Rhino Mounts Rhd62 Users Manual RHD Book
!! Rhino-12 Rhino Mounts Lawn Mower Manuals - Lawn Mower Manuals – The Best Lawn Mower Manuals Collection
RHD88 to the manual f338f2f8-0ee4-413e-9b40-282efa14332e
2015-02-06
: Rhino-Mounts Rhino-Mounts-Rhd62-Users-Manual-524004 rhino-mounts-rhd62-users-manual-524004 rhino-mounts pdf
Open the PDF directly: View PDF
.
Page Count: 152 [warning: Documents this large are best viewed by clicking the View PDF Link!]
- RHD62, RHD74
- RHD88, RHD96
- OPERATOR’S MANUAL
- To the Owner/Operator/Dealer
- Alamo Group Ag. Division is willing to provide
- one (1) AEM Mower Safety Practices Video
- Table of Contents
- Operator Safety Instructions and Practices
- Transporting Safety Instructions and Practices
- Decal Location
- Rhino RHD62, RHD74, RHD88 & RHD96 SUPER-HEAVY-DUTY FLAIL MOWER OPERATION INSTRUCTIONS
- 1. Standard Equipment and Specifications
- 2. OPERATOR REQUIREMENTS
- 3. Tractor Requirements
- 4. GETTING ON AND OFF THE TRACTOR
- 5. STARTING THE TRACTOR
- 6. CONNECTING THE MOWER TO THE TRACTOR
- 6.1 Connecting the Mower A-Frame to the Tractor
- 1. Make sure the tractor is equipped with the correct PTO shaft. Change shafts if needed.
- 2. Shorten or remove the tractor drawbar to avoid interference when raising and lowering the mower.
- 3. Board the tractor and start the engine. Position the tractor to the mower with the 3-point lift arms positioned between the respective set of mower A-frame lift lugs. Note: Set the 3-point lift control to “Position Control” so that the lift ar...
- 4. Turn off the tractor engine and dismount.
- 5. One lift arm at a time, align arm end hole between the set of A-frame lift lugs. Insert hitch pin through the lug and arm holes and insert retaining pin into hitch pin.
- 6. Walk around to opposite side and repeat procedure for remaining lift arm and hitch pin.
- 7. Extend or retract 3-point top link to align its end hole with the holes of the mower’s top link. Insert the top link hitch pin and insert retaining pin into hitch pin.
- 8. Adjust any lower link check chains, guide blocks, or sway blocks to prevent the mower from swaying side to side and possible contact with tractor rear tires.
- 6.1 Connecting the Mower A-Frame to the Tractor
- 7. SETTING THE MOWER
- 7.1 Roller Height Adjustment
- 1. Place the tractor and mower on a level surface and completely lower the mower to the ground.
- 2. Shut down the tractor, place the transmission in park, and set the parking brake before dismounting.
- 3. One section at a time, place lifting device (scissors jack or hydraulic jack) under center of cutter housing.
- 4. Remove hex nuts, washers and carriage bolts from bracket at each end of roller. Make certain that roller bracket is free to move once the fasteners are removed. A stuck roller could drop unexpectedly and cause injury.
- 5. Use lifting device to reposition cutter housing to desired cutting height. Align bracket holes with cutter housing, then reinstall hardware.
- 6. Lower cutter housing to the ground and remove lifting device.
- 7. Set cutting height according to procedures above for remaining two cutter sections. Make sure that all three rollers are set at the same height to ensure a even cut across the entire width of the mower.
- 7.1 Roller Height Adjustment
- 8. DRIVELINE ATTACHMENT
- 9. PRE-OPERATION INSPECTION AND SERVICE
- 10. DRIVING THE TRACTOR AND IMPLEMENT
- 11. OPERATING THE TRACTOR AND IMPLEMENT
- 12. DISCONNECTING THE MOWER FROM THE TRACTOR
- 13. MOWER STORAGE
- 14. TRANSPORTING THE TRACTOR AND IMPLEMENT
- 15. TROUBLESHOOTING GUIDE
- Problem Possible Cause Remedy
- Check for missing knives on Replace missing knives
- cutter shaft.
- Check to see if knives are Free knives so they swing.
- free swinging.
- Blade broken or bent. Replace blades.
- Cuttershaft bent. Replace cuttershaft.
- Drivelines not phased correctly. Replace driveline.
- Implement & Tractor yokes must
- be in line.
- Cuttershaft bearing worn Replace bearings
- Improper type lubricant. Replace with proper lubricant.
- Excessive trash build-up Remove trash.
- around gearbox.
- Bearing or gears set up Consult your Dealer.
- improperly.
- Worn Bearing. Replace bearing.
- (Rubbing on pulleys or belt).
- Worn Bearing or Gear. Replace Bearing or Gear.
- Bent shaft. Replace oil seal and shaft.
- Shaft rough in oil seal area. Replace or repair shaft.
- Oil seal installed wrong. Replace seal.
- Oil seal not sealing in the housing. Replace seal or use a sealant on
- OD of Seal.
- Oil level too high. Drain oil to proper level.
- Sand hole is casting. Replace castings or gearbox.
- Gasket damaged. Replace gasket.
- Bolts loose. Tighten bolts.
- Clutch Slips Excessively Clutch linings badly worn or Repair clutch per maintenance
- plates warped. section of manuals.
- Too much power for clutch. Reduce ground speed and material
- intake.
- Oil on facings. Replace facings.
- Friction facings glazed. Clean with emery cloth.
- Cutting in rocky conditions. Increase cutting height.
- Soft “will fit” knives. Use genuine Rhino knives.
- Blades dull. Check blades for sharpness.
- Grass too wet. Wait for grass to dry.
- Grass too long. Mow at 3-1/2” and recut lower.
- Travel speed too fast. Use a lower tractor gear.
- PTO RPM too low. Mow at engine RPM to match 540
- PTO RPM.
- Rough, uneven ground. Use a slower speed.
- Lower rollers.
- Turning Tractor too fast. Slow down when turning.
- Mower deck not level. Level the mowing deck.
- Blades dull or unbalanced. Sharpen or balance blades.
- Deck underside plugged. Clean underside of deck.
- Grass too high. Mow at 3-1/2” and recut lower.
- Housing plugged. Clean underside of deck.
- Spring broke & belt off idler. Replace spring or adjust belt.
- Housing plugged. Clean underside of housing.
- Debris around pulleys. Remove deck belt shield and clean
- out debris.
- Grass too high. Mow at 3-1/2” and recut lower.
- OPERATION SECTION
- MAINTENANCE SECTION
- Maintenance Instructions
- Problem Possible Cause Remedy
- 1. Standard Equipment and Specifications
- Lubrication
- Banjo Gearbox
- Driveline Shield
- Slip Clutch
- Seasonal Clutch Maintenance
- 1. It is important that the clutch lining plates slip when an obstacle or load heavier than the clutch setting is encountered. Therefore, if the machine sits outside longer than 30 days and is exposed to rain and/or humid air it is important to make ...
- 2. Loosen nuts (Figure Mnt-FL-0003) on springs until the springs can freely rotate, yet remain secure on bolts.
- 3. Attach mower to tractor and start the tractor. Set the engine speed at 1200 RPM.
- 4. Mark outer plates as shown in Figure Mnt-FL-0003.
- 5. Engage the PTO (approximately one second) and then quickly disengage it. The friction lining plates should break loose (check the mark).
- 6. Turn tractor off and tighten the nuts on the springs to their original position of 1-5/16” compressed spring length.
- To Disassemble Universal Joint
- 1. Remove all snap rings.
- 2. Position joint in loose vice, strike top arm of unsupported yoke to drive the top cup up. Repeat on opposite side.
- 3. If you cannot grip the loosened cap per Step 4, use a pointed tool to tip a needle them repeat Step 2.
- 4. Grip loosened cup in vise, strike yoke arm to drive yoke off cup. Repeat on opposite cup.
- 5. Support cross in loose vise and strike yoke arm. Repeat Step 4 to remove remaining two cups.
- 1. Smear grease into bearings and check for dirt.
- 2. Insert cup and cross. Drive in with spacer.
- 3. Insert snap ring
- 4. Insert second cup and hold cross into cup. Drive cup flush with arm.
- 5. Drive cup down with spacer and insert snap ring
- 6. To loosen cross, strike yoke arm and check cross for free rotation
- 7. Position second yoke on cross. Repeat Steps 2 to 6.
- 8. Grease Kit after assembly is completed.
- Seasonal Clutch Maintenance
- Replacing Cutter Unit Drive Belt
- 1. Place unit on ground or support securely.
- 2. Remove belt guard.
- 3. Remove idler arm spring.
- 4. Remove extension shaft housing mounting bracket front bolt and loosen rear bolt.
- 5. Loosen extension shaft housing mounting bracket rear bolt.
- 6. Pivot extension shaft housing mounting bracket assembly. Remove old belt and install new one.
- 7. Reinstall front mounting bolt then secure extension shaft housing mounting bracket to unit.
- 8. Reinstall idler arm spring and belt guard.
- Setting Cutting Height
- 1. Place the tractor and mower on a level surface and completely lower the mower to the ground.
- 2. Shut down the tractor, place the transmission in park, and set the parking brake before dismounting.
- 3. Place lifting device (scissor jack or hydraulic jack) under center of cutter housing.
- 4. Remove hex nuts, washers and carriage bolts from bracket at each end of roller. Make certain that roller bracket is free to move once the fasteners are removed. A stuck roller could drop unexpectedly and cause injury.
- 5. Use lifting device to reposition cutter housing to desired height. Align bracket holes with cutter housing, then reinstall hardware.
- 6. Lower cutter housing to the ground and remove lifting device.
- Changing Rotation of Cuttershaft
- 1. To reverse direction of cuttershaft rotation, three left hand parts must be ordered: belt guard, outboard bearing plate and an idler pulley arm. A front trash deflector is also required. Refer to the parts section of this manual for part numbers a...
- 2. With the mower housing securely blocked up, remove cuttershaft and turn 180 degrees.
- 3. Remove gearbox cuttershaft drive pulley and outboard bearing plate. Attach new mounting plate to opposite side of mower housing.
- 4. Remove four gearbox bolts and rotate gearbox 180 degrees to new position.
- 5. Install Cuttershaft pulley, gearbox output pulley, idler arm pulley assembly, and belt on housing right side.
- 6. Attach new belt guard.
- 1. Remove skid plate, front cover plate and front shield.
- 2. Loosen powerband belt tensioner and remove powerband belt from gearbox sheave.
- 3. Remove four gearbox bolts and remove gearbox.
- 4. Change positions of gearbox vented plug and drain plug.
- 5. Rotate gearbox 180 degrees and re-mount.
- 6. Replace powerband belt and re-tension.
- 7. Reattach skid plate, front cover plate and front shield.
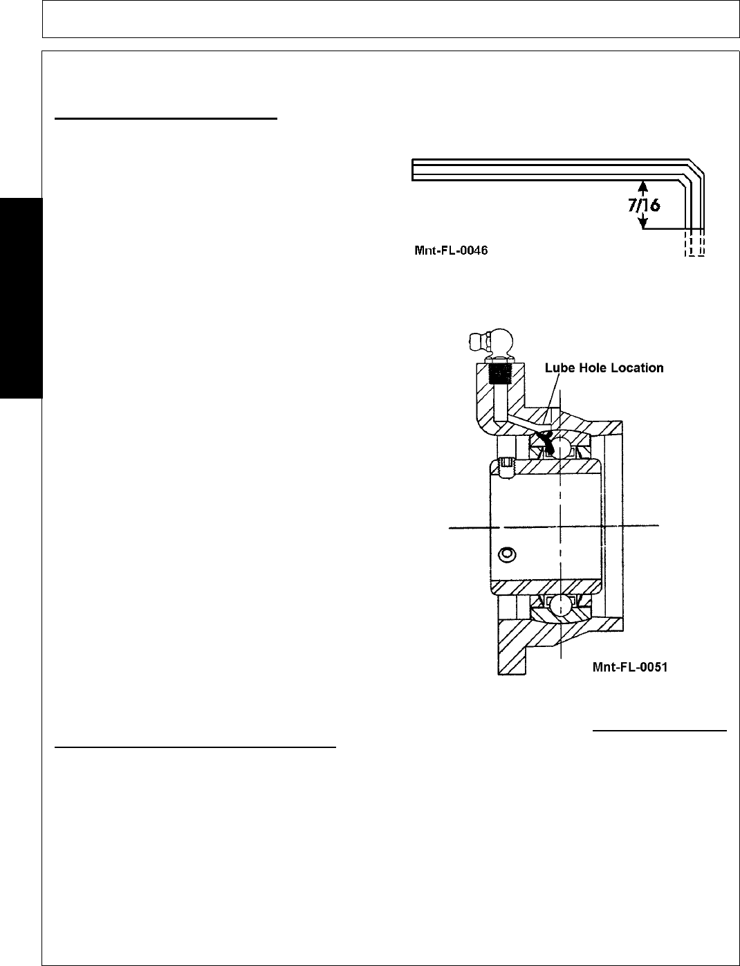
- Roller Bearing Replacement
- 1. Remove roller and both bearing and bracket assemblies from mower. Lift the mower only high enough to remove the roller assembly.
- 2. Slide bearing and bracket assemblies off each end of roller.
- 3. Remove roller bearing and housing assembly attaching hardware. Remove assembly from bracket. Inspect seal between assembly and bracket for brittleness, cracks, wear and tear. Replace if necessary.
- 4. Remove grease fitting from the top of bearing housing.
- 5. Remove bearing from housing by rotating bearing 90° sideways and line up with notches in bearing housing then pull out.
- 6. Install new bearing into housing. Bearing must be installed with grease hole in bearing aligned with grease fitting hole in housing.
- 7. Reinstall grease fitting to housing. Grease fitting must have locking pin installed which inserts into grease hole in bearing when installed. If grease fitting does not have a pin, order a new grease fitting. Grease fitting must be tight and seate...
- 8. Attach roller bearing and housing assembly to bracket with seal between housing and bracket.
- 9. Slide bearing and bracket assemblies on each end of roller.
- 10. Check bearing for proper installation in housing by gently rocking bearing and bracket assembly in end of roller. Play should be slight to none at all.
- 11. Install roller and bearing and bracket assemblies on mower.
- 12. Lubricate roller bearing until lubricant can be seen coming out between roller and bearing housing.
- Cuttershaft Bearing Replacement
- Cuttershaft Replacement
- General Information on Flail Mower Vibration
- TO THE OWNER/OPERATOR/DEALER
- RHINO
- LIMITED WARRANTY
- 1. LIMITED WARRANTIES
- 1.01. Rhino warrants for one year from the purchase date to the original non-commercial, governmental, or municipal purchaser (“Purchaser”) and warrants for six months to the original commercial or industrial purchaser (“Purchaser”) that the ...
- 1.02. Manufacturer will replace for the Purchaser any part or parts found, upon examination at one of its factories, to be defective under normal use and service due to defects in material or workmanship.
- 1.03. This limited warranty does not apply to any part of the goods which has been subjected to improper or abnormal use, negligence, alteration, modification, or accident, damaged due to lack of maintenance or use of wrong fuel, oil, or lubricants, ...
- 1.04. Except as provided herein, no employee, agent, Dealer, or other person is authorized to give any warranties of any nature on behalf of Manufacturer.
- 2. REMEDIES AND PROCEDURES.
- 2.01. This limited warranty is not effective unless the Purchaser returns the Registration and Warranty Form to Manufacturer within 30 days of purchase.
- 2.02. Purchaser claims must be made in writing to the Authorized Dealer (“Dealer”) from whom Purchaser purchased the goods or an approved Authorized Dealer (“Dealer”) within 30 days after Purchaser learns of the facts on which the claim is based
- 2.03. Purchaser is responsible for returning the goods in question to the Dealer.
- 2.04. If after examining the goods and/or parts in question, Manufacturer finds them to be defective under normal use and service due to defects in material or workmanship, Manufacturer will:
- (a) Repair or replace the defective goods or part(s) or
- (b) Reimburse Purchaser for the cost of the part(s) and reasonable labor charges (as determined by Manufacturer) if Purchaser paid for the repair and/or replacement prior to the final determination of applicability of the warranty by Manufacturer.
- 2.05. Purchaser is responsible for any labor charges exceeding a reasonable amount as determined by Manufacturer and for returning the goods to the Dealer, whether or not the claim is approved. Purchaser is responsible for the transportation cost for...
- 3. LIMITATION OF LIABILITY.
- 3.01. MANUFACTURER DISCLAIMS ANY EXPRESS (EXCEPT AS SET FORTH HEREIN) AND IMPLIED WARRANTIES WITH RESPECT TO THE GOODS INCLUDING, BUT NOT LIMITED TO, MERCHANTABILITY AND FITNESS FOR A PARTICULAR PURPOSE.
- 3.02. MANUFACTURER MAKES NO WARRANTY AS TO THE DESIGN, CAPABILITY, CAPACITY, OR SUITABILITY FOR USE OF THE GOODS.
- 3.03. EXCEPT AS PROVIDED HEREIN, MANUFACTURER SHALL HAVE NO LIABILITY OR RESPONSIBILITY TO PURCHASER OR ANY OTHER PERSON OR ENTITY WITH RESPECT TO ANY LIABILITY, LOSS, OR DAMAGE CAUSED OR ALLEGED TO BE CAUSED DIRECTLY OR INDIRECTLY BY THE GOODS INCLU...
- 3.04. NO ACTION ARISING OUT OF ANY CLAIMED BREACH OF THIS WARRANTY OR TRANSACTIONS UNDER THIS WARRANTY MAY BE BROUGHT MORE THAN TWO (2) YEARS AFTER THE CAUSE OF ACTION HAS OCCURRED.
- 4. MISCELLANEOUS.
- 4.01. Proper Venue for any lawsuits arising from or related to this limited warranty shall be only in Guadalupe County, Texas.
- 4.02. Manufacturer may waive compliance with any of the terms of this limited warranty, but no waiver of any terms shall be deemed to be a waiver of any other term.
- 4.03. If any provision of this limited warranty shall violate any applicable law and is held to be unenforceable, then the invalidity of such provision shall not invalidate any other provisions herein.
- 4.04. Applicable law may provide rights and benefits to purchaser in addition to those provided herein.
- AEM-FEMA Ind-Agri Mower Manual 10-10.pdf

©2011 Alamo Group Inc. $0.00
Published 02/11 Part No. 803215C
OPERATOR’S MANUAL
RHINO®
1020 S. Sangamon Ave.
Gibson City, IL 60936
800-446-5158
E-mail: parts@servis-rhino.com
Super Heavy Duty
Flail Mower
This Operator's Manual is an integral part of the safe operation of this machine and must
be maintained with the unit at all times. READ, UNDERSTAND, and FOLLOW the Safety
and Operation Instructions contained in this manual before operating the equipment. C01-
Cover
RHD62, RHD74
RHD88, RHD96

To the Owner/Operator/Dealer
All implements with moving parts are potentially hazardous. There is no substitute for a cautious, safe-minded
operator who recognizes the potential hazards and follows reasonable safety practices. The manufacturer has
designed this implement to be used with all its safety equipment properly attached to minimize the chance of
accidents.
BEFORE YOU START! Read the safety messages on the implement and shown in your manual. Observe the rules
of safety and common sense!
WARRANTY INFORMATION:
Read and understand the complete Warranty Statement found in this Manual. Fill out the Warranty Registration
Form in full and return it to Rhino within 30 Days. Make certain the Serial Number of the Machine is recorded on the
Warranty Card and on the Warranty Form that you retain.

In order to reduce accidents and enhance the safe operation of mowers, Alamo Group Ag Division, in cooperation
with other industry manufacturers has developed the AEM/FEMA Industrial and Agricultural Mower Safety
Practices video and guide book.
The video will familiarize and instruct mower-tractor operators in safe practices when using industrial and
agricultural mowing equipment. It is important that Every Mower Operator be educated in the operation of their
mowing equipment and be able to recognize the potential hazards that can occur while operating a mower. This
video, along with the mower operator’s manual and the warning messages on the mower, will significantly assist in
this important education.
Your Authorized Rhino Dealer may have shown this video and presented you a DVD Video when you purchased
your mower. If you or any mower operator have not seen this video, Watch the Video, Read this Operator’s
Manual, and Complete the Video Guidebook before operating your new mower. If you do not understand any of
the instructions included in the video or operator’s manual or if you have any questions concerning safety of
operation, contact your supervisor, dealer or Alamo Group Ag.
If you would like a VHS video tape of the video, please email AEMVideo@alamo-group.com or Fax AEM VHS
Video at (830) 372-9529 or mail in a completed copy of the form on the back of this page to AEM VHS Video 1502
E Walnut Street, Seguin, TX 78155. and request the VHS video version. Please include your name, mailing
address, mower model and serial number.
Every operator should be trained for each piece of equipment (Tractor and Mower), understand the intended use
and the potential hazards before operating the equipment.
The information and material listed above along with this Operator’s Manual can assist you in meeting the OSHA
requirement for Operator annual training.
OSHA TRAINING REQUIREMENTS
The following training requirements have been taken from Title 29, Code of Federal Regulations Part
1928.57 (a)(6). www.osha.gov
Operator Instructions. At the time of initial assignment and at least annually thereafter, the employer shall instruct
every employee who operates an agricultural tractor or implement in the safe operating practices and servicing of
equipment with which they are or will be involved, and of any other practices dictated by the work environment.

Alamo Group Ag. Division is willing to provide
one (1) AEM Mower Safety Practices Video
Please Send Me: VHS Format – AEM/FEMA Mower Operator Safety Video
DVD Format – AEM/FEMA Mower Operator Safety Video
Mower Operator’s Manual
AEM Mower Operator’s Safety Manual
Requester Name Phone:
Requester Address:
City
State
Zip Code
Mower Model: Serial Number:
Date Purchased: Dealer Salesperson:
Dealership Name: Dealership Location:
Mail to:
AEM Video Services
1502 E Walnut street
Seguin, TX 78155
Or Fax to:
(830) 372-9529
Or Email to:
AEMVideo@alamo-group.com
Table of Contents
SAFETY SECTION ...............................................................................................................1-1
General Safety Instructions and Practices .........................................................................................................1-2
Operator Safety Instructions and Practices ........................................................................................................1-3
Equipment Operation Safety Instructions and Practices ....................................................................................1-5
Connecting or Disconnecting Implement Safety Instructions and Practices ....................................................1-10
Transporting Safety Instructions and Practices ................................................................................................1-11
Concluding Safety Instructions and Practices ..................................................................................................1-15
Decal Location .................................................................................................................................................1-16
Decal Description .............................................................................................................................................1-18
Federal Laws and Regulations .........................................................................................................................1-26
INTRODUCTION SECTION..................................................................................................2-1
ASSEMBLY SECTION .........................................................................................................3-1
General ..............................................................................................................................................................3-2
Driveline Attachment ..........................................................................................................................................3-2
OPERATION SECTION........................................................................................................4-1
Standard Equipment and Specifications ............................................................................................................4-3
OPERATOR REQUIREMENTS .........................................................................................................................4-4
Tractor Requirements ........................................................................................................................................4-5
ROPS and Seat Belt ..........................................................................................................................................4-5
Tractor Safety Devices .......................................................................................................................................4-6
Tractor Horsepower ...........................................................................................................................................4-6
3-Point Hitch .......................................................................................................................................................4-6
Front End Weight ...............................................................................................................................................4-7
Power Take Off (PTO) .......................................................................................................................................4-7
GETTING ON AND OFF THE TRACTOR .........................................................................................................4-8
Boarding the Tractor ..........................................................................................................................................4-8
Dismounting the Tractor .....................................................................................................................................4-9
STARTING THE TRACTOR ..............................................................................................................................4-9
CONNECTING THE MOWER TO THE TRACTOR .........................................................................................4-10
Connecting the Mower A-Frame to the Tractor ................................................................................................4-10
SETTING THE MOWER ..................................................................................................................................4-11
Roller Height Adjustment .................................................................................................................................4-12
DRIVELINE ATTACHMENT .............................................................................................................................4-13
Driveline Length Check ....................................................................................................................................4-13
PRE-OPERATION INSPECTION AND SERVICE ...........................................................................................4-15
Tractor Pre-Operation Inspection/Service ........................................................................................................4-16
Mower Pre-Operation Inspection/Service ........................................................................................................4-16
DRIVING THE TRACTOR AND IMPLEMENT .................................................................................................4-21
Starting the Tractor ..........................................................................................................................................4-22
Brake and Differential Lock Setting ..................................................................................................................4-22
Raising the Mower ...........................................................................................................................................4-23
Driving the Tractor and Mower .........................................................................................................................4-24
Crossing Ditches and Steep Inclines ...............................................................................................................4-25
OPERATING THE TRACTOR AND IMPLEMENT ...........................................................................................4-26
Foreign Debris Hazards ...................................................................................................................................4-27
Bystanders/Passersby Precautions .................................................................................................................4-27
Engaging the Power Take Off (PTO) ...............................................................................................................4-28
PTO RPM and Ground Speed .........................................................................................................................4-29
Operating the Mower ........................................................................................................................................4-29
Shutting Down the Implement ..........................................................................................................................4-31
DISCONNECTING THE MOWER FROM THE TRACTOR .............................................................................4-32
MOWER STORAGE ........................................................................................................................................4-33
TRANSPORTING THE TRACTOR AND IMPLEMENT ...................................................................................4-33
Transporting on Public Roadways ...................................................................................................................4-35
Hauling the Tractor and Implement ..................................................................................................................4-37
TROUBLESHOOTING GUIDE .........................................................................................................................4-38
MAINTENANCE SECTION...................................................................................................5-1
Maintenance Instructions ...................................................................................................................................5-2
Lubrication ..........................................................................................................................................................5-3
Banjo Gearbox ...................................................................................................................................................5-5
Driveline .............................................................................................................................................................5-5
Driveline Shield ..................................................................................................................................................5-6
Slip Clutch ..........................................................................................................................................................5-7
Seasonal Clutch Maintenance ...........................................................................................................................5-7
To Disassemble Universal Joint .........................................................................................................................5-8
To Reassemble Universal Joint .........................................................................................................................5-9
Replacing Cutter Unit Drive Belt ......................................................................................................................5-11
Setting Cutting Height ......................................................................................................................................5-11
Changing Rotation of Cuttershaft .....................................................................................................................5-12
Roller Bearing Replacement ............................................................................................................................5-13
Cuttershaft Bearing Replacement ....................................................................................................................5-14
Cuttershaft Replacement .................................................................................................................................5-16
Changing to Forward or Reverse Rotation .......................................................................................................5-16
Cutter Knives .......................................................................................................................................................5-17
General Information on Flail Mower Vibration ..................................................................................................5-18
Proper Torque For Fasteners ...........................................................................................................................5-19

Safety Section 1-1
© 2011 Alamo Group Inc.
SAFETY SECTION

SAFETY
RHD 02/11 Safety Section 1-2
© 2011 Alamo Group Inc.
SAFETY
General Safety Instructions and Practices
A careful operator is the best operator. Safety is of primary importance to the manufacturer and should be to
the owner/operator. Most accidents can be avoided by being aware of your equipment, your surroundings, and
observing certain precautions. The first section of this manual includes a list of Safety Messages that, if
followed, will help protect the operator and bystanders from injury or death. Read and understand these Safety
Messages before assembling, operating or servicing this Implement. This equipment should only be operated
by those persons who have read the manual, who are responsible and trained, and who know how to do so
responsibly.
The Safety Alert Symbol combined with a Signal Word, as seen below, is used throughout this
manual and on decals which are attached to the equipment. The Safety Alert Symbol means:
“ATTENTION! BECOME ALERT! YOUR SAFETY IS INVOLVED!” The Symbol and Signal Word
are intended to warn the owner/operator of impending hazards and the degree of possible injury
faced when operating this equipment.
Indicates an imminently hazardous situation that, if not avoided, WILL result in DEATH OR
VERY SERIOUS INJURY.
Indicates an imminently hazardous situation that, if not avoided, COULD result in DEATH
OR SERIOUS INJURY.
Indicates an imminently hazardous situation that, if not avoided, MAY result in MINOR
INJURY.
Identifies special instructions or procedures that, if not strictly observed, could result in
damage to, or destruction of the machine, attachments or the environment.
NOTE: Identifies points of particular interest for more efficient and convenient operation or repair.(SG-1)
Practice all usual and customary safe working precautions and above all---remember safety is
up to YOU. Only YOU can prevent serious injury or death from unsafe practices.
READ, UNDERSTAND, and FOLLOW the following Safety Messages. Serious injury or
death may occur unless care is taken to follow the warnings and instructions stated in the
Safety Messages. Always use good common sense to avoid hazards. (SG-2)
Si no lee ingles, pida ayuda a alguien que si lo lea para que le traduzca las
medidas de seguridad. (SG-3)

SAFETY
RHD 02/11 Safety Section 1-3
© 2011 Alamo Group Inc.
SAFETY
Operator Safety Instructions and Practices
The rotating parts of this machine continue to rotate even after the PTO has been turned off.
The operator should remain in the operator’s seat for 60 seconds after the brake has been
set, the PTO disengaged, the tractor turned off, and all evidence of rotation has ceased.
(S3PT-10)
“Wait a minute...Save a life!”
Never crawl under a raised Implement supported solely by the Tractor 3-Point hitch.
Release of the control lever or mechanical failure will result in the Implement falling and
possible injury or death. Always securely block up the Implement before crawling
underneath to perform repairs and service. (S3PT-19)
Do not put hands or feet under mower decks. Blade Contact can result
in serious injury or even death. Stay away until all motion has stopped
and the decks are securely blocked up. (SFL-2)
Never operate the Tractor or Implement until you have read and
completely understand this Manual, the Tractor Operator’s Manual, and
each of the Safety Messages found in the Manual or on the Tractor and
Implement. Learn how to stop the tractor engine suddenly in an
emergency. Never allow inexperienced or untrained personnel to
operate the Tractor or Implement without supervision. Make sure the
operator has fully read and understood the manuals prior to operation.
(SG-4)
The operator and all support personnel should wear hard hats, safety
shoes, safety glasses, and proper hearing protection at all times for
protection from injury including injury from items that may be thrown by
the equipment. (SG-16)
PROLONGED EXPOSURE TO LOUD NOISE MAY CAUSE
PERMANENT HEARING LOSS! Tractors with or without an Implement
attached can often be noisy enough to cause permanent hearing loss.
We recommend that you always wear hearing protection if the noise in
the Operator’s position exceeds 80db. Noise over 85db over an
extended period of time will cause severe hearing loss. Noise over 90db
adjacent to the Operator over an extended period of time will cause
permanent or total hearing loss. NOTE: Hearing loss from loud noise
[from tractors, chain saws, radios, and other such sources close to the
ear] is cumulative over a lifetime without hope of natural recovery. (SG-I7)

SAFETY
RHD 02/11 Safety Section 1-4
© 2011 Alamo Group Inc.
SAFETY
Always read carefully and comply fully with the manufacturer’s
instructions when handling oil, solvents, cleansers, and any other
chemical agent. (SG-22)
KEEP AWAY FROM ROTATING ELEMENTS to prevent entanglement
and possible serious injury or death. (SG-24)
Never allow children to play on or around Tractor or Implement. Children can slip or fall off
the Equipment and be injured or killed. Inadvertent contact with controls can cause the
Implement to shift or fall crushing themselves or others. (SG-25)
DO NOT use drugs or alcohol immediately before or while operating the
Tractor and Implement. Drugs and alcohol will affect an operator’s
alertness and coordination and therefore affect the operator’s ability to
operate the equipment safely. Before operating the Tractor or Implement,
an operator on prescription or over-the-counter medication must consult
a medical professional regarding any side effects of the medication that
would hinder their ability to operate the Equipment safely. NEVER
knowingly allow anyone to operate this equipment when their alertness or
coordination is impaired. Serious injury or death to the operator or others
could result if the operator is under the influence of drugs or alcohol. (SG-27)
Prolonged operation may cause operator boredom and fatigue affecting safe operation.
Take scheduled work breaks to help prevent these potentially impaired operating
conditions. Never operate the Implement and Tractor in a fatigued or bored mental state
which impairs proper and safe operation. (SG-32)
Use extreme caution when getting onto the Implement to perform repairs, maintenance and
when removing accumulated material. Only stand on solid flat surfaces to ensure good
footing. Use a ladder or raised stand to access high spots which cannot be reached from
ground level. Slipping and falling can cause serious injury or death. (SG-33)
Avoid contact with hot surfaces including hydraulic oil tanks, pumps, motors, valves and
hose connections. Relieve hydraulic pressure before performing maintenance or repairs.
Use gloves and eye protection when servicing hot components. Contact with a hot surface
or fluid can cause serious injury from burns or scalding. (SG-34)

SAFETY
RHD 02/11 Safety Section 1-5
© 2011 Alamo Group Inc.
SAFETY
Equipment Operation Safety Instructions and Practices
DO NOT operate this Implement on a Tractor that is not properly maintained. Should a
mechanical or Tractor control failure occur while operating, immediately shut down the
Tractor and perform repairs before resuming operation. Serious injury and possible death
could occur from not maintaining this Implement and Tractor in good operating condition.
(SG-36)
Never leave the Tractor and Implement unattended while the Implement is in the lifted
position. Accidental operation of lifting lever or a hydraulic failure may cause sudden drop
of unit with injury or death by crushing. To properly park the implement when disconnecting
it from the tractor, lower the stand and put the retaining pin securely in place, or put a secure
support under the A-Frame. Lower the implement carefully to the ground. Do not put hands
or feet under lifted components. (S3PT-1)
Use extreme care when lowering or unfolding the implement’s wings. Make sure no
bystanders are close by or underneath the wings. Allow ample clearance around the
implement when folding or unfolding the wings. Use extreme caution around buildings or
overhead power lines. (S3PT-05)
This Implement may be wider than the Tractor. Be careful when operating or transporting
this equipment to prevent the Implement from running into or striking sign posts, guard rails,
concrete abutments or other solid objects. Such an impact could cause the Implement and
Tractor to pivot violently resulting in loss of steering control, serious injury, or even death.
Never allow the Implement to contact obstacles. (S3PT-12)
There are obvious and hidden potential hazards in the operation of this Mower.
REMEMBER! This machine is often operated in grass and in heavy weeds. The Blades of
this Mower can throw objects if shields are not properly installed and maintained. Serious
injury or even death may occur unless care is taken to insure the safety of the operator,
bystanders, or passersby in the area. Do not operate this machine with anyone in the
immediate area. Stop mowing if anyone is within 100 yards of the mower. (SFL-1)
Do not operate Mower if excessive vibration exists. Shut down PTO and the Tractor
engine. Inspect the Mower to determine the source of the vibration. If Mower blades are
missing or damaged replace them immediately. Do not operate the mower until the
blades have been replaced and the Mower operates smoothly. Operating the Mower with
excessive vibration can result in component failure and broken objects to be thrown
outward at very high velocities. To reduce the possibility of property damage, serious injury,
or even death, never allow the Mower to be operated with blades missing. (SFL-4)

SAFETY
RHD 02/11 Safety Section 1-6
© 2011 Alamo Group Inc.
SAFETY
Flail Mowers are capable under adverse conditions of throwing
objects for great distances (300 feet or more) and causing serious
injury or death. Follow safety messages carefully.
STOP MOWING IF PASSERSBY ARE WITHIN 300 FEET UNLESS:
-Front and Rear Deflectors, Chain Guards, or Bands are installed and in good, workable
condition;
-Mower sections or Wings are running close to and parallel to the ground without
exposed Blades;
-All areas have been thoroughly inspected and all foreign material such as rocks, cans,
glass, and general debris has been removed.
NOTE: Where there are grass and weeds high enough to hide debris that could be
struck by the blades, the area should be: inspected and large debris removed, mowed at
an intermediate height, inspected closely with any remaining debris being removed, and
mowed again at desired final height. (This will also reduce power required to mow,
reduce wear and tear on the Mower drivetrain, spread cut material better, eliminate
streaking, and make the final cut more uniform.) (SFL-6)
Operate this Equipment only with a Tractor equipped with an approved roll-
over-protective system (ROPS). Always wear seat belts. Serious injury or
even death could result from falling off the tractor--particularly during a turnover
when the operator could be pinned under the ROPS. (SG-7)
BEFORE leaving the tractor seat lower the implement, set the parking
brake and/or set the tractor transmission in parking gear, disengage the
PTO, stop the engine, remove the key, and wait for all moving parts to
stop. Place the tractor shift lever into a low range or parking gear to
prevent the tractor from rolling. Never dismount a Tractor that is moving
or while the engine is running. Operate the Tractor controls from the
tractor seat only. (SG-9)
Never allow children or other persons to ride on the Tractor or Implement.
Falling off can result in serious injury or death. (SG-10)
Never allow children to operate, ride on, or come close to the Tractor or
Implement. Usually, 16-17 year-old children who are mature and
responsible can operate the implement with adult supervision, if they
have read and understand the Operator’s Manuals, been trained in
proper operation of the tractor and Implement, and are physically large
enough to reach and operate the controls easily. (SG-11)

SAFETY
RHD 02/11 Safety Section 1-7
© 2011 Alamo Group Inc.
SAFETY
Do not mount or dismount the Tractor while the tractor is moving. Mount
the Tractor only when the Tractor and all moving parts are
completelystopped. (SG-12)
Start tractor only when properly seated in the Tractor seat. Starting a
tractor in gear can result in injury or death. Read the Tractor operators
manual for proper starting instructions. (SG-13)
Do not operate this Equipment with hydraulic oil or fuel leaking. Oil
and fuel are explosive and their presence could present a hazard. Do
not check for leaks with your hand! High-pressure oil streams from
breaks in the line could penetrate the skin and cause tissue damage
including gangrene. To check for a hose leak, SHUT the unit ENGINE
OFF and remove all hydraulic pressure. Wear oil impenetrable gloves,
safety glasses and use Cardboard to check for evidence of oil leaks. If
you suspect a leak, REMOVE the HOSE and have it tested at a Dealer.
If oil does penetrate the skin, have the injury treated immediately by a
physician knowledgeable and skilled in this procedure. (SG-15)
Never run the Tractor engine in a closed building or without adequate ventilation. The
exhaust fumes can be hazardous to your health. (SG-23)
Do not exceed the rated PTO speed for the Implement. Excessive PTO speeds can cause
Implement driveline or blade failures resulting in serious injury or death. (SG-26)
Operate the Tractor and/or Implement controls only while properly seated in the Tractor seat
with the seat belt securely fastened around you. Inadvertent movement of the Tractor or
Implement may cause serious injury or death. (SG-29)
In case of mechanical difficulty during operation, place the transmission in the park
position, set the parking brake, shut down all power, including the PTO and the engine and
remove the key. Wait until all rotating motion has stopped before dismounting. (SG-39)

SAFETY
RHD 02/11 Safety Section 1-8
© 2011 Alamo Group Inc.
SAFETY
Do Not operate this equipment in areas where insects such as bees may attack you and/or
cause you to lose control of the equipment. If you must enter in such areas, use a tractor
with an enclosed Cab and close the windows to prevent insects from entering. If a tractor
cab is not available, wear suitable clothing including head, face, and hand protection to
shield you from the insects. Attacking insects can cause you to lose control of the tractor,
which can result in serious injury or death to you or bystanders. Never dismount a moving
tractor. (SG-40)
Mow only in conditions where you have clear visibility in daylight or with adequate artificial
lighting. Never mow in darkness or foggy conditions where you cannot clearly see at least
300 feet (90 m) in front and to the sides of the tractor and mower. Make sure that you can
clearly see and identify passersby, steep slopes, ditches, drop-offs, overhead obstructions,
power lines, debris and foreign objects. If you are unable to clearly see these type of items
discontinue mowing. (SGM-1)
The rotating parts of this machine have been designed and tested for rugged use.
However, the blades could fail upon impact with heavy, solid objects such as metal guard
rails and concrete structures. Such impact could cause the broken objects to be thrown
outward at very high velocities. To reduce the possibility of property damage, serious
injury, or even death, never allow the cutting blades to contact such obstacles. (SGM-4)
Extreme care should be taken when operating near loose objects such
as gravel, rocks, wire, and other debris. Inspect the area before
mowing. Foreign objects should be removed from the site to prevent
machine damage and/or bodily injury or even death. Any objects that
cannot be removed must be clearly marked and carefully avoided by the
operator. Stop mowing immediately if blades strike a foreign object.
Repair all damage and make certain rotor or blade carrier is balanced
before resuming mowing. (SGM-05)
Many varied objects, such as wire, cable, rope, or chains, can become entangled in the
operating parts of the mower head. These items could then swing outside the housing at
greater velocities than the blades. Such a situation is extremely hazardous and could result
in serious injury or even death. Inspect the cutting area for such objects before mowing.
Remove any like object from the site. Never allow the cutting blades to contact such items.
(SGM-06)
Mow at the speed that you can safely operate and control the tractor and mower. The
correct mowing speed depends on terrain condition and grass type, density, and height of
cut. Normal ground speed range is from 2 to 5 mph(3-8 kph). Use slow mowing speeds
when operating on or near steep slopes, ditches, drop-offs, overhead obstructions, power
lines, or when debris and foreign objects are to be avoided. (SGM-07)

SAFETY
RHD 02/11 Safety Section 1-9
© 2011 Alamo Group Inc.
SAFETY
Avoid mowing in reverse direction when possible. Check to make sure there are no
persons behind the mower and use extreme care when mowing in reverse. Mow only at a
slow ground speed where you can safely operate and control the tractor and mower.
Never mow an area that you have not inspected and removed debris or foreign material.
(SGM-08)
Do not mow with two machines in the same area except with Cab tractors with the windows
closed. (SGM-11)
Follow these guidelines to reduce the risk of equipment and grass fires
while operating, servicing, and repairing the Mower and Tractor:
-Equip the Tractor with a fire extinguisher in an accesible location.
-Do Not operate the Mower on a Tractor with an underframe exhaust.
-Do Not smoke or have an open flame near the Mower and Tractor.
-Do Not drive into burning debris or freshly burnt areas.
-Ensure slip clutches are properly adjusted to prevent excessive slippage and plate heating.
-Never allow clippings or debris to collect near drivelines, slip clutches, and gearboxes.
Periodically shut down the Tractor and Mower and clean clippings and collected debris from
the mower deck. (SGM-12)
The Mower is designed for certain mowing applications and is rated to cut up to a specific
size vegetation (see Mower Standard Equipment and Specifications). DO NOT use this
mower to cut vegetation above the Mower’s rated capacity or to cut any type of non-
vegetative material. Only operate this Mower on a properly sized and equipped Tractor.
Operating this Mower in an application for which it is not designed and/or operating the
Mower with the wrong size Tractor can cause Mower component damage and equipment
failure resulting in possible serious injury or death. (SGM-14)
Do not turn so sharp or lift mower so high to produce a severe "knocking" of the Driveline
which will cause accelerated wear and breakage of drive train components and could result
in possible injury from the separated Driveline sections. (SRM-04)
Do not let the Blades turn when the Mower Deck is raised for any
reason, including clearance or for turning. Raising the Mower deck
exposes the Cutting Blades which creates a potentially serious hazard
and could cause serious injury or even death from objects thrown from
the Blades. (SRM-07)

SAFETY
RHD 02/11 Safety Section 1-10
© 2011 Alamo Group Inc.
SAFETY
Connecting or Disconnecting Implement Safety Instructions and
Practices
DO NOT allow any person under a folded wing unless wing is securely
locked up or supported. DO NOT approach the Implement unless the
Tractor is turned off and all motion has ceased. Never work under the
frame work, or any lifted component unless the implement is securely
supported or blocked up. A sudden or inadvertent fall by any of these
components could cause serious injury or even death. (STI-03)
DO NOT use a PTO adapter to attach a non-matching Implement driveline to a Tractor
PTO. Use of an adapter can double the operating speed of the Implement resulting in
excessive vibration, thrown objects, and blade and implement failure. Adapter use will also
change the working length of the driveline exposing unshielded driveline areas. Serious
bodily injury and/or equipment failure can result from using a PTO adapter. Consult an
authorized dealer for assistance if the Implement driveline does not match the Tractor PTO.
(S3PT-14)
Always shut the Tractor completely down, place the transmission in park, and set the
parking brake before you or anyone else attempts to connect or disconnect the Implement
and Tractor hitches. (S3PT-15)
Never operate the Tractor and Mower if the Implement input driveline is directly connected
to the Tractor transmission. Tractor braking distances can be substantially increased by
the momentum of the rotating Mower blades driving the Tractor transmission even though
the Tractor clutch has been disengaged. Install an over running clutch between the Tractor
PTO and the Mower driveline to prevent this potentially dangerous situation. (S3PT-16)
When attaching the Implement input driveline to the Tractor PTO, it is important that the
connecting yoke spring activated locking collar slides freely and the locking balls are seated
securely in the groove on the Tractor PTO shaft. Push and pull the driveline back and forth
several times to ensure it is securely attached. A driveline not attached correctly to the
Tractor PTO shaft could come loose and result in personal injury and damage to the
Implement. (S3PT-17)
Before operating the Implement, check to make sure the Implement input driveline will not
bottom out or become disengaged. Bottoming out occurs when the inner shaft penetrates
the outer housing until the assembly becomes solid-it can shorten no more. Bottoming out
can cause serious damage to the Tractor PTO by pushing the PTO into the Tractor and
through the support bearings or downward onto the PTO shaft, breaking it off. A broken
driveline can cause personal injury. (S3PT-18)

SAFETY
RHD 02/11 Safety Section 1-11
© 2011 Alamo Group Inc.
SAFETY
Transporting Safety Instructions and Practices
Be particularly careful when transporting the Implement with the Tractor. Turn curves or go
up hills only at a low speed and using a gradual steering angle. Rear mounted implements
move the center of gravity to the rear and remove weight from the front wheels. Make
certain, by adding front ballast, that at least 20% of the tractor’s weight is on the front wheels
to prevent rearing up, loss of steering control or Tractor tip-over. Slow down on rough or
uneven surfaces to prevent loss of steering control which could result in property damage
or possible injury. Do not transport unless 3-Point lift lever is fully raised and in the latched
transport position. Dropping implement in transport can cause serious damage to the
tractor and/or Implement and possibly cause the operator or others to be injured or killed.
(S3PT-02)
Allow sufficient clearance for the Implement to swing outward while turning. Implements
carried behind the Tractor will swing outside the tire path when making turns. Contacting a
solid object while turning will cause equipment damage and possible injury. (S3PT-20)
Make certain that the “Slow Moving Vehicle” (SMV) sign is installed in
such a way as to be clearly visible and legible. When transporting the
Equipment use the Tractor flashing warning lights and follow all local
traffic regulations. (SG-6)

SAFETY
RHD 02/11 Safety Section 1-12
© 2011 Alamo Group Inc.
SAFETY
Transport only at speeds where you can maintain control of the
equipment. Serious accidents and injuries can result from operating this
equipment at high speeds. Understand the Tractor and Implement and how it handles
before transporting on streets and highways. Make sure the Tractor steering and brakes
are in good condition and operate properly.
Before transporting the Tractor and Implement, determine the proper transport speeds for
you and the equipment. Make sure you abide by the following rules:
Test the tractor at a slow speed and increase the speed slowly. Apply the Brakes smoothly
to determine the stopping characteristics of the Tractor and Implement. As you increase
the speed of the Tractor the stopping distance increases. Determine the maximum
transport speed not to exceed 20 mph (30 kph) for transporting this equipment.
Test the equipment at a slow speed in turns. Increase the speed through the turn only after
you determine that the equipment can be operated at a higher speed. Use extreme care
and reduce your speed when turning sharply to prevent the tractor and implement from
turning over. Determine the maximum turning speed for you and this equipment before
operating on roads or uneven ground.
Only transport the Tractor and Implement at the speeds which allow you to properly control
the equipment.
Be aware of the operating conditions. Do not operate the Tractor with weak or faulty brakes
or worn tires. When operating down a hill or on wet or rain slick roads, the braking distance
increases: use extreme care and reduce your speed. When operating in traffic always use
the Tractor’s flashing warning lights and reduce your speed. Be aware of traffic around you
and watch out for the other guy. (SG-19)
When the Wings are folded for transport, the center of gravity is raised and the possibility of
overturn is increased. Drive slowly and use extreme caution when turning on hillsides.
Overturning the Implement could cause the Implement to overturn the Tractor and vice
versa resulting in serious injury or even death. Never fold wings on a hillside...the
Implement or unit may overturn. (STI-02)
Only tow the Implement behind a properly sized and equipped Tractor
which exceeds the weight of the Implement by at least 20%. DO NOT
tow the Implement behind a truck or other type of vehicle. Never tow the
Implement and another Implement connected in tandem. Never tow the
Implement at speeds over 20 MPH. (STI-06)
Secure the Implement for transport before traveling on public roads. For pull-type
Implements, secure the center axle using cylinder stops or transport pin and properly attach
a safety chain between the Implement and Tractor. Secure wings in upright position on
folding Implements using wing transport locks. (STI-7)

SAFETY
RHD 02/11 Safety Section 1-13
© 2011 Alamo Group Inc.
SAFETY
Maintenance and Service Safety Instructions and Practices
Make sure the PTO shield, integral driveline shields, and input shields
are installed when using PTO-driven equipment. Always replace any
shield if it is damaged or missing. (S3PT-8)
Relieve hydraulic pressure prior to doing any maintenance or repair work
on the Implement. Place the Implement on the ground or securely
blocked up, disengage the PTO, and turn off the tractor engine. Push
and pull the Remote Cylinder lever in and out several times prior to
starting any maintenance or repair work. (S3PT-09)
Always disconnect the main PTO Driveline from the Tractor before performing service on
the Implement. Never work on the Implement with the tractor PTO driveline connected and
running. Rotating Parts, Blades or Drivelines could turn without warning and cause
immediate entanglement, injury or death. (S3PT-11)
All Safety Shields, Guards and Safety devices including (but not limited
to) - the Deflectors, Steel Guards, Gearbox Shields, PTO integral
shields , and Retractable Door Shields should be used and maintained
in good working condition. All safety devices should be inspected carefully at least daily
for missing or broken components. Missing, broken, or worn items must be replaced at
once to reduce the possibility of injury or death from thrown objects, entanglement, or
blade contact. (SFL-5)
Always maintain the safety signs in good readable condition. If the safety signs are missing,
damaged, or unreadable, obtain and install replacement safety signs immediately. (SG-5)
Do not modify or alter this Implement. Do not permit anyone to modify or alter this
Implement, any of its components or any Implement function. (SG-8)
Never work under the Implement, the framework, or any lifted
component unless the Implement is securely supported or blocked up
to prevent sudden or inadvertent falling which could cause serious
injury or even death. (SG-14)
Never attempt to lubricate, adjust, or remove material from the Implement while it is in
motion or while tractor engine is running. (SG-20)

SAFETY
RHD 02/11 Safety Section 1-14
© 2011 Alamo Group Inc.
SAFETY
Periodically inspect all moving parts for wear and replace when
necessary with authorized service parts. Look for loose fasteners, worn
or broken parts, and leaky or loose fittings. Make sure all pins have
cotter pins and washers. Serious injury may occur from not maintaining
this machine in good working order. (SG-21)
Perform service, repairs and lubrication according to the maintenance section. Ensure the
unit is properly lubricated as specified in the lubrication schedule and all bolts and nuts are
properly torqued. Failure to properly service, repair and maintain this Implement in good
operating condition could cause component failure and possible serious injury or even
death. (SG-35)
Use caution and wear protective gloves when handling sharp objects such as blades,
knives, and other cutting edges. Be alert to worn component surfaces which have sharp
edges. Sharp surfaces can inflict severe laceration injuries if proper hand protection is not
worn. (SG-37)
Replace bent or broken blades with new blades. NEVER ATTEMPT TO STRAIGHTEN,
WELD, OR WELD HARDFACING ON BLADES SINCE THIS WILL LIKELY CRACK OR
OTHERWISE DAMAGE THE BLADE WITH SUBSEQUENT FAILURE AND POSSIBLY
CAUSE SERIOUS INJURY FROM THROWN BLADES. (SGM-10)
DO NOT weld or repair rotating mower components. Welds and other repairs may cause
severe vibration and/or component failure resulting in part being thrown from the mower
causing serious bodily injury. See your Authorized Dealer for proper repairs. (SGM-13)
PARTS INFORMATION
Rhino mowers use balanced and matched system components for blade carriers, blades, cuttershafts, knives,
knife hangers, rollers, drivetrain components, and bearings. These parts are made and tested to Rhino
specifications. Non-genuine "will fit" parts do not consistently meet these specifications. The use of “will fit”
parts may reduce mower performance, void warranties, and present a safety hazard. Use genuine Rhino
mower parts for economy and safety. (SPRM-1)
SEE YOUR RHINO DEALER
Always disconnect the main PTO Driveline from the Tractor before performing service on
the Mower. Never work on the Mower with the tractor PTO driveline connected and
running. Blades or Drivelines could turn without warning and cause immediate
entanglement, injury or death. (SRM-3)
Always disconnect the main PTO Driveline from the Tractor before performing service on
the Mower. Never work on the Mower with the tractor PTO driveline connected and
running. Blades or Drivelines could turn without warning and cause immediate
entanglement, injury or death. (SRM-3)

SAFETY
RHD 02/11 Safety Section 1-15
© 2011 Alamo Group Inc.
SAFETY
Concluding Safety Instructions and Practices
Wear gloves and exercise care when handling blades. Blades are SHARP and can cause
lacerations to hands and other parts of the body if not safely handled. (SSM-09)
To prevent tipping of Implement when stored in folded position, use carrying wheels or
adequate stands on center frame. (S3PT-6)
In addition to the design and configuration of this Implement, including Safety Signs and Safety Equipment,
hazard control and accident prevention are dependent upon the awareness, concern, prudence, and proper
training of personnel involved in the operation, transport, maintenance, and storage of the machine. Refer
also to Safety Messages and operation instruction in each of the appropriate sections of the Tractor and
Equipment Manuals. Pay close attention to the Safety Signs affixed to the Tractor and Equipment. (SG-18)

SAFETY
RHD 02/11 Safety Section 1-16
© 2011 Alamo Group Inc.
SAFETY
Decal Location
NOTE: Rhino supplies safety decals on this product to promote safe operation. Damage to the decals may
occur while in shipping, use, or reconditioning. Rhino cares about the safety of its customers, operators, and
bystanders, and will replace the safety decals on this product in the field, free of charge (Some shipping and
handling charges may apply). Contact your Rhino dealer to order replacement decals.

SAFETY
RHD 02/11 Safety Section 1-17
© 2011 Alamo Group Inc.
SAFETY
ITEM PART NO. QTY LEVEL DESCRIPTION
1. 00725746 1 PELIGRO Translate Safety Material
2. 00773723 1 PELIGRO Translate Driveline Instructions
3. 002369 1 DANGER Multi-Hazard
4. 002425 1 DANGER Front Shield
5. 00756004 ref DANGER Shield Missing
6. 00756005 ref DANGER Rotating Driveline
7. 00756494 1 DANGER Driveline Safety
8. 02967668 1 DANGER Cutting Blades
9. 00725739 1 WARNING Repair Shields
10. 00758194 1 WARNING Pinch Points (V-Belt)
11. D103 1 WARNING 540 PTO Required
12. 03200347 * REFLECT SMV Emblem
13. 000108 1 INSTRUCT Operating Instructions
14. 00678 3 INSTRUCT Grease Fitting Inside
15. 001830 1 INSTRUCT Lubrication Chart
16. 002023 1 INSTRUCT Cutting Height Instructions
17. 00763977 1 INSTRUCT Notice to Owners
18. 00760657 1 INSTRUCT Genuine Parts
19. 001993 2 NAME RHD 88
20. 00775934 2 NAME RHD 62
21. 00775935 2 NAME RHD 76
22. 02983074 2 NAME RHD 96
23. D301 1 LOGO RHINO (2-5/8 x 10-1/8)
24. D302 1 LOGO RHINO (4-7/8 x 6-1/2”)
25. nfs 1 SERIALPLT Serial Plate
26. 02977385 1 Canister, Operator’s Manual
27. 803215C 1 Operator's Manual
28. 10058000 4 Bolt
29. 00017000 4 Lockwasher
30. 00024100 4 Flatwasher
* Furnished by Tractor Manufacturer. Replace if missing from Tractor.

SAFETY
RHD 02/11 Safety Section 1-18
© 2011 Alamo Group Inc.
SAFETY
Decal Description
Peligro Translation, If you do not know how to read
English, please find someone who knows how to
read English.
P/N 00725746
PELIGRO! Spanish Translation for Driveline Safety
P/N 00773723

SAFETY
RHD 02/11 Safety Section 1-19
© 2011 Alamo Group Inc.
SAFETY
Danger! Mult-Hazard Warning. Failing to follow
these Safety Messages and Operating Instructions
can cause serious bodily injury or even death to
operator and others in the area.
P/N 002369

SAFETY
RHD 02/11 Safety Section 1-20
© 2011 Alamo Group Inc.
SAFETY
DANGER! Keep Away! If front deflector shield is
removed from flail housing, serious injury to or
amputation of hands, feet, or limbs may occur from
blades contact. Always make sure that all shields
are in place at all times.
P/N 002425
DANGER! Guard Missing, Do Not Operate. If you
see this decal, Do Not Operate the mower until the
shield has been replaced.
P/N 00756004
DANGER! Rotating Driveline Keep Away, Contact
can cause death.
P/N 00756005
DANGER! Make certain that drivelines are correct
length and are securely attached.
P/N 00756494

SAFETY
RHD 02/11 Safety Section 1-21
© 2011 Alamo Group Inc.
SAFETY
DANGER! - Keep Away - Thrown Objects. Inspect
area before mowing. Do not let rotating blades
contact solid objects. Operate only if all Guards -
Deflectors are in place. Do not operate with Mower
or Wing raised off the ground. Stop mowing if
Passerby enter the area. Stay away from rotating
blades. Keep hands and feet away from rotating
blades. Do not approach mower until all movement
has stopped.
P/N 02967668
WARNING! Failure to use and maintain shields
and deflectors in good condition may lead to injury
or death from entanglement with rotating parts.
being hit by objects thrown with great force by
blades, or by blade contact.
P/N 00725739
WARNING! Do not operate with Belt Shield
removed. Finger(s) may be pinched off if get caught
between V-Belt and Pulley.
P/N 00758194
WARNING! Avoid Bodily Injury, Use 540RPM PTO
Speed Only.
P/N D103

SAFETY
RHD 02/11 Safety Section 1-22
© 2011 Alamo Group Inc.
SAFETY
Slow Moving Vehicle Decal. Keep SMV reflector
clean and visible. DO NOT transport or operate
without the SMV.
P/N 03200347
Instructions to properly lubricate and check mower
for potential problems prior to operation.
P/N 000108
Information that Grease Fitting is present and must
apply grease
P/N 000678
INFORMATION - 8 Hour Lubrication Chart
P/N 001830

SAFETY
RHD 02/11 Safety Section 1-23
© 2011 Alamo Group Inc.
SAFETY
Cutting Height Adjustment Chart
P/N 002023
Operator's Manual (with repair parts) and warranty
was attached to this implement during final
inspection.
P/N 00763977
For safety and to guarantee optimum product
reliability always use genuine RHINO replacement
parts.
P/N 00760657
RHD88 Logo
P/N 001993

SAFETY
RHD 02/11 Safety Section 1-24
© 2011 Alamo Group Inc.
SAFETY
RHD62 Logo
P/N 00775934
RHD74 Logo
P/N 00775935
RHD96 Logo
P/N 02983074
RHINO LOGO
P/N D301

SAFETY
RHD 02/11 Safety Section 1-25
© 2011 Alamo Group Inc.
SAFETY
Logo Product Name: Rhino
P/N D302

SAFETY
RHD 02/11 Safety Section 1-26
© 2011 Alamo Group Inc.
SAFETY
Federal Laws and Regulations
This section is intended to explain in broad terms the concept and effect of federal laws and regulations concerning
employer and employee equipment operators. This section is not intended as a legal interpretation of the law and
should not be considered as such.
Employer-Employee Operator Regulations
U.S. Public Law 91-596 (The Williams-Steiger Occupational and Health Act of 1970) OSHA
This Act Seeks:
“...to assure so far as possible every working man and woman in the nation safe and healthful working
conditions and to preserve our human resources...”
DUTIES
Sec. 5 (a) Each employer-
(1) shall furnish to each of his employees employment and a place of employment which are free from
recognized hazards that are causing or are likely to cause death or serious physical harm to his employees;
(2) shall comply with occupational safety and health standards promulgated under this Act.
(b) Each employee shall comply with occupational safety and health standards and all rules, regulations and
orders issued pursuant to this Act which are applicable to his own actions and conduct.
OSHA Training Requirements
Title 29, Code of Federal Regulations Part 1928.57(a)(6). www.osha.gov
Operator instructions. At the time of initial assignment and at least annually thereafter, the employer shall
instruct every employee who operates an agricultural tractor and implements in the safe operating practices
and servicing of equipment with which they are or will be involved, and of any other practices dictated by the
work environment.
Keep all guards in place when the machine is in operation;
Permit no riders on equipment
Stop engine, disconnect the power source, and wait for all machine movement to stop before servicing,
adjusting, cleaning or unclogging the equipment, except where the machine must be running to be properly
serviced or maintained, in which case the employer shall instruct employees as to all steps and procedures
which are necessary to safely service or maintain the equipment.
Make sure everyone is clear of machinery before starting the engine, engaging power, or operating the
machine.
Employer Responsibilities:
To ensure employee safety during Tractor and Implement operation, it is the employer’s responsibility to:
1. Train the employee in the proper and safe operation of the Tractor and Implement.
2. Require that the employee read and fully understand the Tractor and Implement Operator’s manual.
3. Permit only qualified and properly trained employees to operate the Tractor and Implement.
4. Maintain the Tractor and Implement in a safe operational condition and maintain all shields and guards on the
equipment.
5. Ensure the Tractor is equipped with a functional ROPS and seat belt and require that the employee operator
securely fasten the safety belt and operate with the ROPS in the raised position at all times.
6. Forbid the employee operator to carry additional riders on the Tractor or Implement.
7. Provide the required tools to maintain the Tractor and Implement in a good safe working condition and provide the
necessary support devices to secure the equipment safely while performing repairs and service.
8. Require that the employee operator stop operation if bystanders or passersby come within 300 feet.
Child Labor Under 16 Years of Age
Some regulations specify that no one under the age of 16 may operate power machinery. It is your responsibility to
know what these regulations are in your own area or situation. (Refer to U.S. Dept. of Labor, Employment Standard
Administration, Wage & Home Division, Child Labor Bulletin #102.)


2
Contents
Acknowledgment . . . . . . . . . . . . . . . . . . . . . . . . . . . . . . 2
Foreword . . . . . . . . . . . . . . . . . . . . . . . . . . . . . . . . . . . . . 2
Safety Alerts. . . . . . . . . . . . . . . . . . . . . . . . . . . . . . . . . . . 3
A Word To The User/Operator . . . . . . . . . . . . . . . . . . . . 3
The Industrial/Agricultural Mower. . . . . . . . . . . . . . . . . 4
Follow A Safety Program . . . . . . . . . . . . . . . . . . . . . . . . 5
Prepare For Safe Operation . . . . . . . . . . . . . . . . . . . . . . 9
Start Safely. . . . . . . . . . . . . . . . . . . . . . . . . . . . . . . . . . . 13
Operate Safely . . . . . . . . . . . . . . . . . . . . . . . . . . . . . . . . 13
Park Safely. . . . . . . . . . . . . . . . . . . . . . . . . . . . . . . . . . . 18
Shut Down Safely . . . . . . . . . . . . . . . . . . . . . . . . . . . . . 18
Perform Maintenance Safely . . . . . . . . . . . . . . . . . . . . 19
Final Word To The User. . . . . . . . . . . . . . . . . . . . . . . . . 26
Acknowledgment
We wish to acknowledge the contributions of the members of AEM’s Industrial/Agricultural Mower Manufacturers Council
to the preparation of this Safety Manual.
NOTICE OF COPYRIGHT PROTECTION
Copyright, 2010, by the Association of Equipment Manufacturers. All rights reserved. This work may not be reproduced or disseminated in whole or in part by any means
without the prior written permission of the Association of Equipment Manufacturers.
Copyright 2010© AEM (Association of Equipment Manufacturers)
Revised 01/03, 09/10
This safety manual is intended to point out some of the
basic safety situations that may be encountered during
the normal operation and maintenance of your machine
and to instruct you in safety practices for dealing with
these conditions. This manual is NOT a substitute for
the mower manufacturer’s operator’s manual(s).
Additional precautions may be necessary, or some
instructions may not apply, depending on equipment,
attachments and conditions at the worksite or in the
service area. The manufacturer has no direct control
over equipment application, operation, inspection or
maintenance. Therefore, it is YOUR responsibility to
use good safety practices in these areas.
The information provided in this manual supplements
the speci c information about your machine that is
contained in the manufacturer’s operator’s manual(s).
Other information that may affect the safe operation of
your machine may be contained on safety signs or in
insurance requirements, employer’s safety and training
programs, safety codes, local, state/provincial and
federal laws, rules and regulations.
IMPORTANT! Before you operate the mower,
make sure you have the manufacturer’s
operator’s manual(s) for this machine and all
attachments. If the manufacturer’s manuals
are missing, obtain replacement manuals from
your employer, equipment dealer or directly
from the manufacturer. Keep this safety manual
and the manufacturer’s manuals with the
machine at all times. Read and understand all
manuals.
The AEM Mower Safety Practices video is
available to train and reinforce good safety
practices. Operators are encouraged to
periodically view the safety video.
Foreword
Read and
Understand
Manuals Before
Operating

3
Safety Alerts
Symbol
This Safety Alert Symbol means: “ATTENTION!
STAY ALERT! YOUR SAFETY IS INVOLVED!”
The Safety Alert Symbol identi es important safety
messages on equipment, safety signs, in manuals or
elsewhere. When you see this symbol, be alert to the
possibility of death or personal injury. Follow
instructions in the safety message.
Reasons Safety is Important:
— Accidents disable and kill.
— Accidents cost.
— Accidents can be avoided.
Signal Words
Signal words are distinctive words that will typically be
found on safety signs on the mower and other worksite
equipment. These words may also be found in this
manual and the manufacturer’s manuals. These words
are intended to alert the operator to a hazard and the
degree of severity of the hazard.
DANGER indicates a hazardous
situation which, if not avoided, will
result in death or serious injury.
WARNING indicates a hazardous
situation which, if not avoided, could
result in death or serious injury.
CAUTION indicates a hazardous
situation which, if not avoided, could
result in minor or moderate injury.
NOTICE indicates a property
damage message.
DANGER
WARNING
CAUTION
NOTICE
A Word To The User/Operator
It is YOUR responsibility to read and understand the
safety manual and the manufacturer’s manuals before
operating this machine. This safety manual takes you
step by step through your working day.
Hazard Recognition and Accident Prevention depend
upon you being alert, careful and properly trained in the
operation, transport, maintenance and storage of this
equipment.
Graphics have been provided to help you understand
the text.
Remember that YOU are the key to safety. Good safety
practices not only protect you but also protect the
people around you. Study and understand this manual
and the manufacturer’s manuals for your speci c
machine. Make them a working part of your safety
program. Keep in mind that this safety manual is written
for industrial/agricultural mowers.
Contact the manufacturer of your equipment to answer
any questions about safe operation that remain after
studying the manufacturer’s operator’s manual(s) and
this safety manual.
Practice all other usual and customary safe
working precautions and above all:
REMEMBER — SAFETY IS UP TO YOU!
YOU CAN PREVENT SERIOUS INJURY OR
DEATH CAUSED BY UNSAFE WORK PRACTICES!
Read and
Understand All
Safety Signs

4
Industrial/Agricultural Mower Types
Mowers are used for pasture clipping, crop residue
shredding, heavy brush cutting, waterways, right-of-
ways, roadside or highway mowing. Also, these mowers
are used for cutting grass and other growth in public
areas such as parks and cemeteries.
The Industrial/Agricultural Mower
Sickle Bar
Flail
Rotary
Boom
Folding Wing Rotary
Agricultural Disc Mower Types
Disc mowers are designed and equipped to cut hay
crops at higher eld speed.
Disc mower/conditioners mow and condition crops.
Self-propelled windrowers mow and form conditioned
hay into windrows.
The Industrial/Agricultural Mower
Disc Mower
Disc Mower
Conditioner
Self-propelled
Windrower

5
Follow A Safety Program
Protect Yourself
Wear personal protective clothing and Personal
Protective Equipment (PPE) issued to you or called
for by job conditions. You must ALWAYS wear safety
glasses with side shields.
You may also need:
— Hard hat
— Safety shoes
— Safety goggles or face shield
— Heavy gloves
— Hearing protection
— Re ective clothing
— Wet weather gear
— Respirator or lter mask
Wear whatever is needed—don’t take chances.
WARNING! Prevent death or serious injury from
entanglement. Do not wear loose clothing or
accessories. Tie up long hair. Stay away from all
rotating components when the engine is running.
Contact, wrapping or entanglement with rotating or
moving parts could result in death or serious injury.
Avoid
Entanglement
Follow A Safety Program
— Read, understand and follow the manufacturer’s
written instructions found in the operator’s manual(s)
and safety signs on mower and tractor.
— Have operational training with mower and tractor.
— Take advantage of training programs offered in
your area.
— Ask your equipment dealer or supervisor to explain
things you do not understand.
— Explain the written instructions in the operator’s
manual(s) and safety signs to those users or
operators who cannot read.
— Inspect the mower and tractor daily before operating.
Ensure all guards are in place and the equipment is
operating properly.
— Never smoke while operating. Never ll the fuel tank
with the engine running or near an open ame.
— Make sure you have adequate visibility and suf cient
lighting.
— Know the pinch points and rotating parts. Awareness
on your part can prevent accidents.
— Never attempt to operate the controls except from
the operator’s seat. Improperly controlled functions
could produce unexpected machine movement and
result in serious injury or death.
— Shut down the mower and tractor before dismounting.
(See page 18, Proper Equipment Shut Down
Practices.)
Read, Understand
and Follow Manuals
and Safety Signs
Avoid
Rotating Parts
Know and
Avoid Pinch
Points

6
Follow A Safety Program
Avoid Injury From Raised Equipment
Avoid possible crushing injury from falling mower or
other raised equipment.
Before working near or under raised mower or
equipment parts:
— Securely support or block up raised mower or
equipment parts according to the operator’s manual.
— Securely support, block up or lock up wings with
approved locking devices or lower mower or
equipment parts to the ground.
— Use transport locks when transporting mower on
public roads.
Avoid Injury From High Pressure Fluid
Avoid uid injection injury due to high pressure uid leaks.
If any fl uid is injected into the skin, it must be
removed within a few hours by a doctor familiar with
this type of injury.
Fluid leaks under pressure may not be visible. When
checking for leaks or working around pressurized systems:
— Read manufacturer’s operator’s manual(s) for
recommended safety practices.
— Wear a face shield or safety goggles for eye protection.
— Use a piece of cardboard or wood to check for leaks;
DO NOT use your hands.
— Relieve system pressure before disconnecting lines.
— Check for and repair damaged or leaking lines, pipes
and hoses.
— Check for and tighten loose connections.
— Purge air from system before operating.
High Pressure
Fluid Can Inject
into the Body
Avoid Crushing –
Block Up or
Securely Support
Mower
Follow A Safety Program
Avoid Injury From Fire And Explosion
Set the parking brake, shut the mower and tractor
engine down and remove the key while lling the fuel
tank. Use extra caution when fueling a hot engine.
Never smoke while fueling. Avoid sparks by grounding
the fuel nozzle against the ller neck.
The fumes in an empty fuel tank are explosive. Never
weld or cut on fuel lines, tanks or containers.
Remove all trash or mowing debris from the machine
daily or as needed. Keep debris away from engine,
exhaust, slip clutches and other heat sources. Use
spark arrestors, as appropriate, on the engine exhaust
system. Make sure oily rags or other ammable material
are not stored on the machine.
Check for fuel, oil or hydraulic uid leaks. Repair the
leaks and clean the machine before you operate it.
Ether/cold start uid is ammable. Do not smoke
when using ether/cold start uid. Always follow the
instructions on the can and in the manufacturer’s
operator’s manual(s) for your mower. Do not use ether/
cold start uid if the engine is equipped with a glow plug
or other type of preheater.
Always use a non ammable solvent when you
clean parts. Do not use gasoline, diesel fuel or other
ammable uids.
Store all ammable uids and materials away from your
machine and work area.
Know where re extinguishers are kept—how
they operate—and what type of re they are for.
Check readiness of re extinguishers according to
manufacturer’s instructions. Make sure each tractor is
equipped with a re extinguisher.
Remove
Debris Daily or
As Needed
No Smoking
and No Open
Flames

7
Follow A Safety Program
Be Alert!
Know where to get assistance. Know how to use a rst
aid kit and re extinguisher/ re suppression system.
Be Aware!
Take advantage of training programs offered.
Be Careful!
Human error is caused by many factors: carelessness,
fatigue, overload, preoccupation, unfamiliarity of operator
with the machine, drugs, and alcohol to name a few.
Damage to the tractor or mower can be xed in a short
period of time, but injury, or death, has a lasting effect.
For your safety and the safety of others, encourage your
fellow workers to act safely.
For Safe Operation
You must be a quali ed and authorized operator for
proper operation of your machine. You must clearly
understand the written instructions supplied by the
manufacturer, be trained—including actual operation of
the mower—and know the safety rules and regulations
for the worksite. It is a good safety practice to point
out and explain safety signs and practices and ensure
others understand the importance of following these
instructions.
WARNING! Drugs and alcohol affect an operator’s
alertness and coordination and the operator’s ability
to safely operate the equipment. Never use drugs or
alcohol while operating the mowing equipment.
Never knowingly allow anyone to operate this
machine when their alertness or coordination is
impaired. An operator taking prescription or over-the-
counter medication must consult a medical professional
regarding any side effects of the medication that would
hinder their ability to safely operate this equipment.
Never Use Drugs
or Alcohol While
Operating
Follow A Safety Program
Know The Rules
Most employers have rules governing operation and
maintenance of equipment. Before you start work at a
new location, check with your supervisor or the safety
coordinator. Ask about the rules you will be expected
to obey.
The Occupational Safety and Health Administration
(OSHA) enforces federal laws within the United
States that apply to safe operation, application and
maintenance of equipment on a worksite. It is the
employer’s responsibility to comply with these laws.
An OSHA representative may periodically inspect a
worksite to see that these laws are being followed.
There may also be local or state/provincial laws or
international regulations that apply to this equipment
and its use, along with speci c worksite or employer
rules. It is important that you know and comply with
all applicable laws and rules, including those requiring
operator training and certi cation.
These are some of the rules you must work by:
— A ROPS and seat belt-equipped tractor is a federal
government (OSHA) requirement for operator
protection during mowing operations. An enclosed
cab provides additional operator protection from
thrown objects. Check your mower operator's manual
to see if a tractor cab is also required.
— Wear and check that others are wearing proper
clothing and personal protective equipment.
— Inspect your machine and attachments before each use
as speci ed by the manufacturer and your employer.
— Know the limitations and operating characteristics of
your mowing equipment. Do not misuse it.
— Have all provided shields and guards properly
installed before operating the machine.
— Never modify or remove any part of the machine
(except for service—then make sure it is replaced).
Safety Rules
•
•
•
•
•
•
•
•
•
•
Know and
Understand
Rules of
Operation

8
Follow A Safety Program
Some Rules You Must Work By (continued)
— Only quali ed and authorized individuals may operate
this equipment.
— Never allow children to play on, ride on or operate
the equipment. Children are not quali ed to operate
this equipment.
— Do not allow any riders.
— Use three-point contact (handholds and steps) and
face the equipment when mounting or dismounting.
— Keep bystanders 300 ft (92 m) from the mowing
operation.
— Know the worksite before you use the mower. Be
aware of possible terrain hazards that you may
encounter. Remove or mark obstacles and debris that
could damage or be thrown by the mower.
— Only use attachments and parts that are approved by
the mower manufacturer.
— Make sure all attachments are lowered, set the parking
brake, shut off the engine and cycle the control levers.
Remove the key before leaving the tractor. (See page
18, Proper Equipment Shut Down Practices.)
— When transporting the mower on a trailer, follow the
manufacturer’s detailed instructions for loading, tying
down and unloading the mower.
Keep
Children
Away from
Equipment
No Riders
Shut Down
Unattended
Equipment
Keep
Bystanders
Away
Follow A Safety Program
Know The Equipment
Read and understand the DANGER, WARNING,
CAUTION and NOTICE safety signs and other
informational signs on the tractor and mower and in the
manufacturer’s operator’s manual. Ask your supervisor
or mower dealer to explain any information you do not
understand. Failure to obey safety instructions could
result in death or serious injury.
Make sure all the manufacturer’s protective structures,
guards, shields, screens and panels are in good repair,
in place and securely fastened. Damaged, missing or
weakened safety components can create a hazardous
situation for you as the operator. Never remove or
modify any safety components including thrown object
shielding on a mower.
Know the following about your tractor and mower:
— Function, purpose and use of all controls.
— Correct operation speeds.
— Slope and uneven terrain capabilities and proper
operation.
— Braking and steering characteristics.
— Turning radius and clearances.
— How to quickly stop equipment in an emergency.
Read and
Understand All
Safety Signs
Read and
Understand
Manuals Before
Operating

9
Prepare For Safe Operation
Check The Mower And Tractor Equipment
Before beginning your work day inspect the machine
and have all systems in good operational condition.
WARNING! Prevent possible crushing injury from falling
equipment. Hydraulic system or part failure could cause
unsupported equipment to fall. Do not go under raised
equipment unless it is properly supported according
to the operator’s manual.
— Perform daily and periodic service procedures as
instructed by the equipment manufacturer.
— Check for loose, broken, missing or damaged tractor
and mower parts. Repair or replace these parts.
— Check for proper tractor and mower attachments.
— Check for proper tractor and mower PTO rpm rating
match.
— Check mower blade(s) condition. Replace severely
worn, bent, gouged or nicked blades including the
blade bolts and fasteners. Never straighten or weld
on blades.
— Ensure thrown object shielding is properly installed
and in good condition. Repair or replace if damaged
or missing.
Read Manual –
Block Up or
Securely Support
Mower
Maintain
Machine
Walk-Around
Inspection
Prepare For Safe Operation
— Check that all guards and shields are in place and
that all equipment is in good operating condition. This
includes PTO driveline, gearbox and implement guards
and shields that are used for operator protection.
— Check for properly latched driveline yoke-end locking
devices.
— Check for damaged or leaky tractor and mower
hydraulic systems. Repair or adjust as needed.
WARNING! Hydraulic uid under pressure can penetrate
the skin or eyes and cause serious injury, blindness or
death. Fluid leaks under pressure may not be visible.
Use a piece of cardboard or wood to fi nd leaks, not
your hand. Wear eye protection. If uid is injected
into the skin, it must be removed within a few hours by
medical personnel familiar with this type of injury.
— Keep the operator platform surface clean and free of
grease, oil, dirt, snow or ice. Steps and handholds
must be clean and functional.
— Ensure work lights are kept clean (if equipped). Check
that all lights work properly.
— Ensure the slow moving vehicle (SMV) sign, re ectors
and warning lights are in good condition and can be
clearly seen.
— Ensure all tools or loose objects are removed or
securely fastened while operating the machine.
— Check all safety signs for clarity. Replace damaged
signs.
Check for
Leaks and Inspect
Hoses
Check for Missing/
Damaged Guards
and Shields
Put Away
Tools

10
Prepare For Safe Operation
Know The Work Area
Before you operate the mower thoroughly inspect
the work area. Walk around the area and inspect the
surfaces you will travel on when using the mower.
Locate and avoid:
— Holes
— Drop-offs
— Obstacles
(stumps)
— Excavations
— Standing water
Look for debris and obstacles by walking the area before
you mow. Objects like wire, cable, rocks, tires, and metal
objects that could damage or be thrown by the mower
must be removed or marked clearly and avoided.
Correct unsafe conditions. Do not operate in problem
areas where debris and obstacles cannot be removed
or marked.
Analyze mowing area to determine:
— The most ef cient mowing procedure.
— The height of the material to be mowed.
— Operating terrain conditions.
— How to best use forward mowing pattern.
— The potential for bystanders or passers-by to be
exposed to thrown objects.
Look Out For Others
Before starting equipment:
— Walk around the equipment.
— Check for anyone under, on or near the equipment.
— Clear everyone from these areas.
— Sound a warning.
Remove or
Mark Debris and
Obstacles
Walk
Around the
Worksite
— Deep mud
— Wet spots
— Soft soil
— Rough spots
— Power lines
and apparatus
— Other utilities
— Any conditions
which could
cause collision,
loss of control
or tipover
— Steep slopes
Prepare For Safe Operation
Mount And Dismount Tractor Properly
Always use three-point contact when mounting or
dismounting the tractor or mower. Face the machine
when you enter or leave the machine. Three-point
contact means that three out of four arms and legs are
in contact with the machine at all times during mount
and dismount.
Before mounting:
— Clean shoes and wipe hands. Clean steps and
handholds of snow, ice, mud or oil.
During mounting and dismounting:
— Use handholds and step plates.
— Never grab steering wheels or controls for handholds.
— Never mount or dismount from a moving tractor.
— Never mount or dismount while carrying tools or
objects that prevent three-point contact. Put parts or
tools down. Maintaining proper contact, climb and
then pick up the object.
Use
Three-Point
Contact
Clean Up
Slippery Areas

11
Prepare For Safe Operation
Tractor And Mower Controls Safety Test
Start the tractor following the speci c procedures in the
manufacturer’s operator’s manual. These procedures
normally include:
— Fasten and adjust seat belt on your ROPS-equipped
tractor.
— Check parking brake for engagement.
— Check PTO disengagement.
— Check all controls for Park position.
— Warn others in area before starting tractor.
— Start tractor following tractor manufacturer’s
recommended starting procedures.
WARNING! Avoid serious injury or death from
unexpected machine movement. Start the engine only
from the operator’s position. Never attempt to start
the engine by shorting across starter terminals or
reaching the key from the ground or outside the cab.
After starting:
— Check all instruments, gauges and indicator lights for
normal operation.
— Check all tractor controls, steering and brakes for
proper function.
— Raise and lower mower to check for driveline
bottoming out or engagement problems.
— Check the equipment for excessive vibration and
unusual noises.
Check
Instruments
and Controls
Start Only
from Operator’s
Seat
Use ROPS
and Seat Belt
Use a
“Do Not Operate”
Tag
Do Not
Dismount Until
Equipment Motion
Has Stopped
Prepare For Safe Operation
— Use proper equipment shut down practices before
inspecting equipment. Wait until all equipment
motion has stopped before dismounting the tractor or
mower.
— Do not operate mower unless tractor and mower are
running properly. Place a “Do Not Operate” tag on
the machine, remove the key and do not operate the
mower until the problem is corrected.
Power Takeoff System
Be sure to operate the tractor at the mower’s rated PTO
rpm speed.
When operating tractors with transmission-driven PTO
systems, a rotary mower will have a signi cant ywheel
effect. The mower may continue to propel a tractor with
a transmission-driven PTO system.
The tractor should be equipped and operated as follows:
— Install a driveline equipped with an over-running
clutch.
— Give yourself suf cient maneuvering room and time
by anticipating turns, stops and speed reductions.
Use Proper
PTO Speed

12
Prepare For Safe Operation
Hitching Mower To Tractor
Three-point hitch-mounted mowers:
— Refer to mower and tractor manufacturers’ manuals.
— Place tractor’s hydraulic power lift (rockshaft)
selector lever in down position to avoid unexpected
movement.
— Explain the hitching procedures to those operators
who cannot read.
— Front-end weights may be needed to maintain
steering control and front-end stability. Refer to the
manufacturers' operator's manual(s).
— When backing the tractor up to the mower, NEVER
allow anyone between the tractor and the mower.
— Attach the mower to the tractor three-point links and
securely pin in position.
— Securely attach the driveline to the tractor PTO.
Lower the master shield into place if it is movable.
Push and pull on the driveline to ensure it is locked
onto the PTO shaft.
Read and
Understand
Manuals Before
Operating
Maintain
Proper Weight
Distribution
No One
Allowed Between
Tractor and
Mower
Avoid
Entanglement,
Use Guards and
Shields
Pull-type hitch-mounted mowers:
— Refer to mower and tractor manufacturers’ manuals.
— Remove three-point hitch quick coupler if equipped.
— Attach only to drawbar hitch.
— Adjust tractor drawbar length for 540 or 1000 rpm
PTO operation.
— When backing the tractor up to the mower, NEVER
allow anyone between the tractor and the mower.
— Properly attach the mower safety tow chain to the
tractor.
— Securely attach the driveline to the tractor PTO. Push
and pull on the driveline to ensure it is locked onto
the PTO. Lower the master shield into place.
— Hook up the mower hydraulic hoses to the tractor.
— Make sure the wings, or raised mower decks, are
supported by the cylinders before removing the
transport locks. Never use force to release the
transport or wing locks. The wings or deck could fall
and crush you.
Confi rm Wings Are
Supported Before
Releasing Locks
Avoid
Entanglement,
Use Guards and
Shields
Prepare For Safe Operation
Tractor
Drawbar
Adjustment
14IN
540 RPO PTO
1-3/8" 6 SPLINE
1000 RPO PTO
1-3/8" 21 SPLINE
16IN
1000 RPO PTO
1-3/4" 20 SPLINE
20IN
540 RPM PTO
1-3/8" 6 SPLINE
1000 RPM PTO
1-3/8" 21 SPLINE
1000 RPM PTO
1-3/4" 20 SPLINE

13
Start Safely
Make The Right Start
Mow only in daylight or good arti cial light conditions.
Avoid serious injury or death from mower-thrown
objects or blade contact:
— Keep chain shields, exible or solid de ector shields
or discharge chutes in place and in good repair.
— Keep bystanders at least 300 ft (92 m) from mowing
operation.
— Never direct mower discharge toward anyone.
— Keep hands, feet and other body parts away from
rotating parts, blades and discharge openings.
— Do not operate mower in transport position.
Do not approach a mower until all motion has stopped.
Mower PTO drive engagement:
— Raise mower to maximum cutting height.
— Engage PTO at low engine rpm.
— Increase engine rpm to mower’s rated rpm PTO speed.
— Lower mower to desired cutting height.
— Stop and shut down immediately if the mower strikes
an obstruction.
— Inspect and repair any mower damage before
resuming mowing.
— Do not operate mower with severe vibrations or with
unusual noise.
Mower-Thrown Objects
Depending on the designed purpose, mowers are
designed to cut grass, weeds, brush and crops. The
mower blades have been designed and tested for
rugged use. The mower blades, however, are not
intended to contact solid objects like rocks, concrete
or metal. Such impact can cause broken objects to be
thrown up to 300 ft (92 m). Bystanders should never
be within 300 ft (92 m) of an operating rotary mower or
within 100 ft (30 M) of a properly equipped disc mower.
Rotating Blades –
Keep Away
Do Not Operate a
Damaged Mower
Operate Safely
Mower shielding is designed to reduce the risk of thrown
objects and must be properly maintained and in place
during mowing operations.
The risk of serious injury or death from thrown objects
can be signi cantly reduced by following three rules.
If all of these safety rules are not followed, the
mowing operation must be stopped if anyone comes
within the safety limit for the mower type.
First — Inspect the area prior to mowing and remove
stones, branches, wire, cable, metal, glass and other
solid objects before operating. Any objects that cannot
be removed must be clearly marked and carefully
avoided by the operator.
In non-crop areas with grass and weeds high enough to
hide objects that could be struck by the blades, inspect
the area and remove or mark large debris or obstacles.
Mow the area at an intermediate height. Inspect the area
closely and remove or mark any remaining debris or
obstacles. Mow again at desired nal height.
Second — Mower-thrown object shielding must be
used when operating near roads, parks, populated
areas or other areas where thrown objects could
injure bystanders or damage property. Follow the
manufacturer's operator's manual.
Third — Cross diagonally when mowing through
ditches, sharp dips, and drops. Raise the mower to
prevent the mower blades from hitting the ground.
Follow
All Mower
Safety Rules

14
Operate Safely
Mower-Thrown Objects (continued)
Disc Mowers — When using a disc mower it is
important to know the area to be mowed. If the operator
has mowed the eld before and is familiar with all
obstacles that may be present, it is suf cient to watch
ahead of the mower path for any additional objects that
may have entered the eld. Be ready to stop or avoid
any objects that could be hazardous if thrown by the
mower. If you plan to mow an unfamiliar eld and it is
next to a traveled road or people may be within 100
ft (30 m) of the mower you must inspect, and clean or
mark the eld.
Mowing In Reverse
Do not mow while traveling in reverse. Objects are more
likely to be thrown and can travel further.
Shut off the PTO, wait for the blades to stop turning,
raise the mower, and then back up.
Mow traveling in the forward direction.
Mowing Ground Speed
Proper ground speed depends on terrain conditions and
grass type, density and height to be cut:
— Normal ground speed range is 2 to 5 mph.
— Use slower ground speed for mowing tall, dense grass.
— Use faster ground speed for mowing medium height,
thin grass and under smooth terrain conditions.
— Use slower ground speed for mowing in rough,
sloping or unfamiliar terrain.
Disc mowers are designed to use faster ground speeds
for operating in elds clear of debris and surface hazards.
Use Proper
Ground Speed
Do Not Mow
in Reverse
Operate Safely
Extremely Tall Grass Mowing
You may need to mow extremely tall, non-crop grass
twice. (See page 13, Mower-Thrown Objects.)
First mowing pass:
— Shut the mower and tractor down using proper
equipment shut down practice before dismounting
tractor. (See page 18, Proper Equipment Shut Down
Practices.)
— Inspect the area and remove or mark debris and
obstacles.
— Cut grass higher (10-15 inches) to avoid hidden objects.
Second mowing pass:
— Shut the mower and tractor down using proper
equipment shut down practice before dismounting
tractor.
— Inspect the area and remove or mark debris and
obstacles.
— Cut grass at desired height and, when possible,
90 degrees to the rst mowing pass.
Watch Equipment Clearances
Three-point hitch and side-mounted mowers have a
larger turning arc than pull-type mowers. Allow suf cient
clearance for mower swing while turning.
Do not allow bystanders near the tractor and mower
when moving or transporting the tractor and mower.
Provide Adequate
Clearance for
Mower Swing
Stop Blade
Before
Unclogging

15
Operate Safely
Under Mount Mower Safety Practices
When mowing with an under mount mower:
— Keep removable discharge chute in place and over
discharge opening.
— Never stand on a mower housing when the tractor
engine is operating.
— Distribute grass clippings with discharge chute facing
mowed area.
— Before clearing a clogged mower or discharge
chute, shut down your machine using proper
equipment shut down practice. (See page 18, Proper
Equipment Shut Down Practices.)
Stop Blade
Before
Unclogging
Never Stand
on Mower –
Keep Away
Keep Chute
in Place
Operate Safely
Wing Or Boom Mower
Overhead Obstruction Hazards And Risks
Check for overhead obstructions with raised wing
or boom mowers to avoid serious injury or death by
contact with:
— Electrical power lines and apparatus.
— Low tree limbs.
— Other overhead obstructions.
— Maintain speci ed distance from power lines and
apparatus. Never approach energized power lines or
apparatus with any part of your machine unless all
local, state/provincial and federal (OSHA) required
safety precautions have been taken. Use extreme
caution.
DANGER! Avoid electrocution or serious injury from
contact with or inadequate clearance to energized
power lines or apparatus. Do not allow the machine or
attachment to approach or contact any power line.
Do not approach or touch any machine in contact
with a power line.
Do Not
Approach Energized
Power Lines
Stay Clear
of Energized
Equipment

16
Operate Safely
Wing And Side Mount Mowers Safety Practices
Raised wing positions reduce shielding protection and
increases the thrown object and blade contact hazard
risks.
Avoid possible serious injury or death by thrown
objects or blade contact from raising and lowering
wings during mowing operations:
— Do not mow with bystanders within 300 ft (92 m) of
the mower.
— Be sure no one is near mower while raising or
lowering wings.
— Shut off the PTO and wait for all rotating elements to
stop before raising the mower deck or wing section.
— Only raise wing to clear objects in the mowing path
or to match ground slope.
— Lower raised wing to ground after clearing object or
ground slope conditions.
— Stop mowing if anyone approaches within 300 ft
(92 m) of mowing area.
Ditch Bank Mowing Safety Practices
Use extreme care when mowing ditch banks. Watch for
washouts, eroded areas and mowing obstructions along
the ditch banks. Hitting obstructions with side-mount
or boom mowers may swerve the tractor’s front end
toward the ditch.
Avoid Hitting
Obstructions
Keep Bystanders
Away from
Mowing Area
300 ft
(92 m)
Operate Safely
Raised wing and boom mower ditch bank operations may
reduce the mower’s thrown object shielding effectiveness
for the mower operator’s protection.
— Use enclosed ROPS cabs, special protective
enclosures and other operator shielding available from
the manufacturer when performing these operations.
— Inspect mowing area and remove or mark all foreign
objects and debris to be avoided by mower.
Uneven Terrain Mowing Safety Practices
Tractor and mower stability is reduced on slopes and
uneven terrain.
As in all conditions when mowing, use tractors
equipped with ROPS and seat belt. Make sure the
ROPS are raised and locked in place and always
wear your seat belt.
Prevent tractor and mower overturns and maintain
equipment stability control:
— Review tractor and mower operator’s manuals for
operating safety practices on slopes and uneven
terrain conditions. Explain the practices to those
users and operators who cannot read.
— Avoid extremely steep slope operations.
Read and
Understand
Manuals Before
Operating
Use
Enclosed ROPS
Cabs or Protective
Enclosures
Use ROPS
and Seat Belt

17
Uneven Terrain Mowing Safety Practices
(continued)
— Use extreme care to maintain control over the
equipment when operating in these conditions.
— Increase tractor stability by adding wheel weights,
ballast and increasing wheel spacing to maximum.
Refer to operator’s manual for recommendations.
— Maintain minimum ground speed.
— Make wide and gradual turns.
— Avoid sudden starts, stops, and turns when operating
up, down, or across slopes.
— Do not raise rear-mount or side-mount mowers or
mower wings from the ground during these operations.
— Keep alert for holes, bumps, ruts, rocks, stumps or
other obstructions that could overturn the machine.
— Avoid slippery ground conditions that could cause
loss of control and overturn of tractor and mower.
— Avoid bottoming and striking the ground by diagonal
crossing of sharp dips and drops.
Use extreme care in maintaining equipment stability
during all uneven terrain and slope mowing operations.
You are the nal judge as to any slope that can be safely
negotiated.
Maintain
Control, Use Low
Speeds
Add Ballast,
Widen Wheel
Spacing
Avoid Ruts,
Bumps, Holes
Operate Safely
Operate Safely
Road Transport Safety Practices
Before operating on public roads:
— Refer to tractor and mower manufacturers’ operator’s
manuals for instructions.
— Explain the instructions to those users or operators
who cannot read.
— Check local regulations for required equipment
markings, lights, ashers, etc., while traveling on
public roads. Lights are required on mowers that
obscure tractor taillights and/or warning lights.
— When transporting the mower on a trailer, follow the
manufacturer’s detailed instructions for loading, tying
down and unloading the mower.
Before transporting on public roads:
— Disengage PTO power to mower.
— Raise mower into transport position and engage
transport lock.
— Lock mower wings in the transport position with
approved locking devices.
— Attach towing safety chain between pull-type mower
and tractor.
— Make sure lights, warning lights and re ectors are in
place and visible.
— Check SMV (Slow-Moving Vehicle) emblem for
visibility to any rear-approaching vehicle.
While transporting on public roads:
— Obey all local traf c regulations.
— Approach intersections with caution.
— Observe speed and traf c control signs.
— Avoid panic stops and sharp turns.
Be a courteous operator and pull over periodically and
allow traf c to pass.
Read and
Understand
Manuals Before
Operating
STOP
YIELD
Obey Traffi c
Regulations

18
Parking Safety Practices
— Use designated or out-of-traf c areas.
— Use rm level ground locations.
— Set parking brake.
— Lower raised equipment to ground.
Shut down the mower and tractor using proper
equipment shut down practice before dismounting
tractor. (See page 18, Proper Equipment Shut Down
Practices.)
Sloping ground parking locations:
— Position equipment across slope.
— Set parking brakes.
— Lower raised equipment to ground.
— Block tractor wheels.
Before temporarily parking and leaving disabled
equipment near traf c areas:
— Remove equipment from public roads.
— Set out warning ags.
— Use tractor ashing warning lights.
Park Safely
Set
Parking Brake
Lower Raised
Equipment to
Ground
P
Shut Down Safely
Proper Equipment Shut Down Practices
Make proper equipment shut down an important habit.
Properly shutting down a tractor and mower can
prevent accidents from occurring when the mower is left
unattended. Shut down the mower following the speci c
procedures in the manufacturer’s operator’s manual.
These procedures will normally include:
— Reduce engine speed.
— Disengage PTO clutch and transmission drive.
— Idle engine for gradual cooling.
— Place all controls in PARK position.
— Set the parking brake.
— Lower mower to ground.
— Lower wings of wing mowers to ground.
— Shut off engine, lock ignition and remove key from
the machine and take it with you.
— Wait for all moving parts to stop before dismounting.
— Relieve hydraulic pressure by moving hydraulic
controls several times in all directions.
— Lock anti-vandalism covers and closures, if
equipped, when equipment is unattended.
— Dismount carefully maintaining three-point contact.
Disengage PTO,
Set Brake
Wait for
Rotating Parts
to Stop
Lower Raised
Equipment to
Ground
Remove Key,
Lock Ignition, Take
Key With You
PTO
STOP
P

19
Shut Down Safely
Dismounting Properly
— Never dismount from moving equipment.
— Never jump from any machines.
— Dismount carefully.
— Check for slippery steps.
— Keep feet and hands away from controls.
— Use handholds and steps during dismount.
— Face machine and use three-point contact
(2 hands and 1 foot or 2 feet and 1 hand).
Wait for
Moving Parts
to Stop
Use Three-Point
Contact,
Face Machine
Perform Maintenance Safely
Maintain Your Equipment
Be sure to maintain the equipment according to
manufacturer’s instructions. Regularly check the
operation of the protective and safety devices.
Do not perform any work on a tractor or mower unless
you are authorized and quali ed to do so.
If you have been authorized to do maintenance, read
the operator’s and service manuals. Study the
instructions; check the lubrication charts; examine all
the instruction messages on the machine. Maintenance
can be hazardous unless performed properly. Be sure
you have the necessary skill, information, correct tools
and equipment to do the job.
WARNING! Do not modify equipment or add
components not approved by the manufacturer. Use
parts, lubricants and service techniques recommended
by the manufacturer.
Mower Parts And Your Safety
Mower manufacturers use speci c fasteners and
specially designed parts to meet mowing operations
requirements. Critical parts (self-locking blade bolts,
blades, pins, shields and other special items) have
speci c strength, design and t requirements for the
make and model mower you are using.
Avoid possible death or serious injury from unapproved
parts or modi cations:
— Do not substitute common hardware for original
manufacturer’s blade bolts or other special part items.
— Do not substitute for blades, pins, shields or other
critical parts.
— Do not use higher strength bolts to replace original
manufacturer’s shear bolts.
Maintain
Equipment

20
Perform Maintenance Safely
Prepare Yourself
Wear personal protective clothing and Personal
Protective Equipment (PPE) issued to you or called
for by job conditions. You must ALWAYS wear safety
glasses with side shields.
You may also need:
— Hard hat
— Safety shoes
— Safety glasses, goggles or face shield
— Apron and gloves
— Hearing protection
— Welding helmet or goggles
— Respirator or lter mask
Wear whatever is needed—don’t take chances.
Keep hands—and clothing—away from all moving
parts. Don’t wear dangling ties, loose sleeves, rings,
watches, or long hair.
WARNING! Prevent death or serious injury from entangle -
ment. Do not wear loose clothing or accessories. Stay
away from all rotating components when the engine is
running. Contact, wrapping or entanglement with rotating
or moving parts could result in death or serious injury.
Avoid
Rotating Parts
Avoid
Pinch Points
Perform Maintenance Safely
Wear a rubber apron and rubber gloves when working
with corrosives. Wear gloves and safety shoes when
handling wooden blocks or sharp-edged metal.
Always use safety glasses, goggles or a face shield. They
provide eye protection from uids under pressure, during
grinding and while servicing batteries. Protection is also
needed from ying debris, liquids and loose material
produced by equipment, tools and pressurized air/water.
Wear a face shield and follow manufacturer's instuctions
when you disassemble spring-loaded components or work
with battery acids. Wear a welding helmet or goggles with
a shaded lter when you weld or cut with a torch.
Do not sand, grind, ame-cut, braze or weld without a
NIOSH-approved respirator or appropriate ventilation.
If welding is required on this machine, refer to the
manufacturer’s operator's or service manuals or consult
your equipment dealer for proper procedures.
Keep pockets free of all objects that could fall out—and
drop into machinery.
Handle tools and heavy parts sensibly—with regard
for yourself and other persons. Lower items—don’t
drop them.
Prepare The Work Area
— Position the mower in a level area out of the way of
other working equipment.
— Make sure there is adequate light, ventilation and
clearance.
— Remove oil, grease or water to eliminate any slippery
surfaces.
— Clean around the area to be serviced to minimize
contamination.
Clean
Slippery Surfaces
Ventilate
Work Area

21
Perform Maintenance Safely
Prepare The Machine
Stored energy sources (electrical, mechanical, hydraulic,
pneumatic, chemical, thermal, etc.) must be controlled
or reduced to a practical minimum before performing
any maintenance, repair or service procedures.
Safety practices to prevent potential injuries from
energy-releasing sources:
— Disengage PTO before shutting off engine.
— Place controls in PARK or NEUTRAL before shutting
off engine.
— Set parking brake or block wheels.
— Allow all moving parts to stop.
— Lower mower to ground.
— Lower wings to ground on wing mowers.
— Shut off tractor engine.
— Relieve hydraulic system pressure by moving controls
several times in all directions.
— Lock ignition, remove key and take it with you.
— Look and listen for evidence of moving parts before
dismounting.
— Securely support or block up mower before working
underneath mower or other lifted components.
— Securely support, block up, or lock up mower wings
with approved locking devices before working near or
underneath a wing mower.
— Relieve pressure before disconnecting or
disassembling any pressurized system.
— Block or relieve spring pressure before disassembling
any spring-loaded mechanism.
— Securely support or block up any raised machine
component before working on it.
— Avoid ames, sparks, or smoking near any fuel,
hydraulic uid or other ammable material such as
mowing debris.
Prepare
Machine Systems
for Service
Attach a “DO NOT OPERATE” warning tag to the control
levers and remove the ignition key if the mower should
not be operated. Take the key with you.
Install approved support device(s) when working under
or near raised equipment.
WARNING! Unsupported raised mowers or other
equipment may drop unexpectedly. Never go under
equipment when raised unless supported by an
approved support device(s). Death or serious crushing
injury could result from falling equipment.
Remove only guards or covers that provide access to
the area being serviced. Replace all guards and covers
when work is complete.
Replace
All Guards
Perform Maintenance Safely
Use
Approved
Support Device
Use a
“Do Not Operate”
Tag

22
Perform Maintenance SafelyPerform Maintenance Safely
Use Proper Ventilation
If it is necessary to run an engine in an enclosed area,
remove the exhaust fumes from the area with an
exhaust pipe extension. If you do not have an exhaust
pipe extension, make sure you open the doors and get
outside air into the area.
WARNING! Prevent possible injury. Never work on
machinery with the engine running unless instructed
by the manufacturer’s manuals for specifi c service.
WARNING! Never operate any type of engine without
proper ventilation—EXHAUST FUMES CAN KILL.
Use Jacks And Hoists Carefully
Safety stands or blocks must be located on a rigid part
of the mower. Do not position stands under axles or
wheel supports that may rotate.
If you must work beneath raised equipment, always use
wood—not concrete—blocks, jack-stands or other
rigid and stable supports. When using jacks or hoists
always be sure they are adequately supported.
WARNING! Prevent possible crushing injury. Never
use concrete blocks for supports. They can collapse
under even light loads.
Make sure the hoists or jacks you use are in good repair.
Never use jacks with cracked, bent, or twisted parts.
Never use frayed, twisted or pinched cables. Never use
bent or distorted hooks.
Ventilate
Work Area
Use Proper
Support for Raised
Equipment
Remove
Key and Read
Maintenance
Manual
Common Maintenance Safety Practices
Fuel Hazards
WARNING! Always use approved fuel containers
and/or dispensing equipment.
Fuels are ammable, so observe these practices to
reduce the possibility of a serious accident.
— Shut off engine and ignition during refueling.
— Always ground the fuel nozzle against the ller neck
to avoid sparks.
— Keep sparks and open ames away from fuel.
— Do not smoke while refueling or when handling fuel
containers.
— Do not cut or weld on or near fuel lines, tanks or
containers.
— Do not over ll the tank or spill fuel. Clean up spilled
fuel immediately.
Engine Coolant Hazards
Liquid cooling systems build up pressure as the engine
gets hot, so use extreme caution before removing the
radiator cap.
Be sure to:
— Stop the engine and wait for the system to cool.
— Wear protective clothing and safety glasses.
— Turn the radiator cap slowly to the rst stop to allow
the pressure to escape before removing the cap
completely.
Remove
Radiator Cap
Slowly
No Smoking
and No Open
Flames
Perform Maintenance Safely

23
Hydraulic System Hazards
The hydraulic system is under pressure whenever the
engine is operating and may hold pressure even after the
engine is shut off. Cycle all hydraulic controls including
the auxiliary hydraulic control after the engine is shut
down. Relieve trapped pressure in the lines after the
attachments are shut down and resting on the ground.
During inspection of the hydraulic system:
— Wait for uid to cool before disconnecting the lines.
Hot hydraulic uid can cause SEVERE BURNS.
— Do not use your hand to check for leaks. Instead,
use a piece of cardboard or paper to search for leaks.
— Wear appropriate eye protection. Hydraulic uid can
cause permanent eye injury.
WARNING! Hydraulic uid under pressure can penetrate
the skin or eyes and cause serious injury, blindness or
death. Fluid leaks under pressure may not be visible.
Use a piece of cardboard or wood to fi nd leaks, not
your hand. Wear a face shield or safety goggles for
eye protection. If uid is injected into the skin, it must
be removed within a few hours by medical personnel
familiar with this type of injury.
When venting or lling the hydraulic system, loosen the
ller cap slowly and remove it gradually.
Never reset any relief valve in the hydraulic system to a
pressure higher than recommended by the manufacturer.
Wear
Eye Protection
High Pressure
Fluid Can Inject
Into the Body
Perform Maintenance Safely
Electrical System Hazards
Before working on the electrical system, disconnect the
battery cable(s).
— Remove the battery negative (-) cable(s) rst.
— When reconnecting the battery, connect the battery
negative (-) cable(s) last.
The liquid in batteries contains acid, which is a POISON
and can cause SEVERE CHEMICAL BURNS.
Avoid Injury
— Wear a face shield to prevent contact with your eyes.
— Wear chemical-resistant gloves and clothing to keep
electrolyte off your skin and regular clothing.
WARNING! Electrolyte will damage eyes or skin
on contact. Always wear a face shield to avoid
electrolyte in eyes. If electrolyte contacts eyes, ush
immediately with clean water and get medical attention.
Wear chemical-resistant gloves and protective
clothing to keep electrolyte off skin. If electrolyte
contacts exposed skin or clothing, wash off immediately
with clean water. If electrolyte is ingested, seek
medical attention immediately. NEVER give uids that
would induce vomiting.
Wear
Protective
Clothing
Wear
Face Protection
Perform Maintenance Safely

24
Avoid Explosion
WARNING! Avoid possible serious injury from
explosion. Lead-acid batteries produce extremely
explosive gases especially when being charged. Keep
arcs, sparks, fl ames and lighted tobacco away.
— Do not smoke near batteries.
— Keep arcs, sparks and open ames away from
batteries.
— Provide adequate ventilation.
Never check the battery by placing a metal object
across the battery posts — the resulting spark could
cause an explosion.
WARNING! Avoid possible serious injury from battery
explosion. Do not charge a battery or boost start the
engine if the battery is frozen. Warm to 60°F (15.5°C)
or the battery may explode and could cause serious
injury.
Safety rules during battery boost starting:
— Follow the instructions for proper “battery boost
starting” as speci ed in the manufacturer’s manual.
— Be sure the machines are not touching.
— Observe the polarity of the batteries and connections.
— Make the nal cable connection to the engine or the
furthest ground point away from the battery. Never
make the nal connection at the starter or dead
battery—sparks may ignite the explosive gases
present at the battery.
— When disconnecting cables after jump starting,
remove the cables in reverse order of connection
(e.g., nal connection rst).
Avoid Sparks
and Open Flames
Near Batteries
For
Boost Starting
Observe Polarity
and Make Final
Connection at
Ground Point
Perform Maintenance Safely
Tire And Wheel Maintenance
Check your tires and wheels daily because the stability
of the tractor and mower can be dramatically affected
by tire pressure or damage to tires or wheels.
Check tires for:
— Correct pressure.
— Cuts and bulges.
— Nails or other punctures.
— Uneven or excessive wear.
— Condition of valve stems and caps.
Check wheels for:
— Damage to the rims.
— Missing or loose lug nuts or bolts.
— Misalignment.
All tire service should be performed by a quali ed tire
service center or by an authorized service person who
has been properly trained in the procedures and use of
safety equipment designed for tire servicing.
Check Tires
and Wheels for
Damage
Maintain
Proper Tire
Pressure
Perform Maintenance Safely

25
Tire And Wheel Maintenance (continued)
WARNING! The types of wheels and tires usually
found on this equipment require special care when
servicing to prevent death or serious injury.
Do not in ate the tires above the recommended
pressure. Be sure to replace tire ballast if equipped. See
manufacturer’s speci cations for ballast requirements.
Keep wheel lug nuts tightened to manufacturer’s
recommendations.
A rise in tire pressure during operation is normal, and
should NOT be reduced.
Never rein ate a tire that has been run at or seriously
underin ated without removing the tire from the wheel.
Have the tire and wheel closely inspected for damage
before remounting.
When adding air to a tire, do so from a distance. Use
a long hose with self-attaching chuck. Always stand
behind tread when adjusting tire pressure.
Do not in ate tires with ammable gases or from
systems using an alcohol injector.
Never cut or weld on a wheel with an in ated
tire mounted on it. This could cause explosive
decompression.
Check that the tire size and wheel are correctly matched.
When replacing the tires, ensure the tires are of the
appropriate rating speci ed by the manufacturer.
Tires should not be operated at speeds higher than their
rated speed. Most agricultural tires are rated for 20mph
maximum speed.
Avoid
Tire Explosion
Perform Maintenance Safely
Complete Service And Repairs Before Machine
Is Released
Tighten all bolts, ttings, and connections to torques
speci ed by the manufacturer.
Install all guards, covers, and shields after servicing.
Replace or repair any damaged parts. Re ll and
recharge pressure systems only with manufacturer
approved or recommended uids.
Start the engine and check for leaks. (See page 23,
Hydraulic System Hazards.) Operate all controls
to make sure the tractor and mower are functioning
properly. Test the machine if necessary. After testing,
shut down and check the work you performed. Are
there any missing cotter pins, washers, locknuts, etc.?
Recheck all uid levels before releasing the equipment
for operation.
All parts should be inspected during repair and replaced
if worn, cracked or damaged. Excessively worn or
damaged parts can fail and cause injury or death.
Replace any damaged or illegible safety signs.
Mower Blade Maintenance
Do not take chances using damaged or bent blades.
The mower manufacturers from the Association
of Equipment Manufacturers (AEM) and the Farm
Equipment Manufacturers Association (FEMA) advocate
that you DO NOT reuse, straighten, hard face or weld
mower blades. Death or serious injury could result if a
broken blade is thrown from a mower.
Verify
Service Work
When
Completed
Perform Maintenance Safely

26
Perform Maintenance Safely
Mower Blade Maintenance (continued)
— How are mower blades made?
Mower blades are made of high strength alloy spring
steel. They are hot-forged and shaped to meet the
manufacturer’s individual speci cations, then heat
treated and tempered to a high strength, ductile state
to reduce the possibility of breaking while mowing.
Blades are tested to ensure they meet strength,
hardness, and ductility standards. If a blade fails to
meet any of these speci cations, it will not be used
on the mower.
— What happens when a mower blade bends?
It takes a great amount of impact force to bend
the blade. This impact force often results in the
blades being gouged or chipped. After a blade
is damaged by a gouge or chip a blade failure is
much more likely to occur. When a blade is severely
bent, a microscopic crack may be created in the
blade. Straightening the blade does not remove or
repair this crack, but may cause additional cracks.
Additional stresses during mowing operations can
result in an unexpected blade failure.
— Avoid bending blades. Help prevent mower blades
from bending or cracking by avoiding contact with
solid objects. Mower blades are intended to cut
grass, shrubs, woody vegetation, and small trees and
limbs. They are not intended to contact solid objects
such as rocks, concrete, or steel posts. Inspect the
area prior to mowing. Remove or clearly mark any
solid objects and mow around them.
— Replace damaged blades! Inspect the mower blade(s)
daily or after hitting any solid object. If a mower blade
becomes damaged (bent, gouged, cracked) or worn
more than 25 percent of the original size, it should
be removed and replaced with a new blade. Always
use the original manufacturer’s blades. Aftermarket
brand blades may not meet the mower manufacturer’s
strength, hardness and ductility requirements.
— Do not take chances mowing with damaged or
bent blades. Using a damaged or straightened
mower blade can result in the blade breaking and
being thrown into the operator or a bystander causing
death or serious injury. The price of a new blade is
small compared to the potential for the serious injury
that could result from a bent or broken blade being
thrown from the mower.
Final Word To The User
You have just nished reading the AEM Industrial and
Agricultural Mower Manual. It is impossible for this
manual to cover every safety situation that you may
encounter on a daily basis. Your knowledge of these
safety precautions and your application to the
basic rules of safety will help to build good judgment
in all situations. Our objective is to help you develop,
establish and maintain good safety habits to make
operating an Industrial and Agricultural Mower easier
and safer for you.
This manual is another in a series on the safe operation of machinery published by AEM.
Many pictorials in this safety manual can be found and downloaded at http://pictorials.aem.org.
For additional publications visit our website at www.safetymaterials.org.
ASSOCIATION OF
EQUIPMENT MANUFACTURERS
e-mail safetymaterials@aem.org
www.aem.org


2
Este manual de seguridad está destinado a señalar
algunas de las situaciones de seguridad básicas que
pueden surgir durante la operación y el mantenimiento
normales de la máquina y a instruirlo en prácticas de
seguridad para manejar estas condiciones. Este manual
NO sustituye los manuales del operador del fabricante de
la cortadora de césped.
Puede ser necesario tomar precauciones adicionales o
algunas de las instrucciones pueden no ser pertinentes,
dependiendo del equipo, los accesorios y las condiciones
del sitio de trabajo o del área de servicio. El fabricante no
tiene control directo sobre la aplicación, la operación, la
inspección o el mantenimiento del equipo. Por lo tanto,
es SU responsabilidad utilizar prácticas de seguridad
correctas en estas áreas.
La información que se proporciona en este manual
complementa la información especí ca sobre la máquina que
contienen los manuales del operador del fabricante. Puede
haber otra información que afecte la operación segura de
la máquina en los letreros de seguridad o en los requisitos
del seguro, programas de seguridad y capacitación del
empleador, códigos de seguridad, leyes federales, locales,
estatales o provinciales, reglas y ordenanzas.
¡IMPORTANTE! Antes de hacer funcionar la
cortadora de césped, asegúrese de contar con
los manuales del operador del fabricante para
esta máquina y todos los accesorios. Si faltan
los manuales del fabricante, solicite manuales
de repuesto a su empleador, al concesionario de
los equipos o directamente al fabricante. Guarde
este manual de seguridad y los manuales del
fabricante con la máquina en todo momento. Lea
y asegúrese de comprender todos los manuales.
Se encuentra disponible el video AEM Mower
Safety Practices (Prácticas de seguridad para
la cortadora de césped de AEM) para capacitar
y reforzar prácticas de seguridad correctas. Se
alienta a los operadores a ver periódicamente el
video de seguridad.
Introducción
Lea y asegúrese
de comprender los
manuales antes
de comenzar la
operación
Contenido
Reconocimiento . . . . . . . . . . . . . . . . . . . . . . . . . . . . . . . 2
Introducción . . . . . . . . . . . . . . . . . . . . . . . . . . . . . . . . . . 2
Alertas de seguridad . . . . . . . . . . . . . . . . . . . . . . . . . . . 3
Palabras para el usuario/operador . . . . . . . . . . . . . . . . 3
Cortadora de césped industrial/para agricultura . . . . 4
Cumplimiento del programa de seguridad . . . . . . . . . 5
Preparación para una operación segura . . . . . . . . . . . 9
Arranque con seguridad . . . . . . . . . . . . . . . . . . . . . . . 13
Operación con seguridad . . . . . . . . . . . . . . . . . . . . . . 13
Estacionamiento seguro . . . . . . . . . . . . . . . . . . . . . . . 18
Apagado con seguridad . . . . . . . . . . . . . . . . . . . . . . . 18
Realización de mantenimiento con seguridad . . . . . 19
Palabras fi nales para el usuario . . . . . . . . . . . . . . . . . 26
Reconocimiento
Deseamos reconocer las contribuciones de los miembros del Consejo de Fabricantes de Cortadoras de Césped
Industriales/para Agricultura para la preparación de este Manual de seguridad.
AVISO DE PROTECCIÓN DE COPYRIGHT
Copyright, 2010, por la Asociación de Fabricantes de Equipos (Association of Equipment Manufacturers). Todos los derechos reservados. Queda prohibida la reproducción o
difusión parcial o total de este trabajo por cualquier medio sin consentimiento previo por escrito de la Asociación de Fabricantes de Equipos.
Copyright 2010© AEM (Asociación de Fabricantes de Equipos)
Revisado el 01/03, 09/10

3
Alertas de seguridad
Símbolo
Este símbolo de alerta de seguridad signi ca:
“¡ATENCIÓN! ¡MANTÉNGASE ALERTA! ¡SU
SEGURIDAD ESTÁ EN RIESGO!”
El símbolo de alerta de seguridad identi ca mensajes de
seguridad importantes sobre el equipo, sobre letreros de
seguridad, en manuales u otros lugares. Cuando vea este
símbolo, manténgase alerta ante la posibilidad de muerte
o lesiones personales. Siga las instrucciones del mensaje
de seguridad.
Motivos por los cuales la seguridad es importante:
— Los accidentes provocan discapacidad y muerte.
— Los accidentes cuestan.
— Los accidentes pueden evitarse.
Palabras indicativas
Las palabras indicativas son palabras distintivas que
típicamente se encontrarán en letreros de seguridad
de la cortadora de césped y otros equipos del sitio de
trabajo. Estas palabras también se pueden encontrar
en este manual y en los manuales del fabricante. Están
destinadas a alertar al operador sobre un riesgo y el grado
de gravedad del riesgo.
DANGER (PELIGRO) indica una
situación riesgosa que, si no se evita,
resultará en una lesión grave o la
muerte.
WARNING (ADVERTENCIA) indica
una situación riesgosa que, si no se
evita, podría resultar en una lesión
grave o la muerte.
CAUTION (PRECAUCIÓN) indica
una situación que, si no se evita,
podría resultar en lesiones leves o
moderadas.
NOTICE (AVISO) indica un mensaje
de daños a la propiedad.
NOTICE
PELIGRO
ADVERTENCIA
PRECAUCIÓN
AVISO
DANGER
WARNING
CAUTION
Palabras para el usuario/operador
Es SU responsabilidad leer y asegurarse de comprender el
manual de seguridad y los manuales del fabricante antes de
hacer funcionar esta máquina. Este manual de seguridad lo
lleva paso a paso a través de su día de trabajo.
El reconocimiento de los riesgos y la prevención de
accidentes dependen de que usted esté alerta, sea
cuidadoso y se capacite correctamente para la operación,
el transporte, el mantenimiento y el almacenamiento de
este equipo.
Se han suministrado grá cos útiles para comprender el texto.
Recuerde que USTED es la clave de la seguridad. Las
prácticas de seguridad correctas lo protegen no sólo
a usted sino también a las personas que lo rodean.
Estudie este manual y los manuales del fabricante para
su máquina en particular. Transfórmelos en una parte
activa de su programa de seguridad. Tenga presente que
este manual de seguridad está escrito para cortadoras de
césped industriales/para agricultura.
Contáctese con el fabricante del equipo si le queda
alguna pregunta sobre la operación segura después de
estudiar los manuales del operador del fabricante y este
manual de seguridad.
Tome todas las demás precauciones habituales y
acostumbradas para un trabajo seguro y, sobre todo:
RECUERDE:
¡LA SEGURIDAD DEPENDE DE USTED!
¡PUEDE EVITAR LESIONES GRAVES O MUERTE
CAUSADAS POR PRÁCTICAS LABORALES
NO SEGURAS!
Lea y asegúrese
de comprender
todos los letreros
de seguridad

4
Tipos de cortadora de césped industrial/para
agricultura
Las cortadoras de césped se usan para recortar pasturas,
desmenuzar residuos de cultivos, cortar arbustos, realizar
desbroce pesado, cortar la hierba en vías de agua,
derechos de paso, costados de caminos o autopistas.
Además, estas cortadoras se usan para cortar la hierba
y otras plantas en zonas públicas como parques y
cementerios.
Cortadora de césped industrial/para agricultura
Barra en forma de hoz
Triturador
Giratorio
Aguilón
Giratorio con lateral
plegable
Tipos de cortadora de césped de disco para
agricultura
Las cortadoras de césped de disco están diseñadas y
equipadas para cortar cultivos de heno a mayor velocidad
de desplazamiento.
Las cortadoras/acondicionadoras de disco cortan y
acondicionan los cultivos.
Las formadoras de hileras autopropulsadas cortan el heno
y lo acondicionan en hileras.
Cortadora de césped industrial/para agricultura
Cortadora de césped
de disco
Cortadora/
acondicionadora de
disco
Formadora de hileras
autopropulsada

5
Cumplimiento del programa de seguridad
Protéjase a sí mismo
Use la ropa de protección personal y los equipos de
protección personal (PPE) que se le proporcionen o que
requieran las condiciones del trabajo. SIEMPRE debe
usar gafas de seguridad con escudos laterales.
Puede necesitar también:
— Casco
— Calzado de seguridad
— Antiparras de seguridad o protección facial
— Guantes gruesos
— Protección para oídos
— Indumentaria re ectiva
— Indumentaria impermeable
— Respirador o máscara con ltro
Use la ropa necesaria; no corra ningún riesgo.
¡ADVERTENCIA! Evite lesiones graves o muerte por
enredos. No use ropa fl oja ni accesorios. Ate el cabello
largo. Manténgase alejado de todos los componentes
giratorios cuando el motor está en funcionamiento. El
contacto, el enrollado o el enredo con piezas giratorias o
móviles podrían resultar en lesiones graves o la muerte.
Evite quedar
enredado
Cumplimiento del programa de seguridad
— Lea, asegúrese de comprender y siga las instrucciones
escritas del fabricante que se encuentran en el manual
del operador y en los letreros de seguridad sobre la
cortadora y el tractor.
— Obtenga capacitación para la operación de la
cortadora y el tractor.
— Aproveche los programas de capacitación que se
ofrecen en su zona.
— Solicítele al distribuidor de equipos o al supervisor que
le explique cualquier información que no comprenda.
— Explique las instrucciones escritas de los manuales del
operador y los letreros de seguridad a los usuarios u
operadores que no puedan leerlas.
— Inspeccione la cortadora y el tractor diariamente antes
de hacerlos funcionar. Asegúrese de que todas las
guardas se encuentren en su lugar y de que el equipo
funcione correctamente.
— Nunca fume mientras lo está manejando. Nunca
llene el depósito de combustible con el motor en
funcionamiento o cerca de una llama abierta.
— Asegúrese de tener visibilidad adecuada e iluminación
su ciente.
— Sepa cuáles son los puntos donde puede quedar
atrapado y las partes giratorias. Su conocimiento
puede evitar accidentes.
— Nunca intente hacer funcionar los controles, excepto
desde el asiento del operador. Las funciones
controladas de manera incorrecta pueden producir
el movimiento imprevisto de la máquina y resultar en
lesiones graves o muerte.
— Apague la cortadora y el tractor antes de descender.
(Consulte la página 18, Prácticas correctas de
apagado de los equipos.)
Lea, asegúrese de
comprender y siga
las indicaciones de
los manuales y los
letreros de seguridad
Evite las partes
giratorias
Sepa cuáles son
y evite los puntos
donde pueda quedar
atrapado

6
Cumplimiento del programa de seguridad
Evite las lesiones provocadas por equipos elevados
Evite posibles lesiones de aplastamiento por caídas de la
cortadora u otros equipos elevados.
Antes de trabajar cerca o debajo de partes levadas de la
cortadora o de los equipos:
— Apoye o bloquee con seguridad las partes elevadas de
la cortadora o los equipos de acuerdo con el manual
del operador.
— Apoye, bloquee o trabe con seguridad los laterales con
dispositivos de bloqueo aprobados o descienda las
partes de la cortadora o de los equipos hasta el suelo.
— Use trabas de transporte cuando transporte la
cortadora por la vía pública.
Evite lesiones producidas por líquidos a alta presión
Evite las lesiones por inyección de uidos debidas a fugas
de líquidos a alta presión.
Si un fl uido se inyecta en la piel, debe ser extraído
dentro de pocas horas por personal médico
familiarizado con este tipo de lesión.
Las fugas de uido bajo presión pueden no ser visibles.
Al veri car en busca de fugas o cuando trabaja cerca de
sistemas presurizados:
— Lea las prácticas de seguridad recomendadas en los
manuales del operador del fabricante.
— Use una protección facial o antiparras de seguridad
para proteger los ojos.
— Use un cartón o una madera para buscar fugas; NO
use las manos.
— Alivie la presión del sistema antes de desconectar líneas.
— Busque y repare las líneas, los tubos y las mangueras
dañados o con fugas.
— Busque y apriete las conexiones ojas.
— Purgue el aire del sistema antes de hacerlo funcionar.
El fl uido a alta
presión puede
inyectarse en el
cuerpo
Evite ser aplastado –
Bloquee o apoye
con seguridad la
cortadora
Cumplimiento del programa de seguridad
Evite lesiones por incendios y explosiones
Aplique el freno de estacionamiento, apague el motor de
la cortadora y del tractor y retire la llave mientras llena
el depósito de combustible. Tenga precaución adicional
cuando carga combustible en un motor caliente. Nunca
fume mientras carga combustible. Evite las chispas
conectando a tierra la boquilla de combustible contra el
cuello de llenado del depósito.
Los vapores de un depósito de combustible vacío son
explosivos. Nunca suelde o realice cortes en líneas,
depósitos o contenedores de combustible.
Retire toda la basura o los residuos de corte de la
máquina todos los días o según sea necesario. Mantenga
los residuos alejados del motor, el escape, los embragues
y otras fuentes de calor. Use supresores de chispas,
según corresponda, en el sistema de escape del motor.
Asegúrese de que no haya trapos con aceite u otro
material in amable almacenado en la máquina.
Revise en busca de fugas de combustible, aceite o uido
hidráulico. Repare las fugas y limpie la máquina antes de
hacerla funcionar.
El éter/ uido para arranque en frío es in amable. No fume
cuando usa éter/ uido para arranque en frío. Siempre
siga las instrucciones del recipiente y de los manuales del
operador del fabricante correspondientes a la cortadora
de césped. No use éter/ uido para arranque en frío si el
motor está equipado con bujías de precalentamiento u
otro dispositivo de precalentamiento.
Siempre use solvente no in amable para limpiar las
partes. No use gasolina, combustible diesel u otros uidos
in amables. Almacene todos los uidos y materiales
in amables lejos de la máquina y de la zona de trabajo.
Sepa dónde se guardan los extintores de incendios, cómo
funcionan y para qué tipo de incendio están destinados.
Veri que la disponibilidad de los extintores de incendios de
acuerdo con las instrucciones del fabricante. Asegúrese de
que cada tractor esté equipado con un extintor de incendios.
Retire los
residuos a diario
o según sea
necesario
No fumar;
evitar las llamas
abiertas

7
Cumplimiento del programa de seguridad
¡Manténgase alerta!
Sepa dónde obtener asistencia. Sepa cómo usar un
equipo de primeros auxilios y un extintor de incendios/
sistema de supresión de fuego.
¡Manténgase informado!
Aproveche los programas de capacitación que se ofrecen.
¡Tenga cuidado!
El error humano es causado por muchos factores: descuido,
fatiga, sobrecarga, preocupación, desconocimiento de
la máquina por parte del operador, fármacos y alcohol,
entre muchos otros. Los daños al tractor o la cortadora de
césped se pueden arreglar en un tiempo breve, pero las
lesiones o la muerte tienen un efecto perdurable.
Por su seguridad y la de los demás, aliente a sus
compañeros de trabajo a actuar con seguridad.
Para una operación segura
Usted debe ser un operador cuali cado y autorizado
para operar la máquina correctamente. Debe comprender
claramente las instrucciones por escrito que proporciona
el fabricante, recibir capacitación (que incluya la
operación real de la cortadora de césped) y conocer
las reglas y ordenanzas de seguridad correspondientes
al sitio de trabajo. Una buena práctica de seguridad
consiste en señalar y explicar los letreros y las prácticas
de seguridad y asegurarse de que otras personas
comprendan la importancia de seguir estas instrucciones.
¡ADVERTENCIA! Los fármacos y el alcohol afectan la
capacidad de alerta y de coordinación del operador,
así como su capacidad para operar los equipos con
seguridad. Nunca use fármacos o alcohol mientras
opera el equipo de la cortadora. Nunca permita a
sabiendas que otra persona opere esta máquina con
la capacidad de alerta o coordinación deteriorada.
Un operador que toma un medicamento recetado o de
venta libre debe consultar a un profesional médico con
respecto a los efectos colaterales del medicamento que
podrían reducir su capacidad de operar este equipo con
seguridad.
Nunca use
fármacos o alcohol
mientras está
operando la máquina
Cumplimiento del programa de seguridad
Conozca las reglas
La mayoría de los empleadores tienen reglas que rigen la
operación y el mantenimiento de los equipos. Antes de
comenzar a trabajar en una ubicación nueva, veri que con
el supervisor o con el coordinador de seguridad. Averigüe
sobre las reglas que tendrá que obedecer.
La Administración de Seguridad y Salud Ocupacional
(Occupational Safety and Health Administration,
OSHA) hace cumplir leyes federales dentro de los
EE.UU. que se aplican a la operación, la aplicación y el
mantenimiento seguros de equipos en un sitio de trabajo.
Es responsabilidad del empleador cumplir estas leyes. Un
representante de OSHA puede visitar periódicamente un
sitio de trabajo para ver si estas leyes se cumplen.
También puede haber leyes estatales/provinciales o locales
u ordenanzas internacionales que se apliquen a este
equipo y a su uso, junto con reglas especí cas del sitio
de trabajo o del empleador. Es importante que conozca y
cumpla todas las leyes y reglas aplicables, incluso las que
requieren capacitación y certi cación del operador.
Las siguientes son algunas de las reglas que debe
cumplir al trabajar:
— Un ROPS (sistema de protección antivuelco) y un tractor
equipado con cinturón de seguridad es exigencia del
gobierno federal (OSHA) par ala protección de los
operadores durante el funcionamiento de la cortadora.
Una cabina cerrada proporciona protección adicional para
el operador con respecto a objetos arrojados. Veri que el
manual del operador de la cortadora de césped para ver
si también se requiere una cabina de tractor.
— Use y veri que que otras personas usen la indumentaria
y los equipos de protección personal correctos.
— Inspeccione la máquina y los accesorios antes de cada
uso según lo especi cado por el fabricante y por su
empleador.
— Conozca las limitaciones y las características operativas
del equipo de corte de césped. No haga un uso indebido.
— Veri que que todos los escudos y las guardas estén
correctamente instalados antes de hacer funcionar la
máquina.
— Nunca modi que o retire partes de la máquina (excepto
para realizar servicios; después, asegúrese de que se
vuelvan a colocar en su lugar).
Reglas
de seguridad
•
•
•
•
•
•
•
•
•
•
Sepa cuáles son
y asegúrese de
comprender las reglas
de funcionamiento

8
Cumplimiento del programa de seguridad
Algunas reglas que debe cumplir al trabajar
(continuación)
— Únicamente personas cuali cadas y autorizadas
pueden manejar estos equipos.
— Nunca permita que los niños jueguen en los equipos,
viajen en ellos o los hagan funcionar. Los niños no
están cuali cados para manejar estos equipos.
— No transporte pasajeros.
— Use contacto en tres puntos (asideros y peldaños) y
enfrente el equipo al ascender o descender de él.
— Mantenga a las personas ajenas a 300 pies (92 m) de la
operación de corte.
— Familiarícese con el sitio de trabajo antes de usar la
cortadora de césped. Tenga en cuenta posibles riesgos
que puede encontrar en el terreno. Retire o marque los
obstáculos y residuos que podrían dañar la cortadora o
ser arrojados por ella.
— Utilice sólo accesorios y partes aprobados por el
fabricante de la cortadora de césped.
— Asegúrese de que todos accesorios estén descendidos,
aplique el freno de estacionamiento, apague el motor y
haga funcionar todas las palancas de control. Retire la
llave antes de salir del tractor. (Consulte la página 18,
Prácticas correctas de apagado de los equipos.)
— Cuando transporte la cortadora de césped en un
remolque, siga las instrucciones detalladas del fabricante
para la carga, el amarre y la descarga de la cortadora.
Mantenga
a los niños alejados
de los equipos
No lleve
pasajeros
Apague los equipos
cuando están sin
vigilancia
Mantenga a las
personas ajenas
alejadas
Cumplimiento del programa de seguridad
Conozca los equipos
Lea y asegúrese de comprender los letreros de seguridad
que indican PELIGRO, ADVERTENCIA, PRECAUCIÓN
y AVISO y otros letreros informativos que hay sobre
el tractor y la cortadora de césped y en el manual del
operador del fabricante. Solicítele al supervisor o al
distribuidor de la cortadora que le explique cualquier
información que no comprenda. El incumplimiento de las
instrucciones de seguridad podría resultar en lesiones
graves o muerte.
Asegúrese de que todas las estructuras de protección,
guardas, escudos, pantallas y paneles del fabricante
están bien reparados, en su lugar y bien ajustados.
Los componentes de seguridad dañados, faltantes o
debilitados pueden crear una situación de riesgo para
usted como operador. Nunca retire o modi que ningún
componente de seguridad (incluso escudos para objetos
arrojados) que haya en la cortadora.
Conozca lo siguiente sobre el tractor y la cortadora de
césped:
— Funcionamiento, propósito y uso de todos los controles.
— Velocidades de funcionamiento correctas.
— Capacidades y funcionamiento correcto en pendientes
y terrenos desparejos.
— Características del frenado y la dirección.
— Radio de giro y separaciones.
— Cómo detener los equipos rápidamente en una
emergencia.
Lea y asegúrese
de comprender
todos los letreros
de seguridad
Lea y asegúrese
de comprender los
manuales antes
de comenzar la
operación

9
Preparación para una operación segura
Revise los equipos de la cortadora de césped y el
tractor
Antes de comenzar la jornada de trabajo, inspeccione la
máquina y asegúrese de que todos los sistemas estén en
buenas condiciones operacionales.
¡ADVERTENCIA! Evite posibles lesiones por aplastamiento
producidas por equipos que caen. La falla del sistema
hidráulico o de una parte podría causar la caída de
equipos que no están apoyados. No permanezca debajo
de equipos elevados excepto que estén correctamente
apoyados de acuerdo con el manual del operador.
— Realice procedimientos de servicio diarios y periódicos
según lo indicado por el fabricante del equipo.
— Veri que para detectar piezas faltantes, dañadas,
rotas o ojas en el tractor y en la cortadora de césped.
Repare o sustituya esas piezas.
— Veri que que los accesorios del tractor y la cortadora
sean los correctos.
— Veri que que la clasi cación nominal de velocidad de
TDF del tractor y la cortadora sea la correcta.
— Veri que el estado de las hojas de la cortadora
de césped. Sustituya las hojas que se encuentren
gravemente gastadas, dobladas, agujereadas o
marcadas; incluya los pernos y sujetadores de las
hojas. Nunca enderece o suelde en las hojas.
— Asegúrese de que el escudo para objetos que son
arrojados se encuentre correctamente instalado y en buen
estado. Repárelo o sustitúyalo si está dañado o falta.
Lea el manual –
Bloquee o apoye
con seguridad la
cortadora
Realice el
mantenimiento de
la máquina
Recorrida de
inspección
Preparación para una operación segura
— Veri que que todos los escudos y guardas estén en su
lugar y que todos los equipos se encuentren en buenas
condiciones de funcionamiento. Esto incluye la línea
motriz de la TDF, la caja de engranajes y las guardas y
escudos de los implementos que se usan para proteger
al operador.
— Veri que que los dispositivos de bloqueo del extremo
en horquilla de la línea motriz estén correctamente
enclavados.
— Veri que en busca de sistemas hidráulicos dañados o
con fugas en el tractor o la cortadora. Repare o ajuste
según sea necesario.
¡ADVERTENCIA! El uido hidráulico bajo presión puede
penetrar la piel o los ojos y causar lesiones graves,
ceguera o la muerte. Las fugas de uido bajo presión
pueden no ser visibles. Utilice un cartón o una madera
para buscar fugas, no la mano. Use protección ocular.
Si el uido se inyecta en la piel, debe ser extraído dentro
de las próximas pocas horas por personal médico
familiarizado con este tipo de lesión.
— Mantenga la super cie de la plataforma del operador
limpia y libre de grasa, aceite, suciedad, nieve o
hielo. Los peldaños y asideros deben estar limpios y
funcionar correctamente.
— Asegúrese de que las luces de trabajo se mantengan
limpias (si están instaladas). Veri que que todas las
luces funcionen correctamente.
— Asegúrese de que el letrero de vehículo de movimiento
lento, los y las luces de advertencia estén en buenas
condiciones y puedan verse claramente.
— Asegúrese de que todas las herramientas y objetos
sueltos se retiren o se sujeten con seguridad mientras
se opera la máquina.
— Veri que que todos los letreros de seguridad se vean
con claridad. Sustituya los letreros dañados.
Verifi que en
busca de fugas e
inspeccione las
mangueras
Revise para
detectar/guardas y
escudos dañados
Aparte las
refl ectores
herramientas

10
Preparación para una operación segura
Familiarícese con la zona de trabajo
Antes de hacer funcionar la cortadora de césped,
inspeccione cuidadosamente la zona de trabajo. Recorra
a pie alrededor de la zona e inspeccione las super cies
sobre las cuales se desplazará cuando utilice la cortadora.
Busque residuos y obstáculos recorriendo a pie la zona
antes de cortar. Los objetos como alambre, cable, rocas,
neumáticos y metales que podrían dañar o ser arrojados
por la cortadora de césped deben retirarse o marcarse
claramente y evitarse.
Corrija las condiciones no seguras. No opere en áreas
con problemas donde no se puedan retirar o marcar los
residuos y los obstáculos.
Analice la zona de corte para determinar:
— El procedimiento de corte más e ciente.
— La altura del material que debe cortarse.
— Las condiciones operativas del terreno.
— Cómo usar mejor el patrón de corte en sentido de
avance.
— Las posibilidades de que personas ajenas o que pasan
circunstancialmente queden expuestas a objetos que
se arrojan.
Tenga cuidado con otras personas
Antes de poner en marcha los equipos:
— Recorra a pie alrededor de los equipos.
— Veri que en busca de personas debajo o cerca de los
equipos.
— Retire a todas las personas de esas zonas.
— Haga sonar una advertencia.
Retire o marque
los residuos y
obstáculos
Recorra a pie
alrededor del lugar
de trabajo
Localice y evite:
— Agujeros
— Desmoronamientos
— Obstáculos (tocones)
— Excavaciones
— Agua estancada
— Lodo profundo
— Puntos mojados
— Suelo blando
— Puntos irregulares
— Líneas y aparatos
eléctricos
— Otros servicios públicos
— Cualquier condición que
podría causar una colisión,
pérdida de control o vuelco
— Pendientes empinadas
Preparación para una operación segura
Ascienda y descienda del tractor correctamente
Siempre use contacto de tres puntos al ascender o
descender del tractor o de la cortadora de césped.
Enfrente la máquina al ingresar o salir de ella. Un contacto
de tres puntos signi ca que tres de los cuatro miembros
(brazos y piernas) están en contacto con la máquina en
todo momento durante el ascenso y descenso.
Antes de ascender:
— Límpiese el calzado y las manos. Limpie la nieve, el
hielo, el lodo o el aceite de los peldaños y asideros.
Durante el ascenso y el descenso:
— Use los asideros y los estribos.
— Nunca se aferre al volante o a los controles como
asideros.
— Nunca ascienda o descienda de un tractor en
movimiento.
— Nunca ascienda o descienda transportando
herramientas u objetos que impidan el contacto de tres
puntos. Deje en el piso las piezas o las herramientas.
Manteniendo el contacto correcto, suba y, después,
recoja el objeto.
Utilice contacto
de tres puntos
Limpie las
superfi cies
resbaladizas

11
Preparación para una operación segura
Prueba de seguridad de los controles del tractor
y de la cortadora de césped
Arranque el tractor siguiendo los procedimientos
especí cos del manual del operador del fabricante. Estos
procedimientos normalmente incluyen:
— Colóquese y ajústese el cinturón de seguridad en el
tractor equipado con ROPS.
— Veri que que el freno de estacionamiento esté aplicado.
— Veri que que la TDF esté desenganchada.
— Veri que que todos los controles estén en la posición
de estacionamiento.
— Advierta a otras personas en la zona antes de arrancar
el tractor.
— Arranque el tractor siguiendo los procedimientos de
arranque que recomienda el fabricante del tractor.
¡ADVERTENCIA! Evite lesiones graves o muertes
producidas por el movimiento inesperado de la máquina.
Arranque el motor únicamente desde el puesto del
operador. Nunca intente arrancar el motor haciendo
un corto entre los bornes del arranque o tomando la
llave desde el suelo o desde afuera de la cabina.
Después del arranque:
— Veri que que todos los instrumentos, indicadores y
luces indicadoras funcionen normalmente.
— Veri que que todos los controles, la dirección y los
frenos del tractor funcionen correctamente.
— Eleve y descienda la cortadora de césped en busca
de problemas en el descenso total o el enganche de la
línea motriz.
— Veri que los equipos en busca de vibraciones
excesivas y ruidos anormales.
Revise los
instrumentos y
controles
Arranque
únicamente desde
el asiento del
operador
Use el ROPS
y el cinturón de
seguridad
Preparación para una operación segura
— Use las prácticas correctas de apagado de los equipos
antes de inspeccionar equipos. Espere hasta que todo
movimiento de los equipos se haya detenido antes de
descender del tractor o la cortadora de césped.
— No haga funcionar la cortadora si el tractor y la cortadora
de césped no funcionan correctamente. Coloque una
etiqueta que indique “No poner en funcionamiento” en la
máquina, retire la llave y no haga funcionar la cortadora
hasta que el problema se haya corregido.
Sistema de toma de fuerza (TDF)
Asegúrese de hacer funcionar el tractor a la velocidad de
TDF indicada para la cortadora.
Al hacer funcionar tractores con sistemas de TDF
impulsados por transmisión, una cortadora giratoria tiene
un signi cativo efecto de rueda volante. La cortadora
puede seguir propulsando un tractor con un sistema de
TDF impulsado por transmisión.
El tractor debe estar equipado y funcionar como sigue:
— Instale una línea motriz equipada con un embrague de
sobrecarga.
— Prevea su ciente espacio y tiempo para maniobrar
anticipando los giros, las paradas y las reducciones de
velocidad.
Use la velocidad
de la TDF
No descienda hasta
que el movimiento de
los equipos se haya
detenido
Use una etiqueta
que indique
“No poner en
funcionamiento”

12
Preparación para una operación segura
Enganche de la cortadora de césped al tractor
Cortadoras montadas en enganche de tres puntos:
— Consulte los manuales de los fabricantes de la
cortadora y del tractor.
— Coloque la palanca selectora de elevación de potencia
hidráulica del tractor en la posición descendida para
evitar movimientos imprevistos.
— Explique los procedimientos de enganche a los
operadores que no puedan leerlos.
— Pueden requerirse pesos en el extremo delantero para
mantener el control de la dirección y la estabilidad del
extremo delantero. Consulte los manuales del operador
de los fabricantes.
— Al hacer retroceder el tractor hasta la cortadora de
césped, NUNCA permita que haya personas entre
tractor y la cortadora.
— Instale la cortadora en los eslabones de tres puntos del
tractor y asegúrela en su lugar con pasadores.
— Instale con seguridad la línea motriz a la TDF del
tractor. Descienda el escudo principal hasta su lugar
si es móvil. Empuje y tire de la línea motriz para
asegurarse de que esté trabada en el vástago de
la TDF.
Lea y asegúrese
de comprender los
manuales antes
de comenzar la
operación
Mantenga una
distribución
correcta del peso
No permita que
haya nadie entre el
tractor y la cortadora
de césped
Evite quedar
enredado, use
guardas y
escudos
Cortadoras montadas en enganche tipo de tiro:
— Consulte los manuales de los fabricantes de la
cortadora y del tractor.
— Retire el acople rápido del enganche de tres puntos si
está instalado.
— Instálelo únicamente al enganche de la barra de tiro.
— Ajuste la longitud de la barra de tiro del tractor para el
funcionamiento de la TDF a 540 ó 1000 rpm.
— Al hacer retroceder el tractor hasta la cortadora de
césped, NUNCA permita que haya personas entre
tractor y la cortadora.
— Instale correctamente la cadena de remolque de
seguridad de la cortadora en el tractor.
— Instale con seguridad la línea motriz a la TDF del
tractor. Empuje y tire de la línea motriz para asegurarse
de que esté trabada en la TDF. Descienda el escudo
principal a su lugar.
— Conecte las mangueras hidráulicas de la cortadora de
césped en el tractor.
— Asegúrese de que los laterales o las plataformas
elevadas de la cortadora estén sostenidas por los
cilindros antes de retirar las trabas de transporte.
Nunca haga fuerza para soltar las trabas de transporte
o de los laterales. Los laterales o la plataforma podrían
caerse y aplastarlo.
Confi rme que los
laterales estén
apoyados antes de
soltar las trabas
Evite quedar
enredado, use
guardas y
escudos
Preparación para una operación segura
Ajuste de la
barra de tiro del
tractor
14IN
540 RPO PTO
1-3/8" 6 SPLINE
1000 RPO PTO
1-3/8" 21 SPLINE
16IN
1000 RPO PTO
1-3/4" 20 SPLINE
20IN
TDF A 540 RPM
ESTRÍA 6 A 1 3/8"
TDF A 1000 RPM
ESTRÍA 21 A 1 3/8"
TDF A 1000 RPM 1
ESTRÍA 20 A 1 ¾ "
14
PULG.
16
PULG.
20
PULG.

13
Arranque con seguridad
Cómo realizar un arranque correcto
Corte la hierba únicamente con luz diurna o en
condiciones de buena luz arti cial.
Evite lesiones graves o muerte producidas por objetos
arrojados por la cortadora o por el contacto con las hojas:
— Mantenga los escudos de las cadenas, los escudos
de ectores exibles o sólidos y las rampas de
descarga en su lugar y en buen estado de reparación.
— Mantenga a las personas ajenas a 300 pies (92 m) de la
operación de corte.
— Nunca dirija la descarga de la cortadora hacia una
persona.
— Mantenga las manos, los pies y otras partes del
cuerpo alejadas de las piezas giratorias, las hojas y las
aberturas de descarga.
— No haga funcionar la cortadora de césped en la
posición de transporte.
No se acerque a una cortadora hasta que todo
movimiento se haya detenido.
Enganche de la transmisión de RDF de la cortadora de
césped:
— Eleve la cortadora hasta la altura de corte máxima.
— Enganche la TDF a baja velocidad del motor.
— Aumente la velocidad del motor hasta llegar a la
velocidad nominal de la TDF.
— Descienda la cortadora hasta la altura de corte deseada.
— Detenga y apague de inmediato si la cortadora golpea
contra una obstrucción.
— Inspeccione y repare cualquier daño de la cortadora
antes de reanudar el corte.
— No haga funcionar una cortadora que vibra en exceso o
produce ruidos anormales.
Objetos arrojados por la cortadora de césped
Dependiendo del propósito previsto, las cortadoras
están diseñadas para cortar hierba, maleza, broza y
cultivos. Las hojas de la cortadora están diseñadas y
probadas para uso intensivo. Las hojas de la cortadora,
sin embargo, no están diseñadas para entrar en contacto
con objetos sólidos como rocas, cemento o metales. Un
impacto de este tipo puede arrojar objetos rotos hasta
300 pies (92 m) de distancia. Nunca debe haber personas
ajenas a menos de 300 pies (92 m) de una cortadora
giratoria en funcionamiento o a menos de 100 pies (30 m)
de una cortadora de disco correctamente equipada.
Hojas giratorias –
Manténgase
No ponga en
funcionamiento una
cortadora de césped
dañada
Operación con seguridad
Los escudos de la cortadora están diseñados para reducir
el riesgo de objetos arrojados y se deben mantener
correctamente y en su lugar durante las operaciones de
corte.
El riesgo de lesiones graves o muerte puede reducirse
signi cativamente si se siguen estas reglas. Si no se
siguen todas estas reglas de seguridad, la operación
de corte debe detenerse en caso de que alguna
persona ingrese dentro del límite de seguridad
correspondiente a cada tipo de cortadora.
Primero — Inspeccione la zona antes de cortar y retire las
piedras, ramas, alambres, cables, metales, vidrios y otros
objetos sólidos antes de hacer funcionar la máquina. Los
objetos que no puedan retirarse deben marcarse con
claridad y ser evitados con cuidado por el operador.
En áreas sin cultivos con hierba y maleza de altura
su ciente como para ocultar objetos que podrían ser
golpeados por las hojas, inspeccione la zona y retire o
marque los residuos u obstáculos grandes.
Realice el corte de la zona a una altura intermedia.
Inspeccione la zona atentamente y retire o marque
cualquier residuo u obstáculo restante. Corte nuevamente
a la altura nal deseada.
Segundo — Los escudos para objetos arrojados por la
cortadora deben usarse cuando se opera cerca de caminos,
parques, zonas pobladas u otras zonas donde objetos
arrojados podrían lesionar a personas ajenas o dañar la
propiedad. Siga el manual del operador del fabricante.
Tercero — Cruce en sentido diagonal cuando realiza
el corte a través de zanjas, depresiones marcadas y
hundimientos. Eleve la cortadora para evitar que las hojas
de la cortadora golpeen el suelo.
Siga todas
las reglas de
seguridad

14
Operación con seguridad
Objetos arrojados por la cortadora de césped
(continuación)
Cortadoras de disco — Cuando se usa una cortadora
de disco, es importante conocer la zona donde se va a
cortar. Si el operador ha realizado cortes en el terreno
antes y está familiarizado con todos los obstáculos
que puede haber, es su ciente observar delante de la
trayectoria de la cortadora para detectar cualquier objeto
adicional que pueda haber ingresado en el terreno. Esté
preparado para detenerse o evitar objetos que podrían
ser peligrosos si son arrojados por la cortadora. Si piensa
cortar en un terreno que no conoce bien y se encuentra
junto a un camino transitado o puede haber personas
a menos de 100 pies (30 m) de la cortadora de césped,
debe inspeccionar y limpiar o marcar el terreno.
Cómo cortar en retroceso
No corte mientras se desplaza en retroceso. Es más
probable que se arrojen objetos y que éstos puedan llegar
más lejos.
Apague la TDF, espere que las hojas dejen de girar, eleve
la cortadora y, después, retroceda.
Corte desplazándose en sentido de avance.
Velocidad de desplazamiento durante el corte
La velocidad de desplazamiento correcta depende de las
condiciones del terreno y del tipo de hierba, la densidad y
la altura que debe cortarse:
— El rango normal de velocidad de desplazamiento es de
2 a 5 mph (3.2 a 8 km/h).
— Use una velocidad de desplazamiento menor para
cortar hierbas altas y densas.
— Use una velocidad de desplazamiento mayor para
cortar hierba delgada a altura media y con condiciones
de terreno sin di cultades.
— Use una velocidad de desplazamiento menor par acortar
en terreno irregular, con pendientes o no muy conocido.
Las cortadoras de disco están diseñadas para usar
velocidades de desplazamiento mayores cuando funcionan
en terrenos despejados de residuos y peligros super ciales.
Use la velocidad
de desplazamiento
correcta
Operación con seguridad
Corte de hierba extremadamente alta
Puede ser necesario cortar dos veces la hierba
extremadamente alta que no sea cultivo. (Consulte la página
13, Objetos arrojados por la cortadora de césped.)
Primera pasada de corte:
— Apague la cortadora y el tractor usando la práctica
correcta de apagado de equipos antes de descender del
tractor. (Consulte la página 18, Prácticas correctas de
apagado de los equipos.)
— Inspeccione la zona y retire o marque cualquier residuo u
obstáculo.
— Corte la hierba a mayor altura (10 a 15 pulg. [25 a 38 cm])
para evitar los objetos ocultos.
Segunda pasada de corte:
— Apague la cortadora y el tractor usando la práctica
correcta de apagado de equipos antes de descender
del tractor.
— Inspeccione la zona y retire o marque cualquier residuo
u obstáculo.
— Corte la hierba a la altura deseada y, de ser posible, a
90 grados con respecto a la primera pasada de corte.
Preste atención a los espacios libres de los
equipos
Las cortadoras con enganche de tres puntos y montaje
lateral tienen un arco de giro mayor que las tipo de tiro.
Deje el espacio libre su ciente para la oscilación de la
cortadora cuando gira.
No permita que haya personas ajenas cerca del tractor
y la cortadora de césped cuando mueve o transporta el
tractor y la cortadora.
Proporcione el
espacio libre
adecuado para la
oscilación de la
cortadora de césped
Detenga
la hoja antes de
desatascar
No corte
en retroceso

15
Operación con seguridad
Prácticas de seguridad para la cortadora de
césped de montaje inferior
Cuando se traslada con una cortadora de césped de
montaje inferior:
— Mantenga la rampa de descarga extraíble en su lugar y
por encima de la abertura de descarga.
— Nunca se pare sobre la carcasa de una cortadora
de césped cuando el motor del tractor está en
funcionamiento.
— Distribuya los recortes de hierba con la rampa de
descarga orientada hacia la zona donde se cortó.
— Antes de limpiar una cortadora o una rampa de
descarga atascada, apague la máquina usando la
práctica correcta para apagado del equipo. (Consulte
la página 18, Prácticas correctas de apagado de los
equipos.) Detenga
la hoja antes de
desatascar
Nunca se pare
sobre la cortadora
de césped –
Manténgase alejado
Mantenga
la rampa en
su lugar
Operación con seguridad
Cortadora de césped con lateral o aguilón
Peligros y riesgos de obstrucciones elevadas
Veri que en busca de obstrucciones elevadas con las
cortadoras que tienen el lateral o el aguilón elevado, para
evitar lesiones graves o la muerte por contacto con:
— Líneas y aparatos eléctricos.
— Ramas bajas de los árboles.
— Otras obstrucciones elevadas.
— Mantenga las distancias especi cadas con respecto a
los cables y los aparatos eléctricos. Nunca se acerque
a cables o aparatos eléctricos energizados con ninguna
parte de la máquina, salvo que se hayan tomado todas
las precauciones de seguridad locales, estatales/
provinciales y federales (OSHA) necesarias. Use
extrema precaución.
¡PELIGRO! Evite la electrocución o lesiones graves por
contacto o un espacio libre inadecuado con respecto
a líneas o aparatos eléctricos energizados. No permita
que la máquina o el accesorio se acerque o entre en
contacto con una línea de electricidad. No se acerque
ni toque una máquina que esté en contacto con una
línea de electricidad.
No se acerque a
líneas de electricidad
energizadas
Manténgase alejado
de los equipos
energizados

16
Operación con seguridad
Prácticas de seguridad para cortadoras de
césped con laterales y montaje lateral
Las posiciones elevadas de los laterales reducen la
protección de los escudos y aumentan los riesgos de
objetos arrojados y contacto con las hojas.
Evite la posibilidad de lesiones graves o muerte por
objetos arrojados o contacto con las hojas causados
por la elevación y el descenso de los laterales durante
las operaciones de corte:
— No realice cortes con personas ajenas presentes a
menos de 300 pies (92 m) de la cortadora de césped.
— Asegúrese de que no haya personas cerca de la
cortadora mientras se elevan o descienden los
laterales.
— Apague la TDF y espere hasta que todos los elementos
giratorios se hayan detenido antes de elevar la
plataforma o la sección lateral de la cortadora.
— Únicamente eleve el lateral para quitar objetos de la
trayectoria de corte o para acompañar una pendiente
del terreno.
— Descienda hasta el suelo el lateral elevado una vez que
se eliminó el objeto o se superó la pendiente.
— Detenga el trabajo de corte si alguna persona se acerca
a menos de 300 pies (92 m) de la zona de corte.
Prácticas de seguridad para trabajos de corte en
orillas de zanjas
Use extremo cuidado al realizar cortes en orillas
de zanjas. Preste atención a escurrimientos, zonas
erosionadas y obstrucciones para el corte a lo largo de
las orillas de zanjas. Si se golpean obstrucciones con
cortadoras de montaje lateral o con aguilón, el extremo
delantero del tractor puede desviarse hacia la zanja.
Operación con seguridad
Los trabajos en orillas de zanjas con aguilón y lateral
elevado pueden reducir la e cacia de la protección del
operador de la cortadora que proporcionan los escudos
para objetos arrojados.
— Cuando realice estas operaciones, use cabinas cerradas
con ROPS, cerramientos protectores especiales y otros
escudos para el operador que ofrece el fabricante.
— Inspeccione la zona de corte y retire o marque todos
los objetos extraños y los residuos que deberá esquivar
la cortadora.
Prácticas de seguridad para trabajos de corte en
terrenos desparejos
Las pendientes y los terrenos desparejos reducen la
estabilidad del tractor y de la cortadora.
Como en todas las condiciones de corte, use tractores
equipados con ROPS y cinturón de seguridad. Asegúrese
de que el ROPS está elevado y trabado en su lugar y
use siempre el cinturón de seguridad.
Prevenga los vuelcos del tractor y de la cortadora de césped
y mantenga controlada la estabilidad de los equipos:
— Repase los manuales del operador del tractor y de la
cortadora para ver las prácticas de seguridad para
operaciones en pendientes y terrenos desparejos.
Explique las prácticas a los operadores que no puedan
leerlas.
— Evite trabajar en pendientes extremadamente
empinadas.
Evite golpear
obstrucciones
Lea y asegúrese
de comprender los
manuales antes
de comenzar la
operación
Utilice cabinas
cerradas con ROPS
o cerramientos de
protección
Mantenga a las
personas ajenas
alejadas de la zona
de corte
300 ft
(92 m)
Use el ROPS
y el cinturón
de seguridad

17
Prácticas de seguridad para trabajos de corte en
terrenos desparejos (continuación)
— Use extremo cuidado para mantener el control de los
equipos cuando trabaja en estas condiciones.
— Aumente la estabilidad del tractor agregando
pesos o lastre en las ruedas y aumentando al
máximo la separación entre las ruedas. Consulte las
recomendaciones en el manual del operador.
— Mantenga la velocidad de desplazamiento en el mínimo.
— Realice giros amplios y graduales.
— Evite los arranques, las paradas y los giros bruscos
cuando trabaje en subidas o bajadas de pendientes o
sobre ellas.
— No levante del suelo las cortadoras de montaje trasero
o de montaje lateral ni los laterales de la cortadora
durante estas operaciones.
— Manténganse alerta en busca de agujeros, baches,
pozos, tocones u otras obstrucciones que podrían
hacer volcar la máquina.
— Evite las condiciones de suelo resbaladizo que podrían
causar la pérdida de control y el vuelco del tractor y la
cortadora.
— Evite bajar completamente y golpear el suelo cuando
cruza en sentido diagonal depresiones marcadas y
hundimientos.
Use extremo cuidado al mantener la estabilidad de los
equipos durante todos los trabajos de corte en terrenos
desparejos y pendientes. Usted es quien juzga en última
instancia si en cualquier pendiente se puede trabajar con
seguridad.
Mantenga
el control,
desplácese
Agregue lastre,
ensanche la
separación entre
las ruedas
Evite los pozos,
baches y agujeros
Operación con seguridad
Operación con seguridad
Prácticas de seguridad para el transporte en caminos
Antes de operar en la vía pública:
— Consulte los manuales del operador de los fabricantes
de la cortadora y del tractor para ver instrucciones.
— Explique las instrucciones a los usuarios u operadores
que no puedan leerlas.
— Veri que las ordenanzas locales sobre marcas, luces,
balizas, etc. requeridas en los equipos durante el
desplazamiento por la vía pública. Se requieren luces
en las cortadoras que obstaculizan la visibilidad de las
luces traseras y/o las luces de advertencia del tractor.
— Cuando transporte la cortadora de césped en un
remolque, siga las instrucciones detalladas del fabricante
para la carga, el amarre y la descarga de la cortadora.
Antes de transportar en la vía pública:
— Desconecte la alimentación de la TDF a la cortadora.
— Eleve la cortadora a la posición de transporte y aplique
la traba para transporte.
— Trabe los laterales de la cortadora de césped en la
posición de transporte con dispositivos de bloqueo
aprobados.
— Instale una cadena de seguridad para remolque entre la
cortadora tipo de tiro y el tractor.
— Asegúrese de que las luces, las luces de advertencia y
los re ectores están en su lugar y son visibles.
— Veri que que el emblema de vehículo de movimiento le
resulte visible a cualquier vehículo que se aproxime por
atrás.
Durante el transporte en la vía pública:
— Obedezca todas las ordenanzas de tránsito locales.
— Acérquese a las intersecciones con precaución.
— Observe los letreros de velocidad y control del tránsito.
— Evite las paradas de emergencia y los giros cerrados.
Sea un operador amable y apártese periódicamente para
dejar pasar el tránsito.
Lea y asegúrese
de comprender los
manuales antes
de comenzar la
operación
STOP
YIELD
Obedezca las
ordenanzas de
tránsito

18
Prácticas de seguridad para el estacionamiento
— Use las zonas designadas o alejadas del tránsito.
— Use lugares con suelo rme y nivelado.
— Aplique el freno de estacionamiento.
— Descienda el equipo de la cortadora de césped hasta
el suelo.
Apague la cortadora y el tractor usando la práctica
correcta de apagado de equipos antes de descender del
tractor. (Consulte la página 18, Prácticas correctas de
apagado de los equipos.)
Lugares de estacionamiento con suelo en pendiente:
— Ubique los equipos transversalmente con respecto a la
pendiente.
— Aplique los frenos de estacionamiento.
— Descienda el equipo de la cortadora de césped hasta
el suelo.
— Bloquee las ruedas del tractor.
Antes de estacionar temporalmente y dejar equipos
deshabilitados cerca de zonas con tránsito:
— Retire los equipos de la vía pública.
— Instale banderas de advertencia.
— Use las balizas de advertencia del tractor.
Estacionamiento seguro
Aplique el freno de
estacionamiento
Descienda
los equipos elevados
hasta el suelo
P
Apagado con seguridad
Prácticas correctas de apagado de los equipos
Transforme el apagado correcto de los equipos en un hábito.
El apagado correcto de un tractor y una cortadora
de césped puede ayudar a evitar accidentes cuando
la cortadora está sin vigilancia. Apague la cortadora
siguiendo los procedimientos especí cos del manual
del operador del fabricante. Estos procedimientos
normalmente incluirán:
— Reduzca la velocidad del motor.
— Desenganche el embrague de la TDF y la transmisión.
— Haga funcionar el motor en ralentí para que se enfríe
gradualmente.
— Coloque todos los controles en la posición de
estacionamiento.
— Aplique el freno de estacionamiento.
— Descienda la cortadora de césped hasta el suelo.
— Descienda los laterales de las cortadoras con laterales
hasta el suelo.
— Apague el motor, trabe la ignición y retire la llave de la
máquina; llévela con usted.
— Espere hasta que todas las piezas móviles se hayan
detenido antes de descender.
— Libere la presión hidráulica moviendo los controles
hidráulicos varias veces en todas las direcciones.
— Trabe las cubiertas y los cerramientos antivandalismo, si
están instalados, cuando los equipos están sin vigilancia.
— Descienda con cuidado manteniendo contacto de tres
puntos.
Desenganche la TDF,
aplique el freno
Espere hasta que las
piezas giratorias se
detengan
Descienda los
equipos elevados
hasta el suelo
Retire la llave, trabe
la ignición, llévese
la llave
PTO
STOP P

19
Apagado con seguridad
Descenso correcto
— Nunca descienda de equipos en movimiento.
— Nunca baje de una máquina saltando.
— Descienda con cuidado.
— Veri que que no haya peldaños resbaladizos.
— Mantenga los pies y las manos lejos de los controles.
— Use los asideros y los peldaños durante el descenso.
— Enfrente la máquina y use contacto de tres puntos (2
manos y 1 pie o 2 pies y 1 mano).
Espere hasta que las
piezas móviles se
detengan
Use contacto de tres
puntos; enfrente a
la máquina
Realización de mantenimiento con seguridad
Mantenimiento de los equipos
Asegúrese de mantener los equipos de acuerdo con las
instrucciones del fabricante. Veri que con regularidad el
funcionamiento de los dispositivos de protección y de
seguridad.
No realice ningún trabajo en un tractor o en una cortadora
de césped si no está autorizado y cuali cado para
hacerlo.
Si ha sido autorizado para realizar mantenimiento, lea
los manuales del operador y de servicios. Estudie las
instrucciones; veri que las tablas de lubricación; examine
todos los mensajes de instrucciones que haya sobre la
máquina. El mantenimiento puede ser peligroso si no se
realiza correctamente. Asegúrese de tener las habilidades
necesarias, la información y las herramientas y equipos
correctos para realizar el trabajo.
¡ADVERTENCIA! No modifi que equipos ni agregue
componentes no aprobados por el fabricante. Use
piezas, lubricantes y técnicas de servicio recomendadas
por el fabricante.
Piezas de la cortadora de césped y seguridad
personal
Los fabricantes de cortadoras de césped usan
sujetadores y especí cos y piezas especialmente
diseñadas para cumplir con los requisitos de las
operaciones de las cortadoras. Las piezas críticas (pernos
autobloqueantes de las hojas, hojas, pasadores, escudos
y otros componentes especiales) tienen requisitos
especí cos de resistencia, diseño y ajuste para la marca y
el modelo de cortadora que usted está usando.
Evite posibles lesiones graves o la muerte por el uso de
piezas o modi caciones no aprobadas:
— No sustituya con tornillería común los pernos de las
hojas u otros componentes de piezas especiales
originales del fabricante.
— No sustituya hojas, pasadores, escudos u otras piezas
críticas.
— No use pernos de mayor resistencia para reemplazar
los pernos de seguridad originales del fabricante.
Realice el
mantenimiento de
los equipos

20
Realización de mantenimiento con seguridad
Preparación personal
Use la ropa de protección personal y los equipos de
protección personal (PPE) que se le proporcionen o que
requieran las condiciones del trabajo. SIEMPRE debe
usar gafas de seguridad con escudos laterales.
Puede necesitar también:
— Casco
— Calzado de seguridad
— Anteojos de seguridad, antiparras o protección facial
— Delantal y guantes
— Protección para oídos
— Casco o antiparras para soldar
— Respirador o máscara con ltro
Use la ropa necesaria; no corra ningún riesgo.
Mantenga las manos (y la ropa)alejadas de todas las
piezas móviles. No use cordones sueltos, mangas ojas,
anillos, relojes o cabello largo.
¡ADVERTENCIA! Evite lesiones graves o muerte por
enredos. No use ropa fl oja ni accesorios. Manténgase
alejado de todos los componentes giratorios cuando
el motor está en funcionamiento. El contacto, el
enrollado o el enredo con piezas giratorias o móviles
podrían resultar en lesiones graves o la muerte.
Evite las piezas
giratorias
Evite puntos donde
pueda quedar
atrapado
Realización de mantenimiento con seguridad
Use un delantal de caucho y guantes de caucho cuando
trabaja con sustancias corrosivas. Use guantes y calzado
de seguridad cuando manipula bloques de madera o
metales con bordes agudos.
Use siempre anteojos de seguridad, antiparras o
protección facial. Proporcionan protección ocular para
uidos bajo presión, mientras se esmerila y se realizan
servicios a las baterías. También es necesaria protección
contra residuos, líquidos y material suelto producido por
el equipo, las herramientas y el aire/agua presurizada.
Use protección facial y siga las instrucciones del
fabricante cuando desarma componentes cargados a
resorte o cuando trabaja con ácidos de batería. Use un
casco o antiparras para soldar con ltro esfumado cuando
suelda o corta con soplete.
No arene, esmerile, corte con soplete o suelde sin
un respirador aprobado por NIOSH o una ventilación
adecuada. Si se requiere soldar en esta máquina, consulte
los manuales del operador o de servicios del fabricante o
consulte al concesionario de los equipos para obtener los
procedimientos correctos.
Mantenga los bolsillos sin objetos que podrían salirse y
caer dentro de la maquinaria.
Maneje las herramientas y las piezas pesadas con
sensatez con respecto a usted mismo y a otras personas.
Deposite los elementos, no los deje caer.
Preparación de la zona de trabajo
— Ubique la cortadora de césped en una zona nivelada
fuera del paso de otros equipos en funcionamiento.
— Asegúrese de que haya luz, ventilación y espacio libre
adecuados.
— Quite el aceite, la grasa o el agua para eliminar toda
super cie resbaladiza.
— Limpie alrededor de la zona donde se realizarán
servicios para minimizar la contaminación.
Limpie las
superfi cies
resbaladizas
Ventile la zona
de trabajo

21
Realización de mantenimiento con seguridad
Preparación de la máquina
Deben controlarse o reducirse las fuentes de energía
almacenada (eléctricas, mecánicas, hidráulicas,
neumáticas, químicas, térmicas, etc.) al mínimo
practicable antes de realizar cualquier procedimiento de
mantenimiento, reparación o servicio.
Prácticas de seguridad para prevenir posibles lesiones
por fuentes que liberan energía:
— Desenganche la TDF antes de apagar el motor.
— Coloque los controles en la posición de estacionamiento
o punto muerto antes de apagar el motor.
— Aplique el freno de estacionamiento o bloquee las
ruedas.
— Espere hasta que todas las piezas móviles se
detengan.
— Descienda la cortadora de césped hasta el suelo.
— Descienda los laterales de las cortadoras con laterales
hasta el suelo.
— Apague el motor del tractor.
— Libere la presión del sistema hidráulico moviendo los
controles varias veces en todas las direcciones.
— Trabe la ignición, retire la llave y llévesela.
— Escuche y observe en busca de evidencias que
indiquen piezas en movimiento antes de descender.
— Apoye o bloquee con seguridad la cortadora de
césped antes de trabajar debajo de ella o de otros
componentes elevados.
— Apoye, bloquee o trabe con seguridad los laterales de la
cortadora con dispositivos de traba aprobados antes de
trabajar cerca o debajo de una cortadora con laterales.
— Alivie la presión antes de desconectar o desarmar un
sistema presurizado.
— Bloquee o alivie la presión de los resortes antes de
desarmar un mecanismo cargado a resorte.
— Apoye o bloquee con seguridad cualquier componente
elevado de la máquina antes de trabajar en él.
— Evite las llamas, las chispas y no fume cerca de
combustibles, uido hidráulico u otro material
in amable como los residuos de los cortes.
Prepare los
sistemas de la
máquina para
realizarles servicios
Fije una etiqueta con la advertencia “NO PONER EN
FUNCIONAMIENTO” en todas las palancas de control y
retire la llave de contacto si la cortadora de césped no
debe ser utilizada. Llévese la llave.
Instale dispositivos de apoyo aprobados cuando trabaja
debajo o cerca de equipos elevados.
¡ADVERTENCIA! Las cortadoras de césped u otros
equipos elevados no apoyados pueden caerse de manera
imprevista. Nunca se introduzca debajo de equipos
elevados si no están apoyados en dispositivos de
apoyo aprobados. La caída de equipos podría resultar en
una lesión grave o la muerte por aplastamiento.
Retire sólo las guardas o cubiertas que permiten acceder
a la zona donde se realizarán servicios. Vuelva a colocar
todas las guardas y cubiertas cuando el trabajo esté
terminado.
Vuelva a colocar
todas las guardas
Realización de mantenimiento con seguridad
Utilice
dispositivos de apoyo
aprobados
Use una “etiqueta que
indique No poner en
funcionamiento”

22
Realización de mantenimiento con seguridad
Use ventilación adecuada
Si es necesario hacer funcionar un motor en una zona
cerrada, elimine del área las emanaciones de escape
con una extensión del caño de escape. Si no tiene esa
extensión, asegúrese de abrir las puertas y dejar entrar
aire del exterior.
¡ADVERTENCIA! Evite posibles lesiones. Nunca trabaje
en la maquinaria con el motor en funcionamiento salvo
que así lo indiquen los manuales del fabricante para
un servicio en particular.
¡ADVERTENCIA! Nunca haga funcionar ningún tipo de
motor sin la ventilación adecuada: LAS EMANACIONES
DEL ESCAPE PUEDEN SER MORTALES.
Use gatos y malacates con cuidado
Los soportes o bloques de seguridad deben ubicarse
en una parte rígida de la cortadora. No ubique soportes
debajo de ejes o apoyos de ruedas que puedan girar.
Si debe trabajar debajo de equipos elevados, siempre
use bloques de madera (no de concreto), soportes de
gato u otros soportes rígidos y estables. Cuando use
gatos o malacates, siempre asegúrese de que están
correctamente apoyados.
¡ADVERTENCIA! Evite posibles lesiones por
aplastamiento. Nunca use bloques de concreto para
apoyo. Pueden colapsar bajo cargas incluso livianas.
Asegúrese de que los malacates o gatos que usa estén en
buenas condiciones. Nunca use gatos con piezas rajadas,
dobladas o retorcidas. Nunca use cables pelados,
retorcidos o pellizcados. Nunca use ganchos doblados o
deformados.
Ventile la zona
de trabajo
Use un apoyo
adecuado para los
equipos elevados
Retire la llave y
lea el manual de
mantenimiento
Prácticas de seguridad para tareas de
mantenimiento comunes
Riesgos del combustible
¡ADVERTENCIA! Siempre use recipientes y/o equipos
de distribución de combustible aprobados.
Los combustibles son in amables; por eso, debe cumplir
estas prácticas con el n de reducir la posibilidad de un
accidente grave.
— Apague el motor y la ignición mientras carga combustible.
— Siempre conecte a tierra la boquilla de combustible
contra el cuello de llenado del depósito para evitar
chispas.
— Mantenga las chispas y llamas abiertas alejadas del
combustible.
— No fume mientras carga combustible o manipula
recipientes con combustible.
— No corte ni suelde en líneas, tanques o recipientes de
combustible ni cerca de ellos.
— No llene el depósito en exceso o derrame combustible.
Limpie el combustible derramado de inmediato.
Riesgos del refrigerante de motor
Los sistemas de refrigeración con líquidos acumulan
presión a medida que el motor se calienta; tenga suma
precaución antes de retirar la tapa del radiador.
Asegúrese de:
— Detener el motor y esperar que el sistema se enfríe.
— Usar ropa de protección y anteojos de seguridad.
— Girar la tapa del radiador lentamente hasta el primer
tope para permitir que la presión escape antes de
retirar la tapa por completo.
Retire la tapa
del radiador
lentamente
No fumar;
evitar las llamas
abiertas
Realización de mantenimiento con seguridad

23
Riesgos del sistema hidráulico
El sistema hidráulico se encuentra bajo presión siempre
que el motor está funcionando; puede conservar presión
incluso después de apagar el motor. Haga funcionar
todos los controles hidráulicos incluyendo el control
hidráulico auxiliar después de que el motor esté apagado.
Alivie la presión atrapada en las líneas después de que los
accesorios están apagados y apoyados en el suelo.
Durante la inspección del sistema hidráulico:
— Espere que el uido se enfríe antes de desconectar
las líneas. El uido hidráulico caliente puede causar
QUEMADURAS GRAVES.
— No use las manos para veri car la presencia de fugas.
En cambio, use un cartón o papel para buscar fugas.
— Use protección ocular adecuada. El uido hidráulico
puede causar lesiones oculares permanentes.
¡ADVERTENCIA! El uido hidráulico bajo presión pueden
penetrar la piel o los ojos y causar lesiones graves,
ceguera o la muerte. Las fugas de uido bajo presión
pueden no ser visibles. Utilice un cartón o una madera
para buscar fugas, no la mano. Use una protección
facial o antiparras de seguridad para proteger los
ojos. Si el uido se inyecta en la piel, debe ser extraído
dentro de las próximas pocas horas por personal médico
familiarizado con este tipo de lesión.
Cuando ventila o llena el sistema hidráulico, a oje la tapa
de llenado con lentitud y retírela gradualmente.
Nunca restablezca una válvula de alivio del sistema
hidráulico a una presión mayor que la recomendada por el
fabricante.
Use protección
ocular
El fl uido a
alta presión puede
inyectarse en el
cuerpo
Realización de mantenimiento con seguridad
Riesgos del sistema eléctrico
Antes de trabajar en el sistema eléctrico, desconecte los
cables de la batería.
— Retire primero los cables negativos (-) de la batería.
— Al reconectar la batería, conecte los cables negativos
(-) de la batería al nal.
El líquido del interior de las baterías contiene ácido,
que es un VENENO y puede causar QUEMADURAS
QUÍMICAS GRAVES.
Evite lesiones
— Use una protección facial para evitar el contacto con
los ojos.
— Use guantes y ropa resistentes a los productos
químicos para mantener al electrolito alejado de la piel
y la ropa común.
¡ADVERTENCIA! El contacto con el electrolito daña
los ojos y la piel. Siempre use una protección facial
para evitar que el electrolito penetre en los ojos. Si el
electrolito entra en contacto con los ojos, enjuague de
inmediato con agua limpia y busque atención médica.
Use guantes de caucho y ropa de protección para
mantener el electrolito lejos de la piel. Si el electrolito
entra en contacto con la piel o la ropa, lave de inmediato
con agua limpia.
Si se ingiere, busque atención médica de inmediato.
NUNCA proporcione líquidos que induzcan el vómito.
Use indumentaria
de protección
Use protección
facial
Realización de mantenimiento con seguridad

24
Evite explosiones
¡ADVERTENCIA! Evite posibles lesiones graves por
explosiones. Las baterías de plomo-ácido producen
gases sumamente explosivos, especialmente durante la
carga. Mantenga alejados los arcos, las chispas, las
llamas y el tabaco encendido.
— No fume cerca de las baterías.
— Mantenga los arcos, las chispas y llamas abiertas
alejadas de las baterías.
— Proporcione ventilación adecuada.
Nunca revise la batería colocando un objeto metálico
entre los bornes: la chispa resultante podría causar una
explosión.
¡ADVERTENCIA! Evite posibles lesiones graves por
explosiones de baterías. No cargue baterías ni arranque
con refuerzo el motor si la batería está congelada.
Caliente a 60 °F (15,5 °C) o la batería puede explotar y
causar lesiones graves.
Reglas de seguridad durante el arranque con refuerzo de
batería:
— Siga las instrucciones para el “arranque con refuerzo
de batería” correcto como se especi ca en el manual
del fabricante.
— Asegúrese de que las máquinas no se estén tocando.
— Observe la polaridad de las baterías y conexiones.
— Realice la conexión nal de cable al motor o al punto
de tierra más alejado de la batería. Nunca realice la
conexión nal en el arrancador o la batería muerta: las
chispas pueden encender gases explosivos presentes
en la batería.
— Cuando desconecta cables después de un arranque
con puente, retire los cables en el orden inverso al de la
conexión (es decir, la conexión nal primero).
Evite las chispas
y las llamas abiertas
cerca de las
baterías
Para el arranque
con refuerzo, observe
la polaridad y realice
la conexión fi nal en
el punto de descarga
a tierra
Realización de mantenimiento con seguridad
Mantenimiento de neumáticos y ruedas
Revise los neumáticos y las ruedas a diario porque la
estabilidad del tractor y la cortadora de césped puede
verse signi cativamente afectada por la presión de los
neumáticos o daños en los neumáticos o en las ruedas.
Revise los neumáticos para veri car:
— La presión correcta.
— Cortes y protuberancias.
— Clavos u otras pinchaduras.
— Desgaste desparejo o excesivo.
— Estado de los vástagos y tapas de las válvulas.
Revise las ruedas para veri car:
— Daños en las llantas.
— Tuercas o pernos faltantes o ojos.
— Desalineación.
Todos los servicios de neumáticos deben ser realizados
por un centro de servicios para neumáticos cuali cado
o por una persona de servicio autorizada debidamente
capacitada en los procedimientos y el uso del equipo de
seguridad destinado a los servicios de neumáticos.
Revise los
neumáticos y las
ruedas en busca
de daños
Mantenga la
presión correcta en
los neumáticos
Realización de mantenimiento con seguridad

25
Mantenimiento de neumáticos y ruedas
(continuación)
¡ADVERTENCIA! Los tipos de ruedas y neumáticos
que generalmente se encuentran en estos equipos
requieren cuidados especiales al realizar servicios
para evitar lesiones graves o la muerte.
No in e los neumáticos por encima de la presión
recomendada. Asegúrese de volver a colocar el lastre
de los neumáticos si está instalado. Consulte las
especi caciones del fabricante para ver los requisitos
de lastre.
Mantenga las tuercas de las ruedas apretadas según las
recomendaciones del fabricante.
Es normal que la presión de los neumáticos aumente
durante el funcionamiento; NO se debe reducir.
Nunca vuelva a in ar un neumático que se ha desin ado
mucho o por completo sin retirar el neumático de la
rueda. Haga inspeccionar atentamente el neumático y la
rueda para detectar daños antes de volverlos a armar.
Al agregar aire a un neumático, hágalo desde cierta
distancia. Use una manguera larga con mandril de
auto jación. Siempre párese detrás de la trocha cuando
ajusta la presión de un neumático.
No in e neumáticos con gases in amables o con sistemas
que usan un inyector de alcohol.
Nunca corte o suelde una rueda con un neumático in ado
instalado en ella. Esto podría causar descompresión
explosiva.
Veri que que el tamaño del neumático y la rueda
coincidan correctamente.
Cuando reemplaza neumáticos, asegúrese de que sean de
la clasi cación adecuada especi cada por el fabricante.
Los neumáticos no deben funcionar a velocidades más
altas que las nominales. La mayoría de los neumáticos
para agricultura están clasi cados para una velocidad
máxima de 20 mph (32 km/h).
Evite la explosión
de los neumáticos
Realización de mantenimiento con seguridad
Servicio y reparaciones completas antes de
liberar la máquina
Apriete todos los pernos, accesorios y conexiones con las
torsiones especi cadas por el fabricante.
Instale todas las guardas, cubiertas y escudos después
de realizar los servicios. Reemplace o repare los que
estén dañados. Llene y recargue los sistemas a presión
sólo con los uidos aprobados o recomendados por el
fabricante.
Arranque el motor y revise para detectar fugas. (Consulte
la página 23, Riesgos del sistema hidráulico.) Haga
funcionar todos los controles para asegurarse de que el
tractor y la cortadora de césped funcionan correctamente.
Pruebe la máquina si es necesario. Después de las
pruebas, apague y veri que el trabajo realizado. ¿Falta
algún pasador, arandela, tuerca de seguridad, etc.?
Vuelva a revisar todos los niveles de uidos antes de
liberar la máquina para el funcionamiento.
Todas las piezas deben ser inspeccionadas durante la
reparación y deben reemplazarse si están gastadas,
rajadas o dañadas. Las piezas excesivamente gastadas o
dañadas pueden fallar y causar lesiones o la muerte.
Reemplace cualquier letrero dañado o ilegible.
Mantenimiento de las hojas de la cortadora
No corra riesgos usando hojas dañadas o dobladas. Los
fabricantes de cortadoras de césped de la Asociación
de Fabricantes de Equipos (Association of Equipment
Manufacturers, AEM) y la Asociación de Fabricantes de
Equipos para Agricultura (Farm Equipment Manufacturers
Association, FEMA) piden que las hojas de cortadoras
NO se reutilicen, enderecen, refuercen en su super cie o
suelden. Si una hoja rota es arrojada por una cortadora,
podrían producirse lesiones graves o la muerte.
Verifi que el trabajo
de servicio cuando
está completo
Realización de mantenimiento con seguridad

26
Realización de mantenimiento con seguridad
Mantenimiento de las hojas de la cortadora
(continuación)
— ¿Cómo están hechas las hojas de la cortadora
de césped? Están hechas acero para resortes de
aleación de alta resistencia. Se forjan en caliente y se
les da forma para cumplir con las especi caciones
individuales del fabricante; luego, se tratan y templan
a un estado dúctil, de alta resistencia para reducir la
posibilidad de rupturas durante el corte. Las hojas se
prueban para garantizar que cumplan con las normas
de resistencia, dureza y ductilidad. Si una hoja no
cumple con alguna de estas especi caciones, no se
utilizará en la cortadora de césped.
— ¿Qué sucede cuando se dobla una hoja de la
cortadora? Se necesita una gran fuerza de impacto
para doblar la hoja. Esta fuerza de impacto a menudo
resulta en que las hojas se agujerean o marcan. Una
vez que una hoja está dañada por un agujero o una
marca, es mucho más probable que ocurra una falla
de la hoja. Cuando una hoja está gravemente doblada,
puede crearse una rajadura microscópica en ella.
Enderezar la hoja no quita o repara esta rajadura, sino
que puede causar rajaduras adicionales.Tensiones
adicionales durante los trabajos de corte pueden
resultar en una falla imprevista de la hoja.
— Evite doblar las hojas. Contribuya a prevenir que las
hojas de la cortadora se doblen o rajen evitando el
contacto con objetos sólidos. Las hojas de la cortadora
de césped están destinadas a cortar hierba, arbustos,
vegetación leñosa y árboles y ramas pequeños. No
están diseñadas para entrar en contacto con objetos
sólidos como roca, cemento o postes de acero.
Inspeccione la zona antes de usar la cortadora. Retire
o marque claramente los objetos sólidos y corte
alrededor de ellos.
— Sustituya las hojas dañadas! Inspeccione las hojas
de la cortadora diariamente o después de golpear
algún objeto sólido. Si una hoja de la cortadora de
césped se daña (está doblada, agujereada, rajada) o
desgasta más del 25 por ciento del tamaño original,
debe retirarse y sustituirse con una nueva. Siempre use
las hojas originales del fabricante. Las hojas de marcas
no originales pueden no cumplir con los requisitos de
resistencia, dureza y ductilidad del fabricante de la
cortadora.
— No corra riesgos usando hojas dañadas o dobladas.
El uso de una hoja de cortadora dañada o enderezada
puede resultar en la ruptura de la hoja y que la hoja
sea arrojada hacia el operador o una persona ajena
causando una lesión grave o la muerte. El precio
de una nueva hoja es bajo en comparación con la
posibilidad de una lesión grave que podría resultar de
una hoja doblada o rota arrojada por la cortadora
Palabras fi nales para el usuario
Acaba de terminar de leer el Manual de la cortadora de
césped industrial y para agricultura AEM. Es imposible
que este manual abarque todas las situaciones
de seguridad que se podría encontrar a diario. Su
conocimiento de estas precauciones de seguridad y
de su cumplimiento de las reglas básicas de seguridad
contribuirán a formar un buen juicio en todas las
situaciones. Nuestro objetivo es ayudarlo a desarrollar,
establecer y mantener buenos hábitos de seguridad para
que la operación de una cortadora de césped industrial y
para agricultura le resulte más fácil y más segura.
Éste es otro manual de una serie publicada por AEM sobre la operación de maquinaria en condiciones de seguridad.
Muchas de las ilustraciones de este manual de seguridad se pueden encontrar y descargar en http://pictorials.aem.org.
Para obtener publicaciones adicionales, visite nuestro sitio web en www.safetymaterials.org.
ASOCIACIÓN DE FABRICANTES
DE EQUIPOS
Correo electrónico: safetymaterials@aem.org
www.aem.org

Introduction Section 2-1
© 2011 Alamo Group Inc.
INTRODUCTION SECTION

INTRODUCTION
RHD 02/11 Introduction Section 2-2
© 2011 Alamo Group Inc.
INTRODUCTION
This Flail Mower is designed with care and built with quality materials by skilled workers. Proper assembly,
maintenance, and operating practices, as described in this manual, will help the owner/operator get years of
satisfactory service from the machine.
The purpose of this manual is to familiarize, instruct, and train. The Assembly Section instructs the owner/
operator in the correct assembly of the Mower using standard and optional equipment. The Parts Manual is
designed to familiarize the owner/operator with replaceable parts on the Mower and is provided also. This
section provides exploded assembly drawings of each mower component illustrating each piece and the
corresponding part number.
Careful use and timely service saves extensive repairs and costly downtime losses. The Operation and
Maintenance Sections of the manual train the owner/operator how to work the Mower correctly and attend to
appropriate maintenance. The Trouble Shooting Guide helps diagnose difficulties with mower and offers
solution to the problems.
Safety is of primary importance to the owner/operator and to the manufacturer. The first section of this manual
includes a list of Safety Messages, that, if followed, will help protect the operator and bystanders from injury or
death. Many of the Safety Messages will be repeated throughout the manual. The owner/operator/dealer
should know these Safety Messages before assembly and be aware of the hazards of operating this mower
during assembly, use, and maintenance. The Safety Alert Symbol combined with a Signal Word, as seen
below, is intended to warn the owner/operator of impending hazards and the degree of possible injury faced
when operating this machine.
Indicates an imminently hazardous situation that, if not avoided, WILL result in DEATH OR
VERY SERIOUS INJURY.
Indicates an imminently hazardous situation that, if not avoided, COULD result in DEATH
OR SERIOUS INJURY.
Indicates an imminently hazardous situation that, if not avoided, MAY result in MINOR
INJURY.
Identifies special instructions or procedures that, if not strictly observed, could result in
damage to, or destruction of the machine, attachments or the environment.

INTRODUCTION
RHD 02/11 Introduction Section 2-3
© 2011 Alamo Group Inc.
INTRODUCTION
The Super Heavy Duty Flail is made from the proven, time-tested design of Rhino, offering you a manicured
look with substantial safety. It is the ideal machine not only for roadside use, but also for parks, playgrounds,
school grounds, and even golf courses.
Strong top decks make with 10-gauge steel and end plates that are 1/2” thick for the inboard and 5/16” thick
steel for the outboard.
• Convenient Mount---3pt. hitch that mounts to 36 HP or greater tractors.
• Sharp appearance---Leaves a manicured cut appearance.
• Variety of lengths to suit your needs---62”, 74”, 88” and 96”
• Knife Options---An array of cutting knife options allows you to tailor the finished appearance to meet your
needs.
Knife Variety - An array of cutting knife options allows you to tailor the finished appearance to meet your needs.
Cutting Capacity: 1” diameter grass and weeds.
Cutting Widths: RHD 62”, 74”, 88” and 96”
Warranty: One year parts and labor. Non-governmental users subject to a modified policy. Only genuine Rhino
OEM parts may be used for warranty replacement.

INTRODUCTION
RHD 02/11 Introduction Section 2-4
© 2011 Alamo Group Inc.
INTRODUCTION
Attention Owner/Operator
BEFORE OPERATING THIS MACHINE:
1. Carefully read the Operator’s Manual, completely understand the Safety Messages and instructions, and
know how to operate correctly both the tractor and implement.
2. Fill out the Warranty Card in full. Be sure to answer all questions, including the Serial Number of the
implement. Mail within 30 days of delivery date of this implement.
NOTE: Warranties are honored only if completed “Owner Registration and Warranty” forms are received by
Rhino within thirty days of delivery of the implement.
3. Record the Model and Serial Numbers on the Warranty page at the front of the Operator’s Manual. Keep this
as part of the permanent maintenance file for the implement.

Assembly Section 3-1
© 2011 Alamo Group Inc.
ASSEMBLY SECTION

ASSEMBLY
RHD 02/11 Assembly Section 3-2
© 2011 Alamo Group Inc.
ASSEMBLY
General
The mower comes shipped from the factory completely set up. The only assembly required is to remove the
driveline from its shipping position and attach it to the gearbox.
Driveline Attachment
Before starting assembly, make certain that all
paint, dirt, and grease are removed from gearbox
shaft (1). To ease assembly apply a light coat of
grease to splines and assemble. Do not assemble a
drive line without a shield.
Attach the slip clutch end of the driveline to the
gearbox input shaft securely. Make certain that the
slip clutch is fully onto the input shaft splines.
Tighten the locknuts (2) alternately until they have
reached the proper torque. See Figure ASMP-FL-
0017.
Refer to Torque Chart in the Maintenance Section.

Operation Section 4-1
© 2011 Alamo Group Inc.
OPERATION SECTION

OPERATION
RHD 02/11 Operation Section 4-2
© 2011 Alamo Group Inc.
OPERATION
Rhino RHD62, RHD74, RHD88 & RHD96 SUPER-HEAVY-DUTY FLAIL
MOWER OPERATION INSTRUCTIONS
Rhino RHD flail mowers are manufactured with quality material by skilled workers. These mowers are
designed for cutting grass and small weeds up to 1”. The mower is equipped with protective deflectors to
prevent objects being thrown from the mower by the blades, however, no shielding is 100% effective. All
shields, guards, and deflectors equipped on the mower must be maintained in good operational condition.
It is the operator’s responsibility to be knowledgeable of all potential operating hazards and to take every
reasonable precaution to ensure oneself, others, animals, and property are not injured or damaged by the
mower, tractor, or a thrown object. Do not operate the mower if passersby, pets, livestock, or property are
within 100 yards of the unit.
This section of the Operator’s Manual is designed to familiarize, instruct, and educate safe and proper mower
use to the operator. Pictures contained in this section are intended to be used as a visual aid to assist in
explaining the operation of a RHD flail mower and are not specific to any model. Some pictures may show
shields removed for picture clarity. NEVER operate implement without all shields in place and in good
operational condition. The operator must be familiar with the mower and tractor and all associated safety
practices before operating the mower and tractor. Proper operation of the mower, as detailed in this manual,
will help ensure years of safe and satisfactory use of the mower.
IMPORTANT: To avoid mower damage, retorque all bolts after the first 10 hours of operation. Refer to the
Torque Chart at the end of the Maintenance Section to ensure bolts are properly
tightened.
READ AND UNDERSTAND THE ENTIRE OPERATING INSTRUCTIONS AND SAFETY SECTION OF THIS
MANUAL AND THE TRACTOR MANUAL BEFORE ATTEMPTING TO USE THE TRACTOR AND
IMPLEMENT. If you do not understand any of the instructions, contact your nearest authorized dealer for a
full explanation. Pay close attention to all safety signs and safety messages contained in this manual and
those affixed to the implement and tractor. OPS-U- 0001
READ, UNDERSTAND, and FOLLOW the following Safety Messages. Serious injury or
death may occur unless care is taken to follow the warnings and instructions stated in the
Safety Messages. Always use good common sense to avoid hazards. (SG-2)
Si no lee ingles, pida ayuda a alguien que si lo lea para que le traduzca las
medidas de seguridad. (SG-3)

OPERATION
RHD 02/11 Operation Section 4-3
© 2011 Alamo Group Inc.
OPERATION
1. Standard Equipment and Specifications
RHD 62 RHD74
Horsepower Required (Min.) 25HP 30HP
Tractor PTO 540 RPM 540 RPM
Cutting Capacity 1” 1”
Cutting Height 1” - 6”” 1” - 6”
Cutting Width 62” 74”
Overall Width 70” 82”
Overall Length 40” 40”
Weight (Approximate) 815 lbs 930 lbs
Hitch CAT I CAT I-II
Blades Fine or Coarse Cut Fine or Coarse Cut
Number of Knives Fine Cut 76 pair Fine Cut 92 pair
Coarse Cut 36 pair Coarse Cut 36 pair
Blade Rotation Forward Forward
Cuttershaft Diameter 4-1/2 4-1/2
Gearbox Rating 60HP 60HP
Knife Tip Speed (FPM) 9000 9000
Driveline Size CAT 4 CAT 4
Driveline Protection Slip Clutch Slip Clutch
Drive Belt “C” Size “C” Size
Deck Thickness 10 Ga. 10 Ga.
Rear Roller Diameter 6” 6”
Skid Shoe STD STD
RHD 88 RHD 96
Horsepower Required (Min.) 40HP 50HP
Tractor PTO 540 RPM 540 RPM
Cutting Capacity 1” 1”
Cutting Height 1” - 6”” 1” - 6”
Cutting Width 88” 96”
Overall Width 96” 103”
Overall Length 40” 40”
Weight (Approximate) 1035 lbs 1170 lbs
Hitch CAT I-II CAT I-II
Blades Fine or Coarse Cut Fine or Coarse Cut
Number of Knives Fine Cut 108 pair Fine Cut 118 pair
Coarse Cut 44 pair Coarse Cut 48 pair
Blade Rotation Forward Forward
Cuttershaft Diameter 4-1/2 4-1/2
Gearbox Rating 60HP 60HP
Knife Tip Speed (FPM) 8900 8900
Driveline Size CAT 4 CAT 4
Driveline Protection Slip Clutch Slip Clutch
Drive Belt “C” Size “C” Size
Deck Thickness 10 Ga. 10 Ga.
Rear Roller Diameter 6” 6”
Skid Shoe STD STD

OPERATION
RHD 02/11 Operation Section 4-4
© 2011 Alamo Group Inc.
OPERATION
The Mower is designed for certain mowing applications and is rated to cut up to a specific
size vegetation (see Mower Standard Equipment and Specifications). DO NOT use this
mower to cut vegetation above the Mower’s rated capacity or to cut any type of non-
vegetative material. Only operate this Mower on a properly sized and equipped Tractor.
Operating this Mower in an application for which it is not designed and/or operating the
Mower with the wrong size Tractor can cause Mower component damage and equipment
failure resulting in possible serious injury or death. (SGM-14)
2.OPERATOR REQUIREMENTS
Safe operation of the unit is the responsibility of a qualified operator. A qualified operator has read and under-
stands the implement and tractor Operator’s Manuals and is experienced in implement and tractor operation
and all associated safety practices. In addition to the safety messages contained in this manual, safety signs
are affixed to the implement and tractor. If any part of the operation and safe use of this equipment is not com-
pletely understood, consult an authorized dealer for a complete explanation.
If the operator cannot read the manuals for themselves or does not completely understand the operation of the
equipment, it is the responsibility of the supervisor to read and explain the manuals, safety practices, and
operating instructions to the operator.
Safe operation of equipment requires that the operator wear approved Personal Protective Equipment (PPE)
for the job conditions when attaching, operating, servicing, and repairing the equipment. PPE is designed to
provide operator protection and includes the following safety wear:
PERSONAL PROTECTIVE EQUIPMENT (PPE)
• Always Wear Safety Glasses
•Hard Hat
• Steel Toe Safety Footwear
• Gloves
• Hearing Protection
• Close Fitting Clothing
• Respirator or Filter Mask (depends on operat-
ing conditions) OPS-U- 0002

OPERATION
RHD 02/11 Operation Section 4-5
© 2011 Alamo Group Inc.
OPERATION
3. Tractor Requirements
The tractor used to operate the mower must have the power, capacity and required equipment to safely
operate the mower at a ground speed between 2 and 5 MPH. Operating the mower with a tractor that does not
meet the following requirements may cause tractor or mower damage and could be a potential danger to the
operator and passersby.
Tractor Requirements and Capabilities
• ASABE approved Roll-Over Protective Structure (ROPS) or ROPS cab and seat belt.
• Tractor Safety Devices .....................Slow Moving Vehicle (SMV) emblem, lighting, PTO master shield
• Tractor Horsepower-Minimum..........RHD62-25 HP, RHD74-30 HP, RHD88-40 HP, RHD96-50HP
• 3-Point Hitch:
Lifting Capacity .......................RHD60 - 815 lbs., RHD72 - 930 lbs., RHD88 - 1035 lbs.,
RHD96-1170 lbs
Category .................................RHD60 - CAT I; RHD74, RHD88, RHD96 - CAT I or CAT II
• Front End Weights............................As needed to maintain 20% weight on tractor front axle
• Power Take Off.................................540 RPM - 6 spline
DO NOT use drugs or alcohol immediately before or while operating the
Tractor and Implement. Drugs and alcohol will affect an operator’s
alertness and coordination and therefore affect the operator’s ability to
operate the equipment safely. Before operating the Tractor or Implement,
an operator on prescription or over-the-counter medication must consult
a medical professional regarding any side effects of the medication that
would hinder their ability to operate the Equipment safely. NEVER
knowingly allow anyone to operate this equipment when their alertness or
coordination is impaired. Serious injury or death to the operator or others
could result if the operator is under the influence of drugs or alcohol. (SG-27)
3.1 ROPS and Seat Belt
The tractor must be equipped with a Roll-Over-Protective-Structure (ROPS) (tractor cab or roll-bar) and seat
belt to protect the operator from falling off the tractor, especially during a roll over where the driver could be
crushed and killed. Only operate the tractor with the ROPS in the raised position and seat belt fastened.
Tractor models not equipped with a ROPS and seat belt should have these life saving features installed by an
authorized dealer. OPS-U- 0003
Operate this Equipment only with a Tractor equipped with an approved roll-
over-protective system (ROPS). Always wear seat belts. Serious injury or
even death could result from falling off the tractor--particularly during a turnover
when the operator could be pinned under the ROPS. (SG-7)

OPERATION
RHD 02/11 Operation Section 4-6
© 2011 Alamo Group Inc.
OPERATION
3.3 Tractor Horsepower
The horsepower required to operate the mower depends on many factors including the vegetation to be cut,
terrain condition, operator experience, and condition of the mower and tractor. For most mowing condition, the
RHD62 mower requires a tractor with at least 25HP, RHD74-30HP, RHD-88-40HP and RHD96-50HP.
Operating the mower with a tractor that does not have adequate power may damage the tractor engine.
3.4 3-Point Hitch
The tractor 3-point hitch must be rated to lift at least
815 lbs. If attaching a RHD62, 930 lbs. if attaching a
RHD74, 1035 lbs. if attaching RHD88, and 1170
lbs. if attaching a RHD96 flail.
RHD mowers can attach to tractor’s with either a
CAT I or II hitch. Refer to the tractor operator’s
manual for the category of the tractor used. If the
hitch does not conform to ASABE CAT I or II
dimensions, the mower may not fit or raise properly.
Consult an authorized dealer for possible
modification procedures to mount nonconforming
hitches.
Use the correct hitch pins for the hitch category
being used. For a CAT I hitch, 7/8” lower can 3/4”
upper diameter hitch pins are used and CAT II
hitches require 1-1/8” lower and 1” upper diameter
hitch pins.
3.2 Tractor Safety Devices
If transporting or operating the tractor and implement near a public roadway, the tractor must be equipped with
proper warning lighting and a Slow Moving Vehicle (SMV) emblem which are clearly visible from the rear of
the unit. Lights and a SMV emblem must be equipped directly on implements if the visibility of the tractor
warning signals are obscured.
Maintain all manufacturer equipped safety shields and guards. Always replace shields and guards that were
removed for access to connect, service, or repair the tractor or implement. Never operate the tractor PTO
with the PTO master shield missing or in the raised position. OPS-U- 0004

OPERATION
RHD 02/11 Operation Section 4-7
© 2011 Alamo Group Inc.
OPERATION
Before attaching mower to tractor, it will be
necessary that each tractor lower hitch arms have
freedom of movement that the mower is completely
independent of tractor movement. This will allow
the mower to pivot sideways as well as move
vertically.
Some tractors provide this “float” by means of an
optional slot in the lower end of each lift link, others
by lift check chains which can be made telescopic
by changing the position of the pins in the links.
Failure to provide “float” may result in failure of the
cutterhousing and bearings in the roller, thus
voiding the mower warranty. Should your tractor not
have a built “float” option, a flexible check chain
assembly (optional equipment) will be required. See
Figure ASMP-FL-0019.
On all centered mowers, two flexible check chain assemblies will be necessary to provide “float” to each lift
link.
On all offset mowers, one flexible check chain assembly will be necessary to provide “float” to the lift link on the
same side that the mower is offset. The other lift link should be the adjustable stiff link furnished with the tractor.
3.5 Front End Weight
Maintain a minimum of 20% total tractor weight on the tractor front end at all times. Front end weight is critical
to maintain steering ability and to prevent the front end from rearing up. Consult your authorized tractor dealer
for front weights and carriers.
3.6 Power Take Off (PTO)
Only operate the mower on a tractor equipped to operate at 540 rpm PTO speed. Tractors operating at 540
rpm will have a 1-3/8” diameter 6-spline PTO shaft stub. Refer to the tractor operator’s manual for operating
the PTO at the proper speed.
If operating an older model tractor where the tractor’s transmission and PTO utilize one master clutch, an over-
running clutch must be used between the PTO output shaft and the driveline of the mower. Consult an
authorized tractor dealer to purchase and install an over-running clutch if needed.
DO NOT use a PTO adapter to attach a non-matching Implement driveline to a Tractor
PTO. Use of an adapter can double the operating speed of the Implement resulting in
excessive vibration, thrown objects, and blade and implement failure. Adapter use will also
change the working length of the driveline exposing unshielded driveline areas. Serious
bodily injury and/or equipment failure can result from using a PTO adapter. Consult an
authorized dealer for assistance if the Implement driveline does not match the Tractor PTO.
(S3PT-14)

OPERATION
RHD 02/11 Operation Section 4-8
© 2011 Alamo Group Inc.
OPERATION
Never operate the Tractor and Mower if the Implement input driveline is directly connected
to the Tractor transmission. Tractor braking distances can be substantially increased by
the momentum of the rotating Mower blades driving the Tractor transmission even though
the Tractor clutch has been disengaged. Install an over running clutch between the Tractor
PTO and the Mower driveline to prevent this potentially dangerous situation. (S3PT-16)
4. GETTING ON AND OFF THE TRACTOR
Before getting onto the tractor, the operator must read and completely understand the implement and tractor
operator manuals. If any part of either manual is not completely understood, consult an authorized dealer for
a complete explanation. OPS-U- 0007
Do not mount or dismount the Tractor while the tractor is moving. Mount
the Tractor only when the Tractor and all moving parts are
completelystopped. (SG-12)
4.1 Boarding the Tractor
Use both hands and equipped handrails and steps for support when boarding the tractor. Never use control
levers for support when mounting the tractor. Seat yourself in the operator’s seat and secure the seat belt
around you.
Never allow passengers to ride on the tractor or attached equipment. Riders can easily fall off and be
seriously injured or killed from falling off and being ran over. It is the operator’s responsibility to forbid all extra
riders at all times. OPS-U- 0008
Never allow children to operate, ride on, or come close to the Tractor or
Implement. Usually, 16-17 year-old children who are mature and
responsible can operate the implement with adult supervision, if they
have read and understand the Operator’s Manuals, been trained in
proper operation of the tractor and Implement, and are physically large
enough to reach and operate the controls easily. (SG-11)
Never allow children or other persons to ride on the Tractor or Implement.
Falling off can result in serious injury or death. (SG-10)
Do not mount or dismount the Tractor while the tractor is moving. Mount
the Tractor only when the Tractor and all moving parts are
completelystopped. (SG-12)

OPERATION
RHD 02/11 Operation Section 4-9
© 2011 Alamo Group Inc.
OPERATION
4.2 Dismounting the Tractor
Before dismounting, park the tractor and implement on a reasonably level surface, apply the parking brake,
idle the engine down, disengage the PTO, and lower the implement to the ground. Shut down the tractor
engine according to the operator’s manual, remove the key, and wait for all motion to completely stop. Never
leave the seat until the tractor, its engine and all moving parts have come to a complete stop.
Use hand rails and steps when exiting the tractor. Be careful of your step and use extra caution when mud,
ice, snow or other matter has accumulated on the steps or hand rails. Use all handrails and steps for support
and never rush or jump off the tractor. OPS-U- 0009
BEFORE leaving the tractor seat lower the implement, set the parking
brake and/or set the tractor transmission in parking gear, disengage the
PTO, stop the engine, remove the key, and wait for all moving parts to
stop. Place the tractor shift lever into a low range or parking gear to
prevent the tractor from rolling. Never dismount a Tractor that is moving
or while the engine is running. Operate the Tractor controls from the
tractor seat only. (SG-9)
5. STARTING THE TRACTOR
The operator must have a complete understanding of the placement, function, and operational use of all
tractor controls before starting the tractor. Review the tractor operator’s manual and consult an authorized
dealer for tractor operation instructions if needed.
Essential Tractor Controls:
• Locate the light control switch.
• Locate the engine shut off control.
• Locate the brake pedals and the clutch.
• Locate the PTO control.
• Locate the 3-point hitch control lever.
• Locate the hydraulic remote control levers.
Before starting the tractor ensure the following:
• Conduct all pre-start operation inspection and service according to the tractor operator’s manual.
• Make sure all guards, shields, and other safety devices are securely in place.
• The parking brake is on.
• The PTO control lever is disengaged.
• The 3-point hitch control lever is in the lowered position.
• The hydraulic remote control levers are in the neutral position.
• The tractor transmission levers are in park or neutral.
Refer to the tractor owner’s manual for tractor starting procedures. Only start the tractor while seated and
belted in the tractor operator’s seat. Never bypass the ignition switch by short circuiting the starter solenoid.
After the tractor engine is running, avoid accidental contact with the tractor transmission to prevent sudden
and unexpected tractor movement. OPS-U-0028

OPERATION
RHD 02/11 Operation Section 4-10
© 2011 Alamo Group Inc.
OPERATION
6.1 Connecting the Mower A-Frame to the Tractor
1. Make sure the tractor is equipped with the
correct PTO shaft. Change shafts if needed.
2. Shorten or remove the tractor drawbar to avoid
interference when raising and lowering the
mower.
3. Board the tractor and start the engine. Position
the tractor to the mower with the 3-point lift
arms positioned between the respective set of
mower A-frame lift lugs. Note: Set the 3-point lift
control to “Position Control” so that the lift arms
maintain a constant height when attaching the
mower. See the tractor Operator’s Manual for
correct settings when attaching 3-point
equipment.
Never run the Tractor engine in a closed building or without adequate ventilation. The
exhaust fumes can be hazardous to your health. (SG-23)
Start tractor only when properly seated in the Tractor seat. Starting a
tractor in gear can result in injury or death. Read the Tractor operators
manual for proper starting instructions. (SG-13)
6. CONNECTING THE MOWER TO THE TRACTOR
Use extreme caution when connecting the mower to the tractor. The mower should be securely resting at
ground level or setting on blocks. Keep hands and feet from under the mower deck and clear of pinch points
between the tractor hitch arms and mower pins. OPS-R-0001
Always shut the Tractor completely down, place the transmission in park, and set the
parking brake before you or anyone else attempts to connect or disconnect the Implement
and Tractor hitches. (S3PT-15)

OPERATION
RHD 02/11 Operation Section 4-11
© 2011 Alamo Group Inc.
OPERATION
4. Turn off the tractor engine and dismount.
5. One lift arm at a time, align arm end hole
between the set of A-frame lift lugs. Insert hitch
pin through the lug and arm holes and insert
retaining pin into hitch pin.
6. Walk around to opposite side and repeat
procedure for remaining lift arm and hitch pin.
7. Extend or retract 3-point top link to align its end
hole with the holes of the mower’s top link.
Insert the top link hitch pin and insert retaining
pin into hitch pin.
8. Adjust any lower link check chains, guide
blocks, or sway blocks to prevent the mower
from swaying side to side and possible contact
with tractor rear tires.
7. SETTING THE MOWER
After the mower is attached to the tractor’s 3-point hitch, but before the universal slip joint is installed, and with
the mower on the ground, adjust the top link of the hitch to make the mower gearbox input shaft parallel to the
tractor PTO shaft. This relationship provides optimum operation of the universal joints in the driveline. A
driveline that is not parallel to the PTO will result in vibration due to the characteristic of a universal joint that
results in the output end speeding up and slowing down twice each revolution of the universal jointed shaft.
Adjust the top link whenever the cutting height is changed.
Properly setting the cutting height is essential for efficient and safe operation. A properly set mower will make
a more uniform cut, distribute clippings more evenly, require minimal tractor work, and follow the contour of
uneven terrain.
NOTE: Avoid very low cutting heights, striking the ground with the blades gives the most damaging shock
loads and will cause damage to the mower and drive. Blades contacting the ground may cause objects to be
thrown out from under the mower deck. Always avoid operating the mower at a height which causes the
blades to contact the ground. OPS-F-0071
Never work under the Implement, the framework, or any lifted
component unless the Implement is securely supported or blocked up
to prevent sudden or inadvertent falling which could cause serious
injury or even death. (SG-14)

OPERATION
RHD 02/11 Operation Section 4-12
© 2011 Alamo Group Inc.
OPERATION
7.1 Roller Height Adjustment
The mower’s cutting height is set by positioning the
roller assembly for each mower section. Each
section must be set at the same height to ensure an
even cut across the entire width of the mower.
1. Place the tractor and mower on a level surface
and completely lower the mower to the ground.
2. Shut down the tractor, place the transmission in
park, and set the parking brake before dis-
mounting.
3. One section at a time, place lifting device (scis-
sors jack or hydraulic jack) under center of cut-
ter housing.
4. Remove hex nuts, washers and carriage bolts
from bracket at each end of roller. Make certain
that roller bracket is free to move once the fas-
teners are removed. A stuck roller could drop
unexpectedly and cause injury.
5. Use lifting device to reposition cutter housing to
desired cutting height. Align bracket holes with
cutter housing, then reinstall hardware.
6. Lower cutter housing to the ground and remove
lifting device.
7. Set cutting height according to procedures
above for remaining two cutter sections. Make
sure that all three rollers are set at the same
height to ensure a even cut across the entire
width of the mower.

OPERATION
RHD 02/11 Operation Section 4-13
© 2011 Alamo Group Inc.
OPERATION
8.1 Driveline Length Check
When fitting the mower to the tractor, the telescoping driveline must be inspected to ensure that at its most
compressed position, the profiles do not “bottom out”, and when at its farthest extended position, there is
sufficient engagement between the profiles to operate safely. At its shortest length, there must be at least a 1”
clearance between each profile end and opposite profile universal joint. At its farthest operating extension, a
minimum profile engagement of 12” must be maintained.
8. DRIVELINE ATTACHMENT
The driveline yoke and tractor PTO shaft must be
dirt free and greased for attachment.
To connect the mower driveline to the tractor
PTO output shaft, pull the driveline yoke collar
back and align the grooves and splines of the
yoke with those of the PTO shaft. Push the
driveline yoke onto the PTO shaft, release the
locking collar, and position the yoke until the
locking collar balls are seated onto the PTO
shaft. Push and pull the driveline back and forth
several times to ensure a secure attachment.
After the driveline is securely attached, place the
tractor PTO master shield back in the operating
position. OPS-R-0003
When attaching the Implement input driveline to the Tractor PTO, it is important that the
connecting yoke spring activated locking collar slides freely and the locking balls are seated
securely in the groove on the Tractor PTO shaft. Push and pull the driveline back and forth
several times to ensure it is securely attached. A driveline not attached correctly to the
Tractor PTO shaft could come loose and result in personal injury and damage to the
Implement. (S3PT-17)
Before operating the Implement, check to make sure the Implement input driveline will not
bottom out or become disengaged. Bottoming out occurs when the inner shaft penetrates
the outer housing until the assembly becomes solid-it can shorten no more. Bottoming out
can cause serious damage to the Tractor PTO by pushing the PTO into the Tractor and
through the support bearings or downward onto the PTO shaft, breaking it off. A broken
driveline can cause personal injury. (S3PT-18)

OPERATION
RHD 02/11 Operation Section 4-14
© 2011 Alamo Group Inc.
OPERATION
“Bottoming Out” Check Procedure
• Disconnect driveline from the tractor and slide
the profiles together until fully compressed.
• Place a mark on the inner shield 1/8” from the
end of the outer shield and reattach the
driveline to the PTO Shaft.
• With the PTO NOT TURNING, slowly drive the
tractor with mower attached through the
sharpest turn possible and watch shaft
movement. With the PTO NOT TURNING,
slowly drive the tractor with the mower attached
through the most severe terrain conditions
expected and watch shaft movement.
• If the distance between the mark and the outer
shield becomes less than 2” at any point there
is a potential problem bottoming out the
driveline and the driveline should be shortened.
OPS-F-0001
Shorten the driveline profiles as follows:
• Remove the driveline from the tractor.
• Position the mower to the point with the shortest
distance between the tractor PTO shaft and cutter
gearbox. Shut down the tractor and securely block
the mower in this position.
• Pull driveline apart and reattach yoke to PTO shaft.
• Hold driveline sections parallel to one another and
measure back 1” from yoke of each shaft and place
mark on opposite section. Cut this length off with a
saw.
• Round off all sharp edges and debur.
• Thoroughly grease then reinstall the driveline.
• Recheck for proper operation.
Engagement Check Procedure
• With the driveline attached, position the mower to the
point where the telescoping driveline is at its maximum extension. Completely shut down the tractor and secure in
position.
• Mark the inner driveline shield 1/8” from the end of the outer shield.
• Disconnect the driveline from the tractor and separate the two driveline halves.
• Measure the distance from the mark to the end of the inner profile. This length is the amount the driveline profiles
were engaged.
• If the engaged length is less than 12” the shaft is considered too short and should be replaced with a longer shaft.
Consult an authorized dealer to purchase the required driveline length.
NOTE: If the driveline cannot be shortened and still maintain the required profile engagement, the operator must be made
aware of terrain conditions and avoid situations which pose a potential problem to avoid damaging the driveline.
OPS-F-0002

OPERATION
RHD 02/11 Operation Section 4-15
© 2011 Alamo Group Inc.
OPERATION
9. PRE-OPERATION INSPECTION AND SERVICE
Before each use, a pre-operation inspection and service of the implement and tractor must be performed.
This includes routine maintenance and scheduled lubrication, inspecting that all safety devices are equipped
and functional, and performing needed repairs. DO NOT operate the unit if the pre-operation inspection
reveals any condition affecting safe operation. Perform repairs and replacement of damaged and missing
parts as soon as noticed. By performing a thorough pre-operation inspection and service, valuable down time
and repair cost can be avoided. OPS-U-0029
Always disconnect the main PTO Driveline from the Tractor before performing service on
the Mower. Never work on the Mower with the tractor PTO driveline connected and
running. Blades or Drivelines could turn without warning and cause immediate
entanglement, injury or death. (SRM-3)
Always disconnect the main PTO Driveline from the Tractor before performing service on
the Mower. Never work on the Mower with the tractor PTO driveline connected and
running. Blades or Drivelines could turn without warning and cause immediate
entanglement, injury or death. (SRM-3)
DO NOT allow any person under a folded wing unless wing is securely
locked up or supported. DO NOT approach the Implement unless the
Tractor is turned off and all motion has ceased. Never work under the
frame work, or any lifted component unless the implement is securely
supported or blocked up. A sudden or inadvertent fall by any of these
components could cause serious injury or even death. (STI-03)
Periodically inspect all moving parts for wear and replace when
necessary with authorized service parts. Look for loose fasteners, worn
or broken parts, and leaky or loose fittings. Make sure all pins have
cotter pins and washers. Serious injury may occur from not maintaining
this machine in good working order. (SG-21)

OPERATION
RHD 02/11 Operation Section 4-16
© 2011 Alamo Group Inc.
OPERATION
9.1 Tractor Pre-Operation Inspection/Service
Refer to the tractor operator’s manual to ensure a
complete pre-operation inspection and scheduled
service is performed according to the
manufacturers recommendations. The following
are some of the items that require daily service and
inspection:
• Tire condition/air pressure
• Wheel lug bolts
• Steering linkage
• PTO shield
• SMV sign is clean and visible
• Tractor’s lights are clean and functional
• Tractor Seat belt is in good condition
• Tractor ROPS is in good condition
• ROPS is in the raised position
• No tractor oil leaks
• Radiator free of debris
• Engine oil level and condition
• Engine coolant level and condition
• Power brake fluid level
• Power steering fluid level
• Fuel condition and level
• Sufficient lubrication at all lube points
• Air filter condition OPS-U-0030
9.2 Mower Pre-Operation Inspection/Service
Before each mower use, a complete inspection and service is required to ensure the mower is in a good and
safe working condition. Damaged and/or broken parts should be repaired and/or replaced immediately. To
ensure the mower is ready for operation, conduct the following. OPS-R-0007
All Safety Shields, Guards and Safety devices including (but not limited
to) - the Deflectors, Steel Guards, Gearbox Shields, PTO integral
shields , and Retractable Door Shields should be used and maintained
in good working condition. All safety devices should be inspected carefully at least daily
for missing or broken components. Missing, broken, or worn items must be replaced at
once to reduce the possibility of injury or death from thrown objects, entanglement, or
blade contact. (SFL-5)
Replace bent or broken blades with new blades. NEVER ATTEMPT TO STRAIGHTEN,
WELD, OR WELD HARDFACING ON BLADES SINCE THIS WILL LIKELY CRACK OR
OTHERWISE DAMAGE THE BLADE WITH SUBSEQUENT FAILURE AND POSSIBLY
CAUSE SERIOUS INJURY FROM THROWN BLADES. (SGM-10)

OPERATION
RHD 02/11 Operation Section 4-17
© 2011 Alamo Group Inc.
OPERATION
The operator’s manual and safety signs affixed on
the unit contain important instructions on the safe
and proper use of the equipment. Maintain these
important safety features on the implement in good
condition to ensure the information is available to
the operator at all times.
• Ensure the manual canister is secured to the
equipment with the operator’s manual inside.
• Ensure all safety signs are in place and legible.
Replace missing, damaged, and illegible
decals. OPS-U- 0011
• Check that the main driveline securely attached
to the tractor and the locking collar is seated in
the groove of the PTO Shaft.
• Inspect that the 3-point hitch pins are the
proper size, correctly installed and secured to
the tractor lift arms with retaining pins inserted.
• Ensure that a properly rated safety tow chain is
equipped securing the mower to the tractor.
OPS-F-0015
• Ensure rubber deflectors are in position and not
damaged. Replace worn, broken, and missing
sections immediately.
• Ensure the rollers are in good condition and
rotate freely.
• Ensure the driveline integral shield is in good
condition and rotate freely.
• Inspect that all bolts and screws are in position
and are properly torqued. OPS-F- 0004

OPERATION
RHD 02/11 Operation Section 4-18
© 2011 Alamo Group Inc.
OPERATION
• Inspect the condition of the drive belts.
• Ensure the slip clutch (rear mower section only)
is properly adjusted and the friction plates are
not frozen together. Reference the
Maintenance Section for proper slip clutch
maintenance.
• Ensure the slop clutch shield and drive belts
shields are in place and in good repair.
• Ensure the tractor PTO master shield is in
place, lowered and in good condition.
OPS-F- 0016
• Inspect oil level in gearbox and replenish if
needed. A low oil level is a warning sign that
the gearbox may be cracked or its seal is
damaged and needs to be replaced.
• Perform scheduled lubrication as specified in
the maintenance section. OPS-F-0017
• Inspect cutter knives and knife pins for
looseness and excessive wear. Make sure the
mower is securely blocked up before crawling
beneath. Replace damaged, worn, and missing
knives as complete sets to maintain cuttershaft
balance.
• Remove any grass or other debris which may
be wrapped around the cuttershafts.
• Inspect the condition of deck skid shoes and
hardware. OPS-F- 0007

OPERATION
RHD 02/11 Operation Section 4-19
© 2011 Alamo Group Inc.
OPERATION
Tractor PRE-OPERATION Inspection
Tractor ID#________________ Make ____________________
Date: ________________ Shift ____________________
Before conducting the inspection, make sure the tractor engine is off, all
rotation has stopped and the tractor is in park with the parking brake
engaged. Make sure the mower is resting on the ground or securely blocked
up and all hydraulic pressure has been relieved.
Operator’s Signature:
Item Condition at
Start of Shift Specific Comments if
not O.K.
The flashing lights function properly
The SMV Sign is clean and visible
The tires are in good condition with proper pressure
The wheel lug bolts are tight
The tractor brakes are in good condition
The steering linkage is in good condition
There are no visible oil leaks
The hydraulic controls function properly
The ROPS or ROBS Cab is in good condition
The seatbelt is in place and in good condition
The 3-point hitch is in good condition
The drawbar pins are securely in place
The PTO master shield is in place
The engine oil level is full
The brake fluid level is full
The power steering fluid level is full
The fuel level is adequate
The engine coolant fluid level is full
The radiator is free of debris
The air filter is in good condition
DO NOT OPERATE an UNSAFE TRACTOR or MOWER

OPERATION
RHD 02/11 Operation Section 4-20
© 2011 Alamo Group Inc.
OPERATION
Flail Mower PRE-OPERATION Inspection
Mower ID#________________ Make ____________________
Date: ________________ Shift ____________________
Before conducting the inspection, make sure the tractor engine is off, all
rotation has stopped and the tractor is in park with the parking brake
engaged. Make sure the mower is resting on the ground or securely blocked
up and all hydraulic pressure has been relieved.
Operator’s Signature:
Item Condition at
Start of Shift Specific Comments if
not O.K.
FLAIL MOWER
The Operator’s Manual is in the canister on the mower
All safety decals are in place and legible
The hitch connection bolts & pins are tight
There are no cracks in hitch
Their mower deck is clear of cut grass and debris
The thrown object guard/deflectors are in place
Their guards/deflectors are in good condition
The driveline/gearbox shields are in good condition
The driveline clutch is in good condition, not frozen
The driveline tubes & u-joints have been lubricated
The driveline yoke is securely attached to the PTO
The gearbox oil level is full
Blades are not broken, chipped, cracked or bent
Blade shackles are in good condition with no cracks
The blade pins are properly retained
The skid shoes are in good condition & tight
The rear roller is in good condition and turns freely
DO NOT OPERATE an UNSAFE TRACTOR or MOWER

OPERATION
RHD 02/11 Operation Section 4-21
© 2011 Alamo Group Inc.
OPERATION
10. DRIVING THE TRACTOR AND IMPLEMENT
Safe tractor transport requires the operator possess a thorough knowledge of the model being operated and
precautions to take while driving with an attached implement. Ensure the tractor has the capacity to handle the
weight of the implement and the tractor operating controls are set for safe transport. To ensure safety while
driving the tractor with an attached implement, review the following. OPS-U- 0012
This Implement may be wider than the Tractor. Be careful when operating or transporting
this equipment to prevent the Implement from running into or striking sign posts, guard rails,
concrete abutments or other solid objects. Such an impact could cause the Implement and
Tractor to pivot violently resulting in loss of steering control, serious injury, or even death.
Never allow the Implement to contact obstacles. (S3PT-12)
Transport only at speeds where you can maintain control of the
equipment. Serious accidents and injuries can result from operating this
equipment at high speeds. Understand the Tractor and Implement and
how it handles before transporting on streets and highways. Make sure the Tractor steering
and brakes are in good condition and operate properly.
Before transporting the Tractor and Implement, determine the proper transport speeds for
you and the equipment. Make sure you abide by the following rules:
Test the tractor at a slow speed and increase the speed slowly. Apply the Brakes smoothly
to determine the stopping characteristics of the Tractor and Implement. As you increase
the speed of the Tractor the stopping distance increases. Determine the maximum
transport speed not to exceed 20 mph (30 kph) for transporting this equipment.
Test the equipment at a slow speed in turns. Increase the speed through the turn only after
you determine that the equipment can be operated at a higher speed. Use extreme care
and reduce your speed when turning sharply to prevent the tractor and implement from
turning over. Determine the maximum turning speed for you and this equipment before
operating on roads or uneven ground.
Only transport the Tractor and Implement at the speeds which allow you to properly control
the equipment.
Be aware of the operating conditions. Do not operate the Tractor with weak or faulty brakes
or worn tires. When operating down a hill or on wet or rain slick roads, the braking distance
increases: use extreme care and reduce your speed. When operating in traffic always use
the Tractor’s flashing warning lights and reduce your speed. Be aware of traffic around you
and watch out for the other guy. (SG-19)

OPERATION
RHD 02/11 Operation Section 4-22
© 2011 Alamo Group Inc.
OPERATION
Always disengage the tractor differential lock when turning. When engaged the differential lock will prevent or
limit the tractor from turning. During normal cutting conditions, locking the differential provides no benefit and
should not be used.
10.1 Starting the Tractor
The procedure to start the tractor is model specific.
Refer to the tractor operator’s manual for starting
procedures for your particular tractor. Consult an
authorized dealer if the starting procedure is
unclear. Ensure the 3-point control lever is in the
lowered position and the PTO is disengaged before
starting the tractor. OPS-U-0033
10.2 Brake and Differential Lock Setting
Make sure the tractor brakes are in good operating
condition. Tractor brakes can be set to operate
independently allowing single rear wheel braking
action or locked together to provide simultaneous
rear wheel braking. FOR MOST DRIVING AND
OPERATING CONDITIONS, THE BRAKE PEDALS
SHOULD BE LOCKED TOGETHER TO PROVIDE
THE MOST EFFECTIVE BRAKING ACTION.
Always disengage the tractor differential lock when
turning. When engaged the differential lock will
prevent or limit the tractor from turning. During
normal cutting conditions, locking the differential
provides no benefit and should not be used. OPS-
U- 0013
Be aware of the operating conditions. Do not operate the Tractor with weak or faulty brakes.
When operating down a hill or on wet or rain slick roads, the braking distance increases; use
extreme care and reduce your speed in these conditions. When operating in traffic, always
use the Tractor’s flashing warning lights and reduce your speed. Be aware of traffic around
you and watch out for the other guy.

OPERATION
RHD 02/11 Operation Section 4-23
© 2011 Alamo Group Inc.
OPERATION
10.3 Raising the Mower
Using the tractor 3-point hitch control lever, raise
the mower off the ground about 6”, or just high
enough to clear any ground obstacles. When
raising the mower, make sure all connection points
are securely attached and at least 1” clearance is
maintained between the driveline and the deck. If
necessary, place an upper lift stop on the 3-point
hitch control lever to limit the height the mower can
be raised to avoid driveline damage.

OPERATION
RHD 02/11 Operation Section 4-24
© 2011 Alamo Group Inc.
OPERATION
10.4 Driving the Tractor and Mower
Start off driving at a slow speed and gradually increase your speed while maintaining control of the tractor and
mower. Moving slowly at first will also prevent the tractor from rearing up and loss of steering control. The
tractor should never be operated at speeds that cannot be safely handled or which will prevent the operator
from stopping quickly during an emergency. If the power steering or engine ceases operating, stop the tractor
immediately as the tractor will be difficult to control.
Drive the tractor with the 3-Point lift arms in the raised position and lock the control lever in the transport detent
position to prevent damage to the mower driveline and tongue when turning.
Perform turns with the tractor and mower at slow
speeds to determine how the tractor with an
attached mower handles a turn. Determine the safe
speed to maintain proper control of the tractor when
making turns. When turning with a towed
implement, the overall working length of the unit is
increased. Allow additional clearance for the mower
when turning.
To avoid overturns, drive the tractor with care and at
safe speeds, especially when operating over rough
ground, crossing ditches or slopes, and turning
corners. Tractor wheel tread spacing should be
increased when working on inclines or rough
ground to reduce the possibility of tipping.
Use extreme caution when operating on steep
slopes. Keep the tractor in a low gear when going
downhill. DO NOT coast or free-wheel downhill.
OPS-F- 0018

OPERATION
RHD 02/11 Operation Section 4-25
© 2011 Alamo Group Inc.
OPERATION
10.5 Crossing Ditches and Steep Inclines
When crossing ditches with steep banks or going up
sharp inclines, it is possible that the main driveline
inner profile will penetrate into the outer housing to its
maximum depth until the assembly becomes solid
(driveline is at its extreme shortest length). This type
of abusive operation can cause serious damage to
the tractor and mower drive by pushing the PTO into
the tractor and through the support bearings or
downward onto the PTO shaft, breaking it off.
Damage resulting from over-collapse of the driveline’s inner profile and its outer housing
may allow the driveline to come loose from the Tractor which could cause bodily injury to the
operator or bystanders and/or extensive damage to the Tractor or Implement. OPS-R-0020
When confronted with an incline or ditch, do not
approach from an angle which is perpendicular or
straight on as damaged to over collapse of the
driveline may occur.
When crossing such terrain, the implement should
be fully lowered for a lower center of gravity and
added stability. OPS-R-0021

OPERATION
RHD 02/11 Operation Section 4-26
© 2011 Alamo Group Inc.
OPERATION
Inclines and ditches should be approached along a
line which is at an angle as shown. This type of
path will reduce the possibility of over-collapse of
the driveline and resulting damage. If the gradient
is so steep that such an approach increases the
possibility of a tractor roll-over, select an alternate
crossing path.
When operating the tractor and mower across
slopes and inclines, through ditches, and other
uneven terrain conditions, it is important to maintain
sufficient deck to ground clearance. Blade contact
with the ground may cause soil, rocks and other
debris to be thrown out from under the mower
resulting in possible injury and/or property damage.
Ground contact also produces a severe shock load
on the mower drive and to the mower blades
resulting in possible damage and premature wear.
OPS-R-0022
11. OPERATING THE TRACTOR AND IMPLEMENT
THE OPERATOR MUST COMPLETELY UNDERSTAND HOW TO OPERATE THE TRACTOR AND
IMPLEMENT AND ALL CONTROLS BEFORE ATTEMPTING TO OPERATE. The operator must read and
understand the Safety and Operation Sections of the implement and tractor operator’s manuals. These
manuals must be read and explained to any operator who cannot read. Never allow someone to operate the
implement and tractor without complete operating instructions.
Before starting any operation, the operator must become familiar with the area to be worked in and any
obstacles and hazards contained within to ensure safety to the operator, bystanders, and equipment. Special
attention should be paid to foreign debris, rough terrain, steep slopes, and passersby and animals in the area.
OPS-U- 0015
Extreme care should be taken when operating near loose objects such
as gravel, rocks, wire, and other debris. Inspect the area before
mowing. Foreign objects should be removed from the site to prevent
machine damage and/or bodily injury or even death. Any objects that
cannot be removed must be clearly marked and carefully avoided by the
operator. Stop mowing immediately if blades strike a foreign object.
Repair all damage and make certain rotor or blade carrier is balanced
before resuming mowing. (SGM-05)

OPERATION
RHD 02/11 Operation Section 4-27
© 2011 Alamo Group Inc.
OPERATION
Many varied objects, such as wire, cable, rope, or chains, can become entangled in the
operating parts of the mower head. These items could then swing outside the housing at
greater velocities than the blades. Such a situation is extremely hazardous and could result
in serious injury or even death. Inspect the cutting area for such objects before mowing.
Remove any like object from the site. Never allow the cutting blades to contact such items.
(SGM-06)
11.1 Foreign Debris Hazards
Before mowing, inspect the area to make sure
there are no foreign objects that the mower blades
could hit or become entangled with. Remove all
foreign objects and debris. If objects are too big to
remove, mark them clearly and be sure to prevent
the mower blades from contacting them.
If you hit a solid object or foreign debris, stop the
mower and tractor at once. Immediately idle the
engine speed and disengage the PTO. Wait for all
mower rotating motion to stop, then raise the
mower and move the tractor and implement off the
object. Inspect the area and remove, or mark the
location of the debris. Inspect the condition of the
mower and make any needed repairs immediately.
Make sure the blades are not damaged and the
carrier is balanced before resuming operation.
Always wear your seat belt securely fastened and
only operate the tractor and mower with the ROPS
in the raised position. If the tractor or mower hits a
tree stump, rock, or bump, a sudden movement
could throw you off of the seat and under the
tractor and/or mower. The seat belt is your best
protection from falling off the tractor and the ROPS
provides protection from being crushed during a
tractor roll-over. OPS-F-0010
11.2 Bystanders/Passersby Precautions
If a bystander comes within 300 feet of the tractor while the mower is being operated, stop the tractor at once,
idle the engine and disengage the PTO. Do not engage the PTO again until all bystanders are well past the
300 foot distance. OPS-R-0024

OPERATION
RHD 02/11 Operation Section 4-28
© 2011 Alamo Group Inc.
OPERATION
Flail Mowers are capable under adverse conditions of throwing
objects for great distances (300 feet or more) and causing serious
injury or death. Follow safety messages carefully.
STOP MOWING IF PASSERSBY ARE WITHIN 300 FEET UNLESS:
-Front and Rear Deflectors, Chain Guards, or Bands are installed and in good, workable
condition;
-Mower sections or Wings are running close to and parallel to the ground without
exposed Blades;
-All areas have been thoroughly inspected and all foreign material such as rocks, cans,
glass, and general debris has been removed.
NOTE: Where there are grass and weeds high enough to hide debris that could be
struck by the blades, the area should be: inspected and large debris removed, mowed at
an intermediate height, inspected closely with any remaining debris being removed, and
mowed again at desired final height. (This will also reduce power required to mow,
reduce wear and tear on the Mower drivetrain, spread cut material better, eliminate
streaking, and make the final cut more uniform.) (SFL-6)
11.3 Engaging the Power Take Off (PTO)
Before engaging the PTO, make certain that the area is clear of bystanders and passersby. The implement
must be completely lowered and the deck positioned at a safe operating height. NEVER engage the PTO with
the implement in the raised position.
Set the tractor engine speed at approximately 1,000 RPM before engaging the PTO. Shift the PTO control to
the on position, and slowly increase the engine speed until the PTO is operating at the rated speed. If you
hear unusual noises or see or feel abnormal vibrations, disengage the PTO immediately. Inspect the
implement to determine the cause of the noise or vibration and repair the abnormality. OPS-U- 0027
Do not let the Blades turn when the Mower Deck is raised for any
reason, including clearance or for turning. Raising the Mower deck
exposes the Cutting Blades which creates a potentially serious hazard
and could cause serious injury or even death from objects thrown from
the Blades. (SRM-07)
Do not put hands or feet under mower decks. Blade Contact can result
in serious injury or even death. Stay away until all motion has stopped
and the decks are securely blocked up. (SGM-09)

OPERATION
RHD 02/11 Operation Section 4-29
© 2011 Alamo Group Inc.
OPERATION
11.4 PTO RPM and Ground Speed
Ground speed for mowing will depend upon the height, type, and density of vegetation to be cut.
Recommended speed for efficient mower performance is between 2 and 5 mph(3-8 kph). Operate the mower
at its full rated PTO speed to maintain blade speed for a clean cut. Refer to the tractor operator’s manual or
the tractor instrument panel for the engine speed and gear to provide the required PTO and desired ground
speed. Make sure that the mower is operating at its full rated speed before entering the vegetation to be cut.
If it becomes necessary to temporarily regulate engine speed, increase or decrease the throttle gradually.
Ground speed is achieved by transmission gear selection and not by the engine operating speed. The
operator may be required to experiment with several gear range combinations to determine the best gear and
range which provides the most ideal performance from the mower and most efficient tractor operation. As the
severity of cutting conditions increase, the ground speed should be decreased by selecting a lower gear to
maintain the proper operating PTO speed. OPS-R-0025
Do not exceed the rated PTO speed for the Implement. Excessive PTO speeds can cause
Implement driveline or blade failures resulting in serious injury or death. (SG-26)
Mow at the speed that you can safely operate and control the tractor and mower. The
correct mowing speed depends on terrain condition and grass type, density, and height of
cut. Normal ground speed range is from 2 to 5 mph(3-8 kph). Use slow mowing speeds
when operating on or near steep slopes, ditches, drop-offs, overhead obstructions, power
lines, or when debris and foreign objects are to be avoided. (SGM-07)
11.5 Operating the Mower
Only operate the mower from the tractor operator’s seat with the seatbelt securely fastened. The tractor must
be equipped with a ROPS in the raised position or a ROPS cab.
The mower is designed to cut vegetation up to 1-1/2” in diameter. Sharp blades will produce a cleaner cut and
require less power. Travel at a speed that allows the mower sufficient time to cut through the vegetation and
maintain the PTO operating speed to prevent overloading the mower and tractor. Choose a driving pattern
that provides the maximum pass length and minimizes turning.
Under certain conditions, tractor tires may roll some grasses down preventing them from being cut at the
same height as the surrounding area. When this occurs, reduce the tractor ground speed while maintaining
the operating speed of the mower. A slower ground speed will permit grasses to at least partially rebound and
be cut. Taking a partial cut and/or reversing the direction of travel may also help produce a cleaner cut.
Avoid mowing in the reverse direction when possible. In situations where the mower must be backed to
access areas to be cut, make sure there are no persons or other foreign debris behind the mower before
mowing in reverse. When mowing in reverse, operate the tractor and mower at a reduced ground speed to
ensure tractor and mower control is maintained. OPS-R-0026

OPERATION
RHD 02/11 Operation Section 4-30
© 2011 Alamo Group Inc.
OPERATION
Do not mow with two machines in the same area except with Cab tractors with the windows
closed. (SGM-11)
Mow only in conditions where you have clear visibility in daylight or with adequate artificial
lighting. Never mow in darkness or foggy conditions where you cannot clearly see at least
300 feet (90 m) in front and to the sides of the tractor and mower. Make sure that you can
clearly see and identify passersby, steep slopes, ditches, drop-offs, overhead obstructions,
power lines, debris and foreign objects. If you are unable to clearly see these type of items
discontinue mowing. (SGM-1)
Avoid mowing in reverse direction when possible. Check to make sure there are no
persons behind the mower and use extreme care when mowing in reverse. Mow only at a
slow ground speed where you can safely operate and control the tractor and mower.
Never mow an area that you have not inspected and removed debris or foreign material.
(SGM-08)
Follow these guidelines to reduce the risk of equipment and grass fires
while operating, servicing, and repairing the Mower and Tractor:
-Equip the Tractor with a fire extinguisher in an accesible location.
-Do Not operate the Mower on a Tractor with an underframe exhaust.
-Do Not smoke or have an open flame near the Mower and Tractor.
-Do Not drive into burning debris or freshly burnt areas.
-Ensure slip clutches are properly adjusted to prevent excessive slippage and plate heating.
-Never allow clippings or debris to collect near drivelines, slip clutches, and gearboxes.
Periodically shut down the Tractor and Mower and clean clippings and collected debris from
the mower deck. (SGM-12)

OPERATION
RHD 02/11 Operation Section 4-31
© 2011 Alamo Group Inc.
OPERATION
11.6 Shutting Down the Implement
To shut down the implement, first bring the tractor
to a complete stop. Then slow down the implement
by reducing the engine speed before disengaging
the PTO. Wait for all motion to stop before
proceeding to drive or shut down the tractor.
Park the tractor on a level surface, place the
transmission in park or neutral and apply the
parking brake, lower the attached implement to the
ground, shut down the engine, remove the key, and
wait for all motion to come to a complete stop
before exiting the tractor. OPS-F- 0011

OPERATION
RHD 02/11 Operation Section 4-32
© 2011 Alamo Group Inc.
OPERATION
Never stand or allow another person to stand between a running Tractor and the Mower
when disconnecting the Implement from the Tractor 3-point hitch. Always shut the Tractor
off completely and set the parking brake before attempting to disconnect the Mower pins
from the Tractor hitch.
12. DISCONNECTING THE MOWER FROM THE TRACTOR
Before disconnecting the mower, the PTO must be
disengaged and all motion at a complete stop.
Move the mower to a level storage location and
lower to the ground. If the mower is not resting
securely on the ground, block the mower up
securely before attempting to disconnect it from
the tractor. Use extreme care to keep feet and
hands from under the mower and clear of any
pinch points.
To disconnect the implement, first extend the
tractor 3-point hitch top link to remove tension on
the top link hitch pin. When the pin is loose and
easy to rotate, remove the pin from the mower.
Next remove both lower hitch pins.
Use extreme care to keep feet and hands from under the mower and clear of any pinch points.
OPS-F-0012_A
Always shut the Tractor completely down, place the transmission in park, and set the
parking brake before you or anyone else attempts to connect or disconnect the Implement
and Tractor hitches. (S3PT-15)
After disconnecting the 3 lift points, remove the
mower driveline from the tractor PTO shaft. Lay
the driveline down carefully to avoid damaging
the driveline or its shield. Do not let the driveline
fall into mud or dirt, which can contaminate the
bearing and shorten the life of the driveline.
OPS-F-0013

OPERATION
RHD 02/11 Operation Section 4-33
© 2011 Alamo Group Inc.
OPERATION
Never work under the Implement, the framework, or any lifted
component unless the Implement is securely supported or blocked up
to prevent sudden or inadvertent falling which could cause serious
injury or even death. (SG-14)
13. MOWER STORAGE
Properly preparing and storing the mower at the end of the season is critical to maintaining its appearance
and to help ensure years of dependable service. The following are suggested storage procedures:
• Thoroughly clean all debris off the mower to prevent damage from crop, mud, and standing water.
• Lubricate all mower grease points and fill gearbox oil level as detailed in the maintenance section.
• Tighten all bolts and pins to the recommended torque.
• Check the mower for worn and damaged parts. Perform repairs and make replacements immediately so
that the mower will be ready for use at the start of the next season.
• Store the mower in a clean, dry place with the mower housing resting securely on blocks or at ground
level.
• Keep the driveline yoke from sitting in water, dirt and other contaminants.
• Use spray touch-up enamel where necessary to prevent rust and maintain the appearance of the mower.
It is critical that the driveline clutch slip when an obstacle or heavy load is encountered to avoid mower and/or
tractor damage. If the mower sits outside for an extended period of time or is exposed to rain and/or humid
air, the clutch lining plates must be inspected to ensure they are not frozen together from rust or corrosion. If
the mower has been exposed to such conditions, at the start of each mowing season, and any time it is
suspected that the slip clutch plates may be frozen together, readjust the slip clutch as detailed in Clutch
Maintenance section of this manual. OPS-F-0014_A
Never allow children to play on or around Tractor or Implement. Children can slip or fall off
the Equipment and be injured or killed. Inadvertent contact with controls can cause the
Implement to shift or fall crushing themselves or others. (SG-25)
14. TRANSPORTING THE TRACTOR AND IMPLEMENT
Inherent hazards of operating the tractor and implement and the possibility of accidents are not left behind
when you finish working in an area. Therefore, the operator must employ good judgement and safe operation
practices when transporting the tractor and implement between locations. By using good judgement and
following safe transport procedures, the possibility of accidents while moving between locations can be
substantially minimized. OPS-U- 0017

OPERATION
RHD 02/11 Operation Section 4-34
© 2011 Alamo Group Inc.
OPERATION
If the tractor’s hydraulic pump is not independent of the tractor PTO, or if the tractor PTO has to be run to have
hydraulic power, disconnect the mower driveline from the tractor PTO output shaft. Secure the driveline to the
mower deck to prevent driveline damage or loss during transport.
Before transporting the tractor and mower, idle
the tractor engine, disengage the PTO and wait
for all mower moving parts to come to a
complete stop. Raise the mower sections and
ensure transport locks engage. OPS-F- 0021
Before transporting the tractor on a public roadway
or boarding a trailer for transport, the tractor brake
pedals should be locked together. Locking the
pedals ensures that both wheels brake
simultaneously while stopping, especially when
making an emergency stop.
Use extreme caution and avoid hard applications of
the tractor brakes when towing heavy loads at road
speeds. Never tow the implement at speeds
greater than 20 MPH (32 kph). OPS-U- 0018

OPERATION
RHD 02/11 Operation Section 4-35
© 2011 Alamo Group Inc.
OPERATION
14.1 Transporting on Public Roadways
Extreme caution should be used when transporting the tractor and implement on public roadways. The tractor
must be equipped with all required safety warning features including a SMV emblem and flashing warning
lights to alert drivers of the tractor’s presence. Remember that roadways are primarily designed for
automotive drivers and most drivers will not be looking out for you, therefore, you must look out for them.
Check your side view mirrors frequently and remember that vehicles will approach quickly because of the
tractor’s slower speed. Be extremely cautious when the piece of equipment that you are towing is wider than
the tractor tire width and/or extends beyond your lane of the road.
Make sure that a proper size safety tow chain is secured between the tractor and implement before entering a
public road. OPS-U- 0019
Only tow the Implement behind a properly sized and equipped Tractor
which exceeds the weight of the Implement by at least 20%. DO NOT
tow the Implement behind a truck or other type of vehicle. Never tow the
Implement and another Implement connected in tandem. Never tow the
Implement at speeds over 20 MPH. (STI-06)
Never allow children or other persons to ride on the Tractor or Implement.
Falling off can result in serious injury or death. (SG-10)
Make certain that the “Slow Moving Vehicle” (SMV) sign is installed in
such a way as to be clearly visible and legible. When transporting the
Equipment use the Tractor flashing warning lights and follow all local
traffic regulations. (SG-6)
The SMV (Slow-Moving Vehicle) emblem is
universal symbol used to alert drivers of the
presence of equipment traveling on roadways at a
slow speed. SMV signs are a triangular bright
orange with reflective red trim for both easy day
and night visibility. Make sure the SMV sign is
clean and visible from the rear of the unit before
transporting the tractor and implement on a public
roadway. Replace the SMV emblem if faded,
damaged, or no longer reflective. OPS-U- 0020

OPERATION
RHD 02/11 Operation Section 4-36
© 2011 Alamo Group Inc.
OPERATION
Make sure that all tractor flashing warning lights,
headlights, and brake/tail lights are functioning
properly before proceeding onto public roads. While
newer model tractors have plenty of lighting to
provide warning signals and operating lighting, most
older models are only equipped with operating lights.
Consult an authorized tractor dealer for lighting kits
and modifications available to upgrade the lighting on
older tractor models. OPS-U- 0021
When operating on public roads, have
consideration for other road users. Pull to the side
of the road occasionally to allow all following traffic
to pass. Do not exceed the legal speed limit set in
your country for agricultural tractors. Always stay
alert when transporting the tractor and implement
on public roads. Use caution and reduce speed if
other vehicles or pedestrians are in the area. OPS-
U- 0022
Reduce speed before turning or applying the brakes.
Ensure that both brake pedals are locked together
when operating on public roads. OPS-U- 0023

OPERATION
RHD 02/11 Operation Section 4-37
© 2011 Alamo Group Inc.
OPERATION
14.2 Hauling the Tractor and Implement
Before transporting a loaded tractor and implement,
measure the height and width dimensions and gross
weight of the complete loaded unit. Ensure that the
load will be in compliance with the legal limits set for
the areas that will be traveled through. OPS-U- 0024
Use adequately sized and rated trailers and
equipment to transport the tractor and implement.
Consult an authorized dealer to determine the proper
equipment required. Using adequately sized chains,
heavy duty straps, cables and/or binders, securely tie
down both the front and rear of the tractor utilizing the
proper tie down locations as specified by the tractor
manufacturer. OPS-U- 0025

OPERATION
RHD 02/11 Operation Section 4-38
© 2011 Alamo Group Inc.
OPERATION
15. TROUBLESHOOTING GUIDE
Problem Possible Cause Remedy
Excessive Vibrations Check gearbox bolts. Tighten if loose
Check for missing knives on Replace missing knives
cutter shaft.
Check to see if knives are Free knives so they swing.
free swinging.
Blade broken or bent. Replace blades.
Cuttershaft bent. Replace cuttershaft.
Drivelines not phased correctly. Replace driveline.
Implement & Tractor yokes must
be in line.
Cuttershaft bearing worn Replace bearings
Gearbox Overheating Low on lubricant. Fill to level plug.
Improper type lubricant. Replace with proper lubricant.
Excessive trash build-up Remove trash.
around gearbox.
Bearing or gears set up Consult your Dealer.
improperly.
Gearbox Noisy Rough Gears. Run in or change gears.
Worn Bearing. Replace bearing.
Noise Damaged Belt Shield Straighten or replace Shields.
(Rubbing on pulleys or belt).
Worn Bearing or Gear. Replace Bearing or Gear.
Gearbox Leaking Damaged oil seal Replace seal.
Bent shaft. Replace oil seal and shaft.
Shaft rough in oil seal area. Replace or repair shaft.
Oil seal installed wrong. Replace seal.
Oil seal not sealing in the housing. Replace seal or use a sealant on
OD of Seal.
Oil level too high. Drain oil to proper level.
Sand hole is casting. Replace castings or gearbox.
Gasket damaged. Replace gasket.
Bolts loose. Tighten bolts.

OPERATION
RHD 02/11 Operation Section 4-39
© 2011 Alamo Group Inc.
OPERATION
Clutch Slips Excessively Clutch linings badly worn or Repair clutch per maintenance
plates warped. section of manuals.
Too much power for clutch. Reduce ground speed and material
intake.
Oil on facings. Replace facings.
Friction facings glazed. Clean with emery cloth.
Knives Wear Too Fast Cutting in sandy conditions. Increase cutting height.
Cutting in rocky conditions. Increase cutting height.
Soft “will fit” knives. Use genuine Rhino knives.
Discharging Bunches or Clogging- Belt installed improperly. Check belt for correct set-up.
Blades dull. Check blades for sharpness.
Grass too wet. Wait for grass to dry.
Grass too long. Mow at 3-1/2” and recut lower.
Travel speed too fast. Use a lower tractor gear.
PTO RPM too low. Mow at engine RPM to match 540
PTO RPM.
Blades Scalping High Places Mowing too low. Raise height of cut.
Rough, uneven ground. Use a slower speed.
Lower rollers.
Turning Tractor too fast. Slow down when turning.
Uneven Cut Travel speed too fast. Use a slower speed.
Mower deck not level. Level the mowing deck.
Blades dull or unbalanced. Sharpen or balance blades.
Deck underside plugged. Clean underside of deck.
Grass too high. Mow at 3-1/2” and recut lower.
Grass Clippings Windrow Grass too wet. Wait for grass to dry.
or clump Grass too high. Mow at 3-1/2” and recut lower.
Housing plugged. Clean underside of deck.
Grass Not being Cut Evenly Belt worn or slipping. Replace or adjust belt.
Spring broke & belt off idler. Replace spring or adjust belt.
Housing plugged. Clean underside of housing.
Debris around pulleys. Remove deck belt shield and clean
out debris.
Grass too high. Mow at 3-1/2” and recut lower.

Maintenance Section 5-1
© 2011 Alamo Group Inc.
MAINTENANCE SECTION

MAINTENANCE
RHD 02/11 Maintenance Section 5-2
© 2011 Alamo Group Inc.
MAINTENANCE
Maintenance Instructions
Before operating the mower, make sure it is properly lubricated and thoroughly inspected. Only a minimum of
time and effort is required to regularly lubricate and maintain this machine to provide long life and trouble free
operation.
Check all bolt tightness BEFORE initial operation of the mower. Retorque all hardware after the first 4 hours of
operation. A torque chart is provided at the end of the Maintenance Section.
NOTE: Before initial start-up, check outer cuttershaft bearing setscrews. Standard 3/16 allen wrench must be
modified as shown.
This modified tool allows access between housing
and bearing inner race to tighten setscrews. Check
setscrews after first days of operation. If loose,
tighten and recheck again the next day or until
setscrews are found to remain tight.

MAINTENANCE
RHD 02/11 Maintenance Section 5-3
© 2011 Alamo Group Inc.
MAINTENANCE
Lubrication
Do not let excess grease collect on or around parts, particularly when operating in sandy areas. The
accompanying illustration shows lubrication points. The chart gives the frequency of lubrication in hours, based
on normal operating conditions. Severe or unusual conditions may require more frequent lubrication.
Use Multi-Purpose Gear Oil P/N 00786250 for all locations shown according to instructions. Be sure to clean
the fitting thoroughly before using grease gun. Daily lubrication of the wing driveline slip joint is necessary.
Failure to maintain proper lubrication will result in damage to U-joints, gearbox and/or drive shaft.
When attaching QD yoke to tractor PTO or gearbox shaft, it is important that the spring
activated locking pin or collar slides freely, and locking balls are seated in groove on splined
shaft. A loose yoke could slip off and result in personal injury or damage to cutter.

MAINTENANCE
RHD 02/11 Maintenance Section 5-4
© 2011 Alamo Group Inc.
MAINTENANCE
LOCATION LUBE INTERVAL LEVER ACTION PUMPS
A. Cuttershaft Bearings 8 Hours 4-6
B. Roller Bearings 8 Hours 8-10*
C. Mower Idler Arm 8 Hours 1-2
D. Banjo Bearing 8 Hours 2-3
E. Banjo Coupling 8 Hours 2-3
F. Cross & Bearings 8 Hours 2-3
G. Telescoping Tubes 8 Hours 6-8
H. Shield Bearings 50 Hours 1-2
*Note: Lubricate roller bearings until lubricant can be seen coming out between roller and bearing housing.

MAINTENANCE
RHD 02/11 Maintenance Section 5-5
© 2011 Alamo Group Inc.
MAINTENANCE
Banjo Gearbox
The gearbox should not require additional lubricant
unless the box is cracked or a seal is leaking. It is
recommended that the check plug be removed after
every 8 to 10 hours of operation and oil added until
it shows proper level.
Use Rhino Multi-Purpose gear oil, P/N 00786250.
Driveline
The Driveline should be inspected each morning before the mower is started.
Cross & bearings are located at each end of driveline.
Telescoping tube sitting is accessible by rotating driveline shield tubes until hole in shield exposes grease
fitting.
Lubricate all fittings with a good quality Lithium Soap compatible E.P. grease meeting the NLGI #2
specifications and containing no more than 1%.
Check the cross & bearing kits for wear by rotating tractor yoke back and forth while implement yoke is
attached to mower. If there is noticeable movement in driveline, replace the cross & bearing kit before it causes
damage to driveline.

MAINTENANCE
RHD 02/11 Maintenance Section 5-6
© 2011 Alamo Group Inc.
MAINTENANCE
Driveline Shield
The Driveline Integral Shields should not become dented or otherwise damaged. The Integral Shield Assembly
has a Nylon Bearing at each end and should turn freely. This nylon bearing should require lubrication every 8
hours. To remove the Integral Shields for replacement or repair, turn the three Nylon Nuts 1/4 turn in the Shield
Slots of the Cone and Tube and remove them. Slip the Shield Cone Assembly off inner section of the Driveline.
Install the new or repaired Shield on the Driveline. Place the split Nylon Bearing over the Driveline Housing of
Shaft against the Yoke and in the Bearing groove. Install shield over the Housing so the Nylon Bearing fits into
the Shield Bearing Retainer. Align a slot in the Shield Cone with one of the slots in the Shield. Put one of the
Nylon Nuts back in through the aligned slots and turn until it is perpendicular to the slots. Add the other two
Nylon Nuts.
Make certain that the Driveline Integral Shields are free to telescope and rotate around the
Driveline without binding.

MAINTENANCE
RHD 02/11 Maintenance Section 5-7
© 2011 Alamo Group Inc.
MAINTENANCE
Slip Clutch
A slip clutch is incorporated in the PTO driveline. It is designed to slip, absorb the shock load, and protect the
driveline.
After the first hour of operation, the slip clutch should be checked for overheating. After this first check, the slip
clutch should be checked weekly or anytime there is overheating. To adjust the slip clutch, tighten the spring
bolts 1/8 (maximum) turn at a time. Bolts should NEVER be adjusted to the point where the springs are
compressed solid. Minimum spring compression length is 1-1/4”.
The slip clutch should be checked periodically and adjusted to compensate for wear. The lining plates are 1/8”
thick when new. Replace after 1/32” wear. If the mower has been idle for an extended period of time, or in wet
weather, before operating check to be sure the friction lining plates are not frozen or rusted together. Should
this freezing occur refer to the procedure described in the “Seasonal Clutch Maintenance” section on the next
page.
Seasonal Clutch Maintenance
1. It is important that the clutch lining plates slip when an obstacle or load heavier than the clutch setting is
encountered. Therefore, if the machine sits outside longer than 30 days and is exposed to rain and/or
humid air it is important to make sure that the clutch lining plates are not rusted/corroded together. Before
using the mower use the following procedure to make sure the clutch will slip and give the overload
protection required.
2. Loosen nuts (Figure Mnt-FL-0003) on springs until the springs can freely rotate, yet remain secure on
bolts.
3. Attach mower to tractor and start the tractor. Set the engine speed at 1200 RPM.
4. Mark outer plates as shown in Figure Mnt-FL-0003.
5. Engage the PTO (approximately one second) and then quickly disengage it. The friction lining plates
should break loose (check the mark).
6. Turn tractor off and tighten the nuts on the springs to their original position of 1-5/16” compressed spring
length.

MAINTENANCE
RHD 02/11 Maintenance Section 5-8
© 2011 Alamo Group Inc.
MAINTENANCE
To Disassemble Universal Joint
1. Remove all snap rings.
2. Position joint in loose vice, strike top arm of
unsupported yoke to drive the top cup up.
Repeat on opposite side.
3. If you cannot grip the loosened cap per Step 4,
use a pointed tool to tip a needle them repeat
Step 2.
4. Grip loosened cup in vise, strike yoke arm to
drive yoke off cup. Repeat on opposite cup.
5. Support cross in loose vise and strike yoke arm.
Repeat Step 4 to remove remaining two cups.

MAINTENANCE
RHD 02/11 Maintenance Section 5-9
© 2011 Alamo Group Inc.
MAINTENANCE
To Reassemble Universal Joint
1. Smear grease into bearings and check for dirt.
CAUTION! Make sure all needle bearings are
seated properly.
2. Insert cup and cross. Drive in with spacer.
3. Insert snap ring
4. Insert second cup and hold cross into cup.
Drive cup flush with arm.

MAINTENANCE
RHD 02/11 Maintenance Section 5-10
© 2011 Alamo Group Inc.
MAINTENANCE
5. Drive cup down with spacer and insert snap ring
6. To loosen cross, strike yoke arm and check
cross for free rotation
7. Position second yoke on cross. Repeat Steps 2
to 6.
8. Grease Kit after assembly is completed.

MAINTENANCE
RHD 02/11 Maintenance Section 5-11
© 2011 Alamo Group Inc.
MAINTENANCE
Replacing Cutter Unit Drive Belt
1. Place unit on ground or support securely.
2. Remove belt guard.
3. Remove idler arm spring.
4. Remove extension shaft housing mounting
bracket front bolt and loosen rear bolt.
5. Loosen extension shaft housing mounting
bracket rear bolt.
6. Pivot extension shaft housing mounting bracket
assembly. Remove old belt and install new one.
7. Reinstall front mounting bolt then secure
extension shaft housing mounting bracket to
unit.
8. Reinstall idler arm spring and belt guard.
Setting Cutting Height
The mower’s cutting height is set by positioning the
roller assembly to desired cut height.
1. Place the tractor and mower on a level surface
and completely lower the mower to the ground.
2. Shut down the tractor, place the transmission in
park, and set the parking brake before
dismounting.
3. Place lifting device (scissor jack or hydraulic
jack) under center of cutter housing.
4. Remove hex nuts, washers and carriage bolts
from bracket at each end of roller. Make certain
that roller bracket is free to move once the
fasteners are removed. A stuck roller could
drop unexpectedly and cause injury.
5. Use lifting device to reposition cutter housing to
desired height. Align bracket holes with cutter
housing, then reinstall hardware.
6. Lower cutter housing to the ground and remove
lifting device.

MAINTENANCE
RHD 02/11 Maintenance Section 5-12
© 2011 Alamo Group Inc.
MAINTENANCE
Changing Rotation of Cuttershaft
Standard shaft rotation is forward rotation as shown in the Figure ASM-FL-0072. To reverse cuttershaft
rotation, the wing drive gearbox must be flipped over 180 degrees and the center mower drive components
moved to the opposite side. When changing rotation of cutteshafts (course cut only) knife pins on wing mower
sections must be reinstalled in opposite direction.
Center Cuttershaft Rotation Reversal
1. To reverse direction of cuttershaft rotation,
three left hand parts must be ordered: belt
guard, outboard bearing plate and an idler
pulley arm. A front trash deflector is also
required. Refer to the parts section of this
manual for part numbers and ordering
information.
2. With the mower housing securely blocked up,
remove cuttershaft and turn 180 degrees.
3. Remove gearbox cuttershaft drive pulley and
outboard bearing plate. Attach new mounting
plate to opposite side of mower housing.
4. Remove four gearbox bolts and rotate gearbox
180 degrees to new position.
5. Install Cuttershaft pulley, gearbox output pulley,
idler arm pulley assembly, and belt on housing
right side.
6. Attach new belt guard.
Wing Cuttershaft Rotation Reversal
1. Remove skid plate, front cover plate and front
shield.
2. Loosen powerband belt tensioner and remove
powerband belt from gearbox sheave.
3. Remove four gearbox bolts and remove
gearbox.
4. Change positions of gearbox vented plug and
drain plug.
5. Rotate gearbox 180 degrees and re-mount.
6. Replace powerband belt and re-tension.
7. Reattach skid plate, front cover plate and front
shield.

MAINTENANCE
RHD 02/11 Maintenance Section 5-13
© 2011 Alamo Group Inc.
MAINTENANCE
Roller Bearing Replacement
1. Remove roller and both bearing and bracket assemblies from mower. Lift the mower only high enough to
remove the roller assembly.
2. Slide bearing and bracket assemblies off each end of roller.
If replacing with new bearing and bracket assemblies, proceed to step 9.
3. Remove roller bearing and housing assembly attaching hardware. Remove assembly from bracket.
Inspect seal between assembly and bracket for brittleness, cracks, wear and tear. Replace if necessary.
If replacing with new roller bearing and housing assemblies, proceed to step 8.
4. Remove grease fitting from the top of bearing housing.
5. Remove bearing from housing by rotating bearing 90° sideways and line up with notches in bearing
housing then pull out.
6. Install new bearing into housing. Bearing must be installed with grease hole in bearing aligned with grease
fitting hole in housing.
7. Reinstall grease fitting to housing. Grease fitting must have locking pin installed which inserts into grease
hole in bearing when installed. If grease fitting does not have a pin, order a new grease fitting. Grease
fitting must be tight and seated in grease hole in bearing to prevent bearing from rotating in housing.
8. Attach roller bearing and housing assembly to bracket with seal between housing and bracket.
9. Slide bearing and bracket assemblies on each end of roller.
10. Check bearing for proper installation in housing by gently rocking bearing and bracket assembly in end of
roller. Play should be slight to none at all.
11. Install roller and bearing and bracket assemblies on mower.
12. Lubricate roller bearing until lubricant can be seen coming out between roller and bearing housing.
Securely support the mower while removing and installing roller assembly.

MAINTENANCE
RHD 02/11 Maintenance Section 5-14
© 2011 Alamo Group Inc.
MAINTENANCE
Cuttershaft Bearing Replacement
OUTBOARD (DRIVE) BEARING
1. Lift cutter unit to maximum horizontal height;
then, securely support ends of cutterhousing.
2. Remove enough knives to place a floor jack
under center of cuttershaft.
3. Securely support cuttershaft.
NOTE: The cuttershaft must remain supported
while changing bearings.
4. Remove outboard fender-outboard bearings or
wing drivelines-wing inboard bearings. Loosen
setscrews securing bearing inner race to
cuttershaft. Use special 3/16 hex allen wrench
which has been shortened to reach into
bearings.
5. Remove fasteners securing bearing and
housing assembly to cutterhousing; then
remove bearing and housing assembly.
6. NOTE: There are two tapped holes in the
housing which can be used to pull bearing and
housing assembly out by using special tool No.
701627.
7. Using a jack to align parts, install bearing and
housing assembly to cutter unit and make
certain that bearing setscrew is located in
keyway on cuttershaft. Grease bearing and
install cap over fitting.
NOTE: Make sure grease is getting into
bearing.
8. Replace outboard fender or wing driveline.
Make sure to time wing drivelines properly
before reconnecting.
NOTE: Grease Lube Hole in bearing outer race must align with lube hole in housing. Inboard or Drive Side
Bearing cannot be used as Outboard Bearing.

MAINTENANCE
RHD 02/11 Maintenance Section 5-15
© 2011 Alamo Group Inc.
MAINTENANCE
Cuttershaft Bearing Replacement (cont’d)
1. Remove belt guard.
2. Remove spring from idler arm.
3. Remove extension shaft housing mounting bracket fasteners at the cutterhousing. Pivot mounting bracket
assembly and remove drive belt.
4. Remove fasteners that secure pulley to cuttershaft. Remove pulley and key.
5. Remove fasteners securing inboard bearing and housing assembly to cutterhousing; then, remove bearing
and housing assembly.
NOTE: There are two tapped holes in the housing which can be used to pull bearing and housing
assembly out by using special tool No. 701627.
6. Using a jack to align parts, install inboard bearing and housing assembly to cutter unit. Grease bearing and
install cap over fitting.
7. Reinstall key and pulley. Secure with cuttershaft fasteners.
8. Remove jack and check shaft rotation. Reinstall knives which were removed.
9. Reinstall drive belts then secure motor mounting bracket to cutterhousing.
10. Reinstall idler arm spring.
11. Reinstall belt guard
12. Remove supports, lower unit to ground and test unit. Reinstall outboard fender, if not already installed.
Inboard (Drive) Bearing-Figures Mnt-FL-0023 and Mnt-FL_0020

MAINTENANCE
RHD 02/11 Maintenance Section 5-16
© 2011 Alamo Group Inc.
MAINTENANCE
Cuttershaft Replacement
NOTE: It is recommended that cuttershaft bearing and housing assemblies be replaced when replacing
cuttershaft.
1. Place unit on the ground or securely support at
a convenient height.
2. Remove cuttershaft bearing and housing
assemblies as in Cuttershaft Bearing
Replacement. After removing both assemblies,
the cuttershaft can be removed and a new one
installed. It may be necessary to remove two
sets of knives nearest the drive end of
cuttershaft.
3. Install new bearing and housing assemblies.
NOTE: Lube hole in bearing outer race must align
with hole in housing. Outboard bearing cannot be
used on inboard side. Set screws are not required
for Inboard Bearing.
Changing to Forward or Reverse Rotation
To change direction of cuttershaft rotation, three left hand parts are required. A belt guard, an outboard bearing
plate and an idler pulley arm (Consult parts list for these part numbers). Remove the cuttershaft and turn 180°.
Remove the gearbox cuttershaft drive pulley and outboard bearing plate, (using the proper bearing plate)
mount the plate to opposite side of mower housing. Remove the four bolts that mount the gearbox and rotate
gearbox 180° to new position. Install cuttershaft pulley, gearbox output pulley, idler arm pulley assembly and
belt. REPLACE EXISTING BELT GUARD WITH PROPER GUARD.

MAINTENANCE
RHD 02/11 Maintenance Section 5-17
© 2011 Alamo Group Inc.
MAINTENANCE
Cutter Knives
Cutter knives are attached to the cutter shaft with hardened pin and cotter pins. These pins are supplied with
the knife kit. To remove existing knives, remove and discard these pins and install new knives using new pins.
Knife pins must be installed in certain direction to locate cotter pins where knives will not reach them when
flexing backward. After installing cotter pins, bend extended prong at 45 degree angle.
FOR FORWARD ROTATION: Knife pins must be installed with their heads facing away from the cuttershaft
pulley.
FOR REVERSE ROTATION: Knife pins must be installed with their heads facing toward the cuttershaft pulley.

MAINTENANCE
RHD 02/11 Maintenance Section 5-18
© 2011 Alamo Group Inc.
MAINTENANCE
General Information on Flail Mower Vibration
FLAIL MOWERS - INFORMATION BULLETIN NO. 5
Excessive Vibration
Vibration is a MONSTER and if allowed to continue unchecked, can cause the complete break-up of a machine
in a very short time.
A properly operated Flail Mower will produce very little vibration. If vibration does occur, the mower should be
stopped and the trouble corrected, as warranty does not cover failures resulting from continued
operation after something happens to cause the mower to vibrate excessively.
Vibration is caused by a rotating part which is out of balance. This could be the cutter shaft or, on those models
having a universal slip joint assembly drive shaft, from the drive shaft.
If the two extreme ends of the drive shaft, (the splined yokes which fit on the tractor power take off shaft and
on the mower gear box driven shaft), are not parallel, vibration will be evident. This is because of the
mechanics of a universal drive wherein the rotational speed thru a universal joint is not uniform. If the ends of a
universal drive shaft are parallel, the uneven rotation effect is cancelled out and the machine being driven will
be driven at a uniform rate of speed. However, if the ends are not parallel, the uneven rotation effect may be
multiplied, resulting in a speeding up and slowing down of the entire mower system (gear box, extension shaft,
pulleys, belt, and cutter shaft) each revolution. This effect can be readily noticed if the mower, while running, is
raised to an extreme height on the tractor lift.
For smoothest operation, the tilt of the mower should be adjusted (on a 3-point hitch, by adjusting the length of
the top link between the tractor and the mower) so that the ends of the drive shaft are parallel when the mower
is down in operating position. Raising the mower while running, to extreme heights on the lift should be
avoided.
To check where the vibration is originating, first be sure the ends of the universal drive shaft are parallel. Then,
if vibration is still present, remove the drive belt and run the mower. If vibration is still present, it most likely is
coming from and caused by a bent drive shaft. If so, the shaft should be replaced or straightened. If the
vibration is gone - the drive portion of the mower is running smoothly - then the vibration is probably coming
from the cutter shaft (it could be a pulley out of balance or a faulty belt with a varying cross section, but this is
not likely).
The cutter shaft will run out of balance if:
1. Wire, rope, string, rags, etc., around the cutter shaft are holding the knives in a folded back position.
Remove such foreign objects and be sure all knives are free to swing to the extended position.
2. Knives are missing or broken. Replace missing or broken knives.
3. Knife hanger lugs are broken off shaft. This condition usually results from continued operation in contact
with large hard objects where the knife hanger lugs themselves are hitting the hard objects. Lugs should
be replaced using arc welding equipment so as not to direct too much heat in one area of the shaft.
4. Cutter shaft ball bearings are worn enough to have radial “play” in them. Replace ball bearing and other
worn parts to eliminate “play”.
5. Shaft is bent. The shafts are straight within a couple of thousandths of an inch when they are made. It is
possible that they will become bent in use, such as if the shaft is hooked on a stump while the tractor is
moving forward at good speed.
6. Shafts are operated at improper speed. Rotating shafts have what is known as a natural period of
vibration. The same is true of the cutter shafts on the Flail Mowers.

MAINTENANCE
RHD 02/11 Maintenance Section 5-19
© 2011 Alamo Group Inc.
MAINTENANCE
The actual speed at which the harmonic will occur will vary with each mower and each installation. To avoid
this harmonic vibration when operating the mower, it may be necessary to adjust the engine speed of the
tractor up or down.
Some units have a harmonic which occurs below the nominal operating speed. On these units, it will be noticed
that there is always a little vibration at a particular RPM as the mower is being sped up to operating speed. This
occurs as the shaft passes through its normal harmonic vibration point. As long as the mower is opened at the
proper speed, then harmonic vibration will not be an issue.
Proper Torque For Fasteners
The chart lists the correct tightening torque for fasteners. When bolts are to be tightened or replaced, refer to
this chart to determine the grade of bolts and the proper torque except when specific torque values are
assigned in manual text.
RECOMMENDED TORQUE IN FOOT POUNDS UNLESS OTHERWISE STATED IN THE MANUAL*
NOTE: These values apply to fasteners as received from supplier, dry or when lubricated with normal engine
oil. They do not apply if special graphited or molydisulphide greases or other extreme pressure lubricants are
used. This applies to both UNF fine and UNC coarse threads.

RHINO
LIMITED WARRANTY
1. LIMITED WARRANTIES
1.01. Rhino warrants for one year from the purchase date to the original non-commercial, governmental, or municipal purchaser
(“Purchaser”) and warrants for six months to the original commercial or industrial purchaser (“Purchaser”) that the goods
purchased are free from defects in material or workmanship.
1.02. Manufacturer will replace for the Purchaser any part or parts found, upon examination at one of its factories, to be defective
under normal use and service due to defects in material or workmanship.
1.03. This limited warranty does not apply to any part of the goods which has been subjected to improper or abnormal use,
negligence, alteration, modification, or accident, damaged due to lack of maintenance or use of wrong fuel, oil, or lubricants,
or which has served its normal life. This limited warranty does not apply to any part of any internal combustion engine, or
expendable items such as blades, shields, guards, or pneumatic tires except as specifically found in your Operator’s Manual.
1.04. Except as provided herein, no employee, agent, Dealer, or other person is authorized to give any warranties of any nature on
behalf of Manufacturer.
2. REMEDIES AND PROCEDURES.
2.01. This limited warranty is not effective unless the Purchaser returns the Registration and Warranty Form to Manufacturer within
30 days of purchase.
2.02. Purchaser claims must be made in writing to the Authorized Dealer (“Dealer”) from whom Purchaser purchased the goods or
an approved Authorized Dealer (“Dealer”) within 30 days after Purchaser learns of the facts on which the claim is based.
2.03. Purchaser is responsible for returning the goods in question to the Dealer.
2.04. If after examining the goods and/or parts in question, Manufacturer finds them to be defective under normal use and service
due to defects in material or workmanship, Manufacturer will:
(a)Repair or replace the defective goods or part(s) or
(b)Reimburse Purchaser for the cost of the part(s) and reasonable labor charges (as determined by Manufacturer) if
Purchaser paid for the repair and/or replacement prior to the final determination of applicability of the warranty by
Manufacturer.
The choice of remedy shall belong to Manufacturer.
2.05. Purchaser is responsible for any labor charges exceeding a reasonable amount as determined by Manufacturer and for
returning the goods to the Dealer, whether or not the claim is approved. Purchaser is responsible for the transportation cost
for the goods or part(s) from the Dealer to the designated factory.
3. LIMITATION OF LIABILITY.
3.01. MANUFACTURER DISCLAIMS ANY EXPRESS (EXCEPT AS SET FORTH HEREIN) AND IMPLIED WARRANTIES WITH
RESPECT TO THE GOODS INCLUDING, BUT NOT LIMITED TO, MERCHANTABILITY AND FITNESS FOR A
PARTICULAR PURPOSE.
3.02. MANUFACTURER MAKES NO WARRANTY AS TO THE DESIGN, CAPABILITY, CAPACITY, OR SUITABILITY FOR USE OF
THE GOODS.
3.03. EXCEPT AS PROVIDED HEREIN, MANUFACTURER SHALL HAVE NO LIABILITY OR RESPONSIBILITY TO PURCHASER
OR ANY OTHER PERSON OR ENTITY WITH RESPECT TO ANY LIABILITY, LOSS, OR DAMAGE CAUSED OR ALLEGED
TO BE CAUSED DIRECTLY OR INDIRECTLY BY THE GOODS INCLUDING, BUT NOT LIMITED TO, ANY INDIRECT,
SPECIAL, CONSEQUENTIAL, OR INCIDENTAL DAMAGES RESULTING FROM THE USE OR OPERATION OF THE
GOODS OR ANY BREACH OF THIS WARRANTY. NOT WITHSTANDING THE ABOVE LIMITATIONS AND WARRANTIES,
MANUFACTURER’S LIABILITY HEREUNDER FOR DAMAGES INCURRED BY PURCHASER OR OTHERS SHALL NOT
EXCEED THE PRICE OF THE GOODS.
3.04. NO ACTION ARISING OUT OF ANY CLAIMED BREACH OF THIS WARRANTY OR TRANSACTIONS UNDER THIS
WARRANTY MAY BE BROUGHT MORE THAN TWO (2) YEARS AFTER THE CAUSE OF ACTION HAS OCCURRED.
4. MISCELLANEOUS.
4.01. Proper Venue for any lawsuits arising from or related to this limited warranty shall be only in Guadalupe County, Texas.
4.02. Manufacturer may waive compliance with any of the terms of this limited warranty, but no waiver of any terms shall be deemed
to be a waiver of any other term.
4.03. If any provision of this limited warranty shall violate any applicable law and is held to be unenforceable, then the invalidity of
such provision shall not invalidate any other provisions herein.
4.04. Applicable law may provide rights and benefits to purchaser in addition to those provided herein.
KEEP FOR YOUR RECORDS
ATTENTION: Purchaser should fill in the blanks below for his reference when buying repair parts and/or for proper machine identification
when applying for warranty.
Rhino Implement Model Serial Number
Date Purchased Dealer
ATTENTION:
READ YOUR OPERATOR'S MANUAL RHINO®
1020 S Sangamon Ave.
Gibson City, IL 60936
800-446-5158
Email: parts@servis-rhino.com

TO THE OWNER/OPERATOR/DEALER
To keep your implement running efficiently and safely, read your manual thoroughly and follow these directions
and the Safety Messages in this Manual. The Table of Contents clearly identifies each section where you can
easily find the information you need.
The OCCUPATIONAL SAFETY AND HEALTH ACT (1928.51 Subpart C) makes these minimum safety require-
ments of tractor operators:
REQUIRED OF THE OWNER:
1. Provide a Roll-Over-Protective Structure that meets the requirements of this Standard; and
2. Provide Seat belts that meet the requirements of this paragraph of this Standard and SAE J4C; and
3. Ensure that each employee uses such Seat belt while the tractor is moving; and
4. Ensure that each employee tightens the Seat belt sufficiently to confine the employee to the protected
area provided by the ROPS
REQUIRED OF THE OPERATOR:
1. Securely fasten seat belt if the tractor has a ROPS.
2. Where possible, avoid operating the tractor near ditches, embankments, and holes.
3. Reduce speed when turning, crossing slopes, and on rough, slick, or muddy surfaces.
4. Stay off slopes too steep for safe operation.
5. Watch where you are going - especially at row ends, on roads, and around trees.
6. Do not permit others to ride.
7. Operate the tractor smoothly - no jerky turns, starts, or stops.
8. Hitch only to the drawbar and hitch points recommended by the tractor manufacturer.
9. When the tractor is stopped, set brakes securely and use park lock, if available.
x Keep children away from danger all day, every day...
x Equip tractors with rollover protection (ROPS) and keep
all machinery guards in place...
x Please work, drive, play and live each day with care
and concern for your safety and that of your family and
fellow citizens.

RHD-SOM-02/11 P/N 803215C
Printed U.S.A
RHD62, RHD74
RHD88, RHD96
SUPER HEAVY DUTY
FLAIL MOWER