Ryobi Ts1300 Owner S Manual TS1300_746_eng
TS1300 to the manual d088bccc-fead-4473-8063-ddd58e6e961b
2014-07-06
: Ryobi Ryobi-Ts1300-Owner-S-Manual ryobi-ts1300-owner-s-manual ryobi pdf
Open the PDF directly: View PDF
.
Page Count: 28

NOTE: Miter Saw shown includes all available Accessories. These Accessories, which include dust bag, table extensions,
stop block and work clamp, may be optional on some models.
SAVE THIS MANUAL FOR FUTURE REFERENCE
OPERATOR'S MANUAL
10 in. (254 mm) Miter Saw
Model TS1300 - Double Insulated
THANK YOU FOR BUYING A RYOBI MITER SAW.
Your new saw has been engineered and manufactured to Ryobi's high standards for dependability, ease of operation, and
operator safety. Properly cared for, it will give you years of rugged, trouble-free performance.
CAUTION: Carefully read through this entire operator's manual before using your new saw.
Pay close attention to the Rules for Safe Operation, Warnings, and Cautions. If you use your saw properly and only for what
it is intended, you will enjoy years of safe, reliable service.
Please fill out and return the Warranty Registration Card so we can be of future service to you.
Thank you again for buying Ryobi tools.
DAN
GER
K
EEPHAN
DSAWAY
F
ROMBLA
DE
45
15
0
30
15
0

Page 2
B. Work Clamp (Optional) .......................................... 12
C. Dust Guide ............................................................ 12
D. To Install Blade................................................. 12-13
E. Dust Bag (Optional) ............................................... 14
F. Table Extensions (Optional) .................................. 14
G. Stop Block (Optional) ............................................ 14
Adjustments ............................................................. 14-17
A. Squaring The Miter Table To The Fence .............. 15
B. Squaring The Saw Blade To The Fence ............... 16
C. Pivot Adjustments.................................................. 17
Travel Pivot Adjustment ........................................ 17
D. Depth Stop ............................................................ 17
E. Depth Stop Adjustments........................................ 17
Operation .................................................................. 17-20
A. Applications ........................................................... 17
B. Cutting With Your Miter saw .................................. 18
C. Crosscutting .......................................................... 18
To Crosscut With Your Miter saw .......................... 18
D. Support Long Workpieces ..................................... 19
E. Cutting Warped Material........................................ 20
F. Clamping Wide Workpieces .................................. 20
Maintenance ............................................................. 21-22
A. General.................................................................. 21
B. Lubrication ............................................................. 21
C. Extension Cords .................................................... 21
D. Brush Replacement ............................................... 22
Troubleshooting ............................................................ 23
Exploded Views and Parts List ............................... 24-27
Parts Ordering / Service ............................................... 28
Table Of Contents ........................................................... 2
Safety and International Symbols ................................. 2
Rules For Safe Operation ............................................ 3-6
Additional Rules For Safe Operation For
Miter Saws ................................................................... 6
Product Specifications ................................................... 7
Glossary Of Terms For Woodworking .......................... 7
Unpacking And Checking Contents .............................. 8
Loose Parts List ........................................................... 8
Features ...................................................................... 9-11
A. Know Your Miter Saw .............................................. 9
14 Amp Motor .......................................................... 9
10 in. (254 mm) Carbide Tipped Blade ................... 9
Cutting Capacities ................................................... 9
Carrying Handle ...................................................... 9
Miter Lock Handle ................................................. 10
Lock-Off Lever ....................................................... 10
Spindle Lock Button .............................................. 10
Trigger Lock .......................................................... 10
Positive Stops On Miter Table ............................... 10
Electric Brake ........................................................ 10
Fence .................................................................... 10
Self-Retracting Lower Blade Guard....................... 10
Work Clamp........................................................... 10
Mounting Holes ..................................................... 11
B. Optional Accessories............................................. 11
C. Electrical Connection............................................. 11
Assembly .................................................................. 12-14
A. Miter Lock Handle ................................................. 12
TABLE OF CONTENTS
SAFETY AND INTERNATIONAL SYMBOLS
This operator's manual describes safety and international symbols and pictographs that may appear on this product.
Read the operator's manual for complete safety, assembly, operating and maintenance and repair information.
MEANING
• NO HANDS SYMBOL
Failure to keep your hands away from the blade will result
in serious personal injury.
• READ OPERATOR'S MANUAL
Failure to follow operating instructions and safety
precautions in operator's manual can result in serious
injury. Read operator's manual before starting or operating
this unit.
SYMBOL

Page 3
The purpose of safety symbols is to attract your attention to possible dangers. The safety symbols, and the
explanations with them, deserve your careful attention and understanding. The safety warnings do not by
themselves eliminate any danger. The instructions or warnings they give are not substitutes for proper
accident prevention measures.
SYMBOL MEANING
SAFETY ALERT SYMBOL:
Indicates danger, warning, or caution. May be used in conjunction with other symbols or pictographs.
DANGER: Failure to obey a safety warning will result in serious injury to yourself or to others. Always
follow the safety precautions to reduce the risk of fire, electric shock and personal injury.
WARNING: Failure to obey a safety warning can result in serious injury to yourself or to others. Always
follow the safety precautions to reduce the risk of fire, electric shock and personal injury.
CAUTION: Failure to obey a safety warning may result in property damage or personal injury to
yourself or to others. Always follow the safety precautions to reduce the risk of fire, electric shock and
personal injury.
NOTE: Advises you of information or instructions vital to the operation or maintenance of the equipment.
DOUBLE INSULATION
Double insulation is a concept in safety, in electric power
tools, which eliminates the need for the usual three-wire
grounded power cord. All exposed metal parts are isolated
from internal metal motor components with protecting
insulation. Double insulated tools do not need to be grounded.
IMPORTANT
Servicing requires extreme care and knowledge and should
be performed only by a qualified service technician. For
service we suggest you return the tool to your nearest
RYOBI AUTHORIZED SERVICE CENTER for repair. When
servicing, use only identical Ryobi replacement parts.
WARNING:
The double insulated system is intended to protect the
user from shock resulting from a break in the tool's
internal wiring. Observe all normal safety precautions
related to avoiding electrical shock.
WARNING:
Do not attempt to operate this tool until you have read
thoroughly and understand completely all instructions,
safety rules, etc. contained in this manual. Failure to
comply can result in accidents involving fire, electric
shock, or serious personal injury. Save this operator's
manual and review frequently for continuing safe operation
and instructing others who may use this tool.
RULES FOR SAFE OPERATION

Page 4
Safe operation of this power tool requires that you read and
understand this operator's manual and all labels affixed to
the tool. Safety is a combination of common sense, staying
alert, and knowing how your miter saw works.
READ ALL INSTRUCTIONS
1. KNOW YOUR POWER TOOL. Read the operator's
manual carefully. Learn the saw's applications and
limitations as well as the specific potential hazards
related to this tool.
2. GUARD AGAINST ELECTRICAL SHOCK BY
PREVENTING BODY CONTACT WITH GROUNDED
SURFACES. For example; pipes, radiators, ranges,
refrigerator enclosures.
3. KEEP GUARDS IN PLACE and in good working order.
4. KEEP THE WORK AREA CLEAN. Cluttered work
areas and work benches invite accidents. DO NOT
leave tools or pieces of wood on the saw while it is in
operation.
5. DO NOT USE IN DANGEROUS ENVIRONMENTS. Do
not use power tools near gasoline or other flammable
liquids, in damp or wet locations, or expose them to
rain. Keep the work area well lit.
6. KEEP CHILDREN AND VISITORS AWAY. All visitors
should wear safety glasses and be kept a safe distance
from work area. Do not let visitors contact tool or
extension cord while operating.
7. MAKE WORKSHOP CHILD-PROOF with padlocks
and master switches, or by removing starter keys.
8. DO NOT FORCE THE TOOL. It will do the job better
and safer at the rate for which it was designed.
9. USE THE RIGHT TOOL. Do not force the tool or
attachment to do a job it was not designed for. Don't use
it for a purpose not intended.
10. DRESS PROPERLY. Do not wear loose clothing,
gloves, neckties, rings, bracelets, or other jewelry.
They can get caught and draw you into moving parts.
Rubber gloves and nonslip footwear are recommended
when working outdoors. Also wear protective hair
covering to contain long hair.
11. ALWAYS WEAR SAFETY GLASSES WITH SIDE
SHIELDS. Everyday eyeglasses have only impact-
resistant lenses; they are NOT safety glasses.
12. PROTECT YOUR LUNGS. Wear a face or dust mask
if the cutting operation is dusty.
13. PROTECT YOUR HEARING. Wear hearing protection
during extended periods of operation.
14. DO NOT ABUSE CORD. Never yank cord to disconnect
it from receptacle. Keep cord from heat, oil, and sharp
edges.
15. DO NOT OVERREACH. Keep proper footing and
balance at all times.
16. MAINTAIN TOOLS WITH CARE. Keep tools sharp and
clean for better and safer performance. Follow
instructions for lubricating and changing accessories.
17. DISCONNECT ALL TOOLS. When not in use, before
servicing, or when changing attachments, blades, bits,
cutters, etc., all tools should be disconnected.
18. REMOVE ADJUSTING KEYS AND WRENCHES. Get
in the habit of checking to see that hex keys and
adjusting wrenches are removed from tool before turning
it on.
19. AVOID ACCIDENTAL STARTING. Be sure switch is
off when plugging in.
20. USE THE PROPER EXTENSION CORD. Make sure
your extension cord is in good condition. When using an
extension cord, be sure to use one heavy enough to
carry the current your product will draw. An undersized
cord will cause a drop in line voltage resulting in loss of
power and overheating. A wire gage size (A.W.G.) of at
least 14 is recommended for an extension cord 25 feet
or less in length. If in doubt, use the next heavier gage.
The smaller the gage number, the heavier the cord.
21. USE OUTDOOR EXTENSION CORDS. When tool is
used outdoors, use only extension cords with approved
ground connection that are intended for use outdoors
and so marked.
22. KEEP BLADES CLEAN AND SHARP. Sharp blades
minimize stalling and kickback.
23. KEEP HANDS AWAY FROM CUTTING AREA. Keep
hands away from blades. Do not reach underneath
work or around or under the blade while blade is
rotating. Do not attempt to remove cut material when
blade is moving.
WARNING: Blades coast after turn off.
24. NEVER USE IN AN EXPLOSIVE ATMOSPHERE.
Normal sparking of the motor could ignite fumes.
25. INSPECT TOOL CORDS PERIODICALLY and if
damaged, have repaired at your nearest AUTHORIZED
SERVICE CENTER. Stay constantly aware of cord
location and keep it well away from the rotating blade.
26. INSPECT EXTENSION CORDS PERIODICALLY and
replace if damaged.
27. KEEP TOOL DRY, CLEAN, AND FREE FROM OIL
AND GREASE. Always use a clean cloth when cleaning.
Never use brake fluids, gasoline, petroleum-based
products, or any solvents to clean tool.
28. STAY ALERT AND EXERCISE CONTROL. Watch
what you are doing and use common sense. Do not
operate tool when you are tired. Do not rush.
RULES FOR SAFE OPERATION

Page 5
29. CHECK DAMAGED PARTS. Before further use of the
tool, a guard or other part that is damaged should be
carefully checked to determine that it will operate properly
and perform its intended function. Check for alignment
of moving parts, binding of moving parts, breakage of
parts, mounting and any other conditions that may affect
its operation. A guard or other part that is damaged must
be properly repaired or replaced by an authorized
service center to avoid risk of personal injury.
30. DO NOT USE TOOL IF SWITCH DOES NOT TURN IT
ON AND OFF. Have defective switches replaced by an
authorized service center.
31. USE THE FENCE. Always use the fence when cutting.
32. SUPPORT LONG WORKPIECES. To minimize risk of
blade pinching and kickback, always support long
workpieces.
33. BEFORE MAKING A CUT, BE SURE ALL
ADJUSTMENTS ARE SECURE.
34. USE ONLY CORRECT BLADES. Do not use blades
with incorrect size holes. Never use blade washers or
blade screws that are defective or incorrect. The
maximum blade capacity of your saw is 10 in. (254 mm).
35. USE RECOMMENDED ACCESSORIES. The use of
improper accessories may cause risk of injury.
36. NEVER STAND ON TOOL. Serious injury could occur
if the tool is tipped or if the blade is unintentionally
contacted.
37. POLARIZED PLUGS. To reduce the risk of electric
shock, this tool has a polarized plug (one blade is wider
than the other). This plug will fit in a polarized outlet only
one way. If the plug does not fit fully in the outlet, reverse
the plug. If it still does not fit, contact a qualified electrician
to install the proper outlet. Do not change the plug in any
way.
38. NEVER LEAVE TOOL RUNNING UNATTENDED.
TURN THE POWER OFF. Do not leave tool until it
comes to a complete stop.
39. AVOID CUTTING NAILS. Inspect for and remove all
nails from lumber before cutting.
40. NEVER TOUCH BLADE or other moving parts during
use.
41. NEVER START A TOOL WHEN THE BLADE IS IN
CONTACT WITH THE WORKPIECE.
42. DO NOT OPERATE THIS TOOL WHILE UNDER THE
INFLUENCE OF DRUGS, ALCOHOL, OR ANY
MEDICATION.
43. SECURE WORK. Use clamps or a vise to hold work
when practical. It's safer than using your hand and it
frees both hands to operate tool.
44. REPLACEMENT PARTS. All repairs, whether electrical
or mechanical, should be made at your nearest
Authorized Service Center.
WARNING:
When servicing use only identical Ryobi replacement
parts. Use of any other parts may create a hazard or
cause product damage.
45. SAVE THESE INSTRUCTIONS. Refer to them
frequently and use them to instruct other users. If you
loan someone this tool, loan them these instructions
also.
Look for this symbol to point out important safety precautions.
It means attention!!! Your safety is involved.
GLASSES
SAFETY
WEAR YOUR
FORESIGHT IS BETTER
THAN NO SIGHT
The operation of any saw can result in foreign objects being thrown into your eyes, which
can result in severe eye damage. Before beginning power tool operation, always wear
safety goggles or safety glasses with side shields and a full face shield when needed. We
recommend Wide Vision Safety Mask for use over eyeglasses or standard safety glasses
with side shields.
WARNING:
RULES FOR SAFE OPERATION

Page 6
1. NEVER USE A DULL SAW BLADE or one that does
not have sufficient set.
2. DO NOT REMOVE THE SAW'S BLADE GUARDS.
Never operate the saw with any guard or cover re-
moved. Make sure all guards are operating properly
before each use.
3. MAKE SURE THE MITER TABLE IS LOCKED IN
POSITION BEFORE OPERATING YOUR SAW. Lock
the miter table by securely tightening the miter lock
handle.
4. NEVER PERFORM ANY OPERATION "FREEHAND".
Always place the workpiece to be cut on the miter table
and position it firmly against the fence as a backstop.
5. ALWAYS USE A CLAMP to secure the workpiece
when possible.
6. NEVER hand hold a workpiece that is too small to be
clamped. Keep hands clear of the no hands zone.
7. NEVER reach behind or under the blade and its cutting
path with your hands and fingers for any reason.
8. NEVER stand or have any part of your body in line with
the path of the saw blade.
9. ALLOW THE MOTOR TO COME UP TO FULL SPEED
before starting a cut.
10. ALWAYS release the power switch and allow the saw
blade to stop rotating before raising it out of the
workpiece.
11. NEVER reach to pick up a workpiece, a piece of scrap,
or anything else that is in or near the cutting path of the
blade.
12. NEVER leave the miter saw unattended while con-
nected to a power source.
13. FIRMLY CLAMP OR BOLT your miter saw to a work-
bench or table. The most comfortable saw table height
is 39 inches or at approximately hip height.
14. AVOID AWKWARD OPERATIONS AND HAND PO-
SITIONS where a sudden slip could cause your hand to
move into the blade. ALWAYS make sure you have
good balance. NEVER operate your miter saw on the
floor or in a crouched position.
15. ALWAYS PROVIDE ADEQUATE ROOM AND SUP-
PORT for crosscutting long workpieces.
16. NEVER USE A LENGTH STOP ON THE FREE SCRAP
END OF A CLAMPED WORKPIECE. NEVER hold
onto or bind the free scrap end of the workpiece in any
operation. If a work clamp and length stop are used
together, they must both be installed on the same side
of the saw table to prevent the saw from catching the
loose end and kicking up.
Additional Rules For Safe Operation
For Miter Saws
17. DO NOT TURN THE MOTOR SWITCH ON AND OFF
RAPIDLY. This could cause the saw blade to loosen
and could create a hazard. Should this ever occur,
stand clear and allow the saw blade to come to a
complete stop. Disconnect your saw from the power
supply and securely retighten the blade bolt.
18. NEVER cut more than one piece at a time. DO NOT
STACK more than one workpiece on the saw table at
a time.
19. IF ANY PART OF THIS MITER SAW IS MISSING or
should break, bend, or fail in any way, or should any
electrical component fail to perform properly, shut off
the power switch, remove the miter saw plug from the
power source and have damaged, missing, or failed
parts replaced before resuming operation.
20. ALWAYS STAY ALERT! Do not allow familiarity (gained
from frequent use of your saw) to cause a careless
mistake. ALWAYS REMEMBER that a careless frac-
tion of a second is sufficient to inflict severe injury.
21. MAKE SURE THE WORK AREA HAS AMPLE LIGHT-
ING to see the work and that no obstructions will
interfere with safe operation BEFORE performing any
work using your saw.
22. ALWAYS TURN OFF SAW before disconnecting it, to
avoid accidental starting when reconnecting to power
supply.
23. SAVE THESE INSTRUCTIONS. Refer to them fre-
quently and use to instruct other users. If you loan
someone this tool, loan them these instructions also.
SAVE THESE INSTRUCTIONS
WARNING:
Some dust created by power sanding, sawing, grinding,
drilling, and other construction activities contains
chemicals known to cause cancer, birth defects or
other reproductive harm. Some examples of these
chemicals are:
• lead from lead-based paints,
• crystalline silica from bricks and cement and other
masonry products, and
• arsenic and chromium from chemically-treated
lumber.
Your risk from these exposures varies, depending on
how often you do this type of work. To reduce your
exposure to these chemicals: work in a well ventilated
area, and work with approved safety equipment, such
as those dust masks that are specially designed to filter
out microscopic particles.

Page 7
Blade Diameter..................................................................................................................................10 in. (254 mm)
Blade Arbor ........................................................................................................................................5/8 in. (16 mm)
No Load Speed ........................................................................................................................................ 5,000 RPM
Rating ................................................................................................................................120 Volts, 60 Hz-AC Only
Input........................................................................................................................................................ 14 Amperes
Cutting Capacity
For Both Flat And Vertical Cuts On Dimensional Lumber
90° Crosscut ................................................................................................................................ 2 x 4 and 4 x 4
2 x 6 (Flat only)
45° Miter....................................................................................................................................................... 2 x 4
Net Weight ....................................................................................................................................... 29 lbs. (13.2 kg.)
Arbor
The shaft on which a blade or cutting tool is mounted.
Crosscut
A cutting or shaping operation made across the grain of the
workpiece.
Freehand
Performing a cut without using a fence, miter gage, fixture,
work clamp, or other proper device to keep the workpiece
from twisting during the cut.
Gum
A sticky, sap based residue from wood products.
Miter Cut
A cutting operation made with the wood at any angle other
than 90 degrees to the fence.
Resin
A sticky, sap base substance that has hardened.
Revolutions Per Minute (RPM)
The number of turns completed by a spinning object in one
minute.
Saw Blade Path
The area over, under, behind, or in front of the blade. As it
applies to the workpiece, that area which will be, or has been,
cut by the blade.
Set
The distance that the tip of the sawblade tooth is bent (or set)
outward from the face of the blade.
Throw-Back
Throwing of a workpiece in a manner similar to a kickback.
Usually associated with a cause other than the kerf closing,
such as a workpiece not being against the fence, being
dropped into the blade, or being placed inadvertently in
contact with the blade.
Through Sawing
Any cutting operation where the blade extends completely
through the thickness of the workpiece.
Workpiece
The item on which the cutting operation is being done. The
surfaces of a workpiece are commonly referred to as faces,
ends, and edges.
No Hands Zone
The area between the marked lines on the left and right side
of the miter table base. This zone is identified by no hands
zone labels placed inside the marked lines on the miter table
base. The operator's hands must stay clear of this area
during any operation of the saw.
PRODUCT SPECIFICATIONS
GLOSSARY OF TERMS FOR WOODWORKING

Page 8
R
O
TAT
I
O
N
R
OT
A
T
I
O
N
I
NS
Fig. 1
Your Miter Saw has been shipped completely assembled
except for the blade, miter lock handle, dust guide or dust
bag, work clamp, table extensions, and stop block.
■Remove all loose parts from the carton. Separate and
check with the list of Loose Parts.
See Figure 1.
■Remove the packing materials from around your saw.
■Carefully lift saw from the carton and place it on a level
work surface. Although small, this saw is heavy. To avoid
back injury, get help when needed.
■Do not discard the packing materials until you have
carefully inspected the saw, identified all loose parts, and
satisfactorily operated your new saw.
■Your saw has been shipped with the saw arm locked in
the down position. To release saw arm, push down on top
of saw arm and pull out the lock pin.
See Figure 3.
■Lift the saw arm by the handle. Hand pressure should
remain on the saw arm to prevent sudden rise upon
release of the lock pin.
■Examine all parts to make sure no breakage or damage
has occurred during shipping.
If any parts are damaged or missing, do not attempt to plug
in the power cord and turn the switch on until the damaged
or missing parts are obtained and are installed correctly.
Contact your nearest Ryobi dealer or call 1-800-525-2579 in
the United States or 1-800-265-6778 in Canada for assistance
if any parts are missing or damaged.
WARNING:
If any parts are missing do not operate your saw until the
missing parts are replaced. Failure to do so could result
in possible serious injury.
LOOSE PARTS LIST
The following items are included with your Miter Saw:
■10 in. (254 mm) Carbide Tipped Blade
■Miter Lock Handle
■Dust Guide
■Blade Wrench
■5 mm Hex Key
■6 mm Hex Key
■8 mm Hex Key
■Operator's Manual
■Warranty Registration
Some models may include one or more of the following
accessories:
■Work Clamp
■8 mm Work Clamp Screw
■Dust Bag
■Stop Block
■Table Extensions (2)
■Small Wing Screw (for use with stop block)
■Large Wing Screws (2), for use with table extensions)
5 mm HEX KEY
8 mm HEX KEY
WORK CLAMP
SAW BLADE
MITER
LOCK HANDLE
BLADE WRENCH
8 mm WORK
CLAMP SCREW
UNPACKING AND CHECKING CONTENTS
SMALL WING
SCREW
STOP BLOCK
LARGE WING
SCREWS
DUST GUIDE
TABLE EXTENSIONS
DUST BAG
6 mm HEX KEY

Page 9
Fig. 2
KNOW YOUR MITER SAW
See Figure 2.
Before attempting to use your saw, familiarize yourself with
all operating features and safety requirements.
WARNING:
Do not allow familiarity with your miter saw to make you
careless. Remember that a careless fraction of a second
is sufficient to inflict severe injury.
14 AMP MOTOR
Your saw has a powerful 14 amp motor with sufficient
power to handle tough cutting jobs. It is made with all ball
bearings, and has externally accessible brushes for ease
of servicing.
10 in. (254 mm) CARBIDE TIPPED BLADE
A 10 in. (254 mm) carbide tipped saw blade is included with
your miter saw. It is fine for most wood cutting operations,
but for fine joinery cuts or cutting plastic, use one of the
accessory blades available from your nearest Ryobi dealer.
CUTTING CAPACITIES
When the miter angle (miter table) is set at 0°:
Your saw will cut dimensional lumber up to a 2 x 6.
It will cut dimensional lumber up to the thickness of a 4 x 4.
When the miter angle (miter table) is set at 45°:
Your saw will cut dimensional lumber up to a 2 x 4.
CARRYING HANDLE
See Figure 3.
For convenience when carrying or transporting your miter
saw from one place to another, a carrying handle has been
provided on top of the saw arm as shown in figure 3. To
transport, turn off and unplug your saw, then lower the saw
arm and lock it in the down position. Lock saw arm by
depressing the lock pin. Tighten the miter lock handle.
Remove the saw from the workbench or workstand. It is now
ready to transport.
LOWER
BLADE GUARD
DUST BAG UPPER
BLADE GUARD
SAW ARM SWITCH
LOCK-OFF LEVER
FENCE
MITER TABLE
MITER SCALE
MITER
LOCK HANDLE
8 mm WORK
CLAMP SCREW
SWITCH TRIGGER
NO HANDS
ZONE LABEL
MITER
TABLE BASE
CONTROL ARM
MITER
LOCK PLATE
"NO HANDS ZONE"
BOUNDARY LINE
POSITIVE STOP (S)
WORK CLAMP
FEATURES
DAN
GER
K
EEPHAN
DSAWAY
F
ROMBLA
DE
45
15
0
30
15
0
TABLE
EXTENSION
STOP
BLOCK

Page 10
Fig. 3
Fig. 4
Fig. 5
0
30
45
15
15
CARRYING
HANDLE
SAW ARM
LOCKED IN DOWN POSITION
SAW
ARM
MITER LOCK
HANDLE
SPINDLE LOCK BUTTON
LOCK-OFF
LEVER
PADLOCK
SWITCH
TRIGGER
SWITCH
TRIGGER
LOCK
PIN
FEATURES
MITER LOCK HANDLE
See Figure 3.
The miter lock handle securely locks your saw at desired
miter angles.
LOCK-OFF LEVER
See Figure 4.
The switch trigger is equipped with a lock-off lever to re-
duce the possibility of accidental starting. The lock-off lever
must be slid back away from the switch trigger in order to
turn saw on. Once the saw is on, the lock-off lever can be
released. The spring loaded lever will spring back into the
lock-off position when the switch trigger is released.
SPINDLE LOCK BUTTON
See Figure 4.
A spindle lock button has been provided for locking the
spindle of your saw in a stationary position. Depress and
hold the lock button while installing, changing, or removing
blade.
TRIGGER LOCK
See Figure 5.
To prevent unauthorized use of your miter saw, we suggest
that you disconnect it from the power supply and lock the
switch in the off position. To lock the switch, install a
padlock through the hole in the switch trigger. A lock with a
shackle up to 13/64 in. (5 mm) diameter may be used.
When the lock is installed and locked, the switch is
inoperable. Store the padlock key in another location.
POSITIVE STOPS ON MITER TABLE
Positive stops have been provided at 0°, 15°, 22-1/2°,
30°, and 45°. The 15°, 22-1/2°, 30°, and 45° positive
stops have been provided on both the left and right side
of the miter table.
ELECTRIC BRAKE
An electric brake has been provided to quickly stop blade
rotation after the switch is released.
FENCE
The fence on your miter saw has been provided as a
support to hold your workpiece securely against when
making all cuts.
SELF-RETRACTING LOWER BLADE GUARD
The lower blade guard is made of shock-resistant, see-
through plastic that provides protection from each side of
the blade. It retracts over the upper blade guard as the saw
is lowered into the workpiece.
WORK CLAMP (Optional)
An optional work clamp has been provided with your saw. It
provides one means of clamping the workpiece to the fence.
Clamping secures the work and prevents the workpiece
from creeping toward the saw blade. This is very helpful
when cutting miters.

Page 11
7-1/8”
3-3/8”
9-7/8”
18”
4-1/8”
9-3/4”
4-1/8”
3-3/4”
24”
16-1/2”
7/16” DIA. HOLE
3-3/8"
4-1/8"
9-3/4"
4-1/8"
7/16" DIA. HOLE
18"
3-3/4" 16-1/2"
Fig. 6
24"
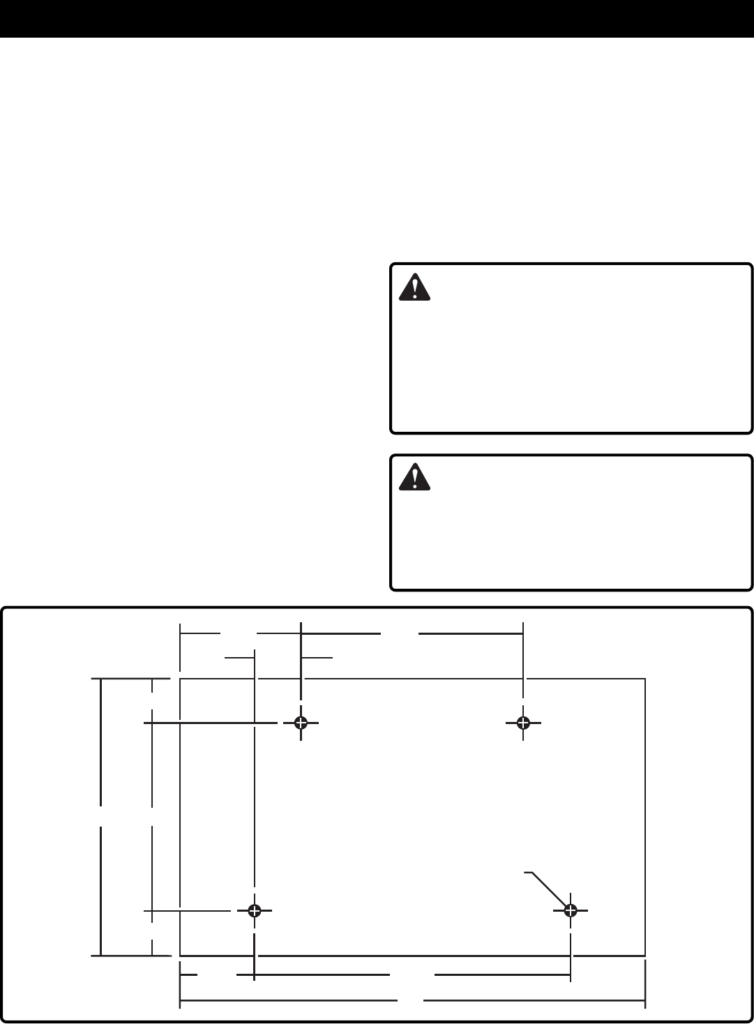
MOUNTING HOLES
See Figure 6.
Your miter saw should be mounted to a firm supporting
surface such as workbench. Four bolt holes have been
provided in the saw base for this purpose. Each of the four
mounting holes should be bolted securely using 3/8 in. (10
mm) machine bolts, lock washers, and hex nuts (not included).
Bolts should be of sufficient length to accommodate the saw
base, lock washers, hex nuts, and the thickness of the
workbench.
Tighten all four bolts securely.
The hole pattern, shown in figure 6, is for an 18 in. (457 mm)
x 24 in. (610 mm) workbench. Carefully check the workbench
after mounting to make sure that no movement can occur
during use. If any tipping, sliding, or walking is noted, secure
the workbench to the floor before operating.
OPTIONAL ACCESSORIES
Optional accessories, provided on some models, are avail-
able for use with your saw. They include table extensions, a
stop block, work clamp, and dust bag.
Table extensions increase the work surface to 36 in. wide,
providing support for cutting long workpieces.
The stop block provides a stop for making repetitive cuts to
same length. It can be installed on either side of saw base.
The work clamp provides a means for clamping workpiece
securely against the fence when making a cut. Standard "C"
clamps can also be used for this purpose.
The dust bag catches sawdust, helping keep work area
cleaner.
These accessories are also available from your Ryobi dealer.
For the location of a distributor near you, call 1-800-525-
2579 in the United States or 1-800-265-6778 in Canada.
ELECTRICAL CONNECTION
Your saw has a precision built electric motor. It should be
connected to a power supply that is 120 volts, 60 Hz, AC
only (normal household current). Do not operate this tool
on direct current (DC). A substantial voltage drop will cause
a loss of power and the motor will overheat. If your tool does
not operate when plugged into an outlet, double-check the
power supply.
WARNING:
The operation of any saw can result in foreign objects
being thrown into your eyes, which can result in severe
eye damage. Before starting power tool operation, always
wear safety goggles or safety glasses with side shields
and a full face shield when needed. We recommend wide
vision safety mask for use over eyeglasses or standard
safety glasses with side shields.
WARNING:
Do not attempt to modify this tool or create accessories
not recommended for use with this tool. Any such alter-
ation or modification is misuse and could result in a
hazardous condition leading to possible serious personal
injury.
FEATURES
9-7/8"7-1/8"

Page 12
0
30
45
15
15
Fig. 7
Fig. 8
Fig. 9
WARNING:
To prevent accidental starting that could cause possible
serious personal injury, assemble all parts, make sure all
adjustments are complete, and make sure all fasteners
are secure before connecting saw to power supply. Saw
should never be connected to power supply when you are
assembling parts, making adjustments, installing or re-
moving blades, or when not in use.
As mentioned previously your saw has been factory as-
sembled and adjusted. The miter lock handle, work clamp,
dust guide or dust bag, table extensions, stop block, and
blade are the only parts that have to be installed.
MITER LOCK HANDLE
See Figure 7.
To install the miter lock handle, place the threaded stud on
the end of the miter lock handle into the threaded hole in
the control arm under miter table. Turn clockwise to tighten.
WORK CLAMP (Optional)
See Figure 8.
To install optional work clamp, part number 982021-001,
place the shaft of the clamp in either hole in front of the
miter table base. Thread the 8 mm work clamp screw
provided into the side of the base and tighten it to secure
the clamp in position. Rotate the knob on the clamp to
move it in or out as needed.
WARNING:
When using the work clamp with the stop block, install the
clamp on the stop block side of the blade. This will
eliminate the possibility of the saw catching the loose end
and kicking up. Failure to heed this warning can result in
serious personal injury.
DUST GUIDE
See Figure 9.
To install the dust guide, place the end marked INSERT
over the exhaust port in the upper blade guard. Turn the
guide so that the open end is facing down.
TO INSTALL BLADE
See Figures 10, 11, and 12.
WARNING:
A 10 in. (254 mm) blade is the maximum blade capacity
of your saw. Never use a blade that is too thick to allow
outer blade washer to engage with the flats on the spindle.
Larger blades will come in contact with the blade guards,
while thicker blades will prevent the blade bolt from
securing the blade on the spindle. Either of these situa-
tions could result in a serious accident and can cause
serious personal injury.
TO
TIGHTEN
MITER
TABLE
CONTROL
ARM
TO
LOOSEN
MITER
LOCK HANDLE
MITER
TABLE BASE
8 mm WORK
CLAMP SCREW
WORK CLAMP
DUST GUIDE
UPPER
BLADE GUARD EXHAUST
PORT
ASSEMBLY
45
15
0
30
15
0
0
30
45
15
15

Page 13
Fig. 11
Fig. 10
■Unplug your saw.
WARNING:
Failure to unplug your saw could result in accidental
starting causing possible serious personal injury.
■Push down on the saw arm and pull out the lock pin to
release saw arm. Raise saw arm to its full raised posi-
tion. Be cautious, saw arm is spring loaded to raise.
■Loosen the phillips screw on the blade bolt cover until
blade bolt cover can be raised.
See Figure 11.
■Gently raise the lower blade guard bracket, releasing
lower blade guard from notch so that it can be rotated
up.
See Figure 10.
■Rotate the lower blade guard and blade bolt cover up
and back to expose the blade bolt.
■Depress the spindle lock button and rotate the blade
bolt until the spindle locks.
See Figure 12.
■Using the blade wrench provided, loosen and remove
the blade bolt.
NOTE: The blade bolt has left hand threads. Turn blade
bolt clockwise to loosen.
■Remove outer blade washer. Do not remove inner blade
washer.
■Wipe a drop of oil onto inner blade washer and outer
blade washer where they contact the blade.
WARNING:
If inner blade washer has been removed, replace it before
placing blade on spindle. Failure to do so could cause an
accident since blade will not tighten properly.
■Fit saw blade inside lower blade guard and onto spindle.
The blade teeth point downward at the front of saw as
shown in figure 11.
CAUTION:
Always install the blade with the blade teeth and the arrow
printed on the side of the blade pointing down at the front
of the saw. The direction of blade rotation is also stamped
with an arrow on the upper blade guard.
■Replace outer blade washer. The double "D" flats on the
blade washers align with the flats on the spindle.
■Depress spindle lock button and replace blade bolt.
NOTE: The blade bolt has left hand threads. Turn blade
bolt counterclockwise to tighten.
■Tighten blade bolt securely.
■Remove the blade wrench and store it in a safe place for
future use.
LOWER
BLADE GUARD
LOWER BLADE
GUARD BRACKET
NOTCH
LOWER
BLADE GUARD
PHILLIPS
SCREW
FLAT (S)
ON SPINDLE
BLADE
BOLT COVER
INNER BLADE
WASHER WITH
DOUBLE "D" FLATS
OUTER BLADE WASHER
WITH DOUBLE "D" FLATS
BLADE
BLADE BOLT
TO
LOOSEN TO
TIGHTEN
SPINDLE
LOCK
BUTTON
ASSEMBLY
R
O
TAT
I
O
N
R
O
TAT
I
O
N
R
OT
A
T
I
O
N
Fig. 12

Page 14
WARNING:
Before connecting saw to power source, make sure the
saw blade or blade guard will not hit the work clamp or
table extensions when cutting 35° to 45° angles.
STOP BLOCK (Optional)
The optional stop block is included with the Table exten-
sions and is useful as a stop for making repetitive cuts to
the same length. It can be installed on either side of the
saw base:
■Loosen the thumb screw and adjust the stop block the
desired distance from the blade for the cut to be made.
For accurate placement of the stop block, measure the
distance from the teeth set on the blade to the stop
block.
■Tighten thumb screw securely.
■Make a test cut in scrap material and measure the
length of the workpiece.
■Make any necessary adjustments.
■Replace the lower blade guard and blade bolt cover.
■Retighten phillips screw securing blade bolt cover.
WARNING:
Make sure the spindle lock button is not engaged before
reconnecting saw into power source. Never engage
spindle lock button when blade is rotating.
DUST BAG (Optional)
An optional dust bag, part number 4090001, is available for
use on your miter saw. It fits over the exhaust port on the
upper blade guard. To install it, remove dust guide from
exhaust port. Then, squeeze the two metal clips to open
the mouth of the bag and slide it on the exhaust port.
Release the clips. The metal ring in the bag should lock in
between the grooves on the exhaust port.
To remove the dust bag for emptying, simply reverse the
above procedure.
TABLE EXTENSIONS (Optional)
To install optional table extensions, part number 982022-001,
insert the ends of extensions into the holes in the sides of the
base. Adjust the extensions to the desired length. To secure
them in place, screw the two thumb screws provided into the
holes in the front of the base and tighten them securely.
WARNING:
When using the work clamp with the stop block, install the
clamp on the same side as the stop block. This will
eliminate the possibility of trapping the workpiece, resulting
in the saw blade and workpiece kicking up. Failure to
heed this warning can result in serious personal injury.
ASSEMBLY
WARNING:
Always make sure your miter saw is securely mounted to
a workbench or an appropriate workstand. Failure to do
so could result in an accident resulting in possible serious
personal injury.
Your Ryobi miter saw has been adjusted at the factory for
making very accurate cuts. However, some of the compo-
nents might have been jarred out of alignment during ship-
ping. Also, over a period of time, readjustment will probably
become necessary due to wear. After unpacking your saw,
check the following adjustments before you begin using
saw. Make any readjustments that are necessary and peri-
odically check the parts alignment to make sure that your
saw is cutting accurately.
WARNING:
Your saw should never be connected to power supply
when you are assembling parts, making adjustments,
installing or removing blades, or when not in use. Discon-
necting your saw will prevent accidental starting that
could cause serious injury.
NOTE: Many of the illustrations in this manual show only
portions of your miter saw. This is intentional so that we
can clearly show points being made in the illustrations.
Never operate your saw without all guards securely in
place and in good operating condition.
ADJUSTMENTS

Page 15
30˚
45˚
15˚
30˚
45˚
0˚
15
Fig. 15
Fig. 16
6 mm SOCKET
HEAD SCREW(S)
6 mm SOCKET
HEAD SCREW(S)
0°
15°
30°
45°
15°
30°
45°
SQUARING THE MITER TABLE TO THE FENCE
See Figures 13 - 16.
■Unplug your saw.
WARNING:
Failure to unplug your saw could result in accidental
starting causing possible serious personal injury.
■Push down on the saw arm and pull out the lock pin to
release the saw arm.
See Figure 3.
■Raise saw arm to its full raised position.
■Loosen the miter lock handle approximately one-half
turn.
■Depress the miter lock plate and rotate the miter table
until the pointer on the control arm is positioned in the
positive stop at 0°.
■Release the miter lock plate and securely tighten the
miter lock handle.
■Lay a framing square flat on the miter table. Place one
leg of the square against the fence. Place the other leg
of the square beside the blade slot in the miter table.
The edge of the square and the blade slot in the miter
table should be parallel as shown in figure 13.
■If the edge of the framing square and the blade slot in
the miter table are not parallel as shown in figures 14
and 15, adjustments are needed.
■Using a 6 mm hex key provided, loosen the socket head
screws securing the fence.
See Figure 16.
Adjust the
fence left or right until the framing square and blade slot
are parallel.
■Retighten the screws securely and recheck the fence-
to-table alignment.
FENCE MITER TABLE
BLADE SLOT
FRAMING
SQUARE
VIEW OF MITER TABLE NOT SQUARE WITH
FENCE, ADJUSTMENTS ARE REQUIRED
ADJUSTMENTS
Fig. 14
30˚
45˚
15˚
30˚
45˚
0˚
15
VIEW OF MITER TABLE NOT SQUARE WITH
FENCE, ADJUSTMENTS ARE REQUIRED
MITER TABLE
BLADE SLOT
FENCE
FRAMING
SQUARE
FENCE
Fig. 13
30˚
45˚
15˚
30˚
45˚
0˚
15
MITER
LOCK HANDLE
BLADE SLOT
MITER TABLE
MITER
LOCK PLATE
FRAMING
SQUARE
FENCE
CORRECT VIEW OF MITER
TABLE SQUARE WITH FENCE

Page 16
Fig. 19
Fig. 20
45˚
30˚
15˚
30˚
45˚
45˚
30˚
15˚
30˚
45˚
Fig. 18
SQUARING THE SAW BLADE TO THE FENCE
See Figures 17 - 20.
■Unplug your saw.
WARNING:
Failure to unplug your saw could result in accidental
starting causing possible serious personal injury.
■Pull the saw arm all the way down and engage the lock
pin to hold the saw arm in transport position.
■Loosen miter lock handle approximately one-half turn.
■Depress the miter lock plate and rotate the miter table
until the pointer on the control arm is positioned in the
positive stop at 0°.
■Release the miter lock plate and securely tighten the
miter lock handle.
■Lay a framing square flat on the miter table. Place one
leg of the square against the fence. Slide the other leg
of the square against the flat part of saw blade.
NOTE: Make sure that the square contacts the flat part
of the saw blade, not the blade teeth.
■The edge of the square and the saw blade should be
parallel as shown in figure 17.
■If the front or back edge of the saw blade angles away
from the square as shown in figures 18 and 19, adjust-
ments are needed.
■Using the 8 mm hex key provided, loosen the socket
head screws that secure the mounting bracket to the
miter table.
See Figure 20.
■Rotate the mounting bracket left or right until the saw
blade is parallel with the square.
■Retighten the screws securely and recheck the blade-
to-fence alignment.
After squaring adjustments have been made, it may be
necessary to loosen the scale indicator screw and reset
the indicator to zero.
FENCE
VIEW OF BLADE NOT SQUARE WITH
FENCE, ADJUSTMENTS ARE REQUIRED
FENCE
BLADE
FRAMING
SQUARE
BLADE
MITER
TABLE
MITER
TABLE
VIEW OF BLADE NOT SQUARE WITH
FENCE, ADJUSTMENTS ARE REQUIRED
FRAMING
SQUARE
8 mm SOCKET
HEAD SCREW(S)
MOUNTING
BRACKET
MITER
TABLE
8 mm HEX KEY
ADJUSTMENTS
BLADE
MITER
LOCK
HANDLE
MITER
LOCK PLATE
Fig. 17
45˚
30˚
15˚
30˚
45˚
CORRECT VIEW OF
BLADE SQUARE WITH FENCE
FENCE
FRAMING
SQUARE
MITER
TABLE

Page 17
Fig. 21
PIVOT ADJUSTMENTS
NOTE: These adjustments were made at the factory and
normally do not require readjustment.
TRAVEL PIVOT ADJUSTMENT
■The saw arm should rise completely to the up position
by itself.
■If the saw arm does not raise by itself or if there is play in
the pivot joints, have saw repaired at your nearest RYOBI
AUTHORIZED SERVICE CENTER.
DEPTH STOP
The depth stop limits the blade's downward travel. It
allows the blade to go below the miter table enough to
maintain full cutting capacities. The depth stop positions
the blade 1/4 in. (6.4 mm) from the miter table support.
NOTE: The miter table support is located inside miter table.
The depth stop is factory set to provide maximum cutting
capacity for the 10 in. (254 mm) saw blade provided with
your saw. Therefore, the saw blade provided should never
need adjustments.
However, when the diameter of the blade has been reduced
due to sharpening, it may be necessary to adjust the depth
stop to provide maximum cutting capacity. Also, when a new
blade is installed, it is necessary to check the clearance of
the blade to the miter table support.
DEPTH STOP ADJUSTMENTS
See Figure 21.
■Unplug your saw.
WARNING:
Failure to unplug your saw could result in accidental
starting causing possible serious personal injury.
■To adjust the depth stop use a 17 mm wrench or adjustable
wrench and loosen the hex nut at the rear of the miter saw
arm.
■Use the 5 mm hex key provided to adjust the depth stop
adjustment screw. The saw blade is lowered by turning
the screw counterclockwise and raised by turning the
screw clockwise.
■Lower the blade into the blade slot of the miter table.
Check blade clearance and maximum cutting distance
(distance from fence where blade enters) to front of miter
table slot.
■Readjust if necessary.
WARNING:
Do not start your miter saw without checking for
interference between the blade and any part of the miter
table. Damage could result to the blade if it strikes the
miter table during operation of the saw.
■Tighten the hex nut with a 17 mm wrench or adjustable
wrench.
■To prevent the depth stop adjustment screw from turning
while tightening the hex nut, carefully hold it with the hex
key while tightening the hex nut.
APPLICATIONS
(Use only for the purposes listed below)
■Cross cutting wood and plastic.
■Cross cutting miters, joints, etc. for picture frames,
moldings, door casings, and fine joinery.
NOTE: The crosscut blade provided is fine for most wood
cutting operations, but for fine joinery cuts or cutting plastic,
use one of the accessory blades available from your Ryobi
dealer.
ADJUSTMENTS
OPERATION
DEPTH STOP
ADJUSTMENT
SCREW
HEX NUT

Page 18
45
15
0
30
15
30˚
STRAIGHT CROSSCUT Fig. 22
WARNING:
Before starting any cutting operation, clamp or bolt your
miter saw to a workbench. Never operate your miter saw
on the floor or in a crouched position. Failure to heed this
warning can result in serious personal injury
CUTTING WITH YOUR MITER SAW
WARNING:
When using a work clamp or C-clamp to secure your
workpiece against the fence, clamp workpiece on one
side of the blade only. The workpiece must remain free on
one side of the blade to prevent the blade from binding in
workpiece. The workpiece binding the blade will cause
motor stalling and kickback. This situation could cause an
accident resulting in possible serious personal injury.
CROSSCUTTING
See Figure 22.
A crosscut is made by cutting across the grain of the
workpiece. A straight crosscut is made with the miter table
set at the zero degree position. Miter crosscuts are made
with the miter table set at some angle other than zero.
TO CROSSCUT WITH YOUR MITER SAW:
■Pull out the lock pin and lift saw arm to its full height.
■Loosen the miter lock handle. Rotate the miter lock
handle approximately one-half turn to the left to loosen.
■Press the miter lock plate down with your thumb and hold.
■Rotate the control arm until the pointer aligns with the
desired angle on the miter scale.
■Release the miter lock plate.
NOTE: You can quickly locate 0°, or 15°, 22-1/2°, 30°,
and 45° left or right by releasing the miter lock plate as you
rotate the control arm. The miter lock plate will seat itself
in one of the positive stop notches, located in the miter
table frame.
■Tighten the miter lock handle securely.
WARNING:
To avoid serious personal injury, always tighten the miter
lock handle securely before making a cut. Failure to do so
could result in movement of the control arm or miter table
while making a cut.
■Place the workpiece flat on the miter table with one edge
securely against the fence. If the board is warped, place
the convex side against the fence. If the concave edge of
a board is placed against the fence, the board could
collapse on the blade at the end of the cut, jamming the
blade.
See Figures 24 and 25.
OPERATION
■When cutting long pieces of lumber or molding, support
the opposite end of the stock with a roller stand or with a
work surface level with the saw table.
See Figure 23.
■Align cutting line on the workpiece with the edge of saw
blade.
■Grasp the stock firmly with one hand and secure it against
the fence. Use the work clamp or a C-clamp to secure the
workpiece when possible.
WARNING:
To avoid serious personal injury, keep your hands outside
the no hands zone and at least 3 in. (76.2 mm) from blade.
Never perform any cutting operation freehand (without
securing workpiece against the fence). The blade could
grab the workpiece if it slips or twists.
■Before turning on the saw, perform a dry run of the cutting
operation just to make sure that no problems will occur
when the cut is made.
■Grasp the saw handle firmly, slide the lock-off lever back,
then squeeze the switch trigger. Allow several seconds
for the blade to reach maximum speed.
■Slowly lower the blade into and through the workpiece.
■Release the switch trigger and allow the saw blade to stop
rotating before raising the blade out of workpiece. Wait
until the electric brake stops blade from turning before
removing the workpiece from the miter table.

Page 19
Fig. 23
LONG WORKPIECE
WORKPIECE SUPPORTS
SUPPORT LONG WORKPIECES
See Figure 23.
Long workpieces need extra supports. Supports should be
placed along the workpiece so it does not sag. The support
should let the workpiece lay flat on the base of the saw and
work table during the cutting operation. Use the work clamp
or a C-clamp to secure the workpiece.
OPERATION
WARNING:
To avoid serious personal injury, always keep your hands
outside the no hands zone and at least 3 in. (76.2 mm)
from blade. Never perform any cutting operation free-
hand (without securing workpiece against the fence). The
blade could grab the workpiece if it slips or twists.
45
15
0
30
15
30˚

Page 20
45
15
0
30
15
30˚
00
CUTTING WARPED MATERIAL
See Figures 24 and 25.
When cutting warped material, always make sure it is
positioned on the miter table with the convex side against the
fence as shown in figure 24.
If the warped material is positioned the wrong way as shown
in figure 25, it will pinch the blade near the completion of the
cut.
WARNING:
To avoid a kickback and to avoid serious personal injury,
never position the concave edge of bowed or warped
material against the fence.
CLAMPING WIDE WORKPIECES
See Figure 26.
When cutting wide workpieces that are too wide to be
clamped with the work clamp provided, a C-clamp must be
used. For example, when cutting 2 in. x 6 in. boards, they
should be clamped with a C-clamp as shown in figure 26.
OPERATION
Fig. 24
Fig. 25
Fig. 26
0°
15°
30°
45°
15°
30°
45°
RIGHT
0°
15°
30°
45°
15°
30°
45°
WRONG
WIDE
BOARD
C-CLAMP

Page 21
WARNING:
When servicing, use only identical Ryobi replacement
parts. Use of any other part may create a hazard or cause
product damage.
GENERAL
Avoid using solvents when cleaning plastic parts. Most
plastics are susceptible to damage from various types of
commercial solvents and may be damaged by their use. Use
clean cloths to remove dirt, carbon dust, etc.
WARNING:
Do not at any time let brake fluids, gasoline, petroleum-
based products, penetrating oils, etc. come in contact
with plastic parts. They contain chemicals that can dam-
age, weaken or destroy plastic.
It has been found that electric tools are subject to accelerated
wear and possible premature failure when they are used on
fiberglass, wallboard, spackling compounds, or plaster. The
chips and grindings from these materials are highly abrasive
to electric tool parts such as bearings, brushes, commutators,
etc. Consequently, it is not recommended that this tool be
used for work on any fiberglass material, wallboard, spackling
compounds, or plaster. Wood and plastic are the only
recommended materials to be cut with this saw. When
cutting these materials it is extremely important that the tool
is cleaned frequently by blowing with an air jet.
LUBRICATION
All of the bearings in this tool are lubricated with a sufficient
amount of high grade lubricant for the life of the unit under
normal operating conditions. Therefore, no further lubrication
is required.
EXTENSION CORDS
The use of any extension cord will cause some loss of power.
To keep the loss to a minimum and to prevent tool overheating,
use an extension cord that is heavy enough to carry the
current the tool will draw.
A wire gage size (A.W.G.) of at least 14 is recommended for
an extension cord 25 feet or less in length. When working
outdoors, use an extension cord that is suitable for outdoor
use. The cord's jacket will be marked WA.
CAUTION:
Keep extension cords away from the cutting area and
position the cord so that it will not get caught on lumber,
tools, etc., during cutting operation.
WARNING:
Check extension cords before each use. If damaged,
replace immediately. Never use tool with a damaged cord
since touching the damaged area could cause electrical
shock resulting in serious injury.
WARNING:
Always wear safety goggles or safety glasses with side
shields during power tool operation or when blowing dust.
If operation is dusty, also wear a dust mask.
MAINTENANCE

Page 22
0
30
45
15
20
WARNING:
To ensure safety and reliability, all repairs — with the
exception of the externally accessible brushes — should
be performed by a qualified service technician at a Ryobi
Authorized Service Center to avoid risk of personal
injury.
BRUSH REPLACEMENT
See Figure 27.
Your saw has externally accessible brush assemblies that
should be periodically checked for wear.
Proceed as follows when replacement is required:
■Unplug your saw.
WARNING:
Failure to unplug your saw could result in accidental
starting causing serious injury.
■Remove brush cap with a screwdriver. Brush assembly
is spring loaded and will pop out when you remove
brush cap.
■Remove brush assembly.
■Check for wear. Replace both brushes when either has
less than 1/4 in. length of carbon remaining. Do not
replace one side without replacing the other.
■Reassemble using new brush assemblies. Make sure
curvature of brush matches curvature of motor and that
brush moves freely in brush tube.
■Make sure brush cap is oriented correctly (straight) and
replace.
■Tighten brush cap securely. Do not overtighten.
MAINTENANCE
BRUSH
ASSEMBLY
Fig. 27
BRUSH
ASSEMBLY
BRUSH
CAP
BRUSH
CAP

Page 23
1. Plug in saw.
2. Have switch replaced by an
Authorized Service Center.
3. Replace fuse or reset circuit
breaker.
4. Have cord replaced by an
Authorized Service Center.
5. Replace brushes.
1. Replace blade.
2. Turn blade around.
3. Remove blade and clean with
turpentine and coarse steel wool.
4. Change the blade.
1. Replace with the adequate size
extension cord.
2. Contact the electric company.
1. Tighten blade bolt.
2. Tighten all mounting hardware.
3. Reposition workbench on flat
surface. Fasten workbench to
floor if necessary.
4. Clean blade and blade flanges.
1. Replace blade.
2. Check and adjust positive stop.
1. Position bowed material correctly
(convex side to the back fence).
1. Return to an Authorized Service
Center for adjustment.
2. Have spring replaced by an
Authorized Service Center.
1. Saw not plugged in.
2. Faulty switch.
3. Fuse blown or circuit breaker
tripped.
4. Cord damaged.
5. Worn, broken brushes.
1. Dull blade.
2. Blade mounted backwards.
3. Gum or pitch on blade.
4. Incorrect blade for work being
done.
1. Extension cord too light or too
long.
2. Low supply voltage.
1. Blade bolt not tight.
2. Saw not mounted securely to
workbench.
3. Workbench on uneven floor.
4. Blade or blade flanges not clean.
1. Damaged saw blade.
2. Positive stop not adjusted
correctly.
1. Cutting bowed material in wrong
position.
1. No spring tension.
2. Spring broken.
PROBLEM CAUSE SOLUTION
Saw will not start.
Saw makes unsatisfactory cuts.
Blade does not come up to speed.
Saw vibrates excessively.
Does not make accurate 45° and
90° cuts.
Material pinches blade.
Saw blade does not return to UP
position.
TROUBLESHOOTING

Page 24
RYOBI 10 in. (254 mm) MITER SAW – MODEL NUMBER TS1300
WARNING: Improper repair of a double insulated tool can result in damages to the double insulation system possibly causing electrical shock or
electrocution. Any repairs requiring disassembly of your tool requires safety testing and should only be performed by a Ryobi Authorized Service Center.
For the repair center nearest you call 1-800-525-2579 in the United States or 1-800-265-6778 in Canada.
RYOBI 10 in. (254 mm) MITER SAW – MODEL NUMBER TS1300
FIGURE A
13
1
23
456
7810
12
11
14
15
16
18
19
20
21
24
26
25
27
28
29
37
28
29
30
31
32 32 33
34 35
36
38
39
40 41
42 43
44
44
45
46
47
48
49
5051 34
52
53
54
55
56
57
58
59
60
61
62
63
64
65
66
67
68
69
70
71
66
72
73
74
75
76
69
77
78
79
80
23
17
22
9

Page 25
The model number will be found on a plate attached to the motor housing. Always mention the model number in all correspondence regarding your
MITER SAW or when ordering repair parts.
1800130-502 Screw ......................................................................4
2588002-005 Motor Housing ........................................................1
3981315-001 Set Screw (M5 x 6) .................................................2
4981313-001 Nylon Set Screw (M5 x 6) .......................................2
5982006-001 Data Plate ...............................................................1
6976684-001 Brush Holder ...........................................................2
7900030-402 Screw (M4 x 25)......................................................3
8976683-001 Brush Assembly ......................................................2
9976682-001 Brush Cap ...............................................................2
10 982024-001 Warning Label.........................................................1
11 588016-004 Handle Cover ..........................................................1
12 588014-002 Compression Spring ...............................................1
13 595008-004 Lock-Off Lever ........................................................1
14 976678-001 Switch Spring ..........................................................1
15 595025-006 Switch Holder..........................................................1
16 595004-000 Switch Trigger .........................................................1
17 976795-001 Field ........................................................................1
18 595007-008 Switch .....................................................................1
19 900030-401 Screw (M4 x 12)......................................................2
20 976673-001 Cord Clamp.............................................................1
21 976671-001 Connect Wire ..........................................................1
22 977439-001 Power Cord .............................................................1
23 976688-001 Bend Relief .............................................................1
24 901010-506 Screw (M5 x 60)......................................................2
25 588017-000 Fan Casing .............................................................1
26 976873-001 Ball Bearing ............................................................1
27 976794-001 Armature Assembly (Inc. Key Nos. 26, 34 & 35)....1
28 588025-003 Handle Washer .......................................................2
29 170030-601 Screw ......................................................................2
30 300030-100 Hex Nut (M10) ........................................................1
31 180031-002 Depth Stop Adjustment Screw (M10 x 20) .............1
32 300030-121 Hex Nut (M12) ........................................................2
33 350312-260 Flat Washer (M12) .................................................. 1
34 976874-001 External Retaining Ring ..........................................2
35 976875-001 Ball Bearing ............................................................1
36 586004-108 Frame Arm ..............................................................1
37 588024-007 Carrying Handle ......................................................1
38 976650-001 Spindle Lock Pin .....................................................1
39 976651-001 E-Ring .....................................................................1
40 976649-001 Compression Spring ...............................................1
Key Part
No. Number Description Quan.
FIGURE A PARTS LIST
Key Part
No. Number Description Quan.
RYOBI 10 in. (254 mm) MITER SAW – MODEL NUMBER TS1300
41 452040-401 Square Key (4 x 4 x 28) ..........................................1
42 588030-008 Gear Shaft ..............................................................1
43 098460-040 Ball Bearing (6004ZZ) ............................................ 1
44 588031-004 Screw (Special).......................................................2
45 588023-001 Lock Pin Cap ..........................................................1
46 630000-000 "O" Ring ..................................................................1
47 588022-102 Lock Pin ..................................................................1
48 470000-600 E-Ring .....................................................................1
49 800030-401 Screw (M4 x 16)......................................................1
50 588021-009 Rubber Bumper ......................................................1
51 989377-002 Ball Bearing (6000LLB) .......................................... 1
52 588028-001 Gear ........................................................................1
53 588029-007 Lock Ring ................................................................1
54 130030-501 Screw (M5 x 10)......................................................1
55 976739-001 Lower Blade Guard Bracket ...................................1
56 350105-131 Washer (M5) ...........................................................1
57 589015-001 Screw ......................................................................1
58 350304-100 Washer M4) ............................................................1
59 130030-601 Bolt (M4 x 10) .........................................................1
60 588041-009 Connect Plate .........................................................1
61 350308-200 Flat Washer (M8) .................................................... 1
62 588042-005 Link Nut...................................................................1
63 981641-001 Lower Blade Guard................................................. 1
64 976554-001 Return Spring..........................................................1
65 976548-001 Blade Bolt (M8 x 20) ............................................... 1
66 976547-001 Blade Washer .........................................................2
67 982023-001 Blade .......................................................................1
68 588075-008 Label-Upper Guard .................................................1
69 100030-501 Screw (M5 x 12)......................................................5
70 190010-401 Phillips Screw .........................................................1
71 588048-001 Lock Nut..................................................................1
72 130030-401 Screw (M4 x 15)......................................................1
73 589031-007 Stopper ...................................................................1
74 317030-050 Lock Nut..................................................................1
75 350305-122 Washer (M5) ...........................................................1
76 589034-005 Deflector .................................................................1
77 317030-040 Lock Nut..................................................................1
78 976731-001 Upper Blade Guard Assembly ................................1
79 976757-001 Dust Guide ..............................................................1
80 588068-001 Logo Plate...............................................................1

Page 26
RYOBI 10 in. (254 mm) MITER SAW – MODEL NUMBER TS1300RYOBI 10 in. (254 mm) MITER SAW – MODEL NUMBER TS1300
FIGURE B
1
2
36
7
9
7
21
22
23
24
10
11
12
13
14
15
16
17
18
19
20
8
5
3
4

Page 27
The model number will be found on a plate attached to the motor housing. Always mention the model number in all correspondence regarding your
MITER SAW or when ordering repair parts.
FIGURE B PARTS LIST
RYOBI 10 in. (254 mm) MITER SAW – MODEL NUMBER TS1300
1 360308-142 Lock Washer (M8) ............................................................................................................................................................. 4
2 710308-045 Bolt (M8 x 45) .................................................................................................................................................................... 4
3 981313-001 Nylon Set Screw (M5 x 6)..................................................................................................................................................2
4 982013-001 Fence .................................................................................................................................................................................1
5 588049-007 Spring ................................................................................................................................................................................1
6 982011-001 Mounting Bracket...............................................................................................................................................................1
7 360310-182 Lock Washer ...................................................................................................................................................................... 3
8 588058-006 Screw .................................................................................................................................................................................1
9 700310-025 Screw (M10 x 25 Hex Socket) ...........................................................................................................................................2
10 982010-001 Miter Table.........................................................................................................................................................................1
11 588056-004 Shim................................................................................................................................................................................... 4
12 982009-001 Miter Lock Plate .................................................................................................................................................................1
13 588061-009 Fixed Plate.........................................................................................................................................................................1
14 588060-003 Indexing Plate .................................................................................................................................................................... 1
15 140030-500 Screw (Pan Head) ............................................................................................................................................................. 1
16 982008-001 Miter Lock Handle..............................................................................................................................................................1
17 589015-007 Control Arm .......................................................................................................................................................................1
18 360306-121 Lock Washer......................................................................................................................................................................4
19 700306-020 Bolt..................................................................................................................................................................................... 4
20 982007-001 Miter Table Base ...............................................................................................................................................................1
21 976569-001 8 mm Hex Key ...................................................................................................................................................................1
22 976605-001 6 mm Hex Key ...................................................................................................................................................................1
23 791050-000 5 mm Hex Key ...................................................................................................................................................................1
24 4240024 Blade Wrench .................................................................................................................................................................... 1
4090001 Optional Dust Bag (Not Shown) ........................................................................................................................................1
982021-001 Optional Work Clamp (Not Shown) ...................................................................................................................................1
982022-001 Optional Table Extensions with Stop Block (Not Shown) ................................................................................................. 1
972000-746 Operator’s Manual
Key Part
No Number Description Quan.

972000-746
8-04
RYOBI TECHNOLOGIES INC.
1428 Pearman Dairy Road Anderson SC 29622
Post Office Box 1207 Anderson SC 29622-1207
Phone 1-800-525-2579
RYOBI TECHNOLOGIES INC.
P.O. Box 910
Cambridge, Ontario N1R 6K2
Phone 1-800-265-6778
EXTENSION CORD CAUTION
When using a power tool at a considerable distance from a power
source, be sure to use an extension cord that has the capacity to
handle the current the tool will draw. An undersized cord will
cause a drop in line voltage, resulting in overheating and loss of
power. Use the chart to determine the minimum wire size
required in an extension cord. Only round jacketed cords should
be used.
When working with a tool outdoors, use an extension cord that is
designed for outside use. This is indicated by the letters "WA" on
the cord's jacket.
Before using any extension cord, inspect it for loose or exposed
wires and cut or worn insulation.
OPERATOR'S MANUAL
10 in. (254 mm) Miter Saw
Model TS1300
**Ampere rating
(on tool data plate) 0-2.0 2.1-3.4 3.5-5.0 5.1-7.0 7.1-12.0 12.1-16.0
Cord Length Wire Size (A.W.G.)
25' 16 16 16 16 14 14
50' 16 16 16 14 14 12
100' 16 16 14 12 10 —
CAUTION: Keep the extension cord clear of the working
area. Position the cord so that it will not get caught on workpiece,
tools, or other obstructions while you are working with a power
tool.
**Used on 12 gauge - 20 amp circuit.
•SERVICE
Now that you have purchased your tool, should a need ever exist for repair parts or
service, simply contact your nearest Ryobi Authorized Service Center. Be sure to
provide all pertinent facts when you call or visit. Please refer to the Service Center insert
or call 1-800-525-2579 in the United States or 1-800-265-6778 in Canada for your
nearest Ryobi Authorized Service Center. You can also check our web site at
www.ryobitools.com for a complete list of Authorized Service Centers.
•MODEL NO.
The model and serial numbers of your tool will be found on a plate attached to the motor
housing. Please record the serial number in the space provided below.
•MODEL NUMBER TS1300
•SERIAL NUMBER