Samsung Electronics Co RFV01U-D2A RRU (RFV01U) User Manual RFV01U D2A Rev 01 1
Samsung Electronics Co Ltd RRU (RFV01U) RFV01U D2A Rev 01 1
Contents
- 1. RFV01U-D2A_User Manual_Rev.01_1
- 2. RFV01U-D2A_User Manual_Rev.01_2
RFV01U-D2A_User Manual_Rev.01_1

Radio Access Networ
k
RFV01U-D2
A
Installation Manual
Describes product installation and requirement procedure
Document Version 2.0
July 2017
Document Number: 2600-00KTG7GAA

© 2017 SAMSUNG Electronics Co., Ltd.
All Rights Reserved. The contents of this document/presentation contain proprietary information that
must be kept confidential. No part of this document shall be photocopied, reproduced, stored in a
retrieval system, or transmitted, in any form or by any means whether, electronic, mechanical, or
otherwise without the prior written permission of SAMSUNG Electronics Co., Ltd.
No warranty of accuracy is given concerning the contents of the information contained in this
publication. To the extent permitted by law no liability (including liability to any person by reason of
negligence) will be accepted by SAMSUNG Electronics Co., Ltd., its subsidiaries or employees for
any direct or indirect loss or damage caused by omissions from or inaccuracies in this document.
SAMSUNG Electronics Co., Ltd. reserves the right to change details in this publication without notice.
SNMTC-v3-0312
This manual should be read and used as a guideline for properly installing and/or operating the
product. Owing to product variations across the range, any illustrations and photographs used in
this manual may not be a wholly accurate depiction of the actual products you are using.
This manual may be changed for system improvement, standardization and other technical
reasons without prior notice.
Samsung Networks documentation is available at http://www.samsungdocs.com

Confidential
RFV01U-D2A Installation Manual v2.0 iii
Copyright © 2017, All Rights Reserved.
Contents
Prefaceviii
ConventionsinthisDocument.......................................................................................................viii
NewandChangedInformation.......................................................................................................ix
RevisionHistory...............................................................................................................................ix
OrganizationofThisDocument......................................................................................................ix
RelatedDocumentation..................................................................................................................ix
PersonalandProductSafety............................................................................................................x
EquipmentMarkings......................................................................................................................xiv
Chapter1BeforeInstallation1
SystemConfigurationandInterface................................................................................................1
RRHConfiguration.......................................................................................................................1
RRHInterface...............................................................................................................................3
Specifications...................................................................................................................................5
CautionsforInstallation...................................................................................................................6
BeforeInstalling...........................................................................................................................6
WhileInstalling............................................................................................................................6
AfterInstalling.............................................................................................................................7
InstallationTools..............................................................................................................................8
Chapter2InstallingSystem11
InstallationProcedure....................................................................................................................11
SystemArrangement.....................................................................................................................12
TransportingandUnpacking..........................................................................................................18
BringinginItems........................................................................................................................18
UnpackingItems........................................................................................................................18
RRHHandling.................................................................................................................................19
FixingRRH......................................................................................................................................20
FixingFingerGuard....................................................................................................................20
FixingUnitBracket.....................................................................................................................23
FixingPoleType.........................................................................................................................26
FixingWallType.........................................................................................................................38
Chapter3ConnectingCables53
CablingProcedure..........................................................................................................................53
GuidelinesforCableConnections..................................................................................................54
CablePathInspection................................................................................................................54
CableCutting.............................................................................................................................55
CableInstallation.......................................................................................................................55
CableBinding.............................................................................................................................56
ConnectorAttachment..............................................................................................................56
IdentificationTagAttachment...................................................................................................57
CablingDiagram.............................................................................................................................58
Grounding......................................................................................................................................60
ConnectingGroundCable..........................................................................................................60
PowerCabling................................................................................................................................63
ConnectingPowerCable............................................................................................................64
InterfaceCableConnection............................................................................................................67

Confidential
Contents
RFV01U-D2A Installation Manual v2.0 iv
Copyright © 2017, All Rights Reserved.
Remove/InsertOpticalModule..................................................................................................67
ConnectingCPRICable...............................................................................................................68
ConnectingUDACable...............................................................................................................73
ConnectingRETCable................................................................................................................77
ConnectingRFCable..................................................................................................................79
Chapter4InspecttheInstallation86
AppendixAAcronyms91
AppendixBSectorAntennaInstallation92
CautionswhenInstallingaSectorAntenna...................................................................................92
SectorAntennaInstallation............................................................................................................94
AppendixCCleantheOpticalConnectors95
Introduction...................................................................................................................................95
MeasuringtheOpticalOutputandConnectingtheOpticalConnector.....................................95
AppendixDStandardTorque97

Confidential
RFV01U-D2A Installation Manual v2.0 v
Copyright © 2017, All Rights Reserved.
List of Figures
Figure1.Configuration(withoutFingerGuard)..............................................................................................2
Figure2.RRHConfiguration(withFingerGuard)...........................................................................................3
Figure3.RRHInterface...................................................................................................................................4
Figure4.ProceduretoInstalltheRRH..........................................................................................................11
Figure5.RRHArrangement_1SectorPoleTypeInstallation(StandardInstallation)...................................12
Figure6.RRHArrangement_1SectorPoleTypeInstallation(SideInstallation)...........................................13
Figure7.RRHArrangement_2SectorPoleTypeInstallation(SideInstallation)...........................................13
Figure8.RRHArrangement_1SectorWallTypeInstallation(StandardInstallation)...................................14
Figure9.RRHArrangement_1SectorWallTypeInstallation(SideInstallation)..........................................15
Figure10.RRHArrangement_3SectorWallTypeInstallation(StandardInstallation)...................................16
Figure11.RRHArrangement_3SectorWallTypeInstallation(SideInstallation)..........................................17
Figure12.RRHHandling.................................................................................................................................19
Figure13.FingerGuardFixing(1)...................................................................................................................21
Figure14.FingerGuardFixing(2)...................................................................................................................21
Figure15.FingerGuardFixing(3)...................................................................................................................21
Figure16.FingerGuardFixing(4)...................................................................................................................22
Figure17.FingerGuardFixing(5)...................................................................................................................22
Figure18.FingerGuardFixing(6)...................................................................................................................22
Figure19.FixingUnitBracket_StandardInstallation(1)................................................................................24
Figure20.FixingUnitBracket_StandardInstallation(2)................................................................................24
Figure21.FixingUnitBracket_StandardInstallation(3)................................................................................25
Figure22.FixingUnitBracket_SideInstallation..............................................................................................26
Figure23.AssemblingMountingBracket(1)..................................................................................................27
Figure24.AssemblingMountingBracket(2)..................................................................................................28
Figure25.LiftingRRHandMountingBracketAssembly.................................................................................29
Figure26.LiftingRRHandMountingBracketAssembly.................................................................................30
Figure27.FixingMountingBracketAssembly_1SectorPoleType(1)...........................................................31
Figure28.FixingMountingBracketAssembly_1SectorPoleType(2)...........................................................31
Figure29.FixingMountingBracketAssembly_1SectorPoleType(3)...........................................................32
Figure30.LevellingMountingBracketAssembly_1SectorPoleType...........................................................32
Figure31.FixingMountingBracketAssembly_2SectorPoleType(SideInstallation1)................................33
Figure32.FixingMountingBracketAssembly_2SectorPoleType(SideInstallation2)................................33
Figure33.FixingMountingBracketAssembly_2SectorPoleType(SideInstallation3)................................34
Figure34.FixingRRH_1SectorPoleType(StandardInstallation)..................................................................35
Figure35.FixingRRH_1SectorPoleType(SideInstallation)..........................................................................36
Figure36.FixingRRH_2SectorPoleType(SideInstallation1).......................................................................38
Figure37.FixingRRH_2SectorPoleType(SideInstallation2).......................................................................38
Figure38.RRHmarkingdimensions_1SectorWallType(StandardInstallation)...........................................39
Figure39.RRHmarkingdimensions_1SectorWallType(SideInstallation)..................................................40
Figure40.RRHmarkingdimensions_3SectorWallType(StandardInstallation)...........................................40
Figure41.RRHmarkingdimensions_3SectorWallType(SideInstallation)..................................................41
Figure42.Marking_WallType........................................................................................................................42
Figure43.DrillingandAnchoring....................................................................................................................43
Figure44.FixingMountingBracket_1SectorWallType................................................................................45
Figure45.FixingMountingBracket_3SectorWallType................................................................................46
Figure46.FixingRRH_1SectorWallType(StandardInstallation)..................................................................47
Figure47.FixingRRH_1SectorWallType(SideInstallation).........................................................................48

Confidential
List of Figures
RFV01U-D2A Installation Manual v2.0 vi
Copyright © 2017, All Rights Reserved.
Figure48.FixingRRH_3SectorWallType(StandardInstallation1)...............................................................49
Figure49.FixingRRH_3SectorWallType(StandardInstallation2)...............................................................50
Figure50.FixingRRH_3SectorWallType(SideInstallation1).......................................................................51
Figure51.FixingRRH_3SectorWallType(SideInstallation2).......................................................................52
Figure52.ProceduretoConnectSystemCable..............................................................................................53
Figure53.CableConnectionProcedure..........................................................................................................54
Figure54.CableDiagram_RFConnection:2T2R.............................................................................................58
Figure55.CableDiagram_RFConnection:2T4R,4T4R..................................................................................58
Figure56.ConnectingGroundCable(1).........................................................................................................61
Figure57.ConnectingGroundCable(2).........................................................................................................62
Figure58.PowerEquipmentElements...........................................................................................................63
Figure59.ConnectingPowerCable(1)...........................................................................................................65
Figure60.ConnectingPowerCable(2)...........................................................................................................65
Figure61.OpticalModuleRemoval(1)..........................................................................................................67
Figure62.OpticalModuleRemoval(2)..........................................................................................................67
Figure63.OpticalModuleRemoval(3)..........................................................................................................67
Figure64.OpticalModuleInset......................................................................................................................68
Figure65.ConnectingCPRICable(1)..............................................................................................................69
Figure66.ConnectingCPRICable(2)..............................................................................................................70
Figure67.ConnectingCPRICable(3)..............................................................................................................70
Figure68.ConnectingCPRICable(4)..............................................................................................................71
Figure69.ConnectingCPRICable(5)..............................................................................................................71
Figure70.ConnectingCPRICable(6)..............................................................................................................72
Figure71.ConnectingUDACable(1)..............................................................................................................74
Figure72.ConnectingUDACable(2)..............................................................................................................74
Figure73.ConnectingUDACable(3)..............................................................................................................74
Figure74.ConnectingUDACable(4)..............................................................................................................75
Figure75.ConnectingUDACable(5)..............................................................................................................75
Figure76.ConnectingUDACable(6)..............................................................................................................76
Figure77.ConnectingRETCable(1)...............................................................................................................78
Figure78.ConnectingRETCable(2)...............................................................................................................78
Figure79.ConnectingRETCable(3)...............................................................................................................79
Figure80.ConnectingRETCable(4)...............................................................................................................79
Figure81.ConnectingRFCable_2T2RConnection(1)....................................................................................81
Figure82.ConnectingRFCable_2T2RConnection(2)....................................................................................81
Figure83.ConnectingRFCable_2T2RConnection(3)....................................................................................82
Figure84.ConnectingRFCable_2T2RConnection(4)....................................................................................83
Figure85.ConnectingRFCable_2T4R,4T4RConnection(1)..........................................................................84
Figure86.ConnectingRFCable_2T4R,4T4RConnection(2)..........................................................................84
Figure87.InstallationInspectionProcedure..................................................................................................86
Figure88.SectorAntenna...............................................................................................................................94

Confidential
RFV01U-D2A Installation Manual v2.0 vii
Copyright © 2017, All Rights Reserved.
List of Tables
Table1.Specifications...................................................................................................................................5
Table2.BasicInstallationTools.....................................................................................................................8
Table3.PartsandToolsforfixingFingerGuard..........................................................................................20
Table4.PartsandToolsforfixingUnitBracket_Standardinstallation.......................................................23
Table5.PartsandToolsforfixingUnitBracket_StandardInstallation.......................................................25
Table6.PartsandToolsforassemblingMountingBracket........................................................................26
Table7.PartsandToolsforfixingMountingBracketAssembly_1SectorPoleType..................................30
Table8.PartsandToolsforfixingMountingBracketAssembly_2SectorPoleType(SideInstallation).....32
Table9.FixingRRH_1SectorPoleType(StandardandSideInstallation)...................................................34
Table10.PartsandToolsforfixingRRH_2SectorPoleType(SideInstallation)...........................................36
Table11.ToolsforMarking...........................................................................................................................39
Table12.PartsandToolsforDrillingandAnchoring.....................................................................................42
Table13.AnchorBoltDrillBitsandHoleDepth............................................................................................43
Table14.PartsandToolsforfixingMountingBracket_1SectorWallType..................................................44
Table15.PartsandToolsforfixingMountingBracket_3SectorWallType..................................................45
Table16.PartsandToolsforfixingRRH_1SectorWallType(StandardandSideInstallation)....................46
Table17.PartsandToolsforfixingRRH_3SectorWallType(StandardInstallation)...................................48
Table18.PartsandToolsforfixingRRH_3SectorWallType(SideInstallation)...........................................50
Table19.RecommendedMinimumAllowedCablebendRadius..................................................................55
Table20.RRHConnectionCable...................................................................................................................59
Table21.PartsandToolsforconnectingGroundCable...............................................................................60
Table22.PartsandToolsforconnectingPowerCable.................................................................................64
Table23.PowerCable/ConnectorPinMap...................................................................................................64
Table24.PartsandToolsforconnectingCPRICable....................................................................................68
Table25.PartsandToolsforconnectingUDACable....................................................................................73
Table26.UDACablePinMap........................................................................................................................73
Table27.PartsforconnectingRETCable......................................................................................................77
Table28.RETCablePinMap.........................................................................................................................77
Table29.RFCableMinimumRadiusofCurvature........................................................................................79
Table30.PartsandToolsforconnectingRFcable........................................................................................80
Table31.RFCableIdentificationTag.............................................................................................................85
Table32.ConstructionSituationChecklist...................................................................................................87
Table33.StandardTorqueValueforFasteningBolts...................................................................................97
Table34.BrassBoltsTorqueValue...............................................................................................................97
Table35.ConnectorConnectionTorqueValue.............................................................................................97

Confidential
RFV01U-D2A Installation Manual v2.0 viii
Copyright © 2017, All Rights Reserved.
Preface
This manual describes how to install a 700/850 MHz RRH and how to connect its
cables. This manual includes the following 700/850 MHz RRH:
RFV01U-D2A
Conventions in this Document
Samsung Networks product documentation uses the following conventions.
Symbols
Symbol Description
Indicates a task.
Indicates a shortcut or an alternative method.
Provides additional information.
Provides information or instructions that you should follow to avoid service
failure or damage to equipment.
Provides information or instructions that you should follow to avoid personal
injury or fatality.
Provides antistatic precautions that you should observe.
Menu Commands
menu | command
This indicates that you must select a command on a menu, where menu is the
name of the menu, and command is the name of the command on that menu.
File Names and Paths
These are indicated by a bold typeface. For example:
Copy filename.txt into the /home/folder1/folder2/bin/ folder.
User Input and Console Screen Output Text
Input and output text is presented in the Courier font. For example,
context <designated epc-context-name>
CLI commands are presented in bold small caps. For example,
Type the RTRV-NE-STS command in the input field.

Confidential
Preface
RFV01U-D2A Installation Manual v2.0 ix
Copyright © 2017, All Rights Reserved.
New and Changed Information
This section describes information that has been added/changed since the previous
publication of this manual.
Added antenna gain. (Personal and Product Safety)
Added a safe distance between the base station antenna and people. (Caution
for Installation in Chapter 1)
Revision History
The following table lists all versions of this document.
Document Number Product/Software
Version
Document
Version
Publication
Date
Remarks
2600-00KTG7GAA RFV01U-D2A 1.0 July 2017 -
2600-00KTG7GAA RFV01U-D2A 2.0 July 2017 -
Organization of This Document
Section Title Description
Chapter 1 Before Installation This chapter introduces an RRH and describes
items that should be understood before
installation.
Chapter 2 Installing System This chapter describes the procedures to install
the RRH.
Chapter 3 Connecting Cables This chapter describes the procedures to connect
the cables to the RRH installed.
Chapter 4 Inspect the Installation This chapter describes the procedures of
inspecting installation status after RRH
installation and cabling is completed.
Appendix A Acronyms This annex describes the acronyms used in this
manual.
Appendix B Sector Antenna Installation This annex describes the sector antenna
installation.
Appendix C Clean the Optical Connectors This annex describes the procedure of cleaning
the optical connector and cleaning tool.
Appendix D Standard Torque This annex describes the standard torque when
fastening the bolt.
Related Documentation
LTE eNB System Description

Confidential
Preface
RFV01U-D2A Installation Manual v2.0 x
Copyright © 2017, All Rights Reserved.
Personal and Product Safety
This product safety information includes European directives, which you must
follow. If these do not apply in your country, please follow similar directives that
do apply in your country.
Proposition 65 Warning (US Only)
State of California Proposition 65 Warning (US only)
WARNING: This product contains chemicals known to the State of California to
cause cancer and birth defects or other reproductive harm.
Electrical
The product is designed to operate from a -48 V DC supply and is therefore
classified as Safe Extra Low Voltage (SELV) equipment.
All structural parts are grounded and all input and outputs have built-in isolation
from the network. All input and output ports that connect to external power
sources are designed to meet relevant national safety requirements.
The product contains hazardous energy levels as defined by EN 60950. Care must
be taken when maintaining this equipment as injury to personnel or damage to the
equipment could result from mistakes. Maintenance should only be carried out by
trained and competent engineers who are familiar with the relevant procedures and
instructions.
Lasers
The product is fitted with optic modules rated as Class 1 radiation-emitting devices
under EN 60825-1. During installation, operation, and maintenance, never look
into the end of an optical fiber directly or by reflection either with the naked eye or
through an optical instrument. Do not operate equipment with exposed fiber
connectors-cover these with fiber cables or blanking caps. Do not remove
equipment covers during operation unless requested to do so in the documentation.
Carry out normal safety precautions when trimming fibers during installation.
Manual Handling
Care should be taken when handling equipment. Give due consideration to the
weight of the equipment, the physical capability of the individual(s) handling the
equipment, and movements such as twisting, bending and stooping, which could
lead to skeletal and muscular injuries.
Installation
Installation must be carried out by trained and competent engineers only. All
relevant safety measures should be taken to ensure equipment is not connected to

Confidential
Preface
RFV01U-D2A Installation Manual v2.0 xi
Copyright © 2017, All Rights Reserved.
live power and transmission sources during installation. Equipment must be
correctly installed in order to meet the relevant safety standards and approval
conditions.
Each power feed to the unit requires a separate fused feed from the provided
power supply. The cable between the power distribution point and the installed
equipment must have a minimum cross-sectional area of 2.5 mm2.
Rack-mountable equipment must be placed in a standard 19-inch rack and secured
with the appropriate fixings as detailed in the installation manual.
Maintenance
Maintenance must only be carried out by a suitably trained and competent
technician. All safety instructions must be carefully observed at all times.
Equipment covers should not be removed while live power and transmission is
connected unless in a controlled environment by trained technicians.
Fire
The product is powered from a -48 V DC supply. To protect against fire, the
equipment is fused.
Environment
The product must be operated in an environment with the specified relative
humidity and ambient temperature ranges.
Keep all liquids away from the equipment as accidental spillage can cause severe
damage.
Cooling
The product cools down by its own set of cooling fans housed in a fan module.
Each fan module detects a fan that is not operating normally. LEDs on the front
panel of the fan module provide an alarm indication in the event of fan failure.
In the event of fan failure, take urgent remedial action to restore full cooling
capacity.
Take appropriate measures to ensure that fan modules do not start spinning during
repair and maintenance procedures.
Anti-Static Precautions
The circuit boards and other modules in the product are sensitive to and easily
damaged by static electricity. If any card or sub-assembly is removed from the unit,
the following anti-static precautions must be observed at all times:
Service personnel must wear anti-static wrist straps.
Circuit boards and sub-assemblies must be placed on ground conductive mats

Confidential
Preface
RFV01U-D2A Installation Manual v2.0 xii
Copyright © 2017, All Rights Reserved.
or in conductive bags.
All tools must be discharged to ground before use.
The anti-static wrist strap and cord must be checked at regular intervals for
their suitability for use.
Grounding
To comply with EN 60950, the equipment must be connected to a safety
grounding point via a permanent link. Grounding points are located on the product
for this purpose. Always connect the ground cable before fitting other cables. The
product must remain grounded continuously unless all connections to the power
supply and data network are all removed.
If equipment is grounded through a cabinet or rack, make sure it is done so
properly according to the installation instructions.
Power Supply Connection
The equipment is designed to be powered from a -48 V DC supply. Power
connections and installation of associated wiring must be carried out by a suitably
qualified technician.
Only devices that comply with all relevant national safety requirements should be
connected to the unit’s power supply inlets. Other usage will invalidate any
approval given to this equipment.
Connection of this equipment to devices that are not marked with all relevant
national safety requirements may produce hazardous conditions on the network.
When the power supply is obtained by a rectifier/safety isolation transformer, the
supply must meet the requirements of EN 60950 providing double/reinforced
insulation between hazardous voltages and SELV/TNV circuits. Any battery must
be separated from hazardous voltages by reinforced insulation.
Indirect Connection
Before indirectly connecting any equipment to another device through a shared
power supply, ALWAYS seek advice from a competent engineer.
Devices that are not marked according to the relevant national safety standards
may produce hazardous conditions on the network.
Product Disposal
To reduce the environmental impact of products, Samsung has joined WEEE
compliance activities.
The WEEE symbol on the product indicates that the product is covered by the
European Directive 2002/96/CE for the disposal of Waste Electrical and Electronic
Equipment (WEEE). This means that the product should be disposed of separately
from the municipal waste stream via designated collection facilities appointed by

Confidential
Preface
RFV01U-D2A Installation Manual v2.0 xiii
Copyright © 2017, All Rights Reserved.
the government or the local authorities. This will help prevent potential negative
consequences for the environment and human health. Please check the terms and
conditions of the purchase contract for information about correct disposal.
Battery Disposal
The product contains a battery on the processor card. The battery should not be
disposed of with other household waste. Where marked, the chemical symbols Hg,
Cd or Pb indicate that the battery contains mercury, cadmium or lead above the
reference levels in EC Directive 2006/66. The battery incorporated in this product
is not user replaceable. For information on its replacement, please contact your
service provider. Do not attempt to remove the battery or dispose it in a fire. Do
not disassemble, crush, or puncture the battery.
End of life recycling materials information is available from Samsung.
California USA Only
This Perchlorate warning applies only to primary CR (Manganese Dioxide)
Lithium coin cells in the product sold or distributed ONLY in California USA
‘Perchlorate Material-special handling may apply, See
www.dtsc.ca.gov/hazardouswaste/perchlorate.’
Antenna Gain
The antenna gain with a maximum of 10.865 dBi should be used to satisfy
maximum ERP. But the antenna gain can be grown up to 13.875 dBi, when the
operator is extending the coverage to the unserved area.

Confidential
Preface
RFV01U-D2A Installation Manual v2.0 xiv
Copyright © 2017, All Rights Reserved.
Equipment Markings
This marking on the product, accessories or literature indicates that the
product and its electronic accessories (e.g. charger, headset, USB cable)
should not be disposed of with other household waste at the end of their
working life. To prevent possible harm to the environment or human health
from uncontrolled waste disposal, please separate these items from other
types of waste and recycle them responsibly to promote the sustainable
reuse of material resources.
Household users should contact either the retailer where they purchased
this product, or their local government office, for details of where and how
they can take these items for environmentally safe recycling.
Business users should contact their supplier and check the terms and
conditions of the purchase contract. This product and its electronic
accessories should not be mixed with other commercial wastes for disposal.
Correct disposal of batteries in this product
(Applicable in countries with separate collection systems.)
The marking on the battery, manual or packaging indicates that the battery
in this product should not be disposed of with other household waste. Where
marked, the chemical symbols Hg, Cd or Pb indicate that the battery
contains mercury, cadmium or lead above the reference levels in EC
Directive 2006/66.
The battery incorporated in this product is not user replaceable. For
information on its replacement, please contact your service provider. Do not
attempt to remove the battery or dispose it in a fire. Do not disassemble,
crush, or puncture the battery. If you intend to discard the product, the waste
collection site will take the appropriate measures for the recycling and
treatment of the product, including the battery.

Confidential
RFV01U-D2A Installation Manual v2.0 1
Copyright © 2017, All Rights Reserved.
Chapter 1 Before
Installation
This chapter introduces the RRH system and describes items you should know
before installation.
System Configuration and Interface
This section provides the pictorial view of the RRH and its interfaces.
RRH Configuration
The following figures depict the physical view of the RRH with and without the
finger guard configuration respectively.

Confidential
Chapter 1 Before Installation
RFV01U-D2A Installation Manual v2.0 2
Copyright © 2017, All Rights Reserved.
Figure 1. Configuration (without Finger Guard)
[Bottom View]
15 (380)
[Front View]
[Top View]
[Left View] [Right View] [Rear View]
19.73 (501)
8.1 (207)
15 (380)
Unit: in. (mm)

Confidential
Chapter 1 Before Installation
RFV01U-D2A Installation Manual v2.0 3
Copyright © 2017, All Rights Reserved.
Figure 2. RRH Configuration (with Finger Guard)
RRH Interface
The following figure depicts the physical view of the RRH interfaces.
[Bottom View]
15.49 (393)
[Front View]
[Top View]
[Left View] [Right View] [Rear View]
19.73 (501)
10.03 (255)
15.88 (403)
Unit: in. (mm)

Confidential
Chapter 1 Before Installation
RFV01U-D2A Installation Manual v2.0 4
Copyright © 2017, All Rights Reserved.
Figure 3. RRH Interface
[Bottom View]
ANT 1
(
Bias-T
)
ANT2
ANT 3
(
Bias-T
)
DC_PWR ANT4
RET
UD
A
L0
L1
[Right View]
Ground Terminal

Confidential
Chapter 1 Before Installation
RFV01U-D2A Installation Manual v2.0 5
Copyright © 2017, All Rights Reserved.
Specifications
The following table lists the main specifications of the RRH.
Table 1. Specifications
Item RRH
Input Current (MAX) 24 A @ -48 V DC

Confidential
Chapter 1 Before Installation
RFV01U-D2A Installation Manual v2.0 6
Copyright © 2017, All Rights Reserved.
Cautions for Installation
Observe the following safety instructions when installing the system. Installation
should be in accordance with the applicable local electric codes.
Before Installing
Before starting the installation, ensure the following:
Post warning signs in areas where high-voltage cables are installed.
Post ‘off limit’ signs in areas where accidents are most expected.
With guardrails or fences, block open areas such as connecting parts, roof, and
scaffold.
Install the system in the Restrict Access Area.
While Installing
While installation, ensure the following:
The system power must be cut off before installing.
Be careful not to damage or scratch the boards mounted on the system and the
cables among the boards when the system is transported or installed.
Make sure the power switch of power supply is off when installing the system.
Installing the system with power switch on may cause system damage or fatal
human injury when cables are not correctly connected.
Make sure that worker wears protection gloves and goggles to prevent damage
from debris while drilling holes in a wall or ceiling.
Do not wear accessories such as watches and rings to prevent electrical shock.
Never allow foreign substances to be inserted into unused ports by covering them
with a cap.
To prevent foreign substances, outdoor air and moisture from entering the cable
inlet (including cable gland and conduit), do the following:
- Unused inlet
Use the hole finishing materials including cap and rubber packing.
- Cable-installed inlet
After cable installation, block any space in the inlet with tape, compressed sponge,
rubber packing, and silicon.
Keep a safe distance between the base station antenna and people.

Confidential
Chapter 1 Before Installation
RFV01U-D2A Installation Manual v2.0 7
Copyright © 2017, All Rights Reserved.
After Installing
After installation, remove any debris produced during the work and clean up the
installation site.
In the system, the laser beam light runs through the optical cable. Handle the
optical cables with care as the laser beam can seriously damage the worker’s eyes.
Make sure that worker does not damage installed cables while cleaning the system.
While cleaning the power supply device, take caution that the device is not
exposed to foreign objects that may cause power failure.
RRH Safe Distance
RFV01U-D2A 1000 cm

Confidential
Chapter 1 Before Installation
RFV01U-D2A Installation Manual v2.0 8
Copyright © 2017, All Rights Reserved.
Installation Tools
The basic tools required for installation are listed in the following table. The
additional tools required for each site need to be identified and arranged during a
site survey before starting installation.
Table 2. Basic Installation Tools
No. Name Specification Purpose of use
1 Torque Driver
Apply a torque range
: 2 to 10 lbf·in
For fastening finger guard (M3).
Apply a torque range
: 20 to 90 lbf·in
For fastening RRH ground pressure
terminal (M5 and M6).
2 Screw Driver Bit
‘+’, No. 2 For fastening finger guard (M3 and
M5).
‘+’, No. 3 For fastening RRH ground pressure
terminal (M6).
3 Screw Driver
‘+’, No. 2 For loosening M3 and M5 screws.
‘+’, No. 3 For loosening M6 screws.
4 Torque Wrench
Apply a torque range
: 10 to 50 lbf·in
For tightening M6 Hex. Bolt and RF
connector of system (4.3-10 type).
Apply a torque range
: 100 to 400 lbf·in
For tightening M10 Hex. Bolt and RF
connector of antenna (DIN type).
5 Torque Wrench Spanner Head
Apply Hex. Bolt Head: 10 mm
(for 10 to 50 lbf·in)
For tightening M6 Hex. Bolt.
Apply Hex. Bolt Head: 17 mm
(for 100 to 400 lbf·in)
For tightening M10 Hex. Bolt.
Apply Hex. Bolt Head: 22 mm
(for 10 to 50 lbf·in)
For tightening RF connector of
system (4.3-10 type).
Apply Hex. Bolt Head: 32 mm
(for 100 to 400 lbf·in)
For tightening RF connector of
antenna (DIN type).
6 Spanner
10 mm For loosening M6 Hex. Bolt.
17mm For loosening M10 Hex. Bolt.
22 mm For loosening RF connector of
system (4.3-10 type).
32mm For loosening RF connector of
antenna (DIN type).
7 Ratchet Wrench
10 × 13/17 × 19 (4 in 1) For fastening Hex. Bolt.
8 Tape Measure
16 ft./150 ft. Tape measure for length
measurement.
9 Power Extension Cable
100 ft. Basic tool.

Confidential
Chapter 1 Before Installation
RFV01U-D2A Installation Manual v2.0 9
Copyright © 2017, All Rights Reserved.
No. Name Specification Purpose of use
10 Level
Normal For horizontality and verticality.
11 Hammer Drill
Normal Wall type drilling.
12 Concrete Drill Bit
0.55 in. (14 mm) For the M10 strong Anchor.
13 Anchor Punch
M10 For the M10 strong Anchor.
14 Hammer
Normal Anchor fixing.
15 Vacuum Cleaner
Normal For removing dust during the drilling
work.
16 Heating Gun
122 to 572°F (50 °C to
300 °C)
Shrinking feeder cable tube.
17 Cable Cutter
0.24 to 1.26 in. (6 to 32 mm) Cable cutting.
18 Crimping Tool
AWG14 to AWG4 (1.5 to 16
mm
2
)
Pressure terminal for crimping.
19 Wire Stripper
Apply cable thickness: 1.5 to
6.2 in.(4 to 16 mm)
Cable sheath for removal.
20 Nipper
Basic Tool For cutting cable.
21 LAN Tool
Basic Tool RJ45 crimper.
22 Industrial Scissor
Basic Tool Cutting.
23 Knife
Basic Tool Cutting.
24 Optical Connector Cleaner For LC Connector For optical connector cleaning.

Confidential
Chapter 1 Before Installation
RFV01U-D2A Installation Manual v2.0 10
Copyright © 2017, All Rights Reserved.
No. Name Specification Purpose of use
25 Optical Transceiver Removal
Tool
Normal Separate the optical module.
26 Multi tester
Digital Pocket Tester The voltage and current
measurements.
Whether measured cable
disconnection.
27 Fiber Optical Test Set
Wave length: 1310 nm, 1550
nm (single mode) 850 nm,
1310 nm (multi-mode)
Optical level check.
28 Angle Meter
Normal Antenna angle measurement.
29 Multi master (VSWR and RF
Power)
Normal Feeder VSWR measurement.
30 Compass
Normal Check azimuth during installation.
The required installation tools may vary depending on the conditions at the site.
In addition to the basic tools, a protractor, ladder, safety equipment, cleaning tools,
and so on should also be arranged in consideration of the site conditions.

Confidential
RFV01U-D2A Installation Manual v2.0 11
Copyright © 2017, All Rights Reserved.
Chapter 2 Installing System
This chapter describes the installation procedures of the RRH.
Installation Procedure
The following figure depicts the overall procedures for installing the RRH.
Figure 4. Procedure to Install the RRH
Make sure that the power switch of the power supply is OFF when installing the
system. Installing the system with the power switch ON may cause system damage
or fatal human injury when connecting or disconnecting the cables.
To prevent the risk of electrical shock, do not wear accessories such as watches
and rings.
Foundation Work
Unpacking and Transporting
Fixing System
Unpacking Items
Bringing in Items
Marking and Drilling (only wall type)
System Levelling
Fixing System

Confidential
Chapter 2 Installing System
RFV01U-D2A Installation Manual v2.0 12
Copyright © 2017, All Rights Reserved.
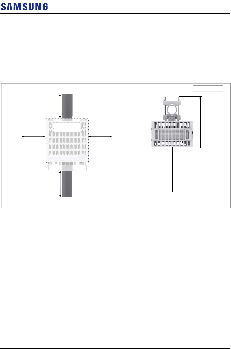
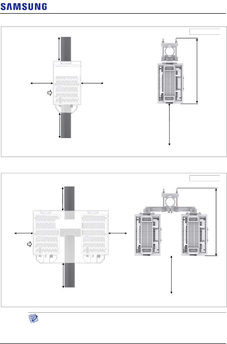
System Arrangement
A minimum distance must be secured around the RRH, in each direction for
installation and maintenance.
The following figures depict the recommended distances for each direction of the
RRH in different installation scenarios.
Figure 5. RRH Arrangement_1 Sector Pole Type Installation (Standard Installation)
[Front View]
Unit: in. (mm)
[Top View]
≥ 12 (300)
≥ 16 (400)
≥8 (200)≥ 8 (200)
19.37 (492)
≥
32 (
800)
W: 15.88 (403)
H: 19.73
(
501
)

Confidential
Chapter 2 Installing System
RFV01U-D2A Installation Manual v2.0 13
Copyright © 2017, All Rights Reserved.
Figure 6. RRH Arrangement_1 Sector Pole Type Installation (Side Installation)
Figure 7. RRH Arrangement_2 Sector Pole Type Installation (Side Installation)
When fixing a pole mounting bracket, the length of a carriage bolt is 220 mm for
the pole diameter 50 to100 A.
Unit: in. (mm)
[Side View] [Top View]
≥ 8 (200)≥ 8 (200)
25.81 (655)
D: 10.03 (255)
H: 19.73
(
501
)
≥12 (300)
≥ 16 (400)
≥
32 (
800)
[RRH Front]
Unit: in. (mm)
[RRH Front]
[Side View] [Top View]
≥ 8 (200)
25.81 (655)
≥ 12 (300)
≥ 15.74 (400)
≥
32 (
800)
D: 27.91 (709)
H: 19.73
(
501
)
≥ 8 (200)

Confidential
Chapter 2 Installing System
RFV01U-D2A Installation Manual v2.0 14
Copyright © 2017, All Rights Reserved.
When two sectors pole type (side installation) is installed, it is recommended to
install it to the pole of the 80 to 100 A specification.
Figure 8. RRH Arrangement_1 Sector Wall Type Installation (Standard Installation)
Pole Size (Diameter) Length of Carriage Bolt
50 A (60.5 mm) 220 mm
65 A (76.3 mm)
80 A (89.2 mm)
90 A (101.6 mm)
100 A (114.3 mm)
Pole
Size
Pole
Size
Carriage Bolt Carriage Bolt
[1 Sector] [2 Sector]
[Front View]
Unit: in. (mm)
[Top View]
12.82 (325)
≥ 32 (800)
≥ 12 (300)
≥ 16 (400)
≥ 8 (200) ≥8 (200)
W: 15.88 (403)
H: 19.73
(
501
)

Confidential
Chapter 2 Installing System
RFV01U-D2A Installation Manual v2.0 15
Copyright © 2017, All Rights Reserved.
Figure 9. RRH Arrangement_1 Sector Wall Type Installation (Side Installation)
Unit: in. (mm)
[Side View] [Top View]
19.25 (489)
≥ 32 (800)
≥ 12 (300)
≥ 16 (400)
≥ 8 (200)≥ 8 (200)
D: 10.03 (255)
H: 19.73
(
501
)
[RRH Front]

Confidential
Chapter 2 Installing System
RFV01U-D2A Installation Manual v2.0 16
Copyright © 2017, All Rights Reserved.
Figure 10. RRH Arrangement_3 Sector Wall Type Installation (Standard Installation)
[Front View]
Unit: in. (mm)
[Top View]
W: 63.4 (1610)/H: 19.73 (501)
≥ 8 (200) ≥8 (200)≥ 8 (200) ≥ 8 (200)
≥ 16 (400) ≥ 12 (300)
12.82
≥ 32 (800)
(325)

Confidential
Chapter 2 Installing System
RFV01U-D2A Installation Manual v2.0 17
Copyright © 2017, All Rights Reserved.
Figure 11. RRH Arrangement_3 Sector Wall Type Installation (Side Installation)
[RRH Front]
[Front View]
Unit: in. (mm)
[Top View]
≥ 32 (800)
19.25 (489)
≥ 16 (400)
W: 45.86 (1165)/H: 19.73 (501)
≥8 (200) ≥8 (200) ≥ 8 (200) ≥ 8 (200)
≥ 12 (300)

Confidential
Chapter 2 Installing System
RFV01U-D2A Installation Manual v2.0 18
Copyright © 2017, All Rights Reserved.
Transporting and Unpacking
This section describes the procedure to unpack cabinets and other components and
to transport them to the installation place.
Bringing in Items
Bring in items, taking care of the followings:
When carrying a system:
o Fasten the system firmly to the transport vehicle or carrier to prevent
damage to the system for a vibration or shock.
o Use a lift to prevent accidents. However, if the system must be carried by
people, enough people are required to carry the system.
Before moving the system, check the storage place for the system and remove
obstacles in advance.
While moving the system, the system should not be shocked physically and
damaged caused by dust, moisture, and static electricity.
Unpacking Items
To unpack the items, ensure the following:
The items must be packed until they reach the installation place.
The items are classified in accordance with each job specification and stored
on a place that does not interfere with working.
Unpacked systems must be installed immediately. If not installed, the systems
must be stored in the installation place temporarily.
Unpack only external packing, leaving the internal packing in unpacked status.
Unpack the inner packaging after each system is placed on its installation
location.
Scrap by-products (packaging waste) in accordance with the rule. Do not
recycle the by-products.

Confidential
Chapter 2 Installing System
RFV01U-D2A Installation Manual v2.0 19
Copyright © 2017, All Rights Reserved.
RRH Handling
When transporting the RRH, hold the handle at the top of the RRH (No tool is
needed for holding the handle).
Figure 12. RRH Handling
When lifting or putting down the RRH, two or more operators must hold the
handle and the support bracket respectively. The corner of the RRH may be
scratched if one operator holds the handles.
Handle
Handle
Support
Bracke
t

Confidential
Chapter 2 Installing System
RFV01U-D2A Installation Manual v2.0 20
Copyright © 2017, All Rights Reserved.
Fixing RRH
This section describes the procedures to fix the system on a wall and a pole.
Fixing Finger Guard
To fix the finger guard, do the following:
1
Make sure you have the following items:
Table 3. Parts and Tools for fixing Finger Guard
Category Description
Parts Finger Guard_Front 1 EA/RRH
Finger Guard_Rear 1 EA/RRH
Finger Guard_Bottom 1 EA/RRH
Fastener M3 × 10L screw 4 EA/RRH
M5 × 10L SEMS 12 EA/RRH
Recommended Torque Value M3 screw 5.6 lbf·in (6.4 kgf·cm)
M5 SEMS 25 lbf·in (29 kgf·cm)
Working Tools Torque driver (2 to 10 lb·fin and 20 to 90 lbf·in)
Screw driver bit ('+', No. 2)
Screw driver ('+', No. 2)
Check the type and fixing location of the finger guard before fixing it.
2
Place the finger guard_front to the RRH front.
[Finger Guard_Rear] [Finger Guard_Front]
[Finger Guard_Bottom]

Confidential
Chapter 2 Installing System
RFV01U-D2A Installation Manual v2.0 21
Copyright © 2017, All Rights Reserved.
Figure 13. Finger Guard Fixing (1)
3
Fix the finger guard_front using fasteners.
Figure 14. Finger Guard Fixing (2)
4
Place the finger guard_rear to the RRH rear.
Figure 15. Finger Guard Fixing (3)
5
Fix the finger guard_rear using fasteners.
Finger Guard_Front
[RRH Front]
[Top View]
M5 SEMS
[RRH Front]
Finger Guard_Rear
[RRH Rear]

Confidential
Chapter 2 Installing System
RFV01U-D2A Installation Manual v2.0 22
Copyright © 2017, All Rights Reserved.
Figure 16. Finger Guard Fixing (4)
6
Place the finger guard_ bottom to the RRH bottom.
Figure 17. Finger Guard Fixing (5)
7
Fix the finger guard_bottom using fasteners.
Figure 18. Finger Guard Fixing (6)
[RRH Rear]
[Top View]
M5 SEMS
[RRH Front]
Finger Guard_Bottom
[Bottom View]
M3 Screw
[RRH Front]

Confidential
Chapter 2 Installing System
RFV01U-D2A Installation Manual v2.0 23
Copyright © 2017, All Rights Reserved.
Fixing Unit Bracket
There are two ways to fix a unit bracket to the RRH. One is fixing a unit mounting
bracket to the rear side of RRH (standard installation). The other is fixing a unit
bracket to the side of RRH (side installation). These are the same for the wall type
and pole type installation procedures.
To fix the unit Bracket_Standard for standard installation, do the following:
1
Make sure that you have the following items:
Table 4. Parts and Tools for fixing Unit Bracket_Standard installation
Category Description
Parts Unit bracket 1 EA/RRH
Fasteners M6 × 35L Hex. Bolt (washer assembly) 6 EA/RRH
Recommended Torque Value M3 screw 5.6 lbf·in (6.4 kgf·cm)
M6 Hex. Bolt 43 lbfin (50 kgf·cm)
Working Tools Torque Wrench (10~50 lbf·in)
Torque Wrench Spanner head (apply Hex. Head: 10 mm)
Spanner (10 mm)
Torque driver (2 to 10 lbf·in)
Screw driver bit ('+', No. 2)
Screw driver ('+', No. 2)
2
Loosen the fastener of finger guard_rear and separate the dummy cover from it.
[Unit Bracket Standard Installation]
Unit Bracket
(RRH left)
Unit Bracket
(RRH rear)
[Unit Bracket Side Installation]

Confidential
Chapter 2 Installing System
RFV01U-D2A Installation Manual v2.0 24
Copyright © 2017, All Rights Reserved.
Figure 19. Fixing Unit Bracket_Standard Installation (1)
3
Place a dummy cover to the RRH left and fix it using fasteners.
Figure 20. Fixing Unit Bracket_Standard Installation (2)
4
Place a unit bracket to the RRH rear and fix it using fasteners.
Dummy Cover
M3 Screw
Dummy Cover
M3 Scre
w

Confidential
Chapter 2 Installing System
RFV01U-D2A Installation Manual v2.0 25
Copyright © 2017, All Rights Reserved.
Figure 21. Fixing Unit Bracket_Standard Installation (3)
To fix the unit Bracket_Side for standard installation, do the following:
1
Make sure that you have the following items:
Table 5. Parts and Tools for fixing Unit Bracket_Standard Installation
Category Description
Parts Unit bracket 1 EA/RRH
Fasteners M6 × 35L Hex. Bolt (washer assembly) 6 EA/RRH
Recommended Torque Value M6 × 20L Hex. Bolt 43 lbfin (50 kgfcm)
Working Tools Torque wrench (10 to 50 lbfin)
Torque wrench spanner head (apply Hex. Head: 10 mm)
Spanner (10 mm)
2
Place a unit bracket to the RRH left and fix it using fasteners.
Unit Bracket
M6 Hex. Bolt
(washer assembly)

Confidential
Chapter 2 Installing System
RFV01U-D2A Installation Manual v2.0 26
Copyright © 2017, All Rights Reserved.
Figure 22. Fixing Unit Bracket_Side Installation
Fixing Pole Type
This section describes the procedures for fixing the system on the pole.
Assembling Mounting Bracket
To assemble the mounting bracket, do the following:
1
Make sure you have the following items:
Table 6. Parts and Tools for assembling Mounting Bracket
Category Description
Parts Mounting Bracket_Front 1 EA
Mounting Bracket_Rear 1 EA
Fasteners M10 × 220L Carriage Bolt
M10 Plain Washer
M10 Spring Washer
M10 Hex. Nut
4 EA
4 EA
4 EA
4 EA
Working Tools Spanner (17 mm)
Unit Bracket
M6 Hex. Bolt
(washer assembly)

Confidential
Chapter 2 Installing System
RFV01U-D2A Installation Manual v2.0 27
Copyright © 2017, All Rights Reserved.
When fixing the mounting bracket, the specification of pole should be from 50 A
(2.38 in./60.5 mm) to 100 A (4.5 in./114.3 mm) and the specification of carriage
bolt should be M10 × 220L.
When fixing pole, fix it using the outside hole of mounting bracket_front.
2
Insert carriage bolts to the outside hole of mounting bracket_front.
Figure 23. Assembling Mounting Bracket (1)
3
Pass the carriage bolt through the side-closed hole of the mounting
bracket_rear and then fix the fastening material.
4
Fasten the other carriage bolt to the mounting bracket_front only.
Inside holes
Outside holes
M10 Carria
g
e Bolt
Mounting Bracket_Front

Confidential
Chapter 2 Installing System
RFV01U-D2A Installation Manual v2.0 28
Copyright © 2017, All Rights Reserved.
Figure 24. Assembling Mounting Bracket (2)
Lifting RRH and Mounting Bracket Assembly
To lift the RRH/mounting bracket assembly, do the following:
1
Tie the rope in two carrying points of the RRH and the Mounting bracket
assembly.
M10 Spring Washe
r
M10 Plain Washe
r
Mounting Bracket_Rea
r
M10 Carriage Bolt
M10 Hex. Nut
Mounting Bracket_Front

Confidential
Chapter 2 Installing System
RFV01U-D2A Installation Manual v2.0 29
Copyright © 2017, All Rights Reserved.
Figure 25. Lifting RRH and Mounting Bracket Assembly
2
Haul the rope to carry up the RRH/Mounting bracket assembly and at the same
time, pull the rope outward to avoid collision with the tower platform.
To perform the above step, two operators are required. One for hauling the rope
and the other for pulling the rope outward. For more information, see Figure 25.
[Lifting Mounting Bracket Assembly]
[Lifting RRH]
Carrying
Point_1
Carrying
Point 2
Carrying
Point_1
Carrying
Point_2

Confidential
Chapter 2 Installing System
RFV01U-D2A Installation Manual v2.0 30
Copyright © 2017, All Rights Reserved.
Figure 26. Lifting RRH and Mounting Bracket Assembly
Fixing Mounting Bracket Assembly
For 1 Sector
To fix the mounting bracket Assembly_1 sector pole type, do the following:
1
Make sure you have the following items:
Table 7. Parts and Tools for fixing Mounting Bracket Assembly_1 Sector Pole Type
Category Description
Parts 1 Sector Mounting Bracket Assembly 1 Set
Recommended Torque Value M10 Hex. Nut 217 lbfin (250 kgf·cm)
Working Tools Torque Wrench (100 to 400 lbf·in)
Torque Wrench Spanner head (apply Hex. Head: 17 mm)
Spanner (17 mm), Level
2
Place a mounting bracket assembly to the pole.
Pulley
RRH/Mounting Bracket Assembly
Tower Platform
Rope
Operator A Operator B

Confidential
Chapter 2 Installing System
RFV01U-D2A Installation Manual v2.0 31
Copyright © 2017, All Rights Reserved.
Figure 27. Fixing Mounting Bracket Assembly_1 Sector Pole Type (1)
3
Locate the upper carriage bolt in the upper side hole of the mounting
bracket_rear and fix the fastening materials temporarily on upper side.
Figure 28. Fixing Mounting Bracket Assembly_1 Sector Pole Type (2)
4
Locate the lower carriage bolt in the lower side hole of the mounting
bracket_rear and fix the all fastening materials.
Mounting Bracket
Assembly
Side Hole
M10 Carriage Bolt
Mounting Bracket_Rea
r

Confidential
Chapter 2 Installing System
RFV01U-D2A Installation Manual v2.0 32
Copyright © 2017, All Rights Reserved.
Figure 29. Fixing Mounting Bracket Assembly_1 Sector Pole Type (3)
5
Check the level of mounting bracket assembly on the pole and adjust the level.
Figure 30. Levelling Mounting Bracket Assembly_1 Sector Pole Type
When fixing the pole mounting bracket assembly on the pole, be sure to check the
level of bracket. After finishing the installation, you can adjust the level minutely.
In case of poor levelling, adjust the position of fasteners used to fix the Mounting
bracket assembly or its levelling status.
For 2 Sector
To fix the mounting bracket Assembly_2 sector pole type for side installation, do
the following:
1
Make sure you have the following items:
Table 8. Parts and Tools for fixing Mounting Bracket Assembly_2 Sector Pole Type (Side Installation)
Category Description
Side Hole
M10 Carriage Bolt
Mounting Bracket_Rea
r
If it is level, the bubble of the
spirit level is positioned at the
center of both lines.
[1 Sector Side and Standard Mounting Bracket Assembly]

Confidential
Chapter 2 Installing System
RFV01U-D2A Installation Manual v2.0 33
Copyright © 2017, All Rights Reserved.
Category Description
Parts 1 Sector Mounting Bracket Assembly 1 Set
Extension Mounting Bracket 2 EA
Fastener M10 × 25L Hex. Bolt (washer assembly) 2 EA
Recommended Torque Value M10 Hex. Bolt/Nut 217 lbfin (250 kgf·cm)
Working Tools Torque Wrench (100 to 400 lbf·in)
Torque Wrench Spanner head (apply Hex. Head: 17 mm)
Spanner (17 mm)
Level
2
Fix 1 sector mounting bracket assembly to the pole (as described in the ‘For 1
Sector’ section).
Figure 31. Fixing Mounting Bracket Assembly_2 Sector Pole Type (Side Installation 1)
3
Fit the groove of the extension mounting bracket into the right hook of the
mounting bracket_front, and then fix it using fasteners.
Figure 32. Fixing Mounting Bracket Assembly_2 Sector Pole Type (Side Installation 2)
M10 Hex. Bolt
(washer assembly)
Mounting Bracket
_
Front Hook
Extension Mounting Bracket
Hook Groove

Confidential
Chapter 2 Installing System
RFV01U-D2A Installation Manual v2.0 34
Copyright © 2017, All Rights Reserved.
4
Fit the groove of the extension mounting bracket into the left hook of the
mounting bracket_front, and then fix it using fasteners.
Figure 33. Fixing Mounting Bracket Assembly_2 Sector Pole Type (Side Installation 3)
Fixing RRH
For 1 Sector
To fix the RRH_1 sector pole type for standard and side installation, do the
following:
1
Make sure you have the following items:
Table 9. Fixing RRH_1 Sector Pole Type (Standard and Side Installation)
Category Description
Parts M10 × 35L Hex. Bolt (washer assembly,
attached to the unit bracket)
1 EA
Recommended Torque Value M10 Hex. Bolt 217 lbfin (250 kgf·cm)
Working Tools Torque Wrench (100 to 400 lbf·in)
Torque Wrench Spanner head (apply Hex. Head: 17 mm)
Spanner (17 mm)
2
Hang the unit bracket hook of RRH side on the groove of the mounting
bracket_front hook, and then fix it using fasteners.
M10 Hex. Bolt
(washer assembly)
Mounting Bracket
_
Front Hook
Extension Mounting Bracket
Hook Groove

Confidential
Chapter 2 Installing System
RFV01U-D2A Installation Manual v2.0 35
Copyright © 2017, All Rights Reserved.
Figure 34. Fixing RRH_1 Sector Pole Type (Standard Installation)
M10 Hex. Bolt
(washer assembly)
Unit Bracket Hook
Mounting Bracket_Front
Hook Groove

Confidential
Chapter 2 Installing System
RFV01U-D2A Installation Manual v2.0 36
Copyright © 2017, All Rights Reserved.
Figure 35. Fixing RRH_1 Sector Pole Type (Side Installation)
For 2 Sector
To fix the RRH_2 sector pole type for side installation, do the following:
1
Make sure you have the following items:
Table 10. Parts and Tools for fixing RRH_2 Sector Pole Type (Side Installation)
Category Description
Parts M10 × 35L Hex. Bolt (washer assembly,
attached to the unit bracket)
1 EA/RRH
Recommended Torque Value M10 Hex. Bolt 217 lbfin (250 kgf·cm)
Working Tools Torque Wrench (100 to 400 lbf·in)
Torque Wrench Spanner head (apply Hex. Head: 17 mm)
Spanner (17 mm)
Check the location to install the RRH.
M10 Hex. Bolt
(washer assembly)
Unit Bracket Hook
Mounting Bracket_Front
Hook Groove

Confidential
Chapter 2 Installing System
RFV01U-D2A Installation Manual v2.0 37
Copyright © 2017, All Rights Reserved.
Fix the RRH according to the order of [RRH-0 RRH-1].
2
Hang the unit bracket hook of RRH-0 side on the groove of the mounting
bracket_front hook, and then fix it using fasteners.
RRH-0 RRH-1
RRH-0 RRH-1

Confidential
Chapter 2 Installing System
RFV01U-D2A Installation Manual v2.0 38
Copyright © 2017, All Rights Reserved.
Figure 36. Fixing RRH_2 Sector Pole Type (Side Installation 1)
3
Fix RRH-1 in the same way as the RRH-0.
Figure 37. Fixing RRH_2 Sector Pole Type (Side Installation 2)
Fixing Wall Type
Marking and Drilling for Wall Mounting
To mark on a wall, do the following:
1
Make sure you have the following items:
[RRH-0]
[RRH-0]
M10 Hex. Bolt
(washer assembly)
Unit Bracket Hook
Mounting Bracket_Front
Hook Groove
[RRH-0] [RRH-0] [RRH-1]

Confidential
Chapter 2 Installing System
RFV01U-D2A Installation Manual v2.0 39
Copyright © 2017, All Rights Reserved.
Table 11. Tools for Marking
Category Description
Working Tools Tape Measure
Permanent Maker
Level
To mount the system on a wall, perform the leveling test by referring to System
Leveling to check the positions are marked to be horizontal or vertical before
drilling. If the result shows they are not horizontal or vertical, modify the marking
positions.
When the position where the system will be placed is determined, place the system
on that position and then mark the positions where anchor bolts will be fixed. This
reduces the marking error range.
2
Check the distance between the locations for fixing the RRH and the anchor
bolt hole.
Figure 38. RRH marking dimensions_1 Sector Wall Type (Standard Installation)
[Rear View]
Unit: in. (mm)
4.48
5.11 (130)
15.88 (403)
5.48 (139) 5.28 (134)
19.73 (501)
: Anchor Bolt Hole
2.36
(60)
(114)

Confidential
Chapter 2 Installing System
RFV01U-D2A Installation Manual v2.0 40
Copyright © 2017, All Rights Reserved.
Figure 39. RRH marking dimensions_1 Sector Wall Type (Side Installation)
Figure 40. RRH marking dimensions_3 Sector Wall Type (Standard Installation)
Unit: in. (mm)
: Anchor Bolt Hole
[Side View]
5.11 (130)
10.03 (255)
2.73 (69) 2.18 (55)
4.48
19.73 (501)
2.36
(60) (114)
Unit: in. (mm)
: Anchor Bolt Hole
[Rear View]
5.11
(130)
5.28 (134)
5.28
(134)
≥ 63.4 (1610)
≥ 8 (200)
5.48
(139)
4.48
(114)
19.73
(501)
≥ 8 (200)
2.36
(60)

Confidential
Chapter 2 Installing System
RFV01U-D2A Installation Manual v2.0 41
Copyright © 2017, All Rights Reserved.
Figure 41. RRH marking dimensions_3 Sector Wall Type (Side Installation)
3
Place a mounting bracket on the fixing location.
4
Check the level status using a level and adjust the level of bracket assembly.
5
Mark the anchor bolt holes on the wall after ensuring that the level status is
normal.
Unit: in. (mm)
: Anchor Bolt Hole
4.48
(114)
19.72 (501)
[Side View]
≥ 45.86 (1165)
≥8 (200)≥ 8 (200)
10.03 (255)
5.11
(130)
2.73
(69)
2.18
(55)
2.36
(60)

Confidential
Chapter 2 Installing System
RFV01U-D2A Installation Manual v2.0 42
Copyright © 2017, All Rights Reserved.
Figure 42. Marking_Wall Type
To drill anchor holes and fix anchors, do the following:
1
Make sure you have the following items:
Table 12. Parts and Tools for Drilling and Anchoring
Category Description
Parts 1, 3 Sector Installation M10 Strong Anchor 4 EA/RRH
2 Sector Installation 4 EA
Woking Tools Hammer Drill
If it is level, the bubble of the
spirit level is positioned at the
center of both lines.
[1 Sector Side and Standard Mounting Bracket Assembly]
5.11 (130)
[3 Sector Standard Installation Mounting Bracket Assembly]
≥ 18.64 (473)
Unit: in. (mm)/ : Marking Point
2.36
(60)
≥ 18.64 (473)
[3 Sector Side Installation Mounting Bracket Assembly]
≥ 12.79 (325) ≥ 12.79 (325)

Confidential
Chapter 2 Installing System
RFV01U-D2A Installation Manual v2.0 43
Copyright © 2017, All Rights Reserved.
Category Description
Concrete Drill Bit [0.55 in. (14 mm)]
Vacuum Cleaner
Hammer
Anchor Punch (For M10 Strong Anchor)
Table 13. Anchor Bolt Drill Bits and Hole Depth
Category Anchor Bolt Drill Bits Hole Depth
RRH (Wall Type) M10 0.55 in. (14 mm) 1.73 in. (44 mm)
2
Drill anchor holes at the marked points and remove all the drilling dust from
the holes using a cleaner.
3
Fix strong anchor to the drilled hole.
Figure 43. Drilling and Anchoring
When fixing the mounting bracket_front or 2 sector mounting bracket
assembly_front on the wall, ‘A’ side should stick on the wall.
[O]
* Remove the debris from the drilled hole.
[Anchor Hole Cross Section]
1.73 in.
(44 mm)
[X]
0.55 in.
(14 mm)
Hammer Drill
Vacuum Cleane
r
0.55 in.
(14 mm)
M10 Stron
g
Ancho
r
A
nchor Punch
Hamme
r

Confidential
Chapter 2 Installing System
RFV01U-D2A Installation Manual v2.0 44
Copyright © 2017, All Rights Reserved.
For 1 Sector
The way to fix 1 sector mounting bracket is as follows:
To fix the mounting Bracket_1 sector for wall type installation, do the following:
1
Make sure you have the following items:
Table 14. Parts and Tools for fixing Mounting Bracket_1 Sector Wall Type
Category Description
Parts Mounting Bracket_Front 1 EA
Fastener M10 Plain Washer
M10 Spring Washer
M10 × 70L Hex. Bolt
4 EA
4 EA
4 EA
Recommended Torque Value M10 Hex. Bolt 217 lbfin (250 kgfcm)
Working Tools Torque Wrench (100 to 400 lbf·in)
Torque Wrench Spanner head (apply Hex. Head: 17 mm)
Spanner (17 mm)
2
Place the mounting bracket_front along with the fixed strong anchors and fix it
using fasteners.
[Top View]
A Wall
Mounting Bracket_Front
A
AA Wall
2 Sector Mounting Bracket
A
ssembl
y
_
Front
[Top View]

Confidential
Chapter 2 Installing System
RFV01U-D2A Installation Manual v2.0 45
Copyright © 2017, All Rights Reserved.
Figure 44. Fixing Mounting Bracket_1 Sector Wall Type
For 3 Sector
To fix the mounting Bracket_3 sector for wall type installation, do the following:
1
Make sure you have the following items:
Table 15. Parts and Tools for fixing Mounting Bracket_3 Sector Wall Type
Category Description
Parts Mounting Bracket_Front 1 EA/RRH
Fastener M10 Plain Washer
M10 Spring Washer
M10 × 70L Hex. Bolt
4 EA/RRH
4 EA/RRH
4 EA/RRH
Recommended Torque Value M10 Hex. Bolt 217 lbfin (250 kgfcm)
Working Tools Torque Wrench (100 to 400 lbf·in)
Torque Wrench Spanner head (apply Hex. Head: 17 mm)
Spanner (17 mm)
2
Place the mounting bracket_front along with the fixed strong anchors and fix it
using fasteners.
Mounting Bracket_Front
M10 Plain Washer
M10 Spring Washer
M10 Hex. Bolt

Confidential
Chapter 2 Installing System
RFV01U-D2A Installation Manual v2.0 46
Copyright © 2017, All Rights Reserved.
Figure 45. Fixing Mounting Bracket_3 Sector Wall Type
Fixing RRH
For 1 Sector
To fix the RRH_1 sector for wall type (standard and side) installation, do the
following:
1
Make sure you have the following items:
Table 16. Parts and Tools for fixing RRH_1 Sector Wall Type (Standard and Side Installation)
Category Description
Parts M10 × 35L Hex. Bolt (washer assembly,
attached to the unit bracket)
1 EA
Recommended Torque Value M10 Hex. Bolt 217 lbfin (250 kgf·cm)
Working Tools Torque Wrench (100 to 400 lbf·in)
Torque Wrench Spanner head (apply Hex. Head: 17 mm)
Spanner (17 mm)
2
Hang the unit bracket hook of RRH side on the groove of the mounting
bracket_front hookand fix it using fasteners.
Mounting Bracket_Front
M10 Plain Washer
M10 Spring Washer
M10 Hex. Bolt

Confidential
Chapter 2 Installing System
RFV01U-D2A Installation Manual v2.0 47
Copyright © 2017, All Rights Reserved.
Figure 46. Fixing RRH_1 Sector Wall Type (Standard Installation)
M10 Hex. Bolt
(washer assembly)
Unit Bracket Hook
Mounting Bracket_Front
Hook Groove

Confidential
Chapter 2 Installing System
RFV01U-D2A Installation Manual v2.0 48
Copyright © 2017, All Rights Reserved.
Figure 47. Fixing RRH_1 Sector Wall Type (Side Installation)
For 3 Sector
To fix the RRH_3 sector for wall type (standard) installation, do the following:
1
Make sure you have the following items:
Table 17. Parts and Tools for fixing RRH_3 Sector Wall Type (Standard Installation)
Category Description
Parts M10 × 35L Hex. Bolt(washer assembly,
attached to the unit bracket)
1 EA/RRH
Recommended Torque Value M10 Hex. Bolt 217 lbfin (250 kgf·cm)
Working Tools Torque Wrench (100 to 400 lbf·in)
Torque Wrench Spanner head (apply Hex. Head: 17 mm)
Spanner (17 mm)
Check the location to install the RRH.
M10 Hex. Bolt
(washer assembly)
Unit Bracket Hook
Mounting Bracket_Front
Hook Groove

Confidential
Chapter 2 Installing System
RFV01U-D2A Installation Manual v2.0 49
Copyright © 2017, All Rights Reserved.
Fix the RRH according to the order of [RRH-0 RRH-1 RRH-2].
2
Hang the unit bracket hook of RRH-0 side on the groove of the mounting
bracket_front hook and fix it using fasteners.
Figure 48. Fixing RRH_3 Sector Wall Type (Standard Installation 1)
RRH-1RRH-0 RRH-2
RRH-1RRH-0 RRH-2
[RRH-0]
[RRH-0]
M10 Hex. Bolt
(washer assembly)
Unit Bracket Hook
Mounting Bracket_Front
Hook Groove

Confidential
Chapter 2 Installing System
RFV01U-D2A Installation Manual v2.0 50
Copyright © 2017, All Rights Reserved.
3
Fix RRH-1 and RRH-2 in the same way as the RRH-0.
Figure 49. Fixing RRH_3 Sector Wall Type (Standard Installation 2)
To fix the RRH_3 sector for pole type (side) installation, do the following:
1
Make sure you have the following items:
Table 18. Parts and Tools for fixing RRH_3 Sector Wall Type (Side Installation)
Category Description
Parts M10 × 35L Hex. Bolt(washer assembly,
attached to the unit bracket)
1 EA/RRH
Recommended Torque Value M10 Hex. Bolt 217 lbfin (250 kgf·cm)
Working Tools Torque Wrench (100 to 400 lbf·in)
Torque Wrench Spanner head (apply Hex. Head: 17 mm)
Spanner (17 mm)
Check the location to install the RRH.
Fix the RRH according to the order of [RRH-0 RRH-1 RRH-2].
[RRH-0] [RRH-1] [RRH-2]
RRH-1RRH-0 RRH-2

Confidential
Chapter 2 Installing System
RFV01U-D2A Installation Manual v2.0 51
Copyright © 2017, All Rights Reserved.
2
Hang the unit bracket hook of RRH-0 side on the groove of the mounting
bracket_front hook and fix it using fasteners.
Figure 50. Fixing RRH_3 Sector Wall Type (Side Installation 1)
3
Fix RRH-1 and RRH-2 in the same way as the RRH-0.
RRH-1RRH-0 RRH-2
[RRH-0]
[RRH-0]
M10 Hex. Bolt
(washer assembly)
Unit Bracket Hook
Mounting Bracket_Front
Hook Groove

Confidential
Chapter 2 Installing System
RFV01U-D2A Installation Manual v2.0 52
Copyright © 2017, All Rights Reserved.
Figure 51. Fixing RRH_3 Sector Wall Type (Side Installation 2)
[RRH-0] [RRH-1] [RRH-2]