Samsung DW80K5050UB/AA 0000 OM DW80K5050US AA_DW80K7050UG AA E User Manual DISHWASHER Manuals And Guides 1608189L
User Manual: Samsung DW80K5050UB/AA-0000 DW80K5050UB/AA-0000 SAMSUNG DISHWASHER - Manuals and Guides View the owners manual for your SAMSUNG DISHWASHER #DW80K5050UBAA0000. Home:Kitchen Appliance Parts:Samsung Parts:Samsung DISHWASHER Manual
Open the PDF directly: View PDF
.
Page Count: 72

Dishwasher
user manual
imagine the possibilities
Thank you for purchasing this Samsung product.
DW80K7050 Series
DW80K5050 Series
DW7000KM-02025A-00_EN.indd 1 5/2/2016 7:17:45 PM

English - 2
contents
SETTING UP YOUR DISHWASHER
6
6 Unpacking your dishwasher
6 Checking parts
7 Control panel
9 Cycle selector
10 Meeting installation requirements
USING YOUR DISHWASHER
11
11 Basic guidelines
14 Adjusting the angle of the plate supports
15 Adjusting the height of the upper rack
15 Removing the upper rack
16 Loading the lower rack
17 Loading the upper rack
18 Using the cutlery rack
19 Using the 3
rd
(cutlery) rack
(For applicable models)
20 Using detergent
CLEANING AND MAINTAINING YOUR
DISHWASHER
22
22 Cleaning the exterior
22 Cleaning the interior
22 Cleaning the fi lters (DW80K7050 series)
23 Cleaning the nozzles
24 Storing your dishwasher
CYCLES
25
25 Cycle chart
TROUBLESHOOTING
27
27 Check these points if your dishwasher…
30 Information codes
APPENDIX
31
31 Helping the environment
31 Specifi cations
DW7000KM-02025A-00_EN.indd Sec9:2 5/2/2016 7:17:48 PM

English - 3
safety information
Throughout this manual, you’ll see Warning and Caution notes. These
important safety instructions do not cover all possible situations that might occur.
It is your responsibility to use caution when installing, maintaining, and operating your
dishwasher. Samsung will not be liable for any damage resulting from improper use.
IMPORTANT SAFETY INSTRUCTIONS
What the icons and signs in this user manual mean :
WARNING
Hazards or unsafe practices that may result in severe personal injury or death.
CAUTION
Hazards or unsafe practices that may result in personal injury or property
damage.
CAUTION
To reduce the risk of fi re, explosion, electric shock, or personal injury when using
your dishwasher, follow these basic safety precautions:
Do NOT attempt.
Do NOT disassemble.
Do NOT touch.
Follow directions explicity.
Unplug the power plug from the wall socket.
Make sure the machine is grounded to prevent electric shock.
Call the service center for help.
WARNING
State of California Proposition 65 Warning (US only)
This product contains chemicals known to the State of California to cause cancer and birth
defects or other reproductive harm.
WARNING - When using the dishwasher, follow basic precautions, including the
following:
Read all instructions before using the dishwasher.
As with any equipment using electricity, water, and moving parts, potential hazards exist.
Use the dishwasher only for its intended function.
Use only detergents or wetting agents recommended for use in a dishwasher, and keep
them out of the reach of children.
When loading items to be washed:
- Locate sharp items so that they are not likely to damage the door seal, and
- Load sharp knives with the handles up to reduce the risk of cut-type injuries.
SAVE THESE INSTRUCTIONS
WARNING
01 safety information
DW7000KM-02025A-00_EN.indd Sec1:3 5/2/2016 7:17:48 PM

English - 4
Do not wash plastic items unless they are marked “dishwasher safe” or the equivalent.
For plastic items not so marked, check the manufacturer’s recommendations.
Do not touch the HEATING ELEMENT during or immediately after use.
WARNING : When using your dishwasher, follow basic precautions, including the following:
1. Read all instructions before using the dishwasher.
2. Use the dishwasher only for its intended function.
3. Use only detergents or wetting agents recommended for use in a dishwasher and keep
them out of the reach of children.
4. When loading items to be washed:
- locate sharp items so that they are not likely to damage the door seal, and
- load sharp knives with the handles up to reduce the risk of cut-type injuries.
5. Do not wash plastic items unless they are marked “dishwasher safe” or the equivalent.
For plastic items not so marked, check the manufacturer’s recommendations.
6. Do not touch the HEATING ELEMENT during or immediately after use.
7. Do not operate your dishwasher unless all ENCLOSURE panels are properly in place.
8. Do not tamper with the controls.
9. Do not abuse, sit on, or stand on the door or on a dish rack of the dishwasher.
10. To reduce the risk of injury, do not allow children to play in or on the dishwasher.
11. Under certain conditions, hydrogen gas may be produced in a hot-water system that
has not been used for two weeks or more. HYDROGEN GAS IS EXPLOSIVE. If the hot-
water system has not been used for such a period, before using the dishwasher, turn
on all hot-water faucets and let the water fl ow from each for several minutes. This will
release any accumulated hydrogen gas. As the gas is fl ammable, do not smoke or use
an open fl ame during this time.
12. Remove the door to the washing compartment when removing an old dishwasher from
service or discarding it.
After unpacking the dishwasher, keep the packaging out of the reach of children.
The dishwasher is extremely heavy. Do not attempt to move or carry the dishwasher by
yourself. Two or more people are needed to move a dishwasher and avoid potential injuries.
Do not install the dishwasher near electrical components. Keep the dishwasher away from
open fl ames.
Install and level your dishwasher on an uncarpeted fl oor that can support its weight.
Your dishwasher must be properly grounded. Never connect it to an ungrounded outlet.
See page 10 for more information on grounding your dishwasher.
Connect the ground wire to the green ground connector in the terminal box.
After the dishwasher is installed, check that the drain hose is properly connected and
that there is no leakage from the hose connectors. If the drain hose is loose, it may cause
property damage.
The water supply line is susceptible to breakage. As time goes by, it becomes less fl exible.
Check the line periodically. If it is swollen, torn, cut, or there is a water leak, replace it
immediately.
WARNING
safety information
SAVE THESE INSTRUCTIONS
DW7000KM-02025A-00_EN.indd Sec1:4 5/2/2016 7:17:48 PM

English - 5
To safely operate this appliance, familiarize yourself with its operations and exercise care
when using it.
Do not put gasoline, solvents, or other flammable materials inside the dishwasher. Do not
wash dishes exposed to these materials.
Keep your dishwasher detergent out of the reach of children. Detergent has an adverse
effect on human organs. It contains elements for polishing and is corrosive. Avoid letting the
detergent come into contact with your skin and eyes.
Do not push or place pressure on the door when it is open, as this may damage the
dishwasher or cause harm.
Do not allow children to play in or on the dishwasher. They may harm themselves or
damage the dishwasher.
Disconnect the power cable (or set the circuit breaker to off) before servicing your
dishwasher.
Do not repair, replace, or service any part of your dishwasher yourself. Disassembly, repairs
and modifi cations must be performed by authorized service technicians only. Work done by
an unauthorized person may void your warranty.
Before disposing of your dishwasher, remove the door of the washing compartment or the
door latch so that children or small animals do not get trapped inside.
If the dishwasher is left unused for an extended period of time, turn off the water supply.
This dishwasher is intended for residential use only.
BEFORE USING YOUR DISHWASHER
WARNING
Tip-Over Hazard
- Do not use the dishwasher until it is correctly installed.
- Do not push down on an open door.
- Do not place excessive weight on the open door.
Electric Shock Hazard
Failure to follow these instructions can result in death, fi re, or electric shock:
- Electrically ground the dishwasher
- Connect the ground wire to the green ground connector in the junction box.
- Do not use an extension cord.
SAVE THESE INSTRUCTIONS
01 safety information
WARNING
DW7000KM-02025A-00_EN.indd Sec1:5 5/2/2016 7:17:48 PM

English - 6
setting up your dishwasher
Be sure to have your installer follow these instructions closely so that your new
dishwasher works properly and that you’re not at risk of injury when washing
dishes.
UNPACKING YOUR DISHWASHER
• Once your new dishwasher has been delivered to you, carefully unpack it and check for any damage.
If the dishwasher has been damaged, make note of it on the waybill and keep a copy. Do not install the
dishwasher, and contact Samsung Customer Service at the number listed below.
• If there is no damage to the product, you can proceed with the installation. If you are going to install it
yourself, make sure to read through the installation guide and follow the directions inside.
• After unpacking your dishwasher, keep the packaging out of the reach of children to ensure their safety.
CHECKING PARTS
When your dishwasher has been unpacked, make sure you’ve received all the parts shown below.
If your dishwasher was damaged during shipping, or if you do not have all the parts, contact Samsung
Customer Service at 1-800-SAMSUNG (726-7864)
Lower rack 3rd Rack
(For applicable models)
Upper rack
Middle nozzle
Air brake
Base Dispenser
Door
Lower nozzle
Filter combination
(For applicable models)
Cutlery rack
Accessory parts - User/Installation manual, Installation Kit.
DW7000KM-02025A-00_EN.indd Sec3:6 5/2/2016 7:17:48 PM

English - 7
CONTROL PANEL
DW80K7050, DW80K5050 Series
1Light indicator Indicates that the product is operating.
2Power
When you press the Power button, the entire display turns on and off, and
then the light of the most recently fi nished cycle lights up.
When the selected cycle is complete, the dishwasher powers off
automatically.
3Cycle Selector Select the appropriate wash cycle depending on the soil level of your
dishes. After you select a cycle, the Cycle On light for that cycle lights up.
4Lower Rack
Select this option to wash a small load of dishes. We recommend that you
place dishes in the lower rack when you use this feature.
When you select Lower Rack, the dishwasher will not wash dishes
placed in the upper rack.
5StormWash™
Use this option when you want to wash pots and pans, durable serving
bowls, and other large, very dirty, hard to clean dishes.
To use StormWash™, place the dishes face down in the marked
StormWash™ area in the lower basket.
StormWash™ is not available with the Delicate and Rinse only cycles.
6Hi-Temp Wash
Raises the main wash temperature to improve cleaning for loads containing
tough, baked-on food.
Hi-Temp Wash is not available for the Delicate and Rinse only cycles.
7
Sanitize /
(Control Lock)
The temperature rises to 163 ˚F (73 ˚C) in the fi nal rinse cycle for high
temperature sanitization.
If you select the Sanitize option, the “Sanitize” lamp blinks when the water
temperature reaches the sanitary temperature (over 155 ˚F (68 ˚C)), and
then remains illuminated until the Sanitize option ends. When you press the
Power button, the “Sanitize” lamp turns off.
Sanitize is not available for the Delicate and Rinse only cycles.
The Normal Cycle with the Sanitize option selected is NSF certifi ed.
The Sanitize feature operates in accordance with NSF/ANSI Standard
184for Residential Dishwashers. Certifi ed residential dishwashers are
not intended for licensed food establishments. Only the DW80K7050
model dishwasher is NSF Certifi ed.
02 setting up your dishwasher
93 4 821 5 76
DW7000KM-02025A-00_EN.indd Sec3:7 5/2/2016 7:17:49 PM

English - 8
7
Sanitize /
(Control Lock)
Control Lock allows you to lock the buttons on the control panel so children
cannot accidently start the dishwasher by pressing the buttons on the
panel.
To lock and unlock the buttons on the control panel, hold the Sanitize
button down for three (3) seconds when power is On.
8Delay Start
(DISPLAY)
Delay a cycle for up to 24 hours in one-hour increments. The hour displayed
indicates the time at which the wash will be started.
Displays wash information, Delay Start hours, and Error messages.
If an trouble occurs during an operation, an check message is displayed
with a warning sound. Refer to “Information codes” on page 30.
9Start
To start a cycle, press the Start button before closing the door.
To cancel the cycle, press and hold the Start button for 3 seconds or press
the Power button to power off.
You can select options (Lower Rack, StormWash™, Hi-Temp Wash, Sanitize) before starting a
cycle. If you change the cycle after selecting an option, the original cycle is reset.
To prevent the touchpad from losing response sensitivity, follow these instructions:
- Touch the center of each keypad using one fi nger. Do not push.
- Clean the touch control’s surface regularly with a soft, damp cloth.
- Be careful not to touch more than one touch key pad at a time, except as directed.
When you pause a cycle by opening the door during operation, press the Start button before closing
the door to continue the cycle.
Push door fi rmly closed within 3 seconds of pressing Start button.
If the door is not closed within 3 seconds, the cycle will not start.
setting up your dishwasher
O O X
DW7000KM-02025A-00_EN.indd Sec3:8 5/2/2016 7:17:50 PM

English - 9
CYCLE SELECTOR
DW80K7050, DW80K5050 Series
1Auto This cycle detects the level of soil and automatically initiates the optimal cycle
after a few minutes of operation.
2Normal Use this cycle for normally soiled dinner dishes.
3Heavy Use this cycle for heavily soiled dishes and dishes with heavy soil.
4Delicate Use this cycle for normally soiled dishes or fragile items such as glasses.
5Express 60 Use this cycle for lightly soiled dishes.
6Rinse only Use for rinsing dishes, glasses, and silverware that will not be washed right
away. Do not use detergent.
02 setting up your dishwasher
1 2 3 4 5 6
DW7000KM-02025A-00_EN.indd Sec3:9 5/2/2016 7:17:50 PM

English - 10
MEETING INSTALLATION REQUIREMENTS
Electrical supply and grounding
To prevent the risk of fire, electric shock, or personal injury, all wiring and grounding must be
done in accordance with the National Electrical Code ANSI/FNPA, No. 70 Latest Revision and
local codes and ordinances. It is the personal responsibility of the appliance owner to provide
adequate electrical service for this appliance.
Never use an extension cord.
When preparing for installation, ensure that you provide:
• An individual branch circuit with a 120 V, 60Hz, 15 AMP fuse or circuit breaker that serves
only your dishwasher .
Your dishwasher must be grounded. If your dishwasher malfunctions or breaks down, grounding
will reduce the risk of electric shock by providing a path of least resistance for the electric
current.
Never connect the ground wire to plastic plumbing lines, gas lines, or hot water pipes.
GROUNDING INSTRUCTIONS
For a permanently connected appliance:
This appliance must be connected to a grounded metal, permanent wiring system, or an
equipment-grounding conductor must be run with the circuit conductors and then connected to
the equipment-grounding terminal or lead on the appliance.
Water supply
The hot water supply line pressure must be between 20-120 psi (140-830 kPa).
Adjust the water heater to deliver water between 120 ˚F (49 ˚C) - 149 ˚F (65 ˚C).
Most plumbing supply stores sell water supply lines of various lengths up to 10 feet
(305cm) long.
You can reduce the risk of leaks and water damage by:
• Making water faucets easily accessible.
• Turning off faucets when the dishwasher is not in use.
• Periodically checking for leaks at water supply line fittings.
Before using your dishwasher for the first time, check all connections at the water supply valve
and faucets for leaks.
Flooring
For safety, your dishwasher must be installed on a solidly constructed fl oor.
Never install your dishwasher on a platform or poorly supported structure.
Your dishwasher must be properly installed in accordance with the Installation Guide before you use it. If
you did not receive an Installation Guide with your dishwasher, you can obtain one by visiting our website at
www.samsung.com.
CAUTION
WARNING
WARNING
setting up your dishwasher
DW7000KM-02025A-00_EN.indd Sec3:10 5/2/2016 7:17:50 PM

English - 11
using your dishwasher
BASIC GUIDELINES
1. Open the door and load your dishes (see page 14).
- Place dishes into the upper and lower racks, unless you have selected Lower Rack.
- Remove any food remains from the dishes before placing them in the FlexLoad™ rack(s).
- After placing the dishes into the FlexLoad™ racks, rotate the nozzles by hand to check whether any
of the dishes will interfere with them.
- Make sure the dishes will not prevent the detergent dispenser from opening.
2. Add detergent to the dispenser (see page 20).
- Make sure to use only automatic dishwasher detergent and rinse aid.
- Refer to “Using detergent” on page 20 for instructions explaining how to add detergent and
rinse aid.
3. Press the Power button.
- When you press the Power button, the entire display turns on and off, and then the indicator of the
most recently fi nished cycle lights up.
- If “Low Rinse” ( ) is illuminated, you should refi ll the rinse aid dispenser to improve washing and
drying performance.
4.
Select an appropriate cleaning cycle depending on the soil level of the dishes. (See pages 9 and 25.)
- Press the appropriate cycle button.
- When you press a cycle button, the cycle indicator lights up.
5. Press the Start button, and then close the door within 3 seconds.
- The dishwasher will start draining after a few seconds, and then start the selected cycle.
- Make sure to close the door fi rmly. If the door is not closed properly, the selected cycle will not start
automatically.
6. When the wash cycle is completed.
- The light illuminates and the dishwasher sounds a chime.
- The dishwasher powers off automatically.
- The door opens automatically 5 ~ 15 minutes before the cycle ends to improve drying performance.
- If you want to load more dishes or pause the dishwasher while it is already running, make sure to
open the door slowly and carefully as there is a possibility of injury from the hot steam inside the
dishwasher.
- If the door is opened while the dishwasher is running, a safety mechanism is activated and stops
the cycle.
- To resume operation, press the Start button, and then close the door within 3 seconds.
- Adding dishes several minutes after the dishwasher starts operating may affect its performance.
- If you open the door while the dishwasher is running at high temperature, it will drain the hot water
automatically to protect you from scalding.
You should use rinse aids for better drying performance. You can further improve drying performance
by also selecting the Sanitize option.
After a cycle is complete, the door automatically opens to let steam out. This is normal and not a
product malfunction.
CAUTION
03 using your dishwasher
DW7000KM-02025A-00_EN.indd Sec4:11 5/2/2016 7:17:50 PM

English - 12
Touch controls
Touch controls allow you to operate the dishwasher easily.
• They are convenient to operate, requiring only a soft touch.
• Have a simple and stylish design.
• Are easy to clean.
If you have children or you want to clean the Control Interface, we recommend activating
the Control Lock feature to lock the control buttons. See page 8.
- Children will not be able to accidently start the dishwasher by touching the controls with
this option selected.
- If a cycle is running, the buttons will not respond. (except the Power button)
- If dishwasher is off, only the Power button responds.
Setting Mode
The Setting Mode lets you change the dishwasher’s Sound, Light indicator, and AutoRelease™
Dry settings. To enter the Setting mode, press the Delay Start + Sanitize buttons for 3
seconds while the dishwasher is on. Press the Sanitize button to select a sub-setting menu and
then press the Delay Start button to change a setting.
- Sound Setting: Press the Sanitize button until “U1” or “U0” is displayed. To change the
setting, press the Delay Start button. “U0” turns the sound off for all cycles. “U1” turns the
sound on.
The dishwasher maintains the Sound Setting you have selected until you change it.
- Light indicator Setting: Press the Sanitize button until “B1“ or “B0” is displayed. To change
the setting, press the Delay Start button. “B0” turns the light off for all cycles. “B1” turns the
light on.
- AutoRelease™ Dry setting: Press the Sanitize button until “A1” or “A0” is displayed.
Press the Delay Start button to enable or disable AutoRelease™ Dry. “A0” disables
AutoRelease™ Dry. “A1” activates AutoRelease™ Dry.
* Once the door opens in the
AutoRelease™ Dry mode, the door
cannot be closed manually for the next
2 minutes.
* The AutoRelease™ Dry mode will be
disabled for the Rinse only cycle.
The door opens automatically 5 ~ 15 minutes before the cycle ends to improve drying
performance.
Changing the “AutoRelease™ Dry” setting can infl uence drying results. Select “A1” mode
for better drying results. (“A1” is the default setting.)
After a cycle is complete, the door automatically opens to let steam out. This is normal and
not a product malfunction.
using your dishwasher
DW7000KM-02025A-00_EN.indd Sec4:12 5/2/2016 7:17:51 PM

English - 13
Delay start
When you select the Delay Start option, your dishwasher will:
• Start draining to remove remaining water at once (pre-drain).
Your dishwasher will operate the selected cycle when the delay time expires.
When using the dishwasher, try to arrange the dishes properly as described on page 16to19.
• You should remove food remains such as bones, fruit seeds, etc. and any other waste such
as toothpicks, paper, etc. from the dishes as these may cause damage to the dishes, create
noise, or cause the dishwasher to malfunction.
• Select the appropriate cycle depending on the level of soil and the type of dishes.
• Use only the proper amount of detergent and rinsing agent.
Do not wash the following items
• Acrylic or Aluminum items: Dishes with printed gold rim decoration may become
discolored.
• Dishes treated with adhesive: Treated plastics, wood, ivory, copper, and tin may come
loose.
• Plastics with a temperature tolerance less than 194 ˚F (90 ˚C): Thin plastics wash and dry
poorly, and may be damaged due to elevated wash temperatures.
• Tin: Tin should be washed by hand and dried immediately as it may rust.
• Wooden utensils: Wooden items may crack.
WARNING
WARNING
03 using your dishwasher
DW7000KM-02025A-00_EN.indd Sec4:13 5/2/2016 7:17:51 PM

English - 14
ADJUSTING THE ANGLE OF THE PLATE SUPPORTS
You can adjust the angle of the tines in the upper rack to three different positions to match the size and
shape of your dishes. To adjust the tines, grasp the handle at the back of the rack and push it left or right.
See the illustration below.
In the lower rack, you can easily remove the plate support to make room for large items such as pots and
pans. To remove the plate support, lift up the handles (A). To refi t the plate support, align it so it is in place,
and then push down on the handles (A). To fold down the fold-down tines on the lower rack, remove the
rack from the dishwasher, turn the rack over, grasp the tine (B), and then adjust it backward. See the
illustration below.
Upper rack
Lower rack
using your dishwasher
DW7000KM-02025A-00_EN.indd Sec4:14 5/2/2016 7:17:51 PM

English - 15
ADJUSTING THE HEIGHT OF THE UPPER RACK
You can adjust the height of the upper rack in your Samsung dishwasher so that the lower rack can
accommodate larger sized dishes. Depending on where you set the upper rack height, the lower rack can
accommodate plates up to 12 in. (30 cm) in diameter and the upper rack can accommodated plates up to
8 in. (20 cm) in diameter.
DW80K7050, DW80K5050 Series
1. To lower the upper rack by 2 in. (5 cm), pull
the adjustment handles located at the left
and right sides of the upper rack and push
the upper rack downwards slightly at the
same time.
2. To raise the upper rack, just pull the upper
rack upwards. The adjuster handle will latch
and the upper rack will move to the high
position.
We recommend adjusting the height of the
upper rack before loading dishes into the
rack. If you adjust the the rack after loading
the dishes, you may damage the dishes.
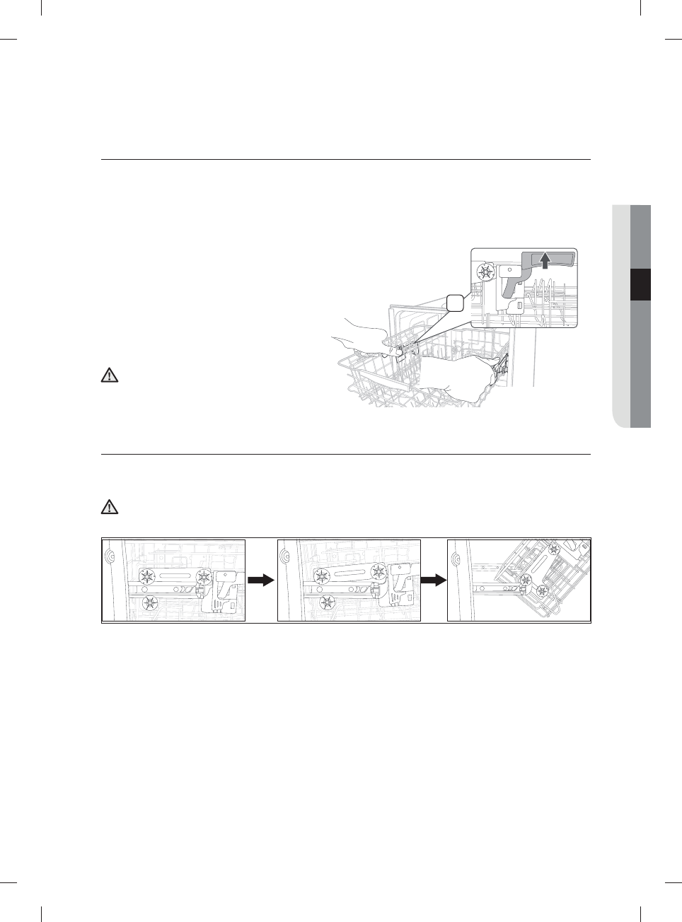
REMOVING THE UPPER RACK
Pull the upper rack towards the front and then remove it by lifting it up slightly and pulling it towards the
front. See the illustrations below.
While the upper rack is removable, it must be installed for the dishwasher to operate properly.
If you attempt to operate the dishwasher without the rack, noise will occur and the dishwasher will
perform poorly.
Step 1. Step 2. Step 3.
CAUTION
CAUTION
03 using your dishwasher
A
DW7000KM-02025A-00_EN.indd Sec4:15 5/2/2016 7:17:51 PM

English - 16
LOADING THE LOWER RACK
The lower rack has been especially designed for dinner dishes, soup bowls, plates, pots, lids, casserole
dishes, and plates.
Load large items such as pans and pots into the dishwasher so their open sides face downwards. We
recommend loading cups, stemware, and small plates into the upper rack.
See the recommended loading patterns below.
Saucer
10 place setting 12 place setting
Loading the large items into the StormWash™ zone
You can load large items such as pots and pans into the
StormWash™ Zone - identifi ed by red guide lines - In the
lower rack for more effective cleaning. When you select the
StormWash™ option, an additional, powerful jet is activated
and directed at items in the StormWash™ Zone. Make sure
pot handles and other items do not interfere with the rotation
of the nozzles.
using your dishwasher
DW7000KM-02025A-00_EN.indd Sec4:16 5/2/2016 7:17:51 PM

English - 17
LOADING THE UPPER RACK
The upper rack has been designed for small plates, mugs, glasses, and plastic items marked “dishwasher
safe”. Load your plates into the dishwasher in two half rows, so that the front of each plate faces the back
of the plate in front of it, and the open sides of the plates at the center of the dishwasher face each other.
See the illustrations below.
Make sure the loaded dishes do not interfere with the rotation of the nozzle which is located at the bottom
of the upper rack. (Check this by rotating the nozzle by hand.)
When loading dishes, pull the upper rack out suffi ciently so you can load it without striking the counter
above.
10 place setting 12 place setting
Using the glass support
You can load cups or glasses onto the glass support. This is also very convenient for washing
wine glasses. Hang your wine glasses onto the pegs of the glass support.
You can fold the glass support back when it is not being used.
DW80K7050 Series DW80K5050 Series
03 using your dishwasher
DW7000KM-02025A-00_EN.indd Sec4:17 5/2/2016 7:17:52 PM

English - 18
USING THE CUTLERY RACK
The cutlery rack consists of two compartments.
You can place each knife, spoon, or fork separately into the spoon stands in the
basket’s covers to prevent chipping and discoloration.
You can use the cutlery rack with the cover open. Refer to the illustration to the right.
Left Right
10 place setting
Left Right
12 place setting
The spoon stands as seen from above with the suggested placement of cutlery items. Match the numbers
in the diagram to the numbers in the list of cutlery items below.
DO NOT let any item extend through the bottom.
1 3 42 5
1 Forks
2 Tea spoons
3 Dinner spoons
4 Knives
5 Serving spoons and Serving forks
6 Remaining items
using your dishwasher
DW7000KM-02025A-00_EN.indd Sec4:18 5/2/2016 7:17:53 PM

English - 19
USING THE 3RD (CUTLERY) RACK (FOR APPLICABLE MODELS)
Loading the cutlery rack
<Place items randomly or regularly.>
In addition to the standard cutlery basket in the lower rack, some models come with a cutlery
rack.
The cutlery rack is best suited for fl atware and cooking or serving utensils. You can place cutlery
and utensils randomly or regularly on the cutlery rack.
Heavily soiled utensils or items with baked on foods should be placed in the lower cutlery basket
for the most effective cleaning.
Removing the Cutlery Rack
The entire cutlery rack can be removed if more space is needed on the upper rack for larger
items.
* When loading the cutlery and utensils onto the cutlery rack, make sure they do not interfere
with the top nozzle of the rack. If they interfere, remove the cutlery pad and try again.
03 using your dishwasher
DW7000KM-02025A-00_EN.indd Sec4:19 5/2/2016 7:17:54 PM

English - 20
USING DETERGENT
All dishwasher cycles require detergent in the detergent compartment.
Add the correct amount of detergent for the selected cycle to ensure the best performance.
Use dishwasher detergent only. Regular detergent produces too much foam, which may decrease the
dishwasher’s performance or cause it to malfunction.
Do not swallow dishwasher detergent. Avoid breathing in the fumes. Dishwasher detergent contains
irritants and caustic chemicals that can induce respiratory conditions. If you have swallowed
dishwasher detergent or inhaled the fumes, seek medical attention immediately.
Keep dishwasher detergent out of the reach of children.
Filling the detergent dispenser
1. Open the detergent dispenser fl ap by pushing the detergent
dispenser release catch.
The fl ap is always open at the end of a dishwashing cycle.
2. Add the recommended amount of detergent to the main
wash detergent compartment.
3. Close the fl ap by sliding it to the left and then pressing it
down.
4. For better cleaning result, especially if you have very dirt
items, pour a small amount (about 1/2 of an ounce or 15g) of
detergent onto the door.
The additional detergent will activate during the pre-wash
phase.
CAUTION
WARNING
WARNING
using your dishwasher
DW7000KM-02025A-00_EN.indd Sec4:20 5/2/2016 7:17:55 PM

English - 21
The cover opens automatically to dispense the detergent during the wash.
CYCLE
AMOUNT OF DETERGENT
Main wash dispenser Onto the door for pre-wash
Auto, Normal 3/4 oz (20 g) 1/3 oz (10 g)
Heavy, Express 60' 1 oz (30 g) 1/2 oz (15 g)
Delicate 3/4 oz (20 g) 1/5 oz (5 g)
The numbers inside the dispenser refer to grams.
Filling the rinse aid reservoir
When the Rinse Refi ll indicator lights up on the control panel, refi ll the reservoir with rinse aid.
Your dishwasher has been designed to use liquid rinse aid only.
Using a powdered rinse aid will clog the reservoir opening and cause the dishwasher to
malfunction.
Rinse aid improves the drying performance of the dishwasher.
Do not add regular detergent to the rinse aid reservoir.
1. Remove the rinse aid reservoir cap by rotating it
counterclockwise.
2. Fill the rinse aid reservoir with rinse aid.
Use the viewing port when fi lling the rinse aid reservoir.
Do not fi ll the reservoir above the full level indicator.
Excess rinse aid can overfl ow during the wash cycle.
3. Turn the rinse aid indicator dial to a number between 1 and
6. The higher the number, the more rinse aid the dishwasher
uses. If you are unable to rotate the rinse aid dial easily, try
using a coin.
4. Close the rinse aid reservoir cap by rotating it clockwise.
CAUTION
CAUTION
03 using your dishwasher
DW7000KM-02025A-00_EN.indd Sec4:21 5/2/2016 7:17:55 PM

English - 22
cleaning and maintaining your
dishwasher
Keeping your dishwasher clean improves its performance, reduces unnecessary
repairs, and lengthens its life.
CLEANING THE EXTERIOR
It’s best to clean spills on the outside of your dishwasher as they occur. Use a soft, damp cloth on the
control panel to gently wipe away spills and dust. Do not use benzene, wax, thinner, chlorine bleach, or
alcohol. These materials may discolor the inner walls and cause stains. Do not clean the dishwasher by
sprinkling water over it and avoid letting water come into contact with any of the electrical parts.
If your dishwasher has a stainless steel door panel, you can clean it with a stainless steel cleaner for
Home Appliances or a similar product using a clean, soft cloth.
CLEANING THE INTERIOR
Clean the interior of your dishwasher periodically to remove any dirt or food particles. Wipe the inside of
the dishwasher and the inner part of the door with a wet dishcloth. We recommend fi lling the detergent
dispenser with dish detergent, and then running the dishwasher empty periodically using either the Normal
or Express 60 cycle with the sanitize option. This will keep your dishwasher clean.
If white spots and odor are still present in your dishwasher, run the Normal cycle with the dishwasher empty
and without detergent until it fl ushes. Then, interrupt the cycle and put an 8 ounce cup of white vinegar into
the lower basket. Close the dishwasher and let the cycle fi nish.
Do not remove the tub front seal (the long rubber seal enclosing the opening of the dishwasher).
CLEANING THE FILTERS (DW80K7050 SERIES)
1. Turn off the dishwasher.
2. Rotate the fi lter insert counterclockwise to unfasten and then detach
the fi lter insert.
3. Remove the fi ne fi lter (fl at, rectangular).
CAUTION
DW7000KM-02025A-00_EN.indd Sec5:22 5/2/2016 7:17:56 PM

English - 23
4. Remove any dirt or other remains from the fi lters, and then rinse them
under running water.
5. Reassemble the fi lters in the reverse order of the dissasembly, replace
the fi lter insert, and rotate clockwise to the close arrow.
If the fi lter insert is not closed properly, its performance will
be decreased.
CLEANING THE NOZZLES
If your dishwasher does not seem to be cleaning adequately or the nozzles seem clogged, you can clean
each of the nozzles. When removing the nozzles, take care as they may break.
Lower nozzle
1. Check whether the nozzle holes are
clogged by food particles.
2. If cleaning is needed, remove the nozzle by
pulling it upwards.
3. Clean the nozzle, and then push it back
into place.
4. Check whether the nozzle is engaged
correctly by rotating it by hand.
CAUTION
04 cleaning and maintaining
DW80K5050 Series
DW80K7050 Series
DW7000KM-02025A-00_EN.indd Sec5:23 5/2/2016 7:17:56 PM

English - 24
Middle nozzle
1. Pull the upper rack towards the front and
remove it.
2. Check whether the nozzle holes are
clogged by food particles.
3. If cleaning is needed, remove the nozzle.
4. To remove the nozzle, unfasten and
remove the nut, and then remove the
nozzle.
5. Clean the nozzle, re-insert it, and fasten
the nut.
6. When fastening the nut, turn it fi rmly by
hand.
7. Check whether the nozzle is engaged
correctly by rotating it by hand.
Upper nozzle
1. Check whether the nozzle holes are
clogged by food particles.
2. If cleaning is needed, remove the nozzle.
3. To remove the nozzle, pull out the upper
rack fi rst, unfasten the nozzle cap by
turning it counterclockwise, and then
remove the upper nozzle.
4. Clean the nozzle, re-insert it, and then
fasten the nozzle cap to the nozzle by
turning the cap clockwise.
5. Check whether the nozzle is engaged
correctly by rotating it by hand.
STORING YOUR DISHWASHER
If you need to store your dishwasher for an extended period of time, fi rst drain and disconnect it. If you
leave water in the hoses and internal components, you can damage the dishwasher.
After draining and disconnecting the dishwasher, be sure to turn off the water supply valve and circuit
breaker.
cleaning and maintaining your
dishwasher
1
2
1
2
Cap nozzle
DW80K7050 Series
Cap nozzle
DW80K5050 Series
DW7000KM-02025A-00_EN.indd Sec5:24 5/2/2016 7:17:56 PM

English - 25
cycles
CYCLE CHART
DW80K7050 Series
Cycle
Pre-
wash1
Pre-
wash2
Pre-
wash3 Main wash Rinse1 Rinse2 Rinse3 Last Rinse
[Sanitize] Dry Water
[gal(ℓ)]
Time
(min)
Auto zzz
z
z{{
z
z4.5-6.5
(16.9-24.7) 128-144
122-140 ˚F
(50-60 ˚C)
136-154 ˚F
(58-68 ˚C)
[163 ˚F (73 ˚C)]
Normal z {
z
z{{
z
z2.3-6.6
(9.0-25.1) 100-167
113-144 ˚F
(45-62 ˚C)
136-149 ˚F
(58-65 ˚C)
[163 ˚F (73 ˚C)]
Heavy zzz
z
zzz
z
z7.7 (29.0) 163
149 ˚F (65 ˚C) 154 ˚F (68 ˚C)
[163 ˚F (73 ˚C)]
Delicate z
z
z
z
z3.8 (14.3) 101
122 ˚F (50 ˚C) 149 ˚F (65 ˚C)
Express 60
z
z
z
z3.0 (11.4) 60
122 ˚F (50 ˚C) 140 ˚F (60 ˚C)
[163 ˚F (73 ˚C)]
Rinse only
z
1.1 (4.2) 14
104 ˚F
(40 ˚C)
( z: Basic, {: Optional step)
DW80K5050 Series
Cycle
Pre-
wash1
Pre-
wash2
Pre-
wash3 Main wash Rinse1 Rinse2 Rinse3 Last Rinse
[Sanitize] Dry Water
[gal(ℓ)]
Time
(min)
Auto z {
z
z{{
z
z4.9-8.4
(18.4-31.9) 110-149
131-145 ˚F
(55-63 ˚C)
136-154 ˚F
(58-68 ˚C)
[163 ˚F (73 ˚C)]
Normal z {
z
z{{
z
z3.1-7.2
(11.7-27.2) 103-170
113-145 ˚F
(45-63 ˚C)
131-149 ˚F
(55-65 ˚C)
[163 ˚F (73 ˚C)]
Heavy z z
z
zzz
z
z8.7 (33.1) 166
149 ˚F (65 ˚C) 154 ˚F (68 ˚C)
[163 ˚F (73 ˚C)]
Delicate z
z
z
z
z5.0 (19.0) 103
122 ˚F (50 ˚C) 149 ˚F (65 ˚C)
Express 60
z
z
z
z3.8 (14.3) 60
122 ˚F (50 ˚C) 140 ˚F (60 ˚C)
[163 ˚F (73 ˚C)]
Rinse only
z
1.3 (4.9) 17
104 ˚F
(40 ˚C)
( z: Basic, {: Optional step)
05 cycles
DW7000KM-02025A-00_EN.indd Sec6:25 5/2/2016 7:17:56 PM

English - 26
• The numbers in parentheses in the Last Rinse column represent the temperature when you select
Sanitize.
• When you select the Auto or Normal cycle, you can eliminate optional steps depending on the soil level
of the dishes.
• The water consumption and wash time varies depending on the steps or options you add, and on the
pressure and temperature of the supplied water.
• When you select any options, the cycle time can be changed.
• When the Rinse Aid is empty, wash time and Last Rinse temperature can increase a little.
cycles
DW7000KM-02025A-00_EN.indd Sec6:26 5/2/2016 7:17:56 PM

English - 27
troubleshooting
CHECK THESE POINTS IF YOUR DISHWASHER…
PROBLEM POSSIBLE CAUSE SOLUTION
Will not start.
The door is not closed completely. Check if the door is latched and closed
completely.
No cycle is selected. Select a proper cycle.
The power cable is not connected. Connect the power cable properly.
The water supply does not work. Check if the water supply valve is open.
The Control Panel is locked. Unlock the child lock, (See page 8.)
A circuit breaker is open. Reset the circuit breaker.
It’s taking too long
with an operation or
cycle.
Cold water is being supplied. Check if the water supply line is connected
to a hot water supply.
(Additional time is required to heat cold
water.)
There are food
particles remaining
on dishes.
(Not cleaning
properly.)
You selected an inappropriate
cycle.
Select a cycle according to the number and
soil level of the dishes, as directed in this
manual.
The water temperature is low. Connect the water supply line to a hot
water supply.
For best performance, the temperature of
the supplied water should be 120 ˚F (49 ˚C).
Low water pressure. The water pressure should be between 20
and 120 psi (140 - 830 kPa).
The water is too hard. Use high-quality, fresh detergent with rinse
aid.
Dishwasher detergent was not
used.
Use automatic dishwasher detergent.
We recommend a powder or gel type
dishwasher detergent.
Detergent remains in the
dispenser.
Make sure large items such as cookie
sheets, cutting boards, or contaners, etc.
are not blocking the detergent dispenser
and preventing it from opening properly.
Rearrange the dishes so they do not
interfere with detergent dispenser
operation.
There is no rinse aid. Check the dispenser and add rinse aid.
Use liquid type rinse aid.
A nozzle is clogged. Clean the nozzle. See page 23.
The dishes are improperly loaded.
Too many dishes have been
loaded.
Rearrange the dishes so they do not
interfere with nozzle rotation and detergent
dispenser operation.
Load only an appropriate number of dishes.
Load your dishes as recommended. (See
page 16.)
06 troubleshooting
DW7000KM-02025A-00_EN.indd Sec7:27 5/2/2016 7:17:56 PM

English - 28
PROBLEM POSSIBLE CAUSE SOLUTION
Leaves glasses with
a dim polish.
The water supplied is soft and too
much detergent was used.
Underload the dishwasher and use a rinse
aid to minimize this.
Aluminum dishes were included in
the wash load.
Remove the marks on the dishes using a
low sensitivity cleaner.
Leaves a yellow
or brown fi lm on
the inside of the
dishwasher.
This is caused by coffee and tea
soils.
Remove the soils using a spot cleaner.
Does not dry dishes
well.
There is no rinse aid in the
dispenser.
Check the dispenser and add rinse aid.
Use a liquid type rinse aid.
The temperature of the water
is low when the dishwasher is
running.
Connect the water supply line to a hot
water supply.
Use rinse aid with the Sanitize option.
Too many dishes have been
loaded.
Proper loading of items can affect drying.
Load your dishes as recommended. (See
page 16.)
Glasses and cups with concave
bottoms hold water. This water
may spill onto other items when
unloading.
After the cycle fi nishes, empty the lower
rack fi rst and then the upper rack. This will
prevent water from dripping from the upper
rack onto the dishes in the lower rack.
AutoRelease™ Dry mode is not
in use.
Activate the AutoRelease™ Dry mode. (See
page 12.)
Has a bad odor.
Water was left over from an
incomplete cycle.
Insert detergent without loading dishes,
and run the Normal cycle to clean the
dishwasher.
The Drain Hose is obstructed. Contact a qualifi ed service technician to
remove any obstruction from the drain
hose.
The dishwasher is not used daily
or soiled dishes are left in unit too
long.
With the dishwasher empty and no
detergent, place a glass with 8
ounces of vinegar upright into the lower
rack, and then run a Normal
cycle.
Is too noisy.
Sound is generated when the
dispenser cover is open and the
drain pump is operating in an early
stage.
This is normal operation.
The dishwasher is not level. Ensure the dishwasher is level.
Foreign material (a screw, a plastic
piece) is in the pump chamber.
Contact a qualifi ed service technician to
remove foreign material from the pump
chamber.
There is a ‘chopping’ sound
because a nozzle is bumping
against the dishes.
Rearrange the dishes.
troubleshooting
DW7000KM-02025A-00_EN.indd Sec7:28 5/2/2016 7:17:57 PM

English - 29
PROBLEM POSSIBLE CAUSE SOLUTION
Does not have a
smoothly rotating
nozzle.
The nozzle hole is clogged with
food particles.
Clean the nozzle hole. See page 23.
The nozzle is blocked by a dish or
pot and cannot rotate.
After placing the dishes into the racks,
rotate the nozzles by hand to check
whether any of the dishes interfere with
them.
Water won’t
pump out of the
dishwasher.
The drain is clogged. Contact a qualifi ed service technician to
remove any obstruction from the drain hose
and check the drain pump operation.
Has a bent upper
rack after loading
dishes.
The dishes are not loaded
properly.
Load your dishes as recommended.
(See page 16.)
Cannot close the
door.
AutoRelease™ Dry mode is in
operation.
Once the door opens in the AutoRelease™
Dry mode, the door cannot be closed
manually for the next 2 minutes. You may
close the door after 2 minutes.
06 troubleshooting
DW7000KM-02025A-00_EN.indd Sec7:29 5/2/2016 7:17:57 PM

English - 30
INFORMATION CODES
The Control Panel displays information codes to help you understand what is occurring with your
dishwasher.
Code Action
OC
Over-level water check
• Functional check. Close the water supply valve and go to your house circuit
breaker panel, set the dishwasher’s circuit breaker switch to o , and then
contact an authorized Samsung service center.
LC
Leakage check
• If a water supply valve connection leak occurs, close the water supply valve
and go to your house circuit breaker panel, set the dishwasher’s circuit breaker
switch to o , and then contact the installer to fi x.
If the problem continues, contact an authorized Samsung service center.
4C
Water supply check
• Check if the water supply valve is closed, the water supply is suspended, or the
water inlet valve or line is frozen or clogged by foreign particles.
If the problem continues, close the water supply valve, and then contact an
authorized Samsung service center.
5C
Drain check
• After closing the water supply valve, check whether the drain hose is clogged or
folded. Also, check whether drain hole inside sump is clogged.
If the problem continues, contact an authorized Samsung service center.
HC
High temperature heating check
• The product ensure that the temperature for hot water line is not too high and
adjusts to appropriate temperature (120 ˚F (49 ˚C) - 149 ˚F (65 ˚C)) automatically.
If the problem continues, go to your house circuit breaker panel, set the
dishwasher’s circuit breaker switch to o , and then contact an authorized
Samsung service center.
3C
Pump operation check
• Functional check. Turn o the dishwasher and try to start it again.
If the problem continues, contact an authorized Samsung service center.
For any codes not listed above, call 1-800-SAMSUNG (726-7864)
troubleshooting
DW7000KM-02025A-00_EN.indd Sec7:30 5/2/2016 7:17:57 PM

English - 31
appendix
HELPING THE ENVIRONMENT
• Your dishwasher is manufactured from recyclable materials. If you decide to dispose of it, please
observe local waste disposal regulations. Cut off the power cable so that the appliance cannot be
connected to a power source.
• Remove the door so that animals and small children cannot get trapped inside the appliance.
• Do not exceed the detergent quantities recommended in the detergent manufacturers’ instructions.
SPECIFICATIONS
Model DW80K7050**,DW80K5050**
Type Built-in Dishwasher Wash capacity 15 place settings
Power 120 V~, 60 Hz only,
15A circuit breaker Used water pressure 20 - 120 psi
(140 - 830 kPa)
Rated power uasge Wash Motor DW80K7050 Series : 60 ~ 100 W
DW80K5050 Series : 150 ~ 190 W
Heater 1100 W
Dimensions
(Width × Depth × Height) 23
7
⁄
8
x 24¾ x 33
7
⁄
8
in. (605 x 627 x 860 mm)
Weight Unpacked DW80K7050 Series : 92 lb (42.6 Kg)
DW80K5050 Series : 99.2 lb (45 Kg)
07 appendix
DW7000KM-02025A-00_EN.indd Sec8:31 5/2/2016 7:17:57 PM

English - 32
warranty
SAMSUNG DISHWASHER
LIMITED WARRANTY TO ORIGINAL PURCHASER
This SAMSUNG brand product, as supplied and distributed by USA: SAMSUNG ELECTRONICS AMERICA,
INC./CANADA: SAMSUNG ELECTRONICS CANADA, INC. (SAMSUNG) and delivered new, in the original
carton to the original consumer purchaser, is warranted by SAMSUNG against manufacturing defects in
materials and workmanship for a limited warranty period of:
One (1) Year All Parts and Labor, Five (5) Years Printed Circuit Board, Racking (Labor Charges for in-home
service starting from the 2nd year is customer’s responsibility), and Lifetime Stainless Door Liner & Tub
for leakage. Samsung will replace your unit with same or current model (that is better or equivalent in
functionality) (Labor related to replacement is customer’s responsibility).
This limited warranty begins on the original date of purchase, and is valid only on products purchased and
used in the United States/Canada. To receive warranty service, the purchaser must contact SAMSUNG for
problem determination and service procedures. Warranty service can only be performed by a SAMSUNG
authorized service center. The original dated bill of sale must be presented upon request as proof of
purchase to SAMSUNG or SAMSUNG’s authorized service center. SAMSUNG will provide in-home service
during the warranty period at no charge, subject to availability within the contiguous United States/Canada.
In home service is not available in all areas.
To receive in-home service, product must be unobstructed and accessible to the service agent. If service
is not available, SAMSUNG may elect to provide transportation of the product to and from an authorized
service center.
SAMSUNG will repair, replace, or refund this product at our option and at no charge as stipulated herein,
with new or reconditioned parts or products if found to be defective during the limited warranty period
specifi ed above. All replaced parts and products become the property of SAMSUNG and must be returned
to SAMSUNG. Replacement parts and products assume the remaining original warranty, or ninety (90)
days, whichever is longer.
This limited warranty covers manufacturing defects in materials and workmanship encountered in normal,
noncommercial use of this product and shall not apply to the following: damage that occurs in shipment;
delivery and installation; applications and uses for which this product was not intended; altered product or
serial numbers; cosmetic damage or exterior fi nish; accidents, abuse, neglect, fi re, water, lightning, or other
acts of nature or God; use of products, equipment, systems, utilities, services, parts, supplies, accessories,
applications, installations, repairs, external wiring or connectors not supplied or authorized by SAMSUNG
that damage this product or result in service problems; incorrect electrical line voltage, fl uctuations and
surges; customer adjustments and failure to follow operating instructions, maintenance and environmental
instructions that are covered and prescribed in the instruction book; product removal and reinstallation;
problems caused by pest infestations. This limited warranty does not cover problems resulting from
incorrect electric current, voltage or supply, light bulbs, house fuses, house wiring, cost of a service call for
instructions, or fi xing installation errors. SAMSUNG does not warrant uninterrupted or error-free operation of
the product.
DW7000KM-02025A-00_EN.indd Sec10:32 5/2/2016 7:17:57 PM

English - 33
EXCEPT AS SET FORTH HEREIN, THERE ARE NO WARRANTIES ON THIS PRODUCT EITHER EXPRESS
OR IMPLIED, AND SAMSUNG DISCLAIMS ALL WARRANTIES INCLUDING, BUT NOT LIMITED TO, ANY
IMPLIED WARRANTIES OF MERCHANTABILITY, INFRINGEMENT OR FITNESS FOR A PARTICULAR
PURPOSE. NO WARRANTY OR GUARANTEE GIVEN BY ANY PERSON, FIRM, OR CORPORATION WITH
RESPECT TO THIS PRODUCT SHALL BE BINDING ON SAMSUNG. SAMSUNG SHALL NOT BE LIABLE
FOR LOSS OF REVENUE OR PROFITS, FAILURE TO REALIZE SAVINGS OR OTHER BENEFITS, OR ANY
OTHER SPECIAL, INCIDENTAL OR CONSEQUENTIAL DAMAGES CAUSED BY THE USE, MISUSE, OR
INABILITY TO USE THIS PRODUCT, REGARDLESS OF THE LEGAL THEORY ON WHICH THE CLAIM IS
BASED, AND EVEN IF SAMSUNG HAS BEEN ADVISED OF THE POSSIBILITY OF SUCH DAMAGES.
NOR SHALL RECOVERY OF ANY KIND AGAINST SAMSUNG BE GREATER IN AMOUNT THAN THE
PURCHASE PRICE OF THE PRODUCT SOLD BY SAMSUNG AND CAUSING THE ALLEGED DAMAGE.
WITHOUT LIMITING THE FOREGOING, PURCHASER ASSUMES ALL RISK AND LIABILITY FOR LOSS,
DAMAGE, OR INJURY TO PURCHASER AND PURCHASER’S PROPERTY AND TO OTHERS AND THEIR
PROPERTY ARISING OUT OF THE USE, MISUSE, OR INABILITY TO USE THIS PRODUCT. THIS LIMITED
WARRANTY SHALL NOT EXTEND TO ANYONE OTHER THAN THE ORIGINAL PURCHASER OF THIS
PRODUCT, IS NONTRANSFERABLE AND STATES YOUR EXCLUSIVE REMEDY.
Some states do not allow limitations on how long an implied warranty lasts, or the exclusion or limitation
of incidental or consequential damages, so the above limitations or exclusions may not apply to you. This
warranty gives you specifi c rights, and you may also have other rights, which vary from state to state.
To obtain warranty service, please contact SAMSUNG at:
In USA
Samsung Electronics America, Inc.
85 Challenger Road Ridgefi eld Park, NJ 07660
1-800-SAMSUNG (726-7864)
www.samsung.com/us/support
In CANADA
Samsung Electronics Canada Inc.
2050 Derry Road West, Mississauga, Ontario L5N 0B9 Canada
1-800-SAMSUNG (726-7864)
www.samsung.com/ca/support (English)
www.samsung.com/ca_fr/support (French)
DW7000KM-02025A-00_EN.indd Sec10:33 5/2/2016 7:17:57 PM

memo
DW7000KM-02025A-00_EN.indd Sec10:34 5/2/2016 7:17:57 PM

memo
DW7000KM-02025A-00_EN.indd Sec10:35 5/2/2016 7:17:57 PM

Questions or Comments?
COUNTRY CALL OR VISIT US ONLINE AT
U.S.A 1-800-SAMSUNG (726-7864) www.samsung.com/us/support
CANADA 1-800-SAMSUNG (726-7864) www.samsung.com/ca/support (English)
www.samsung.com/ca_fr/support (French)
DD81-02025A-00
bit.ly/samsungdishwashers
DW7000KM-02025A-00_EN.indd Sec10:36 5/2/2016 7:17:57 PM

Lavavajillas
manual del usuario
imagine las posibilidades
Gracias por adquirir este producto Samsung.
Serie DW80K7050
Serie DW80K5050
DW7000KM-02025A-00_MES.indd 1 5/2/2016 7:17:03 PM

Español - 2
contenido
CONFIGURACIÓN DE SU LAVAVAJILLAS
6
6 Desempaque de la lavavajillas
6 Verifi cación de las piezas
7 Panel de control
9 Selector de ciclos
10 Cumplimiento de los requisitos de instalación
USO DE LA LAVAVAJILLAS
11
11 Pautas básicas
14 Ajuste del ángulo de los soportes para platos
15 Ajuste de la altura del estante superior
15 Cómo retirar el estante superior
16 Carga del estante inferior
17 Carga del estante superior
18 Uso del estante para cubiertos
19 Uso del 3
er
estante (cubiertos)
(Para modelos aplicables)
20 Uso del detergente
LIMPIEZA Y MANTENIMIENTO DE LA
LAVAVAJILLAS
22
22 Limpieza del exterior
22 Limpieza del interior
22 Limpieza de los fi ltros (serie DW80K7050)
23 Limpieza de las boquillas
24 Cómo guardar la lavavajillas
CICLOS
25
25 Tabla de ciclos
SOLUCIÓN DE PROBLEMAS
27
27 Controle estos puntos si su lavavajillas…
30 Códigos de información
APÉNDICE
31
31 Ayuda al medio ambiente
31 Especifi caciones
DW7000KM-02025A-00_MES.indd Sec9:2 5/2/2016 7:17:12 PM

Español - 3
información sobre seguridad
A lo largo de este manual, encontrará notas de Advertencia y Precaución . Estas importantes
instrucciones de seguridad no abarcan todas las situaciones posibles que podrían ocurrir.
Es su responsabilidad actuar con precaución cuando instale, realice el mantenimiento y ponga en
funcionamiento la máquina lavavajillas. Samsung no se responsabiliza por ningún daño ocasionado
por el uso inadecuado.
INSTRUCCIONES DE SEGURIDAD IMPORTANTES
Signifi cado de los íconos y señales de este manual del usuario:
ADVERTENCIA Peligros o prácticas inseguras que pueden causar lesiones físicas graves o la muerte.
PRECAUCIÓN Peligros o prácticas inseguras que pueden causar lesiones físicas o daños materiales.
PRECAUCIÓN
Para reducir el riesgo de incendio, explosión, descargas eléctricas o lesiones físicas cuando
usa la máquina lavavajillas, siga estas instrucciones básicas de seguridad:
NO intente.
NO desensamble.
NO toque.
Siga las instrucciones explícitamente.
Desenchufe el cable de alimentación del tomacorriente de pared.
Asegúrese de que la máquina esté conectada a tierra para evitar descargas eléctricas.
Llame al servicio técnico para solicitar ayuda.
ADVERTENCIA
Advertencia sobre la State of California Proposition 65 (solo EE.UU.)
Este producto contiene productos químicos reconocidos en el estado de California como capaces de
provocar cáncer y defectos de nacimiento u otras afecciones reproductivas.
ADVERTENCIA - Cuando utilice la máquina lavavajillas, tome todas las precauciones básicas,
incluyendo las siguientes:
Lea todas las instrucciones antes de usar la lavavajillas.
Al igual que con cualquier equipo que use electricidad, agua y piezas movibles, existen riesgos potenciales.
Utilice la lavavajillas únicamente para la función para la cual está diseñada.
Utilice únicamente detergentes o productos humectantes recomendados para utilizarse en lavavajillas y
manténgalos fuera del alcance de los niños.
Cuando cargue los artículos que se lavarán:
- Coloque los objetos cortantes de manera que no dañen las juntas de la puerta.
-
Cargue los cuchillos fi losos con el mango hacia arriba para reducir el riesgo de sufrir lesiones por cortes.
CONSERVE ESTAS INSTRUCCIONES
ADVERTENCIA
01 información sobre seguridad
DW7000KM-02025A-00_MES.indd Sec1:3 5/2/2016 7:17:12 PM

Español - 4
No lave objetos de plástico a menos que tengan el rótulo "apto para lavavajillas" o su equivalente.
En el caso de los artículos de plástico que no tengan tal rótulo, consulte las recomendaciones del fabricante.
No toque el ELEMENTO CALENTADOR durante el uso o inmediatamente luego de él.
ADVERTENCIA: Cuando utilice la lavavajillas, tome todas las precauciones básicas, incluyendo las siguientes:
1. Lea todas las instrucciones antes de usar la lavavajillas.
2. Utilice la lavavajillas únicamente para la función para la cual está diseñada.
3. Utilice únicamente detergentes o productos humectantes recomendados para utilizarse en lavavajillas y
manténgalos fuera del alcance de los niños.
4. Cuando cargue los artículos que se lavarán:
- coloque los objetos cortantes de manera que no dañen las juntas de la puerta.
- cargue los cuchillos fi losos con el mango hacia arriba para reducir el riesgo de sufrir lesiones por
cortes.
5. No lave objetos de plástico a menos que tengan el rótulo "apto para lavavajillas" o su equivalente.
En el caso de los artículos de plástico que no tengan tal rótulo, consulte las recomendaciones del
fabricante.
6. No toque el ELEMENTO CALENTADOR durante el uso o inmediatamente luego de él.
7. No ponga en funcionamiento la lavavajillas a menos que todos los paneles de CIERRE estén
correctamente colocados.
8. No modifi que los controles.
9. Trate con cuidado la puerta y los estantes de la lavavajillas, no se siente o pare sobre ellos.
10. Para reducir el riesgo de lesiones, evite que los niños jueguen dentro o fuera de la lavavajillas.
11. En ciertas circunstancias, se puede producir gas hidrógeno en un sistema de agua caliente que no se ha
usado durante dos semanas o más. EL GAS HIDRÓGENO ES EXPLOSIVO. Si el sistema de agua caliente
no se ha usado durante dicho período, antes de usar la lavavajillas abra todas las llaves de agua caliente y
deje que el agua fl uya durante varios minutos. Esto disipará el gas hidrógeno acumulado. Dado que el gas
es infl amable, no fume ni utilice una llama abierta en ese momento.
12. Cuando deje de utilizar o descarte una lavavajillas antigua, retire la puerta del compartimiento de lavado.
Después de desempacar la lavavajillas, mantenga el empaque fuera del alcance de los niños.
La máquina lavavajillas es muy pesada. No intente mover o trasladarla usted mismo. Se necesitan dos o más
personas para mover una lavavajillas y evitar lesiones potenciales.
No instale la lavavajillas cerca de componentes eléctricos. Mantenga la lavavajillas alejada de llamas abiertas.
Instale y nivele la lavavajillas sobre una superfi cie no alfombrada que pueda soportar su peso.
La lavavajillas debe conectarse a tierra correctamente. Nunca la conecte a un tomacorriente sin conexión a
tierra. Consulte la página 10 para obtener más información sobre cómo conectar la lavavajillas a tierra.
Conecte el cable a tierra a la conexión a tierra de color verde de la caja de terminales.
Después de instalar la lavavajillas, asegúrese que la manguera de desagüe esté correctamente conectada y
que las conexiones de la manguera no tengan pérdidas. Si la manguera de desagüe está fl oja, puede ocasionar
pérdidas materiales.
El conducto puede romperse. A medida que transcurre el tiempo, pierde su fl exibilidad. Revise el conducto
periódicamente. Si está hinchado, rasgado, cortado o si hay pérdida de agua, reemplácelo inmediatamente.
Para usar este electrodoméstico en forma segura, familiarícese con su funcionamiento y manéjelo con cuidado
cuando lo use.
ADVERTENCIA
información sobre seguridad
CONSERVE ESTAS INSTRUCCIONES
DW7000KM-02025A-00_MES.indd Sec1:4 5/2/2016 7:17:12 PM

Español - 5
No vierta gasolina, solventes ni otros materiales infl amables dentro de la lavavajillas. No lave vajilla que haya
sido expuesta a estos materiales.
Mantenga el detergente de la lavavajillas fuera del alcance de los niños. El detergente causa un efecto adverso
en los órganos del cuerpo humano. Contiene sustancias para otorgar brillo y es corrosivo. Evite que el
detergente entre en contacto con la piel o los ojos.
No empuje ni presione la puerta cuando esté abierta, ya que al hacerlo podría dañar la lavavajillas o hacerse
daño.
No permita que los niños jueguen dentro o encima de la máquina lavavajillas. Pueden hacerse daño o dañar la
lavavajillas.
Desconecte el cable de alimentación (o corte el disyuntor) antes de realizar el mantenimiento de la lavavajillas.
No repare, reemplace ni realice el mantenimiento de ninguna de las piezas de su lavavajillas por su cuenta. Solo
se permite que técnicos califi cados autorizados realicen el desensamble, las reparaciones y las modifi caciones.
El trabajo efectuado por una persona no autorizada puede invalidar su garantía.
Antes de deshacerse de la lavavajillas, retire la puerta del compartimiento de lavado o la traba de la puerta para
evitar que niños o animales pequeños puedan quedar atrapados adentro.
Si no va a utilizarse la lavavajillas durante un período prolongado, corte el suministro de agua.
Esta lavavajillas ha sido diseñada para uso residencial únicamente.
ANTES DE USAR LA LAVAVAJILLAS
ADVERTENCIA
Riesgo de vuelco
- No utilice la lavavajillas hasta que no esté correctamente instalada.
- No ejerza presión sobre una puerta abierta.
- No coloque peso excesivo sobre una puerta abierta.
Riesgo de descarga eléctrica
El incumplimiento con estas instrucciones puede tener como resultado la muerte, incendios o descargas
eléctricas:
- Conecte a tierra la lavavajillas.
- Conecte el cable a tierra a la conexión a tierra de color verde de la caja de conexiones.
- No utilice un cable prolongador.
CONSERVE ESTAS INSTRUCCIONES
01 información sobre seguridad
ADVERTENCIA
DW7000KM-02025A-00_MES.indd Sec1:5 5/2/2016 7:17:12 PM

Español - 6
confi guración de su lavavajillas
Asegúrese de que su instalador siga estas instrucciones minuciosamente para que su nueva
lavavajillas funcione adecuadamente y no existan riesgos de sufrir lesiones al lavar los platos.
DESEMPAQUE DE LA LAVAVAJILLAS
• Cuando haya recibido la lavavajillas, desempáquela con cuidado y verifi que que no esté dañada.
Si la lavavajillas está dañada, tome nota de ello en la carta de porte y guarde una copia. No instale la lavavajillas y
comuníquese con el Servicio al cliente de Samsung al número que se indica a continuación.
• Si el producto no está dañado, comience con la instalación. Si va a instalarlo por su cuenta, asegúrese de leer la guía de
instalación y de seguir sus instrucciones.
• Después de desempacar la lavavajillas, mantenga el empaque fuera del alcance de los niños para garantizar su seguridad.
VERIFICACIÓN DE LAS PIEZAS
Una vez desempacada la lavavajillas, asegúrese de haber recibido todas las piezas que aparecen a continuación.
Si su lavavajillas sufrió daños durante el transporte, o si falta alguna pieza, comuníquese con el Servicio al cliente de
Samsung al 1-800-SAMSUNG (726-7864).
Estante inferior Estante 3
(Para modelos aplicables)
Estante superior
Boquilla intermedia
Freno de aire
Base Dosifi cador
Puerta
Boquilla inferior
Filtro intercambiable
(Para modelos aplicables)
Estante para
cubiertos
Accesorios - Manual del usuario/instalación, kit de instalación.
DW7000KM-02025A-00_MES.indd Sec3:6 5/2/2016 7:17:12 PM

Español - 7
PANEL DE CONTROL
Series DW80K7050, DW80K5050
1
Light indicator
(Indicador luminoso) Indica que el producto está en funcionamiento.
2
Power (Encendido)
Cuando se presiona el botón Power (Encendido), se enciende y apaga toda la pantalla
y luego se enciende la luz del último ciclo que se fi nalizó.
Una vez completado el ciclo seleccionado, la lavavajillas se apaga automáticamente.
3
Cycle Selector
(Selector de ciclos)
Seleccione el ciclo de lavado adecuado según el nivel de suciedad de la vajilla. Cuando
se selecciona un ciclo, se enciende el indicador de ciclo activado correspondiente.
4
Lower Rack
(Estante inferior)
Seleccione esta opción para lavar una pequeña cantidad de vajilla. Le recomendamos
que coloque los platos en el estante inferior cuando use esta función.
Cuando seleccione Lower Rack (Estante inferior), la lavavajillas no lavará los
platos del estante superior.
5
StormWash™
Use esta opción cuando desee lavar ollas y sartenes, bowls de servir duraderos y otros
elementos de gran tamaño, muy sucios y difíciles de limpiar.
Para usar StormWash™ coloque los platos cara abajo en la zona marcada
StormWash™ en la canasta inferior.
StormWash™ no está disponible con los ciclos Delicate (Vajilla delicada) y
Rinse Only (Solo enjuague).
6
Hi-Temp Wash
(Lavado a alta
temperatura)
Eleva la temperatura del lavado principal para mejorar la limpieza de cargas muy sucias
o que contienen restos de alimentos adheridos.
Hi-Temp Wash (Lavado a alta temperatura) no está disponible para los ciclos
Delicate (Vajilla delicada) y Rinse Only (Solo enjuague).
7
Sanitize
(Desinfección) /
(Control Lock
(Bloqueo controles))
La temperatura se eleva a 163 ˚F (73 ˚C) en el ciclo de enjuague fi nal para la
desinfección a alta temperatura.
Si selecciona la opción Sanitize (Desinfección) el indicador “Sanitize (Desinfección)”
parpadea cuando la temperatura del agua alcanza la temperatura de desinfección,
más de 155 ˚F (68 ˚C), y permanece encendido hasta el fi nal de la opción
Sanitize (Desinfección). Cuando abre la puerta o presiona el botón Power (Encendido),
el indicador “Sanitize (Desinfección)” se apaga.
Sanitize (Desinfección) no está disponible para los ciclos Delicate (Vajilla delicada)
y Rinse Only (Solo enjuague).
El ciclo Normal con la opción Sanitize (Desinfección) seleccionada está certifi cado
por NSF.
La función Sanitize (Desinfección) cumple con la Norma 184 NSF/ANSI para
Lavavajillas Residenciales. Las lavavajillas residenciales certifi cadas no han sido
diseñadas para los establecimientos alimentarios autorizados. Solo la lavavajillas
modelo DW80K7050 está certifi cada por NSF.
02 confi guración de su lavavajillas
93 4 821 5 76
DW7000KM-02025A-00_MES.indd Sec3:7 5/2/2016 7:17:13 PM

Español - 8
7
Sanitize
(Desinfección) /
(Control Lock
(Bloqueo controles))
Control Lock (Bloqueo controles) le permite bloquear los botones del panel de
control para que los niños no puedan encender la lavavajillas en forma accidental al
presionarlos.
Para bloquear y desbloquear los botones del panel de control, mantenga presionado
el botón Sanitize (Desinfección) durante tres (3) segundos con la máquina encendida.
8
Delay Start
(Inicio retardado)
(PANTALLA)
Retarde un ciclo hasta 24 horas, en incrementos de una hora. La hora en pantalla
indica el tiempo en el cual comenzará el lavado.
Muestra información del lavado, de las horas de Delay Start (Inicio retardado) y
mensajes de error.
Si se produce un error durante el funcionamiento, se enciende un mensaje de control
con un sonido de advertencia. Consulte “Códigos de información” en la página 30.
9
Start (Inicio)
Para iniciar un ciclo, presione el botón Start (Inicio) antes de cerrar la puerta.
Para cancelar el ciclo, mantenga presionado el botón Start (Inicio) durante 3 segundos
o presione el botón Power (Encendido) para apagar la máquina.
Puede seleccionar las opciones (Lower Rack (Estante inferior), StormWash™, Hi-Temp Wash (Lavado a alta temperatura),
Sanitize (Desinfección)) antes de iniciar un ciclo. Si cambia el ciclo después de seleccionar una opción, se regresa al ciclo
original.
Para impedir que el teclado táctil pierda sensibilidad de respuesta, siga estas instrucciones:
- Toque con el dedo el centro de cada tecla. No ejerza presión.
- Limpie de forma regular la superfi cie del control táctil con un trapo suave y húmedo.
- Tenga cuidado de no tocar más de una tecla al mismo tiempo, excepto cuando así se le indique.
Cuando pause un ciclo abriendo la puerta, presione el botón Start (Inicio) antes de cerrar la puerta para reanudar el ciclo.
Empuje la puerta hasta cerrarla fi rmemente durante los 3 segundos siguientes a presionar el botón Start (Inicio).
Si la puerta no se cierra antes de 3 segundos, el ciclo no se inicia.
confi guración de su lavavajillas
O O X
DW7000KM-02025A-00_MES.indd Sec3:8 5/2/2016 7:17:14 PM

Español - 9
SELECTOR DE CICLOS
Series DW80K7050, DW80K5050
1
Auto Este ciclo detecta el nivel de suciedad e inicia automáticamente el ciclo óptimo
luego de algunos minutos de funcionamiento.
2
Normal Utilice este ciclo para la vajilla con suciedad normal.
3
Heavy (Muy sucio) Utilice este ciclo para vajilla muy sucia.
4
Delicate (Vajilla delicada) Utilice este ciclo para vajilla o elementos frágiles con suciedad normal, tales
como las copas.
5
Express 60 (Rápido 60) Utilice este ciclo para la vajilla ligeramente sucia.
6
Rinse Only (Solo enjuague) Utilice para enjuagar platos, vasos y cubiertos que no es necesario lavar en ese
momento. No utilice detergente.
02 confi guración de su lavavajillas
1 2 3 4 5 6
DW7000KM-02025A-00_MES.indd Sec3:9 5/2/2016 7:17:14 PM

Español - 10
CUMPLIMIENTO DE LOS REQUISITOS DE INSTALACIÓN
Suministro eléctrico y conexión a tierra
Para evitar el riesgo de incendio, descarga eléctrica o lesiones físicas, todo el cableado y la conexión a tierra
deben realizarse de conformidad con la versión más reciente del Código Eléctrico Nacional, ANSI/FNPA, Nro. 70
y los códigos y ordenanzas locales. Es exclusiva responsabilidad del propietario del electrodoméstico proveer los
servicios eléctricos adecuados para este electrodoméstico.
Nunca utilice un cable prolongador.
Cuando prepare la instalación, asegúrese de proveer:
• Un circuito derivado individual con un fusible o disyuntor de 120 V, 60 Hz, 15 A destinado únicamente a la
lavavajillas.
La lavavajillas debe estar conectada a tierra. En caso de que la lavavajillas funcione mal o se descomponga, la
conexión a tierra reducirá el riesgo de descarga eléctrica al ofrecer una vía de menor resistencia para la corriente
eléctrica.
Nunca conecte un cable a tierra a las tuberías de plástico, las tuberías de gas o las cañerías de agua caliente.
INSTRUCCIONES DE CONEXIÓN A TIERRA
Para un electrodoméstico con conexión permanente:
Este electrodoméstico debe estar conectado a un metal con conexión a tierra, a un sistema de cableado
permanente, o se debe conectar el conductor de conexión a tierra del equipo a los conductores del circuito y
luego a la terminal de conexión a tierra del equipo.
Suministro de agua
La presión del conducto de agua caliente debe estar entre 20 y 120 psi (140 y 830 kPa).
Ajuste el calentador de agua para obtener una temperatura de agua entre 120 ˚F (49 ˚C) y 149 ˚F (65 ˚C).
La mayoría de las tiendas de suministros de plomería venden conductos de diversas longitudes, de hasta
10 pies (305cm) de largo.
Para reducir el riesgo de pérdidas y daños ocasionados por el agua puede hacer lo siguiente:
• Coloque las llaves de agua en un lugar de fácil acceso.
• Cierre las llaves cuando no use la lavavajillas.
• Verifi que periódicamente que no haya pérdidas de agua en los accesorios del conducto.
Antes de utilizar la lavavajillas por primera vez verifi que que no haya pérdidas en ninguna de las conexiones de la
válvula de suministro de agua ni en las llaves.
Piso
Por razones de seguridad, su lavavajillas debe estar instalada sobre un piso de construcción sólida.
Nunca instale la lavavajillas sobre una plataforma o sobre una estructura con soportes poco resistentes.
La lavavajillas debe instalarse adecuadamente, conforme a la Guía de instalación, antes de utilizarla. Si no recibió una Guía de
instalación junto con la lavavajillas, puede obtener una en nuestro sitio Web www.samsung.com.
PRECAUCIÓN
ADVERTENCIA
ADVERTENCIA
confi guración de su lavavajillas
DW7000KM-02025A-00_MES.indd Sec3:10 5/2/2016 7:17:14 PM

Español - 11
uso de la lavavajillas
PAUTAS BÁSICAS
1. Abra la puerta y cargue la vajilla (consulte la página 14).
- Coloque la vajilla en los estantes superior e inferior, a menos que seleccione Lower Rack (Estante inferior).
- Retire los restos de comida de la vajilla antes de colocarla en los estantes FlexLoad™.
- Después de cargar la vajilla en los estantes FlexLoad™, rote las boquillas a mano para verifi car si alguno de los platos
interferirá con ellas.
- Asegúrese de que los platos no impidan que se abra la apertura del dosifi cador del detergente.
2. Agregue detergente al dosifi cador (página 20).
- Asegúrese de
utilizar únicamente detergente y producto de enjuague
para lavavajillas automática.
- Consulte “Uso del detergente” en la página 20 para obtener instrucciones sobre cómo agregar el detergente y el
producto de enjuague.
3. Presione el botón Power (Encendido).
- Cuando se presiona el botón Power (Encendido) se enciende y apaga toda la pantalla y se enciende el indicador del
último ciclo que se fi nalizó.
- Si se enciende “Low Rinse (Producto de enjuague bajo)” ( ), debe reponer el producto de enjuague para mejorar el
desempeño del lavado y del secado.
4.
Seleccione el ciclo de limpieza adecuado según el nivel de suciedad de la vajilla. (consulte las páginas
9
y
25
.)
- Presione el botón de ciclo adecuado.
- Cuando presiona un botón de ciclo, se enciende el indicador correspondiente.
5. Presione el botón Start (Inicio) y cierre la puerta antes de 3 segundos.
- La lavavajillas comenzará a drenar después de algunos segundos y luego se iniciará el ciclo seleccionado.
- Asegúrese de cerrar la puerta fi rmemente. Si la puerta está levemente entreabierta, el ciclo seleccionado no
comenzará automáticamente.
6. Cuando se completa el ciclo de lavado.
- Se enciende el indicador y la lavavajillas emite una señal sonora.
- La lavavajillas se apaga automáticamente.
- La puerta se abre automáticamente de 5 a 15 minutos antes de que fi nalice el ciclo para mejorar el desempeño del
secado.
- Si desea cargar más vajilla o para que la lavavajillas haga una pausa mientras funciona, asegúrese de abrir la puerta
lenta y cuidadosamente, ya que existe la posibilidad de sufrir lesiones a causa del vapor caliente contenido en el
interior.
- Si se abre la puerta mientras funciona la lavavajillas, se activa un mecanismo de seguridad y se detiene el ciclo.
- Para reanudar el funcionamiento, presione el botón de inicio y cierre la puerta antes de 3 segundos.
- Agregar vajilla algunos minutos después de que la lavavajillas comience a funcionar puede afectar al desempeño.
- Si se abre la puerta mientras la lavavajillas funciona a alta temperatura, se desaguará automáticamente el agua
caliente para protegerle contra las quemaduras.
Para lograr un mejor desempeño en el secado debe utilizar productos para el enjuague. Puede lograr un mejor
desempeño del secado seleccionando la opción Sanitize (Desinfección).
Una vez fi nalizado un ciclo, la puerta se abre automáticamente para que salga el vapor. Esto es normal. y no se trata de
un mal funcionamiento del producto.
PRECAUCIÓN
03 uso de la lavavajillas
DW7000KM-02025A-00_MES.indd Sec4:11 5/2/2016 7:17:14 PM

Español - 12
Controles táctiles
Los controles táctiles le permiten operar fácilmente la lavavajillas.
• Se activan fácilmente con un toque suave.
• Tienen un diseño sencillo y elegante.
• Son fáciles de limpiar.
Si tiene niños o desea limpiar la Interfaz de control, recomendamos activar la función
Control Lock (Bloqueo controles) para bloquear los botones de control. Consulte la página 8.
- Cuando esta opción esté seleccionada, los niños no podrán encender la lavavajillas en forma accidental
al tocar los controles.
- Si un ciclo se está ejecutando, los botones no responderán (excepto el botón Power (Encendido)).
- Si la lavavajillas está apagada, únicamente responderá el botón Power (Encendido).
Modo de confi guración
ElEl modo de confi guración le permite cambiar los ajustes de Sound (Sonido), Light indicator (Indicador
luminoso) y AutoRelease™ Dry (Secado AutoRelase) de la lavavajillas. Para ingresar en el modo de
confi guración, presione los botones Delay Start (Inicio retardado) + Sanitize (Desinfección) durante
3 segundos con la lavavajillas encendida. Presione el botón Sanitize (Desinfección) para seleccionar un
subelemento del menú de confi guración y presione el botón Delay Start (Inicio retardado) para cambiar una
confi guración.
- Confi guración del sonido: Presione el botón Sanitize (Desinfección) hasta que se muestre “U1” o “U0”.
Para cambiar la confi guración, presione el botón Delay Start (Inicio retardado). “U0” desactiva el sonido
en todos los ciclos. “U1” activa el sonido.
La lavavajillas conservará la confi guración del sonido seleccionada hasta que vuelva a cambiarla.
- Confi guración del Light indicator (Indicador luminoso): Presione el botón Sanitize (Desinfección)
hasta que se muestre “B1“ o “B0”. Para cambiar la confi guración, presione el botón
Delay Start (Inicio retardado). “B0” apaga el indicador en todos los ciclos. “B1” enciende el indicador.
- Confi guración de AutoRelease™ Dry (Secado AutoRelase): Presione el botón Sanitize (Desinfección)
hasta que se muestre “A1” o “A0”.
Presione el botón Delay Start (Inicio retardado) para activar o desactivar AutoRelease™ Dry (Secado
AutoRelase). “A0” desactiva AutoRelease™ Dry (Secado AutoRelase). “A1” activa AutoRelease™ Dry
(Secado AutoRelase).
* Cuando la puerta se abre en el modo de
AutoRelease™ Dry (Secado AutoRelase), no
se puede cerrar manualmente durante los 2
minutos siguientes.
* El modo AutoRelease™ Dry (Secado
AutoRelase) solo se desactivará en el ciclo
Rinse Only (Solo enjuague).
La puerta se abre automáticamente de 5 a 15 minutos antes de que fi nalice el ciclo para mejorar el
desempeño del secado.
Cambiar la confi guración de “AutoRelease™ Dry (Secado AutoRelase)” puede afectar al desempeño
del secado. Seleccione el modo “A1” para obtener mejores resultados de secado. (“A1” es el ajuste
predeterminado.)
Una vez fi nalizado un ciclo, la puerta se abre automáticamente para que salga el vapor. Esto es normal. y
no se trata de un mal funcionamiento del producto.
uso de la lavavajillas
DW7000KM-02025A-00_MES.indd Sec4:12 5/2/2016 7:17:14 PM

Español - 13
Inicio retardado
Al seleccionar la opción de su lavavajillasDelay Start (Inicio retardado):
• Comienza a vaciarse el agua restante inmediatamente (vaciado previo).
La lavavajillas efectuará el ciclo seleccionado luego de que se cumpla el tiempo establecido para iniciar el
programa.
Cuando use la lavavajillas, trate de acomodar los platos de manera adecuada, como se describe
en las páginas
16
a
19
.
• Debe retirar de la vajilla todos los restos de comida, como huesos, semillas, etc., y cualquier otro tipo de
desecho como los palillos, papel u otros, ya que es posible que dañen la vajilla, generen ruidos u ocasionen
incluso mal funcionamiento.
• Seleccione el ciclo adecuado dependiendo del nivel de suciedad y el tipo de vajilla.
• Utilice únicamente la cantidad adecuada de detergente y de producto de enjuague.
No deben lavarse los siguientes artículos
• Artículos de acrílico o aluminio: Los platos con un borde dorado impreso pueden decolorarse.
• Platos tratados con adhesivo: Es posible que los plásticos, la madera, el marfi l, el cobre y la hojalata que
hayan sido tratados se afl ojen.
• Plásticos con una tolerancia a la temperatura inferior a 194 ˚F (90 ˚C): Los plásticos delgados no se lavan
ni secan bien y es posible que se dañen debido a las altas temperaturas de lavado.
• Hojalata: La hojalata debe lavarse a mano y secarse inmediatamente, ya que puede oxidarse.
• Utensilios de madera: Los objetos de madera pueden agrietarse.
ADVERTENCIA
ADVERTENCIA
03 uso de la lavavajillas
DW7000KM-02025A-00_MES.indd Sec4:13 5/2/2016 7:17:15 PM

Español - 14
AJUSTE DEL ÁNGULO DE LOS SOPORTES PARA PLATOS
Puede ajustar el ángulo de los dientes del estante superior en tres posiciones distintas para que coincida con el tamaño y la
forma de la vajilla. Para ajustar los dientes, sujete la manija de la parte posterior del estante y empuje hacia la derecha o hacia
la izquierda. Consulte la ilustración inferior.
En el estante inferior, puede retirarse fácilmente el soporte para platos para hacer lugar para objetos grandes, como ollas y
sartenes. Para retirar el soporte para platos, levante las manijas (A). Para volver a colocar el soporte para platos, alinéelo para
que quede en su lugar y luego presione hacia abajo las manijas (A). Para plegar los dientes plegables del estante inferior, retire
este de la lavavajillas, déle vuelta, sujete el diente (B) y pliéguelo. Consulte la ilustración inferior.
Estante superior
Estante inferior
uso de la lavavajillas
DW7000KM-02025A-00_MES.indd Sec4:14 5/2/2016 7:17:15 PM

Español - 15
AJUSTE DE LA ALTURA DEL ESTANTE SUPERIOR
Puede ajustar la altura del estante superior de su lavavajillas Samsung para dar cabida a platos de mayor tamaño en el estante
inferior. Según la altura del estante superior que establezca, en el estante inferior puede ubicar platos de hasta 12 pulgadas
(30 cm) de diámetro y en el estante superior platos de hasta 8 pulgadas (20 cm) de diámetro.
Series DW80K7050, DW80K5050
1. Para bajar el estante superior 2 pulgadas (5 cm),
presione las manijas de ajuste que están situadas a
la izquierda y a la derecha del estante superior y al
mismo tiempo presiónelo suavemente hacia abajo.
2. Para subir el estante superior, simplemente empújelo
hacia arriba. La manija de ajuste se trabará y el
estante superior quedará en posición alta.
Recomendamos que ajuste la altura del estante
superior antes de cargar la vajilla. Si la ajusta luego
de cargar la vajilla, esta puede resultar dañada.
CÓMO RETIRAR EL ESTANTE SUPERIOR
Jale el estante superior hacia el frente y, para retirarlo, levántelo levemente y jale hacia el frente. Consulte las ilustraciones
inferiores.
Si bien puede retirarse el estante superior, debe estar instalado para que la lavavajillas funcione correctamente.
Si trata de operar la lavavajillas sin el estante, se escuchará ruido y el desempeño de la lavavajillas será defi ciente.
Paso 1. Paso 2. Paso 3.
PRECAUCIÓN
PRECAUCIÓN
03 uso de la lavavajillas
A
DW7000KM-02025A-00_MES.indd Sec4:15 5/2/2016 7:17:15 PM

Español - 16
CARGA DEL ESTANTE INFERIOR
Se ha diseñado el estante inferior específi camente para la vajilla para comida, recipientes para sopa, platos, ollas, tapas y
fuentes de horno.
Cargue los objetos grandes como recipientes y ollas en la lavavajillas de manera que sus lados abiertos miren hacia abajo.
Recomendamos cargar las tazas, la cristalería y los platos pequeños en el estante superior.
Observe los patrones recomendados de carga que se encuentran a continuación.
Platillo
10 puestos 12 puestos
Carga de objetos grandes en la zona StormWash™ (Lavado potente)
Puede cargar objetos grandes como ollas y sartenes en la zona
StormWash™ (Lavado potente), señalada por líneas rojas, del estante
inferior para obtener un lavado más efectivo. Cuando se selecciona la
opción StormWash™ (Lavado potente), se activa un potente chorro
adicional que se dirige directamente a los elementos de la zona
StormWash™ (Lavado potente). Asegúrese de que las manijas de las
ollas y otros objetos no interfi eran con la rotación de las boquillas.
uso de la lavavajillas
DW7000KM-02025A-00_MES.indd Sec4:16 5/2/2016 7:17:16 PM

Español - 17
CARGA DEL ESTANTE SUPERIOR
Se ha diseñado el estante superior para platos pequeños, jarras, vasos y objetos de plástico que tengan el rótulo "apto para
lavavajillas". Cargue los platos en la lavavajillas en dos medias hileras, de manera que la cara de cada plato mire la parte
trasera del otro que tiene enfrente, y que las caras de los platos en el centro de la lavavajillas se enfrenten unas a otras.
Consulte las ilustraciones inferiores.
Asegúrese de que la vajilla cargada no interfi era con la rotación de la boquilla que se encuentra en la parte inferior del estante
superior. (Para verifi carlo, haga rotar la boquilla a mano.)
Para cargar la vajilla, tire del estante superior dejando el espacio sufi ciente para que pueda cargarlo sin golpear la encimera
superior.
10 puestos 12 puestos
Uso del soporte para copas
Puede cargar tazas o vasos en el soporte para copas. Resulta muy práctico también para lavar copas de vino.
Cuelgue sus copas de vino de las espigas del soporte para copas.
Puede plegar el soporte para copas cuando no se use.
Serie DW80K7050 Serie DW80K5050
03 uso de la lavavajillas
DW7000KM-02025A-00_MES.indd Sec4:17 5/2/2016 7:17:16 PM

Español - 18
USO DEL ESTANTE PARA CUBIERTOS
El estante para cubiertos consiste en dos compartimientos.
Puede colocar independientemente cada cuchillo, cuchara o tenedor en el soporte para cucharas
en la cubierta de la canasta para evitar roturas o decoloración.
El estante para cubiertos puede utilizarse con la cubierta abierta. Consulte la ilustración de la
derecha.
Izquierda Derecha
10 puestos
Izquierda Derecha
12 puestos
Soporte para cucharas visto desde arriba con las ubicaciones sugeridas para los cubiertos. Haga coincidir los números del
diagrama con los números de la lista inferior de los cubiertos.
NO permita que ningún artículo llegue hasta la parte inferior.
1 3 42 5
1
Tenedores
2
Cucharitas para té
3
Cucharas
4
Cuchillos
5
Cucharas y tenedores de servir
6
Elementos restantes
uso de la lavavajillas
DW7000KM-02025A-00_MES.indd Sec4:18 5/2/2016 7:17:17 PM

Español - 19
USO DEL 3ER ESTANTE (CUBIERTOS) (PARA MODELOS APLICABLES)
Carga del estante para cubiertos
<Ubique los artículos en forma aleatoria u ordenada.>
Además de la canasta para cubiertos estándar del estante superior, algunos modelos tienen un estante para
cubiertos.
El estante para cubiertos es adecuado para cubiertos y utensilios para cocinar y servir. Puede acomodar los
cubiertos y utensilios en forma aleatoria u ordenada en el estante para cubiertos.
Para una limpieza más efi caz, los utensilios o artículos muy sucios o con restos de alimentos adheridos deben
colocarse en la canasta para cubiertos inferior.
Cómo retirar el estante para cubiertos
Se puede retirar el estante para cubiertos completo si se necesita disponer de más espacio en el estante superior
para artículos voluminosos.
* Cuando cargue los cubiertos y utensilios en el estante para cubiertos, asegúrese de que no interfi eran con la
boquilla superior del estante. Si interfi eren, retire la rejilla para cubiertos y vuelva a intentarlo.
03 uso de la lavavajillas
DW7000KM-02025A-00_MES.indd Sec4:19 5/2/2016 7:17:18 PM

Español - 20
USO DEL DETERGENTE
Todos los ciclos de la lavavajillas requieren detergente en el compartimiento correspondiente.
Agregue la cantidad adecuada de detergente para el ciclo seleccionado para asegurar el mejor desempeño.
Use solamente detergente para lavavajillas. Los detergentes normales producen demasiada espuma, lo que puede
reducir el desempeño de la lavavajillas o causar su malfuncionamiento.
No ingiera detergente para lavavajillas. Evite inhalar las emanaciones. Los detergentes para lavavajillas contienen
productos químicos irritantes y cáusticos que pueden provocar trastornos respiratorios. Si ingirió detergente para
lavavajillas o inhaló sus emanaciones, procúrese atención médica inmediatamente.
Mantenga el detergente para lavavajillas fuera del alcance de los niños.
Llenado del dosifi cador de detergente
1. Abra la tapa del dosifi cador de detergente empujando su pestillo de
liberación.
La tapa siempre está abierta al fi nal del ciclo de lavado.
2. Agregue la cantidad recomendada de detergente en el compartimiento
del detergente de lavado principal.
3. Cierre la tapa deslizándola hacia la izquierda y presionándola.
4. Para obtener los mejores resultados, en especial con los artículos
muy sucios, vierta una pequeña cantidad (alrededor de 1/2 onza o 15
gramos) de detergente en la puerta.
El detergente adicional se activará durante la fase de prelavado
PRECAUCIÓN
ADVERTENCIA
ADVERTENCIA
uso de la lavavajillas
DW7000KM-02025A-00_MES.indd Sec4:20 5/2/2016 7:17:18 PM

Español - 21
La cubierta se abre automáticamente para dosifi car el detergente durante el lavado.
CICLO CANTIDAD DE DETERGENTE
Dosifi cador para el lavado principal En la puerta para el prelavado
Auto, Normal 3/4 oz (20 g) 1/3 oz (10 g)
Heavy (Muy sucio),
Express 60' (Rápido 60') 1 oz (30 g) 1/2 oz (15 g)
Delicate (Vajilla delicada) 3/4 oz (20 g) 1/5 oz (5 g)
Los números que se encuentran dentro del dosifi cador aluden a gramos.
Llenado del depósito de producto de enjuague
Cuando se enciende el indicador Rinse Refi ll (Reponer producto de enjuague) del panel de control, reponga el
producto para el enjuague.
La lavavajillas se ha diseñado para usar solo producto de enjuague líquido.
El uso de un producto en polvo puede obstruir la apertura del depósito y hacer que la lavavajillas no funcione
correctamente
El producto de enjuague mejora el desempeño del secado de la lavavajillas.
No agregue un detergente normal en el depósito del producto de enjuague.
1. Retire la tapa del depósito del producto de enjuague girándola en
sentido contrario al de las agujas del reloj.
2. Llene el depósito de producto para el enjuague.
Utilice el orifi cio de visualización al llenar el depósito de producto para
el enjuague.
No sobrepase el indicador de nivel lleno.
El exceso de producto de enjuague se puede derramar durante el
ciclo de lavado.
3. Gire el dial del indicador del producto de enjuague hasta un número
entre 1 y 6. Cuanto más alto es el número, más cantidad de producto
de enjuague utiliza la lavavajillas. Si no puede rotar el dial del producto
de enjuague fácilmente, inténtelo con una moneda.
4. Cierre la tapa del depósito de producto para el enjuague girándola en el sentido de las agujas del reloj.
PRECAUCIÓN
PRECAUCIÓN
03 uso de la lavavajillas
DW7000KM-02025A-00_MES.indd Sec4:21 5/2/2016 7:17:19 PM

Español - 22
limpieza y mantenimiento de la
lavavajillas
Mantener la lavavajillas limpia mejora su desempeño, reduce la cantidad de reparaciones
innecesarias y alarga su vida.
LIMPIEZA DEL EXTERIOR
Se recomienda limpiar los derrames en el exterior de la lavavajillas a medida que ocurran. Utilice un paño suave y húmedo
para limpiar suavemente todos los derrames y el polvo del panel de control. No utilice benceno, cera, diluyente, blanqueador a
base de cloro ni alcohol. Estos materiales pueden decolorar las paredes internas y ocasionar manchas. No debe rociarse agua
sobre la lavavajillas para limpiarla y debe evitarse que el agua entre en contacto con cualquiera de las partes eléctricas.
Si la lavavajillas posee un panel de acero inoxidable en la puerta, puede limpiarlo con un paño limpio y suave y un
limpiador para acero inoxidable de electrodomésticos o un producto semejante.
LIMPIEZA DEL INTERIOR
Limpie periódicamente el interior de la lavavajillas para eliminar las partículas de suciedad o comida. Limpie el interior de la
lavavajillas y la parte interior de la puerta con un repasador húmedo. Recomendamos que llene el dosifi cador con detergente
para platos y luego opere la lavavajillas vacía periódicamente usando el ciclo Normal o Express 60 (Rápido 60) con la opción
de desinfección. Esto mantendrá limpia su lavavajillas.
Si en la lavavajillas hay aún manchas blancas y olores, use el ciclo Normal con la lavavajillas vacía y sin detergente hasta que
se vacíe. Luego, interrumpa el ciclo y ponga una taza de 8 onzas de vinagre blanco en la canasta inferior. Cierre la lavavajillas y
deje terminar el ciclo.
No quite el sello frontal de la tina (el sello de goma largo que rodea la abertura de la lavavajillas).
LIMPIEZA DE LOS FILTROS (SERIE DW80K7050)
1. Apague la lavavajillas.
2. Rote el cartucho del fi ltro en sentido contrario al de las agujas del reloj para afl ojarlo
y luego retírelo.
3. Retire el fi ltro delgado (plano, rectangular).
PRECAUCIÓN
DW7000KM-02025A-00_MES.indd Sec5:22 5/2/2016 7:17:19 PM

Español - 23
4. Elimine el polvo y cualquier otro residuo de los fi ltros y enjuague estos con agua de
la llave.
5. Vuelva a ensamblar los fi ltros en el orden inverso al desensamble, reemplace el
cartucho del fi ltro y rote en el sentido de las agujas del reloj hasta la fl echa.
Si el cartucho del fi ltro no se inserta correctamente, el desempeño de
la limpieza se reduce.
LIMPIEZA DE LAS BOQUILLAS
Si la lavavajillas no limpia correctamente o las boquillas parecen estar obstruidas, puede limpiarlas en forma individual. Tenga
cuidado al retirar las boquillas, ya que pueden romperse.
Boquilla inferior
1. Verifi que que los orifi cios de la boquilla no estén
obstruidos con partículas de comida.
2. Si se necesita realizar la limpieza, empuje la
boquilla hacia arriba para retirarla.
3. Limpie la boquilla y vuelva a colocarla en su lugar.
4. Haga rotar manualmente la boquilla para verifi car
que haya quedado instalada correctamente.
PRECAUCIÓN
04 limpieza y mantenimiento
Serie DW80K5050
Serie DW80K7050
DW7000KM-02025A-00_MES.indd Sec5:23 5/2/2016 7:17:19 PM

Español - 24
Boquilla intermedia
1. Jale el estante superior hacia el frente y retírelo.
2. Verifi que que los orifi cios de la boquilla no estén
obstruidos con partículas de comida.
3. Si hace falta limpiar la boquilla, retírela.
4. Para hacerlo, afl oje y retire la tuerca y luego quite
la boquilla.
5. Limpie la boquilla, insértela nuevamente y ajuste la
tuerca.
6. Para ajustar la tuerca, gírela fi rmemente con la
mano.
7. Haga rotar manualmente la boquilla para verifi car
que haya quedado instalada correctamente.
Boquilla superior
1. Verifi que que los orifi cios de la boquilla no estén
obstruidos con partículas de comida.
2. Si hace falta limpiar la boquilla, retírela.
3. Para retirar la boquilla quite primero el estante
superior, afl oje la tapa de la boquilla girándola
en sentido contrario al de las agujas del reloj y
luego extraiga la boquilla.
4. Limpie la boquilla, insértela nuevamente y
ajuste la tapa de la boquilla girándola en el
sentido de las agujas del reloj.
5. Haga rotar manualmente la boquilla para
verifi car que haya quedado instalada
correctamente.
CÓMO GUARDAR LA LAVAVAJILLAS
Si necesita guardar su lavavajillas durante un período prolongado, primero drénela y desconéctela. Si queda agua en las
mangueras y los componentes internos se puede dañar la lavavajillas.
Después de drenar y desconectar la lavavajillas, asegúrese de cerrar la válvula de suministro de agua y de cortar el disyuntor.
limpieza y mantenimiento de la
lavavajillas
1
2
1
2
Tapa de la boquilla
Serie DW80K7050
Tapa de la boquilla
Serie DW80K5050
DW7000KM-02025A-00_MES.indd Sec5:24 5/2/2016 7:17:19 PM

Español - 25
ciclos
TABLA DE CICLOS
Serie DW80K7050
Ciclo Prelava-
do 1
Prelava-
do 2
Prelava-
do 3
Lavado prin-
cipal
Enjua-
gue 1
Enjua-
gue 2
Enjua-
gue 3
Último enjuague
[Desinfección] Secado Agua [gal(ℓ)] Tiempo
(min)
Auto zzz
z
z{{
z
z4.5-6.5
(16.9-24.7) 128-144
122-140 ˚F
(50-60 ˚C)
136-154 ˚F
(58-68 ˚C)
[163 ˚F (73 ˚C)]
Normal z {
z
z{{
z
z2.3-6.6
(9.0-25.1) 100-167
113-144 ˚F
(45-62 ˚C)
136-149 ˚F
(58-65 ˚C)
[163 ˚F (73 ˚C)]
Heavy
(Muy sucio) zzz
z
zzz
z
z7.7 (29.0) 163
149 ˚F (65 ˚C) 154 ˚F (68 ˚C)
[163 ˚F (73 ˚C)]
Delicate
(Vajilla delicada) z
z
z
z
z3.8 (14.3) 101
122 ˚F (50 ˚C) 149 ˚F (65 ˚C)
Express 60
(Rápido 60)
z
z
z
z3.0 (11.4) 60
122 ˚F (50 ˚C) 140 ˚F (60 ˚C)
[163 ˚F (73 ˚C)]
Rinse Only
(Solo enjuague)
z
1.1 (4.2) 14
104 ˚F
(40 ˚C)
( z: Básico, {: paso opcional)
Serie DW80K5050
Ciclo Prelava-
do 1
Prelava-
do 2
Prelava-
do 3
Lavado prin-
cipal
Enjua-
gue 1
Enjua-
gue 2
Enjua-
gue 3
Último enjuague
[Desinfección] Secado Agua [gal(ℓ)] Tiempo
(min)
Auto z {
z
z{{
z
z4.9-8.4
(18.4-31.9) 110-149
131-145 ˚F
(55-63 ˚C)
136-154 ˚F
(58-68 ˚C)
[163 ˚F (73 ˚C)]
Normal z {
z
z{{
z
z3.1-7.2
(11.7-27.2) 103-170
113-145 ˚F
(45-63 ˚C)
131-149 ˚F
(55-65 ˚C)
[163 ˚F (73 ˚C)]
Heavy
(Muy sucio) z z
z
zzz
z
z8.7 (33.1) 166
149 ˚F (65 ˚C) 154 ˚F (68 ˚C)
[163 ˚F (73 ˚C)]
Delicate
(Vajilla delicada) z
z
z
z
z5.0 (19.0) 103
122 ˚F (50 ˚C) 149 ˚F (65 ˚C)
Express 60
(Rápido 60)
z
z
z
z3.8 (14.3) 60
122 ˚F (50 ˚C) 140 ˚F (60 ˚C)
[163 ˚F (73 ˚C)]
Rinse Only (Solo
enjuague)
z
1.3 (4.9) 17
104 ˚F
(40 ˚C)
( z: Básico, {: paso opcional)
05 ciclos
DW7000KM-02025A-00_MES.indd Sec6:25 5/2/2016 7:17:20 PM

Español - 26
• Los números que se encuentran entre paréntesis en la columna Último enjuague representan la temperatura cuando está
seleccionada la opción Sanitize (Desinfección).
• Cuando selecciona el ciclo Auto o Normal, puede eliminar los pasos opcionales según el nivel de suciedad de la vajilla.
• El consumo de agua y el tiempo de lavado depende de los pasos o las opciones que agregue, y de la presión y la
temperatura del agua suministrada.
• Cuando selecciona otras opciones, la duración del ciclo puede variar.
• Cuando falta producto de enjuague, el tiempo de lavado y la temperatura del último enjuague se pueden incrementar un
poco.
ciclos
DW7000KM-02025A-00_MES.indd Sec6:26 5/2/2016 7:17:20 PM

Español - 27
solución de problemas
CONTROLE ESTOS PUNTOS SI SU LAVAVAJILLAS…
PROBLEMA CAUSA POSIBLE SOLUCIÓN
No enciende.
La puerta no está completamente cerrada. Verifi que que la puerta esté trabada y completamente
cerrada.
No se ha seleccionado ningún ciclo. Seleccione un ciclo adecuado.
El cable de alimentación no está conectado. Conecte el cable de alimentación adecuadamente.
No funciona el suministro de agua. Verifi que que la válvula de suministro de agua esté
abierta.
El panel de control está bloqueado. Desactive el bloqueo para niños (consulte la página
8).
Un disyuntor está abierto. Reinicie el disyuntor.
Tarda demasiado tiempo
con una operación o un
ciclo.
Se suministra agua fría. Verifi que que el conducto esté conectado al
suministro de agua caliente.
(Se requiere más tiempo para calentar el agua fría).
La vajilla presenta
partículas de comida.
(La limpieza no es
adecuada).
Seleccionó un ciclo
Normal (Normal).
Seleccione un ciclo de acuerdo con la cantidad de
vajilla y su nivel de suciedad, tal como lo indica este
manual.
La temperatura del agua es baja. Conecte la tubería de suministro de agua a la llave del
agua caliente.
Para obtener el mejor desempeño, la temperatura del
agua suministrada debe ser de 120 ˚F (49 ˚C).
Presión de agua baja. La presión del agua debe estar entre 20 y 120 psi
(140 - 830 kPa).
El agua es demasiado dura. Utilice un detergente fresco, de alta calidad, con
producto de enjuague.
No se usó detergente para lavavajillas. Utilice detergente para lavavajillas automático.
Recomendamos un detergente para lavavajillas en
polvo o en gel.
Quedan restos de detergente en el
dosifi cador.
Asegúrese de que los artículos grandes, como
láminas para hornear galletas, tablas para cortar,
recipientes, etc. no bloqueen el dosifi cador de
detergente o impidan que se abra adecuadamente.
Reacomode la vajilla de manera que no interfi era con
el funcionamiento del dosifi cador del detergente.
No hay producto de enjuague. Verifi que el dosifi cador y agregue agente de enjuague.
Utilice un agente de enjuague líquido.
Hay una boquilla obstruida. Limpie la boquilla. Consulte la página 23.
La vajilla no se cargó correctamente.
Se cargó demasiada vajilla.
Reacomode la vajilla de manera que no interfi era con
la rotación de la boquilla ni con el funcionamiento del
dosifi cador del detergente.
Cargue solamente la cantidad adecuada de platos.
Cargue la vajilla según las recomendaciones.
(Consulte la página 16.)
06 solución de problemas
DW7000KM-02025A-00_MES.indd Sec7:27 5/2/2016 7:17:20 PM

Español - 28
PROBLEMA CAUSA POSIBLE SOLUCIÓN
Deja las copas con poco
brillo.
El agua suministrada es blanda y se ha
usado demasiado detergente.
Disminuya la carga de la lavavajillas y utilice un agente
de enjuague para minimizar esto.
La carga incluye vajilla de aluminio. Elimine las marcas de la vajilla con un limpiador de
baja sensibilidad.
Deja una película amarilla
o marrón en el interior de
la lavavajillas.
Esto es debido a restos de café
o té.
Elimine esta suciedad con un limpiador de manchas.
Los platos no se secan
bien.
No hay producto de enjuague en el
dosifi cador.
Verifi que el dosifi cador y agregue agente de enjuague.
Use un producto líquido para el enjuague.
Cuando la lavavajillas está funcionando, la
temperatura del agua es baja.
Conecte la tubería de suministro de agua a la llave del
agua caliente.
Utilice producto de enjuague con la opción Sanitize
(Desinfección).
Se cargó demasiada vajilla. La carga inadecuada de los elementos puede afectar
el secado.
Cargue la vajilla según las recomendaciones.
(Consulte la página 16.)
Los vasos y las copas cóncavos retienen
agua. El agua puede derramarse sobre otros
objetos al sacarlos.
Luego de fi nalizar el ciclo, vacíe primero el estante
inferior y luego el superior. Esto evitará que el agua
del estante superior gotee sobre la vajilla del estante
inferior.
El modo de secado AutoRelease™ no está
en uso.
Active el modo de secado AutoRelease™. (Consulte
la página 12.)
Tiene mal olor.
Quedó agua después de un ciclo
incompleto.
Coloque detergente, sin cargar vajilla, y haga
funcionar el ciclo Normal (Normal) para limpiar la
lavavajillas.
La manguera de desagüe está obstruida. Comuníquese con un técnico de servicio califi cado
para eliminar cualquier obstrucción de la manguera
de drenaje.
No usa la lavavajillas cada día o deja vajilla
sucia en la unidad demasiado tiempo.
Con la lavavajillas vacía y sin detergente, coloque un
vaso con 8
onzas de vinagre boca arriba en el estante inferior y
ejecute el ciclo
Normal (Normal).
Hace demasiado ruido.
Cuando la cubierta del dosifi cador está
abierta y el funcionamiento de la bomba de
desagüe está en las primeras etapas, se
genera ruido.
Este funcionamiento es normal.
La lavavajillas no está nivelada. Asegúrese de que la lavavajillas esté nivelada.
Hay materiales extraños (un tornillo, una
pieza de plástico) en la cámara de la bomba.
Comuníquese con un técnico de servicio califi cado
para eliminar cualquier material extraño de la cámara
de la bomba.
Se escucha un "golpeteo" porque una
boquilla golpea contra la vajilla.
Reacomode la vajilla.
solución de problemas
DW7000KM-02025A-00_MES.indd Sec7:28 5/2/2016 7:17:20 PM

Español - 29
PROBLEMA CAUSA POSIBLE SOLUCIÓN
La boquilla no gira
fácilmente.
El agujero de la boquilla está obstruido con
partículas de comida.
Limpie el orifi cio de la boquilla. Consulte la página
23.
Un plato o una olla bloquean la boquilla y
esta no puede girar.
Después de colocar los platos en los estantes, gire
las boquillas de forma manual para verifi car si alguno
de los platos interfi ere con ellas.
No se vacía el agua de la
lavavajillas.
El drenaje se obstruyó. Comuníquese con un técnico califi cado para retirar
cualquier obstrucción de la manguera de desagüe y
revise el funcionamiento de la bomba de drenaje.
Presenta su estante
superior doblado luego
de cargar la vajilla.
Se cargó incorrectamente la vajilla. Cargue la vajilla según las recomendaciones.
(Consulte la página 16.)
No se puede cerrar la
puerta.
El modo de secado AutoRelease™ está
en uso.
Cuando la puerta se abre en el modo de secado
AutoRelease™, no se puede cerrar manualmente
durante los 2 minutos siguientes. Puede cerrar la
puerta después de 2 minutos.
06 solución de problemas
DW7000KM-02025A-00_MES.indd Sec7:29 5/2/2016 7:17:20 PM

Español - 30
CÓDIGOS DE INFORMACIÓN
El panel de control muestra códigos de información para ayudarle a comprender mejor qué ocurre con la lavavajillas.
Código Acción
OC
Control de nivel alto de agua
•
Control funcional. Cierre la válvula de suministro de agua, vaya al panel del
disyuntor de su casa, desconecte el disyuntor de la lavavajillas y contacte a un
servicio técnico de Samsung
autorizado.
LC
Verifi cación de fugas
•
Si se producen fugas desde la conexión de la válvula de suministro de agua,
cierre la válvula y vaya al panel del disyuntor de su casa, apague el disyuntor
de la lavavajillas y, luego, comuníquese con el instalador para que realice la
reparación.
Si el problema continúa, contacte a un centro de servicio técnico de Samsung autorizado.
4C
Control de suministro de agua
•
Verifi que si la válvula de suministro de agua está cerrada, si se ha suspendido
el suministro de agua o si el conducto o la válvula de entrada de agua están
congelados u obstruidos.
Si el problema continúa, cierre la válvula del suministro de agua y contacte a un servicio
técnico de Samsung autorizado.
5C
Verifi cación del drenaje
• Luego de cerrar la válvula de suministro de agua, revise si la manguera de desagüe está
obstruida o doblada. Además, verifi que si el colector interno está obstruido.
Si el problema continúa, comuníquese con un centro de servicio autorizado de Samsung.
HC
Control de calentamiento de temperatura alta
• El producto asegura que la temperatura del conducto de agua caliente no sea demasiado
elevada y automáticamente ajusta la temperatura adecuada (120 ˚F (49 ˚C) - 149 ˚F (65 ˚C)).
Si el problema continúa, vaya al panel del disyuntor de su casa, desconecte el disyuntor de la
lavavajillas y contacte a un servicio técnico de Samsung autorizado.
3C
Control del funcionamiento de la bomba
• Control funcional. Apague la lavavajillas y enciéndala nuevamente.
Si el problema continúa, contacte a un centro de servicio técnico de Samsung autorizado.
Para los códigos que no fi guran más arriba, llame al 1-800-SAMSUNG (726-7864).
solución de problemas
DW7000KM-02025A-00_MES.indd Sec7:30 5/2/2016 7:17:20 PM

Español - 31
apéndice
AYUDA AL MEDIO AMBIENTE
• Esta lavavajillas se fabrica con materiales reciclables. Si decide deshacerse de ella, siga la normativa local relacionada
con la eliminación de desechos. Corte el cable de alimentación para que el aparato no pueda conectarse a una fuente de
alimentación.
• Quite la puerta para que los animales y los niños pequeños no puedan quedar atrapados dentro del electrodoméstico.
• No utilice cantidades de detergente superiores a las recomendadas por el fabricante del detergente.
ESPECIFICACIONES
Modelo DW80K7050**,DW80K5050**
Tipo Lavavajillas integrable Capacidad de lavado 15 puestos
Alimentación 120 V~ / 60 Hz solamente,
disyuntor 15 A Presión de agua utilizada 20 - 120 psi
(140 - 830 kPa)
Uso de potencia nominal Motor de lavado Serie DW80K7050: 60 ~ 100W
Serie DW80K5050: 150 ~ 190 W
Calentador 1100 W
Dimensiones
(Ancho × Profundidad × Altura) 23
7
⁄
8
x 24¾ x 33
7
⁄
8
pulgadas (605 x 627 x 860 mm)
Peso Sin empaque Serie DW80K7050: 92 lb (42.6 kg)
Serie DW80K5050: 99.2 lb (45 kg)
07 apéndice
DW7000KM-02025A-00_MES.indd Sec8:31 5/2/2016 7:17:20 PM

Español - 32
garantía
LAVAVAJILLAS SAMSUNG
GARANTÍA LIMITADA PARA EL COMPRADOR ORIGINAL
El presente producto de la marca SAMSUNG, tal como lo provee y distribuye SAMSUNG ELECTRONICS AMERICA, INC./
CANADÁ: SAMSUNG ELECTRONICS CANADA, INC. (SAMSUNG) y lo entrega como nuevo, en su empaque de cartón
original al comprador o consumidor original, está garantizado por SAMSUNG contra defectos de fabricación de los materiales
y la mano de obra durante el período limitado de la garantía de:
un (1) año para todas las piezas y la mano de obra, cinco (5) años para la placa de circuito impreso, los estantes (los gastos
de mano de obra del servicio técnico a domicilio a partir del segundo año correrán por cuenta del cliente), y toda la vida para
el revestimiento inoxidable de la puerta y la tina de acero inoxidable con respecto a pérdidas. Samsung reemplazará la unidad
por un mismo modelo o actual (es decir mejor o equivalente en prestaciones) (La mano de obra necesaria para la sustitución
correrá a cargo del cliente).
La presente garantía limitada comienza en la fecha original de compra y es válida únicamente para productos comprados y
usados en los Estados Unidos/Canadá. Para recibir el servicio técnico de la garantía, el comprador debe comunicarse con
SAMSUNG con el fi n de que se determine el problema y los procedimientos del servicio. El servicio técnico de la garantía
solo puede ser prestado por un centro de servicio técnico autorizado de SAMSUNG. Se debe presentar la factura de compra
original como prueba de compra a SAMSUNG o al servicio técnico autorizado de SAMSUNG. SAMSUNG prestará servicio
técnico a domicilio durante el período de la garantía sin costo, sujeto a la disponibilidad dentro de los Estados Unidos/Canadá
contiguos. El servicio técnico a domicilio no está disponible en todas las áreas.
Para recibir el servicio técnico a domicilio, el producto no debe presentar obstrucciones y debe ser accesible para el agente
del servicio técnico. Si el servicio técnico no está disponible, SAMSUNG puede optar por transportar el producto hasta y
desde el servicio técnico autorizado.
SAMSUNG reparará, reemplazará el producto u ofrecerá un reembolso a nuestra discreción y sin cargo adicional, tal como se
establece en la presente garantía, con piezas o productos nuevos o reacondicionados si se comprueba que es defectuoso
durante el período limitado de la garantía especifi cado anteriormente. Todas las piezas y los productos reemplazados pasan
a ser propiedad de SAMSUNG y deben ser devueltos a SAMSUNG. Las piezas y los productos reemplazados asumen la
garantía original que resta, o noventa (90) días, el período que sea el más prolongado.
La presente garantía limitada cubre defectos de fabricación de los materiales y la mano de obra encontrados durante el
uso normal y doméstico de este producto y no será válida para lo siguiente: daños que ocurran durante el envío; entrega
e instalación; aplicaciones y usos para los cuales el presente producto no fue destinado; producto o números de serie
alterados; daño cosmético o acabado exterior; accidentes, abuso, descuido, incendio, inundación, caída de rayos, u otros
casos fortuitos o de fuerza mayor; uso de productos, equipo, sistemas, utilidades, servicios, piezas, suministros, accesorios,
aplicaciones, instalaciones, reparaciones, cableado externo o conectores no provistos ni autorizados por SAMSUNG
que dañen este producto o que acarreen problemas en el servicio; voltaje de la línea eléctrica incorrecto, fl uctuaciones
y sobretensión; ajustes del cliente e incumplimiento de lo establecido en el manual de instrucciones, instrucciones de
mantenimiento y ambientales que están cubiertas y recomendadas en el manual de instrucciones; traslado y reinstalación
del producto; problemas causados por plagas. La presente garantía limitada no cubre problemas derivados de la corriente,
el voltaje o el suministro eléctrico incorrectos, las bombillas de luz, los fusibles de la casa, el cableado de la casa, el costo
del servicio técnico para recibir instrucciones o corregir errores en la instalación. SAMSUNG no garantiza el funcionamiento
ininterrumpido o sin errores del producto.
DW7000KM-02025A-00_MES.indd Sec10:32 5/2/2016 7:17:20 PM

Español - 33
SALVO LO ESTABLECIDO EN LA PRESENTE GARANTÍA, NO EXISTEN GARANTÍAS SOBRE EL PRESENTE PRODUCTO,
YA SEAN EXPRESAS O TÁCITAS, Y SAMSUNG DESCONOCE TODAS LAS GARANTÍAS QUE INCLUYEN, AUNQUE NO
EN CARÁCTER TAXATIVO, CUALQUIER GARANTÍA TÁCITA DE QUE EL PRODUCTO SE ENCUENTRA EN CONDICIONES
APTAS PARA LA VENTA, DE DEFRAUDACIÓN DE DERECHOS O DE QUE EL PRODUCTO SE ADECUA A LOS FINES
ESPECÍFICOS PARA LOS CUALES SE ADQUIERE. NINGÚN AVAL O GARANTÍA OTORGADOS POR PERSONA, COMPAÑÍA
O CORPORACIÓN ALGUNA CON RESPECTO AL PRESENTE PRODUCTO REVESTIRÁ CARÁCTER VINCULANTE PARA
SAMSUNG. SAMSUNG NO SERÁ RESPONSABLE POR PÉRDIDA DE INGRESOS O LUCRO CESANTE, IMPOSIBILIDAD
DE GENERAR AHORROS U OBTENER OTROS BENEFICIOS, O CUALQUIER DAÑO DERIVADO DE CIRCUNSTANCIAS
ESPECIALES, DAÑO IMPREVISTO O DERIVADO CAUSADO POR EL USO, USO INCORRECTO, O INCAPACIDAD PARA
USAR EL PRESENTE PRODUCTO, INDEPENDIENTEMENTE DE LA TEORÍA LEGAL EN QUE SE FUNDE EL RECLAMO Y
AUN CUANDO SE LE HAYA NOTIFICADO A SAMSUNG DE LA POSIBILIDAD DE TALES DAÑOS.
NINGÚN RESARCIMIENTO DE NINGUNA ÍNDOLE CONTRA SAMSUNG SUPERARÁ EL MONTO DEL PRECIO DE COMPRA
DEL PRODUCTO VENDIDO POR SAMSUNG Y CAUSANTE DEL PRESUNTO DAÑO.
SIN LIMITAR LO PRECEDENTE, EL COMPRADOR ASUME TODO EL RIESGO Y LA RESPONSABILIDAD POR PÉRDIDA,
DAÑO O LESIÓN AL COMPRADOR Y A LOS BIENES DEL COMPRADOR Y A TERCEROS Y A SUS BIENES DERIVADOS
DEL USO, USO INCORRECTO O INCAPACIDAD PARA USAR EL PRESENTE PRODUCTO. LA PRESENTE GARANTÍA
LIMITADA NO SE EXTENDERÁ A NINGUNA PERSONA DISTINTA DEL COMPRADOR ORIGINAL DEL PRESENTE
PRODUCTO, ES INTRANSFERIBLE Y ESTABLECE SU EXCLUSIVA REPARACIÓN.
Algunos Estados no permiten limitaciones en cuanto al plazo de una garantía implícita, o la exclusión o limitación de daños
imprevistos o derivados, por lo tanto las limitaciones o exclusiones antedichas pueden no aplicarse en su caso. Esta garantía
le otorga derechos específi cos, y además puede tener otros derechos que varían según el Estado en el que se encuentre.
Para recibir un servicio técnico de garantía, comuníquese con SAMSUNG a:
En EE.UU.
Samsung Electronics America, Inc.
85 Challenger Road Ridgefi eld Park, NJ 07660
1-800-SAMSUNG(726-7864)
www.samsung.com/us/support
En CANADÁ
Samsung Electronics Canada Inc.
2050 Derry Road West, Mississauga, Ontario L5N 0B9 Canada
1-800-SAMSUNG(726-7864)
www.samsung.com/ca/support (English)
www.samsung.com/ca_fr/support (French)
DW7000KM-02025A-00_MES.indd Sec10:33 5/2/2016 7:17:20 PM

notas
DW7000KM-02025A-00_MES.indd Sec10:34 5/2/2016 7:17:20 PM

notas
DW7000KM-02025A-00_MES.indd Sec10:35 5/2/2016 7:17:20 PM

¿Tiene alguna pregunta o algún comentario?
PAÍS LLAME AL O VISÍTENOS EN LÍNEA EN
U.S.A 1-800-SAMSUNG (726-7864) www.samsung.com/us/support
CANADA 1-800-SAMSUNG (726-7864) www.samsung.com/ca/support (English)
www.samsung.com/ca_fr/support (French)
DD81-02025A-00
bit.ly/samsungdishwashers
DW7000KM-02025A-00_MES.indd Sec10:36 5/2/2016 7:17:20 PM