Sanyo C3082 Users Manual SM859_I_KS3082_BA
C3082 to the manual 01bf21db-5c6a-41ec-b8d3-5fb26f9d7495
2015-01-26
: Sanyo Sanyo-C3082-Users-Manual-336080 sanyo-c3082-users-manual-336080 sanyo pdf
Open the PDF directly: View PDF
.
Page Count: 104 [warning: Documents this large are best viewed by clicking the View PDF Link!]

IMPORTANT
These air conditioners employ new
refrigerant R410A.
Pay special attention when
servicing the unit.
TECHNICAL & SERVICE MANUAL
KS3082 + C3082
KS3682 + C3682
DC INVERTER SPLIT SYSTEM AIR CONDITIONER
Destination: North America
Outdoor Model No.
C3082
C3682
Product Code No.
1 852 354 34
1 852 354 35
Indoor Unit Outdoor Unit
KS3082
KS3682
C3082
C3682
Indoor Model No.
KS3082
KS3682
Product Code No.
1 852 354 30
1 852 354 31
REFERENCE NO. SM700859
FILE NO.

• Before doing repair work, please read the " SAFETY PRECAUTIONS" carefully and fully understand them.
• The precautionary items here are divided into " Warning" and " Caution" items.
Items in particular which may cause death or serious injury to the service personnel if the work is not performed correctly,
are included in the " Warning" table.
However, even precautionary items identified as " Caution" also have the potential for serious consequences
if not performed correctly.
Important safety precautions are described for all items in both categories. Be sure to carefully follow all of them.
• Symbol Indication
:This symbol indicates items to which we need to pay attention.
In this triangle, a definite precautionary item is described.
:This symbol indicates the item to be prohibited.
In or close to this circle, a prohibited item is described.
:This symbol indicates the items requiring special attention or instruction.
In or close to this circle, a prohibited item is described.
• After doing repair work, perform a test run to confirm that there are no abnormalities.
At the same time, explain the precautions in use to the user.
SAFETY PRECAUTIONS
Warning
Before performing an overhaul, disconnect the power plug or power cable from the unit.
Performing the work with the power supplied to the unit, may cause an electric shock.
When repair work or circuit inspection that requires power supply for the air conditioner, is to be performed,
do not touch the charging section.
Doing so may cause an electric shock.
For the step-up capacitor attached to the electric section, perform the repair work after sufficiently discharging it.
Insufficient capacitor discharge may cause an electric shock.
Do not perform repair work on the electric sections with wet hands.
Doing so may cause an electric shock.
Do not start or stop the air conditioner by means of connecting or disconnecting the power plug.
Doing so may cause an electric shock or fire.
When conducting repair work only use components included in the parts list for the corresponding unit and perform
the work with the appropriate tools.
Incorrect or poor repair work may cause an electric shock or fire.
Never modify the unit.
Doing so may cause an electric shock or fire.
Perform all electric work according to local applicable regulations related to electrical equipment or interior wiring
regulation and make sure to use the exclusive circuit.
Insufficient capacity to the electric circuit or defective arrangement results may cause an electric shock or fire.
Make sure to replace any power cable or lead wire showing any signs of scratch or deterioration.
Failure to do so may cause an electric shock, overheating or fire.
Make sure that there is no dust on or slack in the power plug and insert fully into the socket.
Dust or incomplete connections may cause an electric shock or fire.
Do not damage or process the power cord, as it may cause an electric shock or fire.
For the wiring between the indoor unit and outdoor unit, securely fix the specified cable onto the terminal plate.
Poorly fixed wiring may cause a heat or fire.
After connecting the wiring between the indoor unit and outdoor unit, attach the terminal cover securely.
Incomplete attachment of the terminal cover may cause overheating or fire.
Prohibit
Prohibit
Prohibit
Prohibit
Prohibit
2

Warning
If refrigerant gas blows off during the work, do not touch the refrigerant gas as it may cause frostbite.
If refrigerant gas leaks during the work, ventilate the room.
If refrigerant gas catches fire, harmful gas may be generated.
Do not mix any gas other than the specified refrigerant gas in the refrigerating cycle.
If air or other contaminants mix with the gas, pressure will become extremely high in the refrigerating cycle,
which may cause a unit breakdown."
When the welded section of the compressor intake or discharge pipe is to be disconnected, perform it in
a well-ventilated place after sufficiently recovering the refrigerant gas.
Any residue gas may jet out refrigerant or refrigerating machine oil, which may cause an injury.
When the work is to be performed in a high place (About 2 meters or more), make sure to wear a safety helmet,
gloves and safety belt. Insufficient safety gear may cause a serious injury in case of a fall.
When the unit is to be relocated, confirm that the new installation location has sufficient strength for the weight of the unit.
Insufficient strength of the installation location and incomplete installation work may cause an injury due to
the unit falling.
When the remote controller batteries are replaced, dispose of the old batteries out of the reach of children.
If a child swallows a battery, make sure that the child gets immediate medical attention.
Caution
Do not wash the air conditioner with water, as this may cause an electric shock or fire.
For the repair work in places with high humidity or moisture, make sure to ground the unit.
Failure to do so may cause an electric shock.
Confirm that the component attachment position, wiring condition, soldering condition and connector connection
are normal.
If not, it may cause overheating or fire.
Confirm that the temperature around the compressor is not too high, and then perform the repair work.
Failure to do so may cause a burn.
Perform welding work in a place with good ventilation.
If the work is performed in a poorly ventilated area, it might cause a lack of oxygen.
If the installation plate or attachment frame has deteriorated due to corrosion, etc., replace it.
Failure to do so may cause an injury due to the unit falling.
When the cleaning is to be performed, make sure to turn off the power and pull out the plug.
Touching the fan that is rotating at high speed may result in an injury.
When the indoor unit is to be removed, do not place it on an incline.
Doing so may cause wet furniture because water left inside may trickle down.
Do not hold the sharp end of the unit or the aluminum fins, as it may cause an injury to your hand or finger.
After repairs, make sure to measure the insulation resistance and confirm that the value is 1 Mohm or more.
Any insulation error may cause an electric shock.
After repairs, make sure to check the drainage of the indoor unit.
Inappropriate drainage may cause wet furniture and floors due to water leakage.
Prohibit
Prohibit
Prohibit
Prohibit
Prohibit
3

Table of Contents
SAFETY PRECAUTIONS
TABLE OF CONTENTS
1. OPERATING RANGE
2. SPECIFICATIONS
2-1.Unit Specifications
2-2.Major Component Specifications
2-3.Other Component Specifications
3. DIMENSIONAL DATA
4. REFRIGERANT FLOW DIAGRAM
4-1.Refrigerant Flow Diagram
5. PERFORMANCE DATA
5-1.Temperature Charts
5-2.Cooling Capacity
5-3.Air Throw Distance Charts
6. ELECTRICAL DATA
6-1. Electrical Characteristics
6-2. Electric Wiring Diagrams
7. FUNCTIONS
7-1.Operation Functions
7-2.Protective Functions
8. TROUBLESHOOTING
8-1.Precautions before Performing Inspection or Repair
8-2.Method of Self-Diagnostics
8-3.Checking the Indoor and Outdoor Units
8-4.Trouble Diagnosis of Fan Motor
8-5.Noise Malfunction and Electromagnetic Interference
2
4
6
7
11
15
16
18
19
21
25
27
29
31
35
36
36
39
43
45
..............................................................................................................
.....................................................................................................................
...................................................................................................................
.............................................................................................................
.......................................................................................
.......................................................................................
.....................................................................................................................
...................................................................................................
............................................................................................................
................................................................................................................
.................................................................................................
....................................................................................................
....................................................................................................
...........................................................................................................
...........................................................................................................
...........................................................
.................................................................................................
..............................................................................
...........................................................................................
..........................................................
Page
4

9. CHECKING ELECTRICAL COMPONENTS
9-1.Measurement of Insulation Resistance
9-2.Checking Continuity of Fuse on PCB Ass'y
10. REFRIGERANT R410A:
SPECIAL PRECAUTIONS WHEN SERVICING UNIT
10-1.Characteristics of New Refrigerant R410A
10-2.Checklist before Servicing
10-3.Tools Specifically for R410A
10-4.Tubing Installation Procedures
10-5.In Case of Compressor Malfunction
10-6.In Case Refrigerant is Leaking
10-7.Charging Additional Refrigerant
10-8.Retro-Fitting Existing Systems
APPENDIX A INSTRUCTION MANUAL
APPENDIX B INSTALLAION INSTRUCTIONS
46
47
48
49
50
50
51
53
54
54
A-1
A-2
...............................................................................
.........................................................................
.........................................................................
...................................................................................................
................................................................................................
............................................................................................
....................................................................................
............................................................................................
..........................................................................................
............................................................................................
..........................................................................................
...............................................................................
Page
5

95 °F D.B. / 71 °F W.B.
67 °F D.B. / 57 °F W.B.
1. OPERATING RANGE
Maximum
Minimum
115 °F D.B.
0 °F D.B.
Temperature Indoor Air Intake Temp. Outdoor Air Intake Temp.
Cooling
6

2. SPECIFICATIONS
2-1. Unit Specifications
Indoor Unit KS3082
Outdoor Unit C3082 < 230V >
DATA SUBJECT TO CHANGE WITHOUT NOTICE.
Remarks: Rating conditions are:
Cooling: Indoor air temperature 80°F D.B. / 67°F W.B.
Outdoor air temperature 95°F D.B. / 75°F W.B.
Vertical
dB-A
dB-A
Indoor : Hi/Me/Lo/Qt*
Outdoor : Hi
Air Filter
Compressor
Refrigerant / Amount charged at shipment Ibs (g)
Refrigerant Control
16.5
3,290
( 5.0 to 16.5 )
( 1,000 to 3,290 )
30,600
9.0
( 10,900 to 30,600 )
( 3.2 to 9.0 )
Shipping Volume
Cooling
18,600
12,000
Net
Shipping
Package Dimensions
Weight
Height × Width × Depth
Height × Width × Depth
Ibs (kg)
Ibs (kg)
cu.ft (m3)
(mm)
inch
(mm)
230V Single-Phase 60Hz
inch
187 to 253
Dimensions & Weight
(*Qt = Quiet mode)
Refrigerant Tubing Connections
Unit Dimensions
Operation Sound
Electrical Rating
Sensible Capacity
Latent Capacity
WPower Input
V
A
Available Voltage Range
Running Amperes
Refrigerant Tube Kit / Accessories
Narrow tube
Wide tube
Refrigerant inch (mm)
Tube Diameter inch (mm)
32.0
39.7
4.59
(14.5)
(18.0)
(0.13)
183.0
205.0
15.88
(83.0)
(93.0)
(0.45)
42-3/8 × 40 × 16-3/8
(1,076 × 1,016 × 416)
(300 × 1,065 × 230) (910 × 940 × 340)
12-7/32 × 44-7/8 × 14-31/32
(310 × 1,140 × 380)
Outdoor UnitIndoor Unit
11-13/16 × 41-15/16 × 9-1/16 35-13/16 × 37-1/32 × 13-3/8
3/8 (9.52)
5/8 (15.88)
ft (m)Max. allowable tubing length at shipment
Flare Type
164 (50)
49 / 44 / 39 / 32
55
R410A / 6.5 (2,950)
Electric Expansion Valve
Washable, Anti-Mold
DC Twin Rotary (Inverter)
Manual
Auto
Timer
Indoor / OutdoorFan Speeds
24-Hour ON or OFF Timer, 1-Hour OFF Timer
Auto and 3 steps / Auto (Hi, Me, Lo)
Airflow Direction (Indoor) Horizontal
Controls / Temperature Control
Control Unit
Microprocessor / I.C. Thermister
Wireless Remote Control Unit
Features
Compressor Locked Rotor Amperes
Optional / Air Clean Filter
BTU/h
Performance
%Power Factor 87
A 31.0
Voltage Rating
BTU/h
kW
Total Capacity
BTU/h
SEER BTU/Wh 16.0
630 (1,070)Air Circulation (High) ft3/min (m3/h)
9.57Moisture Removal (High) Pints/h
EER BTU/h/W 9.30
Fuse or Circuit Breaker Capacity A35
7

Indoor Unit KS3082
Outdoor Unit C3082 < 208V >
DATA SUBJECT TO CHANGE WITHOUT NOTICE.
Remarks: Rating conditions are:
Cooling: Indoor air temperature 80°F D.B. / 67°F W.B.
Outdoor air temperature 95°F D.B. / 75°F W.B.
Vertical
dB-A
dB-A
Indoor : Hi/Me/Lo/Qt*
Outdoor : Hi
Air Filter
Compressor
Refrigerant / Amount charged at shipment Ibs (g)
Refrigerant Control
Shipping Volume
Net
Shipping
Package Dimensions
Weight
Height × Width × Depth
Height × Width × Depth
Ibs (kg)
Ibs (kg)
cu.ft (m3)
(mm)
inch
(mm)
208V Single-Phase 60Hz
inch
Dimensions & Weight
(*Qt = Quiet mode)
Refrigerant Tubing Connections
Unit Dimensions
Operation Sound
Electrical Rating
Sensible Capacity
Latent Capacity
WPower Input
V
A
Available Voltage Range
Running Amperes
Refrigerant Tube Kit / Accessories
Narrow tube
Wide tube
Refrigerant inch (mm)
Tube Diameter inch (mm)
ft (m)Max. allowable tubing length at shipment
Timer
Indoor / OutdoorFan Speeds
Airflow Direction (Indoor) Horizontal
Controls / Temperature Control
Control Unit
Features
Compressor Locked Rotor Amperes
BTU/h
Performance
%Power Factor
A
Voltage Rating
BTU/h
kW
Total Capacity
BTU/h
SEER BTU/Wh
Air Circulation (High) ft3/min (m3/h)
Moisture Removal (High) Pints/h
EER BTU/h/W
Fuse or Circuit Breaker Capacity A
18.0
3,290
( 5.0 to 18.0 )
( 1,000 to 3,290 )
30,600
9.0
( 10,900 to 30,600 )
( 3.2 to 9.0 )
Cooling
18,600
12,000
187 to 253
32.0
39.7
4.59
(14.5)
(18.0)
(0.13)
183.0
205.0
15.88
(83.0)
(93.0)
(0.45)
(300 × 1,065 × 230) (910 × 940 × 340)
Outdoor UnitIndoor Unit
11-13/16 × 41-15/16 × 9-1/16 35-13/16 × 37-1/32 × 13-3/8
3/8 (9.52)
5/8 (15.88)
Flare Type
164 (50)
49 / 44 / 39 / 32
55
R410A / 6.5 (2,950)
Electric Expansion Valve
Washable, Anti-Mold
DC Twin Rotary (Inverter)
Manual
Auto
24-Hour ON or OFF Timer, 1-Hour OFF Timer
Auto and 3 steps / Auto (Hi, Me, Lo)
Microprocessor / I.C. Thermister
Wireless Remote Control Unit
Optional / Air Clean Filter
88
31.0
16.0
630 (1,070)
9.57
9.30
35
42-3/8 × 40 × 16-3/8
(1,076 × 1,016 × 416)
12-7/32 × 44-7/8 × 14-31/32
(310 × 1,140 × 380)
8

Indoor Unit KS3682
Outdoor Unit C3682 < 230V >
DATA SUBJECT TO CHANGE WITHOUT NOTICE.
Remarks: Rating conditions are:
Cooling: Indoor air temperature 80°F D.B. / 67°F W.B.
Outdoor air temperature 95°F D.B. / 75°F W.B.
Vertical
dB-A
dB-A
Indoor : Hi/Me/Lo/Qt*
Outdoor : Hi
Air Filter
Compressor
Refrigerant / Amount charged at shipment Ibs (g)
Refrigerant Control
Shipping Volume
Net
Shipping
Package Dimensions
Weight
Height × Width × Depth
Height × Width × Depth
Ibs (kg)
Ibs (kg)
cu.ft (m3)
(mm)
inch
(mm)
230V Single-Phase 60Hz
inch
Dimensions & Weight
(*Qt = Quiet mode)
Refrigerant Tubing Connections
Unit Dimensions
Operation Sound
Electrical Rating
Sensible Capacity
Latent Capacity
WPower Input
V
A
Available Voltage Range
Running Amperes
Refrigerant Tube Kit / Accessories
Narrow tube
Wide tube
Refrigerant inch (mm)
Tube Diameter inch (mm)
ft (m)Max. allowable tubing length at shipment
Timer
Indoor / OutdoorFan Speeds
Airflow Direction (Indoor) Horizontal
Controls / Temperature Control
Control Unit
Features
Compressor Locked Rotor Amperes
BTU/h
Performance
%Power Factor
A
Voltage Rating
BTU/h
kW
Total Capacity
BTU/h
SEER BTU/Wh
Air Circulation (High) ft3/min (m3/h)
Moisture Removal (High) Pints/h
EER BTU/h/W
Fuse or Circuit Breaker Capacity A
20.0
4,000
( 5.0 to 20.0 )
( 1,000 to 4,000 )
34,000
10.0
( 10,900 to 34,000 )
( 3.2 to 10.0 )
Cooling
20,700
13,300
187 to 253
32.0
39.7
4.59
(14.5)
(18.0)
(0.13)
183.0
205.0
15.88
(83.0)
(93.0)
(0.45)
(300 × 1,065 × 230) (910 × 940 × 340)
Outdoor UnitIndoor Unit
11-13/16 × 41-15/16 × 9-1/16 35-13/16 × 37-1/32 × 13-3/8
3/8 (9.52)
5/8 (15.88)
Flare Type
164 (50)
49 / 44 / 39 / 32
55
R410A / 6.5 (2,950)
Electric Expansion Valve
Washable, Anti-Mold
DC Twin Rotary (Inverter)
Manual
Auto
24-Hour ON or OFF Timer, 1-Hour OFF Timer
Auto and 3 steps / Auto (Hi, Me, Lo)
Microprocessor / I.C. Thermister
Wireless Remote Control Unit
Optional / Air Clean Filter
87
31.0
16.0
630 (1,070)
10.64
8.50
45
42-3/8 × 40 × 16-3/8
(1,076 × 1,016 × 416)
12-7/32 × 44-7/8 × 14-31/32
(310 × 1,140 × 380)
9

Indoor Unit KS3682
Outdoor Unit C3682 < 208V >
DATA SUBJECT TO CHANGE WITHOUT NOTICE.
Remarks: Rating conditions are:
Cooling: Indoor air temperature 80°F D.B. / 67°F W.B.
Outdoor air temperature 95°F D.B. / 75°F W.B.
Vertical
dB-A
dB-A
Indoor : Hi/Me/Lo/Qt*
Outdoor : Hi
Air Filter
Compressor
Refrigerant / Amount charged at shipment Ibs (g)
Refrigerant Control
Shipping Volume
Cooling
Net
Shipping
Package Dimensions
Weight
Height × Width × Depth
Height × Width × Depth
Ibs (kg)
Ibs (kg)
cu.ft (m3)
(mm)
inch
(mm)
208V Single-Phase 60Hz
inch
Dimensions & Weight
(*Qt = Quiet mode)
Refrigerant Tubing Connections
Unit Dimensions
Operation Sound
Electrical Rating
Sensible Capacity
Latent Capacity
WPower Input
V
A
Available Voltage Range
Running Amperes
Refrigerant Tube Kit / Accessories
Narrow tube
Wide tube
Refrigerant inch (mm)
Tube Diameter inch (mm)
ft (m)Max. allowable tubing length at shipment
Timer
Indoor / OutdoorFan Speeds
Airflow Direction (Indoor) Horizontal
Controls / Temperature Control
Control Unit
Features
Compressor Locked Rotor Amperes
BTU/h
Performance
%Power Factor
A
Voltage Rating
BTU/h
kW
Total Capacity
BTU/h
SEER BTU/Wh
Air Circulation (High) ft3/min (m3/h)
Moisture Removal (High) Pints/h
EER BTU/h/W
Fuse or Circuit Breaker Capacity A
21.9
4,000
( 5.0 to 21.9 )
( 1,000 to 4,000 )
34,000
10.0
( 10,900 to 34,000 )
( 3.2 to 10.0 )
20,700
13,300
187 to 253
32.0
39.7
4.59
(14.5)
(18.0)
(0.13)
183.0
205.0
15.88
(83.0)
(93.0)
(0.45)
(300 × 1,065 × 230) (910 × 940 × 340)
Outdoor UnitIndoor Unit
11-13/16 × 41-15/16 × 9-1/16 35-13/16 × 37-1/32 × 13-3/8
3/8 (9.52)
5/8 (15.88)
Flare Type
164 (50)
49 / 44 / 39 / 32
55
R410A / 6.5 (2,950)
Electric Expansion Valve
Washable, Anti-Mold
DC Twin Rotary (Inverter)
Manual
Auto
24-Hour ON or OFF Timer, 1-Hour OFF Timer
Auto and 3 steps / Auto (Hi, Me, Lo)
Microprocessor / I.C. Thermister
Wireless Remote Control Unit
Optional / Air Clean Filter
88
31.0
16.0
630 (1,070)
10.64
8.50
45
42-3/8 × 40 × 16-3/8
(1,076 × 1,016 × 416)
12-7/32 × 44-7/8 × 14-31/32
(310 × 1,140 × 380)
10

Indoor Unit KS3082
24BYJ48-1256
Flap Motor
Type Stepping Motor
Rating
Model
Coil Resistance Ohm
(Ambient Temp. 77 °F (25 °C))
Each Pair of Terminal : 200 +/- 7%
DC 12V
Aluminum Plate Fin / Copper Tube
1 and 2
19.5
4.55 (0.423) Face Area
Coil
Rows
Fins Per inch
Heat Exchanger Coil
ft2 (m2)
DATA SUBJECT TO CHANGE WITHOUT NOTICE.
Yes
Control PCB
Control Circuit Fuse
Controls
Part No.
Microprocessor
250V 3A
CB-KS3082
1 ... D3-15/16 / L32-1 (D100/L838)
RCS-8VPULS4U
Cross-Flow
DC Motor
SIC-39CVL-D847-10 ... 1
8
-
47
1,370
Internal Controller
Yes
-
-
Fan
Remote Control Unit
Q'ty ... Dia. and Length
Type
inch (mm)
Fan Motor
Nominal Output
Coil Resistance
Rough Measure RPM (Cool)
Type
Model ... Q'ty
No. of Poles
Safety Device
Type
Over-Current Protection
Over-Heat Protection
(Ambient Temp. 68 °F (20 °C))
Run Capacitor Micro F
VAC
W
Ohm
2-2. Major Component Specifications
2-2-1. Indoor Unit
11

Indoor Unit KS3682
Flap Motor
Type
Rating
Model
Coil Resistance Ohm
(Ambient Temp. 77 °F (25 °C))
Face Area
Coil
Rows
Fins Per inch
Heat Exchanger Coil
ft2 (m2)
DATA SUBJECT TO CHANGE WITHOUT NOTICE.
Control PCB
Control Circuit Fuse
Controls
Part No.
Microprocessor
250V 3A
CB-KS3682
Fan
Remote Control Unit
Q'ty ... Dia. and Length
Type
inch (mm)
Fan Motor
Nominal Output
Coil Resistance
Rough Measure RPM (Cool)
Type
Model ... Q'ty
No. of Poles
Safety Device
Type
(Ambient Temp. 68 °F (20 °C))
Run Capacitor Micro F
VAC
W
Ohm
Over-Current Protection
Over-Heat Protection
24BYJ48-1256
Stepping Motor
Each Pair of Terminal : 200 +/- 7%
DC 12V
Aluminum Plate Fin / Copper Tube
1 and 2
19.5
4.55 (0.423)
1 ... D3-15/16 / L32-1 (D100/L838)
RCS-8VPULS4U
Cross-Flow
DC Motor
SIC-39CVL-D847-10 ... 1
8
-
47
1,370
Internal Controller
Yes
Yes
-
-
12

Outdoor Unit C3082
2-2-2. Outdoor Unit
P.C.Board
Circuit Fuse
Controls
Part No.
-
250V 25A
POW-CH3082-B1
Noise Filer P.C.B
Microprocessor
400V 3.5A
CR-C3082-F
Control P.C.B
-
-
HIC-CH3072R-C1
H.I.C.Board
DATA SUBJECT TO CHANGE WITHOUT NOTICE.
Pints (cc)
-
Micro F
VAC
External Finish Acrylic baked-on enamel finish
FV68S ... 2.98 (1,400)
-
-
Internal Controller
Yes
Aluminum Plate Fin / Copper Tube
2
21.2
Face Area ft2 (m2)8.05 (0.748)
Coil
Rows
Fins per inch
Heat Exchanger Coil
SIC-71FW-D8120-4A ... 1
Compressor Oil ... Amount
8
142
750
Ohm
DC Motor
Type
Compressor Model / Nominal Output
Compressor
Coil Resistance (Ambient Temp. 77 °F (25 °C)) Ohm
DC Twin Rotary (Hermetic)
C-9RVN273H0H / 2,250W
T - R :
T - S :
R - S :
0.169
0.169
0.169
CT (Peak current cut-off control)
Compressor Discharge Temp. Control
Operation cut-off control in abnormal ambient Temp.
Safety Device
Micro F
VAC
Run Capacitor
Crankcase Heater
Yes
Yes
Yes
Overload Relay CS-7L110
Model
Operation Temp. Open : 230 °F (110 °C), Close : 203 °F (95 °C)
-
-
230V 30W
1 ... D19-9/32 (D490)
Fan
Propeller
Q'ty ... Dia. inch (mm)
Type
Type
Over- Heat Protection
(Ambient Temp. 68 °F (20 °C))
Fan Motor
Nominal Output
Coil Resistance
Safety Device
Rough Measure RPM (Cool)
Run Capacitor
Type
Model ... Q'ty
No. of Poles
W
Yes
Over- Current Protection
13

Outdoor Unit C3682
P.C.Board
Circuit Fuse
Controls
Part No.
-
250V 25A
POW-CH3082-B1
Noise Filer P.C.B
Microprocessor
400V 3.5A
CR-C3682-F
Control P.C.B
-
-
HIC-CH3072R-C1
H.I.C.Board
DATA SUBJECT TO CHANGE WITHOUT NOTICE.
Pints (cc)
-
Micro F
VAC
External Finish Acrylic baked-on enamel finish
FV68S ... 2.98 (1,400)
-
-
Internal Controller
Yes
Aluminum Plate Fin / Copper Tube
2
21.2
Face Area ft2 (m2)8.05 (0.748)
Coil
Rows
Fins per inch
Heat Exchanger Coil
SIC-71FW-D8120-4A ... 1
Compressor Oil ... Amount
8
142
750
Ohm
DC Motor
Type
Compressor Model / Nominal Output
Compressor
Coil Resistance (Ambient Temp. 77 °F (25 °C)) Ohm
DC Twin Rotary (Hermetic)
C-9RVN273H0H / 2,500W
T - R :
T - S :
R - S :
0.169
0.169
0.169
CT (Peak current cut-off control)
Compressor Discharge Temp. Control
Operation cut-off control in abnormal ambient Temp.
Safety Device
Micro F
VAC
Run Capacitor
Crankcase Heater
Yes
Yes
Yes
Overload Relay CS-7L110
Model
Operation Temp. Open : 230 °F (110 °C), Close : 203 °F (95 °C)
-
-
230V 30W
1 ... D19-9/32 (D490)
Fan
Propeller
Q'ty ... Dia. inch (mm)
Type
Type
Over- Heat Protection
(Ambient Temp. 68 °F (20 °C))
Fan Motor
Nominal Output
Coil Resistance
Safety Device
Rough Measure RPM (Cool)
Run Capacitor
Type
Model ... Q'ty
No. of Poles
W
Yes
Over- Current Protection
14

2-3. Other Component Specifications
Indoor UnitKS3082
KS3682
Outdoor UnitC3082
C3682
032 50 68 86 104 122 140 158 176 194
(0) (10) (20) (30) (40) (50) (60) (70) (80) (90)
40
60
80
100
120
140
160
180
200
20
50
1
0
2
3
4
5
6
7
8
9
10
59 68 77 86 95 104
(10) (15) (20) (25) (30) (35) (40)
• Indoor air temp sensor
(Model:KTEC-35-S121-1)
• Indoor heat exchanger sensor
(Model:PTM-D51H-S6-1)
• Compressor temp sensor
(Model:TKS335B)
Resistance (k ohm)
Resistance (k ohm)
Temperature °F (°C)
• Outdoor air temp sensor
(Model:TKS295B)
• Outdoor heat exchanger sensor
(Model:TKS334B)
• Heat sink temp sensor (HIC Board)
(Model:TKS316B)
40
35
30
25
20
15
10
5
0
-
4514 23 32 41 50 59 68
(
-
20)(
-
15)(
-
10) (
-
5) (0) (5) (10) (15) (20)
Resistance (k ohm)
Temperature °F (°C)
Temperature °F (°C)
15

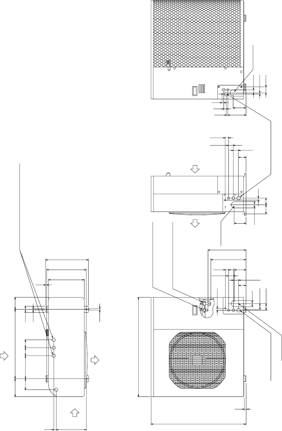
3. DIMENSIONAL DATA
Indoor Unit KS3082
KS3682
Unit: inch(mm)
(852-0-0010-19600-0)
41-15/16 (1065)
9-1/16 (230) (3/32)
7-25/32
Wide tube dia. 5/8" (15.88)
Narrow tube dia. 3/8" (9.52)
Drain hose dia. 23/32" (18)
1-27/32 1-3/32
2-3/32 25/32
5-1/2
6-7/32
16-11/32
17-5/16
19-9/16
16-11/32
17-21/32
22-3/8
5-3/16
3-3/4 3-3/4 7-7/8
15-1/8 17-23/32
2-11/16
11-13/16
1-7/8
dia. 3-5/32
23/32
1-15/32
1-7/8
9-3/32
5-27/32
2-3/8
5/16 2-3/4
4-9/16
4-9/16
11-13/16 (300)
7-23/32
2-3/4
5-9/16
1-9/32
7/16
2-5/8
2-3/8
3-3/8
2-5/8
dia. 3-5/32
16

Outdoor UnitC3082
C3682
Unit: inch(mm)
(852-0-0010-19400-1)
6-11/6 25-31/32 4-11/32
2-15/16
2-3/8
2-ID:1-1/4 holes (holes for drain)
Of the 4-ID:1-1/4 holes, use 1 of 2 holes
specified for drain use to install the port.
Use rubber plugs to seal the remaining 3 holes.
1/2
1/2
2-15/168-5/84-1/8
37-1/32 (940)
Refrigerant tubing joint (Liquid tube)
Flare connection dia.3/8" (9.52)
Refrigerant tubing joint (Gas tube)
Flare connection dia.5/8" (15.88)
2-3/8
3/4
1-15/16
1-27/32
1-3/16
4-11/32
13-9/32
14-11/32
4-11/32
2-25/32
1-15/16
6-23/32 19/32
31/32
4-3/4
1-3/16
7/16
2-5/32
21/32
1-27/32
1-3/16
2-3/8
Tubing outlet
3/4
3-3/8
2-17/32
Wiring outlet
(knock-out holes
dia.1-3/8, 1-3/32, 7/8, 1/2)
Wiring outlet
(knock-out holes
dia.1-3/8, 1-3/32, 7/8, 1/2)
Tubing outlet
Tubing outlet
2-25/32
2-5/32
2-17/32
35-13/16 (910)
23/32
1-1/32
13/32
13-3/8 (340)
14-31/32
16-5/32
11-13/32
AIR INTAKE
AIR INTAKE
AIR DISCHARGE
AIR DISCHARGE
AIR INTAKE
17

Wide tube
service
valve
Wide tube
Narrow
tube
service
valve
Narrow tube
Heat exchanger
Heat exchanger
Cooling cycle
Indoor unit Outdoor unit
Electric
expansion
valve
Strainer
M
O.D
5/8"
(15.88 mm)
O.D.
3/8"
(9.52 mm)
4. REFRIGERANT FLOW DIAGRAM
4-1. Refrigerant Flow Diagram
Indoor UnitKS3082
KS3682
Outdoor UnitC3082
C3682
Compressor
Main
Accumulator
Sub
Accumulator
Muffler
H.P.
High pressure
switch
18

5. PERFORMANCE DATA
5-1. Temperature Charts
Indoor UnitKS3082
Outdoor UnitC3082
• Check each performance value in test-run mode. Electrical performance values represent a combined indoor/outdoor value.
NOTE
Cooling Characteristics (RH : 46%, Indoor fan speed : High fan) (60Hz, 230V)
(1) Low pressure performance chart
(2) Operating current performance chart
(3) Indoor discharge air performance chart
-4
(-20)
5
(-15)
14
(-10)
23
(-5)
32
(0)
41
(5)
50
(10)
59
(15)
68
(20)
77
(25)
86
(30)
95
(35)
104
(40)
Outdoor inlet air D.B. temp.°F(°C)
Outdoor inlet air D.B. temp.°F(°C)
Outdoor inlet air D.B. temp.°F(°C)
Operating current (A)
Indoor discharge air temperature °F(°C)Low pressure at wide tube service valve
psig(MPaG)
-4
(-20)
5
(-15)
14
(-10)
23
(-5)
32
(0)
41
(5)
50
(10)
59
(15)
68
(20)
77
(25)
86
(30)
95
(35)
104
(40)
-4
(-20)
5
(-15)
14
(-10)
23
(-5)
32
(0)
41
(5)
50
(10)
59
(15)
68
(20)
77
(25)
86
(30)
95
(35)
104
(40)
57.2 (14)
64.4 (18)
60.8 (16)
53.6 (12)
50.0 (10)
46.4 (8)
42.8 (6)
10
12
14
16
18
20
22
24
26
28
104
(0.7)
117
(0.8)
131
(0.9)
145
(1.0)
159
(1.1)
174
(1.2)
Hi FanLo fan
Hi FanLo fan
Hi FanLo fan
Indoor Air Temp.86°F (30°C)
80°F (27°C)
75°F (24°C)
Indoor Air Temp.86°F (30°C)
80°F (27°C)
75°F (24°C)
Indoor Air Temp.86°F (30°C)
80°F (27°C)
75°F (24°C)
Indoor Air Temp.86°F (30°C)
80°F (27°C)
75°F (24°C)
Indoor Air Temp.86°F (30°C)
80°F (27°C)
75°F (24°C)
Indoor Air Temp.86°F (30°C)
80°F (27°C)
75°F (24°C)
19

Indoor UnitKS3682
Outdoor UnitC3682
Cooling Characteristics (RH : 46%, Indoor fan speed : High fan) (60Hz, 230V)
• Check each performance value in test-run mode. Electrical performance values represent a combined indoor/outdoor value.
NOTE
(1) Low pressure performance chart
(2) Operating current performance chart
(3) Indoor discharge air performance chart
-4
(-20)
5
(-15)
14
(-10)
23
(-5)
32
(0)
41
(5)
50
(10)
59
(15)
68
(20)
77
(25)
86
(30)
95
(35)
104
(40)
Outdoor inlet air D.B. temp.°F(°C)
Outdoor inlet air D.B. temp.°F(°C)
Outdoor inlet air D.B. temp.°F(°C)
Operating current (A)
Indoor discharge air temperature °F(°C)Low pressure at wide tube service valve
psig(MPaG)
-4
(-20)
5
(-15)
14
(-10)
23
(-5)
32
(0)
41
(5)
50
(10)
59
(15)
68
(20)
77
(25)
86
(30)
95
(35)
104
(40)
-4
(-20)
5
(-15)
14
(-10)
23
(-5)
32
(0)
41
(5)
50
(10)
59
(15)
68
(20)
77
(25)
86
(30)
95
(35)
104
(40)
57.2 (14)
60.8 (16)
64.4 (18)
53.6 (12)
50.0 (10)
46.4 (8)
42.8 (6)
10
12
14
16
18
20
22
24
26
28
104
(0.7)
117
(0.8)
131
(0.9)
145
(1.0)
159
(1.1)
174
(1.2)
Hi FanLo fan
Hi FanLo fan
Hi FanLo fan
Indoor Air Temp.86°F (30°C)
80°F (27°C)
75°F (24°C)
Indoor Air Temp.86°F (30°C)
80°F (27°C)
75°F (24°C)
Indoor Air Temp.86°F (30°C)
80°F (27°C)
75°F (24°C)
Indoor Air Temp.86°F (30°C)
80°F (27°C)
75°F (24°C)
Indoor Air Temp.86°F (30°C)
80°F (27°C)
75°F (24°C)
Indoor Air Temp.86°F (30°C)
80°F (27°C)
75°F (24°C)
20

Indoor Unit:KS3082
Outdoor Unit:C3082
Power Supply:230V Single Phase 60Hz
5-2. Cooling Capacity
1.
2. Above data represents the value when the operation frequency of a compressor is fixed.
Above data does not take Freeze Prevention Protection during cooling operation into account.
For this reason, the value may vary from the actual cooling characteristics.
NOTE
< Cooling Capacity (Low Ambient) >
TC : Total Cooling Capacity (BTU/h) SHC : Sensible Heat Capacity (BTU/h)
RATING CAPACITY: 30,600 BTU/h AIR FLOW RATE: 630CFM
INDOOR OUTDOOR
ENT. TEMP. oF (oC) AMBIENT TEMP. oF (oC)
W.B. D.B. 0515 25 35 45 55
(-17.8) (-15.0) (-9.4) (-3.9) (1.7) (7.2) (12.8)
TC 30,120 30,060 29,930 29,780 29,590 29,330 29,070
72 (22.2) SHC 21,150 21,150 21,020 20,900 20,780 20,660 20,530
59 76 (24.4) SHC 23,470 23,470 23,350 23,230 23,230 22,980 22,860
(15.0) 80 (26.7) SHC 25,920 25,920 25,790 25,790 25,670 25,430 25,300
84 (28.9) SHC 28,240 28,240 28,120 28,120 27,990 27,870 27,630
88 (31.1) SHC 30,120 30,060 29,930 29,780 29,590 29,330 29,070
TC 30,390 30,360 30,270 30,170 30,040 29,820 29,610
72 (22.2) SHC 17,720 17,720 17,600 17,600 17,480 17,360 17,360
63 76 (24.4) SHC 20,050 20,050 19,920 19,920 19,800 19,800 19,680
(17.2) 80 (26.7) SHC 22,490 22,490 22,370 22,370 22,370 22,250 22,120
84 (28.9) SHC 24,820 24,820 24,820 24,690 24,690 24,570 24,450
88 (31.1) SHC 27,140 27,140 27,140 27,020 27,020 26,890 26,770
TC 30,490 30,480 30,450 30,400 30,330 30,160 30,020
72 (22.2) SHC 14,180 14,180 14,180 14,180 14,180 14,050 14,050
67 76 (24.4) SHC 16,500 16,500 16,500 16,500 16,500 16,380 16,380
(19.4) 80 (26.7) SHC 19,070 18,940 18,940 18,940 18,940 18,820 18,820
84 (28.9) SHC 21,390 21,390 21,390 21,270 21,270 21,150 21,150
88 (31.1) SHC 23,710 23,710 23,710 23,710 23,590 23,590 23,470
TC 30,370 30,380 30,410 30,430 30,420 30,310 30,250
72 (22.2) SHC 10,510 10,510 10,510 10,630 10,630 10,510 10,510
71 76 (24.4) SHC 12,950 12,950 12,950 12,950 12,950 12,830 12,830
(21.7) 80 (26.7) SHC 15,400 15,400 15,400 15,400 15,400 15,280 15,280
84 (28.9) SHC 17,720 17,720 17,720 17,720 17,720 17,720 17,600
88 (31.1) SHC 20,050 20,050 20,050 20,050 20,050 20,050 20,050
TC 30,030 30,080 30,170 30,240 30,310 30,250 30,270
75 76 (24.4) SHC 9,410 9,4109,410 9,5309,530 9,530 9,530
(23.9) 80 (26.7) SHC 11,850 11,850 11,850 11,970 11,970 11,970 11,970
84 (28.9) SHC 14,180 14,180 14,300 14,300 14,300 14,300 14,300
88 (31.1) SHC 16,500 16,620 16,620 16,620 16,620 16,620 16,620
21

1. Rating conditions (#) : Indoor Unit Entering Air Temp. 80 °F (26.7 °C) D.B. / 67 °F (19.4 °C) W.B.
: Outdoor Ambient Temp. 95 °F (35 °C) D.B.
2.
3. Above data represents the value when the operation frequency of a compressor is fixed.
Above data does not take Freeze Prevention Protection during cooling operation into account.
For this reason, the value may vary from the actual cooling characteristics.
NOTE
< Cooling Capacity >
TC : Total Cooling Capacity (BTU/h) SHC : Sensible Heat Capacity (BTU/h)
RATING CAPACITY: 30,600 BTU/hAIR FLOW RATE: 630 CFM
INDOOR OUTDOOR
ENT. TEMP. oF (oC) AMBIENT TEMP. oF (oC)
W.B. D.B. 65758595105 115
(18.3) (23.9) (29.4) (35.0) (40.6)(46.1)
TC 30,650 29,970 29,19028,600 24,890 17,310
72 (22.2) SHC 21,390 21,020 20,66020,290 18,330 14,660
59 76 (24.4) SHC 23,710 23,350 22,98022,610 20,66016,990
(15.0) 80 (26.7)SHC 26,280 25,790 25,43025,060 23,100 17,310
84 (28.9) SHC 28,610 28,240 27,75027,380 24,890 17,310
88 (31.1) SHC30,650 29,970 29,190 28,600 24,890 17,310
TC 31,580 30,910 30,16029,630 25,270 17,560
72 (22.2) SHC 18,330 17,970 17,600 17,360 15,150 11,730
6376(24.4) SHC20,66020,29019,920 19,680 17,480 14,050
(17.2) 80 (26.7)SHC 23,100 22,740 22,370 22,120 20,050 16,500
84 (28.9) SHC25,43025,06024,690 24,450 22,370 17,560
88 (31.1) SHC27,75027,51027,020 26,770 24,690 17,560
TC 32,420 31,780 31,050#30,600 25,550 17,760
72 (22.2) SHC15,15014,79014,420 14,300 12,100 8,920
6776(24.4) SHC17,48017,11016,870 16,620 14,420 11,240
(19.4) 80 (26.7)SHC 19,920 19,56019,310 19,070 16,870 13,690
84 (28.9) SHC22,25022,00021,640 21,390 19,190 16,010
88 (31.1) SHC24,57024,33023,96023,71021,51017,760
TC 33,130 32,540 31,84031,490 25,710 17,880
72 (22.2) SHC11,73011,48011,120 11,000 8,670 5,860
71 76 (24.4) SHC14,05013,81013,440 13,320 11,120 8,310
(21.7) 80 (26.7)SHC 16,500 16,250 15,890 15,770 13,56010,750
84 (28.9) SHC18,82018,58018,330 18,210 15,890 13,070
88 (31.1) SHC21,15020,90020,66020,53018,21015,400
TC 33,630 33,090 32,43032,190 25,730 17,900
75 76 (24.4) SHC10,75010,51010,26010,1407,940 5,370
(23.9) 80 (26.7)SHC 13,200 12,950 12,710 12,590 10,380 7,820
84 (28.9) SHC15,52015,28015,030 15,030 12,710 10,140
88 (31.1) SHC17,84017,72017,480 17,36015,03012,590
22

Indoor Unit:KS3682
Outdoor Unit:C3682
Power Supply:230V Single Phase 60Hz
1.
2. Above data represents the value when the operation frequency of a compressor is fixed.
Above data does not take Freeze Prevention Protection during cooling operation into account.
For this reason, the value may vary from the actual cooling characteristics.
NOTE
< Cooling Capacity (Low Ambient) >
TC : Total Cooling Capacity (BTU/h) SHC : Sensible Heat Capacity (BTU/h)
RATING CAPACITY: 34,000BTU/h AIR FLOW RATE: 630CFM
INDOOR OUTDOOR
ENT. TEMP. oF (oC) AMBIENT TEMP. oF (oC)
W.B. D.B. 0515 25 35 45 55
(-17.8) (-15.0) (-9.4) (-3.9) (1.7) (7.2) (12.8)
TC 30,900 30,870 30,800 30,710 30,590 30,400 30,210
72 (22.2) SHC 21,510 21,510 21,510 21,510 21,390 21,270 21,150
59 76 (24.4) SHC 23,960 23,840 23,840 23,840 23,710 23,590 23,470
(15.0) 80 (26.7) SHC 26,400 26,400 26,280 26,280 26,160 26,040 25,920
84 (28.9) SHC 28,730 28,730 28,610 28,610 28,480 28,480 28,360
88 (31.1) SHC 30,900 30,870 30,800 30,710 30,590 30,400 30,210
TC 31,010 31,010 30,990 30,950 30,890 30,750 30,620
72 (22.2) SHC 17,970 17,970 17,970 17,970 17,970 17,840 17,840
63 76 (24.4) SHC20,410 20,410 20,290 20,290 20,290 20,170 20,170
(17.2) 80 (26.7) SHC22,860 22,860 22,740 22,740 22,740 22,610 22,610
84 (28.9) SHC25,180 25,180 25,180 25,060 25,060 25,060 24,940
88 (31.1) SHC27,510 27,510 27,510 27,510 27,380 27,380 27,260
TC 30,910 30,940 30,980 31,000 31,010 30,930 30,880
72 (22.2) SHC14,420 14,420 14,420 14,420 14,420 14,420 14,420
67 76 (24.4) SHC16,740 16,740 16,740 16,740 16,740 16,740 16,740
(19.4) 80 (26.7) SHC19,190 19,190 19,190 19,190 19,190 19,190 19,190
84 (28.9) SHC21,510 21,510 21,640 21,640 21,640 21,510 21,510
88 (31.1) SHC23,840 23,960 23,960 23,960 23,960 23,960 23,840
TC 30,570 30,620 30,730 30,820 30,910 30,900 30,930
72 (22.2) SHC10,630 10,630 10,750 10,750 10,750 10,750 10,750
71 76 (24.4) SHC12,950 12,950 13,070 13,070 13,070 13,070 13,070
(21.7) 80 (26.7) SHC15,400 15,400 15,520 15,520 15,520 15,520 15,520
84 (28.9) SHC17,720 17,840 17,840 17,840 17,970 17,970 17,970
88 (31.1) SHC20,170 20,170 20,170 20,170 20,290 20,290 20,290
TC 30,010 30,090 30,260 30,430 30,590 30,650 30,770
75 76 (24.4) SHC9,410 9,4109,530 9,530 9,650 9,6509,650
(23.9) 80 (26.7) SHC11,850 11,850 11,970 11,970 12,100 12,100 12,100
84 (28.9) SHC14,180 14,180 14,300 14,300 14,420 14,420 14,420
88 (31.1) SHC16,500 16,620 16,620 16,740 16,740 16,740 16,870
23

Indoor Unit:KS3682
Outdoor Unit:C3682
Power Supply:230V Single Phase 60Hz
1. Rating conditions (#) : Indoor Unit Entering Air Temp. 80 °F (26.7 °C) D.B. / 67 °F (19.4 °C) W.B.
: Outdoor Ambient Temp. 95 °F (35 °C) D.B.
2.
3. Above data represents the value when the operation frequency of a compressor is fixed.
Above data does not take Freeze Prevention Protection during cooling operation into account.
For this reason, the value may vary from the actual cooling characteristics.
NOTE
< Cooling Capacity >
TC : Total Cooling Capacity (BTU/h) SHC : Sensible Heat Capacity (BTU/h)
RATING CAPACITY: 34,000BTU/h AIR FLOW RATE: 630CFM
INDOOR OUTDOOR
ENT. TEMP. oF (oC) AMBIENT TEMP. oF (oC)
W.B. D.B. 65 75 85 95 105 115
(18.3) (23.9) (29.4) (35.0)(40.6)(46.1)
TC 34,170 33,480 32,690 32,110 24,650 16,770
72 (22.2) SHC 23,470 23,100 22,610 22,25018,21014,420
5976(24.4)SHC 25,790 25,430 24,940 24,570 20,530 16,740
(15.0)80(26.7)SHC 28,240 27,870 27,380 27,020 22,980 16,770
84 (28.9) SHC 30,560 30,200 29,710 29,460 24,65016,770
88 (31.1) SHC 33,010 32,520 32,030 31,790 24,65016,770
TC 35,010 34,360 33,600 33,100 24,85016,910
72 (22.2) SHC 20,170 19,800 19,310 19,070 15,030 11,480
63 76 (24.4) SHC 22,490 22,120 21,760 21,390 17,360 13,810
(17.2) 80 (26.7) SHC 24,940 24,570 24,200 23,840 19,800 16,250
84 (28.9) SHC 27,260 26,890 26,530 26,280 22,120 16,910
88 (31.1) SHC 29,580 29,220 28,85028,610 24,45016,910
TC 35,720 35,120 34,400 #34,000 24,930 16,970
72 (22.2) SHC 16,620 16,380 16,010 15,890 11,730 8,670
67 76 (24.4) SHC 19,070 18,700 18,330 18,210 14,180 11,000
(19.4) 80 (26.7) SHC 21,510 21,15020,90020,660 16,620 13,440
84 (28.9) SHC 23,840 23,590 23,230 22,980 18,940 15,770
88 (31.1) SHC 26,160 25,920 25,55025,300 21,270 16,970
TC 36,270 35,710 35,040 34,780 24,870 16,950
72 (22.2) SHC 13,070 12,830 12,460 12,340 8,4305,610
71 76 (24.4) SHC15,400 15,15014,79014,790 10,7507,940
(21.7) 80 (26.7) SHC 17,840 17,600 17,360 17,230 13,200 10,380
84 (28.9) SHC 20,170 19,920 19,680 19,560 15,520 12,710
88 (31.1) SHC 22,490 22,25022,00021,880 17,840 15,030
TC 36,560 36,070 35,45034,630 24,680 16,830
75 76 (24.4) SHC 11,850 11,610 11,360 11,120 7,570 5,130
(23.9) 80 (26.7) SHC 14,300 14,05013,81013,560 10,020 7,570
84 (28.9) SHC 16,620 16,500 16,25015,890 12,340 9,900
88 (31.1) SHC 18,940 18,820 18,580 18,210 14,660 12,220
24

Horizontal distance (ft.)
Axis air velocity (ft./sec.)
Vertical distance (ft.)
Room air temp. : 80°F (26.7°C)
Fan speed : High
Cooling
: Flap angle 0 , : Axis air velocity 0
: Flap angle 30 , : Axis air velocity 30
5-3. Air Throw Distance Charts
Indoor UnitKS3082
0
5
10
15
0 5 10 15 20 25 30
: Flap angle 0 , : Axis air velocity 0
: Flap angle 30, : Axis air velocity 30
25

Horizontal distance (ft.)
Axis air velocity (ft./sec.)
Vertical distance (ft.)
Room air temp. :80°F (26.7°C)
Fan speed : High
Cooling
: Flap angle 0 , : Axis air velocity 0
: Flap angle 30 , : Axis air velocity 30
Indoor UnitKS3682
0
5
10
15
0 5 10 15 20 25 30
: Flap angle 0 , : Axis air velocity 0
: Flap angle 30, : Axis air velocity 30
26

6. ELECTRICAL DATA
6-1. Electrical Characteristics
Indoor UnitKS3082
Outdoor UnitC3082
Indoor Unit Outdoor Unit
Fan Motor Fan Motor + Compressor
Performance at 230V Single-phase 60Hz
Rating conditions Running amp. A 0.4
Power input W
A
W
39
16.1
3,251
Rating conditions:Indoor air temperature:80°F (26.7°C) D.B. / 67°F (19.4°C) W.B.
Outdoor air temperature:95°F (35°C) D.B.
Cooling
16.5
3,290
Indoor Unit Outdoor Unit
Fan Motor Fan Motor + Compressor
Performance at 208V Single-phase 60Hz
Rating conditions Running amp. 0.4
Power input 39
17.6
3,251
Cooling
<
230V
>
<
208V
>
(2) Voltage:208V
(1) Voltage:230V
18.0
3,290
Rating conditions:Indoor air temperature:80°F (26.7°C) D.B. / 67°F (19.4°C) W.B.
Outdoor air temperature:95°F (35°C) D.B.
Complete Unit
Complete Unit
27

Indoor UnitKS3682
Outdoor UnitC3682
Indoor Unit Outdoor Unit
Fan Motor Fan Motor + Compressor
Performance at 230V Single-phase 60Hz
Rating conditions Running amp. A 0.4
Power input W
A
W
39
19.6
3,961
Rating conditions:Indoor air temperature:80°F (26.7°C) D.B. / 67°F (19.4°C) W.B.
Outdoor air temperature:95°F (35°C) D.B.
Cooling
20.0
4,000
Indoor Unit Outdoor Unit
Fan Motor Fan Motor + Compressor
Performance at 208V Single-phase 60Hz
Rating conditions Running amp. 0.4
Power input 39
21.5
3,961
Cooling
<
230V
>
<
208V
>
(2) Voltage:208V
(1) Voltage:230V
21.9
4,000
Rating conditions:Indoor air temperature:80°F (26.7°C) D.B. / 67°F (19.4°C) W.B.
Outdoor air temperature:95°F (35°C) D.B.
Complete Unit
Complete Unit
28

8FA2-5250-70400-3
6-2. Electric Wiring Diagrams
Indoor UnitKS3082
KS3682
EVAPORATOR
TERMINAL BASE
TO OUTDOOR UNIT
LAMP
9P(WHT)
FLAP
5P (WHT)
M
FLAP MOTOR
RED
ORG
YEL
PNK
BLU
1
2
3
4
5
1
2
3
4
5
AC IN COM SI
BLK
WHT
BLK
BLK
BLK
BLK
BLK
BLK
BLK
1
2
3
4
5
6
7
8
9
1
2
3
4
5
6
7
8
9
1
2
3
4
5
6
7
8
9
1
2
3
4
5
6
7
8
9
IND LAMP ASSY
OPERATION SW
COIL
4P(WHT)
DCM
7P(BLU)
S-LINK (RAC)
4P (BLU)
GND
2P(WHT)
CONTROLLER
M
FAN MOTOR
PL ELEC J-B
2
3
4
5
6
7
1
2
3
4
5
6
7
1
2
3
4
1
BLK
BLK
1
2
1
2
COIL THERMISTOR
t°
ROOM/UV
4P (WHT)
1
2
3
1
2
3
4 4
T10
6P (BLU)
1 2 43 65
WHT
BLK
RED
RED
2
1
2
1
GRN/YEL
BLK
YEL
WHT
BLU
GRN/YEL
1
2
3
U1
U2
BLK
BLK
ROOM THERMISTOR
UV ASSY
t°
RED
BLU
29

Outdoor UnitC3082
C3682
8FA2-5250-71800-1
1
2
3
4
5
INDOOR
UNIT
POWER
SUPPLY
GND
TERMINAL (5P)
CRANKCASE
HEATER
FAN MOTOR MAGNETIC COIL
COIL THERMISTOR
NOISE FILTER P.C.BOARD
CONTROL P.C.BOARD
HIC
BOARD
CT
(BRN)
ACOUT
(ORG)
DCOUT
(WHT)
PRY
(GRN)
(BRN)
CT
(RED)
FM2
(RED)
FM1
(WHT)
MV
(BLK)
COIL
(ORG)
ACIN
(WHT)
DCIN
(GRN)
PRY
(WHT)
TEST/MV
HIC1
(WHT)
CN01
(WHT)
CN02
(WHT)
R S
M
3
T
U V W
TH01
(YEL)
HIC2
(WHT)
REACTOR
C1
L1 L2 L3 L4 C1 C2
ACIN1
ACIN2
E1
SI
CH1
CH2
S-COM
E2
w
w
w
w
w
w w
w
BLK
WHT
WHT
WHT
RED
BLK
GRN/YEL
GRN/YEL
1
1
1
1
1
2
1 2
1 2
1
1
1
2
2
3
3
1
1
1
1
2
2
1
1
2
2
3
3
4
4
5
5
3
3
2
WHT
WHT
1 3
1 3
1 3
1 3
BLK
WHT
1 3
1 3
1 3
1 3
BLK
WHT
1 2
1 2
1 2
1 2 3
1 2
BLK
WHT
BLK
WHT
BLK
WHT
HIC+HIC-
HIC+ HIC-
TH1
AC1
BRIDGE DIODE
HEAT SINK (RADIATOR)
AC2
DC+
DC-
+
--
BLK
WHT
WHT
WHT
WHT
WHT
M M
BRN
WHT
ORG
RED
BLU
ORG
RED
YEL
BLK
GRY
t° YEL
YEL
COMPRESSOR
THERMISTOR
OUTDOOR
THERMISTOR
HIGH
PRESSURE SW
(WHT)
COMP
1
1
2
2
t° BLK
BLK
(YEL)
OUTDOOR
1
1
2
2
(BLK)
HP-SW
(RED)
OLR
COMPRESSOR
MOTOR
OVER LOAD RELAY
1
2
3
4
5
6
7
8
9
10
1
2
3
4
5
6
7
8
9
10
1
2
3
4
5
6
7
8
9
10
1
2
1
2
3
4
5
6
7
8
9
10
t° BLK
BLK
1
1
2
2
1
1
2
2
BLK
BLK
BLK
WHT
YEL
BLU
WHT
BLK
BLK
BLK
BLK
BLK
BLK
BLK
BLK
BLK
1
2
3
4
5
6
7
8
9
10
1
2
3
4
5
6
7
8
9
10
1
2
3
4
5
6
7
8
9
10
1
2
3
4
5
6
7
8
9
10
BLK
BLK
BLK
BLK
BLK
BLK
BLK
11 11 11 11
BLK
GRY
YEL
YEL
YEL
RED
WHT
GRN/YEL
BLU
WHT
WHT
t°
30

Emergency operation
Emergency operation is available when the remote
controller malfunctions, has been lost, or otherwise
cannot be used.
•
The set temperature is 4°F(2°C) below the detected room
temperature in the case of cooling operation.
(GREEN) (Lamp Off)
COOL STOP
To operate the system, press the OPERATION button,
which is also used as the receiver, below the unit display.
Each time this button is pressed, the OPERATION lamp
changes color to indicate the type of operation. Select the
desired type of operation.
7. FUNCTIONS
7-1. Operation Functions
SENSOR DRY
During DRY operation, the system adjusts the room
temperature and fan speed according to the conditions in the
room, in order to maintain a comfortable room environment.
SENSOR DRY operation
•
DRY operation is as shown in the figure below.
The compressor operation frequency varies.
The indoor fan operates with 1/f fluctuation.
The compressor operates at a low operating frequency.
The indoor fan operates with 1/f fluctuation.
When room temperature rises above the set temperature, the
compressor turns ON. When room temperature falls below the
set temperature, the compressor turns OFF.
The Sensor Dry operation during the Low Ambient Cooling
Mode (outside air temperature : 59°F(15°C) or lower) is as
follows.
•
Monitoring operation takes place when the room temperature
is below 59°F(15°C), or more than 5°F(3°C) below the set
temperature.
•
When the monitoring range is entered, the compressor stops,
and the indoor fan operates with 1/f fluctuation.
DRY A
DRY B
DRY ADRY B
Monitor
Conditions are monitored at all
times when the room temperature
is below 59°F(15°C).
Load
COOL zone
A zone
B zone
NOTE
and
31

HIGH POWER NIGHT SETBACK
Lamp colors
Timer backup
This function acts to raise the power but keeps the AC system in
the same operating mode.
This function is set with the HIGH POWER button on the remote
controller.
(It can be set regardless of the temperature and fan speed
settings.)
HIGH POWER operation from remote controller
The unit operates at maximum output for 30 minutes,
regardless of the desired temperature.
The fan speed is 1 step above "High."
OPERATION lamp
•
When HIGH POWER operation ends, the unit operates at low
Hz for 5 minutes, regardless of the thermostat OFF conditions.
•
When in DRY mode, operation is in the cooling zone.
•
Operation stops if there are no operator controls for 25 hours or
longer after unit operation switched from OFF to ON by use of
ON timer operation.
Frequency
MAX
0
Start End
Time
30 min. 5 min.
Setting
temperature
Press the NIGHT
SETBACK button
•
When NIGHT SETBACK operation is set, the temperature and
fan speed settings will be adjusted automatically to allow
comfortable sleep.
•
When NIGHT SETBACK operation is set, " mark" appears on
the remote controller. The main unit display lamp also becomes
dimmer.
COOL and DRY modes
When the night setback mode is selected, the air conditioner
automatically raises the temperature setting 2°F(1°C) when 30
minutes have passed after the selection was made, and then
another 2°F(1°C) after another 30 minutes have passed,
regardless of the indoor temperature when night setback was
selected. This enables you to save energy without sacrificing
comfort. This function is convenient when gentle cooling is
needed.
TIMER lampGreen
LED CLEAN lampGreen
DRY operationOrange
COOL operationGreen
FAN operationGreen
NOTE
30 min. 30 min. Time
2°F(1°C)
2°F(1°C)
32

The noise reducing control is the function used for silent operation of the air conditioner by means of
setting the dip switch on the outdoor unit P.C.Board to control the fan and compressor's motor speed.
<Operation Sound>
<Switching Procedure to Noise Reducing Control>
(1)Remove the 3 screws fixing the inspection panel and remove the inspection panel. (Fig. 2)
(2)When the switch No. 1 of the dip switch (SW01) on the control P.C.Board is turned ON,
the noise reducing control is enabled. (Fig. 3)
When this function is used, the cooling ability is slightly degraded. Therefore,
when this function is to be enabled, make sure to receive the approval of the client.
1.In the test operation, high-power operation, defrost operation or low ambient cooling
operation (to be cancelled at the outside temperature of 14 °C or less, or 17 °C or
more), the noise reducing control is not available.
2.In the noise reducing operation, the fan's maximum motor speed is limited to 500rpm.
Also, the maximum frequency (Hz) is controlled in the cooling (30Hz) or heating
operation (30Hz).
<In Cooling Operation>
Specifications
Cooling Cooling
55 dB-A 47 dB-A
Noise Reducing Control
(Fan's motor speed : 500rpm)
Normal Operation
Normal Operation or
Noise Reducing Operation is kept.
(Initial setting is the normal operation.)
Noise Reducing Operation
Outdoor Air Temp. [°C]
33
28
Noise Reducing Control (Outdoor Unit)
Fig.2 View from front
Fig.3 Control P.C.Board
SW01
Dip switch (SW01)
ON
12
Power lamp
NOTE
NOTE
Control P.C.Board
Inspection panel
Slide downward
33

The maximum current value is changed to 14A (for C3082) or 17A (for C3682) to prevent power breaker
tripping. (It is set to 24A when the unit is delivered from the factory.)
<Maximum Current Value Change Procedure>
(1)Remove the inspection panel.
Refer to Fig. 2 in " Noise Reducing Control" for details.
(2)When the switch No.2 of the dip switch (SW01) on the control P.C.Board is turned ON,
the maximum current value change. (Fig. 4)
Maximum Current Value Change Function
< C3082 >
Current Value on
the Point C
Current Value
on the Point B
Current Value
on the Point A
In cooling
operation
< C3682 >
Current Value on
the Point C
Current Value
on the Point B
Current Value
on the Point A
(25.0)
22.0
21.6
(25.0)
24.0
23.6
In cooling
operation
Dip Switch (SW01)
Switch No.2
ON
OFF
Max. Current Value
C3082 C3682
14.0A 17.0A
22.0A 24.0A
1.When the high load is given (Outside temperature is high in the cooling operation),
the capacity is reduced.
When the maximum current value change function is to be enabled, make sure to receive
the approval of the client.
2.The maximum capacity for cooling operation is about as much as the rated capacity.
NOTE
Description of function
Example of operation
Frequency
Frequency Current
Stops operation
Approx.3 minutes
Power Point C
Point B
Point A
Target
frequency
Operates at the target frequency at Point A and below.
Stops increases to the frequency between Points A and B.
Reduces the frequency by 1 Hz per 0.5 seconds when Point B is exceeded.
Stops operation, and restarts it appoximately 5 minutes later, if Point C is
exceeded.
(May operate when sudden voltage fluctuations occur. Indicates trouble.)
•
•
•
•
Fig.4 Control P.C.Board
SW01
Dip switch (SW01)
ON
12
Power lamp
34

Compressor discharge temperature control
Freeze prevention
During COOL or DRY operation, freezing is detected and
operation is stopped when the temperature of the indoor heat
exchanger matches the conditions below.
1.
Freeze-prevention operation is engaged when the
temperature of the indoor heat exchanger is below 41°F(5°C).
2.
Restart after freeze-prevention operation occurs when the
temperature of the indoor heat exchanger reaches 46°F(8°C)
or above.
a.
Area: Automatic capacity control
b.
When the temperature drops below Point A, the operation
frequency is reduced by a certain proportion.
c.
Area: Frequency increase is prohibited.
d.
When the temperature reaches Point C or above, freezing
prevention is ended and control is the same as in the
a
area.
*When the temperature drops to below 36°F(2°C)
(continuously for 2 minutes or longer), the compressor stops.
Once the freeze condition is detected, the air conditioner will
work less than the maximum frequency until it is turned off.
A
*
B
C
abcd
Indoor heat exchanger
temperature °F(°C)
36
(2)
41
(5)
46
(8)
This function controls the operation frequency to prevent the
compressor discharge temperature from rising more than a
specified temperature.
a.
Area: Automatic capacity control.
b.
When the temperature rises above Point A, the operation
frequency is reduced at a specified rate.
c.
Area: Further frequency increase is prohibited.
d.
When the temperature falls below Point B, prevention of a rise
in frequency is released and the air conditioner operates as in
a
area.
*The compressor will stop if the temperature of the compressor
discharge exceeds 248°F(120°C) due to shortage of gas or
other reason.
Approx.
214
(101)
A
B
abcd
Compressor discharge temperature °F(°C)
Approx.
201
(94)
7-2. Protective Functions
This function prevents the circuit breaker or fuse from operating
to open the circuit. This function works when electrical current
has increased due to an increase in the cooling load,
or to a decrease in the power supply voltage. In these cases,
operation frequency is reduced or operation is interrupted auto-
matically to control the electrical current for operation.
When the cause of the increase in electrical current is rectified,
the system will resume operation in the original mode.
Cooling Dry
Peak current cut-off trips 25.0
Hz down 22.0
(A)
CT (Peak current cut-off control)
•
•
<
KS3082
>
Cooling Dry
Peak current cut-off trips 25.0
Hz down 24.0
(A)
<
KS3682
>
35

8. TROUBLESHOOTING
8-1. Precautions before Performing Inspection or Repair
NOTE
After checking the self-diagnostics monitor, turn the power OFF before starting inspection or repair.
High-capacity electrolytic capacitors are used inside the outdoor unit controller (inverter). They retain an electrical charge
(charging voltage DC 310V) even after the power is turned OFF, and some time is required for the charge to dissipate. Be
careful not to touch any electrified parts before the controller LED (red) turns OFF.
If the outdoor controller is normal, approximately 30 seconds will be required for the charge to dissipate. However, allow
at least 5 minutes for the charge to dissipate if there is thought to be any trouble with the outdoor controller.
1:If the operation lamp blinks every 0.5 seconds immediately when the
power is turned ON, there is an external ROM (OTP data) failure on the
indoor circuit board, or a ROM socket insertion problem, or the ROM
has not been installed.
2:The failure mode is stored in memory even when the power is not ON.
Follow the procedure below to perform diagnostics.
8-2. Method of Self-Diagnostics
Follow the procedure below to perform detailed trouble diagnostics.
< Clock display >
Test run mode
Self-diagnostics mode
Deletion of self-diagnostics
report mode
PROCEDURE
Step 1: Press and hold the remote controller QUIET button and 1 HR
TIMER button. Then, press and hold the ACL (reset) button with a
pointed object such as the tip of a pen. After 5 seconds, release
ACL button first, then release QUIET and 1 HR TIMER buttons,
"oP-1" (test run) appears, blinking in the remote controller clock
display area.
Step 2: Next, press the 1 HR TIMER button twice to change the display
from "oP-1" to "oP-2" and "oP-3" (self-diagnostics). (The display
continues to blink.)
Step 3: Finally press the ON/OFF button to engage self-diagnostics mode.
• The self-diagnostics function utilizes the 3 indicator lamps on the main
unit, in combinations of ON lamps, blinking lamps, and OFF lamps, to
report the existence of sensor trouble or a protective operation. (The
lamps blink or remain ON for 5 seconds, then turn OFF for 2 seconds.)
Self-diagnostics is completed when the buzzer sounds 3 short beeps.
• A maximum of 3 self-diagnostics reports are displayed, for 5 seconds
each, beginning with the most recent report. Following this display the
lamps turn OFF. In order to view the self-diagnostics results again,
press the ON/OFF button again.
• The 3 lamps remain OFF if no trouble has occurred.
<IMPORTANT> After self-diagnostics is completed, be sure to press the
ACL (reset) button to return to normal mode. The air
conditioner will not operate if this is not done.
After turning on power to the air conditioner, use the remote controller and
follow the steps below to execute self-diagnostics.
1HR.
TIMER
button
ON/OFF
operation
button
ACL
(Reset)
button
QUIET
button
36

Since the indications cover various units, the corresponding parts listed below may not be present in some models.
(1) OPERATION lamp
(2) TIMER lamp
(3) LED CLEAN lamp
OPERATION TIMER
LED CLEAN
ON/OFF
INDOOR UNIT
(1) Self-diagnostics Lamps
.... OFF .... Blinking .... ON (Illuminated)
LED Clean
(3)
Operation
(1)
Timer
(2)
Indication on indoor unit
(1)Sensor open circuit or short circuit
(2)Contact failure at connector or open circuit at terminal crimping location
(short-circuit detection only for the humidity sensor)
(3)Indoor/outdoor PCboard failure
(1)Sensor open circuit or short circuit
(2)Contact failure at connector or open circuit at terminal crimping location
(3)Outdoor PCboard failure
Outdoor PCboard failure
(1) Mis-wiring (2) AC power failure (3) Blown fuse (4) Power Relay failure
(5) Indoor or outdoor PCboard failure (6) Outdoor Fan Motor failure (7) Reactor failure
(8) High-Pressure Switch failure (9) Overload Relay failure (10) Magnetic Coil failure
* See detailed flowchart in this section.
(1) HIC or power Tr failure (2) Outdoor fan does not turn. (3) Instantaneous power outage
(4) Service valve not opened. (5) Outdoor fan blocked. (6) Continuous overload operation
(7) Compressor failure (8) Outdoor PCboard failure
(1) External ROM data failure (2) Outdoor PCboard failure
(1) Instantaneous power outage (2) HIC or power transistor failure
(3) Outdoor PCboard failure
(1) Outdoor PCboard failure (2) Outdoor power supply voltage failure
(1) Electric expansion valve failure (2) Capillaries choked (3) Shortage of refrigerant
(4) Continuous overload operation (5) Outdoor fan does not rotate (6) Outdoor
PCboard
failure
(1) Fan motor failure (2) Contact failure at connector (3) Indoor PCboard failure
(1) 4-way valve failure (heat pump model only)
(2) Outdoor PCboard failure
(1) Service valve not opened. (2) Shortage of refrigerant
(1) Open phase (2) Outdoor PCboard failure
(1) Fan motor failure (2) Contact failure at connector (3) Outdoor PCboard failure
(1) Mis-wiring (2) Blown fuse (3) Power Relay failure (4) Outdoor PCboard failure
(5) Compressor failure
* See detailed flowchart in this section.
(1) Indoor fan system failure (2) Shortage of refrigerant (3) Low-temperature operation
S01
S02
S03
S04
S05
S06
S07
E01
E02
E03
E04
E05
E06
E07
E08
E09
E10
E11
E12
E13
F10
F02
F13
F04/F12
F09/
F15 to F18
F08/
F21 to F24
F27
E05
P26
F31
P16
P07
P03
P01
P19
P15
P29
P22
E07/P04/P05
P20/P27
P11
Diagnosis Contents
Error
Code
Alarm
Code Possible Malfunction
Room temperature sensor failure
Indoor heat exchanger sensor failure
Humidity sensor failure
Compressor temperature sensor failure
Outdoor heat exchanger sensor failure
Outdoor air temperature sensor failure
Outdoor electrical current detection
failure
Indoor/outdoor communications failure
(serial communications)
• HIC circuit failure
• Power Tr (transistor) circuit failure
• PAM circuit failure
• Active circuit failure
• 4-way valve switching failure
• Indoor zero-cross failure
• Outdoor system communications failure
• OLR operation
• Outdoor power supply open phase
• Outdoor coil freezing
Outdoor unit external ROM (OTP data)
failure
Peak current cut-off
Compressor discharge overheat
prevention activated.
No-refrigerant protection
DC compressor drive circuit failure
Outdoor fan operating failure
Freeze-prevention operation activated.
Indoor fan operating failure
37

(2) If the self-diagnostics function fails to operate
Check the indoor unit.
Is the fuse blown?
Replace the controller.
Replace the circuit
board or the fuse.
No indicators illuminate and the
indoor fan does not rotate.
Check the power voltage.
Normal
Blown
38

8-3. Checking the Indoor and Outdoor Units
(1) Checking the indoor unit
(2) Checking the outdoor unit
Using the TEST/T-RUN terminals
ControlNo. Check items (unit operation)
T-RUN :Test run (compressor and fan motor turn ON).
TEST/MV : Compresses time to 1/60th (accelerates
operation by 60 times faster than normal).
Use the remote controller to operate the
unit in "TEST run" mode. To determine
whether the mode is currently in
"TEST run" mode, check the 4 indicator
lamps on the unit. If all 4 are blinking,
the current mode is "TEST run."
If there are no problems with the above, then check the outdoor unit.
1The rated voltage must be present between inter-unit wirings 1 and 2.
Connect a 5 k ohm resistor between inter-unit wirings 2 and 3. When the
voltage at both ends is measured, approximately 12 to 15V DC must
be output and the multimeter pointer must bounce once every 8
seconds.
Or instead of measuring the voltage, you can insert an LED jig and
check that the LED flickers once every 8 seconds.
•
•
ControlNo. Check items (unit operation)
Apply the rated voltage between outdoor
unit terminals L and N.
If there are no problems with the above, then check the indoor unit.
1 The control panel LED (red) must illuminate.
Short-circuit the outdoor unit COM terminal
to the T-RUN terminal.
2 The compressor, fan motor and 4-way valve must all turn on.
•
•
TEST/T-RUN terminals
(TEST)/MV T-RUN COM
For the "Test run" procedure, refer to the Appendix B "Installation Instructions".
39

(3) Serial Communication Error Identification Procedure
Refer to "Method of Self-Diagnostics" for the self-diagnostics procedure.
(3-1) Alarm Code : E05
< Before the Operation >
If the lamps on the main body show the following conditions after the completion of self-diagnostics,
a communication error between the indoor unit and outdoor unit might be considered.
In such a case, identify the breakdown section by using the following procedure.
Troubleshooting Serial Communication
Is the voltage of about DC12V
or more given between the terminals
2 and 3 on the outdoor unit terminal strip
(Serial Communication Line) ?
(Fig. 1)
No
Yes
1.Turn OFF the power and wait until the power lamp (LED)
of the outdoor unit controller is turned OFF.
2.Disconnect the cable from the terminal 3 on the indoor unit
terminal strip. (Fig. 2)
3.Turn ON the power.
< Convenient Tool for Short-Circuit Work ( for example ) >
Alligator Clip
Alligator Clip Cable
A
( Continued to the next page A. )
B
( Continued to the next page B. )
For terminal strip short circuit work or inter-unit wiring removal, turn off the power to
avoid an electric shock.
Release the terminal strip short circuit after the completion of self-diagnostics.
Do not perform the short-circuit work between any other terminals except for
specified ones on the specified terminal strip. If such work is performed between
the incorrect terminals, the unit might be broken.
Fig. 1
Outdoor Unit
Power
1 2 43 5 6
1 2 3
V
+-
Indoor Unit
Outdoor Unit
1 2 43 5 6
1 2 3
V
+
-
Power
Indoor Unit
Fig. 2
NOTE
Lamp
LED Clean
Timer Operation :Off
: Blinking
Alarm Code
(Error Code) (3) (2) (1)
: Illuminated
E05 (E01)
E07/P04/P05/P20/P27 (E12)
CAUTION
WARNING
< Check Items before Troubleshooting Serial Communication Start >
After confirming that the following errors do not exist, start the "Troubleshooting Serial Communication"
in "Alarm Code : E05 and E07/P04/P05/P20/P27".
1.Mis -wiring (inter-unit cable, etc.)
2.AC power failure
3.Blown fuse
4.Power Relay failure
5.Outdoor Fan Motor failure (defective insulation, etc.)
6.Reactor failure (defective insulation, etc.)
7.High-Pressure Switch failure
8.Overload Relay failure
9.Magnetic Coil failure (defective insulation, short-circuit, etc.)
10.Compressor failure (defective insulation, etc.)
40

What is the latest self-diagnosis result ?
Alarm Code : E07/P04/P05/
P20/P27
Alarm Code : E07/P04/P05/
P20/P27
Defect in the outdoor unit
P. C. board.
Alarm Code : E05
Defect or connection error
in the inter-unit cable
Defect in the indoor unit
P.C. board
( Continued from the previous page A. )
A
( Continued from the previous page B. )
B
1 2 43 5 6
1 2 3
Outdoor Unit
Power
Fig. 3
Indoor Unit
1 2 43 5 6
1 2 3
Outdoor Unit
Power
Fig. 4
Indoor Unit
1 2 43 5 6
1 2 3
Outdoor Unit
Power
Fig. 5
Indoor Unit
Alarm Code : E05
1.Turn OFF the power and wait until the power lamp (LED)
of the outdoor unit controller is turned OFF.
2.Short-circuit between the terminals 2 and 3 on the outdoor
unit terminal strip. (Fig. 3)
1.Turn ON the power and operate the system using the
remote controller or the operation button on the indoor unit.
2.Perform the self-diagnosis five seconds after the operation
start.
1.Turn off the power and wait until the power lamp (LED)
of the outdoor unit controller is turned OFF.
2.Remove the short-circuit between the terminals 2 and 3 on
the outdoor unit terminal strip.
3.Disconnect the cable from the terminal 3 on the indoor unit
terminal strip. (Fig. 4)
Short-circuit between the terminals 2 and 3 on the indoor unit
terminal board. (Fig. 5)
1.Turn ON the power and operate the system using the
remote controller or the operation button on the indoor unit.
2.Perform the self-diagnosis five seconds after the operation
start.
What is the latest self-diagnosis result ?
Defect in the indoor unit
P.C. board
Is the voltage of about DC22V to
24V given between the terminals
2 and 3 on the indoor unit terminal strip
(Serial Communication Line) ?
(Fig. 2)
No
Defect or connection error
in the inter-unit cable
Yes
41

(3-2) Alarm Code : E07/P04/P05/P20/P27
Troubleshooting Serial Communication
1.Turn off the power and wait until the power lamp (LED)
of the outdoor unit controller is turned OFF.
2.Disconnect the cable from the terminal 3 on the indoor
unit terminal strip. (Fig. 7)
Defect in the indoor unit
P.C. board
Defect in the outdoor unit
P.C. board
1.Turn ON the power and operate the system using the
remote controller or the operation button on the indoor unit.
2.Perform the self-diagnosis five seconds after the operation
start.
1.Turn off the power and wait until the power lamp (LED)
of the outdoor unit controller is turned OFF.
2.Disconnect the cable from the terminal 3 on the Outdoor
unit terminal strip. (Fig. 6)
Defect in the inter-unit
cable
1.Turn ON the power and operate the system using the
remote controller or the operation button on the indoor unit.
2.Perform the self-diagnosis five seconds after the operation
start.
What is the latest self-diagnosis result ?
What is the latest self-diagnosis result ?
1 2 43 5 6
1 2 3
Outdoor Unit
Fig. 6
Power
Indoor Unit
1 2 43 5 6
123
Power
Fig. 7
Outdoor Unit
Indoor Unit
Alarm Code : E07/P04/P05/
P20/P27
Alarm Code : E05
Alarm Code : E07/P04/P05/
P20/P27
Alarm Code : E05
42

[Trouble symptom 3]Motor rotates for some time (several seconds), but then quickly stops, when the indoor
unit operates.
(There is trouble in the system that provides feedback of motor rotation speed from the
motor to the indoor unit controller.)
[Trouble symptom 4]Fan motor rotation speed does not change during indoor unit operation.
[Trouble symptom 5]Fan motor rotation speed varies excessively during indoor unit operation.
(Remedy for symptom 3 to 5)
It is not possible to identify whether the trouble is indoor unit controller trouble or motor trouble.
Therefore, first replace the indoor unit controller, then (if necessary) replace the DC motor.
8-4. Trouble Diagnosis of Fan Motor
8-4-1. Indoor Fan Motor
This indoor DC fan motor contains an internal control PCB. Therefore, it is not possible to measure the coil
resistance, and the following procedure should be used to check the motor.
To perform diagnosis, operate the unit in cooling mode with indoor fan speed "High". Next, make sure that the
indoor unit receive the signals from the remote controller when the ON/OFF operation button is pressed.
[Trouble symptom 1]The fan does not stop when the unit stops. Indoor unit controller trouble.
[Trouble symptom 2]The fan motor does not rotate when the unit is operating.
(Diagnostic procedure)
* Disconnect the motor connectors and measure the voltage at the DC motor connectors on the indoor
unit controller (3 locations).
(Diagnostic results)
All of the above measured values are normal. Fan motor trouble (Replace the motor.)
Any one of the above measured values is not normal. Indoor unit controller trouble (Replace the controller .)
(Reference)DC motor connector pin arrangement
Pin 1: Vm (red)
Pin 2: Not used
Pin 3: Not used
Pin 4: Gnd (black)
Pin 5: Vcc (white)
Pin 6: Vs (yellow)
Pin 7: PG (blue)
Important: (A) Turn OFF the power before connecting or disconnecting the motor connectors.
(B) When performing voltage measurement at the indoor controller connector for (3) in the table
below, the DC motor will trip and voltage output will stop approximately 1 minute after operation
is started. For this reason, to measure the voltage again, turn OFF the unit once using the
remote controller, and then start the air conditioner again.
(1) Vm-Gnd: Between pin 1 and pin 4
(2) Vcc-Gnd: Between pin 5 and pin 4
(3) Vs-Gnd: Between pin 6 and pin 4
Measurement location
DC 280 V +/-10%
DC 15 V +/-10%
Fluctuation between DC 1.63 to 6.23 V
Normal value
43

8-4-2. Outdoor Fan Motor
This outdoor DC fan motor contains an internal control PCB. Therefore, it is not possible to measure the coil
resistance, and the following procedure should be used to check the motor.
Perform the trouble diagnosis by Test Run mode described on Installation Instructions of indoor unit.
[Trouble symptom 1]The fan does not stop when the outdoor unit stops. Outdoor unit controller trouble
[Trouble symptom 2]The fan motor does not rotate when the outdoor unit is operating.
(Diagnostic procedure)
* Disconnect the motor connectors and measure the voltage at the DC motor connectors on the outdoor
unit controller (3 locations).
(Diagnostic results)
All of the above measured values are normal. Fan motor trouble (Replace the motor.)
Any one of the above measured values is not normal. Outdoor unit controller trouble
(Replace the controller .)
(Reference)DC motor connector pin arrangement
[Trouble symptom 3]Motor rotates for some time (several seconds), but then quickly stops, when the outdoor
unit operates.
(There is trouble in the system that provides feedback of motor rotation speed from the
motor to the outdoor unit controller.)
[Trouble symptom 4]Fan motor rotation speed does not change during outdoor unit operation.
[Trouble symptom 5]Fan motor rotation speed varies excessively during outdoor unit operation.
(Remedy for symptom 3 to 5)
It is not possible to identify whether the trouble is outdoor unit controller trouble or motor trouble.
Therefore, first replace the outdoor unit controller, then (if necessary) replace the DC motor.
Important: (A) Turn OFF the power before connecting or disconnecting the motor connectors.
(B) When performing voltage measurement at the outdoor controller connector for (3) in the table
below, the DC motor will trip and voltage output will stop approximately 10 seconds after
operation is started. For this reason, to measure the voltage again, first turn OFF the outdoor
unit power, then, measure the voltage in Test Run mode.
Pin 1: Vm (red)
Pin 2: Not used
Pin 3: Gnd (blue)
Pin 1: Vcc (brown)
Pin 2: PG (white)
Pin 3: Vsp (orange)
Pin
FM1
FM2
Connector No.
(1)Vm-Gnd: Between pin 1 and pin 3 of FM1
(2)Vcc-Gnd: Between pin 1 of FM2 and pin3 of FM1
(3)Vs-Gnd: Between pin 3 of FM2 and pin3 of FM1
Measurement location
DC 280V +/- 10%
DC 15V +/- 10%
Fluctuation between DC 1.8V to 5.7V
Normal value
44

8-5. Noise Malfunction and Electromagnetic Interference
An inverter A/C operates using pulse signal control and high frequencies. Therefore, it is susceptible to the effects of external
noise, and is likely to cause electromagnetic interference with nearby wireless devices.
A noise filter is installed for ordinary use, preventing these problems. However, depending on the installation conditions, these
effects may still occur. Please pay attention to the points listed below.
(1) Noise malfunction
This refers to the application of high-frequency noise to the signal wires, resulting in abnormal signal pulses and malfunction.
Locations most susceptible to noise
1.Locations near broadcast stations where
there are strong electromagnetic waves
2.Locations near amateur radio (short wave)
stations
3.Locations near electronic sewing machines
and arc-welding machines
Correction
(The fundamental concept is to make the
system less susceptible to noise.)
- Insulate for noise or
distance from the noise source. -
1.Use shielded wires.
2.Move unit away from the noise source.
Trouble
Either of the following trouble may occur.
1.The unit may stop suddenly during
operation.
2.Indicator lamps may flicker.
(2) Electromagnetic interference
This refers to noise generated by high-speed switching of the microcomputer and compressor. This noise radiates through
space and returns to the electric wiring, affecting any wireless devices (televisions, radios, etc.) located nearby.
Locations most susceptible to noise
1.A television or radio is located near the
A/C and A/C wiring.
2.The antenna cable for a television or
radio is located close to the A/C and A/C
wiring.
3.Locations where television and radio
signals are weak.
Correction
1.Select a separate power source.
2.Keep the A/C and A/C wiring at least 1 meter
away from wireless devices and antenna cables.
3.Change the wireless device’s antenna to a high-
sensitivity antenna.
4.Change the antenna cable to a BS coaxial cable.
5.Use a noise filter (for the wireless device).
6.Use a signal booster.
Trouble
1.Noise appears in the television picture,
or the picture is distorted.
2.Static occurs in the radio sound.
45

Insulation
tester
Probe
Clip
Ground wire
Terminal plate
Copper
tube or
metallic part
Clip
Insulation
tester
Probe
Fig. 1
Fig. 2
Fig. 3
Fig. 4
Copper
tube or
metallic part
Clip
Insulation
tester
Probe
Clip
Insulation
tester
Probe
Metallic
part
From fan motor,
compressor and
other parts
9. CHECKING ELECTRICAL COMPONENTS
9-1. Measurement of Insulation
Resistance
The insulation is in good condition if the resistance
exceeds 1M ohm.
9-1-1. Power Supply Cord
Clamp the grounding wire of power cord with the lead
clip of the insulation resistance tester and measure the
resistance by placing a probe on either of the two
power wires. (Fig. 1)
Then also measure the resistance between the
grounding and other power terminals. (Fig. 1)
9-1-2. Indoor Unit
Clamp an aluminum plate fin or copper tube with the
lead clip of the insulation resistance tester and
measure the resistance by placing a probe on each
terminal screw on the terminal plate. (Fig. 2)
Note that the ground line terminal should be skipped
for the check.
9-1-3. Outdoor Unit
Clamp a metallic part of the unit with the lead clip of
the insulation resistance tester and measure the
resistance by placing a probe on each terminal screw
where power supply lines are connected on the
terminal plate. (Fig. 2)
9-1-4.Measurement of Insulation
Resistance for Electrical Parts
Disconnect the lead wires of the desired electric part
from terminal plate, capacitor, etc. Similarly disconnect
the connector. Then measure the insulation resistance.
(Figs. 3 and 4)
Refer to Electric Wiring Diagram.
If the probe cannot enter the poles because the hole is
too narrow then use a probe with a thinner pin.
NOTE
46

Fuse
PCB Ass'y
Fig. 5
Fig. 6
Fuse
9-2.Checking Continuity of Fuse on
PCB Ass'y
Remove the PCB Ass'y from the electrical
component box. Then pull out the fuse from the PCB
Ass'y. (Fig. 5)
Check for continuity using a multimeter as shown in
Fig. 6.
47

10. REFRIGERANT R410A:
SPECIAL PRECAUTIONS WHEN SERVICING UNIT
10-1. Characteristics of New Refrigerant R410A
10-1-1. What is New Refrigerant R410A?
R410A is a new refrigerant that contains two types of pseudo-non-azeotropic refrigerant mixture. Its
refrigeration capacity and energy efficiency are about the same level as the conventional refrigerant, R22.
10-1-2. Components (mixing proportions)
HFC32 (50%) / HFC125 (50%)
10-1-3. Characteristics
Less toxic, more chemically stable refrigerant
The composition of refrigerant R410A changes whether it is in a gaseous phase or liquid phase. Thus, when
there is a refrigerant leak the basic performance of the air conditioner may be degraded because of a change in
composition of the remaining refrigerant. Therefore, do not add new refrigerant. Instead, recover the
remaining refrigerant with the refrigerant recovery unit. Then, after evacuation, totally recharge the specified
amount of refrigerant with the new refrigerant at its normal mixed composition state (in liquid phase).
When refrigerant R410A is used, the composition will differ depending on whether it is in gaseous or liquid
phase, and the basic performance of the air conditioner will be degraded if it is charged while the refrigerant is in
gaseous state. Thus, always charge the refrigerant while it is in liquid phase.
Ether-type oil is used for compressor oil for R410A-type units, which is different
from the mineral oil used for R22. Thus more attention to moisture prevention and
faster replacement work compared with conventional models are required.
CAUTION
48

Tubing precautions
Refrigerant R410A is more easily affected by dust or moisture compared with R22, thus be sure to temporarily
cover the ends of the tubing with caps or tape prior to installation.
Never use 0.0276" (0.7 mm)-thick copper tubing or tubing which is less than 0.0315" (0.8 mm) in thickness, since
air conditioners with R410A are subject to higher pressure than those using R22 and R407C.
No addition of compressor oil for R410A
No additional charge of compressor oil is permitted.
No use of refrigerant other than R410A
Never use a refrigerant other than R410A.
If refrigerant R410A is exposed to fire
Through welding, etc., toxic gas may be released when R410A refrigerant is exposed to fire. Therefore, be sure
to provide ample ventilation during installation work.
Caution in case of R410A leak
Check for possible leak points with the special leak detector for R410A. If a leak occurs inside the room,
immediately provide thorough ventilation.
A
D
Flare tool for R410A
A
D
Conventional flare tool (R22)
Spacer
10-2. Checklist before Servicing
Use a clutch-type flare tool for R410A or the conventional flare tool. Note that sizes of the resultant flares differ
between these two tools. Where a conventional flare tool is used, make sure to observe A Specification (amount of
extrusion) by using the flare spacer.
Size of flare
Specification A
Diameter of tube D
Dia.1/4" (6.35 mm)
Dia.3/8" (9.52 mm)
Dia.1/2" (12.7 mm)
Dia.5/8" (15.88 mm)
Flare tool for R410A Conventional flare tool (for R22)
0 to 0.0196"
(0 to 0.5 mm)
0.0472"
(1.2 mm)
49

10-3. Tools Specifically for R410A
For servicing, use the following tools for R410A
Gauge manifold
Charging hose
Gas leak detector
Refrigerant cylinder
Charging cylinder
Refrigerant recovery unit
Vacuum pump with anti-reverse flow (*1)
(Solenoid valve-installed type, which prevents oil from flowing back into the
unit when the power is off, is recommended.)
Vacuum pump (*2)...can be used if the following adapter is attached.
Vacuum pump adapter (reverse-flow prevention adapter) (*3).
(Solenoid valve-installed adapter attached to a conventional vacuum pump.)
Electronic scale for charging refrigerant
Flare tool
Bender
Torque wrench
Cutter, reamer
Welding tool, nitrogen gas cylinder
Tools specifically for R410A
Tool Distinction Tool Name
Tools which can be com-
monly used for R22,
R407C, and R410A
CAUTION The above tools specifically for R410A must not be used for R22 and R407C.
Doing so will cause malfunction of the unit.
For the above vacuum pump (*1, *2) and vacuum pump adapter (*3), those for
R22-type units can be used for R410A-type. However, they must be used
exclusively for R410A and never alternately with R22 and R407C.
For details on tubing installation procedures, refer to the installation manuals attached to the indoor
unit and outdoor unit.
To prevent other refrigerants (R22, R407C) from being mistakenly charged to this unit, shape and external
diameter of the service port screw has been altered.
<External diameter of service port> R410A : 5/16"
R22, R407C : 1/4"
10-4. Tubing Installation Procedures
When the tubes are connected, always apply HAB oil on the flare portions to improve the sealing of tubing.
The following is the HAB oil generally used:
Esso: ZERICE S32
NOTE
50

10-5. In Case of Compressor Malfunction
CAUTION Should the compressor malfunction, be sure to make the switch to a replacement
compressor as quickly as possible.
Use only the tools indicated exclusively for R410A. See "10-3. Tools
Specifically for R410A."
10-5-1. Procedure for Replacing Compressor
(1) Recovering refrigerant
Any remaining refrigerant inside the unit should not be
released to the atmosphere, but recovered using the
refrigerant recovery unit for R410A.
Do not reuse the recovered refrigerant, since it will contain
impurities.
(2) Replacing Compressor
Soon after removing seals of both discharge and suction
tubes of the new compressor, replace it quickly.
(3) Checking for sealing
Use nitrogen gas for the pressurized gas, and never use a
refrigerant other than R410A. Also do not use oxygen or
any flammable gas.
(4) Evacuation
Use a solenoid valve-installed vacuum pump so that
even if power is cut off in the middle of evacuation of air
due to a power interruption, the valve will prevent the
pump oil from flowing back.
The equipment may be damaged if moisture remains in
the tubing, thus carry out the evacuation thoroughly.
When using a vacuum pump with exhaust air volume more
than 0.883 cu.ft./min. and ultimate vacuum pressure rate
of 50 micron Hg.
Standard time for evacuation
(1) Recover refrigerant
OK
(2) Replace compressor
OK
(3) Check for sealing
OK
(4) Evacuation
OK
(5) Recharge
Length of tubing
Evacuation time
Less than 33 ft. (10 m)
More than 10 minutes
More than 33 ft. (10 m)
More than 15 minutes
51

Valve
Single valve
Charge liquid refrigerant with
cylinder in up-side-down position.
Single valve (with siphon tube)
Charge with cylinder in normal position.
Liquid
Valve
Liquid
Charging
cylinder
Open Refrigerant
cylinder
Liquid
NO!
CAUTION Never charge a large amount
of liquid refrigerant at once to
the unit. This may cause
damage to the compressor.
CAUTION To prevent the composition
of R410A from changing,
never bleed the refrigerant
gas into the atmosphere
while transferring the
refrigerant. (Fig. 3)
(5) Recharging
Be sure to charge the specified amount of
refrigerant in liquid state using the service port
of the wide tube service valve. The proper
amount is listed on the unit's nameplate.
When the entire amount cannot be charged all at
once, charge gradually while operating the unit in
Cooling Operation.
When charging with a refrigerant cylinder, use an
electronic scale for charging refrigerant. In this
case, if the volume of refrigerant in the cylinder
becomes less than 20% of the fully-charged
amount, the composition of the refrigerant starts
to change. Thus, do not use the refrigerant if
the amount in the charging cylinder is less
than 20%.
Also, charge the minimum necessary amount to
the charging cylinder before using it to charge
the air conditioning unit.
Example:
In case of charging refrigerant to a unit requiring
1.68 lb. (0.76 Kg) using a capacity of a 22 lb. (10
Kg) cylinder, the minimum necessary amount for
the cylinder is:
1.68 + 22 0.20 = 6.08 lb.
(0.76 + 10 0.20 = 2.76 Kg)
For the remaining refrigerant, refer to the
instructions of the refrigerant manufacturer.
If using a charging cylinder, transfer the specified
amount of liquid refrigerant from the refrigerant
cylinder to the charging cylinder.
Prepare an evacuated charging cylinder
beforehand.
Do not use the refrigerant if the amount in the
charging cylinder is less than 20%.
Configuration and characteristics of cylinders
Fig. 1
Fig. 2
Fig. 3
52

Length of tubing
Evacuation time
Less than 33 ft. (10 m)
More than 10 minutes
More than 33 ft. (10 m)
More than 15 minutes
10-6. In Case Refrigerant is Leaking
CAUTION Never attempt to charge additional refrigerant when refrigerant has been leaking
from the unit. Follow the procedure described below to locate points of leaks and
carry out repairs, then recharge the refrigerant.
(1) Detecting Leaks
Use the detector for R410A to locate refrigerant leak
points.
(2) Recovering refrigerant
Never release the gas to the atmosphere; recover
residual refrigerant using the refrigerant recovery unit for
R410A, instead.
Do not reuse the recovered refrigerant because its
composition will have been altered.
(3) Welding leaking points
Confirm again that no residual refrigerant exists in the unit
before starting welding.
Weld securely using flux and wax for R410A.
Prevent oxide film from forming inside the tubes utilizing
substitution with nitrogen (N2) in the refrigerant circuit of
the unit. Leave ends of tubes open during welding.
(4) Checking for sealing
Use nitrogen gas for the pressurized gas, and never use
a refrigerant other than R410A. Also do not use oxygen or
any flammable gas.
(5) Evacuation
Use a solenoid valve-installed vacuum pump so that
even if power is cut off in the middle of evacuation of air
due to a power interruption, the valve will prevent the
pump oil from flowing back.
The equipment may be damaged if moisture remains in
the tubing, thus carry out the evacuation thoroughly.
When using a vacuum pump with exhaust air volume
more than 0.883 cu.ft./min. and ultimate vacuum pressure
rate of 50 micron Hg.
Standard time for evacuation
(6) Recharging
Recharge unit in the same manner explained on the
previous page "(5) Recharging."
(2) Recover refrigerant
OK
(3) Weld leaking points
OK
(4) Check for sealing
OK
(5) Evacuation
OK
(6) Recharge
(1) Detect leaks
OK
53

10-7. Charging Additional Refrigerant
10-7-1. When Tubes are Extended
Observe the proper amount of refrigerant as stated in this service manual or the installation manual that came
with the indoor unit. Charge additional refrigerant in liquid state only.
10-8. Retro-Fitting Existing Systems
10-8-1. Use of Existing Units
Never use new refrigerant R410A for existing units which use R22. This will cause the air conditioner to
operate improperly and may result in a hazardous condition.
10-8-2. Use of Existing Tubing
If replacing an older unit that used refrigerant R22 with a R410A unit, do not use its existing tubing. Instead,
completely new tubing must be used.
CAUTION Never charge additional refrigerant if refrigerant is leaking from the unit. Follow
instructions given in "10-6. In Case Refrigerant is Leaking" and completely carry
out repairs. Only then should you recharge the refrigerant.
54

INSTRUCTION MANUAL
KS3082 + C3082
KS3682 + C3682
(OI-852-6-4181-150-00-0)
APPENDIX A
A-1

KS3082
KS3682
COOL/DRY Model
© SANYO 2010
Pub. OI-85264181150000
INSTRUCTION MANUAL
Inverter-Controlled Split System Air Conditioner
MODE D’EMPLOI
Climatiseur de type séparé contrôlé par inverseur
This air conditioner uses
the new refrigerant R410A.
Save These Instructions!
Conserver ce mode d’emploi
00_KHS3682_Cover.fm Page 1 Tuesday, December 15, 2009 10:33 AM

2
FEATURES
This air conditioner is an inverter type unit that automatically adjusts capability as appropriate. Details on these functions are provided below;
refer to these descriptions when using the air conditioner.
• Microprocessor Controlled Operation
The interior compartment of the remote control unit
contains several features to facilitate automatic operation,
easy logically displayed for easy use.
• Simple One-touch Wireless Remote Control
The remote control unit has several features to facilitate
automatic operation.
• 24-Hour ON or OFF Timer
This timer can be set to automatically turn the unit on or off
at any time within a 24 hour period.
• 1-Hour OFF Timer
This timer can be set to automatically turn off the unit at
any time after one hour.
•Night Setback
This function saves energy by controlling operation to
provide a quieter operating sound than normal.
• Automatic and 3-step Fan Speed
Auto/High/Medium/Low
• Air Sweep Control
This function moves a flap up and down in the air outlet,
directing air in a sweeping motion around the room and
providing comfort in every corner.
• Auto. Flap Control
This automatically sets the flap to the optimum position
during cooling and drying operation.
• Automatic Restart Function for Power Failure
Even when power failure occurs, preset programmed
operation can be reactivated once power resumes.
• High Power Operation
The unit operates at maximum output for 30 minutes,
regardless of the desired temperature.
The fan speed is 1 step above “High”.
• Quiet Operation
The fan rotates slower than the fan speed setting to provide
a quieter operating sound.
• LED Clean Operation
During operation, the UV anti-bacteria unit is activated for
30 minutes and cleans the air blown from the air
conditioner.
• Anti-Mold Filter
This unit is equipped with an anti-mold filter that inhibits the
growth of mold and bacteria.
• Air Clean Filter
An air filter that eliminates unpleasant odors and cleans the
air is available.
Purchase a replacement filter at your local dealer.
(model STK-FDXB)
• Unoccupied
This function prevents the room temperature from
increasing too much when no one is in the room, and
operate automatically to save energy.
CONTENTS
Page Page
FEATURES................................................................................. 2
PRODUCT INFORMATION ........................................................ 3
ALERT SYMBOLS...................................................................... 3
INSTALLATION LOCATION........................................................ 3
ELECTRICAL REQUIREMENTS ............................................... 3
SAFETY INSTRUCTIONS.......................................................... 3
NAMES OF PARTS .................................................................... 4
USING THE REMOTE CONTROL UNIT.................................... 8
OPERATION WITH THE REMOTE CONTROL UNIT ................ 9
1. Operation .................................................................... 9
2. Adjusting the Fan Speed............................................. 9
3. Fan Only...................................................................... 9
4. Night Setback Mode.................................................. 10
5. QUIET Mode ............................................................. 10
6. HIGH POWER Mode................................................. 10
7. LED CLEAN Mode .................................................... 11
8. UNOCCUPIED Mode................................................ 11
SPECIAL REMARKS ................................................................12
SETTING THE TIMER ..............................................................12
USING THE 1-HOUR OFF TIMER ...........................................14
TIPS FOR ENERGY SAVING...................................................14
ADJUSTING THE AIRFLOW DIRECTION ...............................14
OPERATION WITHOUT THE REMOTE CONTROL UNIT .......15
CARE AND CLEANING ............................................................15
TROUBLESHOOTING ..............................................................17
OPERATING RANGE................................................................17
WIRED REMOTE CONTROLLER ............................................17
OI-150-2-EG
01_KS3682_EN.fm Page 2 Friday, February 12, 2010 12:26 PM

3
PRODUCT INFORMATION
If you have problems or questions concerning your Air
Conditioner, you will need the following information. Model
and serial numbers are on the nameplate on the bottom of
the cabinet.
Model No. __________________________________
Serial No. ___________________________________
Date of purchase _____________________________
Dealer’s address _____________________________
Phone number ________________
ALERT SYMBOLS
The following symbols used in this manual, alert you
to potentially dangerous conditions to users, service
personnel or the appliance:
INSTALLATION LOCATION
• We recommend that this air conditioner be installed
properly by qualified installation technicians in
accordance with the Installation Instructions
provided with the unit.
• Before installation, check that the voltage of the electric
supply in your home or office is the same as the voltage
shown on the nameplate.
Avoid:
To protect the air conditioner from heavy corrosion, avoid installing
the outdoor unit where salty sea water can splash directly onto it or
in sulphurous air near a spa.
ELECTRICAL
REQUIREMENTS
1. All wiring must conform to the local electrical codes.
Consult your dealer or a qualified electrician for details.
2. Each unit must be properly grounded with a ground (or
earth) wire or through the supply wiring.
3. Wiring must be done by a qualified electrician.
SAFETY INSTRUCTIONS
• Read this Instruction Manual carefully before using
this air conditioner. If you still have any difficulties
or problems, consult your dealer for help.
• This air conditioner is designed to give you
comfortable room conditions. Use this only for its
intended purpose as described in this Instruction
Manual.
This symbol refers to a hazard or unsafe
practice which can result in severe
personal injury or death.
This symbol refers to a hazard or unsafe
practice which can result in personal
injury or product or property damage.
• Do not install this air conditioner
where there are fumes or flammable
gases, or in an extremely humid space
such as a greenhouse.
• Do not install the air conditioner where
excessively high heat-generating
objects are placed.
CAUTION
• Never use or store gasoline or other
flammable vapor or liquid near the air
conditioner — it is very dangerous.
• This air conditioner has no ventilator
for intaking fresh air from outdoors.
You must open doors or windows
frequently when you use gas or oil
heating appliances in the same room,
which consume a lot of oxygen from
the air. Otherwise there is a risk of
suffocation in an extreme case.
• Do not turn the air conditioner on and
off from the power mains switch. Use
the ON/OFF operation button.
• Do not stick anything into the air outlet
of the outdoor unit. This is dangerous
because the fan is rotating at high
speed.
• Do not let children play with the air
conditioner.
• Do not cool the room too much if
babies or invalids are present.
CAUTION
OI-150-3-EG
01_KS3682_EN.fm Page 3 Friday, February 12, 2010 12:26 PM

4
NAMES OF PARTS
This illustration is based on the external view of a standard model.
Consequently, the shape may differ from that of the air conditioner
which you have selected.
This air conditioner consists of an indoor unit and an outdoor unit.
You can control the air conditioner with the remote control unit.
UNIT DISPLAY AND OPERATION
BUTTON
Avoid using radio equipment such as mobile phone near (within
4 ft. (1.2 m)) the remote control receiver. Some radio equipment
may cause malfunction of the unit.
If the trouble happens, disconnect power and restart the air
conditioner after a few minutes.
The unit’s display lamps are dimmed during operation in the NIGHT
SETBACK mode.
Air Intake Air from the room is drawn into this section and
passes through air filters which remove dust.
Air Outlet Conditioned air is blown out of the air
conditioner through the air outlet.
Remote
Control Unit
The wireless remote control unit controls power
ON/OFF, operation mode selection,
temperature, fan speed, timer setting, and air
sweeping.
Refrigerant
Tubes
The indoor and outdoor units are connected by
copper tubes through which refrigerant gas
flows.
Drain Hose Moisture in the room condenses and drains off
through this hose.
Outdoor
(Condensing)
Unit
The outdoor unit contains the compressor, fan
motor, heat exchanger coil, and other electrical
components.
INDOOR UNIT
Air intakes
Remote control unit
Refrigerant tubes
Drain hose
OUTDOOR UNIT
Air outlet
Air outlet
NOTE
REMOTE
CONTROL
receiver
This section picks up infrared signals from the
remote control unit (transmitter).
OPERATION
button
When the remote control unit cannot be used,
pressing this button enables cooling operation.
Each time this button is pressed, the operation
mode changes cyclically.
OPERATION
lamp
This lamp lights when the system is in the
continuous DRY (orange), COOL (green) and
FAN (green) mode.
TIMER lamp This lamp lights when the system is being
controlled by the timer.
LED CLEAN
lamp
This lamp lights during operation in the UV anti-
bacterial mode.
REMOTE CONTROL
receiver
TIMER lamp
OPERATION lamp
OPERATION button
(ON/OFF)
INDOOR UNIT
LED CLEAN lamp
IMPORTANT
Cooling operation Stop
NOTE
OI-150-4-EG
01_KS3682_EN.fm Page 4 Friday, February 12, 2010 12:26 PM

5
REMOTE CONTROL UNIT (DISPLAY)
(1) Operation mode
MILD DRY ..............................
COOL.....................................
FAN ........................................
(2) Fan speed
Automatic operation ...............
HIGH .....................................
MEDIUM.................................
LOW .......................................
(3) Temperature setting
60–86°F
When set to 80 °F
temperature indication............
(4) Timer
24-hour clock with ON/OFF
program Timer .......................
ON Timer. ..............................
OFF Timer. ............................
1-hour OFF Timer. .................
(5) NIGHT SETBACK..................
(6) Confirmation of transmission.......
(7) Auto. flap indication................
Flap angle indication..............
Sweep indication....................
(8) High power operation.............
(9) UNOCCUPIED ......................
(10) Quiet operation ....................
(11) LED CLEAN operation.........
Displayed when setting timer
Displayed when transmitting data
Displayed when indoor unit sensor is
in use
Displayed when setting temperature
Displayed when temperature is shown
Symbols
OI-150-5-EG
01_KS3682_EN.fm Page 5 Friday, February 12, 2010 12:26 PM

6
REMOTE CONTROL UNIT
Transmitter
When you press the buttons on the remote control unit, the mark appears in
the display to transmit the setting changes to the receiver in the air conditioner.
Display
Information on the operating conditions is displayed while the remote control unit
is switched on. If the unit is turned off, FLAP setting and FAN SPEED setting are
not displayed.
FAN SPEED selector button
: The air conditioner automatically decides the fan speeds.
: High fan speed
: Medium fan speed
: Low fan speed
FLAP button
Press this button either to select the setting of the airflow direction to the
auto. flap in each mode or one of the six possible positions manually or to
select the sweep function which moves the flap up and down automatically.
: Auto flap setting: If selected in a cooling or dry operation, the flap is
set at position (7) in the following chart.
: The airflow direction can be set manually. (six positions)
: The flap moves up and down automatically.
When you press the FLAP button, the air flow direction will be changed one
by one as follows.
NOTE
SWEEP
CANCEL button
SENSOR button
When you press this button (use a small-tipped object such as a ballpoint pen), the
mark will appear at the display. And the room temperature is detected by the
sensor which is built into the indoor unit and the air conditioner is controlled
accordingly.
If the remote control unit is located near a heat source, such as a space heater or in
direct sunlight, press the SENSOR button to switch to the sensor on the indoor unit.
NOTE
LED CLEAN button
: If this button is pressed during DRY, COOL or FAN operation, the UV
anti-bacterial unit is activated for 30 minutes and cleans the air blown
from the air conditioner.
ADDRESS switch
• The address switch changes to prevent mixing of signals from remote control units when two
air conditioners are installed next to each other. Normally, the address switch is set to A. For
more information, please contact the dealer where you made the purchase.
• Normally, the tabs on the remote control unit should not be bent.
Temperature display selector button
This switches the temperature display
between °C and °F.
QUIET button
: When you press this button, the fan rotates slower than the fan speed
setting to provide a quieter operating sound.
ON TIME/OFF TIME setting buttons
Advance button
Return button
No display: The timer does not operate.
: The air conditioner starts at the set time.
: The air conditioner stops at the set time.
: The air conditioner stops and starts, or starts
and stops, at the set times every day. For
details, see “SETTING THE TIMER”.
OI-150-6-EG
01_KS3682_EN.fm Page 6 Friday, February 12, 2010 12:26 PM

7
Sensor
A temperature sensor inside the remote control unit senses the room
temperature.
(Cover closed)
CLOCK button
ACL button (ALL CLEAR)
Puts the remote control unit into pre-operation status. Always press this button
after replacing the batteries.
ON/OFF operation button
This button is for turning the air conditioner on and off.
1 HR. TIMER button (1-HOUR OFF TIMER)
: When you press this button, regardless of whether the unit is operating
or stopping, the unit operates for one hour and then shuts down.
Temperature setting buttons (TEMP.)
Press the button to increase the set temperature.
Press the button to reduce the set temperature.
The temperature setting changes by 1 °C or 2 °F each time one of the TEMP.
buttons is pressed.
MODE selector button
Use this button to select DRY, COOL or FAN mode.
(DRY) : The air conditioner reduces the humidity in the room.
(COOL) : The air conditioner makes the room cooler.
(FAN) : The air conditioner works only as a circulation fan.
NIGHT SETBACK button
For details, see “4. Night Setback Mode”. When you press this button in the
DRY or COOL mode, the mark appears in the display, and the remote
control unit will automatically adjust the set temperature to save energy.
HIGH POWER button
: If this button is pressed during DRY, COOL or FAN operation, the unit
operates at maximum output for 30 minutes, regardless of the desired
temperature.
The fan speed is 1step above ‘‘HIGH’’.
UNOCCUPIED button
For details, see “8. UNOCCUPIED Mode”. When you press this button, the
mark appears in the display. And the remote control unit will automatically
prevent the room temperature from increasing too much when no one is in the
room.
• The illustration above pictures the remote control unit after the cover has been opened.
• The remote control unit sends the temperature signal to the air conditioner regularly at five minute intervals. If the signal from the
remote control unit stops for more than 15 minutes due to the loss of the remote control unit or other trouble, the air conditioner will
switch to the temperature sensor which is built into the indoor unit and control the room temperature. In these cases, the
temperature around the remote control unit may differ from the temperature detected at the air conditioner’s position.
• The indoor fan runs continuously when the system is in normal operation. It does not turn off when the desired room temperature is
reached. If Night Set Back mode is selected, the fan will turn off intermittently during cooling operation in order to control air flow.
NOTE
OI-150-7-EG
01_KS3682_EN.fm Page 7 Friday, February 12, 2010 12:26 PM

8
USING THE REMOTE CONTROL UNIT
HOW TO INSTALL BATTERIES
1. Slide the cover in the direction indicated by the arrow and remove
it.
2. Install two AAA alkaline batteries. Make sure the batteries point in
the direction marked in the battery compartment.
3. Use a thin object such as the tip of a pen to press the ACL button.
• The batteries last about six months, depending on how much
you use the remote control unit. Replace the batteries when
the remote control unit’s display fails to light, or when the
remote control unit cannot be used to change the air
conditioner’s settings.
• Use two fresh leak-proof type-AAA alkaline batteries.
• In replacing batteries, follow the instructions as mentioned in
the sub-section “HOW TO INSTALL BATTERIES”.
• If you do not use the remote control unit more than 1 month,
take out the batteries.
• Dispose of the used batteries at the designated location in
compliance with the applicable local ordinances.
HOW TO USE THE REMOTE CONTROL UNIT
When using the remote control unit, always point the unit’s
transmitter head directly at the air conditioner’s receiver.
REMOTE CONTROL UNIT INSTALLATION
POSITION
The remote control unit may be operated either from a non-fixed
position or from a wall-mounted position. To ensure that the air
conditioner operates correctly, DO NOT install the remote control
unit in the following places:
DO NOT
• In direct sunlight
• Behind a curtain or other places where it is covered
• More than 26 ft.(8 m) away from the air conditioner
• In the path of the air conditioner’s airstream
• Where it may become extremely hot or cold
• Where it may be subject to electrical or magnetic noise
• Where there is an obstacle between the remote control unit and air
conditioner (since a check signal is sent from the remote control
unit every 5 minutes)
MOUNTING THE REMOTE CONTROL UNIT
Before mounting the remote control unit, press the ON/OFF
operation button at the mounting location to make sure that the air
conditioner operates from that location. The indoor unit should make
a beeping sound to indicate that it has received the signal.
To take out the remote control unit, pull it forward.
WHEN HOLDING THE REMOTE CONTROL UNIT
• When using the remote control unit and during air conditioner
operation, the transmitter on the remote control unit should be
pointed towards the receiver on the indoor unit.
• Make sure that there are no objects between the remote control
unit and receiver which could block the signal.
ACL button
NOTE
Air conditioner
(Indoor unit)
Receiver
Remote control unit (Transmitter head)
• To prevent loss of the remote control
unit, you can connect the remote
control unit to the mount by passing
a string through the remote control
unit and attachment hole.
Remote control unit mount
Mounting screws
5/32 x 5/8"
(4 x 16 mm)
(included)
Rear side
Hole
Press
Set in
place
OI-150-8-EG
01_KS3682_EN.fm Page 8 Friday, February 12, 2010 12:26 PM

9
OPERATION WITH THE REMOTE CONTROL UNIT
1. Operation 2. Adjusting the Fan Speed
A. Automatic fan speed
Simply set the FAN SPEED selector button to the
position.
This automatically sets the best fan speed for the room
temperature.
B. Manual fan speed
If you want to adjust fan speed manually during operation,
just set the FAN SPEED selector button as desired. [ ,
, or ]
3. Fan Only
Check that the circuit breaker on the power panel is
turned on.
Press the setting buttons as described below and
change the settings as desired.
STEP 1 Press the MODE selector button
and select the desired mode.
For dehumidifying operation
For cooling operation
For fan only operation
→
→
→
STEP 2 To start the air conditioner, press the ON/
OFF operation button.
STEP 3 Press the TEMP. setting buttons to change
the temperature setting to the desired
temperature.
Adjustable temperature range:
STEP 4 Set the FAN SPEED selector button to the
setting you want.
STEP 5 Press the FLAP button and set the airflow
direction as desired.
(Refer to “ADJUSTING THE AIRFLOW
DIRECTION” on page 14.)
To stop the air conditioner, press the ON/OFF
operation button again.
• Choose the best position in the room for the remote
control unit, which also acts as the sensor for room
comfort and transmits the operating instructions.
Once you’ve found this best position, always keep the
remote control unit there.
• This appliance has a built-in 5-minute time delay
circuit to ensure reliable operation. When the
operation button is pressed, the compressor will start
running within three minutes. In the event of power
failure, the unit will stop.
STEP 2
STEP 1
STEP 3
STEP 4
STEP 5
NOTE
30 °C max.
16 °C min. or 86 °F max.
60 °F min.
NOTE
If you want to circulate air without any temperature
control, follow these steps:
STEP 1 Press the MODE selector button to switch to
the fan mode .
STEP 2 Press the ON/OFF operation button.
STEP 3 Press the FAN SPEED selector button to
select the fan speed of your choice ( ,
or ).
STEP 2
STEP 1
STEP 3
OI-150-9-EG
01_KS3682_EN.fm Page 9 Friday, February 12, 2010 12:26 PM

10
4. Night Setback Mode
Night Setback Mode is used for saving energy.
Press the NIGHT SETBACK button while operation. (except FAN
mode)
The mark appears in the display.
To release the night setback function, press the NIGHT SETBACK
button again.
Pressing the MODE selector button cancels Night Setback mode.
In Cooling and DRY Mode: ( and )
5. QUIET Mode
QUIET Mode is used to reduce the fan sound of the indoor unit.
Press the QUIET button.
The mark appears in the display.
To cancel, press QUIET button again.
• In QUIET Mode, the fan rotates at a slower speed than the fan
speed setting.
• If the unit is already operating with a very low airflow, the fan sound
may not change even if the QUIET button is pressed.
6. HIGH POWER Mode
HIGH POWER mode can be used to increase the output of the
indoor unit for all operation modes.
Press the HIGH POWER button while operation.
The mark appears in the display.
To cancel, press HIGH POWER button again.
• When the HIGH POWER button is pressed, the unit operates at
maximum output for 30 minutes, regardless of the desired
temperature. The fan speed is 1 step above “High”.
• QUIET Mode and HIGH POWER Mode cannot be used at the
same time.
• Pressing the MODE selector button cancels HIGH POWER mode.
• Depending on the operating conditions, the fan speed may be
increased by a small amount only.
NOTE
When the night setback mode is selected, the air conditioner
automatically raises the temperature setting 2 °F when 30 minutes
have passed after the selection was made, and then another 2 °F
after another 30 minutes have passed, regardless of the indoor
temperature when night setback was selected. This enables you
to save energy without sacrificing comfort. This function is
convenient when gentle cooling is needed.
Setting
temperature
Press the NIGHT
SETBACK button
30 min. 30 min. Time
2°F
2°F
NOTE
OI-150-10-EG
01_KS3682_EN.fm Page 10 Friday, February 12, 2010 12:26 PM

11
7. LED CLEAN Mode
In LED CLEAN mode, a UV anti-bacterial unit (including a LED
CLEAN lamp and anti-bacterial filter) in the indoor unit is used during
DRY, COOL, or FAN operation to remove bacteria from air blown
from the air conditioner.
Press the LED CLEAN button while operation.
The mark appears in the display.
To cancel, press the LED CLEAN button again.
• When the LED CLEAN button is pressed, the UV anti-bacterial unit
operates for one hour and cleans air blown from the air conditioner.
• Pressing the MODE selector button cancels LED CLEAN mode.
• Do not open the front panel while the LED CLEAN lamp on the
display is on.
• Depending on the room brightness, light from the LED CLEAN
lamp may reflect inside the air conditioner and be visible. This is
not a malfunction.
8. UNOCCUPIED Mode
Unoccupied mode is used to prevent the room temperature from
increasing too much when no one is in the room, and operate
automatically to save energy.
Press the UNOCCUPIED button.
The mark appears in the display.
To release the unoccupied function, press the UNOCCUPIED button
again.
Unoccupied Indication
Even if Unoccupied Mode is ON, it will be disabled if the air
conditioner is in operation.
• Unoccupied Function can be set and released through all
operational modes, regardless of whether the air conditioner is
operating or not.
• If the Unoccupied Function is ON and the remote control unit is
used to turn the air conditioner OFF (including OFF TIMER), the air
conditioner will turn off, but depending on the room temperature,
Cooling Operation will automatically begin.
• When the Unoccupied Function is in operation and the ON/OFF
operation button is pressed, operation will restart based on the
settings input before the air conditioner was turned off.
In Cooling Mode: ( )
• Unoccupied Mode triggers Cooling Operation in response to the
room temperature, but when this happens, the remote control unit
will continue to display the Operation mode set by the user.
• If the room temperature rapidly changes, the room temperature
may get over the upper or lower limit when the unoccupied function
is activated.
• The remote control unit should be used in the location specified in
“REMOTE CONTROL UNIT INSTALLATION POSITION” on
page 8.
• The air conditioner’s stop order (stated in (2) / above) is valid only
when the unoccupied function is operated.
NOTE
Unoccupied
Function Unoccupied
Indication
Status
OFF no display The unoccupied function is not set.
ON flashing
The unoccupied function is now
being set, and under Cooling
operation.
lighting
Although the unoccupied function is
set, not under Cooling operation.
NOTE
(1)
89
86
82 (2)
Room
Temperature (°F)
Cooling
starts
Time
Cooling
stops
(1) When the room temperature rises above 89°F, Cooling
Operation will begin.
(2) When the room temperature drops below 82°F, Cooling
Operation will stop.
The above actions will repeat so that the room temperature is
maintained at about 86°F.
NOTE
OI-150-11-EG
01_KS3682_EN.fm Page 11 Friday, February 12, 2010 12:26 PM

12
SPECIAL REMARKS
How it works?
• Once the room temperature reaches the level that was set, the
unit’s operation frequency is changed automatically.
• During DRY operation, the fan speed automatically runs at lower
speed for providing a comfortable breeze.
• ‘‘DRY’’ operation is not possible if the indoor temperature is 59 °F
or less.
• Sometimes the indoor unit may not get to the set fan speed such as
LOW under cool operation at very low outdoor temperatures due to
the indoor unit being protected from ice or frost.
• In the event of power failure, the unit will stop. When the power is
resumed, the unit will restart automatically in approximately
5 minutes by the remote control unit.
If the remote control unit is on and left in a location where the unit
can receive a signal, then the unit will automatically restart in
approximately 5 minutes of power being restored.
Clicking sound is heard from the air conditioner
• In cooling operation, any plastic parts may shrink due to a sudden
temperature change. In this event, a clicking sound may occur. This
is normal, and the sound will soon disappear.
• The remote control unit sends the setting condition to the air
conditioner regularly at five minute intervals.
SETTING THE TIMER
In the descriptions below, the following settings are used for the
temperature and time indicator selector button on the bottom front
section of the remote control unit.
• Temperature: °F
• Time: AM, PM
1. How to set the present time
(Example) To set to 10:30 pm.
‘‘DRY’’ ( ) Operation
Cooling ( ) operation
Power failure during operation
Clicking Sound
Remote Control Unit
Operation Indication
1. Press the CLOCK button
once if the time indicator is
not flashing.
The time indication alone
flashes.
2. Press the Advance, Return
( , ) button until PM 10:30
is displayed.
The time can be set in 1-minute
increments. Holding down the
button advances the time rapidly
in 10-minute increments.
3. Press the CLOCK button
again. This completes the setting of the
current time.
NOTE
OI-150-12-EG
01_KS3682_EN.fm Page 12 Friday, February 12, 2010 12:26 PM

13
2. How to set the OFF time
(Example) To stop the air conditioner at 11:00 am.
3. How to set the ON time
(Example) To start operation at 7:10 am.
4. How to set daily ON/OFF repeat timer
(Example) To start operation at 7:10 am. and stop the air conditioner
at 11:00 am.
• The ON/OFF combination timer uses the current time as the
reference, and it is activated starting from whichever set time
comes first.
• With the ON/OFF combination timer, the settings are repeated
every day.
• You can check the timer ON/OFF times after you have set them by
pressing the ON TIME and OFF TIME setting buttons.
To cancel a timer program
• Press the CANCEL button.
• When either an ON or OFF timer is to be canceled, press the
button corresponding to the timer whose program is to be
canceled, and then press the CANCEL button.
• The airflow direction, fan speed and temperature setting can be
changed after a timer program has been set even when the unit is
stopped. Even when operation is stopped during an ON timer
program, the unit will start operating when the set time is reached
provided that the program is not canceled.
• When the ON timer and OFF timer are set to the same time, the
timer operates as if it is turned off.
Operation Indication
1. Press the OFF TIME setting
button once. The timer indication is
displayed, and the present OFF
time is shown.
2. Press the Advance, Return
( , ) button until AM 11:00
is displayed.
The timer indication
blinks.
The time can be set in 10-minute
increments. Holding down the
button advances the time rapidly
in 10-minute increments.
3. Wait a few seconds, and then
the setting is complete. The timer indication
stops blinking and the present
time is displayed.
Operation Indication
1. Press the ON TIME setting
button once. The timer indication is
displayed, and the present ON
time is shown.
2. Press the Advance, Return
( , ) button until AM 7:10
is displayed.
The timer indication
blinks.
The time can be set in 10-minute
increments. Holding down the
button advances the time rapidly
in 10-minute increments.
3. Wait a few seconds, and then
the setting is complete. The timer indication
stops blinking and the present
time is displayed.
Operation Indication
1. Set the timer ON/OFF times
as shown in 2-1, 2, 3 and 3-1,
2, 3.
The present time 10:30 pm. and
are displayed.
7:10 am.
ON
11:00 am.
OFF
10:30 pm.
Present time
NOTE
NOTE
OI-150-13-EG
01_KS3682_EN.fm Page 13 Friday, February 12, 2010 12:26 PM

14
USING THE 1-HOUR OFF
TIMER
1. 1-Hour OFF Timer
This function causes the unit to operate for one hour and then
stop, regardless of whether the unit is on or off when this
button is pressed.
The indicator in the display indicates that this function is
operating.
Setting procedure:
Regardless of whether the unit is operating or stopped, press the 1
HR. TIMER button.
appears in the display.
Cancellation procedure:
Press the ON/OFF operation button to turn the unit off, wait for the
unit to stop operating, and then press the ON/OFF operation button
again.
The 1-Hour Timer function is now cancelled and the unit operates
normally.
• If, while the 1-Hour Timer function is operating, the 1HR. TIMER
button is pressed once to cancel the function and then again, the
unit continues to operate for one hour from that point in time and
then stops.
• It is not possible to use the OFF Timer and 1-Hour OFF Timer
together. Whichever function is set last takes precedence. If the 1
HR. TIMER button is pressed while the TIMER OFF function
operates, the OFF Timer is cancelled and the unit will stop
operating one hour later.
2. Operation together with the daily ON/OFF
repeat timer
The 1-Hour OFF Timer setting is given priority over the DAILY ON/
OFF REPEAT setting.
TIPS FOR ENERGY SAVING
Do not
• Block the air intake and outlet of the unit. If they are
obstructed, the unit will not work well, and may be damaged.
• Let direct sunlight into the room. Use sunshades, blinds or curtains.
If the walls and ceiling of the room are warmed by the sun, it will
take longer to cool the room.
Do
• Always try to keep the air filter clean. (Refer to “CARE AND
CLEANING”.) A clogged filter will impair the performance of the
unit.
• To prevent conditioned air from escaping, keep windows, doors and
any other openings closed.
ADJUSTING THE AIRFLOW
DIRECTION
1. Horizontal
The horizontal airflow can be adjusted by moving the vertical vanes
with your hands to the left or right.
When the humidity is high, the vertical vanes should be in the
front position during the cooling or dehumidifying operation. If
the vertical vanes are positioned all of the way to the right or
left, condensation may begin to form around the air vent and
drip down.
2. Vertical
The vertical airflow can be adjusted by moving the flap with the
remote control unit. Do not move the flap with your hands. Confirm
that the remote control unit has been turned on. Use the FLAP
button to set either the sweep function or one of the six airflow
direction settings.
• The flap automatically closes when the unit is off.
NOTE
CAUTION
FAN
SWEEP
SWEEP
A. Sweep function
The flap starts moving
up and down to deliver
air over the sweep
range.
B. Setting the airflow manually
Referring to the above
illustration, use the
FLAP button to set the
airflow direction within
the range used during
cooling or
dehumidifying
operation.
C. Auto flap function
The flap is set
to the
recommended
position.
COOL
DRY
NOTE
OI-150-14-EG
01_KS3682_EN.fm Page 14 Friday, February 12, 2010 12:26 PM

15
• Use the FLAP button on the remote control to adjust the
position of the flap. If you move the flap by hand, the flap
position according to the remote control and the actual flap
position may no longer match. If this should happen, shut off
the unit, wait for the flap to close, and then turn on the unit
again; the flap position will now be normal again.
• Do not have the flap pointed down during cooling operation.
Condensation may begin to form around the air vent and drip
down.
OPERATION WITHOUT THE
REMOTE CONTROL UNIT
If you have lost the remote control unit or it has trouble, follow the
steps below.
When the air conditioner is not running
Each time the OPERATION button is pressed, the operation mode
changes cyclically.
The temperature is set to the room temperature minus 4°F during
the cooling operation, and the fan speed and flap are set to Auto.
CARE AND CLEANING
Casing and Grille (Indoor Unit)
Clean the casing and grille of the indoor unit with a vacuum cleaner
brush, or wipe them with a clean, soft cloth.
If these parts are stained, use a clean cloth moistened with a mild
liquid detergent. When cleaning the grille, be careful not to force the
vanes out of place.
Anti-Mold Filter
The anti-mold filter behind the front panel should be checked and
cleaned at least once every two weeks.
How to remove the anti-mold filter
1. Grasp both ends of the front panel and pull forward and up to
open the front panel.
2. Lift the anti-mold filter up slightly to disengage it from the
protrusions on the unit.
3. Pull downward to remove the filter from the unit.
Cleaning
Use a vacuum cleaner to remove light dust. If there is sticky dust on
the filter, wash the filter in lukewarm, soapy water, rinse it in clean
water, and dry it.
How to replace the anti-mold filter
1. Insert the top of the anti-mold filter, and then secure the bottom of
the filter with the protrusions on the unit.
2. Close the front panel by pushing the center of the front panel and
then pressing both edges until the panel clicks into place.
Air Clean Filter
The air clean filter removes dust and dirt from the air, and reduces
odors and smoke from tobacco.
1. For safety, be sure to turn the air
conditioner off and also to
disconnect the power before
cleaning.
2. Do not pour water on the indoor unit
to clean it. This will damage the
internal components and cause an
electric shock hazard.
CAUTION
INDOOR UNIT
OPERATION button (ON/OFF)
OPERATION lamp
Cooling operation Stop
NOTE
1. Never use solvents, or harsh
chemicals when cleaning the indoor
unit. Do not wipe the plastic casing
using very hot water.
2. Some metal edges and the fins are
sharp and may cause injury if
handled improperly; be especially
careful when you clean these parts.
3. The internal coil and other
components of the outdoor unit
must be cleaned every year. Consult
your dealer or service center.
CAUTION
Protrusions
Front panel
Anti-mold filter
12
2
OI-150-15-EG
01_KS3682_EN.fm Page 15 Friday, February 12, 2010 12:26 PM

16
How to install the air clean filter
The air clean filter needs to be installed behind the anti-mold filter.
1. Open the front panel and remove the anti-mold filter.
2. Remove the air filter holder from the anti-mold filter.
3. Install the air clean filter in the air filter holder.
4. Install the air filter holder to the anti-mold filter, remount the anti-
mold filter, and close the front panel.
How to clean the air clean filter
• In general, the filter should be sucked to remove dust in low fan
speed of a vacuum cleaner once every three months.
• If there is heavily grime on the filter, soak the filter in lukewarm
water with neutral detergent diluted 1:500 for 1 to 2 minutes then
wash it.
• Rinse the filter in clean water, then let it dry on the towel in room
temperature.
• Do not bend nor give excessive force onto the air clean filter.
• If the filter surface is heavily blocked with dirt or damaged, replace
it with new one. Purchase a replacement filter at your local dealer.
(model STK-FDXB)
Cleaning the main unit and remote control unit
• Wipe clean using a soft, dry cloth.
• To remove stubborn dirt, moisten a cloth in warm water no hotter
than 104 °F, wring thoroughly, and then wipe.
• The front panel can be removed in order to wash it with water.
Removing and remounting the front panel
Removing
Open the front panel until it is nearly horizontal, grasp the sections
near the front panel arms on both sides, and then remove the panel
by pushing the arms towards the outside while pulling the panel
towards you.
If the front panel is difficult to remove, grasp both ends of it and lift it
up slightly.
Move it to the left and disengage the left arm, then move it to the
right and disengage the right arm.
Remounting
Grasp the sections near the front panel arms on both sides, and
hold the front panel so that it is nearly horizontal. Push the arm
shafts towards the outside so that they come into contact with the
top of the indentations on the right and left sides of the air
conditioner. Then push firmly until the arm shafts click into place.
After closing the front panel, press firmly on the parts indicated by
the arrows to securely fasten the panel in place.
Also refer to the figure that shows “How to replace the anti-mold
filter”.
Washing the front panel with water
• Clean the front panel gently using a soft sponge, or the like. Then
wipe away any remaining moisture.
• Neutral detergent may be used to remove stubborn dirt. Then rinse
thoroughly with water and wipe away any remaining moisture.
This air clean filter cannot remove
harmful gases or vapors nor ventilate
air in the room. You must open doors
or windows frequently when you use
gas or oil heating appliances.
Otherwise there is a risk of suffocation
in extreme cases.
Air filter holder
Anti-mold filter
Air clean filter
NOTE
Front panel Arm
When using a footstool or the like, be
careful not to let it tip over.
CAUTION
OI-150-16-EG
01_KS3682_EN.fm Page 16 Friday, February 12, 2010 12:26 PM

17
TROUBLESHOOTING
If your air conditioner does not work properly, first check the following
points before requesting service. If it still does not work properly,
contact your dealer or service center.
OPERATING RANGE
The air conditioner is operable within the temperature ranges as
listed below:
WIRED REMOTE CONTROLLER
A separately sold wired remote controller (STK-RCS-
7TWSUA) used with this air conditioner is also available. If
you wish to use the wired remote control function, you will
need to purchase both the optional wired remote controller
and its connection kit (STK-KCW2).
Trouble Possible Cause Remedy
Air conditioner does
not run at all. 1. Power failure. 1. Restore power.
2. Leakage circuit
breaker tripped. 2. Contact service
center.
3. Line voltage is too
low. 3. Consult your
electrician or
dealer.
4. Batteries in remote
control unit have
run down.
4. Replace batteries.
OPERATION lamp
blinks and air
conditioner does not
operate.
Trouble in system. Contact service
center.
Compressor runs but
soon stops. Obstruction in front of
condenser coil. Remove obstruction.
Poor cooling
performance. 1. Dirty or clogged air
filter. 1. Clean air filter to
improve airflow.
2. Heat source or
many people in
room.
2. Eliminate heat
source if possible.
3. Doors and/or
windows are open. 3. Shut them to keep
the heat out.
4. Obstacle near air
intake or air
discharge port.
4. Remove it to
ensure good
airflow.
5. Thermostat is set
too high for
cooling.
5. Set the
temperature lower.
Clicking sound is
heard from the air
conditioner.
In cooling operation,
any plastic parts may
shrink due to a
sudden temperature
change. In this event,
a clicking sound may
occur.
This is normal, and
the sound will soon
disappear.
OPERATION lamp
lights but outdoor unit
will not run.
The use of cellular
phones near the air
conditioner may
cause disturbance to
its normal operation.
1. Turn off the power
then restart the air
conditioner after a
while.
2. Consult your
dealer.
Temperature Indoor air
temperature Outdoor air
temperature
COOLING Max. 95 °F DB /
71 °F WB 115 °F DB
Min. 67 °F DB /
57 °F WB 0 °F DB
OI-150-17-EG
01_KS3682_EN.fm Page 17 Friday, February 12, 2010 12:26 PM

INSTALLATION INSTRUCTIONSAPPENDIX B
KS3082 + C3082
KS3682 + C3682
(II-852-6-4190-499-00-0)
A-2

Contents
Page
IMPORTANT!
Please Read Before Starting .................................. 2
1. GENERAL .......................................................... 3
1-1. Tools Required for Installation (not supplied)
1-2. Accessories Supplied with Unit
1-3. Optional Copper Tubing Kit
1-4. Type of Copper Tube and Insulation Material
1-5. Additional Materials Required for Installation
2. INSTALLATION SITE SELECTION ................... 4
2-1. Indoor Unit
2-2. Outdoor Unit
3. HOW TO INSTALL THE INDOOR UNIT ............ 12
3-1. Remove the Rear Panel from the Unit
3-2. Make a Hole
3-3. Install the Rear Panel on the Wall
3-4. Removing and Installing the Grille
3-5. Shape the Indoor Side Tubing
3-6. Wiring Instructions
3-7. Wire Size and Length
3-8. Wiring Instructions for Inter-unit Connections
3-9. Mounting
3-10. Frame Fastening Method
3-11. Drain Hose
4. HOW TO INSTALL THE OUTDOOR UNIT ........ 22
4-1. Wiring Instructions for the Outdoor Unit
4-2. Routing the Tubing and Wiring
5. REFRIGERANT TUBING .................................. 23
5-1. Use of the Flaring Method
5-2. Flaring Procedure with a Flare Tool
5-3. Caution before Connecting Tubes Tightly
5-4. Connecting Tubing between Indoor and
Outdoor Units
5-5. Insulation of Refrigerant Tubing
5-6. Taping the Tubes
5-7. Finishing the Installation
6. AIR PURGING................................................... 25
■Air Purging with a Vacuum Pump (for Test Run)
■Basic Functions of the Service Valves
■Pump Down
■Service Valve Connections
This air conditioner uses the new refrigerant R410A.
Refrigerant service valve size = 5/16"
NOTE
85264190499000 © SANYO 2010
INSTALLATION INSTRUCTIONS
Model Combinations
Combine indoor and outdoor units only as listed
below.
Indoor Unit Outdoor Unit
KS3082 C3082
KS3682 C3682
Power Source:
60 Hz, single-phase, 230/208 V
– Inverter Split System Air Conditioner – COOL /DRY Model
Be sure to read the yellow instruction sheet
attached to the outdoor unit for models using the
new refrigerant R410A.
The illustrations are based on the typical appearance of
a standard model. Consequently, the shape may differ
from that of the air conditioner that you are installing.
NOTE
7. REMOTE CONTROL UNIT INSTALLATION
POSITION ......................................................... 29
7-1. Mounting on a Wall
8. ADDRESS SWITCH.......................................... 30
8-1. Address Setting of the Remote
Control Unit
SANYO North America Corporation In Canada
Commercial Solutions Division SANYO Canada Inc.
2055 Sanyo Ave., San Diego 201 Creditview Road, Woodbridge
CA 92154, U.S.A. Ontario, L4L 9T1, Canada
W
10-018 C3082-3682 2/15/10 11:50 AM Page a

2
IMPORTANT!
Please Read Before Starting
This air conditioning system meets strict safety and operating
standards. As the installer or service person, it is an important
part of your job to install or service the system so it operates
safely and efficiently.
For safe installation and trouble-free operation, you
must:
●Carefully read this instruction booklet before beginning.
●Follow each installation or repair step exactly as shown.
●Observe all local, state, and national electrical codes.
●Pay close attention to all warning and caution notices
given in this manual.
This symbol refers to a hazard
or unsafe practice which can
result in severe personal injury
or death.
This symbol refers to a hazard
or unsafe practice which can
result in personal injury or prod-
uct or property damage.
If Necessary, Get Help
These instructions are all you need for most installation
sites and maintenance conditions. If you require help for a
special problem, contact our sales/service outlet or your
certified dealer for additional instructions.
In Case of Improper Installation
The manufacturer shall in no way be responsible for improp-
er installation or maintenance service, including failure to
follow the instructions in this document.
SPECIAL PRECAUTIONS
When Wiring
ELECTRICAL SHOCK CAN CAUSE SEVERE
PERSONAL INJURY OR DEATH. ONLY A
QUALIFIED, EXPERIENCED ELECTRICIAN
SHOULD ATTEMPT TO WIRE THIS SYSTEM.
• Do not supply power to the unit until all wiring and tubing
are completed or reconnected and checked.
• Highly dangerous electrical voltages are used in this
system. Carefully refer to the wiring diagram and these
instructions when wiring. Improper connections and
inadequate grounding can cause accidental injury or
death.
• Ground the unit following local electrical codes.
• Connect all wiring tightly. Loose wiring may cause over-
heating at connection points and a possible fire hazard.
When Transporting
Be careful when picking up and moving the indoor and out-
door units. Get a partner to help, and bend your knees when
lifting to reduce strain on your back. Sharp edges or thin alu-
minum fins on the air conditioner can cut your fingers.
When Installing…
…In a Ceiling or Wall
Make sure the ceiling/wall is strong enough to hold the
unit’s weight. It may be necessary to construct a strong
wood or metal frame to provide added support.
…In a Room
Properly insulate any tubing run inside a room to prevent
“sweating” that can cause dripping and water damage to
walls and floors.
…In Moist or Uneven Locations
Use a raised concrete pad or concrete blocks to provide a
solid, level foundation for the outdoor unit. This prevents
water damage and abnormal vibration.
…In an Area with High Winds
Securely anchor the outdoor unit down with bolts and a
metal frame. Provide a suitable air baffle.
…In a Snowy Area
Install the outdoor unit on a raised platform that is higher
than drifting snow. Provide snow vents.
When Connecting Refrigerant Tubing
• Use the flare method for connecting tubing.
• Apply refrigerant lubricant to the matching surfaces of
the flare and union tubes before connecting them, then
tighten the nut with a torque wrench for a leak-free
connection.
• Check carefully for leaks before starting the test run.
When Servicing
• Turn the power OFF at the main power box (mains) before
opening the unit to check or repair electrical parts and
wiring.
• Keep your fingers and clothing away from any moving
parts.
• Clean up the site after you finish, remembering to check
that no metal scraps or bits of wiring have been left inside
the unit being serviced.
Others
• Ventilate any enclosed areas when installing or testing
the refrigeration system. Escaped refrigerant gas, on
contact with fire or heat, can produce dangerously
toxic gas.
• Confirm upon completing installation that no refrigerant
gas is leaking. If escaped gas comes in contact with a
stove, gas water heater, electric room heater or other heat
source, it can produce dangerously toxic gas.
WARNING
WARNING
CAUTION
CAUTION
10-018 C3082-3682 2/15/10 11:50 AM Page 2

3
1. General
This booklet briefly outlines where and how to install the
air conditioning system. Please read over the entire set
of instructions for the indoor and outdoor units and make
sure all accessory parts listed are with the system before
beginning.
1-1. Tools Required for Installation (not supplied)
1. Standard screwdriver
2. Phillips head screwdriver
3. Knife or wire stripper
4. Tape measure
5. Carpenter’s level
6. Sabre saw or key hole saw
7. Hacksaw
8. Core bits
9. Hammer
10. Drill
11. Tube cutter
12. Tube flaring tool
13. Torque wrench
14. Adjustable wrench
15. Reamer (for deburring)
1-2. Accessories Supplied with Unit
Table 1
1-3. Optional Copper Tubing Kit
Copper tubing for connecting the outdoor unit to the
indoor unit is available in kits which contain the narrow
and wide tubing, fittings and insulation. Consult your
nearest sales outlet or air conditioning workshop.
1-4. Type of Copper Tube and Insulation Material
If you wish to purchase these materials separately from
a local source, you will need:
1. Deoxidized annealed copper tube for refrigerant tub-
ing as detailed in Table 2.
Cut each tube to the appropriate lengths 1' to 1'4"
(30 cm to 40 cm) to dampen vibration between units.
Table 2
2. Foamed polyethylene insulation for the specified
copper tubes as required to precise length of tubing.
Wall thickness of the insulation should be not less
than 5/16" (8 mm).
3. Use insulated copper wire for field wiring. Wire size
varies with the total length of wiring. Refer to 3-6.
Wiring Instructions for details.
Parts Figure Q’ty Parts Figure Q’ty
1
1Tapping screw
Rawl plug
Truss-head
Phillips
5/32 × 5/8" (4×16 mm)
8
2
AAA alkaline
battery
2
10
Tapping screw
Truss-head
Phillips
5/32 × 13/32" (4×10 mm)
2
Parts Figure Q’ty
Remote
control unit
Remote control
unit holder
Air clean filter
1
1
Flare insulation
Drain hose
adapter
CAUTION
Check local electrical codes
and regulations before
obtaining wire. Also, check
any specified instructions or
limitations.
Model
Narrow Tube Wide Tube
Outer Dia. Thickness Outer Dia. Thickness
KS3082 3/8" (9.52 mm) 0.0314" (0.8 mm) 5/8" (15.88 mm) 0.0393" (1.0 mm)
KS3682 3/8" (9.52 mm) 0.0314" (0.8 mm) 5/8" (15.88 mm) 0.0393" (1.0 mm)
10-018 C3082-3682 2/15/10 11:50 AM Page 3

4
1-5. Additional Materials Required for Installation
1. Refrigeration (armored) tape
2. Insulated staples or clamps for connecting wire
(See local codes.)
3. Putty
4. Refrigeration lubricant
5. Clamps or saddles to secure refrigerant tubing
2. Installation Site Selection
2-1. Indoor Unit
AVOID:
●direct sunlight.
●nearby heat sources that may affect performance of the unit.
●areas where leakage of flammable gas may be expected.
●places where large amounts of oil mist exist.
DO:
●select an appropriate position from which every corner of
the room can be uniformly cooled. (High on a wall is best.)
●select a location that will hold the weight of the unit.
●select a location where tubing and drain hose have the
shortest run to the outside. (Fig. 1)
●allow room for operation and maintenance as well as unre-
stricted air flow around the unit. (Fig. 2)
●install the unit within the maximum elevation difference (H)
above or below the outdoor unit and within the maximum tub-
ing length (L) from the outdoor unit as detailed in Table 3 and
Fig. 3a.
●install the indoor unit more than 3.3' (1 m) away from any
antenna or power lines or connecting wires used for television,
radio, telephone, security system, or intercom. Electrical noise
from any of these sources may affect operation.
Drain hose
Indoor unit
Outside drainage
Fig. 1
2" (5 cm)
min.
3" (7.5 cm)
min.
Front View
2" (5 cm)
min.
Fig. 2
INDOOR
UNIT
Tubing length (L)
OUTDOOR
UNIT
Elevation
difference (H)
Fig. 3a
WARNING
To prevent abnormal heat genera-
tion and the possibility of fire, do
not place obstacles, enclosures
and grilles in front of or surround-
ing the air conditioner in a way
that may block air flow.
Indoor unit
Floor level
Wall
Minimum height
from floor level
5' (1.5 m)
Fig. 3b
For stable operation of the
air conditioner, do not
install wall-mounted type
indoor units less than 5'
(1.5 m) from floor level.
CAUTION
Table 3
* If total tubing length becomes 100 to 165 ft. (Max.), charge additional refrigerant (R410A) by 0.43 oz./ft.
No additional charge of compressor oil is necessary. For more detailed charging information, refer to the Technical & Service Manual.
Model
16510 to 100 0.43
Charge-less Tubing
Length (Actual Length)
(ft.)
Maximum Tubing
Length (L)
(ft.)
Maximum Elevation Difference (H)
(ft.)
KS3082
KS3682
Required Amount
of Additional Refrigerant
(oz./ft.)*
If the outdoor unit is higher
If the outdoor unit is lower
100
50
10-018 C3082-3682 2/15/10 11:50 AM Page 4

●Concerning air-intake side distance “A” (Fig. 5a)
The minimum for distance “A” is 6" if there are no
obstructions on the air-discharge side (wall *1 side)
and *2 or *4 is not present. In all other cases, the min-
imum for distance “A” is 8".
●If wall *1 is on the air-discharge side (Fig. 5a), or if
obstructions are present on all 3 sides *2, *3, and *4
(Fig. 5a), then the minimum distance for “B” and “C” is
39-3/8". Even if there is no wall on the air-discharge
side, a minimum of 39-3/8" is required.
Fig. 5c
Air intake
Concrete
or equal
About 6" (15 cm)
Min. 6" (15 cm)
Anchor bolts
(4 pcs.)
About 1'4" (40 cm)
5
2-2. Outdoor Unit
AVOID:
●heat sources, exhaust fans, etc. (Fig. 4)
●damp, humid or uneven locations.
DO:
●choose a place as cool as possible.
●choose a place that is well ventilated.
●install in a location where at least two sides are unob-
structed, so that the flow of air at the intake port or
exhaust port is not blocked, and so that sufficient
space is ensured for maintenance to be carried out
without trouble. In general the top also must be unob-
structed. (Fig. 5a)
●provide a solid base (level concrete pad, concrete block,
6" x 1'4" (15 x 40 cm) beams or equal), a minimum of 6"
(15 cm) above ground level to reduce humidity and pro-
tect the unit against possible water damage and
decreased service life. (Figs. 5b and 5c)
●install cushion rubber under unit’s feet to reduce
vibration and noise. (Fig. 5d)
●use lug bolts or equal to bolt down unit, reducing
vibration and noise.
●install in a location where no antenna of a television
or radio exists within 10' (3 m).
Outdoor unit
Hot air
Heat source
Exhaust fan
NO
Fig. 4
Air intake
Air discharge
Min.
6" (15 cm) Min.
3'3" (100 cm)
Min. 10"
(25 cm)
Ground
Obstacle
Obstacle above
Air discharge
Min. 8" (20 cm)
Air intake
*1
*2
*3
*4
ABC
Fig. 5d
Cushion rubber
(Locally purchased)
Fig. 5a
Fig. 5b
Drain holes
CAUTION
CAUTION
A solid base must not cover
the hole of the bottom plate.
10-018 C3082-3682 2/15/10 11:50 AM Page 5

6
Fig. 5e
Fig. 5f
Fig. 5g
2-2-1. Installing the Unit in an Area with High Winds
and in a Snowy Area
● In locations with high winds, a wind-proof duct
should be fitted and direct exposure to the wind
should be avoided as much as possible. (Fig. 5e)
● In regions with significant snowfall, the outdoor unit
should be provided with a platform and snow-proof
duct. (Fig. 5f)
■ Countermeasures against snow and wind
In regions with snow and strong wind, the following
problems may occur when the outdoor unit is not
provided with a platform and ducting:
a) The outdoor fan may not run and damage to the
unit may occur.
b) There may be no air flow.
c) The tubing may freeze and burst.
d) The condenser pressure may drop because of
strong wind, and the indoor unit may freeze.
2-2-2. Precautions for Installation in a Snowy Area
(1) The platform should be higher than the maximum
snow depth. (Fig. 5g)
(2) The 2 anchoring feet of the outdoor unit should
be used for the platform, and the platform should
be installed beneath the air intake side of outdoor
unit.
(3) The platform foundation must be firm and the unit
must be secured with anchor bolts.
(4) In case of installation on a roof subject to strong
wind, countermeasures must be taken to prevent
the unit from being blown over.
Air discharge
Air discharge
Air discharge
Air
discharge
Outdoor unit Duct
Platform (foundation)
Air Intake
Air Intake
About 1/2 of the unit height
Higher than the
maximum snow depth
Without snow-
proof ducting
(Low platform)
Without snow-
proof ducting
(High platform)
10-018 C3082-3682 2/15/10 11:50 AM Page 6

7
11-13/16" 13-3/8"
25-3/16"
22-7/8" (6-21/32")
6-5/16"
21-25/32" (12-9/16")
2-11/16"
35-13/16"
37-1/32"
Air
discharge
Air
discharge
Air
discharge
Hole for anchor bolt (4-R1/4") / Anchor bolt : 3/8" or M101
Air
discharge Air discharge
25-31/32"6-11/16"
13-3/8" 25/32"25/32"
14-31/32" 13/32"25/32"
Air Intake
Air
discharge
Unit: inch
Air
Air Intake
1
(4-11/32")
discharge
Air discharge
2-2-3. Dimensions of Wind-proof Duct
Reference diagram for C3082/3682
(9/16")
21-9/16" (1/4")
22-1/4"
23-7/16"
(4-31/32") 4-31/32"
21-25/32"
11-13/16"
11-13/16"
1-5/16"
15/16"
18-15/16" (1-31/32")
(1-31/32")
(1-31/32")8-21/32"1-3/16"
22-7/8"
Equivalent to the reverse side
Unit: inch
4- 1/4"hole
Reference diagram for wind-proof duct (locally purchased): STK-DGV160E
10-018 C3082-3682 2/15/10 11:50 AM Page 7

8
Required space around the outdoor unit
If the wind-proof duct is used, the space shown below must be secured around the outdoor unit.
If the unit is used without the required space, a protective device may activate, preventing the unit from operating.
(1) Single-unit installation
CAUTION The top and both sides must remain open. If there are obstacles to the front and rear of
the outdoor unit, the obstacle at either the front or rear must be no taller than the height of
the outdoor unit.
(2) Multiple-unit installation
Installation in lateral rows
CAUTION The front and top must remain open.
The obstacles must be no taller than the height of the outdoor unit.
CAUTION The front and both sides must remain open.
Installation in front-rear rows
Installation with intakes facing outletsInstallation with intakes facing
intakes or outlets facing outlets
Min. 39-3/8"
or more
Min. 8" or more
8" na
h
t ero
M
More than 9-27/32"More than 9-27/32"
More than 6"
Unit: inch
Unit: inch
More than 78-3/4"
More than 11-13/16"
More than 47-1/4"
Unit: inch
10-018 C3082-3682 2/15/10 11:50 AM Page 8

9
25-13/32"
3/32" 13-3/8" (11-15/16")
16-15/16"
Air Intake
Air
discharge
39-1/4"
27-7/32"
7-1/32"
35-15/16"
28-15/16"
27-5/8" (11-5/8")
Air Intake
13/32"14-31/32"
25/32"
25/32"
25/32" 13-3/8"
4-11/32"
1
(8-15/16") 25-31/32"
Air discharge
1
Unit: inch
Hole for anchor bolt (4-R1/4") / Anchor bolt: 3/8" or M10
2-2-4. Dimensions of Snow-proof Duct
Reference diagram for C3082/3682
7
3
4
6
8
2
1
1
2
3
4
5
6
7
8
1
1
1
1
1
1
1
Unit: inch
Unit top, snow-proof duct
Unit right, snow-proof duct
Unit left, snow-proof duct
Unit front, snow-proof duct
Unit reverse side, snow-proof duct
Unit reverse side, snow-proof duct
Unit reverse side, reinforcement bracket
for snow-proof duct
Unit left, reinforcement bracket for snow-
proof duct
Fastened by screws at 14 locations
Fastened by screws
at 3 locations
Fixing with
front panel
2- 9/32"
hole
2- 9/32"hole
2- 9/32"
hole
2- 9/32"hole
9/32"X13/32"hole
15-11/32"
Fastened by screws
(Same on the
reverse side)
Fastened by screws
at 2 locations
28-13/16"
16-15/16"
9-1/8"
31/32"
2-7/32"
24-3/16"
28-3/16"
23
Fixing with
rear panel
5/8"
6-1/32"
28-3/16"
1-15/16"20-13/32"
5/16"
5-13/32"
34-23/32"
11-7/8"
28-/13/16"
16-15/16"
9-1/8"
4-1/32"
Fixing with
rear panel
Unit anchor holes
(Unit fixed bottom plate)
9-7/32"
13-7/8"
5-1/8
"
4-11/32"
1-9/16"
5-7/8"
25/32"
4-27/32"
20-7/8"
3-27/32"
3-15/16"
4-23/32"
25-13/32"
17-9/16"
Fastened by screws
at 2 locations
(Same on the
reverse side) Fixing with
top panel
1/16" 27-9/16"
5
1
Reference diagram for snow-proof duct (locally purchased): STK-BDV80E
10-018 C3082-3682 2/15/10 11:50 AM Page 9

10
Reference diagram for snow-proof duct
Space requirements for setting
C3082/3682 with STK-BDV80E
Min. 39-3/8" or more
(1) Single-unit installation
(2) Multiple-unit installation (2 or more units)
[Obstacle to the front of unit]
Min. 6" or more
[Obstacle to the rear of unit]
(1) Single-unit installation
(3) Multiple-unit installation (2 or more units)
Note:
In cases 2 and 3 the height of the obstacle must be
no taller than the height of the outdoor unit.
(2) Obstacles on both sides
Top is open: Top is open:
Top is blocked by an obstacle:
Top is blocked by an obstacle:
Min. 11-13/16"
or more Min. 11-13/16"
or more
Min. 6"
or more
Min. 11-13/16"
or more
Min. 11-13/16"
or more
Min. 11-13/16"
or more
Min. 11-13/16"
or more
Min. 11-13/16"
or more
Min. 11-13/16"
or more
Min. 19-11/16"
or more
Min. 9-27/32"
or more Min. 9-27/32"
or more
Min. 39-3/8"
or more
Min. 39-3/8" or more
Min. 39-3/8"
or more
10-018 C3082-3682 2/15/10 11:50 AM Page 10

11
Min. 39-3/8"
or more
Min. 11-13/16"
or more
Min. 11-13/16"
or more
Min. 19-11/16"
or more
Min. 59-1/16"
or more
Min. 78-3/4"
or more
(1) Single-unit installation
(2) Ob
Installation is possible with the maximum 3 outdoor units.
stacles on both sides
[Installation in front-rear rows]
[Obstacles to the front and rear of unit]
•The top and both sides must remain open. Either the obstacle to the front or the obstacle
to the rear must be no taller than the height of the outdoor unit.
The top and both sides must remain open. Either the obstacle to the front or
the obstacle to the rear must be no taller than the height of the outdoor unit.
Unit: inch
. 39-3/8"niM erom ro
"6
1
/11-
91
.niM ero
m
r
o
. 8"niM ero
m
r
o
Min.11-13/16"
or more
Min.11-13/16"
or more
"8/3-
9
3.niM e
rom ro
"61/31
-11.ni
Me
r
o
m
ro
"61/11-91.niM er
o
m ro
10-018 C3082-3682 2/15/10 11:50 AM Page 11

Rear panel
Fig. 7c
Rear panel
Fig. 7b
12
Set screw only for transportation
Fig. 6
Rear panel
marks
Fig. 7a
Left
tubing
Right
tubing
Right-rear
tubing
(recommended)
Right-downward
tubing
Left-rear
tubing
Left-downward
tubing
Fig. 8
3. How to Install the Indoor Unit
3-1. Remove the Rear Panel from the Unit
(1) Remove and discard the set screw on the rear panel.
(Fig. 6)
(2) Press the 2 ▲marks on the frame cover and disengage
the stationary tabs from the frame. (Fig. 7a)
(3) Remove the rear panel by grasping the sections shown
in Fig. 7b and pulling it in the direction shown by the
arrow.
Tubing can be extended in 6 directions as shown in Fig. 8.
Select the direction you need providing the shortest run to
the outside unit.
●When left tubing is to be done, switch the drain hose and
drain cap. (For details, refer to “Switching drain hose and
drain cap” on page 20.)
3-2. Make a Hole
(1) Place the rear panel from the indoor unit on the wall at
the location selected. Make sure the panel is horizontal,
using a carpenter’s level or tape measure to measure
down from the ceiling. Wait until after cutting the hole
before attaching the rear panel to the wall.
(2) Determine which side of the unit you should make the
hole for tubing and wiring. (Fig. 9)
In the case of left-rear tubing, use the measurement points
6-7/32" (158 mm) from the marked position on the rear
panel for precise placement of the hose outlet. (Fig. 9)
(3) Before making the hole, check carefully that no studs or
pipes are directly run behind the spot to be cut.
The above precautions are also applicable if tubing
goes through the wall in any other location.
NOTE
NOTE
6-7/32"
(158 mm)
5-3/16"
(132 mm)
Fig. 9
CAUTION
Also avoid areas where elec-
trical wiring or conduits are
located.
10-018 C3082-3682 2/15/10 11:50 AM Page 12

13
Indoor
side
Outdoor
side
Hole should be made at a slight downward slant to the
outdoor side.
NOTE
Fig. 10
Plastic cover
INSIDE OUTSIDE
Wall
Slight
angle
PVC pipe
(Locally purchased)
Fig. 12
PVC pipe (Locally purchased)
Cut at sli
g
ht an
g
le
Fig. 11
(4) Using a sabre saw, key hole saw or hole-cutting drill
attachment, cut a hole in the wall. See Table 4 and
Fig. 10.
Table 4
(5) Measure the thickness of the wall from the inside
edge to the outside edge and cut PVC pipe at a
slight angle 1/4" (6 mm) shorter than the thickness of
the wall. (Fig. 11)
(6) Place the plastic cover over the end of the pipe (for
indoor side only) and insert the pipe in the wall. (Fig.
12)
3-3. Install the Rear Panel on the Wall
Be sure to confirm that the wall is strong enough to sus-
pend the unit.
There are a number of screw holes on the rear panel.
Using the 8 screw holes with mark is recommended
to attach the rear panel securely to the wall.
See either Item a) or b) below depending on the wall type.
a) If Wooden Wall
(1) Attach the rear panel to the wall with the 8 screws
provided. (Fig. 13)
If you are not able to line up the holes in the rear
panel with the beam locations marked on the wall,
use rawl plugs or toggle bolts to go through the
holes on the panel or drill 3/16" (5 mm) dia. holes in
the panel over the stud locations and then mount the
rear panel.
(2) Double check with a carpenter’s level or tape mea-
sure that the panel is level. This is important to
install the unit properly. (Fig. 14)
(3) Make sure the panel is flush against the wall. Any
space between the wall and unit will cause noise
and vibration.
b) If Block, Brick, Concrete or Similar Type Wall
Make 3/16" (4.8 mm) dia. holes in the wall. Insert rawl
plugs for appropriate mounting screws. (Fig. 15)
Hole Dia.
3-5/32" (80 mm)
Fig. 13
Fig. 14
3/16"
(4.8 mm) dia. hole
Rawl plug
Fig. 15
10-018 C3082-3682 2/15/10 11:50 AM Page 13

3-4. Removing and Installing the Grille
Basically, these models can be installed and wired with-
out removing the grille. If access to any internal part is
needed, follow the steps as given below.
How to remove the grille
(1) Open the front panel until it is nearly horizontal, grasp
the sections near the front panel arms on both sides,
and then remove the panel by pushing the arms
towards the outside while pulling the panel towards
you.
If the front panel is difficult to remove, grasp both
ends of it and lift it up slightly. Move it to the left and
disengage the left arm, then move it to the right and
disengage the right arm. (Fig. 16)
(2) Lift the anti-mold filter up slightly to disengage it from
the protrusions on the unit, and then pull downward
to remove the filter from the unit. (Fig. 16)
(3) Remove the 3 screws from the front of the unit and
remove the screw covers on the bottom surface. Then
remove the 2 screws. (Fig. 17)
(4) Remove the screw on the right side cover plate and
remove the cover. (Fig. 17a)
(5) Remove the lower flap by disengaging 4 pins of the
lower flap in order. (Figs. 17b and 17c)
(The flap is so flexible that it can be easily removed.)
(6) Lift up the grille in the direction shown by the arrow
and pull the grille towards you to remove it. (Fig. 17d)
How to replace the grille
(1) While aligning the top edge of the grille with the
frame, move the grille horizontally and insert the top
and bottom into the frame.
(2) Press the grille firmly with your hand to ensure no gap
exists between the frame and grille.
(3) Tighten the 6 screws. And fix the removed covers in
place.
(4) Grasp the sections near the front panel arms on both
sides, and hold the front panel so that it is nearly hori-
zontal. Push the arm shafts towards the outside so
that they come into contact with the top of the inden-
tations on the right and left sides of the air condition-
er. Then push firmly until the arm shafts click into
place. (Fig. 18)
(5) Remount the lower flap.
(In remounting the flap, it cannot be turned end for
end because the right and left pins of the flap differ in
form. (Fig. 17c))
(6) Insert the top of the anti-mold filter, and then secure
the bottom of the filter with the protrusions on the unit.
(7) When closing the front panel, push the central part of
the front panel first and then press the bottom right
and left corners in place until you feel a click. (Fig. 19)
Check that no gap exists between the frame and the
grille.
NOTE
14
Grille
Screw cover
Screw
Bottom surface
Screw (on the front) Screw (on the cover)
Screw (on the bottom)
Anti-mold filter
Front panel Arm
Protrusions
Fig. 16
Fig. 17a
Fig. 18
Front panel
Arm
Pin
Indentation
Fig. 19
Grille Upper flap
Lower flap
Fig. 17b
Lower flap
Pin
Fig. 17c
Fig. 17d
10-018 C3082-3682 2/15/10 11:50 AM Page 14

15
3-5. Shape the Indoor Side Tubing
(1) Arrangement of tubing by direction
a) Right or left tubing
Cut out the corner of the right/left frame with a
hacksaw or the like. (Figs. 20 and 21)
b) Right-rear or left-rear tubing
In this case, the corner of the frame need not be
cut.
(2) To mount the indoor unit on the rear panel:
Hang the 3 mounting slots of the unit on the
upper tabs of the rear panel. (Fig. 22)
3-6. Wiring Instructions
General precautions on wiring
(1) Before wiring, confirm the rated voltage of the unit as
shown on its nameplate, then carry out the wiring
closely following the wiring diagram.
(2) Provide a power outlet to be used exclusively for
each unit, with a power supply disconnect and cir-
cuit breaker for overcurrent protection provided in
the exclusive line.
(3) To prevent possible hazards due to insulation failure,
the unit must be grounded.
(4) Each wiring connection must be done tightly and in
accordance with the wiring system diagram. Wrong
wiring may cause the unit to misoperate or become
damaged.
(5) Do not allow wiring to touch the refrigerant tubing,
compressor, or any moving parts of the fan.
(6) Unauthorized changes in the internal wiring can be
very dangerous. The manufacturer will accept no
responsibility for any damage or misoperation that
occurs as a result of such unauthorized changes.
Frame
Right tubing
outlet
Frame
Left tubing
outlet
Fig. 21
Fig. 22
Fig. 20
10-018 C3082-3682 2/15/10 11:50 AM Page 15

16
3-7. Wire Size and Length
Regulations on wiring diameter differ from locality to locality. For field wiring requirements, please refer to your local elec-
trical codes. Carefully observe these regulations when carrying out the installation.
Refer to the wiring system diagram (Fig. 23) for the meaning of (A), (B), and (C) in Table 5.
Refer to your local codes or in the absence of local codes see the National Electric Code: ANSI/NFPA70.
NOTE
Fig. 23
WIRING SYSTEM DIAGRAM
●Be sure to comply with local codes on running the wire
from the indoor unit to the outdoor unit (size of wire and
wiring method, etc.).
●Each wire must be firmly connected.
●No wire should be allowed to touch refrigerant tubing, the
compressor, or any moving part.
Disconnect
switch
*
1
2
3
1
2
3
4
5
Grounding line
INDOOR
UNIT
OUTDOOR
UNIT
Field supply
Grounding
line
L1
L2
Power supply
Single phase 230/208V 60Hz
Terminal Terminal
(A)
(B)
(C)
(B)
CAUTION
●Be sure to connect the power supply line to the outdoor unit as shown in the wiring diagram.
The indoor unit draws its power from the outdoor unit.
●Do not run wiring for antenna, signal, or power lines of television, radio, stereo, telephone,
security system, or intercom any closer than 3'4" (1 m) from the power cable and wires
between the indoor and outdoor units. Electrical noise may affect the operation.
●To avoid the risk of electric shock, each air conditioner
unit must be grounded.
●For the installation of a grounding device, please
observe local electrical codes.
●Grounding is necessary, especially for units using
inverter circuits, in order to release charged electricity
and electrical noise caused by high tension.
Otherwise, electrical shock may occur.
●Place a dedicated ground more than 7' (2 m) away from
other grounds and do not have it shared with other elec-
tric appliances.
WARNING
Table 5
WARNING
*
Disconnect switch may be required by
national or local codes.
Always comply with national and local code
requirements.
CAUTION
NOTE
Wire Size
Fuse or Circuit
Breaker Capacity
Length
C3082
C3682
It depends on wire specification and
supply voltage level (*2)
35A for C3082
45A for C3682
AWG12 (min.) or bigger (*1) for C3082
AWG10 (min.) or bigger (*1) for C3682 AWG14 or bigger
180 ft. (max.)
Disconnect switch
(15A)
AWG14 or bigger
180 ft. (max.)
(AWG: American Wire Gauge)
Model (A) POWER SUPPLY WIRING (B) POWER LINE (C) CONTROL LINE
-
(*1) It depends on supply voltage level and wire specification. Consider temperature rating
of wire, ambient temperature, and the number of wires inside the conduit.
(*2) Requirement of supply voltage level: AC187V to 253V (Measure voltage level at terminal plate inside the outdoor unit.)
10-018 C3082-3682 2/15/10 11:50 AM Page 16

17
3-8. Wiring Instructions for Inter-unit Connections
(1) Insert the inter-unit wiring (according to local codes)
into the through-the-wall PVC pipe. Run the wiring
toward the indoor side allowing approx. 10" (25 cm)
to extend from the wall face. (Fig. 24)
(2) Grasp both ends of the front panel, push the arms
towards the outside, and remove the front panel by
opening it towards the front and pulling it towards
you. If the front panel is difficult to remove, grasp
both ends of it and lift it up slightly. Move it to the left
and disengage the left arm, then move it to the right
and disengage the right arm.
(3) Remove the screw on the right side cover plate and
open the cover. (Fig. 25)
(4) Route the inter-unit wiring from the back of the
indoor unit and pull it toward the front for connec-
tion. (Fig. 26a, 26b)
(5) Connect the inter-unit wiring to the corresponding
terminals on the terminal plate (Fig. 26a, 26b) while
referring to the wiring diagram.
(6) Be sure to secure the wiring with the provided
clamp.
When closing the front panel, push the central part of
the front panel first and then press the bottom right and
left corners in place until you feel a click. (Fig. 27)
Please refer to “How to replace the grille” on page 14 for
installing the air intake grille.
NOTE
Rear
panel
Wiring
Wall
10"
(25 cm)
Plastic
cover
Fig. 24
Cover
Fig. 25
Terminal plate
Fig. 26a
Earth plate Lock nut
Inter-unit
wiring
Top of conduit
connector
Fig. 26b
Fig. 27
10-018 C3082-3682 2/15/10 11:50 AM Page 17

18
When connecting each power wire to the corresponding
terminal, follow the instructions “How to connect wiring
to the terminal” and fasten the wire securely tight with
the fixing screw of the terminal plate.
How to connect wiring to the terminal
a) For Indoor Unit
(1) Cut the wire end with a cutting pliers, then strip the
insulation to expose the wire about 9/32" (7 mm).
See the label (Fig. 28) near the terminal plate.
(2) Using a screwdriver, loosen the terminal screw on
the terminal plate.
(3) Insert the wire and tighten the terminal screw com-
pletely using a screwdriver.
b) For Outdoor Unit
■For solid core wiring (or F-cable)
(1) Cut the wire end with a cutting pliers, then strip the
insulation to expose the solid wire about 15/16" (25
mm). (Fig. 29)
(2) Using a screwdriver, remove the terminal screw(s)
on the terminal plate.
(3) Using the pliers, bend the solid wire to form a loop
suitable for the terminal screw.
(4) Shape the loop wire properly, place it on the termi-
nal plate and fix it securely with the removed termi-
nal screw using a screwdriver.
■For stranded wiring
(1) Cut the wire end with a cutting pliers, then strip the
insulation to expose the stranded wiring about 3/8"
(10 mm) and tightly twist the wire ends. (Figs. 30
and 31)
(2) Using a screwdriver, remove the terminal screw(s)
on the terminal plate.
(3) Using a ring connector fastener or pliers, securely
clamp each stripped wire end with a ring connector.
(Fig. 30)
(4) Place the ring connector wire, and replace and
tighten the removed terminal screw using a screw-
driver. (Fig. 32)
Solid wire
Loop
Insulation
Strip 15/16" (25 mm)
Fig. 29
STRIP
SIZE
9/32"
(7 mm) (ACTUAL
SIZE)
Fig. 28
Stranded wire
Ring
connector
Strip 3/8" (10 mm)
Fig. 30
Screw
Ring connector
Te r mi nal plate
Wire
Special
washer
Fig. 32
Screw and
special washer
Ring
connector
Wire
WARNING
Loose wiring may cause the
terminal to overheat or result
in unit malfunction. A fire
hazard may also exist. There-
fore, be sure all wiring is
tightly connected.
Twi st wire ends
Fig. 31
10-018 C3082-3682 2/15/10 11:50 AM Page 18

19
3-9. Mounting
(1) To install the indoor unit, mount the indoor unit onto
the 3 tabs on the upper part of the rear plate.
(2) Hold down the air discharge outlet and press the
lower part of the indoor unit until it clicks to securely
fasten to the 2 tabs on the lower part of the rear
plate. (Fig. 33)
For tubing, choose either the right or left tubing direction
and follow the steps below. Also, extend the support on
the back of the indoor unit as a stand to make your work
easier. (Fig. 34)
■Right-side tubing
(1) Shape the refrigerant tubing so that it can easily go
into the wall hole. (Fig. 35)
(2) Push the wiring, refrigerant tubing, and drain hose
through the hole in the wall. Adjust the indoor unit so
it is securely seated on the rear panel. (Fig. 36)
(3) Carefully bend the tubing (if necessary) to run along
the wall in the direction of the outdoor unit and then
tape as far as the fittings. (See Caution on page 24.)
The drain hose should come straight down the wall
to a point where water runoff won’t stain the wall.
(4) Connect the refrigerant tubing to the outdoor unit.
(After performing a leak test on the connecting part,
insulate it with the tubing insulation. (Fig. 37a)) Also,
refer to Section 5-4. Connecting Tubing between
Indoor and Outdoor Units.
(5) Assemble the refrigerant tubing, drain hose, and
conduit (including inter-unit wiring) as shown in
Fig. 37b.
NOTE
Cover
Refrigerant
tubing
Rear panel
Drain hose
Inter-unit
wiring
Fig. 35
Fig. 36
Fig. 33
Push
Fig. 34
Fig. 37a
Fig. 37b
Refrigerant tubing
Drain hose
Conduit
Inter-unit wiring
Flare
insulation
Rear panel
10-018 C3082-3682 2/15/10 11:50 AM Page 19

20
Hole in wall
Bent part Narrow tube Wide tube
Rear panel
Fig. 38
Drain cap
Drain hose
Clamp
Fig. 39
■Left-side tubing
(1) Lead the tubing and drain hose through the wall,
allowing sufficient length for connection. Then bend
the tubing using a tube bender to make the attach-
ment. (Fig. 38)
(2) Switch the drain hose and drain cap.
Switching drain hose and drain cap
(a) Locate the drain hose and the drain cap.
(Fig. 39)
(b) Remove the screw fastening the drain hose on
the right side, and pull out the drain hose to
remove it. (Fig. 39)
(c) Apply moderate force to pull off the drain cap
on the left side. (If you cannot pull it off by hand,
use a long-nose pliers.)
(d) Reattach the drain hose to the left side and the
drain cap to the right side. (Fig. 40a)
Drain hose
Slide the drain hose fully onto the drain pan outlet.
(It will be easy to slide when water is added.) Check
that the screw holes in the drain bracket and the
drain pan outlet are aligned and securely in contact,
then fasten them with the screw. (After attaching the
drain hose, check that it is attached securely.)
(Fig. 40b)
Drain cap
Use a Phillips screwdriver to push the drain cap in
firmly. (If it is difficult to push in, wet the cap with
water first.)
(3) Install the indoor unit on the rear panel.
(4) Connect the tubing and wiring led inside from out-
doors.
(5) After completing a leak test, bundle the tubing
together with armoring tape and store it inside the
tubing storage area at the back of the indoor unit
and hold it with clamps. (Figs. 40a and 41)
Fig. 40a
Fig. 40b
Fig. 41
Refrigerant tubing
Inter-unit wiring
Conduit
Drain bracket
Drain pan outlet
Drain hose
Drain bracket
Drain hose
Screw
Screw
Screw hole
Drain hose
Drain cap
Clamp
10-018 C3082-3682 2/15/10 11:50 AM Page 20

21
To unmount indoor unit
Press the 2 ▲marks on the lower part of the indoor unit
and unlatch the tabs. Then lift the indoor unit and
unmount. (Fig. 42)
3-10. Frame Fastening Method
(1) Remove the screw cover on the bottom surface.
(Fig. 43)
(2) Fasten the frame to the rear panel using the 2 sup-
plied tapping screws 5/32" x 13/32" (4 x 10 mm).
(Fig. 43)
Under normal conditions, the installation design calls for
a less than 3/32" (2 mm) gap between the air conditioner
unit and the wall.
Confirm that the gap is appropriate (less than 2 mm).
3-11. Drain Hose
a) The drain hose should be slanted downward to the
outdoors. (Fig. 44)
b) Never form a trap in the course of the hose.
c) If the drain hose will run in the room, insulate the
hose with insulation*so that chilled condensation
will not damage furniture or floors. (Fig. 45)
*Foamed polyethylene or its equivalent is recom-
mended.
NOTE
WARNING
Risk of Electric Shock
Do not supply power to the
unit or operate it until all
tubing and wiring to the out-
side unit are completed.
Condensation
Insulation material
(Locally purchased)
must be used.
Fig. 45
Screw
cover
Screw
Fig. 43
Push
Fig. 42
Slant
Drain
hose
Indoor
unit
Fig. 44
10-018 C3082-3682 2/15/10 11:50 AM Page 21

22
4. How to Install the Outdoor Unit
First refer to Section 2. Installation Site Selection.
4-1. Wiring Instructions for the Outdoor Unit
Regulations on wire size differ from locality to locality. For
field wiring requirements, please refer to your local elec-
trical codes. Make sure that the installation fully complies
with all local and national regulations.
(1) Remove the 3 screws from the inspection panel.
(Fig. 46a)
Remove the inspection panel by sliding it downward
and pulling it toward you. (Fig. 46b)
(2) Connect the inter-unit and power supply line accord-
ing to the wiring system diagram on the inspection
panel. (Fig. 46c)
(3) When connections are completed, check that all
connections are correct as shown in the wiring sys-
tem diagram.
(4) Be sure to ground the unit according to your local
codes.
4-2. Routing the Tubing and Wiring
●The tubing and wiring can be extended out in 3 direc-
tions: front, rear, and right. Use a nipper or similar
tool to cut out the knockout holes for the inter-unit
control wiring outlet, power wiring outlet, and tubing
outlet from the appropriate covers A and B. (Fig. 46d)
●Route the tubing so that it does not contact the
compressor, panel, or other parts inside the unit.
Increased noise will result if the tubing contacts
these parts.
●When routing the tubing, use a tube bender to
bend the tubes.
CAUTION
Terminal plate
Cabinet
Screw
Inspection panel
Fig.46a Fig.46b
Fig.46c
Tubing outlet
Front Right
Rear
Cover B
Cover A
Inter-unit
power line
Power supply line
(conduit)
Wiring outlet
Wiring outlet
(conduit)
Fig.46d
10-018 C3082-3682 2/15/10 11:50 AM Page 22

23
5. Refrigerant Tubing
5-1. Use of the Flaring Method
Many of the conventional split system air conditioners
employ the flaring method to connect refrigerant tubes
which run between indoor and outdoor units. In this
method, the copper tubes are flared at each end and
connected with flare nuts.
5-2. Flaring Procedure with a Flare Tool
(1) Cut the copper tube to the required length with a
tube cutter. It is recommended to cut approx. 12" to
20" (30 to 50 cm) longer than the tubing length you
estimate.
(2) Remove burrs at the end of the copper tube with a
tube reamer or file. This process is important and
should be done carefully to make a good flare.
(Fig. 47)
When reaming, hold the tube end downward and be
sure that no copper scraps fall into the tube. (Fig. 48)
(3) Remove the flare nut from the unit and be sure to
mount it on the copper tube.
(4) Make a flare at the end of copper tube with a flare
tool.*(Figs. 49a and 49b)
(*Use “RIDGID” or equivalent.)
A good flare should have the following characteristics:
●inside surface is glossy and smooth.
●edge is smooth.
●tapered sides are of uniform length.
5-3. Caution before Connecting Tubes Tightly
a) Be sure to apply a sealing cap or water-proof tape
to prevent dust or water from getting into the tubes
before they are used.
b) Be sure to apply refrigerant lubricant to the match-
ing surfaces of the flare and union before connect-
ing them together. This is effective for reducing gas
leaks. (Fig. 50)
c) For proper connection, align the union tube and
flare tube straight with each other, then screw in the
flare nut lightly at first to obtain a smooth match.
(Fig. 51)
NOTE
NOTE
Deburring
Before After
Fig. 47
Reamer
Copper
tubing
Fig. 48
Flare tool
Flare nut
Copper
tubing
Fig. 49b
Fig. 49a
Apply refrigerant
lubricant here and here
Fig. 50
Flare nut
Union
Fig. 51
0 to 0.0196"
(0 to 0.5 mm)
If the special R410A
flare tool is used:
0.0472" (1.2 mm)
If the previous flare tool
(clutch-type) is used:
Adjust so that the amount of tube
protrusion is as shown in the figure.
10-018 C3082-3682 2/15/10 11:50 AM Page 23

24
5-4. Connecting Tubing between Indoor and
Outdoor Units
a) Tightly connect the indoor side refrigerant tubing exten-
ded from the wall with the outdoor side tubing. (Fig. 52)
b) To fasten the flare nuts, apply specified torque as:
Table 6
5-5. Insulation of Refrigerant Tubing
To prevent heat loss and wet floors due to dripping of con-
densation, both tubes must be well insulated with a
proper insulation material. (Fig. 53)
The thickness of the insulation should be a minimum 5/16"
(8 mm). (Fig. 54)
5-6. Taping the Tubes
(1) At this time, the 2 refrigerant tubes (and electrical wire
if local codes permit) should be taped together with
armoring tape. The drain hose may also be included
and taped together as 1 bundle with the tubing.
(2) Wrap the armoring tape from the bottom of the outdoor
unit to the top of the tubing where it enters the wall. As
you wrap the tubing, overlap half of each previous tape
turn. (Fig. 55)
(3) Clamp the tubing bundle to wall, using 1 clamp approx.
every 47" (120 cm).
Do not wind the armoring tape too tightly, since this will
decrease the heat insulation effect. Also, be sure the con-
densation drain hose splits away from the bundle and drips
clear of the unit and the tubing.
5-7. Finishing the Installation
After finishing insulating and taping over the tubing, use
sealing putty to seal off the hole in the wall to prevent rain
and draft from entering. (Fig. 56)
NOTE
IMPORTANT
Indoor unit
Outdoor unit
Spanner
Torque wrench
Fig. 52
Insulation
Min.
5/16"
(8 mm)
Thickness:
min. 5/16"
(8 mm)
Fig. 54
Fig. 55
Clamp
Insulated tubes
Apply putty here
Tubing
Fig. 56
CAUTION
After a tube has been insulat-
ed, never try to bend it into a
narrow curve, as this may
cause the tube to break or
crack.
Flare
insulation
Fig. 53
Tube Dia. Nut Tightening Torque
1/4" (6.35 mm) 21/32" (17 mm) Approx. 120 – 160 lbs·in (140 – 180 kgf·cm)
3/8" (9.52 mm) 7/8" (22 mm) Approx. 300 – 360 lbs·in (340 – 420 kgf·cm)
1/2" (12.70 mm) 1-1/32" (26 mm) Approx. 430 – 540 lbs·in (490 – 610 kgf·cm)
5/8" (15.88 mm) 1-5/32" (29 mm) Approx. 590 – 710 lbs·in (680 – 820 kgf·cm)
10-018 C3082-3682 2/15/10 11:50 AM Page 24

25
6. Air Purging
Air and moisture remaining in the refrigerant system
have undesirable effects as indicated below. Therefore,
they must be purged completely.
●pressure in the system rises
●operating current rises
●cooling (or heating) efficiency drops
●moisture in the air may freeze and block capillary tubing
●water may lead to corrosion of parts in the refrigerant
system
■Air Purging with a Vacuum Pump (for Test Run)
(1) Check that each tube (both narrow and wide tubes)
between the indoor and outdoor units have been
properly connected and all wiring for the test run
has been completed. Note that both narrow and
wide tube service valves on the outdoor unit are
kept closed at this stage.
(2) Using an adjustable wrench or box wrench, remove
the valve caps from the service valve on both nar-
row and wide tubes.
(3) Connect a vacuum pump and a manifold valve (with
pressure gauges) to the service port on the wide
tube service valve. (Fig. 57)
(4) With the “Lo” knob of the manifold valve open, run
the vacuum pump. The operation time for the vacu-
um pump varies with tubing length and the capacity
of the pump. The following table shows the amount
of time for evacuation:
Table 7
HiLo
Indoor unit
Outdoor unit
Manifold valve
(Exclusively for R410A)
Pressure
gauge
Vacuum pump
Charging hose
(Exclusively for R410A)
Vacuum pump adapter
(Exclusively for R410A)
(with reverse flow prevention)
Fig. 57
CAUTION
Be sure to use a manifold valve
for air purging. If it is not avail-
able, use a stop valve (field sup-
ply) for this purpose. The “Hi”
knob of the manifold valve must
always be kept closed.
The required time in Table 7 is calculated based on the
assumption that the ideal (or target) vacuum condition
is around 10 mmHg abs.
NOTE
Required time for evacuation when
100 liter/h vacuum pump is used
If tubing length is If tubing length is
less than 33 ft. (10 m) more than 33 ft. (10 m)
10 min. or more 15 min. or more
CAUTION
The service port on the wide tube
service valve uses a Schrader core
valve to access the refrigerant sys-
tem. The valve core is similar to
those used in automobile tires.
Therefore, be sure to use a vacuum
hose connector which has a push-
pin inside.
To prevent other refrigerants from being mistakenly
charged to units which use R410A, the size of the
charge port on the service valve is different from the
one for other refrigerant types. For servicing such as
recharging, the specified charging hose, manifold and
vacuum pump adapter (with reverse flow prevention)
for R410A must be used.
NOTE
10-018 C3082-3682 2/15/10 11:50 AM Page 25

26
(5) With the vacuum pump still running, close the “Lo”
knob of the manifold valve. Then stop the vacuum
pump.
(6) With the hex wrench, turn the valve stem on the nar-
row tube service valve counter-clockwise by 90
degrees (1/4 turn) for 10 seconds, and then turn the
stem clockwise to close it again. (Fig. 58)
(7) Leak test all joints at the tubing (both indoor and out-
doors) with soapy water. Bubbles indicate a leak. Tight-
en the joint more when leaks, then check if there is no
leak. Be sure to wipe off the soap with a clean cloth.
(8) With the hex wrench, turn the wide tube service
valve stem counter-clockwise to fully open the valve.
(9) Turn the narrow tube service valve stem counter-
clockwise to fully open the valve.
(10) Loosen the vacuum hose connected to the wide
tube service port slightly to release the pressure.
Then, remove the hose.
(11) Fasten the valve cap on the wide tube service port
securely with an adjustable wrench or box wrench.
Next, mount the valve cap on the service valve and
tighten it to 170 lbs·in (200 kgf·cm) with a torque
wrench. This process is very important to prevent
gas from leaking from the system.
(12) Test run the air conditioner. (See next page.)
(13) While the air conditioner is running, apply liquid
soap to check for any gas leaks around the service
valves or caps.
(14) If there is no leakage, stop the air conditioner.
(15) Wipe off the soap on the tubing.
This completes air purging with a vacuum pump and the
air conditioner is ready for actual operation.
CAUTION
Be sure to completely insert
the hex wrench before
attempting to turn the valve.
Fig. 58
CAUTION
This may cause the refriger-
ant gas to leak. In order to
avoid this, take off the hose
quickly.
Valve cap
Narrow tube
Hex wrench
Wide tube
Vacuum hose to manifold valve
90 (1/4 turn)
10-018 C3082-3682 2/15/10 11:50 AM Page 26

27
How to Test Run the Air Conditioner
After turning on the power of the air conditioner, use the
remote controller and follow the steps below to conduct the
test run.
(1) Set the remote controller in Test Run mode.
(Fig. 59a)
a) Press and hold the QUIET button and the 1HR.
TIMER button.
b) Then press and hold the ACL (Reset) button with a
pointed object such as the tip of a pen. After 5 sec-
onds, release the ACL button first.
c) Then release the QUIET and 1HR. TIMER buttons.
d) appears and “oP-1” blinks in the remote controller
clock display area. (Fig. 59b)
(2) Start Cooling mode test run by pressing the ON/OFF
operation button of the remote controller. (Fig. 59a)
• This starts the fan producing uncooled forced air with
the 3 indicator lamps (OPERATION lamp, TIMER
lamp, and LED CLEAN lamp) on the main unit
blinking. (Fig. 59c)
• After 3 minutes, the system shifts into cooling opera-
tion, and cool air will start to be felt. Cooling mode test
run is unaffected by the room temperature.
(3) Press the ON/OFF operation button of the remote con-
troller again to stop the test run. (Fig. 59a)
(4) Finally press the ACL (Reset) button of the remote con-
troller to release it from Test Run mode to return to nor-
mal mode. (Fig. 59a)
• “ ” and “oP-1” will disappear from the remote con-
troller clock display area.
Troubleshooting:
In the event that the green OPERATION lamp is blinking
upon powering up the system, an error condition exists. In
this case, refer to the self-diagnostics procedure on the
inside of the front cover.
After the test run is completed, be sure to press the ACL
(Reset) button to return to normal mode. The air conditioner
will not operate correctly if this is not done.
IMPORTANT
NOTE
Fig. 59a
Fig. 59b
Fig. 59c
1HR.
TIMER
ON/OFF
operation
ACL
(Reset)
QUIET
button
button
button
button
TIMER lamp
OPERATION lamp
LED CLEAN
lamp
10-018 C3082-3682 2/15/10 11:50 AM Page 27

28
■Pump Down
Pump down means collecting all refrigerant gas in the
system back into the outdoor unit without losing any of
the gas. Pump down is used when the unit is to be
moved or before servicing the refrigerant circuit.
Pump Down Procedure
Be sure to carry out pump down with the unit in
cooling mode.
(1) Connect the Lo side charging hose of the manifold
valve to the service port on the wide tube service
valve.
(2) Using a hex wrench, turn the narrow tube service
valve clockwise all the way to close the service
valve. (Be sure to confirm that the wide tube service
valve is fully open.)
(3) Press the operation button and start cooling oper-
ation.
(4) When the low pressure gauge reading falls to 14.2 to
7.1 psi (1 to 0.5 kg/cm2), fully close the wide tube
valve stem. Then quickly stop the unit.
(5) Disconnect all gauges and hoses, and replace the
valve caps as they were before.
■Basic Functions of the Service Valves
The basic functions of the service valves are given in Table 8 below.
Action Narrow Tube Service
Valve (2-Way)
Wide Tube Service
Valve (3-Way)
CLOSED
Fully OPEN
Fully OPEN
Shipping
Operating and
test running
the air conditioner
Measuring pressure
and gas charging
Air purging with
a vacuum pump
CLOSED
Valve cap
Stem
O-ring
*
*
Table 8
*The service port on the wide tube ser-
vice valve uses a Schrader core valve
to access the refrigerant system.
Therefore, be sure to use a hose con-
nector which has a push-pin inside.
(Fig. 60a)
PUSH
Hose with push-pin
Service valve
Fig. 60a
Close
Hex
wrench
Open
Fig. 60b
CAUTION
When opening or clos-
ing the service valve
stem, use the hex
wrench. Be sure to fully
seat the wrench before
turning the valve.
External diameter of service port
R410A: 5/16"
NOTE
10-018 C3082-3682 2/15/10 11:50 AM Page 28

a) Temporary connection:
Screw in 3 – 5 turns by hand. (Fig. 60c)
b) To fasten the flare nuts, apply specified torque
as Table 9 and Fig. 60d.
Fig. 60c Fig. 60d
CAUTION
Torque wrench
Be sure to tighten the
flare nut using the
prescribed torque.
If the nut is over-
tightened, refrigerant
leakage may occur.
Press
Set in
place
Remote control
unit mount
Mounting screws
Rear side
Hole
To prevent loss of the remote control
unit, you can connect the remote
control unit to the mount by passing
a string through the remote control
unit and attachment hole.
5/32 5/8" (4 16 mm)
(included)
29
7. Remote Control Unit Installation Position
The remote control unit can be operated from either a
non-fixed position or a wall-mounted position.
To ensure that the air conditioner operates correctly, do
not install the remote control unit in the following places:
●In direct sunlight
●Behind a curtain or other place where it is covered
●More than 26' (8 m) away from the air conditioner
●In the path of the air conditioner’s airstream
●Where it may become extremely hot or cold
●Where it may be subject to electrical or magnetic
interference
●Where there is an obstacle between the remote con-
trol unit and the air conditioner (since a check signal
is sent from the remote control unit every 5 minutes)
7-1. Mounting on a Wall
Before mounting the remote control unit, press the
ON/OFF operation button at the mounting location to
make sure that the air conditioner operates from that
location. The indoor unit should make a beeping sound
to indicate that it has received the signal.
Table 9
Fig. 61
To take out the remote control unit, pull it forward.
■Service Valve Connections
Tube Dia. Nut Tightening Torque
1/4" (6.35 mm) 21/32" (17 mm) Approx. 120 – 160 lbs·in (140 – 180 kgf·cm)
3/8" (9.52 mm) 7/8" (22 mm) Approx. 300 – 360 lbs·in (340 – 420 kgf·cm)
1/2" (12.70 mm) 1-1/32" (26 mm) Approx. 430 – 540 lbs·in (490 – 610 kgf·cm)
5/8" (15.88 mm) 1-5/32" (29 mm) Approx. 590 – 710 lbs·in (680 – 820 kgf·cm)
10-018 C3082-3682 2/15/10 11:50 AM Page 29

30
8. Address Switch
8-1. Address Setting of the Remote Control Unit
The address can be set in order to prevent interference
between remote controllers when 2 indoor units are
installed near each other. The address is normally set to
“A.” To set a different address, it is necessary to change
the address on the second remote controller.
Once changed, you cannot restore the original address
setting of the air conditioner.
(1) Switch on the power source.
(2) Break the address-setting tab marked “A” on the
second remote controller to change the address
(Fig. 62). When the tab is removed, the address is
automatically set to B (Fig. 63).
(3) Press and hold the remote controller QUIET button
and 1HR. TIMER button. Then press and hold the
ACL (Reset) button with a pointed object such as
the tip of a pen. After 5 seconds, release the ACL
button first, then release the QUIET and 1HR.
TIMER buttons. “oP-1” (Test Run) appears, blinking
in the remote controller clock display area.
(4) Each time the 1HR. TIMER button is pressed, the
display changes as shown below. Press this button
3 times to change the display to “oP-7” (Address
setting). (Fig. 64)
(5) “oP-7” has now been selected for address setting.
(6) Press the ON/OFF operation button on the remote
controller. (Fig. 64) Check that the “beep”signal-
received sound is heard from the second indoor unit
(approximately 5 times). The sound you hear is the
signal that the remote controller address has been
changed.
(7) Finally press the remote controller ACL (Reset) but-
ton to cancel the blinking “oP-7” display.
(Fig. 64)
Changing of the second remote controller address is
now completed.
Test run mode
Selfdiagnostic mode
Address setting mode
NOTE Fig. 62
Fig. 63
Fig. 64
Tab
ACL button
1HR.
TIMER
button
ON/OFF
operation
button
ACL
(Reset)
button
QUIET
button
10-018 C3082-3682 2/15/10 11:50 AM Page 30

For Parts or Service Assistance please contact your local Sanyo HVAC Contractor or Distributor
United States: SCS, HVAC Solutions
Web: www.SanyoHVAC.com
Parts: hvac.parts@sna.sanyo.com
Service: hvac.service@sna.sanyo.com
Canada: Sanyo Canada Inc.
Web: www.SanyoHVAC.com
Parts/Service: hvac@sci.sanyo.com
3/10 Printed in Japan