Scheidt and Bachmann PIT-BASEIII Coin Box Reader System User Manual CHANNEL c
Scheidt & Bachmann GmbH Coin Box Reader System CHANNEL c
Manual

n Systems for Car Parks and Leisure Centres
Manual ChipCoin Processing
Article no. of chapter: 86 93538 (c) 1
ChipCoin Processing
Contents Page
1Introduction ....................................................................................2
1.1 Block diagram...........................................................................................2
2Coin feeder......................................................................................4
2.1 Entry ..........................................................................................................4
2.1.1 Function ...................................................................................................4
2.2 Exit.............................................................................................................5
2.2.1 Function ...................................................................................................5
2.3 Automatic Pay Station.............................................................................6
2.3.1 Function ...................................................................................................6
2.4 Maintenance and service.........................................................................7
2.4.1 Outside.....................................................................................................7
2.4.2 Inside........................................................................................................8
2.4.2.1 Cover removal....................................................................................8
3Entry hopper ...................................................................................9
3.1 View...........................................................................................................9
3.2 Maintenance and service.......................................................................10
4ChipCoin interface.........................................................................11
4.1 View / connections.................................................................................11
5PIT Base station .............................................................................12
5.1 View / connections.................................................................................13
6Item numbers................................................................................13

n Systems for Car Parks and Leisure Centres
ChipCoin Processing Manual
2Article no. of chapter: 86 93538 (c)
1Introduction
At an entry the coin feeder is located directly in front of the hopper. In case of a
ChipCoin request the coin goes from the hopper to the coin feeder, where it is
guided through the coin channel via stopper and reject magnets and coded and
read by an installed antenna coil.
At an exit the ChipCoin inserted by the customer goes directly into the coin
feeder. Here it is read via the antenna coil and, when found to be valid, is moved
on to the collector receptacle; the gate opens. ChipCoins without exit
authorisation are returned via a reject mechanism to be removed by the customer.
At an automatic pay machine the ChipCoin inserted by the customer likewise
goes directly to the coin feeder. It is read via the antenna coil and "parked" there
as long as necessary until the customer has paid the fee calculated. Simultaneous
to that the insertion aperture of the coin channel (shutter) closes in order to
prevent insertion of coins into the coin feeder.
Due to the different demands (with shutter, without shutter, different coin inlet)
different coin feeders are used for entrance, exit and automatic teller.
All versions are based on identical coin channels (black coin feeder casing)
which are varyingly fitted with magnets, reflex couplers and mechanical
components.
First of all the different versions and their functional operation will be explained.
Maintenance tips will be given on the basis of a fully outfitted coin channel.
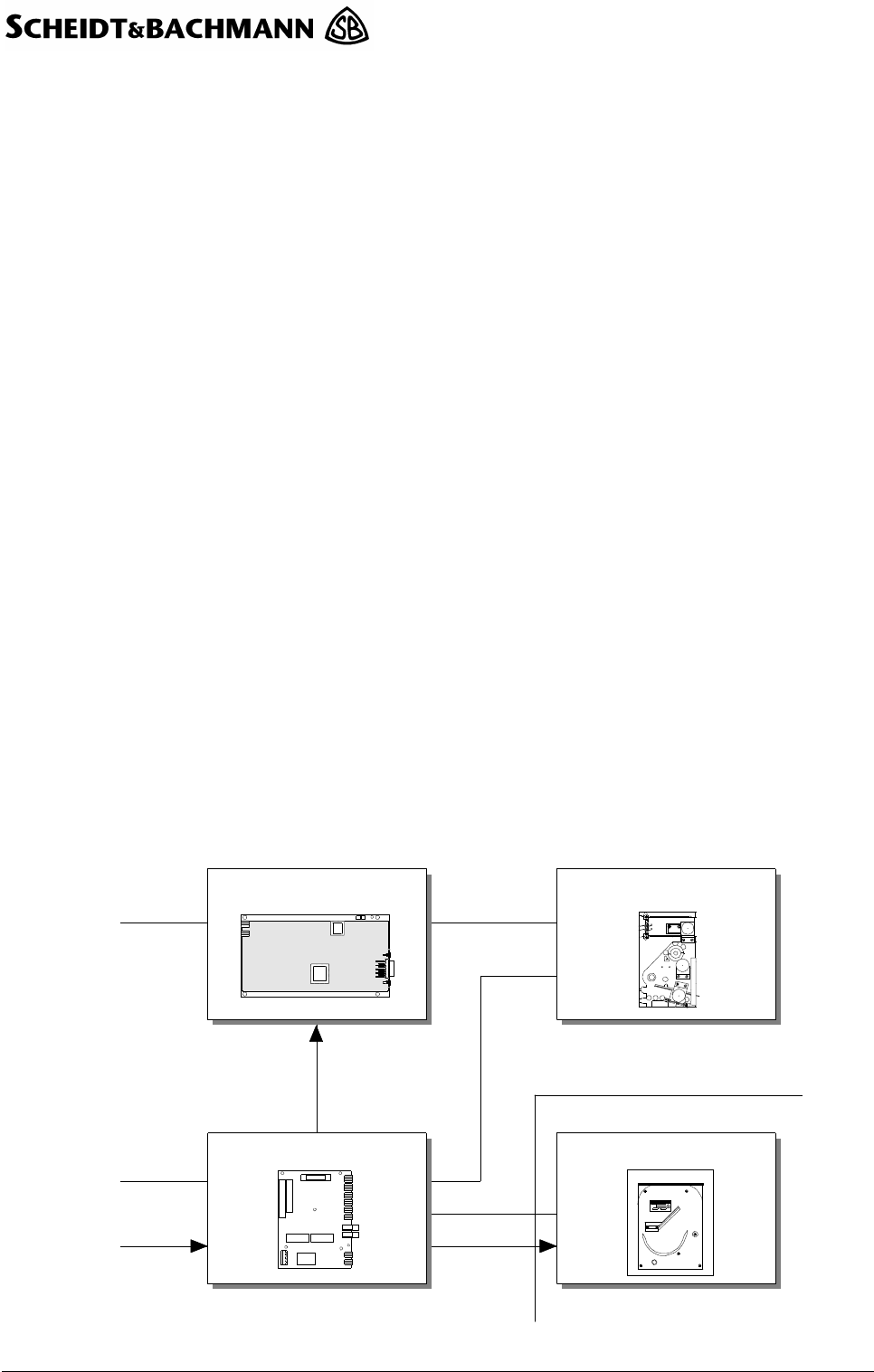
1.1 Block diagram
PIT Basestation
I/O
COM1/EPR
12V
I/Os
I/Os
ChipCoin Interface Hopper
Power supply Power
Antennas
Coin feeder
Entry only

n Systems for Car Parks and Leisure Centres
Manual ChipCoin Processing
Article no. of chapter: 86 93538 (c) 3
2Coin feeder
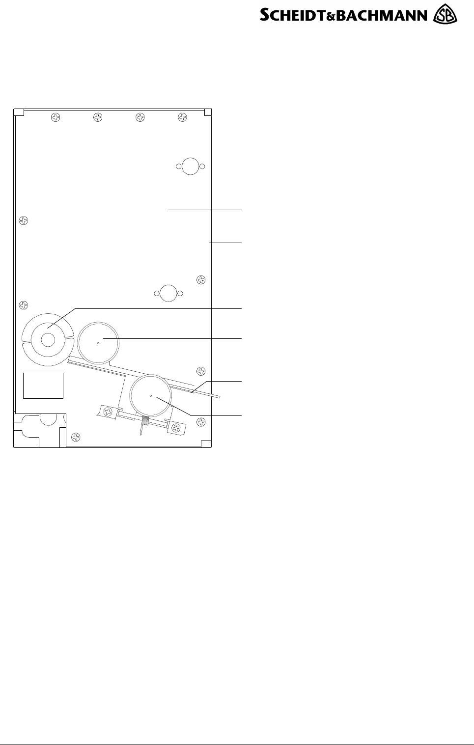
2.1 Entry
2.1.1 Function
As soon as a vehicle drives over the loop, the ChipCoin, which has already been
positioned by the stopper magnet in front of the read/write antenna, is coded.
After pressing the ChipCoin request button the stopper magnet is pulled tight
and the ChipCoin is thereby released for output.
If the ChipCoin cannot be coded, the stopper magnet and the reject magnet pull
tight and the ChipCoin falls into the collector receptacle.
If the ChipCoin is not removed within a predefined period of time, the stopper
magnet pulls tight and the coin is dropped into the collector receptacle.
After removing the coded ChipCoin a new ChipCoin is brought into position in
front of the read/write antenna.
Reject magnet for ChipCoins
not removed
Read/write antenna
Stopper magnet for
read/write operation
Reject plate for ChipCoins
not removed
Mounting plate
Coin channel
(covered by mounting plate)

n Systems for Car Parks and Leisure Centres
ChipCoin Processing Manual
4Article no. of chapter: 86 93538 (c)
2.2 Exit
2.2.1 Function
The shutter releases the ChipCoin insert chute if a vehicle is on the loop. In this
way insertion of foreign matter by pedestrians (vandalism) is prevented.
In standard position the shutter is closed, the stopper magnet blocks the ChipCoin
and the rejector plate stands in the "Reject coin" position (output to the front).
If the loop is driven over, the shutter is opened. (Magnet pulls tight). The
ChipCoin is inserted and is blocked at the read/write antenna by the stopper
magnet. The ChipCoin is analysed.
If it entitles the holder to exit, the stopper magnet and the reject magnet pull
tight. The ChipCoin falls into the exit collector receptacle and the gate is opened.
If the ChipCoin is invalid (eg, the period of grace is exceeded; supplemental
payment) the stopper magnet pulls tight and the ChipCoin is outputted to the
front via the reject plate. The gate does not open. The reason for this is shown to
the customer on the display.
Reject magnet for invalid ChipCoins
Shutter flap
Shutter magnet
Read/write antenna
Reflex coupler circuit board
Stopper magnet for
read/write operation
Reject plate for invalid ChipCoins
Coin channel
(covered by mounting plate)
Mounting plate

n Systems for Car Parks and Leisure Centres
Manual ChipCoin Processing
Article no. of chapter: 86 93538 (c) 5
2.3 Automatic Pay Station
2.3.1 Function
At the automatic teller the shutter closes upon insertion of a ChipCoin and
thereby prevents the customer from inserting coins into the coin feeder.
In standard condition the shutter is opened and the stopper magnet blocks the
ChipCoin.
If the customer has inserted the ChipCoin for analysis, this is recognised by the
reflex coupler and the shutter is closed (the magnet drops down). The ChipCoin is
positioned in front of the read/write antenna by the stopper magnet. The amount
to be paid is determined and displayed.
When the payment operation is completed, the authorisation to exit is coded on
the ChipCoin and the stopper magnet is briefly pulled tight. The ChipCoin falls
into the return change cup for removal.
Suggestion:
In order to avoid blockage/disturbance by foreign matter (e g, coins), the stopper
magnet at regular intervals pulls tight briefly so that such items are diverted
down into the return change cup.
Shutter flap
Shutter magnet
Read/write antenna
Reflex coupler circuit board
Stopper magnet for
read/write operation
Coin channel
(covered by mounting plate)
Mounting plate

n Systems for Car Parks and Leisure Centres
ChipCoin Processing Manual
6Article no. of chapter: 86 93538 (c)
2.4 Maintenance and service
2.4.1 Outside
The small number of movable parts reduces maintenance expense to the coin
feeder to a minor level. The following suggestions should, however, be heeded in
order to ensure permanent faultfree operations.
•Shutter plate
‚Shutter magnet
ƒStopper magnet (exit, automatic pay station)
„Stopper magnet (entry)
…Reject magnet
†Reject plate
‡Read/write antenna (exit, automatic
pay station)
ˆRead/write antenna (entry)
‰ Reflex coupler circuit board
ŠSprings for shutter, rejector plate
• The entire coin feeder should be checked on both inside and outside for dirt
and, if necessary, should be cleaned. Be careful, in doing so, of the shutter and
rejector magnet mechanism (‚,…).
• In case of serious dirt accumulation an air pump can be used for cleaning.
• Check for the smooth working of the shutter plate (•) and the reject plate (†).
Only the spring tension (Š) should be allowed to show any perceptible
resistance.
• Check for tight fit of the read/write antenna (‡,ˆ).
Š
†…
ˆ„
ƒ
‡
Љ‚
•

n Systems for Car Parks and Leisure Centres
Manual ChipCoin Processing
Article no. of chapter: 86 93538 (c) 7
2.4.2 Inside
2.4.2.1 Cover removal
For removal of the cover the coin feeder should be taken out of its bracket.
Coin channel and cover are held together by a bayonet catch. After pushing the
cover upwards it can be removed.
Push cover upwards Coin feeder without the cover
•Condensation openings
‚Reflecting sticker for reflect coupler
‡Bayonet catch
ƒReflex coupler
„Stopper magnet (exit,
automatic pay station)
… Stopper magnet (entry)
†Rejector plate
• Check the sticker (‚) for dirt. It must have a light-coloured reflecting surface.
• Check the reflex coupler (ƒ) for dirt.
• For cleaning the coin channel use an air pump, a brush or a soft rag.
• Check to see that the stopper magnets („,…) work smoothly. They must let
themselves be pressed in easily upon pressure from the encapsulated spiral
spring. Under no circumstances may they be hard to move, nor should they
stick tight.
‡
‡
‡
•
•
•
•
•
‡
• • • •
•
‡
‡
†
• • • • • •
•
•
• • • •
„
•
•
…
ƒ ‚
•

n Systems for Car Parks and Leisure Centres
ChipCoin Processing Manual
8Article no. of chapter: 86 93538 (c)
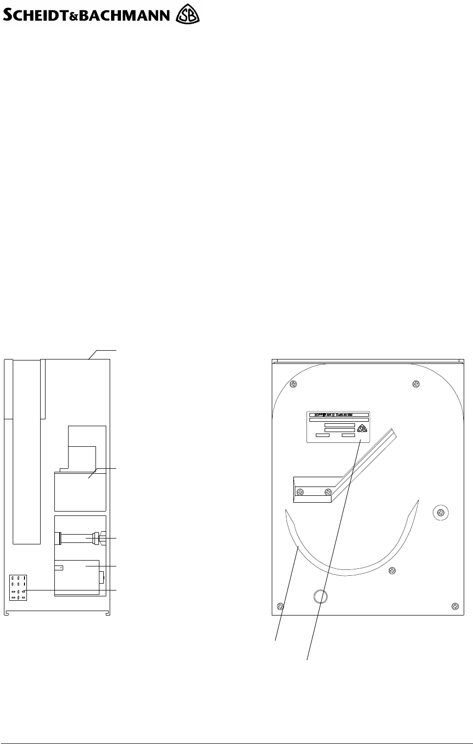
3Entry hopper
The entrance hopper stores the ChipCoins and conveys them to the coin feeder. In
order to increase its capacity and to make refilling easier, a funnel has been
mounted on top of the hopper. In order to check the supply of ChipCoins, the
funnel has been provided with viewing holes.
Control and voltage supply occur via a connection to the ChipCoin interface.
Coin output occurs via a chain. In order to ensure that the coins reach the right
properly start-positioned for transport via the chain, with every movement of the
chain there occurs additionally the movement of one of the slides driven by an
excentre. Both the chain and the slide are driven by the same motor.
3.1 View
Front view Side view
Connection plug for
ChipCoin interface
Drive motor
Sliding shaft
Funnel receptacle /
ChipCoin input
ChipCoin exit to coin
feeder
ChipCoin drive track
Name plate

n Systems for Car Parks and Leisure Centres
Manual ChipCoin Processing
Article no. of chapter: 86 93538 (c) 9
3.2 Maintenance and service
The hopper is maintenance-free. Should it ever occur that, despite plentiful
supply of coins, no ChipCoin is outputted, then possibly a jam may have occurred.
Check to see if the hopper upon a ChipCoin request makes a short movement. If
this is the case and no jam obtains in the coin feeder, then take the hopper out
and empty it. Jams can normally be eliminated by shaking the hopper. You will
hear if the ChipCoin releases. Then fill the hopper again and put it back in. Turn
the entrance on again and check its functioning.
Never work on the hopper with the current turned on. First turn
the entrance off and then remove the plug from the hopper.

n Systems for Car Parks and Leisure Centres
ChipCoin Processing Manual
10 Article no. of chapter: 86 93538 (c)
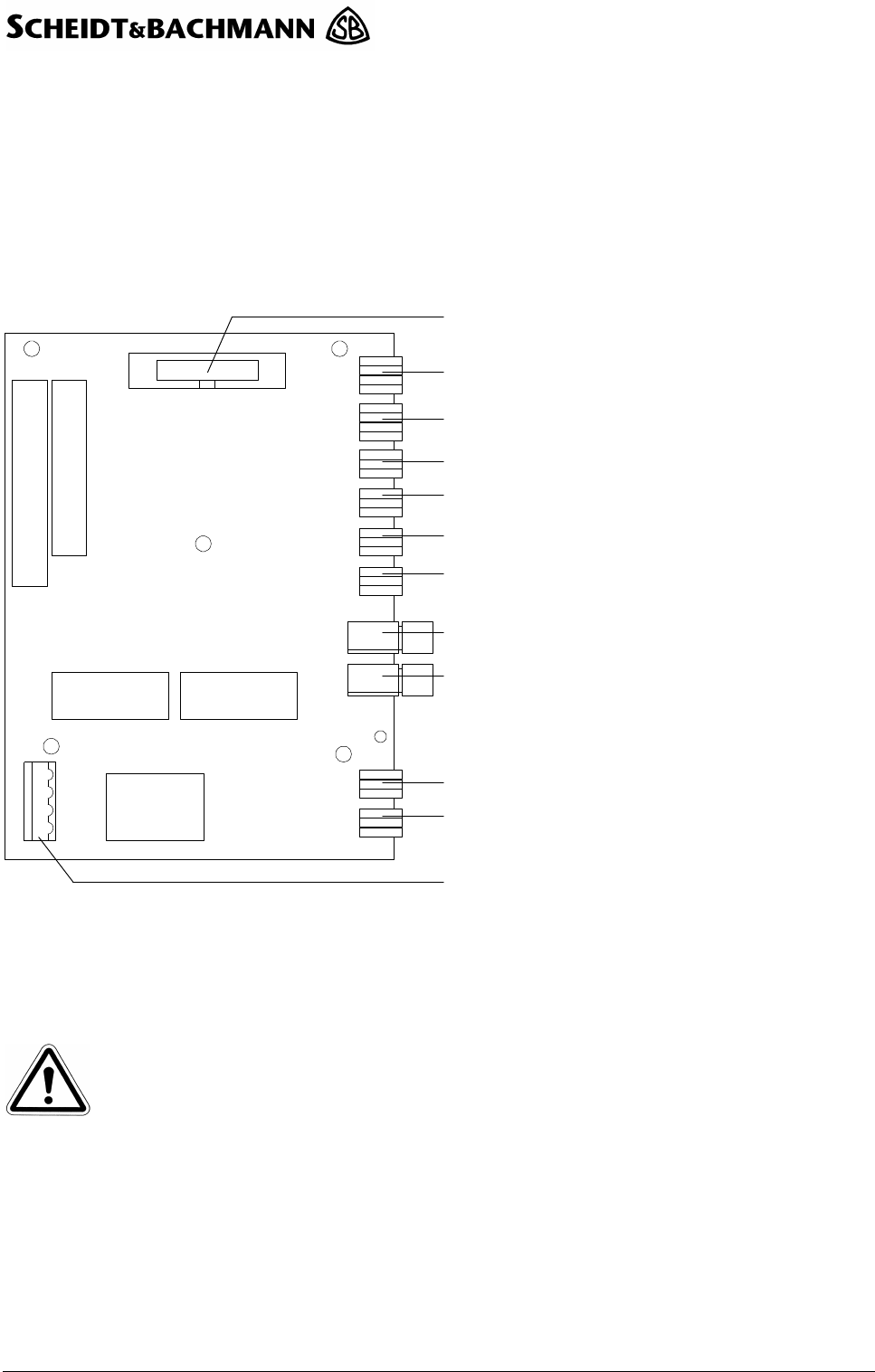
4ChipCoin interface
The Chip-Coin interface circuit board assumes control of the stopper, shutter and
rejector magnets as well as analysis of information from the reflex coupler and
the photoelectric barrier as well as hopper control.
4.1 View / connections
Never work on the circuit board when the current is on. First
turn off the device and wait until it has come to a complete
rest.
Reserve
Reflex coupler (entrance, automatic pay station)
Stopper magnet (entry)
Shutter magnet (exit, automatic pay station)
Rejector magnet (entry / exit)
Stopper magnet (exit, automatic pay station)
LW connection for luminous diode
LW connection for phototransistor
Reserve
Current output for PIT base station
Hopper connection (entrance)
Current supply

n Systems for Car Parks and Leisure Centres
Manual ChipCoin Processing
Article no. of chapter: 86 93538 (c) 11
5PIT Base station
The PIT base station III is the interface for coding and analysis of the ChipCoin
cards. It has a serial interface for connection to the single-board computer or the
PMK computer as well as having two antenna connections.
This equipment has been tested and found to comply with the limits
for a Class B digital device, pursuant to Part 15 of the FCC Rules. These
limits are designed to provide reasonable protection against harmful
interference in a residential installation. This equipment generates,
uses and can radiate radio frequency energy and, if not installed and
used in accordance with the instructions, may cause harmful
interference to radiocommunications. However, there is no guarantee
that interference will not occur in a particular installation. If this
equipment does cause harmful interference to radio or television
reception, which can be determined by turning the equipment off and
on, the user is encouraged to try to correct the interference by one or
more of the following measures:
• Reorient or relocate the receiving antenna.
• Increase the separation between the equipment and receiver.
• Connect the equipment into an outlet on a circuit different from
that to which the receiver is connected.
• Consult the dealer or an experienced radio/TV technician for help.
Changes and modifications not expressly approved by Scheidt &
Bachmann can void the user's authority to operate the equipment.

n Systems for Car Parks and Leisure Centres
ChipCoin Processing Manual
12 Article no. of chapter: 86 93538 (c)
5.1 View / connections
Never work on the circuit board when the current is on. First
turn off the device and wait until it has come to a complete
rest.
6Item numbers
PIT Base station III.............................. 04 19275
ChipCoin Interface............................. 04 18306
Entry hopper (bulk coin store)........... 04 18112
Entry coin feeder ............................... 04 17845
Exit coin feeder.................................. 04 17844
Automatic Pay Station feeder............ 04 18117
ChipCoin read/write antenna (inside, coin feeder)
Serial interface (ð COM1)
Operational readiness, green
Card read/write antenna (outside)
Analysis operation, red
Flash PROM (software)