Simplex Time Recorder 3000AR3 Wireless Fire Alarm Control Panel User Manual CP 3000 Manual
Simplex Time Recorder Company Wireless Fire Alarm Control Panel CP 3000 Manual
Users Manual

CP-3000 WIRELESS FIRE ALARM CONTROL
PANEL
OPERATING and INSTALLATION
INSTRUCTION MANUAL
CWSI
10798 N.W. 53 Street
Sunrise, Florida 33351
2
Disclaimer
The
information contained in this document is believed to be accurate and reliable at the time
of printing. Known corrections or omissions may be found on errata sheets included in the various
product manuals. However, Commercial Wireless Systems International
, LLC herein known as CWSI,
may not be held accountable for errors or omissions in this or other CWSI publications. No license is
granted by implication or otherwise under any patent rights of CWSI
CWSI makes no claims as to the suitability of their products for a specific installation site or for
a specific application. Local testing for suitability of both the proposed site and application is required.
Unless prohibited by law, the liability of CWSI is limited to the cost of the equipment supplied
by C
WSI or their authorized agent. The liability of CWSI for defective product is limited to the repair or
replacement of the defective product at the option of CWSI. CWSI is not liable for, nor will
reimbursement be made for the removal of, or replacement of the defective equipment or for the
inconvenience or supplemental costs which may be incurred by the installer, installing company,
dealer or end user of the equipment.
All guarantees or warranties on the products are limited to those published by CWSI and no
others, given verbally or in writing are valid except when signed specifically by the president of CWSI
3
DISCLAIMER
....................................................................................................
2
INTRODUCTION
...............................................................................................
5
SECTION 1
-
DESCRIPT
ION AND FEATURES
...............................................
6
1.1 Product Description and Wireless System O
verview
..............................................
6
1.2 Features
.......................................................................................................................
7
SECTION 2
–
SPECIFIC
ATIONS AND COMPATIBI
LITY
................................
8
2.1 Specifications
..............................................................................................................
8
2.2 Compatibility
...............................................................................................................
9
SECTION 3
-
INSTALLA
TION
..........................................................................10
3.1 Proper Installation Order
............................................................................................
10
3.2 Preparing the Installation Site
....................................................................................
10
3.3 Receiving and Unpacking the Equipment
................................................................
.
10
3.4 Installing the CP
-
3000
................................................................................................
.
10
3.4.1 The Backup Batteries
..........................................................................................................................
11
3.
4.2 Cover Panel
.........................................................................................................................................
11
3.4.3 Enrolling Devices Into the CP
-
3000
....................................................................................................
14
3.4.4 Installing the Repeaters and Initiating Devices
...................................................................................
14
3.5 System Inputs and Outputs
........................................................................................
16
3.5.1 Alarm A, B, C, D Contacts
..................................................................................................................
16
3.5
.2 Trouble Contacts
................................................................................................................................
16
3.5.3 Alarm Contacts
...................................................................................................................................
16
3.5.4 Auxiliary
Output Local Energy Municipal Box Service
.......................................................................
17
3.5.5 Notification Appliance Circuits
............................................................................................................
19
3.5.6 Notification Appliance Compatibility
....................................................................................................
19
3.5.7 Ethernet
Connection
...........................................................................................................................
20
3.5.8 Telephone Line Jack
...........................................................................................................................
20
3.5.9 RS
-
232
DB9 Connector
......................................................................................................................
20
SECTION 4
- SYSTEM O
PERATION
...............................................................21
4.1 User Interface
..............................................................................................................
21
4.1.1 LCD
.....................................................................................................................................................
21
4.1.2 LEDS
...................................................................................................................................................
21
4.1.3 Buttons
................................................................................................................................................
21
4.2 Modes of
Operation
....................................................................................................
23
4.2.1 Normal
.................................................................................................................................................
23
4.2.2 Alarm
...................................................................................................................................................
23
4.2.3 Sprinkler Supe
rvisory
..........................................................................................................................
24
4.2.4 Trouble Signals
...................................................................................................................................
24
4.2.5 System Test
........................................................................................................................................
25
4.2.6 M
emory Recall
....................................................................................................................................
25
4
SECTION 5
-
DIGITAL
ALARM COMMUNICATORS
......................................25
SECTION 6
-
SYSTEM PROGRAMMING
........................................................25
Appendix A
-
APPROVED ANTENNAS…………………………………………..28

5
Introduction
This manual is intended for persons involved with the installation, maintenance and operation
of the CP
-
3000 RF control p
anel. It is a comprehensive guide that provides details on product
operation and should be kept for future reference. This manual consists of separate sections. Each
section contains information in a manner as to be clear as possible. It is designed to pro
vide all the
information necessary to install, program and operate the equipment.
Read and understand this
manual prior to installing or operating the equipment. It is imperative that the installer understan
d the
requirements of the Authority Having Jurisdiction (AHJ) and be familiar with the standards set forth by
Underwriters Laboratories, NFPA
72 National Fire Alarm Code, and NFPA 70 National Electrical
Code.
The model CP
-
3000 is the first
in a series of wireless fire annunciation and control panels
manufactured by CWSI. This system was designed and tested to comply with
NFPA
72 National Fire
Alarm Code and UL
864 standard. The CP
-
3000 is approved for Local, Proprietary, Remote
Station, Central Station and Auxiliary
service when installed in accordance with this manual.
FCC Warning
Important: Any changes or modifications not expressly approved by the party
responsible for compliance could void the user’s authority to operate the
equip
ment.
This device complies with part 15 of the FCC Rules. Operation is subject to the
following two conditions: (1) This device may not cause harmful interference,
and (2) this device must accept any interference received, including
interference that may
cause undesired operation.
FCC Warning - RF Exposure
Important:
When using this device, a certain separation distance between antenna and
nearby persons has to be kept to ensure RF exposure compliance. In order to comply
with the RF exposure limits esta
blished in the ANSI C95.1 standards, the distance
between the antennas and the user should not be less than [20cm].
6
Section 1 - Description and Features
1.1 Product Description and Wireless System Overview
The CWSI CP
-
3000 is an intelligent addressable wireless fire alarm
control panel. The CP
-
3000
system provides for annunciatio
n of up to 1024 individual addressable initiating devices
including and
not limited to, smoke detectors, heat detectors, pull stations, water flow and sprinkler supervisory
transmitters
. It has two on board tr
ansceivers that allows all communications with devices to be done
via radio frequency (RF). Since the communications are bi
-
directional the control panel can send out
control commands to perform functions including turning on or off repeater
NAC circuits
and tandem
smoke detector
sounder
activation. The advanced RF protocol and speed of the CP
-
3000 allows a
failure of any one of up to 1024 initiating devices to be re
ported within 200 seconds. It is field
programmable making the addition of devices both easy and cost effective. Ethernet
connection is
provided for local area network
connection (LAN) as well as an optional modem
that will allow system
information and status to be retrieved at a remote location. An internal piezo
sounder provides distinct
tones for alarm, supervisory and trouble
signals
. The system conta
ins a clock
and non
-volatile
memory
that will record and store events by time and date of occurrence. This memory is maintained
even when all power is removed from the system. The CP-
3000 is capable of storing 3000 events as
ou
tlined in the memory recall section of this manual. The events can later be viewed in order or
downloaded to a computer via the built in RS
-
232
port located in the lower right side of the main
circuit board. The on board RS
-
232 port can also
be used for site specific programming
as well as
down loading system information.
The unit is also compatible with UL
Listed Communicators
making the CWSI CP
-
3000 a complete
installation solution. Th
e system is designed with monitoring and emergency personnel in mind. The
LCD display
provides easily identifiable pinpoint information displaying the specific initiating device
(s)
in alarm
, trouble
or supervisory
condition. A 21 button membrane switch panel is used for system
control and programming
. The CP
-
3000 notification appliance circuits are field selectable both for 12
or 24 volt DC and Class A
or B operation.
The CWSI initiating devices
contain microprocessor based transceivers and are battery powered. Bi
-
directional repeaters are used to create a cellular network type signaling path to and from the
CP
-
3000 control panel. Initiating devices transmit both status and alarm information. Repeaters process
the data and retransmit the data through the repeater
network to and from devices and the CP
-
3000
control panel. All tran
smitted signals
are verified for data integrity, signal quality and reception
conformation. The CP-
3000 is responsible for reading all incoming transmission data and deciding
what action if any is to be taken such as displaying information
, sending commands back to repeaters
to activate Notification appliance circuits, HVAC shutdown, Elevator Recall, Tandem smoke detectors
and many other control functions.
The CP
-
3000 control panel has many new and enhanced features unavailable in previou
s wireless
systems due to recent technological advances. These features and industry advancements are what
make CWSI the unsurpassed leader in the wireless fire alarm
industry.

7
1.2 Features
1024 device
ca
pability
4 alarm
types
Bi
-
Directional RF communication
900 Mhz Frequency Hopping Spread Spectrum format
CRC data validation
Dual transceiver design
Tandem smoke detector
control
60 hour battery standby time
Field selectable NAC circuits Voltage and Class
1 Class A
12 or 24 Volt DC @ 2 Amps
2 Class B
12 Volt DC @ 2 Amp each or 24 Volt DC @ 1 Amp each
4 N.O. programmable dry contact outputs
2 form C programmable dry cont
act alarm
outputs
2 form C programmable/fixed trouble
outputs
Auxiliary
municipal city box output
320 x 240 backlit LCD display
RS
-
232
data port
Ethernet
po
rt
Optional Modem for site data
Real time clock
with daylight savings adjustment
Device enrollment
feature
Password and key lock protected non-
volatile memory
User changeable password
Program
mable from membrane pad or computer
Pinpoint signal identification
History of events for
1000 alarm
signals
1000 supervisory
/trouble
signals
1000 annual test log signals
150 membrane switch presses
Silent or audible walk test
Printable history and maintenance log
4 site specific programmable function buttons
8
Section 2 – Specifications and Compatibility
2.1 Specifications
Power Source
: 120 VAC 60Hz 4 Amp dedicated circuit.
Batteries
: Two 12Vdc 7Ah sealed lead acid batteries
connected in series for up to 60 hours standby
operation.
Operating Temper
ature
: 32 to 120 degrees F.
Operating Humidity
: 85% non
-
condensing
Special Application NAC Circuits: Programmable Power Limited. 1 Class “A” (Style Z) or 2 Class “B”
(Style Y) Field selectable.
Cla
ss A
ratings: 12 or 24 Volts DC @ 2 Amps each
Class B
ratings: 12 Volts DC @ 2 Amps each or 24 Volts DC @ 1 Amp each
Dry Contact Alarm Relays:
4 N.O. non
-
programmable power limited
rated 28 Vdc @ 1 A
mp. resistive.
2 Form “C” programmable power limited
rated 28 Vdc @ 1 Amp. resistive.
Dry Contact Trouble Relays:
2 N.O. non
-
programmable power limited rated 28 Vdc @ 1 Amp. resistive.
2 N.C. non
-
programmable
power limited
rated 28 Vdc @ 1 Amp. resistive.
Auxiliary
output: Current 300 ma. Max coil resistance 14.6 ohms.
Data Port: RS
-
232
–
9 Pin Computer connector.
Ethernet
port connecto
r: RJ
-
45
Telco input: RJ
-
11
Transceiver Operating Frequency: 900 MHz band.
Antenna
Types: Yagi and Folded Dipole Omni. Max Coax length 20 ft.
Transmission Format
: Frequency Hopping
–
Spread Spectrum.
Dimensions
: 17” high, 17” wide, 3 ¼” deep
Enclosure
: Powder coated 16 gauge steel
Weight
: 29 Lbs.

9
2.2 Compatibility
The following UL Listed RF devices
are compatible with the CP
-
3000Control Panel:
Commercial Wireless Systems International, LLC
A/C Repeater Model AR
-
3
–
A/C powered repeater
Battery Repeater Model BR
-
3
–
Battery powered Repeater
Smoke Detector Model 300
–
Photo Electric Sm
oke Detector with Integral Sounder
Manual Pull Station Model 310 –
Non Coded Fire Alarm Box
Heat Detectors models 320/321 –
Automatic Fixed and Rate of Rise Heat Detector
Fire Transmitter Model 330
–
N.O. EOL Supervised Transmitter
The following antennas
are for use with the CP
-
3000:
Commercial Wireless Systems International, LLC
Models:
OM
-
1 Omni, OM
-
2 Omni, YA
-
1 Yagi, YA
-2 Yagi
The following UL Listed Digital communicators are compatible with the CP
-
3000 Control
Panel:
Communicators
are to be determined. They will be activated via dry contact relay outputs
10
Section 3 - Installation
3.1 Proper Installation Order
The following steps when performed in the li
sted order will result in a trouble
free installation:
1.
Site Signal Survey
2.
Control Panel Installation and Basic Programming
3.
Device and Repeater Enrollment
4.
Control Panel Site Specific Programming
5.
Repeater and Device installation and testing
3.2 Preparing the Installation Site
Prior to the installation of a CP
-
3000 system a signal survey
must be been performed by a factory
trained technician or authorized dealer. The signal survey
determines the loc
ation of the CP
-
3000,
repeaters, and initiating device
transmitters. Refer to the CWSI Signal Survey manual and individual
CWSI device manuals for the proper method to conduct a signal survey. The completed survey
becomes the blueprint layou
t for the actual installation.
During the survey try to locate A/C repeaters and CP
-3000 control panel close to available 120 Vac
uninterruptible power. All CP
-
3000 connections must be installed in conduit. When connecting
primary A/C power always follow
:
1-
National Fire and Electrical Codes (NFPA
72 and NFPA 70)
2-
Local Electrical and Fire Code requirements
3-
Local AHJ (Authority Having Jurisdiction) requirements
WARNING: Make sure A/C supply is turned OFF prior to connecting the CP
-
3000
panel.
3.3 Receiving and Unpacking the Equipment
Upon receiving the equipment, the carton should be inspected for damage, which may have occurred
during shipment. Each package should be checked against the packing slip for completeness.
Differences shoul
d be reported to CWSI immediately. If any product is suspected of damage it should
be checked for proper operation or returned to CWSI.
3.4 Installing the CP-3000
WARNING: This equipment must be professionally installed by factory trained personnel. Use
of an antenna
other than listed in the compatibility section of this manual may be harmful to
persons, void FCC or damage the equipment.
After conducting a signal survey
the CP-
3000 can be mounted in it’s intended loca
tion. The following
should be considered and or adhered to when mounting the unit.
1
–
ALL WIRING SHOUL
D COMPLY WITH NATIONAL AND/OR LOCAL
ELECTRICAL CODES. UN
LESS OTHERWISE SPECI
FIED, WIRE
SHOULD BE18
GAUGE 7 STRAND COPPE
R WITH 600 VOLT INSU
L
ATION. SHIELDED WIRE
IS
PREFERRED.
2
–
This unit is intended to be mounted in indoor dry areas. Avoid dusty, wet and corrosive
locations.
11
3
–
Provide adequate space surrounding the unit to allow for;
a
-
The hinged cover to be completely opened for easy a
ccess to internal
components and wiring.
b
-
The connection of conduit to the desired cabinet locations.
c
–
The use of the required antenna
type for the installation.
4
–
Avoid electrically noisy locat
ions such as main electrical and transformer rooms,
computer rooms, telephone switching rooms, etc.
Unlock the CP
-3000 cover and open the unit. Carefully verify that the unit is not damaged and the
printed circuit boards are properly s
ecured and connected. Remove the door by lifting it off of the
hinge pins. This will allow for easier installation. Hold the CP-
3000 in its intended position, verify
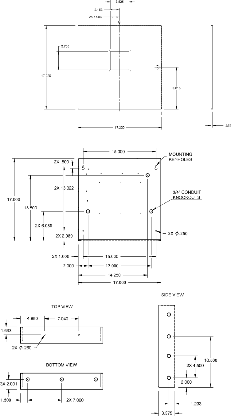
leveling and mark the location of the upper corner mounting keyholes
(Figure 3)
. Using the
mounting
screws and anchors provided secure the screws to the wall and hang the CP
-
3000 control panel. If
the anchors are not the proper type for the wall, replace the anchors and screws with suitable ones.
The screws should be a #12 size minimum. Install
screws in the two lower mounting holes. The
conduit can now be installed into the provided knockout locations required.
Power limited and non
-
power limited
wiring must be in separate conduit and kept a minimum of .25” apart in the
e
nclosure.
Refer to
figure 4
for suggested wire
routing.
WARNING: Make sure A/C supply is
turned OFF prior to proceeding with A/C connection.
Connect the incoming A/C supply to the
black transformer
flying leads and earth gr
ound to the gray flying lead using wire nuts provided.
Required input is 120 VAC 50
-
60Hz 4 Amps. Use minimum 18 AWG 600 Volt 7 strand copper wire for
A/C connections. Follow all applicable electrical codes. Attach the specified antennas to the SMA
connecto
rs at the top of the cabinet and mount the antenna
if required. It is recommended to not
connect any other equipment such as horns or dialers to the CP
-
3000 until the unit is programmed.
Do not connect the batteries
yet. N
ow apply A/C power and verify the initial power up screen as
shown in figure 2 appears. If it does not, verify the following:
1)
Proper input voltage is present at transformer
input.
2)
Transformer secondary connector is correctly plugged into receiver card connector
labeled J1.
3)
Ribbon cable is present and plugged in between receiver
board location J3 and main
CP
-
3000 motherboard location J7.
If all the above is correct and power up screen is still not presen
t, call for service.
3.4.1 The Backup Batteries
The cabinet houses two 12 Volt 7Amp hour batteries
wired in series. These batteries will supply 60
hours of backup power followed by 5 minutes of alarm
time at maximum alarm
load allowed in this
manual. Once power up screen is present, install two 12 Volt 7 Amp Hour batteries and wire
as
shown in figure 4 using the supplied battery harness. Do not connect battery harness to the receiver
board batt
ery connector until A/C power has been applied to the control panel. Plug the battery
harness connector into J2 on receiver card and initial programming
of the system can begin as
detailed in the programming section of this manual. The initial programming has to be completed prior
to device
enrollment
.
3.4.2 Cover Panel
There is an optional cover panel available that attaches to the inside of the cabinet with 6 screws. It
protects the user from coming i
n contact with the electronics but still allows full access to all control
panel switches. Figure 5 illustrates panel location and attachment.

12
figure 3

13
figure 4
14
3.4.3 Enrolling Devices Into the CP
-
3000
Enrolling a device will both assign alarm
priority and allow specific location nomenclature entry in
order to pinpoint the physical location of a device in the event an alarm or trouble
occurs. This
procedure can be performed only after completing the initial programming
of the CP
-
3000 as
described in the programming section of the manual. It is recommended to use a computer connected
to the RS
-
232
port on the CP
-
3000 motherboard to perform enrollment
, data entry and
site specific
programming. The computer will allow for easier data entry especially where location designators are
being entered. Refer to the section on computer interfacing for connection instructions. Prepare a list
of device location designators prior
to beginning enrollment. This will allow complete device and site
specific programming to be completed. To enter the enrollment mode open the cabinet to gain access
to the switch panel. Press and hold the enter button for 5 seconds. Enter your pass code th
en scroll
up and down to highlight the device enrollment selection and press enter. The control panel is now in
enrollment mode and ready to accept new devices into the system. The CP
-
3000 has 4 alarm levels
referred to in this manual as alarms A, B, C and D. These alarm levels are prioritized with A being the
highest and D the lowest priority alarm. Each initiating device must be assigned to one of these alarm
levels. The alarm level assignment will give the device its priority in the installation. Repeate
rs are
enrolled after installing them at their mounting location and do not get assigned an alarm priority.
Install a battery into the device to be enrolled. Do not install batteries
into more than one device at a
time. When the battery i
s installed the control panel LCD screen will display a number corresponding
to the device serial number. This number is also printed on a label located on the device. Use the up
down buttons to highlight the desired alarm priority for the device. Press the enter button when the
desired selection is highlighted. Alarm priority designations may now show on the LCD as
nomenclature chosen for alarms A
-
D during the initial programming. They will be in order of priority
from top to bottom. Upon entering the sele
ction the device sounder
will beep twice indicating
successful enrollment. You will now be prompted to enter the location designator for the device. Enter
the information desired for the device. There is a maximum of XX characters. When fin
ished press
enter and the system will prompt you to end the enrollment process or go to the next device. There is
a space provided on each device label in which to write the location designation. Also a computer
print out can be generated to show the devic
e serial number and corresponding location designator.
This will aid in correctly installing devices in the proper locations. Proceed to enroll all devices into the
control panel as described above.
Note: All devices must be enrolled in to the system. Fail
ure to
enroll a device may result in an alarm signal not being transmitted, received and processed.
3.4.4 Installing the Repeaters and Initiating Devices
After enrolling the devices the next step is to mount the repeaters at their locations as determined by
the initial signal survey
. Start at the first repeater
location closest to the CP
-
3000 panel. Install the
repeater in accordance with its instruction manual again performing a signal survey prior to
permanent
ly mounting the repeater. Upon applying power to the repeater perform the enrollment
procedure as described in the section above. Since there is no alarm
priority for a repeater, the only
enrollment choice to make is the lo
cation designation data entry. Continue out from the panel
installing and enrolling the balance of the repeaters. It is recommended that notification appliances
and repeaters be installed at the same time. Refer to the repeater manual for a list of notification
appliances and other equipment approved for connection to a repeater. Any equipment to be
connected to the CP
-
3000 such as dialers, notification appliances etc. should also be installed and
connected prior to installin
g initiating devices. Refer to other sections of this manual for approved
equipment. This will allow full system testing during initiating device
installation as to prevent having
to visit a device location more th
an once during the installation process. After installing the repeaters
then proceed with programming
the CP
-
3000 for the desired functions as needed for the installation.
Refer to the programming section of this manual for instructions and site specific programming

15
features and options. Prior to the installation and testing of the initiating devices, the control panel can
be left in normal mode for real time operation testing of the system or placed in one of the available
test modes. R
efer to system testing for these options then begin installing the initiating devices
starting with the ones located closest to the control panel. Hold the first device at its desired position
and generate a signal survey transmission from it (refer to the
individual device manual for signal
survey transmission). If the signal is acceptable the device may be installed at that location. Slight
transmitter location adjustments may or may not have to be made in order to obtain acceptable signal
strength result
s. Do not mount any device unless acceptable signal strength indicating tone is heard
(two beeps). Once the device is mounted confirm acceptable signal strength once more to insure
proper operation. After the device has been installed and signal verified,
activate the device for an
alarm signal transmission and verify proper alarm reception and proper site specific programming
function operations. See the individual manuals for alarm activation methods of each device.
Continue installing the balance of the
equipment following this method and the installation will be a
successful one with few if any problems. After all of the equipment has been installed and powered
up be sure to place the panel in normal monitoring mode. Installation trouble
with any devices will be
reported with in 200 seconds. Refer to the operation section of this manual for further information.
figure 5
16
3.5 System Inputs and Outputs
The CP
-3000 has 10 dry contact, 1 auxiliary
and 1 class A or 2 clas
s B NAC output circuits available.
Some are programmable and some are non programmable. Each output and function is explained
below. Refer to figures 6 and 7 for wiring diagrams of these outputs. All diagrams are shown with
system power connected and contr
ol panel in normal mode.
3.5.1 Alarm A, B, C, D Contacts (TB2 Terminals 9
-
24)
These 4 normally open outputs will operate when any alarm
signal of the corresponding A, B, C or D
type is being processed. For example if alarm A has been design
ated for smoke detectors and a
smoke detector
alarm is received the alarm A relay will activate. When alarm C is configured for
supervisory
then the alarm C relay will serve as a supervisory output. These outputs
can be power
limited
or non
-
power limited depending on the equipment they are connected to. Power limited and
non
-
power limited circuits must be separated by at least .25” within the enclosure and run in different
conduit. These outpu
ts are also used when connecting the control panel to a communicator. They
have double terminals so that an end of line resistor can be connected in different terminals than
those used for wiring connections allowing connected equipment to properly monitor
any wiring fault.
Refer to the communicator section of this manual for connection of a communicator. The contacts are
rated at 28Volts D.C. 2 Amps resistive. Acceptable wire
size for connection is 16
-
22awg.
3.5.2 Trouble Contacts (TB2 Termin
als 1
-
8 N.O. and TB3 Terminals 3
-
6 N.C.)
There are 2 normally open and 2 normally closed trouble
dry contact outputs available on the CP
-
3000. They will operate during processing of any of the trouble conditions listed in the system
operati
on section of this manual. These also serve as the fail safe relays
that monitor for system
processor failure and total power down of the control panel. The outputs can be power limited
or non
-
power limited depending on
the equipment they are connected to. Power limited and non
-
power
limited circuits must be separated by at least .25” within the enclosure and run in different conduit.
The normally open outputs have double terminals so that an end of line resistor can be
connected in
different terminals than those used for wiring connections allowing connected equipment to properly
monitor any wiring fault. The terminal output designations shown in figure 6 are with system power
applied in normal standby mode. One of the normally open trouble outputs is used when connecting
the control panel to a communicator. Refer to the communicator section of this manual for connection
of a communicator. When a power loss trouble occurs at the system or a repeater
, acti
vation of the
trouble relays will be delayed by 60 minutes. This time is programmable and options are explained in
the programming
section of the manual. The contacts are rated at 28Volts D.C. 2 Amps resistive.
Acceptable wire
size for connection is 16-
22awg.
3.5.3 Alarm Contacts (TB3 Terminals 7
-
12)
These are 2 form C outputs that can be separately programmed to activate when any or all of the 4
alarm
types A, B, C or D are in process. These outputs can be p
ower limited
or non
-
power limited
depending on the equipment they are connected to. Power limited and non
-
power limited circuits
must be separated by at least .25” within the enclosure and run in different conduit. The contacts are
ra
ted at 28Volts D.C. 2 Amps resistive. Acceptable wire
size for connection is 16
-
26awg. Note: Alarm
C can be designated for sprinkler supervisory
. When this programming
choice is made make sure to
program
these relays
so that one of them will activate on alarms A, B and D only and the other relay
will activate on supervisory alarm C only.
17
3.5.4 Auxiliary
Output Local Energy Municipal Box Service (TB3 Terminals 1+2)
This is a programmable output for connection to a city municipal box using series connection only.
Shunt connection is not supported. This output is supervised and can be programmed to activate
when any one of the 4 alarm
types A, B, C or D ar
e in process. A jumper labeled JP1 located on the
CP
-
3000 motherboard can be used to temporarily disable the auxiliary
output. This is useful when
tripping of the municipal box is not desired while performing system testing in normal mode
. Placing
the jumper on pins 2+3 will disable the output. This will cause a system trouble
to be displayed.
Removing the jumper completely or placing it on pins 1+2 will enable the output. Note: The auxiliary
output must first be programmed to activate before the auxiliary output and jumper JP1 will function.
There are also reset options available when this feature is used. Refer to the programming
section for
further instructions. Alarm C must not be programmed to activa
te the auxiliary output when it is
designated as sprinkler supervisory
. No termination resistor is needed when this output is not
programmed to activate.
Output Ratings:
Alarm current 250ma.
Alarm voltage 3.625 Volts D.C.
Coil resistan
ce 14.5 ohms
Max. coil resistance 14.6 ohms
Max. wire
resistance 3 ohms

18
figure 6

19
3.5.5 Notification Appliance Circuits (TB1 Terminals 1
-
4 on receiver
card)
The CP
-
3000 control panel provides a special application notifi
cation appliance circuit which is field
selectable for either 1 Class A
Style Z or 2 Class B
Style Y supervised power limited
outputs. Output
voltage is also field selectable between 12 and 24 Volts D.C
. The Class and voltage are determined
by the settings of SW3 and SW4 on the receiver
card. The NAC circuit
connector is labeled TB1 and
located on the lower right edge of the receiver card. The CP
-
3000 will maintain th
e NAC circuit output
voltage at either 12 or 24 volts even if the battery voltage drops below 12 or 24 volts. The NAC
circuits
are also software site specific programmable for activation and deactivation. Refer to the
programming
section for complete activation and deactivation programming options. The circuits
utilize current sensing technology and if the rated current draw is exceeded, the NAC circuit will
deactivate. It will attempt to reactivate only if another d
evice sends an alarm or the NAC circuit is
reset by the control panel and then reactivated by another alarm. In class B operation, an end of line
resistor P/N TR
-3 must be placed at the last appliance connected to the circuit or a trouble will be
transmitt
ed to the control panel. A trouble will also be sent if a ground fault exists on a NAC circuit.
Figure 7 shows proper wiring of NAC circuit. Table 1 shows compatible notification appliances
.
Synchronization is achieved by us
ing one of the compatible synchronization modules.
Output ratings:
Class B
–
2 output circuits
12 Volts D.C. @ 2 Amps or 24 Volts D.C. @ 1 Amp each
Class A
–
1 output circuit
12 Volts D.C. @ 2 Amps or 24 Volts D.C. @
2 Amps
3.5.6 Notification Appliance Compatibility
The following UL Listed notification appliances are compatible with the CP-
3000
Control Panel
MANUFACTURER
MODEL NUMBER
TYPE
SW4 SETTING
WHEELOCK
AS
-
121575W
H
ORN/STROBE
12 Volts
WHEELOCK
HS4
-
121575W
-
FR
HORN/STROBE
12 Volts
WHEELOCK
MT
-
12/24
-
R OR
–W
HORN
12 or 24 Volts
WHEELOCK
MT
-121575W-
FR OR
–
NW
HORN/STROBE
12 Volts
WHEELOCK
MT4-
12/24
-
R OR
–W
HORN
12 or 24 Volts
WHEELOCK
AMT
-
12/24
-
R OR
–W
HORN
12 or 24 V
olts
WHEELOCK
RSS
-
121575W
-
FR OR
–FW
STROBE
12 Volts
WHEELOCK
RSSP
-121575W-
FR
STROBE
12 Volts
WHEELOCK
SM-
12/24
-R
SYNC MODULE
12 or 24 Volts
WHEELOCK
DSM
-
12/24
-R
SYNC MODULE
12 or 24 Volts
GENTEX
GEH12
-
R OR
–W
HORN
12 Volts
GENTEX
GES3
-
12 SERIES
STROB
E
12 Volts
GENTEX
GEC3
-
12 SERIES
HORN/STROBE
12 Volts
GENTEX
AVSM
-
R OR
–W
SYNC MODULE
12 Volts
SYSTEM SENSOR
H12/24 SERIES
HORN
12 or 24 Volts
SYSTEM SENSOR
PA400 SERIES
HORN
12 Volts
SYSTEM SENSOR
S1224MC SERIES
HORN
12 or 24 Volts
SYSTEM SENSOR
P12
24MC SERIES
HORN/STROBE
12 or 24 Volts
SYSTEM SENSOR
MDL
SYNC MODULE
12 or 24 Volts

20
CONTACT MANUFACTURER FOR COMPLETE PART NUMBERS AND OPTIONS.
REFER TO MANUFACTURER DOCUMENTATION FOR PROPER WIRING OF SYNC MODULES
Table 1
figure 7
3.5.7
Ethernet
Connection
This connector can be hooked to the local area network
. Exact functions to be determined. Refer to
figure 4 for location.
3.5.8 Telephone Line Jack
This connector can be used when the option
al factory installed modem
is present. It will allow for
system status information at a remote site. Uploading of site programming
information is not allowed
through this connection. Any access through this connection will
require password
entry. Refer to
figure 4 for location.
3.5.9 RS
-
232
DB9 Connector
This connector is for uploading or downloading of information such as site programming
or alarm
memory
. Refer to figure 4 for location.

21
Section 4 - System Operation
4.1 User Interface
The membrane switch panel allows for means to display, control and program all aspects of the
CP
-
3000. Refer to figure 1.
4.1.1 LCD
The 5” diagonal 3
40 x 240 LCD backlit display allows for pinpoint status display of any abnormal
conditions occurring as well as programming
information and other useful necessary information as
mentioned throughout this manual.
4.1.2 LEDS
There are 6
led
lights for visual indication of:
A/C power (green)
This LED is on when proper A/C is applied and off during brown out or total loss of A/C power.
Fire Alarm (red)
This LED flashes when at least one Alarm condition is in process. It will t
urn steady when the Alarm
Ack or Signal Silence button is pressed. Resetting the system to normal will turn this LED off.
Supervisory (yellow)
This LED flashes when at least one Supervisory condition is in process. It will turn steady when the
Supervisor
y Ack or Signal Silence button is pressed. Resetting the system to normal will turn this LED
off.
Trouble (yellow)
This LED flashes when at least one Trouble condition is in process. It will turn steady when the
Trouble Ack or Signal Silence button is pre
ssed. Resetting the system to normal will turn this LED off.
Signals Silenced (yellow)
This LED turns on when the Signal Silence button is pressed during an Alarm condition. If NAC
circuits
are reactivated this led
will go
out.
System Test (green)
This LED turns on when the system is placed in test mode. Resetting the system to normal will turn
this LED off.
4.1.3 Buttons
There is a total of 21 membrane buttons, which are accessible only when the door is opened. They
provide means for total system control and programming
. All button presses will be stored in non
volatile memory
.

22
Buttons and functions are:
Alarm Ack
Pressing this button during an alarm
will silence the inte
rnal piezo
sounder
and change the Fire LED
from flashing to steady. The piezo will beep once every 30 seconds until the system is reset to
normal. If a different device
goes into alarm, the piezo will resound an alarm. More than 5
simultaneous alarms will cause the screen to scroll through the displayed alarms at 5 second
intervals. Pressing the Alarm Ack button a second time will cease this rotation. The alarm display can
then be rotated using the soft key arrow
buttons Previous or Next.
Supervisory Ack
Pressing this button during a supervisory
will silence the internal piezo
sounder
and change the
Supervisory LED from flashing to steady. The piezo will beep onc
e a minute until the system is reset
to normal. If a different device
transmits a supervisory condition, the piezo will resound the
supervisory tone. More than 5 simultaneous supervisory conditions will cause the screen to scroll
through the
m at 5 second intervals. Pressing the Supervisory Ack button a second time will cease this
rotation. The display can then be rotated using the soft key arrow buttons Previous or Next.
Trouble Ack
Pressing this button during a trouble
will
silence the internal piezo
sounder
and change the Trouble
LED from flashing to steady. The piezo will beep once every 2 minutes until the system is reset to
normal. If the panel is not reset to normal within 4 hours or a diffe
rent device
transmits a trouble
condition, the piezo will resound the trouble tone. More than 5 simultaneous trouble conditions will
cause the screen to scroll through them at 5 second intervals. Pressing the Trouble Ack button a
second time
will cease this rotation. The display can then be rotated using the soft key arrow buttons
Previous or Next.
Signal Silence
This button performs the same functions as the Alarm Ack button except it will also reset any active
NAC circuits, Alarm dry contact relays
and Auxiliary
output. The Signals Silenced LED will also turn
on if NAC circuits are silenced. Resetting the system to normal will turn off the Signals Silenced LED.
Reset
Pressing this butt
on will reset the system to normal. All active LED’s, NAC circuits
, Dry contact relays
,
Auxiliary
output, LCD display
and piezo will be restored to normal standby condi
tion. If the system
was in test mode, it will be returned to normal standby. If any Alarm, Supervisory or Trouble that
exists after reset will cause the system to once again annunciate that condition.
Panel Test
Pressing this button will activate the Test
LED and display a test menu on the LCD allowing the user
to choose the particular test desired. Refer to system testing for additional information. Pressing reset
will return the system to normal standby.
Horns On
This button will activate any programmed
NAC circuits
. It may also activate other relays
if
programmed to do so. Refer to programming
section for options. The piezo
will also sound for an
alarm
if the button is p
ushed when no alarm is present on the system.
Enter
Used for system programming
. Refer to programming section.

23
Back
Used for system programming
. Refer to programming section.
Up, Down, Left, Right (cursor movement)
Used for system programming
. Refer to programming section.
4 Soft arrow keys use display for various functions
Perform functions shown on the LCD above the buttons TBD.
4 programmable site specific buttons
These buttons can be progra
mmed to perform various functions such as tandem
smoke reset,
elevator reset, HVAC reset etc. Custom labels can be provided. Refer to the programming
section or
consult the factory for information.
figure 1
4.2 Modes of Operation
4.2.1 Normal
Normal mode exists when no off normal conditions are occurring in the installation. The LCD screen
shown in figure 8 will be present during normal mode. When in normal mode the CP
-
3000 is
monitoring system voltages, keypad inpu
ts, etc. as well as monitoring for any off normal alarms,
supervisory
or trouble
signals
. Transmitter polling signals are also logged during normal operation.
4.2.2 Alarm
Alarms can be generated by any of the compatible initiating devices
listed in this manual. Upon
reception of an alarm
signal from an initiating device
the following will occur:
1.
Any lower priority conditions currently displayed on t
he LCD will be replaced by the higher
level alarm. The lower priority condition will be redisplayed when the higher one is reset.
2.
The sounder
will emit a steady tone.
3.
The Fire Alarm LED will flash once a second.
4.
The correspon
ding alarm
relay (1,2,3 or 4) will activate.
24
5.
The form C relays
will activate if programmed to do so.
6.
The CP
-
3000 NAC circuit
outputs will activate if programmed to do so.
7.
Any repeater
NAC ci
rcuits
programmed to turn on will activate.
8.
The Auxiliary
output will activate if programmed to do so.
9.
The event is stored in the non volatile memory
.
The membrane buttons will function as described in
section 4.1.3. If lower priority signals
are present,
they will be displayed as each higher priority signal is reset. The LCD display
shown in figure 9 will be
present when the system is in alarm
.
4.2.3 S
prinkler Supervisory
Alarm C can be programmed for sprinkler supervisory
operation during initial programming
of the
system. Upon reception of a supervisory signal the following will occur.
1.
Any lower priority conditi
ons currently displayed on the LCD will be replaced by the sprinkler
supervisory
display.
2.
The sounder
will pulse once a second.
3.
The sprinkler Supervisory LED will flash once a second.
4.
Relay 3 will activate.
5.
The event is
stored in non volatile memory
.
The membrane buttons will function as described in section 4.1.3. If lower priority signals
are present,
they will be displayed as each higher priority signal is reset. The LCD display
shown in figure 10 will
be present when the system is processing a supervisory
signal.
Alarm, NAC circuits
or Auxiliary
output must not be programmed to activate upon receipt of a
sprin
kler supervisory
signal.
4.2.4 Trouble Signals
A trouble
signal indicates a problem with a device
(s) or the control panel. Trouble signals
do not
activate any NAC relays
or alarm
circuits. Upon reception of a trouble signal the following will occur:
1.
Multiple trouble
signal of different types will be displayed in the order of priority.
2.
The sounder will pulse once every 10 seconds.
3.
The trouble
LED will flash once a second.
4.
The form C trouble
contacts will activate.
5.
The event is stored in non volatile memory
.
The membrane buttons will function as described in section 4.1.3. The LCD displa
y
shown in figure
11 will be present when the system is processing a trouble
signal. The list below shows possible
trouble signals
in order of priority.
1.
Processor Failure
–
Can occur in CP
-
3000 panel. Ca
used by CP
-
3000 processor failing to
execute the main system program. Sounder will come on steady and trouble relay will trip.
2.
Memory error
–
Can occur in CP
-
3000 control panel. Caused by CP
-
3000 memory
data
check error.
3.
Tam
per
–
Cased by removal of device
or exposing device battery.
4.
Interference
–
Can occur in AR
-
3, BR
-
3 repeaters or CP
-
3000 control panel. Caused by
unrecognized signal which may interfere with transmitter reception.
5.
Test Problem
– Caused by th
e CP
-
3000 not receiving a device
polling transmission within 200
seconds.
6.
NAC Circuit Fault
–
Can occur in AR
-
3 repeater
or CP
-3000 panel. Caused by an open
circuit, short circuit or ground fault in NAC circuit
wiring.
7.
Charger Failure
–
Can occur in AR
-
3 repeater
or CP
-
3000 panel. Caused by problem in
battery charging circuit.
8.
Low Battery
–
Can occur in any CWSI battery operated or A/C powered device
, repeater
or
CP
-
3000 panel. Caused by battery voltage being too low.
25
9.
Power Loss
–
Can occur in AR
-
3 repeater
or CP
-
3000 control panel. Caused by low or no
voltage present at A/C input to product. Trouble relay activation will be delayed by 90 min
utes.
10.
Maintenance Required
–
Can occur in model 300 smoke detector
. Caused by sensitivity level
error or hardware failure in the smoke detector head.
4.2.5 System Test
A full system test of all initiating devices
can be performed as required by NFPA
or local authorities.
During testing the programmed NAC circuits
can be silent or activate for 5 seconds when an alarm
is
sent from a device
. Tr
ansmitter signals
received while in test mode are stored in a special test log
allowing for an annual testing printout to be generated by downloading the information via the RS-
232
port connected to a computer. Test log memor
y
has a capacity of 1000 signals. The trouble
relay will
activate while the CP
-
3000 is in test mode. Test mode is entered by pressing the system test button
and then entering the 4 digit pass code.
4.2.6 Memory Recall
The C
P-
3000 has the capability of storing 1000 alarms, 1000 supervisory
/trouble
1000 test and 150
keypad button presses. This information can be downloaded and printed separately or in various
groupings. These memory
lists can also be individually cleared which requires a password
.
Section 5 - Digital Alarm Communicators
All communicators will be connected via on board normally open dry contact outputs.
If off premise
s communications are required, the following DACT’S may be used for connection to the
CP
-3000 control panel. Wiring diagrams are also included to show proper connections.
This section to be completed before product is submitted. At least 2 dialers will be
used.
Section 6 - System Programming
This section details system programming
options not previously explained. This includes repeater
relay activation and deactivation (NAC circuits
), delays, etc
. This section will be completed prior to
submitting product. Some options will include total EVAC, EVAC by zone, relay repeater activation,
etc.
26
A
alarm..........5, 6, 7, 12, 15, 17, 18, 22, 24, 25, 26, 27
antenna ............................................................11, 12
Antenna ...................................................................
9
auxiliary...........................................................17, 18
Auxiliary....................................3, 5, 7, 8, 18, 24, 26
B
batteries .......................................................8, 12, 15
Batteries...................................................................
8
C
Class A ......................................................6, 7, 8, 21
Class B ..........................................................7, 8, 21
clock ....................................................................6, 7
Communicators .........................................3, 6, 9, 27
D
Description and Features.........................................
6
device ....................
5, 6, 7, 10, 12, 15, 24, 25, 26, 27
devices.....................................................................
9
Dimensions..............................................................
9
Disclaimer ...............................................................
2
E
Enclosure................................................................
.9
enrollment.................................................... 7, 12, 15
Ethernet .................................................3, 6, 7, 8, 22
F
Features ...................................................................
7
2
I
initiating devices ...................................6, 15, 25, 27
Installation.............................................................10
Order..................................................................10
Introduction.............................................................
5
L
LCD display ............................................6, 7, 24, 26
led..........................................................................23
loca
l area network .............................................6, 22
M
memory........................................ 6, 7, 22, 23, 26, 27
modem............................................................... 6, 22
N
NAC circuit ...............................................21, 26, 27
NAC circuits....................6, 7, 21, 23, 24, 26, 27, 28
NFPA .......................................................... 5, 11, 27
notification appliances.....................................15, 21
O
Operating Frequency...............................................
8
Operating Humidity.................................................
8
Operating Temperature ...........................................
8
P
password......................................................7, 22, 27
piezo ..................................................................6, 24
power limited...................................8, 11, 17, 18, 21
Power Source ..........................................................
8
programming 5, 6, 12, 15, 16, 18, 21, 22, 23, 24, 25,
26, 28
R
receiver............................................................12, 21
relays .........................................................18, 24, 26
repeater..................................6, 9, 15, 18, 26, 27, 28
RS
-232.......................................3, 6, 7, 8, 15, 22, 27
S
signal survey..............................................10, 11, 15
Signal Survey ........................................................10
signals................................................6, 7, 25, 26, 27
smoke detector.........................................6, 7, 17, 27
sounder ..................................................6, 15, 24, 26
Specifications ..........................................................
8
supervisory ................6, 7, 17, 18, 19, 24, 25, 26, 27
T
tandem............................................................... 6, 25
transformer ......................................................11, 12
Transmission Format...............................................
9
trouble..................6, 7, 10, 15, 16, 18, 24, 25, 26, 27
U
UL ............................................................. 5, 6, 9, 21
W
walk test...................................................................
7
Weight.....................................................................
9
wire......................................................11, 12, 18, 19
APPENDIX A
APPROVED ANTENNAS
1)
Manufacturer
-
M2 Antenna Systems
Model
-
914A
-
ISP
Isotropic gain
-
14.25 dBi
2)
Manufacturer
-
Antenna World
Model
-
COM
-
8804Y
Isotropic gain
-
8.5 dBi
3)
Manufacturer
-
Comtelco
Model
-
P915
-
SMA
-2
Isotropic gai
n
-
1 dBi
4)
Manufacturer
-
Nearson
Model
-
S161AM
-
915
Isotropic gain
-
2.5 dBi