Simrad Autopilot Ap26 Users Manual 20221586B AP26_AP27
AP26 to the manual da35c9eb-bfb2-4f33-b5ed-f46bf7c528f1
2015-02-02
: Simrad Simrad-Simrad-Autopilot-Ap26-Users-Manual-491961 simrad-simrad-autopilot-ap26-users-manual-491961 simrad pdf
Open the PDF directly: View PDF
.
Page Count: 152 [warning: Documents this large are best viewed by clicking the View PDF Link!]
- SIMRAD AP26 AND AP27 AUTOPILOTS
- FRONT MATTER
- SYSTEM DESCRIPTION
- OPERATION
- Overview
- ON/OFF - Standby mode
- AP26 and AP27 with MSD50 Stern Drive unit
- Follow-Up steering (FU)
- Non-Follow-Up steering (NFU)
- R3000X Remote Control (NFU)
- JS10 Joystick (NFU)
- Automatic Steering
- Automatic control of steering parameters
- Manual Parameter Selection
- U-Turn
- Dodge in AUTO
- Tacking in Auto mode
- Navigating with the AP26 and AP27
- Dodge in NAV
- Selecting a different Navigation source
- Wind vane steering
- Tacking and gybing in Wind mode
- Wind steering and navigation
- Multiple station system
- Lock function
- User Set-up Menu
- INFO menu
- INSTALLATION
- General
- Installation checklist
- Unpacking and handling
- Determine system configuration
- Autopilot System Layout
- RF300 Rudder feedback installation
- Autopilot computer installation
- Cable connections
- Grounding and RFI
- Drive unit installation
- Control unit installation
- ROBNET2 network cables
- RC36 Rate Compass installation
- RFC35 Fluxgate Compass installation
- R3000X Remote Control installation
- JS10 Joystick
- S35 NFU Lever installation
- Interfacing
- SimNet
- Single NMEA input/output
- Double NMEA input/output
- NMEA output on Port 2
- NMEA Compass input
- Radar Clock/Data
- IS15 Instrument installation
- External Alarm
- LF3000 Linear Feedback
- CONFIGURATION AND SETUP
- MAINTENANCE
- TROUBLE SHOOTING
- SPARE PARTS LIST
- TECHNICAL SPECIFICATIONS
- GLOSSARY
- INDEX

MANUAL
Simrad
AP26 and AP27
Autopilots
This page is intentionally left blank

Instruction manual
20221586B 1
Instruction Manual
This manual is intended as a reference guide for operating and
correctly installing the AP26 and AP27 autopilots.
Great care has been paid to simplify operation and set-up of the
autopilots, however, an autopilot is a complex electronic system. It
is affected by sea conditions, speed of the vessel, hull shape and
size.
Please take time to read this manual to get a thorough
understanding of the operation and system components and their
relationship to a complete autopilot system.
Other documentation material that is included in this manual is a
warranty card. This must be filled out by the authorized dealer that
performed the installation and mailed in to activate the warranty.

Simrad AP26 and AP27 Autopilots
2 20221586B
Document revisions
Rev Date Written by Checked by Approved by
A 18.03.04 NG ThH ThH
B 27.04.04
Document history
Rev. A First edition.
Rev. B FU50 substituted by FU25. Part no. for AC40 Power PCB ass’y, page 124
corrected. Added notes in chapter 3.19. Minor corrections in text and
display pictures.

Instruction manual
20221586B 3
Contents
1 System description ....................................................................................... 9
1.1 General .................................................................................................. 9
1.2 How to use this manual......................................................................... 9
1.3 System components............................................................................. 10
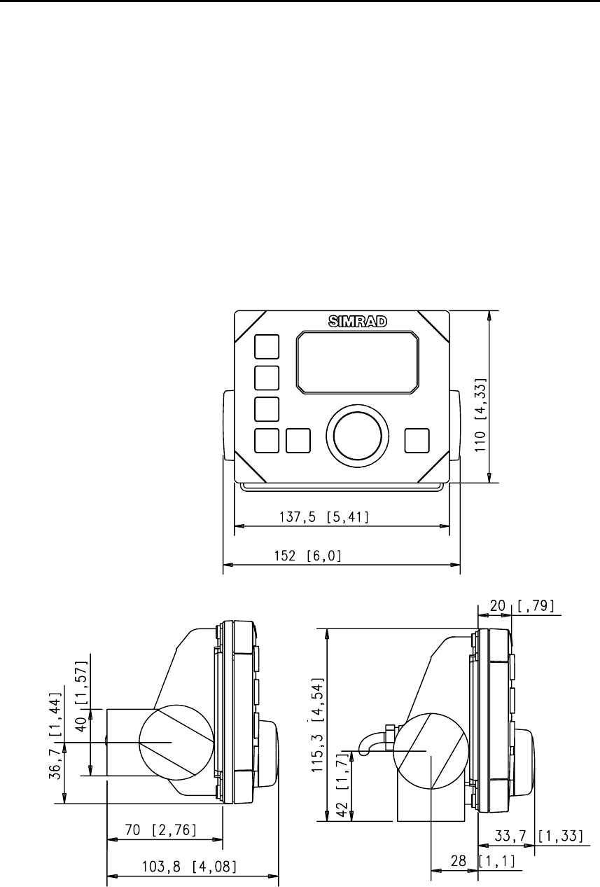
1.4 AP26 Control Unit .............................................................................. 11
1.5 AP27 Control Unit .............................................................................. 11
1.6 Autopilot Computer ............................................................................ 11
1.7 RF300 Rudder Feedback unit ............................................................. 12
1.8 Heading Sensors.................................................................................. 12
RC36 Rate compass ............................................................................ 12
RFC35 Electronic Fluxgate Compass (optional) ................................12
NMEA compass (optional) .................................................................13
Simrad RGC10 and RGC50 gyrocompasses ...................................... 13
1.9 Optional equipment............................................................................. 14
R3000X Remote Control .................................................................... 14
JS10 Joystick....................................................................................... 14
FU25 Follow-Up Steering Lever ........................................................ 14
Multiple stations.................................................................................. 14
2 Operation.................................................................................................... 15
2.1 Overview ............................................................................................. 15
2.2 ON/OFF - Standby mode .................................................................... 17
Flashing course knob icon .................................................................. 18
Alarms ................................................................................................. 18
2.3 AP26 and AP27 with MSD50 Stern Drive unit.................................. 18
Zero point setting ................................................................................ 18
2.4 Follow-Up steering (FU).....................................................................19
2.5 Non-Follow-Up steering (NFU) .........................................................20
2.6 R3000X Remote Control (NFU).........................................................21

Simrad AP26 and AP27 Autopilots
4 20221586B
2.7 JS10 Joystick (NFU) ........................................................................... 21
2.8 Automatic Steering .............................................................................22
Heading catch...................................................................................... 22
2.9 Automatic control of steering parameters........................................... 23
Power boat........................................................................................... 23
Sailboat................................................................................................ 24
2.10 Manual Parameter Selection ............................................................... 24
2.11 U-Turn................................................................................................. 25
2.12 Dodge in AUTO..................................................................................26
2.13 Tacking in Auto mode ........................................................................ 27
2.14 Navigating with the AP26 and AP27.................................................. 27
Setting the waypoint arrival circle ......................................................30
2.15 Dodge in NAV .................................................................................... 31
2.16 Selecting a different Navigation source.............................................. 31
2.17 Wind vane steering.............................................................................. 32
2.18 Tacking and gybing in Wind mode..................................................... 33
Gybing................................................................................................. 34
Tack and gybe prevent ........................................................................ 34
2.19 Wind steering and navigation ............................................................. 35
Operating in WINDNAV mode .............................................................37
RACING ............................................................................................. 37
2.20 Multiple station system ....................................................................... 38
2.21 Lock function ...................................................................................... 38
2.22 User Set-up Menu ............................................................................... 39
Alternating Course Knob Icon ............................................................ 39
STANDBY Mode ............................................................................... 39
AUTO Mode ....................................................................................... 44
NAV Mode.......................................................................................... 45
WIND Mode .......................................................................................45
2.23 INFO menu .........................................................................................46
Course knob icon ................................................................................ 48

Instruction manual
20221586B 5
INFO menu flowchart ......................................................................... 49
Alternative mode screens in STBY, AUTO and NAV....................... 50
INFO menu and Main screen, active unit ........................................... 50
INFO menu and Main Screen, inactive unit .......................................50
3 Installation.................................................................................................. 51
3.1 General ................................................................................................ 51
3.2 Installation checklist ...........................................................................51
3.3 Unpacking and handling ..................................................................... 52
3.4 Determine system configuration ......................................................... 52
3.5 Autopilot System Layout .................................................................... 53
3.6 RF300 Rudder feedback installation...................................................53
3.7 Autopilot computer installation .......................................................... 55
3.8 Cable connections ............................................................................... 55
3.9 Grounding and RFI ............................................................................. 56
3.10 Drive unit installation.......................................................................... 58
Connecting a reversible pump ............................................................60
Connecting a hydraulic linear drive.................................................... 61
Connecting a solenoid valve ............................................................... 61
3.11 Control unit installation ...................................................................... 62
Panel mounting of AP26 ..................................................................... 62
Alternative panel mounting of AP26 .................................................. 62
Optional bracket mounting .................................................................63
3.12 ROBNET2 network cables ................................................................. 63
AP27 connection................................................................................. 65
3.13 RC36 Rate Compass installation ........................................................65
3.14 RFC35 Fluxgate Compass installation ...............................................67
3.15 R3000X Remote Control installation .................................................68
3.16 JS10 Joystick....................................................................................... 68
3.17 S35 NFU Lever installation ................................................................ 68
3.18 Interfacing ........................................................................................... 69
3.19 SimNet................................................................................................. 69

Simrad AP26 and AP27 Autopilots
6 20221586B
SimNet network cables ....................................................................... 70
SimNet power and termination ........................................................... 70
3.20 Single NMEA input/output ................................................................. 75
3.21 Double NMEA input/output ............................................................... 75
3.22 NMEA output on Port 2...................................................................... 76
3.23 NMEA Compass input........................................................................ 76
3.24 Radar Clock/Data................................................................................ 77
3.25 IS15 Instrument installation................................................................77
3.26 External Alarm.................................................................................... 79
3.27 LF3000 Linear Feedback .................................................................... 79
4 Configuration and setup ........................................................................... 83
4.1 First time turn on................................................................................. 83
4.2 Description of Installation Settings..................................................... 84
4.3 Installation Menu ................................................................................ 85
Language selection.............................................................................. 87
4.4 Dockside settings ................................................................................ 87
Boat type .............................................................................................88
Drive unit voltage................................................................................ 88
Rudder Feedback Calibration .............................................................89
Rudder Test ......................................................................................... 90
Drive engage ....................................................................................... 91
Rudder Deadband................................................................................ 92
Wind setup .......................................................................................... 92
Minimum wind angle (NORMAL).....................................................93
Minimum wind angle (RACING)....................................................... 93
Tack angle (RACING)........................................................................93
Tack time (RACING).......................................................................... 94
Wind shift alarm limit (RACING)......................................................94
4.5 Interface Settings................................................................................. 95
4.6 Display units .......................................................................................95
4.7 Sea Trial .............................................................................................. 96

Instruction manual
20221586B 7
Set Rudder zero................................................................................... 97
Minimum rudder ................................................................................. 97
Compass calibration............................................................................ 98
Compass Offset ................................................................................. 100
Wind Offset....................................................................................... 101
Wind damping................................................................................... 101
Depth Offset...................................................................................... 102
Automatic tuning............................................................................... 102
Transition Speed ...............................................................................103
Init NAV ...........................................................................................104
4.8 Parameters ......................................................................................... 104
Manual parameter adjust................................................................... 105
Recall Autotuned?.............................................................................107
4.9 Service Menu ....................................................................................107
System Data Menu ............................................................................ 108
SimNet and NMEA Data Screen ......................................................108
NMEA Port test (AC hardware) .......................................................110
SimNet setup ..................................................................................... 110
Master Reset......................................................................................112
Final sea trial.....................................................................................112
Providing user training...................................................................... 113
5 Maintenance .............................................................................................115
5.1 Control unit ....................................................................................... 115
5.2 Autopilot Computer ..........................................................................115
5.3 Rudder Feedback............................................................................... 115
5.4 Compass ............................................................................................115
5.5 Drive unit .......................................................................................... 115
5.6 Exchange of software programme ....................................................116
Autopilot Computer ..........................................................................116
Autopilot Control Unit...................................................................... 117

Simrad AP26 and AP27 Autopilots
8 20221586B
6 Trouble shooting ...................................................................................... 118
6.1 Alarms ............................................................................................... 118
7 Spare Parts List........................................................................................123
8 Technical Specifications .......................................................................... 126
8.1 AP26 and AP27 Autopilot System ................................................... 126
8.2 AP26 Control Unit ............................................................................ 127
8.3 AP27 Control Unit ............................................................................ 129
8.4 Autopilot Computers......................................................................... 130
8.5 RC36 Rate compass .......................................................................... 132
8.6 RFC35 Fluxgate compass ................................................................. 133
8.7 RF300 Rudder Feedback................................................................... 133
8.8 R3000X Remote Control ..................................................................135
8.9 JS10 Joystick..................................................................................... 135
8.10 FU25 Steering Lever......................................................................... 136
8.11 IS15 Rudder ...................................................................................... 137
8.12 SimNet...............................................................................................138
8.13 IP protection...................................................................................... 139
8.14 NMEA and SimNet messages........................................................... 140
9 Glossary ....................................................................................................144
10 Index.......................................................................................................... 147
SALES AND SERVICE WORLDWIDE
TERMS OF WARRANTY
WARRANTY CARD

System Description
20221586B 9
1 SYSTEM DESCRIPTION
1.1 General
Congratulations on the purchase of your new Simrad autopilot
system and thank you for selecting what we feel is the most
advanced autopilot system available on the market today.
Today, Simrad manufactures a complete range of autopilots for
all types of vessels, from recreational boats to merchant marine
vessels. Our factory for these products, Simrad Egersund AS, is
located in Egersund on the southwest coast of Norway. The
company's involvement in autopilots began in 1953 with
equipment for the North Sea fishing fleet under the brand name
Robertson. Professional mariners around the world acknowledge
that the Robertson and Simrad brand names are synonymous
with the absolute best in autopilot technology.
The Simrad AP26 and AP27 autopilots represents yet another
step forward in autopilot technology with the intent of providing
leisure boats between 30 and 80 foot with a host of new features.
The system can be expanded and enhanced with a selection of
options and accessories.
The brain in the autopilot system is the single "intelligent"
autopilot computer that communicates on the Robnet2 network.
The Robnet2 has been developed to establish a reliable digital
communication and power distribution network between the
units in the autopilot system.
In the AP26 and AP27 autopilots Simrad introduces the new
SimNet data and control network. SimNet provides high speed
data transfer and control between Simrad products that are
integrated as a total steering and navigation system onboard.
1.2 How to use this manual
This manual is intended as a reference guide for operating,
installing and maintaining the Simrad AP26 and AP27
autopilots. Great care has been paid to simplify operation and
set-up.
Please take time to read this manual to get a thorough
understanding of the operation and system components and their
relationship to a complete autopilot system.

Simrad AP26 and AP27 Autopilots
10 20221586B
Other documentation material that is provided with your system
includes a warranty card. This must be filled out by the
authorized dealer that performed the installation and mailed in to
activate the warranty.
1.3 System components
A basic autopilot system consists of the following units (refer to
Figure 1-1):
• AP26 Control Unit or AP27 Control Unit with accessories
• Autopilot Computer
• Rate compass
• Rudder Feedback Unit with transmission link
• Drive unit
The basic system can be expanded with multiple fixed and hand
held full function control units, hand held remote and steering
lever.
RATE
COMPASS
AP26
CONTROL
UNIT
REVERSIBLE
PUMP
AUTOPILOT
COMPUTER
RF300
RUDDER
FEDDBACK
Figure 1-1 AP26 Basic system

System Description
20221586B 11
RATE
COMPASS
AP27
CONTROL
UNIT
REVERSIBLE
PUMP
AUTOPILOT
COMPUTER
RF300
RUDDER
FEDDBACK
Figure 1-2 AP27 Basic System
1.4 AP26 Control Unit
A compact autopilot control for panel, bulkhead or bracket
mounting. It has a multifunction LCD display for readout of
autopilot data, mode keys and a rotary course knob. It has two
Robnet2 connectors for system interconnection and expansion
and two SimNet connectors for control and data sharing with
other Simrad products. A NMEA2000 Adapter Cable is available
for interface through a SimNet port (page 125).
1.5 AP27 Control Unit
A portable control unit with 7 m (20 ft.) of cable. It has the same
autopilot functions as AP26 and can be used as a hand held
autopilot or be mounted in a fixed, bracket mount.
1.6 Autopilot Computer
The autopilot computer is the heart in the autopilot system. It
contains the steering computer, interface to other system
components, NMEA 0183 interface and drive electronics for the
drive unit motor and clutch. Three models, AC10, AC20 and
AC40 are available.

Simrad AP26 and AP27 Autopilots
12 20221586B
Autopilot computer comparison chart:
AC10 AC20 (AC40)
Supply voltage 10-28 V 10-40 V
Motor current (continuous/peak) 6/10 A 10/20A (20/40A)
Clutch/bypass current 1,5 A* 1,5 A*
Number of control units 2 7
NMEA 0183 ports (input/output) 1 2
Solenoid output x x
Input for NFU control x x
External alarm x
Radar clock/data interface x
Input for NMEA compass x
* 3A on later models.
1.7 RF300 Rudder Feedback unit
Rudder feedback unit with transmission link and 10 m (30 feet)
of cable. Transforms the angular travel of the rudder to a digital
signal read by the autopilot steering computer.
1.8 Heading Sensors
The AP26 and AP27 autopilots can be used with the following
combinations of heading sensors:
RC36 Rate compass
Fluxgate compass with integrated rate sensor. Provides a dramatic
improvement to the dynamic performance of both the autopilot
and a stabilized radar display.
RC36 comes as standard with the autopilot.
RFC35 Electronic Fluxgate Compass
(optional)
A compact heading sensor from Simrad with 15 m (45 feet) of
cable. The direction of the earth's magnetic field is sensed by a

System Description
20221586B 13
floating ring core in a fluxgate coil and transformed to a digital
signal read by the autopilot steering computer.
RFC35 can operate as a low cost back-up compass for the AP26
and AP27 autopilots.
NMEA compass (optional)
A well performing compass that outputs NMEA 0183 HDT or
HDG messages at 10 Hz can be connected directly to the AC20
or AC40 autopilot computer.
It is absolutely necessary for the autopilot that the heading rate is
minimum 10 Hz.
Simrad RGC10 and RGC50 gyrocompasses
The optional GI51 unit is needed to interface these two
gyrocompass models. Ask your Simrad dealer for information.

Simrad AP26 and AP27 Autopilots
14 20221586B
1.9 Optional equipment
A series of optional equipment are available for the basic AP26
and AP27 systems.
R3000X Remote Control
A small handheld remote control with two push buttons for
power steering or course selection (port and starboard), and one
push button with built-in lighted indicator for limited mode
change.
JS10 Joystick
The JS10 Joystick is a Non-Follow-Up steering lever designed
for indoor and outdoor console mount. It has a spring-loaded
return-to-mid-position feature and is equipped with 10 m (33’) of
cable and installation hardware.
FU25 Follow-Up Steering Lever
The FU25 Follow-up steering lever features a dial with 5° rudder
angle markings. The rudder will move and stop at the angle
selected on the dial. The FU25 has a mid-position indent, buttons
for (limited) mode selection, and mode indicators. It is designed
for indoor and outdoor bulkhead or flush panel-mounting. Refer
to the FU25 manual for more information.
Multiple stations
Multiple control units can be added to the system. See page 11

Installation
20221586B 15
2 OPERATION
WARNING ! An autopilot is a very useful navigational aid, but DOES
NOT under any circumstance replace a human navigator.
Do not use automatic steering when:
• In heavy traffic areas or in narrow waters
• In poor visibility or extreme sea conditions
• When in areas where use of autopilot is prohibited
by law
When using an autopilot:
• Do not leave the helm unattended
• Do not place any magnetic material or equipment
near heading sensor used in the autopilot system
• Verify at regular intervals course and position of
vessel
• Always switch to Standby mode and reduce speed
in due time to avoid hazardous situations
2.1 Overview
STBY
AUTO
NAV
PWR
SETUP
DODGE
WIND
INFO
Figure 2-1 AP26 Front Panel

Simrad AP26 and AP27 Autopilots
16 20221586B
STBY
PWR
AUTO
SETUP
WIND
NAV
DODGE
INFO
Figure 2-2 AP27 Front Panel
The control units shown above can operate as a stand alone unit
in an autopilot system or combined in a multistation system. In a
multistation system the command can easily be transferred from
one unit to another. Units not in control will display "Inactive"
and/or .
The autopilot system is capable of the following primary steering
modes: STBY (power steering), AUTO, NAV and WIND, each
mode having a dedicated push button.
Each of the mode push buttons is clearly identified with the
primary function in large text, and a secondary function listed in
smaller text. Each button provides you with a multiple function
mode display.
A group of user adjustable settings are provided in the User
Setup Menu (page 39).
Alarms are presented in plain text to alert you of system and
external data failure conditions. Alarms include both audible and
visual presentations. The alarm listing is on page 118.

Installation
20221586B 17
2.2 ON/OFF - Standby mode
Note ! At first time turn on see paragraph 4.1.
A single press on the STBY button switches the system ON and
the following status displays are shown:
Autopilot computer model
P00 M00 S000
AC20
Simrad
Self check
Power board revision
Main board revision
Autopilot model
HW rev. 00
SW 1.0.00
AP26
Simrad
Hardware revision
SW 1.0.00
Software version Software release
Software release
Software version
Sn xxxxxx
SimNet no.
SW and HW revisions shown are examples only.
After approximately 5 seconds, the system is operative and the
unit that was turned on will show the Standby mode display.
Other units in a multistation system will display "Inactive".
Control is transferred to any single unit by pressing its’ STBY
button.
The main Standby mode display
shows the current heading.
Alternatively, the Standby mode
display can show the following
information by a long press on
the TURN/DODGE/INFO
button:
− Standby mode
− Current heading 345°M
− Compass source: Rate
compass
− Rudder angle =00°.
Refer to INFO menu, page 46.

Simrad AP26 and AP27 Autopilots
18 20221586B
A long press (2-3 sec.) on the STBY button switches the system
OFF and during this time, the alarm will sound.
Note ! In an emergency, it is possible, on a multistation system, to turn
OFF the system at any control unit by pressing the STBY button
for 2-3 seconds.
STBY mode is the mode that is used when steering the boat at
the helm.
Flashing course knob icon
When the course knob and the PORT/STBD buttons are used
for settings etc., an icon will flash on the screen to tell that no
course changes can be made unless you press the AUTO
button.
Alarms
In the event there is an audible alarm with explaining text on the
control unit, refer to section 6 Trouble shooting.
2.3 AP26 and AP27 with MSD50 Stern Drive
unit
Note ! The information in section 2.3 only applies if your autopilot is
driving a Simrad MSD50 Stern Drive.
The MSD50 Stern drive unit has a relative feedback signal which
needs a zero point setting after the autopilot has been turned on.
Refer to the MSD50 manual for further information.
Zero point setting
Note ! If you do not need a rudder angle display when leaving the dock,
just steer the boat manually on a straight course and press the
AUTO button. The zero point is then set automatically.
If you prefer to use the rudder angle display when leaving the
dock, proceed as follows:
After turn on the rudder angle
display will alternate between
10 degrees port and starboard
to indicate that the "rudder"
zero point need be set.

Installation
20221586B 19
Use the wheel to bring the "rudder" to midship position. Turn the
wheel from lock to lock (H.O. to H.O.) and count the exact
number of turns. Then start from one lock position and turn the
half number of turns.
Press AUTO and then STBY. The zero point is now set and the
display will show:
Follow the operating
instructions on the following
pages. There is no further
need for zero point settings
until next time you turn the
autopilot on.
2.4 Follow-Up steering (FU)
In the Follow-Up steering mode the course knob may be used to
set rudder commands. The commanded rudder angle is shown on
the display and the rudder will move to the commanded angle
and stop.
Press both buttons
simultaneously to
activate Follow-
Up
Use course
knob to
command
rudder angle
Commanded rudder angle 10° to
port. Rudder angle: 4° to port
and moving.
Return to manual control in Standby by
pressing the STBY button
WARNING ! While in Follow-up mode you cannot take manual control
of the wheel.

Simrad AP26 and AP27 Autopilots
20 20221586B
2.5 Non-Follow-Up steering (NFU)
In Standby mode, the NFU display is presented when the PORT
or STBD button is pressed. The rudder will move as long as the
button is pressed and the rudder angle is shown on the display.
Activates
PORT rudder
command
Activates
STBD
rudder
command
Note ! When a NFU steering lever or remote control is operated, other
control units become “Inactive”.

Installation
20221586B 21
2.6 R3000X Remote Control (NFU)
Push button for
Port and Stbd
commands
In STANDBY mode, the rudder will
move as long as the Port or Stbd
button is pressed.
In AUTO mode and Wind modes the
set course or set wind angle will
change 1° each time the button is
pressed.
Note!
If you keep the button pressed, it will
automatically change the setting in
increments of 3° per second.
Mode changes are as per table below.
Initial mode 1st press 2nd press
STBY-AUTO
Simrad R3000X
SIMRAD
STBY/automatic.
Automatic modes
are active when
the lamp is lit.
STBY
AUTO
NAV
STBY
AUTO
WIND
WINDN
AUTO
STBY
STBY
WIND
STBY
STBY
STBY
STBY
AUTO
AUTO 1)3)
STBY 2)
WIND 2)
WIND 2)
WIND 3)
Notes !
1. When NAV mode is selected in User Setup
2. When WIND mode is selected in User Setup
3. NAV and WINDN modes can only be entered from the
Control unit because you have to accept the prompt displays.
2.7 JS10 Joystick (NFU)
The principle is similar to that of R3000X Remote Control (see
above). The rudder will move as long as the lever is offset to
Port or Starboard. JS10 has no mode change feature.
Note ! When a NFU steering lever or a remote control is operated, the
control units and FU25 become "Inactive".

Simrad AP26 and AP27 Autopilots
22 20221586B
2.8 Automatic Steering
When AUTO mode is selected, the autopilot automatically picks
the current boat heading as the set course and maintains the
simultaneous rudder angle. This gives a bumpless transfer at the
mode change.
The main Auto mode display
shows the mode index and the
set course.
Alternatively, the Standby mode
display can show the following
information by a long press on
the TURN/DODGE/INFO
button:
Automatic steering mode
Set course: 340 degrees
Steering parameter: LO-A
Compass reading: 340°M
Rudder angle: 00°
Refer to INFO menu, page 46.
The autopilot will keep the boat on the set course until a new
mode is selected or a new course is set with the course knob or
the PORT or STBD buttons. One revolution of the course knob
equals a 45° course change.
Decrease Increase
Course adjust 1°
(or 10°)/ push
Course change
CCW: Decrease CW: Increase
Note ! On power boats it is possible in the User Setup menu to set the
buttons to change the course by 10° per press (see page 45).
Once the course is changed to a new set course, the boat will
automatically turn to the new heading and continue to steer
straight.
Heading catch
When in Auto mode this feature allows you to automatically
cancel the turn you are in by an instant press on the AUTO

Installation
20221586B 23
button. The autopilot will immediately counteract the turn and
the boat will continue straight ahead on the heading read from
the compass the very moment you pressed the AUTO button.
Automatic steering mode
New “caught” heading: 305°
Compass reading: 303° M (magnetic)
or T (true)
Rudder angle: 00°.
Steering parameter: LO-A
Regain manual steering by pressing the STBY button
2.9 Automatic control of steering parameters
The autopilot provides two different sets of steering parameters
for controlling the response of the boat at different speeds or
wind directions while in AUTO, NAV or WIND modes.
Power boat
The autopilot selects the LO (response) steering parameters
when engaging an automatic mode from STBY provided there is
no speed input. This is a safety feature. When entering an
automatic mode at low speed, the steering parameters may be
changed to HI automatically by input data from a speed log or a
GPS navigator, or manually.
The speed at which the autopilot automatically changes from LO
to HI parameters (or opposite) is determined by the "Transition
Speed" set in the Installation Setup Menu (Sea trial). See
diagram below.
Legend
HI-A High response parameters set automatically
LO-A Low response parameters set automatically
HI-M High response parameters set manually
LO-M Low response parameter set manually

Simrad AP26 and AP27 Autopilots
24 20221586B
26
24
22
20
18
16
14
12
10
8
6
4
2
0
LO response parameters
HI response parameters
Transition Speed set to 9 Knots
Transition to LO parameters
with increasing speed: 10 Knots
Transition to HI parameters
with decreasing speed: 8 Knots
Speed
Sailboat
When sailing in WIND mode, the parameters are automatically
changed by the direction of the wind as per below or by the boat
speed.
The transition between HI and LO parameters and vice versa
will have a different characteristics with regards to the wind
angle compared with the transition controlled by the speed of the
boat.
If you loose too much speed e.g. when tacking, the parameters
will change to HI to gain sufficient rudder response. This should
be observed when setting the transition speed on sailboats.
2.10 Manual Parameter Selection
Manual selection of steering parameters is necessary if there is
no speed input to the autopilot or if you want to override the
automatic control.

Installation
20221586B 25
To toggle between LO and HI parameters, press the "AUTO"
button two times quickly.
Quick
double
press
Notes !
1. If you are in NAV or WIND modes you need not enter AUTO
mode to manually change the parameter set. Just make a
quick double press on the AUTO button.
2. The manually selected setting (HI or LO) will override the
automatic selection and remain in effect until you re-enter
any automatic mode from STBY.
2.11 U-Turn
This feature is very useful in a man overboard situation and
whenever you want to steer back on a reciprocal heading.
U-Turn changes the current set course to be 180 degrees in the
opposite direction. The user must decide whether the U-Turn
should be made to Port or Starboard when bringing the boat on
the new course. U-Turn is activated by a quick press on the
TURN/DODGE/INFO button. The autopilot will continue on
the set course until you press either the PORT or STBD button
to select the direction to make the U-Turn. If you do not press
PORT or STBD within 1 minute, the autopilot will return to the
AUTO mode and stay on course.
Press
TURN/DODGE
/ INFO to enter
U-TURN
Select
STBD
U-turn
Boat
makes
STBD
U-turn

Simrad AP26 and AP27 Autopilots
26 20221586B
2.12 Dodge in AUTO
Dodging is useful in situations where you need to quickly take
control of the helm to steer around an obstruction, and then
resume the previous set heading. Dodging is activated by a quick
double press on the TURN/DODGE/INFO button.
When in DODGE mode the displayed set course is the last one
set prior to activating the dodge function. When DODGE is
displayed, the autopilot is no longer in control of the steering,
and you must either manually steer the boat in STBY mode or
take control using Non Follow Up or Follow Up steering. On
manual steering (STBY mode) the clutch or bypass valve in the
drive unit will be disengaged. The autopilot will remain in the
DODGE mode until you exit DODGE by a second press on the
TURN/DODGE/INFO button or select a mode.
Quick double press to activate
Dodge mode
Perform dodging in one of the following ways:
1. Manually steer the boat
by the wheel:
2. Non Follow Up steering
by pressing:
or
or using NFU
steering lever
3. Follow Up steering by
pressing both:
and using the
course knob
To return from Dodge mode, press one of the following:
Selects AUTO
mode and
returns to the
last set course
or
Selects AUTO
mode with the
current heading as
the set course
Note ! Using NFU or FU modes while dodging will make “NFU” or
“FU” flash instead of “DODGE”.

Installation
20221586B 27
2.13 Tacking in Auto mode
The tack function is only available in sailboats when the system
is set up for SAIL boat type in the installation setup.
Tacking in AUTO mode is different from tacking in WIND
mode. In AUTO mode the tack angle is fixed and can be set in
the Installation/Dockside menu.
Tacking should only be performed into the wind and must be
tried out in calm sea conditions with light wind to find out how it
works on your boat. Due to a wide range of boat characteristics
(from cruising to racing boats) the performance of the tack
function may vary from boat to boat. Except for the fixed course
change and the difference in displays, the procedure is similar to
that of the U-Turn described on page 25.
Press to enter
TACK mode
Select
STBD
tack
Boat
makes
STBD
tack
2.14 Navigating with the AP26 and AP27
The autopilot has the capability to use steering information from
an external navigator (GPS, Chart Plotter) to direct the boat to a
specific waypoint location, or through a route of waypoints. In
the NAV mode, the autopilot uses the compass as heading source
for course keeping. The information received from the navigator
alters the set course to keep the boat on the track line and direct
the autopilot to the destination waypoint.
Note ! Navigational steering should only be used in open waters. By
selecting the NAV mode, the autopilot is set for automatic
steering on the current set course and then waits for the user to
accept the course change to the track line or destination
waypoint.
To obtain satisfactory navigation steering, the following points
must be fulfilled prior to entering the NAV mode:

Simrad AP26 and AP27 Autopilots
28 20221586B
• The autopilot autosteering must be tested and determined
satisfactory.
• The navigation receiver (GPS, Chart Plotter) must be in full
operating mode with adequate signal characteristics for valid
position and navigation data.
• At least one waypoint must be entered and selected as the
current “Go to” waypoint.
• The navigation receiver (source) for the autopilot will be the
one that is automatically selected in the interface set-up or
manually selected in the User setup menu item called “Source
select” (page 42).
The autopilot is designed to steer in “mixed mode” operation.
This combines the straight steering capability of cross track error
(XTE) steering in conjunction with the turning capability of
bearing mode steering (Course To Steer, CTS) and automatic
waypoint shift.
Note ! If the autopilot is connected to a navigation receiver that does
not transmit a message with bearing to next waypoint, it will
pick a XTE message and steer on Cross Track Error only. In that
case you have to revert to AUTO mode at each waypoint and
manually change set course to equal bearing to next waypoint
and then select NAV mode again.
Press the NAV button to activate the NAV prompt display.
NAV
The prompt display shows the
name or number of the next
waypoint (WP), the bearing of the
track line (BWW) from the
previous waypoint to the
destination waypoint, the required
course change (CHG) and the
direction in which the boat will
turn.
Note ! If only one waypoint has been entered the bearing will be from
the present position to the destination waypoint.
Press the NAV button again to accept the waypoint as the
location to steer towards. The autopilot turns the boat onto the
track line.

Installation
20221586B 29
NAV
− NAV mode
− Course to steer (CTS): 260 is
set internally by the autopilot
to steer the boat onto the track
line.
− Cross track error (XTE): 0.010
nm to stbd.
Note ! For Cross Track Error, the number of decimals shown depends
on the output from the GPS/chart plotter. Three decimals give a
more accurate track keeping.
Alternatively, the NAV mode display can show the following
information by a long press on the TURN/DODGE/INFO
button:
− Next waypoint: Egersund
− Bearing from current position
to the next waypoint (BPW):
270°M
− Distance to waypoint: 10 nm
− Steering parameter: LO-M
− Rudder angle: 00°
When operating the autopilot in NAV mode to steer through a
route of waypoints, the autopilot will steer to the first waypoint
in the route after you accept the first waypoint as the location to
steer towards. When you arrive at the waypoint, the autopilot
will output an audible warning, display an alert screen with the
new course information, and automatically change course onto
the new leg.
Note ! If the required course change is more than 10
°
, you will need to
verify that the upcoming course change is acceptable. This is a
safety feature.
NAV
Alert screen. Press NAV button to
verify course change larger than
10°.
If no verification is received, the
autopilot will continue on the
current set course in AUTO mode.

Simrad AP26 and AP27 Autopilots
30 20221586B
Regain manual steering by pressing the STBY button
Setting the waypoint arrival circle
For route navigation it is recommended to use automatic
waypoint shift/change at a set waypoint arrival circle.
The arrival circle should be adjusted according to boat speed.
The higher speed, the wider circle. The intention is to make the
autopilot start the heading change in due time to make a smooth
turn onto the next leg.
The figure below may be used to select the appropriate waypoint
circle.
Example: With the speed of 20 knots you should use a waypoint
circle with radius 0.09 nm.
Note ! The distance between any waypoints in a route must not be
smaller than the radius of the waypoint arrival circle when using
automatic waypoint shift.

Installation
20221586B 31
2.15 Dodge in NAV
When dodging in NAV mode, the course displayed as Course To
Steer (CTS) is the boat’s recommended heading. However, the
previous set course is stored by the autopilot. When DODGE is
flashing on the display, the autopilot is no longer in control of
the steering and you must either steer the boat manually or take
control using either Non-Follow-up steering or Follow-up
steering. On manual steering, the clutch (or bypass valve) in the
drive unit will be disengaged when dodging. The autopilot will
remain in the DODGE mode until you exit DODGE by a second
press on the TURN/DODGE/INFO button or until you select
another mode.
Perform dodging the same way as in AUTO mode above.
Quick double press to
activate Dodge mode
To return from Dodge mode, press one of the following:
1.
Selects AUTO mode with the current heading as
the set course.
2.
Returns to NAV mode at present position with
new bearing to waypoint prompt. Keeps all offset
estimates (Wind/current etc.) in the algorithms
(recommended).
3.
Selects NAV mode at present position with new
bearing to waypoint prompt.
2.16 Selecting a different Navigation source
If you have more than one navigation source connected to the
autopilot, you will be able to choose any for navigation. Refer to
the ‘Source Select’ item in the User Set-up menu for details on
selecting a different navigator (page 42).

Simrad AP26 and AP27 Autopilots
32 20221586B
2.17 Wind vane steering
Prior to entering WIND mode the autopilot system should be
operating in AUTO, with valid input from the selected wind
transducer. The WIND mode is only available if the system has
been set up for SAIL-boat in the Installation Menu, and the
NAV/WIND source is set to WIND under the USER SETUP
menu. (Refer to page 40).
Enter the WIND mode by pressing the NAV/WIND/SETUP
button.
The set course to steer (CTS) and set wind angle are entered
from the compass heading and the wind transducer at the
moment the WIND-mode is selected. From that point the
autopilot will change the course to maintain the wind angle as
the wind direction may change.
Note ! If the cumulative shift of the wind direction exceeds a set limit
from the time a new wind angle is set, a WIND SHIFT alarm will
sound.
The display will show the set wind angle. Adjustments to this set
angle can be made by using the course knob or PORT or STBD
button.
The display also presents heading and rudder angle.
Wind (vane) mode
Set wind angle:
045 degrees from stbd.
Measured wind angle: 042°A
A = Apparent
T = True
Rudder angle: 01° to port.
Parameter: LO-M (Low
response, manually set)
Steer port Steer stbd.
Adjust set wind angle 1°/push Major wind angle adjust
CCW: Steer port CW: Steer stbd

Installation
20221586B 33
Regain manual steering by pressing the STBY button
2.18 Tacking and gybing in Wind mode
In WIND mode there is a tacking and gibing aid function.
Tacking in WIND mode as compared to AUTO mode can be
performed when sailing with apparent or true wind as the
reference, and with a true wind angle of less than 90 degrees.
The tacking operation will immediately mirror the set wind angle
to the opposite side. A tacking-message will flash on the display
for 5 seconds. Any new command given when the message is
flashing, will interrupt the tack operation. The rate of turn during
the tack will be given by the ‘Tack time’ parameter set in the
Installation/Dockside menu (page 94).
A quick press on the TURN/DODGE/INFO button will activate
the tack function and the boat will start turning to the same wind
angle on the other side.
Quick
press

Simrad AP26 and AP27 Autopilots
34 20221586B
Gybing
Gybing is possible when the true wind angle is larger than 120°
When a gybe is initiated, the
wind angle will first be set to
170°T on the same side as the
current wind angle. The main
sail should now be hauled.
With the main sail safely
hauled, the wind side may be
changed. This is done by
pressing either PORT or
STBD buttons depending on
the way the boat should
continue to turn. The new set
wind angle will then become
the same as the wind angle set
before the gybe operation
started.
The rate of turn when changing wind side in a gybe will be the
highest possible, determined by the performance of the drive
unit.
Tack and gybe prevent
When beating and running, sailing is at the most critical.
If the sails are unbalanced when beating, yaw forces from the
sails can drive the boat into the wind. If the boat is driven
beyond the minimum wind angle, the thrust from the sails will
suddenly disappear and the boat speed reduced. Then the boat
will be even more difficult to steer because the rudder will
become less effective.
The tack prevent function in WIND-mode has been implemented
to avoid such situations. It will react immediately when the
apparent wind angle becomes 5° less than the set minimum wind
angle. Additional amount of rudder will be commanded to
immediately increase the wind angle.
When running, it is difficult to steer the boat with waves coming
sideways or from behind. The waves may yaw the boat so that
the wind side is shifted and an unwanted gybe may happen. This
can be hazardous for both the crew and the mast.

Installation
20221586B 35
The gybe prevent function will be activated when the measured
apparent wind angle becomes greater than 175° or when the
wind angle gets opposite to the set wind angle. Additional rudder
will be commanded to keep the wind on the same side as the set
wind angle.
Caution ! The tack and gybe prevent functions are not a guarantee
against getting into a hazardous situation. If the effect of the
rudder and/or drive unit is not adequate, it may happen. Pay
particular attention in such situations.
2.19 Wind steering and navigation
The autopilot can also steer the boat given both wind data and
track data from a GPS/Chartplotter. In this mode called
WINDNAV mode the automatic steering is based on a set of
criteria (see bullets below). Wind steering and navigation is
activated by pressing the NAV/WIND/SETUP button when in
Wind mode. There are two sub-modes under this key: NORMAL
(default) and RACING (see below). The initial course change
(CHG) needed to navigate towards the active waypoint, is
calculated by the autopilot. The autopilot will maintain windside
in these calculations and the change of course is accepted by
pressing the PORT or STBD button [1].

Simrad AP26 and AP27 Autopilots
36 20221586B
[1] [2] [4] [3] [7]
[5] [6] [8]
Figure 2-3

Installation
20221586B 37
Operating in WINDNAV mode
Refer to Figure 2-3 with references [ ] the associated displays
and the criteria (bullets) below.
• The set wind angle should be larger than the ‘Minimum
wind angle’ set in the Installation/Dockside menu and
smaller than 170° Apparent.
• Information about when it is time to head directly towards
the waypoint, Distance To Turn (DTT) and Estimated Time
to Turn (ETT) are displayed. These calculations are based on
the assumption that the set wind angle will be the same or
larger after a tack or gybe towards the waypoint [2][3].
• A turn prompt will appear when it is time to head towards
the waypoint and the autopilot will calculate and display the
change of heading by comparing between the current
heading and the heading towards the waypoint (CHG) [5].
• When heading towards the waypoint, the autopilot utilizes
either the XTE from the GPS/Chartplotter to maintain track
or a layline calculated by the autopilot. The calculated
layline applies when the Cross Track Error (XTE) from the
external navigator is larger than 0.15 nm [8].
RACING
If ‘Wind setup’ is set to ‘RACING’ in the Installation/Dockside
menu, a more advanced steering is possible:
• Optimising VMG to wind may be enabled when beating and
it is not possible to head directly towards the waypoint [2][4].
• Layline steering may be disabled when heading directly
towards the waypoint. Instead you can optimise the Waypoint
Closure Velocity (WCV) by trimming the sails and the set
wind angle. A turn prompt will then be displayed if the
difference between Course Over Ground (COG) and Bearing
Position Waypoint (BPW) exceeds 30° when heading
towards a waypoint [8].
See chapter 2.22 User Set-up Menu on how to access these
parameters.

Simrad AP26 and AP27 Autopilots
38 20221586B
2.20 Multiple station system
In normal operation control is accessible from every
control unit connected to the autopilot system. One
control unit is "active" and provides the user with
access to all functions. All remaining control units
are "inactive" and have no effect on mode changes or
course selection. A single press on any of the mode
buttons on an "inactive" control unit will allow
transfer of command and make it "active".
2.21 Lock function
The "LOCK" function is a safety feature in the autopilot system.
It will disable all control units, including the FU25 Follow-up
lever, except for a single user selected control unit location.
When the "lock" function is in use, no transfer of command can
take place; only the active control unit stays in command.
To enable the "lock" function, make a quick double press on the
STBY button.
The display on the active control unit will first show a icon
and then the icon will alternate with the mode index.
The "locked" control units in the system will show:
The “Lock function is disengaged by one of the following
actions:
• The active control unit unlocks the other ones and makes them
“inactive” by another double press on the STBY button. It
also displays the icon before it returns to the normal active
state.
• The system is switched OFF by any control unit (press STBY
for 2-3 seconds).

Installation
20221586B 39
2.22 User Set-up Menu
In the AP26 and AP27, all modes except NFU and FU have a
complemental User Set-up menu. You can easily access the set-
up menu by a quick double press on the NAV/WIND/SETUP
button.
Quick double press
to access
Scroll through the menu
Use the course knob to
change a value or a setting
Alternating Course Knob Icon
When the course knob is used in the User Set-up menu, an icon
will alternate with the mode index to tell that no course changes
can be made unless you press the mode button.
The user set-up menu times out 30 seconds after the last
operation in the menu.
STANDBY Mode
Backlight
The backlight of the display and buttons may be
adjusted to 10 levels (10 = brightest). The setting is
stored when the system is turned off. Adjustment is
local to the control unit you adjust or synchronized
with other units in the Simrad Group (page 110).
Contrast
The contrast of the display may be adjusted to 10
levels (10 = highest contrast). The setting is stored
when the system is turned off.
Adjustment is local to the control unit you adjust. At
high temperatures, not all levels are available due to
automatic temperature compensation.

Simrad AP26 and AP27 Autopilots
40 20221586B
Nav/Wind
This parameter will only be available if ‘Boat type’ is
set to ‘Sail’ in the Installation/Dockside menu (see
Dockside settings, page 88). The ‘Nav/Wind’
parameter will configure the active mode on the
NAV/WIND button.
The following alternatives are available:
• NAV
• WIND Auto
Wind steering will be disabled when the ‘Nav/Wind’ parameter
is set to ‘NAV’. Then the normal NAV mode for power boats is
activated when pressing the NAV/WIND button.
If ‘Nav/Wind’ is set to ‘WIND Auto’, wind steering
will be enabled. Pressing the NAV/WIND button
will then initiate the WIND-mode. The autopilot will
automatically select between apparent and true wind
steering.
True wind steering is used when running. When the boat is
running, it will also be surfing on the waves. This may lead to
significant changes in boat speed, hence changes in apparent
wind angle. Steering to apparent wind is therefore used only
when beating or reaching.
Range: NAV, WIND Auto
Default: WIND Auto
Nav/Wind, RACING parameters
If ‘Wind setup’ is set to ‘RACING’ in the Installation/Dockside
menu (see page 92), more settings are available under the
‘Nav/Wind’ parameter:
• NAV
• WIND Apparent
• WIND True
• WIND Auto
Default: WIND Auto

Installation
20221586B 41
‘WIND Apparent’ is selected when you only want to steer to
apparent wind. Apparent wind steering is preferred when you
want to achieve maximum boat speed. The autopilot will try to
maintain a constant apparent wind angle to get maximum thrust
from a given trim of the sails.
‘WIND True’ is selected when you only want to steer to true
wind. When sailing in closed waters, the apparent wind angle
may change temporarily due to wind gusts. It may then be
preferred to sail to the true wind.
VMG Optimizing
The VMG (to wind) parameter can only be enabled
or disabled when ‘Wind setup’ is set to ‘RACING’. It
is disabled in the ‘NORMAL’ sub-mode.
When enabled, the VMG optimizing will be active for 5 – 10
minutes after a new wind angle has been set. It will only be
activated when beating.
‘VMG’ will be displayed in the lower left corner when the VMG
optimizing feature is active.
Range: Enabled/Disabled
Default: Disabled
Layline Steering
‘Layline steering’ can only be enabled or disabled
when ‘Wind setup’ is set to ‘RACING’. It is enabled
in the ‘NORMAL’ sub-mode.
Layline steering is useful when navigating. It will use the Cross
Track Error (XTE) from the navigator to keep the boat on the
track line. If the XTE from the navigator exceeds 0.15 nm, the
autopilot will calculate its own layline towards the waypoint and
follow that. Layline steering is not active when turning, tacking
or gybing.
‘XTE’ will be displayed in the lower left corner when layline
steering is active.
Range: Enabled/Disabled
Default: Enabled

Simrad AP26 and AP27 Autopilots
42 20221586B
Instrument Select
Select the contents of the
instrument page(s) to be
available under the
DODGE/TURN/INFO
button (page 46). Step
through the list of
instrument pages by using
the PORT or STBD button.
Select the wanted
information by rotating the
course knob to fill the
squares.
Source Select
Provides you with automatic or manual selection of
interfaced data sources for heading (Compass),
Navigation, Position, Wind Angle, Calculated Wind,
Water speed, Water temperature, Distance log (not
displayed on AP26 and AP27) and Depth.
Wind-C (calculated) is a common term for true wind
and wind direction.
Auto source update
Is used for automatically update of sources if the
interfaced units have been removed/added or
switched on/off.
Select Auto source update by rotating the course
knob. Make sure all interfaced units are powered on
The autopilot will search for new connected sources,
and replace sources no longer available.
“SEARCHING” is flashing as long as the autopilot is
searching. When the automatic update is finished, the
display will read “DONE”.
Press the STBD button to leave the User setup.
Manual select
Step through the list of sources using the PORT or STBD
button. Select wanted source by rotating the course knob.
– – indicates that no source is supplying the data available.

Installation
20221586B 43
Notes !
1. Simrad products will be identified by the product name
provided the data is available on SimNet. If data is
provided via an NMEA0183 port on the autopilot
computer, the display will read NMEA-1 or NMEA-2.
NMEA2000 products will have a special ID.
2. See note on page 74 and note 3 below.
3. In the event the SimNet is not powered on, sources
supplying data to SimNet are not on or malfunctioning, or
there is no SimNet installed, it is possible to use any
control unit in the system to select NMEA sources. The
source select displays are then available on all control
units.
Compass
Select the compass to be used if more than one
compass is connected.
Navigation
Select the source for navigational data.
Position
Select the source for position data.
Wind Angle
Select the source for Wind Angle.
Wind Calculated
Select the source for Calculated Wind data for the
Simrad group. AP uses internal sources irrespective
of the selected source.
Water Speed
Select the source for water speed (normally the same
as the source providing Log data).
Water temperature
Select the source for water temperature (normally the
same as the source providing depth data).

Simrad AP26 and AP27 Autopilots
44 20221586B
DisLog
Select the Log source.
Depth
Select the source for depth data.
Course Adjust
When using the (PORT) or (STBD) buttons in
AUTO mode, you are changing the set course in 1°
increments. If you prefer the increments to be 10°
each press (does not apply for sailboats), proceed as
follows:
Select Course adjust and turn the course knob to change the
setting. The default value is 1°, which is the preferred setting.
Select 10° if you want to make major course changes in 10°
increments with the buttons and fine-tune the set course with the
course knob.
Press the STBY button to leave the User setup.
AUTO Mode
Settings that are added for the AUTO and WIND modes are
shown below. Other relevant settings are described under
STANDBY mode in this chapter.
Seastate filter
OFF: Seastate filter is disabled.
AUTO: Automatically reduces rudder activity
and autopilot sensitivity in rough
weather by an adaptive process (default).
MANUAL: Manual yaw band adjust (1-10, 10 ≈
±6°).
The manual setting determines the number of degrees the vessel
may deviate from the set course before any command is given to
the rudder. The AUTO setting is recommended. The MANUAL
settings may be used to find the optimum combination of course
keeping and low rudder activity in rough but steady sea
conditions.

Installation
20221586B 45
Response
The Autotune function in the AP26 and AP27 is so refined that
80-85 % of the boats will need no further adjustments of the
steering parameters. On some boats, however, or at particular sea
conditions a fine tuning of the steering parameters may improve
the performance of the autopilot.
The Response control allows you to make this fine
tuning. It can be set to seven levels. Level 3 (default)
has the values of Rudder and Counter Rudder
parameters set by the Autotune function. If no
Autotune is made (not recommended) the level 3
values are the factory default values.
A low response level reduces the rudder activity and provides a
more “loose” steering.
A high response level increases the rudder activity and provides
a more “tight” steering.
A too high response level will make the boat start S-ing.
Range: 1 – 7
Default: 3
NAV Mode
The User setup for NAV mode is identical to the User setup for
AUTO mode.
WIND Mode
The User setup for WIND mode includes the same
items as the User setup for AUTO mode. In addition
you have:
Wind response
If the difference between the set wind angle and the actual wind
angle is too big, the ‘Wind response’ can be increased to reduce
the deviation.
Note ! First make sure that the course keeping is acceptable, i.e. the
difference between the Course To Steer (CTS) and the actual
heading is at a minimum.

Simrad AP26 and AP27 Autopilots
46 20221586B
If the actual wind angle is S-ing around the set wind angle or the
rudder activity is too high, the ‘Wind response’ should be
reduced.
Range: 1 – 7
Default: 3
See also other relevant settings for WIND mode operation under
STANDBY mode in this chapter.
2.23 INFO menu
A number of instrument pages are available under each mode
screen if the required NMEA 0183 sentences are provided (see
paragraph 8.1) or the information is available on SimNet (page
110). The INFO menu is accessed by a long press on the
TURN/DODGE/INFO button.
The mode screens for Standby, Auto and Nav mode have an
alternative screen.
Standby mode
The main screen shows current
heading with large figures. A long
press on the TURN/DODGE/
INFO button gives you an
alternative screen where the
heading is shown together with
heading source and rudder angle.
You have to select this screen from
the pages in the INFO menu.
Auto mode
As for Standby mode you can
change the Auto mode main screen
to show the set course, steering
parameter, heading and rudder
angle by a long press on the
TURN/DODGE/INFO button. As
for the STBY mode you have to
select this screen from the INFO
menu.

Installation
20221586B 47
Nav mode
For Nav mode the alternative mode
screen gives you the name of the
waypoint, bearing and distance to
waypoint and rudder angle. This
screen is also among the INFO
pages.
Step or scroll through the available instrument screens by
pressing the PORT or STBD button or using the course knob.
Compass
Heading source
Heading
Rudder angle
Depth/Speed
Depth
Speed
Apparent wind
Apparent wind angle
Apparent wind speed
True wind
True wind angle
True wind speed
True wind
True wind angle
VMG to wind
Wind direction
Wind direction
Wind speed
Wind shift
Wind direction
Wind shift

Simrad AP26 and AP27 Autopilots
48 20221586B
Track data
Cross Track Error
Distance to Waypoint
Position
Latitude
Longitude
Nav data
Waypoint ID
Bearing Position – Waypoint
Nav data
Course Over Ground
Speed over ground
Nav data
Course Over Ground
Bearing Position – Waypoint
Sea Temperature
If you prefer not to have all the instrument pages available in the
INFO menu, you may remove pages under the User setup menu.
See page 42.
Return to last instrument screen by a long press on the
TURN/DODGE/INFO button.
Course knob icon
Initially when the INFO menu is accessed an icon will replace
the mode index to tell that no course changes or other course
related settings can be made unless you press a mode key. The
icon will time out after 3-5 seconds and be replaced by the mode
index.

Installation
20221586B 49
INFO menu flowchart
12
6
39
1
2
4
57
8
10
11
12
6
39
1
2
4
57
8
10
11
3-5 sec.
time-out
3-5 sec.
time-out
INFO
DODGE
INFO
DODGE
INFO
DODGE
Long
press
Long
press
Toggle

Simrad AP26 and AP27 Autopilots
50 20221586B
Alternative mode screens in STBY, AUTO
and NAV
INFO
DODGE
12
6
3
9
1
2
4
57
8
10
11
INFO
DODGE
INFO
DODGE
12
6
3
9
1
2
4
57
8
10
11
Long press
Long press
Long press
Toggle
3-5 sec.
time out
3-5 sec.
time out
Main (STBY, AUTO, NAV) Alternative
INFO menu and Main screen, active unit
12
6
3
9
1
2
4
57
8
10
11
3-5 sec.
time out
Note ! Whenever the INFO menu is active and the mode index is
present on an active unit, operating the PORT and STBD button
or the course knob will immediately make the main screen
reappear.
INFO menu and Main Screen, inactive unit
Next INFO page
Last shown INFO page
Previous INFO page
INFO
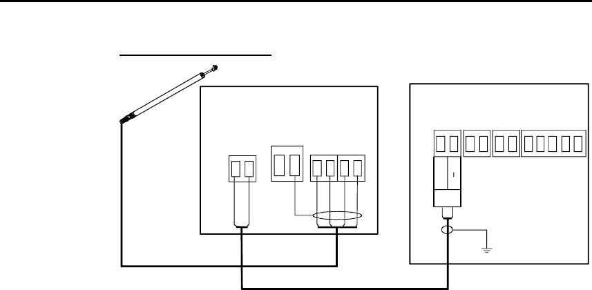
DODGE
INFO
DODGE
INFO
DODGE
You can view the INFO pages without activating the unit.

Installation
20221586B 51
3 INSTALLATION
3.1 General
This section provides detailed information required to
successfully installing the AP26 andAP27 Autopilot system.
The autopilot systems include several modules that need to be
mounted in different locations on the boat, and also need to
interface with at least three different systems on the boat:
• The boat's steering system
• The boats electrical system (input power)
• Other equipment on board
In addition, the advanced capabilities of the autopilot require the
installer to perform a series of settings and tests to verify proper
operation of the system, refer to the check list below.
3.2 Installation checklist
1. Determine the system configuration you are installing
(Figure 3-1)
2. Perform the hardware installation (Page 53)
3. Connect SimNet devices to SimNet (page 69)
4. Connect NMEA2000 devices (page 72)
5. Connect NMEA 0183 devices (inputs and outputs, page 75)
6. Perform Set-up (Section 4, page 83)
7. Perform dockside autopilot tests (refer to Operating
Instructions, page 15)
a) Test all stations (if applicable) - lock/unlock - active/
inactive
b) Test Non-Follow Up mode
c) Test Follow-Up mode
d) Test AUTO mode
e) Test NAV mode and input interfaces
f) Test WIND and WINDN modes (if sailboat) and input
interfaces
g) Test interface outputs to external equipment (if
connected)
8. Perform sea trial settings (Page 96)
a) Rudder zero
b) Compass calibration

Simrad AP26 and AP27 Autopilots
52 20221586B
c) Compass Offset adjustment
d) Automatic tuning
e) Viewing parameters
9. Test Autopilot Operation at Sea (refer to Sea Trial
instructions, pages 96, 112)
10. Provide the user with training (Page 113)
3.3 Unpacking and handling
Care should be taken when unpacking and handling the
equipment. A visual inspection should be made to see that the
equipment has not been damaged during shipment and that all
components and parts are present according to the packing list.
A standard autopilot system will include:
• Control unit with standard installation accessories.
• Autopilot computer (AC10, AC20 or AC40) and one 15 m
(49') Robnet2 cable.
• RC25 Rate Compass with 15 m (49') cable attached.
• RF300 Feedback unit with 10 m (33') cable attached and
transmission rod.
• Appropriate drive unit for the installation (unless the autopilot
is going to operate an existing drive unit or solenoids).
• Optional equipment that may have been ordered for the
installation.
3.4 Determine system configuration
It is important to become familiar with the configuration of the
system prior to beginning the installation. The autopilot system
layout with options is shown in Figure 3-1.
Pay particular attention to the autopilot computer/drive unit
combinations on page 58 and the chart on page 12.
As many of the units are communicating on a common network
(Robnet2), with identical connectors, the installation is
simplified. Try to mount the units within the standard cable
length supplied with each unit, if possible. Robnet2 Extension
Cable (1, 5 and 10m) are available from your distributor.

Installation
20221586B 53
3.5 Autopilot System Layout
STBY
PWR
AUTO
SPEED
SETUP
NAV
TURN
pfjo^a=oPMMMu
STBY AUTO
WIND
SETUP
DODGE
INFO
STBY
PWR
AUTO
NAV
WIND
SETUP
DODGE
INFO
AUTO
NAV
STBY
PWR
Figure 3-1 Autopilot system layout with options
3.6 RF300 Rudder feedback installation
The RF300 Rudder feedback unit mounts close to the rudder,
and is mechanically linked to the rudder tiller arm or rudder
quadrant.
Refer to Figure 3-2 for the recommended mounting arrangement.
Note that the RF300 transmitter arm has two slots for the
transmission link. The slots enable maximum flexibility to
provide the 1:1 mechanical linkage relationship.
Note ! Do not try to remove the transmitter arm from the feedback unit.
The unit is factory adjusted and need no further adjustment at
installation than described below.
As a starting point, it is desirable to set the transmitter rod to the
inner limit of the outer slot if possible. (Refer to Figure 3-2).
Drill and tap the rudder tiller arm so that the Y1 dimension is
equal to the Y2 dimension (Use 4.2 mm drill and 5 mm tap).

Simrad AP26 and AP27 Autopilots
54 20221586B
Attach the ball joint to the tiller arm, and connect the transmitter
rod to the ball joint at the rudder tiller arm.
Turn the helm wheel to set the rudder tiller arm to approximate
centre position.
Rotate the RF300 transmitter lever until it is set to centre
position. (Use the alignment mark to line up the transmitter lever
to be opposite the cable entry into the feedback.).
Note ! Carefully observe the alignment marks. A rudder feedback alarm
may be the result if the alignment instructions as per Figure 3-2
are neglected.
Attach the transmitter rod to the RF300. Set the RF300 mounting
location to be in accordance with Figure 3-2. The centre of the
RF300 should be in line with the centre of the rudder post.
Mount the RF300 to a suitable platform using the screws
provided. If necessary, add blocking material under the RF300 to
adjust the height of the transmission arm to be level with the
rudder tiller arm.
Figure 3-2 RF300 mounting (019356)
Note ! Due to space limitations, it may be necessary to cut the length of
the transmitter rod to move the RF300 closer to the rudder post.
Tighten the mounting screws for both the RF300 feedback unit
and the transmitter rod ball joint.
Observe the RF300 while someone turns the helm wheel through
the complete travel from full port to full stbd. rudder to verify
that the mechanical linkage to the RF300 is not obstructed.

Installation
20221586B 55
AUTOPILOT COMPUTER
MAIN PCB
Rudder
Feedb.
** NON POLARIZED
(COLOR INDEPENDENT)
RF +
RF
Figure 3-3 RF300 connection
3.7 Autopilot computer installation
The autopilot computer is
designed to operate in a
location that provides
ambient temperatures
below +55°C (+130°F).
Note ! The autopilot computer
units (AC10, AC20 and
AC40) are not
weatherproof and should
be mounted vertically as
shown in a dry place
between the control unit
and the drive unit.
Figure 3-4 Autopilot computer mounting
3.8 Cable connections
Use only shielded cables. This includes Mains input, drive units
and if necessary for the extension of the RF300 Rudder
Feedback cable. The clutch/bypass cable and the solenoid cable
should be 1,5 mm2 (AWG14). Signal cables should be 0.5 mm2
(AWG20) twisted pairs.
The mains supply cable and the drive unit motor cable should
have sufficient wire gauge. This will minimize voltage drop and
allow the drive unit to operate at full power.

Simrad AP26 and AP27 Autopilots
56 20221586B
Refer to the table below for recommended cable sizes.
Cable length Drive Unit Voltage
1. Breaker panel to autopilot computer. 12 V 24 V
2. Autopilot computer to Drive Unit motor
(Length refers to each of the two cables) AWG mm2 AWG mm2
Up to 3 m (10 ft.) 12 2,5 12 2,5
Up to 6 m (20 ft.) 10 4 10 2,5
Up to 10 m (32 ft.) 8 6 10 4
Up to 16 m (52 ft.) 6 10 8 6
3.9 Grounding and RFI
The autopilot system has excellent RFI protection and all units
use the autopilot computer as a common ground/shield
connection. The autopilot computer should therefore have a
proper ground connection to the hull/bonding system.
RobNet2 cables and other signal cables (compass, feedback,
NMEA) should not be run in parallel with other cables carrying
RF or high current, such as VHF and SSB transmitters, battery
chargers/ generators, winches and thrusters.
Remove the bottom cover to get access to the plug-in terminals.
Strip about 1 cm (0.4") of the cable's insulation and pull the
screen backwards to cover the insulation. Position the straps as
shown and tighten well to make sure the screen has good
contact.
Provide sufficient wire length so that the plug-in terminals can
be easily connected/disconnected.
Pull out each terminal before connecting the wires. Remove all
strands before putting on the terminal cover.

Installation
20221586B 57
Power Board terminals
Main Board terminals
Note!
The Mains input
is not polarity
protected on
AC40.
Ground terminal
TB9 and TB10 are not on the
AC10 Power Board

Simrad AP26 and AP27 Autopilots
58 20221586B
3.10 Drive unit installation
The relations between drive units, drive unit voltage, autopilot
computer, drive performance and interface to the steering gear
are shown in the tables below.
Refer to the connecting diagram for the different drive units on
page 60 onwards.
Installation instruction for the drive units are found in the
manual for the individual units.
The maximum drive current capability of the AC10, AC20 and
AC40 autopilot computers are different. Use the table below as
reference and observe the notes on next page.
HYDRAULIC PUMPS
RAM CAPACITY
MODEL MOTOR
VOLTS
AUTOPILO
T
COMPUTER
MIN
cm3
(cu. in.)
MAX
cm3
(cu. in.)
FLOW RATE
AT 10 bar
cm3/min
(cu. in/min)
MAX
PRESSURE
bar
PWR.
CONSUM-
PTION
RPU80 12V AC10 80 (4,9) 250
(15,2)
800 (49) 50 2,5-6 A
RPU160 12V AC20 160 (9,8) 550
(33,5)
1600 (98) 60 3-10 A
RPU300 12V AC40 290
(17,7)
960
(58,5)
3000 (183) 60 5-25 A
RPU300 24V AC20 290
(17,7)
960
(58,5)
3000 (183) 60 2,5-12 A
Steering gear interface: Hydraulic plumbing
Notes !
1. The autopilot system detects whether a reversible motor or a
solenoid is connected and outputs the correct drive signal
automatically.
2. The drive output of AC10 is sufficient for any type of 12 and
24V solenoids normally found on a recreational boat.

Installation
20221586B 59
LINEAR DRIVE UNITS
MODEL MOTOR
VOLTS
AUTO-
PILOT
COM-
PUTER
MAX
STROKE
mm (in.)
PEAK
THRUST
kg (lb.)
MAX
RUDDER
TORQUE
Nm
(lb.in.)
HARD-
OVER
TIME
sec.
(30% load)
PWR.
CON-
SUMP.
TILLER
ARM
mm
(in.)
MLD200 12V AC10 300 (11,8) 200
(440)
490
(4350)
15 1,5-6 A 263
(10,4)
HLD350 12V AC10 200 (7,9) 350
(770)
610
(5400)
12 2,5-8 A 175
(6,9)
HLD2000L 12V AC20 340 (13,4) 500
(1100)
1460 (12850) 19 3-10 A 298
(11,7)
HLD2000D 24V AC20 200 (7,9) 1050
(2310)
1800
(15900)
11 3-10 A 175
(6,9)
HLD2000LD 24V AC20 340 (13,4) 1050
(2310)
3180
(28000)
19 3-10 A 298
(11,7)
MSD50* 12V AC10 190 (7,5) 60
(132)
– 15 0,8-2 A –
Steering gear interface: Connects to quadrant or tiller.
* For stern drive power assisted steering only.
1. The motor voltage is stepped down by the autopilot computer
when operating from 24V or 32V mains.
2. The specified autopilot computer is necessary to achieve max
drive unit capacity.
3. Recommended operational thrust or torque is 70% of listed
peak value.
4. Typical average power consumption is 40% of listed
maximum value.

Simrad AP26 and AP27 Autopilots
60 20221586B
PREVIOUS MODELS OF DRIVE UNITS
Model Autopilot
computer
Drive unit
voltage
Input
voltage
(Mains)
Drive output Interface to
steering
gear
RPU100 (1,0l)
RPU150 (1,5l)
RPU200 (2,0l)
(Reversible
hydraulic
pump)
AC20
AC20
AC20
12V
12V
24V
12,24,32V Proportional
rate
Hydraulic
plumbing
RPU1 (1,4/2,0l)
RPU3 (3,8/5,0l)
AC10
AC10
12V, 24V
24V, 24V
Solenoid
valves, on/off
Hydraulic
plumbing
MRD100
(Reversible
mechanical
drive)
AC40
AC20
12V
24V
12,24,32V
24,32V
12V to clutch
24V to clutch
Proportional
rate to motor
Chain/
sprockets
MRD150
(USA only)
AC20 12V
32V
12, 24V
32V
12V to clutch
32V to clutch
Proportional
rate to motor
Chain/
sprocket
Note ! When selecting DRIVE UNIT voltage in the Installation setup,
the clutch/bypass voltage is always set equal to the motor
voltage. If a retrofit installation where e.g. a HLD2000 has a
12V motor and a 24V bypass valve, the bypass valve solenoid
has to be changed back to standard 12V version.
Connecting a reversible pump
Simrad
reversible
pump
AUTOPILOT COMPUTER
POWER PCB
TB1 TB2 TB3 TB4 TB5
TB6
Sol. -Motor
Sol. -Motor
Figure 3-5 Connecting a reversible pump

Installation
20221586B 61
Connecting a hydraulic linear drive
AUTOPILOT COMPUTER
POWER PCB
TB1 TB2 TB3 TB4 TB5
TB6
Bypass
Clutch
Sol. -Motor
Sol. -Motor
TB7
HYDRAULIC
LINEAR DRIVE
Single pole
clutch/bypass
switch
Figure 3-6 Connecting a hydraulic linear drive
Connecting a solenoid valve
AUTOPILOT COMPUTER
POWER PCB
TB1 TB2 TB3 TB4 TB5
TB6
Sol. -Motor
Sol. -Motor
Sol. gnd
TB7
Sol. Sol.Sol. gnd
SOLENOID
VALVE
Figure 3-7 Connecting a solenoid valve

Simrad AP26 and AP27 Autopilots
62 20221586B
3.11 Control unit installation
Avoid mounting the control unit(s) where it is easily exposed to
sunlight, as this will shorten the lifetime of the display. If this is
not possible, make sure the units are always covered with the
white protection cover when not used.
Caution ! Do not install the control unit where moisture at the rear can
be present. It could cause damage by entering the breathing
hole or by coming into contact with the electrical connectors.
Panel mounting of AP26
The mounting surface must be flat and even to within 0.5
mm.
• Drill the 4 mounting holes and make a panel cut-out
according to supplied template.
• Place one of the three supplied gaskets between the
panel and the unit with the interlocking feature
correctly orientated (see figure).
• Use the supplied screws to fasten the control unit to the
panel. Do not over-tighten the mounting screws!
• Apply the front panel corners.
• Connect the Robnet2 cable(s) to the control unit
connector(s)
Alternative panel mounting of AP26
This way of mounting is simpler, but will lift the unit
from the panel surface. When installed adjacent to
Simrad equipment there will be a difference in height
between the autopilot and the other equipment.
• Use the template and drill hole(s) only for the
connectors.
• Place all three gaskets between panel and unit with
the interlocking feature correctly orientated (see
figure).
• Follow above panel mounting instructions but use the
supplied 32 mm screws to fasten the control unit to
the panel
Do not over-tighten the mounting screws!
This side towards
control uni
t
This side towards
control uni
t

Installation
20221586B 63
Optional bracket mounting
• Locate the cradle on the mounting site and mark the 4 holes
for the fixing screws on the mounting surface.
• Drill the 4 mounting holes and screw the cradle to the
mounting surface.
• Use the supplied screws to fasten the control unit to the left
and right brackets.
• Apply the front panel corners.
• Use the two locking knobs to assemble the cradle with the left
and right brackets and adjust the control head to best viewing
angle.
• Connect the Robnet2 cable(s) to the control unit connector(s)
(See note on page 64).
Figure 3-8 AP26 Bracket mounting
3.12 ROBNET2 network cables
As Robnet2 units have two Robnet2 connectors (blue) they can
be used as "jack points" for further expansion of the system.
There are no dedicated "in" or "out" connectors. You may
connect the cables to any available Robnet2 connector (blue) on
the specific unit. The Robnet2 connectors have a locking
mechanism for extra safety.
Caution ! Do not mix the blue Robnet2 cables with the yellow SimNet
cables.
The 15 m cable to the autopilot computer has a connector only at
the control unit end. Robnet2 cables with 5 pin male connector at

Simrad AP26 and AP27 Autopilots
64 20221586B
both ends are available in 1, 5 and 10 m length. For cable
extension a Robnet2 T-Joiner is required.
When installing a system, try to minimize the total cable length
by connecting all Robnet2 units to the nearest available Robnet2
connector.
Total length of Robnet2 cable installed in a system should not
exceed 50 m (165').
Examples of interconnecting Robnet2 units:
CONTROL
UNIT
CONTROL
UNIT
AP27
CONTROL
UNIT
COMPASSAUTOPILOT
COMPUTER
T-joiner
Figure 3-9 Interconnecting Robnet2 units
A Robnet2 T-Joiner P/N 24005662 is available to make the
Robnet2 interconnection more simple by reducing the number of
cables or extend cables when necessary.
See table for pin configuration and colour code of the network
cable.
Cable pairs Color code Signal
Pink V SYSTEM+
1. pair Grey V SYSTEM–
Brown Bus–
2. pair White Bus+
Yellow On - Off
Figure 3-10 Robnet2 Connector
Note ! The connectors are weather proof according to IP65, when
properly installed. All unused Robnet2 connectors must be fitted
with the plastic cap to protect them against dirt and moisture.

Installation
20221586B 65
On-Off
Vsys+
AUTOPILOT COMPUTER
MAIN PCB
ROBNET
Bus+
Vsys
Wh
Bn
Bus
Pnk Gry Yel
AP26
CONTROL UNIT
REAR VIEW
TB15
Figure 3-11 Control unit connection
J1 and J2 (left) are Robnet2 connectors. J3 and J4 are SimNet
connectors.
AP27 connection
If a Simrad AP27 is part of the system, use the Robnet2
connector in a free receptacle (see Figure 3-9). Alternatively cut
the connector from the cable and connect the wires in parallel
with the cable shown on Figure 3-11 using the same colour code.
Note ! The AP27 cable contains an air-breathing tube. Check that the
tube is open after you have cut the cable.
3.13 RC36 Rate Compass installation
Figure 3-12
RC36 mounting
The heading sensor is the most important part of the autopilot
system and great care should be taken when deciding the

Simrad AP26 and AP27 Autopilots
66 20221586B
mounting location. As the heading is displayed on the Control
Unit, the heading sensor can be mounted at a remote location.
The RC36 rate compass also contains a magnetic heading sensor,
so particular attention must be paid to the location. It can be
mounted on deck or bulkhead, athwartship or alongship and has
a 15 m (99’) cable with a Robnet2 connector. The heading offset
feature in the autopilot will compensate for the mechanical
offsets that may be a result of the selected location and
orientation of the RC36.
If the RC36 is deck or bulkhead mounted athwartship with the
cable gland pointing aft, little if any offset correction is required.
With the cable gland pointing forward a 180° correction is
required.
When mounting RC36 on a bulkhead alongship, a +90° or –90°
correction is needed dependent on whether it is port or starboard
bulkhead.
Note ! Offset correction is performed after the calibration (see
paragraph Note !).
Find a location that provides a solid mounting place free from
vibration, and as close to the vessel's centre of roll and pitch as
possible, i.e. close to the water line. It should be as far as
possible from disturbing magnetic influences such as the engines
(min. 2 meters), engine ignition cables, other large metal objects
and particularly the drive unit. On steel hull boats it should be
mounted 0,75-1 m above the wheel house on a non magnetic
stand.
Use the supplied mounting kit and drill the holes through the
centre of the slots in the sensor or the mounting brackets.
Note ! The compass face plate on the RC36 is the TOP. Never mount it
upside down! Level the sensor as close to horizontal as possible.

Installation
20221586B 67
RATE
COMPASS
AP16, AP25, AP26
Figure 3-13 RC36 connection to autopilot control unit
Plug the RC36 into a Robnet2 connector (see Figure 3-9) or cut
the connector from the cable and connect the wires in parallel
with the cable shown in Figure 3-11.
3.14 RFC35 Fluxgate Compass installation
(Optional back-up)
The RFC35 Fluxgate Compass is a magnetic sensor, which
means you have to take the same precautions at installation as
for the standard RC36 (see previous page).
• Connect the RFC35 to the autopilot computer as per Figure
3-14.
RFC35
FLUXGATE
COMPASS
AUTOPILOT COMPUTER
MAIN PCB
Heading
Sensor
** NON POLARIZED
(COLOR INDEPENDENT)
HS+
HS-
Figure 3-14 RFC35 connection

Simrad AP26 and AP27 Autopilots
68 20221586B
3.15 R3000X Remote Control installation
R3000X should be mounted in the supplied bracket that can be
fixed by four mounting screws. The unit is weather proof and
can be mounted outdoor.
TB6
AUTOPILOT COMPUTER
TB3 TB4 TB5
TB7
Stbd
Port
Gnd
Gn Red Blu
REMOTE
TB8
TB1 TB2
R3000X
REMOTE CONTROL
Lamp
Yel
POWER PCB
Figure 3-15 R3000X connection
3.16 JS10 Joystick
Refer to separate installation procedure for JS10 Joystick.
3.17 S35 NFU Lever installation
The unit is mounted to a bulkhead or panel by two screws from
the front. The cable is connected to the autopilot computer
according to Figure 3-16. Interchange the Port and Stbd wires to
the screw terminals if necessary to make the direction of the
lever movement coincide with the direction of the rudder
movement.

Installation
20221586B 69
TB6
AUTOPILOT COMPUTER
POWER PCB
TB3 TB4 TB5 TB7
S35
STEERING LEVER
TB1 TB2
Lamp
Stbd
Port
Gnd
Brn/Wh
Pnk/Gry
Yel
Grn
NOTE!
Disregard the color code
on the terminal label.
REMOTE
Figure 3-16 S35 connection
The unit is opened by removing the three screws on the back
cover. Inside are two sets of micro-switches, a printed circuit
board with a plug-in terminal and a jumper strap.
3.18 Interfacing
With the autopilot system there are several possibilities to
connect to other equipment for data collection and exchange:
1. Use SimNet
2. Use SimNet via AT10 Universal SimNet/NMEA Converter
3. Connect to a NMEA2000 network or unit
4. The AC10 has a single NMEA0183 input/output port.
5. The AC20 and AC40 have two NMEA0183 input/output ports
and Clock Data interface to Simrad and Furuno radars.
The NMEA0183 output may also drive Simrad IS15 instruments
directly.
The different connecting diagrams on the following pages
illustrate the interface possibilities of the autopilots.
3.19 SimNet
The SimNet cable system with very small plugs in both ends
makes it easy to run the cables, only 10 mm (3/8”) holes are
required through panels and bulkheads. The SimNet accessory
program contains the necessary items to make a successful
installation.

Simrad AP26 and AP27 Autopilots
70 20221586B
SimNet network cables
A SimNet unit has one or two yellow SimNet connectors. There
are no dedicated “in” or “out” connectors. Find the shortest and
easiest way to route the SimNet cables from product to product
and select the standard length cables from the SimNet accessory
program. SimNet cables are available in 0.3 m (1 ft.), 2 m (6.6
ft.), 5 m (16.6 ft.) and 10 m (33 ft.) length all with plugs at both
ends. Connect products with two SimNet connectors in a daisy
chain and use drop cable and T-joiner for products with only one
SimNet connector.
The SimNet power cable has a red connector with built in
terminator.
If you plan to extend your SimNet system in the future it may be
an idea to prepare for it by adding a few T-joiners in central
locations. The T-joiners provides easy access to the network and
can be replaced with a new product, or the new product can be
connected via a drop cable.
SimNet power and termination
The following rules should be observed when installing SimNet.
1. It must have a separate 12VDC power from the battery bus or
the circuit breaker board to avoid interference
2. It must not be connected to the supply voltage terminals of
the Autopilot Computer (introduces interference).
3. It will power and be powered from an IS12 instrument
system.
4. It must be properly terminated.
The SimNet network has to be terminated according to the
number and type of products connected.
In a small system consisting of maximum 5 SimNet products and
a total length of 5 m SimNet cable you need the SimNet power
cable with built in termination (red disc on cable plug).
For additional information about SimNet ask for the separate
SimNet Manual.

Installation
20221586B 71
`lj_f
iltbo
pfjo^a=fpNO
^i^oj
qfjbo
ifdeq rmmbo
fkcl fkcl
10
WIND
SETUP DODGE
AUTO
STBY
PWR
10
11
TURN
INFO NAV
m^dbifdeq
pfjo^a=fpNO
rmmbo
fkcl
iltbo
fkcl
a^q^
ifdeq ^i^oj
qfjbo
rmmbo
fkcl
iltbo
fkcl
pfjo^a=fpNO
`lj_f
Figure 3-17 SimNet network, small system
iltbo
fkcl
rmmbo
pfjo^a=fpNO
fkcl
a^q^
ifdeq qfjbo
^i^oj
fkcl
rmmbo
pfjo^a=fpNO
iltbo
fkcl
`lj_f
m^db
rmmbo
fkcl
pfjo^a=fpNO
fkcl
iltbo ifdeq
ifdeq
`lj_f
qfjbo
^i^oj 1
10 10
DODGE
TURN
1
PWR AUTO
SETUP
INFO
WIND
NAV
STBY
Figure 3-18 SimNet network, small system with Wind
transducer
Notes !
1. The wind transducer (*) has a built in terminator
2. If there is no wind transducer connected, a SimNet
terminator must be connected instead.

Simrad AP26 and AP27 Autopilots
72 20221586B
m^db
a^q^
ifdeq
rmmbo
fkcl
pfjo^a=fpNO
iltbo
fkcl ifdeq
`lj_f
iltbo
pfjo^a=fpNO
fkcl
rmmbo
fkcl
`lj_f
qfjbo
^i^oj iltbormmbo
fkcl
pfjo^a=fpNO
fkcl
INFO
NAV
DODGE
WIND
PWR
AUTO
STBY
^i^oj
qfjbo
rmmbo
fkcl
pfjo^a=fpNO
fkcl
iltbo
ifdeq qfjbo
^i^oj ifdeq
`lj_f
Figure 3-19 SimNet/NMEA2000 network, medium system
Notes !
1. Maximum total length of SimNet cable is 40 m (130 ft.)
excluding the 30 m (99 ft.) of masthead cable.
2. The wind transducer (*) has a built in terminator
3. If there is no wind transducer connected, a SimNet
terminator must be connected instead.
4. A SimNet/NMEA2000 adapter cable (page 125) is
required to connect a NMEA2000 device to SimNet, see
Figure 3-19. The cable is available at your SimNet dealer.

Installation
20221586B 73
STBY
SETUP
INFO
PWR
NAV
WIND
AUTO
TURN
DODGE
10
10
11
pfjo^a=fpNO
qfjbo
^i^oj
ifdeq iltbo
fkclfk cl
rmmbo rmmbo
pfjo^a=fpNO
ifdeq ^i^oj
qfjbo
iltbo
fkcl fkcl ifdeq
pfjo^a=fpNO
m^db fkcl
rmmbo
fkcl
iltbo
`lj_f `lj_f a^q^
Figure 3-20 Robnet2 and SimNet network

Simrad AP26 and AP27 Autopilots
74 20221586B
NAV
WIND
SETUP
STBY
AUTO
PWR
DODGE
WIND
DODGE
NAV
STBY
AUTO
PWR
INFO
Figure 3-21 Robnet2, SimNet and Roblink network
Notes !
1. Maximum total length of SimNet cable is 40 m (130 ft.)
excluding the 30 m (99 ft.) of masthead cable.
2. It is not necessary to connect all autopilot control units to
SimNet for data sharing. However, if you want to have full
redundancy and SimNet control, e.g. select sources, you
have to connect the actual unit to SimNet.
3. AT15 is a NMEA0183/SimNet converter for the IS15
Instrument system.
4. AT44 is a SimNet interface that is supplied with CX44 and
CX54.

Installation
20221586B 75
3.20 Single NMEA input/output
RX1
RX1+
MAIN PCB
NMEA
Input 1
Vbat+
Sys. sel.
Gnd
TX1
TX1+
NMEA
Output1
AUTOPILOT COMPUTER
TB13 TB14
Note
NAV RECEIVER
OR PLOTTER
(NMEA talker)
NMEA listener
IS15 RUDDER
IS15 COMPASS
RADAR
Figure 3-22 Single NMEA connection
Caution ! If an IS15 Instrument is powered from TB14 Vbat+ and Gnd,
please observe that Vbat output voltage will follow mains
supply voltage (IS15 Compass = 12V only!).
3.21 Double NMEA input/output
RX1
RX1+
MAIN PCB
NMEA
Input 1
Vbat+
Sys. sel.
Gnd
TX1
TX1+
NMEA
Output1
POWER PCB
TB8 TB9 TB10
RX2
RX2+
NMEA
Input2
TX2
TX2+
NMEA
Output2
GPS or
CHARTPLOTTER AC20/AC40 AUTOPILOT COMPUTER
TB13 TB14
GPS or
CHARTPLOTTER
Figure 3-23 Double NMEA connection

Simrad AP26 and AP27 Autopilots
76 20221586B
3.22 NMEA output on Port 2
Output signal Output terminal Output sentence
Continuous output of compass
heading at 10 Hz (10x/sec.)
Rudder angle output at 5 Hz
NMEA format
Autopilot Computer Power
PCB.
NMEA2, TX2+, TX2–
HDT (True) or HDG (Magn.)
depending on heading source.
RSA Rudder angle
3.23 NMEA Compass input
POWER PCB
TB8 TB9 TB10
RX2
RX2+
NMEA
Input2
AC20/AC40 AUTOPILOT COMPUTER
NMEA
COMPASS
Figure 3-24 NMEA compass connection
Note ! The compass connected to the NMEA In port (RX2) will not be
calibrated.

Installation
20221586B 77
3.24 Radar Clock/Data
AC20/AC40 AUTOPILOT COMPUTER
POWER PCB
Radar
TB8 TB9 TB10
Data_h
Data_c
Clk_h
Clk_c
SIMRAD/
ANRITSU
OR
FURUNO
RADAR
Figure 3-25 Radar Clock/Data connection
3.25 IS15 Instrument installation
For installation and operation of the IS15 instruments refer to
separate manuals. There are two options for interfacing the IS15
SimNet (see page 69) and NMEA0183. The SimNet interface is
recommended and you need an AT15 Active Tee as an interface
item (page 74).
NMEA In
This connection will provide speed, depth and temperature input
to the autopilot. If an IS15 Wind Transducer is connected to the
system, wind information will also be transferred to the
autopilot.
The connection is made by a Roblink cable from the instrument
NMEA socket (4) to the Autopilot Computer Main Board,
Terminal RX1+ and RX1–. See Figure 3-26.
NMEA Out
This will provide the instrument system with heading data.
The connection is made by a Roblink cable from Autopilot
Computer Main Board, terminal TX1+ and TX1– to the
instrument NMEA socket (4). See Figure 3-26.
You will need a minimum of two instrument heads to make the
system both ‘listen’ and ‘talk’ (I/O).

Installation
20221586B 79
3.26 External Alarm
The external alarm circuit has an open collector output for an
external alarm relay or buzzer. The operating voltage for the
circuit is the main supply voltage. Max. load on external alarm
output is 0.9 Amp.
Ext.
alarm
TB6
AUTOPILOT COMPUTER
POWER PCB
TB7 TB8 TB9
Figure 3-28 External alarm connection
3.27 LF3000 Linear Feedback
Caution ! The rod of the LF3000 is not locked in place in the cylinder.
Pay attention as it may slip out of its housing and end up on
the seabed.
The LF3000 is a waterproof feedback unit. It has a 300 mm
(11,8") stroke and comes with a special mounting bracket which
secures the LF3000 to the cylinder of the existing outboard drive
unit.
The 8,5 m (28') cable is terminated in the LFI3000 Mk2 Linear
Feedback Interface according to Figure 3-30.
The mounting hardware provided is made to interface with
Teleflex HC5340 cylinders and Hynautic K7 and K10 Cylinders.
The hardware may not be appropriate for other systems.
Center the drives. Loosely secure the LF3000 to the supplied
mounting bracket, across the center of the drive unit cylinder.
Either cylinder may be used if there is a dual set up. You may
mount the feedback in either direction, i.e. the shaft of LF3000
may point to port or starboard.
Loosen the end bolt (a) used to secure the cylinder to the drive
unit mount. Insert the rod retaining assembly (b) and retighten

Simrad AP26 and AP27 Autopilots
80 20221586B
the bolt. Secure the feedback rod to the retainer plate using the
two washers and the cap nut provided. Adjust the location of the
LF3000 Linear Feedback to allow full travel of the hydraulic
cylinder without causing the retainer plate to hit the end of the
cylinder. Check that the outboard motor can be tilted freely.
Tighten all nuts and the mounting bracket.
Turn the helm slowly by hand to the stop on either side, check that
the rod does not bind up in any direction. Make a “drip nose” (c)
on the cable to the unit and clamp the cable to allow full engine
movement to port and starboard.
LF3000
BRACKET
CYLINDER
(END VIEW)
RETAINER PLATE
LOCK NUT
FLAT WASHERS (2) LF3000
LINEAR FEEDBACK
ALLEN HEX SCREWS (2)
FLAT WASHERS (2)
MOUNTING BRACKET
CLAMPS (2 HALVES)
Figure 3-29 LF3000 mounting
a
b
c

Installation
20221586B 81
Electrical connection
AUTOPILOT COMPUTER
MAIN PCB
RF
RF+
Rudder
Feedb.
LFI3000 Mk2
LINEAR FEEDBACK
INTERFACE
TB1
White
Brown
TB2
White
Brown
Green
Yellow
Figure 3-30 LF3000/LFI3000 Mk2 connections

Simrad AP26 and AP27 Autopilots
82 20221586B
This page is intentionally left blank.

Maintenance
20221586B 83
4 CONFIGURATION AND SETUP
4.1 First time turn on
Before attempting to turn on the autopilot and perform an
Installation Setup, the hardware installation and electrical
connections must be completed in accordance with the
installation instructions.
The design of the autopilot includes advanced features that have
simplified the installation and setup of an autopilot.
This is the start-up screen that is presented the
first time you turn on your autopilot by pressing
the STBY/PWR button.
Notes !
1. You can postpone the automatic interface by going directly to
the Installation/Dockside setup. Any time the STBY button is
pressed the interface prompt will reappear until the
automatic interface has been performed.
2. Be aware that you will have no compass reading before the
automatic interface is completed.
Continue by pressing the STBD (START) button to start the
automatic interface.
The autopilot will search for connected sources,
and as the sources are detected a black square
appears on the screen.
“SEARCHING” is flashing as long as the
autopilot is searching for data. When the
automatic interface setup is finished, “Done press
→” is displayed. Press the STBD button to
accept. The display will read “SETUP
REQUIRED”.
Continue with the installation setup according to
the next chapters.
If you already have completed the installation
settings, the autopilot will enter STBY mode.

Simrad AP26 and AP27 Autopilots
84 20221586B
4.2 Description of Installation Settings
Note ! The installation settings must be performed as part of the
installation of the autopilot system. Failure to do so correctly
may prohibit the autopilot from functioning properly!
The Installation menu can only be accessed in STBY mode.
The Installation Settings are grouped into the following
functional categories:
• Language: Selection of language used for display
information
• Dockside: Items to be set prior to seatrials
• Interface: Setting the format of the clock/data output for
radars connected to the Autopilot Computer.
• Display units: Setting the units to be displayed for wind
speed, water temperature and depth.
• Seatrial: Presents settings and automatic calibrations to
be performed during sea trial.
• Parameters: Permits viewing and changing of basic
steering parameters (See also response control
page 45).
• Service: System data, NMEA data, NMEA test,
SimNet setup, Master reset of memories.
Each group is designed to focus on specific functions and enable
quick access when changes need to be made.
Some important points regarding the installation settings:
• When the autopilot is delivered new from the factory AND
ANY TIME AFTER A MASTER RESET OF MEMORIES
HAS BEEN PERFORMED, the installation settings are all
reset to factory preset (default) values. The automatic
interface prompt will appear (see page 83) and a complete
setup has to be made.
• The values that are selected from within the Installation
Settings Menu, are stored in the memory of the autopilot
system. No specific action is required to "SAVE" the selected
values. Once the value is changed, it is stored until the next
time the menu item is selected and changed.

Maintenance
20221586B 85
• The Installation Settings are global except for display units
and language, enabling settings to be distributed to all control
units in the system.
• The Seatrial settings are dependent on successful completion
of the Dockside settings.
4.3 Installation Menu
The Installation Menu is
presented on the autopilot
display by pressing and holding
the NAV/WIND/SETUP button
for 5 seconds.
Note ! The INSTALLATION MENU is different from the USER SETUP
MENU. Refer to the flow diagram on the next page for a
pictorial view of the Installation Menu.
Navigate through the Installation Menu as follows:
• Answer YES to a question by rotating the course knob
clockwise.
• Answer NO to a question or proceed to the next menu item by
pressing the STBD button.
• Return to the previous menu item by pressing the PORT
button.
• Change the selected item by rotating the course knob in either
direction.
• Exit the Installation Menu by pressing STBY, AUTO, or
NAV/WIND buttons.
When using the Installation Menu, refer to the diagram
"Installation Menu Flow Chart" on next page.
Note ! You may proceed through all items in the installation menu by
continuing pressing the STBD button.

Simrad AP26 and AP27 Autopilots
86 20221586B
DOCKSIDE
SEATRIAL
INSTALLATION
MENU
SEA-TRIAL MENU
DOCKSIDE MENU
ENGLISH
DEUTSCH
FRANCAIS
ESPANOL
ITALIANO
NEDERLANDS
SVENSKA
NORSK
LANGUAGE MENU
SERVICE
INTERFACE
Mode in
STBY ?
Yes
No
INTERFACE MENU
LANGUAGE
Output
SELECT OR CONFIRM BY
COURSE KNOB
PROCEED TO NEXT MENU ITEM
BY PRESSING STBD BUTTON
REVERT TO PREVIOUS
MENU ITEM
SYMBOLS
BOAT TYPE
DRIVE UNIT VOLTAGE
RUDDER CAL STBD
RUDDER CAL PORT
RUDDER TEST?
DRIVE ENGAGE
RUDDER DEADBAND
WIND SETUP
MIN. WIND ANGLE
TACK ANGLE
TACK TIME
WIND SHIFT LIMIT
ENTER INSTALLATION MENU
BY PRESSING AND HOLDING THE
NAV BUTTON FOR 5 SECONDS
RUDDER ZERO ADJUST
MINIMUM RUDDER
COMPASS CALIBRATION
COMPASS OFFSET
WIND OFFSET
WIND DAMPING
DEPTH OFFSET
AUTOMATIC TUNING
TRANSITION SPEED
INIT NAV
THRUSTER DIRECTION
DRIVE OUTPUT ADJUST
TURN CCW
CONFIRMED
SYSTEM DATA
STEERING COMPASS
RUDDER
INPUT VOLTAGE
DRIVE OUT
CLUTCH/BYPASS
RADAR
LOOPBACK NMEA1
LOOPBACK NMEA2
NMEA TEST
SIMNET/NMEA DATA
XTE
BWW
BPW
POS/LAT
POS/LON
COG
SOG
WIND
SPEED
DEPTH
SYSTEM DATA
SIMNET/NMEA DATA
NMEA PORT TEST
SIMNET SETUP
Master reset?
DISPLAY UNITS
WIND SPEED
WATER TEMP
DEPTH
DISPLAY UNITS
SIMNET SETUP
GROUP SELECTION
BACKLIGHT
INSTANCE NUMBER
SIMNET NODE STATUS
GLOBAL SIMNET RESET
PARAMETERS
RUDDER LO
CONT.RUDDER LO
AUTOTRIM LO
RUDDER LIM. LO
RUDDER HI
CONT. RUDDER HI
AUTOTRIM HI
RUDDER LIM. HI
RECALL AUTOTUNED
PARAMETERS
SERVICE
Figure 4-1 Installation Menu Flow Chart

Maintenance
20221586B 87
Language selection
To access the language selection in the Installation Menu,
confirm “Yes” by turning the course knob clockwise
The autopilot can present the display text in eight different
languages:
English, Deutsch, Francais, Espanol, Italiano, Nederlands,
Svenska and Norsk.
Turn the course knob to select the language you
wish to use.
Continue to next item in the menu by pressing
the STBD button, or leave the menu by pressing
the STBY button.
4.4 Dockside settings
The following menu items are accessible and can be set up in the
Dockside Menu:
• Boat type
• Drive Unit voltage
• Rudder Feedback calibration
• Rudder test
• Drive engage
• Rudder deadband
When Sail is selected as Boat type the following menu items are
also accessible in the Dockside Menu:
• Wind setup
• Min. wind angle
If Wind setup is set to RACING the following items are added to
the menu.
• Separate (port, stbd) wind angle limits
• Tack angle
• Tack time
• Wind shift limit

Simrad AP26 and AP27 Autopilots
88 20221586B
Select STANDBY mode and enter the Installation Menu as
previously described. Select Dockside by pressing STBD button
and confirm by rotating the course knob clockwise.
Boat type
Actual boat type is selected by
turning the rotary course knob.
The options are: Planing,
Displacement and Sail.
Type of boat selected will affect the steering parameters, and the
functions available in the autopilot system. Select appropriate
Boat type and press STBD button.
Drive unit voltage
Set the drive unit voltage to correct level. The selections are
12V, 24V, or 32V and should be set to the voltage specified for
your drive unit.
Refer to the drive unit table on page 58 for information.
The drive engage/bypass clutch output follows the same voltage
as set for the drive unit. It is not possible to select a higher
voltage than the input voltage.
Note ! Selection of improper voltage level for your drive unit may
damage both the drive unit and the autopilot computer even if
the protection circuits in the autopilot computer are activated.
During the Rudder Test, the autopilot system will automatically
detect whether the drive unit is a reversible motor or a solenoid
is operated.
To change the voltage
selection, rotate the course
knob.
Note ! The drive unit voltage setting does not apply when operating
solenoids on a continuous running pump/steering gear. Hence,
the output voltage to the solenoids will be the same as the input
voltage.
Proceed to next menu item by pressing STBD button.

Maintenance
20221586B 89
Rudder Feedback Calibration
Make sure the RF300 is installed and aligned as pr. instruction in
section 3.6 (or eventually section 3.27 for LF3000). This
function enables you to compensate for any non-linearity in the
transmission between the rudder and the rudder feedback.
Confirm Rudder feedback
calibration to STBD by
turning the course knob
clockwise.
Manually turn the helm/wheel to starboard until the rudder stops
at starboard lock (H.O.).
The value on the display is
the angle read by the rudder
feedback unit before any
adjustment is made.
If the actual rudder angle is different from that of the display,
correct the reading by turning the course knob clockwise to
increase the value or counter clockwise to decrease the value.
See note.
Advance to the next step by pressing the STBD button.
Manually turn the helm to port until the rudder stops at
maximum port rudder.
Adjust the displayed angle the same way as for starboard rudder.
Note ! Many boats have ±45° (90° H.O. - H.O.) rudder angle as
standard. So if you are not making any adjustment to the display
readout (i.e. not turning the course knob), the autopilot will set a
(default) value of 45° to each side. However, you should always
simulate an adjustment by tuning the course knob forwards and
back again. This is necessary to prevent the rudder from hitting
the end stops.
Rudder zero may still be inaccurate and should be adjusted later
during sea trial.
Proceed to next menu item by pressing STBD button.

Simrad AP26 and AP27 Autopilots
90 20221586B
Rudder Test
Note ! If the boat uses power assisted steering, it is important that the
engine or electric motor used to enable the power assist steering
be turned on prior to this test.
Bring the rudder manually to midship position before starting the
test.
Caution ! Stand CLEAR of the wheel and do not attempt to take manual
control of the wheel during this test!
Activate the automatic rudder
test by turning the course knob
clockwise.
The autopilot will after a few
seconds issue a series of PORT
and STBD rudder commands
and automatically verify correct
rudder direction. It detects
minimum power to drive the
rudder, and reduces the rudder
speed if it exceeds the
maximum acceptable speed
(8°/sec.) for autopilot operation.
The Rudder test is verified by
the display showing ‘Motor
OK’, ‘Solenoids OK’, or
‘Failed’. If ‘Failed’ is given,
check for correct electrical
connection.
The Motor Drive out (displayed in percentage) is the amount of
maximum available power needed to achieve correct rudder
speed on automatic steering (Maximum speed is used in NFU
mode).
The screen also tells whether a clutch is installed or not.
If the Automatic rudder test fails, refer to ”Alarms” beginning on
page 118.

Maintenance
20221586B 91
Test of LF3000/LFI3000 Mk2 feedback
1. Align engines to centre position; “zero rudder”.
2. Rev engines to 3-4000 rev/min and observe the rudder angle
indicator on the autopilot, a 2° change in the reading should
be accepted.
3. If the rudder angle exceeds 2°, connect the screen on the TB1
cable to the centre block terminal and repeat item 2 (See
Figure 3-30). If this gives a better result keep the screen
connected.
Proceed to next menu item by pressing STBD button.
Drive engage
This determines the use of the
autopilot computer drive
engage port. The port voltage
is the same as the selected
drive unit voltage. Drive
engage has the following
settings:
Bypass/clutch:
The port will activate (go high), in all autopilot steering modes,
and typically engages a bypass valve on a hydraulic linear drive
or a clutch on a mechanical drive when entering any of the active
autopilot modes. This is the default setting and it allows you to
steer the boat with the helm or wheel when in STBY or DODGE
modes.
Auto:
This setting is implemented for future use. Always use the
“Bypass/clutch” (default) setting.

Simrad AP26 and AP27 Autopilots
92 20221586B
Rudder Deadband
The rudder deadband function
is adaptive and is continuously
operative. It prevents the
rudder from hunting and the
adaptive function optimizes the
deadband to the speed of the
boat and the pressure on the
rudder.
If the auto-setting does not perform properly due to high inertia
from the wheel or a loose steering gear, it can be adjusted
manually.
Adjust the Rudder deadband by rotating the course knob. Find
the lowest possible value that will prevent the rudder from
hunting. A wide deadband will cause inaccurate steering. It is
recommended to check rudder stability and accuracy in FU-
mode when the boat is moving to get pressure on the rudder.
Range: AUTO, 0.1° to 4.0° in 0.1° increments.
Default: AUTO.
Proceed to the next menu item by pressing the STBD button.
Wind setup
Wind setup is only available if ‘Boat type’ is set to ‘Sail’ in the
Installation/Dockside menu.
Wind setup has two levels:
NORMAL and RACING. The
RACING level will give access
to more wind setup items to
achieve optimal performance
when sailing.
Additional setup items also become available in the User setup
and the Quick setup menus.
Range: NORMAL and RACING
Default: NORMAL

Maintenance
20221586B 93
Minimum wind angle (NORMAL)
The ‘Minimum wind angle’ is
the minimum apparent wind
angle that will keep the sails
well shaped and give an
acceptable thrust. This
parameter will vary from boat
to boat.
The ‘Minimum wind angle’ applies in the tack-prevent function.
It also applies when the autopilot is navigating in Wind mode.
Range: 15 – 90°
Default: 30°
Minimum wind angle (RACING)
If ‘Wind setup’ is set to
RACING, you can set different
minimum wind angles for port
and starboard.
The difference between port and starboard wind angles will be
taken into account when calculating the Estimated Time to Turn
(ETT) and Distance To Turn (DTT).
The minimum wind angle also applies when the autopilot is
optimising the VMG (available parameter in the Quick setup
menu when ‘Wind setup’ is set to RACING).
Range: 15 – 90°
Default: 30°
Tack angle (RACING)
The autopilot can tack also in
AUTO-mode. The set tack
angle replaces a similar change
of the set course using the
course knob.
Range: 50 – 150°
Default: 100°

Simrad AP26 and AP27 Autopilots
94 20221586B
Tack time (RACING)
When performing a tack in
WIND-mode, the rate of turn
can be limited. This will give
single handed sailors time to
handle the boat and the sails
during a tack.
The tack time is the time needed for the sailor to initiate the tack,
start using the winches and hauling the foresail from one side to
the other.
A turn performed without shifting the wind side, will also be
made at a reduced turn rate. Shifting wind side when gybing,
however, is an instant action from the autopilot.
Range: 2 – 50 seconds
Default: 12s
Wind shift alarm limit (RACING)
The monitored wind shift in
WIND mode is the wind shift
angle measured from the last
time the wind angle was set on
the autopilot. If this wind shift
exceeds the ‘Wind shift alarm
limit’, a wind shift alarm will
be activated.
The wind shift monitoring can be turned off by setting the ‘Wind
shift limit’ to ‘OFF’.
Note ! A wind shift reading is also presented in the ‘Wind shift’-display.
This is the change of wind direction measured from the last time
the autopilot mode was changed, e.g. STANDBY to AUTO,
AUTO to WIND. This wind shift reading is for information only,
and not to activate the wind shift alarm.
Range: OFF, 2 – 90°
Default: 30°

Maintenance
20221586B 95
4.5 Interface Settings
Sets the format of the clock/data output for radars connected to
the Autopilot Computer.
Step to the Interface part of the
Installation Menu.
Turn the course knob clockwise
to access the Interface Setup
items.
Use the course knob to select the
connected type of radar.
Note ! This setting is not available in the AC10 Autopilot Computer.
4.6 Display units
Select Display units by pressing
STBD button and confirm by
rotating the course knob clock-
wise. This screen gives access to
the display unit set-up of the Wind
Speed, Sea temperature and
Depth. The setup is local to each
control unit.
Use the STBD button to select an
item and the course knob to select
the unit.
Available units are:
Wind Speed: Knots (kt) or
meter/second (m/s)
Sea temperature:
Fahrenheit (°F) or Celsius (°C)
Depth: Meter (m) or feet (ft)
Exit the Display units menu by pressing STBD button to proceed
to the Sea trial menu, or press STBY to return to normal
autopilot operation.

Simrad AP26 and AP27 Autopilots
96 20221586B
4.7 Sea Trial
Caution ! The Sea Trial must always be performed in open waters at a
safe distance from other traffic.
The Sea-trial menu can only be accessed if the Dockside Settings
are completed and confirmed.
The seatrial settings are:
• Rudder zero adjust (To tell the autopilot the precise midships
position of the rudder)
• Minimum rudder
• Compass calibration (To automatically compensate for
onboard magnetic interference)
• Compass Offset (To compensate for a fixed offset (A-error) in
the final compass heading readout)
• Wind Offset (To compensate for a fixed mechanical offset of
the Wind vane)
• Wind Damping (To avoid flickering on the wind display)
• Depth offset (To compensate for the distance between the
depth transducer and the surface if required)
• Automatic tuning (A method of determining the steering
parameters)
• Transition speed (the speed at which you want a power boat to
change steering parameters)
• Init NAV (to set the response you prefer when steering onto a
track in NAV mode)
• Drive output adjust (See Dockside Rudder Test page 90.)
Select Seatrial by
pressing the STBD
button and confirm by
rotating the course knob
clock-wise.

Maintenance
20221586B 97
Set Rudder zero
This adjustment should be made in calm sea and side forces from
wind or current should be avoided.
• Bring the boat up to cruising speed, and head directly into the
wind.
• If the boat has twin engines, synchronize the engine RPM's.
• Set the trim tabs and stabilizers to have no effect on the boats
heading.
• Steer the boat manually on a steady course.
• Confirm the rudder ZERO position by rotating the course
knob clockwise.
Press STBD to proceed to next menu item.
Minimum rudder
Some vessels may have a tendency of not responding to small
rudder commands around the “course keeping” position because
of a small rudder, a rudder deadband or whirls/disturbance of the
water-stream passing the rudder.
By turning the Minimum Rudder function ‘On’, it may improve
the course keeping performance on some boats, but will increase
the rudder activity.
Turn the minimum rudder on
by turning the rotary course
knob.
Range: OFF-ON.
Default: OFF
Note ! Only set Minimum Rudder to ON if it proves to give a better
course keeping performance in calm sea.

Simrad AP26 and AP27 Autopilots
98 20221586B
Compass calibration
This function will activate the compass
calibration procedure for Simrad compasses
connected to Robnet2 and the Autopilot
Computer terminals (HS).
Notes !
1. The RC36 Rate Compass that comes with the autopilot as
standard will store the calibration and off-set data in its own
memory.
2. Compass calibration for a second compass connected to the
HS terminal will be stored in the Autopilot Computer
memory.
3. Calibration is made on the compass that is active for the
autopilot. The active compass is the one that is displayed on
the compass calibration screen.
RATE-0 = Rate compass, FLUX-0 = Fluxgate compass on
HS terminals.
4. If an optional NMEA compass from Simrad or another
manufacturer is installed, also refer to the optional compass’
manual regarding calibration. This compass will not be
calibrated by the autopilot.
Before you start the compass calibration, make sure you have
enough open water around you to make a full turn with the boat.
The calibration should be done in calm sea conditions and with
minimal wind to obtain good results. Use about 60-90 seconds to
make a full circle.
Increase speed: >>>>>>
Decrease speed: <<<<<<
Appropriate speed: > <
1. Select the ‘Calibration’ item on the display
2. Begin turning the boat (port or starboard).
3. Confirm start of calibration by turning the course knob
clockwise. The display will flash “Calibrating”. Establish
your turning rate using the arrows in the display.

Maintenance
20221586B 99
4. When the calibration is completed, (after having made
approximately 1 1/4 turns), it will be confirmed by the display
reading “Confirmed”.
Compass deviation
The heading from a magnetic heading sensor will normally have
a deviation when compared with the actual direction of the
earth’s magnetic field. This is caused by interference from the
boat’s local magnetic field. The deviation will be at a minimum
if the compass is placed as far as possible from any magnetic
object on board. On the other hand, you may have to
compromise with other requirements for the installation of the
compass (page 65).
During the calibration, the compass will measure the magnitude
and direction of the local magnetic field from where the compass
is mounted. The magnitude is given in % of the magnitude of the
earth’s magnetic field. If the local magnetic field is stronger than
the earth’s magnetic field (the local field is reading more than
100%), the compass calibration will fail. If the local field is
reading more than 30%, you should look for any interfering
magnetic objects and remove them, or you should move the
compass to a different location. The local field angle will aid you
to the local interfering magnetic object. See drawing.
Lubber line Lubber line
Magnitude of local
field in % of
earth’s magnetic
field.
Direction of local
field with respect
to lubber line. It
can also be on the
reciprocal.
Note ! In certain areas and at high latitudes the local magnetic
interference becomes more significant and heading errors
exceeding ±3° may have to be accepted.

Simrad AP26 and AP27 Autopilots
100 20221586B
Compass Offset
After calibration, also check the compass readout against a
known reference, a compensated compass or a bearing. If the
reading has a fixed offset, proceed to next menu item by pressing
STBD button or return to STANDBY mode by pressing the
STBY button.
Note ! Offset correction is always performed after the calibration. If
you use COG as a reference for the offset remember it has to be
a magnetic reading.
The compass OFFSET feature allows you to correct for a fixed
heading offset. This offset may be present as a result of the
compass being installed with a lubber line offset or if a fixed
offset remains after the calibration procedure has been
completed. The value of compass offset is specific to the heading
sensor that is selected at the time the offset is entered. This
means that you can have individual offsets for each compass
installed.
Select the amount of
correction by turning the
course knob to offset the
heading to agree with the
known, accurate heading. The
Offset value can be either
positive or negative.
Note ! If an OFFSET still exists after having compensated for it, one of
the following problems may still exist:
• The heading reference to which you are comparing the
compass is not correct.
• The automatic calibration is not correct. Refer to above
“Compass deviation”.
Proceed to the next menu item by pressing the STBD button, or
return to Standby mode by pressing the STBY button.

Maintenance
20221586B 101
Wind Offset
Note ! This offset only applies if you have a wind transducer directly
connected to SimNet (IS12TW) or a wind transducer that outputs
data on NMEA2000 format.
The Wind Offset feature allows you to correct for a fixed wind
angle offset. Steer the boat directly into the wind with a damping
of 15s. Keep the bow a steady heading for 15-20 sec. and read
the wind angle. If necessary turn the course knob to input an off
set that makes the display read Wind 000°.
The Offset value can be either
positive or negative.
Wind damping
Damping of the apparent wind
angle is made by the Advanced
Wind Filter (AWF) in the
Autopilot Computer.
The inputs to the AWF are heading, boat speed, apparent wind
angle and wind speed. Verify that these inputs are available in
User Setup/Source Select.
Heading sensors, speed sensors and wind sensors have variable
performance. The measured wind angle can be very erratic when
the boat is rolling heavily. In such conditions the AWF gives a
better result when the calculations are based more on heading
and boat speed inputs to achieve the correct apparent wind angle.
Increasing the ‘Wind damping’, will make the AWF depend
more on heading and boat speed to calculate the correct apparent
wind angle. Decreasing the ‘Wind damping’, will make the
AWF depend more on the “raw” apparent wind angle data.
The boat speed input to the AWF is primarily Speed Over
Ground (SOG). If this is not available, the AWF will use speed
through water. If none of these are available, the AWF will use a
boat speed that is 1.5 times the the Transition Speed set in the
Installation/Seatrial menu.
Range: 1 – 100 seconds
Default: 15 seconds

Simrad AP26 and AP27 Autopilots
102 20221586B
Depth Offset
Note ! This adjustment only applies to “smart” depth transducers that
outputs depth on NMEA2000 format. NMEA0183 sentence
‘DPT’ contains offset and the depth reading is from the surface.
NMEA0183 sentence ‘DBT’ contains no depth offset and the
reading will be from the position of the transducer.
When the depth offset is set to
zero, the indicated depth is
from the transducer to the
bottom.
To read the depth from the water surface to the bottom you have
to set the depth offset according to the vertical distance between
the surface and the transducer, i.e. positive (+) value. If you want
to indicate the depth from the keel to the bottom you have to set
the depth offset according to the vertical distance between the
transducer and the keel, i.e. negative (–) value.
Automatic tuning
Automatic tuning is a feature that automatically sets the two
main steering parameters (Rudder and Counter Rudder) by
taking the boat through a number of S-turns. The scaling factors
of the parameters are also set automatically as a function of the
boat type selection performed in the Dockside menu.
Automatic tuning is an optional procedure that is not required for
the autopilot to function. The autopilot is preset with steering
parameters that should steer most boats in the 30 - 80 foot range.
It is, however, recommended to perform an automatic turning as
part of the sea trial.
Recommended speed during Automatic tuning varies with the
type of boat, but should not exceed 10 knots.
Note ! Automatic tuning should not be performed at planing speed!
For displacement boats use a speed that is approximately half the
normal cruising speed (i.e. if cruising speed is 10 knots, perform
the Automatic tuning at about 5 knots).
The parameter values calculated during Automatic tuning
becomes the HI parameters. The LO parameters are
automatically set to 66% of the HI.

Maintenance
20221586B 103
It also is recommended to perform the Automatic tuning steering
East or West, as this will yield the best balanced parameters.
Note ! After the Automatic tuning has been completed the rudder must
be controlled manually, as the autopilot has returned to STBY
mode.
Caution ! The Automatic tuning function will take control of the boat
and perform a number of S-turns. It must always be performed
in open waters at a safe distance from other traffic. The
Automatic tuning function may take from 1 to 2 minutes to
complete. To stop the Automatic tuning, press the STBY
button.
Activate the Automatic
tuning, by rotating the course
knob clockwise. The display
will flash “Automatic tuning”.
After an Automatic tuning, there should be no need for further
adjustments. “Fine tuning” of these parameters are made by the
response control (see page 45). However, viewing or changing
the parameters can be made from within the Parameters menu
item. See also “Recall Autotune” on page 107.
Proceed to the next menu item by pressing the STBD button, or
return to Standby mode by pressing the STBY button.
Transition Speed
The transition speed is the speed where the autopilot will
automatically change the steering parameter set from HI to LO
parameters, or vice versa (page 23).
The default setting of transition speed is 5 kts.
It is recommended that you set the transition speed to a speed
that represents the speed where the hull begins to plane, or the
speed where you change from slow to cruising speed.
The speed used for the automatic transition is obtained with the
following priority:
1. Speed through water from the speed log source.
2. Speed Over Ground (SOG) from the GPS/Chartplotter.
If no speed data is available, manual speed selection is required.
See also chapters 2.9 and 2.10.

Simrad AP26 and AP27 Autopilots
104 20221586B
Rotate the course dial
clockwise until the transition
speed is set to the desired
value in knots.
Range: OFF – 30 knots
Default: 5 knots
Proceed to next menu item by pressing STBD button.
Init NAV
Sets a firm or soft approach to the track line when entering the
NAV mode at the first leg. The approach angle is dependant
(adaptive) on the distance (XTE) from the track line and the boat
speed.
Select firm or soft approach to
the track line by rotating the
course knob.
Range: Firm - Soft
Default: Firm
Proceed to the “Parameters” item by pressing the STBD button
or return to STANDBY mode by pressing the STBY button.
4.8 Parameters
To access the Parameters,
rotate the course knob
clockwise.
A boats steering parameters
found by the Automatic
tuning can be looked at and if
needed changed under this
menu item. The steering
parameters can also be set
manually instead of
performing an Automatic
tuning. The parameters are
divided into two sets:

Maintenance
20221586B 105
• HI value parameters for automatic steering at low speed with
a power boat and when running with a sailboat.
• LO value parameters for automatic steering at high speed and
when sailing into the wind or reaching with a sailboat.
Step through the menu items by pressing the STBD or PORT
buttons. Adjust the value by rotating the course knob.
Manual parameter adjust
Boat type Own boat
Displayed
parameter Displacem.
& Sail Planing Automatic
tuning Manual
Use course
knob to adjust
parameters
LOw
Rudder LO 0.35 0.20
Cont.Rudder LO 1.00 1.00
Autotrim LO 40 sec. 40 sec.
Rudder Lim LO 20° 20°
HIgh
Rudder HI 0.50 0.30
Cont.Rudder HI 1.40 1.40
Autotrim HI 40 sec. 40 sec.
Use PORT and
STBD buttons
to step through
parameters Rudder Lim HI 20° 20°
Note ! The values in the table are factory set (default) and listed for
information only. After having performed the Automatic tuning,
the values may differ from those listed in the table. See also
“Automatic Tuning” previously in this chapter.
The two most important parameters that determine the
performance of the automatic steering are Rudder and Counter
Rudder.

Simrad AP26 and AP27 Autopilots
106 20221586B
Rudder sets the rudder gain which is the ratio between the
commanded angle and the heading error.
• Too little Rudder and the autopilot fails to keep a steady
course.
• Too much Rudder gives unstable steering and reduces speed.
• Low speed requires more Rudder than high speed.
Counter Rudder is the parameter that counteracts the effect of
the boats turn rate and inertia. For a short time period it is
superimposed on the proportional rudder response as provided
by the heading error. It may sometimes appear as if it tends to
make the rudder move to the wrong side (counter rudder).
The best way of checking the value of the Counter Rudder
setting is when making turns. The figures illustrate the effects off
various Counter Rudder settings.
Too little Rudde
r
New course
Too much Rudder
Course to steer
Course to steer
Counter rudder setting too
low, overshoot response
New course
Counter rudder setting too high,
sluggish and creeping response

Maintenance
20221586B 107
Autotrim standard value is 40 sec. which should work well on
most boats.
Rudder Limit should be kept at 20 degrees unless there is a
need for more rudder when performing dockside manoeuvres.
Recall Autotuned?
To recall the parameter values
that were achieved during the
Automatic tuning procedure,
rotate the course knob
clockwise. When parameter
values are recalled, Confirmed
is displayed.
Exit the Parameter menu by pressing STBD button to proceed to
the Service menu, or press STBY to return to normal autopilot
operation.
4.9 Service Menu
Select STANDBY mode and then enter the Installation Menu by
pressing and holding the NAV/WIND/SETUP button for 5
seconds. Select "Service by pressing the STBD button and
confirm by rotating the course knob clockwise.
System data and
SimNet/NMEA data are test
functions to analyze data
processed by the autopilot.
To exit the menu, press any
mode key (STBY, AUTO or
NAV).
Correct setting of counter
rudder, ideal response
New course

Simrad AP26 and AP27 Autopilots
108 20221586B
System Data Menu
Select System data by rotating
the course knob clockwise.
Step through the menu by
pressing the STBD button. The
menu provides you with
additional system data that can
be useful when testing or
trouble shooting the system.
Steer compass
Steering Compass readout,
M=Magnetic, T=True
Rudder
Rudder angle. Normally
between zero and 45 degrees.
Input voltage
Mains voltage on input
terminals.
Drive out
Power needed to drive the unit
in percent of full (100%) to get
satisfactory rudder speed.
Clutch/bypass
Verifies if a clutch or bypass
valve has been activated when
performing the rudder test.
SimNet and NMEA Data Screen
Select the screen by pressing
the STBD button and confirm
by rotating the course knob
clockwise.
Step through the menu by pressing the STBD button. The menu
provides you with status information about the different SimNet
and/or NMEA messages used by the system.

Maintenance
20221586B 109
Decoding
The incoming signals are decoded according to a built in priority
table in the autopilot. Cross Track Error and bearing information
are taken from the NMEA messages with highest priority.
For all data items, one of the following codes will be displayed:
– – – No data or no NMEA sentence containing the data
needed is available at the input port.
OK Valid data found
INV Message with invalid information.
FRM Message has format failure such as
a) Incorrect check sum
b) Wrong contents in datafield(s)
If data are missing or invalid, perform the following:
• Check the NMEA signal monitor (see below)
• Open the source select page in the User Setup menu and
check that data are available
• Check the navigator setup and make sure it is transmitting
appropriate data.
• Perform a NMEA Port Test (hardware) as per below.
Note ! The “WIND” reading is the apparent wind from the port (L) or
starboard (R). The “SPEED” reading is the speed through
water.

Simrad AP26 and AP27 Autopilots
110 20221586B
NMEA signal monitor
Near the NMEA terminals in the Autopilot Computer you will
find a green monitor LED marked “RX”. A flickering LED
indicates that a NMEA signal is received. It does not, however,
qualify the contents of the message.
Note ! Do not mix up the “RX” LED with the LED marked “TX”. The
“TX” LED will always be lit or flickering when the autopilot is
on.
NMEA Port test (AC hardware)
Disconnect the cables on the Main PCB in the Autopilot
Computer and connect TX1+ to RX1+ and TX1- to RX1-.
Similarly, on the Power PCB connect the NMEA ports the same
way; TX2+ to RX2+ and TX2– to RX2–.
Under Service in the Installation
Menu, select NMEA port test by
pressing the STBD button and
confirm this by rotating the
course knob clockwise.
Verify that the hardware is OK.
If not, replace the corresponding
PCB(‘s).
Proceed to the SimNet Setup menu by pressing the STBD
button, or press STBY to return to normal autopilot operation.
SimNet setup
Under Service in the Installation
Menu, select Simnet setup by
pressing the STBD button and
confirm this by rotating the
course knob clockwise.
Sn 00000 is the unique SimNet
ID number for the specific
autopilot control unit.
Group selection
SIMRAD: Autopilot is part of
the Simrad Group. Source
selection will be common for the

Maintenance
20221586B 111
products in the group
(synchronized).
STAND ALONE: Source
selection for the autopilot will
not be transferred to other
products in the Simrad Group
(no synchronization).
Backlight Illumination
Set backlight to synchronize
with one of the illumination
banks (1-3) available on the
SimNet, or to STAND ALONE
for individual control of the
autopilot illumination.
Instance number
An item to identify units by a
number when the autopilot is
connected to a NMEA2000
Network. On SimNet units the
Instance number is added to the
product name e.g. AP26-1,
AP26-2 for easy identification
on various display screens.
SimNet gateway
Indicates which control unit that
transmits and receives
information on SimNet. The
display verifies by reading
‘Yes’, all other units read ‘No’.
Global SimNet reset
Resets the entire SimNet setup in
the Simrad Group and initiates a
new automatic interface setup.
See chapter 4.1.

Simrad AP26 and AP27 Autopilots
112 20221586B
Master Reset
Note ! A Master Reset is part of the final test at the factory, which will
reset the memories to factory settings. Unless you need to clear
all stored values during the installation setup procedure, you
should not perform a Master Reset.
Under Service in the
Installation Menu, select
Master reset of memories by
pressing the STBD button and
confirm this by rotating the
course knob clockwise.
The Master Reset needs a
double confirmation to
prevent an accidental reset. To
perform a Master Reset, rotate
the course knob clockwise
and observe the display; then
rotate the course knob counter
clockwise. The display will
then read: “Master Reset
confirmed”.
Unless you have made a Master Reset, exit the Installation Menu
by pressing STBY to return to normal autopilot operation.
In the event a Master Reset has been made, refer to chapter 4.2.
Final sea trial
After having completed all settings in the Installation Menu, take
the boat out and perform a final sea trial in open waters at a safe
distance from other traffic.
• Steer the boat on all cardinal headings in AUTO mode.
• Start with low and medium speeds to get familiar with the
response from the autopilot.
• Try the effect of LO and HI parameter settings.
• If the hardware for automatic HI/LO selection is connected
and configured, verify that the HI/LO transition is occurring,
and the HI/LO parameters are changing after the transition
speed is crossed (by more than 1 Knot higher or lower speed).

Maintenance
20221586B 113
• Try the Dodge and U-turn function.
• If a Non-Follow Up lever (or handheld remote) is connected,
test change of modes and verify port and starboard steering
commands of the lever.
• Set waypoints into each navigator connected to the system,
and verify that the autopilot steers in NAV mode for each
NAV source.
• If the boat is a sailboat use the WIND mode and try the
autopilot at different settings of the apparent wind angle. Also
try the WINDN(av) mode, optimized VMG and WCV when
sailing (tacking) to a waypoint.
• Provide the owner with user training.
Providing user training
The user should be instructed in the "basic" operational
functions, such as:
• Turning the system on and off
• Changing modes. Explain briefly what takes place in the
different modes.
• Regaining manual control from any mode. Point out in what
modes the helm is engaged by the autopilot (bypass/clutch).
• Taking command at an "inactive" station, if applicable.
• Using the lock mode, how to lock/unlock and how to shut the
system down from a locked control unit, if applicable.
• Use of the Non-Follow-up and Follow-up steering modes and
learning the difference between the two.
• Use of a Non-Follow-up and Follow-up controller, if
connected.
• Changing course by rotary knob and buttons.
• Moving through the User Set-up Menu learning how to (and
why to) change the settings.
• How to select alternative sources for heading (compass),
navigation (GPS), chartplotter), speed, depth etc. if available.
• Locating compasses and knowing to keep magnetic items
away.

Simrad AP26 and AP27 Autopilots
114 20221586B
• Locating the Mains circuit breaker and the separate SimNet
circuit breaker if provided.

Maintenance
20221586B 115
5 MAINTENANCE
5.1 Control unit
The AP26 and AP27 Control Units will under normal use require
little maintenance.
If the unit requires any form of cleaning, use fresh water and a
mild soap solution (not a detergent). It is important to avoid
using chemical cleaners and hydrocarbons such as diesel, petrol
etc.
Make sure that all open Robnet2 connectors are fitted with a
protection cap.
It is advisable at the start of each season to check all connections
to the control unit head and cover with Vaseline or WD40. If the
Control unit is not removed from the boat, it should be covered
with the white protection cover.
5.2 Autopilot Computer
No special maintenance is required. It is advisable, however, at
the start of each season to make a visual inspection of the
internal and check all connections.
5.3 Rudder Feedback
Make a visual inspection at 2-3 month intervals and at the start
of each season. Apply some grease at the ball joints when
required (RF300)
5.4 Compass
If the compass is exposed to the weather, make a visual
inspection at 2-3 months intervals, and at the start of each
season.
5.5 Drive unit
Refer to the drive unit manual for maintenance instructions.

Simrad AP26 and AP27 Autopilots
116 20221586B
5.6 Exchange of software programme
Autopilot Computer
Figure 5-1 AC10/AC20/AC40 Main PC-Board
• Remove the EPROM from the socket by means
of the special extraction tool (p/n 44139806).
• Insert the tool by pressing the two grip pins
down into the two slots in the corners of the
socket.
• Squeeze the tool and pull out the EPROM.
• The identification tag indicates:
- Name of unit
- Part number
- Software version
Caution!
When inserting a new EPROM, make sure
the cut-off corner matches with the one in
the socket. Press it gently into the socket.
EPROM for AC10, AC20 and AC40
Autopilot Computers: P/N 22088462
After change of EPROM, perform a master
reset as described on page 112.
Autopilot
Computer
EPROM
Cut-off
corner
Slots
Identification
tag

Maintenance
20221586B 117
Autopilot Control Unit
You will need a special kit for a PC to perform the programming
of the Control Unit. Order the following from Simrad:
Programming kit P/N 22088595.
Instructions are included.
Figure 5-2 Part of AP26 PCB
Figure 5-3 Part of AP27 PCB
Remove the cables and unscrew the screws that secure the back
cover. Apply a firm pull with your fingers to pull the back cover
loose from the connector pins. Then you have access to the
software download connector.
Software
download
connector
Software
download
connector

Simrad AP26 and AP27 Autopilots
118 20221586B
6 TROUBLE SHOOTING
An autopilot is a complex system. Its performance dependents
on a proper installation and a successful sea trial.
In the event of an autopilot failure, the autopilot’s numerous test
features will assist you in isolating a probable fault.
Audible and visual alarm is provided for every fault being
detected.
The audible alarm is reset by pressing any button (e.g. by
changing mode from AUTO to STANDBY). All visual alarms
will remain and alternate with the operating display until the
fault has been rectified. Refer to the table below for hints and try
to solve the problem yourself. You may also consult your nearest
Simrad dealer for assistance, if required.
Perform any repair action in the listed sequence.
Notes!
1. ‘Compass difference’, ‘Vessel off course’, and ‘Rudder limit’
warnings are automatically reset when the error is rectified.
2. – – – in a display indicates that data is missing.
6.1 Alarms
Display readout Probable fault Recommended action
System failure Alarms:
The boat is off
course
Boats heading is
outside fixed off
course limit of 20
deg. (Automatic reset
when inside limit.)
Extreme weather
conditions, too slow
speed.
1. Check steering parameters
(Rudder, Autotrim, Seastate-
filter).
2. Increase Rudder value
3. Increase boat speed, if possible,
or steer by hand.
NAV. data failure Missing or invalid
NAV data.
1. Check the Nav. Receiver/GPS
setup.
2. See Service menu Chapter 4.9.

Trouble shooting
20221586B 119
Display readout Probable fault Recommended action
Shallow water
(Only if AP25 is
part of the
system)
The depth is inside
the set limit or outside
the range.
Depth data is missing.
1. Carefully observe the actual
depth.
2. Adjust the alarm limit if not
hazardous.
3. Steer to safe depth, the alarm
will reset automatically.
4. Turn off the shallow alarm if
depth data is missing.
Compass data
missing
No data from selected
compass.
1. If more that one compass is
connected to the system, refer to
the User Setup2/Source select
menu to select a different
compass.
2. Make a source update if no
compass is available.
3. Check connections.
4. Replace compass PCB (Note: Do
not cut cables. There are screw
terminals inside).
Rudder feedback
failure (autopilot
operates on
simulated
feedback)
Rudder feedback
signal missing or
erratic
1. Check all connections.
2. Check the alignment as per the
installation instructions
3. Replace rudder feedback unit.
Rudder response
failure
No response to rudder
command
1. Check all connections
2. Check Rudder FB transmission
link.
3. Check drive unit motor/brushes.
4. Replace the Autopilot Computer
Power PCB.
Rudder too slow Excessive load on
steering gear. Air in
hydraulic system.
Insufficient drive unit
capacity.
1. Look for mechanical
obstructions at the rudder/tiller/
quadrant. Check the back drive
force.
2. Bleed the hydraulic system.
3. Replace with bigger pump unit.

Simrad AP26 and AP27 Autopilots
120 20221586B
Display readout Probable fault Recommended action
Rudder test failed Following conditions
may exist:
a) Rudder feedback
failure
b) Autopilot
Computer current
overload
c) Bypass/clutch
overload
Refer to recommended actions for
the specific probable faults.
Rudder moves in only
one direction
a) Poor connection to
one of the
solenoids
(continuously
running pump)
b) Faulty Power PCB
in autopilot
computer
a) Check the connections
b) Replace the Autopilot Computer
Power PCB
Rudder test not
completed within 2
min.
a) Poor connections
to the drive unit
b) Faulty Main PCB
in the Autopilot
Computer
c) Faulty Power PCB
in the Autopilot
Computer
a) Check connections
b) Replace the Main PCB
c) Check the Power PCB for traces
of burned transistors. – Change
Power PCB.
Rudder moves at full
speed to one side.
a) Faulty Power PCB
in Autopilot
Computer
Replace Autopilot Computer Power
PCB

Trouble shooting
20221586B 121
Display readout Probable fault Recommended action
Failure active
Control Unit
Active control unit
goes silent.
1. Press the STBY button on an
"Inactive" unit to reset.
2. Check/repair Robnet2 cable.
3. Replace the control unit PCB.
ACXX current
overload
The drive unit shut
down due to an
excessive load or a
short circuit.
1. Check the drive unit and drive unit
installation/Manual steering/
Rudder.
2. Disconnect the drive unit. If the
fault is still present, replace the
Autopilot Computer Power PCB.
Low 15 volt Internal 15 Volt
supply in Autopilot
Computer below
limit.
1. Replace Autopilot Computer Main
PCB
2. Replace Autopilot Computer
Power PCB if Mains voltage is
12V.
Bypass/clutch
overload
Clutch/bypass
current exceeds 2,5
Amps (overload or
short circuit).
1. Check actual current
2. Check voltage marking on coil
3. Check coil resistance (through
connecting wires)
Bypass/clutch
disengaged
Poor connection or
open circuit in
bypass/clutch coil
1. Check connections
2. Replace bypass/clutch if open.
3. Perform new "Rudder test".
ACXX high
temp.
Excessive
temperature in
Autopilot
Computer (>75°C),
possible long term
overload.
1. Switch off autopilot
2. Check for backload in Drive
unit/steering system.
3. Check that the autopilot computer
specifications matches Drive unit.
Memory failure
ACXX
Wrong checksum
on memory
parameters or
variables.
Autopilot
Computer will use
default values.
Perform a "Master reset" and make a
new "Dockside set-up". Switch off
and on again. If the alarm is repeated,
replace Autopilot Computer Main
PCB.

Simrad AP26 and AP27 Autopilots
122 20221586B
Display readout Probable fault Recommended action
Com. failure with
ACXX
Faulty Autopilot
Computer or poor
Robnet2 cable
connections from
the same.
1. Check Robnet2 connectors and
cable.
2. Replace Autopilot Computer Main
PCB.
Low supply
voltage
Mains voltage less
than 9 Volts
1. Verify in the System Data Menu
2. Switch autopilot off, charge
batteries
3. Check/repair battery charger
High supply
voltage
AC20/AC40 Mains
exceeds 44 V
AC10 Mains
exceeds 29 V
1. Verify in the System Data Menu
2. Switch the autopilot off
3. Check / repair battery charger

Spare parts list
20221586B 123
7 SPARE PARTS LIST
AP26 Control Unit
22087910 AP26 Control Unit
22088439 AP26 mounting kit consisting of:
22084529 Cabinet corners
22085807 Gasket
44165181 Screw 3.5x19
44165645 Screw 3.5x32
22085872 Optional mounting bracket consisting of:
44148906 Screw M4x12
22084776 Right bracket
22084784 Left bracket
22084859 Locking knob
22085880 Cradle
44163145 Locking washer for left and right
bracket
44163160 Locking washer for cradle
22087925 AP26 Front Ass’y
22087944 AP26 Back Ass’y
22087761 AP26 Board Ass'y
22084750 Protection Cover
22088181 AP26&AP27 software
AP27 Control Unit
22088090 AP27 Control Unit
22086276 AP27 Standard Mounting kit
22087795 AP27 Board Ass'y
22088181 AP26&AP27 software
22086193 Back cover
Autopilot Computers
22088108 AC10 Autopilot Computer
22088116 AC20 Autopilot Computer
22088124 AC40 Autopilot Computer
22081707 AC20 Installation accessories
22081855 AC10 Installation accessories
22081962 AC40 Installation accessories

Simrad AP26 and AP27 Autopilots
124 20221586B
22081251 AC20 Power PCB Ass'y
22081715 AC10 Power PCB Ass'y
22088694 AC40 Power PCB Ass'y
22088447 AC Main PCB Ass'y (All models)
22088462 PROM for all autopilot computers
22081434 AC10/AC20 Base plate
22082036 AC40 Base plate
22081350 Main cover
22081368 Terminal cover
RFC35 Electronic Fluxgate Compass
22081459 RFC35 Fluxgate Compass
22081442 Installation accessories consisting of:
20104972 Mounting plate (2)
44140762 Screw 3.5x25 (2)
44140770 Screw 30x9 (4)
22081376 Plug (2)
22081178 RFC35 PCB Ass'y
RC36 Rate compass
22086920 RC36 Rate Compass
22081442 Installation Accessories Consisting of:
20104972 Mounting plate (2)
44140762 Screw 3.5x25 (2)
44140770 Screw 30x9 (4)
22081376 Plug (2)
22086938 RC36 PCB Ass'y
24005647 Robnet2 Cable, 15 m with Plug
RF300 Rudder Feedback Unit
20193462 RF300 Rudder Feedback
20193470 RF300 transmission lever
20193454 RF300 transmission link
44133122 Transmission rod M5x325mm
20193624 RF300 Ball joint Ass'y (2)
Robnet2 cables
24005613 Robnet2 cable, 1 m (3’) with two plugs

Spare parts list
20221586B 125
24005621 Robnet2 cable, 5 m (16’) with two plugs
24005639 Robnet2 cable, 10 m (33’) with two plugs
24005647 Robnet2 cable 15 m (49’) with one plug
24005662 Robnet2 joiner
SimNet cables and accessories
24005829 SimNet cable 0.3 m (1’)
24005837 SimNet cable2 m (6.6’)
24005845 SimNet cable 5 m (16.6’)
24005852 SimNet cable 10 m (33’)
24005860 SimNet T-joiner
24005878 SimNet cable gland
24005886 SimNet protection plug
24005894 SimNet termination plug
24005902 SimNet power w/termination 2 m (6.6’)
24005910 SimNet power w/o termination 2 m (6.6’)
24005936 AT10 Universal NMEA0183 converter
24005944 AT15 Active Tee w/connector, IS15
24005928 SimNet cable protection cap
SimNet/NMEA2000 Adapter Cable
Tools
44139806 Extraction tool for EPROM

Simrad AP26 and AP27 Autopilots
126 20221586B
8 TECHNICAL SPECIFICATIONS
8.1 AP26 and AP27 Autopilot System
Boat size and type:..................... Up to 80 feet, Power, Displacement, Sail
Steering system types: ............... Hydraulic, Mechanical
Inter-unit connection: ................ RobNet2 network or two-wire supply/data
System ON/OFF: ....................... From control units
Supply voltage:.......................... See autopilot computers
Power consumption: .................. Dependent on system configuration
Environmental Protection:
Control Unit:..................... IP56 from front, IP43 from back.
RC36, RFC35, CDI35: ..... IP56
RF300: .............................. IP56
AC10, AC20, AC40:......... IP44
EMC protection: ........................ EN60945 : 1993, A1 : 1993
Automatic Steering control:
Rudder Drive: ................... Proportional rate or solenoid on/off
Parameter selection:.......... Automatic with manual override
Sea state control:............... Adaptive sea state filter or manual
Language selection: ................... English, Norwegian, French, Spanish, German,
Italian, Dutch, Swedish.
Electronic Interface:
Navigation interface:......... Standard (NMEA 0183)
NMEA inp./outp. ports: .... Max. 6 (see autopilot computer specifications)
NMEA input sentences:.... APA, APB, BOD, BWC, BWR, BWW, DBT,
DPT, GGA, GLL, MTW, MWV, RMA, RMB,
RMC, VHW, VLW, VTG, XTE.
NMEA output sentences:.. BWC, BWW, GLL, HDG, HDM, HDT, HSC,
RMB, RMC, RSA, VTG, XTE.
See chapter 8.14 for NMEA0183 details.
Optional output: ............... Simrad and Furuno radar display (clock/data)
NMEA2000 interface........ Via SimNet port and SimNet/NMEA2000
adapter cable

Technical specifications
20221586B 127
Heading sensors:
Standard: ........................... RC25 Rate Compass
Options:............................. RFC35 Electronic Fluxgate compass
NMEA Compass (Not AC10)
Simrad RGC50/RGC10 gyrocompasses *
* By GI51
Course Selection:....................... Rotary course dial and push button
Alarms: ...................................... Audible and visual, optional external
Alarm modes: ............................ Off course, system failures, overload
Steering modes: ......................... Standby, Non-follow up, Follow-up, Auto, Nav,
Wind
Special Turn modes: .................. Dodging, Tacking, Gybing, U-Turn
Instrument screen interface:
Instrument screen NMEA0183 messages and SimNet
MAIN (HDG+RUDDER) ROBNET2 PROPRIETARY, NMEA HDT and
HTG, SimNet
SPEED/DEPTH VHW + DBT/DPT, SimNet
APPARENT WIND MWV, SimNet
TRUE WIND/WIND
DIRECT.
MWV + VTG/RMC, SimNet
POSITION GGA/RMC/RMA, SimNet
NAV/TRACK DATA APB + VTG/RMC + GGA/RMC +
RMB/BWC, SimNet
LOG/SEA
TEMPERATURE
VLW + MTW, SimNet
Note ! Alternative messages are separated by slashes.
8.2 AP26 Control Unit
Dimensions: ............................... See Figure 8-1
Weight: ...................................... 0,5 kg (1.1 lbs)
Power consumption ................... 3 W

Simrad AP26 and AP27 Autopilots
128 20221586B
Display:
Type: ................................. Backlit LCD matrix display
Resolution: ........................ 80 x 32 pixels
Colour: ....................................... Black
Illumination: .............................. Adjustable in 10 steps
Environmental Protection:......... IP56 from front, IP43 from back.
Safe distance to compass:.......... 0.3 m (1.0 ft.)
Temperature:
Operating: ......................... 0 to +55 °C (+32 to +130 °F)
Storage: ............................. –30 to +80 °C (–22 to +176 °F)
Figure 8-1 AP26 Control Unit – dimensions
(Mounting bracket is optional equipment)

Technical specifications
20221586B 129
8.3 AP27 Control Unit
Dimensions: ............................... See Figure 8-2
Weight: ...................................... 0,57 kg (1,25 lbs)
Power consumption ................... 3 W
Display:
Type: ................................. Backlit LCD matrix display
Resolution: ........................ 80 x 32 pixels
Colour: ....................................... Black
Illumination: .............................. Adjustable in 10 steps
Environmental Protection:......... IP56.
Safe distance to compass:.......... 0.3 m (1’)
Temperature:
Operating: ......................... 0 to +55 °C (+32 to +130 °F)
Storage: ............................. –30 to +80 °C (–22 to +176 °F)
Mounting: .................................. Handheld or mounted in a fixed, bracket mount.
Cable.......................................... 7m (23’) special RobNet2 cable with air tube.
Figure 8-2 AP27 Control Unit - dimensions

Simrad AP26 and AP27 Autopilots
130 20221586B
8.4 Autopilot Computers
Dimensions: ............................... See Figure 8-3 and Figure 8-4
Weight:
AC10/AC20 ...................... 1,3 kg (2,9 lbs.)
AC40................................. 2,8 kg (6,2 lbs)
Supply voltage:
AC10................................. 10-28V DC
AC20/AC40 ...................... 10-40V DC
Reverse voltage protection ........ Yes (not AC40)
Power consumption: .................. 5 Watt (electronics)
Motor / solenoid drive:
AC10:................................ 6 A continuous, 12 A for 5 sec.
AC20:................................ 10 A continuous, 20 A for 5 sec.
AC40:................................ 20 A continuous, 40 A for 5 sec.
Heading Sensor input: ............... Composite pulse width modulated
Rudder feedback input:.............. Frequency signal, 3400 Hz., 20 Hz/deg.
Rudder feedback units: .............. RF300, LF3000
NMEA input/output ports:......... AC10:1 (one)
AC20, AC40: 2 (two)
External Alarm: ......................... Open collector
Temperature range:
Operation: ......................... 0 to +55 °C (+32 to +130 °F)
Storage: ............................. –30 to +80 °C (–22 to +176 °F)
Mounting: .................................. Bulkhead mount
Material:..................................... Anodized aluminium and black ABS cover

Technical specifications
20221586B 131
Figure 8-3 AC10/AC20 Autopilot computer - Dimensions
Figure 8-4 AC40 Autopilot computer - Dimensions

Simrad AP26 and AP27 Autopilots
132 20221586B
8.5 RC36 Rate compass
Dimensions: ............................... See Figure 8-5
Weight: ...................................... 0,9 kg (2,0 lbs)
Supply and interface:................. RobNet2
Power consumption: .................. 0,9 watts
Automatic Performance:
Calibration: ....................... Automatically activated by control head
Gain compensation: .......... Automatically adjusted continuously
Rate sensor stabilized heading output
Accuracy:................................... <1.25° (rms)
Repeatability:............................. <0.2° (rms)
Roll/Pitch:.................................. ± 35 degrees
Cable supplied: .......................... 15 m TP shielded Robnet2 cable
Temperature range:
Operation: ......................... 0 to +55 °C (+32 to + 130 °F)
Storage: ............................. –30 to +80 °C (–22 to +176 °F)
Environmental Protection:......... IP56
Mounting: .................................. Deck or bulkhead
Material:..................................... White ABS
Figure 8-5 RC36 Rate Compass - Dimensions

Technical specifications
20221586B 133
8.6 RFC35 Fluxgate compass
Dimensions: ............................... Same as RC36. See Figure 8-5
Weight: ...................................... 0,9 kg (2,0 lbs)
Supply and output:..................... Polarity independent 2-wire supply with
superimposed pulse width modulation
Automatic Performance:
Calibration: ....................... Automatically activated by control head
Gain compensation: .......... Automatically adjusted continuously
Repeatability:............................. ± 0.5 degrees
Roll/Pitch:.................................. ± 35 degrees
Accuracy:................................... ± 3 degrees after calibration
Cable supplied: .......................... 15 m TP shielded cable
Temperature range:
Operation: ......................... 0 to +55 °C (+32 to + 130 °F)
Storage: ............................. –30 to +80 °C (–22 to +176 °F)
Environmental Protection:......... IP56
Mounting: .................................. Deck or bulkhead
Material:..................................... Black ABS
8.7 RF300 Rudder Feedback
Dimensions: ............................... See Figure 8-6 and Figure 8-7.
Weight: ...................................... 0,5 kg (1,1 lbs)
Material: .................................... Arnite T06 200 PBT
Environmental Protection:......... IP56
Temperature range:
Operation: ......................... –25 to +55 °C (–13 to +130 °F)
Storage: ............................. –30 to +80 °C (–22 to + 176 °F)
Mounting: ................................. Horizontal, vertical, or upside down
Cable supplied: .......................... 10 m (33 ft.) twisted pair shielded cable
Rudder angle:............................. ± 90 degrees
Output signal: ............................ Polarity independent two wire frequency signal
Frequency resolution: ....... Centre: 3400 Hz, 20 Hz/degree of change
Linearity:........................... ± 3 degrees up to 45 degrees of rudder

Simrad AP26 and AP27 Autopilots
134 20221586B
Transmission link: ..................... Stainless 350mm (13.8") with 2 ball joints.
Ball joint stud for rudder arm requires 4.2mm
diameter hole and 5mm tap.
Figure 8-6 RF300 Rudder Feedback - Dimensions
Figure 8-7 Transmission link - Dimensions

Technical specifications
20221586B 135
8.8 R3000X Remote Control
Dimensions: .... See Figure 8-8
Weight:............ 0,4 kg (0,9 lbs)
Material:.......... Epoxy coated aluminium
Protection ........ IP56
Safe distance to compass: 0.15 m (0.5 ft.)
Temperature range:
Operation: ...–25 to +55 °C (–13 to +130 °F)
Storage: .......–30 to +80 °C (–22 to + 176 °F)
Cable length: ... 7 m, shielded
Mounting bracket:....... Supplied
Figure 8-8 R3000X - Dimensions
8.9 JS10 Joystick
Figure 8-9
JS10 Joystick
Dimensions
Dimensions: ...............................................See Figure 8-9
Weight: .......................................................0.5 kg (1.1 lbs.)
Environmental Protection:
Joystick.............................................................. IP66
Terminals........................................................... IP20
Safe distance to compass:.......................... 0.15 m (0.5 ft.)
Shock resistance (according to MIL 202 B method 202
A):
1/2 sinusoid 11 ms:
No damage or disassembling at 100 g
Vibration resistance (according to IEC 68-2-6):
16 g with frequency range from 40 to 500 Hz and
maximum shifting 0,75 mm (peak -to- peak)
Temperature range:
Operation: .....................–25 to +70°C (–13 to +158°F)
Storage: ........................ –40 to +70°C (–40 to +158°F)
Mounting: ..................................................... Panel-mount
Cable: ..................................................... 10 meters (33 ft.)

Simrad AP26 and AP27 Autopilots
136 20221586B
8.10 FU25 Steering Lever
Dimensions: ............................... See Figure 8-10
Handle can be mounted pointing upwards or downwards.
Weight: ...................................... 1.2 kg (2.6 lbs.) including cable
Material:..................................... Polyacetal (POM)
Environmental Protection:......... IP56
Power consumption: ................. 3W
Safe distance to compass:.......... 0.15 m (0.5 ft.)
Temperature:
Operating: ......................... –25 to +55°C (–13 to +130°F)
Storage: ............................. –30 to +80°C (–22 to +176°F)
Cable:......................................... 10 m (33 ft.) cable with three twisted pairs of
wire run through a cable gland.
(cable gland can alternatively be mounted on back cover; see Figure 8-10)
Max. rudder command angle:.... Equal to physical stop minus 2°
Autopilot interface:.................... Via proprietary RobNet2™ bus
Accuracy:................................... ±1° within ±40° of mid-position at 25°C
Figure 8-10 FU25 Steering Lever Dimensions

Technical specifications
20221586B 137
8.11 IS15 Rudder
Dimensions: ............................... See Figure 8-11
Weight: ...................................... 225 grams
Environmental Protection:......... IP56 from front, IP44 from rear
Power requirement: .................. 12/24 VDC, 70 mA (100 mA max with max
lighting)
Safe distance to compass:.......... 0.15 m (0.5 ft.)
Temperature: Operating: ........ –0 to +55°C (+32 to +130°F)
Storage: ............................. –30 to +80°C (–22 to +176°F)
Scale: ......................................... Full deflection adjustable for any h.o. angle
between ±20° and ±45°. Divisions: Marking per
each 1/8 of full deflection. Accuracy: ±2° of full
scale deflection.
Heading Display (Digital): ........ 0 to 359°
Heading Resolution: .................. 1°
Heading reference:..................... True or Magnetic North
Heading Lock: ........................... Course and direction to steer on digital display
Course to Steer: ......................... Settable on digital display
Display Backlighting:................ Green color with seven levels plus Off
Display Backlighting Control:... Two independent lighting banks or individual
settings (bank 0)
Inputs: Rudder Angle: ............ 2-wire p.w.m.
NMEA 0183, RSA
Roblink (IS15 system)
Compass heading: ...... NMEA 0183, HDG, HDM, HDT
Outputs: Rudder Angle:............ NMEA 0183, RSA, 5 Hz*
Compass heading: ...... NMEA 0183, HDG
Other:.......................... NMEA 0183 sentences according to IS15
NMEA in/out table.

Simrad AP26 and AP27 Autopilots
138 20221586B
Figure 8-11 IS15 Rudder - Dimensions
8.12 SimNet
Maximum number of products connected in a network:...................................... 50
Maximum cable length:............. .........................................................120 m (400’)
Bit rate of the bus: ..................... .................................................... 250 kbit/second
Maximum DC current through a single SimNet plug ......................................... 5A
SimNet power supply: ............... ................................................................. 12VDC
Maximum drop cable length:..... ...............................................................6 m (20’)
Maximum total length of all drop cables (accumulated):......................60 m (200’)
Environmental protection: Cable and plug/connector system.......................... IP66
Temperature:.............................. ........................................................ 70°C (158°F)

Technical specifications
20221586B 139
8.13 IP protection
Each part of a Simrad autopilot system has a two digits IP
protection code.
The IP rating is a method to classify the degree of protection
against solid objects, water ingress and impact afforded by
electrical equipment and enclosures. The system is recognised in
most European countries and is set out in a number of British
and European standards.
The first code number describes the protection against solid
objects, and the second number describes the protection against
liquids.
FIRST NUMBER
Protection against solid
objects
SECOND NUMBER
Protection against liquids
IP TESTS IP TESTS
0 No protection 0 No protection
1 Protection against solid
objects up to 50 mm, eg.
accidental touch by hands.
1 Protected against vertically falling
drops of water (eg. condensation).
2 Protection against solid
objects up to 12 mm, eg.
fingers.
2 Protected against direct sprays of water
up to 15° from the vertical.
3 Protection against solid
objects over 2.5 mm (tools +
wires)
3 Protected against sprays to 60° from the
vertical.
4 Protection against solid
objects over 1 mm (tools +
wires + small wires)
4 Protected against water sprayed from
any direction.
5 Protection against dust -
limited ingress (no harmful
deposit)
5 Protected against low pressure jets of
water from all directions - limited
ingress permitted.
6 Totally protected against
dust
6 Protected against strong jets of water,
eg. for use on shipdecks - limited
ingress permitted.
7 Protected against the effects of
immersion between 15 cm and 1 m.
8 Protected against long periods of
immersion under pressure.

Simrad AP26 and AP27 Autopilots
140 20221586B
8.14 NMEA and SimNet messages
NMEA0183 messages and data overview for AC10, AC20, AC40
Message ident.
HDG
HDM
HDT
RSA
MWV 2)
VPW 2)
DBT
DPT
MTW
VHW 2)
VLW
VBW
GGA
GLL
RMA
Data source: (n/p/h=nav/pos/heading source, c=calculated): h h h c ppp
Accept. cond. (N=nav. flag, P= pos. flag): PPP
Status flag P* P P
Compass_Data Compass heading, M 1) 21
Compass heading, T 3
Rudder_Data Rudder angle 1
Wind_Data Apparent wind angle 1) 1
Apparent wind speed
1)
1
True wind angle 1
True wind speed 1
Velocity made good to windward
1)3)
1
Depth_Data Depth ref transducer 1 2
Transducer-Keel Offset 1
Speed_Temp_Data Speed through water 1) 12
Log distance and trip 1
Water temperature 1
Gps_Data Present position Lat, Lon 1) 412
COG, T 1
COG, M
1)
Magnetic variation 1 5
SOG
1)
1
Nav_Data To-wp position 1)
To-wp ident.
Bearing wp-wp, T
Bearing wp-wp, M
1)
Bearing pos-wp, T
Bearing pos-wp, M
1)
Distance pos-wp
1)
XTE
1)
Waypoint closure velocity
1)
Steering_contr1 Heading steering cmd, T / M
AC NMEA-1 Rx: xxxxxxxxxxx
AC NMEA-2 Rx: x x x xxxxxxxxxxx
AC NMEA-1 TX: Transmission interval in sec.-> 1 1 1 1 2
AC NMEA-2 TX: .1* 1 .1* .2
1. Information required to operate in WINDN mode
2. Recommended sentences for operating in WINDN mode
3. If the VPW sentence is not available, the autopilot will calculate the
VMG internally.

Technical Specifications
20221586B 141
Remarks:
RMC 2)
VTG 2)
APB 2)
BOD
BWW
BWC
BWR
RMB 2)
XTE
HSC
ppnn n n nnn c
P P* N N N N* N* N N * Pos flag or NMEA version 3.01
P N N N N/P=nav/pos data warning, *DGPS if flag=2
ddddx
dddd
ddddx
dddd
dddd
dddd
dddd
dddd
dddd
dddd
d
dddd
3 ddddx
23 ddddx
1 ddddx
64 3 2 x
23 ddddx
213 x
651324 ddddx
321 ddddx
321 ddddx
4 213 ddddx
4 213* ddddx* Only if Magnetic variation is present
213 ddddx
3 12 ddddx
1 ddddx
x
xxxx x x xxx
xxxx x x xxx
2 2 10 10 2 5 10
10
*
HDG
out
if
magn. sensor,
HDT
out
if
true sensor
Indata use
A
P16
A
P25
A
P27
OutACXX
A
P26

Simrad AP26 and AP27 Autopilots
142 20221586B
SimNet/NMEA2000 messages and data overview
Message ident.
127250
127245
130306
128267
130310
128259
128275
65408*
129025
129029
129026
130577
128259
127250
HC
Wa / Wt
D
WaT
WaS
Dl
Dl
PPPPPP
Compass Data Compass heading 1) 1
Rudder Data Rudder angle
Wind Data Apparent wind angle 1) 1
Apparent wind speed
1)
1
True wind angle 1
True wind speed 1
Depth Data Depth ref transducer 1
Transducer-Keel Offset 1
Speed Data Speed through water 1) 1
Distance Log Data Log distance and trip 1 1
Temperature Data Water temperature 1
Position Data Present position Lat, Lon 1) 21
COG
1)
21
Magnetic variation 1
SOG
1)
321
Navigation Data To-wp position 1)
To-wp ident.
Bearing wp-wp
1)
Bearing pos-wp
1)
Distance pos-wp
1)
XTE
1)
Waypoint closure velocity
1)
Steering Data Heading steering cmd, T / M
APXX Gateway x* x x*x*x*x*x* x* x*
Additional PGNs supported
Simrad Propriatory
61184 Parameter Command
65408 Parameter Reply
130840 DataUserGroup Configuration
65323 DataUserGroup Request
NMEA2000
59392 ISO acknowledge
60928 ISO Adress claim
Data source:
N=nav, P=pos, H=heading, D=depth, Wa=Wind apparent,
Wt=Wind True, WaS=Water Speed/ WaT=Water temp,
Dl=Distance log, C=Calculated):
1) Information required to operate in WINDN mode.

Technical Specifications
20221586B 143
Remarks:
129283
129284
65357*
65408*
127237
* SimNet proprietary
NN N C
dd dx
dd dx
dd dx
dd dx
dd dx
dd dx
d d d x In INFO views Depth+Offset is displayed if
x offset is present
dd dx
dx
dd dx
dd dx
dd dx
x
dd dx
1x
1dddx
1dddx
1dddx
1dddx
1dddx
1dddx
x
x* x* x* x
*O
nly transmitted i
f
NMEA183
/
R
C
36
/
RF
C
35 is source
Indata use
A
P16
A
P25
A
P26
Out Gateway

Simrad AP26 and AP27 Autopilots
144 20221586B
9 GLOSSARY
Apparent wind – The speed and direction from which the wind
appears to blow with reference to the bow when the boat is
moving (also called relative wind).
Arrival alarm – An alarm signal issued by a GPS/chartplotter
that indicates arrival at or at a predetermined distance from a
waypoint. (see arrival circle).
Arrival circle – An artificial boundary placed around the
destination waypoint of the present navigation leg, the entering
of which will signal an arrival alarm.
Bearing – The horizontal direction of one terrestrial point from
another, expressed as the angular distance from a reference
direction, usually measured from 000° at the reference direction
clockwise through 359°.
BPW – Bearing to a specified waypoint from present position.
BWW – Bearing waypoint to waypoint - Bearing angle of the
line between the “TO” and the “FROM” waypoint, calculated at
the “FROM” waypoint for any two arbitrary waypoints.
COG - Course Over Ground - The actual direction of progress
of a vessel, between two points, with respect to the surface of the
earth, The vessel’s heading may differ from the course over
ground due to the effects of wind, tide, currents.
GPS - Global Positioning System - This system is based on
satellites in fixed orbits, circling the earth at an altitude of
approximately 20,200 km. The system will provide the user with
24 hour a day all weather position coverage, with an accuracy of
5 to 30 meters.
Magnetic bearing – Bearing relative to magnetic north;
compass bearing corrected for deviation.
Magnetic deviation – A local magnetic field onboard a vessel.
Can interfere with the earth’s magnetic field and create compass
readings that may deviate from the actual magnetic heading. The
deviation will vary with the actual heading.
Magnetic heading – heading relative to magnetic north.

Glossary
20221586B 145
Magnetic variation - A magnetic compass points to the
magnetic north pole. The difference between this direction and
true north is the magnetic variation. The amount and direction of
this variation is dependent upon where on the earth you are
located.
NMEA0183 - A format (language) designed to permit
communication between various types of marine electronic
equipment. In essence this is a two-wire shielded, serial data
link, permitting one device to talk while other devices listen.
Numerous different sentences are available, permitting
communication between various different devices.
NMEA2000 – A modern serial-data communications network to
interconnect marine electronic equipment onboard vessels.
Equipment designed to this standard will have the ability to
share data, including commands and status, with other
compatible equipment over a single signalling channel.
Product ID – A number, suffix, acronym or term that can
identify a product.
Product name – The name of a Simrad product known from
sales and other literature.
Route - A stored sequence of waypoints. These waypoints will
be listed in the order in which you desire to follow them.
SimNet Source – Any product or device directly connected to
SimNet or NMEA2000, or interfaced to SimNet via NMEA0183
or Robnet2.
Simrad Group – A number of Simrad products that are
selecting and sharing the same data sources via the SimNet
network.
Simrad Class 1 products – Simrad products that are SimNet
controllers, i.e. they have an appropriate display and routines
that can set up and control the SimNet.
Simrad Class 2 products – Simrad products that do not contain
a SimNet controller. When connected to SimNet they will
automatically pick the first available source on SimNet and lock
on to that. When a Class 1 product is added to the Simrad Group,
Class 2 products will automatically subordinate themselves to
the Class 1 source selection.
SOG - Speed over ground is the actual speed of the vessel
relative to the ocean floor.

Simrad AP26 and AP27 Autopilots
146 20221586B
True bearing – Bearing relative to true north; compass bearing
corrected for compass error.
True heading – Heading relative to true north (the meridian).
Waypoint - A discrete point, stored in a navigator, located on
the surface of the earth. Normally this point will be identified by
Lat/Lon coordinates although in some systems it may be shown
by T.D.'s.
XTE - Cross Track Error - Used to identify a vessels position
relative to a straight line drawn between two waypoints. The
amount the vessel is off to the left or to the right of this line is
known as the track. It is normally displayed in thousands of a
nautical mile, equal to 6 ft or 1.85 m.

Index
20221586B 147
10 INDEX
A
alarm
external, 79
listing, 118
apparent wind, 32, 41, 144
arrival circle, 30
auto setup, 83
automatic tuning, 102
autopilot computer
installation, 55
maintenance, 115
specifications, 130
autotrim, 107
B
backlight, 39
boat type, 88
C
cable
Robnet, 63
specifications, 55
compass
calibration, 98
deviation, 99
installation, 66
maintenance, 115
offset, 100
selection, 43
contrast, 39
control unit
front panel, 16
installation, 62
maintenance, 115
specifications, 127, 129
counter rudder, 45, 102
setting, 106
course adjust, 44
Course knob icon, 39
course to steer, 28
cross track error, 28
D
depth offset, 102
depth source, 43
display units, 95
dockside settings, 87
Dodging, 26
drive engage, 91
Drive out, 90
drive unit
hydraulic pumps, 58
installation, 58
linear drive, 58
maintenance, 115
reversible pump, 60
solenoid valve, 61
stern drive, 18
voltage, 88
F
fluxgate compass
specifications, 133
follow-up steering, 19
G
grounding, 56
H
heading catch, 23
I
illumination. See backlight
Init NAV, 104
instance number, 111
instrument
installation, 77
menu, 46
screen, 46
selection, 48
instrument select, 42
interface setting, 95

Simrad AP26 and AP27 Autopilots
148 20221586B
interfacing, 69
IP protection code, 139
L
language, 87
layline, 37, 41
linear feedback
installation, 79
lock function, 38
log source, 43
loopback, 110
M
master reset, 112
minimum rudder, 97
minimum wind angle, 93
modes of operation
standby, 17
mounting
bracket, 63
panel, 62
multiple station, 38
N
Nav source, 43
navigating, 27
NFU Steering lever, 14
NMEA compass, 76
NMEA data, 108
NMEA input/output, 75
NMEA messages, 140
NMEA port test, 110
non-follow-up steering, 20
P
parameter
view, 104
parameters, 104
position source, 43
product ID, 110
R
racing, 40, 92
radar connection, 77
radar output, 95
recall autotuned, 107
remote control
installation, 68
specifications, 135
response, 45
Rhumb line, 104
rudder, 45, 102
setting, 106
Rudder deadband, 92
rudder feedback
installation, 53
maintenance, 115
specifications, 133
rudder feedback calibration,
89
rudder limit, 107
rudder test, 90
rudder zero, 97
S
sea trial, 96
seastate filter, 44
service, 107
SimNet, 9, 11, 69
SimNet backlight, 111
SimNet gateway, 111
SimNet messages, 142
SimNet reset, 111
SimNet setup, 110
Simrad group, 110
software program exchange,
117
software setup, 83
source auto update, 42
source manually update, 42
source select, 42
specifications, 126
steering lever
installation, 68
steering parameters selection
automatic, 23
manual, 25

Index
20221586B 149
system
basic, 10
components, 10
specifications, 126
system data, 108
T
tack angle, 93
tack time, 33, 94
tacking
in auto mode, 27
in wind mode, 33
transition speed, 23, 103
True bearing, 146
True heading, 146
true wind, 32, 41
U
user setup menu, 39
user training, 113
U-Turn, 25
V
VMG, 37, 41
W
water speed source, 43
water temperature source, 43
wind
offset, 101
wind angle source, 43
wind auto, 40
wind calculated source, 43
wind damping, 101
wind response, 45
wind setup, 40, 92
wind shift, 32, 94
wind shift alarm, 94
wind vane steering, 32

Simrad AP26 and AP27 Autopilots
150 20221586B
This page is intentionally left blank.
