Skidata EXLCD400 Parking column using RFID User Manual Cover ColumnSPT400 1 0 en
Skidata AG Parking column using RFID Cover ColumnSPT400 1 0 en
Skidata >
User Manual

Manual and operational description
Parking Column EN/EX EMPTY 400
Parking Column ENTRY LCD 400
Parking Column ENTRY GR MON 400
Parking Column EXIT LCD 400
Parking Column EXIT GR MON 400
Parking Column EN/EX EMPTY 400 - US
Parking Column ENTRY LCD 400 - US
Parking Column ENTRY GR MON 400 - US
Parking Column EXIT LCD 400 - US
Parking Column EXIT GR MON 400 - US
Parking Columns System SPT 400

Manual and operational description Parking Columns System SPT 400
Page 2 © SKIDATA AG, February 2004
SKIDATA AG
Technical Documentation
Untersbergstrasse 40
A-5083 Gartenau
Telephone +43 6246 888-0,
Telefax +43 6246 888-7
Internet http://www.skidata.com
e-mail docu@skidata.com
Copyright
© 2004 by SKIDATA AG. All rights reserved. All information in the
following document is protected by copyright law. No part of this
document may be reproduced without the written consent of SKI-
DATA AG. SKIDATA AG reserves the right to make any changes
of specification and other information in this document without
further notice.
Please note
During the compilation of this Technical Documentation, great
care has been taken to ensure the accuracy of the information
contained in it. However, despite our constant effort to ensure the
highest degree of accuracy and comprehensiveness possible,
the information provided cannot be guaranteed to be absolutely
error-free.
Trademarks
This documentation may contain representations of registered
product or service trademarks owned by SKIDATA AG or third
parties, as well as references to proprietary know-how protected
by copyright laws or other legal provisions. In any case the intel-
lectual property rights remain exclusively with their respective
owners.
Declaration of Conformity
The Parking Columns of System SPT 400 except the model ver-
sions where the name ends with the characters “-US” have been
developed, designed and manufactured in accordance with the
following EU directive:
R&TTE (99/5/EC)
0408
Version February 2004

Parking Columns System SPT 400 Manual and operational description
© SKIDATA AG, February 2004 Page 3
Important : The FCC-specific notes apply only to the model ver-
sions where the name ends with the characters “-US”.
FCC 15.19:
This device complies with Part 15 of the FCC Rules. Operation
is subject to the following two conditions: (1) this device may not
cause harmful interference, and (2) this device must accept any
interference received, including interference that may cause un-
desired operation.
FCC 15.21:
IMPORTANT: Any changes to or modifications of Parking Col-
umns of System SPT 400 unless expressly approved by SKI-
DATA AG, may void the user's authority to operate this device.

Manual and operational description Parking Columns System SPT 400
Page 4 © SKIDATA AG, February 2004
Parking Columns System SPT 400 1
Document Management – Version Table
Tab. 1: Document Version Table for Installation & Maintenance Instructions
Section Document Pages Version Date
1 Parking Columns System SPT 400 251.0 2004-02-11

Parking Column 1
1
Parking Columns
System SPT 400
Version 1.0
25 pages
Copyright 2004 by SKIDATA AG

1 Parking Column
1.1 Contents
Page 2 © SKIDATA AG, Version 1.0
1.1 Contents
1.1 Contents 2
1.2 Parking Column for System SPT 400 3
1.2.1 Installation 4
1.2.2 Power supply 7
1.2.3 Stripping connection wires 9
1.2.4 Cross-sectional area of cable leads 11
1.2.5 Connection terminals for control lead and
intercom 11
1.2.6 Connection loop detector 13
1.2.7 Connection SIO, Arcnet 14
1.2.8 Changing the fuse 16
1.2.9 Earthing connection 17
1.2.10 Surge protection for external devices 18
1.2.11 Weather protection 18
1.2.12 MANUAL OPEN/CLOSE switch 20
1.2.13 Installing devices in the front panel 21
1.2.14 Opening the front panel 23
1.2.15 Closing the Parking Column 25

Parking Column 1
Parking Column for System SPT 400 1.2
© SKIDATA AG, Version 1.0 Page 3
1.2 Parking Column for System
SPT 400
General Warning:
PCBs are sensitive to electrostatic discharge and should be
handled with great care to avoid damage to the circuitry.
Avoid touching the boards unnecessarily. Before mounting the
column, check the entire device for possible transport damage.
Before accessing electronical or mechanical parts, the entire
deviced must be disconnected from the mains.
Fig. 1:
Parking Columns for System SPT
400

1 Parking Column
1.2 Parking Column for System SPT 400
Page 4 © SKIDATA AG, Version 1.0
Ensure the following before proceeding with the installation:
The concrete foundation must be exactly horizontal. Installing
the device on an uneven surface may cause the chassis to
become warped or damaged. If levelling of the surface is not
possible, the parking column must be level-adjusted, e.g. by
using additional hexagon nuts (see Fig. Hexagon nuts as
spacers); in that case the threaded rods must be allowed to
protrude further.
The surface of the concrete foundation must be even and ex-
actly horizontal
Cable protection tubes should be cut approx. 2 cm above the
concrete surface
1.2.1 Installation
The threaded rods should protrude approx. 50 mm from the
concrete surface
The fastening tension of the hexagon nuts must not exceed
20 Nm
Use washers with large outer diameter (∅ = 30 mm, as per
UN 737 standard)
The parking column must be aligned exactly horizontally

Parking Column 1
Parking Column for System SPT 400 1.2
© SKIDATA AG, Version 1.0 Page 5
Fig. 2: Column installation

1 Parking Column
1.2 Parking Column for System SPT 400
Page 6 © SKIDATA AG, Version 1.0
Installation on non-level surfaces (applies only in exceptional cir-
cumstances)
All three No. 2 washers must be absolutely level (use a spirit
level if necessary).
Important:
Avoid drilling dust from getting into the device during installa-
tion, as electrostatically charged dust may cause damage to
the electronic assemblies inside the column.
Fig. 3:
Hexagon nuts as spacers

Parking Column 1
Parking Column for System SPT 400 1.2
© SKIDATA AG, Version 1.0 Page 7
1.2.2 Power supply
Two types of Parking Columns are available : 120 V und 230 V
Important notes:
Electric installation and maintenance work may be carried
out only by appropriately qualified, licensed electrical
technicians.
Mains connections must be hardwired.
Please ensure full compliance with all applicable national
and international rules and regulations concerning elec-
tric connections, and all applicable safety regulations.
When all electric lines are properly connected, replace and fasten
the cover.

1 Parking Column
1.2 Parking Column for System SPT 400
Page 8 © SKIDATA AG, Version 1.0
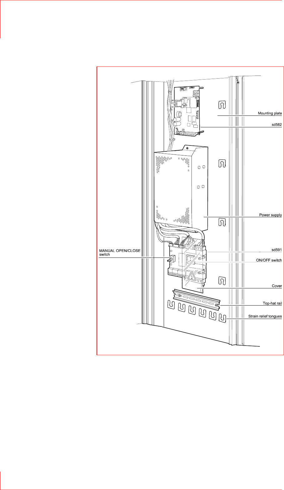
Fig. 4:
Column interior:
Mounting plate configuration

Parking Column 1
Parking Column for System SPT 400 1.2
© SKIDATA AG, Version 1.0 Page 9
Ensure the following before proceeding with electrical con-
nections:
Check for proper mains supply voltage (120 V or 230 VAC)
Mains connections must comply with national standards and
guidelines
When using flexible stranded wires, all filaments must be
placed inside the terminal clamps (use wire-end sleeves, if
necessary)
The mains supply line must be fused in accordance with ap-
plicable regulations (6 A fuse recommended)
Check the isolation resistance of the cables to make sure it
exceeds 0.5 MΩ
Fix cables to mounting plate by way of tension relieve tongues
and cable ties
Check the network cables to ensure the proper loop imped-
ance
Important: Always make sure that the device is completely
disconnected from the mains while fitting electric wiring.
1.2.3 Stripping connection wires
To avoid danger of short circuit with wires or chassis parts, wires
should not be stripped by more than 6 mm (recommended
value). Uninsulated wire sections must be inserted completely
into the connection terminals.
When attaching connecting wires, the insulation should cover the
wire up to the point where it connects to the terminal.
Fig. 5:
Correct connector wiring

1 Parking Column
1.2 Parking Column for System SPT 400
Page 10 © SKIDATA AG, Version 1.0
** see 1.2.4 Section Cross-sectional area of cable leads
Fig. 6:
Power supply on sd591

Parking Column 1
Parking Column for System SPT 400 1.2
© SKIDATA AG, Version 1.0 Page 11
Caution:
The OUT terminal on connection control board sd591 is not
fused and cannot be deactivated by way of the on-board mains
switch.
Note:
Electrical leads and wires must comply wirth applicable na-
tional guidelines concerning
– mechanical stress
– tension resistance
– cross-sectional area with respect to voltage drop
– current carrying capacity and short-circuit rating
To install electrical fittings, you must first remove the cover of
control board sd591
1.2.4 Cross-sectional area of cable leads
1.2.5 Connection terminals for control lead and
intercom
Tab. 1: Cable leads – Technical characteristics
wires Max. torque at terminals Rigid
Solid
Flexible
Twisted
* 0,22 – 0,25 Nm 0,14 – 1,5 mm² 0,14 – 1,5 mm²
** 0,5 – 0,6 Nm 0,20 – 2,5 mm² 0,20 – 2,5 mm²
*** 0,22–0,25 Nm 0,14 – 1,5 mm² 0,14 – 1,0 mm²

1 Parking Column
1.2 Parking Column for System SPT 400
Page 12 © SKIDATA AG, Version 1.0
* see Section 1.2.4 Cross-sectional area of cable leads
Fig. 7:
Connection terminals for control
lead and intercom

Parking Column 1
Parking Column for System SPT 400 1.2
© SKIDATA AG, Version 1.0 Page 13
1.2.6 Connection loop detector
Fig. 8:
Connection terminals for loop
detector

1 Parking Column
1.2 Parking Column for System SPT 400
Page 14 © SKIDATA AG, Version 1.0
1.2.7 Connection SIO, Arcnet
*** see Section 1.2.2 Power supply
Fig. 9: Connections on control board sd582

Parking Column 1
Parking Column for System SPT 400 1.2
© SKIDATA AG, Version 1.0 Page 15
Note on wire twisting:
When connecting Arcnet and loop cables, make sure that the
wires are twisted up to the connection terminal (approx. 5
twists per 10 cm).
Shield connections must be as short as possible and insulated
against contact with the chassis wall by means of a protective
tube.
Fig. 10:
sd582 – I/O circuit connections

1 Parking Column
1.2 Parking Column for System SPT 400
Page 16 © SKIDATA AG, Version 1.0
1.2.8 Changing the fuse
Important Note:
A blown fuse indicates a device defect that requires the atten-
tion of a trained service technician. The fuse must be re-
placed by a new one of the same type and technical
characteristics (see below). Before replacing the fuse, the
lead in the power distributor must be deactivated (i.e., discon-
nected from the mains).
Fuse characteristics:
120 VAC = 5 A–T
230 VAC = 2.5 A–T
Model: Schurter
Type: SPT 5x20
Time lag: T
High breaking capacity: H
Ceramic tube

Parking Column 1
Parking Column for System SPT 400 1.2
© SKIDATA AG, Version 1.0 Page 17
1.2.9 Earthing connection
The protective earth conductor of the lead must be attached to
the central earthing point by way of a ring lug.
After installation, ensure proper metal contact of all aluminium
parts, i.e. the cable lug and/or metal part (check by measur-
ing)
If necessary, mill off any aluminium parts at the contact point
to ensure proper conductivity (the resistance of the earth con-
ductor must not exceed 0.1 ȍ)
After connecting the earth conductor, proceed as follows:
Check the strain relief clamps for proper fit
Check to make sure the cables leading to the connection ter-
minals are properly placed in accordance with applicable
norms
Perform a visual check of the insulation to ensure it is in
proper condition
Fig. 11:
Earthing point
Fig. 12:
Protective earth
conductor

1 Parking Column
1.2 Parking Column for System SPT 400
Page 18 © SKIDATA AG, Version 1.0
Slightly tug at the wires to check whether the terminal screws
are fastened properly
Check to ensure the connectors are plugged in properly
Reattach the cover of sd591
Perform a visual check and manual inspection of the earthing
connection
Check to make sure that none of the wires are strained
Note:
If the Parking Column is powered up at temperatures below
2 °C, the control assembly will not start up to prevent possible
damage. In that case, the built-in temperature control system
will activate the heater (make sure that all doors are closed to
allow for the device to warm up as quickly as possible).
1.2.10 Surge protection for external devices
In case additional devices (e.g., relays, controls, etc.) are in-
stalled inside the chassis (on the top-hat rail), any relay contacts
and coil connections must be protected against transient voltage
by means of appropriate components (e.g., diodes, RC elements,
varistors, etc).
1.2.11 Weather protection
Important:
Opening the device while it is exposed to rain or snowfall may
cause damage to the components inside.
To avoid moisture damage when performing installation work,
you can protect the open device against moisture by means of
an umbrella (see illustration below).
Before opening the device during or shortly after a rain or
snow shower, use a cloth to wipe down the top cover and up-
per edge of the front panel to avoid moisture getting inside
while opening the device.

Parking Column 1
Parking Column for System SPT 400 1.2
© SKIDATA AG, Version 1.0 Page 19
Fig. 13:
Using an umbrella for moisture
protection when performing main-
tenance work
Fig. 14:
Column top – Detail: umbrella
holding frame

1 Parking Column
1.2 Parking Column for System SPT 400
Page 20 © SKIDATA AG, Version 1.0
1.2.12 MANUAL OPEN/CLOSE switch
Switch positions
Position 0: Normal operation
Position 1: Keep CLOSED
Position 2: Keep OPEN
Single gate passage
Briefly set the switch to position 2; after the barrier opens, set
it back to the 0 position
If no vehicle passes through the gate, the barrier will close
automatically after approximately ten seconds
Fig. 15:
OPEN/CLOSE switch on sd591

Parking Column 1
Parking Column for System SPT 400 1.2
© SKIDATA AG, Version 1.0 Page 21
1.2.13 Installing devices in the front panel
Fig. 16:
Installing devices in the front
panel
Fig. 17:
Installing devices in the front
panel – inner side – Top view

1 Parking Column
1.2 Parking Column for System SPT 400
Page 22 © SKIDATA AG, Version 1.0
Important: Devices and cables intended for subsequent in-
stallation must bear a CE label (EU countries) or UL/CSA la-
bel (USA; Canada) and must comply with all national and
international standards and guidelines. Installation of such
components may only be performed by qualified electricians.
CAUTION:
When installing devices in the front panel, ensure a minimum
clearance of 5 cm above the fan/heater (see illustration).
The fan/heater must never be covered to avoid the danger
of fire.
To avoid damage to the device, make sure that the fastening
screws of the mounting plate are not screwed in too tightly
(max. torque 0.5 Nm).
When cutting out the metal plate, make sure it is not warped,
as this may cause water to leak into the device.
After installing the desired device(s), check the chassis for
tightness against water and snow.

Parking Column 1
Parking Column for System SPT 400 1.2
© SKIDATA AG, Version 1.0 Page 23
1.2.14 Opening the front panel
To open the front panel, open the column door and pull the lock-
ing lever on the inside of the chassis wall forward (see illustra-
tion).

1 Parking Column
1.2 Parking Column for System SPT 400
Page 24 © SKIDATA AG, Version 1.0
Fig. 1: Unlocking lever

Parking Column 1
Parking Column for System SPT 400 1.2
© SKIDATA AG, Version 1.0 Page 25
1.2.15 Closing the Parking Column
Close the top cover and the front panel
After locking the column door, slide the dust cover back over
the lock
Important:
If the front panel is not closed tightly, water or snow may get
inside the device, causing damage to the electronic assem-
blies.
After closing the front panel, pull at it slightly to make sure it is
properly closed and locked shut.
Fig. 18:
Closing the column top section