Smart Technologies and Investment GTOF3100 GTO ACCESS WIRELESS ESTATE INTERCOM User Manual
Smart Technologies & Investment Ltd GTO ACCESS WIRELESS ESTATE INTERCOM
Contents
- 1. User manual
- 2. user manual
user manual

rev - 12/01/10
Moving Gate
Area
Driveway
10'
10'
10'
10'
NEVER INSTALL
any control device
within gray area
NEVER install the keypad portion of this
system where a person can reach through
the gate to activate it, or where a person can
touch the gate while activating the keypad.
The recommended minimum distance
between the gate and keypad is 10 ft.
©2010 Gates That Open, LLC
Printed in China for GTO
Wireless Estate Intercom
Installation Manual
Kit Includes:
A. Keypad
B. Keypad Cover
C. Jumper (required for hard-wired installation)
D. Keypad Battery Cover
E. Base Unit
F. Base Unit Rechargeable Battery
G. Transformer
H. Screws for mounting Keypad Cover
How it Works:
A visitor without an entry code presses the CALL button on
the keypad. The base (indoor) unit and the keypad will ring.
A user at the base (indoor) unit answers the call by pressing
the PUSH TO ANSWER/TALK button. The user at the base
unit then presses the GRANT PERMISSION button to allow
the visitor to operate the gate. The keypad’s GRANTED
light comes on, indicating that the visitor can now push any
number key on the keypad to open the gate.
Visitors with access codes simply use their code to operate
the gate. Temporary codes can be programmed to expire
within a set number of days.
WIRELESS
AC
E
F
G
H
D
B
PROFESSIONAL RESIDENTIAL
ACCESS
SYSTEMS
WARNING
GTO–Gates That Open, LLC • 3121 Hartseld Road • Tallahassee, Florida 32303
Telephone (850) 575-0176 • Fax (850) 575-8912 • www.gtoinc.com • www.gtoaccess.com
F3100MBC

rev - 12/01/10
FCC WARNING: Changes or modications to this unit not expressly approved by the party responsible for
compliance could void the user’s authority to operate the equipment.
NOTE: This equipment has been tested and found to comply with the limits for a Class B digital device, pursuant to
Part 15 of the FCC Rules. These limits are designed to provide reasonable protection against harmful interference in
a residential installation. This equipment generates, uses and can radiate radio frequency energy and, if not installed
and used in accordance with the instructions, may cause harmful interference to radio communications.
However, there is no guarantee that interference will not occur in particular installations. If this equipment does
cause harmful interference to radio or television reception, which can be determined by turning the equipment off
and on, the user is encouraged to try to correct the interference by one or more of the following measures: • Reorient
or replace the receiver antenna. • Increase the separation between the equipment and the receiver. • Connect the
equipment into an outlet on a circuit different from that to which the receiver is connected. • Consult the dealer or an
experienced radio/TV technician for help.
Estate Intercom/Keypad Features
Keypad
•Thekeypadilluminatesandbeepsatthepressofanykey.Atnight,thekeypadwillilluminatewhentheproximitysensors
detectmotionnearthekeypadface.
•Whenavalidcodeisentered,theSTATUSlightwillblinkrapidly,thekeypadwillbeepthreetimes,andtheGRANTED
lightturnsgreen.
•Thekeypadremainsactivefor40secondsafterenteringavalidcode:pressinganykeyonthekeypadwhilethegateis
inmotionwillstopthegate;pressinganykeywhilethegateisstoppedwillcausethegatetoreversedirection.After40
seconds,thekeypadwillbeep3threetimesandgointo“idle”mode,andtheGRANTEDlightwillturnoff.
•Ifmorethan20keypressesareenteredwithoutmatchinganEntryCode,theSTATUSlightwillashrapidly,anerrortone
willsoundfor1second,andthekeypadwillgointo“lock-down”modefor40seconds.
•Ifmorethan10secondselapsebetweenkeypresses,thekeypadwillbeep3threetimesandgointo“idle”mode.
Master and Entry Codes
•Upto100EntryCodesmaybeprogrammedintothekeypad.
•TemporaryEntryCodescanbeprogrammedtoexpirewithinonetoseven(1–7)days.
•EntryCodesremainstoredinmemoryevenwhenthekeypadbatteriesgodead.
•AllEntryCodesaredeletedbypressingtheRESETbuttononthekeypad;MasterCodedefaultsto“1234.”
Base Unit
•Thebaseunitispoweredbyarechargeablebattery(included);thechargeismaintainedbythetransformer.
•Thebaseunitcanbedisconnectedfromthetransformerallowingittobemovedanywherewithinrange.
•Uptothreeadditionalbaseunitscanbeaddedtothesystem.
NOTE: The keypad, not the base station, initiates the call and operates the gate. The base station is for answering
calls and granting “permission” for the gate to be opened.
INTERCOM/KEYPAD SPECIFICATIONS
Frequency 318 MHz from keypad to gate opener
900 MHz from keypad to base station
Memory – Keypad Stores up to 100 four-digit entry codes
Power Consumption – Keypad 60 mA when relay is closed
Power Supply – Keypad Four C batteries (plus 8-24 Vdc for hard-wired installations)
Power Supply – Base Unit 9 Vdc 300 mA transformer; 3.6V Ni-MH 800 mA rechargeable battery
pack
Range from Keypad to Base Unit 500’ wireless
Range from Reypad to Gate Opener 50’ wireless 100’ wired using 16 AWG wire
Relay Output – Keypad Momentary, normally open dry contact closes for 2 seconds upon
activation
Relay Output Rating – Keypad 12 or 24 Vdc 100 mA
Wiring – Keypad Power & Relay Output 16 AWG stranded low voltage direct burial wire

1
rev - 12/01/10
Keypad and Base Unit Overview
Front Interior
Calling Light:
Turns RED when calling; turns
GREEN when call is answered.
Granted Light:
Turns GREEN when access
permission is granted.
Program Button:
Used to program Entry Codes.
Status Light:
Blinks once when any key is
pressed; provides visual feedback
when programming keypad.
3
DEF
9
WXY
6
MNO
2
0
CALL
4
GHI
7
PRS
1ABC
8
TUV
5
JKL
Presence
Sensors
123456789
ETD
+
0
-
ID SET RESET
REQUIRES 4 “C”
SIZE BATTERIES
123456789
ETD
+
0
-
ID SET RESET
REQUIRES 4 “C”
SIZE BATTERIES
Relay Output:
Used to connect the keypad to gate
opener control board (hard-wired
installations).
Power Input:
To connect keypad to gate opener power
source (hard-wired installations).
DIP Switches:
Match keypad DIP switch settings to
Entry Transmitter’s DIP switch settings.
Jumper:
OFF: Wireless mode 318 MHz enable.
ON: Relay out (hard-wired installations).
318 MHz disable.
Reset Button:
Press this button for 2 seconds to
program keypad to Master Code default
“1234” (and delete all other codes).
ID Set Button:
Used to sync additional base units with
keypad.
Battery Holder and Cover:
Use 4 “C” batteries.
Face
POWER
Keypad
Batt Low
Grant Permission
Push To Answer/Talk
End Call
DV 9V
Power Light:
GREEN: charging; RED: battery
power mode (unplugged from
transformer); Blinking RED: low
battery.
Push To Answer/Talk Button:
To answer call from keypad: press
and hold to talk; release to listen.
Grant Permission Button:
Must be pressed before the person
at the keypad can press any key to
open the gate.
End Call Button:
Terminates the call.
Keypad Battery Indicator
Light:
ON when keypad battery is low.
Power Jack:
Connect transformer to charge the
battery.
ID SET
VOLUME
POWER
OFF ON
Volume Control:
Controls volume level of speaker.
Battery Access Cover:
Rechargeable 3.6 Volt Ni-MH battery
(included).
ID Set Button:
Used to sync additional base units with
keypad.
ON/OFF Switch:
Turn OFF to conserve battery power.
Bottom
1. Install Keypad and Base Unit Batteries
Step 1: Unlock the bottom of the keypad and separate it from its cover. Remove battery cover and install four “C” batteries
(required, not included). Replace the battery cover.
Step 2: Remove the base unit battery cover using a small phillips head screwdriver. Install the rechargeable Ni-MH battery
(included). Replace battery cover.
ID SET

2
rev - 12/01/10
2. Connect the Transformer and Test Base Unit
Step 1: Find a convenient location near an AC outlet to mount or place the
base unit.
Step 2: Plug the transformer into the outlet and connect it to the base unit.
The base unit can be disconnected from the transformer for use in
another location. The battery will last approximately four (4) hours when
unplugged from the transformer. You can turn the base unit OFF to
conserve battery power, however it will not receive a signal.
Step 3: Test the base unit by pressing the CALL button on the keypad. The
base unit will ring. Charge battery for 12 hours
before using the system for
the first time.
POWER
Keypad
Batt Low
Grant Permission
Push To Answer/Talk
End Call
DV 9V
Transformer
110 Vac outlet
3. Install and Test Keypad
For wireless applications, the keypad must be in line of sight of and no more than 50 ft. away from the gate opener
receiver. Test the keypad range before permanently mounting it.
Step 1: At the gate, set the keypad DIP switches to match your
Entry Transmitter’s DIP switch settings. NOTE: If you have not
adjusted your gate opener’s Entry Transmitter from the factory
setting, see the “Personalize Transmitter Settings” section in your
gate opener’s installation manual.
Step 2: Test the keypad using the default Master Code “1234.” It
will activate the gate.
Step 3: Test the keypad range by pressing the CALL button. You
will hear the base unit ringing through the keypad speaker.
Step 4: Mount the keypad cover using the screws provided.
NOTE: a metal housing or metal object can affect range.
Step 5: Slide the keypad into the cover and lock it.
You will need to hard-wire your keypad to the gate opener if you:
• Do NOT have a GTO Entry Transmitter.
• Have a GTO Access Systems GP Series gate opener.
• Live in an area with high radio frequency interference.
Skip to page 5 for instructions.
123456789
ETD
+
0
-
ID SET RESET
If you use this button
to operate gate, put
the 9th DIP Switch
in the “0” position
Dual Button Entry Transmitter
1 2 3 4 5 6 7 8 9
ECE
A23S 12V
ALKALINE BATTERY
+
0
–
LED
Single Button Entry Transmitter
If you use this button
to operate gate, put
the 9th DIP Switch in
the “+” position
Change the Keypad’s DIP Switch Settings NOT
the Entry Transmitter Dip Switch Settings

3
rev - 12/01/10
Program New Master Code
1. Press and Release Program Button:
2. Enter current Master Code:
(example: the factory default Master Code)
3. Press and Release Program Button:
4. Enter the Function Code:
5. Press and Release Program Button:
6. Enter the new Master Code:
7. Press and Release Program Button:
8. Enter the new Master Code again:
9. Press and Release Program Button:
Program Button Status Light
= Your 4-digit code.
4. Program the Keypad
• A Master Code is needed to add, remove, or program Entry Codes.
• Factory default Master Code is “1234.”
• Keypad can only enter “program” mode from “idle” mode.
• Keypad will beep three times before going into “idle” mode (more than 10 seconds
between key presses).
Add New Entry Code
1.
2. Master Code
3.
4. Function Code
5.
6. New Entry Code
7.
Delete Entry Code
1.
2. Master Code
3.
4. Function Code
5.
6. Code to be deleted
7.
Delete All Entry Codes
1.
2. Master Code
3.
4. Function Code
5.
Add Temporary Entry Code
*In step 4, you will need to enter a number from 1 through 7
to indicate the number of days until the Entry Code expires.
1.
2. Master Code
3.
4. Function Code & # of days Code will be active*
5.
6. Temporary Entry Code
7.
Programming Confirmed: Keypad will beep 3 times.
Error Message: Status light will flash rapidly, error tone will sound for
1 second and keypad will return to “idle” mode (changes not saved).
• Entry Code is not 4 digits.
• New Master Codes don’t match (“Program New Master Code”).
• Memory is full (already 100 codes).
• No matching code is found (“Delete Entry Code”).

4
rev - 12/01/10
5. Sync Additional Base Units (optional)
If you purchased additional base units (F3101MBC), you must sync each additional unit with the keypad so they can
communicate.
Step 1: Install the battery and turn the base unit ON.
Step 2: Press and release the “ID SET” button on the keypad.
Step 3: Press the number on the keypad that corresponds to
the base unit you are adding. You will hear a number of beeps
corresponding to the number you pressed. For example, if you are
adding a second base unit to the system, press “2,” the keypad will
beep TWO times. If you are adding a third base unit, press “3,” the
keypad will beep THREE times, etc.
Step 4: Press the “ID SET” button on the base unit for
approximately two seconds then release. You will hear THREE
beeps from the base unit and THREE beeps from the keypad,
which means the base unit and keypad are synced.
IMPORTANT: Base units need to be placed at least 10 feet
apart to prevent interference.
6. Test the Intercom
IMPORTANT: The base unit and the keypad cannot be within 15 feet of each other when operating. If units are closer
than 15 feet, the signal will be inconsistent and emit feedback.
Have someone press the CALL button on the keypad. When the base unit inside the house rings, press the ANSWER
button and talk to the person at the gate to check the connection and range. Then press the GRANT PERMISSION button
and have the person press any key on the keypad to activate the gate.
Using the Wireless Estate Intercom
NOTE: The keypad, not the base station, initiates the call and operates the gate. The base station is for answering calls
and granting “permission” for the gate to be opened.
Using the Intercom
• Press the CALL button on the keypad to ring the base unit inside the house.
• The base unit will ring when it receives a CALL from the keypad: hold the ANSWER button to talk to the visitor,
release the ANSWER button to listen. Press the GRANT PERMISSION button to allow the visitor to open the gate
(by pressing any number key on the keypad). The END CALL button terminates the call.
• After the keypad’s GRANTED light turns green, press any number key to open the gate.
Using Entry Codes
• When a valid code is entered, the STATUS light will blink rapidly, and the keypad will beep 3 times.
• The keypad remains active for 40 seconds after entering a valid code: pressing any key on the keypad while the gate is
in motion will stop the gate; pressing any key while the gate is stopped will cause the gate to reverse direction. After
40 seconds, the keypad will beep 3 three times and go into “idle” mode.
• If more than 20 key presses are entered without matching any Entry Codes, the STATUS light will ash rapidly, the
error tone will sound for 1 second, and the keypad will go into “lock-down” mode for 40 seconds.
• If more than 10 seconds elapse between key presses, the keypad will beep 3 three times and go into “idle” mode.
Intercom ID Codes
This keypad and base unit are synced at the factory to communicate with each other. This
base unit is considered to be “unit #1” when adding more base units to the system.
ID SET button
ID SET
VOLUME
POWER
OFF ON
Keypad - Inside
Base Unit – Bottom
Keypad - Front
ID SET button
3
DEF
9
WXY
6
MNO
2
0
CALL
4
GHI
7
PRS
1ABC
8
TUV
5
JKL
123456789
ETD
+
0
-
ID SET RESET

5
rev - 12/01/10
123456789
ETD
+
0
-
ID SET RESET
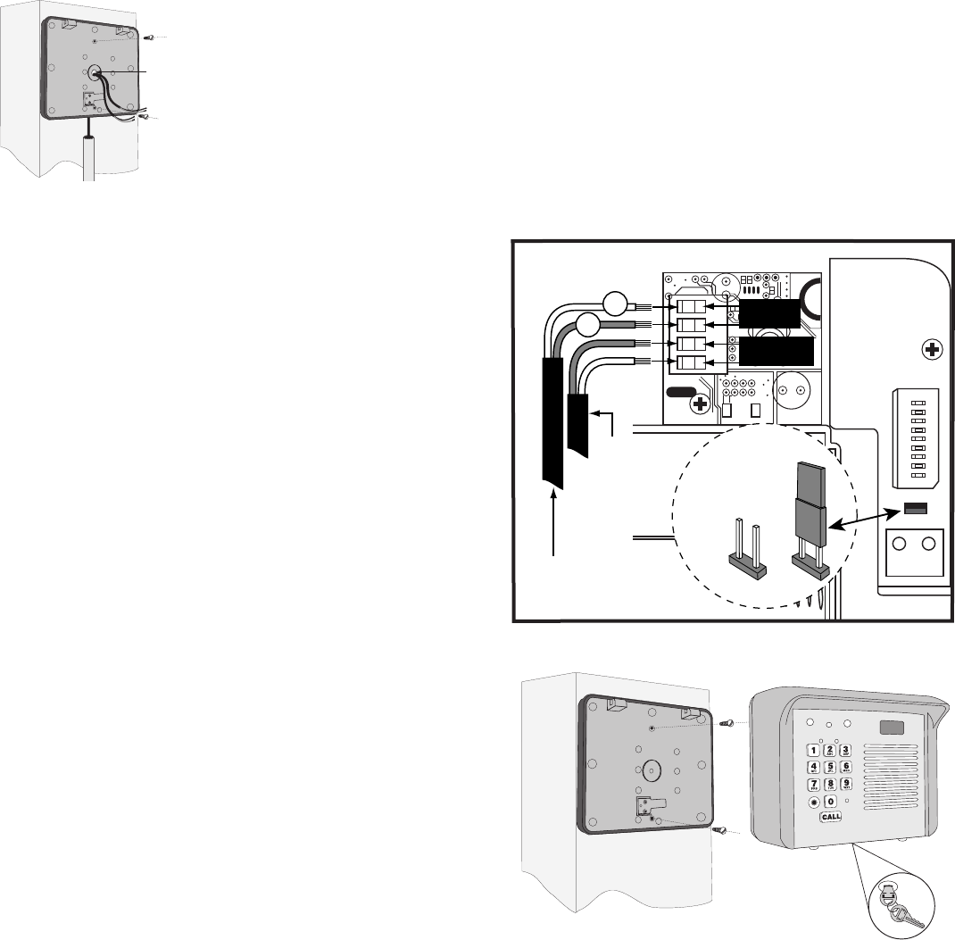
Hard-wire
from
Gate Opener
Power Supply
from
Opener
Battery
#1
#2
POWER
RELAY
Jumper ON
wireless mode
Jumper OFF
wired mode
HARD-WIRED INSTALLATION
You will need two pairs of 16 gauge (AWG) stranded, direct burial, low voltage wire (RB509), one pair to hard-wire the
communication between the keypad and the gate opener, the other to exend the life of the four “C” batteries. NOTE: The
four “C” batteries are required for reliable operation of the keypad.
Step 1: Turn the gate opener’s power switch OFF.
Step 2: Determine how the wires will enter the keypad (e.g., from the back through a
hole drilled in the post; running the wire on the post surface). Drill a hole in the back of
the keypad cover and pull the wire into the cover. Then mount the cover to the post using
the screws provided. Run wire through PVC pipe from the ground to keypad and from the
ground to the opener control board to protect it from lawn mowers or grazing animals.
Step 3: Wire the keypad to the gate opener control board. Strip 3/16” off the ends of one
pair of low voltage wires. Attach the wires to the terminal block marked RELAY on the keypad control board as shown.
Then connect wire #1 to the CYCLE terminal on the gate
opener control board, and wire #2 to the COM terminal on
the gate opener control board
NOTE: If you have a PRO 1000/2000/SL1000/SL2000
gate opener, connect wire #1 to the WHT accessory
terminal, and wire #2 to the GRN accessory terminal.
Refer to your gate opener instruction manual for more
details on wiring the gate opener control board.
Step 4: Wire the keypad to the battery. Strip 3/16” off
the ends of the second pair of low voltage wires. Attach
the wires to the terminal block marked POWER on the
keypad control board as shown. Connect the other end of
the wires to the opener’s battery: one end to the POSITIVE
(RED) terminal and the other to the NEGATIVE (BLACK)
terminal.
Step 5: Connect the jumper between the two terminals on
the keypad control board (ON) as shown.
Step 6: Slide the keypad into the cover and lock.
Step 7: Replace the gate opener control board cover and
turn the power switch ON.
Step 8: Program the keypad (page 3).
Drill Hole

6
rev - 12/01/10
Troubleshooting
Pressing the keypad CALL button does not ring the base unit:
1. Check the batteries in the keypad and replace them if necessary.
2. Make sure the base unit is turned on and the volume is turned up.
3. Try moving the keypad and the base unit closer to each other (no closer than 15 ft.).
4. Perform “Sync” procedure below (this will require two people):
a. Open the keypad and locate the “ID SET” button above the batteries. Locate the “ID SET” button on the bottom
of the base unit.
b. Make sure the “antenna-to-antenna” distance between the keypad and the base unit is at least 15 feet.
c. Press the “ID SET” button on the keypad until you hear a beep, then release.
d. Press the “ID SET” button on the base unit for approximately 2 seconds then release. You will hear ONE beep
from the base unit and TWO from the keypad, which means the keypad and base unit are synched.
e. Test the system by pressing the CALL button on the keypad to see if the base unit receives the signal. Once the
system is working, you will need to sync additional base stations (see page 4).
The Master Entry Code does not open the gate and the GRANTED light does not turn green.
1. Check the batteries in the keypad and replace them if necessary.
2. Program the keypad (page 3).
The Master Entry Code does not open the gate and the GRANTED light turns green.
WIRELESS Installation:
1. Verify that your Entry Transmitter operates the gate.
2. Verify that the Keypad DIP switches are matched to the Entry Transmitter DIP Switches (page 2).
3. Make sure the JUMPER in the keypad is NOT installed (page 5).
WIRED Installation:
1. Be sure the wires are securely connected to the gate opener control board (page 5).
2. Make sure the JUMPER in the keypad is installed (page 5).
You’ve forgotten the Master Entry Code:
The following will remove all Entry Codes from the keypad and program the Master Code back to factory default.
1. Press and hold the RESET button in the keypad for two seconds. Master Entry Code is now “1234.”
2. Program the keypad (page 3).
Limited One Year Warranty
Gates That Open, LLC (“GTO”). gate opener accessories are warranted by the manufacturer against defects in workmanship for a period of one (1) year from the date
of purchase, provided recommended installation procedures have been followed.
In the case of product failure due to defective material or manufacturer workmanship within the one (1) year warranty period, the accessory will be repaired or replaced
(at the manufacturer’s option) at no charge to the customer, if returned freight prepaid to GTO - Gates That Open, LLC • 3121 Hartseld Rd. • Tallahassee, FL 32303.
IMPORTANT: Call 850/575-4144 or fax 850/575-8950 for a Return Goods Authorization (RGA) number before returning goods to factory. Products received
at the factory without an RGA will not be accepted.
Replacement or repaired parts are covered by this warranty for the remainder of the one (1) year
warranty period or six (6) months, whichever is greater. GTO will pay the shipping charges (equal to United Parcel Service GROUND rate) for return
to the owner of items repaired under warranty.
The manufacturer will not be responsible for any charges or damages incurred in the removal of the defective parts for repair, or for the reinstallation of those parts after
repair. This warranty shall be considered void if damage to the product(s) was due to improper installation or use, connection to an improper power source, tampering,
or if damage was caused by lightning, electrical power surge, wind, re, ood, insects, or other natural agent.
After the one (1) year warranty period, GTO or one of its authorized service centers will make any necessary repairs for a nominal fee. Call GTO at 850/575-4144 for
more information. This warranty gives you specic legal rights, and you may also have other rights which may vary from state to state. This warranty is in lieu of all
other warranties, expressed or implied. NOTE: Verication of the warranty period requires copies of receipts or other proof of purchase. Please retain those records.
If you have any questions or concerns, please contact our Technical Service Department
Monday thru Friday 8:00 a.m. to 7:00 p.m. (ET) at 1-800-543-1236 or 850-575-4144
GTO–Gates That Open, LLC • 3121 Hartseld Road • Tallahassee, Florida 32303
Telephone (850) 575-0176 • Fax (850) 575-8912 • www.gtoinc.com
The contents of all material available on this installation manual are copyrighted by Gates That Open, LLC (“GTO”), unless otherwise indicated. All rights are reserved by GTO, and
content may not be reproduced, downloaded, disseminated, published, or transferred in any form or by any means, except with the prior, written permission of GTO. Any reprinting of GTO
publications is by permission only. Copyright infringement is a violation of federal law. GTO®, GTO/PRO®, Mighty Mule® are registered trademarks of GTO - Gates That Open, LLC. GTO
Access Systems™ is a trademark of GTO - Gates That Open, LLC. These marks are the exclusive property of GTO - Gates That Open, LLC (“GTO”). All rights are reserved by GTO, and
these marks may not be used, in any form, without the prior, written permission of GTO.