Smartbow W010 Chirp spread spectrum based transceiver used for wireless localization User Manual 15 W010 UserMan
MKW electronics GmbH Chirp spread spectrum based transceiver used for wireless localization 15 W010 UserMan
Smartbow >
15_W010 UserMan

User Manual
W010 SMARTBOW Wallpoint

IMPORTANT
READ CAREFULLY BEFORE USE!
KEEP THE MANUAL FOR FUTURE CONSULTATION!
© 2015 MKW electronics GmbH. All rights reserved.
MKW electronics GmbH T +43 (0) 7732 3711-0
Jutogasse 3 F +43 (0) 7732 3711-35
4675 Weibern, AUSTRIA office@smartbow.at
www.smartbow.at I www.mkwe.at

Table of content
1
Introduction 5
1.1 General Information 5
1.2 Trademarks, Copyright and Disclaimer 5
2
Electromagnetic Compatibility (EMC) 8
2.1 Europe 8
2.2 USA 8
2.2.1
User Information acc. to FCC15.21: 8
2.2.2
Statement for Class B digital device acc. to FCC 15.105 8
2.3 Canada 8
2.3.1
Statement acc. RSS Gen Issue 3, Sect. 7.1.3 8
3
Safety 9
3.1 Safety Labels 9
3.2 Signal words and their meaning 10
3.3 Operating states 11
3.4 Electrical safety 11
3.5 Operation 12
3.6 Repair and Service 12
3.7 Transport 13
3.8 Magnetic fields 13
3.9 Waste disposal/Environmental protection 13
4
The SMARTBOW Wallpoint 14
4.1 General product information 14
4.2 Scope of supply 15
4.3 Technical Data 16
4.4 Modification on the SMARTBOW Wallpoint 17
4.5.1
General warranty conditions 18
4.5.2
Warranty coverage 19
4.5.3
Warranty exclusion 19
4.5.4
Support Hotline 19
5
Installation 20
5.2 Mounting the SMARTBOW Wallpoint 20
5.2.1
Installation pipe clamp 24
5.2.2
Installation I-beam clamp 25
6
Equipment 26
6.1 100101 Pipe clamp 26

6.2 100103 Magnetic holder 26
6.3 100104 I-beam clamp 26
7
Transport and storage 27
7.1 Transport 27
7.2 Storage 27
7.3 Cleaning 27
8
Trouble Shooting 28
9
Waste 29
10
Support 30
11
Lists 32
11.1 List of figures 32
11.2 List of tables 33
12
GLOSSARY 33
13
List of included amendments 34

Page 5 of 34
1 Introduction
1.1 General Information
Welcome to the SMARTBOW manual. We are happy that you have decided to buy our solution.
You will find the technical information, operating instructions and instructions for maintenance
and fault elimination. Read this information carefully before operating the SMARTBOW system
and make sure you are familiar with it. Non-observance may result in injury or damage to the
system. If there is an unclear point or if you would like to have more information, please contact
our support. Please read through the warranty conditions to know your rights and obligations.
Keep the manual within range, to be able to use it immediately.
1.2 Trademarks, Copyright and Disclaimer
SMARTBOW is a registered trademark of MKW electronics GmbH.
The exclusive right of use underlies the company MKW electronics GmbH. All rights reserved.
The statements contained in this publication are only for information and should not be
understood as a sale offer. Certain products may not be available in some countries and the
delivered products may differ from those shown in the pictures. Neither this edition nor parts of it
may be copied or published by print or any other means without the written permission of MKW
electronics GmbH(in the following MKWE).
The content of this publication has been compiled with the utmost care. Nevertheless MKWE is
not liable for any damages that may arise from errors or omissions in this publication.
The germen manual is the original manual. Translations into other languages are based on the
German manual as a source document. MKWE is not liable for discrepancies between the
original German manual and versions in other languages. In case of conflicts in the content and
accuracy of translated manuals, the German manual is the reference document.
The compliance to this manual as well as the conditions and methods of installation, operation,
use and maintenance of the system cannot be monitored by the manufacturer. Improper
installation can cause damages to material and persons. Therefore, we assume no
responsibility or liability for any loss, damage or costs arising from incorrect installation,
improper operation or incorrect usage and maintenance which are associated in any way.

Page 6 of 34
We also assume no responsibility for patent infringements or violations of the rights of third
parties arising from the use of this system.
For improvement in terms of design, operation, and/or reliability MKWE reserves the right to
modify the products described in this document without prior notice. MKWE rejects from all
liability related with the use or application of the product described here.
All SMARTBOW products have been developed to assist farmers in their daily work with their
herd as good as possible. Because of variations in farm management, MKWE cannot be
responsible for the economic results of each individual farm.
As soon as it becomes evident that safe operation is no longer possible (e.g. if there is visible
damage), remove the system immediately from power supply.

Page 7 of 34
1.3 We ask for your feedback
All information of this manual has been compiled with the utmost care. The recommendations
are intended as guidelines. The instructions, illustrations and specifications in this manual are
based on the current information available at the time of publication. Your SMARTBOW system
may contain improvements and equipment or options that are not covered in this manual. New
information based on the feedback from our customers, are continuously updated and
expanded.
We hope SMARTBOW fits your expectations and we like to receive your feedback (please send
an email to support@smartbow.at or call +43 (0) 7732 3711-175).
The SMARTBOW Team

Page 8 of 34
2 Electromagnetic Compatibility (EMC)
2.1 Europe
For additional regulatory information, see the Regulatory Compliance homepage on
www.smartbow.at at the following location http://www.smartbow.at/en/legal.html
2.2 USA
2.2.1 User Information acc. to FCC15.21:
Changes or modifications not expressly approved by the party responsible for compliance could
void the user’s authority to operate the equipment.
2.2.2 Statement for Class B digital device acc. to FCC 15.105
This equipment has been tested and found to comply with the limits for a Class B digital device,
pursuant to part 15 of the FCC Rules. These limits are designed to provide reasonable
protection against harmful interference in a residential installation. This equipment generates,
uses and can radiate radio frequency energy and, if not installed and used in accordance with
the instructions, may cause harmful interference to radio communications. However, there is no
guarantee that interference will not occur in a particular installation. If this equipment does
cause harmful interference to radio or television reception, which can be determined by turning
the equipment off and on, the user is encouraged to try to correct the interference by one or
more of the following measures:
— Reorient or relocate the receiving antenna.
— Increase the separation between the equipment and receiver.
— Connect the equipment into an outlet on a circuit different from that to which the receiver
is connected.
— Consult the dealer or an experienced radio/ TV technician for help.
2.3 Canada
2.3.1 Statement acc. RSS Gen Issue 3, Sect. 7.1.3
This device complies with Part 15 of the FCC Rules and with Industry Canada license-exempt
RSS standard(s). Operation is subject to the following two conditions: (1) this device may not
cause harmful interference, and (2) this device must accept any interference received, including
interference that may cause undesired operation.
Le présent appareil est conforme aux CNR d'Industrie Canada applicables aux appareils radio
exempts de licence. L'exploitation est autorisée aux deux conditions suivantes : (1) l'appareil ne
doit pas produire de brouillage, et (2) l'utilisateur de l'appareil doit accepter tout brouillage
radioélectrique subi, même si le brouillage est susceptible d'en compromettre le
fonctionnement.

Page 9 of 34
3 Safety
3.1 Safety Labels
The following safety labels are used on the different SMARTBOW products to warn against risks
and dangers.
European-label for the separate collection of electrical and
electronic appliances
Further information in chapter 9 Disposal
The security labels on your product show important and useful information, which will help you
to use and maintain the SMARTBOW
Wallpoint safely. Follow to the instructions below to
ensure that all labels remain in perfect condition and in the right place.
Make sure that the safety labels are always clean and legible. Do not use solvents, souring
agents or other comparable cleaning agents which could damage the sticker.
Replace lost or illegible safety stickers.
Safety labels can be obtained from the MKWE support.

Page 10 of 34
3.2 Signal words and their meaning
The following signal words are used in the manual in order to warn the reader about risks and
dangers.
Indicates a hazardous situation which, if not avoided, will result in
death or serious injury.
Indicates a hazardous situation which, if not avoided, could result
in death or serious injury
Indicates a hazardous situation which, if not avoided, could result
in minor, moderate or serious injury.
Indicates information considered important, but not hazard-
related, e.g. information relating to possible property damage.
These signal words are in accordance with the standard definition for civil applications in the
European Economic Area. Definitions that deviate from the standard definition may also exist in
other economic areas or military applications. It is therefore essential to make sure that the
signal words described here are always used just with the related product documentation and
the related product. The use of signal words in connection with unrelated products or
documentation can result in misinterpretation and in personal injury or material damage.

Page 11 of 34
3.3 Operating states
The SMARTBOW
Wallpoint may be operated only under the operating conditions and the
positions specified by the manufacturer. Applicable local or national safety regulations and rules
for the prevention of accidents must be observed in all work performed.
The SMARTBOW Wallpoint is exclusively produced for use in livestock sheds.. Any other use is
only permitted with a written permission of MKW electronics GmbH.
Do not place the SMARTBOW Wallpoint on heat-generating devices such as radiators or fan
heaters. The ambient temperature must not exceed the maximum temperature specified in the
product documentation or in the data sheet. Product overheating can damage the Wallpoint
permanently.
3.4 Electrical safety
Unless expressly permitted, never remove the cover or any part of the housing while the
SMARTBOW Wallpoint is in operation. Doing so will expose circuits and components and can
lead to injuries, or damage to the SMARTBOW Wallpoint.
Any object that is not designed to be placed in the openings of the housing must not be used for
this purpose. Doing so can cause damage to the SMARTBOW Wallpoint.
Unless specified otherwise, the SMARTBOW Wallpoint is protected against the ingress of
liquids. When the cable entry cover is opened it must be protected against penetration by
liquids. If the necessary precautions are not taken the SMARTBOW Wallpoint may be damaged.
Do not use the SMARTBOW Wallpoint under adverse environmental conditions such as
• inflammable gases, vapours and solvents
• strong vibrations
An operation under the conditions described above may damage the SMARTBOW Wallpoint.
Prior to cleaning the SMARTBOW Wallpoints, disconnect it completely from the power supply
(e.g. network cable). Use a soft, non-lining cloth to clean the product. Never use chemical
cleaning agents such as alcohol, acetone or diluents for cellulose lacquers.

Page 12 of 34
3.5 Operation
In some countries there are laws about digital positioning and tracking of people, animals and/or
objects. Only the user is responsible not to violate such laws or regulations.
Before you start processing the SMARTBOW
Wallpoint mechanically and/or thermally or before
you disassemble it, be sure to read and pay special attention to the chapter 9 “Waste disposal”.
Depending on the function, the SMARTBOW Wallpoint can produce an elevated level of
electromagnetic radiation, which is within the range of the legal standards. Considering that
unborn babies require increased protection, pregnant women must be protected by appropriate
measures. Persons with pacemakers may also be exposed to risks from electromagnetic
radiation. The employer/operator must evaluate workplaces where there is a special risk of
exposure to radiation and if necessary, take measures to avoid the potential danger.
Should a fire occur, the SMARTBOW Wallpoint may release hazardous substances (gases,
fluids, etc.) that can cause health problems. Therefore, suitable measures must be taken, e.g.
protective masks and protective clothing must be worn.
3.6 Repair and Service
Adjustments, replacement of parts and repair may be performed only by electrical experts
authorized by MKWE. Only original parts may be used for replacing parts. A safety test must
always be performed after parts have been replaced (visual inspection, functional test). This
helps to ensure the continued safety of the SMARTBOW
Wallpoint.

Page 13 of 34
3.7 Transport
The packaging of the SMARTBOW Wallpoint protects the housing from damage.
If you have to return a SMARTBOW Wallpoint to MKWE, it should be packed so that external
influences cannot cause damage to the product.
3.8 Magnetic fields
Please be aware that magnetic fields delete data media (diskettes, hard disks, USB flash drives,
digital cameras, check cards, credit cards, audio and video cassettes) and can affect or destroy
electronic and mechanical components, e.g. pacemaker monitors, compasses, counters, etc. In
any case keep a safety distance of about 1 meter.
Do not use the magnets in locations where they are exposed to high heat (> 80°C).
Magnetic fields of permanent magnets have, according to present knowledge, no measurable
positive or negative influence on people. A health risk due to the magnetic field of a permanent
magnet is unlikely but cannot be completely excluded.
3.9 Waste disposal/Environmental protection
Waste electrical and electronic equipment must not be disposed of with unsorted municipal
waste, but must be collected separately.
If products or their components are mechanically and/or thermally processed in a manner that
goes beyond their intended use, hazardous substances (heavy-metal dust such as lead,
beryllium, nickel) may be released. For this reason, the product may only be disassembled by
specially trained personnel. Improper disassembly may be hazardous to your health. The
national waste disposal regulations must be observed.

Page 14 of 34
4 The SMARTBOW Wallpoint
4.1 General product information
The SMARTBOW Wallpoint is attached to suitable walls,
poles, etc. Through radio signals the position of
SMARTBOW Eartags is determined in the barn. The
communication and data exchange between the
SMARTBOW Eartags and the SMARTBOW station operates
via the SMARTBOW Wallpoints in the barn or outdoor area
A SMARTBOW Wallpoint consists of the following components:
• Housing incl. electronics
• Cover for cable entry, incl. screws
• sealing Plugs for unused cable entry’s
• detachable antennas
• plastic nut for attachment on Wallpoint mounting accessories
Figure 2: SMARTBOW Wallpoint components
The SMARTBOW
Wallpoint must not be repositioned by the end user; otherwise we cannot
guarantee correct system behaviour. The SMARTBOW Wallpoint cover for cable entry must not
be opened at any time. There are no serviceable parts inside,
The screws of the cover are sensitive to too high torque
(torque < 0,6Nm).
Figure 1: SMARTBOW Wallpoint

Page 15 of 34
4.2 Scope of supply
Figure 3: Scope of supply
The following items are included in the delivery of the SMARTBOW Wallpoint:
1 pcs. SMARTBOW Wallpoint (packed in an antistatic foil)
2 pcs. Omni Antennas
2 pcs. Chipboard screws
2 pcs. Dowel
1 pcs. Mounting bracket for SMARTBOW Wallpoint
1 pcs. SMARTBOW Wallpoint cover incl. sealing Plugs
1 pcs. User Manual per delivery

Page 16 of 34
4.3 Technical Data
Type
SMARTBOW
Wallpoint
Power supply Power over Ethernet Class 2, 48V, IEEE
802.3af compliant
Typical indoor range (Wallpoint
to Wallpoint) 500m, line of sight
Typical location accuracy 80% < 1m
1
Location accuracy average all
measurements 1,21m
2
Resolution 1cm
Operating temperature -20 to +60°C
Storage temperature -20°C to +70°C
Dimensions (without antennas)
(l x w x h) 202x194x75mm
Weight (without antennas) ca. 800g
Protection class IP65
Table 1: Technical Data SAMRTBOW Wallpoint
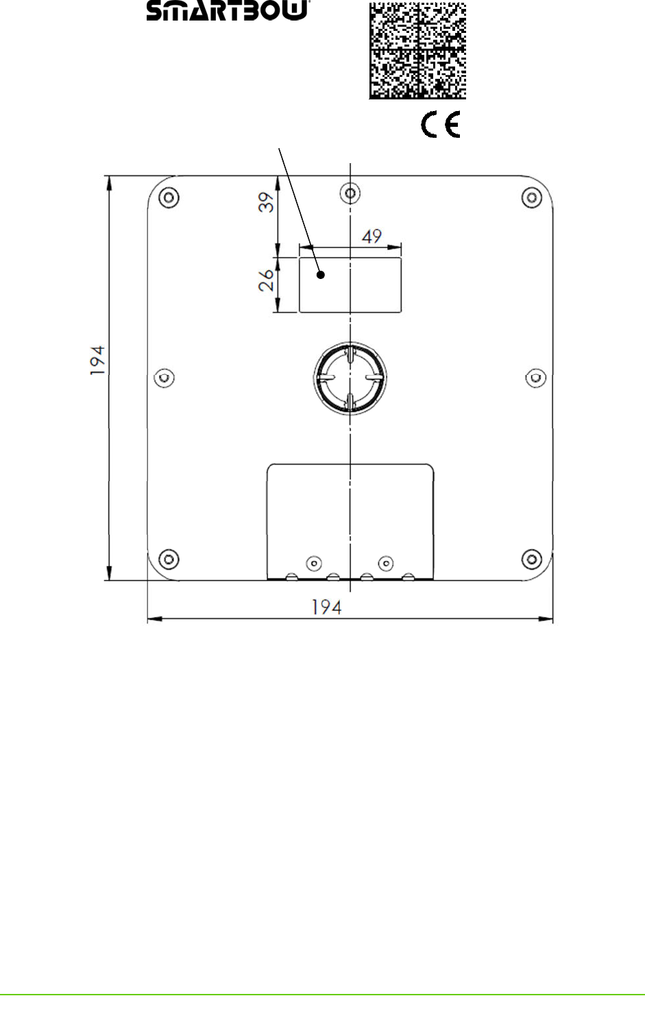
Figure 4: SMARTBOW Wallpoint labelling elements front
1
Conditions defined by MKW electronics GmbH
2
Conditions defined by MKW electronics GmbH

Page 17 of 34
Product: Wallpoint
Model No.: W010
FCC ID: 2ADP3W010
IC: 12561A-W010
PoE: 44-57VDC IP65
Class2 (IEEE 802.3af)
MAC: 180B52000E2F
Figure 5: SMARTBOW Wallpoint labelling elements rear
4.4 Modification on the SMARTBOW Wallpoint
There are no modifications on the product that need to be performed by the end user, no
serviceable parts inside.
MKW electronics GmbH doesn’t approve any modifications on the products that are made by
unauthorized persons. Modifications can have negative effects on the quality and proper
function of the products of MKW electronics GmbH
.

Page 18 of 34
4.5 General and special warranty conditions
4.5.1 General warranty conditions
These general warranty conditions apply only in connection with the general terms and
conditions of sale (GTC) of MKW electronics GmbH at the purchasing moment of the Wallpoint.
The current version of the GTC is visible on the homepage of MKWE (http://www.mkwe.at).
The warranty always begins on the date of transfer of the SMARTBOW
®
Wallpoints bought
from MKWE or an authorized seller of MKWE and refers to any material or production damage,
which may occur while normal using. The warranty period is derived from the proof of purchase.
Please keep the original proof of purchase in a safe place. MKWE and its authorized service
partners reserve the right to refuse a warranty repair or a warranty confirmation if a proof cannot
be provided.
If you have to return a SMARTBOW Wallpoint please make sure that it is packed securely.
Please send us with the SMARTBOW Wallpoint a detailed description of the problem. In order
to assert your claims or before sending, please contact the MKWE Support.
The SMARTBOW Wallpoint always has to be sent completely, that means with all parts from the
scope of supply. An incomplete reception of shipment will delay the repair / exchange. MKWE
does not take over any liability for additionally sent materials, which do not belong to the original
scope of supply.
This warranty does not have any effect on your existing statutory warranty claims and is subject
to the laws of the country, in which the SMARTBOW Wallpoint was bought by the end customer
from the authorized distributer and is valid only in this country.

Page 19 of 34
4.5.2 Warranty coverage
In case of a fault in your SMARTBOW Wallpoint covered by this warranty, MKWE ensures the
repair or the replacement of the SMARTBOW Wallpoint. The decision whether to repair or
replace the SMARTBOW Wallpoint will be made by MKWE. For this reason MKWE will decide if
the sent SMARTBOW Wallpoint will be replaced in the same quality and function.
We assume no guarantee for expendable materials, which mean parts which must be replaced
at regular intervals.
If it turns out during the repair, that it is an error that is not covered by warranty, MKWE reserves
the right to charge a handling fee as well as the costs for the repair (material and labour) which
refers to an estimate.
4.5.3 Warranty exclusion
MKWE makes no guarantees for failure and damage caused by external influences (heat,
water, lightning, etc.), accidental damage, improper use, changes, alterations and extensions
made on the SMARTBOW Wallpoint, use of foreign parts, neglect, improper packaging,
improper storage or loss in returning the SMARTBOW Wallpoint.
This warranty is void if the defect in the SMARTBOW Wallpoints is caused by maintenance or
repair, which was performed by someone else than the MKWE or an authorized service partner.
The warranty also void if labels or serial numbers of the SMARTBOW Wallpoints or a
component of the SMARTBOW Wallpoints is changed or made illegible.
4.5.4 Support Hotline
Before returning the Wallpoint to MKWE we recommend to contact us via the support hotline or
by mail. You will receive further information on how you can make your claim under warranty.
The SMARTBOW support is available under support@smartbow.at or +43 (0) 7732 3711-175).

Page 20 of 34
5 Installation
5.1 Installation of the SMARTBOW Wallpoint
The Wallpoint has to be installed only by MKWE technicians or authorized partners. In order to
do this a Cat5e cable (specification see Appendix A), without connectors, is required at the
position where the SMARTBOW Wallpoint will be installed. Refer to the cabling plan provided by
MKWE or authorized partners for the positions where the SMARTBOW Wallpoints will be
installed. The cable will be terminated and tested by the technician. It is not possible to relocate
the SMARTBOW Wallpoint after installation; this can lead to undesired and unstable system
behaviour.
5.2 Mounting the SMARTBOW Wallpoint
Necessary tools for installation:
• 1 pcs. cordless drill driver
• 1 pcs.TX25 bit
• 1 pcs. screwdriver TX10 (if possible with torque limitation M
max
=0,6Nm)
• 1 pcs. knife
• 1 pcs. pencil
Optional tools for installation (depends on material of wall)
• 1 pcs. impact drilling machine
• 1 pcs. 8mm impact drill
Step 1: Use mounting bracket to mark drill pattern
Figure 6: Marking the drill pattern
Step 2: Drill holes for dowels (skip this if you mount the SMARTBOW Wallpoint on wood)

Page 21 of 34
Step 3: Put dowels into drilled holes (skip this if you mount the SMARTBOW Wallpoint on wood)
Figure 7: Dowel insertion
Step 4: Screw the mounting bracket with provided chipboard screws
Figure 8: Screwing the mounting bracket

Page 22 of 34
Step 5: Connect the SMARTBOW Wallpoint to the terminated Ethernet cable and close it with
the SMARTBOW Wallpoint cover and sealing Plugs. Tighten the screws with the screwdriver
TX10.
Figure 9: Closing the SMARTBOW Wallpoint
You must not apply a tightening torque of more than 0.6Nm,
otherwise the case could be damaged. We recommend to use a
torque wrench
Step 6: Attach the SMARTBOW Wallpoint to the mounting bracket and tighten plastic nut
Figure 10: Attaching the SMARTBOW Wallpoint to the mounting bracket

Page 23 of 34
Step 7: Remove plastic covers and attach the antennas to the SMARTBOW Wallpoint
Figure 11: Installing the antennas
Antennas that are not mounted properly can lead to undesired
product performance.

Page 24 of 34
5.2.1 Installation pipe clamp
Necessary tools for installation:
•
13mm wrench
Step 1: Put the first bracket of the pipe clamp around the pipe and add the mounting bracket.
Temporarily tighten the nuts by hand.
Figure 12: Mounting pipe clamp first bracket
Step 2: Attach the second bracket of the pipe clamp
Figure 13: Mounting pipe clamp second bracket
Step 3: Tighten the nuts using a 13mm wrench
Figure 14: Tightening the 4 nuts

Page 25 of 34
5.2.2 Installation I-beam clamp
Necessary tools for installation:
• 17mm wrench
• 6mm Allen key
Step 1: Screw the I-Beam clamps onto the mounting bracket with the 2 supplied M8x20 screws
by use of the 6mm Allen key.
Figure 15: Screwing the I-Beam clamp onto the mounting bracket
Step 2: Mount the clamps to the I-Beam using a 17mm wrench
Figure 16: Tightening of the 2 screws

Page 26 of 34
6 Equipment
6.1 100101 Pipe clamp
Use the clamp holder if you mount the SMARTBOW Wallpoint to a
pipe with diameters from 26-63mm (1” – 2 ½ “). There are 2
brackets per pack. For mounting instructions see point 5.2.1.
6.2 100103 Magnetic holder
For fast and easy installation on magnetic materials (like steel),
there is a special mounting bracket with integrated magnet
available
Do not use this holder if you use the
localization feature.
For proper holding force a minimum
thickness for the magnetic material of
3mm is necessary.
6.3 100104 I-beam clamp
The I-beam is suitable for mounting the SMARTBOW Wallpoint to
I-beams with flange thickness from 2 to 22mm. Larger clamps are
available upon request.
Figure 17: Pipe clamp
Figure 18: Magnetic holder
Figure 19: I-beam clamp

Page 27 of 34
7 Transport and storage
7.1 Transport
Always use the original packaging for transporting the SMARTBOW Wallpoint to avoid
scratching the surface.
7.2 Storage
Store the SMARTBOW Wallpoint in dry, cool, clean surroundings. Please take care that the
storage temperature range does not exceed the limits shown in chapter 4.3 Technical Data.
7.3 Cleaning
Clean the SMARTBOW Wallpoint only in closed state.
Heavy soiling of the housing can be removed mechanically with a spatula. Avoid the use of
sharp tools. Clean the housing with a damp cloth and mild cleaning agent. Do not use any
abrasives or solvents such as alcohol, acetone, and nitro thinner. Avoid direct high pressure
cleaning near the cable entries.

Page 28 of 34
8 Trouble Shooting
This chapter contains a list of faults and solutions.
Problem
Reason
Solution
SMARTBOW Wallpoint
Power LED doesn’t light
cable not plugged plug Ethernet cable into RJ45
plug inside housing (see
chapter 5.2 Step 7)
switch has no power Check if the station,
respectively the switchbox,
where the SMARTBOW
Wallpoint is plugged into, has
power.
faulty SMARTBOW
Wallpoint please contact the service
hotline +43 (0) 7731 3711 -
165
Table 2: Troubleshooting

Page 29 of 34
9 Waste
Please do your part to protect the environment by disposing used SMARTBOW Wallpoints
environmentally friendly under European WEEE Directive 2002/96/EG (directive on electrical
and electronic equipment), and/or national laws. Improper disposal of electronic products could
have a negative impact on the environment and human health due to potentially hazardous
substances.
The package contains the following materials:
• corrugated cardboard/cardboard
• films/flat bags of polyethylene
• adhesive tape of PVC
Keep packaging materials away from children - can cause suffocation!
Bring the packaging to an official collection point.
MKW electronics GmbH is focused on sustainability and takes over all duties of the return and
disposal for EU manufacturers. Please contact your MKW electronics service center to dispose
of the product environmentally friendly. A separate collection and proper recycling of the
electronic waste helps to use natural resources carefully. Your cooperation in the correct
disposal of this product enables the effective use of natural resources.

Page 30 of 34
10 Support
For support and customer service please do not hesitate to contact our SMARTBOW team.
MKW electronics GmbH T +43 (0) 7732 3711-175
Jutogasse 3 F +43 (0) 7732 3711-35
4675 Weibern, AUSTRIA support@smartbow.at
www.smartbow.at

Page 31 of 34
APPENDIX A SPECIFICATION OF CAT5E CABLE
• Shielding: Foil and braid shielded
• Conductor cross section: 4x2xAWG24
• Outer Diameter: 6mm ± 0,1mm
• Working temperature: -20°C…. +60°C
APPENDIX B USED TELECOMMUNICATION STANDARD
T-568B
1 orange/white 1
2 orange 2
3 green/white 3
4 blue 4
5 blue/white 5
6 green 6
7 brown/white 7
8 brown 8
Table 3: Pin assignment EIA/TIA T568B

Page 32 of 34
11 Lists
11.1 List of figures
Figure 1: SMARTBOW Wallpoint ................................................................................................................ 14
Figure 2: SMARTBOW Wallpoint components ........................................................................................... 14
Figure 3: Scope of supply ............................................................................................................................ 15
Figure 4: SMARTBOW Wallpoint labelling elements front .......................................................................... 16
Figure 5: SMARTBOW Wallpoint labelling elements rear ........................................................................... 17
Figure 6: Marking the drill pattern................................................................................................................ 20
Figure 7: Dowel insertion ............................................................................................................................. 21
Figure 8: Screwing the mounting bracket .................................................................................................... 21
Figure 9: Closing the SMARTBOW Wallpoint ............................................................................................. 22
Figure 10: Attaching the SMARTBOW Wallpoint to the mounting bracket ................................................. 22
Figure 11: Installing the antennas ............................................................................................................... 23
Figure 12: Mounting pipe clamp first bracket .............................................................................................. 24
Figure 13: Mounting pipe clamp second bracket ........................................................................................ 24
Figure 14: Tightening the 4 nuts.................................................................................................................. 24
Figure 15: Screwing the I-Beam clamp onto the mounting bracket ............................................................ 25
Figure 16: Tightening of the 2 screws ......................................................................................................... 25
Figure 17: Pipe clamp ................................................................................................................................. 26
Figure 18: Magnetic holder .......................................................................................................................... 26
Figure 19: I-beam clamp ............................................................................................................................. 26

Page 33 of 34
11.2 List of tables
Table 1: Technical Data SAMRTBOW Wallpoint ........................................................................................ 16
Table 2: Troubleshooting ............................................................................................................................. 28
Table 3: Pin assignment EIA/TIA T568B ..................................................................................................... 31
12 GLOSSARY
SMARTBOW Eartag Low Power 2.4GHz ISM band transceiver sensor module which
supports localization, 3-axis accelerometer and ambient
temperature
SMARTBOW Station Local server at the farm for data analysis and localization

Page 34 of 34
13 List of included amendments
Date
Version
Remark
12.01.2015 1 Original
29.01.2015 1.1 Chapter 3.9 Smartbow Wallpoint has a
battery …. removed
20.04.2015 1.2 Label IC ID: changed to IC: