Smartbow W012 Chirp Spread Spectrum Transceiver Used For Wireless Localization User Manual
Smartbow GmbH Chirp Spread Spectrum Transceiver Used For Wireless Localization Users Manual
Smartbow >
Users Manual

User Manual
W01X SMARTBOW Wallpoint
W010, W011, W012
Smartbow GmbH T +43 (0) 7732 47200-0
Jutogasse 3, 4675 Weibern F +43 (0) 7732 47200-91
AUSTRIA office@smartbow.at
www.smartbow.com

IMPORTANT
READ CAREFULLY BEFORE USE!
KEEP THE MANUAL FOR FUTURE CONSULTATION!
© 2017 Smartbow GmbH. All rights reserved.
Smartbow GmbH T +43 (0) 7732 47200-0
Jutogasse 3 F +43 (0) 7732 47200-91
4675 Weibern, AUSTRIA office@smartbow.at
www.smartbow.com

Table of content
1 Introduction 5
1.1 General Information 5
1.2 Trademarks, Copyright and Disclaimer 5
2 Electromagnetic Compatibility (EMC) 7
2.1 Europe 7
2.2 TR-CU 7
2.3 USA / Canada 7
2.3.1 User Information acc. to FCC15.21 7
2.3.2 User information acc. to KDB 447498 D01 Clause 7/ RSS-102 Clause2.6 7
2.3.3 Statement acc. to RSS Gen Issue 4 Sect. 8.3 7
2.3.4 Part 15 Statement acc. FCC 15.19/RSS Gen Issue 4 Sect. 8.4 8
3 Safety 8
3.1 Safety Labels 8
3.2 Signal words and their meaning 9
3.3 Operating states 9
3.4 Electrical safety 9
3.5 Operation 10
3.6 Repair and Service 10
3.7 Transport 11
3.8 Magnetic fields 11
3.9 Waste disposal/Environmental protection 11
4 The SMARTBOW Wallpoint 12
4.1 General product information 12
4.2 Scope of supply 12
4.3 Technical Data 13
4.4 Modification on the SMARTBOW Wallpoint 17
4.5.1 General warranty conditions 17
4.5.2 Warranty coverage 17
4.5.3 Warranty exclusion 18
4.5.4 Support Hotline 18
5 Installation 19
5.1 Installation of the SMARTBOW Wallpoint 19
5.2 Mounting the SMARTBOW Wallpoint 19
5.2.1 Installation option pipe clamp 21

5.2.2 Installation option special attachment for pipe 22
5.2.3 Installation option I-beam clamp 23
6 Equipment 24
6.1 100101 Pipe clamp 24
6.2 100104 I-beam clamp 24
6.3 100105 Special attachment for pipe 24
7 Transport and storage 25
7.1 Transport 25
7.2 Storage 25
7.3 Cleaning 25
8 Troubleshooting 25
9 Waste 26
10 Support 26
11 Declaration of Conformity 27
12 Lists 30
12.1 List of figures 30
12.2 List of tables 30
13 Glossary 30
14 Revision history 31
APPENDIX A: Specification PROFINET / Industrial Ethernet 32

Page 5 of 32
1 Introduction
1.1 General Information
Welcome to the SMARTBOW manual. We are happy that you have decided to buy our solution.
You will find the technical information, operating instructions and instructions for maintenance and fault
elimination. Read this information carefully before operating the SMARTBOW system and make sure you
are familiar with it. Non-observance may result in injury or damage to the system. If there is an unclear
point or if you would like to have more information, please contact our support. Please read through the
warranty conditions to know your rights and obligations.
Keep the manual within range, to be able to use it immediately.
1.2 Trademarks, Copyright and Disclaimer
SMARTBOW is a registered trademark of Smartbow GmbH.
The exclusive right of use underlies the company Smartbow GmbH. All rights reserved.
The statements contained in this publication are only for information and should not be understood as a
sale offer. Certain products may not be available in some countries and the delivered products may differ
from those shown in the pictures. Neither this edition nor parts of it may be copied or published by print or
any other means without the written permission of Smartbow GmbH (in the following SMARTBOW).
The content of this publication has been compiled with the utmost care. Nevertheless, SMARTBOW is not
liable for any damages that may arise from errors or omissions in this publication.
The germen manual is the original manual. Translations into other languages are based on the German
manual as a source document. SMARTBOW is not liable for discrepancies between the original German
manual and versions in other languages. In case of conflicts in the content and accuracy of translated
manuals, the German manual is the reference document.
The compliance to this manual as well as the conditions and methods of installation, operation, use and
maintenance of the system cannot be monitored by the manufacturer. Improper installation can cause
damages to material and persons. Therefore, we assume no responsibility or liability for any loss, damage
or costs arising from incorrect installation, improper operation or incorrect usage and maintenance which
are associated in any way.
We also assume no responsibility for patent infringements or violations of the rights of third parties arising
from the use of this system.

Page 6 of 32
For improvement in terms of design, operation, and/or reliability SMARTBOW reserves the right to modify
the products described in this document without prior notice. SMARTBOW rejects from all liability related
with the use or application of the product described here.
All SMARTBOW products have been developed to assist farmers in their daily work with their herd as good
as possible. Because of variations in farm management, SMARTBOW cannot be responsible for the
economic results of each individual farm.
As soon as it becomes evident that safe operation is no longer possible (e.g. if there is visible damage),
remove the system immediately from power supply.
1.3 We ask for your feedback
All information of this manual has been compiled with the utmost care. The recommendations are intended
as guidelines. The instructions, illustrations and specifications in this manual are based on the current
information available at the time of publication. Your SMARTBOW system may contain improvements and
equipment or options that are not covered in this manual. New information based on the feedback from our
customers, are continuously updated and expanded.
We hope SMARTBOW fits your expectations and we like to receive your feedback (please send an email
to support@smartbow.at or call +43 (0) 7732 47200-90).
The SMARTBOW Team

Page 7 of 32
2 Electromagnetic Compatibility (EMC)
2.1 Europe
For additional regulatory information, see the Regulatory Compliance homepage on
www.smartbow.com at the following location
https://smartbow.com/en/documents/documents-wallpoint.html
2.2 TR-CU
The Wallpoint W01X meets the requirements of the technical regulations of customs
union of Russia, Kazakhstan, Kyrgystan, Armenia and Belarus. The EAC sign on the
type label certifies the conformity to the safety requirement of customs union.
2.3 USA / Canada
2.3.1 User Information acc. to FCC15.21
Changes or modifications not expressly approved by the party responsible for compliance could void the
user’s authority to operate the equipment.
2.3.2 User information acc. to KDB 447498 D01 Clause 7/ RSS-102 Clause2.6
The minimum RF Exposure test separation distance is 20 cm.
La distance minimale de séparation du test d'exposition RF est de 20 cm
2.3.3 Statement acc. to RSS Gen Issue 4 Sect. 8.3
This radio transmitter (identify the device by certification number or model number if Category II) has
been approved by Industry Canada to operate with the antenna types listed below with the maximum
permissible gain indicated. Antenna types not included in this list, having a gain greater than the
maximum gain indicated for that type, are strictly prohibited for use with this device.
Antennas approved for use:
Number
Type
Characteristic
Plug
Frequency range (GHz)
Gain (dBi)
1
RP-SMA
Omni
male
2.4 – 2.4835
4
2
RP-SMA
Omni
male
2.4 – 2.4835
4
Ce radio-émetteur (identifier l'appareil par son numéro de certification ou son numéro de modèle s'il fait
partie de la Catégorie II) a reçu l'approbation d'Industrie Canada pour un fonctionnement avec les types
d'antennes listées ci-dessous, avec le gain maximum permissible indiqué. L'utilisation de types
d'antennes ne figurant pas sur cette liste ou dont le gain est supérieur au gain maximum indiqué pour ce
type est strictement interdite avec cet appareil.
Antennes pouvant être utilisées :
Nombre
Type
Caractéristique
Plug
Plage de fréquence (GHz)
Gain (dBi)
1
RP-SMA
Omni
male
2.4 – 2.4835
4
2
RP-SMA
Omni
male
2.4 – 2.4835
4

Page 8 of 32
2.3.4 Part 15 Statement acc. FCC 15.19/RSS Gen Issue 4 Sect. 8.4
This device complies with Part 15 of the FCC Rules and with Industry Canada license-exempt RSS
standard(s). Operation is subject to the following two conditions: (1) this device may not cause harmful
interference, and (2) this device must accept any interference received, including interference that may
cause undesired operation.
Le présent appareil est conforme aux CNR d'Industrie Canada applicables aux appareils radio exempts
de licence. L'exploitation est autorisée aux deux conditions suivantes : (1) l'appareil ne doit pas produire
de brouillage, et (2) l'utilisateur de l'appareil doit accepter tout brouillage radioélectrique subi, même si le
brouillage est susceptible d'en compromettre le fonctionnement.
3 Safety
3.1 Safety Labels
The following safety labels are used on the different SMARTBOW products to warn against risks and
dangers.
Warning of a magnetic field
Hazards due to batteries
Risk of hand injury
European-label for the separate collection of electrical and electronic appliances
Further information in chapter 9 Disposal
The security labels on your product show important and useful information, which will help you to use and
maintain the SMARTBOW Wallpoint safely. Follow to the instructions below to ensure that all labels remain
in perfect condition and in the right place.
Make sure that the safety labels are always clean and legible. Do not use solvents, souring agents or other
comparable cleaning agents which could damage the sticker.
Replace lost or illegible safety stickers.
Safety labels can be obtained from the SMARTBOW support.

Page 9 of 32
3.2 Signal words and their meaning
The following signal words are used in the manual in order to warn the reader about risks and dangers.
Indicates a hazardous situation which, if not avoided, will result in death
or serious injury.
Indicates a hazardous situation which, if not avoided, could result in
death or serious injury
Indicates a hazardous situation, which, if not avoided, could result in
minor, moderate or serious injury.
Indicates information considered important, but not hazard-related, e.g.
information relating to possible property damage.
These signal words are in accordance with the standard definition for civil applications in the European
Economic Area. Definitions that deviate from the standard definition may also exist in other economic
areas or military applications. It is therefore essential to make sure that the signal words described here
are always used just with the related product documentation and the related product. The use of signal
words in connection with unrelated products or documentation can result in misinterpretation and in
personal injury or material damage.
3.3 Operating states
The SMARTBOW Wallpoint may be operated only under the operating conditions and the positions
specified by the manufacturer. Applicable local or national safety regulations and rules for the prevention
of accidents must be observed in all work performed.
The SMARTBOW Wallpoint is exclusively produced for use in livestock sheds. Any other use is only
permitted with a written permission of Smartbow GmbH.
Do not place the SMARTBOW Wallpoint on heat-generating devices such as radiators or fan heaters.
The ambient temperature must not exceed the maximum temperature specified in the product
documentation or in the data sheet. Product overheating can damage the Wallpoint permanently.
3.4 Electrical safety
Unless expressly permitted, never remove the cover or any part of the housing while the SMARTBOW
Wallpoint is in operation. Doing so will expose circuits and components and can lead to injuries, or
damage to the SMARTBOW Wallpoint.

Page 10 of 32
Any object that is not designed to be placed in the openings of the housing must not be used for this
purpose. Doing so can cause damage to the SMARTBOW Wallpoint.
Unless specified otherwise, the SMARTBOW Wallpoint is protected against the ingress of liquids. When
the cable entry cover is opened it must be protected against penetration by liquids. If the necessary
precautions are not taken the SMARTBOW Wallpoint may be damaged.
Do not use the SMARTBOW Wallpoint under adverse environmental conditions such as
inflammable gases, vapours and solvents
strong vibrations
An operation under the conditions described above may damage the SMARTBOW Wallpoint.
Prior to cleaning the SMARTBOW Wallpoints, disconnect it completely from the power supply (e.g.
network cable). Use a soft, non-lining cloth to clean the product. Never use chemical cleaning agents
such as alcohol, acetone or diluents for cellulose lacquers.
3.5 Operation
In some countries there are laws about digital positioning and tracking of people, animals and/or objects.
Only the user is responsible not to violate such laws or regulations.
Before you start processing the SMARTBOW Wallpoint mechanically and/or thermally or before you
disassemble it, be sure to read and pay special attention to the chapter 9 “Waste disposal”.
Depending on the function, the SMARTBOW Wallpoint can produce an elevated level of electromagnetic
radiation, which is within the range of the legal standards. Considering that unborn babies require increased
protection, pregnant women must be protected by appropriate measures. Persons with pacemakers may
also be exposed to risks from electromagnetic radiation. The employer/operator must evaluate workplaces
where there is a special risk of exposure to radiation and if necessary, take measures to avoid the potential
danger.
Should a fire occur, the SMARTBOW Wallpoint may release hazardous substances (gases, fluids, etc.)
that can cause health problems. Therefore, suitable measures must be taken, e.g. protective masks and
protective clothing must be worn.
3.6 Repair and Service
Adjustments, replacement of parts and repair may be performed only by electrical experts authorized by
SMARTBOW. Only original parts may be used for replacing parts. A safety test must always be

Page 11 of 32
performed after parts have been replaced (visual inspection, functional test). This helps to ensure the
continued safety of the SMARTBOW Wallpoint.
3.7 Transport
The packaging of the SMARTBOW Wallpoint protects the housing from damage.
If you have to return a SMARTBOW Wallpoint to Smartbow GmbH, it should be packed so that external
influences cannot cause damage to the product.
3.8 Magnetic fields
Please be aware that magnetic fields delete data media (diskettes, hard disks, USB flash drives, digital
cameras, check cards, credit cards, audio and video cassettes) and can affect or destroy electronic and
mechanical components, e.g. pacemaker monitors, compasses, counters, etc. In any case keep a safety
distance of about 1 meter.
Do not use the magnets in locations where they are exposed to high heat (> 80°C).
Magnetic fields of permanent magnets have, according to present knowledge, no measurable positive or
negative influence on people. A health risk due to the magnetic field of a permanent magnet is unlikely
but cannot be completely excluded.
3.9 Waste disposal/Environmental protection
Waste electrical and electronic equipment must not be disposed of with unsorted municipal waste, but
must be collected separately.
If products or their components are mechanically and/or thermally processed in a manner that goes beyond
their intended use, hazardous substances (heavy-metal dust such as lead, beryllium, nickel) may be
released. For this reason, the product may only be disassembled by specially trained personnel. Improper
disassembly may be hazardous to your health. The national waste disposal regulations must be observed.

Page 12 of 32
4 The SMARTBOW Wallpoint
4.1 General product information
The SMARTBOW Wallpoint is attached to suitable walls, poles, etc.
Through radio signals the position of SMARTBOW Eartags is
determined in the barn. The communication and data exchange
between the SMARTBOW Eartags and the FarmServer operates via
the SMARTBOW Wallpoints in the barn or outdoor area.
The SMARTBOW Wallpoint must not be repositioned by the end user; otherwise we cannot guarantee
correct system behaviour. The SMARTBOW Wallpoint cover for cable entry must not be opened at any
time. There are no serviceable parts inside.
The screws of the cover are sensitive to too high torque
(torque < 0,6Nm).
4.2 Scope of supply
Figure 2: Scope of supply
The following items are included in the delivery of the SMARTBOW Wallpoint:
1 pcs. SMARTBOW Wallpoint (packed in an antistatic foil)
Figure 1: SMARTBOW Wallpoint

Page 13 of 32
2 pcs. Omni Antennas
2 pcs. Chipboard screws
2 pcs. Dowel
1 pcs. Mounting bracket for SMARTBOW Wallpoint
1 pcs. User Manual
4.3 Technical Data
Type
SMARTBOW Wallpoint
Power supply
Power over Ethernet Class 2, 48V, IEEE 802.3af
compliant
Typical indoor range (Wallpoint to
Wallpoint)
500m, line of sight
Typical location accuracy
80% < 1m1
Location accuracy average all
measurements
1,21m2
Resolution
1cm
Operating temperature
-20 to +60°C
Storage temperature
-20°C to +70°C
Dimensions (without antennas)
(l x w x h)
202x194x75mm
Weight (without antennas)
ca. 800g
Protection class
IP65
Table 1: Technical Data SAMRTBOW Wallpoint
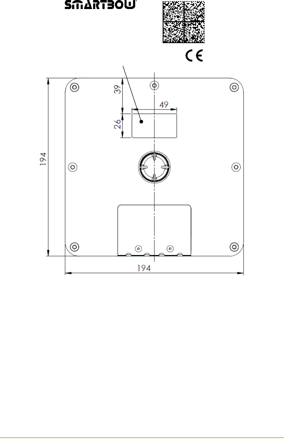
Figure 3: SMARTBOW Wallpoint labelling elements front
1
Conditions defined by Smartbow GmbH
2
Conditions defined by Smartbow GmbH

Page 14 of 32
Product: Wallpoint
Model No.: W010
FCC ID: 2ADP3W010
IC: 12561A-W010
PoE: 44-57VDC IP65
Class2 (IEEE 802.3af)
MAC: 180B52000E2F
Figure 4: SMARTBOW Wallpoint W010 labelling elements rear

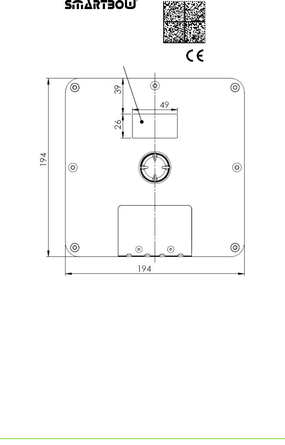
Page 15 of 32
Product: Wallpoint
Model No.: W011
FCC ID: 2ADP3W010
IC: 12561A-W010
PoE: 44-57VDC IP65
Class2 (IEEE 802.3af)
MAC: 180B52000E2F
Figure 5: SMARTBOW Wallpoint W011 labelling elements rear

Page 16 of 32
Изделие: приёмник
Product: Wallpoint Модель №: W012
Model No.: W012 Производитель: Smartbow GmbH
FCC ID: 2ADP3W012 Дата: 2017-09-28
IC: 12561A-W012 PoE: 44-57 VDC IP65
PoE: 44-57VDC IP65 класс 2 (IEEE 802.3af
Class2 (IEEE 802.3af) Сделано в Австрии
MAC: 180B52000E2F
Figure 6: SMARTBOW Wallpoint W012 labelling elements rear

Page 17 of 32
4.4 Modification on the SMARTBOW Wallpoint
There are no modifications on the product that need to be performed by the end user, no serviceable
parts inside.
Smartbow GmbH doesn’t approve any modifications on the products that are made by unauthorized
persons. Modifications can have negative effects on the quality and proper function of the products of
Smartbow GmbH.
4.5 General and special warranty conditions
4.5.1 General warranty conditions
These general warranty conditions apply only in connection with the general terms and conditions of sale
(GTC) of Smartbow GmbH at the purchasing moment of the Wallpoint. The current version of the GTC is
visible on the homepage of SMARTBOW (http://www.smartbow.at).
The warranty always begins on the date of transfer of the SMARTBOW Wallpoints bought from
SMARTBOW or an authorized seller of SMARTBOW and refers to any material or production damage,
which may occur while normal using. The warranty period is derived from the proof of purchase.
Please keep the original proof of purchase in a safe place. SMARTBOW and its authorized service
partners reserve the right to refuse a warranty repair or a warranty confirmation if a proof cannot be
provided.
If you have to return a SMARTBOW Wallpoint please make sure that it is packed securely.
Please send us with the SMARTBOW Wallpoint a detailed description of the problem. In order to assert
your claims or before sending, please contact the SMARTBOW Support.
The SMARTBOW Wallpoint always has to be sent completely, that means with all parts from the scope of
supply. An incomplete reception of shipment will delay the repair / exchange. SMARTBOW does not take
over any liability for additionally sent materials, which do not belong to the original scope of supply.
This warranty does not have any effect on your existing statutory warranty claims and is subject to the
laws of the country, in which the SMARTBOW Wallpoint was bought by the end customer from the
authorized distributer and is valid only in this country.
4.5.2 Warranty coverage
In case of a fault in your SMARTBOW Wallpoint covered by this warranty, SMARTBOW ensures the
repair or the replacement of the SMARTBOW Wallpoint. The decision whether to repair or replace the
SMARTBOW Wallpoint will be made by SMARTBOW. For this reason SMARTBOW will decide if the sent
SMARTBOW Wallpoint will be replaced in the same quality and function.

Page 18 of 32
We assume no guarantee for expendable materials, which mean parts which must be replaced at regular
intervals.
If it turns out during the repair, that it is an error that is not covered by warranty, SMARTBOW reserves
the right to charge a handling fee as well as the costs for the repair (material and labour) which refers to
an estimate.
4.5.3 Warranty exclusion
SMARTBOW makes no guarantees for failure and damage caused by external influences (heat, water,
lightning, etc.), accidental damage, improper use, changes, alterations and extensions made on the
SMARTBOW Wallpoint, use of foreign parts, neglect, improper packaging, improper storage or loss in
returning the SMARTBOW Wallpoint.
This warranty is void if the defect in the SMARTBOW Wallpoints is caused by maintenance or repair,
which was performed by someone else than the SMARTBOW or an authorized service partner. The
warranty also void if labels or serial numbers of the SMARTBOW Wallpoints or a component of the
SMARTBOW Wallpoints is changed or made illegible.
4.5.4 Support Hotline
Before returning the Wallpoint to SMARTBOW we recommend to contact us via the support hotline or by
mail. You will receive further information on how you can make your claim under warranty.
The SMARTBOW support is available under support@smartbow.at or +43 (0) 7732 47200-90.

Page 19 of 32
5 Installation
5.1 Installation of the SMARTBOW Wallpoint
The Wallpoint has to be installed only by SMARTBOW technicians or authorized partners. In order to do
this a PROFINET cable (specification see Appendix A), without connectors, is required at the position where
the SMARTBOW Wallpoint will be installed. Refer to the cabling plan provided by SMARTBOW or
authorized partners for the positions where the SMARTBOW Wallpoints will be installed. The cable will be
terminated and tested by the technician.
It is not possible to relocate the SMARTBOW Wallpoint after installation; this
can lead to undesired and unstable system behaviour.
5.2 Mounting the SMARTBOW Wallpoint
Necessary tools for installation:
1 pcs. cordless drill driver
1 pcs. TX25 bit
1 pcs. knife
1 pcs. pencil
Optional tools for installation (depending on material of wall)
1 pcs. impact drilling machine
1 pcs. 8mm impact drill
1. Use mounting bracket to mark drill pattern
Figure 7: Marking the drill pattern
Skip step 2 and 3 if you mount the SMARTBOW Wallpoint on wood.
2. Drill holes for dowels
3. Put dowels into drilled holes

Page 20 of 32
Figure 8: Dowel insertion
4. Screw the mounting bracket with provided chipboard screws
Figure 9: Screwing the mounting bracket
5. Attach the SMARTBOW Wallpoint to the mounting bracket and tighten plastic nut
Figure 10: Attaching the SMARTBOW Wallpoint to the mounting bracket
6. Remove plastic covers and attach the antennas to the SMARTBOW Wallpoint

Page 21 of 32
Figure 11: Installing the antennas
7. Connect the SMATBOW Wallpoint to the Network using both M12 connectors.
Antennas that are not mounted properly can cause undesired product
performance.
5.2.1 Installation option pipe clamp
Necessary tools for installation:
13mm wrench
1. Put the first bracket of the pipe clamp around the pipe and add the mounting bracket. Temporarily
tighten the nuts by hand.
Figure 12: Mounting pipe clamp first bracket
2. Attach the second bracket of the pipe clamp

Page 22 of 32
Figure 13: Mounting pipe clamp second bracket
3. Tighten the nuts using a 13mm wrench
Figure 14: Tightening the 4 nuts
5.2.2 Installation option special attachment for pipe
Necessary tools for installation:
Slotted screwdriver or socket wrench
Sheet-iron shears
1. Determine the necessary length of the clamp band.
2. Cut the clamp band with a sheet-iron shears to the necessary length + min.40mm.
3. Push one end of the clamp band ca. 40mm into the recess of the clamp.
4. Turn the one end which is guided through the recess, slightly upward.
5. Turn the other end of the strip under the housing through the rear recess up again.
6. Hook the tab of the recess in the clamp band and check the seat (pay attention to an overlap of
min. 20 mm at the open end).
7. Turn around the open end down.
8. Place the clamp around the body to be fastened.
9. Screw in the free end of the clamp band in the closure.

Page 23 of 32
Figure 15: Installation option universal hose clamp set
10. The bent end of the tape is securely clamped between the casing and pipe.
5.2.3 Installation option I-beam clamp
Necessary tools for installation:
17mm wrench
6mm Allen key
1. Screw the I-Beam clamps onto the mounting bracket with the 2 supplied M8x20 screws by use of
the 6mm Allen key.
Figure 16: Screwing the I-Beam clamp onto the mounting bracket
2. Mount the clamps to the I-Beam using a 17mm wrench
Figure 17: Tightening of the 2 screws

Page 24 of 32
6 Equipment
6.1 100101 Pipe clamp
Use the clamp holder if you mount the SMARTBOW Wallpoint to a pipe
with diameters from 26-63mm (1” – 2 ½ “). There are 2 brackets per pack.
For mounting instructions see point 5.2.1.
6.2 100104 I-beam clamp
The I-beam is suitable for mounting the SMARTBOW Wallpoint to I-beams
with flange thickness from 2 to 22mm. Larger clamps are available upon
request.
6.3 100105 Special attachment for pipe
To fix the SMARTBOW Wallpoints to objects with different clamping areas,
there is a set consisting of a clamp band with 3m length and 8 clamps
available. The installation instructions for this special attachment for pipe
can be found in Chapter 5.2.2.
Figure 18: Pipe clamp
Figure 19: I-beam clamp
Figure 20: Special attachment for pipe

Page 25 of 32
7 Transport and storage
7.1 Transport
Always use the original packaging for transporting the SMARTBOW Wallpoint to avoid scratching the
surface.
7.2 Storage
Store the SMARTBOW Wallpoint in dry, cool, clean surroundings. Please take care that the storage
temperature range does not exceed the limits shown in chapter 4.3 Technical Data.
7.3 Cleaning
Clean the SMARTBOW Wallpoint only in closed state.
Heavy soiling of the housing can be removed mechanically with a spatula. Avoid the use of sharp tools.
Clean the housing with a damp cloth and mild cleaning agent. Do not use any abrasives or solvents such
as alcohol, acetone, and nitro thinner. Avoid direct high pressure cleaning near the cable entries.
8 Troubleshooting
This chapter contains a list of faults and solutions.
Problem
Reason
Solution
SMARTBOW Wallpoint Power
LED doesn’t light
switch has no power
Check if the FarmServer,
respectively the switchbox,
where the SMARTBOW
Wallpoint is plugged into, has
power.
faulty SMARTBOW Wallpoint
please contact the service
hotline +43 (0) 773247200-90
Table 2: Troubleshooting

Page 26 of 32
9 Waste
Please do your part to protect the environment by disposing used SMARTBOW Wallpoints environmentally
friendly under European WEEE Directive 2002/96/EG (directive on electrical and electronic equipment),
and/or national laws. Improper disposal of electronic products could have a negative impact on the
environment and human health due to potentially hazardous substances.
The package contains the following materials:
corrugated cardboard/cardboard
films/flat bags of polyethylene
adhesive tape of PVC
Keep packaging materials away from children - can cause suffocation!
Bring the packaging to an official collection point.
Smartbow GmbH is focused on sustainability and takes over all duties of the return and disposal for EU
manufacturers. Please contact your SMARTBOW service center to dispose of the product environmentally
friendly. A separate collection and proper recycling of the electronic waste helps to use natural resources
carefully. Your cooperation in the correct disposal of this product enables the effective use of natural
resources.
10 Support
For support and customer service please do not hesitate to contact our SMARTBOW team.
Smartbow GmbH T +43 (0) 7732 47200-0
Jutogasse 3 F +43 (0) 7732 47200-91
4675 Weibern, AUSTRIA support@smartbow.at
www.smartbow.com

Page 27 of 32
11 Declaration of Conformity
Figure 21: Declaration of Conformity SMARBOW Wallpoint W010

Page 28 of 32
Figure 22: Declaration of Conformity SMARTBOW Wallpoint W011

Page 29 of 32
Figure 23: Declaration of Conformity SMARTBOW Wallpoint W012

Page 30 of 32
12 Lists
12.1 List of figures
Figure 1: SMARTBOW Wallpoint ................................................................................................................ 12
Figure 2: Scope of supply ............................................................................................................................ 12
Figure 3: SMARTBOW Wallpoint labelling elements front .......................................................................... 13
Figure 4: SMARTBOW Wallpoint W010 labelling elements rear ................................................................ 14
Figure 5: SMARTBOW Wallpoint W011 labelling elements rear ................................................................ 15
Figure 6: SMARTBOW Wallpoint W012 labelling elements rear ................................................................ 16
Figure 7: Marking the drill pattern................................................................................................................ 19
Figure 8: Dowel insertion ............................................................................................................................. 20
Figure 9: Screwing the mounting bracket .................................................................................................... 20
Figure 10: Attaching the SMARTBOW Wallpoint to the mounting bracket ................................................. 20
Figure 11: Installing the antennas ............................................................................................................... 21
Figure 12: Mounting pipe clamp first bracket .............................................................................................. 21
Figure 13: Mounting pipe clamp second bracket ........................................................................................ 22
Figure 14: Tightening the 4 nuts.................................................................................................................. 22
Figure 15: Installation option universal hose clamp set .............................................................................. 23
Figure 16: Screwing the I-Beam clamp onto the mounting bracket ............................................................ 23
Figure 17: Tightening of the 2 screws ......................................................................................................... 23
Figure 18: Pipe clamp ................................................................................................................................. 24
Figure 19: I-beam clamp ............................................................................................................................. 24
Figure 20: Special attachment for pipe ....................................................................................................... 24
Figure 21: Declaration of Conformity SMARBOW Wallpoint W010 ........................................................... 27
Figure 22: Declaration of Conformity SMARTBOW Wallpoint W011 .......................................................... 28
Figure 23: Declaration of Conformity SMARTBOW Wallpoint W012 .......................................................... 29
Figure 24: Cross-section of a PROFINET Cable ........................................................................................ 32
12.2 List of tables
Table 1: Technical Data SAMRTBOW Wallpoint ........................................................................................ 13
Table 2: Troubleshooting ............................................................................................................................. 25
13 Glossary
SMARTBOW Eartag
Low Power 2.4GHz ISM band transceiver sensor module which
supports localization, 3-axis accelerometer and ambient temperature
SMARTBOW FarmServer
Local server at the farm for data analysis and localization

Page 31 of 32
14 Revision history
Date
Version
Remark
07.12.2017
1.0
Original

Page 32 of 32
APPENDIX A: Specification PROFINET / Industrial Ethernet
Shielding: Foil and braid shielded
Conductor cross section: 2x2xAWG22/1
Outer Diameter: 6.5mm ± 0,2mm
Working temperature range: -25°C…. +70°C
Installation temperature range: -5°C… +50°C
Figure 24: Cross-section of a PROFINET Cable