Smeg Sca706X Users Manual
Smeg Electric Wall Oven to the manual b7d9d967-1b38-4d97-87f5-7c43cbdd8deb
2015-01-24
: Smeg Smeg-Sca706X-Users-Manual-224126 smeg-sca706x-users-manual-224126 smeg pdf
Open the PDF directly: View PDF
.
Page Count: 29
- 1. INSTRUCTIONS FOR SAFE AND PROPER USE
- 2. INSTALLATION
- 3. DESCRIPTION OF CONTROLS
- USE OF THE OVEN
- 5. AVAILABLE ACCESSORIES
- 6. COOKING HINTS
- CLEANING AND MAINTENANCE
- 8. EXTRAORDINARY MAINTENANCE

SCA706X operating and installation instructions

Contents
1. INSTRUCTIONS FOR SAFE AND PROPER USE________________ 4
2. INSTALLATION __________________________________________ 6
3. DESCRIPTION OF CONTROLS _____________________________ 8
4. USE OF THE OVEN______________________________________ 17
5. AVAILABLE ACCESSORIES _______________________________ 18
6. COOKING HINTS________________________________________ 19
7. CLEANING AND MAINTENANCE ___________________________ 25
8. EXTRAORDINARY MAINTENANCE _________________________ 28
INSTRUCTIONS FOR THE INSTALLER: these are intended for the
qualified technician who must install the appliance, set it functioning
and carry out an inspection test.
INSTRUCTIONS FOR THE USER: these contain user advice,
description of the controls and the correct procedures for cleaning and
maintenance of the appliance.
3

Introduction
1. INSTRUCTIONS FOR SAFE AND PROPER USE
THIS MANUAL IS AN INTEGRAL PART OF THE APPLIANCE AND
THEREFORE MUST BE KEPT IN ITS ENTIRETY AND IN AN ACCESSIBLE
PLACE FOR THE WHOLE WORKING LIFE OF THE OVEN. WE ADVISE
CAREFUL READING OF THIS MANUAL AND ALL THE INSTRUCTIONS
THEREIN BEFORE USING THE OVEN. INSTALLATION MUST BE CARRIED
OUT BY QUALIFIED PERSONNEL IN ACCORDANCE WITH THE
REGULATIONS IN FORCE. THIS APPLIANCE IS INTENDED FOR DOMESTIC
USES AND CONFORMS TO CURRENT REGULATIONS IN FORCE. THE
APPLIANCE HAS BEEN BUILT TO CARRY OUT THE FOLLOWING
FUNCTIONS: COOKING AND HEATING-UP OF FOOD. ALL OTHER USES
ARE CONSIDERED IMPROPER.
THE MANUFACTURER DECLINES ALL RESPONSIBILITY FOR IMPROPER
USE.
DO NOT LEAVE THE PACKING IN THE HOME ENVIRONMENT. SEPARATE
THE VARIOUS WASTE MATERIALS AND TAKE THEM TO THE NEAREST
SPECIAL GARBAGE COLLECTION CENTRE.
IT IS OBLIGATORY FOR THE ELECTRICAL SYSTEM TO BE EARTHED
ACCORDING TO THE METHODS REQUIRED BY SAFETY RULES.
WHEN LINKING UP TO MAINS BY PLUG AND SOCKET, MAKE SURE THAT
BOTH ARE COMPATIBLE AND CONNECT BY MEANS OF A POWER CABLE
COMPLYING WITH APPLICABLE REGULATIONS.
THE SOCKET MUST BE ACCESSIBLE AFTER THE APPLIANCE HAS BEEN
BUILT IN.
NEVER UNPLUG BY PULLING ON THE CABLE.
DO NOT OBSTRUCT VENTILATION OUTLETS AND HEAT DISPERSAL SLITS.
IMMEDIATELY AFTER INSTALLATION CARRY OUT A BRIEF INSPECTION
TEST OF THE OVEN, FOLLOWING THE INSTRUCTIONS BELOW. SHOULD
THE APPLIANCE NOT FUNCTION, DISCONNECT IT FROM THE SUPPLY AND
CALL THE NEAREST TECHNICAL ASSISTANCE CENTRE.
NEVER ATTEMPT TO REPAIR THE APPLIANCE.
ALWAYS CHECK THAT THE CONTROL KNOBS ARE IN THE “ZERO” (OFF)
POSITION WHEN YOU FINISH USING THE OVEN.
4

Introduction
NEVER PUT FLAMMABLE OBJECTS IN THE OVEN: THEY COULD BE
ACCIDENTALLY IGNITED AND CAUSE FIRES.
DURING USE THE APPLIANCE BECOMES VERY HOT. TAKE CARE NOT TO
TOUCH THE HEATING ELEMENTS INSIDE THE OVEN. TO AVOID BURNS
AND SCALDS CHILDREN SHOULD BE KEPT AWAY
THE I.D. PLATE WITH TECHNICAL DATA, REGISTRATION NUMBER AND
BRAND NAME IS POSITIONED VISIBLY ON THE OVEN DOOR FRAME.
DO NOT REMOVE THIS PLATE FOR ANY REASON.
THIS APPLIANCE IS DESIGNED FOR COOKING FOOD AND IT SHALL NOT
BE USED AS A SPACE HEATER.
DO NOT SPRAY ANY SPRAY PRODUCTS NEAR THE ELECTRICAL
APPLIANCE WHILE IT IS IN OPERATION.
THE OVEN IS DESIGNED FOR USE BY ADULTS. DO NOT ALLOW CHILDREN
TO GO NEAR OR PLAY WITH IT. THE USE OF THIS APPLIANCE IS NOT
PERMITTED TO PEOPLE (INCLUDING CHILDREN) OF REDUCED PHYSICAL
AND MENTAL ABILITY, OR LACKING IN EXPERIENCE IN THE USE OF
ELECTRICAL APPLIANCES, UNLESS THEY ARE SUPERVISED OR
INSTRUCTED BY ADULTS OR PEOPLE RESPONSIBLE FOR THEIR SAFETY.
BEFORE THE APPLIANCE IS PUT INTO OPERATION, ALL THE LABELS AND
PROTECTIVE FILMS APPLIED INSIDE OR OUTSIDE MUST BE REMOVED.
IF THE APPLIANCE IS INSTALLED ON BOATS OR IN CARAVANS, DO NOT
USE IT AS A ROOM HEATER.
The manufacturer declines all responsibility for damage to persons
or things caused by non-observance of the above prescriptions or by
interference with any part of the appliance or by the use of non-original
spare parts.
5

Instructions for the installer
6
2. INSTALLATION
2.1 Electrical connection
Make sure that the voltage and capacity of the power supply line
conform to the data shown on the plate on the oven door frame.
Do not remove this plate for any reason.
It is obligatory for the electrical system to be earthed according to the
methods required by safety rules.
If a plug and socket connection is being used make sure that the plug
and socket are compatible. Avoid use of adapters and shunts as these
could cause overheating and risk of burns.
If the appliance is connected to the power supply network in a
permanent manner, install a multipolar cut-out device on the line, with
contact opening distance equal to or greater than 3 mm located near the
oven and in an easily reachable position.
For operation on 230V
∼
: use a H05RR-F /
H05RN-F type three-core cable (3 x 1.5
mm2).
The cable end to be connected to the
appliance must be provided with an earth
wire (yellow-green) at least 20 mm longer.
The manufacturer declines all responsibility for damage to persons
or things caused by non-observance of the above prescriptions or by
interference with any part of the appliance.

Instructions for the installer
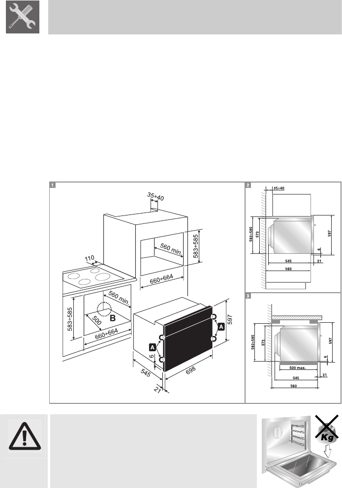
2.2 Installing the oven
The oven is designed for installation into any piece of furniture as long as
it is heat-resistant. Proceed according to the dimensions shown in
Figures 1, 2 and 3. For installing under a work top, follow the dimensions
given in Figure 3. For installing under a work top beneath a hob with
controls connected to the oven, ensure a minimum clearance from any
side walls of at least 110 mm as shown in Figure 1.
For installing in a column, follow the dimensions given in Figure 2 allowing for a
clearance of 80 to 90 mm at the top and sides of the column. Tighten the four
screws (ref.A) inside the frame to secure (Fig. 1).
For installing beneath a separate hob, allow for a rear and bottom
clearance as shown in Figure 1 (ref. B). See relevant instructions for
fitting and securing the hob.
Never use the oven door to lever the oven into
place when fitting.
Avoid exerting too much pressure on the oven door
when open.
7

Instructions for the user
8
3. DESCRIPTION OF CONTROLS
3.1 Front control panel
All the oven controls are grouped together on the front panel.
Before using the oven check that the electronic programmer is showing
the symbol (see paragraph “3.2 Electronic programmer”.
Press the central key for 1 - 2 seconds to enable use of the oven
when using for the first time or after a power blackout.
THERMOSTAT CONTROL KNOB
The cooking temperature is selected by turning
the knob clockwise to the desired setting,
between 50° and 250°C.

Instructions for the user
FUNCTION CONTROL KNOB
Rotate the knob in either direction to select desired function from the
following:
NO FUNCTION SET
UPPER AND LOWER
HEATING ELEMENTS
DEFROSTING
WIDE GRILL ELEMENT
UPPER AND LOWER
HEATING ELEMENTS +
VENTILATION
SMALL GRILL ELEMENT
WIDE GRILL ELEMENT +
VENTILATION
LOWER HEATING
ELEMENT
FAN-ASSISTED
HEATING ELEMENT
UPPER AND LOWER
HEATING ELEMENTS +
FAN-ASSISTED HEATING
ELEMENT
SMALL GRILL ELEMENT +
VENTILATION
LOWER HEATING
ELEMENT + FAN-ASSISTED
HEATING ELEMENT
LOWER HEATING
ELEMENT +
VENTILATION
TIMER KNOB
Turn the knob clockwise to the desired time setting.
Time is expressed in minutes (maximum 55
minutes).
Adjustment is progressive so that the oven also operates at any
intermediate value. The buzzer sounding at the end of the cooking time
does not interrupt operation of the oven.
THERMOSTAT INDICATOR LIGHT (ORANGE)
When this light comes on, the oven is heating up.
When this light goes out, the preset heating temperature
has been reached.
When it flashes at regular intervals, the temperature inside
the oven is being kept constantly at the set level.
INDICATOR LIGHT (GREEN)
This light comes on when any of the oven heating elements
is receiving power.
9

Instructions for the user
10
3.2 ANALOGUE ELECTRONIC CLOCK (ON SOME MODELS ONLY)
The instructions provided are valid solely for the large oven.
LIST OF FUNCTIONS
TIMER KEY
COOKING DURATION AND END KEY
TIME SETTING AND RESET
VALUE DECREASE KEY
VALUE INCREASE KEY
The buzzer that sounds at the end of each programming will be made up
of 10 buzzes repeated 3 times at intervals of about 1 minute. It can be
stopped at any time by pressing any key.
3.2.1 Setting the time
When using the oven for the first time, or after a power failure, the display
flashes at regular intervals. Press key to stop the display flashing.
Press key again for 2 seconds; the current time can now be set. Press
the value modification keys or to increase or decrease by one
minute at a time. Press either of the value modification keys to display the
current time. Five seconds after last pressing the key, the clock will start
from the set time.

Instructions for the user
3.2.2 Timer
This function only activates the buzzer, without stopping cooking.
- Press key and the display lights up as
shown in figure 1;
- Within 5 seconds press key or to set the
timer. Each time a key is pressed, an outer
segment representing 1 minute of cooking is lit
or switched off (figure 2 shows 10 minutes of
cooking).
- Five seconds after last pressing the key the
countdown begins, at the end of which the
buzzer activates.
- The current time can be viewed during the
countdown by pressing key once, press the
key again to return to the timer display.
- At the end of the countdown the oven must be
stopped manually by turning the thermostat
knob and the function selector knob to 0.
1
2
It is not possible to set a cooking time of more than 4 hours.
11

Instructions for the user
12
3.2.3 Programming
Cooking duration: the 2nd key can be pressed to set the cooking
duration. Before it can be set, the thermostat must be turned to the
desired cooking temperature and the function selector knob to any
setting. To set the cooking duration, proceed as follows:
- Press key ; the pointer will go to position 12
and the adjacent symbol will flash (Fig. 1).
- Use the or key to set the cooking
duration: each pressure on the key adds 1
minute to the cooking duration, and every 12
minutes a new inside segment will light up
(figure 2 shows a cooking duration of 1 hour).
- Once the desired duration is obtained, cooking
will start about 5 seconds after the last pressure
on or .
- The display will show the current time,
represented by the constantly illuminated
segments, and the minutes left to the end of the
cooking time, represented by the flashing
segments (each flashing segment means 12
minutes of cooking time left).
1
2
- At the end of the cooking time the timer will switch the oven heating
elements off, the beeps will start to sound and the numbers on the
dial will flash.
- The duration can also be reset by deleting the program selected:
Press the central key for 2 seconds to cancel the set duration and
the oven will have to be manually switched off if the cooking operation
is in progress.
Warning: it is not possible to set cooking durations of more than 12
hours.

Instructions for the user
Cooking start: as well as setting a cooking duration, the cooking start
time can also be set (with a maximum delay of 12 hours in relation to the
current time). To set the cooking start/end time, proceed as follows:
- Set the cooking duration as described in the previous point.
- Within 5 seconds of last pressing key or , press key again
to set the cooking end time. Symbol will flash on the display
together with the current time, with internal segments illuminated to
show the end of cooking time. Use keys or to set the cooking
end time.
- 5 seconds after the last key is pressed, the display will show the
current time and the cooking start and end times, which will be
represented by the illuminated inside segments. The display
segments will be constantly illuminated as long as the current time
is not the same as the cooking start time; as soon as the current
time reaches the set starting time, all the inside segments will start
to flash, indicating that the oven has started cooking.
- At the end of the cooking time the timer will switch the oven heating
elements off, the beeps will start to sound and the numbers on the
dial will flash.
- To delete the entire set program, hold down the central key for 2
seconds; if cooking has already started, the oven will have to be
switched off manually.
- Here we can see a programming example: the
current time is 7:06 and cooking is
programmed to start at 8.00 and end at 9.00.
- At 8 o'clock the inside segments between 8
and 9 will start to flash, while the hours hand
will remain still.
Warning: for the oven to start cooking operations after the programming
procedures described above, the thermostat and function selector knob
must be correctly set to the desired temperature and function.
3.2.4 Display brightness reduction
To reduce the energy consumption in stand-by, key can be pressed to
reduce the display brightness. To restore the normal brightness, press
again.
13

Instructions for the user
14
3.3 Electronic programmer
LIST OF FUNCTIONS
TIMER KEY
COOKING DURATION KEY
END OF COOKING KEY
MANUAL OPERATION KEY
VALUE DECREASE KEY
VALUE INCREASE KEY
3.3.1 Clock adjustment
When using the oven for the first time, or after a power failure, the display
flashes regularly and indicates . To stop flashing, press key on
the display. By pressing keys or each single press changes the
time by 1 minute either up or down.
Press one of the two keys until the right time appears.
Before setting the programmer activate the desired function and
temperature.
3.3.2 Semi-automatic cooking
Use this setting for automatic oven switch-off at the end of cooking time.
By pressing key , the display lights up, showing ; keep the key
pressed and at the same time, press keys or to set the cooking
time.

Instructions for the user
Release key to start the programmed cooking time count. The display
will now show the right time together with symbols A and .
3.3.3 Automatic cooking
Use this setting to automatically start and stop the oven.
By pressing key , the display lights up showing ; keep the key
pressed and at the same time, press keys or to set the cooking
time.
By pressing key the sum of the right time + cooking time will appear;
keep the key pressed and at the same time, press keys or to
regulate the end of cooking time.
Release key to start the programmed count and the display will show
the right time together with symbols AUTO and .
After setting, to see how much cooking time is left, press key ; to see
end of cooking time, press key .
3.3.4 End of cooking
When cooking is over, the oven will automatically switch off and, at the
same time, an intermittent alarm will sound. After switching off the alarm,
the display will once again show the right time together with the symbol
, indicating that the oven has returned to manual operation mode.
3.3.5 Adjusting the buzzer volume
The buzzer volume can be varied (3 settings) while it is operating by
pressing key .
3.3.6 Stopping the buzzer
The buzzer stops automatically after seven minutes. It can be stopped
manually by pressing keys and together.
3.3.7 Timer
The programmer can also be used as an ordinary timer.
In timer mode, the system will not cut out operation of the oven at the
end of the set time.
15

Instructions for the user
16
By pressing key , the display shows ; keep the key pressed and
at the same time press keys or By releasing the key , the
programmed count starts and the symbols and appear on the
monitor.
After programming the timer, the display will show the current time. To
see the cooking time remaining, press key .
Set-up with incoherent values is logically prevented (e.g. the contrast
between a cooking time and a longer period will not be accepted by the
programmer).
3.3.8 Deleting the set data
With the program set, hold down the key of the function to be deleted,
while at the same time going to the value by pressing the value
modification keys or The programmer will interpret deletion of the
duration as the end of cooking.
3.3.9 Modifying the set data
The cooking data entered can be changed at any time by keeping the
function key pressed and at the same time adjusting the keys or .

Instructions for the user
4. USE OF THE OVEN
4.1 Warnings and general advice
Before using the oven for the first time, pre-heat it to maximum
temperature (250°C) long enough to burn any manufacturing oily
residues which could give the food unpleasant odours.
During cooking, do not cover the bottom of the oven with aluminium or
tin foil and do not place pans or oven trays on it as this may damage the
enamel coating. If you wish to use greaseproof paper, place it so that it
will not interfere with the hot air circulation inside the oven.
To prevent any steam in the oven creating
problems, open the door in two stages: half open
(5 cm approx.) for 4-5 seconds and then fully
open. To access food, always leave the door
open as short a time as possible to prevent the
temperature in the oven from falling and ruining
the food.
4.2 Cooling system
The oven is equipped with a cooling system
which automatically comes on upon the oven
being turned on.
Fans cause a steady outflow of air from above
the door which may continue for a brief period of
time even after the oven has been turned off.
4.3 Oven light
The oven light comes on:
When the oven door is opened, or by turning the functions knob to any
symbol.
17

Instructions for the user
18
5. AVAILABLE ACCESSORIES
The oven features 4 runners for positioning
racks and trays at different heights.
Some models are not provided with all accessories.
Oven rack: useful for holding cooking
containers.
Tray rack: for placing on top of a tray for
cooking foods which may drip.
Oven tray: useful for collecting fat from
foods placed on the rack above.
Baking tray: for baking cakes, pizza and
oven desserts.
Roof liner: remove it to make cleaning
inside the oven easier.
Chrome plated rod gripper useful for
removing hot racks and trays.
Roasting spit: useful for cooking chicken,
sausages and anything else requiring
uniform cooking over the whole surface.
Spit supports: to be inserted in the holes of
the oven plate before mounting the roasting
spit.
Accessories available on request
Original accessories may be ordered from any Authorised Service
Centre.

Instructions for the user
6. COOKING HINTS
In fan-assisted mode preheating should be carried out at 30/40°C above the
cooking temperature. This considerably shortens cooking times and
reduces power consumption, as well as giving better cooking results.
Keep the oven door closed during cooking
6.1 Traditional cooking
FUNCTION SWITCH
THERMOSTAT SWITCH
50 ÷ 250°C
This traditional cooking method, in which heat comes from above and
below, is suitable for cooking food on a single level. You have to pre-
heat the oven until the set temperature is reached. Place the food in the
oven only after the thermostat indicator light has turned off. Very fatty
meats may be put in when the oven is still cold. Put frozen meat in
immediately, without waiting for it to defrost. The only precaution you
need to take is to set the temperature about 20°C lower and cooking
time about 1/4 longer than you would for fresh meat.
6.2 Fan-assisted cooking
FUNCTION SWITCH
THERMOSTAT SWITCH
50 ÷ 250°C
This system is suitable for cooking on several levels, including different
types of food (fish, meat etc.), without tastes and smells mingling. Air
circulation in the oven ensures a uniform distribution of heat.
Multiple cooking is possible as long as the cooking temperature of the
different foods is the same.
19

Instructions for the user
20
6.3 Grill cooking
FUNCTION SWITCH
THERMOSTAT SWITCH
.
Permits rapid browning of foods. You are advised to place the tray in the
highest position. When cooking small items for a short time the tray
should be in the highest position. For larger items requiring longer
cooking times, the tray should be lowered to avoid food being burned on
top before being thoroughly cooked.
The grill function should be used only with the door closed.
6.4 Fan-assisted grilling
FUNCTION SWITCH
THERMOSTAT SWITCH
200
Ensures uniform heat distribution with greater heat penetration into the
food. Food will be lightly browned on the outside and remain soft inside.
Keep the oven door closed during cooking. Heating up time must
not exceed 60 minutes.

Instructions for the user
6.5 Delicate cooking
FUNCTION SWITCH
THERMOSTAT SWITCH
50 ÷ 250°C
Ideal for pastries and cakes with a liquid surface and little sugar and
moist desserts in moulds. Excellent results can also be achieved in
completing cooking at the base and with dishes requiring heat in the
lower area in particular. The tray is best inserted in the lowest position.
6.6 Defrosting
FUNCTION SWITCH
THERMOSTAT SWITCH IN POSITION
0
The flow of air produced by the fan ensures quicker defrosting.
The air circulating inside the oven is at room temperature.
The advantage of defrosting at room temperature is that it does not alter
the taste and appearance of the food.
21

Instructions for the user
22
6.7 Rotisserie grilling
FUNCTION SWITCH
THERMOSTAT SWITCH IN POSITION
200
Insert the food to be cooked on to the rod and tighten screws A of the
forks. Fit frames B into the holes of the drip tray F. Remove handle D
and position the spit rod so that pulley E fits into the slot on the right-
hand side of frame B. Completely introduce the drip tray into the oven
until the tip of the rod of frame B on the left-hand side fits into drive seat
C of the rotisserie motor on the back wall of the oven. Pour a bit of water
into the tray to avoid smoke from forming.
Keep the oven door closed during cooking. Heating up time must
not exceed 60 minutes.
It is normal for the thermostat light to flash during cooking. This indicates
the temperature inside the oven is kept steady on the set level.

Instructions for the user
6.8 Recommended cooking table
Cooking times, especially meat, vary according to the thickness and
quality of the food and to consumer taste.
TRADITIONAL COOKING
SHELF POSITION
( 1 IS LOWEST)
TEMPERATURE
(°C)
TIME
IN MINUTES (*)
FIRST COURSES
LASAGNE
OVEN-BAKED PASTA
2 - 3
2 - 3
210 - 230
210 - 230
30
40
MEAT
ROAST VEAL
ROAST BEEF
ROAST PORK
CHICKEN
DUCK
GOOSE - TURKEY
RABBIT
LEG OF LAMB
2
2
2
2
2
2
2
2
170 - 200
210 - 240
170 - 200
170 - 200
170 - 200
140 - 170
170 - 200
170 - 200
30 - 40 / KG.
30 - 40 / KG.
30 - 40 / KG.
45 - 60
45 - 60
45 - 60
50 - 60
40 - 50
FISH 1 - 2 170 - 200 ACCORDING TO
SIZE
PIZZA 1 - 2 210 - 240 40 - 45
DESSERTS
SHORT PASTRY
CIAMBELLA
BRIOCHES
FRUIT CAKE
PARADISE CAKE
APPLE CAKE
RICE CAKE
1 - 2
1 - 2
1 - 2
1 - 2
1 - 2
1 - 2
1 - 2
170 - 200
165
170 - 200
170 - 200
170
190
180
15 - 20
35 - 45
40 - 45
20 - 30
60
60
60
(*) = WITH PREHEATED OVEN
GRILLING
SHELF POSITION
( 1 IS LOWEST)
TIME IN MINUTES
FIRST SIDE SECOND SIDE
PORK CHOPS
FILLET OF PORK
FILLET OF BEEF
LIVER
VEAL ESCALOPES
HALF CHICKEN
SAUSAGES
MEAT-BALLS
FISH FILLETS
TOAST
4
3
3
4
4
3
4
4
4
4
7 - 9
9 - 11
9 - 11
2 - 3
7 - 9
9 - 14
7 - 9
7 - 9
5 - 6
2 - 4
5 - 7
5 - 9
9 - 11
2 - 3
5 - 7
9 - 11
5 - 6
5 - 6
3 - 4
2 - 3
23

Instructions for the user
24
FAN-ASSISTED COOKING
SHELF POSITION
( 1 IS LOWEST)
TEMPERATURE
(°C)
TIME
IN MINUTES
FIRST COURSES
LASAGNE
OVEN-BAKED PASTA
CREOLE RICE
2
2
2
190 - 210
190 - 210
190 - 220
20 - 25
25 - 30
20 - 25
MEAT
ROAST VEAL
ROAST PORK
ROASTED BEEF
FILLET OF BEEF
ROAST LAMB
ROAST BEEF
ROAST CHICKEN
ROAST DUCK
ROAST TURKEY
ROAST RABBIT
ROAST HARE
ROAST PIGEON
2
2
2
2
2
2
2
2
2
2
2
2
150 - 170
150 - 160
160 - 170
160 - 180
130 - 150
170 - 180
170
160 - 170
150 - 160
150 - 160
160 - 170
140 - 170
65 - 90
70 - 100
65 - 90
35 - 45
100 - 130
40 - 45
70 - 90
100 - 160
160 - 240
80 - 100
30 - 50
15 - 25
FISH 2 - 3 150 - 170 ACCORDING
TO SIZE
PIZZA
BREAD
TOAST
2 - 3
2 - 3
1 - 2
210 - 240
190 - 210
220 - 240
30 - 50
40
7
DESSERTS
CIAMBELLA
FRUIT CAKE
BRIOCHES
SHORT PASTRY
RICE CAKE
APPLE CAKE
PARADISE CAKE
2 - 3
2 - 3
2 - 3
2 - 3
2 - 3
2 - 3
2 - 3
150 - 170
170 - 190
160 - 170
170 - 180
170
180
160
35 - 45
40 - 50
40 - 60
20
60
60
60

Instructions for the user
7. CLEANING AND MAINTENANCE
NEVER USE A STEAM JET TO CLEAN THE APPLIANCE.
Before carrying out any maintenance, disconnect the appliance
from the power supply
7.1 Cleaning stainless steel
To keep stainless steel in good condition it should be cleaned regularly
after use. Let it cool first.
7.1.1 Ordinary Daily Cleaning
To clean and preserve the stainless steel surfaces, always use only
specific products that do not contain abrasives or chlorine-based acids.
How to use: pour the product on a damp cloth and wipe the surface,
rinse thoroughly and dry with a soft cloth or leather.
7.1.2 Food stains or residues
Do not use metallic sponges or sharp scrapers: they will
damage the surface.
Use normal non-abrasive products for steel, and a wooden or
plastic tool if necessary.
Rinse thoroughly and dry with a soft cloth or leather.
Do not allow residues of sugary foods (such as jam) to set
inside the oven. If left to set for too long, they might damage
the enamel lining of the oven.
7.2 Cleaning of the oven (without self-cleaning panels)
For best oven upkeep clean regularly after having allowed to cool. Take
out all removable parts.
25

Instructions for the user
26
• Clean the oven rack and side guides with hot water and non-abrasive
detergent. Rinse and dry.
• The oven should be operated at the maximum temperature for about
15/20 minutes after using specific products, to eliminate the residues
deposited inside the oven.
• For easier cleaning, the door can be removed (see 7.4 Removing the
door).
7.3 Self-cleaning liners (only on some models)
The oven is equipped with continuous self-cleaning enamelled liners.
These liners make the oven easier to clean and ensure its efficiency over
time.
7.3.1 Using the self-cleaning liners
Periodically, to prevent food residues and unpleasant smells from
accumulating inside the oven, the appliance should be operated empty at
temperatures of not less than 200°C for a time varying from 30 to 60
minutes, in order to allow the self-cleaning liners to oxidise the residues
present; when the oven has cooled, these will then be removed with a
damp sponge
7.3.2 Looking after the self-cleaning liners
The liners should not be cleaned with abrasive creams or ordinary
detergents. Use a damp sponge only, so as not to damage the special
characteristics of the enamel which coats the liners.
7.3.3 Assembling the self-cleaning liners
1. Remove all accessories from the oven;
2. Remove the side supports (fig.1);
3. Extract the side liners “F” and “G”(fig. 2);
4. Remove the back panel “A” after undoing the threaded ring-nuts “C”
(fig. 2).
5. Reassemble the panels, restoring them to their original position.
Incorrect installation of the rear panel can lead to uneven cooking.
1) 2)
7.4 Removing the door

Instructions for the user
7.4.1 With type 1 mobile levers
With the door completely open, lift the levers A of the two hinges until they
touch the hinges B and take hold of the two sides of the door with both
hands close to the hinges themselves. Raise the door to an angle of about
45° and remove it. If the hinges have not locked, repeat the operation,
raising the levers and keeping the door slightly raised. To reassemble, fit
the hinges B into their grooves, then lower the door into place, ensuring
that it remains fitted into the grooves C, and lower the levers A.
7.4.2 Removing doors with pins
Open the door completely and insert the pins (supplied) into the holes
from the inside. Close the door to an angle of about 45° and lift it off. To
reassemble, fit the hinges into their grooves, then lower the door into place
and extract the pins. If you should lose the pins, two screwdrivers can also
be used.
7.5 Removing the door glazing
The glass in the door should always be kept thoroughly clean. For easier
cleaning, the door glazing can be fully removed by proceeding as
described below. After opening the door and locking it in place as
described in point “7.4 Removing the door”, remove the internal glass
panel levering it as illustrated in figure 1, and detach the 4 pins that fix the
glass to the door. If your oven also has a middle glass panel (figure 2) this
can be extracted simply by lifting it upwards. After having carried out
cleaning, first of all replace the middle glass panel (if your oven has one),
and then position the internal glass hinging it, as shown in figure 3, on the
grooves of the oven door (see part A in figure 3). When the glazing has
been positioned on the door, exert a slight pressure on the four fixing pins.
If the door should close during these operations, simply relock one of the
hinges as described in point “7.4 Removing the door”. The glass panels
can now be washed separately.
27

Instructions for the user
28
1)
2)
3)
Use absorbent kitchen roll; remove stubborn dirt with a damp sponge and
ordinary detergent.
Warning: before removing the glass panels, make sure that the door has
been locked in open position as described in points . This operation
might have to be repeated during the removal process if the door is
accidentally freed.
To replace the glass panels in the oven door, follow the instructions
provided in reverse order.
WARNING. Never use the oven without the glass fitted: the outside
surface of the door may overheat.
8. EXTRAORDINARY MAINTENANCE

Instructions for the user
The oven may require additional maintenance or replacement of parts
subject to wear such as seals, bulbs, and so on. The following
instructions describe how to carry out these minor maintenance
operations.
Before any intervention, disconnect the power supply.
8.1 Replacement of light bulb
Remove the bulb protector A by turning anticlockwise and change bulb B
(in the 8-function model with front glass panel change the halogen bulb C)
with a similar one. Re-fit the bulb protector A.
Only use oven bulbs (T 300°C).
8.2 Oven door seal
To permit thorough cleaning of the oven, the seal
may be removed. Before removing the seal, take off
the door as described above. Once the door has
been taken off, lift the tabs at the corners as shown
in the figure.
After cleaning, refit the seal with the longer side
horizontal and insert the tabs into the appropriate
holes starting from the top ones.
29

914774261/ A