Soleus Air Sg Wac 25Hce Users Manual
SG-WAC-25HCE to the manual 08b4304a-9fa3-46f5-bf92-adc9d383f61a
2015-02-02
: Soleus-Air Soleus-Air-Sg-Wac-25Hce-Users-Manual-447035 soleus-air-sg-wac-25hce-users-manual-447035 soleus-air pdf
Open the PDF directly: View PDF
.
Page Count: 20
- Thank you for choosing a Soleus Air powered by Gree Air Conditioner. This owner’s manual will provide you with valuable information necessary for the proper care and maintenance of your new product. Please take a few moments to thoroughly read the instructions and familiarize yourself with all the operational aspects of your new air conditioner.
- For your own records, please attach a copy of your sales receipt to this manual. Also, write the store name/location, date purchased, and serial number below:
- ELECTRICAL REQUIREMENTS
- PARTS LIST
- SPECIFICATIONS
- DISCLAIMER
- INSTALLATION & ASSEMBLY INSTRUCTIONS
- INSTALLATION & ASSEMBLY INSTRUCTIONS - WINDOW MOUNTING
- INSTALLATION & ASSEMBLY INSTRUCTIONS - WINDOW MOUNTING
- ASSEMBLY & Installation (Cont.)
- WARRANTY

Model
SG-WAC-25HCE
Electronic Heat & Cool Window A/C
Operating Instructions

Thank you for choosing a Soleus Air powered by Gree Air Conditioner. This owner’s manual will
provide you with valuable information necessary for the proper care and maintenance of your new
product. Please take a few moments to thoroughly read the instructions and familiarize yourself with
all the operational aspects of your new air conditioner.
For your own records, please attach a copy of your sales receipt to this manual. Also, write the store
name/location, date purchased, and serial number below:
Store Name: ____________________________________________________
Location: ______________________________________________________
Date Purchased: _________________________________________________
Serial Number (located on back of unit): ______________________________
IMPORTANT SAFETY INSTRUCTIONS
Before installing and using your air conditioner, please read this owner’s manual carefully. Store this
manual in a safe place for future reference. Your safety and the safety of others is very important to
us. Please pay attention to all safety messages outlined in this owner’s manual.
WARNING: To reduce the risk of fire, electrical shock or injury when using your air conditioner, follow
the following basic precautions:
2
This is a safety alert symbol.
This symbol alerts you to potential hazards that can harm you or others or even cause
death.
All safety messages will directly follow the safety alert symbol and/or the words
“DANGER” or “WARNING”.
Failure to immediately follow these
instructions may cause serious injury
or even death.
All Safety messages alert you of potential hazards, how to reduce the chance of injury,
and what can happen if instructions are not followed correctly.
• Plug into a grounded 3 prong outlet.
• Do not remove the ground prong.
• Do not use a plug adapter.
• Do not use an extension cord.
• Unplug the air conditioner before servicing
• Use two or more people to move and install the air
conditioner

Recommended Ground Method
For your personal safety, this air conditioner must be grounded. This air conditioner is equipped with a 3 prong power
supply cord with a grounded plug. To minimize the possibility of electrical shock, the cord must be plugged into a 3 prong
outlet and grounded in accordance with all local codes and ordinances. If a 3 prong outlet is not available, it is the cus-
tomer’s responsibility to have a properly grounded 3 prong outlet installed by a qualified electrician.
LCDI Power Cord and Plug
This air conditioner is equipped with an LCDI (Leakage Current Detection and Interruption) power cord that is required
by UL. This power supply cord contains state-of-the-art electronics that sense leakage current. If the cord is damaged
and leakage occurs, power will be disconnected from the unit.
The test and reset buttons on the LCDI Plug are used to check if the plug is functioning properly. To test the plug:
1. Plug power cord into a grounded 3 prong outlet
2. Press RESET (on some units a green light will turn on).
3. Press the TEST Button, the circuit should trip and cut all power to the air conditioner (on some units a green light
may turn off.
4. Press the RESET button for use. You will hear a click and the A/C is not ready for use.
NOTES:
• The RESET button must be engaged for proper use.
• The power supply cord must be replaced if it fails to trip when the TEST button is pressed and the unit fails to reset.
• Do not use the power supply cord as an ON/OFF switch. The
power supply cord is designed as a protection device.
• A damaged power supply cord must be replaced with a new
power supply cord from Soleus Air Powered by Gree.
• The power supply cord contains new user serviceable parts.
Opening the tamper-resistant case voids all warranty and per-
formance claims.
NOTE: Your units power cord and plug may differ from the one
shown.
ELECTRICAL REQUIREMENTS
3
Electrical Shock Hazard
Plug into a grounded 3 prong outlet.
Do not remove the ground prong.
Do not use an adapter
Do not use an extension cord.
Failure to follow these instructions can result in death,
fire, or electrical shock
The electrical ratings for your air conditioner are listed on the model and serial
number label located on the front left side of the unit (when facing the front).
Specific electrical requirements are listed in the chart below. Follow the
requirements below for the type of plug on the power supply cord.
Power Supply Cord
It is the customer’s responsibility:
• To contact a qualified electrician
• To assure that the electrical installation is adequate
and in conformance with the National Electrical Code,
ANSI/NFPA 70 - latest edition, and all local codes and
ordinances.
Copies of the standards listed may be obtained from:
National Fire Protection Association
One Batterymarch Park
Quincy, Massachusetts 02269
NEMA 6-20P

PARTS LIST
TOOLS NEEDED
Large Flathead Screwdriver
Tape Measurer
Adjustable Wrench or Pliers
Pencil
Level
Socket Wrenches
Phillips Head Screwdriver
Non-Hardware Packing List
• Window Air Conditioner
• AAA Batteries (2)
• Top Mounting Rail
• Foam Top Mounting Rail Seal Strip
• Accordion Panels (2)
• Side Retainer (2)
• Window Sash Seal
• Foam Seal for Bottom Rail
• Owner’s Manual
4

SPECIFICATIONS
• Noise level is measured at a distance of 3.28 ft away from the front of the unit in cooling mode.
• Power consumption is measured when the fan runs at the highest speed setting.
• These specifications are for reference only. For actual data, please refer to the rating label on the back of the unit.
5
Model SG-WAC-25HCE
Power Supply (Ph/V/Hz) 1/230~208/60Hz
Rated Cooling Capacity (BTU/h) 25,000/24,700
Cooling Power Input (Watts) 2,660/2,630
Rated Current Cooling (Amperage) 12/13
EER 9.4/9.4
Noise Level dB(A) 60
CFM 510
Dehumidifying Capacity 192 Pints per day
Product Dimensions (W” x H” x D”) 26.5 x 18.625 x 26.5
Package Dimensions (W” x H” x D”) 29.25 x 20.25 x 32
Net/Gross Weight (Lbs) 139/156
Refrigerant Type R-410A
Plug Type NEMA 6-20P
Rated Current Heating (Amperage) 16/15.6
Heating Power Input (Watts) 3,680/3,030
Rated Heating Capacity (BTU/h) 11,000/8,700
DISCLAIMER
ALL INFORMATION AND THE TECHNICAL SPECIFI-
CATIONS PRESENTED IN THIS USER’S MANUAL
ARE THE PRESENTATION OF THE MANUFAC-
TURER. SOLEUS INTERNATIONAL HAS NOT CON-
DUCTED INDEPENDENT TEST TO THE INFORMA-
TION AND THE SPECIFICATIONS PRESENTED
HEREWITHIN.

INSTALLATION & ASSEMBLY INSTRUCTIONS
Window Preparation
Please read all instructions prior to installing your air conditioner. Two people are recommended to install this product. If
a new electrical outlet is required, have the outlet installed by a qualified electrician before installing the unit.
Before installing the unit, check the dimensions of your window to make sure the air conditioner will fit. This unit is made
to fit inside a standard double-hung window. Make sure the window is in good shape and able to firmly hold the needed
screws. If not, make repairs prior to installing the unit.
Storm Window Requirements
A storm window frame will not allow the air conditioner to tilt properly which in turn will keep it from draining properly. To
adjust for this, attach a board or piece of wood to the sill. The board or wood piece should have a depth of at least 1 1/2”.
Make sure the board or piece of wood is approximately 1/2” higher than the storm window frame. This will allow the air
conditioner to tilt enough for proper drainage. (See FIG. 2).
Prior to Installing the Air Conditioner
1. Check for anything that could block airflow. Check the area outside of the window for things such as shrubs, trees, or
awnings. Check the inside area to make sure curtains, drapes, or blinds will not prevent proper airflow.
2. Check the available electrical outlet. The power supply must be the same as shown on the unit serial nameplate
(located on the left side of the unit, near the front faceplate). Be sure the outlet is close enough for the power cord to
reach.
3. Carefully unpack the air conditioner. Remove all packing material and make sure the floor is protected when remov-
ing. Due to the large size of this air conditioner, two people should move the unit together.
6
Model SG-WAC-25HCE
Unit Height 18 5/8”
Unit Width 26 1/4”
Min. Window Opening (See
FIG 1) 19 1/2”
Min. Window Width 30”
Max Window Width 41”
FIG. 1
When handling the unit, be careful to avoid cuts from
the sharp metal edges and aluminum fins on the front
and rear coils.
FIG. 2
Board or wood piece must
be approximately 1/2” higher
than the storm window frame
for proper drainage
Storm window frame
or obstruction
SASH
Storm window frame or
obstruction
SASH

INSTALLATION & ASSEMBLY INSTRUCTIONS - WINDOW MOUNTING
REMOVE CHASSIS
1. Pull down the front panel and remove the filter (FIG. 1 below)
2. Lift the front panel upwards to remove and place to the side.
3. Locate the four faceplate screws and remove. These screws will need to be re-installed prior to mounting the air con-
ditioner (FIG. 2 above)
4. After removing the screws, gently pull away the faceplate from the air conditioner cabinet (FIG. 3 & 4).
5. Remove the two control panel screws from the front panel (FIG 5).
7
FIG. 2
FIG. 1
FIG. 3 FIG. 4
FIG. 5

INSTALLATION & ASSEMBLY INSTRUCTIONS - WINDOW MOUNTING
REMOVE CHASSIS
6. Remove the shipping screws from the top of the unit and both sides of the cabinet if installed (FIG 6 & 7).
7. Hold the cabinet while pulling on the base handle to carefully remove the unit. Do not pull or lift near the top of the
unit (FIG 8).
8. Remove the internal packing material prior to installation (FIG. 9)
8
FIG. 9
FIG. 6 FIG. 7
FIG. 8

ASSEMBLY & INSTALLATION (CONT.)
9
Placing the Cabinet Inside the Window
1. Open the window and place the cabinet in the middle
of the window sill.
2. Make sure the bottom rail is seated over the window
sill as shown below. Bring the window down temporar-
ily behind the top angle rail to hold the cabinet in place.
3. Fasten cabinet to window sill using two 3/4” HEX-Head
screws. Pre-drill holes if needed. Add the bottom rail
seal over the screws.
Top Angle Rail and Side Bracket Installation
1. Place the air conditioner on a hard flat surface.
2. Locate the foam gasket and top angle rail
3. Attach the foam gasket to the top angle rail
4. Install top angle side to cabinet as shown in FIG 7
5. Slide the “I” section of the window panel into the side
bracket of the cabinet (FIG. 8a ). Do this for both sides.
6. Insert top and bottom legs of window filler panel frame
into channel in the top angle and bottom rail. Do both
sides. Install side retainer to cabinet as shown. FIG 8B-
9.
FIG. 7
Foam Gasket and Top
Angle Rail
FIG. 9
TOP VIEW
SILL
STOOL
ANGLE
FIG. 8a
FIG. 8b

10
Install Support Brackets
1. Hold each support bracket flush against the outside of
the window sill. Tighten each bracket to the bottom of
the cabinet as shown below. Mark the brackets at top
lever of the window sill and then remove.
2. Assemble the sill angle brackets to the support brack-
ets at the marked position as shown above. Hand
tighten, but not all the way for any changes that may
need to be made later during installation.
3. Install the support brackets (with sill angle brackets
attached) to the bottom of the cabinet as shown below.
4. Tighten all 6 bolts securely.
Extend the Accordion Panels
1. Carefully raise the window to expose the accordion
panel and panel frame. Loosen the locking screws so
the accordion panels slide easily.
2. Extend each panel to completely fill the width of the
window. Tighten the locking screws when the panels
are fully extended.
Install the Window Lock and Sash Seal
1. Trim the sash seal to fit the width of the window. Insert
the sash seal into space between the upper and lower
sashes.
2. Attach the right angle safety lock as shown below.
Mark
Left
Right
1/2” Long Screws
and Locknuts
Sill Angle
Bracket
Flat Head Bolt
Locknut
1/2” long
screw and
locknuts
2 each req’d
for each sup-
port bracket

ASSEMBLY & INSTALLATION (CONT.)
11
Installing the Chassis into the Cabinet
1. Team lift (two people) the air conditioner chassis and
carefully slide it into the cabinet. Let the front of the air
conditioner hang out approximately 6”.
2. CAUTION: DO NOT PUSH ON THE CONTROLS OR
FINNED COILS.
3. Be sure the chassis is firmly seated in the back of the
cabinet.
4. Insert all screws removed during window installation
and reattach the front face plate, front panel, and the
air filter. Use the REMOVE CHASSIS instructions and
figures 1-6 for reference.
THRU-THE-WALL INSTALLATION
NOTE: Consult local building codes prior to installation
and/or a qualified carpenter.
Select the Wall Location
This air conditioner has a slide-out chassis, so that it can
be installed through an outside wall as specified below:
MAX WALL THICKNESS: 8 1/4”
IMPORTANT: The side louvers must never be blocked.
NOTE: All parts needed for Thru-The-Wall Installation are
provided, except a wood frame, shims, and 10 wood
screws (10-1” long minimum). Select a wall surface that:
1. Does not support major structural loads such as the
frame construction at ends of windows, and under
truss-bearing points, etc.
2. Does not have plumbing or wiring inside.
3. Is near existing electrical outlets, or where another out-
let can or will be installed.
4. Does not have objects blocking the air vents which
limits cooling.
5. Allows unblocked airflow from the rear and sides of the
air conditioner.
Prepare the Wall
1. Prepare the wall in frame construction (including brick
and stucco veneer). Working from inside the room, find
the wall stud that is nearest the center of the installa-
tion area.
2. Cut a hole on each side of the center stud.
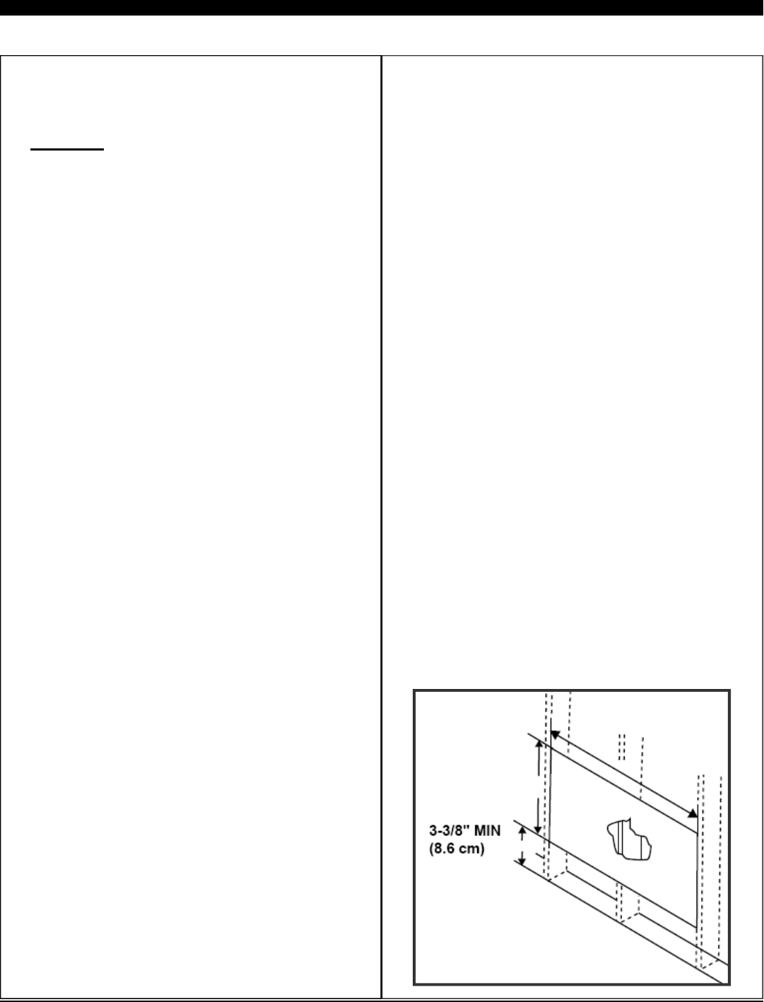
3. Measure between the inside edges of every other stud
as shown below.
FIG. 1

ASSEMBLY & INSTALLATION - THRU-THE-WALL (CONT.)
12
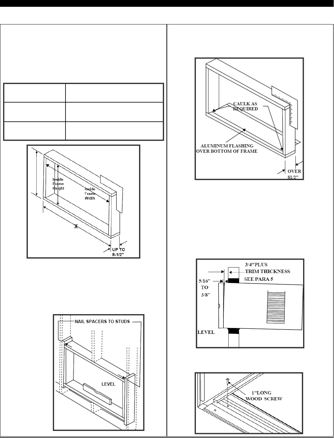
Carefully measure and cut an opening with the following
dimensions depending on your model (FIG. 1 & 2).
WIDTH “X” = inside model plus twice the thickness of the
framing material used.
HEIGHT “Y” = inside model height plus twice the thickness
of framing material used.
4. Build a wooden frame with the INSIDE dimensions of
your model listed above (Measure twice). The frame
depth should be the same as the wall thickness. Fill in
extra space from the opening to the studs with wood
spacers as shown below.
5. Nail the spacers to the studs. They should be flush with
the dry wall.
NOTE: If wall thickness is 8-12” or more, add aluminum
flashing over the bottom of the frame opening to assure
water is unable to enter the area between the inner and
outer wall.
Prepare and Install the Cabinet
1. Slide the chassis from the cabinet. Refer back to the
REMOVE CHASSIS instructions and FIG. 1-6 in the
WINDOW MOUNTING SECTION.
2. Place the cabinet into the opening with the bottom rail
resting firmly on the bottom board of the wood frame.
3. Position the cabinet so it is tilted properly for water re-
moval as seen below.
4. Secure the bottom rail to the wood frame with two large
1” (2.5 cm) long wood screws as shown below.
Model SG-WAC-25HCE
Inside Frame Height 18 7/8” (47.9 cm)
Inside Frame Width 26 3/4” (67.9 cm)
FIG. 2
FIG. 1
FIG. 2

ASSEMBLY & INSTALLATION - THRU-THE-WALL (CONT.)
13
Refer to the SUPPORT BRACKET ASSEMBLY in the
WINDOW MOUNTING section to assemble the support
brackets. A wooden strip nailed to the outside wall should
be used in conjunction with the angled sill support brack-
ets.
5. Screw or nail the cabinet to the wooden frame using
shims if the frame is oversized, to eliminate possible
noise. Remember to maintain proper slope for water
elimination.
6. Install the chassis into the cabinet by following the
steps described in the WINDOW MOUNTING section.
OPTIONAL: Caulking and installation of the trim on the
interior wall may be done if desired. Caulk the openings
around the top and sides of the cabinet and all sides of the
wood sleeve to the opening.
NOTE: See the WINDOW MOUNTING instructions for the
bottom rail seal location.
MASONRY CONSTRUCTION
1. Cut or build a wall opening in the masonry wall similar
to the frame construction (refer to the THRU-THE-
WALL installation for a wall thickness greater than 8
1/2”)..
2. Secure the cabinet in place using masonry nails, or
masonry anchor screws. Or, build a frame using the
instructions found in the THRU-THE-WALL installation
section.
3. Make sure the masonry above the cabinet is supported
well. Use the existing holes in the cabinet or additional
drilled holes to fasten the cabinet at various positions.
Make sure that the side louvers are clear of any ob-
structions.
4. Install the exterior cabinet support brackets according
to the SUPPORT BRACKET INSTALLATION instruc-
tions in the THRU-THE-WALL installation section.
Caulk or flash with aluminum if needed. This will pro-
vide a tight seal around the top and sides of the cabi-
net.
5. For a more aesthetically pleasing installation, apply
wood trim molding around the sides of the cabinet with-
out obstructing the side louvers.
Support
Bracket
Wooden Strip
FIG. 3
FIG. 4

14
USING YOUR AIR CONDITIONER
Electronic Control Panel & Remote Control
1. Power Button: Turns the air conditioner on and
off
2. Digital Display: Displays the current room tem-
perature or the amount of time left on the timer.
Shows the Set Temp when setting the tempera-
ture. Shows the Timer Set when setting the timer.
The once the timer and/or temperature are set,
the display will change to show the current room
temperature. To see the set temperature again,
simply press either of the Temp/Delay ▲/▼
buttons.
3. Temperature Set: Use these buttons on the con-
trol panel and remote to increase or decrease the
Set Temperature (the desired room temperature)
in cooling or energy saver mode. The SET light
will light up when setting the temperature
4. Timer Set: Use these buttons on the control
panel and remote to set the Timer. Each press of
the Timer (DELAY) buttons will increase or de-
crease the timer. For timer instructions see #7.
5. Fan Speed & Auto Fan: Use the fan speed but-
tons to change the fan speed. Choose between
low, medium, high, and Auto. When using the re-
mote control, press the AUTO button to turn auto
mode on and off and the FAN+ and FAN– buttons
to select low, medium, or high fan speed.
6. Mode Button: Press the mode button to cycle
through the various modes: Cooling, Energy
Saver, Heat, and Fan only.
7. Auto-on Timer: When the air conditioner is off, it
can be set to automatically turn on in 1-24 hours
at the previous set mode and fan setting. To set
the Auto-on Timer, press the DELAY button on
the unit or remote control. Each touch of the ▲/▼
on the unit or the +/- buttons on the remote will
change the timer setting in 1 hour intervals. The
SET light will turn on while setting.
Auto-off Timer: When the air conditioner is on, it
can be set to automatically turn off in 1-24 hours.
To se the Auto-off Timer, press the DELAY button
on the unit or remote control. Each ouch of the ▲/
▼ on the unit or the +/- buttons on the remote will
change the timer setting in 1 hour intervals. The
SET light will turn on while setting.
• To see the remaining time, press the DELAY
Button. To change the timer setting use the
▲/▼ on the unit or the +/- buttons on the
remote.
• To cancel the timer, press the DELAY button
until the SET light turns off.
Air Conditioner Controls
Remote Control
This display always shows the room
temperature except when setting
the Set temperature or the Timer.
When the light is on the unit is in
temperature or timer set mode.
Light Indicates the
Timer is set.
Timer Increase
Auto Fan On
Increase Fan Speed
Power Button
1-24Hr Timer
Timer
Decrease
Mode Button
Decrease
Fan Speed
Increase/
Decrease
Temperature
Normal Operating Sounds
• You may hear a pinging noise caused by water
hitting the condenser, on rainy days, or when the
humidity is high. This design feature helps re-
move moisture and improve efficiency.
• You may hear the thermostat click when the com-
pressor cycles on and off.
• Water will collect in the base pan during rain or
days of high humidity. The water may overflow
and drip from the outside part of the unit.
• The fan may run even when the compressor is
not on.

15
USING YOUR AIR CONDITIONER (Cont.)
• Freezing Conditions: This is a cooling only air
conditioner. It is not designed for freezing outdoor
conditions. It must not be used in freezing outdoor
conditions.
• Remote Control: To ensure proper operation
when using the remote control, aim the remote
directly at the signal receiver on the air condi-
tioner.
• The remote control has a signal range up to
20 feet.
• Make sure nothing is blocking the remote con-
trol signal from being received by the air con-
ditioner.
• Make sure the batteries are installed correctly
and still have power.
• Cooling Mode: Use the COOL mode at Low, Me-
dium, High, or Auto Fan speed when cooling is
needed. Use the temperature ▲/▼ buttons to set
the desired temperature between 64°F and 86°F.
• Once the temperature is set, the compressor
will cycle on and off to keep the room
temperature at the set temperature level. The
lower the set thermostat temperature, the
cooler the room will become. The higher the
set thermostat temperature, the warmer the
room will become.
• For Normal Cooling - Set the Mode to Cool
and the Fan to High or Med with the
termperature set in the middle.
• For Maximum Cooling - Set the Mode to Cool
and the Fan to High with a lower set
temperature.
• For Quieter & Nighttime Cooling - Set the
Mode to Cool and the Fan to Low with the
temperature set in the middle.
NOTE: If the air conditioner is off and is then
turned on while set to a Cool setting or if
turned from a fan setting to a Cool setting, it
may take approximately 3 minutes for the
compressor to start and cooling to begin.
• Heat Mode: Use the Heat mode at Low, Med,
High or Auto Fan Speed for heating. Use the
temperature ▲/▼ buttons to set the desired
temperature between 64°F and 86°F in 1°F
increments.
• For Normal Heating - Set the Mode to Heat
and the Fan to High or Med with the
termperature set in the middle.
• For Maximum Heating - Set the Mode to Heat
and the Fan to High with a lower set
temperature.
• For Quieter & Nighttime Heating - Set the
Mode to Heat and the Fan to Low with the
temperature set in the middle.
• Energy Saver Mode - Controls the Fan
On - The fan will cycle on and off with the
compressor. This results in winder variations of
room temperature and humidity. Normally used
with the room is unoccupied. NOTE: The fan my
continue to run for a short time after the compres-
sor cycles off.
Off - The fan runs all the time in fan or cooling
mode.
• Fan Only Mode: Use Fan Only mode at Low,
Med, or High fan speed to provide air circulation
and filtering without cooling. Since fan only setting
do not provide cooling, a Set temperature cannot
be entered. The room temperature will appear in
the display.
NOTE: Auto Fan Speed cannot be used in Fan
Only mode.
• Loss of Power Protection: If power to the air
conditioner is lost or interrupted, the air condi-
tioner will automatically re-start in the setting last
used prior to power loss. If the Timer was set to
automatically turn the air conditioner off or on, it
will resume countdown at the amount time left
prior to power loss. You may need to set a new
time if desired.
• Air Direction: Use the lever near on the front air
vents to adjust the direction of the airflow. You
can direct the airflow left or right only. The lever is
located on the right side of the air vent.

ASSEMBLY & INSTALLATION (CONT.)
16
USING YOUR AIR CONDITIONER (Cont.)
• Freezing Conditions: This is a cooling only air
conditioner. It is not designed for freezing outdoor
conditions. It must not be used in freezing outdoor
conditions.
• Remote Control: To ensure proper operation
when using the remote control, aim the remote
directly at the signal receiver on the air condi-
tioner.
• The remote control has a signal range up to
20 feet.
• Make sure nothing is blocking the remote con-
trol signal from being received by the air con-
ditioner.
• Make sure the batteries are installed correctly
and still have power.
• Cooling Mode: Use the COOL mode at Low, Me-
dium, High, or Auto Fan speed when cooling is
needed. Use the temperature ▲/▼ buttons to set
the desired temperature between 64°F and 86°F.
• Once the temperature is set, the compressor
will cycle on and off to keep the room
temperature at the set temperature level. The
lower the set thermostat temperature, the
cooler the room will become. The higher the
set thermostat temperature, the warmer the
room will become.
• For Normal Cooling - Set the Mode to Cool
and the Fan to High or Med with the
termperature set in the middle.
• For Maximum Cooling - Set the Mode to Cool
and the Fan to High with a lower set
temperature.
• For Quieter & Nighttime Cooling - Set the
Mode to Cool and the Fan to Low with the
temperature set in the middle.
NOTE: If the air conditioner is off and is then
turned on while set to a Cool setting or if
turned from a fan setting to a Cool setting, it
may take approximately 3 minutes for the
compressor to start and cooling to begin.
• Energy Saver Mode - Controls the Fan
On - The fan will cycle on and off with the
compressor. This results in winder variations of room
temperature and humidity. Normally used with the
room is unoccupied. NOTE: The fan my continue to
run for a short time after the compressor cycles off.
Off - The fan runs all the time in fan or cooling mode.
• Fan Only Mode: Use Fan Only mode at Low,
Med, or High fan speed to provide air circulation
and filtering without cooling. Since fan only setting
do not provide cooling, a Set temperature cannot
be entered. The room temperature will appear in
the display.
NOTE: Auto Fan Speed cannot be used in Fan
Only mode.
• Loss of Power Protection: If power to the air
conditioner is lost or interrupted, the air condi-
tioner will automatically re-start in the setting last
used prior to power loss. If the Timer was set to
automatically turn the air conditioner off or on, it
will resume countdown at the amount time left
prior to power loss. You may need to set a new
time if desired.
• Air Direction: Use the lever on the front air vents
to adjust the direction of the airflow. You can di-
rect the airflow left, right, up or down. The lever is
located on the right side of the air vent.

17
CARE AND CLEANING
Clean your air conditioner to keep it looking new
and to minimize dust build up.
Air Filter Cleaning
The air filter should be checked at least once
every month to see if it needs cleaning. Trapped
particles and dust can build up in the filter and
may decrease airflow as well as cause the
cooling coils to accumulate frost. To clean the air
filter:
1. Remove the filter by pulling down on the in-
dents of the filter door on the front of the unit.
(See FIG. 13)
2. Wash the filter using liquid dish soap and
warm water. Rinse the filter thoroughly. Gen-
tly shake the filter to remove excess water.
3. Let the filter dry completely before placing it
into the air conditioner.
4. If you do not wish to wash the filter, you may
vacuum the filter to remove the dust and
other particles.
Wear and Tear
To minimize wear and tear on the air condi-
tioner, always wait at least 3 minutes before
changing modes. This will help prevent the
compressor from overheating and the circuit
breaker from tripping.
Cabinet Cleaning
To clean the air conditioner cabinet:
• Unplug the air conditioner to prevent shock or
a fire hazard. The cabinet and front panel of
the air conditioner may be dusted with an oil-
free cloth or washed with a cloth dampened in
a solution of warm water and mild liquid soap.
Rinse thoroughly with a damp cloth and wipe
dry.
• Never use harsh cleaners, wax or polish on
the cabinet front.
• Be sure to wring excess water from the cloth
before wiping around the controls. Excess
water in or around the controls may cause
damage to the air conditioner.
Winter Storage
To store the air conditioner when it is not in use
for an extended period of time, remove it care-
fully from the window according to the installation
instructions and cover it with plastic or place it in
the original box
.
FIG. 13

PROBLEM
The Air Conditioner will not start
POSSIBLE CAUSES
The air conditioner is unplugged
The fuse is blown/circuit breaker is
tripped.
Power Failure
The current interrupter device is
tripped.
SOLUTIONS
• Make sure the air conditioner is
plug is pushed completely into the
outlet
• Check the house fuse/circuit
breaker box and replace the fuse
or reset the breaker.
• The unit will automatically re-start
when power is restored.
• There is a protective time delay
(approx. 3 minutes) to prevent
tripping of the compressor
overload. For this reason, the unit
may not start normal cooling for 3
minutes after it is turned back on.
• Press the RESET button located
on the power cord plug.
• If the RESET button will not stay
engaged, discontinue use of the
air conditioner and contact a
qualified service technician.
TROUBLESHOOTING
The Air Conditioner does not cool
as it should
Airflow is restricted
The temperature control may not be
set correctly.
The air filter is dirty
The room may be too warm
Cold air is escaping
The Cooling Coils are frozen
• Make sure there are no curtains,
blinds, or furniture blocking the
front of the air conditioner
• Lower the set thermostat tempera-
ture
• Clean the filter. See the Cleaning
and Care Section of the manual.
• Please allow time for the room to
cool down after turning on the air
conditioner.
• Check for open furnace registers
and cold air returns
• See “Air Conditioner Freezing Up”
below.
The Air Conditioner is freezing up
Ice blocks the air flow and stops the air
conditioner from cooling the room
• Set the MODE dial to HIGH FAN
or HIGH COOL and set the ther-
mostat to a higher temperature
The Remote Control is not working
The batteries are inserted incorrectly
The batteries may be dead
• Check the position of the batteries.
• Replace the batteries
18

PROBLEM
Water is dripping outside
POSSIBLE CAUSES
Hot and Humid weather.
SOLUTIONS
• This is normal
TROUBLESHOOTING (CONT.)
Water is dripping inside the room
The air conditioner is not correctly
tilted outside.
• For proper water drainage, make
sure the air conditioner is slightly
tilted downward from the front of
the unit to the rear.
Water collects in the base pan
Moisture removed from the air is
draining into the base pan.
• This is normal for a short period in
areas with low humidity and nor-
mal for a longer period in areas
with high humidity.
Digital Display reads “F1”, “F2”, or
“FJ”
A sensor has failed • Contact customer service
19

WARRANTY
One Year Limited Warranty
Soleus International, Inc. warrants the accompanying Soleus Air Powered by Gree Air Conditioner to be free of defects
in material and workmanship for the applications specified in its operation instruction for a period of ONE (1) year
from the date of original retail purchase in the United States.
If the unit exhibits a defect in normal use, Soleus International will, at its option, either repair or replace it, free of
charge within a reasonable time after the unit is returned during the warranty period.
As a condition to any warranty service obligation, the consumer must present this Warranty Certificate along with a
copy of the original purchase invoice.
THIS WARRANTY DOES NOT COVER:
• Damage, accidental or otherwise, to the unit while in the possession of a consumer not caused by a defect in
material or workmanship.
• Damage caused by consumer misuse, tampering, or failure to follow the care and special handling provisions
in the instructions.
• Damage to the finish of the case, or other appearance parts caused by wear.
• Damage caused by repairs or alterations of the unit by anyone other than those authorized by Soleus Interna-
tional Inc.
• Freight and Insurance cost for the warranty service.
• Filter and Accessories
ALL WARRANTIES, INCLUDING ANY IMPLIED WARRANTY OF MERCHANT ABILITY ARE LIMITED TO
ONE-YEAR DURATION OF THIS EXPRESS LIMITED WARRANTY. SOLEUS INTERNATIONAL INC.
DISCLAIMS ANY LIABILITY FOR CONSEQUENTIAL OR INCIDENTAL DAMAGES AND IN NO EVENT
SHALL SOLEUS INTERNATIONAL INC’S LIABILITY EXCEED THE RETAIL VALUE OF THE UNIT FOR
BREACH OF ANY WRITTEN OR IMPLIED WARRANTY WITH RESPECT TO THIS UNIT.
This warranty covers only new products purchased from our authorized dealers or retailers. It does not cover used, sal-
vaged, or refurbished products.
As some states do not allow the limitation or exclusion of incidental or consequential damages, or do not allow
limitation on implied warranties, the above limitations and exclusions may not apply to you. This warranty gives you
specific legal rights, and you may also have other rights that vary from state to state.
For Technical Support and Warranty Service
Please Call (888) 876-5387
Or Write To:
Soleus International, Inc.
20035 E. Walnut Dr. N.
City of Industry, CA 91789
www.soleusair.com
www.soleusgreen.com
20