Spx Cooling Technologies Marley Sigma Wood Coolingtower 1000 Users Manual
1000 to the manual f55c9449-db20-4dc3-aac7-fdee95410d38
2015-02-06
: Spx-Cooling-Technologies Spx-Cooling-Technologies-Marley-Sigma-Wood-Coolingtower-1000-Users-Manual-528577 spx-cooling-technologies-marley-sigma-wood-coolingtower-1000-users-manual-528577 spx-cooling-technologies pdf
Open the PDF directly: View PDF
.
Page Count: 12

/ Marley Sigma 1000/1200 Cooling Tower /

2
You’ll enjoy single source responsibility and reliability
because we design and manufacture virtually all major
cooling tower components.
All Marley components are designed and selected to be
part of an integrated system. For example, the spray pattern
from nozzles and the pressure drop through drift eliminators
both affect a fill’s heat transfer capacity. So, we include that
impact in our thermal analysis.
Drift eliminators must be effective at the air velocities
where fill is most efficient. So, we’ve carefully designed both
components to work together efficiently.
How many other cooling tower companies can offer you
this assurance? They may use Brand “A” nozzles with Brand
“B” fill and Brand “C” drift eliminators. When they all come
together, the whole may be less than the sum of the parts.
Our total system approach assures that all the parts
work together to provide you the greatest total performance.
And because we design specifically for cooling towers,
all our components will provide many years of service with
minimal maintenance.
/ The Marley Difference /
Series 1200 Cross-Section

3
/ Sigma Advantage /
• GuaranteedPerformance. Don’t rely on outside
agencies with limited enforcement powers. We’ll stand
by our responsibility for reliable thermal performance.
We designed it. We rate it. We guarantee it!
• Exclusive5-YearMechanicalWarranty. Your no-
cost assurance of trouble-free mechanical operation
for 5 years. Isn’t that where a lot of your tower
maintenance dollars have gone in the past?
• LongServiceLife. We’ve carefully chosen all the
materials used in Sigma towers for their corrosion
resistance and suitability for cooling tower service.
Pressure-treated lumber, heavy-galvanized steel,
stainless steel, PVC and fiberglass keep your Sigma
tower working year after year.
• EfcientFieldAssembly. Precise factory fabrication
assures that every component in your Sigma tower will
fit as designed. And SPX Cooling Technologies offers
an unparalleled nationwide construction organization to
build your tower quickly and economically.
• LowOperatingCosts. Marley’s high-efficiency fill
and fans, gravity-flow water distribution, and efficient
Geareducer® drive work together to offer maximum
cooling with minimum power use.
• LowMaintenanceCosts. Induced-draft propeller
fans on Marley right-angle Geareducer units; TEFC,
1.15 service factor motors; and heavy-duty mechanical
equipment supports assure long service life with
minimal maintenance.
• All-SeasonReliability. Sigma towers perform as
specified in the heat of summer. They respond well to
energy management techniques in the spring and fall.
They operate virtually ice-free in the dead of winter.
And they offer simple maintenance all year long. We
guarantee it!
• SingleSourcePartsAvailability. SPX designs,
manufactures, guarantees, and stocks all major
components of the Sigma cooling tower except
motors. We’ll have the parts if you ever need them.
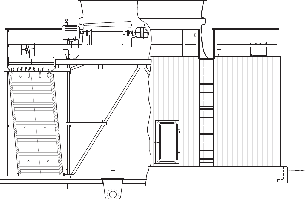
Series 1000 Cross-Section

4
/ Construction and Components /
Fill/Louvers/Drift Eliminators
Marley high-performance film fill is the heart of every
Sigma tower. A repeating chevron pattern provides the
wetted surface and air turbulence necessary for proper heat
transfer, while minimizing resistance to airflow so you’ll save
on fan power. Molded protrusions on each fill sheet assure
uniform spacing.
Fill sheets include both louvers and drift eliminators.
The louvers in this patented arrangement keep water on the
fill sheets and in your tower, and also assure proper heat
transfer throughout wide variations in airflow. Users find this
fill operates ice-free even in extremely cold weather.
Fill sheets are vacuum formed 15 mil (.015") thick
polyvinyl-chloride (PVC) capable of service at hot water
temperatures up to 125°F. Stainless steel structural tubes
resting in stainless steel hangers support the fill, and PVC
tubes control alignment. Series 1000 fill includes two
stainless supports, and Series 1200 fill uses four stainless
supports. This system also holds the bottom of the fill sheets
above the cold water basin floor to simplify basin cleaning.
Integral drift eliminators prevent the costly nuisance of
drift spotting on objects in the sur round ing environment.
Their unique shape induces the air flow through three distinct
direction changes as illustrated above. The final turn directs
air toward the fan to save you fan horsepower. Moisture
carried in the air stream can’t make these abrupt turns, so
drift is 0.010% or less of the circulating water flow rate.

5
fans, used on larger models, include hollow GRE (glass-
reinforced epoxy) blades and epoxy-coated cast iron hubs.
Blades on both fan types are adjustable in pitch, so you can
take full advantage of rated horsepower or adjust the pitch
to compensate for unusual job site restrictions. The true
airfoil blades, designed specifically for cooling towers, offer
efficient, quiet operation and long service life.
Mechanical Equipment
You’ll receive a 5-year warranty against failure of any
mechanical component in the fan drive system (except the
motor, which is warranted by its manufacturer).
The Marley Geareducer speed reducers used in the
Sigma line contribute a long record of dependability, long
service life, and low maintenance to this assurance of
reliability. Their designs meet or exceed the requirements
of CTI STD-111 and AGMA Std. 420.04. We run-in every
Geareducer unit under load prior to shipment to make sure
that it will operate properly on your tower.
Housings are gray cast iron. Gears are high-strength,
case hardened alloy steel. And all bearings are tapered roller
bearings. A variety of available horsepower capacities and
reduction ratios lets us choose the optimum Geareducer
model and fan speed for your job. Service factors are always
at least 2.0 as applied.
Splash-type lubrication and integral cooling fins preclude
the need for maintenance-intensive oil pumps and coolers. A
constant oil bath or flow lubricates every bearing in forward or
reverse motion – at full or half speed.
All Marley Geareducer assemblies are right-angle type
with motors located outside the tower’s saturated airstream.
A galvanized steel lube line runs from the Geareducer unit
to a standpipe near the motor on each cell, so you can check
oil level and change or add oil while standing on the fan deck.
All Sigma Series 1000/1200 towers offer the benefits of
adjustable pitch propeller type Marley fans. The H-3 series
fans normally used on smaller models incorporate cast
aluminum blades and machined aluminum hubs. HP-7 series
Fans operate inside structural GRP (glass-reinforced
polyester) eased-inlet fan cylinders designed and applied to
maximize fan performance. Cylinder height varies from 3'-5"
to 7'-0", depending on fan diameter. Cylinders less than
6'-0" tall include galvanized welded fan guards. (See Access
and Safety on page 7.)
Marley-manufactured driveshafts transmit power
from the motor to the Geareducer assembly. All Marley
driveshafts include 304 stainless steel tubes with welded-
on stainless steel flanges and bonded neoprene flexible
elements to transmit torque. Marley driveshafts are full-
floating assemblies with non-lubricated flexible couplings
on each end. Their tolerance to misalignment and torsional
shock is unequalled in nonspecialized units. All Marley
driveshafts are dynamically balanced at the factory to
minimize operating vibrations.
Welded unitized hot-dip galvanized steel supports
maintain alignment throughout the mechanical equipment
system. Marley torque-tubes provide superior strength and
stability. Their cylindrical shape also keeps operating costs
down by minimizing airflow restrictions and reducing air
turbulence in the fan entrance region.
/ Construction and Components /

6
Water Distribution System
The gravity-flow water distribution system designed into
the Sigma tower essentially reduces pump head to its most
basic component – static lift – saving you money on pump
power. You won’t have to force water through internal piping
and pressure spray nozzles, as you would in a counterflow
tower.
Warm water enters the system through the Sigma
galvanized crossover pipe. Inlet connections for your piping
are standard 125# flanges. Marley flow-control valves balance
the flow to both distribution basins of each cell. Water flows
projected area and the design meets 5%g seismic loading,
based on a maximum water temperature of 120°F.
Pressure-treated Douglas Fir is the standard material
for structural members in Sigma towers because it offers
predictably consistent structural strength and provides long
service life in cooling towers. Treated redwood structure
from each valve through a splash-suppression chamber into
the treated fir plywood distribution basin.
Polypropylene patented “Spiral Target” nozzles in the
basin floor then distribute the water uniformly over the fill.
All materials in the water distribution system offer long life
and minimal maintenance. Valves consist of cast iron bodies
and grease-lubricated stainless steel operating stems. All
plywood is treated exterior grade. The nozzles are chemically
and biologically inert, so they’ll last indefinitely.
Structure and Materials
Sigma tower design conforms to the latest edition of the
National Design Specification for Wood Construction (NDS)
published by the National Forest Products Association.
Wind load criterion is normally 30 pounds per square foot of
is available as an option. However, you will benefit in the
long run from specifying redwood very selectively and very
carefully.
Unless otherwise specified, all lumber – regardless
of species – is pressure treated after fabrication. Lumber
treatment is CCA, infused into the wood by the full-cell
process to 0.40 lb/ft3 retention.
The primary structural elements of all Sigma towers
are the 4" x 4" columns. Column bent lines occur on 4'-0"
longitudinal centers.
/ Construction and Components /

7
The 4" x" 4 tower diagonals carry loads to heavy-
duty hot-dip galvanized steel anchor plates or hot-dip
galvanized anchor weldments. The system of longitudinal
and transverse diagonal bracing provides stability in a true
tension-compression design.
the mechanical equipment. The taller fan cylinders used on
Series 1200 models effectively keep personnel away from
the fan, eliminating the need for guards.
All mechanical equipment is accessible both from the
interior of the tower and through the fan cylinder.
Every component of every tower is removable and
replaceable.
Casing
Tower endwalls are cased with gray 8 oz/sq ft rib-type,
fiber reinforced polyester sheets. Water and corrosion-proof,
All structural framing connections use 1/2" dia.
galvanized machine bolts with either fiber-reinforced nylon
shear connectors or FRP connector straps.
The fan deck is pressure treated exterior grade fir
plywood designed for a uniform live load of 60 psf.
Access and Safety
The Sigma tower is designed to meet all OSHA
requirements. A 3'-6" high guardrail system, complete with
toprails, intermediate rails and toeboards, surrounds the
entire top perimeter of the tower.
Aluminum ladders attached to the tower endwalls
provide access to the fan deck level. Ladders begin at the
cold water basin level and end at the top of the guarddrail.
Each tower normally includes two ladders—one at each
endwall.
Hinged doors through the endwall casing permit access
to the interior of the tower at the basin level. Single-cell
towers have one door. Multicell towers have doors in both
endwalls, plus accessways through any and all partition
walls.
Removable fan guards on Series 1000 models keep
personnel away from operating fans. The galvanized,
heavy-gauge welded rod guards lift off for easy access to
FRP is immune to biological deterioration and requires no
maintenance.
Casing ribs run vertically. Vertical joints between sheets
are overlapped one rib and are sealed in the fill areas.
Casing attaches to the structural members with stainless
steel fasteners and neoprene bonded washers. Corner trim
pieces are 12 oz/sq ft molded FRP.
/ Construction and Components /
Cold Water Collection Basin
Most Sigma owners install their towers over concrete
cold water basins provided by others. However, you can
choose a Marley wood collection basin as an optional
accessory. (See page 11).
Consult your Marley sales representative for detailed
dimensioned drawings and load schedules to help you with
your basin design.

8
/ Available Options /
Accessory Description and RemarksAccessory Description and Remarks
Plywood Cold Water
Collection Basin
Pressure-treated Douglas fir plywood collection
basin for towers located above grade.
See page 11.
Bottom-Outlet Sump Square-plan galvanized steel sump with bottom
outlet. Outlet connection is a hole and bolt circle
conforming to 125# ASME pipe connection.
Includes a plugged drain connection in sump
bottom.
Additional Access
Door
Extra access door on single-cell towers
offers easy access through either endwall.
Wood Stairway Pressure-treated Douglas fir 45° stairway located
at tower endwall provides access to the fan
deck. Choose a stairway in place of one endwall
ladder, or use both ladders as well as the
stairway. Handrails and kneerails are standard,
so design conforms to OSHA standards.
Steel Ladder Galvanized steel ladder conforms to OSHA
standards. May be in place of or in addition to
standard aluminum ladders.
Ladder Safety Cage Galvanized steel circular framework, bolts
to ladder siderails and conforms to OSHA
standards. Cages extend from the top of the
guardrail to about 7’ above the base of the
ladder. If the tower fan deck is more than 20'
above roof or grade, OSHA requires safety cages.
Plenum Walkway Pressure-treated Douglas fir plenum walkways
extend the full length of the tower from access
door to access door above the water line.
Guardrails are optional. However, OSHA requires
guardrails if the walkway is 4'-0" or more above
the basin floor.
Ladder Extensions Used when tower is elevated appreciably above
working level. Extensions attach to the normal
ladder and may require base anchorage
(depending on length).
Premium
Hardware
Choose from several corrosion-resistant
hardware options, providing different degrees of
protection.
Fire Protection Sprinkler systems and overlay materials let you
choose from a range of fire protection options.
See page 10.
Redwood Fan Deck,
Distribution Basin, or
Tower Structure
You can choose redwood instead of Douglas fir
for any or all of these tower elements.
Interior tower columns can be extended to
permit concrete basin depth of up to 5’-6”.
Some exceptions apply, so consult your
Marley sales representative
Fan Cylinder
Extensions
Optional flared fan cylinder extensions improve
fan efficiency to reduce your operating costs.
Extensions on Sigma 1000 Series towers
conform to OSHA requirements without fan
guards.
Cell Partitions Extra partitions between fan cells for specific
operating considerations. See page 9.
Vibration Limit
Switch
Robertshaw or Metrix single-pole, double-throw
vibration switches in NEMA 4 housing. Double-
pole, double-throw models are also available.
Oil Level Sight Glass A brass-fitted oil level sight glass takes the place
of the dip stick on the external oil fill and drain
system. Permits easy reading of oil level and also
lets you change oil through the lube line.
Air Inlet Screens Galvanized wire mesh screens over the air inlets
keep leaves and trash out of the tower. Easily
removable. Choose either treated fir frames or
galvanized steel U-edge frames.
Plywood
Distribution Basin
Covers
Removable, treated fir plywood covers keep
upper basins free of leaves and debris. They
also tend to retard growth of algae by keeping
ultraviolet radiation away from the warm
water in the basins. Covers may be used as a
working surface for tower maintenance.
Extended
Columns for Deep
Collection Basin

9
Cell Partition Options
Every Sigma tower includes plenum chamber partitions
and hot water distribution basin partitions between
adjacent cells. Plenum partitions ensure consistent thermal
performance as you shut off one fan at a time. They keep air
from entering an operating cell through an adjacent idle fan,
maintaining efficient thermal performance. Basin partitions
let you inspect and clean individual basins while the rest of
the tower continues to operate.
Specify extra partitions carefully because excess
partitions can sometimes discourage routine maintenance
and good housekeeping procedures. Two options are
available to meet specific design goals:
• Fillareapartitionsareavailable,butusuallynot
necessary. The solid sheet design of film fill prevents
water and air migration between the fill areas of
adjacent cells, regardless of operating mode.
• Completewatertightpartitionsprovidetotalcell
isolation. These partitions let you use adjacent cells
to serve separate loads with incompatible system
temperatures. Watertight partitions extend from louver-
face to louver-face and cover the full internal height of
the tower, including the cold water basin. Partitions
usually consist of exterior grade, pressure-treated fir
plywood, sealed to cold water basin partitions made
from the same material as the basin sides. For concrete
basin partitions, design drawings are available that
specify the appropriate Marley dimensions.
Optional weir gates in wood basin partitions let you
mix or segregate the water in the basin to meet
your operating needs. Marley weir gates come with
removable cover plates.
/ Available Options /
Oil-Level Sight Glass
Wood Stairway with Access Platform
10
Fire Protection Options
The PVC fill, louvers and drift eliminators used on Sigma
towers are fire-retardant, having flame spread ratings less
than 25 per ASTM E-84. Standard fan decking material
is pressure-treated fir plywood which ignites poorly and
burns slowly. For these reasons, governing agencies (such
as Factory Mutual) may not require fire protection sprinkler
systems on Sigma towers.
On specific jobs you may want to weigh the cost of
various modifications against the cost (and maintenance)
of a sprinkler system – or the cost of higher insurance
premiums. One or more of the following tower modifications
may negate the need for a sprinkler system:
• Fire-retardantfancylindersandoptionalcasingoffer
flame spread less than 25 per ASTM E-84.
• A1/4"thickber-reinforcedcementboard(FRC)overlay
on the fan deck acts as a fire stop and provides a
nonskid walking surface.
• A1/4"FRCoverlayonthedistributionbasincoversacts
as a fire stop.
• Barrierwallskeeprefromspreadingbetweencells
in multicell towers. Specify barrier wall design by
containment period, such as a “20-minute fire wall”.
Barrier walls are full-width, full-height of the tower
interior (except cold water basin), and consist of
pressure-treated fir plywood both sides of the column
line between cells. Plywood thickness (and cost) vary
according to the specified containment time.
• Steelconstruction.RememberthattheSigmaseries
is available in steel construction – either galvanized or
stainless – as are a number of other Marley series, all of
which meet all established fire code requirements.
If your insurance carrier insists on a sprinkler system for
your tower, consult your Marley sales representative. We can
provide a sprinkler system to fit your needs, or work with
your people to be sure that the sprinkler system and tower
will meet your specification.
Non-Standard Motors
Although you can buy your Sigma tower “less motor” at
a cost reduction, it is not normally recommended. Motors
supplied on Marley towers meet rigorous specifications
developed from environmental chamber tests at our
Development Center. These specifications represent prudent
minimum design requirements.
Unless otherwise specified, motors provided on
Marley cooling towers are TEFC, 1.0 or 1.15 service
factor (appropriate to the applied load), 1800 RPM. Other
enclosures (such as Explosion Proof) and motors specially
wound for non-standard voltages are available at extra cost.
Two-speed motors are also available, and their
advantages are discussed on page 22.
/ Special Component Options /

11
Cold Water Collection Basins
If you plan to locate your tower above grade, a treated
Douglas fir Marley cold water collection basin is available,
complete with the necessary operating accessories. The
basin floor is exterior grade, pressure-treated fir plywood,
supported on joists. Basin sides are plywood, machined to
fit the basin floor, providing a water-tight joint after sealing.
The standard wood basin includes at least one
depressed, side-outlet sump. The number and size of
sumps depends on the circulating water rate and the overall
size of the tower. Unless otherwise specified, sumps include
plugged drains and hot-dip galvanized debris screens.
Standard sumps are FRP construction or hot-dip galvanized
steel, depending on outlet size.
Stainless steel sumps and screens are available as
options at extra cost.
Each basin includes an overflow/cleanout connection
consisting of a galvanized full coupling and standpipe. The
normally-installed standpipe ensures adequate freeboard in
the cold water basin and removes easily for flush-out basin
cleaning.
A float-operated, mechanical make-up valve provided
with each basin automatically replenishes water lost from
the system. The valve is located in the plenum chamber
between fill banks, just inside the endwall access door to
facilitate adjustment and maintenance.
/ Special Component Options /
High Design Loadings
Our engineers will make sure that your Sigma tower
will withstand any higher-than-normal design loadings
(wind, earthquake, decking, etc.) that you may specify.
Clearly define any special design requirements in your tower
specifications. We’ll make any necessary changes to the
tower’s structural design. This is equally true if you anticipate
incoming hot water temperatures above 120°F.
The specification should also describe the type of load
system served by the tower, and include the expected
water quality analysis, so that our engineers can select and
recommend appropriate changes in component materials
to assure satisfactory service. Discuss any questions about
technical requirements with your trained Marley sales
representative.

/ Additional Services /
SPX Cooling Technologies is dedicated to satisfying the needs of our customers—needs which begin far in advance of the actual
purchase of a new Marley cooling tower, and vary over the operating lifetime of the project. Here is a partial listing of the additional
services offered by SPX Cooling Technologies to help you do your job most effectively:
Application/Sizing/Layout Services—Sales Engineers are
trained to help you choose the proper type and size
of cooling tower, and will guide you in its appropri-
ate location on site. They will also help you write the
specifications for its purchase. As the only manufacturer
who makes all types of cooling products, SPX Cooling
Technologies can offer you a wide range of options to
meet your requirements.
Construction Service—We can supply supervision only—or a
complete, experienced crew to handle construction.
Parts Service—We maintain a stock of spare parts specific
to your Marley tower.
Maintenance Service—In addition to providing complete
instructions and continuing guidance, we will provide
as much “hands on” maintenance as you require, or will
recommend a local service contractor for your consider-
ation.
Condition Inspection Service—From time to time, for your
peace of mind, our engineers can give your tower a
thorough inspection to evaluate its current condition.
This usually allows you to foresee and forestall problems
before they become serious.
Reconstruction Service—Due to operating or atmospheric
conditions, or age, sooner or later your tower will be in
need of repairs above and beyond those categorized
as normal maintenance. Our reconstruction service can
return your tower to as new condition
Performance Improvement Service—Systems served by
cooling towers grow in response to demand for the
product produced by that system. Most customers find
that they could produce more product if the cooling
tower could deliver colder water. Fortunately, cooling
tower technology advances with time, and we can ap-
ply this increased technology to upgrade your tower’s
thermal performance.
Tower Replacement Service—Occasionally, customers will
benefit from replacing an installed tower, rather than
refurbishing it. SPX Cooling Technologies stands ready
to assist you in that endeavor—and, in most cases,
the replacement will require little or no change to your
concrete basin or support structure.
7401 WEST 129 STREET
OVERLAND PARK, KANSAS 66213
UNITED STATES
913 664 7400
spxcooling@spx.com
spxcooling.com
In the interest of technological progress,
all products are subject to design and/or
material change without notice.
©2008 SPX Cooling Technologies, Inc.
Printed in USA | SIG-07