Ssi America Eps2U Users Manual
EPS2U to the manual a87f08ba-cc53-42b1-b634-e76abd3347ed
2015-02-06
: Ssi-America Ssi-America-Eps2U-Users-Manual-528617 ssi-america-eps2u-users-manual-528617 ssi-america pdf
Open the PDF directly: View PDF
.
Page Count: 30
- Purpose
- Conceptual Overview
- Definitions/Terms/Acronyms
- Mechanical Overview
- AC Input Requirements
- DC Output Specification
- Protection Circuits
- Control and Indicator Functions
- MTBF
- Agency Requirements

SSI
EPS2U
Power Supply Design Guide
A Server System Infrastructure (SSI) Specification
For Entry Chassis Power Supplies
Revision 2.1
Revision History
Orig./Rev. Description of Changes Date
1.0 Initial release of EPS2U specification
1.1 Updated EPS2U spec with an added 12V 240VA channel, updated mounting
features, and added gold comment for gold signal contacts
4/14/02
1.2 Approved EPS2U specification including changes from 4/23/2002 SSI council meeting 4/23/02
2.0 Added output power level recommendations for 550W, 600W, and 650W power
supplies and updated connector pin-outs.
Modified 12V continuous and peak requirements for 480W power level.
Updated transient load requirements, 240VA requirements, and signal description for
PWOK.
Removed temperature rise requirements from thermal section and added efficiency
and airflow recommendations for each power level.
9/27/02
2.1 Section 4.2 - Changed operating temperature to 45°C from 50°C
Section 6.1 - Added 3.3V remote sense to pin 1 of baseboard connector
Section 6.1 - Changed +12V4 wire color to Yellow/Green stripe
Added Section 6.1.1 – 12V Power Rail Configurations
Section 6.4 - Changed output load rating tables
Defined one load range per output level (vs. two)
Increased +12V currents for 550, 600 & 650W split plane supplies
Section 6.6 - Adjusted transient load requirements
5/16/03

SSI
EPS2U Power Supply Design Guide, V2.1
Disclaimer:
THIS SPECIFICATION IS PROVIDED "AS IS" WITH NO WARRANTIES
WHATSOEVER, INCLUDING ANY WARRANTY OF MERCHANTABILITY,
NONINFRINGEMENT, FITNESS FOR ANY PARTICULAR PURPOSE, OR ANY
WARRANTY OTHERWISE ARISING OUT OF ANY PROPOSAL, SPECIFICATION OR
SAMPLE. WITHOUT LIMITATION, THE PROMOTERS (Intel Corporation, NEC
Corporation, Dell Computer Corporation, Data General a division of EMC Corporation,
Compaq Computer Corporation, Silicon Graphics Inc., and International Business
Machines Corporation) DISCLAIM ALL LIABILITY FOR COST OF PROCUREMENT OF
SUBSTITUTE GOODS OR SERVICES, LOST PROFITS, LOSS OF USE, LOSS OF
DATA OR ANY INCIDENTAL, CONSEQUENTIAL, DIRECT, INDIRECT, OR SPECIAL
AMAGES, WHETHER UNDER CONTRACT, TORT, WARRANTY OR OTHERWISE,
ARISING IN ANY WAY OUT OF USE OR RELIANCE UPON THIS SPECIFICATION OR
ANY INFORMATION HEREIN.
The Promoters disclaim all liability, including liability for infringement of any proprietary
rights, relating to use of information in this specification. No license, express or implied,
by estoppel or otherwise, to any intellectual property rights is granted herein.
This specification and the information herein is the confidential and trade secret
information of the Promoters. Use, reproduction and disclosure of this specification and
the information herein are subject to the terms of the S.S.I. Specification Adopter's
Agreement.
Copyright Intel Corporation, Dell Computer Corporation, Hewlett Packard Company, Silicon Graphics Inc.,
International Business Machines Corporation, 2002-2003.
- 2 -

SSI
EPS2U Power Supply Design Guide, V2.1
Contents
1 Purpose.......................................................................................................................................................... 5
2 Conceptual Overview ................................................................................................................................... 5
3 Definitions/Terms/Acronyms....................................................................................................................... 6
4 Mechanical Overview ................................................................................................................................... 7
4.1 Airflow Requirements .................................................................................................................................. 8
4.2 Temperature Requirements ........................................................................................................................ 8
5 AC Input Requirements................................................................................................................................ 9
5.1 AC Inlet Connector...................................................................................................................................... 9
5.2 AC Input Voltage Specification ................................................................................................................... 9
5.3 Efficiency ..................................................................................................................................................... 9
5.4 AC Line Dropout........................................................................................................................................ 10
5.5 AC Line Fuse ............................................................................................................................................ 10
5.6 AC Inrush .................................................................................................................................................. 10
5.7 AC Line Transient Specification ................................................................................................................ 10
5.8 AC Line Fast Transient Specification........................................................................................................ 11
6 DC Output Specification ............................................................................................................................ 12
6.1 Output Connectors .................................................................................................................................... 12
6.1.1 12V Power Rail Configurations.......................................................................................................... 12
6.1.2 Baseboard power connector.............................................................................................................. 13
6.1.3 Processor Power Connector.............................................................................................................. 14
6.1.4 Peripheral Power Connectors............................................................................................................ 15
6.1.5 Floppy Power Connector ................................................................................................................... 15
6.1.6 Server Signal Connector.................................................................................................................... 15
6.2 Grounding.................................................................................................................................................. 16
6.3 Remote Sense .......................................................................................................................................... 16
6.4 Output Power/Currents ............................................................................................................................. 17
6.4.1 Standby Outputs ................................................................................................................................ 18
6.5 Voltage Regulation.................................................................................................................................... 19
6.6 Dynamic Loading ...................................................................................................................................... 20
6.7 Capacitive Loading.................................................................................................................................... 20
6.8 Ripple / Noise............................................................................................................................................ 21
6.9 Timing Requirements ................................................................................................................................ 21
7 Protection Circuits...................................................................................................................................... 24
7.1 Current Limit.............................................................................................................................................. 24
7.2 240VA Protection ...................................................................................................................................... 24
7.3 Over Voltage Protection ............................................................................................................................ 25
7.4 Over Temperature Protection.................................................................................................................... 25
8 Control and Indicator Functions ............................................................................................................... 26
8.1 PSON# ...................................................................................................................................................... 26
8.2 PWOK (Power OK) ................................................................................................................................... 27
8.3 Field Replacement Unit (FRU) Signals ..................................................................................................... 27
8.3.1 FRU Data ........................................................................................................................................... 27
8.3.2 FRU Data Format............................................................................................................................... 28
- 3 -

SSI
EPS2U Power Supply Design Guide, V2.1
9 MTBF ............................................................................................................................................................ 30
10 Agency Requirements................................................................................................................................ 30
Figures
Figure 1: Enclosure Drawing .................................................................................................................................... 7
Figure 2: Output Voltage Timing............................................................................................................................. 22
Figure 3: Turn On/Off Timing (Single Power Supply)............................................................................................. 23
Figure 4: PSON# Signal Characteristics ................................................................................................................ 26
Tables
Table 1: Thermal Requirements ............................................................................................................................... 8
Table 2: AC Input Rating .......................................................................................................................................... 9
Table 3: Efficiency .................................................................................................................................................... 9
Table 4: AC Line Sag Transient Performance........................................................................................................ 11
Table 5: AC Line Surge Transient Performance .................................................................................................... 11
Table 6: 12V Rail Summary.................................................................................................................................... 12
Table 7: P1 Baseboard Power Connector – Common Plane................................................................................. 13
Table 8: P1 Baseboard Power Connector – Split Plane......................................................................................... 13
Table 9: Processor Power Connector – Common Plane........................................................................................ 14
Table 10: Processor Power Connector – Split Plane ............................................................................................. 14
Table 11: Peripheral Power Connectors................................................................................................................. 15
Table 12: P9 Floppy Power Connector................................................................................................................... 15
Table 13: Server Signal Connector ........................................................................................................................ 16
Table 14: 480 W Load Ratings – Common Plane.................................................................................................. 17
Table 15: 550 W Load Ratings – Split Plane.......................................................................................................... 17
Table 16: 600 W Load Ratings – Split Plane.......................................................................................................... 18
Table 17: 650 W Load Ratings – Split Plane.......................................................................................................... 18
Table 18: Voltage Regulation Limits....................................................................................................................... 19
Table 19: Optional +5V Regulation Limits .............................................................................................................. 19
Table 20: Transient Load Requirements ................................................................................................................ 20
Table 21: Capacitve Loading Conditions................................................................................................................ 20
Table 22: Ripple and Noise .................................................................................................................................... 21
Table 23: Output Voltage Timing............................................................................................................................ 21
Table 24: Turn On/Off Timing................................................................................................................................. 22
Table 25: Over Current Protection.......................................................................................................................... 24
Table 26: Over Current Protection.......................................................................................................................... 25
Table 27: Over Voltage Limits ................................................................................................................................ 25
Table 28: PSON# Signal Characteristic .................................................................................................................. 26
Table 29: PWOK Signal Characteristics................................................................................................................. 27
Table 30: FRU Device Information ......................................................................................................................... 28
Table 31: FRU Device Product Information Area ................................................................................................... 28
Table 32: FRU Device Product Information Area ................................................................................................... 29
- 4 -

SSI
EPS2U Power Supply Design Guide, V2.1
1
2
Purpose
This 2U Rack Power Supply Specification defines a common power supply used in entry-level servers. This
supply may range typically from 400 to 700 watts and is used in a non-redundant configuration. The scope of this
document defines the requirements for one supply in this power range. The parameters of this supply are defined
in this specification for open industry use.
This specification defines 480W, 550W, 600W, and 650W power supplies with multiple outputs; 3.3 V, 5 V, 12V, -
12 V, and 5 VSB. Because of its connector leads, the power supply is not intended to be a hot swap type of
power supply.
Conceptual Overview
In the Entry server market, the bulk power system must source power on several output rails.
These rails are typically as follows:
• +3.3 V
• +5 V
• +12 V
• –12 V
• 5 V standby
NOTE
Local DC-DC converters shall be utilized for processor power, and will ideally convert power from the +12 V
rail, however, they may also convert power from other rails.
The bulk power system may be a n+1 redundant power system or a non-redundant power system.
- 5 -

SSI
EPS2U Power Supply Design Guide, V2.1
3 Definitions/Terms/Acronyms
Required The status given to items within this design guide, which are required to
meet SSI guidelines and a large majority of system applications.
Recommended The status given to items within this design guide which are not required to
meet SSI guidelines, however, are required by many system applications.
Optional The status given to items within this design guide, which are not required to
meet SSI guidelines, however, some system applications may optionally
use these features.
Autoranging A power supply that automatically senses and adjusts itself to the proper
input voltage range (110 VAC or 220 VAC). No manual switches or
manual adjustments are needed.
CFM Cubic Feet per Minute (airflow).
Dropout A condition that allows the line voltage input to the power supply to drop to
below the minimum operating voltage.
Latch Off A power supply, after detecting a fault condition, shuts itself off. Even if the
fault condition disappears, the supply does not restart unless manual or
electronic intervention occurs. Manual intervention commonly includes
briefly removing and then reconnecting the supply, or it could be done
through a switch. Electronic intervention could be done by electronic
signals in the Server System.
Monotonically A waveform changes from one level to another in a steady fashion, without
intermediate retracement or oscillation.
Noise The periodic or random signals over frequency band of 0 Hz to 20 MHz.
Overcurrent A condition in which a supply attempts to provide more output current than
the amount for which it is rated. This commonly occurs if there is a "short
circuit" condition in the load attached to the supply.
PFC Power Factor Corrected.
Ripple The periodic or random signals over a frequency band of 0 Hz to 20 MHz.
Rise Time Rise time is defined as the time it takes any output voltage to rise from
10% to 95% of its nominal voltage.
Sag The condition where the AC line voltage drops below the nominal voltage
conditions.
Surge The condition where the AC line voltage rises above nominal voltage.
VSB or Standby Voltage An output voltage that is present whenever AC power is applied to the AC
inputs of the supply.
MTBF Mean time between failure.
PWOK A typical logic level output signal provided by the supply that signals the
Server System that all DC output voltages are within their specified range.
- 6 -

SSI
EPS2U Power Supply Design Guide, V2.1
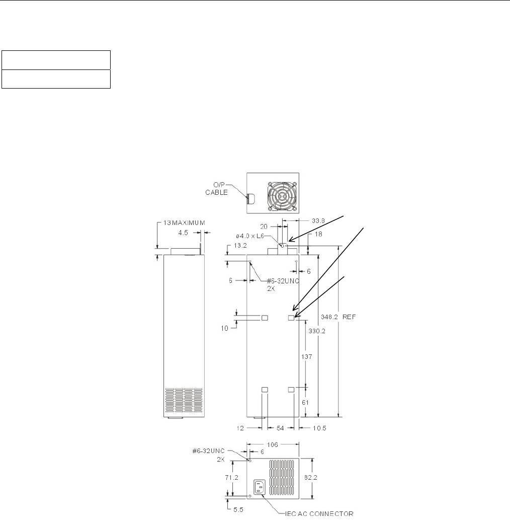
4 Mechanical Overview
STATUS
Required (Optional)
Note: Some enclosure features are noted as optional in the drawing below. These features may be use in some
chassis designs where only top access is allowed for the cage mounting.
The EPS2U is a power supply enclosure intended to handle a power range of 400W to 700W. A mechanical
drawing of the power supply cage is shown below in Figure 1.
A
llow for 1.2mm
protrusion (x4)
Optional mounting features for top access
mounting of the power supply.
Figure 1: Enclosure Drawing
- 7 -

SSI
EPS2U Power Supply Design Guide, V2.1
4.1 Airflow Requirements
STATUS
Recommended
The power supply shall have a two-speed fan(s) and provide cooling to both the supply and the system. During
low-speed fan operation, the power supply must not exceed a noise level of 43 dBa measured at one meter on all
faces. At low fan speed, the power supply shall provide a minimum of 12 CFM of airflow with 0.003 inH2O of
system backpressure. At high fan speed, the power supply shall provide a minimum of 20 CFM with 0.006 inH2O
of system backpressure.
4.2 Temperature Requirements
STATUS
Recommended
The power supply shall operate within all specified limits over the Top temperature range. The average air
temperature difference (∆Tps ) from the inlet to the outlet of the power supply shall not exceed the values shown
below in Table 1. All airflow shall pass through the power supply and not over the exterior surfaces of the power
supply.
Table 1: Thermal Requirements
ITEM DESCRIPTION MIN MAX UNITS
Top Operating temperature range. 0 50 °C
Tnon-op Non-operating temperature range. -40 70 °C
The power supply must meet UL enclosure requirements for temperature rise limits. All sides of the power supply
with exception of the air exhaust side, must be classified as “Handle, knobs, grips, etc. held for short periods of
time only”.
- 8 -

SSI
EPS2U Power Supply Design Guide, V2.1
5 AC Input Requirements
STATUS
Required
The power supply shall incorporate universal power input with active power factor correction, which shall reduce
line harmonics in accordance with the EN61000-3-2 and JEIDA MITI standards.
5.1 AC Inlet Connector
STATUS
Required
The AC input connector shall be an IEC 320 C-14 power inlet. This inlet is rated for 15 A/250 VAC.
5.2 AC Input Voltage Specification
STATUS
Required
The power supply must operate within all specified limits over the following input voltage range. Harmonic
distortion of up to 10% THD must not cause the power supply to go out of specified limits. The power supply shall
operate properly at 85 VAC input voltage to guarantee proper design margins.
Table 2: AC Input Rating
PARAMETER MIN RATED MAX
Voltage (110) 90 Vrms 100-127 Vrms 140 Vrms
Voltage (220) 180 Vrms 200-240 Vrms 264 Vrms
Frequency 47 Hz 63 Hz
5.3 Efficiency
STATUS
Recommended
The following efficiency requirements are provided as a recommendation to allow for proper power supply cooling
when installed in a system.
Table 3: Efficiency
Power Level Efficiency Airflow (reference)
480W 68% 20 CFM
550W 68% 20 CFM
600W 72% 20 CFM
650W 72% 20 CFM
- 9 -

SSI
EPS2U Power Supply Design Guide, V2.1
5.4 AC Line Dropout
STATUS
Required
An AC line dropout is defined to be when the AC input drops to 0 VAC at any phase of the AC line for any length
of time. During an AC dropout of one cycle or less the power supply must meet dynamic voltage regulation
requirements over the rated load. An AC line dropout of one cycle or less shall not cause any tripping of control
signals or protection circuits. If the AC dropout lasts longer than one cycle, the power supply should recover and
meet all turn on requirements. The power supply must meet the AC dropout requirement over rated AC voltages,
frequencies, and output loading conditions. Any dropout of the AC line shall not cause damage to the power
supply.
5.5 AC Line Fuse
STATUS
Required
The power supply shall incorporate one input fuse on the LINE side for input over-current protection to prevent
damage to the power supply and meet product safety requirements. Fuses should be slow blow type or
equivalent to prevent nuisance trips. AC inrush current shall not cause the AC line fuse to blow under any
conditions. All protection circuits in the power supply shall not cause the AC fuse to blow unless a component in
the power supply has failed. This includes DC output load short conditions.
5.6 AC Inrush
STATUS
Required
The power supply must meet inrush requirements for any rated AC voltage, during turn on at any phase of AC
voltage, during a single cycle AC dropout condition, during repetitive ON/OFF cycling of AC, and over the
specified temperature range (Top). The peak inrush current shall be less than the ratings of its critical components
(including input fuse, bulk rectifiers, and surge limiting device).
STATUS
Recommended
An additional inrush current limit is recommended for some system applications that require multiple systems on a
single AC circuit. AC line inrush current shall not exceed 40 A peak for one-quarter of the AC cycle, after which,
the input current should be no more than the specified maximum input current from Table 2.
5.7 AC Line Transient Specification
STATUS
Recommended
AC line transient conditions shall be defined as “sag” and “surge” conditions. Sag conditions (also referred to as
“brownout” conditions) will be defined as the AC line voltage dropping below nominal voltage. Surge conditions
will be defined as the AC line voltage rising above nominal voltage.
The power supply shall meet the requirements under the following AC line sag and surge conditions.
- 10 -

SSI
EPS2U Power Supply Design Guide, V2.1
Table 4: AC Line Sag Transient Performance
AC Line Sag
Duration Sag Operating AC Voltage Line Frequency Performance Criteria
Continuous 10% Nominal AC Voltage ranges 50/60 Hz No loss of function or performance
0 to 1 AC
cycle
100% Nominal AC Voltage ranges 50/60 Hz No loss of function or performance
>1 AC cycle >10% Nominal AC Voltage ranges 50/60 Hz Loss of function acceptable, self
recoverable
Table 5: AC Line Surge Transient Performance
AC Line Surge
Duration Surge Operating AC Voltage Line Frequency Performance Criteria
Continuous 10% Nominal AC Voltages 50/60 Hz No loss of function or performance
0 to ½ AC
cycle
30% Mid-point of nominal AC
Voltages
50/60 Hz No loss of function or performance
5.8 AC Line Fast Transient Specification
STATUS
Recommended
The power supply shall meet the EN61000-4-5 directive and any additional requirements in IEC1000-4-5:1995
and the Level 3 requirements for surge-withstand capability, with the following conditions and exceptions:
• These input transients must not cause any out-of-regulation conditions, such as overshoot and
undershoot, nor must it cause any nuisance trips of any of the power supply protection circuits.
• The surge-withstand test must not produce damage to the power supply.
• The supply must meet surge-withstand test conditions under maximum and minimum DC-output load
conditions.
- 11 -

SSI
EPS2U Power Supply Design Guide, V2.1
6 DC Output Specification
6.1 Output Connectors
The power supply shall have one of the two following output connector and wire harness configurations,
depending upon the type of 12V rail configuration needed by the system.
6.1.1 12V Power Rail Configurations
There are two types of 12V rail configurations for systems: ‘Common plane’ and ‘split plane’ processor power
delivery. The ‘common plane’ system has both processors powered from a single 12V rail (+12V1) from the
power supply. The ‘split plane’ system has both processors powered from separate 12V rails (+12V1 and
+12V2), one dedicated to each processor. The system, in both cases, has an additional 12V rail to power the rest
of the baseboard +12V loads and dc/dc converters. +12V1, +12V2, and +12V3 should not be connected together
on the baseboard to ensure that 240VA protection circuits in the power supply operate properly.
Table 6: 12V Rail Summary
Common Plane System Split Plane System
+12V1 Processors +12V1 Processor 1
+12V2 Baseboard components other
than processors
+12V2 Processor 2
+12V3 Drives and peripherals +12V3 Baseboard components other than
processors
+12V4 Drives and peripherals
- 12 -

SSI
EPS2U Power Supply Design Guide, V2.1
6.1.2 Baseboard power connector
STATUS
Required
Connector housing: 24-Pin Molex 39-01-2240 or equivalent
Contact: Molex 44476-1111 or equivalent
Table 7: P1 Baseboard Power Connector – Common Plane
Pin Signal 18 AWG Color Pin Signal 18 AWG Color
1 +3.3 VDC,
3.3RS 1
Orange,
Orange/white stripe
13 +3.3 VDC Orange
2 +3.3 VDC Orange 14 -12 VDC Blue
3 COM Black 15 COM Black
4 +5 VDC Red 16 PS_ON Green
5 COM Black 17 COM Black
6 +5 VDC Red 18 COM Black
7 COM Black 19 COM Black
8 PWR OK Gray 20 Reserved (-5 V in ATX) N.C.
9 5 VSB Purple 21 +5 VDC Red
10 +12 V2 Yellow/Blue Stripe 22 +5 VDC Red
11 +12 V2 Yellow/Blue Stripe 23 +5 VDC Red
12 +3.3 VDC Orange 24 COM Black
Table 8: P1 Baseboard Power Connector – Split Plane
Pin Signal 18 AWG Color Pin Signal 18 AWG Color
1 +3.3 VDC,
3.3RS 1
Orange,
Orange/white stripe
13 +3.3 VDC Orange
2 +3.3 VDC Orange 14 -12 VDC Blue
3 COM Black 15 COM Black
4 +5 VDC Red 16 PS_ON Green
5 COM Black 17 COM Black
6 +5 VDC Red 18 COM Black
7 COM Black 19 COM Black
8 PWR OK Gray 20 Reserved (-5 V in ATX) N.C.
9 5 VSB Purple 21 +5 VDC Red
10 +12 V3 Yellow/Blue Stripe 22 +5 VDC Red
11 +12 V3 Yellow/Blue Stripe 23 +5 VDC Red
12 +3.3 VDC Orange 24 COM Black
1. 3.3V remote sense signal double crimped with 3.3V contact.
- 13 -

SSI
EPS2U Power Supply Design Guide, V2.1
2. If 240VA limiting is not a requirement for the power supply than all +12V outputs are common and may have the same
wire color (yellow).
6.1.3 Processor Power Connector
STATUS
Required
Connector housing: 8-Pin Molex 39-01-2080 or equivalent
Contact: Molex 44476-1111 or equivalent
Table 9: Processor Power Connector – Common Plane
Pin Signal 18 AWG color Pin Signal 18 AWG Color
1 COM Black 5 +12 V1 Yellow/Black Stripe
2 COM Black 6 +12 V1 Yellow/Black Stripe
3 COM Black 7 +12 V1 Yellow/Black Stripe
4 COM Black 8 +12 V1 Yellow/Black Stripe
Table 10: Processor Power Connector – Split Plane
Pin Signal 18 AWG color Pin Signal 18 AWG Color
1 COM Black 5 +12 V1 Yellow/Black Stripe
2 COM Black 6 +12 V1 Yellow/Black Stripe
3 COM Black 7 +12 V2 Yellow
4 COM Black 8 +12 V2 Yellow
If 240VA limiting is not a requirement for the power supply than all +12V outputs are common and may have the same wire
color (yellow).
- 14 -

SSI
EPS2U Power Supply Design Guide, V2.1
6.1.4 Peripheral Power Connectors
STATUS
Required
Connector housing: Amp 1-480424-0 or equivalent
Contact: Amp 61314-1 contact or equivalent
Table 11: Peripheral Power Connectors
Pin Signal 18 AWG Color
1 +12V2 (+12V3 or +12V4) 1, 2 Yellow (Yellow/Blue Stripe or Yellow/Green stripe) 1, 2
2 COM Black
3 COM Black
4 +5 VDC Red
1. The +12V power to peripherals may be split between the second, third, or fourth +12V channel for the purpose of
limiting power to less than 240VA.
2. If 240VA limiting is not a requirement for the power supply than all +12V outputs are common and may have the
same wire color.
6.1.5 Floppy Power Connector
STATUS
Required
Connector housing: Amp 171822-4 or equivalent
Table 12: P9 Floppy Power Connector
Pin Signal 22 AWG Color
1 +5 VDC Red
2 COM Black
3 COM Black
4 +12V2 (+12V3 or +12V4) 1, 2 Yellow (Yellow/Blue Stripe or Yellow/Green stripe) 1, 2
1. The +12V power to peripherals may be split between the second, third, or fourth +12V channel for the purpose of
limiting power to less than 240VA.
2. If 240VA limiting is not a requirement for the power supply than all +12V outputs are common and may have the same
wire color.
6.1.6 Server Signal Connector
STATUS
Optional
For server systems with SMBus features, the power supply may have an additional connector, which provides
serial SMBus for FRU data and remote sense on 3.3V and Return.
- 15 -

SSI
EPS2U Power Supply Design Guide, V2.1
If the optional server signal connector is not used on the power supply or the connector is unplugged, the power
supply shall utilize the 3.3RS on the baseboard connector (Pin 1).
Connector housing: 5-pin Molex 50-57-9405 or equivalent
Contacts: Molex 16-02-0088 or equivalent (gold plated)
Table 13: Server Signal Connector
Pin Signal 24 AWG Color
1 I2C Clock White/Green Stripe
2 I2C Data White/Yellow Stripe
3 Reserved NA
4 ReturnS Black/White Stripe
5 3.3RS Orange/White Stripe
6.2 Grounding
STATUS
Required
The ground of the pins of the power supply wire harness provides the power return path. The wire harness
ground pins shall be connected to safety ground (power supply enclosure).
6.3 Remote Sense
STATUS
Optional
The power supply may have remote sense for the +3.3V (3.3VS) and return (ReturnS) if the Optional Server
Signal connector is implemented. The remote sense return (ReturnS) is used to regulate out ground drops for all
output voltages; +3.3V, +5 V, +12V1, +12V2, +12V3, -12 V, and 5 VSB. The 3.3V remote sense (3.3VS) is used
to regulate out drops in the system for the +3.3 V output. The remote sense input impedance to the power supply
must be greater than 200 W on 3.3 VS and ReturnS. This is the value of the resistor connecting the remote
sense to the output voltage internal to the power supply. Remote sense must be able to regulate out a minimum
of 200 mV drop on the +3.3 V output. The remote sense return (ReturnS) must be able to regulate out a minimum
of 200 mV drop in the power ground return. The current in any remote sense line shall be less than 5 mA to
prevent voltage sensing errors. The power supply must operate within specification over the full range of voltage
drops from the power supply’s output connector to the remote sense points.
- 16 -

SSI
EPS2U Power Supply Design Guide, V2.1
6.4 Output Power/Currents
STATUS
Recommended
The following tables define the power and current ratings for 480 W, 550 W, 600 W, and 650 W power supplies.
The combined output power of all outputs shall not exceed the rated output power. The power supply must meet
both static and dynamic voltage regulation requirements for the minimum loading conditions.
Table 14: 480 W Load Ratings – Common Plane
Voltage Minimum Continuous Maximum Continuous Peak
+3.3 V 0.8 A 24 A
+5 V 0.5 A 20 A
+12V1 (Processors) 0 A 18 A 22 A 7
+12V2 (Baseboard) 1.0 A 18 A
-12 V 0 A 0.5 A
+5 VSB 0.1 A 2.0 A
1. Maximum continuous total DC output power should not exceed 480 W.
2. Maximum continuous combined load on +3.3 VDC and +5 VDC outputs shall not exceed 115 W.
3. Maximum Peak total DC output power should not exceed 550 W.
4. Peak power and current loading shall be supported for a minimum of 1 second.
5. Maximum combined current for the 12 V outputs shall be 32 A.
6. Maximum 12V combined peak current shall be 44A.
7. Peak +12 V1 current shall be supported for a minimum of 0.5 seconds.
Table 15: 550 W Load Ratings – Split Plane
Voltage Minimum Continuous Maximum Continuous Peak
+3.3 V 0.8 A 24 A
+5 V 0.5 A 20 A
+12V1 0 A 10.5 A 12 A
+12V2 0 A 10.5 A 12 A
+12V3 0.9 A 14 A
+12V4 0.1 A 8.0 A 13 A
-12 V 0 A 0.5 A
+5 VSB 0.1 A 2.0 A
1. Maximum continuous total DC output power should not exceed 550 W.
2. Maximum continuous combined load on +3.3 VDC and +5 VDC outputs shall not exceed 140 W.
3. Maximum peak total DC output power should not exceed 630 W.
4. Peak power and current loading shall be supported for a minimum of 1 second.
5. Maximum combined current for the 12 V outputs shall be 38 A.
6. Peak current for the combined 12 V outputs shall be 45 A.
- 17 -

SSI
EPS2U Power Supply Design Guide, V2.1
Table 16: 600 W Load Ratings – Split Plane
Voltage Minimum Continuous Maximum Continuous Peak
+3.3 V 0.8 A 24 A
+5 V 0.5 A 20 A
+12V1 0 A 12 A 15 A
+12V2 0 A 12 A 15 A
+12V3 0.9 A 14 A
+12V4 0.1 A 8.0 A 13 A
-12 V 0 A 0.5 A
+5 VSB 0.1 A 2.0 A
1. Maximum continuous total DC output power should not exceed 600 W.
2. Maximum continuous combined load on +3.3 VDC and +5 VDC outputs shall not exceed 140 W.
3. Maximum peak total DC output power should not exceed 710 W.
4. Peak power and current loading shall be supported for a minimum of 1 second.
5. Maximum combined current for the 12 V outputs shall be 42 A.
6. Peak current for the combined 12 V outputs shall be 51 A.
Table 17: 650 W Load Ratings – Split Plane
Voltage Minimum Continuous Maximum Continuous Peak
+3.3 V 0.8 A 24 A
+5 V 0.5 A 24 A
+12V1 0 A 12.5 A 15 A
+12V2 0 A 12.5 A 15 A
+12V3 0.9 A 14 A
+12V4 0.1 A 8.0 A 13 A
-12 V 0 A 0.5 A
+5 VSB 0.1 A 2.0 A
1. Maximum continuous total DC output power should not exceed 650 W.
2. Maximum continuous combined load on +3.3 VDC and +5 VDC outputs shall not exceed 140 W.
3. Maximum peak total DC output power should not exceed 770 W.
4. Peak power and current loading shall be supported for a minimum of 1 second.
5. Maximum combined current for the 12 V outputs shall be 45 A.
6. Peak current for the combined 12 V outputs shall be 54 A.
6.4.1 Standby Outputs
STATUS
Required
The 5 VSB output shall be present when an AC input greater than the power supply turn on voltage is applied.
- 18 -

SSI
EPS2U Power Supply Design Guide, V2.1
6.5 Voltage Regulation
STATUS
Required
The power supply output voltages must stay within the following voltage limits when operating at steady state and
dynamic loading conditions. These limits include the peak-peak ripple/noise specified in Section 5.8. All outputs
are measured with reference to the return remote sense (ReturnS) signal. The 5 V, 12V1, 12V2, 12V3, –12 V and
5 VSB outputs are measured at the power supply connectors referenced to ReturnS. The +3.3 V is measured at
its remote sense signal (3.3VS) located at the signal connector.
Table 18: Voltage Regulation Limits
Parameter MIN NOM MAX Units Tolerance
+3.3 V +3.20 +3.30 +3.46 Vrms +5/-3%
+5 V +4.80 +5.00 +5.25 Vrms +5/-4%
+12V1 +11.52 +12.00 +12.60 Vrms +5/-4%
+12V2 +11.52 +12.00 +12.60 Vrms +5/-4%
+12V3 +11.52 +12.00 +12.60 Vrms +5/-4%
-12 V -11.40 -12.20 -13.08 Vrms +9/-5%
+5 VSB +4.85 +5.00 +5.25 Vrms +5/-3%
STATUS
Optional
Some system applications may require tighter regulation limits on the +5 V output. The optional regulation limits
are shown below.
Table 19: Optional +5V Regulation Limits
Parameter MIN NOM MAX Units Tolerance
+5 V +4.85 +5.00 +5.25 Vrms +5/-3%
- 19 -

SSI
EPS2U Power Supply Design Guide, V2.1
6.6 Dynamic Loading
STATUS
Required
The output voltages shall remain within the limits specified in Table 18 for the step loading and within the limits
specified in Table 20 for the capacitive loading. The load transient repetition rate shall be tested between 50 Hz
and 5 kHz at duty cycles ranging from 10%-90%. The load transient repetition rate is only a test specification.
The ∆ step load may occur anywhere within the MIN load to the MAX load shown in Table 14, Table 15, Table 16,
or Table 17.
Table 20: Transient Load Requirements
Output ∆ Step Load Size Load Slew
Rate
Capacitive Load
+3.3 V 30% of max load 0.5 A/µs 1000 µF
+5 V 30% of max load 0.5 A/µs 1000 µF
12V1+12V2+12V3+12V4 65% of max load 0.5 A/µs 2200 µF
+5 VSB 25% of max load 0.5 A/µs 1 µF
6.7 Capacitive Loading
STATUS
Required
The power supply shall be stable and meet all requirements with the following capacitive loading ranges.
Note: Up to 10,000 µF of the +12V capacitive loading may be on the +12V1 output.
Table 21: Capacitve Loading Conditions
Output MIN MAX Units
+3.3 V 10 12,000 µF
+5 V 10 12,000 µF
+12 V 10 11,000 µF
-12 V 1 350 µF
+5 VSB 1 350 µF
- 20 -

SSI
EPS2U Power Supply Design Guide, V2.1
6.8 Ripple / Noise
STATUS
Required
The maximum allowed ripple/noise output of the power supply is defined in Table 22. This is measured over a
bandwidth of 0 Hz to 20 MHz at the power supply output connectors. A 10 µF tantalum capacitor in parallel with a
0.1 µF ceramic capacitor are placed at the point of measurement.
Table 22: Ripple and Noise
+3.3 V +5 V +12 V -12 V +5 VSB
50 mVp-p 50 mVp-p 120 mVp-p 120 mVp-p 50 mVp-p
6.9 Timing Requirements
STATUS
Required
These are the timing requirements for the power supply operation. The output voltages must rise from 10% to
within regulation limits (Tvout_rise) within 5 to 70 ms. The +3.3 V, +5 V and +12 V output voltages should start to
rise at about the same time. All outputs must rise monotonically. The +5 V output needs to be greater than the
+3.3 V output during any point of the voltage rise. The +5V output must never be greater than the +3.3V output
by more than 2.25 V. Each output voltage shall reach regulation within 50 ms (Tvout_on) of each other during turn
on of the power supply. Each output voltage shall fall out of regulation within 400 ms (Tvout_off) of each other
during turn off. Figure 2 and Figure 3 show the turn ON and turn OFF timing requirements. In Figure 3, the
timing is shown with both AC and PSON# controlling the ON/OFF of the power supply.
Table 23: Output Voltage Timing
Item Description MIN MAX Units
Tvout_rise Output voltage rise time from each main output. 5 70 ms
Tvout_on All main outputs must be within regulation of each
other within this time.
50 ms
Tvout_off All main outputs must leave regulation within this
time.
400 ms
- 21 -

SSI
EPS2U Power Supply Design Guide, V2.1
V4
V3
V2
V1
Tvout_off
Tvout_on
Tvout
_
rise
10% Vout
Vout
Figure 2: Output Voltage Timing
Table 24: Turn On/Off Timing
Item Description MIN MAX UNITS
Tsb_on_delay Delay from AC being applied to 5 VSB being
within regulation.
1500 ms
T ac_on_delay Delay from AC being applied to all output voltages
being within regulation.
2500 ms
Tvout_holdup Time all output voltages stay within regulation
after loss of AC.
18 ms
Tpwok_holdup Delay from loss of AC to deassertion of PWOK. 17 ms
Tpson_on_delay Delay from PSON# active to output voltages within
regulation limits.
5 400 ms
T pson_pwok Delay from PSON# deactive to PWOK being
deasserted.
50 ms
Tpwok_on Delay from output voltages within regulation limits
to PWOK asserted at turn on.
100 1000 ms
T pwok_off Delay from PWOK deasserted to output voltages
(3.3 V, 5 V, 12 V, -12 V) dropping out of regulation
limits.
1 ms
Tpwok_low Duration of PWOK being in the deasserted state
during an off/on cycle using AC or the PSON#
signal.
100 ms
Tsb_vout Delay from 5 VSB being in regulation to O/Ps
being in regulation at AC turn on.
50 1000 ms
- 22 -

SSI
EPS2U Power Supply Design Guide, V2.1
STATUS
Recommended
Item Description MIN MAX UNITS
Tvout_holdup Time all output voltages stay within regulation
after loss of AC.
21 ms
Tpwok_holdup Delay from loss of AC to deassertion of PWOK. 20 ms
Tsb_holdup Time 5VSB output voltage stays within regulation
after loss of AC.
70 ms
Tsb_holdup
PSON turn on/off cycle
A
C turn on/off cycle
Tsb_vout
Tpwok_low
Tpson_pwok
Tpwok_off
Tpwok_off Tpwok_on
T
sb o
n
de
l
ay
Tpson_on_delay
Tpwok_holdup
Tvout_holdup
Tpwok_on
TAC_on_delay
PSON#
5VSB
PWOK
Tsb_on_delay
Vout
AC Input
Figure 3: Turn On/Off Timing (Single Power Supply)
- 23 -

SSI
EPS2U Power Supply Design Guide, V2.1
7 Protection Circuits
STATUS
Required
Protection circuits inside the power supply shall cause only the power supply’s main outputs to shutdown. If the
power supply latches off due to a protection circuit tripping, an AC cycle OFF for 15 s and a PSON# cycle HIGH
for 1 s must be able to reset the power supply.
7.1 Current Limit
STATUS
Required
The power supply shall have current limit to prevent the +3.3 V, +5 V, and +12 V outputs from exceeding the
values shown in Table 25. If the current limits are exceeded, the power supply shall shutdown and latch off. The
latch will be cleared by toggling the PSON# signal or by an AC power interruption. The power supply shall not be
damaged from repeated power cycling in this condition. -12 V and 5 VSB shall be protected under over current or
shorted conditions so that no damage can occur to the power supply.
Table 25: Over Current Protection
Voltage Over Current Limit (Iout limit)
+3.3 V 110% minimum; 150% maximum
+5 V 110% minimum; 150% maximum
+12V 110% minimum; 150% maximum
7.2 240VA Protection
STATUS
Recommended
System designs may require user access to energized areas of the system. In these cases the power supply may
be required to meet regulatory 240VA limits for any power rail. Since the +12V rail combined power exceeds
240VA it must be divided into separate channels to meet this requirement. Each separate rail needs to be limited
to less than 20A for each +12V rail. The separate +12V rails do not necessarily need to be independently
regulated outputs. They can share a common power conversion stage. For common plane systems, the +12V rail
is divided into either two or three rails. For split plane systems, the +12V rail is split into four rails. Refer to section
6.4 for how the 12V rail is split between different output connectors.
- 24 -

SSI
EPS2U Power Supply Design Guide, V2.1
Table 26: Over Current Protection
Common Plane Split Plane
Voltage Over Current Limit (Iout limit) Over Current Limit (Iout limit)
+3.3 V 110% minimum; 150% maximum 110% minimum; 150% maximum
+5 V 110% minimum; 150% maximum 110% minimum; 150% maximum
+12V1 18A minimum; 20A maximum; 22A peak1 15A minimum; 20A maximum
+12V2 Peak current minimum; 20A maximum Peak current minimum; 20A maximum
+12V3 Peak current minimum; 20A maximum (550W only) Peak current minimum; 20A maximum
+12V4 N/A Peak current minimum; 20A maximum
1. +12V1 peak currents shall be maintained for a minimum of 500msec. The maximum duration of the peak current exceeding
the 240VA limit should be limited to meet safety regulations. A maximum duration of 1 second is recommended.
7.3 Over Voltage Protection
STATUS
Required
The power supply over voltage protection shall be locally sensed. The power supply shall shutdown and latch off
after an over voltage condition occurs. This latch shall be cleared by toggling the PSON# signal or by an AC
power interruption. Table 27 contains the over voltage limits. The values are measured at the output of the
power supply’s connectors. The voltage shall never exceed the maximum levels when measured at the power
pins of the power supply connector during any single point of fail. The voltage shall never trip any lower than the
minimum levels when measured at the power pins of the power supply connector.
Table 27: Over Voltage Limits
Output Voltage MIN (V) MAX (V)
+3.3 V 3.9 4.5
+5 V 5.7 6.5
+12V1,2,3 13.3 14.5
-12 V -13.3 -14.5
+5 VSB 5.7 6.5
7.4 Over Temperature Protection
STATUS
Recommended
The power supply will be protected against over temperature conditions caused by loss of fan cooling or
excessive ambient temperature. In an OTP condition the PSU will shutdown. When the power supply
temperature drops to within specified limits, the power supply shall restore power automatically. The OTP circuit
must have built in hysteresis such that the power supply will not oscillate on and off due to temperature recovering
condition. The OTP trip level shall have a minimum of 4 °C of ambient temperature hysteresis.
- 25 -

SSI
EPS2U Power Supply Design Guide, V2.1
8 Control and Indicator Functions
The following sections define the input and output signals from the power supply.
Signals that can be defined as low true use the following convention:
signal# = low true
8.1 PSON#
STATUS
Required
The PSON# signal is required to remotely turn on/off the power supply. PSON# is an active low signal that turns
on the +3.3 V, +5 V, +12 V, and -12 V power rails. When this signal is not pulled low by the system, or left open,
the outputs (except the +5 VSB and Vbias) turn off. This signal is pulled to a standby voltage by a pull-up resistor
internal to the power supply. Refer to Figure 3 for timing diagram.
Table 28: PSON# Signal Characteristic
Signal Type
Accepts an open collector/drain input from the system.
Pull-up to VSB located in power supply.
PSON# = Low ON
PSON# = Open or High OFF
MIN MAX
Logic level low (power supply ON) 0 V 1.0 V
Logic level high (power supply OFF) 2.0 V 5.25 V
Source current, Vpson = low 4 mA
Power up delay: Tpson_on_delay 5 ms 400 ms
PWOK delay: T pson_pwok 50 ms
Hysteresis ≥ 0.3V and/or other de-bounce method
Disabled
Enabled
≥ 2.0 V
PS is
disabled
≤ 1.0 V
PS is
enabled
1.0V 2.0V
0V 5.25V
Figure 4: PSON# Signal Characteristics
- 26 -

SSI
EPS2U Power Supply Design Guide, V2.1
8.2 PWOK (Power OK)
STATUS
Required
PWOK is a power OK signal and will be pulled HIGH by the power supply to indicate that all the outputs are within
the regulation limits of the power supply. When any output voltage falls below regulation limits or when AC power
has been removed for a time sufficiently long so that power supply operation is no longer guaranteed, PWOK will
be deasserted to a LOW state. See Figure 3 for a representation of the timing characteristics of PWOK. The
start of the PWOK delay time shall be inhibited as long as any power supply output is in current limit.
Table 29: PWOK Signal Characteristics
Signal Type +5V TTL Compatible output signal
PWOK = High Power OK
PWOK = Low Power Not OK
MIN MAX
Logic level low voltage, Isink = 4 mA 0 V 0.4 V
Logic level high voltage, Isource=200 µA2.4 V 5.25 V
PWOK delay: Tpwok_on 200 ms 1000 ms
PWOK rise and fall time 100 µs
Power down delay: T pwok_off 1 ms 200 ms
8.3 Field Replacement Unit (FRU) Signals
STATUS
Optional
Two pins will be allocated for the FRU information on the power supply connector. One pin is the Serial Clock
(SCL). The second pin is used for Serial Data (SDA). Both pins are bi-directional and are used to form a serial
bus. The FRU circuits inside the power supply must be powered off of 5 VSB output and grounded to ReturnS
(remote sense return). The Write Control (or Write protect) pin should be tied to ReturnS inside the power supply
so that information can be written to the EEPROM.
8.3.1 FRU Data
FRU data shall be stored starting in address location 8000h through 80FFh. The FRU data format shall be
compliant with the IPMI specifications. The current versions of these specifications are available at:
http:\\developer.intel.com/design/servers/ipmi/spec.htm.
- 27 -

SSI
EPS2U Power Supply Design Guide, V2.1
8.3.2 FRU Data Format
The information to be contained in the FRU device is shown in the following table.
Table 30: FRU Device Information
Area Type Description
Common Header As defined by the FRU document
Internal Use Area Not required, do not reserve
Chassis Info Area Not applicable, do not reserve
Board Info Area Not applicable, do not reserve
8.3.2.1 Product Info Area
Implement as defined by the IPMI FRU document. Product information shall be defined as follows:
Table 31: FRU Device Product Information Area
Field Name Field Description
Manufacturer Name {Formal name of manufacturer}
Product Name {Manufacturer’s model number}
Product part/model number Customer part number
Product Version Customer current revision
Product Serial Number {Defined at time of manufacture}
Asset Tag {Not used, code is zero length byte}
FRU File ID {Not required}
PAD Bytes {Added as necessary to allow for 8-byte offset to next area}
- 28 -

SSI
EPS2U Power Supply Design Guide, V2.1
8.3.2.2 MultiRecord Area
Implement as defined by the IPMI FRU document. The following record types shall be used on this power supply:
• Power Supply Information (Record Type 0x00)
• DC Output (Record Type 0x01)
• No other record types are required for the power supply.
MultiRecord information shall be defined as follows:
Table 32: FRU Device Product Information Area
Field Name (PS Info) Field Information Definition
Overall Capacity (watts) 480
Peak VA 550
Inrush current (A) 50
Inrush interval (ms) 5
Low end input voltage range 1 90
High end input voltage range 1 140
Low end input voltage range 2 180
High end input voltage range 2 264
A/C dropout tol. (ms) 20
Binary flags Set for: Hot Swap support, Autoswitch, and PFC
Peak Wattage Set for: 10 s, 550 W
Combined wattage Set for 5 V & 3.3V combined wattage of 115 W
Predictive fail tach support Not supported, 00h value
Field Name (Output) Field Description:
Five outputs are to be defined from #1 to #5, as follows: +3.3 V, +5
V, +12 V, -12V, and +5 VSB.
Output Information Set for: Standby on +5 VSB, No Standby on all others.
All other output fields Format per IPMI specification, using parameters in the EPS12V
specification.
- 29 -

SSI
EPS2U Power Supply Design Guide, V2.1
9 MTBF
STATUS
Recommended
The power supply shall have a minimum MTBF at continuous operation of 1) 50,000 hours at 100% load and
45 °C, as calculated by Bellcore RPP, or 2) 100,000 hours demonstrated at 100% load and 50 °C.
10 Agency Requirements
STATUS
Recommended
The power supply must comply with all regulatory requirements for its intended geographical market. Depending
on the chosen market, regulatory requirements may vary. Although a power supply can be designed for
worldwide compliance, there may be cost factors that drive different versions of supplies for different
geographically targeted markets.
This specification requires that the power supply meet all regulatory requirements for the intended market at the
time of manufacturing. Typically this includes:
• UL
• CSA
• A Nordic CENELEC
• TUV
• VDE
• CISPR Class B
• FCC Class B
The power supply, when installed in the system, shall meet immunity requirements specified in EN55024.
Specific tests are to be EN61000-4-2, -3, -4, -5, -6, -8, -11, EN61000-3-2, -3, and JEIDI MITI standard. The
power supply must maintain normal performance within specified limits. This testing must be completed by the
system EMI engineer. Conformance must be designated with the European Union CE Marking. Specific
immunity level requirements are left to customer requirements.
- 30 -