Sunbeam 2387 Loader Book User Manual To The A1582552 46ef 4dfe Ae05 84ffb64a66a3
User Manual: Sunbeam 2387 to the manual
Open the PDF directly: View PDF
.
Page Count: 104 [warning: Documents this large are best viewed by clicking the View PDF Link!]
- 2387
- OPERATOR’S MANUAL
- To the Owner/Operator/Dealer
- TABLE OF CONTENTS
- General Safety Instructions and Practices
- Operator Safety Instructions and Practices
- Equipment Operation Safety Instructions and Practices
- Connecting or Disconnecting Implement Safety Instructions and Practices
- Transporting Safety Instructions and Practices
- Maintenance and Service Safety Instructions and Practices
- Concluding Safety Instructions and Practices
- Federal Laws and Regulations
- Assembly Instructions
- Dismounting Loader and Mounting Loader to Tractor
- Dismounting Loader
- 1. Locate tractor and loader on firm level ground.
- 2. Level and lower bucket to ground. Engage tractor brakes and shut off tractor engine. Move lift control lever back and forth several times to relieve pressure in lift cylinders.
- 3. Remove 5/8 lock nuts and washers which clamp hinges closed around mid mounting tubes on tractor.
- 4. Start tractor engine and release tractor brakes. Activate lift control lever to raise side frame up off midmounting assembly. Continue rotating loader side frames off midmounting tubes. Slowly back tractor out of loader while rotating loader side ...
- 5. Move lift and bucket control levers back and forth several times to relieve pressure on lift and bucket cylinders. Disconnect quick couplers between loader and tractor. Hang hoses over loader side frame upright for storage. Make sure male quick co...
- 6. Fasten bolts, washers and nuts onto hinge for storage.
- Mounting Loader
- 1. Slowly drive tractor up to loader until hoses will reach from loader to tractor. Engage tractor brakes and shut off tractor engine.
- 2. Make sure quick couplers are clean and connect between tractor and loader, matching color coded bands.
- 3. Remove bolts, nuts and washers from hinge.
- 4. Start tractor engine and release tractor brakes. Slowly drive tractor ahead until front mounting brackets are directly under loader catch flats. Activate lift control lever so that catch flats hook securely on front mounting bracket tubes. Continu...
- 5. Hook rubber strap around hoses and back on itself. Attach other end of rubber strap to bolt at front of corner or side frame.
- 6. Clamp hinge assembly around midmounting tube. Install bolts, washers and nuts. Torque cap screws to 126 Ft. Lbs.
- Dismounting Loader
- Attaching Pin on Bucket
- 1. Attach bucket to lift boom frame and cylinders with four 1” pins, use two 3/8 shoulder bolts and 3/8 lock nuts at upper pin (bucket cylinder). Use two 3/8 x 1.25 hex bolts, 3/8 jam nut, 3/8 flat washer and 3/8 lock nut at lower pin. Position bol...
- 2. Install level indicator rod in level guide tube on right bucket cylinder. Sandwich level indicator rod angle between right inside bucket ear and cylinder rod end.
- 3. Set bucket level on ground and adjust level guide tube along bucket cylinder until end of guide tube is flush with end of rod.
- Assembling Quick Attach Device
- Installing Quick Attach Device
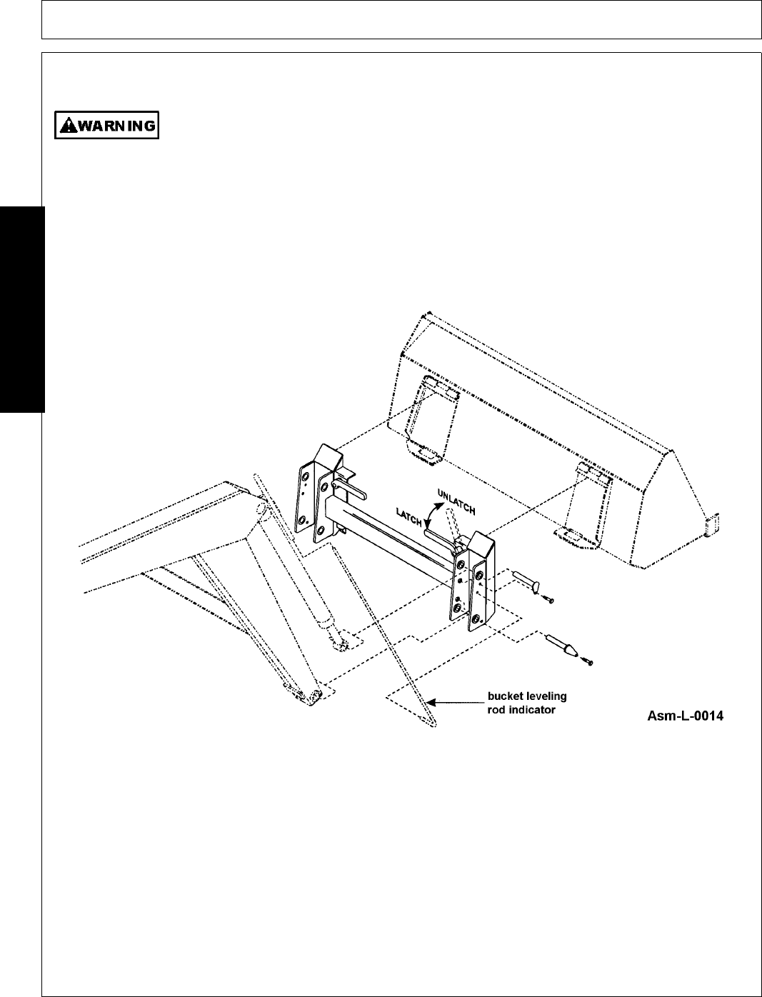
- 1. Fasten quick attach device to lower boom arms and bucket tilt cylinders using 1” x 4-3/8” anti-rotation pins, 3/8” x 3/4” shoulder bolts, and 3/8” lock nuts (supplied with loader). Figure Asm-L-0014.
- 2. Attach bucket leveling rod indicator (supplied with loader), to outside of right ear on quick attach as shown. Figure Asm-L-0014. Secure bucket leveling rod indicator with two 1/8” x 1” cotter pins (supplied with loader).
- 1. Be sure both quick hitch pin levers are in the unlocked position, with the levers pointing up. Tilt the loader quick hitch forward, drive the loader into the attachment bracket and engage top of the quick hitch into the top of the attachment bracket.
- 2. Raise the loader slightly and rotate the top of the quick hitch back toward the operator until the bottom of the attachment is seated firmly in the bottom of the quick hitch.
- 3. Rotate the quick hitch pin levers down 90 degrees to the locked position. You should feel a firm resistance when locking the levers down. The tapered pins must extend through the slots in the bottom of the attachment bracket. The tapered side of t...
- 4. Raise the loader and attachment to shoulder height. By standing at the side of the loader, inspect the connection between the quick hitch and attachment.
- 5. On level ground, tilt the attachment down 90 degrees and lower it to the ground. Lower the loader further to slightly raise the front of the tractor of the tractor off the ground. Drive the tractor in reverse while the attachment is on the ground ...
- OPERATION SECTION
- BUSH HOG 2387 LOADER
- OPERATION INSTRUCTIONS
- 1. Standard Equipment and Specifications
- (A) Maximum Lift Height at Pivot Pin 101”
- (B) Maximum Height Under Bucket ---
- (C) Clearance with Bucket Dumped 86”
- (D) Reach at Maximum Height 24”
- (E) Maximum Dump Angle 44°
- (F) Reach with Attachment on Ground 62”
- (G) Attachment Rollback Angle 17°
- (H) Digging Depth 5.5”
- (I) Overall Height in Carry Position 54” @ top of upright
- 2. Operator Requirements
- 3. Tractor Requirements
- 4. Getting On and Off the Tractor
- 4.1 Boarding the Tractor
- 4.2 Dismounting the Tractor
- 5. Starting the Tractor
- 6. Pre-Operation Inspection and Service
- 6.1 Tractor Pre-Operation Inspection/Service
- 6.2 Loader Pre-Operation Inspection and Service
- 7. Driving the Tractor and Loader
- 7.1 Driving the Tractor and Loader
- 8. Operating the Tractor and Loader
- 8.1 Operating the Loader
- 8.2 Operating Bale Spear
- 8.3 Shutting Down the Implement
- 9. Loader Storage
- 10. Transporting the Tractor and Implement
- 10.1 Transporting on Public Roadways
- 10.2 Hauling the Tractor and Implement
- 11. Troubleshooting Guide
- Loader slow or will not lift Hydraulic oil too heavy. Change to proper oil.
- and/or dump
- Oil filter plugged. Clean or replace filter.
- Hydraulic pump worn. Repair or replace pump.
- Oil line restricted or leaking. Check all hoses and tubes for leaks,
- damage or restrictions. Replace
- damaged or restricted hoses or tube
- oil lines.
- Control valve does not shift Inspect, clean, repair or replace
- properly. valve.
- Air in hydraulic system. Cycle lift cylinders and bucket
- cylinders several times to free
- system of air.
- Cylinder leaks internally. Replace seals.
- Faulty relief valve (tractor). Clean and replace relief valve.
- Loader chatters or Air leak in pump inlet line. Check, tighten or replace inlet line.
- vibrates when raising
- or lowering.
- Air in hydraulic system. Cycle lift and bucket cylinders.
- Oil level too low. Add oil as required.
- Faulty relief valve (tractor). Replace relief valve.
- Oil Leaks Loose connections. Tighten fittings.
- Defective fittings or hoses. Replace defective parts.
- Worn or damaged o-ring Install a seal repair kit.
- or wiper seal in cylinder See “Cylinder Service”.
- rod end.
- Worn or damaged o-rings Install an o-ring repair kit.
- in valve.
- PROBLEM POSSIBLE CAUSE REMEDY
- Insufficient lift capacity Load is greater than boom Check loader specifications.
- lift capacity.
- Improper hydraulic pump Repair or replace pump.
- operation.
- Internal lift cylinder leakage. Replace any worn parts and install
- a seal repair kit. See “Cylinder
- Service”.
- Improper hydraulic valve Repair or replace valve.
- operation.
- Excessive wear on bucket Bucket is riding on cutting Use boom “FLOAT” position or
- cutting edge edge instead of wear runners. bucket level indicator to ensure
- bucket rides
- Bucket cutting edge not Rear axle on tractor not level With tractor on level surface,
- flat on theground. from side to side compare rear axle height from left to
- right, measuring from axle center to ground. Adjust air pressure in rear tires until axle height measures the same for both sides.
- MAINTENANCE SECTION
- Lubrication Schedule
- Daily Maintenance
- 1. Check fluid level of tractor hydraulic system before starting each day’s operation. If necessary, add hydraulic oil as recommended in your tractor operator’s manual.
- 2. Daily, unless conditions justify more frequent greasing, lubricate all twelve grease fittings; one at each end of lift boom arms and one at rod and base ends of each lift and bucket cylinder.
- 3. After every ten hours of operation, check all hardware and tighten where required.
- 4. Replace hoses immediately if they are damaged by a cut or scrape, extruded at the fittings or leaking. Hydraulic oil leaks should be repaired promptly to avoid loss of oil and serious personal injury from escaping oil.
- Cylinder Service
- Lift and Bucket Cylinder Disassembly
- 1. Hold cylinder tube (13) stationary and pull wire ring (14) out through slot.
- 2. Pull shaft (1), with all assembled parts, out of cylinder tube (13).
- 3. Remove elastic locknut (12) from end of shaft and slide cylinder piston (10) and cylinder head (4) off shaft.
- 4. Remove piston wear ring (11), piston seal (8), and o-ring (7) from outside grooves on piston(10).
- 5. Remove wiper seal (2), rod seal (3) and wear ring (5) from inside of cylinder head and o-ring (7) with backup washer (6) from groove on outside of head.
- 6. Clean all parts including cylinder tube, in a suitable cleaning solvent, then use air pressure to blow any dirt or excess solvent from all parts.
- 7. Examine all parts for wear or damage and replace, if necessary.
- Lift and Bucket Cylinder Reassembly
- 1. Place rod seal (3) into groove inside cylinder head.
- 2. Install wiper seal (2) with lip of seal facing out and flush with top of cylinder head (5). Install wear ring (4) inside other end of head (5).
- 3. Place o-ring (7) with back-up washer (6) in groove on outside of head. Back-up washer must be on rod side.
- 4. Remove sharp edges on outer edge of the threaded end of shaft (1). Lubricate wiper seal (2) and rod seal (3) in head and carefully slide head onto shaft.
- 5. Place o-ring (10), piston seal (11) and piston wear ring (8) in grooves on outside of piston (9).
- 6. Slide piston (9) onto threaded end of shaft and install lock nut (12). Tighten lock nut to 100 lbs.
- 7. Lubricate piston wear ring (8) and piston seal (11) on piston, o-ring (7) and backup washer (6) on head and inside of cylinder tube (13), then carefully slide piston and head into cylinder tube (13).
- 8. Insert wire retaining ring (14) into slot in cylinder tube (13). Apply pressure to wire ring to thread it into groove while turning cylinder head.
- Storage
- Lift and Bucket Cylinder Disassembly
- Proper Torque for Fasteners
- 1. Standard Equipment and Specifications
- LIMITED WARRANTY
- DISCLAIMER OF IMPLIED WARRANTIES & CONSEQUENTIAL DAMAGES
- THIS LIMITED WARRANTY SHALL NOT APPLY:
- 1. To vendor items which carry their own warranties, such as engines, tires, and tubes.
- 2. If the unit has been subjected to misapplication, abuse, misuse, negligence, fire or other accident.
- 3. If parts not made or supplied by Bush Hog have been used in connection with the unit, if, in the sole judgement of Bush Hog such use affects its performance, stability or reliability.
- 4. If the unit has been altered or repaired outside of an authorized Bush Hog dealership in a manner which, in the sole judgement of Bush Hog, affects its performance, stability or reliability.
- 5. To normal maintenance service and normal replacement items such as gearbox lubricant, hydraulic fluid, worn blades, or to normal deterioration of such things as belts and exterior finish due to use or exposure.
- 6. To expendable or wear items such as teeth, chains, sprockets, belts, springs and any other items that in the company’s sole judgement is a wear item.
- TO THE OWNER/OPERATOR/DEALER
- Safety Section Page 19.pdf
- Concluding Safety Instructions and Practices
- Decal Location
- 1. 50057411 2 LOGO Bush Hog (3.20” x 14.50”)
- 2. 50057412 1 LOGO Bush Hog (3.90” x 17.50”)
- 3. 50069073 2 MODEL 2387
- 4. 52740 2 WARNING Oil Leaks
- 5. 52203 1 WARNING Lock Valve in Transport
- 6. 52204 1 INSTRUCT Loader Positions
- 7. D469 1 WARNING Loader Safety
- 8. D468 2 DANGER Crushing, Electrocution, Falling Hazard
- 9. D471 1 WARNING Handling Bales
- 10. D470 1 DANGER Use ROPS, Seatbelt, Rear Ballast
- 11. 03200347 * REFLCTR SMV Sign
- 12. 00776031 1 _________ Canister, Operator’s Manual
- 13. 55580 1 WARNING Sheet, Decal; includes two D516 decals (Note: For Quick Attach Device Only)
- Decal Location
- Concluding Safety Instructions and Practices

© 2011 Alamo Group Inc. $0.00
2387
Published 01/11 Part No. 50069202
OPERATOR’S MANUAL
BUSH HOG®
2501 Griffin Ave.
Selma, AL 36703
334-874-2700
www.bushhog.com
LOADER
This Operator's Manual is an integral part of the safe operation of this machine and must
be maintained with the unit at all times. READ, UNDERSTAND, and FOLLOW the Safety
and Operation Instructions contained in this manual before operating the equipment. C01-
Cover

To the Owner/Operator/Dealer
All implements with moving parts are potentially hazardous. There is no substitute for a cautious, safe-minded
operator who recognizes the potential hazards and follows reasonable safety practices. The manufacturer has
designed this implement to be used with all its safety equipment properly attached to minimize the chance of
accidents.
BEFORE YOU START!! Read the safety messages on the implement and shown in your manual. Observe the
rules of safety and common sense!
WARRANTY INFORMATION:
Read and understand the complete Warranty Statement found in this Manual. Fill out the Warranty Registration
Form in full and return it to within 30 Days. Make certain the Serial Number of the Machine is recorded on the
Warranty Card and on the Warranty Form that you retain.
TABLE OF CONTENTS
SAFETY SECTION .............................................................................................................. 1-1
General Safety Instructions and Practices ......................................................................................................... 1-2
Operator Safety Instructions and Practices .......................................................................................................1-4
Equipment Operation Safety Instructions and Practices .................................................................................... 1-5
Connecting or Disconnecting Implement Safety Instructions and Practices ....................................................1-12
Transporting Safety Instructions and Practices ............................................................................................... 1-13
Maintenance and Service Safety Instructions and Practices ........................................................................... 1-14
Storage and Parking Safety Instructions and Practices ................................................................................... 1-17
Concluding Safety Instructions and Practices .................................................................................................. 1-17
Decal Location ................................................................................................................................................. 1-18
Decal Location ................................................................................................................................................. 1-20
Federal Laws and Regulations ........................................................................................................................ 1-25
INTRODUCTION SECTION ................................................................................................. 2-1
ASSEMBLY AND CONNECTING THE LOADER SECTION .............................................. 3-1
Assembly Instructions ........................................................................................................................................3-2
Proper Ballasting and Wheel Spacing ............................................................................................................... 3-4
Dismounting Loader and Mounting Loader to Tractor .......................................................................................3-5
Dismounting Loader ...........................................................................................................................................3-5
Mounting Loader ................................................................................................................................................ 3-6
Attaching Pin on Bucket .....................................................................................................................................3-6
Assembling Quick Attach Device ....................................................................................................................... 3-7
Installing Quick Attach Device ........................................................................................................................... 3-8
OPERATION SECTION ....................................................................................................... 4-1
Standard Equipment and Specifications ............................................................................................................ 4-3
Operator Requirements ..................................................................................................................................... 4-4
Tractor Requirements ........................................................................................................................................ 4-6
ROPS and Seat Belt ..........................................................................................................................................4-7
Tractor Lighting and SMV Emblem .................................................................................................................... 4-7
Tractor Ballast .................................................................................................................................................... 4-7
Getting On and Off the Tractor .......................................................................................................................... 4-8
Boarding the Tractor ..........................................................................................................................................4-8
Dismounting the Tractor ..................................................................................................................................... 4-9
Starting the Tractor ..........................................................................................................................................4-10
Pre-Operation Inspection and Service ............................................................................................................. 4-11
Tractor Pre-Operation Inspection/Service ........................................................................................................ 4-12
Loader Pre-Operation Inspection and Service ................................................................................................. 4-12
Driving the Tractor and Loader ........................................................................................................................ 4-17
Driving the Tractor and Loader ........................................................................................................................ 4-18
Operating the Tractor and Loader .................................................................................................................... 4-19
Operating the Loader ....................................................................................................................................... 4-24
Operating Bale Spear ...................................................................................................................................... 4-37
Shutting Down the Implement .......................................................................................................................... 4-38
Loader Storage ................................................................................................................................................ 4-38
Transporting the Tractor and Implement .......................................................................................................... 4-38
Transporting on Public Roadways ................................................................................................................... 4-40
Hauling the Tractor and Implement .................................................................................................................. 4-42
Troubleshooting Guide .....................................................................................................................................4-43
MAINTENANCE SECTION .................................................................................................. 5-1
Lubrication Schedule ......................................................................................................................................... 5-4
Daily Maintenance ............................................................................................................................................. 5-5
Cylinder Service ................................................................................................................................................. 5-6
Lift and Bucket Cylinder Disassembly ................................................................................................................ 5-6
Lift and Bucket Cylinder Reassembly ................................................................................................................ 5-7
Storage .............................................................................................................................................................. 5-7
Proper Torque for Fasteners ..............................................................................................................................5-9

Safety Section 1-1
SAFETY SECTION

SAFETY
2387 01/11 Safety Section 1-2
© 2011 Alamo Group Inc.
SAFETY
General Safety Instructions and Practices
A careful operator is the best operator. Safety is of primary importance to the manufacturer and should be to
the owner/operator. Most accidents can be avoided by being aware of your equipment, your surroundings, and
observing certain precautions. The first section of this manual includes a list of Safety Messages that, if
followed, will help protect the operator and bystanders from injury or death. Read and understand these Safety
Messages before assembling, operating or servicing this Implement. This equipment should only be operated
by those persons who have read the manual, who are responsible and trained, and who know how to do so
responsibly.
The Safety Alert Symbol combined with a Signal Word, as seen below, is used throughout this
manual and on decals which are attached to the equipment. The Safety Alert Symbol means:
“ATTENTION! BECOME ALERT! YOUR SAFETY IS INVOLVED!” The Symbol and Signal Word
are intended to warn the owner/operator of impending hazards and the degree of possible injury
faced when operating this equipment.
Indicates an imminently hazardous situation that, if not avoided, WILL result in DEATH OR
VERY SERIOUS INJURY.
Indicates an imminently hazardous situation that, if not avoided, COULD result in DEATH
OR SERIOUS INJURY.
Indicates an imminently hazardous situation that, if not avoided, MAY result in MINOR
INJURY.
Identifies special instructions or procedures that, if not strictly observed, could result in
damage to, or destruction of the machine, attachments or the environment.
NOTE: Identifies points of particular interest for more efficient and convenient operation or repair.(SG-1)
Practice all usual and customary safe working precautions and above all---remember safety is
up to YOU. Only YOU can prevent serious injury or death from unsafe practices.
Si no lee ingles, pida ayuda a alguien que si lo lea para que le traduzca las
medidas de seguridad. (SG-3)
Operate this Equipment only with a Tractor equipped with an approved roll-
over-protective system (ROPS). Always wear seat belts. Serious injury or
even death could result from falling off the tractor--particularly during a turnover
when the operator could be pinned under the ROPS. (SG-7)

SAFETY
2387 01/11 Safety Section 1-3
© 2011 Alamo Group Inc.
SAFETY
Never allow children to operate, ride on, or come close to the Tractor or
Implement. Usually, 16-17 year-old children who are mature and
responsible can operate the implement with adult supervision, if they
have read and understand the Operator’s Manuals, been trained in
proper operation of the tractor and Implement, and are physically large
enough to reach and operate the controls easily. (SG-11)
Never allow children or other persons to ride on the Tractor or Implement.
Falling off can result in serious injury or death. (SG-10)
Never allow children to play on or around Tractor or Implement. Children can slip or fall off
the Equipment and be injured or killed. Inadvertent contact with controls can cause the
Implement to shift or fall crushing themselves or others. (SG-25)
DO NOT use drugs or alcohol immediately before or while operating the
Tractor and Implement. Drugs and alcohol will affect an operator’s
alertness and coordination and therefore affect the operator’s ability to
operate the equipment safely. Before operating the Tractor or Implement,
an operator on prescription or over-the-counter medication must consult
a medical professional regarding any side effects of the medication that
would hinder their ability to operate the Equipment safely. NEVER
knowingly allow anyone to operate this equipment when their alertness or
coordination is impaired. Serious injury or death to the operator or others
could result if the operator is under the influence of drugs or alcohol. (SG-27)
Engine Exhaust, some of its constituents, and certain vehicle components contain or emit
chemicals known to the state of California to cause cancer and birth defects or other
reproductive harm. (SG-30)
Never walk or work under any raised boom or bucket. The Boom could fall and cause
serious bodily injury or death. Always lower the boom and bucket flat on the ground or
support the Boom and bucket on safety stands. Unload all hydraulic actuators prior to
performing any maintenance. To do this, set the bucket on the ground then kill the tractor
engine. Push and pull the control levers in and out several times to remove pressure. Do
not work under raised Boom or Bucket unless components are securely blocked up to
prevent inadvertent dropping. (SBH-7)

SAFETY
2387 01/11 Safety Section 1-4
© 2011 Alamo Group Inc.
SAFETY
Operator Safety Instructions and Practices
Never operate the Tractor or Implement until you have read and
completely understand this Manual, the Tractor Operator’s Manual, and
each of the Safety Messages found in the Manual or on the Tractor and
Implement. Learn how to stop the tractor engine suddenly in an
emergency. Never allow inexperienced or untrained personnel to
operate the Tractor or Implement without supervision. Make sure the
operator has fully read and understood the manuals prior to operation.
(SG-4)
The operator and all support personnel should wear hard hats, safety
shoes, safety glasses, and proper hearing protection at all times for
protection from injury including injury from items that may be thrown by
the equipment. (SG-16)
PROLONGED EXPOSURE TO LOUD NOISE MAY CAUSE
PERMANENT HEARING LOSS! Tractors with or without an Implement
attached can often be noisy enough to cause permanent hearing loss.
We recommend that you always wear hearing protection if the noise in
the Operator’s position exceeds 80db. Noise over 85db over an
extended period of time will cause severe hearing loss. Noise over 90db
adjacent to the Operator over an extended period of time will cause
permanent or total hearing loss. NOTE: Hearing loss from loud noise
[from tractors, chain saws, radios, and other such sources close to the
ear] is cumulative over a lifetime without hope of natural recovery. (SG-I7)
Always read carefully and comply fully with the manufacturer’s
instructions when handling oil, solvents, cleansers, and any other
chemical agent. (SG-22)
Never run the Tractor engine in a closed building or without adequate ventilation. The
exhaust fumes can be hazardous to your health. (SG-23)
Battery posts, terminals and related accessories contain lead and lead compounds,
chemicals known to the state of California to cause cancer, birth defects or other
reproductive harm. (SG-31)

SAFETY
2387 01/11 Safety Section 1-5
© 2011 Alamo Group Inc.
SAFETY
Equipment Operation Safety Instructions and Practices
Prolonged operation may cause operator boredom and fatigue affecting safe operation.
Take scheduled work breaks to help prevent these potentially impaired operating
conditions. Never operate the Implement and Tractor in a fatigued or bored mental state
which impairs proper and safe operation. (SG-32)
Use extreme caution when getting onto the Implement to perform repairs, maintenance and
when removing accumulated material. Only stand on solid flat surfaces to ensure good
footing. Use a ladder or raised stand to access high spots which cannot be reached from
ground level. Slipping and falling can cause serious injury or death. (SG-33)
Use extreme care when loading, carrying or handling any agricultural
fertilizers, chemicals or biological residue. Follow the manufacturer’s
handling instructions and wear appropriate Personal Protective
Equipment including gloves, safety glasses and respirator when required.
If you are using a tractor equipped with a cab, make sure the cab is rated
for appropriate environmental exposure. Be safe and always wear proper
protection. Short or long term exposure to certain chemicals and
materials can result in serious injury or death. (SL-19)
Repeated or substantial breathing of hazardous dusts, including
crystalline silica, could cause fatal or serious respiratory disease including
silicosis. Concrete, masonry, many types of rock, and various other
materials contain silica sand. California lists respirable crystalline silica as
a substance known to cause cancer. Operation of this equipment under
certain conditions may generate airborne dust particles that could contain
crystalline silica. In those conditions, personal protective equipment
including an appropriate respirator must be used. If excessive dust is
generated, a dust collection or suppression system should also be used
during operation. (SG-41)
This Implement may be wider than the Tractor. Be careful when operating or transporting
this equipment to prevent the Implement from running into or striking sign posts, guard rails,
concrete abutments or other solid objects. Such an impact could cause the Implement and
Tractor to pivot violently resulting in loss of steering control, serious injury, or even death.
Never allow the Implement to contact obstacles. (S3PT-12)

SAFETY
2387 01/11 Safety Section 1-6
© 2011 Alamo Group Inc.
SAFETY
Never grasp control levers when mounting the machine. (SBH-4)
The Boom is designed only to position and operate the Bucket which is attached to it. Never
attempt to lift, pull, or push other solid objects with the boom or bucket. Serious injury could
result from a structural failure when the Boom is used for purposes other than those for
which it was designed. (SBH-9)
BEFORE leaving the tractor seat lower the implement, set the parking
brake and/or set the tractor transmission in parking gear, disengage the
PTO, stop the engine, remove the key, and wait for all moving parts to
stop. Place the tractor shift lever into a low range or parking gear to
prevent the tractor from rolling. Never dismount a Tractor that is moving
or while the engine is running. Operate the Tractor controls from the
tractor seat only. (SG-9)
Do not mount or dismount the Tractor while the tractor is moving. Mount
the Tractor only when the Tractor and all moving parts are
completelystopped. (SG-12)
Start tractor only when properly seated in the Tractor seat. Starting a
tractor in gear can result in injury or death. Read the Tractor operators
manual for proper starting instructions. (SG-13)
Operate the Tractor and/or Implement controls only while properly seated in the Tractor seat
with the seat belt securely fastened around you. Inadvertent movement of the Tractor or
Implement may cause serious injury or death. (SG-29)
DO NOT operate this Implement on a Tractor that is not properly maintained. Should a
mechanical or Tractor control failure occur while operating, immediately shut down the
Tractor and perform repairs before resuming operation. Serious injury and possible death
could occur from not maintaining this Implement and Tractor in good operating condition.
(SG-36)

SAFETY
2387 01/11 Safety Section 1-7
© 2011 Alamo Group Inc.
SAFETY
Do Not operate this equipment in areas where insects such as bees may attack you and/or
cause you to lose control of the equipment. If you must enter in such areas, use a tractor
with an enclosed Cab and close the windows to prevent insects from entering. If a tractor
cab is not available, wear suitable clothing including head, face, and hand protection to
shield you from the insects. Attacking insects can cause you to lose control of the tractor,
which can result in serious injury or death to you or bystanders. Never dismount a moving
tractor. (SG-40)
Keep bystanders 10 feet away from the tractor and loader while
operating. The bystanders could enter the path of the tractor or items
could fall from the loader resulting in serious injury to the bystander. (SL-01)
For added safety when lifting loads above the height of the operator,
install a certified Falling Object Protective Structure. Shiftable loads,
round bales, large loose items, and loader attachments can fall toward
the operator resulting in serious injury or death. Falling Object Protective
Structure (FOPS) rated Cab may be obtained from the tractor dealer or
other sources. (SL-02)
Before dismounting the tractor and loader lower the loader to the ground or
onto solid support blocks. Engage the loader valve travel lock to prevent
inadvertent movement of the valve controls causing the loader to suddenly
move and drop. Sudden dropping of the loader and attachment could
result in serious injury. (SL-05)
Use extra care when turning or stopping. Allow for increased length and weight of added
loader. The loader adds five to six feet of length in front of the tractor and significant weight.
Allow extra distance when stopping or turning. Do not allow loader or attachment to contact
solid objects. (SL-07)
Do not raise the loader into an overhead structure or allow a raised attachment to contact
overhead structures. Sudden or unexpected contact with an overhead structure could result
in serious injury. (SL-08)

SAFETY
2387 01/11 Safety Section 1-8
© 2011 Alamo Group Inc.
SAFETY
Do not let the loader or attachment contact electrical power lines. Contact
with electrical power lines can result in serious injury or electrocution. If
the loader attachment contacts a power line remain in the tractor seat
until the power has been shut off. Stepping off the tractor can permit
electrical current to pass through the body resulting in electrocution. (SL-09)
Store the grapple bucket or bale spear attachment with the point(s) on the
ground. Walking into the point of the bale or grapple spear can cause
serious bodily injury. Never drive the bale spear or grapple bucket
attachment forward if a bystander is in front of the loader. (SL-10)
Only mount the loader on a tractor that is listed on the mounting instructions. Never mount
on a tricycle steering front axle. Move the tractor front and rear wheels to the widest spacing
and add the recommended rear tractor ballast to prevent tractor tip over. Keep the tractor
tires properly inflated. Maintain at least 25% of the total Tractor and Loader weight including
the maximum load in the bucket or attachment on the rear axle. Always wear your seatbelt
and make sure the ROPS structure is fully deployed to prevent serious injury or death from
the tractor tipping over. (SL-11)
Carry the loader and attachment low when transporting to reduce the
potential of the tractor tipping over. Transport on slopes only at slow
speeds and use gradual turning angles. Tractor wheel contact with any
wash out, drop off or ground obstruction with a raised loader could result
in the tractor tipping over and causing serious injury. (SL-12)
Do not work from the loader or attachments. Do now allow any riders on
the loader, tractor or attachments. Falling off the loader could result in
serious injury and/or tractor run over. (SL-14)

SAFETY
2387 01/11 Safety Section 1-9
© 2011 Alamo Group Inc.
SAFETY
Do not use an attachment that is not securely attached to the quick
hitch, The attachment could fall resulting in severe crushing injuries
or death to the operator or bystanders.
• Rotate both hitch pin levers down to the locked position. You should feel a firm
resistance when locking the levers down. The pins must extend through the slots in
the bottom of the attachment bracket.
• Examine the fit between the quick hitch and the bottom of the attachment bracket.
The pins must extend through the slots in the bottom of the attachment bracket. The
tapered side of each pin must be firmly wedged against the surface of the slot on
the bottom of the attachment bracket. The attachment bucket should fit snugly
against the bottom of the quick hitch bracket. If there is a gap of more than 1/8” or if
the pins are not firmly seated do not use the attachment. Contact your dealer before
using the attachment.
• On level ground, tilt the attachment down 90° degrees and lower it to the ground.
Lower the loader further to slightly raise the front of the tractor off the ground. Drive
the tractor in reverse while the attachment is on the ground for 20-30 feet to ensure
the attachment does not disconnect. If the attachment disconnects during this
process, discontinue the use of the attachment and contact your dealer.
NEVER walk or work under or allow any person to be underneath a
raised loader or attachment. (SL-15)
Do not operate the loader from the ground. Operate the tractor and loader only while seated
in the tractor seat with the seatbelt fastened. The loader could fall crushing a person
resulting in serious injury or death. (SL-16)
Use extreme care when piling material above 6 feet high. Material
could shift and fall onto the operator or bystanders. The material could
crush or suffocate the operator or bystander resulting in serious injury
or death. (SL-17)

SAFETY
2387 01/11 Safety Section 1-10
© 2011 Alamo Group Inc.
SAFETY
Know before you DIG. Call 888-258-0808 and request that all buried utilities locations be
identified before digging in unfamiliar ground. Do not let the loader or attachment contact
buried electrical power lines, utilities or gas lines. Contact with electrical power lines can
result in serious bodily injury or electrocution. If the loader contacts a power line, remain in
the tractor seat until the power has been shut off. Stepping off the tractor can permit
electrical current to pass through the body resulting in electrocution. (SL-18)
Do not use loader as a jack to raise the tractor tires off the ground. The loader could fail
causing the tractor and loader to fall to the ground resulting in serious injury. (SL-25)
Use extreme care when loading, transporting or dumping loads that impair or partially block
the operator’s line of sight. Know where you are traveling. Make sure no bystanders are in
the area of travel. If a bystander assists in providing guidance, make sure they are not in the
path of travel. Keep all bystanders 25 feet away from travel path. (SL-29)
Always look behind you before backing up. Make sure you are looking
in the direction of travel. A bystander could walk behind the tractor.
Running into a bystander can result in serious injury or death. (SL-30)
Some tractors are equipped with a “Super Steer” front axle. When a
loader is mounted to this type of tractor, the bucket will shift in the
opposite direction from which the wheels are turned. Maximum shift will
be approximately 8 inches and most noticeable when the tractor is
stationary. Sudden or unexpected movement of the loader and
attachment could result in serious injury to the operator or bystanders.
(SL-33)
Operate the tractor and loader only in conditions where you have clear visibility in daylight
or with adequate artificial lighting. Never operate in darkness or foggy conditions where you
cannot clearly see at least 100 feet in front and to the sides of the tractor. Make sure you
can clearly see bystanders, ditches, steep slopes, drop-offs, overhead obstructions, power
lines, and debris or obstruction in the travel path. If you are unable to clearly see these
types of items discontinue operating. Contact with unseen vehicles, bystanders,
obstructions, or drop-offs can cause serious injury. (SL-35)

SAFETY
2387 01/11 Safety Section 1-11
© 2011 Alamo Group Inc.
SAFETY
Be particularly careful in transport. The Implement has raised and moved the center of
gravity to the front of the Power Unit increasing the possibility of overturn and tipping
forward. Turn curves or go up slopes only at low speed and using a gradual turning angle.
Go up slopes with the Implement located uphill. Slow down on rough or uneven surfaces.
(SPU-2)
Never leave the Implement and Power Unit unattended while the Implement is in the raised
position. Accidental operation of a lifting lever or a hydraulic failure may cause the
implement to suddenly fall causing serious injury or possible death to anyone who might
inadvertently be under the Implement. Lower the implement carefully to the ground. Do not
put hands or feet under lifted components. (SPU-3)
The center of gravity of a Power Unit equipped with a front-mounted Implement is shifted to
the front and removes weight from the rear wheels. The Power Unit should maintain at
least 25% total weight with the maximum load in the bucket or attachment on the rear
wheels to prevent tipping forward, loss of steering control, and possible injury. Add
counterweight if required when operating on slopes and proceed with the load uphill to
prevent tipping. Reference the Power Unit’s Operator’s Manual or an authorized dealer for
information on adding additional weight. (SL-37)
Make sure the hydraulic quick disconnects are fully seated into the connections. Do not use
the loader if the hydraulic connection is leaking. Leaking oil could allow the loader to fall
resulting in a serious crushing injury. (SL-22)
If the loader valve controls fail to functions properly discontinue use of the tractor and
loader until the controls are properly repaired. Sudden or unexpected movement or
dropping of the loader and attachment could result in serious injury. (SL-31)
Make sure all air is purged from the hydraulic system before using the loader. Air in the
system can cause the loader to respond sluggishly or with unexpected movement. The air
can be purged from the cylinder lines by fully cycling the cylinders several times from the
fully closed to fully open position. Sudden or unexpected movement or dropping of the
loader and attachment could result in serious injury. (SL-32)

SAFETY
2387 01/11 Safety Section 1-12
© 2011 Alamo Group Inc.
SAFETY
Connecting or Disconnecting Implement Safety Instructions and
Practices
Do not stand or allow bystander or coworkers between the loader and the
tractor while installing or disconnecting the loader from the tractor. Keep
hands and body clear of the loader and the loader mounts. Serious injury
or death can result from a person being crushed between the tractor and
loader. (SL-03)
Never allow anyone to get under the loader or attachment or to reach
through the loader lift arms when raised. Serious injury could result from
crushing or pinching by the loader or attachment. (SL-06)
Make sure the loader is properly attached to the tractor and the retaining pins securely lock
the loader into position. Improper mounting of the loader onto the tractor can result in the
loader falling causing serious injury. (SL-23)
Make sure all tractor and loader guards are in place and properly functioning. Do not use an
attachment if the roll back guards are damaged or missing. The roll back guards prevents
items carried in the attachment from rolling back onto the operator causing serious injury.
For added safety when lifting loads above the height of the operator, install a certified
Falling Object Protective Structure. (SL-28)

SAFETY
2387 01/11 Safety Section 1-13
© 2011 Alamo Group Inc.
SAFETY
Transporting Safety Instructions and Practices
Transport only at speeds where you can maintain control of the
equipment. Serious accidents and injuries can result from operating this
equipment at high speeds. Understand the Tractor and Implement and
how it handles before transporting on streets and highways. Make sure the Tractor steering
and brakes are in good condition and operate properly.
Before transporting the Tractor and Implement, determine the proper transport speeds for
you and the equipment. Make sure you abide by the following rules:
Test the tractor at a slow speed and increase the speed slowly. Apply the Brakes smoothly
to determine the stopping characteristics of the Tractor and Implement. As you increase
the speed of the Tractor the stopping distance increases. Determine the maximum
transport speed not to exceed 20 mph (30 kph) for transporting this equipment.
Test the equipment at a slow speed in turns. Increase the speed through the turn only after
you determine that the equipment can be operated at a higher speed. Use extreme care
and reduce your speed when turning sharply to prevent the tractor and implement from
turning over. Determine the maximum turning speed for you and this equipment before
operating on roads or uneven ground.
Only transport the Tractor and Implement at the speeds which allow you to properly control
the equipment.
Be aware of the operating conditions. Do not operate the Tractor with weak or faulty brakes
or worn tires. When operating down a hill or on wet or rain slick roads, the braking distance
increases: use extreme care and reduce your speed. When operating in traffic always use
the Tractor’s flashing warning lights and reduce your speed. Be aware of traffic around you
and watch out for the other guy. (SG-19)
Before transporting the tractor and Loader engage the loader valve travel
lock to prevent inadvertent contact with the joystick controller causing
sudden dropping of the loader and attachment. If the loader attachment,
such as a bucket, were to drop suddenly and hit the ground while
transporting, the tractor could stop immediately resulting in the operator
hitting the steering wheel or flying our of the operator’s seat. Serious injury
could result. (SL-04)
Do not raise the loader on a hillside. Do not transport across a slope with
a raised loader. When the loader is raised, the center of gravity of the
tractor and loader is raised increasing the potential for the tractor to tip
over. Tractor wheel contact with any wash out, drop off or the ground
obstruction with a raised loader could result in the tractor tipping over and
causing serious bodily injury. (SL-21)

SAFETY
2387 01/11 Safety Section 1-14
© 2011 Alamo Group Inc.
SAFETY
Maintenance and Service Safety Instructions and Practices
Lower the loader to the bed of the truck or trailer when transporting the
tractor and loader with a truck. Measure to ensure the transport height
does not exceed the legal limits. Contact with overhead obstructions or
power lines can cause property damage or serious injury. (SL-34)
Before dismounting the tractor and loader, lower the loader to the ground or onto solid
support blocks. Sudden dropping of the loader and attachment could result in serious
injury. (SL-38)
Transport an empty bale spear tilted back in the vertical position to
prevent unintended harm to a person, animal or object. Serious injury
or death may occur from a bale spear puncture. (SL-39)
Never drive the power unit with the bucket or plow in the raised position.
Traveling with the bucket or plow in the raised position increases the
chances of colliding with overhead obstructions and making the unit more
prone to tipping over. (SNPO-37)
READ, UNDERSTAND, and FOLLOW the following Safety Messages. Serious injury or
death may occur unless care is taken to follow the warnings and instructions stated in the
Safety Messages. Always use good common sense to avoid hazards. (SG-2)
Never interfere with factory-set hydraulic calibrations. Any change in calibration could
cause a failure of the equipment and may result in injury. (SBH-13)
Always maintain the safety signs in good readable condition. If the safety signs are missing,
damaged, or unreadable, obtain and install replacement safety signs immediately. (SG-5)
Make certain that the “Slow Moving Vehicle” (SMV) sign is installed in
such a way as to be clearly visible and legible. When transporting the
Equipment use the Tractor flashing warning lights and follow all local
traffic regulations. (SG-6)

SAFETY
2387 01/11 Safety Section 1-15
© 2011 Alamo Group Inc.
SAFETY
Do not modify or alter this Implement. Do not permit anyone to modify or alter this
Implement, any of its components or any Implement function. (SG-8)
Never work under the Implement, the framework, or any lifted component
unless the Implement is securely supported or blocked up to prevent
sudden or inadvertent falling which could cause serious injury or even
death. (SL-36)
Do not operate this Equipment with hydraulic oil or fuel leaking. Oil
and fuel are explosive and their presence could present a hazard. Do
not check for leaks with your hand! High-pressure oil streams from
breaks in the line could penetrate the skin and cause tissue damage
including gangrene. To check for a hose leak, SHUT the unit ENGINE
OFF and remove all hydraulic pressure. Wear oil impenetrable gloves,
safety glasses and use Cardboard to check for evidence of oil leaks. If
you suspect a leak, REMOVE the HOSE and have it tested at a Dealer.
If oil does penetrate the skin, have the injury treated immediately by a
physician knowledgeable and skilled in this procedure. (SG-15)
Never attempt to lubricate, adjust, or remove material from the Implement while it is in
motion or while tractor engine is running. (SG-20)
Periodically inspect all moving parts for wear and replace when
necessary with authorized service parts. Look for loose fasteners, worn
or broken parts, and leaky or loose fittings. Make sure all pins have
cotter pins and washers. Serious injury may occur from not maintaining
this machine in good working order. (SG-21)
Do Not fill fuel tank while engine is running. Refuel only after engine has cooled down. If
fuel is spilled, move machine away from the area of the spill and avoid creating any source
of ignition until the fuel has evaporated. (SBH-49)

SAFETY
2387 01/11 Safety Section 1-16
© 2011 Alamo Group Inc.
SAFETY
Avoid contact with hot surfaces including hydraulic oil tanks, pumps, motors, valves and
hose connections. Relieve hydraulic pressure before performing maintenance or repairs.
Use gloves and eye protection when servicing hot components. Contact with a hot surface
or fluid can cause serious injury from burns or scalding. (SG-34)
Use caution and wear protective gloves when handling sharp objects such as blades,
knives, and other cutting edges. Be alert to worn component surfaces which have sharp
edges. Sharp surfaces can inflict severe laceration injuries if proper hand protection is not
worn. (SG-37)
Avoid contact with hot surfaces of the engine or muffler. Use gloves and eye protection
when servicing hot components. Contact with a hot surface or fluid can cause serious injury
from burns or scalding. (SG-38)
Never allow anyone to get under the loader or attachment or to reach
through the loader lift arms when raised. Serious injury could result from
crushing or pinching by the loader or attachment. (SL-06)
PARTS INFORMATION
Bush Hog products are designed utilizing specifically matched system components to ensure optimum
equipment performance. These parts are made and tested to Bush Hog specifications. Non-genuine "will fit"
parts do not consistently meet these specifications. The use of “will fit” parts may reduce equipment
performance, void warranties, and present a safety hazard. Use genuine Bush Hog parts for economy and
safety. (SPBH-2)
SEE YOUR BUSH HOG DEALER

SAFETY
2387 01/11 Safety Section 1-17
© 2011 Alamo Group Inc.
SAFETY
Storage and Parking Safety Instructions and Practices
Concluding Safety Instructions and Practices
Never crawl under or allow children to play around or on a loader that is disconnected from
the tractor. The loader could fall crushing a person resulting in serious injury or death. (SL-13)
Do not remove the attachment from the loader when the loader is disconnected from the
tractor. The attachment stabilizes the loader. If the attachment is removed, the loader will
fall and could result in serious injury. (SL-26)
Only disconnect and store the loader on firm flat ground. Make sure the loader stands are
properly installed and rest on firm ground or support blocks. If the stands sink or fail, the
loader could fall causing serious injury. (SL-27)
In addition to the design and configuration of this Implement, including Safety Signs and Safety Equipment,
hazard control and accident prevention are dependent upon the awareness, concern, prudence, and proper
training of personnel involved in the operation, transport, maintenance, and storage of the machine. Refer
also to Safety Messages and operation instruction in each of the appropriate sections of the Tractor and
Equipment Manuals. Pay close attention to the Safety Signs affixed to the Tractor and Equipment. (SG-18)

SAFETY
2387 01/11 Safety Section 1-18
© 2011 Alamo Group Inc.
SAFETY
Decal Location
NOTE: Bush Hog supplies safety decals on this product to promote safe operation. Damage to the decals may
occur while in shipping, use, or reconditioning. Bush Hog cares about the safety of its customers, operators,
and bystanders, and will replace the safety decals on this product in the field, free of charge (Some shipping
and handling charges may apply). Contact your Bush Hog dealer to order replacement decals.

SAFETY
2387 01/11 Safety Section 1-19
© 2011 Alamo Group Inc.
SAFETY
ITEM PART NO. QTY LEVEL DESCRIPTION
1. 50057411 2 LOGO Bush Hog (3.20” x 14.50”)
2. 50057412 1 LOGO Bush Hog (3.90” x 17.50”)
3. 50069073 2 MODEL 2387
4. 52740 2 WARNING Oil Leaks
5. 52203 1 WARNING Lock Valve in Transport
6. 52204 1 INSTRUCT Loader Positions
7. D469 1 WARNING Loader Safety
8. D468 2 DANGER Crushing, Electrocution, Falling Hazard
9. D471 1 WARNING Handling Bales
10. D470 1 DANGER Use ROPS, Seatbelt, Rear Ballast
11. 03200347 * REFLCTR SMV Sign
12. 00776031 1 _________ Canister, Operator’s Manual
13. 55580 1 WARNING Sheet, Decal; includes two D516 decals
(Note: For Quick Attach Device Only)
* -Supplied by Tractor Manufacturer. Replace if missing from Tractor.
NOTE: Order D438 Safety Decal Sheet which includes all safety decals.

SAFETY
2387 01/11 Safety Section 1-20
© 2011 Alamo Group Inc.
SAFETY
Decal Location
P/N 50057411
Logo: BUSH HOG (3.20” x 14.50”)
P/N 50057412
Logo: BUSH HOG (3.90” x 17.50”)
MODEL NAME: 2387
P/N 50069073

SAFETY
2387 01/11 Safety Section 1-21
© 2011 Alamo Group Inc.
SAFETY
WARNING! - DO NOT operate with oil leaks.
-Inspect hoses regularly. Failure to inspect and replace
worn hoses may allow them to rupture suddenly and
violently, resulting in serious bodily injury or death from
scalding, fire burn injury, or oil penetration.
-Frayed, torn or crimped hoses may rupture and spray
hot oil on operator causing serious injury. Oil may spray
on hot tractor parts and catch fire resulting in severe
injury, burn or death.
-To check for hose leak, shut tractor off and remove
hydraulic pressure. Never use hands to check for leaks.
-Wear safety glasses, oil, impenetrable gloves, and use
cardboard to check for evidence of oil leaks. If you
suspect a leak, remove the hose and have it tested at a
dealer.
KEEP SHIELDS IN PLACE OVER HYDRAULIC
COMPONENTS. Do not operate equipment if shields are
missing or if oil leaks exist.
-Repair or replace hoses as needed to prevent
unexpected failure and possible serious injury to operator
or bystander. If oil penetrates skin, serious injury or
gangrene could occur. A doctor familiar with this type of
injury must surgically remove the injected fluid
immediately.
P/N 52740
WARNING! Lock valve when in transport or
storage.
P/N 52203
Loader Positions.
P/N 52204

SAFETY
2387 01/11 Safety Section 1-22
© 2011 Alamo Group Inc.
SAFETY
Loader Safety
-Read, understand and follow the operation, warning,
and safety instructions in the Operator’s Manual.
-Equip tractor with ROPS (Roll Over Protection System)
before installing or operating the loader.
-Operate Loader only from operator’s seat with the
seatbelt securely fastened around you.
-Carry bucket low during transport for better visibility and
to avoid overturns.
-Keep bystanders 10 feet away when operating loader.
-When parking or servicing unit, lower bucket to the
ground on level hard surface, stop engine, set parking
brake, place transmission in park.
-Read and understand mounting instructions in the
operator’s manual before installing or detaching loader.
-Do not remove bucket or attachment form detached
loader.
-Do not allow riders on tractor or loader.
-Do not allow children or untrained persons to operate
loader.
D469
Crushing Hazard, Electrocution Hazard, Falling
Hazard.
D468
Crushing Hazard
D471

SAFETY
2387 01/11 Safety Section 1-23
© 2011 Alamo Group Inc.
SAFETY
DANGER! - Use ROPS and seatbelt at all times.
Add recommended rear ballast. Operate tractor at
low speeds. Failure to comply may result in serious
injury or death.
D470
Slow Moving Vehicle Decal. Keep SMV reflector
clean and visible. DO NOT transport or operate
without the SMV.
P/N 03200347
Read Operator’s Manual! The operator’s manual is
located inside this canister. If the manual is
missing order one from your dealer.
P/N 00776031

SAFETY
2387 01/11 Safety Section 1-24
© 2011 Alamo Group Inc.
SAFETY
WARNING! - Crushing Hazard.
-To Avoid Serious Injury or Death
Make sure attachment is securely attached to the loader.
See Operator’s Manual for instructions.
-Lock both levers down. Make sure pins are adequately
extended through slots at the bottom of the attachment
bracket and the tapered side of pin is firmly seated
against attachments slots. Make sure the gap is not
larger than 1/8”.
-Tilt attachment down, lower to ground, apply down
pressure, and drag backwards. Do not use attachment if
it disengages.
-NEVER walk or work underneath raised loader or
attachment
(Located on the Quick Attach Device Only)
P/N D516

SAFETY
2387 01/11 Safety Section 1-25
© 2011 Alamo Group Inc.
SAFETY
Federal Laws and Regulations
This section is intended to explain in broad terms the concept and effect of federal laws and regulations concerning
employer and employee equipment operators. This section is not intended as a legal interpretation of the law and
should not be considered as such.
Employer-Employee Operator Regulations
U.S. Public Law 91-596 (The Williams-Steiger Occupational and Health Act of 1970) OSHA
This Act Seeks:
“...to assure so far as possible every working man and woman in the nation safe and healthful working
conditions and to preserve our human resources...”
DUTIES
Sec. 5 (a) Each employer-
(1) shall furnish to each of his employees employment and a place of employment which are free from
recognized hazards that are causing or are likely to cause death or serious physical harm to his employees;
(2) shall comply with occupational safety and health standards promulgated under this Act.
(b) Each employee shall comply with occupational safety and health standards and all rules, regulations and
orders issued pursuant to this Act which are applicable to his own actions and conduct.
OSHA Training Requirements
Title 29, Code of Federal Regulations Part 1928.57(a)(6). www.osha.gov
Operator instructions. At the time of initial assignment and at least annually thereafter, the employer shall
instruct every employee who operates an agricultural tractor and implements in the safe operating practices
and servicing of equipment with which they are or will be involved, and of any other practices dictated by the
work environment.
Keep all guards in place when the machine is in operation;
Permit no riders on equipment
Stop engine, disconnect the power source, and wait for all machine movement to stop before servicing,
adjusting, cleaning or unclogging the equipment, except where the machine must be running to be properly
serviced or maintained, in which case the employer shall instruct employees as to all steps and procedures
which are necessary to safely service or maintain the equipment.
Make sure everyone is clear of machinery before starting the engine, engaging power, or operating the
machine.
Employer Responsibilities:
To ensure employee safety during Tractor and Implement operation, it is the employer’s responsibility to:
1. Train the employee in the proper and safe operation of the Tractor and Implement.
2. Require that the employee read and fully understand the Tractor and Implement Operator’s manual.
3. Permit only qualified and properly trained employees to operate the Tractor and Implement.
4. Maintain the Tractor and Implement in a safe operational condition and maintain all shields and guards on the
equipment.
5. Ensure the Tractor is equipped with a functional ROPS and seat belt and require that the employee operator
securely fasten the safety belt and operate with the ROPS in the raised position at all times.
6. Forbid the employee operator to carry additional riders on the Tractor or Implement.
7. Provide the required tools to maintain the Tractor and Implement in a good safe working condition and provide the
necessary support devices to secure the equipment safely while performing repairs and service.
8. Require that the employee operator stop operation if bystanders or passersby come within 300 feet.
Child Labor Under 16 Years of Age
Some regulations specify that no one under the age of 16 may operate power machinery. It is your responsibility to
know what these regulations are in your own area or situation. (Refer to U.S. Dept. of Labor, Employment Standard
Administration, Wage & Home Division, Child Labor Bulletin #102.)

Introduction Section 2-1
INTRODUCTION SECTION

INTRODUCTION
2387 01/11 Introduction Section 2-2
© 2011 Alamo Group Inc.
INTRODUCTION
This 2387 Loader is designed with care and built with quality materials by skilled workers. Proper assembly,
maintenance, and operating practices, as described in this manual, will help the owner/operator get years of
satisfactory service from the machine.
The purpose of this manual is to familiarize and instruct. The Assembly Section instructs the owner/operator in
the correct assembly of the Front End Loader using standard and optional equipment. The Parts manual is
designed to familiarize the owner/operator with replaceable parts on the Loader. This Part Manual provides
exploded assembly drawings of each Loader component illustrating each piece and the corresponding part
number.
Careful use and timely service saves extensive repairs and costly downtime losses. The Operation and
Maintenance Sections of the manual train the owner/operator how to work the Front End Loader correctly and
attend to appropriate maintenance. The Trouble Shooting Guide helps diagnose difficulties and offers solution
to the problems.
Safety is of primary importance to the owner/operator and to the manufacturer. The first section of this manual
includes a list of Safety Messages, that, if followed, will help protect the operator and bystanders from injury or
death. Many of the Safety Messages will be repeated throughout the manual. The owner/operator/dealer
should know these Safety Messages before assembly and be aware of the hazards of operating this Loader
during assembly, use, and maintenance. The Safety Alert Symbol combined with a Signal Word, as seen
below, is intended to warn the owner/operator of impending hazards and the degree of possible injury faced
when operating this machine.
It is recommended that tractor wheels be moved to the widest setting and rear ballast be
applied to increase tractor stability.
Never allow children to operate, ride on, or come close to the Tractor or
Implement. Usually, 16-17 year-old children who are mature and
responsible can operate the implement with adult supervision, if they
have read and understand the Operator’s Manuals, been trained in
proper operation of the tractor and Implement, and are physically large
enough to reach and operate the controls easily. (SG-11)
Never allow children or other persons to ride on the Tractor or Implement.
Falling off can result in serious injury or death. (SG-10)
Never allow children to play on or around Tractor or Implement. Children can slip or fall off
the Equipment and be injured or killed. Inadvertent contact with controls can cause the
Implement to shift or fall crushing themselves or others. (SG-25)

INTRODUCTION
2387 01/11 Introduction Section 2-3
© 2011 Alamo Group Inc.
INTRODUCTION
DO NOT use drugs or alcohol immediately before or while operating the
Tractor and Implement. Drugs and alcohol will affect an operator’s
alertness and coordination and therefore affect the operator’s ability to
operate the equipment safely. Before operating the Tractor or Implement,
an operator on prescription or over-the-counter medication must consult
a medical professional regarding any side effects of the medication that
would hinder their ability to operate the Equipment safely. NEVER
knowingly allow anyone to operate this equipment when their alertness or
coordination is impaired. Serious injury or death to the operator or others
could result if the operator is under the influence of drugs or alcohol. (SG-27)
Engine Exhaust, some of its constituents, and certain vehicle components contain or emit
chemicals known to the state of California to cause cancer and birth defects or other
reproductive harm. (SG-30)
Never walk or work under any raised boom or bucket. The Boom could fall and cause
serious bodily injury or death. Always lower the boom and bucket flat on the ground or
support the Boom and bucket on safety stands. Unload all hydraulic actuators prior to
performing any maintenance. To do this, set the bucket on the ground then kill the tractor
engine. Push and pull the control levers in and out several times to remove pressure. Do
not work under raised Boom or Bucket unless components are securely blocked up to
prevent inadvertent dropping. (SBH-7)
Operate this Equipment only with a Tractor equipped with an approved roll-
over-protective system (ROPS). Always wear seat belts. Serious injury or
even death could result from falling off the tractor--particularly during a turnover
when the operator could be pinned under the ROPS. (SG-7)

INTRODUCTION
2387 01/11 Introduction Section 2-4
© 2011 Alamo Group Inc.
INTRODUCTION
The Bush Hog 2387 Loader is designed for four-wheel drive tractors. They are intended to lift only loose
materials that will fit in the bucket. All cylinders are double-acting. Parking stands support loader so tractor can
be “driven in” for quick attaching.
Front and rear, and left and right are determined by the normal direction of travel (the same as on your
automobile).

INTRODUCTION
2387 01/11 Introduction Section 2-5
© 2011 Alamo Group Inc.
INTRODUCTION
Attention Owner/Operator
BEFORE OPERATING THIS MACHINE:
1. Carefully read the Operator’s Manual, completely understand the Safety Messages and instructions, and
know how to operate correctly both the tractor and implement.
2. Fill out the Warranty Card in full. Be sure to answer all questions, including the Serial Number of the
implement. Mail within 30 days of delivery date of this implement.
NOTE: Warranties are honored only if completed “Owner Registration and Warranty” forms are received by
Alamo Group within thirty days of delivery of the implement.
3. Record the Loader Model and Serial Numbers on the Warranty page. Keep this as part of the permanent
maintenance file for the implement.

Assembly Section 3-1
ASSEMBLY AND
CONNECTING THE
LOADER SECTION

ASSEMBLY
2387 01/11 Assembly Section 3-2
© 2011 Alamo Group Inc.
ASSEMBLY
Assembly Instructions
To avoid injury during installation of the loader attachment, do not allow bystanders within 10
feet of loader or attachment.
Always wear safety glasses when removing or installing buckets.
Always use a drift and hammer made of non-sparking material (a shot-filled mallet is
recommended) to install or remove pins. A steel hammer or drift could generate flying metal
fragments and result in injury. Always wear safety glasses when using a hammer to remove
or install pins.
Always have a heavy attachment, such as a bucket mounted on loader when it is removed
from tractor.
It is important not to put excessive weight on parking stands with lift cylinder retraction.
Damage may result.
Never allow anyone to get under the loader or attachment or to reach
through the loader lift arms when raised. Serious injury could result from
crushing or pinching by the loader or attachment. (SL-06)
Make sure the loader is properly attached to the tractor and the retaining pins securely lock
the loader into position. Improper mounting of the loader onto the tractor can result in the
loader falling causing serious injury. (SL-23)

ASSEMBLY
2387 01/11 Assembly Section 3-3
© 2011 Alamo Group Inc.
ASSEMBLY
Do not use an attachment that is not securely attached to the quick
hitch, The attachment could fall resulting in severe crushing injuries
or death to the operator or bystanders.
• Rotate both hitch pin levers down to the locked position. You should feel a firm
resistance when locking the levers down. The pins must extend through the slots in
the bottom of the attachment bracket.
• Examine the fit between the quick hitch and the bottom of the attachment bracket.
The pins must extend through the slots in the bottom of the attachment bracket. The
tapered side of each pin must be firmly wedged against the surface of the slot on
the bottom of the attachment bracket. The attachment bucket should fit snugly
against the bottom of the quick hitch bracket. If there is a gap of more than 1/8” or if
the pins are not firmly seated do not use the attachment. Contact your dealer before
using the attachment.
• On level ground, tilt the attachment down 90° degrees and lower it to the ground.
Lower the loader further to slightly raise the front of the tractor off the ground. Drive
the tractor in reverse while the attachment is on the ground for 20-30 feet to ensure
the attachment does not disconnect. If the attachment disconnects during this
process, discontinue the use of the attachment and contact your dealer.
NEVER walk or work under or allow any person to be underneath a
raised loader or attachment. (SL-15)
Only mount the loader on a tractor that is listed on the mounting instructions. Never mount
on a tricycle steering front axle. Move the tractor front and rear wheels to the widest spacing
and add the recommended rear tractor ballast to prevent tractor tip over. Keep the tractor
tires properly inflated. Maintain at least 25% of the total Tractor and Loader weight including
the maximum load in the bucket or attachment on the rear axle. Always wear your seatbelt
and make sure the ROPS structure is fully deployed to prevent serious injury or death from
the tractor tipping over. (SL-11)
Make sure all air is purged from the hydraulic system before using the loader. Air in the
system can cause the loader to respond sluggishly or with unexpected movement. The air
can be purged from the cylinder lines by fully cycling the cylinders several times from the
fully closed to fully open position. Sudden or unexpected movement or dropping of the
loader and attachment could result in serious injury. (SL-32)

ASSEMBLY
2387 01/11 Assembly Section 3-4
© 2011 Alamo Group Inc.
ASSEMBLY
Proper Ballasting and Wheel Spacing
Spread front wheels to maximum distance.
Spread rear wheels to maximum distance.
Add rear wheel weight, rear ballast box or
implement. Make sure there is 20% of total weight
on rear axle.

ASSEMBLY
2387 01/11 Assembly Section 3-5
© 2011 Alamo Group Inc.
ASSEMBLY
Dismounting Loader and Mounting Loader to Tractor
Dismounting Loader
To avoid injury during installation of loader:
• Place loader bucket against barrier to restrict forward movement of loader.
• Do not permit bystanders within 10 feet of loader.
Loader must be equipped with a bucket or other optional attachment to dismount from
tractor.
When dismounting loader, maintain clearance between loader side frames and tractor hood
and front axle.
1. Locate tractor and loader on firm level ground.
2. Level and lower bucket to ground. Engage
tractor brakes and shut off tractor engine.
Move lift control lever back and forth several
times to relieve pressure in lift cylinders.
3. Remove 5/8 lock nuts and washers which
clamp hinges closed around mid mounting
tubes on tractor.
4. Start tractor engine and release tractor brakes.
Activate lift control lever to raise side frame up
off midmounting assembly. Continue rotating
loader side frames off midmounting tubes.
Slowly back tractor out of loader while rotating
loader side frames. Allow loader to roll off front
mounting bracket until lift cylinders are fully
extended and yoke is resting on ground.
Engage tractor brakes and shut off tractor
engine.
5. Move lift and bucket control levers back and
forth several times to relieve pressure on lift
and bucket cylinders. Disconnect quick
couplers between loader and tractor. Hang
hoses over loader side frame upright for
storage. Make sure male quick couplers will
not become contaminated during storage.
6. Fasten bolts, washers and nuts onto hinge for
storage.
NOTE: Loader should be stored in a dry place. If loader is being stored for an extended period (one month or
more), a coat of grease should be applied to the cylinder shafts to prevent rusting.

ASSEMBLY
2387 01/11 Assembly Section 3-6
© 2011 Alamo Group Inc.
ASSEMBLY
Mounting Loader
Mounting is basically reverse of dismounting.
1. Slowly drive tractor up to loader until hoses will reach from loader to tractor. Engage tractor brakes and
shut off tractor engine.
2. Make sure quick couplers are clean and connect between tractor and loader, matching color coded bands.
3. Remove bolts, nuts and washers from hinge.
4. Start tractor engine and release tractor brakes. Slowly drive tractor ahead until front mounting brackets are
directly under loader catch flats. Activate lift control lever so that catch flats hook securely on front
mounting bracket tubes. Continue driving loader forward while rolling the loader on the front mounting
bracket tubes until side frame uprights are fully resting on midmounting assembly. Engage tractor brakes
and shut off engine.
5. Hook rubber strap around hoses and back on itself. Attach other end of rubber strap to bolt at front of
corner or side frame.
6. Clamp hinge assembly around midmounting tube. Install bolts, washers and nuts. Torque cap screws to
126 Ft. Lbs.
Attaching Pin on Bucket
Always wear safety glasses when removing or installing buckets.
Material bucket can be installed using tool ordinarily available.
1. Attach bucket to lift boom frame and cylinders
with four 1” pins, use two 3/8 shoulder bolts and
3/8 lock nuts at upper pin (bucket cylinder). Use
two 3/8 x 1.25 hex bolts, 3/8 jam nut, 3/8 flat
washer and 3/8 lock nut at lower pin. Position
bolt with head on inside of outer bucket ear.
Fasten bolt to ear using 3/8 jam nut. Install pin
so pin head is over jam nut and retain with 3/8
flat washer and 3/8 lock nut.
2. Install level indicator rod in level guide tube on
right bucket cylinder. Sandwich level indicator
rod angle between right inside bucket ear and
cylinder rod end.
3. Set bucket level on ground and adjust level
guide tube along bucket cylinder until end of
guide tube is flush with end of rod.

ASSEMBLY
2387 01/11 Assembly Section 3-7
© 2011 Alamo Group Inc.
ASSEMBLY
Assembling Quick Attach Device
Quick attach device can be installed using tools ordinarily available.
Torque all hardware to specifications listed in loader operator’s manual.
Shut off the tractor engine and engage the tractor brakes during installation.
Only quick attach, skid steer compatible attachments can be used with the quick attach device. Pin on style
attachments can be used on the loader, but necessitate removal of the quick attach device and relocation of
the bucket level indicator.
All references to left and right used in these instructions are as they would appear to the operator standing at
the rear of the unit facing forward.
1. Quick attach device is pre-assembled at the factory.
2. Unband the quick attach device and wood blocks. (Figure Asm-L-0012)

ASSEMBLY
2387 01/11 Assembly Section 3-8
© 2011 Alamo Group Inc.
ASSEMBLY
Installing Quick Attach Device
Always use a drift and hammer made of non-sparking material (a shot-filled mallet is
recommended) to install or remove pins. A steel hammer or drift could generate flying metal
fragments and result in injury. Always wear safety glasses when using a hammer to remove
or install pins.
1. Fasten quick attach device to lower boom arms and bucket tilt cylinders using 1” x 4-3/8” anti-rotation pins,
3/8” x 3/4” shoulder bolts, and 3/8” lock nuts (supplied with loader). Figure Asm-L-0014.
2. Attach bucket leveling rod indicator (supplied with loader), to outside of right ear on quick attach as shown.
Figure Asm-L-0014. Secure bucket leveling rod indicator with two 1/8” x 1” cotter pins (supplied with
loader).

ASSEMBLY
2387 01/11 Assembly Section 3-9
© 2011 Alamo Group Inc.
ASSEMBLY
When Connecting an Attachment to the Loader Quick Hitch
1. Be sure both quick hitch pin levers are in the unlocked position, with the levers pointing up. Tilt the loader
quick hitch forward, drive the loader into the attachment bracket and engage top of the quick hitch into the
top of the attachment bracket.
2. Raise the loader slightly and rotate the top of the quick hitch back toward the operator until the bottom of
the attachment is seated firmly in the bottom of the quick hitch.
3. Rotate the quick hitch pin levers down 90
degrees to the locked position. You should feel
a firm resistance when locking the levers down.
The tapered pins must extend through the slots
in the bottom of the attachment bracket. The
tapered side of the pins must be firmly wedged
against the surface of the slot at the bottom of
the attachment bracket. If the pins are not
wedged securely in place, the attachment may
fall off resulting in possible severe crushing
injury or death to the operator or bystander.
4. Raise the loader and attachment to shoulder
height. By standing at the side of the loader,
inspect the connection between the quick hitch
and attachment.
Never walk or work under or allow any person to be underneath a raised
loader or attachment.
• Examine the fit between the quick hitch and the
bottom of the attachment bracket. The pins must
extend through the slots in the bottom of the
attachment bracket. The tapered side of each pin
must be firmly wedged against the surface of the
slot on the bottom of the attachment bracket. The
attachment bracket should fit snugly against the
bottom of the loader bracket. If there is a gap of
more than 1/8” or if the pins are not firmly seated do
not use the attachment. Contact your dealer before
using the attachment.

ASSEMBLY
2387 01/11 Assembly Section 3-10
© 2011 Alamo Group Inc.
ASSEMBLY
5. On level ground, tilt the attachment down 90 degrees
and lower it to the ground. Lower the loader further to
slightly raise the front of the tractor of the tractor off
the ground. Drive the tractor in reverse while the
attachment is on the ground for 20-30 feet to insure
the attachment does not disconnect. If the
attachment disconnects during this process,
discontinue the use of attachment and contact your
dealer.
Do not use an attachment that is not securely attachment that is not
securely attached to the quick hitch. The attachment could fall resulting in
severe crushing injuries or death to the operator or bystanders.

Operation Section 4-1
OPERATION SECTION

OPERATION
2387 01/11 Operation Section 4-2
© 2011 Alamo Group Inc.
OPERATION
BUSH HOG 2387 LOADER
OPERATION INSTRUCTIONS
Your 2387 Loader should now be assembled and inspected for any evidence of defective or damaged parts
before use. Any evidence of damage should be reported to your dealer immediately.
This section of the Operator’s Manual is designed to familiarize, instruct, and educate safe and proper loader
use to the operator. Pictures contained in this section are intended to be used as a visual aid to assist in
explaining the operation of a 2387 loader and are not necessarily of a 2387 loader or exact tractor. Some
pictures may show shields removed for purposes of clarity. NEVER OPERATE this implement without all
shields in place and in good operational condition. The operator must be familiar with the loader and tractor
operation and all associated safety practices before operating the loader and tractor. Proper operation of the
loader, as detailed in this manual, will help ensure years of safe and satisfactory use of the loader.
READ, UNDERSTAND, and FOLLOW the following Safety Messages. Serious injury or
death may occur unless care is taken to follow the warnings and instructions stated in the
Safety Messages. Always use good common sense to avoid hazards. (SG-2)
Si no lee ingles, pida ayuda a alguien que si lo lea para que le traduzca las
medidas de seguridad. (SG-3)
READ AND UNDERSTAND THE ENTIRE OPERATING INSTRUCTIONS AND SAFETY SECTION OF THIS
MANUAL AND THE TRACTOR MANUAL BEFORE ATTEMPTING TO USE THE TRACTOR AND
IMPLEMENT. If you do not understand any of the instructions, contact your nearest authorized dealer for a
full explanation. Pay close attention to all safety signs and safety messages contained in this manual and
those affixed to the implement and tractor. OPS-U- 0001

OPERATION
2387 01/11 Operation Section 4-3
© 2011 Alamo Group Inc.
OPERATION
1. Standard Equipment and Specifications
Specifications will vary with tire size, hydraulic system and bucket used. Specifications are given for a loader
equipped with a 48” bucket, external hydraulic system of 8 GPM with engine operating at 2500 RPM and relief
setting of 2400 PSI.
Horsepower Range 30-45 HP
System pressure/flow rate 2400 PSI/ 8 GPM
Lift Capacity to maximum height 1360 lbs.
Breakout force at pivot pin 4920 lbs.
Rollback force at ground line 2340 lbs.
Total weight with bucket (approx.) 1014 lbs.
Raising time to full height 5.5 seconds
Lower time 3.59 seconds
Attachment dump time 2.06 seconds
Attachment rollback time 2.25 seconds
Hydraulic system flow 8 GPM
System pressure at rated flow 2400 PSI
(A) Maximum Lift Height at Pivot Pin 106”
(B) Maximum Height Under Bucket 101"
(C) Clearance with Bucket Dumped 86”
(D) Reach at Maximum Height 24”
(E) Maximum Dump Angle 44°
(F) Reach with Attachment on Ground 62”
(G) Attachment Rollback Angle 17°
(H) Digging Depth 5.5”
(I) Overall Height in Carry Position 54” @ top of upright
(Manufacturers estimated specifications and design subject to change without notice.)

OPERATION
2387 01/11 Operation Section 4-4
© 2011 Alamo Group Inc.
OPERATION
2. Operator Requirements
DO NOT use drugs or alcohol immediately before or while operating the
Tractor and Implement. Drugs and alcohol will affect an operator’s
alertness and coordination and therefore affect the operator’s ability to
operate the equipment safely. Before operating the Tractor or Implement,
an operator on prescription or over-the-counter medication must consult
a medical professional regarding any side effects of the medication that
would hinder their ability to operate the Equipment safely. NEVER
knowingly allow anyone to operate this equipment when their alertness or
coordination is impaired. Serious injury or death to the operator or others
could result if the operator is under the influence of drugs or alcohol. (SG-27)
Never operate the Tractor or Implement until you have read and
completely understand this Manual, the Tractor Operator’s Manual, and
each of the Safety Messages found in the Manual or on the Tractor and
Implement. Learn how to stop the tractor engine suddenly in an
emergency. Never allow inexperienced or untrained personnel to
operate the Tractor or Implement without supervision. Make sure the
operator has fully read and understood the manuals prior to operation.
(SG-4)
The operator and all support personnel should wear hard hats, safety
shoes, safety glasses, and proper hearing protection at all times for
protection from injury including injury from items that may be thrown by
the equipment. (SG-16)
PROLONGED EXPOSURE TO LOUD NOISE MAY CAUSE
PERMANENT HEARING LOSS! Tractors with or without an Implement
attached can often be noisy enough to cause permanent hearing loss.
We recommend that you always wear hearing protection if the noise in
the Operator’s position exceeds 80db. Noise over 85db over an
extended period of time will cause severe hearing loss. Noise over 90db
adjacent to the Operator over an extended period of time will cause
permanent or total hearing loss. NOTE: Hearing loss from loud noise
[from tractors, chain saws, radios, and other such sources close to the
ear] is cumulative over a lifetime without hope of natural recovery. (SG-I7)
Always read carefully and comply fully with the manufacturer’s
instructions when handling oil, solvents, cleansers, and any other
chemical agent. (SG-22)

OPERATION
2387 01/11 Operation Section 4-5
© 2011 Alamo Group Inc.
OPERATION
Never run the Tractor engine in a closed building or without adequate ventilation. The
exhaust fumes can be hazardous to your health. (SG-23)
Battery posts, terminals and related accessories contain lead and lead compounds,
chemicals known to the state of California to cause cancer, birth defects or other
reproductive harm. (SG-31)
Prolonged operation may cause operator boredom and fatigue affecting safe operation.
Take scheduled work breaks to help prevent these potentially impaired operating
conditions. Never operate the Implement and Tractor in a fatigued or bored mental state
which impairs proper and safe operation. (SG-32)
Use extreme caution when getting onto the Implement to perform repairs, maintenance and
when removing accumulated material. Only stand on solid flat surfaces to ensure good
footing. Use a ladder or raised stand to access high spots which cannot be reached from
ground level. Slipping and falling can cause serious injury or death. (SG-33)
Use extreme care when loading, carrying or handling any agricultural
fertilizers, chemicals or biological residue. Follow the manufacturer’s
handling instructions and wear appropriate Personal Protective
Equipment including gloves, safety glasses and respirator when required.
If you are using a tractor equipped with a cab, make sure the cab is rated
for appropriate environmental exposure. Be safe and always wear proper
protection. Short or long term exposure to certain chemicals and
materials can result in serious injury or death. (SL-19)
Repeated or substantial breathing of hazardous dusts, including
crystalline silica, could cause fatal or serious respiratory disease including
silicosis. Concrete, masonry, many types of rock, and various other
materials contain silica sand. California lists respirable crystalline silica as
a substance known to cause cancer. Operation of this equipment under
certain conditions may generate airborne dust particles that could contain
crystalline silica. In those conditions, personal protective equipment
including an appropriate respirator must be used. If excessive dust is
generated, a dust collection or suppression system should also be used
during operation. (SG-41)

OPERATION
2387 01/11 Operation Section 4-6
© 2011 Alamo Group Inc.
OPERATION
3. Tractor Requirements
Safe operation of the unit is the responsibility of a qualified operator. A qualified operator has read and
understands the implement and tractor Operator’s Manuals and is experienced in implement and tractor
operation and all associated safety practices. In addition to the safety messages contained in this manual,
safety signs are affixed to the implement and tractor. If any part of the operation and safe use of this
equipment is not completely understood, consult an authorized dealer for a complete explanation.
If the operator cannot read the manuals for themselves or does not completely understand the operation of the
equipment, it is the responsibility of the supervisor to read and explain the manuals, safety practices, and
operating instructions to the operator.
Safe operation of equipment requires that the operator wear approved Personal Protective Equipment (PPE)
for the job conditions when attaching, operating, servicing, and repairing the equipment. PPE is designed to
provide operator protection and includes the following safety wear:
PERSONAL PROTECTIVE EQUIPMENT (PPE)
• Protective Eye Glasses, Goggles, or Face
Shield
•Hard Hat
• Steel Toe Safety Footwear
• Gloves
• Hearing Protection
• Close Fitting Clothing
• Respirator or Filter Mask (depends on
operating conditions) OPS-L- 0021
Operate this Equipment only with a Tractor equipped with an approved roll-
over-protective system (ROPS). Always wear seat belts. Serious injury or
even death could result from falling off the tractor--particularly during a turnover
when the operator could be pinned under the ROPS. (SG-7)
For added safety when lifting loads above the height of the operator,
install a certified Falling Object Protective Structure. Shiftable loads,
round bales, large loose items, and loader attachments can fall toward
the operator resulting in serious injury or death. Falling Object Protective
Structure (FOPS) rated Cab may be obtained from the tractor dealer or
other sources. (SL-02)

OPERATION
2387 01/11 Operation Section 4-7
© 2011 Alamo Group Inc.
OPERATION
Tractor Requirements and Capabilities
• ASABE approved Roll-Over Protective Structure (ROPS) or ROPS cab and seat belt.
• Tractor Safety Devices .................Slow Moving Vehicle (SMV) emblem, lighting,
• Tractor Ballast ...............................As required to maintain 25% of gross weight of tractor, loader and
bucket load on rear tires
3.3 Tractor Ballast
Before operating tractor and loader, add sufficient counterweight so a minimum of 25% of the
total weight is on the rear axle. Total weight includes weight of: tractor, loader, rated load in
bucket, and counterweight. Rated load is lift capacity at full height at 500mm forward of
bucket pivot point (See Standard Equipment and Specifications). When determining required
counterweight bucket should be at maximum forward position (bucket pivot point at the same
height as boom pivot point on mast).
3.1 ROPS and Seat Belt
The tractor must be equipped with a Roll-Over-Protective-Structure (ROPS) (tractor cab or roll-bar) and seat
belt to protect the operator from falling off the tractor, especially during a roll over where the driver could be
crushed and killed. Only operate the tractor with the ROPS in the raised position and seat belt fastened.
Tractor models not equipped with a ROPS and seat belt should have these life saving features installed by an
authorized dealer. OPS-U- 0003
3.2 Tractor Lighting and SMV Emblem
If the tractor will be operated near or traveled on a
public roadway it must be equipped with proper
warning lighting and a Slow Moving Vehicle (SMV)
emblem which are clearly visible from the rear of
the unit. Most tractor’s have different settings for
operating and transporting lighting. Refer to the
tractor operator’s manual for using the tractor’s
light switch and operating the turn signals.
OPS-B- 0017

OPERATION
2387 01/11 Operation Section 4-8
© 2011 Alamo Group Inc.
OPERATION
4. Getting On and Off the Tractor
4.1 Boarding the Tractor
To ensure tractor stability when operating add
wheel ballast or rear weights to rear tractor tires.
For better stability, use tractor with wide front axle
rather than tricycle front wheels. Move wheels to
the tractor manufacturer’s widest recommended
settings to increase stability. If 3-Point hitch
counterweights are used, they should be carried
as low as possible at all times to maximize stability.
Effective counterbalance weight at rear axle of
mounted rear equipment is determined by
multiplying actual weight of equipment by 1.50.
EXAMPLE: Equipment weighing 800 pounds,
attached to tractor, multiplied by 1.50, equals 1200
pounds of effective counterbalance weight at rear
axle.
A tractor that does not meet this criteria is
DANGEROUS and should not be operated as
upset of the unit can occur resulting in possible
serious injury and property damage. OPS-L-
0001_A
Do not mount or dismount the Tractor while the tractor is moving. Mount
the Tractor only when the Tractor and all moving parts are
completelystopped. (SG-12)
Before getting onto the tractor, the operator must read and completely understand the implement and tractor
operator manuals. If any part of either manual is not completely understood, consult an authorized dealer for
a complete explanation. OPS-L- 0022
Never allow children or other persons to ride on the Tractor or Implement.
Falling off can result in serious injury or death. (SG-10)
Never grasp control levers when mounting the machine. (SBH-4)

OPERATION
2387 01/11 Operation Section 4-9
© 2011 Alamo Group Inc.
OPERATION
4.2 Dismounting the Tractor
Use both hands and equipped handrails and steps for support when boarding the tractor. Never use control
levers for support when mounting the tractor. Seat yourself in the operator’s seat and secure the seat belt
around you.
Never allow passengers to ride on the tractor or attached equipment. Riders can easily fall off and be
seriously injured or killed from falling off and being ran over. It is the operator’s responsibility to forbid all extra
riders at all times. OPS-L- 0023
BEFORE leaving the tractor seat lower the implement, set the parking
brake and/or set the tractor transmission in parking gear, disengage the
PTO, stop the engine, remove the key, and wait for all moving parts to
stop. Place the tractor shift lever into a low range or parking gear to
prevent the tractor from rolling. Never dismount a Tractor that is moving
or while the engine is running. Operate the Tractor controls from the
tractor seat only. (SG-9)
Before dismounting the tractor and loader lower the loader to the ground or
onto solid support blocks. Engage the loader valve travel lock to prevent
inadvertent movement of the valve controls causing the loader to suddenly
move and drop. Sudden dropping of the loader and attachment could
result in serious injury. (SL-05)
Before dismounting, park the tractor and implement on a reasonably level surface, apply the parking brake,
idle the engine down, disengage the PTO, and lower the implement to the ground. Shut down the tractor
engine according to the operator’s manual, remove the key, and wait for all motion to completely stop. Never
leave the seat until the tractor, its engine and all moving parts have come to a complete stop.
Use hand rails and steps when exiting the tractor. Be careful of your step and use extra caution when mud,
ice, snow or other matter has accumulated on the steps or hand rails. Use all handrails and steps for support
and never rush or jump off the tractor. OPS-L- 0024

OPERATION
2387 01/11 Operation Section 4-10
© 2011 Alamo Group Inc.
OPERATION
5. Starting the Tractor
Never run the Tractor engine in a closed building or without adequate ventilation. The
exhaust fumes can be hazardous to your health. (SG-23)
Start tractor only when properly seated in the Tractor seat. Starting a
tractor in gear can result in injury or death. Read the Tractor operators
manual for proper starting instructions. (SG-13)
The operator must have a complete understanding of the placement, function, and operational use of all tractor
controls before starting the tractor. Review the tractor operator’s manual and consult an authorized dealer for
tractor operation instructions if needed.
Essential Tractor Controls:
• Locate the ignition switch
• Locate the light control lever
• Locate the engine shut off control
• Locate the engine throttle control
• Locate the brake pedals and the clutch
• Locate the parking brake
• Locate the PTO control
• Locate the 3-point hitch control lever
• Locate the hydraulic remote control levers
Before starting the tractor ensure the following:
• Conduct all pre-start operation inspection and service according to the tractor operator’s manual.
• Make sure all guards, shields, and other safety devices are securely in place.
• The parking brake is on.
• The 3-point hitch control lever is in the lowered position.
• The hydraulic remote control levers are in the neutral position.
• The tractor transmission levers are in park or neutral.
Refer to the tractor owner’s manual for tractor starting procedures. Only start the tractor while seated and
belted in the tractor operator’s seat. Never bypass the ignition switch by short circuiting the starter solenoid.
After the tractor engine is running, avoid accidental contact with the tractor transmission to prevent sudden and
unexpected tractor movement. OPS-L-0025

OPERATION
2387 01/11 Operation Section 4-11
© 2011 Alamo Group Inc.
OPERATION
6. Pre-Operation Inspection and Service
Periodically inspect all moving parts for wear and replace when
necessary with authorized service parts. Look for loose fasteners, worn
or broken parts, and leaky or loose fittings. Make sure all pins have
cotter pins and washers. Serious injury may occur from not maintaining
this machine in good working order. (SG-21)
Never work under the Implement, the framework, or any lifted component
unless the Implement is securely supported or blocked up to prevent
sudden or inadvertent falling which could cause serious injury or even
death. (SL-36)
Before each use, a pre-operation inspection and service of the implement and tractor must be performed.
This includes routine maintenance and scheduled lubrication, inspecting that all safety devices are equipped
and functional, and performing needed repairs. DO NOT operate the unit if the pre-operation inspection
reveals any condition affecting safe operation. Perform repairs and replacement of damaged and missing
parts as soon as noticed. By performing a thorough pre-operation inspection and service, valuable down time
and repair cost can be avoided. OPS-L-0026

OPERATION
2387 01/11 Operation Section 4-12
© 2011 Alamo Group Inc.
OPERATION
6.2 Loader Pre-Operation Inspection and Service
6.1 Tractor Pre-Operation Inspection/Service
Refer to the tractor operator’s manual to ensure a
complete pre-operation inspection and scheduled
service is performed according to the
manufacturers recommendations. The following
are some of the items that require daily service and
inspection:
• Tire condition/air pressure
• Wheel lug bolts
• Steering linkage
• PTO shield
• SMV sign is clean and visible
• Tractor’s lights are clean and functional
• Tractor Seat belt is in good condition
• Tractor ROPS is in good condition
• ROPS is in the raised position
• No tractor oil leaks
• Radiator free of debris
• Engine oil level and condition
• Engine coolant level and condition
• Power brake fluid level
• Power steering fluid level
• Fuel condition and level
• Sufficient lubrication at all lube points
• Air filter condition OPS-U-0030
Periodically inspect all moving parts for wear and replace when
necessary with authorized service parts. Look for loose fasteners, worn
or broken parts, and leaky or loose fittings. Make sure all pins have
cotter pins and washers. Serious injury may occur from not maintaining
this machine in good working order. (SG-21)
Avoid contact with hot surfaces including hydraulic oil tanks, pumps, motors, valves and
hose connections. Relieve hydraulic pressure before performing maintenance or repairs.
Use gloves and eye protection when servicing hot components. Contact with a hot surface
or fluid can cause serious injury from burns or scalding. (SG-34)

OPERATION
2387 01/11 Operation Section 4-13
© 2011 Alamo Group Inc.
OPERATION
Before operation, a complete inspection and service is required to ensure the loader is in a good and safe
working condition. Damaged and/or broken parts should be repaired and/or replaced immediately. To ensure
the loader is ready for operation, conduct the following. OPS-L-0027
Do not operate this Equipment with hydraulic oil or fuel leaking. Oil
and fuel are explosive and their presence could present a hazard. Do
not check for leaks with your hand! High-pressure oil streams from
breaks in the line could penetrate the skin and cause tissue damage
including gangrene. To check for a hose leak, SHUT the unit ENGINE
OFF and remove all hydraulic pressure. Wear oil impenetrable gloves,
safety glasses and use Cardboard to check for evidence of oil leaks. If
you suspect a leak, REMOVE the HOSE and have it tested at a Dealer.
If oil does penetrate the skin, have the injury treated immediately by a
physician knowledgeable and skilled in this procedure. (SG-15)
The operator’s manual and safety signs affixed on
the unit contain important instructions on the safe
and proper use of the equipment. Maintain these
important safety features on the implement in good
condition to ensure the information is available to
the operator at all times.
• Ensure the manual canister is secured to the
equipment with the operator’s manual inside.
• Ensure all safety signs are in place and legible.
Replace missing, damaged, and illegible
decals. OPS-U- 0011
MOUNT ASSEMBLY
• Inspect condition of mounting frame weldment.
• Ensure all bolts and screws are in position and
are properly torqued.
• Ensure all pins are in place and fastened with
screws.
• Ensure frame is properly mounted to tractor
and hardware is properly installed and
tightened. OPS-L-0004_A
Mount Frame Assembly

OPERATION
2387 01/11 Operation Section 4-14
© 2011 Alamo Group Inc.
OPERATION
LOADER BOOM ASSEMBLY
• Inspect condition of each arm section weldment
• Ensure all pins are in place.
• Ensure all bolts and screws are properly
installed.
• Check condition of bushings at boom pivot
points.
• Ensure each hydraulic cylinder is installed and
retained correctly. Ensure the proper size pins
are used to retain the cylinders in place and are
secured properly. OPS-L-0005_B
HYDRAULIC LINE INSPECTION
• Check for hydraulic leaks along hoses,
cylinders and fittings. IMPORTANT: DO NOT
use your hands to check for oil leaks. Use a
piece of heavy paper or cardboard to check for
hydraulic oil leaks.
• Inspect the condition of the valve weldment.
• Ensure fitting is properly connected
• Inspect condition of bushings. OPS-L-0018_B
Hydraulic Hoses
BUCKET INSPECTION
• Ensure all pins are in place.
• Ensure each hydraulic cylinder is installed and
retained correctly. Ensure the proper size pins
are used to retain the cylinders in place and are
secured properly.
• Inspect the condition of the bucket lug
weldments.
• Inspect condition of bushings.
OPS-L-0007_B
Bucket Pins

OPERATION
2387 01/11 Operation Section 4-15
© 2011 Alamo Group Inc.
OPERATION
Tractor PRE-OPERATION Inspection
Tractor ID#:________________________Make:________________________
Date:______________________________Shift:________________________
Before conducting the inspection, make sure the tractor engine is off, all
rotation has stopped and the tractor is in park with the parking brake
engaged. Make sure the implement is resting on the ground or securely
blocked up and all hydraulic pressure has been relieved.
Operator’s Signature:___________________________________________________
Item Condition at
Start of Shift Specific Comments if
not O.K.
The flashing lights function properly
The SMV Sign is clean and visible
The tires are in good condition with proper pressure
The wheel lug bolts are tight
The tractor brakes are in good condition
The steering linkage is in good condition
There are no visible oil leaks
The hydraulic controls function properly
The ROPS or ROBS Cab is in good condition
The seatbelt is in place and in good condition
The 3-point hitch is in good condition
The drawbar pins are securely in place
The PTO master shield is in place
The engine oil level is full
The brake fluid level is full
The power steering fluid level is full
The fuel level is adequate
The engine coolant fluid level is full
The radiator is free of debris
The air filter is in good condition
DO NOT OPERATE an UNSAFE TRACTOR or IMPLEMENT

OPERATION
2387 01/11 Operation Section 4-16
© 2011 Alamo Group Inc.
OPERATION
FRONT END LOADER PRE-OPERATION Inspection
Front End Loader ID#_______________Make____________________
Date_____________________________Shift____________________
Before conducting the inspection, make sure the tractor engine is off, all
rotation has stopped and the tractor is in park with the parking brake
engaged. Make sure the Loader is resting on the ground or securely blocked
up and all hydraulic pressure has been relieved.
Operator’s Signature:
Item Condition at
Start of Shift Specific Comments if
not O.K.
The Operator’s Manual is in the Canister on the Loader
All Safety Decals are in place and legible
The Mounting frame bolts are in place and tight
The Loader Arms are securely retained in frame mounts
The Loader connection bolts & pins are tight
There are no cracks in Loader Arms or Mounts
The Attachment pins are in place and secure
The Bucket Quick Attach pins pass through the attachment
The Bucket Quick Attach control levers are in the lock position
The Hydraulic Cylinder pins are secured
The Hydraulic hose connections are tight
The Hydraulic Valve hose connections are tight
There are no leaking or damaged hoses
There is no evidence of Hydraulic leaks
The Control Valve Lock functions correctly
The Pivot Pins are properly lubricated
The Loader Storage Stands are in good condition
DO NOT OPERATE an UNSAFE TRACTOR or FRONT END LOADER

OPERATION
2387 01/11 Operation Section 4-17
© 2011 Alamo Group Inc.
OPERATION
7. Driving the Tractor and Loader
This Implement may be wider than the Tractor. Be careful when operating or transporting
this equipment to prevent the Implement from running into or striking sign posts, guard rails,
concrete abutments or other solid objects. Such an impact could cause the Implement and
Tractor to pivot violently resulting in loss of steering control, serious injury, or even death.
Never allow the Implement to contact obstacles. (S3PT-12)
Transport only at speeds where you can maintain control of the
equipment. Serious accidents and injuries can result from operating this
equipment at high speeds. Understand the Tractor and Implement and
how it handles before transporting on streets and highways. Make sure the Tractor steering
and brakes are in good condition and operate properly.
Before transporting the Tractor and Implement, determine the proper transport speeds for
you and the equipment. Make sure you abide by the following rules:
Test the tractor at a slow speed and increase the speed slowly. Apply the Brakes smoothly
to determine the stopping characteristics of the Tractor and Implement. As you increase
the speed of the Tractor the stopping distance increases. Determine the maximum
transport speed not to exceed 20 mph (30 kph) for transporting this equipment.
Test the equipment at a slow speed in turns. Increase the speed through the turn only after
you determine that the equipment can be operated at a higher speed. Use extreme care
and reduce your speed when turning sharply to prevent the tractor and implement from
turning over. Determine the maximum turning speed for you and this equipment before
operating on roads or uneven ground.
Only transport the Tractor and Implement at the speeds which allow you to properly control
the equipment.
Be aware of the operating conditions. Do not operate the Tractor with weak or faulty brakes
or worn tires. When operating down a hill or on wet or rain slick roads, the braking distance
increases: use extreme care and reduce your speed. When operating in traffic always use
the Tractor’s flashing warning lights and reduce your speed. Be aware of traffic around you
and watch out for the other guy. (SG-19)
Your driving vision may be reduced or impaired by the tractor, cab, or implement. Before
driving on public roadways identify any limited vision areas, and make adjustments to your
operating position, mirrors, and the implement transport position so that you can clearly
see the area where you will be traveling, and any traffic that may approach you. Failure to
maintain adequate vision of the public roadway and traffic can result in serious injury or
even death. (STI-10)

OPERATION
2387 01/11 Operation Section 4-18
© 2011 Alamo Group Inc.
OPERATION
Safe tractor transport requires the operator possess a thorough knowledge of the model being operated and
precautions to take while driving with an attached implement. Ensure the tractor has the capacity to handle the
weight of the implement and the tractor operating controls are set for safe transport. To ensure safety while
driving the tractor with an attached implement, review the following. OPS-L- 0028
7.1 Driving the Tractor and Loader
Use extra care when turning or stopping. Allow for increased length and weight of added
loader. The loader adds five to six feet of length in front of the tractor and significant weight.
Allow extra distance when stopping or turning. Do not allow loader or attachment to contact
solid objects. (SL-07)
Start off driving at a slow speed and gradually increase your speed while maintaining complete control of the
tractor and loader. Moving slowly at first will also prevent the tractor from rearing up and loss of steering
control. The tractor should never be operated at speeds that cannot be safely handled or which will prevent
the operator from stopping quickly during an emergency. If the power steering or engine ceases operating,
stop the tractor immediately as the tractor will be difficult to control.
Perform turns with the tractor and loader at slow speeds to determine how the tractor with an attached
implements handles a turn. Determine the safe speed to maintain proper control of the tractor when making
turns. When turning with an implement, the overall working length of the unit is increased. Allow additional
clearance for the loader when turning.
To avoid overturns, drive the tractor with care and at safe speeds, especially when operating over rough
ground, crossing ditches or slopes, and turning corners. Tractor rear wheel spacing should be increased
when operating on inclines or rough ground to reduce the possibility of tipping.
Use extreme caution when operating on steep slopes. Keep the tractor in a low gear when going downhill.
DO NOT coast or free-wheel downhill. OPS-L-0030

OPERATION
2387 01/11 Operation Section 4-19
© 2011 Alamo Group Inc.
OPERATION
8. Operating the Tractor and Loader
Do not attempt to lift loads in excess of loader capacity.
Operating loader on a hillside is dangerous. Extreme care is recommended. Keep bucket
as low as possible.
Use extreme care when piling material above 6 feet high. Material
could shift and fall onto the operator or bystanders. The material could
crush or suffocate the operator or bystander resulting in serious injury
or death. (SL-17)
Do not raise the loader on a hillside. Do not transport across a slope with
a raised loader. When the loader is raised, the center of gravity of the
tractor and loader is raised increasing the potential for the tractor to tip
over. Tractor wheel contact with any wash out, drop off or the ground
obstruction with a raised loader could result in the tractor tipping over and
causing serious bodily injury. (SL-21)
Do not operate or raise the loader near the edge of a ditch or where loose
soil can give way and allow the tractor to tip over. Keep the tractor tires
away from loose soil or the edge of a drop off. Always wear your seatbelt
when operating the loader to reduce the possibility of serious injury from a
tractor tip over or roll over. (SL-24)
The Boom is designed only to position and operate the Bucket which is attached to it. Never
attempt to lift, pull, or push other solid objects with the boom or bucket. Serious injury could
result from a structural failure when the Boom is used for purposes other than those for
which it was designed. (SBH-9)
Operate the Tractor and/or Implement controls only while properly seated in the Tractor seat
with the seat belt securely fastened around you. Inadvertent movement of the Tractor or
Implement may cause serious injury or death. (SG-29)
DO NOT operate this Implement on a Tractor that is not properly maintained. Should a
mechanical or Tractor control failure occur while operating, immediately shut down the
Tractor and perform repairs before resuming operation. Serious injury and possible death
could occur from not maintaining this Implement and Tractor in good operating condition.
(SG-36)

OPERATION
2387 01/11 Operation Section 4-20
© 2011 Alamo Group Inc.
OPERATION
Do Not operate this equipment in areas where insects such as bees may attack you and/or
cause you to lose control of the equipment. If you must enter in such areas, use a tractor
with an enclosed Cab and close the windows to prevent insects from entering. If a tractor
cab is not available, wear suitable clothing including head, face, and hand protection to
shield you from the insects. Attacking insects can cause you to lose control of the tractor,
which can result in serious injury or death to you or bystanders. Never dismount a moving
tractor. (SG-40)
Keep bystanders 10 feet away from the tractor and loader while
operating. The bystanders could enter the path of the tractor or items
could fall from the loader resulting in serious injury to the bystander. (SL-01)
Use extra care when turning or stopping. Allow for increased length and weight of added
loader. The loader adds five to six feet of length in front of the tractor and significant weight.
Allow extra distance when stopping or turning. Do not allow loader or attachment to contact
solid objects. (SL-07)
Do not raise the loader into an overhead structure or allow a raised attachment to contact
overhead structures. Sudden or unexpected contact with an overhead structure could result
in serious injury. (SL-08)
Do not let the loader or attachment contact electrical power lines. Contact
with electrical power lines can result in serious injury or electrocution. If
the loader attachment contacts a power line remain in the tractor seat
until the power has been shut off. Stepping off the tractor can permit
electrical current to pass through the body resulting in electrocution. (SL-09)
Carry the loader and attachment low when transporting to reduce the
potential of the tractor tipping over. Transport on slopes only at slow
speeds and use gradual turning angles. Tractor wheel contact with any
wash out, drop off or ground obstruction with a raised loader could result
in the tractor tipping over and causing serious injury. (SL-12)
Do not work from the loader or attachments. Do now allow any riders on
the loader, tractor or attachments. Falling off the loader could result in
serious injury and/or tractor run over. (SL-14)

OPERATION
2387 01/11 Operation Section 4-21
© 2011 Alamo Group Inc.
OPERATION
Do not use an attachment that is not securely attached to the quick
hitch, The attachment could fall resulting in severe crushing injuries
or death to the operator or bystanders.
• Rotate both hitch pin levers down to the locked position. You should feel a firm
resistance when locking the levers down. The pins must extend through the slots in
the bottom of the attachment bracket.
• Examine the fit between the quick hitch and the bottom of the attachment bracket.
The pins must extend through the slots in the bottom of the attachment bracket. The
tapered side of each pin must be firmly wedged against the surface of the slot on
the bottom of the attachment bracket. The attachment bucket should fit snugly
against the bottom of the quick hitch bracket. If there is a gap of more than 1/8” or if
the pins are not firmly seated do not use the attachment. Contact your dealer before
using the attachment.
• On level ground, tilt the attachment down 90° degrees and lower it to the ground.
Lower the loader further to slightly raise the front of the tractor off the ground. Drive
the tractor in reverse while the attachment is on the ground for 20-30 feet to ensure
the attachment does not disconnect. If the attachment disconnects during this
process, discontinue the use of the attachment and contact your dealer.
NEVER walk or work under or allow any person to be underneath a
raised loader or attachment. (SL-15)
Do not operate the loader from the ground. Operate the tractor and loader only while seated
in the tractor seat with the seatbelt fastened. The loader could fall crushing a person
resulting in serious injury or death. (SL-16)
Use extreme care when piling material above 6 feet high. Material
could shift and fall onto the operator or bystanders. The material could
crush or suffocate the operator or bystander resulting in serious injury
or death. (SL-17)
Know before you DIG. Call 888-258-0808 and request that all buried utilities locations be
identified before digging in unfamiliar ground. Do not let the loader or attachment contact
buried electrical power lines, utilities or gas lines. Contact with electrical power lines can
result in serious bodily injury or electrocution. If the loader contacts a power line, remain in
the tractor seat until the power has been shut off. Stepping off the tractor can permit
electrical current to pass through the body resulting in electrocution. (SL-18)

OPERATION
2387 01/11 Operation Section 4-22
© 2011 Alamo Group Inc.
OPERATION
Do not use loader as a jack to raise the tractor tires off the ground. The loader could fail
causing the tractor and loader to fall to the ground resulting in serious injury. (SL-25)
Use extreme care when loading, transporting or dumping loads that impair or partially block
the operator’s line of sight. Know where you are traveling. Make sure no bystanders are in
the area of travel. If a bystander assists in providing guidance, make sure they are not in the
path of travel. Keep all bystanders 25 feet away from travel path. (SL-29)
Always look behind you before backing up. Make sure you are looking
in the direction of travel. A bystander could walk behind the tractor.
Running into a bystander can result in serious injury or death. (SL-30)
Some tractors are equipped with a “Super Steer” front axle. When a
loader is mounted to this type of tractor, the bucket will shift in the
opposite direction from which the wheels are turned. Maximum shift will
be approximately 8 inches and most noticeable when the tractor is
stationary. Sudden or unexpected movement of the loader and
attachment could result in serious injury to the operator or bystanders.
(SL-33)
Operate the tractor and loader only in conditions where you have clear visibility in daylight
or with adequate artificial lighting. Never operate in darkness or foggy conditions where you
cannot clearly see at least 100 feet in front and to the sides of the tractor. Make sure you
can clearly see bystanders, ditches, steep slopes, drop-offs, overhead obstructions, power
lines, and debris or obstruction in the travel path. If you are unable to clearly see these
types of items discontinue operating. Contact with unseen vehicles, bystanders,
obstructions, or drop-offs can cause serious injury. (SL-35)
Never leave the Implement and Power Unit unattended while the Implement is in the raised
position. Accidental operation of a lifting lever or a hydraulic failure may cause the
implement to suddenly fall causing serious injury or possible death to anyone who might
inadvertently be under the Implement. Lower the implement carefully to the ground. Do not
put hands or feet under lifted components. (SPU-3)
Before dismounting the tractor and loader, lower the loader to the ground or onto solid
support blocks. Sudden dropping of the loader and attachment could result in serious
injury. (SL-38)
Make sure the hydraulic quick disconnects are fully seated into the connections. Do not use
the loader if the hydraulic connection is leaking. Leaking oil could allow the loader to fall
resulting in a serious crushing injury. (SL-22)

OPERATION
2387 01/11 Operation Section 4-23
© 2011 Alamo Group Inc.
OPERATION
Always have a heavy attachment, such as a bucket mounted on loader when it is removed
from tractor.
It is important not to put excessive weight on parking stands with lift cylinder retraction.
Damage may result.
If the loader valve controls fail to functions properly discontinue use of the tractor and
loader until the controls are properly repaired. Sudden or unexpected movement or
dropping of the loader and attachment could result in serious injury. (SL-31)
Make sure all air is purged from the hydraulic system before using the loader. Air in the
system can cause the loader to respond sluggishly or with unexpected movement. The air
can be purged from the cylinder lines by fully cycling the cylinders several times from the
fully closed to fully open position. Sudden or unexpected movement or dropping of the
loader and attachment could result in serious injury. (SL-32)
Do not raise the loader on a hillside. Do not transport across a slope with
a raised loader. When the loader is raised, the center of gravity of the
tractor and loader is raised increasing the potential for the tractor to tip
over. Tractor wheel contact with any wash out, drop off or the ground
obstruction with a raised loader could result in the tractor tipping over and
causing serious bodily injury. (SL-21)
THE OPERATOR MUST COMPLETELY UNDERSTAND HOW TO OPERATE THE TRACTOR AND
IMPLEMENT AND ALL CONTROLS BEFORE ATTEMPTING TO OPERATE. The operator must read and
understand the Safety and Operation Sections of the implement and tractor operator’s manuals. These
manuals must be read and explained to any operator who cannot read. Never allow someone to operate the
implement and tractor without complete operating instructions.
Before starting any operation, the operator must become familiar with the area to be worked in and any
obstacles and hazards contained within to ensure safety to the operator, bystanders, and equipment. Special
attention should be paid to foreign debris, rough terrain, steep slopes, and passersby and animals in the area.
OPS-L-0033

OPERATION
2387 01/11 Operation Section 4-24
© 2011 Alamo Group Inc.
OPERATION
8.1 Operating the Loader
The following text and illustrations offer suggested loader and tractor operating techniques.
FILLING THE BUCKET
Approach and enter the pile with a level bucket.
Loaders with 1-lever control, ease lever back
toward you to lift and roll back bucket. With series
valve, prevent loader stall by not lifting and rolling
back at the same time.

OPERATION
2387 01/11 Operation Section 4-25
© 2011 Alamo Group Inc.
OPERATION
Lift and roll back of bucket will increase efficiency
because...
A level bucket throughout the lifting cycle resists
bucket lift and increases breakaway effort.
NOTE: Do not be concerned if the bucket is not completely filled during each pass. Maximum productivity is
determined by the amount of material loaded in a given period of time. Time is lost if two or more attempts are
made to fill the bucket on each pass.

OPERATION
2387 01/11 Operation Section 4-26
© 2011 Alamo Group Inc.
OPERATION
LIFTING THE LOAD
When lifting the load, keep the bucket positioned to
avoid spillage. Loader has mechanical self leveling
of attachment in both raise and lower cycle.
Attachment can be adjusted by using bucket
cylinders.
CARRYING THE LOAD
Position bucket just below tractor hood for
maximum stability and visibility, whether bucket is
loaded or empty.
Use extreme care when operating loader on a
slope, keep bucket as low as possible. This keeps
center of gravity low and will provide maximum
stability.

OPERATION
2387 01/11 Operation Section 4-27
© 2011 Alamo Group Inc.
OPERATION
When transporting the load, keep bucket as low as
possible, to avoid tipping, in case a wheel drops in a
rut.
DUMPING THE BUCKET
Lift bucket high enough to clear side of vehicle.
Move tractor in as close as possible to side of
vehicle, then dump bucket.

OPERATION
2387 01/11 Operation Section 4-28
© 2011 Alamo Group Inc.
OPERATION
LOWERING THE BUCKET
After bucket is dumped, back away from vehicle
while lowering and rolling back bucket.

OPERATION
2387 01/11 Operation Section 4-29
© 2011 Alamo Group Inc.
OPERATION
OPERATING WITH FLOAT CONTROL
During hard surface operation, keep bucket level
and put lift control in float position to permit bucket
to float on working surface. If hydraulic down
pressure is exerted on bucket, it will wear faster
than normal.
Float will also prevent mixing of surface material
with stockpile material. Float position will reduce the
chance of surface gouging when removing snow or
other material.

OPERATION
2387 01/11 Operation Section 4-30
© 2011 Alamo Group Inc.
OPERATION
LOADING FROM A BANK
Choose a forward gear that provides sufficient
ground speed for loading.
Exercise caution when undercutting high banks.
Dirt slides can be dangerous. Load from as low as
possible for maximum efficiency. Loader lift and
breakaway capacity diminish as loading height is
increased.
Side cutting is a good technique for cutting down a
big pile.
If the pile sides are too high and liable to cause
cave-in, use loader to break down the sides until a
slot can be cut over the top.

OPERATION
2387 01/11 Operation Section 4-31
© 2011 Alamo Group Inc.
OPERATION
Another method for large dirt piles is to build a ramp
approach to the pile.
It is important to keep the bucket level when
approaching a bank or pile. This will help prevent
gouging the work area.

OPERATION
2387 01/11 Operation Section 4-32
© 2011 Alamo Group Inc.
OPERATION
PEELING AND SCRAPING
Use a slight bucket angle, travel forward and hold
lift control forward to start the cut. Make a short 5 to
8 foot angle cut and break out cleanly.
With bucket level, start a cut at notch approximately
2 inches deep. Hold depth by feathering bucket
control to adjust cutting lip up or down. When front
tires enter the notch, adjust lift cylinder to maintain
proper depth.
Make additional passes until desired depth is
reached. During each pass, use only bucket control
while working depth. This will allow you to
concentrate on controlling bucket angle to maintain
a precise cut.

OPERATION
2387 01/11 Operation Section 4-33
© 2011 Alamo Group Inc.
OPERATION
LOADING LOW TRUCKS OR SPREADERS FROM A PILE
For faster loading, minimize angle of turn and
length of run between pile and spreader. Back
grade occasionally with a loaded bucket to keep
working surface free of ruts and holes. Also, hold lift
control forward so full weight of bucket is scraping
ground.
Do not roll bucket over and attempt to backgrade.
This type of use can cause severe overloading of
bucket cylinders when fully extended, possibly
causing bucket cylinder rods to become bent.

OPERATION
2387 01/11 Operation Section 4-34
© 2011 Alamo Group Inc.
OPERATION
BACKFILLING
Approach pile with a level bucket.
Poor methods actually move no more dirt and make
it more difficult to hold a level grade.
Do not use bucket in dumped position for
bulldozing. This method, shown above, will impose
severe shock loadings on dump linkage, bucket
cylinder and tractor.

OPERATION
2387 01/11 Operation Section 4-35
© 2011 Alamo Group Inc.
OPERATION
Leave dirt in bucket. Dumping on each pass wastes
time.
Operate tractor at right angles to ditch. Take as big
a bite as tractor can handle without lugging down.

OPERATION
2387 01/11 Operation Section 4-36
© 2011 Alamo Group Inc.
OPERATION
Leave dirt which drifts over side of bucket for final
cleanup.
Pile dirt on high side for easier backfilling on a
slope.
HANDLING LARGE HEAVY OBJECTS
1. Using front end loaders for handling large heavy objects such as large round or rectangular bales, logs and
oil drums is not recommended.
2. Handling large heavy objects can be extremely dangerous due to:
• Danger of tractor rolling over.
• Danger of up-ending tractor.
• Danger of object rolling or sliding down loader arms onto operator.
3. If you must perform above work, protect yourself by:
• Never lifting load higher than necessary to clear ground when moving.
• Ballasting tractor rear to compensate for load.
• Never lifting large objects with equipment that does not have an anti-rollback device.
• Moving slowly and carefully, avoiding rough terrain.
• Tilt bucket forward while lifting to maintain bucket angle.

OPERATION
2387 01/11 Operation Section 4-37
© 2011 Alamo Group Inc.
OPERATION
8.2 Operating Bale Spear
Operate the bale spear using extreme caution. Sharp points on bale spear can cause
serious injury or death.
Because of size and weight of large bales, extreme care must be taken in handling them. Be
aware of forces acting on stacked bales due to gravity and keep workers far from zones of
potential hazard from shifting or falling bales. DO NOT ALLOW BYSTANDERS!
Keep bale spear and loader boom clear of overhead lines. Allowing loader boom or any
attachments to contact overhead power lines may electrify entire tractor and electrocute
(kill) operator.
Loader equipped with bale spear is designed to handle round bales up to 2000 pounds.
Load bale spear by approaching from round end to
prevent cutting strings or puncturing plastic or net
wrap.Tilt bale spear upward to prevent bale from
falling off of spear,
Keep bystanders 10 feet away from the tractor and loader while
operating. The bystanders could enter the path of the tractor or items
could fall from the loader resulting in serious injury to the bystander. (SL-01)
Store the grapple bucket or bale spear attachment with the point(s) on the
ground. Walking into the point of the bale or grapple spear can cause
serious bodily injury. Never drive the bale spear or grapple bucket
attachment forward if a bystander is in front of the loader. (SL-10)

OPERATION
2387 01/11 Operation Section 4-38
© 2011 Alamo Group Inc.
OPERATION
Carry bales as low to the ground as possible to
allow maximum visibility and avoid tipping.
9. Loader Storage
Properly preparing and storing the loader at the end of the season is critical to maintaining its appearance and
to help ensure years of dependable service. The following are suggested storage procedures:
• Thoroughly clean all debris off the loader to prevent damage from rotting grass and standing water.
• Lubricate all grease points detailed in the maintenance section.
• Tighten all bolts and pins to the recommend torque.
• Check worn and damage parts. Perform repairs and make replacements immediately so that the loader will
be ready for use at the start of the next season.
• Store the loader in a clean, dry place resting securely on parking stands at ground level.
• Use spray touch-up enamel where necessary to prevent rust and maintain the appearance of the loader.
10. Transporting the Tractor and Implement
8.3 Shutting Down the Implement
Park the tractor on a level surface, place the transmission in park or neutral and apply the parking brake, lower
the attached implement to the ground, shut down the engine, remove the key, and wait for all motion to come
to a complete stop before exiting the tractor. OPS-L- 0014
Never allow children to play on or around Tractor or Implement. Children can slip or fall off
the Equipment and be injured or killed. Inadvertent contact with controls can cause the
Implement to shift or fall crushing themselves or others. (SG-25)
Never allow children or other persons to ride on the Tractor or Implement.
Falling off can result in serious injury or death. (SG-10)

OPERATION
2387 01/11 Operation Section 4-39
© 2011 Alamo Group Inc.
OPERATION
Transport only at speeds where you can maintain control of the
equipment. Serious accidents and injuries can result from operating this
equipment at high speeds. Understand the Tractor and Implement and
how it handles before transporting on streets and highways. Make sure the Tractor steering
and brakes are in good condition and operate properly.
Before transporting the Tractor and Implement, determine the proper transport speeds for
you and the equipment. Make sure you abide by the following rules:
Test the tractor at a slow speed and increase the speed slowly. Apply the Brakes smoothly
to determine the stopping characteristics of the Tractor and Implement. As you increase
the speed of the Tractor the stopping distance increases. Determine the maximum
transport speed not to exceed 20 mph (30 kph) for transporting this equipment.
Test the equipment at a slow speed in turns. Increase the speed through the turn only after
you determine that the equipment can be operated at a higher speed. Use extreme care
and reduce your speed when turning sharply to prevent the tractor and implement from
turning over. Determine the maximum turning speed for you and this equipment before
operating on roads or uneven ground.
Only transport the Tractor and Implement at the speeds which allow you to properly control
the equipment.
Be aware of the operating conditions. Do not operate the Tractor with weak or faulty brakes
or worn tires. When operating down a hill or on wet or rain slick roads, the braking distance
increases: use extreme care and reduce your speed. When operating in traffic always use
the Tractor’s flashing warning lights and reduce your speed. Be aware of traffic around you
and watch out for the other guy. (SG-19)
Before transporting the tractor and Loader engage the loader valve travel
lock to prevent inadvertent contact with the joystick controller causing
sudden dropping of the loader and attachment. If the loader attachment,
such as a bucket, were to drop suddenly and hit the ground while
transporting, the tractor could stop immediately resulting in the operator
hitting the steering wheel or flying our of the operator’s seat. Serious injury
could result. (SL-04)
Lower the loader to the bed of the truck or trailer when transporting the
tractor and loader with a truck. Measure to ensure the transport height
does not exceed the legal limits. Contact with overhead obstructions or
power lines can cause property damage or serious injury. (SL-34)
Before dismounting the tractor and loader, lower the loader to the ground or onto solid
support blocks. Sudden dropping of the loader and attachment could result in serious
injury. (SL-38)

OPERATION
2387 01/11 Operation Section 4-40
© 2011 Alamo Group Inc.
OPERATION
10.1 Transporting on Public Roadways
Inherent hazards of operating the tractor and implement and the possibility of accidents are not left behind
when you finish working in an area. Therefore, the operator must employ good judgement and safe operation
practices when transporting the tractor and implement between locations. By using good judgement and
following safe transport procedures, the possibility of accidents while moving between locations can be
substantially minimized. OPS-L- 0031
Before transporting the tractor and loader, idle the
tractor engine. When transporting, carry the loader
as low as possible maintaining adequate ground
clearance and visibility. Reduce tractor ground
speed when transporting a load. Take extra care
when traveling over rough terrain or on slopes.
OPS-L-0011
Before transporting the tractor on a public roadway
or boarding a trailer for transport, the tractor brake
pedals should be locked together. Locking the
pedals ensures that both wheels brake
simultaneously while stopping, especially when
making an emergency stop.
Use extreme caution and avoid hard applications of
the tractor brakes when towing heavy loads at road
speeds. Never tow the implement at speeds
greater than 20 MPH (32 kph). OPS-U- 0018
Make certain that the “Slow Moving Vehicle” (SMV) sign is installed in
such a way as to be clearly visible and legible. When transporting the
Equipment use the Tractor flashing warning lights and follow all local
traffic regulations. (SG-6)

OPERATION
2387 01/11 Operation Section 4-41
© 2011 Alamo Group Inc.
OPERATION
Extreme caution should be used when transporting the tractor and implement on public roadways. The tractor
must be equipped with all required safety warning features including a SMV emblem and flashing warning
lights to alert drivers of the tractor’s presence. Remember that roadways are primarily designed for
automotive drivers and most drivers will not be looking out for you, therefore, you must look out for them.
Check your side view mirrors frequently and remember that vehicles will approach quickly because of the
tractor’s slower speed. Be extremely cautious when the piece of equipment that you are towing is wider than
the tractor tire width and/or extends beyond your lane of the road. OPS-L- 0032
The SMV (Slow-Moving Vehicle) emblem is
universal symbol used to alert drivers of the
presence of equipment traveling on roadways at a
slow speed. SMV signs are a triangular bright
orange with reflective red trim for both easy day
and night visibility. Make sure the SMV sign is
clean and visible from the rear of the unit before
transporting the tractor and implement on a public
roadway. Replace the SMV emblem if faded,
damaged, or no longer reflective. OPS-U- 0020
Make sure that all tractor flashing warning lights,
headlights, and brake/tail lights are functioning
properly before proceeding onto public roads. While
newer model tractors have plenty of lighting to
provide warning signals and operating lighting, most
older models are only equipped with operating lights.
Consult an authorized tractor dealer for lighting kits
and modifications available to upgrade the lighting on
older tractor models. OPS-U- 0021
When operating on public roads, have consideration for other road users. Pull to the side of the road
occasionally to allow all following traffic to pass. Do not exceed the legal speed limit set in your country for
agricultural tractors. Always stay alert when transporting the tractor and implement on public roads. Use
caution and reduce speed if other vehicles or pedestrians are in the area. OPS-L- 0020

OPERATION
2387 01/11 Operation Section 4-42
© 2011 Alamo Group Inc.
OPERATION
10.2 Hauling the Tractor and Implement
Before transporting a loaded tractor and implement,
measure the height and width dimensions and gross
weight of the complete loaded unit. Ensure that the
load will be in compliance with the legal limits set for
the areas that will be traveled through. OPS-U- 0024
Use adequately sized and rated trailers and
equipment to transport the tractor and implement.
Consult an authorized dealer to determine the proper
equipment required. Using adequately sized chains,
heavy duty straps, cables and/or binders, securely tie
down both the front and rear of the tractor utilizing the
proper tie down locations as specified by the tractor
manufacturer. OPS-U- 0025

OPERATION
2387 01/11 Operation Section 4-43
© 2011 Alamo Group Inc.
OPERATION
11. Troubleshooting Guide
TROUBLE POSSIBLE CAUSE POSSIBLE REMEDY
Loader slow or will not lift Hydraulic oil too heavy. Change to proper oil.
and/or dump
Oil filter plugged. Clean or replace filter.
Hydraulic pump worn. Repair or replace pump.
Oil line restricted or leaking. Check all hoses and tubes for leaks,
damage or restrictions. Replace
damaged or restricted hoses or tube
oil lines.
Control valve does not shift Inspect, clean, repair or replace
properly. valve.
Air in hydraulic system. Cycle lift cylinders and bucket
cylinders several times to free
system of air.
Cylinder leaks internally. Replace seals.
Faulty relief valve (tractor). Clean and replace relief valve.
Loader chatters or Air leak in pump inlet line. Check, tighten or replace inlet line.
vibrates when raising
or lowering.
Air in hydraulic system. Cycle lift and bucket cylinders.
Oil level too low. Add oil as required.
Faulty relief valve (tractor). Replace relief valve.
Oil Leaks Loose connections. Tighten fittings.
Defective fittings or hoses. Replace defective parts.
Worn or damaged o-ring Install a seal repair kit.
or wiper seal in cylinder See “Cylinder Service”.
rod end.
Worn or damaged o-rings Install an o-ring repair kit.
in valve.

OPERATION
2387 01/11 Operation Section 4-44
© 2011 Alamo Group Inc.
OPERATION
PROBLEM POSSIBLE CAUSE REMEDY
Insufficient lift capacity Load is greater than boom Check loader specifications.
lift capacity.
Improper hydraulic pump Repair or replace pump.
operation.
Internal lift cylinder leakage. Replace any worn parts and install
a seal repair kit. See “Cylinder
Service”.
Improper hydraulic valve Repair or replace valve.
operation.
Excessive wear on bucket Bucket is riding on cutting Use boom “FLOAT” position or
cutting edge edge instead of wear runners. bucket level indicator to ensure
bucket rides
Bucket cutting edge not Rear axle on tractor not level With tractor on level surface,
flat on theground. from side to side compare rear axle height from left to
right, measuring from axle center to
ground. Adjust air pressure in rear
tires until axle height measures the
same for both sides.

Maintenance Section 5-1
MAINTENANCE SECTION

MAINTENANCE
2387 01/11 Maintenance Section 5-2
© 2010 Alamo Group Inc.
MAINTENANCE
READ, UNDERSTAND, and FOLLOW the following Safety Messages. Serious injury or
death may occur unless care is taken to follow the warnings and instructions stated in the
Safety Messages. Always use good common sense to avoid hazards. (SG-2)
Never interfere with factory-set hydraulic calibrations. Any change in calibration could
cause a failure of the equipment and may result in injury. (SBH-13)
Always maintain the safety signs in good readable condition. If the safety signs are missing,
damaged, or unreadable, obtain and install replacement safety signs immediately. (SG-5)
Make certain that the “Slow Moving Vehicle” (SMV) sign is installed in
such a way as to be clearly visible and legible. When transporting the
Equipment use the Tractor flashing warning lights and follow all local
traffic regulations. (SG-6)
Do not modify or alter this Implement. Do not permit anyone to modify or alter this
Implement, any of its components or any Implement function. (SG-8)
Never work under the Implement, the framework, or any lifted component
unless the Implement is securely supported or blocked up to prevent
sudden or inadvertent falling which could cause serious injury or even
death. (SL-36)
Do not operate this Equipment with hydraulic oil or fuel leaking. Oil
and fuel are explosive and their presence could present a hazard. Do
not check for leaks with your hand! High-pressure oil streams from
breaks in the line could penetrate the skin and cause tissue damage
including gangrene. To check for a hose leak, SHUT the unit ENGINE
OFF and remove all hydraulic pressure. Wear oil impenetrable gloves,
safety glasses and use Cardboard to check for evidence of oil leaks. If
you suspect a leak, REMOVE the HOSE and have it tested at a Dealer.
If oil does penetrate the skin, have the injury treated immediately by a
physician knowledgeable and skilled in this procedure. (SG-15)
Never attempt to lubricate, adjust, or remove material from the Implement while it is in
motion or while tractor engine is running. (SG-20)

MAINTENANCE
2387 01/11 Maintenance Section 5-3
© 2011 Alamo Group Inc.
MAINTENANCE
NEVER perform maintenance beneath a raised loader unless loader is properly supported
to prevent accidental lowering.
Do Not fill fuel tank while engine is running. Refuel only after engine has cooled down. If
fuel is spilled, move machine away from the area of the spill and avoid creating any source
of ignition until the fuel has evaporated. (SBH-49)
Avoid contact with hot surfaces including hydraulic oil tanks, pumps, motors, valves and
hose connections. Relieve hydraulic pressure before performing maintenance or repairs.
Use gloves and eye protection when servicing hot components. Contact with a hot surface
or fluid can cause serious injury from burns or scalding. (SG-34)
Use caution and wear protective gloves when handling sharp objects such as blades,
knives, and other cutting edges. Be alert to worn component surfaces which have sharp
edges. Sharp surfaces can inflict severe laceration injuries if proper hand protection is not
worn. (SG-37)
Avoid contact with hot surfaces of the engine or muffler. Use gloves and eye protection
when servicing hot components. Contact with a hot surface or fluid can cause serious injury
from burns or scalding. (SG-38)
Never allow anyone to get under the loader or attachment or to reach
through the loader lift arms when raised. Serious injury could result from
crushing or pinching by the loader or attachment. (SL-06)
PARTS INFORMATION
Bush Hog products are designed utilizing specifically matched system components to ensure optimum
equipment performance. These parts are made and tested to Bush Hog specifications. Non-genuine "will fit"
parts do not consistently meet these specifications. The use of “will fit” parts may reduce equipment
performance, void warranties, and present a safety hazard. Use genuine Bush Hog parts for economy and
safety. (SPBH-2)
SEE YOUR BUSH HOG DEALER

MAINTENANCE
2387 01/11 Maintenance Section 5-4
© 2010 Alamo Group Inc.
MAINTENANCE
Lubrication Schedule
Before operating your Loader, take the time to inspect and repair any damage to the machine or tractor. Only a
minimum of time and effort is required to regularly maintain this machine to provide long life and trouble free
operation.
Lubricate all grease fittings: one at each end of lift boom arms and one at rod and base ends of each lift and
bucket cylinders.
NOTE: Fully retract bucket to a comfortable height to grease bucket/loader boom joint. Do not reach or stand
under a raised loader or attachment without proper support.

MAINTENANCE
2387 01/11 Maintenance Section 5-5
© 2011 Alamo Group Inc.
MAINTENANCE
Daily Maintenance
Regular maintenance of your loader and hydraulic system will insure maximum loader efficiency and long life.
1. Check fluid level of tractor hydraulic system before starting each day’s operation. If necessary, add
hydraulic oil as recommended in your tractor operator’s manual.
2. Daily, unless conditions justify more frequent greasing, lubricate all twelve grease fittings; one at each end
of lift boom arms and one at rod and base ends of each lift and bucket cylinder.
3. After every ten hours of operation, check all hardware and tighten where required.
4. Replace hoses immediately if they are damaged by a cut or scrape, extruded at the fittings or leaking.
Hydraulic oil leaks should be repaired promptly to avoid loss of oil and serious personal injury from
escaping oil.
Escaping hydraulic fluid under pressure can penetrate skin, causing serious personal injury.
• DO NOT use your hand to check for leaks. Use
a piece of wood or cardboard and wear eye
protection to search for leaks.
• Stop engine and relieve pressure before
connecting or disconnecting lines.
• Tighten all connections before starting engine
or pressurizing lines.
NOTE: If any fluid is injected into skin, obtain medical attention immediately or gangrene may result.

MAINTENANCE
2387 01/11 Maintenance Section 5-6
© 2010 Alamo Group Inc.
MAINTENANCE
Cylinder Service
Loader cylinders are designed to be reliable and easy to service. If a cylinder should malfunction during
warranty period, return complete cylinder assembly, without disassembling, to your authorized service
department or contact your authorized service department for instructions. Unauthorized disassembly of a
cylinder in warranty period will VOID WARRANTY.
Lift and Bucket Cylinder Disassembly
Following is an outline procedure for disassembling and reassembling cylinders
1. Hold cylinder tube (13) stationary and pull wire ring (14) out through slot.
2. Pull shaft (1), with all assembled parts, out of cylinder tube (13).
Note: Resistance will be felt until piston seal (8) slides over wire retaining ring groove.
3. Remove elastic locknut (12) from end of shaft and slide cylinder piston (10) and cylinder head (4) off shaft.
4. Remove piston wear ring (11), piston seal (8), and o-ring (7) from outside grooves on piston(10).
5. Remove wiper seal (2), rod seal (3) and wear ring (5) from inside of cylinder head and o-ring (7) with
backup washer (6) from groove on outside of head.
6. Clean all parts including cylinder tube, in a suitable cleaning solvent, then use air pressure to blow any dirt
or excess solvent from all parts.
7. Examine all parts for wear or damage and replace, if necessary.

MAINTENANCE
2387 01/11 Maintenance Section 5-7
© 2011 Alamo Group Inc.
MAINTENANCE
Lift and Bucket Cylinder Reassembly
Note: Be careful not to damage seals and o-rings on edges or holes in cylinder tube. Inspect and remove burrs
and sharp edges if necessary before reassembly.
1. Place rod seal (3) into groove inside cylinder head.
Note: Lips of seal (3) must be face inward and seal must be firmly seated in groove.
2. Install wiper seal (2) with lip of seal facing out and flush with top of cylinder head (5). Install wear ring (4)
inside other end of head (5).
3. Place o-ring (7) with back-up washer (6) in groove on outside of head. Back-up washer must be on rod
side.
4. Remove sharp edges on outer edge of the threaded end of shaft (1). Lubricate wiper seal (2) and rod seal
(3) in head and carefully slide head onto shaft.
5. Place o-ring (10), piston seal (11) and piston wear ring (8) in grooves on outside of piston (9).
Note: For easier installation, place piston seal (11) in 120°F water to warm seal.
6. Slide piston (9) onto threaded end of shaft and install lock nut (12). Tighten lock nut to 100 lbs.
7. Lubricate piston wear ring (8) and piston seal (11) on piston, o-ring (7) and backup washer (6) on head and
inside of cylinder tube (13), then carefully slide piston and head into cylinder tube (13).
8. Insert wire retaining ring (14) into slot in cylinder tube (13). Apply pressure to wire ring to thread it into
groove while turning cylinder head.
Note: If cylinder has a countersunk hole, hook end of retaining wire into hole and turn cylinder head 1-1/2 turns
to secure wire. End of hook may need to be ground to fit in countersunk hole.
Storage
NOTE: When loader hydraulics are disconnected from tractor, the tractor hydraulic circuit must be completed.
Failure to do so will result in tractor hydraulic pump damage.
Never crawl under or allow children to play around or on a loader that is disconnected from
the tractor. The loader could fall crushing a person resulting in serious injury or death. (SL-13)
Do not remove the attachment from the loader when the loader is disconnected from the
tractor. The attachment stabilizes the loader. If the attachment is removed, the loader will
fall and could result in serious injury. (SL-26)
Only disconnect and store the loader on firm flat ground. Make sure the loader stands are
properly installed and rest on firm ground or support blocks. If the stands sink or fail, the
loader could fall causing serious injury. (SL-27)

MAINTENANCE
2387 01/11 Maintenance Section 5-8
© 2010 Alamo Group Inc.
MAINTENANCE
1. Store loader with attachment securely
attached.
2. Place dust caps on hydraulic quick couplers.
3. Do not remove attachment from stored loader.
4. Do not allow children to play on or around
loader.

MAINTENANCE
2387 01/11 Maintenance Section 5-9
© 2011 Alamo Group Inc.
MAINTENANCE
Proper Torque for Fasteners
The chart lists the correct tightening torque for fasteners. When bolts are to be tightened or replaced, refer to
this chart to determine the grade of bolts and the proper torque except when specific torque values are
assigned in manual text.
RECOMMENDED TORQUE IN FOOT POUNDS UNLESS OTHERWISE STATED IN THE MANUAL*
NOTE: These values apply to fasteners as received from supplier, dry or when lubricated with normal engine
oil. They do not apply if special graphited or molydisulphide greases or other extreme pressure lubricants are
used. This applies to both UNF fine and UNC coarse threads.

MAINTENANCE
2387 01/11 Maintenance Section 5-10
© 2010 Alamo Group Inc.
MAINTENANCE

MAINTENANCE
2387 01/11 Maintenance Section 5-11
© 2011 Alamo Group Inc.
MAINTENANCE

LIMITED WARRANTY
Bush Hog warrants to the original purchaser of any new Bush Hog equipment, purchased from an authorized Bush
Hog dealer, that the equipment be free from defects in material and workmanship for a period of one (1) year for
non-commercial, state and municipalities’ use and ninety (90) days for commercial use from date of retail sale. The
obligation of Bush Hog to the purchaser under this warranty is limited to the repair or replacement of defective
parts.
Replacement or repair parts installed in the equipment covered by this limited warranty are warranted for ninety
(90) days from the date of purchase of such part or to the expiration of the applicable new equipment warranty
period, whichever occurs later. Warranted parts shall be provided at no cost to the user at an authorized Bush Hog
dealer during regular working hours. Bush Hog reserves the right to inspect any equipment or parts which are
claimed to have been defective in material or workmanship.
DISCLAIMER OF IMPLIED WARRANTIES & CONSEQUENTIAL DAMAGES
Bush Hog’s obligation under this limited warranty, to the extent allowed by law, is in lieu of all warranties, implied or
expressed, INCLUDING IMPLIED WARRANTIES OF MERCHANTABILITY AND FITNESS FOR A PARTICULAR
PURPOSE and any liability for incidental and consequential damages with respect to the sale or use of the items
warranted. Such incidental and consequential damages shall include but not be limited to: transportation charges
other than normal freight charges; cost of installation other than cost approved by Bush Hog; duty; taxes; charges
for normal service or adjustment; loss of crops or any other loss of income; rental of substitute equipment,
expenses due to loss, damage, detention or delay in the delivery of equipment or parts resulting from acts beyond
the control of Bush Hog.
THIS LIMITED WARRANTY SHALL NOT APPLY:
1. To vendor items which carry their own warranties, such as engines, tires, and tubes.
2. If the unit has been subjected to misapplication, abuse, misuse, negligence, fire or other accident.
3. If parts not made or supplied by Bush Hog have been used in connection with the unit, if, in the sole judgement
of Bush Hog such use affects its performance, stability or reliability.
4. If the unit has been altered or repaired outside of an authorized Bush Hog dealership in a manner which, in the
sole judgement of Bush Hog, affects its performance, stability or reliability.
5. To normal maintenance service and normal replacement items such as gearbox lubricant, hydraulic fluid, worn
blades, or to normal deterioration of such things as belts and exterior finish due to use or exposure.
6. To expendable or wear items such as teeth, chains, sprockets, belts, springs and any other items that in the
company’s sole judgement is a wear item.
NO EMPLOYEE OR REPRESENTATIVE OF BUSH HOG IS AUTHORIZED TO CHANGE THIS LIMITED
WARRANTY IN ANY WAY OR GRANT ANY OTHER WARRANTY UNLESS SUCH CHANGE IS MADE IN
WRITING AND SIGNED BY BUSH HOG’S SERVICE MANAGER, 2501 GRIFFIN AVE., SELMA, ALABAMA
36703.
Record the model number, serial number and date
purchased. This information will be helpful to your
dealer if parts or service are required.
MAKE CERTAIN THE WARRANTY
HAS BEEN FILED WITH BUSH HOG
SELMA, ALABAMA
MODEL NUMBER ___________________________
SERIAL NUMBER ___________________________
DATE OF RETAIL SALE ______________________

TO THE OWNER/OPERATOR/DEALER
To keep your implement running efficiently and safely, read your manual thoroughly and follow these directions
and the Safety Messages in this Manual. The Table of Contents clearly identifies each section where you can
easily find the information you need.
The OCCUPATIONAL SAFETY AND HEALTH ACT (1928.51 Subpart C) makes these minimum safety
requirements of tractor operators:
REQUIRED OF THE OWNER:
1. Provide a Roll-Over-Protective Structure that meets the requirements of this Standard; and
2. Provide Seat belts that meet the requirements of this paragraph of this Standard and SAE J4C; and
3. Ensure that each employee uses such Seat belt while the tractor is moving; and
4. Ensure that each employee tightens the Seat belt sufficiently to confine the employee to the protected
area provided by the ROPS
REQUIRED OF THE OPERATOR:
1. Securely fasten seat belt if the tractor has a ROPS.
2. Where possible, avoid operating the tractor near ditches, embankments, and holes.
3. Reduce speed when turning, crossing slopes, and on rough, slick, or muddy surfaces.
4. Stay off slopes too steep for safe operation.
5. Watch where you are going - especially at row ends, on roads, and around trees.
6. Do not permit others to ride.
7. Operate the tractor smoothly - no jerky turns, starts, or stops.
8. Hitch only to the drawbar and hitch points recommended by the tractor manufacturer.
9. When the tractor is stopped, set brakes securely and use park lock, if available.
Keep children away from danger all day, every day...
Equip tractors with rollover protection (ROPS) and keep
all machinery guards in place...
Please work, drive, play and live each day with care
and concern for your safety and that of your family and
fellow citizens.

2387-SOM-01/11 P/N 50069202
Printed U.S.A
2387
LOADER