Sundance Spas Maxxus Users Manual 2000+ Sweetwater Owner's
Maxxus to the manual 7aa938c3-6800-4437-a19f-b7bde8ff87e4
2015-02-02
: Sundance-Spas Sundance-Spas-Maxxus-Users-Manual-489973 sundance-spas-maxxus-users-manual-489973 sundance-spas pdf
Open the PDF directly: View PDF
.
Page Count: 37
- Front Cover
- Table of Contents
- Important Hot Tub Owner Information
- Important Safety Instructions
- Locating Your Sweetwater Hot Tub
- General Electrical Safety Instructions
- Equipment Bay / Wiring Illustrations
- Electrical Installation Instructions
- Power Supply Options and Requirements
- Start Up Instructions
- Control Panel Illustrations
- Initial Start Up
- Selecting Filter Cycles
- Care and Maintenance of Your Hot Tub
- Maintaining Water Quality
- Troubleshooting with Control Panel
- Troubleshooting Procedures
- Electrical Wiring Diagrams
- Rear Cover / Company Address

Owner’s
Owner’s
Manual
Manual

Table of Contents
Important Hot Tub Owner Information.................................................................................................1
Important Safety Instructions....................................................................................................................2
Locating Your Sweetwater Hot Tub........................................................................................................8
General Electrical Safety Instructions...................................................................................................9
Equipment Bay / Wiring Illustrations 1-4.........................................................................................10
Electrical Installation Instructions (240 VAC).................................................................................11
Bali Service Connection (120 VAC).......................................................................................................12
Power Supply Options and Requirements........................................................................................12
Start Up Instructions.....................................................................................................................................14
Control Panels....................................................................................................................................................16
Warmer and Cooler Buttons.....................................................................................................................17
Light Button .....................................................................................................................................................17
Jets/Jets 1 Button ........................................................................................................................................17
Jets 2 Button...................................................................................................................................................17
Initial Start Up...................................................................................................................................................18
Selecting Filter Cycles .................................................................................................................................18
Filtration ...........................................................................................................................................................18
Filter Cycles.........................................................................................................................................................19
Standard Mode...............................................................................................................................................19
Care and Maintenance of Your Hot Tub............................................................................................19
Cleaning the Filter ........................................................................................................................................20
Ozonators .........................................................................................................................................................20
Draining and Refilling.....................................................................................................................................21
Cleaning the Hot Tub Surface .................................................................................................................21
Maintaining the Wood Cabinet ...............................................................................................................21
Maintaining the Cover.................................................................................................................................22
Winterizing .......................................................................................................................................................22
Restarting Your Hot Tub in Cold Weather..........................................................................................23
Maintaining Water Quality .......................................................................................................................23
pH Control........................................................................................................................................................23
Sanitizing...........................................................................................................................................................24
Other additives......................................................................................................................................................24
Water sanitization with ozone .................................................................................................................24
Troubleshooting.................................................................................................................................................24
Troubleshooting Procedures......................................................................................................................25
Problem - Procedure.....................................................................................................................................25
Pump priming instructions........................................................................................................................26
(continued)

Wiring Diagram Bali Domestic (60 Hz)..............................................................................................28
Wiring Diagram Cyprus and Aruba Domestic (60 Hz)..............................................................29
Wiring Diagram Palermo and Bahia Domestic (60 Hz)............................................................30
Wiring Diagram Bali Export (50 Hz).....................................................................................................31
Wiring Diagram Cyprus and Aruba Export (50 Hz)....................................................................32
Wiring Diagram Palermo and Bahia Export (50 Hz)..................................................................33

Page 1
Important Hot Tub Owner Information
Your Sweetwater hot tub is constructed to the highest stan-
dards and is capable of providing many years of trouble-free
use. However, because heat retentive materials are utilized
to insulate the hot tub for efficient operation, an uncovered
hot tub surface directly exposed to sunlight and high tem-
peratures for an extended period is subject to permanent
damage. Damage caused by exposing the hot tub to this
abuse is not covered by warranty. We recommend that you
always keep the hot tub full of water when it is exposed to
direct sunlight and that you keep the Sweetwater insulating
cover in place at all times when the hot tub is not in use.
Read and carefully follow the requirements for your hot tub’s
support base (found in the section titled, “Locating Your
Sweetwater Hot Tub”, page 8).
Sweetwater Spas constantly strives to offer the finest hot
tub available, therefore modifications and enhancements
may be made which affect the specifications , illustrations
and/or instructions contained herein.
FCC Notice
This equipment has been tested and found to comply with the limits for
a Class B Digital Device, pursuant to Part 15 of the FCC Rules. These lim-
its are designed to provide reasonable protection against harmful interfer-
ence in a residential installation. This equipment generates, uses and can
radiate radio frequency energy and, if not installed and used in accor-
dance with the instructions, may cause harmful interference to radio com-
munications. However, there is no guarantee that interference will not
occur in a particular installation. If this equipment does cause harmful
interference to radio or television reception, which can be determined by
turning the equipment off and on, the user is encouraged to try to correct
the interference by one or more of the following measures: l) Rearrange
or relocate the receiving antenna. 2) Increase the separation between the
equipment and receiver. 3) Connect the equipment into an outlet on a cir-
cuit different from the circuit connected. 4) Consult the dealer or an expe-
rienced radio/TV technician for help. Changes or modifications not
expressly approved by the party responsible for FCC compliance could
void the user’s authority to operate this equipment.

Page 2
IMPORTANT SAFETY INSTRUCTIONS:
READ AND FOLLOW ALL INSTRUCTIONS CAREFULLY
When installing and using this electrical equipment, basic safety precautions
should always be followed, including:
1) WARNING: To reduce the risk of injury, do not permit children to use this
product unless they are closely supervised at all times.
2) WARNING: A grounding wire connector is provided on this unit to con-
nect a minimum No. 8AWG (8.4mm2) solid copper conductor between
this unit and any metal equipment, metal enclosures of electrical equip-
ment, metal water pipe, or conduit within 5 feet (1.5m) of the unit.
3) DANGER: Risk of Accidental Drowning. Extreme caution must be exer-
cised to prevent unauthorized access by children. To avoid accidents,
ensure that children cannot use this hot tub unless they are supervised
at all times.
4) DANGER: Risk of Injury. The suction fittings in this hot tub are sized to
match the specific water flow created by the pump. Should the need
arise to replace the suction fittings or the pump, be sure that the flow
rates are compatible. Never operate the hot tub if the suction fittings are
broken or missing. Never replace a suction fitting with one rated less than
the flow rate marked on the original suction fitting.
5) DANGER: Risk of Electric Shock. Install at least 5 feet (1.5m), from all
metal surfaces. As an alternative, a hot tub may be installed within 5 feet
(1.5m) of metal surfaces if each metal surface is permanently connected
(bonded) by a minimum No. 8 AWG (8.4 mm2) solid copper conductor
attached to the wire connector on the grounding lug, inside the equip-
ment compartment on the equipment box.
6) DANGER: Risk of Electric Shock. Do not permit any electrical appliance,
such as a light, telephone, radio, television, etc. within 5 feet (1.5m) of a
hot tub.
7) ELECTRICAL SUPPLY: The electrical supply for this product must
include a suitably rated switch or circuit breaker to open all ungrounded
supply conductors to comply with section 422-20 of the National
Electrical Code, ANSI/NFPA 70. The disconnect must be readily accessi-
ble and visible to the hot tub occupant but installed at least 5 feet (1.5m),
from the hot tub water.

Page 3
8) WARNING: To Reduce the Risk of Injury:
a) The water in a hot tub should never exceed 104˚F (40˚C). Water tem-
peratures between 100˚F (38˚C) and 104˚F (40˚C) are considered
safe for a healthy adult. Lower water temperatures are recommended
for young children and when hot tub use exceeds 10 minutes.
b) Since excessive water temperatures have a high potential for causing
fetal damage during the early months of pregnancy, pregnant or possi-
bly pregnant women should limit hot tub water temperatures to 100˚F
(38˚C). If pregnant, please consult your physician before using a hot
tub.
c) Before entering the hot tub, the user should measure the water tem-
perature with an accurate thermometer since the tolerance of water
temperature regulating devices may vary as much as +/- 5˚F (2˚C).
d) The use of alcohol, drugs, or medication before or during hot tub use
may lead to unconsciousness with the possibility of drowning.
e) Persons suffering from obesity or a medical history of heart disease, low
or high blood pressure, circulatory system problems, or diabetes should
consult a physician before using a hot tub.
f) Persons using medication should consult a physician before using a hot
tub since some medication may induce drowsiness, while other med-
ication may affect heart rate, blood pressure, and circulation.
IMPORTANT SAFETY INSTRUCTIONS
(CSA SAFETY INFORMATION)
When using this electrical equipment, basic safety precautions should
always be followed, including the following:
a) READ AND FOLLOW ALL INSTRUCTIONS.
b) A green colored terminal or a terminal marked G, Gr, Ground, ,Grounding
or the symbol*is located inside the supply terminal box or compart-
ment. To reduce the risk of electric shock, this terminal must be con-
nected to the grounding means provided in the electric supply service
panel with a continuous copper wire equivalent in size to the circuit con-
ductors that supply this equipment.
*IEC Publication 417, Symbol 5019.

Page 4
c) At least two lugs marked “Bonding Lugs” are provided on the external
surface or on the inside of the supply terminal box/compartment. To
reduce the risk of electric shock, connect the local common bonding grid
in the area of the hot tub to these terminals with an insulated or bare cop-
per conductor not smaller than No. 6AWG.
d) All field-installed metal components such as rails, ladders, drains or
other similar hardware within 10 feet (3m) of the hot tub shall be bond-
ed to the equipment grounding buss with copper conductors not smaller
than No. 6 AWG.
e) SAVE THESE INSTRUCTIONS .
WARNING: Children should not use hot tubs without adult supervision.
AVERTISSEMENT: NE PAS LAISSER LES ENFANTS UTILISER LA CUVE DE
RELAXATION SANS SURVEILLANCE.
WARNING: Do not use hot tubs unless all suction guards are installed to
prevent body and hair entrapment.
AVERTISSEMENT: NE PAS UTILISER LA CUVE DE RELAXATION SI LES
GRILLES DE PRISE D’ASPIRATION NE SONT PAS TOUTES EN PLACE,.POUR
EVITER QUE LES CHEVEUX OU UNE PARTIE DU CORPS SOIENT ASPIRES
WARNING:People with infectious diseases should not use a hot tub.
AVERTISSEMENT: LES PERSONNES ATTEINTES DE MALADIES INFEC-
TIEUSES NE DEVRAIENT PAS UTILISER LA CUVE DE RELAXATION .
WARNING: To avoid injury, exercise care when entering or exiting the hot
tub.
AVERTISSEMENT: POUR EVITER DES BLESSURES, SOYEZ PRUDENT EN
ENTRANT ET SORTANT DE LA CUVE DE RELAXATION .
WARNING: Do not use drugs or alcohol before or during the use of a hot
tub to avoid unconsciousness and possible drowning.

Page 5
AVERTISSEMENT: POUR EVITER L’EVANOUISSEMENT ET LA NOYADE
EVENTUELLE, NE PRENDRE NI DROGUE NI ALCOOL AVANT D’UTILISER LA
CUVE DE RELAXATION NI QUAND ON S’Y TROUVE.
WARNING: Pregnant or possibly pregnant women should consult a physi-
cian before using a hot tub.
AVERTISSEMENT: LES FEMMES ENCEINTES, QUE LEUR GROSSESSE
SOIT CONFIRMEE OU NON, DEVRAIENT CONSULTER UN MEDECIN AVANT
D’UTILISER LA CUVE DE RELAXATION .
WARNING: Water temperature in excess of 100°F (38˚C) may be injurious
to your health.
AVERTISSEMENT: IL PEUT ETRE DANGEREUX POUR LA SANTE DE SE
PLONGER DANS DE L’EAU A PLUS DE 38˚C.
WARNING: Before entering the hot tub, measure the water temperature
with an accurate thermometer.
AVERTISSEMENT: AVANT D’UTILISER UNE CUVE DE RELAXATION
MESURER LA TEMPERATURE DE L’EAU A L’AIDE D’UN THERMOMETRE
PRECIS.
WARNING: Do not use a hot tub immediately following strenuous exercise.
AVERTISSEMENT: NE PAS UTILISER LA CUVE DE RELAXATION IMMEDI-
ATEMENT APRES UN EXERCICE FATIGANT.
WARNING: Prolonged immersion in a hot tub may be injurious to your
health.
AVERTISSEMENT: RESTER TROP LONGTEMPS DANS LA CUVE DE RELAX-
ATION PEUT ETRE DANGEREUX POUR LA SANTE.
WARNING: Do not permit electric appliances (such as light, telephone,
radio, television, etc.) within 5 feet (1.5m) of this hot tub.
AVERTISSEMENT: NE PAS PLACER D’APPAREIL ELECTRIQUE (LUMINAIR,
TELEPHONE, RADIO, TELEVISEUR, ETC.) A MOINS DE 1.5M DE LA CUVE
DE RELAXATION .

Page 6
CAUTION: Maintain water chemistry in accordance with manufacturer’s
instructions.
AT TENTION: LA TENEUR DE L’EAU EN MATIERES DISSOUTES DOIT ETRE
CONFORME AUX DIRECTIVES DU FABRICANT.
WARNING: The use of alcohol or drugs can greatly increase the risk of fatal
hyperthermia in hot tubs.
AVERTISSEMENT: LA CONSOMMATION D’ALCOOL OU DE DROGUE AUG-
MENTE CONSIDERABLEMENT LES RISQUES D’HYPERTHERMIE MORTELLE
DANS UNE CUVE DE RELAXATION .
SAVE THESE INSTRUCTIONS
HYPERTHERMIA
Prolonged immersion in hot water may induce hyperthermia. A description of
the causes, symptoms, and effects of hyperthermia are as follows:
Hyperthermia occurs when the internal temperature of the body reaches a
level several degrees above the normal body temperature of 98.6˚F (37˚C).
The symptoms of hyperthermia include drowsiness, lethargy, and an increase
in the internal temperature of the body. The effects of hyperthermia include:
a) Unawareness of impending hazard;
b) Failure to perceive heat;
c) Failure to recognize the need to exit hot tub;
d) Physical inability to exit hot tub;
e) Fetal damage in pregnant women; and
f) Unconsciousness and danger of drowning.

Page 7
Cautions
1. Persons suffering from heart disease, diabetes, high or low blood pres-
sure, and any condition requiring medical treatment, pregnant women,the
elderly, or infants should consult with a physician before using a hot tub.
2. The Consumer Products Safety Commission has stated that the water
temperature in a hot tub should not exceed 104˚F (40˚C). Immersion in
water in excess of 104˚F (40˚C) can be hazardous to your health.
3. Observe a reasonable time limit when using the hot tub. Long exposures
at higher temperatures can cause high body temperature. Symptoms may
include dizziness, nausea, fainting, drowsiness, and reduced awareness.
These effects could possibly result in drowning.
4. Do not use the hot tub under the influence of alcohol, narcotics, or other
drugs. Use of the hot tub under these conditions may lead to serious
consequences.
5. Always test the hot tub water temperature before entering the hot tub.
Enter and exit the hot tub slowly. Wet surfaces can be very slippery.
6. Never bring any electrical appliances into or near the hot tub. Never oper-
ate any electrical appliances from inside the hot tub or when you are wet.
7. Proper chemical maintenance of hot tub water is necessary to maintain
safe water and prevent possible damage to hot tub components.
8. Use the hot tub straps and clip tie downs to secure the cover when not
in use. This will help to discourage unsupervised children from entering
the hot tub and keep the hot tub cover secure in high-wind conditions.
There is no representation that the cover, clip tie downs, or actual locks
will prevent access to the hot tub.

Page 8
Locating Your Sweetwater Hot Tub
IMPORTANT: Because of the combined weight of the hot tub, water and
users, it is extremely important that the base upon which the hot tub rests be
smooth, flat, level and capable of uniformly supporting this weight, without
shifting or settling, for the entire time the hot tub is in place. If the hot tub is
placed on a surface which does not meet these requirements, damage to the
skirt and/or the hot tub shell may result. Damage caused by improper sup-
port is not covered under warranty. It is the responsibility of the hot tub owner
to assure the integrity of the support over time.
We recommend a poured, reinforced concrete slab (minimum of 4 inches
thick). Wood decking is also acceptable provided it is constructed so that it
meets the requirements outlined above.
The hot tub must be installed in such a manner as to provide drainage away
from the hot tub. Placing the hot tub in a depression without provisions for
proper drainage could allow rain, overflow and other casual water to flood the
equipment and create a wet condition in which it would sit.
For hot tubs which will be recessed into a floor or deck, install so as to per-
mit access to the equipment, either from above or below, for servicing. Make
certain that there are no obstructions which would prevent removal of the cab-
inet side panels, especially on the side with the equipment bay doors.
In selecting the ideal outdoor location for your hot tub, we suggest that you
take into consideration 1) the proximity to change area and shelter (especial-
ly in colder weather); 2) the pathway to and from your hot tub (this should be
free of debris so that dirt and leaves are not easily tracked into the hot tub);
3) the closeness to trees and shrubbery (remember that leaves and birds
could create extra work in keeping the hot tub clean); 4) a sheltered environ-
ment (less wind and weather exposure can result in lowered operation and
maintenance costs); and 5) the overall enhancement of your environment. It
is preferable not to place the hot tub under an unguttered roof overhang since
Bali Model Only
Bali models to be connected to 120 VAC electrical service must be locat-
ed no more than 10 feet (3m) from a grounded, grounding type electrical
outlet so that the power cord included can be plugged directly into it.
*DO NOT USE AN EXTENSION CORD as this could cause damage to
the hot tub’s equipment due to insufficient voltage. The power supplied to
this hot tub must be a dedicated circuit with no other appliances or lights
sharing the power provided by the circuit. To prepare your hot tub for con-
nection to 120 VAC service, refer to the instructions on page 12.

Page 9
run-off water will shorten the life expectancy of the hot tub cover.
* Power cord is not available for Canada - the hot tub must be hard wired.
For indoor installations, be certain to make provisions for proper ventilation.
When the hot tub is in use, considerable amounts of moisture will escape.
This can damage certain surfaces over time.
If you have any questions regarding the placement or installation of your hot
tub consult your authorized Sweetwater Dealer
.
General Electrical Safety Instructions
Your new hot tub is equipped with the "state-of-the-art" equipment system. It
contains the most advanced safety and self-protective equipment in the indus-
try. Nonetheless, this hot tub must be installed properly to insure dependable
usage. Please contact your dealer or local building department should you
have any questions regarding your installation.
Proper Grounding Is Extremely Important. Sweetwater hot tubs are
equipped with a current collector system. A pressure wire connector is pro-
vided on the surface of the control box, located inside the equipment door
(See illustration 1, item 1) to permit connection of a bonding wire between
this point and any ground metal equipment, metal water pipe or conduit with-
in 5 feet (1.5m) of the hot tub, or copper clad grounding rod buried within 5
feet (1.5m) of the hot tub. Bonding wire must be at least No. 8 AWG (8.4
mm2) solid copper wire. This is a most important safety assurance feature.
Before installing this hot tub, check with the local building department to
insure installation conforms to local building codes.

Page 10
Illustration No. 4
240V 4-Wire Hook-up
Bali Models Only
Illustration No. 3
120V 3-Wire Hook-up
Bali Models Only
Illustration No. 2
240V 3-Wire Hook-up Palermo,
Aruba,Cyprus and Bahia Models
Important: move red wire from position
#1 to position #3 for this hook-up
Illustration No. 1
Equipment Bay
1. Control Box
2. Grounding Lugs
3. Power Supply Entrances.
Use Equipment Panel ‘notch’ on Bali Model.
1
2
3
6
3
4
5
7
4. Pump
5. Heater
6. Hot Tub Drain Cap
7. Pump Drain Plug

Page 11
Electrical Installation Instructions
For Connection to 240V Service
(Note: The Bali model may be connected to 120V service. See the Instructions on next page.)
IMPORTANT
NOTICE: The electrical wiring of this hot tub must meet the
requirements of the National Electrical Code (NEC) and any applicable state
or local codes. The electrical circuit must be installed by a qualified electri-
cian and approved by a local building/electrical inspection authority.
1. This hot tub must be permanently connected (hard-wired) to the power
supply. No plug-in connections or extension cords are to be used in
conjunction with the operation of this hot tub. Supplying power to
the hot tub which is not in accordance with these instructions will void
both the independent testing agency listing and the manufacturer’s war-
ranty.
2. The power supplied to this hot tub must be a dedicated circuit with no
other appliances or lights sharing the power provided by the circuit.
3. To determine the current, voltage and wire size required, refer to Table
No. 1, Power Supply Options and Requirements, page 12.
– Wire size must be appropriate per NEC and/or local codes.
– We recommend type THHN wire.
– All wiring must be copper to ensure proper connections. Do not use
aluminum wire.
– When using wire larger than #6, add a junction box near the hot tub
and reduce to short lengths of #6 wire to connect to the hot tub.
4. The electrical supply for this product must include a suitably rated switch
or circuit breaker to open all ungrounded supply conductors to comply
with Section 422-20 of the National Electrical Code, ANSI/NFPA 70. The
disconnecting means must be readily accessible to the hot tub’s occu-
pant but installed at least 5 feet (1.5m) from hot tub water.
5. The electrical circuit supplied for the hot tub must include a suitable
ground fault circuit interruptor (GFCI) as required by NEC Article 680-42.
6. To gain access to the hot tub’s power terminal block, remove the wood
cabinet panel on the control panel side of all models except Aruba. For
Aruba models, remove the wood cabinet panel from the lounge side.
Then open the door to the control box. (Illustration No. 1, item 1).
7. Use the appropriate power supply inlet and remove the panel from the
front of the hot tub to allow you to feed the cable through to the control
box. Install the cable with connector through the large opening provided
in the bottom of the control box.
8. Connect wires, color to color, on terminal blocks TB1 and ground
(Illustration No. 1). TIGHTEN SECURELY! All wires must be hooked up or
damage could result.
9. Close the control box door and reinstall the cabinet side panels.

Page 12
Bali 120 VAC Service Connection
1. Remove the center cabinet panel directly under the hot tub’s control panel.
2. Locate and unroll the GFI protected power cord.
3. Replace cabinet panel making sure cord passes through notch.
Refer to additional instructions in box on page 8.
* Power cord is not available for Canada - the hot tub must be hard wired.
Table No. 1
Power Supply Options and Requirements
Sweetwater hot tubs are designed to provide optimum performance and flex-
ibility of use when connected to the maximum electrical service as listed
below. Bali is shipped configured for 120V, 15A connection with a GFI pro-
tected cord provided.
If you prefer, your Sweetwater dealer can perform a minor circuit board mod-
ification to allow the hot tub to accept different electrical service. The opera-
tional considerations of these modifications are listed in the footnotes located
at the end of this section.
PALERMO and BAHIA DOMESTIC MODELS (60 Hz)
240V/30A*240V/50A
Voltage 240 volts 240 volts
Current Draw 24 amps 40 amps
Number of Wires Three Three
Circuit Breaker 30 amp dual pole 50 amp dual pole
In 50A configuration, the heater will not operate while both the pumps are
operating at high speed.
ARUBA and CYPRUS DOMESTIC MODELS (60 Hz)
240V/30A*240V/40A
Voltage 240 volts 240 volts
Current Draw 24 amps 32 amps
Number of Wires Three Three
Circuit Breaker 30 amp dual pole 40 amp dual pole

BALI DOMESTIC MODEL (60 Hz)**
120V/15A 240V/30A *24 0V/40A ***
Voltage 120 volts 240 volts 240 Volts
Current Draw 12 amps 22 amps 28 amps
No. of Wires Three (15 amp cord) Four Four
Circuit Breaker 15 amp 30 amp dual pole 40 amp dual pole
PALERMO and BAHIA EXPORT MODELS (50 Hz)
230V/25A*230V/30A
Voltage 230 to 240 volts 230 to 240 volts
Current Draw 18 amps 24 amps
No. of Wires Three Three
Circuit Breaker 25 amp dual pole 30 amp dual pole
In 50A configuration, the heater will not operate while the pumps are oper-
ating at high speed.
ARUBA, BALI and CYPRUS EXPORT MODELS (50 Hz)
230V/20A*230V/30A
Voltage 230 to 240 volts 230 to 240 volts
Current Draw 14 amps 20 amps
No. of Wires Three Three
Circuit Breaker 20 amp dual pole 25 amp dual pole
In 40A configuration, the heater will operate while the pump is operating
at high speed. This also applies to export Palermo and Bahia 30A and
export Aruba, Bali and Cyprus 25A.
*In this configuration, the heater will not operate at the same time as the
high speed of either pump. Note: Pump 2 in Palermo and Bahia models
runs only in high speed.
** Bali Domestic Models Only (60 Hz) - For 240V connection of the Bali
move the red wire from position #1 to position #3 on the terminal block
(see Illustration 4, page 10).
***Bali Domestic Models Only (60 Hz) - If the Bali is to be operated on
240 VAC, 40A service, remove the jumper at location JP1-1 on the circuit
board. 30A, 240 VAC operation increases the output capacity of the heater
four-fold compared to 120 VAC. However, the heater cannot operate when
the pump is on high speed. 40A, 240 VAC operation allows the heater to
operate at the same time as the high speed pump.
Page 13

Page 14
Start Up Instructions
FOR BEST RESULTS, READ EACH STEP IN ITS ENTIRETY BEFORE
PROCEEDING WITH THAT STEP.
1. PREPARE THE HOT TUB FOR FILLING
• Clear all debris from the hot tub. (Although the hot tub shell has been
polished at the factory, you may want to treat it with a specially formu-
lated hot tub cleaner and wax available from your dealer prior to filling
the first time.)
• Remove the filter.
2. FILL THE HOT TUB
• Place the end of your garden hose into the pipe exposed when you
removed the filter cartridge.
Important: Always fill your hot tub through the filter pipe after draining.
Failure to do so may cause air to be trapped in the pump, preventing the
pump from circulating water.
NOTE: Never fill with water from a water softener. If your water is extreme-
ly “hard”, it is preferable to fill half-way with hard water and the rest of the
way with softened water. Or, you may fill entirely with hard water if you use
a special water additive available from your Sweetwater dealer.
• Fill the hot tub until the water level is above all jets. Warning: Do not
over-fill.
• Remove the hose and replace the filter cartridge.
3. TURN ON THE POWER
Turn on the power to the hot tub at the home’s circuit breaker. The heater
and the pump’s low speed automatically activate and the LED display on
the control panel shows the water temperature.
4. ACTIVATE JETS
Press the JETS or JETS 1 button on the control panel once to activate
pump 1 in low speed. Press the button a second time to activate pump 1
in high speed and initiate maximum water flow to certain jets.
5. ADD START-UP CHEMICALS
Add the hot tub water chemicals as recommended by your Sweetwater
Dealer. (See the section titled MAINTAINING WATER QUALITY (page 23) for
general guidance.)

Page 15
6. SET HOT TUB TO HEAT (Default Set Temp is 100˚F (38˚C)
To warm the hot tub water up to a comfortable temperature, follow these steps:
•The LED display on the control panel displays the actual temperature of
the hot tub water. Press either the COOLER(Down) or WARMER (Up)
button to display the “set” temperature for 5 seconds. If you want the
water to heat to a different temperature, simply press COOLER or
WARMER within 5 seconds while the “set” temperature is displayed.
The set temperature advances or decreases by one degree each time
one of these sensor pads is pressed.
•The heater will turn off when the temperature corresponding to the ther-
mostat setting is achieved.
NOTE:
•
The maximum temperature for which the hot tub can be set is 104˚F (40˚C) and
the minimum is 65˚F (18˚C).
•Setting the thermostat at maximum will not accelerate the heating process.
This will only result in a higher ultimate temperature.
•If hot tub is hooked up to a15 amp/120V (Bali) Turn off high speed pump to
operate heater.
7. PLACE COVER ON HOT TUB
• Keeping the insulating cover in place anytime the hot tub is not in use
will reduce the time required for heating, thereby minimizing operating
costs.
• The time required for initial heat-up will vary depending on the starting
water temperature and the capacity of your hot tub. Smaller hot tubs
heat at a rate of approximately 6 to 8 degrees per hour; larger hot tubs
heat at about 4 to 6 degrees per hour. The heating rate of a Bali
connected to 120VAC will be about 2 or 3 degrees per hour.
DANGER. RISK OF INJURY. Always check water temperature carefully
before entering hot tub.

Page 16
Control Panels
Illustration No. 5
Bali
Digital Command Center
These buttons:
1. Display temperature setting.
2. Change temperature setting.
3. Perform other programming
functions.
Controls 2-speed pump.
Indicates
heater is on.
COOLER
LIGHT
JETS 1
WARMER
Light
indicator
Red LED display: can shown current water temperature,
set water temperature, error messages, and filter modes.
Controls
light.
Red LED display:
can show current
water tempera-
ture, set water
temperature, error
messages and
filter modes.
JETS
LIGHT
COOLER
WARMER
DIGITAL
COMMAND CENTER
HEAT
Illustration No. 6
Aruba and Cyprus
Digital Command Center
Controls
light
Controls
2-speed
pump
Pump
indicator
These buttons:
1. Display temperature setting.
2. Change temperature setting.
3. Perform other programming
functions.
Indicates
heater is on.

Page 17
WARMER AND COOLER BUTTONS
The hot tub’s thermostat is to provide you with optimum control of the hot
tub water temperature. This temperature set point can be adjusted from 65˚F
(18˚C) to 104˚F (40˚C). In conjunction with setting the temperature, these
two buttons are used in changing the filter cycles (see “Selecting Filter
Cycles”, page 18).
LIGHT
The control panel button labeled LIGHT activates the underwater hot tub light
when depressed and the LED indicator light above this sensor comes on
when the hot tub light is turned on. The light has a one hour default.
There are two colored lenses included with your hot tub which may be placed
over the light lens inside the hot tub. To remove a lens, simply rotate it coun-
terclockwise and pull.
JETS OR JETS 1
The JETS OR JETS 1 button controls the 2-speed pump. Pressing this but-
ton switches the pump from off, to low speed, to high speed, and back to off.
JETS 2
The JETS 2 button controls the high speed pump 2 featured on Palermo and
Bahia models.
JETS 1 JETS 2 COOLER
LIGHT WARMER
Illustration No. 7
Palermo and Bahia
Digital Command Center
Light
indicator
Red LED display: can shown current water temperature,
set water temperature, error messages, and filter modes.
Controls
light
Controls
2-speed
pump 1
Pump 1
indicator
These buttons:
1. Display temperature setting.
2. Change temperature setting.
3. Perform other programming
functions.
Controls
high speed
pump 2
Pump 2
indicator
Indicates
heater is on.

Page 18
NOTE: Auto Shut-off -- Anytime a pump has been manually turned on,
it will automatically turn off after approximately 20 minutes. If at this
time you desire more jet operation, you may simply turn them back on.
You will notice that occasionally, when you touch the button to turn off the high
speed of the pump, the low speed continues to operate. This is normal if the hot
tub is in the “Standard” mode and calling for heat, if a filter cycle is in progress or
if the heater has recently turned off. (After the heater turns off, the pump contin-
ues to circulate water for approximately 30 seconds to cool the heating element.)
Initial Start Up
The hot tub control has automatic functions that operate upon start up. Upon
power up, the read out will display a three digit number that identifies the soft-
ware revision. This number will then change to “888” while the system is
booting up. Also during the boot up, all of the indicator LED’s will be lit.
At the end of the boot up, the water temperature will be displayed. If the tem-
perature is below 100˚F (38˚C), the low speed pump and the heater will turn
on until the temperature rises to the preset 100˚F (38˚C). Approximately
two minutes after the system has been initially powered up, the first
filtration cycle will begin to operate. Any time after the boot up, you will
be able to select a pre-programmed filter cycle and reset your temperature set
point. Selecting Filter Cycles
FILTRATION
Proper filtration is an important key to maintaining the clarity of your hot tub’s
water. The Filtration system is designed for unsurpassed effectiveness at
removing debris and suspensions from the water anytime the water is circu-
lating.
You may change the filtration cycle start time by one of the following methods:
1. Turn power to the hot tub off and then back on at the breaker, or
2. Press and hold for three seconds the “WARMER” and “COOLER” but-
tons at the same time. When the currently set cycle appears (F1-F6) press
the jets 1 button one time and the control will go into the initial power up
routine.
Example: If you want your first filter cycle start time to be at 4 PM, perform
above functions just before the desired start time. Filter cycle start time may
vary slightly.
Your hot tub comes with six pre-programmed filtration cycles (F1-F6) and two
lockout modes (L1-L2). Of the six filter cycles, three cycles are in the standard
mode and three cycles are in the economy mode.

Page 19
To change the filter cycles, press and hold the“WARMER” button and
“COOLER” buttons for 3 seconds. This will get you into the filter cycle pro-
gramming mode. Use the “WARMER” and “COOLER” buttons to scroll
between F1 and L2. This numeric value coincides with a specific filter cycle
that is to be used for filtration.
Filter Cycles
STANDARD MODE
Heating is automatically controlled by the loss of water temperature. If the hot
tub water drops 2˚F (1.2˚C) below the set temperature, the low speed pump
and the heater will automatically turn on. They will both remain on until the
water temperature reaches the temperature setpoint.
NOTE: The initial time still operates the filter cycle in this mode to ensure
proper filtration.
F1 2 hours of filtration every 12 hours
F2 2 hours of filtration every 8 hours
F3 2 hours of filtration every 6 hours
ECONOMY
In this mode, the timer determines when the filtering and heating take place.
F4 2 hours of filtration every 12 hours
F5 2 hours of filtration every 8 hours
F6 2 hours of filtration every 6 hours
L1 LOCKOUT - special feature used when cleaning or changing the filter
cartridge or any type of non-electrical servicing that requires the hot tub’s
pump operation to be suspended while the work is completed. The tempera-
ture readout flashes in this function.
NOTE: If the hot tub is heating when the system is put into the lockout
mode, the heater will immediately turn off and the pump will cycle water
for thirty seconds, then turn off. This will assist in cooling the heater ele-
ment.
L2 LOCK MODE - Special feature to prevent unauthorized use of your hot
tub which disables Jets and Light buttons. Your filter cycles and heating will
continue to operate normally. The temperature readout flashes in this function.
Care and Maintenance of Your Hot Tub
Proper and regular maintenance of your hot tub will help it retain its beauty
and performance. Your dealer can supply you with all the information, sup-
plies and accessory products you will need to accomplish this.

Page 20
CLEANING THE FILTER
Your Sweetwater hot tub is equipped with a cartridge filter located in the
skimmer/filter well. Filtering is accomplished when the 2-speed pump 1, on
either high or low speed, causes water to flow through the polyester mesh of
the filter. As this happens, suspended particles become trapped on the filter’s
surface.
To ensure optimum performance, it is necessary to remove and clean the fil-
ter cartridge, usually once a week, depending on usage and water quality. To
accomplish this, follow these steps:
1. Turn off power to the hot tub at the home’s breaker panel.
2. Remove the filter lid (strainer grid on Bali model.).
3. Remove the filter cartridge by loosening the retainer nut on the pipe at
one end of the filter and sliding the filter toward the nut until the other
end is free of the retainer bracket. Lift the filter out as you pull it away
from the filter pipe. On Bali Model, pull filter straight up after removing
grid.
4. Using a garden hose with a high-pressure nozzle, rinse debris from the
filter pleats beginning at the top and working your way downward.
Continue, one section at a time, until you have rinsed all of the filter’s pleats.
Periodically, the filter cartridge will need a more thorough cleaning to remove
imbedded oils and minerals. For this, we suggest cleaning as above and then
soaking the cartridge overnight in a plastic container filled with a solution of
water and a specially formulated filter cleanser available from your Sundance
dealer.
The average life expectancy of a Sweetwater filter cartridge is approximately
two years with proper care and water quality maintenance. A replacement
cartridge may be purchased from your Sundance Dealer.
OZONATORS
The Ozone is injected into the water to supplement chemical sanitizers, kill
bacteria, oxidize organics and control minerals. Ozone is injected anytime the
pump is turned on automatically like in heat call or filter cycles. The ozonator
will turn off anytime the pump is manually activated by pressing the jets but-
ton. It will remain off until five minutes after that specific function has been
turned off.

Page 21
DRAINING AND REFILLING
CAUTION: There are certain precautions to keep in mind when drain-
ing your hot tub. If it is extremely cold, and the hot tub is outdoors, freez-
ing could occur in the lines or the equipment. On the other hand, if it is
hot outdoors, do not leave the hot tub’s surface exposed to direct sun-
light for long periods.
To drain your Sweetwater hot tub, pull out the external drain cap attached to
the drain hose (see Illustration 1). Raise the end of the drain hose above the
water level, remove the cap and connect a garden hose. Lay the garden hose
out to drain the hot tub.
Be sure to disconnect the garden hose and replace the cap before refilling.
After refilling, turn power back on
.
CLEANING THE HOT TUB SURFACE
To preserve your hot tub’s surface, it is crucial that you avoid using abrasive
cleaners or cleansers which have adverse chemical effect on the surface. If
you are not certain as to the suitability of a particular cleanser, consult your
Sweetwater dealer.
Regardless of the cleanser used, use care to assure that no soap residue is
left on the surface. This could cause severe sudsing when the hot tub is
refilled.
Your Sweetwater dealer offers a specially formulated surface cleaner and
sealant which aids in cleaning the hot tub surface and adds a protective coat-
ing to enhance the luster of the surface.
MAINTAINING THE WOOD CABINET
With time and exposure to the elements, the wood on your hot tub will tend
to lose its new appearance. Protecting or reviving the wood is a fairly simple
process.
Light sanding with a fine-grit sandpaper will help smooth any roughness and
regular applications of a penetrating wood preservative will enhance and pro-
tect the richness of the wood. A specially formulated wood stain available
from your Sweetwater dealer is ideal for this.
NOTE: Do not apply varnish, shellac or other surface sealants to the
wood. These tend to react with the chemicals in the wood and the UV
rays of the sun, causing yellowing, flaking and peeling.

Page 22
MAINTAINING THE COVER
Using the insulating hot tub cover anytime the hot tub is not in use will sig-
nificantly reduce your operating costs, heatup time and maintenance require-
ments.
To prolong the life of the cover, handle it with care and clean it regularly using
mild soap and water. Periodic treatments with a quality vinyl conditioner will
help protect against deterioration caused by UV rays from the sun. Never allow
anyone to stand or sit on the cover, and avoid dragging it across rough sur-
faces.
WINTERIZING
Your Sweetwater hot tub is designed to automatically protect itself against
freeze damage when operating properly. Refer to “ICE - Freeze Condition”
details on page 25. During periods of severe freezing temperatures, you should
periodically check to be certain the hot tub’s electrical supply has not been
interrupted. In extreme, bitter cold weather with ambient temperatures of
-20°F (-29°C) or colder, the hot tub must be drained and purged to prevent
freeze damage.
For expert winterization of your hot tub, contact your authorized
Sundance Dealer. In emergency situations, damage can be minimized
by taking the following steps:
1. Remove power to hot tub.
2. Pull out the gray drain cap attached to the drain hose located on the
external wood skirt (see illustration 1, item 6). Raise drain hose above
water line, then attach garden hose. Lay drain hose and garden hose
flat on ground to drain hot tub.
3. As the water level drops below the seats, use whatever means
available to get it out of the recessed seating areas and into the
footwell.
4. When the water level ceases to drop, use whatever means available to
remove any remaining water from the footwell (wet and dry vacuum
recommended).
5. Access the equipment compartment by removing the exterior wood
panel from the control panel side on all models except the Aruba. On
Aruba models remove the panel on the lounge side of the hot tub.
Locate the pump drain plug(s)on the front of each pump (see Ill. No.1,
item 7). Remove these plugs to allow the water to drain from the
pump(s) and heater. (Note: up to two gallons of water may be released
during this procedure. Use a wet/dry vacuum or other means to
prevent the equipment bay from flooding). Replace pump(s) drain
plugs.
7. Loosen the heater union (Ill. No.1, item 5) on one side of the heater and
gently separate the heater flange from their mating pipe, allowing it to
drain. Approximately 1/2 gallon of water will drain. Use a wet/dry
vacuum or other means to keep water from flooding the equipment
compartment. Reinstall both union nuts after system has drained.

Page 23
8. Reinstall the wood side panels and cover the hot tub so that no casual
moisture can enter the hot tub. Disconnect garden hose and replace
drain cap.
Consult your Authorized Sundance Dealer if you have any questions regarding
winter use or winterizing.
RESTARTING YOUR HOT TUB IN COLD WEATHER
If you want to start up your hot tub after it has sat empty for a time in freez-
ing temperatures, be aware that the water remaining in certain sections of the
piping may still be frozen. This situation will block water flow preventing the
hot tub from operating properly and possibly damaging the equipment. We
recommend you consult your dealer for guidance before attempting to re-start
your hot tub under these conditions.
Maintaining Water Quality
Maintaining the quality of the water within specified limits will serve to
enhance your enjoyment and prolong the life of the hot tub’s equipment. It is
a fairly simple task, but it requires regular attention because the water chem-
istry involved is a balance of several factors. A careless attitude in regard to
water maintenance will result in poor conditions for soaking and even dam-
age to your hot tub investment.
For specific guidance on maintaining water quality, consult your pool and hot
tub chemical dealer who can recommend appropriate chemical products for
sanitizing and balancing your hot tub water.
CAUTION: Never store hot tub chemicals inside the hot tub’s equipment
bay.
pH CONTROL
pH is a measure of the relative acidity or alkalinity of water and is measured
on a scale of 0 to 14. The midpoint of 7 is said to be neutral, above which
is alkaline and below which is acidic.
In hot tub water, it is very important to maintain a slightly alkaline condition
of 7.2 to 7.8. Problems become proportionately more severe when this range
is exceeded or diminished. A low pH will be corrosive to metals in the hot tub
equipment. A high pH will cause minerals to deposit (scaling) on the interior
surfaces of the hot tub and equipment. In addition, the ability of the sanitiz-
ing agents to keep the water clean is diminished as the pH moves further out-
side of the ideal range.
Your dealer can provide you with any chemicals and instruction you may need
to adjust the pH of your hot tub water.

Page 24
SANITIZING
To destroy bacteria and organic compounds in the hot tub water, a sanitizer
must be used regularly. A residual sanitizer level of 1 to 3 ppm (parts per mil-
lion) is generally considered desirable.
Bromine tablets, a two-part bromine system or granular chlorine (dichlor) are
all acceptable sanitizers.
IMPORTANT: Do not use chlorine tablets (trichlor) in your hot tub. This
chemical can have an extremely corrosive effect on certain materials in the
hot tub. Damage caused by use of this chemical, or improper use of any
chemical is not covered under the hot tub’s warranty.
OTHER ADDITIVES
Many other additives are available for your hot tub. Some are necessary to
compensate for out-of-balance water, some aid in cosmetic water treatment
and others simply alter the feel or smell of the water. Your pool and hot tub
dealer can advise you on the use of these additives.
WATER SANITIZATION WITH OZONE
The Ozone Water Purification System, available from your Sweetwater hot tub
dealer, is designed to work in conjunction with chemical sanitizers to keep
your hot tub water cleaner, clearer, and fresher, allowing for longer intervals
between drainings.
The Ozone system works by converting oxygen to ozone as air passes through
an enclosed chamber located in the equipment compartment of your hot tub.
When this powerful oxidizer is mixed with the hot tub water, bacteria and con-
taminants are destroyed and organic compounds are reduced to their lowest
elements for removal by the filtration system.
Although your Ozone system will substantially reduce the need for chemical
sanitizers, it is recommended that either bromine or granular chlorine be used
to provide residual germ-killing action when the ozone system is not in oper-
ation. In addition, it is important that the chemical balance be maintained
within the proper parameters for the ozone to provide effectiveness. For more
detailed information about proper use of chemicals consult your local dealer.
Troubleshooting
Your hot tub has a self-diagnostic control system. The system will automati-
cally display the following if a problem is detected.
SN1 Nonfunctional hi-limit sensor
Open or a short in hi-limit sensor. Heater is deactivated. This must be
repaired by the dealer or qualified service technician.

Page 25
SN2 Nonfunctional temperature sensor
Open or short in temperature sensor. Heater is deactivated. This must
be repaired by the dealer or qualified service technician.
FL1 Water flow problem
Pressure switch is not closed when the pump is activated. Heater is
deactivated. Proper flow of water is inhibited or pressure switch has
malfunctioned. Check for proper water level, pump is primed and/or
clogged filter. Contact dealer or qualified service technician.
FL2 Pressure switch problem
Pressure switch is closed, while pump is deactivated. Contact dealer
or qualified technician.
COL Cool condition
If the water temperature drops 20˚F (11˚C) below the set temperature
(in economy mode), the low speed pump and the heater will activate
to bring the temperature within 15˚F (8˚C) of the set temperature. No
corrective action is required.
ICE Freeze condition
A potential freeze condition of 55˚F (13˚C) has been detected. No
action is required. The low speed pump will be activated along with
the heater. The hot tub will automatically bring the water temperature
up, until the hot tub is out of danger (see “Winterizing”, page 22).
OH High temperature condition
Water temperature is above acceptable limits. Do not enter the hot tub
water. Water temperature has reached 110˚F (43˚C) and the low
speed of the pump is activated to circulate the water through the
heater.
- - - Watchdog
Water temperature has reached 118˚F (48˚C). The entire system is
disabled. Contact dealer or qualified service technician.
Troubleshooting Procedures
In the unlikely event your hot tub is not working the way you believe it should,
please first review all the installation and operating instructions in this manu-
al and check the message on the panel display; second, if you are still not sat-
isfied it is working properly, please follow the appropriate troubleshooting
instructions.
PROBLEM PROCEDURE
NONE OF THE Check the control panel lights.
COMPONENTS 1. If there are letters or symbols displayed on the
OPERATE screen, refer to the previous section to
(i.e. pump, light) determine meaning and action required.
2. If nothing appears on the screen:
a. Check the household circuit breaker.
b. Contact your dealer or authorized service center.

Page 26
PUMP DOES NOT Depress "Jets" sensor.
OPERATE BUT 1. If no sound is detected or if a "buzzing" sound is
LIGHT DOES detected, turn off power to the hot tub and contact
OPERATE. your dealer or service center.
2.If motor operates but no water flows to jets:
a. Pump may not be properly primed. See instruc-
tions on the next page.
b. Contact dealer or authorized service center.
Pump Priming Instructions: Turn Hot Tub Off!
Remove filter and insert end of garden hose into filter pipe. Seal-off pipe
opening around hose using a large, clean rag and turn on maximum
water flow through the hose. After about 30 seconds, turn off water,
remove hose and rag, reinstall filter and activate pump’s high speed.
IMPORTANT: If freezing conditions exist and pump is not operational,
take measures to protect the system from freeze damage. See
“Winterizing”, page 22.
POOR JET ACTION 1. Make certain the pump is on high speed.
2. Make sure jets are fully open.
3. Open air control for the jet system selected.
4. Check for adequate water level.
5. Check for dirty filter.
WATER IS TOO HOT 1. Reduce thermostat setting.
2. Reduce filtration cycle length. (Even without
heater on, water temperature can increase from
prolonged pump operation.)
NO HEAT 1. Check thermostat setting.
2. Keep the cover in place while heating.
3. If “heater on” indicator is lit. but no temperature
rise is experienced after a reasonable period of
time, contact your dealer or authorized service
center.
Your authorized Sweetwater dealer is a trained service repair center. Should
checking the above steps fail to correct the problem, please call your dealer
so that he may arrange service.
Your Sweetwater dealer’s phone number:
Sweetwater builds the best hot tubs in the industry. Nonetheless, we are
always striving to improve the quality and features of our products. Your input
as a Sweetwater hot tub owner is a cherished part of this process. If you have

Page 27
any comments or suggestions, or if you wish to be informed on any new
products for your hot tub, please write to us.
CONGRATULATIONS on your good taste and welcome to the happiest and
most relaxed family in the world!

Page 28
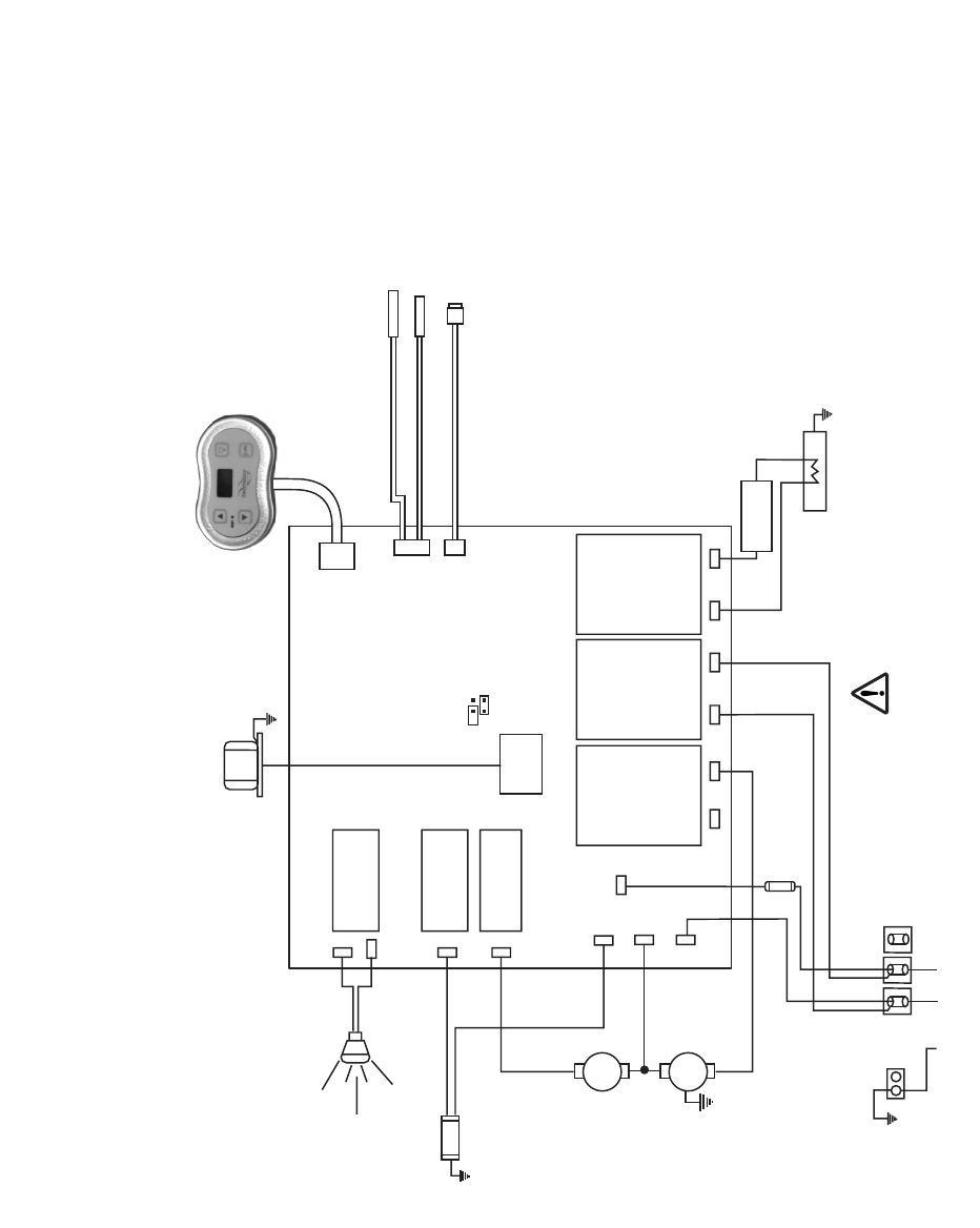
Electrical Wiring Diagram
Bali Domestic (60 Hz)
NOTE: FOR 240 VOLTS PERMANENTLY CONNECTED UNIT:
1. MOVE THE RED WIRE FROM POS. 1 TO POS. 3 ON THE TB1
TERMINAL BLOCK.
2. IF THE SPA IS TO BE OPERATED ON A 40A SERVICE. REMOVE THE
JUMPER PROVIDED AT LOCATION JP1-&2..
Note: For 240 VAC 4-Wire Permanent Connected Unit:
1. Remove and discard the GFCI Cord
2. Permanently connect to the power supply. The electrical wiring
MUST meet the requirements of NEC or local codes.
3. Move the RED wire from position 1 to position 3 on the TB1
terminal block (left).
4. If the hot tub is to be operated on 40A service, remove the
jumper provided at location JP1 #1&2 on circuit board.
3
OZONATOR
O3
GRN
TB1
RED
WHT
WHT
WHT
BLK
BLK
RED
RED RED
BLK BLK
BLK
BLK
21
HEATER
1 kW @ 120 VAC
4 kW @ 240 VAC
HI - LIMIT / FREEZE SENSOR
TEMPERATURE SENSOR
J1
J2
J3
HOT TUB
LIGHT
TRANSFORMER
120 VAC
J4
W
JP1
4
2
3
1
120 VAC, 1 PHASE, 60 Hz
SERVICE REQUIREMENTS 120 VAC,
15 A 60 HZ, SINGLE PHASE
PUMP
HI
LO
THERM
SWITCH
PRESSURE SWITCH
Bali Panel
F1
20A, 250V
SC-20

Page 29
OZONATOR
O3
GRN
TB1
RED
WHT
RED
WHT
BLK
BLK
RED
RED RED
BLK BLK
BLK
BLK
21 HEATER
5.5 kW
HI - LIMIT / FREEZE SENSOR
TEMPERATURE SENSOR
J1
J2
J3
F1
20A, 250V
SC-20
HOT TUB
LIGHT
TRANSFORMER
240 VAC
Cyprus / Aruba Panel
J4
R
JP1
4
2
3
1
240 VAC, 1 PHASE, 60 Hz
USE COPPER CONDUCTORS ONLY
WIRE SIZE MUST BE APPROPRIATE
PER NEC AND/OR LOCAL CODES
PUMP
HI
LO
THERM
SWITCH
PRESSURE SWITCH
Electrical Wiring Diagram
Cypress and Aruba Domestic (60 Hz)

Page 30
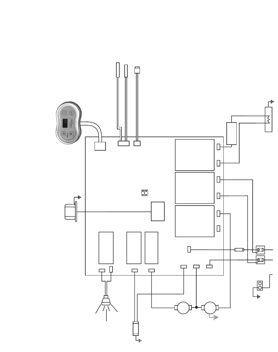
OZONATOR
O3
GRN
TB1
240 VAC, 1 PHASE, 60 Hz
USE COPPER CONDUCTORS ONLY
WIRE SIZE MUST BE APPROPRIATE
PER NEC AND/OR LOCAL CODES
RED
RED BLK
WHT
WHT
RED
BLK
BLK
WHT
BLK
RED RED
BLK BLK
BLK
21 HEATER
5.5 kW
PRESSURE SWITCH
HI - LIMIT / FREEZE SENSOR
TEMPERATURE SENSOR
J1
J2
J3
F1
30A, 250V
SC-30
PUMP 1
PUMP 2
HOT TUB
LIGHT
TRANSFORMER
240 VAC
Palermo / Bahia Panel
J4
RY
JP1
4
2
3
1
65
87
7624
HI
HI
LO
THERM
SWITCH
1
3
Electrical Wiring Diagram
Palermo and Bahia Domestic (60 Hz)

Page 31
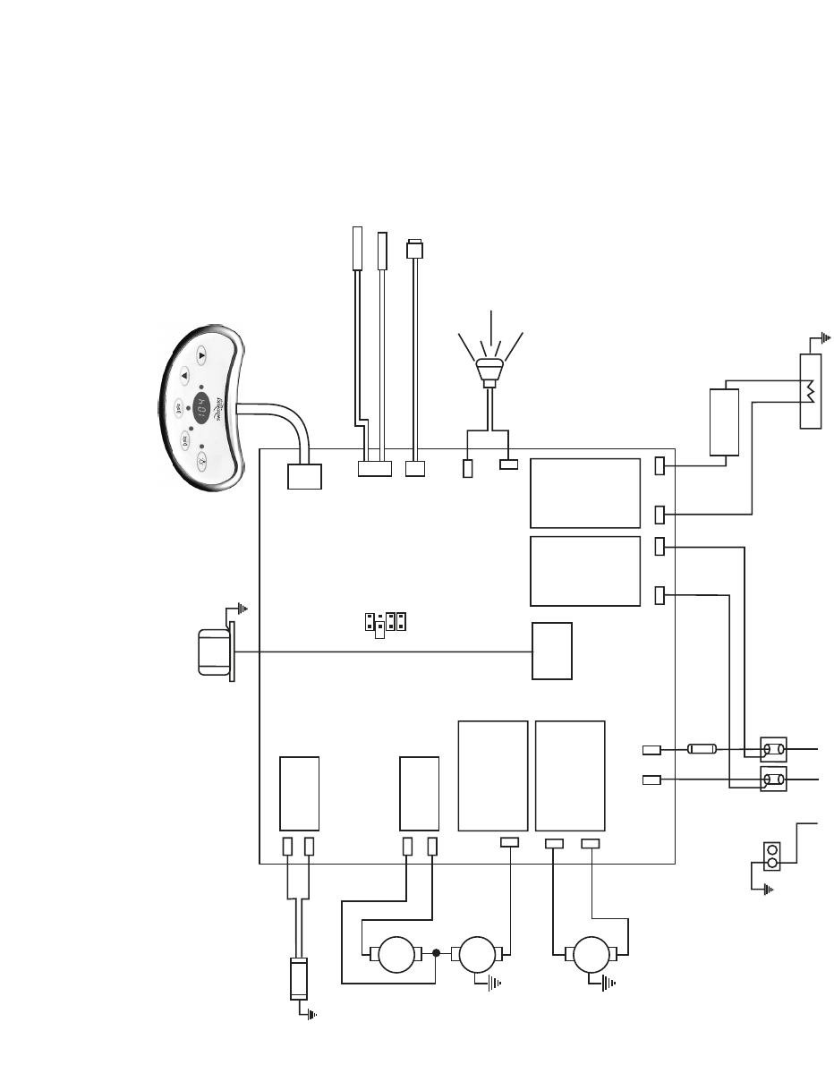
OZONATOR
O3
GRN
TB1
RED
WHT
WHT
WHT
BLK
BLK
RED
RED RED
BLK BLK
BLK
BLK
21
HEATER
2.7 kW @ 230 VAC
HI - LIMIT / FREEZE SENSOR
TEMPERATURE SENSOR
J1
J2
J3
F1
20A, 250V
SC-20
HOT TUB
LIGHT
TRANSFORMER
230 VAC
J4
JP1
4
2
3
1
230 VAC, 1 PHASE, 50 Hz
USE COPPER CONDUCTORS ONLY
WIRE SIZE MUST BE APPROPRIATE
PER NEC AND/OR LOCAL CODES
PUMP
HI
LO
THERM
SWITCH
PRESSURE SWITCH
Bali Panel
Electrical Wiring Diagram
Bali Export (50 Hz)

Page 32
Electrical Wiring Diagram
Cyprus and Aruba Export (50 Hz)
OZONATOR
O3
GRN
TB1
N
N
RED
N
L
L(BRN)
N
L(BLK) N
LL
BLK
L
21 HEATER
2.7 kW @ 230 VAC
17
HI - LIMIT / FREEZE SENSOR
TEMPERATURE SENSOR
J1
J2
J3
F1
20A, 250V
SC-20
HOT TUB
LIGHT
TRANSFORMER
230 VAC
Cyprus / Aruba Panel Shown
J4
BK
JP1
4
2
3
1
230 VAC, 1 PHASE, 50 Hz
USE COPPER CONDUCTORS ONLY
WIRE SIZE MUST BE APPROPRIATE
PER NEC AND/OR LOCAL CODES
PUMP
HI
LO
THERM
SWITCH
PRESSURE SWITCH

Page 33
Electrical Wiring Diagram
Palermo and Bahia Export (50 Hz)
OZONATOR
O3
GRN
TB1
230 VAC, 1 PHASE, 50 Hz
USE COPPER CONDUCTORS ONLY
WIRE SIZE MUST BE APPROPRIATE
PER NEC AND/OR LOCAL CODES
N
NL
N
N
L(BLK)
L
L(BRN)
N
L
NN
LL
L
21 HEATER
2.7 kW @ 230 VAC
PRESSURE SWITCH
HI - LIMIT / FREEZE SENSOR
TEMPERATURE SENSOR
J1
J2
J3
F1
30A, 250V
SC-30
PUMP 1
PUMP 2
HOT TUB
LIGHT
TRANSFORMER
230 VAC
Palermo / Bahia Panel
J4
JP1
4
2
3
1
65
87
24
HI
HI
LO
THERM
SWITCH

14525 Monte Vista Ave, Chino, CA 91710/USA
Part #6530-320 • Rev. D • © 2001 Sundance Spas, Inc.