Super Micro Computer Superserver 6015T Inf Users Manual X_1.0b.indb
SUPERSERVER 6015T-INF MNL-0934
6015T-INF to the manual bf4b768e-d006-5754-619f-8d5c2fde9a65
2015-02-02
: Super-Micro-Computer Super-Micro-Computer-Superserver-6015T-Inf-Users-Manual-448803 super-micro-computer-superserver-6015t-inf-users-manual-448803 super-micro-computer pdf
Open the PDF directly: View PDF
.
Page Count: 114 [warning: Documents this large are best viewed by clicking the View PDF Link!]

SUPER
SUPERSERVER 6015T-T
SUPERSERVER 6015T-INF
USER’S MANUAL
Revision 1.0b
®

Manual Revision 1.0b
Release Date: April 7, 2008
The information in this User’s Manual has been carefully reviewed and is believed to be accurate.
The vendor assumes no responsibility for any inaccuracies that may be contained in this document,
makes no commitment to update or to keep current the information in this manual, or to notify any
person or organization of the updates. Please Note: For the most up-to-date version of this
manual, please see our web site at www.supermicro.com.
Super Micro Computer, Inc. ("Supermicro") reserves the right to make changes to the product
described in this manual at any time and without notice. This product, including software, if any,
and documentation may not, in whole or in part, be copied, photocopied, reproduced, translated or
reduced to any medium or machine without prior written consent.
IN NO EVENT WILL SUPERMICRO BE LIABLE FOR DIRECT, INDIRECT, SPECIAL, INCIDENTAL,
SPECULATIVE OR CONSEQUENTIAL DAMAGES ARISING FROM THE USE OR INABILITY TO
USE THIS PRODUCT OR DOCUMENTATION, EVEN IF ADVISED OF THE POSSIBILITY OF
SUCH DAMAGES. IN PARTICULAR, SUPERMICRO SHALL NOT HAVE LIABILITY FOR ANY
HARDWARE, SOFTWARE, OR DATA STORED OR USED WITH THE PRODUCT, INCLUDING THE
COSTS OF REPAIRING, REPLACING, INTEGRATING, INSTALLING OR RECOVERING SUCH
HARDWARE, SOFTWARE, OR DATA.
Any disputes arising between manufacturer and customer shall be governed by the laws of Santa
Clara County in the State of California, USA. The State of California, County of Santa Clara shall
be the exclusive venue for the resolution of any such disputes. Super Micro's total liability for
all claims will not exceed the price paid for the hardware product.
FCC Statement: This equipment has been tested and found to comply with the limits for a Class
A digital device pursuant to Part 15 of the FCC Rules. These limits are designed to provide
reasonable protection against harmful interference when the equipment is operated in a commercial
environment. This equipment generates, uses, and can radiate radio frequency energy and, if not
installed and used in accordance with the manufacturer’s instruction manual, may cause harmful
interference with radio communications. Operation of this equipment in a residential area is likely
to cause harmful interference, in which case you will be required to correct the interference at your
own expense.
California Best Management Practices Regulations for Perchlorate Materials: This Perchlorate
warning applies only to products containing CR (Manganese Dioxide) Lithium coin cells. “Perchlorate
Material-special handling may apply. See www.dtsc.ca.gov/hazardouswaste/perchlorate”
WARNING: Handling of lead solder materials used in this
product may expose you to lead, a chemical known to
the State of California to cause birth defects and other
reproductive harm.
Unless you request and receive written permission from Super Micro Computer, Inc., you may not
copy any part of this document.
Information in this document is subject to change without notice. Other products and companies
referred to herein are trademarks or registered trademarks of their respective companies or mark
holders.
Copyright © 2008 by Super Micro Computer, Inc.
All rights reserved.
Printed in the United States of America

Preface
About This Manual
This manual is written for professional system integrators and PC technicians. It
provides information for the installation and use of the SuperServer 6015T-T/6015T-
INF. Installation and maintenance should be performed by experienced technicians
only.
The SuperServer 6015T-T/6015T-INF is a 1U Twin (two serverboards in a 1U chas-
sis) rackmount server based on the SC808T-980 server chassis and two Super
X7DBT-T/X7DBT-INF serverboards. The X7DBT-T/X7DBT-INF supports dual Intel®
Xeon® 5300/5100 Series processors.
Manual Organization
Chapter 1: Introduction
The fi rst chapter provides a checklist of the main components included with the
server system and describes the main features of the Super X7DBT-T/X7DBT-INF
serverboard and the SC808T-980 chassis.
Chapter 2: Server Installation
This chapter describes the steps necessary to install the SuperServer 6015T-
T/6015T-INF into a rack and check out the server confi guration prior to powering
up the system. If your server was ordered without the processor and memory
components, this chapter will refer you to the appropriate sections of the manual
for their installation.
Chapter 3: System Interface
Refer to this chapter for details on the system interface, which includes the functions
and information provided by the control panel on the chassis as well as other LEDs
located throughout the system.
iii
Preface

SUPERSERVER 6015T-T/6015T-INF User's Manual
iv
Chapter 4: System Safety
You should thoroughly familiarize yourself with this chapter for a general overview
of safety precautions that should be followed when installing and servicing the
SuperServer 6015T-T/6015T-INF.
Chapter 5: Advanced Serverboard Setup
Chapter 5 provides detailed information on the X7DBT-T/X7DBT-INF serverboard,
including the locations and functions of connectors, headers and jumpers. Refer
to this chapter when adding or removing processors or main memory and when
reconfi guring the serverboard.
Chapter 6: Advanced Chassis Setup
Refer to Chapter 6 for detailed information on the SC808T-980 1U rackmount server
chassis. You should follow the procedures given in this chapter when installing, re-
moving or reconfi guring SAS/SATA or peripheral drives and when replacing system
power supply units and cooling fans.
Chapter 7: BIOS
The BIOS chapter includes an introduction to BIOS and provides detailed informa-
tion on running the CMOS Setup Utility.
Appendix A: BIOS POST Messages
Appendix B: BIOS POST Codes
Appendix C: SAS/SATA RAID
Appendix D: Installing Drivers
Appendix E: System Specifi cations

v
Preface
Notes

vi
Table of Contents
Preface
About This Manual ...................................................................................................... iii
Manual Organization ................................................................................................... iii
Chapter 1: Introduction
1-1 Overview ......................................................................................................... 1-1
1-2 Serverboard Features ..................................................................................... 1-2
1-3 Server Chassis Features ................................................................................ 1-5
1-4 1U Twin: System Notes .................................................................................. 1-6
1-5 Contacting Supermicro ................................................................................... 1-7
Chapter 2: Server Installation
2-1 Overview ......................................................................................................... 2-1
2-2 Unpacking the System ................................................................................... 2-1
2-3 Preparing for Setup ........................................................................................ 2-1
Choosing a Setup Location .................................................................... 2-2
Rack Precautions .................................................................................... 2-2
Server Precautions ................................................................................. 2-2
Rack Mounting Considerations ............................................................... 2-3
2-4 Installing the System into a Rack ................................................................... 2-4
Identifying the Sections of the Rack Rails .............................................. 2-4
Installing the Rear Inner Rails ................................................................... 2-4
Installing the Rack Rails ............................................................................ 2-5
Installing the Server into the Rack ............................................................ 2-6
Installing the Server into a Telco Rack ..................................................... 2-6
2-5 Checking the Serverboard Setup ................................................................... 2-8
2-6 Checking the Drive Bay Setup ..................................................................... 2-10
Chapter 3: System Interface
3-1 Overview ......................................................................................................... 3-1
3-2 Control Panel Buttons .................................................................................... 3-1
Reset ....................................................................................................... 3-1
Power ...................................................................................................... 3-1
3-3 Control Panel LEDs ........................................................................................ 3-2
Overheat/Fan Fail .................................................................................. 3-2
NIC2 ........................................................................................................ 3-2
NIC1 ........................................................................................................ 3-2
SUPERSERVER 6015T-T/6015T-INF User's Manual

HDD ........................................................................................................ 3-2
Power ...................................................................................................... 3-3
3-4 SATA Drive Carrier LEDs ................................................................................. 3-3
Chapter 4: System Safety
4-1 Electrical Safety Precautions ........................................................................... 4-1
4-2 General Safety Precautions ............................................................................. 4-2
4-3 ESD Precautions ............................................................................................ 4-3
4-4 Operating Precautions .................................................................................... 4-4
Chapter 5: Advanced Serverboard Setup
5-1 Handling the Serverboard ................................................................................ 5-1
5-2 Serverboard Installation ................................................................................... 5-2
5-3 Connecting Cables .......................................................................................... 5-3
Connecting Data Cables ........................................................................... 5-3
Connecting Power Cables ......................................................................... 5-3
Connecting the Control Panel ................................................................... 5-4
5-4 I/O Ports ........................................................................................................... 5-4
5-5 Processor and Heatsink Installation ............................................................... 5-5
5-6 Installing Memory ............................................................................................. 5-8
5-7 Adding PCI Cards ............................................................................................ 5-9
5-8 Serverboard Details ....................................................................................... 5-10
X7DBT-T/X7DBT-INF Layout .................................................................. 5-10
X7DBT-T/X7DBT-INF Quick Reference .................................................. 5-11
5-9 Connector Defi nitions ................................................................................... 5-12
ATX Power Connector ........................................................................... 5-12
Auxiliary Power Connnector .................................................................... 5-12
PW_ON Connector ................................................................................ 5-12
Reset Connector .................................................................................... 5-12
Overheat LED (OH) ............................................................................... 5-13
NIC1/NIC2 LEDs .................................................................................... 5-13
HDD LED ............................................................................................... 5-13
Power On LED ....................................................................................... 5-14
NMI Button ............................................................................................. 5-14
Fan Headers .......................................................................................... 5-14
Chassis Intrusion .................................................................................... 5-14
Universal Serial Bus ............................................................................... 5-15
LAN1/2 (Ethernet Ports) ......................................................................... 5-15
Wake-On-LAN ........................................................................................ 5-15
vii
Table of Contents

viii
Wake-On-Ring ........................................................................................ 5-16
Serial Ports ............................................................................................. 5-16
SGPIO Header ....................................................................................... 5-16
SMB Power (I2C) .................................................................................... 5-17
SMB ........................................................................................................ 5-17
5-10 Jumper Settings ............................................................................................ 5-18
Explanation of Jumpers ......................................................................... 5-18
CMOS Clear ........................................................................................... 5-18
VGA Enable/Disable ............................................................................... 5-18
LAN1/2 Enable/Disable .......................................................................... 5-19
I2C to PCI-Express Slot ......................................................................... 5-19
Watch Dog Enable/Disable .................................................................... 5-19
5-11 Onboard Indicators ....................................................................................... 5-20
LAN1/LAN2 LEDs .................................................................................. 5-20
Onboard Power LED .............................................................................. 5-20
Infi niband LED Indicators ....................................................................... 5-20
Chapter 6: Advanced Chassis Setup
6-1 Static-Sensitive Devices .................................................................................. 6-1
6-2 Control Panel ................................................................................................... 6-2
6-3 System Fans .................................................................................................... 6-3
System Fan Failure ................................................................................... 6-3
6-4 Drive Bay Installation/Removal ........................................................................ 6-3
Accessing the Drive Bays ......................................................................... 6-3
SATA Drive Installation .............................................................................. 6-3
6-5 Power Supply ................................................................................................... 6-5
Power Supply Failure ................................................................................ 6-5
Replacing the Power Supply ..................................................................... 6-5
Chapter 7: BIOS
7-1 Introduction ..................................................................................................... 7-1
7-2 Running Setup ................................................................................................ 7-2
7-3 Main BIOS Setup ............................................................................................ 7-2
7-4 Advanced Setup ............................................................................................. 7-7
7-5 Security ......................................................................................................... 7-24
7-6 Boot .............................................................................................................. 7-25
7-7 Exit ................................................................................................................ 7-26
SUPERSERVER 6015T-T/6015T-INF User's Manual

Table of Contents
ix
Appendices:
Appendix A: BIOS POST Messages
Appendix B: BIOS POST Codes
Appendix C: Intel HostRAID Setup Guidelines
Appendix D: System Specifi cations

x
Notes
SUPERSERVER 6015T-T/6015T-INF User's Manual

Chapter 1
Introduction
1-1 Overview
The SuperServer 6015T-T/6015T-INF is a "1U Twin" server comprised of the
SC808T-980 1U chassis and two (twin) X7DBT-T/X7DBT-INF serverboards. Please
refer to our web site for information on operating systems that have been certifi ed
for use with the 6015T-T/6015T-INF (www.supermicro.com).
In addition to the serverboard and chassis, various hardware components may have
been included with the 6015T-T/6015T-INF, as listed below.
Four (4) CPU heatsinks (SNK-P0017)
SATA Accessories:
Four (4) SATA hard drive carriers [MCP-220-00001-03(01)]
One (1) internal SATA backplane (BPN-SAS-808)
One (1) SATA cable set (CBL-0201L)
Two (2) PCI-E x8 riser cards (RSC-R1U-E8R)
Six (6) 4-cm high-performance fans (FAN-0085L)
Rackmount hardware with screws (CSE-PT51L):
Two (2) rack rail assemblies
Six (6) brackets for mounting the rack rails in a rack/telco rack
One (1) CD containing drivers and utilities
SuperServer 6015T-T/6015T-INF User's Manual
Note: "03" at the end of a part number indicates the part is available in silver, a "01"
indicates it's available in black.
Chapter 1: Introduction
1-1

1-2
SUPERSERVER 6015T-T/6015T-INF User's Manual
1-2 Serverboard Features
At the heart of the SuperServer 6015T-T/6015T-INF lies two X7DBT-T/X7DBT-INF
dual processor serverboards, which are based on Intel's 5000P chipset. Below
are the main features of the X7DBT-T/X7DBT-INF. Note that the features on each
board are doubled for the server (see Appendix C).
Processors
Each X7DBT-T/X7DBT-INF supports dual Intel® Xeon® 5300/5100 Series proces-
sors. Please refer to our web site for a complete listing of supported processors
(www.supermicro.com).
Memory
The X7DBT-T/X7DBT-INF has eight 240-pin DIMM sockets that can support up to
32 GB of ECC FBD (Fully Buffered DIMM) DDR2-667/533 SDRAM. Memory can
be installed in both interleaved (dual-channel) and non-interleaved (single-channel)
confi gurations. All memory modules used to populate the system should be the
same size, type and speed.
Serial ATA
The South Bridge (ESB2) of the 5000P chipset includes a Serial ATA control-
ler for 3 Gb/s SATA drives. The hot-swappable SATA drives are connected to a
backplane that provides power, bus termination and confi guration settings. RAID
0 and 1 are supported.
PCI Expansion Slots
Each X7DBT-T/X7DBT-INF board has one PCI-Express x8 slot, so two PCI-Express
x8 slots are provided in the server. In the 6015T-T/6015T-INF server confi gura-
tion, riser cards have been pre-installed to support two low-profi le PCI-Express x8
add-on cards.
Ethernet Ports
Two Intel® 82563EB network controllers are integrated into the 5000P chipset on
each of the serverboards to support a total of four Gigabit LAN ports (100/1000Base-
T/1000BaseTX, RJ45 output).

Chapter 1: Introduction
1-3
Onboard Controllers/Ports
An onboard IDE controller supports Ultra ATA 100 hard drives or ATAPI devices.
Onboard I/O backpanel ports include one COM port, a VGA port, two USB ports, two
Gigabit LAN (NIC) ports and (on the 6015T-INF only) an Infi niBand® port. There
are two sets of I/O ports included in the server (one set for each severboard).
Infi niBand Port Bracket: The Infi niBand port bracket is a small "U" shaped
bracket that secures the connector to the I/O port shield. This allows the
I/O shield, not the serverboard, to support the cable's weight. The bracket
can be found on the connector itself.
When installing the serverboard, remove the bracket from the Infi niBand
port. Slide the port through the shield, and then replace the bracket to se-
cure the port to the I/O shield.
ATI Graphics Controller
The X7DBT-T/X7DBT-INF features an integrated ATI video controller based on the
ES1000 graphics chip. The ES1000 was designed specifi cally for servers, featuring
low power consumption, high reliability and superior longevity.
Other Features
Other onboard features that promote system health include voltage monitors, a
chassis intrusion header, auto-switching voltage regulators, chassis and CPU
overheat sensors, virus protection and BIOS rescue.
!

1-4
SUPERSERVER 6015T-T/6015T-INF User's Manual
Figure 1-1 . Intel 5000P Chipset:
System Block Diagram
Note: This is a general block diagram. Please see Chapter 5 for details.
PCI-X
USB 2.0
3.0 Gb/S
PORT
PORT PORT
PORT PORT
PORT
PORT
#0
MCH
PROCESSOR#2
ESB2
PCI-EXP X8
GILGAL
GB LAN FWH
RJ45
RJ45
LPC
COM2
SIO
W83627
VGA
PCI33MMZ
ES1000
VGA
CONN
28
KB
MS
VRM
#2,3
#4,5
#4 #3
#2
#0
VRM PROCESSOR#1
MT/S
667/1067/1333
MT/S
FBD DIMM
FBD DIMM
FBD DIMM
EHF
USB
#0
#1
#2
#3
#4
PCIE X8
PCIE X4
FBD CHNL0
FBD CHNL1
FBD CHNL2
FBD CHNL3
#1A
FBD DIMM
SATA
#0
#1
#2
#3
PORT
#1
JPCIE1
PCI-E SLOT
PORT
#6,7
PCI-EXP X8
IB
667/1067/1333
#1B
#2A
#2B
#3A
#3B
#4A
#4B

Chapter 1: Introduction
1-5
1-3 Server Chassis Features
The following is a general outline of the main features of the SC808T-980 1U chas-
sis. Details on the chassis can be found in Chapter 6.
System Power
When confi gured as a SuperServer 6015T-T/6015T-INF, the SC808T-980 includes
a single 980W cold-swap power supply, which provides the power to both server-
boards housed in the chassis.
SATA Subsystem
The SC808T-980 chassis was designed to support four SATA hard drives, which
are hot-swappable units.
Control Panel
The SC808T-980 features two independant control panels associated with each
serverboard in the chassis. Each control panel has LEDs to indicate power on,
network activity, hard disk drive activity and system overheat conditions. Each
control panel also includes a main power button and a system reset button.
Rear I/O Panel
The SC808T-980 is a 1U rackmount chassis. Its I/O panel provides a slots for two
low-profi le PCI-E x8 expansion cards, two COM ports, four USB ports, two VGA
ports and four Gb Ethernet ports. The 6015T-INF also provides two Infi niBand
ports. See Chapter 6 for details.
Cooling System
The SC808T-980 chassis has an innovative cooling design that features two sets
of triple (for a total of six) 4-cm high-performance fans. A fan speed control setting
in BIOS allows fan speed to be determined by system temperature.

1-6
SUPERSERVER 6015T-T/6015T-INF User's Manual
1-4 1U Twin: System Notes
As a 1U Twin confi guration, the 6015T-T/6015T-INF is a unique server system. With
two system boards incorporated into a single chassis, there are several points you
should keep in mind.
System Power
A single power supply is used to provide the power for both serverboards. Each
serverboard however, can be shut down independently of the other with the power
button on its own control panel.
Although they share a common power supply, the I2C signals used for power supply
monitoring are received by the primary serverboard only. (When viewed from the
front of the chassis, the serverboard on the left is referred to as the primary board
and the serverboard on the right as the secondary.)
SATA Backplane/Drives
As a system, the 6015T-T/6015T-INF supports the use of four SATA drives. The
SATA backplane works as a single backplane divided into two sections. This means
that while a single power connector is used and functions such as overheating apply
to both sections together, each pair of SATA drives is logically connected to its own
serverboard. Consequently, RAID setup is limited to a two-drive scheme (RAID
cannot be spread across all four drives).

Chapter 1: Introduction
1-7
1-5 Contacting Supermicro
Headquarters
Address: Super Micro Computer, Inc.
980 Rock Ave.
San Jose, CA 95131 U.S.A.
Tel: +1 (408) 503-8000
Fax: +1 (408) 503-8008
Email: marketing@supermicro.com (General Information)
support@supermicro.com (Technical Support)
Web Site: www.supermicro.com
Europe
Address: Super Micro Computer, B.V.
Het Sterrenbeeld 28, 5215 ML
's-Hertogenbosch, The Netherlands
Tel: +31 (0) 73-6400390
Fax: +31 (0) 73-6416525
Email: sales@supermicro.nl (General Information)
support@supermicro.nl (Technical Support)
rma@supermicro.nl (Customer Support)
Asia-Pacifi c
Address: Super Micro Computer, Inc.
4F, No. 232-1, Liancheng Rd.
Chung-Ho 235, Taipei County
Taiwan, R.O.C.
Tel: +886-(2) 8226-3990
Fax: +886-(2) 8226-3991
Web Site: www.supermicro.com.tw
Technical Support:
Email: support@supermicro.com.tw
Tel: 886-2-8228-1366, ext.132 or 139

1-8
SUPERSERVER 6015T-T/6015T-INF User's Manual
Notes

Chapter 2: Server Installation
2-1
Chapter 2
Server Installation
2-1 Overview
This chapter provides a quick setup checklist to get your 6015T-T/6015T-INF up and
running. Following these steps in the order given should enable you to have the
system operational within a minimum amount of time. This quick setup assumes
that your system has come to you with the processors and memory preinstalled. If
your system is not already fully integrated with a serverboard, processors, system
memory etc., please turn to the chapter or section noted in each step for details
on installing specifi c components.
2-2 Unpacking the System
You should inspect the box the 6015T-T/6015T-INF was shipped in and note if it was
damaged in any way. If the server itself shows damage you should fi le a damage
claim with the carrier who delivered it.
Decide on a suitable location for the rack unit that will hold the 6015T-T/6015T-INF.
It should be situated in a clean, dust-free area that is well ventilated. Avoid areas
where heat, electrical noise and electromagnetic fi elds are generated. You will also
need it placed near a grounded power outlet. Be sure to read the Rack and Server
Precautions in the next section.
2-3 Preparing for Setup
The box the 6015T-T/6015T-INF was shipped in should include two sets of rail
assemblies, two rail mounting brackets and the mounting screws you will need to
install the system into the rack. Follow the steps in the order given to complete
the installation process in a minimum amount of time. Please read this section
in its entirety before you begin the installation procedure outlined in the sections
that follow.

2-2
SUPERSERVER 6015T-T/6015T-INF User's Manual
Choosing a Setup Location
- Leave enough clearance in front of the rack to enable you to open the front
door completely (~25 inches).
- Leave approximately 30 inches of clearance in the back of the rack to allow
for suffi cient airfl ow and ease in servicing.
- This product is for installation only in a Restricted Access Location (dedicated
equipment rooms, service closets and the like).
- This product is not suitable for use with visual display work place devices ac-
cording to §2 of the the German Ordinance for Work with Visual Display Units.
Rack Precautions
- Ensure that the leveling jacks on the bottom of the rack are fully extended to
the fl oor with the full weight of the rack resting on them.
- In single rack installation, stabilizers should be attached to the rack.
- In multiple rack installations, the racks should be coupled together.
- Always make sure the rack is stable before extending a component from the
rack.
- You should extend only one component at a time - extending two or more
simultaneously may cause the rack to become unstable.
Server Precautions
- Review the electrical and general safety precautions in Chapter 4.
- Determine the placement of each component in the rack before you install the
rails.
- Install the heaviest server components on the bottom of the rack fi rst, and then
work up.
- Use a regulating uninterruptible power supply (UPS) to protect the server from
power surges, voltage spikes and to keep your system operating in case of a
power failure.
-
Allow the hot plug SATA drives and power supply modules to cool before touch-
ing them.
-
Always keep the rack's front door and all panels and components on the serv-
ers closed when not servicing to maintain proper cooling.
!!
Warnings and Precautions!

Chapter 2: Server Installation
2-3
Rack Mounting Considerations
Ambient Operating Temperature
If installed in a closed or multi-unit rack assembly, the ambient operating tempera-
ture of the rack environment may be greater than the ambient temperature of the
room. Therefore, consideration should be given to installing the equipment in an
environment compatible with the manufacturer’s maximum rated ambient tempera-
ture (Tmra).
Reduced Airfl ow
Equipment should be mounted into a rack so that the amount of airfl ow required
for safe operation is not compromised.
Mechanical Loading
Equipment should be mounted into a rack so that a hazardous condition does not
arise due to uneven mechanical loading.
Circuit Overloading
Consideration should be given to the connection of the equipment to the power
supply circuitry and the effect that any possible overloading of circuits might have
on overcurrent protection and power supply wiring. Appropriate consideration of
equipment nameplate ratings should be used when addressing this concern.
Reliable Ground
A reliable ground must be maintained at all times. To ensure this, the rack itself
should be grounded. Particular attention should be given to power supply connec-
tions other than the direct connections to the branch circuit (i.e. the use of power
strips, etc.).

2-4
SUPERSERVER 6015T-T/6015T-INF User's Manual
2-4 Installing the System into a Rack
This section provides information on installing the 6015T-T/6015T-INF into a rack
unit with the rack rails provided. If the system has already been mounted into a
rack, you can skip ahead to Sections 2-5 and 2-6. There are a variety of rack
units on the market, which may mean the assembly procedure will differ slightly.
You should also refer to the installation instructions that came with the rack unit
you are using.
Identifying the Sections of the Rack Rails
You should have received two rack rail assemblies in the rack mounting kit. Each
assembly consists of two sections: an inner fi xed chassis rail that secures directly
to the server chassis and an outer fi xed rack rail that secures directly to the rack
itself (see Figure 2-1). Two pairs of short brackets to be used on the front side of
the outer rails are also included.
Installing the Inner Rails
Both the left and right side inner rails have been pre-attached to the chassis.
Proceed to the next step.
Figure 2-1. Identifying the Sections of the Rack Rails
(right side rail shown)

Chapter 2: Server Installation
2-5
Installing the Outer Rails
Begin by measuring the distance from the front rail to the rear rail of the rack. Attach
a short bracket to the front side of the right outer rail and a long bracket to the rear
side of the right outer rail. Adjust both the short and long brackets to the proper
distance so that the rail can fi t snugly into the rack. Secure the short bracket to the
front side of the outer rail with two M4 screws and the long bracket to the rear side
of the outer rail with three M4 screws. Repeat these steps for the left outer rail.
Locking Tabs
Both chassis rails have a locking tab, which serves two functions. The fi rst is to
lock the server into place when installed and pushed fully into the rack, which is
its normal position. Secondly, these tabs also lock the server in place when fully
extended from the rack. This prevents the server from coming completely out of
the rack when you pull it out for servicing.
Figure 2-2. Installing the Rack Rails

2-6
SUPERSERVER 6015T-T/6015T-INF User's Manual
Installing the Server into the Rack
You should now have rails attached to both the chassis and the rack unit. The next
step is to install the server into the rack. Do this by lining up the rear of the chas-
sis rails with the front of the rack rails. Slide the chassis rails into the rack rails,
keeping the pressure even on both sides (you may have to depress the locking
tabs when inserting). See Figure 2-3.
When the server has been pushed completely into the rack, you should hear the
locking tabs "click". Finish by inserting and tightening the thumbscrews that hold
the front of the server to the rack.
Installing the Server into a Telco Rack
To install the SuperServer 6015T-T/6015T-INF into a Telco type rack, use two L-
shaped brackets on either side of the chassis (four total). First, determine how far
the server will extend out the front of the rack. Larger chassis should be positioned
to balance the weight between front and back. If a bezel is included on your server,
remove it. Then attach the two front brackets to each side of the chassis, then the
two rear brackets positioned with just enough space to accommodate the width of
the rack. Finish by sliding the chassis into the rack and tightening the brackets
to the rack.

Chapter 2: Server Installation
2-7
Figure 2-3. Installing the Server into a Rack

2-8
SUPERSERVER 6015T-T/6015T-INF User's Manual
2-5 Checking the Serverboard Setup
After you install the 6015T-T/6015T-INF in the rack, you will need to open the top
cover to make sure the serverboard is properly installed and all the connections
have been made.
1. Accessing the inside of the System (see Figure 2-4)
First, release the retention screws that secure the system to the rack. Grasp the
two handles on either side and pull the system straight out until it locks (you will
hear a "click"). Next, remove the four screws (two on the sides and two on the top)
that secure the top cover to the chassis. Place your thumbs in the two rectangular
recesses and push the cover away from you (toward the rear of the chassis) until
it stops. You can then lift the top cover from the chassis to gain full access to the
inside of the server.
To remove the system from the rack completely, depress the locking tabs in the
chassis rails (push the right-side tab down and the left-side tab up) to continue to
pull the system out past the locked position.
2. Check the CPUs (processors)
You may have one or two processors already installed in each of the two server-
boards. Each processor needs its own heatsink. See Chapter 5 for instructions
on processor and heatsink installation.
3. Check the system memory
Your server system may have come with system memory already installed. Make
sure all DIMMs are fully seated in their slots. For details on adding system memory,
refer to Chapter 5.
4. Installing add-on cards
You can install two add-on cards to the system. See Chapter 5 for details on install-
ing PCI add-on cards.
5. Check all cable connections and airfl ow
Make sure all power and data cables are properly connected and not blocking the
chassis airfl ow. See Chapter 5 for details on cable connections.

Chapter 2: Server Installation
2-9
Figure 2-4. Accessing the Inside of the System

2-10
SUPERSERVER 6015T-T/6015T-INF User's Manual
2-6 Checking the Drive Bay Setup
Next, you should check to make sure the peripheral drives and the SATA drives
and SATA backplane have been properly installed and all connections have been
made.
1. Check the SATA drives
Depending upon your system's confi guration, your system may have one or
more drives already installed. If you need to install SATA drives, please refer to
Chapter 6.
2. Check the airfl ow
Airfl ow is provided by six sets of 4-cm fans (each set of fans consists of two fans
that are mounted back to back). The system component layout was carefully
designed to direct suffi cient cooling airfl ow to the components that generate the
most heat. Note that all power and data cables have been routed in such a way
that they do not block the airfl ow generated by the fans.
3. Supplying power to the system
The last thing you must do is to provide input power to the system. Plug the
power cord from the power supply module into a high-quality power strip that
offers protection from electrical noise and power surges. It is recommended that
you use an uninterruptible power supply (UPS) source.

Chapter 3: System Interface
3-1
Chapter 3
System Interface
3-1 Overview
There are several LEDs on the two control panels as well as others on the SATA
drive carriers to keep you constantly informed of the overall status of the system as
well as the activity and health of specifi c components. There are also two buttons
on each control panel. This chapter explains the meanings of all LED indicators
and the appropriate response you may need to take. Note that the server has two
control panels, one for each serverboard installed in the system. This allows each
severboard to be controlled independently of the other.
3-2 Control Panel Buttons
There are two push-buttons located on each control panel: a reset button and a
power on/off button.
RESET: Depressing the reset button will reboot only the serverboard it is
associated with.
POWER: This is the main power button, which is used to apply or turn off
the main system power only to the serverboard it is connected to. Depressing
this button removes the main power but keeps standby power supplied to the
serverboard.

3-2
SUPERSERVER 6015T-T/6015T-INF User's Manual
3-3 Control Panel LEDs
Each of the two control panels located on the front of the SC808T-980 chassis has
fi ve LEDs. Each LED provides you with critical information related its own specifi c
serverboard. This section explains what each LED indicates when illuminated and
any corrective action you may need to take.
Overheat/Fan Fail: When this LED fl ashes, it indicates a fan failure. When
on continuously it indicates an overheat condition, which may be caused by cables
obstructing the airfl ow in the system or the ambient room temperature being too
warm. Check the routing of the cables and make sure all fans are present and
operating normally. You should also check to make sure that the chassis covers
are installed. Finally, verify that the heatsinks are installed properly (see Chapter
5). This LED will remain fl ashing or on as long as the indicated condition exists.
NIC2: Indicates network activity on LAN2 when fl ashing .
NIC1: Indicates network activity on LAN1 when fl ashing.
HDD: Channel activity for the hard disk drives. This light indicates SATA
drive activity on the 6015T-T/6015T-INF when fl ashing.
2
1

Chapter 3: System Interface
3-3
Power: Indicates power is being supplied to the system's power supply unit.
This LED should normally be illuminated when the system is operating.
3-4 SATA Drive Carrier LEDs
Each SATA drive carrier has two LEDs.
Green: When illuminated, the green LED on the front of the SATA drive car-
rier indicates drive activity. A connection to the SATA backplane enables this LED
to blink on and off when that particular drive is being accessed.
Red: The red LED indicates two states. When blinking, it indicates the drive
is rebuilding. When solid, it indicates a drive failure. If a SATA drive fails, you
should be notifi ed by your system management software. Please refer to Chapter
6 for instructions on replacing failed SATA drives.

3-4
SUPERSERVER 6015T-T/6015T-INF User's Manual
Notes

Chapter 4: System Safety
4-1
Chapter 4
System Safety
4-1 Electrical Safety Precautions
!
Basic electrical safety precautions should be followed to protect yourself from
harm and the SuperServer 6015T-T/6015T-INF from damage:
Be aware of the locations of the power on/off switch on the chassis as well as
the room's emergency power-off switch, disconnection switch or electrical
outlet. If an electrical accident occurs, you can then quickly remove power
from the system.
Do not work alone when working with high voltage components.
Power should always be disconnected from the system when removing or
installing main system components, such as the serverboards, memory
modules and processors (not SATA drives). When disconnecting power, you
should fi rst power down the system with the operating system fi rst and then
unplug the power cord from the power supply unit.
When working around exposed electrical circuits, another person who is
familiar with the power-off controls should be nearby to switch off the power
if necessary.
Use only one hand when working with powered-on electrical equipment. This
is to avoid making a complete circuit, which will cause electrical shock.
Use extreme caution when using metal tools, which can easily damage any
electrical components or circuit boards they come into contact with.
Do not use mats designed to decrease static electrical discharge as protection
from electrical shock. Instead, use rubber mats that have been specifi cally
designed as electrical insulators.

SUPERSERVER 6015T-T/6015T-INF User's Manual
4-2
4-2 General Safety Precautions
Follow these rules to ensure general safety:
Keep the area around the 6015T-T/6015T-INF clean and free of clutter.
The 6015T-T/6015T-INF weighs approximately 40 lbs (~18.2 kg) when fully
loaded. When lifting the system, two people at either end should lift slowly
with their feet spread out to distribute the weight. Always keep your back
straight and lift with your legs.
Place the chassis top cover and any system components that have been
removed away from the system or on a table so that they won't accidentally
be stepped on.
While working on the system, do not wear loose clothing such as neckties and
unbuttoned shirt sleeves, which can come into contact with electrical circuits
or be pulled into a cooling fan.
Remove any jewelry or metal objects from your body, which are excellent metal
conductors that can create short circuits and harm you if they come into
!
The power supply power cord must include a grounding plug and must be
plugged into a grounded electrical outlet.
Serverboard Battery: CAUTION - There is a danger of explosion if the onboard
battery is installed upside down, which will reverse its polarities (see Figure
4-1). This battery must be replaced only with the same or an equivalent type
recommended by the manufacturer. Dispose of used batteries according to
the manufacturer's instructions.
DVD-ROM Laser: CAUTION - this server may have come equipped with
a DVD-ROM drive. To prevent direct exposure to the laser beam and
hazardous radiation exposure, do not open the enclosure or use the unit in
any unconventional way.
Mainboard replaceable soldered-in fuses: Self-resetting PTC (Positive Tempera-
ture Coeffi cient) fuses on the mainboard must be replaced by trained service
technicians only. The new fuse must be the same or equivalent as the one
replaced. Contact technical support for details and support.

Chapter 4: System Safety
4-3
4-3 ESD Precautions
Electrostatic discharge (ESD) is generated by two objects with different electrical
charges coming into contact with each other. An electrical discharge is created to
neutralize this difference, which can damage electronic com ponents and printed
circuit boards. The following measures are generally suffi cient to neutralize this
difference before contact is made to protect your equipment from ESD:
Use a grounded wrist strap designed to prevent static discharge.
Keep all components and printed circuit boards (PCBs) in their antistatic
bags until ready for use.
Touch a grounded metal object before removing the board from the antistatic
bag.
Do not let components or PCBs come into contact with your clothing, which
may retain a charge even if you are wearing a wrist strap.
Handle a board by its edges only; do not touch its components, peripheral
chips, memory modules or contacts.
When handling chips or modules, avoid touching their pins.
Put the serverboard and peripherals back into their antistatic bags when
not in use.
For grounding purposes, make sure your computer chassis provides excellent
conductivity between the power supply, the case, the mounting fasteners and
the serverboard.
!
contact with printed circuit boards or areas where power is present.
After accessing the inside of the system, close the system back up and secure
it to the rack unit with the retention screws after ensuring that all connections
have been made.

SUPERSERVER 6015T-T/6015T-INF User's Manual
4-4
4-4 Operating Precautions
Care must be taken to assure that the chassis cover is in place when the
6015T-T/6015T-INF is operating to assure proper cooling. Out of warranty
damage to the 6015T-T/6015T-INF system can occur if this practice is not
strictly followed.
!
Figure 4-1. Installing the Onboard Battery
LITHIUM BATTERY
BATTERY HOLDER BATTERY HOLDER
LITHIUM BATTERY
OR

Chapter 5: Advanced Serverboard Setup
5-1
Chapter 5
Advanced Serverboard Setup
This chapter covers the steps required to install the X7DBT-T/X7DBT-INF
serverboard into the SC808T-980 chassis, connect the data and power cables and
install add-on cards. All serverboard jumpers and connections are also described.
A layout and quick reference chart are included in this chapter for your reference.
Remember to completely close the chassis when you have fi nished working with
the serverboard to better cool and protect the system.
5-1 Handling the Serverboard
Electrostatic discharge (ESD) can damage electronic com ponents. To prevent
damage to any printed circuit boards (PCBs), it is important to handle them very
carefully (see previous chapter). To prevent the X7DBT-T/X7DBT-INF serverboard
from bending, keep one hand under the center of the board to support it when
handling. The following measures are generally suffi cient to protect your equipment
from electric static discharge.
Precautions
• Use a grounded wrist strap designed to prevent Electrostatic Discharge (ESD).
• Touch a grounded metal object before removing any board from its antistatic
bag.
• Handle a board by its edges only; do not touch its components, peripheral chips,
memory modules or gold contacts.
• When handling chips or modules, avoid touching their pins.
• Put the serverboard, add-on cards and peripherals back into their antistatic bags
when not in use.
• For grounding purposes, make sure your computer chassis provides excellent
conductivity between the power supply, the case, the mounting fasteners and
the serverboard.

5-2
SUPERSERVER 6015T-T/6015T-INF User's Manual
5-2 Serverboard Installation
This section explains the fi rst step of physically mounting the X7DBT-T/X7DBT-INF
into the SC808T-980 chassis. Following the steps in the order given will eliminate
the most common problems encountered in such an installation. To remove the
serverboard, follow the procedure in reverse order.
1. Accessing the inside of the system (see Figure 2-5)
The top cover of the chassis is secured with four screws: two at the top rear of
the cover and one on each side lip, also near the back. Remove all four, then
place both thumbs in the indentations and push the cover back until it slides
off. You can then lift the top cover from the chassis to gain full access to the
inside of the server. (If already installed in a rack, you must fi rst release the
retention screws that secure the unit to the rack. Then grasp the two handles
on either side and pull the unit straight out until the rails lock into place.)
2. Check compatibility of serverboard ports and I/O shield
The X7DBT-T/X7DBT-INF in a Twin 1U confi guration requires the use of
Supermicro's specially designed 1U Twin chassis: the SC808T-980. Make
sure that the I/O ports on the serverboards align properly with their respective
holes in the I/O shield at the back of the chassis when installing.
3. Mounting the serverboard onto the serverboard tray
Carefully mount the serverboards by aligning the board holes with the raised
metal standoffs that are visible in the chassis. Insert screws into all the mount-
ing holes on your serverboards that line up with the standoffs and tighten until
snug (if you screw them in too tight, you might strip the threads). Metal screws
provide an electrical contact to the serverboard ground to provide a continuous
ground for the system.
Unpacking
The serverboard is shipped in antistatic packaging to avoid electrostatic discharge.
When unpacking the board, make sure the person handling it is static protected.

Chapter 5: Advanced Serverboard Setup
5-3
5-3 Connecting Cables
Now that the serverboards are installed, the next step is to connect the cables to
the boards. These include the data cables for the peripherals and control panel
and the power cables.
Connecting Data Cables
The cables used to transfer data from the peripheral devices have been carefully
routed to prevent them from blocking the fl ow of cooling air that moves through
the system from front to back. If you need to disconnect any of these cables, you
should take care to keep them routed as they were originally after reconnecting
them (make sure the red wires connect to the pin 1 locations). The following data
cables (with their locations noted) should be connected. (See the layout on page
5-9 for connector locations.) Note that each connection listed should be made for
both serverboards in the chassis.
SATA drive cables (SATA1)
Control Panel cable (JF1)
Connecting Power Cables
The X7DBT-T/X7DBT-INF has two 20-pin ATX power supply connectors for con-
nection to the ATX power supply. Only one of these from each board should be
connected to the power supply. The "Primary ATX Power Header" is used to supply
power to the primary serverboard and the "Secondary ATX Power Header" is used
to supply power to the secondary serverboard. Connect the power supply to only
one of these on both boards (primary = left, secondary = right when viewed from
front of server). See Section 5-9 for power connector pin defi nitions.

5-4
SUPERSERVER 6015T-T/6015T-INF User's Manual
5-4 I/O Ports
The I/O ports are color coded in conformance with the PC 99 specifi cation. See
Figure 5-2 below for the colors and locations of the various I/O ports.
Figure 5-1. Control Panel Header Pins
Note: Infi niBand ports are included on the X7DBT (6015T-INF) only. To prevent
damage to the port or serverboard, an Infi niBand bracket (included) must be used
to secure the connector to the I/O shield.
LAN1 LAN2
COM2 Port (Turquoise) VGA Port (Blue)USB 0/1 Ports
Figure 5-2. I/O Ports
NMI
x (Key)
Vcc 5V Stby
Vcc 3V
Vcc 3V Stby
Vcc 3V Stby
Vcc 3V
Reserved
Reset (Button)
Power (Button)
Ground
x (Key)
Power On LED
IDE/SATA LED
NIC1 LED
NIC2 LED
OH/Fan Fail LED
Reserved
Ground
Ground
2 1
20 19
Connecting the Control Panel
JF1 contains header pins for various front control panel connectors. See Figure
5-1 for the pin locations of the various front control panel buttons and LED indica-
tors. All JF1 wires have been bundled into a single ribbon cable to simplify this
connection. Make sure the red wire plugs into pin 1 as marked on the board. The
other end connects to the Control Panel PCB board, located just behind the system
status LEDs on the chassis.
Infi niBand Port

Chapter 5: Advanced Serverboard Setup
5-5
5-5 Processor and Heatsink Installation
IMPORTANT! Always connect the power cord last and remove it fi rst before add-
ing, removing or changing any hardware components. Make sure that you install
the processor into the CPU socket before you install the heatsink and fan. The
X7DBT-T/X7DBT-INF can support either one or two Xeon 5300/5100 type proces-
sors. If installing one processor only, install it into CPU socket #1.
Notes:
1. Intel's boxed Xeon CPU package contains a CPU fan and heatsink assembly. If
you buy a CPU separately, make sure that you use only Intel-certifi ed multi-direc-
tional heatsinks and fans.
2. When purchasing a Xeon 5300/5100 CPU or when receiving a serverboard with
a CPU pre-installed, make sure that the CPU plastic cap is in place and none of
the CPU pins are bent; otherwise, contact the retailer immediately.
!
When handling the processor, avoid placing direct pressure on the label
area of the fan. Also, do not place the serverboard on a conductive
surface, which can damage the BIOS battery and prevent the system
from booting up.
Installing the Processor
1. A black PnP cap is attached to the
load plate to protect the CPU socket.
Press the load lever down and away
from the retention clasp to release the
load plate from its locked position.
Load lever
2. Gently lift the load lever to open the
load plate.
PnP cap
Load plate released

5-6
SUPERSERVER 6015T-T/6015T-INF User's Manual
Socket key
CPU installed in socket
PnP cap released
from load plate
3. Use your thumb and your index
fi nger to hold the CPU at opposite
sides.
4. Align pin1 of the CPU (the cor-
ner marked with a triangle) with the
notched corner of the CPU socket.
5. Find the corner of the CPU that
has a semi-circle cutout below a gold
dot (CPU key). This corner should be
aligned with the cutout on the socket
(socket key).
6. Once aligned, carefully lower the
CPU straight down into the socket.
Do not drop the CPU on the socket,
do not move the CPU horizontally
or vertically and do not rub the CPU
against any surface or any of the
contacts, which may damage the CPU
and/or contacts.
7. With the CPU in the socket, inspect
the four corners of the CPU to make
sure that it is properly installed.
8. Use your thumb to gently push the
load lever down until it snaps into the
retention clasp.
9. If the CPU is properly installed into
the socket, the PnP cap will be auto-
matically released from the load plate
when the lever locks. Remove the cap.
Repeat steps to install a second CPU
if desired.
Warning! Keep the plastic PnP cap.
The serverboard must be shipped
with the PnP cap properly installed
to protect the CPU socket. Shipment
without the PnP cap properly installed
will void the warranty.
CPU key
CPU pin 1
Notched corner
Gold dot
Load lever

Chapter 5: Advanced Serverboard Setup
5-7
Warning! We do not recommend that the CPU or the heatsink be
removed. However, if you do need to uninstall the heatsink, please
follow the instructions below to prevent damage to the CPU or the
CPU socket.
!
Installing the Heatsink
1. Do not apply any thermal grease
to the heatsink or the CPU die; the
required amount has already been
applied.
2. Place the heatsink on top of the CPU
so that the four mounting holes are
aligned with those on the (preinstalled)
heatsink retention mechanism.
3. Screw in two diagonal screws (i.e.
the #1 and the #2 screws) until just
snug. Do not fully tighten the screws
or you may damage the CPU.)
4. Add the two remaining screws then
fi nish the installation by fully tightening
all four screws.
Removing the Heatsink
1. Unscrew and remove the heatsink screws from the serverboard in the sequence as
show in the picture above.
2. Hold the heatsink and gently wriggle the heatsink to loosen it from the CPU. (Do
not use excessive force when wriggling the heatsink!!)
3. Once the heatsink is loose, remove it from the CPU.
4. Clean the surface of the CPU and the heatsink to get rid of the old thermal grease.
Reapply the proper amount of thermal grease on the surface before you re-install the
heatsink.

5-8
SUPERSERVER 6015T-T/6015T-INF User's Manual
5-6 Installing Memory
1. Memory support
The X7DBT-T/X7DBT-INF has eight 240-pin DIMM sockets that can support up to
32 GB of ECC FBD (Fully Buffered DIMM) DDR2-667/533 SDRAM (for a total of
64 GB in the system). The memory scheme is interleaved, so you must populate
two slots at a time, beginning with slot 1A and 2A, then slots 3A and 4A and so on.
See chart below for optimizing your DIMM installation.
2. Installing memory modules
Insert each memory module vertically. Pay attention to the notches along the bottom
of the module to prevent inserting it incorrectly. Gently press down on the DIMM
module until it snaps into place in the slot (see Figure 5-3).
!
CAUTION! Exercise extreme care when installing or removing
DIMM modules to prevent any possible damage.
To Install: Insert module vertically and press down until it snaps into place. Pay attention to the bottom
notches.
To Remove: Use your thumbs to gently push each release tab outward to free the DIMM from the
slot.
Figure 5-3. DIMM Installation
Optimized DIMM Configurations
Branch 0 Branch 1
Number of
DIMMs
Bank 1
(Channel 0)
Bank 2
(Channel 1)
Bank 3
(Channel 2)
Bank 4
(Channel 3)
2 DIMMs 1A --- 2A --- --- --- --- ---
4 DIMMs 1A --- 2A --- 3A --- 4A ---
6 DIMMs 1A 1B 2A 2B 3A --- 4A ---
8 DIMMs 1A 1B 2A 2B 3A 3B 4A 4B
Notes: i. DIMM slot# specified = DIMM slot to be populated; “---“ = DIMM
slot not to be populated. ii. Both FBD 533 MHz and 667MHz DIMMs are
supported; however, you need to use memory modules of the same speed
and type. iii. Interleaved memory is supported when pairs of DIMM
modules are installed. To optimize memory performance, please populate
pairs of memory modules in both Branch 0 and Branch 1. iv. For memory
to work properly, you need to follow the restrictions listed above.

Chapter 5: Advanced Serverboard Setup
5-9
5-7 Adding PCI Cards
1. 64-bit PCI-X slot
The 6015T-T/6015T-INF includes two preinstalled riser cards designed specifi cally
for use in the SC808T-980 1U rackmount chassis. These riser cards support two
low-profi le PCI-Express x8 cards to fi t inside the chassis.
2. PCI card installation
The riser card has already been preinstalled into the serverboard. Perform the
following steps to add a PCI add-on card:
1. Remove the PCI slot shield on the chassis by releasing the locking tab.
2. Insert the add-on card into the riser card.
3. Secure the add-on card with the locking tab.

5-10
SUPERSERVER 6015T-T/6015T-INF User's Manual
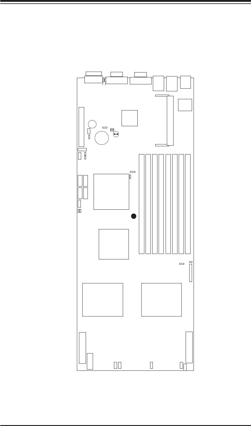
Figure 5-4. X7DBT-T/X7DBT-INF Layout
(not drawn to scale)
Jumpers not indicated are for test purposes only.
The Infi niBand components are included on the X7DBT-INF only.
5-8 Serverboard Details
USB0/1
LAN1
LAN2
COM2
VGA
Infi niBand
BIOS
SIMSO
ATI
ES1000
PCI-Express x8
SATA3
SATA2 SATA0
SATA1
South Bridge
ESB2
North Bridge
5000P
DIMM 1A (Bank1)
DIMM 1B (Bank1)
DIMM 2A (Bank2)
DIMM 2B (Bank2)
DIMM 3A (Bank3)
DIMM 3B (Bank3)
DIMM 4A (Bank4)
DIMM 4B (Bank4) ATX Power 1
ATX Power 2
CPU2 CPU1
JP10
JBT1
JPL1
JPL2
JPG1 JP1
JP7
Battery
Speaker
JWOL
JWOR
J18
SGPIO
JI2C1
JI2C2
JUSB2
JL1
JOH1
JWD
JF1
J17
Fan1/2
Fan3/4
Fan5/6
Fan7/8
Primary
ATX Power
Header
Secondary
ATX Power
Header
SUPER X7DBT-INF
®
LE1
LE3 LE2

Chapter 5: Advanced Serverboard Setup
5-11
X7DBT-T/X7DBT-INF Quick Reference
Jumper Description Default Setting
JBT1 CMOS Clear See Section 5-10
JI2C1/JI2C2 I2C to PCI-Express Slot Open (Disabled)
JPG1 VGA Enable Pins 1-2 (Enabled)
JPL1/ JPL2 LAN1/LAN2 Enable/Disable Pins 1-2 (Enabled)
JWD (JWD) Watch Dog Pins 1-2 (Reset)
Connector Description
ATX Power 1 20-Pin ATX PWR Connector (for Primary Board)
ATX Power 2 20-Pin ATX PWR Connector (for Secondary Board)
COM2 COM2 Serial Port/Header
FAN 1-6 Chassis and CPU Fan Headers
Infi niBand* Infi niBand Connector
J17 System Management Power (I2C) Header
J18 System Management Bus Header
JF1 Front Control Panel Connector
JL1 Chassis Intrusion Header
JOH1 Overheat LED Header
JP10 4-pin Auxiliary Power Connector (for HDDs)
JPI2C System Management Power (I2C) Header
JWOL Wake-on-LAN Header
JWOR Wake-on-Ring Header
LAN1/2 Gigabit Ethernet Ports
SATA0-SATA3 Intel SATA 0-3 Ports
SGPIO Serial ATA General Purpose Input/Output Header
SIMSO IPMI SIMSO IPMI Socket
USB0/1 USB0/1 Ports
USB2/3 USB0/1 Headers
LED Indicator Description
LE1 Onboard Power LED Indicator
LE2* Infi niBand Link LED (green)
LE3* Infi niBand Activity LED (yellow)
*X7DBT-INF only
Note: the "Primary ATX Power Header" is used to supply power to the primary
serverboard and the "Secondary ATX Power Header" is used to supply power to
the secondary serverboard. Connect the power supply to only one of these on both
boards (primary = left, secondary = right when viewed from front of server).

5-12
SUPERSERVER 6015T-T/6015T-INF User's Manual
Reset Connector
The reset connector is located on pins
3 and 4 of JF1 and attaches to the
reset switch on the computer chas-
sis. See the table on the right for pin
defi nitions.
PW_ON Connector
The PW_ON connector is on pins 1
and 2 of JF1. This header should
be connected to the chassis power
button. See the table on the right for
pin defi nitions.
5-9 Connector
Defi nitions
ATX Power Connector
The main ATX power supply con-
nectors on the X7DBT-T/X7DBT-INF
meets the SSI (Superset ATX) 20-pin
specifi cation. Refer to the table on
the right for the pin defi nitions. Only
one of the two ATX power connectors
from each serverboard should be con-
nected to the power supply.
Reset Button
Pin Defi nitions (JF1)
Pin# Defi nition
3 Reset
4 Ground
Power Button
Pin Defi nitions (JF1)
Pin# Defi nition
1 PW_ON
2 Ground
Auxiliary Power Connector
A 4-pin 12V auxiliary power connector
is included to provide power to hard
drive disks. See the table on the right
for pin defi nitions.
Auxiliary Power
Pin Defi nitions (JP10)
Pin# Defi nition
1 +12V
2 Ground
3 Ground
4 +5V
ATX Power 20-pin Connector
Pin Defi nitions (ATX Power 1/2)
Pin# Defi nition Pin # Defi nition
11 PS On 1 Ground
12 5VSB 2 Ground
13 Ground 3 Ground
14 Ground 4 Ground
15 Ground 5 Ground
16 NC2 6 NC1
17 12V 7 12V
18 12V 8 12V
19 12V 9 12V
20 12V 10 12V

Chapter 5: Advanced Serverboard Setup
5-13
Overheat LED (OH)
Connect an LED to the OH connection
on pins 7 and 8 of JF1 to provide ad-
vanced warning of chassis overheat-
ing. Refer to the table on the right for
pin defi nitions.
NIC2 (LAN2) LED
The LED connections for LAN2 are
on pins 9 and 10 of JF1. Attach LAN
LED cables to display network activ-
ity. See the table on the right for pin
defi nitions.
HDD LED
The HDD LED connection is located
on pins 13 and 14 of JF1. Attach the
hard drive LED cable here to display
disk activity (for any hard drives on
the system, including SAS, Serial ATA
and IDE). See the table on the right
for pin defi nitions
OH/Fan Fail LED
Pin Defi nitions (JF1)
Pin# Defi nition
7 Vcc
8 Ground
NIC1 LED
Pin Defi nitions (JF1)
Pin# Defi nition
11 Vcc
12 Ground
NIC2 LED
Pin Defi nitions (JF1)
Pin# Defi nition
9 Vcc
10 Ground
HDD LED
Pin Defi nitions (JF1)
Pin# Defi nition
13 Vcc
14 HD Active
NIC1 (LAN1) LED
The LED connections for LAN1 are
on pins 11 and 12 of JF1. Attach
LAN LED cables to display network
activity. See the table on the right for
pin defi nitions.

5-14
SUPERSERVER 6015T-T/6015T-INF User's Manual
Chassis Intrusion
The Chassis Intrusion header is des-
ignated JL1. See the board layout for
the location of JL1 and the table on
the right for pin defi nitions.
Power On LED
The Power On LED connector is lo-
cated on pins 15 and 16 of JF1. This
connection is used to provide LED
indication of power being supplied to
the system. See the table on the right
for pin defi nitions.
Fan Headers
The X7DBT-T/X7DBT-INF has four
6-pin proprietary fan headers. Each
fan header supports two 3-pin fans.
See the table on the right for pin
defi nitions. Note: The onboard fan
speed is controlled by the CPU die
temperature.
NMI Button
The non-maskable interrupt button
header is located on pins 19 and 20
of JF1. Refer to the table on the right
for pin defi nitions.
Power LED
Pin Defi nitions (JF1)
Pin# Defi nition
15 5V Stby
16 Control
NMI Button
Pin Defi nitions (JF1)
Pin# Defi nition
19 Control
20 Ground
Chassis Intrusion
Pin Defi nitions (JL1)
Pin# Defi nition
1 Intrusion Input
2 Ground
Fan Header Pin Defi nitions
(Fan1/2 - Fan7/8)
Pin # Defi nition Pin # Defi nition
1 PWR (DC
Speed CTRL)
4 Ground
2 Tachometer for
Fan 1/3/5
5 Tachometer for
Fan 2/4/6
3 Ground 6 PWR (DC
Speed CTRL)

Chapter 5: Advanced Serverboard Setup
5-15
Wake-On-LAN
The Wake-On-LAN header is des-
ignated JWOL on the serverboard.
See the table on the right for pin
defi nitions. You must enable the LAN
Wake-Up setting in BIOS to use this
function. (You must also have a LAN
card with a Wake-On-LAN connector
and cable to use this feature.)
Universal Serial Bus (USB)
There are two Universal Serial Bus
ports located on the I/O panel and
two additional USB headers located
on the serverboard. The headers,
labeled USB2 and USB3, can be
used to provide front side USB access
(cables not included). See the tables
on the right for pin defi nitions.
Wake-On-LAN
Pin Defi nitions
(JWOL)
Pin# Defi nition
1 +5V Standby
2 Ground
3 Wake-up
LAN1/2 (Ethernet Ports)
Two gigabit Ethernet ports (designated
LAN1 and LAN2) are located beside the
VGA port on the I/O backplane. These
ports accept RJ45 type cables.
USB Headers
Pin Defi nitions (USB1, USB2)
USB3/5
Pin # Defi nition
USB2/4
Pin # Defi nition
1 +5V 1 +5V
2 PO- 2 PO-
3 PO+ 3 PO+
4 Ground 4 Ground
5Key 5NC
USB Ports Pin
Defi nitions (USB0/1)
Pin# Defi nition
1 +5V
2PO-
3PO+
4 Ground
5N/A
Note: NC indicates no connection.

5-16
SUPERSERVER 6015T-T/6015T-INF User's Manual
Wake-On-Ring
The Wake-On-Ring header is designated
JWOR. This function allows your computer
to receive and be "awakened" by an incom-
ing call when in the suspend state. See the
table on the right for pin defi nitions. You
must also have a WOR card and cable to
use this feature.
Serial Ports
One serial port is included on the
serverboard: COM2 is a port located
beside the VGA port. See the table
on the right for pin defi nitions.
Wake-On-Ring
Pin Defi nitions
(JWOR)
Pin# Defi nition
1 Ground (Black)
2 Wake-up
Note: NC indicates no connection.
Serial Port Pin Defi nitions
(COM2)
Pin # Defi nition Pin # Defi nition
1 DCD 6 DSR
2 RXD 7 RTS
3 TXD 8 CTS
4 DTR 9 RI
5 Ground 10 NC
SGPIO Header
An SGPIO (Serial General Purpose
Input/Output) header is included on the
serverboard. This header is used to
communicate with the System Monitoring
chip on the backplane. SGPIO is used to
monitor SATA activity. See the table on
the right for pin defi nitions.
SGPIO Headers Pin Defi nitions
(SGPIO)
Pin# Defi nition Pin Defi nition
1 NC 2 *NC
3 Ground 4 DATA Out
5 Load 6 Ground
7 Clock 8 *NC

Chapter 5: Advanced Serverboard Setup
5-17
SMB Power (I2C)
The header at JI2C is for I2C, which
may be used to monitor the status of
the power supply, fan and system tem-
perature. See the table on the right for
pin defi nitions.
SMB Power (I2C)
Pin Defi nitions (J17)
Pin# Defi nition
1 Clock
2 Data
3 Power Fail
4 Ground
5+3.3V
SMB
A System Management Bus header
is located at J18. Connect the ap-
propriate cable here to utilize SMB on
your system.
SMB Header
Pin Defi nitions
Pin# Defi nition
1 Data
2 Ground
3 Clock
4NC

5-18
SUPERSERVER 6015T-T/6015T-INF User's Manual
5-10 Jumper Settings
Explanation of
Jumpers
To modify the operation of the
serverboard, jumpers can be used
to choose between optional settings.
Jumpers create shorts between two
pins to change the function of the
connector. Pin 1 is identifi ed with
a square solder pad on the printed
circuit board. See the serverboard
layout pages for jumper locations.
Note: On a two-pin jumper, "Closed"
means the jumper is on both pins and
"Open" means the jumper is either on
only one pin or completely removed.
CMOS Clear
JBT1 is used to clear CMOS (which will also clear any passwords). Instead of pins,
this jumper consists of contact pads to prevent accidentally clearing the contents
of CMOS. To clear CMOS,
1) First power down the system and unplug the power cord(s)
2) With the power disconnected, short the CMOS pads with a metal object such as
a small screwdriver
3) Remove the screwdriver (or shorting device)
4) Reconnect the power cord(s) and power on the system.
Note: Do not use the PW_ON connector to clear CMOS.
VGA Enable/Disable
JPG1 allows you to enable or disable
the VGA port. The default position is
on pins 1 and 2 to enable VGA. See
the table on the right for jumper set-
tings.
VGA Enable/Disable
Jumper Settings (JPG1)
Jumper Setting Defi nition
Pins 1-2 Enabled
Pins 2-3 Disabled

Chapter 5: Advanced Serverboard Setup
5-19
Watch Dog Enable/Disable
JWD enables the Watch Dog function,
a system monitor that takes action
when a software application freezes
the system. Jumping pins 1-2 will
have WD reboot the system if a pro-
gram freezes. Jumping pins 2-3 will
generate a non-maskable interrupt for
the program that has frozen. See the
table on the right for jumper settings.
Watch Dog must also be enabled in
BIOS.
Note: when Watch Dog is enabled, the user must
write their own application software to disable the
Watch Dog Timer.
Watch Dog
Jumper Settings (JWD)
Jumper Setting Defi nition
Pins 1-2 Reset
Pins 2-3 NMI
Open Disabled
LAN1/LAN2 Enable/Disable
Change the setting of jumper JPL1 to
enable or disable the LAN1 port and
JPL2 to enable or disable the LAN2
port on the serverboard. See the table
on the right for jumper settings. The
default setting is enabled.
LAN1/2 Enable/Disable
Jumper Settings (JPL1/2)
Jumper Setting Defi nition
Pins 1-2 Enabled
Pins 2-3 Disabled
I2C to PCI-Express Slot
JI2C1/JI2C2 allows you to enable the
I2C bus to communicate with the PCI-
Express slot. For the jumpers to work
properly, please set both jumpers to the
same setting. If enabled, both jumpers
must be enabled. If disabled, both
jumpers must be disabled. See the
table on the right for jumper settings.
I2C to PCI-Express Slot
Jumper Settings (JPI2C1/JPI2C2)
Jumper Setting Defi nition
Closed Enabled
Open Disabled

5-20
SUPERSERVER 6015T-T/6015T-INF User's Manual
5-11 Onboard Indicators
LAN1/LAN2 LEDs
The Ethernet ports (located beside
the VGA port) have two LEDs. On
each Gb LAN port, one LED indicates
activity when blinking while the other
LED may be green, amber or off to
indicate the speed of the connection.
See the table on the right for the func-
tions associated with the connection
speed LED.
LAN LED
(Connection Speed Indicator)
LED Color Defi nition
Off 10 MHz
Green 100 MHz
Amber 1 GHz
Onboard Power LED Indicator
(LE1)
LED Color Defi nition
Green (Solid) Power On, System
On
Green (Flashing) Power Standby:
power cable con-
nected, System: Off
Off Power: Off, power
cable: not connected
Onboard Power LED (LE1)
There is an Onboard Power LED (LE1)
located near JF1. When the green light
is on or fl ashing, the power is connected.
Unplug the power cable before removing
and changing any components. See the
table on the right for indications.
Infi niBand Link LED
(LE2)
Color Status Defi nition
Green Solid Infi niBand
Connected
Off Off No connection
Infi niBand LED Indicators (LE2/
LE3)
Two Infi niBand LED Indicators (LE2/LE3)
are located near the Infi niBand connector.
The green LED (LE2) is the Infi niBand
Link LED while the yellow LED (LE3)
indicates activity. Refer to the tables on
the right for details.
Infi niBand Link LED
(LE3)
Color Status Defi nition
Yellow Solid Infi niBand:
Active
Yellow Dim Infi niBand:
Connected,
Activity: Idle
Off Off No connection

Chapter 6: Advanced Chassis Setup
6-1
Chapter 6
Advanced Chassis Setup
This chapter covers the steps required to install components and perform mainte-
nance on the SC808T-980 chassis. For component installation, follow the steps
in the order given to eliminate the most common problems encountered. If some
steps are unnecessary, skip ahead to the step that follows.
Tools Required
The only tool you will need to install components and perform maintenance is a
Philips screwdriver.
6-1 Static-Sensitive Devices
Electrostatic Discharge (ESD) can damage electronic com ponents. To prevent
damage to any printed circuit boards (PCBs), it is important to handle them very
carefully. The following measures are generally suffi cient to protect your equipment
from ESD discharge.
Precautions
Use a grounded wrist strap designed to prevent static discharge.
Touch a grounded metal object before removing any board from its antistatic
bag.
Handle a board by its edges only; do not touch its components, peripheral chips,
memory modules or gold contacts.
When handling chips or modules, avoid touching their pins.
Put the serverboard, add-on cards and peripherals back into their antistatic bags
when not in use.
For grounding purposes, make sure your computer chassis provides excellent
conductivity between the power supply, the case, the mounting fasteners and
the serverboard.
Unpacking
The serverboard is shipped in antistatic packaging to avoid static damage. When
unpacking the board, make sure the person handling it is static protected.

6-2
SUPERSERVER 6015T-T/6015T-INF User's Manual
Figure 6-2. Chassis Rear View
6-2 Control Panel
Each control panel on the front of the chassis must be connected to the JF1 con-
nector on its assiciated serverboard to provide you with system control buttons and
status indicators. (When viewed from the front of the chassis, the serverboard on
the left is referred to as the primary serverboard and the serverboard on the right
as the secondary.)
These wires have been bundled together in a ribbon cable to simplify the connection.
Connect the cable from JF1 on the serverboard to the control panel PCB (printed
circuit board). Make sure the red wire plugs into pin 1 on both connectors. Pull all
excess cabling out of the airfl ow path. The LEDs inform you of system status for
the serverboard it is connected to. See Chapter 3 for details on the LEDs and the
control panel buttons. Details on JF1 can be found in Chapter 5.
Figure 6-1. Chassis Front View
USB Ports COM Port VGA Port
LAN Ports LAN PortsPower SupplyPCI-Express x8 Slot PCI-Express x8 Slot
SATA Drives
Control Panel: Primary Serverboard Control Panel: Secondary Serverboard
Infi niBand Port* USB Ports COM Port VGA Port Infi niBand Port*
*The Infi niBand ports are included on the 6015T-INF only.

Chapter 6: Advanced Chassis Setup
6-3
6-3 System Fans
Each serverboard has its own set of three 4-cm high-performance fans (for a total
of six in the chassis) to provide the cooling for the SuperServer 6015T-T/6015T-INF.
Fan speed may be controlled by a setting in BIOS (see Chapter 7).
System Fan Failure
If a fan fails, the remaining fans will ramp up to full speed and the overheat/fan fail
LED on the control panel will blink on and off. Replace any failed fan at your earliest
convenience with the same type and model (the system can continue to run with a
failed fan). Remove the top chassis cover while the system is still running to deter-
mine which of the fans has failed. Then power down the system before replacing a
fan. Removing the power cord is also recommended as a safety precaution.
Use caution when working around the SATA backplane. Do not
touch the backplane with any metal objects and make sure no
ribbon cables touch the backplane. Also, regardless of how many
SATA drives are installed, all four drive carriers must remain in
the chassis to maintain proper airfl ow.
!
6-4 Drive Bay Installation/Removal
Accessing the Drive Bays
SATA Drives: Because of their hotswap capability, you do not need to access the
inside of the chassis or power down the system to install or replace SATA drives.
Proceed to the next step for instructions. Note: The operating system you use must
have RAID support to enable the hot-swap capability of the SATA drives.
SATA Drive Installation
1. Mounting a SATA drive in a drive carrier
The SATA drives are mounted in drive carriers to simplify their installation and
removal from the chassis. These carriers also help promote proper airfl ow for the
system. For this reason, even empty carriers without drives installed must remain
in the chassis. To add a new drive, install it into the carrier with the printed circuit
board side facing down so that the mounting holes align with those in the carrier.
Secure the drive to the carrier with four screws, as shown in Figure 6-3.

6-4
SUPERSERVER 6015T-T/6015T-INF User's Manual
Figure 6-3. Mounting a Drive in a Carrier
2. Installing/removing hot-swap SATA drives
The drive carriers are all easily accessible at the front of the chassis. These are
(with RAID enabled) hot-swap drives. To remove a carrier, push the release button
located beside the drive LEDs. Then swing the handle fully out and use it to pull
the unit straight out (see Figure 6-4).
Figure 6-4. Removing a SATA Drive

Chapter 6: Advanced Chassis Setup
6-5
6-5 Power Supply
The SuperServer 6015T-T/6015T-INF has a single 980 watt power supply. This
power supply has the capability of operating at 100 - 240 input volts. Depress both
main power buttons on the front of the chassis and then unplug the AC power cord
to completely remove power from the system before removing the power supply.
Power Supply Failure
If the power supply unit fails, the system will shut down and you will need to replace
the power supply unit. Replacement units can be ordered directly from Supermicro
(PWS-981-1S - see contact information in Chapter 1).
Replacing the Power Supply
1. Accessing the inside of the system
To replace a power supply, you must fi rst remove the top chassis cover. To do so,
fi rst release the retention screws that secure the unit to the rack. Grasp the two
handles on either side and pull the unit straight out until it locks (you will hear a
"click"). The top cover of the chassis is secured with four screws: two at the top
rear of the cover and one on each side lip, also near the back. Remove all four,
then place both thumbs in the indentations and push the cover back until it slides
off. You can then lift the top cover from the chassis to gain full access to the inside
of the server.
2. Removing the power supply
First unplug the power cord from the system. To remove the failed power unit,
remove the two screws on the back of the power supply, which secure it to the
chassis. You can then lift the unit straight out of the chassis. (See Figure 6-5.)
3. Installing a new power supply
Replace the failed unit with another unit of the same wattage. You must replace
it with the exact same power supply. Carefully insert the new unit into position in
the chassis and secure it with the two screws at the rear of the unit. Before recon-
necting the power cord, make sure the power switch on the power supply is in the
off position. Then reconnect the power cord, replace the chassis top cover and
push the unit back into the rack. Finish by turning the power switch on the power
supply on, and then depress the power buttons on the front of the chassis.

6-6
SUPERSERVER 6015T-T/6015T-INF User's Manual
Figure 6-4. Removing the Power Supply

Chapter 7: BIOS
7-1
Chapter 7
BIOS
7-1 Introduction
This chapter describes the Phoenix BIOS™ Setup utility for the X7DBT/X7DBT-INF.
The Phoenix ROM BIOS is stored in a fl ash chip and can be easily upgraded using
a fl oppy disk-based program.
Note: Due to periodic changes to the BIOS, some settings may have been added or
deleted and might not yet be recorded in this manual. Please refer to the Manual
Download area of the Supermicro web site <http://www.supermicro.com> for any
changes to the BIOS that may not be refl ected in this manual.
System BIOS
The BIOS is the Basic Input Output System used in all IBM® PC, XT™, AT®, and
PS/2® compatible computers. The Phoenix BIOS stores the system parameters,
types of disk drives, video displays, etc. in the CMOS. The CMOS memory requires
very little electrical power. When the computer is turned off, a backup battery pro-
vides power to the CMOS logic, enabling it to retain system parameters. Each time
the computer is powered on the computer is confi gured with the values stored in
the CMOS Logic by the system BIOS, which gains control at boot up.
How To Change the Confi guration Data
The CMOS information that determines the system parameters may be changed by
entering the BIOS Setup utility. This Setup utility can be accessed by pressing the
<Delete> key at the appropriate time during system boot. (See below.)
Starting the Setup Utility
Normally, the only visible POST (Power On Self Test) routine is the memory test. As
the memory is being tested, press the <Delete> key to enter the main menu of the
BIOS Setup utility. From the main menu, you can access the other setup screens,
such as the Security and Power menus. Beginning with Section 7-3, detailed de-
scriptions are given for each parameter setting in the Setup utility.
Warning: To prevent possible boot failure, do not shut down or reset the
system while updating BIOS.
!

7-2
SUPERSERVER 6015T-T/6015T-INF User's Manual
7-2 Running Setup
Default settings are in bold text unless otherwise noted.
The BIOS setup options described in this section are selected by choosing the ap-
propriate text from the main BIOS Setup screen. All displayed text is described in
this section, although the screen display is often all you need to understand how
to set the options (See the next page).
When you fi rst power on the computer, the Phoenix BIOS™ is immediately acti-
vated.
While the BIOS is in control, the Setup program can be activated in one of two
ways:
1. By pressing <Delete> immediately after turning the system on, or
2. When the message shown below appears briefl y at the bottom of the screen during
the POST (Power On Self-Test), press the <Delete> key to activate the main Setup
menu:
Press the <Delete> key to enter Setup
7-3 Main BIOS Setup
All main Setup options are described in this section. The main BIOS Setup screen
is displayed below.
Use the Up/Down arrow keys to move among the different settings in each menu.
Use the Left/Right arrow keys to change the options for each setting.
Press the <Esc> key to exit the CMOS Setup Menu. The next section describes in
detail how to navigate through the menus.
Items that use submenus are indicated with the icon. With the item highlighted,
press the <Enter> key to access the submenu.

Chapter 7: BIOS
7-3
Main BIOS Setup Menu
Main Setup Features
System Time
To set the system date and time, key in the correct information in the appropriate
fi elds. Then press the <Enter> key to save the data.
System Date
Using the arrow keys, highlight the month, day and year fi elds, and enter the correct
data. Press the <Enter> key to save the data.
BIOS Date
This fi eld displays the date when this version of BIOS was built.

7-4
SUPERSERVER 6015T-T/6015T-INF User's Manual
IDE Channel 0 Master/Slave, IDE Channel 1 Master/Slave, SATA
Port2 and SATA Port3
These settings allow the user to set the parameters of IDE Channel 0 Master/
Slave, IDE Channel 1 Master/Slave, IDE Channel 2 Master, IDE Channel 3 Master
slots. Hit <Enter> to activate the following submenu screen for detailed options
of these items. Set the correct confi gurations accordingly. The items included in
the submenu are:
Type
This option allows the user to selects the type of IDE hard drive. The option
Auto will allow the BIOS to automatically confi gure the parameters of the
HDD installed at the connection. Enter a number between 1 to 39 to select a
predetermined HDD type. Select User to allow the user to enter the parameters
of the HDD installed. Select CDROM if a CDROM drive is installed. Select ATAPI
if a removable disk drive is installed.
Multi-Sector Transfers
This item allows the user to specify the number of sectors per block to be
used in multi-sector transfer. The options are Disabled, 4 Sectors, 8 Sectors,
and 16 Sectors.
LBA Mode Control
This item determines whether the Phoenix BIOS will access the IDE Channel 0
Master Device via the LBA mode. The options are Enabled and Disabled.

Chapter 7: BIOS
7-5
32 Bit I/O
This option allows the user to enable or disable the function of 32-bit data transfer.
The options are Enabled and Disabled.
Transfer Mode
This option allows the user to set the transfer mode. The options are Standard,
Fast PIO1, Fast PIO2, Fast PIO3, Fast PIO4, FPIO3/DMA1 and FPIO4/DMA2.
Ultra DMA Mode
This option allows the user to select Ultra DMA Mode. The options are Disabled,
Mode 0, Mode 1, Mode 2, Mode 3, Mode 4, and Mode 5.
Serial ATA
This setting allows the user to enable or disable the function of Serial ATA. The
options are Disabled and Enabled.
Native Mode Operation
Select the native mode for ATA. The options are: Serial ATA and Auto.
SATA Controller Mode
Select Compatible to allow the SATA and PATA drives to be automatically-detected
and be placed in the Legacy Mode by the BIOS. Select Enhanced to allow the
SATA and PATA drives to be to be automatically-detected and be placed in the
Native IDE Mode. Note: Enhanced mode is supported by the Windows 2000 OS
or a later version.
When the SATA Controller Mode is set to Enhanced, the following items will
display:
Serial ATA (SATA) RAID Enable
Select Enable to enable Serial ATA RAID Functions. (For the Windows OS
environment, use the RAID driver if this feature is set to Enabled. When this
item is set to Enabled, the item: "ICH RAID Code Base" will be available for
you to select Intel or Adaptec Host RAID fi rmware to be activated. If this item
is set to Disabled, the item-SATA AHCI Enable will be available.) The options
are Enabled and Disabled.
ICH RAID Code Base (Available when SATA RAID is Enabled)
Select Intel to enable Intel's SATA RAID fi rmware. Select Adaptec to use Adaptec's
HostRAID fi rmware. The options are Intel and Adaptec.

7-6
SUPERSERVER 6015T-T/6015T-INF User's Manual
SATA AHCI (Available when SATA RAID is Disabled)
Select Enable to enable the function of Serial ATA Advanced Host Interface. (Use
caution when using this function. This feature is for advanced programmers only.
The options are Enabled and Disabled.)
System Memory
This display informs you how much system memory is recognized as being present
in the system.
Extended Memory
This display informs you how much extended memory is recognized as being
present in the system.

Chapter 7: BIOS
7-7
7-4 Advanced Setup
Choose Advanced from the Phoenix BIOS Setup Utility main menu with the arrow
keys. You should see the following display. The items with a triangle beside them have
submenus that can be accessed by highlighting the item and pressing <Enter>.
Boot Features
Access the submenu to make changes to the following settings.
QuickBoot Mode
If enabled, this feature will speed up the POST (Power On Self Test) routine by
skipping certain tests after the computer is turned on. The settings are Enabled
and Disabled. If Disabled, the POST routine will run at normal speed.
QuietBoot Mode
This setting allows you to Enable or Disable the graphic logo screen during
boot-up.
POST Errors
Set to Enabled to display POST Error Messages if an error occurs during bootup.
If set to Disabled, the system will continue to boot without displaying any error
message even when a boot error occurs.

7-8
SUPERSERVER 6015T-T/6015T-INF User's Manual
ACPI Mode
Use this setting to determine if you want to employ ACPI (Advanced Confi guration
and Power Interface) power management on your system. The options are
Yes and No.
Power Button Behavior
If set to Instant-Off, the system will power off immediately as soon as the user
hits the power button. If set to 4-sec., the system will power off when the user
presses the power button for 4 seconds or longer. The options are instant-off
and 4-sec override.
Resume On Modem Ring
Select On to “wake your system up” when an incoming call is received by your
modem. The options are On and Off.
Power Loss Control
The feature allows the user to set the power state after a power outage. You
can select Stay Off for the system power to remain off after a power loss. Select
Power On for the system power to be turned on after a power loss. Select Last
State to allow the system to resume its last state before the power loss.
Watch Dog
If enabled, this option will automatically reset the system if the system is not
active for more than 5 minutes. The options are Enabled and Disabled.
Summary Screen
This setting allows you to Enable or Disable the summary screen which displays
the system confi guration during bootup.
Memory Cache
Cache System BIOS Area
This setting allows you to designate a reserve area in the system memory to be
used as a System BIOS buffer to allow BIOS to write (cache) its data into it. Select
Write Protect to enable the function and reserve this area for system BIOS ROM
access only. Select Uncached to disable this function and make this area available
for other devices.
Cache Video BIOS Area
This setting allows you to designate a reserve area in the system memory to be
used as a Video BIOS buffer to allow BIOS to write (cache) its data into it. Select
Write Protect to enable the function and reserve this area for the Video BIOS ROM
access only. Select Uncached to disable this function.

Chapter 7: BIOS
7-9
Cache Base 0-512K
If enabled, this feature will allow the data stored in the base memory area: block
0-512K to be cached (written) into a buffer, a storage area in the Static DROM
(SDROM) or to be written into L1 or L2 cache inside the CPU to speed up
CPU's operations. Select Uncached to disable this function. Select Write Through
to allow data to be cached into the buffer and written into the system memory at
the same time. Select Write Protect to prevent data from being written into the
base memory area of Block 0-512K. Select Write Back to allow the CPU to write
data back directly from the buffer without writing data to the system memory in
order to speed up CPU's operation. The options are Uncached, Write Through,
Write Protect, and Write Back.
Cache Base 512K-640K
If enabled, this feature will allow the data stored in the memory area: 512K-640K
to be cached (written) into a buffer, a storage area in the Static DROM (SDROM)
or written into L1, L2 or L3 cache inside the CPU to speed up CPU operations.
Select Uncached to disable this function. Select Write Through to allow data to be
cached into the buffer and written into the system memory at the same time. Select
Write Protect to prevent data from being written into the base memory area of Block
512-640K. Select Write Back to allow the CPU to write data back directly from the
buffer without writing data to the system memory to speed up CPU's operation. The
options are Uncached, Write Through, Write Protect, and Write Back.
Cache Extended Memory
If enabled, this feature will allow the data stored in the extended memory area to
be cached (written) into a buffer, a storage area in the Static DROM (SDROM) or
written into L1, L2 or L3 cache inside the CPU to speed up CPU's operations.
Select Uncached to disable this function. Select Write Through to allow data to
be cached into the buffer and written into the system memory at the same time.
Select Write Protect to prevent data from being written into the base memory area
of Block 0-512K. Select Write Back to allow the CPU to write data back directly from
the buffer without writing data to the system memory to speed up CPU's operation.
The options are Uncached, Write Through, Write Protect and Write Back.
Discrete MTRR Allocation
If enabled, MTRRs (Memory Type Range Registers) are confi gured as distinct,
separate units and cannot be overlapped. If enabled, the user can achieve better
graphic effects when using a Linux graphic driver that requires the write-combining
confi guration with 4GB or more memory. The options are Enabled and Disabled.

7-10
SUPERSERVER 6015T-T/6015T-INF User's Manual
PCI Confi guration
Access the submenu to make changes to the following settings for PCI devices.
Onboard GLAN1/Onboard GLAN2 (Gigabit- LAN) OPROM Confi gure
Enabling this option provides the capability to boot from GLAN Port 1 or GLAN Port
2. The options are Disabled and Enabled.
Default Primary Video Adapter
This feature allows the user to specify which video adapter is to be used as the
default primary video adapter: the onboard video adapter or others. The options
are Other and Onboard Video.
Emulated IRQ Solutions
The options are Disabled and Enabled.
PCI-Exp. I/O Performance
Some add-on cards perform faster with the coalesce feature, which limits the
payload size to 128 Bytes, while others perform faster with a payload size of 256
bytes, which inhibits coalesce features. Please refer to your add-on card user
guide for the desired setting. The options are Payload (256 Bytes) and Coalesce
Enabled (128 Bytes).
PCI Parity Error Forwarding
The feature allows SERR and PERR errors detected in PCI slots to be sent
(forwarded) to the BIOS DMI Event Log for the user to review. The options are
Enabled and Disabled.
ROM Scan Ordering
This feature allows the user to decide which Option ROM to be activated fi rst. The
options are Onboard fi rst and Add-On fi rst.
Reset Confi guration Data
If set to Yes, this setting clears the Extended System Confi guration Data- (ESCD)
area. The options are Yes and No.

Chapter 7: BIOS
7-11
Slot1 PCI-Exp x8
Access the submenu for each of the settings above to make changes to the
following:
Option ROM Scan
When enabled, this setting will initialize the device expansion ROM. The options
are Enabled and Disabled.
Enable Master
This setting allows you to enable the selected device as the PCI bus master.
The options are Enabled and Disabled.
Latency Timer
This setting allows you to set the clock rate for Bus Master. A high-priority, high-
throughout device may benefi t from a greater clock rate. The options are Default,
0020h, 0040h, 0060h, 0080h, 00A0h, 00C0h, and 00E0h. For Unix, Novell and
other Operating Systems, please select the option: other. If a drive fails after
the installation of a new software, you might want to change this setting and
try again. A different OS requires a different Bus Master clock rate.
Large Disk Access Mode
This setting determines how large a hard drive is to be accessed. The options are
DOS or Other (for Unix, Novelle NetWare and other operating systems).
Advanced Chipset Control
Access the submenu to make changes to the following settings.
Warning: Use caution when changing the Advanced settings. Incorrect
values entered may cause system to malfunction. Also, a very high DRAM
frequency or incorrect DRAM timing may cause system to become un-
stable. When this occurs, revert the item to the default setting.
SERR Signal Condition
This setting specifi es the ECC Error conditions that an SERR# is to be asserted.
The options are None, Single Bit, Multiple Bit and Both.
4GB PCI Hole Granularity
This feature allows you to specify the size of PCI hole granularity for a PCI slot.
If MTRRs are not enough, this option may be used to reduce MTRR occupation.
The options are: 256 MB, 512 MB, 1GB and 2GB.
!

7-12
SUPERSERVER 6015T-T/6015T-INF User's Manual
Memory Branch Mode
This option determines how the two memory branches operate. System address
space can either be interleaved between the two branches or Sequential from one
branch to another. Mirror mode allows data correction by maintaining two copies
of data in two branches. Single Channel 0 allows a single DIMM population during
system manufacturing. The options are Interleave, Sequential, Mirroring, and
Single Channel 0.
Branch 0/1 Rank Interleaving
Select enable to enable the feature of memory Interleaving for Branch 0 Rank/
Branch1 Rank. The options are 1:1, 1:2 and 1:4.
Branch 0/1 Rank Sparing
Select enable to enable the sparing feature for Branch 0 Rank/Branch 1 Rank. The
options are Enabled and Disabled.
Enhanced x8 Detection
Select Enabled to enable Enhanced x8 DRAM UC Error Detection. The options
are Disabled and Enabled.
High Temperature DRAM Operation
When set to Enabled, the BIOS will refer to the SPD table to set the maximum
DRAM temperature. If disabled, the BIOS will set the maximum DRAM temperature
based on a predefi ned value. The options are Enabled and Disabled.
AMB Thermal Sensor
Select Enabled to enable the thermal sensor embedded in the Advanced Memory
Buffer on a fully buffered memory module for thermal monitoring. The options are
Disabled and Enabled.
Thermal Throttle
Select Enabled to enable the function of closed-loop thermal throttling on a fully
buffered (FBD) memory module. In the closed-loop thermal environment, thermal
throttling will be activated when the temperature of the FBD DIMM device exceeds
a predefi ned threshold. The options are Enabled and Disabled.
Global Activation Throttle
Select Enabled to enable open-loop global thermal throttling on a fully buffered
(FBD) memory module to make it active whenever the number of activate control
exceeds a predefi ned number. The options are Enabled and Disabled.

Chapter 7: BIOS
7-13
Snoop Filter
Select Enabled to eliminate snoop traffi c to the graphics port to improve system
performance when running graphics intensive applications. The options are Enabled
and Disabled.
Crystal Beach Features
This feature was designed to implement Intel's I/O AT (Acceleration Technology) to
accelerate the performance of TOE devices. (Note: A TOE device is a specialized,
dedicated processor that is installed on an add-on card or a network card to handle
some or all packet processing of the add-on card. For this motherboard, the TOE
device is built inside the ESB 2 South Bridge chip.) The options are Enabled and
Disabled.
Route Port 80h Cycles to
This feature allows the user to decide which bus to send debug information to. The
options are Disabled, PCI and LPC.
Clock Spectrum Feature
If Enabled, the BIOS will monitor the level of Electromagnetic Interference caused
by the components and will attempt to decrease the interference whenever needed.
The options are Enabled and Disabled.
Enabling Multi-Media Timer
Select Yes to activate a set of timers that are alternative to the traditional 8254
timers for the OS use. The options are Yes and No.
USB Function
Select Enabled to enable the function of USB devices specifi ed. The settings are
Enabled and Disabled.
Legacy USB Support
This setting allows you to enable Legacy USB device support. The settings are
Enabled and Disabled.

7-14
SUPERSERVER 6015T-T/6015T-INF User's Manual
Advanced Processor Options
Access the submenu to make changes to the following settings.
CPU Speed
This is a display that indicates the speed of the installed processor.
Frequency Ratio (Available when supported by the CPU)
The feature allows the user to set the internal frequency multiplier for the CPU.
The options are: Default, x12, x13, x14, x15, x16, x17 and x18.
Hyper-threading (Available when supported by the CPU)
Set to Enabled to use the Hyper-Threading Technology, which will result in increased
CPU performance. The options are Disabled and Enabled.
Core-Multi-Processing (Available when supported by the CPU)
Set to Enabled to use a processor's Second Core and beyond. (Please refer to
Intel's web site for more information.) The options are Disabled and Enabled.
Machine Checking (Available when supported by the CPU)
Set to Enabled to activate the function of Machine Checking and allow the CPU to
detect and report hardware (machine) errors via a set of model-specifi c registers
(MSRs). The options are Disabled and Enabled.
Thermal Management 2 (Available when supported by the CPU)
Set to Enabled to use Thermal Management 2 (TM2) which will lower CPU voltage
and frequency when the CPU temperature reaches a predefi ned overheat threshold.
Set to Disabled to use Thermal Manager 1 (TM1), allowing CPU clocking to be
regulated via CPU Internal Clock modulation when the CPU temperature reaches
the overheat threshold.
C1 Enhanced Mode (Available when supported by the CPU)
Select Disable to disable the Standard C1 Halt State which will partially turn off
the CPU internal clocks to conserve energy and prevent system overheating when
the OS is idle. Select Enable to use the Enhanced C1 Halt State to lower the CPU
clock frequency and the supply voltage before turning off the clocks.
Execute Disable Bit (Available when supported by the CPU and the OS)
Set to Enabled to enable Execute Disable Bit and allow the processor to classify
areas in memory where an application code can be executed and where it cannot,
and thus preventing a worm or a virus from inserting and creating a fl ood of codes
to overwhelm the processor or damage the system during an attack.
The options are Disabled and Enabled. (Note: For more information regarding
hardware/software support for this function, please refer to Intel's and Microsoft's
web sites.)

Chapter 7: BIOS
7-15
Adjacent Cache Line Prefetch (Available when supported by the CPU.)
The CPU fetches the cache line for 64 bytes if this option is set to Disabled. The
CPU fetches both cache lines for 128 bytes as comprised if Enabled. The options
are Disabled and Enabled.
Hardware Prefetch (Available when supported by the CPU)
Set this option to Enabled to enable the hardware components that are used in
conjunction with software programs to prefetch data in order to shorten execution
cycles and maximize data processing effi ciency. The options are Disabled and
Enabled.
Direct Cache Access (Available when supported by the CPU)
Set to Enable to route inbound network IO traffi c directly into processor caches
to reduce memory latency and improve network performance. The options are
Disabled and Enabled.
DCA Delay Clocks (Available when supported by the CPU)
This feature allows the user to set the clock delay setting from snoop to prefetch
for Direct Cache Access. Select a setting from 8 (bus cycles) to 120 (bus cycles)
(in 8-cycle increment). The default setting is 32 (bus cycles).
Intel <R> Virtualization Technology (Available when supported by the
CPU)
Select Enabled to use Intel's Virtualization Technology and allow one platform to
run multiple operating systems and applications in independent partitions, creating
multiple "virtual" systems in one physical computer. The options are Enabled and
Disabled. (Note: If there is any change to this setting, you will need to power off
and restart the system for the change to take effect.) Please refer to Intel’s web
site for detailed information.
Intel EIST Support (Available when supported by the CPU)
Select Enabled to use the Enhanced Intel SpeedStep Technology and allow the
system to automatically adjust processor voltage and core frequency in an effort
to reduce power consumption and heat dissipation. The options are Enabled and
Disabled. Please refer to Intel’s web site for detailed information.

7-16
SUPERSERVER 6015T-T/6015T-INF User's Manual
I/O Device Confi guration
Access the submenu to make changes to the following settings.
Serial Port B
This setting allows you to assign control of serial port B. The options are Enabled
(user defi ned), Disabled, Auto (BIOS controlled) and OS Controlled.
Mode
This setting allows you to set the type of device that will be connected to serial
port B. The options are Normal, IR (for an infrared device) and ASK_IR.
Base I/O Address
This setting allows you to select the base I/O address for serial port B. The
options are 3F8, 2F8, 3E8 and 2E8.
Interrupt
This setting allows you to select the IRQ (interrupt request) for serial port B.
The options are IRQ3 and IRQ4.
DMI Event Logging
Access the submenu to make changes to the following settings.
Event Log Validity
This is a display to inform you of the event log validity. It is not a setting.
Event Log Capacity
This is a display to inform you of the event log capacity. It is not a setting.
View DMI Event Log
Highlight this item and press <Enter> to view the contents of the event log.
Event Logging
This setting allows you to Enable or Disable event logging.
ECC Event Logging
This setting allows you to Enable or Disable ECC event logging.
Mark DMI Events as Read
Highlight this item and press <Enter> to mark the DMI events as read.
Clear All DMI Event Logs
Select Yes and press <Enter> to clear all DMI event logs. The options are Yes
and No.

Chapter 7: BIOS
7-17
Console Redirection
Access the submenu to make changes to the following settings.
COM Port Address
This item allows you to specify which COM port to direct the remote console to:
Onboard COM A or Onboard COM B. This setting can also be Disabled.
BAUD Rate
This item allows you to set the BAUD rate for console redirection. The options
are 300, 1200, 2400, 9600, 19.2K, 38.4K, 57.6K, and 115.2K.
Console Type
This item allows you to set console redirection type. The options are VT100,
VT100,8bit, PC-ANSI, 7bit, PC ANSI, VT100+, VT-UTF8 and ASCII.
Flow Control
This item allows you to select the fl ow control option for console redirection. The
options are None, XON/XOFF and CTS/RTS.
Console Connection
This item allows you to decide how console redirection is to be connected: either
Direct or Via Modem.
Continue CR after POST
Choose whether to continue with console redirection after the POST routine.
The options are On and Off.

7-18
SUPERSERVER 6015T-T/6015T-INF User's Manual
Hardware Monitor Logic
Note: Phoenix BIOS will automatically detect the type of CPU(s) and hardware
monitoring chip are used on the motherboard and will display the Hardware
Monitoring Screen accordingly. Your Hardware Monitoring Screen may look like
the one shown on this page, on p. 7-19 or on p 7-20, depending on the type of
CPU(s) and HW Monitoring chip you are using.
CPU Temperature Threshold
This option allows the user to set a CPU temperature threshold that will activate
the alarm system when the CPU temperature reaches this pre-set temperature
threshold. The options are 70oC, 75oC, 80oC and 85oC.
Highlight this and hit <Enter> to see monitor data for the following items:
CPU1 Temperature
CPU1 Second Core
CPU2 Temperature
CPU2 Second Core
System Temperature
Fan1-Fan8 Speeds: If the feature of Auto Fan Control is enabled, the BIOS will
automatically display the status of the fans indicated in this item.
Fan Speed Control Modes
This feature allows the user to decide how the system controls the speeds of the
onboard fans. The CPU temperature and the fan speed are correlative. When the
CPU on-die temperature increases, the fan speed will also increase, and vice versa.
Select Workstation if your system is used as a Workstation. Select Server if your
system is used as a Server. Select 3-pin if your chassis uses 3-pin fans. Select
4-pin if your chassis uses 4-pin fans. Select “Disable” to disable the fan speed
control function and allow the onboard fans to constantly run at the full speed (12V).
The Options are: 1. Disable, 2. Optimized Server w/3-pin, 3. Optimized Workstation
w/3-pin, 4. Optimized Server w/4-pin, and 5. Optimized Workstation w/4-pin.
Voltage Monitoring
The following items will be monitored and displayed:
Vcore A
Vcore B
P1V5
+3.3V
+12V
5Vsb
5VDD

Chapter 7: BIOS
7-19
Hardware Monitor Logic
CPU Temperature Threshold (See note on page 7-18)
This option allows the user to set a CPU temperature threshold that will activate
the alarm system when the CPU temperature reaches this pre-set temperature
threshold. The options are 70oC, 75oC, 80oC and 85oC.
Highlight this and hit <Enter> to see monitor data for the following items:
CPU1 Temperature
CPU1 Second Core
CPU2 Temperature
CPU2 Second Core
System Temperature
Fan1-Fan8 Speeds: If the feature of Auto Fan Control is enabled, the BIOS will
automatically display the status of the fans indicated in this item.
Fan Speed Control Modes
This feature allows the user to decide how the system controls the speeds of the
onboard fans. The CPU temperature and the fan speed are correlative. When the
CPU on-die temperature increases, the fan speed will also increase, and vice versa.
Select Workstation if your system is used as a Workstation. Select Server if your
system is used as a Server. Select 3-pin if your chassis uses 3-pin fans. Select
4-pin if your chassis uses 4-pin fans. Select “Disable” to disable the fan speed
control function and allow the onboard fans to constantly run at the full speed (12V).
The Options are: 1. Disable, 2. Optimized Server w/3-pin, 3. Optimized Workstation
w/3-pin, 4. Optimized Server w/4-pin, and 5. Optimized Workstation w/4-pin.
Voltage Monitoring
The following items will be monitored and displayed:
Vcore A
Vcore B
P1V5
+3.3V
+12V
5Vsb
5VDD
P_VTT
Vbat

7-20
SUPERSERVER 6015T-T/6015T-INF User's Manual
Hardware Monitor Logic (See note on page 7-18.)
CPU Temperature Threshold
This option allows the user to set a CPU temperature threshold that will activate
the alarm system when the CPU temperature reaches this pre-set temperature
threshold. The hardcode default setting is 80oC.
Temperature Monitoring
Highlight this and hit <Enter> to see monitor data for the following items:
CPU1 Temperature/CPU1 Second Core Temperature
CPU2 Temperature/CPU2 Second Core Temperature
PECI Agent 1 Temperature/PECI Agent 2 Temperature/PECI Agent 3 Temperature/
PECI Agent 4 Temperature
System Temperature
Fan1-Fan8 Speeds: If the feature of Auto Fan Control is enabled, the BIOS will
automatically display the status of the fans indicated in this item.
Fan Speed Control Modes
This feature allows the user to decide how the system controls the speeds of the
onboard fans. The CPU temperature and the fan speed are correlative. When the
CPU on-die temperature increases, the fan speed will also increase, and vice versa.
Select Workstation if your system is used as a Workstation. Select Server if your
system is used as a Server. Select 3-pin if your chassis uses 3-pin fans. Select
4-pin if your chassis uses 4-pin fans. Select “Disable” to disable the fan speed
control function and allow the onboard fans to constantly run at the full speed (12V).
The Options are: 1. Disable, 2. Optimized Server w/3-pin, 3. Optimized Workstation
w/3-pin, 4. Optimized Server w/4-pin, and 5. Optimized Workstation w/4-pin.
Voltage Monitoring
The following items will be monitored and displayed:
Vcore A:
Vcore B:
-12V
P1V2_NIC_SEN
+3.3V
+12V
5Vsb
5VDD
P_VTT
Vbat

Chapter 7: BIOS
7-21
IPMI (Available only when an IPMI card is installed)
IPMI Specifi cation Version: This item displays the current IPMI Version.
Firmware Version: This item displays the current Firmware Version.
System Event Logging
Select Enabled to enable IPMI Event Logging. When this function is set to Disabled,
the system will continue to log events received via system interface. The options
are Enabled and Disabled.
Clear System Event Logging
Enabling this function to force the BIOS to clear the system event logs during the
next cold boot. The options are Enabled and Disabled.
Existing Event Log Number
This item displays the number of the existing event log.
Event Log Control
System Firmware Progress
Enable this function to log POST progress. Options are Enabled and
Disabled.
BIOS POST Errors
Enable this function to log POST errors. Options are Enabled and Disabled.
BIOS POST Watch Dog
Set to Enabled to enable POST Watch Dog. Options are Enabled and Disabled.

7-22
SUPERSERVER 6015T-T/6015T-INF User's Manual
OS Boot Watch Dog
Set to Enabled to enable OS Boot Watch Dog. The options are Enabled and
Disabled.
Timer for Loading OS (Minutes)
This feature allows the user to set the time value (in minutes) for the previous
item: OS Boot Watch Dog by keying-in a desired number in the blank. The default
setting is 10 (minutes.) (Please ignore this option when OS Boot Watch Dog is
set to Disabled.)
Time Out Option
This feature allows the user to determine what action to take in an event of a system
boot failure. The options are No Action, Reset, Power Off and Power Cycles.
System Event Log/System Event Log (List Mode)
These options display the System Event (SEL) Log and System Event (SEL) Log
in List Mode. Items include: SEL (System Event Log) Entry Number, SEL Record
ID, SEL Record Type, Time Stamp, Generator ID, SEL Message Revision, Sensor
Type, Sensor Number, SEL Event Type, Event Description, and SEL Event Data.

Chapter 7: BIOS
7-23
Realtime Sensor Data
This feature display information from motherboard sensors, such as temperatures,
fan speeds and voltages of various components.

7-24
SUPERSERVER 6015T-T/6015T-INF User's Manual
7-5 Security
Choose Security from the Phoenix BIOS Setup Utility main menu with the arrow
keys. You should see the following display. Security setting options are displayed
by highlighting the setting using the arrow keys and pressing <Enter>. All Security
BIOS settings are described in this section.
Supervisor Password Is:
This displays whether a supervisor password has been entered for the system.
Clear means such a password has not been used and Set means a supervisor
password has been entered for the system.
User Password Is:
This displays whether a user password has been entered for the system. Clear
means such a password has not been used and Set means a user password has
been entered for the system.
Set Supervisor Password
When the item "Set Supervisor Password" is highlighted, hit the <Enter> key. When
prompted, type the Supervisor's password in the dialogue box to set or to change
supervisor's password, which allows access to the BIOS.
Set User Password
When the item "Set User Password" is highlighted, hit the <Enter> key. When
prompted, type the user's password in the dialogue box to set or to change the
user's password, which allows access to the system at boot-up.

Chapter 7: BIOS
7-25
Password on Boot
This setting allows you to require a password to be entered when the system
boots up. The options are Enabled (password required) and Disabled (password
not required).
7-6 Boot
Choose Boot from the Phoenix BIOS Setup Utility main menu with the arrow keys.
You should see the following display. See details on how to change the order and
specs of boot devices in the Item Specifi c Help window. All Boot BIOS settings are
described in this section.
Candidate
List
Boot List
Boot Priority Order/Excluded from Boot Orders
The devices included in the boot list section (above) are bootable devices listed in
the sequence of boot order as specifi ed. The boot functions for the devices included
in the candidate list (above) are currently disabled. Use a <+> key or a <-> key to
move the device up or down. Use the <f> key or the <r> key to specify the type of
an USB device, either fi xed or removable. You can select one item from the boot
list and hit the <x> key to remove it from the list of bootable devices (to make its
resource available for other bootable devices). Subsequently, you can select an item
from the candidate list and hit the <x> key to remove it from the candidate list and
put it in the boot list. This item will then become a bootable device. See details on
changing the boot priority order of a device in the "Item Specifi c Help" window.

7-26
SUPERSERVER 6015T-T/6015T-INF User's Manual
7-7 Exit
Choose Exit from the Phoenix BIOS Setup Utility main menu with the arrow keys.
You should see the following display. All Exit BIOS settings are described in this
section.
Exit Saving Changes
Highlight this item and hit <Enter> to save any changes you've made and to exit
the BIOS Setup utility.
Exit Discarding Changes
Highlight this item and hit <Enter> to exit the BIOS Setup utility without saving any
changes you may have made.
Load Setup Defaults
Highlight this item and hit <Enter> to load the default settings for all items in the
BIOS Setup. These are the safest settings to use.
Discard Changes
Highlight this item and hit <Enter> to discard (cancel) any changes you've made.
You will remain in the Setup utility.
Save Changes
Highlight this item and hit <Enter> to save any changes you've made. You will
remain in the Setup utility.

A-1
Appendix A: BIOS POST Messages
Appendix A
BIOS POST Messages
During the Power-On Self-Test (POST), the BIOS will check for problems. If a prob-
lem is found, the BIOS will activate an alarm or display a message. The following is
a list of such BIOS messages.
Failure Fixed Disk
Fixed disk is not working or not confi gured properly. Check to see if fi xed disk is at-
tached properly. Run Setup. Find out if the fi xed-disk type is correctly identifi ed.
Stuck key
Stuck key on keyboard.
Keyboard error
Keyboard not working.
Keyboard Controller Failed
Keyboard controller failed test. May require replacing keyboard controller.
Keyboard locked - Unlock key switch
Unlock the system to proceed.
Monitor type does not match CMOS - Run SETUP
Monitor type not correctly identifi ed in Setup
Shadow Ram Failed at offset: nnnn
Shadow RAM failed at offset nnnn of the 64k block at which the error was de-
tected.
System RAM Failed at offset: nnnn
System RAM failed at offset nnnn of in the 64k block at which the error was de-
tected.
Extended RAM Failed at offset: nnnn Extended memory not working or not con-
fi gured properly at offset nnnn.
System battery is dead - Replace and run SETUP
The CMOS clock battery indicator shows the battery is dead. Replace the battery and
run Setup to reconfi gure the system.

A-2
SUPERSERVER 6015T-T/6015T-INF User's Manual
System CMOS checksum bad - Default confi guration used
System CMOS has been corrupted or modifi ed incorrectly, perhaps by an application
program that changes data stored in CMOS. The BIOS installed Default Setup Values.
If you do not want these values, enter Setup and enter your own values. If the error
persists, check the system battery or contact your dealer.
System timer error
The timer test failed. Requires repair of system board.
Real time clock error
Real-Time Clock fails BIOS hardware test. May require board repair.
Check date and time settings
BIOS found date or time out of range and reset the Real-Time Clock. May require
setting legal date (1991-2099).
Previous boot incomplete - Default confi guration used
Previous POST did not complete successfully. POST loads default values and offers
to run Setup. If the failure was caused by incorrect values and they are not corrected,
the next boot will likely fail. On systems with control of wait states, improper Setup
settings can also terminate POST and cause this error on the next boot. Run Setup
and verify that the waitstate confi guration is correct. This error is cleared the next
time the system is booted.
Memory Size found by POST differed from CMOS
Memory size found by POST differed from CMOS.
Diskette drive A error
Diskette drive B error
Drive A: or B: is present but fails the BIOS POST diskette tests. Check to see that
the drive is defi ned with the proper diskette type in Setup and that the diskette drive
is attached correctly.
Incorrect Drive A type - run SETUP
Type of fl oppy drive A: not correctly identifi ed in Setup.
Incorrect Drive B type - run SETUP
Type of fl oppy drive B: not correctly identifi ed in Setup.

A-3
Appendix A: BIOS POST Messages
System cache error - Cache disabled
RAM cache failed and BIOS disabled the cache. On older boards, check the cache
jumpers. You may have to replace the cache. See your dealer. A disabled cache slows
system performance considerably.
CPU ID:
CPU socket number for Multi-Processor error.
EISA CMOS not writeable
ServerBIOS2 test error: Cannot write to EISA CMOS.
DMA Test Failed
ServerBIOS2 test error: Cannot write to extended DMA (Direct Memory Access)
registers.
Software NMI Failed
ServerBIOS2 test error: Cannot generate software NMI (Non-Maskable Interrupt).
Fail-Safe Timer NMI Failed
ServerBIOS2 test error: Fail-Safe Timer takes too long.
device Address Confl ict
Address confl ict for specifi ed device.
Allocation Error for: device
Run ISA or EISA Confi guration Utility to resolve resource confl ict for the specifi ed
device.
CD ROM Drive
CD ROM Drive identifi ed.
Entering SETUP ...
Starting Setup program
Failing Bits: nnnn
The hex number nnnn is a map of the bits at the RAM address which failed the memory
test. Each 1 (one) in the map indicates a failed bit. See errors 230, 231, or 232 above
for offset address of the failure in System, Extended, or Shadow memory.
Fixed Disk n
Fixed disk n (0-3) identifi ed.

A-4
SUPERSERVER 6015T-T/6015T-INF User's Manual
Invalid System Confi guration Data
Problem with NVRAM (CMOS) data.
I/O device IRQ confl ict
I/O device IRQ confl ict error.
PS/2 Mouse Boot Summary Screen:
PS/2 Mouse installed.
nnnn kB Extended RAM Passed
Where nnnn is the amount of RAM in kilobytes successfully tested.
nnnn Cache SRAM Passed
Where nnnn is the amount of system cache in kilobytes successfully tested.
nnnn kB Shadow RAM Passed
Where nnnn is the amount of shadow RAM in kilobytes successfully
tested.
nnnn kB System RAM Passed
Where nnnn is the amount of system RAM in kilobytes successfully tested.
One or more I2O Block Storage Devices were excluded from the Setup Boot
Menu
There was not enough room in the IPL table to display all installed I2O block-storage
devices.
Operating system not found
Operating system cannot be located on either drive A: or drive C:. Enter Setup and
see if fi xed disk and drive A: are properly identifi ed.
Parity Check 1 nnnn
Parity error found in the system bus. BIOS attempts to locate the address and display
it on the screen. If it cannot locate the address, it displays ????. Parity is a method
for checking errors in binary data. A parity error indicates that some data has been
corrupted.
Parity Check 2 nnnn
Parity error found in the I/O bus. BIOS attempts to locate the address and display it
on the screen. If it cannot locate the address, it displays ????.

A-5
Appendix A: BIOS POST Messages
Press <F1> to resume, <F2> to Setup, <F3> for previous
Displayed after any recoverable error message. Press <F1> to start the boot process
or <F2> to enter Setup and change the settings. Press <F3> to display the previous
screen (usually an initialization error of an Option ROM, i.e., an add-on card). Write
down and follow the information shown on the screen.
Press <F2> to enter Setup
Optional message displayed during POST. Can be turned off in Setup.
PS/2 Mouse:
PS/2 mouse identifi ed.
Run the I2O Confi guration Utility
One or more unclaimed block storage devices have the Confi guration Request bit set
in the LCT. Run an I2O Confi guration Utility (e.g. the SAC utility).
System BIOS shadowed
System BIOS copied to shadow RAM.
UMB upper limit segment address: nnnn
Displays the address nnnn of the upper limit of Upper Memory Blocks, indicating
released segments of the BIOS which can be reclaimed by a virtual memory man-
ager.
Video BIOS shadowed
Video BIOS successfully copied to shadow RAM.

A-6
SUPERSERVER 6015T-T/6015T-INF User's Manual
Notes

Appendix B: BIOS POST Codes
B-1
This section lists the POST (Power On Self Test) codes for the PhoenixBIOS. POST
codes are divided into two categories: recoverable and terminal.
Recoverable POST Errors
When a recoverable type of error occurs during POST, the BIOS will display an
POST code that describes the problem. BIOS may also issue one of the follow-
ing beep codes:
1 long and two short beeps - video confi guration error
1 repetitive long beep - no memory detected
Terminal POST Errors
If a terminal type of error occurs, BIOS will shut down the system. Before doing
so, BIOS will write the error to port 80h, attempt to initialize video and write the
error in the top left corner of the screen. The following is a list of codes that may
be written to port 80h.
Appendix B
BIOS POST Codes
POST Code Description
01h IPMI Initialization
02h Verify Real Mode
03h Disable Non-Maskable Interrupt (NMI)
04h Get CPU type
06h Initialize system hardware
07h Disable shadow and execute code from the ROM.
08h Initialize chipset with initial POST values
09h Set IN POST fl ag
0Ah Initialize CPU registers
0Bh Enable CPU cache
0Ch Initialize caches to initial POST values
0Eh Initialize I/O component
0Fh Initialize the local bus IDE
10h Initialize Power Management
11h Load alternate registers with initial POST values
12h Restore CPU control word during warm boot
13h Reset PCI Bus Mastering devices
14h Initialize keyboard controller
16h 1-2-2-3 BIOS ROM checksum
17h Initialize cache before memory Auto size

B-2
SUPERSERVER 6015T-T/6015T-INF User's Manual
POST Code Description
18h 8254 timer initialization
1Ah 8237 DMA controller initialization
1Ch Reset Programmable Interrupt Controller
20h 1-3-1-1 Test DRAM refresh
22h 1-3-1-3 Test 8742 Keyboard Controller
24h Set ES segment register to 4 GB
28h Auto size DRAM
29h Initialize POST Memory Manager
2Ah Clear 512 kB base RAM
2Ch 1-3-4-1 RAM failure on address line xxxx*
2Eh 1-3-4-3 RAM failure on data bits xxxx* of low byte of
memory bus
2Fh Enable cache before system BIOS shadow
32h Test CPU bus-clock frequency
33h Initialize Phoenix Dispatch Manager
36h Warm start shut down
38h Shadow system BIOS ROM
3Ah Auto size cache
3Ch Advanced confi guration of chipset registers
3Dh Load alternate registers with CMOS values
41h Initialize extended memory for RomPilot (optional)
42h Initialize interrupt vectors
45h POST device initialization
46h 2-1-2-3 Check ROM copyright notice
48h Check video confi guration against CMOS
49h Initialize PCI bus and devices
4Ah Initialize all video adapters in system
4Bh QuietBoot start (optional)
4Ch Shadow video BIOS ROM
4Eh Display BIOS copyright notice
4Fh Initialize MultiBoot
50h Display CPU type and speed
51h Initialize EISA board (optional)
52h Test keyboard
54h Set key click if enabled
55h Enable USB devices
58h 2-2-3-1 Test for unexpected interrupts
59h Initialize POST display service
5Ah Display prompt “Press <ESC> to enter SETUP”
5Bh Disable CPU cache

Appendix B: BIOS POST Codes
B-3
POST Code Description
5Ch Test RAM between 512 and 640 kB
60h Test extended memory
62h Test extended memory address lines
64h Jump to UserPatch1
66h Confi gure advanced cache registers
67h Initialize Multi Processor APIC
68h Enable external and CPU caches
69h Setup System Management Mode (SMM) area
6Ah Display external L2 cache size
6Bh Load custom defaults (optional)
6Ch Display shadow-area message
70h Display error messages
72h Check for confi guration errors
76h Check for keyboard errors
7Ch Set up hardware interrupt vectors
7Dh Initialize Intelligent System Monitoring (optional)
7Eh Initialize coprocessor if present
80h Disable onboard Super I/O ports and IRQs (optional)
81h Late POST device initialization
82h Detect and install external RS232 ports
83h Confi gure non-MCD IDE controllers
84h Detect and install external parallel ports
85h Initialize PC-compatible PnP ISA devices
86h Re-initialize onboard I/O ports.
87h Confi gure Motherboard Confi gurable Devices
(optional)
88h Initialize BIOS Data Area
89h Enable Non-Maskable Interrupts (NMIs)
8Ah Initialize Extended BIOS Data Area
8Bh Test and initialize PS/2 mouse
8Ch Initialize fl oppy controller
8Fh Determine number of ATA drives (optional)
90h Initialize hard-disk controllers
91h Initialize local-bus hard-disk controllers
92h Jump to UserPatch2
93h Build MPTABLE for multi-processor boards
95h Install CD ROM for boot
96h Clear huge ES segment register
97h Fix up Multi Processor table
98h 1-2 Search for option ROMs and shadow if successful. One
long, two short beeps on checksum failure

B-4
SUPERSERVER 6015T-T/6015T-INF User's Manual
POST Code Description
99h Check for SMART Drive (optional)
9Ch Set up Power Management
9Dh Initialize security engine (optional)
9Eh Enable hardware interrupts
9Fh Determine number of ATA and SCSI drives
A0h Set time of day
A2h Check key lock
A4h Initialize typematic rate
A8h Erase <ESC> prompt
AAh Scan for <ESC> key stroke
ACh Enter SETUP
AEh Clear Boot fl ag
B0h Check for errors
B1h Inform RomPilot about the end of POST (optional)
B2h POST done - prepare to boot operating system
B4h 1 One short beep before boot
B5h Terminate QuietBoot (optional)
B6h Check password (optional)
B7h Initialize ACPI BIOS and PPM Structures
B9h Prepare Boot
BAh Initialize SMBIOS
BCh Clear parity checkers
BDh Display MultiBoot menu
BEh Clear screen (optional)
BFh Check virus and backup reminders
C0h Try to boot with INT 19
C1h Initialize POST Error Manager (PEM)
C2h Initialize error logging
C3h Initialize error display function
C4h Initialize system error fl ags
C6h Console redirection init.
C7h Unhook INT 10h if console redirection enabled
C8h Force check (optional)
C9h Extended ROM checksum (optional)
CDh Reclaim console redirection vector

Appendix B: BIOS POST Codes
B-5
POST Code Description
D2h Unknown interrupt
D4h Check Intel Branding string
D8h Alert Standard Format initialization
D9h Late init for IPMI
DEh Log error if micro-code not updated properly
The following are for the boot block in Flash ROM
POST Code Description
E0h Initialize the chipset
E1h Initialize the bridge
E2h Initialize the CPU
E3h Initialize system timer
E4h Initialize system I/O
E5h Check force recovery boot
E6h Checksum BIOS ROM
E7h Go to BIOS
E8h Set Huge Segment
E9h Initialize Multi Processor
EAh Initialize OEM special code
EBh Initialize PIC and DMA
ECh Initialize Memory type
EDh Initialize Memory size
EEh Shadow Boot Block
EFh System memory test
F0h Initialize interrupt vectors
F1h Initialize Run Time Clock
F2h Initialize video
F3h Initialize System Management Manager
F4h Output one beep
F5h Clear Huge Segment
F6h Boot to Mini DOS
F7h Boot to Full DOS
If BIOS detects error 2C, 2E, or 30 (base 512K RAM error), it displays an additional
word-bitmap (xxxx) indicating the address line or bits that failed. For example, “2C
0002” means address line 1 (bit one set) has failed. “2E 1020" means data bits 12
and 5 (bits 12 and 5 set) have failed in the lower 16 bits. The BIOS also sends the
bitmap to the port-80 LED display. It fi rst displays the checkpoint code, followed by
a delay, the high-order byte, another delay, and then the loworder byte of the error.
It repeats this sequence continuously.

B-6
SUPERSERVER 6015T-T/6015T-INF User's Manual
Notes

Appendix C: Intel HostRAID Setup Guidelines
C-1
Appendix C
Intel HostRAID Setup Guidelines
After all the hardware has been installed, you must fi rst confi gure Intel's ESB2
SATA RAID before you install the Windows Operating System and other software
drivers.
Important Notes to the User
Note 1: If you do not wish to confi gure onboard SATA RAID functions, please go
directly to Section C-3, Appendix D and Appendix E for OS and other software
installation instructions.
Note 2: This chapter describes RAID Confi guration Instructions for the Intel ESB2
RAID Controller designed for the Windows OS.
C-1 Introduction to Serial ATA and Parallel ATA
To confi gure the SATA RAID functions, you must fi rst use the Intel ESB2 SATA
RAID Utility program to confi gure the RAID Level that you desire before installing
the Windows XP/2000/2003 operating system and other software drivers. (The
necessary drivers are all included on the Supermicro CD that came packaged with
your motherboard.) Note that the current version of the ESB2 SATA RAID Utility
can only support Windows XP/2000/2003 Operating Systems.
Serial ATA (SATA)
Serial ATA (SATA) is a physical storage interface that uses a single cable with a
minimum of four wires to create a point-to-point connection between devices. It is a
serial link, which supports transfer rates up to 3.0 Gbps. Because the serial cables
used in SATA are thinner than the traditional cables used in Parallel ATA (PATA),
SATA systems have better airfl ow and can be installed in smaller chassis than
Parallel ATA. In addition, the cables used in PATA are limited to a length of 40cm,
while Serial ATA cables can be up to one meter in length. Overall, SATA provides
better functionality than PATA.
Introduction to the Intel ESB2 Serial RAID
Located in the South Bridge of the 5000P chipset, the I/O Controller Hub (ESB2)
provides the I/O subsystem with access to the rest of the system. It supports an
1-channel UltraATA/100 Bus Master IDE controller (PATA) and six Serial ATA (SATA)
ports. The ESB2 supports the following PATA and SATA device confi gurations:
Legacy mode and Native mode.

C-2
SUPERSERVER 6015T-T/6015T-INF User's Manual
The Intel HostRAID Confi gurations
The following RAID levels are supported:
RAID 0 (Data Striping): this writes data in parallel, interleaved ("striped") sections
of two hard drives. Data transfer rate is doubled over using a single disk.
RAID1 (Data Mirroring): an identical data image from one drive is copied to another
drive. The second drive must be the same size or larger than the fi rst drive.
RAID 10 (Striping & Mirroring): RAID 0 and 1 schemes are combined (without parity
information) to get the benefi ts of both.
RAID 5: both data and parity information are striped and mirrored across three or
more hard drives.
The Intel Matrix Storage
The Intel Matrix Storage, supported by the ESB2, allows the user to create RAID
0, RAID 1, RAID 10 and RAID 5 sets by using only six identical hard disk drives.
The Intel Matrix Storage Technology creates two partitions on each hard disk drive
and generate a virtual RAID 0, RAID 1, RAID 10 and RAID 5 sets. It also allows
you the change the HDD partition size without any data.
Confi guring BIOS settings for SATA RAID Functions (Native Mode)
1. Press the <Del> key during system bootup to enter the BIOS Setup Utility.
Note: If it is the fi rst time powering on the system, we recommend you load the
Optimized Default Settings. If you have already done so, please skip to Step 3.
2. Use the arrow keys to select the "Exit" Settings. Once in the "Exit" settings,
Scroll down to select "Load Optimized Default Settings" and press the <Enter>
key. Select "OK" to confi rm the selection. Press the <Enter> key to load the default
settings for the BIOS.
3. Use the arrow keys to select the "Main" section in BIOS.
4. Scroll down to "SATA Controller Mode" and press the <Enter> key to select
"Enhanced"
5. Scroll down to "SATA RAID Enabled" and press <Enter>. Then, select "En-
abled."
6. Go to "Exit". Select "Exit Saving Changes" from the "Exit" menu. Press the
<Enter> key to save the changes and exit the BIOS.
7. Once you've exited the BIOS Utility, the system will re-boot.
8. During the system boot-up, press the <Ctrl> and <I> keys simultaneously to run
the Intel RAID Confi guration Utility when prompted by the following message: Press
<Ctrl> <I> for the Intel RAID Confi guration Utility.

Appendix C: Intel HostRAID Setup Guidelines
C-3
Using the Intel ESB2 SATA RAID Utility Program
1. Creating, Deleting and Resetting RAID Volumes:
a. After the system exits from the BIOS Setup Utility, the system will automatically
reboot. The following screen appears after Power-On Self Test.
b. When you see the above screen, press the <Ctrl> and the <I> keys simultane-
ously to have the main menu of the SATA RAID Utility appear:
Note: All graphics and screen shots shown in the manual are for reference only. The
screen shots shown in the manual do not imply Supernicro's endorsement or non-
endorsement on any 3rd party's product. Your screens may or many not look exactly
the same as the graphics shown in this manual.
Note: The Intel RAID Confi guration Utility is only available for systems with two or
more drives installed. The Intel RAID Utility screen will not display in systems with
one drive installed.)
Due to each serverboard controlling two of the four SATA drives in the system, the
6015T-T/6015T-INF only supports RAID levels 0 and 1.

C-4
SUPERSERVER 6015T-T/6015T-INF User's Manual
b. Specify a name for the RAID 0 set and press the <Tab> key or the <Enter> key
to go to the next fi eld. (You can use the <Esc> key to select the previous menu.)
c. When RAID Level item is highlighted, press the <Up Arrow>, <Down Arrow> keys
to select RAID 0 (Stripe) and hit <Enter>.
d. When the Disks item is highlighted, press <Enter> to select the HDD to confi gure
as RAID. The following pop-up screen displays (see note on page C-3) :
e. Use the <Up Arrow>, <Down Arrow> keys to highlight a drive and press <Space>
to select it. A triangle appears to confi rm the selection of the drive.
f. Use the <Up Arrow>, <Down Arrow> keys to select the stripe size, ranged from
4 KB to 128 KB for the RAID 0 array, and hit <Enter>. (Note: For a server, please
use a lower stripe size, and for a multimedia system, use a higher stripe size. The
default stripe size is 128 KB.)
g. Press <Enter> when the Create Volume item is highlighted. A warning message
displays.
h. When asked "Are you sure you want to create this volume (Y/N), press "Y" to
create the RAID volume, or type "N" to go back to the Create Volume menu.
Creating a RAID 0 Volume
a. Select "Create RAID Volume" from the main menu and press the <Enter> key.
The following screen will appear:

Appendix C: Intel HostRAID Setup Guidelines
C-5
Creating a RAID 1 Volume
a. Select "Create RAID Volume" from the main menu and press the <Enter> key.
The following screen will appear:
b. Specify a name for the RAID 1 set and press the <Tab> key or the <Enter> key
to go to the next fi eld. (You can use the <Esc> key to select the previous menu.)
c. When RAID Level item is highlighted, press the <Up Arrow>, <Down Arrow> keys
to select RAID 1 (Mirror) and hit <Enter>.
d. When the Capacity item is highlighted, enter your RAID volume capacity and hit
<Enter>. The default setting is the maximum capacity allowed.
e. Press <Enter> when the Create Volume item is highlighted. A warning message
displays.
f. When asked "Are you sure you want to create this volume (Y/N), press "Y" to
create the RAID volume, or type "N" to go back to the Create Volume menu.

C-6
SUPERSERVER 6015T-T/6015T-INF User's Manual
Creating a RAID 10 (RAID 1+ RAID 0)
a. Select "Create RAID Volume" from the main menu and press the <Enter> key.
The following screen will appear:
b. Specify a name for the RAID 10 set and press <Enter>.
c. When RAID Level item is highlighted, use the <Up Arrow>, <Down Arrow> keys
to select RAID 10 (RAID1 + RAID0) and hit <Enter>.
d. When the Stripe Size is highlighted, use the <Up Arrow>, <Down Arrow> keys to
select the stripe size from 4 KB to 128 KB for your RAID 10 and hit <Enter>. The
default setting is 64 KB. (Note: For a server, please use a lower stripe size, and
for a multimedia system, use a higher stripe size.)
e. When the RAID Volume Capacity item is highlighted, enter your RAID volume
capacity and hit <Enter>. The default setting is the maximum capacity allowed.
f. Press <Enter> when the Create Volume item is highlighted. A warning message
displays.
g. When asked "Are you sure you want to create this volume (Y/N), press "Y" to
create the RAID volume, or type "N" to go back to the Create Volume menu.

Appendix C: Intel HostRAID Setup Guidelines
C-7
Creating a RAID 5 Set (Parity)
a. Select "Create RAID Volume" from the main menu and press the <Enter> key.
The following screen will appear:
b. Specify a name for the RAID 5 set and press <Enter>.
c. When the Raid Level is highlighted, use the <Up Arrow>, <Down Arrow> keys to
select RAID 5 (Parity) and hit <Enter>.
d. When the Disk item is highlighted, press <Enter> to select the HDD to confi gure
as RAID. The following pop-up screen displays (see note on page C-3):
e. Use the <Up Arrow>, <Down Arrow> keys to highlight a drive and press <Space>
to select it. A triangle appears to confi rm the selection of the drive.
f. Use the <Up Arrow>, <Down Arrow> keys to select the stripe size, ranged from
4 KB to 128 KB for the RAID 5 array, and hit <Enter>. (Note: For a server, please
use a lower stripe size, and for a multimedia system, use a higher stripe size. The
default stripe size is 128 KB.)
g. Enter your desired RAID volume capacity and press <Enter> when the capacity
item is highlighted. The default setting is the maximum capacity allowed.
h Press Enter when the Create Volume item is highlighted. A warning message
displays.

C-8
SUPERSERVER 6015T-T/6015T-INF User's Manual
Deleting a RAID Volume
Warning: Make sure you back up your data before deleting a RAID set.
You will lose all data on the disk drives when deleting a RAID set.
a. From the main menu, select item2-Delete RAID Volume, and press <Enter>.
b. Use the <Up Arrow>, <Down Arrow> keys to select the RAID set you want to
delete and press <Del>. A warning message displays.
c. When asked "Are you sure you want to delete this volume (Y/N), press "Y" to
delete the RAID volume, or type "N" to go back to the Delete Volume menu.
i. When asked "Are you sure you want to create this volume (Y/N), press "Y" to
create the RAID volume, or type "N" to go back to the Create Volume menu.
!

Appendix C: Intel HostRAID Setup Guidelines
C-9
Resetting to Non-RAID and Resetting a RAID HDD
Warning: Be cautious when you reset a RAID volume HDD to non-RAID
or Resetting a RAID HDD. Resetting a RAID volume HDD or Resetting a
RAID HDD will reformat the HDD and delete the internal RAID structure
on the drive.
a. From the main menu, select item3-Reset Disks to Non- RAID, and press <Enter>.
The following screen will appear:
b. Use the <Up Arrow>, <Down Arrow> keys to highlight the RAID set drive to reset
and press <Space> to select.
c. Press <Enter> to reset the RAID set drive. A Warning message displays.
d. Press "Y" to reset the drive, or type "N" to go back to the main menu.
Exiting the Intel Matrix Storage Manager Utility
a. From the main menu, select item4-Exit, and press <Enter>. A warning message
will appear.
b. Press "Y" to reset the drive, or type "N" to go back to the main menu.
!

C-10
SUPERSERVER 6015T-T/6015T-INF User's Manual
C-2 Installing Windows XP/2000/2003 for RAID Systems
Note: If you wish to have SATA RAID functions on the server, you must fi rst set
up the RAID drives as described in section C-1.
a. Insert a Microsoft Windows XP/2000/2003 Setup CD in the CD drive and the
system will start booting up from CD.
b. Press the <F6> key when the message "Press F6 if you need to install a third
party SCSI or RAID driver" displays.
c. When the Windows XP/2000/2003 Setup screen appears, press "S" to specify
additional device(s).
d. Insert the driver diskette "Intel AA RAID XP/2000/2003 Driver for ESB2" into drive
A: and press the <Enter> key.
e. Choose the Intel(R) ESB2 SATA RAID Controller from the list indicated in the
XP/2000/2003 setup screen and press the <Enter> key.
f. Press the <Enter> key to continue the installation process. (If you need to specify
any additional devices to be installed, do it at this time.) Once all devices are speci-
fi ed, press the <Enter> key to continue with the installation.
g. From the Windows XP/2000/2003 setup screen, press the <Enter> key. The
XP/2000/2003 Setup will automatically load all device fi les and then continue the
installation.
h. After the Windows XP/2000/2003 installation is completed, the system will au-
tomatically reboot.
Note: the current version of the ESB2 SATA RAID Utility can only support Windows
XP/2000/2003 Operating Systems.

D-1
Appendix D: System Specifi cations
Appendix D
System Specifi cations
Note: unless noted specifi cations apply to a complete system (both serverboards).
Processors
Four Intel® Xeon® 5300/5100 Series processors in LGA771 sockets
Note: please refer to our website for details on supported processors.
Chipset
Intel 5000P
BIOS
Phoenix BIOS in 8 Mb Flash EEPROM (each serverboard)
Memory Capacity
Sixteen (16) DIMM slots to support a maximum up to 64 GB of ECC FBD
(Fully Buffered DIMM) DDR2-667/533 SDRAM
Note: interleaved memory requires DIMMs to be installed in pairs - refer to Section 5-6 for
details.
Serial ATA Controller
Intel ESB2 on-chip controller to support four 3 Gb/s Serial ATA (RAID 0, 1)
SATA Drive Bays
Four (4) hot-swap drive bays to house four (4) standard SATA drives
PCI Expansion
Two (2) low-profi le PCI-Express x8 cards (with pre-installed riser cards)
Serverboard
6015T-T: X7DBT
6015T-INF: X7DBT-INF
Dimensions (both): 6.5 x 16.4 in (165 x 417 mm)

D-2
SUPERSERVER 6015T-T/6015T-INF User's Manual
Chassis
SC808T-980 (1U Rackmount)
Dimensions: (WxHxD) 17.2 x 1.7 x 27.75 in. (437 x 43 x 705 mm)
Weight
Gross Weight: 40 lbs. (18.2 kg.)
System Cooling
Six (6) high performance 4-cm fans
System Input Requirements
AC Input Voltage: 100 - 240V AC auto-range
Rated Input Current: 12A - 5A max
Rated Input Frequency: 50 to 60 Hz
Power Supply
Rated Output Power: 980W (Part# PWS-981-1S)
Rated Output Voltages: +12V (81A), +5Vsb (4A)
BTU Rating
5173 BTUs/hr (for rated output power of 980W)
Operating Environment
Operating Temperature: 10º to 35º C (50º to 95º F)
Non-operating Temperature: -40º to 70º C (-40º to 158º F)
Operating Relative Humidity: 8% to 90% (non-condensing)
Non-operating Relative Humidity: 5 to 95% (non-condensing)

D-3
Appendix D: System Specifi cations
Regulatory Compliance
Electromagnetic Emissions:
FCC Class A, EN 55022 Class A, EN 61000-3-2/-3-3, CISPR 22 Class A
Electromagnetic Immunity:
EN 55024/CISPR 24, (EN 61000-4-2, EN 61000-4-3, EN 61000-4-4,
EN 61000-4-5, EN 61000-4-6, EN 61000-4-8, EN 61000-4-11)
Safety:
EN 60950/IEC 60950-Compliant
UL Listed (USA)
CUL Listed (Canada)
TUV Certifi ed (Germany)
CE Marking (Europe)
California Best Management Practices Regulations for Perchlorate Materials:
This Perchlorate warning applies only to products containing CR (Manganese
Dioxide) Lithium coin cells. “Perchlorate Material-special handling may apply.
See www.dtsc.ca.gov/hazardouswaste/perchlorate”
Note: please visit our web site for information on supported operating systems.

D-4
SUPERSERVER 6015T-T/6015T-INF User's Manual
Notes