ADV Micromatic M17B Parts Manual
2013-11-21
: Sweepscrub Adv Micromatic M17B Parts Manual ADV_Micromatic_M17B_parts_manual 884 file product_file
Open the PDF directly: View PDF
.
Page Count: 30

MicromaticTM M17B
PARTS LIST
Advance model: 908 7057 020
909 5854 000(6)2009-11

2005-01
2007-05 MICROMATICTM M17B 1
909 5854 000(5)2008-11
WHEN ORDERING PARTS
* Use the 8, 9 or 10 digit numbers from the “Ref. No.” columns in this parts list.
* Specify the model and serial number of the machine.
* Use the space below to record the model and serial number for future reference.
Model ___________________ Serial No. ___________________
* = Optional
# = Modied item No. or New item No.
[ ] = Not shown
TABLE OF CONTENTS
2009-11
DESCRIPTION PLAN
SOLUTION TANK 2 - 3
VACUUM SYSTEM 4 - 5
RECOVERY TANK 6 - 9
HANDLE ASSEMBLY 10 - 11
SOLUTION SYSTEM 12 - 13
SQUEEGEE SYSTEM 14 - 15
BRUSH SYSTEM 16 - 19
WIRING SYSTEM 20 - 21
ACCESSORIES 22 - 23
WIRING DIAGRAM 24 - 25
RECOMMENDED SPARE PARTS 26 - 27

2005-01
2MICROMATICTM M17B 2007-05
909 5854 000(5)2008-11
24
27
25
2
22
26
21
13
19
32
39
40
20
31
31
23
name
plate
38
37
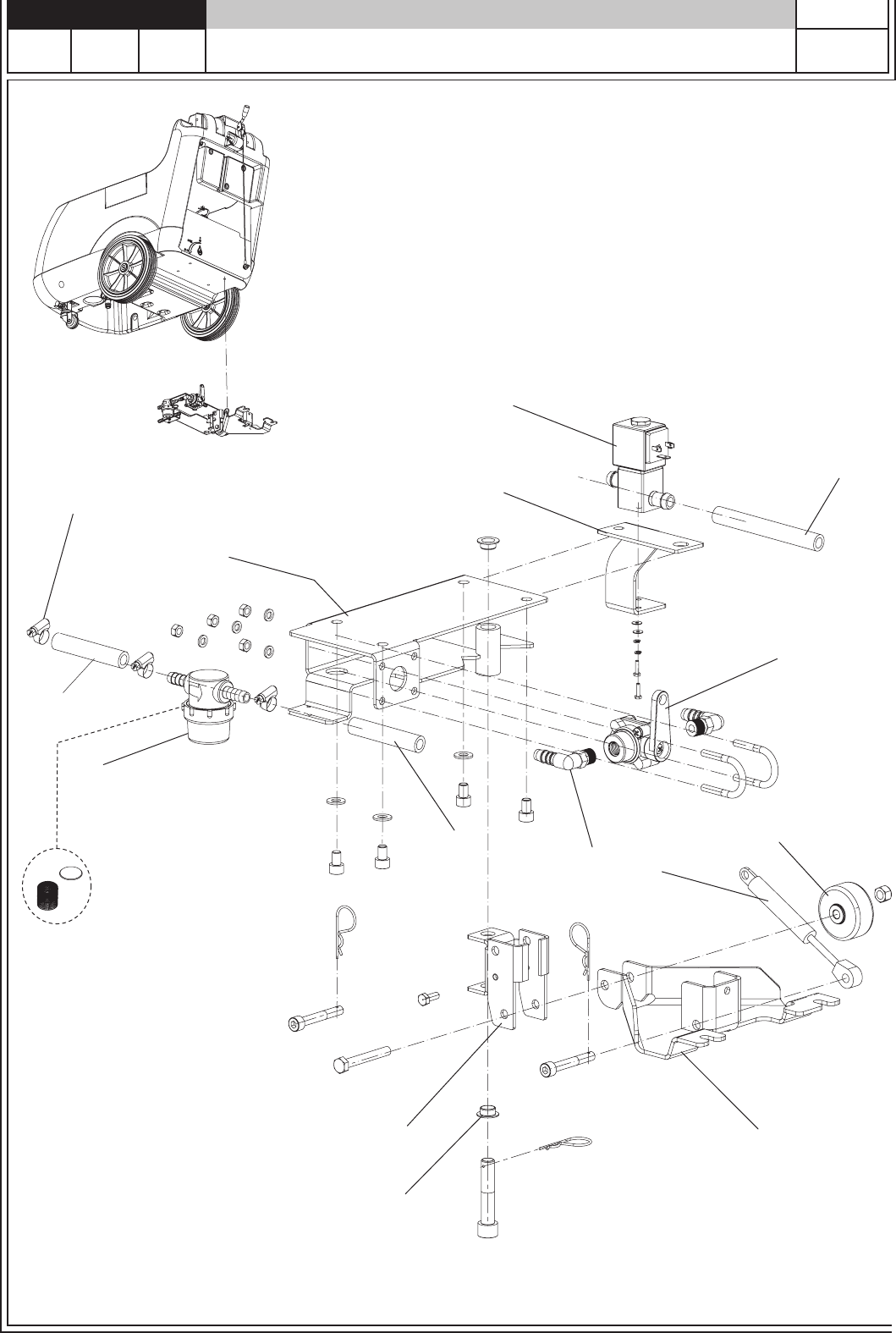
SOLUTION TANKSOLUTION TANK
2008-11

2005-01
2007-05 MICROMATICTM M17B 3
909 5854 000(5)2008-11
SOLUTION TANKSOLUTION TANK
2008-11
Item Ref. No. Qty Description
2 909 5674 000 1 SPONGE FRESH WATER INLET
13 909 5658 000 1 SUPPORTING ROD
19A 9096915000 2 WHEEL
20 909 5895 000 1 ELBOW 90° Ø10
21 909 5285 000 1 SUPPORT
22 909 5551 000 1 SOLUTION TANK
23 909 5560 000 1 WHEEL
24 909 5573 000 1 SQUEEGEE LIFTING CABLE
25 909 5976 000 1 KIT DECALS MICROMATICTM M17B
26 909 5644 000 1 BRACKET
27 909 5700 000 1 KIT SQUEEGEE LIFT CABLE
30 909 5641 000 1 INDEXING PLUNGER
31 909 5696 000 1 VALVE
32 909 5748 000 1 SHAFT, WHEELS
[33] 909 5986 000 1 SOLUTION TANK HARDWARE KIT
37 909 6236 000 1 BLACK CAP
38 909 6441 000 1 PIN 3X20
39 909 5286 000 2 GASKET
40*A 9096916000 1 FILTER
[41] 909 6226 000 1 RUBBER SHOCK ABSORBER KIT
[42] 909 6227 000 1 INSTALLATION INSTRUCTION FOR RUBBER SHOCK ABSORBER KIT
A: SEE TSB IT 2007-015

2005-01
4MICROMATICTM M17B 2007-05
909 5854 000(5)2008-11
9
5
7
6
8
10
12
14
VACUUM SYSTEMVACUUM SYSTEM
2008-11

2005-01
2007-05 MICROMATICTM M17B 5
909 5854 000(5)2008-11
Item Ref. No. Qty Description
5 909 5198 000 3 VIBRATION DAMPING M6
6 909 5564 000 1 PIPE ACOUSTIC INSULATION
7 909 5565 000 1 PIPE ACOUSTIC INSULATION
8 909 5579 000 1 VACUUM MOTOR HOSE
9A# 9098233000 1 KIT VACUUM MOTOR WITH CONNECTOR
10 909 5371 000 2 CARBON BRUSH
10A 9098231000 1 CARBON BRUSH KIT
[11] 909 5987 000 1 VACUUM SYSTEM HARDWARE KIT
12 145 0543 000 1 CLAMP
14 L08812587 1 CLAMP 4,8X430 WHITE
[15] 9098474000 1 HARDWARE VACUUM MOTOR FIXING KIT
A STARTING FROM SERIAL NUMBER 093718588
VACUUM SYSTEMVACUUM SYSTEM
2009-11

2005-01
6MICROMATICTM M17B 2007-05
909 5854 000(5)2008-11
13
1
6
12
14
5
4
3
RECOVERY TANKRECOVERY TANK
- Before machine S/N 054418642 2008-11

2005-01
2007-05 MICROMATICTM M17B 7
909 5854 000(5)2008-11
Item Ref. No. Qty Description
1 909 5716 000 1 GASKET
3 56324497 2 FLOAT CAGE
4 56391690 1 FLOATING BALL
5# 9098255000 1 DRAIN HOSE
6A 9097728000 1 CAGE FLOAT HOLDER KIT
[7]A 9097729000 1 INSTRUCTIONS INSTALLATION CAGE FLOAT HOLDER KIT
12B 909 6061 000 1 RECOVERY TANK KIT
13 909 5553 000 1 TANK COVER
14 909 5578 000 1 SUCTION HOSE
[17] 909 5988 000 1 RECOVERY TANK HARDWARE KIT
RECOVERY TANKRECOVERY TANK
A: SEE TSB IT 2008-009
B: SEE TSB IT 2006-001
- Before machine S/N 054418642
2009-11

2005-01
8MICROMATICTM M17B 2007-05
909 5854 000(5)2008-11
RECOVERY TANKRECOVERY TANK
- From machine S/N 054418642 2009-11
13
1
4
3
5
15
6A
16
14

2005-01
2007-05 MICROMATICTM M17B 9
909 5854 000(5)2008-11
Item Ref. No. Qty Description
1 909 5716 000 1 GASKET
3 56324497 2 FLOAT CAGE
4 56391690 1 FLOATING BALL
5# 9098255000 1 DRAIN HOSE
6A 9097728000 1 CAGE FLOAT HOLDER KIT
0A 9097729000 1 INSTRUCTIONS INSTALLATION CAGE FLOAT HOLDER KIT
13 909 5553 000 1 TANK COVER
14 909 6060 000 1 SUCTION HOSE
15 909 6061 000 1 KIT RECOVERY TANK + SUCTION HOSE
16# 909 5065 000 1 ANTIFOAMING FILTER
[18] 909 5988 000 1 RECOVERY TANK HARDWARE KIT
RECOVERY TANKRECOVERY TANK
- From machine S/N 054418642
A: SEE TSB IT 2008-009
2009-11

2005-01
10 MICROMATICTM M17B 2007-05
909 5854 000(5)2008-11
7
8
1
2
11
9
10
12
14
15
HANDLE ASSEMBLYHANDLE ASSEMBLY
2008-11

2005-01
2007-05 MICROMATICTM M17B 11
909 5854 000(5)2008-11
Item Ref. No. Qty Description
1 909 5587 000 1 DECAL CONTROL PANEL
2 909 5584 000 2 SWITCH
7 909 5099 000 1 HANDLE ADJUSTER KIT
8 L08812909 1 LED CARD
9 909 5563 000 1 HANDLE BAR
10 909 5847 000 1 SWITCH HOUSING LOWER
11 909 5846 000 1 SWITCH HOUSING UPPER
12 909 5701 000 1 HANDLE ADJUSTING KIT (7)
[13] 909 5995 000 1 HANDLE ASSEMBLY HARDWARE KIT
14 145 4259 000 1 CAP Ø 11.9
15 145 4260 000 1 CAP Ø 14.7
HANDLE ASSEMBLYHANDLE ASSEMBLY
2008-11

2005-01
12 MICROMATICTM M17B 2007-05
909 5854 000(5)2008-11
12
5
19
18
17
23
2
22
27
14
26
380 mm
90 mm
100 mm
28
30
16
24
29
SOLUTION SYSTEMSOLUTION SYSTEM
2008-11

2005-01
2007-05 MICROMATICTM M17B 13
909 5854 000(5)2008-11
Item Ref. No. Qty Description
2 L08603665 1 WHEEL
5C 9097738000 1 SOLENOID VALVE 24V
12 146 0549 000 2 BUSHING
14B 9097166000 1 KIT WATER FILTER COMPLETE
16A 909 5566 000 1 BRACKET
17B 909 5567 000 1 SUPPORT
18 909 5571 000 1 PLATE
19C 9097866000 1 BRACKET SOLENOID VALVE
22 909 5632 000 1 VALVE
23 909 5637 000 1 SPRING
24C 909 5651 000 2 RUBBER HOLDER
26B L08603893 1 KIT FILTER NET WITH GASKET
27C 9097868000 1 HOSE Ø12 380 MM
28 909 5026 000 1 HOSE Ø10 100 MM
29 145 8582 000 3 CLAMP 8/ 9-16
30 145 4154 000 1 HOSE Ø10 90 MM
[31]C 9097874000 1 CONNECTOR FOR SOLENOID VALVE
[32]C 909 5977 000 1 SOLENOID VALVE KIT (5,14,19,22,24,27,28,29,30)
[33]C 9097873000 1 INSTRUCTIONS INSTALLATION SOLENOID VALVE KIT
[34] 909 5990 000 1 SOLUTION SYSTEM HARDWARE KIT
SOLUTION SYSTEMSOLUTION SYSTEM
A: SEE TSB IT 2007-015
B: SEE TSB IT 2007-021
C: SEE TSB IT 2008-016
2008-11

2005-01
14 MICROMATICTM M17B 2007-05
909 5854 000(5)2008-11
SQUEEGEE ASSEMBLYSQUEEGEE ASSEMBLY
2009-11
9
3
8
13
14
15
16
10A
17

2005-01
2007-05 MICROMATICTM M17B 15
909 5854 000(5)2008-11
Item Ref. No. Qty Description
3 L08603665 2 SQUEEGEE WHEEL
8 909 5554 000 1 SQUEEGEE WELDMENT
9 909 5555 000 4 SPRING
10A 9097354000 1 BLADES POLYURET. KIT
13 L08603689 2 WASHER FLAT 6X18 SS
14 L08603880 1 KIT SQUEEGEE BUMP.ROLLER
15 909 5703 000 1 KIT SQUEEGEE WHEEL
16 909 5702 000 1 KIT SQUEEGEE COMPLETE
17# 9097637000 1 KIT SQUEEGEE FIXING
[19] 909 5991 000 1 SQUEEGEE ASSEMBLY HARDWARE KIT
SQUEEGEE ASSEMBLYSQUEEGEE ASSEMBLY
A: SEE TSB IT 2008-007
2009-11

2005-01
16 MICROMATICTM M17B 2007-05
909 5854 000(5)2008-11
BRUSH SYSTEMBRUSH SYSTEM
- Before machine S/N 054920336 2009-11
31
32
33
3
25
11
20
19 21
2
18
27
8
23
22
5
4
17
28
24

2005-01
2007-05 MICROMATICTM M17B 17
909 5854 000(5)2008-11
Item Ref. No. Qty Description
2 9097184000 1 VIBRATION DAMPING
3 L08603849 1 REDUCTION GEAR
4 56363855 1 BUMPER ROLLER
5 909 5710 000 1 SPACER
6 909 5508 000 1 ELECTRIC MOTOR
8 L08812891 1 BRUSH Ø430 PROLENE PPL
8* 909 5691 000 1 BRUSH Ø430 MIDLITE GRIT180
8* 909 5692 000 1 BRUSH Ø430 MIDGRIT 240
8* 909 5693 000 1 BRUSH Ø430 PROLITE
8* 909 5694 000 1 BRUSH Ø430 UNION MIX
11 909 5720 000 1 CARBON BRUSH SET (4 PCS)
17 909 5550 000 1 BRUSH PROTECTION
18 909 5556 000 1 PLATE BRUSH SUPPORT
19 909 5557 000 1 BRACKET
20 909 5558 000 2 SPRING
21 909 5559 000 2 BUSHING
22 909 5585 000 1 BRUSH DECK ADJUSTER BLOCK
23 909 5586 000 1 PLATE
24 909 5594 000 1 HOSE COPPER
25# 9097113000 1 REDUCTIONGEAR MOTOR 520W
27 L08812589 1 POLYGONAL HOLDER WITH FLANGE KIT
28 909 5622 000 1 HOSE Ø10 640 MM
[30] 909 5992 000 1 BRUSH SYSTEM HARDWARE KIT
31* 909 5695 000 1 PAD HOLDER
32 L08603966 1 RING NYLON
33 L08837030 1 RETAINER PAD
BRUSH SYSTEMBRUSH SYSTEM
- Before machine S/N 054920336
2009-11

2005-01
18 MICROMATICTM M17B 2007-05
909 5854 000(5)2008-11
BRUSH SYSTEMBRUSH SYSTEM
- From machine S/N 054920336 2009-11
31
32
33
3
25B
20
19 21
10
2D
18
27
8
17
24
23
22
28
11A11C
6B
37

2005-01
2007-05 MICROMATICTM M17B 19
909 5854 000(5)2008-11
Item Ref. No. Qty Description
2D 9097184000 1 VIBRATION DAMPING
3 L08603849 1 REDUCTION GEAR
6B 9097114000 1 ELECTRIC MOTOR
8 L08812891 1 BRUSH Ø430 PROLENE PPL
8* 909 5691 000 1 BRUSH Ø430 MIDLITE GRIT180
8* 909 5692 000 1 BRUSH Ø430 MIDGRIT 240
8* 909 5693 000 1 BRUSH Ø430 PROLITE
8* 909 5694 000 1 BRUSH Ø430 UNION MIX
11A 909 5720 000 1 CARBON BRUSH W/COVER KIT (4 PCS)
11C 909 6893 000 1 CARBON BRUSH KIT
17 909 5550 000 1 BRUSH PROTECTION
18 909 6269 000 1 PLATE BRUSH SUPPORT
19 909 6270 000 1 BRACKET
20 909 5558 000 2 SPRING
21 909 5559 000 2 BUSHING
22 909 5585 000 1 BRUSH DECK ADJUSTER BLOCK
23 909 5586 000 1 PLATE
24 909 6217 000 1 HOSE COPPER
25B 9097113000 1 REDUCTIONGEAR MOTOR 520W 24V
27 L08812589 1 POLYGONAL HOLDER WITH FLANGE KIT
28 909 5622 000 1 HOSE Ø10 640 MM
[30] 909 5992 000 1 BRUSH SYSTEM HARDWARE KIT
31* 909 5695 000 1 PAD HOLDER
32* L08603966 1 RING NYLON
33 L08837030 1 RETAINER PAD
37 909 5397 000 1 BUMPER ROLLER KIT
BRUSH SYSTEMBRUSH SYSTEM
A-B-C: TSB IT 2007-011
D: TSB IT 2007-018
- From machine S/N 054920336
2009-11

2005-01
20 MICROMATICTM M17B 2007-05
909 5854 000(5)2008-11
3
23
32
25
30
17
29 20
28
21 26 27
36
35
37
34
31
11
WIRING SYSTEMWIRING SYSTEM
2008-11

2005-01
2007-05 MICROMATICTM M17B 21
909 5854 000(5)2008-11
Item Ref. No. Qty Description
3 909 6568 000 1 COVER ELECTRONIC CARD
11 909 6380 000 1 CLAMP KIT
17 146 0656 000 1 GASKET L=125 MM
20 146 0708 000 1 INSULATOR M6 WHITE
21 909 5127 000 1 VACUUM ELECTROMAGNETIC SWITCH 24V
23 146 2118 000 1 GASKET L=750 MM
25 909 5098 000 1 ELECTRONIC CARD
26 146 0719 000 1 BRUSH ELECTROMAGNETIC SWITCH 24V
27 909 5149 000 1 SUPPORT BATTERY CHARGER CABLE
28A 909 5561 000 1 BATTERY CHARGER 24V 8A 115-230V
28B 9097046000 1 BATTERY CHARGER 24V 8/9A 100-240V
29 909 6062 000 2 KIT BUSH CABLE GIUDE AND RETAINING RING
30A 909 5570 000 1 BRACKET FOR BATTERY CHARGER
30B 909 6234 000 1 BRACKET FOR BATTERY CHARGER
31 909 5788 000 1 PLATE
32A 909 5845 000 1 HARNESS ELECTRONIC CARD
32B 909 6427 000 1 HARNESS ELECTRONIC CARD
34 145 8046 000 1 STRIP FUSE HOLDER
35 9096914000 1 CABLE EXTENSION
36 L08812670 2 RESTRAINT
37 146 0660 000 1 BLADE FUSE HOLDER
[42] 909 5844 000 1 MACHINE HARNESS MICROMATIC TM M17B
[43] L08812093 4 BOOT BATTERY CLAMPS
[44] 145 8513 000 1 VACUUM BLADE FUSE 30A
[46] 909 5955 000 1 BATTERY HARNESS
[47]# 9097590000 1 CABLE BATTERY INTERCONNECTION
[50] 145 9852 000 1 FUSE BLADE 5A
[51] 145 3824 000 1 BRUSH STRIP FUSE 40A
[52]A 909 5982 000 1 POWER CABLE
[53]A 909 5983 000 1 OUTLET CABLE
[54]A 909 5984 000 1 COOLING FAN
[56] 909 5994 000 1 WIRING SYSTEM HARDWARE KIT
[57]B 9097047000 1 BATTERY CHARGER 24V 8/9A 100-240V KIT
[58]B 9097048000 1 INSTALLATION INSTRUCTIONS FOR BATTERY CHARGER 24V 8/9A 100-240V KIT
[59]B 909 6446 000 1 BATTERY CHARGER COOLING FAN
[60]B 909 6447 000 1 COVER FOR BATTERY CHARGER
[61]B 909 6448 000 1 BATTERY CHARGER HARNESS
[62]B 145 1248 000 1 BATTERY CHARGER CAP
WIRING SYSTEMWIRING SYSTEM
A-B: SEE TSB IT 2007-016
2009-11

2005-01
22 MICROMATICTM M17B 2007-05
909 5854 000(5)2008-11
ACCESSORIESACCESSORIES
13
18
14 15
16
17
19
10
2008-11

2005-01
2007-05 MICROMATICTM M17B 23
909 5854 000(5)2008-11
Item Ref. No. Qty Description
10# L08812952 1 HOLDER SQUEEGEE
13 56325682 1 FIXTURE LEFT/RIGHT KIT
14 56325684 1 ADJUSTMENT SCREW KIT
15 L08603876 1 KIT SQUEEGEE HOLDER
16* L08603878 1 KIT SQUEEGEE CURVED
17* 909 5916 000 1 KIT CURVED SQUEEGEE COMPLETE
18 909 5915 000 1 SPACER
19 909 6047 000 1 KIT SQUEEGEE SUPPORT
[20] 56393285 1 SQUEEGEE BLADE FRONT
[21] 56325685 1 SQUEEGEE BLADE REAR
[21] 909 5917 000 1 INSTALLATION INSTRUCTIONS FOR CURVED SQUEEGEE COMPLETE
ACCESSORIESACCESSORIES
2008-11

2005-01
24 MICROMATICTM M17B 2007-05
909 5854 000(5)2008-11
F3
CH1
+
-
+
-
BK RD BN
V-
IS1
F2
YE
CFBA430
CT
1
BL
BKBU BN RD
S-BT VT S+ V- BL
V+
8
CH
BK
1
SC
EB1
PKWHOGBNBU
LRSVSB LY LG
GY
KY
LC
8
Ch
NO Ch
EB2
SW1
SW2
RD
ES1
BU
ES2
F1
YE
BN M2
BU M1
RD
RD
OR WH
W-
W+
EV1
Pb/Gel
SWITCH
Gel
Pb
RD GY
C1
YE BK RD
ES3
RD
BN
EV1
VACUUM SWITCH 909 5584 000
NEGATIVE INSULATOR 146 0708 000
BRUSH SWITCH 909 5584 000
SOLENOID VALVE 08812960
IS1
SW2
SW1
LEGENDA
LED CARD (CFBALED) 08812909
CHARGER OUTPUT CONNECTOR included in 909 5561 000
ELECTRONIC CARD (CFBA430) 909 5098 000
BRUSH ELECTROMAGNETIC SWITCH 909 5127 000
VACUUM BLADE FUSE (40A) 145 0227 000
KIT VACUUM MOTOR W/ CONNECTOR 909 5713 000
REDUCTION GEAR MOTOR 909 5638 000
WATER VALVE & ELECTR. BLADE FUSE (5A)145 9852 000
BRUSH STRIP FUSE (40A) 145 3824 000
F3
M1
M2
F2
F1
BATTERY CHARGER 909 5561 000
EB1
ES1
EB2
C1
CH1
ES2
VACUUM ELECTROMAGNETIC SWITCH 146 0719 000
ES3
CHARGER OUTPUT RELAIS included in 909 5845 000
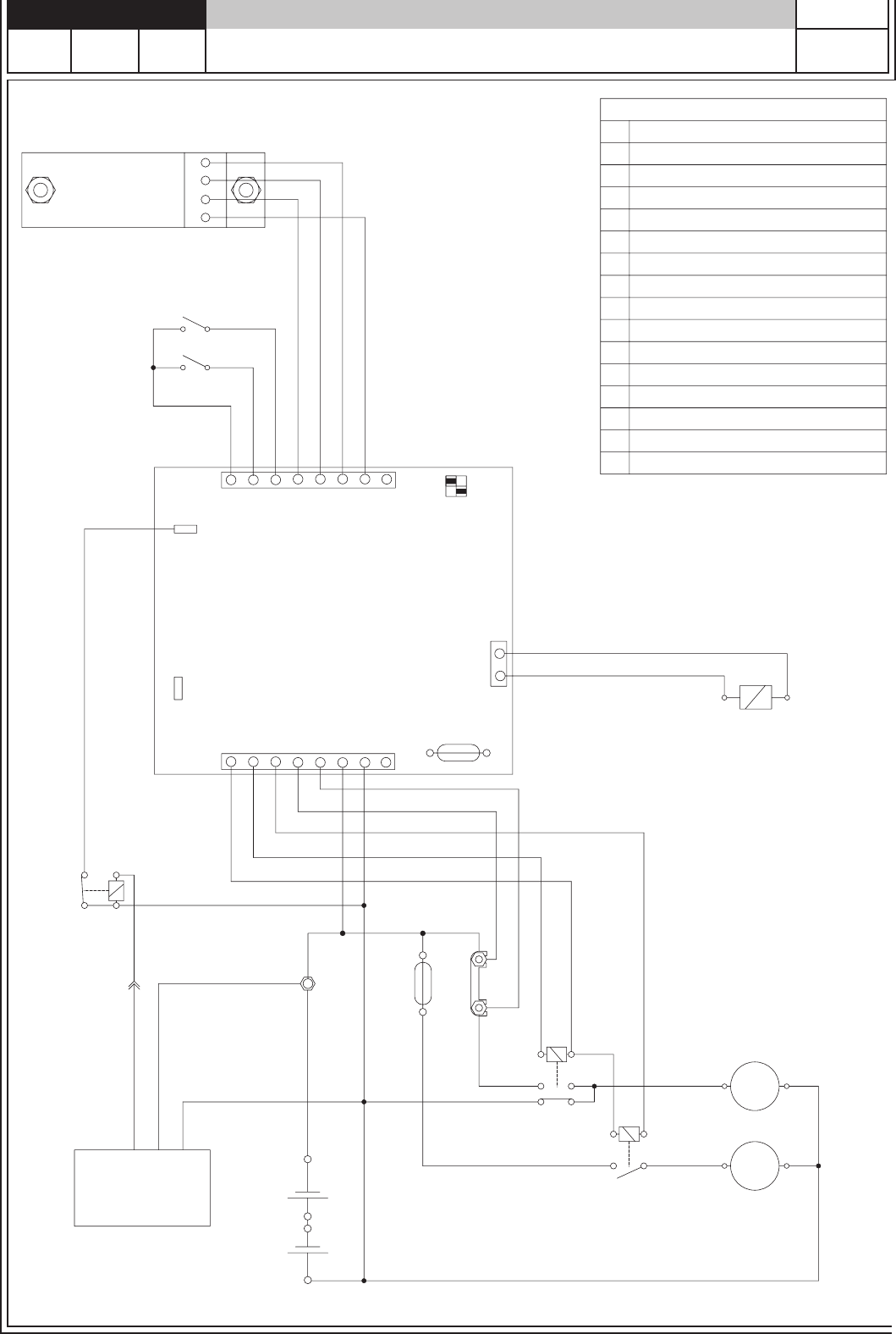
WIRING DIAGRAM
909 5604 000
- Before machine S/N 072820309
WIRING DIAGRAMWIRING DIAGRAM

2005-01
2007-05 MICROMATICTM M17B 25
909 5854 000(5)2008-11
- From machine S/N 072820309
WIRING DIAGRAM
909 5604 000
Rev. A
VACUUM SWITCH
NEGATIVE INSULATOR
BRUSH SWITCH
WATER ELECTRIC VALVE
LEGENDA
LED BOARD (CFBALED)
CHARGER OUTPUT CONNECTOR (OPT)
ELECTRONIC BOARD (CFBA430)
BRUSH EL. SWITCH
VACUUM MOTOR
BRUSH MOTOR
WATER VALVE & ELECTR. FUSE (5A)
BRUSH FUSE (40A)
BATTERY CHARGER (OPT)
VACUUM EL. SWITCH
VACUUM FUSE (30A)
EV1
IS1
SW2
SW1
F3
M1
M2
F1
EB1
ES1
EB2
C1
CH1
ES2
F2
F3
CH1
BK RD BN
V-
IS1
F2
YE
CFBA430
BKBU BN RD
BK
EB1
PKWHOGBNBU GY
EB2
SW1
SW2
RD
ES1
BU
ES2
F1
YE
BN M2
BU M1
RD
RD
OR WH
EV1
Pb/Gel
SWITCH
RD GY
BK
RD
RD
BK
+
-
+
-
CT
1
BL
S-BT VT S+ V- BL
V+
8
CH
1
SC LRSVSB LY LG KY
LC
8
Ch
NO Ch
W-
W+
Gel
Pb
WIRING DIAGRAMWIRING DIAGRAM

2005-01
26 MICROMATICTM M17B 2007-05
909 5854 000(5)2008-11
Item Ref. No. Qty Description
WEAR PARTS
9097166000 1 KIT WATER FILTER COMPLETE
L08603893 1 KIT FILTER NET WITH GASKET
909 5716 000 1 GASKET L=1250 MM
9097354000 1 BLADES POLIURET. KIT 720MM/28”
909 5555 000 4 SPRING
L08812891 1 BRUSH Ø430 PROLENE PPL STD
ORDINARY MAINTENANCE
# 9098255000 1 DRAIN HOSE
909 5578 000 1 SUCTION HOSE (BEFORE TSB 2006-001)
909 6060 000 1 SUCTION HOSE (AFTER TSB 2006-001)
909 5579 000 1 VACUUM MOTOR HOSE
145 8513 000 1 BLADE FUSE 30A
145 3824 000 1 STRIP FUSE 40A
145 9852 000 1 BLADE FUSE 5A
EXTRAORDINARY MAINTENANCE
9097738000 1 SOLENOID VALVE 24V
909 5977 000 1 SOLENOID VALVE KIT
909 5651 000 2 RUBBER HOLDER
909 5696 000 1 VALVE
# 9098233000 1 KIT VACUUM MOTOR W/CONNECTOR
# 9098231000 1 CARBON BRUSH KIT
909 5371 000 2 CARBON BRUSH FOR OLD VACUUM MOTOR
909 5573 000 1 SQUEEGEE LIFTING CABLE
909 5700 000 1 KIT SQUEEGEE LIFT CABLE
909 5564 000 1 PIPE ACOUSTIC INSULATION
909 5565 000 1 PIPE ACOUSTIC INSULATION
9097113000 1 REDUCTIONGEAR MOTOR 520W
909 6893 000 1 CARBON BRUSH KIT (4 PZ) (TSB IT 2007-011)
909 5720 000 1 CARBON BRUSH W/COVER KIT (TSB IT 2007-011)
9097184000 1 VIBRATION DAMPING
909 5558 000 2 SPRING
909 5397 000 1 BUMPER ROLLER KIT
9096915000 2 WHEEL
909 5099 000 1 HANDLE ADJUSTER KIT
909 5701 000 1 HANDLE ADJUSTING KIT
909 5554 000 1 SQUEEGEE WELDMENT
909 5702 000 1 KIT SQUEEGEE COMPLETE
909 5703 000 2 KIT SQUEEGEE WHEEL
L08603880 2 KIT SQUEEGEE BUMPER ROLLER
909 6062 000 1 KIT BUSH CABLE GUIDE AND RETAINING RING
909 5584 000 1 SWITCH
909 5098 000 1 ELECTRONIC CARD
9097047000 1 KIT BATTERY CHARGER 100-240V
9097046000 1 BATTERY CHARGER 100-240V
146 0719 000 1 ELECTROMAGNETIC SWITCH 24V
909 5127 000 1 ELECTROMAGNETIC SWITCH 24V
RECOMMENDED SPARE PARTSRECOMMENDED SPARE PARTS
2009-11

2005-01
2007-05 MICROMATICTM M17B 27
909 5854 000(5)2008-11
Item Ref. No. Qty Description
OPTIONALS
9096916000 1 FILTER
# 909 5065 000 1 ANTIFOAMING FILTER
909 5691 000 1 BRUSH Ø430 MIDLITE GRIT180
909 5692 000 1 BRUSH Ø430 MIDGRIT 240
909 5693 000 1 BRUSH Ø430 PROLITE
909 5694 000 1 BRUSH Ø430 UNION MIX
909 5695 000 1 PAD HOLDER
L08603878 1 KIT SQUEEGEE CURVED
909 5916 000 1 KIT CURVED SQUEEGEE COMPLETE
RECOMMENDED SPARE PARTSRECOMMENDED SPARE PARTS
2009-11

Nilsk-Advance, Inc.
14600 21st Avenue North
Plymouth, MN, 55447-3408
www.nilsk-advance.com
Phone: 800-989-2235
Fax: 800-989-6566
©2008 Nilsk-Advance, Inc.,
Plymouth, MN 55447-3408
Printed in Italy