Kent Razor Blade 28c Rider Floor Scrubber Parts Manual
2016-12-23
: Sweepscrub Kent-Razor-Blade-28C-Rider-Floor-Scrubber-Parts-Manual kent-razor-blade-28c-rider-floor-scrubber-parts-manual 1710 file product_file
Open the PDF directly: View PDF 
.
Page Count: 56

Razor Blade 26D-28D
PARTS LIST
KENT MODELS: 
908 7099 020 - 908 7100 020
908 7101 020
909 6458 000(7)2008-05
Razor Blade 28C

2005-12
2007-11 1
909 6458 000(7)2008-05
 DESCRIPTION          PLAN     
GENERAL VIEW 2 - 3
TANKS ASSEMBLY 4 - 5
RECOVERY TANK 6 - 9
CHASSIS SYSTEM 10 - 11
FRONT WHEEL ASSEMBLY 12 - 15
MOTOR DRIVE WHEEL 16 - 17
STEERING SYSTEM 18 - 19
CONTROL PANEL ASSEMBLY 20 - 21
PEDAL ASSEMBLY 22 - 25
FOOTBOARD ASSEMBLY 26 - 27
SOLUTION SYSTEM 28 - 29
SQUEEGEE SYSTEMS 30 - 31
BRUSH DECK SYSTEMS 32 - 35
CYLINDRICAL BRUSHES SYSTEM 36 - 37
SEAT ASSEMBLY 38 - 39
LIFTING BRUSH DECK SYSTEM 40 - 41
ELECTRICAL COMPONENTS 42 - 43
BATTERY CHARGER ASSEMBLY 44 - 45
WIRING DIAGRAM 46 - 47
ACCESSORIES  48 - 51
RECOMMENDED SPARE PARTS 52 - 53
WHEN ORDERING PARTS
*  Use the 8, 9 or 10 digit numbers from the “Ref. No.” columns in this parts list.
*  Specify the model and serial number of the machine.
*  Use the space below to record the model and serial number for future reference.
Model  ___________________  Serial No.  ___________________
TABLE OF CONTENTS
RAZOR BLADE 26D - 28D - 28C
* = Optional

2005-12
22007-11
909 6458 000(7)2008-05
RAZOR BLADE 26D - 28D - 28C
GENERAL VIEW

2005-12
2007-11 3
909 6458 000(7)2008-05
Item No. Ref. No. Qty Description
1 145 1129 000 6 WASHER 16X6
2 145 1894 000 6 SCREW M6X30
3 1 SQUEEGEE SYSTEMS
4 909 5903 000 1 HATCH RIGHT
5 909 5904 000 1 HATCH LEFT
6 1 BRUSH SYSTEMS
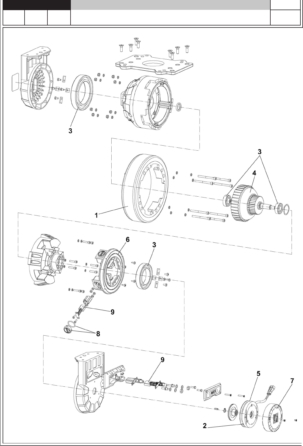
7 1 FRONT WHEEL ASSEMBLY
8 1 SOLUTION SYSTEM
9 1 SQUEEGE SUPPORT SYSTEM
10 1 FOOTBOARD ASSEMBLY
11 1 BRUSH DECK LIFTING SYSTEM
12 1 STEERING SYSTEM
13 1 CYLINDRICAL BRUSHES SYSTEM 28C
14 1 CHASSIS ASSEMBLY
15 1 TANKS ASSEMBLY
16 909 6068 000 1 BATTERY CONTAINER
17 909 6158 000 1 BOX FOR BATTERY CHARGER CABLE
18 146 0765 000 2 SCREW 6X10
RAZOR BLADE 26D - 28D - 28C
GENERAL VIEW

2005-12
42007-11
909 6458 000(7)2008-05
RAZOR BLADE 26D - 28D - 28C
TANKS ASSEMBLY

2005-12
2007-11 5
909 6458 000(7)2008-05
Item No. Ref. No. Qty Description
1 909 6245 000 1 SOLUTION TANK
2 909 6401 000 1 HARDWARE WATER TANK KIT
3 1 SEAT ASSEMBLY
4 1 RECOVERY TANK
5 2 RAZOR BLADE DECAL (KIT DECALS)
[6] 909 6470 000 1 KIT DECALS (RAZOR BLADE DECALS POS.5; KENT LOGO DECAL POS. 22 - 
PAG.19; BATTERY DECAL POS. 26 - PAG. 11; DECAL FUSE 60A, DECAL FUSE 5A, 
DECAL FUSE 100A POS. 25-25-26 - PAG. 43)
RAZOR BLADE 26D - 28D - 28C
TANKS ASSEMBLY

2005-12
62007-11
909 6458 000(7)2008-05
RAZOR BLADE 26D - 28D - 28C 
BEFORE S/N 074531009
RECOVERY TANK

2005-12
2007-11 7
909 6458 000(7)2008-05
Item No. Ref. No. Qty Description
3 L08812259 2 CAGE, FLOAT
4 L08812373 1 FLOATING BALL
5 909 6199 000 1 HOLDER, FLOAT CAGE
9 145 0543 000 1 HOSE CLAMP 14/32-52
14 909 5196 000 1 VACUUM MOTOR 24V 500W
15 9097401000 1 RECOVERY TANK KIT
16 909 6247 000 1 TANK COVER
18 909 6094 000 3 VIBRATION DAMPING
19 909 6095 000 1 GASKET
20 909 6096 000 1 DRAIN HOSE
21 909 6097 000 1 VACUUM HOSE
22 146 0629 000 1 GASKET
23 909 5371 000 2 CARBON BRUSH
24 909 6380 000 1 HOSE CLAMP KIT 
25 909 6381 000 1 FLOAT CAGE FITTING KIT 
26 909 6382 000 1 DIRTY WATER TANK HARDWARE KIT 
27A 909 6442 000 1 ACOUSTIC INSULATION HOSE
28A 909 6569 000 1 ACOUSTIC INSULATION
29 909 6810 000 1 COVER TANK LOCKING KIT
[30] 909 6812 000 1 INSTALLATION INSTRUCTIONS FOR COVER TANK LOCKING KIT
[31] 909 6128 000 1 CLAMP
RAZOR BLADE 26D - 28D - 28C 
BEFORE S/N 074531009
RECOVERY TANK
A: ON MACHINES WITH SERIAL NUMBER STARTING FROM 060803403

2005-12
82007-11
909 6458 000(7)2008-05
RECOVERY TANK
RAZOR BLADE 26D - 28D - 28C 
STARTING FROM S/N 074531009
2007-11

2005-12
2007-11 9
909 6458 000(7)2008-05
RAZOR BLADE 26D - 28D - 28C 
STARTING FROM S/N 074531009
RECOVERY TANK
2007-11
Item No. Ref. No. Qty Description
1 9097340000 1 RECOVERY TANK 
2 909 6489 000 1 GASKET VACUUM MOTOR
3 9097466000 1 MOTOR VACUUM 3ST 500W CPL
4 909 6247 000 1 COVER VACUUM MOTOR
5 9097399000 1 FILTER
6 909 6490 000 1 GASKET VACUUM MOTOR
7 909 6442 000 1 PIPE ACOUSTIC INSULATION
8 909 6491 000 1 PANEL ACOUSTIC INSULATION
9 909 6096 000 1 HOSE DRAIN 
10 145 0543 000 1 CLAMP 24/32-52
11 909 6097 000 1 HOSE VACUUM 
12 909 6247 000 1 COVER TANK 
13 909 6268 000 1 GASKET 
14 L08812968 1 GASKET
15 909 6199 000 1 HOLDER FLOAT CAGE
16 L08812373 1 BALL FLOATING
17 L08812259 2 CAGE FLOAT CPL
18 909 6876 000 1 HARDWARE RECOVERY TANK KIT 
19 909 6877 000 1 HARDWARE MOTOR FIXING KIT
20 909 6380 000 1 HOSE CLAMP KIT 
21 909 6810 000 1 COVER TANK LOCKING KIT
22 909 5371 000 2 CARBON BRUSH
[23] 909 6812 000 1 INSTALLATION INSTRUCTION COVER TANK LOCKING KIT

2005-12
10 2007-11
909 6458 000(7)2008-05
RAZOR BLADE 26D - 28D - 28C
CHASSIS SYSTEM

2005-12
2007-11 11
909 6458 000(7)2008-05
RAZOR BLADE 26D - 28D - 28C
CHASSIS SYSTEM
Item No. Ref. No. Qty Description
1 9097206000 1 SUPPORT ROLLER BUMPER STARTING FROM 074531009
1 9097205000 1 SUPPORT ROLLER BUMPER STARTING FROM 074531009
2 909 6065 000 1 CHASSIS
3 L08812248 1 BUMPER ROLLER STARTING FROM 074531009
4 33003824 1 SCREW M10X150 UNI5737 STARTING FROM 074531009
5 33004368 1 SCREW M8X35
6 909 6240 000 1 PLATE
7 145 2612 000 2 PULLEY
8 146 0987 000 4 CLAMP
933004010 2 SCREW HEX M10X30 UNI5739 STARTING FROM 074531009
10 909 6066 000 1 ACTUATOR PROTECTION
11 909 6895 000 2 REAR WHEEL  Ø 300X70
12 909 6069 000 1 BAR PROTECTION CABLE
13 909 6070 000 1 DRAIN HOSE BRACKET
14 909 6715 000 1 JACK MOTOR 24V
15 909 6151 000 1 TANK CABLE
16 909 6364 000 1 REAR WHEELS FITTING KIT 
17 909 6365 000 1 KIT TANK CABLE 
18 909 6366 000 1 BAR PROTECTION FITTING KIT 
19 909 6367 000  1 ACTUATOR’S PIN FITTING KIT 
20 909 6718 000 1 CABLE SQUEEGEE KIT  
21 909 6368 000 1 CHASSIS HARDWARE KIT 
22 33005608 5 NUT SELF L. M10 UNI7474
23 L08604251 8 WASHER 10X30 UNI6592
24 9097207000 1 PLATE ROLLER BUMPER SUP.
[25] 909 6719 000 1 INSTALLATION INSTRUCTIONS FOR  CABLE SQUEEGEE KIT 
[26] 1 BATTERY DECAL ( KIT DECALS POS.6 PAGE 5)

2005-12
12 2007-11
909 6458 000(7)2008-05
RAZOR BLADE 26D - 28D - 28C (BEFORE JANUARY 2007)
FRONT WHEEL ASSEMBLY

2005-12
2007-11 13
909 6458 000(7)2008-05
RAZOR BLADE 26D - 28D - 28C (BEFORE JANUARY 2007)
FRONT WHEEL ASSEMBLY
Item No. Ref. No. Qty Description
2 L08600669 2 PIN 4X20
4 145 9774 000 1 KEY 5X5X20
8 33004562 2 SCREW M5X14
9 145 5919 000 2 DOWEL M10X25
13 33006056 1 RETAINING RING
14 33004578 6 SCREW M6X20
19 146 1533 000 1 DOWEL M5X10
21 909 5937 000 1 STEERING SUPPORT
22 909 5938 000 1 VIBRATION DAMPING
24 909 5940 000 1 STEERING SUPPORT PLATE
25 909 5941 000 1 BALL BEARING SUPPORT
26 909 5942 000 1 BALL BEARING 
27 909 5943 000 1 STEERING PINION
29 909 5945 000 1 STEERING SHAFT
32 909 6317 000 1 SENSOR KIT
33 909 6221 000 1 BRACKET WIRE PROTECTION
34 145 2330 000 1 GREASER
35 145 4691 000 1 BALL BEARING 
36 145 9505 000 1 BUSHING 
37 146 2873 000 1 WASHER FLAT 16X30 NYLON
38 909 6324 000 1 CARBON BRUSH KIT (4PCS)
39 909 6323 000 1 TYRE WHEEL
40 909 6326 000 1 ELECTROMAGNETIC BRAKE
41 909 6325 000 1 MOTOR 600W 24V
42 909 6370 000 1 FITTING PLATE KIT 
43 909 6371 000 1 CROWN KIT 
44 909 6372 000 1 CABLE CLAMPS FITTING KIT 
45 909 6373 000 1 RING NUT KIT 
46 909 6374 000 1 CLAMP KIT 
47 909 6375 000 1 FRONT WHEEL ASSY HARDWARE KIT 
[48] 9097053000 1 HARNESS DRIVE WHEEL

2005-12
14 2007-11
909 6458 000(7)2008-05
RAZOR BLADE 26D - 28D - 28C (AFTER JANUARY 2007)
FRONT WHEEL ASSEMBLY

2005-12
2007-11 15
909 6458 000(7)2008-05
RAZOR BLADE 26D - 28D - 28C (AFTER JANUARY 2007)
FRONT WHEEL ASSEMBLY
Item No. Ref. No. Qty Description
1 L08600669 2 SPLIT PIN
2 L08603041 1 SCREW HEX HD M5X10
3 33004605 4 SREW HEX THD TO HD M5X10
4 33005842 6 WASHER SPLIT 8
5 33004562 4 SCREW M5X14
6 145 5919 000 2 DOWEL M10X25
7 33005915 6 WASHER FLAT 8X17 
8 145 9157 000 1 RING NUT
9 33005444 6 SCREW HEX HD 8X20
10 33006056 1 RETAINING RING
11 33004578 6 SCREW M6X20
12 33005919 2 WASHER FLAT
13 145 9774 000 1 KEY
14 33005912 1 WASHER FLAT 5X10 SS
15 145 9966 000 4 WASHER FLAT 10X21X2 SS
16 146 1533 000 1 DOWEL
17 146 2873 000 1 WASHER FLAT 16X30 NYLON
18 909 5606 000 1 CLAMP
19 909 5940 000 1 STEERING SUPPORT PLATE
20 909 5941 000 1 BALL BEARING SUPPORT
21 909 5942 000 1 BALL BEARING 
22 909 5943 000 1 STEERING PINION
23 909 5944 000 1 CROWN
24 909 5945 000 1 STEERING SHAFT
25 909 5947 000 1 SPACER
26 909 6121 000 1 SENSOR
27 909 6221 000 1 BRACKET WIRE PROTECTION
28 9096930000 1 GEAR SUPPORT
29 9096931000 1 MOTOR DRIVE WHEEL CPL
30 9096933000 1 STEERING SUPPORT
31 9096934000 1 MOTOR DRIVE WHEEL UPPER PLATE
32 145 2330 000 1 GREASER
33 145 4691 000 1 BALL BEARING 
34 145 9505 000 1 BUSHING 
35 9097462000 4 SCREW M10X25
36 33005843 4 WASHER SPLIT 10
[37]A 9096928000 1WHEEL DRIVE KIT
[38] 9096929000 1ISTALLATION INSTRUCTIONS
[39] 9096927000 1 MOTOR DRIVE WHEEL HARNESS
A: SEE TSB IT 2007-023

2005-12
16 2007-11
909 6458 000(7)2008-05
MOTOR DRIVE WHEEL
RAZOR BLADE 26D - 28D - 28C 
2007-11

2005-12
2007-11 17
909 6458 000(7)2008-05
2007-11
Item No. Ref. No. Qty Description
19096935000 1 TYRE WHEEL
29096966000 1 ELECTROMAGNETIC BRAKE
39096959000 1 BALL BEARING KIT
49096967000 1 ARMATURE
59096976000 1 BRAKE SHOE
69096968000 1 RING
79096970000 1 BRAKE COVER
89096969000 1 PLUG
99096960000 1 BRUSHES KIT
MOTOR DRIVE WHEEL
RAZOR BLADE 26D - 28D - 28C 

2005-12
18 2007-11
909 6458 000(7)2008-05
RAZOR BLADE 26D - 28D - 28C
STEERING SYSTEM

2005-12
2007-11 19
909 6458 000(7)2008-05
RAZOR BLADE 26D - 28D - 28C
STEERING SYSTEM
Item No. Ref. No. Qty Description
3 145 4773 000 4 INSERT HEX. M8
7 909 6074 000 1 CABLE
9 146 2445 000 1 STEERING COLUMN
10 146 2446 000 1 SUPPORT
11 146 2449 000 1 PLUNGER INDEXING
13 146 2457 000 1 BELLOW RUBBER
14 146 2458 000 1 LEVER
15 909 5011 000 3 SCREW OVAL HD M6X20 SS
16 909 6071 000 1 STEERING COLUMN
17 909 6072 000 1 WHEEL STEERING
18 909 6073 000 1 FRONT COVER
20 145 9619 000 1 JOINT
22 1 KENT LOGO DECAL  ( KIT DECALS POS.6 PAGE 5)
23 909 6398 000 1 SUPPORT FITTING KIT 
24 909 6399 000 1 KIT ROD TENSION
25 909 6400 000 1 STEERING SYSTEM HARDWARE KIT 
26 145 9290 000 1 SPRING
27 1 CONTROL PANEL ASSEMBLY

2005-12
20 2007-11
909 6458 000(7)2008-05
RAZOR BLADE 26D - 28D - 28C 
CONTROL PANEL ASSEMBLY

2005-12
2007-11 21
909 6458 000(7)2008-05
RAZOR BLADE 26D - 28D - 28C
CONTROL PANEL ASSEMBLY
Item No. Ref. No. Qty Description
2 146 2888 000 1 KEY SWITCH
3 145 4719 000 1 KNOB FOR POTENTIOMETER
5 146 1727 000 1 EMERGENCY SWITCH
6 146 1728 000 1 CONTACT
8 146 1710 000 5 SCREW M 5X10
10 909 6076 000 1 POTENTIOMENTER
11 909 6077 000 1 ELECTRONIC BOARD
12 909 6078 000 1 DECAL CONTROL PANEL
14 146 2887 000 1 KEY
15 909 6647 000 1 CONTROL PANEL KIT 

2005-12
22 2007-11
909 6458 000(7)2008-05
RAZOR BLADE 26D-28D-28C 
BEFORE S/N 061808338
PEDAL ASSEMBLY
2006-12

2005-12
2007-11 23
909 6458 000(7)2008-05
RAZOR BLADE 26D-28D-28C 
BEFORE S/N 061808338
PEDAL ASSEMBLY
Item No. Ref. No. Qty Description
1 33005500 1 NUT  M4
2 L08812095 4 SCREW M6X16
3 33005838 2 WASHER SPLIT  4
4 145 1147 000 2 SPRING WASHER
5 145 6015 000 1 SCREW HEX HD M4X20
6 145 1241 000 1 CLAMP
7 145 2473 000 1 ROD TENSION M6X32
8 33005531 2 NUT HEX LOW M6
9 145 5867 000 2 SCREW HEX HD 3,9X13
10 33005911 1 WASHER FLAT 4X9
11 33003950 2 SCREW HEX HD M4X16
12 146 1938 000 1 SPEED CONTR. PEDAL BRACKET
13 146 1939 000 1 SPEED CONTR. PEDAL SUPPORT
14 146 2910 000 1 SPEED CONTROL PEDAL
15 146 2062 000 1 GASKET 
16 146 2315 000 1 PEDAL GASKET
17 146 2480 000 1 HARNESS DRIVE PEDAL
18 33005851 3 WASHER SPLIT 6
19 146 2882 000 1 LEVER
20 146 2883 000 1 SPRING 
21 146 2884 000 1 SPACER
22 145 4086 000 1 PEDAL COVER
23 145 8479 000 1 DOWEL M6
24 33005604 7 NUT HEX SELFLOCK LOW M6
25 33003975 3 SCREW HEX HD M6X20
[26] 146 2881 000 1 SPEED CONTROL PEDAL COMPLETE KIT (1,2,3,4,5,6,7,8,9,10,11,12,13,14,15,16, 
17, 18,19,20,21,22,23,24,25,)
2006-12

2005-12
24 2007-11
909 6458 000(7)2008-05
RAZOR BLADE 26D-28D-28C
 STARTING FROM S/N 061808339)
PEDAL ASSEMBLY

2005-12
2007-11 25
909 6458 000(7)2008-05
RAZOR BLADE 26D-28D-28C
 STARTING FROM S/N 061808339)
PEDAL ASSEMBLY
Item No. Ref. No. Qty Description
1 146 2952 000 1 SPEED CONTROL PEDAL COMPLETE KIT
2 909 6834 000 1 PEDAL ASSEMBLY HARDWARE KIT
4 145 1147 000 2 SPRING WASHER
12 146 2929 000 1 SPEED CONTROL PEDAL BRACKET
13 146 2930 000 1 SPEED CONTROL PEDAL SUPPORT
14 146 2910 000 1 SPEED CONTROL PEDAL
15 146 2062 000 1 GASKET 
16 146 2315 000 1 PEDAL GASKET
17 146 2480 000 1 HARNESS DRIVE PEDAL
19 146 2882 000 1 LEVER
20 146 2883 000 1 SPRING 
21 146 2884 000 1 SPACER
22 145 4086 000 1 PEDAL COVER

2005-12
26 2007-11
909 6458 000(7)2008-05
RAZOR BLADE 26D - 28D - 28C
FOOTBOARD ASSEMBLY

2005-12
2007-11 27
909 6458 000(7)2008-05
Item No. Ref. No. Qty Description
1 909 5899 000 1 FOOTBOARD
2 1 PEDAL ASSEMBLY
3 145 4618 000 4 BLIND NUT M6 SS
4 1 ELECTRICAL COMPONENTS
5 146 0759 000 4 DOWEL M6X25
6 909 6122 000 1 ELECTRONIC CARD COVER
7 909 6838 000 1 GASKET 
8 909 6369 000 1 FOOTBOARD ASSY HARDWARE KIT 
RAZOR BLADE 26D - 28D - 28C
FOOTBOARD ASSEMBLY

2005-12
28 2007-11
909 6458 000(7)2008-05
RAZOR BLADE 26D - 28D - 28C
SOLUTION SYSTEM

2005-12
2007-11 29
909 6458 000(7)2008-05
RAZOR BLADE 26D - 28D - 28C
SOLUTION SYSTEM
Item No. Ref. No. Qty Description
1 909 6389 000 1 CAP KIT 
2 909 6390 000 1 PRESSURE SENSOR HOSE KIT 
3 909 6391 000 1 FILTER FITTING KIT 
4 909 6392 000 1 SUPPORT FITTING KIT 
5 33003496 6 HOSE CLAMP
6 909 6393 000 1 SOLUTION SYSTEM HARDWARE KIT 
7 145 5869 000 2 SCREW 3,9X9,5
8 909 5215 000 1 NET, WATER FILTER AND GASKET
9 909 6348 000 1 HOSE
10 909 6347 000 1 HOSE
11 909 6346 000 1 HOSE
12 9096954000 1 VALVE
13 909 5443 000 1 SOLENOID VALVE 24V UL
14 909 5207 000 1 WATER FILTER
15 909 6080 000 2 ELBOW 90°
16 909 6081 000 1 PIPE HOLDER 1/2 MALE
17 909 6328 000 1 HOSE
18 909 6091 000 1 PRESSURE SENSOR
19 909 6085 000 1 PIPE HOLDER STRAIGHT
20 909 6086 000 1 CURVED ELBOW M/F
21 909 6087 000 1 CURVED ELBOW 90° M
22 909 6088 000 1 SUPPORT, SOLENOID VALVE
23* 9096916000 1 SOLUTION TANK FILTER

2005-12
30 2007-11
909 6458 000(7)2008-05
RAZOR BLADE 26D - 28D - 28C
SQUEEGEE SYSTEMS

2005-12
2007-11 31
909 6458 000(7)2008-05
RAZOR BLADE 26D - 28D - 28C
SQUEEGEE SYSTEMS
Item No. Ref. No. Qty Description
1 909 5372 000 1 KIT SQUEEGEE 32” - RAZOR BLADE 26D 
1 909 5373 000 1 KIT SQUEEGEE 34” - RAZOR BLADE 28D - 28C
2 909 6397 000 1 SQUEEGEE SYSTEM HARDWARE KIT 
3 L08601509 1 PIN, SQUEEGEE SUPPORT
4 909 6223 000 1 HANDWHEEL M8X45
5 909 6396 000 1 HANDWHEEL FITTING KIT 
6 909 6394 000 1 SQUEEGEE LATCH KIT 
7 9096973000 1 TENSION ROD FITTING KIT 
8 L08603880 1 KIT BUMPER ROLLER
9 9097499000 1 BLADES NEOPRENE KIT 32”- RAZOR BLADE 26D 
9 9097500000 1 BLADES NEOPRENE KIT 34”- RAZOR BLADE 28D - 28C
10 L08603675 2 THUMB NUT SQUEEGEE FIXING
11 909 6103 000 1 SQUEEGEE SUPPORT
12 909 6104 000 1 PLATE, SQUEEGEE SUPPORT
13 9096944000 4 TENSION ROD
14 L08603833 1 STRAP LEFT REAR - RAZOR BLADE 26D
14 909 5351 000 1 STRAP LEFT REAR - RAZOR BLADE 28D - 28C
15 L08603834 1 STRAP RIGHT REAR - RAZOR BLADE 26D
15 909 5352 000 1 STRAP RIGHT REAR - RAZOR BLADE 28D - 28C
16 L08603831 1 STRAP FRONT - RAZOR BLADE 26D
16 909 5349 000 1 STRAP FRONT - RAZOR BLADE 28D - 28C
17 909 6356 000 2 WING NUTS KIT
18 909 5294 000 1 WELDMENT SQUEEGEE TOOL - RAZOR BLADE 26D
18 909 5487 000 1 WELDMENT SQUEEGEE TOOL - RAZOR BLADE 28D - 28C
19 L08603879 1 KIT SQUEEGEE WHEEL
[20]A 9096945000 1 TENSION ROD KIT
A: FOR MACHINES BEFORE S/N 070100618 - SEE TSB IT 2007-014

2005-12
32 2007-11
909 6458 000(7)2008-05
RAZOR BLADE 26D - 28D 
BEFORE S/N 074531009
BRUSH DECK SYSTEMS

2005-12
2007-11 33
909 6458 000(7)2008-05
RAZOR BLADE 26D - 28D 
BEFORE S/N 074531009
BRUSH DECK SYSTEMS
Item No. Ref. No. Qty Description
7 L08812306 1 HUB BRUSH RIGHT REDUCTIONGEAR MOTOR  
8 9097090000 2 HUB
19 146 1036 000 8 HANDWHEEL M10
20 146 1037 000 1 HANDWHEEL 
24 909 5226 000 1 BRUSH DECK 650MM/26” - RAZOR BLADE 26D
24 909 6250 000 1 BRUSH DECK 740MM/28” - RAZOR BLADE 28D
25 L08603822 1 HUB, BRUSH LEFT RED. GEARMOTOR  
28 909 6163 000 1 DECK MOTOR BRACKET RIGHT - RAZOR BLADE 26D
28 909 6166 000 1 DECK MOTOR BRACKET RIGHT - RAZOR BLADE 28D
30 909 6165 000 2 REDUCTIONGEAR MOTOR
31 909 6168 000 1 RIGHT SKIRT SUPPORT
32 909 6169 000 1 LEFT SKIRT SUPPORT
33 909 6170 000 2 SIDE SKIRT PLATE
34 909 6172 000 2 SIDE SKIRT
35 909 6220 000 1 DECK MOTOR BRACKET LEFT - RAZOR BLADE 26D
35 909 6167 000 1 DECK MOTOR BRACKET LEFT - RAZOR BLADE 28D
36 909 5877 000 2 CARBON BRUSH KIT (4 PCS)
37 909 6162 000 1 BRACKET
38 909 6351 000 1 BRUSH DECKWATER HOSE KIT
39 909 6352 000 2 HUB FITTING KIT 
40 909 6353 000 1 SIDE SKIRT FITTING KIT 
41 909 6354 000 1 SPLIT PIN KIT 
42 909 6355 000 1 ROLLER BUMPER FITTING KIT 
43 909 6356 000 2 WING NUTS KIT  
44 909 6357 000 1 REDUCTIONGEAR MOTOR FITTING KIT
45 909 6358 000 1 BRUSH DECK HARDWARE KIT 
[46] 909 6179 000 1 HARNESS BRUSH DECK

2005-12
34 2007-11
909 6458 000(7)2008-05
RAZOR BLADE 26D - 28D 
STARTING FROM S/N 074531009
BRUSH DECK SYSTEMS

2005-12
2007-11 35
909 6458 000(7)2008-05
RAZOR BLADE 26D - 28D 
STARTING FROM S/N 074531009
BRUSH DECK SYSTEMS
Item No. Ref. No. Qty Description
1 909 5226 000 1 BRUSH DECK 650MM/26” - RAZOR BLADE 26D
1 909 6250 000 1 BRUSH DECK 740MM/28” - RAZOR BLADE 28D
2# 9097426000 1 LEFT SKIRT SUPPORT - TSB IT 2008-004
3 909 6352 000 2 HARDWARE HUB FIXING KIT
4 9097090000 2 HUB
5 9097496000 1 HOLDER POLYGONAL RIGHT KIT
6 9097497000 1 HOLDER POLYGONAL LEFT KIT
7# 9097425000 1 RIGHT SKIRT SUPPORT - TSB IT 2008-004
8 909 6354 000 2 SPLIT PINS KIT
9 909 5380 000 2 CARBON BRUSH KIT 
10 9097178000 2 REDUCTION GEAR MOTOR 400W 24V
11 909 6356 000 2 WING NUTS KIT
12 909 6163 000 1 BRACKET BRUSH MOTOR RIGHT - RAZOR BLADE 26D
12 909 6166 000 1 BRACKET BRUSH MOTOR RIGHT - RAZOR BLADE 28D
13 909 6220 000 1 BRACKET BRUSH MOTOR LEFT - RAZOR BLADE 26D
13 909 6167 000 1 BRACKET BRUSH MOTOR LEFT - RAZOR BLADE 28D
14 909 6353 000 4 HARDWARE SKIRT FIXING KIT 
15# 9097428000 2 SIDE SKIRT - TSB IT 2008-004
16# 9097427000 2 SIDE SKIRT PLATE - TSB IT 2008-004
16 909 6170 000 2 SIDE SKIRT PLATE - TSB IT 2008-004
17 909 6351 000 1 HOSE WATER BRUSH DECK KIT
18 146 1036 000 8 HANDWHEEL M10
19 909 6162 000 1 BRACKET BRUSH DECK
20 146 1037 000 1 HANDWHEEL 
21 9097498000 1 ARM BRUSH DECK REINFORCEMENT KIT
22 909 6355 000 1 ROLLER BUMPER FITTING KIT 
[23]  909 6179 000 1 HARNESS BRUSH DECK
24# 9097494000 1 RIGHT SKIRT SUPPORT WITH PLATE KIT - TSB IT 2008-004
25# 9097495000 1 LEFT SKIRT SUPPORT WITH PLATE KIT - TSB IT 2008-004
[26]# 9097599000 1 PROTECTION MOTOR KIT - TSB IT 2008-014
[27]# 9097600000 1 INSTALLATION INSTRUCTION FOR PROTECTION MOTOR KIT - TSB IT 2008-014
100 909 6343 000 1 BRUSH DECK 650MM/26” KIT - RAZOR BLADE 26D
100 909 6344 000 1 BRUSH DECK 740MM/28” KIT - RAZOR BLADE 28D
2008-05

2005-12
36 2007-11
909 6458 000(7)2008-05
RAZOR BLADE  28C
CYLINDRICAL BRUSHES SYSTEM

2005-12
2007-11 37
909 6458 000(7)2008-05
RAZOR BLADE  28C
CYLINDRICAL BRUSHES SYSTEM
Item No. Ref. No. Qty Description
1 909 6189 000 1 CYLINDRICAL BRUSH DECK FRAME
2 909 5774 000 2 ELECTRIC MOTOR 24V 600W
3 L08603949 2 CARBON BRUSH SET (4 PCS)
4 909 5758 000 2 PULLEY
5A 909 5761 000 1 CINGHIA POLY-V SX
5B 909 6731 000 1 BELT POLY-V LEFT
6A 909 5760 000 1 BELT POLY-V RIGHT
6B 909 5761 000 1 BELT POLY-V RIGHT
7A 909 5724 000 1 CRANK CASE BELT PROTECTION RIGHT
7B 909 6785 000 1 CRANK CASE BELT PROTECTION RIGHT
8A 909 5725 000 1 CRANK CASE BELT PROTECTION LEFT
8B 909 6786 000 1 CRANK CASE BELT PROTECTION LEFT
9 909 6190 000 2 BRUSH SUPPORT
10 56407551 2 HUB
11 909 5964 000 2 HANDWHEEL M8
12 909 6225 000 1 DIRT CONTAINER
13 909 5141 000 1 HOSE
14 909 5516 000 2 CABLE CLAMP Ø 18
15 145 4366 000 1 PIPE HOLDER 
16 9096953000 1 FITTING
17 909 6162 000 1 BRACKET
18 909 5802 000 1 CRANKCASE MOTOR PROTECTION RIGHT
19 909 5803 000 1 CRANKCASE MOTOR PROTECTION LEFT
20 909 5957 000 4 CAP INSULATING
21 146 1037 000 1 HANDWHEEL
22 146 1036 000 8 HANDWHEEL M10
23 909 6192 000 1 RIGHT SKIRT SUPPORT
24 909 6193 000 1 LEFT SKIRT SUPPORT
25 909 6194 000 2 SIDE SKIRT
26 909 6195 000 2 SIDE SKIRT PLATE
27 909 6356 000 2 WING NUTS KIT
28 L08603880 1 KIT BUMPER ROLLER
29 909 6354 000 1 SPLIT PINS KIT 
30 909 6360 000 2 ROLLER KIT  
31 909 6361 000 2 PULLEY KIT  
32 909 6362 000 1 CYLINDRICAL BRUSH DECK HARDWARE KIT 
33A 909 5759 000 2 PULLEY POLY-V
33B 909 6730 000 2 PULLEY POLY-V
[34]  909 6196 000 1 HARNESS CYL. BRUSH DECK
100 909 6345 000 1 BRUSH DECK 710MM/28” CYL KIT
A: FOR MACHINES TILL S/N 063719996
B: FOR MACHINES STARTING FROM S/N 063719997

2005-12
38 2007-11
909 6458 000(7)2008-05
RAZOR BLADE 26D - 28D - 28C
SEAT ASSEMBLY

2005-12
2007-11 39
909 6458 000(7)2008-05
RAZOR BLADE 26D - 28D - 28C
SEAT ASSEMBLY
Item No. Ref. No. Qty Description
1 909 6244 000 1 SEAT SUPPORT
2 909 5897 000 1 SEAT
3 909 6098 000 1 CAP Ø 85
4 909 6242 000 1 MICROSWITCH
5 909 6383 000 1 LEVER FITTING KIT 
6 909 6384 000 1 SEAT ASSY HARDWARE KIT 
7 909 6241 000 2 GUMMI PLATTE
8 1 SEE ACCESSORIES

2005-12
40 2007-11
909 6458 000(7)2008-05
RAZOR BLADE 26D - 28D - 28C
LIFTING BRUSH DECK SYSTEM

2005-12
2007-11 41
909 6458 000(7)2008-05
RAZOR BLADE 26D - 28D - 28C
LIFTING BRUSH DECK SYSTEM
Item No. Ref. No. Qty Description
1 909 6385 000 1 LEVER KIT 
2 909 5637 000 1 SPRING GAS
3 909 6107 000 1 ACTUATOR 24V
4 909 6109 000 1 LEVER
5 909 6387 000 1 ACTUATOR TUBE FITTING KIT 
6 909 6388 000 1 HARDWARE KIT 
7 909 6115 000 3 LEVER BRUSHES SUPPORT
8 909 6117 000 1 SPRING
9 909 6386 000 3 LEVER BRUSHES SUPPORT KIT 

2005-12
42 2007-11
909 6458 000(7)2008-05
RAZOR BLADE 26D - 28D - 28C
ELECTRICAL COMPONENTS

2005-12
2007-11 43
909 6458 000(7)2008-05
RAZOR BLADE 26D - 28D - 28C
ELECTRICAL COMPONENTS
Item Ref. No. Qty Description
1 145 8046 000 1 FUSE CARRIER
2 146 0659 000 1 FUSE CARRIER, MAXIFUSE
3 909 6341 000 1 FUSE CARRIER
4 909 6131 000 1 FAN COOLING
5 909 6116 000 1 ELECTRONIC COMPONENTS SUPPORT
6 909 6118 000 1 ELECTRONIC CARD, TRACTION
7 909 6119 000 1 ELECTRONIC CARD
8 909 6126 000 1 BUZZER 5-32V
9 909 6257 000 1 CHARGER BATTERY 24V 25A 100-115V
10 909 6363 000 1 HARDWARE ELECTRICAL COMPONENTS KIT
SPARE BATTERY CHARGER 24V 100-115V
[11] 146 2141 000 1 FUSE 15A 
[12] 909 6259 000 1 CARD ELECTRONIC BATTERY CHARGER
[13] 909 6258 000 1 CARD DISPLAY
[14] 909 6260 000 1 CABLE NET
[15] 146 0801 000 1 SWITCH WET/GEL
[16] 145 1980 000 1 FUSE 100A
[17] 145 9852 000 1 FUSE 5A
[18] 909 6218 000 1 FUSE 60A
[19] 9096926000 1 MACHINE HARNESS
[20] 909 6125 000 1 BATTERY HARNESS
[21] 909 6123 000 1 HARNESS ELECTRIC BOX
[22] 146 1986 000 1 CONNECTOR
[23] 909 6350 000 1 PROGRAMMER ELECTRONIC CARD TRACTION
[24] 1 DECAL FUSE 60A (KIT DECALS PAGE 5 POSITION 19)
[25] 1 DECAL FUSE 5A (KIT DECALS PAGE 5 POSITION 19)
[26] 1 DECAL FUSE 100A (KIT DECALS PAGE 5 POSITION 19)
[27]# 9097601000 1 GASKET BATTERY CHARGER - TSB IT 2008-008
[28]# 9097722000 1 INSTALLATION INSTRUCTION BATTERY CHARGER GASKET - TSB IT 2008-008
[29]# 9097723000 1 BATTERY CHARGER GASKET KIT - TSB IT 2008-008
[30]# 9097590000 1 CABLE BATTERY INTERCONNECTION
2008-05

2005-12
44 2007-11
909 6458 000(7)2008-05
RAZOR BLADE 26D - 28D - 28C
BATTERY CHARGER ASSEMBLY

2005-12
2007-11 45
909 6458 000(7)2008-05
RAZOR BLADE 26D - 28D - 28C
BATTERY CHARGER ASSEMBLY
Diagram Reference Ref. No. Qty Description
NOT SHOWN 909 6251 000 1 COOLING FAN FOR BATTERY CHARGER 110-115V
NOT SHOWM 146 0801 000 1 SWITCH - BATTERY CHARGER 110-115V
MAINS FUSE 146 2141 000 1 FUSE 15A FOR BATTERY CHARGER  - 110-115V
NOT SHOWN 909 6259 000 1 BATTERY CHARGER CARD -110-115V
DISPLAY CARD 909 6258 000 1 DISPLAY CARD - BATTERY CHARGER - 110-115V
NOT SHOWN 909 6260 000 1 NET CABLE - BATTERY CHARGER 110-115V

2005-12
46 2007-11
909 6458 000(7)2008-05
RAZOR BLADE 26D - 28D - 28C
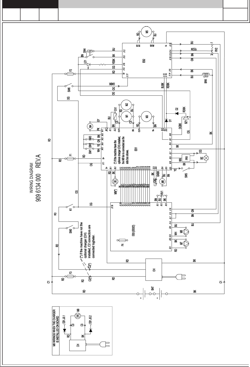
WIRING DIAGRAM

2005-12
2007-11 47
909 6458 000(7)2008-05
RAZOR BLADE 26D - 28D - 28C
WIRING DIAGRAM
COMPONENTS
BAT 24V BATTERIES 
BE BEACON 
BRK ELECTROMAGNETIC BRAKE
BZ1 BACK-UP ALARM / HORN 
C1 BATTERY CONNECTOR 
C2 SECONDARY CHARGER CONNECTOR 
C3 EXT. FAN CHARGER CONNECTOR (OPT)
CH BATTERY CHARGER (OPT) 
CS BRUSH DECK CONNECTOR 
CSC CILINDRICAL DECK SECONDARY CONNECTOR
EB1 FUNCTIONS ELECTRONIC BOARD
EB2 DRIVE ELECTRONIC BOARD 
EB3 CONTROL PANEL BOARD 
EB3/2 C.P. BOARD W. PUMP DRIVERS (OPT)
EV1 WATER ELECTROVALVE 
F1 FUNCTIONS FUSE 
F2 DRIVE SYSTEM FUSE 
F3 LOW POWER CIRCUIT FUSE 
F4 CHEMICALS FUSE (only with EB3/2)
K1 KEY SWITCH 
LD1 DRIVE DIAGNOSTIC WARNING LIGHT
M1 LEFT BRUSH MOTOR
M2 RIGHT BRUSH MOTOR
M3 VACUUM MOTOR
M4 BRUSH DECK ACTUATOR
M5 DRIVE MOTOR
M6 SQUEEGEE ACTUATOR
M7 WATER PUMP (OPT)
M8 DETERGENT PUMP (OPT)
M9 FAN
PR1 WATER LEVEL SENSOR
RV1 WORK SPEED LIMITER
RV2 DRIVE SPEED POTENTIOMETER (PEDAL)
SW0 EMERGENCY STOP SWITCH
SW1 ACTUATOR LIMIT MICROSWITCH (POS.0)
SW2 ACTUATOR LIMIT MICROSWITCH (POS.1)
SW3 ACTUATOR LIMIT MICROSWITCH (POS.2)
SW4 STEERING SENSOR
SW5 SEAT MICROSWITCH
SW6 REV. GEAR SWITCH (IF PRESENT)

2005-12
48 2007-11
909 6458 000(7)2008-05
RAZOR BLADE 26D - 28D - 28C
ACCESSORIES

2005-12
2007-11 49
909 6458 000(7)2008-05
RAZOR BLADE 26D - 28D - 28C
ACCESSORIES
Item No. Ref. No. Qty Description
BRUSH DECK KITS
1* 909 6343 000 1 BRUSH DECK 650MM/26” KIT - RAZOR BLADE 26D
1* 909 6344 000 1 BRUSH DECK 740MM/28” KIT - RAZOR BLADE 28D
RAZOR BLADE 26D BRUSHES
2* 909 5332 000 2 PROLENE
2* 909 5334 000 2 MIDGRIT 240
2* 909 5336 000 2 MIDLITE GRIT 180
2* 909 5338 000 2 PROLITE
2* 909 5340 000 2 UNION MIX
2* 909 5330 000 2 PAD HOLDER KIT
NOT SHOWN L08603966 1 RING NYLON
NOT SHOWN L08837030 1 RETAINER PAD
RAZOR BLADE 28D BRUSHES
2* 909 5333 000 2 PROLENE
2* 909 5335 000 2 MIDGRIT 240
2* 909 5337 000 2 MIDLITE GRIT 180
2* 909 5339 000 2 PROLITE
2* 909 5341 000 2 UNION MIX
2* 909 5331 000 2 PAD HOLDER KIT
NOT SHOWN L08603966 1 RING NYLON
NOT SHOWN L08837030 1 RETAINER PAD
CYLINDRICAL BRUSH DECK KIT
3* 909 6345 000 1 BRUSH DECK 690MM/28” CYL. KIT - 
RAZOR BLADE 28C BRUSHES
4* 56412191 2 UNION MIX
4* 56412192 2 PROLITE
4* 56412046 2 PROLENE
4* 56412193 2 MIDLITE GRIT 180
4* 56412194 2 DYNA GRIT 80
4* 56412195 2 MAGNA GRIT 46
SQUEEGEE KITS
5 909 5372 000 1 KIT SQUEEGEE 32” -  RAZOR BLADE 26D
5 909 5373 000 1 KIT SQUEEGEE 34” -  RAZOR BLADE 28D - 28C
BLADES KITS
6 9097499000 1 BLADES RUBBER KIT 32”- RAZOR BLADE 26D
6 909 6859 000 1 BLADES POLYURETHAN KIT 32”- RAZOR BLADE 26D
6 9097500000 1 BLADES RUBBER KIT 34” - RAZOR BLADE 28D - 28C 
6 9096991000 1 BLADES POLYURETHAN KIT 34”- RAZOR BLADE 28D - 28C 

2005-12
50 2007-11
909 6458 000(7)2008-05
RAZOR BLADE 26D - 28D - 28C
ACCESSORIES

2005-12
2007-11 51
909 6458 000(7)2008-05
RAZOR BLADE 26D - 28D - 28C
ACCESSORIES
Item No. Ref. No. Qty Description
1* 909 6465 000 1 BEACON FLASHING ON SUPPORT KIT
[2] 909 6466 000  1 INSTALLATION INSTRUCTION FOR BEACON FLASHING ON SUPPORT 
KIT
3* 909 6815 000 1 HOSE FILLING KIT
[4] 909 6817 000 1 INSTALLATION INSTRUCTION FOR HOSE FILLING KIT
[5]* 909 6468 000 1 SILENCER REVERSE ALARM KIT
[6] 909 6469 000 1 INSTALLATION INSTRUCTION FOR SILENCER REVERSE ALARM KIT

2005-12
52 2007-11
909 6458 000(7)2008-05
RAZOR BLADE 26D - 28D - 28C
RECOMMENDED SPARE PARTS
Ref. No. DESCRIPTION QTY MACHINES
RECOVERY TANK
909 6489 000 GASKET VACUUM MOTOR 1 RAZOR BLADE 26D - 28D - 28C
9097466000 MOTOR VACUUM KIT  1 RAZOR BLADE 26D - 28D - 28C
9097399000 FILTER 1 RAZOR BLADE 26D - 28D - 28C
909 6490 000 GASKET VACUUM MOTOR 1 RAZOR BLADE 26D - 28D - 28C
909 6096 000 HOSE DRAIN BLACK 1 RAZOR BLADE 26D - 28D - 28C
909 6097 000 HOSE VACUUM BLACK 1 RAZOR BLADE 26D - 28D - 28C
909 6268 000 GASKET L=1370 MM 1 RAZOR BLADE 26D - 28D - 28C
L08812968 GASKET 1 RAZOR BLADE 26D - 28D - 28C
L08812373 FLOATING BALL 1 RAZOR BLADE 26D - 28D - 28C
L08812259 CAGE FLOATING BALL 2 RAZOR BLADE 26D - 28D - 28C
909 6380 000 HARDWARE CLAMP KIT  1  RAZOR BLADE 26D - 28D - 28C
909 5371 000 CARBON BRUSH  2 RAZOR BLADE 26D - 28D - 28C
CHASSIS SYSTEM
L08812248 BUMPER ROLLER 1 RAZOR BLADE 26D - 28D - 28C
145 2612 000 PULLEY 2 RAZOR BLADE 26D - 28D - 28C
909 6895 000 WHEEL REAR D.300 BLUE 2 RAZOR BLADE 26D - 28D - 28C
909 6715 000 JACK MOTOR 24V 1 RAZOR BLADE 26D - 28D - 28C
909 6151 000 CABLE  1 RAZOR BLADE 26D - 28D - 28C
909 6365 000 HARDWARE CABLE FIXING KIT 1 RAZOR BLADE 26D - 28D - 28C
909 6718 000 CABLE SQUEEGEE KIT 1 RAZOR BLADE 26D - 28D - 28C
FRONT WHEEL ASSEMBLY
909 5942 000 BALL BEARING 1 RAZOR BLADE 26D - 28D - 28C
909 5943 000 PINION STEERING 1 RAZOR BLADE 26D - 28D - 28C
909 6121 000 SENSOR 1 RAZOR BLADE 26D - 28D - 28C
9096931000 MOTOR WHEEL W600 24V 1 RAZOR BLADE 26D - 28D - 28C
145 2330 000 GREASER NIPPLE M6 1 RAZOR BLADE 26D - 28D - 28C
145 4691 000 BALL BEARING 1 RAZOR BLADE 26D - 28D - 28C
9096928000 WHEEL DRIVE KIT 1 RAZOR BLADE 26D - 28D - 28C
9096927000 HARNESS DRIVE WHEEL 1 RAZOR BLADE 26D - 28D - 28C
MOTOR DRIVE WHEEL 
9096935000 WHEEL D.250 1 RAZOR BLADE 26D - 28D - 28C
9096959000 BALL BEARING KIT 1 RAZOR BLADE 26D - 28D - 28C
9096976000 SHOE BRAKE 1 RAZOR BLADE 26D - 28D - 28C
9096960000 CARBON BRUSH KIT 1 RAZOR BLADE 26D - 28D - 28C
9096966000 BRAKE ELECTRICALLY RELEASED  1 RAZOR BLADE 26D - 28D - 28C
STEERING SYSTEM
909 6074 000 CABLE 1 RAZOR BLADE 26D - 28D - 28C
146 2458 000 LEVER 1 RAZOR BLADE 26D - 28D - 28C
145 9290 000 SPRING 1 RAZOR BLADE 26D - 28D - 28C
CONTROL PANEL ASSEMBLY
146 2888 000 SWITCH KEY WITH CAP 1 RAZOR BLADE 26D - 28D - 28C
146 1727 000 SWITCH EMERGENCY 1 RAZOR BLADE 26D - 28D - 28C
146 1728 000 CONTACT NC. 1 RAZOR BLADE 26D - 28D - 28C
909 6077 000 CARD ELECTRONIC  1 RAZOR BLADE 26D - 28D - 28C
909 6078 000 DECAL CONTROL PANEL 1 RAZOR BLADE 26D - 28D - 28C
146 2887 000 KEY (2PCS) 1 RAZOR BLADE 26D - 28D - 28C
PEDAL ASSEMBLY
146 2480 000 HARNESS PEDAL 1 RAZOR BLADE 26D - 28D - 28C
146 2952 000 PEDAL COMPLETE KIT 1 RAZOR BLADE 26D - 28D - 28C
SOLUTION SYSTEM
909 6389 000 CAP F 1/2 KIT 1 RAZOR BLADE 26D - 28D - 28C
909 6390 000 HOSE KIT 1 RAZOR BLADE 26D - 28D - 28C
909 5215 000 NET & GASKET WATER FILTER 1 RAZOR BLADE 26D - 28D - 28C
9096954000 VALVE 1 RAZOR BLADE 26D - 28D - 28C
909 5443 000 SOLENOID VALVE 24V 1 RAZOR BLADE 26D - 28D - 28C
909 5207 000 FILTER WATER 1 RAZOR BLADE 26D - 28D - 28C
909 6328 000 HOSE L=730MM 1 RAZOR BLADE 26D - 28D - 28C
909 6091 000 SENSOR PRESSURE 1 RAZOR BLADE 26D - 28D - 28C
SQUEEGEE SYSTEMS
909 6223 000 HANDWHEEL M8X45 1RAZOR BLADE 26D - 28D - 28C
909 6394 000 SQUEEGEE LATCH KIT  1RAZOR BLADE 26D - 28D - 28C
9096973000 TENSION ROD FITTING KIT  4RAZOR BLADE 26D - 28D - 28C
L08603880 KIT BUMPER ROLLER 1RAZOR BLADE 26D - 28D - 28C
9097499000 KIT SQUEEGEE BLADE 32”  1RAZOR 26D 
9097500000 KIT SQUEEGEE BLADE 34”  1RAZOR 28D - 28C
L08603675 THUMB NUT SQUEEGEE FIXING 2RAZOR BLADE 26D - 28D - 28C

2005-12
2007-11 53
909 6458 000(7)2008-05
RAZOR BLADE 26D - 28D - 28C
RECOMMENDED SPARE PARTS
Ref. No. DESCRIPTION QTY MACHINES
909 6103 000 SQUEEGEE SUPPORT 1RAZOR BLADE 26D - 28D - 28C
909 6104 000 PLATE, SQUEEGEE SUPPORT 1RAZOR BLADE 26D - 28D - 28C
9096944000 TENSION ROD 4RAZOR BLADE 26D - 28D - 28C
L08603833 STRAP LEFT REAR  1RAZOR BLADE 26D
909 5351 000 STRAP LEFT REAR  1RAZOR BLADE 28D - 28C
L08603834 STRAP RIGHT REAR  1RAZOR BLADE 26D
909 5352 000 STRAP RIGHT REAR  1RAZOR BLADE 28D - 28C
L08603831 STRAP FRONT  1RAZOR BLADE 26D
909 5349 000 STRAP FRONT  1RAZOR BLADE 28D - 28C
909 6356 000 WING NUTS KIT 2RAZOR BLADE 26D - 28D - 28C
L08603879 KIT SQUEEGEE WHEEL  1 RAZOR BLADE 26D - 28D - 28C
BRUSH DECK SYSTEMS
9097090000 HUB BRUSH 2 RAZOR BLADE 26D - 28D
909 6354 000 SPLIT PINS W/CABLE KIT 2 RAZOR BLADE 26D - 28D
909 5380 000 CARBON BRUSH KIT 2 RAZOR BLADE 26D - 28D
9097178000 REDUCTIONGEAR MOTOR 400W 2 RAZOR BLADE 26D - 28D
909 6356 000 WING NUTS KIT 2 RAZOR BLADE 26D - 28D
909 6172 000 BLADE SIDE 2 RAZOR BLADE 26D - 28D
909 6170 000 PLATE SIDE SKIRT 2 RAZOR BLADE 26D - 28D
909 6351 000 HOSE WATER BRUSH DECK KIT 1 RAZOR BLADE 26D - 28D
146 1036 000 KNOB 8 RAZOR BLADE 26D - 28D
9097498000 ARM BRUSH DECK REINFORCEMENT KIT 1 RAZOR BLADE 26D - 28D
909 6179 000 HARNESS BRUSH DECK 1 RAZOR BLADE 26D - 28D
CYLINDRICAL BRUSH DECK SYSTEM
909 5774 000 MOTOR ELECTRIC 600W 24V 2 RAZOR BLADE 28C
L08603949 BRUSH CARBON KIT (4 PCS) 2 RAZOR BLADE 28C
909 6731 000 BELT POLY-V LEFT 1 RAZOR BLADE 28C
909 5761 000 BELT POLY-V RIGHT 1 RAZOR BLADE 28C
909 6190 000 SUPPORT BRUSH 2 RAZOR BLADE 28C
56407551 HUB 2 RAZOR BLADE 28C
909 5964 000 KNOB M8 2 RAZOR BLADE 28C
909 5141 000 HOSE D.10 L=320MM 1 RAZOR BLADE 28C
909 5957 000 CAP INSULATING 4 RAZOR BLADE 28C
909 6194 000 BLADE SIDE 2 RAZOR BLADE 28C
909 6195 000 SIDE SKIRT PLATE 2 RAZOR BLADE 28C
909 6356 000 WING NUTS KIT 2 RAZOR BLADE 28C
L08603880 KIT BUMPER ROLLER 1 RAZOR BLADE 28C
909 6354 000 SPLIT PINS KIT  1 RAZOR BLADE 28C
909 6360 000 BELT TENSIONER KIT   2 RAZOR BLADE 28C
909 6361 000 PULLEY KIT   2 RAZOR BLADE 28C
909 6196 000 HARNESS CYL. BRUSH DECK 1 RAZOR BLADE 28C
SEAT ASSEMBLY
909 6242 000 MICROSWITCH 1 RAZOR BLADE 26D - 28D - 28C
BRUSH DECK LIFTING SYSTEM
909 5637 000 SPRING GAS 1 RAZOR BLADE 26D - 28D - 28C
909 6107 000 JACK MOTOR 24V 1 RAZOR BLADE 26D - 28D - 28C
ELECTRICAL COMPONENTS
145 8046 000 FUSE CARRIER 1 RAZOR BLADE 26D - 28D - 28C
146 0659 000 FUSE CARRIER  MAXIFUSE 1 RAZOR BLADE 26D - 28D - 28C
909 6341 000 FUSE CARRIER 1 RAZOR BLADE 26D - 28D - 28C
909 6131 000 FAN COOLING 1 RAZOR BLADE 26D - 28D - 28C
909 6118 000 CARD ELECTRONIC DRIVE  1 RAZOR BLADE 26D - 28D - 28C
909 6119 000 CARD ELECTRONIC FUNCTIONS 1 RAZOR BLADE 26D - 28D - 28C
909 6126 000 BUZZER 5-32V 1 RAZOR BLADE 26D - 28D - 28C
909 6257 000 CHARGER BATTERY 24V 25A 100-115V 1 RAZOR BLADE 26D - 28D - 28C
145 1980 000 FUSE 100A 1 RAZOR BLADE 26D - 28D - 28C
145 9852 000 FUSE 5A 1 RAZOR BLADE 26D - 28D - 28C
909 6218 000 FUSE 60A 1 RAZOR BLADE 26D - 28D - 28C
9096926000 HARNESS MACHINE 1 RAZOR BLADE 26D - 28D - 28C
909 6125 000 HARNESS BATTERY 1 RAZOR BLADE 26D - 28D - 28C
909 6123 000 HARNESS ELECTRIC BOX 1 RAZOR BLADE 26D - 28D - 28C
146 1986 000 CONNECTOR  1 RAZOR BLADE 26D - 28D - 28C

14600 21st Avenue North
Plymouth, MN, 55447-3408
www.kenteuroclean.com
Phone:         800-334-1083
Fax:             866-261-4779
©2007 Printed in Italy