4100000 9X Parts Catalog REV G Powerboss Armadillo 9xr Ride On Floor Sweeper Manual
2017-01-16
: Sweepscrub Powerboss-Armadillo-9X-9Xr-Ride-On-Floor-Sweeper-Parts-Manual powerboss-armadillo-9x-9xr-ride-on-floor-sweeper-parts-manual 2028 file product_file
Open the PDF directly: View PDF
.
Page Count: 134 [warning: Documents this large are best viewed by clicking the View PDF Link!]

Armadillo 9X Sweeper #4100000 Rev. G 12/16
PowerBoss® Copyright 2014-2015
Page 1
Parts Catalog
Armadillo 9X Sweeper Series
Models: 9X & 9XCE
PowerBoss®, Minuteman International, Inc.
A Member of the Hako Group
#4100000 Rev. G 12/16

PowerBoss® Copyright 2014-2015
Armadillo 9X Sweeper #4100000 Rev. G 12/16
Page 2
Thank you for your purchase of the new industry standard for sweepers. PowerBoss® takes
great pride in off ering the most dependable, reliable, and best value in industrial power
sweepers and scrubbers. We set the standard.
Our Customer Service Department would like to hear from you. If you see any errors, omissions
or something that needs clarifi cation in this Parts Catalog, please let us know. We are working
hard towards continually improving our processes--to benefi t you, our valued customer.
Please copy the form below, fi ll out and comment on how you found our manual.
Thank you!
The PowerBoss® Team
Name______________________________________________________________________
Title: ______________________________________________________________________
Company Name: _____________________________________________________________
Address: ____________________________________________________________________
Country: ____________________________________________________________________
Type of equipment or model number: ______________________________________________
Comments: __________________________________________________________________
____________________________________________________________________________
____________________________________________________________________________
Please return to:
Customer Service Manager
PowerBoss®, Minuteman International, Inc.
14N845 U.S. Route 20
Pingree Grove, Illinois 60140 USA
Phone: 800-323-9420
Email: tech@powerboss.com
PREFACE
PREFACE

Armadillo 9X Sweeper #4100000 Rev. G 12/16
PowerBoss® Copyright 2014-2015
Page 3
This is the Parts Catalog for the PowerBoss® Armadillo 9X & 9XCE Sweeper Series.
This Catalog covers the Armadillo 9X & 9XCE machine variations beginning December 2014.
We believe this machine will provide excellent service for many years.
However, the best results will be obtained if:
• The machine is operated with reasonable care.
• The machine is maintained regularly per the maintenance schedule provided in the User Manual.
• The machine is maintained with PowerBoss® supplied or equivalent parts.
All right side and left side references to the machine (except for engine) are determined by facing
the direction of forward travel. The front of the engine or engine fan faces the rear of the machine.
Some hardware considered to be common or locally available has been omitted from the parts
section to make this manual clear. Be sure to use equivalent hardware when replacement becomes
necessary.
The Model and Serial Number of your machine is shown on the I.D. name plate. This information is
needed when contacting Technical Support or when ordering parts. The I.D. plate is mounted on the
console of the machine, left of the operator and adjacent the main broom adjustment access door.
Example I.D Plates:
Parts may be ordered by phone, fax, or email from any PowerBoss® parts and service center.
Before ordering parts or supplies, be sure to have your machine model number and serial number
handy. For your convenience Fill out the data block on the next page for future reference.
MACHINE DATA
Fill out at installation
Serial Number: ___________________________________
Engine Serial Number: ____________________________
Sales Rep.: ______________________________________
Date of Install: ___________________________________
All information contained in this catalog is current at the time of printing. PowerBoss®, Minuteman
International, Inc. reserves the right to make changes at any time without notice.
PowerBoss®, Minuteman International, Inc., Copyright 2014-2015, Printed in USA.
PREFACE

PowerBoss® Copyright 2014-2015
Armadillo 9X Sweeper #4100000 Rev. G 12/16
Page 4
TECHNICAL SPECIFICATIONS
Model Armadillo 9X Series
9X Model No. SW9XKDSL; SW9XKGAS; SW9XKLPG
9X CE Model No. 9XRDSLCE; 9XRLPGCE
DIMENSIONS & WEIGHT
Length . . . . . . . . . . . . . . . . . . 105 in (267 cm)
Width . . . . . . . . . . . . . . . . . . . 60 in (152 cm)
Height (machine) . . . . . . . . . . 52.5 in (133 cm)
Height (with steering wheel) . . 58 in (147 cm)
Height (with Overhead guard) 81 in (206 cm)
Height (with Cab) . . . . . . . . . . 81 in (206 cm)
Weight (Diesel engine) . . . . . 4090 lb (1855 kg)
Weight (Gas & LPG engines) 4070 lb (1846 kg)
Minimum U-turn . . . . . . . . . . . 110 in (280 cm)
SWEEPING SYSTEM
Productivity . . . . . . . . . . . . . . 184,800 ft²/hr (17,168 m²/hr)
Sweep path. . . . . . . . . . . . . . . 62 in (157 cm)
Main broom. . . . . . . . . . . . . . . 48 in (122 cm)
Side broom . . . . . . . . . . . . . . . 24 in (61 cm)
with Dual side broom . . . . . . . optional 72 in path
. . . . . . . . . optional (183 cm) path
Hopper type . . . . . . . . . . . . . . RTR™ high dump
Hopper volume . . . . . . . . . . . . 21.1 ft³ (0,59 m³)
Hopper load capacity . . . . . . . 1100 lb (498 kg)
Dust control . . . . . . . . . . . . . . 110 ft² (10,22 m²)
High dump . . . . . . . . . . . . . . . 64 in (162 cm)
include RTR™(Rotary Trash Relocation)
TECHNICAL SPECIFICATIONS
dimensions shown in inches (cm)

Armadillo 9X Sweeper #4100000 Rev. G 12/16
PowerBoss® Copyright 2014-2015
Page 5
STANDARD ABBREVIATIONS
STANDARD ABBREVIATIONS
°C-Degrees Celsius
°F-Degrees Fahrenheit
12V-12 Volts DC
AR-Abrasion Resistant
ASSY-Assembly
ATO-Standard Auto Fuse Type
Also called ATC
BHSCS-Button Head Screw SS
BLK-Black
BLT-Belt
BR-Brass or Broom or Brush
BRM-Broom
BRKT-Bracket
CB-Curb Broom
CCW-Counter Clockwise
CI-Cubic Inch
CW-Clockwise Rotation
CYL-Cylinder
DEG-Degrees
DIA-Diameter
DPDT-Double Pole Double Throw
ELEC-Electric
ES-Elastic Stop, also Nyloc
EXT-Exterior or Extended
FI-Fuel Injection
FS-Full Size
FTG-Fitting
FWD-Forward
REV-Reverse
GAL-US Gallon (3.79 Liters)
GOV-Governor
HD-Head
HD-Heavy Duty
HOP-Hopper
HSS-High Speed Steel
HT-High Temperature
HT-Height
HYD-Hydraulic
ID-Identifi cation
ID-Inside Diameter
IMP-Impeller
INFO-Information
INT-Internal or Interior
LG-Long
LH-Left Hand
LPG-Liquefi ed Petroleum Gas
LP-Liquefi ed Petroleum
M8x1-Indicates Metric threads,
8mm Dia with a 1mm thread pitch
MM-Millimeters
MNT-Mount
MS-MId Size
OD-Outside Diameter
PLTD-Plated
REV-Reverse
RH-Right Hand
ROT-Rotation
RTR-Rotary Trash Relocator
SCR-Screw
SC-Scrubber
SP-Service Part
SPDT-Single Pole Double Throw
SPST-Single Pole Single Throw
SS-Stainless Steel
STR-Straight
ST-Straight
SUB-Sub Assembly
THD-Thread
THK-Thick
THRU-Through
UNC-Unifi ed Nat’l Coarse Threads
UNF-Unifi ed Nat’l Fine Threads
V1505-Kubota Diesel Engine
W/-With
WELD-Weldment
W/O-Without
SP-Zinc Plated

PowerBoss® Copyright 2014-2015
Armadillo 9X Sweeper #4100000 Rev. G 12/16
Page 6
TABLE OF CONTENTS
PREFACE. . . . . . . . . . . . . . . . . . . . . . . . . . . . . . . . . . . . . . . . . . . . . . . . . . . . . . . . . . . . . . . . . . . . . . . . . . . 2
TECHNICAL SPECIFICATIONS
STANDARD ABBREVIATIONS. . . . . . . . . . . . . . . . . . . . . . . . . . . . . . . . . . . . . . . . . . . . . . . . . . . . . . . . . . 5
FRAME ASSEMBLY . . . . . . . . . . . . . . . . . . . . . . . . . . . . . . . . . . . . . . . . . . . . . . . . . . . . . . . . . . . . . . . . . . 8
HYDRAULIC BRAKE ASSEMBLY . . . . . . . . . . . . . . . . . . . . . . . . . . . . . . . . . . . . . . . . . . . . . . . . . . . . . . 10
HYDRAULIC BRAKE ASSEMBLY - CONTINUED . . . . . . . . . . . . . . . . . . . . . . . . . . . . . . . . . . . . . . . . . 12
BRAKE - 8” ARMA L/H PN-3321450 . . . . . . . . . . . . . . . . . . . . . . . . . . . . . . . . . . . . . . . . . . . . . . . . . . . . . 14
BRAKE - 8” ARMA R/H PN-3321471. . . . . . . . . . . . . . . . . . . . . . . . . . . . . . . . . . . . . . . . . . . . . . . . . . . . . 14
STEERING WHEEL, GAUGES & FUSES . . . . . . . . . . . . . . . . . . . . . . . . . . . . . . . . . . . . . . . . . . . . . . . . 16
STEERING COLUMN . . . . . . . . . . . . . . . . . . . . . . . . . . . . . . . . . . . . . . . . . . . . . . . . . . . . . . . . . . . . . . . . 18
SIDE BROOM ASSEMBLY - DRIVE MOTOR, ARM, AND MOUNTING . . . . . . . . . . . . . . . . . . . . . . . . 20
SIDE BROOM ASSEMBLY - ADJUSTMENT COMPONENTS . . . . . . . . . . . . . . . . . . . . . . . . . . . . . . . . 22
ENGINE COVER, SIDE DOOR, LATCH & REAR GRILL . . . . . . . . . . . . . . . . . . . . . . . . . . . . . . . . . . . . 24
REAR DRIVE ASSEMBLY. . . . . . . . . . . . . . . . . . . . . . . . . . . . . . . . . . . . . . . . . . . . . . . . . . . . . . . . . . . . . 26
DIRECTIONAL CONTROL LINKAGE ASSEMBLY . . . . . . . . . . . . . . . . . . . . . . . . . . . . . . . . . . . . . . . . . 28
CONSOLE ASSEMBLY . . . . . . . . . . . . . . . . . . . . . . . . . . . . . . . . . . . . . . . . . . . . . . . . . . . . . . . . . . . . . . . 30
SEAT, FLOOR PAN & TAIL LIGHT . . . . . . . . . . . . . . . . . . . . . . . . . . . . . . . . . . . . . . . . . . . . . . . . . . . . . . 32
LIFT & ROTATION CYLINDERS, HYDRAULIC HOSES . . . . . . . . . . . . . . . . . . . . . . . . . . . . . . . . . . . . 34
RTR SWITCH DETAIL LIFT ARM . . . . . . . . . . . . . . . . . . . . . . . . . . . . . . . . . . . . . . . . . . . . . . . . . . . . . . . 36
THIS PAGE IS INTENTIONALLY LEFT BLANK . . . . . . . . . . . . . . . . . . . . . . . . . . . . . . . . . . . . . . . . . . . 37
HOPPER - FILTER AND SHAKER MOTOR COMPONENTS . . . . . . . . . . . . . . . . . . . . . . . . . . . . . . . .38
HOPPER - COVER AND LATCH COMPONENTS . . . . . . . . . . . . . . . . . . . . . . . . . . . . . . . . . . . . . . . . . 40
FRONT BUMPER ASSEMBLY . . . . . . . . . . . . . . . . . . . . . . . . . . . . . . . . . . . . . . . . . . . . . . . . . . . . . . . . . 42
BATTERY COMPONENTS . . . . . . . . . . . . . . . . . . . . . . . . . . . . . . . . . . . . . . . . . . . . . . . . . . . . . . . . . . . . 43
ENGINE PAN, HYDRAULIC HOSE RETAINER & LATCH . . . . . . . . . . . . . . . . . . . . . . . . . . . . . . . . . . . 44
FUEL TANK GASOLINE AND DIESEL . . . . . . . . . . . . . . . . . . . . . . . . . . . . . . . . . . . . . . . . . . . . . . . . . . . 46
HYDRAULIC RESERVOIR ASSEMBLY . . . . . . . . . . . . . . . . . . . . . . . . . . . . . . . . . . . . . . . . . . . . . . . . . 48
HYDRAULIC CONTROL VALVE DETAIL. . . . . . . . . . . . . . . . . . . . . . . . . . . . . . . . . . . . . . . . . . . . . . . . . 50
IMPELLER ASSEMBLY . . . . . . . . . . . . . . . . . . . . . . . . . . . . . . . . . . . . . . . . . . . . . . . . . . . . . . . . . . . . . . . 52
MAIN BROOM ASSEMBLY. . . . . . . . . . . . . . . . . . . . . . . . . . . . . . . . . . . . . . . . . . . . . . . . . . . . . . . . . . . . 54
SIDE BROOM & MAIN BROOM . . . . . . . . . . . . . . . . . . . . . . . . . . . . . . . . . . . . . . . . . . . . . . . . . . . . . . . . 56
VACUUM SWITCH . . . . . . . . . . . . . . . . . . . . . . . . . . . . . . . . . . . . . . . . . . . . . . . . . . . . . . . . . . . . . . . . . . 58
TIMER-FILTER SHAKER SEALED . . . . . . . . . . . . . . . . . . . . . . . . . . . . . . . . . . . . . . . . . . . . . . . . . . . . . 59
GASKET MOUNT ASSEMBLY . . . . . . . . . . . . . . . . . . . . . . . . . . . . . . . . . . . . . . . . . . . . . . . . . . . . . . . . . 60
ENGINE KUBOTA V1505 DIESEL - AIR CLEANER ASSEMBLY. . . . . . . . . . . . . . . . . . . . . . . . . . . . . . 62
ENGINE KUBOTA V1505 DIESEL - FUSE BOX ASSEMBLY. . . . . . . . . . . . . . . . . . . . . . . . . . . . . . . . . 63
ENGINE KUBOTA V1505 DIESEL - FUSE BOX DETAILS . . . . . . . . . . . . . . . . . . . . . . . . . . . . . . . . . . . 64
ENGINE KUBOTA V1505 DIESEL - ALTERNATOR, WATER PUMP, FAN, AND OIL PAN. . . . . . . . . . 66
TABLE OF CONTENTS

Armadillo 9X Sweeper #4100000 Rev. G 12/16
PowerBoss® Copyright 2014-2015
Page 7
ENGINE KUBOTA V1505 DIESEL - FLYWHEEL, STARTER, HEAD COVER, AND MANIFOLD . . . . 68
ENGINE KUBOTA V1505 DIESEL - FUEL SYSTEM AND SPEED CONTROL . . . . . . . . . . . . . . . . . . . 70
ENGINE KUBOTA V1505 DIESEL - MOTOR MOUNTING . . . . . . . . . . . . . . . . . . . . . . . . . . . . . . . . . . . 72
ENGINE KUBOTA V1505 DIESEL - EXHAUST DETAIL. . . . . . . . . . . . . . . . . . . . . . . . . . . . . . . . . . . . . 74
ENGINE KUBOTA V1505 DIESEL - RADIATOR DETAIL . . . . . . . . . . . . . . . . . . . . . . . . . . . . . . . . . . . . 76
ENGINE KUBOTA V1505 DIESEL - RADIATOR COOLANT TANK & MOUNT . . . . . . . . . . . . . . . . . . . 78
ENGINE KUBOTA V1505 DIESEL - RADIATOR ASSY & MOUNTING BRACKETS . . . . . . . . . . . . . . 80
ENGINE KUBOTA V1505 DIESEL - RADIATOR ASSY, CLAMPS, HOSES & SENDERS . . . . . . . . . . 82
ENGINE KUBOTA V1505 DIESEL, WG1605 GAS & LPG - HYDRAULIC PUMP DETAIL . . . . . . . . . . 84
ENGINE KUBOTA WG1605 LPG - AIR CLEANER DETAIL . . . . . . . . . . . . . . . . . . . . . . . . . . . . . . . . . . 86
ENGINE KUBOTA WG1605 GAS - AIR CLEANER DETAIL . . . . . . . . . . . . . . . . . . . . . . . . . . . . . . . . . . 87
ENGINE KUBOTA WG1605 GAS & LPG ENGINE ASSEMBLY . . . . . . . . . . . . . . . . . . . . . . . . . . . . . . . 88
ENGINE KUBOTA WG1605 GAS & LPG - MOUNTS-EXHAUST SIDE. . . . . . . . . . . . . . . . . . . . . . . . . 90
ENGINE KUBOTA WG1605 GAS & LPG - MOUNTS-INTAKE SIDE . . . . . . . . . . . . . . . . . . . . . . . . . . . 91
ENGINE KUBOTA WG1605 GAS & LPG - MOUNTING FASTENER DETAIL. . . . . . . . . . . . . . . . . . . . 92
ENGINE KUBOTA WG1605 GAS & LPG - MOUNTING FASTENER DETAIL . . . . . . . . . . . . . . . . . . . 93
ENGINE KUBOTA WG1605 GAS & LPG - MOUNTING AIR CLEANER BRACKET . . . . . . . . . . . . . . . 94
ENGINE KUBOTA WG1605 GAS & LPG - RADIATOR MOUNTS . . . . . . . . . . . . . . . . . . . . . . . . . . . . . 95
ENGINE KUBOTA WG1605 GAS & LPG - RADIATOR. . . . . . . . . . . . . . . . . . . . . . . . . . . . . . . . . . . . . . 96
ENGINE KUBOTA WG1605 GAS & LPG - EXHAUST DETAIL . . . . . . . . . . . . . . . . . . . . . . . . . . . . . . . 98
OPTIONS AND STANDARD CE FEATURES
OPTION - LH CURB BROOM KIT ASSEMBLY (3338666) . . . . . . . . . . . . . . . . . . . . . . . . . . . . . . . . . . 100
OPTION - DUAL CURB BROOM SUB-ASSEMBLY (3319421) . . . . . . . . . . . . . . . . . . . . . . . . . . . . . . 102
OPTION - SIDE BROOM LIFT LH (3335420). . . . . . . . . . . . . . . . . . . . . . . . . . . . . . . . . . . . . . . . . . . . . 104
OPTION - RAISE HOPPER, MAIN BROOM SHUT OFF (690100)
CE MODELS STANDARD FEATURE . . . . . . . . . . . . . . . . . . . . . . . . . . . . . . . . . . . . . . . . . . . . . . . . . . 106
OPTION - KEY LATCH (690102)
CE MODELS STANDARD FEATURE . . . . . . . . . . . . . . . . . . . . . . . . . . . . . . . . . . . . . . . . . . . . . . . . . . 110
OPTION - SEAT SWITCH ENGINE SHUT OFF (690147)
CE MODELS STANDARD FEATURE . . . . . . . . . . . . . . . . . . . . . . . . . . . . . . . . . . . . . . . . . . . . . . . . . . 112
OPTION - LOW LP INDICATOR (690148) . . . . . . . . . . . . . . . . . . . . . . . . . . . . . . . . . . . . . . . . . . . . . . . 114
OPTION - BACKUP ALARM & NEUTRAL SAFETY SWITCH (3317306P) . . . . . . . . . . . . . . . . . . . . . 116
OPTION - HOPPER PRESSURE BYPASS (690231) . . . . . . . . . . . . . . . . . . . . . . . . . . . . . . . . . . . . . . 118
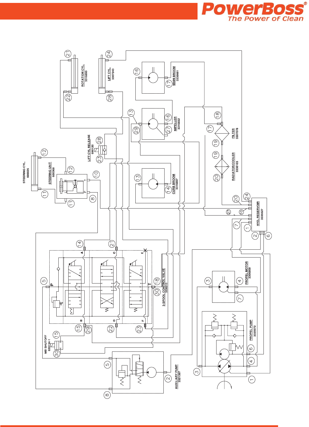
HYDRAULIC SCHEMATIC 9X . . . . . . . . . . . . . . . . . . . . . . . . . . . . . . . . . . . . . . . . . . . . . . . . . . . . . . . . 120
HYDRAULIC SCHEMATIC 9X CE . . . . . . . . . . . . . . . . . . . . . . . . . . . . . . . . . . . . . . . . . . . . . . . . . . . . . 123
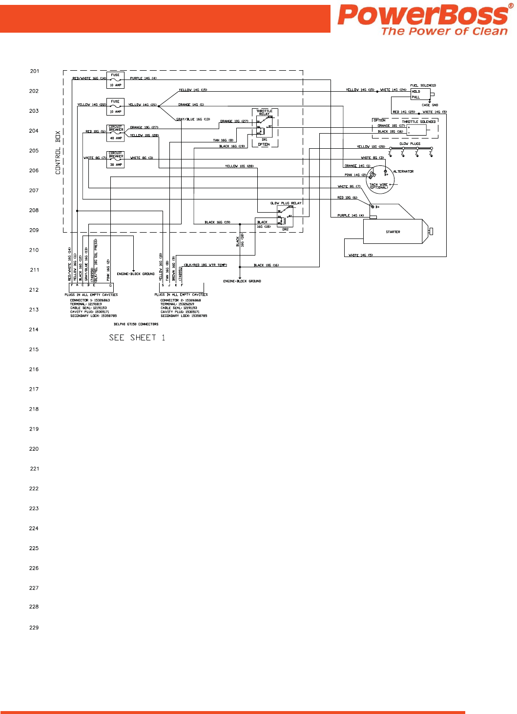
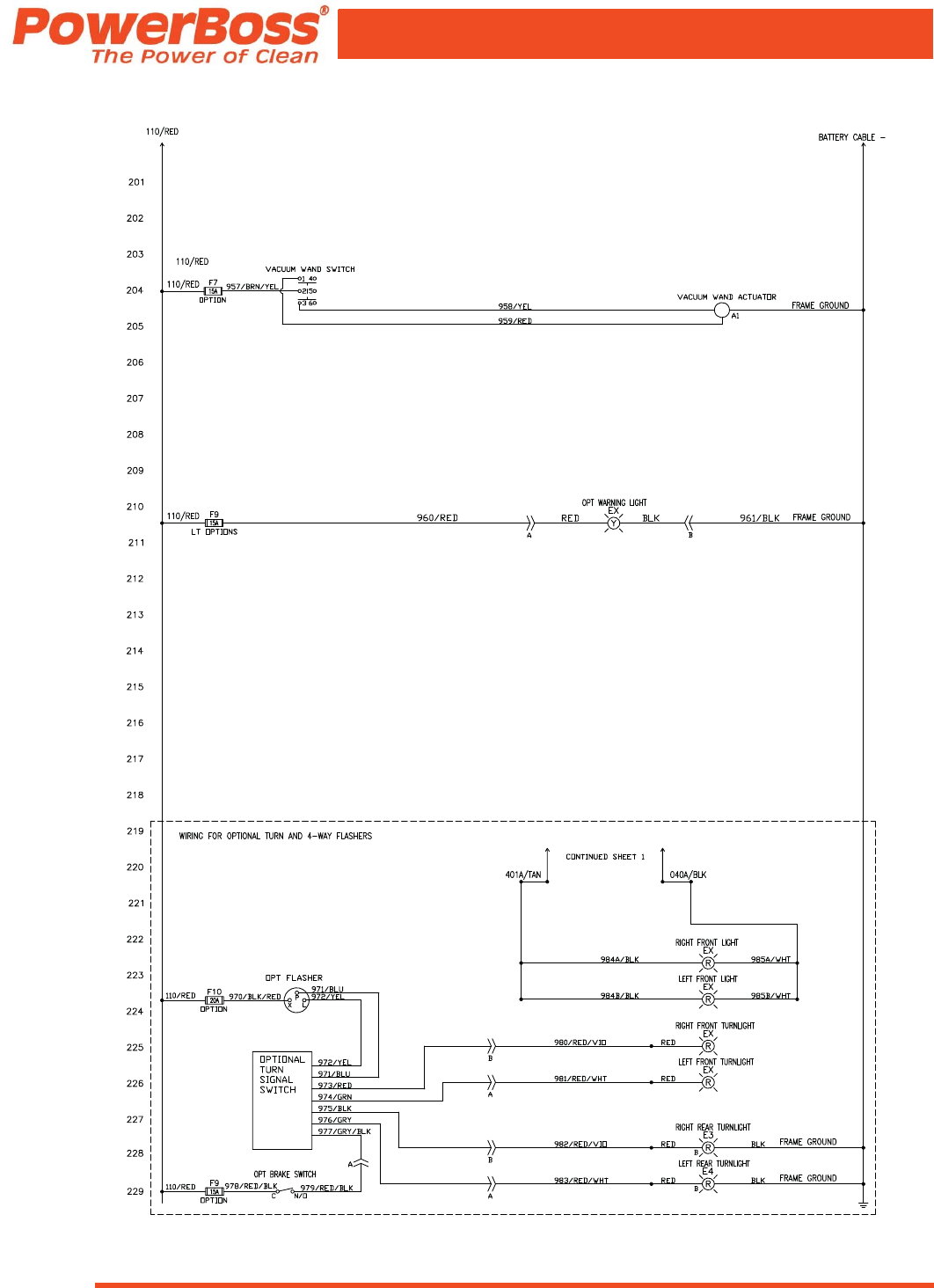
ELECTRICAL SCHEMATIC WITH KUBOTA V1505 - DIESEL . . . . . . . . . . . . . . . . . . . . . . . . . . . . . . . 126
ELECTRICAL SCHEMATIC WITH KUBOTA WG1605 - GAS & LPG . . . . . . . . . . . . . . . . . . . . . . . . . . 130
WARRANTY . . . . . . . . . . . . . . . . . . . . . . . . . . . . . . . . . . . . . . . . . . . . . . . . . . . . . . . . . . . . . . . . . . . . . . . 133
TABLE OF CONTENTS

PowerBoss® Copyright 2014-2015
Armadillo 9X Sweeper #4100000 Rev. G 12/16
Page 8
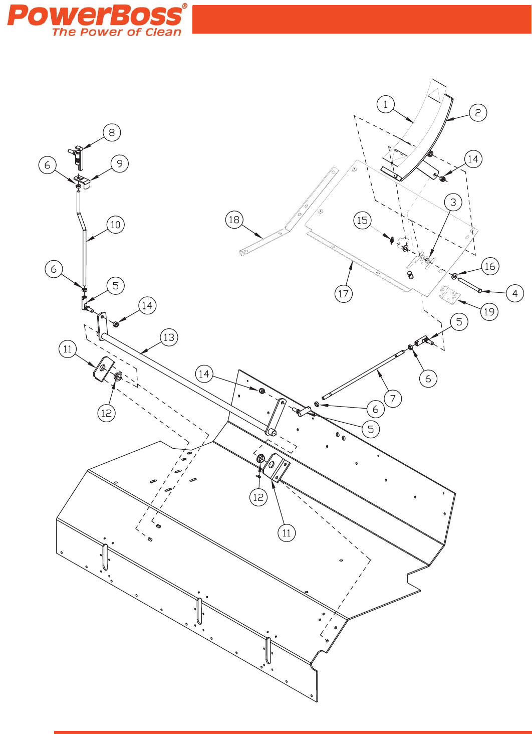
FRAME ASSEMBLY
PARTS BREAKDOWN

Armadillo 9X Sweeper #4100000 Rev. G 12/16
PowerBoss® Copyright 2014-2015
Page 9
PARTS BREAKDOWN
FRAME ASSEMBLY ARMADILLO 9X
ITEM PART NO. REQ’D DESCRIPTION
1 3332182M 1 SKIRT-RT REAR 9X, DARK GRAY
2 3309707 1 COUNTERWEIGHT-RH PAINTED
3 3332147P 1 COVER-COUNTER WEIGHT CENTER
4 3301046P 1 COUNTERWEIGHT-LH PAINTED
5 3335397M 1 SKIRT-LH REAR, 9X, DARK GRAY
6A 3309740 1 MNT-ENG LOCK
6B 3301522 1 SPRING-EXT BRAKE ARM (NOT SHOWN)
6C 3309743 1 ARM-ENG LOCK
6D 430119 1 RUBBER CAP 1/2 ID
7 3321296 1 WELDMENT-BATTERY BOX (MODELS W/ENGINE SWING)
8 3335310M 1 WELD-FRAME, TIER 2,
9 3315203 2 RETAINER-HOPPER SIDE SEAL
10 3318143 2 FLAP-RUBBER HOPPER/FRAME SIDE
11 3307276 1 SEAL-FRAME HOPPER HORIZONTAL
12 3307281 1 STRAP-FRAME HOP FLAP PAINTED
13 3307287 2 STRAP-BROOM CORNER FLAP PAINTED
14 3307286 2 FLAP-BROOM CHAMBER CORNER
15 3307658 1 CHAIN-FRAME GROUNDING
16 3307283 1 STRAP-REAR FEED FLAP PAINTED
17 3307279 1 FLAP-REAR FEED
18 3307282 1 ANGLE-REAR FLAP PAINTED
19 3307278 1 FLAP-REAR HOPPER
20 3307280 2 FLAP-MAIN BROOM DOOR
21 3307275 2 HINGE-BROOM DOOR
22 3318739 2X 3.0' WEATHERSTRIPPING-RUBBER SPONGE
23 3307265M 1 ASSY- BROOM DOOR RH
24 3307266M 1 ASSY- BROOM DOOR LH
25 3307246 1 LATCH-LH BROOM DOOR
26 3307247 1 LATCH-RH BROOM DOOR
27 3307248 2 BOLT-STRIKER BROOM DOOR LATCH
28 3307519M 1 SKIRT-RH SIDE
29 3307520M 1 SKIRT-LH SIDE
30 3307792 1 BAR-HOSE PAN SUPPORT
31 3307791 1 PAN-HOSE
32 3307284 2 STRAP - BROOM DOOR FLAP
33 3343740 1 TIE DOWN-UNIVERSAL, REAR

PowerBoss® Copyright 2014-2015
Armadillo 9X Sweeper #4100000 Rev. G 12/16
Page 10
HYDRAULIC BRAKE ASSEMBLY
PARTS BREAKDOWN

Armadillo 9X Sweeper #4100000 Rev. G 12/16
PowerBoss® Copyright 2014-2015
Page 11
PARTS BREAKDOWN
Continued On Next Page
HYDRAULIC BRAKE ASSEMBLY
ITEM PART NO. REQ'D DESCRIPTION
1 3303169 1 LEVER-HAND BRAKE
2 3307241 1 SPACER-HAND BRAKE ZP SW/A
3 3307273 2 BAR-HAND BRAKE SPACER, ZP SW/A
4 3307895 1 SPACER-THIN HAND BRAKE, ZP
5 711380 2 NUT-NYLOC 3/8-16
7 3307632 1 CABLE-CENTER BRAKE, SW/A
8 3300367 1 PULLEY-2.50 DIA, BUSHED, BRAKE
9 3400125 1 PIN-COTTER 3/8 RUE-RING
10 3400088 2 WASHER-FLAT 5/16 IDx.688 ODx.065 THK
11 3303552 1 SLEEVE-HAND BRAKE ZP
12 3400185 1 PIN-CLEVIS 5/16x1-1/4 ZP
13 3321452 2 CABLE-8" PARKING BRAKE (HAND)
14 3400473 2 SCR-HEX,3/8-16x3.00 ZP F'THD
15 3400118 1 PIN-CLEVIS 5/16x7/8 ZP
16 3400125 1 PIN-COTTER 3/8 RUE-RING
17 3307232 1 BAR-BRAKE EQUALIZER ZP SW/A
18 3321470 2 CLEVIS-BRAKE 8MM
19 3316717 1 CYLINDER-BRAKE MASTER, ARMA
20 3307638 1 FTG-REDUCER NAPA #7909
21 3400028 3 SCR-HEX,3/8-16x1.50 ZP
22 711380 3 NUT-HEX 3/8-16 ES ZP
23 3307235 1 ROD-BRAKE MASTER CYLINDER, ZP
24 3313109 1 SPRING-PEDAL RETURN
25 3400278 4 WASHER-FENDER 3/8
26 3400075 2 NUT-HEX JAM 3/8-24 ZP
27 3301447 1 CLEVIS-CABLECRAFT AC-218
28 3400125 1 PIN-COTTER 3/8 RUE-RING
29 3332271 1 CLAMP-3/8 DIA INSULATED HALF (STRAP)
30 3400117 1 PIN-CLEVIS 3/8x1-1/8, ZP
31 3337539 1 WELDMENT - BRAKE BAR, HYD.
32 3307637-1 1 ASSEMBLY-BRAKE LINE CENTER SW/A
33 3321457 1 BRAKE LINE-ARMA RH LONG
34 3306307 1 FTG-TEE HYD BRAKE
35 3321459 1 BRAKE LINE-ARMA LH LONG
36 3321455 1 BRAKE LINE-ARMA LH, SHORT
37 3321456 1 BRAKE LINE-ARMA RH, SHORT

PowerBoss® Copyright 2014-2015
Armadillo 9X Sweeper #4100000 Rev. G 12/16
Page 12
HYDRAULIC BRAKE ASSEMBLY - CONTINUED
PARTS BREAKDOWN

Armadillo 9X Sweeper #4100000 Rev. G 12/16
PowerBoss® Copyright 2014-2015
Page 13
PARTS BREAKDOWN
End of Section
HYDRAULIC BRAKE ASSEMBLY - CONTINUED
ITEM PART NO. REQ'D DESCRIPTION
38 3400969 1 FTG-COUPLING, 3/16" OD HYD BRAKE, BRASS
39 3321450 1 ASSEMBLY-8" HYDRAULIC BRAKE LH
40 3321471 1 ASSEMBLY-8" HYDRAULIC BRAKE RH
41 3307238 1 BEARING-INNER WHEEL SW/A
42 3332483 1 BRAKE-DRUM 8" ARMA PAINTED
43 3307242 10 STUD-WHEEL, 1/2-20x1.75 LG
44 3300369 1 CAP-HUB, 2.44" DIA, ZP
45 3300411 5 NUT-WHEEL LUG, 1/2-20 UNF
46 3307255 1 RIM-FRONT OUTER SW/A PNTD
47 3400066 10 NUT-HEX 7/16-14 ZP
48 3400099 10 WASHER-LOCK 7/16 SPLIT ZP
49 3307253 2 TUBE-TIRE INNER, 650x10
50 3307252 2 TIRE-PNEUMATIC 650x10
51 3307254 1 RIM-FRONT INNER SW/A PNTD
52 3400022 10 SCR-HEX,1/2-13X1.25 GR 5 ZP
53 3400076 1 NUT-HEX JAM SLOTTED, 1-14 ZP
54 3307352 1 WASHER-1.016 IDx1.50 ODx.25 THK
55 3400120 1 PIN-COTTER 5/32 DIAx2.00 LG, ZP
56 3300467 1 BEARING-BALL 2.44 ODx1.18 ID
57 3402030 4 SCR-FLT,5/8-11x1.00, SOC ZP
58 3321453 1 PLT-8" BRAKE MOUNT RH&LH
59 3307220 2 BEARING-.88IDx1.00ODx.50LG
60 3307233 2 MOUNT-.88 DIA BEARING, ZP SW/A
61 711439 1 NUT-FLANGED WIZZ 3/8-16
62 3400385 1 WASHER-CONICAL SPRING 3/8
63 711250 1 BLT-HH 3/8-16 X 1.25 STL ZINC
68 3300413 1 PAD-RUBBER BRAKE PEDAL
69 3337386 1 PLT - BRAKE PEDAL
70 3307861 1 PULLEY MOUNT #3
71 3300368 1 PULLEY-PLASTIC 2” x .25” GROOVE

PowerBoss® Copyright 2014-2015
Armadillo 9X Sweeper #4100000 Rev. G 12/16
Page 14
BRAKE - 8” ARMA L/H PN-3321450
BRAKE - 8” ARMA R/H PN-3321471
PARTS BREAKDOWN

Armadillo 9X Sweeper #4100000 Rev. G 12/16
PowerBoss® Copyright 2014-2015
Page 15
PARTS BREAKDOWN
BRAKE - 8” ARMA L/H PN-3321450
BRAKE - 8” ARMA R/H PN-3321471
Item Part no. Qty. Description
1 3321462 1 RETAINER-BRAKE 8" PLATE
2 3321465 2 SPRING-TENSION
3 3321461 1 ASSEMBLY-WHEEL CYLINDER, 8" BRAKE
4 3321467 1 BRAKE SHOE SET-8" LH (SHOWN)
4 3334766 1 BRAKE SHOE SET-8" RH (NOT SHOWN)
5 3321466 2 SPRING-HOLD DOWN
6 3321463 1 ASSEMBLY-MANUAL BRAKE ADJUSTER
7 3321464 1 SPRING-RETURN, 8" BRAKE
- 3321450 1 BRAKE-ASSEMBLY, 8" ARMA LH (ALL PARTS)
- 3321471 1 BRAKE-ASSEMBLY, 8" ARMA RH (ALL PARTS)

PowerBoss® Copyright 2014-2015
Armadillo 9X Sweeper #4100000 Rev. G 12/16
Page 16
STEERING WHEEL, GAUGES & FUSES
PARTS BREAKDOWN

Armadillo 9X Sweeper #4100000 Rev. G 12/16
PowerBoss® Copyright 2014-2015
Page 17
PARTS BREAKDOWN
STEERING WHEEL, GAUGES & FUSES
ITEM PART NO. REQ'D DESCRIPTION
1 3302520 1 DECAL-"FILTER SHAKER"
2 3300441 2 SWITCH MOMENTARY 12V
3 3026924 1 CIRCUIT BREAKER-45 AMP
4 600260 1 KNOB LEVER
5A 3338622 1 WDT - TILT STEERING LOCK
5B 3400192 2 NUT-HEX JAM 5/8-11 ZP
5C 12310058 1 WSR-FLT M10.5 X 20 X 2 STL
7 3338616P 1 WDT - AM9D TILT STEERING BOX
8 3338215 1 WHEEL-STEERING W/COVER SW
9 3307594 1 DECAL-FRONT PANEL SW/A
11 3333721 1 GAUGE-4 IN 1, 3.50" DIA
12 3307599 1 DECAL-IGNITION SW/A
13 3316100 1 SW-IGNITION, 3-POS, W/STARTER LOCKOUT
14 3335096 1 HARNESS-GAUGE
15 3333719P 1 WELDMENT-GAUGE MOUNT
16 3302525 1 DECAL-"HORN"
17 3338621P 1 COVER - PLT, TILT STEERING, AM9D
18 3322599 1 FUSE BLOCK-ATO, 10 POSITON
19 3322601 5 FUSE-15 AMP AUTOMOTIVE PUSH IN
20 3300379 1 HORN-AUTOMOTIVE 12V STANDARD
21 3301854 1 DECAL-CAUTION
22 690104 1 ASSY, RUBBER FUSE BOX COVER
23 3335380 2 FUSE-25 AMP STD, AUTO
EKd͗ ŽEŽƚ&ŽƌŐĞƚƚŽŝŶƐƚĂůůϲϵϬϭϬϯ ƌƵďďĞƌ
ĨůĂƉƚŽƉƌŽƚĞĐƚĨƵƐĞďŽdž͘

PowerBoss® Copyright 2014-2015
Armadillo 9X Sweeper #4100000 Rev. G 12/16
Page 18
STEERING COLUMN
PARTS BREAKDOWN

Armadillo 9X Sweeper #4100000 Rev. G 12/16
PowerBoss® Copyright 2014-2015
Page 19
PARTS BREAKDOWN
STEERING COLUMN
ITEM PART NO. REQ'D DESCRIPTION
1 600260 1 KNOB, LEVER
2 600368 1 STEERING UNIT
3 600569 2 RETAINING RING, EXT .50 HD
4 620057 1 NUT, JAM M16-1.50 STL ZP
5 675511 1 FTG-STR THD CONNECTOR -4 ORFS TO -6 SA
6 675515 1 FTG-STR THD CONNECTOR -6 ORFS TO -6 SA
7A 675552 1 FTG-STR THD 45 -6 ORFS TO -6 SAE
7B 675552 1 FTG-STR THD 45 -6 ORFS TO -6 SAE
8 690152 1 DUST RING, STEERING
9 690160 1 DUST RING, STEERING, UPPER
10 711206 4 BLT-HH 1/4-20 X .87 STL ZINC
11 711379 2 NUT-FLANGED WIZZ 5/16-18
12 750075 1 SHAFT - TILT STEERING PIVOT
13 3338215 1 STEERING WHEEL
14 PART OF 3338215 1 COVER, STEERING WHEEL
15 3338622 1 WDT - TILT STEERING LOCK
16 3338625 1 BRKT - TILT STEERING
17 3400035 2 SCR-HEX,5/16-18X1.00 ZP
18 3400383 8 WASHER-CONICAL SPRING 1/4
19 3400384 2 WASHER-CONICAL SPRING 5/16
20 11038072 4 BOLT, M6-100 X 16H
21 12310058 2 WSR-FLT M10.5 X 20 X 2 STL 140HV ZD DIN
23 3338616P 1 WDT - AM9D TILT STEERING BOX
24 3338621P 1 COVER - PLT, TILT STEERING, AM9D
25 675407 1 HYD HOSE - AUX PUMP TO PS UNIT
26 675411 1 HYD HOSE - PS UNIT TO ROT ACT P2
27 675409 1 HYD HOSE - PS UNIT TO RESV
28 675410 1 HYD HOSE - PS UNIT TO ROT ACT P1

PowerBoss® Copyright 2014-2015
Armadillo 9X Sweeper #4100000 Rev. G 12/16
Page 20
SIDE BROOM ASSEMBLY - DRIVE MOTOR, ARM, AND MOUNTING
PARTS BREAKDOWN

Armadillo 9X Sweeper #4100000 Rev. G 12/16
PowerBoss® Copyright 2014-2015
Page 21
PARTS BREAKDOWN
SIDE BROOM ASSEMBLY - DRIVE MOTOR, ARM, AND MOUNTING
ITEM PART NO. REQ’D DESCRIPTION
1 3335120 1 CABLE-SIDE BROOM
2 3302599 1 SPRING-EXT LOOPS-IN-LINE ZP
3 3401454 1 BOLT-HEX, TAP 3/8-16 X 2 ZP
4 3400087 1 WASHER-FLAT 3/8 STANDARD ZP
5 3400258 1 SCR-HEX,3/8-24X4.00 ZP
6 3307654P 1 RH SIDE BROOM MOUNT, AM9D
7 3307527P 1 O/S WELD-RH CURB BROOM ARM, AM9D
8 3307642 1 CLEVIS-5/16
9 3306179 1 SPRING-COMPRESSION, CURB BROOM
10 3400342 1 NUT-HEX 3/8-24 ES ZP
11 3316897 1 MOTOR-HYD CURB BROOM
12 675528 2 FTG-STR THD ELBOW -8 ORFS TO -10 SAE
13 3330338 1 KEY-SHAFT D-FOSS CB/MB/SC MTRS (REPLACEMENT)
14 3400027 3 SCR-HEX,3/8-16X1.75 ZP
15 3400278 9 WASHER-FENDER 3/8
16 3300465 3 ISOLATOR-RUBBER (.375IDx.81OD)
17 3301262 1 PLATE-GIMBAL SC HD
18 3300526 3 BUMPER-RUBBER 1/4IDx1/8 THK
19 3400087 3 WASHER-FLAT 3/8 STANDARD ZP
20 711380 3 NUT-NYLOC 3/8-16
21 3400049 1 SCR-SOCKET HEAD,1/4-20X0.75 NYLOCK
22 3400103 1 WASHER-LOCK 1/4 SPLIT ZP
23 3302058 1 BAR-CURB BROOM RETAINER
24 3300875 1 DRIVE HUB SC BR
25 711373 2 NUT-NYLOC 1/4-20
26 713002 2 BLT-HH 1/4-20 X .75 #5 ZINC
27 3400030 4 SCR-HEX,3/8-16X1.00, GRADE 5, ZP
28 3400101 4 WASHER-LOCK 3/8 SPLIT ZP
29 3400068 1 NUT-HEX 3/8-16 ZP
30 3400184 1 PIN-CLEVIS 5/16 X 1-1/8 ZP
31 3400087 1 WASHER-FLAT 3/8 STANDARD ZP
32 3400125 1 RING-RUE 3/8 COTTER PIN
33 3400069 1 NUT-HEX 5/16-24 ZP
- 3307033 - SUB-CURB BROOM SUB ASSY (INCLUDES ALL ITEMS, EXCEPT: 1,
4, 8, 13, 30, 31, 33)

PowerBoss® Copyright 2014-2015
Armadillo 9X Sweeper #4100000 Rev. G 12/16
Page 22
SIDE BROOM ASSEMBLY - ADJUSTMENT COMPONENTS
PARTS BREAKDOWN

Armadillo 9X Sweeper #4100000 Rev. G 12/16
PowerBoss® Copyright 2014-2015
Page 23
PARTS BREAKDOWN
SIDE BROOM ASSEMBLY - ADJUSTMENT COMPONENTS
ITEM PART NO. REQ'D DESCRIPTION
1 3307861 1 WELDMENT-PULLEY MOUNT #3
2 3307865 1 WELDMENT-SAFETY ARM RETAINER/PULLEY MOUNT
3 3300368 3 PULLEY-PLASTIC φ2", φ.25" GROOVE
4 3400404 1 SCR-SET,1/2-20X3.00
5 3400449 1 NUT-HEX JAM 1/2-20 (NOT SHOWN)
6 620027 1 PIN-CLEVIS 1/2 X 4-1/2
7 3400404 1 SCR-SET,1/2-20X3.00
8 3400449 1 NUT-HEX JAM 1/2-20 ZP
9 3400086 1 WASHER-FLAT 1/2 STANDARD ZP

PowerBoss® Copyright 2014-2015
Armadillo 9X Sweeper #4100000 Rev. G 12/16
Page 24
ENGINE COVER, SIDE DOOR, LATCH & REAR GRILL
PARTS BREAKDOWN

Armadillo 9X Sweeper #4100000 Rev. G 12/16
PowerBoss® Copyright 2014-2015
Page 25
PARTS BREAKDOWN
ENGINE COVER, SIDE DOOR, LATCH & REAR GRILL
ITEM PART NO. REQ'D DESCRIPTION
1 3300376 1 STUD-BALL 10MM
2 3307503 1 HINGE ENGINE COVER
3 3307504 2 SPACER ENGINE COVER HINGE FRAME SIDE
6 3308767 1 GAS SPRING-8" STROKE
7 3335146 1 HANDLE - RECESSED NYLON INSET (.07-.13 WALL)
8 3336780M 1 ENGINE COVER 9X, ORANGE
9 690129 1 INSULATION - ENG COVER BACK
10 690127 1 INSULATION - ENG COVER LH FRONT PANEL
11 690128 1 INSULATION - ENG COVER LH BACK PANEL
12 690130 1 INSULATION - ENG COVER RT 9X
13 690131 1 INSULATION - ENG COVER TOP 9X
14 3330356 1 PLUG-PLASTIC HOLE, 3/4, 7 GA
15 3307719 2 LATCH-RUBBER SOFT
16 711374 1 NUT-HEX 5/16-18 ES
19 3500198 8.5' SEAL-TRIM 90 DEG. MOUNT
20 3336786M 1 SIDE DOOR 9X, ORANGE
21 3335437M 1 RADIATOR GUARD 9X , ORANGE
22 3300380 1 LATCH ASSY-#C2-10-301-50
23 3335015 2 PLATE-STOP, SIDE DOOR, ARMA PLATED
24 3300526 2 BUMPER-RUBBER 1/4IDx1/8 THK
25 3335174 1 SIDE DOOR STRIKE ARMA
26 3307560 - SPACER-METAL, 0.060” SIDE DOOR SW/A
27 3307513 2 HINGE-SIDE DOOR
28 3302482 1 BUMPER-RUBBER, 1.5" DIA, 5/8 THK
29 3303204-1 1 TAIL LIGHT - 12V COMBINATION ASSY

PowerBoss® Copyright 2014-2015
Armadillo 9X Sweeper #4100000 Rev. G 12/16
Page 26
REAR DRIVE ASSEMBLY
PARTS BREAKDOWN

Armadillo 9X Sweeper #4100000 Rev. G 12/16
PowerBoss® Copyright 2014-2015
Page 27
PARTS BREAKDOWN
REAR DRIVE ASSEMBLY
ITEM PART NO. REQ'D DESCRIPTION
1 600178 1 ROD END FEM 3/4-16 W/ZERK
2 600939 1 NUT 3/4-16 JAM
3 675501 2 FTG-45 DEG STR ELBOW -10 ORFS TO -12 SAE
4 675508 1 FTG-STR THD CONNECTOR -4 ORFS TO -4 SA
5 675518 2 FTG-STR THD ELBOW -6 ORFS TO -5 SAE
6 690003 1 CYL STEERING FORK
7 690025 1 STEERING CYL
8 710120 2 SCREW, HHCS, 1/2-13 X 2 GRD 8
9 710121 2 WASHER, NORDLOCK (2PC), 1/2 CARBON STEEL
10 710122 2 NUT, 3/4-10, NYLON LOCKING, LOW PROFILE
11 711376 4 NUT-NYLOC 1/2-13
12 711380 2 NUT-NYLOC 3/8-16 NUT
13 712318 2 WSR- FLAT .75 X 1.12 X .12 PL
14 713048 2 BLT-HH 3/8-16 X 2 1/2 #5
15 3300411 5 NUT-WHEEL LUG, 1/2-20 UNF
16 3300470 2 BEARING-TAPERED ROL CUP
17 3300471 2 BEARING-TAPERED ROLCONE W/SEAL
18 3306809 1 MOTOR - HYD, 400 SERIES
19 3307021 1 ASSY-TIRE REAR
20 3307347 1 HUB-REAR SW/A, BLACK
21 3304348 5 STUD - WHEEL, 1/2-20X 1.63 (REAR SW/A)
22 3337860 1 SPACER-STEERING FORK
23 3400020 4 SCR-HEX, 1/2-13 X 2.00 ZP
24 3400120 1 PIN-COTTER 5/32 X 2.00 ZP
25 3400223 1 NUT-SLOTTED, 1-20 UNEF
26 3400422 2 SCR-HEX, 3/4-10 X 5.00 ZP
27 3307349P 1 PIN - REAR FORK
28 3317370P 1 WELDMENT-CYL STEERING MOUNT
29 REF 1 WELDMENT- FRAME, AM9D/9X

PowerBoss® Copyright 2014-2015
Armadillo 9X Sweeper #4100000 Rev. G 12/16
Page 28
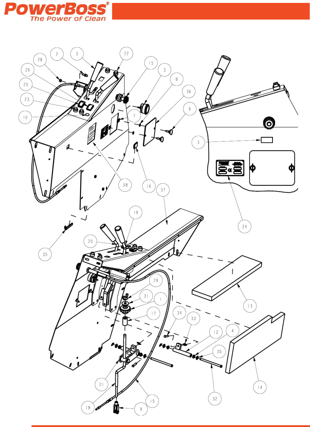
DIRECTIONAL CONTROL LINKAGE ASSEMBLY
PARTS BREAKDOWN

Armadillo 9X Sweeper #4100000 Rev. G 12/16
PowerBoss® Copyright 2014-2015
Page 29
PARTS BREAKDOWN
DIRECTIONAL CONTROL LINKAGE ASSEMBLY
ITEM PART NO. REQ'D DESCRIPTION
1 3335609 1 PAD-FOOT PEDAL, ANTI-SKID, 2” X 9.5”
2 3337390 1 PEDAL - FWD/REV, 1-PC
3 3300414 2 BUSHING-PLASTIC FLANGED, .375IDx.50OD
4 711681 1 PIN-CLEVIS, 3/8x4
5 3300461 2 BALL JOINT-3/8-24
6 3400075 4 NUT-JAM, 3/8-24
7 3307222 1 ROD-DIRECTIONAL CONTROL, DIESEL
8 3307611 1 QUICK RELEASE- FWD/REV
9 3307613 1 HANDLE-QUICK RELEASE
10 3307938 1 ROD-DIRECTIONAL CONTROL DIESEL
11 3307223 2 MOUNT-DIRECTIONAL CONTROL BUSHING
12 3307220 2 BUSHING-PLASTIC FLANGED, .76IDx.88OD
13 3307215 1 DIRECTIONAL TORQUE TUBE
14 3400342 4 NUT-HEX 3/8-24 ES ZP
15 3400125 1 PIN-COTTER 3/8 RUE-RING
16 3400087 1 WASHER-FLAT 3/8 STANDARD ZP
17 3337387P 1 FLOOR BOARD - UPPER, AM9D
18 3337542 1 ASSY - 9XR FLOORBOARD LEDGE
19 3337389 1 MOUNT - FWD/REV PEDAL

PowerBoss® Copyright 2014-2015
Armadillo 9X Sweeper #4100000 Rev. G 12/16
Page 30
CONSOLE ASSEMBLY
PARTS BREAKDOWN

Armadillo 9X Sweeper #4100000 Rev. G 12/16
PowerBoss® Copyright 2014-2015
Page 31
PARTS BREAKDOWN
CONSOLE ASSEMBLY
ITEM PART NO. REQ'D DESCRIPTION
1 3300352 1 KNOB-MB LIFT ADJ
2 3300376 1 STUD-BALL, GAS SPRING, 5/16-18
3 3336094 1 GAUGE-HOURMETER, DIGITAL, SNAP (AFTER SN-18168059)
4 3300414 4 BUSHING-PLASTIC 3/8IDx1/2OD
5 600264 2 HANDLE CONTURED
6 3301147 2 SCR-5/16 ACME THD, WING HEAD,
7 3301155 2 CLIPNUT-5/16-18
8 711744 2 RETAINER 5/16 PUSH NUT BOLT
9 3301447 1 CLEVIS WITH PIN AND COTTER
10 3301669 1 PLUG-PLASTIC, 11/16 DIA
12 3307614 1 WELD-PIVOT SB LIFT
13 3307846 1 INSULATION-CONSOLE TOP
14 3307847 1 INSULATION-DRIVER COMP SIDE
15 3337966 1 CABLE- THROTTLE
16 3323529 1 PLUG-CARLING CONTURA SWITCH
17 3333672 1 SPACER-MB LIFT ROD
18 3334984 1 ROD-MAIN BROOM, LOWER
19 3338296 1 WELD-ROD,MAIN BROOM, UPPER, ZP
20 3338297 1 WELD-ROD,SIDE BROOM, UPPER, ZP
21 3335112P 1 WELD-LIFT ARM, MAIN BROOM,
22 3342905 1 ASSY- INDICATOR LIGHT RED W/PACKARDTERMS
23 3342905 1 ASSY- INDICATOR LIGHT RED W/PACKARDTERMS
24 715731 1 ID PLATE-SERIAL# INFO
25 3342705 1 SWITCH-BASE, DPST CONTURA ROCKER
26 3343912 1 SW-ROCKER CONTURA DPDT ON-OFF
28 711374 1 NUT-NYLOC 5/16-18
29 3400084 1 NUT-WING 1/2-13
30 3400087 4 WASHER-FLAT 3/8 STANDARD ZP
31 3400091 1 WASHER-FENDER 1/2 ZP
32 3400113 4 PIN-CLEVIS 3/8x5-1/2 ZP
33 3400125 4 PIN-COTTER 3/8 RUE-RING
34 3400185 2 PIN-CLEVIS 5/16x1-1/4
35 3500118 EDGING-VINYL TRIM 1/8” X 250’ (Sold Per Foot)
36 3307554 1 COVER BROOM ADJ, 9X ORANGE
37 3335003M 1 CONSOLE, 9X, ORANGE
38 3301854 1 DECAL-CAUTION, 5x4.50"

PowerBoss® Copyright 2014-2015
Armadillo 9X Sweeper #4100000 Rev. G 12/16
Page 32
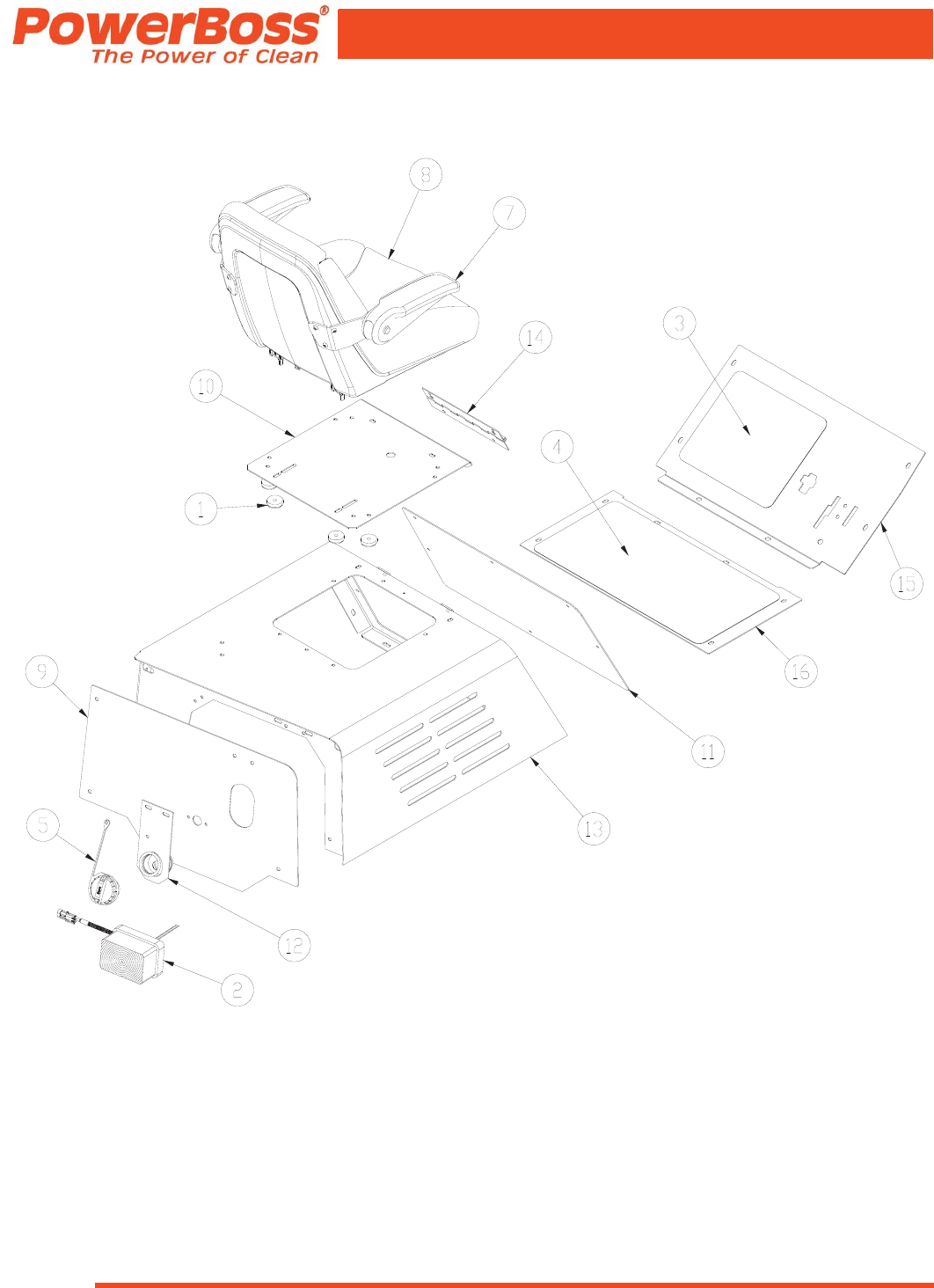
SEAT, FLOOR PAN & TAIL LIGHT
PARTS BREAKDOWN

Armadillo 9X Sweeper #4100000 Rev. G 12/16
PowerBoss® Copyright 2014-2015
Page 33
PARTS BREAKDOWN
SEAT, FLOOR PAN & TAIL LIGHT
ITEM PART NO. REQ'D DESCRIPTION
1 3302482 4 BUMPER-RUBBER, 1.5” DIA, 5/8 THK
2 3303204-1 1 TAIL LIGHT - 12V COMBINATION ASSY
3 3307587 1 FLOOR MAT-SMALL
4 3307588 1 FLOOR MAT-LARGE
5 3343413 1 CAP-FUEL TANK
7 620239 1 ARM-REST
8 620219 1 SEAT STD W SEAT BELT RECEIVERS
9 3309716P 1 PANEL-REAR COVER, 9X
10 3333729P 1 MNT-SEAT 9X DARK GRAY
11 3333733P 1 PLATE-ACCESS SEAT CLIP, 9X
12 3335010P 1 FUEL FILL, 9X
13 3335027M 1 CLIP, SEAT 9X, DARK GRAY
14 3335033P 1 HINGE-UNIVERSAL SEAT MNT, 9X
15 3337387P 1 FLOOR BOARD - UPPER
16 3337388P 1 FLOOR BOARD - LOWER

PowerBoss® Copyright 2014-2015
Armadillo 9X Sweeper #4100000 Rev. G 12/16
Page 34
LIFT & ROTATION CYLINDERS, HYDRAULIC HOSES
PARTS BREAKDOWN

Armadillo 9X Sweeper #4100000 Rev. G 12/16
PowerBoss® Copyright 2014-2015
Page 35
PARTS BREAKDOWN
LIFT & ROTATION CYLINDERS, HYDRAULIC HOSES
ITEM PART NO. REQ'D DESCRIPTION
1 3300837 4 BEARING-1.12 ODx1.00 IDx.75
2 3334551P 1 LIFT ARM-UPPER RH 9X
3 3400177 8 BEARING-THRUST 2.06 IDx3.25 OD
4 3300836 2 BEARING-2.18 ODx2.00 IDx.75
6 3300882 4 WASHER-HD 3.25 ODx2.00 ID
7 3301709 4 RING-RETAINING, EXT 2.00 DIA
9 3316890 1 CYLINDER-HYD, ROTATION HOPPER LIFT
11 675420 1 HYD HOSE - NEED VALVE TO ROT CYL
12 675421 1 HYD HOSE - ROT CYL TO CONT VALVE
13 3336963P 1 HARNESS - LIFT ARM
14 3301998 6 RING-RETAINING, EXT .940 DIA
15 3307430 2 PIN-UPPER LIFT ARM, .998 DIA,
16 3400012 2 FTG-GREASE 3/16
17 3307605 2 ASSEMBLY-DUMP ARM MOUNT
18 3307305M 1 LIFT ARM-HOPPER 9X DARK GRAY
19 3335285 1 PIN, LIFT CYL, ROD END
21 3343821 1 ASSY- SAFETY ARM W/ BALL JOINT
22 3307607 1 PIN-ROTATION CYL, .998 DIA,
24 3335361 1 PIVOT-HOPPER LH
25 3332416 1 ARM-ROTATION (W/PRESSED BEARINGS #28)
26 3307074 1 ARM-HOPPER ROTATION (W/PRESSED BEARINGS #28)
27 712162 8 SCREW, SHCS 7/16-14 X 1-1/2 STEEL ZINC
28 3300840 4 BEARING-2.18 ODx2.00 IDx1.50
29 3401570-11 8 WASHER-NORD-LOCK, 7/16, ZP
30 3336997 1 WELD - HOPPER ROTATE STOP
31 3400449 3 NUT-HEX JAM 1/2-20 ES
32 3400306 3 SCR-HEX,1/2-20X1.00 ZP
33 3307606 1 PIN-FRONT ROTATION CYL, .998 DIA,
34 3317119 1 ASSY- BLOCK ROTATION RH
36 3317364 1 PIVOT-HOPPER RH
37 3400076 2 NUT-HEX JAM SLOTTED, 1-14
38 3300879 2 WASHER-HD 3.25 ODx1.00 ID
39 3400122 2 PIN-COTTER 1/8 X 2.00 ZP
40 675507 2 FTG-STR THD ELBOW -4 ORFS TO -4 SAE
41 3334454P 1 LIFT ARM-UPPER LH 9X
42 3400219 2 SCR-SOC,5/16-18X0.50 ZP
43 3400102 2 WASHER-LOCK 5/16 SPLIT ZP
44 3400278 4 WASHER-FENDER 3/8 ZP
45 3321377 2 TOP-ROTATION CYL MNT ARMA
46 711239 4 SCR-HEX 3/8-16 X 1.00 GR8 ZP
47 3307243 1 ASSY, CYLINDER-HYD HOPPER LIFT
48 675518 2 FTG-STR THD ELBOW -6 ORFS TO -5 SAE
49 675550 4 FITTING ORIFICE .047 #6
50 3339955 1 CLEVIS-LIFT ARM 1.0 DIA. PIN 1.00-14 TD

PowerBoss® Copyright 2014-2015
Armadillo 9X Sweeper #4100000 Rev. G 12/16
Page 36
RTR SWITCH DETAIL LIFT ARM
PARTS BREAKDOWN
RTR SWITCH DETAIL LIFT ARM
ITEM PART NO. REQ’D DESCRIPTION
1 3302472 1 MOUNT-WIRE TIE LOW PROFILE
2 3311564 1 GROMMET-RUBBER, 1/2 ID
3 3336963P 1 HARNESS - LIFT ARM, ARMA TIER II
4 828062-B 1 TIE-WIRE BLACK

Armadillo 9X Sweeper #4100000 Rev. G 12/16
PowerBoss® Copyright 2014-2015
Page 37
THIS PAGE IS INTENTIONALLY LEFT BLANK
PARTS BREAKDOWN

PowerBoss® Copyright 2014-2015
Armadillo 9X Sweeper #4100000 Rev. G 12/16
Page 38
HOPPER - FILTER AND SHAKER MOTOR COMPONENTS
PARTS BREAKDOWN

Armadillo 9X Sweeper #4100000 Rev. G 12/16
PowerBoss® Copyright 2014-2015
Page 39
PARTS BREAKDOWN
HOPPER - FILTER AND SHAKER MOTOR COMPONENTS
ITEM PART NO. REQ'D DESCRIPTION
1 750073 2 BRACKET SHAKER MOTOR
3 748149-1 2 ASSY, SHAKER MOTOR W/CONNECTOR
5 3300917 2 BAR-FILTER RETAINER
6 3334676 8 ROD-5/16-18x4.63, FILTER TIE DOWN
6A 3334678 8 NUT-WING 5/16-18 NYLON INSERT
7 3300919 4 BAR-FILTER SHAKER
8 3307850 8 ISOLATOR-RUBBER, .25IDx1ODx.50THK, SW/A
9 3334070 2 FILTER-POLYESTER HOPPER 9XR (31x24x3.19)
10 711374 8 NUT-NYLOC 5/16-18
11 70-516-16 4 BLT-CARR 5/16-18 X 1 ZINC
12 3400329 4 SCR-FLT,5/16-18X.75,SLT ZP
14 3311564 3 GROMMET-RUBBER, 1/2 ID
15 832829 8 NUT-U TYPE 5/16-18
16 3336778 1 BRACKET- FOR SWITCH BALL (# 2 RTR LIGHT )
17 3307440M 1 HOPPER 9X, DUAL FILTER, ORANGE
18 3400484 1 RIVET-AVDEL 3/16 X .602
20 3336964P 1 HARNESS - HOPPER, ARMA
22 3330356 2 PLUG-PLASTIC HOLE, 3/4, 7 GA

PowerBoss® Copyright 2014-2015
Armadillo 9X Sweeper #4100000 Rev. G 12/16
Page 40
HOPPER - COVER AND LATCH COMPONENTS
PARTS BREAKDOWN

Armadillo 9X Sweeper #4100000 Rev. G 12/16
PowerBoss® Copyright 2014-2015
Page 41
PARTS BREAKDOWN
HOPPER - COVER AND LATCH COMPONENTS
ITEM PART NO. REQ'D DESCRIPTION
4 3400059 20 SCR-THM 1/4-20 X .75 SS
8 3400052 2 SCR-SHOULDER 5/16 DIA X 1/4 ZP
9 3400355 2 SCR-LEVEL BOLT, 3/8-16x2.50
10 3304624 2 CAP-RUBBER BUMPER, (USED WITH #10 ABOVE)
11 3300376 4 STUD-BALL, GAS SPRING, 5/16-18 THRD, .391 DIA.
12 3305006 2 SPRING-GAS 5" STROKE, 14.5" EXTENDED (100 LBF)
13 3307469 2 HINGE-FILTER COVER, ,
15 3400070 4 NUT-HEX 5/16-18 ZP
16 711439 2 NUT-FLANGED WIZZ 3/8-16
17 3401021 2 NUT-HEX ELASTIC JAM 1/4-20 #8 ZP
18 3307468 1 BAR-FILTER LATCH, ,
19 3307247 1 LATCH-RH BROOM DOOR
20 3316862M 1 LID-HOPPER 9X ORANGE
21 3318739 120” WEATHERSTRIPPING-RUBBER SPONGE
22 3400170 2 SCR-HSS 1/2x.31,
23 3301146 10 CLIPNUT-1/4-20 ZP
24 3400059 4 SCR-THMS 1/4-20 X .75 SS SLOTTED
25 3400384 4 WASHER-CONICAL SPRING 5/16
26 711379 4 NUT-FLANGED WIZZ 5/16-18
27 3307842 2 FLAP-HOPPER SIDE
28 3307843 2 RETAINER-FLAP HOPPER SIDE
29 3307720 5 FLAP-HOPPER FRONT
30 3307721 1 RETAINER-HOPPER FLAP
31 3500198 134” SEAL-TRIM 90 DEG. MOUNT
32 3307460M 1 HOOD-HOPPER 9X, ORANGE
33 3400394 1 NUT-FLANGE LOCK 7/16-14
34 3338592 1 BOLT-STRIKER .675 (17.1mm) DIA.
35 3307743 2 PLATE HOPPER BACKING
36 3334900 1 DECAL-"POWERBOSS" LOGO

PowerBoss® Copyright 2014-2015
Armadillo 9X Sweeper #4100000 Rev. G 12/16
Page 42
FRONT BUMPER ASSEMBLY
PARTS BREAKDOWN
FRONT BUMPER ASSEMBLY
ITEM PART NO. REQ'D DESCRIPTION
1 3335094 1 HARNESS-FRONT BUMPER HEADLIGHT
2 3315839 2 HEADLIGHT-HALOGEN 12V, FLUSH MOUNT
- 3315869 - BULB-HALOGEN REPLACEMENT (NOT SHOWN)
3 3316865M 1 BUMPER-FRONT, AM9D DARK GRAY
4 3311564 1 GROMMET-1/2" ID RUBBER
5 3316871 2 BUMPER-RUBBER, 1.50" DIA
6 3322186 2 INSERT-3/8-16 UNC
7 3311374 6 SCR-HEX,1/4-14X3/4 SELF TAP
8 711439 8 NUT-FLANGED WIZZ 3/8-16
9 3316981 2 RETAINER, PUSHNUT, 3/8 BOLT, 25/32 OD ZP
10 3400385 8 WASHER-CONICAL SPRING 3/8
11 711250 4 BLT-HH 3/8-16 X 1.25 STL ZINC
12 3400030 4 SCR-HEX,3/8-16X1.00, GRADE 5, ZP
13 3337303P 2 PLT-MOUNT, BUMPER, AM9D
14 828062-B 1 CABLE TIE-LARGE (BLACK)

Armadillo 9X Sweeper #4100000 Rev. G 12/16
PowerBoss® Copyright 2014-2015
Page 43
BATTERY COMPONENTS
PARTS BREAKDOWN
BATTERY COMPONENTS
ITEM PART NO. REQ'D DESCRIPTION
1 3307939 1 CABLE-BATTERY POSITIVE DIESEL ENGINE
2 3301076 1 HOLD DOWN-BATTERY 2-PIECE
3 3307634 1 CABLE BATTERY NEGATIVE
4 3400085 2 NUT-WING 1/4-20
5 3300440 1 BATTERY-GAS/LP/DIESEL, 12V, 650 CCA, 125 MIN RESERVE
6 3321296 1 WELD-BATTERY BOX

PowerBoss® Copyright 2014-2015
Armadillo 9X Sweeper #4100000 Rev. G 12/16
Page 44
ENGINE PAN, HYDRAULIC HOSE RETAINER & LATCH
PARTS BREAKDOWN

Armadillo 9X Sweeper #4100000 Rev. G 12/16
PowerBoss® Copyright 2014-2015
Page 45
PARTS BREAKDOWN
ENGINE PAN, HYDRAULIC HOSE RETAINER & LATCH
ITEM PART NO. REQ'D DESCRIPTION
1 3334951 1 WELDMENT-ENGINE PIVOT
3 3300471 1 BEARING-TAPERED ROLCONE W/SEAL
4 3300470 1 BEARING-TAPERED ROL CUP
5 3307326 1 BEARING MOUNT-ENGINE PIVOT
6 3400012 1 FTG-GREASE, φ3/16
7 3400083 1 NUT-HEX JAM, 1 1/4-12 ES
8 3333303 1 COVER-HOSE RETAINER SHORT
9 3333302 1 HOSE RETAINER SW/A
10 3335208 1 WELDMENT-ENGINE CATCH OUTER
11 3335183 1 WELDMENT-ENGINE CATCH INNER
12 3337544 1 LATCH - ENGINE SWING
13 3334994M 1 WELD-ENGINE PAN,

PowerBoss® Copyright 2014-2015
Armadillo 9X Sweeper #4100000 Rev. G 12/16
Page 46
FUEL TANK GASOLINE AND DIESEL
PARTS BREAKDOWN

Armadillo 9X Sweeper #4100000 Rev. G 12/16
PowerBoss® Copyright 2014-2015
Page 47
PARTS BREAKDOWN
FUEL TANK GASOLINE AND DIESEL
ITEM PART NO. REQ'D DESCRIPTION
1 711427 2 NUT-FLANGED WIZZ 10-32
2 3044112 2 CLAMP-HOSE, SS, 2.50 MAX
3 3300388 1 SENDER-FUEL SHORT (5 INCH)
4 811023 1 GASKET, SENDER
5DSL 3307575 1TANK-FUEL, 7.64 US GAL,
5GAS 3335055 FUEL TANK - GAS ARMA
6 3337019 1 SEAL - #10 BONDED NITRILE WASHER
7 3400498 1 FTG-BRASS NIPPLE, 1/4 NPTx2.0 LG
8 3400499 1 VALVE-MINATURE 1/4 FPT BALL
9DSL 3400793 1FTG-90 3/8 BARBx1/4 NPT
9GAS 3336095 FTG-FUEL HOSE BARB
10 3401579 1 SCR - HEX STANDOFF, 2X 10-32X.50 LG
11 3401636 4 SCR, PPH, 10-32 X .50, W/O-RING 18-8 SS
12DSL 3402022 1FTG-90 1/4 MPT X 1/4 HOSE BARB
12GAS 3401445 FTG-HOSE BARB 90? 5/16 X 1/4 NPT
13 3500221 1 HOSE-2” ID STRAIGHT RAD.
14 3307731 1 FUEL TANK STRAP (NOT SHOWN)

PowerBoss® Copyright 2014-2015
Armadillo 9X Sweeper #4100000 Rev. G 12/16
Page 48
HYDRAULIC RESERVOIR ASSEMBLY
PARTS BREAKDOWN

Armadillo 9X Sweeper #4100000 Rev. G 12/16
PowerBoss® Copyright 2014-2015
Page 49
PARTS BREAKDOWN
HYDRAULIC RESERVOIR ASSEMBLY
ITEM PART NO. REQ'D DESCRIPTION
1 3300358 1 SUB-HYD FILTER SW/9X (FILTER, MOUNT & FITTINGS)
- 3300359 1 FILTER-HYDRUALIC OIL (FILTER ONLY)
- 3304899 1 FTG-ADAPTER, 3/4-16 TO 1/2 OD TUBE (NOT SHOWN)
- 3400167 1 FTG-ADAPTER, 1 1/6-12 EXT TO (NOT SHOWN)
- 3400632 1 FTG-ADAPTER, RUN TEE 1-1/16-12 (NOT SHOWN)
- 3400636 1 FTG-ADAPTER, SWIVEL NUT 90° ELBOW (NOT SHOWN)
2 3310072 1 WELDMENT-HYD FILL TUBE
3 3500137 1 HOSE-1/8 ID EEC-PCV
4 3044112 1 CLAMP-HOSE, SS, 2.50 MAX WORM
5 3303577 1 HOSE-RUBBER, 2.00IDx3.50 LG
6 3307778 1 FTG-90° 1/8MPTx1/4 BARB
7 3044112 1 CLAMP-HOSE, SS, 2.50 MAX WORM
8 3335527 1 RESERVOIR-HYDRAULIC, 7.5 US GA
9 3343836 1 STRAINER-HYDRAULIC TM-14
10 675506 1 FTG-STR THD ELBOW -16 ORFS TO -20 SAE
11 3400164 1 FTG-PLUG 3/4-16 O RING
12 675524 2 FTG-STR THD CONNECTOR -8 ORFS TO -8 SA
13 3400453 1 FTG-PLUG 9/16-18 O-RING STEEL
14 675510 1 FTG-STR THD CONNECTOR -5 ORFS TO -4 SA
15 675504 1 FTG-45 DEG STR ELBOW -12 ORFS TO -16 SA
16 675519 1 FTG-STR THD CONNECTOR -6 ORFS TO -5 SA
17 675510 2 FTG-STR THD CONNECTOR -5 ORFS TO -4 SA
18 3307580 1 DIPSTICK-HYD RESEVOIR
19 3305576 1 ASSEMBLY-HYD OIL FILTER BREATHER
20 3400044 6 SCR-HEX,#10-32X0.75
21 3400045 1 SCR-PAN,#8-32X0.62,SLT

PowerBoss® Copyright 2014-2015
Armadillo 9X Sweeper #4100000 Rev. G 12/16
Page 50
HYDRAULIC CONTROL VALVE DETAIL
PARTS BREAKDOWN

Armadillo 9X Sweeper #4100000 Rev. G 12/16
PowerBoss® Copyright 2014-2015
Page 51
PARTS BREAKDOWN
HYDRAULIC CONTROL VALVE DETAIL
ITEM PART NO. REQ'D DESCRIPTION
1 600263 3 KNOB-PLASTIC TAPERED #145 BLACK
2 3338603 1 WELD - HANDLE CONT VLV 3 PLTD
3 3303996 6 BEARING-PLASTIC 1/2X3/8X.75 LG
4 3338456P 6 LINK-HYD VLV SW/A PLTD
5 3400125 6 RUE RING-1/4 HEAVY ZP
6 3400088 5 WASHER-FLAT 5/16 IDx.688 ODx.065 THK
7 3400425 3 PIN-CLEVIS 1/4 X 5/8 ZP
8 3338458 1 HANDLE CONT VLV 2 PLTD
9 3338459 1 HANDLE CONT VLV 1 PLTD
10 3400466 1 SCR-CAR,5/16-18X2.75 ZP
11 711724 2 RING-RET EXT .38
12 3300465 4 ISOLATOR-RUBBER (.375IDx.81OD)
13 3300884 1 ROD-PIVOT CONTROL VALVE PLTD
14 3338455 1 MNT - HYD. SPOOL VALVE ARMA
16 3338213 1 VALVE-HYD CONTROL 3-SPOOL SW/A
17 675513 2 FTG - HYD. TEE #8JIC X #10 ORB X #8JIC
18 690006 1 ORIFICE-BRASS #332, .041” DIA, HYDRAULIC, 3/4-16 THD
19 675524 4 FTG-TEE SWIVEL RUN #4 JIC ARMA
21 711374 2 NUT-NYLOC 5/16-18
31 3400088 6 WASHER-FLAT #8 ZP
32 450034 3 PIN-CLEVIS 3/16 X 3/4 ZP

PowerBoss® Copyright 2014-2015
Armadillo 9X Sweeper #4100000 Rev. G 12/16
Page 52
IMPELLER ASSEMBLY
PARTS BREAKDOWN

Armadillo 9X Sweeper #4100000 Rev. G 12/16
PowerBoss® Copyright 2014-2015
Page 53
PARTS BREAKDOWN
IMPELLER ASSEMBLY
ITEM PART NO. REQ'D DESCRIPTION
13316832 1 MOTOR-HYDRAULIC, .323CI, CCW ROTATION, IMPELLER
3337905 1 SEAL KIT IMPELLER MOTOR
2 675525 2 FTG-STR THD RUN TEE -8 ORFS TO -8 SAE
3 3307152 1 MOUNT-IMPELLER MOTOR
4 3300465 4 ISOLATOR-RUBBER, .375 IDx.81 OD
5 3400028 4 SCR-HEX 3/8-16x1.50"
6 3322121 1 MOUNT-IMPELLER MOTOR, CIRCULAR
7 3335458 2.5’ GASKET-TOP IMPELLAR, ARMA
8 3307004 1 SHROUD-IMPELLER,
9 3307003 1 IMPELLER-8.88" DIA, ARMA BALANCED
10 3335459 2.5’ GASKET-BOTT IMPELLAR, ARMA
11 3335192 1 IMPELLER MOUNT, ARMA
12 3333915 3 ISOLATOR-RUBBER, φ1.5x1" LG, 3/8-16 THREAD
13 3300351 3 CLAMP-HOSE, 4.5" DIA, SS
14 3307767 1 HOSE-IMPELLER, φ4"x7.5" LONG
15 3315347 1 TRANSITION-PLASTIC IMPELLER EXHAUST
16 3318203 1 HOSE-IMPELLER EXHAUST, 3.5"IDx62" LONG
17 675508 1 FTG-STR THD CONNECTOR -4 ORFS TO -4 SA
18 675523 1 FTG-STR THD ELBOW -8 ORFS TO -8 SAE

PowerBoss® Copyright 2014-2015
Armadillo 9X Sweeper #4100000 Rev. G 12/16
Page 54
MAIN BROOM ASSEMBLY
PARTS BREAKDOWN

Armadillo 9X Sweeper #4100000 Rev. G 12/16
PowerBoss® Copyright 2014-2015
Page 55
PARTS BREAKDOWN
MAIN BROOM ASSEMBLY
ITEM PART NO. REQ'D DESCRIPTION
1 600263 1 HANDLE GRIP
2 3338296 1 WELD-ROD,MAIN BROOM, UPPER, 9X,ZP
3 3400084 1 NUT-WING 1/2-13
4 3400091 1 WASHER-FENDER 1/2
5 3300352 1 KNOB-MAIN BROOOM LIFT ADJUST
6 3335112P 1 WELDMENT-MAIN BROOM PIVOT LIFT
7 3334984 1 ROD-LIFT MAIN BROOM
8 3301447 1 CLEVIS-CABLECRAFT AC-218
9 3301285 1 RETAINER-MAIN BROOM DRIVER HUB
10 3301050P 1 HUB-MAIN BROOM DRIVE
11 675523 1 FTG-STR THD ELBOW -8 ORFS TO -8 SAE
12 3338661 1 MOTOR-HYD MAIN BROOM
13 3330338 1 KEY-SHAFT D-FOSS CB/MB/SC MOTORS
14 3307337 3' GASKET-MAIN BROOM ARM
15 3307338 3' RETAINER-GASKET MAIN BROOM ARM
16 3307207M 1 MAIN BROOM MNT AM9D-M
17 3307181 1 SPACER-MAIN BROOM
18 3300432 2 BUSHING-FL-52-4
19 690111 2 PIN-DOWEL, .375x1.25, SS
20 3305667 1 BEARING-MAIN BROOM
21 3305642 1 HUB-BROOM IDLER
22 3400047 2 SCR-SOCKET, 5/16-18x0.75
23 3305666 1 RING-RETAINING MAIN BROOM
25 3335220 1 MAIN BROOM PLT
26 3400748 1 KNOB-HAND 1/2-13x1-1/2 DOG POINT
27 3335196 1 PLATE-LIFT ARM, MAIN BROOM, ARMA
28 712305 1 WASHER, FENDER 5/8 X 2 X .125 ZINC
29 712003 1 SCREW, HHCS 5/8-11 X 0.75 ZINC
30 3333672 1 SPACER-MB LIFT ROD
31 712315 1 WASHER SR-HELICAL .64 X 1.26 X .06 ZINC
32 3335908 1 RING-NILOS, 2.55”OD
33 3400086 1 WASHER-FLAT 1/2 STANDARD ZP
34 3400098 1 WASHER-LOCK 1/2 SPLIT ZP

PowerBoss® Copyright 2014-2015
Armadillo 9X Sweeper #4100000 Rev. G 12/16
Page 56
SIDE BROOM & MAIN BROOM
PARTS BREAKDOWN

Armadillo 9X Sweeper #4100000 Rev. G 12/16
PowerBoss® Copyright 2014-2015
Page 57
PARTS BREAKDOWN
SIDE BROOM & MAIN BROOM
ITEM PART NO. REQ'D DESCRIPTION
MAIN BROOM
1 3305818 1 BROOM-48"HIGH DEN FIBER & WIRE
3305812 1 BROOM-48" NYLON
3305665 1 BROOM-48" HIGH DENSITY NYLON
3305814 1 BROOM-48" NYLON CHEVRON (PATROL)
3315315 1 BROOM-48"STIFF NYLON
3305663 1 BROOM-48" PROEX & WIRE
3333483 * 1 BROOM-48” TRIPLE ROW POLY (CHEVRON PATERN)
SIDE BROOM
2 3300308 * 1 BROOM-SIDE 24" WHITE NYLON
3300306 1 BROOM-SIDE 24" DIA. BLACK POLY
3300309 1 BROOM-SIDE 26" WHITE NYLON
3300307 1 BROOM-SIDE 26" BLACK POLY
3300311 1 BROOM-SIDE 26" WIRE
* - Standard Broom used on the AM9D-III machine.
Main Broom User’s Guide
Proex & Wire - Slightly encrusted soilage & dusty conditions. High heat.
Nylon - General purpose broom with long life bristles.
Poly Proex - All purpose broom that stands up well on rough surfaces.
High Density Nylon - Highly eff ective for small particle soilage. Severe dust environments.
Crinkle Wire - Stiff bristles for compacted grime, oil, grease or mud. Fair to good broom life.
Natural Fiber & Wire - Good all around broom. Good for high heat applications.
Side Broom User’s Guide
Poly - Stiff bristles for aggressive sweeping of mainly heavy litter. Not suited for high heat.
Nylon - Provides longest life. Recommended for tough sweeping jobs.
Wire (fl at) - For areas of heavy grease build up or scarifying action. Used in high heat applications.

PowerBoss® Copyright 2014-2015
Armadillo 9X Sweeper #4100000 Rev. G 12/16
Page 58
VACUUM SWITCH
PARTS BREAKDOWN
VACUUM SWITCH
ITEM PART NO. REQ'D DESCRIPTION
1 3303105 1 FTG-NIPPLE 1/8"MPT X 2.00 LG
4 3401122 0.1 SEALANT-THREADED PIPE, 565 PST
5 3303327-1 1 CLOG FILTER - PRESSURE SWITCH ASSY
6 3400315 2 SCR-HEX,#10-32X0.50 (Not Shown)
7 3400172 2 NUT-HEX JAM #10-32 ES (Not Shown)

Armadillo 9X Sweeper #4100000 Rev. G 12/16
PowerBoss® Copyright 2014-2015
Page 59
TIMER-FILTER SHAKER SEALED
PARTS BREAKDOWN
TIMER-FILTER SHAKER SEALED
ITEM PART NO. REQ'D DESCRIPTION
I 690138 I BRACKET, TIMER
2 710230 2 SCR-MC 8-32 X .62 ST PL
3 711373 I NUT - NYLOC 1/4-20
4 711502 2 WSR - FLT, .170 X .38 X .32 STL ZINC
5 748502-1 I ASSY, RELAY - TIMER, W/CONNECTOR
6 3400082 2 NUT - HEX #8-32 ES ZP
DO NOT TIGHTEN 711373 UNTIL ASSY
IS MOUNTED TO THE MACHINE

PowerBoss® Copyright 2014-2015
Armadillo 9X Sweeper #4100000 Rev. G 12/16
Page 60
GASKET MOUNT ASSEMBLY
PARTS BREAKDOWN

Armadillo 9X Sweeper #4100000 Rev. G 12/16
PowerBoss® Copyright 2014-2015
Page 61
PARTS BREAKDOWN
GASKET MOUNT ASSEMBLY
ITEM PART NO. REQ'D DESCRIPTION
3307018 1 GASKET MOUNT SUB 9XV (Includes Items 1-13)
2 3307173 1 ROD-IMPELLER BAFFLE
3 3300414 2 BUSHING-PLASTIC, 3/8 ID X 1/2 OD
4 3307155 1 WELDMENT ROD GASKET MOUNT BAFFLE
5 3301199 1 BALL JOINT-1/4-28
6 3304160 1 SPRING-EXTENSION, 2.00 LG
7 3307182 1 WELDMENT-GASKET MOUNT,
8 3301498 1 DAMPER-HOPPER SHUTOFF,
10 3307005 1 GASKET-IMPELLER
12 748504-1 1 THERMOSTAT ASSEMBLY
- 3303729 1 GROMMET-RUBBER, .25IDx.56ODx.12 GROOVE (Not Shown)
13 3300563 1 KNOB-PLASTIC BALL 1" DIA, BLACK
17 3307182 1 WELD-GASKET MNT SW/A/62E
18 3307005 1 GASKET-IMPELLER

PowerBoss® Copyright 2014-2015
Armadillo 9X Sweeper #4100000 Rev. G 12/16
Page 62
ENGINE KUBOTA V1505 DIESEL - AIR CLEANER ASSEMBLY
PARTS BREAKDOWN
ENGINE KUBOTA V1505 DIESEL - AIR CLEANER ASSEMBLY
ITEM PART NO. REQ'D DESCRIPTION
1 3302842 1 ELEMENT-AIR CLEANER, PRIMARY
2 3302597 1 ELEMENT-AIR CLEANER, SAFETY
3 3303827 1 NUT-WING, DONALDSON AIR CLEANER
4 3303031 1 "ASSEMBLY-DONALDSON HEAVY DUTY AIR CLEANER
(Includes Items 1,2&3)"
5 3303991 1 INDICATOR-AIR CLEANER RESTRICTION
6 3044112 2 CLAMP-HOSE, φ2.5" SS
7 3332643 1 HOSE-RAD UPPER 1505 (COOLER)

Armadillo 9X Sweeper #4100000 Rev. G 12/16
PowerBoss® Copyright 2014-2015
Page 63
ENGINE KUBOTA V1505 DIESEL - FUSE BOX ASSEMBLY
PARTS BREAKDOWN
ENGINE KUBOTA V1505 DIESEL - FUSE BOX ASSEMBLY
ITEM PART NO. REQ'D DESCRIPTION
1 748769 1 ASSY - DIESEL CONTROL BOX
2 3342109 2 SPACER
3 3400102 2 WASHER
4 3400231 2 SCR-HEX,5/16-18X2.0 ZP
5 690042 1 BRACKET, MTG, WELD, DIESEL CONTROL BOX

PowerBoss® Copyright 2014-2015
Armadillo 9X Sweeper #4100000 Rev. G 12/16
Page 64
',(6(/&21752/%2;
:,7+723&29(55(029('
ENGINE KUBOTA V1505 DIESEL - FUSE BOX DETAILS
PARTS BREAKDOWN

Armadillo 9X Sweeper #4100000 Rev. G 12/16
PowerBoss® Copyright 2014-2015
Page 65
PARTS BREAKDOWN
ENGINE KUBOTA V1505 - DIESEL CONTROL BOX (748769)
ITEM PART NO. REQ'D DESCRIPTION
1 690042 1 BRACKET, MTG, WELD, DIESEL CONTROL BOX
2 710328 8 SCR-RHMS 8-32 X .37 ZP
3 712540 4 SCR-THMS 10-24 X .37 SS
4 748447 1 WIRING HARNESS, KUBOTA DSL CONTROL BOX
5 748447-1 1 WIRE ASSY, ORANGE
6 748447-2 1 WIRE ASSY, YELLOW
7 748762 1 CIRCUIT BREAKER, 12V 50A
8 748763-MCH 1 MOUNTING PLATE, MACHINED
9 748764 1 ENCLOSURE W/ METRIC KNOCKOUTS
10 748767 2 RELAY, 14 VDC 50/30 A
11 748768 1 CORDGRIP, M25, LIQUID TIGHT
12 748962 1 CIRCUIT BREAKER, 12V 40A
13 748963 2 CIRCUIT BREAKER BOOT
14 748964-1 2 ASSY, FUSE HOLDER
15 748967 2 SOCKET, RELAY
16 3400082 8 NUT-NYLOC 8-32 ZP

PowerBoss® Copyright 2014-2015
Armadillo 9X Sweeper #4100000 Rev. G 12/16
Page 66
ENGINE KUBOTA V1505 DIESEL - ALTERNATOR, WATER PUMP, FAN, AND OIL PAN
PARTS BREAKDOWN

Armadillo 9X Sweeper #4100000 Rev. G 12/16
PowerBoss® Copyright 2014-2015
Page 67
PARTS BREAKDOWN
ENGINE KUBOTA V1505 DIESEL - ALTERNATOR, WATER PUMP, FAN, AND OIL PAN
ITEM PART NO. QTY DESCRIPTION
1 3336919 1 COVER-THERMOSTAT KUBOTA V1505
2 3350446 1 THERMOSTAT-KUBOTA V1505 & V2203
3 3336918 1 GASKET-THERMOSTAT KUBOTA V1505
4 3341070 1 SENDER-TEMPERATURE 12V KUBOTA V1505
5 3336939 1 HOUSING-THERMOSTAT KUBOTA V1505
6 3336915 1 GASKET-WATER FLANGE KUBOTA V1505
7 3336947 1 PLUG-THERMOSTAT HSG KUBOTA V1505
8 3336931 1 PIPE-WATER RETURN THERMOSTAT HSG
9 3336946 1 PIPE-WATER KUBOTA V1505
10 3330793 1 GASKET - KUBOTA V1505 WATER PUMP
11 3330792 1 PUMP - WATER, KUBOTA V1505
12 3336932 1 PIPE-WATER PUMP KUBOTA V1505
13 3329875 1 ALTERNATOR-KUBOTA V1505
14 3336067 1 STAY-DYNAMO
15 3331935 1 COVER-BELT
16 3330210 1 FAN - KUBOTA V1505 ENGINE (SP) 1
17 3336933 1 SPACER-FAN 10MM KUBOTA V1505
18 3336937 1 BOLT-PULLEY KUBOTA V1505
19 3336934 1 PULLEY-ENGINE KUBOTA V1505
20 3329867 1 BELT-KUBOTA V1505V
21 3336920 1 PAN-OIL KUBOTA V1505
22 661004 1OIL DRAIN ASSY, V1505
23 3344822 1 DRAIN PLUG GASKET, KUBOTA
24 3338327 1 PLUG-DRAIN (BOTTOM)
25 3338328 1 GASKET-OIL PAN (ALTERNATE)
26 3344821 1 PLUG-DRAIN (SIDE) (ALTERNATE)
27 3337571 1 SEAL, OIL KUBOTA V1505
28 690116 1 ENGINE, DSL, DE-RATED - V1505, KUBOTA

PowerBoss® Copyright 2014-2015
Armadillo 9X Sweeper #4100000 Rev. G 12/16
Page 68
ENGINE KUBOTA V1505 DIESEL - FLYWHEEL, STARTER, HEAD COVER, AND MANIFOLD
PARTS BREAKDOWN

Armadillo 9X Sweeper #4100000 Rev. G 12/16
PowerBoss® Copyright 2014-2015
Page 69
ENGINE KUBOTA V1505 DIESEL - FLYWHEEL, STARTER, HEAD COVER, AND MANIFOLD
ITEM PART NO. QTY DESCRIPTION
1 3334041 1 MANIFOLD-EXHAUST KUBOTA V1505
2 3333964 1 GASKET-EX-MANIFOLD KUBOTA V1505
3 3334278 1 GASKET - VALVE COVER KUBOTA V1505
4 3336910 1 COVER-CYLHEAD KUBOTA V1505
5 3337572 4 GASKET KUBOTA V1505
6 3336916 4 NUT-CYLHEAD COVER KUBOTA V1505
7 3337573 1 O-RING KUBOTA V1505
8 3336926 1 PLUG-OIL FILLER KUBOTA V1505
9 3337574 1 COVER, BREATHER KUBOTA V1505
10 3337575 1 VALVE BREATHER KUBOTA V1505
11 3337576 1 TUBE BREATHER KUBOTA V1505
12 3336911 1 MANIFOLD-INLET KUBOTA 1505
13 3337577 1 GASKET INTAKE MANIFOLD KUBOTA V1505
14 3336935 1 COMP-FLYWHEEL KUBOTA V1505
15 3329956 1 COUPLING-KUBOTA DIESEL V1505/D905
16 3329957 1 BELL HOUSING KUBOTA V1505 DIESEL
17 3336938 6 BOLT-FLYWHEEL KUBOTA V1505
18 3339628 1 ASSY-COCK DRAIN V1505
19 3324129 1 FILTER - OIL, 1505/905 KUBOTA DIE
20 3330402 1 STARTER - KUBOTA V1505, 12V
21 3301720 1 FTG-90 EL 1/8 FPT
22 3341069 1 SENDER-OIL PRESSURE 12V
23 3305640 1 FTG-NIPPLE 1/8BPT-1/8NPT BRASS
24 3336917 1 PLATE-REAR END V1505
PARTS BREAKDOWN

PowerBoss® Copyright 2014-2015
Armadillo 9X Sweeper #4100000 Rev. G 12/16
Page 70
ENGINE KUBOTA V1505 DIESEL - FUEL SYSTEM AND SPEED CONTROL
PARTS BREAKDOWN

Armadillo 9X Sweeper #4100000 Rev. G 12/16
PowerBoss® Copyright 2014-2015
Page 71
ENGINE KUBOTA V1505 DIESEL - FUEL SYSTEM AND SPEED CONTROL
ITEM PART NO. QTY DESCRIPTION
1 3330106 4 INJECTOR-KUBOTA V1505 DIESEL
2 3333567 1 FUEL LINE-KBA 1505 LEAK OFF LINE
3 3334998 1 PIPE INJECTION-KUBOTA V1505
4 3334997 1 PIPE INJECTION-KUBOTA V1505
5 3334996 1 PIPE INJECTION-KUBOTA V1505
6 3334995 1 PIPE INJECTION-KUBOTA V1505
7 3330693 1 KUBOTA 1505-FUEL PUMP GASKET
8 3330692 1 PUMP - FUEL, KUBOTA V1505 DIESEL
9 3336924 1 GASKET-CONTROL PLATE KUBOTA V1505
10 3336943 1 PLATE-SPEED CONTROL KUBOTA V1505
11 3336944 3 BOLT-ADJUSTING SPEED CONTROL KUBOTA
12 3336976 3 HUT-HEX JAM 6MM
13 3336948 1 SHAFT-LEVER STOP SPEED CONTROL KUBOTA
14 3336942 2 LEVER-SPEED CONTROL KUBOTA V1505
15 3336945 1 LEVER-ENGINE STOP KUBOTA V1505
16 3336969 2 WASHER-PLAIN 15MM OD X 6MM ID X 1
17 3336970 2 NUT-HEX LOCK 6MM
18 3336941 1 LEVER-SPEED CONTROL KUBOTA V1505
19 3336949 1 LEVER-GOVERNOR KUBOTA V1505
20 3305882 1 MOUNT, FUEL FILTER KUBOTA PNTD
21 3303324 1 FILTER - FUEL KUBOTA DSL (SP)
22 3400293 5 SCR-HEX 10MMX1.25PX20MM ZP
23 3401458 5 WSH-LOCK, 10 MM ZP
24 3336912 1 BRACKET-FUEL FILTER KUBOTA V1505
25 3400390 1 NUT-FLANGE LOCK 5/16-18
26 3350331 1 MOUNT-THROTTLE KBA 1505 DSL
27 3400384 1 WASHER CONICAL SPRING 5/16
28 3400034 1 SCR-HEX,5/16-18X1.25 ZP
29 3330795 4 GLOW PLUG KUBOTA V1505
30 3337578 1 CORD GLOW PLUG KUBOTA V1505
31 3336927 1 PLUG-ENGINE KUBOTA V1505
32 3334549 1 KIT-SOLENOID FUEL SHUT-OFF W/ JUMPER
33 3336925 1 COVER HYDRAULIC PUMP-ENGINE KUBOTA V1505
PARTS BREAKDOWN

PowerBoss® Copyright 2014-2015
Armadillo 9X Sweeper #4100000 Rev. G 12/16
Page 72
ENGINE KUBOTA V1505 DIESEL - MOTOR MOUNTING
PARTS BREAKDOWN

Armadillo 9X Sweeper #4100000 Rev. G 12/16
PowerBoss® Copyright 2014-2015
Page 73
PARTS BREAKDOWN
ENGINE KUBOTA V1505 DIESEL - MOTOR MOUNTING
ITEM PART NO. REQ'D DESCRIPTION
1 690032 1 ENGINE MOUNT, OUTER, AM9D, KUBOTA V1505
2 690031 1 ENGINE MOUNT, INNER, AM9D, KUBOTA V1505
3 690032 1 ENGINE MOUNT, OUTER, AM9D, KUBOTA V1505
4 3300464 4 ISOLATOR-RUBBER, 1.24 DIAx1.25 LG
5 690031 1 ENGINE MOUNT, INNER, AM9D, KUBOTA V1505
- 3350329 1 BRACKET-HOSE RETAINER, FRONT, KABOTA V1505 DIESEL (NOT
SHOWN)
- 3333301 1 BRACKET-HOSE RETAINER, REAR, KABOTA V1505 DIESEL (NOT
SHOWN)

PowerBoss® Copyright 2014-2015
Armadillo 9X Sweeper #4100000 Rev. G 12/16
Page 74
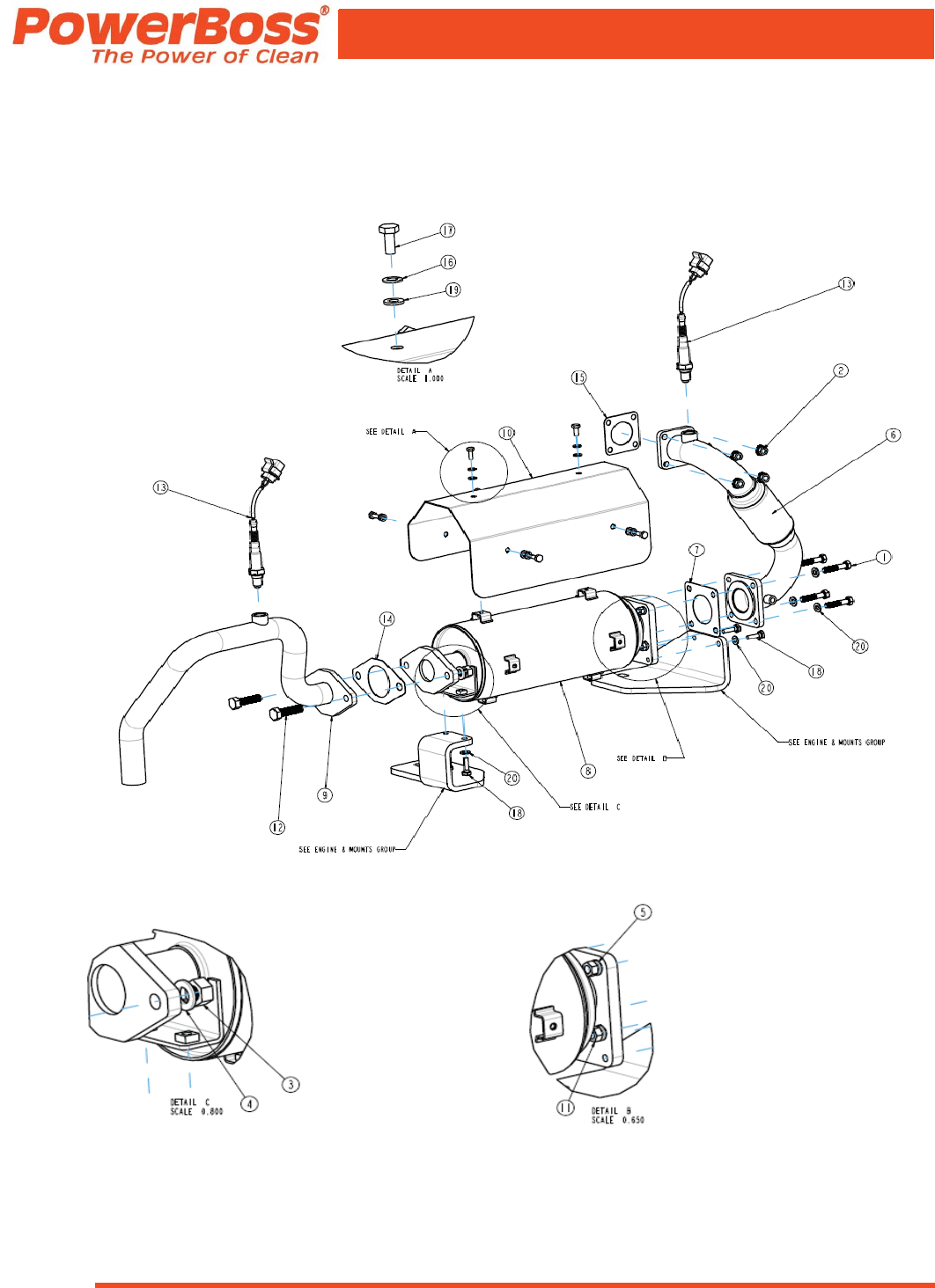
ENGINE KUBOTA V1505 DIESEL - EXHAUST DETAIL
PARTS BREAKDOWN

Armadillo 9X Sweeper #4100000 Rev. G 12/16
PowerBoss® Copyright 2014-2015
Page 75
PARTS BREAKDOWN
ENGINE KUBOTA V1505 DIESEL - EXHAUST DETAIL
ITEM PART NO. REQ'D DESCRIPTION
1 3301641 2 CLAMP-EXHAUST 1 1\2
2 3330627 1 MUFFLER-KUBOTA V1505 BOX
3 3330629 1 BLANKET-KUBOTA V1505E BOX EXHAUST
4 EPS2655 1 STAY MUFFLER
5 3335036 1 EXHAUST-KUBOTA V1505 9X
6 3401570-7W 4 WASHER-NORD-LOCK, 1/4, 0.53 OD
7 3336632 1 PLT - EXHAUST MNT BRKT
8 690113 1 BRACKET, UPPER EXHAUST HANGER, 9X/AM9D
9 3400071 4 NUT-HEX 1/4-20
10 3400103 2 WASHER-LOCK 1/4 SPLIT
11 3344112 2 ISO-CYL, 1 DIA X 3/4 X 1/4-20,
12 3400043 2 SCR-HH 1/4-20 X .50 ZINC
14 3400089 2 WASHER-FLAT 1/4 STANDARD
15 3335134 1 EXHAUST FUNNEL, ARMA
16 713002 4 BLT-HH 1/4-20 X .75 #5 ZINC
17 3400383 4 WASHER-CONICAL SPRING 1/4
18 711425 4 NUT-FLANGED WIZZ 1/4-20 STL ZP

PowerBoss® Copyright 2014-2015
Armadillo 9X Sweeper #4100000 Rev. G 12/16
Page 76
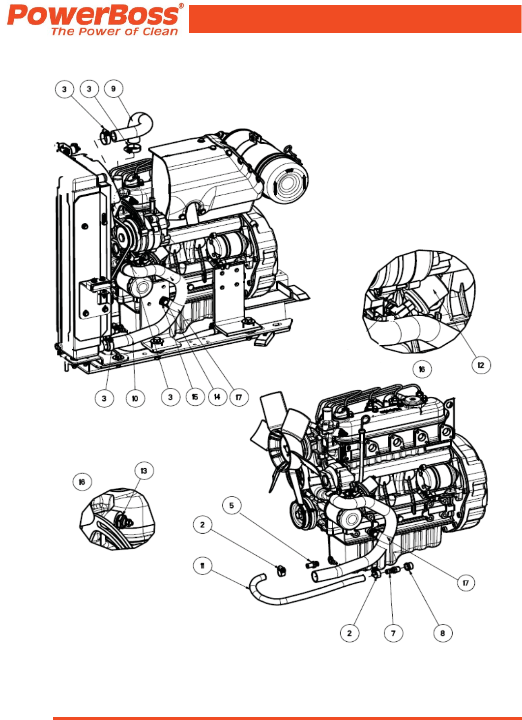
ENGINE KUBOTA V1505 DIESEL - RADIATOR DETAIL
PARTS BREAKDOWN

Armadillo 9X Sweeper #4100000 Rev. G 12/16
PowerBoss® Copyright 2014-2015
Page 77
PARTS BREAKDOWN
ENGINE KUBOTA V1505 DIESEL - RADIATOR DETAIL
ITEM PART NO. REQ'D DESCRIPTION
1 675503 1 FTG-STR THD CONNECTOR -12 ORFS TO -16 S
1A 675530 1 FTG-STR THD CONNECTOR -8 ORFS TO -16 S
2 3336527 1 RADIATOR CAP
3A 690019 24” HOSE, RADIATOR TO OVERFLOW BOTTLE, 21” LENGTH
3B 690019 36” HOSE, OVERFLOW BOTTLE EXIT, 36” LENGTH
4 675419 1 HYD HOSE - RAD OUT TO RESV
5 690033 1 MOUNT-RADIATOR HYD W/COOLER
6 3332643 2 HOSE-UPPER RADIATOR, KUBOTA 1505
7 3303255 4 CLAMP-HOSE 1.75 DIA NOMINAL
8 690125 1 RADIATOR-OIL COOLER, LP/GAS/DSL
9 690150 1 ASSY, FAN SHROUD, DSL/LP/GAS
10 3333489 1 FTG-RADIATOR HOSE
11 690020 1 LOWER RADIATOR HOSE, AM9D
12 675418 1 HYD HOSE - FILTER OUT TO RAD
13 3333488 1 FTG-PLUG, RADIATOR
14 3301733 2 DECAL-WARNING FAN (RAD SHROUD)
-- 690225 4 CLAMP- HOSE .460 (NOT SHOWN - USED WITH ITEMS 3A and 3B
ON EACH END)

PowerBoss® Copyright 2014-2015
Armadillo 9X Sweeper #4100000 Rev. G 12/16
Page 78
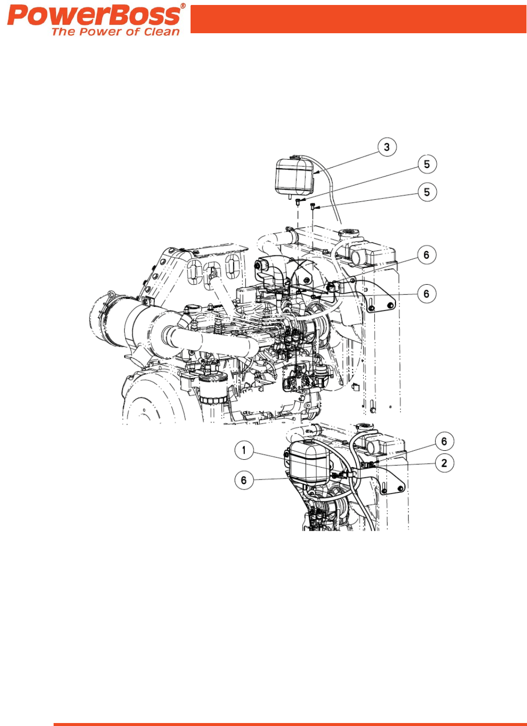
ENGINE KUBOTA V1505 DIESEL - RADIATOR COOLANT TANK & MOUNT
PARTS BREAKDOWN

Armadillo 9X Sweeper #4100000 Rev. G 12/16
PowerBoss® Copyright 2014-2015
Page 79
PARTS BREAKDOWN
ENGINE KUBOTA V1505 DIESEL - RADIATOR COOLANT TANK & MOUNT
ITEM PART NO. REQ'D DESCRIPTION
1 713527 1 P-CLAMP, VINYL COVERED, 1/2 DIA
2 3301158 1 CLAMP-CABLE 11/16” DIA CLAMP-SADDLE TYPE 5/16” DIA.
3 3344101 1 RESERVOIR ASSY
4 3344112 4 ISOLATOR- CYLINDRICAL, 1 DIA X 3/4 X 1/4-20,
5 713002 6 BLT-HH 1/4-20 X .75 #5 ZINC
6 711373 10 NUT-NYLOC 1/4-20

PowerBoss® Copyright 2014-2015
Armadillo 9X Sweeper #4100000 Rev. G 12/16
Page 80
ENGINE KUBOTA V1505 DIESEL - RADIATOR ASSY & MOUNTING BRACKETS
PARTS BREAKDOWN

Armadillo 9X Sweeper #4100000 Rev. G 12/16
PowerBoss® Copyright 2014-2015
Page 81
PARTS BREAKDOWN
ENGINE KUBOTA V1505 DIESEL - RADIATOR ASSEMBLY & MOUNTING BRACKETS
ITEM PART NO. REQ'D DESCRIPTION
1 3301158 1 CLAMP-SADDLE TYPE 11/16” DIA.
2 3400103 8 WASHER-LOCK 1/4 SPLIT
3 690125 1 RADIATOR-OIL COOLER COMBO
4 690150 1 ASSY, FAN SHROUD, DSL/LP/GAS
5 690033 1 PLATE- BASE, RADIATOR MOUNT, AM9D
6 3336627 1 PLT-RADIATOR MNT, RH TOP
7 3336629 2 PLT - RADIATOR MNT, LH TOP
8 3336632 1 PLT - EXHAUST MNT BRKT
9 690113 1 PLT - EXHAUST MNT, UPPER BRKT
10 3336634 1 PLT - RADIATOR MNT
13 3344110 2 ISOLATOR-BONDED BUSHING BOTTOM RADIATOR
14 3344112 2 ISOLATOR- CYLINDRICAL, 1 DIA X 3/4 X 1/4-20,
15 3400007 4 SCR-CAR,3/8-16X1.25
18 711207 6 BLT-HH 1/4-20 X 1.00 STL ZINC
19 3400071 4 NUT-HEX 1/4-20
20 711380 6 NUT-NYLOC 3/8-16
21 3400089 8 WASHER-FLAT 1/4 ZP
22 3400278 2 WASHER-FENDER 3/8
23 3401570-7W 4 WASHER-NORD-LOCK, 1/4, 0.53 OD
24 661133 1 BRKT, RADIATOR, UPPER
25 3334426 1 ISOLATOR-RAD MNT
26 713527 1 P-CLAMP, VINYL COVERED, 1/2 DIA
27 711374 2 NUT-NYLOC 5/16-18 ZP
28 713001 1 SCR-HH 1/4-20 X .62 PLAIN GR 5
29 713002 1 SCR-HH 1/4-20 X .75 ZP 5
30 82-54-A 1 CLAMP-P .75 I.D. 5/16 DIA.
31 711228 1 SCR-HH 5/16-18 X .75 ZP GR 5

PowerBoss® Copyright 2014-2015
Armadillo 9X Sweeper #4100000 Rev. G 12/16
Page 82
ENGINE KUBOTA V1505 DIESEL - RADIATOR ASSY, CLAMPS, HOSES & SENDERS
PARTS BREAKDOWN

Armadillo 9X Sweeper #4100000 Rev. G 12/16
PowerBoss® Copyright 2014-2015
Page 83
PARTS BREAKDOWN
ENGINE KUBOTA V1505 DIESEL - RADIATOR ASSEMBLY, CLAMPS, HOSES & SENDERS
ITEM PART NO. REQ'D DESCRIPTION
2 713527 2 CLAMP-HOSE 1/2 NOM
3 3301158 4 CLAMP-HOSE 1.25 NOM
5 3345502 1 ADAPTER, OIL DRAIN - MALE/FEMALE
7 3345503 1 FTG-BRASS,3/8” BARB X 1/4” MALE NPT
8 3345506 1 FTG-BRASS,3/8” BARB X 1/4” FEMALE NPT
9 3332643 1 HOSE-RAD UPPER 1505
10 690020 1 HOSE-RAD LOWER 1505
11 3345505 1 HOSE - 1/2” ID X 24” PCV OIL DRAIN
12 3341069 1 SENDER-OIL PRESSURE 12V
13 3341070 1 SENDER-TEMPERATURE 12V
14 711206 2 SCR-HH 1/4-20 X .87 ZP GR 5
15 3400385 1 WASHER-CONICAL SPRING 3/8
16 3401122 0.100 565 PST. Thrd Slnt 50ml (WHITE LOCTITE 565)
17 3343082 1 CLAMP-PIPE, 9/16 DIA, INSULATED

PowerBoss® Copyright 2014-2015
Armadillo 9X Sweeper #4100000 Rev. G 12/16
Page 84
ENGINE KUBOTA V1505 DIESEL, WG1605 GAS & LPG - HYDRAULIC PUMP DETAIL
PARTS BREAKDOWN

Armadillo 9X Sweeper #4100000 Rev. G 12/16
PowerBoss® Copyright 2014-2015
Page 85
PARTS BREAKDOWN
ENGINE KUBOTA V1505 DIESEL - HYDRAULIC PUMP DETAIL
ITEM PART NO. REQ'D DESCRIPTION
1 70-516-16 2 BLT-CARR 5/16-18 X 1 ZINC
2 675500 1 FTG-STR ELBOW -10 ORFS TO -12 SAE
3 675502 1 FTG-45 DEG STR ELBOW -12 ORFS TO -12 SAE
4 675505 1 FTG-STR THD CONNECTR -16 ORFS TO -16 SAE
5 675512 1 FTG-STR THD ELBOW -4 ORFS TO -8 SAE
6 675520 1 FTG-STR THD ELBOW -6 ORFS TO -8 SAE
7 675527 1 FTG-45 DEG STR THREAD ELBOW -8 ORFS TO
8 675528 1 FTG-STR THD ELBOW -8 ORFS TO -10 SAE
9 711373 3 NUT-NYLOC 1/4-20
10 711374 6 NUT-NYLOC 5/16-18
11 711380 1 NUT-NYLOC 3/8-16
12 713043 4 BLT-HH 3/8-16 X 1.25 #5
13 3300526 8 BUMPER-RUBBER 1/4 ID X 1/8 THK
14 3300543 6 SPRING-FWD/REV RETURN
15 3301507 1 COUPLING-RUBBER, DIR CONTROL
16 3301544 1 DISC FWD/REV ZP
17 3303711 1 ORING-STATIC SEAL 3.239 ID
18 3303918 2 SPACER-FWD/REV BRACKET ZP
19 3307219 1 PLATE-DIRECTIONAL CONT PLTD SW/A
20 3321397 1 PUMP-AUX HYDRAULIC (9XR, 9XD,10X,AM9D)
21 3335072 1 PUMP-PISTON, VARIABLE, 1.44 CIR, PROPEL
22 3335200 1 PLATE- FWD/REV SPRING MNT V1505
23 3335301 1 BRKT-FWD/REV ZP. 9X
24 3400027 1 SCR-HEX,3/8-16X1.75 ZP
25 3400033 4 SCR-HEX,5/16-18X1.50 ZP
26 3400069 2 NUT-HEX 5/16-24 ZP
27 3400089 4 WASHER-FLAT 1/4 STANDARD ZP
28 3400173 3 SCR-HH, 1/4-20X1.75, PART THRD, GR 5, ZP
29 3400221 2 SCR-HH, 5/16-24X1.00 GR 5, ZP
30 3400385 4 WASHER-CONICAL SPRING 3/8

PowerBoss® Copyright 2014-2015
Armadillo 9X Sweeper #4100000 Rev. G 12/16
Page 86
ENGINE KUBOTA WG1605 LPG - AIR CLEANER DETAIL
PARTS BREAKDOWN
ENGINE KUBOTA WG1605 LPG - AIR CLEANER DETAIL
ITEM PART NO. REQ'D DESCRIPTION
1 690194 1 COUPLER NECK, THROTTLE BODY - 9X LP
2 690195 1 INDUCTION HOSE, ENGINE SIDE - 9X LP
3 690196 1 COUPLER, REDUCER, 2.5 TO 2.25 - 9X LP
4 690197 1 TUBE, INDUCTION - 9X LP
5 690198 1 HOSE, CRANK CASE VENT - 9X GAS/LP
6 690199 1 INDUCTION HOSE, AIR CLEANER SIDE - 9X
7 829129 2 CLAMP-HOSE WORM-DRV8-22MM HOSE DIA. 5/16
8 3044112 4 CLAMP-HOSE, SS, 2.50 MAX WORM
9 3303991 1 INDICATOR-AIR CLEANER RESTRICTION
10 3303031 1 AIR CLNR- HEAVY DUTY; CAP, MOUNT, HOUSING
11 690008 1 CLAMP, W-FOOT, AIR CLEANER, AM9D

Armadillo 9X Sweeper #4100000 Rev. G 12/16
PowerBoss® Copyright 2014-2015
Page 87
PARTS BREAKDOWN
ENGINE KUBOTA WG1605 GAS - AIR CLEANER DETAIL
ENGINE KUBOTA WG1605 GAS - AIR CLEANER DETAIL
ITEM PART NO. REQ'D DESCRIPTION
1 690195 1 INDUCTION HOSE, ENGINE SIDE - 9X LP
2 690196 2 COUPLER, REDUCER, 2.5 TO 2.25 - 9X LP
3 690197 1 TUBE, INDUCTION - 9X LP
4 690198 1 HOSE, CRANK CASE VENT - 9X GAS/LP
5 690199 1 INDUCTION HOSE, AIR CLEANER SIDE - 9X
6 690223 1 TUBE, INDUCTION, UPPER
7 690224 1 INDUCTION HOSE, UPPER
8 829129 2 CLAMP-HOSE WORM-DRV8-22MM HOSE DIA. 5/16
9 3044112 6 CLAMP-HOSE, SS, 2.50 MAX WORM
10 3303031 1 AIR CLNR- HEAVY DUTY; CAP, MOUNT, HOUSING
11 3303991 1 INDICATOR-AIR CLEANER RESTRICTION
12 690008 1 CLAMP, W-FOOT, AIR CLEANER, AM9D
THIS END TO
THROTTLE BODY

PowerBoss® Copyright 2014-2015
Armadillo 9X Sweeper #4100000 Rev. G 12/16
Page 88
ENGINE KUBOTA WG1605 GAS & LPG ENGINE ASSEMBLY
PARTS BREAKDOWN

Armadillo 9X Sweeper #4100000 Rev. G 12/16
PowerBoss® Copyright 2014-2015
Page 89
ENGINE KUBOTA WG1605 GAS & LPG ENGINE ASSEMBLY
ITEM PART NO. REQ'D DESCRIPTION
1 600363 2 WASHER-FLAT .39 X 1.12 X .1 ZP
2 600820 1 SCR-HH M8-1.25 X 45 ZP CLASS 8.8
3 600918 1 SCR-HH M8-1.25 X 35 ZP CLASS 8.8
4 600959 2 WASHER-LOCK M8 ZINC SPLIT
5 690020 1 LOWER RADIATOR HOSE, AM9D
6 690161 1 BRKT, RADIATOR UPPER - 9X LP/GAS
7 690125 1 RADIATOR-OIL COOLER, LP/GAS/DSL
8 690204 1 GROUP, AIR CLEANER - 9X
9 711374 2 NUT-NYLOC 5/16-18 ZP
10 711380 2 NUT-NYLOC 3/8-16 ZP
11 713027 4 SCR-HH 5/16-18 X 1 ZP GR 5
12 713043 2 SCR-HH 3/8-16 X 1.25 ZP GR 5
13 731382 2 SCR-FHSCS M6-1.00 X 20 ZP
14 3300465 2 ISOLATOR-RUBBER (.375IDx.81OD)
15 3303255 4 CLAMP-HOSE 1.75 DIA NOMINAL
16 3316981 2 NUT-PUSH RETAINER 3/8 BOLT, 25/32 OD ZP
17 3332643 1 HOSE-RAD UPPER 1505 (COOLER)
18 3338792 1 SUB-HYDRAULIC PUMPS ARMA
19 690176 1 ENGINE, BASE - 9X LP
690221 1 ENGINE, RAW, WG1605, GASOLINE - 9X
20 3400007 2 BLT-CARR 3/8-16 X 1.25 ZP
21 3400233 2 WASHER-FENDER 5/16 X 1.00 ZP
22 3400278 2 WASHER-FENDER 3/8 X 1.25 ZP
23 3400385 2 WASHER-CONICAL SPRING 3/8
24 12040044 2 NUT-NYLOC M6 X 1.0 ZP CLASS 6
25 12347027 2 WASHER-FLAT M6.6 X 22 X 2 ZP
26 3318752 1 RSRVR-COOLANT OVRFLW
PARTS BREAKDOWN

PowerBoss® Copyright 2014-2015
Armadillo 9X Sweeper #4100000 Rev. G 12/16
Page 90
ENGINE KUBOTA WG1605 GAS & LPG - MOUNTS-EXHAUST SIDE
ENGINE KUBOTA WG1605 GAS & LPG - MOUNTS-EXHAUST SIDE
ITEM PART NO. REQ'D DESCRIPTION
1 690030 2 SPACER, ENGINE MOUNT
2 690162 1 BRACKET, CAT CONV. SUPPORT
3 690163 1 BRACKET, CAT CONV. OUTER
4 690165 1 MOUNT - FOOT LEFT REAR
5 690166 1 MOUNT - FOOT LEFT FRONT
9 690175 4 ISOLATOR - ENGINE MOUNT
PARTS BREAKDOWN

Armadillo 9X Sweeper #4100000 Rev. G 12/16
PowerBoss® Copyright 2014-2015
Page 91
ENGINE KUBOTA WG1605 GAS & LPG - MOUNTS-INTAKE SIDE
ENGINE KUBOTA WG1605 GAS & LPG - MOUNTS-INTAKE SIDE
ITEM PART NO. REQ'D DESCRIPTION
1 690030 2 SPACER, ENGINE MOUNT
2 690162 1 BRACKET, CAT CONV. SUPPORT
6 690167 1 MOUNT - FOOT RIGHT REAR
7 690168 1 MOUNT - FOOT RIGHT FRONT
9 690175 4 ISOLATOR, ENGINE MOUNT
11 690177 1 BRACKET-HOSE HOLDER - REAR
15 3333301P 1 BRACKET - HOSE RETAINER
16 3334994M 1 ENGINE PAN
17 690176 1 ENGINE - LPG
690221 1 ENGINE - GAS
PARTS BREAKDOWN

PowerBoss® Copyright 2014-2015
Armadillo 9X Sweeper #4100000 Rev. G 12/16
Page 92
ENGINE KUBOTA WG1605 GAS & LPG - MOUNTING FASTENER DETAIL
ENGINE KUBOTA WG1605 GAS & LPG - MOUNTING FASTENER DETAIL
ITEM PART NO. REQ'D DESCRIPTION
1 600945 16 LOCKWASHER M10
2 620082 6 BOLT M10 1.25 x .25 HH STL ZP (CLEAR)
14 713038 6 M10 - 1.25 x 30mm HHCS
15 713534 4 BOLT-HH 7/16 - 14 x 2.5 GRADE 5 ZINC
18 3400091 8 WASHER FENDER 1/2 ZP
20 3401429 4 NUT - 7/16 - 14 ES ZPBRACKET-HOSE RETAINER
PARTS BREAKDOWN

Armadillo 9X Sweeper #4100000 Rev. G 12/16
PowerBoss® Copyright 2014-2015
Page 93
ENGINE KUBOTA WG1605 GAS & LPG - MOUNTING FASTENER DETAIL
ENGINE KUBOTA WG1605 GAS & LPG - MOUNTING FASTENER DETAIL
ITEM PART NO. REQ'D DESCRIPTION
2 620082 6 BOLT M10 1.25 x .25 HH STL ZP (CLEAR)
14 713038 6 M10 - 1.25 x 30mm HHCS
15 713534 4 BOLT-HH 7/16 - 14 x 2.5 GRADE 5 ZINC
16 713535 4 HHCS M10 - 1.25 x 35mm GR 8.8 ZINC
18 3400091 8 WASHER FENDER 1/2 ZP
20 3401429 4 NUT - 7/16 - 14 ES ZPBRACKET-HOSE RETAINER
PARTS BREAKDOWN

PowerBoss® Copyright 2014-2015
Armadillo 9X Sweeper #4100000 Rev. G 12/16
Page 94
ENGINE KUBOTA WG1605 GAS & LPG - MOUNTING AIR CLEANER BRACKET
ENGINE KUBOTA WG1605 GAS & LPG - MOUNTING AIR CLEANER BRACKET
ITEM PART NO. REQ'D DESCRIPTION
10 690173 4 BRKT, AIR CLEANER - 9X LP/GAS
17 717024 2 SCR-HH M8-1.25 X 20 ZP GRADE 8.8
19 3400273 1 WASHER-INT LOCK 5/16 ZP
21 12310041 2 WASHER-FLAT M8.4 X 16 X 1.6 ZP
PARTS BREAKDOWN

Armadillo 9X Sweeper #4100000 Rev. G 12/16
PowerBoss® Copyright 2014-2015
Page 95
ENGINE KUBOTA WG1605 GAS & LPG - RADIATOR MOUNTS
ENGINE KUBOTA WG1605 GAS & LPG - RADIATOR MOUNTS
ITEM PART NO. REQ'D DESCRIPTION
3 711380 6 NUT-NYLOC 3/8-16 ZP
6 730528 2 WASHER-FENDER M12 X 37 SS
7 3316981 4 NUT-PUSH RETAINER 3/8 BOLT, 25/32 OD ZP
8 3344110 2 ISOLATOR-BONDED BUSHING BOTT RAD
9 3400007 4 BLT-CARR 3/8-16 X 1.25 ZP
12 3400278 8 WASHER-FENDER 3/8 X 1.25 ZP
13 3336634 1 PLATE- RADIATOR MNT
14 690124 1 PLATE BASE - RADIATOR MNT
PARTS BREAKDOWN

PowerBoss® Copyright 2014-2015
Armadillo 9X Sweeper #4100000 Rev. G 12/16
Page 96
ENGINE KUBOTA WG1605 GAS & LPG - RADIATOR
PARTS BREAKDOWN

Armadillo 9X Sweeper #4100000 Rev. G 12/16
PowerBoss® Copyright 2014-2015
Page 97
PARTS BREAKDOWN
ENGINE KUBOTA WG1605 GAS & LPG - RADIATOR
ITEM PART NO. REQ'D DESCRIPTION
1 711207 2 SCR-HH 1/4-20 X 1.00 ZP GR 5
2 711254-1 2 BLT-CARR 3/8-16 X 2.50 ZP
4 713002 3 SCR-HH 1/4-20 X .75 ZP 5
5 713527 1 P-CLAMP, VINYL COVERED, 1/2 DIA
7 3316981 2 NUT-PUSH RETAINER 3/8 BOLT, 25/32 OD ZP
10 3400089 5 WASHER-FLAT 1/4 ZP
11 3400103 5 WASHER-LOCK 1/4 SPLIT ZP
12 690125 1 RADIATOR-OIL COOLER COMBO
13 690169 1 MOUNT, COOLANT OVERFLOW - 9X LP/GAS
14 690150 1 ASSY, FAN SHROUD, DSL/LP/GAS

PowerBoss® Copyright 2014-2015
Armadillo 9X Sweeper #4100000 Rev. G 12/16
Page 98
ENGINE KUBOTA WG1605 GAS & LPG - EXHAUST DETAIL
PARTS BREAKDOWN

Armadillo 9X Sweeper #4100000 Rev. G 12/16
PowerBoss® Copyright 2014-2015
Page 99
PARTS BREAKDOWN
ENGINE KUBOTA WG1605 GAS & LPG - EXHAUST DETAIL
ITEM PART NO. REQ'D DESCRIPTION
1 600919 4 SCR-HH M8-1.25 X 40 ZP CLASS 8.8
2 600934 4 NUT-FLANGE WIZZ M8-1.25 ZP
3 600947 2 WASHER-WAVE .313 ID x .69 OD x .031 THIC
4 600950 2 WASHER-FLAT M12 ZP
5 600959 4 WASHER-LOCK M8 ZINC SPLIT
6 690189 1 PIPE, EXHAUST, PRE-CAT - 9XLP/GAS
7 690190 1 GASKET, CATALYST, 4 BOLT - 9X LP/GAS
8 690191 1 CATALYTIC CONVERTER, 9X LP-GAS
9 690192 1 PIPE, EXHAUST, POST CAT - 9X LP/GAS
10 690193 1 HEAT SHIELD, CAT. CONVERTER - 9XLP/GAS
11 717013 4 NUT-HEX M8 X 1.25 ZINC
12 730667 2 SCR-HH M12-1.75 X 45 ZP CLASS 8.8
13 748476 2 SENSOR, OXYGEN - 9X LP/GAS
14 3345028 1 GASKET-CAT 1605 INLET
15 3345082 1 GASKET, FLANGE, EX MANIFOLD, KUBOTA 1605
16 3400103 6 WASHER-LOCK 1/4 SPLIT ZP
17 11038072 6 SCR-HH M6-1.0 X 16 ZP CLASS 8.8
18 11038247 4 SCR-HH M8-1.25 X 25 ZP CLASS 8.8
19 12310033 6 WASHER-FLAT M6.4 X 12 X 1.6 ZP
20 12310041 8 WASHER-FLAT M8.4 X 16 X 1.6 ZP

PowerBoss® Copyright 2014-2015
Armadillo 9X Sweeper #4100000 Rev. G 12/16
Page 100
OPTIONS
OPTION - LH CURB BROOM KIT ASSEMBLY (3338666)
OPTIONS AND STANDARD CE FEATURES

Armadillo 9X Sweeper #4100000 Rev. G 12/16
PowerBoss® Copyright 2014-2015
Page 101
OPTIONS
OPTION - LH CURB BROOM KIT ASSEMBLY (3338666)
ITEM PART NO. REQ'D DESCRIPTION
1 711206 1 BLT-HH 1/4-20 X .87 STL ZINC
2 711373 3 NUT-NYLOC 1/4-20
3 711379 1 NUT-FLANGED WIZZ 5/16-18
4 711380 2 NUT-NYLOC 3/8-16
5 711425 1 NUT-FLANGED WIZZ 1/4-20 STL ZP
6 713002 2 BLT-HH 1/4-20 X .75 #5 ZINC
7 713043 2 BLT-HH 3/8-16 X 1.25 #5
8 3300368 1 PULLEY-PLASTIC 2” x .25” GROOVE
9 3307642 1 CLEVIS-5/16 PLTD SW/A
10 3307794 1 PIN-CLEVIS 1/2 X 4-1/2 ZP
11 3317214 1 MNT-DUAL CURB BROOM PNTD
12 3319421 1 ASSY-DUAL CURB BROOM (SEE DETAIL, PAGES 90-91)
13 3332713 1 SWITCH-DOUBLE SCRUB BROOM
14 3334946 1 CABLE-SIDE BROOM, 33” LG, 1/8”D
15 3335420 1 ASSY- SIDE BROOM LIFT LH
16 3335422 1 WELD-PULLEY LH SIDE BROOM
17 3342273 1 COVER-SWITCH, CARLING, BLACK W/LENS
18 3343539 1 CLAMP-P TYPE, 2 DIA
19 3400035 1 SCR-HEX,5/16-18X1.00 ZP
20 3400069 1 NUT-HEX 5/16-24 ZP
21 3400075 1 NUT-HEX JAM 3/8-24 ZP
22 3400086 1 WASHER-FLAT 1/2 STANDARD ZP
23 3400087 1 WASHER-FLAT 3/8 STANDARD ZP
24 3400088 2 WASHER-FLAT 5/16 IDx.688 ODx.065 THK
25 3400089 1 WASHER-FLAT 1/4 STANDARD ZP
26 3400118 1 PIN-CLEVIS 5/16x7/8 ZP
27 3400124 1 PIN-COTTER 5/8 RUE-RING
28 3400125 2 RING-RUE 3/8 COTTER PIN
29 3400184 1 PIN-CLEVIS 5/16 X 1-1/8 ZP
30 3400227 1 SCR-HEX,1/4-20X1.25 ZP
31 3400999 1 CLAMP-HOSE 1-1/8” DIA STEEL VINYL COATE
32 3317219P 1 HARNESS-DUAL CURB BRM, 9X
- 675427 1 HOSE-LH CB MTR IN TO RT CB OUT 170” (NOT SHOWN)
- 675428 1 HOSE-LH CB MTR OUT TO IMP TEE 100” (NOT SHOWN)
- 690262 1 DECAL, LEFT SIDE CURB BROOM - 9X (NOT SHOWN)
- 3338666 - ASSY - DUAL CURB BROOM

PowerBoss® Copyright 2014-2015
Armadillo 9X Sweeper #4100000 Rev. G 12/16
Page 102
OPTIONS
OPTION - DUAL CURB BROOM SUB-ASSEMBLY (3319421)

Armadillo 9X Sweeper #4100000 Rev. G 12/16
PowerBoss® Copyright 2014-2015
Page 103
OPTIONS
OPTION - DUAL CURB BROOM SUB-ASSEMBLY (3319421)
ITEM PART NO. REQ'D DESCRIPTION
1 3302599 1 SPRING-EXT LOOPS-IN-LINE ZP
3 3301262 1 PLATE-GIMBAL SC HD
4 3306179 1 SPRING-COMPRESSION, CURB BROOM
5 3309778 1 LH CURB BROOM ARM PNTD
6 3309782 1 LH SIDE BROOM MOUNT PNTD
7 3316897 1 MOTOR-HYD CURB BRM
8 3330338 1 KEY-SHAFT D-FOSS CB/MB/SC MTRS (REPLACEMENT)
9 711250 1 SCR-HH 3/8-16 X 1.25 ZP GR 5
10 3400030 4 SCR-HEX,3/8-16X1.00, GRADE 5, ZP
11 3400049 1 SCR-SOCKET HEAD,1/4-20X0.75 ZP NYLOCK
12 3400068 1 NUT-HEX 3/8-16 ZP
13 3400087 1 WASHER-FLAT 3/8 STANDARD ZP
14 3400101 4 WASHER-LOCK 3/8 SPLIT ZP
15 3400103 1 WASHER-LOCK 1/4 SPLIT ZP
16 675528 2 FTG-STR THD ELBOW -8 ORFS TO -10 SAE
17 3400258 1 SCR-HEX,3/8-24X4.00 ZP
18 3400342 1 NUT-HEX 3/8-24 ES ZP
19 3300875 1 DRIVE HUB SC BR
20 3302058 1 BAR-CURB BROOM RETAINER
21 3400027 3 SCR-HEX,3/8-16X1.75 ZP
22 3400278 9 WASHER-FENDER 3/8
23 3300465 3 ISOLATOR-RUBBER (.375IDx.81OD)
24 3400087 3 WASHER-FLAT 3/8 STANDARD ZP
25 711380 3 NUT-NYLOC 3/8-16
26 3300526 3 BUMPER-RUBBER 1/4IDx1/8 THK
27 713002 2 BLT-HH 1/4-20 X .75 #5 ZINC
28 711373 2 NUT-NYLOC 1/4-20

PowerBoss® Copyright 2014-2015
Armadillo 9X Sweeper #4100000 Rev. G 12/16
Page 104
OPTIONS
OPTION - SIDE BROOM LIFT LH (3335420)

Armadillo 9X Sweeper #4100000 Rev. G 12/16
PowerBoss® Copyright 2014-2015
Page 105
OPTIONS
OPTION - SIDE BROOM LIFT LH (3335420)
ITEM PART NO. REQ'D DESCRIPTION
1 711374 1 NUT -NYLOC 5 /16-18
2 711387 1 NUT -NYLOC 1/4-20 112 NUT
3 711569 1 WASHER-FLAT .390 X .880 X .062 NYL
4 712333 1 WASHER-FLAT 5/16 SS
5 713104 1 BUSHING, SLEEVE, 3/8
6 713107 1 GRD 9 ZP
7 3300431 2 BUSHING-.499 ID X . 594 DD C X. 250
8 3300461 1 BALL JOINT
9 3318884 1 ADAPTER -CURB BRM ACTUATOR
10 3318887 1 PIN-CLEVIS 1/4 X 1-1/ 8
11 3335273 2 SPACER -.32 ID X .499 DD x .31 LG
12 3335274 4 SPACER -.28 ID X . 625 DD x . 26 LG
13 3335275 1 PLATE-SUPPORT SB LIFT
14 3335372 1 MOUNT - PIVOT SIDE BROOM
15 3335373 1 PLATE - PIVOT SIDE BROOM
16 3336595 1 ACTUATOR-DUAL BROOM- 12VDC WEATHERPACK
17 3400041 3 SCREW -HHM 1/4-20 X . 875 LG ZP
18 3400081 5 NUT -HE X 1/4-20 ES ZP
19 3400087 2 WASHER-FLAT 3/8 ZP
20 3400088 1 WASHER-FLAT 5/16 X.688 X .065 ZP
21 3400089 9 WASHER-FLAT 1/4 ZP
22 3400173 1 SCREW -HHM 1/4-20 X 1.75 LG ZP
23 3400178 2 BEARING-THRUST .531 ID X 1.00 DD
24 3400342 1 NUT -HEX 3/8-24 ES ZP
25 3400742 1 RUE RING-1/4 HEAVY ZP
26 3401098 1 NUT -HEX JAM 5/16-18 ES ZP
28 3401440 1 5/16-18 X 1.25 LG ZP
29 3401983 2 SCREW BH 1/4-20 X 1.25 LG

PowerBoss® Copyright 2014-2015
Armadillo 9X Sweeper #4100000 Rev. G 12/16
Page 106
OPTION - RAISE HOPPER, MAIN BROOM SHUT OFF (690100)
CE MODELS STANDARD FEATURE
OPTIONS
(CONTINUED NEXT PAGE)

Armadillo 9X Sweeper #4100000 Rev. G 12/16
PowerBoss® Copyright 2014-2015
Page 107
OPTIONS
OPTION - RAISE HOPPER, MAIN BROOM SHUT OFF (690100)
ITEM PART NO. REQ'D DESCRIPTION
1 600941 2 WASHER .344 ID x .688 OD x.065 THICK STE
2 620134-1 1 ASSY VALVE, SOLENOID N/C
3 675414 2 HYD HOSE - CONT VALVE TO IMP MOTOR
4 675524 2 FTG-STR THD CONNECTOR -8 ORFS TO -8 SA
5 675525 2 FTG-STR THD RUN TEE -8 ORFS TO -8 SAE
6 711379 2 NUT-FLANGED WIZZ 5/16-18
7 711387 2 NUT-NYLOC 1/4-20 1/2NUT
8 711503 2 WSR-FLT #10 (SPECIAL FLAT WASHER)
9 711543 2 WSR-HELICAL #10
10 712550 2 SCR-IHWH SLOT 10-32X.75 18-8 SS
11 712573 2 BLT-CARR 1/4-20 X 2.50 SS
12 712636 2 NUT-HEX 10-32 SS
13 713027 2 BLT-HH 5/16-18 X 1 #5 ZP
14 730690 1 4" HOSE PROTECTOR (10 PK)
15 3335945 1 SWITCH-COBO W/ AMP CONNECTOR
16 3337340 1 PLT - HOPPER POSITION SWITCH MOUNT
17 3400089 2 WASHER-FLAT 1/4 STANDARD ZP

PowerBoss® Copyright 2014-2015
Armadillo 9X Sweeper #4100000 Rev. G 12/16
Page 108
OPTION - RAISE HOPPER, MAIN BROOM SHUT OFF (690100) - CONTINUED
127(,125'(572/2:(57+(+233(5,7(00867
5(0$,135(66(':+,/(&21752/9$/9(/(9(5,623(5$7('
OPTIONS

Armadillo 9X Sweeper #4100000 Rev. G 12/16
PowerBoss® Copyright 2014-2015
Page 109
OPTIONS
OPTION - RAISE HOPPER, MAIN BROOM SHUT OFF (690100)
ITEM PART NO. REQ'D DESCRIPTION
1 600114 2 SPACER, .328 B .498 OD .500 ,SS
2 675422 2 HYD HOSE - LIFT CYL TO CONT VALVE E
3 675508 1 FTG-STR THD CONNECTOR -4 ORFS TO -4 SA
4 675517 1 FTG-STR THD CONNECTOR -6 ORFS TO -4 SA
5 690120 1 ASSY, HOPPER RETURN VALVE, 9X CE
6 711387 2 NUT-NYLOC 1/4-20 1/2NUT
7 711566 2 WSR-FLT .259 X .50 X .065
8 712572 2 BLT-CARR 1/4-20 X 2.00 SS
9 690151 1 DECAL, HOPPER UNLOCK - 9X CE
10 748047 1 SECONDHAND OPERATION PUSH BUTTON

PowerBoss® Copyright 2014-2015
Armadillo 9X Sweeper #4100000 Rev. G 12/16
Page 110
OPTION - KEY LATCH (690102)
CE MODELS STANDARD FEATURE
OPTIONS

Armadillo 9X Sweeper #4100000 Rev. G 12/16
PowerBoss® Copyright 2014-2015
Page 111
OPTIONS
OPTION - KEY LATCH (690102)
ITEM PART NO. REQ'D DESCRIPTION
1 3343016 1 KEY-LATCH 7MM SQUIRE
2 3343017 1 LATCH-VISE ACTION LARGE, KEYED
3 3343066 1 PAWL-LATCH, 1800/5550 ENG COVER

PowerBoss® Copyright 2014-2015
Armadillo 9X Sweeper #4100000 Rev. G 12/16
Page 112
OPTION - SEAT SWITCH ENGINE SHUT OFF (690147)
CE MODELS STANDARD FEATURE
OPTIONS

Armadillo 9X Sweeper #4100000 Rev. G 12/16
PowerBoss® Copyright 2014-2015
Page 113
OPTIONS
OPTION - SEAT SWITCH ENGINE SHUT OFF (690147)
ITEM PART NO. REQ'D DESCRIPTION
1 711210 1 BLT-HH 1/4-20 X 1.25 STL ZINC FULL THRD
2 711373 1 NUT-NYLOC 1/4-20
3 741036 1 TIMER-RELAY-TRUE OFF 12V 3 SEC
4 748445 1 DELTA SW - N/O TWIST LOCK
5 3311564 1 GROMMET-RUBBER, 1/2 ID

PowerBoss® Copyright 2014-2015
Armadillo 9X Sweeper #4100000 Rev. G 12/16
Page 114
OPTION - LOW LP INDICATOR (690148)
OPTIONS

Armadillo 9X Sweeper #4100000 Rev. G 12/16
PowerBoss® Copyright 2014-2015
Page 115
OPTIONS
OPTION - LOW LP INDICATOR (690148)
ITEM PART NO. REQ'D DESCRIPTION
1 748453 1 HARNESS, LOW LP INDICATOR
2 748960 1 LIGHT ASSY, INDICATOR LAMP, LOW LP
3 3305535-2 1 TEE, LOW LP INDICATOR
4 3305535-3 1 SENSOR, LOW LP INDICATOR
5 3305535-4 1 LABEL, LOW LP INDICATOR
6 REF - MOUNT - LPG SAFTEY VALVE
7 REF - BULKHEAD - 62 LP
9 REF - VALVE - LP RELIEF
10 90524174 2 COVER, SAFETY CAP WIRE TERMINAL
11 REF - WELDMENT - CLIP SEAT
12 REF - WELDMENT - FRAME 9X

PowerBoss® Copyright 2014-2015
Armadillo 9X Sweeper #4100000 Rev. G 12/16
Page 116
OPTION - BACKUP ALARM & NEUTRAL SAFETY SWITCH (3317306P)
OPTIONS
^^D>^t/d,^EZ<d^^,KtE>Kt

Armadillo 9X Sweeper #4100000 Rev. G 12/16
PowerBoss® Copyright 2014-2015
Page 117
OPTIONS
OPTION - BACKUP ALARM & NEUTRAL SAFETY SWITCH (3317306P)
PART NO. REQ'D DESCRIPTION
3303002 1 HORN-BACK UP, 97 db(A), 12VDC (NOT SHOWN)
3322601 1 FUSE-15 AMP AUTOMOTIVE PUSH IN (NOT SHOWN)
3335222 3 CAM-SWITCH, LOWER THRTL POS (NOT SHOWN)
3335223 3 CAM-SWITCH, UPPER, BACKUP (NOT SHOWN)
749014 1 HARNESS ASSY, NEUTRAL SAFE (NOT SHOWN)
3335047 2 CLAMP-SWITCH
3335526 2 ASSY- SWITCH LIMIT, MALE
3401437 2 NUT-HEX #5-40 ZP
3401510 2 WASHER-MED SPLIT LOCK, #5, ZP
712004 2 SCREW-MACH SLOT ROUND HD 5-40x1-1/4 ZINC
3401433 2 SCR-PHMS 5-40 X 0.75 ZP
3335560 1 MNT-SWITCH POS, FWD/REV, 1900
3337565 1 HARNESS - OPT, BACKUP ALARM, ARMA
747021 1 CONNECTOR-PACKARD 3 PIN MALE

PowerBoss® Copyright 2014-2015
Armadillo 9X Sweeper #4100000 Rev. G 12/16
Page 118
OPTION - HOPPER PRESSURE BYPASS (690231)
OPTIONS

Armadillo 9X Sweeper #4100000 Rev. G 12/16
PowerBoss® Copyright 2014-2015
Page 119
OPTION - HOPPER PRESSURE BYPASS (690231)
PART NO. REQ'D DESCRIPTION
3335945 1 SWITCH-COBO W/ AMP CONNECTOR
3337340 1 PLT - HOPPER POSITION SWITCH MOUNT
3400035 2 SCR-HH 5/16-18 X 1.00 ZP GR 5
3400384 2 WASHER-CONICAL SPRING 5/16
620134-1 1 ASSY VALVE, SOLENOID N/C
675411 1 HYD HOSE - PS UNIT TO ROT ACT P2
675422 1 HYD HOSE - LIFT CYL TO CONT VALVE E
675521 1 FTG-STR THD CONNECTOR -6 ORFS TO -8 SA
675522 1 FTG-STR THD RUN TEE -6 ORFS TO -8 ORFS T
675525 1 FTG-STR THD RUN TEE -8 ORFS TO -8 SAE
675550 1 FITTING ORIFICE .047 #6
675573 1 FITTING
711310 2 NUT-HEX 10-32 ZP
711379 2 NUT-FLANGED WIZZ 5/16-18 ZP
711387 2 NUT-JAM 1/4-20 ZP NYLOC
711503 2 WASHER-FLAT #10 X .50 ZP
711505 2 WASHER-FLAT 1/4 ZP
711543 2 WASHER-LOCK #10 SPLIT ZP
712550 2 SCR-HH 10-32 X.75 SS SLOTTED WSH HEAD
712573 2 BLT-CARR 1/4-20 X 2.50 SS
749017 1 HARNESS ASSY, HOPPER SWITCH
OPTIONS

PowerBoss® Copyright 2014-2015
Armadillo 9X Sweeper #4100000 Rev. G 12/16
Page 120
HYDRAULIC SCHEMATIC 9X
3334846, Sheet 1 of 3, Rev B, 05/2016
WIRING

Armadillo 9X Sweeper #4100000 Rev. G 12/16
PowerBoss® Copyright 2014-2015
Page 121
3334846, Sheet 2 of 3, Rev B, 05/2016
WIRING

PowerBoss® Copyright 2014-2015
Armadillo 9X Sweeper #4100000 Rev. G 12/16
Page 122
3334846, Sheet 3 of 3, Rev B, 05/2016

Armadillo 9X Sweeper #4100000 Rev. G 12/16
PowerBoss® Copyright 2014-2015
Page 123
HYDRAULIC SCHEMATIC
HYDRAULIC SCHEMATIC 9X CE
3334846-CE, Rev A, 05/2016, Sheet 1 of 3

PowerBoss® Copyright 2014-2015
Armadillo 9X Sweeper #4100000 Rev. G 12/16
Page 124
HYDRAULIC SCHEMATIC
3334846-CE, Rev A, 05/2016, Sheet 2 of 3

Armadillo 9X Sweeper #4100000 Rev. G 12/16
PowerBoss® Copyright 2014-2015
Page 125
3334846-CE, Rev A, 05/2016, Sheet 1 of 3

PowerBoss® Copyright 2014-2015
Armadillo 9X Sweeper #4100000 Rev. G 12/16
Page 126
ELECTRICAL SCHEMATIC
ELECTRICAL SCHEMATIC WITH KUBOTA V1505 - DIESEL
3397501, Rev C, 07/28/2015, Sheet 1 of 4

Armadillo 9X Sweeper #4100000 Rev. G 12/16
PowerBoss® Copyright 2014-2015
Page 127
ELECTRICAL SCHEMATIC
ELECTRICAL SCHEMATIC WITH KUBOTA V1505 - DIESEL
3397501, Rev C, 07/28/2015, Sheet 2 of 4

PowerBoss® Copyright 2014-2015
Armadillo 9X Sweeper #4100000 Rev. G 12/16
Page 128
ELECTRICAL SCHEMATIC WITH KUBOTA V1505 - DIESEL
3397501, Rev C, 07/28/2015, Sheet 3 of 4
ELECTRICAL SCHEMATIC

Armadillo 9X Sweeper #4100000 Rev. G 12/16
PowerBoss® Copyright 2014-2015
Page 129
ELECTRICAL SCHEMATIC WITH KUBOTA V1505 - DIESEL
3397501, Rev C, 07/28/2015, Sheet 4 of 4
ELECTRICAL SCHEMATIC

PowerBoss® Copyright 2014-2015
Armadillo 9X Sweeper #4100000 Rev. G 12/16
Page 130
ELECTRICAL SCHEMATIC WITH KUBOTA WG1605 - GAS & LPG
3397502, Rev A, 07/28/2015, Sheet 1 of 3
ELECTRICAL SCHEMATIC

Armadillo 9X Sweeper #4100000 Rev. G 12/16
PowerBoss® Copyright 2014-2015
Page 131
ELECTRICAL SCHEMATIC
ELECTRICAL SCHEMATIC WITH KUBOTA WG1605 - GAS & LPG
3397502, Rev A, 07/28/2015, Sheet 2 of 3

PowerBoss® Copyright 2014-2015
Armadillo 9X Sweeper #4100000 Rev. G 12/16
Page 132
ELECTRICAL SCHEMATIC
ELECTRICAL SCHEMATIC WITH KUBOTA WG1605 - GAS & LPG
3397502, Rev A, 07/28/2015, Sheet 3 of 3

Armadillo 9X Sweeper #4100000 Rev. G 12/16
PowerBoss® Copyright 2014-2015
Page 133
WARRANTY
WARRANTY
5HYLVLRQ.
(IIHFWLYH'HFHPEHU
3RZHU%RVV0DGH6LPSOH,QGXVWULDO/LPLWHG:DUUDQW\
Minuteman International owner of PowerBoss warrants to the original purchaser/user that the product is free from defects in workmanship and materials
under normal use. PowerBoss will, at its option, repair or replace without charge, parts that fail under normal use and service when operated and
maintained in accordance with the applicable operation and instruction manuals. All warranty claims must be submitted through and approved by factory
authorized repair stations.
7KLV ZDUUDQW\ GRHV QRW DSSO\ WR QRUPDO ZHDU RU WR LWHPV ZKRVH OLIH LV GHSHQGHQW RQ WKHLU XVH DQG FDUH 3DUWV QRW PDQXIDFWXUHG E\ 3RZHU%RVV DUH FRYHUHG
E\ DQG VXEMHFW WR WKH ZDUUDQWLHV DQGRU JXDUDQWHHV RI WKHLU PDQXIDFWXUHUV 3OHDVH FRQWDFW 0LQXWHPDQ ,QWHUQDWLRQDO IRU SURFHGXUHV LQ ZDUUDQW\ FODLPV
DJDLQVW WKHVH PDQXIDFWXUHUV
Special warning to purchaser -- Use of replacement parts not manufactured by PowerBoss or its designated licensees, will void all warranties
expressed or implied. A potential health hazard exits without original equipment replacement.
All warranted items become the sole property of Minuteman International or PowerBoss or its original manufacturer, whichever the case may be.
PowerBoss disclaims any implied warranty, including the warranty of merchantability and the warranty of fitness for a particular purpose. PowerBoss
assumes no responsibility for any special, incidental or consequential damages.
This limited warranty is applicable only in the U.S.A. and Canada, and is extended only to the original user/purchaser of this product. Customers outside
the U.S.A. and Canada should contact their local distributor for export warranty policies. PowerBoss is not responsible for costs or repairs performed by
persons other than those specifically authorized by PowerBoss. This warranty does not apply to damage from transportation, alterations by unauthorized
persons, misuse or abuse of the equipment, use of non-compatible chemicals, or damage to property, or loss of income due to malfunctions of the
product. If a difficulty develops with this machine, you should contact the dealer from whom it was purchased.
This warranty gives you specific legal rights, and you may have other rights, which vary from state to state. Some states do not allow the exclusion or
limitation of special, incidental or consequential damages, or limitations on how long an implied warranty lasts, so the above exclusions and limitations
may not apply to you.
Travel * Labor Parts Engine Extended Warranty Costs
Walk Behind ****
Battery Sweepers 90 Days months 12 months N/A N/A -
IC Sweepers 90 Days months 12 months Through Eng. Mfg. N/A -
Battery Scrubbers 90 Days 24 months 36 months N/A N/A -
Riders
Battery Scrubbers 90 Days 24 months 36 months or 2000 hr. N/A 36 months parts + 24 labor (or 3000 Hours) 5%
IC Sweeper/Scrubbers
82 & 90 90 Days 6 months 24 months or 2000 hr. 24 months or 3000 hrs**
36 months parts + 24 months labor (or 3000 Hours) +
180 days travel 5%
I.C. Sweepers 9X, 10X 90 days 6 months 48 months or 3000 hrs. 60 months or 3000 hrs**
48 months parts + 24 months labor (or 3000 Hours) +
180 days travel 5%
NAUTILUS Scrubber 180 Days 24 months 36 months or 2000 hr. 36 months or 2000 hrs**
48 months parts + 24 months labor (or 3000 Hours) +
180 days travel 3%
All Rider, I.C. Bumper to Bumper
(excludingAPEXseries)
5000 hr max. 48 months parts, 48 months labor, 180
days travel
Exceptions
Apex Series Sweeper 90 Days 12 months 12 months or 1000 hr. 12 months or 1000 hrs** 24 months parts + 24 months labor (or 2000 Hours) 5%
6X Sweeper 90 Days 6 months 24 months or 2000 hr. 24 months or 2000 hours**
36 months parts + 24 months labor (or 3000 Hours) +
180 day travel 5%
8%
7DQN%ODGGHUV
3RO\HWK\OHQHSODVWLFWDQNV
%DWWHULHV
&KDUJHUV
$IWHUPDUNHW5HSODFHPHQWSDUWV
(LJKW\HDUVQRDGGLWLRQDOODERU7HQ\HDUVQR
DGGLWLRQDOODERU
ǦPRQWKVIXOOUHSODFHPHQWǦSURUDWHGFUHGLW
2QHǦ\HDUUHSODFHPHQW
1LQHW\GD\VIURPGDWHRISXUFKDVH
*7ZR+RXU&DS3HU6HUYLFH&DOO
7KURXJK(QJLQH0DQXIDFWXUHU6HH6HFWLRQRI:DUUDQW\0DQXDOIRU(QJLQH:DUUDQW\
([FHSWLRQV%DVHG8SRQ'HDOHU¶V&HUWLILFDWLRQ6WDWXV
([WHQGHG:DUUDQW\0867%H6LJQHG8S:LWKLQ'D\VRI'HOLYHU\WR(QG8VHU
'HDOHU+DV<HDU)URP5HFHLYLQJ0DFKLQH7R6LJQ8S)RU([WHQGHG:DUUDQW\
$OODERYHODERUDQGWUDYHOUHLPEXUVHGDWRURIWKHSXEOLVKHGVKRSUDWH

“The Power of Clean”
PowerBoss® Is a Full Line Manufacturer of Sweepers and Scrubbers,
for Industrial Facilities.
PowerBoss®, Minuteman International, Inc. 14N845 U.S. Route 20 Pingree Grove, Illinois 60140
Phone: 800-323-9420 www.PowerBoss.com email: tech@powerboss.com
A Member of the Hako Group
PowerBoss® Copyright 2014-2015
Armadillo 9X Sweeper #4100000 Rev. G 12/16