TRANE Package Units(both Units Combined) Manual L0904650
User Manual: TRANE TRANE Package Units(both units combined) Manual TRANE Package Units(both units combined) Owner's Manual, TRANE Package Units(both units combined) installation guides
Open the PDF directly: View PDF
.
Page Count: 20

ISTALLATIO
OPERATION
NT CE
18-AB33D7-3
ALL phases of this installation must comply with
NATIONAL, STATE AND LOCAL CODES
Model:
TCX024G1
TCX030GI
TCX036G 1,3,4
TCX042G1,3
TCX048G1,3,4
TCX060G1,3,4
BAYLIFT002AA
LIFTING LUG KIT
12 SEER Single Package
Cooling W/Electric Heat
2 -5Ton
IMPORTANT-- This Document is customer property and is to remain with this unit. Please return to service information pack upon completion of
work.
All phases of this installation must comply with the NATIONAL, STATE & LOCAL CODES. In the absence of local codes, the installa-
tion must conform with National Electric Code -- ANSI/NFPA 70 or "LATEST REVISION."
Since American-Standard has a policy of continuous product improvement,
it reserves the right to change the specifications and design without notice.
© 2002 American Standard Inc. All rights reserved 07/02

GENERAL INFORMATION
IMPORTANT: Read this entire manual before beginning instal-
lation procedures.
SAFETY NOTICE• THIS INFORMATION IS INTENDED FOR
USE BY INDIVIDUALS POSSESSING ADEQUATE BACK-
GROUNDS OF ELECTRICAL AND MECHANICAL EXPERI-
ENCE. ANY ATTEMPT TO REPAIR A CENTRAL AIR CONDI-
TIONING PRODUCT MAY RESULT IN PERSONAL INJURY
AND/OR PROPERTY DAMAGE. THE MANUFACTURER OR
SELLER CANNOT BE RESPONSIBLE FOR THE INTERPRE-
TATION OF THIS INFORMATION, NOR CAN IT ASSUME
LIABILITY IN CONNECTION WITH ITS USE•
IMPORTANT: RECONNECT ALL GROUNDING DEVICES•
ALL PARTS OF THIS PRODUCT CAPABLE OF CONDUCTING
ELECTRICAL CURRENT ARE GROUNDED. IF GROUNDING
WIRES, SCREWS, STRAPS, CLIPS, NUTS OR WASHERS
USED TO COMPLETE A PATH TO GROUND ARE REMOVED
FOR SERVICE, THEY MUST BE RETURNED TO THEIR ORIGI-
NAL POSITION AND PROPERLY FASTENED.
IMPORTANT: ALL POWER LEGS MAY NOT BE BROKEN BY
CONTACTORS. SEE WIRING DIAGRAM ON UNIT CONTROL
BOX COVER.
BEFORE STARTING THE COMPRESSOR, THE CRANKCASE
HEATER SHOULD BE ENERGIZED FOR EIGHT HOURS.
Read this manual carefully before attempting to install, operate, or
perform maintenance on this unit. Installation and maintenance
should be performed by qualified service technicians only.
NOTE: "Warnings" and "Cautions" appear at appropriate
places in this manual Your personal safety and the proper
operation of this air conditioning product require that you foflow
them carefully• The manufacturer assumes no liability for
installations or servicing performed by unqualified personnel.
INSPECTION
1. Check for damage after the unit is unloaded• Report promptly,
to the carrier, any damage found to the unit. Do not drop the unit.
IMPORTANT: The use of"spreader bars" is required when |
hoisting the unit (to prevent damage to sides and top). J
2. Check the unit's nameplate to determine if the unit is correct for
the intended application. The power supply must be adequate
for both the unit and all accessories.
3. Check to be sure the refrigerant charge has been retained during
shipment. Access to 1/4" flare pressure taps may be gained by
removing the furnace compartment access panel.
©TYPICAL ROOFTOP INSTALLATION WITH FULL PERIMETER CURBS
(TCX024-036G Models on BAYCURB030,038)
~FIELD SUPPLIED
SUPPORTS
AT EACH END
OF CURB
FIELD SUPPLIED
CANT STRIP
FIELD SUPPLIED
RIGID INSULATION
SUPPLY AIR _ RETURN AIR
DUCT _ DUCT
ROOF MOUNTING
CURB
Page 2

@TYPICAL ROOFTOP iNSTALLATiON WiTH UNIVERSAL BAYCURB030A,038A
(TCX024=060G IVlodels)
SEE NOTE I
SEE NOTE2
FIELD SUPPLIED
SUPPORTS
ATEACNEND
OFCURB
,_J_ROOFINSULATION
FIELD SUPPLIED
CANT STRIP
ROOF
FIELD SUPPLIED
RIGID iNSULATiON
NOTE 1: The TCX042G Models extend out /ROOFMOUNTING
past this end of the curb only• )CURB
SUPPLY AIR
NOTE 2: Only the TCX048, 060F Models DUCT RETURNAIR
extend past both the end and the DUCT
side of the curb as illustrated
CONVERTING HORIZONTAL TO DOWNFLOW
NOTE
SUPPLY OPENING
1 REMOVE THE SCREW NEAREST TO THE
OPENING AND PULL THE PANEL FIRMLY
TOWARD THE OUTSIDE OF THE UNIT TO
DISENGAGE THE BACK ATTACHMENT
RETURN OPENING
2 REMOVE RIGHT-HAND SCREW AND
MOVE PANEL TO THE RIGHT OR
REMOVE BOTH SCREWS
HORIZONTAL SUPPLY
AIR COVER
SHEET METAL
SCREWS HORIZONTAL RETURN
AIR COVER
Page 3

DiMENSiONAL DATA
©
HOR I ZONTAL _"f
SUPP}Y
OPEN ING DOWNF LC
SUPP Y
OPEN NO
SECT. X-X
TYPICAL CROSS BEC/ION
OF SUPPLY & RETURN
PERIMETER FLANGES
SUPPLY 8( ECONOM}ZER/FII_TER
I:RE/URN ACCESS
PANEl s
J
.....j_
NOR I ZONTAL
RETURN OPENING
_>_
EVAPORA1OR CO I L 8(
J BLOWER >ANEL
66 MM KNOCKOU 8( CONDU I OR
H VO AO( CONN CI I ON
76 MM
BbSH NG 8( CONDU T FOR
LO VOLTAGE CONNECTION
CONDENSATE DRAIN FOR
19 MM [5\4"] FEMALE NPT
--DOWNFLOW RETURN
OPENING
D66 Z955
2
SECT Y-Y
TYPICAL CROSS SECT ON
OF DOWNFLOW SUPPLY 8(
RETURN PER METER FLANGES
CORNER WEIGHT (LBS) UNIT
MODEL A B C D E F G H J K L M N P
WEIGHT
W1 W2 W3 W4
TCX024G 75 57 78 101 311 56-1/2 36 253/16 18-9/16 11-1/16 6-9/16 6-13/16 17 21 24-I/4 17-I/2 10 3 4-7/16
TCXO30G 75 60 84 106 323 21 24-7/8
TCXO36G 78 63 86 106 334 56-1/2 36 29-3/16 18-9/16 11-1/16 6-9/16 6-13/16 17 20-1/2 25-I/4 17-I/2 10 3 4-7/16
TCXO42G 86 63 86 111 334 20-1/2 25-7/8
TCXO48G 98 93 111 128 430 25-3/8 30-1/4
65-1/4 45 33-3/8 21-1/16 15-1/16 4-15/16 9-1/8 21-15/16 20 14 3-1/2 8-5/16
TCXO69G 112 86 114 144 457 25-3/16 28-7/8
From Dwg. 21 D663966 Rev. 0
Page 4

DiMENSiONAL DATA
@
CON I I:RO BOX
ACCESS PANE}
CONDENSER CO!L
&GUARD
"E[ECTR}C HEATER
ACCESS PANEl
0667982
RECOMMENDED SERVICE
CLEARANCE
BACK * 6.0"
LEFT SIDE 30.0"
RIGHT SIDE 24.0"
FRONT 42.0"
18" WITH FRESH AIR ACCESSORY
• 30" WITH ECONOMIZER
CLEARANCE TO
COMBUSTIBLE MATERIAL
BOTTOM 0.0"
BACK 1.0"
LEFT SIDE 6.0"
RIGHT SIDE 6.0"
FRONT SIDE 12.0"
TOP 36.0"
MODEL A B C
TCX024G 56 1/2 36 25 3/16
TCX030G
TCX036G 56-1/2 36 29-3/16
TCX042G
TCX048G 65-1/8 45 33-3/8
TCX06OG
From Dwg. 21 D663965 Rev. 0
Page 5

REQUIRED CLEARANCE FOR UNIT iNSTALLATiON
AND ROOF PENETRATION HOLE SiZE REQUIRED
SERVICE
LINES L
SUPPLY AIR
SERVICE
CLEARANCE
LINES
SIDE RAIL /
WOOD NAILER _
RETURN AIR
SERVICE CLEARANCE & PENETRATION DIMENSIONS
MODEL NO. A B C D E F
TCX024-042G 42" 30" "12" 24" 36" 25"
TCX048-060G 42" 30" "12" 36" 50" 25"
E
* 18" WITH FRESH AIR ACCESSORY
* 30" WITH ECONOMIZER
LOCATIONS AND RECOMMENDATIONS
These units are designed for outdoor installation. For proper instal-
lation, the following recommendations must be considered.
NOTE: Unit shipped for horizontal installation. Convert to
downflow per instruction.
The discharge air from the condenser fans must be unrestricted for
a minimum of 3 feet above the unit.
Roof Mounting Curb (field assembled BAYCURB030A and
BAYCURB034A) or a field fabricated curb must be in place before
unit is hoisted to the roof.
Roof Mounting Curb (frame) must be installed on a fiat, level
section of the roof(max, of 1/4" per foot pitch), providing alevel
mounting surface for the unit. In addition, provide sufficient
height above the roof to prevent water from entering unit.
1, Be sure the mounting curb spans structural members (trusses)
of the roof, thereby providing sufficient support for weight of the
unit, curb and duct(s) plus any accessories (factory or field
installed). See Figures 1, 2, 3, 4, 5, 6, 7, 8, 9,10,11 and 12.
NOTE: If any internal accessories are to be added to the unit it
should be done at the shop if at all practical.
2. Unit should be positioned so Roof-Run-Off water does not pour
directly on unit.
3. For"RoofTop Application," unit must be elevated above roof with
a mounting Curb or Frame.
4. Exhaust vents or other sources of contaminated air should not be
near unit air inlet if outside air is to be introduced as a make-up
air or the economizer ventilation feature is to be used.
5. Check the handling facilities to insure the safety of personnel and
the unit(s).
6. CAUTION MUST BE TAKEN AT ALL TIMES TO AVOID PER-
SONAL INJURIES AND/OR DAMAGE TO EQUIPMENT.
7. The unit must be mounted level for proper drainage of defrost
water through the holes in the base pan.
Page 6

LOCATIONS AND RECOMMENDATIONS
8. Flexible duct connectors must be of a flame retardant material.
All duct work outside dthe structure must be insulated and
weatherproofed in accordance with local codes.
9. Roof flashing must be installed to seal the roof curb cavity and
must conform to local building codes.
10. Holes through exterior walls must be sealed in accordance with
local codes.
11. Access and service clearances for the unit must be given careful
consideration when locating the duct entrance openings. Fig-
ures 6 and 8 provide unit dimensions.
12. All fabricated outdoor ducts should be as short as possible.
13. Be sure the hole in the structure for the ducts is large enough to
accommodate the fabricated ducts and the insulation surrounding
them. (See Figure 6.)
CLEARANCES
1. The recommended clearances for single-unit installations are
illustrated in Figures 5 and 6. These minimum requirements are not
only an important consideration when determining unit placement,
but they are also essential to ensure adequate serviceability,
maximum capacity, and peak operating efficiency.
2. Any reduction of the unit clearances indicated in this illustration
may result in condenser coil starvation, or the recirculation of warm
condenser air. Actual clearances which appear to be inadequate
should be reviewed with a local sales engineer.
IMPORTANT!: To convert to downflow remove covers from
the downflow supply and return air openings and place them
over the horizontal supply and return air openings (painted
side out) and secure with sheet metal screws.
INSTALLATION
UNIT SUPPORT
If unit is to be roof mounted, check building codes for weight
distribution requirements. Refer to accessory roof curb mounting
instructions. Check unit nameplate for supply voltage required.
Determine if adequate electrical power is available. Refer to speci-
fication sheet.
LOCATION AND CLEARANCES
Installation of the unit should conform to local building codes or, in
the absence of local codes, to the ANSI/NFPA No. 70-1987 National
Electrical Code or "Latest Revision." Canadian installations must
conform to CSA and local codes.
Select a location that will permit unobstructed airflow into the
condenser coil and away from the fan discharge and permit unob-
structed service access into the compressor compartment. Sug-
gested airflow clearances and service clearances are given in
Figure 5.
PLACING AND RiGGiNG
1. Before preparing the unit for lifting, check the outline drawing for
center of gravity for lifting safety. Because of placement of
internal components, the unit weight may be unevenly distrib-
uted. Approximate unit weights are given in outline drawing on
page 3.
NOTE: Accessory BA YLIFTOO2M Four (,4)rifting lugs are recom-
mended for rigging the unit for hoisting. See Figure 7insert
"B".
2. Insert the four lifting tugs in openings provided in drip lip on
perimeter of unit. See Figure 7 insert "B".
3. Before hoisting the unit, be sure that the proper method drigging
is used, with straps or slings and spreader bars for protection
during lifting.
IMPORTANT!: DO NOT LIFT THE UNIT WITHOUT TEST=
LIFTING FOR BALANCE AND RIGGING. DO NOT LIFT THE
UNIT IN WINDY CONDITIONS OR ABOVE PERSONNEL. DO
NOT LIFT THE UNIT BY ATTACHING A CLEVIS, HOOKS,
PINS OR BOLTS TO THE UNIT CASING, CASING HARD-
WARE, ANGLES, TABS OR FLANGES. FAILURE TO OB=
SERVE THESE WARNINGS MAY RESULT IN EQUIPMENT
DAMAGE.
4. When the curb and air ducts have been properly installed, the unit
is ready to be hoisted to the roof and set in position.
IMPORTANT!: "Spreader Bars" must be used when
hoisting unit.
5. IMPORTANT: The unit must be lowered into position P.V.C.
rubber tape on the curb flange permits the unit to be
repositioned if required without destroying the P.V.C. rub-
ber seals affixed to mounting curb.
6. PLACING UNIT ON MOUNTING CURB--The unit is designed
with a perimeter drip lip that is lower than the unit base ban, see
Figure 7 insert "A".
7. Position the unit drip tip down over and in contact with the outside
corner of the curb, as illustrated in Figure 7 insert "A". Continue
to lower unit on top of curb, with the unit drip tip is astraddle and
in contact with both the end and side rail of curb, the unit is now
resting on top of curb.
8. Take the two (2) hold down brackets shipped with curb and
secure unit to curb with hold down brackets as illustrated in
Figure 8 insert "A".
Page 7

©
SPREADER BARS
OUTDOOR COIL
END OF UNIT
DRIP_ NASA
DIMPLE LIFTING LUGS
GASKET SEAL"
BASE OFUNIT
REST ON TOP OF
CURB RAILS
DRIP LIP ON
PERIMETER OF UNIT
CURB CORNER
J
NOTE: The inner perimeter of the Drip Lip on all
units should be flush with the outer perimeter
of the curb on the two sides shown here. See
Figure 2 for the location of the unit overhang
on the TCX036-060G Models with
BAYCURB030A,038A.
®
EXISTING
SHEET METAL
)SCREW
HOLD-DOWN
BRACKET WITH
lIA_l CURB
!
FLANGE OF
CURB
Page 8

INSTALLATION
ROOFTOP ==UNITS
For roof top applications using a field fabricated frame and ducts,
use the following procedure:
1. The frame must be located and secured by bolting or welding to
the roof. Flashing is required.
2. The hole in the roof must be prepared in advance of installing the
unit.
3. Secure the ducts to the roof.
4. Place the unit on the frame or roof curb. Refer to Figures 9 or
10.
5. Secure the unit to the frame or roof curb.
6. Insulate any ductwork outside of the structure with at least two
(2) inches of insulation and then weatherproof. There must be
a weatherproof seal where the duct enters the structure.
7. Complete the installation according to the instructions in the
following sections of this manual.
®TYPICAL ROOFTOP APPLICATIONS WITH FRAME
(TCX024=060G) ""
RETURN AIR SUPPLY AIR b •
WEATHER-PROOF
DUCT
ROOFFLASHING
ANGLE IRON
JFRAME
®TYPICAL ROOFTOP APPLICATION WITH FRAME
(TCX024=060G MODELS)
DUCT
ROOF FLASHING
RETURN AIR
ROOF FLASHING
\ ,,
SUPPLY AIR
IRON
FRAME
Page 9

iNSTALLATiON
GROUND LEVEL -- HORIZONTAL UNITS
For ground level installations, the unit should be positioned on a pad
the size of the unit or larger. The unit must be level on the pad. The
pad must not come in contact with the structure (See Figure 11.) Be
sure the outdoor portion of the supply and return air ducts are as
short as possible.
2. Attach the supply and return air ducts to the unit.
3. Insulate any ductwork outside of the structure with at least 2
inches of insulation and weatherproof. There must be a weath-
erproof seal where the duct enters the structure.
Proceed with the installation as follows:
1. Place the unit on the pad and the five (5) rubber isolators
provided.
4. Complete the installation according to the instructions in the
following sections of this manual.
®TYPICAL GROUND LEVEL APPLICATION
(TCX024-060G MODELS)
SUPPLY AIR
RETURN AIR DUCT
DUCT _f
SIDING I_'_1V"
OUTDOOR AIR
DISCHARGE
I
I '
I"
EXTERIOR
WALL
OUTDOOR AIR
INTAKE
SUPPORT PAD
=' FOUNDATION
INSULATE
WEATHERPROOF FLEXIBLE DUCT ISOLATORS
OR RAIN SHIELD CONNECTORS (1 PER CORNER
AND 1 UNDER
UNIT CONTROL BOX) 2046.eps
DUCTWORK
ATTACHING DOWNFLOW DUCTWORK
TO ROOF CURB
Supply and return air flanges are provided on the roof curb for easy
duct installation. All ductwork must be run and attached to the curb
before the unit is set into place.
Follow these guidelines for ductwork construction:
Connections to the unit should be made with three-inch canvas
connectors to minimize noise and vibration transmission.
Elbows with turning vanes or splitters are recommended to mini-
mize air noise and resistance.
The first elbow in the ductwork leaving the unit should be no closer
than two feet from the unit, to minimize noise and resistance.
Page 10
ATTACHING HORIZONTAL DUCTWORK
TO UNIT
All conditioned air ductwork should be insulated to minimize heating
and cooling duct losses. Use a minimum of two (2) inches of
insulation with a vapor barrier. The outside ductwork must be
weatherproofed between the unit and the building.
When attaching ductwork to a horizontal unit, provide a flexible
watertight connection to prevent noise transmission from the unit to
the ducts. The flexible connection must be indoors and made out
of heavy canvas.
I NOTE: Do not draw the canvas taut between the solid ducts. J

®DUCT ATTACHMENT METHODS
FLANGE
WEATHERPROOF
THIS SEAM
FIELD DUCT
AIR PROOF.
THIS SEAM
BASE
FIELD DUCT ql X
U 'UNIT DUCT
FLANGE
/AIR PROOF
THIS SEAM
FIELDDucT__IT BASE
UNIT DUCT FLANGE
UNIT EXTERIOR
\
\ UNIT DUCT FLANGE
....WEATHERPROOF
THIS SEAM
FIELD DUCT
/AIR PROOF
FLANGE _ UNIT BASE
\ FIELD DUCT
UNIT BASE
UNIT
FLANGE SEAr
WITH BUTYL OR
SILICONE
NOT RECOMMENDED
DOWNFLOW
FIELD DUCT
HORIZONTAL
The following warning complies with State of California law, Proposition 65.
ILWARNING: This product contains
fiberglass wool insulation! Fiberglass dust and ceramic
fibers are believed by the State of California to cause
cancer through inhalation. Glasswool fibers may also
cause respiratory, skin, or eye irritation.
CONDENSATE DRAIN PiPiNG
A 3/4-inch female NPT condensate drain connection is provided on
the evaporator access panel end of the unit. See Figure 4. Provide
a trap and fitt it with water before starting the unit to avoid air from
being drawn through. Follow local codes and standard piping
practices when running the drain line. Pitch the line downward away
from the unit. Avoid long horizontal runs. See Figure 13.
NOTE: Do not use reducing fittings in the drain lines. The conden-
sate drain must be:
• Made of 3/4" pipe size.
• Pitched 1/4" per foot to provide free drainage to convenient drain
system.
•Trapped.
• Must not be connected to closed drain system.
(_ TYPICAL CONDENSATE DRAIN PiPiNG
3/4"PVC OR COPPER
TUBING AND FITTINGS
,i]
Page 1

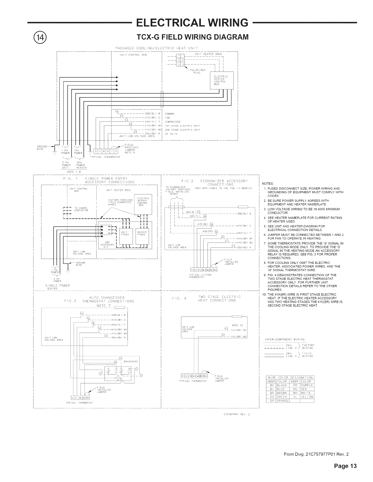
ELECTRICAL WIRING
ELECTRICAL CONNECTIONS
Electrical wiring and grounding must be installed in accordance with
local codes or, in the absence of local codes, with the National
Electrical Code ANSI/NFPA 70, Latest Revision.
ELECTRICAL POWER
It is important that proper electrical power be available for the unit.
Voltage variation should remain within the limits stamped on the unit
nameplate.
DISCONNECT SWITCH
Provide an approved weatherproof disconnect either on the side of
the unit or within close proximity and within sight of the unit.
OVER CURRENT PROTECTION
The branch circuit feeding the unit must be protected as shown on
the unit rating plate.
POWER WIRING
The power supply lines must be run in weathertight conduit to the
disconnect and into the bottom of the unit control box. Provide strain
relief for all conduit with suitable connectors.
Provide flexible conduit supports whenever vibration transmission
may cause a noise problem within the building structure.
CONTROL WIRING (CLASS ll)
Low voltage control wiring should not be run in conduit with power
wiring unless Class 1 wire of proper voltage rating is used. Route
the thermostat cable or equivalent single leads of No. 18 AWG
colored wire from the thermostat subbase terminals through the
rubber gromment on the unit. See Figure 5 for the control entry
location. Make connections as shown on the unit wiring diagram
and in Figure 14.
Do not short thermostat wires since this wilt damage the control
transformer.
Recommended wire sizes and lengths for installing the unit thermo-
stat are provided in Table 2. The total resistance of these low
voltage wires must not exceed one (1) ohm. Any resistance in
excess of 1 ohm may cause the control to malfunction because of
the excessive voltage drop
TABLE 2
THERMOSTAT WiRE SIZE AND MAXIMUM LENGTH
WIRE SIZE MAXIMUM LENTGH (Ft)
18 75
16 125
14 200
Be sure all connections are made tight. See Figure 14.
NOTES: For branch circuit wiring (main power supply to unit
disconnect), wire size for the length of run should be determined
using the circuit ampacity found on the unit nameplate and the
N.E.C.
For more than 3 conductors in a raceway or cable, see the
N.E. C. for derating the ampacity of each conductor.
GROUNDING: THE UNITMUST BE ELECTRICALLY GROUNDED
IN ACCORDANCE WITH LOCAL CODES OR THE NATIONAL
ELECTRIC CODE.
NOTE: Ground the unit internally as provided. See wiring
diagram for location.
COMPRESSOR MOTOR ROTATION
DISCONNECT ALL POWERTO COMPRESSORWHEN
COMPRESSOR MOTOR ROTATION IS REVERSED. CHANGE
ANY TWO CUSTOMER POWER LEADS TO CORRECT ROTATION
Failure to change customer power leads to correct compressor
rotation may result in compressor damage during operation.
THERMOSTAT HEAT ANTICIPATOR
The thermostat heat anticipators should be set to equal the amper-
age draw of the Wl thermostat circuit.
IMPORTANT: Upon completion of wiring check all electrical
connections, including factorywiring within the unit. Make sure
all connections are tight. Replace and secure all electrical box
covers and access doors before leaving the unit or turning on the
power to the unit.
After all electrical wiring is complete, set the thermostat system
switch in the OFF position so that the compressor will not run
and then apply power by closing the system main disconnect switch.
This will activate the compressor sump heat. Do not change the
Thermostat System Switch until power has been applied long
enough to evaporate any liquid R-22 in the compressor. It is
recommended that the sump heater be energized for eight (8) hours
prior to starting.
Page12

®ELECTRICAL WIRING
TCX-G FIELD WiRiNG DIAGRAM
POWER
V
>ACKAC D COOL NO/EL C R I C H AJ LN
Ls / ({NIRO 30X _ IJN HE#TER ARE'_
--_ ']
' III
I
POLAR ZEC
p[ LG
o
I ®
I
<, .......!: ..........
j41A{ R) 1SI ; I/.GI 14: _,i
/_ 4 (}',3H 2ND STACE C _ C HEA
'1• _SA ;,D_ 4 VO S
FIELD
7 / ...............P.........
" i I • NOI (,
v (A[ 11 Pli'VOS AI
i 5FI
o¢,_< o,,u _
NO I 1,8
F 0 S NCI E s(}WE ENIRY
ACCLSSORY CONNSC I lOS
LN E,_ e A'<A
I UNI r coiRo
fox
I
I
I
I
,i
'I
,Ji r o/_
_o A(; _RE_
PO,Vn
\ .F/
6,4 _
S NO E PO_',ER
....... 177
A# 0 CI ANO Ov'I R
: I @. 3 I HERvlOS]/" CONNEC JONS
NO I 7i ,
v LIA'_ ARE# [
F O 2 CQNOBJ Z R '_,CCESSOBY
CONN CT ON c
_o 8CONC,M!ZER _NOI ,_I'_'L_;A_ I0 _H_ TOM !¸ r/OONS_
_ELD Ir/ST_L _ EO
WIRES
I I I I
III' _"
I 56 S _ ................................... 36B{BL] @
.... [...........
IIL ...... q
NOTES:
1 FUSED DISCONNECT SIZE, POWER WIRING AND
GROUNDING OF EQUIPMENT MUST COMPLY WITH
CODES
2 BE SURE POWER SUPPLY AGREES WiTH
EQUIPMENT AND HEATER NAMEPLATE
3 LOW VOLTAGE WIRING TO BE 18 AWG MINIMUM
CONDUCTOR.
4 SEE HEATER NAMEPLATE FOR CURRENT RATING
I I i _\__p, OF HEATER USED.
I • _££<£ [ ?_{ 4K= ( 5 SEE UNIT AND HEATER DIAGRAM FOR
I z_ ELECTRICAL CONNECTION DETAILS.
6 JUMPER MUST BE CONNECTED BETWEEN 1 AND 2
-41_{Bli} @1 FOR FAN TO OPERATE IN HEATING
!: ,L _ ........... 7SOMBTNERMOSTATSPROV,OETHB'G'S,GNAL,N",:_Ll_ _"AR A ' L _,{er } _ THE COOLING MODE ONLY TO PROVIDE THE 'G'
SIGNAL IN THE HEATING MODE AN ACCESSORY
RELAY IS REQUIRED, SEE FIG. 3 FOR PROPER
I D CONNECTIONS.
_J .... 8 FOR COOLING ONLY OMIT THE ELECTRIC
HEATER, ASSOCIATED POWER WIRES AND THE
[ !'I!!_!!!]_ e;] 'W' SIGNAL THERMOSTAT WIRE.
y CA 2 S'SGE
THERMOSTAT
F J, 4 hO S/iCE @L C]R C
HEAT CONNLCT i ON'.}
J T L _ NOTE 10
_'xb _,, 1[ i_,hml ,,,i
.................................................IC(BR} t_21
i
} i
} i
} i
} i
} i
} i
} i
} i
} i
} i
} i
} i
p o _/4_,q&/.......
TYP OAk T ERkO TA J] p R
9 FIG 4 DEMONSTRATES CONNECTION OF THE
TWO STAGE ELECTRIC HEAT THERMOSTAT
ACCESSORY ONLY. FOR FURTHER UNIT
CONNECTION DETAILS REFER TO THE OTHER
FIGURES
10. THE 41A(BR) WIRE iS FIRST STAGE ELECTRIC
HEAT IF THE ELECTRIC HEATER ACCESSORY
HAS TWO HEATING STAGES THE 41C(BR) WIRE IS
SECOND STAGE ELECTRIC HEAT.
I s I E R C0t_ :_0'/ :N W I R I NO
24v \ FACTORY
....... [ IN[ d j @I_IN(
24v ' : I ')
__ I I [ v j" ,91_1 {
From Dwg. 21C757977P01 Rev. 2
Page 13

FILTER iNSTALLATiON
AiR FILTERS
Filters are to be used with the TCX024=060G heating/cooling units.
The basic unit does not have filters in it. However, a filter frame
accessory is offered that wilt allow filters to be installed within the
unit.
Otherwise a filter rack must be installed by the installer in the duct
work.
Affix the filter label supplied with the unit adjacent to the filter area.
TABLE 1
NOMINAL FILTER* FILTER
UNIT CFM (Sq Ft) SIZE RESISTANCE
TCX024G 800 2.67 0.05
TCX030G 1000 3.33 0.05
TCX036G 1200 4.00 0.05
TCX042G 1400 4.67 0.05
TCX048G 1600 5.33 0.05
TCX060G 2000 6.67 0.05
Filters must be installed in the return air system. The above square
footages are based on 300 F.P.M. face velocity, if permanent filters are
used, size per mfg. recommendation with clear resistance of 0.05" WC.
SEQUENCE OF OPERATION
GENERAL
Operation of the system cooling (and optional heating) cycles is
controlled by the position of the system switch on the room ther-
mostat. Once the system switch is placed in either the HEAT OR
COOL position, unit operation is automatic. The optional automatic
changeover thermostat, when in the AUTO position, automatically
changes to heat or cool with sufficient room temperature change.
With the unit disconnect closed, voltage is supplied to the unit
control transformer and the crankcase heater (if provided). On
single phase units, the crankcase heater is optionally field installed.
COOLINGmMECHANICALCOlVlPRESSORCYCLE
On a call for mechanical cooling, the indoor fan "G" and the
compressor circuit "YI" are energized. The indoor fan circuit "G"
starts with power from the control transformer and then energizes
the fan relay coil (F). This closes the fan relay (F) contacts and the
indoor fan motor (IDM) starts.
HEATING m ELECTRIC HEATERS
On a call for heat, power from the thermostat is received at "WI",
which energizes the "AH" contactor coil. The "AH" contactor closes
powering the heater, provided all element limits are closed.
If two stages of heat are provided and additional heat is required, the
thermostat's second stage "W2" circuit is energized powering the
"BH" contactor coil.
NOTE: The indoor thermostat must be configured to provide a "G"
signal to energize the indoor fan relay (F) during the heating mode.
The heater control circuit wilt not be energized unless the indoor fan
relay (F) is energized.
The compressor circuit starts with power from the control trans-
former through the thermostat switch "YI" to the compressor
contactor (CO) coil. This closes the (CO) contacts and starts the
compressor (CPR) and the outdoor fan motor (ODM). When the call
for cooling is complete, the compressor contactor (CC), outdoor fan
motor (ODM), and indoor fan relay (F) is de-energized.
Page 14

START -UP
PRE=START QUICK CHECKLIST
•Is the unit properly located and level with the proper clearance?
See Figure 5.
•Is the duct work correctly sized, run, taped, insulated, and
weatherproofed with proper unit arrangement. See Ductwork
Installation section.
• Is the condensate line properly sized, run, trapped, and pitched?
•Is the filter dthe correct size and number? Is it clean and in
place?
•Is the wiring properly sized and run according to the unit wiring
diagram?
• Are all the wiring connections, including those in the unit, tight?
• Has the unit been properly grounded and fused with the recom-
mended fuse size? See Wiring Data.
•Is the thermostat level, correctly wired, welt located, and set for
the proper heat anticipation?
• Have the air conditioning systems been checked at the service
ports for charge and leak tested if necessary?
•Do the condenser fan and indoor blower turn free without rubbing,
and are they tight on the shafts?
• Has the indoor blower speed been determined and the proper
speed been set? See the Unit Wiring Diagram.
•Has all work been done in accordance with applicable local and
national codes?
•Are all covers and access panels in place to prevent air loss and
safety hazards?
STARTING THE UNIT IN THE COOLING MODE
CAUTION: Before starting the system on the cooling cycle, turn the
thermostat switch to OFF and close the unit disconnect switch. This
procedure energizes the compressor crankcase heater, vaporizing
any liquid refrigerant in the crankcase. This is a precaution against
foaming at start-up which could damage the compressor bearings.
Allow the heater to operate a minimum of eight (8) hours.
NOTE: See the section on "Sequence of Operation" for a descrip-
tion of the cooling operating sequence.
To start the unit in the cooling mode, set the thermostat system
switch to COOL and move the thermostat COOL indicator to a
setting below room temperature. The condenser (outdoor) fan
motor compressor and evaporator (indoor) fan motor will operate
automatically.
OPERATING PRESSURES
After the unit has operated in the cooling mode for a short period of
time, install pressure gauges on the gauge ports of the discharge
and suction line valves. Check the suction and discharge pressures
and compare them to the normal operating pressures provided in
the unit's SERWCE FACTS.
NOTE: Do not use the pressures from the unit's SERVICE FACTS
to determine the unit refrigerant charge. The correct charge is
shown on the unit nameplate. To charge the system accurately,
weigh in the charge according to the unit nameplate.
VOLTAGE
With the compressor operating, check the line voltage at the unit.
The voltage should be within the range shown on the unit name-
plate. If tow voltage isencountered, check the size and length of the
supply line from the main disconnect to the unit. The line may be
undersized for the length of the run.
COOLING SHUT DOWN
Place the system selector in the OFF position or reset thermostat at
a setting above room temperature.
Do not de-energize the main power disconnect except when unit is
to be serviced. Power is required to keep the heat pump compres-
sor warm and boil off refrigerant in the compressor.
STARTING THE UNIT iN THE HEATING MODE
NOTE: See the section on "Sequence of Operation" for a
description of the heating operating sequence.
Check to make sure all grilles and registers are open and all unit
access doors are closed before start-up.
HEATING SHUT=DOWN
Place the system selector switch at OFF or place the heating
selector lever at a setting below room temperature.
WARNING: DO NOT OPERATE THE UNIT
WITHOUT THE EVAPORATOR FAN ACCESS PANEL IN
PLACE. REINSTALL THE ACCESS PANEL AFTER
PERFORMING ANY MAINTENANCE PROCEDURES ON THE
FAN. OPERATING THE UNIT WITHOUT THE ACCESS
PANEL PROPERLY INSTALLED MAY RESULT IN SEVERE
PERSONAL INJURY OR DEATH.
Page 15

FINAL iNSTALLATiON CHECKLIST
•Does the unit run and operate as described in the section on
"Sequence dOperation" in response to the room thermostat?
•Are the condenser fan and indoor blower operating correctly with
proper rotation and without undue noise?
•Is the compressor operating correctly and has the system been
checked with a charging chart?
• Has the voltage and running current been checked to determine
if it is within limits?
• Has the thermostat been checked for calibration and the air
discharge grilles adjusted to balance the system?
•Has the furnace manifold pressure been checked and adjusted
if necessary?
• Has the heating air temperature rise been checked?
• Has the unit been checked for tubing and sheet metal rattles? Are
there any other unusual noises to be checked?
• Are all covers and panels in place and properly fastened?
• Has the owner or maintenance personnel been given this manual
and the warranty? Has the owner or maintenance been instructed
on proper operation and maintenance of this unit?
• Has the ductwork been checked for air leaks and condensation?
TROUBLESHOOTING CHART
\
SYSTEM FAULTS
REFRIGERANT CIRCUIT
Liquid Pressure Too high P S P S S
Liquid Pressure Too Low S P S S S
Suction Pressure Too High S P P S P
Suction Pressure Too Low S S P S
Liquid Refrigerant floodback (TXV System) S S
Liquid Refrig. floodback (Cap.Tube System) P S S S P
I. D. Coil Frosting P P S
Compressor Runs Inadequate or No Cooling S P P S S P S
ELECTRICAL
Compressor & O.D. fan Do Not Start P P S P P P
Compressor Will Not Start But O.D. Fan Runs P S P P P S
O.D. Fan Won't Start p p
Compressor Hums But Will Not Start P P P P S S
Compressor Cycles onlOL P S P P P S P S P S S S S S
I.D. Blower Won't Start P S S P P
P-PRIMARY CAUSES S-SECONDARY CAUSES x 6 6 4 5 9 0
Page 16

MAINTENANCE
ROUTINE MAINTENANCE BY OWNER
You can do some of the periodic maintenance functions for your
TCX-G unit yourself; this includes replacing the disposable or
cleaning the permanent air fitters, cleaning the unit cabinet, clearing
the condenser coil, and conducting a general unit inspection on a
regular basis,
Be sure to inspect them at Neast once each month when the
system is in constant operation. (in new homes, check the filters
every week for the first four (4) weeks.)
If you have disposable-type filters, replace them with new filters of
the same type and size. Do not attempt to clean disposable
filters.
Permanent-type filters can be cleaned by washing them with a mild
detergent and water. Make sure that the filters are thoroughly dry
before reinstalling them in the unit (or duct system).
NOTE: It may be necessary to replace permanent filters annually
if washing fails to clean the filter or if the filter shows signs of
deterioration, Be sure to use the same type and size as was
originally installed,
CONDENSER COIL
Unfiltered air circulates through the unit's condenser coil and can
cause the coil's surface to become clogged with dust, dirt, etc. To
clean the coil, vertically (i.e., with the fins) stroke the coil surface
with a soft-bristled brush.
Be sure to keep all vegetation away from the condenser coil area.
MAINTENANCE PERFORMED BY
SERVICEMAN -- COOLING SEASON
To keep your unit operating safely and efficiently, the manufacturer
recommends that a qualified serviceman check the entire system at
least once each year and any other time that you feet one isneeded.
Your serviceman should examine these areas of your TCY-F unit:
•filters (for cleaning or replacement)
• motors and drive system components
•gaskets (for possible replacement)
•safety controls (for mechanical cleaning)
•electrical components and wiring (for possible replacement and
connection tightness)
•condensate drain (for cleaning)
• unit duct connections (to see that they are physically sound and
sealed to the unit casing)
•unit mounting support (for structural integrity)
• the unit (for obvious unit deterioration)
MAINTENANCE PERFORMED BY
SERVICEMAN ==HEATING SEASON
Complete the unit inspections and service routines described below
at the beginning of each heating season.
•Visually inspect the unit to ensure that the airflow required for
condenser coil is not obstructed from the unit.
• Inspect the control panel wiring to verify that all electrical connec-
tions are tight and that the wire insulation is intact.
WARNING: TO PREVENT INJURY OR DEATH
DUE TO ELECTRICAL SHOCK OR CONTACT WITH MOVING
PARTS. LOCK UNIT DISCONNECT SWITCH IN OPEN
POSITION BEFORE SERVICING UNIT.
WARNING: TO PREVENT AN EXPLOSION
OR POSSIBLE INJURY, DEATH AND EQUIPMENT DAMAGE,
DO NOT STORE COMBUSTIBLE MATERIALS, GASOLINE
OR OTHER FLAMMABLE VAPORS OR LIQUIDS NEAR THE
UNIT.
The following warning complies with State of California law, Proposition 65.
AWARNING: This product contains
fiberglass wool insulation! Fiberglass dust and ceramic
fibers are believed by the State of California to cause
cancer through inhalation. Glasswool fibers may also
cause respiratory, skin, or eye irritation.
PRECAUTIONARY MEASURES
• Avoid breathing fiberglass dust.
• Use a NIOSH approved dust/mist respirator.
• Avoid contact with the skin or eyes. Wear long-
sleeved, loose-fitting clothing, gloves, and eye
protection.
• Wash clothes separately from other clothing: rinse
washer thoroughly.
Operations such as sawing, blowing, tear-out, and
spraying may generate fiber concentrations requiring
additional respiratory protection. Use the appropriate
NIOSH approved respirator in these situations.
FIRST AID MEASURES
Eye Contact Flush eyes with water to remove dust.
If symptoms persist, seek medical
attention.
Skin Contact Wash affected areas gently with soap
and warm water after handling.
Page 17

LiMiTED WARRANTY
HiGH EFFiCiENCY AiR CONDiTiONER
TCY AND TCX
Models Less Than 20 Tons for Residential Use*
(Parts Only)
This limited warranty is extended by American Standard Inc., to the original purchaser and to any
succeeding owner of the real property to which the Air Conditioner is originally affixed, and applies to
products purchased and retained for use within the U.S.A. and Canada.
If any part of your Air Conditioner fails because of a manufacturing defect within five years from the
date of the original purchase, Warrantor will furnish without charge the required replacement part. Any
local transportation, related service labor, diagnosis calls, refrigerant and related items are not
included.
In addition, if the sealed motor=compressor fails or the outdoor coil* should become defective, either or
both events occurring because of a manufacturing defect within the sixth through tenth year from the
date of original purchase, Warrantor will furnish without charge the required replacement compressor
and/or outdoor coil. Any local transportation, related service labor, diagnosis calls, refrigerant and
related items are not included.
*NOTE: If your Central Air Conditioner is installed within one mile of salt water, including but not limited
to seacoasts and inland waterways, your outdoor coil warranty as stated above is limited to five years
from the date of original purchase.
This limited warranty does not cover failure of your Central Air Conditioner if it is damaged while in your
possession, damage caused by unreasonable use of the Central Air Conditioner and/or damage from
failure to properly maintain the Central Air Conditioner as set forth in the Use and Care manual (see
Proper Maintenance section).
This limited warranty applies to product installed on or after 10/1/2001 where product is manufactured
after 1/1/2000. This limited warranty is not retroactive to any installations prior to 10/1/2001 or on
product produced prior to 2000.
THE LIMITED WARRANTY AND LIABILITY SET FORTH HEREIN ARE IN LIEU OF ALL
OTHER WARRANTIES AND LIABILITIES, WHETHER IN CONTRACT OR IN NEGLIGENCE,
EXPRESS OR IMPLIED, IN LAW OR IN FACT, INCLUDING BUT NOT SPECIFICALLY LIMITED
TO IMPLIED WARRANTIES OF MERCHANTABILITY AND FITNESS FOR PARTICULAR USE,
AND IN NO EVENT SHALL WARRANTOR BE LIABLE FOR ANY INCIDENTAL OR
CONSEQUENTIAL DAMAGES.
Some states do not allow limitations on how long an implied limited warranty lasts or do not allow the
exclusion or limitation of incidental or consequential damages, so the above limitation or exclusion may
not apply to you. This limited warranty gives you specific legal rights, and you may also have other
rights which vary from state to state.
Parts will be provided by our factory organization through an authorized service organization in your
area listed in the yellow pages. If you wish further help or information concerning this limited warranty,
contact:
American Standard Inc.
Troup Highway
Tyler, TX 75711-9010
Attention: Manager, After Sales Support
GW-622-1802
Page 18
* This limited warranty is for residential usage of this equipment and not applicable when this
equipment is used for a commercial application. A commercial use is any application where the end
purchaser uses the product for other than personal, family or household purposes.

LiMiTED WARRANTY
CENTRAL AiR CONDiTiONER
TCY, TCX, TCC, TCD, TCH, TCK,
TCM, TCP, THC and TSC
Models Less Than 20 Tons for Commercial Use*
(Parts Only)
This warranty is extended by American Standard Inc., to the original purchaser and to any succeeding
owner of the real property to which the Air Conditioner is originally affixed, and applies to products
purchased and retained for use within the U.S.A. and Canada. There is no warranty against corrosion,
erosion or deterioration.
If any part of your Air Conditioner fails because of a manufacturing defect within one year from the date
of the original purchase, Warrantor will furnish without charge the required replacement part.
In addition, if the sealed motor-compressor fails because of a manufacturing defect within the second
through fifth year from the date of original purchase, Warrantor will furnish without charge the required
replacement compressor. Warrantor's obligations and liabilities under this warranty are limited to
furnishing EO.B. Warrantor factory or warehouse replacement parts for Warrantor's products covered
under this warranty. Warrantor shall not be obligated to pay for the cost of lost refrigerant. No liability
shall attach to Warrantor until products have been paid for and then liability shall be limited solely to the
purchase price of the equipment under warranty shown to be defective.
THE WARRANTY AND LIABILITY SET FORTH HEREIN ARE iN LIEU OF ALL OTHER
WARRANTIES AND LIABILITIES, WHETHER iN CONTRACT OR IN NEGLIGENCE, EXPRESS
OR IMPLIED, IN LAW OR IN FACT, INCLUDING BUT NOT SPECIFICALLY LIMITED TO
IMPLIED WARRANTIES OF MERCHANTABILITY AND FITNESS FOR PARTICULAR USE, AND
IN NO EVENT SHALL WARRANTOR BE LIABLE FOR ANY INCIDENTAL OR
CONSEQUENTIAL DAMAGES.
Some states do not allow limitations on how long an implied warranty lasts or do not allow the
exclusion or limitation of incidental or consequential damages, so the above limitation or exclusion may
not apply to you. This warranty gives you specific legal rights, and you may also have other rights
which vary from state to state.
American Standard Inc.
Troup Highway
Tyler, TX 75711-9010
Attention: Manager, After Sales Support
GW-602-4800
* This warranty is for commercial usage of said equipment and not applicable when the equipment is
used for a residential application. Commercial use is any application where the end purchaser uses the
product for other than personal, family or household purposes.
Page 19

Since American-Standard has a policy of continuous
product improvement, it reserves the right to change the
specifications and design without notice.
American=Standard Inc.
6200 Troup Highway
Tyter,TX 75703
Page20
Technical Literature -Printed in U.S.A.
P,I,