Tecumseh Aja7494Zxdxc Performance Data Sheet June 6, 2000
2015-04-01
: Tecumseh Tecumseh-Aja7494Zxdxc-Performance-Data-Sheet-688362 tecumseh-aja7494zxdxc-performance-data-sheet-688362 tecumseh pdf
Open the PDF directly: View PDF
.
Page Count: 2

January 21, 2014
Revision: REL
Tecumseh Compressor Company
Hermetic Condensing Units
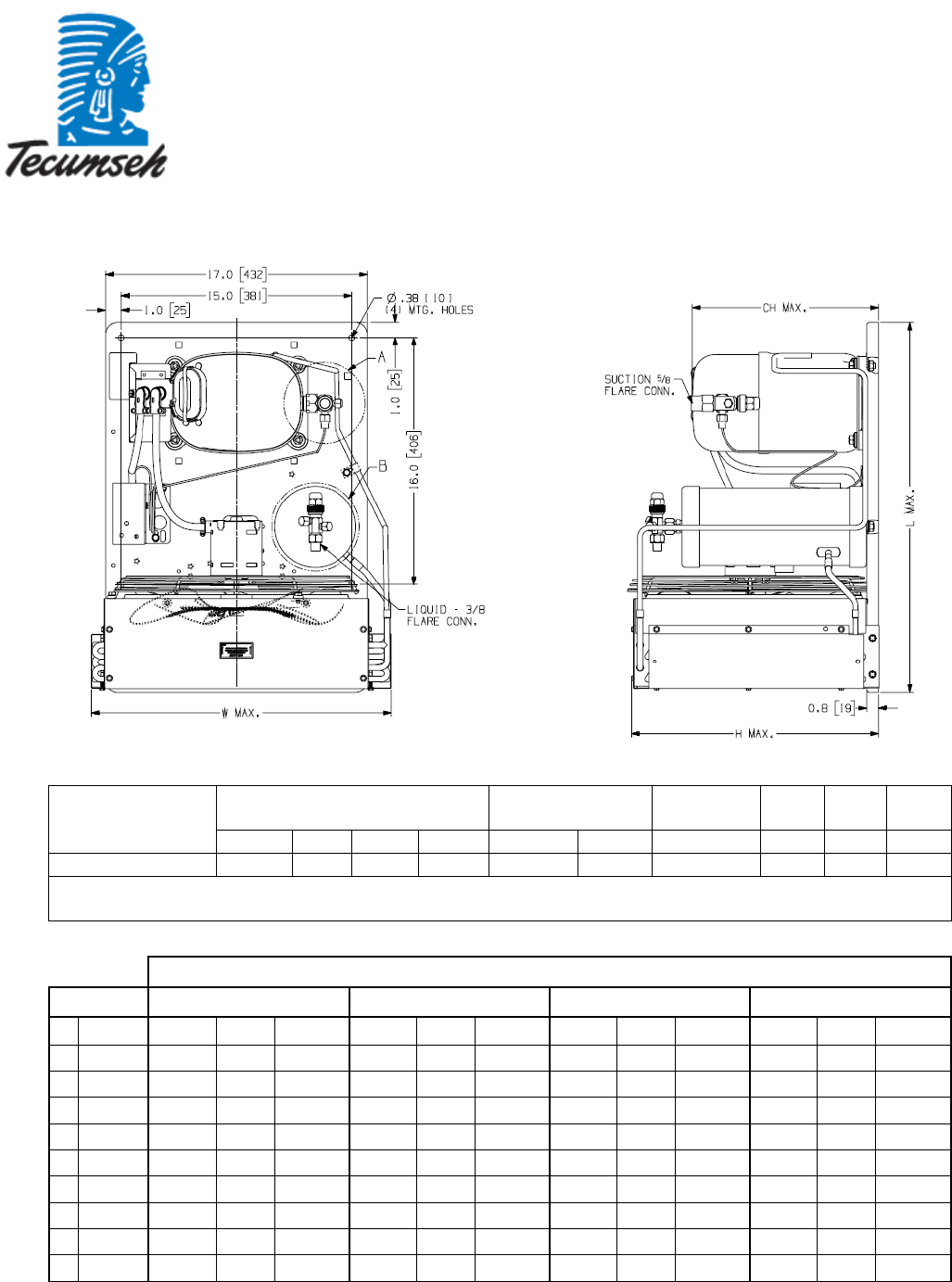
Model: AJA7494ZXDXC BoM: 2B1106-1 R-404a 1 1/4 HP Air Cooled
Model
Dimensions, inches
Line Connection*
Pumpdown
Air
Oil
Ch
Gr.
Wt.
L
W
H
CH
Suction
Liquid
90 F 90%
CFM
Oz.
Lbs.
AJA7494ZXDXC
24.0
19.4
16.1
12.0
5/8” F
3/8” F
10.8 lbs
840
27
100
* F = Flare, S = Solder, RF or RS = Rotolock with Flare or Solder Connections, C = Compression Fitting
Factory charge: 20 PSIG Nitrogen – MUST BE EVACUATED
Ambient Temperatures
Evaporator T,
80°F
90°F
100°F
110°F
°F
PSIG
BTUH
Watts
Cond T
BTUH
Watts
Cond T
BTUH
Watts
Cond T
BTUH
Watts
Cond T
-10
23.6
5720
1284
96
4881
1273
104
4085
1230
112
3423
1193
120
-5
27.9
6551
1352
98
5627
1373
106
4816
1345
114
4023
1322
122
0
32.6
7355
1435
100
6352
1473
108
5500
1459
116
4607
1442
125
5
37.7
8152
1529
102
7074
1573
110
6158
1573
118
5188
1558
127
10
43.2
8963
1630
105
7810
1674
113
6813
1686
120
5776
1672
129
15
49.1
9806
1735
107
8578
1777
115
7485
1799
123
6384
1788
131
20
55.4
10701
1842
110
9396
1883
118
8198
1913
125
7025
1910
133
25
62.2
11666
1945
112
10279
1993
120
8972
2027
127
7709
2039
135
30
69.6
12720
2043
115
11247
2107
123
9830
2142
130
8451
2180
137
60 Hz Performance
Return gas temp. 40F, 5F sub cooling

January 21, 2014
Revision: REL
Specifications/ Parts:
Model
AJA7494ZXDXC
Fan Motor
810F050C20
Unit Bill of Material
2B1106-1
Fan Motor RLA
0.7
Nominal Volts-Hz-Ph
208-230-60-1
Fan Blade
51533-3
Refrigeration Range
-10° F to +30° F
Fan Guard
70831
Design Pressure Low
181
Fan Shroud
70727-2
Design Pressure High
450
Voltage Range
187 to 253
Low Pressure Control
84026-2
Min. Circuit Ampacity
12.2
Dual Pressure Control
N/A
Max. Fuse Size (amps)
20
Condenser
50797-4
Compressor Model
AJA7494ZXD
Receiver Tank
51081-1
Comp. Bill of Material
AJ202ET-188-P2
Liquid Valve
31578-1
Compressor RLA/LRA
9.2 / 54.0
Rotolock Valve Gasket
30334
Overload
INTERNAL
Suction Valve
31071-2
Relay
820RVAM25
Run Capacitor
85PR370F20
Run Capacitor Rating
25 MFD @ 370V
Start Capacitor
85PS250D84
Start Capacitor Rating
216-259 MFD @ 250V
Capacitor Cabinet Assy.
AE1170-043A
Unit Drawing
DGU1893-48
Wiring Diagram
90657-9
Electrical Diagram