Thermador Pd304 Users Manual
PD304 to the manual d3952970-2ca0-417e-bc0c-5e729fdb9f9c
2015-02-04
: Thermador Thermador-Pd304-Users-Manual-390883 thermador-pd304-users-manual-390883 thermador pdf
Open the PDF directly: View PDF .
Page Count: 1

INSTALLATION
INSTRUCTIONS
For Thermador Professional® Duel Fuel Ranges Models
PD304
PD36
PD48

For Massachusetts Installations:
1. Installation must be performed by a qualified
or licensed contractor, plumber or gas fitter
qualified or licensed by the state, province or
region where this appliance is being installed.
2. Shut-off valve must be a “T” handle gas
cock.
3. Flexible gas connector must not be longer
than 36 inches.
IMPORTANT: Save these instructions for the Local Gas Inspector’s use.
INSTALLER: Please leave these Installation Instructions with this unit for the owner.
OWNER: Please retain these instructions for future reference.
Please Read Entire Instructions
Before Proceeding
IMPORTANT
Local codes vary. Installation, gas
connections and grounding must
comply with all applicable codes.
WARNING
Disconnect power before installing. Before
turning power ON, be sure that all controls
are in the OFF position.
WARNING:
If the information in this manual is not
followed exactly, a fire or explosion may
result causing property damage, personal
injury or death.
— Do not store or use gasoline or other flam-
mable vapors and liquids in the vicinity of this
or any other appliance.
— WHAT TO DO IF YOU SMELL GAS
■Do not try to light any appliance.
■Do not touch any electrical switch.
■Do not use any phone in your building.
■Immediately call your gas supplier from a
neighbor’s phone. Follow the gas supplier’s
instructions.
■If you cannot reach your gas supplier, call the
fire department.
— Installation and service must be performed
by a qualified installer, service agency or the
gas suppler.
TO REDUCE THE RISK OF TIPPING OF THE
APPLIANCE, IT MUST BE SECURED BY A
PROPERLY INSTALLED ANTI-TIP DEVICE.
VERIFY THAT THE ANTI-TIP DEVICE IS
ENGAGED PER INSTALLATION IN
STRUCTIONS. (NOTE: ANTI-TIP DEVICE IS
REQUIRED ON ALL 30" AND 36" RANGES)
WARNING
■
ALL RANGES CAN TIP
■ ■
■ ■
■ INJURY TO PERSONS
COULD RESULT
■
INSTALL ANTI-TIP
DEVICE
■ SEE INSTALLATION
INSTRUCTIONS
Note: This Range is NOT designed for installa-
tion in manufactured (mobile) homes or for instal-
lation in Recreational Park Trailers.
DO NOT install this range outdoors.

1
Model PD304 Model PD364GL
Low Back Model LB36R Model PD484GGE
Low Back Model LB48R
Contents
Introduction ............................................................................ 1-2
Important Installation Information ............................................... 2
Step 1: Ventilation Requirements ............................................. 3
Step 2: Cabinet Preparation ............................................... 4 – 8
Step 3: Unpacking, Moving
and Placing the Range........................................... 9 – 10
Step 4: Installing Anti-Tip Device .................................... 11 – 12
Step 5: Gas Requirements and Hookup.................................. 13
Step 6: Electrical Requirements,
Connection and Grounding ................................ 14 – 16
Step 7: Backguard Installation ................................................ 17
Step 8: Door Installation.......................................................... 18
Step 9: Test and Adjustment ................................................... 19
To Clean and Protect Exterior Surfaces .................................. 19
Installer Checklist .................................................................... 20

2
Introduction
The Thermador Professional® Ranges are free stand-
ing units available in a number of configurations.
Model PD304 is equipped with four sealed gas surface
burners and a 30-inch electric convection self-clean-
ing oven with broil capability. Models PD364GE,
PD364GL, and PD366 feature a gas cooking surface
with four sealed gas surface burners with either an
electric griddle or gas grill or six sealed gas surface
burners plus a 36-inch electric convection, self-clean-
ing oven with broil capability. Models PD484GGE,
PD486GE, and PD486GL feature a gas cooking sur-
face with four sealed burners, electric griddle and gas
grill, six sealed burners and an electric griddle, or six
sealed burners and a gas grill. PD48 Ranges provide
a large electric convection, self-cleaning oven (the
same as used in the PD36 Ranges) and a small electric
oven with bread proofing and warming features as well
as bake and broil capability.
GAS TYPE VERIFICATION
Verify the type of gas supplied to the location. Ensure
that the appliance is connected to the type of gas for
which it is certified. All models are certified for use with
natural gas. Field conversion of the appliance for use
with propane gas supply will require a conversion kit.
IMPORTANT
• A backguard must be utilized when there is less
than a 12” horizontal clearance between combus-
tible materials and the back edge of the range. The
Thermador Low Back backguard must be or-
dered separately and installed at the rear of the
range. For island installations and other installa-
tions with more than 12” clearance, an optional
stainless steel Island Trim is available to cover the
backguard mounting flanges.
• Verify that the appliance is correct for the type of
gas being provided. Refer to Step 5 on Page 13
before proceeding with the installation.
Gas Supply : z
Natural Gas - 6 inch water column, (14.9 mb) min.,
8 inch (20 mb) nominal
Propane Gas - 11 inch water column, (27.4 mb),
14 inch (34.9 mb) maximum
Important Installation Information
This appliance has been tested in accordance with
ANSI Z21.1, Standard for Household Cooking Appli-
ances (USA) and in accordance with CAN 1.1-M81
Domestic Gas Ranges (Canadian).
It is strongly recommended that this appliance be
installed in conjunction with a suitable overhead
vent hood. (See Step 1 for Ventilation Require-
ments.) Due to the high heat capability of this unit,
particular attention should be paid to the hood and
duct work installation to assure it meets local building
codes.
Check local building codes for the proper method of
appliance installation. Local codes vary. Installation,
electrical connections and grounding must comply
with all applicable codes. In the absence of local codes
the appliance should be installed in accordance with
the National Fuel Gas Code ANSI Z223.1/FNPA 54
current issue and National Electrical Code ANSI/
NFPA 70-current issue. In Canada, installation must
be in accordance with the CAN 1-B149.1 and .2 –
Installation Codes for Gas Burning Appliances and/or
local codes.
This appliance is equipped with an intermittent/inter-
rupted ignition device that cycles the two far left
surface burners on and off when in the ExtraLow®
setting.
CAUTION:
When connecting the unit to propane gas,
make certain the propane gas tank is equipped
with its own high pressure regulator in addition
to the pressure regulator supplied with the
range. The maximum gas pressure to this
appliance is not to exceed 14.0 inches
water column (34.9 mb) from the propane
gas tank to the regulator.
This unit is designed as a cooking appliance.
Based on safety considerations, never use it for
warming or heating a room
.
CAUTION
CAUTION
To eliminate risk of burns or fire caused by
reaching over heated surface units, cabinet
storage located above the surface units
should be avoided.

3
Step 1: Ventilation Requirements
It is strongly recommended that a
suitable exhaust hood be installed
above the range. Downdraft
ventilation should not be used. The
table below indicates the
Thermador hoods, by model
number, that are recommended
for use with all ranges.
1. Select Hood and
Blower Models:
• For wall installations, the hood
width must, at a minimum,
equal the width of the range
cooking surface. Where
space permits, a hood larger
in width than the cooking sur-
face may be desirable for im-
proved ventilation perfor-
mance.
• For island installations, the
hood width should, at a mini-
mum, overhang the range
cooking surface by 6" on each
side.
Notes: * For wall installations where adequate space is available, the installer or user may elect to
use a hood that is wider than the range cooking surface. This may be particularly beneficial
for those cases, such as a long duct run or heavy usage of the grill, in which improved
capturing of the cooking exhaust is desired.
** Thermador offers a choice of remote (VTR1000Q or VTR1400Q) or in-hood
(VTN1000Q) blowers for use in wall installations.
VTR1000Q, VTR1400Q
or VTN 1000Q
VTR1000Q, VTR1400Q
VTR1000Q, VTR1400Q
36" RANGE HTNI42YS
HNI42YS
PHI48ZS
VTR1000Q
VTR1400Q
PH36ZS, 42ZS
PHE36,42
HNW36YS
HNW42 YS
WALL INSTALLATION ISLAND INSTALLATION
RANGE WIDTH HOOD* BLOWER** HOOD* BLOWER**
30" RANGE PH30ZS
PH30HQS
PHE30,36
VTR1000Q,
VTR1400Q
OR VTN 1000Q
HTNI42YS
HNI42YS
PHI48ZS
VTR1000Q,
VTR1400Q
48" RANGE PH48ZS
PH48HQS
PHE48,60
VTR1000Q
VTR1400Q
or VTN 1000Q
HTNI48YS
HNI48YS
HTNI54YS
HNI54YS
PHI60ZS
VTR1400Q
2. Hood Placement:
• For best smoke elimination, the
lower edge of the hood should
be installed a minimum of 30" to
a maximum of 36" above the
range cooking surface. (See
Fig. 1).
• If the hood contains any com-
bustible materials (i.e. a wood
covering), it must be a mini-
mum of 36" above the cooking
surface.
3. Consider Make-Up Air:
• Due to the high volume of venti-
lation air, a source of outside
replacement air is recom-
mended. This is particularly im-
portant for tightly sealed and
insulated homes.
• A qualified heating and ventilat-
ing contractor should be con-
sulted.
IMPORTANT:
Ventilation hoods and blowers are
designed for use with single wall
ducting. However, some local
building codes or inspectors may
require double wall ducting. Con-
sult local building codes and/or
local agencies, before starting, to
assure that hood and duct instal-
lation will meet local requirements.
• Hood blower speeds should
be variable to reduce noise
and loss of heated or air con-
ditioned household air when
maximum ventilation is not
required. Normally, the maxi-
mum blower speed is only
required when using the grill.

4
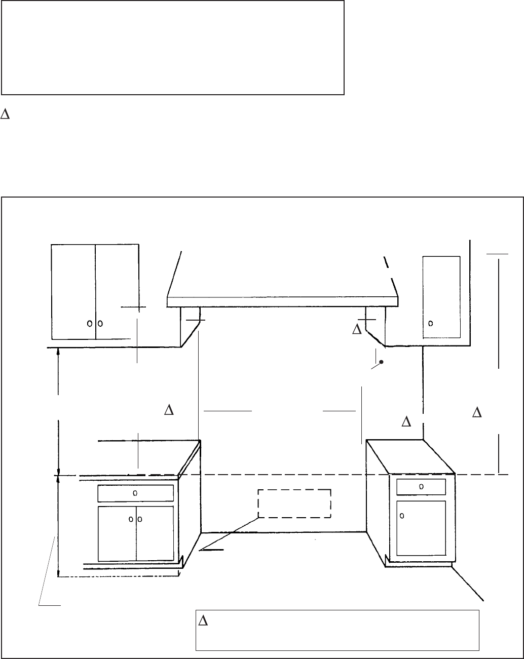
Step 2: Cabinet Preparation
1. The range is a free standing unit. If the unit is to be
placed adjacent to cabinets, the clearances shown
in Fig. 1 are required. The same clearances apply
to island installations, except for the overhead
cabinets, which must have a space wide enough
to accept the flared island hood, as indicated in
Fig. 1.
2. The 36" ranges may be recessed into the cabi-
nets beyond the edge of the front face of the oven
(See Figures 2A and 2B). The 30" and 48" ranges
are not approved to be installed flush with the
cabinets.
CAUTION
In these installations, the door and cabinet on
36-inch models can cause a pinching hazard.
NOTE: The maximum depth of over head cabinets
installed on either side of the hood is 13".
A 36-inch minimum clearance is required between
the top of the range and the bottom of an unprotected
cabinet. A 30-inch minimum distance is necessary
when the bottom of the wood or metal cabinet is
protected by not less than 1/4 inch of a flame
retardant material covered with not less than No. 28
MSG sheet steel, 0.015 inch (0.4 mm) thick stainless
steel, 0.024 inch (0.6 mm) aluminum, or 0.020 inch
(0.5 mm) thick copper. Flame retardant materials
bear the mark:
UNDERWRITERS LABORATORIES INC.
CLASSIFIED MINERAL AND FIBER BOARDS
SURFACE BURNING CHARACTERISTICS
Followed by the flame spread and smoke ratings.
These designations are shown as “FHC (FIame
Spread/Smoke Developed).” Materials with “O”
flame spread ratings are flame retardant. Local codes
may allow other flame spread ratings.
3. The gas and electrical supply should be within the
zones shown in Fig. 3A.
4. Any openings in the wall behind the range and in
the floor under the range must be sealed.
5. When there is less than a 12" horizontal clear-
ance between combustible material and the
back edge of the range above the cooking sur-
face, a Thermador Low Back or High Shelf
backguard must be installed. (See Fig. 2A). When
clearance to combustible material is over 12",
a Thermador Island Trim may be used. (See Fig.
2B). Figures 2A and 2B indicate the space
required for each type of backguard.
6. Always keep appliance area clear and free from
combustible materials, gasoline and other flam-
mable vapors and liquids.
7. Do not obstruct the flow of combustion and
ventilation air to the unit.

5
For Electrical and Gas Supply Zone,
see Figure 3A. Zone size and position
differ according to the model.
Cooking
Surface
CAUTION: See Figs.
2A, and 2B. 36"
Min. to combustible
material ,
from cooking
surface
as defined in the “National Fuel Gas Code” (ANSI Z223.1,
Latest Edition). *The range height is adjustable. The level of the
range top must be at the same level or above the countertop level.
As defined in the “National
Fuel Gas Code” (ANSI
Z223.1, Latest Edition).
Range width
30", 36" or 48"
30" or 36" Wide Hood
42" or 48" for Island
36" or 42" Wide Hood
42" or 48" for Island
48" or 60" Wide Hood
48", 54" or 60" for Island
}
}
}
For 30" Ranges
For 36" Ranges
For 48" Ranges
30" Range – 30"
36" Range – 36"
48" Range – 48" 13" Max.
Cabinet
Depth }
³
³
3" Min. to
combustible
side wall
material ,
(both sides)
18" Min.
³
³
FIG. 1 Cabinet Clearances
CAUTION:
Do not install the Models PD304 and PD48 ranges such that the
oven door is flush with the cabinet face.
A flush installation could
result in damage to the cabinets due to exposure to high heat.
*35-3/8" Min. Range Height
with Leveling Legs fully
retracted
*36-3/4" Max. Range Height
with Leveling Legs fully
extended.
30" Min. to 36" Max. bottom of
overhead Hood to cooking
surface (36" if hood contains
combustible materials )
³
³
•
³
³
Step 2: Cabinet Preparation
³
³
Min. Distance Between Overhead
Cabinets of Combustible Materia
l
³
³
³
³
³
³

6
Step 2: Cabinet Preparation
FIG. 2A - Side View
3/8"
FIG. 2B - Side View
4"
³
³
1/8"
NOTE:
For Island trim installations,
counter surface should have a
cantilever edge meeting the back
section of the island trim
accessory.
NOTE:
If an inner wall is used under the
cantilever counter top, there
should be a 1/8" gap from the rear
of the range to the inner wall.
Cantilever Countertop

3/4" Flex Line to
Appliance
A
Centerline of
Electrical
Supply Zone
Gas
Supply
Zone
1/2"
N.P.T. 240 VAC Receptacle
(Shown) or Junction
Box
2" Maximum Protru-
sion from Wall for
Gas Supply
³
³
³
³
³
³
D
Model A B C D E
PD30 8" 12" 10" 6-1/2" 5-1/4"
PD36 10-1/2" 15" 10-1/2" 6-1/2" 5-1/4"
PD48 16-1/2" 16" 15-1/2" 6-1/2" 5-1/4"
Floor
7
GAS AND ELECTRIC SUPPLY ZONES:
Step 2: Cabinet Preparation
NOTE:
A Manual Gas
Shut-Off Valve
(not shown)
must be easily
accessible
through an
adjacent cabinet
without moving
the range.
Typical placement shown.
Other placement of Gas
Supply and Electrical
Receptacle within the
Electrical and Gas Supply
Zone is acceptable.
FIG. 3A Gas & Electrical Supply Zone for Dual Fuel Ranges
The Dual Fuel ranges may be con-
nected to the power supply with a
range supply cord kit or by hard-
wiring to the power supply. It is the
responsibility of the installer to pro-
vide the proper wiring components
(cord or conduit and wires) and com-
plete the electrical connection as dic-
tated by local codes and ordinances,
and/or the National Electric Code.
The units must be properly grounded.
Refer to Step 6 for details.
The range must be connected only
to the type of gas for which it is
certified. If the range is to be con-
nected to propane gas, ensure that the
propane gas supply tank is equipped
with its own high pressure regulator in
addition to the pressure regulator sup-
plied with the range. (See STEP 5.)
NOTE: Any opening in the wall behind the appliance and
any opening in the floor under the appliance must be
sealed.
E
³
³
B
³
³
C

Step 2: Cabinet Preparation
Power Cord & Receptacle Junction Box & Conduit
8
ELECTRICAL SUPPLY, DUAL FUEL RANGES
Installation of Dual Fuel ranges
must be planned so that the rough-
in of the junction box for the recep-
tacle or conduit connection will al-
low maximum clearance to the rear
of the unit.
When the power supply cord (not
supplied) or conduit is connected
to the mating receptacle or junction
box cover, the combined plug/re-
ceptacle or junction box cover/con-
duit connector should protrude no
more than 2-1/4" from the rear wall.
See Figure 3B.
This is especially critical if the junc-
tion box in the wall will be directly
behind the junction box on the unit
when the unit is installed. Refer to
Figure 9 on Page 15 for location of
junction box on unit. To minimize
binding when the unit is connected
to the receptacle or junction box,
orient the receptacle or conduit
connector, and slide back into posi-
tion.
FIG. 3B WALL CONNECTION

Chart A 30" Range 36" Range 48" Range
Shipping Weight 335 lbs. 444 lbs. 584 lbs.
Weight without 285 lbs. 390 lbs. 524 lbs.
packing materials
Without door(s), 215 lbs. 295 lbs. 395 lbs.
burner caps, front kick
panel and oven racks
9
Step 3: Unpacking, Moving and Placing The Range
CAUTION
Proper equipment and ad-
equate manpower must be
used in moving the range
to avoid injury, and to avoid
damage to the unit or the
floor. The unit is heavy
and should be handled
accordingly.
• The range has an approximate
shipping weight as shown in
Chart A. It is recommended that
the grates, griddle plate and
frame, burner caps, front kick
panel and oven racks be re-
moved to facilitate handling.
This will reduce the weight as
shown in Chart A and allow the
range to pass through 30" door-
ways. See Figs. 2A and 2B on
Page 6. Do not remove the
grill or griddle assemblies.
• Remove the outer carton and
packing material from the ship-
ping base. The dual fuel ranges
are held to the skid by four (4)
bolts (see Fig. 4 and 5). After
removing the bolts the range
must be lifted and removed from
the skid.
• Remove angle-mounting brack-
ets from range. This requires
the installer to remove two
screws holding each bracket
then remove bracket and rein-
stall screws.
FIG. 4 – Removal of Two
Front Shipping Bolts FIG. 5 – Removal of Two Rear
Shipping Bolts
³
Left Rear
Shipping
Bolt

10
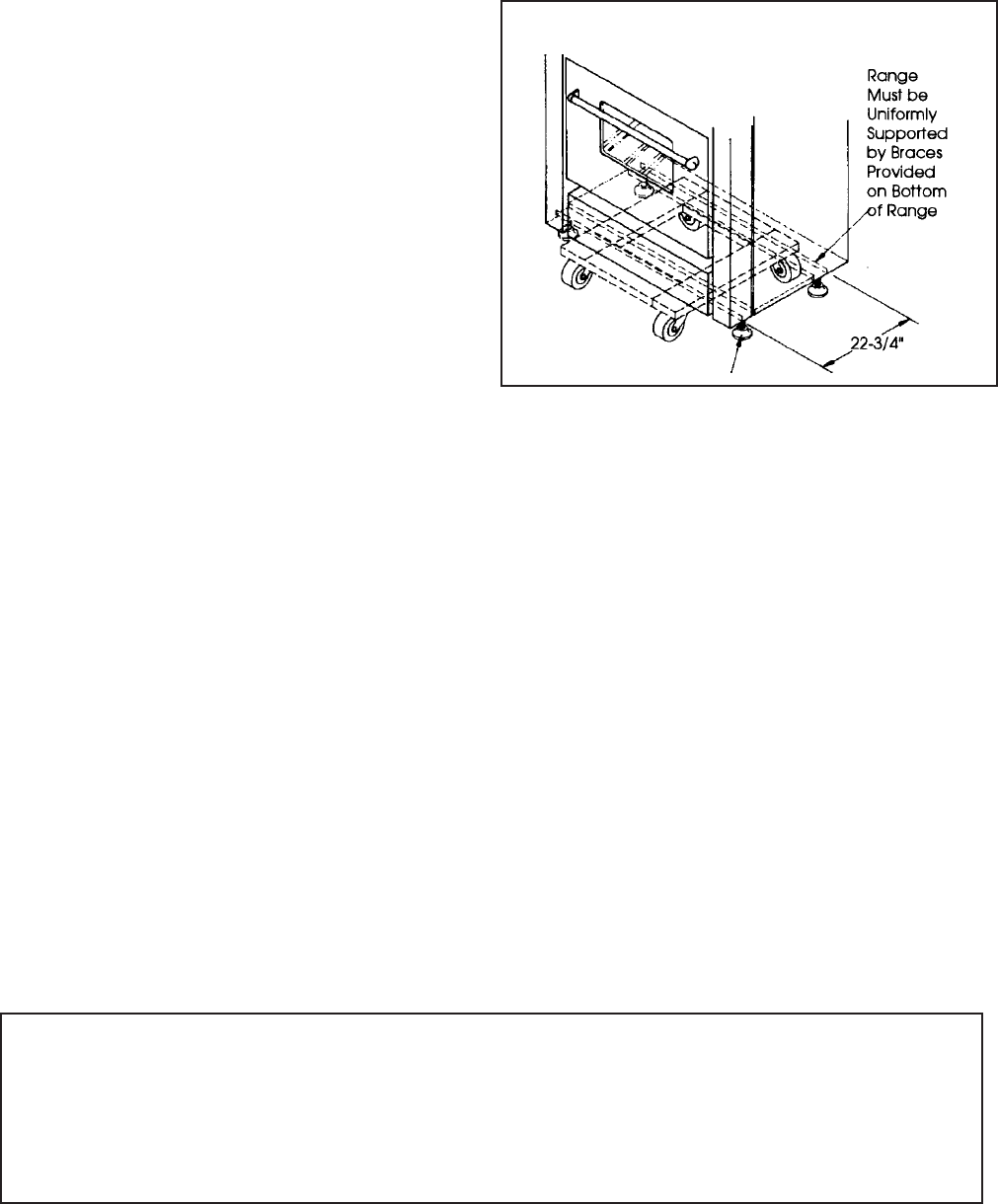
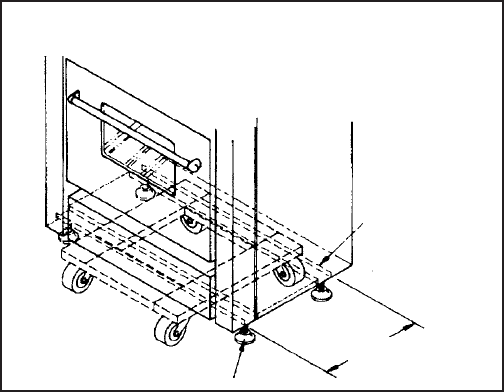
• Due to the weight, a dolly with soft wheels
should be used to move this unit. The weight
must be supported uniformly across the bottom
(See Fig. 6).
• After transporting the professional range by
dolly close to its final location, the range can be
tipped back and supported on the rear legs
while the dolly is carefully removed.
THE FLOOR UNDER THE LEGS
SHOULD BE PROTECTED (WOOD
STRIPS, CARPET, PANELING,
ETC.) BEFORE PUSHING THE
UNIT INTO POSITION.
The anti-tip de-
vice must be installed (STEP 4), gas and
electrical connections should be made (STEPS
5 and 6), and the backguard installed (STEP 7)
before the range is placed in its final position.
• For proper performance the professional
range must be level. (It is very important for
all products that have the griddle feature). The
range is leveled by adjusting the legs with a
wrench.
• Replace the kick panel and install the oven
door. To install door, see Page 18. Do not
install the oven door until the range is in its
final location. It is important that the two (2)
screws retaining the kick panel are secure
to prevent accidental access to hot sur-
faces.
•Ensure that the burner caps are correctly
seated on the burner bases of the range's
cooktop.
Step 3: Unpacking, Moving and Placing The Range
Fig. 6- Dolly Positioning
Griddle Tilt Adjustment
Check the griddle frame adjustment by pouring two tablespoons of water on the back of the griddle
plate. The water should slowly roll into the grease tray. If not, adjust the two screws under the back
of the griddle frame. Start with one half turn CCW of the screws. Further adjustment should be made
by one-quarter turn until water slowly flows into the grease tray.

11
Step 4: Installing Anti-Tip Device
Tools Needed for Installation of Anti-Tip Device:
- Screwdriver, Phillips - Hammer
- Drill, electric or hand - Pencil or other marker
- Measuring tape or ruler
- 1/8" drill bit (wood or metal wall or floor)
- 3/16" carbide-tipped masonry drill bit (concrete or concrete block wall or floor)
- 3/16" anchors, drywall or concrete, 2 each (not required if mounting bracket is being attached to solid wood or
metal)
WARNING
RANGE TIPPING HAZARD
•All ranges can tip and injury can result. To
prevent accidental tipping of the range,
attach it to the floor, wall or cabinet by
installing the Anti-Tip Device supplied.
•A risk of tip-over may exist if the appliance
is not installed in accordance with these
instructions.
•If the range is pulled away from the wall
for cleaning, service or any other reason,
ensure that the Anti-Tip Device is prop-
erly reengaged when the range is pushed
back against the wall. In the event of
abnormal usage (such as a person stand-
ing, sitting, or leaning on an open door),
failure to take this precaution can result
in tipping of the range. Personal injury
might result from spilled hot liquids or
from the range itself.
CAUTION
PROPERTY DAMAGE
•Contact a qualified installer or contractor
to determine the proper method for drill-
ing holes through the wall or floor material
(such as ceramic tile, hardwood, etc.)
• Do not slide the range across an unpro-
tected floor.
• Failure to follow these instructions may
result in damage to wall or floor cover-
ings.
WARNING
ELECTRICAL SHOCK HAZARD
•Use extreme caution when drilling holes
into the wall or floor. There may be
concealed electrical wires located
behind the wall or under the floor.
• Identify the electrical circuits that could
be affected by the installation of the
Anti-Tip Device, then turn off power to
these circuits.
• Failure to follow these instructions may
result in electrical shock or other per-
sonal injury.
WARNING
• ALL
RANGES
CAN
TIP
• INJURY
TO
PER-
SONS COULD
RESULT
• INSTALL
ANTI-TIP
DEVICES
PACKED
WITH
RANGE
• SEE
INSTALLATION
INSTRUCTIONS
For all 30" and 36" ranges, an anti-tip device must be installed as per these
instructions.

12
Step 4: Installing Anti-Tip Device
PD30 and PD36 Duel Fuel Ranges (Figures 8A and 8B)
Thermador Service Part No. Qty Description
415078 4 Screw, Phillips, #10 x 1-1/2"
487310 1 Anti-Tip Bracket, Floor-Mounted
IMPORTANT INSTALLATION
INFORMATION:
• The anti-tip bracket may be attached to a solid
wood cabinet having a minimum wall thickness of 3/
4".
• The thickness of the wall or floor may require use
of longer screws, available at your local hardware
store.
• In all cases, at least two (2) of the bracket mounting
screws must be fastened to solid wood or metal.
• Use appropriate anchors when fastening the mount-
ing bracket to any material other than hardwood or
metal.
• Prepare holes at fastener locations as identified
below:
-For walls, wall studs, or floors composed
of solid wood or metal, drill 1/8" pilot holes.
-For walls or floors composed of drywall,
sheet-rock or other soft materials, drill 3/16"
holes to a minimum depth of 1-3/4", then tap
plastic anchors into each of the holes using a
hammer.
-For walls or floors composed of concrete or
concrete block, drill 3/16" holes to a minimum
depth of 1-3/4", then tap concrete anchors
into each of the holes using a hammer.
-For walls or floors having ceramic tile cover-
ing, drill 3/16" holes through the tile only, then
drill into the material behind the tile as indi-
cated immediately above.
• If the range is moved to a new location, the Anti-
Tip Device must be removed and reinstalled.
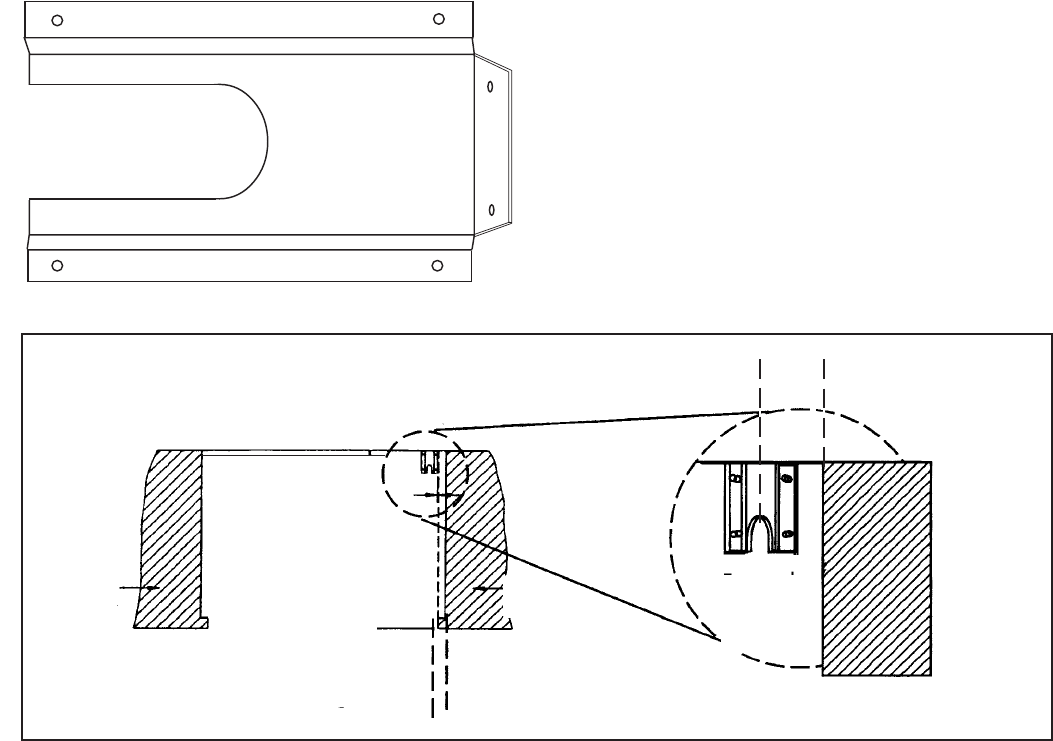
Figure 8A - Mounting Anti-tip Bracket
MOUNTING ANTI-TIP BRACKET
The alternative floor mounted bracket shall be installed
as follows:
a) Place bracket on floor in position shown in Figure
8B.
b) Secure to floor or wall stud.
c) Later, when the unit is installed,the adjustable leg
will slide under the bracket.
Figure 8B
2-1/2"
³
³
from edge of range
2-1/2"
³
³
(typical -
either side)

13
Step 5: Gas Requirements and Hookup
CAUTION
When connecting unit to propane gas, make
certain the propane gas tank is equipped with its
own high pressure regulator in addition to the
pressure regulator supplied with the appliance.
The pressure of the gas supplied to the appli-
ance regulator must not exceed 14"
(34.9 mb) water column.
Verify the type of gas being used at the installation site.
As shipped from the factory, units are configured for
use with natural gas.Make certain the range matches
the type of gas available at this location.
For installation of the appliance at high altitude, please
consult your local gas company for their recommen-
dation of the correct orifice sizes and any other
necessary adjustments that will provide proper gas
combustion at specified altitudes.
HOOK UP
• A manual gas shut-off valve must be installed
external to the appliance, in a location accessible
from the front, for the purpose of shutting off the
gas supply. The supply line must not interfere with
the back of the unit. Make sure the gas supply is
turned off at the manual shut-off valve before
connecting the appliance.
• The range is supplied with its own pressure regu-
lator that has been permanently mounted within
the range body.
• Use 3/4" flex line to connect between the gas
supply and the appliance manifold pipe, which
exits the upper rear of the appliance. The appli-
ance manifold pipe connection is 3/4" NPT. (See
Photo A.) Use caution to avoid crimping the 3/4"
flex line when making bends.
• The gas supply connections should be made by a
competent technician and in accordance with
local codes or ordinances. In the absence of a
local code, the installation must conform to the
National Fuel Gas Code ANSI Z223.1/NFPA54-
current issue.
• Always use pipe dope or Teflon® tape on the pipe
threads, and be careful not to apply excessive
pressure when tightening the fittings.
• Leak testing of the appliance shall be in accor-
dance with the following instructions.
• Turn on gas and check supply line connections
for leaks using a soap and water solution.
• Bubbles forming indicate a gas leak. Repair all
leaks immediately after finding them.
• Do not use a flame of any kind to check for
gas leaks.
Natural Gas Requirements:
Inlet Connection: 3/4" N.P.T. external
1/2" N.P.T. internal
(Minimum 3/4" dia. flex line.)
Supply Pressure: 6" to 14" water column.
(14.9 to 34.9 mb)
Manifold Pressure: 5" water column (12.5 mb)
Propane Gas Requirements:
Inlet Connection: 3/4" N.P.T. external
1/2" N.P.T. internal
(Minimum 3/4" dia. flex line.)
Supply Pressure: 11" to 14" water column.
(27.4 mb to 34.9 mb)
Manifold Pressure: 10" water column (24.9 mb)
Use 3/4" flex line to connect between
the gas supply and the appliance
manifold pipe, which exits the upper
rear of the appliance.
Photo A
Channel
for gas
line
³
³
WARNING
Gas line must not come in contact
with any components inside back
cover of range. Run gas line in
channel in back of range.

14
Step 6: Electrical Requirements, Connection & Grounding
CHART D: POWER SUPPLY WIRE–RATING AND SIZE REQUIREMENTS
MODEL VOLTAGE TEMPERATURE CONDUCTOR SIZE, AWG
NUMBER RATING, MIN. RATING L1, L2 NEUT GROUND
PD304 300 VAC Type T or Equal 10 12 10
PD36 300 VAC Type T or Equal 10 12 10
PD48 300 VAC Type T or Equal 8 10 8
Chart C: Electrical Supply Circuit Requirements
MODEL NUMBERVOLTAGE CIRCUIT RATING FREQUENCY PHASE
PD304 120/240 VAC 35 Amps 60 Hz. Single
PD36 120/240 VAC 35 Amps 60 Hz. Single
PD48 120/240 VAC 50 Amps 60 Hz. Single
• Prior to servicing appliance, always disconnect
appliance electrical supply cord, if so equipped,
from wall receptacle. If appliance is hard-wired to
power supply, disconnect power to unit by turning
off the proper circuit breaker or disconnecting the
proper fuse.
CAUTION
The appliance must be isolated from the gas supply piping system by closing its individual manual shut-off valve
during any pressure testing of the gas supply piping system at test pressures equal to or less than 1/2 psig
(3.5
kPa.).
The appliance and its individual shut off valve must be disconnected from the gas supply piping system
during any pressure testing of the system at test pressures in excess of 1/2 psig (3.5 kPa.).
When checking the manifold gas pressure, the inlet pressure to the regulator should be at least 6" W.C.
(14.9 mb) for natural gas or 11" W.C. (27.4 mb) for propane.
Do not attempt any adjustment of the pressure regulator.
• For the PD Dual Fuel Ranges, a neutral supply
wire must be provided from the power source
(breaker/fuse panel) because critical range com-
ponents, including the surface burner spark
reignition module, require 120 VAC to operate
safely and properly. An improper 120/240 VAC
power supply will cause malfunction, damage
this appliance, and possibly create a condition of
shock hazard. If the correct power supply circuit
is not provided, it is the responsibility and obliga-
tion of the installer and user to have proper power
supply connected. This must be accomplished in
accordance with all applicable local codes and
ordinances by a qualified electrician. In the ab-
sence of local codes and ordinances, the power
supply connection shall be in accordance with
the National Electric Code.
• Observe all governing codes and ordinances
when grounding. In the absence of these codes
or ordinances observe National Electrical Code
ANSI/NFPA No. 70 current issue. See Pages 15
and 16 for grounding method.
• Electrical wiring diagrams and schematics have
been placed in the toe kick area of the range for
access by a qualified service technician.
• The PD Dual Fuel Ranges may be connected to
a 120/208 VAC power supply.
Dual Fuel range models PD 304, PD36 and PD48
can be connected or hard-wired to the power supply
as described on Page 15.

15
Step 6: Electrical Requirements, Connection & Grounding
Dual Fuel models must be connected to the power supply utilizing one of the following methods. For all methods
of connection, the length of the cord or conduit/wiring must allow the unit to be slid completely out of the cabinet
without having to unplug or disconnect the unit from the power supply. Recommended minimum free length of
cord or conduit is four feet. Electrical installations and grounding must be in accordance with all local codes and
ordinances, and/or the National Electric Code, as applicable.
• 4-CONDUCTOR CORD -
NORMALLY, A UNIT MUST
BE CONNECTED TO THE
POWER SUPPLY WITH A
3-POLE, 4-CONDUCTOR
CORD KIT RATED 125/
250 VOLTS, 50 AMPERES,
AND MARKED FOR USE
WITH RANGES. The cord
kit must be attached to the
range junction box with a strain
relief which will fit a 1" diam-
eter hole. If not already
equipped, the cord must have
1/4" faston closed-loop lugs
attached to the free ends of
the individual conductors, pref-
erably soldered in place.
•PERMANENT CONNECTION
(HARD WIRING) - Units may
be hard wired to the power
supply. The installer must
provide approved flexible
aluminum conduit, 3/4" trade
size, maximum 6 feet long.
Locate the junction box on the
rear of the unit and remove
cover. Refer to Fig. 9. Remove
the ground strap retaining
screw and bend the ground
strap up. Refer to Fig. 10. The
conduit must be installed to
the junction box using an
approved conduit connector.
Wiring for the unit is to be
brought into the junction box
through the conduit. Refer to
Chart D on Page 15 for rating
of wiring and sizing of indi-
vidual conductors. The ends
of the wiring must have
1/4" faston closed-loop lugs
attached, preferably soldered
in place. Make the connec-
tions to the terminal block pro-
vided. Secure the ground lead
to the junction box with the
screw previously used to se-
cure the ground strap. Refer
to Fig. 11. The free end of the
conduit must be connected to
a junction box provided in the
gas and electrical supply zone,
as shown in Figure 3A on Page
8.
•3-CONDUCTOR CORD –
WHERE LOCAL CODES
AND ORDINANCES PERMIT
GROUNDING THROUGH
NEUTRAL, AND CONVER-
SION OF SUPPLY TO 4
WIRE IS IMPRACTICAL,
UNIT MAY BE CON-
NECTED TO THE POWER
SUPPLY WITH A 3-POLE,
FIG. 9 –
Location of Junction
Box on dual fuel ranges.
GAS SUPPLY
JUNCTION
BOX
Flexible electrical conduit or
4-connector Appliance Cord
Gas
supply
channel
³
3-CONDUCTOR CORD KIT
RATED 125/250 VOLTS, 50
AMPERES, AND MARKED
FOR USE WITH RANGES.
The cord kit must be attached
to the range junction box with a
strain relief which will fit a 1"
diameter hole. If not already
equipped, the cord must have
1/4" faston closed-loop lugs at-
tached to the free ends of the
individual conductors, prefer-
ably soldered in place.

Upper Nut
16
Supply Wire
³
Flat Washer
³
³
FIG. 10
Cupped Washer
³
Step 6: Electrical Requirements, Connection & Grounding
A 3- or 4-conductor supply may be connected to the
terminal block.
3-WIRE LEAD CONNECTION
1. Remove upper nuts only from the terminal block
studs. Do not remove nuts which secure
range internal wiring leads.
2. Secure the neutral, grounded wire of the supply
circuit, to the center stud of the terminal block with
nut. (See Fig. 11).
3. Secure the L1 (black) and L2 (red) power leads to
the outside terminal block studs (brass colored)
with nuts.
4. Tighten nuts securely.
4-WIRE CONNECTION
1. Remove upper nuts only from the terminal block
studs. Do not remove lower nuts which
secure range internal wiring leads.
2. Remove ground strap screw and bend the strap
up as shown in Fig. 12
3. Secure the neutral wire to the center stud of the
terminal block with nut.
4. Secure the L1 (black) and L2 (red) power leads to
the outside terminal studs (brass colored) with
nuts.
5. Secure the bare copper ground lead to the range
chassis using the ground screw previously used
for the ground strap. Be sure that neutral and
ground terminals do not touch.
6. Tighten all connections securely.
Bend Ground Strap Up
³
Ground Wire
FIG. 13
³
³
L1 Black L2 Red
FIG. 11
FIG. 12
³
L2 Red
L1 Black
Neutral White
³
³
Ground Strap
3 Wire Connection
Conductor Securement
Secure Neutral Wire

17
The backguard must be attached before sliding the
range into the final installed position. A Low Back or
High Shelf backguard must be installed when there is
less than a 12" clearance between combustibles and
the back of the range above the cooking surface. (See
Fig. 2A and 2B on Page 7).
An Island Trim is available for covering the backguard
mounting flanges for island installations, where there
is a minimum of 12" of horizontal clearance between
combustibles and the back of the range. (See Fig. 2B
on Page 7).
The backguard is inserted, as shown in Fig. 14, into
the guide channels on the back of the range. Secure
the backguard with the (4) sheet metal screws pro-
vided.
Step 7: Backguard Installation
Chart C: BACKGUARD KIT MODEL NUMBERS
RANGE MODEL NO. 9" STD. LOW BACK 12" LOW BACK 22" HIGH SHELF 3-3/4" ISLAND TRIM
PD304 Included with Range N/A HS30R IT30R
PD36 N/A LB36R HS36R IT36R
PD48 N/A LB48R HS48R IT48R
FIG. 14
³
³
Backguard
Installed
Front of Unit

CAUTION
The door is heavy and requires two people to
handle it properly.
Hinge Locking Pin
Height adjusting screw
Bottom of Door
Photo B. Insert the door hinge into the hinge
pocket in the front frame.
Fig. 15
Fig. 16
Photo D
Photo C
(Retain for future
door removal)
1. Insert the door hinge into the hinge pocket in the
front frame. When the door is properly installed,
the bottom edge will be parallel to the front of the
range and the hinge will click into position and
support the weight of the door.
2. Tip the door parallel to the floor to free the hinge
locking pin.
3. Carefully remove the pins. The door is now free to
close. Install the hold down bracket. Do not tighten
screw.
Retain pins for future door removal.
4. Adjust the door height so the latch lock lever and
spacer gauge enters the slot in the door liner as
the door is closing and the top of the door should
be parallel to the bottom of the control panel.
Tighten down screw on hold down bracket.
5. Oven door hinges seated and hold down bracket
is located in proper locked position. Now the door
opens and closes properly.
6. The toe kick panel should be mounted last to
prevent damage by the door.
18
Step 8: Door Installation

The stainless steel surfaces may be cleaned by
wiping with a damp soapy cloth, rinsing with clear
water and drying with a soft cloth to avoid water
marks. Any mild glass cleaner will remove fingerprints
and smears.
For discolorations or deposits that persist, refer to the
Care and Use Manual.
To polish and protect the stainless steel, use a cleaner/
polish such as Stainless Steel Magic®.
DO NOT allow deposits to remain for long periods of
time.
DO NOT use ordinary steel wool or steel brushes.
Small bits of steel may adhere to the surface causing
rust.
DO NOT allow salt solutions, disinfectants, bleaches
or cleaning compounds to remain in contact with
stainless steel for extended periods. Many of these
compounds contain chemicals which could prove
harmful. Rinse with water after exposure and wipe dry
with a clean cloth.
To Clean and protect Exterior Surfaces
19
Step 9: Test and Adjustment
Install any loose components, such
as burner caps and grates, that
may have been removed earlier.
Be certain that burner caps seat
properly into the alignment slots in
the burner bases. Before testing
operation of the appliance, verify
that the unit and the gas supply
have been carefully checked for
leaks and that the unit has been
connected to the electrical power
supply. Turn the manual gas shut-
off valve to the open position. Check
operation of the sealed gas burn-
ers and grill by pushing and turning
each knob counterclockwise to “HI”.
The burner igniters will click until
the flame ignites. The two far left
sealed burners feature XLO®,
causing the flame to cycle on and
off when the knob is set to the XLO
range. This is normal operation.
EACH GAS BURNER MUST BE
EVALUATED FOR CORRECT
FLAME PERFORMANCE IMME-
DIATELY AFTER INSTALLATION
OF THIS APPLIANCE. In PD
Range models, air shutter for the
grill burner (NOT top burners) is
preadjusted at the factory. How-
ever, environmental or installation
conditions may require readjust-
ments. Flame evaluation is per-
formed with burner's control knob
at highest setting.
If the PLPKIT is used to convert
this appliance from Natural to Pro-
pane Gas, flame evaluation and
air shutter readjustments must be
performed — see instructions pro-
vided with the PLPKIT for correct
recommendations.
Burner flames should be blue and
stable with no yellow tips, exces-
sive noise, or lifting of the flame
from the burner. If any of these
conditions exist, check that the air
shutter (grill only) or burner ports
are not blocked or clogged.
Remove any blockages that exist.
If the flame is too yellow, indicating
insufficient air, increase the shut-
ter opening to increase air inlet (grill
only).
CAUTION
Burner adjustments must be
made by a qualified technician
at the time of installation.
Extreme care should be used
when adjustments are made
after installation. Improper or
lack of adjustments may
cause harmful by-products or
void your warranty.
FIG. 17 – Proper Flame (Approx.)
Top
Burners
1 to 1
-1
/
2
"
1
/
2
to 1"
Grill
³
³
³
³
The sealed top burner flames
should be approximately 1" to 1-1/2"
high. The grill flames should be as
shown in Fig. 17.
NOTE: No air shutter or low flame
adjustment is necessary or pos-
sible with the sealed top burners.

INSTALLER CHECKLIST
ELECTRICAL
❑Receptacle with correct over-
current protection is provided
for service cord connection.
❑Proper ground connection.
❑Proper polarity at receptacle.
OPERATION
❑All internal packing materials
removed. Check below grates
and grill pans and within
oven(s).
❑If used on propane gas, verify
that the propane gas supply is
equipped with its own high pres-
sure regulator in addition to the
pressure regulator supplied
with the appliance.
❑Burner caps properly seated
into burner bases.
❑Grill components properly
seated (not all models). Refer
to Use & Care Manual for Grill
details.
FINAL CHECK LIST
❑Placement of unit.
❑Specified clearances main-
tained to cabinet surfaces.
❑Unit Level – front to back –
side to side.
❑Burner caps positioned prop-
erly on sealed burner bases.
❑All packaging material removed.
❑Island trim or backguard at-
tached (if horizontal clearance
to combustible materials be-
hind cooking surface is less
than 12").
❑Check door adjustment and
hold down brackets.
❑Kick panel in place and two (2)
screws secure.
❑The griddle plate and frame is
correctly positioned, tilted
slightly forward. (See page 10
for adjustment procedure.)
GAS SUPPLY
❑Connection: 3/4" N.P.T. with
a minimum 3/4" diameter
flex line.
❑The appliance is connected only
to the type of gas for which it is
certified for use.
❑Manual gas shut off valve in-
stalled in an accessible loca-
tion (without requiring removal
of range).
❑Unit tested and free of gas leaks.
❑Gas supply pressure does not
exceed 14" W.C. (34.9 mb)
❑Bezels centered on burner
knobs, and knobs turn freely.
❑Each burner lights satisfacto-
rily, both individually and with
other burners operating.
❑Air Shutter adjustment for
proper flame made for Grill.
See Step 9 and Fig.17.
❑Griddle is tilted slightly forward
and does not rock (not all mod-
els).
❑Oven door hinges seated and
hinge locks in proper position.
Door opens and closes prop-
erly.
❑Burner grates correctly posi-
tioned, level, and do not rock.
20

Pour toutes les cuisinières mixtes Thermador Professional®
INSTRUCTIONS
D’INSTALLATION
Modèles
PD304
PD36
PD48

Pour les installations au Massachusetts :
1. L’installation doit être réalisée par un entrepreneur qualifié
ou agréé, un plombier ou un installateur de gaz qualifié
ou autorisé par l’État ou la région dans laquelle cet
appareil est posé.
2. Le robinet d’arrêt de gaz doit être pourvu d’une poignée
en « T ».
3. La longueur maximum autorisée du tuyau de gaz est de
91,4 cm (36 ").
Important : Conservez ces instructions pour l’inspecteur local de la compagnie de gaz.
Installateur : Veuillez laisser ces instructions d’installation avec l’appareil pour le propriétaire.
Propriétaire : Veuillez conserver ces instructions pour consultation ultérieure.
Veuillez lire toutes les instructions
avant de poursuivre
IMPORTANT
Les réglementations locales varient.
L’installation, les raccordements au gaz et les
mises à la terre doivent être conformes à toutes
les réglementations applicables.
AVERTISSEMENT
Coupez l’électricité avec d’installer l’appareil.
Avant de remettre l’électricité, assurez-vous
que toutes les commandes sont à la position
OFF.
— Ne stockez pas et n’utilisez pas d’essence ou autres
produits inflammables à proximité des appareils.
—
SI VOUS SENTEZ UNE ODEUR DE GAZ
■
N’allumez aucun appareil.
■
Ne touchez pas aux interrupteurs électriques.
■
N’utilisez pas les téléphones du bâtiment.
■
Appelez immédiatement votre compagnie de gaz de chez
un voisin. Suivez les instructions de la compagnie.
■
Si vous n’arrivez pas à contacter votre compagnie de
gaz, appelez les pompiers.
— L’installation et les réparations doivent être réalisées par
un installateur qualifié, un centre de service agréé ou la
compagnie de gaz.
POUR DIMINUER LES RISQUES DE BASCULEMENTDE
L’APPAREIL, INSTALLEZ UN DISPOSITIF ANTIBASCULE.
ASSUREZ-VOUS QUE LE DISPOSITIF ANTIBASCULE EST
CORRECTEMENT PLACÉ,CONFORMÉMENT
AUXINSTRUCTIONSD’INSTALLATION. (REMARQUE : LE
DISPOSITIF ANTIBASCULE EST OBLIGATOIRE SUR TOUTES
LES CUISINIÈRES DE 76,2 CM [30"] ET DE 91,4 CM [36 "]).
AVERTISSEMENT
■
LES CUISINIÈRES PEUVENT
BASCULER.
■ ■
■ ■
■
DES PERSONNES PEUVENT ÊTRE
BLESSÉES.
■ ■
■ ■
■
INSTALLEZ UN DISPOSITIF
ANTIBASCULE.
■ ■
■ ■
■
CONSULTEZ LES INSTRUCTIONS
D’INSTALLATION.
Remarque: Cette cuisinière N’EST PAS conçue
pour les maisons mobiles ni pour les véhicules
récréatifs.
NE PAS installer cette cuisinière à l'extérieur.
AVERTISSEMENT
L’information fournie dans ce manuel doit
être très rigoureusement respectée, sous
peine d’incendie ou d’explosion entraînant
des dommages, des blessures ou la mort.

23
Modèle PD304 Modèle PD364GL
Modèle LB36R à plaque de
protection basse
Modèle PD484GGE
Modèle LB48R à plaque de
protection basse
Introduction ................................................................... 24
Informations importantes à propos de l’installation ........ 25
Chapitre 1 : Exigences de ventilation ............................ 26
Chapitre 2 : Préparation de l’emplacement ........... 27 – 31
Chapitre 3 : Déballage, manutention et
mise en place de la cuisinière .............................. 32 – 33
Chapitre 4 : Installation du dispositif antibascule.. . 34 – 35
Chapitre 5 : Exigences pour l'alimentation du gaz
et raccordement ........................................................... 36
Chapitre 6 : Exigences pour l'alimentation électrique,
le branchement et la mise à la terre ...................... 37 – 39
Chapitre 7 : Installation de la plaque de protection ........ 40
Chapitre 8 : Installation de la porte ................................ 41
Chapitre 9 : Test et réglage .......................................... 42
Nettoyage et protection des surfaces extérieures.......... 42
Liste de vérification de l’installateur .............................. 43
Table des matières

24
Les cuisinières Thermador Professional
®
sont des
appareils monoblocs disponibles en plusieurs
configurations.
Le modèle PD304 est équipé d’une table de cuisson
de quatre brûleurs à gaz hermétiquement encastrés et
d’un four électrique à convection autonettoyant de
76,2 cm (30") avec gril. La table de cuisson des
modèles PD364GE, PD364GL et PD366 comporte
quatre brûleurs à gaz hermétiquement encastrés avec
soit une plaque chauffante, soit un gril ou encore six
brûleurs à gaz hermétiquement encastrés plus un four
électrique à convection autonettoyant de 91,4 cm
(36") avec gril. La table de cuisson des modèles
PD484GGE, PD486GE et PD486GL est équipée de
quatre brûleurs à gaz hermétiquement encastrés,
d’une plaque de cuisson et d’un gril, de six brûleurs
hermétiquement encastrés et d’une plaque de cuisson
ou de six brûleurs et d’un gril. Les cuisinières PD48 ont
un grand four électrique à convection autonettoyant
(le même que celui des cuisinières PD36) et un four
électrique auxiliaire avec fonctions de cuisson de
pain, de maintien au chaud et de cuisson et un gril.
VÉRIFICATION DU TYPE DE GAZ
Vérifiez quel est le type de gaz fourni sur le lieu
d’installation. L’appareil doit être raccordé au type de
gaz pour lequel il est certifié. Toutes les cuisinières
sont certifiées pour une utilisation avec du gaz naturel.
Pour convertir l’appareil au gaz propane sur le lieu
d’installation, une trousse de conversion est
nécessaire.
IMPORTANT
•
Une plaque de protection doit être mise en place
lorsque le dégagement horizontal entre les
matériaux combustibles et le bord arrière de la
cuisinière est inférieur à 30,5 cm (12"). La
plaque de protection basse Thermador doit être
commandée séparément et installée à l’arrière
de la cuisinière. Pour les installations en
îlot et autres installations avec un dégagement
de plus de 30,5 cm (12’’), un enjoliveur en acier
inoxydable est vendu en option afin de recouvrir
les brides de montage de la plaque de
protection.
•
Assurez-vous que l’appareil convient au type de
gaz fourni. Consultez le Chapitre 5 à la page
38 avant de procéder à l’installation.
Introduction

Cet appareil a été testé conformément à la norme
américaine ANSI Z21.1 en vigueur régissant les
appareils électroménagers de cuisson au gaz et
conformément à la norme canadienne CAN 1.1-M81
régissant les cuisinières à gaz domestiques.
Il est fortement recommandé d’installer une hotte de
ventilation adaptée au-dessus de cet appareil (voir
Chapitre 1, Conditions de ventilation). Comme la
cuisinière peut dégager une forte chaleur, une atten-
tion particulière doit être portée aux travaux
d’installation des conduites et de la hotte, lesquels
doivent être conformes aux règlementations locales
de construction.
MISE EN GARDE
Pour éliminer les risques de brûlures ou d’incendie
provoqués par la chaleur, il est conseillé d’éviter
d’installer des armoires au-dessus des tables de
cuisson des appareils.
Vérifiez la réglementation locale applicable à la
construction pour connaître la méthode appropriée
d’installation de l’appareil. Les réglementations
locales varient. L’installation, le branchement électrique
et la mise à la terre doivent respecter toutes les
réglementations applicables. À défaut d'une
réglementation spécifique applicable, l’appareil doit
être installé conformément à la norme américaine en
vigueur régisssant le gaz combustible ANSI Z223.1/
NFPA54 et l’électricité ANSI/NFPA70. Au Canada,
l'installation doit être conforme aux normes
canadiennes CAN 1-B149.1 and .2 régissant les
cuisinières à gaz domestiques et la réglementation
locale.
Information Importante concernant l’installation
MISE EN GARDE
Si l’appareil est alimenté au gaz
propane, assurez-vous que le réservoir de
propane est équipé de son propre détendeur
en plus du détendeur fourni avec la
cuisinière. La pression maximum d’arrivée du
gaz dans cet appareil ne doit pas dépasser les
34,9 millibars (14 pouces à la colonne d’eau)
entre le réservoir de propane et le détendeur.
25
MISE EN GARDE
Cet appareil est conçu pour un usage culinaire.
Pour des raisons de sécurité, ne l’utilisez
jamais pour chauffer une pièce

26
Chapitre 1 : Conditions de ventilation
Il est fortement recommandé
d’installer une hotte de ventilation
appropriée au-dessus de la
cuisinière. Une ventilation par
contre-tirage ne devrait pas être
utilisée. Le tableau ci-dessous
énumère, par numéro de modèle,
les hottes Thermador qu’il est
conseillé d’utiliser avec les
cuisinières.
1. Choix du modèle de
hotte et de ventilateur
• Pour les installations murales, la
largeur de la hotte doit être au
minimum égale à celle de table
de cuisson de la cuisinière. Si
l’espace le permet, il est
souhaitable d’installer une hotte
plus large que la table de
cuisson pour améliorer les
performances de ventilation.
• Pour les installations en îlot, la
largeur de la hotte devrait
dépasser d’au minimum 15,2 cm
(6") des deux côtés de la table
de cuisson de la cuisinière.
Remarques : * Pour les installations murales, si l’espace est suffisant, l’installateur ou l’utilisateur peut choisir une
hotte plus large que la table de cuisson de la cuisinière. Elle améliorera l’évacuation des fumées si l’on
utilise beaucoup le gril ou si la conduite est longue.
** Pour les installations murales, Thermador propose des modèles de ventilateurs à distance (VTR1000Q ou
VTR1400Q) ou incorporés dans la hotte (VTN1000Q).
VTR1000Q, VTR1400Q
ou
VTN 1000Q
VTR1000Q, VTR1400Q
VTR1000Q, VTR1400Q
CUISINIÈRE DE 91,4
CM (36
po
)
HTNI42YS
HNI42YS
PHI48ZS
VTR1000Q
VTR1400Q
PH36ZS, 42ZS
PHE36,42
HNW36YS
HNW42 YS
INSTALLATION MURALE INSTALLATION EN ÎLOT
LARGEUR DE LA
CUISINIÈRE HOTTE* VENTILATEUR** HOTTE* VENTILATEUR**
CUISINIÈRE
DE
76,2
CM (30
po
)
PH30ZS
PH30HQS
PHE30,36
VTR1000Q,
VTR1400Q
ou
VTN 1000Q
HTNI42YS
HNI42YS
PHI48ZS
VTR1000Q,
VTR1400Q
CUISINIÈRE
DE
121,9
CM
(48
po
)
PH48ZS
PH48HQS
PHE48,60
VTR1000Q
VTR1400Q
ou
VTN 1000Q
HTNI48YS
HNI48YS
HTNI54YS
HNI54YS
PHI60ZS
VTR1400Q
2. Emplacement de la
hotte
• Pour une meilleure élimination
des fumées, le bord inférieur de
la hotte doit être placé à une
distance minimum de 76,2 cm
(30") et maximum de 91,4 cm
(36") au-dessus de la table de
cuisson (voir Figure 1).
• Si la hotte contient des
matériaux combustibles (par
exemple, un placage en bois),
elle doit être placée à 91,4 cm
(36") au minimum au-dessus de
la table de cuisson.
3. Apport d’air
• Un important volume d’air étant
nécessaire pour la ventilation, il
est recommandé de prévoir un
apport d’air de l’extérieur. Cet
aspect revêt une importance
particulière dans les logements
bien isolés et très étanches.
• Il est conseillé de consulter un
entrepreneur en chauffage et
en climatisation.
MISE EN GARDE
Les hottes de ventilation et les
ventilateurs sont conçus pour une
seule conduite murale. Certaines
réglementations locales du
secteur du bâtiment exigent
toutefois une double conduite.
Consultez les normes applicables
et/ou l’administration locale avant
de commencer les travaux afin de
vous assurer que l’installation des
conduites répond aux exigences
locales.
• Il convient que la vitesse du
ventilateur de la hotte soit
réglable afin de réduire le bruit
et la perte d’air chaud ou
climatisé lorsque la ventilation
maximum n’est pas nécessaire.
Normalement, la vitesse
maximum du ventilateur n’est
nécessaire que quand on utilise
le gril.

27
Chapitre 2 : Préparation de l’emplacement
1. La cuisinière est un appareil monobloc. Si elle est
placée au milieu des armoires, les dégagements
requis sont indiqués à la Figure 1. Les mêmes
dégagements s’appliquent aux installations en îlot,
excepté pour les armoires suspendues qui doivent
laisser un espace suffisamment grand pour poser
la hotte d’îlot évasée, comme le montre la Figure 1.
2. Les cuisinières de 91,4 cm (36") peuvent être
encastrées entre les armoires au-delà du bord de
la partie frontale du four (voir Figures 2A et 2B).
Les cuisinières de 76,2 cm (30") et de 121,9 cm (48")
ne sont pas homologuées pour être installées à ras
des armoires.
REMARQUE : La profondeur maximum des armoires
en hauteur installées d’un côté ou de l’autre de la hotte
est de 33 cm (13").
Un dégagement minimum de 91,4 cm (36") est
nécessaire entre le dessus de la cuisinière et le
dessous d’une armoire non protégée. Si le dessous
de l’armoire en bois ou en métal est protégé par un
matériau ignifuge d’au moins 6,35 mm (1/4") revêtu
d’une feuille d’acier no 28 MSG d’au moins la même
épaisseur, de 0,38 mm (0.015") d’acier inoxydable,
de 0,6 mm (0.024") d’aluminium ou de 0,5 mm (0.02")
de cuivre, la distance minimum est de 76,2 cm (30").
Les matériaux ignifuges portent la marque :
3. Les arrivées d’électricité et de gaz doivent se trouver
dans les zones indiquées à la Figure 3A.
4. La profondeur maximum des armoires installées de
chaque côté de la hotte est de 33 cm (13").
5. Toute ouverture dans le mur qui se trouve derrière
la cuisinière et dans le plancher sous la cuisinière
doit être refermée.
6. Si la distance entre un matériau combustible et le
bord arrière de la cuisinière au-dessus de la table
de cuisson est de moins de 30,5 cm (12"), il est
obligatoire d’installer une plaque Thermador de
protection arrière, basse ou à étagère supérieure
(voir Figure 2A). Si la distance du matériau
combustible est supérieure à 30,5 cm (12"), il est
possible d’utiliser un enjoliveur Thermador pour îlot
(voir Figure 2B). Les Figures 2A et 2B indiquent
l’espace nécessaire pour chaque type de plaque
de protection.
7. L’appareil ne doit jamais se trouver à proximité de
matériaux combustibles, d’essence et d’autres
produits inflammables (vapeurs ou liquides).
8. L’air de combustion et de ventilation arrivant à
l’appareil doit pouvoir circuler librement dans les
conduites
MISE EN GARDE
Dans ce type d’installation pour les cuisinières
de 91,4 cm (36"), la porte et l’armoire peuvent
comporter un risque de pincement.
UNDERWRITERS LABORATORIES INC.
CLASSIFIED MINERAL AND FIBER BOARDS
SURFACE BURNING CHARACTERISTICS,
(panneaux de fibres et minéraux classés,
caractéristiques d’inflammation des surfaces),
suivie des taux de progression des flammes et des
fumées. Ces désignations sont indiquées par « FHC »
(Flame Spread/Smoke Developed – Progression des
flammes/Production de fumée). Les matériaux ayant
un taux « O » de progression de flammes sont
ignifuges. Les réglementations locales peuvent
autoriser d’autres taux de progression des flammes.

Zone d’arrivée d’électricité et de gaz,
voir Fig. 3A. Les dimensions et la
position de cette zone dépendent
du modèle.
Table de
cuisson
MISE EN GARDE : Voir
Fig. 2A et 2B. Distance
min. 91,4 cm (36") entre la
table de cuisson et des
matériaux combustibles
.
Ð
Tel que défini dans le « Code national du gaz combustible »
(ANSI Z223.1 – Dernière édition). * La hauteur de la cuisinière est
réglable. Le dessus de la cuisinière doit être au même niveau ou
plus haut que le plan de travail.
Tel que défini dans le « Code national
du gaz combustible » (Dernière
version de la norme ANSI Z223.1).
Largeur de la cuisinière
76,2 cm 30", 91,4 cm 36" ou
121,9 cm 48"
Hotte de 76.2 CM (30") ou de 91,4 cm (36")
106,7 cm (42") ou 121,9 cm(48") pour installation en îlot
Hotte de 91,4 cm (36") ou 106,7 cm (42")
106,7 cm (42") ou 121,9 cm (48") pour installation en îlot
Hotte de 121,9 cm (48") ou 152,4 cm (60")
121,9 cm (48"), 137,2 cm (54") ou
152,4 cm (60") pour installation en îlot
}
}
}
Cuisinière de 76,2 cm (30 ")
Cuisinière de 91,4 cm (36 ")
Cuisinière de 121,9 cm (48 ")
³
Distance minimum entre les armoires
suspendues composées de matériaux com-
bustibles
³
Profondeur
max. de
l’armoire :
33 cm (13")
}
³
³
Min. 7,6 cm (3")
à paroi latérale
combustible en
matériau
(des deux côtés).
45,8 cm
(18") min.
³
³
FIG. 1 – Dégagement des armoires
MISE EN GARDE
N’installez pas les modèles de cuisinières PD304 et PD48 de telle
sorte que la porte du four soit au ras de la partie frontale des
armoires. Une installation à même niveau risque d’endommager
les armoires dû à leur exposition à la chaleur.
Min. 76,2 cm (30") à 91,4 cm
(36") max. entre le dessous
de la hotte et la table de
cuisson (91,4 cm [36"] si la
hotte contient des matériaux
combustibles ).
³
³
³
•
³
³
Cuisinières de 76,2 cm (30")
Cuisinières de 91,4 cm (36")
Cuisinières de 121,9 cm (48")
28
Chapitre 2 : Préparation de l’emplacement
76,2 cm = 30"
91,4 cm = 36"
106,7 cm = 42"
121,9 cm = 48"
137,2 cm = 54"
152,4 cm = 60"
Hauteur min. de la cuisinière avec
pieds élévateurs entièrement
rétractés : 89,8 cm (35-3/8")
Hauteur max. de la cuisinière
avec pieds élévateurs
entièrement déployés :
93,3 cm (36-3/4").
Conversion deS mesures
³
³
³
³³

29
Chapitre 2 : Préparation de l’emplacement
FIG. 2A -
Vue latérale
3/8"
4"
³
³
3,2 mm
(1/8")
REMARQUE :
Pour installer l’enjoliveur pour îlot,
le plan de travail doit avoir un bord
en porte-à-faux venant se placer
bord à bord avec l’arrière de
l’enjoliveur.
REMARQUE :
Si une paroi interne est utilisée
sous le plan de travail en porte-
à-faux, la distance entre cette
paroi et l’arrière de la cuisinière
doit être de 3,2 mm (1/8")
Plan de travail en porte-à-
faux
Min. 91,4 cm (36")
des combustibles
Matériaux
combustibles
Étagère
supérieure
Plaque de
protection
basse
Partie frontale
Mur
Plaque
d’habillage
tel que défini dans le Code national du gaz combustible
(ANSI Z223.1, Version actuelle).
Conversions de mesures
9,5 mm = 3/8"
9,8 cm = 3-7/8"
30,4 cm = 12"
32,7 cm = 12-7/8"
55,9 cm = 22"
64,7 cm = 25-1/2"
66,9 cm = 26-3/8"
72,1 cm = 28-3/8"
74,9 cm = 29-1/2"
82,9 cm = 32-5/8"
120,3 cm = 47-3/8"
Conversion des mesures
91,4 cm = 36"
30,5 cm = 12"
3,2 mm= 1/8"
Partie
frontale
Enjoliveur
pour îlot.
Matériaux
combustibles
Min. 91,4 cm (36") à
combustibles
FIG. 2B -
Vue latérale
Min. 30,48 cm (12") à
combustibles si aucune
plaque de protection n'est
installée ou installation en
ilôt

A³
³
³
³
³
³
D
E
³
³
B
³
³
C
30
ARRIVÉE DU GAZ ET DE L'ÉLECTRICITÉ
Chapitre 2 : Préparation de l’emplacement
Figure 3A : Arrivée du gaz et de l'électricité
de toutes les cuisinières mixtes
Toutes les cuisinières mixtes
peuvent être raccordées au secteur
à l’aide du cordon d’alimentation fourni
avec la cuisinière ou bien directement
câblées. L’installateur doit fournir les
éléments de câblage qui conviennent
(cordon ou conduite et câbles) et
réaliser le raccordement au gaz
conformément à la réglementation
locale et/ou au Code national
d’électricité. Les appareils doivent
être mis à la terre. Voir le Chapitre 6
pour plus de détails.
La cuisinière ne doit être
raccordée qu’au type de gaz
pour lequel elle est certifiée. Si
elle est raccordée au gaz propane,
le réservoir de propane doit être doté
de son propre détendeur en
plus du détendeur fourni
avec la cuisinière (voir Chapitre 5).
Modèle
ABCDE
PD30 20,3cm 30,5cm 25,4cm 16,5cm 13,3cm
PD36 26,4cm 38,1cm 26,4cm 16,5cm 13,3cm
PD48 41,9cm 40,6cm 39,4cm 16,5cm 13,3cm
REMARQUE : Toute ouverture dans le mur se trouvant
derrière l’appareil ou dans le plancher sous l’appareil
doit être bouchée.
Conversions de mesures
20,3 cm = 8"
30,5 cm = 12"
25,4 cm = 10"
16,5 cm = 6-1/2"
26,4 cm = 10-1/2"
38,1 cm = 15"
39,4 cm = 15-1/2"
40,6 cm = 16"
41, 9 cm = 16-1/2"
Saillie max.’5,1 cm
(2") à partir du mur
pour l’arrivée de gaz
Tuyau flexible de
19 mm (3/4" ) vers
l’appareil
Zone
d'arrivée de
l'électricité
Zone
d’arrivée
du gaz
Filetage NPT
12,7 mm (1/2")M4" ) verste et5vrréa 504 VCAe derep(le ntée/4"eilBoît(Zone)Tj)-3.1429 TD36.0099 lus dd’amentation REMARQhée.dTwe (reilesuresdêtivée de5(mntation)TjT10.te et5rep(le nté s(poareil)TjT*370041 T55.1375 fig./4"sou dae (vàures)TjT*090041 Tc33.0453 dé leestpoareilA de5etlvecprréaurnil'éler ll ou daecpro-urnil'éler lletible de

Chapitre 2 : Préparation de l’emplacement
ALIMENTATION ÉLECTRIQUE, CUISINIÈRES MIXTES
L’installation des cuisinières mixtes
doit être planifiée de sorte que la
boîte de dérivation pour la prise ou
la connexion de la conduite laisse
le maximum d’espace à l’arrière de
l’appareil.
Quand le cordon d’alimentation
électrique (non fourni) ou la
conduite sont connectés à la prise
ou à la boîte de dérivation,
Cordon d’alimentation et prise Boîte de dérivation et conduite
31
5,7 cm (2 1/4") max.
une fois branché
l’ensemble prise/prise murale ou
couvre de boîte de connexion/
connecteur de conduite ne doit pas
former une saillie de plus de 5,7 cm
(2-1/4") à l’arrière. Reportez-vous
à la Figure 3B.
Ce point est particulièrement
important si la boîte de dérivation
murale se trouve juste derrière la
boîte de dérivation de l’appareil une
fois celui-ci installé. Reportez-vous
à la Figure 9 de la page 40 pour
l’emplacement de la boîte de
dérivation sur l’appareil. Afin de
minimiser les torsions lors du
branchement de l’appareil à la prise
ou à la boîte, orientez en premier
lieu la prise ou le connecteur de la
conduite et faites glisser sur la
position.
FIG. 3B – RACCORDEMENT AU MUR
5,7 cm max.
(2 1/4")

Tableau A
Cuisinière de Cuisinière de Cuisinière de
76,2 cm (30") 91,4 cm (36") 121,9 cm (48")
Poids à l’expédition 152 kg (335 lb) 201,4 kg (444 lb) 264,9 kg (584 lb)
Poids sans matériaux
129,3 kg (285 lb) 176,9 kg (390 lb) 237, 6 kg ( 524 lb)
d’emballage
Poids hors porte(s),
97,5 kg (215 lb) 133,8 kg (295 lb) 179,2 kg (395 lb)
chapeaux de brûleurs, plaque
d’habillage et grilles de four
32
Chapitre 3 : Déballage, manutention et mise en place de la cuisinière
MISE EN GARDE
Un équipement adapté
manipulé par du personnel
expérimenté doit être utilisé
pour déplacer la cuisinière
afin de ne pas endommager
l’appareil ni le plancher. La
cuisinière est lourde et
repose sur des pieds
réglables en acier.
• Le poids approximatif de la cuisinière à
l’expédition est celui qui est indiqué au
Tableau A. Il est recommandé d’ôter les
grilles des brûleurs, la plaque de cuisson,
les chapeaux des brûleurs, la plaque
d’habillage et les grilles du four pour
faciliter la manutention. Le poids de
l’appareil s’en trouvera diminué, comme
indiqué au Tableau A, et permettra à la
cuisinière de passer par une porte de
76,2 cm (30"). Voir Figures 2A et 2B à la
Page 31. N’ôtez pas le gril ni la
plaque de cuisson.
• Retirez l’emballage externe et les
matériaux d’emballage de la palette
d’expédition. Toutes les cuisinières
mixtes sont fixées sur une palette à l’aide
de quatre (4) boulons (voir Fig. 4 et 5).
Après avoir enlevé les boulons, soulevez
la cuisinière et enlevez-la de la palette.
• Retirez les équerres de la cuisinière. Pour
ce faire, l’installateur doit retirer les deux
vis qui fixent chacune de ces équerres,
enlevez l’équerre et remettez les vis.
Figure 4 – Retrait des deux
boulons avant posés pour
l’expédition
Figure 5 – Retrait des deux
boulons arrière posés pour
l’expédition
³
Boulon arrière
gauche posé
pour
l’expédition
Arrière de
l’appareil.

33
Chapitre 3 : Déballage, manutention et mise en place de la cuisinière
Fig. 6 - Mise en place sur la plate-forme à roulettes
Le poids de la
cuisinière doit être
uniformément
réparti en s’aidant
des supports placés
sur le dessous de la
cuisinière
- En raison du poids de la cuisinière, il convient
d’utiliser une plate-forme à roulettes souples pour
la déplacer. Le poids doit être uniformément réparti
sur la plate-forme (voir Figure 6).
- Transportez la cuisinière sur la plate-forme près
de son emplacement définitif, basculez-la pour
qu’elle soit portée par les pieds arrière et retirez la
plate-forme. PROTÉGEZ LE SOL SE
TROUVANT SOUS LES PIEDS
(MORCEAUX DE BOIS, TAPIS, ETC.)
AVANT DE METTRE LA CUISINIÈRE EN
PLACE. Installez le dispositif antibascule
(Chapitre 4), raccordez le gaz et l’électricité
(Chapitres 5 et 6) et installez la plaque de
protection (Chapitre 7) avant de placer
définitivement la cuisinière.
- Pour garantir son bon fonctionnement, la
cuisinière professionnelle doit être nivelée.
(Ce point est important pour tous les produits
équipés d’une plaque chauffante.) La cuisinière
se nivelle en réglant les pieds avec une clé.
- Remettez la plaque d’habillage en place et installez
la porte du four. Pour installer la porte, voir la
page 43. Les deux (2) vis qui maintiennent la
plaque d’habillage doivent être solidement
fixées pour éviter un contact accidentel
avec les surfaces chaudes.
Assurez-vous que les chapeaux des brûleurs
sont correctement assis sur les bases des
brûleurs de la table de cuisson de la cuisinière.
57,8 cm
(22-3/4")

34
Chapitre 4 : Installation du dispositif antibascule
Outils nécessaires pour l’installation du dispositif antibascule :
• Tournevis Phillips
• Perceuse, électrique ou à main
• Ruban à mesurer ou règle
• Foret de 3,2 mm (1/8") (mur ou sol en bois ou métal)
• Foret à béton pointe carbure de 19 mm (3/4") (mur ou sol en béton ou blocs de béton)
• Ancrages de 4,8 mm (3/16"), cloison en préfabriqué ou béton, 2 (inutile si le support de montage est fixé sur du bois dur ou du métal)
Pour toutes les cuisinières de 76,2 cm (30") et de 91,4 cm (36"), un dispositif
antibascule doit être installé conformément aux instructions suivantes.
AVERTISSEMENT
DANGER DE RENVERSEMENT
• Toutes les cuisinières peuvent se renverser et
blesser quelqu’un. Pour éviter un renversement
accidentel, elles doivent être fixées au sol, au
mur ou à une armoire au moyen de l’installation
du dispositif antibascule qui vous est fourni.
• Il peut exister un risque de renversement si
l’appareil n’est pas installé conformément à ces
instructions.
• En cas de déplacement de la cuisinière pour
nettoyage, réparation ou autre, assurez-vous
que le dispositif antibascule s’est bien
réenclenché quand la cuisinière a été repoussée
contre le mur. Si cette précaution n’est pas
prise, dans l’hypothèse d’une utilisation anormale
(personne montant, s’asseyant ou s’étendant
sur une porte ouverte), la cuisinière risque de
basculer, provoquant des blessures dues aux
liquides chauds renversés ou à la cuisinière elle-
même.
MISE EN GARDE
RISQUE DE DOMMAGES
• Contactez un installateur ou un entrepreneur qualifié
pour déterminer la méthode de perçage correcte des
murs ou du plancher (carrelage, bois dur, etc. ).
• Ne faites pas glisser la cuisinière sur un plancher non
protégé.
• Le non-respect de ces instructions comporte un risque
de dommages pour les revêtements muraux ou du sol.
AVERTISSEMENT
RISQUE D’ÉLECTROCUTION
• Soyez très prudent lorsque vous percez des
trous dans le mur ou dans le plancher. Des
fils électriques peuvent être dissimulés dans
les murs ou dans le plancher.
• Identifiez les circuits électriques pouvant se
trouver à l’endroit où le dispositif antibascule
est installé et déconnectez-les.
• Le non-respect de ces instructions risque de
provoquer une électrocution ou des
blessures.
AVERTISSEMENT
• Marteau
• Crayon ou autre marqueur
• TOUTES LES
CUISINIÈRES PEUVENT
BASCULER
• DES PERSONNES
PEUVENT ÊTRE
BLESSÉES
• INSTALLEZ LES
DISPOSITIFS
ANTIBASCULE
FOURNIS AVEC LA
CUISINIÈRE
• CONSULTEZ LES
INSTRUCTIONS
D’INSTALLATION

35
Chapitre 4 : Installation du dispositif antibascule
Cuisinières à gaz PD30 et PD36 (Figures 8A et 8B)
Référence pièce Quantité Description
détachée Thermador
415078 4
Vis Phillips
no 10 x 1-1/2"
487310 1 La
patte antibascule, montage au sol
INFORMATIONS IM^PORTANTES
À PROPOS DE L’INSTALLATION :
• La patte antibascule peut être fixée à une armoire en bois massif
ayant une paroi d’une épaisseur minimum de 19 mm (3/4").
• Selon l’épaisseur du mur ou du plancher, il peut être nécessaire
d’utiliser des vis plus longues, disponibles chez votre quincaillier.
• Au moins deux (2) vis de montage de la patte doivent être fixées
sur le bois massif ou le métal.
• Utilisez des ancrages appropriés pour monter la patte antibascule
sur un matériau autre que le bois dur ou le métal.
• Préparez les trous des emplacements de fixation comme indiqué
ci-dessous :
•Pour les murs, montants de mur ou sols en bois massif ou en
métal, percez des trous de guidage de 3,2 mm (1/8").
•Pour les murs ou les sols de type préfabriqué, carton-plâtre ou
autres matériaux mous, percez des trous de 4,8 mm (3/16") à
une profondeur minimum de 44,5 mm (1
-
3/4"), puis enfoncez
les ancrages en plastique dans tous les trous à l’aide d’un
marteau.
•Pour les murs ou les sols en béton ou en blocs en béton,
percez des trous de 4,8 mm (3/16") à une profondeur minimum
de 4,45 cm (1
-
3/4"), puis enfoncez les ancrages à béton dans
les trous à l’aide d’un marteau.
•Pour les murs ou les sols revêtus de carrelage, percez des trous
de 4,8 mm (3/16") de la profondeur du carrelage puis percez
derrière le carrelage comme indiqué ci-dessus.
• Si la cuisinière doit être ultérieurement placée à un nouvel endroit,
le dispositif antibascule sera enlevé et réinstallé.
MONTAGE DE LA PATTE ANTIBASCULE
L’option patte montée au sol doit être installée comme suit :
a) Placez la patte sur l’emplacement comme indiqué à la Figure 8B.
b) Fixez au plancher ou au montant de mur.
c) Une fois la cuisinière installée, le pied réglable se glissera sous
la patte.
Figure 8B
(2-1/2")
³
³
À partir du bord de la
cuisinière
³
³
Figure 8A – Montage de la patte antibascule
Figure 8B – Mise en place de la patte antibascule
(vue du haut) 6,35 cm
Bord avant de
l’armoire droite (distance habituelle ––
des deux côtés)
6,35 cm (
2-1/2")
Armoire
droite
Plancher
Ligne du mur
Armoire
gauche

36
Chapitre 5 : Exigences pour l'alimentation du gaz et raccordement
MISE EN GARDE
Si l’appareil est alimenté par du gaz propane, le
réservoir de gaz propane doit être équipé de son
propre détendeur en sus du détendeur fourni
avec la cuisinière. La pression du gaz à l’entrée
du détendeur de la cuisinière ne doit pas
dépasser 34,9 mb (14 pouces à la colonne
d’eau).
Vérifiez le type de gaz utilisé à l’endroit où la cuisinière
est installée. Celles-ci sont préparées à l’usine avant
expédition pour être alimentées par du gaz naturel ou
du gaz propane. La cuisinière doit correspondre au
type de gaz utilisé sur le site.
En cas d’installation de l’appareil à haute altitude,
veuillez consulter la compagnie locale de gaz pour
connaître les dimensions correctes des orifices et
autres réglages nécessaires permettant une bonne
combustion du gaz à l’altitude indiquée.
RACCORDEMENT
• Un robinet manuel d’arrêt de gaz doit être installé
à l’extérieur de l’appareil, à un endroit accessible
par le devant, dans le but de pouvoir couper
l’alimentation en gaz. Le tuyau d’arrivée de gaz ne
doit pas gêner à l’arrière de l’appareil.
Assurez-vous que le robinet d’arrêt est fermé avant
de raccorder l’appareil.
• La cuisinière est fournie avec un détendeur non
amovible qui a été monté à l’intérieur de manière
permanente.
• Utilisez le tuyau flexible de 19,1 mm (3/4") pour
raccorder l’arrivée de gaz au tuyau du collecteur de
l’appareil ; ce dernier sort du côté supérieur gauche
à l’arrière de l’appareil. Le raccord du tube du
collecteur est un filetage NPT 19,1 mm (3/4") (voir
photo A). Prenez garde à éviter les pincements du
tuyau flexible de 19,1 mm (3/4") dans les coudes.
• Le branchement à l’arrivée de gaz doit être effectué
par un technicien compétent conformément à la
réglementation locale. À défaut de règlementation
municipale, l’installation doit être conforme à la
norme américaine ANSI Z223.1/NFPA54en vigueur
régissant le gaz combustible.
• Utilisez toujours de la pâte à joint ou du ruban
Teflon® sur les filets du tuyau et prenez garde à ne
pas serrer excessivement les raccords.
• Les tests de fuite de l’appareil seront toujours
réalisés conformément aux instructions du fabricant.
• Ouvrez le gaz et assurez-vous qu’il n’y a pas de
fuites à l’aide d’une solution savonneuse. N’utilisez
pas de flamme pour faire cette vérification.
Photo A
³
³
Exigences pour le gaz naturel:
Raccord d’entrée :
19,1 mm (3/4") N.P.T. externe
12,7 mm (1/2") N.P.T. interne
(Minimum 19,1 mm (3/4") tuyau flexible
diamètre minimum)
Pression d’alimentation :
14,9 à 34,9 mb (6" à 14")
à la colonne d’eau
Pression du collecteur :
12,5 mb (5") à la colonne d’eau
Exigences pour le gaz propane :
Raccord d’entrée :
19,1 mm (3/4") N.P.T. externe
12,7 mm (1/2") N.P.T. interne
(diamètre minimum de 19,1 mm (3/4")
pour tuyau flexible)
Pression d’alimentation :
27,4 mb à 34,9 mb (11" à 14")
à la colonne d’eau).
Pression du collecteur :
24,9 mb (10")
à la colonne d’eau).
Utilisez un tuyau flexible 19,1 mm (3/4")
pour raccorder le tuyau du collecteur se
trouvant dans la partie supérieure gauche
de l’arrière de l’appareil, à l’arrivée de gaz.
Canal
pour le
tuyau
de gaz
AVERTISSEMENT
Le tuyau de gaz ne doit pas passer à l’intérieur
du couvercle arrière de la cuisinière.
Acheminez le tuyau de gaz par le canal
prévu à cet effet à l’arrière de l’appareil.

37
Chapitre 6 : Exigences pour l’alimentation électrique, branchement et mise à laterre
• Avant d’intervenir sur l’appareil, débranchez toujours, s’il en est
pourvu, le cordon d’alimentation électrique de la prise murale. Si
le câblage de l’appareil est fixe, coupez l’alimentation électrique
au niveau du disjoncteur du circuit ou déconnectez le fusible
correspondant.
MISE EN GARDE
L’appareil doit être isolé du système d’arrivée de gaz en fermant le robinet manuel d’arrêt pendant tous les tests de pression d’alimentation
en gaz lorsque ces pressions sont égales ou inférieures à 3,5 kPa (1/2 psig).
L’appareil et son robinet individuel d’arrêt doivent être débranchés du système d’arrivée de gaz pendant tous les tests de pression du
système si ces pressions dépassent 3,5 kPa (1/2 psig).
Pour la vérification de la pression de gaz du collecteur, la pression d’entrée du détendeur doit être de 14,9 mb (6,0") au minimum pour
le gaz naturel et de 27,4 mb (11,0") pour le propane.
Ne tentez pas de régler le détendeur.
• Pour tous les modèles PD de cuisinières mixtes, un fil
d’alimentation neutre doit être installé à partir de la source
d’électricité (disjoncteur/panneau de fusibles) car certains
composants de la cuisinière, dont le module de production
d’étincelle pour les brûleurs de la table de cuisson, fonctionnent
de manière sûre et adéquate sur le 120 VCA. Une mauvaise
alimentation électrique de 120/240 VCA entraînera des
dysfonctionnements, endommagera la cuisinière et peut
provoquer un risque d’électrocution. Si le circuit électrique ne
répond pas aux exigences requises, l’installateur ou l’utilisateur
est responsable et tenu de faire une installation correcte et
conforme à la réglementation locale applicable par un électricien
qualifié. À défaut de réglementation à ce sujet, le branchement
électrique doit être conforme au Code national régissant
l’électricité.
• La mise à la terre doit être conforme à l’ensemble de la
réglementation applicable. À défaut de réglementation spécifique
à ce sujet, la norme américaine ANSI/NFPA Nº 70 en vigueur
régissant l'électricité sera appliquée. Reportez-vous à la méthode
de mise à la terre aux pages 40 et 41.
• Les schémas de câblage électrique à l’intention du technicien
qualifié ont été placés dans la plaque d’habillage de l’appareil.
• Les cuisinières mixtes PD peuvent être branchées sur une
alimentation électrique de 120/208 VCA.
Les modèles de cuisinières mixtes PD 304, PD36 et
PD48 peuvent être connectés à l’alimentation
électrique au moyen d’une installation fixe ou du
cordon d’alimentation, comme décrit à la Page 40.
Tableau B : Exigences des circuits d’alimentation électrique
NUMÉRO DU MODÈLE
TENSION
INTENSITÉ DU CIRCUIT
FRÉQUENCE
PHASE
PD304 120 VCA 35 A (Amps) 60 Hz
Monophasé
PD36 120 VCA 35 A (Amps) 60 Hz
Monophasé
PD48 120 VCA 50 A (Amps) 60 Hz
Monophasé
Numéro du Tension Température
Dimensions du conducteur
(AWG- Calibre américain des fils)
modèle nominale min. nominale L1, L2
NEUTRE
TERRE
PD304 300 VCA
Type T ou équivalent
10 12 10
PD36 300 VCA
Type T ou équivalent
10 12 10
PD48 300 VCA
Type T ou équivalent
8 10 8
Tableau D : Câble d’alimentation électrique - Conditions de tension et dimensions

38
Chapitre 6 : Exigences pour l'alimentation électrique, le branchement et la mise à la terre
Les cuisinières mixtes doivent être branchées à l’alimentation électrique selon l’une des méthodes suivantes.
Pour toutes les méthodes de branchement, la longueur du cordon ou de la conduite/câblage doit permettre de
glisser complètement l’appareil hors de son emplacement sans avoir à le débrancher de la source d’alimentation.
La longueur minimum recommandée de cordon ou de conduite est de 1,22 m (quatre pieds). Les installations
électriques et la mise à la terre doivent être conformes à l’ensemble des réglementations locales et/ou au Code
national de l’électricité, selon ce qui est applicable.
•CORDON À 4 CONDUCTEURS –
NORMALEMENT, L’APPAREIL DOIT
ÊTRE BRANCHÉ À L’ALIMENTATION
ÉLECTRIQUE AU MOYEN DU
NÉCESSAIRE-CORDON À 4
CONDUCTEURS, 3 PÔLES D’UNE
TENSION NOMINALE DE 125/250 VOLTS,
50 AMPÈRES, HOMOLOGUÉ POUR UNE
UTILISATION AVEC LES CUISINIÈRES.
La trousse de câbles doit être fixé
sur la boîte de dérivation de la
cuisinière à l’aide d’un protecteur
de cordon adapté à un trou de
2,54 cm (1’’). S’il n’en est pas déjà
équipé, le cordon doit avoir des
cosses en boucle fermée Faston
de 0,63 cm (1/4’’) fixées aux
extrémités libres de chaque
conducteur et de préférence
soudées.
•CONNEXION PERMANENTE
(CÂBLAGE FIXE). Les
cuisinières peuvent être
connectées à l’alimentation
électrique par un câblage fixe.
L’installateur doit fournir une
conduite flexible en aluminium
homologuée, de taille standard
19 cm (3/4’’) et d’une longueur
maximum de 1,82 m (6’).
Repérez la boîte de dérivation
à l’arrière de l’appareil et retirez
le couvercle. Reportez-vous à
la Figure 9. Retirez la vis de
fixation du conducteur de terre
et repliez-le vers le haut.
Reportez-vous à la Figure 10.
La conduite doit être reliée à la
boîte de dérivation par un
connecteur de conduite
homologué.
Les câbles de l’appareil seront
amenés dans la boîte de dérivation
par la conduite. Reportez-vous au
tableau D de la page 39 pour
connaître les caractéristiques des
conducteurs. Les extrémités des
câbles doivent être pourvues de
cosses en boucle fermée Faston de
0,63 cm (1/4’’) et de préférence
soudées. Connectez-les à la plaque
à bornes qui est fournie. Fixez le fil
de terre sur la boîte de dérivation à
l’aide de la vis utilisée auparavant
pour fixer le conducteur de terre.
L’extrémité libre de la conduite doit
être raccordée à la boîte de
dérivation qui se trouve dans la
zone d’arrivée de gaz et d’électricité,
tel qu'indiqué sur la Figure 3A de la
page 32.
•CORDON À 3 CONDUCTEURS – SI
LES RÉGLEMENTATIONS
LOCALES PERMETTENT LA MISE
À LA TERRE PAR UN FIL NEUTRE
ET QUE LA CONVERSION DE
L’ALIMENTATION À QUATRE FILS
EST DIFFICILE, L’APPAREIL PEUT
ÊTRE CONNECTÉ À
L’ALIMENTATION ÉLECTRIQUE
PAR UNE TROUSSE DE CÂBLE À 3
CONDUCTEURS, 3 PÔLES, D’UNE
TENSION NOMINALE DE 125/250
VOLTS, 50 AMPÈRES ET
HOMOLOGUÉ POUR ÊTRE
UTILISÉ AVEC LES CUISINIÈRES.
La trousse de câbles doit être
fixé sur la boîte de dérivation de
la cuisinière à l’aide d’un
protecteur de cordon adapté à
un trou de 2,54 cm (1’’). S’il n’en
est pas déjà équipé, le cordon
doit avoir des cosses en boucle
FIG. 9 –
Emplacement de la boîte
de dérivation sur les
cuisinières mixtes
.
ARRIVÉE DE GAZ
Conduite électrique flexible ou
cordon d’appareil 4 connecteurs
Canal
d’arrivée
de gaz
³
fermée Faston de 0,63 cm (1/
4’’) fixées aux extrémités libres
de chaque conducteur et de
préférence soudées.
BOÎTE DE
DÉRIVATION

39
Fil d’alimentation
³
Rondelle plate
³
³
FIG. 10
Écrou supérieur
³
Chapitre 6 : Conditions d’alimentation, branchement et mise à laterre
Il est possible de connecter une alimentation à 3 ou à
4 conducteurs sur la plaque à bornes.
Connexion à 3 fils
1. Retirez seulement les écrous supérieurs des plots
de la plaque à bornes. N’enlevez pas les écrous
qui fixent les fils des câbles internes de la
cuisinière.
2. Fixez le fil neutre de mise à la terre du circuit
d’alimentation au plot central de la plaque à bornes
avec un écrou (voir Figure 11).
3. Fixez les fils de tension L1 (noir) et L2 (rouge) sur
les plots (couleur cuivre) des extrémités de la plaque
à bornes avec des écrous.
4. Serrez bien les écrous.
Connexion à 4 fils
1. Retirez seulement les écrous supérieurs des plots
de la plaque à bornes. N’enlevez pas les écrous
qui fixent les fils des câbles internes de la
cuisinière.
2. Retirez la vis du conducteur de terre et repliez le
conducteur vers le haut comme le montre la
Figure 12.
3. Fixez le fil neutre sur le plot central de la plaque à
bornes avec un écrou.
4. Fixez les fils de tension L1 (noir) et L2 (rouge) sur
les plots (couleur cuivre) des extrémités de la plaque
à bornes avec des écrous.
5. Fixez le fil de terre en cuivre dénudé sur le châssis
de la cuisinière à l’aide de la vis préalablement
utilisée pour le conducteur de terre. Assurez-vous
que la borne neutre et la borne de terre ne se
touchent pas.
6. Serrez bien toutes les connexions.
Repliez le conducteur de terre vers le haut
³
Fil de terre
FIG. 13
³
³
L1 Noir L2 Rouge
FIG. 11 Connexion à 3 fils
FIG. 12
³
L2 Rouge
L1 Noir
Blanc neutre
³
³
Conducteur terre
Fixation des conducteurs
Fixez le fil neutre
Rondelle à collerette

40
La plaque de protection doit être mise en place avant de glisser la
cuisinière à son emplacement définitif. La plaque, basse ou haute
avec étagère, est obligatoire si la distance, au-dessus de la table de
cuisson, entre les parois combustibles et l’arrière de la cuisinière
est inférieure à 30,5 cm (12") (voir Figures 2A et 2B à la Page 31).
Un enjoliveur pour installation en îlot est disponible : il recouvre les
brides de montage de la plaque de protection là où la distance
horizontale entre les parois combustibles et l’arrière de la cuisinière
est d’au moins 30,5 cm (12") (voir Figure 2B Page 31).
La plaque de protection s’insère dans les glissières à l’arrière de la
cuisinière, comme indiqué à la Figure 14, et est fixée par les quatre
(4) vis à tôle fournies.
Chapitre 7 : Installation de la plaque de protection
TABLEAU C : RÉFÉRENCES POUR LES PLAQUES DE PROTECTION
MODÈLE DE CUISINIÈRE 22,9 CM (9") 30,5 CM (12") 55,9 CM (22") 9,5 CM (3 3/4")
PLAQUE BASSE STANDARD
PLAQUE BASSE
PLAQUE HAUTE À ÉTAGÈRE
ENJOLIVEUR POUR ÎLOT
PD304
Inclus avec la cuisinière
N/D HS30R IT30R
PD36 N/D LB36R HS36R IT36R
PD48 N/D LB48R HS48R IT48R
FIG. 14
³
³
Plaque de protection
installée
Avant de l’appareil

41
Chapitre 8 : Installation de la porte
Goupille de blocage du crochet charnière
Vis de réglage de
hauteur
Bas de la porte
Photo B. Insérez le crochet charnière de la porte
dans le passage de charnière du cadre frontal.
Fig. 15
Fig. 16
Photo D
Photo C
(Retain for future
door removal)
Plaque de
maintien
inférieure
Installation (dépose)
de la porte, trou de
goupille
Réglage de hauteur
de la porte
Crochet de
charnière
Goupilles de
support
1. Insérez le crochet charnière de la porte dans les
passages de charnières du cadre frontal. Quand la
porte est correctement installée, le bord inférieur est
parallèle à l’avant de la cuisinière, le crochet charnière
s’enclenche et supporte le poids de la porte.
2. Placez la porte en parallèle avec le sol pour libérer la
goupille de blocage du crochet charnière.
3. Enlevez précautionneusement les goupilles. Il est
maintenant possible de fermer la porte. Installez la
plaque de maintien inférieure. Ne serrez pas la vis.
Conservez les goupilles pour un éventuel retrait de la
porte.
4. Réglez la hauteur de la porte de manière à ce que le
levier du verrou et la barre d’espacement s’insèrent
dans la fente de la garniture de la porte à sa fermeture.
Le haut de la porte doit être parallèle à la partie
inférieure du panneau de commandes. Serrez la vis
du bas de la plaque de maintien inférieure.
5. Les crochets charnières de la porte du four et la plaque
de maintien inférieure sont maintenant correctement
en place. Vous pouvez ouvrir et fermer la porte.
6. Il convient de monter la plaque d’habillage en dernier
pour ne pas endommager la porte.
MISE EN GARDE
La porte est lourde et doit être manipulée par
deux personnes.
Goupille de blocage
du crochet charnière
(à conserver pour
dépose ultérieure de la
porte)

42
Chapitre 9 : Tests et réglages
Les surfaces en acier inoxydable se nettoient en passant un chiffon
mouillé à l’eau savonneuse. Rincez à l’eau claire et séchez avec un
chiffon sec pour éviter les traces d’eau. Retirez les traces de doigts
et les traînées avec un produit à vitres doux.
En cas de décoloration ou de tache persistante, consultez le Manuel
d’utilisation et d’entretien.
Pour faire briller et protéger l’acier inoxydable, utilisez un produit
nettoyant/à polir comme le Stainless Steel Magic
®
.
NE laissez PAS les taches s’incruster.
N’utilisez PAS de tampons ni de brosses métalliques. De petits
morceaux de métal risquent d’adhérer à la surface et de la faire
rouiller.
NE laissez PAS les solutions salines, les désinfectants, l’eau de
Javel ou les produits de nettoyage en contact avec l’acier inoxydable.
Ces produits contiennent en général des produits chimiques
susceptibles de l’endommager. Rincez-les à l’eau et séchez avec un
chiffon sec.
Nettoyage et protection des surfaces extérieures
Installez toutes les pièces détachées, telles
que les chapeaux et les grilles des brûleurs,
susceptibles d’avoir été enlevées. Assurez-
vous que les chapeaux de brûleurs reposent
bien sur leurs rainures d’alignement placées
dans les bases des brûleurs. Avant de tester
le fonctionnement de l’appareil, assurez-vous
que l’alimentation en gaz et l’appareil lui-
même ne présentent pas de fuites et que
l’alimentation électrique est branchée.
Ouvrez le robinet manuel d’arrêt de gaz.
Vérifiez le fonctionnement des brûleurs
hermétiquement encastrés et du gril en
enfonçant et en tournant chacun des boutons
dans le sens contraire des aiguilles d’une
montre à la position HI. Les allumeurs des
brûleurs émettent des déclics jusqu’à
allumage de la flamme. Les deux brûleurs
les plus à gauche ont une fonctionnalité XLO
®
grâce à laquelle la flamme s’allume et s’éteint
lorsque le bouton est sur la position XLO. Il
s'agit d'un fonctionnement normal.
Les flammes des brûleurs doivent être tout à
fait bleues (pas de jaune à l’extrémité) et
stables, ne pas produire un bruit excessif ni
se détacher du brûleur. Si l’une de ces
conditions apparaît, assurez-vous que
l’obturateur d’air (gril seulement) ou les
orifices des brûleurs ne sont pas bouchés ou
obstrués. Éliminez toute obstruction. Si la
flamme est trop jaune (ce qui indique une
insuffisance d’air) , réglez l’obturateur dans
le sens contraire des aiguilles d’une montre
afin d’augmenter l’entrée d’air (gril
seulement).
La hauteur des flammes des brûleurs doit être
d’environ 25,4 mm (1") à 38,1 mm (1-1/2").
Les flammes de la plaque chauffante et du
gril doivent présenter l’aspect indiqué à la
Figure 17.
REMARQUE : Il n’est ni possible ni
nécessaire de régler l’obturateur d’air ou la
flamme basse des brûleurs hermétiquement
encastrés de la table de cuisson.
MISE EN GARDE
Les réglages des brûleurs
doivent être réalisés par un
technicien qualifié au moment
de l’installation. Renforcez les
précautions pour effectuer les
réglages après l’installation.
Des réglages incorrects ou
non effectués peuvent causer
des dommages collatéraux
ou annuler votre garantie.
FIG. 17 – Flamme correcte
25,4 mm (1") à
38,1 mm (1-1/2")
³
³
³
³
Gril
Brûleurs
hermétiquement
encastrés
12,7 mm (1") à 25,4 mm (1")

Liste de vérification pour l’installateur
cuisinière).
❑L'appareil a été testé et est
dépourvu de fuites de gaz.
❑La pression d’alimentation de
gaz est inférieure à 34,9 mb
(14").
ÉLECTRICITÉ
❑La prise de courant à laquelle le
cordon d’alimentation est
branché est bien protégée
contre les surtensions.
❑La mise à la terre a bien été
installée.
❑La prise électrique possède une
bonne polarité.
FONCTIONNEMENT
❑Tous les matériaux d’emballage
ont été enlevés à l’intérieur.
Vérifiez sous les grilles,
lèchefrites et dans le(s) four(s).
❑Si le gaz propane est utilisé,
assurez-vous que l’alimentation
en propane est pourvue de son
propre détendeur en plus du
détendeur fourni avec l’appareil.
❑Les chapeaux des brûleurs
reposent bien sur leurs bases.
❑Les composantes du gril sont bien
en place (sur certains modèles).
Voir le Manuel d’utilisation et
d’entretien pour plus de détails
sur le gril.
❑Les cadrans des boutons sont
bien centrés et les boutons
LISTE FINALE DE
VÉRIFICATION
❑L’appareil a été mis en place.
❑Les distances spécifiées entre
l’appareil et les armoires
adjacentes ont été respectées.
❑L’appareil a été nivellé d'avant à
arrière, et d'un côté à l'autre.
❑Les chapeaux de brûleurs ont été
correctement placés sur les
bases.
❑Tous les matériaux d’emballage
ont été retirés.
❑L'enjoliveur pour îlot ou plaque
de protection a été posé (si la
distance horizontale avec
matériaux combustibles au-
dessus de la table de cuisson est
inférieure à 30,5 cm [12"]).
❑La porte et des plaques de
maintien inférieures ont été
installés.
❑La plaque d’habillage a été
posée et fixée par deux (2) vis.
ALIMENTATION EN GAZ
❑Raccord : filetage NPT de
19,1 mm (3/4") avec tuyau
flexible diamètre minimum de
19,1 mm (3/4")
❑L’appareil est bien raccordé au
type de gaz pour lequel il est
certifié.
❑Le robinet manuel d’arrêt de gaz
installé à un endroit accessible
(sans avoir à bouger la
tournent librement.
❑Chaque brûleur s’allume
correctement, seul ou avec
d’autres brûleurs allumés.
❑Le réglage de l’obturateur d’air
afin d’obtenir la flamme spécifiée
pour le gril ou la plaque de
cuisson a été effectué. Voir
Chapitre 9 et Figure 17.
❑La plaque de cuisson est nivelée
ou légèrement inclinée vers
l’avant et ne bouge pas (sur
certains modèles).
❑Les crochets charnières de
porte(s) du(des) four(s) sont bien
en place et se verrouillent
correctement. La porte s’ouvre
et se ferme correctement.
❑Les grilles des brûleurs sont bien
placées, nivelées et ne bougent
pas.
43

Specifications are for planning purposes only. Refer to installation instructions and consult your
countertop supplier prior to making counter opening. Consult with a heating and ventilating engineer
for your specific ventilation requirements. For the most detailed information, refer to installation
instructions accompanying product or write Thermador indicating model number.
We reserve the right to change specifications or design without notice. Some models are certified
for use in Canada. Thermador is not responsible for products which are transported from the U.S.
for use in Canada. Check with your local Canadian distributor or dealer.
For the most up-to-date critical installation dimensions by fax, use your fax handset and phone:
(775) 833-3600. Use code #8030.
_____________________________________________________________________________________
Les spécifications ne sont fournies qu’à titre prévisionnel. Consultez les instructions d’installation
et le fournisseur de votre plan de travail avant de le modifier. Consultez un entrepreneur en chauffage
et en climatisation pour vos conditions spécifiques de ventilation. Pour une information plus détaillée,
reportez-vous aux instructions d’installation jointes au produit ou bien écrivez à Thermador en
indiquant le numéro du modèle.
Nous nous réservons le droit de modifier les caractéristiques ou le design sans préavis. Certains
modèles sont approuvés pour le Canada. Thermador n’est pas responsable des produits transportés
des États-Unis pour être utilisés au Canada. Veuillez vous renseigner auprès de votre distributeur
ou détaillant canadien.
Pour obtenir les dimensions d’installation très précises par télécopieur, veuillez nous contacter
par télécopieur et par téléphone au (775) 833-3600. Utilisez le code no 8030.
5551 McFadden Avenue, Huntington Beach, CA USA • 1 (800) 735-4328
ECO 5U00BG • 9000051329 Rev. A • © 2004 BSH Home Appliances Corp. • Litho USA 10/04
BSH Home Appliances Corp.