Trane DD1B060A9H31B 18 CD21D1 5.pmd User Manual To The Aba8779c 7d43 4493 8944 E81f35074244
User Manual: Trane DD1B060A9H31B to the manual
Open the PDF directly: View PDF 
.
Page Count: 24

*Horizontal Conversion for these furnaces may be left or right side rotation.
*UD1A040A9H21B
*UD1B060A9H31B
*UD1B080A9H31B
*UD1C080A9H41B
High Efficiency Single Stage Upflow/ Horizontal
and Downflow/ Horizontal Gas-Fired Furnaces,
“Fan Assisted Combustion System”
ALL phases of this installation must comply with NATIONAL, STATE AND LOCAL CODES
IMPORTANT — This Document is customer property and is to remain with this unit.
Please return to service information pack upon completion of work.
Installer’s Guide
*UD1B100A9H31B
*UD1C100A9H51B
*UD1D120A9H51B
*UD1D140A9H51B
*DD1B060A9H31B
*DD1B080A9H31B
*DD1C100A9H51B
*DD1D120A9H51B
*__First letter may be “A” or “T”
Upflow/ Horizontal* Downflow/ Horizontal*
A341789P07
18- CD21D1- 5
For VENT SIZING INFORMATION see:
USA —
National Fuel Gas Code ............. ANSI Z223.1/NFPA 54 (latest version)
CANADA  —
Natural Gas Installation Code ........... CAN/CGA-B149.1 (latest version)
Propane Installation Code ................. CAN/CGA-B149.2 (latest version)
USA/CANADA ALTERNATE —
Category I Venting Guide .................................. Pub. No. 18-CH23D1-2
*UD1-H *DD1-H

© 2008 Trane           All Rights Reserved 18-CD21D1-5
Installer’s Guide
The following safety practices and precautions must be
followed during the installation, servicing, and opera-
tion of this furnace.
1. Use only with the type of gas approved for this fur-
nace. Refer to the furnace rating plate.
2. Install this furnace only in a location and position as
specified in “Location and Clearances” (page 4), of
these instructions.
3. Provide adequate combustion and ventilation air to
the furnace space as specified in “Air for Combus-
tion and Ventilation” (pages 8-9), of these instruc-
tions.
4. Combustion products must be discharged outdoors.
Connect this furnace to an approved vent system
only, as specified in the “Venting” section (pages 13-
15), of these instructions.
5. Never test for gas leaks with an open flame.  Use a
commercially available soap solution made specifi-
cally for the detection of leaks to check all connec-
tions, as specified in “Gas Piping” (page 618), of
these instructions.
6. Always install the furnace to operate within the
furnace’s intended temperature-rise range with a
duct system which has an external static pressure
within the allowable range, as specified on the unit
rating plate. Airflow with temperature rise for cfm
versus static is shown in the Service Facts accom-
panying this furnace.
7. When a furnace is installed so that supply ducts
carry air circulated by the furnace to areas outside
the space containing the furnace, the return air
shall also be handled by a duct(s) sealed to the fur-
nace casing and terminating outside the space con-
taining the furnace.
8. A gas-fired furnace for installation in a residential
garage must be installed as specified in “Location
and Clearances” section (page 4), of these instruc-
tions.
9. The furnace may be used for temporary heating of
buildings or structures under construction only
when the  following conditions have been met:
a. The furnace venting system must be complete
and installed per manufacturer’s instructions.
b. The furnace is controlled only by a room thermo-
stat (no field jumpers).
c. The furnace return air duct must be complete and
sealed to the furnace and clean air filters are in
place.
d. The furnace input rate and temperature rise
must be verified to be within nameplate mark-
ing.
e. 100% of the furnace combustion air requirement
must come from outside the structure.
SAFETY SECTION
CARBON MONOXIDE POISONING HAZARD
Failure to follow the steps outlined below for each 
appliance connected to the venting system being 
placed into operation could result in carbon monoxide 
poisoning or death.
The following steps shall be followed for each appliance 
connected to the venting system being placed into 
operation, while all other appliances connected to the 
venting system are not in operation:
1. Seal any unused openings in the venting system.
2. Inspect the venting system for proper size and horizontal 
pitch, as required in the National Fuel Gas Code, 
ANSI Z223.1/NFPA 54 or the CAN/CGA B149 
Installation Codes and these instructions.  Determine 
that there is no blockage or restriction, leakage, 
corrosion and other deficiencies which could cause an 
unsafe condition.
3. As far as practical, close all building doors and windows 
and all doors between the space in which the 
appliance(s) connected to the venting system are 
located and other deficiencies which could cause an 
unsafe condition.
 4. Close fireplace dampers.
5. Turn on clothes dryers and any appliance not connected 
to the venting system. Turn on any exhaust fans, such 
as range hoods and bathroom exhausts, so they are 
operating at maximum speed.  Do not operate a summer 
exhaust fan.
6.
Follow the lighting instructions. Place the appliance be-
ing inspected into operation. Adjust the thermostat so 
appliance is operating continuously.
7. If improper venting is observed during any of the above 
tests, the venting system must be corrected in 
accordance with the National Fuel Gas Code, 
ANSI Z221.1/NFPA 54 and/or CAN/CGA B149 
Installation Codes.
8.
After it has been determined that each appliance 
connected to the venting system properly vents where 
tested as outlined above, return doors, windows, exhaust 
fans, fireplace dampers and any other gas -fired burning 
appliance to their previous conditions of use.
▲
WARNING
!
f. The furnace return air temperature range is be-
tween 55 and 80 degrees Fahrenheit.
g. Clean the furnace, duct work, and components
upon substantial completion of the construction
process, and verify furnace operating conditions
including ignition, input rate, temperature rise
and venting, according to the manufacturer’s in-
structions.
10. This product must be gas piped by a Licensed
Plumber or Gas Fitter in the Commonwealth of
Massachusetts.

Installer’s Guide
18-CD21D1-5 3
Installation Instructions 3
General Installation Instructions 4
Location and Clearances 4
Outline Drawing 5
Upflow Installation 7
Downflow Installation 7
Air For Combustion and Ventilation 8
Duct Connections 10
Return Air Filters 11
Typical Upflow Return Air Filter Installations 11
Alternate Upflow Filter Clip / Bracket Installation 13
Typical Downflow Furnace Return Air Filter Installations 13
General Venting Instructions 14
Venting Into a Masonry Chimney 15
Electrical Connections 16
Field Wiring Diagrams 17
Gas Piping 19
Sequence of Operation 19
Start Up and Adjustment 20
Preliminary Inspections 20
Combustion and Input Check 20
High Altitude Derate 21
Lighting Instructions 22
Control and Safety Switch Adjustment 23
IFC Error Flash Codes 24
Abnormal Conditions 24
Contents
▲
WARNING
!
FIRE OR EXPLOSION HAZARD
Failure to follow the safety warnings exactly could re-
sult in serious injury, death or property damage.
Improper servicing could result in dangerous opera-
tion, serious injury, death, or property damage.
Safety signal words are used to designate a degree or
level of seriousness associated with a particular hazard.
The signal words for safety markings are WARNING,
and CAUTION.
a. WARNING indicates a potentially hazardous situa-
tion which, if not avoided, could result in death or
serious injury.
b. CAUTION indicates a potentially hazardous situation
which, if not avoided, may result in minor or mod-
erate injury. It is also used to alert against unsafe
practices and hazards involving only property dam-
age.
▲
CAUTION
!
To prevent shortening its service life, the furnace
should not be used as a “Construction Heater” during
the finishing phases of construction until the require-
ments listed in item 9, a-g of the safety section of this
publication have been met.   Condensate in the pres-
ence of chlorides and fluorides from paint, varnish,
stains, adhesives, cleaning compounds, and cement
create a corrosive condition which may cause rapid de-
terioration of the heat exchanger.
▲
WARNING
!
These furnaces are not approved or intended for instal-
lation in manufactured (mobile) housing, trailers, or
recreational vehicles.
Failure to follow this warning could result in property
damage, personal injury, or death.
▲
CAUTION
!
Do NOT install the furnace in a corrosive or contami-
nated atmosphere.

418-CD21D1-5
Installer’s Guide
LOCATION AND CLEARANCES
The location of the furnace is normally selected by the
architect, the builder, or the installer.  However, before
the furnace is moved into place, be sure to consider the
following requirements:
1. Is the location selected as near the chimney or vent
and as centralized for heat distribution as practical?
2. Do all clearances between the furnace and enclo-
sure equal or exceed the minimums stated in Clear-
ance Table on the Outline Drawings.
3. Is there sufficient space for servicing the furnace
and other equipment? A minimum of 24 inches
front accessibility to the furnace must be provided.
Any access door or panel must permit removal of
the largest component.
4. Are there at least 3 inches of clearance between the
furnace combustion air openings in the front panel
and any closed panel or door provided?
5. Are the ventilation and combustion air openings
large enough and will they remain unobstructed? If
outside air is used, are the openings set above the
highest snow accumulation level? (See the Air for
Combustion and Ventilation section.)
6. Allow sufficient height in supply plenum above the
furnace to provide for cooling coil installation, if the
cooling coil is not installed at the time of this furnace
installation.
7. A furnace shall be installed so electrical components
are protected from water.
8. If the furnace is installed in a residential garage,
it must be installed so that the burners, and the ig-
nition source are located not less than 18 inches
above the floor and the furnace must be located or
protected to avoid physical damage from vehicles.
GENERAL INSTALLATION INSTRUCTIONS
The manufacturer assumes no responsibility for equip-
ment installed in violation of any code or regulation.
It is recommended that Manual J of the Air Condition-
ing Contractors Association (ACCA) or A.R.I. 230 be fol-
lowed in estimating heating requirements. When esti-
mating heating requirements for installation at Alti-
tudes above 2000 ft., remember the gas input must be
reduced (See GAS INPUT ADJUSTMENT).
Material in this shipment has been inspected at
the factory and released to the transportation
agency without known damage. Inspect exterior
of carton for evidence of rough handling in ship-
ment. Unpack carefully after moving equipment
to approximate location. If damage to contents is
found, report the damage immediately to the de-
livering agency.
Codes and local utility requirements governing the
installation of gas fired equipment, wiring, plumbing,
and flue connections must be adhered to.  In the ab-
sence of local codes, the installation must conform with
latest edition of the National Fuel Gas Code ANSI
Z223.1 • National Installation Code, CAN/CGA B149.1.
The latest code may be obtained from the American Gas
Association Laboratories, 400 N. Capitol St. NW,
Washington D.C.  20001.
1-800-699-9277 or www.aga.org
These furnaces have been classified as Fan Assisted
Combustion system CATEGORY I furnaces as required
by ANSI Z21.47 “latest edition” and CAN/CGA 2.3.
Therefore they do not require any special provisions for
venting other than what is indicated in these instruc-
tions. (Category I defined on page 14).
These furnaces may be twinned. They shall have
common returns with equal pressure drops or
ducts with equivalent lengths and sizes. See Field
Wiring Diagrams for Twinning on page 17 for
proper hookup.

Installer’s Guide
18-CD21D1-5 5
From Dwg. 21C341699 Sh. 1 Rev. 4
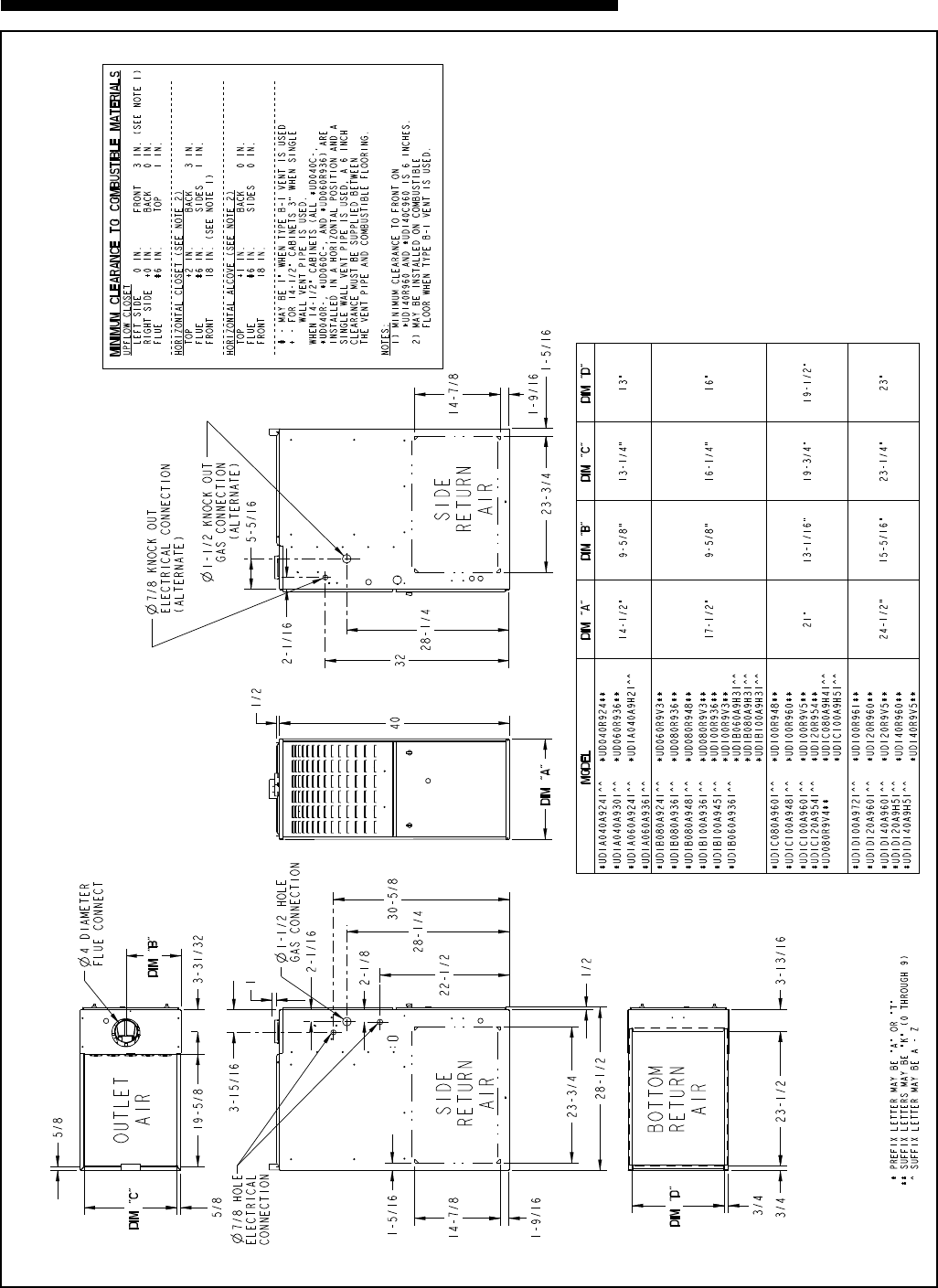
*UD1-H OUTLINE DRAWING
(ALL DIMENSIONS ARE IN INCHES)

618-CD21D1-5
Installer’s Guide
From Dwg. 21C341700 Sh. 1 Rev. 0
*DD1-HF OUTLINE DRAWING
(ALL DIMENSIONS ARE IN INCHES)

Installer’s Guide
18-CD21D1-5 7
UPFLOW INSTALLATION
Standoffs and screws (See Figure 1 on page 6) are in-
cluded with the cased coils for attachment to the fur-
nace. There are clearance alignment holes near the bot-
tom of the coil wrapper and drill screws are used to en-
gage the furnace top flange. The standoff is inserted
into the cabinet alignment hole. The drill screws are in-
serted through the standoffs then screwed into the fur-
nace flange.  The coil is always placed downstream of
the furnace airflow. These instructions apply only if the
coil is on top of an upflow furnace.
DOWNFLOW INSTALLATION
▲
WARNING
!
Do NOT install the furnace directly on carpeting, tile or
other combustible material other than wood flooring.
For vertical downflow application, subbase
(BAYBASE205) must be used between the furnace and
combustible flooring.  When the downflow furnace is
installed vertically with a cased coil, a subbase is not
SEE FIGURE 3 AND TABLE 1
TABLE 1
CABINET
WIDTH
RETURN
DUCT WIDTH
FLOOR OPENING PLENUM OPENING
"A" "B" "C" "D"
14-1/2" 13-1/4" 13-5/8" 20-1/8" 12-5/8" 19-3/8"
17-1/2" 16-1/4" 16-5/8" 20-1/8" 15-5/8" 19-3/8"
21" 19-3/4" 20-1/8" 20-1/8" 19-1/8" 19-3/8"
24-1/2" 23-1/4" 23-5/8" 20-1/8" 22-5/8" 19-3/8"
HORIZONTAL INSTALLATION
The coil and furnace must be fully supported when used
in the horizontal position.
Three brackets (with screws) are included with downflow
furnaces for installation to stabilize and secure the fur-
nace and TXC cased coil in the horizontal position.
See Figure 4.
IMPORTANT:
The 2/4TXC cased coil must be placed downstream of the
furnace.  In horizontal installations, the apex of the coil
may point either toward or away from the furnace.  See
the 2/4TXC coil Installer's Guide for more details.
The cased coil is secured to the furnace and both the fur-
nace and the cased coil must be properly supported. The
brackets mount using the rear screws on the coil case
and use the screws provided to secure the bracket to the
furnace.  The remaining bracket is placed as close to cen-
ter as possible (horizontally) between the coil case front
and the furnace bottom channel (for downflow/ horizontal
furnace). Use four of the screws provided to secure the
bracket.
This furnace may be installed in an attic or crawl space
in the horizontal position by placing the furnace on the
left or right side (as viewed from the front in the up-
right position). The horizontal furnace installation in an
attic should be on a service platform large enough to al-
low for proper clearances on all sides and service access
to the front of the furnace (See Clearance Table on Out-
line Drawings and Figure 5).
UPFLOW
FURNACE
CASED
COIL
SCREWS
(BOTH SIDES)
STANDOFFS
(BOTH SIDES)
STANDOFFS (4) DRILL SCREWS (4)
FOR VERTICAL
INSTALLATIONS:
1
required.
REQUIRED FLOOR OPENING:  (DOWNFLOW)
2
FURNACE
FRONT
A (width)
B (depth)
C
D
3
CASED COIL CONNECTION
BRACKET FOR DOWNFLOW
FURNACE IN HORIZONTAL
4

818-CD21D1-5
Installer’s Guide
If the furnace is suspended using perforated steel strap
(plumber’s strap), it must be supported at all four cor-
ners and in the middle at the front of the furnace.
The forward most screw on the side of the furnace
may be used to connect the strapping (See Figure 6).
Line contact is only permissible between lines formed
by the intersection of the top and two sides of the fur-
nace casing and the building joists, studs, or framing.
A cutout is provided on both sides of the downflow fur-
nace cabinet to allow a 90° elbow to be attached inside
the cabinet and the vent piping to connect there. In
horizontal, the downflow furnace may be vented
through the top of the cabinet if needed. In vertical con-
figuration, the downflow furnace may be vented using
the side cabinet cutouts. This venting configuration
could be used if an electronic air cleaner is installed.
When the downflow furnace is vented through
the left side of the furnace cabinet in horizontal
or vertical configuration, Type B vent pipe must
be used within the cabinet.
Confined spaces are installations with less than 50 cu.
ft. of space per 1000 BTU/ hr input from all equipment
installed. Air for combustion and ventilation require-
ments can be supplied from inside the building as in
Figure 9 or from the outdoors, as in Figure 10.
AIR FOR COMBUSTION AND VENTILATION
Adequate flow of combustion and ventilating air must
not be obstructed from reaching the furnace.  Air open-
ings provided in the furnace casing must be kept free of
obstructions which restrict the flow of air.  Airflow re-
strictions affect the efficiency and safe operation of the
furnace.  Keep this in mind should you choose to re-
model or change the area which contains your furnace.
Furnaces must have a free flow of air for proper perfor-
mance.
Provisions for combustion and ventilation air shall be
made in accordance with “latest edition” of Section 5.3,
Air for Combustion and Ventilation, of the National
Fuel Gas Code, ANSI Z223.1, or Sections 7.2, 7.3 or 7.4
of CAN/ CGA B149 Installation Codes, and applicable
provisions of the local building codes. Special conditions
created by mechanical exhausting of air and fireplaces
must be considered to avoid unsatisfactory furnace op-
eration.
Furnace locations may be in “confined space” or “uncon-
fined space”. Unconfined space is defined in Table 2 and
Figure 7. These spaces may have adequate air by infiltra-
tion to provide air for combustion, ventilation, and dilu-
tion of flue gases.  Buildings with tight construction (for
example, weather stripping, heavily insulated, caulked,
vapor barrier, etc.), may need additional air provided as
described for confined space.
5
TYPICAL ATTIC PLATFORM INSTALLATION
(UPFLOW/HORIZONTAL FURNACE SHOWN)
Typical Suspended Installation
(Upflow/Horizontal Furnace Shown)
6
50 CU. FT. OR MORE
PER 1000 BTU/ HR.
INPUT ALL EQUIP-
MENT INSTALLED
UNCONFINED
7
CONFINED
8
LESS THAN 50 CU. FT.
PER 1000 BTU/ HR.
INPUT ALL EQUIP-
MENT INSTALLED

Installer’s Guide
18-CD21D1-5 9
1. All air from inside the building as in Figure 9: The
confined space shall be provided with two perma-
nent openings communicating directly with an addi-
tional room(s) of sufficient volume so that the com-
bined volume of all spaces meets the criteria for an
unconfined space. The total input of all gas utiliza-
tion equipment installed in the combined space
shall be considered in making this determination.
Refer to Table 3, for minimum open areas required.
2. All air from outdoors as in Figure 10: The confined
space shall be provided with two permanent open-
ings, one commencing within 12 inches of the top
and one commencing within 12 inches of the bot-
tom of the enclosure. The openings shall communi-
cate directly, or by ducts, with the outdoors or
spaces (crawl or attic) that freely communicate with
the outdoors. Refer to Table 3, for minimum open
areas required.
3. The following types of installations will require use of
OUTDOOR AIR for combustion, due to chemical expo-
sures:
* Commercial buildings
* Buildings with indoor pools
* Furnaces installed in commercial laundry rooms
* Furnaces installed in hobby or craft rooms
* Furnaces installed near chemical storage areas.
Exposure to the following substances in the combus-
tion air supply will also require OUTDOOR AIR for
combustion:
* Permanent wave solutions
* Chlorinated waxes and cleaners
* Chlorine based swimming pool chemicals
* Water softening chemicals
* Deicing salts or chemicals
* Carbon Tetrachloride
* Halogen type refrigerants
* Cleaning solvents (such as perchloroethylene)
* Printing inks, paint removers, varnish, etc.
* Hydrochloric acid
* Cements and glues
* Antistatic fabric softeners for clothes dryers
* Masonry acid washing materials
TABLE 2
MINIMUM AREA IN SQUARE FEET FOR
UNCONFINED SPACE INSTALLATIONS
FURNACE MAXIMUM
BTUH / INPUT RATING
WITH 8 FOOT CEILING
MINIMUM AREA IN SQUARE FEET
OF UNCONFINED SPACE
40,000
60,000
80,000
100,000
120,000
140,000
250
375
500
625
750
875
TABLE 3
MINIMUM FREE AREA IN SQUARE INCHES
EACH OPENING (FURNACE ONLY)
Furnace
Maximum
BTUH/INPUT
Rating
Air From
Inside
Air From Outside
Vertical
 Duct
Horizontal
 Duct
40,000
60,000
80,000
100,000
120,000
140,000
100
100
100
100
120
140
10
15
20
25
30
35
20
30
40
50
60
70
0
9

10 18-CD21D1-5
Installer’s Guide
DUCT CONNECTIONS
Air duct systems should be installed in accordance with
standards for air conditioning systems, National Fire
Protection Association Pamphlet No. 90. They should
be sized in accordance with ACCA Manual D or which-
ever is applicable.  Check on controls to make certain
they are correct for the electrical supply.
Central furnaces, when used in connection with cooling
units, shall be installed in parallel or on the upstream
side of the cooling units to avoid condensation in the
heating element, unless the furnace has been specifi-
cally approved for downstream installation. With a par-
allel flow arrangement, the dampers or other means
used to control flow of air shall be adequate to prevent
chilled air from entering the furnace, and if manually
operated, must be equipped with means to prevent op-
eration of either unit unless the damper is in full heat
or cool position.
On any job, flexible connections of nonflammable ma-
terial may be used for return air and discharge con-
nections to prevent transmission of vibration.
Though these units have been specifically designed
for quiet, vibration free operation, air ducts can act
as sounding boards and could, if poorly installed, am-
plify the slightest vibration to the annoyance level.
When the furnace is located in a utility room adjacent
to the living area, the system should be carefully de-
signed with returns which minimize noise transmission
through the return air grille. Although these winter air
conditioners are designed with large blowers operating
at moderate speeds, any blower moving a high volume
of air will produce audible noise which could be objec-
tionable when the unit is located very close to a living
area. It is often advisable to route the return air ducts
under the floor or through the attic.  Such design per-
mits the installation of air return remote from the liv-
ing area (i.e. central hall).
When the furnace is installed so that the supply ducts
carry air circulated by the furnace to areas outside the
space containing the furnace, the return air shall also
be handled by a duct(s) sealed to the furnace and termi-
nating outside the space containing the furnace.
Minimum return air “entering temperature” for
the furnace is 55° F.
Where there is no complete return duct system, the re-
turn connection must be run full size from the furnace
to a location outside the utility room, basement, attic,
or crawl space.
DO NOT install return air through the back of the
furnace cabinet.
RETURN AIR DUCT CONNECTION
NOTE:
On upflow 5 or 6 ton airflow models, if the airflow re-
quirement exceeds 1800 CFM, these models will re-
quire return air openings and  filters on both sides; OR
1 side and the bottom; OR just the bottom.
▲
WARNING
!
TO PREVENT INJURY OR DEATH DUE TO CONTACT 
WITH MOVING PARTS, TURN THE POWER TO THE 
FURNACE OFF BEFORE SERVICING FILTERS.
4. The side panels of the upflow furnace include
locating notches that are used as guides for cutting
an opening for return air, refer to Figure 12 and the
outline drawing on page 5 for duct connection
dimensions for various furnaces.
5. If a 3/4" flange is to be used for attaching the air in-
let duct, add to cut where indicated by solid lines
in Figure 12. Cut corners diagonally and bend out-
ward to form flange.
6. If flanges are not required, and a filter frame is in-
stalled, cut between the locating notches.  See
Figure 12.
7. Upflow Furnaces:  a filter rack is factory supplied
for bottom or side return. Use the filter rack on ei-
ther side or on the bottom if the filter is to be used
within the furnace cabinet.
▲
WARNING
!
Do NOT install the filter in the return duct directly 
above the furnace in horizontal applications. Install 
the filter remotely. Installing the filter directly above 
the furnace in horizontal applications may cause 
property damage, serious injury or death.
All return air duct systems should provide for installa-
tion of return air filters.
PREPARATION FOR UPFLOW BOTTOM AND SIDE
RETURN AIR FILTER INSTALLATION
All return air duct systems should provide for installa-
tion of return air filters.
1. Determine the appropriate postion to set the
furnace in order to connect to the supply and return
ductwork.
2. The return air filter and rack are shipped in either
the bottom or side location.  Remove the filter and
filter rack by first turning the two latches on the
blower door and tilting the door forward to remove.
Remove the filter by sliding it out of the rack.
Compress the spring loaded filter rack to disengage
the retaining pins/screws from the furnace sides
and slide the filter rack out.
The filter rails are spring loaded for automatic
adjustment to allow standard size, locally obtainable
replacement filters.  The filter rack itself slides to
adjust to the required width needed for bottom or
side return.
3. For upflow side return installations, remove the
insulation around the opening in the blower compart-
ment.

Installer’s Guide
18-CD21D1-5 11
When the upflow furnace is installed in the horizon-
tal right or left application and a return duct is at-
tached to the top side as shown in Figure 11, re-
move the filter from the furnace and install in a re-
mote location.
Do not install the filter in the return duct directly
above the furnace in horizontal applications.
When the upflow furnace is installed in the horizon-
tal right or left application and a close coupled (less
than 36") return duct is attached to the bottom side
of the furnace as shown in Figure 11, securely at-
tach a 1/2" mesh metal hardware cloth protective
screen to the inside bottom of the filter grill to pre-
vent personal injury from contacting moving
parts when reaching into the return opening
to replace the filter.
Close coupled (less than 36") return (filter directly
beneath bottom side return) is not recommended
due to noise considerations.
Downflow Furnaces:  Brackets are factory sup-
plied to mount filters in the return air duct work.
8. Connect the duct work to the furnace. See Outline
Drawing for supply and return duct size and loca-
tion. Flexible duct connectors are recommended to
connect both supply and return air ducts to the fur-
nace.
If only the front of the furnace is accessible, it is
recommended that both supply and return air ple-
nums are removable.
9. The horizontal installation of the upflow fur-
nace requires an external filter section. Do
NOT use the bottom return filter within the fur-
nace. Filter kits are available for horizontal
applications.
10. When replacing a furnace, old duct work should be
cleaned out. Thin cloths should be placed over the
registers and the furnace fan should be run for
10 minutes. Don’t forget to remove the cloths be-
fore you start the furnace.
FILTER
REMOVE FILTER FROM UPFLOW
FURNACE WHEN RETURN DUCT IS
ATTACHED TO FURNACE TOP SIDE
(HORIZONTAL LEFT OR RIGHT
APPLICATIONS) AS SHOWN.
Close coupled (less than 36")
return (filter directly beneath bottom
side return) not recommended due to
noise considerations. If used, securely
attach 1/2" mesh metal hardware cloth
protective screen to the inside bottom of
filter grill.
q
*SEE OUTLINE DRAWING
w
LOCATING
NOTCHES
PROVIDED
FOR SIDE
RETURN
CUTOUT
FRONT
of Furnace
*
*
*
*CUT OUT
FOR
SIDE
FILTER
BOTTOM FILTER RACK INSTALLATION
Airflow
e
11. The bottom panel of the upflow furnace must be
removed for bottom return air. After removing the
filter and filter rack, lay the furnace on its back.
Remove the two 5/16" hex screws securing the front
of the bottom channel to the cabinet. Rotate the
channel downward (or remove by lowering the front
edge of the channel and pulling forward). Slide the
bottom return air panel out of the cabinet.  Rotate
the front channel to its original position and rein-
stall the two 5/16” screws.
RETURN AIR FILTERS
TYPICAL UPFLOW RETURN AIR
FILTER INSTALLATIONS
These furnaces require high velocity type air filters.
The filters may be installed within the furnace blower
compartment for UPFLOW furnaces in either a BOT-
TOM or SIDE (left side or right side) return air inlet.
Some filters may need to be trimmed for side or bottom
filter use.
NOTE:
For upflow 5 ton airflow models where the airflow
requirement exceeds 1800 CFM -  Models will require
return air openings and filters on: (1) both sides, or (2)
one side and the bottom, or (3) just the bottom.
The furnace and the bottom filter rack installation can
be seen in Figure 13.

12 18-CD21D1-5
Installer’s Guide
UPFLOW FURNACE RETURN AIR FILTERS
CABINET
WIDTH QTY* CABINET
BOTTOM FILTER
CABINET
SIDE FILTER
14-1/2" 1 14" X 25" X 1" 17-1/2" X 25" X 1"
17-1/2" 1 17" X 25" X 1" 17-1/2" X 25" X 1"
21" 1 20" X 25" X 1" 17-1/2" X 25" X 1"
24-1/2" 1 24" X 25" X 1" 17-1/2" X 25" X 1"
 *First letter may be "A" or "T"
**NOTE:  For upflow 5 ton airflow models where the airflow
  requirement exceeds 1800 CFM - Modles will require return air
  openings and filters on:  (1) both sides, or (2) one side and the
  bottom, or (3) just on the bottom
TABLE 4
OPTIONAL FILTER RACK INSTALLATION FOR BOTTOM
RETURN
The following checklist should be used when installing a
bottom return filter on an upflow furnace:
a.  Remove the filter.
b.  Remove the filter rack.
c.  Remove the bottom panel.
d. With the filter removed, the filter rack is com-
pressed and then inserted into the bottom of the
furnace.  The retaining screw/pin on each side
inserts into engagement holes at the bottom of
the furnace cabinet side.  See Figure 18.
e. Reinstall the furnace filter in the bottom position
by inserting the chamfer end first into the filter
rack.
FILTER RACK INSTALLATION FOR SIDE RETURN AIR
ON UPFLOW FURNACES (LEFT OR RIGHT)
The following checklist should be used when installing a
right or left side return filter on an upflow furnace:
a. Remove the filter.
b. Remove the filter rack.
c. Leave the bottom panel in place.
d. Make side cutout by following the directions in
the “Return Air Duct Connections” section on
page 10.
e. Compress the filter rack and reinstall in the side
position on the furnace.  Confirm that the upper
retaining pin/screw locks into the engagement
hole in the blower deck and the lower pin/screw
rests against the side of the bottom panel.  See
Figures 15-16, 19-20.
f. Reinstall the furnace filter in the side position by
inserting the chamfer end first into the filter
rack.
Airflow
r
Typical Upflow Left Side Return Filter Rack Installation
RETAINING
PIN
(Both Sides)
SPRINGS
SIDE
CUTOUT
FILTER
RACK
RAILS
BOTTOM
PANEL
INSTALLED
Airflow
Airflow
t
RETAINING
PIN
(Both Sides)
SPRINGS
SIDE
CUTOUT
FILTER
RACK
RAILS
BOTTOM
PANEL
INSTALLED
Airflow
Airflow
y
Typical Upflow Right Side Return Filter Rack Installation
Airflow
Typical Horizontal Filter Installation
u
Optional conversion kits for horizontal filters are
BAYFLTR203 for 17 1/2"  width cabinets, BAYFLTR204
for 21" width cabinets, and BAYFLTR205 for 24" width
cabinets.  These include filters and brackets necessary
for horizontal filters.  In addition, optional door kit
BAYFLTR206 is also available.  See Figures 17 and 22.
Optional door kit
BAYFLTR206

Installer’s Guide
18-CD21D1-5 13
Bottom Panel
Filter
Rack
Furnace
Cabinet
Side
Filter Rack
Retaining
Screw/Pin
Engagement Hole 
For 
Bottom Return
Filter Rack
Installation With
Filter
Rack
Furnace
Cabinet
Side
Filter Rack
Retaining
Screw/Pin
Engagement Hole 
For 
Bottom Return
Filter Rack
Installation With
BLOWER
DECK
Filter
Rack
Assembly
Furnace
Blower
Deck
Filter Rack
Retaining
Screw/Pin
Engagement Hole
For 
 Return
Filter Rack
Installation With
Side
Furnace
Cabinet
Side
i
o
p
RETURN AIR FILTERS FOR UPFLOW FURNACE IN
HORIZONTAL CONFIGURATION
When the Upflow Furnace is installed in the horizontal
configuration, the return air filters must be installed
exterior to the furnace cabinet. Remote filter grilles
may be used for homeowner convenience or the filters
may be installed in the duct work upstream of the fur-
nace. See Figure 17.
ALTERNATE UPFLOW FILTER CLIP/ BRACKET INSTAL-
LATION - KIT09224
1.Determine the location to be used. The furnace
cabinet has dimples for location of the alternate fur-
nace clips (Side return only). Pre-drill clearance
holes with a 3/16" drill.  Bottom return holes are
pre-drilled.  See Figure 21.
2.Install the clips in front and rear of the desired loca-
tion using the screws provided. The filter clip with
the leaf spring mounts in the rear of the cabinet.
TYPICAL DOWNFLOW FURNACE RETURN AIR FILTER
INSTALLATIONS
These furnaces require high velocity type air filters.
Downflow furnace filters must be located outside the
furnace cabinet. Typical installations are shown in Fig-
ure 22. Tables 5 and 6 provide information for installa-
tion of the filter retaining brackets shipped with down-
flow furnaces.
a
REAR
SIDE
CUT-OUT
ALTERNATE FILTER
CLIPS LOCATION
s
Airflow
Optional door kit
BAYFLTR206

14 18-CD21D1-5
Installer’s Guide
TABLE 5
TABLE 6
CABINET
WIDTH
RETURN
DUCT
WIDTH
FILTER ACCESS
OPENING -
DIMENSION "A"
FILTER ACCESS
OPENING -
DIMENSION "B"
14-1/2" 13-1/4" 12" 14"
17-1/2" 16-1/4" 15" 14"
21" 19-3/4" 19-1/2" 14"
24-1/2" 23-1/4" 22" 14"
CABINET
WIDTH
FILTER
SIZE
FILTER BRACKET
LOCATION *
14-1/2" 2 - 14X20X1 12-7/8"
17-1/2" 2 - 16X20X1 14-3/8"
21" 2 - 16X20X1 13-1/8"
24-1/2" 2 - 16X20X1 11-5/8"
* Location dimension is from end of duct to the screw holes for the bracket.
GENERAL VENTING INSTRUCTIONS
CARBON MONOXIDE POISONING HAZARD
Failure to follow the steps outlined below for each 
appliance connected to the venting system being 
placed into operation could result in carbon 
monoxide poisoning or death.
The following steps shall be followed for each appliance 
connected to the venting system being placed into 
operation, while all other appliances connected to the 
venting system are not in operation:
 1. Seal any unused openings in the venting system.
 2. Inspect the venting system for proper size and 
horizontal pitch, as required in the National Fuel 
Gas Code, ANSI Z223.1/NFPA 54 or the CAN/CGA 
B149 Installation Codes and these instructions.  
Determine that there is no blockage or restriction, 
leakage, corrosion and other deficiencies which 
could cause an unsafe condition.
 3. As far as practical, close all building doors and 
windows and all doors between the space in which 
the appliance(s) connected to the venting system 
are located and other spaces of the building.
 4. Close fireplace dampers.
 5. Turn on clothes dryers and any appliance not 
connected to the venting system. Turn on any 
exhaust fans, such as range hoods and bathroom 
exhausts, so they are operating at maximum speed.  
Do not operate a summer exhaust fan.
 6. Follow the lighting instructions. Place the appliance 
being inspected into operation. Adjust the 
thermostat so appliance is operating continuously.
 7. If improper venting is observed during any of the 
above tests, the venting system must be corrected 
in accordance with the National Fuel Gas Code, 
ANSI Z221.1/NFPA 54 and/or CAN/CGA B149 
Installation Codes.
 8. After it has been determined that each appliance 
connected to the venting system properly vents 
where tested as outlined above, return doors, 
windows,  exhaust fans, fireplace dampers and any 
other gas-fired burning appliance to their previous 
conditions of use.
▲
WARNING
!

Installer’s Guide
18-CD21D1-5 15
NOTE:
The following section does not apply if BAYVENT800B
(Masonry Chimney Vent Kit) is used. All instructions
with the kit must be followed.
TABLE 7
MASONRY CHIMNEY VENTING
Tile Lined Chimney Chimney Lining
Type Furnace Internal External “B” Vent
Flexible
Metal Liner
Single Fan
Assist No No Yes *Yes
Fan Assist
+
Fan Assist No No Yes *Yes
Fan Assist
+
Natural Yes No Yes *Yes
* Flexible chimney liner size is determined by using the type “B” vent size for
the available BTUH input, then reducing the maximum capacity by 20%
(multiply maximum capacity times 0.80).  The minimum capacity is the same
as shown in the “B” vent tables.
External Masonry Chimney
Venting of fan assisted appliances into external chim-
neys (one or more walls exposed to outdoor tempera-
tures), requires the chimney be lined with type “B”,
double wall vent or suitable flexible chimney liner ma-
terial. This applies in all combinations of common vent-
ing as well as for fan assisted appliances vented alone.
▲
WARNING
!
CARBON MONOXIDE POISONING HAZARD
Failure to follow the installation instructions for the
venting system being placed into operation could re-
sult in carbon monoxide poisoning or death.
The following installation practices are recommended to
minimize corrosion caused by condensation of flue prod-
ucts in the furnace and flue gas system.
1. Avoid an excessive number of bends.
2. Horizontal runs should pitch upward at least 1/4" per
foot.
3. Horizontal runs should be as short as possible.
4. All vent pipe or connectors should be securely sup-
ported and must be inserted into, but not beyond
the inside wall at the chimney vent.
5. When vent connections must pass through walls or
partitions of combustible material, a thimble must
be used and installed according to local codes.
6. Vent pipe through the roof should be extended to a
height determined by National Fuel Gas Code or
local codes. It should be capped properly to prevent
rain water from entering the vent. Roof exit should
be waterproofed.
7. Use type “B” double wall vent when vent pipe is
routed through cool spaces (below 60° F.).
VENT PIPING
These furnaces have been classified as Fan-Assisted
Combustion System, Category I furnaces under the
“latest edition” provisions of ANSI Z21.47 and CAN/
CGA 2.3 standards. Category I furnaces operate with a
non-positive vent static pressure and with a flue loss of
not less than 17 percent.
NOTE:
If desired, a side wall termination can be accomplished
through the use of an “add-on” draft inducer. The in-
ducer must be installed according to the inducer
manufacturer’s instructions. Set the barometric pres-
sure relief to achieve -0.02 inch water column.
NOTE: When the downflow furnace is vented through
the left side of the furnace cabinet using the provided
cutout, Type B vent piping must be used.
The furnace shall be connected to a factory built chim-
ney or vent complying with a recognized standard, or a
masonry or concrete chimney lined with a lining mate-
rial acceptable to the authority having jurisdiction.
▲
WARNING
!
Furnace venting into an unlined masonry chimney or
concrete chimney is prohibited.
Failure to follow this warning could result in property
damage, personal injury, or death.
VENTING INTO A MASONRY CHIMNEY
If the chimney is oversized, the liner is inadequate, or
flue-gas condensation is a problem in your area, con-
sider using the chimney as a pathway or chase for type
“B” vent or flexible vent liner. If flexible liner material
is used, size the vent using the “B” vent tables, then re-
duce the maximum capacity by 20% (multiply 0.80
times the maximum capacity). Masonry Chimney Kit
BAYVENT800B may be used with these furnaces (Up-
flow model furnaces only) to allow venting into a ma-
sonry chimney. Refer to the BAYVENT800B Installer’s
Guide for application requirements.
INTERNAL MASONRY CHIMNEYS
Venting of fan assisted appliances into a lined, internal
masonry chimney is allowed only if it is common vented
with at least one natural draft appliance; OR, if the
chimney is lined with type “B”, double wall vent or suit-
able flexible liner material (See Table 7).
▲
WARNING
!
The chimney liner must be thoroughly inspected to in-
sure no cracks or other potential areas for flue gas
leaks are present in the liner. Liner leaks will result in
early deterioration of the chimney.
Failure to follow this warning could result in carbon
monoxide poisoning or death.

16 18-CD21D1-5
Installer’s Guide
TABLE 8
ππ
ππ
π(D*)2
4
=  X 7
8. Where long periods of airflow are desired for com-
fort, use long fan cycles instead of continuous air-
flow.
9. Apply other good venting practices as stated in the
venting section of the National Fuel Gas Code
ANSI Z223.1 “latest edition”.
10. Vent connectors serving appliance vented by
natural draft or non-positive pressure shall
not be connected into any portion of a mecha-
nized draft system operating under positive
pressure.
11. Horizontal pipe runs must be supported by hangers,
straps or other suitable material in intervals at a
minimum of every 3 feet of pipe.
12. A furnace shall not be connected to a chimney or
flue serving a separate appliance designed to burn
solid fuel.
13. The flow area of the largest section of vertical vent
or chimney shall not exceed 7 times the smallest
listed appliance categorized vent area, flue collar
area, or draft hood outlet area unless designed in
accordance with approved engineering methods.
Maximum Vent or Tile
Lined Chimney Flow Area
*Drafthood outlet diameter, flue collar diameter, or listed appliance cat-
egorized vent diameter.
GAS VENT TERMINATION
ROOF PITCH MINIMUM HEIGHT
FLAT TO 7/12
OVER 7/12 TO 8/12
OVER 8/12 TO 9/12
OVER 9/12 TO 10/12
OVER 10/12 TO 11/12
OVER 11/12 TO 12/12
OVER 12/12 TO 14/12
OVER 14/12 TO 16/12
OVER 16/12 TO 18/12
OVER 18/12 TO 20/12
OVER 20/12 TO 22/12
1.0 FEET *
1.5 FEET
2.0 FEET
2.5 FEET
3.25 FEET
4.0 FEET
5.0 FEET
6.0 FEET
7.0 FEET
7.5 FEET
8.0 FEET
* THIS REQUIREMENT COVERS MOST INSTALLATIONS
d
ELECTRICAL CONNECTIONS
▲
WARNING
!
The cabinet must have an uninterrupted or unbroken
ground according to National Electrical Code, ANSI/
NFPA 70 – “latest edition” and Canadian Electrical
Code, CSA C22.1 or local codes to minimize personal
injury if an electrical fault should occur.
Failure to follow this warning could result in an electri-
cal shock, fire, injury, or death.
▲
CAUTION
!
The integrated furnace control is polarity sensitive. The
hot leg of the 115 VAC power must be connected to the
BLACK field lead.
▲
WARNING
!
To prevent injury or death due to electrical shock or
contact with moving parts, lock unit disconnect switch
in the open position before servicing the unit.
Failure to follow this warning could result in electri-
cal shock, personal injury, or death.
Make wiring connections to the unit as indicated on en-
closed wiring diagram. As with all gas appliances using
electrical power, this furnace shall be connected into a
permanently live electric circuit. It is recommended
that it be provided with a separate “circuit protection
device” electric circuit. The furnace must be electrically
grounded in accordance with local codes or in the ab-
sence of local codes with the National Electrical Code,
ANSI/NFPA 70 “latest edition” or Canadian Electrical
Code, CSA C22.1, if an external electrical source is uti-
lized.
All field supplied wiring must conform with the tem-
perature limitation for Type T wire [63° F. (35° C)],
when installed in accordance with these instructions
and wiring diagrams supplied with the furnace. A dis-
connecting means must be located within sight from,
and readily accessible to, the furnace.
Refer to the SERVICE FACTS literature for unit wiring
diagrams in addition to the diagram inside the blower
door.

Installer’s Guide
18-CD21D1-5 17
SEE 
NOTE 6
From Dwg. B341437 Rev. 1
FURNACE
TWIN
SEE 
NOTE 7
B/C
B/C
TO 115 V 1 PH.,
60 HZ., POWER
SUPPLY PER
LOCAL CODES
HUM SEE
NOTE 5
EAC SEE
NOTE 5
FIELD WIRING DIAGRAM FOR 1 STAGE FURNACE
1 STAGE HEATING
USING A 1 STAGE HEATING THERMOSTAT
NO COOLING 
From Dwg. 21B341437 P01
OUTDOOR UNIT 
(NO TRANSFORMER)
SEE 
NOTE 6
From Dwg. B341436 Rev. 1
SEE 
NOTE 8
FURNACE
TWIN
SEE 
NOTE 7
B/C
B/C
TO 115 V 1 PH.,
60 HZ., POWER
SUPPLY PER
LOCAL CODES
HUM SEE
NOTE 5
EAC SEE
NOTE 5
FIELD WIRING DIAGRAM FOR 1 STAGE FURNACE
1 STAGE HEATING, 1 STAGE COOLING 
USING A 1 STAGE HEATING, 1 STAGE COOLING THERMOSTAT
(OUTDOOR SECTION WITHOUT TRANSFORMER)
From Dwg. 21B341436 P01

18 18-CD21D1-5
Installer’s Guide
TWINNING
These furnaces may be twinned. Twinning requires that
two furnaces with the same configuration, capacity, and
airflow must be used. They shall have common returns
with equal pressure drops or ducts with equivalent
lengths and sizes. See Field Wiring Diagrams below for
proper hookup.
TWIN TWIN
R1 R1
TWINNING CONNECTION DIAGRAM
FOR TWINNING 1 STAGE FURNACES WITH
SINGLE WIRE TWINNING FEATURE
1 STAGE HEATING ONLY THERMOSTAT
1 STAGE HEAT
ONLY
THERMOSTAT
(WITH FAN SWITCH) FURNACE NO. 1 FURNACE NO. 2
BLOWER OPERATION OF 
UNIT NO. 2 IS SYNCRONIZED
WITH UNIT NO. 1 VIA SIGNALS
FROM TWIN CONNECTION.
SEE NOTE 4
SEE NOTE 3
ISOLATION RELAY
(FIELD SUPPLIED)
SEE NOTE 4
ISOLATION RELAY
SEE NOTE 4
B/C
B/C
B/C
From Dwg. 21B341422 Rev. 3
TWIN TWIN
R1
R1
TWINNING CONNECTION DIAGRAM
FOR TWINNING 1 STAGE FURNACES WITH
SINGLE WIRE TWINNING FEATURE
1 STAGE HEAT / 1 STAGE COOL THERMOSTAT
1 STAGE
HEATING / COOLING
THERMOSTAT FURNACE NO. 1 FURNACE NO. 2
BLOWER OPERATION OF 
UNIT NO. 2 IS SYNCRONIZED
WITH UNIT NO. 1 VIA SIGNALS
FROM TWIN CONNECTION.
SEE NOTE 4
SEE NOTE 5
ISOLATION RELAY
(FIELD SUPPLIED)
SEE NOTE 4
ISOLATION RELAY
SEE NOTE 4
OUTDOOR UNIT
(NO TRANSFORMER)
OUTDOOR UNIT
(WITH TRANSFORMER)
RC
ISOLATION RELAY
(FIELD SUPPLIED)
SEE NOTE 3
B/C
B/C
B/C
From Dwg. 21B341423 Rev. 2

Installer’s Guide
18-CD21D1-5 19
▲
WARNING
!
FIRE OR EXPLOSION HAZARD
Failure to follow the safety warnings exactly could re-
sult in serious injury, death or property damage. Never
test for gas leaks with an open flame. Use a commer-
cially available soap solution made specifically for the
detection of leaks to check all connections. A fire or ex-
plosion may result causing property damage, personal
injury, or loss of life.
GAS PIPING
This unit is shipped standard for left side installation of
gas piping. A piping knockout is also provided in the
right side for an alternate piping arrangement. The in-
stallation of piping shall be in accordance with piping
codes and the regulations of the local gas company. Pipe
joint compound must be resistant to the chemical reac-
tion with liquefied petroleum gases.
Refer to piping Table 9 for delivery sizes. Connect gas
supply to the unit, using a ground joint union and a
manual shut-off valve as shown in Figure 24. National
codes require a condensation drip leg to be installed
ahead of the controls as shown in Figure 24.
The furnace and its individual shut-off valve must be dis-
connected from the gas supply piping system during any
pressure testing of that system at test pressures in ex-
cess of 1/2 psig.
The furnace must be isolated from the gas supply piping
by closing its individual manual shut-off valve during
any pressure testing of the gas supply piping system at
test pressures equal to or less than 1/2 psig.
▲
CAUTION
!
Use a backup wrench on the gas valve when installing
gas piping to prevent damage to the gas valve and
manifold assembly.
NOTE:
Maximum pressure to the gas valve for natural gas is
13.8" W.C.  Minimum pressure is 5.0" W.C.  Maximum
pressure to the gas valve for propane is 13.8" W.C.
Minimum pressure is 11.0" W.C.
All gas fittings must be checked for leaks using a soapy
solution before lighting the furnace.
DO NOT CHECK WITH AN OPEN FLAME!
The following warning complies with State of California law, Proposition 65.
Hazardous Gases!
Exposure to fuel substances or by-products of 
incomplete fuel combustion is believed by the state of 
California to cause cancer, birth defects, or other 
reproductive harm.
▲
WARNING
!
SEQUENCE OF OPERATION
THERMOSTAT CALL FOR HEAT
R and W thermostat contacts close signaling the control
module to run its self-check routine. After the control
module has verified that the pressure switch contacts
are open and the limit switch(es) contacts are closed,
the draft blower will be energized.
▲
WARNING
!
TO PREVENT AN EXPLOSION OR POSSIBLE INJURY,
DEATH AND EQUIPMENT DAMAGE, DO NOT STORE
COMBUSTIBLE MATERIALS, GASOLINE OR OTHER
FLAMMABLE VAPORS OR LIQUIDS NEAR THE UNIT.
LEFT SIDE PIPING (STANDARD)
TOP VIEW OF RIGHT SIDE PIPING
RIGHT SIDE PIPING (OPTIONAL)
f

20 18-CD21D1-5
Installer’s Guide
When the thermostat is satisfied, R and W thermostat
contacts open, the gas valve will close, the flames will
extinguish, and the induced draft blower will be de-en-
ergized.  The indoor blower motor will continue to run
for the fan off period (fixed at 100 seconds), then will be
de-energized by the control module.
▲
WARNING
!
FIRE OR EXPLOSION HAZARD
Failure to follow the safety warnings exactly could re-
sult in serious injury, death or property damage. Never
test for gas leaks with an open flame. Use a commer-
cially available soap solution made specifically for the
detection of leaks to check all connections. A fire or ex-
plosion may result causing property damage, personal
injury, or loss of life.
START-UP AND ADJUSTMENT
PRELIMINARY INSPECTIONS
With gas and electrical power “OFF”
1. Duct connections are properly sealed
2. Filters are in place
3. Venting is properly assembled
4. Blower door is in place
Turn knob on main gas valve within the unit to the
“OFF” position. Turn the external gas valve to “ON”.
Purge the air from the gas lines. After purging, check
all gas connections for leaks with a soapy solution – DO
NOT CHECK WITH AN OPEN FLAME. Allow 5 min-
utes for any gas that might have escaped to dissipate.
LP Gas, being heavier than air, may require forced ven-
tilation.  Turn the knob on the gas valve in the unit to
the “ON” position.
COMBUSTION AND INPUT CHECK
1. Make sure all gas appliances are off except the fur-
nace.
2. Clock the gas meter with the furnace operating (de-
termine the dial rating of the meter) for one revolu-
tion.
3. Match the “Sec” column in the gas flow (in cfh)
Table 12 with the time clocked.
4. Read the “Flow” column opposite the number of sec-
onds clocked.
5. Use the following factors if necessary:
For 1 Cu. Ft. Dial Gas Flow CFH =
Chart Flow Reading ÷ 2
For 1/2 Cu. Ft. Dial Gas Flow CFH =
Chart Flow Reading ÷ 4
For 5 Cu. Ft. Dial Gas Flow CFH =
10X Chart Flow Reading ÷ 4
6. Multiply the final figure by the heating value of the
gas obtained from the utility company and compare
to the nameplate rating. This must not exceed the
nameplate rating.
7.Changes can be made by adjusting the manifold
pressure or changing orifices (orifice change may
not always be required). To adjust the manifold
pressure:
a.Turn off all electrical power to the system.
b.Attach a manifold pressure gauge to the outlet pres-
sure tap marked "OUT PRESS TAP" on White-
Rodgers gas valve model 36F or boss marked "OUT
P" on White-Rodgers gas valve model 36G. (See Fig-
ure 26 for White-Rodgers gas valve model 36F and
Figure 25 for White-Rodgers gas valve model 36G).
For the gas valve model 36F, measurement re-
quires removal of the plug and installation of a
barbed fitting. Attach flexible tubing and a manom-
eter to the barbed fitting.
For the gas valve model 36G, do not remove the
pressure tap test screw. Using a 3/32" hex wrench,
loosen the pressure tap test screw one turn and in-
stall 5/16" flexible tubing and a manometer directly
onto the outlet pressure boss.
c. Turn on system power and energize valve.
d.Remove the regulator adjustment screw cap on the
gas valve for manifold pressure adjustment.
e. Turn the adjustment nut clockwise to increase the
gas flow rate, and counterclockwise to decrease the
gas flow rate using a 3/32" hex wench.
f. The final manifold pressure setting shall be 3.5"
W.C. with an input of no more than nameplate rat-
ing and no less than 93% of the nameplate rating,
unless the unit is derated for high altitude.
g.Replace the regulator adjustment screw cap and
tighten securely.
h.Turn off all electrical power to the system.
i. Remove the manometer and flexible tubing. Re-
move the barbed fitting and replace the plug or
tighten the pressure test screw.
j. Turn on electrical power to the system and energize
valve.
k. Using a leak detection solution or soap suds, check
for leaks at plug or pressure boss screw.
As the induced draft blower comes up to speed, the
pressure switch contacts will close and the ignitor warm
up period will begin. The ignitor will heat for approx. 20
seconds, then the gas valve is energized to permit gas
flow to the burners. The flame sensor confirms that ig-
nition has been achieved within the 6 second ignition
trial period.
After the flame sensor confirms that ignition has been
achieved, the delay fan ON period (fixed at 45 seconds)
begins timing.  After the delay of 45 seconds, the indoor
blower motor will be energized and will continue to run
during the heating cycle.

Installer’s Guide
18-CD21D1-5 21
▲
CAUTION
!
Replace and/ or tighten all plugs removed or loosened
when adjusting gas pressure. Leak check the fittings
before placing the furnace into regular service.
Failure to follow this warning could result in fire, ex-
plosion, or property damage.
For LP gases, the final manifold pressure setting shall
be 10.5" W.C. with an input of no more than the name-
plate rating and no less than 93% of the nameplate rat-
ing, unless the unit is derated for altitude.
Table 10 lists the main burner orifices shipped with the
furnace.  If a change of orifices is required to correct the
input rate, refer to Table 11.
TABLE 9
NATURAL GAS ONLY
TABLE OF CUBIC FEET PER HOUR OF GAS
FOR VARIOUS PIPE SIZES AND LENGTHS
PIPE
SIZE
LENGTH OF PIPE
10 20 30 40 50 60 70
1/2 132 92 73 63 56 50 46
3/4 278 190 152 130 115 105 96
1 520 350 285 245 215 195 180
1-1/4 1050 730 590 520 440 400 370
  This table is based on pressure drop of 0.3 inch W.C. and 0.6 SP.GR. gas
TABLE 10
ORIFICE SIZES
INPUT
RATING
BTUH
NUMBER
OF
BURNERS
MAIN BURNER ORIFICE
DRILL SIZE
NAT. GAS LP GAS
40,000
60,000
80,000
100,000
120,000
140,000
2
3
4
5
6
7
45
45
45
45
45
45
56
56
56
56
56
56
TABLE 11
PART NUMBERS FOR REPLACEMENT ORIFICES
DRILL
SIZE
PART
NUMBER
DRILL
SIZE
PART
NUMBER
44
45
46
47
48
49
50
ORF00501
ORF00644
ORF00909
ORF00910
ORF01099
ORF00503
ORF00493
54
55
56
57
58
59
ORF00555
ORF00693
ORF00907
ORF00908
ORF01338
ORF01339
HIGH ALTITUDE DERATE
Input ratings (BTUH) of these furnaces are based on
sea level operation and should not be changed at eleva-
tions up to 2,000 ft.
If the installation is 2,000 ft. or above, the furnace input
rate (BTUH) shall be reduced 4% for each 1,000 ft.
above sea level. The furnace input rate shall be checked
by clocking the gas flow rate (CFH) and multiplying by
the heating value obtained from the local utility sup-
plier for the gas being delivered at the installed altitude.
Input rate changes can be made by adjusting the mani-
fold pressure (min 3.0 - max 3.7 in. W.C. - Natural Gas)
or changing orifices (orifice change may not always be
required). If the desired input rate cannot be achieved
with a change in manifold pressure, then the orifices
must be changed. LP installations will require an orifice
change.
Installation of this furnace at altitudes above 2,000 ft.
(610m) shall be in accordance with local codes, the Na-
tional Fuel Gas Code, ANSI Z223.1/ NFPA 54 or Na-
tional Standard of Canada, Natural Gas and Propane
Installation Code, CSA B149.1. Installation of this fur-
nace at altitudes above 2,000 ft. (610m) shall be made in
accordance with the listed high Altitude Conversion Kit
available with this furnace.
IMPORTANT:
Re-install the propane orifices to the same depth as the
orifices supplied with the equipment.
See Table 13 for help in selecting orifices if orifice
change is required. Furnace input rate and tempera-
ture rise should be checked again after changing ori-
fices to confirm the proper rate for the altitude.
Installations above 4,000 feet may require a pressure
switch change.  If required, use the BAYHALT*** Kit
(High Altitude Accessory Kit) listed in PRODUCT DATA.
▲
WARNING
!
EXPLOSION HAZARD!
PROPANE GAS IS HEAVIER THAN AIR AND MAY
COLLECT IN ANY LOW AREAS OR CONFINED
SPACES. IN ADDITION, ODORANT FADE MAY MAKE
THE GAS UNDETECTABLE EXCEPT WITH A WARN-
ING DEVICE.  IF THE GAS FURNACE IS INSTALLED
IN A BASEMENT, AN EXCAVATED AREA OR A
CONFINED SPACE, IT IS STRONGLY RECOM-
MENDED TO CONTACT A GAS SUPPLIER TO IN-
STALL A GAS DETECTING WARNING DEVICE IN
CASE OF A GAS LEAK.
NOTE:  The manufacturer of your furnace does NOT test
any detectors and makes no representations regarding
any brand or type of detector.

22 18-CD21D1-5
Installer’s Guide
TABLE 13
Orifice
Twist Drill
Size If
Installed
At Sea
Level
ALTITUDE ABOVE SEA LEVEL
and Orifice Required At Other Elevations
2000 3000 4000 5000 6000 7000 8000 9000 10000
42
43
44
45
46
47
42
44
45
46
47
48
43
44
45
47
47
48
43
44
45
47
47
49
43
45
46
47
48
49
44
45
47
48
48
49
44
46
47
48
49
50
45
47
48
49
49
50
46
47
48
49
50
51
47
48
50
50
51
52
54
55
56
57
58
54
55
56
58
59
55
55
56
59
60
55
55
57
59
60
55
56
57
60
61
55
56
57
60
62
55
56
58
61
62
56
56
59
62
63
56
56
59
63
63
56
57
60
63
64
From National Fuel Gas Code - Table F-4
LIGHTING INSTRUCTIONS
▲
WARNING
!
DO NOT attempt to manually light the burner.
Failure to follow this warning could result in property
damage, personal injury or death.
Lighting instructions appear on each unit.  Each
installation must be checked out at the time of
initial start up to insure proper operation of all
components. Check out should include putting
the unit through one complete cycle as outlined
below.
Turn on the main electrical supply and set the thermo-
stat above the indicated temperature. The ignitor will
automatically heat, then the gas valve is energized to
permit the flow of gas to the burners.  After ignition and
flame is established, the flame control module monitors
the flame and supplies power to the gas valve until the
thermostat is satisfied.
TO SHUT OFF
For complete shutdown: Move the control switch on the
main gas valve to the “OFF” position (See Figures 25
and 26). Disconnect the electrical supply to the unit.
▲
CAUTION
!
If this is done during the cold weather months, provi-
sions must be taken to prevent freeze-up of all water
pipes and water receptacles.
Failure to follow this warning could result in property
damage.
Whenever your house is to be vacant, arrange to
have someone inspect your house for proper tem-
perature. This is very important in below freez-
ing weather. If for any reason your furnace
should fail to operate damage could result, such
as frozen water pipes.
TABLE 12
GAS FLOW IN CUBIC FEET PER HOUR
2 CUBIC FOOT DIAL
SEC. FLOW SEC. FLOW SEC. FLOW SEC. FLOW
8 900 29 248 50 144 82 88
9 800 30 240 51 141 84 86
10 720 31 232 52 138 86 84
11 655 32 225 53 136 88 82
12 600 33 218 54 133 90 80
13 555 34 212 55 131 92 78
14 514 35 206 56 129 94 76
15 480 36 200 57 126 96 75
16 450 37 195 58 124 98 73
17 424 38 189 59 122 100 72
18 400 39 185 60 120 104 69
19 379 40 180 62 116 108 67
20 360 41 176 64 112 112 64
21 343 42 172 66 109 116 62
22 327 43 167 68 106 120 60
23 313 44 164 70 103 124 58
24 300 45 160 72 100 128 56
25 288 46 157 74 97 132 54
26 277 47 153 76 95 136 53
27 267 48 150 78 92 140 51
28 257 49 147 80 90 144 50
White-Rodgers 36G gas valve
g
White-Rodgers 36F gas valve
h
On/O
ff
ff 
Swi
Swit
ch
ch
Outlet Pressure Boss Regulator
Adjustment
Inlet Pressure
Boss (opt.) On/Off Switch

Installer’s Guide
18-CD21D1-5 23
INSTRUCTIONS TO THE OWNERS
In the event that electrical, fuel, or mechanical
failures occur, the owner should immediately
turn the gas supply off at the manual gas valve,
located in the burner compartment (See Figure
24). Also turn off electrical power to the furnace
and contact the service agency designated by
your dealer.
▲
WARNING
!
Should overheating occur, or the gas supply fail to
shut off, shut off the gas valve to the unit before shut-
ting off the electrical supply.
Failure to follow this warning could result in property
damage, personal injury or death.
▲
WARNING
!
The following warning complies with State of California law, Proposition 65.
This product contains fiberglass wool insulation!
Fiberglass dust and ceramic fibers are believed by the 
State of California to cause cancer through inhalation. 
Glasswool fibers may also cause respiratory, skin, or 
eye irritation.
PRECAUTIONARY MEASURES 
● Avoid breathing fiberglass dust.
● Use a NIOSH approved dust/ mist respirator.
●  Avoid contact with the skin or eyes. Wear long-
sleeved, loose-fitting clothing, gloves, and eye 
protection.
● Wash clothes separately from other clothing: rinse 
washer thoroughly.
● Operations such as sawing, blowing, tear-out, and 
spraying may generate fiber concentrations requiring 
additional respiratory protection. Use the appropriate 
NIOSH approved respirator in these situations.
FIRST AID MEASURES
Eye Contact – Flush eyes with water to remove dust. If 
symptoms persist, seek medical attention.
Skin Contact  – Wash affected areas gently with soap 
and warm water after handling.
OPERATING INFORMATION
FLAME ROLL-OUT DEVICE
All models are equipped with a thermal control device
on the burner cover. In case of flame roll-out, the device
will cause the circuit to open which shuts off all flow of
gas.
ABNORMAL CONDITIONS
1. EXCESSIVE COMBUSTION VENT PRESSURE OR
FLUE BLOCKAGE
If pressure against the induced draft blower outlet
becomes excessive, the pressure switch will shut off
the gas valve until acceptable combustion pressure
is again available.
CONTROL AND SAFETY SWITCH
ADJUSTMENT
LIMIT SWITCH CHECK OUT
The limit switch is a safety device designed to close the
gas valve should the furnace become overheated. Since
proper operation of this switch is important to the
safety of the unit, it must be checked out on initial
start up by the installer.
To check for proper operation of the limit switches, set
the thermostat to a temperature higher than the indi-
cated temperature to bring on the gas valve. Restrict
the airflow by blocking the return air or by disconnect-
ing the blower. When the furnace reaches the maxi-
mum outlet temperature as shown on the rating plate,
the burners must shut off. If they do not shut off after a
reasonable time and overheating is evident, a faulty
limit switch is probable and the limit switch must be re-
placed. After checking the operation of the limit control,
be sure to remove the paper or cardboard from the re-
turn air inlet, or reconnect the blower.
AIRFLOW ADJUSTMENT
Check inlet and outlet air temperatures to make sure
they are within the ranges specified on the furnace rat-
ing nameplate. If the airflow needs to be increased or
decreased, see the wiring diagram for information on
changing the speed of the blower motor.
▲
WARNING
!
Disconnect power to the unit before removing the
blower door.
Failure to follow this warning could result in property
damage, personal injury or death.
This unit is equipped with a blower door switch which
cuts power to the blower and gas valve causing shut-
down when the door is removed. Operation with the
door removed or ajar can permit the escape of danger-
ous fumes.  All panels must be securely closed at all
times for safe operation of the furnace.
NOTE:
Direct drive motors have bearings which are perma-
nently lubricated and under normal use, lubrication is
not recommended.
INDOOR BLOWER TIMING
The control module controls the indoor blower. The
blower starts approximately 45 seconds after ignition.
The FAN-OFF period is approximately 100 seconds
from the interruption of gas flow.
ROOM AIR THERMOSTAT HEAT ANTICIPATOR
ADJUSTMENT
Set the thermostat heat anticipator according to the
current flow measured, or the settings found in the
notes on the furnace wiring diagram (found inside the
furnace casing).

24 18-CD21D1-5
Installer’s Guide
File Number 18-CD21D1-5
Supersedes 18-CD21D1-4
Date 05/08
INTEGRATED FURNACE CONTROL ERROR FLASH CODES
Flashing Slow --- Normal - No call for Heat
Flashing Fast --- Normal - Call for Heat
Continuous ON --- Replace IFC
Continuous OFF --- Check Power
2 Flashes --- System Lockout (Retries or Recycles exceeded)
3 Flashes ---
Draft Pressure Error - Possible problems:
  a) Venting problem
  b) Pressure switch problem
  c) Inducer problem
4 Flashes --- Open Temperature Limit Circuit
5 Flashes --- Flame sensed when no flame should be present
6 Flashes --- 115 volt AC power reversed, poor grounding or system voltage too low
7 Flashes --- Gas valve circuit error
8 Flashes --- Low flame sense signal
9 Flashes --- Check Ignitor Circuit and Line "N" to 24VAC "Common" voltage (≤ 2 volts)
[possible grounding problem]
2. LOSS OF FLAME OR GAS SUPPLY FAILURE
If loss of flame occurs during a heating cycle (when
flame is not present at the sensor), the control mod-
ule will retry the ignition sequence up to two times
after the sensor cools. If ignition is not achieved, it
will lockout the furnace.
3. POWER FAILURE
If there is a power failure during a heating cycle,
the system will restart the ignition sequence auto-
matically when power is restored, if the thermostat
still calls for heat.
4. INDUCED DRAFT BLOWER FAILURE
If pressure is not sensed by the pressure switch, it
will not allow the gas valve to open, therefore the
unit will not start. If failure occurs during a running
cycle, the pressure switch will cause the gas valve
to close and shut the unit down.
Carbon monoxide, fire or smoke can cause serious
bodily injury, death, and/ or property damage.
A variety of potential sources of carbon monoxide can be
found in a building or dwelling such as gas-fired clothes
dryers, gas cooking stoves, water heaters, furnaces and
fireplaces. The U.S. Consumer Product Safety Commis-
sion recommends that users of gas-burning appliances
install carbon monoxide detectors as well as fire and
smoke detectors per the manufacturers installation in-
structions to help alert dwelling occupants of the pres-
ence of fire, smoke or unsafe levels of carbon monoxide.
These devises should be  listed by Underwriters Labora-
tories, Inc. Standards for Single and Multiple Station
Carbon Monoxide Alarms, UL 2034 or CSA Interna-
tional Standard, Residential Carbon Monoxide Alarming
Devices, CSA 6.19.
NOTE:
The manufacturer of your furnace does not test any de-
tectors and makes no representations regarding any
brand or type of detector.
Failure to follow safety warnings exactly, could 
result in a fire or explosion causing property 
damage, personal injury or loss of life. 
— Do not store or use gasoline or other flammable 
vapors and liquids in the vicinity of this or any  
other appliance.
— WHAT TO DO IF YOU SMELL GAS
• Do not try to light any appliance.
• Do not touch any electrical switch; 
do not use any phone in your building.
• Immediately call your gas supplier from a 
neighbor’s phone. Follow the gas supplier’s 
instructions.
• If you cannot reach your gas supplier,  
call the fire department. 
— Installation and service must be performed by  
a qualified installer, service agency or the gas 
supplier.
▲
WARNING
!
Since the manufacturer has a policy of continuous product and product data improvement, it reserves the right
to change design and specifications without notice.
Trane
6200 Troup Highway
Tyler, TX 75707
For more information contact
your local dealer (distributor)