Trane Advantage Vrf Indoor Unit Catalogue
2015-04-02
: Trane Trane-Advantage-Vrf-Indoor-Unit-Catalogue-684399 trane-advantage-vrf-indoor-unit-catalogue-684399 trane pdf
Open the PDF directly: View PDF
.
Page Count: 76

Product Catalog
Trane Advantage™ VRF Indoor Unit
Product Catalog
September 2013 VRF-PRC006-EN

2 VRF-PRC006-EN
Table of Contents
Products ................................................................................................................................................................... 5
Slim 1 way cassette ............................................................................................................................................... 8
1-1. Specifications .....................................................................................................................................................................8
1-2. Dimensional drawing ........................................................................................................................................................ 9
1-3. Electrical wiring diagram ................................................................................................................................................ 10
1-4. Sound pressure level ......................................................................................................................................................11
1-5. Temperature and air flow distribution .......................................................................................................................... 12
Mini 4 way cassette ............................................................................................................................................. 13
2-1. Specifications ...................................................................................................................................................................13
2-2. Dimensional drawing ...................................................................................................................................................... 14
2-3. Electrical wiring diagram ................................................................................................................................................ 15
2-4. Sound pressure level ......................................................................................................................................................16
2-5. Temperature and air flow distribution ............................................................................................................................17
4 way cassette ...................................................................................................................................................... 19
3-1. Specifications ...................................................................................................................................................................19
3-2. Dimensional drawing ...................................................................................................................................................... 21
3-3. Electrical wiring diagram .................................................................................................................................................22
3-4. Sound pressure level ......................................................................................................................................................23
3-5. Temperature and air flow distribution .......................................................................................................................... 24
Slim duct ............................................................................................................................................................... 33
4-1. Specifications ...................................................................................................................................................................33
4-2. Dimensional drawing ...................................................................................................................................................... 35
4-3. Electrical wiring diagram ................................................................................................................................................ 38
4-4. Sound pressure level ......................................................................................................................................................40
4-5. Recommended operation range ...................................................................................................................................42

3
Indoor units
VRF-PRC006-EN
MSP (Middle static pressure) duct .................................................................................................................... 44
5-1. Specifications ...................................................................................................................................................................44
5-2. Dimensional drawing ...................................................................................................................................................... 46
5-3. Dimensional drawing ...................................................................................................................................................... 48
5-4. Electrical wiring diagram ................................................................................................................................................ 49
5-5. Sound pressure level ......................................................................................................................................................50
5-6. Recommended operation range ...................................................................................................................................52
HSP (High static pressure) duct ......................................................................................................................... 53
6-1. Specifications ...................................................................................................................................................................53
6-2. Dimensional drawing ...................................................................................................................................................... 54
6-3. Electrical wiring diagram ................................................................................................................................................ 56
6-4. Sound pressure level ......................................................................................................................................................57
6-5. Recommended operation range ...................................................................................................................................58
Ceiling Suspended (Floor) .................................................................................................................................. 59
7-1. Specifications ...................................................................................................................................................................59
7-2. Dimensional drawing ...................................................................................................................................................... 60
7-3. Electrical wiring diagram ................................................................................................................................................ 61
7-4. Sound pressure level ......................................................................................................................................................62
7-5. Temperature and air flow distribution .......................................................................................................................... 63
High Wall ............................................................................................................................................................... 65
8-1. Specifications ...................................................................................................................................................................65
8-2. Dimensional drawing ...................................................................................................................................................... 67
8-3. Electrical wiring diagram ................................................................................................................................................ 69
8-4. Sound pressure level ......................................................................................................................................................70
8-5. Temperature and air flow distribution .......................................................................................................................... 72
EEV Kit Application Table ................................................................................................................................... 74

4 VRF-PRC006-EN
Nomenclature
VRF-PRC008-EN 5
Digit 1 — Refrigerant
4 = R-410a
Digit 2 — Brand Name
T = Trane
Digit 3 — System Type
V = Variable Refrigerant Flow
Digit 4 — Configuration Type
A = High Pressure Static Duct Type
B = Mini 4-Way Cassette
C = 4-Way Cassette
D = Mid Pressure Static Duct Type
E = 1-Way Cassette
L = Slim Duct Type (Low Pressure)
X = Convertible Floor/Ceiling
W = High Wall Type
Digit 5 — Reserved for Future
Use
0 = Not currently used
Digit 6, 7, 8 — Nominal Capacity
(Btu/h x 1,000)
007= 7,000 Btu/h
009= 9,000 Btu/h
012= 12,000 Btu/h
015= 15,000 Btu/h
018= 18,000 Btu/h
024= 24,000 Btu/h
030= 30,000 Btu/h
036= 36,000 Btu/h
048= 48,000 Btu/h
076= 76,000 Btu/h
096= 96,000 Btu/h
Digit 9 — Major Development
Sequence
B = Second Development Sequence
Digit 10 — Electric Power
Supply Characteristics
1 = 208~230/60/1
Digit 11 — Reserved for Future
Use
0 = Not currently used
Digit 12 — Reserved for Future
Use
0 = Not currently used
Digit 13 — Region of Sale
N = North America (UL or ETL)
Digit 14 — Minor Design
Sequence
B = Second Design Sequence
Indoor Units
Nomenclature
4TVD0018B100NB
1234567891011121314

Indoor units
1
5 VRF-PRC006-EN
Products
6 VRF-PRC008-EN
Products
Application Matrix
Capacity 7.5MBH 9.0MBH 9.5MBH 12MBH 18MBH 20MBH 24MBH 30MBH 36MBH 48MBH 76.8MBH 96MBH
Type
Slim
1 way
cassette
4 way
cassette
Mini 4
way
cassette
Slim
duct
MSP
duct
HSP
duct
Ceiling
High Wall
VRF-PRC008-EN.book Page 6 Thursday, August 15, 2013 4:08 PM

6 VRF-PRC006-EN
VRF-PRC008-EN 7
Products
Controls
Family Description Trane Model Number
Integrated System
Management
VRF System Controller TVCTRLTIMD00A0
VRF Enterprise Management Software TVCTRLTSTP3P00
VRF Power Meter Interface Module TVCTRLTIMB16A0
Building Management
System Gateways
VRF System Controller+BACnet TVCTRLTIMB17A0
VRF System Controller+LONTalk TVCTRLTIMB18A0
Centralized Control
Systems
VRF Central On/Off Controller TVCTRLTCMA202D
VRF System TouchScreen Control TVCTRLTCMA300T
VRF Mode Select Switch TVCTRLTCMC2000
Zone Controllers
VRF Wireless Remote Control TVCTRLTRDH00UT
VRF Wired Remote Control TVCTRLTWRWE10T
VRF Duct Signal Receiver & Wire TVCTRLTRKA10N0
Interface Modules VRF External Contact Interface Module TVCTRLTIMB14A0
Sensors
VRF Ext. Room Temp Sensor TVCTRLTRWTA000
VRF Motion Sensor Mini 4Way MOTIONSEN4TVB
Commissioning and
Utility Kits
VRF Auto-Commissioning Tool TVCTRLTIMC1000
VRF Technician Utilities TVCTRLTIMC0300
Products

7
Indoor units
VRF-PRC006-EN
8 VRF-PRC008-EN
Products
Accessories
Family Description Trane Model Number
Y- joint
VRF Y-joint <51MBh 4YDK1509B0051A
VRF Y-joint 51-138MBh 4YDK2512B0138A
VRF Y-joint 138-160MBh 4YDK2812B0160A
VRF Y-joint 160-240MBh 4YDK2815B0240A
VRF Y-joint 240-336MBh 4YDK3419B0336A
VRF Y-joint 336-468MBh 4YDK4119B0468A
VRF Y-joint >468MBh 4YDK4422B0999A
Y-joint
(High Pressure Gas for
HR)
VRF Y-joint HR ≤80MBh 4YDK1500B0080A
VRF Y-joint HR 80-240MBh 4YDK2500B0240A
VRF Y-joint HR 240-468MBh 4YDK3100B0468A
VRF Y-joint HR >468MBh 4YDK3800B0999A
Outdoor T Joint
(Outdoor Connection)
VRF T-joint≤468MBh 4TDK3819B0000A
VRF T-joint HR≤468MBh 4TDK3100B0000A
Header Joint
VRF Header Joint 4Units <160MBh 4HJK2512B0159A
VRF Header Joint 8Units ≤240MBh 4HJK3115B0241A
VRF Header Joint 8Units >240MBh 4HJK3819B0998A
MCU-KIT
VRF MCU Kit up to 6 IDU 4MCUCUY6NCE000
VRF MCU Kit up to 4 IDU 4MCUCUY4NCE000
VRF MCU Kit 2 IDU HSP Only 4MCUCUY2NCE000
EEV Kits
(For Wall-mounted &
Ceiling indoor unit
VRF EEV 1x 7-15.5& 1x 17-31MBh 4EEVXDA24K132A
VRF EEV Kit 2Unit 7-15.5MBh 4EEVXDA24K200A
VRF EEV Kit 2Unit 17-31MBh 4EEVXDA32K200A
VRF EEV 2x 7-15.5& 1x 17-31MBh 4EEVXDA24K232A
VRF EEV Kit 3Unit 7-15.5MBh 4EEVXDA24K300A
VRF EEV 1x 7-15.5& 2x 17-31MBh 4EEVXDA32K224A
VRF EEV Kit 3Unit 17-31MBh 4EEVXDA32K300A
VRF EEV Kit 1Unit 7-15.5MBh 4EEVEVA24SA000
VRF EEV Kit 1Unit 17-31MBh 4EEVEVA32SA000
AHU Kit
VRF AHU Kit 24-30MBh 4EEVAKA40K1025
VRF AHU Kit 48-60MBh 4EEVAKA40K1050
VRF AHU Kit 72-90MBh 4EEVAKA64K1075
VRF AHU Kit 96-112MBh 4EEVAKA64K1100
DRAIN PUMP
VRF Drain Pump Slim Duct CONDPUMPXVLB01
VRF Drain Pump MSP 18/24MBh CONDPUMPXVMB01
VRF Drain Pump MSP 30/36MBh CONDPUMPXVMB02
VRF Drain Pump MSP48/ HSP36-48MBh CONDPUMPXVDB01
VRF Drain Pump HSP 76.8/96MBh CONDPUMPXVHB01
CASSETTE PANEL
VRF Cassette Panel Slim 1Way TVEPANPC1NUSET
VRF Cassette Panel Sliding 1Way TVEPANPC1NUAET
VRF Cassette Panel Mini 4Way TVEPANPC4SUSET
VRF Cassette Panel 4Way TVEPANPC4NUSET

1
8 VRF-PRC006-EN
Slim 1 way cassette
1. Nominal capacity based on 25 ft. of equivalent refrigerant piping with 0 ft. level difference.
- Cooling: Indoor temperature 80°F DB, 67°F WB/Outdoor temperature 95°F DB, 75°F WB
- Heating: Indoor temperature 70°F DB, 60°F WB/Outdoor temperature 47°F DB, 43°F WB
2. Sound pressure was acquired in a dead room. Actual noise level may be different depending on installation conditions.
3. Cassette panel must be ordered separately
4. Trane has a policy of continuous product and product data improvement and reserves the right to change design and specifications without notice.
1-1. Specifications
Technical specifications
Model Name 4TVE0007B100NB 4TVE0009B100NB 4TVE0012B100NB
Power Supply 208~230/60/1 208~230/60/1 208~230/60/1
Performance Capacity
(Nominal)1
Cooling Btu/h 7,500 9,500 12,000
Heating Btu/h 8,500 10,500 13,500
Power
Power Input
(Nominal)1
Cooling
W
40.0 45.0 50.0
Heating 40.0 45.0 50.0
Current Input
(Nominal)1
Cooling
A
0.23 0.25 0.28
Heating 0.23 0.25 0.28
Fan
Motor
Type (Qty.) -Crossflow Fan Crossflow Fan Crossflow Fan
Output (Each) W20 x 1 20 x 1 20 x 1
Airflow Rate H/M/L CFM 245/210/175 245/210/175 280/245/210
External Static Pressure Min/Std/Max in. WG ---
Piping Connections
Liquid Pipe Ø inch 1/4 1/4 1/4
Gas Pipe Ø inch 1/2 1/2 1/2
Drain Pipe Ø inch VP 20 (OD 1", ID 3/4") VP 20 (OD 1", ID 3/4") VP 20 (OD 1", ID 3/4")
Refrigerant
Type -R410A R410A R410A
Control Method -EEV (Included) EEV (Included) EEV (Included)
Sound2Sound Pressure H/M/L dB(A) 27.0/25.0/23.0 29.0/27.0/24.0 35.0/31.0/27.0
External Dimensions
Net Weight lbs. 23.15 23.15 23.15
Shipping Weight lbs. 29.75 29.75 29.75
Net Dimensions (Wxhxd) inches 38 1/4 x 5 3/8 x 16 1/8 38 1/4 x 5 3/8 x 16 1/8 38 1/4 x 5 3/8 x 16 1/8
Shipping Dimensions (Wxhxd) inches 43 7/8 x 8 3/8 x 15 13/16 43 7/8 x 8 3/8 x 15 13/16 43 7/8 x 8 3/8 x 15 13/16
Cassette Panel3
Model Name
-TVEPANPC1NUSET TVEPANPC1NUSET TVEPANPC1NUSET
-TVEPANPC1NUAET TVEPANPC1NUAET TVEPANPC1NUAET
Net Weight lbs. 6.61 6.61 6.61
Shipping Weight lbs. 11.0 11.0 11.0
Net Dimensions (Wxhxd) inches 46 1/2 x 1.0 x 18 1/8 46 1/2 x 1.0 x 18 1/8 46 1/2 x 1.0 x 18 1/8
Shipping Dimensions (Wxhxd) inches 49 5/8 x 5 11/16 x 21.25 49 5/8 x 5 11/16 x 21.25 49 5/8 x 5 11/16 x 21.25
Additional Features
Drain Pump
Model Name -Built-in Built-in Built-in
Max. Lifting
Height inches 29.5 29.5 29.5
Displacement Gal/Hr. 6.25 6.25 6.25
Air Filter -Washable Filter Washable Filter Washable Filter

9
Indoor units
VRF-PRC006-EN
1-2. Dimensional drawing
Unit: mm(inch)
1
2
3
5
6
4
Suspension bolts(M8~M10) X 4EA
970(38-1/4)
415(16-3/8)
160(6-1/4) 50(1-15/16)
280(11)
85(3-3/8)25(1)
52(2-1/16)
460(18-1/8)
94(3-3/4)
197(7-3/4)
119(4-5/8)
410(16-1/8)
1036(40-3/4)
863(34)
861(33-7/8)
1180(46-1/2)
135(5-3/8)
150(5-7/8)
No. Name Description
7.5 MBH 9.5 MBH 12.0 MBH
1Liquid pipe connection Ø6.35(1/4") Flare
2Gas pipe connection Ø12.70(1/2") Flare
3Drain pipe connection VP20 (OD 26, ID 20) / VP20 (OD 1", ID 3/4")
4Conduit for power supply & communication wiring -
5Air inlet grille -
6Air outlet louver -

1
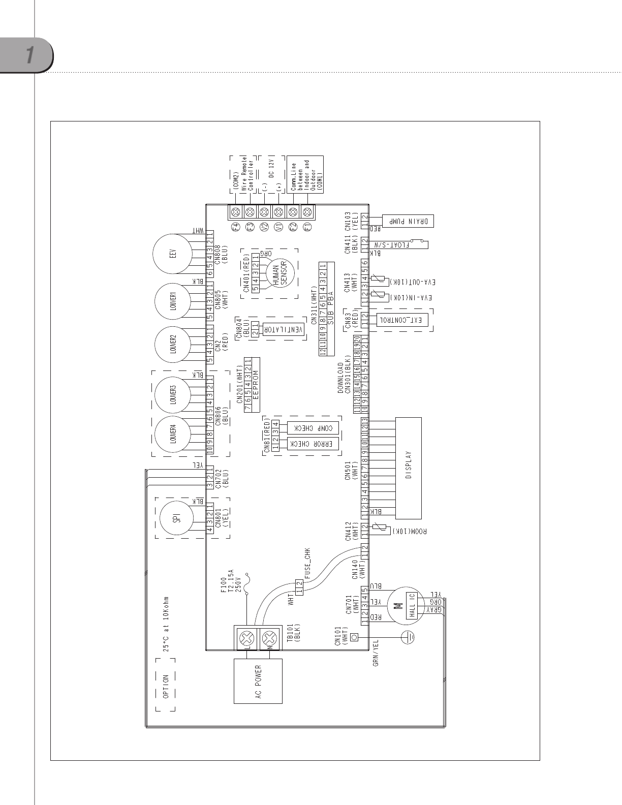
10 VRF-PRC006-EN
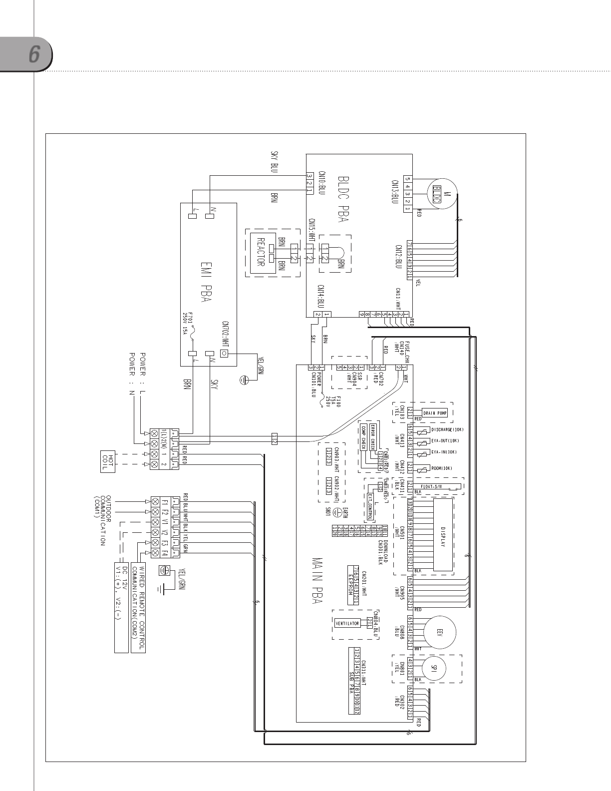
1-3. Electrical wiring diagram
Slim 1 way cassette

11
Indoor units
VRF-PRC006-EN
63 125 250 500 1000 2000 4000 8000
0
45
40
35
30
25
20
15
10
5
NC 45
NC 40
NC 35
NC 30
NC 25
NC 20
NC 15
HIGH
LOW
Sound pressure level (dB)
Octave band center frequency(Hz)
63 125 250 500 1000 2000 4000 8000
0
45
40
35
30
25
20
15
10
5
NC 45
NC 40
NC 35
NC 30
NC 25
NC 20
NC 15
HIGH
LOW
Sound pressure level (dB)
Octave band center frequency(Hz)
1-4. Sound pressure level
Operation sound level
2) NC curves
(1) 4TVE0007B100NB(2) 4TVE0009B100NB
63 125 250 500 1000 2000 4000 8000
0
45
40
35
30
25
20
15
10
5
NC 45
NC 40
NC 35
NC 30
NC 25
NC 20
NC 15
HIGH
LOW
Sound pressure level (dB)
Octave band center frequency(Hz)
(3) 4TVE0012B100NB
1m
1m
Microphone
These operation values were obtained in an anechoic room. Sound pressure level will vary depending on a range of
factors such as the construction of the particular room where the equipment is installed.
Operation sound level may differ depending on operation and ambient conditions.
Note
Unit : dB(A)
Model High Low
4TVE0007B100NB 27 23
4TVE0009B100NB 29 24
4TVE0012B100NB 35 27

12 VRF-PRC006-EN
1-5. Temperature and air flow distribution
4TVE0007-0012B100NB
(1)
Cooling air velocity distribution
Floor distance
Ceiling height
0.2m/s
(0.66ft/s)
0.2m/s
(0.66ft/s)
0.8m/s
(2.62ft/s)
0.6m/s
(1.97ft/s)
1.0m/s
(3.28ft/s)
8 m
3 m
1 m
0 m 1 m 3 m 4 m 5 m 7 m
2
(9.8 ft)
(3.3 ft)
(6.6 ft)
m
2 m 6
(26.2 ft)(0 ft) (3.3 ft) (9.8 ft) (13.1 ft) (16.4 ft) (23.0 ft)
(6.6 ft) (19.7 ft)
m
0.6m/s
(1.97ft/s)
Discharge angle : 60°
Ceiling height
22
Floor distance
8 m
3 m
1 m
0 m 1 m 3 m 4 m 5 m 7 m
2
(9.8 ft)
(3.3 ft)
(6.6 ft)
m
2 m 6
(26.2 ft)(0 ft) (3.3 ft) (9.8 ft) (13.1 ft) (16.4 ft) (23.0 ft)
(6.6 ft) (19.7 ft)
m
25
23
(73.4°F)
23
(73.4°F)
24
(75.2°F)
24
(75.2°F)
(77.0°F)
25
(77.0°F)
(71.6°F)
Discharge angle : 60°
2) Cooling temperature distribution
Floor distance
Ceiling height
8 m
3 m
1 m
0 m 1 m 3 m 4 m 5 m 7 m
2
(9.8 ft)
(3.3 ft)
(6.6 ft)
m
2 m 6
(26.2 ft)(0 ft) (3.3 ft) (9.8 ft) (13.1 ft) (16.4 ft) (23.0 ft)
(6.6 ft) (19.7 ft)
m
0.6m/s
0.4m/s
0.2m/s
0.4m/s
0.2m/s
(0.66ft/s)
(0.66ft/s)
(1.31ft/s)
(1.31ft/s)
(1.97ft/s)
Discharge angle : 60°
3) Heating air velocity distribution
25
25
23
21
33
31
27
Ceiling height
Floor distance
8 m
3 m
1 m
0 m 1 m 3 m 4 m 5 m 7 m
2
(9.8 ft)
(3.3 ft)
(6.6 ft)
m
2 m 6
(26.2 ft)(0 ft) (3.3 ft) (9.8 ft) (13.1 ft) (16.4 ft) (23.0 ft)
(6.6 ft) (19.7 ft)
m
23
(73.4°F)
(77.0°F)
(77.0°F)
(91.4°F)
(87.8°F)
(80.6°F)
(69.8°F)
(73.4°F)
Discharge angle : 60°
4) Heating temperature distribution
1
Slim 1 way cassette

Indoor units
1
13 VRF-PRC006-EN
2
Mini 4 way cassette
2-1. Specifications
Technical specifications
1. Nominal capacity based on 25 ft. of equivalent refrigerant piping with 0 ft. level difference.
- Cooling: Indoor temperature 80°F DB, 67°F WB/Outdoor temperature 95°F DB, 75°F WB
- Heating: Indoor temperature 70°F DB, 60°F WB/Outdoor temperature 47°F DB, 43°F WB
2. Sound pressure was acquired in a dead room. Actual noise level may be different depending on installation conditions.
3. Cassette panel must be ordered separately
4. Motion sensor must be ordered separately
5. Trane has a policy of continuous product and product data improvement and reserves the right to change design and specifications without notice.
Model Name 4TVB0009B100NB 4TVB0012B100NB 4TVB0018B100NB 4TVB0020B100NB
Power Supply 208~230/60/1 208~230/60/1 208~230/60/1 208~230/60/1
Performance Capacity
(Nominal)1
Cooling Btu/h 9,500 12,000 18,000 20,000
Heating Btu/h 10,500 13,500 20,000 23,000
Power
Power Input
(Nominal)1
Cooling
W
24.0 28.0 36.0 38.0
Heating 24.0 28.0 36.0 38.0
Current Input
(Nominal)1
Cooling
A
0.17 0.19 0.27 0.30
Heating 0.17 0.19 0.27 0.30
Fan
Motor
Type (Qty.) -Turbo Fan Turbo Fan Turbo Fan Turbo Fan
Output (Each) W65 x 1 65 x 1 65 x 1 65 x 1
Airflow Rate H/M/L Cfm 350/300/265 370/335/280 460/390/335 475/425/360
External Static
Pressure Min/Std/Max In. WG - - - -
Piping
Connections
Liquid Pipe Ø inch 1/4 1/4 1/4 1/4
Gas Pipe Ø inch 1/2 1/2 1/2 1/2
Drain Pipe Ø inch VP 25 (OD 1 1/4", ID 1") VP 25 (OD 1 1/4", ID 1") VP 25 (OD 1 1/4", ID 1") VP 25 (OD 1 1/4", ID 1")
Refrigerant
Type -R410A R410A R410A R410A
Control Method -EEV (Included) EEV (Included) EEV (Included) EEV (Included)
Sound2Sound Pressure H/M/L Db(A) 34.0/30.0/26.0 36.0/34.0/31.0 40.0/37.0/34.0 41.0/38.0/35.0
External
Dimensions
Net Weight lbs. 26.5 26.5 26.5 26.5
Shipping Weight lbs. 30.9 30.9 30.9 30.9
Net Dimensions (WxHxD) inches 22 3/4 x 9 3/4 22 3/4 22 3/4 x 9 3/4 22 3/4 22 3/4 x 9 3/4 22 3/4 22 3/4 x 9 3/4 22 3/4
Shipping Dimensions (WxHxD) inches 24 1/2 x 11 3/4 x 22 3/4 24 1/2 x 11 3/4 x 22 3/4 24 1/2 x 11 3/4 x 22 3/4 24 1/2 x 11 3/4 x 22 3/4
Cassette Panel3
Model Name -TVEPANPC4SUSET TVEPANPC4SUSET TVEPANPC4SUSET TVEPANPC4SUSET
Net Weight lbs. 6 6 6 6
Shipping Weight lbs. 9.25 9.25 9.25 9.25
Net Dimensions (WxHxD) inches 26 3/8 X 1 3/4 X 26 3/8 26 3/8 X 1 3/4 X 26 3/8 26 3/8 X 1 3/4 X 26 3/8 26 3/8 X 1 3/4 X 26 3/8
Shipping Dimensions (WxHxD) inches 28 1/8 X 4 3/16 X 28 1/2 28 1/8 X 4 3/16 X 28 1/2 28 1/8 X 4 3/16 X 28 1/2 28 1/8 X 4 3/16 X 28 1/2
Additional
Features
Drain Pump
Model Name -Built-in Built-in Built-in Built-in
Max. Lifting Height inches 29.5 29.5 29.5 29.5
Displacement Gal/Hr. 6.25 6.25 6.25 6.25
Air Filter -Washable Filter Washable Filter Washable Filter Washable Filter
Motion Sensor4-MOTIONSEN4TVB MOTIONSEN4TVB MOTIONSEN4TVB MOTIONSEN4TVB

14 VRF-PRC006-EN
2-2. Dimensional drawing
1
7
5
6
2
34
500(19.7) Suspension position
585-630(23-24.8) Ceiling opening
585-630(23-24.8) Ceiling opening
500(19.7) Suspension position
47.5(1.9) 47.5(1.9)
131(5.2)
40(1.6)
176(6.9)
195(7.7)
43(1.7)
575(22.6)
269(10.6)
249(9.8)
165(6.5)
47.5(1.9)
250(9.8)
295(11.6)
47.5(1.9)575(22.6)
670(26.4)
57(2.2)
381(15)
381(15)
300(11.8)
120(4.7)
150(5.9)
670(26.4)
575(22.6)
Ø100(3.9")
41(1.6)
225(8.9)
Unit: mm(inch)
No. Name Description
9.5 MBH 12.0 MBH 18.0 MBH 20.0 MBH
1Liquid pipe connection Ø6.35(1/4") Flare
2Gas pipe connection Ø12.70(1/2") Flare
3Drain pipe connection VP25 (OD 32, ID 25)/VP25 (OD 1 1/4", ID 1")
4Conduit for power supply & communication wiring -
5Air inlet grille -
6Air outlet louver -
7Fresh air intake Ø100(3.9")
Mini 4 way cassette
2

15
Indoor units
VRF-PRC006-EN
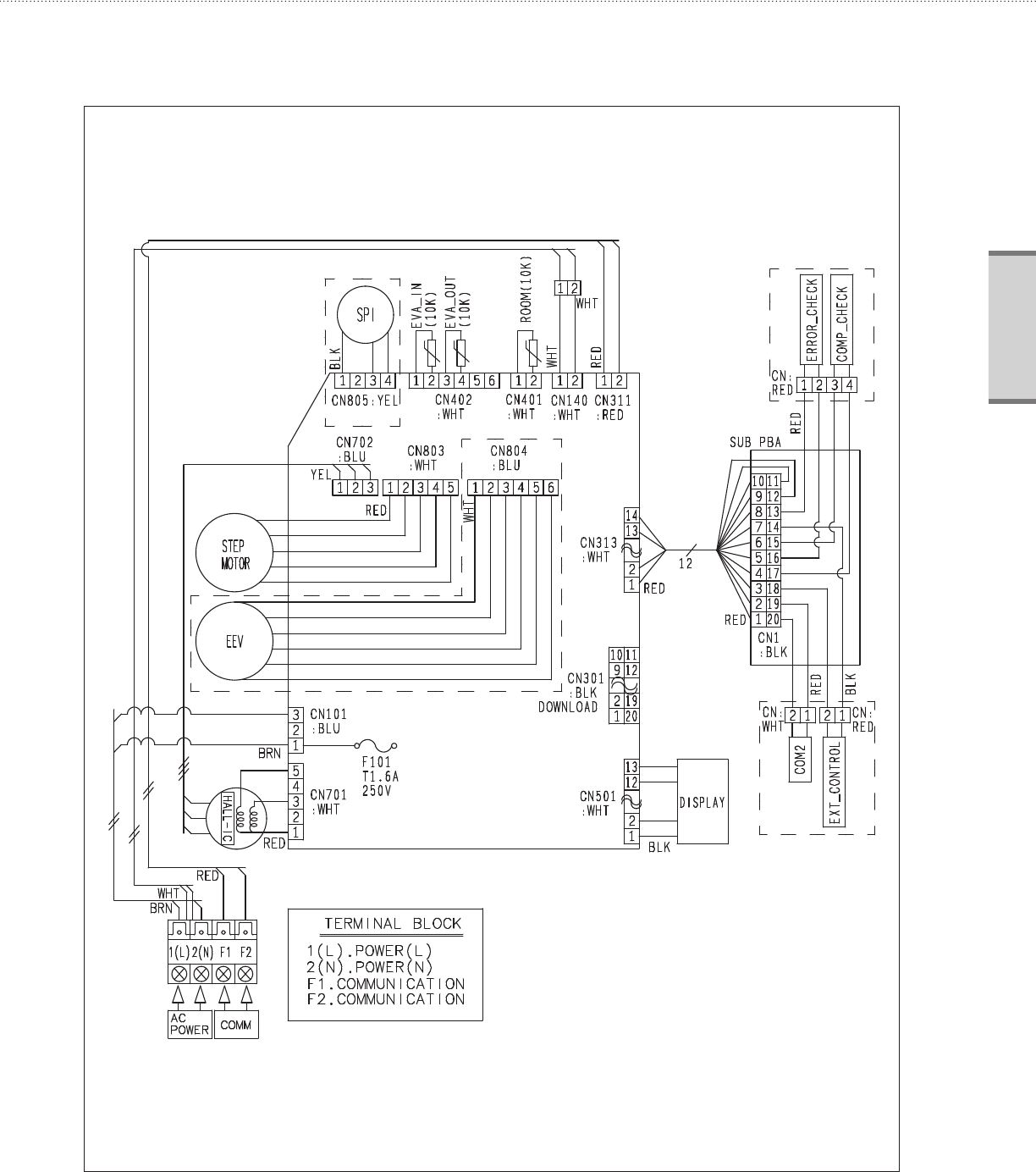
2-3. Electrical wiring diagram

16 VRF-PRC006-EN
2-4. Sound pressure level
Operation sound level
These operation values were obtained in an anechoic room. Sound pressure level will vary depending on a range of
factors such as the construction of the particular room where the equipment is installed.
Operation sound level may differ depending on operation and ambient conditions.
Note
1.5m
Microphone
Unit : dB(A)
Model High Low
4TVB0009B100NB 34 26
4TVB0012B100NB 36 31
4TVB0018B100NB 40 34
4TVB0020B100NB 41 35
63 125 250 500 1000 2000 4000 8000
0
60
50
40
30
20
10
NC 45
NC 40
NC 35
NC 30
NC 25
NC 20
NC 15
HIGH
Mid
LOW
Sound pressure level (dB)
Octave band center frequency(Hz)
63 125 250 500 1000 2000 4000 8000
0
60
50
40
30
20
10
NC 45
NC 40
NC 35
NC 30
NC 25
NC 20
NC 15
HIGH
Mid
LOW
Sound pressure level (dB)
Octave band center frequency(Hz)
2) NC curves
(1) 4TVB0009B100NB(2) 4TVB0012B100NB
63 125 250 500 1000 2000 4000 8000
0
60
50
40
30
20
10
NC 45
NC 40
NC 35
NC 30
NC 25
NC 20
NC 15
HIGH
Mid
LOW
63 125 250 500 1000 2000 4000 8000
0
60
50
40
30
20
10
NC 45
NC 40
NC 35
NC 30
NC 25
NC 20
NC 15
HIGH
Mid
LOW
Sound pressure level (dB)
Sound pressure level (dB)
Octave band center frequency(Hz) Octave band center frequency(Hz)
(3) 4TVB0018B100NB(4) 4TVB0020B100NB
Mini 4 way cassette
2

17
Indoor units
VRF-PRC006-EN
2-5. Temperature and air flow distribution
4TVB0009-0012B100NB
(1) Cooling air velocity distribution
Floor distance
Ceiling height
3 m
1 m
2.5 m 1.5 m 0 m 1.5m 2.5 m
2 m
(9.8 ft)
(3.3 ft)
(6.6 ft)
(0 ft) (4.9 ft)(4.9 ft) (8.2 ft)(8.2 ft)
0.2m/s
(0.66ft/s) 0.2m/s
(0.66ft/s)
0.4m/s
(1.31ft/s)
0.4m/s
(1.31ft/s)
0.6m/s
(1.97ft/s)
0.6m/s
(1.97ft/s)
Discharge angle : 37°
Ceiling height
2.5 m 1.5 m 0 m 1.5m 2.5 m
Floor distance
(0 ft) (4.9 ft)(4.9 ft) (8.2 ft)(8.2 ft)
3 m
1 m
2 m
(9.8 ft)
(3.3 ft)
(6.6 ft)
24
(75.2°F)
24
(75.2°F)
24
(75.2°F)
23
(73.4°F)
23
(73.4°F)
22
(71.6°F)
21
(69.8°F)
21
(69.8°F)
22
(71.6°F)
Discharge angle : 37°
(2) Cooling temperature distribution
Ceiling height
Floor distance
3 m
1 m
2.5 m 1.5 m 0 m 1.5m 2.5 m
2 m
(9.8 ft)
(3.3 ft)
(6.6 ft)
(0 ft) (4.9 ft)(4.9 ft) (8.2 ft)(8.2 ft)
0.2m/s
(0.66ft/s) 0.2m/s
(0.66ft/s)
0.4m/s
(1.31ft/s)
0.4m/s
(1.31ft/s)
0.6m/s
(1.97ft/s)
0.8m/s
(2.62ft/s)
0.8m/s
(2.62ft/s)
1.0m/s
(3.28ft/s)
1.0m/s
(3.28ft/s)
0.6m/s
(1.97ft/s)
Discharge angle : 49°
(3) Heating air velocity distribution
Ceiling height
2.5 m 1.5 m 0 m 1.5m 2.5 m
Floor distance
(0 ft) (4.9 ft)(4.9 ft) (8.2 ft)(8.2 ft)
3 m
1 m
2 m
(9.8 ft)
(3.3 ft)
(6.6 ft)
23
(73.4°F)
27
(80.6°F)
27
(80.6°F)
29
(84.2°F)
29
(84.2°F)
25
(77.0°F)
31
(87.8°F)
31
(87.8°F)
21
(69.8°F)
Discharge angle : 49°
(4) Heating temperature distribution

18 VRF-PRC006-EN
4TVB0018-0020B100NB
(1) Cooling air velocity distribution
Ceiling height
Floor distance
3 m
1 m
2.5 m 1.5 m 0 m 1.5m 2.5 m
2 m
(9.8 ft)
(3.3 ft)
(6.6 ft)
(0 ft) (4.9 ft)(4.9 ft) (8.2 ft)(8.2 ft)
0.2m/s
(0.66ft/s)
0.2m/s
(0.66ft/s)
0.4m/s
(1.31ft/s)
0.4m/s
(1.31ft/s)
0.6m/s
(1.97ft/s)
0.6m/s
(1.97ft/s)
0.8m/s
(2.62ft/s)
0.8m/s
(2.62ft/s)
Discharge angle : 37°
Ceiling height
2.5 m 1.5 m 0 m 1.5m 2.5 m
Floor distance
(0 ft) (4.9 ft)(4.9 ft) (8.2 ft)(8.2 ft)
3 m
1 m
2 m
(9.8 ft)
(3.3 ft)
(6.6 ft)
24
(75.2°F)
24
(75.2°F)
24
(75.2°F)
23
(73.4°F)
20
(68.0°F)
20
(68.0°F)
23
(73.4°F)
25
(77.0°F)
25
(77.0°F)
Discharge angle : 37°
(2) Cooling temperature distribution
Ceiling height
Floor distance
3 m
1 m
2.5 m 1.5 m 0 m 1.5m 2.5 m
2 m
(9.8 ft)
(3.3 ft)
(6.6 ft)
(0 ft) (4.9 ft)(4.9 ft) (8.2 ft)(8.2 ft)
0.2m/s
(0.66ft/s)
0.4m/s
(1.31ft/s)
0.8m/s
(2.62ft/s)
0.8m/s
(2.62ft/s)
0.6m/s
(1.97ft/s)
0.6m/s
(1.97ft/s)
Discharge angle : 49°
(3) Heating air velocity distribution
Ceiling height
2.5 m 1.5 m 0 m 1.5m 2.5 m
Floor distance
(0 ft) (4.9 ft)(4.9 ft) (8.2 ft)(8.2 ft)
3 m
1 m
2 m
(9.8 ft)
(3.3 ft)
(6.6 ft)
25
(77.0°F)
27
(80.6°F)
27
(80.6°F)
23
(73.4°F)
29
(84.2°F)
29
(84.2°F)
31
(87.8°F)
31
(87.8°F)
21
(69.8°F)
Discharge angle : 49°
(4) Heating temperature distribution
2
Mini 4 way cassette

Indoor units
1
19 VRF-PRC006-EN
3
3-1. Specifications
Technical specifications
1. Nominal capacity based on 25 ft. of equivalent refrigerant piping with 0 ft. level difference.
- Cooling: Indoor temperature 80°F DB, 67°F WB/Outdoor temperature 95°F DB, 75°F WB
- Heating: Indoor temperature 70°F DB, 60°F WB/Outdoor temperature 47°F DB, 43°F WB
2. Sound pressure was acquired in a dead room. Actual noise level may be different depending on installation conditions.
3. Cassette panel must be ordered separately
4. Trane has a policy of continuous product and product data improvement and reserves the right to change design and specifications without notice.
4 way cassette
Model Name 4TVC0009B100NB 4TVC0018B100NB 4TVC0024B100NB
Power Supply 208~230/60/1 208~230/60/1 208~230/60/1
Performance Capacity
(Nominal)1
Cooling Btu/h 9,000 18,000 24,000
Heating Btu/h 10,000 20,000 27,000
Power
Power Input
(Nominal)1
Cooling
W
32.0 32.0 40.0
Heating 32.0 32.0 40.0
Current Input
(Nominal)1
Cooling
A
0.25 0.25 0.30
Heating 0.25 0.25 0.30
Fan
Motor
Type (Qty.) -Turbo Fan Turbo Fan Turbo Fan
Output (Each) W65 x 1 65 x 1 65 x 1
Airflow Rate H/M/L Cfm 510/460/390 545/495/425 615/565/495
External Static
Pressure Min/Std/Max In. WG - - -
Piping Connections
Liquid Pipe Ø inch 1/4 1/4 1/4
Gas Pipe Ø inch 1/2 1/2 1/2
Drain Pipe Ø inch VP 25 (OD 1 1/4", ID 1") VP 25 (OD 1 1/4", ID 1") VP 25 (OD 1 1/4", ID 1")
Refrigerant
Type -R410A R410A R410A
Control Method -EEV (Included) EEV (Included) EEV (Included)
Sound2Sound Pressure H/M/L Db(A) 34.0/33.0/31.0 34.0/33.0/31.0 36.0/35.0/34.0
External
Dimensions
Net Weight lbs. 33.1 33.1 33.1
Shipping Weight lbs. 40.8 40.8 40.8
Net Dimensions (WxHxD) inches 33 x 8 x 33 33 x 8 x 33 33 x 8 x 33
Shipping Dimensions (WxHxD) inches 35 3/8 x 10 7/8 x 35 3/8 35 3/8 x 10 7/8 x 35 3/8 35 3/8 x 10 7/8 x 35 3/8
Cassette Panel3
Model Name -TVEPANPC4NUSET TVEPANPC4NUSET TVEPANPC4NUSET
Net Weight lbs. 12.8 12.8 12.8
Shipping Weight lbs. 18.5 18.5 18.5
Net Dimensions (WxHxD) inches 37 7/16 x 1 3/4 x 37 7/16 37 7/16 x 1 3/4 x 37 7/16 37 7/16 x 1 3/4 x 37 7/16
Shipping Dimensions (WxHxD) inches 39 9/16 x 4 x 39 9/16 39 9/16 x 4 x 39 9/16 39 9/16 x 4 x 39 9/16
Additional Features
Drain Pump
Model Name -Built-in Built-in Built-in
Max. Lifting Height inches 29.5 29.5 29.5
Displacement Gal/Hr. 6.25 6.25 6.25
Air Filter -Washable Filter Washable Filter Washable Filter

20 VRF-PRC006-EN
Model Name 4TVC0030B100NB 4TVC0036B100NB 4TVC0048B100NB
Power Supply 208~230/60/1 208~230/60/1 208~230/60/1
Performance Capacity
(Nominal)1
Cooling Btu/h 30,000 36,000 48,000
Heating Btu/h 34,000 40,000 54,000
Power
Power Input
(Nominal)1
Cooling
W
65.0 75.0 95.0
Heating 65.0 75.0 95.0
Current Input
(Nominal)1
Cooling
A
0.50 0.56 0.75
Heating 0.50 0.56 0.75
Fan
Motor
Type (Qty.) -Turbo Fan Turbo Fan Turbo Fan
Output (Each) W97 x 1 97 x 1 97 x 1
Airflow Rate H/M/L Cfm 775/690/600 845/775/705 1025/950/850
External Static
Pressure Min/Std/Max In. WG ---
Piping Connections
Liquid Pipe Ø inch 3/8 3/8 3/8
Gas Pipe Ø inch 5/8 5/8 5/8
Drain Pipe Ø inch VP 25 (OD 1 1/4", ID 1") VP 25 (OD 1 1/4", ID 1") VP 25 (OD 1 1/4", ID 1")
Refrigerant
Type -R410A R410A
Control Method -EEV (Included) EEV (Included) EEV (Included)
Sound2Sound Pressure H/M/L Db(A) 39.0/34.0/30.0 40.0/37.0/33.0 44.0/42.0/39.0
External
Dimensions
Net Weight lbs. 40.8 40.8 40.8
Shipping Weight lbs. 50.7 50.7 50.7
Net Dimensions (WxHxD) inches 33 x 11 1/4 x 33 33 x 11 1/4 x 33 33 x 11 1/4 x 33
Shipping Dimensions (WxHxD) inches 35 3/8 x 14 x 35 3/8 35 3/8 x 14 x 35 3/8 35 3/8 x 14 x 35 3/8
Cassette Panel3
Model Name -TVEPANPC4NUSET TVEPANPC4NUSET TVEPANPC4NUSET
Net Weight lbs. 12.8 12.8 12.8
Shipping Weight lbs. 18.5 18.5 18.5
Net Dimensions (WxHxD) inches 37 7/16 x 1 3/4 x 37 7/16 37 7/16 x 1 3/4 x 37 7/16 37 7/16 x 1 3/4 x 37 7/16
Shipping Dimensions (WxHxD) inches 39 9/16 x 4 x 39 9/16 39 9/16 x 4 x 39 9/16 39 9/16 x 4 x 39 9/16
Additional Features
Drain Pump
Model Name -Built-in Built-in Built-in
Max. Lifting Height inches 29.5 29.5 29.5
Displacement Gal/Hr. 6.25 6.25 6.25
Air Filter -Washable Filter Washable Filter Washable Filter
1. Nominal capacity based on 25 ft. of equivalent refrigerant piping with 0 ft. level difference.
- Cooling: Indoor temperature 80°F DB, 67°F WB/Outdoor temperature 95°F DB, 75°F WB
- Heating: Indoor temperature 70°F DB, 60°F WB/Outdoor temperature 47°F DB, 43°F WB
2. Sound pressure was acquired in a dead room. Actual noise level may be different depending on installation conditions.
3. Cassette panel must be ordered separately
4. Trane has a policy of continuous product and product data improvement and reserves the right to change design and specifications without notice.
3
4 way cassette
Technical specifications

21
Indoor units
VRF-PRC006-EN
3-2. Dimensional drawing
AB
Unit: mm(inch)
890~910(35~35.8) Celling opening
950(37.4) 735(28.9) Suspension position
890~910(35~35.8) Celling opening
735(28.9) Suspension position
Sub duct connection
55(2.2) 840(33.0)
370(14.6)
346(13.6)
185(7.3)
96(3.8)
950(37.4)
120(4.7)
45(1.8)
86(3.4)
164(6.5)
216(8.5)
55(2.2) 55(2.2)840(33.1)
330(13) 240(9.4)
270(10.6)
300(11.8)
55(2.2)
No. Name Description
9MBH 18MBH 24MBH 30MBH 36MBH 48MBH
1Liquid pipe connection Ø6.35(1/4") Flare Ø9.52(3/8") Flare
2Gas pipe connection Ø12.70(1/2") Flare Ø15.88(5/8") Flare
3Drain pipe connection VP25 (OD 32, ID 25)/VP25 (OD 1 1/4", ID 1")
4Conduit for power supply & communication wiring -
5Air inlet grille -
6Air outlet louver -
7Sub-Duct -
6
6 5
7
3 2 1
4
Description
9/18/24 MBH 30/36/48 MBH
Amm(inch) 204(8.0) 288(11.3)
Bmm(inch) 253(10.0) 337(13.3)
92.6(3.6)
4(0.2)-Ø3.3(0.1) 80(3.1)
195(7.7)
80(3.1)
E
Fresh Air Intake

22 VRF-PRC006-EN
3-3. Electrical wiring diagram
3
4 way cassette

23
Indoor units
VRF-PRC006-EN
63 125 250 500 1000 2000 4000 8000
0
60
50
40
30
20
10
NC 45
NC 40
NC 35
NC 30
NC 25
NC 20
NC 15
HIGH
LOW
Sound pressure level (dB)
Octave band center frequency(Hz)
(4) 4TVC0030B100NB
63 125 250 500 1000 2000 4000 8000
0
60
50
40
30
20
10
NC 45
NC 40
NC 35
NC 30
NC 25
NC 20
NC 15
HIGH
LOW
Sound pressure level (dB)
Octave band center frequency(Hz)
(5) 4TVC0036B100NB
63 125 250 500 1000 2000 4000 8000
0
60
50
40
30
20
10
NC 45
NC 40
NC 35
NC 30
NC 25
NC 20
NC 15
HIGH
LOW
Sound pressure level (dB)
Octave band center frequency(Hz)
(6) 4TVC0048B100NB
3-4. Sound pressure level
Operation sound level
These operation values were obtained in an anechoic room. Sound pressure level will vary depending on a
range of factors such as the construction of the particular room where the equipment is installed.
Operation sound level may differ depending on operation and ambient conditions.
Note
1.5m
Microphone
Unit: dB(A)
Model High Low
4TVC0009B100NB 34 31
4TVC0018B100NB 34 31
4TVC0024B100NB 36 34
4TVC0030B100NB 39 30
4TVC0036B100NB 40 33
4TVC0048B100NB 44 39
63 125 250 500 1000 2000 4000 8000
0
60
50
40
30
20
10
NC 45
NC 40
NC 35
NC 30
NC 25
NC 20
NC 15
HIGH
LOW
Sound pressure level (dB)
Octave band center frequency(Hz)
NC curves
(1) 4TVC0009B100NB
63 125 250 500 1000 2000 4000 8000
0
60
50
40
30
20
10
NC 45
NC 40
NC 35
NC 30
NC 25
NC 20
NC 15
HIGH
LOW
Sound pressure level (dB)
Octave band center frequency(Hz)
(2) 4TVC0018B100NB
63 125 250 500 1000 2000 4000 8000
0
60
50
40
30
20
10
NC 45
NC 40
NC 35
NC 30
NC 25
NC 20
NC 15
HIGH
LOW
Sound pressure level (dB)
Octave band center frequency(Hz)
(3) 4TVC0024B100NB

24 VRF-PRC006-EN
3-5. Temperature and air flow distribution
4TVC0009B100NB
(1) Cooling air velocity distribution
X
OZUZP
Y
O]U]P
X
OZUZP
Y
O]U]P
YU^
O_U`P
X
OZUZP
Y
O]U]P
YU\
O_UYP
YU\
O_UYP
·0.4m/s
(1.31ft/s)
·0.3m/s
(0.98ft/s)
·0.6m/s
(1.97ft/s)
·0.7m/s
(2.30ft/s)
·0.9m/s
(2.95ft/s)
·0.5m/s
(1.64ft/s)
·0.1m/s
(0.33ft/s) ·0.2m/s
(0.66ft/s)
·0.1m/s
(0.33ft/s)
·0.2m/s
(0.66ft/s)
·0.8m/s
(2.62ft/s)
·0.3m/s
(0.98ft/s)
·0.1m/s
(0.33ft/s)
Discharge angle :
(2) Cooling temperature distribution
·21.5℃
(70.7 ℉)
·21℃
(69.8℉)
·22℃
(71.6℉)
·18.5℃
(65.3℉)
·18℃
(64.4℉)
·17.5℃
(63.5℉)
·22℃
(71.6℉)
·20.5℃
(68.9 ℉)
·19.5℃
(67.1℉)
·23℃
(73.4 ℉)
·17℃
(62.6℉)
·21℃
(69.8℉)
·20.5℃
(68.9℉)
·23℃
(73.4℉)
·22℃
(71.6℉)X
OZUZP
Y
O]U]P
YU^
O_U`P
X
OZUZP
Y
O]U]P
X
OZUZP
Y
O]U]P
YU\
O_UYP
YU\
O_UYP
Discharge angle :
3
4 way cassette

25
Indoor units
VRF-PRC006-EN
4TVC0009B100NB
(3) Heating air velocity distribution
·0.28m/s
(0.92fit/s)
·0.57m/s
(1.87fit/s)
·0.14m/s
(1.31fit/s)
·0.14m/s
(0.46fit/s)
·0.14m/s
(0.46fit/s)
·0.42m/s
(1.38fit/s)
·0.7m/s
(2.30fit/s)
·0.85m/s
(2.79fit/s)
·1m/s
(3.28fit/s)
·1.1m/s
(3.61fit/s)
·1.3m/s
(4.27fit/s)
·0.14m/s
(0.46fit/s)
·0.14m/s
(0.46fit/s)·0.28m/s
(0.92fit/s)
X
OZUZP
Y
O]U]P
YU^
O_U`P
X
OZUZP
Y
O]U]P
X
OZUZP
Y
O]U]P
YU\
O_UYP
YU\
O_UYP
(4) Heating temperature distribution
·26.7℃
(80.1℉)
·32℃
(89.6℉)
·31℃
(87.8℉)
·32℃
(89.6℉)
·32.8℃
(91.8℉)
·33.6℃
(92.5℉)
·29.4℃
(84.9℉)
·34.5℃
(94.1℉)
·35.5℃
(95.9℉)
·30℃
(86℉)
·27.6℃
(81.7℉)
·28.5℃
(83.3℉)
·32℃
(89.6℉)
·29.4℃
(84.9℉)
·29.4℃
(84.9℉)
·30℃
(86℉)
·28.5℃
(83.3℉)
X
OZUZP
Y
O]U]P
YU^
O_U`P
X
OZUZP
Y
O]U]P
X
OZUZP
Y
O]U]P
YU\
O_UYP
YU\
O_UYP
Discharge angle :
Discharge angle :

26 VRF-PRC006-EN
4TVC0018B100NB
(1) Cooling air velocity distribution
X Y
X
Y
YU^\
·0.1m/s
(0.33fit/s)
YU^\
·0.1m/s
0.33fit/s)
·0.2m/s
(0.66fit/s)
·0.3m/s
(0.98fit/s)
·0.6m/s
(1.97fit/s)
·0.7m/s
(2.30fit/s)
·0.9m/s
(2.95fit/s)
·0.5m/s
(1.64fit/s)
·1m/s
(3.98fit/s)
·0.1m/s
(0.33fit/s)
·0.2m/s
(0.66fit/s)
·0.1m/s
(0.33fit/s)
·0.2m/s
(0.66fit/s)
·0.3m/s
(0.98fit/s)
X
OZUZP
Y
O]U]P
YU^
O_U`P
(2) Cooling temperature distribution
X Y
X
Y
YU^\
·21.5℃
(70.7℉)
·24℃
(75.2℉)
·21℃
(69.8℉)
·22℃
(71.6℉)
·18.5℃
(65.3℉)
·18℃
(64.4℉)
·17.5℃
(63.6℉)
YU^\
·22℃
(71.6℉)
·20.5℃
(68.9℉)
·19.5℃
(67.1℉)
·23℃
(73.4℉)
·17℃
(62.6℉)
·21℃
(69.8℉)
·20.5℃
(68.9℉)
·23℃
(73.4℉)
X
OZUZP
Y
O]U]P
YU^
O_U`P
3
4 way cassette

27
Indoor units
VRF-PRC006-EN
4TVC0018B100NB
(3) Heating air velocity distribution
X Y
X
Y
YU^\
·0.28m/s
(0.92fit/s)
·0.14m/s
(0.46fit/s)
·0.14m/s
(0.46fit/s)
·0.42m/s
(1.38fit/s)
·0.7m/s
(2.30fit/s)
·1.1m/s
(3.61fit/s)
·0.14m/s
(0.46fit/s)
·0.57m/s
(1.87fit/s)
·0.85m/s
(2.79fit/s)
·1m/s
(3.28fit/s)
·1.4m/s
(4.59fit/s)
·0.14m/s
(0.46fit/s)
·1.6m/s
(5..25fit/s)
YU^\
·0.14m/s
(0.46fit/s)
·0.28m/s
(0.92fit/s)
·0.28m/s
(0.92fit/s)
·0.14m/s
(0.46fit/s)
·0.14m/s
(0.46fit/s)
·0.28m/s
(0.92fit/s)
·0.42m/s
(1.38fit/s)
X
OZUZP
Y
O]U]P
YU^
O_U`P
(4) Heating temperature distribution
X Y
X
Y
YU^\YU^\
·32.3℃
(90.1℉)
·33℃
(91.4℉)
·30℃
(86℉)
·31.5℃
(88.7℉)·30℃
(86℉)
·30.7℃
(87.3℉)
·30.7℃
(87.3℉)
·33.8℃
(92.8℉)
·34.6℃
(94.3℉)
·35.3℃
(95.5℉)
·36.1℃
(97.0℉)
·36.8℃
(98.2℉)
·37.6℃
(99.7℉)
·38.3℃
(100.9℉)
·35.3℃
(95.5 ℉)
·39℃
(102.2 ℉)
·39.8℃
(103.6℉)
·40.6℃
(105.1℉)
·39℃
(102.2℉)
X
OZUZP
Y
O]U]P
YU^
O_U`P
Discharge angle :
Discharge angle :

28 VRF-PRC006-EN
4TVC0024B100NB
(1) Cooling air velocity distribution
X Y Z
X
Y
Z ZUX
ZUX
·0.1m/s
(0.33fit/s)
·0.3m/s
(0.98fit/s)
·0.1m/s
(0.33fit/s)
·0.2m/s
(0.66fit/s)
·0.3m/s
(0.98fit/s)
·0.2m/s
(0.66fit/s)
·0.5m/s
(1.64fit/s)
·0.7m/s
(2.30fit/s)
·0.8m/s
(2.62fit/s)
·0.9m/s
(2.95fit/s)
·1m//s
(3.28fit/s)
X
OZUZP
Y
O]U]P
YU^
O_U`P
(2) Cooling temperature distribution
·21℃
X Y Z
X
Y
Z ZUX
ZUX
·20℃
(68℉)
·22℃
(71.6℉)
·21℃
(69.8℉)
·24℃
(75.2℉)
·20℃
(68℉)
·21℃
(69.8℉)
·22℃
(71.6℉)
·23℃
(73.4℉)
·19℃
(66.2℉)
·18.5℃
(65.3℉)
·18℃
(64.4℉)
·17.5℃
(63.5℉)
X
OZUZP
Y
O]U]P
YU^
O_U`P
3
4 way cassette

29
Indoor units
VRF-PRC006-EN
4TVC0024B100NB
(3) Heating air velocity distribution
X Y Z
X
Y
Z ZUX
ZUX
·0.28m/s
(0.92fit/s)
·0.14m/s
(0.46fit/s)
·0.14m/s
(0.46fit/s)
·0.14m/s
(0.46fit/s)
·0.42m/s
(1.38fit/s)
·0.7m/s
(2.30fit/s)
·1.1m/s
(3.61fit/s)
·1.3m/s
(4.27fit/s)
·0.14m/s
(0.46fit/s)
·0.28m/s
(0.92fit/s)
·0.57m/s
(1.87fit/s)
·0.85m/s
(2.79fit/s)
·1m/s
(3.28fit/s)
·1.4m/s
(4.59fit/s)
·0.14m/s
(0.46fit/s)
·0.14m/s
(0.46fit/s)
·0.28m/s
(0.92fit/s)
·0.28m/s
(0.92fit/s)
·0.42m/s
(1.38fit/s)
X
OZUZP
Y
O]U]P
YU^
O_U`P
(4) Heating temperature distribution
Y Z
X
Y
Z ZUX
ZUX
·32.3℃
(90.1℉)
·30.8℃
(87.4℉)
·33.7℃
(92.7℉)
·34.5℃
(94.1℉)
·33℃
(91.4℉)
·30℃
·30.8℃
(87.9℉)
·31.6℃
(88.9℉)
·31.6℃
(88.9℉)
·32.3℃
(90.1℉)
·33℃
(91.4℉)
·34.5℃
(94.1℉)
·39.3℃
(102.7℉)
·40℃
(104℉)
·40.8℃
(105.4℉)
·41.5℃
(106.7℉)
·42℃
(107.6℉)
·33.7℃
(92.7℉)
·33.7℃
(92.7℉)
·34.5℃
(94.1℉)
·34.5℃
(94.1℉)
·35.3℃
(95.5℉)
·35.3℃
(95.5℉)
·38.5℃
(101.3℉)
X
OZUZP
Y
O]U]P
YU^
O_U`P
Discharge angle :
Discharge angle :

30 VRF-PRC006-EN
4TVC0030B100NB
(1) Cooling air velocity distribution
Ceiling heigt
0.2m/s
(0.66ft/s)
0.2m/s
(0.66ft/s)
0.2m/s
(0.66ft/s)
0.2m/s
(0.66ft/s)
0.2m/s
(0.66ft/s)
0.2m/s
(0.66ft/s)
0.8m/s
(2.62ft/s)
0.2m/s
(0.66ft/s) 0.2m/s
(0.66ft/s)
0.4m/s
(1.31ft/s)
0.4m/s
(1.31ft/s)
0.4m/s
(1.31ft/s)
0.6m/s
(1.97ft/s)
0.6m/s
(1.97ft/s)
0.6m/s
(1.97ft/s)
0.6m/s
(1.97ft/s)
0.4m/s
(1.31ft/s)
0.2m/s
(0.66ft/s)
0.2m/s
(0.66ft/s)
1 m
2 m
(8.9 ft)
(3.3 ft)
(6.6 ft)
2.7m
4 m4 m 3 m 1 m 0 m 1 m 3 m
2 m 2 m
Floor distance
(0 ft)(3.3 ft) (3.3 ft)(6.6 ft) (6.6 ft)(9.8 ft) (9.8 ft)(13.1 ft) (13.1 ft)
Discharge angle : 45°
Ceiling heigt
1 m
2 m
(8.9 ft)
(3.3 ft)
(6.6 ft)
2.7m
4 m4 m 3 m 1 m 0 m 1 m 3 m
2 m 2 m
Floor distance
(0 ft)(3.3 ft) (3.3 ft)(6.6 ft) (6.6 ft)(9.8 ft) (9.8 ft)(13.1 ft) (13.1 ft)
24
(75.2°F)
22
(71.6°F)
21
(69.8°F)
21
(69.8°F)
21
(69.8°F)
21
(69.8°F)
23
(73.4°F)
23
(73.4°F)
23
(73.4°F)
25
(77.0°F)
23
(73.4°F)
21
(69.8°F)
22
(71.6°F)
22
(71.6°F)
22
(71.6°F)
22
(71.6°F)
22
(71.6°F)
22
(71.6°F)
22
(71.6°F)
22
(71.6°F)
20
(68.0°F)
20
(68.0°F)
Discharge angle : 45°
(2) Cooling temperature distribution
Ceiling heigt
1 m
2 m
(8.9 ft)
(3.3 ft)
(6.6 ft)
2.7m
4 m4 m 3 m 1 m 0 m 1 m 3 m
2 m 2 m
Floor distance
(0 ft)(3.3 ft) (3.3 ft)(6.6 ft) (6.6 ft)(9.8 ft) (9.8 ft)(13.1 ft) (13.1 ft)
0.4m/s
(1.31ft/s)
0.4m/s
(1.31ft/s)
0.4m/s
(1.31ft/s)
0.4m/s
(1.31ft/s)
0.4m/s
(1.31ft/s)
0.2m/s
(0.66ft/s)
0.2m/s
(0.66ft/s)
0.2m/s
(0.66ft/s)
0.2m/s
(0.66ft/s)
0.2m/s
(0.66ft/s)
0.2m/s
(0.66ft/s)
0.6m/s
(1.97ft/s)
0.6m/s
(1.97ft/s)
0.4m/s
(1.31ft/s)
Discharge angle : 52°
(3) Heating air velocity distribution
Ceiling heigt
1 m
2 m
(8.9 ft)
(3.3 ft)
(6.6 ft)
2.7m
4 m4 m 3 m 1 m 0 m 1 m 3 m
2 m 2 m
Floor distance
(0 ft)(3.3 ft) (3.3 ft)(6.6 ft) (6.6 ft)(9.8 ft) (9.8 ft)(13.1 ft) (13.1 ft)
21
(69.8°F)
21
(69.8°F)
21
(69.8°F)
22
(71.6°F)
22
(71.6°F)
23
(73.4°F)
24
(75.2°F)
25
(77.0°F)
31
(87.8°F)
31
(87.8°F)
30
(86°F)
31
(87.8°F)
31
(87.8°F)
26
(78.8°F)
27
(80.6°F)
27
(80.6°F)
27
(80.6°F)
27
(80.6°F)
31
(87.8°F)
30
(86°F)
30
(86°F)
30
(86°F)
26
(78.8°F)
Discharge angle : 52°
(4) Heating temperature distribution
3
4 way cassette

31
Indoor units
VRF-PRC006-EN
4TVC0036B100NB
(1) Cooling air velocity distribution
Ceiling heigt
1 m
2 m
(8.9 ft)
(3.3 ft)
(6.6 ft)
2.7m
4 m4 m 3 m 1 m 0 m 1 m 3 m
2 m 2 m
Floor distance
(0 ft)(3.3 ft) (3.3 ft)(6.6 ft) (6.6 ft)(9.8 ft) (9.8 ft)(13.1 ft) (13.1 ft)
0.4m/s
(1.31ft/s) 0.4m/s
(1.31ft/s)
0.4m/s
(1.31ft/s)
0.4m/s
(1.31ft/s)
0.4m/s
(1.31ft/s)
0.2m/s
(0.66ft/s)
0.2m/s
(0.66ft/s)
0.2m/s
(0.66ft/s)
0.2m/s
(0.66ft/s)
0.2m/s
(0.66ft/s)
0.2m/s
(0.66ft/s)
1.0m/s
(3.28ft/s)
1.0m/s
(3.28ft/s)
1.0m/s
(3.28ft/s)
0.2m/s
(0.66ft/s)
0.6m/s
(1.97ft/s)
0.6m/s
(1.97ft/s)
0.6m/s
(1.97ft/s)
1.2m/s
(3.94ft/s)
1.2m/s
(3.94ft/s)
0.6m/s
(1.97ft/s)
0.6m/s
(1.97ft/s)
Discharge angle : 45°
Ceiling heigt
1 m
2 m
(8.9 ft)
(3.3 ft)
(6.6 ft)
2.7m
4 m4 m 3 m 1 m 0 m 1 m 3 m
2 m 2 m
Floor distance
(0 ft)(3.3 ft) (3.3 ft)(6.6 ft) (6.6 ft)(9.8 ft) (9.8 ft)(13.1 ft) (13.1 ft)
23
(73.4°F)
23
(73.4°F)
23
(73.4°F)
21
(69.8°F)
21
(69.8°F)
21
(69.8°F)
21
(69.8°F)
21
(69.8°F)
21
(69.8°F)
22
(71.6°F)
22
(71.6°F)
22
(71.6°F)
22
(71.6°F)
22
(71.6°F)
22
(71.6°F)
22
(71.6°F)
20
(68.0°F)
Discharge angle : 45°
(2) Cooling temperature distribution
Ceiling heigt
1 m
2 m
(8.9 ft)
(3.3 ft)
(6.6 ft)
2.7m
4 m4 m 3 m 1 m 0 m 1 m 3 m
2 m 2 m
Floor distance
(0 ft)(3.3 ft) (3.3 ft)(6.6 ft) (6.6 ft)(9.8 ft) (9.8 ft)(13.1 ft) (13.1 ft)
0.2m/s
(0.66ft/s)
0.2m/s
(0.66ft/s)
0.2m/s
(0.66ft/s)
0.2m/s
(0.66ft/s)
0.2m/s
(0.66ft/s)
0.2m/s
(0.66ft/s)
0.2m/s
(0.66ft/s)
0.2m/s
(0.66ft/s)
0.2m/s
(0.66ft/s)
0.4m/s
(1.31ft/s)
0.4m/s
(1.31ft/s)
0.4m/s
(1.31ft/s)
0.4m/s
(1.31ft/s)
0.4m/s
(1.31ft/s)
0.4m/s
(1.31ft/s)
0.4m/s
(1.31ft/s)
1.0m/s
(3.28ft/s)
1.0m/s
(3.28ft/s)
1.0m/s
(3.28ft/s)
Discharge angle : 52°
(3) Heating air velocity distribution
Ceiling heigt
1 m
2 m
(8.9 ft)
(3.3 ft)
(6.6 ft)
2.7m
4 m4 m 3 m 1 m 0 m 1 m 3 m
2 m 2 m
Floor distance
(0 ft)(3.3 ft) (3.3 ft)(6.6 ft) (6.6 ft)(9.8 ft) (9.8 ft)(13.1 ft) (13.1 ft)
25
(77.0°F)
26
(78.8°F)
29
(84.2°F)
29
(84.2°F)
29
(84.2°F)
29
(84.2°F)
29
(84.2°F)
28
(82.4°F)
25
(77.0°F)
25
(77.0°F)
31
(87.8°F)
31
(87.8°F)
33
(91.4°F)
27
(80.6°F)
27
(80.6°F)
25
(77.0°F)
25
(77.0°F)
Discharge angle : 52°
(4) Heating temperature distribution

32 VRF-PRC006-EN
4TVC0048B100NB
Cooling air velocity distribution
Ceiling heigt
1 m
2 m
(8.9 ft)
(3.3 ft)
(6.6 ft)
2.7m
4 m4 m 3 m 1 m 0 m 1 m 3 m
2 m 2 m
Floor distance
(0 ft)(3.3 ft) (3.3 ft)(6.6 ft) (6.6 ft)(9.8 ft) (9.8 ft)(13.1 ft) (13.1 ft)
0.2m/s
(0.66ft/s)
0.2m/s
(0.66ft/s)
0.2m/s
(0.66ft/s)
0.2m/s
(0.66ft/s)
0.2m/s
(0.66ft/s)
0.2m/s
(0.66ft/s)
0.2m/s
(0.66ft/s)
0.2m/s
(0.66ft/s)
0.6m/s
(1.97ft/s)
0.6m/s
(1.97ft/s)
0.6m/s
(1.97ft/s)
0.4m/s
(1.31ft/s)
0.4m/s
(1.31ft/s)
0.4m/s
(1.31ft/s)
1.2m/s
(3.94ft/s)
1.4m/s
(4.59ft/s)
1.4m/s
(4.59ft/s)
1.4m/s
(4.59ft/s)
0.8m/s
(2.62ft/s)
0.8m/s
(2.62ft/s)
0.8m/s
(2.62ft/s)
Discharge angle : 45°
18.0℃
Ceiling heigt
1 m
2 m
(8.9 ft)
(3.3 ft)
(6.6 ft)
2.7m
4 m4 m 3 m 1 m 0 m 1 m 3 m
2 m 2 m
Floor distance
(0 ft)(3.3 ft) (3.3 ft)(6.6 ft) (6.6 ft)(9.8 ft) (9.8 ft)(13.1 ft) (13.1 ft)
20
(68.0°F)
20
(68.0°F)
20
(68.0°F)
20
(68.0°F)
20
(68.0°F)
20
(68.0°F)
20
(68.0°F)
20
(68.0°F)
20
(68.0°F)
20
(68.0°F)
21
(69.8°F)
21
(69.8°F)
22
(71.6°F)
22
(71.6°F)
19
(66.2°F)
17
(62.6°F)
17
(62.6°F)
18
(64.4°F)
19
(66.2°F)
Discharge angle : 45°
(2) Cooling temperature distribution
Ceiling heigt
(8.9 ft)
2.7m
4 m4 m 3 m 1 m 0 m 1 m 3 m
2 m 2 m
Floor distance
(0 ft)(3.3 ft) (3.3 ft)(6.6 ft) (6.6 ft)(9.8 ft) (9.8 ft)(13.1 ft) (13.1 ft)
0.2m/s
(0.66ft/s)
0.2m/s
(0.66ft/s)
0.2m/s
(0.66ft/s)
0.2m/s
(0.66ft/s)
0.2m/s
(0.66ft/s)
0.2m/s
(0.66ft/s)
0.2m/s
(0.66ft/s) 0.2m/s
(0.66ft/s)
0.2m/s
(0.66ft/s)
0.6m/s
(1.97ft/s)
0.6m/s
(1.97ft/s)
0.8m/s
(2.62ft/s)
0.8m/s
(2.62ft/s)
1.2m/s
(3.94ft/s)
0.4m/s
(1.31ft/s)
0.4m/s
(1.31ft/s)
0.4m/s
(1.31ft/s)
0.4m/s
(1.31ft/s)
0.4m/s
(1.31ft/s)
1 m
2 m
(3.3 ft)
(6.6 ft)
Discharge angle : 52°
(3) Heating air velocity distribution
Ceiling heigt
1 m
2 m
(8.9 ft)
(3.3 ft)
(6.6 ft)
2.7m
4 m4 m 3 m 1 m 0 m 1 m 3 m
2 m 2 m
Floor distance
(0 ft)(3.3 ft) (3.3 ft)(6.6 ft) (6.6 ft)(9.8 ft) (9.8 ft)(13.1 ft) (13.1 ft)
29
(84.2°F)
29
(84.2°F)
27
(80.6°F)
27
(80.6°F)
27
(80.6°F)
27
(80.6°F)
31
(87.8°F)
31
(87.8°F)
31
(87.8°F)
32
(89.6°F)
31
(87.8°F)
33
(91.4°F)
33
(91.4°F)
34
(93.2°F)
34
(93.2°F)
31
(87.8°F)
34
(93.2°F)
34
(93.2°F)
Discharge angle : 52°
(4) Heating temperature distribution
3
4 way cassette

Indoor units
1
33 VRF-PRC006-EN
4
4-1. Specifications
Technical specifications
1. Nominal capacity based on 25 ft. of equivalent refrigerant piping with 0 ft. level difference.
- Cooling: Indoor temperature 80°F DB, 67°F WB/Outdoor temperature 95°F DB, 75°F WB
- Heating: Indoor temperature 70°F DB, 60°F WB/Outdoor temperature 47°F DB, 43°F WB
2. Sound pressure was acquired in a dead room. Actual noise level may be different depending on installation conditions.
3. Internally installed drain pump must be ordered separately
4. Trane has a policy of continuous product and product data improvement and reserves the right to change design and specifications without notice.
Model Name 4TVL0007B100NB 4TVL0009B100NB 4TVL0012B100NB 4TVL0018B100NB
Power Supply 208~230/60/1 208~230/60/1 208~230/60/1 208~230/60/1
Performance Capacity
(Nominal)1
Cooling Btu/h 7,500 9,500 12,000 18,000
Heating Btu/h 8,500 10,500 13,500 20,000
Power
Power Input
(Nominal)1
Cooling
W
47.0 60.0 75.0 140.0
Heating 47.0 60.0 75.0 140.0
Current Input
(Nominal)1
Cooling
A
0.32 0.40 0.51 0.94
Heating 0.32 0.40 0.51 0.94
Fan
Motor
Type (Qty.) - Sirocco Fan Sirocco Fan Sirocco Fan Sirocco Fan
Output (Each) W 40 x 1 50 x 1 60 x 1 100 x 1
Airflow Rate H/M/L CFM 282/247/212 318/282/247 353/300/247 547/495/441
External Static
Pressure Min/Std/Max in. WG 0.00/0.08/0.16 0.00/0.08/0.16 0.00/0.08/0.16 0.00/0.08/0.16
Piping
Connections
Liquid Pipe Ø inch 1/4 1/4 1/4 1/4
Gas Pipe Ø inch 1/2 1/2 1/2 1/2
Drain Pipe Ø inch VP 25 (OD 1 1/4", ID 1") VP 25 (OD 1 1/4", ID 1") VP 25 (OD 1 1/4", ID 1") VP 25 (OD 1 1/4", ID 1")
Refrigerant
Type - R410A R410A R410A R410A
Control Method - EEV (Included) EEV (Included) EEV (Included) EEV (Included)
Sound2Sound Pressure H/M/L dB(A) 26.0/24.0/21.0 27.0/25.0/23.0 29.0/28.0/27.0 36.0/34.0/31.0
External
Dimensions
Net Weight lbs. 54.0 54.0 54.0 66.1
Shipping Weight lbs. 62.8 62.8 62.8 76.0
Net Dimensions (WxHxD) inches 35 7/16 x 7 13/16 x 23 5/8 35 7/16 x 7 13/16 x 23 5/8 35 7/16 x 7 13/16 x 23 5/8 43 5/16 x 7 13/16 x 23 5/8
Shipping Dimensions (WxHxD) inches 45 1/4 x 11 x 28 45 1/4 x 11 x 28 45 1/4 x 11 x 28 53 3/16 x 11 x 28
Additional
Features
Drain Pump3
Model Name - CONDPUMPXVLB01 CONDPUMPXVLB01 CONDPUMPXVLB01 CONDPUMPXVLB01
Max. Lifting Height inches 29.5 29.5 29.5 29.5
Displacement Gal/Hr. 6.25 6.25 6.25 6.25
Air Filter - Washable Filter Washable Filter Washable Filter Washable Filter
Slim duct

34 VRF-PRC006-EN
Model Name 4TVL0024B100NB 4TVL0030B100NB 4TVL0036B100NB 4TVL0048B100NB
Power Supply 208~230/60/1 208~230/60/1 208~230/60/1 208~230/60/1
Performance Capacity
(Nominal)1
Cooling Btu/h 24,000 30,000 36,000 48,000
Heating Btu/h 27,000 34,000 40,000 54,000
Power
Power Input
(Nominal)1
Cooling
W
145.0 95.0 120.0 180.0
Heating 145.0 95.0 120.0 180.0
Current Input
(Nominal)1
Cooling
A
0.98 0.80 1.05 1.40
Heating 0.98 0.80 1.05 1.40
Fan
Motor
Type (Qty.) - Sirocco Fan Sirocco Fan Sirocco Fan Sirocco Fan
Output (Each) W 110 x 1 80 x 1 100 x 1 160 x 1
Airflow Rate H/M/L CFM 582/530/477 880/810/705 950/880/810 1,235/1,165/1,060
External Static
Pressure Min/Std/Max in. WG 0.00/0.08/0.16 0.00/0.14/0.28 0.00/0.14/0.28 0.00/0.14/0.28
Piping
Connections
Liquid Pipe Ø inch 3/8 3/8 3/8 3/8
Gas Pipe Ø inch 5/8 5/8 5/8 5/8
Drain Pipe Ø inch VP 25 (OD 1 1/4", ID 1") VP 25 (OD 1 1/4", ID 1") VP 25 (OD 1 1/4", ID 1") VP 25 (OD 1 1/4", ID 1")
Refrigerant
Type - R410A R410A R410A R410A
Control Method - EEV (Included) EEV (Included) EEV (Included) EEV (Included)
Sound2Sound Pressure H/M/L dB(A) 38.0/36.0/33.0 37.0/36.0/34.0 37.0/36.0/34.0 39.0/38.0/36.0
External
Dimensions
Net Weight lbs. 66.1 88.2 88.2 91.5
Shipping Weight lbs. 76.0 103.6 103.6 107.0
Net Dimensions (WxHxD) inches 43 5/16 x 7 13/16 x 23 5/8 51 3/16 x 11 5/8 x 27 3/16 51 3/16 x 11 5/8 x 27 3/16 51 3/16 x 11 5/8 x 27 3/16
Shipping Dimensions (WxHxD) inches 53 3/16 x 11 x 28 62 x 14 9/16 x 32 7/8 62 x 14 9/16 x 32 7/8 62 x 14 9/16 x 32 7/8
Additional
Features
Drain Pump3
Model Name - CONDPUMPXVLB01 CONDPUMPXVLB01 CONDPUMPXVLB01 CONDPUMPXVLB01
Max. Lifting Height inches 29.5 29.5 29.5 29.5
Displacement Gal/Hr. 6.25 6.25 6.25 6.25
Air Filter - Washable Filter Washable Filter Washable Filter Washable Filter
1. Nominal capacity based on 25 ft. of equivalent refrigerant piping with 0 ft. level difference.
- Cooling: Indoor temperature 80°F DB, 67°F WB/Outdoor temperature 95°F DB, 75°F WB
- Heating: Indoor temperature 70°F DB, 60°F WB/Outdoor temperature 47°F DB, 43°F WB
2. Sound pressure was acquired in a dead room. Actual noise level may be different depending on installation conditions.
3. Internally installed drain pump must be ordered separately
4. Trane has a policy of continuous product and product data improvement and reserves the right to change design and specifications without notice.
4
Slim duct
Technical specifications

35
Indoor units
VRF-PRC006-EN
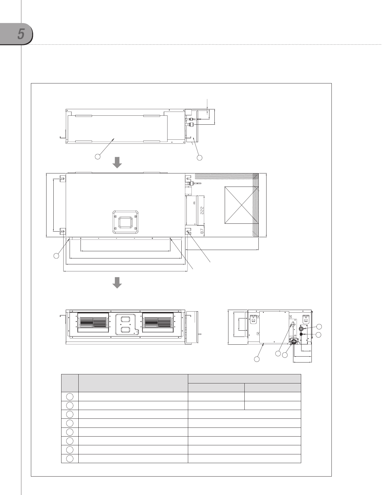
4-2. Dimensional drawing
4TVL0007B1-TVL0012B100NB
12
3
4
5
6
7
8
Suspension bolts(M8~M10) X 4EA
Duct flange connection bolts(M4) X 22EA
Suction
Discharge
10(3/8)100(4)71(2-3/4)
477(18-3/4)
600(23-5/8)
199(7-7/8)
152(6)
100(4)
OD31(1-1/4)
116(4-5/8)
146(5-3/4)
18(3/4)
12(4/8)
938(36-7/8)
8x100(3-7/8)=800(31-1/2)
182(7-1/8)
32(1-1/4)
246(9-5/8)
333(13-1/8)
860(33-7/8)
600(23-5/8)
900(35-3/8)
3x256(10-1/8)=768(30-1/4)
55(2-1/8)
73(2-7/8)
Unit : mm(inch)
No. Name Description
7.5 MBH 9.5 MBH 12.0 MBH
1Liquid pipe connection Ø6.35(1/4") Flare
2Gas pipe connection Ø12.70(1/2") Flare
3
Drain pipe connection without optional drain pump kits
VP25 (OD 32, ID 25) / VP25 (OD 1 1/4", ID 1")
4
Drain pipe connection with optional drain pump kits
VP25 (OD 32, ID 25) / VP25 (OD 1 1/4", ID 1")
5
Control unit
-
6
Conduit for power supply & communication wiring
-
7Return air side -
8Air outlet duct flange -

36 VRF-PRC006-EN
4TVL0018B1-TVL0024B100NB
6
12
3
4
5
7
8
Suspension bolts(M8~M10) X 4EA
Duct flange connection bolts(M4) X 26EA
Suction
Discharge
10(3/8)100(4)71(2-3/4)
505(19-7/8)
600(23-5/8)
199(7-7/8)
152(6)
100(4)
OD32(1-1/4)
116(4-5/8)
146(5-3/4)
18(3/4)
13(1/2)
1100(43-1/4)
10x100(3-7/8)=1000(39-3/8)
182(7-1/8)
31(1-1/4)
246(9-5/8)
333(13-1/8)
1060(41-3/4)
600(23-5/8)
3x322(12-5/8)=966(38)
55(2-1/8)73(2-7/8)
No. Name Description
18.0 MBH 24.0 MBH
1Liquid pipe connection Ø6.35(1/4") Flare Ø9.52(3/8") Flare
2Gas pipe connection Ø12.70(1/2") Flare Ø15.88(5/8") Flare
3
Drain pipe connection without optional drain pump kits
VP25 (OD 32, ID 25) / VP25 (OD 1 1/4", ID 1")
4
Drain pipe connection with optional drain pump kits
VP25 (OD 32, ID 25) / VP25 (OD 1 1/4", ID 1")
5
Control unit
-
6
Conduit for power supply & communication wiring
-
7Return air side -
8Air outlet duct flange -
Unit : mm(inch)
4
Slim duct

37
Indoor units
VRF-PRC006-EN
4TVL0030B1-TVL0048B100NB
1 2
3
4
5
7
8
6
Suspenslon bolts(M8~M10) X 4EA
Duct flange connection bolts(M4) X 32EA
Suction
Discharge
10(3/8)
2(1/16)x
88(3-1/2)=
176(6-7/8)
83(3-1/4)
477(18-3/4)
690(27-1/8)
295(11-5/8)
248(9-3/4)
OD32(1-1/4)
116(4-5/8)
146(5-3/4)
18(3/4)
16(5/8)
1338(52-5/8)
1300(51-1/8)
12x100(4)=1200(47-1/4)
29(1-1/8)
1260(49-5/8)
600(23-5/8)
4x290(11-3/8)=1160(45-5/8)
55(2-1/8)73(2-7/8)
2(1/16)x100(4)=200(7-7/8)
182(7-1/8)
246(9-5/8)
333(13-1/8)
No. Name Description
30.0 MBH 36.0 MBH 48.0 MBH
1Liquid pipe connection Ø9.52(3/8") Flare
2Gas pipe connection Ø15.88(5/8") Flare
3
Drain pipe connection without optional drain pump kits
VP25 (OD 32, ID 25) / VP25 (OD 1 1/4", ID 1")
4
Drain pipe connection with optional drain pump kits
VP25 (OD 32, ID 25) / VP25 (OD 1 1/4", ID 1")
5
Control unit
-
6
Conduit for power supply & communication wiring
-
7Return air side -
8Air outlet duct flange -
Unit : mm(inch)

38 VRF-PRC006-EN
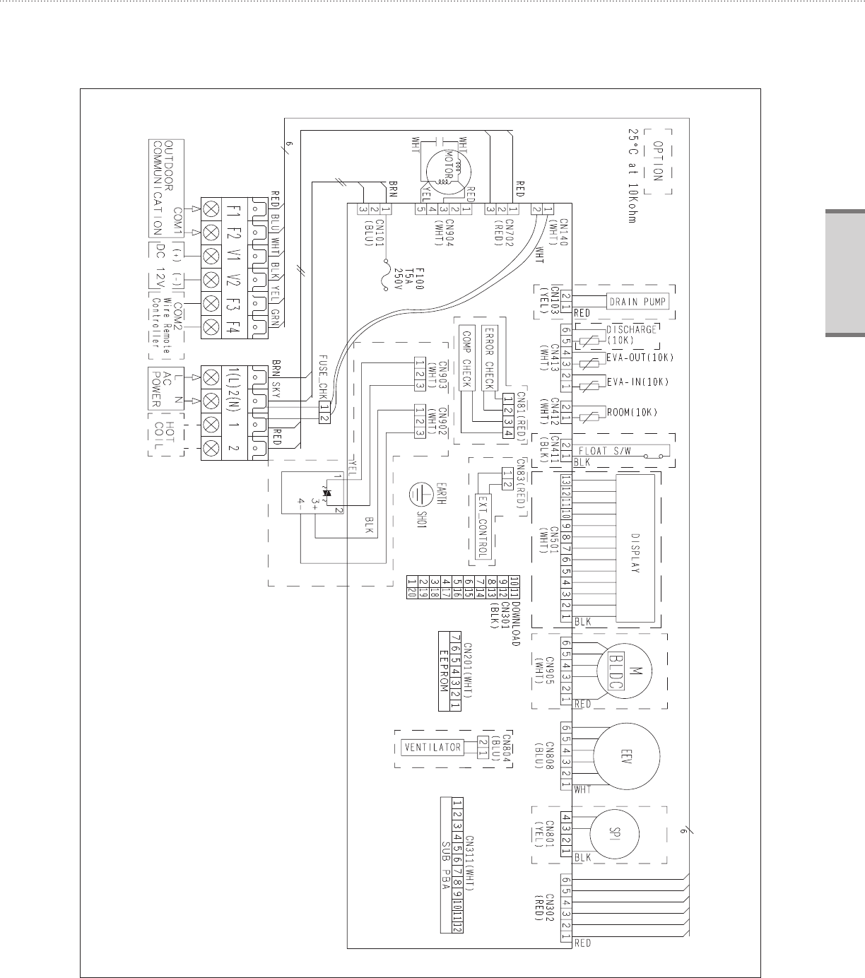
4-3. Electrical wiring diagram
4TVL0007B1-TVL0024B100NB
4
Slim duct

39
Indoor units
VRF-PRC006-EN
4TVL0030B1-TVL0048B100NB

40 VRF-PRC006-EN
4-4. Sound pressure level
Operation sound level
These operation values were obtained in an anechoic room. Sound pressure level will vary depending on a
range of factors such as the construction of the particular room where the equipment is installed.
Operation sound level may differ depending on operation and ambient conditions.
Note
Model High Low
4TVL0007B100NB 26 21
4TVL0009B100NB 27 23
4TVL0012B100NB 29 27
4TVL0018B100NB 36 31
Unit : dB(A)
Model High Low
4TVL0024B100NB 38 33
4TVL0030B100NB 37 34
4TVL0036B100NB 37 34
4TVL0048B100NB 39 36
63 125 250 500 1000 2000 4000 8000
0
45
40
35
30
25
20
15
10
5
NC 45
NC 40
NC 35
NC 30
NC 25
NC 20
NC 15
HIGH
LOW
Sound pressure level (dB)
Octave band center frequency(Hz)
63 125 250 500 1000 2000 4000 8000
0
45
40
35
30
25
20
15
10
5
NC 45
NC 40
NC 35
NC 30
NC 25
NC 20
NC 15
HIGH
LOW
Sound pressure level (dB)
Octave band center frequency(Hz)
63 125 250 500 1000 2000 4000 8000
0
45
40
35
30
25
20
15
10
5
NC 45
NC 40
NC 35
NC 30
NC 25
NC 20
NC 15
HIGH
LOW
Sound pressure level (dB)
Octave band center frequency(Hz)
63 125 250 500 1000 2000 4000 8000
0
45
40
35
30
25
20
15
10
5
NC 45
NC 40
NC 35
NC 30
NC 25
NC 20
NC 15
HIGH
LOW
Sound pressure level (dB)
Octave band center frequency(Hz)
2) NC curves
(1) 4TVL0007B100NB(2) 4TVL0009B100NB
(3) 4TVL0012B100NB(4) 4TVL0018B100NB
4
Slim duct

41
Indoor units
VRF-PRC006-EN
63 125 250 500 1000 2000 4000 8000
0
45
40
35
30
25
20
15
10
5
NC 45
NC 40
NC 35
NC 30
NC 25
NC 20
NC 15
HIGH
LOW
Sound pressure level (dB)
Octave band center frequency(Hz)
63 125 250 500 1000 2000 4000 8000
0
45
40
35
30
25
20
15
10
5
NC 45
NC 40
NC 35
NC 30
NC 25
NC 20
NC 15
HIGH
LOW
Sound pressure level (dB)
Octave band center frequency(Hz)
63 125 250 500 1000 2000 4000 8000
0
45
40
35
30
25
20
15
10
5
NC 45
NC 40
NC 35
NC 30
NC 25
NC 20
NC 15
HIGH
LOW
Sound pressure level (dB)
Octave band center frequency(Hz)
63 125 250 500 1000 2000 4000 8000
0
45
40
35
30
25
20
15
10
5
NC 45
NC 40
NC 35
NC 30
NC 25
NC 20
NC 15
HIGH
LOW
Sound pressure level (dB)
Octave band center frequency(Hz)
(5) 4TVL0024B100NB(6) 4TVL0030B100NB
(7) 4TVL0036B100NB(8) 4TVL0048B100NB
NC curves

42 VRF-PRC006-EN
4-5. Recommended operation range
Adjust option code according to the actual installation condition (external static pressure).
(1) 4TVL0007B100NB
(2) 4TVL0009B100NB (3) 4TVL0012B100NB
(4) 4TVL0018B100NB
(5) 4TVL0024B100NB (6) 4TVL0030B100NB
ESP = External Static Pressure
The graphs display the available external static pressure range of installed indoor units. Therefore, they do not
reflect the actual change of external static pressure and airflow rate according to adjusted airflow (High-Mid-Low) of
installed indoor units.
Note
Air Flow Rate : CMM(CFM)
4 5 6 7 8 9
(141) (177) (212) (247) (282) (318)
39.2
34.3
29.4
19.6
24.5
9.8
14.7
4.9
0
0.10
0.08
0.06
0.16
0.14
0.12
0.04
0.02
0
External Static Pressure (Pa)
External Static Pressure (inH2O)
External Static Pressure (mmAq)
4.0
2.0
1.0
0.5
1.5
2.5
3.0
3.5
0
H(8.0)L(6.0)
12.5 13.5 14.5 15.5 16.5
39.2
34.3
29.4
19.6
24.5
9.8
14.7
4.9
0
0.10
0.08
0.06
0.16
0.14
0.12
0.04
0.02
0
External Static Pressure (Pa)
External Static Pressure (inH2O)
External Static Pressure (mmAq)
4.0
2.0
1.0
0.5
1.5
2.5
3.0
3.5
0
H(15.5)L(12.5)
11.5
Air Flow Rate : CMM(CFM)
(406) (441) (477) (512) (547) (582)
6 7 8 9 10
39.2
34.3
29.4
19.6
24.5
9.8
14.7
4.9
0
0.10
0.08
0.06
0.16
0.14
0.12
0.04
0.02
0
External Static Pressure (Pa)
External Static Pressure (inH2O)
External Static Pressure (mmAq)
4.0
2.0
1.0
0.5
1.5
2.5
3.0
3.5
0
H(9.0)L(7.0)
5
Air Flow Rate : CMM(CFM)
(177) (212) (247) (282) (318) (353)
13 14 15 16 1817
39.2
34.3
29.4
19.6
24.5
9.8
14.7
4.9
0
0.10
0.08
0.06
0.16
0.14
0.12
0.04
0.02
0
External Static Pressure (Pa)
External Static Pressure (inH2O)
External Static Pressure (mmAq)
4.0
2.0
1.0
0.5
1.5
2.5
3.0
3.5
0
H(16.5)L(13.5)
12
Air Flow Rate : CMM(CFM)
(424) (459) (494) (530) (565) (635)(600)
7 8 9 10 11
39.2
34.3
29.4
19.6
24.5
9.8
14.7
4.9
0
0.10
0.08
0.06
0.16
0.14
0.12
0.04
0.02
0
External Static Pressure (Pa)
External Static Pressure (inH
2
O)
External Static Pressure (mmAq)
4.0
2.0
1.0
0.5
1.5
2.5
3.0
3.5
0
H(10.0)L(7.0)
6
Air Flow Rate : CMM(CFM)
(212) (247) (282) (318) (353) (388)
21.4 23 24.6 26.2 32.627.8 29.4 31
68.6
58.8
39.2
49.0
19.6
29.4
9.8
0
0.16
0.12
0.08
0.28
0.24
0.20
0.04
0
External Static Pressure (Pa)
External Static Pressure (inH
2
O)
External Static Pressure (mmAq)
7.0
4.0
2.0
1.0
3.0
5.0
6.0
0
H(31)L(23)
19.8
Air Flow Rate : CMM(CFM)
(699) (755) (812) (868) (925) (981) (1038) (1094) (1151)
External Static
Pressure (in H20) Option code
0.00 010054-1254AE-201616-331110
0.04 010054-1255D1-201616-331110
0.08 010054-1255D1-201616-331110
0.16 010054-125904-201616-331110
External Static
Pressure (in H20) Option code
0.00 010054-1259BA-203434-331110
0.04 010054-1259ED-203434-331110
0.08 010054-1259ED-203434-331110
0.16 010054-125E10-203434-331110
External Static
Pressure (in H20) Option code
0.00 010054-121913-201C1C-331110
0.04 010054-121946-201C1C-331110
0.08 010054-121946-201C1C-331110
0.16 010054-121979-201C1C-331110
External Static
Pressure (in H20) Option code
0.00 010054-125D2D-204848-331110
0.04 010054-125E50-204848-331110
0.08 010054-125E50-204848-331110
0.16 010054-125E83-204848-331110
External Static
Pressure (in H20) Option code
0.00 010054-121946-202323-331110
0.04 010054-121979-202323-331110
0.08 010054-121979-202323-331110
0.16 010054-1219AC-202323-331110
External Static
Pressure (in H20) Option code
0.00 010054-1B5915-205A5A-331110
0.04 010054-1B5948-205A5A-331110
0.12 010054-1B599F-205A5A-331110
0.24 010054-1B5AE4-205A5A-331110
4
Slim duct

43
Indoor units
VRF-PRC006-EN
Adjust option code according to the actual installation condition (external static pressure).
(7) 4TVL0036B100NB
(8) 4TVL0048B100NB
ESP = External Static Pressure
The graphs display the available external static pressure range of installed indoor units. Therefore, they do not
reflect the actual change of external static pressure and airflow rate according to adjusted airflow (High-Mid-Low) of
installed indoor units.
Note
22.5 24 26.5 29 36.531.5 34
68.6
58.8
39.2
49.0
19.6
29.4
9.8
0
0.16
0.12
0.08
0.28
0.24
0.20
0.04
0
External Static Pressure (Pa)
External Static Pressure (inH2O)
External Static Pressure (mmAq)
7.0
4.0
2.0
1.0
3.0
5.0
6.0
0
H(34)L(24)
20
Air Flow Rate : CMM(CFM)
(706) (794) (847) (935) (1024) (1112) (1200) (1288)
27 29.2 31.4 33.6 40.235.8 38
68.6
58.8
39.2
49.0
19.6
29.4
9.8
0
0.16
0.12
0.08
0.28
0.24
0.20
0.04
0
External Static Pressure (Pa)
External Static Pressure (inH2O)
External Static Pressure (mmAq)
7.0
4.0
2.0
1.0
3.0
5.0
6.0
0
H(38)L(27)
25.8
Air Flow Rate : CMM(CFM)
(911) (953) (1031) (1108) (1186) (1264) (1341) (1419)
External Static
Pressure (in H20) Option code
0.00 010054-1B5956-206E6E-331110
0.04 010054-1B5989-206E6E-331110
0.12 010054-1B5AD0-206E6E-331110
0.24 010054-1B5E25-206E6E-331110
External Static
Pressure (in H20) Option code
0.00 010054-1B59B9-209191-331110
0.04 010054-1B59EC-209191-331110
0.12 010054-1B5E33-209191-331110
0.24 010054-1B5E88-209191-331110

44 VRF-PRC006-EN
5
MSP (Middle static pressure) duct
5-1. Specifications
Technical specifications
1. Nominal capacity based on 25 ft. of equivalent refrigerant piping with 0 ft. level difference.
- Cooling: Indoor temperature 80°F DB, 67°F WB/Outdoor temperature 95°F DB, 75°F WB
- Heating: Indoor temperature 70°F DB, 60°F WB/Outdoor temperature 47°F DB, 43°F WB
2. Sound pressure was acquired in a dead room. Actual noise level may be different depending on installation conditions.
3. Internally installed drain pump must be ordered separately
4. Trane has a policy of continuous product and product data improvement and reserves the right to change design and specifications without notice.
Model Name 4TVD0018B100NB 4TVD0024B100NB 4TVD0030B100NB
Power Supply 208~230/60/1 208~230/60/1 208~230/60/1
Performance Capacity
(Nominal)1
Cooling Btu/h 18,000 24,000 30,000
Heating Btu/h 20,000 27,000 34,000
Power
Power Input
(Nominal)1
Cooling
W
165.0 220.0 260.0
Heating 165.0 220.0 260.0
Current Input
(Nominal)1
Cooling
A
1.40 1.50 1.50
Heating 1.40 1.50 1.50
Fan
Motor
Type (Qty.) - Sirocco Fan Sirocco Fan Sirocco Fan
Output (Each) W 124 x 1 124 x 1 180 x 1
Airflow Rate H/M/L CFM 512/460/406 653/600/547 882/810/706
External Static
Pressure Min/Std/Max in. WG 0.00/0.16.0.31 0.00/0.16.0.31 0.24/0.31/0.39
Piping
Connections
Liquid Pipe Ø inch 1/4 3/8 3/8
Gas Pipe Ø inch 1/2 5/8 5/8
Drain Pipe Ø inch VP 25 (OD 1 1/4", ID 1") VP 25 (OD 1 1/4", ID 1") VP 25 (OD 1 1/4", ID 1")
Refrigerant
Type - R-410A R-410A R-410A
Control Method - EEV (Included) EEV (Included) EEV (Included)
Sound2Sound Pressure H/M/L dB(A) 35.0/33.0/31.0 39.0/35.0/31.0 40.0/37.0/34.0
External
Dimensions
Net Weight lbs. 63.9 63.9 80.5
Shipping Weight lbs. 72.75 72.75 89.3
Net Dimensions (WxHxD) inches 35 7/16 x 10 1/4 x 18 7/8 35 7/16 x 10 1/4 x 18 7/8 45 1/4 x 12 5/8 x 18 7/8
Shipping Dimensions (WxHxD) inches 46 1/16 x 13 3/8 x 23 7/16 46 1/16 x 13 3/8 x 23 7/16 55 15/16 x 15 3/4 x 23 7/16
Additional
Features
Drain Pump3
Model Name - CONDPUMPXVLB01 CONDPUMPXVMB01 CONDPUMPXVMB02
Max. Lifting Height inches 29.5 29.5 29.5
Displacement Gal/Hr. 6.25 6.25 6.25
Air Filter - Washable Filter Washable Filter Washable Filter

45
Indoor units
VRF-PRC006-EN
Model Name 4TVD0036B100NB 4TVD0048B100NB
Power Supply 208~230/60/1 208~230/60/1
Performance Capacity
(Nominal)1
Cooling Btu/h 36,000 48,000
Heating Btu/h 40,000 54,000
Power
Power Input
(Nominal)1
Cooling
W
290.0 430.0
Heating 290.0 430.0
Current Input
(Nominal)1
Cooling
A
1.60 2.45
Heating 1.60 2.45
Fan
Motor
Type (Qty.) - Sirocco Fan Sirocco Fan
Output (Each) W 180 x 1 218 x 1
Airflow Rate H/M/L CFM 954/880/812 1,236/1,165/1,059
External Static
Pressure Min/Std/Max in. WG 0.24/0.31/0.39 0.24/0.31/0.39
Piping
Connections
Liquid Pipe Ø inch 3/8 3/8
Gas Pipe Ø inch 5/8 5/8
Drain Pipe Ø inch VP 25 (OD 1 1/4", ID 1") VP 25 (OD 1 1/4", ID 1")
Refrigerant
Type - R-410A R-410A
Control Method - EEV (Included) EEV (Included)
Sound2Sound Pressure H/M/L dB(A) 41.0/40.0/38.0 42.0/39.0/36.0
External
Dimensions
Net Weight lbs. 80.5 107
Shipping Weight lbs. 89.3 122.4
Net Dimensions (WxHxD) inches 45 1/4 x 12 5/8 x 18 7/8 47 1/4 x 14 3/16 x 25 5/8
Shipping Dimensions (WxHxD) inches 55 15/16 x 15 3/4 x 23 7/16 57 5/16 x 17 1/8 x 30 5/8
Additional
Features
Drain Pump3
Model Name - CONDPUMPXVMB02 CONDPUMPXVDB01
Max. Lifting Height inches 29.5 29.5
Displacement Gal/Hr. 6.25 6.25
Air Filter - Washable Filter Washable Filter
1. Nominal capacity based on 25 ft. of equivalent refrigerant piping with 0 ft. level difference.
- Cooling: Indoor temperature 80°F DB, 67°F WB/Outdoor temperature 95°F DB, 75°F WB
- Heating: Indoor temperature 70°F DB, 60°F WB/Outdoor temperature 47°F DB, 43°F WB
2. Sound pressure was acquired in a dead room. Actual noise level may be different depending on installation conditions.
3. Internally installed drain pump must be ordered separately
4. Trane has a policy of continuous product and product data improvement and reserves the right to change design and specifications without notice.
Technical specifications

46 VRF-PRC006-EN
MSP (Middle static pressure) duct
5
5-2. Dimensional drawing
4TVD0018B1-TVD0024B100NB Unit: mm(inch)
1
2
3
4
5
7
8
6
Suspension bolts(M8~M10) X 4EA
Duct flange connection bolts(M4) X 16EA
117(4.6)
77(3) 12(0.5)
Suction
480(18.9)
135(5.3) x 5(0.2) = 675(26.6) 600(23.6)
480(18.9)
844(33.2) Air outlet duct flange
936(36.9) Suspension position
900(35.4)
Discharge
397(15.6) Suspension position
260(10.2)
185(7.3)
76(3)
132(5.2)
139(5.5)
90(3.5)
No. Name Description
18MBH 24MBH
1Liquid pipe connection Ø6.35(1/4") Flare Ø9.52(3/8") Flare
2Gas pipe connection Ø12.70(1/2") Flare Ø15.88(5/8") Flare
3
Drain pipe connection without optional drain pump kits
VP25 (OD 32, ID 25) / VP25 (OD 1 1/4", ID 1")
4
Drain pipe connection with optional drain pump kits
VP25 (OD 32, ID 25) / VP25 (OD 1 1/4", ID 1")
5Control unit -
6
Conduit for power supply & communication wiring
-
7Return air side -
8Air outlet duct flange -

47
Indoor units
VRF-PRC006-EN
4TVD0030B1-TVD0036B1NB Unit: mm(inch)
1
2
4
5
7
8
6
3
Suspension bolts(M8~M10) X 4EA
Duct flange connection bolts(M4) X 18EA
Suction
Discharge
397(15-5/8) Suspension position
222(8-6/8)
480(18-7/8)
320(12-5/8)
157(6-1/8)
125(4-7/8)
229(9)
Air outlet flange
902(35-1/2) Air outlet duct flange
600(23-5/8)
6x135(5-3/8)=810(31-7/8)
1150(45-1/4)
1186(46-3/4) Suspension position
87(3-3/8)
77(3)
132(5-1/4)
144(5-5/8)
27(1-1/8)
107(4-1/4)
121(4-3/4)
No. Name Description
30.0 MBH 36.0 MBH
1Liquid pipe connection Ø9.52(3/8") Flare
2Gas pipe connection Ø15.88(5/8") Flare
3
Drain pipe connection without optional drain pump kits
VP25 (OD 32, ID 25) / VP25 (OD 1 1/4", ID 1")
4
Drain pipe connection with optional drain pump kits
VP25 (OD 32, ID 25) / VP25 (OD 1 1/4", ID 1")
5Control unit -
6
Conduit for power supply & communication wiring
-
7Return air side -
8Air outlet duct flange -

48 VRF-PRC006-EN
MSP (Middle static pressure) duct
5
5-3. Dimensional drawing
4TVD0048B100NB Unit: mm(inch)
6
1
2
3
4
5
7
8
Suspension bolts(M8~M10) X 4EA
Duct flange connection bolts(M4) X 20EA
Suction
Discharge
534(21) Suspension position
222(8-3/4)
360(14-1/8)
253(10)
Air outlet flange
1000(39-3/8) Air outlet duct flange
650(25-5/8)
6x150(5-7/8)=900(35-3/8)
1200(47-1/4)
1236(48-5/8) Suspension position
244(9-5/8)
299(11-3/4)
86(3-3/8)
2(1/8)x100(3-7/8)=200(7-7/8)
80(3-1/8)
170(6-3/4)
No. Name Description
48.0 MBH
1Liquid pipe connection Ø9.52(3/8") Flare
2Gas pipe connection Ø15.88(5/8") Flare
3
Drain pipe connection without optional drain pump kits
VP25 (OD 32, ID 25) / VP25 (OD 1 1/4", ID 1")
4
Drain pipe connection with optional drain pump kits
VP25 (OD 32, ID 25) / VP25 (OD 1 1/4", ID 1")
5Control unit -
6
Conduit for power supply & communication wiring
-
7Return air side -
8Air outlet duct flange -

49
Indoor units
VRF-PRC006-EN
5-4. Electrical wiring diagram

50 VRF-PRC006-EN
MSP (Middle static pressure) duct
5
5-5. Sound pressure level
Operation sound level
These operation values were obtained in an anechoic room. Sound pressure level will vary depending on a range
of factors such as the construction of the particular room where the equipment is installed.
Operation sound level may differ depending on operation and ambient conditions.
Note
Unit : dB(A)
Model High Low
4TVD0018B100NB 35 31
4TVD0024B100NB 39 31
4TVD0030B100NB 40 34
4TVD0036B100NB 41 38
4TVD0048B100NB 42 36
63 125 250 500 1000 2000 4000 8000
0
45
40
35
30
25
20
15
10
5
NC 45
NC 40
NC 35
NC 30
NC 25
NC 20
NC 15
HIGH
LOW
Sound pressure level (dB)
Octave band center frequency(Hz)
63 125 250 500 1000 2000 4000 8000
0
60
50
40
30
20
10
NC 45
NC 40
NC 35
NC 30
NC 25
NC 20
NC 15
HIGH
LOW
Sound pressure level (dB)
Octave band center frequency(Hz)
63 125 250 500 1000 2000 4000 8000
0
45
40
35
30
25
20
15
10
5
NC 45
NC 40
NC 35
NC 30
NC 25
NC 20
NC 15
HIGH
LOW
Sound pressure level (dB)
Octave band center frequency(Hz)
63 125 250 500 1000 2000 4000 8000
0
60
50
40
30
20
10
NC 45
NC 40
NC 35
NC 30
NC 25
NC 20
NC 15
HIGH
LOW
Sound pressure level (dB)
Octave band center frequency(Hz)
2) NC curves
(1) 4TVD0018B100NB(2) 4TVD0024B100NB
(3) 4TVD0030B100NB(4) 4TVD0036B100NB

51
Indoor units
VRF-PRC006-EN
63 125 250 500 1000 2000 4000 8000
0
60
50
40
30
20
10
NC 45
NC 40
NC 35
NC 30
NC 25
NC 20
NC 15
HIGH
LOW
Sound pressure level (dB)
Octave band center frequency(Hz)
(5) 4TVD0048B100NB

52 VRF-PRC006-EN
5
MSP (Middle static pressure) duct
26 28 343230
117.7
137.3
127.5
98.1
107.9
78.5
88.3
68.6
58.8
0.31
0.35
0.39
0.43
0.47
0.55
0.51
0.28
0.24
External Static Pressure (Pa)
External Static Pressure (inH
2
O)
External Static Pressure (mmAq)
12.0
10.0
8.0
7.0
9.0
11.0
6.0
14.0
13.0
H(35)
L(30)
3836
Air Flow Rate : CMM(CFM)
(918) (988) (1059) (1130) (1271)(1200) (1341)
5-6. Recommended operation range
Adjust option code according to the actual installation condition (external static pressure).
ESP = External Static Pressure
The graphs display the available external static pressure range of installed indoor units. Therefore, they do not
reflect the actual change of external static pressure and airflow rate according to adjusted airflow (High-Mid-Low) of
installed indoor units.
Note
(4) 4TVD0036B100NB (5) 4TVD0048B100NB
External Static
Pressure (in H20) Option code
0.24 010054-1259CE-205A5A-331110
0.31 010054-125E02-205A5A-331110
0.39 010054-125E46-205A5A-331110
0.47
External Static
Pressure (in H20) Option code
0.24 010054-125E00-206E6E-331110
0.31 010054-125E44-206E6E-331110
0.39 010054-125E88-206E6E-331110
0.47
External Static
Pressure (in H20) Option code
0.24 010054-125E20-209191-331110
0.31 010054-125E43-209191-331110
0.39 010054-125E86-209191-331110
0.47
(3) 4TVD0030B100NB
18 20 262422
117.7
137.3
127.5
98.1
107.9
78.5
88.3
68.6
58.8
0.31
0.35
0.39
0.43
0.47
0.55
0.51
0.28
0.24
External Static Pressure (Pa)
External Static Pressure (inH
2
O)
External Static Pressure (mmAq)
12.0
10.0
8.0
7.0
9.0
11.0
6.0
14.0
13.0
H(27)
L(23)
3028
Air Flow Rate : CMM(CFM)
(635) (706) (777) (847) (988)(918) (1059)
16 18 242220
117.7
137.3
127.5
98.1
107.9
78.5
88.3
68.6
58.8
0.31
0.35
0.39
0.43
0.47
0.55
0.51
0.28
0.24
External Static Pressure (Pa)
External Static Pressure (inH2O)
External Static Pressure (mmAq)
12.0
10.0
8.0
7.0
9.0
11.0
6.0
14.0
13.0
H(25)L(20)
2826
Air Flow Rate : CMM(CFM)
(565) (635) (706) (777) (918)(847) (988)
10 11 12 16151413
58.8
78.5
68.6
39.2
49.0
19.6
29.4
9.8
0
0.08
0.12
0.16
0.20
0.24
0.31
0.28
0.04
0
External Static Pressure (Pa)
External Static Pressure (inH
2
O)
External Static Pressure (mmAq)
6.0
4.0
2.0
1.0
3.0
5.0
0
8.0
7.0
H(14.5)L(11.5)
Air Flow Rate : CMM(CFM)
(353) (388) (424) (459) (530)(494) (565)
External Static
Pressure (in H20) Option code
0.00 010054-125571-203434-331110
0.08 010054-125593-203434-331110
0.16 010054-1255C5-203434-331110
0.24 010054-1255F5-203434-331110
0.31 010054-125957-203434-331110
(1) 4TVD0018B100NB
14 15 16 20191817
58.8
78.5
68.6
39.2
49.0
19.6
29.4
9.8
0
0.08
0.12
0.16
0.20
0.24
0.31
0.28
0.04
0
External Static Pressure (Pa)
External Static Pressure (inH
2
O)
External Static Pressure (mmAq)
6.0
4.0
2.0
1.0
3.0
5.0
0
8.0
7.0
H(18.5)L(15.5)
Air Flow Rate : CMM(CFM)
(494) (530) (565) (600) (671)(635) (706)
External Static
Pressure (in H20) Option code
0.00 010054-125904-204848-331110
0.08 010054-125936-204848-331110
0.16 010054-125979-204848-331110
0.24 010054-125DF9-204848-331110
0.31 010054-125DFC-204848-331110
(2) 4TVD0024B100NB
VRF-PRC006-EN

Indoor units
53 VRF-PRC006-EN
16
6-1. Specifications
Technical specifications
1. Nominal capacity based on 25 ft. of equivalent refrigerant piping with 0 ft. level difference.
- Cooling: Indoor temperature 80°F DB, 67°F WB/Outdoor temperature 95°F DB, 75°F WB
- Heating: Indoor temperature 70°F DB, 60°F WB/Outdoor temperature 47°F DB, 43°F WB
2. Sound pressure was acquired in a dead room. Actual noise level may be different depending on installation conditions.
3. Internally installed drain pump must be ordered separately
4. Trane has a policy of continuous product and product data improvement and reserves the right to change design and specifications without notice.
Model Name 4TVA0036B100NB 4TVA0048B100NB 4TVA0076B100NB 4TVA0096B100NB
Power Supply 208~230/60/1 208~230/60/1 208~230/60/1 208~230/60/1
Performance Capacity
(Nominal)1
Cooling Btu/h 36,000 48,000 76,800 96,000
Heating Btu/h 40,000 54,000 85,200 108,000
Power
Power Input
(Nominal)1
Cooling
W
210.0 330.0 530.0 790.0
Heating 210.0 330.0 530.0 790.0
Current Input
(Nominal)1
Cooling
A
1.47 1.47 3.80 5.90
Heating 1.47 1.47 3.80 5.90
Fan
Motor
Type (Qty.) - Sirocco Fan Sirocco Fan Sirocco Fan Sirocco Fan
Output (Each) W 183 x 2 183 x 2 400 x 1 400 x 1
Airflow Rate H/M/L CFM 989/880/777 1,377/1,183/989 2,048/1,835/1,660 2,543/2,295/2,047
External Static
Pressure Min/Std/Max in. WG 0.20/0.39/0.79 0.20/0.39/0.79 0.20/0.59/0.98 0.20/0.59/1.10
Piping
Connections
Liquid Pipe Ø inch 3/8 3/8 3/8 3/8
Gas Pipe Ø inch 5/8 5/8 3/4 7/8
Drain Pipe Ø inch VP 25 (OD 1 1/4", ID 1") VP 25 (OD 1 1/4", ID 1") VP 25 (OD 1 1/4", ID 1") VP 25 (OD 1 1/4", ID 1")
Refrigerant
Type - R-410A R-410A R-410A R-410A
Control Method - EEV (Included) EEV (Included) EEV (Included) EEV (Included)
Sound2Sound
Pressure H/M/L dB(A) 40.0/39.0/37.0 44.0/42.0/40.0 45.0/43.0/41.0 48.0/46.0/43.0
External
Dimensions
Net Weight lbs. 123.5 123.5 196.2 196.2
Shipping Weight lbs. 138.9 138.9 218.3 218.3
Net Dimensions (WxHxD) inches 47 1/4 x 14 3/16 x 25 5/8 47 1/4 x 14 3/16 x 25 5/8 48 13/16 x 18 1/2 x 40 15/16 48 13/16 x 18 1/2 x 40 15/16
Shipping Dimensions
(WxHxD) inches 58 1/4 x 16 9/16 x 31 1/8 58 1/4 x 16 9/16 x 31 1/8 59 5/16 x 22 x 45 1/2 59 5/16 x 22 x 45 1/2
Additional
Features
Drain Pump3
Model Name - CONDPUMPXVDB01 CONDPUMPXVDB01 CONDPUMPXVHB01 CONDPUMPXVHB01
Max. Lifting
Height inches 29.5 29.5 29.5 29.5
Displacement Gal/Hr. 6.25 6.25 6.25 6.25
Air Filter - Washable Filter Washable Filter Washable Filter Washable Filter
HSP (High static pressure) duct

54 VRF-PRC006-EN
6
HSP (High static pressure) duct
6-2. Dimensional drawing
4TVA0036B1-TVA0048B100NB
6
1
2
3
4
5
7
8
Suspension bolts(M8~M10) X 4EA
Duct flange connection bolts(M4) X 20EA
Suction
Discharge
534(21) Suspension position
222(8-3/4)
360(14-1/8)
253(10)
Air outlet flange
1000(39-3/8) Air outlet duct flange
650(25-5/8)
6x150(5-7/8)=900(35-3/8)
1200(47-1/4)
1236(48-5/8) Suspension position
244(9-5/8)
299(11-3/4)
86(3-3/8)
2(1/8)x100(3-7/8)=200(7-7/8)
80(3-1/8)
170(6-3/4)
Unit : mm(inch)
No. Name Description
36.0 / 48.0 MBH
1Liquid pipe connection Ø9.52(3/8") Flare
2Gas pipe connection Ø15.88(5/8") Flare
3
Drain pipe connection without optional drain pump kits
VP25 (OD 32, ID 25) / VP25 (OD 1 1/4", ID 1")
4
Drain pipe connection with optional drain pump kits
VP25 (OD 32, ID 25) / VP25 (OD 1 1/4", ID 1")
5Control unit -
6
Conduit for power supply & communication wiring
-
7Return air side -
8Air outlet duct flange -

55
Indoor units
VRF-PRC006-EN
7
8
6
4
3215
Discharge side
470(18.5)
660(26)
34(1.3)
80(3.1)
140(5.5) x 8(0.3) = 1120(44.1)
1188(46.8) Air outlet duct flange
1188(46.8) Air intlet duct flange
1306(51.4) Suspension position
914(36) Suspension position
1040(40.9)
1240(48.8)
647(25.5)
598(23.5)
100(3.9) x 2(0.1) = 200(7.9)
93(3.7)
22(0.9)
29(1.1)
209(8.2)
236(9.3)
385(15.2)
35(1.4)
OD Ø32(1.3)
Suction side
140(5.5) x 8(0.3) = 1120(44.1)
4TVA0076B1-TVA0096B100NB Unit : mm(inch)
No. Name Description
1Liquid pipe connection Ø9.52 (3/8”)
2Gas pipe connection 76.0 MBH: Ø19.05 (3/4”)
96.0 MBH: Ø22.22 (7/8”)
3
Drain pipe connection without optional drain pump kits
VP25 (OD 32, ID 25)
4
Drain pipe connection with optional drain pump kits
VP25 (OD 32, ID 25)
5Power supply/Communication connection
6
Air discharge grille flange
7Suction flange
8Hook 3/8” or M10

56 VRF-PRC006-EN
6
HSP (High static pressure) duct
6-3. Electrical wiring diagram
4TVA0036-0096B100NB

57
Indoor units
VRF-PRC006-EN
6-4. Sound pressure level
Operation sound level
These operation values were obtained in an anechoic room. Sound pressure level will vary depending on a range
of factors such as the construction of the particular room where the equipment is installed.
Operation sound level may differ depending on operation and ambient conditions.
Note
Unit : dB(A)
Model High Low
4TVA0036B100NB 40 37
4TVA0048B100NB 44 40
4TVA0076B100NB 45 41
4TVA0096B100NB 48 43
63 125 250 500 1000 2000 4000 8000
0
60
50
40
30
20
10
NC 45
NC 40
NC 35
NC 30
NC 25
NC 20
NC 15
HIGH
LOW
Sound pressure level (dB)
Octave band center frequency(Hz)
63 125 250 500 1000 2000 4000 8000
0
60
50
40
30
20
10
NC 45
NC 40
NC 35
NC 30
NC 25
NC 20
NC 15
HIGH
LOW
Sound pressure level (dB)
Octave band center frequency(Hz)
NC curves
(1) 4TVA0036B100NB(2) 4TVA0048B100NB
63 125 250 500 1000 2000 4000 8000
0
90
80
70
60
50
40
30
20
10
NC 40
NC 50
NC 60
NC 70
NC 30
NC 20
HIGH
LOW
63 125 250 500 1000 2000 4000 8000
0
90
80
70
60
50
40
30
20
10
NC 40
NC 50
NC 60
NC 70
NC 30
NC 20
HIGH
LOW
Sound pressure level (dB)
Sound pressure level (dB)
Octave band center frequency(Hz) Octave band center frequency(Hz)
(3) 4TVA0076B100NB(4) 4TVA0096B100NB

58 VRF-PRC006-EN
6
HSP (High static pressure) duct
6-5. Recommended operation range
Adjust option code according to the actual installation condition (external static pressure).
(1) 4TVA0036B100NB
(2) 4TVA0048B100NB (3) 4TVA0076B100NB
(4) 4TVA0096B100NB
ESP = External Static Pressure
The graphs display the available external static pressure range of installed indoor units. Therefore, they do not
reflect the actual change of external static pressure and airflow rate according to adjusted airflow (High-Mid-Low) of
installed indoor units.
Note
19 21 23 25 27 29 31 33
196.1
98.0
147.1
49.0
0
0.40
0.59
0.79
0.20
0
External Static Pressure (Pa)
External Static Pressure (inH
2
O)
External Static Pressure (mmAq)
15.0
5.0
10.0
0
20.0
H(28)L(22)
Air Flow Rate : CMM(CFM)
(671) (741) (812) (883) (1094)(1024)(953) (1165)
50 54 58 62 66 70 74 76 80
294.2
196.1
245.2
98.0
147.1
49.0
0
0.40
0.59
1.18
1.10
0.79
0.98
0.20
0
External Static Pressure (Pa)
External Static Pressure (inH
2
O)
External Static Pressure (mmAq)
15.0
20.0
25.0
5.0
10.0
0
30.0
H(72)L(58)
274.6 28.0
Air Flow Rate : CMM(CFM)
(1765) (1906) (2047) (2471) (2612) (2683)(2330)(2189) (2824)
24 26 28 30 32 34 36 38 40 42 44
196.1
98.0
147.1
49.0
0
0.40
0.59
0.79
0.20
0
External Static Pressure (Pa)
External Static Pressure (inH2O)
External Static Pressure (mmAq)
15.0
5.0
10.0
0
20.0
H(39)L(28)
Air Flow Rate : CMM(CFM)
(847) (918) (988) (1059) (1271) (1341)(1412) (1483)(1200)(1130) (1553)
44 46 48 50 52 54 56 58 60 62 64
294.2
196.1
245.2
98.0
147.1
49.0
0
0.40
0.59
1.18
0.79
0.98
0.20
0
External Static Pressure (Pa)
External Static Pressure (inH2O)
External Static Pressure (mmAq)
15.0
20.0
25.0
5.0
10.0
0
30.0
H(58)L(47)
Air Flow Rate : CMM(CFM)
(1553)(1624) (1694) (1765) (1977) (2047) (2118) (2189)(1906)(1836) (2259)
External Static
Pressure (in H20) Option code
0.20 010054-1355C6-206E6E-331110
0.40 010054-1355C6-206E6E-331110
0.59 010054-13596E-206E6E-331110
0.79 010054-135AE4-206E6E-331110
External Static
Pressure (in H20) Option code
0.20 010054-135926-209191-331110
0.40 010054-135999-209191-331110
0.59 010054-135E23-209191-331110
0.79 010054-135E9A-209191-331110
External Static
Pressure (in H20) Option code
0.20 011054-195097-20DCDC-331110
0.40 011054-1950C7-20DCDC-331110
0.59 011054-1950E8-20DCDC-331110
0.79 011054-19544D-20DCDC-331110
0.98 011054-19549F-20DCDC-331110
External Static
Pressure (in H20) Option code
0.20 011054-195407-231C1C-331110
0.40 011054-195429-231C1C-331110
0.59 011054-19545B-231C1C-331110
0.79 011054-19549E-231C1C-331110
0.98 011054-1955D1-231C1C-331110
1.10 011054-1955F3-231C1C-331110

Indoor units
59 VRF-PRC006-EN
17
7-1. Specifications
Technical specifications
1. Nominal capacity based on 25 ft. of equivalent refrigerant piping with 0 ft. level difference.
- Cooling: Indoor temperature 80°F DB, 67°F WB/Outdoor temperature 95°F DB, 75°F WB
- Heating: Indoor temperature 70°F DB, 60°F WB/Outdoor temperature 47°F DB, 43°F WB
2. Sound pressure was acquired in a dead room. Actual noise level may be different depending on installation conditions.
3. EEV kit to be ordered separately, see application guide on page 74.
4. Condensate pump, if necessary, to be field supplied
5. Trane has a policy of continuous product and product data improvement and reserves the right to change design and specifications without notice.
Model Name 4TVX0018B100NB 4TVX0024B100NB
Power Supply 208~230/60/1 208~230/60/1
Performance Capacity
(Nominal)1
Cooling Btu/h 18,000 24,000
Heating Btu/h 20,000 27,000
Power
Power Input
(Nominal)1
Cooling
W
72.0 80.0
Heating 72.0 80.0
Current Input
(Nominal)1
Cooling
A
0.42 0.48
Heating 0.42 0.48
Fan
Motor
Type (Qty.) - Sirocco Fan Sirocco Fan
Output (Each) W 25 x 1 35 x 1
Airflow Rate H/M/L Cfm 495/460/420 635/580/530
External Static Pressure Min/Std/Max In. Wg - -
Piping Connections
Liquid Pipe Ø inch 1/4 3/8
Gas Pipe Ø inch 1/2 5/8
Drain Pipe Ø in (mm) ID 11/16" hose ID 11/16" hose
Refrigerant
Type - R-410A R-410A
Control Method3- EEV (not included) EEV (not included)
Sound2Sound Pressure H/M/L Db(A) 40.0/37.0/34.0 44.0/42.0/40.0
External Dimensions
Net Weight lbs. 46.3 46.3
Shipping Weight lbs. 56.2 56.2
Net Dimensions (WxHxD) inches 39 3/8 x 25 1/2 x 7 7/8 39 3/8 x 25 1/2 x 7 7/8
Shipping Dimensions (WxHxD) inches 42 1/2 x 28 3/4 x 11 13/16 42 1/2 x 28 3/4 x 11 13/16
Additional Features Air Filter - Washable Filter Washable Filter
Ceiling Suspended (Floor)

60 VRF-PRC006-EN
7
Ceiling Suspended (Floor)
1
2
3
4
5
6
1000(39.4)
200(7.9)
240(9.4) Suspension position
922(36.3) Suspension position39(1.5)
197(7.8)
11(0.4)
Ø22(0.9)
868(34.2)
253(10)
650(25.6)
7-2. Dimensional drawing
No. Name Description
18.0 MBH 24.0 MBH
1Liquid pipe connection Ø6.35(1/4") Flare Ø9.52(3/8") Flare
2Gas pipe connection Ø12.70(1/2") Flare Ø15.88(5/8") Flare
3Drain pipe connection ID18 Hose/ID11/16" Hose
4Conduit for power supply & communication wiring -
5Air inlet grille -
6Air outlet louver -
Unit: mm(inch)

61
Indoor units
VRF-PRC006-EN
7-3. Electrical wiring diagram

62 VRF-PRC006-EN
7
Ceiling Suspended (Floor)
7-4. Sound pressure level
Operation sound level
1m
1m
Microphone
1m
1m
Microphone
1m
1m
Microphone
These operation values were obtained in an anechoic room. Sound pressure level will vary depending on a range
of factors such as the construction of the particular room where the equipment is installed.
Operation sound level may differ depending on operation and ambient conditions.
Note
Unit : dB(A)
Model High Low
4TVX0018B100NB 40 34
4TVX0024B100NB 44 40
63 125 250 500 1000 2000 4000 8000
0
60
50
40
30
20
10
NC 45
NC 40
NC 35
NC 30
NC 25
NC 20
NC 15
HIGH
LOW
Sound pressure level (dB)
Octave band center frequency(Hz)
63 125 250 500 1000 2000 4000 8000
0
60
50
40
30
20
10
NC 45
NC 40
NC 35
NC 30
NC 25
NC 20
NC 15
HIGH
LOW
Sound pressure level (dB)
Octave band center frequency(Hz)
2) NC curves
(1) 4TVX0018B100NB(2) 4TVX0024B100NB

63
Indoor units
VRF-PRC006-EN
7-5. Temperature and air flow distribution
4TVX0018-0024B100NB (Floor installation)
(1) Cooling air velocity distribution
Floor distance
Ceiling height
8 m0 m 1 m 3 m 4 m 5 m 7 m
2 m 6 m
(9.8 ft)
(3.3 ft)
(6.6 ft)
(0 ft) (3.3 ft) (6.6 ft) (9.8 ft) (13.1 ft) (16.4 ft) (19.7 ft) (23.0 ft) (26.2 ft)
3 m
1 m
2 m
0.2m/s
(0.66ft/s)
0.4m/s
(1.31ft/s)
0.6m/s
(1.97ft/s)
Discharge angle : 36°
Ceiling height
(9.8 ft)
(3.3 ft)
(6.6 ft)
3 m
1 m
2 m
Floor distance
8 m0 m 1 m 3 m 4 m 5 m 7 m
2 m 6 m
(0 ft) (3.3 ft) (6.6 ft) (9.8 ft) (13.1 ft) (16.4 ft) (19.7 ft) (23.0 ft) (26.2 ft)
25
(77.0°F)
23
(73.4°F)
24
(75.2°F)
24
(75.2°F)
25
(77.0°F)
22
(71.6°F)
21
(69.8°F)
Discharge angle : 36°
(2) Cooling temperature distribution
Ceiling height
(9.8 ft)
(3.3 ft)
(6.6 ft)
3 m
1 m
2 m
Floor distance
8 m0 m 1 m 3 m 4 m 5 m 7 m
2 m 6 m
(0 ft) (3.3 ft) (6.6 ft) (9.8 ft) (13.1 ft) (16.4 ft) (19.7 ft) (23.0 ft) (26.2 ft)
0.2m/s
(0.66ft/s)
0.2m/s
(0.66ft/s)
0.4m/s
(1.31ft/s) 0.4m/s
(1.31ft/s)
0.6m/s
(1.97ft/s)
0.6m/s
(1.97ft/s) 0.8m/s
(2.62ft/s)
1.0m/s
(3.28ft/s)
1.2m/s
(3.94ft/s)
Discharge angle : 54°
(3) Heating air velocity distribution
Ceiling height
(9.8 ft)
(3.3 ft)
(6.6 ft)
3 m
1 m
2 m
Floor distance
8 m0 m 1 m 3 m 4 m 5 m 7 m
2 m 6 m
(0 ft) (3.3 ft) (6.6 ft) (9.8 ft) (13.1 ft) (16.4 ft) (19.7 ft) (23.0 ft) (26.2 ft)
21
(69.8°F)
23
(73.4°F)
25
(77.0°F)
27
(80.6°F)
27
(80.6°F)
31
(87.8°F)
29
(84.2°F)
29
(84.2°F)
Discharge angle : 54°
(4) Heating temperature distribution

64 VRF-PRC006-EN
8
4TVX0018-0024B100NB (Ceiling installation)
(1) Cooling air velocity distribution
Ceiling height
(9.8 ft)
(3.3 ft)
(6.6 ft)
3 m
1 m
2 m
Floor distance
8 m0 m 1 m 3 m 4 m 5 m 7 m
2 m 6 m
(0 ft) (3.3 ft) (6.6 ft) (9.8 ft) (13.1 ft) (16.4 ft) (19.7 ft) (23.0 ft) (26.2 ft)
0.2m/s
(0.66ft/s)
1.0m/s
(3.28ft/s)
0.2m/s
(0.66ft/s)
0.4m/s
(1.31ft/s)
0.6m/s
(1.97ft/s)
Discharge angle : 36°
Ceiling height
(9.8 ft)
(3.3 ft)
(6.6 ft)
3 m
1 m
2 m
Floor distance
8 m0 m 1 m 3 m 4 m 5 m 7 m
2 m 6 m
(0 ft) (3.3 ft) (6.6 ft) (9.8 ft) (13.1 ft) (16.4 ft) (19.7 ft) (23.0 ft) (26.2 ft)
25
(77.0°F)
21
(69.8°F)
23
(73.4°F)
23
(73.4°F)
24
(75.2°F)
24
(75.2°F)
Discharge angle : 36°
(2) Cooling temperature distribution
Ceiling height
(9.8 ft)
(3.3 ft)
(6.6 ft)
3 m
1 m
2 m
Floor distance
8 m0 m 1 m 3 m 4 m 5 m 7 m
2 m 6 m
(0 ft) (3.3 ft) (6.6 ft) (9.8 ft) (13.1 ft) (16.4 ft) (19.7 ft) (23.0 ft) (26.2 ft)
0.2m/s
(0.66ft/s)
0.2m/s
(0.66ft/s)
0.4m/s
(1.31ft/s)
0.4m/s
(1.31ft/s)
0.6m/s
(1.97ft/s)
1.0m/s
(3.28ft/s)
0.8m/s
(2.62ft/s)
Discharge angle : 54°
(3) Heating air velocity distribution
Ceiling height
(9.8 ft)
(3.3 ft)
(6.6 ft)
3 m
1 m
2 m
Floor distance
8 m0 m 1 m 3 m 4 m 5 m 7 m
2 m 6 m
(0 ft) (3.3 ft) (6.6 ft) (9.8 ft) (13.1 ft) (16.4 ft) (19.7 ft) (23.0 ft) (26.2 ft)
21
(69.8°F)
21
(69.8°F)
23
(73.4°F)
25
(77.0°F)
27
(80.6°F)
25
(77.0°F)
31
(87.8°F)
33
(91.4°F)
Discharge angle : 54°
(4) Heating temperature distribution
Ceiling Suspended (Floor)

Indoor units
65 VRF-PRC006-EN
18
High Wall
8-1. Specifications
Technical specifications
1. Nominal capacity based on 25 ft. of equivalent refrigerant piping with 0 ft. level difference.
- Cooling: Indoor temperature 80°F DB, 67°F WB/Outdoor temperature 95°F DB, 75°F WB
- Heating: Indoor temperature 70°F DB, 60°F WB/Outdoor temperature 47°F DB, 43°F WB
2. Sound pressure was acquired in a dead room. Actual noise level may be different depending on installation conditions.
3. EEV kit to be ordered separately, see application guide on page 74.
4. Condensate pump, if necessary, to be field supplied
5. Trane has a policy of continuous product and product data improvement and reserves the right to change design and specifications without notice.
Model Name 4TVW0007B100NB 4TVW0009B100NB 4TVW0012B100NB
Power Supply 208~230/60/1 208~230/60/1 208~230/60/1
Performance Capacity
(Nominal)1
Cooling Btu/h 7,500 9,500 12,000
Heating Btu/h 8,500 10,500 13,500
Power
Power Input
(Nominal)1
Cooling
W
37.0 37.0 45.0
Heating 37.0 37.0 45.0
Current Input
(Nominal)1
Cooling
A
0.25 0.25 0.30
Heating 0.25 0.25 0.30
Fan
Motor
Type (Qty.) - Crossflow Fan Crossflow Fan Crossflow Fan
Output (Each) W 23 x 1 23 x 1 23 x 1
Airflow Rate H/M/L Cfm 275/240/200 290/255/215 325/295/255
External Static
Pressure Min/Std/Max In. Wg - - -
Piping Connections
Liquid Pipe Ø inch 1/4 1/4 1/4
Gas Pipe Ø inch 1/2 1/2 1/2
Drain Pipe Ø in (mm) ID 11/16" hose ID 11/16" hose ID 11/16" hose
Refrigerant R-410A
Type - R-410A R-410A R-410A
Control Method3- EEV (not included) EEV (not included) EEV (not included)
Sound2Sound Pressure H/M/L Db(A) 31.0/29.0/27.0 31.0/29.0/27.0 37.0/33.0/29.0
External Dimensions
Net Weight lbs. 18.75 18.75 18.75
Shipping Weight lbs. 24.25 24.25 24.25
Net Dimensions (WxHxD) inches 32 1/2 x 11.25 x 7 1/2 32 1/2 x 11.25 x 7 1/2 32 1/2 x 11.25 x 7 1/2
Shipping Dimensions (WxHxD) inches 35 1/2 x 13 7/8 x 10 3/8 35 1/2 x 13 7/8 x 10 3/8 35 1/2 x 13 7/8 x 10 3/8
Additional Features Air Filter - Washable Filter Washable Filter Washable Filter

66 VRF-PRC006-EN
8
High Wall
Model Name 4TVW0018B100NB 4TVW0020B100NB 4TVW0024B100NB
Power Supply 208~230/60/1 208~230/60/1 208~230/60/1
Performance Capacity
(Nominal)1
Cooling Btu/h 18,000 20,000 23,200
Heating Btu/h 20,000 23,000 23,800
Power
Power Input
(Nominal)1
Cooling
W
55.0 57.0 60.0
Heating 55.0 57.0 60.0
Current Input
(Nominal)1
Cooling
A
0.36 0.38 0.40
Heating 0.36 0.38 0.40
Fan
Motor
Type (Qty.) - Crossflow Fan Crossflow Fan Crossflow Fan
Output (Each) W 40 x 1 40 x 1 40 x 1
Airflow Rate H/M/L Cfm 425/370/315 495/440/385 495/440/385
External Static
Pressure Min/Std/Max In. Wg - - -
Piping Connections
Liquid Pipe Ø inch 1/4 1/4 3/8
Gas Pipe Ø inch 1/2 1/2 5/8
Drain Pipe Ø in (mm) ID 11/16" hose ID 11/16" hose ID 11/16" hose
Refrigerant
Type - R-410A R-410A R-410A
Control Method3- EEV (not included) EEV (not included) EEV (not included)
Sound2Sound Pressure H/M/L Db(A) 44.0/41.0/38.0 44.0/41.0/38.0 45.0/42.0/38.0
External Dimensions
Net Weight lbs. 27.55 27.55 27.55
Shipping Weight lbs. 34.2 34.2 34.2
Net Dimensions (WxHxD) inches 41 7/8 x 11 3/4 x 8 5/8 41 7/8 x 11 3/4 x 8 5/8 41 7/8 x 11 3/4 x 8 5/8
Shipping Dimensions (WxHxD) inches 44 3/4 x 14 7/8 x 11 7/8 44 3/4 x 14 7/8 x 11 7/8 44 3/4 x 14 7/8 x 11 7/8
Additional Features Air Filter - Washable Filter Washable Filter Washable Filter
1. Nominal capacity based on 25 ft. of equivalent refrigerant piping with 0 ft. level difference.
- Cooling: Indoor temperature 80°F DB, 67°F WB/Outdoor temperature 95°F DB, 75°F WB
- Heating: Indoor temperature 70°F DB, 60°F WB/Outdoor temperature 47°F DB, 43°F WB
2. Sound pressure was acquired in a dead room. Actual noise level may be different depending on installation conditions.
3. EEV kit to be ordered separately, see application guide on page 74.
4. Condensate pump, if necessary, to be field supplied
5. Trane has a policy of continuous product and product data improvement and reserves the right to change design and specifications without notice.
Technical specifications

67
Indoor units
VRF-PRC006-EN
8-2. Dimensional drawing
4TVW0007-0012B100NB
1
23
4
5
6
285(11-1/4)
825(32-1/2) 189(7 1/2)
Unit:mm(inch)
No. Name Description
7.5 MBH 9.5 MBH 12.0 MBH
1Liquid pipe connection Ø6.35 (1/4") Flare
2Gas pipe connection Ø12.70 (1/2") Flare
3Drain pipe connection ID 18 hose / ID 11/16" hose
4Conduit for power supply & communication wiring -
5Air inlet grille -
6Air outlet louver -

68 VRF-PRC006-EN
8
High Wall
4TVW0018-0024B100NB
1
2
3
4
5
6
298(11-3/4)
1065(41-7/8) 218(8-5/8)
Unit : mm(inch)
No. Name Description
18.0 MBH 20.0 MBH 23.2 MBH
1Liquid pipe connection Ø6.35 (1/4") Flare Ø9.52 (3/8") Flare
2Gas pipe connection Ø12.70 (1/2") Flare Ø15.88 (5/8") Flare
3Drain pipe connection ID 18 hose / ID 11/16" hose
4Conduit for power supply & communication wiring -
5Air inlet grille -
6Air outlet louver -

69
Indoor units
VRF-PRC006-EN
8-3. Electrical wiring diagram

70 VRF-PRC006-EN
8
High Wall
8-4. Sound pressure level
Operation sound level
1m
1m
Microphone
These operation values were obtained in an anechoic room. Sound pressure level will vary depending on a range
of factors such as the construction of the particular room where the equipment is installed.
Operation sound level may differ depending on operation and ambient conditions.
Note
Unit : dB(A)
Model High Low
4TVW0007B100NB 31 27
4TVW0009B100NB 31 27
4TVW0012B100NB 37 29
Model High Low
4TVW0018B100NB 44 38
4TVW0020B100NB 44 38
4TVW0024B100NB 45 38
63 125 250 500 1000 2000 4000 8000
0
45
40
35
30
25
20
15
10
5
NC 45
NC 40
NC 35
NC 30
NC 25
NC 20
NC 15
HIGH
LOW
Sound pressure level (dB)
Octave band center frequency(Hz)
63 125 250 500 1000 2000 4000 8000
0
45
40
35
30
25
20
15
10
5
NC 45
NC 40
NC 35
NC 30
NC 25
NC 20
NC 15
HIGH
LOW
Sound pressure level (dB)
Octave band center frequency(Hz)
63 125 250 500 1000 2000 4000 8000
0
45
40
35
30
25
20
15
10
5
NC 45
NC 40
NC 35
NC 30
NC 25
NC 20
NC 15
HIGH
LOW
Sound pressure level (dB)
Octave band center frequency(Hz)
HIGH
LOW
63 125 250 500 1000 2000 4000 8000
0
60
50
40
30
20
10
NC 45
NC 40
NC 35
NC 30
NC 25
NC 20
NC 15
Sound pressure level (dB)
Octave band center frequency(Hz)
NC curves
(1) 4TVW0007B100NB(2) 4TVW0009B100NB
(3) 4TVW0012B100NB(4) 4TVW0018B100NB

71
Indoor units
VRF-PRC006-EN
NC curves
(5) 4TVW0020B100NB(6) 4TVW0024B100NB
HIGH
LOW
63 125 250 500 1000 2000 4000 8000
0
60
50
40
30
20
10
NC 45
NC 40
NC 35
NC 30
NC 25
NC 20
NC 15
Sound pressure level (dB)
Octave band center frequency(Hz)
HIGH
LOW
63 125 250 500 1000 2000 4000 8000
5
55
45
35
25
15
NC 45
NC 40
NC 35
NC 30
NC 25
NC 20
NC 15
Sound pressure level (dB)
Octave band center frequency(Hz)

72 VRF-PRC006-EN
8
High Wall
8-5. Temperature and air flow distribution
4TVW0007-0012B100NB
(1) Cooling air velocity distribution
Ceiling height
(9.8 ft)
(3.3 ft)
(6.6 ft)
3 m
1 m
2 m
Floor distance
8 m0 m 1 m 3 m 4 m 5 m 7 m
2 m 6 m
(0 ft) (3.3 ft) (6.6 ft) (9.8 ft) (13.1 ft) (16.4 ft) (19.7 ft) (23.0 ft) (26.2 ft)
0.2m/s
(0.66ft/s)
0.2m/s
(0.66ft/s) 0.4m/s
(1.31ft/s)
0.6m/s
(1.97ft/s)
0.8m/s
(2.62ft/s)
0.6m/s
(1.97ft/s)
1.2m/s
(3.94ft/s)
1.4m/s
(4.59ft/s)
1.0m/s
(3.28ft/s)
Discharge angle : 60°
Ceiling height
(9.8 ft)
(3.3 ft)
(6.6 ft)
3 m
1 m
2 m
Floor distance
8 m0 m 1 m 3 m 4 m 5 m 7 m
2 m 6 m
(0 ft) (3.3 ft) (6.6 ft) (9.8 ft) (13.1 ft) (16.4 ft) (19.7 ft) (23.0 ft) (26.2 ft)
25
(77.0°F)
25
(77.0°F)
23
(73.4°F)
26
(78.8°F)
24
(75.2°F)
Discharge angle : 60°
(2) Cooling temperature distribution
Ceiling height
(9.8 ft)
(3.3 ft)
(6.6 ft)
3 m
1 m
2 m
Floor distance
8 m0 m 1 m 3 m 4 m 5 m 7 m
2 m 6 m
(0 ft) (3.3 ft) (6.6 ft) (9.8 ft) (13.1 ft) (16.4 ft) (19.7 ft) (23.0 ft) (26.2 ft)
0.2m/s
(0.66ft/s)
0.2m/s
(0.66ft/s)
0.4m/s
(1.31ft/s)
0.4m/s
(1.31ft/s)
0.6m/s
(1.97ft/s)
0.8m/s
(2.62ft/s)
1.0m/s
(3.28ft/s)
1.2m/s
(3.94ft/s)
1.8m/s
(5.90ft/s)
Discharge angle : 60°
(3) Heating air velocity distribution
Ceiling height
(9.8 ft)
(3.3 ft)
(6.6 ft)
3 m
1 m
2 m
Floor distance
8 m0 m 1 m 3 m 4 m 5 m 7 m
2 m 6 m
(0 ft) (3.3 ft) (6.6 ft) (9.8 ft) (13.1 ft) (16.4 ft) (19.7 ft) (23.0 ft) (26.2 ft)
21
(69.8°F)
23
(73.4°F)
25
(77.0°F)
27
(80.6°F)
25
(77.0°F)
29
(84.2°F)
31
(87.8°F)
Discharge angle : 60°
(4) Heating temperature distribution

73
Indoor units
VRF-PRC006-EN
Ceiling height
(9.8 ft)
(3.3 ft)
(6.6 ft)
3 m
1 m
2 m
Floor distance
8 m0 m 1 m 3 m 4 m 5 m 7 m
2 m 6 m
(0 ft) (3.3 ft) (6.6 ft) (9.8 ft) (13.1 ft) (16.4 ft) (19.7 ft) (23.0 ft) (26.2 ft)
0.2m/s
(0.66ft/s)
0.2m/s
(0.66ft/s)
0.4m/s
(1.31ft/s)
0.6m/s
(1.97ft/s)
0.8m/s
(2.62ft/s)
1.0m/s
(3.28ft/s)
1.2m/s
(3.94ft/s)
Discharge angle : 60°
(3) Heating air velocity distribution
Ceiling height
27
(80.6°F)
27
(80.6°F)
29
(84.2°F)
29
(84.2°F)
(9.8 ft)
(3.3 ft)
(6.6 ft)
3 m
1 m
2 m
Floor distance
8 m0 m 1 m 3 m 4 m 5 m 7 m
2 m 6 m
(0 ft) (3.3 ft) (6.6 ft) (9.8 ft) (13.1 ft) (16.4 ft) (19.7 ft) (23.0 ft) (26.2 ft)
23
(73.4°F)
25
(77.0°F)
31
(87.8°F)
Discharge angle : 60°
(4) Heating temperature distribution
4TVW0018-0024B100NB
(1) Cooling air velocity distribution
Ceiling height
(9.8 ft)
(3.3 ft)
(6.6 ft)
3 m
1 m
2 m
Floor distance
8 m0 m 1 m 3 m 4 m 5 m 7 m
2 m 6 m
(0 ft) (3.3 ft) (6.6 ft) (9.8 ft) (13.1 ft) (16.4 ft) (19.7 ft) (23.0 ft) (26.2 ft)
0.4m/s
(1.31ft/s)
0.6m/s
(1.97ft/s)
0.8m/s
(2.62ft/s)
1.0m/s
(3.28ft/s)
1.2m/s
(3.94ft/s)
1.4m/s
(4.59ft/s)
Discharge angle : 60°
Ceiling height
(9.8 ft)
(3.3 ft)
(6.6 ft)
3 m
1 m
2 m
Floor distance
8 m0 m 1 m 3 m 4 m 5 m 7 m
2 m 6 m
(0 ft) (3.3 ft) (6.6 ft) (9.8 ft) (13.1 ft) (16.4 ft) (19.7 ft) (23.0 ft) (26.2 ft)
25
(77.0°F)
24
(75.2°F)
23
(73.4°F)
23
(73.4°F)
22
(71.6°F)
22
(71.6°F)
Discharge angle : 60°
(2) Cooling temperature distribution

74 VRF-PRC006-EN
EEV Kit Application Table
Indoor unit type and combinations
EEV KIT
4TVW0007B100NB
4TVW0009B100NB
4TVW0012B100NB
4TVW0018B100NB
4TVW0020B100NB
4TVW0024B100NB
4TVX0018B100NB
4TVX0024B100NB
Single room application
4EEVEVA24SA000 Any 1 N/A
4EEVEVA32SA000 N/A Any 1
Double room application
4EEVXDA24K132A Any 1 Plus Any 1
4EEVXDA24K200A Any 2 N/A
4EEVXDA32K200A N/A Any 2
Triple room application
4EEVXDA24K232A Any 2 Plus Any 1
4EEVXDA24K300A Any 3 N/A
4EEVXDA32K224A Any 1 Plus Any 2
4EEVXDA32K300A N/A Any 3
Note: Cassette and concealed (fan coil) type indoor units come with a factory installed and cannot be installed with the above
EEV kits.


Trane optimizes the performance of homes and buildings around the world.Abusinessof Ingersoll Rand, the leader in
creating and sustaining safe, comfortable and energy efficient environments,Trane offersabroad portfolioof advanced
controls and HVAC systems, comprehensive building services, and parts.For more information, visit www.Trane.com.
Trane hasapolicyof continuousproduct and product dataimprovement and reservesthe righttochange design and specifications without notice.
We arecommitted to usingenvironmentally
conscious printpracticesthat reducewaste.
© 2013 Trane All rights reserved
VRF-PRC006-EN 19 Sep 2013
(NEW)
Variable Refrigerant Flow (VRF) Multi-Split AC and HP
AHRI Standard 1230