Trane Advantage Vrf Mini Outdoor Unit Catalogue PRC007 EN 12/10/2013 Capacity Adjustment Tables Due To Temperature And Extended Pipi
2015-04-02
: Trane Trane-Advantage-Vrf-Mini-Outdoor-Unit-Catalogue-684401 trane-advantage-vrf-mini-outdoor-unit-catalogue-684401 trane pdf
Open the PDF directly: View PDF
.
Page Count: 35
- Digit 1 — Refrigerant
- Digit 2 — Brand Name
- Digit 3 — System Type
- Digit 4 — Functional Type Outdoor Unit (also see separate tab)
- Digit 5 — Special Application
- Digit 6, 7, 8 — Nominal Capacity (Btu/h x 1,000)
- 036 = 36,000 Btu/h
- 048 = 48,000 Btu/h
- 053 = 60,000 Btu/h
- 072 = 72,000 Btu/h
- 096 = 96,000 Btu/h
- 120 = 120,000 Btu/h
- 144 = 144,000 Btu/h
- 168 = 168,000 Btu/h
- 192 = 192,000 Btu/h
- Digit 9 — Major Development Sequence
- B = Second Development Sequence
- Digit 10 — Electric Power Supply Characteristics
- 1 = 208~230/60/1
- 3 = 208~230/60/3
- 4 = 460/60/3
- Digit 11 — Reserved for Future Use
- Digit 5 — Reserved for Future Use
- Digit 11 — Reserved for Future Use
- Controls
- Accessories
- Product Specifications
- 1. Nominal capacity based on 25 ft. of equivalent refrigerant piping with 0 ft. level difference. - Cooling: Indoor temperature 80°F DB, 67°F WB/Outdoor temperature 95°F DB, 75°F WB - Heating: Indoor temperature 70°F DB, 60°F WB/Outdoor tempera...
- 2. Rated per AHRI Unitary Small HP Standard 210/240.
- 3. Actual length (equivalent length in parenthesis)
- 4. If outdoor is installed above the indoor units, the allowable height difference to the furthest indoor unit is 164ft. If the outdoor unit is installed below the indoor units, the allowable height difference is 131 ft.
- 5. Sound pressure was acquired in a dead room. Actual noise level may be different depending on installation conditions.
- 6. Trane has a policy of continuous product and product data improvement and reserves the right to change design and specifications without notice.
- Product Specifications
- Operation Limit
- Sound Levels
- Cycle Diagrams
- Dimensional Drawings
- Capacity Tables
- Capacity Correction

Trane Advantage™ VRF Mini Outdoor Unit
December 2013 VRF-PRC007-EN
Product Catalog

2 VRF-PRC007-EN
Table of Contents
VRF Mini Outdoor Unit . . . . . . . . . . . . . . . . . . . . . . . . . . . . . . . . . . . . . . . . . . . . . 3
Nomenclature . . . . . . . . . . . . . . . . . . . . . . . . . . . . . . . . . . . . . . . . . . . . . . . . . . 3
System Features . . . . . . . . . . . . . . . . . . . . . . . . . . . . . . . . . . . . . . . . . . . . . . . . 4
Indoor Units . . . . . . . . . . . . . . . . . . . . . . . . . . . . . . . . . . . . . . . . . . . . . . . . . . . . . . 5
Nomenclature . . . . . . . . . . . . . . . . . . . . . . . . . . . . . . . . . . . . . . . . . . . . . . . . . . 5
Products . . . . . . . . . . . . . . . . . . . . . . . . . . . . . . . . . . . . . . . . . . . . . . . . . . . . . . . . . 6
Application Matrix . . . . . . . . . . . . . . . . . . . . . . . . . . . . . . . . . . . . . . . . . . . . . . . 6
Controls . . . . . . . . . . . . . . . . . . . . . . . . . . . . . . . . . . . . . . . . . . . . . . . . . . . . . . . 7
Accessories . . . . . . . . . . . . . . . . . . . . . . . . . . . . . . . . . . . . . . . . . . . . . . . . . . . . 8
Mini Outdoor Units . . . . . . . . . . . . . . . . . . . . . . . . . . . . . . . . . . . . . . . . . . . . . . . . 9
Product Specifications . . . . . . . . . . . . . . . . . . . . . . . . . . . . . . . . . . . . . . . . . . . 9
Operation Limit . . . . . . . . . . . . . . . . . . . . . . . . . . . . . . . . . . . . . . . . . . . . . . . . 10
Electrical Wiring Diagram . . . . . . . . . . . . . . . . . . . . . . . . . . . . . . . . . . . . . . . . 10
Heat Pump . . . . . . . . . . . . . . . . . . . . . . . . . . . . . . . . . . . . . . . . . . . . . . . . . . 10
Sound Levels . . . . . . . . . . . . . . . . . . . . . . . . . . . . . . . . . . . . . . . . . . . . . . . . . . 11
Sound Pressure Level . . . . . . . . . . . . . . . . . . . . . . . . . . . . . . . . . . . . . . . . . 11
NC Curves . . . . . . . . . . . . . . . . . . . . . . . . . . . . . . . . . . . . . . . . . . . . . . . . . . 11
Sound Power . . . . . . . . . . . . . . . . . . . . . . . . . . . . . . . . . . . . . . . . . . . . . . . . 12
NR Curves . . . . . . . . . . . . . . . . . . . . . . . . . . . . . . . . . . . . . . . . . . . . . . . . . . 12
Cycle Diagrams . . . . . . . . . . . . . . . . . . . . . . . . . . . . . . . . . . . . . . . . . . . . . . . . 13
Dimensional Drawings . . . . . . . . . . . . . . . . . . . . . . . . . . . . . . . . . . . . . . . . . . 14
Heat Pump . . . . . . . . . . . . . . . . . . . . . . . . . . . . . . . . . . . . . . . . . . . . . . . . . . 14
Capacity Tables . . . . . . . . . . . . . . . . . . . . . . . . . . . . . . . . . . . . . . . . . . . . . . . . 15
4TVH0036B100NB . . . . . . . . . . . . . . . . . . . . . . . . . . . . . . . . . . . . . . . . . . . . 15
4TVH0048B100NB . . . . . . . . . . . . . . . . . . . . . . . . . . . . . . . . . . . . . . . . . . . . 23
4TVH0053B100NB . . . . . . . . . . . . . . . . . . . . . . . . . . . . . . . . . . . . . . . . . . . . 27
Capacity Correction . . . . . . . . . . . . . . . . . . . . . . . . . . . . . . . . . . . . . . . . . . . . . 33
Capacity correction by distance . . . . . . . . . . . . . . . . . . . . . . . . . . . . . . . . . 33
Defrosting Correction Factor . . . . . . . . . . . . . . . . . . . . . . . . . . . . . . . . . . . 34
For Trane Advantage VRF indoor units, refer to VRF-PRC006-EN
For larger capacity Trane Advantage VRF outdoor units, refer to VRF-PRC008-EN

VRF-PRC007-EN 3
Digit 1 — Refrigerant
4 = R-410a
Digit 2 — Brand Name
T=Trane
Digit 3 — System Type
V = Variable Refrigerant Flow
Digit 4 — Functional Type
Outdoor Unit
(also see separate tab)
H = Heat Pump, DC Inverter (VRF)
R = Heat Recovery (3-pipe), DC
Inverter (VRF)
Digit 5 — Special Application
0=Standard
Digit 6, 7, 8 — Nominal Capacity
(Btu/h x 1,000)
036 = 36,000 Btu/h
048 = 48,000 Btu/h
053 = 60,000 Btu/h
072 = 72,000 Btu/h
096 = 96,000 Btu/h
120 = 120,000 Btu/h
144 = 144,000 Btu/h
168 = 168,000 Btu/h
192 = 192,000 Btu/h
Digit 9 — Major Development
Sequence
B = Second Development Sequence
Digit 10 — Electric Power
Supply Characteristics
1 = 208~230/60/1
3 = 208~230/60/3
4 = 460/60/3
Digit 11 — Reserved for Future
Use
0 = Not currently used
Digit 12 — Reserved for Future
Use
0 = Not currently used
Digit 13 — Region of Sale
N = North America (UL or ETL)
Digit 14 — Minor Design
Sequence
B = Second Design Sequence
VRF Mini Outdoor Unit
Nomenclature
4TVH0048B100NB
1234567891011121314

4 VRF-PRC007-EN
VRF Mini Outdoor Units
Product Features
• Single phase power is suitable for residential and light commercial applications
• Heat pump design delivers either cooling or heating to the connected zones
• Space saving footprint - 13" depth allows installation in almost any location
• Inverter rotary compressor has been rigorously tested for high reliability and performance
• All major components can be accessed through the front of the unit, simplifying maintenance
• Up to 9 indoor units can be connected, with a wide variety of capacities and configurations
available to meet most architectural design requirements
• Individual zone control meets the comfort requirements of each occupant
• Compatible with the same building controls as the larger capacity Trane Advantage VRF
systems

VRF-PRC007-EN 5
Digit 1 — Refrigerant
4 = R-410a
Digit 2 — Brand Name
T=Trane
Digit 3 — System Type
V = Variable Refrigerant Flow
Digit 4 — Configuration Type
A = High Pressure Static Duct Type
B=Mini 4-Way Cassette
C=4-Way Cassette
D = Mid Pressure Static Duct Type
E=1-Way Cassette
L = Slim Duct Type (Low Pressure)
X = Convertible Floor/Ceiling
W = High Wall Type
Digit 5 — Reserved for Future
Use
0 = Not currently used
Digit 6, 7, 8 — Nominal Capacity
(Btu/h x 1,000)
007= 7,000 Btu/h
009= 9,000 Btu/h
012= 12,000 Btu/h
015= 15,000 Btu/h
018= 18,000 Btu/h
024= 24,000 Btu/h
030= 30,000 Btu/h
036= 36,000 Btu/h
048= 48,000 Btu/h
076= 76,000 Btu/h
096= 96,000 Btu/h
Digit 9 — Major Development
Sequence
B = Second Development Sequence
Digit 10 — Electric Power
Supply Characteristics
1 = 208~230/60/1
Digit 11 — Reserved for Future
Use
0 = Not currently used
Digit 12 — Reserved for Future
Use
0 = Not currently used
Digit 13 — Region of Sale
N = North America (UL or ETL)
Digit 14 — Minor Design
Sequence
B = Second Design Sequence
Indoor Units
Nomenclature
4TVD0018B100NB
1234567891011121314

6 VRF-PRC007-EN
Products
Application Matrix
Capacity 7.5MBH 9.0MBH 9.5MBH 12MBH 18MBH 20MBH 24MBH 30MBH 36MBH 48MBH 76.8MBH 96MBH
Type
Slim
1 way
cassette
4 way
cassette
Mini 4
way
cassette
(interior)
Slim
duct
MSP
duct
HSP
duct
Ceiling
High Wall

VRF-PRC007-EN 7
Products
Controls
Family Description Trane Model Number
Integrated System
Management
VRF System Controller TVCTRLTIMD00A0
VRF Enterprise Management Software TVCTRLTSTP3P00
VRF Power Meter Interface Module TVCTRLTIMB16A0
Building Management
System Gateways
VRF System Controller+BACnet TVCTRLTIMB17A0
VRF System Controller+LONTalk TVCTRLTIMB18A0
Centralized Control
Systems
VRF Central On/Off Controller TVCTRLTCMA202D
VRF System TouchScreen Control TVCTRLTCMA300T
VRF Mode Select Switch TVCTRLTCMC2000
Zone Controllers
VRF Wireless Remote Control TVCTRLTRDH00UT
VRF Wired Remote Control TVCTRLTWRWE10T
VRF Duct Signal Receiver & Wire TVCTRLTRKA10N0
Interface Modules VRF External Contact Interface Module TVCTRLTIMB14A0
Sensors
VRF Ext. Room Temp Sensor TVCTRLTRWTA000
VRF Motion Sensor Mini 4Way MOTIONSEN4TVB
Commissioning and
Utility Kits
VRF Auto-Commissioning Tool TVCTRLTIMC1000
VRF Technician Utilities TVCTRLTIMC0300

8 VRF-PRC007-EN
Products
Accessories
Family Description Trane Model Number
Y- joint
VRF Y-joint <51MBh 4YDK1509B0051A
VRF Y-joint 51-138MBh 4YDK2512B0138A
VRF Y-joint 138-160MBh 4YDK2812B0160A
VRF Y-joint 160-240MBh 4YDK2815B0240A
VRF Y-joint 240-336MBh 4YDK3419B0336A
VRF Y-joint 336-468MBh 4YDK4119B0468A
VRF Y-joint >468MBh 4YDK4422B0999A
Header Joint
VRF Header Joint 4Units <160MBh 4HJK2512B0159A
VRF Header Joint 8Units ≤240MBh 4HJK3115B0241A
VRF Header Joint 8Units >240MBh 4HJK3819B0998A
EEV Kits
(For Wall-mounted &
Ceiling indoor unit
VRF EEV 1x 7-15.5& 1x 17-31MBh 4EEVXDA24K132A
VRF EEV Kit 2Unit 7-15.5MBh 4EEVXDA24K200A
VRF EEV Kit 2Unit 17-31MBh 4EEVXDA32K200A
VRF EEV 2x 7-15.5& 1x 17-31MBh 4EEVXDA24K232A
VRF EEV Kit 3Unit 7-15.5MBh 4EEVXDA24K300A
VRF EEV 1x 7-15.5& 2x 17-31MBh 4EEVXDA32K224A
VRF EEV Kit 3Unit 17-31MBh 4EEVXDA32K300A
VRF EEV Kit 1Unit 7-15.5MBh 4EEVEVA24SA000
VRF EEV Kit 1Unit 17-31MBh 4EEVEVA32SA000
AHU Kit
VRF AHU Kit 24-30MBh 4EEVAKA40K1025
VRF AHU Kit 48-60MBh 4EEVAKA40K1050
VRF AHU Kit 72-90MBh 4EEVAKA64K1075
VRF AHU Kit 96-112MBh 4EEVAKA64K1100
DRAIN PUMP
VRF Drain Pump Slim Duct CONDPUMPXVLB01
VRF Drain Pump MSP 18/24MBh CONDPUMPXVMB01
VRF Drain Pump MSP 30/36MBh CONDPUMPXVMB02
VRF Drain Pump MSP48/ HSP36-48MBh CONDPUMPXVDB01
VRF Drain Pump HSP 76.8/96MBh CONDPUMPXVHB01
CASSETTE PANEL
VRF Cassette Panel Slim 1Way TVEPANPC1NUSET
VRF Cassette Panel Sliding 1Way TVEPANPC1NUAET
VRF Cassette Panel Mini 4Way TVEPANPC4SUSET
VRF Cassette Panel 4Way TVEPANPC4NUSET

VRF-PRC007-EN 9
Mini Outdoor Units
Product Specifications
208~230V Heat Pump Single Modules
Model Name 4TVH0036B100NB 4TVH0048B100NB 4TVH0053B100NB
Power Supply 208~230/60/1 208~230/60/1 208~230/60/1
Performance
Nominal Tons 3.0 4.0 4.5
System Type Ducted Non-Ducted Ducted Non-Ducted Ducted Non-Ducted
Capacity
(Rated)1, 2
Cooling Btu/h 38,000 38,000 48,000 48,000 53,000 53,000
High Temp
Heating Btu/h 42,000 42,000 54,000 54,000 61,000 61,000
Low Temp
Heating Btu/h 26,600 26,000 35,000 33,000 38,000 38,000
AHRI 210/240
Efficiency
Ratings2
EER - 11.2 11.2 10.2 10.2 9.5 10.3
SEER - 16.0 14.8 16.0 15.8 15.5 18.5
HSPF - 8.60 8.80 9.40 8.70 8.60 8.80
Power MCA A 23.0 29.0 34.0
MOP A 40.0 50.0 55.0
Compressor
Type (Qty.) - Twin BLDC Rotary (1) Twin BLDC Rotary (1) Twin BLDC Rotary (1)
Model Name - UG5T450FUEJXSG UG5T450FUEJXSG UG5T450FUEJXSG
Output kW 4.12 4.12 4.12
Oil Type - POE POE POE
Initial Charge fl. oz. 57.4 57.4 57.4
Fan
Type (Qty.) - Propeller/ BLDC (2) Propeller/ BLDC (2) Propeller/ BLDC (2)
Output (Each) W 125 125 125
Airflow Rate CFM 3,885 3,885 3,885
Piping Connections
Liquid Pipe Ø inch 3/8" Braze 3/8" Braze 3/8" Braze
Gas Pipe Ø inch 5/8" Braze 5/8" Braze 3/4" Braze
Installation Limits Max Length3ft. 492 (574) 493 (574) 494 (574)
Max Height4ft. 164 (131) 164 (131) 164 (131)
Indoor Unit
Connections
Number Of Connectable Indoor
Units -689
Total Capacity - 50 to 130% of total outdoor unit capacity
Refrigerant Type - R410A R410A R410A
Factory Charge lbs. 7.05 8.05 9.05
Sound5Sound PressuredB(A)50.051.053.0
External Dimensions
Net Weight lbs. 220.5 220.5 227
Shipping Weight lbs. 231.5 231.5 238
Net Dimensions (WxHxD) inches 37 x 47.64 x 13 38 x 47.64 x 13 39 x 47.64 x 13
Shipping Dimensions (WxHxD) inches 39.17 x 53.86 x 16.77 39.17 x 53.86 x 16.77 39.17 x 53.86 x 16.77
Operating Temp
Range
Cooling °F 23 ~ 118 24 ~ 118 25 ~ 118
Heating °F -4 ~ 66 -4 ~ 66 -4 ~ 66
1. Nominal capacity based on 25 ft. of equivalent refrigerant piping with 0 ft. level difference.
- Cooling: Indoor temperature 80°F DB, 67°F WB/Outdoor temperature 95°F DB, 75°F WB
- Heating: Indoor temperature 70°F DB, 60°F WB/Outdoor temperature 47°F DB, 43°F WB
2. Rated per AHRI Unitary Small HP Standard 210/240.
3. Actual length (equivalent length in parenthesis)
4. If outdoor is installed above the indoor units, the allowable height difference to the furthest indoor unit is 164ft. If the outdoor unit is installed below
the indoor units, the allowable height difference is 131 ft.
5. Sound pressure was acquired in a dead room. Actual noise level may be different depending on installation conditions.
6. Trane has a policy of continuous product and product data improvement and reserves the right to change design and specifications without notice.

10 VRF-PRC007-EN
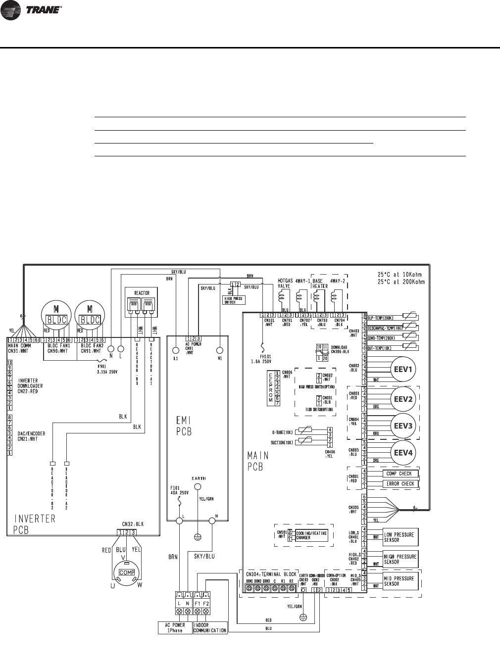
Mini Outdoor Units
Operation Limit
Electrical Wiring Diagram
Heat Pump
Mode Outdoor Temperature Indoor Temperature Indoor Humidity (RH)
Cooling 23°F ~ 118°F (DB) 57°F ~ 82°F (WB) 80% or less
Heating -4°F ~ 66°F (WB) 81°F or less (DB)
4TVH0036B100NB, 4TVH0048B100NB, 4TVH0053B100NB

VRF-PRC007-EN 11
Mini Outdoor Units
Sound Levels
Sound Pressure Level
Notes:
•These operation sound value were obtained in a dead room. Sound pressure level will vary
depending on a range of factors such as the construction of the particular room where the
equipment is installed.
•Operation sound level may differ depending on operation and ambient conditions.
NC Curves
1m
Outdoor Unit
1.5m
Unit: dB(A)
Model Pressure
4TVH0036B100NB 50
4TVH0048B100NB 51
4TVH0053B100NB 53
NC 65
NC 60
NC 55
NC 50
NC 45
NC 40
NC 35
NC 30
25
30
35
40
45
50
55
60
65
70
63 125 250 500 1000 2000 4000 8000
NC 65
NC 60
NC 55
NC 50
NC 45
NC 40
NC 35
NC 30
25
30
35
40
45
50
55
60
65
70
63 125 250 500 1000 2000 4000 8000
Sound pressure level (dB)
Octave band center frequency(Hz)
4TVH0036B100NB 4TVH0048B100NB
Sound pressure level (dB)
Octave band center frequency(Hz)
NC 65
NC 60
NC 55
NC 50
NC 45
NC 40
NC 35
NC 30
25
30
35
40
45
50
55
60
65
70
63 125 250 500 1000 2000 4000 8000
Sound pressure level (dB)
Octave band center frequency(Hz)
4TVH0053B100NB

12 VRF-PRC007-EN
Mini Outdoor Units
Sound Power
Notes:
•dBA = A-weighted sound power level.
•Reference power: 1pW
•Measured according to ISO 3741.
NR Curves
Unit: dB(A)
Model Power
4TVH0036B100NB 66
4TVH0048B100NB 68
4TVH0053B100NB 69
0.0
10.0
20.0
30.0
40.0
50.0
60.0
70.0
80.0
90.0
100.0
110.0
125 250 500 1000 2000 4000 8000 dBA
Power (dB)
NR 100
NR 95
NR 90
NR 85
NR 80
NR 75
NR 70
NR 65
NR 60
NR 55
NR 50
NR 45
NR 40
NR 35
NR 30
NR 25
NR 20
NR 15
NR 10
NR 5
NC 0
0.0
10.0
20.0
30.0
40.0
50.0
60.0
70.0
80.0
90.0
100.0
110.0
125 250 500 1000 2000 4000 8000 dBA
Power (dB)
NR 100
NR 95
NR 90
NR 85
NR 80
NR 75
NR 70
NR 65
NR 60
NR 55
NR 50
NR 45
NR 40
NR 35
NR 30
NR 25
NR 20
NR 15
NR 10
NR 5
NC 0
Sound pressure level (dB)
Octave band center frequency(Hz)
4TVH0036B100NB 4TVH0048B100NB
Sound pressure level (dB)
Octave band center frequency(Hz)
0.0
10.0
20.0
30.0
40.0
50.0
60.0
70.0
80.0
90.0
100.0
110.0
125 250 500 1000 2000 4000 8000 dBA
Power (dB)
NR 100
NR 95
NR 90
NR 85
NR 80
NR 75
NR 70
NR 65
NR 60
NR 55
NR 50
NR 45
NR 40
NR 35
NR 30
NR 25
NR 20
NR 15
NR 10
NR 5
NC 0
Sound pressure level (dB)
Octave band center frequency(Hz)
4TVH0053B100NB

VRF-PRC007-EN 13
Mini Outdoor Units
Cycle Diagrams
4TVH0036B100NB, 4TVH0048B100NB, 4TVH0053B100NB
Check
V/V 5/8”
Compressor
Oil
Separator
Heat exchanger
4-Way V/V
(SHF-20A)
High Press.
Sensor
Hot gas
bypass
V/V 2A
Tair
Tc o ut Td is
Filter
Filter
EEV(Ż
Tsc
To p
EEV
Accumulator
(4,000cc)
jG
Tsuc
BLDC Motor
BLDC Motor
Filter
Filter
3/8”
Low Press.
Sensor
“C”
“B”
Ż[
/
(1,000cc)
High
Press.
S/W
“A”
Cooling Flow
1/4"
3/8"
1/2"
5/8"
3/4"
B
Model Gas Pipe Size
4TVH0036-0048B100NB 5/8”
4TVH0053B100NB 3/4”

14 VRF-PRC007-EN
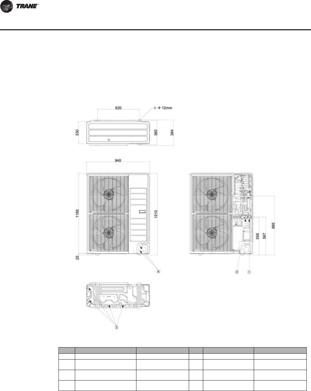
Mini Outdoor Units
Dimensional Drawings
Heat Pump
4TVH0036B100NB, 4TVH0048B100NB, 4TVH0053B100NB
No. Name Description No. Name Description
1 Gas Ref. Pipe - 5 Power Wiring Conduit 4(0.16") - Ø43.7(1.72")
2 Liquid Ref. Pipe - 6 Communication Wiring
Conduit 8(0.31") - Ø22.0(0.87")
3 Power Wiring Conduit 2(0.08") - Ø43.7(1.72") 7 Knock-out Hole for Ref.
Piping 178 x 76(7" x 3")
4Communication Wiring
Conduit 2(0.08") - Ø34.5(1.36") 8 Anchor Bolt Hole 4(0.16") - Ø12(0.47")
Unit: mm(inch)

VRF-PRC007-EN 15
Mini Outdoor Units
Capacity Tables
4TVH0036B100NB
4TVH0036B100NB - Cooling
Combi.
(%)
Outdoor
Temperature
(°F)
Indoor Temperature (°F, WB)
57 61 64 67 69 72 75
TC PI TC PI TC PI TC PI TC PI TC PI TC PI
MBHkWMBHkWMBHkWMBHkWMBHkWMBHkWMBHkW
130
50 33.9 1.42 40.2 1.74 46.8 2.06 50.1 2.22 52.6 2.34 54.0 2.24 55.1 2.13
54 33.8 1.44 40.2 1.76 46.8 2.11 50.1 2.27 52.0 2.33 53.1 2.22 54.5 2.18
57 33.8 1.47 40.1 1.80 46.7 2.14 50.1 2.31 51.1 2.31 52.5 2.29 53.6 2.31
61 33.8 1.50 40.1 1.84 46.7 2.18 50.0 2.38 50.5 2.39 51.7 2.41 53.0 2.43
64 33.8 1.52 40.1 1.87 46.7 2.33 49.1 2.50 49.7 2.51 51.0 2.54 52.1 2.55
68 33.7 1.56 40.0 2.00 46.6 2.50 48.5 2.63 49.1 2.64 50.2 2.65 51.5 2.69
70 33.7 1.60 40.0 2.06 46.6 2.59 47.9 2.69 48.7 2.70 49.8 2.72 51.2 2.75
73 33.7 1.71 40.0 2.21 46.5 2.78 47.3 2.81 47.9 2.82 49.2 2.85 50.4 2.87
77 33.6 1.84 39.9 2.37 45.9 2.91 46.7 2.93 47.3 2.95 48.4 2.97 49.8 3.00
81 33.6 1.96 39.9 2.54 45.3 3.04 45.9 3.05 46.4 3.07 47.8 3.10 48.9 3.13
84 33.5 2.09 39.8 2.70 44.5 3.16 45.3 3.18 45.8 3.20 46.9 3.23 48.3 3.25
88 33.5 2.22 39.8 2.90 43.9 3.29 44.4 3.30 45.0 3.32 46.3 3.34 47.4 3.39
91 33.5 2.38 39.7 3.09 43.0 3.41 43.8 3.43 44.4 3.45 45.5 3.48 46.8 3.51
95 33.4 2.53 39.6 3.29 42.3 3.54 42.9 3.55 43.4 3.57 44.8 3.61 45.9 3.65
99 32.4 2.70 38.4 3.51 40.3 3.66 41.1 3.68 41.6 3.70 42.6 3.74 44.0 3.77
102 31.7 2.86 37.6 3.74 39.0 3.79 39.5 3.80 40.0 3.82 41.3 3.87 42.3 3.90
108 31.7 3.04 37.6 3.98 38.4 3.92 38.7 3.93 39.2 3.95 40.7 3.99 41.5 4.04
111 31.7 3.21 37.6 4.20 37.9 4.04 37.9 4.04 38.4 4.09 40.2 4.13 40.7 4.16
115 31.7 3.39 37.6 4.44 37.4 4.18 37.1 4.17 37.6 4.21 39.7 4.25 40.0 4.29
120
50 31.1 1.30 37.2 1.58 43.3 1.88 46.3 2.03 49.3 2.18 53.2 2.31 54.3 2.22
54 31.1 1.31 37.2 1.61 43.2 1.91 46.3 2.06 49.3 2.22 52.3 2.30 53.4 2.20
57 31.1 1.34 37.1 1.64 43.2 1.95 46.2 2.11 49.2 2.27 51.7 2.28 52.8 2.30
61 31.1 1.36 37.1 1.67 43.1 1.99 46.1 2.16 49.2 2.33 50.8 2.40 51.9 2.42
64 31.0 1.40 37.1 1.71 43.1 2.06 46.1 2.27 49.1 2.50 50.2 2.52 51.3 2.54
68 31.0 1.42 37.0 1.77 43.0 2.21 46.1 2.45 48.3 2.62 49.3 2.65 50.4 2.66
70 30.9 1.43 37.0 1.84 43.0 2.29 46.0 2.54 47.9 2.69 49.0 2.70 50.1 2.73
73 30.9 1.53 36.9 1.96 43.0 2.45 46.0 2.72 47.1 2.81 48.4 2.83 49.5 2.86
77 30.9 1.63 36.9 2.11 42.9 2.64 45.9 2.91 46.5 2.93 47.6 2.95 48.6 2.98
81 30.9 1.75 36.9 2.26 42.9 2.81 45.1 3.04 45.6 3.05 47.0 3.07 48.1 3.10
84 30.8 1.86 36.8 2.41 42.8 3.01 44.5 3.16 45.0 3.18 46.1 3.20 47.2 3.23
88 30.8 1.99 36.8 2.56 42.8 3.22 43.6 3.29 44.1 3.29 45.5 3.33 46.6 3.35
91 30.8 2.11 36.8 2.74 42.5 3.39 43.0 3.40 43.6 3.42 44.7 3.45 45.7 3.49
95 30.7 2.26 36.6 2.91 41.5 3.51 42.1 3.53 42.9 3.55 44.0 3.58 45.1 3.61
99 29.7 2.40 35.6 3.11 39.8 3.64 40.3 3.66 40.8 3.67 41.9 3.71 42.9 3.74
102 29.2 2.55 34.8 3.31 38.2 3.77 39.0 3.78 39.5 3.80 40.5 3.84 41.5 3.88
108 29.2 2.70 34.8 3.51 37.4 3.89 38.4 3.90 39.0 3.93 40.0 3.97 41.0 4.00
111 29.2 2.86 34.8 3.71 36.6 4.03 37.9 4.03 38.4 4.06 39.5 4.09 40.5 4.14
115 29.2 3.00 34.8 3.92 35.9 4.15 37.4 4.14 37.9 4.19 39.0 4.23 40.0 4.26
110
50 28.7 1.17 34.2 1.43 39.7 1.70 42.4 1.84 45.2 1.97 50.7 2.26 53.2 2.30
54 28.6 1.20 34.1 1.46 39.6 1.73 42.4 1.87 45.1 2.01 50.6 2.30 52.6 2.28
57 28.6 1.21 34.1 1.48 39.6 1.76 42.3 1.91 45.1 2.06 50.6 2.34 51.7 2.28
61 28.6 1.24 34.1 1.52 39.5 1.80 42.3 1.95 45.1 2.09 50.0 2.38 51.1 2.41
64 28.5 1.26 34.0 1.54 39.5 1.84 42.3 2.00 45.0 2.20 49.4 2.50 50.2 2.53
68 28.5 1.29 34.0 1.58 39.5 1.95 42.2 2.15 44.9 2.36 48.5 2.63 49.6 2.65
70 28.5 1.31 34.0 1.62 39.4 2.00 42.2 2.22 44.9 2.45 48.2 2.69 49.3 2.70
73 28.4 1.36 33.9 1.74 39.4 2.16 42.1 2.38 44.9 2.63 47.3 2.81 48.4 2.83
77 28.4 1.46 33.9 1.86 39.4 2.31 42.1 2.55 44.8 2.81 46.7 2.93 47.8 2.96
81 28.4 1.55 33.8 1.98 39.3 2.47 42.0 2.74 44.8 3.01 45.9 3.06 47.0 3.08
84 28.4 1.66 33.8 2.11 39.3 2.65 42.0 2.92 44.2 3.15 45.3 3.18 46.4 3.20
88 28.3 1.76 33.8 2.26 39.2 2.81 42.0 3.13 43.6 3.28 44.4 3.30 45.5 3.34
91 28.3 1.87 33.8 2.41 39.2 3.01 41.9 3.34 42.8 3.39 43.8 3.43 44.9 3.45
95 28.2 2.00 33.7 2.56 39.1 3.21 41.5 3.51 42.1 3.53 42.9 3.55 44.0 3.59
99 27.4 2.11 32.7 2.73 37.9 3.42 39.5 3.64 40.0 3.65 41.1 3.68 42.1 3.71
102 26.8 2.26 32.0 2.91 37.1 3.65 38.2 3.76 38.7 3.77 39.7 3.81 40.5 3.84
108 26.8 2.39 32.0 3.09 37.1 3.87 37.6 3.88 38.2 3.89 39.2 3.94 39.7 3.96
111 26.8 2.53 32.0 3.27 37.1 4.09 37.1 4.00 37.6 4.02 38.7 4.07 39.0 4.09
115 26.8 2.66 32.0 3.45 37.1 4.31 36.6 4.13 37.1 4.14 38.2 4.20 38.2 4.20
TC(Total Capacity, MBH), PI(Power Input, kW)

16 VRF-PRC007-EN
Mini Outdoor Units
100
50 26.0 1.06 31.1 1.28 36.1 1.52 38.6 1.64 41.0 1.77 46.0 2.02 51.2 2.27
54 26.0 1.08 31.1 1.31 36.0 1.55 38.5 1.68 41.0 1.80 46.0 2.06 51.2 2.32
57 26.0 1.10 31.1 1.33 36.0 1.58 38.5 1.71 41.0 1.84 45.9 2.10 50.9 2.35
61 25.9 1.11 31.1 1.36 36.0 1.61 38.5 1.74 40.9 1.87 45.9 2.14 50.0 2.38
64 25.9 1.14 31.0 1.38 35.9 1.64 38.4 1.78 40.9 1.91 45.8 2.26 49.4 2.50
68 25.9 1.16 31.0 1.42 35.9 1.69 38.4 1.86 40.9 2.05 45.8 2.43 48.5 2.63
70 25.9 1.17 30.9 1.42 35.9 1.75 38.4 1.93 40.8 2.11 45.7 2.52 48.2 2.70
73 25.9 1.20 30.9 1.52 35.8 1.88 38.3 2.06 40.8 2.27 45.7 2.70 47.6 2.81
77 25.8 1.28 30.9 1.63 35.8 2.00 38.3 2.22 40.7 2.43 45.7 2.90 46.7 2.94
81 25.8 1.36 30.9 1.74 35.8 2.15 38.2 2.37 40.7 2.60 45.1 3.04 46.1 3.06
84 25.8 1.46 30.8 1.85 35.7 2.29 38.2 2.54 40.6 2.78 44.5 3.16 45.3 3.18
88 25.8 1.55 30.8 1.97 35.7 2.45 38.2 2.70 40.6 2.97 43.6 3.29 44.7 3.30
91 25.7 1.65 30.8 2.10 35.7 2.60 38.1 2.88 40.6 3.18 43.0 3.40 43.8 3.44
95 25.7 1.75 30.7 2.23 35.6 2.78 38.0 3.10 40.4 3.39 42.1 3.53 43.2 3.55
99 24.9 1.86 29.7 2.38 34.5 2.96 36.9 3.28 39.2 3.61 40.3 3.66 41.1 3.69
102 24.4 1.97 29.2 2.53 33.8 3.15 36.1 3.50 37.9 3.75 38.7 3.78 39.7 3.81
108 24.4 2.09 29.2 2.68 33.8 3.34 36.1 3.71 37.4 3.89 37.9 3.90 39.2 3.93
111 24.4 2.21 29.2 2.83 33.8 3.55 36.1 3.93 36.9 4.04 37.1 4.03 38.7 4.05
115 24.4 2.32 29.2 2.98 33.8 3.74 36.1 4.14 36.4 4.19 36.4 4.14 38.2 4.18
90
50 23.4 0.95 27.8 1.15 32.5 1.36 34.7 1.46 36.9 1.57 41.6 1.79 46.0 2.01
54 23.4 0.97 27.8 1.16 32.5 1.37 34.7 1.48 36.9 1.60 41.6 1.82 46.0 2.06
57 23.4 0.98 27.8 1.19 32.4 1.41 34.6 1.52 36.8 1.63 41.5 1.86 45.9 2.10
61 23.3 1.00 27.7 1.21 32.4 1.42 34.6 1.54 36.8 1.66 41.5 1.90 45.9 2.13
64 23.3 1.02 27.7 1.23 32.4 1.46 34.6 1.57 36.8 1.69 41.4 1.93 45.8 2.26
68 23.3 1.04 27.7 1.26 32.4 1.48 34.6 1.61 36.7 1.76 41.4 2.07 45.8 2.43
70 23.3 1.04 27.7 1.26 32.3 1.52 34.5 1.66 36.7 1.81 41.4 2.16 45.7 2.51
73 23.3 1.07 27.6 1.31 32.3 1.61 34.5 1.78 36.7 1.95 41.3 2.31 45.7 2.70
77 23.2 1.12 27.6 1.41 32.2 1.73 34.4 1.90 36.6 2.08 41.3 2.47 45.7 2.90
81 23.2 1.20 27.6 1.50 32.2 1.84 34.4 2.03 36.6 2.22 41.2 2.65 45.1 3.04
84 23.2 1.26 27.6 1.60 32.2 1.96 34.4 2.16 36.6 2.38 41.2 2.82 44.5 3.16
88 23.2 1.36 27.5 1.71 32.2 2.10 34.3 2.31 36.5 2.54 41.1 3.02 43.6 3.29
91 23.2 1.43 27.5 1.81 32.1 2.24 34.3 2.46 36.5 2.70 41.1 3.22 43.0 3.40
95 23.1 1.52 27.4 1.93 32.0 2.38 34.2 2.63 36.4 2.89 41.0 3.44 42.1 3.53
99 22.4 1.61 26.6 2.06 31.1 2.54 33.2 2.81 35.3 3.07 39.5 3.63 40.3 3.66
102 21.9 1.71 26.1 2.17 30.4 2.70 32.5 2.98 34.6 3.28 37.9 3.75 38.7 3.78
108 21.9 1.81 26.1 2.30 30.4 2.86 32.5 3.16 34.6 3.48 37.1 3.88 37.9 3.90
111 21.9 1.91 26.1 2.42 30.4 3.03 32.5 3.34 34.6 3.68 36.4 3.99 37.1 4.03
115 21.9 2.01 26.1 2.54 30.4 3.20 32.5 3.52 34.6 3.88 35.6 4.12 36.4 4.14
80
50 20.8 0.84 24.9 1.01 28.9 1.18 30.9 1.27 32.8 1.36 36.9 1.56 40.8 1.76
54 20.8 0.86 24.8 1.02 28.9 1.20 30.8 1.30 32.8 1.40 36.9 1.59 40.7 1.79
57 20.8 0.87 24.8 1.04 28.9 1.23 30.8 1.32 32.7 1.42 36.8 1.62 40.7 1.83
61 20.8 0.88 24.8 1.07 28.9 1.26 30.8 1.35 32.7 1.45 36.8 1.66 40.7 1.86
64 20.7 0.90 24.8 1.08 28.8 1.27 30.7 1.37 32.7 1.47 36.8 1.68 40.6 1.90
68 20.7 0.92 24.7 1.10 28.8 1.30 30.7 1.41 32.6 1.51 36.7 1.75 40.6 2.03
70 20.7 0.92 24.7 1.11 28.7 1.31 30.7 1.42 32.6 1.53 36.7 1.81 40.5 2.11
73 20.7 0.94 24.7 1.13 28.7 1.37 30.6 1.51 32.6 1.64 36.7 1.94 40.5 2.26
77 20.7 0.97 24.6 1.21 28.7 1.47 30.6 1.61 32.5 1.76 36.6 2.07 40.4 2.42
81 20.7 1.03 24.6 1.29 28.7 1.57 30.6 1.72 32.5 1.88 36.6 2.22 40.4 2.59
84 20.6 1.10 24.6 1.36 28.6 1.67 30.6 1.84 32.5 2.00 36.6 2.37 40.4 2.76
88 20.6 1.16 24.6 1.46 28.6 1.78 30.5 1.95 32.4 2.14 36.5 2.53 40.3 2.95
91 20.6 1.24 24.6 1.55 28.6 1.90 30.5 2.08 32.4 2.27 36.5 2.70 40.3 3.15
95 20.5 1.31 24.5 1.64 28.5 2.01 30.4 2.22 32.3 2.43 36.4 2.87 40.2 3.36
99 19.9 1.39 23.8 1.74 27.7 2.15 29.5 2.36 31.3 2.58 35.3 3.06 39.0 3.59
102 19.5 1.47 23.3 1.85 27.1 2.27 28.9 2.50 30.7 2.75 34.6 3.26 37.9 3.75
108 19.5 1.56 23.3 1.96 27.1 2.41 28.9 2.65 30.7 2.92 34.6 3.46 37.6 3.92
111 19.5 1.65 23.3 2.06 27.1 2.54 28.9 2.81 30.7 3.10 34.6 3.66 37.4 4.09
115 19.5 1.74 23.3 2.17 27.1 2.66 28.9 2.96 30.7 3.27 34.6 3.87 37.1 4.25
4TVH0036B100NB - Cooling (continued)
Combi.
(%)
Outdoor
Temperature
(°F)
Indoor Temperature (°F, WB)
57 61 64 67 69 72 75
TC PI TC PI TC PI TC PI TC PI TC PI TC PI
MBHkWMBHkWMBHkWMBHkWMBHkWMBHkWMBHkW
TC(Total Capacity, MBH), PI(Power Input, kW)

VRF-PRC007-EN 17
Mini Outdoor Units
70
50 18.2 0.74 21.7 0.88 25.2 1.02 27.0 1.10 28.7 1.18 32.2 1.34 35.8 1.51
54 18.2 0.75 21.7 0.89 25.2 1.04 27.0 1.12 28.6 1.20 32.2 1.36 35.8 1.53
57 18.2 0.77 21.7 0.91 25.2 1.06 27.0 1.15 28.6 1.22 32.2 1.39 35.7 1.56
61 18.2 0.78 21.7 0.92 25.2 1.08 26.9 1.16 28.6 1.25 32.1 1.42 35.7 1.60
64 18.1 0.78 21.7 0.94 25.1 1.10 26.9 1.18 28.5 1.26 32.1 1.45 35.7 1.63
68 18.1 0.80 21.6 0.96 25.1 1.12 26.9 1.21 28.5 1.30 32.1 1.47 35.6 1.67
70 18.1 0.81 21.6 0.97 25.1 1.13 26.8 1.21 28.5 1.31 32.1 1.50 35.6 1.74
73 18.1 0.82 21.6 0.99 25.1 1.15 26.8 1.26 28.4 1.36 32.0 1.61 35.6 1.86
77 18.1 0.83 21.6 1.02 25.0 1.23 26.8 1.35 28.4 1.47 32.0 1.71 35.5 1.99
81 18.1 0.88 21.6 1.09 25.0 1.31 26.8 1.43 28.4 1.56 31.9 1.83 35.5 2.12
84 18.0 0.94 21.5 1.16 25.0 1.40 26.7 1.52 28.4 1.66 31.9 1.95 35.5 2.27
88 18.0 0.99 21.5 1.23 25.0 1.49 26.7 1.63 28.3 1.77 31.9 2.08 35.4 2.42
91 18.0 1.06 21.5 1.31 24.9 1.58 26.7 1.73 28.3 1.89 31.9 2.22 35.4 2.58
95 17.9 1.11 21.4 1.38 24.9 1.68 26.6 1.84 28.2 2.00 31.8 2.36 35.3 2.75
99 17.4 1.18 20.8 1.47 24.1 1.79 25.8 1.95 27.4 2.13 30.8 2.51 34.2 2.92
102 17.0 1.26 20.4 1.56 23.6 1.90 25.3 2.07 26.8 2.27 30.2 2.67 33.5 3.12
108 17.0 1.32 20.4 1.64 23.6 2.00 25.3 2.20 26.8 2.41 30.2 2.83 33.5 3.31
111 17.0 1.40 20.4 1.73 23.6 2.11 25.3 2.32 26.8 2.54 30.2 2.99 33.5 3.50
115 17.0 1.47 20.4 1.81 23.6 2.22 25.3 2.44 26.8 2.68 30.2 3.15 33.5 3.70
60
50 15.6 0.64 18.6 0.76 21.6 0.87 23.2 0.94 24.6 1.00 27.6 1.13 30.6 1.26
54 15.6 0.66 18.6 0.77 21.6 0.88 23.1 0.95 24.6 1.02 27.5 1.15 30.6 1.29
57 15.6 0.67 18.6 0.78 21.6 0.91 23.1 0.97 24.6 1.04 27.5 1.17 30.5 1.31
61 15.6 0.67 18.6 0.79 21.6 0.92 23.1 0.99 24.6 1.05 27.5 1.20 30.5 1.34
64 15.6 0.68 18.5 0.81 21.6 0.94 23.0 1.00 24.6 1.07 27.4 1.21 30.5 1.36
68 15.6 0.69 18.5 0.82 21.5 0.95 23.0 1.02 24.5 1.10 27.4 1.24 30.4 1.39
70 15.5 0.70 18.5 0.83 21.5 0.96 23.0 1.03 24.5 1.10 27.4 1.26 30.4 1.41
73 15.5 0.72 18.5 0.84 21.5 0.98 23.0 1.05 24.5 1.12 27.4 1.31 30.4 1.50
77 15.5 0.72 18.5 0.86 21.4 1.02 23.0 1.10 24.5 1.20 27.3 1.39 30.3 1.60
81 15.5 0.75 18.5 0.91 21.4 1.08 22.9 1.17 24.4 1.27 27.3 1.48 30.3 1.71
84 15.5 0.79 18.4 0.97 21.4 1.15 22.9 1.26 24.4 1.36 27.3 1.58 30.3 1.81
88 15.4 0.84 18.4 1.02 21.4 1.22 22.9 1.33 24.4 1.44 27.3 1.68 30.2 1.94
91 15.4 0.88 18.4 1.08 21.4 1.30 22.9 1.42 24.4 1.53 27.2 1.79 30.2 2.06
95 15.4 0.94 18.3 1.15 21.3 1.37 22.8 1.50 24.3 1.63 27.1 1.90 30.1 2.20
99 14.9 0.99 17.8 1.21 20.7 1.47 22.1 1.59 23.6 1.73 26.3 2.02 29.2 2.33
102 14.6 1.05 17.4 1.28 20.2 1.55 21.7 1.68 23.1 1.84 25.8 2.15 28.6 2.49
108 14.6 1.11 17.4 1.35 20.2 1.63 21.7 1.78 23.1 1.95 25.8 2.27 28.6 2.64
111 14.6 1.16 17.4 1.42 20.2 1.72 21.7 1.87 23.1 2.06 25.8 2.39 28.6 2.79
115 14.6 1.22 17.4 1.47 20.2 1.81 21.7 1.96 23.1 2.16 25.8 2.51 28.6 2.94
50
50 13.0 0.56 15.5 0.64 18.0 0.73 19.3 0.78 20.5 0.83 23.1 0.94 25.6 1.04
54 13.0 0.56 15.5 0.65 18.0 0.74 19.3 0.79 20.5 0.84 23.0 0.95 25.5 1.06
57 13.0 0.57 15.5 0.67 18.0 0.76 19.2 0.81 20.5 0.86 23.0 0.97 25.5 1.07
61 13.0 0.57 15.5 0.67 18.0 0.77 19.2 0.82 20.5 0.87 23.0 0.98 25.5 1.10
64 12.9 0.58 15.4 0.67 17.9 0.78 19.2 0.83 20.5 0.88 23.0 1.00 25.5 1.11
68 12.9 0.59 15.4 0.69 17.9 0.79 19.2 0.85 20.4 0.90 22.9 1.02 25.4 1.14
70 12.9 0.60 15.4 0.70 17.9 0.80 19.2 0.86 20.4 0.91 22.9 1.03 25.4 1.15
73 12.9 0.61 15.4 0.71 17.9 0.82 19.2 0.87 20.4 0.93 22.9 1.04 25.4 1.17
77 12.9 0.61 15.4 0.72 17.9 0.83 19.1 0.88 20.4 0.96 22.9 1.10 25.4 1.26
81 12.9 0.62 15.4 0.74 17.9 0.87 19.1 0.94 20.4 1.02 22.9 1.16 25.4 1.33
84 12.9 0.67 15.4 0.78 17.8 0.93 19.1 1.00 20.4 1.08 22.8 1.25 25.3 1.42
88 12.9 0.70 15.3 0.83 17.8 0.99 19.1 1.07 20.3 1.15 22.8 1.32 25.3 1.52
91 12.8 0.73 15.3 0.88 17.8 1.04 19.1 1.13 20.3 1.21 22.8 1.41 25.3 1.61
95 12.8 0.78 15.3 0.94 17.8 1.10 19.0 1.20 20.2 1.29 22.7 1.49 25.2 1.71
99 12.4 0.82 14.8 0.99 17.2 1.16 18.4 1.26 19.7 1.36 22.0 1.58 24.4 1.81
102 12.2 0.87 14.5 1.04 16.9 1.24 18.1 1.34 19.2 1.45 21.6 1.68 23.9 1.92
108 12.2 0.91 14.5 1.10 16.9 1.31 18.1 1.42 19.2 1.52 21.6 1.77 23.9 2.03
111 12.2 0.95 14.5 1.16 16.9 1.38 18.1 1.48 19.2 1.61 21.6 1.86 23.9 2.14
115 12.2 0.99 14.5 1.21 16.9 1.46 18.1 1.56 19.2 1.68 21.6 1.96 23.9 2.25
4TVH0036B100NB - Cooling (continued)
Combi.
(%)
Outdoor
Temperature
(°F)
Indoor Temperature (°F, WB)
57 61 64 67 69 72 75
TC PI TC PI TC PI TC PI TC PI TC PI TC PI
MBHkWMBHkWMBHkWMBHkWMBHkWMBHkWMBHkW
TC(Total Capacity, MBH), PI(Power Input, kW)

18 VRF-PRC007-EN
Mini Outdoor Units
4TVH0036B100NB
4TVH0036B100NB - Heating
Combi.
(%)
Outdoor Temperature
(°F)
Indoor Temperature (°F, WB)
61 65 70 72 75
TC PI TC PI TC PI TC PI TC PI
DB WB MBH kW MBH kW MBH kW MBH kW MBH kW
130
-4 -4.4 30.0 2.98 29.7 3.15 29.7 3.32 29.7 3.50 29.5 3.68
1 0 32.7 3.24 32.4 3.40 32.4 3.57 32.2 3.73 32.2 3.89
5 3 34.3 3.49 34.3 3.65 34.1 3.81 34.1 3.97 34.1 4.13
10 9 36.2 3.64 36.0 3.80 36.0 3.94 36.0 4.10 35.7 4.24
14 12 37.9 3.78 37.9 3.92 37.9 4.06 37.6 4.20 37.6 4.34
19 18 41.1 3.82 40.8 3.96 40.8 4.08 40.6 4.21 40.6 4.33
23 21 42.7 3.93 42.7 4.05 42.4 4.16 42.4 4.29 42.4 4.42
27 25 44.3 3.82 44.3 3.94 44.3 4.05 44.1 4.15 44.1 4.27
32 30 47.0 3.94 47.0 4.05 46.8 4.15 46.8 4.26 46.8 4.36
37 36 49.7 4.05 49.5 4.14 49.5 4.24 49.5 4.35 48.9 4.40
44 40 51.4 4.11 51.4 4.21 51.1 4.30 51.1 4.40 48.9 4.22
47 43 53.0 4.13 53.0 4.22 53.0 4.31 52.7 4.38 48.9 4.01
51 47 54.9 4.13 54.6 4.23 54.6 4.31 52.7 4.16 48.9 3.82
54 50 56.5 4.19 56.2 4.28 56.2 4.35 52.7 4.01 48.9 3.68
57 53 58.1 4.24 58.1 4.32 56.2 4.19 52.7 3.86 48.9 3.54
60 56 60.0 4.29 59.7 4.36 56.2 4.04 52.7 3.72 48.9 3.42
120
-4 -4.4 29.7 3.20 29.7 3.37 29.7 3.53 29.5 3.70 29.5 3.86
1 0 32.4 3.46 32.4 3.61 32.2 3.76 32.2 3.91 32.2 4.06
5 3 34.3 3.71 34.1 3.85 34.1 3.99 34.1 4.14 33.8 4.29
10 9 36.0 3.84 36.0 3.97 36.0 4.13 35.7 4.26 35.7 4.40
14 12 37.9 3.97 37.6 4.10 37.6 4.23 37.6 4.36 37.3 4.50
19 18 40.8 4.00 40.8 4.12 40.6 4.23 40.6 4.35 40.6 4.47
23 21 42.7 4.09 42.4 4.20 42.4 4.31 42.4 4.43 42.2 4.54
27 25 44.3 3.97 44.3 4.08 44.1 4.18 44.1 4.29 44.1 4.38
32 30 47.0 4.08 46.8 4.18 46.8 4.28 46.8 4.37 45.2 4.27
37 36 49.5 4.18 49.5 4.28 49.5 4.36 48.7 4.35 45.2 3.98
44 40 51.4 4.24 51.1 4.33 51.1 4.42 48.7 4.17 45.2 3.82
47 43 53.0 4.25 52.7 4.34 51.9 4.31 48.7 3.97 45.2 3.64
51 47 54.6 4.26 54.6 4.34 51.9 4.10 48.7 3.78 45.2 3.47
54 50 56.2 4.30 55.2 4.26 51.9 3.95 48.7 3.64 45.2 3.34
57 53 58.1 4.35 55.2 4.10 51.9 3.80 48.7 3.50 45.2 3.22
60 56 58.7 4.25 55.2 3.96 51.9 3.66 48.7 3.39 45.2 3.11
110
-4 -4.4 29.7 3.45 29.5 3.60 29.5 3.75 29.5 3.90 29.2 4.05
1 0 32.4 3.68 32.2 3.81 32.2 3.96 32.2 4.10 31.9 4.24
5 3 34.1 3.92 34.1 4.06 34.1 4.19 33.8 4.32 33.8 4.45
10 9 36.0 4.05 35.7 4.17 35.7 4.29 35.7 4.43 35.7 4.56
14 12 37.6 4.16 37.6 4.28 37.6 4.40 37.3 4.53 37.3 4.64
19 18 40.8 4.16 40.6 4.28 40.6 4.39 40.6 4.49 40.3 4.61
23 21 42.4 4.26 42.4 4.36 42.2 4.46 42.2 4.57 41.4 4.55
27 25 44.1 4.13 44.1 4.21 44.1 4.31 43.8 4.41 41.4 4.13
32 30 46.8 4.22 46.8 4.31 46.8 4.40 44.6 4.18 41.4 3.83
37 36 49.5 4.31 49.2 4.40 47.6 4.24 44.6 3.92 41.4 3.59
44 40 51.1 4.36 50.6 4.40 47.6 4.07 44.6 3.75 41.4 3.45
47 43 52.7 4.37 50.6 4.18 47.6 3.87 44.6 3.57 41.4 3.28
51 47 53.8 4.28 50.6 3.97 47.6 3.68 44.6 3.40 41.4 3.13
54 50 53.8 4.12 50.6 3.82 47.6 3.55 44.6 3.28 41.4 3.01
57 53 53.8 3.96 50.6 3.68 47.6 3.42 44.6 3.16 41.4 2.91
60 56 53.8 3.82 50.6 3.56 47.6 3.30 44.6 3.06 41.4 2.82
TC(Total Capacity, MBH), PI(Power Input, kW)

VRF-PRC007-EN 19
Mini Outdoor Units
100
-4 -4.4 29.5 3.60 29.5 3.72 29.5 3.86 29.2 3.98 29.2 4.13
1 0 32.2 3.80 32.2 3.92 31.9 4.04 31.9 4.15 31.9 4.29
5 3 34.1 4.02 33.8 4.14 33.5 4.27 33.8 4.38 33.8 4.50
10 9 35.7 4.13 35.7 4.25 35.3 4.36 35.4 4.47 35.4 4.59
14 12 37.6 4.24 37.6 4.34 37.0 4.45 37.3 4.56 37.3 4.67
19 18 40.6 4.23 40.6 4.32 39.5 4.42 40.3 4.51 37.6 4.15
23 21 42.4 4.29 42.2 4.39 41.4 4.49 40.6 4.29 37.6 3.94
27 25 44.1 4.16 44.1 4.24 42.0 4.23 40.6 3.90 37.6 3.57
32 30 46.8 4.25 46.0 4.24 42.0 3.93 40.6 3.63 37.6 3.32
37 36 48.9 4.27 46.0 3.97 42.0 3.67 40.6 3.39 37.6 3.12
44 40 48.9 4.09 46.0 3.80 42.0 3.53 40.6 3.26 37.6 3.00
47 43 48.9 3.88 46.0 3.62 42.0 3.40 40.6 3.10 37.6 2.85
51 47 48.9 3.70 46.0 3.45 42.4 3.19 40.6 2.96 37.6 2.72
54 50 48.9 3.57 46.0 3.32 42.4 3.09 40.6 2.85 37.6 2.64
57 53 48.9 3.43 46.0 3.19 42.4 2.98 40.6 2.75 37.6 2.54
60 56 48.9 3.32 46.0 3.10 42.4 2.87 40.6 2.67 37.6 2.46
90
-4 -4.4 29.5 3.93 29.2 4.05 29.2 4.17 29.2 4.29 29.2 4.42
1 0 32.2 4.13 31.9 4.24 31.9 4.34 31.9 4.45 31.9 4.57
5 3 33.8 4.35 33.8 4.45 33.8 4.57 33.5 4.68 33.5 4.78
10 9 35.7 4.45 35.7 4.56 35.4 4.66 35.4 4.77 33.8 4.56
14 12 37.3 4.55 37.3 4.64 37.3 4.74 36.5 4.68 33.8 4.29
19 18 40.6 4.52 40.3 4.61 38.9 4.45 36.5 4.09 33.8 3.75
23 21 42.2 4.59 41.4 4.55 38.9 4.20 36.5 3.88 33.8 3.56
27 25 43.8 4.43 41.4 4.12 38.9 3.81 36.5 3.52 33.8 3.24
32 30 44.1 4.11 41.4 3.82 38.9 3.55 36.5 3.28 33.8 3.01
37 36 44.1 3.84 41.4 3.58 38.9 3.32 36.5 3.08 33.8 2.83
44 40 44.1 3.69 41.4 3.44 38.9 3.19 36.5 2.97 33.8 2.72
47 43 44.1 3.51 41.4 3.28 38.9 3.04 36.5 2.82 33.8 2.60
51 47 44.1 3.34 41.4 3.12 38.9 2.90 36.5 2.69 33.8 2.49
54 50 44.1 3.23 41.4 3.01 38.9 2.81 36.5 2.60 33.8 2.40
57 53 44.1 3.11 41.4 2.90 38.9 2.70 36.5 2.51 33.8 2.33
60 56 44.1 3.00 41.4 2.81 38.9 2.62 36.5 2.43 33.8 2.25
80
-4 -4.4 29.2 4.17 29.2 4.28 29.2 4.38 29.2 4.49 28.9 4.61
1 0 31.9 4.33 31.9 4.44 31.9 4.54 31.6 4.63 30.3 4.38
5 3 33.8 4.57 33.5 4.66 33.5 4.76 32.4 4.60 30.3 4.21
10 9 35.4 4.65 35.4 4.75 34.6 4.67 32.4 4.30 30.3 3.95
14 12 37.3 4.74 36.8 4.75 34.6 4.39 32.4 4.06 30.3 3.72
19 18 38.9 4.45 36.8 4.14 34.6 3.84 32.4 3.54 30.3 3.27
23 21 38.9 4.22 36.8 3.94 34.6 3.64 32.4 3.37 30.3 3.10
27 25 38.9 3.82 36.8 3.57 34.6 3.32 32.4 3.06 30.3 2.83
32 30 38.9 3.56 36.8 3.32 34.6 3.09 32.4 2.85 30.3 2.64
37 36 38.9 3.34 36.8 3.11 34.6 2.90 32.4 2.69 30.3 2.49
44 40 38.9 3.21 36.8 3.00 34.6 2.79 32.4 2.58 30.3 2.39
47 43 38.9 3.05 36.8 2.85 34.6 2.67 32.4 2.47 30.3 2.29
51 47 38.9 2.91 36.8 2.72 34.6 2.54 32.4 2.35 30.3 2.19
54 50 38.9 2.82 36.8 2.64 34.6 2.46 32.4 2.28 30.3 2.12
57 53 38.9 2.71 36.8 2.54 34.6 2.36 32.4 2.20 30.3 2.04
60 56 38.9 2.63 36.8 2.46 34.6 2.30 32.4 2.14 30.3 1.98
4TVH0036B100NB - Heating (continued)
Combi.
(%)
Outdoor Temperature
(°F)
Indoor Temperature (°F, WB)
61 65 70 72 75
TC PI TC PI TC PI TC PI TC PI
DB WB MBH kW MBH kW MBH kW MBH kW MBH kW
TC(Total Capacity, MBH), PI(Power Input, kW)

20 VRF-PRC007-EN
Mini Outdoor Units
70
-4 -4.4 29.2 4.40 29.2 4.50 28.9 4.60 28.4 4.53 26.4 4.15
1 0 31.9 4.56 31.6 4.64 30.3 4.40 28.4 4.06 26.4 3.72
5 3 33.5 4.78 32.2 4.57 30.3 4.23 28.4 3.90 26.4 3.59
10 9 34.1 4.61 32.2 4.28 30.3 3.97 28.4 3.66 26.4 3.37
14 12 34.1 4.32 32.2 4.03 30.3 3.74 28.4 3.45 26.4 3.18
19 18 34.1 3.79 32.2 3.53 30.3 3.28 28.4 3.03 26.4 2.80
23 21 34.1 3.59 32.2 3.35 30.3 3.12 28.4 2.89 26.4 2.67
27 25 34.1 3.26 32.2 3.05 30.3 2.83 28.4 2.63 26.4 2.43
32 30 34.1 3.04 32.2 2.84 30.3 2.66 28.4 2.46 26.4 2.28
37 36 34.1 2.85 32.2 2.67 30.3 2.50 28.4 2.32 26.4 2.14
44 40 34.1 2.75 32.2 2.57 30.3 2.40 28.4 2.23 26.4 2.07
47 43 34.1 2.62 32.2 2.45 30.3 2.30 28.4 2.14 26.4 1.98
51 47 34.1 2.51 32.2 2.35 30.3 2.19 28.4 2.04 26.4 1.89
54 50 34.1 2.42 32.2 2.27 30.3 2.13 28.4 1.98 26.4 1.84
57 53 34.1 2.35 32.2 2.19 30.3 2.05 28.4 1.92 26.4 1.78
60 56 34.1 2.26 32.2 2.13 30.3 1.99 28.4 1.86 26.4 1.72
60
-4 -4.4 28.9 4.64 27.6 4.39 26.0 4.07 24.3 3.75 22.6 3.45
1 0 29.2 4.23 27.6 3.94 26.0 3.64 24.3 3.37 22.6 3.10
5 3 29.2 4.06 27.6 3.79 26.0 3.51 24.3 3.25 22.6 3.00
10 9 29.2 3.81 27.6 3.56 26.0 3.31 24.3 3.07 22.6 2.83
14 12 29.2 3.60 27.6 3.35 26.0 3.13 24.3 2.89 22.6 2.67
19 18 29.2 3.16 27.6 2.95 26.0 2.75 24.3 2.55 22.6 2.36
23 21 29.2 3.00 27.6 2.81 26.0 2.62 24.3 2.44 22.6 2.25
27 25 29.2 2.73 27.6 2.55 26.0 2.39 24.3 2.22 22.6 2.05
32 30 29.2 2.55 27.6 2.39 26.0 2.24 24.3 2.08 22.6 1.93
37 36 29.2 2.41 27.6 2.26 26.0 2.11 24.3 1.97 22.6 1.83
44 40 29.2 2.32 27.6 2.18 26.0 2.03 24.3 1.89 22.6 1.76
47 43 29.2 2.20 27.6 2.08 26.0 1.95 24.3 1.82 22.6 1.70
51 47 29.2 2.12 27.6 1.99 26.0 1.86 24.3 1.73 22.6 1.62
54 50 29.2 2.04 27.6 1.93 26.0 1.81 24.3 1.69 22.6 1.57
57 53 29.2 1.98 27.6 1.86 26.0 1.74 24.3 1.63 22.6 1.52
60 56 29.2 1.93 27.6 1.81 26.0 1.70 24.3 1.59 22.6 1.49
50
-4 -4.4 24.4 3.78 23.0 3.52 21.6 3.27 20.2 3.03 18.8 2.80
1 0 24.4 3.39 23.0 3.16 21.6 2.96 20.2 2.74 18.8 2.53
5 3 24.4 3.27 23.0 3.05 21.6 2.84 20.2 2.65 18.8 2.45
10 9 24.4 3.08 23.0 2.88 21.6 2.69 20.2 2.50 18.8 2.32
14 12 24.4 2.91 23.0 2.73 21.6 2.54 20.2 2.36 18.8 2.19
19 18 24.4 2.56 23.0 2.41 21.6 2.25 20.2 2.09 18.8 1.94
23 21 24.4 2.45 23.0 2.30 21.6 2.15 20.2 2.00 18.8 1.86
27 25 24.4 2.23 23.0 2.10 21.6 1.96 20.2 1.84 18.8 1.70
32 30 24.4 2.09 23.0 1.97 21.6 1.85 20.2 1.72 18.8 1.60
37 36 24.4 1.98 23.0 1.86 21.6 1.74 20.2 1.63 18.8 1.53
44 40 24.4 1.90 23.0 1.80 21.6 1.69 20.2 1.58 18.8 1.47
47 43 24.4 1.83 23.0 1.72 21.6 1.61 20.2 1.51 18.8 1.41
51 47 24.4 1.74 23.0 1.65 21.6 1.54 20.2 1.45 18.8 1.36
54 50 24.4 1.70 23.0 1.60 21.6 1.51 20.2 1.41 18.8 1.32
57 53 24.4 1.64 23.0 1.54 21.6 1.46 20.2 1.37 18.8 1.28
60 56 24.4 1.60 23.0 1.51 21.6 1.41 20.2 1.33 18.8 1.24
4TVH0036B100NB - Heating (continued)
Combi.
(%)
Outdoor Temperature
(°F)
Indoor Temperature (°F, WB)
61 65 70 72 75
TC PI TC PI TC PI TC PI TC PI
DB WB MBH kW MBH kW MBH kW MBH kW MBH kW
TC(Total Capacity, MBH), PI(Power Input, kW)

VRF-PRC007-EN 21
Mini Outdoor Units
4TVH0048B100NB
4TVH0048B100NB - Cooling
Combi.
(%)
Outdoor
Temperature
(°F)
Indoor Temperature (°F, WB)
57 61 64 67 69 72 75
TC PI TC PI TC PI TC PI TC PI TC PI TC PI
MBHkWMBHkWMBHkWMBHkWMBHkWMBHkWMBHkW
130
50 42.8 1.92 50.8 2.35 59.2 2.78 63.3 3.01 66.5 3.17 68.2 3.04 69.6 2.89
54 42.8 1.95 50.7 2.39 59.1 2.85 63.3 3.07 65.7 3.15 67.1 3.01 68.8 2.96
57 42.7 1.99 50.7 2.44 59.0 2.90 63.2 3.13 64.6 3.13 66.3 3.10 67.7 3.13
61 42.7 2.03 50.7 2.49 59.0 2.96 63.2 3.23 63.8 3.24 65.2 3.26 67.0 3.30
64 42.7 2.07 50.6 2.53 58.9 3.15 62.1 3.39 62.7 3.40 64.5 3.44 65.9 3.46
68 42.6 2.11 50.6 2.70 58.9 3.39 61.3 3.56 62.0 3.57 63.4 3.60 65.1 3.64
70 42.5 2.17 50.5 2.80 58.8 3.52 60.5 3.64 61.6 3.66 62.9 3.69 64.7 3.72
73 42.5 2.32 50.5 2.99 58.8 3.77 59.8 3.80 60.5 3.82 62.2 3.86 63.6 3.89
77 42.5 2.49 50.4 3.21 58.0 3.95 59.0 3.97 59.7 3.99 61.1 4.03 62.8 4.06
81 42.4 2.66 50.4 3.44 57.3 4.12 57.9 4.13 58.6 4.15 60.4 4.20 61.7 4.23
84 42.4 2.83 50.3 3.66 56.2 4.28 57.2 4.30 57.9 4.34 59.3 4.37 61.0 4.41
88 42.3 3.01 50.3 3.93 55.4 4.45 56.1 4.47 56.8 4.50 58.5 4.53 59.9 4.59
91 42.3 3.22 50.2 4.19 54.3 4.62 55.4 4.65 56.1 4.67 57.4 4.71 59.1 4.76
95 42.2 3.42 50.1 4.46 53.5 4.79 54.2 4.80 54.9 4.84 56.6 4.88 57.9 4.94
99 40.9 3.65 48.5 4.76 50.9 4.95 51.9 4.99 52.6 5.01 53.9 5.07 55.5 5.11
102 40.1 3.88 47.6 5.07 49.2 5.14 49.9 5.15 50.5 5.18 52.1 5.24 53.4 5.28
108 40.1 4.12 47.6 5.39 48.5 5.31 48.9 5.32 49.5 5.35 51.5 5.41 52.5 5.47
111 40.1 4.35 47.6 5.70 47.9 5.48 47.9 5.48 48.5 5.54 50.8 5.59 51.5 5.64
115 40.1 4.59 47.6 6.01 47.2 5.66 46.9 5.65 47.6 5.71 50.2 5.76 50.5 5.81
120
50 39.3 1.76 47.0 2.13 54.7 2.55 58.5 2.75 62.3 2.96 67.2 3.13 68.6 3.00
54 39.3 1.78 46.9 2.18 54.6 2.59 58.4 2.80 62.2 3.01 66.1 3.12 67.4 2.98
57 39.3 1.81 46.9 2.23 54.5 2.65 58.4 2.85 62.2 3.07 65.3 3.09 66.7 3.12
61 39.2 1.85 46.8 2.26 54.5 2.69 58.3 2.92 62.1 3.15 64.2 3.25 65.6 3.28
64 39.2 1.89 46.8 2.32 54.4 2.78 58.2 3.08 62.1 3.39 63.4 3.41 64.8 3.45
68 39.1 1.92 46.8 2.40 54.4 2.99 58.2 3.32 61.0 3.55 62.3 3.58 63.7 3.61
70 39.1 1.94 46.7 2.49 54.3 3.10 58.1 3.45 60.5 3.64 61.9 3.66 63.3 3.70
73 39.1 2.08 46.7 2.66 54.3 3.32 58.0 3.69 59.5 3.80 61.2 3.83 62.5 3.87
77 39.0 2.21 46.6 2.85 54.2 3.57 58.0 3.95 58.7 3.97 60.1 3.99 61.4 4.04
81 39.0 2.37 46.6 3.06 54.1 3.81 56.9 4.12 57.6 4.13 59.3 4.17 60.7 4.20
84 38.9 2.52 46.5 3.26 54.1 4.07 56.2 4.28 56.8 4.30 58.2 4.34 59.6 4.38
88 38.9 2.69 46.5 3.47 54.0 4.36 55.1 4.45 55.7 4.46 57.5 4.51 58.9 4.54
91 38.8 2.86 46.4 3.71 53.7 4.60 54.3 4.61 55.0 4.63 56.4 4.68 57.8 4.73
95 38.7 3.06 46.3 3.95 52.5 4.76 53.1 4.78 54.2 4.80 55.5 4.85 56.9 4.90
99 37.6 3.25 44.9 4.21 50.2 4.93 50.9 4.95 51.6 4.98 52.9 5.02 54.2 5.07
102 36.8 3.46 44.0 4.49 48.2 5.10 49.2 5.12 49.9 5.15 51.2 5.20 52.5 5.25
108 36.8 3.66 44.0 4.76 47.2 5.27 48.5 5.28 49.2 5.33 50.5 5.38 51.8 5.42
111 36.8 3.87 44.0 5.03 46.3 5.46 47.9 5.46 48.5 5.50 49.9 5.55 51.2 5.60
115 36.8 4.06 44.0 5.31 45.3 5.63 47.2 5.62 47.9 5.67 49.2 5.73 50.5 5.78
110
50 36.2 1.59 43.2 1.94 50.1 2.31 53.6 2.49 57.1 2.67 64.0 3.06 67.2 3.12
54 36.2 1.62 43.1 1.97 50.1 2.34 53.6 2.53 57.0 2.73 64.0 3.12 66.4 3.09
57 36.1 1.64 43.1 2.01 50.0 2.39 53.5 2.59 56.9 2.78 63.9 3.17 65.3 3.09
61 36.1 1.68 43.0 2.05 50.0 2.44 53.4 2.64 56.9 2.83 63.2 3.23 64.5 3.26
64 36.0 1.71 43.0 2.09 49.9 2.49 53.4 2.70 56.8 2.98 62.4 3.39 63.4 3.42
68 36.0 1.75 42.9 2.13 49.9 2.64 53.3 2.91 56.8 3.20 61.3 3.56 62.7 3.60
70 36.0 1.77 42.9 2.19 49.8 2.72 53.3 3.01 56.7 3.32 60.9 3.64 62.3 3.66
73 35.9 1.85 42.9 2.35 49.8 2.92 53.2 3.23 56.7 3.56 59.8 3.80 61.2 3.83
77 35.9 1.97 42.8 2.52 49.7 3.13 53.2 3.46 56.6 3.81 59.0 3.97 60.4 4.01
81 35.9 2.10 42.8 2.68 49.7 3.34 53.1 3.71 56.6 4.07 57.9 4.14 59.3 4.18
84 35.8 2.25 42.7 2.86 49.6 3.58 53.1 3.96 55.8 4.27 57.2 4.31 58.6 4.34
88 35.8 2.39 42.7 3.06 49.6 3.81 53.0 4.23 55.1 4.44 56.1 4.47 57.5 4.52
91 35.8 2.53 42.7 3.26 49.5 4.07 53.0 4.52 54.0 4.60 55.4 4.65 56.7 4.68
95 35.7 2.70 42.5 3.47 49.4 4.35 52.5 4.76 53.1 4.78 54.2 4.82 55.5 4.86
99 34.6 2.86 41.2 3.70 47.9 4.63 49.9 4.93 50.5 4.94 51.9 4.99 53.2 5.03
102 33.9 3.06 40.4 3.94 46.9 4.94 48.2 5.09 48.9 5.11 50.2 5.16 51.2 5.20
108 33.9 3.24 40.4 4.19 46.9 5.24 47.6 5.26 48.2 5.27 49.5 5.34 50.2 5.36
111 33.9 3.42 40.4 4.43 46.9 5.55 46.9 5.42 47.6 5.44 48.9 5.51 49.2 5.54
115 33.9 3.61 40.4 4.67 46.9 5.84 46.3 5.59 46.9 5.62 48.2 5.68 48.2 5.70
TC(Total Capacity, MBH), PI(Power Input, kW)

22 VRF-PRC007-EN
Mini Outdoor Units
100
50 32.9 1.44 39.3 1.73 45.6 2.05 48.7 2.23 51.8 2.40 58.1 2.74 64.7 3.08
54 32.8 1.46 39.3 1.78 45.5 2.10 48.7 2.27 51.8 2.44 58.0 2.78 64.7 3.14
57 32.8 1.48 39.3 1.80 45.5 2.13 48.6 2.32 51.7 2.49 58.0 2.84 64.3 3.18
61 32.8 1.51 39.2 1.85 45.5 2.18 48.6 2.36 51.7 2.53 57.9 2.90 63.2 3.23
64 32.7 1.54 39.2 1.87 45.4 2.23 48.5 2.41 51.6 2.59 57.9 3.06 62.4 3.39
68 32.7 1.58 39.1 1.92 45.4 2.29 48.5 2.52 51.6 2.77 57.8 3.30 61.3 3.56
70 32.7 1.59 39.1 1.93 45.3 2.37 48.4 2.61 51.5 2.86 57.8 3.41 60.9 3.65
73 32.7 1.63 39.1 2.05 45.3 2.55 48.4 2.80 51.5 3.08 57.7 3.66 60.1 3.81
77 32.6 1.73 39.0 2.20 45.2 2.72 48.3 3.00 51.4 3.30 57.7 3.93 59.0 3.98
81 32.6 1.85 39.0 2.35 45.2 2.91 48.3 3.21 51.4 3.53 56.9 4.12 58.3 4.14
84 32.6 1.97 38.9 2.51 45.2 3.10 48.2 3.44 51.3 3.77 56.2 4.28 57.2 4.31
88 32.5 2.10 38.9 2.67 45.1 3.32 48.2 3.66 51.3 4.03 55.1 4.45 56.5 4.47
91 32.5 2.24 38.8 2.84 45.1 3.53 48.1 3.90 51.2 4.30 54.3 4.61 55.4 4.66
95 32.4 2.37 38.7 3.02 44.9 3.77 48.0 4.20 51.1 4.59 53.1 4.78 54.5 4.82
99 31.4 2.52 37.6 3.22 43.6 4.01 46.6 4.44 49.5 4.88 50.9 4.95 51.9 5.00
102 30.8 2.67 36.8 3.42 42.7 4.27 45.6 4.74 47.9 5.08 48.9 5.12 50.2 5.16
108 30.8 2.83 36.8 3.63 42.7 4.53 45.6 5.02 47.2 5.27 47.9 5.28 49.5 5.33
111 30.8 2.99 36.8 3.83 42.7 4.80 45.6 5.32 46.6 5.48 46.9 5.46 48.9 5.49
115 30.8 3.14 36.8 4.04 42.7 5.07 45.6 5.62 45.9 5.67 45.9 5.62 48.2 5.66
90
50 29.6 1.29 35.1 1.55 41.1 1.84 43.9 1.97 46.6 2.12 52.6 2.42 58.1 2.73
54 29.6 1.31 35.1 1.58 41.0 1.86 43.8 2.01 46.6 2.17 52.5 2.47 58.0 2.78
57 29.5 1.32 35.1 1.61 41.0 1.91 43.7 2.05 46.5 2.20 52.5 2.52 58.0 2.84
61 29.5 1.36 35.0 1.64 40.9 1.93 43.7 2.09 46.5 2.25 52.4 2.57 57.9 2.89
64 29.5 1.38 35.0 1.67 40.9 1.97 43.7 2.12 46.5 2.29 52.4 2.61 57.9 3.06
68 29.5 1.40 35.0 1.70 40.9 2.01 43.6 2.18 46.4 2.39 52.3 2.81 57.8 3.29
70 29.4 1.42 34.9 1.71 40.8 2.05 43.6 2.25 46.4 2.45 52.3 2.92 57.8 3.40
73 29.4 1.45 34.9 1.78 40.8 2.18 43.5 2.41 46.3 2.64 52.2 3.13 57.7 3.66
77 29.3 1.52 34.9 1.91 40.7 2.34 43.5 2.58 46.3 2.82 52.1 3.34 57.7 3.93
81 29.3 1.62 34.8 2.03 40.7 2.50 43.5 2.75 46.2 3.01 52.1 3.58 56.9 4.12
84 29.3 1.71 34.8 2.17 40.7 2.66 43.4 2.93 46.2 3.22 52.0 3.82 56.2 4.28
88 29.2 1.84 34.8 2.32 40.6 2.84 43.4 3.13 46.1 3.44 52.0 4.09 55.1 4.45
91 29.2 1.94 34.7 2.45 40.6 3.04 43.3 3.33 46.1 3.66 51.9 4.36 54.3 4.61
95 29.1 2.05 34.6 2.61 40.5 3.23 43.2 3.56 45.9 3.91 51.8 4.66 53.1 4.78
99 28.3 2.18 33.6 2.78 39.3 3.44 41.9 3.80 44.6 4.17 49.9 4.92 50.9 4.95
102 27.7 2.32 32.9 2.94 38.4 3.66 41.0 4.04 43.6 4.44 47.9 5.08 48.9 5.12
108 27.7 2.45 32.9 3.12 38.4 3.88 41.0 4.28 43.6 4.71 46.9 5.25 47.9 5.28
111 27.7 2.59 32.9 3.28 38.4 4.11 41.0 4.53 43.6 4.99 45.9 5.41 46.9 5.46
115 27.7 2.73 32.9 3.45 38.4 4.34 41.0 4.77 43.6 5.26 44.9 5.58 45.9 5.62
80
50 26.3 1.14 31.4 1.37 36.5 1.60 39.0 1.72 41.4 1.85 46.6 2.11 51.5 2.39
54 26.3 1.16 31.4 1.38 36.5 1.63 38.9 1.76 41.4 1.89 46.6 2.16 51.5 2.43
57 26.3 1.18 31.3 1.42 36.5 1.67 38.9 1.79 41.3 1.92 46.5 2.19 51.4 2.48
61 26.2 1.20 31.3 1.45 36.4 1.70 38.8 1.83 41.3 1.96 46.5 2.25 51.4 2.52
64 26.2 1.22 31.3 1.46 36.4 1.72 38.8 1.86 41.2 2.00 46.5 2.28 51.3 2.58
68 26.2 1.24 31.2 1.50 36.4 1.76 38.8 1.91 41.2 2.04 46.4 2.37 51.3 2.75
70 26.2 1.24 31.2 1.51 36.3 1.78 38.7 1.92 41.2 2.08 46.4 2.45 51.2 2.85
73 26.1 1.28 31.2 1.53 36.3 1.86 38.7 2.04 41.1 2.23 46.3 2.63 51.2 3.06
77 26.1 1.31 31.1 1.64 36.2 1.99 38.7 2.18 41.1 2.39 46.3 2.81 51.1 3.28
81 26.1 1.39 31.1 1.75 36.2 2.12 38.6 2.33 41.0 2.55 46.2 3.00 51.1 3.50
84 26.1 1.48 31.1 1.85 36.2 2.26 38.6 2.49 41.0 2.72 46.2 3.21 51.0 3.74
88 26.0 1.58 31.1 1.97 36.1 2.41 38.5 2.65 41.0 2.90 46.1 3.42 50.9 3.99
91 26.0 1.68 31.0 2.10 36.1 2.57 38.5 2.82 40.9 3.08 46.1 3.65 50.9 4.27
95 25.9 1.78 30.9 2.23 36.0 2.73 38.4 3.00 40.8 3.29 45.9 3.89 50.7 4.55
99 25.1 1.88 30.0 2.36 34.9 2.91 37.2 3.20 39.6 3.49 44.6 4.14 49.2 4.86
102 24.6 2.00 29.4 2.51 34.2 3.08 36.5 3.39 38.8 3.73 43.6 4.42 47.9 5.08
108 24.6 2.11 29.4 2.66 34.2 3.26 36.5 3.60 38.8 3.96 43.6 4.69 47.6 5.31
111 24.6 2.24 29.4 2.80 34.2 3.44 36.5 3.80 38.8 4.20 43.6 4.96 47.2 5.54
115 24.6 2.35 29.4 2.94 34.2 3.61 36.5 4.01 38.8 4.43 43.6 5.24 46.9 5.75
4TVH0048B100NB - Cooling (continued)
Combi.
(%)
Outdoor
Temperature
(°F)
Indoor Temperature (°F, WB)
57 61 64 67 69 72 75
TC PI TC PI TC PI TC PI TC PI TC PI TC PI
MBHkWMBHkWMBHkWMBHkWMBHkWMBHkWMBHkW
TC(Total Capacity, MBH), PI(Power Input, kW)

VRF-PRC007-EN 23
Mini Outdoor Units
70
50 23.0 1.00 27.5 1.19 31.9 1.38 34.1 1.50 36.2 1.60 40.7 1.81 45.3 2.04
54 23.0 1.02 27.4 1.21 31.9 1.42 34.1 1.52 36.2 1.63 40.7 1.85 45.2 2.08
57 23.0 1.04 27.4 1.23 31.8 1.44 34.0 1.55 36.1 1.65 40.6 1.88 45.2 2.11
61 22.9 1.05 27.4 1.24 31.8 1.46 34.0 1.58 36.1 1.69 40.6 1.92 45.1 2.17
64 22.9 1.06 27.4 1.28 31.7 1.50 34.0 1.60 36.0 1.71 40.6 1.96 45.1 2.20
68 22.9 1.08 27.3 1.30 31.7 1.52 33.9 1.64 36.0 1.76 40.5 2.00 45.0 2.26
70 22.9 1.10 27.3 1.31 31.7 1.53 33.9 1.64 36.0 1.78 40.5 2.03 45.0 2.35
73 22.8 1.11 27.3 1.34 31.6 1.56 33.9 1.71 35.9 1.85 40.4 2.18 44.9 2.52
77 22.8 1.13 27.3 1.38 31.6 1.67 33.8 1.83 35.9 1.99 40.4 2.32 44.9 2.69
81 22.8 1.20 27.2 1.47 31.6 1.78 33.8 1.94 35.9 2.11 40.4 2.48 44.8 2.88
84 22.8 1.27 27.2 1.58 31.6 1.89 33.8 2.07 35.8 2.25 40.3 2.65 44.8 3.07
88 22.8 1.35 27.2 1.67 31.5 2.02 33.7 2.20 35.8 2.40 40.3 2.82 44.7 3.28
91 22.7 1.44 27.1 1.77 31.5 2.15 33.7 2.34 35.8 2.56 40.3 3.00 44.7 3.49
95 22.7 1.51 27.1 1.87 31.4 2.27 33.6 2.49 35.7 2.72 40.1 3.20 44.6 3.72
99 22.0 1.60 26.2 1.99 30.5 2.42 32.6 2.65 34.6 2.89 38.9 3.40 43.2 3.96
102 21.5 1.70 25.7 2.11 29.8 2.57 31.9 2.81 33.9 3.07 38.1 3.62 42.3 4.22
108 21.5 1.79 25.7 2.23 29.8 2.72 31.9 2.98 33.9 3.26 38.1 3.83 42.3 4.49
111 21.5 1.89 25.7 2.34 29.8 2.85 31.9 3.14 33.9 3.45 38.1 4.05 42.3 4.75
115 21.5 1.99 25.7 2.45 29.8 3.00 31.9 3.31 33.9 3.63 38.1 4.27 42.3 5.01
60
50 19.7 0.87 23.5 1.03 27.3 1.18 29.2 1.27 31.1 1.36 34.8 1.53 38.6 1.71
54 19.7 0.89 23.5 1.04 27.3 1.20 29.2 1.29 31.1 1.38 34.8 1.56 38.6 1.75
57 19.7 0.90 23.5 1.05 27.3 1.23 29.2 1.31 31.1 1.40 34.7 1.59 38.5 1.78
61 19.7 0.90 23.5 1.07 27.2 1.24 29.1 1.34 31.1 1.43 34.7 1.62 38.5 1.81
64 19.6 0.92 23.4 1.10 27.2 1.27 29.1 1.36 31.0 1.45 34.7 1.64 38.5 1.85
68 19.6 0.94 23.4 1.11 27.2 1.29 29.1 1.38 31.0 1.48 34.6 1.68 38.4 1.88
70 19.6 0.95 23.4 1.12 27.2 1.30 29.1 1.39 31.0 1.50 34.6 1.70 38.4 1.91
73 19.6 0.97 23.3 1.14 27.1 1.32 29.0 1.43 30.9 1.52 34.6 1.77 38.4 2.03
77 19.6 0.97 23.3 1.16 27.1 1.38 29.0 1.50 30.9 1.62 34.5 1.88 38.3 2.17
81 19.5 1.02 23.3 1.23 27.1 1.46 29.0 1.59 30.9 1.72 34.5 2.01 38.3 2.32
84 19.5 1.07 23.3 1.31 27.1 1.56 28.9 1.70 30.8 1.84 34.5 2.13 38.3 2.45
88 19.5 1.14 23.3 1.38 27.0 1.65 28.9 1.80 30.8 1.95 34.4 2.27 38.2 2.63
91 19.5 1.20 23.2 1.46 27.0 1.76 28.9 1.92 30.8 2.08 34.4 2.42 38.2 2.78
95 19.4 1.27 23.2 1.55 26.9 1.86 28.8 2.03 30.7 2.20 34.3 2.58 38.1 2.98
99 18.9 1.35 22.5 1.64 26.1 1.99 27.9 2.16 29.8 2.34 33.3 2.74 36.9 3.16
102 18.5 1.43 22.0 1.73 25.6 2.10 27.4 2.28 29.1 2.49 32.6 2.91 36.2 3.37
108 18.5 1.51 22.0 1.83 25.6 2.21 27.4 2.41 29.1 2.64 32.6 3.07 36.2 3.57
111 18.5 1.58 22.0 1.92 25.6 2.33 27.4 2.53 29.1 2.78 32.6 3.24 36.2 3.78
115 18.5 1.65 22.0 2.00 25.6 2.45 27.4 2.66 29.1 2.92 32.6 3.40 36.2 3.98
50
50 16.4 0.75 19.6 0.87 22.8 0.99 24.4 1.05 26.0 1.12 29.1 1.27 32.3 1.40
54 16.4 0.76 19.6 0.88 22.7 1.00 24.3 1.07 25.9 1.14 29.1 1.29 32.3 1.44
57 16.4 0.78 19.5 0.90 22.7 1.03 24.3 1.10 25.9 1.16 29.1 1.31 32.2 1.45
61 16.4 0.78 19.5 0.90 22.7 1.04 24.3 1.11 25.9 1.18 29.0 1.32 32.2 1.48
64 16.4 0.79 19.5 0.91 22.7 1.05 24.3 1.13 25.9 1.20 29.0 1.36 32.2 1.51
68 16.4 0.80 19.5 0.94 22.7 1.07 24.2 1.15 25.8 1.22 29.0 1.38 32.1 1.54
70 16.3 0.81 19.5 0.95 22.6 1.08 24.2 1.16 25.8 1.23 29.0 1.39 32.1 1.55
73 16.3 0.82 19.5 0.96 22.6 1.11 24.2 1.18 25.8 1.26 28.9 1.42 32.1 1.59
77 16.3 0.83 19.4 0.97 22.6 1.12 24.2 1.20 25.7 1.30 28.9 1.50 32.0 1.70
81 16.3 0.84 19.4 1.00 22.6 1.18 24.1 1.28 25.7 1.38 28.9 1.58 32.0 1.80
84 16.3 0.90 19.4 1.06 22.5 1.26 24.1 1.36 25.7 1.46 28.8 1.69 32.0 1.92
88 16.3 0.95 19.4 1.13 22.5 1.34 24.1 1.45 25.7 1.55 28.8 1.79 32.0 2.05
91 16.2 0.99 19.4 1.20 22.5 1.42 24.1 1.53 25.6 1.64 28.8 1.91 31.9 2.18
95 16.2 1.05 19.3 1.27 22.4 1.50 24.0 1.62 25.6 1.75 28.7 2.02 31.8 2.32
99 15.7 1.11 18.7 1.34 21.7 1.58 23.3 1.71 24.8 1.85 27.8 2.15 30.9 2.45
102 15.4 1.18 18.3 1.42 21.3 1.68 22.8 1.81 24.3 1.96 27.3 2.27 30.2 2.60
108 15.4 1.23 18.3 1.50 21.3 1.78 22.8 1.92 24.3 2.07 27.3 2.40 30.2 2.75
111 15.4 1.29 18.3 1.58 21.3 1.87 22.8 2.01 24.3 2.18 27.3 2.52 30.2 2.90
115 15.4 1.35 18.3 1.64 21.3 1.97 22.8 2.11 24.3 2.28 27.3 2.66 30.2 3.05
4TVH0048B100NB - Cooling (continued)
Combi.
(%)
Outdoor
Temperature
(°F)
Indoor Temperature (°F, WB)
57 61 64 67 69 72 75
TC PI TC PI TC PI TC PI TC PI TC PI TC PI
MBHkWMBHkWMBHkWMBHkWMBHkWMBHkWMBHkW
TC(Total Capacity, MBH), PI(Power Input, kW)

24 VRF-PRC007-EN
Mini Outdoor Units
4TVH0048B100NB
4TVH0048B100NB - Heating
Combi.
(%)
Outdoor
Temperature
(°F)
Indoor Temperature (°F, WB)
61 65 70 72 75
TC PI TC PI TC PI TC PI TC PI
DB WBMBHkWMBHkWMBHkWMBHkWMBHkW
130
-4 -4.4 38.6 3.85 38.2 4.07 38.2 4.30 38.2 4.53 37.9 4.77
1 0 42.1 4.19 41.7 4.40 41.7 4.62 41.4 4.83 41.4 5.03
5 3 44.1 4.52 44.1 4.73 43.8 4.94 43.8 5.13 43.8 5.34
10 9 46.6 4.72 46.2 4.91 46.2 5.09 46.2 5.30 45.9 5.48
14 12 48.7 4.89 48.7 5.07 48.7 5.25 48.3 5.44 48.3 5.62
19 18 52.9 4.95 52.5 5.12 52.5 5.28 52.1 5.45 52.1 5.61
23 21 54.9 5.08 54.9 5.24 54.6 5.39 54.6 5.56 54.6 5.72
27 25 57.0 4.95 57.0 5.09 57.0 5.24 56.7 5.38 56.7 5.52
32 30 60.5 5.09 60.5 5.24 60.1 5.38 60.1 5.51 60.1 5.64
37 36 64.0 5.24 63.6 5.36 63.6 5.48 63.6 5.63 62.9 5.69
44 40 66.0 5.31 66.0 5.45 65.7 5.57 65.7 5.69 62.9 5.46
47 43 68.1 5.34 68.1 5.46 68.1 5.58 67.8 5.67 62.9 5.19
51 47 70.6 5.35 70.2 5.47 70.2 5.58 67.8 5.39 62.9 4.95
54 50 72.7 5.42 72.3 5.53 72.3 5.63 67.8 5.19 62.9 4.77
57 53 74.8 5.48 74.8 5.59 72.3 5.42 67.8 5.00 62.9 4.58
60 56 77.2 5.55 76.8 5.64 72.3 5.23 67.8 4.81 62.9 4.42
120
-4 -4.4 38.2 4.14 38.2 4.36 38.2 4.57 37.9 4.79 37.9 5.00
1 0 41.7 4.47 41.7 4.67 41.4 4.86 41.4 5.06 41.4 5.25
5 3 44.1 4.80 43.8 4.99 43.8 5.17 43.8 5.36 43.5 5.56
10 9 46.2 4.97 46.2 5.14 46.2 5.34 45.9 5.51 45.9 5.69
14 12 48.7 5.13 48.3 5.30 48.3 5.47 48.3 5.64 48.0 5.83
19 18 52.5 5.18 52.5 5.33 52.1 5.47 52.1 5.63 52.1 5.79
23 21 54.9 5.29 54.6 5.44 54.6 5.58 54.6 5.73 54.2 5.87
27 25 57.0 5.14 57.0 5.28 56.7 5.41 56.7 5.55 56.7 5.67
32 30 60.5 5.28 60.1 5.41 60.1 5.53 60.1 5.66 58.1 5.52
37 36 63.6 5.41 63.6 5.53 63.6 5.64 62.6 5.63 58.1 5.16
44 40 66.0 5.48 65.7 5.61 65.7 5.72 62.6 5.40 58.1 4.95
47 43 68.1 5.50 67.8 5.62 66.8 5.58 62.6 5.14 58.1 4.70
51 47 70.2 5.51 70.2 5.62 66.8 5.30 62.6 4.89 58.1 4.49
54 50 72.3 5.57 70.9 5.51 66.8 5.11 62.6 4.70 58.1 4.33
57 53 74.8 5.63 70.9 5.30 66.8 4.91 62.6 4.53 58.1 4.17
60 56 75.4 5.50 70.9 5.12 66.8 4.74 62.6 4.39 58.1 4.02
110
-4 -4.4 38.2 4.46 37.9 4.66 37.9 4.85 37.9 5.05 37.5 5.24
1 0 41.7 4.77 41.4 4.94 41.4 5.12 41.4 5.30 41.0 5.48
5 3 43.8 5.07 43.8 5.25 43.8 5.42 43.5 5.59 43.5 5.77
10 9 46.2 5.24 45.9 5.40 45.9 5.56 45.9 5.73 45.9 5.90
14 12 48.3 5.39 48.3 5.53 48.3 5.69 48.0 5.86 48.0 6.01
19 18 52.5 5.39 52.1 5.53 52.1 5.68 52.1 5.81 51.8 5.96
23 21 54.6 5.51 54.6 5.64 54.2 5.78 54.2 5.91 53.2 5.89
27 25 56.7 5.34 56.7 5.45 56.7 5.58 56.3 5.70 53.2 5.34
32 30 60.1 5.46 60.1 5.58 60.1 5.69 57.4 5.41 53.2 4.96
37 36 63.6 5.58 63.3 5.69 61.2 5.48 57.4 5.07 53.2 4.64
44 40 65.7 5.64 65.0 5.69 61.2 5.27 57.4 4.85 53.2 4.46
47 43 67.8 5.66 65.0 5.41 61.2 5.01 57.4 4.62 53.2 4.24
51 47 69.2 5.53 65.0 5.14 61.2 4.77 57.4 4.40 53.2 4.05
54 50 69.2 5.33 65.0 4.95 61.2 4.60 57.4 4.24 53.2 3.90
57 53 69.2 5.12 65.0 4.77 61.2 4.42 57.4 4.10 53.2 3.77
60 56 69.2 4.95 65.0 4.61 61.2 4.27 57.4 3.96 53.2 3.64
TC(Total Capacity, MBH), PI(Power Input, kW)

VRF-PRC007-EN 25
Mini Outdoor Units
100
-4 -4.4 37.9 4.66 37.9 4.81 37.9 5.00 37.5 5.16 37.5 5.34
1 0 41.4 4.91 41.4 5.07 41.0 5.23 41.0 5.38 41.0 5.55
5 3 43.8 5.20 43.5 5.36 43.0 5.52 43.5 5.67 43.5 5.83
10 9 45.9 5.35 45.9 5.50 45.4 5.64 45.5 5.79 45.5 5.94
14 12 48.3 5.48 48.3 5.62 47.5 5.77 48.0 5.90 48.0 6.05
19 18 52.1 5.47 52.1 5.59 50.8 5.72 51.8 5.84 48.3 5.38
23 21 54.6 5.56 54.2 5.68 53.2 5.81 52.1 5.56 48.3 5.09
27 25 56.7 5.39 56.7 5.48 54.0 5.47 52.1 5.05 48.3 4.62
32 30 60.1 5.50 59.1 5.48 54.0 5.08 52.1 4.69 48.3 4.30
37 36 62.9 5.52 59.1 5.13 54.0 4.75 52.1 4.39 48.3 4.03
44 40 62.9 5.29 59.1 4.92 54.0 4.57 52.1 4.22 48.3 3.88
47 43 62.9 5.02 59.1 4.68 54.0 4.40 52.1 4.01 48.3 3.69
51 47 62.9 4.79 59.1 4.46 54.5 4.13 52.1 3.83 48.3 3.52
54 50 62.9 4.62 59.1 4.30 54.5 4.00 52.1 3.69 48.3 3.41
57 53 62.9 4.44 59.1 4.13 54.5 3.85 52.1 3.56 48.3 3.29
60 56 62.9 4.29 59.1 4.01 54.5 3.72 52.1 3.45 48.3 3.18
90
-4 -4.4 37.9 5.08 37.5 5.24 37.5 5.40 37.5 5.56 37.5 5.72
1 0 41.4 5.34 41.0 5.48 41.0 5.62 41.0 5.77 41.0 5.91
5 3 43.5 5.63 43.5 5.77 43.5 5.91 43.1 6.06 43.1 6.19
10 9 45.9 5.75 45.9 5.90 45.5 6.03 45.5 6.17 43.5 5.90
14 12 48.0 5.89 48.0 6.01 48.0 6.13 46.9 6.06 43.5 5.55
19 18 52.1 5.85 51.8 5.96 50.1 5.75 46.9 5.29 43.5 4.85
23 21 54.2 5.94 53.2 5.89 50.1 5.44 46.9 5.02 43.5 4.61
27 25 56.3 5.73 53.2 5.33 50.1 4.94 46.9 4.56 43.5 4.19
32 30 56.7 5.31 53.2 4.95 50.1 4.60 46.9 4.24 43.5 3.90
37 36 56.7 4.97 53.2 4.63 50.1 4.30 46.9 3.99 43.5 3.67
44 40 56.7 4.78 53.2 4.45 50.1 4.13 46.9 3.84 43.5 3.52
47 43 56.7 4.55 53.2 4.24 50.1 3.94 46.9 3.64 43.5 3.36
51 47 56.7 4.33 53.2 4.03 50.1 3.75 46.9 3.49 43.5 3.22
54 50 56.7 4.18 53.2 3.90 50.1 3.63 46.9 3.36 43.5 3.11
57 53 56.7 4.02 53.2 3.75 50.1 3.50 46.9 3.25 43.5 3.01
60 56 56.7 3.89 53.2 3.63 50.1 3.39 46.9 3.14 43.5 2.91
80
-4 -4.4 37.5 5.40 37.5 5.53 37.5 5.67 37.5 5.81 37.2 5.96
1 0 41.0 5.61 41.0 5.74 41.0 5.87 40.7 6.00 38.9 5.67
5 3 43.5 5.91 43.1 6.03 43.1 6.16 41.7 5.95 38.9 5.45
10 9 45.5 6.02 45.5 6.14 44.5 6.05 41.7 5.57 38.9 5.11
14 12 48.0 6.13 47.3 6.14 44.5 5.68 41.7 5.25 38.9 4.81
19 18 50.1 5.77 47.3 5.36 44.5 4.97 41.7 4.58 38.9 4.23
23 21 50.1 5.46 47.3 5.09 44.5 4.72 41.7 4.36 38.9 4.01
27 25 50.1 4.95 47.3 4.62 44.5 4.29 41.7 3.96 38.9 3.66
32 30 50.1 4.61 47.3 4.30 44.5 4.00 41.7 3.69 38.9 3.41
37 36 50.1 4.33 47.3 4.02 44.5 3.75 41.7 3.49 38.9 3.22
44 40 50.1 4.16 47.3 3.88 44.5 3.61 41.7 3.34 38.9 3.10
47 43 50.1 3.95 47.3 3.69 44.5 3.45 41.7 3.19 38.9 2.96
51 47 50.1 3.77 47.3 3.52 44.5 3.29 41.7 3.05 38.9 2.83
54 50 50.1 3.64 47.3 3.41 44.5 3.18 41.7 2.95 38.9 2.74
57 53 50.1 3.51 47.3 3.29 44.5 3.06 41.7 2.85 38.9 2.64
60 56 50.1 3.40 47.3 3.18 44.5 2.97 41.7 2.77 38.9 2.56
4TVH0048B100NB - Heating (continued)
Combi.
(%)
Outdoor
Temperature
(°F)
Indoor Temperature (°F, WB)
61 65 70 72 75
TC PI TC PI TC PI TC PI TC PI
DB WBMBHkWMBHkWMBHkWMBHkWMBHkW
TC(Total Capacity, MBH), PI(Power Input, kW)

26 VRF-PRC007-EN
Mini Outdoor Units
70
-4 -4.4 37.5 5.69 37.5 5.83 37.2 5.95 36.5 5.86 33.9 5.38
1 0 41.0 5.90 40.7 6.01 38.9 5.69 36.5 5.25 33.9 4.81
5 3 43.1 6.18 41.4 5.91 38.9 5.47 36.5 5.05 33.9 4.64
10 9 43.8 5.96 41.4 5.53 38.9 5.13 36.5 4.74 33.9 4.36
14 12 43.8 5.59 41.4 5.22 38.9 4.84 36.5 4.46 33.9 4.12
19 18 43.8 4.90 41.4 4.57 38.9 4.24 36.5 3.92 33.9 3.62
23 21 43.8 4.64 41.4 4.34 38.9 4.03 36.5 3.74 33.9 3.45
27 25 43.8 4.22 41.4 3.95 38.9 3.67 36.5 3.40 33.9 3.14
32 30 43.8 3.94 41.4 3.68 38.9 3.44 36.5 3.18 33.9 2.95
37 36 43.8 3.69 41.4 3.46 38.9 3.23 36.5 3.00 33.9 2.77
44 40 43.8 3.56 41.4 3.33 38.9 3.11 36.5 2.89 33.9 2.68
47 43 43.8 3.39 41.4 3.17 38.9 2.97 36.5 2.77 33.9 2.56
51 47 43.8 3.24 41.4 3.05 38.9 2.84 36.5 2.64 33.9 2.45
54 50 43.8 3.13 41.4 2.94 38.9 2.75 36.5 2.56 33.9 2.38
57 53 43.8 3.03 41.4 2.84 38.9 2.66 36.5 2.49 33.9 2.30
60 56 43.8 2.93 41.4 2.75 38.9 2.57 36.5 2.40 33.9 2.23
60
-4 -4.4 37.2 6.01 35.5 5.68 33.4 5.27 31.2 4.85 29.1 4.46
1 0 37.5 5.47 35.5 5.09 33.4 4.72 31.2 4.36 29.1 4.01
5 3 37.5 5.25 35.5 4.90 33.4 4.55 31.2 4.20 29.1 3.88
10 9 37.5 4.94 35.5 4.61 33.4 4.28 31.2 3.97 29.1 3.66
14 12 37.5 4.66 35.5 4.34 33.4 4.05 31.2 3.74 29.1 3.46
19 18 37.5 4.08 35.5 3.81 33.4 3.56 31.2 3.30 29.1 3.06
23 21 37.5 3.88 35.5 3.63 33.4 3.39 31.2 3.16 29.1 2.91
27 25 37.5 3.53 35.5 3.30 33.4 3.10 31.2 2.88 29.1 2.66
32 30 37.5 3.30 35.5 3.10 33.4 2.90 31.2 2.69 29.1 2.50
37 36 37.5 3.12 35.5 2.93 33.4 2.73 31.2 2.55 29.1 2.36
44 40 37.5 3.00 35.5 2.82 33.4 2.63 31.2 2.45 29.1 2.28
47 43 37.5 2.85 35.5 2.69 33.4 2.52 31.2 2.35 29.1 2.19
51 47 37.5 2.74 35.5 2.57 33.4 2.41 31.2 2.24 29.1 2.10
54 50 37.5 2.64 35.5 2.50 33.4 2.34 31.2 2.18 29.1 2.04
57 53 37.5 2.56 35.5 2.41 33.4 2.25 31.2 2.11 29.1 1.96
60 56 37.5 2.50 35.5 2.34 33.4 2.21 31.2 2.06 29.1 1.93
50
-4 -4.4 31.4 4.89 29.6 4.56 27.8 4.23 26.0 3.92 24.2 3.62
1 0 31.4 4.39 29.6 4.10 27.8 3.83 26.0 3.55 24.2 3.28
5 3 31.4 4.23 29.6 3.95 27.8 3.68 26.0 3.42 24.2 3.17
10 9 31.4 3.99 29.6 3.73 27.8 3.49 26.0 3.23 24.2 3.00
14 12 31.4 3.77 29.6 3.53 27.8 3.29 26.0 3.06 24.2 2.84
19 18 31.4 3.32 29.6 3.12 27.8 2.91 26.0 2.71 24.2 2.51
23 21 31.4 3.17 29.6 2.97 27.8 2.78 26.0 2.58 24.2 2.41
27 25 31.4 2.89 29.6 2.72 27.8 2.54 26.0 2.38 24.2 2.21
32 30 31.4 2.71 29.6 2.55 27.8 2.39 26.0 2.23 24.2 2.07
37 36 31.4 2.56 29.6 2.41 27.8 2.25 26.0 2.11 24.2 1.97
44 40 31.4 2.46 29.6 2.33 27.8 2.18 26.0 2.05 24.2 1.90
47 43 31.4 2.36 29.6 2.23 27.8 2.08 26.0 1.95 24.2 1.83
51 47 31.4 2.25 29.6 2.13 27.8 2.00 26.0 1.88 24.2 1.76
54 50 31.4 2.19 29.6 2.07 27.8 1.95 26.0 1.83 24.2 1.71
57 53 31.4 2.12 29.6 2.00 27.8 1.89 26.0 1.77 24.2 1.66
60 56 31.4 2.07 29.6 1.95 27.8 1.83 26.0 1.72 24.2 1.61
4TVH0048B100NB - Heating (continued)
Combi.
(%)
Outdoor
Temperature
(°F)
Indoor Temperature (°F, WB)
61 65 70 72 75
TC PI TC PI TC PI TC PI TC PI
DB WBMBHkWMBHkWMBHkWMBHkWMBHkW
TC(Total Capacity, MBH), PI(Power Input, kW)

VRF-PRC007-EN 27
Mini Outdoor Units
4TVH0053B100NB
4TVH0053B100NB - Cooling
Combi.
(%)
Outdoor
Temperature
(°F)
Indoor Temperature (°F, WB)
57 61 64 67 69 72 75
TC PI TC PI TC PI TC PI TC PI TC PI TC PI
MBHkWMBHkWMBHkWMBHkWMBHkWMBHkWMBHkW
130
50 47.2 2.43 56.2 2.99 65.2 3.55 70.1 3.84 70.8 3.76 72.5 3.60 74.3 3.43
54 47.2 2.48 56.2 3.04 65.2 3.62 69.0 3.81 69.7 3.74 71.4 3.58 73.2 3.52
57 47.1 2.53 56.1 3.10 65.1 3.69 67.9 3.80 68.9 3.71 70.7 3.69 72.4 3.71
61 47.1 2.58 56.0 3.17 65.1 3.76 67.1 3.82 67.8 3.85 69.5 3.89 71.3 3.92
64 47.0 2.63 56.0 3.22 65.0 4.01 66.0 4.03 66.7 4.05 68.5 4.08 70.2 4.12
68 47.0 2.68 55.9 3.43 64.2 4.21 64.9 4.22 66.0 4.24 67.7 4.29 69.4 4.33
70 46.9 2.77 55.9 3.55 63.8 4.30 64.5 4.33 65.5 4.34 66.9 4.38 68.7 4.43
73 46.9 2.95 55.8 3.81 62.7 4.50 63.4 4.53 64.5 4.55 66.2 4.59 67.9 4.62
77 46.8 3.16 55.8 4.08 61.7 4.70 62.7 4.72 63.4 4.73 65.1 4.78 66.8 4.83
81 46.8 3.38 55.7 4.37 60.9 4.89 61.6 4.92 62.6 4.94 64.3 4.98 65.7 5.04
84 46.7 3.60 55.7 4.67 59.8 5.09 60.8 5.12 61.5 5.14 63.2 5.20 64.9 5.24
88 46.7 3.84 55.6 4.98 59.1 5.29 59.7 5.31 60.4 5.35 62.1 5.40 63.8 5.46
91 46.6 4.09 55.6 5.32 58.0 5.50 58.6 5.51 59.7 5.55 61.4 5.61 63.1 5.66
95 46.5 4.35 55.1 5.62 56.8 5.69 57.8 5.72 58.5 5.75 60.2 5.82 61.9 5.88
99 45.1 4.41 52.7 5.53 54.4 5.60 55.1 5.62 56.0 5.66 57.4 5.72 59.1 5.78
102 44.2 4.45 50.7 5.42 52.3 5.48 53.0 5.52 53.9 5.55 55.6 5.61 57.2 5.67
108 44.2 4.71 49.7 5.61 51.3 5.67 52.0 5.71 53.0 5.74 54.9 5.80 56.5 5.87
111 44.2 4.97 48.7 5.79 50.4 5.85 51.0 5.90 52.0 5.93 54.3 5.99 55.9 6.05
115 44.2 5.24 47.8 5.98 49.4 6.04 50.0 6.10 51.0 6.12 53.6 6.19 55.2 6.25
120
50 43.7 2.24 52.1 2.73 60.4 3.23 64.6 3.50 68.7 3.76 71.2 3.71 72.9 3.57
54 43.7 2.26 52.0 2.78 60.3 3.30 64.5 3.57 68.7 3.84 70.4 3.69 71.8 3.54
57 43.6 2.31 52.0 2.83 60.3 3.37 64.4 3.64 67.9 3.81 69.3 3.68 71.0 3.69
61 43.6 2.36 51.9 2.89 60.2 3.43 64.4 3.70 66.8 3.82 68.5 3.86 69.9 3.90
64 43.6 2.40 51.9 2.94 60.1 3.55 64.3 3.94 65.7 4.02 67.4 4.06 68.8 4.08
68 43.5 2.45 51.8 3.05 60.1 3.81 64.2 4.21 64.9 4.22 66.3 4.25 68.0 4.29
70 43.5 2.47 51.8 3.17 60.0 3.95 63.5 4.30 64.2 4.33 65.9 4.35 67.6 4.39
73 43.4 2.64 51.7 3.39 60.0 4.23 62.7 4.49 63.4 4.51 64.8 4.56 66.5 4.59
77 43.4 2.82 51.7 3.63 59.9 4.54 61.7 4.70 62.3 4.72 64.0 4.75 65.4 4.80
81 43.4 3.01 51.6 3.89 59.8 4.86 60.6 4.88 61.6 4.91 63.0 4.96 64.7 4.99
84 43.3 3.21 51.6 4.14 58.8 5.07 59.8 5.09 60.5 5.10 61.9 5.15 63.6 5.21
88 43.3 3.43 51.5 4.43 58.0 5.25 58.7 5.29 59.4 5.31 61.1 5.36 62.5 5.41
91 43.2 3.65 51.5 4.72 56.9 5.46 57.6 5.48 58.6 5.51 60.0 5.56 61.7 5.62
95 43.1 3.89 51.3 5.03 56.1 5.66 56.8 5.68 57.4 5.72 59.2 5.77 60.5 5.83
99 41.8 3.92 49.8 5.09 53.4 5.56 54.1 5.60 54.7 5.62 56.4 5.67 58.1 5.73
102 40.9 3.96 48.7 5.14 51.3 5.45 52.3 5.47 53.0 5.51 54.3 5.56 55.9 5.62
108 40.9 4.21 48.7 5.47 50.4 5.63 51.7 5.66 52.3 5.69 53.3 5.74 54.9 5.82
111 40.9 4.45 48.7 5.79 49.4 5.82 51.0 5.84 51.7 5.87 52.3 5.93 53.9 6.00
115 40.9 4.69 48.7 6.11 48.4 5.99 50.4 6.03 51.0 6.05 51.3 6.10 53.0 6.20
110
50 39.9 2.02 47.6 2.47 55.2 2.93 59.4 3.17 63.2 3.41 70.1 3.82 71.5 3.69
54 39.9 2.07 47.5 2.52 55.1 2.99 59.3 3.22 63.1 3.47 69.0 3.81 70.4 3.68
57 39.8 2.10 47.5 2.56 55.1 3.04 59.2 3.30 63.1 3.54 68.3 3.79 69.6 3.68
61 39.8 2.13 47.4 2.61 55.0 3.10 59.2 3.34 63.0 3.60 67.1 3.84 68.5 3.86
64 39.8 2.18 47.4 2.66 54.9 3.17 59.1 3.44 62.9 3.79 66.0 4.03 67.8 4.07
68 39.7 2.23 47.3 2.72 54.9 3.34 59.1 3.70 62.8 4.07 65.3 4.23 66.6 4.27
70 39.7 2.25 47.3 2.79 54.8 3.47 59.0 3.82 62.8 4.22 64.9 4.33 66.2 4.35
73 39.6 2.35 47.2 3.00 54.8 3.71 58.9 4.11 62.4 4.49 63.8 4.53 65.1 4.56
77 39.6 2.51 47.2 3.20 54.7 3.98 58.9 4.40 61.3 4.69 62.7 4.72 64.0 4.76
81 39.6 2.67 47.1 3.43 54.7 4.25 58.8 4.72 60.6 4.88 61.9 4.92 63.3 4.97
84 39.5 2.85 47.1 3.65 54.6 4.55 58.8 5.04 59.5 5.08 60.8 5.12 62.2 5.16
88 39.5 3.04 47.0 3.90 54.6 4.86 57.7 5.25 58.4 5.28 59.7 5.32 61.4 5.36
91 39.4 3.23 47.0 4.16 54.5 5.19 56.9 5.45 57.6 5.47 59.0 5.52 60.4 5.57
95 39.3 3.43 46.8 4.43 54.4 5.53 55.7 5.64 56.4 5.67 57.8 5.73 59.2 5.77
99 38.2 3.47 45.4 4.46 52.4 5.52 53.1 5.56 53.7 5.58 55.4 5.63 56.7 5.68
102 37.4 3.49 44.5 4.51 50.7 5.41 51.3 5.45 52.0 5.47 53.3 5.52 54.6 5.57
108 37.4 3.71 44.5 4.78 50.0 5.60 50.7 5.63 51.3 5.64 52.3 5.71 53.6 5.75
111 37.4 3.92 44.5 5.05 49.4 5.78 50.0 5.82 50.7 5.83 51.3 5.88 52.6 5.93
115 37.4 4.13 44.5 5.32 48.7 5.96 49.4 5.99 50.0 6.01 50.4 6.06 51.7 6.11
TC(Total Capacity, MBH), PI(Power Input, kW)

28 VRF-PRC007-EN
Mini Outdoor Units
100
50 36.5 1.83 43.4 2.21 50.3 2.63 53.8 2.83 57.3 3.05 64.2 3.48 70.1 3.81
54 36.4 1.86 43.4 2.26 50.3 2.67 53.8 2.89 57.2 3.11 64.1 3.55 69.3 3.80
57 36.4 1.88 43.3 2.30 50.2 2.73 53.7 2.94 57.1 3.17 64.1 3.62 68.3 3.78
61 36.3 1.92 43.3 2.34 50.2 2.78 53.6 3.00 57.1 3.22 64.0 3.69 67.1 3.84
64 36.3 1.97 43.2 2.39 50.1 2.83 53.6 3.06 57.0 3.30 63.9 3.90 66.4 4.03
68 36.3 2.00 43.2 2.43 50.1 2.91 53.5 3.21 57.0 3.53 63.9 4.21 65.3 4.23
70 36.2 2.02 43.1 2.46 50.0 3.03 53.5 3.32 56.9 3.65 63.5 4.30 64.9 4.33
73 36.2 2.07 43.1 2.62 50.0 3.23 53.4 3.57 56.9 3.92 62.4 4.49 63.8 4.53
77 36.1 2.21 43.0 2.79 49.9 3.46 53.4 3.81 56.8 4.21 61.7 4.70 63.0 4.72
81 36.1 2.36 43.0 2.99 49.9 3.69 53.3 4.08 56.8 4.49 60.6 4.88 61.9 4.93
84 36.1 2.51 42.9 3.18 49.8 3.95 53.3 4.37 56.7 4.80 59.8 5.09 60.8 5.12
88 36.0 2.67 42.9 3.41 49.8 4.21 53.2 4.66 56.7 5.12 58.7 5.28 60.1 5.32
91 36.0 2.84 42.9 3.62 49.7 4.49 53.2 4.98 56.6 5.44 57.6 5.48 59.0 5.52
95 35.9 3.03 42.7 3.85 49.6 4.80 53.0 5.30 55.4 5.63 56.8 5.68 57.8 5.73
99 34.8 3.04 41.5 3.90 48.1 4.86 51.4 5.36 52.7 5.55 54.1 5.60 55.4 5.63
102 34.1 3.06 40.6 3.92 47.1 4.89 50.4 5.41 51.0 5.42 52.0 5.47 53.3 5.53
108 34.1 3.25 40.6 4.16 47.1 5.19 50.4 5.73 50.4 5.60 51.0 5.66 52.3 5.72
111 34.1 3.43 40.6 4.39 47.1 5.47 50.4 6.05 49.7 5.77 50.0 5.84 51.3 5.91
115 34.1 3.60 40.6 4.62 47.1 5.77 50.4 6.38 49.1 5.94 49.1 6.03 50.4 6.10
90
50 32.7 1.64 38.9 1.98 45.1 2.32 48.6 2.52 51.7 2.69 58.0 3.09 64.2 3.48
54 32.6 1.66 38.8 2.00 45.1 2.37 48.6 2.56 51.7 2.75 57.9 3.15 64.1 3.54
57 32.6 1.70 38.8 2.04 45.0 2.41 48.5 2.61 51.6 2.80 57.9 3.20 64.1 3.60
61 32.6 1.72 38.7 2.08 45.0 2.46 48.5 2.66 51.6 2.85 57.8 3.27 64.0 3.69
64 32.5 1.75 38.7 2.13 44.9 2.51 48.4 2.71 51.5 2.91 57.7 3.33 63.9 3.89
68 32.5 1.78 38.7 2.15 44.9 2.56 48.3 2.77 51.5 3.03 57.7 3.58 63.9 4.18
70 32.4 1.80 38.6 2.18 44.9 2.61 48.3 2.87 51.4 3.14 57.6 3.70 63.5 4.30
73 32.4 1.83 38.6 2.26 44.8 2.78 48.2 3.06 51.4 3.36 57.5 3.97 62.4 4.49
77 32.4 1.93 38.6 2.42 44.8 2.98 48.2 3.28 51.3 3.59 57.5 4.25 61.7 4.70
81 32.4 2.05 38.5 2.58 44.7 3.17 48.1 3.50 51.3 3.84 57.4 4.56 60.6 4.88
84 32.3 2.19 38.5 2.77 44.7 3.39 48.1 3.74 51.2 4.09 57.4 4.87 59.5 5.09
88 32.3 2.32 38.4 2.93 44.6 3.62 48.1 3.98 51.2 4.37 57.3 5.20 58.7 5.28
91 32.3 2.47 38.4 3.12 44.6 3.85 48.0 4.24 51.1 4.66 56.6 5.45 57.6 5.48
95 32.2 2.63 38.3 3.32 44.5 4.11 47.9 4.53 50.9 4.98 55.4 5.63 56.8 5.68
99 31.2 2.64 37.1 3.36 43.1 4.14 46.4 4.57 49.4 5.03 53.1 5.55 54.1 5.60
102 30.6 2.66 36.4 3.37 42.2 4.18 45.5 4.62 48.4 5.08 51.0 5.44 52.0 5.47
108 30.6 2.80 36.4 3.57 42.2 4.44 45.5 4.91 48.4 5.40 50.0 5.62 51.0 5.66
111 30.6 2.96 36.4 3.76 42.2 4.69 45.5 5.19 48.4 5.71 49.1 5.80 50.0 5.84
115 30.6 3.11 36.4 3.95 42.2 4.94 45.5 5.47 48.4 6.03 48.1 5.99 49.1 6.03
80
50 29.1 1.45 34.7 1.75 40.2 2.04 43.0 2.20 45.8 2.36 51.4 2.69 56.9 3.04
54 29.0 1.48 34.7 1.76 40.2 2.08 43.0 2.24 45.8 2.40 51.3 2.74 56.9 3.09
57 29.0 1.49 34.6 1.80 40.2 2.12 42.9 2.27 45.7 2.45 51.3 2.79 56.8 3.15
61 29.0 1.52 34.6 1.83 40.1 2.15 42.9 2.32 45.7 2.50 51.2 2.85 56.8 3.21
64 28.9 1.55 34.6 1.87 40.1 2.20 42.9 2.37 45.6 2.55 51.2 2.91 56.7 3.28
68 28.9 1.59 34.5 1.89 40.1 2.24 42.8 2.41 45.6 2.59 51.1 3.01 56.6 3.50
70 28.9 1.60 34.5 1.92 40.0 2.26 42.8 2.43 45.5 2.66 51.1 3.12 56.6 3.63
73 28.9 1.61 34.5 1.96 40.0 2.37 42.7 2.59 45.5 2.83 51.0 3.34 56.5 3.89
77 28.8 1.67 34.4 2.08 39.9 2.53 42.7 2.78 45.4 3.04 50.9 3.57 56.5 4.17
81 28.8 1.78 34.4 2.21 39.9 2.71 42.6 2.96 45.4 3.23 50.9 3.81 56.4 4.46
84 28.8 1.89 34.4 2.36 39.9 2.88 42.6 3.16 45.4 3.46 50.8 4.08 56.4 4.76
88 28.7 2.00 34.3 2.51 39.8 3.06 42.6 3.37 45.3 3.69 50.8 4.35 56.3 5.09
91 28.7 2.13 34.3 2.67 39.8 3.27 42.5 3.58 45.3 3.92 50.7 4.65 56.2 5.44
95 28.6 2.26 34.2 2.83 39.7 3.47 42.4 3.81 45.1 4.18 50.6 4.96 55.4 5.63
99 27.8 2.27 33.2 2.85 38.5 3.50 41.1 3.86 43.8 4.23 49.1 5.02 52.7 5.53
102 27.2 2.29 32.5 2.87 37.7 3.54 40.3 3.89 42.9 4.27 48.1 5.07 51.0 5.42
108 27.2 2.41 32.5 3.04 37.7 3.75 40.3 4.12 42.9 4.53 48.1 5.37 50.4 5.61
111 27.2 2.55 32.5 3.20 37.7 3.96 40.3 4.35 42.9 4.80 48.1 5.69 49.7 5.79
115 27.2 2.68 32.5 3.36 37.7 4.17 40.3 4.59 42.9 5.05 48.1 6.00 49.1 5.98
4TVH0053B100NB - Cooling (continued)
Combi.
(%)
Outdoor
Temperature
(°F)
Indoor Temperature (°F, WB)
57 61 64 67 69 72 75
TC PI TC PI TC PI TC PI TC PI TC PI TC PI
MBHkWMBHkWMBHkWMBHkWMBHkWMBHkWMBHkW
TC(Total Capacity, MBH), PI(Power Input, kW)

VRF-PRC007-EN 29
Mini Outdoor Units
70
50 25.4 1.28 30.3 1.51 35.0 1.76 37.8 1.89 40.2 2.03 45.1 2.31 50.0 2.61
54 25.4 1.29 30.3 1.54 35.0 1.80 37.8 1.93 40.2 2.07 45.1 2.36 49.9 2.66
57 25.4 1.32 30.2 1.56 35.0 1.83 37.7 1.97 40.2 2.12 45.0 2.40 49.9 2.69
61 25.3 1.34 30.2 1.60 34.9 1.87 37.7 2.00 40.1 2.14 45.0 2.45 49.8 2.75
64 25.3 1.35 30.2 1.61 34.9 1.89 37.7 2.04 40.1 2.19 44.9 2.50 49.8 2.80
68 25.3 1.38 30.2 1.65 34.9 1.93 37.6 2.08 40.1 2.24 44.9 2.53 49.7 2.89
70 25.3 1.39 30.1 1.66 34.8 1.96 37.6 2.10 40.0 2.26 44.9 2.58 49.7 2.99
73 25.2 1.41 30.1 1.70 34.8 1.99 37.6 2.16 40.0 2.36 44.8 2.77 49.6 3.20
77 25.2 1.45 30.1 1.76 34.8 2.13 37.5 2.31 39.9 2.52 44.8 2.95 49.6 3.43
81 25.2 1.52 30.0 1.87 34.7 2.26 37.5 2.47 39.9 2.69 44.7 3.16 49.5 3.66
84 25.2 1.61 30.0 2.00 34.7 2.41 37.4 2.63 39.9 2.87 44.7 3.37 49.5 3.91
88 25.1 1.72 30.0 2.13 34.7 2.56 37.4 2.80 39.8 3.05 44.6 3.58 49.4 4.17
91 25.1 1.82 30.0 2.25 34.6 2.73 37.4 2.99 39.8 3.25 44.6 3.81 49.4 4.45
95 25.0 1.93 29.9 2.39 34.5 2.90 37.3 3.17 39.7 3.46 44.5 4.07 49.2 4.73
99 24.3 1.94 29.0 2.40 33.5 2.93 36.1 3.20 38.5 3.49 43.1 4.12 47.8 4.78
102 23.8 1.94 28.3 2.41 32.8 2.94 35.4 3.22 37.7 3.52 42.2 4.16 46.8 4.83
108 23.8 2.04 28.3 2.56 32.8 3.11 35.4 3.42 37.7 3.73 42.2 4.40 46.8 5.13
111 23.8 2.14 28.3 2.69 32.8 3.28 35.4 3.60 37.7 3.95 42.2 4.66 46.8 5.41
115 23.8 2.24 28.3 2.84 32.8 3.46 35.4 3.80 37.7 4.16 42.2 4.91 46.8 5.71
60
50 21.8 1.11 26.0 1.30 30.2 1.50 32.3 1.61 34.4 1.73 38.5 1.96 42.7 2.19
54 21.8 1.12 26.0 1.33 30.2 1.52 32.2 1.64 34.3 1.75 38.5 1.99 42.6 2.23
57 21.7 1.14 26.0 1.35 30.1 1.56 32.2 1.67 34.3 1.78 38.4 2.02 42.6 2.26
61 21.7 1.16 25.9 1.36 30.1 1.59 32.2 1.70 34.3 1.82 38.4 2.05 42.6 2.31
64 21.7 1.18 25.9 1.39 30.1 1.61 32.1 1.73 34.2 1.86 38.4 2.10 42.5 2.36
68 21.7 1.19 25.9 1.41 30.1 1.64 32.1 1.76 34.2 1.88 38.3 2.13 42.5 2.40
70 21.7 1.21 25.9 1.43 30.0 1.66 32.1 1.77 34.2 1.89 38.3 2.15 42.4 2.42
73 21.6 1.23 25.8 1.45 30.0 1.68 32.0 1.81 34.1 1.94 38.3 2.25 42.4 2.57
77 21.6 1.24 25.8 1.48 30.0 1.75 32.0 1.91 34.1 2.05 38.2 2.39 42.4 2.75
81 21.6 1.29 25.7 1.56 29.9 1.87 32.0 2.02 34.1 2.19 38.2 2.55 42.3 2.94
84 21.6 1.36 25.7 1.66 29.9 1.99 32.0 2.15 34.0 2.34 38.2 2.72 42.3 3.14
88 21.6 1.45 25.7 1.76 29.9 2.12 31.9 2.29 34.0 2.48 38.1 2.90 42.2 3.33
91 21.5 1.52 25.7 1.87 29.9 2.24 31.9 2.43 34.0 2.64 38.1 3.07 42.2 3.55
95 21.5 1.61 25.6 1.98 29.7 2.37 31.8 2.58 33.9 2.80 38.0 3.28 42.1 3.79
99 20.8 1.62 24.9 1.98 28.9 2.39 30.8 2.61 32.8 2.83 36.8 3.31 40.8 3.82
102 20.4 1.62 24.3 1.99 28.3 2.40 30.2 2.62 32.2 2.85 36.1 3.33 40.0 3.85
108 20.4 1.72 24.3 2.10 28.3 2.52 30.2 2.77 32.2 3.03 36.1 3.54 40.0 4.07
111 20.4 1.81 24.3 2.21 28.3 2.66 30.2 2.93 32.2 3.20 36.1 3.74 40.0 4.29
115 20.4 1.91 24.3 2.32 28.3 2.79 30.2 3.07 32.2 3.37 36.1 3.95 40.0 4.51
50
50 18.2 0.96 21.6 1.09 25.2 1.27 26.9 1.35 28.6 1.43 32.1 1.61 35.7 1.78
54 18.1 0.97 21.6 1.12 25.1 1.28 26.9 1.36 28.6 1.46 32.1 1.64 35.7 1.82
57 18.1 0.97 21.6 1.13 25.1 1.30 26.8 1.39 28.6 1.49 32.1 1.66 35.7 1.86
61 18.1 0.98 21.6 1.16 25.1 1.33 26.8 1.41 28.6 1.50 32.0 1.70 35.6 1.88
64 18.1 1.01 21.6 1.17 25.1 1.35 26.8 1.44 28.5 1.52 32.0 1.72 35.6 1.92
68 18.1 1.02 21.5 1.19 25.0 1.36 26.8 1.46 28.5 1.56 32.0 1.75 35.6 1.96
70 18.1 1.03 21.5 1.21 25.0 1.38 26.7 1.48 28.4 1.57 31.9 1.77 35.5 1.98
73 18.0 1.05 21.5 1.22 25.0 1.40 26.7 1.50 28.4 1.60 31.9 1.81 35.5 2.02
77 18.0 1.06 21.5 1.23 25.0 1.43 26.7 1.52 28.4 1.65 31.9 1.89 35.5 2.15
81 18.0 1.08 21.5 1.28 24.9 1.50 26.7 1.62 28.4 1.75 31.9 2.02 35.4 2.30
84 18.0 1.13 21.4 1.35 24.9 1.60 26.6 1.73 28.3 1.87 31.8 2.14 35.4 2.45
88 18.0 1.21 21.4 1.44 24.9 1.70 26.6 1.83 28.3 1.98 31.8 2.27 35.4 2.61
91 18.0 1.27 21.4 1.52 24.9 1.80 26.6 1.94 28.3 2.10 31.8 2.42 35.3 2.78
95 17.9 1.34 21.3 1.61 24.8 1.89 26.5 2.05 28.2 2.23 31.7 2.57 35.2 2.94
99 17.3 1.34 20.7 1.61 24.0 1.91 25.7 2.07 27.4 2.24 30.7 2.59 34.2 2.96
102 17.0 1.34 20.3 1.61 23.6 1.92 25.2 2.08 26.8 2.24 30.1 2.61 33.5 2.99
108 17.0 1.41 20.3 1.71 23.6 2.03 25.2 2.20 26.8 2.36 30.1 2.75 33.5 3.17
111 17.0 1.49 20.3 1.80 23.6 2.14 25.2 2.32 26.8 2.48 30.1 2.91 33.5 3.36
115 17.0 1.56 20.3 1.89 23.6 2.25 25.2 2.45 26.8 2.61 30.1 3.06 33.5 3.54
4TVH0053B100NB - Cooling (continued)
Combi.
(%)
Outdoor
Temperature
(°F)
Indoor Temperature (°F, WB)
57 61 64 67 69 72 75
TC PI TC PI TC PI TC PI TC PI TC PI TC PI
MBHkWMBHkWMBHkWMBHkWMBHkWMBHkWMBHkW
TC(Total Capacity, MBH), PI(Power Input, kW)

30 VRF-PRC007-EN
Mini Outdoor Units
4TVH0053B100NB - Heating
Combi.
(%)
Outdoor
Temperature
(°F)
Indoor Temperature (°F, WB)
61 65 70 72 75
TC PI TC PI TC PI TC PI TC PI
DB WBMBHkWMBHkWMBHkWMBHkWMBHkW
130
-4 -4.4 39.4 3.44 39.4 3.71 39.1 3.99 39.1 4.24 38.7 4.51
1 0 42.9 3.86 42.9 4.10 42.6 4.34 42.6 4.59 42.2 4.83
5 3 45.4 4.21 45.0 4.44 45.0 4.70 44.7 4.93 44.7 5.17
10 9 47.5 4.43 47.5 4.66 47.5 4.88 47.1 5.10 47.1 5.34
14 12 49.9 4.64 49.9 4.85 49.6 5.06 49.6 5.29 49.2 5.50
19 18 53.7 4.75 53.7 4.94 53.7 5.14 53.4 5.33 53.4 5.52
23 21 56.2 4.90 56.2 5.09 55.8 5.28 55.8 5.45 55.5 5.63
27 25 58.3 4.78 58.3 4.96 58.3 5.13 58.0 5.30 58.0 5.47
32 30 61.8 4.97 61.8 5.14 61.8 5.29 61.4 5.45 61.4 5.61
37 36 65.3 5.13 65.3 5.28 64.9 5.44 64.9 5.58 64.6 5.73
44 40 67.4 5.23 67.4 5.36 67.4 5.51 67.0 5.67 67.0 5.81
47 43 69.8 5.25 69.5 5.39 69.5 5.54 69.5 5.68 69.1 5.82
51 47 71.9 5.28 71.9 5.41 71.6 5.55 71.6 5.68 71.2 5.81
54 50 74.0 5.36 74.0 5.50 74.0 5.62 73.6 5.76 71.2 5.58
57 53 76.5 5.44 76.5 5.56 76.1 5.68 76.1 5.81 71.2 5.38
60 56 78.9 5.51 78.6 5.63 78.6 5.76 76.5 5.66 71.2 5.19
120
-4 -4.4 39.1 3.81 39.1 4.05 39.1 4.29 38.7 4.55 38.7 4.80
1 0 42.6 4.18 42.6 4.42 42.6 4.64 42.2 4.87 42.2 5.10
5 3 45.0 4.53 45.0 4.76 44.7 4.97 44.7 5.19 44.7 5.42
10 9 47.5 4.74 47.1 4.94 47.1 5.15 47.1 5.38 46.8 5.57
14 12 49.6 4.92 49.6 5.12 49.6 5.33 49.2 5.52 49.2 5.72
19 18 53.7 5.01 53.4 5.19 53.4 5.36 53.4 5.54 53.1 5.72
23 21 56.2 5.15 55.8 5.33 55.8 5.49 55.5 5.66 55.5 5.83
27 25 58.3 5.02 58.0 5.18 58.0 5.33 58.0 5.50 57.6 5.65
32 30 61.8 5.19 61.8 5.33 61.4 5.49 61.4 5.63 61.1 5.78
37 36 65.3 5.33 64.9 5.47 64.9 5.61 64.6 5.74 64.6 5.88
44 40 67.4 5.42 67.4 5.55 67.0 5.68 67.0 5.83 65.6 5.81
47 43 69.5 5.45 69.5 5.57 69.1 5.70 69.1 5.84 65.6 5.52
51 47 71.9 5.46 71.6 5.58 71.6 5.71 70.5 5.73 65.6 5.26
54 50 74.0 5.54 74.0 5.66 73.6 5.78 70.5 5.52 65.6 5.07
57 53 76.5 5.61 76.1 5.72 75.4 5.77 70.5 5.31 65.6 4.88
60 56 78.6 5.67 78.6 5.79 75.4 5.56 70.5 5.13 65.6 4.72
110
-4 -4.4 39.1 4.16 39.1 4.39 38.7 4.63 38.7 4.85 38.4 5.08
1 0 42.6 4.51 42.6 4.72 42.2 4.93 42.2 5.15 42.2 5.36
5 3 45.0 4.86 44.7 5.06 44.7 5.26 44.7 5.46 44.3 5.67
10 9 47.1 5.04 47.1 5.24 47.1 5.44 46.8 5.62 46.8 5.81
14 12 49.6 5.20 49.6 5.40 49.2 5.58 49.2 5.76 49.2 5.95
19 18 53.4 5.28 53.4 5.42 53.4 5.60 53.1 5.76 53.1 5.93
23 21 55.8 5.39 55.8 5.55 55.5 5.71 55.5 5.87 55.5 6.03
27 25 58.0 5.25 58.0 5.39 58.0 5.54 57.6 5.68 57.6 5.82
32 30 61.4 5.40 61.4 5.54 61.4 5.68 61.1 5.81 60.4 5.82
37 36 64.9 5.54 64.9 5.67 64.6 5.79 64.6 5.92 60.4 5.45
44 40 67.0 5.62 67.0 5.73 67.0 5.87 64.6 5.68 60.4 5.23
47 43 69.5 5.63 69.1 5.76 69.1 5.87 64.6 5.41 60.4 4.97
51 47 71.6 5.65 71.6 5.77 69.1 5.58 64.6 5.15 60.4 4.74
54 50 73.6 5.71 73.6 5.81 69.1 5.39 64.6 4.98 60.4 4.58
57 53 76.1 5.78 73.6 5.60 69.1 5.19 64.6 4.80 60.4 4.42
60 56 77.8 5.81 73.6 5.40 69.1 5.01 64.6 4.64 60.4 4.27
TC(Total Capacity, MBH), PI(Power Input, kW)

VRF-PRC007-EN 31
Mini Outdoor Units
100
-4 -4.4 38.7 4.53 38.7 4.74 38.7 4.94 38.4 5.15 38.4 5.36
1 0 42.2 4.86 42.2 5.04 41.4 5.24 41.9 5.42 41.9 5.61
5 3 44.7 5.18 44.7 5.36 43.5 5.55 44.3 5.73 44.3 5.92
10 9 47.1 5.35 46.8 5.52 45.9 5.70 46.8 5.88 46.4 6.05
14 12 49.2 5.51 49.2 5.67 48.3 5.83 48.9 6.02 48.9 6.17
19 18 53.4 5.52 53.1 5.68 51.5 5.83 53.1 5.98 52.7 6.11
23 21 55.5 5.65 55.5 5.79 53.9 5.94 55.1 6.06 54.8 6.14
27 25 58.0 5.49 57.6 5.61 55.9 5.73 57.6 5.87 54.8 5.57
32 30 61.4 5.62 61.1 5.73 59.3 5.87 58.6 5.65 54.8 5.18
37 36 64.6 5.73 64.6 5.87 61.0 5.73 58.6 5.29 54.8 4.86
44 40 67.0 5.82 66.7 5.93 61.0 5.50 58.6 5.08 54.8 4.67
47 43 69.1 5.83 67.0 5.65 61.0 5.40 58.6 4.83 54.8 4.44
51 47 70.9 5.77 67.0 5.38 61.6 4.99 58.6 4.61 54.8 4.24
54 50 70.9 5.55 67.0 5.18 61.6 4.81 58.6 4.44 54.8 4.11
57 53 70.9 5.35 67.0 4.99 61.6 4.64 58.6 4.29 54.8 3.96
60 56 70.9 5.17 67.0 4.82 61.6 4.48 58.6 4.16 54.8 3.84
90
-4 -4.4 38.7 4.90 38.4 5.08 38.4 5.28 38.4 5.46 38.4 5.63
1 0 42.2 5.19 42.2 5.36 41.9 5.54 41.9 5.70 41.9 5.87
5 3 44.3 5.51 44.3 5.67 44.3 5.83 44.3 6.00 44.0 6.16
10 9 46.8 5.66 46.8 5.81 46.8 5.98 46.4 6.14 46.4 6.29
14 12 49.2 5.79 49.2 5.95 48.9 6.10 48.9 6.25 48.9 6.40
19 18 53.1 5.79 53.1 5.93 53.1 6.05 52.7 6.19 49.2 5.70
23 21 55.5 5.90 55.5 6.03 55.1 6.15 53.1 5.89 49.2 5.40
27 25 57.6 5.70 57.6 5.83 56.6 5.79 53.1 5.34 49.2 4.91
32 30 61.1 5.83 60.1 5.81 56.6 5.39 53.1 4.97 49.2 4.59
37 36 63.9 5.84 60.1 5.44 56.6 5.04 53.1 4.67 49.2 4.31
44 40 63.9 5.60 60.1 5.22 56.6 4.85 53.1 4.49 49.2 4.13
47 43 63.9 5.34 60.1 4.97 56.6 4.61 53.1 4.28 49.2 3.95
51 47 63.9 5.08 60.1 4.74 56.6 4.42 53.1 4.08 49.2 3.76
54 50 63.9 4.90 60.1 4.58 56.6 4.26 53.1 3.95 49.2 3.64
57 53 63.9 4.71 60.1 4.42 56.6 4.11 53.1 3.81 49.2 3.52
60 56 63.9 4.56 60.1 4.27 56.6 3.97 53.1 3.69 49.2 3.41
80
-4 -4.4 38.4 5.26 38.4 5.42 38.4 5.58 38.1 5.76 38.1 5.92
1 0 41.9 5.52 41.9 5.66 41.9 5.82 41.5 5.97 41.5 6.13
5 3 44.3 5.82 44.3 5.98 44.0 6.13 44.0 6.27 43.6 6.38
10 9 46.8 5.97 46.4 6.11 46.4 6.25 46.4 6.38 43.6 5.99
14 12 48.9 6.09 48.9 6.22 48.9 6.36 47.1 6.15 43.6 5.65
19 18 53.1 6.04 52.7 6.16 50.3 5.83 47.1 5.38 43.6 4.96
23 21 55.1 6.14 53.4 5.97 50.3 5.54 47.1 5.12 43.6 4.70
27 25 56.9 5.82 53.4 5.41 50.3 5.03 47.1 4.65 43.6 4.28
32 30 56.9 5.41 53.4 5.04 50.3 4.69 47.1 4.34 43.6 4.01
37 36 56.9 5.07 53.4 4.74 50.3 4.40 47.1 4.07 43.6 3.76
44 40 56.9 4.87 53.4 4.55 50.3 4.24 47.1 3.92 43.6 3.63
47 43 56.9 4.64 53.4 4.33 50.3 4.03 47.1 3.75 43.6 3.47
51 47 56.9 4.43 53.4 4.15 50.3 3.86 47.1 3.58 43.6 3.32
54 50 56.9 4.27 53.4 4.00 50.3 3.73 47.1 3.47 43.6 3.21
57 53 56.9 4.12 53.4 3.86 50.3 3.60 47.1 3.35 43.6 3.10
60 56 56.9 3.99 53.4 3.74 50.3 3.48 47.1 3.25 43.6 3.01
4TVH0053B100NB - Heating (continued)
Combi.
(%)
Outdoor
Temperature
(°F)
Indoor Temperature (°F, WB)
61 65 70 72 75
TC PI TC PI TC PI TC PI TC PI
DB WBMBHkWMBHkWMBHkWMBHkWMBHkW
TC(Total Capacity, MBH), PI(Power Input, kW)

32 VRF-PRC007-EN
Mini Outdoor Units
70
-4 -4.4 38.4 5.62 38.1 5.77 38.1 5.90 38.1 6.05 38.1 6.20
1 0 41.9 5.84 41.5 5.98 41.5 6.11 41.2 6.15 38.4 5.65
5 3 44.0 6.15 44.0 6.27 44.0 6.41 41.2 5.93 38.4 5.44
10 9 46.4 6.27 46.4 6.40 44.0 6.03 41.2 5.56 38.4 5.10
14 12 48.9 6.38 46.8 6.11 44.0 5.67 41.2 5.25 38.4 4.83
19 18 49.6 5.74 46.8 5.35 44.0 4.98 41.2 4.61 38.4 4.24
23 21 49.6 5.45 46.8 5.09 44.0 4.72 41.2 4.38 38.4 4.05
27 25 49.6 4.96 46.8 4.63 44.0 4.31 41.2 4.00 38.4 3.69
32 30 49.6 4.61 46.8 4.32 44.0 4.02 41.2 3.73 38.4 3.46
37 36 49.6 4.34 46.8 4.06 44.0 3.79 41.2 3.52 38.4 3.26
44 40 49.6 4.17 46.8 3.90 44.0 3.65 41.2 3.38 38.4 3.15
47 43 49.6 3.97 46.8 3.73 44.0 3.48 41.2 3.24 38.4 3.01
51 47 49.6 3.80 46.8 3.57 44.0 3.33 41.2 3.10 38.4 2.88
54 50 49.6 3.68 46.8 3.44 44.0 3.21 41.2 3.00 38.4 2.79
57 53 49.6 3.55 46.8 3.33 44.0 3.11 41.2 2.90 38.4 2.69
60 56 49.6 3.44 46.8 3.22 44.0 3.03 41.2 2.82 38.4 2.62
60
-4 -4.4 38.1 5.99 38.1 6.11 37.7 6.17 35.2 5.68 32.8 5.24
1 0 41.5 6.19 40.2 5.97 37.7 5.55 35.2 5.12 32.8 4.71
5 3 42.6 6.16 40.2 5.73 37.7 5.34 35.2 4.93 32.8 4.54
10 9 42.6 5.78 40.2 5.40 37.7 5.02 35.2 4.65 32.8 4.29
14 12 42.6 5.45 40.2 5.08 37.7 4.74 35.2 4.39 32.8 4.06
19 18 42.6 4.78 40.2 4.48 37.7 4.17 35.2 3.87 32.8 3.58
23 21 42.6 4.55 40.2 4.26 37.7 3.96 35.2 3.69 32.8 3.42
27 25 42.6 4.15 40.2 3.87 37.7 3.62 35.2 3.36 32.8 3.12
32 30 42.6 3.87 40.2 3.63 37.7 3.39 35.2 3.16 32.8 2.94
37 36 42.6 3.65 40.2 3.42 37.7 3.20 35.2 2.98 32.8 2.78
44 40 42.6 3.52 40.2 3.30 37.7 3.09 35.2 2.88 32.8 2.67
47 43 42.6 3.36 40.2 3.16 37.7 2.95 35.2 2.76 32.8 2.57
51 47 42.6 3.21 40.2 3.01 37.7 2.83 35.2 2.64 32.8 2.46
54 50 42.6 3.10 40.2 2.93 37.7 2.74 35.2 2.56 32.8 2.39
57 53 42.6 3.01 40.2 2.83 37.7 2.66 35.2 2.48 32.8 2.31
60 56 42.6 2.93 40.2 2.74 37.7 2.57 35.2 2.41 32.8 2.25
50
-4 -4.4 35.6 5.72 33.4 5.35 31.4 4.97 29.4 4.60 27.4 4.23
1 0 35.6 5.15 33.4 4.81 31.4 4.48 29.4 4.15 27.4 3.84
5 3 35.6 4.96 33.4 4.65 31.4 4.32 29.4 4.02 27.4 3.71
10 9 35.6 4.67 33.4 4.37 31.4 4.08 29.4 3.79 27.4 3.52
14 12 35.6 4.42 33.4 4.13 31.4 3.86 29.4 3.59 27.4 3.32
19 18 35.6 3.90 33.4 3.65 31.4 3.41 29.4 3.19 27.4 2.95
23 21 35.6 3.71 33.4 3.48 31.4 3.26 29.4 3.04 27.4 2.83
27 25 35.6 3.38 33.4 3.17 31.4 2.98 29.4 2.78 27.4 2.58
32 30 35.6 3.17 33.4 2.98 31.4 2.79 29.4 2.62 27.4 2.44
37 36 35.6 2.99 33.4 2.82 31.4 2.64 29.4 2.47 27.4 2.31
44 40 35.6 2.89 33.4 2.73 31.4 2.56 29.4 2.40 27.4 2.24
47 43 35.6 2.77 33.4 2.61 31.4 2.45 29.4 2.29 27.4 2.14
51 47 35.6 2.66 33.4 2.51 31.4 2.35 29.4 2.20 27.4 2.07
54 50 35.6 2.57 33.4 2.42 31.4 2.28 29.4 2.14 27.4 1.99
57 53 35.6 2.50 33.4 2.36 31.4 2.21 29.4 2.08 27.4 1.94
60 56 35.6 2.42 33.4 2.29 31.4 2.15 29.4 2.02 27.4 1.89
4TVH0053B100NB - Heating (continued)
Combi.
(%)
Outdoor
Temperature
(°F)
Indoor Temperature (°F, WB)
61 65 70 72 75
TC PI TC PI TC PI TC PI TC PI
DB WBMBHkWMBHkWMBHkWMBHkWMBHkW
TC(Total Capacity, MBH), PI(Power Input, kW)

VRF-PRC007-EN 33
Mini Outdoor Units
Capacity Correction
Capacity correction by distance
Cooling
Pipe Length (ft)
25 33 66 98 131 164 197 230 262 295 328 361 394 427 459 492 525 558
Level Difference (ft)
164 - - - - - 0.93 0.91 0.89 0.88 0.92 0.90 0.88 0.86 0.84 0.82 0.80 0.78 0.76
131 - - - - 0.950.930.910.890.880.920.900.880.860.840.820.800.780.76
98 - - - 0.96 0.95 0.93 0.91 0.89 0.88 0.92 0.90 0.88 0.86 0.84 0.82 0.80 0.78 0.76
66 - - 0.98 0.96 0.95 0.93 0.91 0.89 0.88 0.92 0.90 0.88 0.86 0.84 0.82 0.80 0.78 0.76
33 - 1.000.980.960.950.930.910.890.880.920.900.880.860.840.820.800.780.76
01.00 1.00 0.98 0.96 0.95 0.93 0.91 0.89 0.88 0.92 0.90 0.88 0.86 0.84 0.82 0.80 0.78 0.76
-33 - 1.000.980.960.940.930.910.890.880.920.900.880.860.840.820.800.780.76
-66 - - 0.98 0.96 0.94 0.92 0.91 0.89 0.87 0.92 0.90 0.88 0.86 0.84 0.82 0.80 0.78 0.76
-98 - - - 0.96 0.94 0.92 0.90 0.88 0.87 0.92 0.90 0.88 0.86 0.84 0.82 0.80 0.78 0.76
-131 - - - - 0.940.920.900.880.870.910.890.870.850.830.810.790.770.75
Heating
Pipe Length (ft)
25 33 66 98 131 164 197 230 262 295 328 361 394 427 459 492 525 558
Level Difference (ft)
164 - - - - - 1.00 1.00 1.00 1.00 1.00 1.00 1.00 1.00 1.00 1.00 1.00 1.00 1.00
131 - - - - 1.001.001.001.001.001.001.001.001.001.001.001.001.001.00
98 - - - 1.00 1.00 1.00 1.00 1.00 1.00 1.00 1.00 1.00 1.00 1.00 1.00 1.00 1.00 1.00
66 - - 1.00 1.00 1.00 1.00 1.00 1.00 1.00 1.00 1.00 1.00 1.00 1.00 1.00 1.00 1.00 1.00
33 - 1.001.001.001.001.001.001.001.001.001.001.001.001.001.001.001.001.00
01.00 1.00 1.00 1.00 1.00 1.00 1.00 1.00 1.00 1.00 1.00 1.00 1.00 1.00 1.00 1.00 1.00 1.00
-33 - 1.001.001.001.001.001.001.001.001.001.001.001.001.001.001.001.001.00
-66 - - 1.00 1.00 1.00 1.00 1.00 1.00 1.00 1.00 1.00 1.00 1.00 1.00 1.00 1.00 1.00 1.00
-98 - - - 1.00 1.00 1.00 1.00 1.00 1.00 1.00 1.00 1.00 1.00 1.00 1.00 1.00 1.00 1.00
-131 - - - - 1.001.001.001.001.001.001.001.001.001.001.001.001.001.00

34 VRF-PRC007-EN
Mini Outdoor Units
Defrosting correction factor
On heating operation, frost can be formed on heat exchanger according to outdoor temperature.
(Frost on heat exchanger results in decreasing the performance.) To remove frost on heat
exchanger of outdoor unit, defrost operation is carried out periodically. During defrost operation,
capacity of outdoor unit may decrease. Capacity decreases, if applicable, are not considered in the
individual capacity tables.
Corrected Heating Capacity = Heating Capacity x Capacity coefficient
Outdoor temperature
(°F, WB) 14.0 17.6 21.2 24.8 28.4 32.0 37.4 41.0 44.6
Capacity coefficient 0.98 0.97 0.95 0.93 0.88 0.85 0.86 0.91 1.00
1.05
Capacity coefficient of outdoor unit on defrost operation
Outdoor temperature(°F)
Capacity coefficient
1.00
0.95
0.90
0.85
0.80
0.75
14.0
0.98 0.97 0.95
0.93
0.88
0.85 0.86
0.91
1.00
17.6 21.2 24.8 28.4 32.0 37.4 41.0 44.6

Trane optimizes the performance of homes and buildings around the world. A business of Ingersoll Rand, the leader in
creating and sustaining safe, comfortable and energy efficient environments, Trane offers a broad portfolio of advanced
controls and HVAC systems, comprehensive building services, and parts. For more information, visit www.Trane.com.
Trane has a policy of continuous product and product data improvement and reserves the right to change design and specifications without notice.
We are committed to using environmentally
conscious print practices that reduce waste.
© 2013 Trane All rights reserved
VRF-PRC007-EN 10 Dec 2013
(NEW)