Trane Electric Unit Heaters Catalogue UH PRC003 EN
2015-04-02
: Trane Trane-Electric-Unit-Heaters-Catalogue-684289 trane-electric-unit-heaters-catalogue-684289 trane pdf
Open the PDF directly: View PDF
.
Page Count: 48

Electric Unit Heaters
UH-PRC003-ENAugust 2005
Model UHEC
Model UHXA
Model UHWA
Model UHAA
Model UHRA
Model UHCA

© 2005 American Standard Inc. All rights reserved. UH-PRC003-EN
Introduction
Introduction
Electric unit heaters have been a traditional means of heating hard-to-warm spaces for many years. Their uncomplicated
approach in auxiliary heating make them easy to install and maintain. Their versatile characteristics allow Trane’s
electric unit heaters to fill nearly every heating application gap, while their structural integrity makes them a reliable
heat source to blend into today’s building décor.
Trane’s electric unit heaters are available in 6 variations. The following chart presents a brief overview of the different
electric unit heater models Trane offers.
Horizontal and Vertical Spot
Heating Electric Unit Heater
Applied as an auxiliary heat source
in walkways, stairways, vestibules,
and entrances. The horizontal and
vertical spot heater may be used in
commercial, industrial and
institutional applications.
Hose-Down, Corrosion-Resistant
Electric Unit Heater
Used in industrial applications where
dirt or dust may be extensive. The
totally enclosed, watertight casing is
corrosion-resistant for non-hazardous
locations.
UHXA 3 to 25 kW Explosion-Proof Electric Unit Heater Designed for hazardous locations, the
UHXA model may be applied where
flammable gases, vapors, powdered
metals or dust may be present.
Commercial, Ceiling-Mounted
Electric Unit Heater
The surface- or recessed mounted
model may be applied in restricted
areas or where wall space is limited.
This may included vestibules, lobbies,
rest rooms, small-offices or guard
buildings.
UHRA 3 to 48 kW
UHWA 2 to 5 kW Heavy Duty, Wall Mounted
Electric Unit Heater
Series 20 and 50
Suited for public buildings such as
schools, stores, offices, dormitories,
hospitals and transportation
terminals.
UHAA 1.5 to 4.8 kW Architectural Wall Mounted
Electric Unit Heater
The rugged construction and
attractive design of the UHAA model
make them appropriate for offices,
lobbies, and reception areas for
schools and dormitories.
Model Description Application
UHCA 2 to 5 kW
UHEC 3 to 50 kW

3
Contents
UH-PRC003-EN
Introduction
Features and Benefits
Application Considerations
Selection Procedure
Model Number
General Data
Control Wiring
Dimensional Data
Options
Mechanical Specifications
2
4
13
14
15
19
29
32
39
42

UH-PRC003-EN4
Features and
Benefits Model UHEC
Electric Unit Heaters
•Thirty-seven models to choose from
ranging from 3.3 to 50 kW. Available for
208, 240/208, 277 or 480-volt operation.
•One unit can be used for either
horizontal or vertical discharge.
•Specially designed inlet louvers, venturi
and outlet diffuser provide uniform air
temperature and throw characteristics.
•Single-phase units, easily converted to
three-phase power, are available in 3.3
to 10 kW for 208 and 240-volt
operation.
•Two-speed fan operation standard on
25 kW units and above.
•Meets all requirements of UL listing
standard 1278 when installed as
directed.
UHEC electric unit heaters are ideal for
applications ranging from new
construction to auxiliary heat to
renovation. They are available in 37
models ranging from 3.3 kW to 50 kW. In
addition to a wide capacity range, each
compact, attractive unit can be mounted
in either a horizontal or vertical discharge
arrangement.
Flexibility
The Trane electric unit heater shows its
flexibility in installation and operation.
Intended for industrial, commercial or
institutional use, the Trane electric unit
heater is available for 208 to 480-volt,
single or three-phase operation. Units
from 3.3 to 10 kW for 208 and 240-volt
operation may be converted easily from
single to three-phase operation in the
field. Two-speed fan operation on 25 kW
units and above provides greater airflow
flexibility.
Uniform Air Distribution
The Trane unit heater uniformly directs
the air to exactly where it’s needed. A
specially designed deep-drawn venturi
assures uniform air distribution. The
outward-drawn venturi channels the air
forward for maximum, uniform air throw.
Outlet diffusers are provided to properly
direct the heated discharge air.
In order to minimize the potential for hot
spots on the heating coil, inlet louvers
evenly distribute intake air over the entire
heating element.
Trane electric unit heaters are designed
with totally enclosed, permanently
lubricated industrial motors. The
air-over-motor design reduces operating
temperatures, promoting long motor life.
Thermal overloads provide additional
protection for major circuits, in case
normal operating temperatures are
exceeded.
Quick and Easy
Low-Cost Installation
Installation time and costs are minimized.
Compact and completely factory wired,
the Trane electric unit heater requires
only a single-source power supply
connection. The units are available with
factory installed 24-volt control
transformers and contactors.
Terminal Panel — Single-point terminal
board wiring for easy control accessories
installation.
Casing — Die-formed heavy-gauge steel
with baked enamel finish.
Outlet Louvers — Individually adjustable
from 30° up to 45° down.
Motor and Fan — Totally enclosed,
permanently lubricated, sealed bearing,
all-angle motor and fan combination
through 20 kW and two-speed permanent
capacitor-type motor on 25 through 50
kW units.
Contactors — All units 25 kW and larger
are equipped with two contactors and
two element banks for either single or
two-stage heating operation.
Fusing — Element, motor and transformer
primary fusing are factory installed and
wired where required to NEC. Branch
circuit fusing installed where required on
48 amps and up.
Intake Louvers — Designed to provide
uniform air distribution across entire
heating element.
Element — High mass, all steel finned,
tubular heating element.
Transformer — 24-volt control circuit for
closer temperature control and added
safety. Standard on most models,
optional on 3.0 and 5 kW 208, 240/208,
277-volt models.
Thermal Overloads — Automatic reset
thermal cutouts disconnect motor and
element in the event normal operating
temperatures are exceeded.
Access Panel — Full width access panel
secured by quarter-turn fasteners.
LISTED

5UH-PRC003-EN
Features and
Benefits Model UHEC
Mounting the unit is easily accomplished
with the use of hanger rods connected to
weld nuts on the unit casing. An
accessory mounting bracket is available
for single-point mounting. Field installed
accessories such as built-in thermostats,
disconnect switches and summer fan
switches are provided with spade
terminals for easy installation to a single-
point terminal board.
Reliable Operation
Trane electric UHEC unit heaters operate
reliably when installed and operated as
directed. In addition to meeting all
requirements of UL listing standard 1025,
the heating element is backed with a five-
year warranty.
Easy Access
In the event that service is required, easy
access to the control components is
provided with a full-length access panel
secured by quarter-turn fasteners. For
added convenience, unit wiring diagrams
are located inside the access panel for
easy reference during installation and
servicing.
Horizontal Discharge
Vertical Discharge

UH-PRC003-EN6
Features and
Benefits Model UHRA
Hose-Down Electric Unit Heaters
Trane UHRA hose-down electric unit
heaters are constructed for use in areas
that require washing or hosing of
equipment due to a dirty or dusty
industrial environment in
non- hazardous locations. The
totally enclosed, watertight casing made
with corrosion-resistant material, makes
the unit ideal for industrial heating
applications. All controls are built-in and
the safety temperature controls are
wired in a nonmetallic NEMA 4x control
panel with single-point power
connections.
Standard Features
•Heavy-duty 304 stainless steel casing
•NEMA 4x nonmetallic control panel
•24-volt transformer and control circuit
•Three-position switch (off - heat - fan)
•Disconnect switch with enclosure
interlock
•Capillary thermostat with stainless steel
sensor
•Automatic reset thermal cutout
•Totally enclosed UL listed motor
•Pilot light (power on indicator)
•Chrome-plated finned tubular element
•Control panel on bottom of unit for ease
of installation and service
•Single-point power connection
•Meets all UL, NEC and OSHA
requirements (when installed as
directed)
•Corrosion-resistant in high humidity and
water-saturated areas (for areas where
corrosion-resistance is needed in
non-hazardous areas).
304 Stainless Steel Casing
Control Components (24-Volt Standard)
NEMA 4x Non-Metallic Enclosure
Element
Stainless Steel
Discharge Grille
Easy-mount bracket for Use with
Field- Installed Hanger or Optional
Mounting Brackets
Door Interlock
Disconnect Switch
(Optional)
Pilot Light (Heater
Energized)
Three-Position Fan Switch
Thermostat
Aluminum Fan Blade
Totally Enclosed Motor
Plated Inlet Grille
Control Enclosure

7UH-PRC003-EN
Features and
Benefits Model UHXA
Trane Explosion-Proof
Electric Unit Heaters
Pressure Relief Valve
Rated at 200 PSI
Spiral Aluminum Finned Tubular Steel
Heat Exchanger Core Liquid Filled
Operation (see page 3)
14-Gauge Steel Adjustable
Louvers with Minimum
Position Stops
Epoxy Coated 14-Gauge Cold Rolled
Steel Cabinet
Cast Aluminum Control Enclosure
with Oversized Opening
Built-In Load Carrying Contactor
Protective Heating Element Cover
Copper Sheathed Immersion Type
Heating Element
High Performance Aluminum Fan
Blades (not shown)
Etched Aluminum Data Plates
Riveted to Case

UH-PRC003-EN8
Features and
Benefits Model UHXA
Liquid to air heat exchanger with low
watt density heating elements in
ethylene glycol solution that provides
freeze protection to -45°C.
Ball bearing permanently lubricated
explosion-proof motor. Chrome plated
guard meets OSHA requirements.
Heavy-duty control contactor with
24-volt control circuit provided on all
models.
Designed for rugged industrial
applications in hazardous locations
where the possibility of explosion or fire
exists due to the presence of certain
flammable gases, vapors, powdered
metals or dusts.
•Permanently sealed, liquid to air, finned
tube heat exchanger core.
•Ethylene glycol water mixture used as
heat transfer fluid in the heater core,
providing -45°C, (-49°F) freeze damage
protection.
•High-performance electric motor
driven fan blows air across finned tubes
to effect uniform heat transfer and area
heat distribution.
•Automatic reset capillary type high limit
provides high temperature regulation
and is rated for 100,000 cycles of
service.
•Stainless steel and aluminum pressure
relief valve handles any over-pressure.
•14-gauge steel cabinet contains heater
core, motor and fan assembly.
•Narrow gap safety fan guard shields all
moving parts.
•Adjustable louvers allow directional
control of air.
•Copper conductor wires enclosed in
rigid metal conduits carry all electrical
power.
•Box lugs are furnished for field
connections within an approved
enclosure.

9UH-PRC003-EN
Features and
Benefits
Model UHWA
Series 20 and 50
Heavy-Duty Wall Heaters
Trane heavy-duty wall mounted electric
forced-air unit heaters are
architecturally styled in a
vandal- resistant design for all
commercial, institutional and many
industrial applications. They are
particularly suited for schools, office
buildings, dormitories, stores, hospitals
and other public buildings.
The high capacity and wide range of
voltage/phase and control systems
provides application versatility to meet
most installation requirements. A wide
selection of built-in factory installed and
wired, pre-engineered control systems
minimizes system design and
installation time.
All units are equipped with zero voltage
reset thermal cut-outs for overheat
protection and a totally enclosed,
permanently lubricated motor. Optional
circuit breaker, control transformer and
a selection of integral or wall-mounted
thermostat controls are part of the unit
package.
Series 50 with exposed thermostat knob
and covered circuit breaker and control
switch only
Series 50 with tamper-resistant cover
removed.
Series 20 and 50 with tamper-resistant
thermostat cover plate which is included
with each heater.
Louvered Grille
Heavy-duty welded steel for maximum
impact resistance. Closely spaced
(pencil proof), tamperproof.
Motor Shield
Protects motor by separating return air
from heated air.
Motor
Heavy-duty unit bearing, permanently
lubricated, totally enclosed, impedance
protected.
Blade
Highly efficient, space saving blade-
over-motor design, individually
balanced.
Contactor
Optional, definite purpose, heavy-duty
type with flame path separators and
dust covers. Choice of heater voltage,
120 volt or 24 volt holding coil.
Thermostat
Optional heavy-duty hydraulic snap
action type with sensing bulb in return
airstream. Disconnects all ungrounded
conductors in OFF position.
Solid Construction and
Dependable Components
Sleeve
Sleeve for surface or semi-recessed
installation. 16 gauge (1.5 mm
thickness) zinc coated steel.
Element
Totally enclosed, corrosion-resistant.
Maximum finning for lower operating
temperature and longer life. Will not
become dust clogged. (No filter
required.)
Thermal Cut-Out
Exclusive “zero voltage reset” type for
high degree of effectiveness if normal
operating temperatures are exceeded.
Transformer
Optional factory assembled and wired
in 50 Series. Choice of 24 or 120 volt
secondary.
Entrance Terminals
Line side termination enclosed for safe
servicing of heaters when supplied with
circuit breakers.
Circuit Breakers
Reduces installation cost by allowing
one or more heaters to be wired from
feeder and feeder tap. Separate control
circuit switch supplied when required.
All power can be turned off before front
cover is removed.

UH-PRC003-EN10
Features and
Benefits
Model UHWA
Series 20 and 50
•Architecturally styled and
vandal- resistant for schools, churches,
stores, office buildings, transportation
terminals, dormitories, hospitals.
•Use in vestibules, entrance ways,
lobbies, corridors, stairways, reception
rooms, rest rooms, offices.
•Simple application design — Wide
selection of built-in, factory installed and
wired, pre-engineered control systems.
Saves design and on-the-job time.
•Versatile application — Higher capacity
and wider range of voltage/phase and
control systems than any similar
heaters previously available.
•Heater front withstands with less than
1/16” (1.6 mm) permanent distortion,
10.8 ft lbs (324 poundals) impact and
400 lbs (181.4 kg) static force applied to
an 8 sq. in. (5160 sq. mm) area at center
grille location.

11UH-PRC003-EN
Features and
Benefits
Model UHCA
Series 70 and 80
Series 70 and 80 Features
•Crisp, unique styling to blend into any
architectural design — unit designed for
long life and warranted for five years.
•Higher velocity ceiling-mounted heater
gets air down to warm those hard to
heat areas where public accessibility is
not desired or where wall area is
restricted.
•Single or multiple installations at a
fraction of the cost of cabinet unit
heaters.
•Five-year warranty.
•2,000 to 5,000 watts.
•208, 204 V single and three-phase.
277 V single-phase.
•UL listed and conform to Underwriters’
Standard 1025.
Commercial and Industrial
Ceiling - Mounted Fan Forced Heaters
Commercial and Institutional
Applications
•Use in vestibules, entrance ways,
lobbies, restrooms and small office and
guard building applications.
•A unique design offers surface and
recessed applications with higher
wattage capacity and wider range of
voltage and phase capabilities than
other heaters of this type.
•Control: Line voltage and low voltage
control capabilities using accessory
thermostat (see page 8).
• Unit mounted controls for Series 80
only with fan purge.
Mounting Bracket — features swing up
installation on surface mounted 70
Series. Bracket center notched to
accept screws of ceiling outlet box
(installed by others). Recessed heater
80 Series has junction box attached to
heater can.
Motor — heavy-duty unit bearing,
permanently lubricated, totally
enclosed, impedance protected.
Blade — highly efficient, space-saving
blade over motor design, individually
balanced.
Thermal Cut-Out — exclusive “zero
voltage reset” type for highest degree
of effectiveness in event normal
operating temperatures are exceeded.
Heater must be manually shut off for
five minutes to reset. (See page 8.)
Element — totally enclosed and
corrosion resistant. Maximum finning
for lower operating temperatures and
long life. Will not become dust clogged.
(No filter required.)
Discharge Venturi — bull’s-eye design
permitting heated air to leave in
uniform pattern.
Plaster Trim — optional plaster trim for
recessed mounted heaters (series 80)
only. Provides finished ceiling
appearance.
Series 80
Recess mounted for 2’ (609.6 mm) x
2’ (609.6 mm) “T” bar or plaster
ceilings

UH-PRC003-EN12
Features and
Benefits
Model UHAA
Series 3320
Architectural Quality
•Built - in tamper resistant thermostat
•Built - in tamper resistant disconnect
switch
•Richly styled, rugged grille
•Whisper-quiet sound level
•Fan delay
•Decorator designed for functional
beauty and versatility.
•Five-year element, limited warranty
•UL listed
Rugged Grille — Grille made of 18
gauge (1.2 mm thickness) steel painted
with a dark brown baked enamel finish.
Richly Styled Grille — Grille is
highlighted by a snap-on, 14-gauge
(1.9 mm thickness) aluminum frame,
secured to the heater with an
inconspicuous fastener.
Element — Steel sheath with plate heat
exchanger.
Fan Delay Switch — To allow the fan to
continue to run for a short period after
the thermostat is satisfied, to expel
warm air from inside the heater. Also
delays fan on start up to insure delivery
of heated air. This switch also prolongs
element life.
“Unique” Vane Axial Fan Wheel —
Draws in large volumes of air then
quietly and gently discharges 175 cfm
(82.6 l/s) of heated air downward into
the room.
Optional Accessories
3320EX33 Surface Mounting Adapter
Factory-Installed Accessories
Suffix R Day/Night Relay

13UH-PRC003-EN
Application
Considerations Model UHXA
Abbreviated descriptions of UL classes,
groups and divisions. Before selecting any
heater for a particular application, refer to
Article 500 as well as other standards
referenced in the National Electric Code.
•Class I: Equipment does not have
surface operating temperature in
excess of the ignition temperature of
the specific gas or vapor.
•Class II: Equipment does not have
surface temperature greater than the
ignition temperature of the specified
dust.
•Group D: Atmospheres such as but not
limited to acetone, alcohol, gasoline,
lacquer solvent vapors, natural gas,
propane or other gases or vapors of
equivalent hazard.
•Group E: Atmospheres containing
combustible metal dust regardless of
resistivity, or other combustible dust
of similar hazard characteristics
having resistivity of less than
105 ohm-centimeter.
•Group F: Atmospheres containing
carbon black, charcoal, coal or coke
dust.
•Group G: Atmospheres containing
combustible dust having resistivity of
105 ohm-centimeter or greater.
•Division I: A location in which ignitable
concentrations of flammable material
exist under normal operating conditions.
•Division II: Locations in which flammable
materials will normally be confined
within closed containers and escape
only in the case of accidental rupture,
breakdown or during maintenance
operations. Any equipment approved
for Division I is automatically also
approved for Division II.
Selection and application of electric unit
heaters should consider the location,
classification and properties of flammable
vapors, liquids, gases, dusts and fibers
which may be present. Each room,
section or area should be considered
individually.
For further information consult National
Electric Code and National Fire Prevention
Association (ANSI) standards. All models
conform to OSHA requirements when
mounted at any height.
Installation Conditions
1
Refer to owner’s manual.
2
The Trane explosion-proof electric unit
heaters have been listed by the
Underwriters Laboratories for maximum
surface temperatures. Use only in
atmospheres having an ignition
temperature higher than 165°C (T3B) for
Class I and Class II operation.
3
Altitude restrictions — see specification
table.
4
Heater must be installed in permanently
mounted upright position and connected
to fixed power supply.
5
Do not operate in atmospheres corrosive
to steel and aluminum.

UH-PRC003-EN14
Selection
Procedure
Model UHEC, UHRA, UHXA, UHWA,
UHCA, UHAA
Calculate the heating loads using the
NEMA, ASHRAE, or other accepted
heating load calculation method.
Determine the quantity and size of unit
heaters to be used. To maintain uniform
temperature and recommended air
circulation, it is suggested that cfm should
be adequate to accomplish three air
changes per hour.
For maximum comfort, the use of smaller
units with lower airflows is suggested to
provide more uniform temperature and
even airflow. In warehouses and storage
areas where uniform heat distribution
and temperature control is of lesser
importance, it is desirable to use fewer
units with greater capacity.
Unit heaters mounted in the horizontal
discharge position are most effective
when heat is directed along the perimeter
of the building wall with the airflow of
each unit supporting the airflow of the
other units to create a constant flow of
warm air.
Model UHEC and Model UHRA
Unit heaters in the vertical position are
ideal for use in high ceiling areas and
areas where low mounting heights
would interfere with personnel or
equipment activity. Units mounted in the
vertical discharge position should not be
mounted higher than the unit’s published
maximum mounting height ratings.
When unit heaters are used to temper
areas such as loading dock doors, one or
more units should be arranged to
blanket the exposed opening.

15UH-PRC003-EN
Model Number
Description
Model UHXA
Digits 1-3 —
Electric Explosion-Proof
Unit Heater
Digit 4 — Development Sequence
Digits 5-6 — Unit Capacity
03 — 3 kW
05 — 5 kW
07 — 7.5 kW
10 — 10 kW
15 — 15 kW
20 — 20 kW
25 — 25 kW
Digit 7 — Element Phase
1 — Single Phase
3 — Three Phase
Digit 8 — Voltage
A — 208 Volts
B — 240 Volts
D — 480 Volts
F — 600 Volts
Digit 9 — Control Voltage
1 — 24 Volts (STD)
2 — 120 Volts (For 208, 240 & 480 Volts only)
3 — 208 Volts (For 208 Volts only)
4 — 240 Volts (For 240 Volts only)
Digit 10 — Design Sequence
Notes:
1. Available in 3 phase only.
2. Available in 480 volts or 600 volts,
3 phase only.
3. Available for 3 kW, 5 kW and 7.5 kW in
208 and 240 volts and 10 kW in 240 volts
only.
Model UHEC
Digits 1-3 — Electric Unit Heater
Digit 4 — Development Sequence
Digits 5-6 — Unit Capacity
03 — 3.3 kW
05 — 5 kW
07 — 7.5 kW
10 — 10 kW
15 — 15 kW
20 — 20 kW
25 — 25 kW
30 — 30 kW
40 — 40 kW
50 — 50 kW
Digit 7 — Element Phase
1 — Single-phase
2 Single-phase/three-phase
(field convertible)
3 — Three-phase
Digit 8 — Element and Motor Voltage
A — 208 V
B — 240/208 V
C — 277 V — Single-phase only
D — 480 V — Three-phase only
Digit 9 — 24-Volt Control Transformer
0 — None - wired for direct line voltage
A — Transformer - for 24-volt control
circuits
Digit 10 — Design Sequence
Digit 11 — Contactors
0 — None - wired for direct line voltage
A — Contactor - for 24-volt control circuits
Model UHRA
Digits 1-3 — Electric Hose-Down Corrosion
Resistant Unit Heater
Digit 4 — Development Sequence
Digits 5-6 — Unit Capacity
03 — 3.3 kW
05 — 5 kW
07 — 7.5 kW
10 — 10 kW
15 — 15 kW
20 — 20 kW
25 — 25 kW
30 — 30 kW
40 — 40 kW
48 — 48 kW
Digit 7 — Element Phase
1 — Single-phase
3 — Three-phase
Digit 8 — Element Voltage
A — 208 V
G — 240 V
C — 277 V
D — 480 V
F — 600 V
Digit 9 — 24-Volt Control
Transformer/Relay
A — Transformer/Relay — Standard
Digit 10 — Design Sequence
Digit 11 —Thermostat/off/on/fan switch
— Factory installed and wired
T — Thermostat/off/on/fan switch —
Standard
Model UHEC,
UHRA, UHXA

UH-PRC003-EN16
Model Number
Description Model UHWA
Model UHWA
Digits 1-3: Unit Type
UHW = Electric Wall Mounted Unit Heater
Digit 4: Development Sequence
Digits 5 - 6: Unit Capacity
02 = 2 kW
03 = 3 kW
04 = 4 kW
05 = 5 kW
Digit 7: Element Phase
1 = 1 Phase/60 Cycle
3 = 3 Phase/60 Cycle
Digit 8: Element and Motor Voltage
A = 208 Volt
B = 240 Volt
C = 277 Volt
Digit 9: Unit Series
2 = Unit Series 20
5 = Unit Series 50
Digit 10: Current Design Sequence
Digit 11: Built-in Thermostat
0 = None
T = Unit Mounted Tamper Proof
Thermostat
Digit 12: Wall Box
2 = Series 20 Wall Box
5 = Series 50 Wall Box
Digit 13: Extension Sleeves
0 = No Extension Sleeves
A = 4” (102 mm) Ext Surface Mounted
(20 Series)
B = 2” (51 mm) Ext Semi-Recessed
(20 Series)
C = 1” (25 mm) Ext Semi-Recessed
(20 Series)
D = 4” (102mm) Ext Surface Mounted
(50 Series)
E = 2” (51 mm) Ext Semi-Recessed
(50 Series)
F = 1” (25 mm) Ext Semi-Recessed
(50 Series)
Digit 14: Wall Mounted Line Voltage Thermostat
1 = DPST 1-Phase Line Voltage
2 = DPST 1-Phase Tamper Resistant
3 = DPST 3-Phase Line Voltage
4 = SPST Pilot Duty Line Voltage
5 = SPST Pilot Duty Tamper Resistant
Digit 15: Contactors
H = Line Voltage
J = 24V
K = 120V
Digit 18: Circuit Breaker
L = Unit Mounted
Digit 19: Transformer 24 Volt
M = 24V Transformer
Digit 20: Transformer 120 Volt
P = 120V Transformer

17UH-PRC003-EN
Model UHCA
Digit 1-3: Unit Type
UHC = Electric Ceiling Mounted Commercial
Heater
Digit 4: Development Sequence
Digits 5-6: Unit Capacity
02 = 2 kW
03 = 3 kW
04 = 4 kW
05 = 5 kW
Digit 7: Element Phase
1 = 1 Phase/60 Cycle
3 = 3 Phase/60 Cycle
Digit 8: Element and Motor Voltage
A = 208 Volt
B = 240 Volt
C = 277 Volt
Digit 9: Unit Series
2 = Surface Mounted, Unit Series 70
5 = Recess Mounted, Unit Series 80
Digit 10: Current Design Sequence
Digit 12-13: Unit Mounted Thermostat
T1 = Single Pole Thermostat
T2 = Double Pole Thermostat
Digit 14: Unit Mounted Disconnect
S = Unit Mounted Disconnect Switch
Digit 15-16: Unit Mounted Relay
R1 = Unite Mounted 24 Volt Transformer/Relay
R = Unit Mounted Line Voltage Relay
R2 = Unit Mounted 120 Volt Relay
Digit 17: Plaster Trim
A = Plaster Trim
Digit 18: Wall Mounted Line Voltage Thermostat
1 = DPST 1-Phase Line Voltage Thermostat
2 = DPST 1-Phase Tamper Resistant Thermostat
3 = DPST 3-Phase Line Voltage Thermostat
4 = SPST Pilot Duty Line Voltage Thermostat
5 = SPST Pilot Duty Tamper Resistant
Thermostat
Digit 19: Control Panels
A = 24V Control Panel for 208V, 1-Contactor
B = 24V Control Panel for 240V, 1-Contactor
C = 24V Control Panel for 277V, 1-Contactor
D = 24V Control Panel for 208V, 2-Contactor
E = 24V Control Panel for 240V, 2-Contactor
F = 24V Control Panel for 277V, 2-Contactor
G = 24V Control Panel for 208V, 3-Contactor
H = 24V Control Panel for 240V, 3-Contactor
J = 24V Control Panel for 277V, 3-Contactor
1 = 120V Control Panel for 208V, 1-Contactor
2 = 120V Control Panel for 240V, 1-Contactor
3 = 120V Control Panel for 277V, 1-Contactor
4 = 120V Control Panel for 208V, 2-Contactor
5 = 120V Control Panel for 240V, 2-Contactor
6 = 120V Control Panel for 277V, 2-Contactor
7 = 120V Control Panel for 208V, 3-Contactor
8 = 120V Control Panel for 240V, 3-Contactor
9 = 120V Control Panel for 277V, 3-Contactor
Digit 20: Low Voltage Thermostat Option
0 = No Low Voltage T-Stat
7 = Low Voltage T-Stat
Digit 21: Thermal Relay with Transformer
0 = No Thermal Relay
A = SPST Relay w/Transformer
Digit 22: Tamper Proof Kit
8 = Tamper Proof Kit
Model UHCA
Model Number
Description

UH-PRC003-EN18
Model UHAA
Model Number
Description
Model UHAA
Digit 1 - 3: Unit Type
UHA = Electric Architectural Wall Heater
Digit 4: Development Sequence
Digits 5–6: Unit Capacity
15 = 1.5 kW
02 = 2 kW
03 = 3 kW
04 = 4 kW
48 = 4.8 kW
Digit 7: Element Phase
1 = 1 Phase/60 Cycle
Digit 8: Element and Motor Voltage
A = 208 Volt
B = 240 Volt
C = 277 Volt
E = 120 Volt
Digit 9: Built-in Thermostat
T = Unit Mounted Tamperproof Thermostat
Digit 10: Current Design Sequence
Digit 11: Unit Mounted Disconnect
D = Unit Mounted Disconnect Switch
Digit 12: Day/Night Relay
0 = None
R = Unit Mounted Day/Night Relay
Digit 13: Surface Mounting Adapter Option
0 = None
A = 3320EX33 Surface Mounting Adapter

19UH-PRC003-EN
Table GD-1 — Model UHEC
Electrical Data Air Delivery Data
Element Min. Supply Airflow Approx. Horiz. Rec. Max.
Unit Capacity and Std. Max. Circuit Wire At Air Rise Air Mounting
Model kW Btu/Hr Motor Element Control Amp Fuse Gauge Motor Data Outlet @ Outlet Throw Height (Ft)
Number Rating (000) Voltage Phase Voltage Rating Size (60°C) Hp Rpm (Cfm) (F) (Ft) Horiz. Vert.
UHEC-031A0C0 3.3 11.2 208 1 208 15.9 20A 12G 1/125 1550 400 26 12 9 9
UHEC-031B0C0 3.3/2.5 11.2/8.5 240/208 1 240/208 13.7/11.9 20A/15A 12GA/14GA 1/125 1550 400 26 12 9 9
UHEC-031AACA 3.3 11.2 208 1 24 15.9 20A 12G 1/125 1550 400 26 12 9 9
UHEC-032A0C0 3.3 11.2 208 1-3 208 15.9/9.2† 20A 12GA 1/125 1550 400 26 12 9 9
UHEC-032B0C0 3.3/2.5 11.2/8.5 240/208 1-3 240/208 13.7/11.9 20A/15A 12GA/14GA 1/125 1550 400 26 12 9 9
7.9/6.9†
UHEC-031C0C0 3.3 11.2 277 1 277 11.9 15A 14GA 1/125 1550 400 26 12 9 9
UHEC-031CACA 3.3 11.2 277 1 24 11.9 15A 14G 1/125 1550 400 26 12 9 9
UHEC-033DACA 3.3 11.2 480 3 24 4.0 15A 14GA 1/125 1550 400 26 12 9 9
UHEC-031BACA 3.3/2.5 11.2/8.5 240/208 1 24 13.7/11.9 20A/15A 12GA/14GA 1/125 1550 400 26 12 9 9
UHEC-032AACA 3.3 11.2 208 1-3 24 15.9/9.2† 20A 12GA 1/125 1550 400 26 12 9 9
UHEC-032BACA 3.3/2.5 11.2/8.5 240/208 1-3 24 13.7/11.9 20A/15A 12GA/14GA 1/125 1550 400 26 12 9 9
7.9/6.9†
UHEC-051A0C0 5.0 17.1 208 1 208 24.1 35A 8GA 1/125 1550 400 40 12 9 9
UHEC-052AACA 5.0 17.1 208 1-3 24 24.1/13.9 35A 8GA 1/125 1550 400 40 12 9 9
UHEC-051B0C0 5.0/3.7 17.1/12.8 240/208 1 240/208 20.9/18.1 30A/25A 10GA/10GA 1/125 1550 400 40 12 9 9
UHEC-052A0C0 5.0 17.1 208 1-3 208 24.1/13.9
†
35A 8GA 1/125 1550 400 40 12 9 9
UHEC-052B0C0 5.0/3.7 17.1/12.8 240/208 1-3 240/208 20.9/18.1 30A/25A 10GA/10GA 1/125 1550 400 40 12 9 9
12.1/10.4†
UHEC-052BACA 5.0/3.7 17.1/12.8 240/208 1-3 24 20.9/18.1 30A/25A 10GA/10GA 1/125 1550 400 40 12 9 9
12.1/10.4†
UHEC-051C0C0 5.0 17.1 277 1 277 18.1 25A 10GA 1/125 1550 400 40 12 9 9
UHEC-053DACA 5.0 17.1 480 3 24 6.1 15A 14GA 1/125 1550 400 40 12 9 9
UHEC-051AACA 5.0 17.1 208 1 24 24.1 35A 8GA 1/125 1550 400 40 12 9 9
UHEC-051BACA 5.0/3.7 17.1/12.8 240/208 1 24 20.9/18.1 30A/25A 10GA/10GA 1/125 1550 400 40 12 9 9
UHEC-05ACACA 5.0 17.1 277 1 24 18.1 25A 10GA 1/125 1550 400 40 12 9 9
UHEC-072AACA 7.5 25.6 208 1-3 24 36.1 20.8 50A 6GA 1/50 1550 700 34 22 10 12
20.8
†
UHEC-072BACA 7.5/5.6 25.6/19.2 240/208 1-3 24 31.3/27.1 40A/35A 8GA/8GA 1/50 1550 700 34 22 10 12
18.1/15.6†
UHEC-071CACA 7.5 25.6 277 1 24 27.1 35A 8GA 1/50 1550 700 34 22 10 12
UHEC-073DACA 7.5 25.6 480 3 24 9.1 15A 14GA 1/50 1550 700 34 22 10 12
UHEC-102AACA 10.0 34.1 208 1-3 24 47.8/27.7
†
60A 4GA 1/50 1550 700 45 22 10 14
UHEC-102BACA 10.0/7.5 34.1/25.6 240/208 1-3 24 42.2/36.1 60A/50A 4GA/6GA 1/50 1550 700 45 22 10 14
24/20.8†
UHEC-101CACA 10.0 34.1 277 1 24 36.1 50A 6GA 1/50 1550 700 45 22 10 14
UHEC-103DACA 10.0 34.1 480 3 24 12.1 20A 12GA 1/50 1550 700 45 22 10 14
UHEC-153AACA 15.0 51.2 208 3 24 41.7 60A 4GA 1/20 1550 1100 43 32 11 20
UHEC-153BACA 15.0/11.2 51.2/38.4 240/208 3 24 36.1/31.3 50A/40A 6GA/6GA 1/20 1550 1100 43 32 11 20
UHEC-153DACA 15.0 51.2 480 3 24 18.1 25A 10GA 1/20 1550 1100 43 32 11 20
UHEC-203BACA 19.7/14.8 67.2/50.5 240/208 3 24 47.8/41.1 70A/60A 4GA/4GA 1/20 1550 1100 57 32 12 18
UHEC-203DACA 20.0 68.3 480 3 24 24.1 35A 8GA 1/20 1550 1100 57 32 12 18
UHEC-253AACA 25.0 85.3 208 3 24 69.5 90A 2GA 1/12 1550 2000/1800 40/44 45 12 22
UHEC-253BACA 25.0/18.7 85.3/64.0 240/208 3 24 60.2/52.1 80A/70A 3GA/4GA 1/12 1550 2000/1800 40/44 45 12 22
UHEC-253DACA 25.0 85.3 480 3 24 30.1 40A 8GA 1/15 1550 2000/1800 40/44 45 12 22
UHEC-303AACA 30.0 102.4 208 3 24 83.4 110A 1GA 1/12 1550 2000/1800 47/53 40 12 20
UHEC-303BACA 30.0/22.5 102.4/76.8 240/208 3 24 72.3/62.5 100A/80A 1GA/3GA 1/12 1550 2000/1800 47/53 40 12 20
UHEC-303DACA 30.0 102.4 480 3 24 36.2 50A 6GA 1/15 1550 2000/1800 47/53 40 12 20
UHEC-403AACA 40.0 136.5 208 3 24 111.2 150A 1/0* 1/4 1550 3100/2800 40/45 55 15 24
UHEC-403BACA 40.0/30.0136.5/102.4 240/208 3 24 96.4/83.4 125A/110A 1/0/1GA 1/4 1550 3100/2800 40/45 55 15 24
UHEC-403DACA 39.0 133.1 480 3 24 47.0 70A 4GA 1/5 1550 3100/2800 40/45 55 15 24
UHEC-503AACA 50.0 170.6 208 3 24 139.0 175A 2/0* 1/4 1550 3100/2800 51/56 50 15 22
UHEC-503BACA 50.0/37.5170.6/128.0 240/208 3 24 120.5/104.3 175A/175A 2/0/2/0 1/4 1550 3100/2800 51/56 50 15 22
UHEC-503DACA 50.0 170.6 480 3 24 60.3 80A 3GA 1/5 1550 3100/2800 51/56 50 15 22
Notes: 1. Maximum amp rating indicates single-phase on those units suitable for both single and three-phase. 2. 25 through 50 kW models are wired for two-stage, low voltage control. These units
are also equipped with two-speed motors for Hi-Lo fan operation with addition of fan switch option. 3. Dual voltage unit ratings indicate highest voltage performance. 4. 1 kW equals 3,413 BTU.
*Supply wire on these models should have insulation rated 75°C minimum.
† Amp Rating for three-phase operation.
General Data Model UHEC

UH-PRC003-EN20
General Data Model UHEC
Table GD-2 — Model UHEC — Metric
Unit Heater Airflow Approx. Horiz. Rec. Max
Capacity at Air Rise Air Mounting
kW Motor Data Outlet @ Outlet Throw Height (M)
Rating Watts R.P.S. (L/S) (C) (M) Horizontal Vertical
3.3 6 25.8 189 14.4 3.7 2.7 2.7
5.0 6 25.8 189 22.2 3.7 2.7 2.7
7.5 14 25.8 330 18.9 6.7 3.0 3.7
10 14 25.8 330 25.0 6.7 3.0 4.3
15 37 25.8 519 23.9 9.8 3.4 6.1
20 37 25.8 519 31.7 9.8 3.7 5.5
25 62 25.8 944/ 22.2/ 13.7 3.7 6.7
849 24.4 13.7 3.7 6.7
25 50 25.8 944/ 22.2/ 13.7 3.7 6.7
480/3 Mtr 849 24.4 13.7 3.7 6.7
30 62 25.8 944/ 26.1/ 12.2 3.7 6.1
849 29.4 12.2 3.7 6.1
30 50 25.8 944/ 26.1/ 12.2 3.7 6.1
480/3 Mtr 849 29.4 12.2 3.7 6.1
40 186 25.8 1463/ 22.2/ 16.8 4.6 7.3
1321 25.0 16.8 4.6 7.3
40 149 25.8 1463/ 22.2/ 16.8 4.6 7.3
480/3 Mtr 1321 25.0 16.8 4.6 7.3
50 186 25.8 1463/ 28.3/ 15.2 4.6 6.7
1321 31.1 15.2 4.6 6.7
50 149 25.8 1463/ 28.3/ 15.2 4.6 6.7
480/3 Mtr 1321 31.1 15.2 4.6 6.7
Note 1. 25 through 50 kW models are equipped with two-speed motors for Hi-Lo fan operation with addition of fan switch
option.

21UH-PRC003-EN
General Data Model UHRA
Table GD-3 — Model UHRA
Unit Motor &
Model Heater Max
Number kW Volts/ Control Amp Motor Motor
UHRA Rating Btu/Hr Phase Volts Rating H P RPM
031AAAT 208/1 15.9
033AAAT 208/3 9.2
031GAAT 240/1 13.8
033GAAT 3.3 11,200 240/3 24 8.0 35 mhp 1550
031CAAT 277/1 12.0 (21 w) (26 rps)
033DAAT 480/3 4.0
033FAAT 600/3 3.2
051AAAT 208/1 24.1
053AAAT 208/3 13.9
051GAAT 240/1 20.9
053GAAT 5.0 17,100 240/3 24 12.1 35 mhp 1550
051CAAT 277/1 18.1 (21 w) (26 rps)
053DAAT 480/3 6.1
053FAAT 600/3 4.9
071AAAT 208/1 36.1
073AAAT 208/3 20.9
071GAAT 240/1 31.3
073GAAT 7.5 25,600 240/3 24 18.1 35 mhp 1550
071CAAT 277/1 27.1 (21 w) (26 rps)
073DAAT 480/3 9.1
073FAAT 600/3 7.3
101AAAT 208/1 48.1
103AAAT 208/3 27.8
101GAAT 240/1 41.7
103GAAT 10 34,130 240/3 24 24.1 35 mhp 1550
101CAAT 277/1 36.2 (21 w) (26 rps)
103DAAT 480/3 12.1
103FAAT 600/3 9.7
151AAAT 208/1 72.2
153AAAT 208/3 41.7
151GAAT 240/1 62.5
153GAAT 15 51,200 240/3 24 36.2 35 mhp 1550
153DAAT 480/3 18.1 (21 w) (26 rps)
153FAAT 600/3 14.5
203AAAT 208/3 55.6
203GAAT 20 68,260 240/3 24 48.2 1/3 1625
203DAAT 480/3 24.1 (249 w) (27 rps)
203FAAT 600/3 19.3
253AAAT 208/3 69.5
253GAAT 25 85,325 240/3 24 60.3 1/3 1625
253DAAT 480/3 30.2 (249 w) (27 rps)
253FAAT 600/3 24.1
303AAAT 208/3 83.4
303GAAT 30 102,390 240/3 24 72.3 1/3 1625
303DAAT 480/3 36.2 (249 w) (27 rps)
303FAAT 600/3 29.0
403DAAT 40 136,520 480/3 24 48.2 1/3 1625
403FAAT 600/3 38.6 (249 w) (27 rps)
483DAAT 48 163,824 480/3 24 57.9 1/3 1625
483FAAT 600/3 46.3 (249 w) (27 rps)
Table GD-4 — Air Delivery Data
Unit F Deg.
Model Temp. Air Rec.
Number Cfm FPM Rise Throw Mtg.
UHRA kW Outlet Outlet Outlet Feet Height
031AAAT
033AAAT
031GAAT
033GAAT 3.3 400 500 26°F 20 Ft. 6 Ft.
031CAAT (189 L/S) (2540 MM/S) (-3.3°C) (6.1 M) (1.8 M)
033DAAT
033FAAT
051AAAT
053AAAT
051GAAT
053GAAT 5.0 400 500 40°F 20 Ft. 6 Ft.
051CAAT (189 L/S) (2540 MM/S) (4.4°C) (6.1 M) (1.8 M)
053DAAT
053FAAT
071AAAT
073AAAT
071GAAT
073GAAT 7.5 400 500 60°F 20 Ft. 6 Ft.
071CAAT (189 L/S) (2540 MM/S) (16°C) (6.1 M) (1.8 M)
073DAAT
073FAAT
101AAAT
103AAAT
101GAAT
103GAAT 10 700 660 45°F 28 Ft. 6 Ft.
101CAAT (330 L/S) (3353 MM/S) (7.2°C) (8.5 M) (1.8 M)
103DAAT
103FAAT
151AAAT
153AAAT
151GAAT
153GAAT 15 700 660 68°F 28 Ft. 6 Ft.
153DAAT (330 L/S) (3353 MM/S) (20°C) (8.5 M) (1.8 M)
153FAAT
203AAAT
203GAAT 20 1400 1000 45°F 35 Ft. 6 Ft.
203DAAT (661 L/S) (5080 MM/S) (7.2°C) (10.7 M) (1.8 M)
203FAAT
253AAAT
253GAAT 25 1400 1000 56°F 35 Ft. 6 Ft.
253DAAT (661 L/S) (5080 MM/S) (13.3°C) (10.7 M) (1.8 M)
253FAAT
303AAAT
303GAAT 30 1400 1000 68°F 35 Ft. 6 Ft.
303DAAT (661 L/S) (5080 MM/S) (20°C) (10.7 M) (1.8 M)
303FAAT
403DAAT 40 1800 1000 70°F 42 Ft. 6 Ft.
403FAAT (849 L/S) (5080 MM/S) (21°C) (12.8 M) (1.8 M)
483DAAT 48 1800 1000 84°F 42 Ft. 6 Ft.
483FAAT (849 L/S) (5080 MM/S) (29°C) (12.8 M) (1.8 M)

UH-PRC003-EN22
Table GD-5 — Air Delivery Characteristics
Velocity of Air Movement (FPM)
Heater Distance from Heater
Capacity 6 Ft. 12 Ft. 24 Ft. Throw
(kW Rating) (1.8 M) (3.7 M) (7.3 M) Distance Weight
3.3, 5.0 210 80 25 36 Ft. 45 lbs.
7.5 (12.8 M/S) (4.9 M/S) (1.5 M/S) (11 M) (20.4 Kg)
10, 15 270 95 45 46 Ft. 55 lbs.
(16.5 M/S) (5.8 M/S) (2.7 M/S) (14 M) (24.9 Kg)
Table GD-6 — Air Delivery Characteristics
Velocity of Air Movement (FPM)
Heater Distance from Heater
Capacity 10 Ft. 20 Ft. 30 Ft. Throw
(kW Rating) (3.0 M) (6.1 M) (9.1 M) Distance Weight
20, 25, 750 450 300 55 Ft. 85 lbs.
30 (45.7 M/S) (27.4 M/S) (18.3 M/S) (16.8 M) (39 Kg)
40, 48 900 500 350 65 Ft. 130 lbs.
(54.9 M/S) (30.5 M/S) (21.3 M/S) (19.8 M) (59 Kg)
Table GD-7 — Unit Electrical Data
Model BTU/Hr.
Number Watts Output
UHRA-03 3.300 11,261
UHRA-05 5,000 17,062
UHRA-07 7,500 25,594
UHRA-10 10,000 34,125
UHRA-15 15,000 51,188
UHRA-20 20,000 68,250
UHRA-25 25,000 85,313
UHRA-30 30,000 102,375
UHRA-40 40,000 136,500
UHRA-48 48,000 163,800
General Data Model UHRA

23UH-PRC003-EN
General Data Model UHXA
Table GD-8 — Model UHXA
Air Temp. Air Temp. Max Min*
Model No. Volts/ Motor Heater Line BTU/ Rise Rise Min. Cir. Fuse Wire
Unit Size UHXA Phase H P Amps Amps Hr. Deg. F Deg. C Ampacity Amps AWG
031A1B 208/1 14.4 16.3 20.4 25 10
033A1B 208/3 8.3 9.8 12.3 15 14
3 kW 033B1B 240/1 1/412.5 14.8 10239 16.6 9.2 18.5 20 12
033B1B 240/3 (186W) 7.2 8.6 10.8 15 14
033D1B 480/3 3.6 4.3 5.4 15 14
033F1B 600/3 2.9 3.5 4.4 15 14
051A1B 208/1 24.0 26.0 32.4 35 8
053A1B 208/3 13.9 15.4 19.2 20 12
5 kW 051B1B 240/1 1/420.8 23.1 17065 27.6 15.3 28.9 30 10
053B1B 240/3 (186 W) 12.0 13.4 16.8 20 12
053D1B 480/3 6.0 6.7 8.4 15 14
053F1B 600/3 4.8 5.4 6.8 15 14
071A1B 208/1 36.1 38.0 47.5 50 8
073A1B 208/3 20.8 22.3 27.9 30 10
7.5 kW 071B1B 240/1 1/431.3 33.6 25598 41.4 23.0 42.0 45 8
073B1B 240/3 (186 W) 18.0 19.4 24.3 25 10
073D1B 480/3 9.0 9.7 12.2 15 14
073F1B 600/3 7.2 7.8 9.8 15 14
103A1B 208/3 27.8 29.3 36.6 40 8
101B1B 240/1 41.7 44.0 55.0 60 6
10 kW 103B1B 240/3 1/424.1 25.5 34130 21.7 12.1 31.8 35 8
103D1B 480/3 (186 W) 12.0 12.7 15.9 20 12
103F1B 600/3 9.6 10.2 12.8 15 14
153A1B 208/3 41.6 43.5 54.4 60 6
15 kW 153B1B 240/3 1/236.1 38.1 51195 19.2 10.7 47.6 50 8
153D1B 480/3 (186 W) 18.0 19.0 23.8 25 10
153F1B 600/3 14.4 15.2 19.0 20 12
203D1B 480/3 1/224.1 25.1 31.3 35 8
20 kW 203F1B 600/3 (373 W) 19.2 20.0 68260 26.2 14.6 25.1 30 10
253D1B 480/3 1/230.1 31.1 38.8 40 8
25 kW 253F1B 600/3 (373 W) 24.1 24.9 85325 32.8 18.2 31.1 35 8
*Supply conductors must be suitable for 90°C
1. 1 watt equals 3.413 Btu.
2. 1 kW equals 3,413 Btu.
3. 24 volt control voltage is standard and includes built-in contactor and 24 volt control transfer.

UH-PRC003-EN24
General Data Model UHXA
Table GD-9 — Model UHXA with 120 Volt Control Voltage
Air Temp. Air Temp. Max Min*
Model No. Volts/ Motor Heater Line BTU/ Rise Rise Min. Cir. Fuse Wire
Unit Size UHXA Phase H P Amps Amps Hr. Deg. F Deg. C Ampacity Amps AWG
031A2B 208/1 14.4 16.3 20.4 25 10
033A2B 208/3 8.3 9.8 12.3 15 14
3 kW 033B2B 240/1 1/412.5 14.8 10239 16.6 9.2 18.5 20 12
033B2B 240/3 (186W) 7.2 8.6 10.8 15 14
033D2B 480/3 3.6 4.3 5.4 15 14
051A2B 208/1 24.0 26.0 32.4 35 8
053A2B 208/3 13.9 15.4 19.2 20 12
5 kW 051B2B 240/1 1/420.8 23.1 17065 27.6 15.3 28.9 30 10
053B2B 240/3 (186 W) 12.0 13.4 16.8 20 12
053D2B 480/3 6.0 6.7 8.4 15 14
071A2B 208/1 36.1 38.0 47.5 50 8
073A2B 208/3 20.8 22.3 27.9 30 10
7.5 kW 071B2B 240/1 1/431.3 33.6 25598 41.4 23.0 42.0 45 8
073B2B 240/3 (186 W) 18.0 19.4 24.3 25 10
073D2B 480/3 9.0 9.7 12.2 15 14
103A2B 208/3 27.8 29.3 36.6 40 8
101B2B 240/1 41.7 44.0 55.0 60 6
10 kW 103B2B 240/3 1/424.1 25.5 34130 21.7 12.1 31.8 35 8
103D2B 480/3 (186 W) 12.0 12.7 15.9 20 12
153A2B 208/3 41.6 43.5 54.4 60 6
15 kW 153B2B 240/3 1/236.1 38.1 51195 19.2 10.7 47.6 50 8
153D2B 480/3 (186 W) 18.0 19.0 23.8 25 10
20 kW 203D2B 480/3 1/2 (373 W) 24.1 25.1 68260 26.2 14.6 31.3 35 8
25 kW 253D2B 480/3 1/2 (373 W) 30.1 31.1 85325 32.8 18.2 38.8 40 8
*Supply conductors must be suitable for 90°C.
1. 120 volt control voltage is standard and includes built-in contactor and 120 volt control transformer.
2. Not available for 600 volt heaters.
Table GD-10 — Model UHXA with 208 or 240 Volt Control Voltage
Air Temp. Air Temp. Max Min*
Model No. Volts/ Motor Heater Line BTU/ Rise Rise Min. Cir. Fuse Wire Control
Unit Size UHXA Phase H P Amps Amps Hr. Deg. F Deg. C Ampacity Amps AWG Voltage
031A3B 208/1 14.4 16.3 20.4 25 10 208
3 kW 033A3B 208/3 1/4 8.3 9.8 12.3 15 14 208
033B4B 240/1 (186 W) 12.5 14.8 10239 16.6 9.2 18.5 20 12 240
033B4B 240/3 7.2 8.6 10.8 15 14 240
051A3B 208/1 24.0 26.0 32.4 35 8 208
5 kW 053A3B 208/3 1/413.9 15.4 19.2 20 12 208
051B4B 240/1 (186 W) 20.8 23.1 17065 27.6 15.3 28.9 30 10 240
053B4B 240/3 12.0 13.4 16.8 20 12 240
071A3B 208/1 36.1 38.0 47.5 50 8 208
7.5 kW 073A3B 208/3 1/420.8 22.3 27.9 30 10 208
071B4B 240/1 (186 W) 31.3 33.6 25598 41.4 23.0 42.0 45 8 240
073B4B 240/3 18.0 19.4 24.3 25 10 240
103A3B 208/3 27.8 29.3 36.6 40 8 208
10 kW 101B4B 240/1 1/441.7 44.0 34130 21.7 12.1 55.0 60 6 240
103B4B 240/3 (186 W) 24.1 25.5 31.8 35 8 240
15 kW 153A3B 208/3 1/241.6 43.5 54.4 60 6 208
153B4B 240/3 (186 W) 36.1 38.1 51195 19.2 10.7 47.6 50 8 240
*Supply conductors must be suitable for 90°C.
1. Not available for 480 and 600 volt heaters.

25UH-PRC003-EN
General Data Model UHXA
Table GD-11 — Model UHXA
Unit Size 3 kW, 5 kW & 7.5 kW 10 kW 15 kW, 20 kW & 25 kW
Capacities 3 kW 10,236 Btu 10 kW 34,120 Btu 15 kW 51,180 Btu
Available 5 kW 17,060 Btu 20 kW 68,240 Btu
7.5 kW 25,590 Btu 25 kW 85,300 Btu
UL Listing Class I, Group D, Divisions 1 & 2
Class II, Groups E, F & G, Divisions 1 & 2
UL Temperature Class I: T3B 165°C (329°F)
Code Class II: T3B 165°C (329°F)
CFM @ 70°F (21°C) 580 1500 2450
L/S @ 21°C (70°F) 274 708 1156
FPM 1000 1600 2000
MM/S 5080 8128 10160
Air Temperature Rise 3 kW 16.3°F 10 kW 21.0°F 15 kW 19.0°F
9.1°C 11.7°C 10.6°C
5 kW 27.2°F 20 kW 25.5°F
15.1°C 14.2°C
7.5 kW 40.8°F 25 kW 32.3°F
22.7°C 17.9°C
Horizontal 24 ft. 40 ft. 43 ft.
Throw 7.3 M 12.2 M 13.1 M
Max. Mtg. Height 8 ft. 10 ft. 13 ft.
from floor 2.4 M 3.1 M 4.0 M
Max. Operational 3 kW, 5 kW, 10 kW & 15 kW - 8000 ft. (2438 M)
Altitude 20 kW - 7000 ft. (2134 M)
7.5 kW & 25 kW - 5500 ft. (1676 M)
Ambient Temperature Limits Min. -45°C, (-49°F)
Max. 40°C, (104°F)
RPM/RPS 1725/29 1725/29 1725/29
Propeller Fan — 3 wing, Aluminum 12” Dia. (305 mm) 16” Dia. (406 mm) 20” Dia. (508 mm)
Motor Motor Voltage/Phase same as element. PSC, Explosion-Proof, Permanently Lubricated, Ball Bearing
1/4 HP (186 W) 1/4 HP (186 W) 1/2 HP (373 W)
Heat Exchanger Heavy wall, liquid filled with immersion elements.
Core Material Steel with aluminum fins.
Heat Transfer Fluid Ethylene-glycol solution, protected to -45°C (-49°F).
Heating Elements Three, low watt density, immersion type copper sheathed.
Thermal Cut-Out Snap action capillary type rated 100,000 cycles pilot duty.
Relief Valve Stainless steel and aluminum construction, opens @ 200 PSI (1379 kPa).
Cabinet 14-gauge cold rolled steel, epoxy coated, individually adjustable louvers.
Fan Guard Wire, less than 1/4” (6.4 mm) spacing, plated, split design for easy removal.
Fasteners Zinc plated.
Conduit Material 3/4 (19.1 mm) rigid metal.
Control Box Cast aluminum with oversized opening. (2) 1” (25.4 mm) NPS with conduits stops for field wiring.
Hanger Connections 5/8” (15.9 mm) NC tap, 2 holes.
Contactors Heavy-duty, break all ungrounded conductors rated 100,000 cycles @ full load. Built-in and prewired.
Control Transformer Built-in and prewired - 24 volt secondary (standard) and 120 volt (optional).
Control Circuits 24 volt standard on all models.
120 volt optional on 208, 240 and 480 volt models.
Line voltage on 208 and 240 volt models only.
Remote wall mounted Explosion-proof 40-90°F operating range
Thermostats Models 22A, 125-277 VAC - 3/4 HP @ 125 VAC; 11/2 HP
TW161 & TW162 @ 250-277 VAC.
Built-in “T” Option 125 VA pilot duty Sensing Bulb and Capillary made from 300 Series Stainless Steel ASW Tube.
Heater Net Weight 3, 5 & 7.5 kW 10 kW 15, 20 & 25 kW
132 lbs (60 Kg) 158 lbs (72 Kg) 190 lbs (86 Kg)
Shipping Weight 3, 5 & 7.5 kW 10 kW 15, 20 & 25 kW
167 lbs (76 Kg) 193 lbs (88 Kg) 225 lbs (102 Kg)

UH-PRC003-EN26
Model UHWA
Series 20 and 50
General Data
Table GD-12 — Electric Wall-Mounted Unit Heaters — Series 20
Model No. Order No. Element Element Ship Wt. Ship Wt. Degree F Degree C
Watts UHWA 233 + Motor Voltage Phase Lbs Kg BTU Air Rise Air Rise
021A2AT -400 208 1
2000 Watts 021B2AT -402 240 1 41 18.6 6,826 27 15
021C2AT -404 277 1
031A2AT -406 208 1
3000 Watts 031B2AT -408 240 1 41 18.6 10,239 41 23
031C2AT -410 277 1
041A2AT -412 208 1
041B2AT -414 240 1
4000 Watts 041C2AT -416 277 1 41 18.6 13,652 57 32
043A2AT -418 208 3
043B2AT -420 240 3
051A2AT -422 208 1
051B2AT -424 240 1
5000 Watts 051C2AT -426 277 1 41 18.6 17,065 73 41
053A2AT -428 208 3
053B2AT -430 240 3
Note: ONLY thermostat and/or contactor may be built-in on Series 20 wall heaters.
Table GD-13 — Electric Wall-Mounted Unit Heaters — Series 50
Model No. Order No. Element Element Ship Wt. Ship Wt. Degree F Degree C
Watts UHWA 233 + Motor Voltage Phase Lbs Kg BTU Air Rise Air Rise
021A5AT -431 208 1
2000 Watts 021B5AT -433 240 1 54 24.5 6,826 27 15
021C5AT -435 277 1
031A5AT -437 208 1
3000 Watts 031B5AT -439 240 1 55 24.9 10,239 41 23
031C5AT -441 277 1
041A5AT -443 208 1
041B5AT -445 240 1
4000 Watts 041C5AT -447 277 1 55 24.9 13,652 57 32
043A5AT -449 208 3
043B5AT -451 240 3
051A5AT -453 208 1
051B5AT -455 240 1
5000 Watts 051C5AT -457 277 1 55 24.9 17,065 73 41
053A5AT -459 208 3
053B5AT -461 240 3
Note: If circuit breaker and/or transformers are required, the Series 50 wall heater must be ordered. 1 Watt Equals 3.413 Btu.

27UH-PRC003-EN
General Data
Table GD-15 — Series 80 Electric Ceiling Recessed Heaters
Model Order Element
No. No. + Motor Element Mounting Amp *Degree F *Degree C
Watts UHCA 233 Voltage Phase Application Rating BTU Air Rise Air Rise
021A8A -331 208 1 Recessed 9.6
2000 021B8A -333 240 1 Recessed 8.3 6,826 15 13.9
021C8A -335 277 1 Recessed 7.2
031A8A -337 208 1 Recessed 14.4
3000 031B8A -339 240 1 Recessed 12.5 10,239 32 17.8
031C8A -341 277 1 Recessed 10.8
041A8A -343 208 1 Recessed 19.2
041B8A -345 240 1 Recessed 16.7
4000 041C8A -347 277 1 Recessed 14.4 13,652 40 22.2
043A8A -349 208 3 Recessed 11.1
043B8A -351 240 3 Recessed 9.6
051A8A -353 208 1 Recessed 24.1
051B8A -355 240 1 Recessed 20.8
5000 051C8A -357 277 1 Recessed 18.1 17,065 44 24.4
053A8A -359 208 3 Recessed 13.9
053B8A -361 240 3 Recessed 12.1
Recessed Mounted Ceiling Heaters — Series 80 packed as a complete unit. Contains junction box, heater box and grille. For
finished ceiling application, use plaster trim (PT3480) which is an optional accessory. Approximate weight 35 lbs (15.9 kg) for
use with 2’ (609.6 mm) x 2’ (609.6 mm) T-bar or hard surface.
* Use PT3480 plaster trim for Series 80 when recessed in a hard finished ceiling. Option Accessory.
Performance Data —
*Degree F (c) air rise measured at 710 fpm (3606.8 mm/s) and 425 cfm (201 l/s) in both 70 and 80 Series.
Throw designed for 8 foot (2438.4 mm) to 12 foot (3657.6 mm) ceilings.
DB RE 10-12 WATT = 63.9
Table GD-14 — Series 70 Electric Ceiling Surface Heaters
Model Order Element
No. No. + Motor Element Mounting Amp *Degree F *Degree C
Watts UHCA 233 Voltage Phase Application Rating BTU Air Rise Air Rise
021A7A -300 208 1 Surface 9.6
2000 021B7A -302 240 1 Surface 8.3 6,826 15 13.9
021C7A -304 277 1 Surface 7.2
031A7A -306 208 1 Surface 14.4
3000 031B7A -308 240 1 Surface 12.5 10,239 32 17.8
031C7A -310 277 1 Surface 10.8
041A7A -312 208 1 Surface 19.2
041B7A -314 240 1 Surface 16.7
4000 041C7A -316 277 1 Surface 14.4 13,652 40 22.2
043A7A -318 208 3 Surface 11.1
043B7A -320 240 3 Surface 9.6
051A7A -322 208 1 Surface 24.1
051B7A -324 240 1 Surface 20.8
5000 051C7A -326 277 1 Surface 18.1 17,065 44 24.4
053A7A -328 208 3 Surface 13.9
053B7A -330 240 3 Surface 12.1
Surface Mounted Ceiling Heaters — Series 70 designed to be mounted to standard 4 inch (101.6 mm) ceiling
box furnished and installed by others. Approximate weight 32 lbs (14.5 kg) packed and shipped as complete
unit.
Model UHCA
Series 70 and 80

UH-PRC003-EN28
General Data
Table GD-16 – Electrical Specifications and Ordering Information
Unit No. Volts kW Watts Btu/Hr Output Wgt Lbs Wgt Kg
UHAA151ETAD 120
UHAA151BTAD 240 1.5 1500 5119 22 10
UHAA151ATAD 208
UHAA151CTAD 277
UHAA021BTAD 240
UHAA021ATAD 208 2.0 2000 6825 22 10
UHAA021CTAD 277
UHAA031BTAD 240
UHAA031ATAD 208 3.0 3000 10240 22 10
UHAA031CTAD 277
UHAA041BTAD 240
UHAA041ATAD 208 4.0 4000 13650 22 10
UHAA041CTAD 277
UHAA481BTAD 240
UHAA481ATAD 208 4.8 4800 16380 22 10
UHAA481CTAD 277
Notes: 1 watt equals 3.413 btu.
1000 Watts Equals 1 kW.
Model UHAA
Series 3320

29UH-PRC003-EN
Control Wiring Model UHXA
The Trane heaters have been designed
for explosion-proof service with single
and 3-phase inputs of 208, 240, 480 and
600 volts. They meet stringent UL
requirements. However, it is essential
that correct installation procedures be
followed to eliminate all potential hazards
arising from faulty installation.
L1
L2
24 Volt Control
WD1 – Single Phase
208, 240 Volt
WD2 – Three Phase
208, 240, 480 Volt
WD1 WD2
WD3 WD4
WD5
WD7
120 Volt Control
WD3 – Single Phase
208, 240 Volt
WD4 – Three Phase
208, 240, 480 Volt
Line Voltage Control
WD5 – Single Phase
208, 240 Volt
WD6 – Three Phase
208, 240 Volt
600 Volt
WD7 – Three Phase
24 Volt Only
WD8 – Three Phase
120 Volt Only
600 Volt
Three Phase Heater
with 120 Volt Control
600 Volt
Three Phase Heater
with 24 Volt Control
Single Phase Heater
with 24 Volt Control
Single Phase Heater
with 120 Volt Control
Single Phase Heater
Line Voltage Control
208V or 240V Models
Only
Three Phase Heater
with 24 Volt Control
Three Phase Heater
with 120 Volt Control
Three Phase Heater
Line Voltage Control
208V or 240V Models
Only
WD6
WD8

UH-PRC003-EN30
Controls
Control Systems
Type of Control WD Heater Type
Built-in thermostat control 1 20 & 50 (1)
Wall mounted thermostat, heater voltage, line duty. For single phase heaters use SP or DP (DP if used as a disconnect) 2 20 & 50 (1)
of sufficient capacity. For three-phase heaters use TW1512 which cycles two poles simultaneously.
Wall mounted, heater voltage, pilot duty, one or more heaters. Heater has built-in contactor with heater voltage coil. 3 20 & 50 (1)
Wall mounted, 120 V, pilot duty, one or more heaters. Heater has built-in contactor with 120 V coil. 4 20 & 50
Wall mounted, 24 V, pilot duty, one or more heaters. Heater has built-in contactor with 24 V coil. 4 20 & 50
Wall mounted, 24 V. Heater has built-in contactor with 24V coil and heater voltage/24 V transformer. 5 50 Only
Wall mounted, pilot duty, 120 V. Heater has built-in contactor with 120V coil and heater voltage/120 V transformer. 5 50 Only
(1) If built-in circuit breaker and/or built-in transformer are desired, 50 Series must be ordered.
Transformer with 24 V secondary (A1) available on all models.
Transformer with 120 V secondary (A2) available on following models only:
All three-phase models
277 V one-phase up to 4000 watts
208 and 240 V one-phase up to 3000 watts
Accessories
For accessory built-in controls:
T Built-in thermostat breaks all
ungrounded conductors in OFF
position.
C Circuit breaker (Series 50 only)
arranged to be disconnected
before removal of front with line
side terminals covered for safe
maintenance. Additional control
circuit switch installed if required.
R Built-in contactor holding coil same
as heater voltage.
R1 Built-in contactor 24V holding coil.
R2 Built-in contactor 120V holding coil.
A1 Built-in control transformer, (Series
50 only) 24V secondary.
A2 Built-In control transformer, (Series
50 only) 120V secondary available
on all three-phase heaters, up to
3000 watts on 208 and 240V,
one - phase and up to 4000 watts on
277V, 1-phase.
For semi-recessed and surface
mounting:
20 Series
20 EX 34 Extension sleeve for
full surface mounting.
20 EX 16 Extension sleeve for
extending front additional
2” (50.8 mm) from finished
wall.
Heater recesses 2 1/4”
(57.2 mm).
20 EX 8 Extension sleeve for
extending front additional
1” (25.4 mm) from finished
wall.
Heater recesses 3 1/4”
(82.6 mm).
20 Box Must be used on all heater
installations.
50 Series
50 EX 34 Extension sleeve for full
surface mounting.
50 EX 16 Extension sleeve for
extending front additional
2” (50.8 mm) from finished
wall.
Heater recesses 2 1/4”
(57.2 mm).
50 EX 8 Extension sleeve for
extending front additional
1” (25.4 mm) from finished
wall.
Heater recesses 3 1/4”
(82.6 mm).
50 Box Must be used on all heater
installations.
Model UHWA
Series 20 and 50

31UH-PRC003-EN
Control Wiring
Optional Control Systems
• Heaters operated from wall mounted,
line voltage, heavy-duty thermostats.
• Direct Line Voltage. More than one
heater may be controlled from one
thermostat providing total amperage of
heaters does not exceed thermostat
rating.
• Single-Phase Heaters. Use any good
quality single pole thermostat of sufficient
ampacity. Use double pole thermostat if
positive off is desired. Knob operated and
tamper resistant type available.
• Three-Phase Heaters. Use TW1512.
Makes and breaks two poles
simultaneously.
• Control Panels. For control of one or
more single or three-phase ceiling
heaters from one 24V or 120V
thermostat. Panels are in NEMA 1
enclosures and have one or more
30 amp, three-pole, 600 VAC contactor(s),
operating voltage to control voltage
transformer and transformer fusing.
(User must provide separate circuit for
each contactor.)
• Three-phase heaters shall be used with
a control panel when controlled by a low
voltage (24V or 120V) thermostat.
• Low Voltage Thermostat (Wall
Mounted). Heaters operated from wall
mounted, low voltage thermostats.
• Thermal Relay With Built-In Line
Voltage/24 Volt Transformer. Relay with
built-in line volt/24 V transformer are
provided for use with wall mounted low
voltage thermostat. For remote mounting
only.
Single Phase
Typical heater element, motor, zero
voltage reset thermal cut-out
Three Phase
Optional
• Unit Mounted Controls for Series 80
Recessed Ceiling Heater only shall be
factory installed and wired on the
Heater.
T2 = Tamper Proof Built-in Thermostat
Double Pole.
S = Disconnect Switch.
R1 = Transformer with 24 volt
Secondary and Relay for low
voltage control.
R = Relay — Coil operates on heater
supply voltage.
R2 = Relay — Provided with 120 volt
control coil.
Fan purge (off delay to dissipate
residual heat on shut off) supplied as a
standard control on heaters with factory
installed options.
Model UHCA
Series 70 and 80

UH-PRC003-EN32
CEILING
A
B
C
A
HEATER
Dimensional
Data Model UHEC
Unit Casing (Inches)
Unit Size H W D
3.3-5 17 3/4 (451) 14 15/32 (368) 6 1/2 (165)
7.5-10 24 5/16 (618) 21 1/2 (546) 6 1/2 (165)
15-20 28 11/16 (729) 21 1/2 (546) 6 1/2 (165)
25-50 34 (864) 29 1/4 (743) 10 1/16 (256)
Unit Casing
Weld-Nut Location Dimensions, Inches (mm)
Horizontal Vertical
Unit Size A B C D E F
3.3-5 3 1/32 (77) 5 1/4 (133) 2 7/16 (62) 1 5/32 (29) 11 5/32 (283) 5 7/16 (138)
7.5-10 7 17/32 (191) 5 1/4 (133) 3 1/2 (89) 1 7/8 (48) 16 1/16 (408) 6 3/8 (162)
15-20 7 17/32 (191) 5 1/4 (133) 3 1/2 (89) 1 7/8 (48) 20 7/16 (519) 6 3/8 (162)
25-50 10 27/32 (275) 8 13/16 (224) 6 13/16 (173) 1 7/8 (48) 26 1/2 (673) 5 5/8 (143)
Vertical Mounting Bracket Clearance Requirements (Inches)
Minimum Distance
Model Adjacent Mounting
Unit Mounting Ceiling Surface Floor Bracket Wt. Dimensions
Size Bracket To Unit To Unit To Unit* lbs. (Kg) E F G
3.3-5 V5105 12 (305) 12 (305) 84 (2134) 9 (4.1) 26 (660) 9 1/8 (232) 18 3/4 (476)
7.5-20 V5120 18 (457) 24 (610) 84 (2134) 13 (5.9) 36 9/16 (929) 13 7/8 (352) 24 1/2 (622)
25-50 V5150 18 (457) 24 (610) 84 (2134) 13 (5.9) 42 (1067) 13 7/8 (352) 28 1/16 (713)
*Do not exceed unit’s maximum mounting height.
Horizontal Wall/Ceiling Swivel Bracket Clearance Requirements (Inches)
Minimum Distance
Model Adjacent Mounting
Unit Mounting Ceiling Surface Floor Bracket Wt. Dimensions
Size Bracket To Unit To Unit To Unit* lbs. (Kg) A B C
3.3-5 A5105 12 (305) 12 (305) 84 (2134) 6 (2.7) 19 15/64 (487) 10 1/2 (267) 9 1/4 (235)
7.5-20 A5120 18 (457) 12 (305) 84 (2134) 9 (4.1) 23 (584) 12 (305) 19 1/8 (486)
25-50 A5150 18 (457) 12 (305) 84 (2134) 11 (5.0) 26 21/32 (677) 13 1/2 (343) 19 7/8 (505)
*Do not exceed unit’s maximum mounting height.
All dimensions approximate.
Certified prints available on request.
Horizontal Air Discharge Vertical Air Discharge
Horizontal Air Discharge

33UH-PRC003-EN
Dimensional
Data Model UHEC
Louver Cone Diffuser Dimensions, in. (mm)
Unit Size P R S T
03 & 05 N/A N/A N/A N/A
07 & 10 11 5/8 (295.3) 14 1/4 (362.0) 6 1/2 (165.1) 1 3/4 (44.5)
15 & 20 11 5/8 (295.3) 14 1/4 (362.0) 6 1/2 (165.1) 1 3/4 (44.5)
25-50 17 1/8 (435.0) 21 (533.4) 9 3/4 (247.7) 2 3/4 (69.9)
Vertical Air Discharge
Louver Cone Diffuser

UH-PRC003-EN34
Dimensional
Data Model UHRA
Dimensions, in. (mm)
Unit Size A B C D E F G H
03,05,07 12” (305) 18” (457) 19
3
/
4
” (502 15
1
/
4
” (387) 16
1
/
2
” (419) 6 Ft. (1.8 M) 8” (203) 6” (152)
10,15 14” (356) 19” (483) 21
3
/
4
” (552) 15
1
/
4
” (387) 18” (457) 6 Ft. (1.8 M) 8” (203) 6” (152)
20,25,30 16” (406) 27” (686) 28
3
/
4
” (730) 19
1
/
2
” (495) 17
1
/
2
” (445) 6 Ft. (1.8 M) 15
1
/
2
” (394) 4
1
/
2
” (114)
40,48 18” (457) 31” (787) 30
3
/
4
” (781) 19
1
/
2
” (495) 19
1
/
2
” (495) 6 Ft. (1.8 M) 21
3
/
4
” (552) 2
3
/
4
” (70)
3 kW thru 15 kW
20 kW thru 48 kW
Dimensions shown in ( ) are in
millimeters

35UH-PRC003-EN
Dimensional
Data Model UHXA
Unit C
Size A B 3 PH. 1 PH. D E F G
3-5 7.5 kW (450.9) (568.3) (501.7) (523.9) (412.8) (266.7) (355.6) (76.2)
10 kW (527.1) (669.9) (527.1) (549.3) (514.4) (292.1) (457.2) (101.6)
15-20 25 kW (628.7) (771.5) (571.5) — (616.0) (317.5) (558.8) (114.3)
Physical Dimensions, in. (mm)
Unit C
Size A B 3 PH. 1 PH. D E F G
3-5 7.5 kW 17 3/4” 22 3/8” 19 3/4” 20 5/8” 16 1/4” 10 1/2” 14” 3”
10 kW 20 3/4” 26 3/8” 20 3/4” 21 5/8” 20 1/4” 11 1/2” 18” 4”
15-20 25 kW 24 3/4” 30 3/8” 22 1/2” — 24 1/4” 12 1/2” 22” 4 1/2”
Dimensions shown in ( ) are in millimeters
Mounting Bracket Kit
In examples HLPM and HLWM, heater
may be rotated horizontally at attachment
point as required.
HLHM
Ceiling Mounting Bracket
Simple and economical if adequate
overhead structure exists. Requires
1/2” (13 mm) pipe, cut and threaded (not
supplied).
HLPM
Floor Mounting Bracket
Particularly useful in buildings with
insufficient strength to use other types of
mounts. Requires 3 1/2” (89 mm) pipe [4”
(102 mm) O.D. — not supplied].
HLWM
Wall Mounting Bracket
Ideal for use in buildings that have
substantial walls. Arm only can also be
bolted directly to structural steel.

UH-PRC003-EN36
Dimensional
Data
Model UHWA
Series 20 and 50
Control System Wiring
Diagrams
Typical Heater Element, Motor, “Zero Voltage Reset” Thermal
Cutout
Dimensions shown in are inches (mm)

37UH-PRC003-EN
Dimensional
Data
Model UHCA
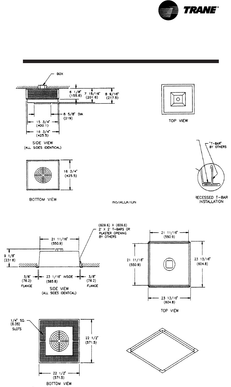
Series 70 and 80
Series 70 — Surface Mounted
Series 70 — Surfaced Details
Series 80 — Recessed
Mounted
Note: Dimensions shown in in inches
(mm)

UH-PRC003-EN38
Dimensional
Data
Model UHAA
Series 3320
Dimensions are shown in inches (mm)

39UH-PRC003-EN
Options Model UHEC
Dust Shield
Horizontal
Heater and
Used On Wall Brackets Dust Shield
3.3 kW A5105 DS5105
7.5 kW to 20.0 kW A5120 DS5120
25.0 kW to 50.0 kW A5150 DS5150
Stratification Control Option
Electric UHEC unit heaters are an
efficient way to provide quick, efficient
heat when and where it’s required. A
wall thermostat with an optional
stratification thermostat makes the
Trane unit heater even more energy
efficient. The stratification thermostat
recovers trapped ceiling heat, saving
electrical energy. When ceiling
temperatures are high, the stratification
thermostat allows the fan to operate
without energizing the heating element.
Recovering this otherwise wasted heat
assures substantial energy savings.
Accessory
Fan Guard
Installation
OSHA Fan Guards
Diffuser Options
Optional diffusers lend added air pattern versatility to individual vertical down blown installations as shown in illustrations.
Model Diffuser
Description Used On No. Max. Mtg. Ht. Dim. A Dim. B Pattern
1. Louver Diffuser (Standard) 3.3 & 5.0 kW STD 9’ (2.7 M) 20’ (6.1 M) 10’ (3.0 M)
Louvers can be individually 7.5 & 10.0 kW STD 12’ (3.7 M) 40’ (12.2 M) 22’ (6.7 M)
adjusted for rectangular 15.0 & 20.0 kW STD 18’ (5.5 M) 52’ (15.8 M) 30’ (9.1 M)
coverage over doorways as 25.0 & 30.0 kW STD 22’ (6.7 M) 75’ (22.9 M) 42’ (12.8 M)
an air curtain or to meet 40.0 & 50.0 kW STD 24’ (7.3 M) 84’ (25.6 M) 47’ (14.3 M)
rectangular floor pattern
heating requirements.
2. General Distribution 3.3 & 5.0 kW N/R 9’ (2.7 M) 15’ (4.6 M)
(No Diffuser) 7.5 & 10.0 kW N/R 12’ (3.7 M) 30’ (9.1 M)
Trane’s Airchute Venturi 15.0 & 20.0 kW N/R 18’ (5.5 M) 40’ (12.2 M)
permits general downflow air 25.0 & 30.0 kW N/R 22’ (6.7 M) 55’ (16.8 M)
pattern distribution as 40.0 & 50.0 kW N/R 24’ (7.3 M) 64’ (19.5 M)
required at a higher mounting
height.
3. Anemostat Diffuser (Optional) 3.3 & 5.0 kW N/A — — — —
For application where draft 7.5 & 10.0 kW AD5120 10’ (3.0 M) 30’ (9.1 M)
restriction is required at lower 15.0 & 20.0 kW AD5120 15’ (4.6 M) 38’ (11.6 M)
unit mounting heights. 25.0 & 30.0 kW AD5150 17’ (5.2 M) 50’ (15.2 M)
40.0 & 50.0 kW AD5150 20’ (6.1 M) 60’ (18.3 M)
4. Louver Cone Diffuser 3.3 & 5.0 kW N/A 45° 90° 45° 90°
(Optional) 7.5 & 10.0 kW RD5120 — — — —
Individually adjustable blades 15.0 & 20.0 kW RD5120 10’ 3.0 M 14’ 4.3 M) 36’ 11.0 M 30’ 9.1 M
permit increased floor 25.0 & 30.0 kW RD5150 14’ 4.3 M 21’ 6.4 M 42’ 12.8 M 35’ 10.7 M
coverage at 45° open. 40.0 & 50.0 kW RD5150 20’ 6.1 M 30’ 9.1 M 62’ 18.9 M 44’ 13.4 M
Additional throw is 18’ 5.5 M 28’ 8.5 M 68’ 20.7 M 54’ 16.5 M
accomplished when blades
are 90° vertical. Allow higher
mounting height.
STD = Standard N/R = None Required N/A = Not Applicable

UH-PRC003-EN40
Model UHRA
•Remote 24-volt thermostat
•Stainless steel wall/ceiling mounting
bracket (3.3-15 kW)
•Cast iron painted mounting bracket
available on all units for wall/ceiling or
pipe mounting
•Hanging bracket for use with
threaded rod
Options
Model UHEC
Model UHRA
Model UHEC
Unit-Mounted Room and Stratification
Thermostats
Unit-mounted thermostats for field
installation are available in low voltage
(24V) for either single or two-stage
operation, and line voltage (up to 277V)
for single-stage operation. All room
thermostats have an adjustable
temperature setting range of 45°F (7.2°C)
to 90°F (32.2°C); and the stratification
thermostat has a range of 70°F (21.1°C) to
130°F (54.4°C).
Low voltage thermostats should only be
used with units provided with contactors
and a low voltage control transformer.
Line voltage thermostats can be used
with all units provided the thermostat’s
maximum amp and voltage ratings are
not exceeded. Line voltage thermostats
have a maximum amp rating of 25 amps,
and maximum voltage rating of 277V.
Two-stage thermostats can be used on
unit sizes 25 kW and above to provide
automatic two-stage heating operation.
Unit and Wall Mounted Summer-Fan
Switches
Unit mounted and wall mounted summer-
fan switches are available for line voltage
(up to 277V) and low voltage (24V).
Summer fan switches allow
fan only operation without energizing the
unit’s heating element. During the
nonheating season, the summer fan
switch will allow the unit’s fan to provide
air circulation without providing heat.
Wall-Mounted Room Thermostat
Wall-mounted thermostats are available
in low voltage (24V) for either single or
two-stage operation, and line voltage (up
to 277V) for single-stage operation. All
Line voltage thermostats have an
adjustable temperature setting range of
40°F (4.4°C) to 90°F (32.2°C).
Single stage low voltage thermostats
have a range of 50°F (10°C) to 80°F
(26.7°C), and two-stage low voltage
thermostats have a range of 45°F (7.2°C)
to 85°F (29.4°C).
The same guidelines for the application of
unit-mounted thermostats are also
applicable to wall-mounted thermostats.
Unit and Wall Mounted Power
Disconnect Switches
Unit and wall mounted power disconnect
switches are available to provide a
positive disconnect of the unit from the
power supply. Two-pole and three-pole
power disconnect switches are available
with voltage ratings from 25 to 63 amps.

41UH-PRC003-EN
Options Model UHXA
Mounting Bracket Kits
Trane makes three mounting kits
available — the HLPM Pipe Mounting
Bracket, the HLHM Ceiling Mounting
Bracket, and the HLWM Wall Mounting
Bracket. Each of these is illustrated and
described on page 20 of this brochure. To
order, specify the type of bracket with the
heater model desired.
Explosion-Proof Thermostat
Specifications
•TW161 Single Pole
•22 Amps 125-277 VAC
•3/4 Hp 125 VAC
•11/2 Hp 250-277 VAC
•51/2” H x 51/2” W x 43/4” D
•Can be used for heating or cooling
applications
Built-In Hydraulic Thermostat
Optional On All Models
•Stainless steel bulb and capillary
•125 VA pilot duty
•Used on 24 volt, 120 volt or 208-240
volt line voltage control
•60°F to 90°F temperature range
•Adjustable from front of unit with
screwdriver.

UH-PRC003-EN42
Mechanical
Specifications Model UHEC
Heaters shall be installed and wired in
accordance with the manufacturer’s
recommendations and applicable
national and local codes.
Casing
Casings fabricated of die-formed,
heavy gauge steel and finished in high
gloss, baked enamel. Supply air shall be
drawn through a stamped louver
periphery evenly across the heating
element, and discharged through an
outward drawn venturi. Adjustable
discharge louvers shall be provided to
control the direction of airflow. A large,
hinged access door shall extend the
width of the heater and locked in position
by quarter-turn fasteners. Heater and
supply wiring diagram shall be
permanently attached to the inside of the
access door.
Elements
Elements shall be high mass, all steel
tubular finned type, copper brazed.
Centrally located and installed in fixed
element banks.
Motors
Motors shall be totally enclosed, all angle
industrial rated. All units 3.3 through 20
kW will utilize sealed bearings to assure
permanent lubrication. 25 through 50 kW
units are provided with a two-speed,
permanent capacitor-type.
Fan Blades
Fan blades shall be of the axial
flow type designed for quiet efficient
operation. Fan speed does not exceed
1,600 rpm (26.7 R.P.S.).
Wiring
Heaters designed for a single circuit, with
elements, motor and control circuits
subdivided with factory wired fuses to
conform to the National Electric Code and
Underwriter’s Laboratory, Inc., Standard
1278. All three-phase heaters shall have
balanced phases.
Thermal Overload Protection
All heaters shall be equipped with
automatic reset thermal overloads which
shut down the element and motor if safe
operating temperatures are exceeded.
Fusing
Element, motor and transformer primary
fusing are factory installed and wired
where required by NEC. Branch circuit
fusing is installed where required (48
amps and up).
Control
Contactors and control circuit
transformers where required are factory
installed and wired. Only direct line
supply and thermostat connections in the
field are required. Two-stage operation is
standard on all units 25 kW and larger
with use of two-stage thermostats. Built-
in fan override is provided to purge unit
casing of excess heat after unit
shutdown. The units are listed under the
Reexamination Service of Underwriter’s
Laboratories, Inc. Units are warranted to
be free from defective material and
workmanship for a period of one year
with the exception of the heating
elements which are warranted for five
years.
Control Options
•Integral power disconnects (where
applicable) — supplied to disconnect all
ungrounded connectors in the “Off”
position. Disconnect is isolated from unit
wiring by use of a metal plate and fisch
paper.
•Thermostats (unit-mounted);
(wall- mounted) — heavy-duty
hydraulic actuating-type. Thermostat
range 45°F (7.2°C) to 90°F (32.2°C).
Unit-mounted thermostat can be
rendered tamperproof by removing the
temperature adjustment knob.
•Independent fan operation for summer
air circulation — provided from a line or
low voltage (unit- mounted)
(wall- mounted) fan switch.
•Combination low voltage wall
thermostat and fan switch — provided
to give wall mounted control of element
and fan.
•Stratification thermostat with a range of
70°F (21.1°C) to 130°F (54.4°C) —
provided for units mounted in the
vertical discharge position to provide an
energy saver cycle recovering warm
stratified air.
Optional Dust Shield
•For use on horizontal units with wall
brackets only, to protect from dust and
other particles falling inside the unit
heater.
Optional Diffusers
•Louver Cone Diffuser — shall have
individually adjustable blades to permit
increased floor coverage at 45 degrees
open. Additional throw is accomplished
when blades are 90 degrees vertical,
allowing higher mounting height.
•Anemostat Diffuser — for applications
where draft restriction is required at a
lower unit mounting height.
Quiet Operation
The heater’s air chute is specifically
designed with an outward deep-drawn
venturi to provide the maximum throw of
warm air forward in either the horizontal
or vertical mounting position.
Sound Ratings of Free Field
Unit Size dba Rating
3.3-5.0 kW 56
7.5-10 kW 57
15-20 kW 71
25-30 kW 70 High/70 Low Speed
40-50 kW 79 High/73 Low Speed
OSHA Fan Guards - Optional
Number Dim. From Center to Center
Model No. Unit Size of Holes Edge Dimension
OFG-5101 2-5 kW 4 1/4" (6.4 mm) 3 3/4" (95 mm)
OFG-5102 7-20 kW 4 1/4" (6.4 mm) 4 3/4" (121 mm)
OFG-5103 25-50 kW 4 1/4" (6.4 mm) 4 3/4" (121 mm)
1. For units with existing holes in louver frame, the fan guard snaps into place.
2. To retrofit the fan guard, holes must be drilled 1/8" (3.2 mm) diameter.
3. OSHA approved.

43UH-PRC003-EN
Mechanical
Specifications Model UHRA
Heaters shall be installed and wired in
accordance with the manufacturers
recommendations and applicable national
and local codes.
Casing
The casing that houses the heating
elements shall be fabricated from
16-gauge 304 stainless steel with a 304
stainless steel outlet protective grille and
angled outlet louvers to insure uniform air
flow and delivery temperature across the
entire face of the heater. The inlet grille
shall be chrome plated. The control
enclosure compartment factory installed
to the bottom of the heater shall be NEMA
4x nonmetallic provided with a hinged
and latched access door that opens from
the bottom to simplify wiring installation
and maintenance. A single point line
voltage connection is provided for 208,
240, 277, 480 and 600 volt service.
Elements
Heavy duty heating elements shall be
manufactured from rugged finned tubular
steel and chrome-plated for corrosion
resistance. Factory wired and sealed for
washdown applications.
Motors
Motors shall be totally enclosed
permanently lubricated manufactured
with corrosion resistant windings to resist
moisture and corrosion, factory wired to
NEMA 4x enclosure and UL Listed. Both
the motor and fan blade shall be factory
installed within the heaters casing on
rubber isolators to minimize vibration and
noise.
Fan Blades
Fan Blades shall be manufactured from
anodized aluminum and finished with an
epoxy coating.
Thermal Overload Protection
All heaters equipped with corrosion
resistant auto reset thermal overloads
shall be sealed to prevent moisture to
enclosure. Shuts down the element and
motor if safe operating temperatures are
exceeded.
Controls
All heaters shall be provided as standard
with 24-volt transformer and control
circuit, fusing (NEC required), pilot light
(power-on indicator), thermostat with
stainless steel capillary sensor and
three-position switch (heat- off-fan)
factory installed and wired in the control
enclosure compartment to the terminal
block for ease of wiring.
•Fan delay relay shall be provided as
standard factory installed and wired in
the control enclosure to maintain fan
operation for approximately 21/2
minutes (150 S) after the heating cycle
has ended.
•Disconnect switch with control
enclosure compartment door interlock
shall be furnished as standard factory
installed and wired.
Installation
All heaters shall be used in (non-
hazardous) locations with corrosive
atmospheres where humidity, incidental
water, water-saturated or direct spray of
water is the normal condition.
Supply Connections
Supply connections shall meet all local
and NEC requirements and shall be
suitable for use in WET or CORROSIVE
atmospheres and locations.
Wiring Instructions
The heaters wiring diagram for field
connections shall be located inside the
control enclosure and all field wiring
connections shall terminate in coded
terminal blocks. Terminal blocks shall be
suitable for either copper or aluminum
field wiring. A single power supply circuit
shall be provided for all voltages thru 48
kW size heaters.
UL, NEC and OSHA
Heaters shall meet all UL, NEC and
OSHA requirements when installed as
directed per Installation Operation
Maintenance Manual (UHRA-IOM-1)
dated March 1994.
Mounting Bracket Kits
Wall Mounting Bracket Kits — Model
A5520 shall be manufactured from
stainless steel and epoxy coated. Models
W5520, W5550, H5550, P5520 and
P5550 shall be manufactured from epoxy
coated steel.

UH-PRC003-EN44
Heaters shall be installed and wired in
accordance with the manufacturer’s
recommendations and applicable
national and local codes for use in
hazardous classified locations and shall
be UL listed.
UL Classes
For Class I, Group D, Divisions 1 and 2
and Class II, Groups E, F and G, Divisions 1
and 2.
Abbreviated descriptions of UL classes,
groups and divisions.
Before selecting any heater for a
particular application, refer to Article 500
as well as other standards referenced in
the National Electric Code.
•Class I: Equipment does not have
surface operating temperature in
excess of the ignition temperature of
the specific gas or vapor.
•Class II: Equipment does not have
surface temperature greater than the
ignition temperature of the specified
dust.
•Group D: Atmospheres such as but not
limited to acetone, alcohol, gasoline,
lacquer solvent vapors, natural gas,
propane or other gases or vapors of
equivalent hazard.
•Group E: Atmospheres containing
combustible metal dust regardless of
resistivity, or other combustible dust of
similar hazard characteristics having
resistivity of less than 105 ohm-
centimeter.
•Group F: Atmospheres containing
carbon black, charcoal, coal or coke
dust.
•Group G: Atmospheres containing
combustible dust having resistivity of
105 ohm-centimeter or greater.
•Division I: A location in which ignitable
concentrations of flammable material
exist under normal operating
conditions.
•Division II: Locations in which
flammable materials will normally be
confined within closed containers and
escape only in the case of accidental
rupture, breakdown or during
maintenance operations. Any
equipment approved for Division I is
automatically also approved for
Division II.
UL Temperature Codes
The UL temperature code is T3B 165°C
(329°F) for Class 1 and Class 2, indicating
maximum operating surface
temperatures.
Cabinet
Cabinet fabricated of 14-gauge (1.9 mm
thickness) cold rolled steel, with
individually adjustable louvers, epoxy
coated. A wire fan guard chrome-plated
with less than 1/4” (6.4 mm) spacing
conforms to NEMA requirements and
shields all moving parts to meet OSHA
requirements. Zinc plated fasteners,
conduit made of cadmium-plated
seamless steel tubing, cast aluminum
control box with opening and 25/8” (16
mm) NC top hanger connections.
Heat Exchanger
Heat exchanger double walled, liquid
filled with three low watt density
immersion type copper sheathed
elements hermetically sealed into the
core made of steel with aluminum fins.
Heat transfer fluid of ethylene-glycol
solution protected to -45°C (-49°F).
Motors
Motors PSC, explosion-proof,
permanently lubricated, ball bearing type,
1725 rpm (29 rps). Motor voltage/phase
same as element.
Fan Blade
Fan blades are made of aluminum
designed for quiet efficient operation.
Controls Factory Installed
Contactors shall be built-in and pre- wired
into an explosion-proof enclosure.
Contactors shall be heavy duty and break
all ungrounded conductors and be rated
for 100,000 cycles at all full load. Control
transformers where required shall be
built-in and pre-wired. Control circuits
shall be 24 volts on 208, 240, 480 and 600
volt heaters or 120 volts on 208, 240 and
480 volt heaters or 208 volts on 208 volt
heaters or 240 volts on 240 volt heaters.
Thermal Overload Protection
All heaters equipped with automatic
reset thermal overload switch capillary
type rated for 100,000 cycles of reliable
service for temperature regulation.
Relief Valve
Over-pressure arising from excessive
external temperature is relieved by a
pressure relief valve factory installed in
the top header tank. Made of stainless
steel opens @ 200 psi (1379 kPa).
Control Options:
•Explosion-proof thermostat
(wall- mounted) - SPST 40°F (4.4°C) -
90°F (32.2°C) 22 amps, 125-277 VAC,
3/4 HP (559 W) @ 125 VAC,
11/2 hp (1119 W) @ 250-277
VAC.
•Explosion-proof thermostat
(wall- mounted) - DPST 40°F (4.4°C) -
90°F(32.2°C) 22 amps, 125-277 VAC,
3/4 hp (559 W) @ 125 VAC,
11/2 hp (1119 W) @ 250-277 VAC.
•Explosion-proof hydraulic thermostat
(built-in) — 45°F (7.2°C) -90°F (32.2°C)
125 VA pilot duty.
Mounting Bracket Kits:
•Wall mounting bracket, ideal for use in
buildings that have substantial walls.
Note the arm only can be bolted directly
to structural steel.
•Ceiling mounting bracket, must have
adequate overhead structure to mount
to. Note 1/2” (12.7 mm) pipe, cut and
threaded and supplied by others is
required.
•Floor mounting bracket should be used
in buildings with insufficient strength to
use other types of mounting brackets.
To be used with
31/2” (88.9 mm) schedule 40 pipe 4”
(101.6 mm) OD supplied by others.
Mechanical
Specifications Model UHXA

45UH-PRC003-EN
Mechanical
Specifications
Model UHWA
Series 20 and 50
Contractor shall supply and install
heavy-duty, wall-mounted forced-air
electric unit heaters of the wattage,
voltage and phase as indicated on the
plans. The heater is designed to provide
an even distribution of heated air to the
space by drawing return air in the
periphery of the heater across the
element, which shall then be discharged
from the center section of the heater by
means of an electric motor and axial
flow fan blade.
Heaters are recessed to extend no
more than 1 1/2” (38.1 mm) from the
finished wall, surface mounted to
extend no more than 5 3/4” (146.1 mm)
from the finished wall or semi-recessed
to extend no more than 2 1/2” (63.5 mm)
from the finished wall.
Enclosure
Heater front can withstand, with less
than 1/16” (1.6 mm) permanent
distortion, 10.8 ft. lbs (324 poundals)
impact and 400 lbs. (181.4 kg) static
force applied to an 8 sq. in. (5160 sq
mm) area at center grille location.
The combination return and supply grille
assembly are constructed of 1/16” (1.6
mm) x 3/8” (9.5 mm) rounded edge
horizontal steel. Louvers are spaced for
maximum opening of 1/4” (6.4 mm).
Louvers are welded at every
intersection to three evenly spaced 1/16”
(1.6 mm) diameter vertical members
and completely framed in a
heavy - gauge natural anodized
aluminum extrusion. Front assembly
are be attached to the chassis by hidden
tamper-resistant (Allen-head) machine
screws. All other parts are 16-gauge
(1.5 mm thickness) steel zinc coated
both sides painted in a high gloss bronze
colored baked enamel finish.
Motor
Motors are permanently lubricated unit
bearing, totally enclosed, shaded pole
type with impedance protection. Motors
will operate at no more than 1400 rpm
(23.3 rps) and are the same voltage as
the heater. A protective shield shall
surround the motor to separate return
air from heated air.
Performance
Heaters have a rating of 245 cfm
(115.6 l/s) at 660 fpm (3352.8 mm/s)
with a maximum temperature rise of
73 F (40.6 C).
Elements
Element assemblies consist of two or
three corrosion-resistant steel sheathed
type elements mechanically bonded to
common corrosion-resistant steel fins.
Each sheathed element consist of
helically coiled nickel chromium
alloy- resistant wire completely
embedded in and surrounded by
magnesium oxide, enclosed and
wedged into corrosion- resistant steel
sheaths. Elements have 2” (50.8 mm)
cold conductor pins extending into the
sheath and have a density of no more
than 60 watts per inch (25.4 mm).
Thermal Overload
Heaters are equipped with a “zero
voltage reset” thermal overload which
disconnects elements and motor in the
event normal operating temperatures
are exceeded. For safety, if opened due
to abnormal temperatures, thermal
overload will remain open until
manually reset by turning heater off for
five minutes. Automatic reset thermal
overloads which allow the element to
continue to cycle under abnormal
conditions will not be accepted.
Warranty
Heaters are warranted for 5 years.
Approval
Heaters are Underwriters’ Laboratories
listed. Heaters are conform to
Underwriters’ Laboratories, Inc.
Standard 1025, Paragraphs 31.20,
31.21, 31.22 and 31.23. Heaters not
conforming to these paragraphs will not
be acceptable.
Optional Control Systems
Heaters are operated from
wall - mounted, line voltage, heavy-duty
(tamper-resistant) thermostats.
Heaters with built-in, pre-wired
contactors are operated from
wall - mounted, line voltage, pilot duty
(tamper-resistant) thermostats.
Heaters with built-in, pre-wired
contactors (and control transformers)
will be operated from wall-mounted,
pilot duty (24 V) or (120 V) wall-
mounted tamper-resistant thermostats.
Heaters are controlled by integrally
mounted thermostats. Thermostats are
heavy-duty, hydraulic type with a range
of 40 F (4.4 C) to 80 F (26.7 C) and with
remote sensing bulb placed in the return
air. Thermostats shall be electrically
rated at least 125 percent of heater
rating. Thermostats also act as a
disconnect by breaking all ungrounded
conductors in the OFF position.
(Thermostat control knob is covered by
a 16-gauge (1.5 mm thickness)
tamper- resistant access plate to
prevent adjustment by unauthorized
personnel.)
Contactors
Where required, heaters are equipped
with heavy-duty, definite purpose
contactors with flame path separators
and dust covers. Contactors will cycle all
ungrounded conductors. Contactors
have holding coils (of the same voltage
as the heater), or 120 volts or 24 volts.
Contactors are be rated at least
125 percent of heater rating and are UL
approved for 250,000 cycles.
Control Transformers
Heater are equipped with a Class 2
control transformer, sealed rating of
20 VA, to supply control circuits of 24
volts or 120 volts. (120 volt secondaries
not available in single phase heaters
over 3 kW.)
Circuit Breakers
Heaters equipped with built-in circuit
breakers in order to allow the heaters to
be supplied from feeder taps. A
separate switch providing a positive off
for control circuits are included where
required. Circuit breakers and control
switches are arranged so that all line
side conductors will be separately
enclosed when heater front is removed
for servicing so that no current-carrying
parts are accessible without the use of
additional tools.

UH-PRC003-EN46
Mechanical
Specifications
Model UHCA
Series 70 and 80
Contractor shall supply and install
heavy duty ceiling-mounted forced-air
electric heater(s) of the wattage, voltage
and phase as indicated on the plans. The
heater is designed to provide an even
distribution of heated air to the space to
be heated by drawing return air in the
periphery of the heater, across and
through the element and be discharged
from the center section of the heater by
means of an electric motor and axial
flow fan blade.
Heaters that are recessed type and
mounted flush with the finished ceiling
or surfaced mounted to extend no more
than 8 9/16” (217.5 mm) from the finished
ceiling.
Enclosure — Recessed
The return grille assembly is
constructed of a one piece heavy gauge
steel with 1/4” (6.4 mm) sq. slots for
return air and concentric rings for
uniform air discharge. Grille assembly is
attached to the chassis by
tamper- resistant (Allen head) machine
screws. All parts of enclosure are heavy
gauge steel, zinc coated both sides and
finished in neutral, off-white colored,
baked enamel.
Surface Mounted
Enclosure are constructed of 1/16”
(1.6 mm) x 3/8” (9.5 mm) rounded edge
horizontal steel louvers which are
spaced for maximum opening of 5/16”
(7.9 mm). Louvers are welded at every
intersection to evenly spaced 1/8”
(3.2 mm) diameter vertical members.
Discharge grille to have concentric rings
for uniform air discharge. Grille
assembly are attached to chassis by
tamper-resistant (Allen head) machine
screws. All parts of enclosure are heavy
gauge steel, zinc coated both sides and
finished in neutral, off- white colored,
baked enamel.
Motor
Motors are permanently lubricated, unit
bearing, totally enclosed shaded pole
type with impedance protection. Motors
operate at no more than 1,300 rpm
(21.7 RPS) and are the same voltage as
the heater.
Performance
Heaters have a rating of 425 cfm
(200.6 l/s) at 710 fpm (3606.8 mm/s)
with a maximum temperature rise of
44 F (24.4 C) and 63.9 DB RE 10-12 watt.
Elements
Element assemblies consist of
two or three corrosion-resistant,
steel- sheathed type elements
mechanically bonded to common
corrosion-resistant steel fins. Each
sheathed element consist of helically
coiled nickel chromium alloy resistant
wire completely embedded in and
surrounded by magnesium oxide,
enclosed and wedged into corrosion
resistant steel sheaths. Elements have
2” (50.8 mm) cold conductor pins
extending into sheath and have a
density of no more than 60 watts per
inch (25.4 mm).
Thermal Overload
Heaters are be equipped with a “zero
voltage reset” thermal overload which
disconnects elements and motor in the
event normal operating temperatures
are exceeded. For safety, if opened due
to abnormal temperatures, thermal
overload will remain open until
manually reset by turning heater off for
five minutes. Automatic reset thermal
overloads which allow the element to
continue to cycle under abnormal
conditions will not be accepted.
Approval
Heaters are Underwriters’ Laboratories
listed. Heaters conform to
Underwriters’ Standard 1025.

47UH-PRC003-EN
Mechanical
Specifications
Model UHAA
Series 3320
Furnish and install heavy-duty forced
air wall heaters, Series 3320 where
specified. Heaters are architectural
styled, constructed of a 18-gauge
(1.2 mm thickness) steel housing with a
14-gauge (1.9 mm thickness) extruded
aluminum frame. The rugged steel
grille and heater box are painted with a
rust resistant dark brown baked enamel
color finish. Rough-in dimensions of
19 3/16” (487.4 mm) high x 14 3/16”
(360.4 mm) wide x 4” (101.6 mm) deep.
Power wiring is connected through two
1/2” (12.7 mm) knockouts in the top of
the heater and one 1/2” (12.7 mm)
knockout on the bottom of the heater.
Units are available in ratings from 1500
to 4800 watts at 240, 208 and 277 volts
and 1500 watts at 120 volts. The
heaters have a low-speed 600 rpm (10
rps), four-pole motor which drives a
vane axial blower to deliver a quiet 175
cfm (82.6 l/s) of down flow air.
The heating element are of the sealed
tubular type with large, parallel steel fins
for quick heat transfer.
Unit’s have as standard, thermal
overload cut-off for added safety, fan
delay switch, manual tamper resistant
disconnect switch and a tamper
resistant thermostat which are
calibrated to provide a range of 55 F
(12.8 C) to 85 F (29.4 C). All items factory
installed and wired.
Optional accessories include a surface
mounting adapter and day-night relays.
All heaters are listed by Underwriter’s
Laboratories, Inc. The heating element
are supplied with a manufacturer’s
five - year limited warranty.

Trane
A Business of American Standard Companies
www.trane.com
For more information contact your local district
office or e-mail us at comfort@trane.com
Trane has a policy of continuous product and data improvement and reserves the right to change design
and specifications without notice.
Literature Order Number
File Number
Supersedes
UH-PRC003-EN
PL-UH-000-UH-PRC003-08/05
UH-PRC003-EN-12/01, UH-DS-6-04/98