Trane Intellipak Modular Series Users Manual
IntelliPak SCWG 020, SCWG 025, SCWG 030, SCWG 035, SIWG 020, SIWG 025, SIWG 030, SIWG 035, SCRG 020, SCRG 025, SCRG 032, SIRG 020, SIRG 025, SIRG 032 SCXGSVX01B
SCWG 020, SCWG 025, SCWG 030, SCWG 035, SWG 020, SWG 025, SWG 030, SWG 035, SCRG 020, SCRG 025, SCRG 032, SRG 020, SCRG 025, SCR to the manual be10bcb7-bb28-4845-84ab-6c2b080cda26
2015-01-21
: Trane Trane-Intellipak-Modular-Series-Users-Manual-236237 trane-intellipak-modular-series-users-manual-236237 trane pdf
Open the PDF directly: View PDF
.
Page Count: 124 [warning: Documents this large are best viewed by clicking the View PDF Link!]

Installation, Owner, and
Diagnostic Manual
July 2000 SCXG-SVX01B-EN
IntelliPak®
Commercial Self-Contained
Modular Series, 20-35 Ton
Models
“BO” and later Design Sequence
SCWG -020, -025, -030, -035
SIWG -020, -025, -030, -035
SCRG -020, -025, -032
SIRG -020, -025, -032

©American Standard Inc. 2000 SCXG-SVX01B-EN
General
Information
About This Manual
Literature Change History
Use this manual for commercial self-
contained models SCWG, SIWG, SCRG,
and SIRG. This is the original issue of this
manual. It provides specific installation,
owner maintenance, and diagnostic
troubleshooting instructions for “BO” and
later design sequences. The “BO” design
sequence includes the VFD option
change from Square D Altivar 66 to
Altivar 58. For information on previous
design sequences, contact your local
Trane representative.
Warnings and Cautions
Warnings in this manual indicate potential
hazardous situations that can result in
death or serious injury.
Cautions in this manual indicate potential
hazardous situations that may result in
minor or moderate injury and/or
equipment damage.
Examples:
Disconnect electrical power
source before servicing unit to
prevent injury or death from
electrical shock.
Use only copper conductors for
electrical unit connections to
prevent equipment damage.
Common HVAC Acronyms
For convenience, a number of acronyms
and abbreviations are used throughout
this manual. These acronyms are
alphabetically listed and defined below.
BAS = Building automation systems
CFM = Cubic-feet-per-minute
CKT. = Circuit
CV = Constant volume
CW = Clockwise
CCW = Counterclockwise
E/A = Exhaust air
CAUTION
!
ECEM = Exhaust/comparative enthalpy
module
F/A = Fresh air
GBAS = Generic building automation
system
HGBP = Hot gas bypass
HI = Human Interface
HVAC = Heating, ventilation and air
conditioning
IGV = Inlet guide vanes
I/O = Inputs/outputs
IOD= Installation/owner/diagnostic
manual
IPC = Interprocessor communications
IPCB = Interprocessor communications
bridge
LH = Left-hand
MCM = Multiple compressor module
MWU = Morning warmup
NSB = Night setback
O/A = Outside air
psig = Pounds-per-square-inch, gauge
pressure
R/A = Return air
RH = Right-hand
RPM = Revolutions-per-minute
S/A = Supply air
SCM = Single circuit module
SZ = Single-zone (unit airflow)
TCI = Tracer® communications module
UCM = Unit control modules
VAV = Variable air volume
VCM = Ventilation control module
VOM = Ventilation override module
w.c. = Water column
WSM = Waterside module
ZSM = Zone sensor module
Special Note on Refrigeration
Emissions
World environmental scientists have
concluded that ozone in our upper
atmosphere is being reduced due to the
release of CFC fully halogenated
compounds.
The Trane Company urges all HVAC
service personnel to make every effort to
prevent any refrigerant emissions while
installing, operating, or servicing equip-
ment. Always conserve refrigerants for
continued use.
WARNING
!

SCXG-SVX01B-EN 3
Contents
Cross reference to related publications/information:
IntelliPak® Self-Contained Programming Guide, PKG-SVP01B-EN
Remote Air-Cool-Condenser Installation, Owner, and Diagnostic Manual, CXRC-
SVX01A-EN
Installation
General Information
Pre-installation Considerations
Dimensions/Weights
Mechanical Requirements
Electrical Requirements
Pre-Startup Requirements
Programming
Startup
Owner
General Information
Sequence of Operation
Maintenance
Diagnostic Troubleshooting
Troubleshooting
Diagnostics
2
2
9
17
33
111
74
112
111
98
91
77
77
64
39
37

4SCXG-SVX01B-EN
Figure I-GI-1. IntelliPak
®
commercial self-contained Modular Series unit.
Installation
Modular Series Self-Contained
Unit Components
Commercial self contained units are
complete HVAC systems used in floor-by-
floor applications. Units are easy to install
because they feature a single point
power connection, factory installed and
tested controls, single water point
connection, factory installed options, and
an internally trapped drain connection.
Modular self-contained units can ship as
split-apart units for installation ease. Split-
apart units ship with a dry nitrogen
charge and require field refrigerant
charging.
Units consist of multiple compressors,
water-cooled condensers (water-cooled
units only), an evaporator coil, dual
forward curved fans, and control panel.
Air-cooled units require a remote air-
cooled condenser, model CXRC. The
hermetically sealed 3-D scroll
compressor motors utilize internal motor
protection and time delays to prevent
excessive cycling. Unit controls are either
an electromechanical thermostat or
microprocessor controls on the IntelliPak
unit. See Figure I-GI-1 for a typical unit.
The hermetically sealed 3-D scroll
compressor motors utilize internal motor
protection and time delays to prevent
excessive cycling.
The water-cooled condensers are shell
and tube type with an internal subcooler.
Condensers are available as mechani-
cally or chemically cleanable. The
evaporator fan is double width, double
inlet and forward curved with a fixed
pitch belt drive assembly. Frequency
drives or inlet guide vanes are optional.
Motor options are standard efficiency
open drip proof (ODP) or totally enclosed
fan cooled (TEFC); or premium efficiency
ODP.
All water-cooled units ship with a full
refrigerant and oil charge. Air-cooled
units ship with oil and a dry nitrogen
holding charge and require field-piping
refrigerant connections to the air cooled
General
Information
condensing unit. Also, air-cooled units
have two refrigerant circuits. Water-
cooled units have four refrigerant circuits;
which include a filter drier, pressure relief
valve, liquid line service valve, sight glass/
moisture indicator, thermal expansion
valve with a sensing bulb and external
equalizing line, discharge line shrader
valve, a suction line shrader valve, and
high and low pressure cutout switches.
Water-cooled units also include a liquid
line service valve for each circuit.
For more detailed information, see the
Owner’s section of this manual.

SCXG-SVX01B-EN 5
Installation
Control Options
Units can have either a thermostat
control or IntelliPak® UCM control
network.
IntelliPak® Unit Controls
Standard controls supplied with the
IntelliPak® unit include the human
interface (HI) panel with unit control
module (UCM), hi/lo inlet air temperature
sensor, and frost protection. All setup
parameters are preset from the factory.
Human Interface Panel
The HI is unit mounted and accessible
without opening the unit’s front panel. It
allows easy setpoint adjustment using
the HI keypad. In addition, the HI displays
all unit operating parameters and
conditions in a clear language display,
which can be configured for either
English, French, or Spanish.
The optional remote human interface
(RHI) will control up to four self-contained
units, each containing an interprocessor
communications bridge (IPCB). It has all
the same features as the unit-mounted HI
except for the service mode.
For more information on setpoint defaults
and ranges and unit programming, see
the
IntelliPak® Self-Contained Program-
ming Guide, PKG-SVP01B-EN
. A copy
ships with each unit.
Unit Control Module
The UCM provides “smart” unit control
with safety features and control relays
for pumps, dampers, etc. The Modular
Series IntelliPak® self-contained unit is
controlled by a microelectronic control
system that consists of a network of
modules. These modules are referred to
General
Information
as unit control modules (UCM). In this
manual, the acronym UCM refers to the
entire control system network.
These modules perform specific unit
functions using proportional/integral
control algorithms. They are mounted in
the unit control panel and are factory
wired to their respective internal compo-
nents. Each module receives and
interprets information from other unit
modules, sensors, remote panels, and
customer binary contacts to satisfy the
applicable request; i.e., economizing,
mechanical cooling, heating, ventilation.
See the Owner’s section of this manual
for a detailed description of each
module’s function.
Optional Controls
Optional controls include a disconnect
switch, dirty filter switch, water flow
switch (water-cooled only), supply air
temperature reset, or external setpoint
inputs. Night heat/morning warmup is
available with electric, steam, or hot
water heat control options.
The static pressure probe, zone night
heat/morning warm up, supply air
temperature reset sensor options ship
separate inside the unit control panel for
field installation. For more detailed
information on the unit control options,
see the Owner’s section of this manual.
Unit Nameplate
The unit nameplate identifies the unit
model number, appropriate service
literature, and wiring diagram numbers. It
is mounted on the left end of the unit
control panel.

6SCXG-SVX01B-EN
Installation General
Information
S C W G N 20 4 2 BO A B 2 10 065 B A 1 0 1 0 A A C F A 1 1 0 T 2 0
1 2 3 4 5 6 7 8 9 10 11 12 13 14 15 16 17 18 19 20 21 22 23 24 25 26 27 28 29 30 31 32 33 34 35 36
Model Number Description
Each self-contained unit has a multiple character model number unique to that unit. To determine a unit’s specific options, reference
the model number on the unit nameplate using the model number explanation below.
Digit 1 - Unit Model
S = Self Contained
Digit 2 - Unit Type
C = Commercial
I = Industrial
Digit 3 - Condenser Medium
W = Water-Cooled
R = Remote Air-Cooled
Digit 4 - Development Sequence
G = Modular Series
Digit 5 - Refrigerant Circuit Configuration
N = Independent
Digit 6, 7 - Unit Nominal Capacity
20 = 20 Tons (Water or Air Cooled)
25 = 25 Tons (Water or Air Cooled)
30 = 30 Tons (Water Cooled Only)
32 = 32 Tons (Air Cooled Only)
35 = 35 Tons (Water Cooled Only)
Digit 8 - Unit Voltage
6 = 200 Volt/60 Hz/3 ph
4 = 460 Volt/60 Hz/3 ph
5 = 575 Volt/60 Hz/3 ph
Digit 9 - Air Volume/Temp Control
1 = I-Pak & IGV and Supply Air Temp
Ctrl
2 = I-Pak & VFD and Supply Air
Temp Ctrl
3 = I-Pak & VFD w/ Bypass and
Supply Air Temp Ctrl
4 = I-Pak w/o Vol. CTRL, w/ Zone Temp
Cool
5 = I-Pak w/o Vol. CTRL, w/ Zone Temp
Heat/Cool
6 = I-Pak w/o Vol. CTRL, w/ Supply Air
Temp Ctrl
8 = Thermostat Interface
9 = Thermostat Interface w/Anti-Short
Cycle Timer
A = Thermostat Interface w/
Compressor Start Delay
B = Thermostat Interface w/Anti-Short
Cycle Timer and Comp. Start Delay
Digit 10, 11 - Design Sequence
BO = “B” Design
Digit 12 - Unit Construction
A = Vertical Discharge
B = Vertical Discharge with Double Wall
C = Horizontal Discharge
D = Horizontal Discharge w/ Double
Wall
E = Vertical Discharge, Ship Separate
F = Vertical Discharge w/ Double Wall,
Ship Separate
G = Horizontal Discharge, Ship Separate
H = Horizontal Discharge w/ Double
Wall, Ship Separate
Digit 13 - Plenum Type
B = Std Plenum w/ Factory Cut Holes
C = Low Plenum w/ Factory Cut Holes
E = Std Plenum w/ Field Cut Holes
F = Low Plenum w/ Field Cut Holes
H = Std Plenum Double Wall (Perf)
w/ Field Cut Holes
J = Low Plenum Double Wall (Perf)
w/ Field Cut Holes
L = Std. Plenum w/Factory Cut Holes,
Ship Separate
M = Low Plenum with Factory Cut
Holes, Ship Separate
P = Std Plenum w/ Field Cut Holes, Ship
Separate
R = Low Plenum w/ Field Cut Holes,
Ship Separate
U = Std Plenum Double Wall (Perf) w/
Field Cut Holes, Ship Separate
V = Low Plenum Double Wall (Perf) w/
Field Cut Holes, Ship Separate
0 = Without Plenum
Digit 14 - Motor Type
1 = Std. Efficiency ODP
2 = Premium Eff. ODP
3 = Std. Efficiency Totally Enclosed
Digit 15, 16 - Motor HP
05 = 5 HP Motor
07 = 7.5 HP Motor
10 = 10 HP Motor
15 = 15 HP Motor
20 = 20 HP Motor
25 = 25 HP Motor
Digit 17, 18, 19 - Fan RPM
085 = 850 rpm
090 = 900 rpm
095 = 950 rpm
100 = 1000 rpm
105 = 1050 rpm
110 = 1100 rpm
115 = 1150 rpm
120 = 1200 rpm
125 = 1250 rpm
130 = 1300 rpm
135 = 1350 rpm
140 = 1400 rpm
145 = 1450 rpm
150 = 1500 rpm
155 = 1550 rpm
160 = 1600 rpm
165 = 1650 rpm
170 = 1700 rpm
175 = 1750 rpm
180 = 1800 rpm
185 = 1850 rpm
Digit 20 - Heating Type
A = Steam Coil, LH
B = Hot Water Coil, LH
C = Electric Heat, 1 Stage
F = Hydronic Heat Ctrl Interface
G = Elec. Heat Ctrl Interface, 1 stage
K = Steam Coil Ship Separate, LH
L = Hot Water Coil Ship Separate, LH
M = Steam Coil, RH
N = Hot Water Coil, RH
P = Steam Coil Ship Separate, RH
R = Hot Water Coil Ship Separate, RH
0 = None
Digit 21 - Unit Isolators
A = Isopads
B = Spring Isolators
0 = None
Digit 22 - Unit Finish
1 = Paint - Executive Beige
2 = Protective Coating
3 = Protective Coating w/ Finish Coat
Digit 23
0 = None
Digit 24 - Unit Connection
1 = Disconnect Switch
2 = Terminal Block
3 = Dual Point Power
Digit 25 - Industrial Options
A = Protective Coated Evaporator Coil
B = Silver Solder
C = Stainless Steel Screws
D = A and B
E = A and C

SCXG-SVX01B-EN 7
P S W G S A 11 0AO
1234 5678910 11
Self-Contained Ship-With Accessory Model Number Description
Installation General
Information
F = B and C
G = A, B and C
0 = None
Digit 26 - Drain Pan Type
A = Galvanized Sloped
B = Stainless Steel Sloped
Digit 27 - Waterside Economizer
A = Mechanical Clean Full Cap. (4-row)
B = Mechanical Clean Low Cap. (2-row)
C = Chemical Clean Full Cap. (4-row)
D = Chemical Clean Low Cap. (2-row)
E = Mechanical Clean Full Capacity
(4-row) Ship Separate
F = Mechanical Clean Low Capacity
(2-row) Ship Separate
G = Chemical Clean Full Capacity
(4-row) Ship Separate
H = Chemical Clean Low Capacity
(2-row) Ship Separate
0 = None
Digit 28 - Ventilation Control
B = Airside Econ w/ Traq™ Damper
(Top O/A Inlet)
C = Airside Econ w/ Standard
Dampers (Top O/A Inlet)
E = Airside Econ w/ Traq™ Damper and
Comparative Enthalpy
(Top O/A Inlet)
F = Airside Econ w/ Std Dampers and
Comparative Enthalpy (Top O/A
Inlet)
G = Traq Damper Ventilation Interface
H = Ventilation For 2 Pos. Cntrl Interface
0 = None
Digit 29 - Water Piping
A = Right Hand Condenser Connection
B = Left Hand Condenser Connection
C = Right Hand Basic Piping
D = Left Hand Basic Piping
E = Right Hand Intermediate Piping
F = Left Hand Intermediate Piping
J = Right Hand Basic w/ Flow Switch
K = Left Hand Basic w/ Flow Switch
L = Right Hand Intermediate
w/ Flow Switch
M = Left Hand Intermediate
w/ Flow Switch
0 = None
Digit 30 - Condenser Tube Type
A = Standard Condenser Tubes
B = 90/10 CuNi Condenser Tubes
0 = None
Digit 31 - Compressor Service Valves
1 = With Service Valves
0 = None
Digit 32 - Miscellaneous System Control
1 = Timeclock
2 = Interface for Remote HI
3 = Dirty Filter Switch
4 = 1 and 2
5 = 1 and 3
6 = 2 and 3
7 = 1, 2, and 3
0 = None
Digit 33 - Control Interface Options
A = Generic BAS Module (GBAS)
B = Ventilation Override Module (VOM)
C = Tracer Comm. Interface Module (TCI)
D= Remote Human Interface (RHI)
E= GBAS and TCI
F= VOM and TCI
G = GBAS and VOM
H = GBAS and RHI
J = VOM and RHI
K = TCI and RHI
L = GBAS, VOM, and TCI
M = GBAS, VOM, and RHI
N = GBAS, TCI, and RHI
P = VOM, TCI, and RHI
R = GBAS, VOM, TCI, and RHI
0 = None
Digit 34 - Agency
T = UL Agency Listing
0 = None
Digit 35 - Filter Type
1 = 2-inch Construction Throwaway
2 = 2-inch Med Eff. Throwaway
Digit 36 - Miscellaneous Control Option
A = Low Entering Air Temp. Protect
Device (LEATPD)
B = High Duct Temp T-Stat
C = Plenum High Static Switch
D = Kit for Heat Mode Output (w/t’stat)
E = A and B
F = A and C
G = B and C
H = A, B, and C
0 = None
Digit 1 - Parts/Accessories
P = Parts/Accessories
Digit 2 - Unit Model
S= Self-Contained
Digit 3 - Shipment
W = With Unit
Digit 4 - Development Sequence
F = Signature Series
G = Modular Series
Digit 5 - Sensors and Other Accessories
S = Sensors
Digit 6 - Sensors and Thermostats (field
installed)
A = BAYSENS017 - Zone Temp Only (C V
and VAV)
B = BAYSENS013 - Zone Temp with
Timed Override Button (CV and VAV)
C = BAYSENS014 - Zone Temp with
Timed Override Button, Setpoint Dial
(CV and VAV)
D = BAYSENS023 - Remote Min. Position
Potentiometer Control (OA Damper)
E = BAYSENS008 - CV Zone Sensor
F = BAYSENS010 - CV Zone Sensor with
Indicator Lights
G = BAYSENS019 - CV Programmable
Night Setback Sensor
H = BAYSENS021 - VAV Zone Sensor
with Indicator Lights
J = BAYSENS020 - VAV Programmable
Night Setback Sensor
K = Remote Sensor Kit
L = Outside Air Temperature Sensor Kit
M = Outside Air Humidity Sensor Kit
N = BAYSTAT010 - 2 Heat/2 Cool
Thermostat
P = BAYSTAT037A - 2 Heat/2 Cool
Programmable Thermostat
0 = None
Digit 7 - Mixed Air Temperature Protec-
tion Kit (field installed)
1 = Mixed Air Temperature Protection Kit
0 = None
Digit 8 - Carbon Dioxide Sensor (field
installed)
1 = Carbon Dioxide Sensor Kit
0 = None
Digit 9 - Future Option
0 = None
Digit 10, 11 - Design Sequence
A0 = A Design

8SCXG-SVX01B-EN
Installation
“After-Shipment” Accessory Model Number
S C W F N 20 4 2 AO A B 2 10 065 B A 1 0 1 0 A A C F A 1 1 0 T 2 0
1 2 3 4 5 6 7 8 9 10 11 12 13 14 15 16 17 18 19 20 21 22 23 24 25 26 27 28 29 30 31 32 33 34 35 36
Digit 1 - Parts/Accessories
P = Parts/Accessories
Digit 2 - Unit Model
S= Self-Contained
Digit 3 - Shipment
A = After Unit
Digit 4 - Development Sequence
F = Signature Series
G = Modular Series
Digit 5 - Condenser Medium
W = Water Cooled
R = Remote Air Cooled
Digit 6 - Refrigerant Circuit Configuration
N = Independent (Water-Cooled)
M = Manifolded (Air-Cooled)
Digits 7, 8 - Unit Nominal Capacity
20 = 20 Tons (Water or Air)
22 = 22 Tons (Water Only)
25 = 25 Tons (Water or Air)
29 = 29 Tons (Water or Air)
30 = 30 Tons (Air Only)
32 = 32 Tons (Water Only)
35 = 35 Tons (Water or Air)
38 = 38 Tons (Water Only)
40 = 40 Tons (Air Only)
42 = 42 Tons (Water Only)
46 = 46 Tons (Water Only)
50 = 50 Tons (Air Only)
52 = 52 Tons (Water Only)
58 = 58 Tons (Water Only)
60 = 60 Tons (Air Only)
65 = 65 Tons (Water Only)
72 = 72 Tons (Water Only)
80 = 80 Tons (Water Only)
Digit 9 - Unit Voltage
6 = 200 Volt/60 Hz/3 ph
4 = 460 Volt/60 Hz/3 ph
5 = 575 Volt/60 Hz/3 ph
0 = Not Defined
Digits 10, 11 - Design Sequence
A0 = A Design
Digit 12 - Unit Power Connection
1 = Single Point Power
2 = Dual Point Power
0 = Not Defined
Digit 13, 14 - Motor HP
05 = 5 HP Motor
07 = 7.5 HP Motor
10 = 10 HP Motor
15 = 15 HP Motor
20 = 20 HP Motor
25 = 25 HP Motor
30 = 30 HP Motor
40 = 40 HP Motor
50 = 50 HP Motor (460V & 575V Only)
0 = Not Defined
Digit 15 - Exhaust/Comparative Enthalpy
Module (Field Installed)
1 = ECEM Kit
2 = None
Digit 16 - Generic BAS Module
1 = GBAS 0-5 VDC Kit
0 = None
Digit 17 - Heat Module
1 = Electric Heat Module Kit
2 = Hydronic Heat Module Kit
0 = None
Digit 18 - Remote Human Interface and
IPCB
1 = Remote Human Interface Panel Kit
(RHI Only)
2 = Interprocessor Communications
Module Kit (IPCB Only)
3 = RHI and IPCB Kit
0 = None
Digit 19 - Tracer Communications
Interface Kit (TCI)
1 = TCI Comm 3 Kit
0 = None
Digit 20 - Ventilation Override Module Kit
(VOM)
1 = VOM Kit
0 = None
Digit 21 - Sensors and Thermostats
A = BAYSENS017 - Zone Temp Only (CV
and VAV)
B = BAYSENS013 - Zone Temp with
Timed Override Button (CV and VAV)
C = BAYSENS014 - Zone Temp with
Timed Override Button, Setpoint Dial
(CV and VAV)
E = BAYSENS008 - CV Zone Sensor
F = BAYSENS010 - CV Zone Sensor with
Indicator Lights
G = BAYSENS019 - CV Programmable
Night Setback Sensor
H = BAYSENS021 - VAV Zone Sensor
with Indicator Lights
J = BAYSENS020 - VAV Programmable
Night Setback Sensor
K = Remote Sensor Kit
L = Outside Air Temperature Sensor Kit
M = Outside Air Humidity Sensor Kit
0 = None
Digit 22 - Low Entering Air Temperature
Protection Device
1 = Low Entering Air Temperature
Protection Device Kit
0 = None
Digit 23 - High Duct Temperature
Thermostat
1 = High Duct Temp. Thermostat Kit
0 = None
Digit 24 - Plenum High Static Switch
1 = Plenum High Static Switch Kit
0 = None
Digits 25 — 45 - Future Use
0 = None
General
Information

SCXG-SVX01B-EN 9
Installation
Receiving and Handling
Shipping Package
Commercial self-contained units ship
assembled on skids with protective
coverings over the coil and discharge
openings. Figure I-PC-1 illustrates a
typical shipping package.
Ship-Separate Accessories
Field-installed sensors ship separately
inside the unit’s main control panel. Extra
filters, sheaves, and belts ship in the unit’s
fan motor section. Condenser plugs,
spring isolators, and isopads ship in the
unit’s bottom left side.
Receiving Checklist
Complete the following checklist
immediately after receiving unit
shipment to detect possible shipping
damage.
oo Inspect individual cartons before
accepting. Check for rattles, bent carton
corners, or other visible indications of
shipping damage.
o If a unit appears damaged, inspect it
immediately before accepting the
shipment. Make specific notations
concerning the damage on the freight
bill. Do not refuse delivery.
o Inspect the unit for concealed
damage before it is stored and as
soon as possible after delivery.
Report concealed damage to the
freight line within the allotted time
after delivery. Check with the
carrier for their allotted time to
submit a claim.
Figure I-PC-1. Typical unit mounted on shipping skid.
o Do not move damaged material from
the receiving location. It is the receiver’s
responsibility to provide reasonable
evidence that concealed damage did
not occur after delivery.
o Do not continue unpacking the
shipment if it appears damaged. Retain
all internal packing, cartons, and crate.
Take photos of damaged material if
possible.
Pre-Installation
Considerations
o Notify the carrier’s terminal of the
damage immediately by phone and
mail. Request an immediate joint
inspection of the damage by the carrier
and consignee.
o Notify your Trane representative of
the damage and arrange for repair.
Have the carrier inspect the damage
before making any repairs to the unit.

10 SCXG-SVX01B-EN
Installation Pre-Installation
Considerations
Installation Preparation
Before installing the unit, perform
the following procedures to
ensure proper unit operation.
1. Verify the floor or foundation is level.
Shim or repair as necessary. To ensure
proper unit operation, install the unit
level (zero tolerance) in both horizontal
axis. Failure to level the unit properly
can result in condensate management
problems, such as standing water
inside the unit. Standing water and wet
surfaces inside units can result in
microbial growth (mold) in the drain
pan that may cause unpleasant odors
and serious health-related indoor air
quality problem.
2. Allow minimum recommended
clearances for maintenance and
routine service. See “Service Access”
section on page 11.
3. Position the unit and skid assembly in
its final location. If unit shipped split-
apart, follow the procedure in the
“Split-Apart Unit Assembly” section
on page 14 before completing this
step. Test lift the unit to determine
exact unit balance and stability before
hoisting it to the installation location.
See Figure I-PC-7 and I-PC-8 on page
13 for typical rigging procedures,
including cautions and proper uses of
such equipment as fork lifts, spreader
bars, and hooks.
4. Remove the skids from under the unit.
See the “Rigging and Handling”
section on page 12. Refer to the “Skid
Removal” section on page 16. If you
find internal damage, file a claim
immediately to the delivering carrier.
5. Remove the protective shipping covers
from the unit. Refer to the “Unit
Protective Covers” section on page 39.
Note: Unit height and connection locations
will change if external vibration isolators
are used. The unit may be raised an
additional 5 7/8 inches with spring-type
isolators.
Note: Unit height and connection locations
will change if the unit is constructed to be
split-a-part in the field. See unit submittal
drawings for connection locations.
6. Electrical supply power must meet
specific balance and voltage
requirements, as described in the
“Electrical Requirements” section on
page 37.
7. Water-cooled units only (model
SXWG): The installer must furnish and
install a condenser main and standby
water pump, cooling tower, pressure
gauges and all components for the
waterside piping. See the “Water
Piping” section on page 34 for general
waterside recommendations.
8. Air-cooled units only (model SXRG):
These units require field-installation of a
remote air-cooled condenser and
refrigerant piping. See the “Refrigerant
Piping” section on page 36 for general
piping recommendations.

SCXG-SVX01B-EN 11
denser and fan motor access panels are
secured with quick-acting fasteners.
Access panels for evaporator coils,
expansion and water valves, and left fan
bearing are sheet metal screws. Access
to other components for service requires
removal of panels secured with sheet
metal screws. During operation, sight
glasses are viewable through portholes
on the upper right side panel of the fan
section.
Disconnect electrical power
source before servicing the unit.
Failure to do so may result in
injury or death from electrical
shock or entanglement in moving
parts.
Service Access
See Figure I-PC-4 and Table I-PC-1 for
recommended service and code
clearances. Access to thermostat unit
controls is through a hinged access panel
door on the front, lower left of the unit’s
compressor section.
IntelliPak® unit control access is through a
panel on the middle right of the fan
section. The panel is secured with an
automatic latch and quick-acting fasten-
ers, which require a screwdriver to open.
Removable front unit panels provide
access to compressors, fan, motor, inlet
guide-vane actuator, and belts.
Removable left side panels give access to
drive side, fan bearing, inlet guide-vanes,
condensers, and waterside economizer
control valve. The compressor, con-
WARNING
!
Figure I-PC-4. Top view of self-contained unit showing recommended service and code
clearances.
Pre-Installation
Considerations
Installation
Table I-PC-1. SCWG/SIWG/SCRG/SIRG Clearance Requirements
Side Distance Purpose
Front 42 in. (1066 mm) NEC code requirement
Left 18 in. Air-cooled units only
36 in. (914 mm) Refrigeration and waterside component service
77 in. Fan shaft removal
Right 36 in. (914 mm) Provides uniform airflow
Inlet 18 in. (457 mm) Provides uniform airflow
Air Inlet 18” (457.2 mm)
Minimum
See Table
42” (1066.8 mm)
Minimum
36” (914 mm)
Minimum

12 SCXG-SVX01B-EN
Figure I-PC-6. Split-apart unit gravity block location.
Figure I-PC-5. Assembled unit gravity block location.
Table I-PC-2. Gravity Block Dimensions
Model A B C D
SXWG 36 14 38 12
SXRG 36 16 40 12
Rigging and Unit Handling
Before lifting the unit or modular
component, determine the approximate
center of gravity for lifting safety. See
Figure I-PC-5 for assembled modular
units and Figure I -PC-6 for split-apart
units. The center of gravity may vary
slightly within the gravity block
depending on unit options.
Ensure lifting equipment capacity
exceeds unit weight by an
adequate safety factor to prevent
injury, death, or unit damage.
Always test-lift the unit to determine the
exact unit balance and stability before
hoisting it to the installation location. See
Figures I-PC-7 and I-PC-8 for typical
rigging procedures and proper rigging
equipment usage.
To prevent injury or death and
unit damage, always test-lift the
unit to determine actual center of
gravity.
See Figures I-PC-5 and I-
PC-6.
Pre-Installation
Considerations
Installation
WARNING
!
WARNING
!
Fan Section Only
Compressor Section Only

SCXG-SVX01B-EN 13
Pre-Installation
Considerations
Rigging and Handling
Unit Shipping
1. Position rigging sling under wood
shipping skid.
2. Use spreader bars to avoid unit
damage.
3. When using a forklift, exercise caution
to prevent unit damage.
4. Use the standard fork length to lift one
end and drag or pull unit while skidding
the opposite end.
5. The unit center of gravity will fall within
center of gravity block at various
locations depending on unit options.
6. Use hooks to lift fan section only. Do not
hook into open channels to lift unit.
7. See unit nameplate for unit weight.
8. Do not stack units.
Do not use hooks to lift unit or
hook into open channels to lift
unit. This could cause unit
damage.
Installation
CAUTION
!
Figure I-PC-8. Split-apart modular unit proper rigging.
Figure I-PC-7. Assembled modular unit proper rigging.
Fan Section

14 SCXG-SVX01B-EN
Split-Apart Unit Assembly
1. Ensure the tagging information on the
fan section nameplate matches that on
the compressor nameplate.
2. Remove the connector brackets holding
the the sheet metal shipping cover on
compressor section. Retain brackets
and screws.
3. Remove shipping cover from the
compressor section and verify the ship-
with packge contains:
• suction and discharge line couplings
• insulation
• sheet metal screws
4. Lift fan section onto the compressor
section using the rigging method in
Figure I-PC-8 on page 13.
5. Remove skid from the fan section,
placing the fan section onto the
compressor section. Reference Figure I-
PC-9 on page 15.
6. Install the connection brackets with the
sheet metal screws (referenced in step
2) on all sides of the unit. Reference
Detail “A” in Figure I-PC-9.
7. Remove the unit panels labeled RU and
RL in Figure I-PC-10 on page 15. To
remove panels, first remove the four
shipping screws located in the corner of
each panel. Next, turn the remaining 1/4
turn fasteners to the unlatch position.
The panel is supported by a “lip”
channel. So, lift the panel up and off the
unit to remove it. See Detail “A”in Figure
I-PC-9 on page 15.
8. Connect the drain hose to the drainpan
outlet fitting and secure it with the drain
hose clamp provided.
9. Circulate nitrogen thoughout
refrigerant circuits.
10. Unbraze and remove the caps on the
discharge and suction lines in both the
compressor and fan sections.
11. Install and braze discharge and suction
line couplings.
12. Insulate discharge and suction lines
with the insulation provided.
13. Remove panel FLR and open the
bottom control panel door, FLL. Pull the
fan motor leads (coiled in the fan
section) through the knockout in the
bottom of the fan section to the control
panel. Ensure that the bushing is
installed in the hole to prevent the
wires from chafing. Refer to the unit
wiring diagrams to connect the fan
motor leads properly and ensure
correct phase sequencing.
IntelliPak Units (UCM) Only
14. Remove panels FML, FMM, and FMR.
15. Pull the circular plug connector (CPC)
from the compressor section through
the knockouts into the fan section.
Install the bushings (provided on the
wiring harnesses) in the knockouts.
16. Using the CPC wiring diagram,
connect the male CPC to the female
CPC in the top control panel.
17. If the unit has the mixed air
temperature option, route the capillary
tube on back of the filter rack.
Units with Thermostat Only
18. Remove panel FMR. See Note 1 on
Figure I-PC-10.
19. Pull frost protection wires from the
bottom control panel throughknockouts
in bottom of fan section. Route wires to
the appropriate frost protection
switches on the evaporator coil.
Reference the unit wiring diagrams to
connect frost protection wiring
connectors.
Air-Cooled Units Only:
20. Route the refrigerant circuit wires for
circuits 1 and 2 from the bottom control
panel through the knockouts to the
solenoid valves. The solenoid valves
are located in the liquid refrigerant
lines on the right-hand side of the unit.
Refer to the unit wiring diagrams to
make splice connections.
Pre-Installation
Considerations
Installation

SCXG-SVX01B-EN 15
Pre-Installation
Considerations
Installation
Figure I-PC-9 How to assemble the split apart modular unit.
Figure I-PC-10 Modular unit panel description and internal connections.

16 SCXG-SVX01B-EN
Pre-Installation
Considerations
Skid Removal
The unit ships on skids to provide forklift
locations from the front or rear. The skid
allows easy maneuverability of the unit
during storage and transportation.
Remove the skids before placing the unit
in its permanent location.
Remove the skids using a forklift or jack.
Lift one end of the unit off of the skids.
See Figure I-PC-5 and I-PC-6 on page 12
for unit gravity block location. Slide the
skids out and lower the unit at the
installation location.
Note: External isolation is not necessary
since units are internally isolated. Consult a
vibration specialist before “double-
isolating” the unit.
External Unit Isolation
If your job requires external vibration
isolation, two options are available:
isopads or spring-type isolators. Isopads
should be placed under the unit at
locations indicated on the factory-
provided isolator sheet.
Set the spring-type isolators (Figure I-PC-
9) in position after the unit is removed
from skids before making electrical,
piping, or duct connections. All units
require a minimum of four isolators per
unit. But some may require six isolators,
depending upon unit options. Note: The
Trane Company strongly recommends
you consult a vibration specialist before
double-isolating the unit. Double isolation
is not recommended.
If you decide to externally isolate the unit,
use spring-flex, type CP isolators. The
spring number is marked on the outer
housing. See Figure I-PC-9.
To install external isolators, complete the
following procedure.
1. Locate the isolators under unit base at
the locations indicated on the factory-
provided isolator placement sheet. Lift
one end of the unit at a time to position
isolators to the floor, using anchor bolts.
2. Level the unit by adjusting isolator
heights. Unit weight may cause the
upper housing to rest on the lower
housing of the spring isolators. The
isolator clearance shown in the side
view of Figure I-PC-9, must be 1/4 - 1/2
inches. To increase the clearance, lift
the unit off the isolator and turn the
leveling bolt counterclockwise. Recheck
the unit level and the housing
clearances. Maximum allowable
difference between isolator heights is 1/4
inch. Shim as required under the
isolators.
Note: The compressors and fan assembly
are internally isolated on most units. Due
to this, the addition of external isolation
devices (spring mounting isolators) is at
the discretion of the building or HVAC
system designer.
Pre-Installation Checklist
Complete the following checklist before
beginning unit installation.
o Verify the unit size and tagging with the
unit nameplate.
o Make certain the floor or foundation is
level, solid, and sufficient to support the
unit and accessory weights. See Table
I-DW-1 on page 32. Level or repair the
floor before positioning the unit if
necessary.
o Allow minimum recommended
clearances for routine maintenance and
service. Refer to unit submittals for
dimensions.
o Allow three fan diameters above the
unit for the discharge ductwork. Return
air enters the rear of the unit and
Installation
conditioned supply air discharges
through the top.
o Electrical connection knockouts are on
the top, left side of the unit.
o Allow adequate space for piping
access and panel removal. Condenser
water piping, refrigerant piping, and
condensate drain connections are on
the lower left end panel.
Note: Unit height and connection locations
will change if using vibration isolators. The
unit height may increase up to 5 7/8” with
spring type isolators.
o Electrical supply power must meet
specific balance and voltage
requirements as described in the
“Electrical Requirements” section on
page 37.
o Water-cooled units only: The installer
is responsible for providing a condenser
main, standby water pump, cooling
tower, pressure gauges, strainers, and
all components for waterside piping.
See the “Water Piping” section on page
34 for general waterside
recommendations.
o Air-cooled units only: The installer is
responsible for providing and installing
the remote air-cooled condenser and
refrigerant piping, including filter driers.
Figure I-PC-9. Optional spring isolator dimensional data.

SCXG-SVX01B-EN 17
Dimensions
and Weights
Installation
SCWG/SIWG Unit —
English - (inches) ON PAGE 20
ON PAGE 21
ON PAGE 21 ON PAGE 21
ON PAGE 21

18 SCXG-SVX01B-EN
Dimensions
and Weights
Installation
SCWG/SIWG Unit —
Metric- (mm)
ON PAGE 21 ON PAGE 21
ON PAGE 21 ON PAGE 21
ON PAGE 21

SCXG-SVX01B-EN 19
Dimensions
and Weights
Installation
SCRG/SIRG Unit —
English - (inches)
ON PAGE 21
ON PAGE 21
ON PAGE 21

20 SCXG-SVX01B-EN
Dimensions
and WeightsInstallation
SCRG/SIRG Unit —
Metric - (mm)
ON PAGE 21
ON PAGE 21
ON PAGE 21

SCXG-SVX01B-EN 21
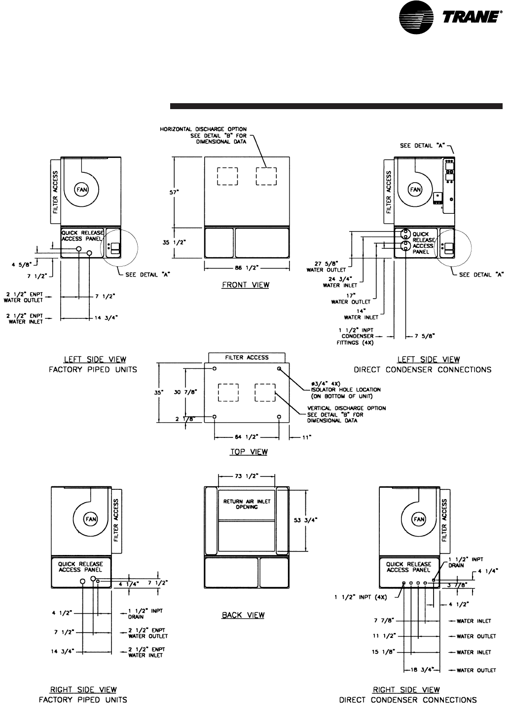
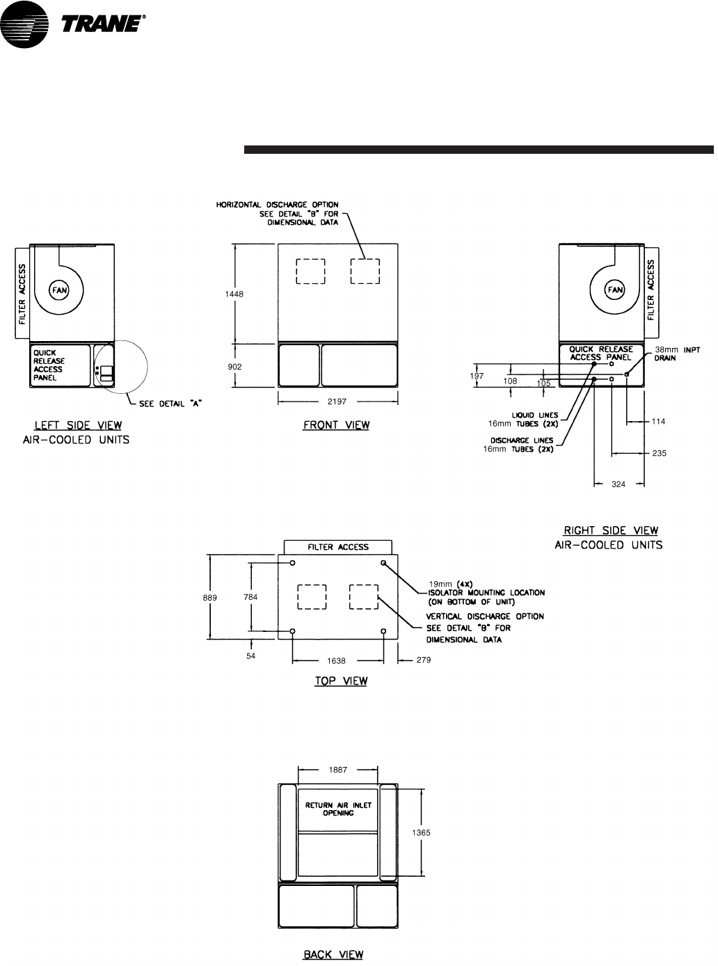
Dimensions
and WeightsInstallation
Unit Dimensions - English, (inches)
Unit Tons A B C D E F
SCWG/SCRG 20 20 10 3/458 1/25 1/813 1/411 1/2
SCWG/SCRG 25 19 1/412 1/457 5/85 1/813 1/411 1/2
SCWG 30 - 35/SCRG 32 18 14 5/856 1/25 1/813 1/411 1/2
Unit Dimensions - Metric (mm)
Unit Tons A B C D E F
SCWG/SCRG 20 508 508 1486 130 337 292
SCWG/SCRG 25 489 489 1464 130 337 292
SCWG 30 - 35/SCRG 32 457 457 1435 130 337 292
SCRG/SIRG/SCWG/SIWG Detail
“A” Electrical Connections —
English - (inches)
Detail “B” Discharge Options — English - (inches) and Metric (mm)
SCRG/SIRG/SCWG/SIWG Detail
“A” Electrical Connections —
Metric - (mm)

22 SCXG-SVX01B-EN
Dimensions
and WeightsInstallation
Hot Water Coil
Hot Water Coil Dimensions - English - (inches)
Unit Ton A B C D E F G H J
20 - 35 37 1/453 3/416 5/873 1/214 7/816 1/443 1/45 5/873/4
Hot Water Coil Dimensions - Metric (mm)
Unit Ton A B C D E F G H J
20 - 35 946 1365 422 1867 378 413 1099 143 187

SCXG-SVX01B-EN 23
Dimensions
and Weights
Installation
Steam Coil Dimensions - English - (inches)
Unit Ton A B C D E K L M N P Q R
20 - 35 37 1/453 3/416 5/873 1/210 7/822 1/23 3/815 7/81419
3/84 3/8
Steam Coil Dimensions - Metric (mm)
Unit Ton A B C D E K L M N P Q R
20 - 35 946 1365 422 1867 276 572 86 403 25 1041 238 111
Steam Coil

24 SCXG-SVX01B-EN
Dimensions
and Weights
Installation
Electric Heat Coil

SCXG-SVX01B-EN 25
Dimensions
and Weights
Installation
Waterside Economizer

26 SCXG-SVX01B-EN
Dimensions
and Weights
Installation
Airside Economizer Dimensions - English - (inches)
Unit Size A B C D E F (1) F (2) G (1) G (2) H (1) H (2) J K L M
SCWG/SIWG 20, 25 36 65 5/837 74 1/46 1/856 1/249 3/423 1/420 1/25 5/87 20 1/217 1/817 49 3/4
SCRG/SIRG 20
SCWG/SIWG 30, 35 36 65 5/837 74 1/46 1/861 3/862 3/428 1/820 1/23 1/47 20 1/217 1/85 1/262 3/4
SCRG/SIRG 25, 32
Airside Economizer Dimensions - Metric (mm)
Unit Size A B C D E F (1) F (2) G (1) G (2) H (1) H (2) J K L M
SCWG/SIWG 20, 25 914 1667 940 1886 156 1435 1264 591 521 143 178 521 435 305 1264
SCRG/SIRG 20
SCWG/SIWG 30, 35 914 1667 940 1886 156 1559 1594 714 521 83 178 521 435 140 1594
SCRG/SIRG 25, 32

SCXG-SVX01B-EN 27
Detail “A”
Detail “B”
Dimensions
and Weights
(Factory
provided
for field
installation)

28 SCXG-SVX01B-EN
Dimensions
and Weights
Installation
Variable Frequency Drive
Variable Frequency Drive Dimensions - English - (inches)
Motor HP Voltage A B C D E F G H J K Weight
7.5 200V 9 1/281/212 3/41/412 1/41/48 1/41/426 lbs.
7.5 460V 6 7/83/86 1/83/811 1/43/810 1/23/87 1/41/415 lbs.
10 200V 9 1/281/212 3/41/412 1/41/48 1/41/426 lbs.
10 460V 9 1/281/212 3/41/412 1/41/48 1/41/426 lbs.
15 200V 9 5/83/48 1/83/422 3/821 1/43/811 1/41/475 lbs.
15 460V 9 1/281/212 3/41/412 1/41/48 1/41/426 lbs.
20 200V 9 5/83/48 1/83/422 3/821 1/43/811 1/41/475 lbs.
20 460V 9 1/281/216 3/81/415 7/81/48 1/41/431 lbs.
25 200V 14 1 12 1 26 3/824 3/47/812 1/83/8126 lbs.
25 460V 9 5/83/48 1/83/422 3/821 1/43/811 1/41/475 lbs.
Variable Frequency Drive Dimensions - Metric (mm)
Motor HP Voltage A B C D E F G H J K Weight
7.5 200V 229 13 203 13 324 6 311 6 210 6 12 kg.
7.5 460V 175 10 156 10 286 10 267 10 184 6 7 kg.
10 200V 229 13 203 13 324 6 311 6 210 6 12 kg.
10 460V 229 13 203 13 324 6 311 6 210 6 12 kg.
15 200V 244 19 206 19 559 10 540 10 286 6 34 kg.
15 460V 229 13 203 13 324 6 311 6 210 6 12 kg.
20 200V 244 19 206 19 559 10 540 10 286 6 34 kg.
20 460V 229 13 203 13 416 6 403 6 210 6 14 kg.
25 200V 356 25 305 25 660 10 629 22 308 10 57 kg.
25 460V 244 19 206 19 559 10 540 10 10 286 34 kg.

SCXG-SVX01B-EN 29
Dimensions
and WeightsInstallation
Variable Frequency
Drive with Bypass

30 SCXG-SVX01B-EN
Variable Frequency Drive With Bypass Dimensions - English - (inches)
Motor HP Voltage A B C D E F G H J K L M Weight
7.5 200V 19 1/217 1/21 7/841 39 3/4 13 1/212 3 1/438 1 1/420 1/22 3/8126 lbs.
7.5 460V 14 1/212 1/41 7/835 33 3/413 1/212 3 1/432 1 1/414 3/42 3/887 lbs.
10 200V 19 1/217 1/21 7/841 39 3/4 13 1/212 3 1/438 1 1/420 1/22 3/8126 lbs.
10 460V 19 1/217 1/21 7/841 39 3/4 13 1/212 3 1/438 1 1/420 1/22 3/8126 lbs.
15 200V 20 18 1 7/849 47 7/816 3/814 7/86 46 3/8-- 20 1/2-- 180 lbs.
15 460V 19 1/217 1/21 7/841 39 3/4 13 1/212 3 1/438 1 1/420 1/22 3/8126 lbs.
20 200V 20 18 1 7/849 47 7/816 3/814 7/86 46 3/8-- 20 1/2-- 180 lbs.
20 460V 19 1/217 1/21 7/841 39 3/4 13 1/212 3 1/438 1 1/420 1/22 3/8126 lbs.
25 200V 20 18 1 7/849 47 7/816 3/814 7/86 46 3/8-- 20 1/2-- 180 lbs.
25 460V 20 18 1 7/849 47 7/816 3/814 7/86 46 3/8-- 20 1/2-- 180 lbs.
Variable Frequency Drive With Bypass Dimensions - Metric (mm)
Motor HP Voltage A B C D E F G H J K L M Weight
7.5 200V 495 445 48 1041 1010 343 305 83 965 38 521 60 57 kg.
7.5 460V 362 311 48 889 857 343 305 83 813 38 375 60 40 kg.
10 200V 495 445 48 1041 1010 343 305 83 965 38 521 60 57 kg.
10 460V 495 445 48 1041 1010 343 305 83 965 38 521 60 57 kg.
15 200V 508 457 48 1244 1216 416 378 152 1178 -- 521 -- 82 kg.
15 460V 495 445 48 1041 1010 343 305 83 965 38 521 60 57 kg.
20 200V 508 457 48 1244 1216 416 378 152 1178 -- 521 -- 82 kg.
20 460V 495 445 48 1041 1010 343 305 83 965 38 521 60 57 kg.
25 200V 508 457 48 1244 1216 416 378 152 1178 -- 521 -- 82 kg.
25 460V 508 457 48 1244 1216 416 378 152 1178 -- 521 -- 82 kg.
Dimensions
and WeightsInstallation

SCXG-SVX01B-EN 31
Dimensions
and Weights
Flexible Horizontal Discharge Plenum Dimensions - English - (inches)
20-35 Tons A B C
Low Height 35 17 1/486 1/2
Standard Height 35 25 1/486 1/2
Flexible Horizontal Discharge Plenum Dimensions - Metric (mm)
20-35 Tons A B C
Low Height 889 438 2197
Standard Height 889 641 2197
Flexible Horizontal Discharge
Plenum
Installation

32 SCXG-SVX01B-EN
Table I-DW-1. Unit Weights, English - SCWG/SCRG/SIWG/SIRG
2-Row 4-Row
Unit Base Airside Waterside Waterside Heating
Size Weight Economizer Economizer Economizer Coil Box
lbs. lbs. lbs. lbs. lbs.
SCWG/SIWG 20 2620 273 488 584 460
25 2730 273 488 584 460
30 2864 273 488 584 460
35 3000 273 488 584 460
SCRG/SIRG 20 2344 273 488 584 460
25 2479 273 488 584 460
32 2614 273 488 584 460
Notes:
1. All unit weights include refrigerant, water, inlet guide vanes and controllers, electric heat and valves.
2. Add 150 lbs. to total weight to obtain approximate shipping weight.
3. Flexible horizontal discharge plenum option weights:
Standard height plenum = 352 lbs.
Low height plenum = 262 lbs.
4. VFD weights are on pages 28 and 30.
Table I-DW-2. Unit Weights, Metric - SCWG//SIWG/SCRG/SIRG
2-Row 4-Row
Unit Base Airside Waterside Waterside Heating
Size Weight Economizer Economizer Economizer Coil Box
Kg Kg Kg Kg Kg
SCWG/SIWG 20 1365 195 65 155 210
25 1400 195 65 155 210
30 1500 225 85 175 210
35 1640 225 130 230 210
SCRG/SIRG 20 1325 195 65 155 210
25 1425 225 85 175 210
32 1530 225 130 230 210
Notes:
1. All unit weights include refrigerant, water, inlet guide vanes and controllers, electric heat and valves.
2. Add 68 kg. to total weight to obtain approximate shipping weight.
3. Flexible horizontal discharge plenum option weights:
Standard height plenum = 160 kg
Low height plenum = 119 kg
4. VFD weights are on pages 28 and 30.
Dimensions
and Weights
Installation

SCXG-SVX01B-EN 33
Mechanical
Requirements
Duct Connections
Disconnect electrical power
source before servicing the unit.
Failure to do so may result in
injury or death from electrical
shock or entanglement in moving
parts.
Return air enters the rear of the unit and
conditioned supply air discharges
through the top. Attach supply air
ductwork directly to the unit’s top panel,
around the fan discharge opening. A duct
collar is not provided.
Note:Units equipped with the flexible
horizontal discharge plenum option may
include a duct collar when holes are factory
cut. If discharge openings are field-cut,
refer to the “Plenum Installation” section.
Install all air ducts according to the
National Fire Protection Association
standards for the “Installation of Air
Conditioning and Ventilation Systems
other than Residence Type (NFPA 90A)
and Residence Type Warm Air Heating
and Air Conditioning Systems (NFPA
90B).
Make duct connections to the unit with a
flexible material such as heavy canvas. If
a fire hazard exists, Trane recommends
using Flexweave 1000, type FW30 or
equivalent canvas. Use three inches for
the return duct and three inches for the
discharge duct. Keep the material loose
to absorb fan vibration.
Note: The compressors and fan assembly
are internally isolated. Therefore, external
isolation devices (spring mounting
isolators) are at the discretion of a vibration
specialist consulted by the building or
HVAC system designer.
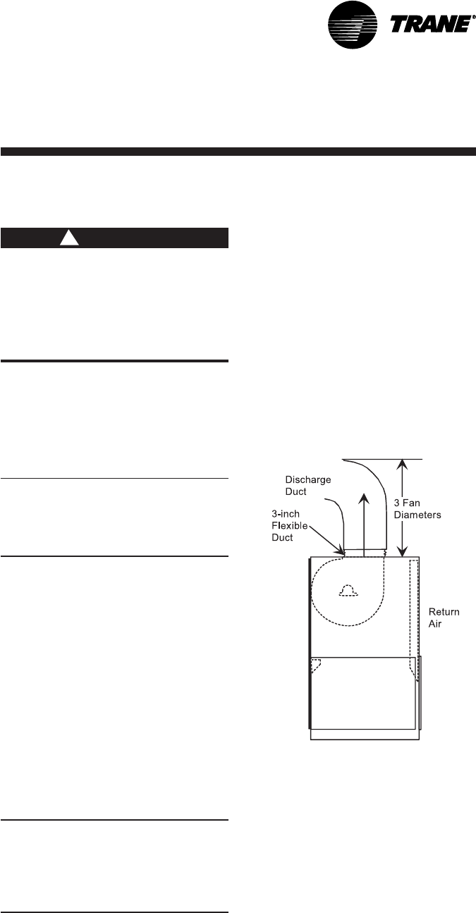
Run the ductwork straight from the
opening for a minimum of three fan
diameters. See Figure I-MR-1. Extend
remaining ductwork as far as possible
without changing size or direction. Do not
make abrupt turns or transitions near the
unit due to increased noise and excessive
static losses. Use elbows with splitters or
turning vanes to minimize static losses.
Poorly constructed turning vanes may
cause airflow generated noise. Align the
fan outlet properly with the ductwork to
decrease noise levels in the duct and to
increase fan performance. To complete
trunk ductwork to the VAV terminal units,
refer to the VAV box manuals for specific
requirements. Check total external static
pressures against fan characteristics to
be sure the required airflow is available
throughout the ductwork.
To achieve maximum acoustical perfor-
mance, minimize the duct static pressure
setpoint.
Figure I-MR-1. Duct connection recommen-
dations.
WARNING
!
Installation

34 SCXG-SVX01B-EN
Mechanical
Requirements
Water Piping
Note: To prevent water damage, install all
piping drain and vent plugs.
Condenser Connections
Condenser water piping knockouts are in
the lower left end panel. If necessary,
remove insulation to gain access. All field
installed piping must conform to
applicable local, state, and federal codes.
To complete condenser water
connections follow the procedure below.
Note: Four condenser waterline drain
plugs ship in a bag in the unit’s left end.
The installer must field install these four
plugs using pipe thread sealer. An addi-
tional plug are provided for units with a
waterside economizer.
1. Install the vent plugs in the economizer
coil headers and condenser manifolds.
These plugs ship in a bag with the
condenser drain plugs.
2. Attach the water supply line to the inlet
connection, and the return line to the
outlet connection. Entering and leaving
water connections for all condensers
are factory manifolded and require only
single connections for entering and
leaving water. If the unit has a
waterside economizer and/or control
valves, the factory pipes between these
components.
3. If using a cooling tower, refer to Figure
I-MR-3 on page 35 for a typical piping
circuit from the unit. For typical city or
well water piping, see Figure I-MR-4 on
page 35.
4. Ensure the water pressure to the unit
does not exceed 400 psig.
Note: To prevent water pump damage,
design system piping to provide relief
when using energy saving waterside
economizer valves.
Installation
Condensate Drain Connections
The condensate drain is internally
trapped. Condensate drain connections
are on the unit’s left side. Connect
condensate drain piping to the 1 1/4“ NPT
female fitting, using at least 7/
8
” OD
copper or 3/4“ OD iron pipe. Pitch the
condensate line downward a minimum of
1/2” for each 10' of horizontal run, away
from the unit. Be sure to install the
condensate drain “P” trap drain plug.
Before starting the unit, fill the trap with
water to prevent negative pressure in the
fan section from impeding condensate
flow. To facilitate drain pipe cleaning,
install plugged tees in place of 90°
elbows.
Table I-MR-1. Water Connection Sizes.
Unit Size Direct Condenser Factory Piped
SXWG 20-35 1 1/2 NPT 2 1/2 NPT
Figure I-MR-2. Direct condenser connections.

SCXG-SVX01B-EN 35
Figure I-MR-3. Condenser water piping components for cooling tower system.
Mechanical
Requirements
Figure I-MR-4. Typical water piping for city or well water system.
Installation
General Waterside Recommendations:
Cooling Towers
Cooling tower control affects the unit
cycle rates. Condenser water
temperature swings from 10-15 degrees
F may cause excessive compressor,
water valve, and unit cycling. Be sure to
set the tower controls to minimize
compressor/unit cycling.
Waterside Piping Arrangements
Install a condenser water pump between
the cooling tower (either open or closed)
and the self-contained unit. Lay out the
remainder of the system’s condenser
piping in reverse returns. This helps
balance the system by equalizing the
length of supply and return pipes.
Multistory buildings may use a direct
return system with balancing valves at
each floor.
Install the supply riser and its return in
close proximity. Furnish both with
permanent thermometers to check the
waterside balance during start-up and
routine maintenance checks.
Also, include strainers at each pump inlet
and unit. Install drain valves at the riser’s
base to allow drainage points for system
flushing during start-up and routine
maintenance. For condenser draining
and header removal, include a shutoff/
balancing valve on the entering and
leaving waterside pipes, drain tees, and
unions of each unit. Also, install a shutoff
valve on the unit entering water pipe for
condenser draining.
Note: Unit does not have floor drains.
Water Temperature Requirements
Do not allow the entering water
temperature to go below 54 F (12.2 C) on
units with constant water flow (basic
piping). This will cause the compressors
to shut down and the mechanical cooling
function will lockout. However, the
economizer (if enabled) will continue to
function. The compressors will reset
when the entering water temperature
reaches 58 F (15C).
Units with variable water flow (intermedi-
ate piping) have a modulating condensing
pressure control valve that allows
compressor operation down to entering
water temperatures of 35 F (2 C).
For more information on constant and
variable water flow, see the Owner’s
section of this manual.
Note: Units with a waterside economizer
can be set from the human interface panel
for variable or constant water flow.

36 SCXG-SVX01B-EN
Refrigerant Piping (Air-Cooled
Units Only)
The maximum line pressure design of
each refrigerant circuit is 3 psig. Include
the following items when designing
refrigerant piping: oil traps, dual risers, oil
return, etc. Refer to the
Trane
Reciprocating Refrigeration Manual
for
proper line sizing and layout.
See the “Start Up” section on page 74 of
this manual for instructions on refrigerant
evacuation, charging, and superheat
measurement. Leak-test the entire
refrigeration system after all piping is
complete.
Leak Test (Remote Air-cooled Units
Only)
Units ship with a holding charge of dry
nitrogen. Before installing the unit
refrigerant piping, momentarily depress
either the suction or discharge line access
valve to verify the holding charge has not
been lost. If no nitrogen escapes the
access valve, leak-test the entire
refrigerant system to determine the leak
source. Use a halogen leak detector, a
halide torch, or soap bubbles to leak test.
After finding a leak, remove the test
pressure and repair the leak. Retest the
unit to ensure all leaks are repaired.
Brazing Procedures
Proper brazing techniques are essential
when installing refrigerant piping. The
following factors should be kept in mind
when forming sweat connections:
1. When heating copper in the presence
of air, copper oxide forms. To prevent
copper oxide from forming inside the
tubing during brazing, sweep an inert
gas, such as dry nitrogen, through the
tubing. A nitrogen flow of 6 to 10 cubic
feet per hour is sufficient to displace the
air in the tubing and prevent oxidation
of the interior surfaces. Use a pressure
regulating valve or flow meter to
control the flow.
2. Ensure that the tubing surfaces
requiring brazing are clean, and that the
tube ends are carefully reamed to
remove any burrs.
3. Make sure the inner and outer tubes of
the joint are symmetrical and have a
close clearance, providing an easy ‘slip’
fit. If the joint is too loose, the
connection’s tensile strength is
significantly reduced. Ensure the
overlap distance is equal to the inner
tube diameter.
4. Wrap each refrigerant line component
with a wet cloth to keep it cool during
brazing. Excessive heat can damage
the internal components.
5. If using flux, apply it sparingly to the
joint. Excess flux will contaminate the
refrigerant system.
6. Apply heat evenly over the length and
circumference of the joint.
7. Begin brazing when the joint is hot
enough to melt the brazing rod. The hot
copper tubing, not the flame, should
melt the rod.
8. Continue to apply heat evenly around
the joint circumference until the brazing
material is drawn into the joint by
capillary action, making a mechanically
sound and gas-tight connection.
9. Visually inspect the connection after
brazing to locate any pinholes or
crevices in the joint. Use a mirror if joint
locations are difficult to see.
Mechanical
Requirements
Installation

SCXG-SVX01B-EN 37
Electrical
Requirements
Unit Wiring Diagrams
Specific unit wiring diagrams are
provided on the inside of the control
panel door. Use these diagrams for
connections or trouble analysis.
Supply Power Wiring
It is the installer’s responsibility to provide
power supply wiring to the unit terminal
block or the non-fused disconnect switch
option. Wiring should conform to NEC and
all applicable code requirements.
Bring supply wiring through the knockout
in the lower left side of the unit control
panel. Connect the three phase wires to
the power terminal block or the non-
fused disconnect switch in the control box
terminals. Refer to specific wiring
diagrams and fuse information in the
unit’s control panel.
Disconnect electrical power
source to prevent injury or death
from electrical shock.
Use only copper conductors for
electrical unit connections to
prevent equipment damage.
Correct phase sequence is
critical. If phase sequence of the
incoming line voltage is not
correct, it may result in motor
damage.
Voltage Range
Voltages must be within +- 10% the
nameplate voltage. Ensure the unit
voltage is balanced by measuring at the
compressor terminals. Voltage imbalance
on three phase systems can cause motor
overheating and premature failure.
Maximum allowable imbalance is 2.0
percent.
Voltage Imbalance
Read the voltage at the compressor
terminals to determine if it is balanced.
Voltage imbalance on three phase
systems can cause motor overheating
and premature failure. The maximum
allowable imbalance is 2.0%. Voltage
imbalance is defined as 100 times the
sum of the deviation of the three voltages
from the average (without regard to sign)
divided by the average voltage. For
example, if the three measured voltages
are 221, 230, and 227, the average
voltage would be:
(221 + 230 + 227) = 226 volts
3
The percentage of voltage imbalance is
then: 100 * (226-221) = 2.2%
226
Control Power
In this example, 2.2% imbalance is not
acceptable. Whenever a voltage
imbalance of more than 2.0% exists,
check the voltage at the unit disconnect
switch. If the imbalance at the unit
disconnect switch does not exceed 2.0%,
faulty unit wiring is causing the
imbalance. Conduct a thorough
inspection of the unit electrical wiring
connections to locate the fault, and make
any repairs necessary.
Access the connection terminal block
through the control panel on the unit’s
upper left side. All wiring should conform
to NEC and applicable local code
requirements.
Be sure all wiring connections are secure.
Reference the unit specific diagrams
inside the control panel.
Unit transformers are sized to
provide power to the unit only.
Do not use these transformers to
supply power to field equipment.
Field connections to these
transformers may create
immediate or premature
component failures.
CAUTION
!
CAUTION
!
CAUTION
!
CAUTION
!
Installation

38 SCXG-SVX01B-EN
Electrical
Requirements
Selection Procedures
RLA = Rated Load Amps
Compressor LRA = Locked Rotor Amps
Fan Motor LRA = Locked Rotor Amps,
N.E.C. Table 430 - 150
FLA = Full Load Amps, N.E.C.
Table 430 - 150
Voltage utilization range is ±10 percent
Determination of minimum circuit
ampacity (MCA).
MCA = 1.25 x largest motor amps/VFD
amps (FLA or RLA) + the sum of the
remaining motor amps.
Determination of maximum fuse size
(MFS) and maximum circuit breaker size
(MCB).
MFS and MCB = 2.25 x largest motor
amps (FLA or RLA) + the sum of the
remaining motor amps.
If the rating value determined does not
equal a standard current rating of over
current protective device, use the next
lower standard rating for the marked
maximum rating.
For units with the dual power option,
there are two circuits that need calcula-
tions using the formulas above:
circuit #1 - fans
circuit #2 - compressors
If the rating value determined does not
equal a standard current rating of over
current protective device, use the next
lower standard rating for the marked
maximum rating.
Installation
Table I-ER-2. SCWG/SIWG Compressor Motor Data
200V 460V 575V
HP RLA LRA RLA LRA RLA LRA
10 33.1 269 14.4 117 11.5 94
15 46.9 409 20.4 178 16.4 143
Table I-ER-3. SCRG/SIRG Compressor Motor Data
200V 460V 575V
HP RLA LRA RLA LRA RLA LRA
10 38.4 269 16.7 117 13.4 94
15 55.0 409 24.1 178 19.1 143
Table I-ER-4. Fan without VFD
200V 460V 575V
HP FLA LRA FLA LRA FLA LRA
5 16.1 105 6.7 46 5.4 37
7.5 25.0 152 10.8 66 8.2 54
10 32.9 193 14.2 84 11.4 66
15 44.8 290 20.3 126 16.2 102
20 61.0 373 25.0 162 20.0 132
25 74.0 469 31.0 204 24.2 162
Table I-ER-5. Fan with VFD
200V 460V
HP FLA LRA FLA LRA
7.5 29.0 152 14.3 66
10 38.3 193 18.2 84
15 42.7 290 25.3 126
20 55.2 373 32.0 162
25 67.8 469 32.7 204
Table I-ER-1. Number of Compressors per Unit
SCWG/SIWG 20 25 30 35
SCRG/SIRG 20 25 32
10 HP 2 2 1 -
15 HP - - 1 2
Table I-ER-6. Electric Heat - Single Stage
SCWG/SIWG SCRG/SIRG Heat 200V 460V
Size Size Kw Amps Amps
20 20 16 44.8 19.6
25 25 20 55.6 24.2
30 - 24 66.8 29.0
- 32 26 72.4 31.6
35 - 28 78 34.0
Note:
Electric heat amperage should not be considered when determining minimum circuit ampacity. The current of the
unit in the heating mode will not exceed the current of the unit in the cooling mode.

SCXG-SVX01B-EN 39
Pre-Startup
Requirements
Pre-Startup Procedures
Before starting up units perform the
following procedures to ensure proper
unit operation.
Unit Protective Covers
Remove the shipping protection
coverings from the human interface
panel (HI) at the control panel, the filter
box (or air inlet opening), the discharge
air opening, and optional variable
frequency drive (VFD).
Compressor Isolators
Loosen compressor isolator mounting
bolts and remove shipping bracket from
beneath the compressor feet. Retighten
isolator mounting bolts. Torque to 18 ft.
lbs. (+ 2 ft. Lbs.)
Supply Fan Isolators
Remove the shipping channels and
mounting bolts from beneath the fan. See
Figure I-PR-1. Open both fan
compartment access doors to access the
channels. The unit has six isolator
mounting points. See Figure I-PR-2.
While keeping the fan mounting frame
level, turn the fan isolator height adjusting
bolts until the fan housing P-gasket
compresses 1/4” against the roof transi-
tion piece. See Figure I-PR-1.
Installation
Figure I-PR-1. Supply fan horizontal isolation shipping bracket.
Figure I-PR-2. Fan isolator locations.

40 SCXG-SVX01B-EN
Unit Vibration Isolator Option
Vibration isolation is not necessary for the
unit since the factory internally isolates
the fan and compressors, thus creating
double isolation. The Trane Company
strongly recommends that you consult a
vibration specialist when considering
double isolation. If job requirements
dictate unit isolators, use a housed-spring
isolator with a locating pin. Factory-
provided unit isolators are type CP and
indicate the spring number on the outer
housing. See Figure I-PR-3. Set the
spring-type vibration isolators in position
before completing electrical, piping, or
duct connections. Units require four
isolators per unit. Reference the isolator
placement sheet that ships with the
isolators to indicate proper placement.
Unit Isolator Installation Procedure
Follow the procedure below to install
isolators:
1. Position the isolators under the unit
base referring to the isolator placement
sheet that ships with the unit isolators.
Lift one end of the unit at a time to
position the isolators. Fasten the
isolators to the floor using anchor bolts.
2. Level the unit by adjusting the isolator
heights. Unit weight may cause the
upper housing of the spring isolators to
rest on the lower housing. Maintain
clearances between 1/4 to 1/2”. To
increase the clearance, lift the unit off
the isolator and turn the leveling bolt
counterclockwise. Verify that the unit is
level and the housing clearances are
correct. The maximum allowable
difference between isolator heights is
1/4”. Shim as required under the
isolators.
Note: The unit is equipped with a posi-
tively sloped drain pan to help indoor air
quality (IAQ) and does not require one
corner of the unit to be pitched.
Figure I-PR-3. Optional spring-flex vibration isolator (type CP-1) for unit isolation.
Note: The compressors and fan assembly
are internally isolated. Therefore, external
isolation devices (spring mounting
isolators) are at the discretion of a vibration
specialist consulted by the building or
HVAC system designer. In general, the
Trane Company does not recommend
double-isolation.
Pre-Startup
RequirementsInstallation

SCXG-SVX01B-EN 41
Pre-Startup
Requirements
Plenum
Before installing the plenum attach the
insulation strip that ships with the plenum.
See Figure I-PR-4 for proper insulation
location. Align the plenum front with the
control panel side of the unit. Using the
strips and screws provided, secure the
plenum to the unit.
Do not remove more than two
nonadjacent panels at one time.
Failure to do so will cause the
plenum frame to collapse and may
cause personal injury.
Treat field-cut holes to prevent fiberglass
from entering the airstream.
Note: Plenum insulation must be applied
properly to prevent air bypass around the
plenum. See Figure I-PR-4.
Figure I-PR-4. Correct plenum insulation placement.
Plenum Bottom View
Dashed line indicates correct insulation placement.
CAUTION
!
Installation

42 SCXG-SVX01B-EN
Pre-Startup
Requirements
Installation
Figure I-PR-5. Installing the waterside economizer.
Waterside Economizer
Installation Procedure
1. Loosen and pull all end devices that
go through the bushing or the filter
rack (upper right corner of rack).
2. Remove the filter rack from the back
of the unit by removing the 1/4” hex
head screws from the top and bottom
of the filter rack assembly. The filter
rack assembly will hang on the unit
when the screws are removed.
Remove the filter rack by lifting it up
off the unit.
3. Remove the economizer from the
crate and position it behind the unit
with the headers on the left side,
when facing the back of the unit.
Remove the plastic envelope that is
taped to the economizer box
assembly. This envelope contains the
gasket that must be installed onto the
vertical side flanges of the box.
4. Install the pressure sensitive gasket to
the unit side of the vertical flange on
the economizer box.
5. Hang the economizer on the unit as
shown in Figure I-PR-5. Lift the
economizer by using the holes
provided in the top panel of the
economizer.
6. Align economizer holes with the holes
in the unit channel. Install screws in the
top (6x) and bottom (6x) of the
economizer.
7. Remove the unit’s rear middle panel
and unbraze the two copper pipes in
the 2 5/8” water pipe. Do not remove
the pipe outlet blockoff panel.
8. Remove the economizer tubing
assemblies from the shipping box.
Check ship-separate parts against
those shown in Figures I-PR-6, I-PR-7, I-
PR-8, and I-PR-9. Face the front of the
unit to see which side the water pipe
exits to determine if the unit has either
right or left-hand piping.
9. Assemble tubing as shown in Figure I-
PR-6 or I-PR-9. Tack all tubes in place
before brazing to ensure proper fit-up.
For right-hand piped units, install the
ball valve actuator assembly and
actuator. Refer to the unit wiring
diagram for wiring connection points.
10. Install the pipe insulation on all pipe
line to prevent sweating. Install the
rear middle panels. Re-install the filter
rack on the back of the economizer coil
box and affix with screws provided.

SCXG-SVX01B-EN 43
Pre-Startup
RequirementsInstallation
Figure I-PR-7. Waterside economizer with left-hand factory piping tubing assembly
Item Part Description
A Assembly #1
B Assembly #2
C Assembly #3
D Assembly #4
E Tube; 2 5/8” x 16 7/8”
F Tube; 2 5/8” x 22 5/8
Figure I-PR-6. Detail view of ship-separate
tubing assemblies for waterside econo-
mizer left-hand piping.
Waterside Economizer with
Left-Hand Factory Piping
Components
Table I-PR-1. Waterside Economizer Ship-Separate Parts List, LH
Factory Item Part # Qty. Description
Piping
Left-Hand 4001 2 Tube; 2 5/8” x 9”
X17110026250 5 Elbow; 2 5/8” x 2 5/8”
4003 1 Tube; 2 5/8” x 26 15/16”
4002 1 Tube; 2 5/8” x 34 3/16”
4009 1 *Tube; 2 5/8” x 16 7/8”
X21040098390 10 ft. *Gasket
X21080406030 1 *Insulation; 2 5/8” Rubatex
X16120203570 1 Plug; 1 1/2” Brass
X17150027060 1 Bushing; 2 1/2” ftg. x 1 1/2”
X17170031210 1 Tee; 2 5/8” x 2 1/8” x 2 5/8”
4738 1 *Tube; 2 5/8” x 19 13/16”
4007 1 Tube; 2 5/8” x 14 1/2”
4006 1 Tube; 2 5/8” x 19 13/16”

44 SCXG-SVX01B-EN
Pre-Startup
Requirements
Installation
Figure I-PR-8. Waterside economizer with right-hand factory piping tubing assembly.
Item Part Description
A Assembly #1
B Assembly #2
C Assembly #3
D Assembly #4
E Tube; 2 5/8” x 11 3/4”
F Tube; 2 5/8” x 20 1/4”
G Actuator Assembly
Figure I-PR-9. Detail view of ship-separate tubing assemblies for waterside economizer right-hand factory piping.
Waterside Economizer with
Right-Hand Factory Piping
Components
Assembly 1
Assembly 2
Assembly 3
Assembly 4
Table I-PR-2. Waterside Economizer Ship-Separate Parts List, RH
Right-Hand 4001 1 Tube; 2 5/8” x 9”
4607 1 Tube; 2 5/8” x 17”
X17110026250 5 Elbow; 2 5/8” x 2 5/8”
4605 2 Tube; 2 5/8” x 9 1/2”
X153301770100 1 Water Valve
4008 1 *Tube; 2 5/8” x 20 1/4”
X17170031210 1 Tee; 2 5/8” x 2 1/8” x 2 5/8”
X16120203570 1 Brass Plug, 1 1/2”
X17150027060 1 Bushing; 2 1/8” ftg. x 1 1/2”
4007 1 Tube; 2 5/8” x 14 1/2”
4606 1 Tube; 2 5/8” x 62
4603 1 *Tube; 2 5/8” x 11 3/4”
4006 1 Tube; 2 5/8” x 19 3/4”
4460-7575 1 *Actuator Assembly
X21080406030 14 ft. *Rubatex Insulation
X21040098390 10 ft. *Gasket
*These items require field assembly.

SCXG-SVX01B-EN 45
Pre-Startup
RequirementsInstallation
Hydronic Coil Installation
These instructions are for steam and hot
water coil installation. The hydronic coil
assembly has a full coil, piping, a modu-
lating temperature control valve, and a
disc temperature limit device located in
the unit near the fan on the motor frame.
Hydronic coils are available with either
right or left-hand pipe connections. Piping
connections are identical to the unit
piping. For example, if you have right-
hand unit piping, the hydronic coil will
have right-hand connections. The
hydronic coil assembly has temperature
controls to keep the unit’s internal cabinet
temperature below 105 F to prevent
motor and bearing damage.
Installation Procedure
1. Remove filter rack from the back of the
unit. Remove the 1/4-inch hex head
screws from the top and bottom of the
filter rack assembly. The filter rack
assembly will hang on the unit when
the screws are removed. The filter rack
can now be removed by lifting up on
the filter rack.
2. Remove the hydronic coil from the
crate and position it behind the unit with
the open side facing the unit evaporator
coil inlet. Also, remove the plastic
envelope that is taped to the coil box
assembly. This envelope contains the
mounting screws needed to attach the
coil box to the unit and the gasket
required on the vertical side flanges of
the box.
3. Install the pressure sensitive gasket to
the unit side of the vertical flange on the
coil box in two places.
4. Using 2” x 1/2” standard thread
eyebolts, thread into the coil lift plates to
raise the coil up to the height necessary
to attach it to the unit. The top panel has
a “J” hook on it to allow hanging,
similar to the filter rack. Align the holes
so that the coil hangs on the unit. If the
unit has the dirty filter option, connect
the static pressure tube to the unit
before bolting the coil in place. Locate
the static pressure tubing on the unit
evaporator coil and route through the
knockout in the top corner of the coil
box.
5. Align the hydronic coil with the holes in
the unit channel or waterside
economizer option. Move the coil box
up against the unit and install using six
mounting screws in the top and six in
the bottom of the coil box.
6. Remove the valve and pipe cover on
the coil box. Connect the wires that are
coiled in the coil box, referring to the
wiring diagram installed on the unit
control panel door. Route wires into the
unit through knockouts in the top of the
box.
7. Reinstall the filter rack on the back of
the heating coil rack. If the unit has the
waterside economizer option, the filter
rack will require additional support legs.

46 SCXG-SVX01B-EN
Disconnect electrical power
source before wiring electric heat
to unit to prevent risk of injury or
death from electrical shock.
2. Punch out the appropriate knockouts in
the electric heater control box and on
the unit’s left side panel. Run the wires
down the side of the unit from the
heater to the lower unit control box.
Place the wire in conduit in accordance
with local code.
Use only copper conductors for
electrical connections to prevent
equipment damage.
Pre-Startup
Requirements
Installation
Electric Heat Installation
The electric heat option consists of a
single stage heater and is used in
IntelliPak units or units with a field-
installed thermostat. The electric heater
ships separate for field installation and
wiring. Available heater kW per unit size
is listed in Table I-PR-3. Electric heat can
be installed on units with either a vertical
or horizontal discharge. However, it
cannot be installed on units with plenums.
See Figure I-PR-10, Tables I-PR-4, and
I-PR-5 for electric heat dimensional data.
Table I-PR-3. Available Electric Heat kW
Unit Size Heater kW
20 Tons 16
25 Tons 20
30 Tons 24
32 Tons 26
35 Tons 28
Installation Procedure
1. Remove the fan discharge shipping
covers, if they have not already been
removed.
2. Install the open-cell gasket around the
discharge opening on the heater.
3. Position the electric heater so that the
unit fan discharge openings line up with
the electric heater openings. For a
vertical discharge unit, position the
electric heater as shown in Figure I-PR-
10.
Figure I-PR-11. Electric heater dimensions.
Table I-PR-4. Electric Heat Dimensions - English - (inches)
Unit Size B1 B2 Z
20 Tons 10 3/415 5/827 3/4
25 Tons 12 1/415 5/826 3/4
30, 32, 35 Tons 14 3/415 5/823 3/4
Table I-PR-5. Electric Heat Dimensions - Metric - (mm)
Unit Size B1 B2 Z
20 Tons 273 397 705
25 Tons 311 397 679
30, 32, 35 Tons 375 397 603
Figure I-PR-10. Vertical discharge electric
heat installation.
4. Use the hole pattern in the electric heat
as a template for marking and drilling
3/16” diameter holes in the unit.
5. Bolt the electric heaters to the unit
using 1/4” sheetmetal screws.
Note: It is very important that electric
heaters are selected based on unit voltage
and tonnage because discharge opening
sizes vary by unit tonnage.
Electric Heat Coil Wiring Procedure
1. Before wiring the electric heater,
remove the unit wiring diagram from
the unit control panel and refer to the
connection points.
WARNING
!
CAUTION
!

SCXG-SVX01B-EN 47
Variable Frequency Drive
Option (VFD)
The variable frequency drive (VFD)
option can only be used with IntelliPak
units. The VFD and VFD w/bypass is
available from 7.5 to 25 hp and is a
Square D model Altivar 58. All VFDs are
pre-configured and run-tested at the
factory prior to shipping. The VFD is wall
mounted. For more information on the
VFD, see the manuals that ship with each
VFD:
Altivar 58 Adjustable Speed Drive
Controllers Keypad Display
and
Altivar 58 Adjustable Speed Drive
Controllers Installation Guide Type H
Controllers.
___________________________________________________________________________________
Control and line voltage wiring
from the VFD to the unit must be
in accordance with all local and
National Electric Codes. Do not
touch circuit components until
main power has been turned off
and “charge” lamp is
extinguished. The capacitors are
still charged and can be quite
dangerous.
________________________________________________________________________________
Disconnect electrical power
source to prevent injury or death
from electric shock. Do not
connect or disconnect wires and
connectors while power is
applied to the circuit.
Pre-Startup
RequirementsInstallation
______________________________________________________________
Use only copper conductors for
electrical unit connections to
prevent equipment damage.
VFD Mounting Requirements
Proper location of the VFD is important to
achieve proper performance and normal
operating life. Installation must be in an
area where it will be protected from:
• Direct sunlight, rain or moisture.
• Corrosive gases or liquids.
• Vibration, airborne dust, or metallic
particles.
For effective cooling as well as proper
maintenance, install the VFD vertically to
the ground using four mounting screws.
There must be a minimum eight inch
clearance above and below the VFD. A
minimum two inch clearance is required
on each side.
Also, allow enough clearance for opening
the VFD cabinet door. This will ensure
sufficient air space for cooling.
Refer to the “Dimensions and Weights”
sections on pages 28-30 for VFD
dimensions and weights.
VFD Electrical Installation Procedure
Refer to the
National Electric Code,
section 310-16
for sizing wires 4B - 9B. All
other control wires should be twisted
shielded or twisted pair shielded, 20 - 14
AWG, with lead length not to exceed 164
feet. When using shielded wire, the shield
sheath must be connected at the VFD
only. The connection on units with VFD
only is J13-S. On units with VFD w/
bypass, the connection is ITB1-10.
WARNING
!
WARNING
!
CAUTION
!

48 SCXG-SVX01B-EN
Pre-Startup
Requirements
Airside Economizer Installation
Unit Handling
1. Hoist the damper cabinet to the
installation location with straps
positioned under the skid as shown in
Figure I-PR-12. Use spreader bars to
prevent unit damage during lifting.
2. With the damper cabinet at its final
location (near the unit), remove the
screws securing it to the skid from the
side flanges. Retain these screws for
later use.
Unit Preparation
3. The support legs are secured to the
skid, and the hanging bracket is secured
with wire ties to an inside flange near
the cabinet’s base. Remove the
C-channel collar and install it on the unit,
if not already installed.
4. Remove the roll of 1/8” thick gasket
from the damper cabinet’s W-supports,
and apply it to the C-channel collar
mounted on the rear of the unit. This
gasket will provide a seal between the
damper cabinet and the unit.
5. Attach the legs (with screws provided)
to the leg brackets located on the
damper’s base.
6. Attach a field-provided clevis of
suitable strength ( > 1/2” ), to each of the
corner lifting brackets through the
7/8” diameter holes.
7. Attach to the clevises a means of lifting
the damper cabinet from its skid.
Unit Installation
8. Slowly raise the damper cabinet from
its skid.
9. Attach the hanging bracket across the
front of the damper cabinet. Position it
with its short flange pointing to four
o’clock, and secure it with screws
provided. See Figure I-PR-13.
10. Lift the damper cabinet and position it
such that the hanging bracket is
positioned over the unit’s C-channel
collar.
Figure I-PR-12. Proper lifting of the airside economizer.
10. Lower the damper cabinet until the
holes in its side flanges are aligned with
the holes in the C-channel collar. Install
screws removed in step 3 through the
damper cabinet’s side flanges and into
the C-channel’s corresponding holes.
11. Attach ductwork to the top and back
dampers according to local codes.
Field Wiring Connections
12. Open the damper cabinet’s door and
connect the factory-provided plug
from the actuator to the factory-
provided plug in the unit’s filter
section.
Figure I-PR-13. Proper installation of the airside economizer option.
Installation
13. Cabinets with TRAQ™ dampers
only: Unroll the two rolls of pneumatic
tubing located inside the damper
cabinet. Route these tubes through the
cabinet’s front upper panel (0.25 dia.
holes provided). Connect them to the
two pneumatic tubes protruding from
the customer electrical connection
panel on the unit. Be sure to connect like
tubes to each other (black to black,
white stripe to white stripe).
14. Cabinets with TRAQ™ dampers
only: Locate the “bullet” sensor and
rolled up wiring in the unit’s filter
section. Route it into the damper
cabinet and insert the sensor into the
sensor mounting clip attached to
underside of one of the Traq™
dampers.

SCXG-SVX01B-EN 49
Pre-Startup
Requirements
Static Pressure Transducer
Installation (VAV units only)
Supply air static pressure controls the
inlet guide vane and VFD options. A static
pressure head assembly ships separate
in the control panel for field installation in
the supply air duct work. The installer is
responsible for providing pneumatic
tubing.
Transducer Location
Place the head assembly in an area of the
ductwork that will provide an average
and evenly distributed airflow pattern.
Use the following guidelines to determine
an appropriate installation location.
1. Locate the static head assembly about
two-thirds to three- fourths of the way
down the longest duct run, in an area
approximately 10 duct diameters
downstream and 2 duct diameters
upstream of any major interferences,
turns, or changes in duct diameter.
2. When installing pneumatic tubing
between the head assembly and
transducer in the control panel, do not
exceed 250 feet for 1/4” OD tubing or
500 feet for 3/8” OD tubing.
Installing the Transducer
Complete the following procedure to
properly install the inlet guide vane static
pressure transducer.
1. Mount the pressure sensing head
assembly in the duct so that the sensing
tip is in the middle of the duct, and
perpendicular to the airflow. This will
provide proper pressure measurement.
See Figure I-PR-14.
2. Connect the pneumatic tubing from the
sensing head to the push-on tubing
connection in the control panel. Use a
plastic static pickup tubing. Do not
exceed 250 feet for 1/4“ OD tubing or
500 feet for 3/8” OD tubing.
The transducer inside the control panel
picks up low side or reference pressure.
Note: If plastic tubing pulls away from a
connection, trim it back before replacing it
on the fitting. Stretched tubing may leak
and cause faulty control.
Figure I-PR-14. Static pressure sensor installation.
Installation

50 SCXG-SVX01B-EN
Pre-Startup
Requirements
Installation
Remote Mounted Thermostat
Option
Mount the thermostat in the largest
space occupied by the most people for
the best average temperature sensing.
The thermostat should be mounted about
5 feet from the floor in contact with freely
circulating air, but not with major drafts.
Avoid the following areas:
• Behind doors or in corners where ther is
no free circulation.
• Locations where the sun’s rays or
infrared radiation from appliances or
fireplaces may affect thermostat
operation.
• Surfaces subject to vibration.
• On walls that contact outside air.
• Adjacent to or in line with conditioned air
discharge grilles or doorways.
Remote Mounted Thermostat Wiring
After the thermostat is mounted, wire the
thermostat back to the unit control panel
according to the correct diagram shown
on inside of panel door.
The total resistance of the thermostat and
the control wiring to each terminal must
not exceed 1 ohm. Table I-PR-6 provides
recommended wire sizes for length of
run.
Wiring the Remote Air-cooled CCRC and
SCRG
The SCRG/SIRG air-cooled condenser
should be wired to the control panel of
the SCRG/SIRG unit to ensure proper
system operation. Reference unit wiring
diagrams for correct terminal locations.
Table I-PR-3 provides recommended
wires sizes for length of run.
Table I-PR-6. Control Wire Size and Maxi-
mum Length
Wire Gauge Max. Wire Length
22 30 ft.
20 50 ft.
18 75 ft.
16 125 ft.
14 200 ft.

SCXG-SVX01B-EN 51
Pre-Startup
Requirements
Figure I-PR-15. BAYSENS017
Zone Temperature Sensor Only
Standard with All Units Remote Zone Sensor Options
Zone sensor options are available and can be ordered with the unit or after the unit
ships. Following is a full description of zone sensors and their functions. Installation
instructions are on page 53. Instructions for the programmable zone sensor are on
page 55. Refer to Table O-GI-2 on page 79 for the zone sensor temperature vs.
resistance coefficient curve.
BAYSENS017B Description
This zone sensor module ships with all units, and can be used with BAYSENS019,
BAYSENS020, or BAYSENS021 remote sensors. When this sensor is wired to one of
these remote zone sensors, wiring must be 18 AWG shielded twisted pair (Belden 8760
or equivalent). Refer to the specific zone sensor for wiring details. It provides the
following features and system control functions:
• Remote temperature sensing in the zone
• Morning warmup sensor
• Zone sensor for ICS™ systems
• Zone temperature averaging
When used as a remote sensor for standard zone sensor, the thermistor sensor must
be disabled.
Figure I-PR-17. BAYSENS021
Single setpoint sensor with system
function lights, Accessory Model Number
Digit 6 = H
BAYSENSO21 Description
This zone sensor module is for use with VAV units without night setback. It allows the
user to control system operation and monitor unit operating status from a remote
location. The sensor has a system switch, a S/A temperature setpoint indicator, a local
sensor, and four LED’s.
BAYSENSO21 features and system control functions include:
• Temperature sensing in the zone
• System control switch with mode setting for "AUTO" and "OFF"
• Supply air single temperature setpoint
• Function status indicator lights:
“SYS ON” glows continuously during normal operation, or blinks if system is in
test mode.
“COOL” glows continuously during cooling cycles, or blinks to indicate a
cooling system failure.
“HEAT” glows continuously during heating cycles, or blinks to indicate a
heating system failure.
“SERVICE” blinks or glows to indicate a problem. These signals vary
depending on the particular equipment being used.
VAV Unit Zone Sensor Option
CV Unit Zone Sensor Option
Figure I-PR-16. BAYSENS008
Dual setpoint, manual/automatic
changeover sensor, Accessory Model
Number Digit 6 = E
BAYSENS008 Description
This zone sensor module is for use with cooling/heating constant volume units. It has
four system switch settings (heat, cool, auto, and off) and two fan settings (on and
auto). The zone sensor provides either manual or automatic changeover control with
dual setpoint capability.
BAYSENS008 features and system control functions include:
• System control switch to select heating mode (HEAT), cooling mode (COOL),
automatic selection of heating or cooling as required (AUTO), or to turn the
system off (OFF).
• Fan control switch to select automatic fan operation while actively heating
or cooling (AUTO), or continuous fan operation (ON).
• Dual temperature setpoint levers for setting desired temperature. The blue
lever controls cooling, and the red lever controls heating.
• Thermometer to indicate temperature in the zone. This indicator is factory
calibrated.
Installation

52 SCXG-SVX01B-EN
Pre-Startup
Requirements
Figure I-PR-20. BAYSENS013
Zone temperature sensor w/timed override ,
Accessory Model Number Digit 6 = B
Figure I-PR-19. BAYSENS014
Zone temperature sensor w/timed override
and local setpoint adjustment,
Accessory Model Number Digit 6 = C
Figure I-PR-18 BAYSENS010
Dual setpoint, manual/automatic
changeover sensor with system function
lights, Accessory Model Number Digit 6 = F
CV Unit Zone Sensor Option BAYSENS010 Description
This zone sensor module is for use with cooling/heating constant volume units without
night setback. It has four system switch settings (heat, cool, auto, and off), two fan
settings (on and auto), and four LED’s. The zone sensor provides either manual or
automatic changeover control with dual setpoint capability. In addition, it can be used
with BAYSENS017.
BAYSENS010 features and system control functions include:
• System control switch to select heating mode (HEAT), cooling mode (COOL),
automatic selection of heating or cooling as required (AUTO), or to turn the system
off (OFF).
• Fan control switch to select automatic fan operation while actively heating or cooling
(AUTO), or continuous fan operation (ON).
• Dual Temperature setpoint levers for setting desired temperature. The blue lever
controls cooling, and the red lever controls heating.
• Thermometer to indicate temperature in the zone. This indicator is factory calibrated.
• Function status indicator lights:
• SYSTEM ON glows continuously during normal operation, or blinks if
system is in test mode.
• COOL glows continuously during cooling cycles, or blinks to indicate a
cooling system failure.
• HEAT glows continuously during heating cycles, or blinks to indicate a
heating system failure.
• SERVICE blinks or glows to indicate a problem. These signals vary
depending on the particular equipment being used.
Integrated Comfort™ Systems Sensors for CV and VAV
Applications
These zone sensor options are for use with cooling/heating Integrated Comfort System
(ICSTM) systems.
BAYSENS014 Description
This electronic analog sensor features single setpoint capability and timed override
with override cancellation.
BAYSENS014 features and system control functions include:
• Remote temperature sensing in the zone
• A timed override button to move an ICSTM or a building management system from its
“unoccupied” to “occupied” mode.
• Thumbwheel for local setpoint adjustment
• A cancel button to cancel the “unoccupied override” command.
BAYSENS013 Description
This electronic analog sensor features single setpoint capability and timed override
with override cancellation. It is used with a Trane Integrated ComfortTM system.
BAYSENS013 features and system control functions include:
• Remote temperature sensing in the zone
• A timed override button to move an ICS™ or a building management system from its
“unoccupied” to “occupied” mode.
• Cancel button to cancel the “unoccupied override” mode.
CV and VAV Unit Zone
Sensor Options
Installation

SCXG-SVX01B-EN 53
Note: Guidelines for wire sizes and
lengths are shown in Table I-PR-7. The total
resistance of these low voltage wires
must not exceed 2.5 ohms per conductor.
Any resistance greater than 2.5 ohms may
cause the control to malfunction due to
excessive voltage drop.
Note: Do not run low-voltage control
wiring in same conduit with high-voltage
power wiring.
1. Run wires between the unit control
panel and the zone sensor subbase. To
determine the number of wires
required, refer to the unit wiring
diagrams.
2. Connect the wiring to the appropriate
terminals at the unit control panel and
at the zone sensor subbase. In general,
zone sensor connections to the unit use
the convention of connecting zone
sensor terminals to like numbered unit
terminals (1 to 1, 2 to 2, etc.). The
connection detail is shown on the unit
wiring diagrams, which are located in
the unit control panel.
3. Replace the zone sensor cover back
on the subbase and snap securely into
place.
Standard Remote Sensor
(BAYSENS017)
When using the remote sensor,
BAYSENS017, mount it in the space that
is to be controlled. Wire according to the
interconnecting wiring diagrams on the
unit.
Table I-PR-7. Zone Sensor Maximum
Lengths and Wire Size
Distance from Recommended
Unit to Controller Wiring Size
0-150 feet 22 gauge
151--240 feet 20 gauge
241-385 feet 18 gauge
386- 610 feet 16 gauge
611-970 feet 14 gauge
Pre-Startup
Requirements
Zone Sensor Installation
All sensor options ship in the main control
panel and are field-installed.
Programmable option installation
procedures are on page 55.
Mounting Location
Mount the sensor on the wall in an area
with good air circulation at an average
temperature. Avoid mounting space
temperature sensor is areas subject to
the following conditions:
• Drafts or “dead” spots behind doors or
in corners
• Hot or cold air from ducts
• Radiant heat from the sun or appliances
• Concealed pipes and chimneys
• Unheated or non-cooled surfaces
behind the sensor, such as outside walls
• Airflows from adjacent zones or other
units
To mount the sensors, remove the dust
cover and mount the base on a flat
surface or 2" x 4" junction box. Sensors
ship with mounting screws.
Mounting the Subbase
Remove the zone sensor cover from
subbase, and mount subbase on the wall
or on a 2 x 4 junction box. Route wires
through the wire access hole in the
subbase. See Figure I-PR-22 on page 54.
Seal the hole in the wall behind the
subbase.
Wiring
Disconnect all electric power
including remote disconnects
before servicing. Failure to do so
before servicing may cause severe
personal injury or death.
Figure I-PR-21. Standard zone sensor,
BAYSENS017, ships with all units.
WARNING
!
Installation

54 SCXG-SVX01B-EN
Figure I-PR-23. Typical zone sensor installation.
Pre-Startup
Requirements
Figure I-PR-22. Zone sensor mounting hole locations.
Mounting to Junction Box
Mounting Directly to the Wall
Junction
Installation

SCXG-SVX01B-EN 55
Pre-Startup
Requirements
Constant Volume Zone Sensor
BAYSENS019 Description
This seven day programmable sensor
with night setback has four periods for
occupied\unoccupied programming per
day. If power is interrupted, the program
retains in permanent memory. If power is
off longer than 2 hours, only the clock and
day may have to be reset.
The six programming keys on the front of
the zone sensor allow selection of system
modes (heat, cool, auto, and off), two fan
modes (on and auto). The zone sensor
has dual temperature selection with
programmable start time capability.
The occupied cooling setpoint ranges
between 40 and 80 F. The warmup
setpoint ranges are between 50 and 90 F
with a 2 degree deadband. The
unoccupied cooling setpoint ranges
between 45 and 98 F. The heating
setpoint ranges between 43 and 96 F.
Two liquid crystal displays (LCD) display
zone temperature, setpoints, week day,
time, and operational mode symbols.
The DIP switches on the subbase enable
or disable applicable functions; i.e.
morning warmup, economizer minimum
CFM override during unoccupied status,
Fahrenheit or Centigrade, supply air
tempering, remote zone temperature
sensor, 12/24 hour time display, smart
fan, and computed recovery.
During an occupied period, an auxiliary
relay rated for 1.25 amps @ 30 volts AC
with one set of single pole double throw
contacts activates.
Figure I-PR-24. BAYSENS019, Programmable
night setback sensor, Accessory Model
Number Digit 6 = G
Variable Air Volume Zone Sensor
BAYSENS020B Description
This seven day programmable sensor
with night setback has four periods for
occupied\unoccupied programming per
day. Either one or all four periods can be
programmed. If power is interrupted, the
program retains in permanent memory. If
power is off longer than 2 hours, only the
clock and day may have to be reset.
The zone sensor keypad allows you to
select occupied/unoccupied periods with
two temperature inputs (cooling supply
air temperature and heating warmup
temperature) per occupied period. The
occupied cooling setpoint ranges be-
tween 40 and 80 F. The warmup setpoint
ranges between 50 and 90 F with a 2
degree deadband. The unoccupied
cooling setpoint ranges between 45 and
98 F. The heating setpoint ranges be-
tween 43 and 96 F.
The liquid crystal display (LCD) displays
zone temperature, setpoints, week day,
time, and operational mode symbols.
The DIP switches on the subbase enable
or disable applicable functions; i.e.
morning warmup, economizer minimum
position override during unoccupied
status, heat installed, remote zone
temperature sensor, 12/24 hour time
display, and daytime warmup. During an
occupied period, an auxiliary relay rated
for 1.25 amps @ 30 volts AC with one set
of single pole double throw contacts
activates.
Figure I-PR-25. BAYSENS020, Programmable
night-setback sensor,
Accessory Model Number Digit 6 = J
Programmable Night Setback
Zone Sensors
Programmable night setback (NSB) zone
sensors provide programming and zone
temperature sensing for the self-
contained unit. It allows the user to
monitor room temperatures and
program settings in the space, without
having to access the unit control panel.
Reference programming instructions for
these zone sensors on page 64.
Installation

56 SCXG-SVX01B-EN
6. Pull the zone sensor module wires
through the subbase as shown in Figure
I-PR-31.
7. Loosely secure subbase to the wall
with the mounting screws. Do not
tighten the subbase screws yet.
8. Level the subbase by sight, then firmly
tighten the three subbase mounting
screws.
Do not overtighten the subbase
screws. Overtightening may
cause the screws to crack the
subbase.
9. Before wiring the subbase, identify the
wires from the unit’s low voltage
terminal strip. Each screw terminal is
labeled.
10. Remove TB from subbase and
discard the tape.
11. Strip the wires
1
/
4
” and
connect the
wires from the unit’s low voltage
terminal strip to the zone sensor
module subbase. Reference connection
details on the unit wiring diagrams,
located on the unit.
12. Firmly tighten each screw terminal.
13. Fit the wires as close to the subbase
as possible.
Pre-Startup
Requirements
Programmable Night Setback
Zone Sensor Installation
Mounting Location
Mount the sensor on the wall in an area
with good air circulation at an average
temperature. Choose a location that is
easily accessible, and on a wall where the
subbase can be mounted about 5 feet
(1.5 meters) above the floor.
Avoid mounting space temperature
sensor is areas subject to the following
conditions:
• Drafts or “dead” spots behind doors or
in corners
• Hot or cold air from ducts
• Radiant heat from the sun or appliances
• Concealed pipes and chimneys
• Unheated or non-cooled surfaces
behind the sensor, such as outside walls
• Airflows from adjacent zones or other
units
(140 mm)
(95 mm)
(140mm)
(95mm)
Installation Procedure
1. Remove the zone sensor module from
the subbase. Carefully hold the zone
sensor module with one hand and
firmly grasp the subbase with the other.
See Figure I-PR-27. To remove the zone
sensor module from the subbase,
gently pull away and upward.
The zone sensor module is an
electronic sensitive device. Do
not touch printed circuit board,
electronic components, or
connector pins. Handle plastic
housing only to prevent damage
to electronic components.
2. After disassembly, protect the internal
surfaces from contact with objects or
substances that could cause damage.
3. Remove the terminal block from
subbase and set aside for wiring.
Discard the tape.
4. Mount the zone sensor module using
the mounting hardware included in the
shipping package. The mounting
hardware is contained in single plastic
bag and includes:
• Plastic wall anchors (3 x)
• Mounting screws (3 x)
The zone sensor module can mount
directly to a wall or to a junction box
mounted to a wall. To mount to a
junction box, you must have the
mounting plate and adapter kit,
BAYMTPL003. Installation instructions
are enclosed with the mounting plate.
5. To mount the zone sensor module
directly to a wall:
a. Hold the subbase in position and mark
the three mounting hole locations on
the wall.
b. Drill three
3
/
16
” (4.8 mm)
holes. Gently tap
the plastic wall anchors into the holes
until the anchor tops are flush with the
wall.
Figure I-PR-29. Securing the subbase.
Figure I-PR-28. Removing the zone sensor
module from the subbase.
CAUTION
!
CAUTION
!
Installation
Figure I-PR-26. BAYSENS019 dimensions.
Figure I-PR-27. BAYSENS020 dimensions.

SCXG-SVX01B-EN 57
Pre-Startup
Requirements
Time Clock Option
The time clock option has a
programmable timer that is factory wired
to the unoccupied input to provide on/off
control. The time clock will not allow the
unit to pass through the night setback/
morning warmup mode, except on units
with optional night heat/morning warm
up, or programmable night setback. See
Figure I-PR-30.
The timeclock, a “Digi 20” by Grasslin, is
inside the control panel, but accessible
with the control panel door closed. This
same type timer is also used for pro-
grammable night setback/morning warm
up. Programming instructions for the
“Digi 20” timer are in the “Program-
ming” section on page 73.
Timeclock Installation
1. Ensure operating temperature is within
4 to 131 F.
2. Locate the time clock at least 5 feet
away from any large electrical contact
or machinery to avoid possible
electrical interference problems.
3. Provide a separate independent circuit
for the time clock power supply.
4. Since all electronic instruments are
sensitive to voltage spikes, pay close
attention tot he following:
a. If possible, supply power to the
electronic time clock from a phase
different than the one supplying power
to the load.
b. Provide a suitable Varistor or RC
network across the INDUCTIVE
LOADS supply terminals to reduce
voltage spikes.
c. Place a diode across the DC
OPERATED INDUCTOR terminals to
eliminate back EMF.
d. HIGHLY INDUCTIVE LOADS, especially
fluorescent lights, may require a relay
in which case step a. and c. apply.
The timeclock can be surface or flush
mounted. Lift off the front cover and
loosen the two screws on opposite
corners. Pull off the base’s plug with a left
to right rolling motion.
Timeclock Installation Checklist
1. Ensure operating temperature is within
4 to 131 F.
2. Locate the time clock at least 5 feet
away from any large electrical contact
or machinery to avoid possible
electrical interference problems.
3. Provide a separate independent circuit
for the time clock
power supply.
4. Since all electronic instruments are
sensitive to voltage spikes, pay close
attention to the following:
a. If possible, supply power to the
electronic time clock from a phase
different than the one supplying power
to the load
b. Provide a suitable Varistor or RC
network across the INDUCTIVE LOADS
supply terminals to reduce voltage
spikes.
c. Place a diode across the DC OPERATED
INDUCTOR terminals to eliminate back
EMF.
d. HIGHLY INDUCTIVE LOADS, especially
fluorescent lights, may require a relay
in which case (A) and (C) apply.
The Digi 20A timeclock unit can be
surface or flush mounted. Lift off the front
cover and loosen the two screws on
opposite corners. Pull off the base’s plug
with a left to right rolling motion.
Surface Mounting Inside Panel
Place screws through the base’s preset
holes and screw to back of panel or wall.
Wire according to the instructions in the
following section. Depending upon the
specific installation, you may find it more
convenient to complete wiring before
attaching the base.
Place the terminal cover over the
terminal block by aligning the two screws
with the corner holes in the base. Push
the timer firmly onto the plug in the base.
Tighten the two screws. A base for DIN
rail mounting is optional.
Wiring the Timeclock
1. Wire 24, 120, or 220 VAC to input
terminals. Make sure to apply correct
voltage. Using incorrect voltage will
void the warranty.
2. Connect wire to the screw terminals
according to the unit wiring diagrams.
Use 12 to 22 AWG wire.
Figure I-PR-30. Grasslin time clock option.
Installation

58 SCXG-SVX01B-EN
Pre-Startup
Requirements
Figure I-PR-31. Human Interface (HI) Panel Keypad
Installing the Remote Human
Interface Panel
Human Interface (HI) Panel
The HI enables the user to communicate
necessary unit operating parameters and
receive operating status information
from within the occupied space.
The HI displays top level information in
the LCD window, unless the operator
initiates other displays, for the various
unit functions. It also displays menu
readouts in a clear language 2 line, 40
character format. The 16-key keypad
allows the operator to scroll through the
various menus to set or modify the
operating parameters. See Figure I-PR-
31 to reference the HI keypad.
Remote Human Interface Panel
The remote human interface (RHI) panel
is identical to the unit mounted HI with the
exception of the “unit select” key. This
key allows the operator to switch from
one unit to the next to program or view
status information regarding a particular
unit.
The RHI functions the same as the unit
mounted HI with two exceptions. The first
is the “test start” function. The operator
can view the service parameters, but can
only initiate the service test function at
the unit. The RHI door has a locking screw
to deter access by unauthorized person-
nel. Additionally, the RHI can control up to
four different units.
HI Location Recommendations
The HI microprocessor module is
mounted inside a molded plastic
enclosure for surface mounting. It is not
weatherproof. Therefore, it is only
applicable for indoor use.
Locate the RHI panel in an area that will
ensure the communication link between
the panel and the unit(s) does not exceed
5,000 feet maximum or pass between
buildings. See Table I-PR-8.
The run length of the low voltage AC
power wiring to the remote HI must not
exceed three (3) ohms/conductor. Refer
to Table I-PR-9.
Ambient Temperature and Humidity
Limits
Ambient Operating Conditions
• Temperature: 32 to 120 F
• Relative humidity: 10 to 90%, non-
condensing
Ambient Storage Conditions
• Temperatures: -50 to 200 F
• Relative humidity: 5 to 95%, non-
condensing
Table I-PR-8. Maximum Communication
Link Wiring Length
Max. Wire Max. Capaci-
tance
Length Between
Conductors
1,000 ft up to 60 pf/ft
2,000 ft up to 50 pf/ft
3,000 ft up to 40 pf/ft
4,000 ft up to 30 pf/ft
5,000 ft up to 25 pf/ft
Note: pf/ft = picofarads/foot
Table I-PR-9. Wiring Recommendations for
the Remote HI Panel
Distance from Unit Recommended
to Remote HI Wire Size
0-460 feet 18 gauge
461-732 feet 16 gauge
733-1000 feet 14 gauge
Installation

SCXG-SVX01B-EN 59
Pre-Startup
Requirements
Mounting the Remote Human
Interface (RHI) Panel
The installer must provide all mounting
hardware such as; hand tools, electrical
boxes, conduit, screws, etc. Refer to
Figure I-PR-32 on page 60 for the
mounting hole and knockout locations.
Procedure
Follow the procedure below for
mounting the remote HI panel on a 4” by
4” electrical junction box. Place the
microprocessor in a clean dry location
during the enclosure mounting
procedures to prevent damage.
1. Mount an electrical junction box in the
wall so that the front edge of the box
will be flush with the finished wall
surface.
2. Prior to mounting the panel, the
microprocessor module must be
carefully removed from the enclosure.
To remove the module:
a. Lay the remote panel face up on a flat
surface and remove the locking screw
from the right hand bottom end of the
panel.
b. Remove the recessed hinge screw
from the left hand bottom end of the
panel.
c. Unlatch the door of the enclosure as if
to open it, and slide the left hand side of
the door upward away from the hinge.
Lay it aside.
d. With the key pad visible, remove the
two (2) screws located on the right
hand side of the key pad.
e. Carefully slide the key pad plate
upward from the bottom, releasing the
extruded hinge pin from its socket at
the top.
f. Set the microprocessor aside until
mounting is complete.
3. Remove the junction box knockout in
the back of the enclosure.
Note: The top of the enclosure is marked
“TOP.”
4. With the enclosure in the correct
position; align the mounting holes
around the knockout in the enclosure
with the screw holes in the electrical
handy box and secure with the
appropriate screws.
5. Replace the microprocessor within the
enclosure as follows:
a. Verify that the terminal block jumpers
are connected properly.
b. Slide the extruded hinge pin at the top
left of the key pad plate into the hole
located at the top left hand side of the
enclosure.
c. Slide the bottom of the plate into place,
aligning the two (2) clearance holes
with the screw holes on the right. Install
the screws but do not tighten at this
time.
Note: If the two screws are not installed as
called out in the previous step, hold
against the key pad plate while installing
the door in the next step, to prevent it from
falling out.
d. Slide the extruded hinge pin at the top
left of the door into the hole located
under the bottom left side of the display.
e. Install and tighten the hinge screw
located at the bottom left side of the
enclosure.
Wall Mounting the RHI Panel
1. Prior to mounting the panel, the
microprocessor module must be
removed from the enclosure. Complete
step 2 in the previous discussion,
“Mounting on a 4 in. x 4 in. Electrical
Box,” before proceeding.
2. With the microprocessor removed,
refer to Figure I-PR-31 for the location of
the mounting holes to be used for wall
mounting.
3. Place the enclosure against the
mounting surface and mark the
mounting holes.
Note: The top of the enclosure is marked
with “TOP.”
4. With the enclosure in the correct
position, remove the enclosure and
drill the necessary holes in the surface
for the appropriate fasteners, (plastic
anchors, molly bolts, screws, etc.)
5. Remove the necessary knockouts for
the wire or conduit entry before
mounting the panel.
6. Place the enclosure back onto the
surface and secure it with the
appropriate screws.
7. Follow step 5 in the previous section,
“Mounting on a 4” by 4” Electrical
Box,” to replace the microprocessor
within the enclosure.
Installation

60 SCXG-SVX01B-EN
Pre-Startup
Requirements
Figure I-PR-32. Remote HI mounting holes and knockout locations.
Installation

SCXG-SVX01B-EN 61
Wiring the Remote Human
Interface
The remote human interface requires 24
VAC + 4 volts power source and a
shielded twisted pair communication link
between the remote panel and the
interprocessor communication bridge
(ICPB) module at the self-contained unit.
Field wiring for both the low voltage
power and the shielded twisted pair must
meet the following requirements:
Note: To prevent control malfunctions, do
not run low voltage wiring (30 volts or less)
in conduit with higher voltage circuits.
1. All wiring must be in accordance with
NEC and local codes.
2. Reference Table I-PR-8 on page 58 for
recommended wiring distance and size.
3. Communication link wiring must be 18
AWG shielded twisted pair (Belden
8760, or equivalent).
4. Communication link must not exceed
5,000 feet maximum for each link.
5. Do not run communication link
between buildings.
Before servicing unit, disconnect
all electric power, including
remote disconnects. Failure to do
so may cause severe personal
injury or death.
Low Voltage (AC) Field Wiring
Connections
To access the wire entry locations, open
the RHI panel door and remove the two
screws on the right-hand side of the key
pad. Swing the keypad open, exposing
both the wire entries and the back of the
HI module. Refer to Figure I-PR-32 on
page 60 and connect one end of the three
conductor 24 volt wires to the remote
panel terminal strip (+), (-), and (ground).
Communication Link (Shielded Twisted
Pair) Wiring
Trim the outer covering of the shielded
cable back approximately 1 inch. See
Figure I-PR-35. Do not cut the bare
shield wire off. Strip approximately 1/2
inch of insulation from each insulated
wire to connect them to the terminal strip
at the remote panel.
Connect the white lead to the positive (+)
terminal, the black lead to the negative (-)
terminal, and the bare shield wire to the
terminal at the remote human interface
panel.
Close the key pad plate. Install and
tighten the two screws removed earlier.
Close the outer door and install the
recessed locking screw at the bottom
right hand side of the enclosure to
prevent accidental starting of the unit by
unauthorized personnel while completing
the wiring at the self-contained unit.
At the Self-Contained Unit
Connect the opposite end of the three
conductor 24 volt wire to the appropriate
terminal strip as follows:
Note: Although the 24 volt power is not
polarity sensitive, do not connect either
the + (plus) or - (minus) terminals from the
remote panel to ground at the self-
contained unit.
Connect the wire connected to the
positive (+) terminal at the remote panel.
Connect the wire connected to the
negative (-) terminal at the remote panel.
Connect the ground wire from the
remote panel to the unit control panel
casing.
Interprocessor Communication Bridge
Module Wiring
Refer to Figure I-PR-33 and trim the outer
covering of the shielded cable back
approximately one inch. Cut the bare
shield wire off even with the outer
covering. Strip approximately 1/2 inch of
insulation from each insulated wire in
order to connect them to the terminal
strip at the unit. Wrap tape around any
exposed foil shield and/or base shield
wire.
Note: The communication link is polarity
sensitive.
Refer to the unit wiring diagram and
connect the white lead to the positive (+)
terminal and the black lead to the
negative (-) terminal. (These terminals
are numbered. Reference to color is for
clarification to maintain polarity).
Note: To maintain polarity, do not connect
the base shield wire to ground at the self-
contained unit.
WARNING
!
Figure I-PR-33. Dressing shielded twisted wire.
Pre-Startup
RequirementsInstallation

62 SCXG-SVX01B-EN
Connecting to Tracer Summit®
IntelliPak® self-contained units operate
with Trane building automation software,
Tracer Summit® version 10.0.4 or later or
any OS2 operating system.
Tape the non-insulated end of the
shield on shielded wire at the
unit. Any connection between the
shield and ground will cause a
malfunction. If daisy-chained in
the unit, splice and tape the
shields to prevent contact with
ground.
CAUTION
!
Pre-Startup
Requirements
Communication Wiring
Note: Communication link wiring is a
shielded, twisted pair of wire and must
comply with applicable electrical codes.
An optional communication link provides
a serial communication interface (SCI)
between Tracer Summit® and each
commercial self-contained (CSC) unit in
the system. The CSC system can have a
maximum of 12 CSC units per connection
link to Summit®. Use a single 18 AWG
shielded, twisted pair wire with stranded,
thinned copper conductors to establish
each communication link between
Summit® and each unit.
Installation

SCXG-SVX01B-EN 63
Pre-Startup
RequirementsInstallation
Pre-Startup Checklist
Complete this checklist after installing the
unit to verify all recommended
installation procedures are complete
before unit start-up. This does not replace
the detailed instructions in the
appropriate sections of this manual.
Always read the entire section carefully
to become familiar with the procedures.
Disconnect electrical power to
prevent injury or death from
electrical shock.
Receiving
oInspect unit and components for
shipping damage. File damage claims
immediately with the delivering carrier.
oCheck unit for missing material. Look
for ship-with drives, isolators, filters,
and sensors that are packaged
separately and placed inside the main
control panel, fan section, or
compressor section. See page 9 for
more information on ship-with items.
oCheck nameplate unit data to verify
against the sales order requirements.
Unit Location
oRemove crating from the unit. Do not
remove the shipping skid until the unit is
set in its final position.
oEnsure the unit location is adequate for
unit dimensions, ductwork, piping, and
electrical connections.
oEnsure access and maintenance
clearances around the unit are
adequate. Allow space at the end of the
unit for shaft removal and servicing.
See the “Service Access” section on
page 11.
Unit Mounting
oPlace unit in its final location.
oRemove shipping skid bolts and skid.
oIf using isolators, properly mount using
the isolator placement sheet.
oRemove shipping brackets on the
compressors and supply fan.
oRemove the unit protective shipping
covers.
Component Overview
oVerify the fan and motor shafts are
parallel.
oVerify the fan and motor sheaves are
aligned.
oCheck the belt tension for proper
adjustment.
oEnsure the fan rotates freely.
oTighten locking screws, bearing set
screws and sheaves.
oEnsure bearing locking collars do not
wobble when rotated.
Ductwork
oIf using return ductwork to the unit,
secure it with three inches of flexible
duct connector.
oExtend discharge duct upward without
change in size or direction for at least
three fan diameters.
oUse a 3” flexible duct connection on
discharge ductwork.
oEnsure trunk ductwork to VAV boxes is
complete and secure to prevent leaks.
oVerify that all ductwork conforms to
NFPA 90A or 90B and all applicable
local codes
Water-Cooled Unit Piping
oVerify the condensate drain piping is
complete for the unit drain pan. Install
and tighten the condensate “P” trap
drain plug.
oInstall water piping drain plugs,
economizer header, and condenser
vent plugs.
oMake return and supply water
connections to the unit and/or
waterside economizer piping package
with recommended valves and piping
components. Refer to the “Water
Piping” section on page 34.
oInstall unions to allow waterside
maintenance.
oInstall cooling tower and standby
pumps.
oTreat water to prevent algae, slime,
and corrosion.
oPrevent refrigerant piping from
rubbing against other objects.
Air-Cooled Units Only
oConnect refrigerant lines.
oInstall liquid line filter driers.
Units with Hydronic Heat
oVerify the entering water temperature
sensor is installed upstream of the
hydronic coil.
Units with Electric Heat
oVerify the supply air temperature
sensor is installed downstream of the
electric heat coil.
WARNING
!

64 SCXG-SVX01B-EN
ProgrammingInstallation
Figure I-P-1. BAYSENS019 Keypad and display configuration.
BAYSENS019 Keypad and Display
Explanation
1. Up and Down Buttons
• Increases or decreased programmed
temperature settings in program menu.
• Shifts to temporary manual override in
normal run mode.
• Increases or decreases temperature
while in temporary override menu.
2. Time Adjust Button
Used to set the correct time of day. Used
to set programmed time for temperature
variations.
3. Program Button
Toggles between the display control
screen and the display program screen.
4. Erase Button
• Erases time and temperature settings
throughout each of the programmed
periods.
• Exits temporary manual override.
5. Day Button
Toggles through the seven days of the
week.
6. Hold Temp Button
Shifts controller to temporary manual
override, and begins temperature
override.
7. Fan Button
Toggles the fan controller between on
and auto mode.
8. Mode Button
Toggles the controller through its four
modes: off, heat, cool, and auto; if HP
version, also emer (emergency).
9.
• Indicates day of the week
• Indicates begin time in program menu
Indicates time setting in temporary
override mode.
Programmable Zone Sensor
Option
BAYSENS019

SCXG-SVX01B-EN 65
ProgrammingInstallation
Figure I-P-2. BAYSENS020 Keypad and display configuration.
BAYSENS020 Keypad and Display
Explanation
1. Up and Down Buttons
• Increases or decreased programmed
temperature settings in program menu.
• Shifts to temporary manual override in
normal run mode.
•Increases or decreases temperature
while in temporary override menu.
• Pressed together, toggles between
unoccupied/occupied setting.
2. Time Adjust Button
Used to set the correct time of day. Used
to set programmed time for temperature
variations.
3. Program Button
Toggles between the display control
screen and the display program screen.
4. Erase Button
• Erases time and temperature settings
throughout each of the programmed
periods.
• Exits temporary manual override.
5. Day Button
Toggles through the seven days of the
week.
6. Hold Temp Button
Shifts controller to temporary manual
override, and begins temperature
override.
7. Mode Button
• Toggles the controller between the two
modes, off and auto.
• Advances to next setpoint in program
menu.
8. During Programming Indicates:
• Heat supply air
• Cool supply air
• Warmup temperature
BAYSENS020

66 SCXG-SVX01B-EN
to the program menu. See Figure I-P-2.
Before toggling to the program menu,
use the mode button to select the type
setpoints to review or program (heat,
cool or auto). For example, if you select
cool mode before toggling to the program
menu, then only the cool setpoints are
reviewed or programmed. If you select
heat mode, then only the heat setpoints
are reviewed or programmed. In auto
mode, both heat and cool setpoints are
reviewed and programmed.
• While in program menu, each time you
press and release the program button,
the ZSM toggles through the four
periods that divide each day. Those four
periods are: Morn(ing), Day, Eve(ning),
and Night.
• To exit the program menu, depress the
program button for two seconds.
Program Menu
BAYSENS020 Only
Note: After toggling to the program
screen, the week is divided into seven
days with each day divided into four
periods.
Setpoint programming depends on the
setting status, occupied or unoccupied,
and whether or not the heat installed,
modulated heat, morning warmup, or
daytime warmup options are enabled.
In the occupied period, the cool supply air
temperature is always set. If heat
installed and modulated heat options are
on, the supply air heat is also set during
occupied periods. The warmup tempera-
ture is also set in occupied periods, if heat
installed and warmup options are
enabled.
ProgrammingInstallation
Initial Power-Up
Before applying power to your ZSM, and
before performing setup and operation
procedures, verify that all wiring is
correct. See Figures I-P-9 on page 71 and
I-P-10 on page 72 for a complete zone
sensor icon display description.
For BAYSENS020 only: at initial power-
up, the ZSM controls to default tempera-
tures of 68 F (19 C) for warmup, and 55 F
(13 C) supply air, until the ZSM is pro-
grammed or the arrow keys are pressed.
If the arrow keys and mode are moved,
the ZSM starts controlling to these new
settings.
Time and Day Settings
On power-up your ZSM will be in normal
run mode and will begin operating using
setpoints. The display will show the
wrong day and time and will need to be
set.
To set the time, there is a single rubber
button on the keypad “minus” and
“plus” mark time.
Depressing the positive side will advance
the time. Depressing the negative side
will decrease the time.
Each time you depress the positive or
negative side “minus” and “plus”, the
time will either advance or decrease
respectively by one minute. If you press
and hold either side of the time button,
the time change will accelerate rapidly.
When you reach the correct time, release
the time button and the time will be set
into permanent memory.
Note: To ensure the time changes are
made, the ZSM will initiate a 30 second
user-stabilization time before making
changes to the ZSM operation mode.
Keypad Operation
Note: After toggling to the program
screen, the week is divided into seven
days with each day divided into four
periods. Therefore, 28 program settings
are possible.
Program Button
Depressing the program button will
toggle the display from normal run mode
During unoccupied periods, only the
desired room temperature setpoints are
entered. Each unoccupied period has a
heat and cool setpoint, and both setpoints
are offered during programming.
Blank temperature settings may also be
entered. When a setpoint is blank, the
program will default to the last setpoint of
its type. If there is no setpoint of its type,
the default setpoint is used. If all setpoints
in the time period are blank, is erased
after exiting from the program menu.
The ZSM has independent, seven day
programming:
• Each day can be programmed with
different times, temperatures, and
occupied status.
• Each day can be programmed with up
to four periods. Although four periods
are available each day, you can
program just one of the four.
• Each period can be programmed for
occupied or unoccupied.
To begin programming, follow these
steps:
• Determine which periods during the day
will be occupied and unoccupied.
• Write your daily schedule on the sheet
enclosed with the zone sensor.
• Enter your program by following the
steps below.
To program time periods and setpoints
for a day:
• Press the program button to enter
program mode.
• Press the day button to select first day to
be programmed.
• To set the “begin” time for the first
period of the day, press the minus or
plus keys.
• To set the temperature setpoint for that
period, use or ¯.
• Press the program button to move to
the next period for that day.
• To program time periods and setpoints
for the next day, press the day button.
• When finished, press and hold the
program button for two seconds to
return to the normal run mode.
Figure I-P-3. Display Program Menu Screen.

SCXG-SVX01B-EN 67
a temporary manual override menu. See
Figure I-P-3.
This mode overrides any number of
programmed setpoints through any of
the 28 programmed periods. After
entering setpoints and length of override
time, these settings are now used.
Keypad Operation for Temporary Manual
Override Menu
The keypad has the same function in
temporary manual override menu as in
all other menus, with a few exceptions:
• Depressing the day button will toggle
your ZSM between the day and hour
icon. See Figure I-P-3 on page 65.
• Depressing the mode button will toggle
your ZSM between the heat and cool
icons and setpoints.
• Depressing the erase button will cancel
the override and return the ZSM to
normal run mode.
• Depressing the holdtemp or program
buttons while in the temporary manual
override menu will toggle your ZSM to
the temporary override mode. See
Figure I-P-4.
ProgrammingInstallation
Note: Blank temperature settings may be
entered at any of the four daily periods.
When a setpoint is left blank and in an
occupied condition, the ZSM will default to
the last occupied setpoint. When a
setpoint is left blank and in an unoccupied
condition, the ZSM will default to the last
unoccupied setpoint.
Temporary Manual Override
While in normal run mode, depressing
the hold temp button toggles the ZSM to
the temporary manual override menu.
The mode will override any number of
programmed setpoints through any of
the 28 programmed periods. After
entering setpoints and length of override
time, these new settings are used in place
of the setpoints programmed for normal
run mode.
Time Button
• While in the program menu, each time
you press and release the positive or
negative side of the time button, the
time will advance or decrease by ten
minute increments. If you press and
hold the positive or negative side
(“minus” and “plus” keys), the ZSM
will increment rapidly.
• When the display is in the normal run
mode, each time you press and release
the positive or negative side of the time
button (“minus” and “plus” keys), the
time will advance or decrease by one
minute. If you press and hold the
positive or negative side (“minus” and
“plus” keys), the ZSM will increment
rapidly.
Note: Blank temperature settings may be
entered at any of the four daily periods.
When a setpoint is left blank and in an
occupied condition, the ZSM will default to
the last occupied setpoint.
Keypad Lockout
If you simultaneously depress and hold
both the positive and negative sides of
the “minus” and “plus” keys for four
seconds, the lock icon will appear and all
keypad functions will lock out. If you
repeat this operation, the lock icon will
disappear and all keypad functions will be
available again.
• Keypad lockout applies only to normal
run mode and temporary manual
override mode.
Day Button
• In normal run mode, depressing the day
button will move the current day ahead.
• While in the program menu, depressing
the day button will move you through
the seven days of the week and allow
you to program temperature settings
for each of the four daily periods.
Erase Button
• Pressing the erase button while in
normal run mode will turn off the check
filter icon.
• Pressing the erase button while in the
program menu, will erase all time and
temperature setpoints of a given
period.
• The erase button will acknowledge the
failure buzzer (Option 16) until 12:00 am.
Mode Button
• BAYSENS019 only: Pressing the mode
button toggles through all modes: off,
heat, cool, auto, and emer (HP unit).
• BAYSENS020 only: Pressing the mode
button while in normal run mode, or
temporary manual override run mode,
will toggle through both modes, off and
auto.
Fan Button
• The fan button allows you to toggle
between on and auto.
Up and Down Button Arrows
• Depressing or ¯ arrow while in normal
run mode will cause your ZSM to toggle
to the temporary manual override
menu.
• Depressing either or ¯ arrow while in
the program menu or temporary
override menu will cause the
temperature setpoint to advance or
decrease in one degree increments.
• Depressing and holding either the or ¯
arrow will cause the temperature
setting to increment rapidly.
Simultaneously depressing the or ¯
arrow for two seconds while in the
program menu or temporary override
menu will toggle the ZSM between an
occupied and unoccupied condition.
Holdtemp Button
While in normal run mode, depressing
the hold temp button toggles the ZSM to
Figure I-P-4. Temporary Manual Override
Menu Screen.

68 SCXG-SVX01B-EN
Temporary Override Run Mode
The temporary override run mode sends
setpoint data to the Unit Control Module
(UCM) from the setpoint data entered in
the temporary manual override menu.
In temporary override run mode, most of
the keypad functions lock out with these
exceptions:
• The mode button still functions as in
normal run mode.
• The fan button still functions as in
normal run mode.
• Depressing the holdtemp button toggles
the ZSM between the temporary
manual override menu and override
run mode. (if no button is pressed for 20
seconds while in temporary manual
override menu, the ZSM exits to normal
run mode, ignoring the temporary
override settings.)
• Depressing either the or ¯ arrow while
in the override run mode will cause the
ZSM to toggle to the temporary manual
override menu.
• The erase button will turn off the check
filter icon if displayed.
• Simultaneously depressing and holding
the positive and negative sides of the
“minus” and “plus” for four seconds
will lock out the keypad.
• Time is not adjustable in this mode.
• The program button is disabled.
ProgrammingInstallation
Figure I-P-5. Override run mode screen.
Keypad Operation for Temporary Manual
Override Menu
The keypad has the same function in
temporary manual override menu as in
all other menus, with a few exceptions:
• Depressing the holdtemp or program
buttons while in temporary manual
override menu will enter settings and
begin temporary manual override run
mode. See Figure I-P-5.
• Depressing the day button will toggle
the ZSM between the day and hour
icon.
• Depressing the mode button will toggle
the ZSM between the heat and cool
icons and setpoints.
• Depressing the erase button will cancel
the override and return the ZSM to
normal run mode.
• If no button is pressed for 20 seconds,
the ZSM exits temporary manual
override menu and enters the normal
run mode, ignoring the temporary
manual override menu settings.
Temporary Manual Override Run Mode
The temporary manual override run
mode sends setpoint data to the UCM
from the setpoint data entered in the
temporary manual override menu. See
Figure I-P-7.
Figure I-P-6. Temporary manual override
menu screen.
In temporary manual override run mode,
most of the keypad functions lock out with
these exceptions:
• The mode button still functions as in
normal run mode.
• Depressing the holdtemp button toggles
the ZSM between temporary manual
override menu and temporary manual
override run mode. If no button is
pressed for 20 seconds, while in the
temporary manual override menu, the
ZSM exits to the normal run mode,
ignoring the temporary manual
override settings.
• Depressing either the up or down arrow
keys while in temporary manual
override run mode will cause the ZSM
to toggle to temporary manual override
menu.
• The erase button will turn off the check
filter icon if displayed.
• Simultaneously depressing and holding
the positive and negative sides of the
minus/plus key for four seconds will lock
out the keypad.
• Time is not adjustable in this mode.
Figure I-P-7. Temporary manual override run
mode screen.

SCXG-SVX01B-EN 69
Table I-P-1. Zone Sensor BAYSENS019 Option Menu Settings.
Option # Description Value Factory Setting
1 Morning Warmup 0 = Disabled 0
1 = Enabled
2 Economizer minimum 0 = Disabled 1
Position override 1 = Enabled
3 Temperature Scale 0 = Fahrenheit 0
1 = Enabled
4 Supply Air Tempering 0 = Disabled 0
1 = Enabled
5 Time Clock 0 = 12 hours 0
1 = 24 hours
6 Smart Fan 0 = Disabled 1
1 = Enabled
7 Intelligent Temperature Recovery 0 = Disabled 0
1 = Enabled
8 Programmable Days/Week 0 = 7 days (M,T,W,T,F,S,S) 0
1 = 3 days (M-F, S, S)
2 = 2 days (M-F, S,S)
9 Programmable Periods/Day 2,3,4 4
10 Programmable Fan Operation 0 = Disallowed 0
1 = Allowed
11 Remote Sensor Installed 0 = No 0
1 = Yes
12 Check Filter Interval 0 = Disabled 350
3000 to 50 in 50 hour
increments
13 Display Zone Temperature 0 = No 1
1 = Yes
14 Keypad Lockout Enabled 0 = Disabled 1
1 = Enabled
15 Initial Time Setting in Temporary 1,2,3,4,5 3
Override Mode (hrs.)
16 Buzzer Options 0 = Key Press only 1
1 = Key Press & Check filter
2 = Key Press, Check Filter,
and System Failures
17 Zone Temperature Calibration Displays current temp. 0 offset
with any offsets
18 Baud Rate 0 = 1024 baud 1
1 = 1200 baud
19 CV or HP Operation 0 = CV 0
1 = HP
20 Default Cooling setpoint 45 to 98 F 74 F
21 Default Heating setpoint 43 to 96 F 68 F
22 Minimum Cooling Setpoint 45 to 98 F 45 F
23 Maximum Heating Setpoint 43 to 96 F 96 F
ProgrammingInstallation
Figure I-P-8. Typical option menu screen.
Option Menu and Keypad Operation
The operation menu sets all
programmable options built into your
ZSM. All options are retained in
permanent EEPROM memory.
To access the option menu display,
simultaneously depress and hold the
mode button and program button for four
seconds. See Figure I-P-8.
The example in Figure I-P-8 shows option
15 displayed and indicates the initial timer
setting in the temporary override run
mode. The option value shown is in
hours, and value selected is five hours.
When the option menu displays, the only
active buttons are the or ¯ arrow and
the “minus” and “plus” button. The or
¯ arrow increment through the available
options by number (1-24), and the
“minus” and “plus” button toggles
through the various option values
associated with each option number. See
Table I-P-1.
Note: On both programmable zone sensor
options, changing either option 9 or 10 will
erase the current program. To avoid
reprogramming, set options 9 and 10
before programming.

70 SCXG-SVX01B-EN
ProgrammingInstallation
Table I-P-2. Zone Sensor BAYSENS020 Option Menu Settings.
Option # Description Value Factory Setting
1 Morning Warmup 0 = Disabled 0
1 = Enabled
2 Economizer minimum 0 = Disabled 1
Position override 1 = Enabled
3 Temperature Scale 0 = Fahrenheit 0
1 = Enabled
4 Heat Installed 0 = No 0
1 = Yes
5 Time Clock 0 = 12 hours 0
1 = 24 hours
6 Hydronic Heat 0 = No 0
1 = Yes
7 Daytime Warmup 0 = Disabled 0
1 = Enabled
8 Programmable Days/Week 0 = 7 days (M,T,W,T,F,S,S) 0
1 = 3 days (M-F, S, S)
2 = 2 days (M-F, S,S)
9 Programmable Periods/Day 2,3,4 4
10 Remote Sensor Installed 0 = No 0
1 = Yes
11 Check Filter Interval 0 = Disabled 350
3000 to 50 in 50 hour
increments
12 Display Zone Temperature 0 = No 1
1 = Yes
13 Keypad Lockout Enabled 0 = Disabled 1
1 = Enabled
14 Initial Time Setting in Temporary 1,2,3,4,5 3
Override Mode (hrs.)
15 Buzzer Options 0 = Key Press only 1
1 = Key Press & Check filter
2 = Key Press, Check Filter,
and System Failures
16 Zone Temperature Calibration Displays current temp. 0 offset
with any offsets
17 Default Cooling Setpoint 45 to 98 F (unoccupied) 74 F
18 Default Heating Setpoint 43 to 96 F (unoccupied) 68 F
19 Default Supply Air Cool 40 to 80 F (occupied) 55 F
20 Default Supply Air Heat 60 to 160 F 100 F
21 Default Warmup 50 to 90 F (occupied) 68
22 Minimum Cooling Setpoint 45 to 98 F 45 F
23 Maximum Heating Setpoint 43 to 96 F 96 F
24 Minimum Supply Air Cool 40 to 80 F (occupied) 40 F
25 Maximum Supply Air Heat 60 to 160 F 160 F
26 Maximum Warmup 50 to 90 F 90 F
Note: On both programmable zone sensor
options, changing either option 9 or 10 will
erase the current program. To avoid
reprogramming, set options 9 and 10
before programming.
Intelligent Copy
Note: Once you have used Intelligent
Copy, you cannot use it again until you
ERASE all weekday and weekend time
periods by pressing ERASE for 5 seconds.
If your heating and cooling requirements
are the same for each day of the week,
and for each day of the weekend, your
ZSM is designed to employ Intelligent
Copy.
To program the five weekdays, Monday
through Friday, program only one
weekday. Likewise, to program the
weekend, Saturday and Sunday, pro-
gram only one day. After programming
one weekday and/or one weekend day,
Intelligent Copy automatically copies your
program to the other days.
Using Intelligent Copy:
1) Be sure to select the seven day
programming format in the Options
Menu. See Tables I-P-1 and I-P-2.
2) Be sure the entire program is blank.
3) Go to the program menu.
4) Enter your setpoint parameters.
Intelligent Copy will automatically copy
these parameters to the other
weekdays.
5) Depress the DAY pushbutton until a
weekend day icon appears.
6) Enter setpoint parameters. Intelligent
Copy will automatically copy these
parameters to the other weekend day.
Remote Panel Indicator Signals From
UCM to ZSM
The unit control module (UCM) can send
four signals to the ZSM.
• Heat
• Cool
• On
• Service
Each of these four signals have three
different conditions. See Table I-P-3.
• Off
• On
• Flashing
Table I-P-3. UCM Signal Conditions.
Signal Condition
Heat On FlashingHEAT is ON and indicated by a solid HEAT icon in the
Display. Failure in the cooling system indicated by a flashing COOL
FAIL icon.
Cool On FlashingCOOLING is ON and indicated by a solid COOL icon in the
Display. Failure in the cooling system indicated by a flashing
COOL FAIL icon.
On Off FlashingSystem is OFF and indicated by a solid colon on the time of
On day display. System is ON and indicated by a flashing colon on
the time of day display. System is in TEST mode and indicated by a
flashing TEST icon.
Service Flashing ON System requires service and is indicated by a solid SERVICE
icon. There is a FAN failure indicated by a flashing SERVICE icon.
Note: There is no indication for a signal in the OFF condition. If Option 16 is set to “2,” any flashing signals will
also give audible buzzer indication

SCXG-SVX01B-EN 71
ProgrammingInstallation
Icon Descriptions
BAYSENS019 Icon Descriptions
Refer to Figure I-P-9 for a pictorial view of
the written descriptions below.
1. The four periods of the day used only
during programming mode.
2. The seven days of the week used
during programming and in normal
mode to display the day (not current in
Program Menu).
3. Four digits used to display the time of
day in normal run mode. Also used in
Programming Menu and Temporary
manual Override Menu, and options
menu.
4. Time of day colon used on the time of
day clock. The colon blinks to indicate
the UCM system is functional.
5. AM and PM are used to indicate the
time of day when using a 12 hour clock.
AM and PM are not used when a 24
hour clock is selected.
6. DAYS and HOURS are used to set the
override timer period.
7. Displayed in temporary manual
OVERRIDE mode, and when setting the
override timer.
8. Only used when setting the override
timer.
Figure I-P-9. BAYSENS019 complete icon display.
9. Displays the desired state of either
OCCUPIED or UNOCCUPIED.
10. The padlock symbol indicates that the
keyboard lockout is in effect.
11. This extends the mode selection box
in order to accommodate the
emergency heat mode on the ZSM heat
pump version.
12. Fan mode selection box.
13. Displayed in normal run mode when
displaying the actual room
temperature.
14. Displayed in option setting mode only.
15. Digits used to display temperature.
16. HEAT and COOL have two functions:
they indicate UCM status in normal run
mode and indicate which type of
setpoint is DESIRED during
programming and override setting.
17. Only used during programming and
override setting to indicate the
DESIRED setpoint temperature.
18. Flashes when check filter timer is
elapsed.
19. Flashing cooling fail status indicator.
20. Only used during UCP self-test mode.
21. Flashing service status indicator and
fan failure.
22. Flashing heating fail status indicator.
23. Operating MODE selection box.

72 SCXG-SVX01B-EN
ProgrammingInstallation
Figure I-P-10. BAYSENS020 complete icon display.
BAYSEN020 Icon Descriptions
Refer to Figure I-P-10 for a pictorial view
of the written descriptions below.
1. The four periods of the day used only
during programming mode.
2. The seven days of the week used
during programming and in normal run
mode.
3. Four digits used to display the time of
day in normal run mode. Also used in
Programming Mode, override timer
setting menu, and options menu.
4. Time of day colon used on the time of
day clock. The colon blinks to indicate
the UCM system is functional.
5. AM and PM are used to indicate the
time of day when using a 12 hour clock.
AM and PM are not used when a 24
hour clock is selected.
6. DAYS and HOURS are used to set the
override timer period.
7. Displayed in temporary manual
OVERRIDE mode, and when setting the
override timer.
8. Only used when setting the override
timer.
9. Displays the desired state of either
OCCUPIED or UNOCCUPIED in the
Programming, Run, and Menu.
10. The padlock symbol indicates that the
keyboard lockout is in effect.
11. Operating mode selection box.
12. Displayed in normal run mode when
displaying the actual room
temperature.
13. Displayed in option setting mode only.
14. Digits used to display temperature.
15. HEAT and COOL have two functions:
they indicate UCM status in normal run
mode and indicate which type of
setpoint is DESIRED during
programming and override setting.
16. Only used during programming and
override setting to indicate the
DESIRED setpoint temperature.
17. Flashes when check filter timer is
elapsed.
18. Flashing cooling fail status indicator.
19. Only used during UCP self-test mode.
20. Flashing service status indicator and
fan failure.
21. Flashing heating fail status indicator.
22. Used in programming mode to set
HEAT SUPPLY AIR, COOL SUPPLY AIR,
and MORNING WARMUP
temperatures.

SCXG-SVX01B-EN 73
Programming the Time Clock
Option
Setting the Time
Important: Depress reset key before
beginning to set time and program.
1. Select military (24:00 hr.) or AM/PM
(12:00 hr.) time mode by depressing
and holding the “h” key while pressing
“+ 1h” key to toggle between military
and AM/PM. (AM appears in the display
when in AM/PM mode.)
2. Press and hold down “¹” key.
3. If setting the time when daylight
savings time is in effect, press “+ 1h”
key once (+ 1h will appear in display).
4. Set hour with “h” key. If AM or PM
does not appear in display, the unit is in
military time. See note above to
change display.
5. Set minutes with “m” key.
6. Press “Day” key repeatedly to the day
of the week. (1 is Monday, 7 is Sunday)
7. Release “¹” key, colon will begin
flashing.
Note: If keys h + or m + are kept de-
pressed for longer than 2 seconds, a rapid
advance of figures will result.
The “Digi 20” electronic time switch is
freely programmable for each day of the
week in one minute increments. For easy
and quick programming, the following 4
block programs are available:
• Monday through Sunday
• Monday through Saturday
• Monday through Friday
• Saturday and Sunday
Programming
Follow the instructions below for
programming the time clock.
1. Press “Prog.” key. 1234567 AM—:—
will appear in display. (Pressing “Prog.”
key again, display will show the number
of free programs “Fr 20”). Press again
to RETURN to 1st program.
2. Press “B” key, “¤” ON symbol will
appear. Pressing the key again will
toggle to OFF “¦”. Select ON or OFF
for the program.
3. Press “h+” to select hour for switching
time.
4. Press “m+” to select minute for
switching time.
5. If the program is to occur every day of
the week, (24 hour time control) ignore
“Day” key and press “Prog.” key to
advance to program.
6. For 7 day time control, press “Day”
key. 1 2 3 4 5 6 (Monday through
Saturday) block of days appears in
display. Pressing “Day” key again, 1 2 3
4 5 (Monday through Friday) appears in
display. Repeated presses will cycle
through all days of the week and back
to 1 through 7 (Monday through
Sunday). Select day or block of days
desired.
7. Press “Prog.” key and repeat steps 2
through 6a to enter additional
programs of ON and OFF times. (Note
that more than one OFF time may be
programmed, enabling automatic
control or manual overrides.)
8. Press “¹” key to enter run mode.
To review and change programs:
1. To review a program at any time, press
“Prog.” key. Programs display in the
sequence they were entered with
repeated presses of “Prog.” key.
2. To change a program, select that
program as outlined in step 1. Enter the
time of day and days of week just as in
the programming steps above. The old
program is overwritten with the new
selections. Press “Prog.” to store the
new program.
3. To delete an individual program, select
the program as in step 1 and press “h”
and “m” keys until “—:—” appears in
the display. Press either “Prog.” or “¹”
key until “—:—” flashes. The program
is deleted after a few seconds.
Manual Override
While in the “run” mode (“¹” symbol is
displayed), pressing the “B” key will
reverse the load status (switch load off if
it is on, or switch it on if it is off). A hand
symbol appears in the display to indicate
the override is active. At the next
scheduled switching time, automatic time
control resumes, eliminating the override.
Pressing the “B” key a second time
“[¤]” appears in the display indicating
the load is permanently on.
Pressing the “B” key a third time “[¦]”
appears in the display indicating the load
is permanently off.
Pressing the “B” key a fourth time
returns to automatic, “B” appears in the
display.
All days shown in the respective blocks
will switch on (or off) at the selected hour
and minute.
ProgrammingInstallation

74 SCXG-SVX01B-EN
Unit Startup Procedures
1. Check all electrical connections for
tightness.
2. For water-cooled units: gain access to
the liquid line service valves in the unit’s
left lower section.
Note: Verify the liquid line service valve is
open at unit start-up. Each compressor
suction line contains a low pressure
sensor that will shut the compressor down
in low pressure situations. See Table O-SO-
2 on page 97.
Never manually or automatically
pump down below 7 psig. This
will cause the compressor to
operate in a vacuum and cause
compressor damage.
1. Be sure all system components are
properly set and installed.
2. Inspect all ductwork and duct
connections.
3. Remove compressor and fan
assembly tie down bolts. However, on
20-38 ton units, do not remove the fan
assembly shipping blocks and tie down
bolts if the fan speed is 750 rpm or less.
To start the unit, complete the following
list in order:
1. Apply power to the unit. Close the unit
disconnect switch option.
2. Make sure that the liquid line service
valves are open on water cooled units.
3. Adjust setpoints at the HI.
See the
IntelliPak® Self-Contained
Programming Guide, PKG-SVP01B-EN,
for available unit operating setpoints.
Refer to the job specifications for proper
setpoints.
Note: A sufficient cooling load must be
visible to refrigerant circuit controls for the
mechanical refrigeration to operate. If
necessary, temporarily reduce the dis-
charge air setpoint to verify the refrigera-
tion cycle operation.
1. Ensure the fan rotation is in the
direction of the arrow on the fan
housing. If rotation is incorrect, first
verify the incoming power phasing is
correct. If it is correct, switch wires on
the fan contact so the fan is properly
phased.
2. Check the fan belt condition and
tension. Adjust the tension if belts are
floppy or squeal continually. Replace
worn or fraying belts in matched sets.
3. Check voltage at all compressor
terminals. Actual voltage should be
within 10 percent of nameplate voltage.
4. Check voltage imbalance from these
three voltage readings, at each
compressor. Maximum allowable
voltage imbalance, phase to phase, is
2%.
5. Check amp draw at compressor
terminals. RLA and LRA is on the unit
nameplate.
6. Measure amp draw at evaporator fan
motor terminals. FLA data is on the
motor nameplate.
7. After the system has stabilized (15 to
30 minutes), check and record
operating pressures and temperatures
for all circuits.
When checking the operating pressures
and conditions, establish nominal
conditions for consistent measurements
as follows:
• Leaving air greater than 60 F
• Entering air temperature between 70
and 90 F
• Entering water temperature greater
than 60 F
• Inlet guide vanes at least halfway open
With all compressors running at full load:
1. Compute superheat from the suction
line pressure and temperature at the
compressor on each circuit. Adjust the
thermal expansion valve settings if
necessary. Superheat should be
between 12 and 17 F.
2. Inspect refrigerant flow in the liquid line
sight glass. Flow should be smooth and
even, with no bubbles once the system
has stabilized.
Normal start-up can occur provided that
Tracer Summit® is not controlling the
module outputs or the generic BAS is not
keeping the unit off.
To ensure that Tracer Summit® has no
affect on unit operation, remove Tracer®
wiring and make required changes to
setpoint and sensor sources. See the
IntelliPak ® Self-Contained Programming
Guide, PKG-SVP01B-EN,
for more
information.
Unit Startup
Reference the
IntelliPak ® Self-Contained
Programming Guide, PKG-SVP01B-EN,
for unit operating instructions.
A copy
ships with each unit.
For units with the VFD option, reference
Instruction Bulletin, Altivar 58 Adjustable
Drive Controllers and/or Installation
Guide, Type H Controllers Keypad
Display
. A copy ships with each VFD.
CAUTION
!
StartupInstallation

SCXG-SVX01B-EN 75
Installation
Startup Log
Complete this log at unit start-up.
Unit: ____________________________ Unit Location: _________________________________________
Unit Voltage: __________ __________ __________
A B C
Evaporator:
Evaporator fan motor horsepower: __________ Evaporator fan motor amps: __________ __________ __________
A B C
Evaporator fan RPM (actual): ____________________
Evaporator System Static (from test and balance report or actual readings):
Supply Duct Static: __________
Return Duct Static: __________
Evaporator Air Conditions with both compressors operating:
Enter: Leaving:
Dry Bulb - F: __________ Dry Bulb - F: __________
Wet Bulb - F: __________ Wet Bulb - F: __________
Evaporator System CFM (test and balance sheet or actual tested): __________
___________________________________________________________________________________________________________________________
Compressor Amp Draw:
Circuit A: __________ __________ __________ Circuit B: __________ __________ __________
A B C A B C
Circuit C: __________ __________ __________ Circuit D: __________ __________ __________
A B C A B C
Suction Pressure - psig: Circuit A: __________ Circuit B: __________ Circuit C: __________ Circuit D: __________
Discharge Pressure - psig: Circuit A: __________ Circuit B: __________ Circuit C: __________ Circuit D: __________
Super Heat - F: Circuit A: __________ Circuit B: __________ Circuit C: __________ Circuit D: __________
Liquid Line Pressure - psig: Circuit A: __________ Circuit B: __________ Circuit C: __________ Circuit D: __________
Sub Cooling - F: Circuit A: __________ Circuit B: __________ Circuit C: __________ Circuit D: __________
___________________________________________________________________________________________________________________________
Startup

76 SCXG-SVX01B-EN
Installation Startup
Water Cooled Units:
Circuit A:
Entering Water Temperature - F: __________ Leaving Water Temperature - F: __________
Entering Water Pressure - psig: __________ Leaving Water Pressure - psig: __________
Circuit B:
Enter Water Temperature - F: __________ Leaving Water Temperature - F: __________
Entering Water Pressure - psig: __________ Leaving Water Pressure - psig: __________
Circuit C:
Entering Water Temperature - F: __________ Leaving Water Temperature - F: __________
Entering Water Pressure - psig: __________ Leaving Water Pressure - psig: __________
Circuit D:
Enter Water Temperature - F: __________ Leaving Water Temperature - F: __________
Entering Water Pressure - psig: __________ Leaving Water Pressure - psig: __________
___________________________________________________________________________________________________________________________
Air Cooled Units:
(Data taken from outside condensing unit)
Voltage: __________ __________ __________ Amp Draw: __________ __________ __________
A B C A B C
Entering Air Temperature - F: __________ Leaving Air Temperature - F: __________
Refrigerant Pressures at condenser - psig: __________/ __________ Sub cooling at condenser - F: __________

SCXG-SVX01B-EN 77
Owner General
Information
Points List
RTM Module:
Binary inputs
• Emergency stop
• External auto/stop
• Unoccupied/occupied
• Dirty filter
• VAV changeover with hydronic heat
Binary outputs
• VAV box drive max (VAV units only)
• CV unoccupied mode indicator (CV units
only)
• Alarm
• Fan run request
• Water pump request (water-cooled
only)
Analog input
• Airside economizer damper minimum
position
Analog output
• Outside air damper actuator
Heat Module:
• Analog output
GBAS Module:
Binary inputs
• Demand limit contacts
Binary outputs
• Dirty filter relay
• Refrigeration fail relay
• Heat fail relay
• Supply fan fail relay
• Active diagnostics
Analog inputs
· Occupied zone cooling setpoint
· Occupied zone heating setpoint
· Unoccupied zone cooling setpoint
· Unoccupied zone heating setpoint or
minimum outside air flow setpoint
· Supply air cooling setpoint
· Supply air heating setpoint
· Supply air static pressure setpoint
ECEM Module:
Analog inputs
• Return air temperature
• Return air humidity
In addition, units with a VOM have:
Binary inputs
• VOM mode A, unit off
• VOM mode B, pressurize
• VOM mode C, exhaust
• VOM mode D, purge
• VOM mode E, purge w/duct pressure
control
Binary output
• V.O. relay
TCI Module:
Binary input
• Enthalpy enable airside economizer
Binary outputs
• Compressor on/off status
• Ventilation status
• Condenser water flow status
• Heat status
Analog outputs
• Supply air pressure
• Supply air temperature
• Suction temperature of each circuit
• Entering economizer water temperature
• Zone temperature
• Entering condenser water temperature
• Supply air temperature reset signal
• Morning warmup sensor temperature
• Entering air temperature
Analog inputs
• Cooling and heating setpoints
• VAV discharge air temperature
setpoints
• Supply air pressure setpoint
• Cooling and heating enable/disable
• Air economizer enable/disable
• Airside economizer minimum position
• Unit priority shutdown

78 SCXG-SVX01B-EN
Unit Control Components
The Modular Series IntelliPak® self-
contained unit is controlled by a
microelectronic control system that
consists of a network of modules. These
modules are referred to as unit control
modules (UCM). In this manual, the
acronym UCM refers to the entire control
system network.
These modules perform specific unit
functions using proportional/integral
control algorithms. They are mounted in
the unit control panel and are factory
wired to their respective internal compo-
nents. Each module receives and
interprets information from other unit
modules, sensors, remote panels, and
customer binary contacts to satisfy the
applicable request; i.e., economizing,
mechanical cooling, heating, ventilation.
Following is a detailed description of each
module’s function.
RTM Module Board - Standard
on all Units
The RTM responds to cooling, heating,
and ventilation requests by energizing the
proper unit components based on
information received from other unit
modules, sensors, remote panels, and
customer supplied binary inputs. It
initiates supply fan, exhaust fan, exhaust
damper, inlet guide vane positioning or
variable frequency drive output, and
airside economizer operation based on
that information.
Reference the RTM points list on page 77.
Note: Emergency stop and external auto/
stop, stop the unit immediately, emer-
gency stop generates a manual reset
diagnostic that must be reset at the unit
human interface. External auto-stop will
return the unit to the current operating
mode when the input is closed, so this
input is auto reset.
RTM Remote Economizer Minimum
Position
The remote minimum position
potentiometer, BAYSTAT023A, provides
a variable resistance (0-270 ohms) to
adjust the economizer minimum position
from 0 to 100% when connected to the
economizer remote minimum position
input of the RTM. RTM must be selected
as the source for economizer minimum
position. If the RTM is the selected source
for economizer minimum position, and
if
a valid resistance per Table O-GI-1 is
provided to the RTM remote minimum
position input,
the OA cfm compensation
function will not operate, even if enabled.
“Default” is the only possible source for
economizer minimum position when
using the OA cfm compensation function.
Table GI-1. Economizer Remote Minimum
Position Input Resistance.
Input Economizer
Resistance Min. Position
0 - 30 ohms 0 %
30 - 240 ohms 0-100 % (Linear)
240 - 350 ohms 100 %
> 350 ohms N/A *
* Note: A resistance greater than 350 ohms is
assumed to be an open circuit. The system will use
the default minimum position value.
RTM Analog Outputs
The RTM has two 0-10 vdc outputs: one
for the inlet guide vane option and one for
the economizer option. These outputs
provide a signal for one or two damper
actuators. There are no terminal strip
locations associated with these wires.
They go directly from pins on the RTM
circuit board to the actuator motor.
RTM Binary Outputs
The RTM has an output with pressure
switch proving inputs for the supply fan.
There is a 40 second delay from when
the RTM starts the supply fan until the fan
proving input must close. A fan failure
diagnostic will occur after 40 seconds.
This is a manual reset diagnostic, and all
heating, cooling, and economizer
functions will shut down. If this proving
input is jumped, other nuisance
diagnostics will occur. If the proving input
fails to close in 40 seconds, the
economizer cycles to the minimum
position. This is a manual reset
diagnostic. External control of the fan is
not recommended.
VAV Drive Max Output
This is a single-pole, double-throw relay
rated at a maximum voltage of 24 vac, 2
amps. The relay contacts of this relay
switch when the unit goes from the
occupied mode to the unoccupied mode
by means of the occupied binary input.
The contacts will stay switched during the
unoccupied and morning warmup mode.
They will return to the position shown on
the unit wiring diagram when the unit
returns to the occupied mode. This binary
output signals the VAV boxes or other
terminal devices to go full open.
RTM Alarm Relay
This is a single pole, double throw relay
rated at a maximum voltage of 24 vac, 2
amps max. Relay contacts can be
programmed from the unit human
interface. This relay can be programmed
to pick up on any one or group of
diagnostics from the HI.
Status/Annunciator Output
The status annunciator output is an
internal function within the RTM module
on CV and VAV units. It provides:
a. diagnostic and mode status signals to
the remote panel (LEDs) and to the HI.
b. control of the binary alarm output on
the RTM.
c. control of the binary outputs on the
GBAS module to inform the customer
of the operational status and/or
diagnostic conditions.
Occupied/Unoccupied Inputs
There are four ways to switch to
occupied/unoccupied:
1. Field-supplied contact closure
hardwired binary input to the RTM
2. Programmable night setback zone
sensor
3. Tracer Summit®
4. Factory-mounted time clock
VAV Changeover Contacts
These contacts are connected to the RTM
when daytime heating on VAV units with
internal or external hydronic heat is
required. Daytime (occupied) heating
switches the system to operate as a CV
unit. Refer to the unit wiring diagram for
the field connection terminals in the unit
control panel. The switch must be rated at
12 ma @ 24 VDC minimum.
External Auto/Stop Switch
A field-supplied switch may be used to
shut down unit operation. This switch is a
binary input wired to the RTM. When
opened, the unit shuts down immediately
and can be cancelled by closing the
switch. Refer to the unit wiring diagrams
(attached to the unit control panel) for
proper connection terminals. The switch
must be rated for 12 ma @ 24 VDC
minimum. This input will override all VOM
inputs, if the VOM option is on the unit.
Owner General
Information

SCXG-SVX01B-EN 79
Table O-GI-2. RTM Sensor Resistance vs. Temperature
Temperature (F) Resistance (ohms) Temperature (F) Resistance (ohms)
-40 346.1 71 11.60
-30 241.7 72 11.31
-20 170.1 73 11.03
-10 121.4 74 10.76
-5 103.0 75 10.50
0 87.56 76 10.25
5 74.65 77 10.00
10 63.8 78 9.76
15 54.66 79 6.53
20 46.94 80 9.30
25 40.40 85 8.25
30 34.85 90 7.33
35 30.18 100 5.82
40 26.22 105 5.21
45 22.85 110 4.66
50 19.96 120 3.76
55 17.47 130 3.05
60 15.33 140 2.50
65 13.49 150 2.05
66 13.15 160 1.69
67 12.82 170 1.40
68 12.50 180 1.17
69 12.19 190 0.985
70 11.89 200 0.830
Owner General
Information
Table O-GI-4. RTM Resistance Value vs. System Operating Mode
Resistance
applied to RTM Mode CV Units VAV Units
input terminals (Ohms) Fan Mode System Mode System Mode
2320 Auto Off Off
4870 Auto Cool
7680 Auto Auto Auto
10,770 On Off
13,320 On Cool
16,130 On Auto
19,480 Auto Heat
27,930 On Heat
Note: Mode boundaries are 1000 to 40,000 ohms. Other boundaries are equal to the midpoint between the
nominal mode resistance.
Table O-GI-3. RTM Setpoint Analog Inputs
Cooling or Heating Setpoint Input (F) Cooling Setpoint Input (F)
(using RTM as zone temp. source) (using RTM as supply air temp. source) Resistance (ohms)
40 40 1084
45 45 992
50 50 899
55 55 796
60 60 695
65 65 597
70 70 500
75 75 403
80 80 305
NA 85 208
NA 90 111
Occupied/Unoccupied Contacts
To provide night setback control if a
remote panel
with night setback
was not
ordered, install a field-supplied contact.
This binary input provides the building’s
occupied/unoccupied status to the RTM. It
can be initiated by a time clock, or a
building automation system control
output. The relay’s contacts must be rated
for 12 ma @ 24 VDC minimum. Refer to
the appropriate wiring diagrams
(attached to the unit control panel for the
proper connection terminals in the unit
control panel.
Emergency Stop Input
A binary input is provided on the RTM
board for installation of a field-supplied
normally closed (N.C.) switch to use
during emergency situations to shut
down all unit operations. When open, an
immediate shutdown occurs. An
emergency stop diagnostic enters the
human interface and the unit will require
a manual reset. Refer to the unit wiring
diagrams (attached to the unit control
panel for the proper connection
terminals. The switch must be rated for
12 ma @ 24 VDC minimum. This input
will override all VOM inputs, if the VOM
option is on the unit.
VAV Box Option
To interlock VAV box operation with
evaporator fan and heat/cool modes,
wire the VAV boxes/air valves to VAV box
control connections on the terminal block.
Supply Duct Static Pressure Control
The RTM relies on input from the duct
pressure transducer when a unit is
equipped with IGV or VFD to position the
IGV or set the supply fan speed to
maintain the supply duct static pressure
to within the static pressure setpoint
deadband.
RTM Sensors
RTM sensors include: zone sensors with
or without setpoint inputs and modes,
supply air sensor, duct static pressure,
outside air temperature, outside air
humidity, airflow proving, and dirty filter.

80 SCXG-SVX01B-EN
Compressor Module (SCM and
MCM - Standard on All Units
The compressor module, (single circuit
and multiple circuit) energizes the
appropriate compressors and condenser
fans upon receiving a request for
mechanical cooling. It monitors the
compressor operation through feedback
information it receives from various
protection devices.
Human Interface Module -
Standard on all units
The human interface (HI) module enables
the operator to adjust the operating
parameters for the unit using it's 16-key
keypad on the human interface panel.
The HI panel provides a 2 line, 40
character, clear language (English,
Spanish, or French) LCD screen with unit
status information and menus to set or
modify operating parameters. It is
mounted in the unit’s main control panel
and accessible through the unit’s control
panel door.
Remote Human Interface
Module Option
The optional remote-mount human
interface (RHI) panel has all the functions
of the unit-mounted version except for
service mode. To use a RHI, the unit must
be equipped with an optional
interprocessor communications bridge
(IPCB). Model number digit 32 (=2)
indicates if the ICPB was ordered with the
unit. If not, contact your local Trane
representative to order an ICPB kit for
field installation. The RHI can be located
up to 1,000 feet (304.8 m) from the unit. A
single RHI can monitor and control up to
four self-contained units if each one
contains an IPCB. The IPCB switches must
be set as SW1- off, SW2 - off, and SW3 -
on.
Interprocessor Communications Board •
Option used with RHI
The interprocessor communication board
expands communications from the CSC
unit's UCM network to a remote human
interface panel. DIP switch settings on the
IPCB module for this application are;
switches 1 and 2 “off,” switch 3 “on.”
Waterside Module - Standard
on All Water-Cooled Units
The waterside module (WSM) controls all
water valves based on unit configuration.
In addition, the WSM monitors waterflow
proving and the following temperatures:
• entering water
• entering air low
• mixed air
• entering condenser water
• refrigerant circuit 3:
• saturated condenser
• evaporator frost
• motor winding
• refrigerant circuit 4:
• condenser
• evaporator
• motor winding
Cooling Tower Interlock
To interlock condenser pump/tower with
cooling operation, wire the cooling tower
to an external 115 volt control power
source, to ground, and to control terminal
block. Normally open/closed contacts are
provided.
Heat Module
The heat module is standard on all units
with factory-installed heat. It controls the
unit heater to stage up and down to bring
the temperature in the controlled space
to within the applicable heating setpoint.
Also, it includes a LEATPD, morning
warmup, and heating outputs.
Ventilation Override Module
(VOM) Option
The ventilation override module can be
field-configured with up to five different
override sequences for ventilation
override control purpose. When any one
of the module’s five binary inputs are
activated, it will initiate specified functions
such as; space pressurization, exhaust,
purge, purge with duct pressure control,
and unit off.
Once the ventilation sequences are
configured, they can be changed unless
they are locked using the HI. Once locked,
the ventilation sequences cannot be
unlocked.
The compressors and condenser fans
disable during the ventilation operation. If
more than one ventilation sequence
activates, the one with the highest priority
(VOM “A”) begins first, with VOM “E”
having lowest priority and beginning last.
A description of the VOM binary inputs
follows below.
UNIT OFF sequence “A”
When complete system shut down is
required, the following sequence can be
used.
• Supply fan – Off
• Supply fan VFD – Off (0 Hz)
(if equipped)
• Inlet guide vanes – closed
(if equipped)
• Outside air dampers – Closed
• Heat – all stages – Off, Modulating heat
output at 0 vdc
• Occupied/unoccupied output – De-
energized
• VO relay – Energized
• Exhaust fan (field-installed) - Off
• Exhaust damper (field-installed) - Closed
PRESSURIZE sequence “B”
This override sequence can be used if a
positively pressured space is desired
instead of a negatively pressurized space.
• Supply fan – on
• Supply fan VFD – on (60 Hz)
(if equipped)
• Inlet guide vanes/VAV boxes – open
(if equipped)
• Outside air dampers – open
• Heat – all stages – off, hydronic heat
output at 0 vdc
• Occupied/ unoccupied output - energized
• VO relay - energized
• Exhaust fan (field-installed) - off
• Exhaust damper (field-installed) - closed
EXHAUST sequence “C”
With the building’s exhaust fans running
and the unit’s supply fan off, the
conditioned space becomes negatively
pressurized. This is desirable for clearing
the area of smoke when necessary; i.e.
from an extinguished fire, to keep smoke
out of areas that were not damaged.
• Supply fan – off
• Supply fan VFD – off (0 Hz)
(if equipped)
• Inlet guide vanes – closed
(if equipped)
• Outside air dampers – closed
• Heat – all stages – Off, hydronic heat
output at 0 vdc
• Occupied/unoccupied output – de-
energized
Owner General
Information

SCXG-SVX01B-EN 81
Figure O-GI-2. Velocity Pressure Trans-
ducer/Solenoid Assembly.
• VO relay – energized
• Exhaust fan (field-installed) - on
• Exhaust damper (field-installed) - open
PURGE sequence “D”
This sequence could be used for purging
the air out of a building before coming out
of unoccupied mode of operation on VAV
units. Also, it can be used to purge smoke
or stale air.
• Supply fan – on
• Supply fan VFD – on (60 Hz)
(if equipped)
• Inlet guide vanes/VAV boxes – Open
(if equipped)
• Outside air damper – Open
• Heat – all stages – Off, Modulating heat
output at 0 vdc
• Occupied/unoccupied output – Energized
• VO relay – Energized
• Exhaust fan (field-installed) - On
• Exhaust damper (field-installed) - Open
PURGE with duct pressure control “E”
This sequence can be used when supply
air control is required for smoke control.
• Supply fan – on
• Supply fan VFD – on (if equipped)
• Inlet guide vanes – controlled by supply
air pressure control function with
supply air pressure high limit disabled
• Outside air dampers – open
• Heat – all stages – off, hydronic heat
output at 0 vdc
• Occupied/unoccupied output – energized
• VO relay – energized
• Exhaust fan (field-installed) - on
• Exhaust damper (field-installed) - open
Note: Each system (cooling, exhaust,
supply air, etc.) within the unit can be
redefined in the field for each of the five
sequences, if required. Also the definitions
of any or all of the five sequences may be
locked into the software by simple key
strokes at the human interface panel. Once
locked into the software, the sequences
cannot be changed.
Trane Communications
Interface Module (TCI) - Option
used with Trane ICSTM
The Trane communication interface
module allows external setpoints for
most of the unit functions to be
communicated to the unit's UCM network
via a Trane ICSTM systems. DIP switch
settings on the TCI module for this
Owner General
Information
application are; switch 1 “off,” 2 “on,” and
3 “off.”
Exhaust/Comparative
Enthalpy Module (ECEM) - On
Units with Comparative
Enthalpy Option
The exhaust/comparative enthalpy
module receives information from the
return air humidity sensor, and the RTM
outside air temperature sensor and
outside air humidity sensor, the outside
air humidity sensor and temperature
sensor to utilize the lowest possible
enthalpy level when considering
economizer operation. In addition, it
receives space pressure information to
maintain the space pressure within the
setpoint control band. Refer to the Figure
O-GI-1 for humidity vs. voltage values.
Ventilation Control Module
(VCM) - Available only with
Traq™ Damper Option
The ventilation control module (VCM) is
located in the airside economizer section
of the unit and linked to the unit’s UCM
network. Using a velocity pressure
transducer/solenoid (pressure sensing
ring) in the fresh air section allows the
VCM to monitor and control fresh air
entering the unit to a minimum airflow
setpoint. See Figure O-GI-2 for a detail
view of the velocity pressure transducer/
solenoid assembly.
An optional temperature sensor can be
connected to the VCM to enable control
of a field installed fresh air preheater.
Also, a field-provided CO2 sensor can be
connected to the VCM to control CO2
reset. The reset function adjusts the
minimum cfm upward as the CO2
concentrations increase. The maximum
effective (reset) setpoint value for fresh
air entering the unit is limited to the
system’s operating cfm. Table O-GI-5 lists
the minimum outside air cfm vs. input
voltage.
Table O-GI-5. Minimum Outside Air
Setpoint w/VCM Module and Traq™
Sensing.
Unit Input Volts CFM
SXWG 20 0.5 - 4.5 vdc 6,350-8,500
SXWG 25 0.5 - 4.5 vdc 7,250-10,625
SXWG 30 0.5 - 4.5 vdc 7,250-12,750
SXWG 35 0.5 - 4.5 vdc 7,250-14,875
SXRG 20 0.5 - 4.5 vdc 7,250-8,500
SXRG 25 0.5 - 4.5 vdc 7,250-10,625
SXRG 32 0.5 - 4.5 vdc 7,250-13,600
Figure O-GI-1. ECEM Relative Humidity vs.
Voltage.

82 SCXG-SVX01B-EN
Generic Building Automation
System Module Option
The generic building automation system
module (GBAS) provides broad control
capabilities for building automation
systems other than Trane’s Tracer®
system. A field provided potentiometer
or a 0-5 vdc signal can be applied to any
of the inputs of the GBAS to provide the
following points:
GBAS Analog Inputs
Four analog inputs that can be configured
to be any of the following:
(1) Occupied zone cooling
(2) Unoccupied zone cooling
(3) Occupied zone heating
(4) Unoccupied zone heating
(5) SA cooling setpoint
(6) SA heating setpoint
(7) Space static pressure setpoint
(8) SA static pressure setpoint
GBAS Binary Outputs
Five binary outputs to provide
diagnostics, signaling up to five alarms.
Each of the five (5) relay outputs can be
mapped to any/all of the available
diagnostics. Each output contains a dry
N.O. and N.C. contact with a VA rating of 2
amps at 24 VAC.
GBAS Binary Input
One binary input for the self-contained
unit to utilize the demand limit function.
This function is operational on units with a
GBAS and is used to reduce electrical
consumption at peak load times. Demand
limiting can be set at either 50% or
100%. When demand limiting is needed,
mechanical cooling and heating (with
field-provided 2-stage electric heat only)
operation are either partially (50%), or
completely disabled (100%) to save
energy. The demand limit definition is
user definable at the HI panel. Demand
limit binary input accepts a field supplied
switch or contact closure. When the need
for demand limiting discontinues, the
unit’s cooling/heating functions become
fully enabled again.
GBAS Analog Inputs
The GBAS accepts external setpoints in
the form of analog inputs for cooling,
heating, supply air pressure. Refer to the
unit wiring diagram for GBAS input
wiring and the various desired setpoints
with the corresponding DC voltage input.
Owner General
Information
Any of the setpoint or output control
parameters can be assigned to each of
the four analog inputs on the GBAS
module. Also, any combination of the
setpoint and/or output control param-
eters can be assigned to the analog
inputs through the HI. To assign the
setpoints apply an external 0-5 vdc
signal:
1. directly to the signal input terminals, or
2. to the 5 vdc source at the GBAS
module with a 3-wire potentiometer.
Note: There is a regulated 5 vdc output on
the GBAS module that can be used with a
potentiometer as a voltage divider. The
recommended potentiometer value is
1000-100,000 ohms.
The setpoints are linear between the
values shown in Table O-GI-6 on page 83.
Reference Table O-GI-7 on age 83 for
corresponding input voltage setpoints.
Following are formulas to calculate input
voltage or setpoint. SP = setpoint, IPV =
input voltage.
If the setpoint range is between 50-90 F:
IPV = (SP - 50) (0.1) + 0.5
SP = [(IPV - 0.5)/0.1] + 50
If the setpoint range is between 40-90 F:
IPV = (SP - 40)(0.8) + 0.5
SP = [(IPV - 0.5)/0.08] + 40
If the setpoint range is between 40-180
F:
IPV = (SP - 40)(0.029) + 0.5
SP = [(IPV - 0.5)/0.029] + 40
If the static pressure range is between
0.03-0.3 iwc:
IPV = (SP - 0.03)(14.8) + 0.5
SP = [(IPV - 0.5)/14.8] + 0.03
If the static pressure range is between
0.0-5.0 iwc:
IPV = (SP)(0.8) + 0.5
SP = [IPV/(0.8 + 0.5)]
GBAS Demand Limit Relay (Binary Input)
The GBAS allows the unit to utilize the
demand limit function by using a
normally open (N.O.) switch to limit the
electrical power usage during peak
periods. Demand limit can initiate by a
toggle switch closure, a time clock, or an
ICS™ control output. These contacts must
be rated for 12 ma @ 24 VDC minimum.
When the GBAS module receives a
binary input signal indicating demand
limiting is required, a command initiates
to either partially (50%) or fully (100%)
inhibit compressor and heater operation.
This can be set at the HI using the setup
menu, under the “demand limit definition
cooling” and “demand limit definition
heating” screens. A toggle switch, time
clock, or building automation system
control output can initiate demand
limiting.
If the cooling demand limit is set to 50%,
half of the cooling capacity disables when
the demand limit binary input closes. The
heating demand limit definition can only
be set at 100%, unless the unit has field-
provided two-stage electric heat. In that
case, if the heating demand limit is set to
50%, half or one stage of heating disables
when the demand limit binary input
closes. If the demand limit definition is set
to 100%, all cooling and/or heating will
disable when the demand limit input
closes.
GBAS Diagnostics (Binary Outputs)
The GBAS can signal up to five alarm
diagnostics, which are fully mappable
using the setup menu on the HI. These
diagnostics, along with the alarm output
on the RTM, allow up to six fully
mappable alarm outputs.
Each binary output has a NO and NC
contact with a rating of 2 amps at 24 VAC.
The five binary outputs are factory preset
as shown on the unit wiring diagram (on
the unit control panel door). However,
these outputs can be field defined in a
variety of configurations, assigning single
or multiple diagnostics to any output.
For a complete listing of possible diagnos-
tics, see the
IntelliPak® Self-Contained
Programming Guide, PKG-SVP01B-EN
.
For terminal strip locations, refer to the
unit wiring diagram for the GBAS.

SCXG-SVX01B-EN 83
Table O-GI-6. GBAS Analog Input Setpoints
Control Parameter Signal Range Setpoint Range
Occupied Zone Cooling Setpoint 0.5 to 4.5 vdc 50 to 90 F
(CV units only)
Unoccupied Zone Cooling Setpoint 0.5 to 4.5 vdc 50 to 90 F
(CV and VAV)
Occupied Zone Heating Setpoint 0.5 to 4.5 vdc 50 to 90 F
(CV units only)
Unoccupied Zone Heating Setpoint 0.5 to 4.5 vdc 50 to 90 F
(CV and VAV)
Supply Air Cooling Setpoint 0.5 to 4.5 vdc 40 to 90 F
(VAV units only)
Supply Air Hydronic Heating Setpoint 0.5 to 4.5 vdc 40 to 180 F
(VAV units only)
Space Static Pressure Setpoint 0.5 to 4.5 vdc 0.03 to 0.30 IWC
Supply Air Pressure Setpoint 0.5 to 4.5 vdc 0.0 to 5.0 IWC
(VAV units only)
Note: 1. Input voltages less than 0.5 vdc are considered as 0.5 vdc input signal is lost, the setpoint will
“clamp” to the low end of the setpoint scale. No diagnostic will result from this condition.
2. Input voltages greater than 4.5 vdc are considered to be 4.5 vdc.
3. The actual measured voltage is displayed at the HI.
Table O-GI-7. GBAS Input Voltage Corresponding Setpoints
Volts Temp. Volts Temp. Volts Temp Volts Temp
(F) (F) (F) (F)
0.5 50 1.6 60 2.6 70 2.7 80
0.6 51 1.7 61 2.7 71 2.8 81
0.7 52 1.8 62 2.8 72 2.9 82
0.8 53 1.9 63 2.9 73 3.0 83
0.9 54 2.0 64 3.0 74 3.1 84
1.0 55 2.1 65 3.1 75 3.2 85
1.1 56 2.2 66 3.2 76 3.3 86
1.2 57 2.3 67 3.3 77 3.4 87
1.3 58 2.4 68 3.4 78 3.5 88
1.5 59 2.5 69 3.5 79 3.6 89
Owner General
Information

84 SCXG-SVX01B-EN
temperature is less than 58 F (15 C). This
option allows the compressor to operate
with entering fluid temperature down to
35 F (2 C). The minimum valve position to
maintain minimum condenser flow rates
is user-defined at the HI. This valve drives
closed if the unit shuts down or if a power
failure occurs.
• Water Flow Switch Option
A water flow switch is factory installed in
the condenser water pipe within the unit.
Whenever the flow switch detects a
water flow loss prior to or during
mechanical cooling, compressor
operation locks out and a diagnostic code
displays. If water flow is restored, the
compressor operation automatically
restores.
To prevent injury or death due to
instantaneous release of high
pressure water, provide relief
valves on system water piping.
This will also help prevent water
pump damage or stoppage due to
excessive system pressure.
Water-Cooled Condensers
Units that are set up for variable water
flow will modulate a water valve to
maintain a user-defined condensing
temperature setpoint. Condensing
temperature will be referenced utilizing
factory installed sensors located at each
condenser.
Table O-GI-8. Water Condenser Connection
Sizes
Unit Size Direct Factory
Condenser Piped
SXWG 20-35 1 1/2 NPT 2 1/2 NPT
Waterside Economizer Option
The waterside economizer option takes
advantage of cooling tower water to
either precool the entering air to aid the
mechanical cooling process or, if the
water temperature is low enough,
provide total system cooling. Waterside
economizing enables when the unit’s
entering water temperature is below the
Waterside Components
Waterside components consist of water
piping, water valves, water flow switch
option, water cooled condensers (SXWF
only), and the economizer option.
Water Purge
This user-definable feature allows the
user to select a purge schedule to
automatically circulate water through the
economizer and condensers periodically
during non-operational times. This allows
fresh chemicals to circulate in waterside
heat exchangers. This feature is on all
units and is defined at the HI.
Water Piping Options
Water piping is factory-installed with left-
hand connections. Units can be ordered
with either basic piping or intermediate
piping. Also, units with waterside
economizers can be set for either
variable or constant water flow at the HI.
See Figures O-GI-3, O-GI-4, and O-GI-5 for
detailed piping configuration information.
With compatible piping configurations,
the unit can be configured to provide:
1) Constant water flow with basic or
intermediate piping or 2) Variable water
flow (head pressure control) with
intermediate piping only.
Constant water flow is for condenser
pumping systems that are not capable of
unloading the water-pumping system.
Variable water flow maximizes energy
saving by unloading the water pumping
system.
• Basic Water Piping
This option is available on units without a
waterside economizer and with
condenser water applications above 54 F
(12.2 C) that do not require condensing
pressure control. Left hand water
connections and piping are extended to
the unit exterior. Manifold piping is
factory installed.
• Intermediate Water Piping
This option provides condensing
temperature control when the unit is
configured (user defined at the HI) for
variable water flow with or without a
waterside economizer. A two-way
modulating control valve is wired and
installed in the unit to maintains a specific
range of water temperature rise through
the condenser when entering fluid
Owner General
Information
WARNING
!
unit’s entering mixed air temperature by
a minimum of 4 F plus the economizer’s
approach temperature. The approach
temperature default is 4 F. Waterside
economizing disables when the unit’s
entering water temperature is not below
the unit’s entering mixed air temperature
by at least the water economizer
approach temperature. The approach
temperature defaults to 4 F. The
economizer acts as the first stage of
cooling. If the economizer is unable to
maintain the supply air setpoint, the unit
control module brings on compressors as
required to meet the setpoint.
The waterside economizer includes a coil,
modulating valves, controls, and piping
with cleanouts. The coil construction is ½-
inch (13 mm) OD seamless copper tubes
expanded into aluminum fins. The
evaporator and economizer coils share a
common sloped (IAQ) drain pan. Drain
pan options are either galvanized or
stainless steel, and are insulated and
internally trapped.
The waterside economizer coil is avail-
able with either a two or four row coil,
with no more than 12 fins per inch. The
tubes are arranged in a staggered
pattern to maximize heat transfer. The
coil has round copper supply and return
headers with removable cleanout and
vent plugs. The optional mechanical
cleanable economizer has removable
cast iron headers to allow easy mechani-
cal cleaning of the tubes. The waterside
working pressure is rated for 400 psig
(2758 kPa).
Waterside Economizer Flow Control
Units equipped with a waterside
economizer can be set from the human
interface panel for variable or constant
water flow.
• Constant Water Flow
Two-way modulating control shutoff
valves are wired, controlled, and installed
in the unit. One valve is located in the
economizer’s water inlet, and the other is
in the condenser bypass water inlet.
When the waterside economizer enables,
the two-way valves modulate to maintain
the discharge air temperature setpoint.
As the economizer valve opens, the

SCXG-SVX01B-EN 85
Owner
Condenser 1
Condenser 2
V2
Condenser 1
Condenser 2
V1
Economizer
Condenser 1
Condenser 2
V2
Figure O-GI-3. Basic water piping configu-
ration, constant water flow.
Figure O-GI-4. Intermediate water piping
configuration, variable water flow.
Figure O-GI-5. Intermediate piping configuration with waterside
economizer, variable or constant water flow.
General
Information
condenser bypass valve closes, and vice
versa. Full water flow is always
maintained through the condensers. Both
valves will close in the event of a power
failure. See Figures O-GI-3 and O-GI-5.
• Variable Water Flow
Two-way modulating control shutoff
valves are wired, controlled, and installed
in the unit. One valve is located in the
economizer’s water inlet, and the other is
in the condenser bypass water inlet.
When the economizer valve is active, the
condenser bypass valve closes. The
economizer valve modulates, thus water
flow through the unit modulates. If the
water is cool enough for economizing, but
mechanical cooling is also required, the
economizer valve fully opens to establish
full water flow through the condensers.
Whenever the water is too warm for
economizing and there is a call for
cooling, the economizer valve fully closes
and the bypass valve fully opens,
establishing full water flow through the
condensers. Full water flow is always
maintained through the condensers
when mechanical cooling is required.
Both valves close whenever cooling is
not required, and in the event of a power
failure. See Figures O-GI-4 and O-GI-5.

86 SCXG-SVX01B-EN
Owner
Unit Airside Components
The unit’s air delivery system consists of
condensers, dampers, enthalpy switch
option, airside economizer option, filters,
low ambient sensors, and factory
mounted single or double wall plenums.
Supply Air Fan
The unit has a single supply fan that runs
at a constant speed. However, the fan
may have the IGV or VFD option that
modulates airflow based on supply air
temperature control. Pressing the stop
key on the HI will turn the supply fan off.
The fan is on continuously when a CV unit
is in occupied mode and except when a
unit is in the night heat/morning warmup
mode. During the night heat and setback
mode the fan cycles on and off in
response to a call for heat. See Table O-
GI-9 for available fan horsepower.
Low Entering Air Temperature Sensor
This is standard on all units with a
hydronic coil or waterside economizer. It
can also be ordered as an option.
A thermostat limit switch is factory
mounted on the unit’s entering air side
with a capillary tube serpentine across
the coil face. If the temperature falls
below 35 F (2 C), the fan shuts down and
the waterside economizer and/or
hydronic heat valve options open to allow
full water flow. The heat output also
energizes. A manual reset is required.
The low entering air temperature
setpoint is adjustable.
High Duct Temperature Thermostat
A factory-supplied temperature limit
switch with reset element detects the
supply air duct temperature. This sensor
should be field-installed downstream
from the unit’s discharge in the supply air
duct. If the supply air duct temperature
exceeds 240 F (115.6 C), the unit shuts
down and displays a diagnostic. A
manual reset is required at the unit. The
high duct temperature can be adjusted at
the thermostat.
Dirty Filter Sensor Option
A factory installed pressure switch
senses the pressure differential across
the filters. When the differential pressure
exceeds 0.9-inches (23 mm) WG, contact
closure occurs and the HI will display a
diagnostic. The unit will continue to run
until you replace the air filters.
A field installed indicator device may be
wired to relay terminals to indicate when
filter service is required. Contacts are
rated at 115 VAC and are powered by a
field supplied transformer.
Low Ambient Sensor (Air-Cooled Units)
The low ambient sensor is field-installed
on air-cooled units. Position it in a location
subject to ambient temperatures only
and not exposed to direct sunlight or
exhaust fans.
The low pressure cutout initiates based
on the ambient temperature. A time
delay on the low pressure cutout initiates
for ambient temperatures between 50
(zero minutes) and 0 F (10 minutes). This
helps to prevent nuisance low pressure
cutout trips.
Inlet Guide Vane Option
Inlet guide vanes (IGV) are driven by a
modulating 0-10 vdc signal from the RTM
module. A pressure transducer
measures duct static pressure, and the
IGV modulates to maintain the supply air
static pressure within an adjustable user-
defined range. The range is determined
by the supply air pressure setpoint and
supply air pressure deadband, which are
set through the HI panel.
IGV assemblies installed on the supply
fan inlet regulate fan capacity and limit
horsepower at lower system air require-
ments. When in any position other than
full open, the vanes pre-spin the air in the
same direction as the supply fan rotation.
As the vanes approach the full-closed
position, the amount of “spin” induced by
the vanes increases at the same time
that intake airflow and fan horsepower
diminish. The IGV’s will close when the
supply fan is off.
Supply Air Static Pressure Limit
The opening of the IGV’s and VAV boxes
coordinate during unit startup and
transition to/from occupied/unoccupied
modes to prevent supply air duct
overpressurization. However, if for any
reason the supply air pressure exceeds
the user-defined supply air static
pressure limit set at the HI panel, the
supply fan/VFD shuts down and the IGV’s
close. The unit will attempt to restart, up
to three times. If the overpressurization
condition still occurs on the third restart,
the unit shuts down and a manual reset
diagnostic sets and displays at the HI.
Variable Frequency Drive Option
The variable frequency drive (VFD) is
driven by a modulating 0-10 vdc signal
from the RTM module. A pressure
transducer measures duct static
pressure, and the VFD adjusts the fan
speed to maintain the supply air static
pressure within an adjustable user-
defined range. The range is determined
by the supply air pressure setpoint and
supply air pressure deadband, which are
set at the HI panel.
VFD’s provide supply fan motor speed
modulation. The drives will accelerate or
decelerate as required to maintain the
supply air static pressure setpoint.
VFD with Bypass
Bypass control is an option that provides
full nominal airflow in the event of drive
failure. The user must initiate the bypass
Table O-GI-9. Supply Fan Horsepower Selections.
Unit Model HP
5 7.5 10 15 20 25
SXWG 20 X X X X X
SXWG 25, 30, 35 X X X X X X
SXRG 20 X X X X X
SXRG 25, 32 X X X X X
General
Information

SCXG-SVX01B-EN 87
Owner
mode at the HI panel. When in bypass
mode, VAV boxes need to be fully open.
The self-contained unit will control
heating and cooling functions to maintain
setpoint from a user-defined zone sensor.
Supply air static pressure limit is active in
this mode.
For more detailed information on VFD
operation, reference the Square D VFD
technical manual that ships with the unit.
Airside Economizer Option
Units with the airside economizer option
are equipped with the necessary control
sequences to use outside air for the first
stage of cooling, in occupied or
unoccupied mode and when ambient
conditions are favorable for economizing.
Inherent in the unit controller is the ability
to suppress the setpoint below the
normal unit setpoint. This allows the
building to improve comfort levels when
possible, and at the same time, optimize
building mechanical cooling operation for
peak operating efficiency. An outside air
temperature and relative humidity
sensor are provided to allow monitoring
of reference enthalpy and are field
installed.
If the unit has the ECEM board, econo-
mizer operation enables when the
outside air enthalpy is less than 25 BTU’s/
lb. default (adjustable 19-28 BTU’s/lb.).
During occupied mode, the outside air
damper opens to 15% (adjustable 0-
100% at the HI) for ventilation purposes.
Also, the ability to alter the outside air
damper position to compensate for VAV
supply air modulation is inherent in the
unit controls, and can be enabled by the
operator.
If the unit does not have an ECEM board,
it will economize when the O/A tempera-
ture falls below the O/A economizer
setpoint.
The mixing box fabrication is 16-gauge
galvanized steel. Opposed low leak
damper blades are fabricated from 16-
gauge galvanized steel and rotate on
rustproof nylon bushings. A factory
installed 24V modulating spring return
actuator controls both damper positions.
When outdoor conditions are not suitable
for economizer cooling, the enthalpy
control disables the economizer function
General
Information
and permits the outdoor air damper to
open only to the minimum position.
On water-cooled units, compressor
operation lockout will not occur at low
ambient air temperatures. However,
lockout will still occur via low condenser
water temperature.
The outdoor air dampers drive fully
closed whenever the supply air fan is off,
provided there is power to the unit.
Comparative Enthalpy Control
Comparative enthalpy controls the
economizer operation and measures
temperature and humidity of both return
air and outside air to determine which
source has lower enthalpy. This allows
true comparison of outdoor air and return
air enthalpy by measurement of outdoor
air and return air temperatures and
humidities. A factory-installed control
board, with field-installed outside and
return air temperature and relative
humidity sensors, allows monitoring of
outside and return air.
Note: If comparative enthalpy is not
ordered, the standard method compares
outdoor air enthalpy with the fixed
reference enthalpy. The reference
enthalpy is set at the human interface
panel.
Units with comparative enthalpy control
are equipped with the necessary control
sequences to allow using outside air for
the first stage of cooling, in occupied or
unoccupied mode and when ambient
conditions are favorable for economizing.
Inherent in the unit controller is the ability
to suppress the setpoint below the
normal unit setpoint. This allows the
building to improve comfort levels when
possible, and at the same time, optimize
building mechanical cooling operation for
peak operating efficiency.
Economizer operation enables when the
outside air enthalpy is 3 BTU’s/lb. less
than the return air enthalpy. During
occupied mode, the outside air damper
opens to 15% (adjustable 0-100%) for
ventilation purposes. Also, the ability to
alter the outside air damper position to
compensate for VAV supply air modula-
tion is inherent in the unit controls, and
can be enabled by the operator.
The mixing box fabrication is 16-gauge
galvanized steel. Opposed low leak
damper blades are fabricated from 16-
gauge galvanized steel and rotate on
rustproof nylon bushings. A factory
installed 24V modulating spring return
actuator controls both damper positions.
Airside Economizers with TraqTM Damper
Outside air enters the unit through the
TraqTM damper assembly and is
measured by velocity pressure flow
rings. The velocity pressure flow rings
are connected to a pressure transducer/
solenoid assembly, which compensates
for temperature swings that could affect
the transducer. The ventilation control
module (VCM) utilizes the velocity
pressure input, the RTM outdoor air
temperature input, and the minimum
outside air CFM setpoint to modify the
volume (CFM) of fresh air entering the
unit as the measured airflow deviates
from setpoint.
When the optional preheat temperature
sensor is installed at the auxiliary
temperature on the VCM and the preheat
function is enabled, the sensor will
monitor the combined (averaged) fresh
air and return air temperatures. As this
mixed air temperature falls below the
preheat actuate temperature setpoint,
the VCM activates the preheat binary
output to control a field-installed heater.
The output deactivates when the tem-
perature rises 5 F above the preheat
actuate temperature setpoint.
Using a field-installed CO2 sensor with
CO2 reset enabled, as the CO2 concentra-
tion increases above the CO2 reset start
value, the VCM modifies the minimum
outside air CFM setpoint to increase the
amount of fresh air entering the unit. The
setpoint adjusts upward until reaching the
CO2 maximum reset value. The maxi-
mum effective (reset) setpoint value for
fresh air is limited to the system’s
operating CFM. As the CO2 concentration
decreases, the effective (reset) setpoint
value adjusts downward toward the
minimum outside air CFM setpoint. See
Figure O-GI-6 on page 88 for an airflow
cfm vs. CO2 concentration curve.

88 SCXG-SVX01B-EN
Table O-GI-10. Remote Air-Cooled Condenser Refrigerant Connection Sizes - English
inches (Metric, mm)
Unit Circuit 1 Circuit 1 Circuit 2 Circuit 2
Size Liquid Line Discharge Line Liquid Line Discharge Line
CXRC 20, 25, 29, 30 5/81 1/85/81 1/8
(16) (29) (16) (29)
Standard Two-Position Damper Interface
Units with the two-position damper
interface are provided with a 0-10 VDC
control output suitable for controlling a
field-provided modulating actuator. In
occupied mode, the output drives to the
maximum position.
Airside Economizer Interface
Units with airside economizer interface
are equipped with the necessary control
sequences to allow using outside air for
the first stage of cooling, in occupied or
unoccupied mode and when ambient
conditions are favorable for economizing.
Inherent in the unit controller is the ability
to suppress the setpoint below the
normal unit setpoint. This allows the
building to improve comfort levels when
possible, and at the same time, optimize
building mechanical cooling operation for
peak operating efficiency. An outside air
temperature and relative humidity
sensor are provided for field installation
to monitor reference enthalpy.
Economizer operation enables when the
outside air enthalpy is less than 25 BTU’s/
lb. (adjustable 19-28 BTU’s/lb.). During
occupied mode, the outside air damper
opens to 15% (adjustable 0-100%) for
ventilation purposes. Also, the ability to
alter the outside air damper position to
compensate for VAV supply air
modulation is inherent in the unit controls,
and can be enabled by the operator. An
analog 2-10 VDC output (adjustable (0-10
VDC) is provided to modulate the field-
provided 30 second damper actuators
(adjustable 1-255 seconds).
Airside Economizer Interface with
Comparative Enthalpy
Units with airside economizer interface
and comparative enthalpy are equipped
with the necessary control sequences to
allow using outside air for the first stage
of cooling, in occupied or unoccupied
mode and when ambient conditions are
favorable for economizing. Inherent in the
unit controller is the ability to suppress
the setpoint below the normal unit
setpoint. This allows the building to
improve comfort levels when possible,
and at the same time, optimize building
mechanical cooling operation for peak
operating efficiency. A factory-installed
control board, with outside and return air
temperature and relative humidity
sensors, are provided for monitoring
outside and return air. The sensors are
field installed. Economizer operation
enables when the outside air enthalpy is
3 BTU’s/lb. less than the return air
enthalpy. During occupied mode, the
outside air damper opens to 15%
(adjustable 0-100%) for ventilation
purposes. Also, the ability to alter the
outside air damper position to
compensate for VAV supply air
modulation is inherent in the unit
controls, and can be enabled by the
operator. An analog 2-10 VDC output
(adjustable (0-10 VDC) is provided to
modulate the field-provided 30-second
damper actuators (adjustable 1-255
seconds).
Figure O-GI-6. CO
2
Reset Function, Outside Air vs. CO
2
.
Air-Cooled Condensers
SXRG units are designed for use with the
remote air-cooled condenser, model
CXRC. For more information, see the air-
cooled condenser Installation, Owner, and
Diagnostic Manual,
CXRC-SVX01A-EN.
See Table O-GI-10 for CXRC refrigerant
connection sizes.
Condenser fans will stage per a user-
defined setting. If the condenser is
equipped with head pressure control (air
modulation on last stage of condenser
capacity), the condenser airflow will
modulate to maintain condensing
temperature setpoint. Condensing
temperature is determined by sensors
located at each condenser coil.
Owner General
Information

SCXG-SVX01B-EN 89
Input Devices and System
Functions
Following are basic input device and
system function descriptions used within
the UCM network on IntelliPak® self-
contained units. Refer to the unit wiring
diagrams for specific connections.
Water Purge
During the unoccupied mode, water-
cooled units will periodically circulate
water through the condensers and
waterside economizer if the user has
enabled the purge function at the HI.
The water purge function circulates
water to introduce fresh water-treatment
chemicals and help prevent water
stagnation. The number of hours be-
tween each periodic purge, or purge
duration, is user-defined at the HI
between 1-999 hours. If the periodic
purge timer expires while the unit is in
occupied mode, it will wait for the next
available unoccupied time before
initiating water purge. Contrary, if a
request for cooling occurs during a purge
sequence, purge will terminate and
cooling will commence.
Compressor Circuit Breakers
The compressors are protected by circuit
breakers that interrupt the compressor
power supply if the current exceeds the
breakers “must trip” value. During a
request for compressor operation, if the
compressor module (MCM or SCM)
detects a problem outside of it’s normal
parameters, it turns any operating
compressor(s) on that circuit off, locks out
all compressor operation for that circuit,
and initiates a manual reset diagnostic.
Compressor Motor Winding Thermostats
A thermostat is embedded in the motor
windings of each compressor. Each
thermostat opens if the motor windings
exceed approximately 221 F. The
thermostat resets automatically when
the winding temperature decreases to
approximately 181 F. Rapid cycling, loss
of charge, abnormally high suction
temperatures, or the compressor running
backwards could cause the thermostat to
open. During a request for compressor
operation, if the compressor module
detects a problem outside of it's normal
parameters, it turns any operating
compressor(s) on that circuit off, locks out
all compressor operation for that circuit,
and initiates a manual reset diagnostic.
Low Pressure Control
Low pressure (LP) control uses a binary
input device. LP cutouts are mounted on
the suction lines near the compressors.
The LP control contacts close when the
suction pressure exceeds 27 ± 4 psig. If
the LP control is open when a compres-
sor starts, none of the compressors on
that circuit will operate. They are locked
out and a manual reset diagnostic
initiates.
The LP cutouts open if the suction
pressure approaches 7 ± 4 psig. If the LP
cutout opens after a compressor starts,
all compressors operating on that circuit
will turn off immediately and will remain
off for a minimum of three minutes.
If the LP cutout trips four consecutive
times during the first three minutes of
operation, the compressors on that circuit
will lock out and a manual reset diagnos-
tic initiates.
Evaporator Temperature Sensor
Frostat™
The evaporator temperature sensor is an
analog input device that monitors
refrigerant temperature inside the
evaporator coil to prevent coil freezing. It
is attached to the suction line near the
evaporator coil with circuits 1 and 2
connected to the SCM/MCM and circuits
3 and 4 connected to the WSM. The coil
frost cutout temperature is factory set at
30 F. It is adjustable at the HI from 25-35 F.
The compressors stage off as necessary
to prevent icing. After the last
compressor stages off, the compressors
restart when the evaporator
temperature rises 10 F above the coil
frost cutout temperature and the
minimum three minute “off” time
elapses.
Saturated Condenser Temperature
Sensors
The saturated condenser temperature
sensors are analog input devices used on
all units. They are mounted inside a
temperature well located on a condenser
tube bend on air-cooled units, and in the
condenser shell on water-cooled units.
The sensors monitor the saturated
refrigerant temperature inside the
condenser coil and are connected to the
SCM/MCM for circuits 1 and 2 (air or
water cooled), and WSM for circuits 3
and 4 (only water-cooled).
Head Pressure Control
Head pressure control is accomplished
using two saturated refrigerant
temperature sensors on air-cooled units
and up to four sensors on water-cooled
units.
• Air-cooled units: During a request for
compressor operation when the con-
densing temperature rises above the
lower limit of the control band, the
compressor module (SCM/MCM)
sequences condenser fans on. If the
operating fans cannot bring the condens-
ing temperature to within the control
band, more fans turn on. As the satu-
rated condensing temperature ap-
proaches the lower limit of the control
band, fans sequence off. The minimum
on/off time for condenser fan staging is
5.2 seconds. If the system is operating at
a given fan stage below 100% for 30
minutes he saturated condensing
temperature is above the efficiency
check point setting, a fan stage will be
added. If the saturated condensing
temperature falls below the efficiency
check point setting, fan control remains at
the present operating stage. If the fan
stage cycles four times within a 10
minute period, the lower limit tempera-
ture is redefined as being equal to the
lower limit minus the temporary low limit
suppression setting. The unit will utilize
this new low limit temperature for one
hour to reduce condenser fan short
cycling.
• Water-cooled: Units without WSE, the
condenser valve modulates to maintain
an average saturated condenser
temperature. Units with WSE, if econo-
mizing and mechanical cooling is neces-
sary the economize valve will sacrifice
free cooling and modulate to maintain
condensing saturated temperature. If not
economizing, the condenser valve will
modulate to maintain condensing
saturated temperature.
Water-cooled units without head pres-
sure control will lock out mechanical
cooling at entering condenser water
temperatures below 54 F. Mechanical
cooling will resume when the entering
Owner
General
Information

90 SCXG-SVX01B-EN
condenser water temperature exceeds
58 F.
Low Ambient Control (Air-Cooled Units
Only)
The low ambient modulating output on
the compressor module is functional on
all units with or without the low ambient
option. When the compressor module
stages up to it's highest stage (stage 2 or
3 depending on unit size), the modulating
output is 100% (10 VDC). When the
control is at stage 1, the modulating
output (0 to 10 VDC) controls the
saturated condensing temperature to
within the programmable condensing
temperature low ambient control point.
Low Ambient Compressor Lockout (Air-
Cooled Units Only)
The low ambient compressor lockout
utilizes an analog input device. When the
system is configured for low ambient
compressor lockout, the compressors will
not operate if the temperature of the
outside air falls below the lockout
setpoint. When the temperature rises 5 F
above the lockout setpoint, the
compressors will operate. The setpoint
for units without the low ambient option is
50 F. For units with the low ambient
option, the setpoint is 0 F. The setpoints
are adjustable at the human interface
panel.
Return Air Temperature Sensor
The return air temperature sensor is an
analog input device used with a return
humidity sensor on units with the
comparative enthalpy option. The sensor
monitors the return air temperature and
compares it to the outdoor temperature
to establish which temperature is best
suited to maintain cooling requirements.
It is mounted in the return air path and
connected to the ECEM.
Supply Fan Circuit Breaker, Fuses, and
Overloads
The supply fan motor is protected by
either circuit breakers fuses or a
combination of fuses and overloads,
dependent upon unit configuration. Circuit
breakers are used on units without VFDs.
They will trip and interrupt the motor
power supply if the current exceeds the
breaker trip value. The RTM shuts all
system functions off when detecting an
open fan proving switch. Units with VFDs
have fuses to protect the VFD and motor.
Units with VFD w/bypass have fuses to
protect VFD circuit and overloads to
protect the motor when in bypass.
Supply Air Temperature Low Limit
The supply air temperature low limit
function uses the supply air temperature
sensor input to modulate the economizer
damper to the minimum position if the
supply air temperature falls below the
occupied heating setpoint temperature.
Supply Air Temperature Sensor
The supply air temperature sensor is an
analog input device. It monitors the
supply air temperature for supply air
temperature control, supply air
temperature reset, supply air
temperature low limiting, and supply air
tempering. It is mounted in the supply air
discharge section of the unit and
connected to the RTM.
Supply Airflow Proving Switches
This is binary input device used on units
to signal the RTM when the supply fan is
operating. It is mounted in the supply fan
section and is connected to the RTM.
During a request for fan operation and if
the differential switch opens for 40
consecutive seconds, compressor
operation turns off, heat operation turns
off, the request for supply fan operation is
turns off and locks out, IGV option closes,
economizer damper option closes, and a
manual reset diagnostic initiates.
Low Entering Air Protection Device
The low entering air protection device
(LEATPD) is a binary input on units with
hydronic heat or a waterside economizer.
It is optional on all water-cooled units.
If the LEATPD is on a unit with factory-
installed heat, it is mounted in the heat
section and connected to the heat
module. If the entering air temperature to
the heating coil falls to 40 F, the normally
open contacts on the LEATPD close and
cause the following events:
a. the hydronic heat actuator fully opens.
b. the supply fan turns off
c. the outside air damper closes
d. the SERVICE light at the remote zone
sensor option turns on.
e. a LEATPD diagnostic displays at the
human interface panel.
If the LEATPD is on a water-cooled unit
without factory-installed heat, it is wired
to the WSM. It will trip if the entering
water temperature falls to 34 F, open the
economizer valve, and energize the
pump output.
High Duct Temp Thermostat Option On
Units with a TCI
The high duct temperature thermostats
are binary input devices used on units
with a Trane communication interface
module (TCI). The high duct temperature
thermostat provides a high limit unit
shutdown and requires a manual reset.
The thermostats are factory set to open if
the supply air temperature reaches 240 F,
or the return air temperature reaches
135 F. Once tripped, the thermostat
requires a manual reset. Reset by
pressing the sensor’s reset button when
the air temperature decreases
approximately 25 F below the cutout
point.
Filter Switch
The filter switch is a binary input device
used on units to measure the pressure
differential across the unit filters. It is
mounted in the filter section and
connected to the RTM. A diagnostic
SERVICE signal displays at the remote
panel if the pressure differential across
the filters is at least 0.5” w.c. The contacts
automatically open when the pressure
differential across the filters decrease to
0.4” w.c. The switch differential is field
adjustable between 0.17” to 5.0” w.c. ±
0.05 “.
High Duct Static Switch Option
The high duct static switch is field-
mounted in the ductwork or plenums with
smoke dampers. It will cause a manual
reset diagnostic if the duct static exceeds
the preset static limit. The static limit is
adjustable at the HI.
Owner
General
Information

SCXG-SVX01B-EN 91
Owner
Control Sequences of
Operation
Occupied/Unoccupied Switching
There are four ways to switch occupied/
unoccupied:
(1) Night setback zone sensor
(2) Field-supplied contact closure
(hardwired binary input to RTM)
(3) Tracer Summit®
(4) Factory-mounted time clock
Field Supplied Occupied/Unoccupied
Input on the RTM
This input accepts a field supplied switch
or contacts closure, such as a time clock,
with a rating of 12 mA at 24 VDC
minimum.
Tracer Summit® System
The Tracer Summit® system can control
the occupied/unoccupied status of the
self-contained unit.
Factory Mounted Time Clock
A time clock can control the
occupied/unoccupied status of the
self-contained unit.
Unoccupied
The unoccupied mode helps conserve
energy during times when a building is
usually unoccupied. When in unoccupied
mode, the unit will control to the
unoccupied setpoints (usually a lower
heating setpoint and higher cooling
setpoint). Setpoints can be programmed
at the HI, Tracer Summit®, or the night
setback zone sensor.
The unit enters the unoccupied mode
when the RTM receives a closed signal
Figure O-SO-1. Typical cycling morning warmup cycle.
temperature is below the MWU setpoint,
the unit enters the MWU mode.
Morning Warmup
This feature can be enabled at the HI, and
can be used with factory or field-installed
heat. If MWU is not required disable the
function in the setup menu at the HI.
MWU transitions the zone from
unoccupied to occupied. It will heat until
the MWU setpoint is met. The unit is then
released to occupied mode. Supply duct
static pressure is maintained during this
sequence. MWU can be set (at the HI) to
function as either full or cycling capacity.
Full Capacity Morning Warmup (MWU)
Full capacity morning warmup uses full
heating capacity to heat the zone as
quickly as possible. Full heating capacity
is provided until the morning warmup
setpoint is met. At this point, the unit is
released to daytime mode.
Cycling Capacity Morning Warmup
(MWU)
Cycling capacity morning warmup
provides a more gradual heating to
overcome “building sink” as the zone is
heated. Normal zone temperature control
with varying capacity is used to raise the
zone temperature to the MWU zone
temperature setpoint. This method of
warmup is used to overcome the
“building sink” effect.
Reference Figure O-SO-1 for a pictorial
explanation of the cycling MWU se-
quence. Cycling capacity MWU will heat
until MWU temperature setpoint is
reached. Next a 60 minute timer begins. If
the building load reaches the MWU
ventilation setpoint, or the 60 minutes
expire, whichever is first, the airside
economizer will control to the minimum
position. MWU will end when the zone
temperature rises above the MWU
terminate setpoint.
Sequence of
Operation
on the unoccupied input for more than
five seconds.
For units with supply air temperature
control entering the unoccupied mode,
the following sequence will occur:
• Heating/cooling functions cease and the
economizer option closes fully. The
supply fan shuts down for proper cool-
down time of the heat exchanger.
However, the supply fan may remain
on for a short period of time.
• After the supply fan shuts down, the
occupied/unoccupied relay energizes
and the IGV option fully opens. Also, the
VAV box stroke time begins. The VAV
box stroke time is field adjustable to
allow time for VAV boxes to go to the
full open airflow position.
• After the max VAV box stroke time
expires and the IGVs are fully open, the
supply fan, economizer (if enabled),
compressors, and heat enable to satisfy
the unoccupied zone temperature
setpoints.
Note: Unoccupied economizer operation
can be enabled or disabled at the HI or
using Tracer Summit®.
For units without volume control entering
the unoccupied mode, the following
sequence will occur:
• The occupied/unoccupied relay
energizes and the economizer option
fully closes.
• The fan mode is set to auto and the unit
will control to the unoccupied zone
temperature setpoints.
With MWU enabled at the HI, if the zone

92 SCXG-SVX01B-EN
Owner Sequence of
Operation
Timed Override Activation - ICS™
This function is operational whenever the
unit’s RTM module is used as the zone
temperature sensor source, which can be
set at the HI panel. When this function is
initiated by the push of the override
button on the zone sensor, the unit will
switch to the occupied mode. Unit
operation (occupied mode) during timed
override is terminated by a signal from
Tracer®.
Timed Override Activation - Non-ICS
This function is active whenever the unit’s
RTM module board is selected as the
zone temperature source, which can be
set at the human interface panel. When
this function is initiated by the push of the
override button on the zone sensor, the
unit will switch to the occupied mode.
Automatic cancellation of the timed
override mode occurs after three hours
of operation.
VAV Drive Max Output
This is a single-pole, double-throw relay
rated at a maximum voltage of 24 vac, 2
amps max. The relay contacts of this
relay switch when the unit goes from the
occupied mode to the unoccupied mode
by means of the unoccupied binary input,
night setback zone sensor, or Tracer
Summit®. The contacts will stay switched
during the unoccupied and morning
warmup mode. They will return to the
position shown on the unit wiring
diagram when the unit returns to the
occupied mode. The intent of this binary
output is to signal the VAV boxes or other
terminal devices to go to a full open
airflow position.

SCXG-SVX01B-EN 93
Owner Sequence of
Operation
Occupied Sequence Of
Operation
All setpoints can be adjusted using the HI
panel. Also, cooling/heating setpoints can
be adjusted in the zone, if using one of the
zone sensor options (BAYSENS020,
BAYSENS021, BAYSENS008,
BAYSENS010, BAYSENS019, or
BAYSENS014). For a complete list of unit
setpoint default values and ranges, see
the
IntelliPak® Self-Contained
Programming Guide, PKG-SVP01B-EN
.
Occupied Zone Temperature - Cooling
The unit transitions from unoccupied to
occupied when the occupied/unoccupied
input on the RTM is open for more than
five seconds after having been closed.
This input can be received from Tracer
Summit®, the remote NSB zone sensor,
the timed override function, or a field
supplied contact. Dependent on unit
options and the HI programming, the
following sequence will occur:
• The unit will begin MWU and then
switch to the occupied mode after the
MWU setpoint is met.
• Purge will be enabled by Tracer
Summit®. Then Tracer Summit® will
enable the occupied mode.
• The unit will switch from unoccupied to
occupied control immediately.
Upon entering occupied mode, the IGV
option will close while the supply fan
remains on. The occupied/unoccupied
relay will de-energize.
Zone Temperature Control
Unit Model Number Digit 9 = 4 or 5
A zone sensor located directly in the
space sends input to the RTM while the
CV unit is in occupied cooling mode.
When the unit is in occupied cooling, the
RTM controls the zone temperature
within the cooling setpoint deadband by
modulating the economizer option and/or
staging mechanical cooling on and off as
required.
Supply Air Temperature Control
Unit Model Number Digit 9 = 1, 2, 3, or 6
When the unit is in occupied cooling, the
RTM controls the supply air temperature
to the specified supply air cooling setpoint
by modulating the economizer option
and/or staging mechanical cooling on and
off as required. The changeover relay
contacts (field supplied) must be open on
units with hydronic heat for cooling to
operate.
Cooling
Upon entering occupied mode, the RTM
receives an input from either the HI, RHI,
Tracer Summit®, or the GBAS to start the
supply fan. The RTM supply fan contacts
close and energize the supply fan
contactor. On units with IGV, the fan
delays until the IGV fully close. When the
supply fan starts, the fan proving switch
closes, signaling the RTM that airflow is
established. Depending on unit options,
either the IGV will begin to drive open or
the VFD will ramp the fan, and/or the
airside economizer dampers will open to
the user-defined minimum position.
When a cooling request is sent to the
RTM from the zone sensor, the RTM
evaluates the system operating condi-
tions using the supply air and outdoor
temperature input before sending the
request to the MCM for mechanical
cooling. If outdoor conditions (tempera-
ture and humidity) are suitable or the
EWT is within specified setpoints, the
RTM will attempt to use “free cooling”
without using any compressors. The RTM
will use either the airside or waterside
economizer option. When outdoor air
conditions are not suitable, only mechani-
cal cooling will function and outside air
dampers will remain at their minimum
position. If the unit does not have an
economizer, mechanical cooling will
operate to satisfy cooling requirements.
Units With Economizer
If the entering condenser water
temperature (units with a WSE) or the
outside air enthalpy (units with an ASE) is
appropriate to use “free cooling,” the
economizer will attempt to satisfy the
cooling zone temperature setpoint.
Note: When using an ASE with econo-
mizer enabled, O/A temperature enable
can be used instead of comparative
enthalpy if the O/A temperature falls below
the economizer setpoint.
Then compressors will stage on as
necessary to maintain supply air tem-
perature setpoint, which is user-defined
at the HI. Minimum on/off timing of
compressors prevents rapid cycling.
When both airside and waterside
economizers are on a single unit, priority
must be set at the HI. The economizer
with the highest priority attempts cooling
first. Once it is operating at its maximum,
and if additional cooling is necessary, the
other economizer enables before
mechanical cooling begins.
Cooling/Waterside Economizer
Waterside economizing enables when
the unit’s entering water temperature is
below the unit’s entering mixed air
temperature by 4 F plus the user
adjustable economizer approach
temperature. The approach temperature
default is 4 F.
Waterside economizing disables when
the unit’s entering water temperature is
not below the unit’s entering mixed air
temperature by at least the water
economizer approach temperature
(default value of 4 F). The economizer
acts as the first stage of cooling. If the
economizer is unable to maintain the
zone or supply air temperature setpoint,
the compressor module will bring on
compressors as required to meet the
setpoint.
Cooling/Airside Economizer
On units with an airside economizer, a call
for cooling will modulate the fresh air
dampers open. The rate of economizer
modulation is based on deviation of the
zone temperature from setpoint; i.e., the
further away from setpoint, the faster the
fresh air damper will open. The first stage
of cooling will start after the economizer
reaches full open.
Note: The airside economizer will only
function freely if ambient conditions are
below the enthalpy control settings or
below the return air enthalpy if unit has
comparative enthalpy installed. If outside
air is not suitable for “economizing,” the
fresh air dampers drive to the minimum
open position. A field adjustable, factory
default setting at the HI panel or Tracer
Summit® can provide the input to establish
the minimum damper position.
When outdoor air conditions are above
the setpoint or comparative enthalpy

94 SCXG-SVX01B-EN
Owner Sequence of
Operation
control setting, only mechanical cooling
will function and outside air dampers will
remain at their minimum position.
Mechanical Cooling
If the zone temperature cannot be
maintained within the setpoint deadband
using the economizer option or if there is
no economizer, the RTM sends a cooling
request to the MCM. The compressor
module checks the compressor
protection circuit before closing stage
one. After the first functional stage starts,
the compressor module monitors the
saturated refrigerant temperature and
closes the condenser fan output contact
when the saturated refrigerant
temperature rises above the lower limit
setpoint.
Air-Cooled Units Only
The compressor module closes the
condenser fan output contact when the
saturated refrigerant temperature rises
above the lower limit setpoint.
Water-Cooled Units Only
The WSM modulates the condenser coil
water valves to maintain condenser
temperature, if applicable. Otherwise, it
will check the entering condenser water
temperature to ensure it is greater than
54 F or if not, it will lock out cooling.
Auto Changeover (Units with Heat )
When the system mode is in auto, the
mode will change to cooling or heating as
necessary to satisfy the zone cooling and
heating setpoints. The zone cooling and
heating setpoints can be as close as 2 F
(1.1 C).
Occupied Zone Temperature - Heating
Relies on input from a sensor directly in
the space, while a system is in occupied
heating mode or an unoccupied period, to
stage electric heat on and off or modulate
the hydronic heating valve as required to
maintain the zone temperature within the
heating setpoint deadband. The supply
fan will operate when there is a request
for heat.
Electric Heat
On units with electric heat, the zone
temperature can be controlled to a
heating setpoint during the occupied
mode by cycling a single stage electric
heater. An interface is provided for field
supplied single stage electric heat. The
zone temperature heating setpoint and
deadband are user defined at the HI
panel.
Hydronic Heat: Hot Water or Steam
On units with hot water or steam heating,
the zone temperature can be controlled
to a heating setpoint during the occupied
mode. The zone temperature heating
setpoint and deadband are user defined
at the HI panel or zone sensor. VAV
occupied heating initiates by closing a
field-supplied switch or relay contacts
connected to the changeover input on the
RTM. Supply air static pressure is
maintained.
Supply Air Setpoint Reset (VAV Units
Only)
Supply air reset can be used to adjust the
supply air temperature setpoint on the
basis of a zone temperature or outdoor
air temperature. Supply air reset
adjustment is available at the HI panel for
supply air heating and supply air cooling
control.
Reset based on outdoor air temperature
Outdoor air cooling reset is sometimes
used in applications where the outdoor
temperature has a large effect on
building load. When the outside air
temperature is low and the building
cooling load is low, the supply air setpoint
can be raised, thereby preventing
subcooling of critical zones. This reset can
lower usage of mechanical cooling, thus
savings in compressor kW, but an
increase in supply fan kW may occur.
Outdoor air heating reset is the inverse of
cooling, with the same principles applied.
For both outdoor air cooling reset and
heating reset, there are three user
defined parameters that are adjustable
through the human interface panel.
• Beginning reset temperature
• Ending reset temperature
• Maximum amount of temperature reset
Reset based on zone temperature
Zone reset is applied to the zone(s) in a
building that tends to overcool or
overheat. The supply air temperature
setpoint is adjusted based on the
temperature of the critical zone(s). This
can have the effect of improving comfort
and/or lowering energy usage. The user-
defined parameters are the same as for
outdoor air reset.
Supply Air Tempering (Hot Water and
Steam VAV Units Only)
When supply air temperature falls below
the supply air temperature deadband low
end, the heating valve modulates open to
maintain the minimum supply air
temperature setpoint.
Daytime Warmup (Units with Supply Air
Temperature Control Only)
During occupied mode, if the zone
temperature falls to a preset, user-
defined zone low limit temperature
setpoint, the unit is put into daytime
warmup. The system changes over to CV
heating, the VAV boxes drive full open.
However, unit airflow modulation control
operates to maintain duct static setpoint,
and full heating capacity is provided until
the daytime warmup setpoint is reached.
The unit is then returned to normal
occupied mode.
Supply Air Tempering
Supply air tempering is available on units
without volume control and with hot
water, steam, or electric heat or units with
supply air temperature control with
steam or hot water heat. When the unit is
in heat mode but not actively heating, if
the supply air temperature drops to 10 F
(5.5 C) below the occupied zone heating
temperature setpoint, electric heat will
stage on or the hydronic valve will
modulate to maintain a minimum supply
air temperature. The unit transitions out
of heat mode if the supply air
temperature rises to 10 F (5.5 C) above
the occupied zone heating temperature
setpoint.
Changeover
This mode only functions on units with
supply air temperature control and
hydronic heat. When the changeover
binary input is closed the unit will control
to a discharge air heating setpoint. This
setpoint is entered at he HI, and can be a
higher temperature than the supply air
cooling setpoint. This function maintains
duct static pressure.

SCXG-SVX01B-EN 95
Table O-SO-1. Compressor Stages.
Unit Refrigerant Compressor HP Standard Lead/Lag SCM
Size Circuit Type by Stage Compressor Compressor or
Model # Digit 5 A B Staging Staging MC
SXWG 20, 25 Independent 10 10 B/AB A/AB MCM
SXRG 20
SXWG 30 Independent 15 10 B/A/AB A/AB MCM
SXRG 25
SXWG 35 Independent 15 15 B/AB A/AB MCM
SXRG 32
Owner
Compressors
Units use two sizes of hermetic scroll
compressors, 10 and 15 hp, and can use
from two to four compressors. When
viewing the front of the unit, compressors
are identified A through B from left to
right. The second compressor from the
left, or B compressor, is always the first to
come on, unless locked out for a
malfunction or shut off on frost protection.
Refer to Table O-SO-1 for compressor
cycling stages and Table O-SO-3 on page
96 for percent cooling capacity by stage.
The control system logic permits com-
pressor operation only after the supply
fan is on. If the supply fan shuts down,
compressors will not operate. Units
without head pressure control (units with
intermediate piping packages) will lock
out mechanical cooling when the entering
condenser water temperature falls below
54 F. Mechanical cooling will resume
when the entering condenser water
temperature exceeds 58 F.
Sequence of
Operation
Compressor Cycling
Compressors cycle to maintain the
operating state required by the
temperature controls. In the event of a
compressor failure, the next available
compressor turns on. Refer to Table O-
SO-1 for compressor cycling by unit
model and tons.
During normal conditions, compressors
will not shut off until they have been on
for at least three minutes and will not turn
on until they have been off for at least
three minutes. Normal operating condi-
tions are established on an individual
compressor basis. When a compressor
starts, its timer also starts. The compres-
sor evaporator circuit frost protection can
override the “minimum” timer and
reduce the five minute minimum re-
quired time period.
When the unit is powered up, or manually
reset there will be a three to eight minute
delay before the first compressor may be
turned on as requested by the unit
temperature control algorithm.
Compressor Lead/Lag Operation
Compressor lead/lag is a user-selectable
feature at the HI panel and is available on
all units. After each request for
compressor operation, the lead
refrigeration circuit or compressor
switches, thereby causing a more
equitable or balanced run time among
compressors.
When lead/lag is enabled, each time the
system cycles, it will alternate between
the standard compressor staging and the
lead/lag staging. Using Table O-SO-1, a
SXWG 30-ton unit will first stage com-
pressor B then A, then AB for first cycle
and A, then AB for the second cycle.
Appropriate condenser valves (water-
cooled and condenser fans (air-cooled)
will stage with appropriate compressors
to maintain saturated condensing
temperature. Enabling lead/lag may drop
a cooling stage when compared to
standard staging. See Table O-SO-1 for
compressor staging.

96 SCXG-SVX01B-EN
Owner Sequence of
Operation
Compressor Safety Devices
The compressors have motor
temperature cutout switches in the motor
windings. These switches are provided to
take the compressors off line during high
motor winding temperature conditions.
If a compressor low pressure cutout
opens during compressor start-up, the
UCM will not shut the compressor off
during the first two to three minutes after
start-up. This prevents possible nuisance
trips during low ambient start conditions.
See Table O-SO-2.
Each compressor’s discharge line
contains a high pressure cutout. Under
abnormal operating conditions, the cutout
will open to stop compressor operation.
Table O-SO-2. Pressure Cutouts.
Unit High Pressure Low Pressure
Model Cutout Cutout
SXWG 360/270 20/35
SXRG 425/350 12/27
Step Control
Steps of mechanical cooling are control
based on supply air or zone temperature.
See Table O-SO-1 on page 95 for
compressor staging.
Capacity is based on an integrating
control concept. The unit capacity
matches the existing load and maintains
an average supply air temperature within
the supply air setpoint temperature
control band region.
The supply air temperature control band
is centered around supply air tempera-
ture setpoint and is adjustable from 2 to
12 F. In a steady state, the unit will either
maintain a constant level of cooling
capacity with the supply air temperature
within the control band, or the highest
active cooling level will cycle to provide
an average supply air temperature equal
to the setpoint.
If the supply air temperature swings
outside the limits of the control band, the
mechanical cooling capacity will increase
or decrease by one level accordingly. The
change occurs by integrating the tem-
perature offset from the control band
limit.
A minimum time delay of five minutes
follows each change in cooling level. This
time delay promotes stability by allowing
the system to respond to the change
before any further control action occurs.
As the supply air temperature ap-
proaches setpoint, the time duration
between changing levels of cooling
capacity increases.
See Figure O-SO-2 for the typical unit
operating curve. Figure O-SO-3 shows
typical unit performance when supply air
temperature swings exceed the control
band limits.
Adjust the supply air temperature control
Table O-SO-3. IntelliPak
®
Unit Cooling Capacity Percent.
Cooling Stage % Utilized
Unit Tons Cool 1 Cool 2 Cool 3
SCWG 20 53 100 n/a
SCWG 25 53 100 n/a
SCWG 30 47 65 100
SCWG 35 53 100 n/a
Table O-SO-4. Thermostat Controlled Unit Cooling Capacity
Stages.
Unit Cooling Stages
Size Cool 1 Cool 2
% Capacity Utilized % Capacity Utilized
SCWG 20 53 100
SCWG 24 53 100
SCWG 30 65 100
SCWG 35 53 100
SCRG 20 52 100
SCRG 25 47 100
SCRG 32 52 100

SCXG-SVX01B-EN 97
Owner Sequence of
Operation
Figure O-SO-2. Typical pulldown curve for unit operating properly within control band.
Figure O-SO-3. Typical pulldown curve for unit operating improperly outside control band.
band according to the desired unit
performance. Increasing the control band
reduces the equipment cycle rate and
increases the maximum potential supply
air temperature deviation from setpoint.
Conversely, decreasing the control band
reduces the maximum potential tem-
perature deviation, but increases the
compressor cycle rate.
Follow these recommendations concern-
ing the supply air temperature control
band settings based on expected unit
sizing:
2 Cooling stage unit: 9 F
3 Cooling stage unit: 7 F
4 Cooling stage unit: 6 F
Low Ambient Compressor Lockout
This function will lock out the compressor
if the outdoor air temperature sensor
reads an outdoor temperature below the
low ambient compressor lockout
temperature setpoint. This setpoint is
adjustable at the human interface panel.
Compressors will lock out when outdoor
air temperature falls below that selected
temperature and will start again when
the temperature rises 5 F above the
setpoint.
Evaporator Coil Frost Protection
FROSTAT™
The FROSTAT™ system eliminates the
need for hot gas bypass. It utilizes an
evaporator temperature sensor mounted
on the suction line near the TXV bulb of
each circuit to protect the evaporator
from freezing.
If the evaporator temperature ap-
proaches the specified setpoint (adjust-
able between 25 and 35 F at the HI) the
compressor(s) will cycle off. The supply
fan remains on to help de-ice the coil. The
compressors will restart when the
evaporator temperature has risen 10 F
above the specified cutout temperature
and when the compressor(s) have been
off a minimum of three minutes. This
prevents rapid cycling of the compres-
sors.
Service Valves
Service valves are factory installed on
each circuit before and after the
compressor to allow compressor
isolation for servicing.

98 SCXG-SVX01B-EN
Maintenance Procedures
Air Filters
Filter access doors are on the same side
of the unit as the water piping
connections. To replace throwaway
filters, remove the dirty elements and
install new filters with the filter’s
directional arrows pointing toward the
fan. Verify that no air bypasses the filters.
All unit sizes require four 16 x 25 x 2 inch
(508 x 635 x 51 mm) and four 20 x 25 x 2
inch (508 x 635 x 51 mm) filters.
Inspecting and Cleaning the
Drain Pan
Check the condensate drain pan and
drain line to ensure that the condensate
drains properly at least every six months
or as dictated by operating experience.
If evidence of standing water or
condensate overflow exists, take steps to
identify and remedy the cause
immediately. Refer to the trouble
shooting section of this manual for
possible causes and solutions. If microbial
growth is evident in the drain pan,
remove and clean it immediately. Clean
drain pans using the following procedure:
1. Disconnect all electrical power to the
unit.
2. Don the appropriate personal
protective equipment (PPE).
3. Remove all standing water.
4. Use a scraper or other tools to remove
and solid matter. Remove solid matter
with a vacuum device that utilizes high
Owner Maintenance
efficiency particulate arrestance (HEPA)
filters with a minimum efficiency of
99.97% at 0.3 micron particle size.
5. Thoroughly clean the contaminated
area(s) with a mild bleach and water
solution or an EPA-approved sanitizer
specifically designed for HVAC use.
Carefully follow the sanitizer
manufacturer’s instructions regarding
product use.
6. Immediately rinse the drain pan
thoroughly with fresh water to prevent
potential corrosion from the cleaning
solution.
7. Allow the unit to dry thoroughly before
putting the system back into service.
8. Determine and correct the cause of
any microbial contamination.
9. Be careful that the contaminated
material does not contact other areas of
the unit or building. Properly dispose of
all contaminated materials and cleaning
solution.
Note: Standing water in drain pans can
promote microbial growth (mold) which
may cause unpleasant odors and serious
health-related indoor air quality problems. If
microbial growth is found, it must be
removed immediately and that portion of
the unit properly cleaned and sanitized.
Inspecting and Cleaning the
Fan
Inspect the fan section every six months
or more frequently if operating
experience dictates. Clean accumulated
dirt and organic matter on the fan interior
surfaces following the procedure below:
1. Disconnect all electrical power to the
unit.
2. Don the appropriate personal
protective equipment (PPE).
3. Use a portable vacuum with HEPA
filtration to remove the loose dirt and
organic matter. The filter should be
99.97% efficient at 0.3 micron particle
size.
4. If no microbial growth (mold) exists,
thoroughly clean the fan and associated
components with an industrial cleaning
solution. Carefully follow the cleaning
solution manufacturer’s instructions
regarding personal protection and
ventilation when using their product.
5. If microbial growth is present, remove
the contamination (Step 2) and
thoroughly clean the affected area with
an EPA-approved sanitizer specifically
designed for HVAC use. Carefully follow
the sanitizer manufacturer’s instructions
regarding the product usage.
6. Rinse the affected surfaces thoroughly
with fresh water and a fresh sponge to
prevent potential corrosion of metal
surfaces.
7. Allow the unit to dry completely before
putting it back into service.
8. Ensure that contaminated material
does not contact other areas of the unit
or building. Properly dispose of all
contaminated materials and cleaning
solution.
Determine the cause of any microbial
growth (mold) and take action to ensure it
does not reoccur.

SCXG-SVX01B-EN 99
Supply Fan
Fan Drive
Perform the following procedures
according to the “Periodic Maintenance
Check List” on page 110.
Disconnect electrical power
source to prevent injury or death
from electrical shock.
1. Rotate the fan wheel to be sure it turns
freely in the proper direction and is not
rubbing on the fan housing, inlet, or inlet
guide vanes. If necessary, center the
fan wheel again.
2. Check the position of both shafts. Fan
and motor shafts should operate
parallel to each other for maximum belt
and bearing life. Shim as necessary
under the motor or fan bearings to
obtain proper alignment.
3. Check the fan motor sheave alignment
with straight edge or a tightly pulled
string. For sheaves of different widths,
place a string in the center groove of
!
WARNING
each sheave and pull it tight for a center
line. See Figure O-M-2 on page 100 for
recommended torques.
4. Once the sheaves are properly aligned,
tighten sheave set screws to proper
torque.
5. Check belt tension. Refer to the
“Measuring Belt Tension” section on
page 100.
6. If required, adjust belt to the minimum
recommended tension. Refer to
“Adjusting Belt Tension” section on
page 100.
7. Retighten bearing set screws to the
proper torques after aligning the
sheaves.
8. Check the fan bearing locking collars
for tightness on the shaft. To tighten the
locking collar, loosen the set screw and
slide the collar into its proper position
over the extended end of the inner
case. Tighten the set screw to the
appropriate torque value.
9. During air balancing, verify the sheave
alignment, belt tension, and that the
shaft is parallel.
Figure O-M-1. Fan shaft and motor sheave alignment.
Owner Maintenance

100 SCXG-SVX01B-EN
Figure O-M-2. Fan Belt Adjustment.
Figure O-M-3. Belt Tension Gauge.
Fan Bearings
The opposite drive end bearing is a
special bearing with close tolerance fit of
balls and races. Replace this bearing with
the same part number as the original
bearing.
Fan Belt Tension
Note: Check fan belt tension at least twice
during the first days of new belt operation
since there is a rapid decrease in tension
until belts are run-in.
Proper belt tension is necessary to
endure maximum bearing and drive
component life and is based on fan brake
horsepower requirements. If frayed or
worn, replace belts in matched sets.
Measuring Belt Tension
Measure fan belt tension with a
Browning, Gates, or equivalent belt
tension gauge. Determine deflection by
dividing the belt span distance (in inches)
by 64. See Figure O-M-2.
Recommended belt tension range values
are on the unit fan scroll. The belt tension
label is on the top right-hand corner of the
fan scroll. See Figure O-M-4.
Follow the procedure below to measure
belt tension.
1. Measure belt span between centers of
sheaves and set the large “O” ring of
the tension gauge at 1/64 inch for each
inch of belt span.
2. Set the load “O” ring at zero.
3. Place the large end of the gauge at the
center of the belt span. Press down until
the large “O” ring is even with the top
of the belt line or the next belt as in
Figure O-M-2. Place a straight edge
across the sheaves as a reference
point. See Figure O-M-1 on page 99.
4. Remove the gauge. Note that the load
“O” ring now indicates a number on the
plunger scale. This number represents
pounds of force required to deflect the
belt.
5. Check the reading from step 4 against
the values given on the unit fan scroll. If
necessary, readjust belt tension.
Deflection = Belt Span/64
Owner Maintenance
Adjusting Belt Tension
To adjust belt tension refer to Figure O-M-
2 and perform the following procedure:
1. Loosen bolts A, B, and E on both sides
of the sliding motor base. See Figure O-
M-4.
2. Loosen nuts C and D (as required for
motor horsepower) to slide the motor
on its mounting plate in the proper
direction to tension or relieve tension on
the belt.
3. Adjust nuts A-D and bolt E. Do not
stretch the belts over the sheaves.
4. Retighten all nuts and bolts.
5. Verify tension is adjusted properly.
Do not over-tension the belts.
Excessive tension will reduce fan
and motor bearing life, accelerate
belt wear, and possibly cause
shaft failure.
Figure O-M-4. Location of fan belt label on
fan scroll.
CAUTION
!
Recommended belt tension range values
are on the unit fan scroll. To access the
fan scroll, face the right-hand side of the
unit and remove the top left panel. The
belt tension label is on the top right-hand
corner of the fan scroll. See Figures O-M-
4.
The correct operation tension for a V-belt
drive is the lowest tension at which the
belt will not slip under the peak load
conditions. It may be necessary to
increase the tension of some drives to
reduce flopping or excessive start-up
squealing.

SCXG-SVX01B-EN 101
Owner Maintenance
Figure O-M-5. Fan assembly.
Figure O-M-6 . Fan motor adjustment points.

102 SCXG-SVX01B-EN
Follow specific manufacturer’s
guidelines for conversion of existing
systems.
• To assist in reducing power generation
emissions, always attempt to improve
equipment performance with improved
maintenance and operations that will
help conserve energy resources.
WARNING: Do not work in a
closed area where refrigerant or
nitrogen gases may be leaking. A
sufficient quantity of vapors may
be present and cause injury.
WARNING: Do not use oxygen,
acetylene, or air in place of
refrigerant and dry nitrogen for
leak testing. A violent explosion
may result causing injury or
death.
WARNING: Always use a pressure
regulator, valves, and gauges to
control drum and line pressures
when pressure testing the
system. Excessive pressures may
cause line ruptures, equipment
damage, or an explosion which
may result in injury or death.
WARNING: Do not exceed 200
psig when leak testing the
system. Damage to the unit could
result, or an explosion may occur
causing injury or death
In the event of required system repair,
leak test the liquid line, evaporator coil,
and suction line at pressures dictated by
local codes, and using the following
guidelines.
1. Charge enough refrigerant and dry
Owner
WARNING
!
WARNING
!
WARNING
!
WARNING
!
Maintenance
Refrigerant System
Special Note on Refrigerant Emissions
Follow the Trane recommended
procedures on operation, maintenance,
and service to ensure refrigerant
conservation and emission reduction.
Also, pay specific attention to the
following:
• Whenever removing refrigerant from
air conditioning or refrigerating
equipment, recover for reuse, recycle,
reprocess (reclaim), or properly
destroy it.
• Always determine possible refrigerant
recycling or reclaiming requirements
before beginning recovery. Questions
about recovered refrigerants and
acceptable refrigerant quality
standards are addressed in ARI
Standard 700.
• Use approved containment vessels
and safety standards. Comply with all
applicable transportation standards
when shipping refrigerant containers.
• To minimize emissions while
recovering refrigerant, use recycling
equipment. Always attempt to use
methods which will pull the lowest
possible system vacuum while
recovering and condensing refrigerant
into containment.
• When leak checking with trace
refrigerant and nitrogen, use HCFC22
(R22) rather than CFC12 (R12) or any
other fully halogenated refrigerants.
Be aware of any new leak test
methods which eliminate refrigerant
as a trace gas.
• When cleaning system components or
parts, do not use CFC11 (R11) or
CFC113 (R113). Refrigeration system
clean up methods using filters and
dryers are recommended. Do not use
solvents which have ozone depletion
factors. Properly dispose of used
materials.
• Take extra care to properly maintain all
service equipment directly supporting
refrigerant service work such as
gauges, hoses, vacuum pumps, and
recycling equipment.
• Stay aware of unit enhancements,
conversion refrigerants, compatible
parts, and manufacturer’s
recommendations that will reduce
refrigerant emissions and increase
equipment operating efficiencies.

SCXG-SVX01B-EN 103
refrigerant service work such as
gauges, hoses, vacuum pumps, and
recycling equipment.
• Stay aware of unit enhancements,
conversion refrigerants, compatible
parts, and manufacturer’s
recommendations that will reduce
refrigerant emissions and increase
equipment operating efficiencies.
Follow specific manufacturer’s
guidelines for conversion of existing
systems.
• To assist in reducing power generation
emissions, always attempt to improve
equipment performance with improved
maintenance and operations that will
help conserve energy resources.
Refrigerant Leak Testing
Do not work in a closed area
where refrigerant or nitrogen
gases may be leaking. A
sufficient quantity of vapors may
be present and cause injury or
death.
Do not use oxygen, acetylene, or
air in place of refrigerant and dry
nitrogen for leak testing. A
violent explosion may result
causing injury or death.
Always use a pressure regulator,
valves, and gauges to control
drum and line pressures when
pressure testing the system.
Excessive pressures may cause
line ruptures, equipment damage,
or an explosion which may result
in injury or death.
Caution: Do not operate the
compressors without some
refrigerant in each circuit. Failure
to do so may damage the
compressors.
Charge refrigerant into the system by
Refrigerant System
Special Note on Refrigerant Emissions
Follow the Trane recommended
procedures on operation, maintenance,
and service to endure refrigerant
conservation and emission reduction.
Also, pay specific attention to the
following:
• When removing refrigerant from air
conditioning or refrigerating equipment
recover for reuse, recycling,
reprocessing (reclaim), or properly
destroy it.
• Always determine possible refrigerant
recycling or reclaiming requirements
before beginning recovery. Questions
about recovered refrigerants and
acceptable refrigerant quality
standards are addressed in ARI
Standard 700.
• Use approved containment vessels and
safety standards when shipping
refrigerant containers.
• To minimize emissions while recovering
refrigerant, use recycling equipment.
Always attempt to use methods that
will pull the lowest possible system
vacuum while recovering and
condensing refrigerant into
containment.
• When leak checking with trace
refrigerant and nitrogen, use HCFC22
(R22) rather than CFC12 (R12) or any
other fully halogenated refrigerants. Be
aware of any new leak test methods
which eliminate refrigerant as a trace
gas.
• When cleaning system components or
parts, do not use CFC11 (R11) or CFC
113 (R113). Refrigeration system clean-
up methods using filters and dryers are
recommended. Do not use solvents
which have ozone depletion factors.
Properly dispose of used materials.
• Take extra care to properly maintain all
service equipment directly supporting
Owner Maintenance
nitrogen into the system to raise the
pressure to 100 psig.
2. Use a halogen leak detector, halide
torch, or soap bubbles to check for
leaks. Check interconnecting piping
joints, the evaporator coil connections,
and all accessory connections.
3. If a leak is detected, release the test
pressure, break the connections and
reassemble it as a new joint, using
proper brazing techniques.
4. If no leak is detected, use nitrogen to
increase the test pressure to 150 psig
and repeat the leak test. Also, use soap
bubbles to check for leaks when
nitrogen is added.
5. Retest the system to make sure new
connections are solid.
6. If a leak is suspected after the system
has been fully charged with refrigerant,
use a halogen leak detector, halide
torch, or soap bubbles to check for
leaks.
Evacuation
For field evacuation, use a rotary style
vacuum pump capable of pulling a
vacuum of 100 microns or less.
When connecting the vacuum pump to a
refrigeration system, it is important to
manifold the pump to both the high and
low side of the system. Follow the pump
manufacturer’s directions.
Do not use a Meg ohm meter or
apply power to the winding of a
compressor while it is under a
deep vacuum. This may damage
the motor windings.
Refrigerant Charging
After leak testing and evacuating the
system, charge liquid refrigerant into the
system through the liquid line valve. After
some refrigerant has entered each
circuit, charge gaseous refrigerant into
the suction line shrader valve with the
compressors running.
CAUTION
!
CAUTION
!
WARNING
!
WARNING
!
WARNING
!

104 SCXG-SVX01B-EN
Do not exceed 200 psig when
leak testing the system. Damage
to the unit could result, or an
explosion may occur causing
injury or death.
In the event of required system repair,
leak test the liquid line, evaporator coil,
and suction line at pressures dictated by
local codes, using the following
guidelines.
1. Charge enough refrigerant and dry
weight. Use an accurate scale or
charging cylinder to determine the
exact weight of the refrigerant entering
the system. Failure to use either a scale
or a charging cylinder can lead to
undercharging or overcharging
resulting in unreliable operation.
Owner Maintenance
WARNING
!
Do not apply flame to the
refrigerant container to increase
refrigerant pressure. Uncontrolled
heat may cause excessive drum
pressures and explosions,
resulting in injury or death and
equipment damage.
Do not allow liquid refrigerant to
come into contact with the skin.
If it does, treat the injury as if the
skin had been frostbitten or
frozen. Slowly warm the affected
area with lukewarm water and
seek medical attention
immediately.
To charge the system, complete the
following procedure:
1. Charge liquid refrigerant into the liquid
line service valve of each compressor
circuit. The vacuum will draw some of
the required refrigerant into the
system. See Figure O-M-7 on page 105.
2. Complete the charging process by
charging gaseous refrigerant into the
suction line shrader valve with the unit
running. However, make sure that
some refrigerant is present in each
circuit before starting the compressors.
The refrigerant container should be
upright so that gaseous refrigerant is
drawn off the top.
Note: Charge each circuit with R22. See
Tables O-M-1 and O-M-2.
Do not allow liquid refrigerant to
enter the suction line. Excessive
liquid will damage the
compressor.
WARNING
!
CAUTION
!
CAUTION
!
Table O-M-1. Water-Cooled Unit (SXWG) Refrigerant Charge.
Unit Size Circuit A Circuit B
Charge lbs. (kg) Charge lbs. (kg)
SXWG 20 25 (11.3) 25 (11.3)
SXWG 29
SXWG 30 27 (12.2) 25 (11.3)
SXWG 35 27 (12.2) 27 (12.2)
Table O-M-2. Air-Cooled Unit (SXRG) Refrigerant Charge
Unit Size Circuit 1 Circuit 2 Circuit 1 Circuit 2
Charge lbs. (kg) Charge lbs. (kg)
SXRG 20 B-10 T A-10 T 36 36
SXRG 25, 32 B-10 T A- 15 T 36 58

SCXG-SVX01B-EN 105
Figure O-M-7. Typical water-cooled (SXWG) compressor section components.
MaintenanceOwner

106 SCXG-SVX01B-EN
Inlet Guide Vanes
Perform the following procedure every
six months for proper inlet guide vane
operation:
1. Spray all parts of guide vane assembly
with WD40.
2. Spray all steel parts of guide vane
assembly with ZRC.
3. Spray hubs and moving parts with dry
silicone lubricant (Mobil Mobilux 2, Shell
alvonia 2, or equivalent).
Maintenance
On occasion, the inlet guide vane actuator
or inlet guide vanes may need to be
removed. For proper adjustment of inlet
guide vanes and/or actuator, see Figure
O-M-8.
Note: Perform this procedure monthly if
the unit is in a coastal area or corrosive
environment.
Figure O-M-8. Proper adjustment of inlet guide vanes.
Owner

SCXG-SVX01B-EN 107
Coil Fin and External Cleaning
Keep coils clean to maintain maximum
performance. For operation at its highest
efficiency, clean the refrigerant coil often
during periods of high cooling demand or
when dirty conditions prevail. Clean the
coil a minimum of once per year to
prevent dirt buildup in the coil fins, where
it may not be visible.
Remove large debris from the coils and
straighten fins before cleaning. Remove
filters before cleaning.
Clean refrigerant coils with cold water
and detergent, or with one of the com-
mercially available chemical coil clean-
ers. Rinse coils thoroughly after cleaning.
Economizer and evaporator coils are
installed so the evaporator is directly
behind the economizer. To clean between
the coils, remove the sheet metal block
off. Access the block off by removing the
corner panels on the unit’s left or right
rear side.
Caution: Do not clean the
refrigerant coil with hot water or
steam. The use of hot water or
steam as a refrigerant coil-cleaner
agent will cause high pressure
inside the coil tubing and
subsequent damage to the coil.
Caution: To prevent damage to
the unit, do not use acidic
chemical coil cleaners. Also, do
not use alkaline chemical coil
cleaners with a pH value greater
then 8.5 (after mixing) without
using an aluminum corrosion
inhibitor in the cleaning solution.
Some chemical coil cleaning
compounds are caustic or toxic.
Use these substances only in
accordance with the
manufacturer’s instructions.
Failure to do so may result in
injury, death, or equipment
damage.
If the refrigerant coil is installed back to
back with the waterside economizer coil,
use a cleaner that is acceptable for
cleaning both types of coils.
Inspecting and Cleaning Coils
Coils become externally fouled as a result
of normal operation. Dirt on the coil
surface reduces it’s ability to transfer heat
that can result in comfort problems,
increased airflow resistance and thus
increased operating energy costs. If the
coil surface dirt becomes wet, which
commonly occurs with cooling coils,
microbial growth (mold) may result,
causing unpleasant odors and serious
health-related indoor air quality
problems.
Inspect coils at least every six months or
more frequently as dictated by operating
experience. Cleaning frequently is
dependent upon system operating hours,
filter maintenance, and efficiency and dirt
load. The suggested cleaning method is
below:
Steam and Hot Water Coils
1. Disconnect all electrical power to the
unit.
2. Don the appropriate personal
protective equipment (PPE).
3. Gain access to both sides of the coil
section.
4. Use a soft brush to remove loose
debris from both sides of the coil.
5. Use a steam cleaning machine, starting
from the top of the coil and working
downward. Clean the leaving air side of
the coil first, then the entering air side.
Use a block-off to prevent steam from
blowing through the coil and into a dry
section of the unit.
6. Repeat step 5 as necessary. Confirm
that the drain line is open following
completion of the cleaning process.
7. Allow the unit to dry thoroughly before
putting the system back into service.
8. Straighten any coil fins that may be
damaged with a fin rake.
9. Replace all panels and parts and
restore electrical power to the unit.
10. Ensure that contaminated material
does not contact other areas of the unit
or building. Properly dispose of all
contaminated materials and cleaning
solutions.
Refrigerant Coils
1. Disconnect all electrical power to the
unit.
2. Don the appropriate personal
protective equipment (PPE).
3. Gain access to the coil section of the
unit (both sides).
4. Use a soft brush to remove loose
debris from both sides of the coil.
5. Mix a high quality coil cleaning
detergent with water according to the
manufacturer’s instructions. If the
detergent is strongly alkaline after
mixing (pH 8.5 or higher), it must
contain an inhibitor. Carefully follow the
cleaning solution manufacturer’s
instructions regarding product use.
6. Place the mixed solution in a garden
pump-up sprayer or high pressure
sprayer. If using a high pressure
sprayer note the following:
• Maintain a minimum nozzle spray
angle of 15 degrees
• Spray perpendicular to the coil face
• Protect other areas of the unit and
internal controls from contact with
moisture or the cleaning solution
• Keep the nozzle at least 6 inches from
the coil
• Do not exceed 600 psig
Draining the Coil
Failure to properly drain and vent
coils when not in use during
freezing temperatures may result
in coil freeze-up damage.
Drain plugs are in the piping below each
coil’s supply and return header. Use these
plugs to drain the coil and piping. When
draining the coil, open the vents at the top
of the supply and return headers.
Maintenance
CAUTION
!
CAUTION
!
WARNING
!
CAUTION
!
Owner

108 SCXG-SVX01B-EN
Maintenance
Also, a drain plug is at the bottom of the
inlet condenser manifold and in the outlet
pipe near the unit’s left side. Remove
these plugs to drain the condensers. Be
sure to open the vent plugs at the top of
the condenser inlet and outlet manifold.
See Figure O-M-7 on page 105.
When refilling the condenser/waterside
economizer coil system with water,
provide adequate water treatment to
prevent the formation of scale or
corrosion.
Failure to provide adequate water
treatment in condenser systems
may result in coil and condenser
fouling or undue metal damage.
Cleaning the Condenser
Note: Using improperly treated or un-
treated water in this equipment may result
in scaling, erosion, corrosion, algae, or
slime. Engage the services of a qualified
water treatment specialist to determine
what treatment is advisable. The Trane
Company warranty specifically excludes
liability for corrosion, erosion, or deteriora-
tion of Trane equipment. Trane assumes
no responsibilities for the results of the
use of untreated or improperly treated
water, saline, or brackish water.
Condensing water contains minerals that
collect on the condenser tube walls.
Cooling towers also collect dust and
foreign materials that deposit in the
condenser tube. The formation of scale or
sludge in the condenser is indicated by a
decreased water flow, low temperature
difference between inlet and outlet water,
and abnormally high condensing tem-
peratures. To maintain maximum
condenser efficiency, the condenser must
remain free of built-up scale and sludge.
Clean the condenser either mechanically
or chemically.
Mechanical Cleaning of Condenser and
Economizer Coils
1. Turn off the condenser supply water.
Remove drain plugs discussed in the
“Draining the Coil” section on page 94.
2. Remove the condenser’s left side to
expose the condenser tubes.
3. Rotate a round brush through the tubes
to loosen contaminant.
4. Flush tubes with water to push the
sludge out through the drain opening in
the bottom of the supply header and
the return pipe.
5. To clean the economizer tubes, remove
the cast iron header plates at the coil’s
right end between the inlet and outlet
headers (4-row coils; 2-row coils do not
have cover plates at right end). Rotate
round brush through tubes from left
end to loosen contaminants. Flush
tubes with water.
6. Replace condenser end plates and
clamps. The end plates must be
centered when tightening the clamp.
7. Replace coil headers with gaskets and
torque bolts to 50 ft.-lb.
8. Replace drain and vent plugs.
Chemical Cleaning of Condenser and
Economizer Coil
Chemical cleaning removes scale
deposits built up by minerals in the water.
For a suitable chemical solution, consult a
water treatment specialist. The
condenser water circuit is composed of
copper, steel, and cast iron.
The chemical supply house should
approve or provide all materials used in
the external circulating system, along
with the quantity of cleaning material,
duration of cleaning time, and safety
precautions necessary for handling the
cleaning agent.
CAUTION
!
Owner

SCXG-SVX01B-EN 109
Piping Components
Water Valves
Water valves have a stern packing nut. If
there is evidence of water leakage at the
valve stem, proceed as follows:
1. Remove actuator motor from support
plate. (Remove four mount bolts)
2. Remove shaft coupling.
3. Torque the packing nut to 10-ft.-lbs. of
torque.
4. Replace shaft coupling.
5. Replace actuator motor (reinstall the
four mount bolts).
Note: If it is necessary to remove the four
valve body bolts for valve cleaning or
service, torque to 45 ft-lb.
Flow Switch Maintenance
Flow switches have a magnet on the
vane assembly that attracts ferrous
particulate may build up on the magnet to
the point that the vane will wedge so that
it will not operate.
When the flow switch does not operate,
remove and replace it or disassemble
and clean it.
Cleaning the Flow Switch
If ferrous particulate contaminates tower
water, the ferrous particles will cling to
the magnet on the switch paddle
assembly. A buildup of the ferrous
particles over a period os time will cause
the paddle to stick and cease to function
properly.
To avoid this problem, remove the switch
and clean each time you clean the
condensers, or clean as needed to keep
the switch operational.
To clean the paddle assembly, remove it
following the procedure below:
1. Remove the switch from the unit.
2. The paddle assembly and wire retainer
Maintenance
clip holds the paddle assembly in the
switch body.
3. Remove the wire retainer clip by
reaching down past the paddle with a
pair of slim nosed pliers and gripping
the end of the wire. Pull up on the wire
clip and remove it.
4. After removing the wire clip, use the
pliers to pull the paddle assembly out of
the switch barrel. Clamp the pliers onto
the end of the paddle and remove the
paddle assembly. It will slide straight
out.
5. Clean the ferrous particulate from the
magnet using a rag or tack cloth. The
particulate is attracted to the magnet,
so it is necessary to pull it off. It will not
simply wipe off.
6. After cleaning the magnet, replace the
paddle assembly into the switch body’s
barrel. However, it is important to
position the paddle perpendicular to the
arrow on the switch’s side and place the
paddle’s flat side facing the opposite
direction or the arrow. Push the paddle
assembly in until it hits the barrel cavity
bottom.
7. Place the spring clip into the switch
barrel and push it down with a small,
flat blade screwdriver until the spring
clip engages the groove in the switch
barrel.
8. When replacing the paddle assembly,
check the operation by pushing on the
paddle’s flat side. The paddle should
swing freely in the direction of the
arrow. This action confirms that the
paddle assembly is properly installed.
9. Replace the switch into the unit piping
using a good pipe thread sealer. Tighten
the switch so that its final position has
the arrow parallel to the water pipe and
pointing toward the left end of the unit
(arrow is pointing in the direction of the
water flow).
Owner

110 SCXG-SVX01B-EN
Periodic Maintenance
Checklists
Monthly Checklist
The following check list provides the
recommended maintenance schedule to
keep the unit running efficiently.
Disconnect power source and
allow all rotating equipment to
stop completely before servicing
or inspecting the unit. Failure to
do so may result in injury or
death.
1. Inspect unit air filters. Clean or replace
if airflow is blocked or if filters are dirty.
2. Inspect coils for excess moisture or
icing. Icing on the coils may indicate low
airflow supply, restricted airflow from
dirty fins, evaporator frost protection
sensor problems, or a shortage of
refrigerant flowing through the coil.
3. Check that condensate from the
evaporator and economizer coils flows
freely through the condensate piping,
traps, drain pan, and drainage holes.
Remove algae and or any airflow
obstructions.
4. Check the condition and tension of fan
belts. Adjust tension if belts are floppy
or squeal continually. Replace worn or
fraying belts in matched sets.
Note: Check and adjust belt tension at
least twice daily the first days of new belt
operation. Belt tension will rapidly de-
crease until the belts are run in.
Maintenance
5. Check the liquid line sight glasses
during operation. Bubbles in the sight
glasses indicate a possible shortage of
refrigerant or an obstruction in the
liquid lines, such as dirty liquid line filter
driers.
6. Inspect filter driers for leaks, flow
obstructions, or temperature drop
across the filter drier. A noticeable
temperature differential, such as 5 F, in
the liquid line may indicate an
obstruction. Replace the filter drier if it
appears clogged.
7. Inspect the optional waterside
economizer coil. Clean the coil to
prevent airflow restrictions through the
fins.
8. Check and record operating pressures.
Semi-Annual Maintenance
1. Verify the fan motor is properly
lubricated. Follow lubrication
recommendations on the motor tag or
nameplate. Contact the motor
manufacturer for more information.
2. Lubricate fan bearings. For best results,
lubricate bearings during unit operation.
Refer to the “Fan Bearings” section on
page 100.
3. With power disconnected, manually
rotate the fan wheel to check for
obstructions in the housing or
interference with fan blades or inlet
guide vane option. Remove
obstructions and debris. Center the fan
wheel if necessary.
4. Check the fan assembly sheave
alignment. Tighten set screws to their
proper torques.
5. Check water valves for leakage at
valve stem packing nut.
6. Inspect the inlet vane assembly and
perform maintenance procedures in
the IGV maintenance section on page
106.
Note: Perform this procedure monthly if
the unit is in a coastal or corrosive environ-
ment.
Annual Maintenance
Check and tighten all set screws, bolts,
locking collars and sheaves.
1. Inspect, clean, and tighten all electrical
connections.
2. Visually inspect the entire unit casing
for chips or corrosion. Remove rust or
corrosion and repaint surfaces.
3. Visually check for leaks in refrigerant
piping.
4. Inspect fan, motor, and control contacts.
Replace badly worn or eroded contacts.
5. Inspect the thermal expansion valve
sensing bulbs for cleanliness, good
contact with the suction line, and
adequate insulation from ambient air.
6. Verify the superheat setting is between
12 and 17 F at the compressor.
When checking operating pressures and
conditions, establish the following
nominal conditions for consistent mea-
surements.
1. Leaving air temperature greater than
60 F.
2. Entering air temperature between 80
and 90 F
3. Entering water temperature greater
than 65 F
4. Inlet vanes at least halfway open
5. Compressors running at full load
6. Drain the condensing water system
and inspect it thoroughly for fouling.
Clean the condensers if necessary.
WARNING
!
Owner

SCXG-SVX01B-EN 111
Table D-T-1. Common Unit Problems and Solutions
Problem Possible Cause Remedy
Drain pan is overflowing Plugged drain line Clean drain line
Unit not level Level unit
Standing water in drain pan Unit not level Level unit
Plugged drain line Clean drain line
Wet interior insulation Coil face velocity too high Reduce fan speed
Improper trap design Design trap per unit installation instructions
Drain pan leaks/overflowing Repair Leaks
Condensation on surfaces Insulate surfaces
Excess Dirt in unit Missing filters Replace filters
Filter bypass Reduce filter bypass
Microbial growth (mold) Standing water in drain pan See “Standing water in drain pan” above
Moisture problems See “Wet interior insulation” above
System Checks
Before proceeding with technical trouble
charts or controls checkout, complete the
follow system analysis:
1. Measure actual supply voltage at the
compressor and an motor terminals
with the unit running. Voltage must be
within the range listed on the motor
nameplate. Phase imbalance must be
less than 2.0 percent.
2. Check all wiring and connections to be
sure that they are intact, secure and
properly routed. The as wired system
diagrams are provided in the unit
control panel.
3. Check that all fuses are installed and
properly sized.
4. Inspect air filters and coils to bel sure
that airflow to the unit is not restricted.
5. Check the zone thermostat settings.
6. Ensure that the fan is rotating in the
proper direction. If phasing is wrong at
the main power terminal block, the fan
and compressors will not run.
7. Inspect ductwork and duct connections
for tightness.
8. Inspect air temperature. Extremely
warm return air will decrease the
cooling capacity of the air conditioner.
Some common unit problems and
solutions are in Table D-T-1. A complete
list of operating diagnostics begin on
page 112. Reference the
IntelliPak®
Programming Guide, PKG-SVP01B-EN,
Diagnostic
Troubleshooting
for additional operational info on the UCM
system.
Operating Procedures
Install pressure gauges on the discharge
and suction line access valves. When the
unit has stabilized (after operating
approximately 15 minutes at full load),
record suction and discharge pressures.
System malfunctions such as low airflow,
line restrictions, incorrect refrigerant
charge, malfunctioning of expansion
valves, damaged compressors, and so
on— will result in pressure variations
which are outside the normal range.
Note: If phasing at the main incoming
power terminal is incorrect, switch two of
the three incoming power leads. If a
compressor has been replaced and the
phase is changed at the compressor, it will
run backwards and discharge pressure will
be very low. To resolve incorrect compres-
sor wire phasing, change phasing at the
compressor.
It is important that pressures be mea-
sured under stable and constant condi-
tions in order for the readings to be
useful. The unit mounted, remote
mounted, or discharge air setpoint can be
temporarily adjusted to simulate full load
conditions.
Voltage Imbalance
Voltage imbalance on three-phase
systems can cause motor overheating
and premature failure. Maximum
allowable imbalance is 2.0 percent, and
the readings used to determine it must be
measured at the compressor terminals.
Voltage imbalance is defined as 100
times the sum of the division of the three
voltages from the average voltage. If, for
example, the three measured voltages
are 221, 230, 227, the average would be:
(221+230+227) = 226 volts
3
The percentage of voltage imbalance is
then:
100*(226-221) = 2.2%
226
In this example, 2.2 percent imbalance of
more than 2.0 percent exists, be sure to
check the voltage at the unit disconnect
and terminal block switch. If an imbalance
at the unit disconnect switch does not
exceed 2.0 percent, the imbalance is
caused by faulty wiring within the unit. Be
sure to conduct a thorough inspection of
the unit electrical wiring connections to
locate the fault, and make any repairs
necessary.
Troubleshooting

112 SCXG-SVX01B-EN
Diagnostic
Troubleshooting
Diagnostics
Refer to the
IntelliPak® Self-Contained
Programming Guide, PKG-SVP01B-EN,
for specific unit programming and
troubleshooting information. In particular,
reference the “Service Mode Menu” and
“Diagnostic Menu” sections in the
programming guide. Refer to the
following text for general diagnostic and
troubleshooting procedures. Common
diagnostics and troubleshooting
procedures follow below.
A
Auto Reset S/A Static Pressure Limit
Problem: The supply air static pressure
went too high.
Reason for Diagnostic: The S/A static
pressure exceeded the S/A static
pressure limit setpoint for at least one
second continuously.
UCM’s Reaction: A "supply air pressure
shutdown" signal is sent to the following
functions:
a. Compressor staging control,
b. Economizer actuator control,
c. Heat operation,
d. Supply fan control,
e. IGV/VFD control,
f. Exhaust fan control,
g. Exhaust actuator control
Reset Required: (PAR) An automatic reset
occurs after the IGV close. The supply fan
is not allowed to restart for 15 seconds
after the diagnostic occurs. An auto reset
will also occur if the unit cycles out of
occupied mode and back.
C
CO2 Sensor Failure
Problem: The VCM CO2 sensor input
signal is out of range.
Check: Check field/unit wiring between
sensor and VCM.
Reason for Diagnostic: The unit is reading
a signal that is out of range for the CO2
sensor transducer input.
UCM’s Reaction: The CO2 reset function
disables.
Diagnostics
Reset Required: (PAR) An automatic reset
occurs after the CO2 sensor transducer
input receives a signal that is within range
for ten continuous seconds.
Compressor Contactor Fail - Circuit 1, 2,
3, or 4
Problem: The compressor contactor for
Ckt. 1, 2, 3, or 4 has malfunctioned.
Reason for Diagnostic: The circuit
compressor proving input is detected
closed continuously for more than three
seconds while neither compressor output
on that circuit closes.
UCM’s Reaction: A "lockout ckt #1, 2, 3, or
4 request is issued to the compressor
staging control function.
Reset Required: (PMR) A manual reset is
required after the disgnostic is set. It can
be reset by the HI, Tracer Summit®, or by
cycling power to the RTM.
Compressor Trip - Ckt 1, 2, 3, or 4
Problem: The compressor ckt #1, 2, 3, or 4
has tripped.
Reason for Diagnostic: The ckt #1, 2, 3, or
4 compressor proving input is detected
open continuously for more than 3
seconds when either or both compressor
outputs on that circuit energize (as
described in the compressor protection
function).
Reason for Diagnostic: The circuit
compressor proving input is detected
open continuously for more than 3
seconds when either or both compressor
outputs on that circuit energize (as
described in the compressor protection
function).
UCM’ Reaction: A “lockout ckt #1, 2, 3, or
4” request is issued to the compressor
staging control function.
Reset Required: (PMR) A manual reset is
required after this diagnostic occurs. The
diagnostic can be reset by the unit
mounted HI module, Tracer Summit®, or
by cycling power to the RTM.
Condenser Temp Sensor Failure - Circuit
1, 2, 3, or 4
Problem: The saturated condenser
temperature input is out of range for
circuit #1, 2, 3, or 4.
Check: Sensor resistance should be
between 830 ohms (200 F) and
345.7Kohms (-40 F). If so, check field/unit
wiring between sensor and MCM/SCM.
Reason for Diagnostic: The unit is reading
a signal that is out of range for the circuit
#1, 2, 3, or 4 saturated condenser
temperature sensor. (temp < -55 F or
temp > 209 F).
UCM’s Reaction: A “Lockout Ckt # 1, 2, 3,
or 4” request is issued to the compressor
staging control function.
Reset Required: (PAR) An automatic reset
occurs after the circuit 1, 2, 3, or 4
condenser temp input returns to its
allowable range within 10 seconds.
D
Dirty Filter
Problem: There is a dirty filter.
Reason for Diagnostic: The filter switch
input on the RTM is closed for more than
60 seconds continuously.
UCM’s Reaction: An information only
diagnostic is set.
Reset Required: (INFO) An automatic
reset occurs after the dirty filter input
reopens for 60 continuous seconds.
E
ECEM Communications Failure
Problem: The RTM has lost
communication with the ECEM.
Check: Field/unit wiring between RTM
and ECEM module.
Reason for Diagnostic: The RTM has lost
communication with the ECEM.
UCM’s Reaction: If the unit has the
comparative enthalpy option, the
economizer enable r.e. enthalpy function
will revert to level 2 enthalpy
comparison.

SCXG-SVX01B-EN 113
Diagnostic
Troubleshooting Diagnostics
Reset Required: (PAR) An automatic reset
occurs after communication has been
restored.
Emergency Stop
Problem: The emergency top input is
open.
Reason for Diagnostic: An open circuit
has occurred on the emergency stop
input caused either by a high duct temp t-
stat trip, or the opening of field-provided
contacts, switch, etc.
UCM’s Reaction: Off or close requests are
issued as appropriate to the following
functions;
a. Compressor staging/chilled water
cooling control
b. Heat operation
c. Supply fan control and proof of
operation
d. Exhaust fan control and proof of
operation.
e. Exhaust actuator control
f. Outside air damper control
g. On VAV units, IGV/VFD control
Reset Required: (PMR) A manual reset is
required after the emergency stop input
recloses. The diagnostic can be reset by
the HI, Tracer Summit®, or by cycling
power to the RTM.
Entering Cond Water Temp Sensor Fail
Problem:
Activation Conditions: temperature < -50
F or temperature > 209 F, and unit
configured for water cooled
condenser
c. Time to React: 10 sec < T < 20 sec
d. Diagnostic Text (Human Interface
Display) “ENT COND WATER TEMP
SENSOR FAIL”
e. Actions to be Initiated: A “Lockout All
Ckts ” request is issued to the
“Compressor Staging Function”
f. Reset: An automatic reset occurs after
the entering condenser water
temperature input returns to within range
continuously for 15 seconds.
Entering Water Temp Sensor Fail
a. Data used (module,packet,byte,bit):
WSM, 01,18,05
b. Activation Conditions: temperature < -
50 F or temperature > 209 F, and unit
configured with water cooled
condenser and/or economizer
c. Time to React: 10 sec < T < 20 sec
d. Diagnostic Text (Human Interface
Display) “ENTERING WATER TEMP
SENSOR FAIL”
e. Actions to be Initiated: A “Disable
Water Side Economizer” request is
issued to “Water Side Economizer
Temperature Enable Function”
f. Reset: An automatic reset occurs after
the Entering Water Temp. input returns to
within range continuously for 10 seconds.
Evap Temp Sensor Failure - Circuit 1, 2, 3,
or 4
Problem: The evaporator temperature
sensor (ckt #1, 2, 3, or 4) is out of range.
Check: Sensor resistance should be
between 830 ohms (200 F) and
345.7Kohms (-40 F). If so, check field/unit
wiring between sensor and MCM/SCM.
Reason for Diagnostic: The unit is reading
a signal that is out of range for the circuit
#1 evaporator temperature sensor input
(temp < -55 F or temp > 209 F).
UCM’s Reaction: The coil frost protection
function for the refrigeration circuit (#1,
2,3, or 4) only is disabled.
Reset Required: (PAR) An automatic reset
occurs after the #1, 2, 3, or 4 evap temp
input returns to its allowable range for 10
seconds.
G
GBAS 0-5 VDC Module Comm Failure
Problem: The RTM has lost
communication with the GBAS module.
Check: Field/unit wiring between RTM
and GBAS.
Reason for Diagnostic: The RTM has lost
communication with the GBAS module.
UCM’s Reaction: The UCM will initiate the
following actions;
a. If the demand limit input was closed
prior to the communications loss, then
the demand limit commands issued to
the heat operation function (if
applicable) and the compressor staging/
chilled water cooling function will be
cancelled.
b. If any of the GBAS setpoint control
parameters are the HI-selected setpoint
sources, then those setpoints will revert
to the default HI setpoints.
c. Any active GBAS output control
parameters will be ignored.
d. A failsafe function in the GBAS module
will cause all GBAS outputs to be
zeroed and deenergized.
Reset Required: (PAR) An automatic reset
occurs after communication has been
restored.
H
Heat Failure
Problem: The heat has failed.
(Electric heat unit) Typically, this is
because the electric heat section became
too hot.
Reason for Diagnostic: The heat fail input
on the heat module was closed:
a. for more than 80 seconds,
b. for ten consecutive occurrances (each
lasting five seconds or more) within a
210 second period.
UCM’s Reaction: An information only
diagnostic is set.
Reset Required: (INFO) An automatic
reset occurs after the heat fail input
remains open for 210 seconds
continuously.
Heat Module Auxilliary Temperature
Sensor Fail
Problem: The heat mod aux temp sensor
input is out of range.
Check: Sensor resistance should be
between 830 ohms (200 F) and
345.7Kohms (-40 F). If so, check field/unit
wiring between sensor and heat module.
Reason for Diagnostic: At least one
enabled unit function has the heat
module auxillary temperature input
designated as its sensor, and the unit is
reading a signal that is out of range for

114 SCXG-SVX01B-EN
Diagnostic
Troubleshooting Diagnostics
this input (temp < -55 F or temp > 209 F).
UCM’s Reaction: The functions that
designated the heat module auxillary
temperature input as their input are
disabled.
Reset Required: (PAR) An automatic reset
occurs after the heat module auxillary
temperature input returns to its allowable
range for 10 seconds.
Heat Module Comm Failure
Problem: The RTM has lost
communication with the heat module.
Check: Check field/unit wiring between
RTM and heat module.
Reason for Diagnostic: The RTM has lost
communication with the heat module.
UCM’s Reaction: An “all heat off” request
is sent to the heat operation function.
If the unit has staged gas or electric heat,
all heat module outputs will be zeroed
and deenergized.
If the unit has hydronic heat or chilled
water installed, the unit will turn off the
supply fan and close the outside air
damper upon the occurrance of a heat
module comm failure. A failsafe function
in the heat module will cause all water
valves to be set to 100% to provide full
water flow. Unless used for switching
purposes (air handlers with chilled water
and mod gas, or chilled water and
hydronic heat) all binary outputs will be
deenergized.
Reset Required: (PAR) An automatic reset
occurs after communication has been
restored.
L
Low Air Temp Limit Trip
Problem: The low air temp limit has
tripped. (Units with steam or hot water
heating, or air handlers with chilled water
cooling)
Reason for Diagnostic: A low air temp
limit trip is detected continuously for
more than one second. This can occur if
the hydronic heat low air temp limit input
closes for > 1 second, or if the chilled
water low air temp limit trip input opens
for > 1 second. On units with both
hydronic heat and chilled water, both low
air temp limit inputs are active, and the
unit will respond in the same manner
regardless of which input is used.
UCM’s Reaction: The UCM will initiate the
following actions;
a. An “open all water valves”request is
issued to the heat module function,
causing any steam, hot water, or chilled
water valves on the unit to open.
b. An “all heat off” request is issued to
the heat control function.
c. A “fan off” request is sent to the supply
fan control function.
d. A “close damper” request is sent to
the economizer actuator control
function.
Reset Required: (PMR) A manual reset is
required after the low air temp limit trip
condition clears. The diagnostic can be
reset at the unit mounted human
interface, by Tracer Summit®, or by
cycling power to the RTM.
Low Pressure Control Open - Circuit 1, 2,
3, or 4
Problem: The Low Pressure Control (LPC)
for Ckt #1, 2, 3, or 4 is open.
Check: State of refrigerant charge for ckt
#1, 2, 3, or 4.
Reason for Diagnostic: The Ckt # 1 LPC
input is detected open as described in the
compressor protection function.
UCM’s Reaction: A “Lockout Ckt # 1, 2, 3,
or 4” request is issued to the compressor
staging control function.
Reset Required: (PMR) A manual reset is
required anytime after the diagnostic is
set. The diagnostic can be reset by the
human interface, Tracer Summit®, or by
cycling power to the RTM.
M
Manual Reset SA Static Press Limit
Problem: The supply air static pressure
went too high for the third consecutive
time.
Reason for Diagnostic: The auto reset
supply air static pressure limit diagnostic
has occurred for the third time while the
unit is operating in occupied mode.
UCM’s Reaction: A "supply air pressure
shutdown" signal is sent to the following
functions;
a. Compressor staging control,
b. Economizer actuator control,
c. Heat operation,
d. Supply fan control,
e. IGV/VFD control,
f. Exhaust fan control
g. Exhaust actuator control
Reset Required: (PMR) A manual reset is
required and can be accomplished at the
HI, Tracer Summit®, or by cycling power
to the RTM.
MCM Communications Failure
Problem: The RTM has lost
communication with the MCM.
Check: Check field/unit wiring between
RTM and MCM.
Reason for Diagnostic: The RTM has lost
communications with the MCM.
UCM’s Reaction: A “Lockout” request is
sent to the compressor staging control
function. And a failsafe function in the
MCM will cause all MCM outputs to be
zeroed and deenergized.
Reset Required: (PAR) An automatic reset
occurs after communication has been
restored.
Mode Input Failure
Problem: The RTM mode input is out of
range.
Check: Sensor resistance should be
between 1 ohm and 40 Kohms. If so,
check field/unit wiring between sensor
and RTM.
Reason for Diagnostic: The mode input
signal on the RTM is out of range
(resistance < 1k ohm or resistance > 40k
ohms).

SCXG-SVX01B-EN 115
Diagnostic
Troubleshooting Diagnostics
UCM’s Reaction: The system mode
reverts to the default (HI set) system
mode.
Reset Required: (INFO) An automatic
reset occurs after the mode input returns
to its allowable range for 10 seconds.
N
NSB Panel Zone Temperature Sensor
Failure
Problem: The NSB panel's zone temp
sensor input is out of range. (This input is
at the NSB panel, not on the unit itself).
Check: If have an external sensor
connected to the NSB panel zone sensor
input, then the internal NSB panel zone
sensor should be disabled. Verify sensor
resistance. If in valid range, check wiring
between the sensor and NSB panel.
NSB Panel Comm Failure
Problem: The RTM has lost
communications with the night setback
panel (programmable zone sensor).
Check: Field/unit wiring between RTM
and NSB Panel.
Reason for Diagnostic: The RTM has lost
communication with the NSB panel.
UCM’s Reaction: The unit reverts to the
next lower priority mode switching
source (typically the HI default mode). If
the NSB panel zone sensor is the
designated sensor source for any
functions, those functions are disabled.
Reset Required: (PAR) An automatic reset
occurs after communication has been
restored.
O
O/A Humidity Sensor Failure
Problem: The outside air humidity sensor
data is out of range.
Check: Check field/unit wiring between
the sensor and RTM.
Reason for Diagnostic: The unit is reading
a signal that is out of range for the outside
air humidity sensor (humidity < 5% or
humidity > 100%).
UCM’s Reaction: The economizer enable
r.e enthalpy function reverts to dry-bulb
temperature changeover (“Level 1”)
control.
Reset Required: (PAR) An automatic reset
occurs after the OA humidity input
returns to its allowable range for 10
seconds.
O/A Temp. Sensor Failure
Problem: The outside air temperature
sensor input is out of range.
Check: Sensor resistance should be
between 830 ohms (200 F)and 345.7
Kohms (-40 F). If so, check field/unit wiring
between sensor and RTM.
Reason for Diagnostic: The unit is reading
a signal that is out of range for the outside
air temperature input on the RTM (temp.
< -55 F or temp > 209 F).
UCM’s Reaction: These unit functions
occur:
• low ambient compressor lockout
disables
• O/A damper drives to minimum position
• on VAV units with S/A temp. reset type
selected as O/A temp. reset, the reset
type reverts to “none” for the duration
of the failure
Reset Required: (PAR) an automatic reset
occurs after the O/A temperature input
returns to its allowable range. To prevent
rapid cycling of the diagnostic, there is a
10 second delay before the automatic
reset.
Occupied Zone Heat Setpoint Failure
Problem: The occupied zone heat setpoint
input is out of range.
Reason for Diagnostic: The input
designated as occupied zone heating
setpoint source is out of range for the
outside air temperature input on the RTM
(temp. < 45 F or temp > 94 F).
UCM’s Reaction: The active occupied
zone heating setpoint reverts to the
default value.
Reset Required: (PAR) an automatic reset
occurs after the occupied zone heating
setpoint input returns to its allowable
range for 10 continuous seconds, or after
a different occupied zone heating setpoint
selection source is user-defined.
R
Return Air Humidity Sensor Failure
Problem: On units with both airside
economizer and comparative enthalpy
installed, the return air humidity sensor
input is out of range.
Check: Check field/unit wiring between
the sensor and ECEM.
Reason for Diagnostic: The unit is reading
a signal that is out of range for the return
air humidity sensor (humidity < 5% or
humidity > 100%).
UCM’s Reaction: The economizer enable
r.e. enthalpy function reverts to reference
enthalpy changeover (“Level 2”) control.
Reset Required: (PMR) An automatic
reset occurs after the RA humidity input
returns to its allowable range
continuously for 10 seconds.
Return Air Temp Sensor Failure
Problem: On units with the comparative
enthalpy option, the return air
temperature sensor input is out of range.
Check: Sensor resistance should be
between 830 ohms (200 F) and
345.7Kohms (-40 F). If so, check field/unit
wiring between the sensor and ECEM.
Reason for Diagnostic: The unit is reading
a signal that is out of range for the return
air humidity sensor (temp < -55 F or
temp > 209 F).
UCM’s Reaction: The economizer enable
r.e. enthalpy function reverts to reference
enthalpy changeover (“Level 2”) control.
Reset Required: (PAR) An automatic reset
occurs after the RA temp input returns to

116 SCXG-SVX01B-EN
Diagnostic
Troubleshooting Diagnostics
its allowable range continuously for 10
seconds.
RTM Aux. Temp. Sensor Failure
Problem: The RTM auxillary temperature
sensor data is out of range.
Check: Sensor resistance should be
between 830 ohms (200 F)and 345.7
Kohms (-40 F). If so, check field/unit wiring
between sensor and RTM.
Reason for Diagnostic: At least one
enabled unit function has the RTM
auxillary temperature input designated
as its sensor, and the unit is reading a
signal that is out of range for this input
(temp. < -55 F or temp > 209 F).
UCM’s Reaction: The functions with the
RTM auxillliary temperataure input
deignated as their sensor are disabled.
Reset Required: (PAR) an automatic reset
occurs after the designated zone
temperature signal returns to its
allowable range. To prevent rapid cycling
of the diagnostic, there is a 10 second
delay before the automatic reset.
RTM Data Storage Error
Problem: There was a data transmission
error.
Check: This can be caused by an
intermittant power loss. Turn the unit off
for 1-2 minutes, then back on again. If
diagnostic persists, then the RTM may
need to be replaced.
Reason for Diagnostic: An error occurred
while the RTM was writing data to its
internal non-volitile memory (EEPROM).
UCM’s Reaction: An information only
diagnostic will be displayed at the Human
Interface.
Reset Required: (INFO) A manual reset
may be made at the Human Interface, at
Tracer Summit®, or by cycling power to
the RTM.
RTM Zone Sensor Failure
Problem: The RTM zone temperature
sensor input is out of range.
Check: Sensor resistance should be
between 830 ohms (200 F)and 345.7
Kohms (-40 F). If so, check field/unit wiring
between sensor and RTM.
Reason for Diagnostic: At least one
enabled unit function has the RTM zone
temperature input designated as its
sensor, and the unit is reading a signal
that is out of range for this input (temp. < -
55 F or temp > 150 F).
UCM’s Reaction: The functions with the
RTM zone temperataure input deignated
as their sensor are disabled.
Reset Required: (PAR) an automatic reset
occurs after the designated zone
temperature signal returns to its
allowable range. To prevent rapid cycling
of the diagnostic, there is a 10 second
delay before the automatic reset.
S
SCM Communication Failure
Problem: The RTM has lost
communication with the SCM.
Check: Check field/unit wiring between
the RTM and SCM.
Reason for Diagnostic: The RTM has lost
communication with the SCM.
UCM’s Reaction: A “Lockout” request is
sent to the compressor staging control
function. A failsafe function in the SCM
will cause all SCM outputs to be zeroed
and deenergized.
Reset Required: (PAR) An automatic reset
occurs after communication has been
restored.
Space Static Press Setpt Failure
Problem: The active space static pressure
setpoint is out of range.
Check: Check setpoint value. Also, if
space pressure setpoint source is GBAS,
but this setpoint has not been assigned to
any of the 4 analog inputs on GBAS, this
message will occur.
Reason for Diagnostic: The unit is reading
a signal that is out of range for the space
static pressure setpoint (input < 0.03 IWC
or input > 0.20 IWC).
UCM’s Reaction: The default space
pressure setpoint will become the active
space pressure setpoint.
Reset Required: (PAR) An automatic reset
occurs after the designated space
pressure setpoint source sends a signal
within range for 10 continuous seconds,
or after a different space pressure
setpoint source is user-defined.
Supply Air Pressure Sensor Failure
Problem: The supply air pressure sensor
voltage input is out of range.
Check: Check field/unit wiring between
the sensor and RTM.
Reason for Diagnostic: The unit is reading
a signal that is out of range for the supply
air pressure sensor voltage input (Input <
40mV or Input > 4.75V)
UCM’s Reaction: The IGV’s will drive
closed, and the following functions are
disabled;
a. SA pressure control
b. SA static pressure limit
Reset Required: (PAR) An automatic reset
occurs after the SA temp heating setpoint
input returns to within range for 10
continuous seconds, or after a different
SA temp heating setopint selection
source is user-defined.
Supply Air Pressure Setpoint Failure
Problem: The SA pressure input signal is
out of range.
Reason for Diagnostic: The SA pressure
setpoint input is sending a signal that is
out of range (Input < 1.0 IWC or Input > 4.3
IWC)
UCM’s Reaction: The default SA pressure
setpoint will become the active SA
pressure setpoint.
Reset Required: (PAR) An automatic reset
occurs after the designated SA pressure
setpoint source sends a signal within

SCXG-SVX01B-EN 117
Diagnostic
Troubleshooting Diagnostics
range for 10 continuous seconds, or after
a different SA pressure setpoint source is
user-defined.
Supply Air Temp Cool Setpoint Fail
Problem: The active supply air
temperature cooling setpoint is out of
range.
Reason for Diagnostic: The input
designated as the SA temp cooling
setpoint is out is out of range (temp < 35 F
or temp > 95 F).
UCM’s Reaction: The default HI-set SA
temp cooling setpoint becomes the active
SA temp cooling setpoint.
Reset Required: (PAR) An automatic reset
occurs after the SA temp cooling setpoint
input returns to within range for 10
continuous seconds, or after a different
SA temp cooling setopint selection
source is user-defined.
Supply Air Temp Heat Setpoint Fail
Problem: The active supply air
temperature cooling setpoint is out of
range.
Reason for Diagnostic: The input
designated as the SA temp heating
setpoint is out is out of range (Temp < 35
F or Temp > 185 F).
UCM’s Reaction: The default HI-set SA
temp heating setpoint becomes the
active SA temp heating setpoint.
Reset Required: (PAR) An automatic reset
occurs after the SA temp heating setpoint
input returns to within range for 10
continuous seconds, or after a different
SA temp heating setopint selection
source is user-defined.
Supply Air Temperature Failure
Problem: The supply air temperature
sensor input is out of range.
Check: Sensor resistance should be
between 830 ohms (200 F) and 345.7
Kohms (-40 F). If so, check field/unit wiring
between sensor and RTM.
Reason for Diagnostic: The unit is reading
a signal that is out of range for the supply
air temperature input on the RTM (temp.
< -55 F or temp > 209 F).
UCM’s Reaction: These unit functions are
disabled:
• supply air tempering
• economizing
• supply air temperature low limit function
(CV units)
• supply air temperature control heating
and cooling functions (VAV units)
Reset Required: (PAR) an automatic reset
occurs after the designated S/A
temperature input returns to its allowable
range. To prevent rapid cycling of the
diagnostic, there is a 10 second delay
before the automatic reset.
Supply Fan Failure
Problem: There is no supply airflow
indication after the supply fan has been
requested on.
Check: Check belts, linkages, etc. on the
Supply Fan assembly. If these are ok,
check field/unit wiring between RTM and
supply fan. If the supply fan will run in
service mode, then verify airflow proving
switch and wiring.
Reason for Diagnostic: The supply airflow
input is detected OPEN for 40 continuous
seconds during any period of time in
which the supply fan binary output is ON.
between 830 ohms (200 F) and
345.7Kohms (-40 F). If so, check field/unit
wiring between the sensor and MCM.
This input is ignored for up to 5 minutes
after the supply fan is first started, until
airflow is first detected.
UCM’s Reaction: “OFF or “Close”
requests are issued as appropriate to the
following functions;
a. Compressor staging/chilled water
control
b. Heat operation
c. Supply fan control and proof of
operation.
d. Exhaust fan control and proof of
operation
e. Exhaust actuator control
f. Economizer actuator control
g. IGV / VFD control
Reset Required: (PMR) A manual reset is
required anytime after the diagnostic is
set. The diagnostic can be reset at the HI,
Tracer Summit®, or by cycling power to
the RTM.
Supply Fan VFD Bypass Enabled
a. Data used (module,packet,byte,bit):
RTM
b. Activation conditions: supply fan VFD
bypass has been activated and supply
fan vfd bypass is installed.
c. Time to React: 10 sec < T < 20 sec
d. Diagnostic text (human interface
display)
SUPPLY FAN VFD BYPASS ENABLED”
e. Actions to be Initiated: NONE
f. Reset: The INFO diagnostic is cleared
when the supply fan VFD bypass is
deactivated.
T
TCI Module Comm Failure
Problem: The RTM has lost
communication with the TCI.
Check: Check field/unit wiring between
RTM and TCI module.
Reason for Diagnostic: The RTM has lost
communication with the TCI module.
UCM’s Reaction: All active commands
and setpoints provided by Tracer
Summit® through the TCI will be
cancelled and/or ignored. And where
Tracer Summit® has been designated as
setpoint source, local HI default setpoints
will be used.
Reset Required: (PAR) An automatic reset
occurs after communication has been
restored.
Tracer Communications Failure
Problem: The TCI has lost
communications with Tracer Summit®.
Check: Tracer Summit®(building control
panel) is powered up and running
properly. If so, check unit wiring between
TCI and Tracer Summit® (building control
panel).

118 SCXG-SVX01B-EN
Diagnostic
Troubleshooting Diagnostics
Reason for Diagnostic: The TCI has lost
communications with Tracer Summit® for
> 15 minutes.
UCM’s Reaction: All active commands
and setpoints provided by Tracer
Summit® through the TCI will be
cancelled and/or ignored. And where
Tracer vSummit® has been designated as
the setpoint source, local HI default
setpoints are used.
Reset Required: (PAR) An automatic reset
occurs after communication between
Tracer Summit® and the TCI is restored.
U
Unit HI Communications Failure
Problem: The RTM has lost
communication with the unit mounted
(local) human interface (HI).
Check: Field/unit wiring between RTM
hand local HI.
Reason for Diagnostic: The RTM has lost
communication with the unit-mounted
human interface.
UCM’s Reaction: A fail-safe function in the
HI will cause the following sequence:
a. disallow any interaction between the HI
and the RTM (or any other modules),
b. render all HI keystrokes ineffective
c. cause the following message to display
on the unit-mounted HI display: “Local
HI communications loss. Check comm
link wiring between modules.” If the
unit has a remote HI option, then this
diagnostic will display as any other
automatic reset diagnostic.
Reset Required: (INFO) An automatic
reset occurs after communication is
restored between the RTM and the HI.
When the failure screen clears, the
general display restores to allow the HI to
interact with the RTM again.
Unoccupied Zone Cool Setpoint Failure
Problem: The unoccupied zone cooling
setpoint input is out of range.
Reason for Diagnostic: The input
designated as the unoccupied zone
cooling setpoint source is out of range
(Temp < 45 F or Temp > 94 F).
UCM’s Reaction: The active unoccupied
zone cooling setpoint reverts to the
default value.
Reset Required: (PAR) An automatic reset
occurs after the designated unoccupied
zone cool setpoint input returns to its
allowable range for 10 continuous
seconds, or after the user defines a
different, valid unoccupied zone cool
setpoint selection source.
Unoccupied Zone Heat Setpoint Failure
Problem: The unoccupied zone heating
setpoint input is out of range.
Reason for Diagnostic: The input
designated as unoccupied zone heating
setpoint source is out of range (temp < 45
F or temp > 94 F).
UCM’s Reaction: The active unoccupied
zone heating setpoint reverts to the
default value.
Reset Required: (PAR) An automatic reset
occurs after the designated unoccupied
zone heat setpoint input returns to its
allowable range for 10 continuous
seconds, or after the user defines a
different, valid unoccupied zone heating
setpoint selection source.
V
VCM Communication Failure
Problem: The RTM has lost
communication with the VCM.
Verify: Check field/unit wiring between
RTM and VCM.
Reason for Diagnostic: The RTM has lost
communication with the VCM.
UCM’s Reaction: All active commands
and setpoints provided by the VCM are
canceled and/or ignored. A fail-safe
function in the VCM will cause all outputs
to deenergize and/or set to zero. The
outside air damper minimum position
function will revert to using the O/A flow
compensation function if O/A flow
compensation is enabled or set to the
default minimum position function if O/A
flow compensation is disabled or not
available.
Reset Required: (PAR) An automatic reset
occurs after communication is restored.
communications with the VOM.
Velocity Pressure Sensor Failure
Problem: The velocity pressure input
signal is out of range.
Check: Check field/unit wiring between
sensor and VCM.
Reason for Diagnostic: The unit is reading
a signal that is out of range for the
velocity pressure transducer input
(during calibration: V < 40 mV or V > 420
mV, during operation: V < 40 mV or V >
0.75 V).
UCM’s Reaction: The minimum airflow
control function is disabled. The outside
air damper minimum position function
reverts to using the O/A flow
compensation function if O/A flow
compensation is enabled or to the default
minimum position function if O/A flow
compensation is disabled or not available.
Reset Required: (PAR) An automatic reset
occurs after the designated space
pressure transducer sends a signal within
range for 10 continuous seconds.
VOM Communications Failure
Problem: The RTM has lost
communication with the VCM.
Check: Field/unit wiring between RTM
and VCM.
Reason for Diagnostic: The RTM has lost
communications with the VOM.
UCM’s Reaction: Ventilation override
actions will not be allowed, and the VO
Output relay will be deenergized.
Reset Required: (PAR) An automatic reset
occurs after communication has been
restored.

SCXG-SVX01B-EN 119
Diagnostic
Troubleshooting Diagnostics
W
WSM Communications Fail
Problem: The RTM has lost
communication with the WSM.
Check: Field/unit wiring between RTM
and WSM.
Reason for Diagnostic: The RTM has lost
communication with the WSM.
UCM’s Reaction: The UCM will react as if
a freezestat has occurred by issuing:
• An “All Heat On” or “Mod Output Full
Open” request to “Heat Control”
• A “Fan off” request to “Supply Fan
Control”
• A “Close Damper” request to
“Economizer Actuator Control”
• The water pump to turn on and position
all water valves to provide maximum
flow through all water source heat
exchangers
• Disables preheat function if WSM Mixed
Air Temp Sensor is selected as Preheat
Sensor
Reset Required: An automatic reset
occurs after one complete set of IPC
packets is received.
WSM Mixed Air Temp Sensor Fail
b. Activation Conditions: temperature < -
50 F or temperature > 209 F, and sensor
is selected for use by “Water Side
Economizer Temperature Enable
Function” or “Preheat Function”
c. Time to React: 10 sec < T < 20 sec
e. Actions to be Initiated: “Water Side
Economizer Temperature Enable
Function” uses Supply Air Cooling
Setpoint instead of Mixed Air
Temperature. If Mixed Air Temperature is
being used for “Preheat Function”, issue
a “Disable” request to “Preheat
Function”.
f. Reset: An automatic reset occurs after
the Mixed Air Temp. input returns to
within range continuously for 10 seconds.
Water Flow Fail
a. Data used (module,packet,byte,bit):
WSM, 01,19,05
b. Activation Conditions: The water flow
input is detected open ;
1. at the end of precool water flow
initiation state, or
2. continuously for five minutes while:
·water side economizer is open 100%,
· presetting of a Head Pressure Valve, or
· demand for mechanical cooling.
Unit must be: a. configured with water
cooled condenser and/or water
economizer and b. have water flow
switch installed.
c. Time to React: immediate
e. Actions to be Initiated: A “Lockout All
Ckts” request is issued to the
“Compressor Staging Function”
f. Reset: An automatic reset occurs after
the Water Flow input returns to within
range continuously for 3 seconds, the
water pump is requested OFF, or the
water flow switch becomes not installed.
Z
Zone Cool Setpoint Failure
Problem: The occupied zone cooling
setpoint is out of range.
Reason for Diagnostic: The input
designated as occupied zone cooling
setpoint source is out of range (temp. <
45 F or temp > 94 F).
UCM’s Reaction: The active occupied
zone cooling setpoint reverts to the
default occupied zone cooling setpoint.
Reset Required: (PAR) an automatic reset
occurs after the designated occupied
zone CSP input returns to its allowable
range for 10 continuous seconds, or after
a different valid occupied zone CSP
selection source is user-defined.

120 SCXG-SVX01B-EN
Index
A
“After-Shipment” Accessory Model
Number 8
Air Filters 98
Air-Cooled Condensers 88
Airside Economizer Installation 48
Airside Economizer Interface 88
Airside Economizer Interface with
Comparative Enth 88
Airside Economizer Option 87
Airside Economizers with Traq Damper
87
Ambient Temperature and Humidity
Limits 58
Annual Maintenance 110
Auto Changeover 94
Auto Reset S/A Static Pressure Limit
112
B
Basic Water Piping 84
BAYSEN020 Icon Descriptions 72
BAYSENS008 Description 50
BAYSENS010 Description 52
BAYSENS013 Description 52
BAYSENS014 Description 52
BAYSENS017B Description 51
BAYSENS019 64
BAYSENS019 Description 55
BAYSENS019 Icon Descriptions 71
BAYSENS019 Keypad and Display
Explanation 64
BAYSENS020 Keypad and Display
Explanation 65
BAYSENS020 Description 55
BAYSENSO21 Description 51
Brazing Procedures 36
C
Cautions 59
Changeover 94
Chemical Cleaning of Condenser and
Economizer Coil 108
Cleaning the Condenser 108
Cleaning the Flow Switch 109
CO2 sensor 87
CO2 Sensor Failure 112
Coil Fin and External Cleaning 107
Common HVAC Acronyms 2
Communication Link (Shielded Twisted
Pair) Wiring 61
Communication Wiring 62
Comparative Enthalpy Control 87
Component Overview 63
Compressor Circuit Breakers 89
Compressor Contactor Fail 112
Compressor Cycling 95
Compressor Isolators 39
Compressor Lead/Lag Operation 95
Compressor Module 80
Compressor Motor Winding Thermo-
stats 89
Compressor Safety Devices 96
Compressor Stages 95
Compressor Trip 112
Compressors 95
Condensate Drain Connections 34
Condenser Connections 34
Condenser Temp Sensor Failure 112
condensing temperature rises above
the lower limit 89
Connecting to Tracer Summit 62
Constant Volume Zone Sensor 55
Constant Water Flow 84
Control Options 5
Control Power 37
Control Sequences of Operation 91
Cooling 93
Cooling Capacity Percent 96
Cooling Tower Interlock 80
Cooling/Airside Economizer 93
Cooling/Waterside Economizer 93
Cycling Capacity Morning Warmup 91
D
Day Button 67
Daytime Warmup 94
Diagnostics 112
Dirty Filter 112
Dirty Filter Sensor Option 86
Draining the Coil 107
Duct Connections 33
Ductwork 63
E
ECEM 81
ECEM Communications Failure 112
Electric Heat 94
Electric Heat Coil Wiring Procedure 46
Electric Heat Installation 46
Emergency Stop 113
Emergency Stop Input 79
Entering Cond Water Temp Sensor Fail
113
Entering Water Temp Sensor Fail 113
Erase Button 67
Evacuation 103
Evap Temp Sensor Failure 113
Evaporator Coil Frost Protection 97
Evaporator Temperature Sensor Frostat
89
EXHAUST sequence “C” 80
Exhaust/Comparative Enthalpy Module
81
External Auto/Stop Switch 78
External Unit Isolation 16
F
Factory Mounted Time Clock 91
Fan Bearings 100
Fan Belt Tension 100
Fan Button 67
Fan Drive 99
Fan shaft and motor sheave alignment
99
Field Supplied Occupied/Unoccupied
Input on the RTM 91
Filter Switch 90
Flow Switch Maintenance 109
FROSTAT 97
Full Capacity Morning Warmup 91
G
GBAS 0-5 VDC Module Comm Failure
113
GBAS Analog Input Setpoints 83
GBAS Analog Inputs 82
GBAS Binary Input 82
GBAS Binary Outputs 82
GBAS Demand Limit Relay 82
GBAS Diagnostics 82
GBAS Input Voltage Corresponding
Setpoint 83
General Waterside Recommendations:
Cooling Towers 35
Generic Building Automation System
Module 82
H
Head Pressure Control 89
Heat Failure 113
Heat Module 80
Heat Module Auxilliary Temperature

SCXG-SVX01B-EN 121
Index
Sensor Fail 113
Heat Module Comm Failure 114
HI 58, 80
HI Location Recommendations 58
High Duct Static Switch 90
High Duct Temp Thermostat 90
High Duct Temperature Thermostat 86
high duct thermostat can be reset 90
Holdtemp Button 67
Human Interface 58
Human Interface Module 80
Human Interface Panel 5
Hydronic Coil Installation 45
Hydronic Heat 94
I
Icon Descriptions 71
ICPB 61
Initial Power-Up 66
Inlet Guide Vane 86
Inlet Guide Vanes 106
Input Devices and System Functions
89
Inspecting and Cleaning Coils 107
Inspecting and Cleaning the Drain Pan
98
Inspecting and Cleaning the Fan 98
Installation Preparation 10
Installing the Remote Human Interface
Panel 58
Installing the Transducer 49
Intelligent Copy 70
IntelliPak Unit Controls 5
Intermediate Water Piping 84
Interprocessor Communication Bridge
Module Wiring 61
Interprocessor Communications Board
80
IPCB 80
K
Keypad Lockout 67
Keypad Operation for Temporary
Manual Override Men 67, 68
L
Leak Test 36
LEATPD 90
Literature Change History 2
Low Air Temp Limit Trip 114
Low Ambient Compressor Lockout
90, 97
Low Ambient Control 89, 90
Low Ambient Sensor 86
Low Entering Air Protection Device 90
Low Entering Air Temperature Sensor
86
Low Pressure Control 89
Low Pressure Control Open 114
Low Pressure Control Open 114
Low Voltage (AC) Field Wiring
Connections 61
M
Maintenance Procedures 98
Manual Override 73
Manual Reset SA Static Press Limit
114
MCM 80
MCM Communications Failure 114
Measuring Belt Tension 100
Mechanical Cleaning of Condenser and
Economizer Coils 108
Mechanical Cooling 94
Minimum Outside Air Setpoint w/VCM
Module and Traq 81
Mode Button 67
Mode Input Failure 114
Model Number Description 6
Monthly Checklist 110
Morning Warmup 91
Mounting Location 53
Mounting the Remote Human Interface
59
Mounting the Subbase 53
MWU 91
N
NSB Panel Comm Failure 115
NSB Panel Zone Temperature Sensor
Failure 115
O
O/A Humidity Sensor Failure 115
O/A Temp. Sensor Failure 115
Occupied Sequence Of Operation 93
Occupied Zone Heat Setpoint Failure
115
Occupied Zone Temperature - Cooling
93
Occupied Zone Temperature - Heating
94
Occupied/Unoccupied Contacts 79
Occupied/Unoccupied Inputs 78
Occupied/Unoccupied Switching 91
Operating Procedures 111
Option Menu and Keypad Operation 69
Optional Controls 5
P
Periodic Maintenance Checklists 110
Piping Components 109
Plenum 41
Points List 77
Pre-Installation Checklist 16
Pre-Startup Checklist 63
Pre-Startup Procedures 39
Pressure Cutouts 96
PRESSURIZE sequence “B” 80
Program Button 66
Program Menu 66
Programmable Night Setback Zone
Sensors 55
Programmable Night Setback Zone
Sensor Installatio 56
Programming the Time Clock Option
73
PURGE sequence “D” 81
PURGE with duct pressure control “E”
81
R
Receiving 63
Receiving and Handling 9
Receiving Checklist 9
Refrigerant Charge 104
Refrigerant Coils 107
Refrigerant Emissions 102, 103
Refrigerant Leak Testing 103
Refrigerant Piping 36
Refrigerant System 102
Remote Human Interface Module
Option 80
Remote Human Interface Panel 58
Remote Mounted Thermostat Option
50
Remote Mounted Thermostat Wiring
50
Remote Panel Indicator Signals From
UCM to ZSM 70
Remote Zone Sensor Options 51
Reset based on outdoor air tempera-
ture 94
Reset based on zone temperature 94

122 SCXG-SVX01B-EN
Return Air Humidity Sensor Failure
115
Return Air Temp Sensor Failure 115
Return Air Temperature Sensor 90
RHI 58, 80
Rigging and Handling 13
Rigging and Unit Handling 12
RTM Alarm Relay 78
RTM Analog Outputs 78
RTM Aux. Temp. Sensor Failure 116
RTM Binary Outputs 78
RTM Data Storage Error 116
RTM Module Board 78
RTM Remote Economizer Minimum
Position 78
RTM Sensors 79
RTM Zone Sensor Failure 116
S
Saturated Condenser Temperature
Sensors 89
SCM 80
SCM Communication Failure 116
Selection Procedures 38
Semi-Annual Maintenance 110
Service Access 11
Service Valves 97
Setting the Time 73
Ship-Separate Accessories 9
Ship-With Accessory Model Number
Description 7
Shipping Package 9
Skid Removal 16
Space Static Press Setpt Failure 116
Special Note on Refrigeration Emis-
sions 2
Split-Apart Unit Assembly 14
Standard Remote Sensor
(BAYSENS017) 53
Standard Two-Position Damper
Interface 88
Startup Log 75
Static Pressure Transducer Installatio
49
Status/Annunciator Output 78
Steam and Hot Water Coils 107
Step Control 96
suction pressure approaches 7 ± 4 psig
89
suction pressure exceeds 22 ± 4 psig
89
Supply Air Fan 86
Supply Air Pressure Sensor Failure 116
Supply Air Pressure Setpoint Failure
116
Supply Air Setpoint Reset 94
Supply Air Static Pressure Limit 86
Supply Air Temp Cool Setpoint Fail 117
Supply Air Temp Heat Setpoint Fail
117
Supply Air Temperature Control 93
Supply Air Temperature Failure 117
Supply Air Temperature Low Limit 90
Supply Air Temperature Sensor 90
Supply Air Tempering 94
Supply Airflow Proving Switches 90
Supply and Exhaust Fan Circuit Break-
ers 90
Supply Duct Static Pressure Control 79
Supply Fan 99
Supply Fan Circuit Breaker, Fuses, and
Overloads 90
Supply Fan Failure 117
Supply Fan Isolators 39
Supply Fan VFD Bypass Enabled 117
Supply Power Wiring 37
System Checks 111
T
TCI 81
TCI Module Comm Failure 117
Temporary Manual Override 67
Temporary Manual Override Run Mode
68
Temporary Override Run Mode 68
Time and Day Settings 66
Time Button 67
Time Clock 91
Time Clock Option 57
Timeclock Installation 57
Timeclock Installation Checklist 57
Timed Override Activation 92
Tracer Communications Failure 117
Tracer Summit System 91
Trane Communications Interface
Module 81
Transducer Location 49
U
Unit Airside Components 86
Unit Components 4
Unit Control Components 78
Unit Control Module 5
Unit HI Communications Failure 118
Unit Isolator Installation Procedure 40
Unit Location 63
Unit Mounting 63
Unit Nameplate 5
UNIT OFF sequence “A” 80
Unit Protective Covers 39
Unit Shipping 14
Unit Start-Up Procedures 74
Unit Startup 74
Unit Vibration Isolator Option 40
Unit Wiring Diagrams 37
Units With Economizer 93
Unoccupied 91
Unoccupied Zone Cool Setpoint Failure
118
Unoccupied Zone Heat Setpoint Failure
118
Up and Down Button Arrows 67
Using Intelligent Copy 70
V
Variable Air Volume Zone Sensor 55
Variable Frequency Drive 86
Variable Frequency Drive Option 47
Variable Water Flow 85
VAV Box Option 79
VAV Changeover Contacts 78
VAV Drive Max Output 78, 92
VCM 81, 87
VCM Communication Failure 118
Velocity Pressure Sensor Failure 118
Ventilation Control Module 81, 87
Ventilation Override Module 80
VFD 47, 86
VFD Electrical Installation Procedure
47
VFD Mounting Requirements 47
VFD with Bypass 86
Voltage Imbalance 37, 111
Voltage Range 37
VOM 80
VOM Communications Failure 118
W
Wall Mounting the RHI Panel 59
Warnings and Cautions 2
Water Condenser Connection Sizes 84
Water Flow Fail 119
Water Flow Switch Option 84
Water Piping 34
Water Piping Options 84
Water Purge 84, 89
Index

SCXG-SVX01B-EN 123
Water Temperature Requirements 35
Water Valves 109
Water-Cooled Condensers 84
Water-Cooled Unit Piping 63
Waterside Components 84
Waterside Economizer Flow Control
84
Waterside Economizer Installation
Procedure 42
Waterside Economizer Option 84
Waterside Module 80
Waterside Piping Arrangements 35
Wiring 53
Wiring the Remote Air-cooled CCRC
and SCRG 50
Wiring the Remote Human Interface
61
Wiring the Timeclock 57
WSM 80
WSM Communications Fail 119
WSM Mixed Air Temp Sensor Fail 119
Z
Zone Cool Setpoint Failure 119
Zone Sensor Installation 53
Zone Sensor Maximum Lengths and
Wire Size 53
Zone Temperature - Heating 94
Zone Temperature Control 93
Index

The Trane Company
A Division of American Standard Inc.
www.trane.com
For more information contact
your local district office or
e-mail us at comfort@trane.com
An American Standard Company
Literature Order Number
File Number
Supersedes
Stocking Location
Since The Trane Company has a policy of continuous product improvement, it reserves the right to change design
and specifications without notice.
SCXG-SVX01B-EN
PL-UN-SCXF-SVX01B-EN 700
SCXG-SVX01A-EN
LaCrosse - Inland