Trane Rooftop Wshp Catalogue PRC021 EN (07/2013)
2015-04-02
: Trane Trane-Rooftop-Wshp-Catalogue-684254 trane-rooftop-wshp-catalogue-684254 trane pdf
Open the PDF directly: View PDF
.
Page Count: 124 [warning: Documents this large are best viewed by clicking the View PDF Link!]

Water Source Heat Pump
Axiom™ High Efficiency Rooftop — GER
3-25Tons — 60 Hz
August 2013 WSHP-PRC021-EN
Product Catalog

© 2013Trane All rights reserved WSHP-PRC021-EN
Introduction
If a rooftop water-source heat pump is in your building’s future, Trane has the right product and
flexible design to fit your needs.We’ve taken the quality of theTrane’s Precedent™andVoyager II™
rooftop units, and added water-cooled capabilities into the product configuration, to deliver the
Axiom water-source comfort system. Product features for the 3 through 10 ton equipment includes:
1. Reliatel™ standalone controls andTracer™ or LonTalk™communication interface
2. Trane built compressor
3. Removable, dual sloped, non-corrosive drain pan
4. Two-inch filter arrangement
5. Standard static, high static, and belt-driven motor configurations
6. Foil-faced insulation installed throughout air-side of unit
7. Motor speed-tap changeability (3-5T, single phase only)
8. Single point power connection
9. Field convertible units for sizes 3-10T (horizontal/down flow configuration)
10. Single platform design
11. Single-size roof curb
Revision Summary
WSHP-PRC021-EN (01 Aug 2013)
Corrected dimension drawings. Added corner weight and center of gravity information.
WSHP-PRC021-EN (09 May 2013)
Updated performance data. Corrections to dimension drawings.
Trademarks
Axiom, Precedent, ReliaTel,TOPSS,Tracer, Voyager II, Trane, and theTrane logo are trademarks
or registered trademarks ofTrane in the United States and other countries.Trane is a business of
Ingersoll Rand. All trademarks referenced in this document are the trademarks of their respective
owners.
LonTalk is a registered trademark of Echelon Corporation.
1
65
32
4
8
10
11
9
7

Table of Contents
WSHP-PRC021-EN 3
Introduction ......................................................2
Features and Benefits ..............................................4
Application Considerations ..........................................9
Selection Procedure ...............................................10
Model Number Descriptions ........................................12
General Data .....................................................13
Performance Data ................................................16
Operating Pressures in Cooling/Heating .......................... 16
Electrical Data ....................................................79
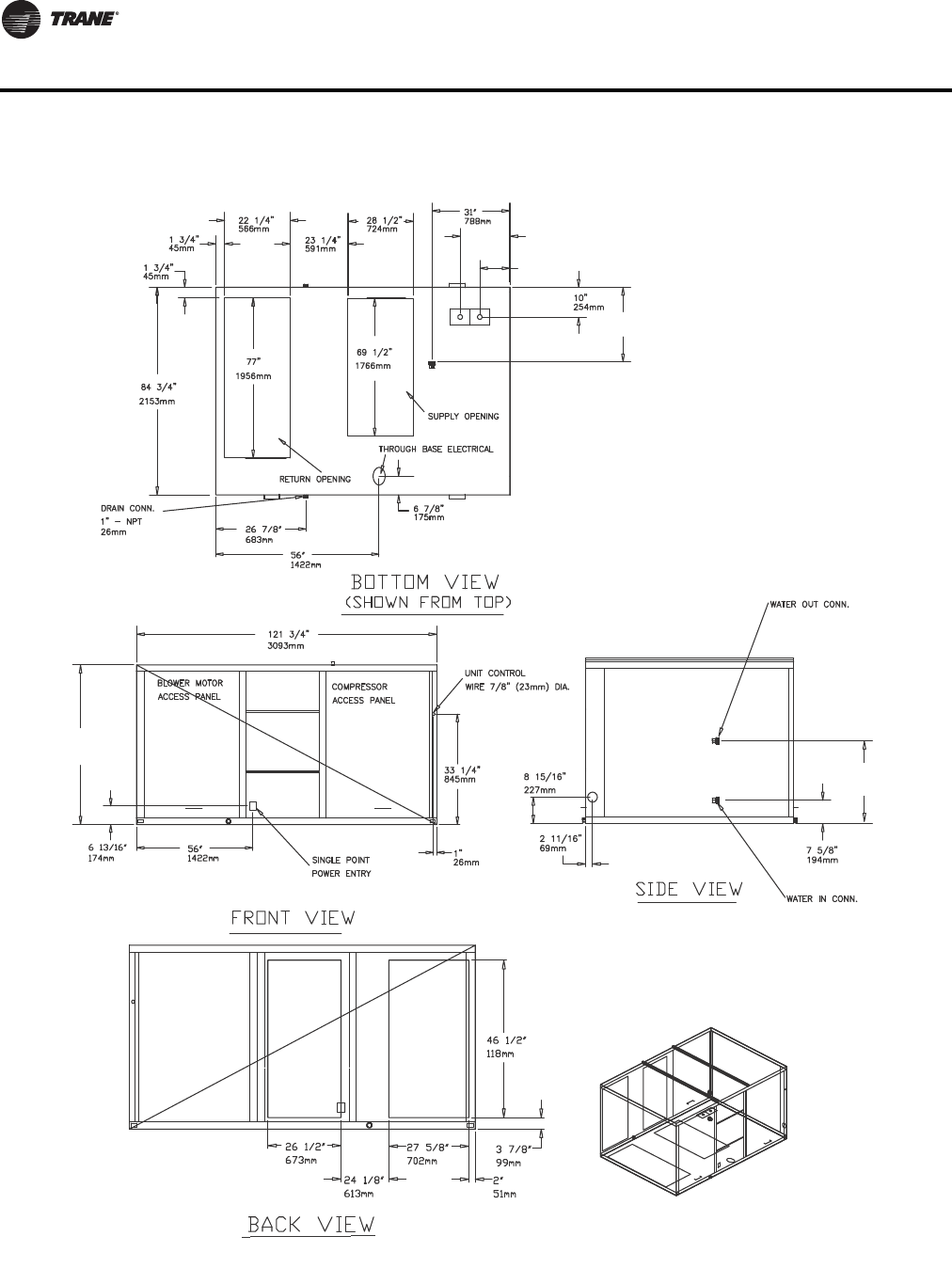
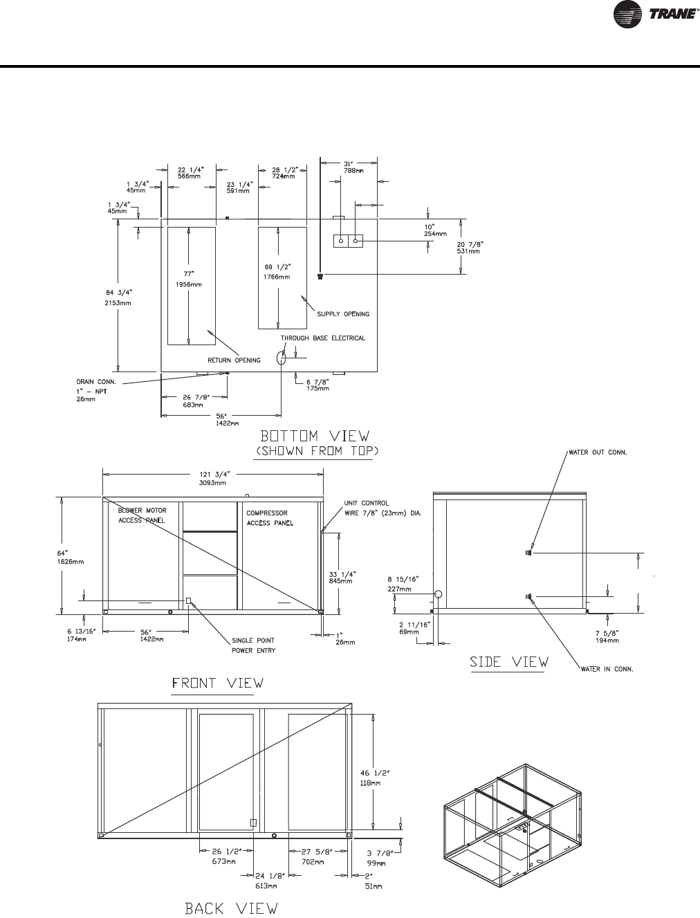
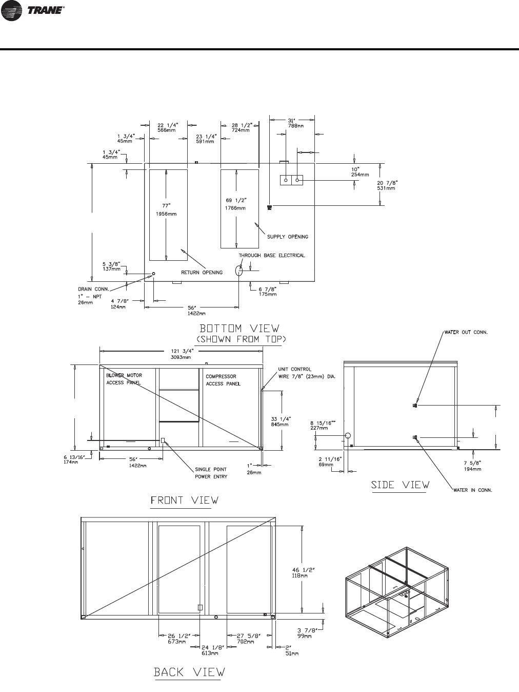
Dimensional Data .................................................86
Weights and Center of Gravity .....................................104
Accessories .....................................................105
System balancing hose kit .................................... 105
Thermostat/Sensor Location .................................. 105
Zone Sensors ............................................... 106
Wiring .........................................................107
Mechanical Specifications .........................................119

4 WSHP-PRC021-EN
Features and Benefits
Barometric Relief (Option)
The Axiom rooftop line offers an optional barometric relief damper for use in conjunction with the
economizer option.This accessory consists of gravity dampers which open because of increased
pressure. As the building air pressure increases, the pressure in the unit’s return air section also
increases, forcing the dampers open and relieving the conditioned space.
Note: The effectiveness of the barometric relief damper during economizing operation is system
related. Pressure drop of the return-air system should be considered to control building
pressurization.
Clogged Filter/Fan Fail Switches
These sensors allow an Integrated Comfort™ System (ICS) or a zone sensor’s service light to
indicate a dirty filter or a fan that is not working.The high field installation costs of these devices
often eliminate them from consideration. By factory installing these features to the rooftop unit,
these sensors are cost effective and a good investment.
Communication Interface
The direct digital control module may be factory or field installed.This module, when applied with
ReliaTel, easily interfaces withTrane’s Integrated Comfort System
Trane’s micro processing controller provides unit control for heating, cooling and ventilation
utilizing input from sensors that measure outdoor and indoor temperature.
Belt-Drive Motor (Option)
With the easy-adjust idler arm, an option available on 12.5- 25 ton units, the belt and sheaves on
the belt driven units can be quickly adjusted without moving the mounted fan motor.The result is
a major savings in time and money.
Blower Motors
Belt and direct drive motor selections are available in both standard and oversized configurations
to meet a wide airflow range.
Co-axial Water-to-Refrigerant Coil
The internal heat exchanging water coil is a copper or cupro-nickel tube-within-a-tube design.The
inner tube of the coil is deeply fluted to enhance heat transfer, and to minimize fouling and scaling.
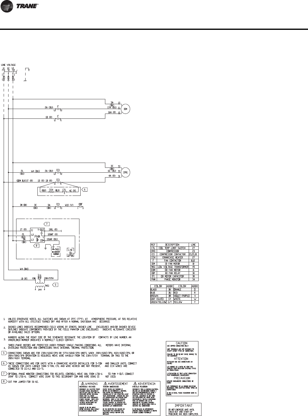
Colored and Numbered Wiring
The unit wiring is both numbered and color-coded to save time and money when tracing wires or
diagnosing the unit.
Compressors
The Axiom rooftop contains the best compressor technology available to achieve the highest
possible performance. Our compressor line includes reciprocating and scrolls.
Controls by Trane
Several years ago,Trane was the first to introduce microprocessor controls into the light
commercial market. With this control board, a broad range of applications may be explored.This
range includes setups such as a standalone unit to sensor design, to a complete building control
system provided through an ICS design.

WSHP-PRC021-EN 5
Features and Benefits
Why Trane Controls?
Trane ICS controls are factory tested and commissioned to provide comfort, efficiency, and
reliability, as well as, single-source warranty and service. WithTrane’s integrated controls, the
installed costs are lower because the equipment has turn-key factory controls and every
component has been specifically designed to optimize the units performance. When the Axiom
rooftop withTrane controls arrives to the jobsite, it is completely ready for quick installation and
operation.
MicroControls
The unit microprocessor improves quality and reliability through the use of time-tested
microprocessor controls and logic.
Features for the micro processing controls include:
• Provides heating, cooling, and ventilating by utilizing input from sensors that measure outdoor
and indoor temperature.
• Prevents the unit from short cycling, considerably improving compressor life.
• Ensures that the compressor will run for a specific amount of time, which allows oil to return
for better lubrication, enhancing the reliability of the compressor.
• Reduces the number of components required to operate the unit, thereby reducing possibilities
for component failure.
• Eliminates the need for field-installed components with its built-in anti-short-cycle timer, time
delay relay and minimum "on time" controls.These controls are factory tested to assure proper
operation.
• Requires no special tools to run the rooftop unit through its paces during testing. Simply place
a jumper betweenTest 1 andTest 2 terminals on the low voltage terminal board and the unit
will walk through its operational steps.The unit automatically returns control to the zone sensor
after stepping through the test mode a single time, even if the jumper is left on the unit
• As long as the unit has power and the LED is lit, the microprocessor is operational.The light
indicates that the processor is functioning properly.
• Expanded diagnostic capabilities when teamed withTrane’s Integrated Comfort Systems to
become part of a full building management system throughTracer Summit.
• As an energy benefit, the microprocessor based controls soften electrical spikes by staging on
blower fans, compressors and heaters.
• The intelligent fallback or adaptive control is a benefit to the building occupant. If a component
goes astray, the unit will continue to operate at predetermined temperature set points.
• Functioning constantly, the microprocessor and zone sensors work together in harmony to
provide tight comfort control.

6 WSHP-PRC021-EN
Features and Benefits
Convertible Units (3 - 10 Ton)
The units ship in a downflow configuration, but may be easily converted to a horizontal supply by
simply moving two panels.
Condenser Thermostat
A bi-metal element thermostat is installed standard on the water out as a standard option of each
system. This standard option gives extra protection against water freeze due to extreme outside
low temperatures.
Discharge Line Thermostat
A bi-metal element discharge line thermostats installed as a standard option on the discharge line
of each system. This standard option provides extra protection to the compressors against high
discharge temperatures in case of loss of charge, extremely high ambient and other conditions
which could drive the discharge temperature higher.
Easy Access Panels
Easy access panels reduce the number of possible water entry points. By removing only two
screws, entry to the standardized internal components and wiring is possible.All panels are sealed
to prevent water from entering the duct work.
Foil-Faced Insulation
All panels in the air-side section of the unit contain cleanable, foil-faced insulation. All edges are
either captured or sealed to ensure fibers do not get into the airstream.
Quality and Reliability
All Axiom rooftop designs were rigorously rain tested at the factory to help ensure water integrity
Actual shipping tests were performed to determine packaging requirements. Units were test
shipped around the country to determine the best packaging.
Drain Pans
The unit drain pans are of non-corrosive material.They are dual-sloped, and removable for ease
of cleaning.The drain pans are reversible to allow a drain trap installation on either side of the unit.
Duct Flanges
The units come complete with horizontal duct flanges to save additional time and money to the field
contractor during installation.
Easy Access Low Voltage Terminal Strip
The low voltage terminal strip is external to the electrical control cabinet. It is extremely easy
to locate and attach the thermostat wire.
The wiring of the low voltage connections to the unit and the zone sensors is as simple as
matching 1-1, 2-2, and 3-3, which ultimately makes it easier for the installer to wire.
Hinged Access Doors
The hinged access option permits easy access to the filter, fan/air-to-refrigerant coil, and
compressor/control section.This option reduces the potential roof damage that may occur
from fallen screws or access panels. It also provides additional security to the panel during a
high wind situation.

WSHP-PRC021-EN 7
Features and Benefits
Factory shake and drop tests were used as part of the package design process to help assure that
the unit arrives at the job site in top condition.
Rigging tests include lifting a unit into the air and letting it drop one foot, assuring that the lifting
lugs and rails hold up under stress.
We perform a 100% coil leak test at the factory.The air-to-refrigerant coil is leak tested at 470 psig
and pressure tested to 470 psig.
All parts are inspected at the point of final assembly. Sub-standard parts are identified and rejected
immediately.
With verification of total unit performance, our customers can be assured that each unit shipped
will run properly. All equipment is run tested to meet the industry standards developed by AHRI
to insure that global quality standards are met.
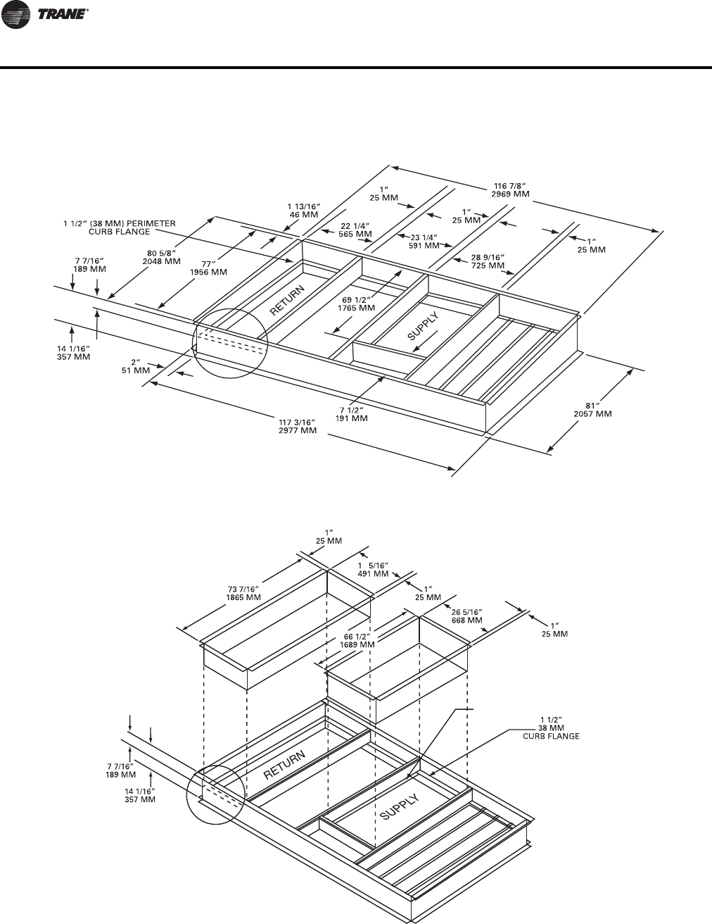
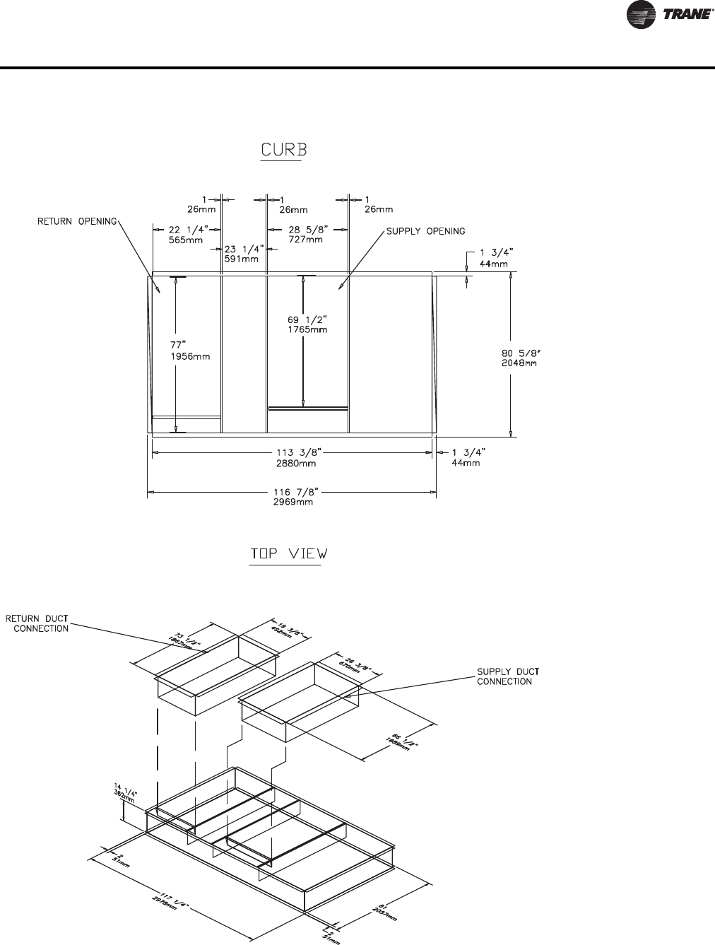
Roof Curb
Only one roof curb (both horizontal and down flow discharge) for the 3 through 5-ton or 6 through
10-ton rooftop line simplifies the roof curb selection. Curb selection for the 12 1/2 through 25-ton
equipment is made through only three roof curb combinations.
Safety Devices
All units are equipped with high and low pressure cutout to prevent compressor damage, and
water coil freezing.
The low pressure switch prevents compressor operation under low charge, excessive loss of
charge situations, and under low temperature operation. The high pressure switch prevents
compressor operation during high or excessive discharge pressures.
The following options round-out the complete line of options.
• 0 to 50% manual or motorized outside air
• Electric Heaters
• Supply and/or return smoke detectors
• Discharge air sensor
• Factory built roof curb
• Wide array of zone sensors and thermostats
Single Point Power
A single electrical connection to the contactor powers the unit when unit contains the electric heat
option.
Standardized Components
Components are placed in the same location on all rooftop units to provide a repetitious look and
feel to installation and maintenance personnel.
Through the Base Condensate
Every unit includes provisions for through-the-base condensate drain connections.This allows the
drain to be connected through the roof curb instead of requiring a separate roof penetration.
Reversing Valve
A system reversing valve (4-way valve) is included with all heat pump units.The valve is piped to
be energized in the cooling mode to allow space heating if valve failure were to occur.
Units with the cooling only option will not receive a reversing valve.

8 WSHP-PRC021-EN
Features and Benefits
Unit Base
For additional water integrity, the unit contains a raised 1 1/8-inch lip around the unit’s down flow
supply and return to prevent water from blowing into the ductwork.
Water Connection
The water-in/water-out connections to the co-axial coil are located in the refrigerant section of the
rooftop.These threaded and accessible connections provide a quick installation to a hose
Thermal Expansion Valve (TXV)
AllTrane water-source rooftops systems include a thermal expansion valve.This valve allows the
unit to operate under a large range of entering fluid temperature from 25° F to 110° F, and entering
air temperatures from 40° F to 90° F.This wide temperature range allows the unit to run without
a water regulating device through precise metering of refrigeration flow to achieve desired heating
or cooling.This precise metering by theTXV increases the efficiency of the unit.
Through the Base Electrical Utility Access
Factory provided through-the-base-openings simplifies wiring and piping. Because these
utility openings frequently minimize the number of roof penetrations, the integrity of roofing
materials is enhanced.
Unit Cabinet
The compact cabinet of the 3 through 10-ton equipment contains rounded corners to take up
less room. All units incorporate a one-piece top design to ensure superior water integrity. All
access panels are tightly sealed to prevent water from entering the duct work.
Unit Mounted Disconnect or Circuit Breaker
Codes require a method of assured unit shutdown for servicing. Field installed disconnects
sometimes interfere with service access. Factory installation of unit disconnects reduce costs,
assure proper mounting, and provide the opportunity to upgrade to unit circuit breaker
protection.

WSHP-PRC021-EN 9
Application Considerations
Flexibility
The rooftop water-source heat pump system is versatile for installation in boiler/cooling tower
applications, as well as ground-source (geothermal) applications.The system design may employ
either a central pumping design, or a distributed pumping design.
A central pumping design involves a single pump design, usually located within a basement or
mechanical room to fulfill pumping requirements for the entire building system. An auxiliary pump
is typically applied to lessen the likelihood of system downtime if the main pump malfunctions.
A distributed pumping system contains a single pump module connected directly to the unit supply
and return.This module is field installed and piped to the unit.This design requires individual
pump modules specifically sized for each water-source heat pump.
Building Automation
As part of a building automation system, the mechanical HVAC system may be optimized to lower
energy consumption. By running only the mechanical devices that are required to support the
building load at a given time of day or night means true savings for the building owner.
Maintenance and serviceability faults through the unit sensing devices are easily defined and cured
with an automated system.
The factory shipped DDC controls means turn-key installation and start-up.
Performance
Application of this product should be within the cataloged airflow and unit performance.TheTrane
Official Product Selection System (TOPSS™) will aid in the selection process for a set of given
conditions. If this program has not been made available, ask a localTrane sales engineer to supply
the desired selections or provide a copy of the program.
Condensate
The rooftop unit contains a draw-thru configuration. A negative pressure condensate trap must be
field provided prior to start-up for the unit to drain properly. See the installation manual for negative
pressure trapping.
Because the units have a reversible sloped condensate drain pan, the unit must be installed level.
Any unit slope must be toward the side of the unit where the condensate drain is located.
Hose Kits
A flexible stainless steel hose kit is used to connect the supply and return lines to the water-inlet/
outlet.

10 WSHP-PRC021-EN
Selection Procedure
Selection Program
All WSHP products should be selected through the Trane Official Product Selection System,
TOPSS™.
If this program has not been made available, ask a localTrane sales engineer to supply the desired
selection or a copy of the program.
Required Fields
The first step in the selection is to determine either:
• Total cooling capacity
• Sensible capacity
• Heating capacity
Note: The maximum allowable water pressure drop and selection ranges can also be identified.
TheTOPSS screen for the product is color coded to help identify field requirements.Fields
shadowed in red identify what is required to run aTOPSS calculation.The selection folder is
divided into five fields to allow ease of input for the selection process.These fields include:
• Fan information
• Cooling input information
• Heating input information
• Hose kit information
• All fields information
New Rating
The performance standard AHRI/ASHRAE/ISO 13256-1 became effective Jan. 1, 2000. It replaces
AHRI standards 320, 325 and 330.This new standard has three major categories which include:
Water Loop (AHRI 320), Ground Water (AHRI 325), and Ground Loop (AHRI 330).
The differences in ISO 13256-1 and the old AHRI ratings include:
• Cooling efficiency measurement is a watt per watt measurement similar to the widely used COP
measurement
• Entering water reflects the centigrade temperature scale at 68º F (20º C)
• Entering air reflects the centigrade temperature scale at 80.6º F (27º C) dry bulb and 66.2º F (19º
C) wet bulb.
• Pump power correction factors are added onto the existing power consumption
• Fan power is corrected to zero external static pressure
The rooftop water-source heat pump performance is rated in accordance to the AHRI/ISO 13256-
1 standard.This new standard has three major categories: Water Loop (AHRI 320), Ground Water
(AHRI 325), Ground Loop (AHRI 330). Although these standards are similar there are some
differences.
The cooling efficiency is measured in EER but includes a Watt-per-Watt unit of measure similar to
the traditional COP measurement.
The entering water temperature has changed to reflect the centigrade temperature scale. For
instance the water loop heating test is performed with 68ºF (20ºC) water instead of 70ºF.The cooling
tests are performed with 80.6ºF (27ºC) dry bulb and 66.2ºF (19ºC) wet bulb entering air instead of
the traditional 80ºF dry bulb, and 67ºF wet bulb entering air temperatures.This data (80.6/66.2) may
be converted to 80/67 by using the entering air correction table.

WSHP-PRC021-EN 11
Selection Procedure
A pump power correction has been added onto the existing power consumption. Within each
model, only one water flow rate is specified for each performance category, and pumping watts are
calculated utilizing the pump power correction formula: (gpm x 0.0631) x press drop x 2990) / 300.
Note: GPM relates to water flow, and press drop relates to the drop through the unit heat
exchanger at rated water flow in feet of head.The fan power is corrected to zero external
static pressure.The nominal airflow is rated at a specific external static pressure.This
effectively reduces the power consumption of the unit, and increases cooling capacity but
decreases heating capacity.These watts are significant enough in most cases to increase
EER and COP over AHRI 320, 325, and 330 ratings.
Cooling Dominated Applications
If humidity levels are moderate to high in a cooling dominated application, the heat pump should
be selected to meet or exceed the calculated sensible load. Also, the unit’s sensible capacity should
be no more than 115% of the total cooling load (sensible + latent), unless the calculated latent load
is less than the latent capacity of the unit.
The sensible-to-total cooling ratio can be adjusted with airflow. If the airflow is lowered, the unit
latent capacity will increase. When less air is pulled across the DX coil, more moisture will
condense from the air.
Heating Dominated Applications
Unit sizing in heating dominated applications is based upon humidity levels for the climate, and
goals for operating cost and installation costs.
If humidity levels are moderate, the heat pump should be selected with the heating capacity equal
to 125% of the cooling load.
If humidity levels are low in the application and low operating cost is important, the heat pump and
ground loop should be sized for 90% to 100% of the heating load.
If humidity levels are low and lower initial cost is important, then the heat pump and ground loop
should be sized for 70% to 85% of the heating load, with the remaining load to be treated with
electric resistance heat.
Installation cost will be reduced in this approach because of the smaller heat pump selection and
less loop materials.
In general, the system will not use enough electric heat to offset the higher installation costs
associated with a fully sized or oversized system.
Finally, a unit sized for the entire heating load in a heating dominated application will be oversized
in cooling. Comfort is reduced from increased room humidity caused by short-run times. Short
cycling will also shorten the life expectancy of the equipment and increase power consumption and
operating cost.
Many rebate incentives require the heat pump and ground loop to be sized for the entire heating
load. Check with you local utility for their requirements.

12 WSHP-PRC021-EN
Digits 1-3 — Unit Configuration
GER= High Efficiency Rooftop
Digit 4 — Development
Sequence
E
Digits 5-7 — Nominal Size (MBH)
036 = 3Ton
048 = 4Ton
060 = 5Ton
072 = 6Ton
090 = 7 1/2Ton
120 = 10Ton
150 = 12 1/2Ton
180 = 15Ton
240 = 20Ton
300 = 25Ton
Digit 8 — Voltage (Volts/Hz/
Phase)
1 = 208/60/1
2 = 230/60/1
3 = 208/60/3
4 = 460/60/3
5 = 575/60/3
8 = 230/60/3
Digit 9 — Heat Exchanger
1 = Copper Water Coil
2 = Cupro-nickel Water Coil
Digit 10 — Design Sequence
Most Up-to-Date Design
Digit 11 — Refrigeration Circuit
0 = Heating and Cooling Circuit
A = Cooling ONLY Circuit
Digit 12 — Blower Configuration
1 = Standard Blower
2 = Oversized Blower Motor
Digit 13 — Freeze Protection
A = 20 Degree Freezestat B/T
B = 30 Degree Freezestat B/T
Digit 14 — Open Digit
0 = Standard Design
S = Design Special
Digit 15 — Supply-Air
Arrangement
D = Down-Flow Supply-Air
Arrangement
(convertible for3-10Ton)
H = Horizontal Supply-Air
Arrangement
(12 1/2 - 25Ton option)
DIGIT 16 — Return-Air
Arrangement
0 = Standard Return-Air Arrangement
G E R E 060 1 1 A 0 1 1 0 D 0 T 0 A 6 0 0 1 1 0 A 0 B 0 0 0 0 0 000
1 2 3 4 5,6,7 8 9 10 11 12 13 14 15 16 17 18 19 20 21 22 23 24 25 26 27 28 29 30-36
Digit 17 — Control Types
R = ReliaTel™ Standalone Controls
T = Tracer™ Communication
Interface
L = LonTalk™ Communication
Interface
Digit 18 — T’stat/Sensor
Location
0 = Wall Mounted Location
A = Wall Mounted Sensor with Unit
Mounted Return-Air Smoke
Detector
B = Wall Mounted Sensor with Unit
Mounted Supply-Air Smoke
Detector
C = Wall Mounted Sensor with Unit
Mounted Return-Air/Supply-Air
Smoke Detectors
Digit 19 — Fault Sensors
0 = No Fault Sensor
A = Clogged Filter Switch
B = Fan Failure Switch
C = Discharge Air SensingTube
D = Clogged Filter Switch and Fan Fail
Switch
E = Clogged Filter Switch and
Discharge Air SensingTube
F = Fan Fail Switch and Discharge Air
SensingTube
G = Clogged Filter Switch, Fan Fail
Switch and DA SensingTube
Digit 20 — Temperature Sensor
7 = High Pressure Control/Frostat/
Crankcase Heater
Digit 21 — Night Setback
0 = No Night Setback Relay
N = Night Setback Relay
Note: Option N is used for the Micro
Standalone Controller ONLY.
Digit 22 — Electric Heat Option
0 = No Electric Heat
A = 5 kW (1-Phase)
B = 6 kW (3-Phase)
C = 9 kW (3-Phase)
D = 10 kW (1-Phase)
E = 12 kW (3-Phase)
F = 14 kW (1-Phase)
G = 18 kW (1 and 3-Phase)
J = 23 kW (3-Phase)
K = 27 kW (3-Phase)
N = 36 kW (3-Phase)
P = 54 kW (3-Phase)
Digit 23 — Unit Mounted
Disconnect
0 = No Unit Mounted Disconnect
1 = Non-Fused Disconnect
2 = Circuit Breaker
Digit 24 — Filter Type
2 = 2"Throwaway Filter
4 = 2" MERV 8 Filter
5 = 2" MERV 13 Filter
Digit 25 — Acoustic
Arrangement
0 = Sound Attenuation Package
Digit 26 — Factory Configuration
0 = Standard Factory Configuration
A = Hinged Access Panels
Digit 27 — Paint Color
0 = No Paint Selection Available
Digit 28 — Outside Air Option
0 = No Outside Air
A = Manual Outside Air Damper
0-25%
B = Motorized Outside Air Damper
0-50%
C = Economizer, Dry Bulb 0-100%
without Barometric Relief
D = Economizer, Dry Bulb 0-100%
with Barometric Relief
E = Economizer, Reference Enthalpy
0-100% without Barometric Relief
F = Economizer, Reference Enthalpy
0-100% with Barometric Relief
G = Economizer, Comparative
Enthalpy 0-100%
without Barometric Relief
H = Economizer, Comparative
Enthalpy 0-100%
with Barometric Relief
Digit 29 — Piping Arrangement
0 = Standard Piping Configuration
Digits 30-36 — Does Not Apply
To The Rooftop Product
0000000= Digit 30-36 Does NOT Apply to
the Rooftop Products
Note: Through-the-base electric is a
standard feature on the water-
source rooftop unit.
Model Number Descriptions

WSHP-PRC021-EN 13
General Data
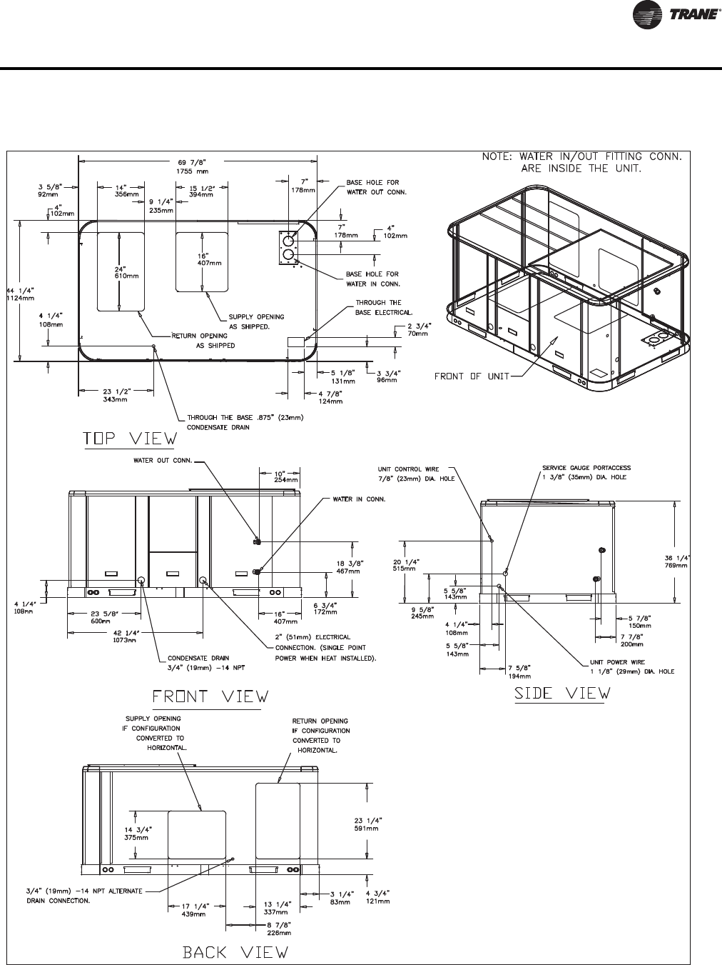
Table 1. General data - 3-4 tons
3 Tons 4 Tons
GER036E1 GER036E3,4,W GER048E1 GER048E3,4,W
Unit Size
Length of Cabinet
Width of Cabinet
Height
Net Weight (lb)
69 7/8”
44 1/4”
36 1/4”
487
69 7/8”
44 1/4”
36 1/4”
487
69 7/8”
44 1/4”
36 1/4”
538
69 7/8”
44 1/4”
36 1/4”
538
Compressor
Number/Type 1/Scroll 1/Scroll 1/Scroll 1/Scroll
Sound
Outdoor Sound Rating (dB) 81 80 82 82
Air to Refrigerant Coil - Type Lanced Lanced Lanced Lanced
Tube Size (in.)
Face Area (sq. ft.)
Rows/FPI
Refrigerant Control
Drain Connection Number/Size (in.)
0.3125
6.68
3/16
Thermal Expansion Valve
¾ NPT
0.3125
6.68
3/16
Thermal Expansion Valve
¾ NPT
0.3125
7.71
4/16
Thermal Expansion Valve
¾ NPT
0.3125
7.71
4/16
Thermal Expansion Valve
¾ NPT
Water Connection (size inches) 1” 1” 1” 1”
Direct Drive Fan - Type FC Centrifugal FC Centrifugal FC Centrifugal FC Centrifugal
Number Used/Diameter (in.)/Width (in.)
Drive Type/Number Speeds
Motor hp
Motor Frame Size
1/11x11
Direct/5
0.75
48
1/11x11
Belt/Variable
1.0
56
1/11x11
Direct/5
1.0
48
1/11x11
Belt/Variable
1.0
56
Filters - Type Furnished Throwaway Throwaway Throwaway Throwaway
Number Size Recommended (2) 20x30x1 (2) 20x30x1 (2) 20x30x1 (2) 20x30x1
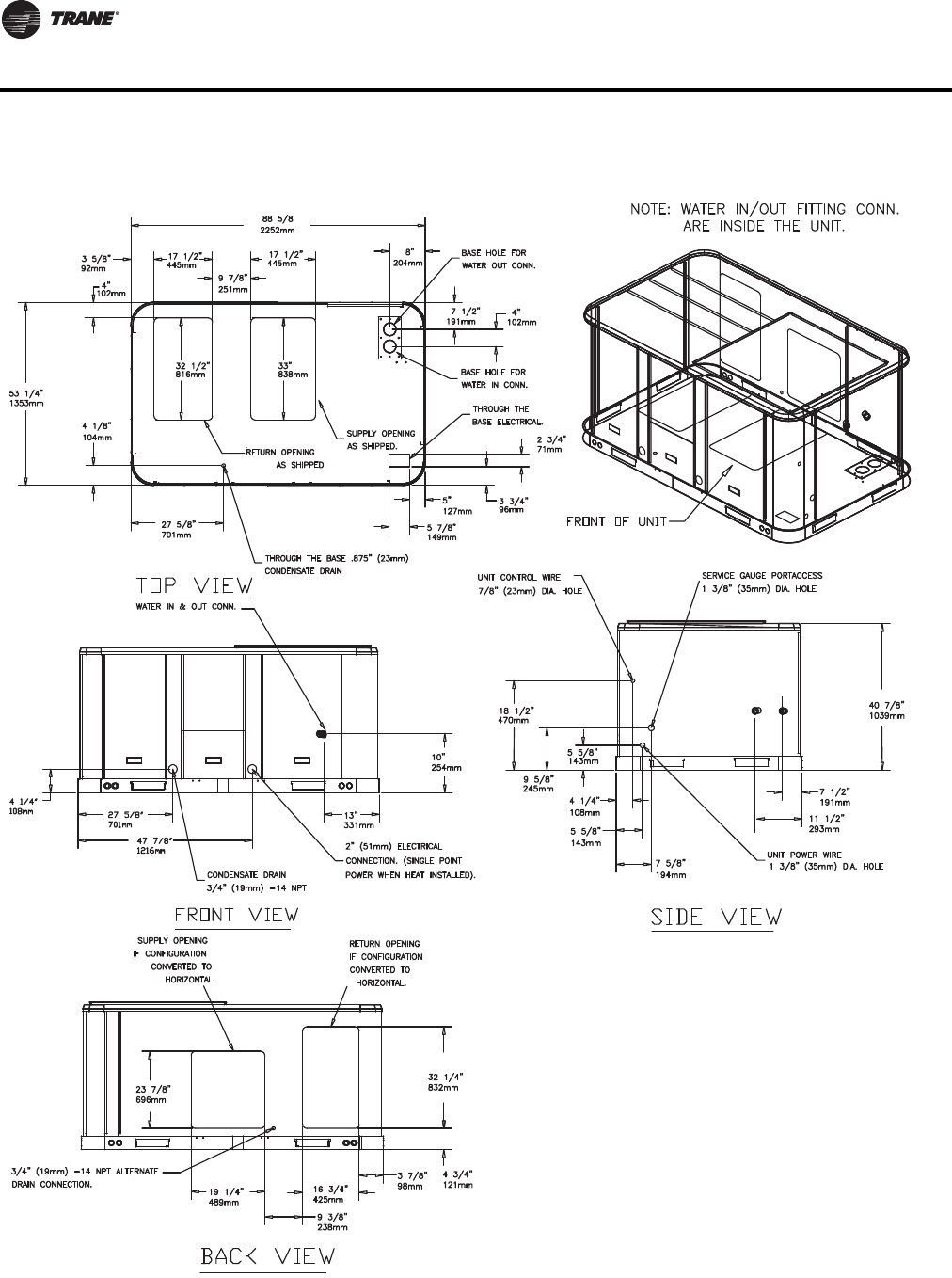
Table 2. General data-5tons
5 Tons
GER060E1 GER060E3,4,W
Unit Size
Length of Cabinet
Width of Cabinet
Height
Net Weight (lb)
88 5/8”
53 1/4”
40 7/8”
678
88 5/8”
53 1/4”
40 7/8”
678
Compressor
Number/Type 1/Scroll 1/Scroll
Sound
Outdoor Sound Rating (dB) 87 87
Indoor Coil - Type Lanced Lanced
Tube Size (in.)
Face Area (sq. ft.)
Rows/FPI
Refrigerant Control
Drain Connection Number/Size (in.)
0.3125
9.27
3/16
Thermal Expansion Valve
1¾ NPT
0.3125
9.27
3/16
Thermal Expansion Valve
1¾ NPT
Water Connection (size inches) 1” 1”
Indoor Fan - Type (Standard)
Number Used/Diameter (in.)/Width (in.)
Drive Type/Number Speeds
Motor hp
Motor Frame Size
FC Centrifugal FC Centrifugal
1/11x11
Direct/5
1.00
48
1/11x11
Belt/Variable
1.00
56
Filters - Type Furnished Throwaway Throwaway
Number Size Recommended (4) 16x25x2 (4) 16x25x2

14 WSHP-PRC021-EN
General Data
Table 3. General data - 6-10 tons
6 Tons 7½ Tons 10 Tons
GER072E3,4,W GER090E3,4,W GER120E3,4,W
Unit Size
Length of Cabinet
Width of Cabinet
Height
Net Weight (lb)
88 5/8”
53 1/4”
40 7/8”
700
88 5/8”
53 1/4”
46 7/8"
794
99 3/4”
63 1/4”
50 7/8”
941
Compressor
Number/Type 1/Scroll 1/Scroll 2/Scroll
Sound
Outdoor Sound Rating (dB) 89 89 87
Indoor Coil - Type Lanced Lanced Lanced
Configuration
Tube Size (in.)
Face Area (sq. ft.)
Rows/FPI
Refrigerant Control
Drain Connection Number/Size (in.)
Full Face
0.3125
9.89
4/16
Orifice
1 3/4 NPT
Full Face
0.3125
12.36
3/16
Orifice
1 3/4 NPT
Intertwined
0.3125
16.65
4/16
Orifice
1 3/4 NPT
Water Connection (size inches) 1” 1 1/4” 1 1/2”
Indoor Fan - Type
Number Used/Diameter (in.)/Width (in.)
Drive Type/Number Speeds
Motor hp (Standard/Oversized)
Motor Frame Size (Standard/Oversized)
FC Centrifugal FC Centrifugal BC Plenum
1/12x12
Belt/Variable
1.0/2.0
56/56
1/15 x 15
Belt/Variable
1.0/2.0
56/56
1/19.7 x 15
Direct/Variable
3.75/—
—/—
Filters - Type Furnished Throwaway Throwaway Throwaway
Number Size Recommended (4) 16x25x2 (4) 20x25x2 (3) 20x25x2
(2) 20x30x2
Table 4. General data — 12½ - 20 tons
12½ Tons
Downflow & Horizontal
Units
15 Tons
Downflow & Horizontal
Units
20 Tons
Downflow & Horizontal
Units
GER150E3,E4,EW GER180E3,E4,EW GER240E3,E4,EW
Unit Size
Length of Cabinet
Width of Cabinet
Height
Net Weight (lb)
122 5/16”
84 3/4”
54”
1800
122 5/16”
84 3/4”
54”
1848
122 5/16”
84 3/4”
64”
2008
Compressor
Number/Type 2 / Scrolls 2 / Scrolls 2 / Scrolls
AHRI Sound Rating (BELS) 9.2 9.2 9.4
Indoor Coil — Type Hi-Performance Hi-Performance Hi-Performance
Tube Size (in.) ID
Face Area (sq. ft.)
Rows/FPI
Refrigerant Control
Drain Connection Number/Size (in.)
0.3125
26.00
3 / 15
Expansion Valve
1/1.00 NPT
0.3125
26.00
4 / 15
Expansion Valve
1/1.00 NPT
0.3125
31.42
4 / 15
Expansion Valve
1/1.00 NPT
Water Connection (size inches) 1 1/2” 1 1/2” 2”
Indoor Fan - Type FC Centrifugal FC Centrifugal FC Centrifugal

WSHP-PRC021-EN 15
General Data
Number Used/Diameter (in.)
Drive Type/No. Speeds
Number Motors
Motor HP (Standard/Oversized)
Motor RPM (Standard/Oversized)
Motor Frame Size (Standard/Oversized)
1 / 18x18
Belt / 1
1
3.0 / 5.0
1740 / 3,450
145T / 145T
1 / 18x18
Belt / 1
1
3.0 / 5.0
1740 / 3,450
145T / 145T
1 / 18x18
Belt / 1
1
5.0 / 7.5
3450 / 3,470
145T / 184T
Filters - Type Furnished Throwaway Throwaway Throwaway
Number Size Recommended
Downflow
Horizontal
(4)20x20x2 (4)20x25x2
(8)20x25x2
(4)20x20x2 (4)20x25x2
(8)20x25x2
(8)20x20x2 (4)20x16x2
(12)20x20x2
Table 4. General data — 12½ - 20 tons (continued)
12½ Tons
Downflow & Horizontal
Units
15 Tons
Downflow & Horizontal
Units
20 Tons
Downflow & Horizontal
Units
GER150E3,E4,EW GER180E3,E4,EW GER240E3,E4,EW
Table 5. General data — 25 ton standard efficiency
25 Tons Downflow & Horizontal Units
GER300E3,4,W,K
Unit Size
Length of Cabinet
Width of Cabinet
Height
Net Weight (lb)
121 3/4”
84 3/4”
54”
1906
Compressor
Number/Type 2 / Scrolls
Sound
Outdoor Sound Rating (BELS) 9.4
Indoor Coil
Type
Tube Size (in.) ID
Face Area (sq. ft.)
Rows/FPI
Refrigerant Control
Drain Connection Number/Size (in.)
Hi-Performance
0.3125
26.00
4 / 15
Short Orifice
1/1.00 NPT
Water Connection (size inches) 2”
Indoor Fan
Type
Number Used/Diameter (in.)
Drive Type/No. Speeds
Number Motors
Motor HP (Standard/Oversized)
Motor RPM (Standard/Oversized)
Motor Frame Size (Standard/Oversized)
FC Centrifugal
1 / 18x18
Belt / 1
1
7.5 / N/A
3,470/N/A
184T/N/A
Filters
Type Furnished
Number Size Recommended
Downflow
Horizontal
Throwaway
(4)20x20x2 (4)20x25x2
(8)20x25x2

16 WSHP-PRC021-EN
Performance Data
Operating Pressures in Cooling/Heating
There are many variables (airflow, air temperatures) in an air conditioning system that will affect
operating refrigerant pressures and temperatures.The charts below shows approximate
conditions and is based on air flow at the rated SCFM, entering air at 80.6°F(DB), 66.2°F(WB) in
cooling, 68°F(DB) in heating. (+)Heating data with 35°F EWT is based on the use of an anti-freeze
solution having a freezing point 20°F lower than the minimum expected entering temperature.
Table 6. AHRI rating
Unit
Size
tons
Rated
Water
Flow
(GPM)
Rated
Airflow
(SCFM)
Cooling
Capacity
WLHP
(BTUH)
EER
WLH
P
Heating
Capacity
WLHP
(BTUH)
COP
WLHP
Cooling
Capacity
GWHP
(BTUH)
EER
GWH
P
Heating
Capacity
GWHP
(BTUH)
COP
GWH
P
Cooling
Capacity
GLHP
(BTUH)
EER
GLHP
Heating
Capacity
GLHP
(BTUH)
COP
GLHP
GER036 3 8.4 1140 38200 14.6 41400 4.5 43800 23.9 36100 4.2 40000 17.6 29800 3.6
GER048 4 11.2 1520 51500 15.8 52700 4.7 58000 24.3 45500 4.3 53500 18.4 37900 3.6
GER060 5 14.0 1900 60900 14.6 69500 4.7 69200 22.4 59200 4.2 63500 16.9 47900 3.6
GER072 6 18.6 2280 75500 13.7 85200 4.3 83800 19.6 71100 4.0 78500 15.6 57700 3.4
GER090 7.5 23.3 2850 86600 13.0 105400 4.4 95500 18.0 86500 4.0 90600 14.6 70200 3.5
GER120 10 31.0 3800 133100 15.9 143200 4.9 153700 24.9 116900 4.2 140200 18.5 85800 3.3
GER150 12.5 38.8 4750 160300 15.9 181500 5.1 178700 22.7 150800 4.5 166800 18.0 118800 3.7
GER180 15 46.5 5700 184400 14.2 201000 4.6 204200 19.7 162900 4.0 192500 15.9 123200 3.2
GER240 20 62.0 7600 261600 13.2 313100 4.4 290500 17.7 265900 4.0 273500 14.8 210000 3.5
GER300 25 77.5 9500 290100 13.1 313100 16.6 299500 14.3
Table 7. GER036 operating pressures in cooling/heating
Operating Data
Model
Entering
Water Temp
°F
Water
Flow GPM
Cooling Heating
Suction
Pressure
PSIG
Discharge
Pressure
PSIG
Water
Temp
Rise °F
Air Temp
Drop DB
°F
Suction
Pressure
PSIG
Discharge
Pressure
PSIG
Water
Temp
Drop °F
Air Temp
Rise DB
°F
GER036
35 6.7 — — — — 82-94 278-353 6-8 20-29
35 8.4 — — — — 84-97 279-356 5-6 20-30
45 6.7 132-152 184-234 14-18 24-30 96-111 292-372 7-9 23-33
45 8.4 132-152 177-225 11-14 25-30 99-114 295-375 6-7 24-33
55 6.7 134-154 212-270 14-17 24-29 112-129 307-391 8-11 26-36
55 8.4 134-154 205-260 11-14 24-29 115-133 311-396 7-9 27-37
68 6.7 136-156 253-322 13-17 23-29 135-155 329-419 10-12 30-41
68 8.4 136-156 245-312 11-14 23-29 140-161 334-424 8-10 31-41
75 6.7 137-158 277-353 13-17 23-28 149-171 342-435 11-14 32-43
75 8.4 137-157 269-342 11-13 23-28 154-177 346-441 9-11 33-44
86 6.7 139-160 319-405 13-17 22-28 173-199 362-461 12-15 36-47
86 8.4 139-160 310-394 10-13 22-28 179-206 367-468 10-12 37-48
95 6.7 141-162 356-452 13-16 22-27 — — — —
95 8.4 141-162 346-441 10-13 22-27 — — — —

WSHP-PRC021-EN 17
Performance Data
Table 8. GER048 operating pressures in cooling/heating
Operating Data
Model
Entering
Water
Temp °F
Water
Flow GPM
Cooling Heating
Suction
Pressure
PSIG
Discharge
Pressure
PSIG
Water
Temp Rise
°F
Air Temp
Drop DB
°F
Suction
Pressure
PSIG
Discharge
Pressure
PSIG
Water
Temp
Drop °F
Air Temp
Rise DB °F
GER048
359.0————82-94 267-339 6-7 18-27
35 11.2 ————83-96 268-341 5-6 19-28
45 9.0 135-155 183-233 13-17 23-29 96-111 278-354 6-8 21-30
45 11.2 135-155 177-225 10-13 23-29 98-113 280-356 5-7 21-31
55 9.0 136-157 212-270 13-16 23-29 112-129 291-370 7-9 23-33
55 11.2 136-157 205-260 10-13 23-29 115-133 293-373 6-8 24-34
68 9.0 138-159 253-323 13-16 22-28 136-157 309-393 9-11 27-37
68 11.2 138-159 246-313 10-13 23-28 140-161 312-398 7-9 28-38
75 9.0 140-161 278-354 13-16 22-28 150-173 320-407 10-12 29-39
75 11.2 139-160 270-344 10-13 22-28 155-179 324-412 8-10 30-40
86 9.0 142-163 321-408 12-16 21-27 175-202 338-430 11-14 32-43
86 11.2 142-163 312-397 10-13 22-27 181-208 342-435 9-11 33-44
95 9.0 144-165 359-456 12-16 21-27 ————
95 11.2 143-165 350-445 10-12 21-27 ————
Table 9. GER060 operating pressures in cooling/heating
Operating Data
Model
Entering
Water
Temp °F
Water
Flow GPM
Cooling Heating
Suction
Pressure
PSIG
Discharge
Pressure
PSIG
Water
Temp
Rise °F
Air Temp
Drop DB
°F
Suction
Pressure
PSIG
Discharge
Pressure
PSIG
Water
Temp Drop
°F
Air Temp
Rise DB
°F
GER060
35 11.2 — — — — 86-99 277-352 6-7 18-27
35 14.0 — — — — 88-101 279-355 5-6 18-27
45 11.2 132-152 189-241 13-16 23-28 101-116 292-372 7-8 21-30
45 14.0 132-151 182-232 10-13 23-28 103-119 294-374 5-7 21-31
55 11.2 134-154 217-277 13-16 22-28 117-135 308-392 8-10 24-34
55 14.0 134-154 210-267 10-13 22-28 120-138 311-396 6-8 24-34
68 11.2 137-157 259-330 12-16 22-27 141-162 332-423 9-12 28-38
68 14.0 136-157 251-320 10-12 22-27 145-167 335-427 8-10 29-39
75 11.2 138-159 284-361 12-15 21-27 155-179 347-441 10-13 30-41
75 14.0 138-159 276-351 10-12 21-27 160-184 349-445 8-11 31-41
86 11.2 141-162 326-415 12-15 21-26 180-207 371-472 12-15 34-45
86 14.0 140-161 318-405 9-12 21-26 186-214 376-479 9-12 35-46
95 11.2 143-164 364-463 12-15 20-26 — — — —
95 14.0 142-164 355-452 9-12 20-26 — — — —

18 WSHP-PRC021-EN
Performance Data
Table 10. GER072 operating pressures in cooling/heating
Operating Data
Model
Entering
Water
Temp °F
Water
Flow
GPM
Cooling Heating
Suction
Pressure
PSIG
Discharge
Pressure
PSIG
Water
Temp Rise
°F
Air Temp
Drop DB
°F
Suction
Pressure
PSIG
Discharge
Pressure
PSIG
Water
Temp Drop
°F
Air Temp
Rise DB
°F
GER072
35 — — — — — 75-87 265-337 5-7 20-29
35 — — — — — 77-89 266-339 4-5 20-29
45 14.9 118-136 180-229 12-16 23-29 87-100 275-349 6-8 23-32
45 18.6 118-136 174-221 10-13 23-29 89-103 276-352 5-6 23-33
55 14.9 120-138 209-266 12-15 23-28 104-119 289-368 7-9 26-36
55 18.6 120-138 202-257 10-12 23-28 107-123 291-370 6-7 27-37
68 14.9 124-142 247-314 12-15 22-28 119-137 310-394 8-10 30-40
68 18.6 123-142 239-304 10-12 23-28 123-142 312-397 7-8 30-41
75 14.9 125-144 271-345 12-15 22-28 133-153 320-408 9-11 32-43
75 18.6 125-143 264-336 9-12 22-28 138-159 324-412 7-9 33-43
86 14.9 128-147 312-398 12-15 22-27 158-182 339-431 10-12 36-47
86 18.6 128-147 304-387 9-12 22-27 163-188 342-435 8-10 37-48
95 14.9 130-149 350-445 11-14 21-27 — — — —
95 18.6 130-149 342-435 9-12 21-27 — — — —
Table 11. GER090 operating pressures in cooling/heating
Operating Data
Cooling Heating
Model
Entering
Water
Temp °F
Water
Flow
GPM
Suction
Pressure
PSIG
Discharge
Pressure
PSIG
Water
Temp Rise
°F
Air Temp
Drop
DB °F
Suction
Pressure
PSIG
Discharge
Pressure
PSIG
Water
Temp Drop
F
Air Temp
Rise
DB °F
GER090
35 — — — — — 71-81 263-335 5-6 19-28
35 — — — — — 72-83 264-336 4-5 19-28
45 18.6 109-126 178-226 11-14 20-25 81-93 276-352 6-7 21-31
45 23.3 109-126 172-219 9-11 20-25 83-95 278-353 5-6 22-31
55 18.6 110-127 207-264 11-14 19-25 97-112 290-369 7-8 24-34
55 23.3 110-127 201-255 9-11 19-25 100-114 291-371 5-7 25-35
68 18.6 114-132 246-313 11-14 19-25 116-133 312-398 8-10 29-39
68 23.3 113-130 239-305 9-11 19-25 119-137 315-400 6-8 29-39
75 18.6 114-132 271-345 11-14 19-25 130-149 324-412 8-11 31-42
75 23.3 114-131 264-337 9-11 19-25 134-154 326-415 7-9 32-42
86 18.6 116-133 315-401 10-13 18-24 154-177 343-437 9-12 35-46
86 23.3 115-133 308-391 8-11 18-24 158-182 347-441 8-10 36-46
95 18.6 118-136 355-451 10-13 18-24 — — — —
95 23.3 118-135 347-441 8-10 18-24 — — — —

WSHP-PRC021-EN 19
Performance Data
Table 12. GER120 operating pressures in cooling/heating
Operating Data
Model
Entering
Water
Temp °F
Water
Flow
GPM
Cooling Heating
Suction
Pressure
PSIG
Discharge
Pressure
PSIG
Water
Temp Rise
°F
Air Temp
Drop DB
°F
Suction
Pressure
PSIG
Discharge
Pressure
PSIG
Water
Temp
Drop °F
Air Temp
Rise DB
°F
GER120
35 — — — — — 74-85 256-326 5-6 17-26
35 — — — — — 76-87 257-327 4-5 17-26
45 24.8 124-143 175-223 12-16 25-30 83-95 267-340 6-7 21-31
45 31.0 124-143 168-214 10-13 25-30 85-97 269-343 5-6 22-31
55 24.8 126-145 204-259 12-16 24-30 99-113 281-358 7-9 25-34
55 31.0 126-144 196-250 10-12 25-30 101-117 284-361 6-7 25-35
68 24.8 128-147 245-312 12-15 24-29 122-141 302-384 8-10 29-39
68 31.0 128-147 238-303 10-12 24-29 126-145 304-387 7-8 30-40
75 24.8 129-149 270-344 12-15 23-29 137-157 312-398 9-11 31-42
75 31.0 129-148 262-334 9-12 23-29 141-162 316-402 7-9 32-43
86 24.8 131-151 313-398 12-15 23-28 162-186 330-421 10-13 35-46
86 31.0 131-151 305-388 9-12 23-28 167-193 333-424 8-10 36-47
95 24.8 133-153 351-447 11-15 22-28 — — — —
95 31.0 133-153 343-436 9-12 22-28 — — — —
Table 13. GER150 operating pressures in cooling/heating
Operating Data
Model
Entering
Water
Temp °F
Water
Flow GPM
Cooling Heating
Suction
Pressure
PSIG
Discharge
Pressure
PSIG
Water
Temp Rise
°F
Air Temp
Drop DB
°F
Suction
Pressure
PSIG
Discharge
Pressure
PSIG
Water
Temp
Drop °F
Air Temp
Rise DB °F
GER150
35 31.0 — — — — 85-98 271-344 11-13 18-27
35 38.8 — — — — 86-100 272-346 9-11 19-28
45 31.0 134-154 192-244 24-31 23-29 100-115 284-362 12-16 21-30
45 38.8 134-154 185-236 19-24 23-29 102-117 285-363 10-13 21-31
55 31.0 135-156 220-280 24-30 23-28 116-134 299-381 14-18 24-34
55 38.8 135-156 213-271 19-24 23-28 119-137 301-383 12-15 24-34
68 31.0 138-158 261-333 23-29 22-28 140-161 321-408 17-22 28-38
68 38.8 137-158 254-323 18-24 22-28 144-166 323-411 14-18 28-39
75 31.0 139-160 286-364 23-29 22-27 155-178 334-425 19-24 30-41
75 38.8 139-160 278-354 18-23 22-27 159-183 336-428 15-19 31-41
86 31.0 141-162 329-419 22-29 21-27 180-207 355-452 21-27 34-45
86 38.8 141-162 321-408 18-23 21-27 185-213 359-457 17-22 34-45
95 31.0 143-164 367-467 22-28 21-26 — — — —
95 38.8 143-164 359-456 18-22 21-26 — — — —

20 WSHP-PRC021-EN
Performance Data
Table 14. GER180 operating pressures in cooling/heating
Operating Data
Model
GEH/GEV
Entering
Water
Temp °F
Water
Flow
GPM
Cooling Heating
Suction
Pressure
PSIG
Discharge
Pressure
PSIG
Water
Temp Rise
°F
Air Temp
Drop DB
°F
Suction
Pressure
PSIG
DischargeP
ressure
PSIG
Water
Temp
Drop °F
Air Temp
Rise DB
°F
GER180
35 37.2 — — — — 80-92 251-319 5-6 17-26
35 46.5 — — — — 82-94 251-320 4-5 17-26
45 37.2 134-155 187-238 11-14 22-27 95-109 259-329 5-7 18-28
45 46.5 134-154 181-231 9-11 22-27 97-111 260-331 4-6 19-28
55 37.2 135-156 217-276 11-14 22-27 111-128 268-341 6-8 21-30
55 46.5 135-156 210-267 9-11 22-27 113-130 270-343 5-6 21-30
68 37.2 137-158 260-330 11-14 21-27 135-155 282-359 7-9 23-33
68 46.5 137-157 252-321 9-11 21-27 138-159 282-359 5-7 23-33
75 37.2 138-159 285-363 11-14 21-26 149-172 288-367 7-9 25-34
75 46.5 138-159 278-354 9-11 21-27 153-177 289-368 6-7 25-34
86 37.2 140-161 329-419 11-14 20-26 175-201 299-381 8-10 27-37
86 46.5 140-161 321-409 9-11 20-26 180-207 300-381 6-8 26-36
95 37.2 141-163 368-469 11-13 20-26 — — — —
95 46.5 141-163 360-459 8-11 20-26 — — — —
Table 15. GER240 operating pressures in cooling/heating
Operating Data
Cooling Heating
Model
Entering
Water
Temp F
Water
Flow
GPM
Suction
Pressure
PSIG
Discharge
Pressure
PSIG
Water
Temp Rise
F
Air Temp
Drop DB F
Suction
Pressure
PSIG
Discharge
Pressure
PSIG
Water
Temp
Drop F
Air Temp
Rise DB F
GER240
35 — — — — — 67-77 268-341 6-7 21-31
35 — — — — — 68-79 269-343 5-6 22-31
45 49.6 112-129 178-227 12-16 23-28 81-93 283-361 7-9 25-35
45 62.0 112-129 172-218 10-12 23-28 83-95 285-362 6-7 26-35
55 49.6 112-129 207-264 12-16 22-28 96-110 299-380 8-10 29-39
55 62.0 112-129 200-255 10-12 22-28 99-114 301-384 6-8 29-40
68 49.6 114-131 250-318 12-15 22-28 119-137 321-409 9-12 34-44
68 62.0 114-131 242-308 10-12 22-28 123-142 324-412 7-9 34-45
75 49.6 115-132 275-350 12-15 22-27 133-153 334-425 10-12 36-47
75 62.0 115-132 267-340 10-12 22-27 138-158 337-429 8-10 37-48
86 49.6 117-134 318-405 12-15 21-27 158-181 354-451 11-14 40-52
86 62.0 117-134 310-395 9-12 21-27 164-188 356-454 9-11 41-52
95 49.6 119-136 357-454 12-15 21-26 — — — —
95 62.0 118-136 348-443 9-12 21-26 — — — —

WSHP-PRC021-EN 21
Performance Data
GER036 Cooling Performance
Table 16. GER300 operating pressures in cooling/heating
Operating Data
Model
Entering
Water
Temp °F
Water
Flow
GPM
Cooling Heating
Suction
Pressure
PSIG
Discharge
Pressure
PSIG
Water
Temp Rise
°F
Air Temp
Drop DB
°F
Suction
Pressure
PSIG
Discharge
Pressure
PSIG
Water
Temp
Drop °F
Air Temp
Rise DB °F
GER300
35—————— ———
35—————— ———
46 62.0 115-132 182-231 11-13 19-25 — — — —
46 77.5 113-130 177-225 8-11 19-24 — — — —
55 62.0 118-136 208-265 11-14 20-26 — — — —
55 77.5 117-134 203-258 8-11 20-25 — — — —
68 62.0 123-142 248-316 11-13 20-26 — — — —
68 77.5 122-140 243-309 8-11 20-26 — — — —
75 62.0 126-145 272-346 11-13 20-26 — — — —
75 77.5 125-144 266-339 8-11 20-26 — — — —
86 62.0 131-150 312-397 10-13 20-26 — — — —
86 77.5 129-148 306-389 8-11 20-26 — — — —
95 62.0 133-154 348-442 10-13 20-26 — — — —
95 77.5 133-153 341-435 8-10 20-26 — — — —
Table 17. GER036 cooling performance
EWT GPM
Gross
Mbtuh
Sen
Mbtuh SHR
Comp Pwr
kW
Reject
Mbtuh LWT
Feet
Head
45
5.5 46.9 32.8 0.70 1.58 52.3 64.0 2.7
6.7 47.3 33.1 0.70 1.51 52.5 60.7 3.8
7.6 47.6 33.3 0.70 1.48 52.7 58.9 4.8
8.4 47.8 33.4 0.70 1.45 52.7 57.6 5.7
8.8 47.8 33.4 0.70 1.44 52.7 57.0 6.2
9.2 47.9 33.5 0.70 1.43 52.8 56.5 6.7
10.1 48.0 33.5 0.70 1.41 52.8 55.5 7.9
55
5.5 45.5 32.3 0.71 1.81 51.7 73.8 2.6
6.7 45.9 32.5 0.71 1.74 51.8 70.5 3.7
7.6 46.3 32.8 0.71 1.71 52.1 68.7 4.6
8.4 46.4 32.8 0.71 1.68 52.1 67.4 5.5
8.8 46.3 32.8 0.71 1.67 52.0 66.8 6.0
9.2 46.4 32.9 0.71 1.66 52.1 66.3 6.5
10.1 46.6 33.0 0.71 1.64 52.2 65.3 7.6
68
5.5 43.5 31.5 0.72 2.13 50.7 86.5 2.5
6.7 43.9 31.8 0.72 2.06 50.9 83.2 3.5
7.6 44.1 32.0 0.72 2.02 51.0 81.4 4.4
8.4 44.3 32.1 0.72 2.00 51.1 80.2 5.2
8.8 44.4 32.1 0.72 1.99 51.1 79.6 5.7
9.2 44.4 32.2 0.72 1.98 51.2 79.1 6.2
10.1 44.6 32.2 0.72 1.96 51.2 78.1 7.3

22 WSHP-PRC021-EN
Performance Data
75
5.5 42.3 31.0 0.73 2.32 50.2 93.3 2.4
6.7 42.7 31.3 0.73 2.24 50.4 90.0 3.4
7.6 42.9 31.5 0.73 2.21 50.5 88.3 4.3
8.4 43.1 31.6 0.73 2.18 50.5 87.0 5.1
8.8 43.2 31.7 0.73 2.17 50.6 86.5 5.6
9.2 43.2 31.7 0.73 2.16 50.6 86.0 6.0
10.1 43.4 31.8 0.73 2.14 50.6 85.0 7.1
86
5.5 40.3 30.2 0.75 2.64 49.3 103.9 2.3
6.7 40.7 30.6 0.75 2.56 49.4 100.8 3.3
7.6 40.9 30.7 0.75 2.52 49.5 99.0 4.1
8.4 41.1 30.9 0.75 2.50 49.6 97.8 4.9
8.8 41.1 30.9 0.75 2.48 49.6 97.3 5.4
9.2 41.2 30.9 0.75 2.47 49.6 96.8 5.8
10.1 41.3 31.0 0.75 2.45 49.7 95.8 6.9
95
5.5 38.5 29.6 0.77 2.94 48.5 112.6 2.3
6.7 38.9 29.9 0.77 2.86 48.6 109.5 3.2
7.6 39.1 30.1 0.77 2.82 48.7 107.8 4.0
8.4 39.3 30.2 0.77 2.79 48.8 106.6 4.8
8.8 39.3 30.2 0.77 2.78 48.8 106.1 5.2
9.2 39.4 30.3 0.77 2.76 48.8 105.6 5.7
10.1 39.5 30.4 0.77 2.74 48.9 104.7 6.7
105
5.5 36.3 28.8 0.79 3.30 47.6 122.3 2.2
6.7 36.7 29.1 0.79 3.22 47.7 119.2 3.1
7.6 37.0 29.3 0.79 3.18 47.9 117.6 3.9
8.4 37.1 29.4 0.79 3.14 47.8 116.4 4.7
8.8 37.2 29.5 0.79 3.13 47.8 115.9 5.1
9.2 37.2 29.5 0.79 3.12 47.8 115.4 5.5
10.1 37.4 29.6 0.79 3.09 47.9 114.5 6.5
115
5.5 34.0 27.9 0.82 3.71 46.6 131.9 2.2
6.7 34.4 28.2 0.82 3.62 46.7 128.9 3.1
7.6 34.6 28.4 0.82 3.57 46.8 127.3 3.8
8.4 34.7 28.5 0.82 3.54 46.8 126.1 4.6
8.8 34.8 28.6 0.82 3.52 46.8 125.6 5.0
9.2 34.9 28.6 0.82 3.51 46.8 125.2 5.4
10.1 35.0 28.7 0.82 3.49 46.9 124.3 6.3
120
5.5 32.7 27.5 0.84 3.93 46.1 136.8 2.1
6.7 33.1 27.8 0.84 3.84 46.2 133.8 3.0
7.6 33.3 28.0 0.84 3.79 46.3 132.2 3.8
8.4 33.5 28.1 0.84 3.76 46.3 131.0 4.5
8.8 33.6 28.2 0.84 3.75 46.3 130.5 4.9
9.2 33.6 28.2 0.84 3.73 46.4 130.1 5.3
10.1 33.7 28.3 0.84 3.70 46.3 129.2 6.2
Note: Cooling performance data is tabulated at 80.6°F DB / 66.2°F WB at the rated CFM. For conditions other than what is
tabulated, multipliers must be used to correct performance. See Table 19, p. 24 for Fan Correction Factors for CFM other
than rated and the Cooling Correction Factors for variations in entering air temperatures. Rated GPM 8.4; Minimum CFM
960; Rated CFM 1140; Maximum CFM 1440.
Table 17. GER036 cooling performance (continued)
EWT GPM
Gross
Mbtuh
Sen
Mbtuh SHR
Comp Pwr
kW
Reject
Mbtuh LWT
Feet
Head

WSHP-PRC021-EN 23
Performance Data
GER036 Heating Performance
Table 18. GER036 heating performance
EWT GPM
Gross
Mbtuh
Absorb
Mbtuh
Comp Pwr
kW LWT
Feet
Head
25
5.5 26.1 18.0 2.36 18.4 4.2
6.7 26.7 18.6 2.37 19.5 5.9
7.6 27.0 18.9 2.38 20.0 7.3
8.4 27.2 19.1 2.38 20.5 8.7
8.8 27.4 19.2 2.38 20.6 9.4
9.2 27.4 19.2 2.39 20.8 10.2
10.1 27.6 19.4 2.39 21.2 12.0
32
5.5 28.9 20.7 2.40 24.5 4.0
6.7 29.6 21.4 2.41 25.6 5.7
7.6 30.0 21.7 2.42 26.3 7.1
8.4 30.2 21.9 2.42 26.8 8.4
8.8 30.4 22.1 2.42 27.0 9.1
9.2 30.4 22.1 2.42 27.2 9.9
10.1 30.7 22.4 2.43 27.6 11.6
45
5.5 34.9 26.5 2.48 35.4 3.3
6.7 35.8 27.3 2.50 36.9 4.6
7.6 36.2 27.6 2.50 37.7 5.7
8.4 36.5 28.0 2.51 38.3 6.8
8.8 36.6 28.0 2.51 38.6 7.3
9.2 36.8 28.2 2.51 38.9 7.9
10.1 37.0 28.5 2.51 39.4 9.3
55
5.5 39.3 30.7 2.54 43.8 3.1
6.7 40.2 31.5 2.55 45.6 4.4
7.6 40.8 32.1 2.56 46.6 5.5
8.4 41.2 32.5 2.57 47.3 6.5
8.8 41.4 32.6 2.57 47.6 7.1
9.2 41.5 32.7 2.58 47.9 7.6
10.1 41.9 33.1 2.58 48.5 9.0
68
5.5 45.5 36.5 2.64 54.7 3.0
6.7 46.4 37.3 2.65 56.9 4.2
7.6 47.0 37.9 2.66 58.0 5.2
8.4 47.5 38.4 2.67 58.9 6.2
8.8 47.7 38.6 2.67 59.2 6.7
9.2 47.8 38.7 2.67 59.6 7.3
10.1 48.2 39.1 2.68 60.3 8.6
75
5.5 48.5 39.3 2.68 60.7 2.9
6.7 49.7 40.5 2.70 62.9 4.1
7.6 50.4 41.2 2.71 64.2 5.1
8.4 50.9 41.6 2.72 65.1 6.1
8.8 51.1 41.8 2.73 65.5 6.6
9.2 51.3 42.0 2.73 65.9 7.1
10.1 51.7 42.4 2.74 66.6 8.4

24 WSHP-PRC021-EN
Performance Data
GER048 Cooling Performance
86
5.5 53.6 44.2 2.77 69.9 2.8
6.7 55.0 45.5 2.79 72.4 4.0
7.6 55.7 46.2 2.80 73.8 4.9
8.4 56.3 46.7 2.81 74.9 5.9
8.8 56.7 47.0 2.82 75.3 6.4
9.2 57.0 47.3 2.82 75.7 6.9
10.1 57.2 47.6 2.82 76.6 8.1
Note: Heating performance data is tabulated at 68.0°F DB at the rated CFM. For conditions other than what is tabulated,
multipliers must be used to correct performance. See Table 19, p. 24 for Fan Correction Factors for CFM other than rated
and the Heating Correction Factors for variations in entering air temperatures. Rated GPM 8.4; Minimum CFM 960; Rated
CFM 1140; Maximum CFM 1440.
Table 19. GER036 fan correction factors
Entering
CFM
Cooling
Capacity
Sensible
Capacity
Cooling
Input
Watts
Heating
Capacity
Heating
Input
Watts
960 0.966 0.910 1.002 0.980 1.072
993 0.973 0.924 1.002 0.985 1.057
1026 0.979 0.941 1.001 0.989 1.044
1080 0.990 0.969 1.001 0.998 1.025
1140 1.000 1.000 1.000 1.000 1.000
1200 1.009 1.031 0.999 1.005 0.982
1320 1.024 1.091 0.997 1.014 0.951
1440 1.038 1.153 0.996 1.023 0.926
Table 20. GER048 cooling performance
EWT GPM
Gross
Mbtuh
Sen
Mbtuh SHR
Comp Pwr
kW
Reject
Mbtuh LWT
Feet
Head
45
7.3 60.4 43.0 0.71 1.86 66.7 63.3 1.5
9.0 60.7 43.2 0.71 1.77 66.7 59.8 2.1
10.1 60.8 43.3 0.71 1.73 66.7 58.2 2.6
11.2 60.9 43.4 0.71 1.69 66.7 56.9 3.1
11.8 61.0 43.4 0.71 1.68 66.7 56.3 3.4
12.3 61.0 43.4 0.71 1.67 66.7 55.9 3.7
13.4 61.1 43.5 0.71 1.64 66.8 55.0 4.3
55
7.3 58.7 42.3 0.72 2.16 66.1 73.1 1.4
9.0 59.1 42.5 0.72 2.07 66.1 69.7 2.0
10.1 59.2 42.7 0.72 2.03 66.1 68.1 2.5
11.2 59.4 42.8 0.72 1.99 66.2 66.8 3.0
11.8 59.4 42.8 0.72 1.98 66.2 66.2 3.3
12.3 59.5 42.8 0.72 1.97 66.2 65.8 3.6
13.4 59.6 42.9 0.72 1.95 66.2 64.9 4.1
Table 18. GER036 heating performance (continued)
EWT GPM
Gross
Mbtuh
Absorb
Mbtuh
Comp Pwr
kW LWT
Feet
Head

WSHP-PRC021-EN 25
Performance Data
68
7.3 56.3 41.4 0.74 2.56 65.0 85.8 1.3
9.0 56.6 41.7 0.74 2.47 65.1 82.5 2.0
10.1 56.8 41.8 0.74 2.43 65.1 80.9 2.4
11.2 57.0 41.9 0.74 2.40 65.1 79.6 2.9
11.8 57.0 41.9 0.74 2.38 65.2 79.0 3.2
12.3 57.1 42.0 0.74 2.37 65.2 78.6 3.4
13.4 57.1 42.0 0.74 2.35 65.1 77.7 4.0
75
7.3 54.9 40.9 0.75 2.79 64.4 92.6 1.3
9.0 55.2 41.1 0.75 2.70 64.4 89.3 1.9
10.1 55.4 41.3 0.75 2.66 64.4 87.8 2.3
11.2 55.5 41.4 0.75 2.62 64.5 86.5 2.8
11.8 55.6 41.4 0.75 2.61 64.5 85.9 3.1
12.3 55.6 41.4 0.75 2.60 64.5 85.5 3.3
13.4 55.7 41.5 0.75 2.57 64.5 84.6 3.9
86
7.3 52.4 40.0 0.76 3.19 63.3 103.3 1.3
9.0 52.7 40.2 0.76 3.09 63.3 100.1 1.8
10.1 52.9 40.4 0.76 3.04 63.3 98.5 2.3
11.2 53.0 40.5 0.76 3.01 63.3 97.3 2.7
11.8 53.1 40.5 0.76 2.99 63.3 96.7 3.0
12.3 53.1 40.5 0.76 2.98 63.3 96.3 3.2
13.4 53.2 40.6 0.76 2.96 63.3 95.4 3.7
95
7.3 50.2 39.2 0.78 3.56 62.4 112.1 1.2
9.0 50.6 39.5 0.78 3.46 62.4 108.9 1.8
10.1 50.6 39.5 0.78 3.40 62.3 107.3 2.2
11.2 50.8 39.7 0.78 3.37 62.3 106.1 2.6
11.8 50.9 39.7 0.78 3.36 62.3 105.6 2.9
12.3 50.9 39.8 0.78 3.34 62.3 105.1 3.1
13.4 51.0 39.8 0.78 3.32 62.4 104.3 3.6
105
7.3 47.6 38.3 0.80 4.02 61.3 121.8 1.2
9.0 47.9 38.5 0.80 3.90 61.2 118.6 1.7
10.1 48.1 38.7 0.80 3.85 61.2 117.1 2.1
11.2 48.2 38.8 0.80 3.81 61.2 115.9 2.6
11.8 48.3 38.8 0.80 3.80 61.2 115.4 2.8
12.3 48.3 38.9 0.80 3.78 61.2 115.0 3.0
13.4 48.4 38.9 0.80 3.75 61.2 114.1 3.5
115
7.3 44.8 37.3 0.83 4.54 60.2 131.5 1.2
9.0 45.1 37.6 0.83 4.42 60.1 128.4 1.7
10.1 45.2 37.7 0.83 4.36 60.1 126.9 2.1
11.2 45.3 37.8 0.83 4.32 60.1 125.7 2.5
11.8 45.4 37.9 0.83 4.31 60.1 125.2 2.7
12.3 45.4 37.9 0.83 4.29 60.1 124.8 3.0
13.4 45.5 38.0 0.83 4.25 60.0 124.0 3.4
Table 20. GER048 cooling performance (continued)
EWT GPM
Gross
Mbtuh
Sen
Mbtuh SHR
Comp Pwr
kW
Reject
Mbtuh LWT
Feet
Head

26 WSHP-PRC021-EN
Performance Data
GER048 Heating Performance
120
7.3 43.2 36.8 0.85 4.82 59.6 136.3 1.2
9.0 43.5 37.1 0.85 4.70 59.6 133.2 1.7
10.1 43.7 37.3 0.85 4.64 59.5 131.8 2.1
11.2 43.8 37.3 0.85 4.60 59.5 130.6 2.5
11.8 43.9 37.4 0.85 4.58 59.5 130.1 2.7
12.3 43.9 37.4 0.85 4.56 59.5 129.7 2.9
13.4 44.0 37.5 0.85 4.53 59.4 128.9 3.4
Note: Cooling performance data is tabulated at 80.6°F DB / 66.2°F WB at the rated CFM. For conditions other than what
is tabulated, multipliers must be used to correct performance. See Table 22, p. 27 for Fan Correction Factors for CFM
other than rated and the Cooling Correction Factors for variations in entering air temperatures. Rated GPM 11.2;
Minimum CFM 1280; Rated CFM 1520; Maximum CFM 1920.
Table 21. GER048 heating performance
EWT GPM
Gross
Mbtuh
Absorb
Mbtuh
Comp Pwr
kW LWT
Feet
Head
25
7.3 32.1 22.8 2.72 18.8 4.7
9.0 32.8 23.4 2.73 19.8 6.8
10.1 33.1 23.8 2.74 20.3 8.3
11.2 33.4 24.0 2.74 20.7 10.0
11.8 33.5 24.1 2.74 20.9 10.9
12.3 33.6 24.2 2.74 21.1 11.7
13.4 33.8 24.4 2.75 21.4 13.6
32
7.3 35.1 25.7 2.75 25.0 4.6
9.0 35.9 26.5 2.76 26.1 6.6
10.1 36.3 26.9 2.76 26.7 8.1
11.2 36.6 27.2 2.77 27.1 9.7
11.8 36.7 27.3 2.77 27.4 10.6
12.3 36.9 27.4 2.77 27.5 11.4
13.4 37.1 27.6 2.77 27.9 13.2
45
7.3 41.9 32.2 2.83 36.2 3.7
9.0 42.8 33.1 2.84 37.6 5.3
10.1 43.2 33.5 2.84 38.4 6.5
11.2 43.5 33.8 2.84 39.0 7.8
11.8 43.7 34.0 2.85 39.2 8.5
12.3 43.8 34.1 2.85 39.5 9.2
13.4 44.3 34.5 2.86 39.8 10.6
55
7.3 47.0 37.1 2.88 44.8 3.6
9.0 47.8 38.0 2.90 46.6 5.1
10.1 48.4 38.4 2.91 47.4 6.3
11.2 48.8 38.9 2.91 48.1 7.5
11.8 49.2 39.2 2.92 48.3 8.2
12.3 49.4 39.4 2.92 48.6 8.8
13.4 49.7 39.7 2.93 49.1 10.2
Table 20. GER048 cooling performance (continued)
EWT GPM
Gross
Mbtuh
Sen
Mbtuh SHR
Comp Pwr
kW
Reject
Mbtuh LWT
Feet
Head

WSHP-PRC021-EN 27
Performance Data
68
7.3 53.6 43.4 2.98 56.1 3.4
9.0 54.8 44.6 3.00 58.1 4.9
10.1 55.6 45.3 3.01 59.0 6.0
11.2 56.2 45.9 3.02 59.8 7.1
11.8 56.5 46.1 3.03 60.2 7.8
12.3 56.7 46.3 3.03 60.5 8.4
13.4 57.0 46.6 3.04 61.0 9.7
75
7.3 57.4 47.0 3.04 62.1 3.3
9.0 59.1 48.6 3.07 64.2 4.8
10.1 59.8 49.2 3.08 65.2 5.8
11.2 60.4 49.8 3.09 66.1 7.0
11.8 60.6 50.0 3.10 66.5 7.6
12.3 60.8 50.3 3.10 66.8 8.2
13.4 61.3 50.6 3.11 67.4 9.5
86
7.3 63.8 53.0 3.16 71.5 3.2
9.0 65.3 54.5 3.18 73.9 4.6
10.1 66.2 55.3 3.19 75.1 5.6
11.2 66.8 55.9 3.21 76.0 6.7
11.8 67.1 56.2 3.21 76.5 7.4
12.3 67.4 56.4 3.22 76.8 7.9
13.4 67.8 56.8 3.22 77.5 9.2
Note: Heating performance data is tabulated at 68.0°F DB at the rated CFM. For conditions other than what is tabulated,
multipliers must be used to correct performance. See Table 22, p. 27 fpr Fan Correction Factors for CFM other than rated
and the Heating Correction Factors for variations in entering air temperatures. Rated GPM 11.2; Minimum CFM 1280;
Rated CFM 1520; Maximum CFM 1920.
Table 22. GER048 fan correction factors
Entering
CFM
Cooling
Capacity
Sensible
Capacity
Cooling
Input
Watts
Heating
Capacity
Heating
Input
Watts
1280 0.966 0.902 1.002 0.977 1.058
1324 0.973 0.922 1.002 0.982 1.046
1368 0.980 0.941 1.001 0.986 1.034
1440 0.990 0.968 1.001 0.992 1.017
1520 1.000 1.000 1.000 1.000 1.000
1600 1.009 1.030 0.999 1.005 0.984
1760 1.027 1.095 0.999 1.022 0.960
1920 1.041 1.160 0.998 1.026 0.937
Table 21. GER048 heating performance (continued)
EWT GPM
Gross
Mbtuh
Absorb
Mbtuh
Comp Pwr
kW LWT
Feet
Head

28 WSHP-PRC021-EN
Performance Data
GER060 Cooling Performance
Table 23. GER060 cooling performance
EWT GPM
Gross
Mbtuh
Sen
Mbtuh SHR
Comp Pwr
kW
Reject
Mbtuh LWT
Feet
Head
45
9.1 72.6 51.6 0.71 2.29 80.4 62.7 6.0
11.2 73.1 52.0 0.71 2.18 80.5 59.4 8.7
12.6 73.3 52.1 0.71 2.12 80.5 57.8 10.8
14.0 73.5 52.3 0.71 2.08 80.6 56.5 13.0
14.7 73.5 52.3 0.71 2.06 80.6 56.0 14.2
15.4 73.6 52.4 0.71 2.04 80.6 55.5 15.4
16.8 73.7 52.4 0.71 2.01 80.6 54.6 17.9
55
9.1 70.3 51.0 0.73 2.70 79.5 72.5 5.8
11.2 70.8 51.3 0.73 2.59 79.6 69.2 8.4
12.6 71.0 51.5 0.73 2.53 79.6 67.6 10.4
14.0 71.2 51.6 0.73 2.49 79.7 66.4 12.5
14.7 71.3 51.7 0.73 2.47 79.7 65.8 13.6
15.4 71.3 51.7 0.73 2.46 79.7 65.4 14.8
16.8 71.5 51.8 0.73 2.43 79.8 64.5 17.3
68
9.1 66.8 49.8 0.75 3.23 77.8 85.1 5.6
11.2 67.3 50.2 0.75 3.12 77.9 81.9 8.0
12.6 67.5 50.4 0.75 3.07 78.0 80.4 9.9
14.0 67.7 50.5 0.75 3.02 78.0 79.1 11.9
14.7 67.8 50.6 0.75 3.01 78.1 78.6 13.0
15.4 67.9 50.6 0.75 2.99 78.1 78.1 14.1
16.8 68.0 50.7 0.75 2.96 78.1 77.3 16.5
75
9.1 64.7 49.1 0.76 3.53 76.8 91.9 5.4
11.2 65.3 49.5 0.76 3.42 76.9 88.7 7.9
12.6 65.5 49.7 0.76 3.37 77.0 87.2 9.7
14.0 65.7 49.8 0.76 3.32 77.0 86.0 11.7
14.7 65.8 49.9 0.76 3.31 77.0 85.5 12.7
15.4 65.8 50.0 0.76 3.29 77.1 85.0 13.8
16.8 66.0 50.0 0.76 3.26 77.1 84.2 16.1
86
9.1 61.3 47.9 0.78 4.04 75.1 102.5 5.3
11.2 61.8 48.3 0.78 3.93 75.2 99.4 7.6
12.6 62.0 48.5 0.78 3.87 75.2 97.9 9.4
14.0 62.2 48.7 0.78 3.83 75.3 96.8 11.3
14.7 62.3 48.7 0.78 3.81 75.3 96.2 12.3
15.4 62.4 48.8 0.78 3.79 75.3 95.8 13.3
16.8 62.5 48.9 0.78 3.76 75.3 95.0 15.5
95
9.1 58.2 46.9 0.81 4.51 73.6 111.2 5.1
11.2 58.7 47.3 0.81 4.39 73.7 108.2 7.4
12.6 58.9 47.4 0.81 4.33 73.7 106.7 9.1
14.0 59.1 47.6 0.81 4.29 73.8 105.5 11.0
14.7 59.2 47.7 0.81 4.27 73.8 105.0 12.0
15.4 59.3 47.7 0.81 4.25 73.8 104.6 13.0
16.8 59.4 47.8 0.81 4.22 73.8 103.8 15.1

WSHP-PRC021-EN 29
Performance Data
GER060 Heating Performance
105
9.1 54.6 45.7 0.84 5.06 71.9 120.8 5.0
11.2 55.1 46.1 0.84 4.94 71.9 117.8 7.2
12.6 55.3 46.3 0.84 4.88 71.9 116.4 8.9
14.0 55.5 46.5 0.84 4.83 72.0 115.3 10.7
14.7 55.6 46.5 0.84 4.81 72.0 114.8 11.6
15.4 55.6 46.6 0.84 4.79 72.0 114.3 12.6
16.8 55.7 46.7 0.84 4.76 72.0 113.6 14.7
115
9.1 50.8 44.6 0.88 5.68 70.1 130.4 4.9
11.2 51.2 45.0 0.88 5.55 70.2 127.5 7.0
12.6 51.5 45.3 0.88 5.49 70.2 126.1 8.6
14.0 51.6 45.4 0.88 5.44 70.2 125.0 10.4
14.7 51.7 45.5 0.88 5.42 70.2 124.6 11.3
15.4 51.8 45.5 0.88 5.40 70.2 124.1 12.3
16.8 51.9 45.6 0.88 5.37 70.2 123.4 14.3
120
9.1 48.7 44.1 0.91 6.01 69.2 135.2 4.8
11.2 49.2 44.5 0.91 5.88 69.2 132.4 6.9
12.6 49.4 44.7 0.91 5.82 69.3 131.0 8.5
14.0 49.6 44.9 0.91 5.77 69.3 129.9 10.3
14.7 49.6 44.9 0.91 5.75 69.2 129.4 11.2
15.4 49.7 45.0 0.91 5.73 69.3 129.0 12.1
16.8 49.8 45.1 0.91 5.70 69.3 128.2 14.2
Note: Cooling performance data is tabulated at 80.6°F DB / 66.2°F WB at the rated CFM. For conditions other than what is
tabulated, multipliers must be used to correct performance. See Table 25, p. 31 for Fan Correction Factors for CFM other
than rated and the Cooling Correction Factors for variations in entering air temperatures. Rated GPM 14.0; Minimum CFM
1600; Rated CFM 1900; Maximum CFM 2400.
Table 24. GER060 heating performance
EWT GPM
Gross
Mbtuh
Absorb
Mbtuh
Comp Pwr
kW LWT
Feet
Head
25
9.1 39.8 28.2 3.39 18.8 8.7
11.2 40.3 28.7 3.39 19.9 12.5
12.6 40.8 29.2 3.40 20.4 15.3
14.0 41.3 29.6 3.41 20.8 18.4
14.7 41.3 29.7 3.41 21.0 20.1
15.4 41.5 29.9 3.41 21.1 21.8
16.8 41.5 29.9 3.41 21.4 25.3
32
9.1 44.1 32.3 3.45 24.9 8.5
11.2 45.1 33.3 3.46 26.1 12.1
12.6 45.4 33.6 3.46 26.7 14.9
14.0 45.7 33.9 3.47 27.2 17.9
14.7 46.0 34.1 3.47 27.4 19.5
15.4 46.0 34.2 3.48 27.6 21.1
16.8 46.3 34.4 3.47 27.9 24.6
Table 23. GER060 cooling performance (continued)
EWT GPM
Gross
Mbtuh
Sen
Mbtuh SHR
Comp Pwr
kW
Reject
Mbtuh LWT
Feet
Head

30 WSHP-PRC021-EN
Performance Data
45
9.1 53.6 41.3 3.61 35.9 6.8
11.2 54.6 42.3 3.62 37.5 9.8
12.6 55.1 42.7 3.63 38.2 12.0
14.0 55.6 43.2 3.63 38.8 14.4
14.7 55.8 43.3 3.64 39.1 15.7
15.4 55.9 43.5 3.64 39.3 17.0
16.8 56.2 43.8 3.64 39.8 19.8
55
9.1 61.0 48.2 3.75 44.4 6.6
11.2 62.1 49.3 3.76 46.2 9.4
12.6 62.9 50.0 3.78 47.1 11.5
14.0 63.5 50.5 3.79 47.8 13.8
14.7 63.7 50.7 3.79 48.1 15.1
15.4 63.8 50.9 3.80 48.4 16.3
16.8 63.9 50.9 3.79 48.9 19.0
68
9.1 70.9 57.4 3.96 55.4 6.3
11.2 72.4 58.8 3.99 57.5 9.0
12.6 73.2 59.6 4.00 58.5 11.0
14.0 73.9 60.2 4.02 59.4 13.2
14.7 74.1 60.4 4.02 59.8 14.4
15.4 74.4 60.6 4.03 60.1 15.6
16.8 74.7 61.0 4.03 60.7 18.1
75
9.1 76.5 62.5 4.09 61.3 6.1
11.2 78.4 64.3 4.14 63.5 8.8
12.6 79.3 65.1 4.15 64.7 10.7
14.0 79.9 65.7 4.17 65.6 12.9
14.7 80.2 66.0 4.16 66.0 14.0
15.4 80.5 66.3 4.17 66.4 15.2
16.8 80.9 66.7 4.18 67.1 17.7
86
9.1 86.2 71.4 4.33 70.3 5.9
11.2 88.4 73.4 4.39 72.9 8.5
12.6 89.5 74.4 4.42 74.2 10.4
14.0 90.4 75.2 4.44 75.3 12.5
14.7 90.7 75.5 4.45 75.7 13.5
15.4 91.0 75.8 4.46 76.2 14.7
16.8 91.6 76.3 4.47 76.9 17.1
Note: Heating performance data is tabulated at 68.0°F DB at the rated CFM. For conditions other than what is tabulated,
multipliers must be used to correct performance. See Table 25, p. 31 for Fan Correction Factors for CFM other than rated
and the Heating Correction Factors for variations in entering air temperatures. Rated GPM 14.0; Minimum CFM 1600;
Rated CFM 1900; Maximum CFM 2400.
Table 24. GER060 heating performance (continued)
EWT GPM
Gross
Mbtuh
Absorb
Mbtuh
Comp Pwr
kW LWT
Feet
Head

WSHP-PRC021-EN 31
Performance Data
GER072 Cooling Performance
Table 25. GER060 fan correction factors
Entering
CFM
Cooling
Capacity
Sensible
Capacity
Cooling
Input
Watts
Heating
Capacity
Heating
Input
Watts
1600 0.966 0.901 1.000 0.981 1.064
1655 0.973 0.919 1.000 0.986 1.052
1710 0.979 0.937 1.000 0.989 1.040
1800 0.989 0.966 1.000 0.994 1.018
1900 1.000 1.000 1.000 1.000 1.000
2000 1.009 1.032 1.000 1.004 0.982
2200 1.026 1.099 0.999 1.014 0.956
2400 1.043 1.169 1.000 1.022 0.933
Table 26. GER072 cooling performance
EWT GPM
Gross
Mbtuh
Sen
Mbtuh SHR
Comp Pwr
kW
Reject
Mbtuh LWT
Feet
Head
45
12.1 91.9 63.5 0.69 3.49 103.9 62.2 6.9
14.9 92.4 63.8 0.69 3.38 103.9 59.0 9.9
16.7 92.5 63.9 0.69 3.33 103.9 57.4 12.2
18.6 92.7 64.0 0.69 3.29 103.9 56.2 14.6
19.5 92.8 64.1 0.69 3.27 103.9 55.6 15.9
20.5 92.8 64.1 0.69 3.26 103.9 55.2 17.3
22.3 92.9 64.2 0.69 3.23 103.9 54.3 20.1
55
12.1 88.9 62.2 0.70 3.90 102.2 71.9 6.6
14.9 89.2 62.5 0.70 3.79 102.1 68.7 9.5
16.7 89.4 62.6 0.70 3.73 102.1 67.2 11.7
18.6 89.5 62.7 0.70 3.69 102.1 66.0 14.1
19.5 89.5 62.7 0.70 3.67 102.1 65.5 15.3
20.5 89.6 62.7 0.70 3.65 102.0 65.0 16.6
22.3 89.7 62.8 0.70 3.63 102.0 64.1 19.4
68
12.1 85.3 61.9 0.73 4.44 100.5 84.6 6.2
14.9 85.7 62.2 0.73 4.31 100.4 81.5 9.0
16.7 85.9 62.3 0.73 4.26 100.4 80.0 11.0
18.6 86.0 62.4 0.73 4.21 100.4 78.8 13.3
19.5 86.1 62.5 0.73 4.19 100.4 78.3 14.5
20.5 86.1 62.5 0.73 4.17 100.4 77.8 15.7
22.3 86.3 62.6 0.73 4.14 100.4 77.0 18.3
75
12.1 83.0 61.0 0.74 4.79 99.4 91.4 6.1
14.9 83.4 61.3 0.74 4.66 99.3 88.4 8.8
16.7 83.6 61.5 0.74 4.60 99.3 86.9 10.8
18.6 83.7 61.6 0.74 4.55 99.3 85.7 13.0
19.5 83.8 61.6 0.74 4.53 99.2 85.2 14.1
20.5 83.8 61.6 0.74 4.51 99.2 84.7 15.3
22.3 83.9 61.7 0.74 4.48 99.2 83.9 17.9

32 WSHP-PRC021-EN
Performance Data
86
12.1 78.9 60.1 0.76 5.41 97.4 102.1 5.9
14.9 79.3 60.4 0.76 5.27 97.3 99.1 8.5
16.7 79.5 60.6 0.76 5.21 97.3 97.6 10.4
18.6 79.7 60.7 0.76 5.15 97.3 96.5 12.5
19.5 79.8 60.7 0.76 5.13 97.3 96.0 13.6
20.5 79.8 60.8 0.76 5.11 97.2 95.5 14.8
22.3 79.9 60.8 0.76 5.08 97.2 94.7 17.2
95
12.1 75.4 58.9 0.78 5.96 95.8 110.8 5.4
14.9 75.8 59.2 0.78 5.82 95.7 107.9 7.8
16.7 76.0 59.3 0.78 5.75 95.7 106.4 9.6
18.6 76.1 59.3 0.78 5.70 95.5 105.3 11.6
19.5 76.1 59.4 0.78 5.68 95.5 104.8 12.6
20.5 76.2 59.5 0.78 5.66 95.5 104.3 13.7
22.3 76.3 59.5 0.78 5.62 95.5 103.6 16.0
105
12.1 71.5 57.5 0.80 6.62 94.1 120.6 5.3
14.9 71.9 57.8 0.80 6.47 94.0 117.6 7.6
16.7 72.1 58.0 0.80 6.40 94.0 116.2 9.3
18.6 72.3 58.1 0.80 6.35 93.9 115.1 11.2
19.5 72.3 58.1 0.80 6.32 93.9 114.6 12.3
20.5 72.4 58.2 0.80 6.30 93.9 114.2 13.3
22.3 72.5 58.3 0.80 6.26 93.9 113.4 15.5
115
12.1 67.1 56.0 0.83 7.34 92.2 130.2 5.1
14.9 67.6 56.4 0.83 7.19 92.1 127.4 7.4
16.7 67.8 56.6 0.83 7.12 92.1 126.0 9.1
18.6 67.9 56.7 0.83 7.06 92.0 124.9 11.0
19.5 68.0 56.7 0.83 7.03 91.9 124.4 11.9
20.5 68.1 56.8 0.83 7.01 92.0 124.0 13.0
22.3 68.2 56.9 0.83 6.98 92.0 123.2 15.1
120
12.1 64.8 55.3 0.85 7.72 91.1 135.1 5.1
14.9 65.3 55.7 0.85 7.57 91.1 132.2 7.3
16.7 65.5 55.9 0.85 7.50 91.1 130.9 9.0
18.6 65.6 56.0 0.85 7.44 91.0 129.8 10.8
19.5 65.7 56.1 0.85 7.42 91.0 129.3 11.8
20.5 65.7 56.1 0.85 7.40 91.0 128.9 12.8
22.3 65.8 56.2 0.85 7.36 91.0 128.1 14.9
Note: Cooling performance data is tabulated at 80.6°F DB / 66.2°F WB at the rated CFM. For conditions other than what is
tabulated, multipliers must be used to correct performance. See Table 28, p. 34 for Fan Correction Factors for CFM other
than rated and the Cooling Correction Factors for variations in entering air temperatures. Rated GPM 18.6; Minimum
CFM 1920; Rated CFM 2280; Maximum CFM 2880.
Table 26. GER072 cooling performance (continued)
EWT GPM
Gross
Mbtuh
Sen
Mbtuh SHR
Comp Pwr
kW
Reject
Mbtuh LWT
Feet
Head

WSHP-PRC021-EN 33
Performance Data
GER072 Heating Performance
Table 27. GER072 heating performance
EWT GPM
Gross
Mbtuh
Absorb
Mbtuh
Comp Pwr
kW LWT
Feet
Head
25
12.1 51.0 36.5 4.25 19.0 10.6
14.9 51.9 37.3 4.27 20.0 14.4
16.7 52.3 37.7 4.28 20.5 17.3
18.6 52.5 37.9 4.29 20.9 20.2
19.5 52.6 38.0 4.29 21.1 21.8
20.5 52.7 38.0 4.30 21.3 23.4
22.3 52.7 38.1 4.30 21.6 26.9
32
12.1 56.0 41.3 4.32 25.2 9.3
14.9 57.0 42.2 4.33 26.3 13.3
16.7 57.4 42.6 4.33 26.9 16.3
18.6 57.7 42.8 4.34 27.4 19.6
19.5 57.8 43.0 4.34 27.6 21.4
20.5 57.9 43.1 4.34 27.8 23.2
22.3 58.2 43.4 4.35 28.1 27.0
45
12.1 66.9 51.2 4.61 36.5 6.9
14.9 68.0 52.2 4.62 38.0 9.9
16.7 68.7 52.9 4.63 38.7 12.2
18.6 69.1 53.3 4.64 39.3 14.6
19.5 69.3 53.4 4.64 39.5 15.9
20.5 69.4 53.6 4.64 39.8 17.3
22.3 69.7 53.9 4.64 40.2 20.1
55
12.1 75.7 59.5 4.75 45.2 6.6
14.9 76.7 60.5 4.76 46.9 9.5
16.7 77.4 61.1 4.77 47.7 11.7
18.6 77.8 61.5 4.77 48.4 14.1
19.5 78.0 61.7 4.77 48.7 15.3
20.5 78.3 62.0 4.78 48.9 16.6
22.3 78.6 62.3 4.78 49.4 19.4
68
12.1 84.0 66.4 5.18 57.0 6.2
14.9 86.2 68.3 5.22 58.8 9.0
16.7 86.9 69.1 5.23 59.7 11.0
18.6 87.6 69.8 5.23 60.5 13.3
19.5 88.1 70.3 5.24 60.8 14.5
20.5 88.5 70.6 5.25 61.1 15.7
22.3 88.9 70.9 5.25 61.6 18.3
75
12.1 90.4 72.4 5.28 63.0 6.1
14.9 92.1 74.0 5.31 65.1 8.8
16.7 93.2 75.0 5.32 66.0 10.8
18.6 94.0 75.8 5.34 66.9 13.0
19.5 94.3 76.1 5.34 67.2 14.1
20.5 94.7 76.4 5.35 67.5 15.3
22.3 95.2 76.9 5.36 68.1 17.9

34 WSHP-PRC021-EN
Performance Data
GER090 Cooling Performance
86
12.1 99.7 81.1 5.45 72.6 5.9
14.9 101.7 83.0 5.48 74.8 8.5
16.7 102.7 84.0 5.50 76.0 10.4
18.6 103.5 84.7 5.51 76.9 12.5
19.5 103.8 85.0 5.52 77.3 13.6
20.5 104.1 85.3 5.53 77.7 14.8
22.3 104.7 85.8 5.54 78.3 17.2
Note: Heating performance data is tabulated at 68.0°F DB at the rated CFM. For conditions other than what is tabulated,
multipliers must be used to correct performance. See Table 28, p. 34 for Fan Correction Factors for CFM other than rated
and the Heating Correction Factors for variations in entering air temperatures. Rated GPM 18.6; Minimum CFM 1920;
Rated CFM 2280; Maximum CFM 2880.
Table 28. GER072 fan correction factors
Entering
CFM
Cooling
Capacity
Sensible
Capacity
Cooling
Input
Watts
Heating
Capacity
Heating
Input
Watts
1920 0.968 0.910 1.002 0.985 1.067
1986 0.975 0.926 1.001 0.988 1.053
2052 0.981 0.942 1.001 0.989 1.040
2160 0.990 0.969 1.000 0.998 1.023
2280 1.000 1.000 1.000 1.000 1.000
2400 1.010 1.031 0.999 1.004 0.983
2622 1.023 1.086 0.998 1.011 0.956
2880 1.040 1.156 0.997 1.019 0.932
Table 29. GER090 cooling performance
EWT GPM
Gross
Mbtuh
Sen
Mbtuh SHR
Comp Pwr
kW
Reject
Mbtuh LWT
Feet
Head
45
15.1 101.5 68.9 0.68 4.37 116.5 60.4 5.6
18.6 101.7 69.0 0.68 4.26 116.2 57.5 8.1
21.0 101.8 69.0 0.68 4.20 116.1 56.1 9.9
23.3 101.9 69.1 0.68 4.16 116.1 55.0 11.9
24.5 101.9 69.1 0.68 4.14 116.0 54.5 13.0
25.6 101.9 69.1 0.68 4.12 116.0 54.0 14.1
28.0 101.9 69.1 0.68 4.09 115.9 53.3 16.5
55
15.1 99.1 67.9 0.68 4.87 115.7 70.3 5.4
18.6 99.3 68.0 0.68 4.75 115.5 67.4 7.8
21.0 99.4 68.0 0.68 4.69 115.4 66.0 9.6
23.3 99.5 68.1 0.68 4.64 115.3 64.9 11.5
24.5 99.5 68.1 0.68 4.63 115.3 64.4 12.5
25.6 99.5 68.1 0.68 4.61 115.2 64.0 13.6
28.0 99.6 68.2 0.68 4.58 115.2 63.2 15.8
Table 27. GER072 heating performance (continued)
EWT GPM
Gross
Mbtuh
Absorb
Mbtuh
Comp Pwr
kW LWT
Feet
Head

WSHP-PRC021-EN 35
Performance Data
68
15.1 95.8 67.6 0.71 5.44 114.4 83.1 5.2
18.6 97.1 68.5 0.71 5.31 115.2 80.4 7.4
21.0 96.2 67.9 0.71 5.25 114.2 78.9 9.1
23.3 96.3 68.0 0.71 5.20 114.1 77.8 11.0
24.5 96.4 68.0 0.71 5.18 114.1 77.3 12.0
25.6 96.4 68.1 0.71 5.16 114.0 76.9 13.0
28.0 96.5 68.1 0.71 5.13 114.0 76.2 15.1
75
15.1 93.6 66.8 0.71 5.85 113.5 90.0 5.0
18.6 93.9 67.0 0.71 5.71 113.4 87.2 7.2
21.0 94.1 67.2 0.71 5.65 113.3 85.8 8.9
23.3 94.2 67.2 0.71 5.60 113.3 84.7 10.7
24.5 94.2 67.2 0.71 5.58 113.2 84.3 11.7
25.6 94.2 67.3 0.71 5.56 113.2 83.8 12.7
28.0 94.3 67.3 0.71 5.52 113.1 83.1 14.7
86
15.1 88.7 64.6 0.73 6.44 110.7 100.6 4.9
18.6 89.0 64.8 0.73 6.30 110.5 97.9 7.1
21.0 89.1 64.9 0.73 6.23 110.3 96.5 8.7
23.3 89.2 65.0 0.73 6.18 110.3 95.5 10.5
24.5 89.2 65.0 0.73 6.15 110.2 95.0 11.4
25.6 89.3 65.0 0.73 6.13 110.2 94.6 12.3
28.0 89.3 65.1 0.73 6.10 110.1 93.9 14.4
95
15.1 85.4 63.5 0.74 7.10 109.6 109.5 4.6
18.6 85.6 63.7 0.74 6.94 109.3 106.7 6.7
21.0 85.8 63.8 0.74 6.87 109.2 105.4 8.3
23.3 85.9 63.9 0.74 6.81 109.1 104.4 9.9
24.5 85.9 63.9 0.74 6.78 109.1 103.9 10.8
25.6 86.0 63.9 0.74 6.76 109.0 103.5 11.8
28.0 86.0 64.0 0.74 6.72 109.0 102.8 13.7
105
15.1 81.4 62.2 0.76 7.93 108.4 119.3 4.5
18.6 81.6 62.4 0.76 7.76 108.1 116.6 6.5
21.0 81.8 62.5 0.76 7.67 108.0 115.3 8.0
23.3 81.9 62.6 0.76 7.61 107.8 114.3 9.7
24.5 82.0 62.7 0.76 7.58 107.9 113.8 10.5
25.6 82.0 62.7 0.76 7.55 107.8 113.4 11.4
28.0 82.1 62.7 0.76 7.52 107.8 112.7 13.3
115
15.1 77.0 60.7 0.79 8.84 107.2 129.2 4.4
18.6 77.3 61.0 0.79 8.68 107.0 126.5 6.4
21.0 77.5 61.1 0.79 8.60 106.8 125.2 7.8
23.3 77.5 61.2 0.79 8.53 106.7 124.2 9.4
24.5 77.6 61.2 0.79 8.50 106.6 123.7 10.3
25.6 77.6 61.2 0.79 8.47 106.6 123.3 11.1
28.0 77.7 61.3 0.79 8.43 106.5 122.6 13.0
Table 29. GER090 cooling performance (continued)
EWT GPM
Gross
Mbtuh
Sen
Mbtuh SHR
Comp Pwr
kW
Reject
Mbtuh LWT
Feet
Head

36 WSHP-PRC021-EN
Performance Data
GER090 Heating Performance
120
15.1 74.7 60.0 0.80 9.36 106.6 134.1 4.4
18.6 75.0 60.2 0.80 9.19 106.3 131.4 6.3
21.0 75.1 60.4 0.80 9.10 106.2 130.1 7.7
23.3 75.2 60.5 0.80 9.03 106.1 129.1 9.3
24.5 75.3 60.5 0.80 9.00 106.0 128.7 10.1
25.6 75.3 60.5 0.80 8.98 105.9 128.3 11.0
28.0 75.4 60.6 0.80 8.93 105.8 127.6 12.8
Note: Cooling performance data is tabulated at 80.6°F DB / 66.2°F WB at the rated CFM. For conditions other than what is
tabulated, multipliers must be used to correct performance. See Table 31, p. 37 for Fan Correction Factors for CFM other
than rated and the Cooling Correction Factors for variations in entering air temperatures. Rated GPM 23.3; Minimum CFM
2400; Rated CFM 2850; Maximum CFM 3600.
Table 30. GER090 heating performance
EWT GPM
Gross
Mbtuh
Absorb
Mbtuh
Comp Pwr
kW LWT
Feet
Head
25
15.1 60.7 43.3 5.10 19.3 7.1
18.6 61.8 44.3 5.12 20.2 10.2
21.0 62.2 44.7 5.14 20.7 12.5
23.3 62.6 45.0 5.15 21.1 15.1
24.5 62.8 45.2 5.15 21.3 16.4
25.6 62.9 45.3 5.15 21.5 17.8
28.0 63.2 45.6 5.16 21.7 20.7
32
15.1 66.4 48.6 5.24 25.6 6.9
18.6 67.9 49.9 5.28 26.6 9.9
21.0 68.2 50.2 5.29 27.2 12.2
23.3 68.5 50.5 5.29 27.7 14.6
24.5 68.8 50.7 5.30 27.9 15.9
25.6 68.9 50.9 5.30 28.0 17.2
28.0 69.3 51.2 5.31 28.3 20.1
45
15.1 79.0 60.1 5.54 37.1 5.6
18.6 80.3 61.3 5.57 38.4 8.1
21.0 80.8 61.8 5.58 39.1 9.9
23.3 81.3 62.2 5.59 39.7 11.9
24.5 81.5 62.4 5.59 39.9 13.0
25.6 81.7 62.6 5.60 40.1 14.1
28.0 82.0 62.9 5.61 40.5 16.5
55
15.1 88.6 68.9 5.78 45.9 5.4
18.6 90.1 70.2 5.81 47.5 7.8
21.0 90.7 70.9 5.83 48.2 9.6
23.3 91.3 71.4 5.84 48.9 11.5
24.5 91.5 71.6 5.85 49.1 12.5
25.6 91.7 71.7 5.85 49.4 13.6
28.0 92.4 72.3 5.87 49.8 15.8
Table 29. GER090 cooling performance (continued)
EWT GPM
Gross
Mbtuh
Sen
Mbtuh SHR
Comp Pwr
kW
Reject
Mbtuh LWT
Feet
Head

WSHP-PRC021-EN 37
Performance Data
68
15.1 101.9 80.2 6.38 57.4 5.2
18.6 104.1 82.1 6.44 59.2 7.4
21.0 105.0 82.9 6.47 60.1 9.1
23.3 105.7 83.5 6.49 60.8 11.0
24.5 106.0 83.9 6.50 61.1 12.0
25.6 106.2 84.0 6.50 61.4 13.0
28.0 106.7 84.5 6.52 62.0 15.1
75
15.1 109.7 87.2 6.61 63.5 5.0
18.6 111.7 89.0 6.65 65.4 7.2
21.0 112.6 89.8 6.68 66.4 8.9
23.3 113.4 90.5 6.70 67.2 10.7
24.5 113.8 90.9 6.71 67.6 11.7
25.6 114.1 91.1 6.72 67.9 12.7
28.0 114.6 91.6 6.74 68.4 14.7
86
15.1 121.6 97.8 6.96 73.1 4.9
18.6 124.1 100.1 7.04 75.3 7.1
21.0 125.2 101.0 7.08 76.4 8.7
23.3 126.3 102.1 7.10 77.2 10.5
24.5 126.7 102.4 7.11 77.6 11.4
25.6 127.1 102.8 7.12 78.0 12.3
28.0 127.8 103.4 7.14 78.6 14.4
Note: Heating performance data is tabulated at 68.0°F DB at the rated CFM. For conditions other than what is tabulated,
multipliers must be used to correct performance. See Table 31, p. 37 for Fan Correction Factors for CFM other than rated
and the Heating Correction Factors for variations in entering air temperatures. Rated GPM 23.3; Minimum CFM 2400;
Rated CFM 2850; Maximum CFM 3600.
Table 31. GER090 fan correction factors
Entering
CFM
Cooling
Capacity
Sensible
Capacity
Cooling
Input
Watts
Heating
Capacity
Heating
Input
Watts
2400 0.970 0.921 0.999 0.986 1.059
2482.5 0.976 0.936 0.999 0.988 1.046
2565 0.982 0.949 0.999 0.991 1.034
2700 0.991 0.973 1.000 0.994 1.016
2850 1.000 1.000 1.000 1.000 1.000
3000 1.009 1.027 1.001 1.005 0.986
3300 1.025 1.081 1.002 1.006 0.955
3600 1.038 1.129 1.003 1.012 0.935
Table 30. GER090 heating performance (continued)
EWT GPM
Gross
Mbtuh
Absorb
Mbtuh
Comp Pwr
kW LWT
Feet
Head

38 WSHP-PRC021-EN
Performance Data
GER120 Cooling Performance
Table 32. GER120 cooling performance
EWT GPM
Gross
Mbtuh
Sen
Mbtuh SHR
Comp Pwr
kW
Reject
Mbtuh LWT
Feet
Head
45
20.2 158.9 112.6 0.71 4.54 174.4 62.3 7.4
24.8 160.2 113.4 0.71 4.31 174.9 59.1 10.7
27.9 160.7 113.8 0.71 4.19 175.0 57.5 13.1
31.0 161.0 114.0 0.71 4.10 175.0 56.3 15.8
32.6 161.1 114.1 0.71 4.06 174.9 55.7 17.2
34.1 161.4 114.3 0.71 4.03 175.1 55.3 18.6
37.2 161.7 114.5 0.71 3.97 175.2 54.4 21.7
55
20.2 153.8 110.4 0.72 5.38 172.2 72.1 7.1
24.8 154.9 111.2 0.72 5.16 172.5 68.9 10.3
27.9 155.5 111.6 0.72 5.02 172.6 67.4 12.6
31.0 155.8 111.9 0.72 4.94 172.7 66.1 15.2
32.6 156.0 112.0 0.72 4.90 172.8 65.6 16.5
34.1 156.2 112.1 0.72 4.87 172.8 65.1 17.9
37.2 156.5 112.3 0.72 4.81 172.9 64.3 20.9
68
20.2 146.7 107.6 0.73 6.46 168.7 84.7 6.8
24.8 147.7 108.4 0.73 6.24 169.0 81.6 9.8
27.9 148.2 108.7 0.73 6.13 169.1 80.1 12.0
31.0 148.6 109.0 0.73 6.05 169.2 78.9 14.5
32.6 148.7 109.1 0.73 6.01 169.2 78.4 15.8
34.1 148.9 109.2 0.73 5.98 169.3 77.9 17.1
37.2 149.1 109.4 0.73 5.92 169.3 77.1 19.9
75
20.2 142.6 106.0 0.74 7.08 166.7 91.5 6.6
24.8 143.6 106.8 0.74 6.85 167.0 88.5 9.6
27.9 144.0 107.1 0.74 6.74 167.1 87.0 11.8
31.0 144.4 107.4 0.74 6.66 167.1 85.8 14.1
32.6 144.6 107.5 0.74 6.62 167.2 85.3 15.4
34.1 144.7 107.6 0.74 6.59 167.2 84.8 16.7
37.2 145.0 107.8 0.74 6.53 167.2 84.0 19.5
86
20.2 135.7 103.5 0.76 8.12 163.4 102.2 6.4
24.8 136.7 104.2 0.76 7.88 163.6 99.2 9.2
27.9 137.2 104.6 0.76 7.77 163.7 97.7 11.3
31.0 137.5 104.8 0.76 7.68 163.7 96.6 13.6
32.6 137.7 105.0 0.76 7.64 163.8 96.1 14.9
34.1 137.7 105.0 0.76 7.61 163.7 95.6 16.1
37.2 138.2 105.4 0.76 7.55 164.0 94.8 18.8
95
20.2 129.7 101.1 0.78 9.06 160.7 110.9 6.0
24.8 130.7 101.8 0.78 8.82 160.8 108.0 8.7
27.9 131.1 102.2 0.78 8.71 160.8 106.5 10.7
31.0 131.5 102.5 0.78 8.62 160.9 105.4 12.8
32.6 131.6 102.6 0.78 8.58 160.9 104.9 14.0
34.1 131.8 102.7 0.78 8.55 160.9 104.4 15.2
37.2 132.0 102.9 0.78 8.49 161.0 103.7 17.7

WSHP-PRC021-EN 39
Performance Data
GER120 Heating Performance
105
20.2 122.5 98.5 0.80 10.16 157.2 120.6 5.8
24.8 123.5 99.3 0.80 9.91 157.3 117.7 8.4
27.9 123.8 99.6 0.80 9.80 157.3 116.3 10.4
31.0 124.4 100.0 0.80 9.71 157.5 115.2 12.5
32.6 124.5 100.1 0.80 9.68 157.5 114.7 13.6
34.1 124.6 100.2 0.80 9.64 157.5 114.2 14.8
37.2 124.9 100.4 0.80 9.57 157.5 113.5 17.2
115
20.2 114.7 95.7 0.83 11.39 153.6 130.2 5.7
24.8 115.7 96.5 0.83 11.13 153.7 127.4 8.2
27.9 116.1 96.9 0.83 11.01 153.7 126.0 10.1
31.0 116.5 97.2 0.83 10.92 153.8 124.9 12.2
32.6 116.6 97.3 0.83 10.88 153.7 124.4 13.3
34.1 116.8 97.4 0.83 10.82 153.7 124.0 14.4
37.2 117.0 97.6 0.83 10.77 153.8 123.3 16.8
120
20.2 110.6 94.3 0.85 12.04 151.7 135.1 5.6
24.8 111.6 95.2 0.85 11.79 151.8 132.2 8.1
27.9 112.0 95.5 0.85 11.67 151.8 130.9 10.0
31.0 112.3 95.8 0.85 11.57 151.8 129.8 12.0
32.6 112.5 96.0 0.85 11.53 151.9 129.3 13.1
34.1 112.7 96.1 0.85 11.49 151.9 128.9 14.2
37.2 112.9 96.3 0.85 11.43 151.9 128.2 16.6
Note: Cooling performance data is tabulated at 80.6°F DB / 66.2°F WB at the rated CFM. For conditions other than what is
tabulated, multipliers must be used to correct performance. See Table 34, p. 41 for Fan Correction Factors for CFM other
than rated and the Cooling Correction Factors for variations in entering air temperatures. Rated GPM 31.0; Minimum
CFM 3200; Rated CFM 3800; Maximum CFM 4800.
Table 33. GER120 heating performance
EWT GPM
Gross
Mbtuh
Absorb
Mbtuh
Comp Pwr
kW LWT
Feet
Head
25
20.2 69.0 47.6 6.28 20.3 13.9
24.8 69.2 47.6 6.32 21.2 19.0
27.9 69.5 47.8 6.34 21.6 23.0
31.0 69.8 48.1 6.36 21.9 26.6
32.6 70.0 48.2 6.36 22.0 28.4
34.1 70.1 48.4 6.37 22.2 30.1
37.2 70.4 48.6 6.39 22.4 33.3
32
20.1 81.8 59.5 6.56 26.1 10.3
24.8 82.9 60.5 6.57 27.1 14.8
27.9 83.6 61.2 6.58 27.6 18.2
31.0 84.1 61.6 6.59 28.0 21.9
32.5 84.5 61.9 6.60 28.2 23.8
34.1 84.5 62.0 6.59 28.4 25.8
37.2 85.1 62.6 6.61 28.6 28.4
Table 32. GER120 cooling performance (continued)
EWT GPM
Gross
Mbtuh
Sen
Mbtuh SHR
Comp Pwr
kW
Reject
Mbtuh LWT
Feet
Head

40 WSHP-PRC021-EN
Performance Data
45
20.1 104.3 80.6 6.95 37.0 7.4
24.8 106.3 82.5 6.98 38.3 10.7
27.9 107.5 83.6 7.00 39.0 13.1
31.0 108.4 84.5 7.01 39.6 15.8
32.5 108.8 84.8 7.02 39.8 17.2
34.1 109.1 85.1 7.02 40.0 18.6
37.2 109.7 85.7 7.03 40.4 21.7
55
20.1 118.4 93.8 7.18 45.7 7.1
24.8 120.6 96.0 7.22 47.3 10.3
27.9 121.9 97.2 7.25 48.0 12.6
31.0 123.4 98.5 7.28 48.6 15.2
32.5 123.5 98.6 7.28 48.9 16.5
34.1 124.1 99.2 7.29 49.2 17.9
37.2 124.6 99.7 7.30 49.6 20.9
68
20.1 136.7 111.0 7.53 57.0 6.8
24.8 140.4 114.4 7.60 58.8 9.8
27.9 141.6 115.6 7.62 59.7 12.0
31.0 142.9 116.7 7.65 60.5 14.5
32.5 143.3 117.2 7.66 60.8 15.8
34.1 143.8 117.7 7.67 61.1 17.1
37.2 144.7 118.4 7.69 61.6 19.9
75
20.1 147.4 121.0 7.75 63.0 6.6
24.8 150.7 124.0 7.82 65.0 9.6
27.9 152.9 126.0 7.88 66.0 11.8
31.0 153.5 126.5 7.89 66.8 14.1
32.5 153.9 126.9 7.91 67.2 15.4
34.1 154.4 127.4 7.92 67.5 16.7
37.2 155.3 128.2 7.94 68.1 19.5
86
20.1 163.4 135.6 8.14 72.5 6.4
24.8 166.8 138.8 8.20 74.8 9.2
27.9 168.0 139.9 8.23 76.0 11.3
31.0 169.1 140.9 8.25 76.9 13.6
32.5 169.6 141.3 8.27 77.3 14.9
34.1 170.0 141.7 8.28 77.7 16.1
37.2 170.8 142.5 8.30 78.3 18.8
Note: Heating performance data is tabulated at 68.0°F DB at the rated CFM. For conditions other than what is tabulated,
multipliers must be used to correct performance. See Table 34, p. 41 for Fan Correction Factors for CFM other than rated
and the Heating Correction Factors for variations in entering air temperatures. Rated GPM 31.0; Minimum CFM 3200;
Rated CFM 3800; Maximum CFM 4800.
Table 33. GER120 heating performance (continued)
EWT GPM
Gross
Mbtuh
Absorb
Mbtuh
Comp Pwr
kW LWT
Feet
Head

WSHP-PRC021-EN 41
Performance Data
GER150 Cooling Performance
Table 34. GER120 fan correction factors
Entering
CFM
Cooling
Capacity
Sensible
Capacity
Cooling
Input
Watts
Heating
Capacity
Heating
Input
Watts
3200 0.967 0.906 1.000 0.983 1.076
3310 0.973 0.924 1.000 0.986 1.060
3420 0.980 0.940 1.000 0.989 1.043
3600 0.990 0.968 1.000 0.992 1.020
3800 1.000 1.000 1.000 1.000 1.000
4000 1.009 1.029 1.001 1.002 0.980
4400 1.024 1.088 0.999 1.015 0.950
4800 1.039 1.152 0.999 1.019 0.922
Table 35. GER150 cooling performance
EWT GPM
Gross
Mbtuh
Sen
Mbtuh SHR
Comp Pwr
kW
Reject
Mbtuh LWT
Feet
Head
45 25.2 189.0 132.9 0.70 6.46 211.1 61.8 7.1
45 31.0 190.1 133.7 0.70 6.26 211.5 58.6 10.2
45 35.0 190.7 134.1 0.70 6.17 211.7 57.1 12.7
45 38.8 191.1 134.4 0.70 6.09 211.9 55.9 15.2
45 40.8 191.3 134.6 0.70 6.06 212.0 55.4 16.7
45 42.6 191.5 134.7 0.70 6.04 212.1 55.0 18.0
45 46.6 191.8 134.9 0.70 5.98 212.2 54.1 21.1
55 25.2 183.2 130.8 0.71 7.23 207.9 71.5 6.8
55 31.0 184.2 131.4 0.71 7.02 208.2 68.4 9.9
55 35.0 184.6 131.8 0.71 6.92 208.3 66.9 12.2
55 38.8 185.0 132.0 0.71 6.85 208.4 65.7 14.7
55 40.8 185.2 132.2 0.71 6.81 208.5 65.2 16.0
55 42.6 185.3 132.3 0.71 6.78 208.5 64.8 17.3
55 46.6 185.6 132.5 0.71 6.73 208.6 64.0 20.3
68 25.2 175.1 127.9 0.73 8.35 203.6 84.2 6.5
68 31.0 176.0 128.5 0.73 8.12 203.7 81.1 9.4
68 35.0 176.5 128.8 0.73 8.01 203.8 79.6 11.7
68 38.8 176.8 129.1 0.73 7.93 203.8 78.5 14.0
68 40.8 176.9 129.2 0.73 7.89 203.8 78.0 15.3
68 42.6 177.0 129.2 0.73 7.86 203.8 77.6 16.5
68 46.6 177.3 129.4 0.73 7.80 203.9 76.8 19.4
75 25.2 170.5 126.2 0.74 9.01 201.2 91.0 6.4
75 31.0 171.4 126.9 0.74 8.77 201.3 88.0 9.2
75 35.0 171.8 127.2 0.74 8.65 201.3 86.5 11.4
75 38.8 172.1 127.4 0.74 8.56 201.4 85.4 13.7
75 40.8 172.2 127.5 0.74 8.52 201.3 84.9 15.0
75 42.6 172.4 127.6 0.74 8.49 201.4 84.5 16.1
75 46.6 172.6 127.8 0.74 8.43 201.4 83.6 18.9
86 25.2 162.8 123.5 0.76 10.16 197.5 101.7 6.2

42 WSHP-PRC021-EN
Performance Data
86 31.0 163.6 124.2 0.76 9.89 197.4 98.7 8.9
86 35.0 164.1 124.5 0.76 9.77 197.4 97.3 11.0
86 38.8 164.4 124.7 0.76 9.67 197.4 96.2 13.2
86 40.8 164.5 124.8 0.76 9.63 197.3 95.7 14.4
86 42.6 164.6 124.9 0.76 9.60 197.3 95.3 15.6
86 46.6 164.8 125.0 0.76 9.53 197.3 94.5 18.3
95 25.2 156.1 121.3 0.78 11.20 194.3 110.4 6.0
95 31.0 156.9 121.9 0.78 10.93 194.2 107.5 8.7
95 35.0 157.3 122.2 0.78 10.80 194.1 106.1 10.7
95 38.8 157.5 122.4 0.78 10.70 194.1 105.0 12.9
95 40.8 157.7 122.5 0.78 10.66 194.1 104.5 14.1
95 42.6 157.8 122.6 0.78 10.63 194.0 104.1 15.2
95 46.6 158.0 122.8 0.78 10.56 194.0 103.3 17.8
105 25.2 147.9 118.6 0.80 12.44 190.4 120.1 5.8
105 31.0 148.7 119.2 0.80 12.16 190.2 117.3 8.4
105 35.0 149.1 119.5 0.80 12.03 190.2 115.9 10.4
105 38.8 149.4 119.8 0.80 11.93 190.1 114.8 12.5
105 40.8 149.5 119.8 0.80 11.88 190.0 114.3 13.7
105 42.6 149.6 120.0 0.80 11.84 190.1 113.9 14.8
105 46.6 149.8 120.1 0.80 11.77 190.0 113.2 17.3
115 25.2 138.9 115.6 0.83 13.80 186.0 129.8 5.7
115 31.0 139.7 116.3 0.83 13.52 185.9 127.0 8.2
115 35.0 140.1 116.7 0.83 13.39 185.8 125.6 10.2
115 38.8 140.4 116.9 0.83 13.28 185.8 124.6 12.2
115 40.8 140.6 117.0 0.83 13.23 185.7 124.1 13.3
115 42.6 140.7 117.1 0.83 13.20 185.7 123.7 14.4
115 46.6 140.9 117.3 0.83 13.12 185.7 123.0 16.8
120 25.2 133.6 113.7 0.85 14.52 183.2 134.5 5.6
120 31.0 134.5 114.4 0.85 14.24 183.1 131.8 8.1
120 35.0 135.0 114.9 0.85 14.10 183.1 130.5 10.0
120 38.8 135.2 115.1 0.85 14.00 183.0 129.4 12.0
120 40.8 135.5 115.3 0.85 13.95 183.2 129.0 13.2
120 42.6 135.4 115.2 0.85 13.91 182.9 128.6 14.2
120 46.6 135.8 115.5 0.85 13.83 183.0 127.9 16.6
Note: Cooling performance data is tabulated at 80.6°F DB / 66.2°F WB at the rated CFM. For conditions other than what is
tabulated, multipliers must be used to correct performance. See Table 37, p. 44 for Fan Correction Factors for CFM other
than rated and the Cooling Correction Factors for variations in entering air temperatures. Rated GPM 38.8; Minimum CFM
4000; Rated CFM 4750; Maximum CFM 6000.
Table 35. GER150 cooling performance (continued)
EWT GPM
Gross
Mbtuh
Sen
Mbtuh SHR
Comp Pwr
kW
Reject
Mbtuh LWT
Feet
Head

WSHP-PRC021-EN 43
Performance Data
GER150 Heating Performance
Table 36. GER150 heating performance
EWT GPM
Gross
Mbtuh
Absorb
Mbtuh
Comp Pwr
kW LWT
Feet
Head
25
25.2 99.2 70.2 8.51 19.4 12.8
31.0 101.2 72.2 8.52 20.3 17.2
35.0 102.3 73.2 8.53 20.8 20.8
38.8 103.0 73.9 8.53 21.2 24.4
40.8 103.4 74.3 8.53 21.4 26.4
42.6 103.7 74.6 8.54 21.5 28.2
46.6 104.2 75.1 8.54 21.8 32.3
32
25.2 114.9 85.2 8.68 25.2 9.5
31.0 116.8 87.1 8.69 26.4 13.6
35.0 117.8 88.1 8.70 27.0 16.8
38.8 118.6 88.9 8.71 27.4 20.1
40.8 118.9 89.2 8.71 27.6 22.0
42.6 119.3 89.5 8.72 27.8 23.7
46.6 119.5 89.8 8.70 28.1 27.7
45
25.2 137.6 107.1 8.92 36.5 7.7
31.0 139.8 109.3 8.93 37.9 11.0
35.0 141.2 110.6 8.96 38.7 13.5
38.8 141.8 111.2 8.96 39.3 16.2
40.8 142.4 111.8 8.97 39.5 17.7
42.6 142.8 112.1 8.97 39.7 19.1
46.6 143.4 112.7 8.98 40.2 22.3
55
25.2 155.2 124.0 9.14 45.2 7.4
31.0 158.1 126.7 9.18 46.8 10.5
35.0 159.4 128.0 9.20 47.7 13.0
38.8 160.5 129.0 9.21 48.3 15.6
40.8 160.7 129.3 9.21 48.7 17.0
42.6 161.3 129.9 9.22 48.9 18.3
46.6 162.0 130.5 9.23 49.4 21.4
68
25.2 179.1 146.7 9.50 56.4 7.0
31.0 183.1 150.5 9.55 58.3 10.1
35.0 184.0 151.4 9.55 59.3 12.4
38.8 185.8 153.1 9.58 60.1 14.9
40.8 186.6 153.8 9.59 60.5 16.2
42.6 186.5 153.8 9.58 60.8 17.5
46.6 187.8 155.0 9.61 61.3 20.4
75
25.2 193.3 160.1 9.72 62.3 6.9
31.0 197.6 164.1 9.79 64.4 9.8
35.0 200.2 166.6 9.84 65.5 12.1
38.8 200.8 167.3 9.82 66.4 14.5
40.8 201.9 168.3 9.84 66.8 15.8
42.6 202.3 168.7 9.85 67.1 17.1
46.6 203.4 169.7 9.86 67.7 19.9

44 WSHP-PRC021-EN
Performance Data
GER180 Cooling Performance
86
25.2 216.4 181.9 10.11 71.6 6.6
31.0 220.5 185.8 10.16 74.0 9.5
35.0 223.3 188.4 10.21 75.2 11.7
38.8 224.7 189.7 10.23 76.2 14.0
40.8 225.7 190.7 10.24 76.7 15.3
42.6 226.3 191.3 10.26 77.0 16.5
46.6 227.3 192.2 10.27 77.7 19.2
Note: Heating performance data is tabulated at 68.0°F DB at the rated CFM. For conditions other than what is tabulated,
multipliers must be used to correct performance. See Table 37, p. 44 for Fan Correction Factors for CFM other than rated
and the Heating Correction Factors for variations in entering air temperatures. Rated GPM 38.8; Minimum CFM 4000;
Rated CFM 4750; Maximum CFM 6000.
Table 37. GER150 fan correction factors
Entering
CFM
Cooling
Capacity
Sensible
Capacity
Cooling
Input
Watts
Heating
Capacity
Heating
Input
Watts
4000 0.971 0.914 0.980 0.983 1.043
4138 0.977 0.929 0.983 0.984 1.031
4275 0.983 0.945 0.987 0.987 1.022
4500 0.991 0.971 0.993 0.995 1.010
4750 1.000 1.000 1.000 1.000 1.000
5000 1.008 1.029 1.008 1.007 0.993
5500 1.021 1.087 1.026 1.022 0.986
6000 1.029 1.145 1.045 1.028 0.984
Table 38. GER180 cooling performance
EWT GPM
Gross
Mbtuh
Sen
Mbtuh SHR
Comp Pwr
kW
Reject
Mbtuh LWT
Feet
Head
45
30.2 210.0 150.6 0.72 8.03 237.4 60.7 9.4
37.2 210.9 151.2 0.72 7.81 237.5 57.8 13.6
41.8 211.3 151.5 0.72 7.70 237.6 56.4 16.7
46.5 211.7 151.8 0.72 7.62 237.7 55.2 20.2
48.8 211.8 151.9 0.72 7.58 237.7 54.7 22.0
51.2 211.9 152.0 0.72 7.55 237.6 54.3 23.9
55.8 212.2 152.2 0.72 7.49 237.7 53.5 27.9
55
30.2 205.3 148.9 0.73 8.97 235.9 70.6 9.0
37.2 206.3 149.6 0.73 8.74 236.2 67.7 13.1
41.8 206.8 149.9 0.73 8.64 236.2 66.3 16.1
46.5 207.2 150.2 0.73 8.53 236.3 65.2 19.4
48.8 207.3 150.3 0.73 8.50 236.3 64.7 21.1
51.2 207.5 150.4 0.73 8.46 236.3 64.2 23.0
55.8 207.7 150.6 0.73 8.41 236.4 63.5 26.8
Table 36. GER150 heating performance (continued)
EWT GPM
Gross
Mbtuh
Absorb
Mbtuh
Comp Pwr
kW LWT
Feet
Head

WSHP-PRC021-EN 45
Performance Data
68
30.2 197.8 146.0 0.74 10.24 232.7 83.4 8.6
37.2 198.8 146.8 0.74 10.00 232.9 80.5 12.5
41.8 199.3 147.1 0.74 9.89 233.0 79.1 15.3
46.5 199.7 147.4 0.74 9.80 233.1 78.0 18.5
48.8 199.9 147.5 0.74 9.76 233.2 77.6 20.2
51.2 200.0 147.7 0.74 9.72 233.2 77.1 22.0
55.8 200.3 147.8 0.74 9.66 233.2 76.4 25.6
75
30.2 191.7 143.8 0.75 11.24 230.1 90.2 8.4
37.2 192.7 144.6 0.75 10.98 230.2 87.4 12.1
41.8 193.2 145.0 0.75 10.86 230.3 86.0 14.9
46.5 193.7 145.3 0.75 10.76 230.4 84.9 18.0
48.8 193.8 145.4 0.75 10.72 230.4 84.4 19.6
51.2 194.0 145.6 0.75 10.68 230.4 84.0 21.3
55.8 194.2 145.8 0.75 10.62 230.5 83.3 24.8
86
30.2 185.0 141.5 0.76 12.37 227.2 101.0 8.1
37.2 186.1 142.3 0.76 12.08 227.3 98.2 11.8
41.8 186.6 142.7 0.76 11.95 227.4 96.9 14.5
46.5 187.0 143.0 0.76 11.85 227.4 95.8 17.5
48.8 187.2 143.2 0.76 11.81 227.5 95.3 19.0
51.2 187.3 143.3 0.76 11.75 227.4 94.9 20.7
55.8 187.6 143.5 0.76 11.68 227.4 94.2 24.1
95
30.2 177.6 138.6 0.78 13.60 224.0 109.8 7.9
37.2 178.7 139.4 0.78 13.30 224.1 107.0 11.5
41.8 179.3 139.9 0.78 13.17 224.3 105.7 14.1
46.5 179.7 140.2 0.78 13.05 224.2 104.6 17.0
48.8 179.9 140.3 0.78 13.01 224.3 104.2 18.5
51.2 180.0 140.4 0.78 12.96 224.2 103.8 20.2
55.8 180.3 140.6 0.78 12.89 224.3 103.0 23.5
105
30.2 168.5 135.2 0.80 15.14 220.2 119.6 7.7
37.2 169.6 136.1 0.80 14.83 220.2 116.8 11.2
41.8 170.1 136.5 0.80 14.67 220.2 115.5 13.7
46.5 170.5 136.8 0.80 14.55 220.2 114.5 16.5
48.8 170.7 137.0 0.80 14.50 220.2 114.0 18.0
51.2 170.8 137.1 0.80 14.45 220.2 113.6 19.6
55.8 171.1 137.3 0.80 14.37 220.2 112.9 22.8
115
30.2 158.5 131.3 0.83 16.86 216.0 129.3 7.5
37.2 159.6 132.2 0.83 16.53 216.0 126.6 10.9
41.8 160.1 132.6 0.83 16.37 216.0 125.3 13.4
46.5 160.6 133.1 0.83 16.26 216.1 124.3 16.1
48.8 160.7 133.1 0.83 16.19 215.9 123.8 17.5
51.2 160.8 133.2 0.83 16.14 215.9 123.4 19.1
55.8 161.1 133.5 0.83 16.06 215.9 122.7 22.2
Table 38. GER180 cooling performance (continued)
EWT GPM
Gross
Mbtuh
Sen
Mbtuh SHR
Comp Pwr
kW
Reject
Mbtuh LWT
Feet
Head

46 WSHP-PRC021-EN
Performance Data
GER180 Heating Performance
120
30.2 153.0 129.3 0.85 17.76 213.6 134.1 7.4
37.2 154.1 130.3 0.85 17.44 213.7 131.5 10.7
41.8 154.7 130.8 0.85 17.28 213.6 130.2 13.2
46.5 155.1 131.1 0.85 17.15 213.6 129.2 15.9
48.8 155.3 131.3 0.85 17.10 213.6 128.8 17.3
51.2 155.4 131.4 0.85 17.05 213.6 128.3 18.9
55.8 155.7 131.6 0.85 16.98 213.6 127.7 21.9
Note: Cooling performance data is tabulated at 80.6°F DB / 66.2°F WB at the rated CFM. For conditions other than what is
tabulated, multipliers must be used to correct performance. See Table 40, p. 47 for Fan Correction Factors for CFM other
than rated and the Cooling Correction Factors for variations in entering air temperatures. Rated GPM 46.5; Minimum CFM
4800; Rated CFM 5700; Maximum CFM 7200.
Table 39. GER180 heating performance
EWT GPM
Gross
Mbtuh
Absorb
Mbtuh
Comp Pwr
kW LWT
Feet
Head
25
30.2 114.9 82.9 9.38 19.5 15.8
37.2 115.5 83.5 9.38 20.5 21.7
41.8 116.1 84.0 9.40 21.0 25.9
46.5 116.7 84.6 9.41 21.4 30.6
48.8 117.0 84.8 9.42 21.5 32.9
51.2 117.3 85.1 9.42 21.7 35.5
55.8 117.7 85.5 9.43 21.9 40.8
32
30.2 125.6 92.9 9.57 25.8 12.6
37.2 126.7 93.9 9.59 27.0 18.1
41.8 127.3 94.5 9.60 27.5 22.2
46.5 128.0 95.2 9.62 27.9 26.7
48.8 128.1 95.3 9.62 28.1 29.1
51.2 128.1 95.3 9.62 28.3 31.6
55.8 129.0 96.2 9.64 28.6 36.7
45
30.2 146.9 112.8 9.99 37.5 10.1
37.2 147.4 113.3 10.00 38.9 14.6
41.8 147.9 113.7 10.01 39.6 17.8
46.5 148.5 114.3 10.03 40.1 21.5
48.8 148.7 114.4 10.04 40.3 23.4
51.2 148.2 114.0 10.03 40.5 25.4
55.8 148.4 114.1 10.03 40.9 29.5
55
30.2 162.2 126.9 10.34 46.6 9.8
37.2 162.3 127.0 10.35 48.2 14.0
41.8 163.6 128.2 10.38 48.9 17.1
46.5 164.0 128.5 10.41 49.5 20.6
48.8 164.5 128.9 10.42 49.7 22.4
51.2 163.0 127.6 10.38 50.0 24.4
55.8 163.0 127.6 10.38 50.4 28.3
Table 38. GER180 cooling performance (continued)
EWT GPM
Gross
Mbtuh
Sen
Mbtuh SHR
Comp Pwr
kW
Reject
Mbtuh LWT
Feet
Head

WSHP-PRC021-EN 47
Performance Data
68
30.2 181.7 144.7 10.83 58.4 9.3
37.2 183.7 146.5 10.89 60.1 13.4
41.8 182.3 145.2 10.88 61.1 16.3
46.5 182.3 145.1 10.89 61.8 19.7
48.8 182.2 145.1 10.89 62.1 21.4
51.2 182.1 144.9 10.89 62.3 23.3
55.8 182.0 144.8 10.89 62.8 27.0
75
30.2 192.5 154.5 11.13 64.8 9.1
37.2 192.8 154.7 11.17 66.7 13.0
41.8 192.7 154.5 11.18 67.6 16.0
46.5 192.2 154.0 11.18 68.4 19.2
48.8 192.1 153.9 11.18 68.7 20.9
51.2 192.2 154.0 11.19 69.0 22.7
55.8 191.5 153.3 11.19 69.5 26.4
86
30.2 208.5 168.8 11.63 74.8 8.8
37.2 208.3 168.4 11.67 76.9 12.6
41.8 208.6 168.6 11.70 77.9 15.4
46.5 206.2 166.4 11.67 78.8 18.5
48.8 205.5 165.6 11.67 79.2 20.1
51.2 205.6 165.8 11.67 79.5 22.0
55.8 204.6 164.8 11.66 80.1 25.6
Note: Heating performance data is tabulated at 68.0°F DB at the rated CFM. For conditions other than what is tabulated,
multipliers must be used to correct performance. See Table 40, p. 47 for Fan Correction Factors for CFM other than rated
and the Heating Correction Factors for variations in entering air temperatures. Rated GPM 46.5; Minimum CFM 4800;
Rated CFM 5700; Maximum CFM 7200.
Table 40. GER180 fan correction factors
Entering
CFM
Cooling
Capacity
Sensible
Capacity
Cooling
Input
Watts
Heating
Capacity
Heating
Input
Watts
4800 0.979 0.922 0.970 0.974 1.001
4965 0.984 0.937 0.974 0.979 1.000
5130 0.988 0.952 0.979 0.984 0.999
5400 0.994 0.976 0.989 0.994 0.999
5700 1.000 1.000 1.000 1.000 1.000
6000 1.005 1.025 1.011 1.008 1.004
6600 1.013 1.073 1.038 1.022 1.017
7200 1.018 1.118 1.070 1.035 1.037
Table 39. GER180 heating performance (continued)
EWT GPM
Gross
Mbtuh
Absorb
Mbtuh
Comp Pwr
kW LWT
Feet
Head

48 WSHP-PRC021-EN
Performance Data
GER240 Cooling Performance
Table 41. GER240 cooling performance
EWT GPM
Gross
Mbtuh
Sen
Mbtuh SHR
Comp Pwr
kW
Reject
Mbtuh LWT
Feet
Head
45
40.3 300.4 208.3 0.69 13.32 345.8 62.2 7.3
49.6 300.7 208.6 0.69 13.11 345.5 58.9 10.5
55.8 300.8 208.6 0.69 13.02 345.3 57.4 12.9
62.0 300.9 208.7 0.69 12.95 345.0 56.1 15.5
65.1 300.9 208.7 0.69 12.85 344.8 55.6 16.9
68.2 300.9 208.7 0.69 12.82 344.6 55.1 18.3
74.4 301.0 208.7 0.69 12.78 344.6 54.3 21.3
55
40.3 295.1 206.0 0.70 14.26 343.8 72.1 7.0
49.6 295.9 206.6 0.70 13.98 343.6 68.9 10.1
55.8 296.2 206.8 0.70 13.86 343.5 67.3 12.4
62.0 296.5 207.0 0.70 13.76 343.5 66.1 14.9
65.1 296.6 207.1 0.70 13.72 343.5 65.6 16.2
68.2 296.7 207.1 0.70 13.68 343.4 65.1 17.6
74.4 296.8 207.2 0.70 13.62 343.3 64.2 20.5
68
40.3 284.7 202.0 0.71 15.89 338.9 84.8 6.7
49.6 285.9 202.8 0.71 15.53 338.9 81.7 9.6
55.8 286.5 203.2 0.71 15.37 338.9 80.1 11.8
62.0 286.9 203.5 0.71 15.24 338.9 78.9 14.2
65.1 287.1 203.7 0.71 15.19 338.9 78.4 15.5
68.2 287.3 203.8 0.71 15.14 338.9 77.9 16.8
74.4 287.5 204.0 0.71 15.05 338.9 77.1 19.6
75
40.3 277.8 199.5 0.72 16.94 335.6 91.7 6.5
49.6 279.1 200.4 0.72 16.55 335.6 88.5 9.4
55.8 279.7 200.9 0.72 16.37 335.6 87.0 11.6
62.0 280.2 201.2 0.72 16.23 335.6 85.8 13.9
65.1 280.4 201.4 0.72 16.17 335.6 85.3 15.1
68.2 280.6 201.5 0.72 16.12 335.6 84.8 16.4
74.4 281.0 201.8 0.72 16.02 335.7 84.0 19.1
86
40.3 265.3 194.9 0.73 18.85 329.6 102.4 6.3
49.6 266.7 196.0 0.73 18.43 329.6 99.3 9.1
55.8 267.5 196.6 0.73 18.23 329.7 97.8 11.2
62.0 268.0 196.9 0.73 18.07 329.7 96.6 13.4
65.1 268.3 197.2 0.73 18.01 329.8 96.1 14.6
68.2 268.4 197.3 0.73 17.95 329.7 95.7 15.8
74.4 268.8 197.6 0.73 17.85 329.7 94.9 18.5
95
40.3 254.0 191.1 0.75 20.58 324.2 111.1 5.8
49.6 255.5 192.2 0.75 20.13 324.2 108.1 8.4
55.8 256.2 192.7 0.75 19.92 324.2 106.6 10.3
62.0 256.7 193.1 0.75 19.75 324.1 105.5 12.4
65.1 257.0 193.3 0.75 19.68 324.2 105.0 13.6
68.2 257.2 193.5 0.75 19.61 324.2 104.5 14.7
74.4 257.6 193.8 0.75 19.50 324.2 103.7 17.2

WSHP-PRC021-EN 49
Performance Data
GER240 Heating Performance
105
40.3 240.5 186.5 0.78 22.71 318.0 120.8 5.6
49.6 242.0 187.7 0.78 22.25 317.9 117.8 8.2
55.8 242.7 188.2 0.78 22.03 317.9 116.4 10.0
62.0 243.3 188.7 0.78 21.85 317.8 115.3 12.1
65.1 243.5 188.9 0.78 21.77 317.8 114.8 13.2
68.2 243.7 189.0 0.78 21.71 317.8 114.3 14.3
74.4 244.1 189.3 0.78 21.59 317.8 113.5 16.7
115
40.3 226.0 181.9 0.80 25.01 311.4 130.5 5.5
49.6 227.5 183.1 0.80 24.53 311.2 127.5 7.9
55.8 228.2 183.7 0.80 24.30 311.1 126.2 9.8
62.0 228.7 184.1 0.80 24.11 311.0 125.0 11.8
65.1 228.9 184.3 0.80 24.04 311.0 124.6 12.8
68.2 229.1 184.4 0.80 23.97 310.9 124.1 13.9
74.4 229.5 184.7 0.80 23.85 310.9 123.4 16.2
120
40.3 218.2 179.4 0.82 26.19 307.6 135.3 5.4
49.6 219.7 180.7 0.82 25.77 307.6 132.4 7.9
55.8 220.4 181.3 0.82 25.54 307.6 131.0 9.7
62.0 220.9 181.7 0.82 25.36 307.5 129.9 11.6
65.1 221.2 181.9 0.82 25.28 307.5 129.4 12.7
68.2 221.4 182.1 0.82 25.21 307.4 129.0 13.8
74.4 221.7 182.4 0.82 25.09 307.4 128.3 16.0
Note: Cooling performance data is tabulated at 80.6°F DB / 66.2°F WB at the rated CFM. For conditions other than what is
tabulated, multipliers must be used to correct performance. See Table 43, p. 51 for Fan Correction Factors for CFM other
than rated and the Cooling Correction Factors for variations in entering air temperatures. Rated GPM 62.0; Minimum
CFM 6400; Rated CFM 7600; Maximum CFM 9600.
Table 42. GER240 heating performance
EWT GPM
Gross
Mbtuh
Absorb
Mbtuh
Comp Pwr
kW LWT
Feet
Head
25
40.3 179.2 129.4 14.57 18.6 9.8
49.6 182.3 132.3 14.64 19.7 14.1
55.8 184.6 134.4 14.69 20.2 17.3
62.0 186.0 135.7 14.73 20.6 20.8
65.1 186.7 136.4 14.75 20.8 22.7
68.2 187.2 136.8 14.75 21.0 24.6
74.4 188.3 137.9 14.78 21.3 28.6
32
40.3 198.8 147.4 15.06 24.7 9.6
49.6 202.7 151.0 15.14 25.9 13.7
55.8 204.8 153.0 15.18 26.5 16.8
62.0 206.3 154.3 15.22 27.0 20.2
65.1 207.4 155.3 15.25 27.2 22.0
68.2 207.8 155.7 15.26 27.4 23.9
74.4 209.4 157.1 15.32 27.8 27.8
Table 41. GER240 cooling performance (continued)
EWT GPM
Gross
Mbtuh
Sen
Mbtuh SHR
Comp Pwr
kW
Reject
Mbtuh LWT
Feet
Head

50 WSHP-PRC021-EN
Performance Data
45
40.3 241.0 185.8 16.15 35.8 7.3
49.6 246.1 190.5 16.30 37.3 10.5
55.8 247.9 192.1 16.33 38.1 12.9
62.0 249.9 194.0 16.39 38.7 15.5
65.1 250.6 194.6 16.41 39.0 16.9
68.2 251.3 195.3 16.42 39.3 18.3
74.4 252.4 196.3 16.45 39.7 21.3
55
40.3 272.4 214.2 17.05 44.4 7.0
49.6 277.5 218.7 17.20 46.2 10.1
55.8 280.1 221.1 17.28 47.1 12.4
62.0 282.5 223.3 17.36 47.8 14.9
65.1 283.1 223.8 17.38 48.1 16.2
68.2 283.9 224.5 17.40 48.4 17.6
74.4 285.8 226.2 17.46 48.9 20.5
68
40.3 314.7 251.9 18.39 55.5 6.7
49.6 319.6 256.3 18.55 57.7 9.6
55.8 323.2 259.5 18.67 58.7 11.8
62.0 324.9 261.0 18.75 59.6 14.2
65.1 325.9 261.8 18.78 60.0 15.5
68.2 326.6 262.4 18.81 60.3 16.8
74.4 327.3 262.9 18.85 60.9 19.6
75
40.3 336.4 271.1 19.12 61.5 6.5
49.6 342.2 276.3 19.29 63.9 9.4
55.8 344.9 278.7 19.40 65.0 11.6
62.0 347.2 280.7 19.49 65.9 13.9
65.1 347.7 281.1 19.52 66.4 15.1
68.2 349.5 282.7 19.57 66.7 16.4
74.4 350.7 283.7 19.63 67.4 19.1
86
40.3 369.8 300.6 20.27 71.1 6.3
49.6 376.8 306.7 20.54 73.6 9.1
55.8 379.5 309.0 20.66 74.9 11.2
62.0 380.9 310.4 20.66 76.0 13.4
65.1 382.4 311.7 20.72 76.4 14.6
68.2 383.3 312.4 20.76 76.8 15.8
74.4 383.7 312.7 20.80 77.6 18.5
Note: Heating performance data is tabulated at 68.0°F DB at the rated CFM. For conditions other than what is tabulated,
multipliers must be used to correct performance. See Table 43, p. 51 for Fan Correction Factors for CFM other than rated
and the Heating Correction Factors for variations in entering air temperatures. Rated GPM 62.0; Minimum CFM 6400;
Rated CFM 7600; Maximum CFM 9600.
Table 42. GER240 heating performance (continued)
EWT GPM
Gross
Mbtuh
Absorb
Mbtuh
Comp Pwr
kW LWT
Feet
Head

WSHP-PRC021-EN 51
Performance Data
GER300 Cooling Performance
Table 43. GER240 fan correction factors
Entering
CFM
Cooling
Capacity
Sensible
Capacity
Cooling
Input
Watts
Heating
Capacity
Heating
Input
Watts
6400 0.969 0.915 0.996 0.978 1.061
6620 0.976 0.932 0.997 0.983 1.048
6840 0.982 0.947 0.998 0.991 1.038
7200 0.991 0.973 0.999 0.993 1.017
7600 1.000 1.000 1.000 1.000 1.000
8000 1.008 1.028 1.001 1.005 0.984
8800 1.024 1.085 1.004 1.016 0.956
9600 1.039 1.142 1.006 1.023 0.933
Table 44. GER300 cooling performance
EWT GPM
Gross
Mbtuh
Sen
Mbtuh SHR
Comp Pwr
kW
Reject
Mbtuh LWT
Feet
Head
46
50.4 329.7 235.1 0.71 13.55 375.9 60.9 7.2
62.0 324.9 227.4 0.70 13.34 370.5 58.0 10.5
69.8 322.6 225.8 0.70 13.27 367.8 56.5 12.9
77.5 319.5 220.5 0.69 13.19 364.5 55.4 15.6
81.4 319.9 223.9 0.70 13.16 364.8 55.0 17.0
85.3 320.1 223.7 0.70 13.20 365.1 54.6 18.4
93.0 318.1 221.4 0.70 13.16 363.0 53.8 21.5
55
50.4 329.2 238.3 0.72 14.38 378.3 70.0 7.0
62.0 326.5 235.1 0.72 14.16 374.8 67.1 10.1
69.8 323.0 232.2 0.72 14.13 371.2 65.6 12.5
77.5 322.2 231.4 0.72 14.08 370.3 64.6 15.0
81.4 321.3 228.4 0.71 14.00 369.1 64.1 16.4
85.3 320.3 226.8 0.71 13.96 367.9 63.6 17.8
93.0 318.2 222.7 0.70 13.88 365.5 62.9 20.7
68
50.4 320.5 239.1 0.75 15.81 374.5 82.9 6.7
62.0 319.9 237.1 0.74 15.60 373.2 80.0 9.6
69.8 319.7 235.9 0.74 15.55 372.7 78.7 11.9
77.5 318.9 234.7 0.74 15.51 371.9 77.6 14.3
81.4 318.3 233.6 0.73 15.48 371.1 77.1 15.6
85.3 318.2 233.6 0.73 15.45 370.9 76.7 16.9
93.0 317.2 232.5 0.73 15.39 369.7 76.0 19.8
75
50.4 314.5 238.1 0.76 16.63 371.2 89.7 6.5
62.0 313.9 237.0 0.75 16.49 370.2 86.9 9.4
69.8 313.6 235.2 0.75 16.39 369.6 85.6 11.6
77.5 313.6 235.8 0.75 16.31 369.3 84.5 14.0
81.4 313.6 233.7 0.75 16.25 369.1 84.1 15.2
85.3 313.4 234.1 0.75 16.28 368.9 83.7 16.5
93.0 313.7 233.4 0.74 16.23 369.1 82.9 19.3

52 WSHP-PRC021-EN
Performance Data
Note: GER300 is cooling only.
86
50.4 299.5 236.0 0.79 18.14 361.4 100.3 6.3
62.0 300.5 235.6 0.78 17.98 361.8 97.7 9.1
69.8 301.9 234.6 0.78 17.87 362.9 96.4 11.2
77.5 302.9 234.2 0.77 17.77 363.6 95.4 13.5
81.4 302.3 234.3 0.77 17.79 363.0 94.9 14.7
85.3 302.6 232.7 0.77 17.72 363.1 94.5 16.0
93.0 302.5 232.3 0.77 17.68 362.8 93.8 18.6
95
50.4 282.5 231.9 0.82 19.45 348.8 108.8 6.1
62.0 287.9 232.6 0.81 19.32 353.8 106.4 8.9
69.8 288.9 232.5 0.81 19.25 354.6 105.2 10.9
77.5 289.6 232.2 0.80 19.15 354.9 104.2 13.1
81.4 289.6 232.3 0.80 19.15 355.0 103.7 14.3
85.3 289.0 232.3 0.80 19.15 354.3 103.3 15.6
93.0 290.0 231.7 0.80 19.13 355.3 102.6 18.1
105
50.4 249.9 222.7 0.89 21.39 322.9 117.8 6.0
62.0 259.8 225.5 0.87 21.07 331.7 115.7 8.6
69.8 269.2 228.1 0.85 20.86 340.5 114.8 10.6
77.5 270.9 228.4 0.84 20.77 341.8 113.8 12.8
81.4 271.5 228.3 0.84 20.73 342.2 113.4 13.9
85.3 272.9 228.5 0.84 20.67 343.5 113.1 15.1
93.0 274.0 228.8 0.83 20.61 344.4 112.4 17.6
115
50.4 215.5 212.5 0.99 23.48 295.6 126.7 5.8
62.0 237.2 219.1 0.92 22.97 315.6 125.2 8.4
69.8 240.4 220.0 0.92 22.86 318.4 124.1 10.3
77.5 242.7 220.6 0.91 22.75 320.3 123.3 12.5
81.4 243.9 221.0 0.91 22.70 321.4 122.9 13.6
85.3 244.9 221.2 0.90 22.68 322.3 122.6 14.7
93.0 245.3 221.3 0.90 22.62 322.5 121.9 17.2
120
50.4 206.1 206.1 1.00 24.51 289.8 131.5 5.8
62.0 214.2 211.8 0.99 24.18 296.7 129.6 8.3
69.8 224.1 215.4 0.96 23.95 305.8 128.8 10.2
77.5 228.0 216.4 0.95 23.81 309.2 128.0 12.3
81.4 229.0 216.7 0.95 23.79 310.2 127.6 13.4
85.3 230.7 217.3 0.94 23.79 311.9 127.3 14.5
93.0 234.4 218.5 0.93 23.68 315.2 126.8 17.0
Note: Cooling performance data is tabulated at 80.6°F DB / 66.2°F WB at the rated CFM. For conditions other than what is
tabulated, multipliers must be used to correct performance. See Table 45, p. 53 for Fan Correction Factors for CFM other
than rated and the Cooling Correction Factors for variations in entering air temperatures. Rated GPM 77.5; Minimum
CFM 7000; Rated CFM 9500; Maximum CFM 11000.
Table 44. GER300 cooling performance (continued)
EWT GPM
Gross
Mbtuh
Sen
Mbtuh SHR
Comp Pwr
kW
Reject
Mbtuh LWT
Feet
Head

WSHP-PRC021-EN 53
Performance Data
Table 45. GER300 fan correction factors
Entering
CFM
Cooling
Capacity
Sensible
Capacity
Cooling
Input
Watts
Heating
Capacity
Heating
Input
Watts
7000 0.939 0.853 0.971 — —
7750 0.961 0.897 0.983 — —
8500 0.976 0.941 0.994 — —
9000 0.991 0.973 0.997 — —
9500 1.000 1.000 1.000 — —
10000 1.007 1.034 1.008 — —
10500 1.013 1.061 1.011 — —
11000 1.020 1.094 1.017 — —
Table 46. GER036 correction factors for variation in entering air temperature
Cooling
Entering
Air WB °F
Cooling
Capacity
Cooling
Input
Watts
Sensible vs Entering Dry Bulb Multipliers Heating
Entering
Air DB °F
Heating
Capacity
Heating
Input
Watts65.6 70.6 75.6 80.6 85.6
49.4 0.935 1.009 1.039 1.107 1.176 * * 53.0 1.048 0.868
56.3 0.936 1.009 0.815 1.036 1.177 * * 58.0 1.034 0.911
60.3 0.936 1.009 0.633 0.846 1.064 * * 63.0 1.016 0.954
63.2 0.958 1.003 0.490 0.714 0.927 1.148 * 68.0 1.000 1.000
66.2 1.000 1.000 0.565 0.788 1.000 1.225 73.0 0.987 1.052
72.1 1.088 0.991 0.481 0.724 0.931 78.0 0.966 1.101
77.1 1.161 0.986 0.440 0.686 83.0 0.950 1.155
Table 47. GER048 correction factors for variation in entering air temperature
Cooling
Entering
Air WB F
Cooling
Capacity
Cooling
Input
Watts
Sensible vs Entering Dry Bulb Multipliers Heating
Entering
Air DB F
Heating
Capacity
Heating
Input
Watts65.6 70.6 75.6 80.6 85.6
49.4 0.920 1.010 1.001 1.068 1.139 * * 53.0 1.051 0.870
56.3 0.922 1.010 0.804 1.021 1.140 * * 58.0 1.033 0.911
60.3 0.924 1.009 0.614 0.838 1.059 1.211 * 63.0 1.015 0.953
63.2 0.956 1.001 0.459 0.699 0.922 1.142 * 68.0 1.000 1.000
66.2 1.000 1.000 0.549 0.778 1.000 1.219 73.0 0.983 1.048
72.1 1.096 1.000 0.472 0.699 0.925 78.0 0.966 1.101
77.1 1.181 0.997 0.439 0.662 83.0 0.949 1.155
Table 48. GER060 correction factors for variation in entering air temperature
Cooling
Entering
Air WB F
Cooling
Capacity
Cooling
Input
Watts
Sensible vs Entering Dry Bulb Multipliers Heating
Entering
Air DB F
Heating
Capacity
Heating
Input
Watts65.6 70.6 75.6 80.6 85.6
49.4 0.940 1.002 0.987 1.058 1.130 * * 53.0 1.051 0.871
56.3 0.941 1.002 0.796 1.036 1.131 * * 58.0 1.036 0.912
60.3 0.942 1.002 0.603 0.831 1.070 * * 63.0 1.016 0.953
63.2 0.959 0.999 0.460 0.689 0.919 1.162 * 68.0 1.000 1.000
66.2 1.000 1.000 0.543 0.767 1.000 1.247 73.0 0.984 1.049

54 WSHP-PRC021-EN
Performance Data
72.1 1.103 1.002 0.466 0.705 0.926 78.0 0.967 1.097
77.1 1.190 1.003 0.423 0.680 83.0 0.950 1.147
Table 49. GER072 correction factors for variation in entering air temperature
Cooling
Entering
Air WB F
Cooling
Capacity
Cooling
Input
Watts
Sensible vs Entering Dry Bulb Multipliers Heating
Entering
Air DB F
Heating
Capacity
Heating
Input
Watts65.6 70.6 75.6 80.6 85.6
49.4 0.940 1.007 1.032 1.098 1.165 * * 53.0 1.050 0.863
56.3 0.941 1.004 0.815 1.042 1.167 * * 58.0 1.036 0.908
60.3 0.941 1.007 0.621 0.844 1.071 * * 63.0 1.016 0.952
63.2 0.959 1.003 0.477 0.700 0.925 1.154 * 68.0 1.000 1.000
66.2 1.000 1.000 0.552 0.774 1.000 1.232 73.0 0.987 1.054
72.1 1.091 0.992 0.474 0.699 0.920 78.0 0.968 1.104
77.1 1.173 0.987 0.429 0.662 83.0 0.948 1.157
Table 48. GER060 correction factors for variation in entering air temperature
Cooling
Entering
Air WB F
Cooling
Capacity
Cooling
Input
Watts
Sensible vs Entering Dry Bulb Multipliers Heating
Entering
Air DB F
Heating
Capacity
Heating
Input
Watts65.6 70.6 75.6 80.6 85.6
Table 50. GER090 correction factors for variation in entering air temperature
Cooling
Entering
Air WB F
Cooling
Capacity
Cooling
Input
Watts
Sensible vs Entering Dry Bulb Multipliers Heating
Entering
Air DB F
Heating
Capacity
Heating
Input
Watts65.6 70.6 75.6 80.6 85.6
49.4 0.932 0.998 1.077 1.143 1.211 * * 53.0 1.038 0.868
56.3 0.933 0.998 0.824 1.056 1.212 * * 58.0 1.028 0.910
60.3 0.938 0.998 0.605 0.846 1.085 1.285 * 63.0 1.012 0.952
63.2 0.962 0.998 0.436 0.681 0.926 1.164 * 68.0 1.000 1.000
66.2 1.000 1.000 0.508 0.757 1.000 1.238 73.0 0.984 1.047
72.1 1.089 1.004 0.397 0.648 0.898 78.0 0.971 1.098
77.1 1.169 1.007 0.328 0.587 83.0 0.958 1.153
Table 51. GER120 correction factors for variation in entering air temperature
Cooling
Entering
Air WB F
Cooling
Capacity
Cooling
Input
Watts
Sensible vs Entering Dry Bulb Multipliers Heating
Entering
Air DB F
Heating
Capacity
Heating
Input
Watts65.6 70.6 75.6 80.6 85.6
49.4 0.934 1.002 1.023 1.090 1.157 * * 53.0 1.054 0.843
56.3 0.935 1.002 0.815 1.030 1.158 * * 58.0 1.037 0.894
60.3 0.936 1.002 0.635 0.847 1.061 * * 63.0 1.018 0.946
63.2 0.957 1.001 0.499 0.713 0.926 1.142 * 68.0 1.000 1.000
66.2 1.000 1.000 0.573 0.784 1.000 1.218 73.0 0.984 1.061
72.1 1.089 0.999 0.497 0.713 0.926 78.0 0.966 1.119
77.1 1.169 0.999 0.466 0.675 83.0 0.944 1.179

WSHP-PRC021-EN 55
Performance Data
Table 52. GER150 correction factors for variation in entering air temperature
Cooling
Entering
Air WB F
Cooling
Capacity
Cooling
Input
Watts
Sensible vs Entering Dry Bulb Multipliers
Heating
Entering
Air DB F
Heating
Capacity
Heating
Input
Watts65.6 70.6 75.6 80.6 85.6
49.4 0.936 1.001 1.026 1.094 1.163 * * 53.0 1.048 0.872
56.3 0.937 1.000 0.812 1.042 1.164 * * 58.0 1.033 0.913
60.3 0.937 1.002 0.620 0.844 1.072 * * 63.0 1.017 0.956
63.2 0.958 1.000 0.475 0.701 0.925 1.157 * 68.0 1.000 1.000
66.2 1.000 1.000 0.549 0.772 1.000 1.235 73.0 0.986 1.049
72.1 1.096 0.997 0.468 0.704 0.923 78.0 0.968 1.097
77.1 1.178 0.994 0.425 0.654 83.0 0.952 1.149
Table 53. GER180 correction factors for variation in entering air temperature
Cooling
Entering
Air WB F
Cooling
Capacity
Cooling
Input
Watts
Sensible vs Entering Dry Bulb Multipliers Heating
Entering
Air DB F
Heating
Capacity
Heating
Input
Watts65.6 70.6 75.6 80.6 85.6
49.4 0.939 0.992 1.031 1.096 1.161 * * 53.0 1.083 0.893
56.3 0.940 0.993 0.816 1.026 1.163 * * 58.0 1.058 0.928
60.3 0.942 0.994 0.618 0.844 1.062 1.223 * 63.0 1.030 0.965
63.2 0.962 0.997 0.470 0.699 0.926 1.138 * 68.0 1.000 1.000
66.2 1.000 1.000 0.544 0.772 1.000 1.209 73.0 0.972 1.038
72.1 1.086 1.008 0.461 0.689 0.919 78.0 0.942 1.077
77.1 1.159 1.017 0.419 0.647 83.0 0.911 1.117
Table 54. GER240 correction factors for variation in entering air temperature
Cooling
Entering
Air WB F
Cooling
Capacity
Cooling
Input
Watts
Sensible vs Entering Dry Bulb Multipliers Heating
Entering
Air DB F
Heating
Capacity
Heating
Input
Watts65.6 70.6 75.6 80.6 85.6
49.4 0.931 0.993 1.061 1.129 1.198 * * 53.0 1.053 0.884
56.3 0.932 0.993 0.822 1.049 1.199 * * 58.0 1.036 0.920
60.3 0.935 0.993 0.619 0.847 1.078 1.269 * 63.0 1.016 0.958
63.2 0.961 0.995 0.471 0.701 0.929 1.158 * 68.0 1.000 1.000
66.2 1.000 1.000 0.542 0.769 1.000 1.232 73.0 0.981 1.042
72.1 1.088 1.010 0.453 0.683 0.912 78.0 0.963 1.087
77.1 1.166 1.023 0.405 0.635 83.0 0.945 1.134
Table 55. GER300 correction factors for variation in entering air temperature
Cooling
Entering
Air WB °F
Cooling
Capacity
Cooling
Input
Watts
Sensible vs Entering Dry Bulb Multipliers Heating
Entering
Air DB °F
Heating
Capacity
Heating
Input
Watts65.6 70.6 75.6 80.6 85.6
49.4 0.942 0.971 0.778 0.933 1.098 * * — — —
56.3 0.943 0.971 0.720 0.936 1.100 * * — — —
60.3 0.943 0.972 0.561 0.822 1.085 * * — — —
63.2 0.959 0.979 0.447 0.691 0.930 1.176 * — — —
66.2 1.000 1.000 0.523 0.751 1.000 1.246 — — —
72.1 1.066 1.041 0.389 0.600 0.864 — — —
77.1 1.101 1.059 0.254 0.487 — — —

56 WSHP-PRC021-EN
Performance Data
Table 56. Multispeed direct drive evaporator fan performance - only available on single phase 3-5 ton units
Unit
Model
External Static Pressure (Inches of Water) & Motor Power (Bhp)(a)
Rated
Speed Set 1
Standard Low Speed
Speed Set 2
Mid Speed
Speed Set 3
Standard High Speed
Speed Set 4
High Speed
Speed Set 5
CFM ESP RPM BHP ESP RPM BHP ESP RPM BHP ESP RPM BHP ESP RPM BHP
GER036
Downflow
Airflow
960 0.43 707 0.21 0.70 843 0.38 0.88 919 0.38 1.02 979 0.36 1.15 1027 0.50
1020 0.37 687 0.20 0.62 818 0.37 0.80 896 0.37 0.94 956 0.35 1.07 1006 0.49
1080 0.31 668 0.19 0.55 792 0.36 0.73 872 0.36 0.87 933 0.34 0.99 985 0.48
1140 0.25 648 0.19 0.47 766 0.35 0.65 849 0.35 0.79 911 0.33 0.91 964 0.47
1200 0.19 628 0.18 0.39 740 0.34 0.57 826 0.34 0.71 888 0.32 0.83 943 0.46
1260 0.13 609 0.18 0.31 715 0.32 0.50 803 0.33 0.63 866 0.32 0.75 922 0.45
1320 0.07 589 0.17 0.24 689 0.31 0.42 780 0.32 0.56 843 0.31 0.68 901 0.44
1380 0.01 569 0.17 0.16 663 0.30 0.34 757 0.31 0.48 820 0.30 0.60 880 0.43
1440 — — — 0.08 637 0.29 0.26 734 0.30 0.40 798 0.29 0.52 859 0.42
GER036
Horizontal
Airflow
960 0.40 707 0.21 0.69 856 0.31 0.88 941 0.39 1.03 987 0.45 1.16 1034 0.50
1020 0.35 688 0.20 0.62 831 0.30 0.80 916 0.38 0.95 967 0.44 1.08 1011 0.49
1080 0.30 669 0.19 0.55 806 0.29 0.73 891 0.37 0.87 947 0.43 1.00 989 0.48
1140 0.24 650 0.19 0.48 781 0.28 0.65 866 0.36 0.79 927 0.42 0.92 966 0.47
1200 0.19 631 0.18 0.41 756 0.28 0.58 841 0.35 0.71 906 0.41 0.84 943 0.46
1260 0.14 612 0.18 0.34 731 0.27 0.50 816 0.34 0.63 886 0.40 0.76 920 0.45
1320 0.09 593 0.17 0.26 706 0.26 0.43 791 0.33 0.55 866 0.39 0.68 898 0.44
1380 0.04 574 0.17 0.19 681 0.25 0.35 766 0.32 0.47 846 0.38 0.60 875 0.43
1440 — — — 0.12 655 0.24 0.28 741 0.30 0.40 826 0.37 0.52 852 0.42
GER048
Downflow
Airflow
1280 0.60 865 0.36 0.84 977 0.47 1.02 1044 0.55 1.17 1090 0.63 — — —
1360 0.48 833 0.35 0.72 944 0.45 0.90 1012 0.54 1.04 1062 0.61 — — —
1440 0.37 802 0.34 0.60 912 0.44 0.77 980 0.52 0.92 1033 0.60 — — —
1520 0.25 770 0.32 0.48 879 0.42 0.65 948 0.50 0.80 1005 0.58 1.06 1100 0.69
1600 0.14 739 0.31 0.36 846 0.41 0.52 915 0.49 0.68 976 0.56 0.92 1069 0.67
1680 0.02 707 0.30 0.24 814 0.39 0.39 883 0.47 0.56 948 0.55 0.78 1038 0.65
1760 — — — 0.13 781 0.38 0.27 851 0.45 0.43 920 0.53 0.64 1006 0.63
1840 — — — 0.01 748 0.36 0.14 819 0.43 0.31 891 0.52 0.50 975 0.62
1920 — — ————0.02 787 0.42 0.19 863 0.50 0.37 944 0.60
GER048
Horizontal
Airflow
1280 0.61 864 0.36 0.84 967 0.47 1.00 1038 0.55 1.16 1115 0.65 — — —
1360 0.51 831 0.35 0.73 935 0.45 0.88 1006 0.53 1.05 1084 0.63 — — —
1440 0.40 798 0.33 0.62 904 0.44 0.77 974 0.52 0.94 1052 0.61 1.10 1114 0.70
1520 0.30 766 0.32 0.51 873 0.42 0.66 943 0.50 0.82 1020 0.59 0.99 1084 0.68
1600 0.19 733 0.31 0.40 842 0.41 0.55 911 0.48 0.71 989 0.57 0.87 1054 0.66
1680 0.09 701 0.29 0.29 810 0.39 0.44 879 0.47 0.60 957 0.55 0.75 1023 0.65
1760 — — — 0.18 779 0.38 0.32 848 0.45 0.48 925 0.54 0.64 993 0.63
1840 — — — 0.08 748 0.36 0.21 816 0.43 0.37 893 0.52 0.52 963 0.61
1920 — — ————0.10 784 0.42 0.26 861 0.50 0.40 932 0.59
GER060
Downflow
Airflow
1600 0.83 888 0.49 0.95 948 0.56 1.19 1048 0.67 — — — — — —
1700 0.69 847 0.46 0.82 908 0.53 1.04 1004 0.64 1.33 1110 0.78 — — —
1800 0.56 806 0.44 0.69 867 0.51 0.90 959 0.62 1.18 1063 0.75 — — —
1900 0.43 764 0.42 0.56 826 0.48 0.76 915 0.59 1.02 1016 0.71 — — —
2000 0.30 723 0.40 0.43 785 0.46 0.62 870 0.56 0.87 969 0.68 1.18 1089 0.88
2100 0.16 681 0.37 0.30 744 0.44 0.47 826 0.53 0.71 922 0.65 1.03 1044 0.84
2200 0.03 640 0.35 0.17 703 0.41 0.33 781 0.50 0.56 876 0.61 0.87 999 0.81
2300 — — — 0.04 663 0.39 0.19 737 0.47 0.41 829 0.58 0.72 954 0.77
2400 — — ————0.05 693 0.44 0.25 782 0.55 0.56 909 0.73

WSHP-PRC021-EN 57
Performance Data
GER060
Horizontal
Airflow
1600 0.76 884 0.48 0.82 932 0.55 0.98 1022 0.66 1.13 1104 0.77 — — —
1700 0.63 842 0.46 0.69 893 0.52 0.85 981 0.63 1.00 1061 0.74 — — —
1800 0.50 801 0.44 0.57 854 0.50 0.72 941 0.60 0.87 1018 0.71 — — —
1900 0.36 759 0.42 0.45 815 0.48 0.60 900 0.58 0.74 975 0.68 — — —
2000 0.23 718 0.39 0.32 776 0.46 0.47 859 0.55 0.61 932 0.65 0.87 1069 0.86
2100 0.10 676 0.37 0.20 737 0.43 0.34 818 0.53 0.49 890 0.62 0.74 1025 0.83
2200 — — — 0.07 699 0.41 0.22 778 0.50 0.36 847 0.59 0.61 980 0.79
2300 — — ————0.09 737 0.47 0.23 804 0.56 0.48 936 0.75
2400 — — ———————0.10 761 0.53 0.35 892 0.72
For 036 Models, fan motor heat (MBh) = 2.72 x Fan Bhp + 0.16. For 048 & 060 Models, fan motor heat (MBh) = 2.87 x Fan Bhp + 0.15.
Factory supplied motors, in commercial equipment, are definite purpose motors, specifically designed and tested to operate reliably and continuously at
all cataloged conditions. Using the full horsepower range of our fan motors as shown in our tabular data will not result in nuisance tripping or premature
motor failure. Our product’s warranty will not be affected.
(a) Data includes pressure drop due to wet coil and filters.
Table 56. Multispeed direct drive evaporator fan performance - only available on single phase 3-5 ton units (continued)
Unit
Model
External Static Pressure (Inches of Water) & Motor Power (Bhp)(a)
Rated
Speed Set 1
Standard Low Speed
Speed Set 2
Mid Speed
Speed Set 3
Standard High Speed
Speed Set 4
High Speed
Speed Set 5
CFM ESP RPM BHP ESP RPM BHP ESP RPM BHP ESP RPM BHP ESP RPM BHP
Table 57. Belt drive evaporator fan performance - GER036 downflow airflow (3 phase units only)
External Static Pressure (Inches of Water)
0.10 0.20 0.30 0.40 0.50 0.60 0.70 0.80 0.90 1.00
CFM RPM BHP RPM BHP RPM BHP RPM BHP RPM BHP RPM BHP RPM BHP RPM BHP RPM BHP RPM BHP
1-hp Standard Motor & Field Supplied Low Static Drive(a) 1-hp Standard Motor & Drive(b)
960 — — 572 0.14 639 0.19 702 0.23 762 0.28 816 0.34 865 0.39 907 0.44 948 0.49 986 0.54
1080 — — 608 0.18 672 0.23 731 0.27 785 0.33 840 0.38 890 0.44 937 0.50 979 0.56 1017 0.62
1200 572 0.18 645 0.23 707 0.28 762 0.33 814 0.38 864 0.44 913 0.50 961 0.57 1005 0.63 1046 0.70
1320 614 0.22 684 0.28 744 0.33 797 0.39 846 0.44 894 0.50 939 0.56 984 0.63 1028 0.70 1070 0.78
1440 656 0.27 723 0.34 781 0.40 833 0.46 881 0.52 925 0.58 969 0.64 1011 0.71 1053 0.78 1094 0.86
Continued
External Static Pressure (Inches of Water)
1.10 1.20 1.30 1.40 1.50
CFM RPM BHP RPM BHP RPM BHP RPM BHP RPM BHP
1-hp Standard Motor & Drive(b)
960 1022 0.59 1057 0.64 1092 0.69 1125 0.74 1157 0.79
1080 1053 0.67 1088 0.73 1121 0.79 1152 0.84 1184 0.9
1200 1084 0.77 1118 0.83 1152 0.89 1182 0.95 1213 1.01
1320 1110 0.85 1147 0.92 1182 1 1214 1.07 — —
1440 1133 0.94 1170 1.01 1207 1.1 — — — —
1-hp Standard Motor & Field Supplied High Static Drive(c)
Notes:
1. For Standard Evaporator Fan Speed (rpm), reference Table 74, p. 73.
2. Data includes pressure drop due to standard filters and wet coils. No accessories or options are included in pressure drop data.
3. Refer to Table 79, p. 74 to determine additional static pressure drop due to other options/accessories.
4. 1-hp Fan Motor Heat (MBh) = 2.7672 x Fan bhp + 0.4705.
5. Factory supplied motors, in equipment, are definite purpose motors, specifically designed and tested to operate at all cataloged conditions. Using the
full horsepower range of our fan motors as shown in our tabular data will not result in nuisance tripping or premature motor failure. Our product’s
warranty will not be affected.
(a) Field Supplied Fan Sheave AK71x3/4" required. Field Supplied Belt may be necessary.
(b) Field Supplied Fan Sheave AK51x3/4" required. Field Supplied Belt may be necessary.
(c) Field Supplied Fan Sheave AK41x3/4" required. Field Supplied Belt may be necessary.

58 WSHP-PRC021-EN
Performance Data
Table 58. Belt drive evaporator fan performance - GER036 horizontal airflow (3 phase units only)
External Static Pressure (Inches of Water)
0.10 0.20 0.30 0.40 0.50 0.60 0.70 0.80 0.90 1.00
CFM RPM BHP RPM BHP RPM BHP RPM BHP RPM BHP RPM BHP RPM BHP RPM BHP RPM BHP RPM BHP
1-hp Standard Motor & Field Supplied Low Static
Drive(a) 1-hp Standard Motor & Drive(b)
960 — — 560 0.13 641 0.17 711 0.22 770 0.27 822 0.32 868 0.37 911 0.41 952 0.46 991 0.52
1080 — — 589 0.16 665 0.21 735 0.26 796 0.31 850 0.37 899 0.42 942 0.48 983 0.53 1021 0.58
1200 551 0.15 622 0.19 691 0.24 758 0.30 820 0.36 875 0.42 925 0.48 971 0.54 1012 0.60 1052 0.66
1320 592 0.19 657 0.24 720 0.29 783 0.35 843 0.41 899 0.47 950 0.54 997 0.60 1041 0.67 1081 0.74
1440 634 0.24 695 0.29 753 0.34 810 0.40 867 0.46 922 0.53 974 0.60 1022 0.67 1066 0.75 1108 0.82
Continued
External Static Pressure (Inches of Water)
1.10 1.20 1.30 1.40 1.50
CFM RPM BHP RPM BHP RPM BHP RPM BHP RPM BHP
1-hp Standard Motor & Drive(b)
960 1028 0.57 1064 0.62 1099 0.67 1133 0.73 1165 0.78
1080 1057 0.64 1093 0.70 1127 0.75 1160 0.81 1192 0.87
1200 1087 0.72 1123 0.78 1156 0.84 1189 0.90 1221 0.97
1320 1118 0.80 1153 0.87 1187 0.94 1218 1.00 — —
1440 1146 0.89 1182 0.97 1217 1.04 — — — —
1-hp Standard Motor & Field
Supplied High Static Drive(c)
Notes:
1. For Standard Evaporator Fan Speed (rpm), reference Table 74, p. 73.
2. Data includes pressure drop due to standard filters and wet coils. No accessories or options are included in pressure drop data.
3. Refer to Table 79, p. 74 to determine additional static pressure drop due to other options/accessories.
4. 1-hp Fan Motor Heat (MBh) = 2.7672 x Fan bhp + 0.4705.
5. Factory supplied motors, in equipment, are definite purpose motors, specifically designed and tested to operate at all cataloged conditions. Using the
full horsepower range of our fan motors as shown in our tabular data will not result in nuisance tripping or premature motor failure. Our product’s
warranty will not be affected.
(a) Field Supplied Fan Sheave AK71x3/4" required. Field Supplied Belt may be necessary.
(b) Field Supplied Fan Sheave AK51x3/4" required. Field Supplied Belt may be necessary.
(c) Field Supplied Fan Sheave AK41x3/4" required. Field Supplied Belt may be necessary.

WSHP-PRC021-EN 59
Performance Data
Table 59. Belt drive evaporator fan performance - GER048 downflow airflow (3 phase units only)
External Static Pressure (Inches of Water)
0.10 0.20 0.30 0.40 0.50 0.60 0.70 0.80 0.90 1.00
CFM RPM BHP RPM BHP RPM BHP RPM BHP RPM BHP RPM BHP RPM BHP RPM BHP RPM BHP RPM BHP
1-hp Standard Motor & Field Supplied Low Static Drive(a) 1-hp Standard Motor & Drive(b)
1280 — — 619 0.20 680 0.24 735 0.29 789 0.34 843 0.39 894 0.45 940 0.51 983 0.56 1025 0.63
1440 597 0.20 664 0.25 724 0.30 775 0.35 823 0.40 872 0.46 921 0.52 968 0.58 1012 0.65 1052 0.71
1600 648 0.26 710 0.32 768 0.37 818 0.43 864 0.49 908 0.54 950 0.60 995 0.67 1039 0.74 1081 0.81
1760 700 0.34 758 0.39 812 0.46 862 0.52 907 0.58 948 0.64 988 0.71 1027 0.77 1068 0.84 1108 0.91
1920 753 0.43 807 0.49 858 0.55 906 0.62 952 0.70 992 0.76 1029 0.83 1066 0.89 1102 0.96 1138 1.03
Continued
External Static Pressure (Inches of Water)
1.10 1.20 1.30 1.40 1.50
CFM RPM BHP RPM BHP RPM BHP RPM BHP RPM BHP
1-hp Standard Motor & Drive(b)
1280 1063 0.69 1101 0.75 1138 0.81 1175 0.88 1208 0.94
1440 1091 0.78 1128 0.85 1164 0.91 1198 0.98 1233 1.05
1600 1120 0.88 1157 0.95 1193 1.02 1227 1.10 1259 1.17
1760 1147 0.99 1185 1.07 1220 1.14 1256 1.23 — —
1920 1174 1.11 1212 1.19 1247 1.27 ————
1-hp Standard Motor & Field Supplied High Static Drive(c)
1. For Standard Evaporator Fan Speed (rpm), reference Table 74, p. 73.
2. Data includes pressure drop due to standard filters and wet coils. No accessories or options are included in pressure drop data.
3. Refer to Table 79, p. 74 to determine additional static pressure drop due to other options/accessories.
4. 1-hp Fan Motor Heat (MBh) = 2.7672 x Fan bhp + 0.4705.
5. Factory supplied motors, in equipment, are definite purpose motors, specifically designed and tested to operate at all cataloged conditions. Using the
full horsepower range of our fan motors as shown in our tabular data will not result in nuisance tripping or premature motor failure. Our product’s
warranty will not be affected.
(a) Field Supplied Fan Sheave AK69x3/4" required. Field Supplied Belt may be necessary.
(b) Field Supplied Fan Sheave AK49x3/4" required. Field Supplied Belt may be necessary.
(c) Field Supplied Fan Sheave AK41x3/4" required. Field Supplied Belt may be necessary.

60 WSHP-PRC021-EN
Performance Data
Table 60. Belt drive evaporator fan performance - GER048 horizontal airflow (3 phase units only)
External Static Pressure (Inches of Water)
0.10 0.20 0.30 0.40 0.50 0.60 0.70 0.80 0.90 1.00
CFM RPM BHP RPM BHP RPM BHP RPM BHP RPM BHP RPM BHP RPM BHP RPM BHP RPM BHP RPM BHP
1-hp Standard Motor & Field Supplied Low Static Drive(a) 1-hp Standard Motor & Drive(b)
1280 — — 633 0.20 704 0.26 767 0.31 822 0.37 871 0.42 915 0.48 957 0.54 997 0.60 1035 0.66
1440 604 0.20 676 0.26 744 0.32 805 0.38 859 0.44 909 0.50 954 0.57 996 0.63 1035 0.69 1073 0.76
1600 656 0.27 721 0.32 785 0.39 843 0.45 897 0.52 946 0.59 991 0.66 1034 0.73 1075 0.80 1110 0.87
1760 709 0.34 768 0.40 827 0.47 883 0.54 936 0.61 984 0.69 1030 0.77 1072 0.84 1113 0.92 1149 1.00
1920 762 0.43 817 0.50 872 0.57 925 0.64 975 0.72 1023 0.80 1067 0.88 1109 0.97 1150 1.05 1188 1.14
1-hp Standard Motor & Field Supplied High Static Drive( c)
Continued
External Static Pressure (Inches of Water)
1.10 1.20 1.30 1.40 1.50
CFM RPM BHP RPM BHP RPM BHP RPM BHP RPM BHP
1-hp Standard Motor & Drive(b)
1280 1072 0.71 1107 0.77 1142 0.84 1176 0.90 1210 0.97
1440 1108 0.83 1143 0.89 1176 0.96 1209 1.02 1239 1.09
1600 1146 0.95 1180 1.02 1212 1.09 1243 1.16 — —
1760 1185 1.08 1219 1.16 1251 1.24 ————
1920 1223 1.22 1258 1.31 — — ————
1-hp Standard Motor & Field Supplied High Static Drive(c)
Notes:
1. For Standard Evaporator Fan Speed (rpm), reference Table 74, p. 73.
2. Data includes pressure drop due to standard filters and wet coils. No accessories or options are included in pressure drop data.
3. Refer to Table 79, p. 74 to determine additional static pressure drop due to other options/accessories.
4. 1-hp Fan Motor Heat (MBh) = 2.7672 x Fan bhp + 0.4705.
5. Factory supplied motors, in equipment, are definite purpose motors, specifically designed and tested to operate at all cataloged conditions. Using the
full horsepower range of our fan motors as shown in our tabular data will not result in nuisance tripping or premature motor failure. Our product’s
warranty will not be affected.
(a) Field Supplied Fan Sheave AK69x3/4" required. Field Supplied Belt may be necessary.
(b) Field Supplied Fan Sheave AK49x3/4" required. Field Supplied Belt may be necessary.
(c) Field Supplied Fan Sheave AK41x3/4" required. Field Supplied Belt may be necessary.

WSHP-PRC021-EN 61
Performance Data
Table 61. Belt drive evaporator fan performance - GER060 downflow airflow (3 phase units only)
External Static Pressure (Inches of Water)
0.10 0.20 0.30 0.40 0.50 0.60 0.70 0.80 0.90 1.00
CFM RPM BHP RPM BHP RPM BHP RPM BHP RPM BHP RPM BHP RPM BHP RPM BHP RPM BHP RPM BHP
1-hp Standard Motor & Field Supplied Low Static Drive(a) 1-hp Standard Motor & Drive(b)
1600 — — — — 623 0.26 681 0.31 734 0.36 783 0.41 831 0.46 878 0.52 923 0.58 965 0.64
1800 — — 594 0.27 656 0.32 712 0.38 763 0.43 810 0.49 855 0.54 899 0.60 941 0.67 983 0.73
2000 571 0.28 633 0.34 690 0.40 744 0.46 794 0.52 840 0.58 883 0.64 924 0.71 964 0.77 1003 0.84
2200 615 0.36 674 0.42 727 0.49 778 0.55 826 0.62 871 0.69 913 0.76 953 0.82 991 0.89 1030 0.96
2400 660 0.45 715 0.52 766 0.59 814 0.66 859 0.74 903 0.81 945 0.88 984 0.96 1021 1.03 1057 1.11
Continued
External Static Pressure (Inches of Water)
1.10 1.20 1.30 1.40 1.50
CFM RPM BHP RPM BHP RPM BHP RPM BHP RPM BHP
1-hp Standard Motor & Drive(b)
1600 1005 0.71 1045 0.78 1083 0.84 1120 0.91 1155 0.98
1800 1023 0.8 1062 0.87 1098 0.94 1134 1.01 1170 1.09
2000 1041 0.91 1079 0.98 1116 1.06 1152 1.13 1186 1.21
2200 1065 1.03 1100 1.11 1135 1.18 1169 1.26 1203 1.34
2400 1092 1.18 1125 1.26 1159 1.34 1191 1.41 1223 1.50
1-hp Standard Motor & Field Supplied High Static Drive(c)
Notes:
1. For Standard Evaporator Fan Speed (rpm), reference Table 74, p. 73.
2. Data includes pressure drop due to standard filters and wet coils. No accessories or options are included in pressure drop data.
3. Refer to Table 79, p. 74 to determine additional static pressure drop due to other options/accessories.
4. 1-hp Fan Motor Heat (MBh) = 2.7672 x Fan bhp + 0.4705.
5. Factory supplied motors, in equipment, are definite purpose motors, specifically designed and tested to operate at all cataloged conditions. Using the
full horsepower range of our fan motors as shown in our tabular data will not result in nuisance tripping or premature motor failure. Our product’s
warranty will not be affected.
(a) Field Supplied Fan Sheave AK69x3/4" required. Field Supplied Belt may be necessary.
(b) Field Supplied Fan Sheave AK49x3/4" required. Field Supplied Belt may be necessary.
(c) Field Supplied Fan Sheave AK41x3/4" required. Field Supplied Belt may be necessary.

62 WSHP-PRC021-EN
Performance Data
Table 62. Belt drive evaporator fan performance - GER060 horizontal airflow (3 phase units only)
External Static Pressure (Inches of Water)
0.10 0.20 0.30 0.40 0.50 0.60 0.70 0.80 0.90 1.00
CFM RPM BHP RPM BHP RPM BHP RPM BHP RPM BHP RPM BHP RPM BHP RPM BHP RPM BHP RPM BHP
1-hp Standard Motor & Field Supplied Low Static Drive(a) 1-hp Standard Motor & Drive(b)
1600 — — 585 0.23 659 0.29 724 0.35 787 0.42 846 0.49 901 0.56 950 0.64 995 0.71 1038 0.78
1800 — — 622 0.29 690 0.36 753 0.43 811 0.49 866 0.57 922 0.65 973 0.73 1020 0.81 1064 0.90
2000 598 0.31 661 0.37 724 0.44 784 0.52 840 0.59 893 0.66 943 0.74 993 0.83 1041 0.92 1085 1.01
2200 647 0.40 703 0.46 761 0.54 817 0.62 870 0.70 921 0.78 970 0.86 1016 0.95 1061 1.04 1106 1.13
2400 696 0.50 746 0.57 799 0.65 853 0.74 903 0.82 952 0.91 998 1.00 1043 1.09 1086 1.18 1127 1.27
Continued
External Static Pressure (Inches of Water)
1.10 1.20 1.30 1.40 1.50
CFM RPM BHP RPM BHP RPM BHP RPM BHP RPM BHP
1-hp Standard Motor & Drive(b)
1600 1078 0.86 1115 0.93 1150 1.01 1183 1.08 1214 1.16
1800 1105 0.98 1143 1.06 1180 1.15 1215 1.23 — —
2000 1128 1.10 1169 1.20 1207 1.29 ————
2200 1150 1.24 1190 1.34 — —————
2400 1170 1.38 1211 1.48 — —————
1-hp Standard Motor & Field Supplied High Static Drive(c)
Notes:
1. For Standard Evaporator Fan Speed (rpm), reference Table 74, p. 73.
2. Data includes pressure drop due to standard filters and wet coils. No accessories or options are included in pressure drop data.
3. Refer to Table 79, p. 74 to determine additional static pressure drop due to other options/accessories.
4. 1-hp Fan Motor Heat (MBh) = 2.7672 x Fan bhp + 0.4705.
5. Factory supplied motors, in equipment, are definite purpose motors, specifically designed and tested to operate at all cataloged conditions. Using the
full horsepower range of our fan motors as shown in our tabular data will not result in nuisance tripping or premature motor failure. Our product’s
warranty will not be affected.
(a) Field Supplied Fan Sheave AK69x3/4" required. Field Supplied Belt may be necessary.
(b) Field Supplied Fan Sheave AK49x3/4" required. Field Supplied Belt may be necessary.
(c) Field Supplied Fan Sheave AK41x3/4" required. Field Supplied Belt may be necessary.

WSHP-PRC021-EN 63
Performance Data
Table 63. Belt drive evaporator fan performance - GER072 downflow airflow
External Static Pressure (Inches of Water)
0.10 0.20 0.30 0.40 0.50 0.60 0.70 0.80 0.90 1.00
CFM RPM BHP RPM BHP RPM BHP RPM BHP RPM BHP RPM BHP RPM BHP RPM BHP RPM BHP RPM BHP
1-hp Standard Motor & Field Supplied Low Static Drive(a) 1-hp Standard Motor & Drive
1920 — — 581 0.28 636 0.34 685 0.39 732 0.45 775 0.50 815 0.55 854 0.60 892 0.66 927 0.71
2160 — — 626 0.37 677 0.43 725 0.49 769 0.55 810 0.61 849 0.67 887 0.73 922 0.79 956 0.84
2400 620 0.42 672 0.49 720 0.55 766 0.61 807 0.68 847 0.75 885 0.81 921 0.88 956 0.95 989 1.01
2640 672 0.55 719 0.62 765 0.69 808 0.76 848 0.83 886 0.90 923 0.98 957 1.05 991 1.12 1024 1.20
2880 725 0.70 768 0.77 811 0.85 852 0.92 890 1.00 927 1.08 962 1.16 995 1.24 1028 1.32 1059 1.40
Continued
External Static Pressure (Inches of Water)
1.10 1.20 1.30 1.40 1.50 1.60 1.70 1.80 1.90 2.00
CFM RPM BHP RPM BHP RPM BHP RPM BHP RPM BHP RPM BHP RPM BHP RPM BHP RPM BHP RPM BHP
1-hp Standard Motor & Drive 2-hp Oversized Motor & Drive
1920 962 0.77 995 0.83 1026 0.89 1057 0.95 1087 1.01 1115 1.07 1143 1.13 1171 1.19 1196 1.24 1222 1.30
2160 990 0.91 1023 0.97 1054 1.04 1085 1.11 1114 1.17 1142 1.24 1170 1.30 1197 1.37 1222 1.43 1249 1.50
2400 1022 1.07 1051 1.13 1082 1.20 1112 1.28 1141 1.35 1170 1.42 1198 1.50 1224 1.57 1249 1.64 1276 1.72
2640 1055 1.27 1085 1.34 1114 1.41 1142 1.47 1169 1.54 1198 1.62 1226 1.70 1252 1.78 1278 1.86 1304 1.95
2880 1089 1.48 1119 1.56 1149 1.64 1176 1.72 1203 1.79 1229 1.87 1255 1.94 1280 2.01 1306 2.10 1331 2.19
Notes:
1. For Standard Evaporator Fan Speed (rpm), reference Table 74, p. 73.
2. Data includes pressure drop due to standard filters and wet coils. No accessories or options are included in pressure drop data.
3. Refer to Table 79, p. 74 to determine additional static pressure drop due to other options/accessories.
4. 1-HP Fan Motor Heat (MBH) = 2.829 x Fan BHP + 0.4024. 2-HP Fan Motor Heat (MBH) = 3.000 x Fan BHP + 0.5000.
5. Factory supplied motors, in equipment, are definite purpose motors, specifically designed and tested to operate at all cataloged conditions. Using the
full horsepower range of our fan motors as shown in our tabular data will not result in nuisance tripping or premature motor failure. Our product’s
warranty will not be affected.
(a) Field Supplied Fan Sheave AK79 and Belt AX38 required.

64 WSHP-PRC021-EN
Performance Data
Table 64. Belt drive evaporator fan performance - GER072 horizontal airflow
External Static Pressure (Inches of Water)
0.10 0.20 0.30 0.40 0.50 0.60 0.70 0.80 0.90 1.00
CFM RPM BHP RPM BHP RPM BHP RPM BHP RPM BHP RPM BHP RPM BHP RPM BHP RPM BHP RPM BHP
1-hp Standard Motor & Field Supplied Low Static Drive(a) 1-hp Standard Motor & Drive
1920 581 0.31 627 0.36 679 0.43 731 0.49 781 0.56 829 0.64 873 0.71 916 0.79 956 0.87 997 0.96
2160 631 0.42 679 0.48 728 0.56 773 0.62 820 0.70 865 0.78 907 0.85 948 0.94 987 1.02 1025 1.11
2400 690 0.56 735 0.63 778 0.70 821 0.78 862 0.86 904 0.94 944 1.03 983 1.11 1021 1.21 1058 1.30
2640 749 0.73 791 0.81 830 0.87 871 0.97 909 1.05 946 1.13 984 1.22 1022 1.32 1058 1.42 1093 1.51
2880 809 0.92 849 1.02 886 1.09 922 1.17 959 1.29 993 1.37 1027 1.46 1062 1.56 1097 1.66 1131 1.77
2-hp Oversized Motor & Drive
Continued
External Static Pressure (Inches of Water)
1.10 1.20 1.30 1.40 1.50 1.60 1.70 1.80 1.90 2.00
CFM RPM BHP RPM BHP RPM BHP RPM BHP RPM BHP RPM BHP RPM BHP RPM BHP RPM BHP RPM BHP
1-hp Standard Motor & Drive 2-hp Oversized Motor & Drive
1920 1034 1.05 1070 1.14 1105 1.24 1139 1.33 1171 1.42 1204 1.52 1234 1.62 1264 1.71 1292 1.81 1320 1.91
2160 1062 1.21 1098 1.30 1133 1.41 1166 1.51 1199 1.61 1229 1.71 1261 1.82 1290 1.93 1318 2.03 1346 2.14
2400 1093 1.40 1128 1.50 1161 1.60 1194 1.70 1227 1.81 1258 1.93 1288 2.04 1316 2.15 1346 2.27 — —
2640 1127 1.62 1161 1.72 1193 1.82 1225 1.93 1255 2.04 1287 2.16 1315 2.27 1345 — — — — —
2880 1163 1.87 1196 1.98 1227 2.09 1257 2.20 — — ——————————
Notes:
1. For Standard Evaporator Fan Speed (rpm), reference Table 74, p. 73.
2. Data includes pressure drop due to standard filters and wet coils. No accessories or options are included in pressure drop data.
3. Refer to Table 79, p. 74 to determine additional static pressure drop due to other options/accessories.
4. 1-HP Fan Motor Heat (MBH) = 2.829 x Fan BHP + 0.4024. 2-HP Fan Motor Heat (MBH) = 3.000 x Fan BHP + 0.5000.
5. Factory supplied motors, in equipment, are definite purpose motors, specifically designed and tested to operate at all cataloged conditions. Using the
full horsepower range of our fan motors as shown in our tabular data will not result in nuisance tripping or premature motor failure. Our product’s
warranty will not be affected.
(a) Field Supplied Fan Sheave AK79 and Belt AX38 required.

WSHP-PRC021-EN 65
Performance Data
Table 65. Belt drive evaporator fan performance - GER090 downflow airflow
External Static Pressure (Inches of Water)
0.10 0.20 0.30 0.40 0.50 0.60 0.70 0.80 0.90 1.00
CFM RPM BHP RPM BHP RPM BHP RPM BHP RPM BHP RPM BHP RPM BHP RPM BHP RPM BHP RPM BHP
1-hp Standard Motor & Low Static Accessory Kit(a) 1-hp Standard Motor & Drive
2400 421 0.22 472 0.31 518 0.38 562 0.46 606 0.54 649 0.63 690 0.72 728 0.81 763 0.90 798 0.99
2700 461 0.28 508 0.38 551 0.48 590 0.56 629 0.65 667 0.74 708 0.84 745 0.94 781 1.04 815 1.14
3000 501 0.35 545 0.47 586 0.58 623 0.68 658 0.78 693 0.88 727 0.97 763 1.08 799 1.19 832 1.30
3300 542 0.44 583 0.58 621 0.70 657 0.82 690 0.93 723 1.03 755 1.14 786 1.24 817 1.35 851 1.48
3600 584 0.54 623 0.70 658 0.84 692 0.97 724 1.09 755 1.21 784 1.32 814 1.44 842 1.55 871 1.67
Continued
External Static Pressure (Inches of Water)
1.10 1.20 1.30 1.40 1.50 1.60 1.70 1.80 1.90 2.00
CFM RPM BHP RPM BHP RPM BHP RPM BHP RPM BHP RPM BHP RPM BHP RPM BHP RPM BHP RPM BHP
1-hp Standard Motor & Drive
2400 830 1.09 860 1.17 890 1.27 918 1.36 945 1.45 971 1.55 997 1.64 1022 1.74 1047 1.83 1071 1.93
2700 846 1.24 876 1.34 907 1.45 936 1.55 963 1.65 989 1.76 1014 1.86 1039 1.97 1063 2.07 1087 2.18
3000 865 1.42 895 1.53 923 1.64 952 1.75 980 1.87 1006 1.98 1031 2.09 1056 2.21 1081 2.32 1104 2.44
3300 882 1.60 912 1.72 942 1.85 969 1.96 998 2.09 1024 2.22 1049 2.34 1073 2.46 1098 2.59 1121 2.71
3600 901 1.80 931 1.93 960 2.06 988 2.19 1015 2.33 1041 2.47 1067 2.60 1092 2.74 1116 2.87 1140 3.01
3-hp Oversized Motor & Drive 3-hp Oversized Motor & Field Supplied High Static Drive (b)
Notes:
1. For Standard Evaporator Fan Speed (rpm), reference Table 74, p. 73.
2. Data includes pressure drop due to standard filters and wet coils. No accessories or options are included in pressure drop data.
3. Refer to Table 79, p. 74 to determine additional static pressure drop due to other options/accessories.
4. 1-HP Fan Motor Heat (MBH) = 2.829 x Fan BHP + 0.4024. 3-HP Fan Motor Heat (MBH) = 2.9000 x Fan BHP + 0.4750.
5. Factory supplied motors, in equipment, are definite purpose motors, specifically designed and tested to operate at all cataloged conditions. Using the
full horsepower range of our fan motors as shown in our tabular data will not result in nuisance tripping or premature motor failure. Our product’s
warranty will not be affected.
(a) BAYLSDR009AA
(b) Field Supplied Fan Sheave AK59 and Belt AX35

66 WSHP-PRC021-EN
Performance Data
Table 66. Belt drive evaporator fan performance - GER090 horizontal airflow
External Static Pressure (Inches of Water)
0.10 0.20 0.30 0.40 0.50 0.60 0.70 0.80 0.90 1.00
CFM RPM BHP RPM BHP RPM BHP RPM BHP RPM BHP RPM BHP RPM BHP RPM BHP RPM BHP RPM BHP
1-hp Standard Motor & Low Static Accessory Kit(a) 1-hp Standard Motor & Drive
2400 484 0.32 531 0.40 587 0.51 642 0.62 688 0.72 728 0.82 762 0.92 794 1.01 825 1.11 853 1.20
2700 533 0.44 574 0.52 620 0.63 671 0.75 719 0.87 762 0.99 799 1.11 832 1.22 862 1.32 890 1.43
3000 582 0.58 621 0.67 659 0.78 702 0.90 748 1.04 792 1.17 832 1.31 867 1.44 898 1.56 927 1.68
3300 632 0.74 669 0.85 703 0.96 739 1.08 779 1.22 821 1.37 861 1.52 898 1.67 932 1.82 963 1.96
3600 683 0.94 718 1.07 749 1.18 780 1.30 815 1.44 852 1.59 890 1.75 928 1.92 963 2.09 995 2.25
3-hp Oversized Motor & Drive
Continued
External Static Pressure (Inches of Water)
1.10 1.20 1.30 1.40 1.50 1.60 1.70 1.80 1.90 2.00
CFM RPM BHP RPM BHP RPM BHP RPM BHP RPM BHP RPM BHP RPM BHP RPM BHP RPM BHP RPM BHP
1-hp Standard Motor & Drive 3-hp Oversized Motor & Drive
2400 881 1.30 907 1.39 932 1.49 957 1.59 981 1.69 1004 1.78 1026 1.88 1048 1.98 1070 2.08 1090 2.18
2700 917 1.53 943 1.64 969 1.75 993 1.86 1016 1.96 1039 2.07 1061 2.18 1083 2.29 1104 2.40 1125 2.52
3000 954 1.80 980 1.92 1005 2.04 1030 2.16 1052 2.27 1075 2.39 1097 2.51 1118 2.63 1139 2.75 1159 2.87
3300 991 2.09 1018 2.23 1043 2.36 1067 2.49 1090 2.62 1112 2.75 1133 2.87 1154 3.01 1175 3.13 1195 3.27
3600 1026 2.41 1054 2.56 1080 2.71 1103 2.85 1127 2.99 1149 3.14 1170 3.27 1191 3.41 — — — —
3-hp Oversized Motor & Field Supplied High Static Drive (b)
Notes:
1. For Standard Evaporator Fan Speed (rpm), reference Table 74, p. 73.
2. Data includes pressure drop due to standard filters and wet coils. No accessories or options are included in pressure drop data.
3. Refer to Table 79, p. 74 to determine additional static pressure drop due to other options/accessories.
4. 1-HP Fan Motor Heat (MBH) = 2.829 x Fan BHP + 0.4024. 3-HP Fan Motor Heat (MBH) = 2.9000 x Fan BHP + 0.4750.
5. Factory supplied motors, in equipment, are definite purpose motors, specifically designed and tested to operate at all cataloged conditions. Using the
full horsepower range of our fan motors as shown in our tabular data will not result in nuisance tripping or premature motor failure. Our product’s
warranty will not be affected.
(a) BAYLSDR009AA
(b) Field Supplied Fan Sheave AK59 and Belt AX35

WSHP-PRC021-EN 67
Performance Data
Table 67. Direct drive evaporator fan performance - GER120 downflow airflow
External Static Pressure (Inches of Water)
0.10 0.20 0.30 0.40 0.50 0.60 0.70 0.80 0.90 1.00
CFM RPM BHP RPM BHP RPM BHP RPM BHP RPM BHP RPM BHP RPM BHP RPM BHP RPM BHP RPM BHP
3200 1024 0.65 1056 0.73 1087 0.81 1118 0.89 1146 0.98 1172 1.06 1199 1.15 1226 1.24 1255 1.35 1280 1.44
3600 1144 0.90 1173 0.99 1201 1.08 1229 1.18 1256 1.27 1282 1.36 1305 1.45 1328 1.55 1352 1.65 1377 1.76
4000 1264 1.21 1291 1.31 1317 1.41 1342 1.51 1367 1.62 1392 1.72 1414 1.82 1437 1.93 1458 2.03 1478 2.14
4400 1385 1.58 1410 1.70 1434 1.81 1457 1.92 1480 2.03 1503 2.15 1525 2.26 1546 2.37 1567 2.49 1586 2.60
4800 1507 2.03 1530 2.16 1552 2.28 1574 2.40 1595 2.52 1616 2.65 1636 2.77 1657 2.89 1677 3.02 1696 3.14
Continued
External Static Pressure (Inches of Water)
1.10 1.20 1.30 1.40 1.50 1.60 1.70 1.80 1.90 2.00
CFM RPM BHP RPM BHP RPM BHP RPM BHP RPM BHP RPM BHP RPM BHP RPM BHP RPM BHP RPM BHP
3200 1303 1.53 1326 1.62 1349 1.72 1374 1.82 1401 1.93 1425 2.04 1450 2.15 1474 2.27 1498 2.38 1521 2.50
3600 1401 1.87 1426 1.99 1448 2.09 1467 2.19 1487 2.29 1508 2.39 1530 2.51 1552 2.62 1576 2.75 1598 2.87
4000 1500 2.25 1522 2.37 1544 2.49 1567 2.62 1588 2.75 1608 2.86 1625 2.97 1643 3.08 1661 3.19 1681 3.31
4400 1605 2.72 1624 2.84 1643 2.96 1664 3.09 1684 3.22 — —————————
4800 ————————————————————
Notes:
1. For Direct Drive Fan Speed (rpm), reference Table 74, p. 73.
2. Data includes pressure drop due to standard filters and wet coils. No accessories or options are included in pressure drop data.
3. Refer to Table 79, p. 74 to determine additional static pressure drop due to other options/accessories.
4. Direct Drive Fan Motor Heat (MBH) = 2.8623 x Fan BHP - 0.1504
5. Factory supplied motors, in equipment, are definite purpose motors, specifically designed and tested to operate at all cataloged conditions. Using the
full horsepower range of our fan motors as shown in our tabular data will not result in nuisance tripping or premature motor failure. Our product’s
warranty will not be affected.

68 WSHP-PRC021-EN
Performance Data
Table 68. Direct drive evaporator fan performance - GER120 horizontal airflow
External Static Pressure (Inches of Water)
0.10 0.20 0.30 0.40 0.50 0.60 0.70 0.80 0.90 1.00
CFM RPM BHP RPM BHP RPM BHP RPM BHP RPM BHP RPM BHP RPM BHP RPM BHP RPM BHP RPM BHP
3200 1038 0.69 1080 0.80 1120 0.91 1161 1.04 1200 1.16 1235 1.29 1269 1.41 1303 1.54 1336 1.67 1368 1.81
3600 1158 0.95 1195 1.07 1231 1.20 1267 1.33 1304 1.47 1339 1.61 1371 1.75 1402 1.89 1432 2.03 1462 2.17
4000 1278 1.27 1313 1.41 1346 1.55 1378 1.69 1411 1.83 1443 1.98 1475 2.14 1506 2.30 1534 2.45 1561 2.61
4400 1399 1.66 1431 1.81 1462 1.96 1491 2.12 1520 2.27 1550 2.43 1580 2.60 1610 2.77 1638 2.94 1665 3.12
4800 1520 2.12 1550 2.29 1579 2.45 1606 2.62 1633 2.79 1659 2.96 1687 3.13 ------
Continued
External Static Pressure (Inches of Water)
1.10 1.20 1.30 1.40 1.50 1.60 1.70 1.80 1.90 2.00
CFM RPM BHP RPM BHP RPM BHP RPM BHP RPM BHP RPM BHP RPM BHP RPM BHP RPM BHP RPM BHP
3200 1400 1.95 1432 2.09 1464 2.23 1495 2.39 1525 2.54 1556 2.69 1586 2.85 1616 3.02 1645 3.18 1675 3.34
3600 1491 2.32 1520 2.47 1549 2.62 1578 2.78 1606 2.94 1634 3.10 1662 3.28 1689 3.44 — — — —
4000 1588 2.76 1615 2.92 1642 3.09 1668 3.25 1694 3.43 ——————————
4400 1690 3.29 — —————————————————
4800 — — — —————————————————
Notes:
1. For Standard Evaporator Fan Speed (rpm), reference Table 74, p. 73.
2. Data includes pressure drop due to standard filters and wet coils. No accessories or options are included in pressure drop data.
3. Refer to Table 79, p. 74 to determine additional static pressure drop due to other options/accessories.
4. Direct Drive Fan Motor Heat (MBH) = 2.8623 x Fan BHP - 0.1504
5. Factory supplied motors, in equipment, are definite purpose motors, specifically designed and tested to operate at all cataloged conditions. Using the
full horsepower range of our fan motors as shown in our tabular data will not result in nuisance tripping or premature motor failure. Our product’s
warranty will not be affected.

WSHP-PRC021-EN 69
Performance Data
Table 69. Belt drive evaporator fan performance - GER150 downflow or horizontal airflow
External Static Pressure (Inches of Water)
0.10 0.20 0.30 0.40 0.50 0.60 0.70 0.80 0.90 1.00
CFM RPM BHP RPM BHP RPM BHP RPM BHP RPM BHP RPM BHP RPM BHP RPM BHP RPM BHP RPM BHP
3-hp Standard Motor & Low Static Drive 3-hp Standard Motor & Drive
4000 — — 382 0.56 420 0.66 459 0.79 496 0.91 531 1.05 564 1.19 595 1.34 625 1.50 654 1.67
4500 — — 410 0.73 446 0.85 479 0.97 514 1.11 548 1.26 578 1.40 610 1.56 639 1.72 666 1.89
5000 400 0.80 440 0.95 473 1.07 504 1.20 534 1.34 566 1.50 597 1.66 625 1.81 653 1.98 681 2.16
5500 431 1.03 470 1.19 502 1.34 531 1.48 559 1.62 586 1.77 615 1.95 643 2.12 670 2.30 695 2.47
6000 463 1.30 500 1.48 531 1.65 559 1.80 585 1.95 611 2.11 636 2.28 662 2.46 689 2.66 714 2.85
3-hp Standard Motor & High Static Drive
Continued
External Static Pressure (Inches of Water)
1.10 1.20 1.30 1.40 1.50 1.60 1.70 1.80 1.90 2.00
CFM RPM BHP RPM BHP RPM BHP RPM BHP RPM BHP RPM BHP RPM BHP RPM BHP RPM BHP RPM BHP
3-hp Standard Motor & Low Static
Drive 3-hp Standard Motor & High Static Drive
4000 682 1.83 708 1.99 734 2.16 758 2.32 782 2.49 804 2.66 826 2.83 847 3.01 867 3.19 886 3.38
4500 693 2.07 719 2.25 745 2.44 769 2.62 793 2.80 815 2.99 838 3.17 859 3.36 880 3.55 900 3.74
5000 707 2.34 732 2.53 757 2.72 780 2.92 804 3.13 826 3.33 848 3.54 870 3.74 891 3.95 911 4.15
5500 721 2.66 747 2.86 771 3.05 794 3.26 816 3.46 838 3.68 860 3.90 881 4.13 902 4.36 922 4.58
6000 738 3.04 760 3.22 784 3.43 808 3.65 831 3.86 852 4.08 873 4.30 893 4.53 913 4.77 933 5.01
5-hp Oversized Motor & Drive
Notes:
1. For Standard Evaporator Fan Speed (rpm), reference Table 74, p. 73.
2. Data includes pressure drop due to standard filters and wet coils. No accessories or options are included in pressure drop data.
3. Refer to Table 79, p. 74 to determine additional static pressure drop due to other options/accessories.
4. Fan Motor Heat (MBH) = 3.15 x Fan BHP
5. Factory supplied motors, in equipment, are definite purpose motors, specifically designed and tested to operate at all cataloged conditions. Using the
full horsepower range of our fan motors as shown in our tabular data will not result in nuisance tripping or premature motor failure. Our product’s
warranty will not be affected.

70 WSHP-PRC021-EN
Performance Data
Table 70. Belt drive evaporator fan performance - GER180 downflow or horizontal airflow
External Static Pressure (Inches of Water)
0.10 0.20 0.30 0.40 0.50 0.60 0.70 0.80 0.90 1.00
CFM RPM BHP RPM BHP RPM BHP RPM BHP RPM BHP RPM BHP RPM BHP RPM BHP RPM BHP RPM BHP
3-hp Standard Motor & Low Static Drive 3-hp Standard Motor & Drive
4800 397 0.75 435 0.88 469 1.00 501 1.13 533 1.28 566 1.43 596 1.59 625 1.74 655 1.92 682 2.09
5400 435 1.02 473 1.18 504 1.32 533 1.46 562 1.60 590 1.76 620 1.94 648 2.11 674 2.28 700 2.46
6000 475 1.36 510 1.53 541 1.70 568 1.85 594 2.01 620 2.17 645 2.34 672 2.53 698 2.73 723 2.92
6600 514 1.76 549 1.96 578 2.15 604 2.33 629 2.49 653 2.66 676 2.84 699 3.02 722 3.23 747 3.44
7200 555 2.25 588 2.46 616 2.68 641 2.89 665 3.06 687 3.24 709 3.43 730 3.62 751 3.82 772 4.02
3-hp Standard Motor & High Static Drive 5-hp Oversized Motor & Drive
Continued
External Static Pressure (Inches of Water)
1.10 1.20 1.30 1.40 1.50 1.60 1.70 1.80 1.90 2.00
CFM RPM BHP RPM BHP RPM BHP RPM BHP RPM BHP RPM BHP RPM BHP RPM BHP RPM BHP RPM BHP
3-hp Standard Motor & High Static Drive 5-hp Oversized Motor & Drive
4800 708 2.27 734 2.46 758 2.66 782 2.86 806 3.06 829 3.25 850 3.45 872 3.65 893 3.85 913 4.04
5400 727 2.65 752 2.85 776 3.05 799 3.25 821 3.47 843 3.69 865 3.91 886 4.13 907 4.36 927 4.58
6000 747 3.11 770 3.30 794 3.51 817 3.73 839 3.95 861 4.17 881 4.40 902 4.63 922 4.87 942 5.12
6600 770 3.66 793 3.87 815 4.08 835 4.28 857 4.51 879 4.74 900 4.98 920 5.22 940 5.46 959 5.71
7200 794 4.25 817 4.49 839 4.73 860 4.96 880 5.19 899 5.41 918 5.64 — — — — — —
Notes:
1. For Standard Evaporator Fan Speed (rpm), reference Table 74, p. 73.
2. Data includes pressure drop due to standard filters and wet coils. No accessories or options are included in pressure drop data.
3. Refer to Table 79, p. 74 to determine additional static pressure drop due to other options/accessories.
4. Fan Motor Heat (MBH) = 3.15 x Fan BHP
5. Factory supplied motors, in equipment, are definite purpose motors, specifically designed and tested to operate at all cataloged conditions. Using the
full horsepower range of our fan motors as shown in our tabular data will not result in nuisance tripping or premature motor failure. Our product’s
warranty will not be affected.

WSHP-PRC021-EN 71
Performance Data
Table 71. Belt drive evaporator fan performance - GER240 downflow or horizontal airflow
External Static Pressure (Inches of Water)
0.10 0.20 0.30 0.40 0.50 0.60 0.70 0.80 0.90 1.00
CFM RPM BHP RPM BHP RPM BHP RPM BHP RPM BHP RPM BHP RPM BHP RPM BHP RPM BHP RPM BHP
5-hp Standard Motor & Drive
6400 — — — — 507 1.72 535 1.88 560 2.07 584 2.27 607 2.46 631 2.66 654 2.86 677 3.07
7200 — — 519 2.10 549 2.30 576 2.48 600 2.67 623 2.88 644 3.10 665 3.32 686 3.54 707 3.76
8000 531 2.50 563 2.77 592 3.00 617 3.21 641 3.41 663 3.62 684 3.86 704 4.10 723 4.34 742 4.58
8800 578 3.26 607 3.56 634 3.83 659 4.08 683 4.31 704 4.54 724 4.77 744 5.01 762 5.27 779 5.54
9600 626 4.19 653 4.51 679 4.81 703 5.10 725 5.36 746 5.62 765 5.85 784 6.11 802 6.36 819 6.64
5-hp Standard Motor & High Static Drive 7.5-hp Oversized Motor & Low Static Drive
Continued
External Static Pressure (Inches of Water)
1.10 1.20 1.30 1.40 1.50 1.60 1.70 1.80 1.90 2.00
CFM RPM BHP RPM BHP RPM BHP RPM BHP RPM BHP RPM BHP RPM BHP RPM BHP RPM BHP RPM BHP
5-hp Standard Motor & High Static Drive
6400 699 3.30 721 3.52 742 3.75 762 3.98 780 4.20 798 4.42 815 4.66 832 4.89 849 5.12 866 5.36
7200 727 3.98 748 4.22 768 4.46 789 4.71 808 4.97 827 5.22 845 5.48 861 5.73 878 5.98 893 6.24
8000 760 4.82 779 5.07 798 5.32 816 5.57 834 5.83 853 6.11 871 6.38 889 6.67 906 6.95 923 7.23
8800 797 5.81 814 6.07 831 6.34 848 6.60 865 6.88 882 7.15 898 7.42 915 7.72 932 8.02 — —
9600 836 6.93 852 7.22 868 7.51 884 7.81 — — — — — — — — — — — —
7.5-hp Oversized Motor & Low Static
Drive 7.5-hp Oversized Motor & Drive
Notes:
1. For Standard Evaporator Fan Speed (rpm), reference Table 74, p. 73.
2. Data includes pressure drop due to standard filters and wet coils. No accessories or options are included in pressure drop data.
3. Refer to Table 79, p. 74 to determine additional static pressure drop due to other options/accessories.
4. Fan Motor Heat (MBH) = 3.15 x Fan BHP
5. Factory supplied motors, in equipment, are definite purpose motors, specifically designed and tested to operate at all cataloged conditions. Using the
full horsepower range of our fan motors as shown in our tabular data will not result in nuisance tripping or premature motor failure. Our product’s
warranty will not be affected.

72 WSHP-PRC021-EN
Performance Data
Table 72. Belt drive evaporator fan performance - GER300 downflow or horizontal airflow
External Static Pressure (Inches of Water)
0.10 0.20 0.30 0.40 0.50 0.60 0.70 0.80 0.90 1.00
CFM RPM BHP RPM BHP RPM BHP RPM BHP RPM BHP RPM BHP RPM BHP RPM BHP RPM BHP RPM BHP
7.5-hp Standard Motor & Low Static Drive 7.5-hp Standard Motor & Drive
7000 ————6032.50 629 2.69 653 2.87 675 3.04 698 3.22 720 3.41 741 3.61 763 3.82
7500 — — 607 2.74 635 2.97 660 3.18 683 3.38 704 3.57 726 3.76 747 3.95 767 4.16 787 4.36
8000 610 3.03 639 3.26 667 3.50 691 3.74 714 3.97 735 4.17 755 4.37 775 4.57 795 4.78 814 4.99
8500 644 3.61 673 3.86 699 4.09 723 4.36 745 4.61 765 4.83 785 5.04 804 5.26 823 5.48 841 5.69
9000 677 4.22 705 4.50 731 4.77 755 5.05 776 5.31 796 5.57 816 5.81 834 6.03 852 6.25 870 6.48
9500 714 4.98 739 5.25 764 5.53 787 5.81 807 6.08 828 6.37 846 6.63 864 6.87 882 7.10 899 7.34
10000 747 5.73 773 6.07 797 6.35 818 6.62 839 6.93 859 7.24 878 7.52 896 7.81 912 8.04 929 8.30
10500 785 6.68 806 6.93 829 7.25 851 7.54 872 7.86 891 8.18 908 8.48 — —————
11000 816 7.53 840 7.90 864 8.27 885 8.58 ————————————
7.5-hp Standard Motor & Drive 7.5-hp Standard Motor & High Static Drive
Continued
External Static Pressure (Inches of Water)
1.10 1.20 1.30 1.40 1.50
CFM RPM BHP RPM BHP RPM BHP RPM BHP RPM BHP
7.5-hp Standard Motor & Drive
7000 786 4.05 809 4.28 831 4.51 852 4.73 872 4.94
7500 808 4.59 829 4.82 850 5.07 871 5.31 892 5.56
8000 833 5.21 852 5.44 871 5.69 891 5.94 911 6.21
8500 860 5.92 877 6.15 895 6.39 913 6.64 932 6.91
9000 887 6.71 904 6.95 921 7.19 938 7.44 955 7.70
9500 915 7.58 932 7.83 949 8.08 965 8.33 981 8.60
10000 945 8.55 ————————
10500 ——————————
11000 ——————————
7.5-hp Standard Motor & High Static Drive
Notes:
1. For Standard Evaporator Fan Speed (rpm), reference Table 74, p. 73.
2. Data includes pressure drop due to standard filters and wet coils. No accessories or options are included in pressure drop data.
3. Refer to Table 79, p. 74 to determine additional static pressure drop due to other options/accessories.
4. Fan Motor Heat (MBH) = 3.15 x Fan BHP
5. Factory supplied motors, in equipment, are definite purpose motors, specifically designed and tested to operate at all cataloged conditions. Using the
full horsepower range of our fan motors as shown in our tabular data will not result in nuisance tripping or premature motor failure. Our product’s
warranty will not be affected.

WSHP-PRC021-EN 73
Performance Data
Table 73. Potentiometer setting standard motor & drive/fan speed (rpm) GER120 only
MIN RPM 1000 MIN RPM 1000
MAX RPM 1700 MAX RPM 1700
Potentiometer Voltage Motor RPM Potentiometer Voltage Motor RPM
1.00 1000 5.50 1394
1.50 1044 6.00 1438
2.00 1088 6.50 1481
2.50 1131 7.00 1525
3.00 1175 7.50 1569
3.50 1219 8.00 1613
4.00 1263 8.50 1656
4.50 1306 9.00 1700
5.00 1350
Table 74. Standard motor & drive/fan speed (rpm)
Tons
Unit Model
Number
Fan
Sheave
6 Turns
Open
5 Turns
Open
4 Turns
Open
3 Turns
Open
2 Turns
Open
1 Turns
Open Closed
3 GER036 AK51x3/4 N/A 761 835 909 982 1057 1125
4 GER048 AK49x3/4 N/A 801 874 946 1019 1091 1164
5 GER060 AK49X3/4 N/A 798 868 939 1010 1081 1152
6 GER072 AK59x1 N/A 805 865 925 985 1045 1105
7.5 GER090 AK64x1 N/A 695 751 807 863 919 975
12½ GER150 500 537 574 611 648 685 N/A
15 GER180 500 537 574 611 648 685 N/A
20 GER240 506 544 581 619 656 694 N/A
25 GER300 694 731 768 805 842 881 N/A
Table 75. Standard motor & low static drive/fan speed (rpm)
Tons
Unit Model
Number
Fan
Sheave
6 Turns
Open
5 Turns
Open
4 Turns
Open
3 Turns
Open
2 Turns
Open
1 Turns
Open Closed
3 GER036 AK71x3/4 N/A 549 600 650 701 751 802
4 GER048 AK69x3/4 N/A 567 619 671 723 775 828
5 GER060 AK69x3/4 N/A 566 617 668 719 770 821
6 GER072 AK79x1 N/A 581 626 671 716 761 805
7.5 GER090 AK79x1 N/A 581 626 671 716 761 805
7.5 GER090 AK99x1 N/A 462 497 533 569 604 640
12½ GER150 379 407 435 463 491 519 N/A
15 GER180 379 407 435 463 491 519 N/A
25 GER300 581 619 657 695 733 769 N/A

74 WSHP-PRC021-EN
Performance Data
Table 76. Standard motor & high static drive/fan speed (rpm)
Tons
Unit Model
Number
Fan
Sheave
6 Turns
Open
5 Turns
Open
4 Turns
Open
3 Turns
Open
2 Turns
Open
1 Turns
Open "Closed
3 GER036 AK41x3/4 N/A 966 1041 1115 1190 1227 N/A
4 GER048 AK41x3/4 N/A 958 1034 1110 1186 1261 N/A
5 GER060 AK41x3/4 N/A 970 1034 1097 1161 1224 N/A
12½ GER150 685 722 759 796 833 870 N/A
15 GER180 685 722 759 796 833 870 N/A
20 GER240 694 739 784 829 874 919 N/A
25 GER300 806 844 882 920 958 994 N/A
Table 77. Oversized motor & drive/fan speed (rpm)
Tons
Unit Model
Number
Fan
Sheave
6 Turns
Open
5 Turns
Open
4 Turns
Open
3 Turns
Open
2 Turns
Open
1 Turns
Open Closed
7.5 GER090 AK64x1 N/A 835 891 946 1002 1057 1113
12½ GER150 751 807 863 919 975 1029 N/A
15 GER180 751 807 863 919 975 1029 N/A
20 GER240 829 874 919 964 1009 1053 N/A
Table 78. Oversized motor & high static drive/fan speed (rpm)
Tons
Unit Model
Number
Fan
Sheave
6 Turns
Open
5 Turns
Open
4 Turns
Open
3 Turns
Open
2 Turns
Open
1 Turns
Open Closed
7.5 GER090 AK59x1 N/A 908 968 1029 1090 1150 1211
Table 79. Static pressure drop through accessories (inches water column)
Tons
Unit
Model
Number cfm
Standard
2”
Filters(a)
MERV 7
Filter(b)
MERV 13
Filter(b)
Economizer with OA/RA Dampers(c) Electric Heater Access (kW)(d),(e)
100% OA
Downflow
100%
RA
100% OA
Horiz.
100%
RA 5-12 14-23 23-36 54 72
3 GER036
960 0.02 0.03 0.03 0.05 0.01 0.05 0.01 0.01 0.02 0.02 — —
1200 0.03 0.05 0.04 0.07 0.02 0.07 0.01 0.02 0.03 0.03 — —
1440 0.03 0.06 0.04 0.10 0.03 0.10 0.01 0.03 0.04 0.04 — —
4 GER048
1280 0.03 0.05 0.06 0.09 0.02 0.09 0.01 0.02 0.03 0.03 — —
1600 0.04 0.07 0.07 0.13 0.04 0.13 0.02 0.04 0.05 0.05 — —
1920 0.06 0.10 0.08 0.17 0.06 0.17 0.02 0.05 0.06 0.08 — —
5 GER060
1600 0.03 0.06 0.05 0.09 0.01 0.05 0.01 0.01 0.01 0.02 — —
2000 0.05 0.08 0.07 0.11 0.01 0.07 0.02 0.02 0.01 0.03 — —
2400 0.07 0.10 0.10 0.12 0.03 0.09 0.03 0.03 0.02 0.04 — —
6 GER072
1920 0.04 0.07 0.10 0.10 0.01 0.06 0.02 — 0.01 0.02 — —
2400 0.06 0.09 0.13 0.11 0.02 0.08 0.02 — 0.02 0.03 — —
2880 0.09 0.12 0.15 0.13 0.04 0.10 0.04 — 0.03 0.05 — —
7.5 GER090
2400 0.04 0.06 0.12 0.11 0.02 0.08 0.02 — 0.02 0.02 — —
3000 0.06 0.09 0.13 0.14 0.05 0.12 0.05 — 0.03 0.03 — —
3600 0.09 0.13 0.15 0.21 0.07 0.25 0.08 — 0.04 0.05 — —

WSHP-PRC021-EN 75
Performance Data
10 GER120
3200 0.07 0.10 0.14 0.17 0.05 0.14 0.05 — 0.02 0.03 0.05 —
4000 0.11 0.15 0.16 0.26 0.07 0.30 0.08 — 0.02 0.03 0.05 —
4800 0.16 0.20 0.18 0.34 0.09 0.35 0.10 — 0.03 0.04 0.06 —
12½ GER150
4000 0.02 0.04 0.08 0.20 0.02 0.20 0.02 — 0.03 0.03 0.04 —
5000 0.03 0.05 0.11 0.26 0.03 0.26 0.03 — 0.04 0.05 0.06 —
6000 0.05 0.07 0.14 0.35 0.04 0.35 0.04 — 0.06 0.07 0.09 —
15 GER180
4800 0.03 0.05 0.10 0.24 0.03 0.24 0.03 — 0.04 0.04 0.05 —
6000 0.05 0.07 0.14 0.35 0.04 0.35 0.04 — 0.06 0.07 0.08 —
7200 0.07 0.09 0.17 0.42 0.05 0.42 0.05 — 0.09 0.10 0.12 —
20 GER240
6400 0.05 0.08 0.12 0.22 0.04 0.22 0.04 — — 0.06 0.08 0.09
8000 0.08 0.10 0.15 0.31 0.05 0.31 0.05 — — 0.10 0.12 0.14
9600 0.11 0.14 0.19 0.44 0.07 0.44 0.07 — — 0.14 0.17 0.20
25
7000 0.09 0.13 0.17 0.26 0.04 0.26 0.04 — — 0.08 0.10 0.11
GER300 9000 0.14 0.18 0.23 0.40 0.07 0.40 0.07 — — 0.13 0.15 0.18
11000 0.21 0.25 0.32 0.57 0.10 0.57 0.10 — — 0.18 0.22 0.26
(a) Tested with 2" filters
(b) Tested with standard filters. Difference in pressure drop should be considered when utilizing 2” MERV 7 and MERV 13 filters.
(c) OA = Outside Air and RA = Return Air
(d) Nominal kW ratings at 240, 480, 600V.
(e) Electric heaters restricted on applications below 320 cfm/Ton.
Table 79. Static pressure drop through accessories (inches water column) (continued)
Tons
Unit
Model
Number cfm
Standard
2”
Filters(a)
MERV 7
Filter(b)
MERV 13
Filter(b)
Economizer with OA/RA Dampers(c) Electric Heater Access (kW)(d),(e)
100% OA
Downflow
100%
RA
100% OA
Horiz.
100%
RA 5-12 14-23 23-36 54 72
Table 80. Air temperature rise across electric heaters (°F)3-5ton
kW Stages
GER036(a)
3 ton
1200 CFM
(a) The minimum allowable airflow for a GER036 with a 17.4 kW heater is 1080 CFM
GER048
4 ton
1600 CFM
GER060(b)
5 ton
2000 CFM
(b) The minimum allowable airflow for a GER060 with a 23.0 kW heater is 1900 CFM
Single
Phase
Three
Phase
Single
Phase
Three
Phase
Single
Phase
Three
Phase
5.00 1 13.8 — 10.5 — 8.5 —
6.00 1 — 18.5 — 10.5 — 11.4
10.00 2 26.8 — 20.3 — 16.3 —
12.00 2 — 36.2 — 22.3 — 21.5
13.80 2 36.9 — 27.8 — 22.3 —
17.40 2 — 48.2 — 33.0 — 30.0
17.60 2 — — 35.5 — 28.3 —
23.00 2 — — — — — 38.8
Notes:
1. For minimum design airflow, see airflow performance table for each unit.
2. To calculate temp rise at different airflow, use the following formula: Temp rise across
Electric Heater = kW x 0.3414/1.08 x CFM

76 WSHP-PRC021-EN
Performance Data
Table 81. Air temperature rise across electric heaters (°F)6-25ton
kW Stages
GER072 (a)
6 ton
3000 CFM
GER090
7.5 ton
3400 CFM
GER120(b)
10 ton
4000 CFM
GER150
12.5 ton
5000 CFM
GER180
15 ton
6000 CFM
GER240
20 ton
8000 CFM
GER300 (c)
25 ton
9000 CFM
9.0 1 14.2 9.5 — — — — —
18.0 1 28.5 19.0 14.2 11.4 9.5 — —
27.0 2 42.7 28.5 21.3 — — — 9.5
36.0 2 56.9 37.9 28.5 23.0 19.0 14.2 12.6
54.0 2 — — 42.7 34.1 28.4 21.3 19.0
72.0 2 — ————28.5 25.3
Notes:
1. For minimum design airflow, see airflow performance table for each unit.
2. To calculate temp rise at different airflow, use the following formula: Temp rise across Electric Heater = kW x 0.3414/1.08 x CFM
(a) The minimum allowable airflow for a GER072 with a 36.0 kW heater is 2400 CFM
(b) The minimum allowable airflow for a GER120 with a 54.0 kW heater is 4000 CFM
(c) 27 kW heater can not be used in the GER300 with an oversized motor.
Table 82. Electric heater temperature rise correction factors
% Variation from Nominal CFM -20 -15 -10 — +5 +10 +15 +20
Temperature Rise Multiplier 1.25 1.17 1.11 1.00 0.95 0.91 0.87 0.83
Table 83. Water volume
Unit Size
Water Side
Volume
Cubic In.
Water Side
Volume
Cubic In.
Water Side
Volume
Gallons
036 105 0.061 0.455
048 171 0.099 0.740
060 171 0.099 0.740
072 259 0.150 1.121
090 210 0.122 0.909
120 342 0.198 1.481
150 508 0.294 2.199
180 508 0.294 2.199
240 779 0.451 3.372
300 1057 0.612 4.576

WSHP-PRC021-EN 77
Performance Data
Example 1 (Ethylene Glycol):
The antifreeze solution is 20% by volume of Ethylene Glycol. Determine the corrected cooling
capacity and waterside pressure drop for a GERA036 when the EWT is 86°F and the GPM is 9.0.
From the catalog data, the cooling capacity at these conditions with 100% water is 39.6 MBTUH,
and the waterside pressure drop is 11.5 feet of head. At 20% Ethylene Glycol, the correction factor
for cool capacity is 0.9912 and the pressure drop is 1.068.
The corrected cooling capacity (MBTUH) = 36.9 * 0.9912 = 36.58.The corrected water side pressure
drop (Ft. head) = 11.5 * 1.068 = 12.23.
Example 2 (Propylene Glycol):
The antifreeze solution is 30% by volume of Propylene Glycol. Determine the corrected heating
capacity and waterside pressure drop for a GERA048 when the EWT is 45°F and the GPM is 12.0.
From the catalog data, the heating capacity at these conditions with 100% water is 49.1 MBTUH,
and the waterside pressure drop is 11.0 feet of head. At 30% Propylene Glycol, the correction factor
for heat capacity is 0.9603 and the pressure drop is 1.174.
The corrected cooling capacity (MBTUH) = 49.1 * 0.9603 = 47.15.The corrected water side pressure
drop (Ft. head) = 11.0 * 1.174 = 12.91.
Table 84. Correction factors for antifreeze solutions
Item
Concentration by Volume
10% 20% 30% 40% 50%
Methanol
Cool
Capacity 0.9980 0.9965 0.9949 0.9932 0.9915
Heat
Capacity 0.9950 0.9898 0.9846 0.9794 0.9742
Pressure
Drop 1.023 1.057 1.091 1.122 1.160
Ethylene Glycol
Cool
Capacity 0.9955 0.9912 0.9870 0.9830 0.9790
Heat
Capacity 0.9925 0.9848 0.9770 0.9690 0.9610
Pressure
Drop 1.024 1.068 1.124 1.188 1.263
Propylene Glycol
Cool
Capacity 0.9934 0.9869 0.9804 0.9739 0.9681
Heat
Capacity 0.9863 0.9732 0.9603 0.9477 0.9350
Pressure
Drop 1.040 1.098 1.174 1.273 1.405

78 WSHP-PRC021-EN
Performance Data

WSHP-PRC021-EN 79
Electrical Data
Table 85. Electrical performance
Model No. Unit Volts
Total Unit
FLA
Comp
RLA (ea)
Comp LRA
(ea)
No. of
Compres.
Blower
Motor
FLA
Blower
Motor
HP
Fan Motor
Num
Minimum
Circuit
Ampacity
Maximum
Overcurrent
Protective
Device
GER036
208/60/1 24.6 18.6 105.0 1 6.00 0.75 1 29.3 45
230/60/1 24.6 18.6 105.0 1 6.00 0.75 1 29.3 45
208/60/3 18.5 13.5 88.0 1 5.00 1 1 21.9 35
230/60/3 18.5 13.5 88.0 1 5.00 1 1 21.9 35
460/60/3 8.9 6.4 39.0 1 2.50 1 1 10.5 15
575/60/3 6.8 5.1 34.0 1 1.70 1 1 8.1 15
GER048
208/60/1 30.7 23.1 134.0 1 7.60 1 1 36.5 50
230/60/1 30.7 23.1 134.0 1 7.60 1 1 36.5 50
208/60/3 21.0 16.0 91.0 1 5.00 1 1 25.0 40
230/60/3 21.0 16.0 91.0 1 5.00 1 1 25.0 40
460/60/3 9.6 7.1 46.0 1 2.50 1 1 11.4 15
575/60/3 7.3 5.6 37.0 1 1.70 1 1 8.7 15
GER060
208/60/1 35.2 27.6 158.0 1 7.60 1 1 42.1 60
230/60/1 35.2 27.6 158.0 1 7.60 1 1 42.1 60
208/60/3 23.1 18.1 137.0 1 5.00 1 1 27.6 45
230/60/3 23.1 18.1 137.0 1 5.00 1 1 27.6 45
460/60/3 11.5 9.0 62.0 1 2.50 1 1 13.8 20
575/60/3 8.5 6.8 50.0 1 1.70 1 1 10.2 15
GER072
208/60/3 27.4 22.4 149.0 1 5.00 1 1 33.0 50
230/60/3 27.4 22.4 149.0 1 5.00 1 1 33.0 50
460/60/3 13.1 10.6 75.0 1 2.50 1 1 15.8 25
575/60/3 9.2 7.7 54.0 1 1.50 1 1 11.1 15
208/60/3 28.7 22.4 149.0 1 6.30 2 1 34.3 50
230/60/3 28.7 22.4 149.0 1 6.30 2 1 34.3 50
460/60/3 13.7 10.6 75.0 1 3.10 2 1 16.4 25
575/60/3 10.1 7.7 54.0 1 2.40 2 1 12.0 15
GER090
208/60/3 28.6 25.0 164.0 1 3.60 1 1 34.9 50
230/60/3 28.6 25.0 164.0 1 3.60 1 1 34.9 50
460/60/3 13.9 12.2 100.0 1 1.70 1 1 17.0 25
575/60/3 10.4 9.0 78.0 1 1.40 1 1 12.7 20
208/60/3 34.4 25.0 164.0 1 9.40 3 1 40.7 60
230/60/3 34.4 25.0 164.0 1 9.40 3 1 40.7 60
460/60/3 16.8 12.2 100.0 1 4.60 3 1 19.9 30
575/60/3 12.4 9.0 78.0 1 3.40 3 1 14.7 20
GER120
208/60/3 26.6 18.1 137.0 2 8.50 3.6 1 49.2 60
230/60/3 26.6 18.1 137.0 2 8.50 3.6 1 49.2 60
460/60/3 13.3 9.0 62.0 2 4.30 3.6 1 24.6 30
575/60/3 11.1 6.8 50.0 2 4.30 3.6 1 19.6 25

80 WSHP-PRC021-EN
Electrical Data
GER150
208/60/3 33.0 22.4 149.0 2 10.60 3 1 61.0 80
230/60/3 33.0 22.4 149.0 2 10.60 3 1 61.0 80
460/60/3 15.4 10.6 75.0 2 4.80 3 1 28.7 35
575/60/3 11.8 7.9 54.0 2 3.90 3 1 21.7 25
208/60/3 39.1 22.4 149.0 2 16.70 5 1 67.1 80
230/60/3 39.1 22.4 149.0 2 16.70 5 1 67.1 80
460/60/3 18.2 10.6 75.0 2 7.60 5 1 31.5 40
575/60/3 14.0 7.9 54.0 2 6.10 5 1 23.9 30
GER180
208/60/3 35.6 25.0 164.0 2 10.60 3 1 66.9 90
230/60/3 35.6 25.0 164.0 2 10.60 3 1 66.9 90
460/60/3 17.3 12.5 100.0 2 4.80 3 1 32.9 45
575/60/3 14.2 10.3 78.0 2 3.90 3 1 27.1 35
208/60/3 41.7 25.0 164.0 2 16.70 5 1 73.0 90
230/60/3 41.7 25.0 164.0 2 16.70 5 1 73.0 90
460/60/3 20.1 12.5 100.0 2 7.60 5 1 35.7 45
575/60/3 16.4 10.3 78.0 2 6.10 5 1 29.3 35
GER240
208/60/3 55.8 39.1 267.0 2 16.70 5 1 104.7 125
230/60/3 55.8 39.1 267.0 2 16.70 5 1 104.7 125
460/60/3 24.9 17.3 142.0 2 7.60 5 1 46.5 60
575/60/3 21.5 15.4 103.0 2 6.10 5 1 40.8 50
208/60/3 56.7 39.1 267.0 2 17.60 7.5 1 105.6 125
230/60/3 56.7 39.1 267.0 2 17.60 7.5 1 105.6 125
460/60/3 25.9 17.3 142.0 2 8.60 7.5 1 47.5 60
575/60/3 22.4 15.4 103.0 2 7.00 7.5 1 41.7 50
GER300
208/60/3 63.3 39.1 267.0 2 24.20 7.5 1 112.2 150
230/60/3 63.3 39.1 267.0 2 24.20 7.5 1 112.2 150
460/60/3 29.6 18.6 103.0 2 11.00 7.5 1 52.9 70
575/60/3 24.4 15.4 160.0 2 9.00 7.5 1 43.7 50
Table 85. Electrical performance
Model No. Unit Volts
Total Unit
FLA
Comp
RLA (ea)
Comp LRA
(ea)
No. of
Compres.
Blower
Motor
FLA
Blower
Motor
HP
Fan Motor
Num
Minimum
Circuit
Ampacity
Maximum
Overcurrent
Protective
Device

WSHP-PRC021-EN 81
Electrical Data
Table 86. Electrical performance for units with electric heat (single point connection)
Standard Indoor Motor Oversized Indoor Motor
Unit Model
Number
Heater Model
Number
Electric Heat
Amps
Electric Heat
kW
Control
Stages
Minimum
Circuit
Ampacity
Max Over
current
Protection
Minimum
Circuit
Ampacity
Max Over
current
Protection
208 Volt Single Phase ——
GER036
BAYHTRE105* 18.3 3.8 1 52.1 60 — —
BAYHTRE110* 36.1 7.5 2 74.4 80 — —
BAYHTRE114* 50.0 10.4 2 91.8 100 — —
GER048
BAYHTRE105* 18.3 3.8 1 59.4 70 — —
BAYHTRE110* 36.1 7.5 2 81.6 90 — —
BAYHTRE114* 50.0 10.4 2 99.0 100 — —
BAYHTRE118* 63.5 13.2 2 115.9 125 — —
GER060
BAYHTRE105* 18.3 3.8 1 65.0 80 — —
BAYHTRE110* 36.1 7.5 2 87.2 100 — —
BAYHTRE114* 50.0 10.4 2 104.6 110 — —
BAYHTRE118* 63.5 13.2 2 121.5 125 — —
230 Volt Single Phase
GER036
BAYHTRE105* 20.8 5.0 1 55.3 60 — —
BAYHTRE110* 41.7 10.0 2 81.4 90 — —
BAYHTRE114* 57.5 13.8 2 101.1 110 — —
GER048
BAYHTRE105* 20.8 5.0 1 62.5 80 — —
BAYHTRE110* 41.7 10.0 2 88.6 100 — —
BAYHTRE114* 57.5 13.8 2 108.4 110 — —
BAYHTRE118* 73.3 17.6 2 128.1 150 — —
GER060
BAYHTRE105* 20.8 5.0 1 68.1 90 — —
BAYHTRE110* 41.7 10.0 2 94.2 110 — —
BAYHTRE114* 57.5 13.8 2 114.0 125 — —
BAYHTRE118* 73.3 17.6 2 133.7 150 — —
208 Volt Three Phase
GER036
BAYHTRE306* 12.5 4.5 1 37.5 45 — —
BAYHTRE312* 25.0 9.0 2 53.1 60 — —
BAYHTRE318* 36.4 13.1 2 67.4 70 — —
GER048
BAYHTRE306* 12.5 4.5 1 40.6 50 — —
BAYHTRE312* 25.0 9.0 2 56.3 60 — —
BAYHTRE318* 36.4 13.1 2 70.5 80 — —
GER060
BAYHTRE306* 12.5 4.5 1 43.3 50 — —
BAYHTRE312* 25.0 9.0 2 58.9 70 — —
BAYHTRE318* 36.4 13.1 2 73.1 80 — —
BAYHTRX323* 48.0 17.3 2 87.6 90 — —
GER072
BAYHTRW309A 18.9 6.8 1 56.6 70 57.9 70
BAYHTRW318A 37.5 13.5 1 79.9 90 81.2 90
BAYHTRW327A 56.3 20.3 2 103.4 110 104.7 110
BAYHTRW336A 74.9 27.0 2 126.6 150 127.9 150

82 WSHP-PRC021-EN
Electrical Data
GER090
BAYHTRU309A 18.9 6.8 1 58.4 70 64.2 80
BAYHTRU318A 37.5 13.5 1 81.7 90 87.5 100
BAYHTRU327A 56.3 20.3 2 105.3 110 111.1 125
BAYHTRU336A 74.9 27.0 2 128.5 150 134.3 150
GER120
BAYHTRB318A 37.5 13.5 1 96.1 100 — —
BAYHTRB327A 56.3 20.3 2 119.7 125 — —
BAYHTRB336A 74.9 27.0 2 142.9 150 — —
BAYHTRB354A 112.7 40.6 2 190.1 200 — —
GER150 AYDHTRK318/
AYHHTRM318 37.5 13.5 1 107.9 110 114.0 125
GER150 AYDHTRK336/
AYHHTRM336 74.9 27.0 2 154.6 175 160.7 175
GER150 AYDHTRK354/
AYHHTRM354 112.4 40.5 2 201.5 225 207.6 225
GER180 AYDHTRK318/
AYHHTRM318 37.5 13.5 1 113.7 125 119.8 125
GER180 AYDHTRK336/
AYHHTRM336 74.9 27.0 2 160.5 175 166.6 175
GER180 AYDHTRK354/
AYHHTRM354 112.4 40.5 2 207.4 225 213.5 225
GER240 AYDHTRL336/
AYHHTRN336 74.9 27.0 2 198.3 200 199.2 200
GER240 AYDHTRL354/
AYHHTRN354 112.4 40.5 2 245.2 250 246.1 250
GER240 AYDHTRK372/
AYHHTRN372 149.9 54.0 2 292.1 300 293.0 300
GER300 AYDHTRL336/
AYHHTRN336 74.9 27.0 2 205.8 225 — —
GER300 AYDHTRL354/
AYHHTRN354 112.4 40.5 2 252.7 300 — —
GER300 AYDHTRK372/
AYHHTRN372 149.9 54.0 2 299.6 300 — —
230 Volt Three Phase
GER036
BAYHTRE306* 14.4 6.0 1 39.9 45 — —
BAYHTRE312* 28.9 12.0 2 58.0 60 — —
BAYHTRE318* 41.9 17.4 2 74.3 80 — —
GER048
BAYHTRE306* 14.4 6.0 1 43.0 50 — —
BAYHTRE312* 28.9 12.0 2 61.1 70 — —
BAYHTRE318* 41.9 17.4 2 77.4 80 — —
GER060
BAYHTRE306* 14.4 6.0 1 45.6 60 — —
BAYHTRE312* 28.9 12.0 2 63.8 70 — —
BAYHTRE318* 41.9 17.4 2 80.0 80 — —
BAYHTRX323* 55.3 23.0 2 96.8 100 — —
Table 86. Electrical performance for units with electric heat (single point connection)
Standard Indoor Motor Oversized Indoor Motor
Unit Model
Number
Heater Model
Number
Electric Heat
Amps
Electric Heat
kW
Control
Stages
Minimum
Circuit
Ampacity
Max Over
current
Protection
Minimum
Circuit
Ampacity
Max Over
current
Protection

WSHP-PRC021-EN 83
Electrical Data
GER072
BAYHTRW309A 21.7 9.0 1 60.1 70 61.4 70
BAYHTRW318A 43.3 18.0 1 87.1 90 88.4 100
BAYHTRW327A 65.0 27.0 2 114.2 125 115.5 125
BAYHTRW336A 86.6 86.6 2 141.3 150 142.6 150
GER090
BAYHTRU309A 21.7 9.0 1 61.9 80 67.7 80
BAYHTRU318A 43.3 18.0 1 89.0 100 94.8 100
BAYHTRU327A 65.0 27.0 2 116.0 125 121.8 125
BAYHTRU336A 86.6 36.0 2 143.1 150 148.9 150
GER120
BAYHTRB318A 43.3 18.0 1 103.4 110 — —
BAYHTRB327A 65.0 27.0 2 130.4 150 — —
BAYHTRB336A 86.6 36.0 2 157.5 175 — —
BAYHTRB354A 129.9 54.0 2 211.6 225 — —
GER150
AYDHTRK318/
AYHHTRM318 43.3 18.0 1 115.1 125 121.2 125
AYDHTRK336/
AYHHTRM336 86.6 36.0 2 169.3 175 175.4 200
AYDHTRK354/
AYHHTRM354 129.9 54.0 2 223.4 225 229.5 250
GER180
AYDHTRK318/
AYHHTRM318 43.3 18.0 1 121.0 125 127.1 150
AYDHTRK336/
AYHHTRM336 86.6 36.0 2 175.1 200 181.2 200
AYDHTRK354/
AYHHTRM354 129.9 54.0 2 229.2 250 235.3 250
GER240
AYDHTRL336/
AYHHTRN336 86.6 36.0 2 212.9 225 213.8 225
AYDHTRL354/
AYHHTRN354 129.9 54.0 2 267.1 300 268.0 300
AYDHTRK372/
AYHHTRN372 173.2 72.0 2 321.2 300 322.1 300
GER300
AYDHTRL336/
AYHHTRN336 86.6 36.0 2 220.4 225 — —
AYDHTRL354/
AYHHTRN354 129.9 54.0 2 274.6 300 — —
AYDHTRK372/
AYHHTRN372 173.2 72.0 2 328.7 300 — —
460 Volt Three Phase
GER036
BAYHTRE406* 7.2 6.0 1 19.5 20 — —
BAYHTRE412* 14.4 12.0 2 28.5 30 — —
BAYHTRE418* 20.9 17.4 2 36.6 40 — —
GER048
BAYHTRE406* 7.2 6.0 1 20.4 25 — —
BAYHTRE412* 14.4 12.0 2 29.4 30 — —
BAYHTRE418* 20.9 17.4 2 37.5 40 — —
Table 86. Electrical performance for units with electric heat (single point connection)
Standard Indoor Motor Oversized Indoor Motor
Unit Model
Number
Heater Model
Number
Electric Heat
Amps
Electric Heat
kW
Control
Stages
Minimum
Circuit
Ampacity
Max Over
current
Protection
Minimum
Circuit
Ampacity
Max Over
current
Protection

84 WSHP-PRC021-EN
Electrical Data
GER060
BAYHTRE406* 7.2 6.0 1 22.8 25 — —
BAYHTRE412* 14.4 12.0 2 31.8 35 — —
BAYHTRE418* 20.9 17.4 2 39.9 40 — —
BAYHTRX423* 27.7 23.0 2 48.4 50 — —
GER072
BAYHTRW409A 9.0 10.8 1 29.3 35 29.9 35
BAYHTRW418A 18.0 21.7 1 42.8 45 43.4 45
BAYHTRW427A 27.0 32.5 2 56.3 60 56.9 60
BAYHTRW436A 36.0 43.3 2 69.9 70 70.5 80
GER090
BAYHTRU409A 9.0 10.8 1 30.5 35 33.4 40
BAYHTRU418A 18.0 21.7 1 44.0 50 46.9 50
BAYHTRU427A 27.0 32.5 2 57.5 60 60.4 70
BAYHTRU436A 36.0 43.3 2 71.1 80 74.0 80
GER120
BAYHTRB418A 18.0 21.7 1 51.6 60 — —
BAYHTRB427A 27.0 32.5 2 65.1 70 — —
BAYHTRB436A 36.0 43.3 2 78.7 80 — —
BAYHTRB454A 54.0 65.0 2 105.7 110 — —
GER150
AYDHTRK418/
AYHHTRM418 21.7 18.0 1 55.8 60 58.6 60
AYDHTRK436/
AYHHTRP436 43.3 36.0 2 82.8 90 85.6 90
AYDHTRK454/
AYHHTRM454 65.0 54.0 2 109.9 110 112.7 125
GER180
AYDHTRK418/
AYHHTRM418 21.7 18.0 1 60.1 70 62.9 70
AYDHTRK436/
AYHHTRP436 43.3 36.0 2 87.1 90 89.9 90
AYDHTRK454/
AYHHTRM454 65.0 54.0 2 114.2 125 117.0 125
GER240
AYDHTRL436/
AYHHTRN436 43.3 36.0 2 100.7 110 101.7 110
AYDHTRL454/
AYHHTRN454 65.0 54.0 2 127.8 150 128.8 150
AYDHTRK472/
AYHHTRN472 86.6 72.0 2 154.8 175 155.8 175
GER300
AYDHTRL436/
AYHHTRN436 43.3 36.0 2 107.0 110 — —
AYDHTRL454/
AYHHTRN454 65.0 54.0 2 134.1 150 — —
AYDHTRK472/
AYHHTRN472 86.6 72.0 2 161.1 175 — —
575 Volt Three Phase
GER036
BAYHTREW06* 5.8 6.0 1 15.3 20 — —
BAYHTREW12* 11.5 12.0 2 22.5 25 — —
BAYHTREW18* 16.7 17.4 2 29.0 30 — —
Table 86. Electrical performance for units with electric heat (single point connection)
Standard Indoor Motor Oversized Indoor Motor
Unit Model
Number
Heater Model
Number
Electric Heat
Amps
Electric Heat
kW
Control
Stages
Minimum
Circuit
Ampacity
Max Over
current
Protection
Minimum
Circuit
Ampacity
Max Over
current
Protection

WSHP-PRC021-EN 85
Electrical Data
GER048
BAYHTREW06* 5.8 6.0 1 16.0 20 — —
BAYHTREW12* 11.5 12.0 2 23.1 25 — —
BAYHTREW18* 16.7 17.4 2 29.6 30 — —
GER060
BAYHTREW06* 5.8 6.0 1 17.5 20 — —
BAYHTREW12* 11.5 12.0 2 24.6 25 — —
BAYHTREW18* 16.7 17.4 2 31.1 35 — —
BAYHTRXW23* 22.1 23.0 2 37.8 40 — —
GER072
BAYHTRWW18A 18.0 17.3 1 32.8 35 33.7 35
BAYHTRWW27A 27.0 26.0 2 43.6 45 44.5 45
BAYHTRWW36A 36.0 34.6 2 54.4 60 55.3 60
GER090
BAYHTRUW18A 18.0 17.3 1 34.3 35 36.3 40
BAYHTRUW27A 27.0 26.0 2 45.1 50 47.1 50
BAYHTRUW36A 36.0 34.6 2 56.0 60 58.0 60
GER120
BAYHTRBW18A 18.0 17.3 1 41.2 45 — —
BAYHTRBW36A 36.0 34.6 2 62.9 70 — —
BAYHTRBW54A 54.0 52.0 2 84.6 90 — —
GER150
AYDHTRKW18/
AYHHTRMW18 17.3 18.0 1 43.3 45 45.5 50
AYDHTRKW36/
AYHHTRMW36 34.6 36.0 2 64.9 70 67.1 70
AYDHTRKW54/
AYHHTRMW54 52.0 54.0 2 86.7 90 88.9 90
GER180
AYDHTRKW18/
AYHHTRMW18 17.3 18.0 1 48.7 50 50.9 60
AYDHTRKW36/
AYHHTRMW36 34.6 36.0 2 70.3 80 72.5 80
AYDHTRKW54/
AYHHTRMW54 52.0 54.0 2 92.1 100 94.3 100
GER240
AYDHTRLW36/
AYHHTRNW36 34.6 36.0 2 84.0 90 84.9 90
AYDHTRLW54/
AYHHTRNW54 52.0 54.0 2 105.8 110 106.7 110
AYDHTRKW72/
AYHHTRNW72 69.3 72.0 2 127.4 150 128.3 150
GER300
AYDHTRMW36/
AYHHTRMW36 34.6 36.0 2 86.9 90 — —
AYDHTRLW54/
AYHHTRNW54 52.0 54.0 2 108.7 110 — —
AYDHTRKW72/
AYHHTRNW72 69.3 72.0 2 130.3 150 — —
Table 86. Electrical performance for units with electric heat (single point connection)
Standard Indoor Motor Oversized Indoor Motor
Unit Model
Number
Heater Model
Number
Electric Heat
Amps
Electric Heat
kW
Control
Stages
Minimum
Circuit
Ampacity
Max Over
current
Protection
Minimum
Circuit
Ampacity
Max Over
current
Protection

86 WSHP-PRC021-EN
Dimensional Data
Figure 1. 3 to 4 ton unit clearance and roof opening
CLEARANCE
HORIZONTAL FLOW - 36" (914 MM)
DOWNFLOW 36" (914 MM)
TYPICAL ROOF OPENING
CLEARANCE 36" (914 MM)
44 1/2"
1130 MM
37"
940 MM
CLEARANCE FROM
TOP OF UNIT 72" (1829 MM)
68 1/4"
1732 MM
40"
1016 MM
CLEARANCE 48" (1219 MM)
CLEARANCE 36" (914 MM)
Figure 2. 5 to 7-1/2 ton unit clearance and roof opening
CLEARANCE
HORIZONTAL FLOW - 18" (457 MM)
DOWNFLOW 36" (914 MM)
TYPICAL ROOF OPENING
CLEARANCE 36" (914 MM)
53 1/4"
1352 MM
46"
1168 MM
CLEARANCE FROM
TOP OF UNIT 72" (1829 MM)
88 5/8"
2251 MM
46"
1168 MM
CLEARANCE 48" (1219 MM)
CLEARANCE 36" (914 MM)

WSHP-PRC021-EN 87
Dimensional Data
Figure 3. 10 ton unit clearance and roof opening
99 11/16”
(2532 MM)
63 3/16”
(1605 MM)
Figure 4. 12½ and 15 tons unit clearance and roof opening
CLEARANCE
DOWNFLOW 36" (914 MM)
HORIZONTAL 60" (1524 MM)
TYPICAL ROOF OPENING
CLEARANCE
DOWNFLOW 48" (1219 MM)
HORIZONTAL 38" (965MM)
84 3/16"
2138 MM
76 1/2"
1943 MM
CLEARANCE FROM
TOP OF UNIT 72" (1829 MM)
121 11/16"
3091 MM
81"
2057 MM
CLEARANCE
DOWNFLOW 60" (1524 MM)
HORIZONTAL 18" (457 MM)
CLEARANCE
DOWNFLOW 68" (1727 MM)
HORIZONTAL 48" (1219 MM)

88 WSHP-PRC021-EN
Dimensional Data
Figure 5. 20 and 25 tons unit clearance and roof opening
CLEARANCE
DOWNFLOW 36" (914 MM)
HORIZONTAL 60" (1524 MM)
TYPICAL ROOF OPENING
CLEARANCE
DOWNFLOW 48" (1219 MM)
HORIZONTAL 38" (965 MM)
84 3/16"
2138 MM
76 1/2"
1943 MM
CLEARANCE FROM
TOP OF UNIT 72" (1829 MM)
121 11/16"
3091 MM
81"
2057 MM
CLEARANCE
DOWNFLOW 60" (1524 MM)
HORIZONTAL 18" (457 MM)
CLEARANCE
DOWNFLOW 68" (1727 MM)
HORIZONTAL 48" (1219 MM)

WSHP-PRC021-EN 97
Dimensional Data
Figure 14. 3 to 4 ton roofcurb
7
44
44
MM
MM
44
44
MM
MM
1038
1038
MM
MM
1053
1053
MM
MM
Figure 15. 3 to 4 ton roofcurb - downflow duct connections
7
(433 MM)

98 WSHP-PRC021-EN
Dimensional Data
Figure 16. 5, 6 and 7½ ton roofcurb
(2130 MM)
(356 MM)
Figure 17. 5, 6 and 7½ ton roofcurb - downflow duct connections
SUPPLY
RETURN
ALL FLANGES 1 1/4" (31 MM)
857
857

WSHP-PRC021-EN 99
Dimensional Data
Figure 18. 10 ton roofcurb
Figure 19. 10 ton roofcurb - downflow duct connections
13/4”
(
44 MM
)
2”
(
51 MM
)
84 1/2”
(2146 MM)
83 7/8”
(2130 MM)
60 3/8”
(1534 MM)
59 7/8”
(
1521 MM
)
14”
(
356 MM
)
2”
(
51 MM
)
56 3/8”
(1432 MM)
34 3/8”
(873 MM)
34 3/8”
(873 MM)
18 1/2”
(470 MM)
18 1/2”
(470 MM)
1”
(
25 MM
)
1”
(
25 MM
)
1”
(
25 MM
)
65/8”
(
168 MM
)
80 1/2”
(2045 MM)
CLEARANCE 18” (457 MM)FORHORIZONTAL
CLEARANCE36”(914 MM) FORDOWNFLOW
SUPPLY
RETURN
ALL FLANGES 1 1/4" (31 MM)
857
857

100 WSHP-PRC021-EN
Dimensional Data
Figure 20. 12½ to 25 ton roofcurb
Figure 21. 12½ to 25 ton roofcurb - duct connections
9
1”
25.4 MM
CURB FLANGE
LONG SIDES
SHORT SIDES

WSHP-PRC021-EN 101
Dimensional Data
Figure 22. 12½ to 25 ton roofcurb

102 WSHP-PRC021-EN
Dimensional Data
Figure 23. 3 to 5 ton accessories

WSHP-PRC021-EN 103
Dimensional Data
Figure 24. Fresh air hood (horizontal units) Figure 25. Fresh air hood (downflow units)
Figure 26. Power exhaust - downflow
economizers Figure 27. Power exhaust - downflow economizers - side view
C
POWER EXHAUST with DOWNFLOW
ECONOMIZERS only, SIDE VIEW
Figure 28. Economizer - horizontal units Figure 29. Economizer - downflow units
Note: When applying economizer to horizontal
units, connected ductwork must be run full
size to allow proper operation of economizer
damper.
Table 87. Power exhaust dimensions
Unit Model # A B(a)
(a) Horizontal dimension only. Downflow economizer is width of
end panel.
C(b)
(b) Power exhaust is applied on downflow economizer only.
GER 150-240 19½ 64¾ 39

104 WSHP-PRC021-EN
Weights and Center of Gravity
Table 88. Accessory weights
Option/Accessory
Description
Net
Weight
036-060
Net
Weight
072-120
Net
Weight
150-300
Option/Accessory
Description
Net
Weight
036-060
Net
Weight
072-120
Net
Weight
150-180
Net
Weight
240-300
Electric Heat 15 30 * Smoke Detector, Return 7 7 7 7
Economizer 26 36 65/80 Smoke Detector, Supply/Return 5 5 5 5
Motorized Damper 20 30 75 Clogged Filter Switch 1 1 1 1
Manual Damper 16 26 32 Fan Fail Switch 1 1 1 1
Barometric Relief 7 10 — Discharge Air Tube 3 3 3 3
Power Exhaust N/A 80 95 Roof curb 61 89 235 —
Oversized Motor 5 8 5 Zone Sensors 1 1 1 1
Belt Drive Motor (3-phase only) 31 Standard 10/15
Hinged Access 10 12 27
Hail Guard 12 20 —
Unit Size
23-36
kW 54 kW 72 kW
Through the base electrical 8 13 23
Unit Disconnect Switch 5 5 5/10 GER 150-300 33/27 40/32 43/34
Unit Circuit Breaker 5 5 5/10
TCI, LCI 1 1 1
Frostat 1 1 1
Crankcase Heater 1 1 1
* Note 1: Net weights for electric heat are as follows
Figure 30. Corner weight locations and center of gravity
Table 89. Typical unit weights and point loading data
Net
Weight
Corner Weights Center of Gravity
Model A B C D Length Width
GER 036 487 132 121 112 121 33.0 19.0
GER 048 538 146 134 124 134 33.0 19.0
GER 060 678 188 164 154 173 40.5 23.0
GER 072 700 194 169 159 179 40.5 23.0
GER 090 794 218 194 182 201 41.0 23.0
GER 120 941 235 251 234 221 52.0 28.0
GER 150 1800 491 481 410 418 60.0 32.0
GER 180 1848 505 493 421 429 60.0 32.0
GER 240 2008 548 536 458 466 60.0 32.0
GERE300 1906 520 509 435 442 30.0 32.0
Center
of Gravity
Length
Center of Gravity
Width
AB
C
D
Center of Gravity

WSHP-PRC021-EN 105
Accessories
System balancing hose kit
For automatic system balancing of a water source heat pump, the Mesurflo® self-balancing hose
kit provides a constant flow rate over the pressure differential rage of 2 to 80 psid. As system
pressure changes (through further addition of heat pumps, for example) each individual flow
control valve will automatically adjust to the new system conditions. In variable water volume
applications, a self-balancing hose kit can provide continuous balancing because of its ability to
automatically adjust to the varying system conditions.
Note: At low differential pressure the flow area required to achieve higher flow can exceed the
flow area available for the respective series.Therefore, the minimum pressure differential
requirement is increased for the higher flow ranges of each series Mesurflo valve.
Thermostat/Sensor Location
Location of thermostat or zone sensor is an important element of effective room control and
comfort.The best location is typically on a wall, remote from HVAC unit’s supply/return-air grille.
Readings at this location assure the desired setpoint is achieved across the space, not just near the
unit. It may be necessary to subdivide the zone to ensure adequate control and comfort is
accomplished. Figure 32 indicates areas where thermostat or zone sensor should not be mounted.
These include:
• Near drafts or dead spots (e.g. behind doors or corners)
• Near hot or cold air ducts
• Near radiant heat (e.g. heat emitted from appliances or the sun)
• Near concealed pipes or chimneys
• On outside walls or other non conditioned surfaces
• In air flows from adjacent zones or other units
Figure 31. Ball valve kit (manual)/MeasurfloVac kit (automatic)
Flex Hose
Mesurmeter w/PT’s
Optional Yball Strainer
w/Blowdown Valve &
Hose Connector
PT
FLOW
Ball Valve
Optional Isolation Valve
2-Position Valve
AUTOMATIC
TEMPERATURE
CONTROL
VALVE
Flex Hose
Optional Yball Strainer
w/Blowdown Valve &
Hose Connector
PT
FLOW
Ball Valve
Optional Isolation Valve
2-Position Valve
2510 Mesurflo w/PT’s
AUTOMATIC
TEMPERATURE
CONTROL
VALVE
Figure 32. Thermostat/sensor location

106 WSHP-PRC021-EN
Accessories
Zone Sensors
Manual/Automatic
Changeover
Manual/Automatic
Changeover
Programmable Night
Setback
Auto, Heat, Cool or Off System
Switch. Fan Auto or Off Switch.
Two temperature setpoint
levers. Status Indication LED
lights, System On, Heat, Cool, or
Service.
Auto, Heat, Cool or Off
System Switch. Fan Auto or
Off Switch.Two temperature
setpoint levers.
Auto or manual changeover
with seven-day programming.
Keyboard selection of Heat,
Cool, Fan, Auto, or On. All
programmable sensors have
System On, Heat, Cool, Service
LED/indicators as standard.
Night Setback Sensors have
one (1) Occupied, one (1) Un-
occupied, and one (1) Override
program per day.
Room Sensor withTimed
Override Button
Integrated Comfort™
System
Sensor(s) available with
optional temperature
adjustment and override
buttons to provide central
control through aTrane
Integrated Comfort™system.

WSHP-PRC021-EN 107
Wiring
Figure 33. 3-5 ton 1ph control diagram

108 WSHP-PRC021-EN
Wiring
Figure 34. 3-5 ton 1ph power connection

WSHP-PRC021-EN 109
Wiring
Figure 35. 3-7.5 ton 3ph control diagram

110 WSHP-PRC021-EN
Wiring
Figure 36. 3-7.5 ton 3ph power connection

WSHP-PRC021-EN 111
Wiring
Figure 37. 10 ton control diagram

11 2 WSHP-PRC021-EN
Wiring
Figure 38. 10 ton power connection

WSHP-PRC021-EN 11 3
Wiring
Figure 39. 12.5-20 ton 208-230V power connection

114 WSHP-PRC021-EN
Wiring
Figure 40. 12.5-20 ton 460-575V power connection

WSHP-PRC021-EN 11 5
Wiring
Figure 41. 12.5-20 ton control diagram

11 6 WSHP-PRC021-EN
Wiring
Figure 42. 25 ton 208-230V power connection

WSHP-PRC021-EN 11 7
Wiring
Figure 43. 25 ton 460-575V power connection

11 8 WSHP-PRC021-EN
Wiring
Figure 44. 25 ton control diagram

WSHP-PRC021-EN 119
Mechanical Specifications
General
Equipment shall be completely assembled, piped, internally wired and test operated at the factory.
A field convertible airflow shall be provided.
The equipment shall contain both ETL and ISO-AHRI 13256-1 listings and labels prior to leaving the
factory. Canadian units shall be CETL certified. Service and caution area labels shall also be placed
on the unit in their appropriate locations.
Air-to-Refrigerant Coil
Internally finned, 3/8-inch copper tubes mechanically bonded to a configured aluminum plate fin
shall be standard. Coils shall be leak tested at the factory to ensure the pressure integrity.The coil
shall be leak tested to 200 psig and pressure tested to 450 psig.
Casing
Unit casing shall be constructed of zinc coated, heavy gauge, galvanized steel. Exterior surfaces
shall be cleaned, phosphatized, and finished with a weather-resistant baked enamel finish. Unit’s
surface shall be tested 100-hours in a salt spray test in compliance with ASTM B117. Cabinet
construction shall allow for all maintenance on one side of the unit. Service panels shall have lifting
handles and be removed and reinstalled by removing only a single fastener while providing a water
and air tight seal.
All exposed vertical panels and top covers in the indoor air section shall be insulated with cleanable
foil faced, fire-retardant permanent, odorless glass fiber material.The base of the unit shall be
insulated with 1/2-inch, 1-pound density foil-faced, closed-cell material. All insulation edges shall
be either captured or sealed.The units base pan shall have no penetrations within the perimeter
of the curb other than the raised 1 1/8-inch high down flow supply/return openings to provide an
added water integrity precaution, if the condensate drain backs up.The base of the unit shall have
provisions for forklift and crane lifting, with forklift capabilities on three sides of the unit.
Clogged Filter/Fan Failure Switch (Option)
A factory or field-installed dedicated differential pressure switch is available to achieve active fan
failure indication and/ or clogged filter indication.These indications will be registered with either
a zone sensor with status indication lights or an Integrated Comfort™ System.
Compressors
All units shall have direct-drive, hermetic, scroll type compressors with centrifugal type oil pumps.
The motor shall be suction gas-cooled and shall have a voltage utilization range of plus or minus
10 percent of unit nameplate voltage. Internal overloads shall be provided with the scroll
compressors.The compressor(s) shall have internal spring isolation and sound muffling to
minimize vibration transmission and noise. External high and low pressure switches shall be
standard. For the 25-ton equipment, external discharge temperature limit, winding temperature
limit and compressor overload shall be provided.
Controls
Unit shall be completely factory wired with necessary controls and contactor pressure lugs or
terminal block for power wiring. Unit shall provide an external location for mounting a fused
disconnect device. Microprocessor controls shall be provided for all 24-volt control functions.The
resident control algorithms shall make all heating, cooling and/or ventilating decisions in response
to electronic signals from sensors measuring indoor and outdoor temperatures.The control
algorithm maintains accurate temperature control, minimizes drift from set point, and provides
better building comfort. A centralized microprocessor shall provide anti-short cycle timing and time
delay between compressors to enhance machine protection.

120 WSHP-PRC021-EN
Mechanical Specifications
Drain Pan
The drain pan shall be constructed of non ferrous or stainless steel, corrosive resistant material and
shall be reversible, removable, double sloped with provisions for through the base condensate
drain.
Differential Enthalpy (Option)
The differential enthalpy controller shall replace the standard dry bulb controller with two enthalpy
sensors that compare total heat content of the indoor air and outdoor air to determine the most
efficient air source.This control option shall offer the highest level of comfort control, plus energy
efficiency available.This option shall be capable of field or factory installation when the factory-
installed economizer is selected.
Differential Pressure Switches (Option)
These factory or field-installed options shall allow for individual fan failure and dirty filter
indication.The fan failure switch shall disable all unit functions and "flash" the Service LED on the
zone sensor.The dirty filter switch shall light the Service LED on the zone sensor and shall allow
continued unit operation.
Discharge Air Sensing Kit (Option)
This factory or field-installed option provides true discharge air sensing in heating models.This
sensor is a status indicator readable throughTracer® orTracker®.
Discharge Line Thermostat
A bi-metal element discharge line thermostats installed as a standard option on the discharge line
of each system. This standard option provides extra protection to the compressors against high
discharge temperatures in case of loss of charge, extremely high ambient and other conditions
which could drive the discharge temperature higher.
Economizer (Option)
The economizer may be field installed for 12-25T horizontal airflow units. For all other
configurations, economizer is factory-installed. It shall be available with or without barometric
relief.The assembly shall include a fully modulating 0-100 percent motor and damper, relief,
minimum position setting, preset linkage, wiring harness with fixed dry bulb.The barometric relief
damper shall provide a pressure operated damper that shall be gravity closing and shall prohibit
entrance of outside air during the equipment OFF cycle. Solid state enthalpy and differential
enthalpy control shall be factory or field-installed options.The factory-installed economizer shall
arrive in the shipping position and shall be moved to the operating position by the installing
contractor.
Electric Heaters
Electric heat modules shall be available for installation within the basic unit.The electric heat
elements shall be constructed of heavy-duty nickel chromium elements internally delta connected
for 240 volt, wye connected for 480 and 600 volt. Staging shall be achieved through the unit control
processor (UCP). Each heater package shall have automatically reset high limit control operating
through the heating element contactors. All heaters shall be individually fused from the factory,
where required, and shall meet all NEC and CEC requirements when properly installed. Power
assemblies shall provide a single-point connection. Electric heat modules shall be UL listed or CSA
certified.
Enthalpy Control (Option)
The enthalpy controller shall replace the dry bulb control with a wet bulb changeover controller
(which has a fully adjustable set point).The enthalpy controller shall offer a higher level of comfort
control, along with energy savings potential than the standard dry bulb controller due to the

WSHP-PRC021-EN 121
Mechanical Specifications
additional wet bulb sensing capability.This option shall be capable of field or factory installation
when the factory-installed economizer is selected.
Filters
One inch, throwaway filters shall be standard. Filter rack shall be capable of converting to a two-
inch filter.
High Pressure Cutout
All units have high pressure cutout as standard.
Hinged Access Doors (Option)
Sheet metal hinges are available factory-installed on the indoor fan section, supply fan, and the
compressor control access doors.
Hoses (option)
Hoses shall consist of a stainless steel outer braid with an inner core of tube made of a nontoxic
synthetic polymar material.The hoses shall be suitable for water temperatures ranging between
33°F and 211°F without the use of glycol.
Automatic Flow Devices (option)
The automatic self-balancing device shall automatically limit the rate of flow to within 10-percent
of the specified amount, over a 40 to 1 differential pressure operating range of 2 to 80 PSID.The
operational temperature shall be rated from fluid freezing, to 225°F.
The valve body shall be suited for working pressures of 400 PSIG.The valve internal core shall
consist of one or more high temperature elastomeric diaphragms and precision orifice with
sculptured orifice seat.
Dual pressure/temperature test ports shall be standard for verifying the pressure differential and
system temperature.
Indoor Fan
Three-phase units shall offer a choice of a direct-drive, FC, centrifugal fan, or a belt driven, FC,
centrifugal fan with adjustable motor sheaves. Single-phase units shall offer a direct drive motor
only. Units utilizing the belt-driven option shall contain an idler-arm assembly for quick-adjustment
of fan belts and motor sheaves. All motors shall be thermally protected. Oversized motors shall be
available for high static applications. All indoor fan motors shall meet the U.S. Energy Policy Act
of 1992 (EPACT).
LonTalk™Communications Interface
The LonTalk communication interface allows the equipment to communicate as aTracer LCI-V
device or generally with a LonTalk Network Building Automation System.
Manual Outside Air Damper (Option)
Factory or field-installed rain hood and screen shall provide up to 50-percent outside air.
Motorized Outside Air Dampers (Option)
Factory or field-installed manually set outdoor air dampers shall provide up to 50-percent outside
air. Once set, outdoor air dampers shall open set position when indoor fan starts.The damper shall
close to the full closed position when indoor fan shuts down.
Motorized Water Valve (Option)
When extreme fluid temperature conditions do not exist with an open loop system, a motorized
water valve shall be applied to vary water flow in the system.The motorized valve shall aid in
maintaining pressure in the loop during equipment cycling.

122 WSHP-PRC021-EN
Mechanical Specifications
Oversized Motors (Option)
Factory or field installed direct drive oversized motors shall be available for high static applications.
Pump Module
The pump module shall consist of either a single or dual 1/6 hp bronze pump and a brass 3-way
shut-off valve. Cast iron pumps are also acceptable.The pump module kits shall contain the
necessary components for the installation, operation and maintenance of the water circuit of a
closed-loop distributed pumping application.
Reference or Comparative Enthalpy (Option)
Reference or Comparative Enthalpy option shall be available when a factory installed economizer
is ordered.
Refrigerant Circuits
The refrigerant circuit shall contained a thermal expansion device, service pressure ports, and
refrigerant line filter driers factory-installed as standard. An area shall be provided for replacement
suction line driers.
Remote Potentiometer (Option)
The minimum position setting of the economizer shall be adjusted with this field-installed
accessory.
Roof Curb (Option)
The roof curb shall be designed to mate with the down flow supply and return openings and
provide support and a water tight installation when installed properly.The roof curb design shall
allow field-fabricated rectangular supply/return ductwork to be connected directly to the curb.The
curb design shall comply with NRCA requirements.The curb shall be shipped, knocked down for
field assembly and shall include wood nailer strips.
Supply and/or Return-Air Smoke Detector (Option)
With this option factory installed, if smoke is detected, all unit operation will be shut down. Reset
will be manual at the unit. Return-air smoke detectors require minimum allowable airflow when
used with certain models. See the installation, operation, and maintenance (IOM) manual for the
models affected and the minimum allowable airflow required.
Through the Base Electrical with Circuit Breaker (Option)
This option is a factory-installed thermal magnetic, molded case, HACR Circuit Breaker with
provisions for through the base electrical connections.The circuit breaker will be installed in a
water tight enclosure in the unit with access through a swinging door. Factory wiring will be
provided from the switch to the unit high voltage terminal block.The circuit breaker will provide
over current protection, be sized per NEC and UL guidelines, and be agency recognized by UL/CSA.
Through the Base Electrical with Disconnect Switch (Option)
Factory installed 3-pole, molded case, disconnect switch with provisions for through the base
electrical connections are available.This disconnect switch will be installed in the unit in a water
tight enclosure with access through a swinging door. Factory wiring will be provided from the
switch to the high voltage terminal block.The switch will be UL/CSA agency recognized. Note:The
disconnect switch will be sized per NEC and UL guidelines but will not be used in place of unit over
current protection.
Through the Base Utilities Access (Option)
A factory-installed electrical service entrance shall be provided allowing electrical access for both
control and main power connections inside the curb and through the base of the unit. Option will
allow for field installation of liquid-tight conduit and an external field-installed disconnect switch.

WSHP-PRC021-EN 123
Mechanical Specifications
Trane™Communications Interface
An option for a factory or field-installedTrane Communication Interface shall be available to allow
a twisted wire pair communication with aTrane Integrated Comfort™ system.
Unit Top
The top cover shall be one piece, or where seams exist, double hemmed and gasket sealed to
prevent water leakage.The ribbed top adds extra strength and prevents water from pooling on the
unit top.
Water-to-Refrigerant Heat Exchanger
The water-to-refrigerant heat exchanger shall be of a high quality co-axial coil for maximum heat
transfer.The copper or optional cupro-nickel coil shall be deeply fluted to enhance heat transfer and
minimize fouling and scaling.The coil shall have a working pressure of 400 psig on the refrigerant
and 650 psig on the watersides.
Zone Sensors (Option)
This field installed option shall be provided to interface with the micro-equipped rooftop
equipment, and shall be available in either manual, automatic, programmable with night setback,
with system malfunction lights or remote sensor options.
Warranty
The unit shall be warranted by the manufacturer against defects in material and factory
workmanship for one year.The refrigerant circuit including motor-compressor, expansion device,
all heat exchangers in contact with refrigerants, and reversing valve (less solenoid coil) shall be
warranted for that year (parts only). Optional extended warranties shall be made available.

Trane optimizes the performance of homes and buildings around the world. A business of Ingersoll Rand, the leader in
creating and sustaining safe, comfortable and energy efficient environments,Trane offers a broad portfolio of advanced
controls and HVAC systems, comprehensive building services, and parts. For more information, visit www.Trane.com.
Trane has a policy of continuous product and product data improvement and reserves the right to change design and specifications without notice.
We are committed to using environmentally
conscious print practices that reduce waste.
© 2013Trane All rights reserved
WSHP-PRC021-EN 01 Aug 2013
Supersedes WSHP-PRC021-EN (10 May 2012)







