Trane Rooftop Wshp Installation And Maintenance Manual
2015-04-02
: Trane Trane-Rooftop-Wshp-Installation-And-Maintenance-Manual-684256 trane-rooftop-wshp-installation-and-maintenance-manual-684256 trane pdf
Open the PDF directly: View PDF
.
Page Count: 60

SAFETY WARNING
Only qualified personnel should install and service the equipment. The installation, starting up, and servicing of heating, ventilating, and air-
conditioning equipment can be hazardous and requires specific knowledge and training. Improperly installed, adjusted or altered equipment
by an unqualified person could result in death or serious injury. When working on the equipment, observe all precautions in the literature and
on the tags, stickers, and labels that are attached to the equipment.
Water-Source Comfort System
Axiom™ Rooftop
Installation, Operation,
and Maintenance
Models “E” and later Design Sequence
60HZ GER -036, -048, -060, -072, -090, -120, -150, -180, -240,-300
WSHP-SVX12B-EN
August 2013

© 2013Trane All rights reserved WSHP-SVX12B-EN
Warnings, Cautions and Notices
Warnings, Cautions and Notices. Note that warnings,
cautions and notices appear at appropriate intervals
throughout this manual. Warnings are provide to alert
installing contractors to potential hazards that could result
in death or personal injury. Cautions are designed to alert
personnel to hazardous situations that could result in
personal injury, while notices indicate a situation that
could result in equipment or property-damage-only
accidents.
Your personal safety and the proper operation of this
machine depend upon the strict observance of these
precautions.
Read this manual thoroughly before operating or servicing
this unit.
Important
Environmental Concerns!
Scientific research has shown that certain man-made
chemicals can affect the earth’s naturally occurring
stratospheric ozone layer when released to the
atmosphere. In particular, several of the identified
chemicals that may affect the ozone layer are refrigerants
that contain Chlorine, Fluorine and Carbon (CFCs) and
those containing Hydrogen, Chlorine, Fluorine and
Carbon (HCFCs). Not all refrigerants containing these
compounds have the same potential impact to the
environment.Trane advocates the responsible handling of
all refrigerants-including industry replacements for CFCs
such as HCFCs and HFCs.
Responsible Refrigerant Practices!
Trane believes that responsible refrigerant practices are
important to the environment, our customers, and the air
conditioning industry. All technicians who handle
refrigerants must be certified.The Federal Clean Air Act
(Section 608) sets forth the requirements for handling,
reclaiming, recovering and recycling of certain
refrigerants and the equipment that is used in these
service procedures. In addition, some states or
municipalities may have additional requirements that
must also be adhered to for responsible management of
refrigerants. Know the applicable laws and follow them.
ATTENTION: Warnings, Cautions, and Notices appear at
appropriate sections throughout this literature. Read
these carefully:
WARNING Indicates a potentially hazardous
situation which, if not avoided, could
result in death or serious injury.
CAUTIONsIndicates a potentially hazardous
situation which, if not avoided, could
result in minor or moderate injury. It
could also be used to alert against
unsafe practices.
NOTICE: Indicates a situation that could result in
equipment or property-damage only
accidents.
WARNING
Proper Field Wiring and Grounding
Required!
All field wiring MUST be performed by qualified
personnel. Improperly installed and grounded field
wiring poses FIRE and ELECTROCUTION hazards. To
avoid these hazards, you MUST follow requirements for
field wiring installation and grounding as described in
NEC and your local/state electrical codes. Failure to
follow code could result in death or serious injury.
WARNING
Personal Protective Equipment (PPE)
Required!
Installing/servicing this unit could result in exposure to
electrical, mechanical and chemical hazards.
• Before installing/servicing this unit, technicians
MUST put on all Personal Protective Equipment (PPE)
recommended for the work being undertaken.
ALWAYS refer to appropriate MSDS sheets and OSHA
guidelines for proper PPE.
• When working with or around hazardous chemicals,
ALWAYS refer to the appropriate MSDS sheets and
OSHA guidelines for information on allowable
personal exposure levels, proper respiratory
protection and handling recommendations.
• If there is a risk of arc or flash, technicians MUST put
on all Personal Protective Equipment (PPE) in
accordance with NFPA 70E or other country-specific
requirements for arc flash protection, PRIOR to
servicing the unit.
Failure to follow recommendations could result in death
or serious injury.
WARNING
Contains Refrigerant!
System contains oil and refrigerant under high
pressure. Recover refrigerant to relieve pressure before
opening the system. See unit nameplate for refrigerant
type. Do not use non-approved refrigerants, refrigerant
substitutes, or refrigerant additives.
Failure to follow proper procedures or the use of non-
approved refrigerants, refrigerant substitutes, or
refrigerant additives could result in death or serious
injury or equipment damage.

Warnings, Cautions and Notices
WSHP-SVX12B-EN 3
Introduction
Revision Summary.
WSHP-SVX12B-EN
Corrected dimensions and added center of gravity
information.
Trademarks
Axiom, Precedent, ReliaTel,TOPSS,Tracer, Voyager II,
Trane, and theTrane logo are trademarks or registered
trademarks ofTrane in the United States and other
countries.Trane is a business of Ingersoll Rand. All
trademarks referenced in this document are the
trademarks of their respective owners.
LonTalk is a registered trademark of Echelon Corporation.
WARNING
Hazardous Voltage w/Capacitors!
Disconnect all electric power, including remote
disconnects and discharge all motor start/run
capacitors before servicing. Follow proper lockout/
tagout procedures to ensure the power cannot be
inadvertently energized. Verify with an appropriate
voltmeter that all capacitors have discharged. Failure to
disconnect power and discharge capacitors before
servicing could result in death or serious injury.
WARNING
Fiberglass Wool!
Product contains fiberglass wool. Disturbing the
insulation in this product during installation,
maintenance or repair will expose you to airborne
particles of glass wool fibers and ceramic fibers known
to the state of California to cause cancer through
inhalation. Glass wool fibers may also cause
respiratory, skin or eye irritation.
NOTICE:
Equipment Damage From Ultraviolet
(UV) Lights!
The manufacturer does not recommend field
installation of ultraviolet lights in its equipment for the
intended purpose of improving indoor air quality. High
intensity C-band ultraviolet light is known to severely
damage polymer (plastic) materials and poses a
personal safety risk to anyone exposed to the light
without proper personal protective equipment.
Polymer materials commonly found in HVAC
equipment that may be susceptible include insulation
on electrical wiring, fan belts, thermal insulation,
various fasteners and bushings. Degradation of these
materials can result in serious damage to the
equipment.
The manufacturer accepts no responsibility for the
performance or operation of our equipment in which
ultraviolet devices were installed outside of the
manufacturer’s factory or its approved suppliers.

4 WSHP-SVX12B-EN
Table of Contents
Warnings, Cautions and Notices .......... 2
Introduction ........................ 3
Model Number Descriptions .............. 5
General Information ..................... 6
Jobsite Inspection ................... 6
Jobsite Storage ..................... 6
Unit Description ..................... 6
System Input Devices and Functions .... 6
Field installed ONLY Accessories ....... 8
Component Location ................. 9
Dimensions ............................ 10
Unit Clearances .................... 10
Installation ............................. 30
General Installation Checks ........... 30
Main Electrical Power Requirements . . . 30
Foundation for Rooftop Units ......... 30
Ductwork .......................... 31
Roof Curbs ........................ 31
Rigging the Unit .................... 31
Supply/Return Pipe ................. 31
Drain Connection ................... 32
Horizontal Discharge Conversion ...... 32
TCO-A Instructions .................. 33
Field Installed Power Wiring .......... 34
Field Installed Control Wiring ......... 34
Control Power Transformer ........... 34
Electrical Requirements ................. 38
Pre-Start ............................... 45
Space Temperature Averaging ........ 45
Test Modes ........................ 47
Pre-Startup Checklist ................ 52
Start Up ............................... 53
Initial Unit Start-up .................. 53
Water Pressure Drop ................ 54
Maintenance ........................... 55
Preventive Maintenance ............. 55
Troubleshooting ........................ 56
Warranty ............................... 58
Standard Warranty ...................58
Extended Warranty ..................58

WSHP-SVX12B-EN 5
Model Number Descriptions
Digits 1-3 — Unit Configuration
GER= High Efficiency Rooftop
Digit 4 — Development
Sequence
E
Digits 5-7 — Nominal Size (MBH)
036 = 3Ton
048 = 4Ton
060 = 5Ton
072 = 6Ton
090 = 7 1/2Ton
120 = 10 Ton
150 = 12 1/2Ton
180 = 15Ton
240 = 20Ton
300 = 25Ton
Digit 8 — Voltage (Volts/Hz/
Phase)
1 = 208/60/1
2 = 230/60/1
3 = 208/60/3
4 = 460/60/3
5 = 575/60/3
8 = 230/60/3
Digit 9 — Heat Exchanger
1 = Copper Water Coil
2 = Cupro-nickel Water Coil
Digit 10 — Design Sequence
Most Up-to-Date Design
Digit 11 — Refrigeration Circuit
0 = Heating and Cooling Circuit
A = Cooling ONLY Circuit
Digit 12 — Blower Configuration
1 = Standard Blower
2 = Oversized Blower Motor
Digit 13 — Freeze Protection
A = 20 Degree Freezestat B/T
B = 30 Degree Freezestat B/T
Digit 14 — Open Digit
0 = Standard Design
S = Design Special
Digit 15 — Supply-Air
Arrangement
D = Down-Flow Supply-Air
Arrangement
(convertible for3-10Ton)
H = Horizontal Supply-Air
Arrangement
(12 1/2 - 25Ton option)
DIGIT 16 — Return-Air
Arrangement
0 = Standard Return-Air
Arrangement
Digit 17 — Control Types
R = ReliaTel™ Standalone Controls
T = Tracer™ Communication
Interface
L = LonTalk™ Communication
Interface
Digit 18 — T’stat/Sensor
Location
0 = Wall Mounted Location
A = Wall Mounted Sensor with Unit
Mounted Return-Air Smoke
Detector
B = Wall Mounted Sensor with Unit
Mounted Supply-Air Smoke
Detector
C = Wall Mounted Sensor with Unit
Mounted Return-Air/Supply-Air
Smoke Detectors
Digit 19 — Fault Sensors
0 = No Fault Sensor
A = Clogged Filter Switch
B = Fan Failure Switch
C = Discharge Air SensingTube
D = Clogged Filter Switch and Fan
Fail
Switch
E = Clogged Filter Switch and
Discharge Air SensingTube
F = Fan Fail Switch and Discharge Air
SensingTube
G = Clogged Filter Switch, Fan Fail
Switch and DA SensingTube
Digit 20 — Temperature Sensor
7 = High Pressure Control/Frostat/
Crankcase Heater
Digit 21 — Night Setback
0 = No Night Setback Relay
N = Night Setback Relay
Note: Option N is used for the Micro
Standalone Controller ONLY.
Digit 22 — Electric Heat Option
0 = No Electric Heat
A = 5 kW (1-Phase)
B = 6 kW (3-Phase)
C = 9 kW (3-Phase)
D = 10 kW (1-Phase)
E = 12 kW (3-Phase)
F = 14 kW (1-Phase)
G = 18 kW (1 and 3-Phase)
J = 23 kW (3-Phase)
K = 27 kW (3-Phase)
N = 36 kW (3-Phase)
P = 54 kW (3-Phase)
Digit 23 — Unit Mounted
Disconnect
0 = No Unit Mounted Disconnect
1 = Non-Fused Disconnect
2 = Circuit Breaker
Digit 24 — Filter Type
2 = 2" Throwaway Filter
4 = 2" MERV 8 Filter
5 = 2" MERV 13 Filter
Digit 25 — Acoustic
Arrangement
0 = Sound Attenuation Package
Digit 26 — Factory
Configuration
0 = Standard Factory Configuration
A = Hinged Access Panels
Digit 27 — Paint Color
0 = No Paint Selection Available
Digit 28 — Outside Air Option
0 = No Outside Air
A = Manual Outside Air Damper
0-25%
B = Motorized Outside Air Damper
0-50%
C = Economizer, Dry Bulb 0-100%
without Barometric Relief
D = Economizer, Dry Bulb 0-100%
with Barometric Relief
E = Economizer, Reference Enthalpy
0-100% without Barometric
Relief
F = Economizer, Reference Enthalpy
0-100% with Barometric Relief
G = Economizer, Comparative
Enthalpy 0-100%
without Barometric Relief
H = Economizer, Comparative
Enthalpy 0-100%
with Barometric Relief
Digit 29 — Piping Arrangement
0 = Standard Piping Configuration
Digits 30-36 — Does Not Apply
To The Rooftop Product
0000000= Digit 30-36 Does NOT Apply to
the Rooftop Products
Note: Through-the-base electric is a
standard feature on the water-
source rooftop unit.
G E R E 060 1 1 A 0 1 1 0 D 0 T 0 A 6 0 0 1 1 0 A 0 B 0 0 0 0 0 000
1 2 3 4 5,6,7 8 9 10 11 12 13 14 15 16 17 18 19 20 21 22 23 24 25 26 27 28 29 30-36

6 WSHP-SVX12B-EN
General Information
Jobsite Inspection
Always perform the following checks before accepting a
unit:
• Verify that the nameplate data matches the data on the
sales order and bill of lading (including electrical data).
• Verify that the power supply complies with the unit
nameplate specifications.
• Visually inspect the exterior of the unit, for signs of
shipping damage. Do not sign the bill of lading
accepting the unit(s) until inspection has been
completed. Check for damage promptly after the
unit(s) are unloaded. Once the bill of lading is signed at
the jobsite, the unit(s) are now the property of the
SOLDTO party and future freight claims MAY NOT be
accepted by the freight company.
• After assuring that charge has been retained, reinstall
the schrader caps to assure that refrigerant leakage
does not occur.
• After assuring that charge has been retained, reinstall
the schrader caps to assure that refrigerant leakage
does not occur.
• Verify that the refrigerant charge has been retained
during shipment by use of gauges. Schrader taps are
located internal to the cabinet.
• After assuring that charge has been retained, reinstall
the schrader caps to assure that refrigerant leakage
does not occur.
Jobsite Storage
Take precautions to prevent condensate from forming
inside the unit’s electrical compartments and motors if:
• If the unit is stored before it is installed.
• The unit is set on the roof curb, and temporary heat is
provided in the building. Isolate all side panel service
entrances and base pan openings (e.g. conduit holes,
supply air/return air openings, and flue openings) from
the ambient air until the unit is ready for start-up.
The manufacturer will not assume any responsibility for
equipment damage resulting form condensate
accumulation on the unit’s electrical and/or mechanical
components.
Unit Description
Before shipment, each unit is leak tested, dehydrated,
charged with refrigerant and compressor oil, and run
tested for proper control operation.
Unit Nameplate
The unit nameplate is located on the units’s corner support
just above the main power entrance access into the control
panel. It includes the unit model number, serial number,
electrical characteristics, refrigerant charge, and other
pertinent unit data.
Compressor Nameplate
The nameplate for the compressors are located on the
compressor terminal box.
Air-to-Refrigerant Coil
The air-to-refrigerant coil is aluminum fin, mechanically
bonded to the copper tubing.
Water-to-Refrigerant Coil
The water-to-refrigerant coil is a copper or cupro-nickel
(option) and steel tube (tube-within-a-tube) design, leak
tested to assure there is no cross leakage between the
water tube (copper/cupro-nickel) and refrigerant gas (steel
tube).
The control system offered to control the unit is a
ReliaTel™ Control Module. It may be installed as a
standalone unit control module, or tied to a full building
automation system.
The ReliaTel™ Control Module is a microelectronic control
module that is referred to as a Refrigeration Module
(RTRM).The acronym RTRM is used extensively
throughout this document when referring to the control
system network.
These modules through Proportional/Integral control
algorithms perform specific unit functions that govern unit
operation in response to zone temperature, supply air
temperature and/or humidity conditions depending on the
application.The stages of capacity control for these units
is achieved by starting and stopping the compressors.
The RTRM is mounted in the control panel and is factory
wired to the respective internal components. RTRM
receives and interprets information from other unit
modules, sensors, remote panels and customer binary
contacts to satisfy the applicable request for cooling.
System Input Devices and Functions
The RTRM must have a mode input in order to operate the
rooftop unit.The flexibility of having several mode
capabilities depends upon the type of sensor and/or
remote panel selected to interface with the RTRM.The
possibilities are; Fan selection ON or AUTO, System
selection HEAT, COOL, AUTO, and OFF.
The descriptions of the following basic input devices used
with the RTRM network are to acquaint the operator with
their function as they interface with the various modules.
Refer to the unit’s electrical schematic for the specific
module connections.
Compressor Disable (CPR1/2)
This input incorporates the low (LPC) of each refrigeration
circuit and can be activated by opening a field supplied
contact installed in series with the LPC.

General Information
WSHP-SVX12B-EN 7
If this circuit is open before the compressor is started, the
compressor will not be allowed to operate. Anytime this
circuit is opened for 5-continuous seconds during
compressor operation, the compressor for that circuit is
immediately turned OFF.The compressor will not be
allowed to restart for a minimum of 3-minutes should the
LPC close.
If four consecutive open conditions occur during the first
3-minutes of operation, the compressor for that circuit will
be locked out, a diagnostic communicated to the remote
panel (if installed) and a manual reset will be required to
restart the compressor.
Low Pressure Control
With the ReliaTel module, the low pressure will be
activated when a field supplied contact is opened.
Anytime this circuit is opened for 5-continuous seconds,
the compressor for that circuit is turned off immediately.
The compressor will not be allowed to restart for a
minimum of 3-minutes.
If four consecutive open conditions occur during the first
3-minutes of operation, the compressor will be locked out,
a diagnostic communicated to ICSTM if applicable, and a
manual reset will be required to restart the compressor.
High Pressure Control
The high pressure controls are wired in series between the
compressor outputs on the RTRM and the compressor
contactor coils. If the high pressure control switch opens,
the RTRM senses a lack of current while calling for cooling
and locks the compressor out.
On dual circuit units, if the high pressure control opens,
the compressor on the affected circuit is locked out. A
manual reset for the affected circuit is required.
Economizer Control Actuator ECA (option)
The ECA monitors the mixed-air temperature, return air
temperature, minimum position setpoint (local or
remote), power exhaust setpoint, CO2 setpoint, CO2 and
ambient dry bulb/enthalpy sensor or comparative
humidity (return air humidity against ambient humidity)
sensors, if selected, to control dampers to an accuracy of
± 5% of stroke.The actuator is spring returned to the
closed position any time power is lost to the unit. It is
capable of delivering up to 25-inch pounds of torque and
is powered by 24 VAC.
RTCI-ReliaTel Trane Communication Interface
(option)
This module is used when the application calls for an ICS
building management type control system. It allows the
control and monitoring of the system through an ICS
panel.The module can be ordered from the factory or
ordered as a kit to be field installed. Follow the installation
instruction that ships with each kit when field installation
is necessary.
RTLI-ReliaTel LonTalk Communication
Interface (option)
This module is used when the application calls for either
an ICS building management type control system that is
LonTalk. It allows the control and monitoring of the system
through an ICS panel.The module can be ordered from the
factory or ordered as a kit to be field installed. Follow the
installation instruction that ships with each kit when field
installation is necessary.
RTOM-ReliaTel Options Module (option)
The RTOM monitors the supply fan proving, clogged filter,
supply air temperature, exhaust fan setpoint, supply air
tempering, FrostatTM and smoke detector. Refer to
system input devices and functions for operation.
Supply Fan Failure Input (option)
The fan failure switch can be factory or field installed to
sense indoor fan operation. With the FFS-Fan Failure
Switch, if air flow through the unit is not proven by the
differential pressure switch (factory set point 0.07-inch
w.c.) within 40-seconds nominally, the RTRM will shut off
all mechanical operations, lock the system out, send a
diagnostic to ICS, and the service LED will flash.The
system will remain locked out until a reset is initiated
either manually or through ICS.
Clogged Filter Switch (option)
The unit mounted clogged filter switch monitors the
pressure differential across the return air filters. It is
mounted in the filter section and is connected to the
RTOM. A diagnostic service signal is sent to the remote
panel if the pressure differential across the filters is at least
0.5-inch w.c.The contacts will automatically open when
the pressure differential across the filters decreases to
approximately 0.4-inch w.c.The clogged filter output is
energized when the supply fan is operating and the
clogged filter switch has been closed for at least 2-
minutes.The system will continue to operate regardless of
the status of the filter switch.
Power Exhaust Control (option)
The power exhaust fan is started whenever the position of
the economizer dampers meets or exceed the power
exhaust setpoint when the indoor fan is on.The setpoint
panel is located in the return air section, and is factory set
to 25%.
Evaporator Frost Control (option)
This input incorporates the Frostat control (FOS) of each
refrigeration circuit and can be activated by closing a field
supplied contact installed in parallel with the FOS.
If this circuit is open before the compressor is started, the
compressor will not be allowed to operate. Anytime this
circuit is opened for 5-continuous seconds during
compressor operation, the compressor for that circuit is
immediately turned OFF.The compressor will not be

General Information
8 WSHP-SVX12B-EN
allowed to restart for a minimum of 3-minutes should the
FOS close.
Smoke Detector Sensor (option)
This sensor provides high limit shutdown of the unit and
requires a manual reset.The sensor is used to detect
smoke due to fire in the air conditioning or ventilation
ducts.
In order for the supply air smoke detector or return air
smoke detector to properly sense smoke in the supply/
return air stream, the air velocity entering the smoke
detector unit must be between 500 and 4000-feet per
minute.
Discharge Line Thermostat
A bi-metal element discharge line thermostats installed as
a standard option on the discharge line of each system.
This standard option provides extra protection to the
compressors against high discharge temperatures in case
of loss of charge, extremely high ambient and other
conditions which could drive the discharge temperature
higher.
Field installed ONLY Accessories
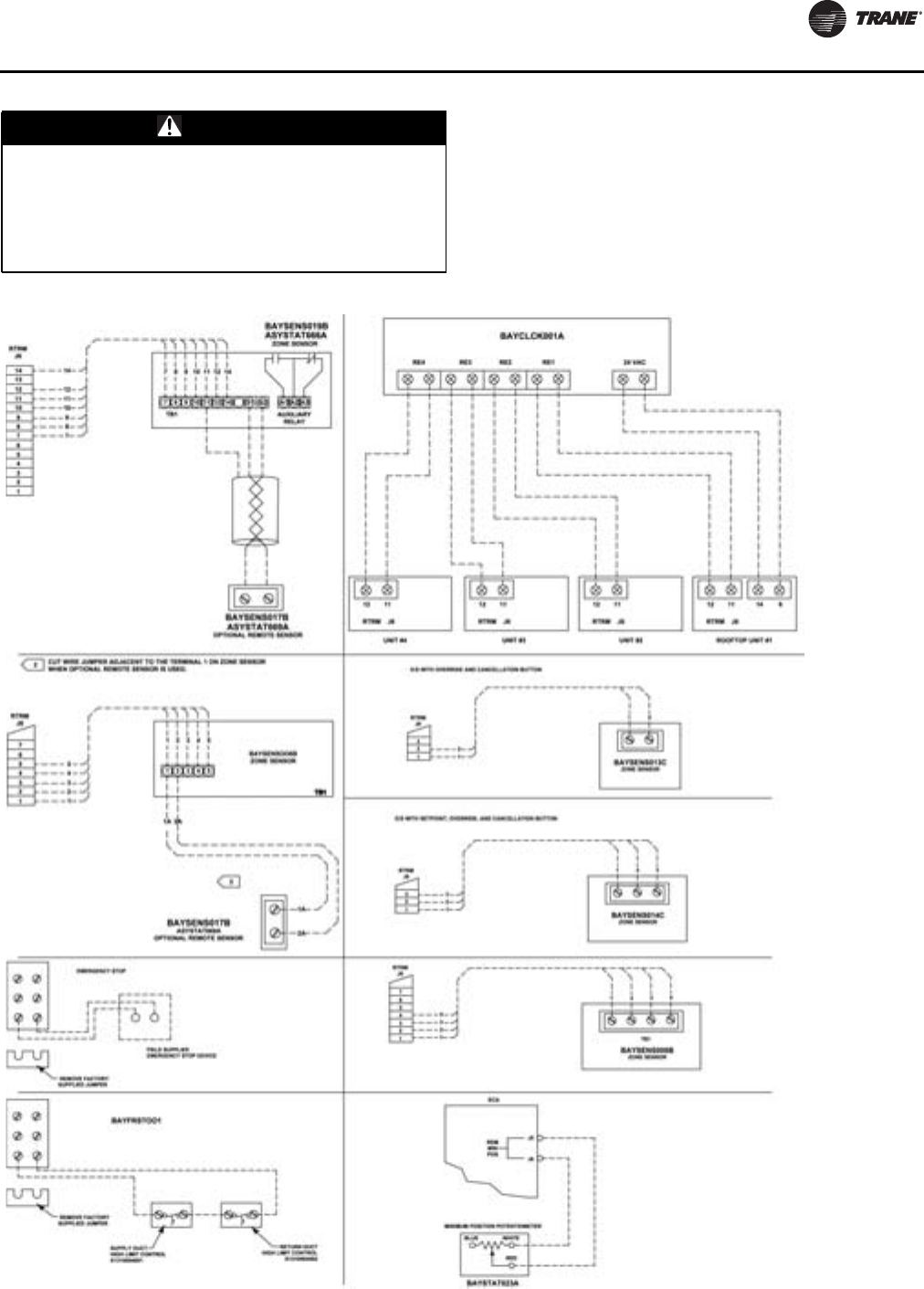
High Temperature Sensor (BAYFRST002A)
This sensor connects the RTRM Emergency Stop Input
LTB1-5 and LTB1-6 and provides high limit shutdown of the
unit and requires a manual reset.The sensor is used to
detect high temperatures due to fire in the air conditioning
or ventilation ducts.The sensor is designed to mount
directly to the sheet metal duct. Each kit contains two
sensors.The return air duct sensor (X13100040010) is set
to open at 135-degrees F.The supply air duct sensor
(X13100040020) is set to open at 240-degrees F.The
control can be reset after the temperature has been
lowered approximately 25-degrees F below the cutout
setpoint.
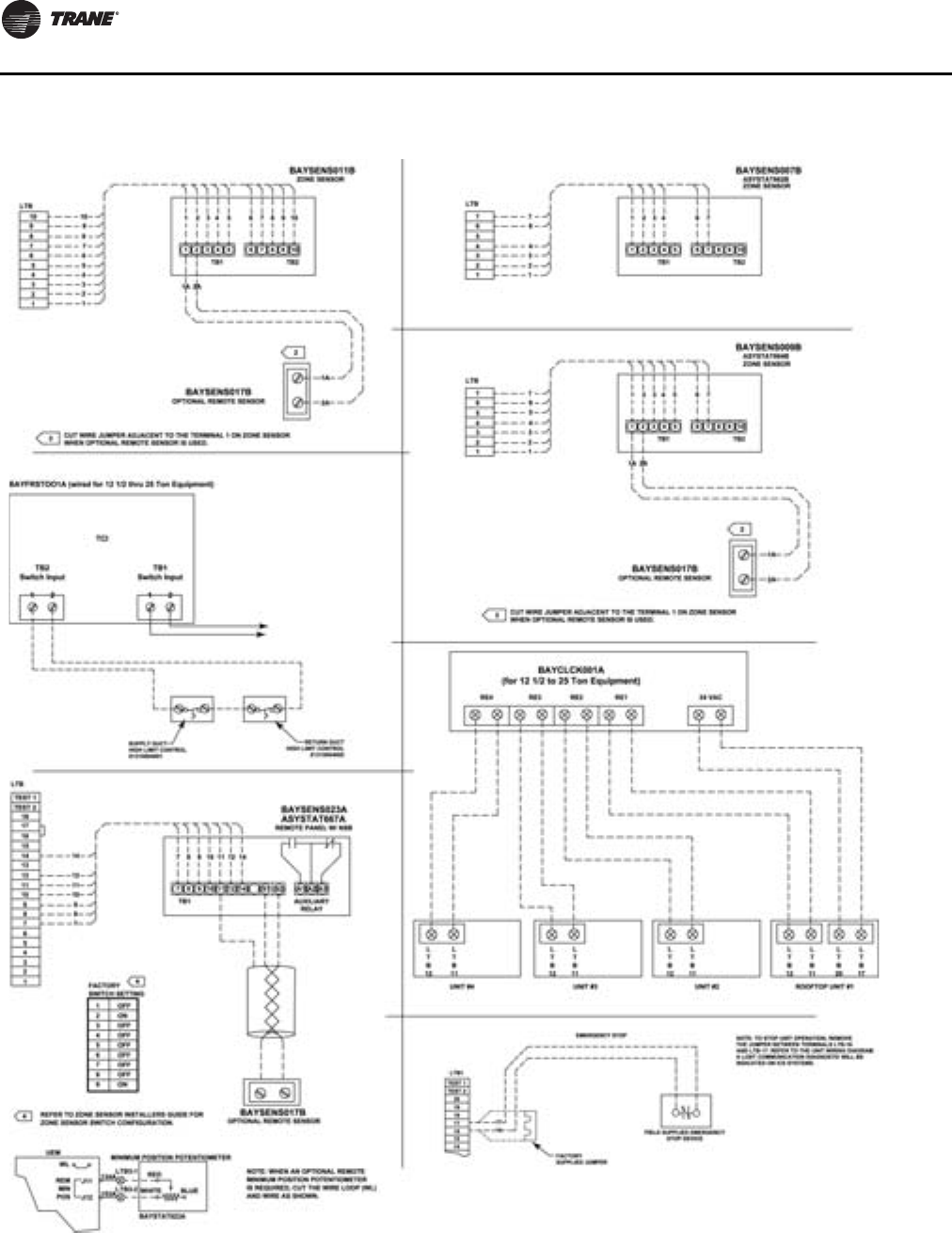
Electronic Timeclock (BAYCLCK001A)
This electronic timeclock is designed to control the
occupied/unoccupied switching of up to four rooftop units.
Once the unit(s) has entered an unoccupied status, night
setback temperatures can be controlled by utilizing a
standard zone sensor wired to the RTRM.The timeclock
contains four binary outputs (RE1, RE2, RE3, RE4), a liquid
crystal display (LCD), and four programming keys (Time/
Day Key, Occupied/Unoccupied Program Key, Run Key,
and an Advance/Override Key). An 18 to 30-VAC power
source is required either from one of the units being
controlled or from a separate class-2 power source.
Zone Panel (BAYSENS106A)
This electronic sensor features three system switch
settings (EM HEAT, HEAT, COOL, and OFF) and two fan
settings (ON andAUTO). It is a manual changeover control
with single setpoint capability.
Zone Panel (BAYSENS108A)
This electronic sensor features four system switch settings
(HEAT, COOL, AUTO, OFF) and two fan settings (ON and
AUTO). It is a manual or auto changeover control with dual
setpoint capability. It can be used with a remote zone
temperature sensor BAYSENS017B.
Remote Panel w/o NSB (BAYSENS110A)
This electronic sensor features four system switch settings
(HEAT, COOL, AUTO, and OFF) and two fan settings (ON
and
AUTO) with four system status LED’s. It is a manual or auto
changeover control with dual setpoint capability. It can be
used with a remote zone temperature sensor
BAYSENS017B.
Programmable Zone Sensor (BAYSENS019B)
This 7-day programmable sensor features 2, 3, and 4-
periods for Occupied/Unoccupied programming per day.
If the power is interrupted, the program is retained in
permanent memory. If power is off longer than 2-hours,
only the clock and day may have to be reset.
The zone sensor allows selection of 2, 3, and 4 system
modes (HEAT, COOL, AUTO, and OFF), two fan modes (ON
and AUTO) It has dual temperature selection with
programmable start time capability.
The occupied cooling setpoint ranges between 45 and 98-
degrees F.The heating setpoint ranges between 43 and 96-
degrees F.
A liquid crystal display (LCD) displays zone temperature,
temperature set points, day of the week, time, and
operational mode symbols.
The option menu is used to enable or disable applicable
functions, (i.e. morning warm-up, economizer minimum
position override during unoccupied status, fahrenheit or
centigrade, supply air tempering, remote zone
temperature sensor, 12/24-hour time display, smart fan,
and computed recovery.
During an occupied period, an auxiliary relay rated for
1.25-amps at 30-volts AC with one set of single pole,
double throw contacts is activated.
Remote Zone Sensor (BAYSENS013C)
This electronic sensor features remote zone sensing and
timed override with override cancellation. It is used with a
Trane Integrated ComfortTM building management
system.
Remote Zone Sensor (BAYSENS014C)
This electronic sensor features single setpoint capability
and timed override with override cancellation. It is used
with aTrane Integrated ComfortTM building management
system.

General Information
WSHP-SVX12B-EN 9
Remote Zone Sensor (BAYSENS016A)
This bullet type temperature sensor can be used for
outside-air ambient sensing, return air temperature
sensing, supply air temperature sensing, remote
temperature sensing (uncovered).Wiring procedures vary
according to the particular application and equipment
involved. Refer to the unit’s wiring diagrams for proper
connections.
Remote Zone Sensor (BAYSENS017B)
This electronic sensor can be used with BAYSENS106A,
108A, 110A, 019A, 020A, or 021A remote panels.When this
sensor is wired to a BAYSENS019A or BAYSENS020A
remote panel, wiring must be 18 AWG shielded twisted
pair (Belden 8760 or equivalent). Refer to the specific
remote panel for wiring details.
Component Location
1. Controls
2. Compressor/water-to-refrigerant section
3. Air-to-refrigerant coil
4. Filter location
5. Blower and motor location

10 WSHP-SVX12B-EN
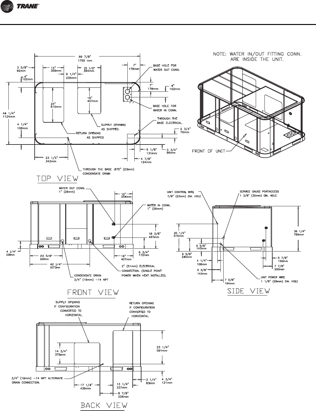
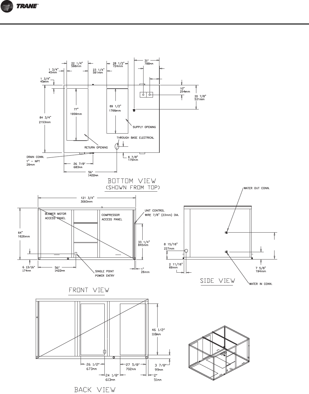
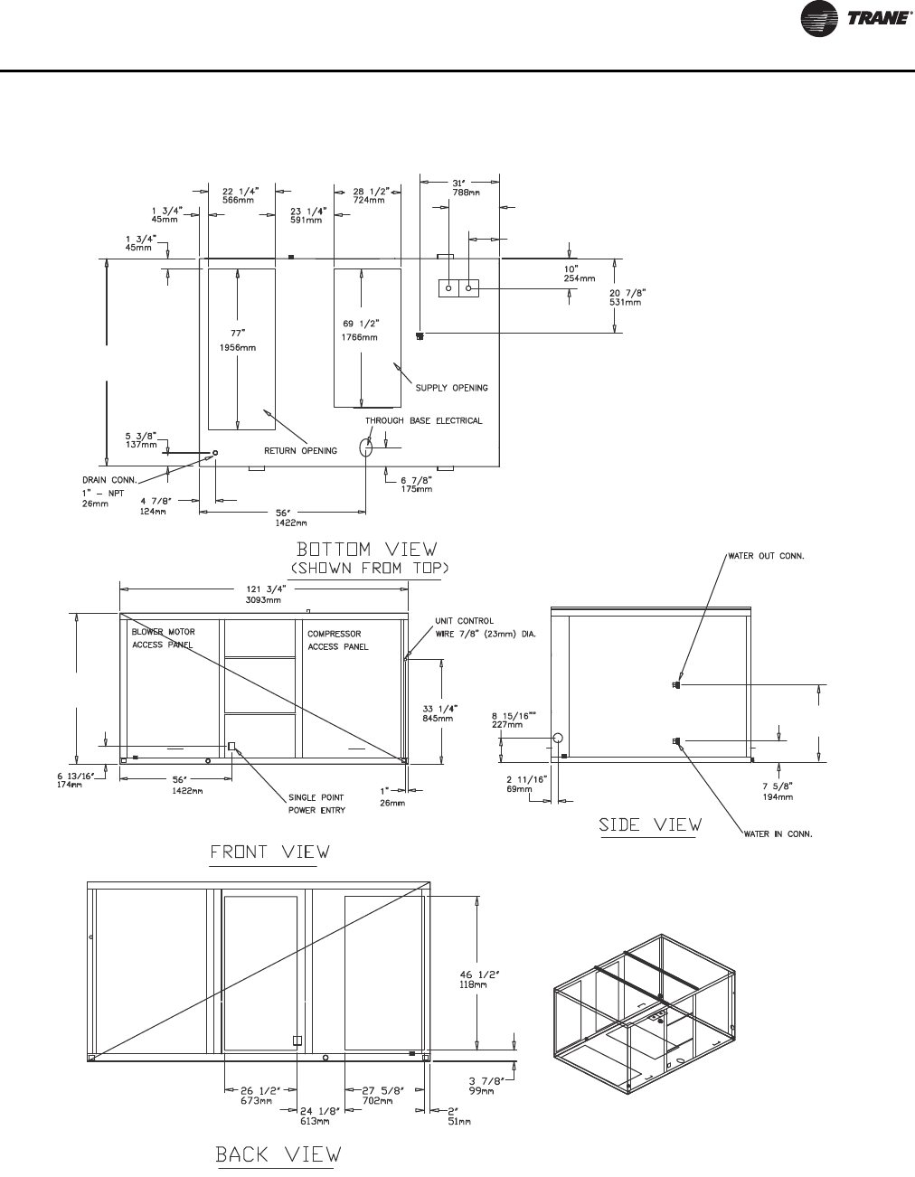
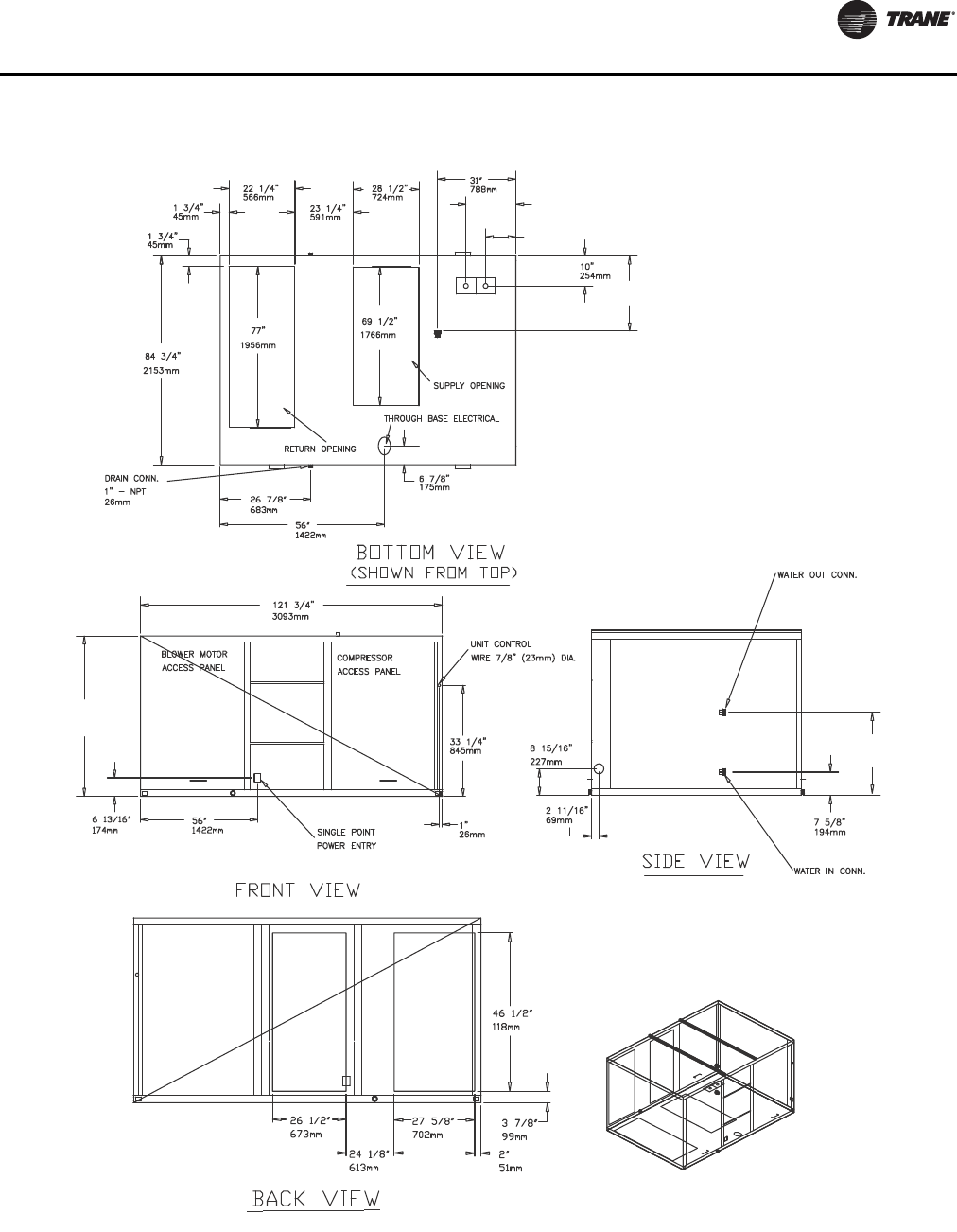
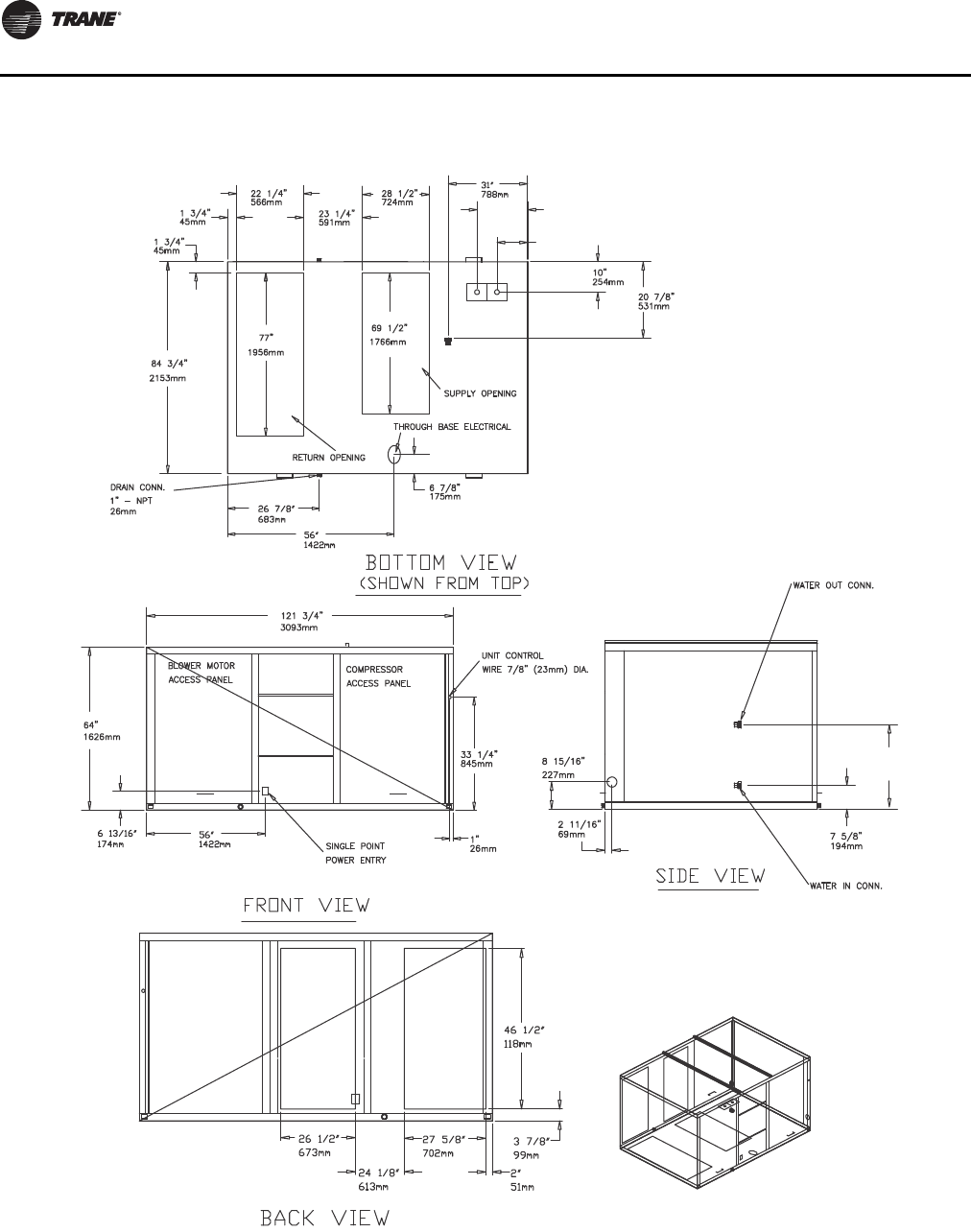
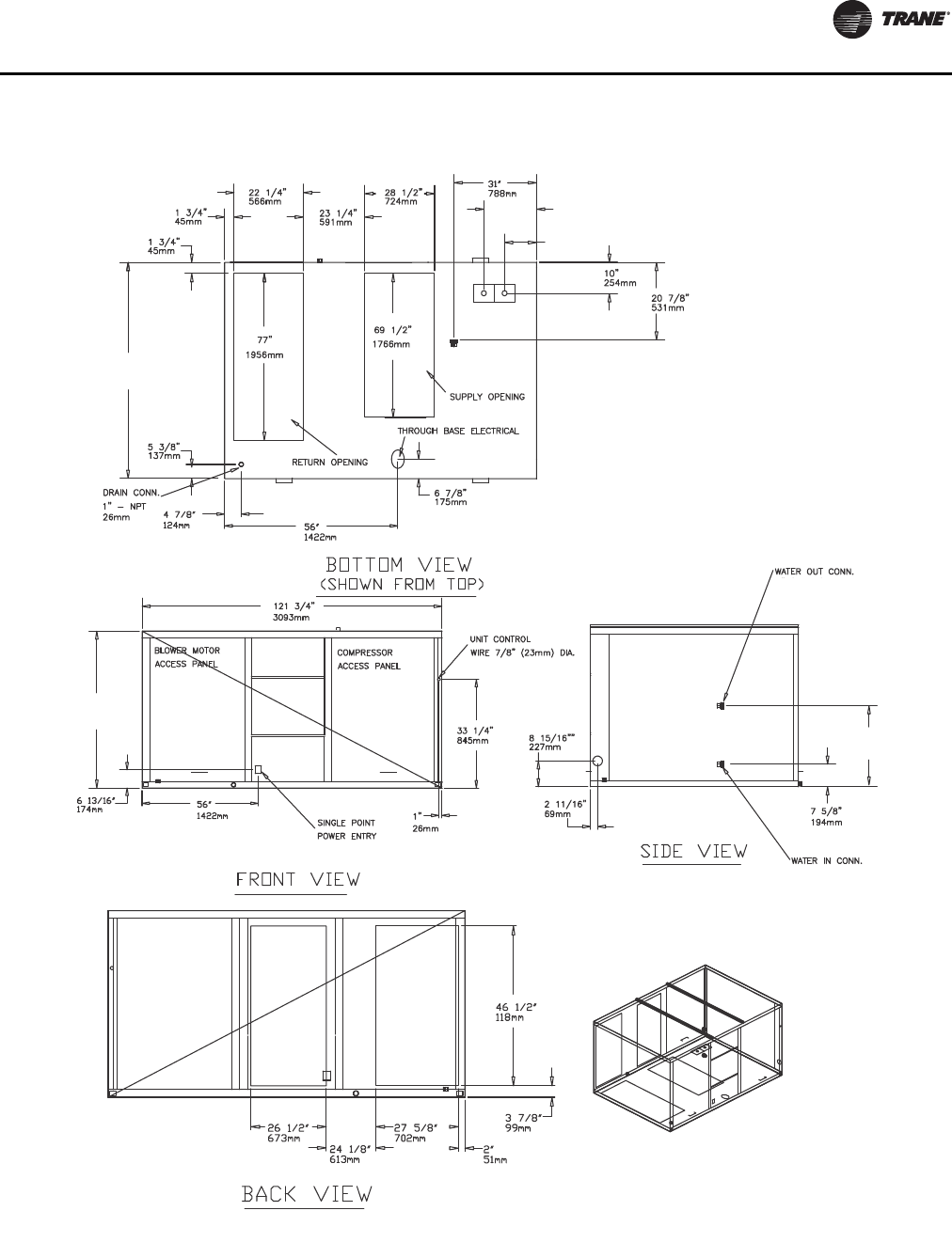
Dimensions
Unit Clearances

Dimensions
WSHP-SVX12B-EN 11
Figure 1. 036 to 048 Clearances
3-4 tons economizer, manual or
motorized fresh air damper 3-4 tons - swing diameter for hinged
door(s) option
Note: All dimensions are in inches/millimeters. Note: All dimensions are in inches/millimeters.
17 7/8"
(448 MM)
16"
(406 MM) 22 1/4"
(565 MM)
3-4 tons - economizer & barometric relief
damper hood
Note: All dimensions are in inches/millimeters.

Dimensions
12 WSHP-SVX12B-EN
Figure 2. 060 to 072 Clearances
5-6 tons - economizer, manual or motorized fresh air damper
Note: All dimensions are in inches/millimeters.
5-6 tons - swing diameter for hinged door(s) option
Note: All dimensions are in inches/millimeters.
21 3/8”
(543 MM)
17”
(432 MM) 34 5/8”
(879 MM)

Dimensions
WSHP-SVX12B-EN 13
Figure 3. 090 Clearances
7½ tons power exhaust 7½ tons swing diameter for hinged door(s) option
Note: All dimensions are in inches/millimeters. Note: All dimensions are in inches/millimeters.
21 3/8"
543 MM
17"
432 MM
34 5/8"
879 MM
7½ tons manual or motorized fresh air damper
Note: All dimensions are in inches/millimeters.

Dimensions
14 WSHP-SVX12B-EN
Figure 4. 120 Clearances
10 tons exhaust 10 tons swing diameter for hinged door(s) option
Note: All dimensions are in inches/millimeters. Note: All dimensions are in inches/millimeters.
55/8"
(143 MM) 21 5/8"
(549 MM)
ECONOMIZER HOOD
10 tons economizer, manual or motorized fresh air damper
Note: All dimensions are in inches/millimeters.
ECONOMIZER HOOD
BAROMETRIC RELIEF HOOD
7 3/4”
(198 MM) 12”
(304 MM) 16 3/4”
(425 MM)
6 7/8”
(175 MM)

Dimensions
WSHP-SVX12B-EN 15
Figure 5. 150 - 300 Clearances
When applying economizer to horizontal units, connected ductwork must be run full size to
allow proper operation of economizer damper.
Fresh Air Hood (Horizontal Units)
Economizer - Horizontal Units
Power Exhaust Dimensions
Unit Model # A B C
GERE150-240 19½ 64¾ 39

Dimensions
16 WSHP-SVX12B-EN
Figure 6. 3 to 4-Ton Unit

Dimensions
WSHP-SVX12B-EN 17
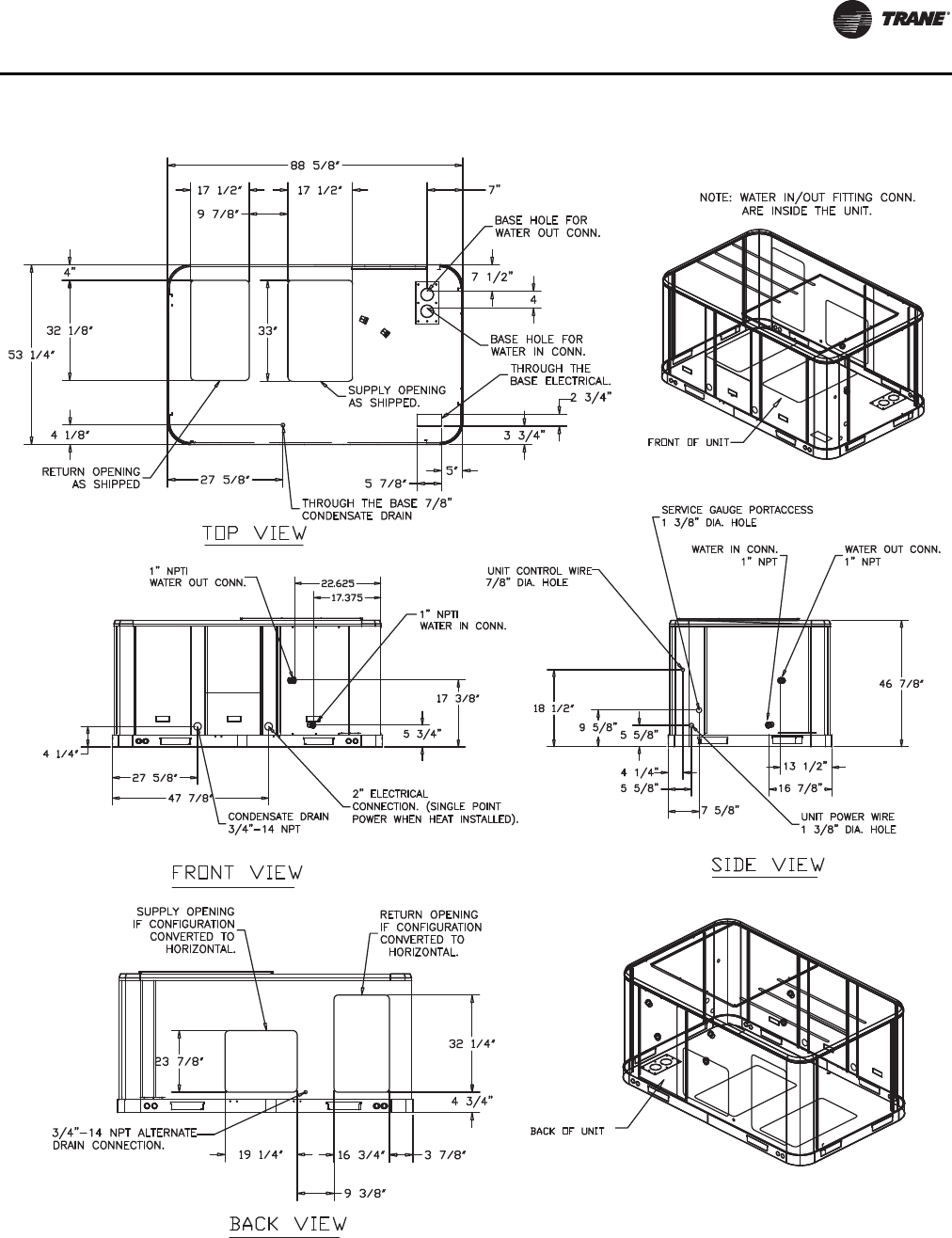
Figure 7. 5 -Ton Unit

Dimensions
18 WSHP-SVX12B-EN
Figure 8. 6 -Ton Unit

Dimensions
WSHP-SVX12B-EN 19
Figure 9. 7 1/2-Ton Unit

Dimensions
20 WSHP-SVX12B-EN
Figure 10. 10 -Ton Unit

Dimensions
WSHP-SVX12B-EN 21
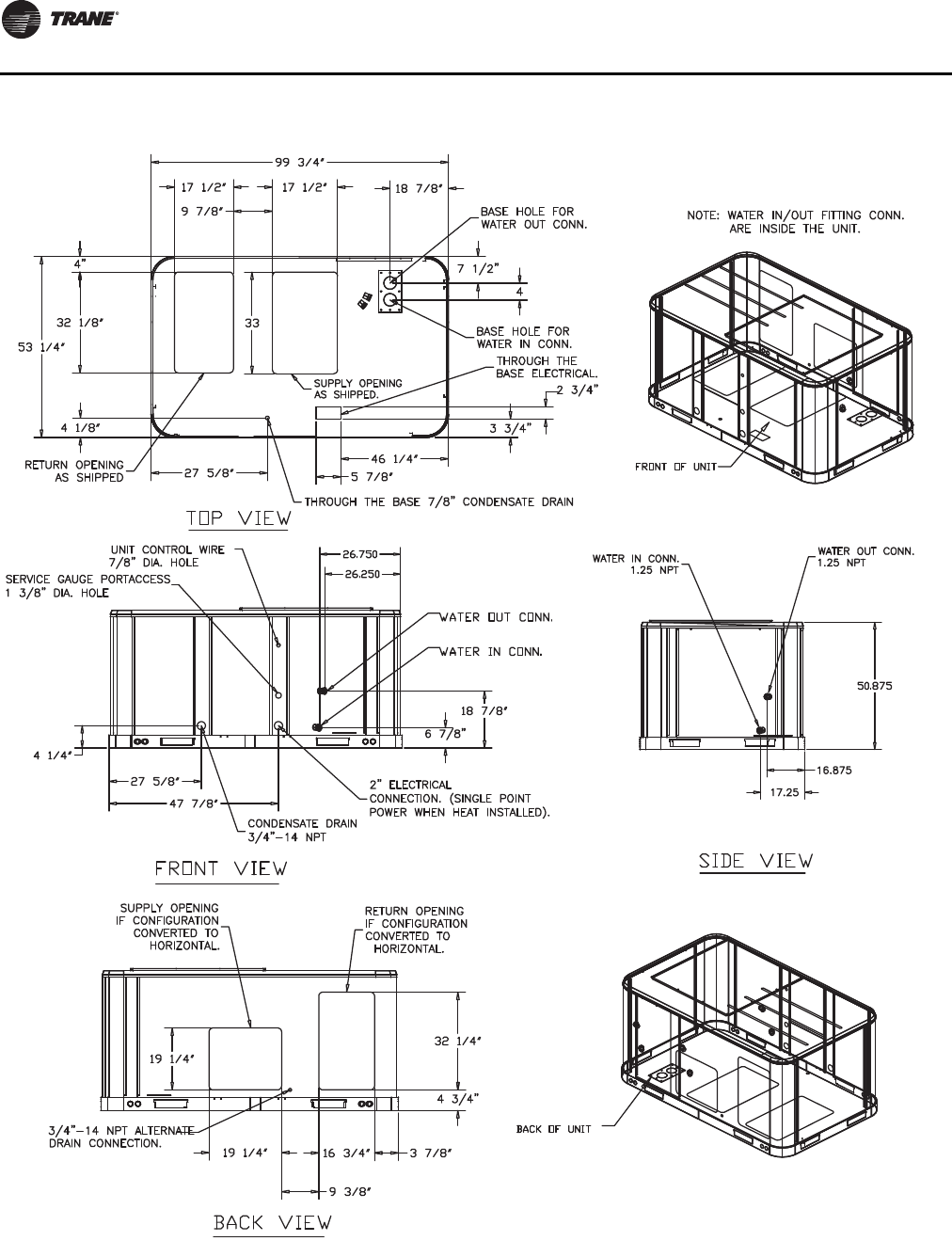
Figure 11. 12 1/2 and 15-Ton Unit
(a) See tables in chapter “General Data,” p. 13, for water connection sizes.
12 5/16"
313mm
20 13/16"
529mm
26 7/8"
684mm
54"
1372mm
23"
584mm

Dimensions
22 WSHP-SVX12B-EN
Figure 12. 20-Ton Unit
20 7/8"
530mm
12 1/2"
317mm
24 1/4"
616mm

Dimensions
WSHP-SVX12B-EN 23
Figure 13. 25-Ton Unit
(a) See tables in chapter “General Data ” p 13 for water connection sizes
64”
1626 mm
20 13/16"
529mm
12 5/16"
313mm
85 5/16"
2167mm
54"
1372mm
26 7/8"
264mm

Dimensions
24 WSHP-SVX12B-EN
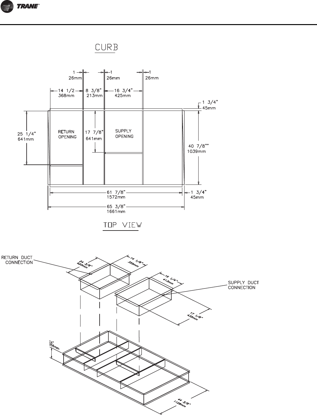
Figure 14. 3 to 4-Ton Roofcurb

Dimensions
WSHP-SVX12B-EN 25
Figure 15. 5, 6 and 7 1/2 -ton roofcurb
(a) See tables in chapter “General Data,” p. 13, for water connection sizes.
12 5/16"
313mm
20 13/16"
529mm
26 7/8"
684mm
54"
1372mm
23"
584mm

Dimensions
26 WSHP-SVX12B-EN
Figure 16. 10 -Ton Roofcurb
20 7/8"
530mm
12 1/2"
317mm
24 1/4"
616mm

Dimensions
WSHP-SVX12B-EN 27
Figure 17. 12 1/2 to 25-Ton Roofcurb
(a) See tables in chapter “General Data,” p. 13, for water connection sizes.
64”
1626 mm
20 13/16"
529mm
12 5/16"
313mm
85 5/16"
2167mm
54"
1372mm
26 7/8"
264mm

Dimensions
28 WSHP-SVX12B-EN
WARNING
Heavy Objects!
Do not use cables (chains or slings) except as shown.
Each of the cables (chains or slings) used to lift the unit
must be capable of supporting the entire weight of the
unit. Lifting cables (chains or slings) may not be of the
same length. Adjust as necessary for even unit lift.
Other lifting arrangements may cause equipment or
property-only damage. Failure to properly lift unit could
result in death or serious injury. See details below.
Figure 18. Corner weight locations and center of
gravity
Table 1. Typical unit weights and point loading data
Net
Weight
Corner Weights Center of Gravity
Model A B C D Length Width
036 487 132 121 112 121 33.0 19.0
048 538 146 134 124 134 33.0 19.0
060 678 188 164 154 173 40.5 23.0
072 700 194 169 159 179 40.5 23.0
090 794 218 194 182 201 41.0 23.0
120 941 235 251 234 221 52.0 28.0
150 1800 491 481 410 418 60.0 32.0
180 1848 505 493 421 429 60.0 32.0
240 2008 548 536 458 466 60.0 32.0
300 1906 520 509 435 442 30.0 32.0
Table 2. Net weights for electric heat are as follows
Unit Size 23-36 kW 54 kW 72 kW
GER 150, 180, 240, 300 33/27 40/32 43/34
Center
of Gravity
Length
nter of Gravity
Width
AB
C
D
Center of Gravity
Figure 19. Rigging

Dimensions
WSHP-SVX12B-EN 29
Table 3. Option and accessory weights
Option/Accessory Description Net Weight 036-060 Net Weight 072-120 Net Weight 150-180, 300 Net Weight 240
Electric Heat 15 15 - -
Economizer H/D 26 36 65/80 65/80
Motorized Damper 20 30 60/75 60/75
Manual Damper 16 26 32 32
Barometric Relief 7 10 - -
Power Exhaust N/A 80 95 95
Oversized Motor 5 8 5 5
Belt Drive Motor (3-phase only) 31 Standard 10 10
Hinged Access 10 12 27 27
Hail Guard 12 20 - -
Through the base electrical 8 13 23 23
Unit Disconnect Switch 5 5 10 10
Unit Circuit Breaker 5 5 10 10
TCI, LCI 1 1 1 1
Frostat 1 1 1 1
Crankcase Heater 1 1 1 1
Smoke Detector, Return 7 7 - -
Smoke Detector, Supply 5 5 5 5
Clogged Filter Switch 1 1 1 1
Fan Fail Switch 1 1 1 1
Discharge Air Tube 3 3 3 3
Roof curb 70 115 235 235
Zone Sensors 1 1 1 1

30 WSHP-SVX12B-EN
Installation
General Installation Checks
The checklist below is a summary of the steps required to
successfully install a commercial unit.This checklist is
intended to acquaint the installing personnel with what is
required in the installation process. It does not replace the
detailed instructions called out in the applicable sections
of this manual.
• Check the unit for shipping damage and material
shortage; file a freight claim and notify appropriate
sales representation.
• Verify the correct model, options and voltage from the
unit nameplate.
• Verify the installation location of the unit will provide
the required clearance for proper operation.
• Assemble and install the roof curb (if applicable). Refer
to the latest edition of the curb installers guide that
ships with each curb kit.
• Fabricate and install duct work; secure duct work to the
curb.
Factory Installed Economizer
• Ensure the economizer has been pulled out into the
operating position. Refer to the economizer installers
guide for proper position and setup.
• Install all access panels.
Filter Installation
• Each unit ships with 1-inch filters.The quantity of filters
is determined by unit size. Access to the filters is
obtained by removing the fan access panel.To modify
the unit’s filter rack to accept 2-inch filters, remove the
L-shaped angle attachment screws and rotate the
angles 90-degrees.
• Reinstall the screws and insert new filters. Refer to the
unit Service Facts (shipped with each unit) for filter
requirements.
Note: Do not operate the unit without filters.
Main Electrical Power Requirements
• Verify the power supply complies with the unit
nameplate specifications.
• Inspect all control panel components; tighten any
loose connections.
• Connect properly sized and protected power supply
wiring to a field-supplied/installed disconnect switch
and to the main power terminal block (HTB1) in the unit
control panel.
• Install proper grounding wires to an earth ground.
Note: All field-installed wiring must comply with NEC
and applicable local codes.
Electric Heat Requirements
• Verify that the power supply complies with the electric
heater specifications on the unit and heater nameplate.
• Inspect the heater junction box and control panel;
tighten any loose connections.
• Check electric heat circuits for continuity.
Low Voltage Wiring (AC & DC) Requirements
• Install the zone thermostat, with or without switching
subbase.
• Connect properly sized control wiring to the proper
termination points between the zone thermostat and
the unit control panel.
Foundation for Rooftop Units
If the unit is installed at ground level (horizontal design),
elevate it above the snow line. Provide concrete footings at
each support location with a full perimeter support
structure or a slab foundation for support. Refer to Table 1,
p. 28 for the unit’s operating and point loading weights
when constructing a footing foundation.
If anchoring is required, anchor the unit to the slab using
hold down bolts or isolators. Isolators should be installed
to minimize the transmission of vibrations into the
building.
For rooftop applications, ensure the roof is strong enough
to support the combined unit and support structural
weight.
WARNING
Proper Field Wiring and Grounding
Required!
All field wiring MUST be performed by qualified
personnel. Improperly installed and grounded field
wiring poses FIRE and ELECTROCUTION hazards. To
avoid these hazards, you MUST follow requirements for
field wiring installation and grounding as described in
NEC and your local/state electrical codes. Failure to
follow code could result in death or serious injury.
WARNING
Hazardous Voltage!
Disconnect all electric power, including remote
disconnects before servicing. Follow proper lockout/
tagout procedures to ensure the power can not be
inadvertently energized. Failure to disconnect power
before servicing could result in death or serious injury.

Installation
WSHP-SVX12B-EN 31
If anchoring is required, anchor the unit to the roof with
hold-down bolts or isolators.
Check with the contractor for proper waterproofing
procedures.
Ductwork
When attaching the ductwork to the unit, provide a
watertight flexible connector at the unit to prevent
operating sounds from transmitting through the
ductwork.
Elbows with turning vanes or splitters are recommended
to minimize air noise due to turbulence and to reduce static
pressure.
All outdoor ductwork between the unit and the structure
should be weather proofed after installation is complete.
See dimensional data on pages 13 through 16 for
connection sizes.
Roof Curbs
The roof curbs for these units (down flow) consists of a full
perimeter enclosure to support the unit. Before installing
any roof curb:
• Verify that the correct roof curb is applied to the unit
• Verify that the roof curb includes the necessary gaskets
and hardware.
• Verify that the proposed installation location provides
the required clearance for proper unit operation.
• Insure that the curb is level and square.The top surface
of the curb must be true to assure an adequate curb-to-
unit seal.
Step-by-step curb assembly and installation instructions
ship with each accessory roof curb kit. Follow the
instructions carefully to assure proper fit-up when the unit
is set into place.
To assure proper condensate flow during operation, the
unit (and curb) must be level.
If the unit is elevated, a field constructed catwalk around
the unit is strongly recommended to provide easy access
for unit maintenance and service.
Recommendations for installing the supply air and return
air ductwork joining the roof curb are included in the curb
instruction booklet. See dimensional data on pages 17
through 20 for roof curb sizing.
Note: For sound consideration, cut only the holes in the
roof deck for the duct work penetrations. Do not cut
out the entire roof deck within the curb perimeter.
If Curb Accessory Kit is not used:
The duct work can be attached directly to the factory
provided flanges around the unit’s supply and return air
openings. Be sure to use flexible duct connections at the
unit.
For built-up curbs supplied by others, gaskets must be
installed around the curb perimeter flange and the supply
and return air opening flanges.
Note: For sound consideration, cut only the holes in the
roof deck for the duct work penetrations. Do not cut
out the entire roof deck within the curb perimeter.
Rigging the Unit
A rigging illustration and center-of-gravity dimensional
data table are shown in Table 1, p. 28. Refer to the typical
unit operating weights table before proceeding.
1. Remove the two screws from each end of the unit that
secures the wooden shipping top. Remove the wooden
top and metal retaining brackets. Remove the
protective covering from around the unit.
2. Rig the unit. Attach adequate strength lifting slings to
all four lifting brackets in the unit base rail. Do not use
cables, chains, or slings except as shown.
3. Install a lifting bar, (as shown in the illustration), to
protect the unit, and to facilitate a uniform lift.The
minimum distance between the lifting hook and the
top of the unit should be 7-feet.
4. Test lift the unit to ensure it is properly rigged and
balanced. Make any necessary rigging adjustments.
5. Lift the unit and position it into place.
6. Downflow units; align the base rail of the unit with the
curb rail while lowering the unit onto the curb. Make
sure that the gasket on the curb is not damaged while
positioning the unit.
7. Set the unit onto the curb; check for levelness.
8. Ensure unit-to-curb seal is tight and without buckles or
cracks.
9. Install and connect a condensate drain line to the
evaporator drain connection.
Supply/Return Pipe
Connect the supply and return line to the water inlet and
outlet of the unit. On open loop systems, an in-line strainer
or mesh screen should be used to eliminate contaminants
from entering the water-to refrigerant heat exchanger.
An isolation valve, p/t plugs and automatic balancing
device are also recommended to separate the closed/open
loop from the mechanical device.
WARNING
Risk of Roof Collapsing!
Confirm with a structural engineer that the roof
structure is strong enough to support the combined
weight of the roofcurb and the unit. Refer to Table 1,
p. 28 and Table 3, p. 29 for typical unit and curb
weights. Failure to ensure proper structural roof
support could cause the roof to collapse, which could
result in death or serious injury and property damage.

Installation
32 WSHP-SVX12B-EN
Drain Connection
An evaporator condensate drain connection is provided
on each unit.The condensate drain pan is factory installed
to drain condensate to the back side of the unit. It can be
converted to drain condensate out of the front of the unit
or through the base
To convert drain condensate out the front of the
unit:
1. Remove the evaporator access panel and supply air
access panels.
2. Remove the support panel that the condensate drain
pan exits through.
3. Slide the condensate drain pan out of the unit and
rotate 180°.
4. Slide the condensate drain pan back into the unit, align
the drain with the grommeted opening in the rear
support panel and push until the coupling is seated in
the grommet.
5. Replace the front support panel by aligning the panel
with tabs in the raceway. Align the condensate drain
pan support in the grommeted hole as the panel is put
in place.
6. Replace the evaporator access panel and the supply air
access panels.
To convert drain condensate through the base of the
unit:
1. Remove the evaporator access panel and supply air
access panels.
2. Remove the support panel that the condensate drain
pan exits through.
3. Slide the condensate drain pan out of the unit.
4. Place on a level surface in the position it was removed
from the unit.
5. Remove the plug knockout in the bottom of the drain
pan to convert it to through the base drainage.
6. Plug the original condensate drain opening with a field
supplied 3/4-inch NPT plug.
7. Slide the condensate drain pan back into the unit, align
the drain support with the grommeted opening in the
rear support panel and push until the support is seated
in the grommet.
8. Replace the front support panel by aligning the panel
with tabs in the raceway. Align the plugged condensate
drain pan coupling in the grommeted hole as the panel
is put in place.
9. Replace evaporator access panel and supply air access
panels.
10. A condensate trap must be installed at the unit due to
the drain connection being on the negative pressure
side of the fan. Install the p-trap using the guidelines
below.
A condensate drain line must be connected to the p-trap.
Pitch the drain lines at least 1/2-inch for every 10-feet of
horizontal run to assure proper condensate flow. Do not
allow the horizontal run to sag causing a possible double-
trap condition which could result in condensate backup
due to air lock.
Horizontal Discharge Conversion
Units are factory shipped in the downflow discharge
configuration, but can be field converted to a horizontal
discharge configuration. Some, but not all units require a
different thermal cut-out limit switch (which is wire tied
near the terminal block in the heater compartment) if the
horizontal discharge configuration is used.
The following units require a limit switch change out for
the horizontal discharge.The additional limit switch is
shipped attached to the blower housing.
If any of the units listed in the following list are installed in
the downflow discharge configuration, remove the wire
tiedTCO-A (located near the terminal block in the heater
compartment) and discard.
Conversion 3 through 5-Ton Units
To convert a unit from down flow to horizontal discharge,
1. Remove the return and supply duct covers.
2. Apply gasket to the supply duct cover as shown in
Figure 21, p. 32.
Figure 20.
Figure 21. Gasket Installation

Installation
WSHP-SVX12B-EN 33
3. Position duct covers. Rotate the supply duct cover 90-
degrees to allow it to be slid into the supply opening.
Note: If the unit is equipped with a return air smoke
detector, refer to the field conversion for horizontal
discharge before installing the return air duct
cover.
4. Slide the duct covers into the duct openings until the
end ward edge of the duct cover engages with the two
retaining clips on the duct flanges. Secure the outward
edge of each duct cover with two screws.
Note: If unit should include a limit switch change out,
proceed to theTCO-A instruction sheet on “TCO-A
Instructions,” p. 33.
Conversion 6 through 10-Ton Units
To convert a unit from down flow to horizontal discharge,
1. Remove the return and supply duct covers.
2. Apply gasket to the return duct cover as shown in
Figure 22.
3. Position the duct covers as shown below.The supply
duct cover is installed over the down flow return
opening by engaging one side of the panel under a
retaining angle and securing the other side with three
screws.
Note: If the unit is equipped with a return air smoke
detector, refer to the field conversion for horizontal
discharge before installing the return air duct
cover.
4. Slide return duct cover into supply openings until end
ward edge of the duct cover engages with the two
retaining clips on the duct flanges. Secure the outward
edge of each duct cover with two screws.
Note: If unit should include a limit switch change out,
proceed to theTCO-A instruction sheet on this
page.
TCO-A Instructions
If the unit being installed is listed in the following table,
and is equipped with the corresponding model number of
factory installed electric heater package in the table, the
limit controlTCO-A must be replace with the extra limit
control shipped in the heater compartment. ReplaceTCO-
A following the instruction in steps 1 through 4. If the unit
being installed does not have a factory installed electric
heater package, or is equipped with a factory installed
electric heater model that does not correspond to models
listed below, skip steps 1 through 4, and go on to the next
step in the installation process.
Note: See Table 7, p. 40 for electric heater kit part #s and
equipment models.
1. Remove the heater section access panel and open the
electric heater front panel.
2. TCO-A is the limit control located in the central part of
the heater mounting plate and that is located on the
bottom of the two heater element assemblies.To
replace this device, first remove the two wires
connected to the terminals. Next, remove the two
screws which secure it to the heater element mounting
plate. OnceTCO-A has been removed from the heater
element mounting plate, discard this device.
3. Obtain the replacementTCO-A which is secured by a
wire tie near the electric heater terminal block in the
heater compartment. Attach it to the heater element
mounting plate with the two screws that were removed
in step 2 above. Connect the two wires that were
unhooked in step 2 to the terminals on the newTCO-A.
Refer to the heater package wiring diagram to assure
that the wiring is connected properly.
4. Close the electric heater dead front panel and replace
heat section access panel.
Figure 22. Duct cover with gasket installed
Figure 23. Installing duct cover

Installation
34 WSHP-SVX12B-EN
Field Installed Power Wiring
Verify that the power supply available is compatible with
the unit’s nameplate.The available supply power must be
within 10% of the rated voltage stamped on the nameplate.
Use only copper conductors to connect the power supply
to the unit.
Main Unit Power Wiring
1. If the unit is NOT equipped with an optional factory
installed non-fused disconnect switch or circuit
breaker, a field supplied disconnect switch must be
installed at or near the unit in accordance with the
National Electric Code (NEC latest edition).
2. Location of the applicable electric service entrance
may be found in Figure 24, p. 34.
3. Complete the unit’s power wiring connections onto
either; the main terminal wire connectors inside the
unit control panel, the factory mounted non-fused
disconnect switch (UCD) or circuit breaker (UCB). Refer
to the customer connection diagram that is shipped
with the unit for specific termination points.
4. Provide proper grounding for the unit in accordance
with the local and national codes.
Field Installed Control Wiring
An overall layout of the various control options available
with the required number of conductors for each control
device may be found on Figure 25, p. 35 and Figure 26,
p. 36.
Note: All field wiring must conform to NEC guidelines as
well as state and local codes.
Control Power Transformer
The 24-volt control power transformers are to be used only
with the accessories called out in this manual.
Transformers rated greater than 50 VA are equipped with
internal circuit breakers. If a circuit breaker trips, turn OFF
all power to the unit before attempting to reset it.
WARNING
Proper Field Wiring and Grounding
Required!
All field wiring MUST be performed by qualified
personnel. Improperly installed and grounded field
wiring poses FIRE and ELECTROCUTION hazards. To
avoid these hazards, you MUST follow requirements for
field wiring installation and grounding as described in
NEC and your local/state electrical codes. Failure to
follow code could result in death or serious injury.
Figure 24. Electrical entrance

Installation
WSHP-SVX12B-EN 35
The transformer is located in the control panel.The circuit
breaker is located on the left side of the transformer and
can be reset by pressing in on the black reset button.
WARNING
Hazardous Voltage!
Disconnect all electric power, including remote
disconnects before servicing. Follow proper lockout/
tagout procedures to ensure the power can not be
inadvertently energized. Failure to disconnect power
before servicing could result in death or serious injury.
Figure 25.

Installation
36 WSHP-SVX12B-EN
Figure 26.

Installation
WSHP-SVX12B-EN 37
Controls Using 24 VAC
Before installing any wire, refer to the electrical access
locations in Figure 24, p. 34.
1. Use copper conductors unless otherwise specified.
2. Ensure that the AC control wiring between the controls
and the unit’s termination point does not exceed three
(3) ohms/conductor for the length of the run.
Note: Resistance in excess of 3-ohms per conductor may
cause component failure due to insufficient AC
voltage supply.
3. Check all loads and conductors for grounds, shorts,
and mis-wiring.
4. Do not run the AC low voltage wiring in the same
conduit with the high voltage power wiring.
5. Route low voltage wire per Figure 27 below.
Controls using DC Analog Input/Outputs
(Standard Low Voltage Multi-conductor Wire)
Before installing any connecting wire between the unit
utilizing a DC analog input/output signal,
refer to Figure 24, p. 34 for electrical access locations
provided on the unit.
1. Review Table 5, it lists the conductor sizing guidelines
that must be followed when interconnecting the DC
binary output devices and the system components
utilizing a DC analog input/output signal to the unit.
Note: Resistance in excess of 2.5 ohms per conductor can
cause deviations in the accuracy of the controls.
2. Ensure that the wiring between controls and the unit’s
termination point does not exceed two and a half (2.5)
ohms/conductor for the length of the run.
3. Do not run the electrical wires transporting DC signals
in or around conduit housing high voltage wires.
4. Route low voltage wiring per Figure 27.
Figure 27. Wire Routing
Table 4. 24V AC conductors
Distance from unit
to Control
Recommended Wire
Size
000-460 feet 18 gauge
461-732 feet 16 gauge
733-1000 feet 14 gauge
Table 5. DC conductors; zone sensor module wiring
Distance from unit to
Control
Recommended Wire
Size
0-150 feet 22 gauge
151-240 feet 20 gauge
241-385 feet 18 gauge
386-610 feet 16 gauge
611-970 feet 14 gauge

38 WSHP-SVX12B-EN
Electrical Requirements
Table 6. Electrical perfomance
Model No. Unit Volts
Total
Unit FLA
Comp
RLA (ea)
Comp
LRA (ea)
No. of
Compres.
Blower
Motor
FLA
Blower
Motor
HP
Fan
Motor
Num
Minimum
Circuit
Ampacity
Maximum
Overcurrent
Protective
Device
GERE036
208/60/1 24.6 18.6 105.0 1 6.00 0.75 1 29.3 45
230/60/1 24.6 18.6 105.0 1 6.00 0.75 1 29.3 45
208/60/3 18.5 13.5 88.0 1 5.00 1 1 21.9 35
230/60/3 18.5 13.5 88.0 1 5.00 1 1 21.9 35
460/60/3 8.9 6.4 39.0 1 2.50 1 1 10.5 15
575/60/3 6.8 5.1 34.0 1 1.70 1 1 8.1 15
GERE048
208/60/1 30.7 23.1 134.0 1 7.60 1 1 36.5 50
230/60/1 30.7 23.1 134.0 1 7.60 1 1 36.5 50
208/60/3 21.0 16.0 91.0 1 5.00 1 1 25.0 40
230/60/3 21.0 16.0 91.0 1 5.00 1 1 25.0 40
460/60/3 9.6 7.1 46.0 1 2.50 1 1 11.4 15
575/60/3 7.3 5.6 37.0 1 1.70 1 1 8.7 15
GERE060
208/60/1 35.2 27.6 158.0 1 7.60 1 1 42.1 60
230/60/1 35.2 27.6 158.0 1 7.60 1 1 42.1 60
208/60/3 23.1 18.1 137.0 1 5.00 1 1 27.6 45
230/60/3 23.1 18.1 137.0 1 5.00 1 1 27.6 45
460/60/3 11.5 9.0 62.0 1 2.50 1 1 13.8 20
575/60/3 8.5 6.8 50.0 1 1.70 1 1 10.2 15
GERE072
208/60/3 27.4 22.4 149.0 1 5.00 1 1 33.0 50
230/60/3 27.4 22.4 149.0 1 5.00 1 1 33.0 50
460/60/3 13.1 10.6 75.0 1 2.50 1 1 15.8 25
575/60/3 9.2 7.7 54.0 1 1.50 1 1 11.1 15
208/60/3 28.7 22.4 149.0 1 6.30 2 1 34.3 50
230/60/3 28.7 22.4 149.0 1 6.30 2 1 34.3 50
460/60/3 13.7 10.6 75.0 1 3.10 2 1 16.4 25
575/60/3 10.1 7.7 54.0 1 2.40 2 1 12.0 15
GERE090
208/60/3 28.6 25.0 164.0 1 3.60 1 1 34.9 50
230/60/3 28.6 25.0 164.0 1 3.60 1 1 34.9 50
460/60/3 13.9 12.2 100.0 1 1.70 1 1 17.0 25
575/60/3 10.4 9.0 78.0 1 1.40 1 1 12.7 20
208/60/3 34.4 25.0 164.0 1 9.40 3 1 40.7 60
230/60/3 34.4 25.0 164.0 1 9.40 3 1 40.7 60
460/60/3 16.8 12.2 100.0 1 4.60 3 1 19.9 30
575/60/3 12.4 9.0 78.0 1 3.40 3 1 14.7 20
GERE120
208/60/3 26.6 18.1 137.0 2 8.50 3.6 1 49.2 60
230/60/3 26.6 18.1 137.0 2 8.50 3.6 1 49.2 60
460/60/3 13.3 9.0 62.0 2 4.30 3.6 1 24.6 30
575/60/3 11.1 6.8 50.0 2 4.30 3.6 1 19.6 25

Electrical Requirements
WSHP-SVX12B-EN 39
GERE150
208/60/3 33.0 22.4 149.0 2 10.60 3 1 61.0 80
230/60/3 33.0 22.4 149.0 2 10.60 3 1 61.0 80
460/60/3 15.4 10.6 75.0 2 4.80 3 1 28.7 35
575/60/3 11.8 7.9 54.0 2 3.90 3 1 21.7 25
208/60/3 39.1 22.4 149.0 2 16.70 5 1 67.1 80
230/60/3 39.1 22.4 149.0 2 16.70 5 1 67.1 80
460/60/3 18.2 10.6 75.0 2 7.60 5 1 31.5 40
575/60/3 14.0 7.9 54.0 2 6.10 5 1 23.9 30
GERE180
208/60/3 35.6 25.0 164.0 2 10.60 3 1 66.9 90
230/60/3 35.6 25.0 164.0 2 10.60 3 1 66.9 90
460/60/3 17.3 12.5 100.0 2 4.80 3 1 32.9 45
575/60/3 14.2 10.3 78.0 2 3.90 3 1 27.1 35
208/60/3 41.7 25.0 164.0 2 16.70 5 1 73.0 90
230/60/3 41.7 25.0 164.0 2 16.70 5 1 73.0 90
460/60/3 20.1 12.5 100.0 2 7.60 5 1 35.7 45
575/60/3 16.4 10.3 78.0 2 6.10 5 1 29.3 35
GERE240
208/60/3 55.8 39.1 267.0 2 16.70 5 1 104.7 125
230/60/3 55.8 39.1 267.0 2 16.70 5 1 104.7 125
460/60/3 24.9 17.3 142.0 2 7.60 5 1 46.5 60
575/60/3 21.5 15.4 103.0 2 6.10 5 1 40.8 50
208/60/3 56.7 39.1 267.0 2 17.60 7.5 1 105.6 125
230/60/3 56.7 39.1 267.0 2 17.60 7.5 1 105.6 125
460/60/3 25.9 17.3 142.0 2 8.60 7.5 1 47.5 60
575/60/3 22.4 15.4 103.0 2 7.00 7.5 1 41.7 50
GERE300
208/60/3 63.3 39.1 267.0 2 24.20 7.5 1 112.2 150
230/60/3 63.3 39.1 267.0 2 24.20 7.5 1 112.2 150
460/60/3 29.6 18.6 103.0 2 11.00 7.5 1 52.9 70
575/60/3 24.4 15.4 160.0 2 9.00 7.5 1 43.7 50
Table 6. Electrical perfomance
Model No. Unit Volts
Total
Unit FLA
Comp
RLA (ea)
Comp
LRA (ea)
No. of
Compres.
Blower
Motor
FLA
Blower
Motor
HP
Fan
Motor
Num
Minimum
Circuit
Ampacity
Maximum
Overcurrent
Protective
Device

Electrical Requirements
40 WSHP-SVX12B-EN
Table 7. Electrical Perfomance for units with electric heat (single point connection)
Standard Indoor Motor Oversized Indoor Motor
Unit Model
Number
Heater Model
Number
Electric Heat
Amps
Electric Heat
kW
Control
Stages
Mimimum
Circuit
Ampacity
Max
Overcurrent
Protection
Mimimum
Circuit
Ampacity
Max
Overcurren
t Protection
208 Volt Single Phase ——
GERE036
BAYHTRE105* 18.3 3.8 1 52.1 60 — —
BAYHTRE110* 36.1 7.5 2 74.4 80 — —
BAYHTRE114* 50.0 10.4 2 91.8 100 — —
GERE048
BAYHTRE105* 18.3 3.8 1 59.4 70 — —
BAYHTRE110* 36.1 7.5 2 81.6 90 — —
BAYHTRE114* 50.0 10.4 2 99.0 100 — —
BAYHTRE118* 63.5 13.2 2 115.9 125 — —
GERE060
BAYHTRE105* 18.3 3.8 1 65.0 80 — —
BAYHTRE110* 36.1 7.5 2 87.2 100 — —
BAYHTRE114* 50.0 10.4 2 104.6 110 — —
BAYHTRE118* 63.5 13.2 2 121.5 125 — —
230 Volt Single Phase
GERE036
BAYHTRE105* 20.8 5.0 1 55.3 60 — —
BAYHTRE110* 41.7 10.0 2 81.4 90 — —
BAYHTRE114* 57.5 13.8 2 101.1 110 — —
GERE048
BAYHTRE105* 20.8 5.0 1 62.5 80 — —
BAYHTRE110* 41.7 10.0 2 88.6 100 — —
BAYHTRE114* 57.5 13.8 2 108.4 110 — —
BAYHTRE118* 73.3 17.6 2 128.1 150 — —
GERE060
BAYHTRE105* 20.8 5.0 1 68.1 90 — —
BAYHTRE110* 41.7 10.0 2 94.2 110 — —
BAYHTRE114* 57.5 13.8 2 114.0 125 — —
BAYHTRE118* 73.3 17.6 2 133.7 150 — —
208 Volt Three Phase
GERE036
BAYHTRE306* 12.5 4.5 1 37.5 45 — —
BAYHTRE312* 25.0 9.0 2 53.1 60 — —
BAYHTRE318* 36.4 13.1 2 67.4 70 — —
GERE048
BAYHTRE306* 12.5 4.5 1 40.6 50 — —
BAYHTRE312* 25.0 9.0 2 56.3 60 — —
BAYHTRE318* 36.4 13.1 2 70.5 80 — —
GERE060
BAYHTRE306* 12.5 4.5 1 43.3 50 — —
BAYHTRE312* 25.0 9.0 2 58.9 70 — —
BAYHTRE318* 36.4 13.1 2 73.1 80 — —
BAYHTRX323* 48.0 17.3 2 87.6 90 — —
GERE072
BAYHTRW309A 6.8 18.9 1 56.6 70 57.9 70
BAYHTRW318A 13.5 37.5 1 79.9 90 81.2 90
BAYHTRW327A 20.3 56.3 2 103.4 110 104.7 110
BAYHTRW336A 27.0 74.9 2 126.6 150 127.9 150
GERE090
BAYHTRU309A 6.8 18.9 1 58.4 70 64.2 80
BAYHTRU318A 13.5 37.5 1 81.7 90 87.5 100
BAYHTRU327A 20.3 56.3 2 105.3 110 111.1 125
BAYHTRU336A 27.0 74.9 2 128.5 150 134.3 150

Electrical Requirements
WSHP-SVX12B-EN 41
GERE120
BAYHTRB318A 13.5 37.5 1 96.1 100 — —
BAYHTRB327A 20.3 56.3 2 119.7 125 — —
BAYHTRB336A 27.0 74.9 2 142.9 150 — —
BAYHTRB354A 40.6 112.7 2 190.1 200 — —
GERE150
AYDHTRK318/
AYHHTRM318 37.5 13.5 1 107.9 110 114.0 125
AYDHTRK336/
AYHHTRM336 74.9 27.0 2 154.6 175 160.7 175
AYDHTRK354/
AYHHTRM354 112.4 40.5 2 201.5 225 207.6 225
GERE180
AYDHTRK318/
AYHHTRM318 37.5 13.5 1 113.7 125 119.8 125
AYDHTRK336/
AYHHTRM336 74.9 27.0 2 160.5 175 166.6 175
AYDHTRK354/
AYHHTRM354 112.4 40.5 2 207.4 225 213.5 225
GERE240
AYDHTRL336/
AYHHTRN336 74.9 27.0 2 198.3 200 199.2 200
AYDHTRL354/
AYHHTRN354 112.4 40.5 2 245.2 250 246.1 250
AYDHTRK372/
AYHHTRN372 149.9 54.0 2 292.1 300 293.0 300
GERE300
AYDHTRL336/
AYHHTRN336 74.9 27.0 2 205.8 225 — —
AYDHTRL354/
AYHHTRN354 112.4 40.5 2 252.7 300 — —
AYDHTRK372/
AYHHTRN372 149.9 54.0 2 299.6 300 — —
230 Volt Three Phase
GERE036
BAYHTRE306* 14.4 6.0 1 39.9 45 — —
BAYHTRE312* 28.9 12.0 2 58.0 60 — —
BAYHTRE318* 41.9 17.4 2 74.3 80 — —
GERE048
BAYHTRE306* 14.4 6.0 1 43.0 50 — —
BAYHTRE312* 28.9 12.0 2 61.1 70 — —
BAYHTRE318* 41.9 17.4 2 77.4 80 — —
GERE060
BAYHTRE306* 14.4 6.0 1 45.6 60 — —
BAYHTRE312* 28.9 12.0 2 63.8 70 — —
BAYHTRE318* 41.9 17.4 2 80.0 80 — —
BAYHTRX323* 55.3 23.0 2 96.8 100 — —
GERE072
BAYHTRW309A 9.0 21.7 1 60.1 70 61.4 70
BAYHTRW318A 18.0 43.3 1 87.1 90 88.4 100
BAYHTRW327A 27.0 65.0 2 114.2 125 115.5 125
BAYHTRW336A 36.0 86.6 2 141.3 150 142.6 150
GERE090
BAYHTRU309A 9.0 21.7 1 61.9 80 67.7 80
BAYHTRU318A 18.0 43.3 1 89.0 100 94.8 100
BAYHTRU327A 27.0 65.0 2 116.0 125 121.8 125
BAYHTRU336A 36.0 86.6 2 143.1 150 148.9 150
Table 7. Electrical Perfomance for units with electric heat (single point connection)
Standard Indoor Motor Oversized Indoor Motor
Unit Model
Number
Heater Model
Number
Electric Heat
Amps
Electric Heat
kW
Control
Stages
Mimimum
Circuit
Ampacity
Max
Overcurrent
Protection
Mimimum
Circuit
Ampacity
Max
Overcurren
t Protection

Electrical Requirements
42 WSHP-SVX12B-EN
GERE120
BAYHTRB318A 18.0 43.3 1 103.4 110 — —
BAYHTRB327A 27.0 65.0 2 130.4 150 — —
BAYHTRB336A 36.0 86.6 2 157.5 175 — —
BAYHTRB354A 54.0 129.9 2 211.6 225 — —
GERE150
AYDHTRK318/
AYHHTRM318 43.3 18.0 1 115.1 125 121.2 125
AYDHTRK336/
AYHHTRM336 86.6 36.0 2 169.3 175 175.4 200
AYDHTRK354/
AYHHTRM354 129.9 54.0 2 223.4 225 229.5 250
GERE180
AYDHTRK318/
AYHHTRM318 43.3 18.0 1 121.0 125 127.1 150
AYDHTRK336/
AYHHTRM336 86.6 36.0 2 175.1 200 181.2 200
AYDHTRK354/
AYHHTRM354 129.9 54.0 2 229.2 250 235.3 250
GERE240
AYDHTRL336/
AYHHTRN336 86.6 36.0 2 212.9 225 213.8 225
AYDHTRL354/
AYHHTRN354 129.9 54.0 2 267.1 300 268.0 300
AYDHTRK372/
AYHHTRN372 173.2 72.0 2 321.2 300 322.1 300
GERE300
AYDHTRL336/
AYHHTRN336 86.6 36.0 2 220.4 225 — —
AYDHTRL354/
AYHHTRN354 129.9 54.0 2 274.6 300 — —
AYDHTRK372/
AYHHTRN372 173.2 72.0 2 328.7 300 — —
460 Volt Three Phase
GERE036
BAYHTRE406* 7.2 6.0 1 19.5 20 — —
BAYHTRE412* 14.4 12.0 2 28.5 30 — —
BAYHTRE418* 20.9 17.4 2 36.6 40 — —
GERE048
BAYHTRE406* 7.2 6.0 1 20.4 25 — —
BAYHTRE412* 14.4 12.0 2 29.4 30 — —
BAYHTRE418* 20.9 17.4 2 37.5 40 — —
GERE060
BAYHTRE406* 7.2 6.0 1 22.8 25 — —
BAYHTRE412* 14.4 12.0 2 31.8 35 — —
BAYHTRE418* 20.9 17.4 2 39.9 40 — —
BAYHTRX423* 27.7 23.0 2 48.4 50 — —
GERE072
BAYHTRW409A 9.0 10.8 1 29.3 35 29.9 35
BAYHTRW418A 18.0 21.7 1 42.8 45 43.4 45
BAYHTRW427A 27.0 32.5 2 56.3 60 56.9 60
BAYHTRW436A 36.0 43.3 2 69.9 70 70.5 80
GERE090
BAYHTRU409A 9.0 10.8 1 30.5 35 33.4 40
BAYHTRU418A 18.0 21.7 1 44.0 50 46.9 50
BAYHTRU427A 27.0 32.5 2 57.5 60 60.4 70
BAYHTRU436A 36.0 43.3 2 71.1 80 74.0 80
Table 7. Electrical Perfomance for units with electric heat (single point connection)
Standard Indoor Motor Oversized Indoor Motor
Unit Model
Number
Heater Model
Number
Electric Heat
Amps
Electric Heat
kW
Control
Stages
Mimimum
Circuit
Ampacity
Max
Overcurrent
Protection
Mimimum
Circuit
Ampacity
Max
Overcurren
t Protection

Electrical Requirements
WSHP-SVX12B-EN 43
GERE120
BAYHTRB418A 18.0 21.7 1 51.6 60 — —
BAYHTRB427A 27.0 32.5 2 65.1 70 — —
BAYHTRB436A 36.0 43.3 2 78.7 80 — —
BAYHTRB454A 54.0 65.0 2 105.7 110 — —
GERE150
AYDHTRK418/
AYHHTRM418 21.7 18.0 1 55.8 60 58.6 60
AYDHTRK436/
AYHHTRP436 43.3 36.0 2 82.8 90 85.6 90
AYDHTRK454/
AYHHTRM454 65.0 54.0 2 109.9 110 112.7 125
GERE180
AYDHTRK418/
AYHHTRM418 21.7 18.0 1 60.1 70 62.9 70
AYDHTRK436/
AYHHTRP436 43.3 36.0 2 87.1 90 89.9 90
AYDHTRK454/
AYHHTRM454 65.0 54.0 2 114.2 125 117.0 125
GERE240
AYDHTRL436/
AYHHTRN436 43.3 36.0 2 100.7 110 101.7 110
AYDHTRL454/
AYHHTRN454 65.0 54.0 2 127.8 150 128.8 150
AYDHTRK472/
AYHHTRN472 86.6 72.0 2 154.8 175 155.8 175
GERE300
AYDHTRL436/
AYHHTRN436 43.3 36.0 2 107.0 110 — —
AYDHTRL454/
AYHHTRN454 65.0 54.0 2 134.1 150 — —
AYDHTRK472/
AYHHTRN472 86.6 72.0 2 161.1 175 — —
575 Volt Three Phase
GERE036
BAYHTREW06* 5.8 6.0 1 15.3 20 — —
BAYHTREW12* 11.5 12.0 2 22.5 25 — —
BAYHTREW18* 16.7 17.4 2 29.0 30 — —
GERE048
BAYHTREW06* 5.8 6.0 1 16.0 20 — —
BAYHTREW12* 11.5 12.0 2 23.1 25 — —
BAYHTREW18* 16.7 17.4 2 29.6 30 — —
GERE060
BAYHTREW06* 5.8 6.0 1 17.5 20 — —
BAYHTREW12* 11.5 12.0 2 24.6 25 — —
BAYHTREW18* 16.7 17.4 2 31.1 35 — —
BAYHTRXW23* 22.1 23.0 2 37.8 40 — —
GERE072
BAYHTRWW18A 18.0 17.3 1 32.8 35 33.7 35
BAYHTRWW27A 27.0 26.0 2 43.6 45 44.5 45
BAYHTRWW36A 36.0 34.6 2 54.4 60 55.3 60
GERE090
BAYHTRUW18A 18.0 17.3 1 34.3 35 36.3 40
BAYHTRUW27A 27.0 26.0 2 45.1 50 47.1 50
BAYHTRUW36A 36.0 34.6 2 56.0 60 58.0 60
GERE120
BAYHTRBW18A 18.0 17.3 1 41.2 45 — —
BAYHTRBW36A 36.0 34.6 2 62.9 70 — —
BAYHTRBW54A 54.0 52.0 2 84.6 90 — —
Table 7. Electrical Perfomance for units with electric heat (single point connection)
Standard Indoor Motor Oversized Indoor Motor
Unit Model
Number
Heater Model
Number
Electric Heat
Amps
Electric Heat
kW
Control
Stages
Mimimum
Circuit
Ampacity
Max
Overcurrent
Protection
Mimimum
Circuit
Ampacity
Max
Overcurren
t Protection

Electrical Requirements
44 WSHP-SVX12B-EN
GERE150
AYDHTRKW18/
AYHHTRMW18 17.3 18.0 1 43.3 45 45.5 50
AYDHTRKW36/
AYHHTRMW36 34.6 36.0 2 64.9 70 67.1 70
AYDHTRKW54/
AYHHTRMW54 52.0 54.0 2 86.7 90 88.9 90
GERE180
AYDHTRKW18/
AYHHTRMW18 17.3 18.0 1 48.7 50 50.9 60
AYDHTRKW36/
AYHHTRMW36 34.6 36.0 2 70.3 80 72.5 80
AYDHTRKW54/
AYHHTRMW54 52.0 54.0 2 92.1 100 94.3 100
GERE240
AYDHTRLW36/
AYHHTRNW36 34.6 36.0 2 84.0 90 84.9 90
AYDHTRLW54/
AYHHTRNW54 52.0 54.0 2 105.8 110 106.7 110
AYDHTRKW72/
AYHHTRNW72 69.3 72.0 2 127.4 150 128.3 150
GERE300
AYDHTRMW36/
AYHHTRMW36 34.6 36.0 2 86.9 90 — —
AYDHTRLW54/
AYHHTRNW54 52.0 54.0 2 108.7 110 — —
AYDHTRKW72/
AYHHTRNW72 69.3 72.0 2 130.3 150 — —
Table 7. Electrical Perfomance for units with electric heat (single point connection)
Standard Indoor Motor Oversized Indoor Motor
Unit Model
Number
Heater Model
Number
Electric Heat
Amps
Electric Heat
kW
Control
Stages
Mimimum
Circuit
Ampacity
Max
Overcurrent
Protection
Mimimum
Circuit
Ampacity
Max
Overcurren
t Protection

WSHP-SVX12B-EN 45
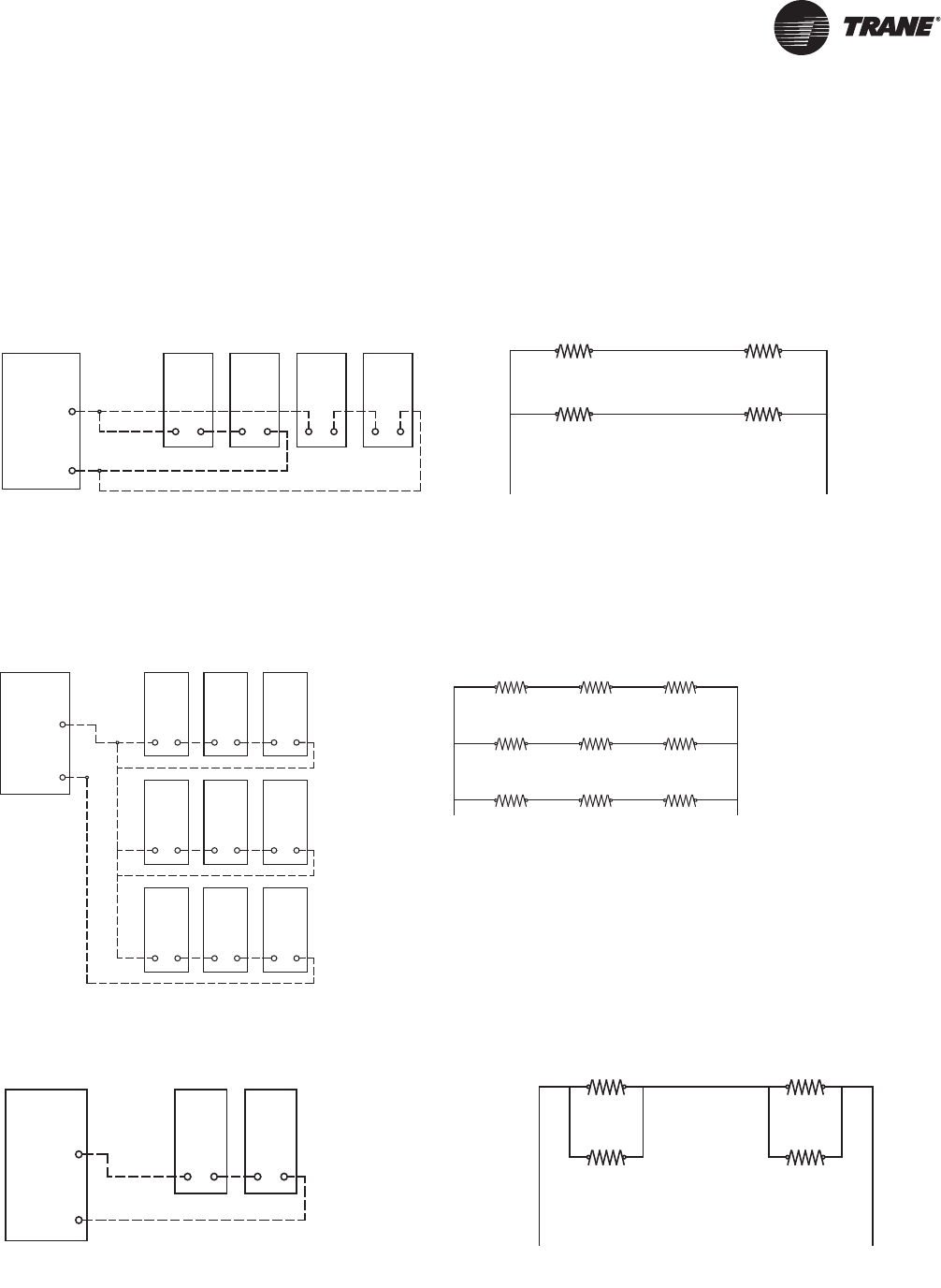
Pre-Start
Space Temperature Averaging
Space temperature averaging is accomplished by wiring a
number of remote sensors in a series/parallel circuit.
Using the BAYSENS016* or BAYSENS017*, at least four
sensors are required to accomplish space temperature
averaging.
Example #1 illustrates two series circuits with two sensors
in each circuit wired in parallel.The square of any number
of remote sensors require.
Example #2 illustrates three sensors squared in a series/
parallel circuit. Using BAYSENS032*, two sensors are
required to accomplish space temperature averaging.
Example #3 illustrates the circuit required for this sensor.
Figure 28. Example 1
ZSM REMOTE SENSORS
#1 #2 #3 #4
1
2
11112222
REMOTE SENSOR
2#1#
REMOTE SENSOR
REMOTE SENSOR
#3
REMOTE SENSOR
#4
ZSM
TERMINAL
#1
TERMINAL
#2
ZSM
Figure 29. Example 2
REMOTE SENSORS
2
1
21
ZSM
#1
2112
TERMINAL
#1
ZSM ZSM
TERMINAL
#2
#2 #3
REMOTE
SENSOR
#1
REMOTE
SENSOR
#2
REMOTE
SENSOR
#3
REMOTE
SENSOR
#4
REMOTE
SENSOR
#5
REMOTE
#6
SENSOR
SENSOR
REMOTE
#7
SENSOR
REMOTE
#8
SENSOR
#9
REMOTE
#4
21
#6#5
12 1 2
12
#7
2112
#8 #9
Figure 30. Example 3
REMOTE SENSORS
2
1
21
ZSM
#1
21
TERMINAL
#1
MSZMSZ
TERMINAL
#2
#2
#1 #2

Pre-Start
46 WSHP-SVX12B-EN
Table 8 lists the temperature versus resistance coefficient
for all sensors.
Voltage Imbalance
Three phase electrical power to the unit must meet
stringent requirements for the unit to operate properly.
Measure each leg (phase-to-phase) of the power supply.
Each reading must fall within the utilization range listed on
the unit nameplate. If any of the readings do not fall within
the proper tolerances, notify the power company to
correct this situation before operating the unit.
Excessive three phase voltage imbalance between phases
will cause motors to overheat and eventually fail.The
maximum allowable voltage imbalance is 2%. Measure
and record the voltage between phases 1, 2, and 3 and
calculate the amount of imbalance as follows:
where;
V1, V2, V3 = Line Voltage Readings
VD = Line Voltage reading that deviates the farthest from
the average voltage.
Example: If the voltage readings of the supply power
measured 221, 230 and 227, the average volts would be:
VD (reading farthest from average) = 221
The percentage of Imbalance equals:
The 2.2% imbalance in this example exceeds the
maximum allowable imbalance of 2.0%.This much
imbalance between phases can equal as much as a 20%
current imbalance with a resulting increase in motor
winding temperatures that will decrease motor life. If the
voltage imbalance is over 2%, notify the proper agencies
to correct the voltage problem before operating this
equipment.
Electrical Phasing (Three Phase Motors)
The compressor motor(s) and the supply fan motor are
internally connected for the proper rotation when the
incoming power supply is phased as A, B, C.
Proper electrical supply phasing can be quickly
determined and corrected before starting the unit by an
instrument such as an Associated Research Model 45
Phase Sequence Indicator and following the steps below:
1. Turn the field supplied disconnect switch that provides
power to the main power terminal block or to the Line
side of the optional factory mounted disconnect switch
to the OFF position.
2. Connect the phase sequence indicator leads to the
terminal block or the Line side of the optional factory
mounted disconnect switch as follows:
Black (phase A) to L1
Red (phase B) to L2
Yellow (phase C) to L3
3. Close the field supplied main power disconnect switch
or circuit protector switch that provides the supply
power to the unit.
4. Observe theABC and CBA phase indicator lights on the
face of the sequencer.The ABC indicator light will glow
Table 8. Temp vs. Resistance
Degrees
F
Nominal
Resistance
K-Ohms
Degrees
F
Nominal
Resistance
K-Ohms
-20 170.1 45 22.85
-15 143.5 50 19.96
-10 121.4 55 17.47
-5 103.0 60 15.33
0 87.56 65 13.49
5 74.65 70 11.89
10 63.80 75 10.50
15 54.66 80 9.297
20 46.94 85 8.247
25 40.40 90 7.330
30 34.85 95 6.528
35 30.18 100 5.824
40 26.22
*Temperature vs. resistance coefficient is negative
WARNING
Live Electrical Components!
During installation, testing, servicing and
troubleshooting of this product, it may be necessary to
work with live electrical components. Have a qualified
licensed electrician or other individual who has been
properly trained in handling live electrical components
perform these tasks. Failure to follow all electrical
safety precautions when exposed to live electrical
components could result in death or serious injury.
% Voltage Imbalance = 100 x AV - VD
AV
AV (average voltage) = Volt 1 + Volt 2 + Volt 3
3
221+230+227 = 226 Avg.
3
100 x 226 - 221 = 2.2%
226
WARNING
Hazardous Voltage!
Disconnect all electric power, including remote
disconnects before servicing. Follow proper lockout/
tagout procedures to ensure the power can not be
inadvertently energized. Failure to disconnect power
before servicing could result in death or serious injury.

Pre-Start
WSHP-SVX12B-EN 47
if the phase is ABC. If the CBA indicator light glows,
open the disconnect switch or circuit protection switch
and reverse any two power wires.
5. Restore the main electrical power and recheck the
phasing. If the phasing is correct, open the disconnect
switch or circuit protection switch and remove the
phase sequence indicator.
Compressor Crankcase Heaters (Optional)
Each compressor can be equipped with a crankcase
heater.The proper operation of the crankcase heater is
important to maintain an elevated compressor oil
temperature during the OFF cycle to reduce oil foaming
during compressor starts. Oil foaming occurs when
refrigerant condenses in the compressor and mixes with
the oil. In lower ambient conditions, refrigerant migration
to the compressor could increase.
When the compressor starts, the sudden reduction in
crankcase pressure causes the liquid refrigerant to boil
rapidly causing the oil to foam.This condition could
damage compressor bearings due to reduced lubrication
and could cause compressor mechanical failures.
Before starting the unit in the COOLING mode, set the
system switch to the OFF position and turn the main power
disconnect to the ON position and allow the crankcase
heater to operate a minimum of 8-hours.
Before closing the main power disconnect switch, ensure
that the SYSTEM selection switch is in the OFF position
and the FAN selection switch is in the AUTO position.
Close the main power disconnect switch and the unit
mounted disconnect switch, if applicable.
Upon power initialization, the RTRM performs self-
diagnostic checks to ensure that all internal controls are
functional. It also checks the configuration parameters
against the components connected to the system.The
Liteport LED, located on the RTRM module, is turned ON
within one second of power-up if internal operation is
okay.
Use one of the followingTEST procedures to bypass some
time delays and to start the unit at the control panel. Each
step of unit operation can be activated individually by
temporarily shorting across theTEST terminals for two or
three seconds.The Liteport LED will blink when the test
mode has been initiated.The unit can be left in anyTEST
step for up to one hour before it will automatically
terminate, or it can be terminated by opening the main
power disconnect switch. Once the test mode has been
terminated, the Liteport LED will glow continuously and
the unit will revert to the SYSTEM control.
Test Modes
There are three methods in which theTEST mode may be
cycled at LTB-Test 1 and LTB-Test 2.
Step Test Mode: This method initiates the different
components of the unit, one at a time, by temporarily
shorting across the two test terminals for two or three
seconds.
For the initial start-up of the unit, this method initiates the
different components of the unit, one at a time, by
temporarily shorting across the two test terminals for two
or three seconds.
Resistance Test Mode: This method may be used for
start-up providing a decade box for variable resistance
outputs.This method initiates the different components of
the unit, one at a time, when a specific resistance value is
placed across the two test terminals.The unit will remain
in the specific test mode for approximately one hour even
though the resistance is left on the test terminals.
Auto Test Mode: This method is not recommended for
start-up due to the short timing between individual
component steps.This method initiates the different
components of the unit, one at a time, when a jumper is
installed across the test terminals.The unit will start the
first test step and change to the next step every 30
seconds. At the end of the test mode, control of the unit
will automatically revert to the applied SYSTEM control
method.
For unit test steps, test modes and step resistance values
to cycle the various components, see Table 9.

Pre-Start
48 WSHP-SVX12B-EN
Verifying Proper Air Flow (Units with DD
Indoor Fan)
Much of the systems performance and reliability is closely
associated with, and dependent upon having the proper
airflow supplied both to the space that is being
conditioned and across the evaporator coil.
The fan motor is factory wired to operate on low speed in
the cooling and heating mode. It can be rewired for high
speed operation should the application require it. Refer to
the wiring diagram on the unit.
The fan motor is specifically designed to operate within
the Blower Horse Power (BHP) parameters listed in the fan
performance tables of the unit Service Facts. By
understanding that these motors will safely work within
these conditions, before an oversized motor is required,
will allow the air distribution system to be set up properly
and diagnostics enhanced should a problem occur.
When verifying direct drive fan performance, the tables
must be used somewhat differently than those of belt
driven fans. Fan performance diagnostics can be easily
recognized when these tables are used correctly.
Before starting the SERVICETEST, set the minimum
position setpoint for the economizer to 0% using the
setpoint potentiometer located on the Economizer Control
(ECA), if applicable.
Using Table 9, momentarily jump across theTest 1 and
Test 2 terminals on LTB1 one time to start the minimum
ventilation test.
With the fan operating properly, determine the total
system external static pressure (inches w.c.) by:
1. Measuring the supply and return duct static pressure.
2. Using the accessory pressure drop table in the Service
Facts, calculate the total static pressure drop for all of
the accessories installed on the unit; (i.e. curb,
economizer, etc.)
Note: Static pressure is based on desired CFM and may
not be actual static pressure.
3. Add the total accessory static pressure drop (Step 2) to
the duct external static pressure (Step 1).The sum of
these two values represents the total system external
static pressure.
4. Measure the amperage at the supply fan contactor and
compare it with the full load amp (FLA) rating printed
on the motor nameplate.
a. Calculate the theoretical BHP
b. Using the fan performance tables in the unit Service
Facts, plot the total external static pressure (Step 3)
and the BHP (Step 4a) to obtain the operating CFM.
When plotted, if the two values can not be interpolated
correspondingly, the static pressure will most likely be
the least accurate measurement. Because of the direct
drive motor operation, the RPM performance is
relatively constant making the operating current a very
reliable diagnostic tool.
Example: GERE060 single phase, low speed
Table 9. ServiceTest Guide
Test Step Mode Fan
Econ
(Note 2) Compr 1 Compr 2 Heat 1 Heat 2 Ohms
1Fan ON Min Position
Setpoint 0% OFF OFF OFF OFF 2.2K
Min Ventilation ON Selectable OFF OFF OFF OFF
2EconomizerTest
Open ON OPEN OFF OFF OFF OFF 3.3K
3 CoolStage-1 ON Min Position ON(Note 1) OFF OFF OFF 4.7K
4(Note 3) CoolStage-2 ON Min Position ON(Note 1) ON (Note 1) OFF OFF 6.8K
5(Note 3) Heat Stage-1 ON Min OFF OFF ON OFF 10K
6(Note 3) HeatStage-2 ON Min OFF OFF ON ON 15K
Notes:
1. The condenser fans will operate any time a compressor is ON providing the outdoor temperatures are within the
operating values.
2. The exhaust fan will turn on anytime the economizer damper position is equal to or greater than the exhaust fan
setpoint.
3. Steps for optional accessories and non-applicable modes in unit will be skipped.
WARNING
Live Electrical Components!
During installation, testing, servicing and
troubleshooting of this product, it may be necessary to
work with live electrical components. Have a qualified
licensed electrician or other individual who has been
properly trained in handling live electrical components
perform these tasks. Failure to follow all electrical safety
precautions when exposed to live electrical
components could result in death or serious injury.
Actual Motor Amps x Motor HP
Motor Nameplate Amps
Actual Motor Amp (5.25) = 99%
Motor Nameplate Amps (5.3)

Pre-Start
WSHP-SVX12B-EN 49
0.99 x Motor HP (0.6) = .59 BHP
The actual external static pressure is approximately
0.45" w.c., airflow equals 2100 CFM.
If the static pressure reading was higher, motor current
would have to be lower proportionately to get an
accurate CFM measurement in direct drive
applications.
5. If the required CFM is too low, (external static pressure
is high causing motor HP output to be below table
value),
a. Relieve supply and/or return duct static.
b. Change indoor fan speed to HIGH and repeat steps
1 through 4.
6. If the required CFM is too high, (external static
pressure is low causing motor HP output to be above
table value), increase supply and/or return duct static.
7. To stop the SERVICETEST, turn the main power
disconnect switch to the OFF position or proceed to the
next component start-up procedure.
Verifying Proper Air Flow (Units with Belt
Drive Fan)
Much of the systems performance and reliability is closely
associated with, and dependent upon having the proper
airflow supplied both to the space that is being
conditioned and across the evaporator coil.
The fan speed is changed by opening or closing the
adjustable motor sheave.
Before starting the SERVICETEST, set the minimum
position setpoint for the economizer to 0% using the
setpoint potentiometer located on the Economizer Control
(ECA), if applicable.
Using Table 9, p. 48, momentarily jump across theTest 1
andTest 2 terminals on LTB1 one time to start the
minimum ventilation test.
Once the supply fan has started, check for proper rotation.
The direction of rotation is indicated by an arrow on the fan
housing. With the fan operating properly, determine the
total system airflow (CFM) by;
1. Measuring the actual RPM
2. Measure the amperage at the supply fan contactor and
compare it with the full load amp (FLA) rating printed
on the motor nameplate.
a. Calculate the theoretical BHP.
b. Using the fan performance tables in the unit Service
Facts, plot the total external static pressure (Step 1)
and the BHP (Step 2) to obtain the operating CFM.
3. If the required CFM is too low, (external static pressure
is high causing motor HP output to be below table
value),
a. Relieve supply and/or return duct static.
b. Change fan speed and repeat steps 1 and 2.
4. To increase fan RPM; Loosen the pulley adjustment set
screw and turn sheave clockwise.
5. To decrease fan RPM; Loosen the pulley adjustment set
screw ant turn sheave counterclockwise.
6. If the required CFM is too high, (external static
pressure is low causing motor HP output to be above
table value), change fan speed and repeat steps 1 and
2.
7. To stop the SERVICETEST, turn the main power
disconnect switch to the OFF position or proceed to the
next component start-up procedure.
Fan Belt Adjustment (Units with Belt Drive
Fan)
The fan belts must be inspected periodically to assure
proper unit operation.
Replacement is necessary if the belts appear frayed or
worn. Units with dual belts require a matched set of belts
to ensure equal belt length.
WARNING
Rotating Components!
During installation, testing, servicing and
troubleshooting of this product it may be necessary to
measure the speed of rotating components. Have a
qualified or licensed service individual who has been
properly trained in handling exposed rotating
components perform these tasks. Failure to follow all
safety precautions when exposed to rotating
components could result in death or serious injury.
WARNING
Live Electrical Components!
During installation, testing, servicing and
troubleshooting of this product, it may be necessary to
work with live electrical components. Have a qualified
licensed electrician or other individual who has been
properly trained in handling live electrical components
perform these tasks. Failure to follow all electrical
safety precautions when exposed to live electrical
components could result in death or serious injury.
Actual Motor Amps x Motor HP
Motor Nameplate Amps

Pre-Start
50 WSHP-SVX12B-EN
When moving or installing the new belts, do not stretch
them over the sheaves. Loosen the belts using the belt
tension adjustment bolts on the motor mounting base.
Once the new belts are installed, using a Browning™ or
Gates™ tension gauge (or equivalent) illustrated in
Figure 31; adjust the belt tension as follows:
1. To determine the appropriate belt deflection;
a. Measure the center-to-center shaft distance (in
inches) between the fan and motor sheaves.
b. Divide the distance measure in Step 1a by 64; the
resulting value represents the amount of belt
deflection that corresponds to the proper belt
tension.
2. Set the large O-ring on the belt tension gauge at the
deflection value determined in Step 1b.
3. Set the small O-ring at zero on the force scale of the
gauge plunger.
4. Place the large end of the gauge at the center of the belt
span; then depress the gauge plunger until the large O-
ring is even with the top of the next belt or even with
the straightedge placed across the fan and motor
sheaves.
5. Remove the belt tension gauge.The small O-ring now
indicates a number other than zero on the plunger’s
force scale.This number represents the force (in
pounds) required to give the needed deflection.
6. Compare the "force" scale reading (Step 5) with the
appropriate "force" value listed in Table 10.Ifthe
"force" reading is outside the range, readjust the belt
tension.
Note: Actual belt deflection "force" must not exceed the
maximum force value shown in Table 10.
7. Recheck the belt tension at least twice during the first
2 to 3-days of operation. Belt tension may decrease
until the new belts are "run-in".
Return Air Smoke Detector
The return air smoke detector is designed to shut off the
unit if smoke is sensed in the return air stream. Sampling
the airflow entering the unit at the return air opening
performs this function.
In order for the smoke detector to properly sense smoke in
the return air stream, the air velocity entering the unit must
be between 500 and 4000 feet per minute. Equipment
covered in this manual will develop an airflow velocity that
falls within these limits over the entire airflow range
specified in the fan performance tables.
WARNING
Rotating Components!
During installation, testing, servicing and
troubleshooting of this product it may be necessary to
measure the speed of rotating components. Have a
qualified or licensed service individual who has been
properly trained in handling exposed rotating
components perform these tasks. Failure to follow all
safety precautions when exposed to rotating
components could result in death or serious injury.
Figure 31. Belt tension gauge
Table 10. Belt tension measurement an deflection
ranges
Belts Cross Section A B
Small P.D. Range
3.0 - 3.6 3.4 - 4.2
3.8 - 4.8 4.4 - 5.6
5.0 - 7.0 5.8 - 8.8
Super Gripbelts
Min 3 4
Max 4.5 5.5
Min 3.5 5.125
Max 5 7.125
Min 4 6.375
Max 5.5 8.75
Gripnotch
Min 3.875 5.75
Max 5.5 8
Min 4.5 6.5
Max 6.25 9.125
Min 5 7.375
Max 6.875 10.125
Steel Cable
Gripbelts
Min 3.25 4.5
Max 4 5.5
Min 3.75 5.75
Max 4.75 7.25
Min 4.25 7
Max 5.25 8.75

Pre-Start
WSHP-SVX12B-EN 51
There are certain models however, if operated at low
airflow, will not develop an airflow velocity that falls within
the required 500 to 4000 feet per minute range. For these
models, the design airflow shall be greater than or equal
to the minimum CFM specified in W_C-IOM-1B manual.
Failure to follow these instructions will prevent the smoke
detector from performing its design function.
Economizer Start-Up
Using Table 9, p. 48 momentarily jump across theTest 1
andTest 2 terminals on LTB1 one time to start the
minimum ventilation test.
1. Set the minimum position setpoint for the economizer
to the required percentage of minimum ventilation
using the setpoint potentiometer located on the
Economizer Control (ECA).
The economizer will drive to its minimum position
setpoint, exhaust fans (if applicable) may start at
random, and the supply fan will start when the
SERVICETEST is initiated.
The exhaust fan will start anytime the economizer
damper position is equal to or greater than the exhaust
fan setpoint.
2. Verify that the dampers stroked to the minimum
position.
3. Verify ambient sesor has been mouted into inside
corner post grommet.
ReliaTel Control
1. Momentarily jump across theTest 1 and Test 2
terminals on LTB1 one additional time if continuing
from previous component start-up or until the desired
start-up component test is started.
2. Verify that the dampers stroked to the full open
position.
3. To stop the SERVICETEST, turn the main power
disconnect switch to the OFF position or proceed to the
next component start-up procedure.
Compressor Start-Up
Using the service test guide in Table 9, p. 48, continue the
SERVICETEST start-up procedure for each compressor
circuit.
1. Attach a set of service gauges onto the suction and
discharge gauge ports for each circuit. Refer to the
refrigerant circuit illustration in the Service Facts.
2. Momentarily jump across theTest 1 and Test 2
terminals on the LTB one additional time if continuing
from previous component start-up or until the desired
start-up componentTest is started.
3. Scroll Compressors
a. Once each compressor has started, verify that the
rotation is correct. If a scroll compressor is rotating
backwards, it will not pump and a loud rattling
sound can be observed.
b. If the electrical phasing is correct, before
condemning a compressor, interchange any two
leads (at the compressorTerminal block) to check
the internal phasing. Refer to p. 47 for phase
sequencing. If the compressor runs backward for an
extended period (15 to 30 minutes), the motor
winding can overheat and cause the motor winding
thermostat to open.
c. Check the compressor oil levels.The oil lever in
each compressor sight glass should be 1/2 to 3/4 full
when they are OFF.
Note: The scroll compressor usesTrane OIL-42 without
substitution.The appropriate oil charge for a 9 and
10-ton scroll compressor is 8-pints. For a 14 and 15-
ton scroll compressor, use 14 pints.
4. After the compressor and condenser fan have started
and operated for approximately 30-minutes, observe
the operating pressures. Compare the operating
pressures to the operating pressure curve in the
Service Facts.
5. Check system superheat. Follow the instruction list on
the superheat charging curve in the Service Facts.
Note: Superheat should be within ±5° F of the superheat
chart value.
6. Repeat steps 1 through 4 for each refrigerant circuit.
7. To stop the SERVICETEST, turn the main power
disconnect switch to the OFF position or proceed to the
next component start-up procedure.
WARNING
Unexpected Fan Start Up!
The supply fan will start when Service Test is initiated
and the exhaust fan may start at random. The exhaust
fan will start anytime the economizer damper position
is equal to or greater than the exhaust fan setpoint.
Leave all access panels and guards to fan sections in
place when performing minimum ventilation test.
Failure to follow proper procedure could result in death
or serious injury.
WARNING
Live Electrical Components!
During installation, testing, servicing and
troubleshooting of this product, it may be necessary to
work with live electrical components. Have a qualified
licensed electrician or other individual who has been
properly trained in handling live electrical components
perform these tasks. Failure to follow all electrical
safety precautions when exposed to live electrical
components could result in death or serious injury.

Pre-Start
52 WSHP-SVX12B-EN
Heating Start-up
Using Table 9, p. 48 continue the SERVICETEST start-up
procedure for each compressor circuit.
1. Clamp an amp meter around one of the first stage
heater power wires at the heater contactor.
2. Momentarily jump across theTest 1 and Test 2
terminals on LTB one additional time if continuing
from previous component start-up or until the desired
start-up component test is started.
3. Verify that the heater stage is operating properly.
4. Clamp an amp meter around one of the two stage
heater power wires at the heater contactor (if
applicable).
5. Momentarily jump across the test 1 and test 2
terminals on LTB one additional time if continuing
from previous component start-up or until the desired
start-up component test is started.
6. Verify that the heater stage is operating properly.
7. To stop the SERVICETEST, turn the main power
disconnect switch to the OFF position or proceed to the
next component start-up procedure.
Pre-Startup Checklist
Before energizing the unit, the following system devices
must be checked:
• Check all electrical connections for tightness and point
of termination accuracy.
• Is the high voltage power supply correct and in
accordance with the nameplate ratings?
• Is phasing of the unit correct per compressor rotation?
• Is the field wiring and circuit protection the correct
size?
• Is the low voltage control circuit wiring correct per the
unit wiring diagram?
• Is the piping system clean/complete and correct? (A
recommendation of all system flushing of debris from
the water-to-refrigerant heat exchanger, along with air
purging from the water-to-refrigerant heat exchanger
be done in accordance with the Closed-Loop/Ground
Source Heat Pump Systems Installation Guide).
• Is unit serviceable? (See section “Unit Clearances,”
p. 10 for clearance recommendations.)
• Are the low/high-side pressure temperature caps
secure and in place?
• Is the thermostat in the OFF position?
• Is the water flow established and circulating through
all the units?
• Is the duct work correctly sized, run, taped, insulated
and weather proofed with proper unit arrangement?
• Is the condensate line properly sized, run, trapped and
pitched?
• Is the zone sensor (when used) correctly wired and in
a proper location?
• Does the indoor blower turn freely without rubbing
and is it properly tightened on the shaft? Check the
supply fan belts (if applicable) for proper tension and
the fan bearings for sufficient lubrication. If the belts
require adjustment, or if the bearings need lubricating,
refer to the maintenance section for instructions.
• Has all work been done in accordance with applicable
local and national codes?
• Has heat transfer fluid been added in the proper mix to
prevent freezing in closed system application?
• Are all the unit access panels secure and in place? And,
is unit interior free from tools or debris?
• Verify that the Remote panel SYSTEM selection switch,
FAN selection switch, and ZONETEMPERATURE
settings for automatic operation are correct.
• Is the main disconnect switch or circuit protector
switch that provides the supply power to the unit’s
terminal block or the unit mounted disconnect switch
closed?
• Is the Night Setback panel (if applicable) programmed
for proper unoccupied operation?
• For units with economizer option verify ambient
sensor is mounted inside corner post grommet.
WARNING
Live Electrical Components!
During installation, testing, servicing and
troubleshooting of this product, it may be necessary to
work with live electrical components. Have a qualified
licensed electrician or other individual who has been
properly trained in handling live electrical components
perform these tasks. Failure to follow all electrical
safety precautions when exposed to live electrical
components could result in death or serious injury.

WSHP-SVX12B-EN 53
Start Up
Use this form to thoroughly check-out the system and
units before and during start-up. (This form need not be
returned to the factory unless requested during technical
service support).
In order to minimize troubleshooting and costly system
failures, complete the following checks and data entries
before the system is put into full operation.
Initial Unit Start-up
Start-up with the conventional thermostat is included
below:
1. Set the thermostat to the highest position.
2. Set the thermostat system switch to COOL with the fan
control to AUTO.The compressor should NOT run.
3. Reduce the thermostat setting until the compressor,
reversing valve, solenoid valve, and loop pump are
energized. Adjust water flow utilizing pressure/
temperature plugs and comparing to tables contained
in specification sheet data. Water leaving the heat
exchanger should be warmer than the entering water
temperature (approximately 9°F-12°F); blower
operation should be smooth; compressor and blower
amps should be within data plate ratings; the suction
line should be cool with no frost observed in the
refrigerant circuit.
4. Check the cooling refrigerant pressures.
5. Turn the thermostat system switch to the OFF position.
Unit should stop running and the reversing valve
should de-energize.
6. Leave unit off for approximately FIVE minutes to allow
for pressure equalization.
7. Turn the thermostat to the lowest setting.
8. Set the thermostat system switch to the HEAT position.
9. Adjust the temperature setting upward until the unit is
energized. Warm air should blow from the register. A
water temperature decrease of approximately 5° F to 9°
F leaving the heat exchanger should be noted.The
blower and compressor operation should be smooth
with no frost observed in the refrigeration circuit.
10. Check the heating refrigerant pressures.
11. Set the thermostat to maintain the desired space
temperature.
12. Instruct the owner on system operation.
Job Name:
Model Number:
Date:
Serial Number:
MODE Heat Cool
Entering fluid temperature degrees F
Leaving fluid temperature degrees F
Temperature differential degrees F
Return air temperature DB/WB degrees F
Supply air temperature DB/WB degrees F
Temperature differential degrees F
Water coil heat exchanger (Water
Pressure IN) PSIG
Water coil heat exchanger (Water
Pressure OUT) PSIG
Pressure Differential PSIG
COMPRESSOR
Amps
Volts
Discharge line temperature (after 10
minutes) degrees F

Start Up
54 WSHP-SVX12B-EN
Water Pressure Drop
Table 11 and Table 12 should be used to define feet of
head/pressure drop. Please note the feet of pressure (ft/
head) provided is at ARI/ISO standard.
Note: To calculate feet of head, when using gauges that
read in PSIG, multiply PSI by 2.31.
Table 11. Cooling water pressure drops (WPD) in feet of
head
Unit Size EWTF GPM Ft.Pressure
036 86 9.0 11.0
048 86 12.0 9.0
060 86 15.0 13.3
072 86 18.0 11.4
090 86 22.5 12.1
120 86 30.0 15.2
150 86 37.5 13.7
180 86 45 19.3
240 86 60 13.2
300 86 75 13.1
Table 12. Heating water pressure drops (WPD) in feet of
head
Unit Size EWTF GPM Ft. Pressure
036 68 9.0 12.0
048 68 12.0 9.7
060 68 15.0 14.3
072 68 18.0 12.3
090 68 22.5 13.1
120 68 30.0 16.4
150 68 37.5 14.8
180 68 45 20.8
240 68 60 14.3
Table 13. Water volume
Unit Size
Water Side
Volume Cubic
In.
Water Side
Volume Cubic
Ft.
Water Side
Volume Gallons
036 76 .044 .329
048 171 .099 .74
060 171 .099 .74
072 259 .15 1.121
090 210 .122 .910
120 342 .198 1.48
150 508 .296 2.201
180 508 2.96 2.201
240 779 .453 3.374
300 1057 .615 4.576

WSHP-SVX12B-EN 55
Maintenance
Preventive Maintenance
Maintenance on the unit is simplified with the following
preventive suggestions:
Filter maintenance must be performed to assure proper
operation of the equipment. Filters should be inspected at
least every three months, and replaced when it is evident
they are dirty. Filter sizing includes:
Check the contactors and relays within the control panel at
least once a year. It is good practice to check the tightness
of the various wiring connections within the control panel.
A strainer (60 mesh or greater) must be used on an open
loop system to keep debris from entering the unit heat
exchanger and to ensure a clean system.
For units on well water, it is important to check the
cleanliness of the water-to-refrigerant heat exchanger.
Should it become contaminated with dirt and scaling as a
result of bad water, the heat exchanger will have to be back
flushed and cleaned with a chemical that will remove the
scale.This service should be performed by an experienced
water treatment specialist.
It should be noted that the water quality should be checked
periodically. (See Table 15).
Note: For other maintenance information concerning the
GERA unit, please read W_C-IOM-1*.
Table 14. Filter sizing
Unit Size
Filter Size
nominal inch
036-048 2/ 20 x 30 x 1
060 4/16 x 25 x 2
072-090 4/ 16 x 25 x 2
120 4/ 20 x 25 x 2
150, 180, 300
Downflow
4/20 x 20 x 2
4/20 x 25 x 2
150, 180, 300
Horizontal 8/20 x 25 x 2
240 Downflow 8/20 x 20 x 2
4/20 x 16 x 2
240 Horizontal 12/20 x 20 x 2
WARNING
Hazardous Voltage!
Disconnect all electric power, including remote
disconnects before servicing. Follow proper lockout/
tagout procedures to ensure the power can not be
inadvertently energized. Failure to disconnect power
before servicing could result in death or serious injury.
WARNING
Hazardous Chemicals!
Coil cleaning agents can be either acidic or highly
alkaline. Handle chemical carefully. Proper handling
should include goggles or face shield, chemical
resistant gloves, boots, apron or suit as required. For
personal safety, refer to the cleaning agent
manufacturers Materials Safety Data Sheet and follow
all recommended safe handling practices. Failure to
follow all safety instructions could result in death or
serious injury.
Table 15. Water quality
Scaling
Calcium and magnesium (total hardness) Less than 350 ppm
Corrosion
pH
Hydrogen Sulfide
Sulfates
Chlorides
Carbon Dioxide
Total dissolved solids (TDS)
7-9.5
Less than 1 ppm
Less than 25 ppm
Less than 125 ppm
Less than 75 ppm
Less than 1000 ppm
Biological Growth
Iron Bacteria Low
Erosion
Suspended Solids Low

56 WSHP-SVX12B-EN
Troubleshooting
WARNING
Hazardous Service Procedures!
The maintenance and trouble shooting procedures
recommended in this section of the manual could result
in exposure to electrical, mechanical or other potential
safety hazards. Always refer to the safety warnings
provided throughout this manual concerning these
procedures. When possible, disconnect all electrical
power including remote disconnects before servicing.
Follow proper lockout/tagout procedures to ensure the
power can not be inadvertently energized. When
necessary to work with live electrical components, have
a qualified licensed electrician or other individual who
has been trained in handling live electrical components
per these tasks. Failure to follow all of the
recommended safety warnings provided, could result in
death or serious injury.
Table 16. Troubleshooting
Problem Heating Cooling Cause Correction
No response to any
thermostat setting
X X Main power off Check fuses
X X Defective control transformer Replace
X X Broken or loose connection Repair
X X Defective thermostat Replace
X X Transformer Reset Transformer
Unit short cycles X X Thermostat or sensor improperly located Relocate
Blower runs, but compressor
does not
X X Defective compressor overload Replace (if external)
X X Defective compressor contactor Replace
X X Supply Voltage too low Correct
X X Defective compressor capacitor Replace
X X Defective windings Replace
X X Limit switches open Check cause/Replace or repair
Insufficient capacity
X X Dirty filter Replace/clean
X X Blower RPM too low Correct
XX
Loss of conditioned air due to leaks in
ductwork Repair leaks
X Introduction of excessively hot return air Correct
X Introduction of excessively cold return air Correct
X X Low on refrigerant charge Locate leak, repair and recharge by weight
(not by superheat)
X X Restricted thermal expansion valve Replace
X X Defective reversing valve See WSHP-IOM-# for touch test chart
X X Thermostat improperly located Relocate
X X Unit undersized Recalculate heat gains/losses
X X Inadequate water flow Increase GPM
X X Scaling in heat exchanger Clean or replace
X Water too hot Decrease temperature
X Water too cold Increase temperature

Troubleshooting
WSHP-SVX12B-EN 57
High pressure switch open
X Inadequate GPM Increase water flow to unit
X Water too hot Decrease temperature
X Inadequate air flow Check, clean blower and coil
X Dirty filter Clean/replace
X X Overcharged with refrigerant Decrease charge
X X Defective pressure switch Check or replace
High head pressure
X Trash in heat exchanger Backflush
X Low water flow Increase GPM
X X Overcharge of refrigerant Decrease charge
X X Non-condensable in system Evacuate and recharge by weight
X X Water too hot Decrease temperature
X Dirty filter Clean / replace
X Inadequate air flow Check, clean blower and coil
Low suction pressure
X X Undercharged Locate leak, repair and recharge
X X Restricted thermal expansion valve Repair / replace
X Inadequate air flow Check, clean blower and coil
X Dirty filter Clean/replace
X Inadequate GPM Increase GPM
Low Pressure switch open
X Inadequate GPM Increase GPM
X Water too cold Increase temperature
X Inadequate air flow Increase CFM
X Dirty filter Clean/replace
X X Undercharged with refrigerant Increase charge
X X Defective pressure switch Replace
X X Heat transfer fluid too cold Raise water temperature
Table 16. Troubleshooting (continued)
Problem Heating Cooling Cause Correction

58 WSHP-SVX12B-EN
Warranty
Standard Warranty
The standard water-source heat pump warranty isTrane
parts-only warranty, running 12 months from startup, not
to exceed 18-months from shipment.
Extended Warranty
The optional extended warranty is a second through fifth
year warranty.The time starts at the end of the standard 1-
year coverage through the fifth year.
These extended warranties apply only to new equipment
installed in domesticTrane Commercial Systems Group
sales territories and must be ordered prior to start-up.

Trane optimizes the performance of homes and buildings around the world. A business of Ingersoll Rand, the leader in
creating and sustaining safe, comfortable and energy efficient environments,Trane offers a broad portfolio of advanced
controls and HVAC systems, comprehensive building services, and parts. For more information, visit www.Trane.com.
Trane has a policy of continuous product and product data improvement and reserves the right to change design and specifications without notice.
We are committed to using environmentally
conscious print practices that reduce waste.
© 2013Trane All rights reserved
WSHP-SVX12B-EN 01 Aug 2013
Supersedes WSHP-SVX12A-EN (30 Apr 2012)