Trane Stealth Helical Rotary Rtae Installation And Maintenance Manual SVX001B EN (10/2014)
2015-04-02
: Trane Trane-Stealth-Helical-Rotary--Rtae-Installation-And-Maintenance-Manual-684174 trane-stealth-helical-rotary--rtae-installation-and-maintenance-manual-684174 trane pdf
Open the PDF directly: View PDF
.
Page Count: 96
- Warnings, Cautions and Notices
- Model Number Description
- Model Number Descriptions
- General Information
- General Data
- Pre-Installation
- Dimensions and Weights
- Installation Mechanical
- Installation Electrical
- Operating Principals
- Controls
- Pre-Start
- Start-Up and Shutdown
- Unit Start-Up
- Temporary Shutdown And Restart
- Extended Shutdown Procedure
- Seasonal Unit Start-Up Procedure
- System Restart After Extended Shutdown
- Sequence of Operation
- Software Operation Overview
- Timelines
- Power Up Diagram
- Power Up to Starting
- Stopped to Starting
- Running (Lead Compressor/Circuit Start and Run)
- Running (Lag Compressor/Circuit Start and Run)
- Satisfied Setpoint
- Normal Shutdown to Stopped or Run Inhibit
- Immediate Shutdown to Stopped or Run Inhibit
- Ice Making (Running to Ice Making to Running)
- Ice Making (Auto to Ice Making to Ice Making Complete)
- Maintenance
- Diagnostics
- Unit Wiring
- Log and Check Sheet

SAFETY WARNING
Only qualified personnel should install and service the equipment. The installation, starting up, and servicing of heating, ventilating, and air-
conditioning equipment can be hazardous and requires specific knowledge and training. Improperly installed, adjusted or altered equipment
by an unqualified person could result in death or serious injury. When working on the equipment, observe all precautions in the literature and
on the tags, stickers, and labels that are attached to the equipment.
Stealth™ Air-Cooled Chiller
Model RTAE
150 to 300 Nominal Tons
Installation, Operation,
and Maintenance
RTAE-SVX001B-EN
October 2014

© 2014Trane All rights reserved RTAE-SVX001B-EN
Warnings, Cautions and Notices
Warnings, Cautions and Notices. Note that warnings,
cautions and notices appear at appropriate intervals
throughout this manual. Warnings are provided to alert
installing contractors to potential hazards that could result
in death or personal injury. Cautions are designed to alert
personnel to hazardous situations that could result in
personal injury, while notices indicate a situation that
could result in equipment or property-damage-only
accidents.
Your personal safety and the proper operation of this
machine depend upon the strict observance of these
precautions.
Read this manual thoroughly before operating or servicing
this unit.
Important
Environmental Concerns!
Scientific research has shown that certain man-made
chemicals can affect the earth’s naturally occurring
stratospheric ozone layer when released to the
atmosphere. In particular, several of the identified
chemicals that may affect the ozone layer are refrigerants
that contain Chlorine, Fluorine and Carbon (CFCs) and
those containing Hydrogen, Chlorine, Fluorine and
Carbon (HCFCs). Not all refrigerants containing these
compounds have the same potential impact to the
environment.Trane advocates the responsible handling of
all refrigerants-including industry replacements for CFCs
such as HCFCs and HFCs.
Responsible Refrigerant Practices!
Trane believes that responsible refrigerant practices are
important to the environment, our customers, and the air
conditioning industry. All technicians who handle
refrigerants must be certified.The Federal Clean Air Act
(Section 608) sets forth the requirements for handling,
reclaiming, recovering and recycling of certain
refrigerants and the equipment that is used in these
service procedures. In addition, some states or
municipalities may have additional requirements that
must also be adhered to for responsible management of
refrigerants. Know the applicable laws and follow them.
ATTENTION: Warnings, Cautions and Notices appear at
appropriate sections throughout this literature. Read
these carefully:
WARNING Indicates a potentially hazardous
situation which, if not avoided, could
result in death or serious injury.
CAUTIONsIndicates a potentially hazardous
situation which, if not avoided, could
result in minor or moderate injury. It
could also be used to alert against
unsafe practices.
NOTICE: Indicates a situation that could result in
equipment or property-damage only
WARNING
Refrigerant under High Pressure!
System contains oil and refrigerant under high
pressure. Recover refrigerant to relieve pressure before
opening the system. See unit nameplate for refrigerant
type. Do not use non-approved refrigerants, refrigerant
substitutes, or refrigerant additives. Failure to recover
refrigerant to relieve pressure or the use of non-
approved refrigerants, refrigerant substitutes, or
refrigerant additives could result in an explosion which
could result in death or serious injury or equipment
damage.
WARNING
Personal Protective Equipment (PPE)
Required!
Installing/servicing this unit could result in exposure to
electrical, mechanical and chemical hazards.
• Before installing/servicing this unit, technicians
MUST put on all PPE required for the work being
undertaken (Examples; cut resistant gloves/sleeves,
butyl gloves, safety glasses, hard hat/bump cap, fall
protection, electrical PPE and arc flash clothing).
ALWAYS refer to appropriate Material Safety Data
Sheets (MSDS)/Safety Data Sheets (SDS) and OSHA
guidelines for proper PPE.
• When working with or around hazardous chemicals,
ALWAYS refer to the appropriate MSDS/SDS and
OSHA/GHS (Global Harmonized System of
Classification and Labelling of Chemicals) guidelines
for information on allowable personal exposure
levels, proper respiratory protection and handling
instructions.
• If there is a risk of energized electrical contact, arc, or
flash, technicians MUST put on all PPE in accordance
with OSHA, NFPA 70E, or other country-specific
requirements for arc flash protection, PRIOR to
servicing the unit. NEVER PERFORM ANY
SWITCHING, DISCONNECTING, OR VOLTAGE
TESTING WITHOUT PROPER ELECTRICAL PPE AND
ARC FLASH CLOTHING. ENSURE ELECTRICAL
METERS AND EQUIPMENT ARE PROPERLY RATED
FOR INTENDED VOLTAGE.
Failure to follow instructions could result in death or
serious injury.

Warnings, Cautions and Notices
RTAE-SVX001B-EN 3
Factory Warranty Information
Compliance with the following is required to preserve the
factory warranty:
All Unit Installations
Startup MUST be performed by Trane, or an authorized
agent ofTrane, to VALIDATE this WARRANTY. Contractor
must provide a two-week startup notification toTrane (or
an agent ofTrane specifically authorized to perform
startup).
Copyright
This document and the information in it are the property of
Trane, and may not be used or reproduced in whole or in
part without written permission.Trane reserves the right
to revise this publication at any time, and to make changes
to its content without obligation to notify any person of
such revision or change.
Trademarks
All trademarks referenced in this document are the
trademarks of their respective owners.
Revision History
RTAE-SVX001B-EN (29 Oct 2014)
• Added transformer option.
• Added harmonic filter option.
• Added 150T and 165T single circuit units.
• Added extreme low ambient option.
• Added seismic isolation option.
• Added CE/PED option.
• Updated unit weights and isolator information.
• Updated drive cooling fluid volumes.
• Modified oil sump check procedure.
RTAE-SVX001A-EN (24 Sep 2013)
New release.
WARNING
Proper Field Wiring and Grounding
Required!
All field wiring MUST be performed by qualified
personnel. Improperly installed and grounded field
wiring poses FIRE and ELECTROCUTION hazards.To
avoid these hazards, you MUST follow requirements for
field wiring installation and grounding as described in
NEC and your local/state electrical codes. Failure to
follow code could result in death or serious injury.

4 RTAE-SVX001B-EN
Table of Contents
Warnings, Cautions and Notices .......... 2
Factory Warranty Information ........... 3
Copyright ............................. 3
Trademarks ........................... 3
Revision History ....................... 3
Model Number Description ............... 6
Outdoor Unit Nameplate ............... 6
Compressor Nameplate ................ 6
Model Number Descriptions .............. 7
Unit Model Number .................... 7
Compressor Model Number ............ 8
Compressor Serial Number ............. 8
General Information ..................... 9
Unit Description ....................... 9
Accessory/Option Information ........... 9
General Data ........................... 10
Drive Cooling System ................. 11
Pre-Installation ......................... 12
Unit Inspection ..................... 12
Inspection ......................... 12
Storage ........................... 12
Installation Requirements .............. 13
Dimensions and Weights ................ 14
Weights ............................. 14
Unit Dimensions ...................... 14
Service Clearances .................... 14
Installation Mechanical .................. 15
Location Requirements ................ 15
Sound Considerations ............... 15
Foundation ........................ 15
Clearances ......................... 15
Center of Gravity ..................... 20
Isolation and Sound Emission .......... 20
Unit Isolation and Leveling ........... 20
Compressor Shipping Bolt Removal .... 23
Units with InvisiSound™ Ultimate Option
(Model Number Digit 12 = 3) .......... 23
Drainage ............................ 23
Evaporator Piping Components ....... 25
Pressure Relief Valves ..................26
Evaporator Waterside Pressure Drop
Curves ...............................27
Freeze Protection ......................29
Low Evaporator Refrigerant Cutout,
Glycol Requirements ...................30
Installation Electrical .....................31
General Recommendations .............31
Adaptive Frequency™ Drive (AFD3)
Capacitor Discharge ..................32
Units with Nitrogen Charge Option .....32
Installer-Supplied Components ..........32
Power Supply Wiring .................33
Control Power Supply ................34
Service Power Connection ............34
Heater Power Supply .................34
Interconnecting Wiring .................35
Chilled Water Pump Control ...........35
Programmable Relays ..................35
Relay Assignments Using Tracer™ TU ...36
Low Voltage Wiring ....................36
Emergency Stop .....................36
External Auto/Stop ...................36
External Circuit Lockout –
Circuit #1 and #2 .....................36
Ice Building Option ..................37
External Chilled Water Setpoint (ECWS)
Option .............................37
External Demand Limit Setpoint (EDLS)
Option .............................37
Chilled Water Reset (CWR) ............38
Transformer Power Rating ..............39
Communications Interface ..............39
LonTalk Interface (LCI-C) ..............39
BACnet Interface (BCI-C) ..............39
Modbus Remote Terminal Unit Interface .39
Operating Principals .....................40
Refrigeration Circuits ..................40
Refrigeration Cycle ....................40
Refrigerant R-134a .....................40

RTAE-SVX001B-EN 5
Compressor and Lube Oil System ...... 40
Condenser and Fans .................. 40
Evaporator ........................... 41
Drive Cooling System ................. 41
Controls ............................... 42
UC800 Specifications .................. 42
Wiring and Port Descriptions ......... 42
Communication Interfaces ............ 43
Rotary Switches .................... 43
LED Description and Operation ........ 43
Tracer AdaptiView TD7 Display ......... 43
Operator Interface .................. 43
Main Display Area/Home Screen ...... 44
Viewing Chiller Operating Modes ..... 44
Alarms ........................... 46
Reports ........................... 47
Equipment Settings ................. 49
Display Settings .................... 51
Viewing the Settings Screen ......... 51
Cleaning the Display ................ 52
Security Settings ................... 52
Disabling/Enabling Security .......... 52
InvisiSound Ultimate - Noise Reduction
Mode ............................. 54
Tracer™ TU .......................... 55
Pre-Start ............................... 56
Start-Up and Shutdown ................. 57
Unit Start-Up ......................... 57
Temporary Shutdown And Restart ...... 57
Extended Shutdown Procedure ......... 57
Seasonal Unit Start-Up Procedure ...... 58
System Restart After Extended Shutdown 58
Sequence of Operation ................ 59
Software Operation Overview ......... 59
Timelines .......................... 59
Power Up Diagram .................. 60
Power Up to Starting ................ 61
Stopped to Starting ................. 62
Running (Lead Compressor/Circuit Start
and Run) .......................... 63
Running (Lag Compressor/Circuit
Start and Run) ......................63
Satisfied Setpoint ....................64
Normal Shutdown to Stopped or
Run Inhibit .........................65
Immediate Shutdown to Stopped or
Run Inhibit .........................65
Ice Making (Running to Ice Making to
Running) ...........................66
Ice Making (Auto to Ice Making to Ice
Making Complete) ...................67
Maintenance ............................68
Recommended Maintenance ............69
Weekly .............................69
Monthly ............................69
Annual .............................69
Refrigerant and Oil Charge Management .69
Lubrication System ....................69
Oil Sump Level Check ................69
Drive Cooling System ..................71
Service Intervals .....................71
Unit Diagnostics .....................71
pH Test ............................71
Pressure Relief Cap ..................71
Drive Cooling Expansion Tank .........71
Condenser Coils — Cleaning and
Inspection ............................72
Coil Cleaning and Inspection Interval ....72
Cleaning Air Side of RTAE Coils ........72
Cleaning Coated Coils ................72
Coil Corrosion Protection Inspection ....72
Reinstallation of Compressor Shipping
Bolts .................................72
Servicing Chiller Roof ................72
Diagnostics .............................73
AFD Diagnostics .......................73
Main Processor Diagnostics .............76
Communication Diagnostics ............85
Operator Display Diagnostics and
Messages ............................88
Unit Wiring .............................89
Log and Check Sheet ....................90

6 RTAE-SVX001B-EN
Model Number Description
Nameplates
The Stealth™ outdoor unit nameplates are applied to the
exterior of the Control Panel. A compressor nameplate is
located on each compressor. When the unit arrives,
compare all nameplate data with ordering, submittal, and
shipping information.
Outdoor Unit Nameplate
See Figure 1 for a typical unit nameplate.The outdoor unit
nameplate provides the following information:
• Unit model and size description.
• Unit serial number.
• Identifies unit electrical requirements.
• Lists correct operating charges of R-134a and
refrigerant oil (Trane OIL00311).
• Lists unit test pressures.
• Identifies installation, operation and maintenance and
service data literature.
• Lists drawing numbers for unit wiring diagrams.
Model Number Coding System
The model numbers for the unit and the compressor are
composed of numbers and letters that represent features
of the equipment. Shown in the following table is a sample
of typical unit model number and the coding system for
each.
Each position, or group of positions, in the model number
is used to represent a feature. For example, in the first
table, position 08 of the unit model number, Unit Voltage,
contains the number“4”.A 4 in this position means that the
unit voltage is 460/60/3.
Unit Model Number. An example of a typical unit
model number (M/N) is:
RTAE 200F UA01 AA1F N1X1 A1A0 0CB0 X02X AA03 000
Model number digits are selected and assigned in
accordance with the definitions as listed in “Unit Model
Number,” p. 7.
Compressor Nameplate
The compressor nameplate provides the following
information:
• Compressor model number. See “Compressor Model
Number,” p. 8.
• Compressor serial number. See “Compressor Serial
Number,” p. 8.
• Compressor electrical characteristics.
• Utilization range.
• Recommended refrigerant.
Figure 1. Typical unit nameplate

RTAE-SVX001B-EN 7
Model Number Descriptions
Unit Model Number
Digits 1,2 — Unit Model
RT = Rotary Chiller
Digits 3— Unit Type
A = Air-cooled
Digits 4 — Development
Sequence
E = Development Sequence
Digits 5-7 — Nominal Capacity
149 = 150 NominalTons Single Circuit
164 = 165 NominalTons Single Circuit
150 = 150 NominalTons
165 = 165 NominalTons
180 = 180 NominalTons
200 = 200 NominalTons
225 = 225 Nominal Tons
250 = 250 Nominal Tons
275 = 275 Nominal Tons
300 = 300 NominalTons
Digit 8— Unit Voltage
A = 200/60/3
B = 230/60/3
C = 380/50/3
D = 380/60/3
E = 400/50/3
F = 460/60/3
G = 575/60/3
H = 400/60/3
Digit 9 — Manufacturing
Location
U = Trane Commercial Systems,
Pueblo, CO USA
Digits 10, 11— Design Sequence
** = Factory assigned
Digit 12 — Unit Sound Package
1 = InvisiSound™ Standard Unit
2 = InvisiSound Superior
(Line Wraps, Reduced Fan
Speed)
3 = InvisiSound Ultimate
(Compressor Sound Attenuation,
Line Wraps, Reduced Fan Speed)
Digit 13 — Agency Listing
0 = No Agency Listing
A = UL/CUL Listing
C = CE European Safety Standard
Digit 14 — Pressure Vessel Code
A = ASME Pressure Vessel Code
D = Australia Pressure Vessel Code
C = CRN or Canada Equivalent
Pressure Vessel Code
L = Chinese Pressure Vessel Code
P = PED European Pressure Vessel
Code
Digit 15 — Factory Charge
1 = Refrigerant Charge HFC-134a
2 = Nitrogen Charge
Digit 16 — Evaporator
Application
F = Standard Cooling
(40 to 68°F/5.5 to 20°C)
G = LowTemp Process
(<40°F LeavingTemp)
C = Ice-making (20 to 68°F/-7 to 20°C)
w/ Hardwired Interface
Digit 17 — Evaporator
Configuration
N = 2 Pass Evaporator
P = 3 Pass Evaporator
Digit 18 — Evaporator Fluid
Type
1 = Water
2 = Calcium Chloride
3 = Ethylene Glycol
4 = Propylene Glycol
5 = Methanol
Digit 19 — Water Connection
X = Grooved Pipe
F = Grooved Pipe + Flange
Digit 20 — Flow Switch
1 = Factory Installed - Other Fluid
(15 cm/s)
2 = Factory Installed - Water 2
(35 cm/s)
3 = Factory Installed - Water 3
(45 cm/s)
Digit 21 — Insulation
A = Factory Insulation - All Cold Parts
0.75”
B = Evaporator-Only Insulation -
High Humidity/Low EvapTemp
1.25”
Digit 22 — Unit Application
1 = Standard Ambient
(32 to 105°F/0 to 40.6°C)
2 = Low Ambient
(0 to 105°F/-17.7 to 40.6°C)
3 = Extreme Low Ambient
(-20 to 105°F/-28.9 to 40.6°C)
4 = High Ambient
(32 to 125°F/0 to 52°C)
5 = Wide Ambient
(0 to 125°F/-17.7 to 52°C)
Digit 23 — Condenser Fin
Options
A = Aluminum Fins with Slits
D = CompleteCoat™ Epoxy Coated
Fins
Digits 24, 25 — Not Used
Digit 26 — Power Line
Connection Type
A = Terminal Block
C = Circuit Breaker
D = Circuit Breaker w/ High Fault
Rated Control Panel
Digit 27 — Short Circuit Current
Rating
A = Default A Short Circuit Rating
B = High A Short Circuit Rating
Digit 28 — Transformer
0 = No Transformer
1 = Factory InstalledTransformer
Digit 29 — Line Voltage
Harmonic Mitigation
X = Line Reactors (~30%TDD)
1 = Filter circuit (IEEE519 Compliant)
Digit 30 — Electrical
Accessories
0 = No Convenience Outlet
C = 15A 115V convenience Outlet
(Type B)
Digit 31 — Remote
Communication Options
0 = No Remote Digital
Communication
1 = LonTalk®Interface LCI-C
(Tracer™ Compatible)
2 = BACnet®MS/TP Interface
(Tracer compatible)
3 = ModBus™ Interface
Digit 32 — Hard Wire
Communication
X = None
A = Hard Wired Bundle - All
B = Remote Leaving WaterTemp
Setpoint
C = Remote Leaving temp and
Demand Limit Setpoints
D = Programmable Relay
E = Programmable Relay and
Leaving Water and Demand
Limit
Setpoint
F = Percent Capacity
G = Percent Capacity and Leaving
Water and Demand Limit
Setpoint
H = Percent Capacity and
Programmable Relay
Digit 33 — Not Used

Model Number Descriptions
8 RTAE-SVX001B-EN
Digit 34 — Structural Options
A = Standard Unit Structure
B = Seismic to International Building
Code (IBC)
C = California Office of Statewide
Health Planning and
Development (OSHPD)
Certification
D = Wind Load for Florida Hurricane
175 MPH
E = Seismic (IBC) and Wind Load
F = OSHPD and Wind Load
Digit 35 — Appearance Options
0 = No Appearance Options
A = Architectural Louvered Panels
Digit 36 — Unit Isolation
0 = No Isolation
1 = Elastomeric Isolators
3 = Seismic Rated Isopads
Digit 37 — Not Used
0 = Not Used
Digit 38 — Not Used
0 = Not Used
Digit 39 — Special
0 = None
S = Special
Compressor Model
Number
Digits 1-4 — Compressor Type
CHHS= Positive displacement, helical
rotary (twin screw) hermetic
compressor
Digit 5 — Frame Size
R = R Frame: 70 - 100 tons
S = S Frame: 112 - 165 tons
Digit 6— Motor Length
B=145mm
C=170mm
E=165mm
F=190mm
Digit 7 — Motor Winding
Characteristics
* = Factory assigned
Digit 8 — Volume Ratio
B = High Volume Ratio
Digit 9 — Refrigerant
1 = R-134a
Digits 10-11— Design Sequence
** = Factory assigned
Compressor Serial
Number
Digits 1-2 — Year
YY = Last two digits of year of
manufacture
Digit 3— Week
WW= Week of build, from 00 to 52
Digit 5 — Day
1 = Monday
2 = Tuesday
3 = Wednesday
4 = Thursday
5 = Friday
6 = Saturday
7 = sunday
Digits 6-8 — Coded Time Stamp
TTT = Used to ensure uniqueness of
serial number
Digit 9 — Assembly Line
Assembly line compressor was built on.
Varies with facility
Digit 10— Build Location
A = Monterrey

RTAE-SVX001B-EN 9
General Information
Unit Description
The 150-300 ton Stealth™ units are helical-rotary type, air-
cooled liquid chillers designed for installation outdoors.
The compressor circuits are completely assembled,
hermetic packages that are factory-piped, wired, leak-
tested, dehydrated, and tested for proper control
operation before shipment.
Chilled water inlet and outlet openings are covered for
shipment.The Stealth featuresTrane’s exclusive Adaptive
Control ™ logic, which monitors the control variables that
govern the operation of the chiller unit. Adaptive Control
logic can adjust capacity variables to avoid chiller
shutdown when necessary, and keep producing chilled
water. All unit sizes are available with two independent
refrigerant circuits. A single refrigeration circuit option is
available for 150 and 165T units. Each compressor is
controlled by a variable speed Adaptive Frequency™
Drive Generation 3 (AFD3). Each refrigerant circuit is
provided with filter, sight glass, electronic expansion
valve, and charging valves.The shell-and-tube type
evaporator is manufactured in accordance with ASME
standards or other international codes. Each evaporator is
fully insulated and is equipped with water drain and vent
connection. As an option, a convenience outlet can be
supplied.
Units are shipped with full oil charge and can be ordered
with either a factory refrigerant charge, or optional
nitrogen charge.
Accessory/Option Information
Check all the accessories and loose parts which are
shipped with the unit against the shipping list. Included in
these items will be water vessel drain plugs, electrical
diagrams, and service literature, which are placed inside
the control panel for shipment.
If optional elastomeric isolators are ordered with unit
(model number digit 36 = 1), they are shipped mounted on
diagonal supports on the end of the unit opposite control
panel. See Figure 3 and Figure 4.
If optional seismic isopads are selected (model number
digit 36= 2), they will be shipped inside the unit control
panel.
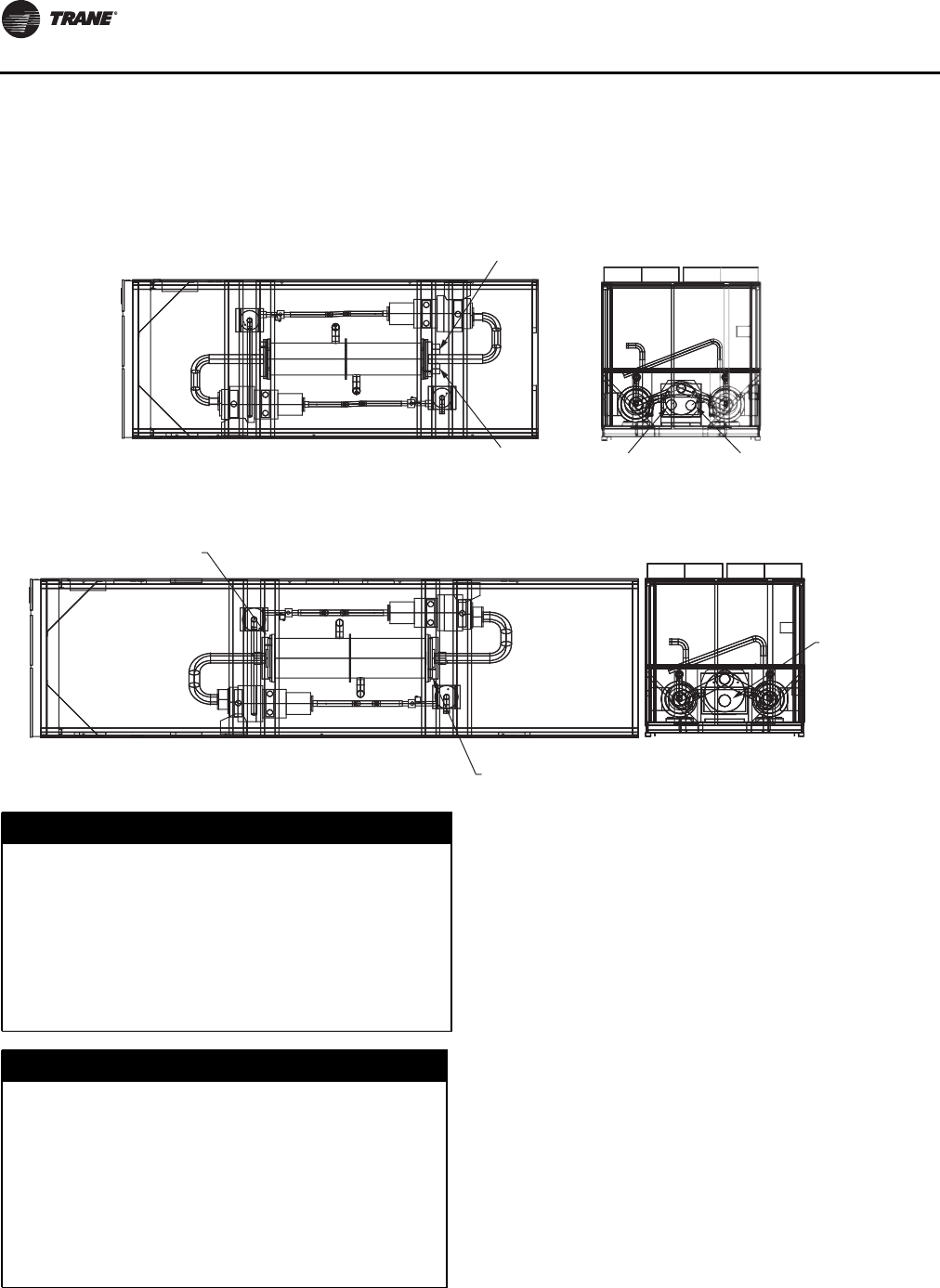
Figure 2. Typical Stealth RTAE
Figure 3. Elastomeric isolator shipping location
Figure 4. Elastomeric isolators attached for shipping
Elastomeric Isolator
Shipping Locations
(not all isolators shown -
quantity varies with unit configuration)

General Data
10 RTAE-SVX001B-EN
General Data
Table 1. General data table
Unit Size (tons) 150 165 180 200 225 250 275 300 150SC 165SC
Compressor Model CHHSR CHHSR CHHSR CHHSR CHHSS CHHSS CHHSS CHHSS CHHSS CHHSS
Quantity # 2 2 2 2 2 2 2 2 1 1
Evaporator
Water Storage (gal) 17.5 18.7 21.9 23.9 26.6 28.7 33.0 36.0 17.3 17.3
(L) 66.1 70.9 82.8 90.5 100.6 108.8 125.0 136.1 65.6 65.6
2 Pass arrangement
Minimum Flow (gpm) 171 187 202 228 261 288 318 354 169 169
(l/s) 10.8 11.8 12.7 14.4 16.5 18.2 20.1 22.3 10.7 10.7
Maximum Flow (gpm) 626 684 742 835 957 1055 1165 1299 620 620
(l/s) 39.5 43.1 46.8 52.7 60.4 66.5 73.5 81.9 39.1 39.1
3 Pass arrangement
Minimum Flow (gpm) 114 124 135 152 174 192 212 236 113 113
(l/s) 7.2 7.8 8.5 9.6 11.0 12.1 13.4 14.9 7.1 7.1
Maximum Flow (gpm) 417 456 495 557 638 703 777 866 414 414
(l/s) 26.3 28.8 31.2 35.1 40.2 44.3 49.0 54.6 26.1 26.1
Condenser
Qty of Coils 8 10 10 12 12 12 14 16 8 10
Coil Length (in) 78.74 78.74 78.74 78.74 78.74 78.74 78.74 78.74 78.74 78.74
(mm) 2000 2000 2000 2000 2000 2000 2000 2000 2000 2000
Coil Height (in) 50 50 50 50 50 50 50 50 50 50
(mm) 1270 1270 1270 1270 1270 1270 1270 1270 1270 1270
Fins/Ft 192 192 192 192 192 192 192 192 192 192
Rows 3333333333
Condenser Fans
Quantity # 8 10 10 12 12 12 14 16 8 10
Diameter (in) 37.5 37.5 37.5 37.5 37.5 37.5 37.5 37.5 37.5 37.5
(mm) 953 953 953 953 953 953 953 953 953 953
Total Airflow (cfm) 107,392 134,240 134,240 161,088 161,088 161,088 187,936 214,784 107,392 132,240
(m3/hr) 182,460 228,075 228,075 273,690 273,690 273,690 319,305 364,920 182,460 228,075
Tip Speed (ft/min) 8700 8700 8700 8700 8700 8700 8700 8700 8700 8700
(M/S) 44.2 44.2 44.2 44.2 44.2 44.2 44.2 44.2 44.2 44.2
Ambient Temperature Range
Standard Ambient °F (°C) 32 to 105 (0 to 40.6)
Low Ambient °F (°C) 0 to 105 (-17.7 to 40.6)
Extreme Low Ambient °F (°C) -20 to 105 (-28.9 to 40.6)
High Ambient °F (°C) 32 to 125 (0 to 52)
Wide Ambient °F (°C) 0 to 125 (-17.7 to 52)
General Unit
Refrigerant HFC-134a HFC-134a
Refrigerant Ckts # 2 1
Minimum Load % 20 18 17 15 20 18 16 15 30 27
Refrigerant Charge/ckt (lbs) 172 181 210 218 265 261 318 325 322 346
(kg) 78 82 95 99 120 118 144 148 146 157
Oil Trane OIL00311 (bulk)/OIL00315 (1 gal)/OIL00317 (5 gal)
Oil Charge/ckt (gal) 3.0 3.0 3.0 3.0 4.0 4.0 4.0 4.0 4.0 4.0
(L) 11.4 11.4 11.4 11.4 15.1 15.1 15.1 15.1 15.1 15.1

General Data
RTAE-SVX001B-EN 11
Drive Cooling System
Drive cooling fluid volumes are dependent on unit
configuration.
• Use Table 2 for units that meet the following criteria:
•Model number digits 10, 11 = AA
• Use Table 2 for units that meet the following criteria:
•Model number digits 10, 11 = AB
•AND Digits 28, 29 = 0X
• Use Table 2 for units that meet the following criteria:
•Model number digits 10, 11 = AC
•AND Digits 3-7 = 225, 250, 275 or 300
•AND Digit 22=1or2
•AND Digits 28, 29 = 0X
• Use Table 3 for all other unit configurations.
Non-Trane approved chemicals could react with system
components and result in failure. Contact a qualified
service technician and your localTrane Parts Center.
Note: The use of incorrect compounds in the drive
cooling system may result in scaling, erosion,
corrosion or freezing.TheTrane Company
warranty specifically excludes liability for
corrosion, erosion, freezing or deterioration of
Trane equipment.
Proper fluid level is important to the operation of the unit.
See “Drive Cooling ExpansionTank,” p. 71 for fluid level
check instructions.The circuit capacities are shown in
tables above.
If the level is below the recommended minimum levels,
contact your localTrane office.
Note: Drive cooling fluid service life is 5 years. See “Drive
Cooling System,” p. 71.
Table 2. Drive cooling with load inductor
Unit Size (tons)
Standard Length Unit
150 165-200 225-250 275-300
gal l gal l gal l gal l
Fluid Type Trane Heat Transfer Fluid CHM01023
Fluid Volume
Ckt 1 1.74 6.58 1.83 6.92 2.00 7.58 2.09 7.92
Ckt2 1.93 7.30 2.27 8.59 2.44 9.24 2.58 9.78
Total 3.67 13.88 4.10 15.51 4.44 16.82 4.67 17.69
Table 3. Drive cooling without load inductor
Unit Size (tons)
Standard Length Unit Extended Length Units(a)
150S - 165S 150 165-250 275-300 150S - 165S 150 165-250 275-300
gal l gal l gal l gal l gal l gal l gal l gal l
Fluid Type Trane Heat Transfer Fluid CHM01023
Fluid Volume
Ckt 1 1.28 4.86 1.14 4.30 1.23 4.64 1.32 4.98 1.37 5.20 1.30 4.93 1.32 4.98 1.41 5.33
Ckt2 n/a n/a 1.32 5.01 1.67 6.31 1.81 6.84 n/a n/a 1.67 6.31 1.81 6.84 1.95 7.38
Total 1.28 4.86 2.46 9.31 2.89 10.95 3.12 11.83 1.37 5.20 2.97 11.23 3.12 11.83 3.36 12.71
(a) Units are extended length if either of the following are selected:
Transformer (model number digit 28 = 1)
Harmonic Filtration Option (model number digit 29 = 1)
Units without Harmonic Filtration Option or Transformer (digits 28, 29 = 0X) are standard length.
NOTICE:
Equipment Damage!
Use only Trane Heat Transfer Fluid P/N CHM01023. This
fluid is a direct use concentration and is not to be
diluted. Do not top off with water or any other fluid.
Use of unapproved fluids, or dilution of approved fluid
could result in catastrophic equipment damage.

12 RTAE-SVX001B-EN
Pre-Installation
Unit Inspection
When unit is delivered, verify it is the correct unit and is
properly equipped. Compare information on the unit
nameplate with ordering and submittal information.
Inspect all exterior components for visible damage. Report
any apparent damage or material shortage to carrier and
make a “unit damage” notation on carrier’s delivery
receipt. Specify extent and type of damage found and
notifyTrane Sales Office. Do not proceed with installation
of a damaged unit without sales office approval.
Inspection
To protect against loss due to damage in transit, complete
the following steps upon receipt of unit.
• Inspect the individual pieces of the shipment before
accepting the unit. Check for obvious damage to the
unit or packing material.
• Inspect the unit for concealed damage as soon as
possible after delivery and before it is stored.
Concealed damage must be reported within 15 days.
• If concealed damage is discovered, stop unpacking the
shipment. Do not remove damaged material from the
receiving location.Take photos of the damage, if
possible.The owner must provide reasonable
evidence that the damage did not occur after delivery.
• Notify the carrier’s terminal of the damage
immediately, by phone and by mail. Request an
immediate, joint inspection of the damage with the
carrier and the consignee.
NotifyTrane sales representative and arrange for repair.
Do not repair unit until damage is inspected by the carrier’s
representative.
Storage
Extended storage of outdoor unit prior to installation
requires these precautionary measures:
• Store the outdoor unit in a secure area.
• For units that have been charged with refrigerant,
verify the following valves are closed on each circuit:
•Suction service valve (butterfly valve)
•Liquid line angle valve or EXV (EXV is driven closed
whenever circuit is powered)
•Oil line shutoff valves to brazed plate heat
exchangers
Note: Units with factory refrigerant charge (model
number digit 15 = 1) are shipped with suction,
liquid and oil line shutoff valves closed, isolating
most of refrigerant charge in the evaporator. If unit
goes directly into long term storage, it is
recommended that these valve positions be
confirmed.
• For units with nitrogen charge option (model number
digit 15 = 2), units are shipped with valves open. If unit
goes directly into storage prior to refrigerant charge,
confirm all service valves are open.
• At least every three months (quarterly), check the
pressure in the refrigerant circuits to verify that the
refrigerant charge is intact. If it is not, contact a
qualified service organization and the appropriate
Trane sales office.
N2

Pre-Installation
RTAE-SVX001B-EN 13
Installation Requirements
A list of the contractor responsibilities typically associated
with the unit installation process is provided in Table 4.
Table 4. Installation requirements
Type Trane Supplied
Trane Installed Trane Supplied
Field Installed Field Supplied
Field Installed
Foundation • Meet foundation requirements
Rigging
• Safety chains
• Clevis connectors
• Lifting beam
• Spreader bar
Disassembly/Reassembly
(as required)(a)
• Trane, or an agent
of Trane specifically
authorized to perform
start-up of Trane®
products (contact
your local Trane
office for pricing)
Isolation • Elastomeric isolators
(optional) • Elastomeric isolators (optional)
Electrical
• Circuit breakers
(optional)
• Unit mounted starter
• Circuit breakers (optional)
• Electrical connections to unit mounted starter
• Wiring sizes per submittal and NEC
• Terminal lugs
• Ground connection(s)
• BAS wiring (optional)
• Control voltage wiring
• Chilled water pump contactor and wiring
• Option relays and wiring
Water piping • Flow switch
• Taps for thermometers and gauges
• Thermometers
• Water flow pressure gauges
• Isolation and balancing valves in water piping
• Vents and drain
• Waterside pressure relief valves
• Water strainer
Insulation • Insulation • Insulation
Water Piping Connection Components • Grooved pipe • Flange kit (optional)
Other Materials
• R-134a refrigerant
• Dry nitrogen
(optional)
“Stealth™ RTAE Installation
Completion Check Sheet and Request
for Trane Service”
(RLC-ADF002-EN,
see “Log and Check Sheet,” p. 90)
Chiller Start-up Commissioning(b)
• Trane, or an agent of
Trane specifically
authorized to perform
start-up of Trane®
products
(a) Trane, or an agent of Trane specifically authorized to perform start-up and warranty of Trane® products, will perform or have direct on-site supervision of
the disassembly and reassembly work.
(b) Start-up must be performed by Trane or an agent of Trane specifically authorized to perform start-up and warranty of Trane® products. Contractor shall
provide Trane (or an agent of Trane specifically authorized to perform start-up) with notice of the scheduled start-up at least two weeks prior to the scheduled
start-up.

14 RTAE-SVX001B-EN
Dimensions and Weights
Weights
Unit Dimensions
See unit submittals for specific unit dimensions and water connection locations.
Service Clearances
Table 5. Weights
Unit Size
(tons)
Standard Length Unit Extended Length Unit(a)
Shipping Operating Shipping Operating
lbs kg lbs kg lbs kg lbs kg
InvisiSound™ Standard or Superior(b)
150S 9436 4280 9596 4353 11013 4995 11173 5068
165S 10451 4741 10611 4813 12011 5448 12171 5521
150 11333 5141 11479 5207 13492 6120 13638 6186
165 12377 5614 12533 5685 14532 6592 14688 6662
180 12698 5760 12880 5843 14853 6737 15035 6820
200 13808 6263 14007 6354 15991 7254 16213 7354
225 15244 6915 15466 7015 17427 7905 17649 8005
250 15622 7086 15861 7195 17805 8076 18044 8185
275 16820 7630 17095 7754 18975 8607 19250 8732
300 17965 8149 18265 8285 20121 9127 20421 9263
InvisiSound Ultimate(c)
150S 10236 4643 10396 4716 11813 5358 11973 5431
165S 11251 5103 11411 5176 12811 5811 12971 5884
150 12133 5504 12279 5570 14292 6483 14438 6549
165 13177 5977 13333 6048 15332 6955 15488 7025
180 13498 6123 13680 6205 15653 7100 15835 7183
200 14608 6626 14807 6716 16791 7616 17013 7717
225 16044 7278 16266 7378 18227 8268 18449 8368
250 16422 7449 16661 7557 18605 8439 18844 8548
275 17620 7992 17895 8117 19775 8970 20050 9095
300 18765 8512 19065 8648 20921 9490 21221 9626
(a) Units are extended length if either of the following are selected:
Transformer (model number digit 28 = 1)
Harmonic Filtration Option (model number digit 29 = 1)
Units without Harmonic Filtration Option or Transformer (digits 28, 29 = 0X) are standard length.
(b) Model number digit 12 = 1 or 2
(c) Model number digit 12 = 3
Figure 5. RTAE service clearances - top view
NOTES:
1. A full 40” clearance
is required in front
of the control panel.
Must be measured
from front of panel,
not end of unit base.
2. Clearance of 85”
on the side of the
unit is required for
coil replacement.
Preferred side for
coil replacement is
shown (left side of
unit, as facing control
panel), however either
side is acceptable.
36” (914.4mm)
40”
(1016
mm) 24”
(600.1mm)
Control
Panel
NO OBSTRUCTIONS ABOVE UNIT
TOP VIEW
See
note 1
85” (2160mm)
See note 2

RTAE-SVX001B-EN 15
Installation Mechanical
Location Requirements
Sound Considerations
• Refer toTrane Engineering Bulletin Chiller Sound
Ratings and Installation Guide RLC-PRB035-EN for
sound consideration applications.
• Locate the unit away from sound-sensitive areas.
• Install the optional elastomeric isolators under the
unit. See “Isolation and Sound Emission,” p. 20.
• Chilled water piping should not be supported by chiller
frame.
• Install rubber vibration isolators in all water piping.
• Use flexible electrical conduit.
• Seal all wall penetrations.
Note: Consult an acoustical engineer for critical
applications.
Foundation
Provide rigid, non-warping mounting pads or a concrete
foundation of sufficient strength and mass to support the
applicable operating weight (i.e., including completed
piping, and full operating charges of refrigerant, oil and
water). See Table 5, p. 14 for unit operating weights. Once
in place, the unit must be level within 1/4” (6.4 mm) across
the length and width of the unit.TheTrane Company is not
responsible for equipment problems resulting from an
improperly designed or constructed foundation.
Clearances
Provide enough space around the unit to allow the
installation and maintenance personnel unrestricted
access to all service points. See submittal drawings for the
unit dimensions, to provide sufficient clearance for the
opening of control panel doors and unit service. See
Figure 5, p. 14 for minimum clearances. In all cases, local
codes which require additional clearances will take
precedence over these recommendations.
For close spacing information, see RLC-PRB037-EN.
Rigging Important:
•Do not fork lift unit.
•See unit nameplate and/or unit submittal for total
shipping weight.
•See Table 6 and Figure 8 thru Figure 10 for unit lifting
configuration.
•See Table 7, p. 18 and Table 8, p. 19 for lift weights and
dimensions at each lifting point locations.
•See Table 9, p. 20 for center of gravity information.
WARNING
Improper Unit Lift!
Test lift unit approximately 24 inches to verify proper
center of gravity lift point. To avoid dropping of unit,
reposition lifting point if unit is not level. Failure to
properly lift unit could result in unit dropping and
possibly crushing operator/technician which could
result in death or serious injury and possible
equipment or property-only damage.
WARNING
Heavy Objects!
Ensure that all the lifting equipment used is properly
rated for the weight of the unit being lifted. Each of the
cables (chains or slings), hooks, and shackles used to
lift the unit must be capable of supporting the entire
weight of the unit. Lifting cables (chains or slings) may
not be of the same length. Adjust as necessary for even
unit lift. Other lifting arrangements could cause
equipment or property damage. Failure to follow
instructions above or properly lift unit could result in
unit dropping and possibly crushing operator/
technician which could result in death or serious injury.
WARNING
Proper Lifting Configuration Required!
Use only lift locations designated with label shown in
Figure 6. Do NOT use locations marked with label
shown in Figure 7. Use unit lifting configurations as
shown in Table 6 and Figure 8, p. 16 thru Figure 10,
p. 17. Other lifting arrangements could result in death,
serious injury or equipment damage.
Figure 6. Label - lift location
Figure 7. Label - do not lift
X39003897001A
X39003894001A

Installation Mechanical
16 RTAE-SVX001B-EN
Table 6. Lifting configuration selection
Tons Unit Length(a) Lift Configuration See
150S, 165S, 150 Standard and Extended 4-point Figure 8, p. 16
165, 180, 200, 225, 250 Standard
165, 180, 200, 225, 250 Extended 6-point Figure 9, p. 17
275 Standard
275 Extended 8-point Figure 10, p. 17
300 Standard and Extended
(a) Units are extended length if either of the following are selected:
Transformer (model number digit 28 = 1)
Harmonic Filtration Option (model number digit 29 = 1)
Units without Harmonic Filtration Option or Transformer (digits 28, 29 = 0X) are standard length.
Figure 8. 4-point lift configuration
96” (2438mm) Spreader Bar
Lifting Location 2
(Lifting location 3
located on other side of unit)
Lifting Location 1
(Lifting location 4
located on other side of unit)
Control Panel

Installation Mechanical
RTAE-SVX001B-EN 17
Figure 9. 6-point lift configuration
96” (2438mm) Spreader Bar
96”
(2438mm)
Spreader Bar
Lifting Location 1
(Lifting location 6
located on other side of unit)
Lifting Location 2
(Lifting location 5
located on other side of unit)
Lifting Location 3
(Lifting location 4
located on other
side of unit)
Control Panel
Figure 10. 8-point lift configuration
96” (2438mm) Spreader Bar
Qty 2
Lifting Location 1 (Lifting location 8 located on other side of unit)
Lifting Location 2
(Lifting location 5
located on other side of unit)
Lifting Location 3
(Lifting location 6
located on other side of unit)
Lifting Location 4
(Lifting location 5
located on other
side of unit)
Control Panel

Installation Mechanical
18 RTAE-SVX001B-EN
Table 7. Lift weights by location
Location
12345678
Tons lb kg lb kg lb kg lb kg lb kg lb kg lb kg lb kg
Standard Length Unit
150S 2540 1152 2451 1112 2164 981 2281 1034 - - - - - - - -
165S 2656 1205 2352 1067 2730 1238 2713 1230 - - - - - - - -
150 3426 1554 2638 1197 2234 1014 3035 1377 - - - - - - - -
165 3452 1566 2876 1304 2810 1275 3239 1469 - - - - - - - -
180 3528 1600 2941 1334 2896 1314 3333 1512 - - - - - - - -
200 3586 1627 3325 1508 3316 1504 3581 1624 - - - - - - - -
225 4003 1816 3551 1611 3617 1641 4073 1847 - - - - - - - -
250 4098 1859 3637 1650 3711 1683 4176 1894 - - - - - - - -
275 2484 1127 1943 881 3683 1671 3829 1737 2255 1023 2625 1191 - - - -
300 2061 935 2289 1038 2515 1141 1682 763 2729 1238 3008 1364 1737 788 1943 881
Extended Length Unit(a)
150S 2698 1224 2597 1178 2837 1287 2881 1307 - - - - - - - -
165S 2988 1356 2841 1289 3135 1422 3047 1382 - - - - - - - -
150 3825 1735 3363 1525 2920 1324 3384 1535 - - - - - - - -
165 2653 1203 2629 1192 2570 1166 1959 889 2046 928 2675 1213 - - - -
180 2685 1218 2674 1213 2641 1198 1946 883 2100 953 2807 1273 - - - -
200 2919 1324 2640 1198 2797 1269 2846 1291 2274 1032 2514 1141 - - - -
225 3065 1391 2705 1227 3237 1468 3144 1426 2406 1091 2870 1302 - - - -
250 3117 1414 2749 1247 3322 1507 3229 1465 2458 1115 2930 1329 - - - -
275 2145 973 2668 1210 3279 1487 1513 686 2412 1094 2482 1126 1644 746 2831 1284
300 2056 933 2440 1107 3452 1566 2241 1017 3089 1401 2993 1358 1460 662 2389 1084
(a) Units are extended length if either of the following are selected:
Low Harmonic Distortion Option (model number digit 29 = 1)
Autotransformer (model number digit 28 = 1 or 2)
Units without Low Harmonic Distortion Option or Autotransformer (digits 28, 29 = X0) are standard length.

Installation Mechanical
RTAE-SVX001B-EN 19
Table 8. Lifting locations (from control panel end of frame)
Location
12345678
Tons in mm in mm in mm in mm in mm in mm in mm in mm
Standard Length Unit
150S 45.5 1156 45.5 1156 153.9 3909 153.9 3909 --------
165S 23.5 596 23.5 596 189.7 4818 189.7 4818 --------
150 39.6 1006 39.6 1006 171.4 4353 171.4 4353 --------
165 60.4 1534 60.4 1534 224.6 5705 224.6 5705 --------
180 60.4 1534 60.4 1534 224.6 5705 224.6 5705 --------
200 53.3 1355 53.3 1355 258.7 6570 258.7 6570 --------
225 53.3 1355 53.3 1355 258.7 6570 258.7 6570 --------
250 53.3 1355 53.3 1355 258.7 6570 258.7 6570 --------
275 75.8 1926 75.8 1926 190.7 4845 190.7 4845 311.9 7922 311.9 7922 - - - -
300 47.6 1210 47.6 1210 171.3 4350 171.3 4350 242.8 6168 242.8 6168 365.1 9274 365.1 9274
Extended Length Unit(a)
150S 23.5 596 23.5 596 207.1 5261 207.1 5261 --------
165S 23.5 596 23.5 596 242.9 6170 242.9 6170 --------
150 44.7 1136 44.7 1136 224.6 5705 224.6 5705 --------
165 61.1 1552 61.1 1552 171.3 4350 171.3 4350 277.8 7057 277.8 7057 - - - -
180 61.1 1552 61.1 1552 171.3 4350 171.3 4350 277.8 7057 277.8 7057 - - - -
200 47.6 1210 47.6 1210 190.7 4845 190.7 4845 311.9 7922 311.9 7922 - - - -
225 47.6 1210 47.6 1210 190.7 4845 190.7 4845 311.9 7922 311.9 7922 - - - -
250 47.6 1210 47.6 1210 190.7 4845 190.7 4845 311.9 7922 311.9 7922 - - - -
275 75.8 1926 75.8 1926 182.0 4623 182.0 4623 258.5 6565 258.5 6565 365.1 9274 365.1 9274
300 47.6 1210 47.6 1210 168.5 4280 168.5 4280 296.1 7520 296.1 7520 418.3 10626 418.3 10626
(a) Units are extended length if either of the following are selected:
Low Harmonic Distortion Option (model number digit 29 = 1)
Autotransformer (model number digit 28 = 1 or 2)
Units without Low Harmonic Distortion Option or Autotransformer (digits 28, 29 = X0) are standard length.

Installation Mechanical
20 RTAE-SVX001B-EN
Center of Gravity Isolation and Sound Emission
The most effective form of isolation is to locate the unit
away from any sound sensitive area. Structurally
transmitted sound can be reduced by elastomeric
vibration eliminators. Spring isolators are not
recommended. Consult an acoustical engineer in critical
sound applications.
For maximum isolation effect, isolate water lines and
electrical conduit.Wall sleeves and rubber isolated piping
hangers can be used to reduce the sound transmitted
through water piping.To reduce the sound transmitted
through electrical conduit, use flexible electrical conduit.
State and local codes on sound emissions should always
be considered. Since the environment in which a sound
source is located affects sound pressure, unit placement
must be carefully evaluated. Sound power levels for
Stealth chillers are available on request.
Unit Isolation and Leveling
For additional reduction of sound and vibration, install the
optional elastomeric isolators.
Construct an isolated concrete pad for the unit or provide
concrete footings at the unit mounting points. Mount the
unit directly to the concrete pads or footings.
Level the unit using the base rail as a reference.The unit
must be level within 1/4-in (6 mm) over the entire length
and width. Use shims as necessary to level the unit.
Elastomeric Isolators
(Optional for units without seismic rating)
Note: See unit submittal, or Table 11, p. 21 thru Table 13,
p. 23 for point weights, isolator location and
isolator selections.
1. Secure the isolators to the mounting surface using the
mounting slots in the isolator base plate. Do not fully
tighten the isolator mounting bolts at this time.
2. Align the mounting holes in the base of the unit with
the threaded positioning pins on the top of the
isolators.
3. Lower the unit onto the isolators and secure the
isolator to the unit with a nut.
4. Level the unit carefully. Fully tighten the isolator
mounting bolts.
Figure 11. Center of gravity
Table 9. Centers of gravity
Tons
CGx CGy CGz
in mm in mm in mm
Standard Length Unit
150S 96.6 2454 43.8 1112 40.4 1025
165S 110.0 2793 45.2 1149 42.8 1087
150 105.5 2679 43.9 1115 37.5 953
165 142.4 3617 43.9 1115 39.7 1008
180 142.8 3628 43.9 1115 39.4 1002
200 155.5 3951 43.9 1115 41.2 1047
225 156.1 3964 43.9 1115 39.8 1011
250 156.4 3973 43.9 1115 39.7 1008
275 194.1 4930 43.9 1115 41.1 1043
300 207.1 5260 43.9 1115 42.4 1076
Extended Length Unit(a)
(a) Units are extended length if either of the following are selected:
Low Harmonic Distortion Option (model number digit 29 = 1)
Autotransformer (model number digit 28 = 1 or 2)
Units without Low Harmonic Distortion Option or Autotransformer (digits
28, 29 = X0) are standard length.
150S 118.8 3017 44.1 1121 37.2 944
165S 136.4 3464 44.7 1137 39.4 1002
150 134.7 3421 43.9 1115 33.3 846
165 169.1 4295 43.9 1115 35.4 898
180 169.9 4314 43.9 1115 35.2 894
200 181.6 4613 43.9 1115 36.9 937
225 183.6 4665 43.9 1115 36.0 915
250 184.2 4680 43.9 1115 36.0 913
275 220.2 5594 43.9 1115 37.4 950
300 232.3 5900 43.9 1115 38.7 984
SIDE VIEW
X
END VIEW
(Non-Control Panel End)
Z
Y
CG
CG

Installation Mechanical
RTAE-SVX001B-EN 21
5. Elastomeric Isolation Pads for Seismic Option
Elastomeric pads ship inside the unit control panel.They
are provided with an isolation washer and 3/4” free hole in
the center of the plate.
Figure 12. Elastomeric isolator
Max Load
(lbs) Color
Maximum
Deflection (in) Type
2250 RED 0.50 RDP-4
3000 GREEN 0.50 RDP-4
1/2 - 13NC - 2B
Mounting molded in neoprene
1.60 ± .25 in
0.50 in
3.0 in
2.75 in
5.0 in
4.63 in
0.56 in
0.38 in
Figure 13. Seismic isolation pad — installed
Table 10. Seismically rated elastomeric isolation pad
Dimension (in)
Model Max Load Length Width Height
B-36 2520 6 6 .625
Figure 14. Mounting point locations(a)
(a) Quantity of isolators varies with unit. Shorter units will not use locations
5 and 6. See submittal for actual number required for specific unit.
13579
246810
Control panel
Table 11. Point weights
Location
12345678910
Tons lb kg lb kg lb kg lb kg lb kg lb kg lb kg lb kg lb kg lb kg
Standard Length
150S 1731 785 1664 755 1834 832 1773 804 1219 553 1375 624 --------
165S 1666 756 1559 707 1886 855 1870 848 1914 868 1716 778 --------
150 1452 659 1543 700 1326 602 1446 656 1464 664 1350 612 1490 676 1262 572 ----
165 1539 698 1341 608 1622 736 1553 704 1657 752 1607 729 1522 690 1536 697 ----
180 1536 697 1338 607 1676 760 1620 735 1709 775 1659 753 1579 716 1581 717 ----
200 1442 654 1764 800 1696 769 1810 821 1836 833 1694 768 1986 901 1580 717 ----
225 1430 649 1792 813 1999 907 2058 933 2111 958 1994 905 2139 970 1721 781 ----
250 1426 647 1803 818 2064 936 2144 973 2182 990 2055 932 2195 996 1753 795 ----
275 1624 737 1627 738 1802 817 1746 792 1795 814 1530 694 1653 750 1831 830 1577 715 1634 741
300 1634 741 1850 839 1871 849 1925 873 1898 861 1938 879 1887 856 1695 769 1752 795 1515 687

Installation Mechanical
22 RTAE-SVX001B-EN
Extended Length Unit(a)
150S 1553 704 1795 814 1974 895 1959 889 2088 947 1804 818 --------
165S 1344 610 1236 561 1537 697 1494 678 1686 765 1668 757 1636 742 1570 712 ----
150 1563 709 1621 735 1705 773 1875 850 1952 885 1575 714 1601 726 1601 726 ----
165 1776 806 1827 829 1956 887 1925 873 2058 933 1958 888 1517 688 1515 687 ----
180 1774 805 1822 827 1990 903 1975 896 2128 965 2030 921 1577 715 1557 706 ----
200 1706 774 1524 691 1662 754 1294 587 1938 879 1738 788 1267 575 1753 795 1457 661 1652 749
225 1857 842 1669 757 1844 836 1412 640 2156 978 1860 844 1378 625 1985 900 1501 681 1766 801
250 1852 840 1664 755 1885 855 1439 653 2219 1006 1936 878 1438 652 2046 928 1530 694 1795 814
275 1874 850 1860 844 1626 737 1700 771 2204 1000 2101 953 2017 915 2131 967 1820 826 1642 745
300 1946 883 1826 828 1854 841 1795 814 2143 972 2106 955 2408 1092 2338 1060 1808 820 1898 861
(a) Units are extended length if either of the following are selected:
Low Harmonic Distortion Option (model number digit 29 = 1)
Autotransformer (model number digit 28 = 1 or 2)
Units without Low Harmonic Distortion Option or Autotransformer (digits 28, 29 = X0) are standard length.
Table 11. Point weights (continued)
Location
12345678910
Tons lb kg lb kg lb kg lb kg lb kg lb kg lb kg lb kg lb kg lb kg
Table 12. Isolator locations(a)
Location
12345678910
Tons in mm in mm in mm in mm in mm in mm in mm in mm in mm in mm
Standard Length
150S 23.6 600 27.6 700 102.4 2600 94.5 2400 187.0 4750 187.0 4750 --------
165S 15.7 400 23.0 585 98.4 2500 102.2 2595 196.9 5000 204.7 5200 --------
150 24.4 620 11.8 300 47.2 1200 82.7 2100 100.4 2550 153.5 3900 188.2 4780 188.2 4780 ----
165 17.7 450 23.0 585 98.6 2505 102.2 2595 155.5 3950 190.6 4840 242.1 6150 242.9 6170 ----
180 17.7 450 23.0 585 98.6 2505 102.2 2595 155.5 3950 190.6 4840 242.1 6150 242.9 6170 ----
200 23.6 600 23.6 600 102.4 2600 137.8 3500 155.5 3950 198.8 5050 255.9 6500 263.8 6700 ----
225 23.6 600 23.6 600 102.4 2600 137.8 3500 155.5 3950 198.8 5050 255.9 6500 263.8 6700 ----
250 23.6 600 23.6 600 102.4 2600 137.8 3500 155.5 3950 198.8 5050 255.9 6500 263.8 6700 ----
275 21.7 550 18.9 480 141.3 3590 125.2 3180 196.1 4980 236.2 6000 236.2 6000 259.8 6598 328.0 8330 324.4 8240
300 19.7 500 27.6 700 143.1 3634 143.1 3634 202.4 5142 235.6 5984 257.9 6551 296.6 7534 347.8 8834 339.5 8624
Extended Length Unit(b)
150S 19.7 500 15.7 400 102.4 2600 133.9 3400 204.7 5200 208.7 5300 --------
165S 23.6 600 23.6 600 86.6 2200 78.7 2000 149.6 3800 157.5 4000 259.8 6600 259.8 6600 ----
150 25.0 635 23.6 600 84.6 2150 98.4 2500 147.6 3750 190.9 4850 240.2 6100 240.2 6100 ----
165 19.7 500 19.7 500 129.9 3300 129.9 3300 204.7 5200 234.3 5950 293.3 7450 299.2 7600 ----
180 19.7 500 19.7 500 129.9 3300 129.9 3300 204.7 5200 234.3 5950 293.3 7450 299.2 7600 ----
200 25.6 650 19.7 500 118.1 3000 98.4 2500 208.7 5300 196.9 5000 255.9 6500 255.9 6500 315.0 8000 315.0 8000
225 25.6 650 19.7 500 118.1 3000 98.4 2500 208.7 5300 196.9 5000 255.9 6500 255.9 6500 315.0 8000 315.0 8000
250 25.6 650 19.7 500 118.1 3000 98.4 2500 208.7 5300 196.9 5000 255.9 6500 255.9 6500 315.0 8000 315.0 8000
275 6.3 160 9.8 250 177.2 4500 139.8 3550 198.8 5050 242.1 6150 309.1 7850 313.0 7950 354.3 9000 370.1 9400
300 9.8 250 9.8 250 177.2 4500 139.8 3550 206.7 5250 242.1 6150 311.8 7920 313.4 7960 393.7 10000 393.7 10000
(a) Dimensions are referenced from end of frame on the control panel side.
(b) Units are extended length if either of the following are selected:
Low Harmonic Distortion Option (model number digit 29 = 1)
Autotransformer (model number digit 28 = 1 or 2)
Units without Low Harmonic Distortion Option or Autotransformer (digits 28, 29 = X0) are standard length.

Installation Mechanical
RTAE-SVX001B-EN 23
Compressor Shipping Bolt Removal
Units with InvisiSound™ Ultimate Option
(Model Number Digit 12 = 3)
For chillers built with InvisiSound Ultimate option,
compressor shipping bolts must be removed to assure
minimum noise during operation. Use a 24mm socket to
remove the (3) M15 x 75mm shipping bolts for each
compressor.They are located under compressor
mounting feet. See Figure 15.
Important:
•DO NOT DISCARD SHIPPING BOLTS. Store bolts in the
control panel for future use.
•All shipping bolts MUST be reinstalled prior to
compressor removal or unit move. Drainage
Locate the unit near a large capacity drain for water vessel
drain-down during shutdown or repair. Evaporators are
provided with drain connections. A vent on top of
evaporator waterbox prevents vacuum by allowing air into
evaporator for complete drainage. All local and national
codes apply.
Table 13. Isolator selections
Location
Tons 1 2 3 4 5 6 7 8 9 10
Standard Length Unit
150S Red 62 Red 62 Red 62 Red 62 Red 62 Red 62 - - - -
165S Red 62 Red 62 Red 62 Red 62 Red 62 Red 62 - - - -
150 Red 62 Red 62 Green 63 Green 63 Green 63 Green 63 Red 62 Red 62 - -
165 Red 62 Red 62 Green 63 Green 63 Green 63 Green 63 Red 62 Red 62 - -
180 Red 62 Red 62 Green 63 Green 63 Green 63 Green 63 Red 62 Red 62 - -
200 Red 62 Red 62 Green 63 Green 63 Green 63 Green 63 Red 62 Red 62 - -
225 Red 62 Red 62 Green 63 Green 63 Green 63 Green 63 Red 62 Red 62 - -
250 Red 62 Red 62 Green 63 Green 63 Green 63 Green 63 Red 62 Red 62 - -
275 Red 62 Red 62 Green 63 Green 63 Green 63 Green 63 Green 63 Green 63 Red 62 Red 62
300 Red 62 Red 62 Green 63 Green 63 Green 63 Green 63 Green 63 Green 63 Red 62 Red 62
Extended Length Unit(a)
150S Red 62 Red 62 Green 63 Green 63 Green 63 Red 62 - - - -
165S Red 62 Red 62 Red 62 Red 62 Red 62 Red 62 Red 62 Red 62 - -
150 Red 62 Red 62 Green 63 Green 63 Green 63 Green 63 Red 62 Red 62 - -
165 Red 62 Red 62 Green 63 Green 63 Green 63 Green 63 Red 62 Red 62 - -
180 Red 62 Red 62 Green 63 Green 63 Green 63 Green 63 Red 62 Red 62 - -
200 Red 62 Red 62 Green 63 Green 63 Green 63 Green 63 Green 63 Green 63 Red 62 Red 62
225 Red 62 Red 62 Green 63 Green 63 Green 63 Green 63 Green 63 Green 63 Red 62 Red 62
250 Red 62 Red 62 Green 63 Green 63 Green 63 Green 63 Green 63 Green 63 Red 62 Red 62
275 Red 62 Red 62 Green 63 Green 63 Green 63 Green 63 Green 63 Green 63 Red 62 Red 62
300 Red 62 Red 62 Green 63 Green 63 Green 63 Green 63 Green 63 Green 63 Red 62 Red 62
(a) Units are extended length if either of the following are selected:
Low Harmonic Distortion Option (model number digit 29 = 1)
Autotransformer (model number digit 28 = 1 or 2)
Units without Low Harmonic Distortion Option or Autotransformer (digits 28, 29 = X0) are standard length.
NOTICE:
Equipment Damage!
Do not remove compressor or move unit without
reattaching compressor shipping bolts. Failure to
reinstall bolts could cause shifting of parts and result in
equipment damage.
Figure 15. Compressor shipping bolt removal
Compressor
Shipping Bolt
Compressor
Mounting
Foot
Isolator

Installation Mechanical
24 RTAE-SVX001B-EN
Evaporator Piping
RTAE units are available with 2 or 3 pass configurations.
See Figure 16.
Evaporator water connections are grooved.
Thoroughly flush all water piping to the unit before making
the final piping connections to the unit.
Components and layout will vary slightly, depending on
the location of connections and the water source.
A vent is provided on the top of the evaporator at the
chilled water inlet. Be sure to provide additional vents at
high points in the piping to bleed air from the chilled water
system. Install necessary pressure gauges to monitor the
entering and leaving chilled water pressures.
Provide shutoff valves in lines to the gauges to isolate
them from the system when they are not in use. Use
rubber vibration eliminators to prevent vibration
transmission through the water lines.
If desired, install thermometers in the lines to monitor
entering and leaving water temperatures. Install a
balancing valve in the leaving water line to control water
flow balance. Install shutoff valves on both the entering
and leaving water lines so that the evaporator can be
isolated for service
Figure 16. Evaporator pass configurations
2-Pass Evaporators
Control Panel End
Control Panel End
3-Pass Evaporators
Top View
(Condenser removed for clarity) End View
(Non-control panel end)
Outlet Waterbox
Inlet Waterbox
Top View
(Condenser removed for clarity)
End View
(Non-control panel end)
Inlet Waterbox
(Outlet waterbox
opposite end)
Outlet Water
Connection
Inlet Water
Connection
Outlet Inlet
NOTICE:
Proper Water Treatment!
The use of untreated or improperly treated water could
result in scaling, erosion, corrosion, algae or slime. It is
recommended that the services of a qualified water
treatment specialist be engaged to determine what
water treatment, if any, is required. Trane assumes no
responsibility for equipment failures which result from
untreated or improperly treated water, or saline or
brackish water.
NOTICE:
Evaporator Damage!
The chilled water connections to the evaporator are to
be “victaulic” type connections. Do not attempt to
weld these connections, as the heat generated from
welding can cause microscopic and macroscopic
fractures on the cast iron waterboxes that can lead to
premature failure of the waterbox. To prevent damage
to chilled water components, do not allow evaporator
pressure (maximum working pressure) to exceed 150
psig (10.5 bar).

Installation Mechanical
RTAE-SVX001B-EN 25
Evaporator Piping Components
Piping components include all devices and controls used
to provide proper water system operation and unit
operating safety. SeeThese components and their general
locations are given below.
Entering Chilled Water Piping
• Air vents (to bleed air from system).
• Water pressure gauges with shutoff valves.
• Vibration eliminators.
• Shutoff (isolation) valves.Thermometers (if desired).
• Clean-out tees.
• Pipe strainer.
Leaving Chilled Water Piping
• Air vents (to bleed air from system).
• Water pressure gauges with shutoff valves.
• Vibration eliminators.
• Shutoff (isolation) valves.
• Thermometers.
• Clean-out tees.
• Balancing valve.
Drains
A 1/2” drain connection is located under outlet end of
evaporator waterbox for drainage during unit servicing. A
shutoff valve must be installed on drain line.
Pressure Gauges
Install field-supplied pressure components as shown in
Figure 17, p. 25. Locate pressure gauges or taps in a
straight run of pipe; avoid placement near elbows, etc. Be
sure to install the gauges at the same elevation on each
shell if the shells have opposite-end water connections.
To read manifolded pressure gauges, open one valve and
close the other (depending upon the reading desired).This
eliminates errors resulting from differently calibrated
gauges installed at unmatched elevations.
Figure 17. Typical Stealth™ water piping
Table 14. Water piping components
Item Description Item Description
1 Bypass Valve Pi Pressure Gauge
2 Isolation Valve FT Water Flow Switch
3 Vibration Eliminator T1 Evap Water Inlet Temp Sensor
4 Evaporator - End View (2-pass) T2 Evap Water Outlet Temp Sensor
5 Evaporator Waterbox (2-pass) NOTES
6 Vent A Isolate unit for initial water loop cleaning
7 Strainer B Vent must be installed at the high point of the line
8 Drain C Drain must be installed at the low point of the line
A
2
1
2
3
3
7
8
64
5
2
2
A
A
B
8C

Installation Mechanical
26 RTAE-SVX001B-EN
Pressure Relief Valves
Install a water pressure relief valve in the evaporator inlet
piping between the evaporator and the inlet shutoff valve,
as shown in Figure 17, p. 25. Water vessels with close-
coupled shutoff valves have a high potential for
hydrostatic pressure buildup on a water temperature
increase. Refer to applicable codes for relief valve
installation guidelines.
Evaporator Flow Switch
The flow switch is factory-installed and programmed
based on the operating conditions submitted with the
order.The leaving evaporator temperature, fluid type and
fluid concentration affect the selected flow switch. If the
operating conditions on the job site change, the flow
switch may need to be replaced. Contact your localTrane
Sales office for more information.
The sensor head includes 3 LEDs, two yellow and one
green.Wait 15 seconds after power is applied to the sensor
before evaluating LEDs for flow status. When wired
correctly and flow is established, only the green LED
should be lit. Following are the LED indicators:
• Green ON, both yellow OFF — Flow
• Green and outside yellow ON — No Flow
• Center yellow ON continuously — Miswire
Factory installed jumper wire W11 must be removed if
using auxiliary contacts and/or additional proof of flow.
See schematics in RTAE-SVE01*-EN for more details.
If using auxiliary flow sensing, both yellow LEDs come on
initially when flow is stopped.The center yellow LED will
turn off after approximately 7 seconds.The LED indicators
are otherwise the same as indicated above.
Indexing Flow Switch
To properly index the flow switch, the following
requirements must be met:
• The dot must be at a position no greater than 90° off
Index.
• The torque must be between 22 ft-lb minimum and 74
ft-lb maximum.
• A minimum distance of 5x pipe diameter must be
maintained between flow switch and any bends,
valves, changes in cross sections, etc.
NOTICE:
Evaporator Damage!
To prevent shell damage, install pressure relief valves in
the evaporator water system.
NOTICE:
Equipment Damage!
Flow switch is on a 24V circuit. Do NOT apply 120V to
the flow switch. Incorrect voltage application could
cause damage to the flow switch.
NOTICE:
Equipment Damage!
Incorrect wiring of auxiliary contacts could cause
equipment damage.
Figure 18. Proper flow switch indexing
Flow
Top Vie w
Index
The flow switch must have the dot
in the shaded area to the left of this line
for proper indexing (±90° off Index)

Installation Mechanical
RTAE-SVX001B-EN 27
Evaporator Waterside Pressure Drop Curves
Figure 19. Evaporator waterside pressure drop curve — 2-pass
0
2.5
5
7.5
10
12.5
15
17.5
20
22.5
25
27.5
30
32.5
35
37.5
40
42.5
45
47.5
50
0 200 400 600 800 1000 1200 1400
Pressure Drop (ft. H2O)
Water Flow (GPM)
pp
300T
275T
250T
225T
200T
185T
165T
150T
150S,
165S

Installation Mechanical
28 RTAE-SVX001B-EN
Figure 20. Evaporator waterside pressure drop curve — 3-pass
0
5
10
15
20
25
30
35
40
45
50
55
60
65
70
75
0 100 200 300 400 500 600 700 800 900 1000
Pressure Drop (ft. H2O)
Water Flow (GPM)
300T
275T
250T
225T
200T
185T
165T
150T
150S,
165S

Installation Mechanical
RTAE-SVX001B-EN 29
Freeze Protection
One or more of the ambient freeze avoidance methods in
Table 15 must be used to protect the Stealth chiller from
ambient freeze damage.
Table 15. RTAC freeze avoidance methods
Method
Protects to
ambient
temperature Notes
Water Pump Control
AND Heaters Down to -20°F
•Heaters alone will provide low ambient protection down to -20°F (-29°C), but will NOT
protect the evaporator from freezing as a result of charge migration. Therefore, it is
required that water pump control be used in conjunction with heaters.
• Heaters are factory-installed on the evaporator and water piping and will protect them from freezing
• Install heat tape on all water piping, pumps, and other components that may be damaged if exposed
to freezing temperatures. Heat tape must be designed for low ambient temperature applications. Heat
tape selection should be based on the lowest expected ambient temperature.
• Tracer™ UC800 controller can start the pump when freezing conditions are detected. For this option
the pump must to be controlled by the Stealth unit and this function must be validated.
• Water circuit valves need to stay open at all times.
• Water pump control and heater combination will protect the evaporator down to any
ambient temperature provided power is available to the pump and the controller. This
option will NOT protect the evaporator in the event of a power failure to the chiller unless
backup power is supplied to the necessary components.
• When no chiller operation is possible and the pump is already off, UC800 pump control for freeze
protection will command the pump to turn:
ON if average of the evaporator entering water temperature, the evaporator leaving water
temperature, and the evaporator refrigerant pool temperature is less than Low Evaporator Refrigerant
Temperature Cutout (LERTC) + 4°F for a period of time.
OFF again if the evaporator refrigerant pool temperature rises above the LERTC + 6°F for a period
of time.
Note: Time period referenced for ON and Off conditions above is dependent on past running conditions
and present temperatures measured.
ON if entering OR leaving water temperature< LWTC for 30°F-sec (17°C-sec)
OFF again if water temperature > LWTC for 30 min
Freeze Inhibitor
Varies.
See “Low
Evaporator
Refrigerant Cutout,
Glycol
Requirements,”
p. 30
• Freeze protection can be accomplished by adding sufficient glycol to protect against freezing below
the lowest ambient expected.
• Use of glycol type antifreeze reduces the cooling capacity of the unit and must be
considered in the design of the system specifications.
Drain Water Circuit Below -20°F
• Shut off the power supply to the unit and to all heaters.
• Purge the water circuit.
• Blow out the evaporator to ensure no liquid is left in the evaporator.
NOTICE:
Evaporator Damage!
If insufficient concentration or no glycol is used, the
evaporator water flow must be controlled by the UC800
AND heaters must be used to avoid catastrophic
damage to the evaporator due to freezing. It is the
responsibility of the installing contractor and/or the
customer to ensure that a pump will start when called
upon by the chiller controls. Refer to RLC-PRB012-EN.
Even with water pump control, a power loss of as little
as 15 minutes under freezing conditions can damage
the evaporator. Only the proper addition of freeze
inhibitor or complete drainage of the water circuit can
ensure no evaporator damage in the event of a power
failure.

Installation Mechanical
30 RTAE-SVX001B-EN
Low Evaporator Refrigerant Cutout, Glycol Requirements
The table below shows the low evaporator temperature
cutout for different glycol levels. Additional glycol beyond
the recommendations will adversely effect unit
performance.The unit efficiency will be reduced and the
saturated evaporator temperature will be reduced. For
some operating conditions this effect can be significant.
If additional glycol is used, then use the actual percent
glycol to establish the low refrigerant cutout setpoint.
Note: Table below is not a substitute for full unit
simulation for proper prediction of unit
performance for specific operating conditions. For
information on specific conditions, contactTrane
product support.
Table 16. Low evaporator refrigerant temperature cutout (LERTC) and low water temperature cutout (LWTC)
Ethylene Glycol Propylene Glycol
Glycol
Percentage
(%)
Solution
Freeze Point
(°F)
Minimum
Recommended
LERTC (°F)
Minimum
Recommended
LWTC (°F)
Glycol
Percentage
(%)
Solution
Freeze Point
(°F)
Minimum
Recommended
LERTC (°F)
Minimum
Recommended
LWTC (°F)
0 32.0 28.6 35.0 0 32.0 28.6 35.0
2 31.0 27.6 34.0 2 31.0 27.6 34.0
4 29.7 26.3 32.7 4 29.9 26.5 32.9
5 29.0 25.6 32.0 5 29.3 25.9 32.3
6 28.3 24.9 31.3 6 28.7 25.3 31.7
8 26.9 23.5 29.9 8 27.6 24.2 30.6
10 25.5 22.1 28.5 10 26.4 23.0 29.4
12 23.9 20.5 26.9 12 25.1 21.7 28.1
14 22.3 18.9 25.3 14 23.8 20.4 26.8
15 21.5 18.1 24.5 15 23.1 19.7 26.1
16 20.6 17.2 23.6 16 22.4 19.0 25.4
18 18.7 15.3 21.7 18 20.9 17.5 23.9
20 16.8 13.4 19.8 20 19.3 15.9 22.3
22 14.7 11.3 17.7 22 17.6 14.2 20.6
24 12.5 9.1 15.5 24 15.7 12.3 18.7
25 11.4 8.0 14.4 25 14.8 11.4 17.8
26 10.2 6.8 13.2 26 13.8 10.4 16.8
28 7.7 4.3 10.7 28 11.6 8.2 14.6
30 5.1 1.7 8.1 30 9.3 5.9 12.3
32 2.3 -1.1 5.3 32 6.8 3.4 9.8
34 -0.7 -4.1 5.0 34 4.1 0.7 7.1
35 -2.3 -5.0 5.0 35 2.7 -0.7 5.7
36 -3.9 -5.0 5.0 36 1.3 -2.1 5.0
38 -7.3 -5.0 5.0 38 -1.8 -5.0 5.0
40 -10.8 -5.0 5.0 40 -5.2 -5.0 5.0
42 -14.6 -5.0 5.0 42 -8.8 -5.0 5.0
44 -18.6 -5.0 5.0 44 -12.6 -5.0 5.0
45 -20.7 -5.0 5.0 45 -14.6 -5.0 5.0
46 -22.9 -5.0 5.0 46 -16.7 -5.0 5.0
48 -27.3 -5.0 5.0 48 -21.1 -5.0 5.0
50 -32.1 -5.0 5.0 50 -25.8 -5.0 5.0

RTAE-SVX001B-EN 31
Installation Electrical
General Recommendations
As you review this manual, keep in mind that:
• All field-installed wiring must conform to National
Electric Code (NEC) guidelines, and any applicable
state and local codes. Be sure to satisfy proper
equipment grounding requirements per NEC.
• Compressor motor and unit electrical data (including
motor kW, voltage utilization range, rated load amps)
is listed on the chiller nameplate.
• All field-installed wiring must be checked for proper
terminations, and for possible shorts or grounds.
• All electrical enclosures on CE marked chillers (unit
model number digit 13 = C) have an environmental
rating of IP53.
Note: Always refer to wiring diagrams shipped with
chiller or unit submittal for specific electrical
schematic and connection information.
Important: To prevent control malfunctions, do not run
low voltage wiring (<30 V) in conduit with
conductors carrying more than 30 volts.
WARNING
Hazardous Voltage w/Capacitors!
Disconnect all electric power, including remote
disconnects and discharge all motor start/run and AFD
(Adaptive Frequency™ Drive) capacitors before
servicing. Follow proper lockout/tagout procedures to
ensure the power cannot be inadvertently energized.
• For variable frequency drives or other energy storing
components provided byTrane or others, refer to the
appropriate manufacturer’s literature for allowable
waiting periods for discharge of capacitors. Verify
with an appropriate voltmeter that all capacitors
have discharged.
• DC bus capacitors retain hazardous voltages after
input power has been disconnected. Follow proper
lockout/tagout procedures to ensure the power
cannot be inadvertently energized. After
disconnecting input power, wait five (5) minutes for
the DC capacitors to discharge, then check the
voltage with a voltmeter. Make sure DC bus
capacitors are discharged (0 VDC) before touching
any internal components.
Failure to follow these instructions could result in death
or serious injury.
For additional information regarding the safe discharge
of capacitors, see “Adaptive Frequency™ Drive (AFD3)
Capacitor Discharge,” p. 32 and PROD-SVB06A-EN.
WARNING
Hazardous Voltage - Pressurized Burning
Fluid!
The motors in the compressors have strong permanent
magnet motors and have the capability to generate
voltage during situations when the refrigerant charge is
being migrated.This potential will be present at the
motor terminals and at the output of the variable speed
drives in the power panel.
Before removing compressor terminal box cover for
servicing, or servicing power side of control panel,
CLOSE COMPRESSOR DISCHARGE SERVICE VALVE
and disconnect all electric power including remote
disconnects. Discharge all motor start/run capacitors.
Follow lockout/tagout procedures to ensure the power
cannot be inadvertently energized. Verify with an
appropriate voltmeter that all capacitors have
discharged.
The compressor contains hot, pressurized refrigerant.
Motor terminals act as a seal against this refrigerant.
Care should be taken when servicing NOT to damage
or loosen motor terminals.
Do not operate compressor without terminal box cover
in place.
Failure to follow all electrical safety precautions could
result in death or serious injury.
For additional information regarding the safe discharge
of capacitors, see “Adaptive Frequency™ Drive (AFD3)
Capacitor Discharge,” p. 32 and PROD-SVB06A-EN.
WARNING
Proper Field Wiring and Grounding
Required!
All field wiring MUST be performed by qualified
personnel. Improperly installed and grounded field
wiring poses FIRE and ELECTROCUTION hazards.To
avoid these hazards, you MUST follow requirements
for field wiring installation and grounding as described
in NEC and your local/state electrical codes. Failure to
follow code could result in death or serious injury.
NOTICE:
Use Copper Conductors Only!
Unit terminals are not designed to accept other types
of conductors. Failure to use copper conductors could
result in equipment damage.

Installation Electrical
32 RTAE-SVX001B-EN
Adaptive Frequency™ Drive (AFD3)
Capacitor Discharge
After disconnecting input power, wait five (5) minutes for
the DC capacitors to discharge.
Using voltmeter, measure voltage on bus at bus indicator
module tabs 1 and 2, accessed through slots in protective
cover on drive. See Figure 21, p. 32 for location of bus
indicator module on the AFD drive. See Figure 22, p. 32 for
details of bus indicator module. Capacitors are fully
discharged when voltage across these tabs measures 0
VDC.
Units with Nitrogen Charge Option
For units with nitrogen charge option (model number digit
15 = 2), the unit must NOT have shore power, or unit power
applied until the unit has been charged. Applying power
will drive EXV valves closed, and will inhibit sufficient vac
for unit charging.
Installer-Supplied Components
Customer wiring interface connections are shown in the
electrical schematics and connection diagrams that are
shipped with the unit.The installer must provide the
following components if not ordered with the unit:
• Power supply wiring (in conduit) for all field-wired
connections.
• All control (interconnecting) wiring (in conduit) for
field supplied devices.
• Fused-disconnect switches or circuit breakers.
Figure 21. AFD board - indicator location
Figure 22. Bus indicator module detail
Bus
Indicator
Module
Tab 2
(-) Bus
Tab 1
(+) Bus
Bus Charge
Indicator
DC Bus Voltage
Indicator LED
N2

Installation Electrical
RTAE-SVX001B-EN 33
Power Supply Wiring
All power supply wiring must be sized and selected
accordingly by the project engineer in accordance with
NECTable 310-16.
All wiring must comply with local codes and the National
Electrical Code.The installing (or electrical) contractor
must provide and install the system interconnecting
wiring, as well as the power supply wiring. It must be
properly sized and equipped with the appropriate fused
disconnect switches.
The type and installation location(s) of the fused
disconnects must comply with all applicable codes.
Incoming customer power location varies with unit
configurations.
• Control Panel (see Figure 23)
•Standard length units
(model number digits 28, 29 = 0X)
•Units with optional harmonic filtration
(model number digit 29 = 1)
• Transformer (see Figure 24, p. 34)
•200, 230 or 575 V units with transformer
(model number digit 28 = 1)
WARNING
Proper Field Wiring and Grounding
Required!
All field wiring MUST be performed by qualified
personnel. Improperly installed and grounded field
wiring poses FIRE and ELECTROCUTION hazards.To
avoid these hazards, you MUST follow requirements for
field wiring installation and grounding as described in
NEC and your local/state electrical codes. Failure to
follow code could result in death or serious injury.
WARNING
Hazardous Voltage w/Capacitors!
Disconnect all electric power, including remote
disconnects and discharge all motor start/run
capacitors before servicing. Follow proper lockout/
tagout procedures to ensure the power cannot be
inadvertently energized. For variable frequency drives or
other energy storing components provided by Trane or
others, refer to the appropriate manufacturer’s literature
for allowable waiting periods for discharge of
capacitors. Verify with an appropriate voltmeter that all
capacitors have discharged. Failure to disconnect power
and discharge capacitors before servicing could result in
death or serious injury.
DC bus capacitors retain hazardous voltages after input
power has been disconnected. Follow proper lockout/
tagout procedures to ensure the power cannot be
inadvertently energized. After disconnecting input
power, wait five (5) minutes for the DC capacitors to
discharge and then check the voltage with a voltmeter
to ensure the dc bus capacitors are discharged before
touching any internal components. Failure to observe
this precaution could result in death or serious injury.
For additional information regarding the safe discharge
of capacitors, see “Adaptive Frequency™ Drive (AFD3)
Capacitor Discharge,” p. 32 and PROD-SVB06A-EN.
NOTICE:
Use Copper Conductors Only!
Unit terminals are not designed to accept other types
of conductors. Failure to use copper conductors could
result in equipment damage.
Figure 23. Incoming customer power - control panel
Control Panel
Incoming Customer
Power Location
Standard Length Units
(model number digits 28, 29 = 0X)
Unit with optional Harmonic Filtration
(model number digit 29 = 1)
Incoming
Customer
Power
Location
Pulse Auto Transformer
(harmonic filtration)
Control Panel
Incoming Customer Power Location
Unit Control Panel - right side view
Incoming
Customer
Power
Location

Installation Electrical
34 RTAE-SVX001B-EN
Cut holes into the location shown above for the
appropriately-sized power wiring conduits. The wiring is
passed through these conduits and connected to the
terminal blocks, optional unit-mounted disconnects, or
HACR type breakers.
The high voltage field-provided connections are made
through patch plate on the right side of the main control
panel or on the right side of the voltage autotransformer
panel.
The low voltage connections are made through knockouts
provided on the left side of the control panel. Additional
grounds may be required for each 115 volt power supply to
the unit. Green lugs are provided for 115V customer
wiring.
Control Power Supply
The unit is equipped with a control power transformer. It
is not necessary to provide additional control power
voltage to the unit. No other loads should be connected to
the control power transformer.
All units are factory-connected for appropriate labeled
voltages.
Service Power Connection
The service power connection is a touch safe procedure to
allow for binding the control system and LLIDs. Service
power connection allows for a NEMA 5-15 style extension
cord to power on Class 2 devices (i.e. UC800, LLIDs, EXVs,
andTD7 display) with an external power source, without
the need of line voltage applied to the unit.This connection
is to be made at 1XJ50.The extension cord power source
is required to have upstream current protection rated at no
more than 10A.The required voltage for the service power
connection is 115V at 60Hz and 110V at 50Hz.
Heater Power Supply
The evaporator shell is insulated from ambient air and
protected from freezing temperatures by thermostatically-
controlled immersion heaters. See Table 17 for evaporator
heater summary. Whenever the water temperature drops
to approximately 37°F (2.8°C), the thermostat energizes
the heaters.The heaters will provide protection from
ambient temperatures down to -20°F (-29°C).
Figure 24. Incoming customer power - transformer
200V, 230V and 575V units
(Includes optional Transformer
model number digit 28 = 1)
Incoming Customer Power Location
On Transformer
End of Unit
(non-control panel end)
Right side of unit
Incoming Customer
Power Location
(located on transformer)
Incoming Customer
Power Location
(located on transformer)
NOTICE:
Equipment Damage!
Control panel main processor does not verify
thermostat operation. A qualified technician must
confirm operation of the thermostat to avoid
catastrophic damage to the evaporator.
Table 17. Evaporator heater summary
Unit Size (tons)
Waterboxes
Supply Return
2-pass Evaporator
150-165 400W 400W
180-200 400W (Qty 2) 400W
225-300 600W 600W
3-pass Evaporator
All sizes 400W (Qty 2) 400W

Installation Electrical
RTAE-SVX001B-EN 35
Interconnecting Wiring
Chilled Water Pump Control
An evaporator water pump output relay closes when the
chiller is given a signal to go into the Auto mode of
operation from any source.The contact is opened to turn
off the pump in the event of most machine level
diagnostics to prevent the build up of pump heat.
The relay output is required to operate the Evaporator
Water Pump (EWP) contactor. Contacts should be
compatible with 115/240VAC control circuit. Normally, the
EWP relay follows theAUTO mode of the chiller.Whenever
the chiller has no diagnostics and is in the AUTO mode,
regardless of where the auto command is coming from,
the normally open relay is energized. When the chiller
exits the AUTO mode, the relay is timed to open in an
adjustable (usingTechView) 0 to 30 minutes.The non-
AUTO modes in which the pump is stopped, include Reset,
Stop, External Stop, Remote Display Stop, Stopped by
Tracer, Start Inhibited by Low AmbientTemp, and Ice
Building complete.
When going from Stop to Auto, the EWP relay is energized
immediately. If evaporator water flow is not established in
20 minutes (for normal transition) or 4 minutes, 15
seconds (for pump commanded ON due to an override
safety), the UC800 de-energizes the EWP relay and
generates a non-latching diagnostic. If flow returns (e.g.
someone else is controlling the pump), the diagnostic is
cleared, the EWP is re-energized, and normal control
resumed.
If evaporator water flow is lost once it had been
established, the EWP relay remains energized and a non-
latching diagnostic is generated. If flow returns, the
diagnostic is cleared and the chiller returns to normal
operation.
In general, when there is either a non-latching or latching
diagnostic, the EWP relay is turned off as though there was
a zero time delay. Exceptions whereby the relay continues
to be energized occur with:
•Low Chilled WaterTemperature diagnostic
(non-latching unless also accompanied by an Evap
Leaving WaterTemperature Sensor Diagnostic)
or
•Interrupt Failure —AFDxA diagnostic (where x is
either 1 or 2 to indicate which drive is affected), in
which a compressor continues to draw current even
after commanded to have shutdown.
or
•Loss of Evaporator Water Flow diagnostic (non-
latching) and the unit is in the AUTO mode, after
initially having proven evaporator water flow.
Programmable Relays
A programmable relay concept provides for enunciation of
certain events or states of the chiller, selected from a list of
likely needs, while only using four physical output relays,
as shown in the field wiring diagram.The four relays are
provided (generally with a Quad Relay Output LLID) as part
of the Programmable Relay Option.The relay’s contacts
are isolated Form C (SPDT), suitable for use with 120 VAC
circuits drawing up to 2.8 amps inductive, 7.2 amps
resistive, or 1/3 HP and for 240 VAC circuits drawing up to
0.5 amp resistive.
The list of events/states that can be assigned to the
programmable relays can be found in Table 19.The relay
will be energized when the event/state occurs.
NOTICE:
Equipment Damage!
If the microprocessor calls for a pump to start and
water does not flow, the evaporator may be damaged
catastrophically. It is the responsibility of the installing
contractor and/or the customer to ensure that a pump
will always be running when called upon by the chiller
controls.
Table 18. Pump Relay Operation
Chiller Mode Relay Operation
Auto Instant Close
Ice Building Instant Close
Tracer Override Close
Stop Timed Open
Ice Complete Instant Open
Diagnostics Instant Operation(a)
(a)Operation can be instant open or instant close, depending on diagnostic.
Chiller Shutdown
Diagnostics
(except freeze protection) Instant Open
Freeze Protection related
chiller shutdown diagnostics Delayed/Dependent Open
Chiller Off Cycle Freeze
Diagnostics Instant Close – Dependent Open
Table 19. Alarm and status relay output configuration
table
Description
Alarm - Latching
This output is true whenever there is any
active latching shutdown diagnostic that
targets the Unit, Circuit, or any of the
Compressors on a circuit.
Alarm - NonLatching
This output is true whenever there is any
active non-latching shutdown diagnostic that
targets the Unit, Circuit, or any of the
Compressors on a circuit.
Alarm
This output is true whenever there is any
active latching or non-latching shutdown
diagnostic that targets the Unit, Circuit, or
any of the Compressors on a circuit.

Installation Electrical
36 RTAE-SVX001B-EN
Relay Assignments Using
Tracer™ TU
Tracer™TU ServiceTool is used to install the
Programmable Relay Option package and assign any of
the above list of events or status to each of the four relays
provided with the option. (See “Tracer™TU,” p. 55 for
more information on theTracerTU service tool.) The
relays to be programmed are referred to by the relay’s
terminal numbers on the LLID board 1K13.
The default assignments for the four available relays of the
Programmable Relay option are:
If any of the Alarm/Status relays are used, provide
electrical power, 115 VAC with fused-disconnect to the
panel and wire through the appropriate relays (terminals
on 1K13 (EUR=A4-5)). Provide wiring (switched hot,
neutral, and ground connections) to the remote
annunciation devices. Do not use power from the chiller’s
control panel transformer to power these remote devices.
Refer to the field diagrams which are shipped with the unit.
Low Voltage Wiring
The remote devices described below require low voltage
wiring. All wiring to and from these remote input devices
to the Control Panel must be made with shielded, twisted
pair conductors. Be sure to ground the shielding only at
the panel.
Important: To prevent control malfunctions, do not run
low voltage wiring (<30 V) in conduit with
conductors carrying more than 30 volts.
Emergency Stop
UC800 provides auxiliary control for a customer specified/
installed latching trip out. When this customer-furnished
remote contact 5K35 is provided, the chiller will run
normally when the contact is closed. When the contact
opens, the unit will trip on a manually resettable
diagnostic.This condition requires manual reset at the
front of the control panel.
Connect low voltage leads to terminal strip locations on
1K2. Refer to the field diagrams that are shipped with the
unit.
Silver or gold-plated contacts are recommended.These
customer-furnished contacts must be compatible with 24
VDC, 12 mA resistive load.
External Auto/Stop
If the unit requires the external Auto/Stop function, the
installer must provide leads from the remote contacts
5K34 to the proper terminals of the LLID 1K2 on the control
panel.
The chiller will run normally when the contacts are closed.
When either contact opens, the compressor(s), if
operating, will go to the RUN:UNLOAD operating mode
and cycle off. Unit operation will be inhibited. Closure of
the contacts will permit the unit to return to normal
operation.
Field-supplied contacts for all low voltage connections
must be compatible with dry circuit 24 VDC for a 12 mA
resistive load. Refer to the field diagrams that are shipped
with the unit.
External Circuit Lockout – Circuit #1 and #2
UC800 provides auxiliary control of a customer specified
or installed contact closure, for individual operation of
either Circuit #1 or #2. If the contact is closed, the
refrigerant circuit will not operate 5K32 and 5K33.
Alarm Ckt 1
This output is true whenever there is any
active latching or non-latching shutdown
diagnostic that targets Circuit 1, or any of the
Compressors on Circuit
Alarm Ckt 2
This output is true whenever there is any
active latching or non-latching shutdown
diagnostic that targets Circuit 2, or any of the
Compressors on Circuit 2.
Unit Limit Mode
This output is true whenever a circuit on the
unit has been running in one of the limit
modes continuously for the Limit Relay
debounce time. A given limit or overlapping of
different limits must be in effect continuously
for the debounce time prior to the output
becoming true. It will become false if no limits
are present for the debounce time.
Compressor Running The output is true whenever any compressor
is running.
Circuit 1 Running The output is true whenever any compressor
of Circuit 1 is running.
Circuit 2 Running The output is true whenever any compressor
of Circuit 2 is running.
Maximum Capacity
The output is true whenever the unit has
reached maximum capacity continuously for
the Max Capacity Relay debounce time. The
output is false when the unit is not at
maximum capacity continuously for the filter
debounce time.
Head Pressure Relief
Request
This relay output is energized anytime the
chiller or a single circuit on the chiller is
running in one of the following modes; Ice
Making Mode, or Condenser Pressure Limit
continuously for the duration specified by the
Chiller Head Relief Relay Filter Time. The
Chiller Head Relief Relay Filter Time is a
service setpoint. The relay output is de-
energized anytime the chiller exits all above
modes continuously for the duration specified
by the same Chiller Head Relief Relay Filter
Time
Table 20. Default assignments
Relay
Relay 0Terminals J2-1,2,3: Unit Limit Mode
Relay 1Terminals J2-4,5,6: Maximum Capacity
Relay 2Terminals J2 - 7,8,9: Compressor Running
Relay 3Terminals J2 -10,11,12: Alarm
Table 19. Alarm and status relay output configuration
table (continued)
Description

Installation Electrical
RTAE-SVX001B-EN 37
Upon contact opening, the refrigerant circuit will run
normally.This feature is used to restrict total chiller
operation, e.g. during emergency generator operations.
Connections to 1K3 are shown in the field diagrams that
are shipped with the unit.
These customer-supplied contact closures must be
compatible with 24 VDC, 12 mA resistive load. Silver or
gold plated contacts are recommended.
Ice Building Option
UC800 provides auxiliary control for a customer specified/
installed contact closure for ice building if so configured
and enabled.This output is known as the Ice Building
Status Relay. The normally open contact will be closed
when ice building is in progress and open when ice
building has been normally terminated either through Ice
Termination setpoint being reached or removal of the Ice
Building command.This output is for use with the ice
storage system equipment or controls (provided by
others) to signal the system changes required as the chiller
mode changes from “ice building” to “ice complete”.
When contact 5K36 is provided, the chiller will run
normally when the contact is open.
UC800 will accept either an isolated contact closure
(External Ice Building command) or a Remote
Communicated input (Tracer) to initiate and command the
Ice Building mode.
UC800 also provides a “Front Panel IceTermination
Setpoint”, settable throughTracer™TU, and adjustable
from 20 to 31°F (-6.7 to -0.5°C) in at least 1°F (1°C)
increments.
Note: When in the Ice Building mode, and the evaporator
entering water temperature drops below the ice
termination setpoint, the chiller terminates the Ice
Building mode and changes to the Ice Building
Complete Mode.
Tracer™TU must also be used to enable or disable Ice
Machine Control.This setting does not prevent theTracer
from commanding Ice Building mode.
Upon contact closure, the UC800 will initiate an ice
building mode, in which the unit runs fully loaded at all
times. Ice building shall be terminated either by opening
the contact or based on the entering evaporator water
temperature. UC800 will not permit the ice building mode
to be reentered until the unit has been switched out of ice
building mode (open 5K36 contacts) and then switched
back into ice building mode (close 5K36 contacts.)
In ice building, all limits (freeze avoidance, evaporator,
condenser, current) will be ignored. All safeties will be
enforced.
If, while in ice building mode, the unit gets down to the
freeze stat setting (water or refrigerant), the unit will shut
down on a manually resettable diagnostic, just as in
normal operation.
Connect leads from 5K36 to the proper terminals of 1K8.
Refer to the field diagrams which are shipped with the unit.
Silver or gold-plated contacts are recommended.These
customer furnished contacts must be compatible with 24
VDC, 12 mA resistive load.
External Chilled Water Setpoint (ECWS)
Option
The UC800 provides inputs that accept either 4-20 mA or
2-10 VDC signals to set the external chilled water setpoint
(ECWS).This is not a reset function.The input defines the
setpoint.This input is primarily used with generic BAS
(building automation systems).The chilled water setpoint
set via theTracer AdaptiView™TD7 or through digital
communication withTracer (Comm3).The arbitration of
the various chilled water setpoint sources is described in
the flow charts at the end of the section.
The chilled water setpoint may be changed from a remote
location by sending either a 2-10 VDC or 4-20 mA signal to
the 1K14, terminals 5 and 6 LLID. 2-10 VDC and 4-20 mA
each correspond to a 10 to 65°F (-12 to 18°C) external
chilled water setpoint.
The following equations apply:
If the ECWS input develops an open or short, the LLID will
report either a very high or very low value back to the main
processor.This will generate an informational diagnostic
and the unit will default to using the Front Panel (TD7)
Chilled Water Setpoint.
TracerTU ServiceTool is used to set the input signal type
from the factory default of 2-10 VDC to that of 4-20 mA.
TracerTU is also used to install or remove the External
ChilledWater Setpoint option as well as a means to enable
and disable ECWS.
External Demand Limit Setpoint (EDLS)
Option
Similar to the above, the UC800 also provides for an
optional External Demand Limit Setpoint that will accept
either a 2-10 VDC (default) or a 4-20 mA signal.The
Demand Limit Setting can also be set via the Tracer
AdaptiView™TD7 or through digital communication with
NOTICE:
Equipment Damage!
Freeze inhibitor must be adequate for the leaving water
temperature. Failure to do so will result in damage to
system components.
Voltage Signal
As generated from external source VDC=0.1455*(ECWS) + 0.5454
As processed by UC800 ECWS=6.875*(VDC) - 3.75
Current Signal
As generated from external source mA=0.2909(ECWS) + 1.0909
As processed by UC800 ECWS=3.4375(mA) - 3.75

Installation Electrical
38 RTAE-SVX001B-EN
Tracer (Comm 3).The arbitration of the various sources of
demand limit is described in the flow charts at the end of
this section.The External Demand Limit Setpoint may be
changed from a remote location by hooking up the analog
input signal to the 1K14 LLID terminals 2 and 3. Refer to the
following paragraph on Analog Input Signal Wiring
Details.The following equations apply for EDLS:
If the EDLS input develops an open or short, the LLID will
report either a very high or very low value back to the man
processor.This will generate an informational diagnostic
and the unit will default to using the Front Panel (Tracer
AdaptiView™TD7) Current Limit Setpoint.
TheTracer™TU ServiceTool must be used to set the input
signal type from the factory default of 2-10 VDC to that of
4-20 mA current.TracerTU must also be used to install or
remove the External Demand Limit Setpoint Option for
field installation, or can be used to enable or disable the
feature (if installed).
EDLS and ECWS Analog Input Signal Wiring
Details:
Both the ECWS and EDLS can be connected and setup as
either a 2-10 VDC (factory default), 4-20 mA, or resistance
input (also a form of 4-2OmA) as indicated below.
Depending on the type to be used, theTracerTU Service
Tool must be used to configure the LLID and the MP for the
proper input type that is being used.This is accomplished
by a setting change on the Custom Tab of the
Configuration View withinTracerTU.
Important: For proper unit operation, BOTH the EDLS
and ECWS settings MUST be the same (2-10
VDC or 4-20mA), even if only one input is to
be used.
The J2-3 and J2-6 terminal is chassis grounded and
terminal J2- 1 and J2-4 can be used to source 12VDC.The
ECLS uses terminals J2-2 and J2-3. ECWS uses terminals
J2-5 and J2-6. Both inputs are only compatible with
high-side current sources.
Chilled Water Reset (CWR)
UC800 resets the chilled water temperature set point
based on either return water temperature, or outdoor air
temperature. Return Reset is standard, Outdoor Reset is
optional.
The following shall be selectable:
• One of three ResetTypes: None, Return Water
Temperature Reset, Outdoor AirTemperature Reset, or
Constant Return WaterTemperature Reset.
• Reset Ratio Set Points.
For outdoor air temperature reset there shall be both
positive and negative reset ratio's.
• Start Reset Set Points.
• Maximum Reset Set Points.
The equations for each type of reset are as follows:
Return
CWS' = CWS + RATIO (START RESET - (TWE -TWL))
and CWS' > or = CWS
and CWS' - CWS < or = Maximum Reset
Outdoor
CWS' = CWS + RATIO * (START RESET -TOD)
and CWS' > or = CWS
and CWS' - CWS < or = Maximum Reset
where
CWS' is the new chilled water set point or the "reset CWS"
CWS is the active chilled water set point before any reset
has occurred, e.g. normally Front Panel,Tracer, or ECWS
RESET RATIO is a user adjustable gain
START RESET is a user adjustable reference
TOD is the outdoor temperature
TWE is entering evap. water temperature
Voltage Signal Current Signal
As generated from
external source VDC+0.133*(%)-6.0 mA=0.266*(%)-12.0
As processed by
UCM %=7.5*(VDC)+45.0 %=3.75*(mA)+45.0
Figure 25. Wiring examples for EDLS and ECWS
J2-1 & 4 Dual
J2-2 & 5 Analog
J2-3 & 6 I/O LLID
J2-1 & 4 Dual
J2-2 & 5 Analog
J2-3 & 6 I/O LLID
J2-1 & 4 Dual
J2-2 & 5 Analog
J2-3 & 6 I/O LLID
Resister
2-10 VDC, 4-20mA
I = 20/(R + 200)
I

Installation Electrical
RTAE-SVX001B-EN 39
TWL is leaving evap. water temperature
MAXIMUM RESET is a user adjustable limit providing the
maximum amount of reset. For all types of reset, CWS' -
CWS < or = Maximum Reset.
In addition to Return and Outdoor Reset, the MP provides
a menu item for the operator to select a Constant Return
Reset. Constant Return Reset will reset the leaving water
temperature set point so as to provide a constant entering
water temperature.The Constant Return Reset equation is
the same as the Return Reset equation except on selection
of Constant Return Reset, the MP will automatically set
Ratio, Start Reset, and Maximum Reset to the following.
RATIO = 100%
START RESET = Design DeltaTemp.
MAXIMUM RESET = Design DeltaTemp.
The equation for Constant Return is then as follows:
CWS' = CWS + 100% (Design Delta Temp. - (TWE -TWL))
and CWS' > or = CWS
and CWS' - CWS < or = Maximum Reset
When any type of CWR is enabled, the MP will step the
Active CWS toward the desired CWS' (based on the above
equations and setup parameters) at a rate of 1 degree F
every 5 minutes until the Active CWS equals the desired
CWS'.This applies when the chiller is running.
When the chiller is not running, CWS is reset immediately
(within one minute) for Return Reset and at a rate of 1
degree F every 5 minutes for Outdoor Reset.The chiller
will start at the Differential to Start value above a fully reset
CWS or CWS' for both Return and Outdoor Reset.
Transformer Power Rating
See table below for power rating of optional transformer
(unit model number digit 28 = 1).
Communications Interface
LonTalk Interface (LCI-C)
UC800 provides an optional LonTalk™ Communication
Interface (LCI-C) between the chiller and a Building
Automation System (BAS). An LCI-C LLID shall be used to
provide "gateway" functionality between a LonTalk
compatible device and the Chiller.The inputs/outputs
include both mandatory and optional network variables as
established by the LonMark Functional Chiller Profile 8040.
Note: For more information see ACC-SVN100*-EN.
BACnet Interface (BCI-C)
Optional BACnet™ Communication Interface for Chillers
(BCI-C) is comprised of aTracer UC800 controller with
interface software. It is a non-programmable
communications module that allows units to
communicate on a BACnet communications network.
Note: For more information, see BAS-SVP01*-EN.
Modbus Remote Terminal Unit Interface
Modicon Communication Bus (Modbus™) enables the
chiller controller to communicate as a slave device on a
Modbus network. Chiller setpoints, operating modes,
alarms and status can be monitored and controlled by a
Modbus master device.
Note: For more information, see BAS-SVP01*-EN.
Range Increment
Reset
Type Reset
Ratio Start
Reset Max
Reset IP
Units SI
Units Factory
Default
Return 10 to
120% 4 to 30 F 0 to 20 F 1% 1% 50%
(2.2 to
16.7 C)
(0.0 to
11.1 C)
Outdoor 80 to -
80%
50 to 130
F0 to 20 F 1% 1% 10%
(10 to
54.4 C)
(0.0 to
11.1 C)
Table 21. Transformer power ratings
Unit Size Power Rating
150 - 200 tons 340 kVA
225-300 tons 470 kVA

40 RTAE-SVX001B-EN
Operating Principals
This section contains an overview of the operation and
maintenance of Stealth RTAE units equipped with UC800
control systems. It describes the overall operating
principles of the RTAE design.
Refrigeration Circuits
Each unit has two refrigerant circuits, with one rotary
screw compressor per circuit. Each refrigerant circuit
includes a compressor suction and discharge service
valve, liquid line shutoff valve, removable core filter, liquid
line sight glass with moisture indicator, charging port and
an electronic expansion valve. Fully modulating
compressors and electronic expansion valves provide
variable capacity modulation over the entire operating
range. Lower condensing temperatures and higher
suction temperatures along with more efficient
compressors and fans result in the premium efficiency
level of Stealth Air Cooled chillers
Refrigeration Cycle
The refrigeration cycle of the RTAE chiller is represented in
the pressure enthalpy diagram shown in Figure 26.Key
state points are indicated on the figure.The cycle for the
full load AHRI design point is represented in the plot.
The RTAE chiller uses a shell and tube evaporator design
with refrigerant evaporating on the shell side and water
flowing inside tubes having enhanced surfaces (states 4 to
1).The suction lines are designed to minimize pressure
drop.(states 1 to 1b).The compressor is a twin-rotor helical
rotary compressor designed similarly to the compressors
offered in otherTrane Screw Compressor Based Chillers
(states 1b to 2).The discharge lines include a highly
efficient oil separation system that removes 99.8% of the
oil from the refrigerant stream going to the heat
exchangers (states 2 to 2b). De-superheating, condensing
and sub-cooling is accomplished in a fin and tube air
cooled heat exchanger where refrigerant is condensed in
the tube (states 2b to 3b). Refrigerant flow through the
system is balanced by an electronic expansion valve
(states 3b to 4).
Refrigerant R-134a
The RTAE chiller uses environmentally friendly R-134a.
Trane believes that responsible refrigerant practices are
important to the environment, our customers, and the air
conditioning industry. All technicians who handle
refrigerants must be certified.The Federal Clean Air Act
(Section 608) sets forth the requirements for handling,
reclaiming, recovering and recycling of certain
refrigerants and the equipment that is used in these
service procedures. In addition, some states or
municipalities may have additional requirements that
must also be adhered to for responsible management of
refrigerants. Know the applicable laws and follow them.
R-134a is a medium pressure refrigerant. It may not be
used in any condition that would cause the chiller to
operate in a vacuum without a purge system. RTAE is not
equipped with a purge system.Therefore, the RTAE chiller
may not be operated in a condition that would result in a
saturated condition in the chiller of –15°F (-26°C) or lower.
R-134a requires the use of specific POE oils as designated
on the unit nameplate.
Important: Use only R-134a andTrane Oil 00311 (bulk)/
00315 (1gal)/00317 (5gal) in Stealth chillers.
Compressor and Lube Oil System
The rotary screw compressor is semi-hermetic, direct
drive with capacity control via a variable speed drive,
rolling element bearings, differential refrigerant pressure
oil pump and oil heater.The motor is a suction gas cooled,
hermetically sealed, permanent magnet motor. An oil
separator is provided separately from the compressor. Oil
filtration is provided internal to the compressor. Check
valves in the compressor discharge and lube oil system
are also provided.
Condenser and Fans
Air-cooled condenser coils have aluminum fins
mechanically bonded to internally finned seamless
aluminum tubing.The tubing is a long life alloy designed
to deliver corrosion performance that meets or exceeds
microchannel coils.The condenser coil has an integral
subcooling circuit. Condensers are factory proof tested at
525 psig and leak tested with helium in a mass
spectrometer chamber at 150 psig. All tube connections
are mechanical except the brazed copper to aluminum
inlet and outlet connections. Condenser fans are direct-
drive vertical discharge.The condenser fan motors are
permanent magnet motors with an integrated drive to
Figure 26. Pressure enthalpy (P-h) diagram - RTAE
R-134a
h (btu/lb)
P (psia)
1
1b
2
2b
3
3b
4
120 140100806040200
30
50
100
200
500
600

Operating Principals
RTAE-SVX001B-EN 41
provide variable speed fan control for all fans and are
designed with permanently lubricated ball bearings,
internal temperature and current overload protection, and
fault feedback as a standard product offering. The fan
impeller is a nine bladed-shrouded fan made from heavy-
duty molded plastic. Standard units will start and operate
between 32 to 105°F (0 to 40°C) ambient.
The UC800 controls calculate optimum fan speed for
maximum efficiency based on compressor load and
outdoor air, resulting in high IPLV values.
Evaporator
The evaporator is a tube-in-shell heat exchanger design
constructed from carbon steel shells and tubesheets with
internally and externally finned seamless copper tubes
mechanically expanded into the tube sheets.The
evaporator is designed, tested and stamped in accordance
with the ASME Boiler and Pressure Vessel Code for a
refrigerant side working pressure of 200 psig.The
evaporator is designed for a water side working pressure
of 150 psig. Standard water connections are grooved for
Victaulic style pipe couplings, with flange style
connections optionally available. Waterboxes are
available in 2 and 3 pass configurations and include a vent,
a drain and fittings for temperature control sensors.
Evaporators are insulated with 3/4 inch closed cell
insulation. Evaporator water heaters with thermostat are
provided to help protect the evaporator from freezing at
ambient temperatures down to -20°F (-29°C). A factory
installed flow switch is installed on the supply water box in
the evaporator inlet connection.
Drive Cooling System
Each refrigeration circuit has a compressor drive cooling
circuit. Each drive cooling circuit includes a wet rotor
circulation pump that circulates a secondary heat transfer
fluid in a closed system between the adaptive frequency
drive components between the heat sinks of the adaptive
frequency drive and a brazed plate heat exchanger.The
pump is fed from a thermal expansion tank with a vented-
pressure cap which is also used as the circuit pressure
relief.The circuit also includes a particulate strainer and a
drain valve for servicing.

42 RTAE-SVX001B-EN
Controls
Overview
Stealth™ RTAE units utilize the following control/interface
components:
• Tracer™ UC800 Controller
• Tracer AdaptiView™TD7 Operator Interface
UC800 Specifications
This section covers information pertaining to the UC800
controller hardware.
Wiring and Port Descriptions
Figure 27 illustrates the UC800 controller ports, LEDs,
rotary switches, and wiring terminals.The numbered list
following Figure 27 corresponds to the numbered callouts
in the illustration.
Figure 27. Wiring locations and connection ports
1. Rotary Switches for setting BACnet®MAC address or MODBUS ID.
2. LINK for BACnet MS/TP, or MODBUS Slave (two terminals, ±). Field wired if used.
3. LINK for BACnet MS/TP, or MODBUS Slave (two terminals, ±). Field wired if used.
4. Machine bus for existing machine LLIDs (IPC3Tracer bus 19.200 baud). IPC3 Bus: used for Comm4 using TCI or LonTalk®using LCI-C.
5. Power (210 mA at 24 Vdc) and ground terminations (same bus as item 4). Factory wired.
6. Not used.
7. Marquee LED power and UC800 Status indicator (Table 22, p. 43).
8. Status LEDs for the BAS link, MBus link, and IMC link.
9. USB device type B connection for the service tool (Tracer TU).
10. The Ethernet connection can only be used with theTracer AdaptiView display.
11. USB Host (not used).
LINK
+ +
+
24
VDC
+
MBUS
Front View
6
7
8
9
6
1
10
11
234 5
Bottom View
10
11

Controls
RTAE-SVX001B-EN 43
Communication Interfaces
There are four connections on the UC800 that support the
communication interfaces listed. See Figure 27, p. 42 for
the locations of each of these ports.
• BACnet®MS/TP
• MODBUS™ Slave
• LonTalk™ using LCI-C (from the IPC3 bus)
• Comm 4 usingTCI (from the IPC3 bus)
Rotary Switches
There are three rotary switches on the front of the UC800
controller. Use these switches to define a three-digit
address when the UC800 is installed in a BACnet or
MODBUS system (e.g., 107, 127, etc.).
Note: Valid addresses are 001 to 127 for BACnet and 001
to 247 for MODBUS.
LED Description and Operation
There are 10 LEDs on the front of the UC800. Figure 28
shows the locations of each LED and Table 22 describes
their behavior in specific instances.
Tracer AdaptiView TD7 Display
Operator Interface
Information is tailored to operators, service technicians,
and owners. When operating a chiller, there is specific
information you need on a day-to-day basis—setpoints,
limits, diagnostic information, and reports. Day-to-day
operational information is presented at the display.
Logically organized groups of information— chiller modes
of operation, active diagnostics, settings and reports put
information conveniently at your fingertips.
Figure 28. LED locations
LINK
LINK MBUS IMC
TX
RX
ACT
SERVICE
Marquee
Table 22. LED behavior
LED UC800 Status
Marquee LED
Powered. If the Marquee LED is green solid, the
UC800 is powered and no problems exist.
Low power or malfunction. If the Marquee LED is
red solid, the UC800 is powered, but there are
problems present.
Alarm. The Marquee LED blinks Red when an alarm
exists.
LINK, MBUS,
IMC
The TX LED blinks green at the data transfer rate
when the UC800 transfers data to other devices on
the link.
The Rx LED blinks yellow at the data transfer rate
when the UC800 receives data from other devices on
the link.
Ethernet Link
The LINK LED is solid green if the Ethernet link is
connected and communicating.
The ACT LED blinks yellow at the data transfer rate
when data flow is active on the link.
Service The Service LED is solid green when pressed. For
qualified service technicians only. Do not use.
NOTICE:
Electrical Noise!
Maintain at least 6 inches between low-voltage (<30V)
and high voltage circuits. Failure to do so could result i
electrical noise that could distort the signals carried by
the low-voltage wiring, including IPC.
Figure 29. TD7 screens
Operator Display Boot Screen Display Loading Data Home Screen, Auto Mode

Controls
44 RTAE-SVX001B-EN
Main Display Area/Home Screen
All screens appear within the main display area (shown as
location in Table 30).
Home screen: Chiller status information
The home screen (Table 30) provides the most frequently
needed chiller status information on “touch targets” (the
entire white rectangular areas) for each chiller component.
Touching any touch target displays a screen containing
more chiller status information related to each
component.
Viewing Chiller Operating Modes
On the Reports screen, touch Chiller Operating Modes to
view the current operating status of the chiller in terms of
the top-level operating mode and submodes.
Note: You can also access the Chiller Operating Modes
screen from the chiller status button in the upper
left corner of the screen.
Figure 30. Main screen
Table 23. Main screen items
Description Resolution Units
Active Chilled Water Setpoint X.X °F /°C
Active Current Limit Setpoint X.X %RLA
Average Motor Current %RLA X.X %RLA
Evap Entering/Leaving Water Temp X.X °F /°C
Cond Entering/Leaving Water Temp X.X °F /°C
Frequency Command X.X Hz
Evaporator Water Flow Status X.X
Condenser Water Flow Status
Figure 31. Chiller operating modes
Table 24. Operating modes
Chiller Modes Description
MP Resetting
Stopped The chiller is not running and cannot run without intervention. Further information is provided
by the sub-mode:
Local Stop Chiller is stopped by TD7 Stop button command– cannot be remotely overridden.
Immediate Stop
Chiller is stopped by the TD7 Panic Stop (by pressing Stop button twice in succession) – previous shutdown
was manually commanded to shutdown immediately without a run-unload or pumpdown cycle - cannot
be remotely overridden.
Diagnostic Shutdown – Manual Reset The chiller is stopped by a diagnostic that requires manual intervention to reset.
Run Inhibit
The chiller is currently being inhibited from starting (and running*), but may be allowed to start
if the inhibiting or diagnostic condition is cleared. Further information is provided by the sub-
mode:
Diagnostic Shutdown – Auto Reset The entire chiller is stopped by a diagnostic that may automatically clear.

Controls
RTAE-SVX001B-EN 45
Starting is Inhibited by External
Source The chiller is inhibited from starting (and running) by the “external stop” hardwired input.
Start Inhibited by BAS The chiller is inhibited from starting (and running) by command from a Building Automation System via
the digital communication link (com 4 or com 5).
Waiting for BAS Communications
This is a transient mode - 15-min. max, and is only possible if the chiller is in the Auto - Remote command
mode. After a power up reset, it is necessary to wait for valid communication from a Building Automation
System (Tracer) to know whether to run or stay inhibited. Either valid communication will be received from
the Building Automation System (e.g. Tracer), or a communication diagnostic ultimately will result. In the
latter case the chiller will revert to Local control.
Power Up Delay Inhibit min:sec
The compressor is currently being inhibited from starting as part of the power up start delay (or staggered
start) feature. This feature is intended to prevent multiple chillers from all starting simultaneously if power
is restored to all chillers simultaneously.
Low Differential Refrigerant Pressure
Cool-Down Timemin:sec Contact your local Trane service office.
Auto
The chiller is not currently running but can be expected to start at any moment given that the
proper conditions and interlocks are satisfied. Further information is provided by the sub-
mode:
Waiting For Evap Water Flow The chiller will wait up to 20 minutes in this mode for evaporator water flow to be established per the flow
switch hardwired input.
Waiting for A Need to Cool The chiller will wait indefinitely in this mode, for an evaporator leaving water temperature higher than the
Chilled Water Setpoint plus the Differential to Start.
Waiting to Start The chiller is not currently running and there is a call for cooling but start is delayed by certain
interlocks or proofs. Further information is provided by the sub-mode:
Waiting For Cond Water Flow The chiller will wait up to 20 minutes in this mode for condenser water flow to be established per the flow
switch hardwired input.
Start Inhibited Waiting for Oil The chiller will wait up to 2 minutes in this mode for oil level to appear in the oil tank.
Condenser Water Pump Pre-Run
Timemin:sec
The chiller will wait up to 30 minutes (user adjustable) in this mode for to allow the condenser water loop
to equalize in temperature
Restart Inhibit min:sec
The compressor is currently unable to start due to its restart inhibit timer. A given compressor is not
allowed to start until 5 minutes (adj) has expired since its last start, once a number of “free starts” have
been used up.
Waiting For EXV Preposition
The Chiller will wait for the time it takes the EXV to get to its commanded pre-position prior to starting
the compressor. This is typically a relatively short delay and no countdown timer is necessary (less than
15 seconds)
Minimum Condenser Watermin:sec Only possible when Condenser Head Pressure Control option is enabled, this wait may be necessary due
to the Head Pressure control device’s stroke time.
Condenser Water Regulating Control
min:sec
Only possible when Condenser Head Pressure Control option is enabled, this wait may be necessary due
to the Head Pressure control device’s stroke time
Running The chiller, circuit, and compressor are currently running. Further information is provided by
the sub-mode:
High Discharge Temp Limit The compressor is running and is being forced loaded to its step load point, without regard to the leaving
water temperature control, to prevent tripping on high compressor discharge temperature.
Base Loaded
Chiller is running in “Base Load” operation where the capacity of the chiller is controlled to maintain a given
current per an adjustable set point. The chiller is forced to run without regard to the chilled water
temperatures and the differential to start and stop
Capacity Control Softloading
The chiller is running, but loading is influenced by a gradual ‘pulldown” filter on the chilled water
temperature setpoint. The settling time of this filter is user adjustable as part of the softload control
feature.
Current Control Softloading The chiller is running, but loading is influenced by a gradual filter on the current limit setpoint The starting
current and the settling time of this filter is user adjustable as part of the softload control feature.
EXV Controlling Differential Pressure
Liquid level control of the Electronic Expansion Valve has temporarily been suspended. The EXV is being
modulated to control for a minimum differential pressure. This control implies low liquid levels and higher
approach temperatures, but is necessary to provide minimum oil flow for the compressor until the
condenser water loop can warm up to approx 50F.
Chilled Water Control Unit is running in the Cooling Mode of operation and is attempting to control to the active Chilled Water
Setpoint.
Running – Limited
The chiller, circuit, and compressor are currently running, but the operation of the chiller/
compressor is being actively limited by the controls. Further information is provided by the sub-
mode.* See the section below regarding criteria for annunciation of limit modes
Table 24. Operating modes (continued)
Chiller Modes Description

Controls
46 RTAE-SVX001B-EN
Alarms
You can use the display to view alarms and to reset them.
Alarms are communicated to the display immediately
upon detection.
Viewing the Alarms Screen
Touch theAlarms button in the main menu area (Figure 30,
p. 44) to view the Alarms screen. A table of active alarms
appears that is organized chronologically with the most
recent at the top of the list, as shown in Figure 32.This
example shows the default view, which appears each time
you return to the screen.
Note: A page number appears in the lower right corner of
the screen. If a screen contains more than one
page, up/down arrows also appear for viewing the
other pages The Alarms screen is accessible by depressing the Alarms
enunciator. A verbal description will be provided.
A scrollable list of the last active Alarms is presented.
Performing a “Reset Alarms” will reset all active Alarms
Condenser Pressure Limit The circuit is experiencing condenser pressures at or near the condenser limit setting. Compressors on the
circuit will be unloaded to prevent exceeding the limits.*
Low Evaporator Refrigerant
Temperature Inhibit
The circuit is experiencing saturated evaporator temperatures at or near the Low Refrigerant Temperature
Cutout setting. Compressors on the circuit will be unloaded to prevent tripping. *
Capacity Limited by Low Liquid Level The circuit is experiencing low refrigerant liquid levels and the EXV is at or near full open. The compressors
on the circuit will be unloaded to prevent tripping.*
Current Limit
The compressor is running and its capacity is being limited by high currents. The current limit setting is
100% RLA (to avoid overcurrent trips) or lower as set by the compressor’s “share” of the active current
limit (demand limit) setting for the entire chiller.*
Phase Unbalance Limit The compressor is running and its capacity is being limited by excessive phase current unbalance.*
Low Discharge Superheat Limit This is limit control that acts to prevent chiller shutdown when the discharge superheat approaches the
limit setpoint by reducing the liquid level and unloading the slide valve.
Oil Loss Avoidance This is limit control that acts to prevent chiller shutdown when the estimated refrigerant flow approaches
the calculated minimum flow by increasing the slide valve capacity and/or VFD frequency
Note: Other normal running modes (see above) may also appear under this top level mode
Shutting Down The chiller is still running but shutdown is imminent. The chiller is going through a compressor
run-unload. sequence. Shutdown is necessary due to one (or more) of the following sub-modes:
Local Stop Chiller is in the process of being stopped by TD7 Stop button command
immediate Stop Chiller is in the process of being stopped by TD7 Panic Stop command
Diagnostic Shutdown – Manual Reset Chiller is in the process of being stopped by a Latching Diagnostic shutdown – Manual Reset is required
to clear
Diagnostic Shutdown – Auto Reset Chiller is in the process of being stopped by a Diagnostic shutdown – Automatic clearing of the diagnostic
is possible if condition clears.
Compressor Unloading (min:sec) The compressor is in its “run – unload” state in which it is being continuously unloaded for 40 sec prior
to shutdown.
Starting is Inhibited by External
Source Chiller is in the process of being stopped by the External Stop hardwired input
Start Inhibited by BAS The Chiller is in the process of shutdown due to a command from the Building Automation System (e.g.
Tracer)
Evaporator Water Pump Off Delay
min:sec
Service Override The Chiller is in a Service Override mode
Service Pumpdown
The chiller, circuit, and compressor is running via a manual command to perform a Service Pumpdown.
Both evap and condenser water pumps are commanded to be running. The EXV is being held wide open,
but the manual liquid line service valve should be closed.
Table 24. Operating modes (continued)
Chiller Modes Description
Figure 32. Alarm screen

Controls
RTAE-SVX001B-EN 47
regardless of type, machine or circuit.The scrollable list
will be sorted by time of occurrence.
If a informational warning is present, the“Alarms” key will
be present but not flashing. If a Alarm shutdown (normal
or immediate) has occurred, the “Alarm” key will display
that is flashing. If no Alarms exist, the “Alarm” key will not
be present.
Reports
You can use theTracer display to view a variety of reports
and to create and edit a custom report. All reports contain
live data that refreshes every 2–5 seconds.
Viewing the Reports Screen
Touch the Reports button in the main menu area (Figure 4)
to view the Reports screen. The Reports screen contains
the following buttons:
• Custom Report1
• Custom Report2
• Custom Report3
• Evaporator
• Condenser
• Compressor
• Motor
• About
• Operating Modes
• Log Sheet
• ASHRAE Chiller Log
Each button links to the report named on the button.
The Reports tab allows a user to select from a list of reports
headings. Each report will generate a list of status items as
defined in the tables that follow.
Editing a Custom Report
You can edit the custom report by adding, removing, or re-
order data as follows:
1. On the Custom Report screen, touch Edit.The Edit
Custom Report screen appears.
2. Add, remove, or re-order as follows:
a. To add an item to the custom report, touch it. It
responds by changing to blue.You can use the
arrows to scroll through the rest of the items that
can be added to the custom report.Then touch Add
to move the selected item to the box on the right
side of the screen.To add all of the remaining items
in the left box to the custom report, touch Add All.
b. To remove an item from the custom report, touch it.
It responds by changing to blue.You can use the
arrows to scroll through the rest of the items that
can be removed from the custom report.Then touch
Remove to move the selected item to the box on the
left side of the screen.
c. To re-order items in the custom report, touch it. It
responds by changing to blue. Use the arrows to
change the order of a highlighted item.
3. To save and view your edited custom report, touch
Save.
Figure 33. Report screen
Figure 34. Edit custom report screen
Figure 35. Report evaporator screen

Controls
48 RTAE-SVX001B-EN
Table 25. Report evaporator screen items
Description Resolution Units
Active Chilled Water Setpoint X.X °F / °C
Evaporator Entering Water Temperature X.X °F / °C
Evaporator Leaving Water Temperature X.X °F / °C
Evaporator Water Flow Status Flow, No Flow Text
Evaporator Water Pump Override Auto, On Text
Evaporator Approach Temperature X.X °F / °C
EXV Position Percent X.X %
Evaporator Refrigerant Pressure XXX.X PSIA/kPa
Evaporator Saturated Rfgt Temp X.X °F / °C
Evaporator Refrigerant Liquid Level X.XX in/mm
Figure 36. Report condenser screen
Table 26. Report condenser screen items
Description Resolution Units
Condenser Entering Water
Temperature X.X F / C
Condenser Leaving Water
Temperature X.X F / C
Condenser Water Flow Status Flow, No Flow Text
Condenser Water Pump Override Auto, On Text
Condenser Approach Temperature X.X F / C
EXV Position Percent X.X %
Condenser Refrigerant Pressure XXX.X PSIA/kPa
Condenser Saturated Rfgt Temp X.X F / C
Differential Refrigerant Pressure XXX.X PSIA/kPa
Outdoor Air Temperature X.X F / C
Figure 37. Report compressor screen
Table 27. Report compressor screen items
Description Resolution Units
Compressor Running Status On,Off Text
Average Motor Current %RLA XX.X% %RLA
Compressor Starts XX Text
Compressor Running Time XX:XX Hr:Min
Oil Loss Level Sensor Wet, Dry Text
Discharge Temperature X.X °F / °C
Discharge Temperature X.X °F / °C
Compressor Oil Pressure XXX.X PSIA/kPaA
Evaporator Refrigerant Pressure XXX.X PSIA/kPaA
Condenser Refrigerant Pressure XXX.X PSIA/kPaA
Differential Refrigerant Pressure XXX.X PSIA/kPaA
Frequency Command XX.X Hz
Figure 38. Report motor screen

Controls
RTAE-SVX001B-EN 49
Equipment Settings
You can use the TD7 display to monitor and change a
variety of equipment settings.
Viewing the Settings Screen
Touch the Settings button in the main menu area (see
Figure 30, p. 44) to view the Settings screen. Equipment
Settings identifies a column of buttons located on the
screen (see the outlined column in Figure 39).The buttons
are:
• Chiller Settings
• Feature Settings
• Chiller Water Reset
• Manual Control Settings
Each of these buttons provide access to a screen that
contains additional buttons related to each topic. This
section provides detailed information about these
screens.
Viewing and Changing Equipment Settings
Each button in the Equipment Settings column on the
Settings screen takes you to a menu screen that contains
a group of buttons. Each button displays the name of a
setting and its current value (Figure 40).Touch any button
to view a screen where you can change the setting for the
feature shown on the button.
Note: A page number appears in the lower right corner of
the screen. If a screen contains more than one
page, up/down arrows also appear for viewing the
other pages, as in Figure 40.
To change an equipment setting, follow this procedure:
1. Touch one of the button in the Equipment Settings
column on the Settings screen, such as Chiller Settings.
The corresponding screen appears (in this case, the
Chiller Settings screen).
2. Touch the button that shows the equipment setting you
want to change. A screen that allows you to change the
equipment setting appears.There are two types of
these screens:
a. For screens with button selections (Figure 41),
touch the button that represents the setting you
want.The button becomes shaded, and a Save
button appears at the bottom of the screen.
b. For screens with numerical keypads (Figure 42),
touch the appropriate numbers to change the
current value.The new value appears above the
keypad.
3. Touch Save to complete the change.The current value
is updated in the upper left side of the screen,
demonstrating that the change has been
communicated to theTracer UC800 controller.The
screen you were previously viewing appears.
Table 28. Report motor screen items
Description Resolution Units
Active Current Limit Setpoint X.X %RLA
Average Motor Current %RLA X.X %RLA
Starter Motor Current L1 %RLA X.X %RLA
Starter Motor Current L2 %RLA X.X %RLA
Starter Motor Current L3 %RLA X.X %RLA
Starter Motor Current L1 X.X A
Starter Motor Current L1 X.X A
Starter Motor Current L1 X.X A
Starter Input Voltage AB XXX.X V
Starter Input Voltage BC XXX.X V
Starter Input Voltage CA XXX.X V
Average Motor Current X.X A
Average Phase Voltage XXX.X V
Frequency Command XX.X Hz
Figure 39. Setting screen
Figure 40. Equipment setting screen
(Chiller setting shown)

Controls
50 RTAE-SVX001B-EN
Keypad features:
• When you enter a new number, the value in the New
value field is deleted and replaced with the new entry.
• The backspace (arrow) key deletes the characters you
previously entered.
• If the keypad is used to enter a setpoint that is out of
range, an error dialog will appear when you touch the
Save button.
• Keypads that allow negative numbers have positive
and negative number (+/-) keys.
Figure 41. Chilled water setpoint screen
Figure 42. Changed chilled water setpoint screen
Table 29. Settings screen items
Description Resolution Units
Chiller Settings
Active Chilled Water Setpoint ± XXX.X °F / °C
Active Current Limit Setpoint XXX % %RLA
Active Panel Base Load Cmd On/Auto Text
Active Base Loading Setpoint XXX %
Active Base Loading Command On/Auto Text
Differential to Start XXX.X °F / °C
Differential to Stop XXX.X °F / °C
Setpoint Source
(BAS/Ext/FP, Ext/Front Panel, Front Panel) BAS/Ext/FP Text
Evaporator Water Pump Off Delay XX Min
Condenser Pump Prestart Time XX Min
High Evap Water Temp Cutout XXX.X °F / °C
Evaporator Leaving Water Temp Cutout XX.X °F / °C
Low Refrigerant Temperature Cutout XX.X °F / °C
Current Limit Softload Start Point XXX.X %
Current Limit Control Softload Time XXXX Sec
Capacity Control Softload Time XXXX Sec
Local Atmospheric Pressure XXX.X psi/kPa
Power Up Start Delay XXX Min
Feature Settings
External Chilled/Hot Water Setpoint
(Enable/Disable) Text
External Current Limit Setpoint
(Enable/Disable) Text
LCI-C Diagnostic Encoding (Enable/Disable) Text
Chilled Water Reset
(Constant, Outdoor, Return, Disable), Disable Text
Return Reset Ratio XXX %
Return Start Reset XXX.X °F / °C
Return Maximum Reset XXX.X °F / °C
Outdoor Reset Ratio XXX %
Outdoor Start Reset XXX.X °F / °C
Outdoor Maximum Reset XXX.X °F / °C
Mode Overrides
Evap Water Pump (Auto, On) Auto Text
Cond Water Pump (Auto, On) Auto Text
Display Reference
Date Format
(mmm dd, yyyy, dd-mmm-yyyy) mmm dd, yyyy Text
Data Separator Text
Time Format (12-hour, 24-hour) 12-hour Text
Unit System (SI, English) English Text
Pressure Units (Absolute, Gauge) Absolute Text
Number Format Text

Controls
RTAE-SVX001B-EN 51
Display Settings
You can use theTracer AdaptiView display to change the
format of the information that appears on the display, and
to clean the touch screen.
Viewing the Settings Screen
Touch the Settings button in the main menu area
(Figure 39, p. 49) to view the Settings screen. Display
Settings identifies a column of buttons located on the
screen (see Figure 43).The buttons are:
• Display Preferences
• Language
• Date andTime
• Clean Display
Each button provide access to a screen that is related to the
button name.
Viewing and Changing Display Preferences
On the Settings screen, touch Display Preferences to view
a screen containing these buttons (see Figure 43):
• Date Format
• Date Separator
• Time Format
• Unit System
• Pressure Units
• Number Format
Each of the buttons shows the name of a display
preference and its format (current value).Touch any of
these buttons to view a screen where you can change the
format.The button representing the format currently used
is shaded (see the “MMDDYYYY” button).
To change the format:
1. Touch the button that shows that format you prefer.
2. Touch Save to confirm your selection and to return to
the Display Preferences screen.
Date Format . Use the Date Format screen to choose
from the following date formats:
• MMDDYYYY (default)
• YYYYMMDD
• DDMMYYYY
Date Separator . Use the Date Separator screen to
choose from the following date formats:
• None
• Slash (default)
• Hyphen
Time Format . Use theTime Format screen to choose
from the following time formats:
• 12 hour (default)
• 24 hour
Units System . Use the Display Units screen to choose
from the following display units:
•SI
• Inch-Pounds (default)
Pressure Units . Use the Pressure Units screen to
choose from the following pressure units:
• kPaA (default if “SI” is chosen for display units)
•kPaG
• PSIA (default if “Inch-Pound” is chosen for display
units)
• PSIG
Number Format .
• 1000000.0
• 1000000,0
Figure 43. Display reference screen
Figure 44. Date format page

Controls
52 RTAE-SVX001B-EN
The language that is currently in use on the display is
expressed as the current value on the Language screen.
The button that displays the current value is shaded (see
the “English” buttoninFigure19as an example).
To change the language:
1. Touch the button that identifies the language you
prefer.
2. Touch Save to confirm your selection and to return to
the Settings screen.
The current date and time for the display is expressed as
the current value.The current value appears below the
center line on the screen.
Above the center line, the following date and time
attributes appear:
• Month
• Day
• Year
• Hour
• Minute
• AM/PM
To change the date or time:
1. Touch the square presenting the attribute you want to
change.The square becomes highlighted.
2. Touch the up or down arrow key on the screen until the
your desired selection appears. Repeat the process for
any other attributes you want to change.
3. Touch Save to confirm your selection and return to the
Settings screen.
Cleaning the Display
On the Settings screen, touch Clean Display to disable the
Tracer AdaptiView display screen for 15 seconds so that
you can clean the screen without it responding to touch.
During this time, the screen is black with a number in the
center that counts down the seconds.After 15 seconds, the
Settings screen re-appears.
Security Settings
If security if enabled, theTracer AdaptiView display
requires that you log in with a four-digit security PIN to
make setting changes that are protected by security. This
feature prevents unauthorized personnel from doing so.
There are two levels of security, each allowing specific
changes to be made.
You can view all data without logging in.The log-in screen
appears only when you try to change a setting that is
protected by security, or when you touch the Log in button
from the Settings screen.
Disabling/Enabling Security
TheTracer AdaptiView display gives you the ability to
disable or enable the security feature that allows a user to
log in and log out.
To disable security, you must be logged in:
1. From the Settings screen, touch the Security button.
The Security screen appears (Figure 48).
Note: If you are logged out, the Log in screen appears.
2. Touch the Disable button.The button becomes shaded.
Figure 45. Language page
Figure 46. Date and time screen
Figure 47. Countdown screen

Controls
RTAE-SVX001B-EN 53
3. Touch Save.The Settings screen appears with only the
Security button visible. The Log in/Logout button is
gone.
To enable security:
1. From the Settings screen, touch the Security button.
The Security screen appears (Figure 48).
2. Touch the Enable button.The button becomes shaded.
3. Touch Save.The Settings screen appears with a Log
out button, in addition to the Security button.
Logging In
There are two levels of security:
• Security Level 1 allows users to change a limited group
of secure settings.The default security PIN is 1111.
• Security Level 2 allows users to change all secure
settings.The default security PIN is 7123.
A technician must use theTracerTU service tool to define
adifferent PIN, or to recall a PIN that has been forgotten.
When defining a PIN inTracerTU, the technician enters a
4-digit PIN that corresponds with the desired level of
security.
To log in:
1. Touch the Log in button.The Log in screen appears
(Figure 49).
2. Use the keypad to enter your PIN.
a. The PIN is a four-digit number, which was
configured for your system with theTracerTU
service tool.
b. As you enter the number, the PIN remains hidden
by asterisks.
Note: If you enter an invalid PIN, an error message
appears on the Log in screen.
3. Touch Save.
a. If you viewed the Log in screen from touching Log
in on the Settings screen, the Settings screen
appears with a Log out button on it.
b. If the Log in screen appeared when you tried to
change a setting, you return to that setting screen.
Note: The PIN is valid until 30 minutes of inactivity
passes, or until you log out.
Logging Out
To log out:
1. Touch the Log out button. A confirmation screen
appears (Figure 51).
2. TouchYes to confirm that you want to log out.The
Settings screen appears with a Log in button on it.
Figure 48. Security screen - disable
Figure 49. Security settings screen
Figure 50. Log in screen
Figure 51. Log out confirmation screen

Controls
54 RTAE-SVX001B-EN
InvisiSound Ultimate - Noise Reduction
Mode
When the InvisiSound Ultimate option is selected (model
number digit 12=3), noise reduction mode can be enabled
to adjust fan speed and lower maximum sound levels.
Reduced acoustic noise levels can be set for certain times,
or on a schedule.The noise reduction feature can be
requested by local time of day scheduling, external input
or building automation system.
To enable this function at the external display:
• Access the Settings screen on the Tracer AdaptiView.
See Figure 52.
• Set the Front Panel Noise Reduction Request to ON.
• Adjust the Noise Reduction Condenser Fan Speed
Clamp to desired value.
•Setting for fan speed is as a percentage of 920 rpm
maximum fan speed
Example:
For fan speed of 700 rpm, enter a value of 76%
•Acceptable inputs are 60% (552 rpm) to 100% (920
rpm) in 1% increments
Figure 52. Noise reduction mode settings

Controls
RTAE-SVX001B-EN 55
Tracer™ TU
The AdaptiView™TD7 operator interface allows for daily
operational tasks and setpoint changes. However, to
adequately service Stealth chillersTracer™TU service tool
is required. (Non-Trane personnel, contact your local
Trane office for software purchase information.)TracerTU
adds a level of sophistication that improves service
technician effectiveness and minimizes chiller downtime.
This portable PC-based service-tool software supports
service and maintenance tasks, and is required for
software upgrades, configuration changes and major
service tasks.
TracerTU serves as a common interface to allTrane®
chillers, and will customize itself based on the properties of
the chiller with which it is communicating.Thus, the
service technician learns only one service interface.
The panel bus is easy to troubleshoot using LED sensor
verification. Only the defective device is replaced.Tracer
TU can communicate with individual devices or groups of
devices.
All chiller status, machine configuration settings,
customizable limits, and up to 100 active or historic
diagnostics are displayed through the service-tool
software interface.
LEDs and their respectiveTracerTU indicators visually
confirm the availability of each connected sensor, relay,
and actuator.
TracerTU is designed to run on a customer’s laptop,
connected to theTracer AdaptiView control panel with a
USB cable.Your laptop must meet the following hardware
and software requirements:
•1 GB RAM (minimum)
•1024 x 768 screen resolution
•CD-ROM drive
•Ethernet 10/100 LAN card
•An available USB 2.0 port
•Microsoft®Windows®XP Professional operation
system with Service Pack 3 (SP3) or Windows 7
Enterprise or Professional operating system (32-bit
or 64-bit)
•Microsoft .NET Framework 4.0 or later
Notes:
•TracerTU is designed and validated for this minimum
laptop configuration. Any variation from this
configuration may have different results.Therefore,
support forTracerTU is limited to only those laptops
with the configuration previously specified.
•For more information, seeTTU-SVN01A-EN Tracer TU
Getting Started Guide
Figure 53. Tracer TU

56 RTAE-SVX001B-EN
Pre-Start
Upon completion of installation, complete the Stealth™
RTAE Installation Completion Check Sheet and Request for
Trane Service checklist in chapter “Log and Check Sheet,”
p. 90.
Important: Start-up must be performed byTrane or an
agent ofTrane specifically authorized to
perform start-up and warranty ofTrane
products. Contractor shall provideTrane (or
an agent ofTrane specifically authorized to
perform start-up) with notice of the
scheduled start-up at least two weeks prior
to the scheduled start-up.

RTAE-SVX001B-EN 57
Start-Up and Shutdown
Important: Initial unit commissioning start-up must be
performed byTrane or an agent ofTrane
specifically authorized to perform start-up
and warranty ofTrane products. Contractor
shall provideTrane (or an agent ofTrane
specifically authorized to perform start-up)
with notice of the scheduled start-up at least
two weeks prior to the scheduled start-up.
Unit Start-Up
If required, once the system has been operating for
approximately 30 minutes and has become stabilized,
complete the remaining start-up procedures, as follows:
1. Check the evaporator refrigerant pressure and the
condenser refrigerant pressure under Refrigerant
Report on the AdaptiView ™TD7.The pressures are
referenced to sea level (14.6960 psia).
2. Check the EXV sight glasses after sufficient time has
elapsed to stabilize the chiller.The refrigerant flow past
the sight glasses should be clear. Bubbles in the
refrigerant indicate either low refrigerant charge or
excessive pressure drop in the liquid line or a stuck
open expansion valve. A restriction in the line can
sometimes be identified by a noticeable temperature
differential between the two sides of the restriction.
Frost will often form on the line at this point. Proper
refrigerant charges are shown in the General
Information Section.
Important: A clear sight glass alone does not mean that
the system is properly charged. Also check
system subcooling, liquid level control and
unit operating pressures.
If chiller is limited by any limiting conditions, contact local
Trane service organization for more information.
Temporary Shutdown And
Restart
To shut the unit down for a short time, use the following
procedure:
1. Press the STOP key on the AdaptiviewTD7. The
compressors will continue to operate and an
operational pumpdown cycle will be initiated..
2. UC800 pump control will turn off the pump (after a
minimum 1 min. delay) when the STOP key is pressed
and automatically restart the pump when the unit
starts normally.
3. The unit will start normally, provided the following
conditions exist:
a. The UC800 receives a call for cooling and the
differential-to-start is above the setpoint.
b. All system operating interlocks and safety circuits
are satisfied.
Extended Shutdown Procedure
The following procedure is to be followed if the system is
to be taken out of service for an extended period of time,
e.g. seasonal shutdown:
1. Test the unit for refrigerant leaks and repair as
necessary.
2. Open the electrical disconnect for the chilled water
pump. Lock the switches in the “OPEN” position.
3. Close all chilled water supply valves. Drain the water
from the evaporator.
4. With the water drained from evaporator, disconnect
115 power from evaporator heaters at terminals 1X4-1
and 1X4-2.
5. Open the main electrical disconnect and lock in the
“OPEN” position.
6. At least every three months (quarterly), check the
refrigerant pressure in the unit to verify that the
refrigerant charge is intact.
NOTICE:
Equipment Damage!
Ensure that the compressor and oil sump heaters have
been operating properly for a minimum of 24 hours
before starting. Failure to do so could result in
equipment damage.
NOTICE:
Equipment Damage!
To prevent pump damage, lock the chilled water pump
disconnects open and verify pump is off before draining
water.
NOTICE:
Equipment Damage!
Applying power to the evaporator heaters when no
water is present could result in damage to heaters.
NOTICE:
Equipment Damage!
Lock the disconnect in the “OPEN” position to prevent
accidental start-up and damage to the system when it
has been shut down for extended periods.

Start-Up and Shutdown
58 RTAE-SVX001B-EN
Seasonal Unit Start-Up Procedure
1. Close all valves and re-install the drain plugs in the
evaporator.
2. Service the auxiliary equipment according to the start-
up/maintenance instructions provided by the
respective equipment manufacturers.
3. Close the vents in the evaporator chilled water circuits.
4. Open all the valves in the evaporator chilled water
circuits.
5. Open all refrigerant valves to verify they are in the
open condition.
6. If the evaporator was previously drained, vent and fill
the evaporator and chilled water circuit.When all air is
removed from the system (including each pass), install
the vent plugs in the evaporator water boxes.
7. Check the adjustment and operation of each safety and
operating control.
8. Refer to the sequence for daily unit startup for the
remainder of the seasonal startup.
System Restart After Extended
Shutdown
Follow the procedures below to restart the unit after
extended shutdown:
1. Verify that the liquid line service valves, oil line,
compressor discharge service valves and suction
service valves are open (backseated).
2. Check the oil sump level (see “Oil Sump Level Check,”
p. 69).
3. Fill the evaporator water circuit.Vent the system while
it is being filled. Open the vent on the top of the
evaporator and condenser while filling and close when
filling is completed.
4. Close the fused-disconnect switches that provides
power to the chilled water pump.
5. Start the evaporator water pump and, while water is
circulating, inspect all piping for leakage. Make any
necessary repairs before starting the unit.
6. While the water is circulating, adjust the water flows
and check the water pressure drops through the
evaporator. See “EvaporatorWaterside Pressure Drop
Curves,” p. 27 and water flow rates in Table 1, p. 10.
7. Verify proper operation of flow switch on the
evaporator waterbox.
8. Stop the water pump.The unit is now ready for start-
up as described previously.
NOTICE:
Equipment Damage!
Ensure that the compressor and oil sump heaters have
been operating properly for a minimum of 24 hours
before starting. Failure to do so could result in
equipment damage.
NOTICE:
Compressor Damage!
Catastrophic damage to the compressor will occur if
the oil line shut off valve or the isolation valves are left
closed on unit start-up.
NOTICE:
Proper Water Treatment!
The use of untreated or improperly treated water in
this equipment could result in scaling, erosion,
corrosion, algae or slime. It is recommended that the
services of a qualified water treatment specialist be
engaged to determine what water treatment, if any, is
required. Trane assumes no responsibility for
equipment failures which result from untreated or
improperly treated water, or saline or brackish water.

Start-Up and Shutdown
RTAE-SVX001B-EN 59
Sequence of Operation
This section will provide basic information on chiller
operation for common events. With microelectronic
controls, ladder diagrams cannot show today’s complex
logic, as the control functions are much more involved
than older pneumatic or solid state controls.
Adaptive control algorithms can also complicate the exact
sequence of operations.This section illustrates common
control sequences.
Software Operation Overview
The Software Operation Overview shown in Figure 54,
p. 59 is a diagram of the five possible software states.This
diagram can be though of as a state chart, with the arrows
and arrow text depicting the transitions between states.
• The text in the circles is the visible top level operating
modes that are displayed onTracer™ AdaptiView.
• The shading of each software state circle corresponds
to the shading on the time lines that show the state the
chiller is in.
There are five generic states that the software can be in:
• Power Up
• Stopped
• Starting
• Running
• Stopping
•
Timelines
• The time line indicates the upper level operating mode,
as it would be viewed on theTracer™ AdaptiView.
• The shading color of the cylinder indicates the
software state.
• Text in parentheses indicates sub-mode text as viewed
onTracer AdaptiView.
• Text above the time line cylinder is used to illustrate
inputs to the Main Processor. This may include user
input to theTracer AdaptiViewTouch screen, control
inputs from sensors, or control inputs from a Generic
BAS.
• Boxes indicate control actions such as turning on
relays, or pulsing compressor load or unload
solenoids.
• Smaller cylinders under the main cylinder indicate
diagnostic checks.
• Text outside a box or cylinder indicates time based
functions.
• Solid double arrows indicate fixed timers.
• Dashed double arrows indicate variable timers.
Figure 54. Software operation overviewFigure 54
Shutting Down
Running
or
Running Limit
Stopped
or
Run Inhibit
Auto
Command
Confirmed Start
Stop Command
Diagnostic
Confirmed
Shutdown
Boot and
Self Test
Stop Command or Diagnostic
Auto
or
Waiting to Start
Check for
Differential
to Start
Check for
Differential
to Stop
Release
of Inhibit
Power Up

Start-Up and Shutdown
60 RTAE-SVX001B-EN
Power Up Diagram
Figure 55, p. 60 shows the respectiveTD-7 AdaptiView
screens during a power up of the UC800 and display. This
process takes 25 seconds for the UC800 and 90 seconds for
the display. On all power ups, the software model always
will transition through the 'Stopped' Software state
independent of the last mode. If the last mode before
power down was 'Auto', the transition from 'Stopped' to
'Starting' occurs, but it is not apparent to the user.
Figure 55. Sequence of operation: power up diagram
Operator Display Power Up
*Display will show
either Auto or Stop
button as “ active”
(depressed) once
it is ready
External
Power
Applied
UC800 Fully Operational
Booting UC800
(25 Seconds)
Operator Display and UC800
Start Booting
Last Mode
Auto*
Last Mode
Stop*
IPC Bus Comm Begins
Remain in
“ S top” indefinitely
until “Auto”
command- See
“ S topped T o S tarting”
IF
(39 Seconds)
Minimum Time Until 1st Compressor Could Restart
(if “P owe r U p D ela y Inhibit” s e t to 0; Default is 105 sec)
Continue Along Start
Sequence
See “Power Up
to S tarting”
10 Sec
First Trane Logo Grey Screen
Second Trane Logo - Loading
User Interface Template...
Black Screen
Loading Data….
Display Ready
18 Seconds 27 Seconds 15 Seconds
Operator Display Boot Up and Load - 90 sec Total to Display Ready
15 Sec
5 Sec
)
7
/
1
6
/
2
0
1
2
M
i
l
e
s
t
o
e
D
e
s
c
r
i
p
t
i
o
n
1
1
/
1
6
/
/
2
2
0
1
2
M
yy
M
i
l
e
e
s
s
t
t
o
o
n
n
e
D
D
D
e
e
s
c
r
i
p
t
i
o
n
6
tt
/
/
U
1
U
U
4
pp
/
p
p
2
a
a
0
aa
n
n
1
nn
2
dd
6
6
6
/
1
4
/
2
0
1
2
M
I
F
i
l
e
s
t
o
n
e
e
e
D
M
M
e
M
M
s
M
M
i
i
c
l
l
e
e
e
e
i
ss
p
s
s
t
t
t
oo
i
o
o
o
n
n
n
e
e
1
1
1
2
2
2
/
1
1
/
2
0
1
2
M
M
e
e
D
D
D
D
i
i
D
D
DD
e
e
e
e
l
e
e
e
e
e
e
e
e
ee
s
s
ss
s
c
c
c
c
t
c
c
r
r
o
r
r
ii
p
p
n
p
p
t
t
e
t
t
ii
o
o
D
o
o
n
n
e
s
c
r
i
p
t
i
o
n
6
/
3
0
/
2
0
1
2
c
c
9
9
0
s
e
c
o
n
d
2
2
2
2
7
7
o
SS
D
SS
e
e
i
e
e
c
c
p
oo
l
o
o
nn
y
n
n
dd
r
s
s
e
ss
a
d
y
9
9
0
0
0
s
s
e
e
c
c
o
o
n
n
d
d
s
t
t
o
o
D
D
i
i
s
s
p
l
l
a
a
y
y
r
r
e
e
a
d
d
y
y
1
2
/
1
1
/
/
2
0
1
2
6
6
6
6
/
/
/
/
1
1
1
1
2
2
2
2
/
/
/
/
2
2
2
2
0
0
0
0
1
1
1
1
2
2
2
2
-
1
1
1
1
2
2
2
2
/
/
/
/
9
9
9
9
/
/
/
/
2
2
2
2
0
0
0
0
1
1
1
1
2
2
2
2
Stopped
7
o
o
/
oo
a
1
aa
p
p
6
d
d
/
y
y
2
y
y
0
99
1
0
0
2
00
M
M
i
i
l
l
e
e
e
s
s
t
t
o
n
n
e
e
D
D
e
e
s
c
r
r
i
i
p
p
t
t
i
i
o
o
n
6
D
D
i
i
/
i
i
s
1
s
s
6
p
p
/
l
l
a
2
a
a
y
y
0
y
y
1
a
a
2
a
a
n
n
F
i
g
u
r
e
1
[
A
S
S
d
S
S
tt
aa
a
aa
r
r
p
r
r
tt
t
i
p
p
B
B
v
BB
o
o
i
o
o
e
o
o
oo
w
oo
tt
ii
B
n
n
gg
o
gg
o
t
S
c
r
e
e
n
]
6
6
6
6
6
6
6
/
/
/
/
/
/
/
1
1
1
1
1
1
2
2
2
2
2
2
/
/
/
/
/
/
/
2
2
2
2
2
2
0
0
0
0
0
0
0
1
1
1
1
1
1
2
2
2
2
2
2
-
1
1
1
1
1
1
2
2
2
2
2
2
/
/
/
/
/
/
/
1
1
1
1
1
1
1
1
1
1
1
1
/
/
/
/
/
/
/
2
2
2
2
2
2
0
0
0
0
0
0
0
1
1
1
1
1
1
2
2
2
2
2
2
UC800 Boot Up
1
2
/
1
1
/
2
0
1
2
M
i
l
e
s
t
t
o
n
e
D
e
s
c
r
i
p
t
i
o
n
Black Screen
6
6
6
6
6
/
/
/
/
/
1
1
1
1
1
4
4
4
4
4
/
/
/
/
/
2
2
2
2
2
0
0
0
0
0
1
1
1
1
1
2
2
2
2
2
-
-
1
1
1
1
1
2
2
2
2
2
/
/
/
/
/
1
1
1
1
1
0
0
0
0
0
/
/
/
/
/
2
2
2
2
2
0
0
0
0
0
1
1
1
1
1
2
2
2
2
2
Starting Sequence
S ee “Power Up to
Starting” Sequence Diagram

Start-Up and Shutdown
RTAE-SVX001B-EN 61
Power Up to Starting
Figure 56, p. 61 diagram shows the timing from a power
up event to energizing the 1st compressor.The shortest
allowable time would be under the following conditions:
• No motor restart inhibit time left from subsequent
starts
• Evaporator Water flow occurs quickly with pump on
command
• Power up Start Delay set to 0 minutes
• Need to cool (differential to start) already exists
• Oil level is detected immediately
The above conditions would allow for a minimum power
up to starting the 1st compressor time of about 45 seconds
(variations may exist due to options installed). Note that it
is not advisable to start a chiller “cold”, the oil heaters
should be in operation for a sufficient length of time prior
to first start. Consult the chiller’s IOM for specifics.
Figure 56. Sequence of events: power up to starting
6
/
1
2
/
2
0
1
2
-
1
2
/
1
1
/
2
0
1
2
Confirm Presence
of Oil Within
90 Seconds
/
1
1
1
1
5
5
/
/
2
2
2
0
0
0
0
0
C
0
0
1
1
C
2
2
o
Power
Applied
* Lead Compressor (and its lead circuit) is
determined b
y
sta
g
in
g
al
g
orithm –“Fixed Sta
g
in
g
”
6
6
6
6
6
6
/
/
/
/
/
/
/
1
1
1
1
1
1
1
1
2
2
2
2
2
2
2
/
/
/
/
/
/
/
2
2
2
2
2
2
2
0
0
0
0
0
0
0
1
1
1
1
1
1
1
2
2
2
2
2
2
2
-
-
7
7
7
7
7
7
7
/
/
/
/
/
/
/
3
3
3
3
3
3
3
/
/
/
/
/
/
2
2
2
2
0
0
1
1
2
2
Power
Up
6
/
1
3
/
2
0
1
2
UC800
Boot Time
(25 Sec)
Auto Mode commanded
by Front Panel or BAS
EXVs self-
close on
power up
Confirm Evaporator Water Flow
(6 Second Filter)
Enforce Restart Inhibit Timer
(0 to 1 minute)
Power Up Delay Inhibit Timer
(User Adjustable 0 to 30 minutes)
7
7
7
7
7
/
/
/
/
/
2
2
2
2
2
/
/
/
/
/
2
2
2
2
2
0
0
0
0
0
1
1
1
1
1
2
2
2
2
2
-
9
9
9
9
9
/
/
/
/
/
3
3
3
3
3
/
/
/
/
/
2
2
2
2
2
0
0
0
0
0
1
1
1
1
1
2
2
2
2
2
Auto
Energize Evaporator
Water Pump Relay
6
/
1
2
/
2
0
1
2
-
1
2
/
1
1
/
2
0
1
2
Confirm Evaporator Water
Flow Within 20 minutes
(6 Second Filter)
Oil Heaters
Always Energized
when Compressor
is De-energized
6
/
/
1
1
4
4
4
/
2
2
2
0
W
1
W
2
W
a
7
7
/
/
3
3
3
/
/
2
2
2
0
EE
1
2
ff
a
s
s
d
E
E
((
00
f
E
E
n
n
00
EXV remains closed
Wait for Need
To Cool
(Diff to Start)
9
9
9
9
9
9
9
9
/
/
/
/
/
/
/
/
2
2
2
2
2
/
/
/
/
/
2
2
2
2
2
0
0
0
0
0
1
1
1
1
1
2
2
2
2
2
-
1
1
1
1
1
0
0
0
0
0
/
/
/
/
/
2
2
2
2
2
/
/
/
/
/
2
2
2
2
2
0
0
0
0
0
1
1
1
1
1
2
2
2
2
2
Auto
9
/
3
/
2
2
2
0
0
0
0
1
1
(
(
2
2
a
s
s
d
f
Call for Cooling
(Differential to Start is met)
1
1
1
1
1
1
1
1
0
0
0
0
0
2
2
0
0
0
/
/
/
/
/
/
1
1
1
1
1
1
/
/
/
/
/
/
2
2
2
2
2
2
0
0
0
0
0
0
1
1
1
1
1
1
2
2
2
2
2
2
-
-
1
1
1
1
1
1
0
0
0
0
0
0
/
/
/
/
/
/
3
3
3
3
3
3
1
1
1
1
1
1
/
/
/
/
/
/
2
2
2
2
2
2
0
0
0
0
0
0
1
1
1
2
2
Waiting
To Start
0
/
2
/
2
0
1
2
a
s
d
f
Confirm
Presence of Oil
(0 to 90 seconds)
1
1
1
1
1
1
0
0
0
0
0
0
/
/
/
/
/
/
3
3
3
3
3
3
0
0
0
0
0
0
/
/
/
/
/
/
2
2
2
2
2
2
0
0
0
0
0
0
1
1
1
1
1
1
2
2
2
2
2
2
-
-
1
1
1
1
1
1
2
2
2
2
2
2
/
/
/
/
/
/
1
1
1
1
1
1
1
1
1
1
1
1
/
/
/
/
/
/
2
2
2
2
2
2
0
0
0
0
0
0
1
1
1
1
1
1
2
2
2
2
2
2
Waiting
To Start
0
/
3
1
/
2
0
1
2
a
s
d
f
1
2
/
1
1
/
2
0
1
2
a
s
d
f
EXV moving to
Preposition
0 to 25 Seconds Send Start Command
to Lead Compressor*
Transition to
Running
Start Control of
Condenser Fan Flow
Pre-Position EXV of
Lead Circuit
6
6
6
6
6
6
/
/
/
/
/
/
1
1
1
1
1
1
3
3
3
3
3
3
/
/
/
/
/
/
2
2
2
2
2
2
0
0
0
0
0
0
1
1
1
1
1
1
2
2
2
2
2
2
-
-
-
1
1
1
1
1
1
2
2
2
2
2
2
/
/
/
/
/
/
1
1
1
1
1
1
0
0
0
0
0
0
/
/
/
/
/
/
2
2
2
2
2
2
0
0
0
0
0
0
1
1
1
1
1
1
2
2
2
2
2
2
Check Evap Pressure for
Low Pressure Cutout
6
/
1
1
1
4
4
/
/
2
P
0
P
r
1
e
2
P
L
* Lead compressor (and its lead circuit) is
determined by staging algorithm - “Fixed Staging”
or “Balanced Wear” selection - also influenced by
lockouts, restart inhibit, or diagnostics present.

Start-Up and Shutdown
62 RTAE-SVX001B-EN
Stopped to Starting
Figure 57 shows the timing from a stopped mode to
energizing the 1st compressor. The shortest allowable
time would be under the following conditions:
• No motor restart inhibit time left from subsequent
starts
• Evaporator Water flow occurs quickly with pump on
command
• Need to cool (differential to start) already exists
The above conditions would allow a compressor to start in
about 20 seconds.
Figure 57. Sequence of events: stopped to starting
6
/
1
2
/
2
0
1
2
-
1
2
/
1
1
/
2
0
1
2
Confirm Presence
of Oil Within
90 Seconds
/
1
1
1
1
5
5
/
2
2
2
0
0
0
0
0
C
0
0
1
1
1
C
2
2
2
o
Stopped
Or Run
Inhibit
* Lead Compressor (and its lead circuit) is
determined b
y
sta
g
in
g
al
g
orithm –“Fixed Sta
g
in
g
”
6
6
/
/
1
1
2
2
2
2
2
/
2
0
1
2
-
7
/
3
/
2
Stop
6
/
1
3
/
2
0
1
2
Auto Mode commanded
by Front Panel or BAS
Confirm Evaporator Water Flow
(6 Second Filter)
Enforce Restart Inhibit Timer
(0 to 1 minute)
7
7
7
7
7
/
/
/
/
/
2
2
2
2
2
/
/
/
/
/
2
2
2
2
2
0
0
0
0
0
1
1
1
1
1
2
2
2
2
2
-
9
9
9
9
9
/
/
/
/
/
3
3
3
3
3
/
/
/
/
/
2
2
2
2
2
0
0
0
0
0
1
1
1
1
1
2
2
2
2
2
Auto
Energize Evaporator
Water Pump Relay
6
/
1
2
/
2
0
1
2
-
1
2
/
1
1
/
2
0
1
2
Confirm Evaporator Water
Flow Within 20 minutes
(6 Second Filter)
Oil Heaters
Always Energized when
Compressor is De-energized
6
/
/
1
1
4
4
4
/
2
2
2
0
W
1
W
2
W
a
7
/
3
/
2
2
0
1
2
E
E
a
s
s
d
f
EXV remains closed
Wait for Need
To Cool
(Diff to Start)
9
9
9
9
9
9
9
9
/
/
/
/
/
/
/
/
2
2
2
2
2
/
/
/
/
/
2
2
2
2
2
0
0
0
0
0
1
1
1
1
1
2
2
2
2
2
-
1
1
1
1
1
0
0
0
0
0
/
/
/
/
/
2
2
2
2
2
/
/
/
/
/
2
2
2
2
2
0
0
0
0
0
1
1
1
1
1
2
2
2
2
2
Auto
9
r
/
3
/
2
2
2
0
0
0
1
1
(
(
2
2
a
s
s
d
f
Call for Cooling
(Differential to Start is met)
1
1
1
1
1
1
1
1
0
0
0
0
0
0
2
2
0
0
0
/
/
/
/
/
/
/
1
1
1
1
1
1
1
/
/
/
/
/
/
/
2
2
2
2
2
2
2
0
0
0
0
0
0
0
1
1
1
1
1
1
1
2
2
2
2
2
2
2
-
-
1
1
1
1
1
1
1
0
0
0
0
0
0
0
/
/
/
/
/
/
/
3
3
3
3
3
3
3
1
1
1
1
1
1
1
/
/
/
/
/
/
/
2
2
2
2
2
2
2
0
0
0
0
0
0
0
1
1
1
2
2
Waiting
To Start
0
/
2
/
2
0
1
2
a
s
d
f
Confirm
Presence of Oil
(0 to 90 seconds)
1
1
1
1
1
1
1
0
0
0
0
0
0
0
/
/
/
/
/
/
/
3
3
3
3
3
3
3
0
0
0
0
0
0
0
/
/
/
/
/
/
/
2
2
2
2
2
2
2
0
0
0
0
0
0
0
1
1
1
1
1
1
1
2
2
2
2
2
2
2
-
-
1
1
1
1
1
1
1
2
2
2
2
2
2
2
/
/
/
/
/
/
/
1
1
1
1
1
1
1
1
1
1
1
1
1
1
/
/
/
/
/
/
/
2
2
2
2
2
2
2
0
0
0
0
0
0
0
1
1
1
1
1
1
1
2
2
2
2
2
2
2
Waiting
To Start
0
/
3
1
/
2
0
1
2
a
s
d
f
1
2
/
1
1
/
2
0
1
2
a
s
d
f
EXV moving to
Preposition
0 to 25 Seconds Send Start Command
to Lead Compressor*
Transition to
Running
Start Control of
Condenser Fan Flow
Pre-Position EXV of
Lead Circuit
6
6
6
6
6
6
/
/
/
/
/
/
1
1
1
1
1
1
3
3
3
3
3
3
/
/
/
/
/
/
2
2
2
2
2
2
0
0
0
0
0
0
1
1
1
1
1
1
2
2
2
2
2
2
-
-
-
1
1
1
1
1
1
2
2
2
2
2
2
/
/
/
/
/
/
1
1
1
1
1
1
0
0
0
0
0
0
/
/
/
/
/
/
2
2
2
2
2
2
0
0
0
0
0
0
1
1
1
1
1
1
2
2
2
2
2
2
Check Evap Pressure for
Low Pressure Cutout
6
/
1
1
1
4
/
/
2
P
0
P
r
1
e
2
P
L
* Lead compressor (and its lead circuit) is
determined by staging algorithm - “Fixed Staging”
or “Balanced Wear” selection - also influenced by
lockouts, restart inhibit, or diagnostics present.

Start-Up and Shutdown
RTAE-SVX001B-EN 63
Running (Lead Compressor/Circuit Start and Run)
Figure 58 shows a typical start and run sequence for the
lead compressor and its circuit.
Running (Lag Compressor/Circuit Start and Run)
Figure 59 shows a typical start and run sequence for the
lag compressor and its circuit.
Figure 58. Sequence of operation: running (lead compressor/circuit start nd run)
*Note: The decision to stage on or off another compressor is determined by
the Average Running Compressor Load Command, Water Temperature Error, and Time Since Last Stage
Hold EXV Pre-position
(10 Seconds)
Lead
Compressor
Running
Chiller and Lead Circuit
Mode is “Running” -Lag
Circuit Mode is “Auto”
Hold EXV of Lead
Circuit at pre-
position for 10 sec
De-energize
Oil Heaters
Of Lead Circuit
Control Lead Circuit
Condenser Fans for
Optimum Differential
Pressure,
ƒ(Cprsr Spd, OA Temp)
6
6
6
/
/
/
/
/
1
1
1
2
2
2
/
/
/
/
/
2
2
2
0
0
0
1
1
1
2
2
2
-
1
1
1
2
2
2
/
/
/
/
/
1
1
1
1
1
1
/
/
/
/
/
2
2
2
0
0
0
1
1
1
2
2
2
Enforce All Running Mode Diagnostics for Chiller, Lead Compressor and its Circuit
Modulate EXV for
Liquid Level &
Pressure Control
Modulate
Compressor
Speed for
Limit Control
Modulate Compressor
Speed for
Capacity Control
Modulate Compressor
Speed for
Capacity Control
6
6
6
/
/
/
1
1
1
2
2
2
/
/
/
2
2
2
0
0
0
1
1
1
2
2
2
-
7
7
/
/
/
2
2
2
4
4
4
/
/
/
2
2
2
0
0
0
1
1
1
2
2
2
Running
6
/
1
3
/
/
2
0
1
2
7
7
/
/
/
/
/
/
2
2
2
2
2
2
3
3
3
/
/
/
2
2
2
0
0
0
1
1
1
2
2
2
-
8
8
8
/
/
/
1
1
1
4
4
4
/
/
/
2
2
2
0
0
0
0
0
1
1
2
2
Running
7
/
2
4
/
/
2
0
1
2
8
/
1
4
/
2
0
1
2
-
9
/
1
1
/
2
0
1
2
Running
Lead Circuit:
Running Limit
8
/
1
5
/
/
2
0
1
2
6
/
/
1
1
1
1
3
3
/
/
2
2
2
2
2
0
0
0
0
0
0
1
1
1
1
2
2
2
2
M
i
l
e
s
t
o
n
n
n
n
e
e
D
D
e
e
e
e
e
s
s
c
c
r
r
i
i
i
p
p
t
t
t
i
i
i
o
o
n
n
9
9
9
/
/
/
1
1
1
0
0
0
/
/
/
2
2
2
0
0
0
1
1
1
2
2
2
-
1
1
1
0
0
0
/
/
/
2
2
2
9
9
9
/
/
/
2
2
2
0
0
0
1
1
1
2
2
2
Running
9
r
/
/
/
1
1
/
/
2
0
1
2
Exit
Limit Mode
Enter
Limit Mode
Stage On
Setpoint Met*
0
/
2
8
/
2
0
1
2
-
1
2
/
1
1
/
2
0
1
2
Running
Lag Circuit:
Waiting to Start
1
1
1
r
0
0
0
/
2
9
/
2
0
1
2
Prepare to Start
Lag Compressor,
Check for Oil,
Check for LPC
EXV moving to preposition
0to25Seconds
Start Control of
Condenser Fan Flow
on Lag Circuit
Send Start Command
to Lag Compressor
Continue
Running
Pre-Position EXV of
Lag Circuit
1
2
/
1
1
/
/
2
0
1
2
Figure 59. Sequence of operation: running (lag compressor/circuit start nd run)
*Note: The decision to stage on or off another compressor is determined by
the Average Running Compressor Load Command, Water Temperature Error, and Time Since Last Stage
Hold EXV Pre-position
(10 Seconds)
Both
Compressors
Running
Chiller and Both Circuit
Modes are “Running”
Hold EXV of Lag
Circuit at pre-
position for 10 sec
De-energize
Oil Heaters
Of Lag Circuit
Control Both Circuit
Condenser Fans for
Optimum Differential
Pressure,
ƒ(Cprsr Spd, OA Temp)
6
6
6
/
/
/
/
/
1
1
1
2
2
2
/
/
/
/
/
2
2
2
0
0
0
1
1
1
2
2
2
-
1
1
1
2
2
2
/
/
/
/
/
1
1
1
1
1
1
/
/
/
/
/
2
2
2
0
0
0
1
1
1
2
2
2
Enforce All Running Mode Diagnostics for Chiller, Lead Compressor and its Circuit
Modulate EXV for
Liquid Level &
Pressure Control
Modulate
Compressor
Speed for
Limit Control
Modulate Compressor
Speed for
Capacity Control
Modulate Compressor
Speed for
Capacity Control
6
6
6
/
/
/
1
1
1
2
2
2
/
/
/
2
2
2
0
0
0
1
1
1
2
2
2
-
7
7
/
/
/
2
2
2
4
4
4
/
/
/
2
2
2
0
0
0
1
1
1
2
2
2
Running
6
/
1
3
/
/
2
0
1
2
7
7
/
/
/
/
/
/
2
2
2
2
2
2
3
3
3
/
/
/
2
2
2
0
0
0
1
1
1
2
2
2
-
8
8
8
/
/
/
1
1
1
4
4
4
/
/
/
2
2
2
0
0
0
0
0
1
1
2
2
Running
7
/
2
4
/
/
2
0
1
2
6
/
/
1
1
1
1
3
3
/
/
2
2
2
2
2
2
0
0
0
0
0
0
1
1
1
1
2
2
2
2
M
i
l
e
s
t
o
n
n
n
n
e
e
D
D
e
e
e
e
e
s
s
c
c
r
r
i
i
i
p
p
t
t
i
i
i
o
o
n
n
Exit
Limit Mode
Enter
Limit Mode
0
0
/
/
/
2
2
8
8
/
/
/
2
2
0
0
1
1
2
2
-
1
1
2
2
/
/
/
1
1
1
1
/
/
/
2
2
0
0
1
1
2
2
Running
Energize Maximum
Capacity Relay after the
Adjustable Filter Time
(0 to 600 Seconds)
Continue
Running
(Both
Comprsrs
&Max
Capacity
Maximum Capacity
Submode
9
9
9
/
/
/
1
1
1
1
1
1
/
/
/
2
2
2
0
0
0
1
1
1
2
2
2
-
1
1
1
0
0
0
/
/
/
3
3
3
0
0
0
/
/
/
2
2
2
0
0
0
1
1
1
2
2
2
Running
8
/
1
3
/
2
0
1
2
-
9
/
1
1
/
2
0
0
1
1
2
Running
Lag Circuit:
Running Limit
9
/
1
1
/
/
2
0
1
2
8
/
1
3
/
/
2
0
1
2
1
1
1
0
0
0
r
/
/
/
3
0
/
/
2
0
1
2
2
2
Both Compressors Running
At or Near Max Speed
(Unable to Achieve CWSP)

Start-Up and Shutdown
64 RTAE-SVX001B-EN
Satisfied Setpoint
Figure 60 shows the normal transition from Running to
shutting down due to the Evap Leaving water temp falling
below the differential to stop setpoint.
Figure 60. Sequence of events: satisfied setpoint
*
Note: Operational Pumpdown is required if the Outdoor Air Temperature is less than 50F.
**
Note: Operational Pumpdown is Terminated Normally when the Evaporator Refrigerant
Pressure is at or below 20 PSIA.
The Maximum Allowed Time for Operational Pumpdown is 2 Minutes.
8
/
1
0
/
2
0
1
2
-
1
0
/
1
3
/
2
0
1
2
Shutting Down
Last Circuit Mode: Shutting Down
SubMode: Operational Pumpdown
*
6
/
1
2
/
2
0
1
2
-
8
/
1
0
/
2
0
1
2
Running
Last Circuit Mode:
Running
1
0
/
1
3
/
2
0
1
2
-
1
2
/
1
1
/
2
0
1
2
Auto
Both Circuit Modes:
Waiting for Need to Cool
8
/
1
1
/
2
0
1
2
6
/
1
3
/
2
0
1
2
Running
Last
Compressor
At Min Speed
1
0
/
1
4
/
2
0
1
2
Differential to Stop is Met
Operational Pumpdown
(0 Seconds to 2 Minutes)
Fully Close EXV
Perform Operational
Pumpdown for Last
Circuit if Required
*
Send Stop Command
To Compressor
IF*
No Pumpdown Required
Pumpdown
Required
Turn Off Last Circuit’s
Condenser Fans
Normal Pumpdown Termination
**
Criteria is Met for Last Circuit
6
6
6
6
6
/
/
/
/
/
/
1
1
1
1
1
2
2
2
2
2
/
/
/
/
/
/
2
2
2
2
2
0
0
0
0
0
1
1
1
1
1
2
2
2
2
2
-
-
1
1
1
1
1
2
2
2
2
2
/
/
/
/
/
/
1
1
1
1
1
1
1
1
1
1
/
/
/
/
/
/
2
2
2
2
2
0
0
0
0
0
1
1
1
1
1
2
2
2
2
2
Enforce All Non Running
Mode Diagnostics
6
/
1
1
1
1
5
/
2
2
2
0
0
0
0
0
0
0
1
1
1
1
1
E
2
2
2
2
2
E
n
1
2
/
1
1
/
2
0
1
2
Auto
Close EXV
(0 to 25 Seconds)
6
/
1
2
/
2
0
1
2
-
1
2
/
1
1
/
2
0
1
2
Check for
Normal Pumpdown
Termination Criteria Met
**
6
/
1
1
1
1
5
/
2
2
2
0
0
0
0
0
0
0
1
1
1
1
1
2
2
2
2
2
1
1
1
1
1
2
2
2
2
2
/
/
/
/
/
1
1
1
1
1
1
1
1
1
1
/
/
/
/
/
2
2
2
2
2
2
2
2
2
2
0
0
0
0
1
1
2
1
1
1
1
1
2
2
2
2
2
n
i
/
/
/
/
/
i
1
1
1
1
n
1
1
1
1
g
/
/
/
/
/
2
2
2
2
2
2
2
2
2
2
0
0
0
0
1
2
Energize Last Circuit
Oil Heaters

Start-Up and Shutdown
RTAE-SVX001B-EN 65
Normal Shutdown to Stopped or Run Inhibit
Figure 61 shows theTransition from Running through a
Normal (friendly) Shutdown. The Dashed lines on the top
attempt to show the final mode if you enter the stop via
various inputs.
Immediate Shutdown to Stopped or Run Inhibit
Figure 62 shows theTransition from Running through an
Immediate Shutdown. The dashed lines on the to attempt
to show the final mode if you enter the stop via various
inputs.
Figure 61. Sequence of events: normal shutdown to stopped or run inhibit
6
/
1
2
/
2
0
1
2
-
8
/
1
5
/
2
0
1
2
Shutting Down
Running Circuit Modes: Shutting Down
SubMode: Operational Pumpdown
*
8
/
1
5
/
2
0
1
2
1
2
/
1
1
/
2
0
1
2
6
/
1
3
/
2
0
1
2
Operational Pumpdown
(0 Seconds to 2 Minutes)
Fully Close EXV
Perform Operational
Pumpdown for All
Running Circuits if
Required
*
IF*
Close EXV
(0 to 25 Seconds)
2
2
0
0
1
2
6
/
1
2
/
2
0
1
2
-
1
2
/
1
1
/
2
0
1
2
Check for
Normal Pumpdown
Termination Criteria Met
**
6
/
1
1
1
1
5
/
/
2
2
2
0
0
0
0
0
0
0
1
1
1
1
1
2
2
2
2
2
No Pumpdown Required
Pumpdown
Required
Evaporator Pump Off Delay
(Adjustable 1 to 30 Minutes)
Send Stop Command to
All
Running Compressors
Energize All Heaters
Fully Close Both EXVs
Turn Off All Running
Circuits Condenser Fans
De-Energize Evaporator
Water Pump Relay
Stop
p
o
r
Run I
n
One or
More
Circuits
Running
Normal Pumpdown Termination
**
Criteria is Met for All Circuits
Local Stop
Chiller Level Diagnostic –Normal Shutdown Latched
Chiller Level Diagnostic –Normal Shutdown Nonlatched
Building Automation System Stop
External Auto-Stop
8
r
r
i
i
/
a
a
1
a
a
5
i
i
s
s
/
s
s
2
s
s
0
M
M
M
M
2
e
e
-
t
t
1
f
f
o
o
0
o
o
/
r
r
1
r
r
A
A
/
A
A
l
l
2
l
l
l
l
0
C
C
C
C
2
C
C
i
i
Shutting Down
Circuit Modes:
Auto
0
/
1
6
/
2
0
1
2
-
1
2
/
1
1
/
2
0
1
2
Stopped or Run Inhibit
Circuit Modes:
Stopped or Auto
1
0
/
1
7
/
2
0
1
2
2
*Note: Operational Pumpdown is required if the
Outdoor Air Temperature is less than 50°F.
** Note: Operational Pumpdown is terminated
normally when the Evaporator Refrigerant Pressure
is at or below 20 psia.
The Maximum Allowed time for Operational Pumpdo
w
is 2 minutes.
Figure 62. Sequence of events: immediate shutdown to stopped or run inhibit
Chiller Level Diagnostic –Immediate Shutdown Non-Latching
Chiller Level Diagnostic –Immediate Shutdown Latching
Front Panel Immediate Shutdown
Run Inhibit
or
Stopped
Compressor Deceleration Time
De-Energize Evaporator
Water Pump Relay
9
/
2
9
/
2
0
1
2
-
1
2
/
1
1
/
2
0
1
2
Stopped
6
6
6
/
/
/
1
1
1
2
2
2
/
/
/
2
2
2
0
0
0
1
1
1
2
2
2
-
9
9
9
/
/
/
2
2
2
9
9
9
/
/
/
2
2
2
0
0
0
1
1
1
2
2
2
Shutting Down
1
2
/
1
1
/
2
0
1
2
a
a
a
s
s
s
d
d
d
f
6
/
1
3
/
2
0
1
2
a
s
d
f
9
/
2
9
/
/
2
2
0
1
2
a
s
s
d
f
One or More
Running
Compressors
Send Stop Command to
All Running Compressors
Energize All Heaters
Fully Close Both EXVs
Turn Off All
Running Circuits
Condenser Fans

Start-Up and Shutdown
66 RTAE-SVX001B-EN
Ice Making (Running to Ice Making to Running)
Figure 63 shows the transition from normal cooling to Ice
making, back to normal cooling
Figure 63. Sequence of events: ice making (running to ice making to running)
Running
Ice Making Command:
1. Tracer
2. External
3. Front Panel
Running
(Unit is Building Ice)
Ice Making Command
Withdrawn (prior to
ice complete)
Running
Stage and modulate all
compressors in
sequence to full load
(if not already)
Start Compressors and
Circuits per normal
staging –See other
sequence diagrams
Run Inhibit
(Ice to Normal Transition)
Ice To Normal Transition Timer
(fixed 2 mins)
Run Unload, Close EXVs and
Perform Operational Pumpdown (if
regd) then Shutoff Compressors,
Energize Heaters
Ignore Softloading and
SetCLS=100%
Energize Ice Building
Relay
Enforce All Limits and
Running Mode Diagnostics
Head Relief Request
Relay Delay (1 to 60
mins adj)
Evap Leaving
Water Temp Rises
Above the
Differential To Start
Maximum 1:10 to fully
loaded
De-energize Heaters, and
Control EXVs per normal
staging - See other
sequence diagrams
De-energize Heaters, and
Control EXVs per normal
staging - See other
sequence diagrams
Running
Auto
Enforce All Limits and Running Mode Diagnostics
Control Circuit’s
Condenser Fans for Diff
Pressure
Control Circuit’s
Condenser Fans for Diff
Pressure
Turn off both Circuits’
Condenser Fans
Confirm No
Compressor Currents
Close EXVs or leave closed
for Circuits’ Off Cycle
Pre-position EXV, Prestart
Condenser Fans
De-Energize Head
Relief Request and Ice
Building Relay
Energize Head Relief
Request Relay Continue to Run Evap
Water Pump Throughout

Start-Up and Shutdown
RTAE-SVX001B-EN 67
Ice Making (Auto to Ice Making to Ice Making Complete)
Figure 64 shows the transition from Auto to Ice making, to
Ice Making Complete.
Figure 64. Sequence of events: ice making (auto to ice making to ice making complete)
Confirm No
Compressor Currents
gpp g p
Auto
Evap Entering Water
Temp Falls Below the
Ice Termination Setpoint
Run Inhibit –
Submode: Ice
Building Complete
Running
(Unit is Building Ice)
Ice Making Command:
1. Front Panel
2. Tracer
3. External Input
Auto Shutting Down
Maximum 1:10 to fully
loaded
Run Unload, Close EXVs and
Perform Operational Pumpdown
(if regd) then Shutoff
Compressors, Energize Heaters
Enforce All Non- Running
Mode Diagnostics
will return to “Auto” and normal cooling
mode with removal of Ice Command
Stage and modulate all
compressors in
sequence to full load
(if not already)
Ignore Softloading and
SetCLS=100%
Energize Ice Building
Relay
Enforce All Limits and
Running Mode Diagnostics
Energize Head Relief
Request Relay
Head Relief Request Relay
Delay(1to60minsadj)
De-energize Heaters, and
Control EXVs per normal
staging - See other
sequence diagrams
Control Circuit’s
Condenser Fans for Diff
Pressure
Turn off both Circuits’
Condenser Fans
Leave EXVs Closed or
Close EXV for Circuits’
Off Cycle
De-Energize Head
Relief Request Relay
De-Energize Evaporator
Water Pump Relay (no
delay time applied)
De-Energize Ice
Building Relay

68 RTAE-SVX001B-EN
Maintenance
This section describes the basic chiller preventive
maintenance procedures, and recommends the intervals
at which these procedures should be performed. Use of a
periodic maintenance program is important to ensure the
best possible performance and efficiency from a Stealth™
chiller.
Use an Operator Log (see “Log and Check Sheet,” p. 90)to
record an operating history for unit.The log serves as a
valuable diagnostic tool for service personnel. By
observing trends in operating conditions, an operator can
anticipate and prevent problem situations before they
occur.
If unit does not operate properly during inspections, see
“Diagnostics,” p. 73.
WARNING
Hazardous Voltage - Pressurized Burning
Fluid!
The motors in the compressors have strong permanent
magnet motors and have the capability to generate
voltage during situations when the refrigerant charge is
being migrated.This potential will be present at the
motor terminals and at the output of the variable speed
drives in the power panel.
Before removing compressor terminal box cover for
servicing, or servicing power side of control panel,
CLOSE COMPRESSOR DISCHARGE SERVICE VALVE
and disconnect all electric power including remote
disconnects. Discharge all motor start/run capacitors.
Follow lockout/tagout procedures to ensure the power
cannot be inadvertently energized. Verify with an
appropriate voltmeter that all capacitors have
discharged.
The compressor contains hot, pressurized refrigerant.
Motor terminals act as a seal against this refrigerant.
Care should be taken when servicing NOT to damage
or loosen motor terminals.
Do not operate compressor without terminal box cover
in place.
Failure to follow all electrical safety precautions could
result in death or serious injury.
For additional information regarding the safe discharge
of capacitors, see “Adaptive Frequency™ Drive (AFD3)
Capacitor Discharge,” p. 32 and PROD-SVB06A-EN.
WARNING
Hazardous Voltage w/Capacitors!
Disconnect all electric power, including remote
disconnects and discharge all motor start/run and AFD
(Adaptive Frequency™ Drive) capacitors before
servicing. Follow proper lockout/tagout procedures to
ensure the power cannot be inadvertently energized.
• For variable frequency drives or other energy storing
components provided byTrane or others, refer to the
appropriate manufacturer’s literature for allowable
waiting periods for discharge of capacitors. Verify
with an appropriate voltmeter that all capacitors
have discharged.
• DC bus capacitors retain hazardous voltages after
input power has been disconnected. Follow proper
lockout/tagout procedures to ensure the power
cannot be inadvertently energized. After
disconnecting input power, wait five (5) minutes for
the DC capacitors to discharge, then check the
voltage with a voltmeter. Make sure DC bus
capacitors are discharged (0 VDC) before touching
any internal components.
Failure to follow these instructions could result in death
or serious injury.
For additional information regarding the safe discharge
of capacitors, see “Adaptive Frequency™ Drive (AFD3)
Capacitor Discharge,” p. 32 and PROD-SVB06A-EN.

Maintenance
RTAE-SVX001B-EN 69
Recommended Maintenance
Weekly
While unit is running in stable conditions.
1. At AdaptiView™TD7 orTracer™TU service tool, check
pressure for evaporator, condenser and intermediate
oil.
2. Observe liquid line sight glass on EXV. If liquid line
sight glass has bubbles measure the subcooling
entering the EXV. Subcooling should always be greater
than 10°F.
3. Inspect the entire system for unusual operation.
4. Inspect the condenser coils for dirt and debris. If the
coils are dirty, See “Condenser Coils — Cleaning and
Inspection,” p. 72.
Monthly
1. Perform all weekly maintenance procedures.
2. Record the system subcooling.
Annual
1. Perform all weekly and monthly procedures.
2. Check oil sump oil level while unit is off. See “Oil Sump
Level Check,” p. 69.
3. Perform pH test of drive cooling fluid. See “pHTest,”
p. 71.
4. Have a qualified laboratory perform a compressor oil
analysis to determine system moisture content and
acid level.
5. Contact aTrane service organization to leak test the
chiller, to check operating and safety controls, and to
inspect electrical components for deficiencies.
6. Clean and repaint any areas that show signs of
corrosion.
7. Clean the condenser coils. See “Condenser Coils —
Cleaning and Inspection,” p. 72.
Refrigerant and Oil Charge
Management
Proper oil and refrigerant charge is essential for proper
unit operation, unit performance, and environmental
protection. Only trained and licensed service personnel
should service the chiller.
Table 30 lists baseline measurements for Stealth units
running at AHRI standard operating conditions. If chiller
measurements vary significantly from values listed below,
problems may exist with refrigerant and oil charge levels.
Contact your localTrane office.
Note: Low temperature applications units will have
values that vary from Table 30. Contact your local
Trane office for more information.
Lubrication System
The lubrication system has been designed to keep most of
the oil lines filled with oil as long as there is a proper oil
level in the oil sump.
Oil Sump Level Check
The oil level in the sump can be measured to give an
indication of the system oil charge. Follow the procedures
below to measure the level.
1. Run the unit as near to full load as possible for a
minimum of 30 minutes. For an accurate reading, 40
or more minutes at full load with normal/steady
discharge superheat readings and no limits/warnings
is recommended. Assessing oil charge after running
at minimum or low loads may lead to an inaccurate
reading.
2. Cycle the compressor off line.
3. Let the chiller sit (powered, but off line) to allow the oil
separator heater to boil off the refrigerant that may be
in the oil separator. An initial assessment of the oil
separator level may be made after 30 minutes of heater
ON dwell time, but oil charge adjustments should not
be made without allowing the oil heaters to run for a
minimum of 4 hours.
NOTICE:
Equipment Damage!
Do not use detergents to clean RTAE coils. Use clean
water only. Use of detergents on RTAE coils could
cause damage to coils.
NOTICE:
Equipment Damage!
Do not use detergents to clean RTAE coils. Use clean
water only. Use of detergents on RTAE coils could
cause damage to coils.
Table 30. Typical Stealth baselines (AHRI conditions)
Measurement Baseline
Evaporator Pressure 51 psia
Evaporator Approach 3.4°F
EXV Position (150-200T units) 45-50% open
EXV Position (225-300T units) 61-64% open
Evaporator delta T - entering 54°F
Evaporator delta T - leaving 44°F
Discharge Superheat 16.5°F
Condenser Pressure 212 psia
Subcooling 10-20°F

Maintenance
70 RTAE-SVX001B-EN
4. Attach a 3/8” or 1/2” hose with a sightglass in the
middle to the oil sump service valve (1/4” flare) and the
oil separator service valve (1/4” flare). See Figure 65,
p. 70 for valve locations.
Note: Using high pressure rated clear hose with
appropriate fittings can help speed up the
process. Hose must be rated to withstand
system pressures as found on unit nameplate.
5. After the unit is off line for 30 minutes, move the
sightglass along the side of the oil sump.
6. The nominal oil level from the bottom of the oil
separator should be as shown in Table 31 and
Figure 66, p. 70. Depending on running conditions and
oil heater dwell time, some deviation from nominal
levels is expected.
Important: If level is less than 4 inches from the bottom
of the oil separator, contact your localTrane
office.
NOTICE:
Equipment Damage!
Never operate the compressor with the sightglass
service valves opened. Close the valves after checking
the oil level. Operating compressors with service valves
open will result in severe oil loss and equipment
damage.
Figure 65. Oil service valves
Table 31. Oil sump level height
Unit Size (tons)
Oil Separator
Size
Nominal Oil
Height
150-200 225 - 300
Oil Separator Size 10” 12”
Nominal Oil Charge Height
in (mm) 9 8.5
To Oil Separator Service Valve
Oil Service Valve
Figure 66. Nominal oil level
To Oil Separator
Service Valve
Nominal oil level
should be:
10” oil sep: 9.0”
12” oil sep: 8.5”

Maintenance
RTAE-SVX001B-EN 71
Drive Cooling System
Service Intervals
• Every (5) years, contact your localTrane office to
service drive fluid and strainer.
• On a yearly basis, a fluid pH test should be performed.
Unit Diagnostics
An improperly filled drive cooling system (either low fluid
level or entrapped air in the circuit) can result in the AFD
drive or output load inductors overheating.This condition
may result in the following diagnostics:
• AFD xA Inverter Heatsink Over Temp
• AFD xA Rectifier Heatsink OverTemp
• AFD xA Estimated Junction OverTemp
• AFD xA Load Inductor HighTemperature
A front panel warning of Low Oil Return or AFD Cooling –
CktX does not indicate an issue with the drive cooling fluid
system, but represents a low refrigerant level reported by
the liquid level sensor for a given length of time.
If chiller diagnostics indicated drive cooling system
problem, contact your localTrane office.
pH Test
Obtain a sample of fluid from the drive cooling loop via the
loop drain located near the oil return heat exchanger.Test
for pH level using litmus paper with a 0.5 resolution.
• pH < 8 indicates fluid to be changed
• pH < 7 indicates potential component damage
Pressure Relief Cap
The pressure relief cap is an automotive style pressure-
vent radiator cap. See Figure 67, p. 71.The setting for the
relief spring is 16 lbs.The function of the relief cap can be
verified with a standard automotive radiator cap tester.
Drive Cooling ExpansionTank
Proper fluid level is important to the operation of the unit.
To verify proper level, inspect the liquid level in each of the
fluid reservoirs (located behind the chiller control panel).
See Figure 68 for fluid levels under various temperature
conditions. If levels levels are low, contact your localTrane
office.
NOTICE:
Equipment Damage!
Use only Trane Heat Transfer Fluid P/N CHM01023. This
fluid is a direct use concentration and is not to be
diluted. Do not top off with water or any other fluid.
Use of unapproved fluids, or dilution of approved fluid
could result in catastrophic equipment damage.
NOTICE:
Equipment Damage!
Drive cooling fluid and strainer must be serviced every
five (5) years. Failure to do so could result in equipment
damage.
Figure 67. Pressure relief cap
Figure 68. Drive cooling expansion tank fill(a)
(a) Fill lines are NOT marked on tank. The A level is just below upper fitting,
C level is just above lower fitting. B is in the middle of the fittings.
Drive Cooling
Fluid
Expansion Tank
Pressure Relief Cap
A
B
C
Max Fill 70°F (21°C)
Design Fill 125°F (51.7°C)
Max Fill -20°F (-28.9°C)
Design Fill 70°F (21°C)
Min Fill 70°F (21°C)
Design Fill -20°F (-28.9°C)

Maintenance
72 RTAE-SVX001B-EN
Condenser Coils — Cleaning and
Inspection
Coil Cleaning and Inspection Interval
Clean condenser coils at least once a year or more
frequently if it is in a “dirty” environment. A clean
condenser coil will help maintain chiller operating
efficiency. Perform coil inspection each time coils are
cleaned.
Cleaning Air Side of RTAE Coils
Do not use detergents to clean the air side of RTAE coils.
Use clean water only. Clean from inside out by removing
end panels.
Cleaning Coated Coils
Coated coils may be cleaned using traditional detergents.
Coil Corrosion Protection Inspection
Inspect corrosion protection at each coil refrigerant
connection where the copper tube joins the aluminum
manifold. If damaged or missing, wrap new Prestite
Insulation (STR01506) on joint to cover area from the
aluminum header body to at least 2 inches of the copper
tube. Seal insulation using hand pressure. Rubber gloves
are suggested when handling insulation.
Reinstallation of Compressor
Shipping Bolts
Units with InvisiSound™ Ultimate Only
(Model Number Digit 12 = 3)
If compressor removal or unit move is required on a unit
with InvisiSound Ultimate option, reinstall compressor
shipping bolts which were removed in section
“Compressor Shipping Bolt Removal,” p. 23.
Servicing Chiller Roof
Service tools are available to access top of chiller. Entry on
chiller roof is not required.
NOTICE:
Equipment Damage!
Do not use coil cleaning agents to clean uncoated RTAE
coils. Use clean water only. Use of coil cleaning agents
on uncoated RTAE coils could cause damage to coils.
WARNING
Hazardous Chemicals!
Coil cleaning agents can be either acidic or highly
alkaline and can burn severely if contact with skin
occurs. Handle chemical carefully and avoid contact
with skin. ALWAYS wear Personal Protective Equipment
(PPE) including goggles or face shield, chemical
resistant gloves, boots, apron or suit as required. For
personal safety refer to the cleaning agent
manufacturer’s Materials Safety Data Sheet and follow
all recommended safe handling practices. Failure to
follow all safety instructions could result in death or
serious injury.
WARNING
Do Not Climb on Top of Chiller!
Do not climb on roof to service unit. Use service tools
designed to access top of chiller. Failure to follow these
instructions could result in technician falling off the
equipment which could result in death or serious injury.

RTAE-SVX001B-EN 73
Diagnostics
Diagnostic Name and Source: Name of Diagnostic and
its source. Note that this is the exact text used in the User
Interface and/or ServiceTool displays.
Affects Target: Defines the “target” or what is affected
by the diagnostic. Usually either the entire Chiller, or a
particular Circuit or Compressor is affected by the
diagnostic (the same one as the source), but in special
cases functions are modified or disabled by the diagnostic.
“None” implies that there is no direct affect to the chiller,
sub components or functional operation.
Design Note: Functions that are affected by a diagnostic
are simply reported as“chiller or circuit x” targets inTracer
TU and on the Alarms page of the AdaptiView™ display,
even though only a specific function and not the entire
circuit or chiller would be effected.
Severity: Defines the severity of the above effect.
Immediate means immediate shutdown of the affected
portion, Normal means normal or friendly shutdown of the
affected portion, Special Action means a special action or
mode of operation (limp along) is invoked, but without
shutdown, and Info means an Informational Note or
Warning is generated. Design Note:TracerTU does not
support display of “Special Action”, on its Diagnostics
pages, so that if a diagnostic has a special action defined
in the table below, it will be displayed only as
“Informational Warning” as long as no circuit or chiller
shutdown results. If there is a shutdown and special action
defined in the table, then theTracerTU Diagnostics Page
display will indicate the shutdown type only.
Persistence: Defines whether or not the diagnostic and
its effects are to be manually reset (Latched), or can be
either manually or automatically reset when and if the
condition returns to normal (Nonlatched).
Active Modes [Inactive Modes]: States the modes or
periods of operation that the diagnostic is active in and, as
necessary, those modes or periods that it is specifically
“not active” in as an exception to the active modes.The
inactive modes are enclosed in brackets, [ ]. Note that the
modes used in this column are internal and not generally
annunciated to any of the formal mode displays.
Criteria: Quantitatively defines the criteria used in
generating the diagnostic and, if nonlatching, the criteria
for auto reset.
Reset Level: Defines the lowest level of manual
diagnostic reset command which can clear the diagnostic.
The manual diagnostic reset levels in order of priority are:
Local or Remote. For example, a diagnostic that has a reset
level of Remote, can be reset by either a remote diagnostic
reset command or by a local diagnostic reset command.
AFD Diagnostics
Table 32. AFD diagnostics
Diagnostic
Name and
Source Affects
Target Severity Persistence
Active Modes
[Inactive
Modes] Criteria Reset
Level
AFD xA
Temperature
Sensor Warning
None Info NonLatch –
timed reset All Any of the 3 IGBT modules (one per phase) has an open or
out of range temperature sensor Local
AFD 1A Voltage
Transient Protection
Loss
None Info NonLatch All
Circuitry for respective AFD “Panel Interlock Warning” was
activated. For RTAE the panel interlock warning input
circuitry of AFD1A, is used to monitor the state of the entire
unit’s Surge Arresters, which is an array of 4 Metal Oxide
Varistors intended to protect the entire unit. An open state
of the circuit suggests at least one of the MOVs has opened
and the transient suppression protection is thereby
compromised. Although the unit is not shutdown from this
warning diagnostic, it is highly recommended to replace the
protection MOVs as soon as practical, in order to protect
from further damage to the drives as a result of incoming
line transients. Even though the diagnostic has an AFD 1A
prefix, it applies to the entire unit
Local

Diagnostics
74 RTAE-SVX001B-EN
AFD xA 12-Pulse or
Auto Transf High
Temp
Circuit Immediate Latch All
The emergency stop input of the respective AFD was
activated (open circuit has been detected). For RTAE units
with the Input Harmonic Distortion Option installed,
(TDD<5%), the respective drive’s Emergency Stop Fault
input circuitry is used to monitor and trip on the series
connected high limit thermostats of its associated 12-Pulse
Autotransformer. For 200, 230 & 575 V units, the same input
is used to monitor and trip on the series connected high limit
thermostats of the Step-up/Step-down Voltage
Autotransformer. Both circuit diagnostics will occur in the
event of a high temperature trip of the Voltage
Autotransformer. A tripped (open) state of the circuit,
suggests an excessively high temperature of the respective
transformer– Check the glycol cooling loop, the control
panel ventilation or the Voltage Autotransformer panel
ventilation fan as applicable.
Local
AFD xA A/D
Calibration Error Circuit Immediate
(decel) Latch Starting
Before each start, the A/D converters are calibrated against
a known zero-voltage measurement. If the measurement
reads more than 3% of full scale, the AFD asserts this A/D
Calibration Error diagnostic.
Local
AFD xA AHD
Frequency Out of
Range
Circuit Info NonLatch Running
The input frequency for the Active Harmonic Damping
function of the respective AFD is outside the range 47 Hz <
Fin < 63 Hz for more than one minute. This diagnostic is
automatically reset when the input frequency returns to the
range 47 Hz < Fin < 63 Hz.
Local
AFD xA AHD Sync
Signal Error Circuit Info NonLatch Running
The Active Harmonic Damping function of the respective
AFD is experiencing noise or glitching of the input line sync
signal continuously for one minute. This diagnostic is
automatically reset when the condition clears.
Local
AFD xA Bump
Failure Circuit Immediate Latch Bump Mode During the compressor bump operation, the motor current
exceeded Bump Cutout Current. Local
AFD xA Bus Over
Voltage Circuit Immediate NonLatch Holding, Running
Bus overvoltage indicated the high bus voltage cut out has
been exceeded while the AFD is in a non-stopped mode. The
diagnostic will auto-reset when the bus voltage returns to its
normal range for 1 minute.
Local
AFD xA Bus Under
Voltage Circuit Immediate
(decel) NonLatch Holding, Running
The bus voltage dropped below the Low Bus Cutout
threshold and there is not enough voltage to reliably operate
the load. The diagnostic will auto-reset when the bus
voltage returns to its normal range for 1 minute.
Local
AFD xA Bus Voltage
Ripple Too High Circuit Immediate Latch Running The DC power bus voltage’s ripple exceeds the drive’s
capability to operate reliably. Local
AFD xA Comm Loss:
Main Processor Circuit Immediate
(decel) Latch All
The AFD detected a continual loss of communication with
the main processor for greater than the Communications
Loss Time (bound setpoint)
Local
AFD xA Compressor
Start Failure Circuit Immediate Latch Starting
The compressor motor failed to start. This is most likely due
to load torque (possibly transients) exceeding the torque
capability.
Local
AFD xA Current
Sensor Self Test
Failure
Circuit Immediate Latch Starting
Self testing indicates a current sensor is not working. Either
it output is out of range or it significantly deviates from the
expected current trajectory on self-test
Local
AFD xA
Desaturation
Detected
Circuit Immediate Latch All Output Short circuit sufficient to drive IGBT transistor gate
into desaturation has been detected Local
AFD xA DSP Board
ID Error Circuit Immediate
(decel) Latch Power Up
Occurs when frame size identification does not match the
drive software. May occur upon DSP board replacement.
Requires rebinding.
Local
AFD xA DSP Board
Initialization Failure Circuit Immediate
(decel) Latch Power Up
This results from address bus checking, data bus checking,
line sync test, RAM test, each performed during the
initialization
Local
AFD xA DSP Board
Low Voltage Failure Circuit Immediate NonLatch All One of the AFD internal power supplies’ voltage has dropped
below a reliable operation threshold Local
AFD xA DSP Board
Over Temp Circuit Immediate
(decel) NonLatch All DSP board thermal switch indicates a temperature above
85°C. Local
Table 32. AFD diagnostics (continued)
Diagnostic
Name and
Source Affects
Target Severity Persistence
Active Modes
[Inactive
Modes] Criteria Reset
Level

Diagnostics
RTAE-SVX001B-EN 75
AFD xA Estimated
Junction Over Temp Circuit Immediate
(decel) Latch Running
The AFD has exceeded the allowed IGBT junction
temperature. Suspect a problem with the Drive cooling
system or if occurring during start acceleration, a damaged
and/or locked rotor compressor
Local
AFD xA Excessive
AHD Inhibit Circuit Info Latch All
The Active Harmonic Damping function of the respective
AFD is experiencing noise or glitching of the input line sync
signal and has experienced 3 inhibits in one minute or 10
inhibits in one hour.
Local
AFD xA Gate Drive
Board Over Temp Circuit Immediate
(decel) NonLatch All Thermal switch on gate-drive board indicates its
temperature exceeds 99°C Local
AFD xA Gate Drive
Fault Circuit Immediate NonLatch Running Gate-drive board faults - One of the gate drive module
power supplies is out of range Local
AFD xA Gate Drive
Low Voltage Failure Circuit Immediate NonLatch All The 24Vdc gate drive supply to the gate drive module has
dropped below a reliable operation threshold Local
AFD xA Gate Drive
Module Comm Loss Circuit Immediate
(decel) Latch All Loss of communication between DSP module and Gate Drive
Module Local
AFD xA Gate Kill
Active Circuit Immediate Latch All
The respective drive’s gate-kill circuitry was activated (open
circuit). For RTAE, the respective compressor’s High
Pressure Cutout Switch is wired into this circuit, and will
cause an immediate shutdown of the drive and compressor
in the event of an HPC trip. A 2nd separate HPC diagnostic
will occur in conjunction with this diagnostic – see details of
the Main Processor Diagnostic “High Pressure Cutout” below
Local
AFD xA General
Failure Circuit Immediate
(decel) Latch All Drive fault other than those supported in this list. Local
AFD xA Ground
Fault Circuit Immediate
(decel) Latch Running Measured ground current exceeds ground current
sensitivity. Local
AFD xA IGBT Self
Test Failure Circuit Immediate Latch Starting Self testing indicates one or more IGBT’s is not working. Local
AFD xA IMC 24V
Low Voltage Circuit Immediate
(decel) NonLatch All Loss of 24V on the IMC/IPC machine bus has been detected
by the AFD Local
AFD xA
Instantaneous
Current Overload
Circuit Immediate Latch Running The instantaneous current of any of the output phases
exceeded the drive capacity. Local
AFD xA Invalid Drive
Command Circuit Info NonLatch All
The AFD has reported that it had received a command for an
invalid state transition from the main processor (MP). This
diagnostic is not supported in 2.0 build
Local
AFD xA Inverter
Heatsink Over Temp Circuit Immediate
(decel) NonLatch All The IGBT heatsink temperature exceeded the cut out
temperature. Local
AFD xA Load
Inductor High
Temperature
Circuit Immediate
(decel) NonLatch All
Circuitry for respective AFD “Panel Interlock Fault” was
activated. For RTAE units, the panel interlock fault input
circuitry is used to sense the state of the high limit
thermostat of its associated load inductors. A tripped (open)
state of the circuit, suggest a high temperature of the load
inductor – Check the glycol cooling loop and the control
panel ventilation
Local
AFD xA Loss of AHD
Sync Signal Circuit Info NonLatch Running The Active Harmonic Damping function of the respective
AFD has received no valid input line sync signals for 1 minute Local
AFD xA Low Rotor
Flux Feedback Circuit Immediate
(decel) Latch Running The estimated rotor flux dropped below the minimum
threshold Local
AFD xA Motor
Current Overload Circuit Immediate
(decel) Latch Running Compressor Motor Overload “Time to Trip” vs Current curve
exceeded Local
AFD xA Non-Volatile
Memory Failure Circuit Immediate
(decel) Latch Power Up
NV Memory does not pass CRC checks during initialization.
This fault will normally occur when firmware is upgraded,
and can be ignored and reset in that circumstance
Local
AFD xA Output
Phase Loss Circuit Immediate
(decel) Latch Running
Drive sensed that an output phase is missing. Output phase
loss is defined as greater than 15% output current
imbalance for more than 5.0 seconds.
Local
AFD xA Over Speed Circuit Immediate Latch All The compressor motor’s speed either exceeded Absolute
Maximum Speed, or the drive has lost control. Local
Table 32. AFD diagnostics (continued)
Diagnostic
Name and
Source Affects
Target Severity Persistence
Active Modes
[Inactive
Modes] Criteria Reset
Level

Diagnostics
76 RTAE-SVX001B-EN
Main Processor Diagnostics
AFD xA Rectifier
Heatsink Over Temp Circuit Immediate
(decel) NonLatch All The diode heatsink temperature exceeded the cut out
temperature. Local
AFD xA Watchdog
Timer Overflow Circuit Immediate Latch All Watchdog timer overflowed. Requires power cycle to restore
operation. Local
Table 32. AFD diagnostics (continued)
Diagnostic
Name and
Source Affects
Target Severity Persistence
Active Modes
[Inactive
Modes] Criteria Reset
Level
Table 33. Main processor diagnostics
Diagnostic
Name Affects
Target Severity Persistence
Active Modes
[Inactive
Modes] Criteria Reset
Level
BAS
Communication
Lost
None Special
Action NonLatch All
The BAS was setup as “installed” at the MP and the Lontalk LCIC
lost communications with the BAS for 15 contiguous minutes
after it had been established. Refer to Section on Setpoint
Arbitration to determine how setpoints and operating modes
may be affected by the comm loss. The chiller follows the value
of the Tracer Default Run Command which can be previously
written by Tracer and stored nonvolatilely by the MP (either use
local or shutdown). Note that this diagnostic is never
operational for BACnet Communication interface (BCI-C) and
only operational with a LonTalk Communication interface
(LCI-C) if so configured by the BAS or Tracer system.
Remote
BAS Failed to
Establish
Communication
None Special
Action NonLatch At power-up
The BAS was setup as “installed” and the BAS did not
communicate with the Lontalk LCIC within 15 minutes after
chiller controls power-up. Refer to Section on Setpoint
Arbitration to determine how setpoints and operating modes
may be effected. Note that this diagnostic is never operational
for BACnet Communication interface (BCI-C) and only
operational with a LonTalk Communication interface (LCI-C) if
so configured by the BAS or Tracer system.
Remote
Check Clock Chiller Info Latch All
The real time clock had detected loss of its oscillator at some
time in the past. Check / replace battery? This diagnostic can
be effectively cleared only by writing a new value to the chiller’s
time clock using the TU or DynaView’s “set chiller time”
functions.
Remote
Condenser Fan
Inverter Fault -
Ckt1
None Info NonLatch All
A fault signal has been detected from at least one of the
Variable Speed Inverter Drive Condenser Fans of Circuit 1
(including the right hand fan of the Shared Fan Module if
present). No action is taken.
Remote
Condenser Fan
Inverter Fault -
Ckt2
None Info NonLatch All
A fault signal has been detected from at least one of the
Variable Speed Inverter Drive Condenser Fans of Circuit 2
(including the left hand fan of the Shared Fan Module if
present). No action is taken.
Remote
Condenser Rfgt
Pressure
Transducer -
Ckt1
Circuit Immediate Latch All Bad Sensor or LLID Remote
Condenser Rfgt
Pressure
Transducer -
Ckt2
Circuit Immediate Latch All Bad Sensor or LLID Remote
Discharge Rfgt
Temp Sensor –
Cprsr1A
Circuit Immediate Latch All Bad Sensor or LLID Remote
Discharge Rfgt
Temp Sensor –
Cprsr2A
Circuit Immediate Latch All Bad Sensor or LLID Remote
Drive Cooling
Supply Temp
Sensor – Ckt1
Circuit Normal Latch All Bad Sensor or LLID. Remote

Diagnostics
RTAE-SVX001B-EN 77
Drive Cooling
Supply Temp
Sensor – Ckt2
Circuit Normal Latch All Bad Sensor or LLID. Remote
Emergency
Stop Chiller Immediate Latch All
EMERGENCY STOP input is open. An external interlock has
tripped. Time to trip from input opening to unit stop shall be 0.1
to 1.0 seconds.
Local
Evap Rfgt Pool
Temp Sensor –
Ckt1
Circuit and
Chiller
Special
Action and
Info
NonLatch All
Bad Sensor or LLID. Note: The Evap Pool Temp Sensors are
used for evaporator freeze protection (running and non-
running).
Remote
Evap Rfgt Pool
Temp Sensor –
Ckt2
Circuit and
Chiller
Special
Action and
Info
NonLatch All
Bad Sensor or LLID. Note: The Evap Pool Temp Sensors are
used for evaporator freeze protection (running and non-
running).
Remote
Evap Rfgt Pool
Temp Sensor
Error – Ckt1
Circuit
Info and
Special
Action
Latch
Ckt Energized
[Ckt Not
Energized
The evaporator refrigerant pool temperature sensor is
indicating a temperature significantly warmer than the
evaporator entering water temperature (by more than 7.2°F
for 5 continuous min excluding ckt nonoperation and a 2 min
ignore time relative to ckt startup). While this diagnostic is
active, it will invalidate the evaporator pool temperature
sensor. Freeze protection functions (i.e. freeze diagnostics and
Evap Pump Override) will default to the respective evaporator
pressure transducer and its calculated saturation temperature.
Local
Evap Rfgt Pool
Temp Sensor
Error – Ckt2 Circuit
Info and
Special
Action
Latch
Ckt Energized
[Ckt Not
Energized
The evaporator refrigerant pool temperature sensor is
indicating a temperature significantly warmer than the
evaporator entering water temperature (by more than 7.2°F
for 5 continuous min excluding ckt nonoperation and a 2 min
ignore time relative to ckt startup). While this diagnostic is
active, it will invalidate the evaporator pool temperature
sensor. Freeze protection functions (i.e. freeze diagnostics and
Evap Pump Override) will default to the respective evaporator
pressure transducer and its calculated saturation temperature.
Local
Evap Spillover
Liquid Level
Sensor – Ckt1
Circuit Normal Latch All Bad Sensor or LLID Remote
Evap Spillover
Liquid Level
Sensor – Ckt2
Circuit Normal Latch All Bad Sensor or LLID Remote
Evap Water
Flow (Entering
Water Temp)
None Info NonLatch
Any Ckt
Energized [No
Ckts Energized]
The entering evaporator water temp fell below the leaving
evaporator water temp by more than 2°F for 180°F-sec,
minimum trip time 30 seconds. It can warn of improper flow
direction through the evaporator, misbound water temperature
sensors, improper sensor installation, partially failed sensors,
or other system problems. Note that either entering or leaving
water temp sensor or the water system could be at fault.
Remote
Evaporator
Approach Error
– Ckt1
Circuit Immediate Latch Respective
circuit running
The Evaporator approach temperature for the respective circuit
(ELWT – Evap Sat Temp Ckt 1) is negative by more than 10°F
for 1 minute continuously while the circuit / compressor is
operating. Either the Evap Leaving Water Temp sensor, or Evap
Suction Rfgt Pressure Transducer Ckt 1 is in error.
Remote
Evaporator
Approach Error
– Ckt2
Circuit Immediate Latch Respective
circuit running
The Evaporator approach temperature for the respective circuit
(ELWT – Evap Sat Temp Ckt 2) is negative by more than 10°F
for 1 minute continuously while the circuit / compressor is
operating. Either the Evap Leaving Water Temp sensor, or Evap
Suction Rfgt Pressure Transducer Ckt 2 is in error.
Remote
Evaporator
Entering Water
Temp Sensor
Chiller Normal Latch All
Bad Sensor or LLID. Note: Entering Water Temp Sensor is used
in EXV pressure control as well as ice making so it must cause
a unit shutdown even if ice or CHW reset is not installed.
Remote
Evaporator
Leaving Water
Temp Sensor
Chiller Normal Latch All Bad Sensor or LLID Remote
Evaporator
Water Flow Lost Chiller Immediate NonLatch [All Stop modes]
a. The Evaporator water flow switch input was open for more
than 6 contiguous seconds (or 15 seconds for thermal
dispersion type flow switch). b. This diagnostic does not de-
energize the evap pump output. c. 6 seconds of contiguous flow
shall clear this diagnostic.
Remote
Table 33. Main processor diagnostics (continued)
Diagnostic
Name Affects
Target Severity Persistence
Active Modes
[Inactive
Modes] Criteria Reset
Level

Diagnostics
78 RTAE-SVX001B-EN
Evaporator
Water Flow
Overdue
Chiller Normal NonLatch
Estab. Evap.
Water Flow on
going from STOP
to AUTO or Evap
Pump Override.
Evaporator water flow was not proven within 20 minutes of the
Evaporator water pump relay being energized in normal “Stop”
to “Auto” transition. If the pump is overridden to “On” for
certain diagnostics, the delay on diagnostic callout shall be only
255 seconds. The pump command status will not be affected by
this diagnostic in either case.
Remote
Excessive
Condenser
Pressure – Ckt1
Circuit Immediate Latch All
The condenser pressure transducer of this circuit has detected
a condensing pressure in excess of the design high side
pressure as limited by the particular compressor type.
Remote
Excessive
Condenser
Pressure – Ckt2
Circuit Immediate Latch All
The condenser pressure transducer of this circuit has detected
a condensing pressure in excess of the design high side
pressure as limited by the particular compressor type.
Remote
External
Chilled/Hot
Water Setpoint
None Info Latch All
a. Function Not “Enabled”: no diagnostics. b. “Enabled “: Out-
Of-Range Low or Hi or bad LLID, set diagnostic, default CWS to
next level of priority (e.g. Front Panel SetPoint).
Remote
External
Demand Limit
Setpoint
None Info Latch All
a. Not “Enabled”: no diagnostics. b. “Enabled “: Out-Of-Range
Low or Hi or bad LLID, set diagnostic, default CLS to next level
of priority (e.g. Front Panel SetPoint.
Remote
Failure to Arm
or Hold - AFD
1A
Circuit Info Nonlatch All
AFD 1A (controlling Compressor 1A) failed to respond in an
appropriate time with its status of Armed to Hold or Hold within
the allotted time of 1 minute of the sent command. (Arm to
Hold command sent; armed to Hold status received; Hold
command sent; Hold status received)
Local
Failure to Arm
or Hold - AFD
2A
Circuit Info Nonlatch All
AFD 2A (controlling Compressor 2A) failed to respond in an
appropriate time with its status of Armed to Hold or Hold within
the allotted time of 1 minute of the sent command. (Arm to
Hold command sent; armed to Hold status received; Hold
command sent; Hold status received)
Local
Failure to Arm
or Start - AFD
1A
Circuit Immediate Latch All
AFD 1A (controlling Compressor 1A) failed to arm or start
within the allotted time of 1 minute. (Arm to Start command
sent; armed to Start status received; Start command sent;
Started status received)
Local
Failure to Arm
or Start - AFD
2A
Circuit Immediate Latch All
AFD 2A (controlling Compressor 2A) failed to arm or start
within the allotted time of 1 minute. (Arm to Start command
sent; armed to Start status received; Start command sent;
Started status received)
Local
High
Differential Rfgt
Pressure - Ckt1
Circuit Normal Latch
Cprsr Energized
[Service/Op
Pumpdown]
The differential pressure for the respective circuit was above
275 Psid (1890 kPa) for 2 consecutive samples 5 seconds apart. Remote
High
Differential Rfgt
Pressure - Ckt2
Circuit Normal Latch
Cprsr Energized
[Service/Op
Pumpdown]
The differential pressure for the respective circuit was above
275 Psid (1890 kPa) for 2 consecutive samples 5 seconds apart Remote
High Discharge
Temperature –
Cprsr1A
Circuit Immediate Latch
All [compressor
run unload or
compressor not
running]
The compressor discharge temperature exceeded 200°F
(without oil cooler) or 230ºF (with oil cooler). This diagnostic
will be suppressed during Stopping mode or after the
compressor has stopped. Note: As part of the Compressor High
Temperature Limit Mode (aka Minimum Capacity Limit), the
compressor shall be forced loaded as the filtered discharge
temperature reaches 190ºF (without oil coolers), or 220ºF
(with oil coolers).
Remote
High Discharge
Temperature –
Cprsr2A
Circuit Immediate Latch
All [compressor
run unload or
compressor not
running]
The compressor discharge temperature exceeded 200°F
(without oil cooler) or 230ºF (with oil cooler). This diagnostic
will be suppressed during Stopping Mode or after the
compressor has stopped. Note: As part of the Compressor High
Temperature Limit Mode (aka Minimum Capacity Limit), the
compressor shall be forced loaded as the filtered discharge
temperature reaches 190ºF (without oil coolers), or 220ºF
(with oil coolers).
Remote
Table 33. Main processor diagnostics (continued)
Diagnostic
Name Affects
Target Severity Persistence
Active Modes
[Inactive
Modes] Criteria Reset
Level

Diagnostics
RTAE-SVX001B-EN 79
High
Evaporator
Refrigerant
Pressure
Chiller Immediate NonLatch All
The evaporator refrigerant pressure of either circuit has risen
above 190 psig. The evaporator water pump relay will be de-
energized to stop the pump regardless of why the pump is
running. The diagnostic will auto reset and the pump will return
to normal control when all of the evaporator pressures fall
below 185 psig. The primary purpose is to stop the evaporator
water pump and its associated pump heat from causing
refrigerant side pressures, close to the evaporator relief valve
setting, when the chiller is not running, such as could occur with
Evap Water Flow Overdue or Evaporator Water Flow Loss
Diagnostics.
Remote
High
Evaporator
Water
Temperature
Chiller
Info and
Special
Action
NonLatch
Only effective if
either 1)Evap
Wtr Flow
Overdue, 2)Evap
Wtr Flow Loss, or
3)Low Evap Rfgt
Temp,-Unit Off,
diagnostic is
active.
Either the leaving or the entering water temperature exceeded
the high evap water temp limit (TV service menu settable –
default 105°F) for 15 continuous seconds. The evaporator
water pump relay will be de-energized to stop the pump but
only if it is running due one of the diagnostics listed on the left
. The diagnostic will auto reset and the pump will return to
normal control when both the entering and leaving
temperatures fall 5°F below the trip setting. The primary
purpose is to stop the evaporator water pump and its
associated pump heat from causing excessive waterside
temperatures and waterside pressures when the chiller is not
running but the evap pump is on due to either Evap Water Flow
Overdue, Evaporator Water Flow Loss, or Low Evap Temp – Unit
Off Diagnostics. This diagnostic will not auto clear solely due to
the clearing of the enabling diagnostic.
Remote
High Motor
Winding
Temperature -
Cprsr1A
Circuit Immediate Latch All
Any of the compressor’s motor winding temperature sensors is
seen to be beyond the windings rated temperature of 265°F
(129.4°C)
Local
High Motor
Winding
Temperature -
Cprsr2A
Circuit Immediate Latch All
Any of the respective compressor’s motor winding temperature
sensors is seen to be beyond the windings rated temperature
of 265°F (129.4°C)
Local
High Pressure
Cutout -
Cprsr1A
Circuit Immediate Latch All A high pressure cutout was detected by AFD 1A Gate Kill Input
; trip at 315 ± 5 PSIG. Local
High Pressure
Cutout -
Cprsr2A
Circuit Immediate Latch All A high pressure cutout was detected by AFD 2A Gate Kill Input
; trip at 315 ± 5 PSIG. Local
High
Refrigerant
Pressure Ratio
– Ckt1
Circuit Immediate Latch Cprsr Energized
The pressure ratio for the respective circuit exceeded 12.3 for
1 contiguous minute while running in any mode. The pressure
ratio is defined as Pcond (abs)/Pevap(abs).
Remote
High
Refrigerant
Pressure Ratio
– Ckt2
Circuit Immediate Latch Cprsr Energized
The pressure ratio for the respective circuit exceeded 12.3 for
1 contiguous minute while running in any mode. The pressure
ratio is defined as Pcond (abs)/Pevap(abs).
Remote
Interrupt
Failure – AFD1A Circuit
Immediate
Shutdown
and Special
Action
Latch AFD intended to
be OFF
Respective AFD is reporting that it is still running the
compressor when the MP has commanded the drive/
compressor to be Off. Detection time shall be 10 seconds
minimum and 15 seconds maximum. On detection and until the
controller is manually reset: this diagnostic shall be active and
the alarm relay shall be energized, the Evap Pump Output will
be energized, the effected compressor will be continually
commanded off, and be unloaded, while a normal stop shall be
commanded to all other compressors. For as long as
compressor operation continues, the MP shall continue liquid
level, oil return, and fan control on the circuit effected.
Local
Table 33. Main processor diagnostics (continued)
Diagnostic
Name Affects
Target Severity Persistence
Active Modes
[Inactive
Modes] Criteria Reset
Level

Diagnostics
80 RTAE-SVX001B-EN
Interrupt
Failure – AFD2A Circuit
Immediate
Shutdown
and Special
Action
Latch AFD intended to
be OFF
Respective AFD is reporting that it is still running the
compressor when the MP has commanded the drive/
compressor to be Off. Detection time shall be 10 seconds
minimum and 15 seconds maximum. On detection and until the
controller is manually reset: this diagnostic shall be active and
the alarm relay shall be energized, the Evap Pump Output will
be energized, the effected compressor will be continually
commanded off, and be unloaded, while a normal stop shall be
commanded to all other compressors. For as long as
compressor operation continues, the MP shall continue liquid
level, oil return, and fan control on the circuit effected.
Local
LCI-C Software
Mismatch: Use
BAS Tool
Chiller Info Nonlatch All
The neuron software in the LCI-C module does not match the
chiller type. Download the proper software into the LCI-C
neuron. To do this, use the Rover service tool, or a LonTalk®
tool capable of downloading software to a Neuron 3150®.
Remote
Loss of Oil
(Running) -
Cprsr1A
Circuit Immediate Latch
Starter
Contactor
Energized
In running modes, Oil Loss Level Sensor detects lack of oil in
the oil sump feeding the compressor (distinguishing a liquid
flow from a vapor flow).
Local
Loss of Oil
(Running) -
Cprsr2A
Circuit Immediate Latch
Starter
Contactor
Energized
In running modes, Oil Loss Level Sensor detects lack of oil in
the oil sump feeding the compressor (distinguishing a liquid
flow from a vapor flow).
Local
Loss of Oil
(Stopped) –
Cprsr1A
Circuit
Immediate
Shutdown
and Special
Action
Latch
Compressor Pre-
start [all other
modes]
Oil Loss Level Sensor detects a lack of oil in the oil sump feeding
the compressor for 90 seconds after EXV preposition is
completed on an attempted circuit start. Note: Compressor
start is delayed pending oil detection during that time, but not
allowed once the diagnostic occurs.
Local
Loss of Oil
(Stopped) –
Cprsr2A
Circuit
Immediate
Shutdown
and Special
Action
Latch
Compressor Pre-
start [all other
modes]
Oil Loss Level Sensor detects a lack of oil in the oil sump feeding
the compressor for 90 seconds after EXV preposition is
completed on an attempted circuit start. Note: Compressor
start is delayed pending oil detection during that time, but not
allowed once the diagnostic occurs.
Local
Low Differential
Rfgt Pressure -
Ckt1
Circuit Immediate Latch Cprsr Energized
The system differential pressure (Pc-Pe) for the respective
circuit was below 25 psid (240.5 kPa) or the pressure ratio (Pc/
Pe) was less than 1.1 while the compressor is running for a
period of time dependent on the deficit (15 sec ignore time
from circuit start). Refer to the Oil Flow Protection specification
for the time to trip function.
Remote
Low Differential
Rfgt Pressure -
Ckt2
Circuit Immediate Latch Cprsr Energized
The system differential pressure (Pc-Pe) for the respective
circuit was below 25 psid (240.5 kPa) or the pressure ratio (Pc/
Pe) was less than 1.1 while the compressor is running for a
period of time dependent on the deficit (15 sec ignore time
from circuit start). Refer to the Oil Flow Protection specification
for the time to trip function.
Remote
Low Discharge
Superheat –
Ckt1
Circuit Normal Latch Any Running
Mode
While Running Normally, the Discharge Superheat was less
than 9 degrees F for more than 4878 degree F seconds. At
circuit startup, the Discharge Superheat will be ignored for 5
minutes.
Remote
Low Discharge
Superheat –
Ckt2
Circuit Normal Latch Any Running
Mode
While Running Normally, the Discharge Superheat was less
than 9 degrees F for more than 4878 degree F seconds. At
circuit startup, the Discharge Superheat will be ignored for 5
minutes.
Remote
Low Evaporator
Rfgt Pressure -
Ckt1
Circuit Immediate Latch
Cprsr Prestart
and Cprsr
Energized
a. The Evap Refrig Pressure dropped below 10 Psia just prior to
compressor start (after EXV preposition).
b. During Early Startup Period: the Evap Refrig Pressure fell
below a pressure equal to Condenser Pressure ÷ 8 but as
limited to not less than 6 or greater than 10 psia.
c. After Early Startup Period expires: The Evap Refrig Pressure
fell below 16 Psia for 30 seconds or below 10 psia for 5 seconds.
(Note: the Early Startup Period for RTAE it is between 1 and 5
min as an inverse function of the Cond Temp measured at time
of circuit startup).
Local
Table 33. Main processor diagnostics (continued)
Diagnostic
Name Affects
Target Severity Persistence
Active Modes
[Inactive
Modes] Criteria Reset
Level

Diagnostics
RTAE-SVX001B-EN 81
Low Evaporator
Rfgt Pressure -
Ckt2
Circuit Immediate Latch
Cprsr Prestart
and Cprsr
Energized
a. The Evap Refrig Pressure dropped below 10 Psia just prior to
compressor start (after EXV preposition).
b. During Early Startup Period: the Evap Refrig Pressure fell
below a pressure equal to Condenser Pressure ÷ 8 but as
limited to not less than 6 or greater than 10 psia.
c. After Early Startup Period expires: The Evap Refrig Pressure
fell below 16 Psia for 30 seconds or below 10 psia for 5 seconds.
(Note: the Early Startup Period for RTAE it is between 1 and 5
min as an inverse function of the Cond Temp measured at time
of circuit startup).
Local
Low Evaporator
Rfgt
Temperature -
Ckt1
Circuit Immediate Latch
All Ckt Running
Modes [Service
Pumpdown]
The warmer of either the Evaporator Refrigerant Pool
Temperature or the Evaporator Saturated Temperature for the
respective circuit, dropped below the Low Refrigerant
Temperature Cutout Setpoint for 2250F-sec (12F-sec/sec
max rate for early circuit startup period) while the circuit was
running. The minimum LERTC setpoint is -5F the point at
which oil separates from the refrigerant. The integral is held
nonvolatily though power down, is continuously calculated, and
can decay or build during the circuit’s off cycle as conditions
warrant.
Remote
Low Evaporator
Rfgt
Temperature -
Ckt2
Circuit Immediate Latch
All Ckt Running
Modes [Service
Pumpdown]
The warmer of either the Evaporator Refrigerant Pool
Temperature or the Evaporator Saturated Temperature for the
respective circuit, dropped below the Low Refrigerant
Temperature Cutout Setpoint for 2250°F-sec (12°F-sec/sec
max rate for early circuit startup period) while the circuit was
running. The minimum LERTC setpoint is -5°F the point at
which oil separates from the refrigerant. The integral is held
nonvolatily though power down, is continuously calculated, and
can decay or build during the circuit’s off cycle as conditions
warrant.
Remote
Low Evaporator
Temp (Unit Off)
– Ckt1
Evap Pump
Info and
Special
Action
NonLatch
Unit in Stop
Mode, or in Auto
Mode and No
Ckt's Energzd
[Any Ckt
Energzd]
The respective circuit’s “Chiller Off Cycle Freeze Protection
Integral” was seen to be higher than ½ of its trip value while
the chiller is in the Stop mode, or in Auto mode with no
compressors running, for one minute and more. The COCFP
integral is increased if the Average of the Evap Water
Temperature and the Evap Refrigerant Pool Temp is below the
value of the Low Evap Rfgt Temp Cutout + 4°F. Energize Evap
Water Pump and Off-Cycle Freeze Avoidance Request Relay
until diagnostic auto resets, then return to normal evap pump
control and de-energize the Freeze Avoidance Request.
Automatic reset occurs when the respective Evap Rfgt Pool
Temp rises 2°F (1.1°C) above the LERTC cutout setting and the
COCFP Integral is less than 1/3 of its trip value. This diagnostic
even while active, does not prevent operation of either circuit.
(At each circuit shutdown, the COCFP integral is initialized to
the LERTC integral).
Remote
Low Evaporator
Temp (Unit Off)
– Ckt2
Evap Pump Special
Action NonLatch
Unit in Stop
Mode, or in Auto
Mode and No
Ckt's Energzd
[Any Ckt
Energzd]
The respective circuit’s “Chiller Off Cycle Freeze Protection
Integral” was seen to be higher than ½ of its trip value while
the chiller is in the Stop mode, or in Auto mode with no
compressors running, for one minute and more. The COCFP
integral is increased if the Average of the Evap Water
Temperatures and the Evap Refrigerant Pool Temp is below the
value of the Low Evap Rfgt Temp Cutout + 4°F. Energize Evap
Water Pump and Off-Cycle Freeze Avoidance Request Relay
until diagnostic auto resets, then return to normal evap pump
control and de-energize the Freeze Avoidance Request.
Automatic reset occurs when the respective Evap Rfgt Pool
Temp rises 2°F (1.1°C) above the LERTC cutout setting AND
the COCFP Integral is less than 1/3 of its trip value. This
diagnostic even while active, does not prevent operation of
either circuit. (At each circuit shutdown, the COCFP integral is
initialized to the LERTC integral).
Remote
Table 33. Main processor diagnostics (continued)
Diagnostic
Name Affects
Target Severity Persistence
Active Modes
[Inactive
Modes] Criteria Reset
Level

Diagnostics
82 RTAE-SVX001B-EN
Low Evaporator
Water Temp
(Unit Off)
Evap Pump
and Freeze
Avoidance
Request
Relay
Info and
Special
Action
NonLatch
Unit in Stop
Mode, or in Auto
Mode and No
Ckt(s) Energzd
[Any Ckt
Energzd]
Either the entering or leaving evaporator water temp fell below
the leaving water temp cutout setting for 30°F-seconds while
the Chiller is in the Stop mode, or in Auto mode with no
compressors running. Energize Freeze Avoidance Request
Relay and Evap Water Pump Relay until diagnostic auto resets,
then de-energize the Freeze Avoidance Request Relay and
return to normal evap pump control. Automatic reset occurs
when both temps rise 2°F (1.1°C) above the cutout setting for
5 minutes, or either circuit starts. This diagnostic even while
active, does not prevent operation of either circuit.
Remote
Low Evaporator
Water Temp:
Unit On
Chiller
Immediate
Shutdown
and Special
Action
NonLatch
Any Ckt[s]
Energzd [No
Ckt(s) Energzd]
The evaporator entering or leaving water temp fell below the
cutout setpoint for 30°F-seconds while the compressor was
running. Automatic reset occurs when both of the temperature
rises 2°F (1.1°C) above the cutout setting for 2 minutes. This
diagnostic shall not de-energize the Evaporator Water Pump
Output.
Remote
Low Oil Flow -
Cprsr2A Circuit Immediate Latch
Cprsr Energized
and Delta P
above 15 Psid
The oil pressure transducer for this compressor was indicating
an unacceptable oil pressure drop as a % of the available oil
pressure to move oil, suggesting significantly reduced oil flow
to the compressor. Possible root causes include oil line service
valve closed or restricted, dirty or restricted oil filter, or
compressor oil line kepner valve malfunction.
Local
Low Oil Flow -
Cpsr 1A Circuit Immediate Latch
Cprsr Energized
and Delta P
above 15 Psid
The oil pressure transducer for this compressor was indicating
an unacceptable oil pressure drop as a % of the available oil
pressure to move oil, suggesting significantly reduced oil flow
to the compressor. Possible root causes include oil line service
valve closed or restricted, dirty or restricted oil filter, or
compressor oil line kepner valve malfunction.
Local
Low Oil Return
or AFD Cooling
– Ckt1
Circuit Info NonLatch All Ckt Running
Modes
The evaporator’s spillover tank refrigerant liquid level, which
feeds the oil return and drive cooling heat exchanger, is seen
to be less than 90% of its min level for 20 continuous minutes
– reset when level gets to 88% of min level. The occurrence of
this warning in conjunction with the “Loss of Oil (Running)” or
any of the” AFD Over Temp” shutdown diagnostics, suggests
either EXV problems or loss of charge is a contributing factor.
Low Oil Return
or AFD Cooling
– Ckt2
Circuit Info NonLatch All Ckt Running
Modes
The evaporator’s spillover tank refrigerant liquid level, which
feeds the oil return and drive cooling heat exchanger, is seen
to be less than 90% of its min level for 20 continuous minutes
– reset when level gets to 88% of min level. The occurrence of
this warning in conjunction with the “Loss of Oil (Running)” or
any of the” AFD Over Temperature” shutdown diagnostics,
suggests either EXV problems or loss of charge is a contributing
factor.
Motor Winding
Temp Sensor -
Cprsr1A
Circuit Info or None Latch All
Both of the motor winding temperature sensors are seen to be
out of their normal range. (Severity is adjustable via TU Service
Tool – default is Info)
Local
Motor Winding
Temp Sensor-
Cprsr2A
Circuit Info or None Latch All
Both of the motor winding temperature sensors are seen to be
out of their normal range. (Severity is adjustable via TU Service
Tool – default is Info)
Local
MP Application
Memory CRC
Error
Chiller Immediate Latch All Modes Memory error criteria TBD Remote
MP: Could not
Store Starts
and Hours
None Info Latch All
MP has determined there was an error with the previous power
down store. Starts and Hours may have been lost for the last
24 hours.
Remote
MP: Invalid
Configuration None Immediate Latch All MP has an invalid configuration based on the current software
installed. Remote
MP: Non-
Volatile
Memory
Reformat
None Info Latch All MP has determined there was an error in a sector of the Non-
Volatile memory and it was reformatted. Check settings. Remote
Table 33. Main processor diagnostics (continued)
Diagnostic
Name Affects
Target Severity Persistence
Active Modes
[Inactive
Modes] Criteria Reset
Level

Diagnostics
RTAE-SVX001B-EN 83
MP: Reset Has
Occurred None Info NonLatch All
The main processor has successfully come out of a reset and
built its application. A reset may have been due to a power up,
or a power loss of a minimum or longer duration to cause an
MP power down reset, or when installing new software or
defining a new configuration. This diagnostic is immediately
and automatically cleared and thus can only be seen in the
Historic Diagnostic List in TU.
Remote
No Differential
Rfgt Pressure –
Ckt1
Circuit Immediate Latch
Compressor
running on
Circuit
The system differential pressure was below 7.7 Psid (53 kPa)
for 6 seconds after the 11 seconds ignore time relative to cprsr/
circuit startup had expired.
Remote
No Differential
Rfgt Pressure –
Ckt2
Circuit Immediate Latch
Compressor
running on
Circuit
The system differential pressure was below 7.7 Psid (53 kPa)
for 6 seconds after the 11 seconds ignore time relative to cprsr/
circuit startup had expired.
Remote
Oil Analysis
Recommended
– Ckt1
Circuit Info Latch
“Service
Messages”
enabled
Diagnostic occurs when accumulated circuit operating hours
since last initialized exceeds 2000 hours. Diagnostic can be
manually cleared but will reoccur every month (720 hours on
real time clock) as long as accumulator is not re-initialized.
Remote
Oil Analysis
Recommended
– Ckt2
Circuit Info Latch
“Service
Messages”
enabled
Diagnostic occurs when accumulated circuit operating hours
since last initialized exceeds 2000 hours. Diagnostic can be
manually cleared but will reoccur every month (720 hours on
real time clock) as long as accumulator is not re-initialized.
Remote
Oil Filter
Change
Recommended
– Cprsr1A
Circuit Info Latch
“Service
Messages”
enabled
Diagnostic occurs only when “service messages” are enabled
and when average oil pressure drop exceeds 18%. Diagnostic
can be manually cleared but will reoccur every month (720
hours on real time clock) as long as average pressure drop does
not fall below 16%.
Remote
Oil Filter
Change
Recommended
– Cprsr2A
Circuit Info Latch
“Service
Messages”
enabled
Diagnostic occurs only when “service messages” are enabled
and when average oil pressure drop exceeds 18%. Diagnostic
can be manually cleared but will reoccur every month (720
hours on real time clock) as long as average pressure drop does
not fall below 16%.
Remote
Oil Flow
Protection Fault
– Ckt 1
Circuit Immediate Latch
Starter
Contactor
Energized [all
Stop modes]
The Intermediate Oil Pressure Transducer for this cprsr is
reading a pressure either above its respective circuit’s
Condenser Pressure by 15 Psia or more, or below its respective
Suction Pressure 10 Psia or more for 30 seconds continuously.
Local
Oil Flow
Protection Fault
– Ckt2
Circuit Immediate Latch
Starter
Contactor
Energized [all
Stop modes]
The Intermediate Oil Pressure Transducer for this cprsr is
reading a pressure either above its respective circuit’s
Condenser Pressure by 15 Psia or more, or below its respective
Suction Pressure 10 Psia or more for 30 seconds continuously.
Local
Oil Pressure
Transducer –
Cprsr1A
Circuit Immediate Latch All Bad Sensor or LLID Remote
Oil Pressure
Transducer –
Cprsr2A
Circuit Immediate Latch All Bad Sensor or LLID Remote
Outdoor Air
Temperature
Sensor
Chiller Normal
Shutdown; Latch All
Bad Sensor or LLID. If this diagnostic occurs, operational
pumpdown will be performed regardless of the last valid
temperature.
Remote
Pumpdown
Terminated -
Ckt1
Circuit Info NonLatch Service
Pumpdown
Service Pumpdown cycle for this circuit was terminated
abnormally due to excessive time.(RTAE max Service
Pumpdown = 4 min).
Local
Pumpdown
Terminated -
Ckt2
Circuit Info NonLatch Service
Pumpdown
Service Pumpdown cycle for this circuit was terminated
abnormally due to excessive. (RTAE max Service Pumpdown =
4 min).
Local
Software Error
1001: Call
Trane Service
All
functions Immediate Latch All
A high level software watchdog has detected a condition in
which there was a continuous 1 minute period of compressor
operation, with neither Evaporator water flow nor a” contactor
interrupt failure” diagnostic active. The presence of this
software error message suggests an internal software problem
has been detected. The events that led up to this failure, if
known, should be recorded and transmitted to Trane Controls
Engineering.
Local
Table 33. Main processor diagnostics (continued)
Diagnostic
Name Affects
Target Severity Persistence
Active Modes
[Inactive
Modes] Criteria Reset
Level

Diagnostics
84 RTAE-SVX001B-EN
Software Error
1002: Call
Trane Service
All
functions Immediate Latch All
Reported if state chart misalignment in stopped or inactive
state occurred while a compressor was seen to be operating
and this condition lasted for at least 1 minute (cmprsr operation
due to Service Pumpdown or with Contactor Interrupt Failure
diagnostic is excluded). The presence of this software error
message suggests an internal software problem has been
detected. The events that led up to this failure, if known, should
be recorded and transmitted to Trane Controls Engineering.
Local
Software Error
1003: Call
Trane Service
All
functions Immediate Latch All
Reported if state chart misalignment occurred inferred from
either Capacity Control, Circuit, or Compressor State Machines
remaining in the Stopping state for more than 3 minutes. The
presence of this software error message suggests an internal
software problem has been detected. The events that led up to
this failure, if known, should be recorded and transmitted to
Trane Controls Engineering.
Local
Starts or Hours
Modified –
Cprsr1A
None Info NonLatch All
The current value for the cumulative starts and or hours for the
given compressor have been modified by a write override from
TU.
NA
Starts or Hours
Modified –
Cprsr2A
None Info NonLatch All
The current value for the cumulative starts and or hours for the
given compressor have been modified by a write override from
TU.
NA
Suction Rfgt
Pressure
Transducer –
Cprsr1A
Circuit Immediate Latch All Bad Sensor or LLID Remote
Suction Rfgt
Pressure
Transducer –
Cprsr2A
Circuit Immediate Latch All Bad Sensor or LLID Remote
Unexpected
Shutdown –
AFD1A
Circuit Normal Nonlatch
All Cprsr Running
modes, Starting,
Running and
Preparing to
Shutdown
The respective AFD status reported back that it is stopped when
the MP thinks it should be running and no AFD shutdown
diagnostic exists. This diagnostic will be logged in the active
buffer and then automatically cleared. This diagnostic could be
caused by intermittent communication problems from the AFD
to the MP, or due to misbinding.
Remote
Unexpected
Shutdown –
AFD2A
Circuit Normal Nonlatch
All Cprsr Running
modes, Starting,
Running and
Preparing to
Shutdown
The respective AFD status reported back that it is stopped when
the MP thinks it should be running and no AFD shutdown
diagnostic exists. This diagnostic will be logged in the active
buffer and then automatically cleared. This diagnostic could be
caused by intermittent communication problems from the AFD
to the MP, or due to misbinding.
Remote
Very Low
Evaporator Rfgt
Pressure – Ckt1
Chiller Immediate Latch All
The respective circuit’s evaporator pressure dropped below
80% of the current Low Evap Refrig Press Cutout setting (see
above) or 8 psia, whichever is less, regardless of the running
state of the circuit’s compressor. Note: Unlike previous
products, even if the circuit associated with the suction
pressure transducer is locked out, it will not defeat the
protection afforded by this diagnostic.
Local
Very Low
Evaporator Rfgt
Pressure – Ckt2
Chiller Immediate Latch All
The respective circuit’s evaporator pressure dropped below
80% of the current Low Evap Refrig Press Cutout setting (see
above) or 8 psia, whichever is less, regardless of the running
state of the circuit’s compressor. Note: Unlike previous
products, even if the circuit associated with the suction
pressure transducer is locked out, it will not defeat the
protection afforded by this diagnostic.
Local
Table 33. Main processor diagnostics (continued)
Diagnostic
Name Affects
Target Severity Persistence
Active Modes
[Inactive
Modes] Criteria Reset
Level

Diagnostics
RTAE-SVX001B-EN 85
Communication Diagnostics
Notes:
•The following communication loss diagnostics will not
occur unless that input or output is required to be
present by the particular configuration and installed
options for the chiller.
•Communication diagnostics are named by the
Functional Name of the input or output that is no
longer being heard from by the Main Processor. Many
LLIDs, such as the Quad Relay LLID, have more than
one functional output associated with it. A comm loss
with such a multiple function board, will generate
multiple diagnostics. Refer to the Chiller's wiring
diagrams to relate the occurrence of multiple
communication diagnostics back to the physical LLID
boards that they have been assigned to (bound).
Table 34. Communication diagnostics
Diagnostic
Name Affects
Target Severity Persistence
Active Modes
[Inactive
Modes] Criteria Reset
Level
Comm Loss: AFD 1A Circuit Immediate NonLatch All Continual loss of communication between the MP and the
Functional ID has occurred for a 30 second period. Remote
Comm Loss: AFD 2A Circuit Immediate NonLatch All Continual loss of communication between the MP and the
Functional ID has occurred for a 30 second period. Remote
Comm Loss: Chiller
% Capacity Output None Info Latch All Continual loss of communication between the MP and the
Functional ID has occurred for a 30 second period. Remote
Comm Loss: Cond
Fan Enable, Shared
Ckt1&2
None Info Latch All
Continual loss of communication between the MP and the
Functional ID has occurred for a 30 second period. This is an
info warning, as it is conceivable that the circuit may run
without the center shared fan deck working if there are many
other coils/fans on the circuits.
Remote
Comm Loss: Cond
Rfgt Pressure, Ckt1 Circuit Immediate Latch All Continual loss of communication between the MP and the
Functional ID has occurred for a 30 second period. Remote
Comm Loss: Cond
Rfgt Pressure, Ckt2 Circuit Immediate Latch All Continual loss of communication between the MP and the
Functional ID has occurred for a 30 second period. Remote
Comm Loss:
Condenser Fan
Enable, Ckt1
Circuit Normal Latch All Continual loss of communication between the MP and the
Functional ID has occurred for a 30 second period. Remote
Comm Loss:
Condenser Fan
Enable, Ckt2
Circuit Normal Latch All Continual loss of communication between the MP and the
Functional ID has occurred for a 30 second period. Remote
Comm Loss:
Discharge
Temperature, Ckt1
Circuit Normal Latch All Continual loss of communication between the MP and the
Functional ID has occurred for a 30 second period. Remote
Comm Loss:
Discharge
Temperature, Ckt2
Circuit Normal Latch All Continual loss of communication between the MP and the
Functional ID has occurred for a 30 second period. Remote
Comm Loss: Drive
Cooling BP Valve,
Ckt1
Circuit Normal Latch All Continual loss of communication between the MP and the
Functional ID has occurred for a 30 second period. Remote
Comm Loss: Drive
Cooling BP Valve,
Ckt2
Circuit Normal Latch All Continual loss of communication between the MP and the
Functional ID has occurred for a 30 second period. Remote
Comm Loss: Drive
Cooling IL Valve,
Ckt1
Circuit Normal Latch All Continual loss of communication between the MP and the
Functional ID has occurred for a 30 second period. Remote
Comm Loss: Drive
Cooling IL Valve,
Ckt2
Circuit Normal Latch All Continual loss of communication between the MP and the
Functional ID has occurred for a 30 second period. Remote
Comm Loss: Drive
Cooling Sply Temp,
Ckt1
Circuit Norma Latch All
Continual loss of communication between the MP and the
Functional ID has occurred for a 30 second period. While this
diagnostic is active, the associated Drive Cooling ByPass
Valve shall be commanded fully closed.
Remote
Comm Loss: Drive
Cooling Sply Temp,
Ckt2
Circuit Norma Latch All
Continual loss of communication between the MP and the
Functional ID has occurred for a 30 second period. While this
diagnostic is active, the associated Drive Cooling ByPass
Valve shall be commanded fully closed
Remote

Diagnostics
86 RTAE-SVX001B-EN
Comm Loss:
Emergency Stop Chiller Normal Latch All Continual loss of communication between the MP and the
Functional ID has occurred for a 30 second period. Remote
Comm Loss: Evap
Rfgt Pool Temp,
Ckt1
Circuit and
Chiller
Special
Action and
Info
Latch All
Continual loss of communication between the MP and the
Functional ID has occurred for a 30 second period Note: The
Evap Pool Temp Sensors are used for both On and Off -cycle
freeze protection. Substitute Suction Pressure to
Temperature conversion for freeze protection functions.
Remote
Comm Loss: Evap
Rfgt Pool Temp,
Ckt2
Circuit and
Chiller
Special
Action and
Info
Latch All
Continual loss of communication between the MP and the
Functional ID has occurred for a 30 second period Note: The
Evap Pool Temp Sensors are used for both On and Off -cycle
freeze protection. Substitute Suction Pressure to
Temperature conversion for freeze protection functions.
Remote
Comm Loss:
Evaporator Entering
Water Temperature
Chiller Normal Latch All
Continual loss of communication between the MP and the
Functional ID has occurred for a 30 second period. Note:
Entering Water Temp Sensor is used in EXV pressure control
as well as ice making & CHW reset, so it must cause a unit
shutdown even if Ice or CHW reset is not installed.
Remote
Comm Loss:
Evaporator Leaving
Water Temperature
Chiller Normal Latch All Continual loss of communication between the MP and the
Functional ID has occurred for a 30 second period. Remote
Comm Loss:
Evaporator Rfgt
Liquid Level, Ckt1
Circuit Normal Latch All Continual loss of communication between the MP and the
Functional ID has occurred for a 30 second period. Remote
Comm Loss:
Evaporator Rfgt
Liquid Level, Ckt2
Circuit Normal Latch All Continual loss of communication between the MP and the
Functional ID has occurred for a 30 second period. Remote
Comm Loss:
Evaporator Water
Flow Switch
Chiller Immediate Latch All Continual loss of communication between the MP and the
Functional ID has occurred for a 30 second period. Remote
Comm Loss:
Evaporator Water
Pump Relay
Chiller Normal Latch All Continual loss of communication between the MP and the
Functional ID has occurred for a 30 second period. Remote
Comm Loss:
Expansion Valve,
Ckt1
Circuit Normal Latch All Continual loss of communication between the MP and the
Functional ID has occurred for a 30 second period. Remote
Comm Loss:
Expansion Valve,
Ckt2
Circuit Normal Latch All Continual loss of communication between the MP and the
Functional ID has occurred for a 30 second period. Remote
Comm Loss: Ext
Noise Reduction
Command
None Info Latch All Continual loss of communication between the MP and the
Functional ID has occurred for a 30 second period. Remote
Comm Loss:
External Auto/Stop Chiller Normal Latch All Continual loss of communication between the MP and the
Functional ID has occurred for a 30 second period. Remote
Comm Loss:
External Chilled/Hot
Water Setpoint
External
Chilled
Water
Setpoint
Special
Action Latch All
Continual loss of communication between the MP and the
Functional ID has occurred for a 30 second period. Chiller
shall discontinue use of the External Chilled Water Setpoint
source and revert to the next higher priority for setpoint
arbitration
Remote
Comm Loss:
External Ckt
Lockout, Ckt1
None Info Latch All
Continual loss of communication between the MP and the
Functional ID has occurred for a 30 second period. MP will
hold the last lockout state (enabled or disabled) that was in
effect at the time of comm loss.
Remote
Comm Loss:
External Ckt
Lockout, Ckt2
None Info Latch All
Continual loss of communication between the MP and the
Functional ID has occurred for a 30 second period. MP will
hold the last lockout state (enabled or disabled) that was in
effect at the time of comm loss
Remote
Comm Loss:
External Demand
Limit Setpoint
External
Current
Limit
setpoint
Special
Action Latch All
Continual loss of communication between the MP and the
Functional ID has occurred for a 30 second period. Chiller
shall discontinue use of the External Current limit setpoint
and revert to the next higher priority for Current Limit
setpoint arbitration
Remote
Table 34. Communication diagnostics (continued)
Diagnostic
Name Affects
Target Severity Persistence
Active Modes
[Inactive
Modes] Criteria Reset
Level

Diagnostics
RTAE-SVX001B-EN 87
Comm Loss:
External Ice
Building Command
Ice Making
Mode
Special
Action Latch All
Continual loss of communication between the MP and the
Functional ID has occurred for a 30 second period. Chiller
shall revert to normal (non-ice building) mode regardless of
last state.
Remote
Comm Loss: Fan
Inverter Fault, Ckt1 None Info Latch All Continual loss of communication between the MP and the
Functional ID has occurred for a 30 second period Remote
Comm Loss: Fan
Inverter Fault, Ckt2 None Info Latch All Continual loss of communication between the MP and the
Functional ID has occurred for a 30 second period. Remote
Comm Loss: Fan
Inverter Speed
Cmd, Ckt1
Circuit Normal Latch All Continual loss of communication between the MP and the
Functional ID has occurred for a 30 second period. Remote
Comm Loss: Fan
Inverter Speed
Cmd, Ckt2
Circuit Normal Latch All Continual loss of communication between the MP and the
Functional ID has occurred for a 30 second period. Remote
Comm Loss: Fan
Inverter Speed
Cmd, Shared
Ckt1&2
None Info Latch All
Continual loss of communication between the MP and the
Functional ID has occurred for a 30 second period. This is an
info warning, as it is conceivable that the circuit may run
without the center shared fan deck working if there are many
other coils/fans on the circuits.
Comm Loss: Heat/
Cool Switch Heat Mode Special
Action Latch All
Continual loss of communication between the MP and the
Functional ID has occurred for a 30 second period. Chiller
shall revert to normal (non-ice building) mode regardless of
last state.
Remote
Comm Loss: Ice-
Making Status
Ice-
Machine
Special
Action Latch All
Continual loss of communication between the MP and the
Functional ID has occurred for a 30 second period. Chiller
shall revert to normal (non-ice building) mode regardless of
last state.
Remote
Comm Loss: Local
BAS Interface Chiller Info NonLatch All
Continual loss of communication between the MP and the
Functional ID has occurred for a 30 second period. Use last
valid BAS setpoints. Diagnostic is cleared when successful
communication is established with the LonTalk LLID (LCIC)
or BACnet LLID (BCIC).
Remote
Comm Loss: Off-
cycle Freeze
Protection Relay
Chiller Info Latch All Continual loss of communication between the MP and the
Functional ID has occurred for a 30 second period. Remote
Comm Loss: Oil
Loss Level Sensor
Input – Ckt1
Circuit Normal Latch All Continual loss of communication between the MP and the
Functional ID has occurred for a 30 second period. Remote
Comm Loss: Oil
Loss Level Sensor
Input – Ckt2
Circuit Normal Latch All Continual loss of communication between the MP and the
Functional ID has occurred for a 30 second period. Remote
Comm Loss: Oil
Pressure, Cprsr1A Circuit Immediate Latch All Continual loss of communication between the MP and the
Functional ID has occurred for a 30 second period. Remote
Comm Loss: Oil
Pressure, Cprsr2A Circuit Immediate Latch All Continual loss of communication between the MP and the
Functional ID has occurred for a 30 second period. Remote
Comm Loss: Op
Status
Programmable
Relays
None Info Latch All Continual loss of communication between the MP and the
Functional ID has occurred for a 30 second period. Remote
Comm Loss:
Outdoor Air
Temperature
Chiller Normal
Shutdown Latch All
Continual loss of communication between the MP and the
Functional ID has occurred for a 30 second period. For RTAE
if this diagnostic occurs, operational pumpdown will be
performed regardless of the last valid temperature
Remote
Comm Loss:
Suction Rfgt
Pressure, Ckt1
Circuit Immediate Latch All [Ckt/Cprsr
lock out]
Continual loss of communication between the MP and the
Functional ID has occurred for a 30 second period. Note: This
diagnostic is replaced by diagnostic 5FB below with Rev 15.0
Remote
Comm Loss:
Suction Rfgt
Pressure, Ckt2
Circuit Immediate Latch All [Ckt/Cprsr
lock out]
Continual loss of communication between the MP and the
Functional ID has occurred for a 30 second period. Note: This
diagnostic is replaced by diagnostic 5FD below with Rev 15.0
Remote
Table 34. Communication diagnostics (continued)
Diagnostic
Name Affects
Target Severity Persistence
Active Modes
[Inactive
Modes] Criteria Reset
Level

Diagnostics
88 RTAE-SVX001B-EN
Operator Display Diagnostics and Messages
Comm Loss:
Winding Temp 1,
Cprsr1A
Circuit Normal Latch All Continual loss of communication between the MP and the
Functional ID has occurred for a 30 second period Remote
Comm Loss:
Winding Temp 1,
Cprsr2A
Circuit Normal Latch All Continual loss of communication between the MP and the
Functional ID has occurred for a 30 second period Remote
Comm Loss:
Winding Temp 2,
Cprsr2A
Circuit Normal Latch All Continual loss of communication between the MP and the
Functional ID has occurred for a 30 second period Remote
Comm Loss:
Winding Temp 2,
Cprsr1A
Circuit Normal Latch All Continual loss of communication between the MP and the
Functional ID has occurred for a 30 second period Remote
Table 34. Communication diagnostics (continued)
Diagnostic
Name Affects
Target Severity Persistence
Active Modes
[Inactive
Modes] Criteria Reset
Level
Table 35. Operator display diagnostics and messages
Operator Display Message Description
//Troubleshooting
Communication Lost with UC800
• Ethernet cable not connected between display and UC800.
• UC800 not powered.
• UC800 has an invalid configuration – Download a valid configuration
• UC800 is in Binding View. When exit Binding View, select ‘Restart’ on this message
Display Failed to Establish
Communication
• Ethernet cable not connected between display and UC800.
• UC800 not powered.
• UC800 just has the backup application running as received from the vendor. Download CTV application
software.
• UC800 has an invalid configuration – Download a valid configuration
Display is about to Restart • The display is low on memory, and needs to re-start. Select Yes to restart. Selecting Yes will not affect
the UC800 operation. Only the Operator Display is reset.
File Not Found • Update UC800 software with Tracer TU.
Screen partially populated. Auto and
Stop button graphics display, no text.
• Valid configuration is not present. Download a configuration.
Screen Unresponsive • TU is downloading software. Wait till download is complete.
The Page Cannot be found
• Most likely this UC800 has only the backup application. Download the latest UC 800 software build.
• This could also mean that the UC800 does not have a valid configuration. Download a configuration to it.
• Cycle power to the OD and UC800.
• UC could be in binding view. If so, get it out of binding view by navigating to another screen in TU.
UC800 Configuration is Invalid • Update the UC800 configuration with TU.

RTAE-SVX001B-EN 89
Unit Wiring
Table 36 provides a list of electrical schematics, field
wiring diagrams and connection diagrams for RTAE units.
Complete wiring package is documented in
RTAE-SVE001*-EN. A laminated wiring diagram booklet is
also shipped with each RTAE unit.
Table 36. RTAE unit wiring drawing numbers
Drawing Number Description
Single Circuit Units
2311-1954 Schematic Diagram
5724-4483 Fan Location Diagram
5724-4473 Assembly; Sensor Routing
2311-1965 Panel Component Location Diagram
2311-1966 Field Wiring Diagram
2311-1964 Field Layout Diagram
Dual Circuit Units(a)
2311-1960 Schematic Diagram Dual Circuit without CE option
2311-1980 Schematic Diagram Dual Circuit with CE option
5724-2731 Fan Location Diagram
5724-2721 Assembly; Sensor Routing
2311-1963 Panel Component Location Diagram Dual Circuit without CE option
5724-4573 Panel Component Location Diagram Dual Circuit with CE option
2311-1961 Field Wiring Diagram Dual Circuit without CE option
2311-1967 Field Wiring Diagram Dual Circuit with CE option
2311-1962 Field Layout Diagram
(a)Dual circuit units with CE option will be indicated by unit model number digit 13=3.

90 RTAE-SVX001B-EN
Log and Check Sheet
The operator log and check sheet are included for use as
appropriate, for installation completion verification before
Trane start-up is scheduled, and for reference during the
Trane start-up.
Where the log or check sheet also exists outside of this
publication as standalone literature, the literature order
number is also listed.
• Stealth™ RTAE Installation Completion Check Sheet
and Request forTrane Service (RLC-ADF002-EN)
• Operator Log

RLC-ADF002-EN 1
Stealth™ RTAE
Installation Completion Check Sheet and Request for Trane Service
Important: A copy of this completed form must be submitted to theTrane service agency that will be responsible for the start-
up of the chiller. Start-up will NOT proceed unless applicable items listed in this form have been satisfactorily
completed.
To: Trane Service Office:
S.O. Number: Serial Numbers:
Job/Project Name:
Address:
The following items are being installed and will be completed by:
Important: Start-up must be performed byTrane or an agent of Trane specifically authorized to perform start-up ofTrane®
products. Contractor shall provideTrane (or an agent ofTrane specifically authorized to perform start-up) with
notice of the scheduled start-up at least two weeks prior to the scheduled start-up.
Check boxes if the task is complete or if the answer is “yes.”
1. Chiller
Installation meets foundation requirements.
In place and piped.
Isolation pads or elastomeric pads installed (optional).
2. Piping
Water piping flushed before making final connections to the system
Chilled water piping connected to:
Evaporator
Air handling units
Pumps
Flow switch or flow proving device installed (if not factory provided)
Strainer installed and cleaned
Water supply connected to filling system
Systems filled
Pumps run, air bled from system
Strainer installed and cleaned
Relief valve ventilation piping installed (if applicable)
3. Flow balancing valves installed
Leaving chilled water
Leaving condenser water (if applicable)
Optional heat recovery or auxiliary condenser water (if applicable)
4. Gauges, thermometers, and air vents
Installed on both sides of evaporator
5. Wiring
Wire size per submittal and NEC
Full power available
Interconnecting wiring, starter to panel (as required)
External interlocks (flow switch, pumps auxiliary, etc.)
Chilled water pump (connected and tested)
115 Vac power available for service tools
All controls installed and connected
All magnetic starters installed and connected
6. Testing
Dry nitrogen available for pressure testing
Trace gas amounts of R-410A or R-134a available for leak testing, if necessary
7. Refrigerant on job site (if nitrogen charge option, model number digit 15 = 2, is chosen)
8. Systems can be operated under load conditions

Trane optimizes the performance of homes and buildings around the world. A business of Ingersoll Rand, the
leader in creating and sustaining safe, comfortable and energy efficient environments, Trane offers a broad
portfolio of advanced controls and HVAC systems, comprehensive building services, and parts. For more
information, visit www.Trane.com.
Trane has a policy of continuous product and product data improvement and reserves the right to change design and specifications without notice.
We are committed to using environmentally
conscious print practices that reduce waste.
Stealth,Trane and theTrane logo are trademarks or registered trademarks of Trane in the United States and other countries.
9. Heaters
If unit was factory charged (model number digit 15 = 1), energize heaters for 24 hours prior to start up.
Important: It is required that chiller heaters are energized for a minimum of 24 hours prior to start up.Therefore,
chiller should have power for this amount of time before Trane Service arrives to do start-up.
If unit has nitrogen charge (model number digit 15 = 2), contactTrane Service for unit charging prior to start-up.
Important: Do NOT apply shore power to unit with nitrogen charge. Shore power will drive EXV valves, inhibiting
ability to adequately vac and charge unit.
10. Equipment room
Does the equipment room have a refrigerant monitor/sensor capable of monitoring and alarming within the allowable
exposure level of the refrigerant?
Does the installation have properly placed and operating audible and visual refrigerant alarms?
Does the equipment room have proper mechanical ventilation?
If it is required by local code, is a self-contained breathing apparatus available?
11. Owner awareness
Has the owner been fully instructed on the proper use of refrigerant?
Does the owner have a copy of the MSDS for refrigerant?
Was the owner given a copy of the Refrigerant Handling Guidelines?
Note: Additional time required to properly complete the start-up and commissioning, due to any incompleteness of the
installation, will be invoiced at prevailing rates.
This is to certify that theTrane®equipment has been properly and completely installed, and that the applicable items listed above
have been satisfactorily completed.
Checklist completed by: ______________________________________________________________________________________________
Signed: _____________________________________________________________________ Date: _______________________________
In accordance with your quotation and our purchase order number __________________, we will therefore require the presence
ofTrane service on this site, for the purpose of start-up and commissioning, by __________________ (date).
Note: Minimum two-week advance notification is required to allow scheduling of the chiller start-up.
Additional comments/instructions: ____________________________________________________________________________________
_____________________________________________________________________________________________________________________
_____________________________________________________________________________________________________________________
Note: A copy of this completed from must be submitted to theTrane Service Office that will be responsible for start-up of chiller.
© 2013Trane All rights reserved
RLC-ADF002-EN 23 Sep 2013
New

RTAE Operator Log Revised: 23 Sep 2013
Operator Log
Stealth™ RTAE Chiller with UC800 Controller - Tracer AdaptiView Reports - Log Sheet
Start 15 minutes 30 minutes 1 hour
Evaporator
Active Chilled Water Setpoint
Entering Water Temperature
Leaving Water Temperature
Ckt 1
Saturated Refrigerant Temperature (°F)
Refrigerant Pressure (psia)
Approach Temperature (°F)
Water Flow Status
Spillover Tank Liquid Level (in)
EXV % Open
Ckt 2
Saturated Refrigerant Temperature (°F)
Refrigerant Pressure (psia)
Approach Temperature (°F)
Water Flow Status
Spillover Tank Liquid Level (in)
EXV % Open
Condenser
Outdoor Air Temperature
Ckt 1
Air Flow %
Saturated Refrigerant Temperature (°F)
Refrigerant Pressure (psia)
Ckt 2
Air Flow %
Saturated Refrigerant Temperature (°F)
Refrigerant Pressure (psia)
Compressor 1A
Running Status
Starts
Running Time (Hr:Min)
Oil Pressure (psia)
Motor 1A
Active Demand Limit Setpoint
Average Motor Current (%)
Percent Speed
AFD Average Input Current (Amps)
AFD Average Input Voltage (Volts)
AFD Input Power (kW)
AFD Output Power (kW)
AFD Speed (rpm)
Compressor 2A
Running Status
Starts
Running Time (Hr:Min)
Oil Pressure (psia)
Motor 2A
Active Demand Limit Setpoint
Average Motor Current (%)
Percent Speed
AFD Average Input Current (Amps)
AFD Average Input Voltage (Volts)
AFD Input Power (kW)
AFD Output Power (kW)
AFD Speed (rpm)
Date:
Technician:
Owner:

Trane optimizes the performance of homes and buildings around the world. A business of Ingersoll Rand, the leader in
creating and sustaining safe, comfortable and energy efficient environments,Trane offers a broad portfolio of advanced
controls and HVAC systems, comprehensive building services, and parts. For more information, visit www.Trane.com.
Trane has a policy of continuous product and product data improvement and reserves the right to change design and specifications without notice.
We are committed to using environmentally
conscious print practices that reduce waste.
© 2014Trane All rights reserved
RTAE-SVX001B-EN 29 Oct 2014
Supersedes RTAE-SVX001A-EN (24 Sep 2013)