Trane Uni Fan Coil And Force Flo Catalogue UNT PRC001 EN (08 May 2012)
2015-04-02
: Trane Trane-Uni-Fan-Coil-And-Force-Flo-Catalogue-684302 trane-uni-fan-coil-and-force-flo-catalogue-684302 trane pdf
Open the PDF directly: View PDF
.
Page Count: 85
- Introduction
- Features and Benefits
- Model Number Descriptions
- General Data
- Model A, Vertical Concealed
- Model B, Vertical Cabinet
- Model C, Horizontal Concealed
- Model D, Horizontal Cabinet
- Model E, Horizontal Recessed
- Model H, Vertical Recessed
- Model J, Vertical Cabinet Slope Top
- Model K, Low Vertical Concealed
- Model L, Low Vertical Cabinet
- Model P, Compact Concealed
- Model P, Compact Concealed (with Recessed Panel Option)
- Factory-Installed Piping Packages
- Selecting the Correct Modulating Valve Size
- Performance Data
- Horizontal Concealed, Compact Concealed, Horizontal Recessed, and Vertical Recessed
- Vertical Concealed
- Horizontal Cabinet and Vertical Cabinet
- Vertical Slope Top Cabinet
- Low Vertical Cabinet and Low Vertical Concealed
- Horizontal Concealed, Compact Concealed, Horizontal Cabinet, Horizontal Recessed and Vertical Recessed
- Vertical Concealed
- Horizontal Concealed, Compact Concealed, Horizontal Recessed and Vertical Recessed
- Vertical Concealed
- Horizontal Cabinet and Vertical Cabinet
- Vertical Slope Top Cabinet
- Horizontal Concealed, Compact Concealed, Horizontal Cabinet, Horizontal Recessed, and Vertical Recessed
- Vertical Concealed
- Controls
- Electrical Data
- Dimensions and Weights
- Unit Weights
- Vertical Concealed, Model A
- Vertical Cabinet, Model B
- Horizontal Concealed, Model C
- Horizontal Cabinet, Model D
- Horizontal Recessed, Model E
- Vertical Recessed, Model H
- Vertical Slope Top, Model J
- Low Vertical Concealed, Model K
- Low Vertical Cabinet, Model L
- Compact Concealed, Model P
- Coil Connections, Vertical Units
- Coil Connections, Horizontal Units
- Fresh Air Opening Locations, Horizontal Units Models C, D, and E
- Fresh Air Opening Locations, Vertical Units Models A, B, and J
- Fresh Air Opening Locations, Low Vertical Units Models K and L
- Wall Box
- Projection Panel
- Mechanical Specifications

UniTrane™ Fan-Coil
Air Terminal Devices
Horizontal, Vertical, and Low Vertical, Sizes 02–12
May 2012 UNT-PRC001-EN
Product Catalog
UNT-PRC001-EN.book Page 1 Tuesday, May 8, 2012 10:54 AM

© 2012 Trane All rights reserved UNT-PRC001-EN
Introduction
It isn’t just a fan and a coil…
The Trane Company has redesigned the traditional fan-coil to lead the industry in:
• indoor air quality (IAQ) features
• easy installation and maintenance
• high quality and durability
• advanced controls
Revision History
The revision of this literature dated 08 May 2012 includes information for Tracer™ UC400 controls,
coil performance updates, and revised performance table formats per new AHRI listing
requirements.
Trademarks
Integrated Comfort, Rover, TOPSS, Tracer, Tracer Summit, Trane, the Trane logo, and UniTrane are
trademarks of Trane in the United States and other countries. Trane is a business of Ingersoll Rand.
All trademarks referenced in this document are the trademarks of their respective owners.
Teflon is a registered trademark of E. I. du Pont de Nemours and Company or its affiliates.
Factory-assembled, -installed,
and -tested piping package
with IAQ drain pan to collect
condensate.
Two-, three-, or
four-row coils.
Quiet operation.
Smaller unit footprint.
Factory-installed and
-tested controls.
Removable, noncorrosive,
positively-sloped drain pan
that’s easy to clean.
Easy-to-remove fan assembly.
16-gage steel construction.
Cleanable closed-cell
insulator (non-fiberglass).
Easy filter access
without front panel
removal. Damper allows up to 100% fresh air.
Build in field service tool
with real language LED
Energy efficient
electronically
commutated motor (ECM)
UNT-PRC001-EN.book Page 2 Tuesday, May 8, 2012 10:54 AM

Table of Contents
UNT-PRC001-EN 3
Introduction . . . . . . . . . . . . . . . . . . . . . . . . . . . . . . . . . . . . . . . . . . . . . . . . . . . . . . . . . . . . 2
Features and Benefits . . . . . . . . . . . . . . . . . . . . . . . . . . . . . . . . . . . . . . . . . . . . . . . . . . . 5
Model Number Descriptions . . . . . . . . . . . . . . . . . . . . . . . . . . . . . . . . . . . . . . . . . . . . . 8
General Data . . . . . . . . . . . . . . . . . . . . . . . . . . . . . . . . . . . . . . . . . . . . . . . . . . . . . . . . . . 11
Model A, Vertical Concealed . . . . . . . . . . . . . . . . . . . . . . . . . . . . . . . . . . . 11
Model B, Vertical Cabinet . . . . . . . . . . . . . . . . . . . . . . . . . . . . . . . . . . . . . . 11
Model C, Horizontal Concealed . . . . . . . . . . . . . . . . . . . . . . . . . . . . . . . . . 12
Model D, Horizontal Cabinet . . . . . . . . . . . . . . . . . . . . . . . . . . . . . . . . . . . . 13
Model E, Horizontal Recessed . . . . . . . . . . . . . . . . . . . . . . . . . . . . . . . . . . 14
Model H, Vertical Recessed . . . . . . . . . . . . . . . . . . . . . . . . . . . . . . . . . . . . 14
Model J, Vertical Cabinet Slope Top . . . . . . . . . . . . . . . . . . . . . . . . . . . . . 15
Model K, Low Vertical Concealed . . . . . . . . . . . . . . . . . . . . . . . . . . . . . . . 15
Model L, Low Vertical Cabinet . . . . . . . . . . . . . . . . . . . . . . . . . . . . . . . . . . 15
Model P, Compact Concealed . . . . . . . . . . . . . . . . . . . . . . . . . . . . . . . . . . 16
Model P, Compact Concealed (with Recessed Panel Option) . . . . . . . . . 17
Factory-Installed Piping Packages . . . . . . . . . . . . . . . . . . . . . . . . . . . . . . . 20
Selecting the Correct Modulating Valve Size . . . . . . . . . . . . . . . . . . . . . . 23
Performance Data . . . . . . . . . . . . . . . . . . . . . . . . . . . . . . . . . . . . . . . . . . . . . . . . . . . . . 25
Horizontal Concealed, Compact Concealed, Horizontal Recessed, and Ver-
tical Recessed . . . . . . . . . . . . . . . . . . . . . . . . . . . . . . . . . . . . . . . . . . . . . . . 26
Vertical Concealed . . . . . . . . . . . . . . . . . . . . . . . . . . . . . . . . . . . . . . . . . . . . 27
Horizontal Cabinet and Vertical Cabinet . . . . . . . . . . . . . . . . . . . . . . . . . . 28
Vertical Slope Top Cabinet . . . . . . . . . . . . . . . . . . . . . . . . . . . . . . . . . . . . . 29
Low Vertical Cabinet and Low Vertical Concealed . . . . . . . . . . . . . . . . . . 30
Horizontal Concealed, Compact Concealed, Horizontal Cabinet, Horizontal
Recessed and Vertical Recessed . . . . . . . . . . . . . . . . . . . . . . . . . . . . . . . . 31
Vertical Concealed . . . . . . . . . . . . . . . . . . . . . . . . . . . . . . . . . . . . . . . . . . . . 32
Horizontal Concealed, Compact Concealed, Horizontal Recessed and Verti-
cal Recessed . . . . . . . . . . . . . . . . . . . . . . . . . . . . . . . . . . . . . . . . . . . . . . . . 33
Vertical Concealed . . . . . . . . . . . . . . . . . . . . . . . . . . . . . . . . . . . . . . . . . . . . 34
Horizontal Cabinet and Vertical Cabinet . . . . . . . . . . . . . . . . . . . . . . . . . . 35
Vertical Slope Top Cabinet . . . . . . . . . . . . . . . . . . . . . . . . . . . . . . . . . . . . . 36
Horizontal Concealed, Compact Concealed, Horizontal Cabinet, Horizontal
Recessed, and Vertical Recessed . . . . . . . . . . . . . . . . . . . . . . . . . . . . . . . . 37
Vertical Concealed . . . . . . . . . . . . . . . . . . . . . . . . . . . . . . . . . . . . . . . . . . . . 38
Controls . . . . . . . . . . . . . . . . . . . . . . . . . . . . . . . . . . . . . . . . . . . . . . . . . . . . . . . . . . . . . . 39
ECM Engine Controller . . . . . . . . . . . . . . . . . . . . . . . . . . . . . . . . . . . . . . . . 39
Control Options . . . . . . . . . . . . . . . . . . . . . . . . . . . . . . . . . . . . . . . . . . . . . . 40
Manual Fan Mode Switch . . . . . . . . . . . . . . . . . . . . . . . . . . . . . . . . . . . . . . 40
Customer Supplied Terminal Interface (CSTI) . . . . . . . . . . . . . . . . . . . . . 41
Tracer Controls . . . . . . . . . . . . . . . . . . . . . . . . . . . . . . . . . . . . . . . . . . . . . . 42
Sequence of Operation . . . . . . . . . . . . . . . . . . . . . . . . . . . . . . . . . . . . . . . . 44
Zone Sensor Options . . . . . . . . . . . . . . . . . . . . . . . . . . . . . . . . . . . . . . . . . 47
Control Features . . . . . . . . . . . . . . . . . . . . . . . . . . . . . . . . . . . . . . . . . . . . . 49
UNT-PRC001-EN.book Page 3 Tuesday, May 8, 2012 10:54 AM

4 UNT-PRC001-EN
Tracer ZN520 and UC400 Additional Features . . . . . . . . . . . . . . . . . . . . . 51
End Device Options . . . . . . . . . . . . . . . . . . . . . . . . . . . . . . . . . . . . . . . . . . . 52
Electrical Data . . . . . . . . . . . . . . . . . . . . . . . . . . . . . . . . . . . . . . . . . . . . . . . . . . . . . . . . . 55
Dimensions and Weights . . . . . . . . . . . . . . . . . . . . . . . . . . . . . . . . . . . . . . . . . . . . . . . 58
Unit Weights . . . . . . . . . . . . . . . . . . . . . . . . . . . . . . . . . . . . . . . . . . . . . . . . 58
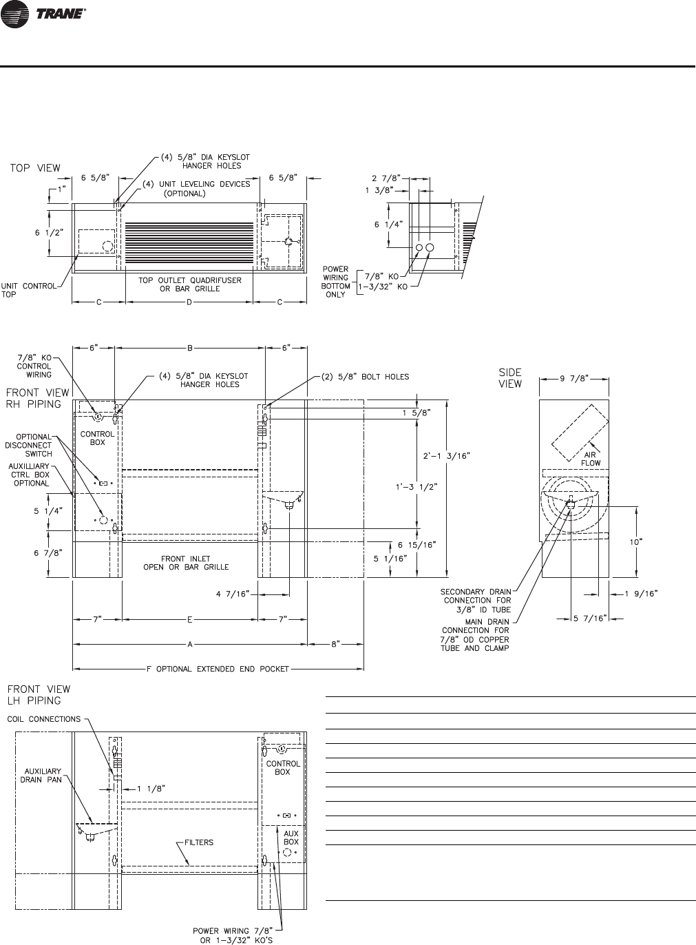
Vertical Concealed, Model A . . . . . . . . . . . . . . . . . . . . . . . . . . . . . . . . . . . 59
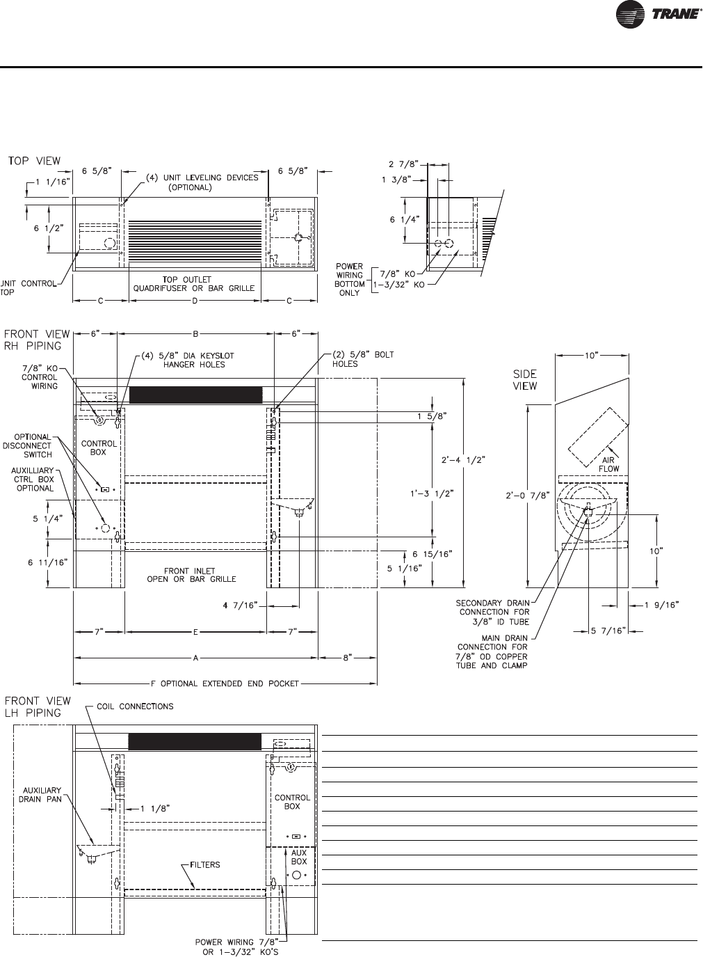
Vertical Cabinet, Model B . . . . . . . . . . . . . . . . . . . . . . . . . . . . . . . . . . . . . . 60
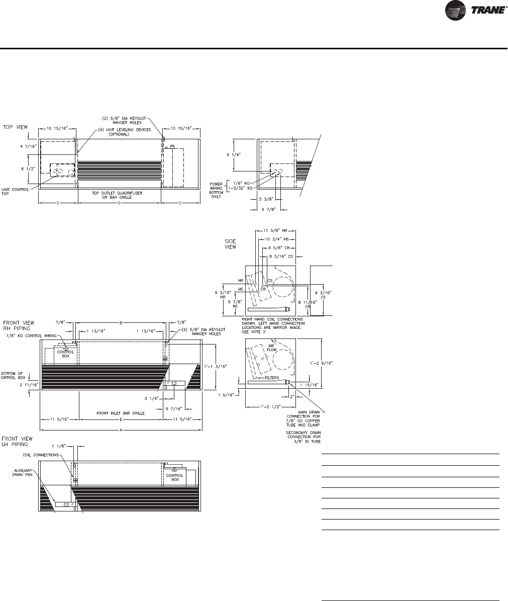
Horizontal Concealed, Model C . . . . . . . . . . . . . . . . . . . . . . . . . . . . . . . . . 61
Horizontal Cabinet, Model D . . . . . . . . . . . . . . . . . . . . . . . . . . . . . . . . . . . . 62
Horizontal Recessed, Model E . . . . . . . . . . . . . . . . . . . . . . . . . . . . . . . . . . 63
Vertical Recessed, Model H . . . . . . . . . . . . . . . . . . . . . . . . . . . . . . . . . . . . 64
Vertical Slope Top, Model J . . . . . . . . . . . . . . . . . . . . . . . . . . . . . . . . . . . . 65
Low Vertical Concealed, Model K . . . . . . . . . . . . . . . . . . . . . . . . . . . . . . . 66
Low Vertical Cabinet, Model L . . . . . . . . . . . . . . . . . . . . . . . . . . . . . . . . . . 67
Compact Concealed, Model P . . . . . . . . . . . . . . . . . . . . . . . . . . . . . . . . . . 68
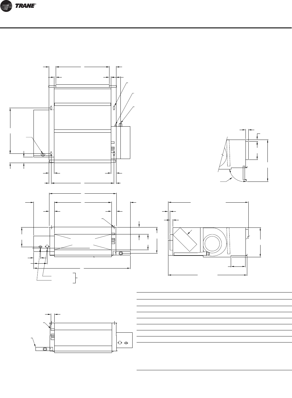
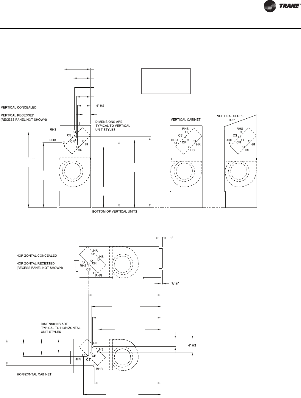
Coil Connections, Vertical Units . . . . . . . . . . . . . . . . . . . . . . . . . . . . . . . . . 69
Coil Connections, Horizontal Units . . . . . . . . . . . . . . . . . . . . . . . . . . . . . . 69
Fresh Air Opening Locations, Horizontal Units Models C, D, and E . . . . 70
Fresh Air Opening Locations, Vertical Units Models A, B, and J . . . . . . 71
Fresh Air Opening Locations, Low Vertical Units Models K and L . . . . . 72
Wall Box . . . . . . . . . . . . . . . . . . . . . . . . . . . . . . . . . . . . . . . . . . . . . . . . . . . . 73
Projection Panel . . . . . . . . . . . . . . . . . . . . . . . . . . . . . . . . . . . . . . . . . . . . . . 74
Mechanical Specifications . . . . . . . . . . . . . . . . . . . . . . . . . . . . . . . . . . . . . . . . . . . . . . 75
UniTrane Fan-Coil Mechanical Specifications . . . . . . . . . . . . . . . . . . . . . 75
Piping Components . . . . . . . . . . . . . . . . . . . . . . . . . . . . . . . . . . . . . . . . . . . 81
UNT-PRC001-EN.book Page 4 Tuesday, May 8, 2012 10:54 AM

UNT-PRC001-EN 5
Features and Benefits
The UniTrane fan-coil meets the standards of today’s market, as well as the anticipated needs of
tomorrow’s market. The tradition that company founder Reuben Trane began in the 1930s
continues with the latest generation of fan-coils from The Trane Company.
The UniTrane fan-coil is the leader in these key areas:
• Energy Efficiency
• Indoor Air Quality (IAQ)
• Controls
•Flexibility
•Quality
• Serviceability
Today’s HVAC market is concerned with issues such as indoor air quality (IAQ) and CFCs that
demand a change in HVAC products. In addition, renovation has overtaken new construction in the
fan-coil market—demanding a design that caters to renovation issues. Trane is concerned with
these issues, too. That’s why we designed the UniTrane fan-coil as an integral part of the company’s
system solutions with standard IAQ-related features that fully comply with ASHRAE 62.
Energy Efficiency
Trane’s commitment to providing premium quality products has led to the exclusive use of
Electronically Commutated Motors (ECM) in all fan coil models. These brushless DC motors
incorporate the latest technology for optimized energy efficiency, acoustical abatement,
maintenance free and extended motor life. Each motor has a built-in microprocessor that allows
for programmability, soft ramp-up, better airflow control, and serial communication.
• Trane units equipped with ECMs are significantly more efficient than the standard Permanent
Split Capacitor (PSC) motor.
• Lower operating costs on average of 50 percent (versus a PSC motor).
• The Reduced FLA feature allows units to ship with a nameplate FLA rating much lower than a
typical ECM unit.
IAQ Design
• Closed-cell insulation is standard on all units to help prevent fiberglass in the airstream.
• The main and auxiliary drain pans are constructed of a noncorrosive engineered plastic (ABS
and CyColac T).
• The main and auxiliary drain pans are positively sloped in every plane to assure proper
drainage and help maximize protection from microbial growth.
• The drain pans are removable for cleaning.
• Easy filter access encourages frequent changing.
• The auto-economizer damper option allows free cooling and ventilation to help comply with
ASHRAE 62—and save energy and operating costs.
• UniTrane fan-coils have a blow-thru design. Low vertical units are drawthru.
Controls
• This is the industry’s first solution that is factory-mounted, -wired, and -programmed for infinite
modulation of fan speed based on space loads, using the Tracer UC400. Auto Fan Speed control
with the Tracer ZN520 ramps the fan speed up and down to meet space loads.
• All controls are factory-mounted and tested to minimize field setup and improve reliability.
• Controls are wired with a 24 Vac transformer to keep only a single source power connection
requirement to the unit.
UNT-PRC001-EN.book Page 5 Tuesday, May 8, 2012 10:54 AM

6 UNT-PRC001-EN
Features and Benefits
• All wall-mounted zone sensors require only low voltage control wiring from the device to the
unit control box. (No line voltage.)
• The controller automatically determines the unit’s correct operating mode (heat/cool) by
utilizing a proportional/integral (PI) control algorithm to maintain the space temperature at the
active setpoint, allowing total comfort control.
• Entering water temperature sampling eliminates the need for inefficient bleedlines to sense
automatic changeover on two-pipe changeover units.
• The random start-up feature helps reduce electrical demand peaks by randomly staggering
multiple units at start-up.
• Occupied/unoccupied operation allows the controller to utilize unoccupied temperature
setpoints for energy savings.
• Warm-up and cool-down energy features are standard with Trane controls.
• Continuous fan or fan cycling is available with Tracer ZN010 or ZN510.
• Monitor unit operation using Tracer TU building management system with Tracer ZN510 or
ZN520 and UC400.
• To customize unit control, Tracer TU or Rover™ software will allow field modification of
Tracer ZN510 and ZN520 default settings. Tracer ZN010 uses Rover to field modify default
settings. UC400 uses Tracer TU.
• Maximize fan-coil system efficiency with free cooling economizers and modulating valves on
units with Tracer ZN520 and UC400.
Flexibility
• Two, three, and four-row coils allow greater design flexibility in two and four-pipe systems.
• One-row steam or hot water reheat coils for dehumidification on units with ZN520 controls.
• Fan motors are available for either high static (0.4-inch external static pressure) or free
discharge applications.
• Piping is factory assembled, mounted and tested. Units are also available without piping.
Reheat coil piping is available on 2-pipe units with hot water reheat coils and either a fan speed
switch or Tracer ZN520 and UC400.
• Factory piping options include interconnecting piping, control valves, and end valves. Deluxe
piping also has unions and a strainer.
• Control options range from a simple fan speed switch to a DDC controller that can tie into a
Tracer Summit building automation system.
• An 8-inch extended end pocket is an available option on the piping end of cabinet style units.
• Slope-top vertical cabinet units are also available for school and dormitory applications to
prevent items from being placed on top of the units.
Quality
• Coils and piping packages are air and leak-tested before mounting on the fan-coil.
• Coil piping connections are also air and leak-tested after mounting on the unit.
• All control end devices and moving components (fans and motors) are computer-tested after
units are complete.
Serviceability
• Touch-safe control box.
• Integrated user interface with real language LED display.
• Built-in tachometer.
UNT-PRC001-EN.book Page 6 Tuesday, May 8, 2012 10:54 AM

UNT-PRC001-EN 7
Features and Benefits
• Filters are easily removable and changed without removing the front panel on vertical cabinet
units.
• Motors are easy to disconnect from the fan board, allowing easy service.
• The main and auxiliary drain pans are easily removable and wipe clean with a wet cloth.
• The manual output test function is an invaluable troubleshooting tool. By simply pressing the
test button on the Tracer ZN510, ZN520, or ZN010; service personnel can manually exercise
outputs in a pre-defined sequence.
UNT-PRC001-EN.book Page 7 Tuesday, May 8, 2012 10:54 AM

8 UNT-PRC001-EN
UniTrane Fan-Coil
Following is a complete description of
the fan-coil model number. Each digit
in the model number has a
corresponding code that identifies
specific unit options.
Note: Not all options are available on
all cabinet styles. Contact your
local Trane sales
representative for more
information.
Digits 1, 2 — Unit Type
FC = Fan-Coil
Digit 3 — Cabinet Type
A = Vertical Concealed
B = Vertical Cabinet
C = Horizontal Concealed
D = Horizontal Cabinet
E = Horizontal Recessed
H = Vertical Recessed
J = Vertical Cabinet Slope Top
P = Compact Concealed
Digit 4 — Development
Sequence “B”
Digits 5, 6, 7 — Unit Size
Digit 8 — Unit Voltage
020 040 080
030 060 100
120
1 = 115/60/1 4 = 230/60/1
2 = 208/60/1 9 = 220/50/1
3 = 277/60/1
Digit 9 — Piping System/
Placement
A = No piping, RH, No Auxiliary Drain
Pan
B = No piping, LH, No Auxiliary Drain
Pan
C = No piping, RH, with Auxiliary
Drain Pan
D = No piping, LH, with Auxiliary
Drain Pan
E = No piping, RH, No Auxiliary Drain
Pan, Extended End Pocket
F = No piping, LH, No Auxiliary Drain
Pan, Extended End Pocket
G = No piping, RH, with Auxiliary
Drain Pan, Extended End Pocket
H = No piping, LH, with Auxiliary
Drain Pan, Extended End Pocket
J = With piping package, RH
K = With piping package, LH
L = With piping package, RH,
Extended End Pocket
M = With piping package, LH,
Extended End Pocket
Digits 10, 11 — Design Sequence
Digit 12 — Inlets
A = Front Toe Space
B = Front Bar Grille
C = Front Stamped Louver
D = Bottom Stamped Louver
E = Bottom Toe Space
F = Back Duct Collar
G= Back Open Return
H = Back Stamped Louver
K = Exposed fan (Model P only)
L = Bottom filter (Model P only)
Digit 13 — Fresh Air Damper
0=None
A = Manual, Bottom Opening
B = Manual, Back Opening
C = Manual, Top Opening
D = Auto, 2-Position, Bottom Opening
E = Auto, 2-Position, Back Opening
F = Auto, 2-Position, Top Opening
G = Auto, Economizer, Bottom
Opening
H = Auto, Economizer, Back Opening
J = Auto, Economizer, Top Opening
K = No Damper, Bottom Opening
L = No Damper, Back Opening
M = No Damper, Top Opening
Digit 14 — Outlets
A = Front Duct Collar
B = Front Bar Grille
C = Front Stamped Louver
D = Front Quad Grille
G = Top Quad Grille
H = Top Bar Grille
J = Top Duct Collar
Digit 15 — Color
0 = No Paint (Concealed Units Only)
1 = Deluxe Beige
2=Soft Dove
3 = Cameo White
4 = Driftwood Grey
5 = Stone Grey
6=Rose Mauve
Digit 16 — Tamperproof Locks/
Leveling Feet
0=None
B = Keylock Access Door
C = Keylock Panel and Access Door
D = Leveling Feet
F = Keylock Access Door with
Leveling Feet
G = Keylock Panel and Access Door
with Leveling Feet
Digit 17 — Motor
A = Free Discharge ECM
B = High Static ECM
Digit 18 — Coil
A = 2-Row Cooling/Heating1
B = 3-Row Cooling/Heating1
C = 4-Row Cooling/Heating1
D = 2-Row Cooling/1-Row Heating
E = 2-Row Cooling/2-Row Heating
F = 3-Row Cooling/1-Row Heating
G = 2-Row Cooling Only
H = 3-Row Cooling Only
J = 4-Row Cooling Only
K = 2-Row Cooling/Heating1 with
Electric Heat
L = 3-Row Cooling/Heating1 with
Electric Heat
M = 4-Row Cooling/Heating1 with
Electric Heat
P = 2-Row Cooling/Heating1 with
1-Row Heating
Q = 2-Row Cooling/Heating1 with
2-Row Heating
R = 3-Row Cooling/Heating1 with
1-Row Heating
X = 2-Row Cooling Only, Electric Heat
Y = 3-Row Cooling Only, Electric Heat
Z = 4-Row Cooling Only, Electric Heat
Digit 19 — Drain Pan Material
3=Polymer Drain Pan
4 = Stainless Steel Main Drain Pan
Digit 20 — Coil Air Vent
A = Automatic Air Vent
M = Manual Air Vent
1Designates coils provided with a changeover sen-
sor.
Model Number Descriptions
UNT-PRC001-EN.book Page 8 Tuesday, May 8, 2012 10:54 AM

UNT-PRC001-EN 9
Model Number Descriptions
Digits 21, 22, 23 — Electric Heat
kW — ( ) = 208V Derate
000 = No Electric Heat
010 = 1.0 kW (0.75 kW)
015 = 1.5 kW (1.1 kW)
020 = 2.0 kW (1.5 kW)
025 = 2.5 kW (1.9 kW)
030 = 3.0 kW (2.3 kW)
040 = 4.0 kW (3.0 kW)
050 = 5.0 kW (3.8 kW)
060 = 6.0 kW (4.5 kW)
070 = 7.0 kW (5.3 kW)
080 = 8.0 kW (6.0 kW)
100 = 10.0 kW
Digit 24 — Reheat Coil
0=None
A = Steam Coil
B = Hot Water Coil
D = High Capacity Hot Water Coil
Digit 25 — Disconnect Switch
0=None
D = Disconnect Switch
Digit 26 — Filter
0=None
1 = 1” Throwaway Filter
2 = 1” Throwaway MERV 8 Filter
3 = 1” Throwaway, 1 Extra
4 = 1” Throwaway MERV 8, 1 Extra
5 = 1” Throwaway, 2 Extras
6 = 1” Throwaway MERV 8, 2 Extras
7 = 1” Throwaway, 3 Extras
8 = 1” Throwaway MERV 8, 3 Extras
A = 1” Throwaway MERV 13 Filter
B = 1” Throwaway MERV 13, 1 Extra
C = 1” Throwaway MERV 13, 2 Extras
D = 1” Throwaway MERV 13, 3 Extras
Digit 27 — Main Control Valve
0=None
A = 2-Way, 2-Position, NO (30 psig)
B = 3-Way, 2-Position, NO (28 psig)
C = 2-Way, 2-Position, NC (30 psig)
D = 3-Way, 2-Position, NC (20 psig)
E = 2-Way, 2-Position, NO (50 psig)
F = 3-Way, 2-Position, NO (28 psig)
G = 2-Way, 2-Position, NC (50 psig)
H = 3-Way, 2-Position, NC (28 psig)
J = 2-Way, Mod., 0.6 Cv (60 psig)
K = 3-Way, Mod., 0.6 Cv (60 psig)
L = 2-Way, Mod., 1.1 Cv (60 psig)
M = 3-Way, Mod., 1.1 Cv (60 psig)
N = 2-Way, Mod., 2.3 Cv (60 psig)
P = 3-Way, Mod., 2.7 Cv (60 psig)
Q = 2-Way, Mod., 3.3Cv (60 psig)
R = 3-Way, Mod., 3.8 Cv (60 psig)
X = Field-supplied, NO
Y = Field-supplied, NC
Z = Field-supplied 3-Wire Modulating
1 = Field supplied analog valve
Digit 28 — Auxiliary Control
Valve
0=None
A = 2-Way, 2-Position, NO (30 psig)
B = 3-Way, 2-Position, NC (28 psig)
C = 2-Way, 2-Position, NC (30 psig)
D = 3-Way, 2-Position, NC (20 psig)
E = 2-Way, 2-Position, NO (50 psig)
F = 3-Way, 2-Position, NO (28 psig)
G = 2-Way, 2-Position, NC (50 psig)
H = 3-Way, 2-Position, NC (28 psig)
J = 2-Way, Mod., 0.6 Cv (60 psig)
K = 3-Way, Mod., 0.6 Cv (60 psig)
L = 2-Way, Mod., 1.1 Cv (60 psig)
M = 3-Way, Mod., 1.1 Cv (60 psig)
N = 2-Way, Mod., 2.3 Cv (60 psig)
P = 3-Way, Mod., 2.7 Cv (60 psig)
Q = 2-Way, Mod., 3.3Cv (60 psig)
R = 3-Way, Mod., 3.8 Cv (60 psig)
X = Field-supplied, NO
Y = Field-supplied, NC
Z = Field-supplied 3-Wire Modulating
1 = Field supplied analog valve
Digit 29 — Piping Packages
0 = None
A = Basic Ball Valve Supply and
Return
B = Basic Ball Valve Supply/Manual
Circuit Setter
C = Basic Ball Valve Supply and
Return with Auto Circuit Setter
D = Deluxe Ball Valve Supply and
Return
E = Deluxe Ball Valve Supply/Manual
Circuit Setter
F = Deluxe Ball Valve Supply and
Return with Auto Circuit Setter
Digit 30 — Control Type
A = Fan Mode Switch
E = Tracer ZN010
F = Tracer ZN510
G = Tracer ZN520
H = Customer Supplied Terminal
Interface (CSTI)
J = Tracer UC400, Single Zone VAV
Digit 31 — Control Option
D = Unit-Mounted Fan Mode Switch
K = Wall-Mounted Fan Mode Switch
V = Unit-Mounted Fan Speed Switch
w/Setpoint Dial Zone Sensor
W = Wall-Mounted Fan Speed Switch
w/Setpoint Dial Zone Sensor
X = Unit-Mounted Fan Speed Switch
w/Wall-Mounted Setpoint Dial
Zone Sensor
Y = Unit-Mounted Fan Speed Switch
& Wall-Mounted Setpoint Dial
w/Comm.
Z = Unit-Mounted Fan Speed Switch,
On/Cancel, Setpoint Dial
w/ Comm.
1 = Wall-Mounted On/Cancel
w/ Comm.
2 = Wall-Mounted Fan Speed Switch,
Setpoint Dial, On/Cancel
w/ Comm.
0 = Without Control Option
3 = Unit-Mounted Low Voltage Fan
Speed Switch (Off /Hi /Med /Low)
4 = Wall-Mounted Digital Zone
Sensor (OALMH, Setpoint,
On/Cancel, Comm Jack)
5 = Wall-Mounted Digital Zone
Sensor (On/Cancel, Comm Jack)
6 = Wireless Zone Sensor
7 = Wireless Display Sensor, Unit-
Mounted Receiver
Digit 32 — IAQ Options
0 = Without IAQ Options
1 = Dehumidification
4 = Dehumidification w/ Sensor
Digit 33 —FLA Motor Option
0 = Standard FLA ECM Mode
A = Reduced FLA ECM Mode
UNT-PRC001-EN.book Page 9 Tuesday, May 8, 2012 10:54 AM

10 UNT-PRC001-EN
Model Number Descriptions
Digit 34
0 = None
Digit 35 — Control Function #3
0=None
2 = Condensate Overflow Detection
Digit 36 — Control Function #4
0=None
2 = Low Temperature Detection
Digits 37, 38 — Future Control
Functions
Digit 39 — Projection Panels and
Falsebacks
0=None
A = 5/8” Standard Recessed Panel
(Vertical Recessed Units Only)
B = 2” Projection Panel
C = 2.5” Projection Panel
D = 3” Projection Panel
E = 3.5” Projection Panel
F = 4” Projection Panel
G = 4.5” Projection Panel
H = 5” Projection Panel
J = 5.5” Projection Panel
K = 6” Projection Panel
L = 2”Falseback
M = 3” Falseback
N = 4” Falseback
P = 5” Falseback
Q = 6” Falseback
R = 7” Falseback
T = 8” Falseback
Digit 40 — Main Autoflow Gpm
Digit 41 — Auxiliary Autoflow
Gpm
0=None H=3.5
A= 0.5 J=4.0
B = 0.75 K = 4.5
C=1.0 L=5.0
D= 1.5 M=6.0
E=2.0 N=7.0
F=2.5 P=8.0
G= 3.0
0=None H=3.5
A= 0.5 J=4.0
B = 0.75 K = 4.5
C=1.0 L=5.0
D= 1.5 M=6.0
E=2.0 N=7.0
F=2.5 P=8.0
G= 3.0
Digit 42 — Subbases
0=None
A = 2” Subbase
B = 3” Subbase
C = 4” Subbase
D = 5” Subbase
E = 6” Subbase
F = 7” Subbase
Digit 43 — Recessed Flange
0=None
A = Recessed Flange
Digit 44 — Wall Boxes
0=None
A = Anodized Wall Box
UNT-PRC001-EN.book Page 10 Tuesday, May 8, 2012 10:54 AM

UNT-PRC001-EN 11
General Data
Model A, Vertical Concealed
Model B, Vertical Cabinet
Outlet
Top Duct Collar
Fresh Air
Bottom or Back
Inlet
Front Toe Space
Outlet
Top Quad Grille, Top Bar Grille
Fresh Air
Bottom or Back
Inlet
Front Toe Space,
Front Bar Grille
UNT-PRC001-EN.book Page 11 Tuesday, May 8, 2012 10:54 AM

12 UNT-PRC001-EN
General Data
Model C, Horizontal Concealed
Outlet
Front Duct Collar Inlet
Back Duct Collar
Fresh Air
N/A
Outlet
Front Duct Collar
Outlet
Front Duct Collar
Fresh Air
Top or Back
Inlet
Bottom Toe Space
Fresh Air
N/A
Inlet
Open Return
No Filter
Unit Configurations
UNT-PRC001-EN.book Page 12 Tuesday, May 8, 2012 10:54 AM

UNT-PRC001-EN 13
General Data
Model D, Horizontal Cabinet
Fresh Air
Top or Back
Fresh Air
Top or Back
Fresh Air
N/A
Fresh Air
N/A
Fresh Air
N/A
Fresh Air
N/A
Inlet
Bottom Stamped
Louver
Inlet
Bottom Stamped
Louver
Inlet
Back Stamped
Louver
Inlet
Back Stamped
Louver
Inlet
Back Duct
Collar
Inlet
Back Duct
Collar
Outlet
Front Quad
Grille, Front Bar Grille
Outlet
Front Duct Collar
Outlet
Front Quad
Grille, Front Bar Grille
Outlet
Front Quad
Grille, Front Bar Grille
Outlet
Front Duct Collar
Outlet
Front Duct Collar
Unit Configurations
UNT-PRC001-EN.book Page 13 Tuesday, May 8, 2012 10:54 AM

14 UNT-PRC001-EN
General Data
Model E, Horizontal Recessed
Model H, Vertical Recessed
Fresh Air
Top or Back
Outlet
Front Duct Collar Inlet
Bottom Stamped
Louver
Outlet
Front Duct Collar
Fresh Air
N/A
Inlet
Back Duct
Collar
Outlet
Top Duct Collar
Outlet
Front Stamped
Louver
Fresh Air
Bottom or Back
Fresh Air
Bottom or Back
Inlet
Front Stamped Louver
Inlet
Front Stamped Louver
Unit Configurations
UNT-PRC001-EN.book Page 14 Tuesday, May 8, 2012 10:54 AM

UNT-PRC001-EN 15
General Data
Model J, Vertical Cabinet Slope Top
Model K, Low Vertical Concealed
Model L, Low Vertical Cabinet
Outlet
Top Quad Grille, Top Bar Grille
Fresh Air
Bottom or Back
Inlet
Front Toe Space,
Front Bar Grille
Outlet
Top Duct Collar
Fresh Air
Back
Inlet
Front Toe Space
Outlet
Top Quad Grille, Top Bar Grille
Fresh Air
Back
Inlet
Front Bar Grille
Unit Configurations
UNT-PRC001-EN.book Page 15 Tuesday, May 8, 2012 10:54 AM

16 UNT-PRC001-EN
General Data
Model P, Compact Concealed
Outlet
Front Duct Collar Inlet
Back Duct Collar
Fresh Air
N/A
Outlet
Front Duct Collar
Outlet
Front Duct Collar
Fresh Air
N/A
Inlet, Bottom Filter
(Bottom Toe Space)
Fresh Air
N/A
Inlet, Exposed
Fan
(Open Return
No Filter)
Unit Configurations
UNT-PRC001-EN.book Page 16 Tuesday, May 8, 2012 10:54 AM

UNT-PRC001-EN 17
General Data
Model P, Compact Concealed (with Recessed Panel Option)
Fresh Air
N/A
Outlet
Front Duct Collar Inlet, Bottom Filter
(Bottom Stamped
Louver)
Outlet
Front Duct Collar
Fresh Air
N/A
Inlet
(Back Duct
Collar)
Outlet
Front Duct Collar
Fresh Air
N/A
Inlet,
Exposed Fan
(Open Return
No Filter)
Unit Configurations
UNT-PRC001-EN.book Page 17 Tuesday, May 8, 2012 10:54 AM

18 UNT-PRC001-EN
General Data
Table 1. UniTrane Fan-Coil general data
Unit Size 02 03 04 06 08 10 12
Coil Data
Face Area — ft20.8 0.8 1.1 1.6 2.1 3.2 3.2
LxDxH — in.
2-Row 15 x 1.7 x 8 15 x 1.7 x 8 20 x 1.7 x 8 29.5 x 1.7 x 8 38 x 1.7 x 8 57 x 1.7 x 8 57 x 1.7 x 8
3-Row 15 x 2.6 x 8 15 x 2.6 x 8 20 x 2.6 x 8 29.5 x 2.6 x 8 38 x 2.6 x 8 57 x 2.6 x 8 57 x 2.6 x 8
4-Row 15 x 3.5 x 8 15 x 3.5 x 8 20 x 3.5 x 8 29.5 x 3.5 x 8 38 x 3.5 x 8 57 x 3.5 x 8 57 x 3.5 x 8
Volume — gal
1-Row (Heat) 0.06 0.06 0.08 0.11 0.14 0.21 0.21
2-Row 0.12 0.12 0.15 0.22 0.28 0.42 0.42
3-Row 0.180.180.230.330.420.620.62
4-Row 0.240.240.300.440.560.830.83
Fins/ft
2-Row 144 144 144 144 144 144 144
3-Row 144 144 144 144 144 144 144
4-Row 144 144 144 144 144 144 144
Reheat Coil Data (1-Row), Standard or High-Capacity(a)
Hot Water or Steam
Face Area — ft20.6 0.6 0.8 1.2 1.6 2.4 2.4
L x D x H — in. 15 x 1.5 x 6 15 x 1.5 x 6 20 x 1.5 x 6 29.5 x 1.5 x 6 38 x 1.5 x 6 57 x 1.5 x 6 57 x 1.5 x 6
Volume — gal 0.12 0.12 0.15 0.22 0.28 0.42 0.42
Standard Capacity(a) Fins/ft 48 48 48 48 48 48 48
High-Capacity(a) Fins/ft 144 144 144 144 144 144 144
Fan/Motor Data
Fan Quantity 1112233
Size — Dia” x Width” 6.31 x 4 6.31 x 6.5 6.31 x 7.5 6.31 x 6.5 6.31 x 7.5 (1) 6.31 x 7.5 6.31 x 7.5
Size — Dia” x Width” (2) 6.31 x 6.5
Motor Quantity 1111122
Filter Data
1” (cm) TA and Pl. Media
Quantity 1111111
Size — in. 8-7/8 x 19-1/8 8-7/8 x 19-1/8 8-7/8 x 24-1/8 8-7/8 x 33-5/8 8-7/8 x 42-1/8 8-7/8 x 61-1/8 8-7/8 x 61-1/8
1” Fresh Air Filter (only on cabinet styles D, E, and H with bottom return and fresh air opening)
Quantity 1111111
Size — in. 5-1/2 x 19-1/8 5-1/2 x 19-1/8 5-1/2 x 24-1/8 5-1/2 x 33-5/8 5-/2 x 42-1/8 5-1/2 x 61-1/8 5-1/2 x 61-1/8
(a) Standard and high-capacity reheat coils share the same component data except that standard capacity reheat coils have 48 fins/ft while high-capacity
reheat coils have 144 fins/ft.
UNT-PRC001-EN.book Page 18 Tuesday, May 8, 2012 10:54 AM

UNT-PRC001-EN 19
General Data
Table 2. Low vertical fan-coil general data
Unit Size 03 04 06
Coil Data
Face Area—ft21.1 1.6 2.1
L x D x H—in.
2-Row 20 x 1.7 x 8 29.5 x 1.7 x 8 38 x 1.7 x 8
3-Row 20 x 2.6 x 8 29.5 x 2.6 x 8 38 x 2.6 x 8
Volume—gal
1-Row (Heat) 0.08 0.11 0.14
2-Row 0.15 0.22 0.28
3-Row 0.23 0.33 0.42
Fins/ft
2-Row 144 144 144
3-Row 144 144 144
Fan/Motor Data
Fan Quantity 1 1 1
Size—Dia” x Width” 5 x 23 5 x 32 5 x 41
Motor Quantity 1 1 1
Filter Data
1” TA
Quantity 1 1 1
Size—in. 8-7/8 x 24-1/8 8-7/8 x 33-5/8 8-7/8 x 42-1/8
Table 3. Fan-coil air flow (cfm)
FC Coil
External Static Pressure (ESP)
FD High Static
0.05 0.1 0.2 0.3 0.4
02 2-row 246 344 314 283 251
3-row 242 352 319 284 249
4-row 222 326 295 263 230
03 2-row 313 410 380 350 319
3-row 309 391 358 324 290
4-row 276 360 330 299 267
04 2-row 381 446 410 373 336
3-row 365 544 506 467 427
4-row 340 506 470 434 397
06 2-row 609 757 700 642 582
3-row 604 880 824 766 707
4-row 557 812 760 706 652
08 2-row 790 1014 950 885 819
3-row 724 992 927 861 794
4-row 676 930 870 808 745
10 2-row 1015 1284 1199 1113 1024
3-row 1052 1456 1360 1262 1162
4-row 988 1366 1276 1183 1089
12 2-row 1105 1424 1330 1234 1134
3-row 1074 1514 1419 1320 1219
4-row 993 1421 1330 1238 1144
UNT-PRC001-EN.book Page 19 Tuesday, May 8, 2012 10:54 AM

20 UNT-PRC001-EN
General Data
Factory-Installed Piping Packages
UniTrane fan-coils have standard piping packages available as a factory built and installed option.
Piping package options are also available for the hot water reheat coil on two-pipe units equipped
with either a fan speed switch or Tracer ZN520 and UC400 controller. Factory built assures all piping
packages are fully tested under water for leaks and are built within strict tolerances. Factory-
installed means that chilled and hot water pipes are the only field connections required. The
installer doesn’t have to sweat connect piping packages onto coil connections in a tight end pocket.
Field connections are brought to a point near the exterior of the unit for easy access. All piping and
components are located to allow condensate to drain into the auxiliary drain pan. Insulation of the
factory piping package is not required. However, all field connections should be insulated to
prevent condensation from missing the auxiliary drain pan.
Piping Package Components
UniTrane piping packages consist of a variety of components for each application. The following
section provides a detailed description of each of the piping components. Following this section
are additional illustrations and specifications.
Piping System/Placement
Factory piping systems are available for either two or four-pipe systems with right or left hand
connections. Four-pipe systems have both the heating and cooling connections on the same side
of the unit. A simple coil connection (a unit without a piping package) is also available in either a
right or left hand configuration for those applications requiring field piping.
Interconnecting Piping
Interconnecting piping refers to the copper piping which is attached to the coil connections and to
which all other components (control valves, end valves, etc.) are attached. Piping is 1/2” nominal
OD copper. Two-pipe piping extends near the unit exterior to one inlet and one outlet connection.
Four-pipe units have two sets of piping that extend near the unit exterior — one inlet and one outlet
each for both chilled and hot water. A label clearly identifies chilled and hot water connection points
on every unit.
Deluxe or Basic Piping Package
The basic piping package includes only the main components of the piping package:
interconnecting piping, control valve option, and end valves.
Figure 1. Factory-installed and -tested piping package (two-pipe deluxe package with manual
circuit setter, shown on a horizontal concealed unit)
Piping Packages
UNT-PRC001-EN.book Page 20 Tuesday, May 8, 2012 10:54 AM

UNT-PRC001-EN 21
General Data
The deluxe piping package also includes a strainer on the entering water pipe and unions at the
coil connections along with the basic components. The strainer body is cast brass construction,
with a stainless steel mesh strainer that is easily removed for cleaning. The unions are forged brass
construction and close with a minimum amount of effort.
End Valves
Each piping package includes a ball valve for the entering water pipe and one of the following end
valves on the leaving water pipe: ball valve, manual circuit setter, or an auto circuit setter. These
valves serve as the field connection points on all UniTrane piping packages.
Ball Valves. Ball valves, also known as stop or end valves, allow the unit to be cut off for service
purposes. These valves have a two-inch handle that rotates 90 percent to a fully open position. The
valve body is cast brass, and the ball is polished brass with a Teflon® seat. Ball valves are available
as end valves on both the entering and leaving water pipes.
Manual Circuit Setter
In lieu of a ball valve on the leaving water pipe, a manual circuit setter, also known as a manual flow
control valve, acts as both a flow setting device and a stop valve. This valve allows water flow
through the fan-coil unit to be set quickly and accurately.
The manual circuit setter includes Schrader ports in the valve body. These ports are used to
measure the pressure drop across the valve. This pressure drop can be compared to factory
supplied curves that relate the pressure drop to a specific flow rate. This valve also has a memory
stop so the correct setting can be found quickly.
Auto Circuit Setter
An auto circuit setter is an automatic flow control device available on the leaving water pipe. The
auto circuit setter includes a cartridge within the valve body that is sized to allow a specific flow
rate through the coil. This valve sets flow through the coil without any action required by a system
piping balancer. The auto circuit setter is available on the leaving water pipe with a ball valve. The
auto circuit setter also includes two P/Ts plugs in the valve body to allow measurement of the
pressure drop temperature through the valve.
Control Valves
Piping packages are available with or without control valves. All control valve options are factory
mounted and wired to the UniTrane fan-coil controls.
Tw o - Wa y / Tw o - P o s i t i o n Va l v e s
These valves will either fully open or close in response to a 24 Vac signal from the Trane controller.
Main control valves are direct-acting valves, while the auxiliary valves are reverse-acting. All
control valves are factory mounted in the leaving water pipe downstream of the coil. Some means
of relieving pump head pressure should be accounted for when two-way valves are selected.
Normally open or normally closed valves are available.
Three-Way/Two-Position Valves
These valves will either allow full water flow through the coil or divert the flow through a bypass
line. The valves respond to a 24 Vac signal from the Trane controller. Main control valves are direct
acting valves, while the auxiliary valves are reverse-acting. All three-way valve packages include
a balance fitting in the bypass line to allow flow balancing in the bypass position. Three-way valves
are factory mounted in the leaving water pipe downstream of the coil. Normally open or normally
closed valves are available.
Two-Way Modulating Valves
These valves modulate the water flow through the coil in response to a signal from the Trane
controller. All modulating valves are three-wire floating point equal percentage valves. The
modulating valves are factory mounted in the leaving water pipe downstream of the coil.
Piping Packages
UNT-PRC001-EN.book Page 21 Tuesday, May 8, 2012 10:54 AM

22 UNT-PRC001-EN
General Data
Three-Way Modulating Valves
These valves modulate the water flow through the coil in response to a signal. Three-way valves
allow water that is directed through the coil to mix with water that is directed through the bypass
line. This mixture exits through the leaving water pipe. All modulating valves are three-wire
floating point equal percentage valves. The modulating valves are factory mounted in the leaving
water pipe downstream of the coil.
Auto Flow Valve (C)
Piping Packages
UNT-PRC001-EN.book Page 22 Tuesday, May 8, 2012 10:54 AM

UNT-PRC001-EN 23
General Data
Selecting the Correct Modulating Valve Size
Modulating valves are available in any of four port sizes. The port sizes relate to a Cv of 0.6, 1.1, 2.3,
2.7, 3.3, and 3.8, which is the coefficient of flow. The coefficient of flow is defined as the volume of
water flow through a control valve in the fully open position with a 1 psig differential across the
valve. It is calculated using the following formula:
Cv = Q/Square root ΔP where:
Cv = flow coefficient
Q = flow rate (Gpm)
ΔP = pressure drop across the valve or coil (psig).
For good control, the valve Cv should be approximately equal to the Cv of the water coil.
Modulating Valve Selection Example
Assume a size 06 fan-coil is selected to operate at the following conditions:
Vertical Cabinet Fan-Coil
Entering water temperature = 45°F
Leaving water temperature = 55°F
EAT conditions = 80/67.
The coil is selected as a four-row coil.
Select the best modulating valve size for this unit.
1. Fi nd th e ΔP across the water coil. Refer to the AHRI performance table to determine the ΔP
across the water coil (or use TOPSS™ selection program). The water pressure drop is found to
be 7.0’ of water at a flow rate of 3.74 gpm. This converts to a pressure drop of 3.03 psig (1.0 feet
of water = 0.4328 psig.)
2. Calculate the Cv of the water coil.
Cv = Gpm/Square root ΔP
Cv = 3.74/Square root 3.03
Cv = 2.15
Therefore, the valve with the Cv of 2.7 should be selected since it has the Cv which is closest
to the Cv of the water coil. The following tables illustrate possible valve selections at AHRI
conditions for horizontal concealed units with a high static motor and vertical cabinet units with
a free discharge motor.
Note: Do not use these tables for any applications other than vertical cabinet or horizontal
concealed units at AHRI conditions.
UNT-PRC001-EN.book Page 23 Tuesday, May 8, 2012 10:54 AM

24 UNT-PRC001-EN
General Data
Table 4. Modulating valve selections for horizontal concealed units
Horizontal Concealed (High Static Motor)
Unit Size Coil Gpm
Coil Coil Valve
WPD Cv Cv
02 2-Row 1.29 8.8 0.66 0.7
3-Row 1.80 23.9 0.56 0.7
4-Row 1.84 6.1 1.13 1.5
03 2-Row 1.58 14.1 0.64 0.7
3-Row 1.86 5.4 1.22 1.5
4-Row 2.26 9.7 1.10 1.5
04 2-Row 1.90 4.6 1.35 1.5
3-Row 2.94 13.9 1.20 1.5
4-Row 3.35 22.3 1.08 0.7
06 2-Row 3.32 15.3 1.29 1.5
3-Row 4.24 7.5 2.35 2.5
4-Row 4.99 11.9 2.20 2.5
08 2-Row 3.90 5.7 2.48 2.5
3-Row 5.13 11.8 2.27 2.5
4-Row 5.68 16.9 2.10 2.5
10 2-Row 5.23 10.8 2.42 2.5
3-Row 7.14 24.2 2.21 2.5
4-Row 7.63 32.8 2.03 2.5
12 2-Row 6.35 16.6 2.37 2.5
3-Row 7.98 18.5 2.82 2.5
4-Row 9.47 25.2 2.87 2.5
Table 5. Modulating valve selections for vertical cabinet units
Vertical Cabinet (Free Discharge Motor)
Unit Size Coil Gpm
Coil Coil Valve
WPD Cv Cv
02 2-Row 1.04 6.1 0.64 0.7
3-Row 1.40 15.4 0.54 0.7
4-Row 1.40 3.7 1.11 1.5
03 2-Row 1.32 10.3 0.63 0.7
3-Row 1.57 4.0 1.19 1.5
4-Row 1.88 7.0 1.08 0.7
04 2-Row 1.68 3.7 1.33 1.5
3-Row 2.25 8.6 1.17 1.5
4-Row 2.54 13.6 1.05 0.7
06 2-Row 2.86 11.7 1.27 1.5
3-Row 3.19 4.4 2.31 2.5
4-Row 3.74 7.0 2.15 2.5
08 2-Row 3.14 3.8 2.45 2.5
3-Row 4.01 7.5 2.23 2.5
4-Row 4.44 10.8 2.05 2.5
10 2-Row 4.39 7.8 2.39 2.5
3-Row 5.60 15.4 2.17 2.5
4-Row 5.88 20.4 1.98 1.5
12 2-Row 5.28 11.8 2.34 2.5
3-Row 6.14 11.2 2.79 2.5
4-Row 7.23 15.4 2.80 2.5
UNT-PRC001-EN.book Page 24 Tuesday, May 8, 2012 10:54 AM

UNT-PRC001-EN 25
Performance Data
UniTrane fan-coil performance data is submitted to AHRI with units grouped based on
performance. Unit performance is impacted by the unit model and the airflow inlet and outlet
configuration. Below is a table which summarizes the performance groups.
Table 6. Fan-Coil performance groupings
UNIT TYPE Motor Type Filter
External
Static Performance Tables
Horizontal Concealed Free Discharge NO 0.05 Table 7, 8, 21 & 22
Compact Concealed Free Discharge NO 0.05
Horizontal Recessed Free Discharge NO 0.05
Vertical Recessed Free Discharge NO 0.05
Vertical Concealed Free Discharge NO 0.05 Table 9, 10, 23 & 24
Horizontal Cabinet Free Discharge YES 0.00 Table 11, 12, 25 & 26
Vertical Cabinet Free Discharge YES 0.00
Vertical Slope Top Free Discharge YES 0.00 Table 13, 14, 27 & 28
Low Vertical Cabinet Free Discharge YES 0.00 Table 15 & 16
Low Vertical Concealed Free Discharge NO 0.05
Horizontal Concealed High Static NO 0.20 Table 17, 18, 29, & 30
Compact Concealed High Static NO 0.20
Horizontal Recessed High Static NO 0.20
Vertical Recessed High Static NO 0.20
Horizontal Cabinet High Static NO 0.20
Vertical Concealed High Static NO 0.20 Table 19, 20, 31, & 32
UNT-PRC001-EN.book Page 25 Tuesday, May 8, 2012 10:54 AM

26 UNT-PRC001-EN
Performance Data
Horizontal Concealed, Compact Concealed, Horizontal Recessed, and Vertical Recessed
AHRI cooling performance is based on 80/67°F entering air temperature, 45°F entering chilled water
temperature with a 10°F ΔT.
Heating performance is based on 70°F entering air temperature, 180°F entering hot water
temperature with a 30°F ΔT.
All performance measured on high speed tap, 115 V, 0.05 ESP, without filter. Free discharge EC
motor. See Table 6, p. 25 for performance groupings.
Table 7. 2-pipe performance—free discharge EC motor
COOLING HEATING
Motor
Power
(W)SIZE COIL
Airflow
(cfm)
Total
Capacity
(MBh)
Sensible
Capacity
Flow Rate
(gpm)
WPD
(ft H20)
Total
Capacity
(MBh) Q/ITD
Flow
Rate
(gpm)
WPD
(ft H20)
020 2HC 246 5.93 4.38 1.2 8.01 16.67 0.152 1.1 5.36 37
3HC 242 6.79 5.01 1.4 2.87 20.14 0.183 1.3 2.26 37
4HC 222 8.15 5.55 1.7 5.03 21.47 0.195 1.4 3.18 37
030 2HC 313 6.71 5.07 1.4 9.90 16.62 0.178 1.3 7.15 39
3HC 309 7.96 5.98 1.6 3.81 24.16 0.220 1.6 3.15 39
4HC 276 9.51 6.56 1.9 6.59 25.69 0.234 1.7 4.39 39
040 2HC 381 8.47 6.76 1.7 3.55 23.99 0.218 1.6 2.61 58
3HC 365 11.36 8.03 2.3 8.21 30.03 0.273 2.0 5.29 58
4HC 340 12.76 8.52 2.6 12.80 32.46 0.295 2.2 7.63 58
060 2HC 609 14.73 11.13 3.0 11.56 38.28 0.348 2.6 7.34 79
3HC 604 16.49 12.37 3.3 4.43 47.33 0.430 3.2 3.60 79
4HC 557 19.16 13.20 3.9 6.90 51.53 0.468 3.4 4.88 79
080 2HC 790 16.11 13.12 3.3 3.83 48.08 0.437 3.2 3.35 122
3HC 724 20.50 14.61 4.2 7.41 58.69 0.534 3.9 5.89 122
4HC 676 22.59 15.32 4.6 10.55 69.94 0.581 4.3 8.08 122
100 2HC 1015 25.90 19.29 5.3 10.84 66.92 0.608 4.5 7.22 145
3HC 1052 31.14 22.21 6.3 11.09 85.99 0.782 5.7 8.81 145
4HC 988 36.48 24.00 7.4 14.94 94.57 0.860 6.3 10.19 145
120 2HC 1105 26.94 20.19 5.5 11.69 70.87 0.644 4.7 8.05 160
3HC 1074 31.39 22.40 6.4 11.29 87.33 0.794 5.8 9.08 160
4HC 993 36.46 23.99 7.4 14.96 94.96 0.863 6.3 10.27 160
Table 8. 4-pipe performance—free discharge EC motor
SIZE COIL
Airflow
(cfm)
COOLING HEATING
Motor
Power
(W)
Total
Capacity
(MBh)
Sensible
Capacity
(MBh)
Flow Rate
(gpm)
WPD
(ft H20)
Total
Capacity
(MBh) Q/ITD
Flow Rate
(gpm)
WPD
(ft H20)
020 2C/1H 242 5.82 4.28 1.2 7.75 9.37 0.085 0.6 0.95 37
2C/2H 222 5.54 4.05 1.1 7.13 15.47 0.141 1.0 4.70 37
3C/1H 222 6.42 4.72 1.3 2.61 8.86 0.081 0.6 0.86 37
030 2C/1H 309 6.66 5.03 1.4 9.79 10.85 0.099 0.7 1.23 39
2C/2H 276 6.33 4.72 1.3 8.97 18.06 0.164 1.2 6.18 39
3C/1H 276 7.47 5.57 1.5 3.40 10.10 0.092 0.7 1.10 39
040 2C/1H 365 8.25 6.56 1.7 3.39 13.88 0.126 0.9 2.25 58
2C/2H 340 7.89 6.24 1.6 3.13 22.20 0.202 1.5 2.26 58
3C/1H 340 10.90 7.66 2.2 7.63 13.27 0.121 0.9 2.08 58
060 2C/1H 604 14.65 11.05 3.0 11.45 22.51 0.205 1.5 6.82 79
2C/2H 557 14.03 10.51 2.9 10.62 36.12 0.328 2.4 6.60 79
3C/1H 557 15.70 11.72 3.2 4.05 21.46 0.195 1.4 6.27 79
080 2C/1H 724 15.25 12.35 3.1 3.47 28.15 0.256 1.9 12.21 122
2C/2H 676 14.65 11.82 3.0 3.22 43.37 0.394 2.9 2.76 122
3C/1H 676 19.79 14.05 4.0 6.95 27.02 0.246 1.8 11.35 122
100 2C/1H 1052 26.31 19.64 5.3 11.15 42.10 0.383 2.8 36.37 145
2C/2H 988 25.41 18.86 5.2 10.47 65.71 0.597 4.4 6.97 145
3C/1H 988 30.02 21.33 6.1 10.35 40.52 0.368 2.7 32.11 145
120 2C/1H 1074 26.51 19.82 5.4 11.35 42.63 0.388 2.8 35.15 160
2C/2H 993 25.42 18.88 5.2 10.52 65.94 0.599 4.4 7.02 160
3C/1H 993 30.03 21.33 6.1 10.39 40.65 0.370 2.7 32.29 160
Note: Q/ITD = MBh (kW)/(Entering water temperature - Entering air temperature) when ∆T and gpm (L/s) remain constant. To determine heating capacities
at a different entering water temperature or entering air temp, compute the new ITD and multiply it by the Q/ITD shown.
Main Coil
UNT-PRC001-EN.book Page 26 Tuesday, May 8, 2012 10:54 AM

UNT-PRC001-EN 27
Performance Data
Vertical Concealed
AHRI cooling performance is based on 80/67°F entering air temperature, 45°F entering chilled water
temperature with a 10°F ΔT.
Heating performance is based on 70°F entering air temperature, 180°F entering hot water
temperature with a 30°F ΔT.
All performance measured on high speed tap, 115 V, 0.05 ESP, without filter. Free discharge EC
motor. See Table 6, p. 25 for performance groupings.
Table 9. 2-pipe performance—free discharge EC motor
COOLING HEATING
Motor
Power
(W)SIZE COIL
Airflow
(cfm)
Total
Capacity
(MBh)
Sensible
Capacity
Flow Rate
(gpm)
WPD
(ft H20)
Total
Capacity
(MBh) Q/ITD
Flow
Rate
(gpm)
WPD
(ft H20)
020 2HC 211 5.46 3.98 1.1 6.96 14.90 0.136 1.0 4.40 37
3HC 205 6.13 4.48 1.3 2.40 17.62 0.160 1.2 1.78 37
4HC 192 7.41 5.02 1.5 4.26 18.93 0.172 1.3 2.53 37
030 2HC 272 6.32 4.71 1.3 8.95 17.89 0.163 1.2 6.07 39
3HC 270 7.42 5.53 1.5 3.36 21.91 0.199 1.5 2.64 39
4HC 247 8.92 6.12 1.8 5.89 23.48 0.213 1.6 3.73 39
040 2HC 340 7.96 6.30 1.6 3.18 22.20 0.202 1.5 2.26 58
3HC 328 10.73 7.53 2.2 7.42 27.64 0.251 1.8 4.55 58
4HC 309 12.09 8.03 2.5 11.65 29.98 0.273 2.0 6.61 58
060 2HC 535 13.91 10.35 2.8 10.45 35.16 0.320 2.3 6.28 79
3HC 531 15.32 11.41 3.1 3.87 43.06 0.391 2.9 3.01 79
4HC 499 17.98 12.33 3.6 6.15 47.12 0.428 3.1 4.13 79
080 2HC 697 15.10 12.22 3.1 3.41 44.27 0.402 3.0 2.86 122
3HC 646 19.42 13.76 4.0 6.72 53.89 0.490 3.6 5.02 122
4HC 612 21.47 14.50 4.4 9.63 58.93 0.536 3.9 6.94 122
100 2HC 891 24.19 17.83 4.9 9.57 61.02 0.555 4.1 6.06 145
3HC 913 28.89 20.45 5.9 9.63 77.21 0.702 5.1 7.16 145
4HC 870 34.18 22.36 6.9 13.30 85.08 0.773 5.7 8.40 145
120 2HC 980 25.42 18.87 5.2 10.51 65.30 0.594 4.4 6.89 160
3HC 958 29.60 21.00 6.0 10.11 80.10 0.728 5.3 7.68 160
4HC 899 34.69 22.72 7.0 13.70 87.45 0.795 5.8 8.84 160
Table 10. 4-pipe performance—free discharge EC motor
SIZE COIL
Airflow
(cfm)
COOLING HEATING
Motor
Power
(W)
Total
Capacity
(MBh)
Sensible
Capacity
(MBh)
Flow Rate
(gpm)
WPD
(ft H20)
Total
Capacity
(MBh) Q/ITD
Flow Rate
(gpm)
WPD
(ft H20)
200 2C/1H 205 5.31 3.86 1.1 6.65 8.37 0.076 0.6 0.78 37
2C/2H 192 5.09 3.68 1.0 6.20 13.82 0.126 0.9 3.86 37
3C/1H 192 5.84 4.26 1.2 2.21 7.99 0.073 0.5 0.72 37
300 2C/1H 270 6.29 4.69 1.3 8.87 10.03 0.091 0.7 1.07 39
2C/2H 247 5.99 4.42 1.2 8.16 16.73 0.152 1.1 5.39 39
3C/1H 247 7.02 5.20 1.4 3.05 9.50 0.086 0.6 0.98 39
400 2C/1H 328 7.75 6.12 1.6 3.04 12.97 0.118 0.9 2.00 58
2C/2H 309 7.46 5.85 1.5 2.83 20.73 0.188 1.4 2.00 58
3C/1H 309 10.33 7.22 2.1 6.94 12.48 0.113 0.8 1.86 58
600 2C/1H 531 13.82 10.28 2.8 10.34 20.85 0.190 1.4 6.28 79
2C/2H 499 13.32 9.85 2.7 9.68 33.46 0.304 2.2 5.74 79
3C/1H 499 14.68 10.89 3.0 3.58 20.05 0.182 1.3 5.56 79
800 2C/1H 646 14.33 11.55 3.10 2.95 26.26 0.239 1.8 10.79 122
2C/2H 612 13.82 11.11 2.8 2.90 40.46 0.368 2.7 2.41 122
3C/1H 612 18.82 13.30 3.8 6.35 25.37 0.231 1.7 10.15 122
1000 2C/1H 913 24.48 18.07 5.0 9.78 38.52 0.350 2.6 29.34 145
2C/2H 870 23.74 17.45 4.8 9.24 59.96 0.545 4.0 5.87 145
3C/1H 870 27.95 19.73 5.7 9.05 37.29 0.339 2.5 27.69 145
1200 2C/1H 958 25.06 18.59 5.1 10.24 39.72 0.361 2.7 30.98 160
2C/2H 899 24.13 17.78 4.9 9.56 61.42 0.558 4.1 6.14 160
3C/1H 899 28.43 20.10 5.8 9.38 38.12 0.347 2.5 28.79 160
Note: Q/ITD = MBh (kW)/(Entering water temperature - Entering air temperature) when ∆T and gpm (L/s) remain constant. To determine heating capacities
at a different entering water temperature or entering air temp, compute the new ITD and multiply it by the Q/ITD shown.
Main Coil
UNT-PRC001-EN.book Page 27 Tuesday, May 8, 2012 10:54 AM

28 UNT-PRC001-EN
Performance Data
Horizontal Cabinet and Vertical Cabinet
AHRI cooling performance is based on 80/67°F entering air temperature, 45°F entering chilled water
temperature with a 10°F ΔT.
Heating performance is based on 70°F entering air temperature, 180°F entering hot water
temperature with a 30°F ΔT.
All performance measured on high speed tap, 115 V, zero ESP, with throwaway filter. Free discharge
EC motor. See Table 6, p. 25 for performance groupings.
Table 11. 2-pipe performance—free discharge EC motor
SIZE COIL
Airflow
(cfm)
COOLING HEATING
Motor
Power
(W)
Total
Capacity
(MBh)
Sensible
Capacity
(MBh)
Flow Rate
(gpm)
WPD
(ft H20)
Total
Capacity
(MBh) Q/ITD
Flow Rate
(gpm)
WPD
(ft H20)
020 2HC 222 5.61 4.11 1.1 7.29 15.45 0.140 1.0 4.69 37
3HC 217 6.35 4.66 1.3 2.56 18.45 0.168 1.2 1.93 37
4HC 204 7.72 5.24 1.6 4.58 19.96 0.181 1.3 2.78 37
030 2HC 280 6.41 4.79 1.3 9.15 18.22 0.166 1.2 6.27 39
3HC 277 7.53 5.62 1.5 3.45 22.36 0.203 1.5 2.74 39
4HC 256 9.10 6.26 1.8 6.11 24.14 0.219 1.6 3.92 39
040 2HC 349 8.08 6.41 1.7 3.26 22.62 0.206 1.5 2.34 58
3HC 338 10.91 7.67 2.2 7.64 28.29 0.257 1.9 4.74 58
4HC 320 12.33 8.21 2.5 12.06 30.86 0.281 2.1 6.96 58
060 2HC 544 13.94 10.42 2.8 10.49 35.55 0.323 2.4 6.41 79
3HC 541 15.48 11.54 3.1 3.95 43.63 0.397 2.9 3.08 79
4HC 510 18.23 12.51 3.7 6.30 48.00 0.437 3.2 4.28 79
080 2HC 706 15.21 12.31 3.1 3.45 44.65 0.406 3.0 2.91 122
3HC 659 19.62 13.92 4.0 6.84 54.73 0.498 3.7 5.17 122
4HC 627 21.75 14.70 4.4 9.86 60.12 0.547 4.0 7.20 122
100 2HC 912 24.50 18.09 5.0 9.80 62.07 0.564 4.1 6.26 145
3HC 933 29.25 20.73 5.9 9.86 78.53 0.714 5.2 7.39 145
4HC 893 34.66 22.70 7.0 13.64 86.94 0.790 5.8 8.74 145
120 2HC 996 25.64 19.06 5.2 10.68 66.06 0.601 4.4 7.04 160
3HC 976 29.90 21.23 6.1 10.31 81.27 0.739 5.4 7.90 160
4HC 921 35.13 23.04 7.1 14.01 89.25 0.811 5.9 9.17 160
Table 12. 4-pipe performance—free discharge EC motor
SIZE COIL
Airflow
(cfm)
COOLING HEATING
Motor
Power
(W)
Total
Capacity
(MBh)
Sensible
Capacity
(MBh)
Flow Rate
(gpm)
WPD
(ft H20)
Total
Capacity
(MBh) Q/ITD
Flow Rate
(gpm)
WPD
(ft H20)
020 2C/1H 217 5.49 4.00 1.1 7.02 8.70 0.079 0.6 0.88 37
2C/2H 204 5.28 3.83 1.1 6.58 14.50 0.132 1.0 4.20 37
3C/1H 204 6.09 4.45 1.2 2.37 8.35 0.076 0.6 0.78 37
030 2C/1H 277 6.38 4.76 1.3 9.08 10.20 0.093 0.7 1.11 39
2C/2H 256 6.09 4.52 1.2 8.40 17.13 0.156 1.1 5.62 39
3C/1H 256 7.16 5.31 1.5 3.16 9.70 0.088 0.7 1.01 39
040 2C/1H 338 7.89 6.24 1.6 3.13 13.22 0.120 0.9 2.06 58
2C/2H 320 7.61 5.99 1.6 2.94 21.26 0.193 1.4 2.09 58
3C/1H 320 10.53 7.38 2.1 7.19 12.76 0.116 0.9 1.94 58
060 2C/1H 541 13.86 10.35 2.8 10.39 21.08 0.192 1.4 6.08 79
2C/2H 510 13.48 9.99 2.7 9.90 34.00 0.309 2.3 6.91 79
3C/1H 510 14.89 11.06 3.0 3.68 20.34 0.185 1.4 5.70 79
080 2C/1H 659 14.50 11.69 3.0 3.16 26.60 0.242 1.8 11.04 122
2C/2H 627 14.02 11.29 2.9 2.98 41.17 0.374 2.7 2.50 122
3C/1H 627 19.06 13.49 3.9 6.50 25.78 0.234 1.7 10.44 122
100 2C/1H 933 24.77 18.32 5.0 9.99 39.07 0.355 2.6 30.09 145
2C/2H 893 24.08 17.74 4.9 9.49 61.10 0.555 4.1 6.08 145
3C/1H 893 28.38 20.06 5.8 9.31 37.94 0.345 2.5 28.55 145
120 2C/1H 976 25.30 18.77 5.2 10.42 40.19 0.365 2.7 31.65 160
2C/2H 921 24.45 18.05 5.0 9.80 62.51 0.568 4.2 6.35 160
3C/1H 921 28.83 20.40 5.9 9.63 38.73 0.352 2.6 29.63 160
Note: Q/ITD = MBh (kW)/(Entering water temperature - Entering air temperature) when ∆T and gpm (L/s) remain constant. To determine heating capacities
at a different entering water temperature or entering air temp, compute the new ITD and multiply it by the Q/ITD shown.
Main Coil
UNT-PRC001-EN.book Page 28 Tuesday, May 8, 2012 10:54 AM

UNT-PRC001-EN 29
Performance Data
Vertical Slope Top Cabinet
AHRI cooling performance is based on 80/67°F entering air temperature, 45°F entering chilled water
temperature with a 10°F ΔT.
Heating performance is based on 70°F entering air temperature, 180°F entering hot water
temperature with a 30°F ΔT.
All performance measured on high speed tap, 115 V, zero ESP, with throwaway filter. Free discharge
EC motor. See Table 6, p. 25 for performance groupings.
Table 13. 2-pipe performance—free discharge EC motor
SIZE COIL
Airflow
(cfm)
COOLING HEATING
Motor
Power
(W)
Total
Capacity
(MBh)
Sensible
Capacity
(MBh)
Flow Rate
(gpm)
WPD
(ft H20)
Total
Capacity
(MBh) Q/ITD
Flow Rate
(gpm)
WPD
(ft H20)
020 2HC 206 5.38 3.91 1.1 6.79 14.62 0.133 1.0 4.25 37
3HC 200 6.04 4.41 1.2 2.34 17.31 0.157 1.2 1.72 37
4HC 190 7.36 4.98 1.5 4.21 18.75 0.170 1.3 2.49 37
030 2HC 262 6.20 4.61 1.2 8.65 17.41 0.158 1.2 5.79 39
3HC 260 7.26 5.40 1.5 3.24 21.30 0.194 1.4 2.50 39
4HC 242 8.80 6.03 1.8 5.75 23.05 0.210 1.5 3.61 39
040 2HC 330 7.82 6.17 1.6 3.08 21.74 0.198 1.5 2.18 58
3HC 320 10.58 7.41 2.2 7.24 27.11 0.246 1.8 4.39 58
4HC 304 11.98 7.95 2.4 11.46 29.58 0.269 2.0 6.45 58
060 2HC 512 13.57 10.06 2.8 10.01 34.08 0.310 2.3 5.94 79
3HC 508 14.90 11.07 3.0 3.69 41.65 0.379 2.8 2.83 79
4HC 483 17.63 12.07 3.6 5.93 45.88 0.417 3.1 3.93 79
080 2HC 665 14.70 11.87 3.0 3.24 42.86 0.390 2.9 2.69 122
3HC 623 19.06 13.49 3.9 6.50 52.43 0.477 3.5 4.77 122
4HC 596 21.16 14.28 4.3 9.38 57.64 0.524 3.8 6.66 122
100 2HC 856 23.65 17.37 4.8 9.18 59.27 0.539 4.0 5.74 145
3HC 873 28.13 19.87 5.7 9.16 74.54 0.678 5.0 6.69 145
4HC 839 33.51 21.88 6.8 12.84 82.50 0.750 5.5 7.95 145
120 2HC 940 24.88 18.41 5.1 10.11 63.44 0.577 4.2 6.52 160
3HC 923 29.00 20.53 5.9 9.73 77.83 0.708 5.2 7.27 160
4HC 876 34.22 22.38 6.9 13.36 85.55 0.778 5.7 8.49 160
Table 14. 4-pipe performance—free discharge EC motor
SIZE COIL
Airflow
(cfm)
COOLING HEATING
Motor
Power
(W)
Total
Capacity
(MBh)
Sensible
Capacity
(MBh)
Flow
Rate
(gpm)
WPD
(ft H20)
Total Capacity
(MBh) Q/ITD
Flow Rate
(gpm)
WPD
(ft H20)
020 2C/1H 200 5.24 3.80 1.1 6.51 8.24 0.075 0.6 0.76 37
2C/2H 190 5.06 3.65 1.0 6.13 13.71 0.125 0.9 3.80 37
3C/1H 190 5.80 4.22 1.2 2.18 7.93 0.072 0.5 0.71 37
030 2C/1H 260 6.17 4.58 1.3 8.59 9.81 0.089 0.7 1.03 39
2C/2H 242 5.91 4.36 1.2 7.99 16.46 0.150 1.1 5.24 39
3C/1H 242 6.92 5.12 1.4 2.98 9.36 0.085 0.6 0.95 39
040 2C/1H 320 7.64 6.02 1.6 2.96 12.77 0.116 0.9 1.94 58
2C/2H 304 7.38 5.79 1.5 2.78 20.50 0.186 1.4 1.96 58
3C/1H 304 10.23 7.14 2.1 6.83 12.35 0.112 0.8 1.83 58
060 2C/1H 508 13.49 9.99 2.7 9.90 20.29 0.184 1.4 5.68 79
2C/2H 483 13.07 9.64 2.7 9.37 32.70 0.297 2.2 5.50 79
3C/1H 483 14.37 10.65 2.9 3.45 19.64 0.179 1.3 5.36 79
080 2C/1H 623 14.02 11.29 2.9 2.98 25.67 0.233 1.7 10.36 122
2C/2H 596 13.59 10.92 2.7 2.81 39.70 0.361 2.6 2.33 122
3C/1H 596 18.55 13.09 3.8 6.18 24.94 0.227 1.7 9.85 122
100 2C/1H 873 23.87 17.56 4.9 9.34 37.39 0.340 2.5 27.83 145
2C/2H 839 23.25 17.04 4.7 8.90 58.37 0.531 3.9 5.57 145
3C/1H 839 27.33 19.26 5.6 8.68 36.38 0.331 2.4 26.50 145
120 2C/1H 923 24.57 18.15 5.0 9.88 38.78 0.353 2.6 26.69 160
2C/2H 876 23.78 17.48 4.9 9.31 60.25 0.548 4.0 5.92 160
3C/1H 876 28.00 19.77 5.7 9.11 37.46 0.341 2.5 27.91 160
Note: Q/ITD = MBh (kW)/(Entering water temperature - Entering air temperature) when ∆T and gpm (L/s) remain constant. To determine heating capacities
at a different entering water temperature or entering air temp, compute the new ITD and multiply it by the Q/ITD shown.
Main Coil
UNT-PRC001-EN.book Page 29 Tuesday, May 8, 2012 10:54 AM

30 UNT-PRC001-EN
Performance Data
Low Vertical Cabinet and Low Vertical Concealed
AHRI cooling performance is based on 80/67°F entering air temperature, 45°F entering chilled water
temperature with a 10°F ΔT.
Heating performance is based on 70°F entering air temperature, 180°F entering hot water
temperature with a 30°F ΔT.
All performance measured on high speed tap, 115 V, zero ESP, with throwaway filter. Free discharge
EC motor. See Table 6, p. 25 for performance groupings.
Table 15. 2-pipe performance—free discharge EC motor
SIZE COIL Unit Type
Airflow
(cfm)
COOLING HEATING
Motor
Power
(W)
Total
Capacity
(MBh)
Sensible
Capacity
(MBh)
Flow
Rate
(gpm)
WPD
(ft H20)
Total
Capacity
(MBh) Q/ITD
Flow
Rate
(gpm)
WPD
(ft H20)
030 2HC Cabinet 285 6.58 5.24 1.31 2.16 19.51 0.18 1.30 1.79 28
2HC Concealed 285 6.58 5.24 1.31 2.16 19.51 0.18 1.30 1.79 28
3HC Concealed 255 7.50 5.29 1.49 3.37 22.51 0.20 1.50 3.13 28
040 2HC Cabinet 380 10.70 7.70 2.13 6.31 27.28 0.25 1.82 3.95 50
2HC Concealed 380 10.70 7.70 2.13 6.31 27.28 0.25 1.82 3.95 50
3HC Concealed 350 9.94 7.35 1.98 1.69 30.71 0.28 2.05 1.59 50
060 2HC Cabinet 551 12.04 9.87 2.40 2.12 37.45 0.34 2.49 2.08 66
2HC Concealed 551 12.04 9.87 2.40 2.12 37.45 0.34 2.49 2.08 66
3HC Concealed 492 14.33 10.10 2.86 3.69 43.29 0.39 2.88 3.33 66
Table 16. 4-pipe performance—free discharge EC motor
SIZE COIL Unit Type
Airflow
(cfm)
COOLING HEATING
Motor
Power
(W)
Total
Capacity
(MBh)
Sensible
Capacity
(MBh)
Flow
Rate
(gpm)
WPD
(ft H20)
Total
Capacity
(MBh) Q/ITD
Flow
Rate
(gpm)
WPD
(ft H20)
030 2C/1H Cabinet 255 6.02 4.76 1.20 1.84 10.89 0.10 0.73 1.47 28
2C/2H Concealed 239 5.68 4.48 1.13 1.66 17.02 0.15 1.13 1.39 28
3C/1H Concealed 239 7.05 4.96 1.41 3.40 10.39 0.09 0.69 1.35 28
040 2C/1H Cabinet 350 9.95 7.10 1.98 5.53 15.60 0.14 1.04 3.58 50
2C/2H Concealed 320 9.13 6.46 1.82 4.74 23.64 0.21 1.57 3.04 50
3C/1H Concealed 320 8.87 6.59 1.77 1.37 14.52 0.13 0.97 3.15 50
060 2C/1H Cabinet 492 10.99 8.99 2.19 1.79 21.80 0.20 1.45 7.76 66
2C/2H Concealed 449 9.89 8.19 1.97 1.47 31.87 0.29 2.12 1.54 66
3C/1H Concealed 449 13.33 9.37 2.66 3.23 20.31 0.18 1.35 6.85 66
Note: Q/ITD = MBh (kW)/(Entering water temperature - Entering air temperature) when ∆T and gpm (L/s) remain constant. To determine heating capacities
at a different entering water temperature or entering air temp, compute the new ITD and multiply it by the Q/ITD shown.
Main Coil
UNT-PRC001-EN.book Page 30 Tuesday, May 8, 2012 10:54 AM

UNT-PRC001-EN 31
Performance Data
Horizontal Concealed, Compact Concealed, Horizontal Cabinet, Horizontal Recessed and
Vertical Recessed
AHRI cooling performance is based on 80/67°F entering air temperature, 45°F entering chilled water
temperature with a 10°F ΔT.
Heating performance is based on 70°F entering air temperature, 180°F entering hot water
temperature with a 30°F ΔT.
All performance measured on high speed tap, 115 V, 0.20 ESP, without filter. High static EC motor.
See Table 6, p. 25 for performance groupings.
Table 17. 2-pipe performance—high static EC motor
SIZE COIL
Airflow
(cfm)
COOLING HEATING
Motor
Power
(W)
Total
Capacity
(MBh)
Sensible
Capacity
(MBh)
Flow
Rate
(gpm)
WPD
(ft H20)
Total
Capacity
(MBh) Q/ITD
Flow Rate
(gpm)
WPD
(ft H20)
2HC 314 6.92 5.25 1.4 10.83 19.68 0.179 1.3 7.18 84
3HC 319 8.40 6.35 1.7 4.32 24.71 0.225 1.7 3.28 84
200 4HC 295 10.27 7.14 2.1 7.75 27.07 0.246 1.8 4.83 84
2HC 380 7.63 5.91 1.6 12.84 22.14 0.201 1.5 8.85 91
3HC 358 9.00 6.88 1.9 4.89 26.79 0.244 1.8 3.80 91
300 4HC 330 11.05 7.75 2.3 8.83 29.53 0.268 2.0 5.65 91
2HC 410 9.09 7.33 1.9 4.16 25.18 0.229 1.7 2.85 110
3HC 506 14.30 10.45 2.9 12.60 37.81 0.344 2.5 8.05 110
400 4HC 470 16.38 11.23 3.3 20.25 41.90 0.381 2.8 12.12 110
2HC 700 16.22 12.50 3.3 14.16 41.80 0.380 2.8 8.63 162
3HC 824 20.72 16.04 4.2 6.91 58.43 0.531 3.9 5.36 162
600 4HC 760 24.46 17.32 5.0 10.99 65.21 0.593 4.3 7.59 162
2HC 950 18.83 15.64 4.0 5.40 53.86 0.490 3.6 4.16 298
3HC 927 25.08 18.35 5.2 11.17 69.93 0.636 4.7 8.20 298
800 4HC 870 27.85 19.29 5.8 16.00 77.84 0.708 5.2 11.67 298
2HC 1199 29.39 22.38 6.0 13.98 74.76 0.680 5.0 8.90 252
3HC 1360 38.20 27.95 7.8 16.58 103.27 0.939 6.9 12.55 252
1000 4HC 1276 45.19 30.40 9.2 22.30 115.47 1.050 7.7 14.73 252
2HC 1330 30.90 23.78 6.4 15.50 79.76 0.725 5.3 10.07 314
3HC 1419 39.09 28.71 8.0 17.49 106.28 0.966 7.1 13.27 314
1200 4HC 1330 46.31 31.24 9.4 23.50 119.18 1.083 7.9 15.62 314
Table 18. 4-pipe performance—high static EC motor
SIZE COIL
Airflow
(cfm)
COOLING HEATING
Motor
Power
(W)
Total Capacity
(MBh)
Sensible
Capacity
(MBh)
Flow Rate
(gpm)
WPD
(ft H20)
Total
Capacity
(MBh) Q/ITD
Flow Rate
(gpm)
WPD
(ft H20)
200 2C/1H 319 6.94 5.27 1.4 10.89 11.04 0.100 0.7 1.27 37
2C/2H 295 6.67 5.03 1.4 10.18 18.88 0.172 1.3 6.68 37
3C/1H 295 8.04 6.03 1.7 4.00 10.57 0.096 0.7 1.18 37
300 2C/1H 358 7.37 5.66 1.5 12.10 11.76 0.107 0.8 1.42 39
2C/2H 330 7.08 5.40 1.5 11.32 20.30 0.185 1.4 7.59 39
3C/1H 330 8.60 6.53 1.8 4.52 11.26 0.102 0.8 1.32 39
400 2C/1H 506 10.23 8.42 2.1 5.10 16.64 0.151 1.1 3.09 58
2C/2H 470 9.83 8.04 2.0 4.77 27.44 0.249 1.8 3.34 58
3C/1H 470 13.76 9.99 2.8 11.77 16.02 0.146 1.1 2.89 58
600 2C/1H 824 17.64 13.85 3.6 16.39 26.58 0.242 1.8 9.16 79
2C/2H 760 16.95 13.19 3.5 15.28 43.91 0.399 2.9 9.45 79
3C/1H 760 19.80 15.21 4.1 6.36 25.49 0.232 1.7 8.51 79
800 2C/1H 927 18.53 15.35 3.9 5.25 32.36 0.294 2.2 15.63 122
2C/2H 870 17.89 14.74 3.8 4.93 51.06 0.464 3.4 3.76 122
3C/1H 870 24.27 17.66 5.0 10.53 31.26 0.284 2.1 14.70 122
1000 2C/1H 1360 31.27 24.13 6.4 15.64 48.74 0.443 3.3 44.63 145
2C/2H 1276 30.28 23.20 6.2 14.75 77.72 0.707 5.2 9.58 145
3C/1H 1276 36.88 26.84 7.5 15.53 47.07 0.428 3.1 41.94 145
1200 2C/1H 1419 31.90 24.73 6.6 16.42 49.85 0.453 3.3 46.47 160
2C/2H 1330 30.90 23.78 6.4 15.49 79.78 0.725 5.3 10.07 160
3C/1H 1330 37.78 27.59 7.7 16.41 48.17 0.438 3.2 43.70 160
Note: Q/ITD = MBh (kW)/(Entering water temperature - Entering air temperature) when ∆T and gpm (L/s) remain constant. To determine heating capacities
at a different entering water temperature or entering air temp, compute the new ITD and multiply it by the Q/ITD shown.
Main Coil
UNT-PRC001-EN.book Page 31 Tuesday, May 8, 2012 10:54 AM

32 UNT-PRC001-EN
Performance Data
Vertical Concealed
AHRI cooling performance is based on 80/67°F entering air temperature, 45°F entering chilled water
temperature with a 10°F ΔT.
Heating performance is based on 70°F entering air temperature, 180°F entering hot water
temperature with a 30°F ΔT.
All performance measured on high speed tap, 115 V, 0.20 ESP, without filter. High static EC motor.
See Table 6, p. 25 for performance groupings.
Table 19. 2-pipe performance—high static EC motor
SIZE COIL
Airflow
(cfm)
COOLING HEATING
Motor
Power
(W)
Total
Capacity
(MBh)
Sensible
Capacity
(MBh)
Flow Rate
(gpm)
WPD
(ft H20)
Total
Capacity
(MBh) Q/ITD
Flow Rate
(gpm)
WPD
(ft H20)
020 2HC 274 6.45 4.83 1.3 9.63 17.95 0.163 1.2 6.11 84
3HC 274 7.71 5.76 1.6 3.72 22.13 0.201 1.5 2.68 84
4HC 258 9.45 6.51 1.9 6.71 24.31 0.221 1.6 3.97 84
030 2HC 341 7.26 5.56 1.5 11.80 20.70 0.188 1.4 7.86 91
3HC 319 8.47 6.41 1.8 4.40 24.76 0.225 1.7 3.29 91
4HC 299 10.43 7.27 2.1 8.0 27.36 0.249 1.8 4.92 91
040 2HC 377 8.67 6.94 1.8 3.83 23.84 0.217 1.6 2.58 110
3HC 455 13.57 9.83 2.8 11.49 35.17 0.320 2.3 7.05 110
4HC 429 15.58 10.61 3.2 18.55 39.04 0.355 2.6 10.66 110
060 2HC 632 15.42 11.76 3.2 12.96 39.23 0.357 2.6 7.68 162
3HC 733 19.49 14.93 4.0 6.18 54.10 0.492 3.6 4.63 162
4HC 687 23.15 16.27 4.7 9.95 60.53 0.550 4.0 6.60 162
080 2HC 865 17.96 14.80 3.8 4.96 50.88 0.463 3.4 3.73 298
3HC 845 24.00 17.44 5.0 10.33 65.58 0.596 4.4 7.26 298
4HC 800 26.69 18.39 5.5 14.85 73.06 0.664 4.9 10.36 298
100 2HC 1089 27.95 21.08 5.7 12.76 70.18 0.638 4.7 7.90 252
3HC 1206 35.92 26.04 7.3 14.78 95.02 0.864 6.3 10.68 252
4HC 1145 42.77 28.58 8.7 20.20 106.34 0.967 7.1 12.65 252
120 2HC 1218 29.62 22.60 6.1 14.36 75.51 0.686 5.0 9.07 314
3HC 1291 37.31 27.20 7.7 16.04 99.64 0.906 6.6 11.71 314
4HC 1223 44.42 29.81 9.1 21.81 111.87 1.017 7.5 13.89 314
Table 20. 4-pipe performance—high static EC motor
SIZE COIL
Airflow
(cfm)
COOLING HEATING
Motor
Power
(W)
Total
Capacity
(MBh)
Sensible
Capacity
(MBh)
Flow Rate
(gpm)
WPD
(ft H20)
Total
Capacity
(MBh) Q/ITD
Flow Rate
(gpm)
WPD
(ft H20)
020 2C/1H 217 5.49 4.00 1.11 7.02 8.70 0.079 0.6 0.84 37
2C/2H 204 5.28 3.83 1.1 6.58 14.50 0.132 1.0 43.20 37
3C/1H 204 6.09 4.45 1.2 2.37 8.35 0.076 0.6 0.78 37
030 2C/1H 277 6.38 4.76 1.2 9.08 10.20 0.093 0.7 1.11 39
2C/2H 256 6.09 4.52 1.2 8.40 17.13 0.156 1.1 5.93 39
3C/1H 256 7.16 5.31 1.5 3.16 9.70 0.088 0.7 1.01 39
040 2C/1H 338 7.89 6.24 1.6 3.13 13.22 0.120 0.9 2.06 58
2C/2H 320 7.61 5.99 1.6 2.94 21.26 0.193 1.4 2.09 58
3C/1H 320 10.53 7.38 2.1 7.19 12.76 0.116 0.9 1.94 58
060 2C/1H 541 13.86 10.35 2.8 10.39 21.08 0.192 1.4 6.08 79
2C/2H 510 13.48 9.99 2.7 9.90 34.00 0.309 2.3 5.91 79
3C/1H 510 14.89 11.06 3.0 3.68 20.34 0.185 1.4 5.70 79
080 2C/1H 659 14.50 11.69 3.0 3.16 26.60 0.242 1.8 11.04 122
2C/2H 627 14.02 11.29 2.9 2.98 41.17 0.374 2.7 2.50 122
3C/1H 627 19.06 19.06 3.9 6.50 25.78 0.234 1.7 10.44 122
100 2C/1H 933 24.77 18.32 5.0 9.99 39.07 0.355 2.6 30.09 145
2C/2H 893 24.08 17.74 4.9 9.49 61.10 0.555 4.1 6.08 145
3C/1H 893 28.38 20.06 5.8 9.31 37.94 0.345 2.5 28.55 145
120 2C/1H 976 25.30 18.77 5.2 10.42 31.65 0.365 2.7 31.65 160
2C/2H 921 24.45 18.05 5.0 9.80 62.51 0.568 4.2 6.35 160
3C/1H 921 28.83 20.40 5.9 9.63 38.73 0.352 2.6 29.63 160
Note: Q/ITD = MBh (kW)/(Entering water temperature - Entering air temperature) when ∆T and gpm (L/s) remain constant. To determine heating capacities
at a different entering water temperature or entering air temp, compute the new ITD and multiply it by the Q/ITD shown.
Main Coil
UNT-PRC001-EN.book Page 32 Tuesday, May 8, 2012 10:54 AM

UNT-PRC001-EN 33
Performance Data
Horizontal Concealed, Compact Concealed, Horizontal Recessed and Vertical Recessed
The following performance data represents the 1-row hot water and steam reheat coils that are
available on fan-coil units in conjunction with a 2, 3, or 4-row cooling coil.
Heating performance is based on 55°F entering air temperature, 180°F entering hot water
temperature (hot water coil) or 2 psig and 5 psig entering steam pressure (steam coil) and a 15°F ΔT.
All performance measured on high speed tap, 115 V, 0.05 ESP, without filter. Free discharge EC
motor. See Table 6, p. 25 for performance groupings.
Table 21. Standard Capacity and High Capacity hot water reheat coil—free discharge EC motor
SIZE
Main
Cooling
Coil
Airflow
(cfm)
Standard capacity hot water reheat coil High capacity hot water reheat coil
Motor
Power (W)
Total
Capacity
(MBh) Q/ITD
Flow Rate
(gpm)
WPD
(ft H20)
Total
Capacity
(MBh) Q/ITD
Flow Rate
(gpm)
WPD
(ft H20)
020 2-row 246 3.96 0.032 0.5 0.07 8.67 0.069 1.2 0.28 37
3-row 242 3.89 0.031 0.5 0.07 8.55 0.068 1.1 0.27 37
4-row 222 3.73 0.030 0.5 0.06 8.27 0.066 1.1 0.26 37
030 2-row 313 4.45 0.036 0.6 0.09 9.49 0.076 1.3 0.33 39
3-row 309 4.42 0.035 0.6 0.09 9.43 0.075 1.3 0.33 39
4-row 276 4.18 0.033 0.6 0.08 9.04 0.072 1.2 0.30 39
040 2-row 381 5.95 0.048 0.8 0.17 12.81 0.102 1.7 0.66 58
3-row 365 5.69 0.046 0.8 0.16 12.37 0.099 1.7 0.62 58
4-row 340 5.46 0.044 0.7 0.15 11.98 0.096 1.6 0.59 58
060 2-row 609 9.51 0.076 1.3 0.51 20.34 0.163 2.7 1.93 79
3-row 604 9.34 0.075 1.2 0.49 20.05 0.160 2.7 1.88 79
4-row 557 8.83 0.071 1.2 0.44 19.19 0.154 2.6 1.74 79
080 2-row 790 12.02 0.096 1.6 0.92 25.94 0.208 3.5 3.58 122
3-row 724 11.22 0.090 1.5 0.81 24.60 0.197 3.3 3.26 122
4-row 676 10.92 0.087 1.5 0.78 24.08 0.193 3.2 3.14 122
100 2-row 1015 17.34 0.139 2.3 2.41 38.00 0.304 5.1 9.73 145
3-row 1052 17.22 0.138 2.3 2.38 37.80 0.302 5.0 9.64 145
4-row 1105 16.37 0.131 2.4 2.18 36.33 0.291 4.8 8.98 160
120 2-row 988 17.97 0.144 2.4 2.57 39.07 0.313 5.2 10.22 145
3-row 1074 17.33 0.139 2.3 2.41 37.99 0.304 5.1 9.72 160
4-row 993 16.36 0.131 2.2 2.18 36.33 0.291 4.8 8.97 160
Note: Q/ITD = MBh (kW)/(Entering water temperature - Entering air temperature) when ∆T and gpm (L/s) remain constant. To determine heating capacities
at a different entering water temperature or entering air temp, compute the new ITD and multiply it by the Q/ITD shown.
Table 22. Steam coil performance—free discharge EC motor
SIZE
Main Cooling
Coil Airflow (cfm)
2 PSIG 5 PSIG
Motor
Power (W)
Total Capacity
(MBh) Q/ITD
Heating LAT
(F)
Total Capacity
(MBh) Q/ITD
Heating LAT
(F)
020 2-row 246 7.65 0.051 86.73 8.06 0.051 88.41 37
3-row 242 7.53 0.051 87.14 7.93 0.051 88.84 37
4-row 222 7.22 0.048 88.21 7.60 0.048 89.96 37
030 2-row 313 8.57 0.058 84.02 9.02 0.057 85.55 39
3-row 309 8.50 0.057 84.21 8.95 0.057 85.75 39
4-row 276 8.06 0.054 85.45 8.49 0.054 87.06 39
040 2-row 381 11.07 0.074 84.74 11.66 0.074 86.31 58
3-row 365 10.61 0.071 85.77 11.17 0.071 87.39 58
4-row 340 10.19 0.068 88.76 10.73 0.068 88.44 58
060 2-row 609 17.09 0.115 83.66 18.00 0.115 85.18 79
3-row 604 16.79 0.113 84.07 17.68 0.113 85.61 79
4-row 557 15.92 0.107 85.34 16.76 0.107 86.95 79
080 2-row 790 21.28 0.143 84.43 22.41 0.143 85.99 122
3-row 724 19.93 0.134 86.00 20.99 0.134 87.64 122
4-row 676 19.42 0.130 86.64 20.45 0.130 88.32 122
100 2-row 1015 30.15 0.202 85.69 31.77 0.202 87.33 145
3-row 1052 29.97 0.201 85.84 31.57 0.201 87.49 145
4-row 988 28.56 0.192 87.04 30.09 0.192 88.75 145
120 2-row 1105 31.19 0.209 84.86 32.86 0.209 86.46 160
3-row 1074 30.14 0.202 85.69 31.76 0.202 87.34 160
4-row 993 28.55 0.192 87.05 30.08 0.192 88.76 160
Note: Q/ITD = MBh (kW)/(Entering water temperature - Entering air temperature) when ∆T and gpm (L/s) remain constant. To determine heating capacities
at a different entering water temperature or entering air temp, compute the new ITD and multiply it by the Q/ITD shown.
Reheat Coils
UNT-PRC001-EN.book Page 33 Tuesday, May 8, 2012 10:54 AM

34 UNT-PRC001-EN
Performance Data
Vertical Concealed
The following performance data represents the 1-row hot water and steam reheat coils that are
available on fan-coil units in conjunction with a 2, 3, or 4-row cooling coil.
Heating performance is based on 55°F entering air temperature, 180°F entering hot water
temperature (hot water coil) or 2 psig and 5 psig entering steam pressure (steam coil) and a 15°F ΔT.
All performance measured on high speed tap, 115 V, 0.05 ESP, without filter. Free discharge EC
motor. See Table 6, p. 25 for performance groupings.
Table 23. Standard Capacity and High Capacity hot water reheat coil—free discharge EC motor
SIZE
Main Cooling
Coil
Airflow
(cfm)
Standard capacity hot water reheat coil High capacity hot water reheat coil
Motor
Power
(W)
Total
Capacity
(MBh) Q/ITD
Flow Rate
(gpm)
WPD
(ft H20)
Total
Capacity
(MBh) Q/ITD
Flow
Rate
(gpm)
WPD
(ft H20)
020 2-row 211 3.69 0.030 0.5 0.06 8.20 0.066 1.1 0.25 37
3-row 205 3.61 0.029 0.5 0.06 8.07 0.065 1.1 0.25 37
4-row 192 3.48 0.028 0.5 0.06 7.85 0.063 1.1 0.24 37
030 2-row 272 4.20 0.034 0.6 0.08 9.06 0.072 1.2 0.30 39
3-row 270 4.17 0.033 0.6 0.08 9.02 0.072 1.2 0.30 39
4-row 247 3.98 0.032 0.5 0.07 8.71 0.070 1.2 0.28 39
040 2-row 340 5.65 0.045 0.8 0.16 12.30 0.098 1.6 0.61 58
3-row 328 5.44 0.044 0.7 0.15 11.94 0.096 1.6 0.58 58
4-row 309 5.24 0.042 0.7 0.14 11.61 0.093 1.6 0.55 58
060 2-row 535 8.96 0.072 1.2 0.46 19.41 0.155 2.6 1.78 79
3-row 531 8.82 0.071 1.2 0.44 19.18 0.153 2.6 1.74 79
4-row 499 8.43 0.067 1.1 0.41 18.51 0.148 2.5 1.64 79
080 2-row 697 11.43 0.091 1.5 0.84 24.95 0.200 3.3 3.34 122
3-row 646 10.76 0.086 1.4 0.76 23.80 0.190 3.2 3.07 122
4-row 612 10.51 0.084 1.4 0.72 23.37 0.187 3.1 2.97 122
100 2-row 891 16.33 0.131 2.2 2.17 36.27 0.290 4.8 8.95 145
3-row 913 16.25 0.130 2.2 2.15 36.13 0.289 4.8 8.89 145
4-row 870 15.57 0.125 2.1 1.99 34.95 0.280 4.7 8.38 145
120 2-row 980 17.06 0.136 2.3 2.34 37.52 0.300 5.0 9.51 160
3-row 958 16.56 0.132 2.2 2.22 36.66 0.293 4.9 9.12 160
4-row 899 15.75 0.126 2.1 2.04 35.26 0.282 4.7 8.51 160
Note: Q/ITD = MBh (kW)/(Entering water temperature - Entering air temperature) when ∆T and gpm (L/s) remain constant. To determine heating capacities
at a different entering water temperature or entering air temp, compute the new ITD and multiply it by the Q/ITD shown.
Table 24. Steam coil performance—free discharge EC motor
SIZE
Main Cooling
Coil Airflow (cfm)
2 PSIG 5 PSIG
Motor Power
(W)
Total
Capacity
(MBh) Q/ITD
Heating LAT
(F)
Total
Capacity
(MBh) Q/ITD
Heating LAT
(F)
020 2-row 211 7.15 0.048 88.47 7.52 0.048 90.24 37
3-row 205 7.00 0.047 89.02 7.37 0.047 90.82 37
4-row 192 6.77 0.045 89.91 7.12 0.045 91.75 37
030 2-row 272 8.09 0.054 85.38 8.52 0.054 86.98 39
3-row 270 8.04 0.054 85.51 8.47 0.054 87.12 39
4-row 247 7.70 0.052 86.59 8.10 0.052 88.26 39
040 2-row 340 10.53 0.071 85.95 11.09 0.071 87.59 58
3-row 328 10.15 0.068 86.86 10.69 0.068 88.54 58
4-row 309 9.80 0.066 87.73 10.32 0.066 89.46 58
060 2-row 535 16.14 0.108 85.01 16.99 0.108 86.60 79
3-row 531 15.91 0.107 85.35 16.75 0.107 86.96 79
4-row 499 15.22 0.102 86.43 16.03 0.102 88.10 79
080 2-row 697 20.28 0.136 85.58 21.35 0.136 87.20 122
3-row 646 19.15 0.129 87.00 20.16 0.128 88.69 122
4-row 612 18.72 0.126 87.56 19.72 0.126 89.29 122
100 2-row 891 28.50 0.191 87.09 30.02 0.191 88.81 145
3-row 913 28.37 0.190 87.21 29.88 0.190 88.93 145
4-row 870 24.24 0.183 88.25 28.70 0.183 90.03 145
120 2-row 980 29.69 0.199 86.07 31.28 0.199 87.73 160
3-row 958 28.87 0.194 86.77 30.41 0.194 88.46 160
4-row 899 27.54 0.185 87.97 29.01 0.185 89.73 160
Note: Q/ITD = MBh (kW)/(Entering water temperature - Entering air temperature) when ∆T and gpm (L/s) remain constant. To determine heating capacities
at a different entering water temperature or entering air temp, compute the new ITD and multiply it by the Q/ITD shown.
Reheat Coils
UNT-PRC001-EN.book Page 34 Tuesday, May 8, 2012 10:54 AM

UNT-PRC001-EN 35
Performance Data
Horizontal Cabinet and Vertical Cabinet
The following performance data represents the 1-row hot water and steam reheat coils that are
available on fan-coil units in conjunction with a 2, 3, or 4-row cooling coil.
Heating performance is based on 55°F entering air temperature, 180°F entering hot water
temperature (hot water coil) or 2 psig and 5 psig entering steam pressure (steam coil) and a 15°F ΔT.
All performance measured on high speed tap, 115 V, zero ESP, with throwaway filter. Free discharge
EC motor. See Table 6, p. 25 for performance groupings.
Table 25. Standard Capacity and High Capacity hot water reheat coil—free discharge EC motor
SIZE
Main
Cooling
Coil
Airflow
(cfm)
Standard capacity hot water reheat coil High capacity hot water reheat coil
Motor
Power
(W)
Total
Capacity
(MBh) Q/ITD
Flow Rate
(gpm)
WPD
(ft H20)
Total
Capacity
(MBh) Q/ITD
Flow Rate
(gpm)
WPD
(ft H20)
020 2-row 222 3.77 0.030 0.5 0.07 8.35 0.067 1.1 0.26 37
3-row 217 3.70 0.030 0.5 0.06 8.23 0.066 1.1 0.26 37
4-row 204 3.58 0.029 0.5 0.06 8.03 0.064 1.1 0.25 37
030 2-row 280 4.25 0.034 0.6 0.08 9.14 0.073 1.2 0.31 39
3-row 277 4.22 0.034 0.6 0.08 9.11 0.073 1.2 0.31 39
4-row 256 4.05 0.032 0.5 0.07 8.81 0.070 1.2 0.29 39
040 2-row 349 5.72 0.046 0.8 0.16 12.42 0.099 1.7 0.63 58
3-row 338 5.51 0.044 0.7 0.15 12.06 0.096 1.6 0.59 58
4-row 320 5.32 0.043 0.7 0.14 11.74 0.094 1.6 0.57 58
060 2-row 544 9.03 0.072 1.2 0.46 19.53 0.156 2.6 1.80 79
3-row 541 8.90 0.071 1.2 0.45 19.30 0.154 2.6 1.76 79
4-row 510 8.51 0.068 1.1 0.42 18.65 0.149 2.5 1.66 79
080 2-row 706 11.49 0.092 1.5 0.85 25.05 0.200 3.3 3.37 122
3-row 659 10.84 0.087 1.4 0.77 23.95 0.192 3.2 3.11 122
4-row 627 10.61 0.085 1.4 0.74 23.55 0.188 3.1 3.01 122
100 2-row 912 16.51 0.132 2.2 2.21 36.58 0.293 4.9 9.09 145
3-row 933 16.41 0.131 2.2 2.19 36.39 0.291 4.8 9.01 145
4-row 893 15.74 0.126 2.1 2.03 35.23 0.282 4.7 8.50 145
120 2-row 996 17.19 0.138 2.3 2.37 37.74 0.302 5.0 9.61 160
3-row 976 16.69 0.134 2.2 2.25 36.88 0.295 4.9 9.22 160
4-row 921 15.90 0.127 2.1 2.07 35.52 0.284 4.7 8.63 160
Note: Q/ITD = MBh (kW)/(Entering water temperature - Entering air temperature) when ∆T and gpm (L/s) remain constant. To determine heating capacities
at a different entering water temperature or entering air temp, compute the new ITD and multiply it by the Q/ITD shown.
Table 26. Steam reheat coil—free discharge EC motor
SIZE
Main Cooling
Coil Airflow (cfm)
2 PSIG 5 PSIG
Motor
Power (W)
Total Capacity
(MBh) Q/ITD Heating LAT (F)
Total Capacity
(MBh) Q/ITD
Heating
LAT (F)
020 2-row 222 7.31 0.049 87.89 7.69 0.049 89.63 37
3-row 217 7.18 0.048 88.35 7.56 0.048 90.12 37
4-row 204 6.96 0.047 89.17 7.32 0.047 90.98 37
030 2-row 280 8.18 0.055 85.10 8.61 0.055 86.69 39
3-row 277 8.14 0.055 85.23 8.57 0.055 86.83 39
4-row 256 7.81 0.052 86.23 8.22 0.052 87.88 39
040 2-row 349 10.66 0.072 85.65 11.22 0.071 87.28 58
3-row 338 10.28 0.069 86.54 10.82 0.069 88.21 58
4-row 320 9.94 0.067 87.37 10.47 0.067 89.08 58
060 2-row 544 16.26 0.109 84.83 17.12 0.109 86.41 79
3-row 541 16.03 0.108 85.17 16.88 0.108 86.77 79
4-row 510 15.36 0.103 86.20 16.18 0.103 87.85 79
080 2-row 706 20.38 0.137 85.46 21.46 0.137 87.08 122
3-row 659 19.29 0.129 86.81 20.31 0.129 88.50 122
4-row 627 18.90 0.127 87.33 19.90 0.127 89.04 122
100 2-row 912 28.80 0.193 86.83 30.34 0.193 88.53 145
3-row 933 28.62 0.192 86.98 30.15 0.192 88.69 145
4-row 893 27.52 0.185 87.99 28.99 0.185 89.75 145
120 2-row 996 29.90 0.201 85.89 31.50 0.201 87.54 160
3-row 976 29.09 0.195 86.58 30.64 0.195 88.27 160
4-row 921 27.79 0.187 87.73 29.28 0.186 89.48 160
Note: Q/ITD = MBh (kW)/(Entering water temperature - Entering air temperature) when ∆T and gpm (L/s) remain constant. To determine heating capacities
at a different entering water temperature or entering air temp, compute the new ITD and multiply it by the Q/ITD shown.
Reheat Coils
UNT-PRC001-EN.book Page 35 Tuesday, May 8, 2012 10:54 AM

36 UNT-PRC001-EN
Performance Data
Vertical Slope Top Cabinet
The following performance data represents the 1-row hot water and steam reheat coils that are
available on fan-coil units in conjunction with a 2, 3, or 4-row cooling coil.
Heating performance is based on 55°F entering air temperature, 180°F entering hot water
temperature (hot water coil) or 2 psig and 5 psig entering steam pressure (steam coil) and a 15°F ΔT.
All performance measured on high speed tap, 115 V, zero ESP, with throwaway filter. Free discharge
EC motor. See Table 6, p. 25 for performance groupings.
Table 27. Standard Capacity and High capacity hot water reheat coil with high static motor—free discharge EC motor
SIZE
Main
Cooling
Coil
Airflow
(cfm)
Standard capacity hot water reheat coil High capacity hot water reheat coil
Motor
Power
(W)
Total
Capacity
(MBh) Q/ITD
Flow Rate
(gpm)
WPD
(ft H20)
Total
Capacity
(MBh) Q/ITD
Flow Rate
(gpm)
WPD
(ft H20)
020 2-row 206 3.64 0.029 0.5 0.06 8.13 0.065 1.1 0.25 37
3-row 200 3.57 0.029 0.5 0.06 8.00 0.064 1.1 0.24 37
4-row 190 3.46 0.028 0.5 0.06 7.82 0.063 1.0 0.23 37
030 2-row 262 4.12 0.033 0.6 0.08 8.94 0.072 1.2 0.30 39
3-row 260 4.10 0.033 0.6 0.08 8.90 0.071 1.2 0.29 39
4-row 242 3.94 0.032 0.5 0.07 8.64 0.069 1.2 0.28 39
040 2-row 330 5.57 0.045 0.7 0.15 12.16 0.097 1.6 0.60 58
3-row 320 5.38 0.043 0.7 0.14 11.84 0.095 1.6 0.57 58
4-row 304 5.21 0.042 0.7 0.14 11.55 0.092 1.5 0.55 58
060 2-row 512 8.76 0.070 1.2 0.44 19.08 0.153 2.5 1.73 79
3-row 508 8.65 0.069 1.2 0.43 18.88 0.151 2.5 1.69 79
4-row 483 8.31 0.066 1.1 0.40 18.30 0.146 2.4 1.60 79
080 2-row 665 11.20 0.090 1.5 0.81 24.55 0.196 3.3 3.25 122
3-row 623 10.61 0.085 1.4 0.74 23.54 0.188 3.1 3.01 122
4-row 596 10.39 0.083 1.4 0.71 23.17 0.185 3.1 2.93 122
100 2-row 856 16.02 0.128 2.1 2.10 35.73 0.286 4.8 8.71 145
3-row 873 15.93 0.127 2.1 2.08 35.57 0.285 4.7 8.65 145
4-row 839 15.33 0.123 2.0 1.94 34.54 0.276 4.6 8.20 145
120 2-row 940 16.74 0.134 2.2 2.27 36.97 0.296 4.9 9.26 160
3-row 923 16.30 0.130 2.2 2.16 36.21 0.290 4.8 8.92 160
4-row 876 15.58 0.125 2.1 2.00 34.98 0.280 4.7 8.38 160
Note: Q/ITD = MBh (kW)/(Entering water temperature - Entering air temperature) when ∆T and gpm (L/s) remain constant. To determine heating capacities
at a different entering water temperature or entering air temp, compute the new ITD and multiply it by the Q/ITD shown.
Table 28. Steam reheat coil with high static motor—free discharge EC motor
SIZE
Main Cooling
Coil Airflow (cfm)
2 PSIG 5 PSIG
Motor
Power (W)
Total Capacity
(MBh) Q/ITD Heating LAT (F)
Total Capacity
(MBh) Q/ITD
Heating LAT
(F)
020 2-row 206 7.06 0.047 88.78 7.44 0.047 90.56 37
3-row 200 6.93 0.047 89.28 7.29 0.046 91.10 37
4-row 190 6.73 0.045 90.04 7.09 0.045 91.89 37
030 2-row 262 7.95 0.053 85.79 8.37 0.053 87.42 39
3-row 260 7.91 0.053 85.90 8.33 0.053 87.53 39
4-row 242 7.62 0.051 86.84 8.02 0.051 88.52 39
040 2-row 330 10.39 0.070 86.29 10.94 0.070 87.94 58
3-row 320 10.04 0.067 87.12 10.57 0.067 88.82 58
4-row 304 9.74 0.065 87.90 10.25 0.065 89.64 58
060 2-row 512 15.80 0.106 85.51 16.64 0.106 87.13 79
3-row 508 15.60 0.105 85.83 16.43 0.105 87.46 79
4-row 483 15.01 0.101 86.77 15.81 0.101 88.46 79
080 2-row 665 19.89 0.133 86.05 20.94 0.133 87.70 122
3-row 623 18.89 0.127 87.34 19.89 0.127 89.05 122
4-row 596 18.53 0.124 87.82 19.51 0.124 89.46 122
100 2-row 856 27.99 0.188 87.55 29.48 0.188 89.29 145
3-row 873 27.84 0.187 87.69 29.33 0.187 89.44 145
4-row 839 26.85 0.180 88.63 28.29 0.180 90.42 145
120 2-row 940 29.17 0.196 86.51 30.73 0.196 88.19 160
3-row 923 28.44 0.191 87.14 29.96 0.191 88.86 160
4-row 876 27.26 0.183 88.23 28.72 0.183 90.00 160
Note: Q/ITD = MBh (kW)/(Entering water temperature - Entering air temperature) when ∆T and gpm (L/s) remain constant. To determine heating capacities
at a different entering water temperature or entering air temp, compute the new ITD and multiply it by the Q/ITD shown.
Reheat Coils
UNT-PRC001-EN.book Page 36 Tuesday, May 8, 2012 10:54 AM

UNT-PRC001-EN 37
Performance Data
Horizontal Concealed, Compact Concealed, Horizontal Cabinet, Horizontal Recessed, and
Vertical Recessed
The following performance data represents the 1-row hot water and steam reheat coils that are
available on fan-coil units in conjunction with a 2-, 3-, or 4-row cooling coil.
Heating performance is based on 55°F entering air temperature, 180°F entering hot water
temperature (hot water coil) or 2 psig and 5 psig entering steam pressure (steam coil) and a 15°F ΔT.
All performance measured on high speed tap, 115 V, 0.20 ESP, without filter. High static EC motor.
See Table 6, p. 25 for performance groupings.
Table 29. High capacity hot water reheat coil with high static motor—high static EC motor
SIZE
Main
Cooling
Coil
Airflow
(cfm)
Standard capacity hot water reheat coil High capacity hot water reheat coil
Motor
Power
(W)
Total
Capacity
(MBh) Q/ITD
Flow Rate
(gpm)
WPD
(ft H20)
Total
Capacity
(MBh) Q/ITD
Flow Rate
(gpm)
WPD
(ft H20)
020 2-row 314 4.62 0.037 0.6 0.09 9.76 0.078 1.3 0.35 84
3-row 319 4.63 0.037 0.6 0.09 9.77 0.078 1.3 0.35 84
4-row 295 4.44 0.036 0.6 0.09 9.47 0.076 1.3 0.33 84
030 2-row 380 5.10 0.041 0.7 0.11 10.52 0.084 1.4 0.39 91
3-row 358 4.91 0.039 0.7 0.10 10.23 0.082 1.4 0.38 91
4-row 330 4.71 0.038 0.6 0.10 9.90 0.079 1.3 0.35 91
040 2-row 410 6.35 0.051 0.9 0.19 13.47 0.108 1.8 0.72 110
3-row 506 6.93 0.055 0.9 0.22 14.41 0.115 1.9 0.81 110
4-row 470 6.64 0.053 0.9 0.21 13.95 0.112 1.9 0.77 110
060 2-row 700 10.50 0.084 1.4 0.60 21.95 0.176 2.9 2.21 162
3-row 824 11.31 0.090 1.5 0.69 23.22 0.186 3.1 2.45 162
4-row 760 10.70 0.086 1.4 0.62 22.27 0.178 3.0 2.27 162
080 2-row 950 13.79 0.110 1.8 1.17 28.87 0.231 3.8 4.33 298
3-row 927 13.32 0.107 1.8 1.10 28.10 0.225 3.7 4.13 298
4-row 870 12.93 0.103 1.7 1.04 27.46 0.220 3.7 3.96 298
100 2-row 1199 19.54 0.156 2.6 2.98 41.72 0.334 5.6 11.49 252
3-row 1360 20.42 0.163 2.7 3.22 43.15 0.345 5.7 12.21 252
4-row 1276 19.44 0.156 2.6 2.95 41.55 0.332 5.5 11.41 252
120 2-row 1330 20.57 0.165 2.7 3.26 43.40 0.347 5.8 12.34 314
3-row 1419 20.85 0.167 2.8 3.34 43.86 0.351 5.8 12.57 314
4-row 1330 19.85 0.159 2.6 3.06 42.22 0.338 5.6 11.75 314
Note: Q/ITD = MBh (kW)/(Entering water temperature - Entering air temperature) when ∆T and gpm (L/s) remain constant. To determine heating capacities
at a different entering water temperature or entering air temp, compute the new ITD and multiply it by the Q/ITD shown.
Table 30. High capacity hot water reheat coil with high static motor—high static EC motor
SIZE
Main Cooling
Coil Airflow (cfm)
2 PSIG 5 PSIG
Motor
Power (W)
Total Capacity
(MBh) Q/ITD Heating LAT (F)
Total Capacity
(MBh) Q/ITD
Heating LAT
(F)
020 2-row 314 8.88 0.060 83.20 9.35 0.060 84.69 84
3-row 319 8.89 0.060 83.17 9.36 0.060 84.66 84
4-row 295 8.55 0.057 84.07 9.00 0.057 85.61 84
030 2-row 380 9.78 0.066 81.08 10.29 0.066 82.46 91
3-row 358 9.42 0.063 81.88 9.92 0.063 83.29 91
4-row 330 9.04 0.061 82.78 9.52 0.061 84.25 91
040 2-row 410 11.79 0.079 83.28 12.41 0.079 84.78 110
3-row 506 12.84 0.086 81.40 13.52 0.086 82.80 110
4-row 470 12.32 0.083 82.30 12.97 0.083 83.75 110
060 2-row 700 18.81 0.126 81.52 19.81 0.126 82.93 162
3-row 824 20.22 0.136 80.01 21.28 0.136 81.33 162
4-row 760 19.16 0.129 81.13 20.17 0.128 82.52 162
080 2-row 950 24.29 0.163 81.44 25.59 0.163 82.84 298
3-row 927 23.49 0.158 82.17 24.74 0.158 83.62 298
4-row 870 22.82 0.153 82.81 24.04 0.153 84.29 298
100 2-row 1199 33.79 0.227 82.99 35.60 0.227 84.49 252
3-row 1360 35.23 0.236 82.05 37.13 0.236 83.50 252
4-row 1276 33.63 0.226 83.11 35.43 0.226 84.61 252
120 2-row 1330 35.48 0.238 81.89 37.39 0.238 83.34 314
3-row 1419 35.95 0.241 81.60 37.89 0.241 83.03 314
4-row 1330 34.30 0.230 82.65 36.13 0.230 84.14 314
Note: Q/ITD = MBh (kW)/(Entering water temperature - Entering air temperature) when ∆T and gpm (L/s) remain constant. To determine heating capacities
at a different entering water temperature or entering air temp, compute the new ITD and multiply it by the Q/ITD shown.
Reheat Coils
UNT-PRC001-EN.book Page 37 Tuesday, May 8, 2012 10:54 AM

38 UNT-PRC001-EN
Performance Data
Vertical Concealed
The following performance data represents the 1-row hot water and steam reheat coils that are
available on fan-coil units in conjunction with a 2-, 3-, or 4-row cooling coil.
Heating performance is based on 55°F entering air temperature, 180°F entering hot water
temperature (hot water coil) or 2 psig and 5 psig entering steam pressure (steam coil) and a 15°F ΔT.
All performance measured on high speed tap, 115 V, 0.20 ESP, without filter. High static EC motor.
See Table 6, p. 25 for performance groupings.
Table 31. High Static EC motor—high static EC motor
SIZE
Main
Cooling
Coil
Airflow
(cfm)
Standard capacity hot water reheat coil High capacity hot water reheat coil
Motor
Power
(W)
Total
Capacity
(MBh) Q/ITD
Flow Rate
(gpm)
WPD
(ft H20)
Total
Capacity
(MBh) Q/ITD
Flow Rate
(gpm)
WPD
(ft H20)
020 2-row 274 4.32 0.035 0.6 0.08 9.26 0.074 1.2 0.32 84
3-row 274 4.30 0.034 0.6 0.08 9.24 0.074 1.2 0.31 84
4-row 258 4.17 0.033 0.6 0.08 9.01 0.072 1.2 0.30 84
030 2-row 341 4.85 0.039 0.7 0.10 10.12 0.081 1.4 0.37 91
3-row 319 4.66 0.037 0.6 0.10 9.83 0.079 1.3 0.35 91
4-row 299 4.50 0.036 0.6 0.09 9.56 0.076 1.3 0.33 91
040 2-row 377 6.09 0.049 0.8 0.18 13.04 0.104 1.7 0.68 110
3-row 455 6.62 0.053 0.9 0.21 13.90 0.111 1.9 0.76 110
4-row 429 6.38 0.051 0.9 0.19 13.52 0.108 1.8 0.73 110
060 2-row 632 9.99 0.080 1.3 0.55 21.12 0.169 2.8 2.07 162
3-row 733 10.72 0.086 1.4 0.62 22.29 0.178 3.0 2.28 162
4-row 687 10.23 0.082 1.4 0.57 21.51 0.172 2.9 2.14 162
080 2-row 865 13.22 0.106 1.8 1.09 27.95 0.224 3.7 4.09 298
3-row 845 12.82 0.103 1.7 1.03 27.28 0.218 3.6 3.92 298
4-row 800 12.48 0.100 1.7 0.98 26.73 0.214 3.6 3.78 298
100 2-row 1089 18.64 0.149 2.5 2.74 40.20 0.322 5.4 10.76 252
3-row 1206 19.36 0.155 2.6 2.93 41.42 0.331 5.5 11.35 252
4-row 1145 18.58 0.149 2.5 2.73 40.11 0.321 5.3 10.72 252
120 2-row 1218 19.73 0.158 2.6 3.03 42.03 0.336 5.6 11.65 314
3-row 1291 20.02 0.160 2.7 3.11 42.50 0.340 5.7 11.88 314
4-row 1223 19.18 0.153 2.6 2.88 41.10 0.329 5.5 11.19 314
Note: Q/ITD = MBh (kW)/(Entering water temperature - Entering air temperature) when ∆T and gpm (L/s) remain constant. To determine heating capacities
at a different entering water temperature or entering air temp, compute the new ITD and multiply it by the Q/ITD shown.
Table 32. Steam coil performance—high static EC motor
SIZE
Main Cooling
Coil Airflow (cfm)
2 PSIG 5 PSIG
Motor
Power (W)
Total Capacity
(MBh) Q/ITD Heating LAT (F)
Total Capacity
(MBh) Q/ITD
Heating LAT
(F)
020 2-row 274 8.32 0.056 84.71 8.76 0.056 86.28 84
3-row 274 8.29 0.056 84.80 8.72 0.056 86.37 84
4-row 258 8.03 0.054 85.55 8.45 0.054 87.17 84
030 2-row 341 9.30 0.062 82.16 9.79 0.062 83.60 91
3-row 319 8.96 0.060 83.00 9.43 0.060 84.48 91
4-row 299 8.65 0.058 83.79 9.11 0.058 85.31 91
040 2-row 377 11.32 0.076 84.21 11.92 0.076 85.76 110
3-row 455 12.27 0.082 82.39 12.92 0.082 83.84 110
4-row 429 11.84 0.079 83.18 12.47 0.079 84.67 110
060 2-row 632 17.92 0.120 82.59 18.87 0.120 84.05 162
3-row 733 19.18 0.129 81.10 20.20 0.129 82.49 162
4-row 687 18.34 0.123 82.08 19.31 0.123 83.52 162
080 2-row 865 23.32 0.157 82.33 24.56 0.156 83.78 298
3-row 845 22.64 0.152 83.00 23.84 0.152 84.49 298
4-row 800 22.07 0.148 83.58 23.24 0.148 85.10 298
100 2-row 1089 32.29 0.217 84.04 34.02 0.217 85.60 252
3-row 1206 33.49 0.225 83.19 35.29 0.225 84.71 252
4-row 1145 32.21 0.216 84.10 33.93 0.216 85.66 252
120 2-row 1218 34.10 0.229 82.78 35.93 0.229 84.28 314
3-row 1291 34.57 0.232 82.47 36.43 0.232 83.95 314
4-row 1223 33.18 0.223 83.41 34.96 0.223 84.93 314
Note: Q/ITD = MBh (kW)/(Entering water temperature - Entering air temperature) when ∆T and gpm (L/s) remain constant. To determine heating capacities
at a different entering water temperature or entering air temp, compute the new ITD and multiply it by the Q/ITD shown.
Reheat Coils
UNT-PRC001-EN.book Page 38 Tuesday, May 8, 2012 10:54 AM

UNT-PRC001-EN 39
Controls
ECM Engine Controller
The Electronically Commutated Motor (ECM) engine controls and reports the performance of up
to two Trane Brushless DC (BLDC) motors.
• The engine also coordinates the operation of the fan in response to electric heat behavior and
electric behavior in response to hydronic heat behavior.
• The engine incorporates a user interface that allows adjustment of certain unit parameters and
provides constant feedback on motor operation.
• The engine integrates service and troubleshooting tools.
• The engine integrates a versatile configurable auxiliary temperature sensor.
• The engine incorporates various safety and lockout features, such as maintaining proper fan
speeds if electric heat is called for.
Status Display
The ECM engine board contains a four-digit, seven-segment display that is used to present
information in a format close to real-world language, while having a small-form factor. Most
characters are immediately recognizable; however, please consult Table 33 and Table 34 for the
graphical representation of each alphanumeric character.
Figure 2. ECM engine controller
Figure 3. Status display
Table 33. Screen representation of alphabetical characters
ABCDEFGHI J KLMNOPQRSTUVWXYZ
Table 34. Screen representation of numeric characters
1234567890
UNT-PRC001-EN.book Page 39 Tuesday, May 8, 2012 10:54 AM

40 UNT-PRC001-EN
Controls
Control Options
UniTrane fan-coils are available with four different control options:
• Manual three-speed fan switch
• Tracer ZN010
• Tracer ZN510
• Tracer ZN520
• Tracer UC400
Manual Fan Mode Switch
Model Number Digit 30 = A and Digit 31 = D or K
Figure 4. Fan speed switch
Figure 5. Adapter board
Note: Customer Low-Voltage Interface for
Fan Speeds, Variable Fan Speed, and
24 Vac Supply
UNT-PRC001-EN.book Page 40 Tuesday, May 8, 2012 10:54 AM

UNT-PRC001-EN 41
Controls
The adapter allows direct customer interfacing through the use of terminal strips. Standard
interfacing includes:
• Fan Speeds (H, M, L) (for wall mounted fan speed switches)
• Variable speed (0–10V) inputs
The standard adapter board eliminates many separate wiring harnesses in the panel and allows
simple, mistake-proofed single-plug interfacing of:
• The ECM engine controller
•Transformers
•Motors
• Valves
•Dampers
• Electric heat control
• Fan speed switches
• Main power (except electric heat)
The manual fan mode switch is available for fan-coil units that do not have Trane factory-mounted
control packages. This four-position switch (off, high, medium, low) allows manual fan mode
selection and is available unit or wall mounted. The unit-mounted option (Digit 31 = D) operates
on line voltage. The wall-mounted option (Digit 31 = K) is low-voltage and has three 24-volt relays
using a factory-wired transformer and relays to control the fan motor.
Customer Supplied Terminal Interface (CSTI)
Figure 6. CSTI adapter board
Customer Low-Voltage Interface for
Valves, Electric Heat, Dampers, Fan
Speeds, Variable Fan Speed, and
24 Vac Supply
Valve(s), Electric Heat, and Changeover
Configuration Switches (Factory-Set)
UNT-PRC001-EN.book Page 41 Tuesday, May 8, 2012 10:54 AM

42 UNT-PRC001-EN
Controls
The control interface is intended to be used with a field-supplied, low-voltage thermostat or
controller. The control box contains a relay board which includes a line voltage to 24-volt
transformer, quiet contactors (for electric heat units), and an optional disconnect switch. All end
devices are wired to a low-voltage terminal block and are run-tested, so the only a power
connection and thermostat connection is needed to commission the unit. Changeover sensors and
controls are provided whenever a change-over coil is selected. When N.O. valves are selected,
inverting relays are provided for use with standard thermostats.
The CSTI adapter board provides all the hookups of the standard adapter board, but in addition,
provides hookups for valve control (main and auxiliary coils), electric heat control, and damper
control. Screw terminal blocks provide convenient access to fan controls and to end device control.
In addition, a courtesy 10-Vdc supply is provided for use with an external potentiometer or rheostat.
The 10-Vdc supply supports up to 10 mA draw.
Tracer Controls
The Tracer family of controllers, ZN010, ZN510, ZN520, and UC400 offer the combined advantages
of simple and dependable operation with the latest Trane-designed controller. Standard control
features include options normally available on more elaborate control systems. All control options
are available factory-configured or can be field-configured using Rover service software, the UC400
is services via Tracer TU. For more detailed information, refer to CNT-IOP-1 (for Tracer ZN010 or
ZN510) or CNT-SVX04A-EN (for Tracer ZN520), or the most recent version of the publication.
Tracer ZN010, Model Number Digit 30 = E
Tracer ZN010 is a stand-alone microprocessor controller.
Figure 7. CSTI adapter board field connections
1. VSP 10V
2. VSP 0–10V
3. VSP DC COM
1. 24 Vac Y (hot)
2. 24 Vac Y (gnd)
3. High
4. Medium
5. Low
6. V1Op/Cooling
7. V1C1 (not std)
8. Not used
9. Not used
10. V2Op/EH1St/Heating
11. V2C1/EH2St (not std)
12. Damper Open
13. Dmp Cl (not std)
321 1098 7654321
11
12
13
Figure 8. Tracer ZN010 control board
UNT-PRC001-EN.book Page 42 Tuesday, May 8, 2012 10:54 AM

UNT-PRC001-EN 43
Controls
Tracer ZN510, Model Number Digit 30 = F
ZN510 can be used as either a stand-alone or communicating microprocessor controller.
Tracer ZN520, Model Number Digit 30 = G
The ZN520 controller can be used in a stand-alone application or as part of a Trane Integrated
Comfort™ System (ICS).
In the stand-alone configuration, ZN520 receives operation commands from the zone sensor and/
or the auto changeover sensor (on auto changeover units). The entering water temperature is read
from the auto changeover sensor and determines if the unit is capable of cooling or heating. The
zone sensor module is capable of transmitting the following information to the controller:
• Timed override on/cancel request
• Zone setpoint
• Current zone temperature
• Fan mode selection (off-auto-high-med-low)
For optimal system performance, fan-coil units can operate as part of an Integrated Comfort
System (ICS) building automation system controlled by Tracer Summit. The controller is linked
directly to the Summit control panel via a twisted pair communication wire, requiring no additional
interface device (i.e., a command unit). The Trane ICS system can monitor or override ZN520
control points. This includes such points as temperature and output positions.
Rover Service Software
This windows-based software package option allows field service personnel to easily monitor,
save, download, and configure Tracer controllers through a communication link from a portable
computer. When connected to the communication link, Rover can view any Tracer controller that
is on the same communication link.
Tracer UC400, Model Number Digit 30 = J
The UC400 single zone VAV controller can be used in a stand-alone application or as part of a Trane
Integrated Comfort™ System (ICS).
Figure 9. Tracer ZN510 control board
Figure 10.
UNT-PRC001-EN.book Page 43 Tuesday, May 8, 2012 10:54 AM

44 UNT-PRC001-EN
Controls
In the stand-alone configuration, UC400 receives operation commands from the zone sensor and/
or the auto changeover sensor (on auto changeover units). The entering water temperature is read
from the auto changeover sensor and determines if the unit is capable of cooling or heating. The
zone sensor module is capable of transmitting the following information to the controller:
• Timed override on/cancel request
• Zone setpoint
• Current zone temperature
• Fan mode selection (off-auto-high-med-low)
For optimal system performance, fan-coil units can operate as part of an Integrated Comfort
System (ICS) building automation system controlled by Tracer Summit. The controller is linked
directly to the Summit control panel via a twisted pair communication wire, requiring no additional
interface device (i.e., a command unit). The Trane ICS system can monitor or override UC400
control points. This includes such points as temperature and output positions.
Sequence of Operation
Fan Speed Switch
Off: Fan is turned off, two-position damper option spring-returns closed.
High, Medium, Low: Fan runs continuously at the selected speed. The two-position damper option
opens to an adjustable mechanical stop-position.
Tracer ZN010 and ZN510
Off: Fan is off; control valves and fresh air damper option close. Low air temperature detection
option is still active.
Auto (Fan Cycling): Fan and fresh air damper cycle with control valve option to maintain setpoint
temperature. In cooling mode, the fan cycles from off to medium and in heating mode it cycles from
off to low (factory default that can be field-adjusted using Rover service software). When no heating
or cooling is required, the fan is off and the fresh air damper option closes. The fan can also be field-
configured (using Rover) to run at a defined speed when the fan speed switch is in the auto position.
Low, Medium, High (Continuous Fan): Fan operates continuously while control valve option cycles
to maintain setpoint temperature. Fresh air damper option is open.
Tracer ZN520
Off: Fan is off; control valve options and fresh air damper options close. The low air temperature
detection option is still active.
Auto: Fan speed control in the auto setting allows the modulating (three-wire floating point) control
valve option and three-speed fan to work cooperatively to meet precise capacity requirements,
while minimizing fan speed (motor/energy/acoustics/dehumidification) and valve position (pump
energy/chilled water reset). As the capacity requirement increases at low fan speed, the water valve
opens. When the low fan speed capacity switch point is reached, the fan switches to medium speed
and the water valve repositions to maintain an equivalent capacity. The reverse sequence takes
place with a decrease in required capacity.
Low, Medium, High: The fan will run continuously at the selected speed and the valve option will
cycle to meet setpoint.
Tracer UC400
Occupied Mode
In Occupied Mode, the UC400 controller maintains the space temperature based on the occupied
space temperature setpoint ± occupied offset. The controller uses the occupied mode as a default
mode when other forms of occupancy request are not present and the fan runs continuously. The
outdoor air damper, if present, will close when the fan is OFF. The temperature setpoints can be
Sequence of Operation
UNT-PRC001-EN.book Page 44 Tuesday, May 8, 2012 10:54 AM

UNT-PRC001-EN 45
Controls
local (hard wired), communicated, or stored default values (configurable using the Tracer TU
service tool).
Unoccupied Mode
In unoccupied mode, the UC400 controller attempts to maintain the space temperature based on
the unoccupied heating or cooling setpoint. The fan will cycle between high speed and OFF. In
addition, the outdoor air damper remains closed, unless economizing. The controller always uses
the stored default setpoint values (configurable using the Tracer TU service tool), regardless of the
presence of a hard wired or communicated setpoint value.
Timed Override Control
If the UC400 controller has a timed override option (ON/CANCEL buttons), pushing the ON button
initiates a timed override on request. A timed override on request changes the occupancy mode
from unoccupied mode to occupied bypass mode. In occupied bypass mode, the controller
controls the space temperature based on the occupied heating or cooling setpoints. The occupied
bypass time, which resides in the UC400 controller and defines the duration of the override, is
configurable from 0 to 240 minutes (default value of 120 minutes). When the occupied bypass time
expires, the unit transitions from occupied bypass mode to unoccupied mode. Pushing the
CANCEL button cancels the timed override request. In addition, it will end the timed override
before the occupied bypass time has expired and transition the unit from occupied bypass mode
to unoccupied mode.
If the controller is in any mode other than unoccupied mode when the ON button is pressed, the
controller still starts the occupied bypass timer without changing to occupied bypass mode. If the
controller is placed in unoccupied mode before the occupied bypass timer expires, the controller
is placed into occupied bypass mode and remains in this mode until either the CANCEL button is
pressed on the Trane zone sensor or the occupied bypass time expires.
Zone Temperature Control
The UC400 controller has three methods of zone temperature control:
•Cascade zone control—used in the occupied, occupied bypass, and occupied standby
modes. It maintains zone temperature by controlling the discharge air temperature to control
the zone temperature. The controller uses the difference between the measured zone
temperature and the active zone temperature setpoint to produce a discharge air temperature
setpoint. The controller compares the discharge air temperature setpoint with the discharge air
temperature and calculates a unit heating/cooling capacity accordingly (refer to the illustration
below). The end devices (outdoor air damper, valves, and so on) operate in sequence based on
the unit heating/cooling capacity (0–100 percent).
If the discharge air temperature falls below the discharge air temperature low limit setpoint,
(configurable using the Tracer TU service tool), and the cooling capacity is at a minimum, the
available heating capacity is used to raise the discharge air temperature to the low limit.
•Simplified zone control— if discharge air temperature failure occurs, then simplified zone
controls runs. In the unoccupied mode, the controller maintains the zone temperature by
Difference
Active zone
temperature
setpoint
Calculated
discharge air
temperature
setpoint
Calculated unit
heating/cooling
capacity
Measured
zone
temperature
Measured
discharge air
temperature
Difference
Sequence of Operation
UNT-PRC001-EN.book Page 45 Tuesday, May 8, 2012 10:54 AM

46 UNT-PRC001-EN
Controls
calculating the required heating or cooling capacity (0–100%) according to the measured zone
temperature and the active zone temperature setpoint. The active zone temperature setpoint
is determined by the current operating modes, which include occupancy and heat/cool modes.
•Discharge air temperature control— is the backup mode that runs only if there is not valid
zone temperature. In this mode, the active space temperature setpoint is used as the discharge
air temperature setpoint.
Important: This is not a normal operating mode. The source of the invalid zone temperature
needs to be corrected to restore normal operation.
** 'Generic' i/o - if there is unused i/o the user may create a new point to reference the i/o. But there is no dedicated 'generic'
i/o like on ZN
Binary inputs -- there is also a defrost and fan status (for 1,2,3 speed fans) for UC400 and ZN520.
The ECM fan does not use the Binary input for fan status but gets the info over IMC from the ECM.
ZN520 also had a binary input for fan status. ZN520 also had defrost but it was wired directly to the compressor (IOP
explains this).
Table 35. Controller input/output summary
ZN010 ZN510 ZN520 UC400
Binary Outputs X
3-Speed Fan XXXX
2-Position Hydronic Valve X X X X
2-Position Fresh Air Damper X X X
1-Stage Electric Heat X X X X
3-Wire Economizer Damper X X
3-Wire Hydronic Valve XX
2-Stage Electric Heat XX
Reheat (hydronic or electric) X X
Generic X X X **
Binary Inputs
Condensate Overflow Detection X X X X
Low Temperature Detection XXXX
Occupancy XXXX
Generic Input X X X **
Analog Inputs
Zone Temperature X X X X
Setpoint XXXX
Fan Mode: Auto, High, Medium, Low X X X X
Entering Water X X X X
Discharge Air XXXX
Outside Air XX
Generic X**
Analog Outputs
Variable speed fan X
Field supplied analog valves X
Note: The generic input and output are for use with a Tracer Summit system only.
Table 36. Controller function summary
ZN010 ZN510 ZN520 UC400
Control Functions
Entering Water Temp. Sampling (Purge) XXXX
Auto Changeover XXXX
Fan Cycling X X
Warm-Up XXX
Pre-Cool XXX
Data Sharing (Master/Slave) X X
Random Start XXXX
Dehumidification XX
Single Zone VAV X
Staged Capacity (2-Stage Electric Supplementary) X X
Other Functions
Manual Test X X X in TU
Maintenance Timer XXXX
Setpoint Limits XXXX
Sequence of Operation
UNT-PRC001-EN.book Page 46 Tuesday, May 8, 2012 10:54 AM

UNT-PRC001-EN 47
Controls
Zone Sensor Options
Zone sensors are available as either unit, wall, or split-mounted options for design flexibility. Fan-
coils with the unit-mounted zone sensor option include a thermistor in the unit’s return air path.
Wall-mounted zone sensor options have an internal thermistor. Zone sensors operate on 24 Vac.
Tracer ZN010 Options Tracer ZN510, ZN520, and UC400 Options
Figure 11. Unit-mounted zone sensor: Digit 30 = E and
Digit 31 = V
Figure 12. Wall-mounted zone sensor: Digit 30 = F, G, or J
and Digit 31 = 1
Figure 13. Wall-mounted zone sensor: Digit 30 = E and
Digit 31 = W
Figure 14. Wall-mounted zone sensor: Digit 30 = F, G, or J
and Digit 31 = 2
Figure 15. Split-mounted zone sensor, unit-mounted fan
mode and wall-mounted setpoint dial:
Digit 30 = E and Digit 31 = X
Figure 16. Split-mounted zone sensor, unit-mounted fan
mode and wall-mounted setpoint dial:
Digit 30 = F, G, or J and Digit 31 = Y
Figure 17. Unit-mounted zone sensor: Digit 30 = F, G, or J
and Digit 31 = Z
X13790843-01
X13511530-01 (wall)
X13651467-02 (comm)
X13790841-01
X13790842-01 (wall)
X13651467-02 (comm)
X13511529-01 (wall)
X13790849-01 (unit)
X13511527-01 (wall)
X13790849-01 (unit)
X13651467-02 (comm)
X13790844-01
Zone Sensor Options
UNT-PRC001-EN.book Page 47 Tuesday, May 8, 2012 10:54 AM

48 UNT-PRC001-EN
Controls
Tracer ZN510, ZN520, and UC400 Options
(continued)
Figure 18. Wall-mounted digital zone sensor with
setpoint adjustment: Digit 30 = F, G, or J and
Digit 31 = 4
Figure 19. Wireless zone sensor (setpoint adjustment, no
fan speed adjustment): Digit 30 = F, G, or J and
Digit 31 = 6
Figure 20. Wireless zone sensor: Digit 30 = F, G, or J and
Digit 31 = 7
X13790886-04 (wall)
X13790821-01 (wall)
X13790860-02 (unit)
X13790822-04 (wall)
X13790860-02 (unit)
Zone Sensor Options
UNT-PRC001-EN.book Page 48 Tuesday, May 8, 2012 10:54 AM

UNT-PRC001-EN 49
Controls
Control Features
The following control functions are standard features on units with Tracer ZN010, ZN510, ZN520,
or UC400.
Entering Water Temperature Sampling Function
A system that uses a two-way control valve option might not sense the correct entering water
temperature during long periods when the control valve is closed. If the demand for heating or
cooling does not exist for a long period, the entering water will eventually approach ambient
temperature.
Using the entering water temperature sampling function, the controller provides accurate two-pipe
system changeover—without sacrificing the benefits of two-way control valves. Also, it eliminates
inefficient bleed or bypass lines that can allow unnecessary waterflow through the system.
This function periodically samples the entering water temperature by opening the hydronic valve.
The valve opens for 20 seconds to allow the water temperature to stabilize. Then the controller
reads the entering water temperature for up to three minutes to see if the correct water temperature
is available for the selected operating mode.
The entering water temperature must be five degrees or more above the space temperature to
allow hydronic heating and five degrees or more below the space temperature to allow hydronic
cooling. If the correct water temperature for the operating mode is available, the unit begins normal
heating or cooling operation. If the correct water temperature is not available, the controller closes
the control valve and waits 60 minutes before attempting to sample the entering water temperature
again.
A factory-mounted thermistor senses the entering water temperature on changeover
cooling/heating coil units. If the fan-coil has a factory-mounted piping package, the sensor is
strapped to the entering water pipe. If the fan-coil does not have a piping package, the sensor is
coiled in the end pocket for mounting on customer-supplied piping. This sensor must detect
accurate water temperature for proper changeover.
Automatic Heat/Cool Mode Determination
The controller automatically determines whether heating or cooling is needed—based on space
and system conditions. Utilizing a proportional/integral (PI) control algorithm to maintain the space
temperature at the active heating or cooling setpoint. The controller measures the space
temperature and active setpoint temperature to determine the unit’s heating or cooling capacity
(zero to 100 percent).
Occupied/Unoccupied Operation
The occupancy input utilizes a binary switch (i.e. motion sensor, timeclock, etc.) that allows the zone
sensor to utilize its unoccupied internal setpoints.
Random Start
This feature randomly staggers multiple unit start-up to reduce electrical demand spikes.
Warm-up
The two-position fresh air damper option closes during the occupied mode when the space
temperature is three degrees or more below the heating setpoint temperature. The damper
remains closed during warm-up until the space temperature is within two degrees of the heating
setpoint temperature.
Cool-down
The two-position fresh air damper option closes during the occupied mode when the space
temperature is three degrees or more above the cooling setpoint temperature. The damper
remains closed during cool-down until the space temperature is within two degrees of the cooling
setpoint temperature.
Control Features
UNT-PRC001-EN.book Page 49 Tuesday, May 8, 2012 10:54 AM

50 UNT-PRC001-EN
Controls
Manual Output Test Function
NA on UC400. But will have ability through TU. This feature is an invaluable tool for
troubleshooting a unit. By simply pressing the controller’s test button, service personnel can
manually exercise outputs in a pre-defined sequence.
Peer to Peer Communication (Tracer ZN510, ZN520, and UC400)
Peer to peer communication allows multiple units in one space to share the same zone sensor and
provide simultaneous heating and cooling. The Tracer ZN510 or ZN520 controller can share
information between units on the same communication link using a twisted pair wire in the field.
Unit configuration must be modified with Rover service tool. On the UC400, zone sensor data
sharing can be accomplished by use of the BAS system controller.
Economizing Control (Tracer ZN520)
With the controller configured for economizing control, it will calculate the required cooling
capacity every ten seconds and modulate the damper option open to the calculated position. If the
setpoint is not satisfied, the damper will continue to open until the setpoint condition has been met
or the damper is 100 percent open. If this still does not satisfy the setpoint, the cooling valve option
will begin to open and try to satisfy the load requirements. Once capacity exceeds the load
requirements, the valve will begin to close until the setpoint has been reached or the damper
reaches its minimum position, which is field-adjustable. This option uses a three-wire, floating
point damper actuator.
A thermistor to sense discharge air is factory mounted near the discharge surface of the last coil
for use in economizing and cascade temperature control. Tracer Summit can also utilize this
temperature value as a read-only point. Cascade temperature control uses both the zone and
discharge air temperatures to more accurately calculate the required unit capacity.
A thermistor to sense fresh air is factory mounted at the unit’s fresh air opening for use in
economizer applications or as a read-only point for Tracer Summit. If the fresh air temperature is
a read-only value, it will not impact the control algorithm. In an economizer application, a fresh air
temperature signal must be provided either by this thermistor or Tracer Summit.
Control Features
UNT-PRC001-EN.book Page 50 Tuesday, May 8, 2012 10:54 AM

UNT-PRC001-EN 51
Controls
Tracer ZN520 and UC400 Additional Features
Automatic Fan Speed Adjustment
When configured in the AUTO mode, the fan operates at the lowest speed possible (high, medium,
or low) to maintain space temperature. As the cooling load decreases, the controller switches the
fan to operate at the next lower speed, and the control valve modulates the unit’s cooling capacity
as required. This results in less fan energy use, improved dehumidification performance, and lower
sound levels.
Automatic Ventilation Reset
To ensure proper ventilation rates, the controller is configured with two fresh air damper minimum
position setpoints for occupied operation. As the fan speed changes to low or high, the damper
adjusts to maintain the correct ventilation rate for the space. The damper position does not adjust
when the fan speed changes to medium.
Fan Status
Tracer ZN520 and UC400 monitors the fan output status to determine if the fan is operating.
Filter Maintenance Status
The controller has an adjustable timer that indicates through Summit, Rover (ZN520) or TU (UC400)
when filter maintenance is necessary. Filter maintenance status is based on cumulative fan run
hours.
Dehumidification
When the fan-coil unit is equipped with a reheat coil and humidity sensor, the controller will
independently control both space temperature and humidity. If the space humidity level rises
above the upper limit, the capacity of the cooling coil is increased, overcooling the air to maintain
the space humidity below the upper limit. Then, the capacity of the heating coil modulates, adding
a small amount of heat to temper (reheat) the air and avoid overcooling the space.
Water Valve Override
The water valve override function drives all water valves in every unit fully open simultaneously.
This helps reduce the time required for waterside balancing.
Cascade Control
The controller maintains discharge air temperature using a cascade control algorithm. The
discharge air temperature is based on the difference between the space temperature and setpoint.
Unit capacity modulates to achieve the discharge air temperature.
Interoperability
Tracer ZN520 can be used with a Tracer Summit system or on other control systems that support
LonTalk and the SCC profile. For more information on specific inputs and outputs, see the
Installation, Owner, and Maintenance Manual, UNT-IOM-6. UC400 can be used with a Tracer
Summit system or other control systems that support BACnet. For more information on specific
inputs and outputs, see the Installation, Owner, and Maintenance Manual, UNT-SVX07D-EN.
Tracer ZN520 and UC400 Additional Features
UNT-PRC001-EN.book Page 51 Tuesday, May 8, 2012 10:54 AM

52 UNT-PRC001-EN
Controls
End Device Options
All end device options are factory-installed and -tested.
Two-Position Control Valves, Model Number Digits 27 and 28 = A - H
Two-position valve options are available with either Tracer ZN010, ZN510, ZN520 or UC400. Valves
are spring-return type, sweat connections, and available as normally open or closed. The valves
respond to a 24 V signal and have 1/2-inch sweat connections. The two-way valve option will either
fully open or close. The three-way valve option allows either full water flow through the coil or
diverts waterflow through the bypass. If the control valve loses power, the valve returns to its de-
energized position. All control valve options are factory installed in the leaving water piping
downstream of the hydronic coil. The valve actuator is easily removable for service without
removing the valve body from piping.
Modulating Control Valves (Tracer ZN520 and UC400), Model Number Digits 27
and 28 = J - R
These 1/2-inch sweat connect valves are three-wire floating point valves, equal percentage type.
Modulating valves are available in four Cv sizes: 0.7, 1.5, 2.5, and 4.0. The valve responds to a 24 V
triac signal from the controller, which determines the valve position by a control algorithm. If the
valve loses power, it remains in the position that it was in when the power loss occurred. All control
valves are factory installed in the leaving water piping downstream of the hydronic coil.
Field-Supplied Valves, Model Number Digits 27 and 28 = X, Y, or 1
This option allows the controller to be factory-configured for the normal position of the field-
supplied valve, as well as running a wiring harness from the control box to the piping side of the
unit. When the field supplied valve option is chosen, the control box is provided with low voltage
components and wired back to a terminal strip (CSTI) or controller.
Note: The Trane Company does not recommend wild coil applications.
Figure 21. Control valve
End Device Options
UNT-PRC001-EN.book Page 52 Tuesday, May 8, 2012 10:54 AM

UNT-PRC001-EN 53
Controls
Two-Position Fresh Air Damper Actuator, Model Number Digit 13 = D, E, or F
(Available with all control options except ZN520)
This damper actuator uses a 24 V signal and is factory-wired and mounted to the damper assembly.
It allows zero to 50 percent fresh air. The damper will drive open to an adjustable mechanical stop-
position whenever the fan is running during occupied mode and will spring-return closed when the
fan turns off.
Note: Trane recommends using the low temperature detection option with fresh air dampers to
detect possible freeze conditions.
Economizer Fresh Air Damper Actuator (Tracer ZN520 and UC400), Model
Number
Digit 13 = G, H, or J
Figure 22. Wiring harness
Figure 23. Two-position fresh air damper actuator
Figure 24. Economizer fresh air damper actuator
End Device Options
UNT-PRC001-EN.book Page 53 Tuesday, May 8, 2012 10:54 AM

54 UNT-PRC001-EN
Controls
This option is a three-wire floating point, spring-return damper actuator and is factory-wired and
mounted to the damper assembly. When the controller enables the economizer and the unit is in
occupied mode, the fresh air damper modulates between its minimum position (editable) and the
full open position to maintain setpoint temperature. If economizer operation stops or if the unit is
in the heating mode, the fresh air damper adjusts to its minimum position.
Note: Trane highly recommends using the low temperature detection option with a fresh air
damper to detect possible freeze conditions.
Low Temperature Detection, Model Number Digit 36 = 2
When the low temperature detection device senses an entering air temperature of 36°F to the
hydronic coil, the normally-closed switch opens a corresponding set of binary input terminals. The
fan disables, control valves open, and the fresh air damper closes.
Thirty minutes after the diagnostic, Tracer ZN010, ZN510, or ZN520 uses an automatic reset
function to attempt to reset the unit. If the diagnostic occurs again within 24 hours after an
automatic diagnostic reset, the unit will require a manual reset. This function attempts to resolve
the infrequent nuisance alarm.
The low temperature detection device is an averaging type capillary tube and will reset when it
detects an entering air temperature of at least 44°F.
Condensate Overflow Detection, Model Number Digit 35 = 2
A float switch is factory-supplied for field installation in the auxiliary drain pan to detect a high
condensate water level. When the float switch rises, the normally closed input opens a
corresponding set of binary input terminals. This also causes the fan to disable, and the control
valve and fresh air damper options to close. Although the float switch will close when the high
condensate level recedes, the controller must be manually reset before normal unit operation can
occur. If using a Tracer ZN510, ZN520 or UC400 controller you can reset using Tracer Summit. Use
Rover service software to reset units with Tracer ZN010, ZN510, or ZN520 and Tracer TU for units
with a UC400.
Figure 25. Low temperature detection device
Figure 26. Condensate overflow detection device
End Device Options
UNT-PRC001-EN.book Page 54 Tuesday, May 8, 2012 10:54 AM

UNT-PRC001-EN 55
Electrical Data
Minimum Circuit Ampacity (MCA) and Maximum Fuse Size (MFS) Calculations
for Fan-Coils with Electric Heat (Single Phase)
Heater Amps = (Heater kW x 1000)/Heater Voltage
Note: Use 120 V heater voltage for 115 V units. Use 240 V heater voltage for 230 V units.
MCA = 1.25 x (heater amps + all motor FLAs)
MFS or HACR Type Circuit Breaker = (2.25 x Largest Motor FLA) + Second Motor FLA + Heater Amps
(If Applicable)
HACR (Heating, Air-Conditioning and Refrigeration) type circuit breakers are required in the branch
circuit wiring for all fan-coils with electric heat.
See Table 39, p. 56 through Table 41, p. 56 for motor FLAs.
Select a standard fuse size or HACR type circuit breaker equal to the MCA.
Use the next larger standard size if the MCA does not equal a standard size.
Standard Fuse Sizes are: 15, 20, 25, 30, 35, 40, 45, 50, 60 amps
Fan-coil electric heat MBh = (Heater kW) (3.413)
Table 37. Electric heat (kW)
Unit Size Unit VoltagekWkWkWkWkWkWkWkWkWkWkW
02 115 1.0 1.5 2.0
230 1.0 1.5 2.0
277 1.0 1.5 2.0
208 0.8 1.1 1.5 1.9
03 115 1.0 1.5 2.0 2.5
230 1.0 1.5 2.0 2.5
277 1.0 1.5 2.0 2.5
208 0.8 1.1 1.5 1.9 2.3
04 115 2.0 2.5 3.0
230 2.0 2.5 3.0
277 2.0 2.5 3.0
208 1.5 1.9 2.3 3.0
06 115 2.0 3.0
230 2.0 3.0 4.0 5.0 6.0
277 2.0 3.0 4.0 5.0 6.0
208 1.5 2.3 3.0 3.8 4.5 5.3
08 115 2.0 3.0
230 2.0 3.0 4.0 5.0 6.0 7.0
277 2.0 3.0 4.0 5.0 6.0 7.0
208 1.5 2.3 3.0 3.8 4.5 5.3 6.0
10 115 3.0
230 3.0 4.0 5.0 6.0 7.0 8.0
277 3.0 4.0 5.0 6.0 7.0 8.0
208 2.3 3.0 3.8 4.5 5.3 6.0
12 115 3.0
230 3.0 4.0 5.0 6.0 7.0 8.0 10.0
277 3.0 4.0 5.0 6.0 7.0 8.0 10.0
208 2.3 3.0 3.8 4.5 5.3 6.0
Table 38. Electric heat (kW), low vertical units
Unit Size Unit Voltage kW kW kW kW
03 115 1.0 1.5 2.0
04 115 1.0 1.5 2.0 2.5
06 115 1.0 1.5 2.0 2.5
Note: Low vertical units are only available with electric heat in combination with the two-row cooling coil.
UNT-PRC001-EN.book Page 55 Tuesday, May 8, 2012 10:54 AM

56 UNT-PRC001-EN
Electrical Data
Table 39. Free discharge and High static electrically commutated motors (ECMs) programmed to
standard ECM mode
Unit Size
115 Volt 208–230 Volt 277 Volt
FLA HP FLA HP FLA HP
121212121212
2 3.1 0.22 1.8 0.22 1.6 0.24)
3 3.1 0.22 1.8 0.22 1.6 0.24
4 3.1 0.22 1.8 0.22 1.6 0.24
6 3.1 0.22 1.8 0.22 1.6 0.24
8 3.1 0.22 1.8 0.22 1.6 0.24
10 3.1 3.1 0.22 0.22 1.8 1.8 0.22 0.22 1.6 1.6 0.24 0.24
12 3.1 3.1 0.22 0.22 1.8 1.8 0.22 0.22 1.6 1.6 0.24 0.24
Table 40. Free discharge electrically commutated motors (ECMs) programmed to reduced FLA
mode
Unit Size
115 Volt 208–230 Volt 277 Volt
FLA HP FLA HP FLA HP
121212121212
2 0.6 0.22 0.4 0.22 0.3 0.24
3 0.6 0.22 0.4 0.22 0.3 0.24
4 0.8 0.22 0.6 0.22 0.4 0.24
6 1.1 0.22 0.8 0.22 0.6 0.24
8 1.6 0.22 1.1 0.22 0.8 0.24
10 0.7 1.2 0.22 0.22 0.5 0.8 0.22 0.22 0.4 0.6 0.24 0.24
12 0.7 1.3 0.22 0.22 0.5 0.9 0.22 0.22 0.4 0.7 0.24 0.24
Table 41. High static electrically commutated motors (ECMs) programmed to reduced FLA mode
Unit Size
115 Volt 208–230 Volt 277 Volt
FLA HP FLA HP FLA HP
121212121212
2 1.3 0.22 0.9 0.22 0.7 0.24
3 1.3 0.22 0.9 0.22 0.7 0.24
4 1.7 0.22 1.2 0.22 0.9 0.24
6 2.3 0.22 1.6 0.22 1.2 0.24
8 3.1 0.22 1.8 0.22 1.5 0.24
10 1.4 2 0.22 0.22 1 1.4 0.22 0.22 0.7 1.1 0.24 0.24
12 1.5 2.8 0.22 0.22 1.1 1.8 0.22 0.22 0.8 1.4 0.24 0.24
Table 42. Low vertical free discharge electrically commutated motors (ECMs)
Unit Size
115 Volt RPM
FLA HP H M L
3 3.1 0.22 1090 770 560
4 3.1 0.22 1090 750 560
6 3.1 0.22 1115 760 560
Note: Actual rpm will vary with application and configuration.
UNT-PRC001-EN.book Page 56 Tuesday, May 8, 2012 10:54 AM

UNT-PRC001-EN 57
Electrical Data
Minimum Circuit Ampacity (MCA) and Maximum Fuse Size (MFS) Calculations
for Fan-Coils: (Motors only, No Electric Heat)
MCA = (1.25) x [Largest Motor Amperes (FLA)] + Second Motor Amperes (FLA) (Size 10 and 12 only)
MFS or HACR1 Type Circuit Breaker = 15 Amps for all Fan-Coils without Electric Heat (see previous
Electrical Data for units with Electric Heat.)
Table 43. Lowboy vertical free discharge electrically commutated motors (ECMs) programmed
with reduced FLA mode
Unit Size
115 Volt RPM
FLA HP H M L
3 0.5 0.22 1090 770 560
4 0.8 0.22 1090 750 560
6 1 0.22 1115 760 560
Note: Actual rpm will vary with application and configuration.
Table 44. Unit RPM
Unit
Size
Free Discharge—Units with 2-Row Coils Free Discharge—Units with 3- and 4-Row Coils
HML H M L
2 980 840 655 980 840 655
3 980 780 580 1080 800 600
4 1050 780 580 1080 800 600
6 1030 780 580 1080 800 600
8 1080 800 600 1080 800 600
10 1050 780 580 1080 800 600
1030 780 580 1080 800 600
12 1050 780 580 1080 800 600
1080 800 600 1080 800 600
Unit
Size
High Static—Units with 2-Row Coils High Static—Units with 3- and 4-Row Coils
HML H M L
2 1480 1110 865 1480 1110 865
3 1400 1175 860 1500 1355 1110
4 1475 1315 1070 1580 1375 1240
6 1400 1070 855 1475 1285 975
8 1475 1285 975 1475 1285 975
10 1475 1315 1070 1580 1375 1240
1400 1070 855 1475 1285 975
12 1475 1315 1070 1580 1375 1240
1475 1285 975 1475 1285 975
Note: Actual rpm will vary with application and configuration.
1HACR (Heating, Air-Conditioning and Refrigeration) type circuit breakers are required in the branch circuit wiring for all size 10 and
12 fan-coils.
UNT-PRC001-EN.book Page 57 Tuesday, May 8, 2012 10:54 AM

58 UNT-PRC001-EN
Dimensions and Weights
Unit Weights
Table 45. Operating weights, lb
Unit Size Cabinet Models Concealed Models Recessed Models
Low Vertical Cabinet
Models
Low Vertical
Concealed Models
02 97 81 78 NA NA
03 97 81 78 125 109
04 125 109 88 155 139
06 155 139 128 164 147
08 164 147 139 NA NA
10 218 200 253 NA NA
12 218 200 253 NA NA
Table 46. Shipping weights, lb
Unit Size Cabinet Models Concealed Models Recessed Models
Low Vertical Cabinet
Models
Low Vertical
Concealed Models
02 84 68 68 NA NA
03 84 68 68 112 96
04 112 96 78 139 123
06 139 123 118 148 131
08 148 131 129 NA NA
10 200 182 243 NA NA
12 200 182 243 NA NA
UNT-PRC001-EN.book Page 58 Tuesday, May 8, 2012 10:54 AM

UNT-PRC001-EN 59
Dimensions and Weights
Vertical Concealed, Model A
Vertical Concealed Unit Dimensions
Unit Size 200-300 400 600 800 1000-1200
No. of Fans 1 1 2 2 3
No. of Motors 1 1 1 1 2
A 2’-8 11/16” 3’-1 11/16” 3’-11 3/16” 4’-7 11/16” 6’-2 11/16”
B 1’-9 5/16” 2’-2 5/16” 2’-11 13/16” 3’-8 5/16” 5’-3 5/16”
C 1’-10 13/16” 2’-3 13/16” 3’-1 5/16” 3’-9 13/16” 5’-4 13/16”
D 1’-5 5/16” 1’-10 5/16” 2’-7 13/16” 3’-4 5/16” 4’-11 5/16”
E 1’-7 5/16” 2’-0 5/16” 2’-9 13/16” 3’-6 5/16” 5’-1 5/16”
Notes:
1. Coil connections are always on the drain pan side and opposite the control
box.
2. Coil connections are 5/8” O.D. sweat. See p. 69 for locations.
3. All duct collar dimensions are to the outside of the collar.
4. See p. 71 for dimensions for outside air openings.
Vertical Concealed
UNT-PRC001-EN.book Page 59 Tuesday, May 8, 2012 10:54 AM

60 UNT-PRC001-EN
Dimensions and Weights
Vertical Cabinet, Model B
Vertical Cabinet Unit Dimensions
Unit Size 200-300 400 600 800 1000-1200
No. of Fans 1 1 2 2 3
No. of Motors 1 1 1 1 2
A 2’-9 5/16” 3’-2 5/16” 3’-11 13/16” 4’-8 5/16” 6’-3 5/16”
B 1’-9 5/16” 2’-2 5/16” 2’-11 13/16” 3’-8 5/16” 5’-3 5/16”
C 7 5/8” 7 1/8” 8 7/8” 7 1/8” 7 5/8”
D 1’-16” 2’-0” 2’-6” 3’-6” 5’-0”
E 1’-7 5/16” 2’-0 5/16” 2’-9 13/16” 3’-6 5/16” 5’-1 5/16”
F 3’-5 5/16” 3’-10 5/16” 4’-7 13/16” 5’-4 5/16” 6’-11 5/16”
Notes:
1. Coil connections are always on the drain pan side and opposite the control box
and unit control.
2. Coil connections are 5/8” O.D. sweat. See p. 69 for locations.
3. See p. 71 for dimensions for outside air openings.
Vertical Cabinet
UNT-PRC001-EN.book Page 60 Tuesday, May 8, 2012 10:54 AM

UNT-PRC001-EN 61
Dimensions and Weights
Horizontal Concealed, Model C
Horizontal Concealed Unit Dimensions
Unit Size 200-300 400 600 800 1000-1200
No. of Fans 1 1 2 2 3
No. of Motors 1 1 1 1 2
A 2’-8 11/16” 3’-1 11/16” 3’-11 3/16” 4’-7 11/16” 6’-2 11/16”
B 1’-9 5/16” 2’-2 5/16” 2’-11 13/16” 3’-8 5/16” 5’-3 5/16”
C 1’-10 13/16” 2’-3 13/16” 3’-1 5/16” 3’-9 13/16” 5’-4 13/16”
D 1’-7 3/8” 2’-0 3/8” 2’-9 7/8” 3’-6 3/8” 5’-1 3/8”
E 1’-6 1/8” 1’-11 1/8” 2’-8 5/8” 3’-5 1/8” 5’-0 1/8”
F 1’-7 5/16” 2’-0 5/16” 2’-9 13/16” 3’-6 5/16” 5’-1 5/16”
Notes:
1. Coil connections are always on the drain pan side and opposite the control box.
2. Coil connections are 5/8” O.D. sweat. See p. 69 for locations.
3. All duct collar dimensions are to the outside of the collar.
4. See p. 70 for dimensions for outside air openings.
Horizontal Concealed
UNT-PRC001-EN.book Page 61 Tuesday, May 8, 2012 10:54 AM

62 UNT-PRC001-EN
Dimensions and Weights
Horizontal Cabinet, Model D
Horizontal Cabinet Unit Dimensions
Unit Size 200-300 400 600 800 1000-1200
No. of Fans1122 3
No. of Motors1111 2
A 2’-9 5/16” 3’-2 5/16” 3’-11 3/16” 4’-8 5/16” 6’-3 5/16”
B 1’-9 5/16” 2’-2 5/16” 2’-11 13/16” 3’-8 5/16” 5’-3 5/16”
C 7 5/8” 7 1/8” 8 7/8” 7 1/8” 7 5/8”
D 1’-6” 2’-0” 2’-6” 3’-6” 5’-0”
E 1’-5 1/4” 1’-10 1/4” 2’-7 3/4” 3’-4 1/4” 3’-4 1/4”
F 3’-5 1/4” 3’-10 5/16” 4’-7 3/16” 5’-4 5/16” 6’-11 5/16”
G 8-5/8” 8-1/8” 9-7/8” 8-1/8” 8-5/8”
H 1’-4” 1’-10” 2’-4” 3’-4” 4’-10”
J 1’-7 3/4” 1’-11 3/4” 2’-7 3/4” 3’-3 3/4” 4’-11 3/4”
Notes:
1. Coil connections are always on the drain pan side and opposite the control box.
2. Coil connections are 5/8” O.D. sweat. See p. 69 for locations.
3. All duct collar dimensions are to the outside of the collar.
4. See p. 70 for dimensions for outside air openings.
Horizontal Cabinet
UNT-PRC001-EN.book Page 62 Tuesday, May 8, 2012 10:54 AM

UNT-PRC001-EN 63
Dimensions and Weights
Horizontal Recessed, Model E
Horizontal Recessed Unit Dimensions
Unit Size 200-300 400 600 800 1000-1200
No. of Fans1122 3
No. of Motors1111 2
A 2’-11 13/16” 3’-4 13/16” 4’-2 5/16” 4’-10 13/16” 6’-5 13/16”
B 1’-9 5/16” 2’-2 5/16” 2’-11 13/16” 3’-8 5/16” 5’-3 5/16”
C 1’-10 13/16” 2’-3 13/16” 3’-1 5/16” 3’-9 13/16” 5’-4 13/16”
D 1’-7 3/8” 2’-0 3/8” 2’-9 7/8” 3’-6 3/8” 5’-1 3/8”
E 1’-6 1/8” 1’-11 1/8” 2’-8 5/8” 3’-5 1/8” 5’-0 1/8”
F 2’-8 7/16” 3’-1 7/16” 3’-10 15/16” 4’-7 7/16” 6’-2 7/16”
G 2’-10 5/16” 3’-3 5/16” 4’-0 13/16” 4’-9 5/16” 6’-4 5/16”
H 1’-7 3/4” 1’-11 3/4” 2’-7 3/4” 3’-3 3/4” 4’-11 3/4”
Notes:
1. Coil connections are always on the drain pan side.
2. Coil connections are 5/8” O.D. sweat. See p. 69 for locations.
3. All duct collar dimensions are to the outside of the collar.
4. See p. 70 for dimensions for outside air openings.
Horizontal Recessed
UNT-PRC001-EN.book Page 63 Tuesday, May 8, 2012 10:54 AM

64 UNT-PRC001-EN
Dimensions and Weights
Vertical Recessed, Model H
Vertical Recessed Unit Dimensions
Unit Size 200-300 400 600 800 1000-1200
No. of Fans 1 1 2 2 3
No. of Motors 1 1 1 1 2
A 2’-8 11/16” 3’-1 11/16” 3’-11 3/16” 4’-7 11/16” 6’-2 11/16”
B 1’-9 5/16” 2’-2 5/16” 2’-11 13/16” 3’-8 5/16” 5’-3 5/16”
C 1’-10 13/16” 2’-3 13/16” 3’-1 5/16” 3’-9 13/16” 5’-4 13/16”
D 1’-5 5/16” 1’-10 5/16” 2’-7 13/16” 3’-4 5/16” 4’-11 5/16”
E 3’-11” 4’-3” 5’-3” 5’-5 1/2” 7’-5 1/2”
F 2’-6” 2’-6” 2’-6” 2’-9 1/2” 2’-9 1/2”
G 2 3/8” 2 3/8” 2 3/8” 4 1/8” 4 1/8”
H 3’-6” 4’-0” 4’-9” 5’-3” 7’-3”
J 2’-2 1/2” 2’-2 1/2” 2’-2 1/2” 2’-3 1/2” 2’-3 1/2”
Notes:
1. Coil connections are always on the drain pan side and opposite the control
box.
2. Coil connections are 5/8” O.D. sweat. See p. 69 for locations.
3. All duct collar dimensions are to the outside of the collar.
4. See p. 71 for dimensions for outside air openings.
Vertical Recessed
UNT-PRC001-EN.book Page 64 Tuesday, May 8, 2012 10:54 AM

UNT-PRC001-EN 65
Dimensions and Weights
Vertical Slope Top, Model J
Vertical Slope Top Unit Dimensions
Unit Size 200-300 400 600 800 1000-1200
No. of Fans 1 1 2 2 3
No. of Motors 1 1 1 1 2
A 2’-9 5/16” 3’-2 5/16” 3’-11 13/16” 4’-8 5/16” 6’-3 5/16”
B 1’-9 5/16” 2’-2 5/16” 2’-11 13/16” 3’-8 5/16” 5’-3 5/16”
C 7 5/8” 7 1/8” 8 7/8” 7 1/8” 7 5/8”
D 1’-6” 2’-0” 2’-6” 3’-6” 5’-0”
E 1’-7 5/16” 2’-0 5/16” 2’-9 13/16” 3’-6 5/16” 5’-1 5/16”
F 3’-5 5/16” 3’-10 5/16” 4’-7 13/16” 5’-4 5/16” 6’-11 5/16”
Notes:
1. Coil connections are always on the drain pan side and opposite the control box
and unit control.
2. Coil connections are 5/8” O.D. sweat. See p. 69 for locations.
3. See p. 71 for dimensions for outside air openings.
Vertical Slope Top
UNT-PRC001-EN.book Page 65 Tuesday, May 8, 2012 10:54 AM

66 UNT-PRC001-EN
Dimensions and Weights
Low Vertical Concealed, Model K
Low Vertical Concealed Unit Dimensions
Unit Size 300 400 600
A 3’-4 5/8” 4’-2 1/8” 4’-10 7/8”
B 2’-2 1/4” 2’-11 3/4” 3’-8 1/4”
C 2’-3 15/16” 3’-0 13/16” 3’-9 15/16”
D 1’-10 5/16” 2’-7 13/16” 3’-4 5/16”
E 2’-0 1/4” 2’-9 3/4” 3’-6 1/4”
Notes:
1. Coil connections are always on the drain pan side
and opposite the control box.
2. Coil connections are 5/8” O.D. sweat.
CS Cooling Coil Supply
CR Cooling Coil Return
HS Heating Coil Supply
HR Heating Coil Return
3. All duct collar dimensions are to the outside of the
collar.
4. See p. 72 for dimensions for outside air openings.
Low Vertical Concealed
UNT-PRC001-EN.book Page 66 Tuesday, May 8, 2012 10:54 AM

UNT-PRC001-EN 67
Dimensions and Weights
Low Vertical Cabinet, Model L
Low Vertical Cabinet Unit Dimensions
Unit Size 300 400 600
A 3’-10 15/16” 4’-8 7/16” 5’-4 15/16”
B 2’-2 1/4” 2’-11 3/4” 3’-8 1/4”
C 11 7/16” 1’-1 5/16” 11 7/16”
D 2’-0” 2’-6” 3’-6”
E 2’-0 1/4” 2’-9 3/4” 3’-6 1/4”
Notes:
1. Coil connections are always on the drain pan side
and opposite the control box.
2. Coil connections are 5/8” O.D. sweat.
CS Cooling Coil Supply
CR Cooling Coil Return
HS Heating Coil Supply
HR Heating Coil Return
3. See p. 72 for dimensions for outside air openings.
Low Vertical Cabinet
UNT-PRC001-EN.book Page 67 Tuesday, May 8, 2012 10:54 AM

68 UNT-PRC001-EN
Dimensions and Weights
Compact Concealed, Model P
CONTROL
BOX
MAIN DRAIN (OPTIONAL)
CONNECTION FOR
7/8” OD COPPER
TUBE AND CLAMP
SECONDARY DRAIN
CONNECTION FOR
3/8” ID TUBE
(4) 5/8” DIA KEYSLOT
HANGER HOLES
TOP VIEW
B
15-1/2”
3-1/4”
3/4”3/4”
9/16”9/16”
E
BACK INLET DUCT COLLAR
2-5/16”2-5/16”
1-3/4” 1-3/4”
3-1/4” 2”
7/8” KO
CONTROL
WIRING
(4) 5/8” DIA KEYSLOT
HANGER HOLES
FRONT VIEW
RH PIPING
FRONT OUTLET
DUCT COLLAR
8-7/8”
2-7/16”
5-5/16”
A
C
1-11/16” 1-11/16”
D6-3/8”6-15/16”
6-5/8”
7/8” KO
1-3/32” KO
POWER
WIRING
BOTTOM
ONLY
CONTROL
BOX
2-5/16”
4-9/16”
AIR
FLOW
SIDE VIEW
INLET OPTIONS
4-7/8” X F
5/8”
6-1/8”
1” DUCT COLLAR
1" DUCT COLLAR
27-3/16”
BACK DUCT COLLAR
FILTER DOOR USED
WITH BACK DUCT
COLLAR ONLY
FILTERS
FILTERS
10-1/16”
14-1/8”
5/8”
BOTTOM INLET
OPEN
BACK INLET
DUCT COLLAR
26-3/4”
COIL CONNECTIONS
AUXILIARY
DRAIN PAN
FRONT VIEW
LH PIPING
CONTROL
BOX
1-1/8”
Compact Concealed Unit Dimensions
Unit Size 200-300 400 600 800 1000-1200
A 32-11/16” 37-11/16” 47-3/16” 55-11/16” 74-11/16”
B 21-5/16” 26-5/16” 35-13/16” 44-5/16” 63-5/16”
C 22-13/16” 27-13/16” 37-5/16” 45-13/16” 64-13/16”
D 19-3/8” 24-3/8” 33-7/8” 42-3/8” 61-3/8”
E 18-1/8” 23-1/8” 32-5/8” 41-1/8” 60-1/8”
F 19-5/16” 24-5/16” 33-13/16” 42-5/16” 61-5/16”
Notes:
1. Coil connections are always on the drain pan side and opposite the control box
and unit control.
2. Coil connections are 5/8” O.D. sweat. See p. 69 for locations.
3. All duct collar dimensions are to the outside of the collar.
4. See p. 71 for dimensions for outside air openings.
Compact Concealed
UNT-PRC001-EN.book Page 68 Tuesday, May 8, 2012 10:54 AM

UNT-PRC001-EN 69
Dimensions and Weights
Coil Connections, Vertical Units
Coil Connections, Horizontal Units
8-3/16" RHR
5-5/16" CS
4-7/8" RHS
4-3/8" CR
2-5/16" HR
21-13/16"
CS
20-13/16"
CR
20-1/2"
HR
18-11/16"
HS
23-1/4"
RHS
19-15/16"
RHR
RMS = Reheat Supply
HR = Hot Water Return
HS = Hot Water Supply
CR = Chilled Return
CS = Chilled Water Supply
Note: Reheat coils are only available
on units with 2-pipe main coils.
8-3/16"
RHR
5-5/16"
CS
4-7/8"
RHS 4-3/8" CR
2-5/16" HR
20-9/16" RHR
23-7/8" RHS
19-5/16" HS
21-1/16" HR
21-3/8" CR
22-3/8" CS
RMS = Reheat Supply
HR = Hot Water Return
HS = Hot Water Supply
CR = Chilled Return
CS = Chilled Water Supply
Note: Reheat coils are only available
on units with 2-pipe main coils.
COMPACT CONCEALED
Coil Connections
UNT-PRC001-EN.book Page 69 Tuesday, May 8, 2012 10:54 AM

70 UNT-PRC001-EN
Dimensions and Weights
Fresh Air Opening Locations, Horizontal Units Models C, D, and E
1-5/8" 1-5/8"
2-15/16"
1-5/8"
1-5/8"
2-15/16"
1-5/8"
Fresh Air Opening Dimensions, Horizontal Units
Unit Size 02–03 04 06 08 10–12
A 18” 23” 32-1/2” 41” 60”
B 21-5/16” 26-5/16” 35-13/16” 44-5/16” 63-5/16”
Fresh Air Opening
UNT-PRC001-EN.book Page 70 Tuesday, May 8, 2012 10:54 AM

UNT-PRC001-EN 71
Dimensions and Weights
Fresh Air Opening Locations, Vertical Units Models A, B, and J
1-5/8" 1-5/8"
1-5/8"
1-5/8"
2-15/16"
2-15/16"
Fresh Air Opening Dimensions, Vertical Units
Unit Size 02–03 04 06 08 10–12
A 18” 23” 32-1/2” 41” 60”
B 21-5/16” 26-5/16” 35-13/16” 44-5/16” 63-5/16”
Fresh Air Opening
UNT-PRC001-EN.book Page 71 Tuesday, May 8, 2012 10:54 AM

72 UNT-PRC001-EN
Dimensions and Weights
Fresh Air Opening Locations, Low Vertical Units Models K and L
Fresh Air Opening Dimensions, Low
Vertical Units
Unit Size 03 04 06
A 24-1/4” 33-3/4” 42-1/4”
B 26-1/4” 35-3/4” 44-1/4”
9-3/16"
3-9/16"
9-3/16"
3-9/16"
Fresh Air Opening
UNT-PRC001-EN.book Page 72 Tuesday, May 8, 2012 10:54 AM

UNT-PRC001-EN 73
Dimensions and Weights
Wall Box
Wall Box Dimensions
Unit Size Dimensions A x B
Internal
Support
02–03 24-3/8 x 4-3/4 1
04 24-3/8 x 7-1/2 1
06 33-1/8 x 7-1/2 2
08 37-1/2 x 7-1/2 3
10–12 58-1/4 x 7-1/2 4
CONTINUOUS
MORTAR RIBS
TOP AND
BOTTOM
1/8”
1/8”
1/8”
1-3/8”
1/2”
1/2”
3/4”
4”
CLEARANCE
FOR DRAINAGE
WOVEN ALUMINUM
INSECT SCREEN
CONTINUOUS DRIP LIP
TOP AND BOTTOM
ADDITIONAL INTERNAL
SUPPORTS EQUALLY SPACED.
NOT TO EXCEED 12” O.C.
5/8”
A
B
Wall Box
UNT-PRC001-EN.book Page 73 Tuesday, May 8, 2012 10:54 AM

74 UNT-PRC001-EN
Dimensions and Weights
Projection Panel
Projection Panel Dimensions
Unit Size 02–03 04 06 08 10–12
A 47” 51” 63” 65-1/2” 89-1/2”
B 30” 30” 30” 33-1/2” 33-1/2”
Projection Panel, All Unit Sizes
C 2” 2-1/2” 3” 3-1/2” 4” 4-1/2” 5” 5-1/2” 6”
D 1-1/8” 1-5/8” 2-1/8” 2-5/8” 3-1/8” 3-5/8” 4-1/8” 4-5/8” 5-1/8”
E 8-5/8” 8-1/8” 7-5/8” 7-1/8” 6-5/8” 6-1/8” 5-5/8” 5-1/8” 4-5/8”
UNIT TO WALL - TOP VIEW
FRONT VIEW ISO
REAR VIEW ISO
Projection Panel
UNT-PRC001-EN.book Page 74 Tuesday, May 8, 2012 10:54 AM

UNT-PRC001-EN 75
Mechanical Specifications
UniTrane Fan-Coil Mechanical Specifications
Performance Data
Capacity: Unit capacities are certified under Industry Room Fan-Coil Air Conditioner Certification
Program in accordance with AHRI Standard 440-97.
Safety: All standard units are UL listed in the United States and Canada and comply with NFPA 90A
requirements.
Construction
All Units
The unit includes a chassis, coil(s), fan wheel(s), fan casing(s), fan board and motor(s). Units also
include a noncorrosive, ABS main drain pan, positively sloped in every plane and insulated with
closed-cell insulation. Horizontal units and all units with standard piping packages also include a
thermoplastic auxiliary drain pan. Steel parts exposed to moisture are galvanized. The fan board
assembly and both drain pans are easily removable. The fan board assembly includes a quick-
disconnect motor plug. The chassis construction is 18-gage galvanized steel, and continuous
throughout the unit. The unit is acoustically and thermally insulated with closed-cell insulation. All
panels are made rigid by channel forming.
Vertical Cabinet and Slope Top Units
Front panel fabrication is 16-gage galvanized steel. All other panels are 18-gage galvanized steel.
The discharge grille is recessed to resist condensate formation. Hinged access door construction
is 20-gage steel and is flush with top panel.
Horizontal Cabinet Units
All panels are 18-gage galvanized steel, including the bottom panel. Discharge grille is recessed to
resist condensate formation. The hinged access door is flush with front panel. Bottom panels ship
with tamperproof screw fasteners and a safety chain.
Concealed/Recessed Units
Exposed panels on recessed units are 18-gage steel construction and ship separate from the unit.
Bottom panels on horizontal recessed models ship standard with tamperproof screw fasteners and
a safety chain. Horizontal recessed units feature a telescoping panel to allow the panel to be
adjusted to line up flush with the ceiling. The telescoping panel extends 1.25” to 2” depending on
the configuration of airflow.
Low Vertical Unit
Front panels are of 16-gage galvanized steel. All cabinet parts are made rigid by channel forming.
End panel is removable for piping access. Hinged access door construction is 20-gage steel and
flush with top panel.
Unit Finish
All cabinet parts and exposed recessed panels are cleaned, bonderized, phosphatized, and painted
with a baked powder finish available in six decorator colors. Standard finish meets ASTM B117
specifications (salt spray test).
Fans
The galvanized metal fan wheels are centrifugal forward-curved and double-width. Fan wheels and
housings are corrosion resistant. Fan housing construction is formed sheet metal. Low vertical
units utilize an aluminum tangential wheel design.
UNT-PRC001-EN.book Page 75 Tuesday, May 8, 2012 10:54 AM

76 UNT-PRC001-EN
Mechanical Specifications
Motors
All motors are brushless DC (BLDC)/electronically commutated motors (ECM) factory-
programmed and run-tested in assembled units. The motor controller is mounted in a touch-safe
control box with a built-in integrated user interface and LED tachometer. If adjustments are needed,
motor parameters can be adjusted through momentary contact switches accessible without
factory service personnel on the motor control board.
Motors will soft-ramp between speeds to lessen the acoustics due to sudden speed changes.
Motors can be operated at three speeds or with a field-supplied variable speed controller. The
motor will choose the highest speed if there are simultaneous/conflicting speed requests.
All motors have integral thermal overload protection with a maximum ambient operating
temperature of 104°F and are permanently lubricated. Motors are capable of starting at 50 percent
of rated voltage and operating at 90 percent of rated voltage on all speed settings. Motors can
operate up to 10 percent over voltage.
Controls
Controls options are: fan speed switch, control interface, and Tracer ZN010, ZN510, ZN520, and
UC400. A variety of inputs and outputs are available for the control interface and Tracer controller
options. A disconnect switch (for non-electric heat units), fused transformer, contactor(s), and
terminal strip are provided with the control interface and Tracer controller options. For specifics on
Tracer ZN010, ZN510, ZN520, and UC400, please refer to “Controls,” p. 39.
Control Interface
The control interface is intended to be used with a field-supplied, low-voltage thermostat or
controller. The control box contains a relay board which includes a line voltage to 24-volt
transformer, quiet contactors (for electric heat units), and an optional disconnect switch. All end
devices are wired to a low-voltage terminal block and are run-tested, so the only a power
connection and thermostat connection is needed to commission the unit. Changeover sensors and
controls are provided whenever a change-over coil is selected. When N.O. valves are selected,
inverting relays are provided for use with standard thermostats.
Fan Speed Switch
The fan speed switch is available with or without the control interface option and is available as
wall-mount or unit-mount. Both the wall-mount and unit-mount FSS will employ low-voltage fan
switches. However, the low-voltage fan speed option will provide an interface to factory wiring,
including variable speed/high-medium-low (HML) control. The control box contains a line voltage
to 24-volt transformer, ECM motor controller, and an optional disconnect switch.
Coils
All water coils are proof-tested at 300 psig (air) and leak-tested at 100 psig (air under water).
Maximum main coil working pressure is 300 psig. Maximum entering water temperature is 200°F.
Tubes and u-bends are 3/8”OD copper. Fins are aluminum and are mechanically bonded to the
copper tubes. Coil stubouts are 5/8” OD copper tubing.
Reheat Coils
Reheat coils are available for use with both hot water and steam. Hot water maximum working
pressure is 300 psig, and the maximum entering water temperature is 200°F. The steam coil
maximum working pressure is 15 psig. The reheat coils are constructed of single circuit 5/8” copper
tubes with aluminum fins. Piping connections are expanded to accept standard copper tubing
5/8”OD.
Piping Packages
All piping packages are proof-tested at 300 psig (air) and leak tested at 100 psig (air under water).
The maximum working pressure of the interconnecting piping is 300 psig.
Options
UNT-PRC001-EN.book Page 76 Tuesday, May 8, 2012 10:54 AM

UNT-PRC001-EN 77
Mechanical Specifications
Piping packages are available in either basic or deluxe configurations. The deluxe package includes
unions at the coil connections and a 20-mesh strainer on the supply side with a pressure rating on
the strainer of up to 400 psig. The basic package does not include either unions or the strainer. A
choice of end valves are available on both the basic and deluxe piping packages.
The piping package is designed so that any condensation is directed into the UniTrane auxiliary
drain pan. Insulation of piping package is not required.
Ball Valve Supply and Return
A ball-type stop valve is available on both the supply and return of the piping package. The ball
valve is a shutoff valve only with a maximum working pressure of 400 psig.
Ball Valve Supply, Manual Circuit Setter Return
A ball valve is provided on the supply with a manual circuit setter on the return. The manual circuit
setter is a combination flow-setting device and shutoff valve that includes two Schrader ports. The
maximum working pressure of the valve is 300 psig.
Ball Valve S & R, Auto Circuit Setter Return
Ball type end valves are mounted on the supply and return, with an additional auto circuit setter
mounted on the return. The auto circuit setter is an automatic flow control valve that is sized to
allow a specific flowrate through the coil. Auto circuit setters also include two P/T plugs and have
a maximum working pressure of 400 psig.
Control Valves
Two-Way, Two-Position Control Valves
Two-way, two-position valves are rated for a maximum pressure differential across the valves of
30 psig. The valves are also available with a close-off pressure of 50 psig. The valve actuator is
easily removable for service without removing the valve body from piping. Use some means, such
as a pump and chiller bypass, to ensure the maximum closed off ΔP rating of the two-way valves
is not exceeded.
Three-Way, Two-Position Control Valves
Normally open three-way, two-position valves are rated for a maximum 28 psig pressure
differential across the valves. Normally closed three-way two-position valves are rated for a
maximum pressure differential across the valves of 20 psig. A bypass line is piped on all three-way
piping packages with a balance fitting to set flow through the bypass line. The balance fitting has
a maximum working pressure of 150 psig. The valves are also available with a maximum close-off
pressure of 50 psig. The valve actuator is easily removable for service without removing the valve
body from piping.
Modulating Control Valves
Two-way and three-way modulating valves are rated for a maximum pressure differential across
the valves of 50 psig (345 kPa). The modulating valves are available in Cv values of 0.7, 1.5, 2.5 and
4.0.
All two-position and modulating control valves have a maximum working pressure of 300 psig.
The maximum entering water temperature of the valve is 200°F.
Electric Heat Coil
The auxiliary electric heating coil is provided as either the total source of heat or auxiliary
intermediate season heating. The electric heat coils are located in the preheat position, and are the
open-wire type. The coils are a nickel chromium element design. The electric heat operates at the
same voltage as the unit, and only a single power connection is necessary.
All units with factory-mounted electric heat are UL-listed and interlocked with the fan motor switch.
A call for electric heat operation will turn the fan on. Motors controls are synchronized with
Options
UNT-PRC001-EN.book Page 77 Tuesday, May 8, 2012 10:54 AM

78 UNT-PRC001-EN
Mechanical Specifications
fan/valve operation to ensure safe operation and to ensure that two modes of heat are not
operating simultaneously. A transformer is supplied on any voltage unit, eliminating the need for
field installation of a step-down transformer. Unit-mounted quiet magnetic relays are supplied on
all voltages. A high temperature cutout with automatic reset is provided as an integral part of the
elements to de-energize the electric heat in the event of a malfunction.
Filters
Filters are concealed from sight and easily removable. Filters are located behind an integral access
door on horizontal type units. Filters are either 1” throwaway or 1” MERV 8.
Units equipped with 1” MERV 8 filters have a rating based on ASHRAE Standard 52.2. The average
dust spot efficiency is no less than 35 to 40 percent when tested in accordance with ASHRAE 52.1
atmospheric dust spot method.
Units equipped with 1” MERV 13 filters have a rating based on ASHRAE Standard 52.2. The
average dust spot efficiency is no less than 90 percent efficiency on 1–3 micron particles and
greater than 90 percent efficiency on 3–10 micron particles when tested in accordance with
ASHRAE Test Standard 52.2.
Fresh Air Damper
A fresh air opening with a damper is a factory-installed option. Dampers are constructed of 18-gage
steel. Fresh air is sealed off with gasket material when the damper is set in the closed position.
Return and fresh air mixes when the damper is open.
Manual Damper
The manual damper is field-adjustable to allow a zero to 100 percent fresh air position.
Auto Two-Position Damper
The auto two-position damper is factory set at 25 percent when open. The damper can be set in the
field to allow a zero to 50 percent fresh air position.
Economizer Damper
The economizer damper is accompanied by a factory-installed and wired modulating actuator. The
damper is factory set at 25 percent default minimum and 100 percent maximum opening. The
damper is field adjustable using Tracer Summit or Rover to allow a zero to 100 percent fresh air.
Disconnect Switch
A unit mounted disconnect switch is available as a standard option on all units.
Colors
Six decorator colors are available in a baked powder finish. For a color chart, contact your local
Trane office for a copy of UNT-SLB017-EN (Color Selector: Cabinet Heaters, Fan-Coils, Unit
Ventilators, & Water-Source Heat Pump Consoles).
Extended End Pockets
On vertical or horizontal cabinet units, an 8” extended end pocket is available on the piping end.
Tamperproof Locks
Key-operated locking access doors and/or panels will help prevent nuisance tampering with unit
and/or controls. Tamper proof locks are available on vertical cabinet, horizontal cabinet, vertical
recessed, vertical slope top, and low vertical units.
Leveling Feet
Refrigerator type screw-in bolts to level the unit are available on vertical and low vertical cabinet
units.
Options
UNT-PRC001-EN.book Page 78 Tuesday, May 8, 2012 10:54 AM

UNT-PRC001-EN 79
Mechanical Specifications
Quad Grille Outlet
Quad grilles are square multi-directional grilles that allow four different discharge directions by
rotating the grilles 90°. The quad grille construction is a black plastic material (NORYL-SE 1-731)
with a 15° angle on the discharge louvers. Quad grilles are recessed into the discharge panel to
prevent condensation from forming on the grille exterior. Quad grilles are available on all cabinet
style units.
Bar Grille Inlet/Outlet
Bar grilles are formed steel grille options available on the discharge of all cabinet units, the return
of vertical cabinet, vertical slope tops and low vertical cabinet units. The grilles have a black paint
finish with 18-gage steel construction. The louvers are formed at a 15° angle, and the discharge
grilles are recessed to prevent condensate formation on the surface of the grille. The bar grilles are
fixed in one discharge direction.
Sub-bases
Sub-bases elevate vertical cabinet or slope top cabinet units to a specified height; for example, to
reach the bottom of a window sill. The sub-base also provides a cavity through which to run piping
underneath the fan-coil unit. Sub-bases are 16-gage steel construction and have the same black
paint finish as the unit’s base. The sub-base is available in heights between 2”–7” in 1/2”
increments. The sub-base depth and width is identical to the unit’s dimensions.
Figure 27. Quad grille outlet
Figure 28. Bar grille inlet and outlet
Figure 29. Sub-base (shown turned on its side)
Options
UNT-PRC001-EN.book Page 79 Tuesday, May 8, 2012 10:54 AM

80 UNT-PRC001-EN
Mechanical Specifications
False Backs
False backs increase the depth of a vertical cabinet unit and provide a cavity through which to run
piping behind the fan-coil unit. False backs are also an excellent application when installing a unit
beneath a window sill that extends out past the front of the unit.
False backs are 18-gage steel construction and have the same paint finish as the unit. The false back
is available in depths between 2”–8” in 1” increments, with height and width identical to the unit’s
dimensions.
Recessing Flanges
Recessing flanges have 18-gage steel construction and are painted the same finish as the unit.
Recessing flanges provide an aesthetic architectural border or frame around vertical and horizontal
cabinet fan-coil units.
Aluminum Wall Boxes
Figure 30. False back
Figure 31. Recessing flange
Figure 32. Wall box
Options
UNT-PRC001-EN.book Page 80 Tuesday, May 8, 2012 10:54 AM

UNT-PRC001-EN 81
Mechanical Specifications
Wall boxes have a clear anodized finish and include a single core wire mesh insect screen. The
frame is 10-gage extruded aluminum alloy 6063-T5 construction. Horizontal louvers have 16-gage
extruded aluminum alloy 6063-T5 construction.
Wall boxes ship separate for field installation. A field supplied duct or sleeve from the wall box to
the unit fresh air opening is required to provide fresh air. Wall boxes are sized to handle up to
100 percent of nominal air flow.
Projection Panels
Projection panels allow semi-recessing of vertical recessed units.
Panels are 16-gage steel construction, painted with a baked powder finish. They are available in
projection depths ranging from 2”–6” in 1/2” increments. There is a distance of 7/8” between the
projection panel and the front of the unit.
Piping Components
Ball Valve
Figure 33. Projection panel
Figure 34. Ball valve
Part Material Spec ASTM
Lever Steel, zinc plated
Seat Te f l on VTFE
Packing Te f l o n RTFE
Stem Rod Brass B16
G-Nut Hex Brass B16
Ball Brass, chrome plated B16
Retainer Brass B16
Body Cast Brass B584-C84400
Working Pressure
400 psi
Options
UNT-PRC001-EN.book Page 81 Tuesday, May 8, 2012 10:54 AM

82 UNT-PRC001-EN
Mechanical Specifications
Manual Circuit Setter
Material
Body—Forged Brass Alloy
Trim—Forged Brass Alloy
All Wetted Parts Brass
Temperature
250°F MAX
Working Pressure
300 psi
Auto Circuit Setter
Material
Body—Forged Brass
Flow Cartridge—Electroless Nickel and Stainless Steel
Temperature
250°F MAX
Working Pressure
400 psi
Pressure Drop
0.5–9.0 gpm = 2 psi ΔP
10.0–12.0 gpm = 5 psi ΔP
Figure 35. Manual circuit setter
Figure 36. Auto circuit setter
Options
UNT-PRC001-EN.book Page 82 Tuesday, May 8, 2012 10:54 AM

UNT-PRC001-EN 83
Mechanical Specifications
Control Valve
Material
Body—Forged Brass
Drive Shaft Stem—Chrome-Plated Brass (Modulating) Brass (2-Position)
Seat—Stainless Steel (Modulating)
Ball Plug—Buna N Rubber(2-Position)
Plug—High Temperature Thermoplastic (Modulating)
O-Ring Seals—EPDM Rubber (2-Position)
Actuator—Stainless Steel Base Plate, Aluminum Cover
Temperature
200°F Max.
34°F Min.
Working Pressure
300 psi
Pressure Drop (Close-Off ΔP)1
2-Way, Two-Position, N.O. = 30 psig
2-Way, Two-Position, N.C. = 30 psig
3-Way, Two-Position, N.O. = 28 psig
3-Way, Two-Position, N.C. = 20 psig
2-Way Modulating = 50 psig
3-Way Modulating = 50 psig
Balance Fitting
Material
Packing Washer—11 Ga. Brass
O-Ring—EPDM Rubber
Stem—Rod Brass
Figure 37. Control valve
1All valves are available with optional 50 psig (345 kPa).
Figure 38. Balance fitting
Options
UNT-PRC001-EN.book Page 83 Tuesday, May 8, 2012 10:54 AM

84 UNT-PRC001-EN
Mechanical Specifications
Gland Screw—Hex Brass
Valve Body—Cast Brass
Union
Material
Nut—Forged Brass
Body—Copper
Tail—Copper
Strainer
Material
Body—Cast Bronze (85-5-5-5)
Cover—Cast Bronze (85-5-5-5)
Screen—Stainless Steel (20 Mesh)
Gasket—Teflon
Pressure and Temperature
400 psi at 150°F
Figure 39. Strainer
Options
UNT-PRC001-EN.book Page 84 Tuesday, May 8, 2012 10:54 AM

Trane optimizes the performance of homes and buildings around the world. A business of Ingersoll Rand, the
leader in creating and sustaining safe, comfortable and energy efficient environments, Trane offers a broad
portfolio of advanced controls and HVAC systems, comprehensive building services, and parts.
For more information, visit www.Trane.com.
Trane has a policy of continuous product and product data improvement and reserves the right to change design and specifications without notice.
We are committed to using environmentally
conscious print practices that reduce waste.
© 2012 Trane All rights reserved
UNT-PRC001-EN 08 May 2012
Supersedes UNT-PRC001-EN (05 Dec 2011)
UNT-PRC001-EN.book Page 85 Tuesday, May 8, 2012 10:54 AM