Trane Varitrac Dampers Catalogue VAV PRC003 EN (03/12)
2015-04-02
: Trane Trane-Varitrac-Dampers-Catalogue-684389 trane-varitrac-dampers-catalogue-684389 trane pdf
Open the PDF directly: View PDF
.
Page Count: 52
- Introduction
- Features and Benefits
- Application Considerations
- Selection Procedures
- Model Number Descriptions
- Electrical Data and Connections
- Specifications
- Acoustics
- Dimensions and Weights
- Glossary

Tracker System — CB
VariTrac™ — Changeover Bypass VAV
March 2012 VAV- PRC0 03 -EN
Communicating
Bypass Controller
HVAC Unit
Bypass Damper
VariTrac Central Control
Panel with touchscreen
interface
VariTrac Zone Damper
Zone Sensor
Wireless Zone Sensor
Wireless Receiver
Product Catalog

© 2012 Trane All rights reserved VAV-PRC003-EN
Introduction
Comfort Made Simple
Trane has a long history of innovative leadership in variable air volume (VAV) technology. Trane
introduced the: 1) First fan-powered VAV unit; 2) First factory-commissioned DDC controller; and
3) First preprogrammed VAV controller designed specifically for VAV applications. Trane is now the
leading manufacturer of VAV terminal units and VAV-related products in the world.The introduction
of VariTrac™ in 1989 brought VAV controls expertise into the changeover bypass zoning market.
Trane is committed to continuous product improvement and now introduces a new generation of
VariTrac controls. This latest generation retains the functionality of the original VariTrac system
with exciting new enhancements, utilizing the best of today’s technology.
The Changeover Bypass VAV Comfort Advantage
VariTrac Product Enhancements
Advanced Control Options. Some VariTrac intelligent system control features are listed below.
•CO
2-based demand control ventilation resets the position of the HVAC unit ventilation air
damper when zone CO2 levels rise.
• Zone-based HVAC unit control operates heating and cooling only when zone demand exists.
• Discharge air control to avoid extreme supply air conditions and maximize equipment life and
occupant comfort.
• A simplified system-balancing process is available via PC software or the touch-screen
interface.
• Global zone temperature setpoint limits simplify startup, commissioning, and operator control.
Trademarks
Trane, VariTrac and the Trane logo are trademarks of Trane in the United States and other countries.
All trademarks referenced in this document are the trademarks of their respective owners.
Figure 1. VariTrac CCP(a)
Packaged unitary systems offer a popular and cost-effective method of supplying conditioned air
to light commercial buildings. These systems commonly have a constant-volume fan with a fixed
outside air damper and a single thermostat. While a constant volume system may meet the overall
thermal requirements of the space, only a single thermostat is available. This system may be
insufficient in multiple-space applications with independent thermal load requirements.
Changeover bypass systems use the practicality and cost effectiveness of constant volume unitary
components like packaged rooftop units, split systems, or water-source heat pumps, and simply
add dampers and a central control panel to coordinate the components. This allows up to 24
individual sensors (thermostats) for independent temperature control.
(a) Maximizes system efficiency and reliability by coordinating the components of the changeover-bypass system.
Figure 2. VariTrac CCP with optional touch-screen interface(a)
Selected enhancements of the new VariTrac product are as follows: 1) A new central control panel
(CCP) with improved system temperature and pressure control functions; 2) An optional touch-
screen operator display for the CCP with built-in time clock for easier system setup and control;
3) A communicating bypass controller allows duct pressure and duct temperature to communicate
to the system via a twisted shielded wire pair, thus eliminating costly “home-run” wiring; 4) The
next generation UCM zone controller allows CO2 and occupancy sensor inputs; and 5) A digital
display zone sensor for simplified occupant control.
(a) Simplifies system operation with intuitive icon-driven design.

Table of Contents
VAV-PRC003-EN 3
Introduction . . . . . . . . . . . . . . . . . . . . . . . . . . . . . . . . . . . . . . . . . . . . . . . . . . . . . . 2
Features and Benefits . . . . . . . . . . . . . . . . . . . . . . . . . . . . . . . . . . . . . . . . . . . . . . 4
Application Considerations . . . . . . . . . . . . . . . . . . . . . . . . . . . . . . . . . . . . . . . . . 13
Selection Procedures . . . . . . . . . . . . . . . . . . . . . . . . . . . . . . . . . . . . . . . . . . . . . . 27
Model Number Descriptions . . . . . . . . . . . . . . . . . . . . . . . . . . . . . . . . . . . . . . . . 30
Electrical Data and Connections . . . . . . . . . . . . . . . . . . . . . . . . . . . . . . . . . . . . . 31
Specifications . . . . . . . . . . . . . . . . . . . . . . . . . . . . . . . . . . . . . . . . . . . . . . . . . . . . 37
Acoustics . . . . . . . . . . . . . . . . . . . . . . . . . . . . . . . . . . . . . . . . . . . . . . . . . . . . . . . 39
Dimensions and Weights . . . . . . . . . . . . . . . . . . . . . . . . . . . . . . . . . . . . . . . . . . 43
Glossary . . . . . . . . . . . . . . . . . . . . . . . . . . . . . . . . . . . . . . . . . . . . . . . . . . . . . . . . 49

4 VAV-PRC003-EN
Features and Benefits
Figure 3. VariTrac changeover-bypass VAV system components
Communicating
Bypass Controller
HVAC Unit
Bypass Damper
VariTrac Central Control
Panel with touchscreen
interface
VariTrac Zone Damper
Zone Sensor
Wireless Zone Sensor
Wireless Receiver
VariTrac Central Control Panel (CCP)
The CCP is the system level controller which
coordinates and monitors VariTrac system
operation, including HVAC system supply
pressure and airflow, heating/cooling
mode, supply air temperature, all zone
temperatures and setpoints, fan mode,
economizer position (when paired with CO2
demand controlled ventilation), time-of-day scheduling, zone
grouping logic, system override mode (after hours operation),
and much more.
Communicating Bypass Controller
A single enclosure with duct
temperature sensor, static
pressure sensor, and
communicating controller (UCM)
which easily mounts on the
supply ductwork. The UCM
provides power to drive the bypass damper actuator.
Zone Sensor
Zone sensors (sometimes referred to as thermostats) measure space temperature and report it to
the zone damper controller (UCM). Five models are available to satisfy varied aesthetic and
application preferences.

VAV-PRC003-EN 5
Features and Benefits
Overview
Changeover-bypass VAV is a comfort system developed for light commercial applications. A
changeover-bypass VAV system responds to changing cooling or heating requirements by varying
the quantity or volume of air delivered to each zone. Each zone has a thermostat for individual
comfort control. An HVAC unit delivers a constant volume of air to the system. As the volume of
air required by the zone changes, excess supply air is directed to the return duct via a bypass duct
and damper. (See Figure 3, p. 4 for typical system components.)
A changeover-bypass VAV system combines the comfort benefits of VAV with the cost effectiveness
and simplicity of packaged, constant-volume unitary equipment.
How the System Works
A changeover-bypass VAV system commonly consists of an HVAC unit with a constant-volume
supply fan, and direct-expansion (DX) cooling. This combined system has the ability to “change”
to the heating mode or cooling mode, depending on individual zone comfort requirements. A
heating coil or a gas-fired heater and an outside air damper are possible options.
A temperature sensor in each zone communicates information to an electronic controller on the
VAV terminal unit. The controller then modulates the zone damper open or closed, supplying
heating or cooling air to the zone.
The HVAC unit delivers a constant volume of supply air to the system. In order to maintain duct
static pressure, a bypass duct and damper are required to bypass (detour) air not required in the
zones.
The VAV terminal unit controller communicates zone temperature information to a central control
panel (CCP). The CCP also gathers information from the system, including duct static pressure and
supply-air temperature. The CCP determines zone heating or cooling needs using voting (or
polling) logic, then requests heating or cooling from the HVAC unit. The CCP directs the HVAC unit
to provide ventilation air to high-occupancy areas (demand control ventilation) or free-cooling
when the outside air temperature falls below the temperature setpoint (economizer control).
Auto Changeover
“Auto changeover” refers to the ability of the system to automatically change between the heating
and cooling modes.
In a changeover-bypass VAV system, the CCP determines whether the HVAC unit should heat or
cool by polling the temperature of the individual zones. It then compares the zone temperatures
to the space temperature setpoints. If the supply air does not meet the criteria for the heat or cool
mode called for, the CCP sends a signal to the HVAC unit to change the system to the opposite
mode.
HVAC Unit
VariTrac changeover bypass systems
operate with Trane and non-Trane products,
including split systems, packaged rooftop
units, and water-source heat pumps.
These systems are generically referred to as
HVAC (heating, ventilating, and air
conditioning) units.
When combined with a Trane packaged
rooftop with ReliaTel™ controller, wiring,
installation, and system startup efficiency is
maximized by connecting with a simple
twisted shielded wire pair.
Bypass Damper with Wire and Quick
Connect
A round or rectangular
damper ducted between
the HVAC supply and
return ducts. It is easily
connected via a “quick-
connector” which
provides quick and
consistent field wiring.
The bypass damper is modulated by the CCP to
maintain required system static pressure.

6 VAV-PRC003-EN
Features and Benefits
Central Control Panel
The VariTrac central control panel (CCP) serves as the central source of communications and
decisionmaking between the individual zones and the HVAC unit. The CCP determines system
heating and cooling modes and coordinates the system supply air temperature and static pressure
to satisfy building thermal load conditions. Inputs to the CCP include 24VAC power and
communication wiring to the zone dampers and bypass control.
Binary inputs consist of priority shutdown and occupied/unoccupied modes. Heating, cooling, and
the HVAC unit fan on split systems and non-Trane HVAC units can be controlled through binary
outputs on an accessory relay board. If a Trane rooftop air conditioner with factory-installed
electronic controls is used, the CCP can control heating, cooling, and the fan with a two-wire
communication link tied to an interface board mounted in the rooftop. It can also display status
information from the electronic controller in the rooftop. (See Figure 4, p. 6.)
CCP Feature Summary
• Communicates with up to 24 VAV unit control modules (UCMs).
• Makes optimal heating and cooling decisions based on setpoint and temperature information
received from individual zones.
• Automatically calibrates all dampers, significantly reducing labor-intensive and costly field
calibration.
• Windows-based PC software simplifies setup and control.
• Provides diagnostic information for all system components via the operator display or PC
software.
• Provides status and diagnostic information for Trane HVAC units equipped with Trane ReliaTel
or UCP electronic controls.
Optional Operator Display
Figure 4. VariTrac central control panel (L) and a screen representation from the central control panel, illustrating
system status (R).
Figure 5. VariTrac central control panel with optional operator display
The optional operator display is a backlit, liquid crystal
display with touch-screen programming capability.
The operator can access system and zone status through
the display and perform basic setup of zone VAV UCMs
and CCP system operating parameters. The display
allows an installer to commission a VariTrac system
without using a PC. The operator display has a seven-
day time clock for stand-alone scheduling capability.

VAV-PRC003-EN 7
Features and Benefits
Operator Display Feature Summary
• Backlit LCD touch-screen display for easy operator interface.
• Combination of icon- and menu-based navigation provides intuitive operation.
• Provides a level of control for the daily operator, and a second level for commissioning and
service.
• Three levels of security are available to protect system settings.
• Seven-day time clock for stand-alone, time-of-day scheduling.
Communicating Bypass Controller
The communicating bypass controller is a single control enclosure with the following integrated
devices included:
• Integrated UCM board;
• Static pressure sensor; and
• Discharge air temperature sensor.
The communicating bypass controller directly controls the bypass damper and communicates duct
conditions to the central control panel via a simple twisted shielded wire pair.
Quick Connect
Minimizes field wiring labor and assures wiring consistency
Duct Temperature Sensor
The supply air temperature sensor allows the CCP to control heating and cooling stages to maintain
the supply air temperature. Supply air temperature setpoints can be edited through the operator
display or PC software.
Static Pressure Sensor
The static pressure sensor measures duct static pressure and positions the bypass damper(s) to
maintain the static pressure setpoint.
Tracker System Integration
The VariTrac system can be fully integrated with the new family of Tracker building controls. A
Tracker building management system can manage multiple VariTrac systems from a single control
point.
Tracker System Summary
• Controls up to 10 VariTrac systems from a single Tracker panel for easy building operation.
Figure 6. Communicating bypass controller, side (L) and 3D (R) views
Quick Connect
Duct Temperature
Sensor
Static Pressure
Sensor

8 VAV-PRC003-EN
Features and Benefits
• LCD touch-screen operator display or Tracker PC software interface provides single-point
building management by a local operator.
• 365-day scheduling function and the flexibility of up to 10 schedules.
• Assign all systems to a single schedule, if desired, for simplified schedule changes.
• Exception scheduling feature for easy management of vacations and holidays.
• Automatically adjusts for daylight savings time and leap year.
• Remote communications capability via modem for system programming and control.
VariTrac Bypass Dampers
Bypass dampers are non-communicating VariTrac dampers and include an integrated fully-
modulating 24 VAC electric actuator.
Field wiring errors are reduced with a quick-connect harness that plugs into the communicating
bypass controller.
Dampers are nominally rated up to 1800–2400 fpm at 1.75" of static pressure, depending on size.
For damper performance information, see Ta bl e 2, p . 2 7, Ta b l e 3, p . 2 8 , Ta b l e 4, p . 2 8 , and Ta b l e 5,
p. 28.
Round Bypass Damper Summary
• Round bypass dampers are available with inlet diameters 6, 8, 10, 12, 14, & 16 inches.
• Heavy gage galvanized steel cylinder with rolled bead for high structural integrity and positive
shut off.
• Sandwich damper blade with elastomeric seal provides quiet operation and tight shutoff for low
leakage.
• Factory-installed, direct-coupled, fully-modulating 24 VAC actuator.
Figure 7. Tracker system architecture
Up to 24
VariTac or
VariTrane
Dampers

VAV-PRC003-EN 9
Features and Benefits
• Rated up to 2400 fpm at 1.75" of static pressure.
Rectangular Bypass Damper Summary
• Rectangular bypass dampers are available in sizes 14 x 12, 16 x 16, 20 x 20, and 30 x 20 inches.
• Formed heavy gage galvanized steel frame, mechanically joined with linkage concealed in the
side channel.
• Air leakage is minimized with an opposed blade design.
• Damper casing is 16 inches long and constructed of heavy gage galvanized sheet metal with slip
and drive connections on the inlet and outlet for easy installation.
• Blades are either four-inch or five-inch nominal widths, depending on height of damper,
constructed of 18 gage galvanized steel.
• A blade rotation stop feature prevents over-rotation of the blades in the fully open position.
• Factory-installed, direct-coupled, fully-modulating 24 VAC actuator.
• Rated up to 3000 fpm at 2" of static pressure.
VariTrac Zone Dampers
VariTrac zone dampers are fully-modulating, pressure-dependent VAV devices. The dampers
control zone temperature by varying the volume of air flowing into a space. Each VariTrac damper
has a control box with a VAV control board and actuator enclosed. The dampers are designed to
operate in static pressures up to 1.75 in. wg.
Round Zone Damper
• Round dampers are available in 6, 8, 10, 12, 14, and 16 inch diameters.
• Heavy gage galvanized steel cylinder with rolled bead for high structural integrity and positive
shut off.
• Sandwich damper blade with elastomeric seal provides quiet operation and tight shutoff.
• 90° blade rotation for a wide control range and stable operation.
• Rated up to 2000 fpm at 1.75" of static pressure.
Rectangular Zone Damper
• Rectangular dampers are available in sizes 8 x 12, 8 x 14, 8 x 16, 10 x 16, 10 x 20, and 14 x 18
inches.
• Heavy gage G60 galvanized steel frame assembled by a mechanical joining process.
• Single-ply, heavy gage G60 galvanized steel blades.
• Linkage uses glass fiber filled nylon crank bearings connected by a metal drive link.
• Factory-installed 24 VAC direct-coupled actuator.
• Rated up to 2400 fpm at 2" of static pressure.
Figure 8. VariTrac rectangular (L) and round zone (R) dampers with UCMs

10 VAV-PRC003-EN
Features and Benefits
Unit Control Module
A unit control module (UCM) is the individual zone controller for the VariTrac air damper and is
mounted on each zone damper. The unit controller continually monitors the zone temperature to
maintain space temperature. The UCM varies the damper position as needed to meet zone
setpoints and communicates current space requirements and system operating modes to the CCP.
The UCM can also control local heat. Local heat may be duct- or space-mounted, and can be staged
electric, pulse-width modulating electric, and modulating or two-position staged hot water.
Zone Sensors
DDC Zone Sensor
The direct digital control (DDC) zone sensor is an uncomplicated, reliable electro-mechanical room
sensor. No programming is required and most sensors contain an internal communications jack.
Models are available with combinations of features such as override (on-cancel) buttons and space-
mounted setpoint. Four sensor variations are available:
• Sensor only (no communications jack)
• Sensor with override buttons
• Sensor with temperature setpoint only
• Sensor with temperature setpoint and override buttons
DDC Zone Sensor with LCD
The DDC zone sensor with LCD (liquid crystal display or digital) is compatible with VariTrane VAV
and VariTrac controllers.
Digital Zone Sensor Summary
• Displays setpoint adjustment and space temperature in °F or °C.
• Simple, two-button control of space setpoint.
• Setpoint control and room temperature display can be optionally disabled.
• Includes button for timed override and a cancel feature for after-hours system operation.
• An easily accessible communications jack is provided for Trane portable edit terminal devices.
• Nonvolatile memory stores last programmed setpoints.
• For field balancing, maximum and minimum airflow or position can be overridden from the
sensor.
Figure 9. DDC zone sensor with LCD (L) and DDC zone sensors (R)

VAV-PRC003-EN 11
Features and Benefits
CO2 Sensor
Wall- and duct-mounted carbon dioxide (CO2) sensors are designed for demand-controlled
ventilation zone applications. The sensor is compatible with VariTrane VAV and VariTrac
controllers. The Trane CO2 sensors measure carbon dioxide in parts-per-million (ppm) in occupied
building spaces. Carbon dioxide measurements are used to identify under-ventilated building
zones. Outdoor airflow increases beyond design ventilation rates if the CO2 exceeds specified
levels.
CO2 Zone Sensor Summary
• Use with the UCM CO2 input for demand control ventilation.
• Silicone-based NDIR sensor technology for long-term stability.
• Measurement range of 2000 ppm CO2 input with an output of 0–10 Vdc.
• Wall-mount transmitter is compact and aesthetic in appearance.
• Optional zone return duct-mount transmitter is available.
Zone Occupancy Sensor
Occupancy Zone Sensor Summary
• Compatible with VariTrane VAV and VariTrac controllers
• Used with zone damper UCM for controlling the occupied standby function
• Ceiling-mount PIR occupancy sensor detects motion over an adjustable range up to 360
degrees
• Single detector covers up to 1200 square feet. For areas larger than 1200 square feet, multiple
sensors can be wired in parallel
• Adjustable time delay avoids nuisance change of state on loss of detection
Figure 10. Duct-mounted CO2 sensor (L) and wall-mounted CO2 sensor (R)
Figure 11. Zone occupancy sensor
The energy-saving zone occupancy sensor is ideal for
zones having intermittent use during the occupied
mode. The sensor sends a signal to the VAV controller
upon detection of movement in the coverage area. The
VAV system then changes the zone from occupied
standby mode to occupied mode.

12 VAV-PRC003-EN
Features and Benefits
• Adjustable sensitivity
• SPDT isolated contacts connect to UCM input
Auxiliary Temperature Sensor
Installed Temperature Sensor
• Thermistor sensing element 10,000 Ohms @ 77°F
• Wiring connection 2 feet, 18 awg
• Sleeving for wire leads is acrylic #5 awg grade C rated @ 155C
Figure 12. Auxiliary temperature sensor
The auxiliary temperature sensor is used with any UCM
damper control. The sensor allows the operator to
monitor duct temperature or air temperature leaving a
reheat device at the zone damper. This sensor is used for
automatic changeover of a UCM damper when not using
a CCP. The auxiliary temperature sensor is ideal for
remote monitoring and diagnostics from the CCP
operator display.

VAV-PRC003-EN 13
Application Considerations
Introduction
The VariTrac system is a changeover-bypass VAV system. One fan supplies either warm air for
heating or cool air for cooling. It is typically applied in small buildings which use unitary heating/
cooling air conditioners. These buildings need the simplicity and low cost of unitary equipment,
but more than one comfort control zone (one zone temperature sensor) for each air conditioner.
When is VariTrac a good HVAC system choice? To help answer this question, several important
application concepts and considerations are discussed below.
Zoning Considerations
Consider the following two questions when evaluating your HVAC system design:
Will the building occupants be comfortable?
A system designed with a single-zone HVAC unit and one zone sensor provides comfort to
occupants near the zone sensor. However, occupants in perimeter areas or interior rooms may be
too hot or too cold.
Will comfort be consistent from room to room and area by area?
A building is normally divided into thermal zones for increased comfort control and energy
savings. Each thermal zone should have a dedicated HVAC unit. For optimum comfort, each thermal
zone should be further divided into comfort zones.
Choosing the number and location of thermal and comfort zones is critical in planning an effective
system. Some things to consider in the design process include:
• Geographic location
• Orientation of the building to the sun
• Prevailing winds
• Wall construction (glass, insulation, building materials)
Figure 13. System design affects occupancy comfort
Single Zone Building
One thermal and
one comfort zone
Thermal Zoned Building
Multiple thermal zones
each with one
comfort zone
Thermal and
Comfort Zoned Building
Multiple thermal zones
each with multiple
comfort zones
Least
Most
Energy Savings • Comfort • Flexibility

14 VAV-PRC003-EN
Application Considerations
• Building layout, design, occupancy and occupancy pattern throughout the day and year
• Activities in each zone
Zoned unitary systems, such as changeover-bypass VAV, divide thermal zones into smaller comfort
zones. Each comfort zone has a damper and zone sensor that controls the amount of heated or
cooled air delivered to the zone. A central system controller monitors the status of each zone
damper and zone sensor. The controller then makes the decision to heat or cool for the HVAC unit.
Individual comfort zones served by a common HVAC unit (part of the same thermal zone) can
require heating and cooling at the same time. In a changeover-bypass VAV system, the unit
alternately provides warm and cool air in an attempt to satisfy the needs of all comfort zones. This
is effective if the simultaneous calls for heating and cooling exist for short time periods only. Wide
temperature variations may occur if some comfort zones need heating for extended periods of time
while others need cooling.
Some comfort zones require special consideration because of their use or location. An example is
the foyer or reception area of an office building. These areas often have wide variations in thermal
load because of glass (relative to other areas of the building) and frequently-opened exterior doors.
Another example is an interior storage room with the need for ventilation but little or no heating
or cooling. These zones can significantly influence efficient operation and comfort levels
throughout the building.
Preferably, areas such as these are designed as separate thermal zones with dedicated HVAC units.
However, this may be impractical or costly. Instead, use fan-powered variable-volume terminal
units, or units with local reheat.
Effective Changeover Bypass VAV System Design
Unitary zoning systems feature low first cost and quick, easy system design and equipment
selection. The system is simple, but it is essential that key elements are considered during the
design process. This section offers a system design sequence and discusses application
considerations that, when followed, help avoid system control and operational instabilities.
Suggested design steps for unitary zoning systems are summarized in Figure 14, p. 14.
Figure 14. Suggested design steps
Step 1. Define Occupant
Comfort Needs
Step 2. Define Thermal Zones
St e p 4 . Siz e He a t i ng /
Cooling Equipment
Step 3. Determine
Comfort Zones
St e p 6 . De si gn t he Du ct syst em
St e p 5 . Siz e Z on e a n d
Byp ass Dam p er Un it s
Involves architect,
engineer(s), and building owner
Involves engineers
and con t ract ors
Involves engineers,
contractors, and building owner
Involves engineer(s) and cont ractors
Involves engineer(s) and cont ractors
Involves engineer(s) and cont ractors
Step 7. Air Diffuser
Selection and Placement
Involves engineer(s) and cont ractors

VAV-PRC003-EN 15
Application Considerations
Step 1. Define occupant comfort needs
The design process begins by considering the needs of building occupants and intended building
use.
What is the intended use of the building?
Is the building usage primarily office space? Is there a manufacturing operation? Are there areas
that have special requirements such as computer or electronic rooms, video/television production,
training facilities, etc.?
What physical activity level is expected of the occupants?
Seated occupants require different indoor temperatures for comfort than continuously moving
occupants. An example may be a building with a mix of office space and light assembly or
manufacturing.
Where will the occupants be located and at what times?
Pay particular attention to areas with intermittent use, such as conference, training, and
lunchrooms.
How are the occupants expected to dress?
Give consideration to how the building occupants will dress. Will they dress in traditional business
attire, such as long-sleeved shirts or blouses, ties, and jackets? Or, will they dress in cooler, casual
attire, such as golf shirts, light slacks, skirts, or shorts?
Gather as much usage information as possible before designing a system. This can be challenging,
particularly when finishing out tenant spaces. However, usage information is crucial to the
selection of heating and cooling equipment, building zoning, and duct layout.
Several publications provide guidance for properly assessing indoor space comfort. An example
is ASHRAE (American Society of Heating, Refrigerating and Air Conditioning Engineers) Standard
55, Thermal Environmental Conditions for Human Occupancy. This standard specifies the
combinations of indoor space environments and personal factors (activity and clothing) that will
produce thermal environmental conditions acceptable to 80 percent or more of the occupants
within a space. Standard 55 addresses temperature, thermal radiation, humidity, and air speed.
ASHRAE Standard 62, Ventilation for Acceptable Indoor Air Quality, is another source for occupant
comfort and safety issues regarding indoor air quality. The standard recommends that relative
humidity be maintained between 30 and 60 percent. This maximizes comfort and reduces the
potential for microbial growth.
Step 2. Define the Thermal Zones
A thermal zone is an area with similar load profiles and occupant comfort requirements. A thermal
zone can be a single room, an area, a group of rooms or an entire building. Defining the thermal
zones within a building is crucial to designing a comfortable indoor environment. Each thermal
zone is conditioned by a single heating and/or cooling unit. The load of the thermal zone
determines the size of the heating and cooling unit.
Cost vs. Comfort
First cost can be reduced by limiting the number of thermal zones. Unfortunately, this may impact
the thermal flexibility of the system, and result in zone comfort issues. Let’s take a closer look at
this important system decision known as “thermal zoning.”
Characteristics of a building which can influence thermal load are:
• Orientation of the building (North, South, East, West)
• Amount and thermal resistance (R-value) of glass (walls, skylights, etc.)
• Expected occupancy within the area

16 VAV-PRC003-EN
Application Considerations
• Interior partitions and doors
• Varying loads from equipment or processes
Let’s examine a few building examples and discuss the zoning criteria of each.
Building Example 1 (See Figure 15, p. 16.)
Consider an existing single-story office building which is small, poorly insulated, with many large
windows and few interior partitions. On a clear, cool spring day, the entire building is cool in the
morning so heating is required. By afternoon, however, the south side of the building being
influenced by the solar load, is warm and requires cooling. The north side remains shaded and
continues to require heating. This situation results in a simultaneous requirement for heating and
cooling for extended periods. Due to the varying loads throughout the building, controlling the
building as a single thermal zone (with a single HVAC unit) cannot satisfy the comfort needs of all
areas. It also is not a good candidate for a zoning system because of the simultaneous need for
heating and cooling.
A similar building with good insulation and fewer shaded windows, on the other hand, may be a
good candidate for a single thermal zone with individual comfort zones. The reduction in wall glass
reduces the solar effect on the building resulting in all areas of the building having similar load
profiles throughout the day. In this case, the building has a single thermal zone and is a good
candidate for one HVAC unit. Individual comfort zones (zone dampers) will be needed to assure
comfortable conditions throughout the zone.
Building Example 2 (See Figure 16, p. 17.)
Consider a strip mall in the spring or fall with stores that face both east and west. In the morning,
the east side of the building gets full sun and warms up while the west side is shaded and requires
heating. In the afternoon, the east side of the building may need heat and the west side cooling.
Because of the thermal load variation throughout the day, this building will not remain comfortable
if designed with a single heating and cooling unit.
On the other hand, comfort in this building could be improved by dividing the building into two
thermal zones (two HVAC units), one serving the east exposure and the other serving the west.
Even with the two systems, individual occupant comfort is not necessarily assured. Interior
partitioning, varying schedules and number of occupants within the thermal zone will drive
differing amounts of heating and cooling. The issues related to comfort zoning are addressed in
the next section.
Figure 15. Building Example 1 illustrates a small, poorly insulated office on the left, and improved design on the right.
Men's
Restroom
Women's
Restroom
ThermostatT
Glass windows
with no shading Minimal wall
insulation
Poor Design Elements
• One thermostat for space
• Glass windows with no shading
• Minimal wall insulation
Men's
Restroom
Women's
Restroom
ThermostatT
Shaded
Windows Insulated
Walls
Improved Design Elements
• Multiple zone thermostats
• Shaded windows
• Insulated walls
ThermostatTThermostatT

VAV-PRC003-EN 17
Application Considerations
Step 3. Define the Comfort Zones
A primary criteria for defining a thermal zone is that it will not require simultaneous heating and
cooling. An HVAC unit with one fan is limited to supplying either heating or cooling. Most
applications with larger thermal zones however will have varying thermal needs throughout the
zone. These small variations can easily be addressed by properly defining comfort zones.
A comfort zone is an area within a thermal zone that is controlled by a zone damper. The amount
of conditioned (heated or cooled) air entering the space varies. This is in response to a space
thermostat. ASHRAE Standard 55 recommends limiting indoor temperature variations.
Temperature variations of less than 2°F in 15 minutes or 4°F in an hour. Deviations from this
recommendation will cause discomfort in 80 percent of the occupants. Zoning systems can greatly
reduce temperature variations caused by shifting occupancy and solar load conditions in large
thermal zones.
Step 4. Sizing HVAC Equipment
Once the building heating and cooling loads are known and the thermal zones have been
determined, the heating and cooling equipment can be selected. Each thermal zone requires a
separate heating and cooling unit. As discussed earlier, unitary zoning systems typically use
packaged DX rooftop units or DX split systems. These systems are offered as heating and cooling
units or heat pumps.
When selecting the heating and cooling unit for a thermal zone, load diversity within the zone
should be considered to minimize equipment size and therefore reduce system first cost and
operating expense. Load diversity is defined as the ratio of the instantaneous peak loads (block
load) to the sum of the peak loads within the thermal zone. In recognizing load diversity, the
designer acknowledges that all areas of the thermal zone will not require maximum cooling or
heating at the same time.
Figure 16. Building Example 2 illustrates a poorly insulated store design (L) and an improved design (R)
Jewelry
Store
Coffee
Shop
Electronics
Store
Toy
Store
Clothing
Store
Pharmacy
Outside
Doors
N
Poor Design Elements
• One thermostat for entire space
• One HVAC unit
Jewelry
Store
Coffee
Shop
Electronics
Store
Toy
Store
Clothing
Store
Pharmacy
Outside
Doors
N
Improved Design Elements
• Two thermal zones
• Two HVAC units

18 VAV-PRC003-EN
Application Considerations
While using diversity may reduce the size of the HVAC unit, the zone ductwork, dampers, and
diffusers must be sized for the individual zone peak loads. The main trunk duct may be sized based
on the HVAC unit airflow. Calculating thermal zone diversity:
1. Determine the instantaneous peak (or block) load for the thermal zone. This information is
output from load analysis software such as Trane TRACE® or manually calculated.
2. Calculate the sum of the peak loads for each of the comfort zones within the thermal zone.
3. The diversity factor is then calculated by dividing the instantaneous peak load value by the sum
of the peak loads.
The heating and cooling equipment will never be called upon to provide more capacity than was
determined by the instantaneous peak load value. Consequently, the equipment capacity can be
reduced by the diversity factor.
Figure 17. Diversity example
Table 1. Diversity example(a)
(a) The sum of blocks loads = 17.5 tons and occurs at 5 p.m. in mid-July.
Zone Time Peak Load
Interior 3 p.m. in mid-July 7.5 tons
North 5 p.m. in mid-July 3.0 tons
East 9 a.m. in June 2.5 tons
South 4 p.m. in November 4.0 tons
West 5 p.m. in September 2.5 tons
Sum of Peak Loads 19.5 tons
Diversity Factor Ins t Pταν eak Load
Sum of Peaks
------------------------------------------------------
=
North Zone
East Zone
West Zone Interior Zone
South Zone
Wedge Zone
Building Perimeter
Glass
Windows
Diversity 17.5 90 percent=
19.5
-----------------------------------------------------
=

VAV-PRC003-EN 19
Application Considerations
Step 5. Size Zone and Bypass Damper Units
Sizing zone damper is relatively straightforward. The volume of airflow (in cfm or L/s) for each
comfort zone should be known from the load analysis. The designer must select the duct velocity
to be used for the system. Recommended zone damper velocities are 1000 to 1600 feet per minute
(fpm) when applied at the branch level. Sizing dampers in this range will minimize damper cost,
reduce the risk of excessive noise, and ensure adequate zone modulation/temperature control.
Dampers located immediately adjacent to the zone or diffuser may need to be sized at a lower
velocity to avoid sound and airflow delivery issues.
Bypass dampers are typically sized for 80 percent of HVAC unit airflow. Recommended velocities
are 1600 to 2000 fpm. Bypass dampers should be located as close to the HVAC unit as possible.
(See Bypass Damper Operation for additional details.)
Note: VariTrac systems are designed for HVAC unit static pressures up to 1.75" w.c.
Step 6. Designing the Duct System
Low pressure, low velocity air distribution systems, such as zoned unitary systems, are usually
designed using the equal friction method. Although static regain is the duct design method of
choice for medium and high velocity variable air volume systems, the added complexity is difficult
to justify with smaller unitary systems. In addition, the low operating velocity of most unitary
systems makes the pressure available to “regain”, small and inconsequential.
With the equal friction method, ducts are sized for a constant pressure loss per given length of duct
and fitting(s). Where low noise levels are especially critical, the system velocity can be reduced by
enlarging the entering and leaving ductwork, damper unit or adding duct liner. A characteristic of
the equal friction method that must be considered however, is that there is no natural provision for
equalizing pressure drops in the branch sections. This results in each branch duct, and thus the
damper units, having different entering static pressure and airflow characteristics.
Figure 18. Hand balancing dampers
Hand
Balancing
Damper
VariTrac
Damper
Supply
Duct

20 VAV-PRC003-EN
Application Considerations
A robust system and zone unit controller, like the Trane VariTrac system, will compensate for
system static changes. The use of manual (or hand) balancing dampers in the branches will also
ensure that airflow is appropriately distributed to each diffuser. (See Figure 18, p. 19.) The overall
effect is improved acoustical and system performance.
Step 7. Air Diffuser Selection and Placement
Supply Diffusers
Many types of supply air diffusers are used in variable air volume systems. Performance, and
ultimately space comfort, can vary greatly depending on the diffuser selected. Although constant-
volume diffusers will provide air to the space at full cfm, as air volume delivered to the space
decreases, so does performance. Linear slot diffusers are recommended for most VAV systems.
Linear supply air slot diffusers are designed to properly mix variable air delivery of both heated and
cooled air. Linear slot diffusers supply conditioned air which “hugs” the ceiling rather than
“dumps” air downward on the occupants. This airflow characteristic is known as the “coanda
effect”. The throw and aspiration characteristics of slot diffusers help to evenly distribute the air
throughout the room or space.
Locate linear slot diffusers in the center of the room with the discharge air pattern perpendicular
to a perimeter wall. To maximize diffuser performance, placement in which air discharge patterns
converge at right angles should be avoided. (See Diffuser section of the VariTrane catalog (VAV-
PRC008-EN) for additional diffuser placement and performance recommendations.)
The throw characteristics of diffusers is well-documented. Slot diffusers should be positioned so
that the velocity of the air striking an obstruction (such as a wall or column) is 75 feet per minute
(fpm) or less. If airstreams from two diffusers collide, the collision velocity should not exceed 150
fpm. Higher collision velocities result in uncomfortable drafts in the lower levels of the room.
In heating applications, linear slot diffusers must be placed to offset heat loss and prevent
downdraft problems along perimeter walls. The following techniques have been proven by test
and experience:
• When the average glass plus wall heat loss is less than 250 Btuh/linear foot, the slot diffuser may
be located in the center of the room with one or more slots blowing toward the perimeter wall.
• With glass and wall heat loss between 250 and 450 Btuh/linear foot, diffusers should be
positioned to blow toward the window and the perimeter wall with a collision velocity of 75 to
150 fpm. If using a continuous glass design, position diffusers every four feet.
• If heat loss exceeds 450 Btuh/linear foot, radiation or floor mounted heated air will be required
to offset the high wall heat loss.
Return Diffusers
Slot-style return diffusers offer some acoustical advantages over perforated grille styles.
Perforated drop-in grilles typically offer little attenuation effect and thus allow sound in the plenum
to break out into the occupied space. This is a problem in areas near the unitary heating and cooling
unit. Improved ceiling aesthetics is also an advantage of slot return diffusers in jobs where slot
supply diffusers are used. Within the occupied space, they blend with the slot supply diffusers.
A general rule of thumb is for the return air openings to equal the total area of the supply openings.
If the ceiling is not tight, such as a drop-in ceiling, the return openings can be reduced by up to 50%
of the supply air openings.
To promote good air distribution, return diffusers should be positioned to minimize supply air
short-circuiting to the return slot. The returns should be either perpendicular to the supply airflow
or parallel and offset from the supply diffusers.

VAV-PRC003-EN 21
Application Considerations
Pressure Dependent vs. Pressure Independent
Pressure-Dependent
A pressure-dependent VAV control sequence uses the space temperature sensor to directly control
the position of the zone damper. The actual airflow delivered to the space is a by-product of this
damper position and the static pressure in the duct upstream of the zone damper.
Ventilation air is a fixed-damper position and must be measured and set during the commissioning
process.
Pressure-Independent
A pressure-independent VAV control scheme directly controls the actual volume of primary air that
flows to the space. An airflow-measuring device in the VAV terminal unit makes this possible. The
position of the modulating device is not directly controlled and is a by-product of regulating the
airflow through the unit. Because the airflow delivered to the space is directly controlled, it is
independent of inlet static pressure.
Local Reheat Capabilities Using VariTrane VAV Units
VariTrane pressure independent VAV units are a simple way to upgrade the zone VAV capabilities
on a VariTrac system. The main advantage is the ability to integrate units with either hot water or
electric reheat. Here are application examples where VAV units may enhance your design:
Example 1
Series fan-powered VAV units work well in conference rooms and training rooms. Series fan-
powered units supply constant air volume to the space. This provides excellent air movement in
the space regardless of the internal load requirements. Hot water or electric heat are integral to the
unit and optionally available to temper the air at partial load conditions.
Example 2
Parallel fan powered units with local heat applied help solve problems in difficult areas to
control like lobbies and vestibules. The parallel fan provides local heat to an individual zone
without relying on the main HVAC unit’s heat or supply fa n. T h i s a l lo w s g r e ater flexibility for mixing
zones on a VariTrac system.
Figure 19. Proper return diffuser orientation

22 VAV-PRC003-EN
Application Considerations
VariTrane units with integral electric or hot water heat are available as:
•Single-duct
• Parallel fan-powered
• Series fan-powered
Local Reheat Capabilities - Non-VAV Options
The Trane VariTrac Zone Controller has built-in capabilities and logic to control a number of reheat
sources. The previous pages discussed how a VariTrane VAV unit with reheat can solve application
issues by providing local reheat.
Local Reheat
Let’s investigate a few other alternatives which will provide local reheat, and result in exceptional
zone temperature control.
Figure 20. Single-duct VAV unit available with integral electric or hot water heat
Figure 21. Series fan-powered VAV terminal unit
Figure 22. Parallel fan-powered VAV terminal unit

VAV-PRC003-EN 23
Application Considerations
Local reheat is particularly important when an HVAC unit is in cooling mode. Cold air is delivered
to all zones whether it is needed or not. Setting the minimum cooling position to zero may not be
practical based on ventilation and/or general airflow requirements. In this case, local reheat
options which can be controlled by the standard VariTrac zone controller include:
• Hydronic wall fin or convector unit with either modulating or two position control. (See
trane.com for a full line of wall fin and convector products.)
• Electric wall fin with multi-stage control
• Duct-mounted electric heater with multi-stage control
• Duct-mounted hot water coil with either modulating or two-position control. (See trane.com for
a full line of duct-mounted water coils.)
Bypass Damper Operation
When zone dampers modulate airflow to the spaces, static pressure changes in the supply duct
system. High pressure in a duct system creates excessive noise and causes poor comfort control.
Low pressure results in insufficient airflow to the spaces.
The HVAC unit in a changeover bypass system is constant volume and does not modulate supply
airflow. Changeover-bypass VAV systems support variable-air-volume operation in the zones by
using a bypass duct with a motorized damper and a pressure-sensing device.
As duct pressure rises above the static pressure setpoint, the bypass damper begins to open.
Conversely, when static pressure falls below the static pressure setpoint, the bypass damper
begins to close until the static pressure setpoint is reached. The optimal static pressure setpoint
is automatically determined upon system calibration.
Figure 23. Trane hydronic wall fin
This is ideal for spaces with large windows or perimeter
heat losses which exceed 450 Btuh per linear foot. Trane
wallfin is available with various grilles and paint options
and can be pedestal or wall-mounted
Figure 24. Trane electric wall fin

24 VAV-PRC003-EN
Application Considerations
Proper operation requires consideration of all aspects of bypass design and location. The bypass
dampers and ductwork should be sized and located according to the following general
recommendations:
• Avoid turbulence by locating the bypass two to three equivalent duct diameters downstream
of the HVAC unit discharge.
• Locate the static pressure and supply air sensors in the main supply duct upstream of the
bypass.
• Locate the bypass before the zone dampers (as close to the HVAC unit as possible) to avoid
comfort or noise issues.
• Size the bypass damper to maintain the minimum required airflow through the HVAC unit
(usually 80 percent of the total design cfm)
• Provide adequate access for servicing the damper.
Building Pressure Control
Comfortable, efficient building operation requires that the air pressure inside the building be
slightly higher than the atmospheric pressure outside of the building. That is, the building is at a
“positive” pressure with respect to the outside environment. If the indoor pressure is too low
(negative), the doors may be hard to open and cold air may leak in through construction cracks,
causing drafts and cold floors. On the other hand, if the indoor pressure is too high, the doors may
stand open and the supply air flow to the zones may decrease, decreasing comfort.
Fixed Outside Air Dampers
Achieving appropriate building pressure is simple in a system with a constant volume supply fan
and fixed outdoor air damper. To maintain a slightly positive building pressure, size the exhaust
fans to remove slightly less air than is introduced through the outdoor air damper.
Outside Economizer or Demand-Controlled Ventilation Systems
If the system resets the quantity of outdoor air in response to occupancy demands (demand-
controlled ventilation), or uses an outdoor air economizer, undesirable changes in building
pressure may result. As the quantity of outdoor air intake varies, the system must exhaust a similar
quantity of air to avoid over or under pressurizing the building.
When using an economizer in a changeover-bypass VAV system under low cooling load conditions
(reduced airflow to the zones), the bypass damper opens to maintain the static pressure setpoint
Figure 25. Changeover bypass variable-air-colume system
Supply
Air Duct
Return
Air
Duct
Ductwork
Bypass
Damper
R
e
t
u
r
n
Air
Duct
H
Heating and
Roofto
p
Micro
C
ontro
l
Static
Pressure
and Suppl
y
Tem
p
erature Sensor
s

VAV-PRC003-EN 25
Application Considerations
and airflow through the supply fan. As the outside air damper opens to provide economizer
cooling, the return air damper closes. In buildings with a ceiling plenum return, the bypass air
dumps into the ceiling plenum since it can no longer return to the fan. The plenum pressure rises
and plenum air enters the zones through the return air grilles.
In buildings that have a ducted return to the fan, bypass air pressurizes the return air duct. As the
return air duct pressure rises, the air flows out of the building through the barometric relief damper
in the rooftop unit. Excess bypass air flows into the zones through the return air grilles.
Using the following suggestions will help maintain building pressurization control:
• Use an exhaust fan with a modulated exhaust damper to remove air from the return air plenum
or duct. Energize the exhaust fan as the outside air damper opens beyond the minimum
position. Sense building static and maintain building air pressure at a slightly positive level by
modulating the exhaust damper position.
• Use an exhaust fan with no exhaust damper. Energize the exhaust fan when the outdoor air
damper opens beyond 25 percent to remove excess outside air from the building. This method
is used with some rooftop units and is effective, affordable, and easy to install.
• Use a back draft damper to prevent airflow to the return air plenum or grilles. When bypass
airflow pressurizes the return duct, the back draft damper closes. Pressure in the HVAC unit
return air inlet rises, causing the rooftop barometric relief damper to open. This method is less
effective because the rooftop barometric relief damper is sized for a portion of the total airflow,
not 100 percent of airflow which may be seen in economizer mode. As the economizer drives
to the maximum position, the building usually becomes over-pressurized.
Application Tip Summary
Tip 1. Use Comfort Zones
Units serving thermal zones can provide greater comfort by dividing the thermal zones into
“comfort zones” using a changeover-bypass-VAV system.
Tip 2. Create Thermal Zones
Create thermal zones which minimize simultaneous heating and cooling requirements. This will
avoid unnecessary changeover of the system and maximize comfort. As an example, a computer
room would be a poor candidate for one comfort zone of a changeover-bypass-VAV system
because it will rarely, if ever, require heating.
Figure 26. Changeover bypass with an economizer. Without proper building pressurization,
bypass air may be forced out of the return duct.
Outdoor
Air Damper
Economizer Fan
Bypass
Return
Damper
Return
Opening

26 VAV-PRC003-EN
Application Considerations
Tip 3. Use Local Heat
Zones which vary thermally by requiring more heat than the other zones or require heat when the
HVAC unit is in cooling mode should use local heat. Local heat in the form of VariTrane VAV units
with electric or hot water heat, or wallfin, or convectors, or duct-mounted coils. The standard
VariTrac controller is capable of controlling the heat based on zone temperature demands.
Tip 4. Place Dampers Properly
The bypass damper should be ducted between the supply and the return of the unit as close to the
unit as possible, and should be sized to handle 80% of the total system CFM.
Tip 5. Control Building Pressure
It may be necessary to provide a modulating means to control building pressure, especially when
economizers or demand-controlled ventilation are used in conjunction with a changeover-bypass-
VAV system.
Tip 6. Use Fan-Powered VAV Boxes
Consider using fan-powered VAV boxes to provide local heat or to enhance comfort levels in some
of your zones. Conference rooms, or zones with high wall heat loss are ideal for either series or
parallel units.

VAV-PRC003-EN 27
Selection Procedures
VariTrac Dampers
VariTrac dampers are typically installed on VariTrac changeover bypass variable air volume (VAV)
systems. VariTrac is ideal when applied to buildings which use unitary HVAC units. The damper
units have controls, which vary air volume and maintain appropriate duct static pressure in the
system to make sure that all zones receive the right amount of airflow. Trane offers four VariTrac
dampers:
• Round zone dampers with DDC controls
• Rectangular zone dampers with DDC controls
• Round bypass dampers
• Rectangular bypass dampers
Zone Damper Selection Procedures
Refer to the sizing chart in Tab l e 2 , p . 2 7 and Table 3, p. 28 for zone dampers. Follow down the first
column in the table for the desired velocity. Then follow across for the cfm (air volume) of a given
VariTrac damper based on that velocity.
Note: If the cfm exceeds the damper range, increase the damper size.
Minimum airflow damper position should be set to10 percent in heating or cooling when a zone
duct temperature sensor is used for stand-alone control. In addition, when controlling duct-
mounted electric reheat coils, cooling minimum airflow should meet the heating unit
manufacturer’s guidelines. (See Application Considerations, Maximum System Effectiveness for
more details.)
Bypass Damper Selection Procedures
To determine the cfm capacity required for a bypass damper, calculate 80 percent of the cfm
capacity of the heating/cooling unit. (Example: If the rooftop capacity is 1200 cfm, the bypass
damper should be sized for 1200 x .8 = 960 cfm.)
To determine the size of the damper, locate the recommended velocity and cfm for the bypass
damper.
Since a 10" round bypass damper at 1800 fpm provides 980 cfm, a 10" damper at 960 cfm would
be slightly less than 1800 fpm, but still within the 1600 to 2000 fpm recommended velocity. A 10"
bypass damper is selected.
Damper Sizing Charts
Table 2. Round zone damper: capacity (cfm), dimensions, and weights
Velocity (fpm)
Size
6” 8” 10” 12” 14” 16”
600 113 203 319 461 630 825
800 151 271 425 615 840 1100
1000(a)
(a) Recommended velocity for zone dampers is between 1000 and 1600 fpm. Use good standard design practices (such as
location of duct).
188 338 532 769 1050 1375
1200(a) 226 406 638 923 1260 1649
1400(a) 264 474 745 1077 1470 1924
1600(a) 301 541 851 1231 1680 2199
Length 17” 17” 17” 17” 17” 17”
Ship Wt 19 lbs 21 lbs 22 lbs 23 lbs 25 lbs 27 lbs

28 VAV-PRC003-EN
Selection Procedures
Table 3. Rectangular zone damper: capacity (cfm), dimensions, blades, and weights
Velocity
(fpm)
Size
8 x 12 8 x 14 8 x 16 10 x 16 10 x 20 14 x 18
600 398 464 531 663 829 1045
800 531 619 707 884 1105 1393
1000(a)
(a) Recommended velocity for zone dampers is between 1000 and 1600 fpm. Use good standard design practices (such as
location of duct).
663 774 884 1105 1382 1741
1200(a) 796 928 1061 1326 1658 2089
1400(a) 928 1083 1238 1547 1934 2437
1600(a) 1061 1238 1415 1769 2211 2785
Blades 2 2 2 3 3 4
Ship Wt 8 lbs 10 lbs 12 lbs 14 lbs 16 lbs 18 lbs
Table 4. Round bypass damper: capacity (cfm), dimensions, and weights
Velocity (fpm)
Size
6” 8” 10” 12” 14” 16"
600 113 203 319 461 630 825
800 151 271 425 615 840 1100
1000 188 338 532 769 1050 1375
1200 226 406 638 923 1260 1649
1400 264 474 745 1077 1470 1924
1600(a)
(a) Recommended velocity for bypass damper is between 1600 and 2000 fpm.
301 541 851 1231 1680 2199
1800(a) 339 609 957 1384 1890 2474
2000(a) 377 676 1064 1538 2100 2749
length 17” 17” 17” 17” 17” 17"
Ship Wt 17 lbs 19 lbs 20 lbs 21 lbs 23 lbs 25 lbs
Table 5. Rectangular bypass damper: capacity (cfm), dimensions, blades, and weights
Velocity (fpm)
Size
14 x 12 16 x 16 20 x 20 30 x 20
600 696 1061 1658 2487
800 928 1415 2211 3316
1000 1161 1769 2763 4145
1200 1393 2122 3316 4974
1400 1625 2476 3869 5803
1600(a)
(a) Recommended velocity for bypass damper is between 1600 and 2000 fpm.
1857 2830 4421 6632
1800(a) 2089 3183 4974 7461
2000(a) 2321 3537 5527 8290
Blades2333
Ship Wt 16 lbs 21 lbs 29 lbs 40 lbs

VAV-PRC003-EN 29
Selection Procedures
Figure 27. Typical VariTrac changeover-bypass VAV system components
Device Name Function in System Number Required
A
Central control panel
w/optional operator display
Controls the HVAC system and provides local
operator interface
One per HVAC unit/VariTrac system
(thermal zone)
Communicating bypass
controller
Sends supply duct temperature and pressure to
the central control panel
One per VariTrac system
Bypass damper(s) Supply air duct volume control to maintain
appropriate static pressure in the duct
One or two per system as needed to
bypass from supply to return
airstream
D
VariTrac dampers Varies air volume to the space to control comfort One per comfort zone
Zone sensors Sends space temperature and setpoint
information to the zone damper controller
One per comfort zone (DDC sensor
w/ LCD requires 4 VA)
CCP power supply 24V power for the central control panel The CCP must have a dedicated 24V
power supply
G
Zone damper power supply(s) 24V power for the zone dampers Power supplies may be shared; each
zone requires 10VA (plus the load of
optional outputs)
H
Trane rooftop communications
interface
Allows the CCP and Trane rooftop controller to
communicate with each other via simple twisted
shielded wire pair
One per controlled Trane rooftop
with ReliaTel controller
Optional relay board Provides 24V control of any non-communicating
HVAC unit
One per controlled non-
communicating HVAC unit
B
C
J
F
E
Figure 28. Typical components in a changeover-bypass VAV system
A & J
B
C
D
E
F
G
H

30 VAV-PRC003-EN
Digit 1, 2, 3, 4 — Product Type
VADB= VariTrac Air Damper
VARA= Rectangular Air Damper
Digit 5, 6 — VariTrac Damper
Size
06 = 6" Damper
08 = 8" Damper
10 = 10" Damper
12 = 12" Damper
14 = 14" Damper
16 = 16" Damper
1R = 14 x 12 Bypass Damper
2R = 16 x 16 Bypass Damper
3R = 20 x 20 Bypass Damper
4R = 30 x 20 Bypass Damper
5R = 8 x 12 Zone Damper
6R = 8 x 14 Zone Damper
7R = 8 x 16 Zone Damper
8R = 10 x 16 Zone Damper
9R = 10 x 20 Zone Damper
AR = 14 x 18 Zone Damper
Digit 7 — Controls (all factory
downloaded and verified)
A = Bypass with Actuator
B = Damper only Control
(Changeover)
C = Damper Plus Up to 3 Stages of
Electric
E = Damper Plus 1-Stage Normally
Closed Hot Water
F= Not Used
G = No Controls (Actuator Only)
H= Residential
J= Not Used
Digit 8, 9, 10, 11
00A0= Design Sequence (VADB Only)
00T0= Design Sequence (VARA only)
Digit 12 — Special Options
S= Special
Digit 13— Transformer
0= NO TRANSFORMER
1 = 120/24 VOLT (50VA)
2 = 208/24 VOLT (50VA)
3 = 240/24 VOLT (50VA)
4 = 277/24 VOLT (50VA)
5 = 480/24 VOLT (50VA)
6 = 347/24 VOLT (50VA)
7 = 575/24 VOLT (50VA)
8 = 380/24 VOLT (50VA)
Digit 14 — Disconnect Switch
0= None
W = With Switch
Digit 15 — Power Fuse
0= None
W= With Fuse
Digit 16 — Wireless Sensor
Options
0= None
1 = Factory Installation of Wireless
Receiver
Digit 17 — Duct Temp Sensor
0= None
W = With Sensor
Digit 18 — Zone Sensor
0= None
A = DDC Sensor Only
B = DDC Sensor, Ext Adj., Comm Jack
C = DDC Sensor, Nsb, Comm Jack
D = DDC Sensor, Ext Adj., Nsb, Comm
Jack
E = Digital Display Zone Sensor
F = Wireless - DDC Sensor, Ext Adj.,
On/Cancel, Deg F
G = Wireless - DDC Sensor, Ext Adj.,
On/Cancel, Deg C
H= Not Used
J= Not Used
K = Wireless - Digital Display Zone
Sensor
Digit 19 — Water Valve
0= None
A = Proportional, HW Valve, 0.7 Cv
B = Proportional, HW Valve, 2.2 Cv
C = Proportional, HW Valve, 3.8 Cv
D = Proportional, HW Valve, 6.6 Cv
E = 2-position, HW Valve, 4.0 Cv
F = 2-position, HW Valve, 5.0 Cv
G = 2-position, HW Valve, 8.0 Cv
Model Number Descriptions

VAV-PRC003-EN 31
Electrical Data and Connections
Figure 29. Central control panel field wiring
24 Vac
Line
v
o
l
t
a
ge
Comm5
link
C
omm
5
lin
k
Comm5 UCM
Tr
ac
k
er
Splice
AA
BB
Twisted pair, shielded wire
per Trane specifications
Shield termination
Earth ground
Contact points
T
ransf
TT
ormer
Termination resistor
Shield ground
=
=
=
=
=
=
=
T
e
rmin
a
tion Bo
a
r
d
TB2
Fi
g
ure not
e
=
Comm4
link
C
omm
4
lin
k
C
omm4
UCM
C
omm4
UCM
Splice
-
+
-
+
Le
g
en
d
Figure Notes:
1 All customer wiring must be in
accordance with national, state,
and local electrical codes.
2 Trane recommends a dedicated
transformer for 24 Vac power.
3 Do not apply voltage to the priority
shutdown and occupancy inputs.
4 Example of Comm5 communication
link wiring. See product-specific
literature for Comm5 wire connection
details.

32 VAV-PRC003-EN
Electrical Data and Connections
Figure 30. Relay board wiring
1
3
2
9
12
15
R
5
13
4
8
10
11
14
6
7
TB1
Relay Board TB2
c
Rh
GY1Y2W1W2/0AUXNO
NC
NOT USED
24 VAC CLASS 2 COOL UNIT
24 VAC CLASS 2 HEAT UNIT
COOL 1
COOL 2
HEAT 1
HEAT 2
SUPPLY FAN
SPARE OUTSIDE AIR
HEAT/COOL
OR ICS
2 HEAT/2COOL HEAT PUMP
REV VALVE
AUX HEAT
COMP 2
COMP 1
Figure 31. Typical relay board wiring
HVAC Unit
24V Terminal Strip
R
G
Y1
Y2
W1
W2
Relay Board TB2
1
3
2
R
5
4
6
7
TB1
c
Rh
GY1Y2W1
W2/0

VAV-PRC003-EN 33
Electrical Data and Connections
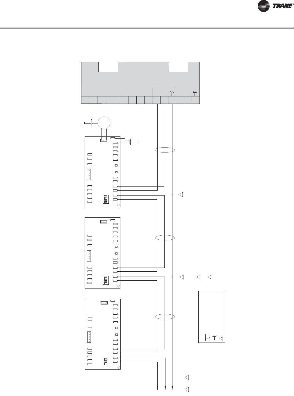
Figure 32. UCM comm link wiring
VariTrac
Termination Board TB2
Static
Pressure Port
+
VOUT
–
Air Supply
Te mp. Sensor
Pressure
Transducer
1
10
11
12
13
14
15
9
8
7
6
5
4
3
2
+
–
J3 R
G
BK
S
GRNYEL
ACT 24V
GND
ZONE
BIP
GND
GND
TB3–6
A/CO2
SET
J1
J10
TB1–1
TB2–6
TB3–1
TB3–2
TB3–3
TB3–5
J11
J9
J7
J8
TB2–2
TB2–3
TB2–5
TB2–4
TB2–1
+
+
+–
––
1
PRESS
1
D.D.C.\U.C.M.
CONTROL BOARD
TB4–1
TB1–2
Communication Sensor/Bypass Control
Assembly Address #33
ADDRESS
SWITCH
COMM 5 COMM 4
Splice
2
Splice
To Zone Dampers
3 through 24
J3
S
GRNYEL
ACT 24V
GND
ZONE
BIP
GND
GND
TB3–6
A/CO2
SET
J1
J10
TB1–1
TB2–6
TB3–1
TB3–2
TB3–3
TB3–5
J11
J9
J7
J8
TB2–2
TB2–3
TB2–5
TB2–4
TB2–1
+
+
+–
––
1
PRESS
1
D.D.C.\U.C.M.
CONTROL BOARD
TB4–1
TB1–2
ADDRESS
SWITCH J3
S
GRNYEL
ACT 24V
GND
ZONE
BIP
GND
GND
TB3–6
A/CO2
SET
J1
J10
TB1–1
TB2–6
TB3–1
TB3–2
TB3–3
TB3–5
J11
J9
J7
J8
TB2–2
TB2–3
TB2–5
TB2–4
TB2–1
+
+
+–
––
1
PRESS
1
D.D.C.\U.C.M.
CONTROL BOARD
TB4–1
TB1–2
ADDRESS
SWITCH
Zone UCM Address #2 Zone UCM Address #1
Figure note
Shielded ground
Twisted pair, shielded wire
per Trane specifications
Legend
=
=
=
Figure Notes:
Shield must be spliced with other
communication link shields.
Shield must be cut back and taped.
Notes:
The UCM order in this drawing is for demonstration purposes only.
No specific order is required on the Comm link.
2
12
1
2

34 VAV-PRC003-EN
Electrical Data and Connections
Figure 33. Communicating bypass controller wiring
CW
ACTUATOR
HOT
CLOSE
CCW OPEN
COM
SPARE
CONNECTOR
ACTUATOR
TB1–1
STATIC
PRESSURE
PORT
W–HOT
BIP
BK–OPEN
2.
2. 24VAC
24VGND
ACT
R–CLOSE
TB1–2
TB4–1
1
TO NEC CLASS 2
24V TRANSFORMER
LOAD 8 VA
(WITHOUT ACTUATOR)
{
HIGH
D.D.C.\U.C.M.
CONTROL BOARD
PRESSURE
TRANSDUCER
ADDRESS
SWITCH
COMMUNICATING SENSOR/BYPASS
CONTROL BOX
AIR SUPPLY TEMP SENSOR
SHIELDED
TWISTED PAIR
COMMUNICATIONS
WIRING
D.D.C.\U.C.M.
CONTROL BOARD
MALE PLUG END
LOCATED ON DDC\UCM
CONTROL BOARD
FEMALE PLUG END
OF BYPASS SENSOR
ASSEMBLY CABLE
{
TB2–3
TB2–4
TB2–5 J8
TB2–6
J11
J10
J9
J7
J1J1
YEL GRN
TB2–2
TB2–1
TB3–1
SPRESS
TB2–6
TB3–2
TB3–6
TB3–5
TB3–3
GND
A/CO2SETGNDZONE
J3
1
VOUT
++
+–
––
–
R
BK
G
+
OUT
OUT
IN
IN
ACT
WH
R
BK

VAV-PRC003-EN 35
Electrical Data and Connections
Figure 34. UCM wiring
24 VAC 60 HZ
NEC CLASS–2
CONTROL CIRCUIT
8.
W
G
W
R
DAMPER
ACTUATOR
WIRING
D.D.C. \ U.CM.
CONTROL BOARD
D.D.C. \ U.CM.
CONTROL BOARD
ADDRESS
SWITCH
SHIELDED
TWISTED PAIR
COMMUNICATIONS
WIRING
}
}
J11
PRESS
TB2–1
TB2–2
TB2–3
TB2–4
TB2–5
TB2–6
S
TB3–6
TB3–5
TB3–3
TB3–2
TB3–1
TB1–1
TB1–2
TB4–1
J7
J8
J9
J10
A/CO2
SETGNDZONE
J1
1
J3
24VGNDBIP
ACT
GRN
YEL
GND
––
+
–
++
1
7.
9.
OUT
OUT
IN
IN
}
6.
6.
OPTIONAL FIELD INSTALLEDOPTIONAL FIELD INSTALLED
AUX TEMP SENSORAUX TEMP SENSOR
OPTIONAL FIELD INSTALLEDOPTIONAL FIELD INSTALLED
CO2 SENSORCO2 SENSOR
OPTIONAL FIELD INSTALLEDOPTIONAL FIELD INSTALLED
ONON–OFF WATER VALVEOFF WATER VALVE
OPTIONAL FIELD INSTALLEDOPTIONAL FIELD INSTALLED
PROPORTIONAL WATER VALVEPROPORTIONAL WATER VALVE
5.
OPTIONAL FIELD INSTALLEDOPTIONAL FIELD INSTALLED
OCCUPANCY SENSOROCCUPANCY SENSOR
R (HOT)
O (COMMON)
GR (NC CONTACT)
BK (RETURN)
Y
(TB4–1) BIP
(TB1–1) 24VAC
NOT CONNECTED
(TB1–1) 24VAC
(TB1–2) GND
ON–OFF
WATER VALVE
24VAC
12 VA MAX
PROP. WATER
VALV
24VAC
12 VA MAX
TO J8
TO J8
TO J9
TO J9
TO J10
OPTIONAL FIELD INSTALLED
OPTIONAL FIELD INSTALLED
ELECTRIC HEATERELECTRIC HEATER
TO J11
TO J8
TO J9
TO J10
HOT
1ST STG.
2ND STG.
3RD STG.
HEATER STAGE
CONTACTOR(S)
24 VAC, 12 VA
MAX/COIL
R (OPEN)
BK (CLOSE)
W (HOT)
CO2
SENSOR
24V
V
+
0
OUT
GND
WALL
MOUNTED
DUCT
MOUNTED
(TB3–5) A/CO2
(TB3–6) GND
(TB1–1) 24V
TB3–6
TB3–5
TB1–1
221 3 2
1
1
TB3TB2TB1
TB2–6
TB2–5
TB3–3
TB3–2
TB3–1
TB1–2
DIGITAL
ZONE SENSOR
OPTIONAL FIELD
INSTALLED DIGITAL ZONE SENSOR
OPTIONAL FIELD
INSTALLED DIGITAL ZONE SENSOR
ZONE SENSOR
W/ COMM. JACK
REMOTE MTD.
TB2–6
TB2–5
TB3–1
TB3–2
TB3–3
4.
4523
3.
1
1.
2. ¼" quick connect required for all field connection.
3. Zone sensor terminals 4 and 5 require shielded twisted pair wiring for communications jack equipped zone sensor options
4. No additional wiring required for night setback override (on/cancel).
5. The optional binary input connects between TB4–1 (BIP) and 24VAC (HOT) from transformer. The binary input can be
reconfigured as an occupancy input via the communications interface.
6. As shipped, the aux input is configured as an AUX input. The AUX input can be reconfigured as a CO2 sensor input via
the communications interface.
7. S terminal not to be used with this applications.
8. If unit mounted transformer is not provided, polarity from unit to unit must be maintained to prevent permanent damage
to control board. If one leg of 24VAC supply is grounded, then ground leg must be connected to TB1–2.
9. Shields of communication wiring should be tied together and insulated.
NOTES:
Factory Wiring
Field Wiring
Optional or Alternate Wiring

36 VAV-PRC003-EN
Electrical Data and Connections
Figure 35. DDC zone sensor with LCD
Digital Sensor
Terminal Connection Chart
Sensor UCM Field Wire
Color Code
TB1–1 TB1–1
TB2–1
TB1–2
TB2–6
TB2–2
TB2–5
TB3–1
TB3–3
TB3–1
TB2–3
TB3–2
TB1–2
TB3–2
Digital Sensor
Board
TB1–1
TB3–1
TB2–1
GND
24V
–2–2
–2
–2
–2
Temperature
Signal Common
Setpoint
Communications
+ (High)
Communications
– (Low)
1
Optional
Field Mounted
Aux. Temp. Sensor
J11
ACT
ADDRESS
SWITCH D.D.C.\U.C.M.
CONTROL BOARD
J8
J7
J9
J10
TB1–1
TB1–2
TB4–1
PRESS
TB2–1
TB2–2
TB2–3
TB2–4
TB2–5
TB2–6
TB3–6
TB3–5
TB3–3
TB3–2
TB3–1
1
J3
S
GNDA/CO2SET
GNDZONE
GRNYEL
J1
GNDBIP
–+–+ –
+
1
24V
Figure 36. DDC zone sensor wiring
J11
ACT
ADDRESS
SWITCH D.D.C.\U.C.M.
CONTROL BOARD
J8
J7
J9
J10
TB1–1
TB1–2
TB4–1
PRESS
TB2–1
TB2–2
TB2–3
TB2–4
TB2–5
TB2–6
TB3–6
TB3–5
TB3–3
TB3–2
TB3–1
1
J3
S
GNDA/CO2SET
GNDZONE
GRNYEL
J1
GNDBIP
–+–+ –
+
1
24V
Optional
Field Mounted
Aux. Temp. Sensor
1
2
Mechanical Sensor
Terminal Connection Chart
Sensor UCM Field Wire
Color Code
TB1–1 TB3–1
TB1–4
TB3–2
TB1–5
TB2–5
TB2–6
TB1–2
1
2
Figure Notes:
Shield must be spliced with other
communication link shields
Shield must be cut back and taped
at sensor.
Temperature
Signal Common
Setpoint
Communications (Optional)
+ (High)
Communications (Optional)
– (Low)
TB1–1
–4
–3
–2
–5
Communications
Jack
Adjustable
Setpoint Option
Night Setback
Override Option
Comm 1
Cooler
Warmer
Sensor
ON
PB1

VAV-PRC003-EN 37
Specifications
Table 6. Zone sensor options
Zone Sensor Options Number of Required Wires(a)
Sensor only (no communications jack available) 2
Sensor with adjustable setpoint 3
Sensor with night setback override and cancel buttons 2
Sensor with adjustable setpoint and night setback override and cancel buttons 3
Sensor with digital display and adjustable setpoint and night setback override and cancel buttons 5(b)
(a) Most sensors have a communication jack available as an option. If these jacks are used, they must be wired to the UCM using an approved two-conductor,
shielded cable. The communication jacks do not need to be wired for the system to operate properly.
(b) Three wires are required for sensor connections. Two wires are required for 24-Vac power connection.
Table 7. VariTrac control panel specifications
Power Requirements 20-30 Vac, 60 Hz, single-phase, 30 VA minimum. Class 2 transformer required.
Operating Environment 32°-122°F (0°-50°C), 10-90% relative humidity, non-condensing
Storage Environment -40°F-122°F (-40°-85°C), 5-95% relative humidity, non-condensing
Control Enclosure NEMA 1 resin enclosure, plenum rated
Mounting Mount directly on wall surface or mount on recessed 4" x 4" (101.6 mm x 101.6 mm) conduit box.
Weight 2.5 lbs. (1.13 kg)
Communication Link Wiring Communication link wiring must be Level 4 22-AWG twisted shielded pair wire with stranded tinned copper
conductors. Maximum total wire length is 3,500 ft (1066.8 m). Wire must meet Trane specifications.
Binary Input Voltage (provided by VariTrac CCP): 10-14 Vdc. Current (provided by VariTrac CCP): 10-14 mA.(a)
UL Approval The VariTrac Central Control Panel is UL approved.
Memory Backup Upon a power loss, all operator-edited data stored in the VariTrac Central Control Panel is maintained
permanently.
(a) Only "dry" contacts may be attached to binary inputs.
Table 8. UCM damper specifications
Power Requirements 20-30 Vac, 60Hz, single-phase 10 VA minimum (plus load of optional heat outputs). Class 2 transformer required.
Operating Environment 32°-120°F (0°-49°C). 10-90% relative humidity, non-condensing
Storage Environment -50°-200°F (-46°-93°C). 5-95% relative humidity, non-condensing
Control Enclosure NEMA 1 metal enclosure, plenum rated
Communication Link Wiring Communication link wiring must be Level 4 22-AWG twisted shielded pair wire with stranded tinned copper
conductors. Maximum total wire is 3,500 ft (1066.8 m). Wire must meet Trane specifications.
Table 9. Communicating bypass control assembly specifications
Power Requirements 20-30 Vac, 60Hz, single-phase 15 VA minimum. Class 2 transformer required.
Operating Environment 32°-120°F (0°-49°C). 10-90% relative humidity, non-condensing
Storage Environment -50°-200°F (-46°-93°C). 5-95% relative humidity, non-condensing
Control Enclosure NEMA 1 metal enclosure, plenum rated
Communication Link Wiring Communication link wiring must be Level 4 22-AWG twisted shielded pair wire with stranded tinned copper
conductors. Maximum total wire is 3,500 ft (1066.8 m). Wire must meet Trane specifications.

38 VAV-PRC003-EN
Specifications
Table 10. Zone occupancy sensor specifications
Power Supply 24 Vac or 24 Vdc, ±10%
Maximum VA Load 0.88 VA @ 24 Vac, 0.722 VA @ 24 Vdc
Isolated Relay Rating 1 A @ 24 Vac or 24 Vdc
Operating Temperature 32°-131°F (0°-55°C)
Storage Temperature -22°-176°F (-30°-80°C)
Humidity Range 0-95% non-condensing
Effective Coverage Area 1200 sq. ft (365.8 m)
Effective Coverage Radius 22 ft (6.7 m)
Housing Material ABS plastic
Table 11. Digital zone sensor specifications
Thermistor Resistance Rating 10kW at 77° (25°C)
Accuracy at 77°F (25°C) 0.4°F (0.2°C)
Setpoint Resistance Rating 500 Ohms at 70°F (21.2°F)
Display Zone Temperature Range 40°-99°F (10° to 35°C)
Display Setpoint Range 50°-90°F (10° to 32°C)
Operating Temperature 0°-120°F (-18° to 49°C)
Storage Temperature -20°-130°F (-29° to 54°C)
Humidity Range 5-95% non-condensing
Power Supply 24 VAC
Maximum VA Load 4 VA
Housing Material Rigid vinyl
Table 12. CO2 sensor specifications
Duct Wall
Dimensions 3 1/8" × 3 1/8" × 7 3/4" 4 1/4" × 3 1/8" × 1 7/16"
Operating Temperature 23°-113°F (-5°-45°C) 59°-95°F (15°-35°C)
Accuracy at 77°F (25°C) < ± (30 ppm CO2 + 3% of reading) < ± (40 ppm CO2 + 3% of reading)
Measuring Range 0-2000 parts per million (ppm)
Recommended Calibration
Interval 5 years
Response Time 1 minute (0-63%)
Storage Temperature -4°-158°F (-20°-70°C)
Humidity Range 0 to 85% relative humidity (RH)
Output Signal (jumper selectable) 4-20 mA, 0-20 mA, 0-10 VDC
Resolution of Analog Outputs 10 ppm CO2
Power Supply Nominal 24 VAC
Power Consumption <5 VA
Housing Material ABS plastic

VAV-PRC003-EN 39
Acoustics
Acoustics are tricky to define for specific jobsites. To provide an acoustical overview of a typical
office system with mineral glass fiber dropped ceiling, ARI standard 885-2008 has generated the
transfer functions in Table 13, p. 39 and Table 14, p. 39.
Sound power data was collected in accordance with ARI Standard 880-2011. Applying the transfer
function for sound reduction due to office furnishings, materials, etc. generated the NC data which
follows. This is a reference document only provided to address general acoustical issues. What
you will find is that the sound in the occupied spaces generated by the VariTrac dampers is minimal
when compared to the main HVAC unit sound generation.
Notes:
1. All NC data are calculated in accordance with Industry Standard AHRI 885-2008.
2. Application ratings are outside the scope of the Certification Program.
Some general ideas to minimize acoustical issues:
• Pay close attention to location of the HVAC unit. This will typically set the overall acoustical
quality of your job.
• Locate VariTrac dampers outside the occupied space.
• Internally lined ductwork can be used to reduce the discharge sound generated by the HVAC
unit.
• Install flex duct with minimal sagging, and turns.
• Locate balancing dampers as far from the diffuser as possible to limit airborne noise.
Table 13. AHRI 885-2008 discharge transfer function assumptions(a)
(a) Add to terminal unit sound power to determine discharge sound pressure in the space.
Notes:
1. All NC data are calculated in accordance with Industry Standard AHRI 885-2008.
2. Application ratings are outside the scope of the Certification Program.
Octave Band
23 456 7
Small Box (<300 cfm) -24 -28 -39 -53 -59 -40
Medium Box (<300-700 cfm) -27 -29 -40 -51 -53 -39
Large Box (>700 cfm) -29 -30 -41 -51 -52 -39
Table 14. AHRI 885-2008 radiated transfer function assumptions
Octave Band
23 4 567
Type 2 Mineral Fiber Insulation -18 -19 -20 -26 -31 -36

40 VAV-PRC003-EN
Acoustics
Table 15. Discharge sound power (dB)1,2,4
Inlet
Size
(in)
0.5” Inlet Pressure
Ps5
1.0” Inlet Pressure
Ps5
1.5” Inlet Pressure
Ps3
2.0” Inlet Pressure
Ps5
3.0” Inlet Pressure
Ps5
Cfml/s234567234567234567234567234567
4
80 38 66 61 54 48 43 36 67 65 61 54 49 45 68 67 66 60 56 54 68 69 68 63 60 58
120 57 69 66 57 51 44 38 73 70 63 57 51 47 73 73 70 64 58 56 73 74 73 67 63 61
150 71 70 69 58 52 45 39 76 74 65 59 52 48 77 76 69 62 56 53 77 77 72 65 60 57 76 78 75 69 64 62
225 106 69 68 61 56 49 45 76 77 68 61 55 50 81 83 76 68 62 59 83 86 79 72 67 64
5
130 61 64 58 52 47 43 39 66 64 58 54 50 47 66 70 65 59 57 55 67 68 67 61 61 60
200 94 66 58 52 48 44 41 71 66 60 55 50 50 72 72 69 60 58 57 73 74 74 64 62 62
250 118 65 58 52 49 44 41 73 67 61 55 50 50 76 70 66 59 55 55 77 72 70 62 58 58 76 74 75 66 63 63
350 165 65 58 53 48 44 41 74 66 61 56 51 51 81 75 70 63 58 59 81 78 75 68 63 63
6
200 94 66 61 54 50 47 43 69 65 60 56 54 51 70 68 66 61 60 58 71 70 68 64 65 63
300 142 68 63 57 54 50 46 72 69 64 58 55 53 76 73 69 63 62 60 76 74 72 67 66 64
400 189 69 64 59 56 51 48 74 70 66 60 57 56 76 74 69 63 60 59 79 76 72 66 63 62 80 77 75 69 67 66
500 236 71 66 62 59 55 52 75 71 67 63 59 57 80 77 74 68 64 64 82 79 77 71 68 67
8
350 165 66 58 52 49 47 41 70 62 56 54 52 49 74 65 61 59 59 56 75 67 63 61 62 61
520 245 67 62 55 53 50 45 73 68 60 57 55 52 76 73 65 62 61 59 78 75 67 64 65 63
700 330 71 64 58 56 53 49 75 70 65 60 58 57 78 74 68 63 61 59 80 76 69 65 63 61 81 79 72 68 67 66
900 425 73 64 61 60 56 52 78 70 68 63 60 60 82 76 74 68 65 64 84 79 78 71 68 67
10
550 260 61 55 51 47 45 41 67 59 55 54 53 50 70 65 59 58 59 58 73 68 62 61 64 63
820 387 66 59 55 50 49 45 72 63 59 55 56 53 76 68 64 61 62 61 78 71 67 64 65 65
1100 519 71 62 59 53 53 48 76 67 63 57 58 56 79 70 65 60 61 60 80 72 67 63 63 63 83 75 71 66 66 67
1400 661 73 65 62 58 56 52 79 71 66 61 60 58 84 76 70 64 64 64 86 78 73 68 68 68
12
800 378 60 53 52 50 49 43 64 58 56 55 55 52 69 65 60 60 61 58 71 70 64 63 65 63
1200 566 64 57 55 52 53 46 69 62 60 57 58 54 74 67 66 63 64 61 76 72 69 66 67 65
1600 755 68 60 59 55 56 50 74 65 63 59 61 56 76 69 66 62 63 60 78 70 68 65 66 63 80 74 72 69 70 67
2000 944 71 63 62 60 58 53 77 69 66 63 63 58 82 73 71 67 68 64 83 76 74 71 71 68
14
1100 519 60 54 53 50 48 43 64 59 57 55 53 50 69 66 62 59 60 58 71 70 64 62 64 63
1600 755 64 58 58 53 51 46 68 62 62 57 56 53 73 67 68 62 62 60 76 71 72 65 66 64
2100 991 67 60 61 56 54 49 72 65 65 60 59 55 75 68 68 63 62 59 77 70 70 65 64 62 80 73 76 68 67 66
3000 1416 72 64 66 62 59 55 77 69 70 65 63 59 83 75 75 69 67 65 86 77 78 72 71 69
16
1400 661 64 58 55 53 52 48 67 64 60 58 58 56 72 70 67 63 64 63 74 73 71 67 68 67
2100 991 66 61 58 55 55 51 70 67 64 60 60 59 74 71 70 66 66 65 76 75 73 70 69 68
2800 1321 69 63 61 58 57 54 73 69 66 63 62 61 76 71 70 66 65 64 78 73 72 68 67 66 80 76 76 72 71 70
4000 1888 73 68 67 64 62 58 78 72 70 66 65 62 83 77 74 71 70 68 86 79 78 75 73 72
Notes:
1. All data are measured in accordance with Industry Standard AHRI 880-2011.
2. All sound power levels, dB re: 10-12 Watts.
3. Data in this column constitute AHRI 880-2011 Standard Rating Conditions.
4. Where Ps is the inlet static pressure minus discharge static.
5. Application ratings are outside the scope of the certification program.

VAV-PRC003-EN 41
Acoustics
Table 16. Radiated sound power (dB)1,2,4
Inlet
Size
(in)
0.5” Inlet Pressure
Ps5
1.0” Inlet Pressure
Ps5
1.5” Inlet Pressure
Ps3
2.0” Inlet Pressure
Ps5
3.0” Inlet Pressure
Ps5
Cfml/s234567234567234567234567234567
4
80 38 40 43 47 45 45 43 41 46 50 49 50 49 42 52 57 51 54 55 42 55 61 55 57 58
120 57 43 44 48 48 46 43 43 49 53 51 51 50 43 52 57 54 57 56 43 55 61 56 58 60
150 71 44 45 48 48 47 44 45 49 53 52 52 50 45 52 59 56 56 54 45 53 58 57 58 57 45 56 61 57 59 61
225 106 45 48 49 50 50 46 48 52 54 53 54 51 49 56 59 58 59 59 49 58 63 61 62 63
5
130 61 39 41 45 43 41 37 39 43 49 50 49 46 39 45 51 53 54 53 41 46 53 55 57 57
200 94 40 41 43 42 39 36 41 45 49 50 49 47 41 48 53 54 56 55 42 48 54 56 58 58
250 118 40 41 43 42 39 36 43 45 49 49 48 46 44 48 51 52 53 52 44 49 53 54 56 56 44 50 55 56 58 59
350 165 39 43 47 47 44 40 43 47 49 49 47 46 48 52 53 54 55 54 48 54 56 57 58 58
6
200 94 41 45 45 42 40 37 41 46 49 49 49 46 41 49 52 52 55 55 42 51 55 55 57 58
300 142 40 44 45 45 43 41 43 48 49 48 48 47 43 51 54 54 56 55 43 53 56 56 58 59
400 189 40 47 48 48 47 45 41 49 50 50 50 48 45 51 52 52 53 51 48 53 54 53 54 54 48 55 57 55 57 58
500 236 41 50 51 51 50 47 43 51 52 52 53 51 46 53 54 54 56 55 51 57 58 56 57 58
8
350 165 39 43 48 46 44 39 40 45 50 50 50 46 41 47 52 52 54 53 42 49 55 54 56 56
520 245 40 45 47 46 44 39 43 48 52 51 50 48 44 50 55 55 57 55 45 52 56 57 60 59
700 330 41 46 48 47 45 41 47 51 53 51 50 48 47 53 55 54 54 52 48 54 57 56 57 55 49 56 59 59 61 60
900 425 44 49 50 50 48 46 45 51 54 52 51 49 50 56 58 57 57 55 52 57 61 59 59 59
10
550 260 39 42 47 46 45 40 42 45 50 51 51 48 45 49 53 54 56 55 45 50 53 55 58 59
820 387 41 45 48 47 45 40 44 47 52 52 51 49 47 51 56 57 58 57 48 52 57 58 60 61
1100 519 43 47 49 48 45 41 47 50 53 52 51 48 49 52 56 55 55 53 49 53 57 56 57 56 50 54 59 59 61 61
1400 661 44 49 51 49 47 43 48 51 54 53 52 48 51 54 57 57 57 56 53 56 60 59 60 60
12
800 378 40 46 47 47 45 40 40 48 50 50 50 48 41 48 53 56 55 54 41 48 53 55 58 57
1200 566 41 47 47 47 44 39 43 50 52 51 51 47 44 52 57 56 57 56 45 52 57 58 59 58
1600 755 42 49 48 48 46 41 44 51 51 51 50 46 45 53 54 53 52 50 47 54 56 55 55 53 49 57 60 60 60 59
2000 944 44 49 50 51 48 43 46 53 53 53 52 48 50 55 56 56 56 54 51 58 60 59 59 58
14
1100 519 39 46 50 46 43 38 40 48 53 49 47 45 41 48 54 52 51 50 43 51 56 53 52 53
1600 755 40 47 51 47 44 40 42 51 55 51 49 47 44 52 57 55 53 53 47 54 58 55 54 56
2100 991 43 49 50 47 45 41 45 52 55 51 50 48 47 55 58 55 53 52 47 56 60 56 55 54 50 57 62 58 56 57
3000 1416 47 55 55 50 46 43 50 58 59 53 50 48 54 60 61 56 55 54 54 61 65 61 60 60
16
1400 661 42 48 51 50 48 44 43 51 54 54 53 51 43 52 56 59 58 57 44 52 58 60 61 60
2100 991 43 49 51 50 49 45 45 52 55 55 55 53 46 54 59 61 61 60 48 56 60 62 63 63
2800 1321 46 51 53 52 49 46 48 55 56 56 55 54 50 57 59 59 59 58 50 57 61 61 62 61 52 58 63 64 64 64
4000 1888 49 56 55 55 54 51 51 56 58 57 57 54 54 61 63 62 62 62 55 62 65 66 65 65
Notes:
1. All data are measured in accordance with Industry Standard AHRI 880-2011.
2. All sound power levels, dB re: 10-12 Watts.
3. Data in this column constitute AHRI 880-2011 Standard Rating Conditions.
4. Where Ps is the inlet static pressure minus discharge static.
5. Application ratings are outside the scope of the certification program.

42 VAV-PRC003-EN
Acoustics
Table 17. Sound noise criteria (NC) - valve only
Inlet
Size
(in)
Discharge1,2,4 Radiated1,2,4
Inlet Pressure (Ps)3,5 Inlet Pressure (Ps)3,5
CFM l/s 0.5” 1.0” 1.5” 2.0” 3.0” 0.5” 1.0” 1.5” 2.0” 3.0”
4
80 38 22 25 27 30 21 24 32 36
120 57 26 31 34 36 22 27 32 36
150 71 30 36 38 39 40 22 27 34 33 36
225 106 28 39 46 50 23 28 34 38
5
130 61 20 24 31 29 19 23 25 27
200 94 22 29 34 36 16 23 27 28
250 118 21 31 35 36 36 16 23 25 27 30
350 165 21 32 41 41 21 23 27 31
6
200 94 19 24 27 30 19 23 26 30
300 142 21 28 33 34 19 23 28 31
400 189 23 30 34 37 38 22 24 26 28 32
500 236 25 31 38 40 25 26 28 33
8
350 165 19 24 29 30 22 24 26 30
520 245 20 28 33 36 21 26 30 31
700 330 25 30 35 37 40 22 27 30 32 34
900 425 28 34 39 42 24 28 33 36
10
550 260 -- 18 22 27 21 24 27 28
820 387 16 24 29 32 22 26 31 32
1100 519 23 29 33 34 38 23 27 31 32 34
1400 661 25 33 39 42 25 28 32 35
12
800 378 -- 16 23 28 21 24 28 28
1200 566 -- 20 26 31 21 26 32 32
1600 755 19 26 29 31 34 22 25 28 31 35
2000 944 22 30 37 38 24 27 31 35
14
1100 519 -- 16 24 29 24 27 28 31
1600 755 -- 19 25 30 25 30 32 33
2100 991 17 24 27 30 34 24 30 33 35 37
3000 1416 24 30 38 42 30 34 36 40
16
1400 661 -- 21 28 32 25 28 32 33
2100 991 18 25 30 34 25 30 34 35
2800 1321 20 27 30 32 36 27 31 34 36 38
4000 1888 26 32 38 42 30 33 38 40
Notes:
1. “--” represents NC levels below NC 15.
2. NC Values are calculated using modeling assumptions based on AHRI 885-98-02 Addendum
3. Data at 1.5” inlet pressure constitute AHRI 880-2011 Standard Rating Conditions.
4. Where Ps is the inlet static pressure minus discharge static.
5. Data at 0.5”, 1.0”, 2.0” and 3.0” are application ratings. These ratings are outside the scope of the certification program.

VAV-PRC003-EN 43
Dimensions and Weights
Note: Central control panel weight is 2.5 lbs.
Figure 37. Central control panel dimensions
Front view Side view
8.75 in.
(22.38 cm)
2.75 in.
(6.99 cm)
10.25 in.
(26.04 cm)
Top view
Bottom view

44 VAV-PRC003-EN
Dimensions and Weights
Figure 38. Communicating bypass control dimensions
Mounting holes
See back view for dimensions
4 1/4"
1 15/16"
3 5/16"
Side View
6 3/4"
5"
3 3/8"
3 7/8"
4 5/16"
1.00" 1.00"
0.300"
Back View
Notes:
7/8" knockout
1/2" conduit
Customer entry
Weight 3 1/4 lbs
Operating Temp 32˚ to 140˚
Humidity 5 to 95% (non-condensing)
Mounting Method Metal screws
Duct Static
Pressure Sensor
Duct Temp
Sensor

VAV-PRC003-EN 45
Dimensions and Weights
Figure 39. Round zone and bypass damper dimensions

46 VAV-PRC003-EN
Dimensions and Weights
Figure 40. Rectangular zone damper dimensions

VAV-PRC003-EN 47
Dimensions and Weights
Figure 41. Rectangular bypass damper dimensions

48 VAV-PRC003-EN
Dimensions and Weights
Figure 42. Occupancy sensor (L), CO2 sensor dimensions (R, Top), and digital zone sensor (R, Bottom)
3.60"
1.90"
2.50"
Front View
Side
View
4.25"
1.44"
3.125"
(120,41 [4,74])
(27,52 [1,08])
(73,55 [2,90])

VAV-PRC003-EN 49
Glossary
B
Back Draft Damper
A one-way airflow damper in a parallel fan powered unit
prevents primary flow from exiting the plenem inlet.
Binary Input
A two-position signal indicating on/off status.
Binary Output
A control output that is either on or off.
Built-In Time Clock
The occupancy timer included in the CCP operator display.
Bypass Damper
The motorized damper ducted between the system
supply and return ducts used to control static pressure in
changeover bypass VAV systems.
C
Central Control Panel (CCP)
The system level control device in a Trane changeover
bypass or delivered VAV system that gathers data from
zone controllers and operates the HVAC unit to maintain
the correct air flow and temperature.
Changeover-Bypass VAV
A control that provides variable air volume functionality to
a constant volume air handling system.
CO2 Sensor
An analog sensor that detects and measures carbon
dioxide sensor to determine occupancy level.
Commissioning
The process of starting up and verifying correct operation
of a building system.
Conditioned Air
Air that is heated, cooled, humidified, or dehumidified to
maintain comfort in an interior space.
Constant Volume
An air distribution system that varies the temperature of a
fixed volume of air to maintain space comfort.
D
Direct-Expansion (DX)
When the refrigerant in the system is either condensed or
evaporated directly by the medium being heated or
cooled.
Delivered VAV
A self configuring system providing true pressure
independent VAV control to smaller building applications.
Delivered VAV requires a CCP with operator display, a
Commercial Voyager VAV rooftop unit and VariTrane VAV
boxes.
Demand Control Ventilation
A method of maintaining indoor air quality through
intelligent ventilation based on occupancy. The quantity of
ventilation is controlled based on indoor CO2 levels, which
correlate to occupancy levels. Demand controlled
ventilation saves money by reducing ventilation during
periods of low occupancy.
Discharge Air (DA)
Air discharged from the air handler into the ducts.
Discharge Air Control
An air handling system that provides fixed temperature air
(either fixed or variable volume). Other control devices
vary the actual volume of air delivered to the space to
maintain occupant comfort.
E
Economizer
A damper arrangement and automatic control system that
allows a heating, ventilation and air conditioning (HVAC)
system to supply up to 100 percent outside air to satisfy
cooling demands, even if additional mechanical cooling is
required.
Exception Schedule
A one time only time of day schedule in a system that is
removed automatically after use.
F
Free Cooling
Outdoor air introduced to a system under correct
conditions to provided cooling to a space. Also see also
“Economizer.”
H
HVAC Unit
An air moving device that conditions air. An HVAC unit
may provide cooling, or heating and cooling. Typical HVAC
units include packaged rooftop units, split systems, and
water source heat pumps.

50 VAV-PRC003-EN
Glossary
L
LCD
Liquid crystal display.
N
NDIR
Non-dispersive infrared technology.
Negative Pressure
The condition that exists when more air is exhausted from
a space than is supplied.
Non-Volatile Memory
System memory that retains programming with no battery
or capacitor back up required.
Normally Closed (NC)
Electrical contacts that are closed (current flows) in the
de-energized condition.
Normally Ppen (NO)
Electrical contacts that are open (no current flows) in the
de-energized condition.
O
Occupancy Sensor
A binary sensor that transmits a signal upon detection of
movement in the coverage area.
Outdoor Air (OA)
This is fresh air drawn in to provide space ventilation. Also
see ‘Ventilation air.”
Outdoor Air Damper
The damper that draws fresh air into the air handling
system for ventilation. Also referred to as the ventilation or
fresh air damper.
Override
A manual or automatic action taken to bypass normal
operation.
P
Packaged Unitary System
An air handling system with all the major components
contained in a single cabinet or installed in a single
location.
PIR
Passive infrared sensing technology (used in occupancy
and motion detection sensors).
Polling
The method a VariTrac CCP uses to determine the need
for heating or cooling from the air handling system by
examining the zone requirements.
Positive Pressure
The condition that exists when more air is supplied to a
space than is exhausted.
Pressure-Dependent VAV Control
A VAV unit with airflow quantity dependent upon static
pressure. There is no zone flow sensor in pressure
dependent VAV boxes.
Pressure-Independent VAV Control
A VAV unit with airflow quantity independent of duct static
pressure. Actual airflow to the space is measured and
controlled by an airflow sensor in the pressure
independent VAV box.
Priority Shutdown
An immediate shutdown of the fan and heating or cooling
stages in a VariTrac changeover bypass or Delivered VAV
system caused by either the loss of critical system
information or an external priority shutdown input.
Pulse-Width Modulating Reheat
Reheat that operates duct mounted electric coils on a 0-
100% duty cycle in response to increased space heating
demand.
R
Reheat Device
A source of heat located downstream from a control
device such as a VAV box to add heat to air entering a
space to provide occupant comfort.
ReliaTel (RTRM)
The latest generation Trane factory mounted unitary
controller.
Return Air (RA)
Air returned to the air handler from the conditioned space,
to be reconditioned.
S
Setpoint
The desired room temperature to be achieved and
maintained by an HVAC system.
Setpoint Limit
An electronic or manual constraint imposed on a setpoint
to prevent misadjustment.

VAV-PRC003-EN 51
Glossary
SPDT
A relay with of one set of normally-open, normally-closed
contacts.
Staged Electric Reheat
Reheat that operates one or more duct mounted electric
coils in a series in response to increased space heating
demand.
Staged (or Perimeter) Hot Water Reheat
Reheat that operates duct-mounted hot water or space-
mounted electric or hot water reheat coils in response to
increased space heating demand.
Static Pressure
The difference between the air pressure on the inside of
the duct and outside of the duct. Static pressure is an
indicator of how much pressure the fans are creating and
how effective they will be at distributing the supply air
through the ducts.
Supply Air (SA)
air which blows out of the air handler into the ducts. See
also “Discharge air (DA).”
T
Terminal Unit
HVAC equipment that provides comfort directly to a
space.
Thermal Requirements
The heating or cooling load requirements for a specific
area or space in a building. Care must be taken to not
control areas with different thermal requirements from
one air handling system.
Touch-Screen Operator Display
The LCD panel mounted onto a VariTrac CCP to allow
direct user interface and time of day programming for the
system.
U
Unit Control Module UCM
A Trane microelectronic circuit board that controls
individual HVAC equipment. May link to an Integrated
Comfort System.
Unitary
one or more factory-made assemblies which normally
include an evaporator or cooling coil, an air moving device,
and a compressor and condenser combination.
V
Variable Air Volume (VAV)
an air handling system that varies the volume (amount) of
constant temperature air to a space to control comfort.
VariTrac
The Trane changeover bypass VAV system.
VariTran e
The Trane pressure independent VAV box.
VAV Box
The damper or air valve (plus associated controller) that
controls the zone air volume in a VAV system. Also see
“Variable air volume.”
Ventilation Air
The outdoor air drawn into the HVAC unit to provide fresh
air to the space. Also see “Outdoor air (OA).”
Voting
See “Polling.”
Z
Zone Sensor
The device that measures a variable (usually temperature)
in a space and sends it to a controller. Commonly referred
to as a thermostat.

Trane optimizes the performance of homes and buildings around the world. A business of Ingersoll Rand, the
leader in creating and sustaining safe, comfortable and energy efficient environments, Trane offers a broad
portfolio of advanced controls and HVAC systems, comprehensive building services, and parts. For more
information, visit www.Trane.com.
Trane has a policy of continuous product and product data improvement and reserves the right to change design and specifications without notice.
We are committed to using environmentally
conscious print practices that reduce waste.
© 2012 Trane All rights reserved
VAV-PRC003-EN 13 Mar 2012
Supersedes VAV-PRC003-EN (31 Jan 2012)