Tricity Bendix Tbg700 Users Manual 74 6903.PC.uk.pmd
TBG700 to the manual 1da78e85-2ca4-0434-c98c-a8b6a8168907
2015-02-03
: Tricity-Bendix Tricity-Bendix-Tbg700-Users-Manual-459926 tricity-bendix-tbg700-users-manual-459926 tricity-bendix pdf
Open the PDF directly: View PDF
.
Page Count: 32

TBG700
User
Manual
Gas
Hob

2
Welcome to the world of Electrolux
Thank you for choosing a first class product from Electrolux, which hopefully will provide
you with lots of pleasure in the future.
The Electrolux ambition is to offer a wide variety of quality products that make your life
more comfortable.
You find some examples on the cover in this manual. Please take a few minutes to study
this manual so that you can take advantage of the benefits of your new machine.
We promise that it will provide a superior User Experience delivering Ease-of-Mind.
Good luck!

3
Contents
Important Safety Information .................................................................................. 4
Instructions for the User .......................................................................................... 8
Description of the Hobs................................................................................................ 6
Operation...................................................................................................................... 8
Maintenance and Cleaning....................................................................................... 10
Something Not Working?........................................................................................... 12
Standard Guarantee Conditions................................................................................ 28
Service and Spare Parts ............................................................................................ 29
European Guarantee ................................................................................................. 30
Instructions for the Installer ................................................................................. 13
Engineer technical data............................................................................................. 13
Important safety requirements ................................................................................... 15
Installation .................................................................................................................. 16
Gas Connection ......................................................................................................... 17
Cut Out Size................................................................................................................ 18
Building In................................................................................................................... 19
Fitting the Hob into the Worktop................................................................................. 20
Electrical Connections............................................................................................... 21
Wiring Diagram .......................................................................................................... 22
Fault Finding .............................................................................................................. 23
Commissioning.......................................................................................................... 26
Conversion from Natural Gas to LPG ........................................................................ 27
Guide to Use the instructions
The following symbols will be found in the text to guide you throughout the Instructions:
Safety Instructions
Step by step instructions for an operation
Hints and Tips
Environmental information

4
Important Safety Information
You MUST read these warnings carefully before installing or using the hob. If
you need assistance, contact our Customer Care Department on 08705 950950
Installation
This appliance must be installed and serviced by a competent person as stated in the Gas
Safety (Installation and Use) Regulations Current Editions and the IEE Wiring Regulations.
For appliances installed in the Republic of Ireland please refer to NSAI-Domestic Gas
Installations I.S.813 Current Editions and the ETCI Rules for Electrical Installations.
Remove all packaging before using the hob.
Ensure that the gas and electrical supply complies with the type stated on the rating plate,
located near the gas supply pipe.
Do not attempt to modify the hob in any way.
Child Safety
This hob is designed to be operated by adults. Do not allow children to play near or with the
hob.
This appliance is not intended for use by children or other persons whose physical, sensory
or mental capabilities or lack of experience and knowledge prevents them from using the
appliance safely without supervision or instruction by a responsible person to ensure that they
can use the appliance safely.
The hob gets hot when it is in use. Children should be kept away until it has cooled.
Children can also injure themselves by pulling pans or pots off the hob.
During Use
This hob is intended for domestic cooking only. It is not designed for commercial or industrial
purposes.
This appliance is not connected to a combustion products evacuation device. It must be
installed and connected in accordance with current installation regulations. Particular
attention shall be given to the relevant requirements regarding ventilation.
When in use a gas cooking hob will produce heat and moisture in the room in which it has
been installed. Ensure there is a continuous air supply, keeping air vents in good condition or
installing a cooker hood with a venting hose.
Ensure a good ventilation around the appliance. A poor air supply could cause lack of oxygen.
When using the hob for a long period time, the ventilation should be improved, by opening
a window or increasing the extractor speed.
Do not use this hob if it is in contact with water. Do not operate the hob with wet hands.

5
Ensure the control knobs are in the ‘OFF’ position when not in use.
When using other electrical appliances, ensure the cable does not come into contact
with the hot surfaces of the cooking appliance.
Unstable or misshapen pans should not be used on the hob as unstable pans can
cause an accident by tipping or spillage.
Never leave the hob unattended when cooking with oil and fats.
Never use plastic or aluminium foil dishes on the hob.
Perishable food, plastic items and areosols may be affected by heat and should not be
stored above or below the hob unit.
This appliance cannot be cleaned with steam or with a steam cleaning machine.
Service
This hob should only be repaired or serviced by an authorised Service Engineer and
only genuine approved spare parts should be used.
Environmental Information
After installation, please dispose of the packaging with due regard to safety and the
environment.
When disposing of an old appliance, make it unusable, by cutting off the cable.
The symbol on the product or on its packaging indicates that this product may not be
treated as household waste. Instead it shall be handed over to the applicable collection point
for the recycling of electrical and electronic equipment. By ensuring this product is disposed
of correctly, you will help prevent potential negative consequences for the environment and
human health, which could otherwise be caused by inappropriate waste handling of this
product. For more detailed information about recycling of this product, please contact your
local city office, your household waste disposal service or the shop where you purchased the
product.
Keep this instruction book for future reference and ensure it is passed on to any
new owner.
These instructions are only valid for countries whose identification symbols are shown on the
cover of this instruction booklet and on the appliance itself.

6
1. Hob Top
2. Semi-rapid Burner
3. Triple Crown Burner
4. Rapid Burner
5. Auxiliary Burner
6-10 Control Knobs
Description of the Hob
2
12
4
5
6789
3
10

7
INSTALLATION
Any gas installation must be carried out by a registered competent person,
and in accordance with existing rules and regulations.
The relevant instructions are to be found in the second section of this manual.
Please, ensure that, once the hob is installed, it is easily accessible for the engineer
in the event of a breakdown.
WHEN THE HOB IS FIRST INSTALLED
Once the hob has been installed, it is important to remove any protective materials,
which were put on in the factory.
The manufacturer will not accept liability, should the above instructions or any of the
other safety instructions incorporated in this book be ignored.

8
Operation
Hob burners control knobs
The symbols on the knobs mean that :
there is no gas supply
there is maximum gas supply
there is minimum gas supply
Lighting the burners
For easier lighting, proceed before putting a pan on the pan support.
To light a burner:
push in the relevant control knob and turn it anticlockwise to maximum position
(), to ignite the burner.
Then adjust the flame as required.
If the burner does not ignite, turn the control knob to zero, and try again.
When switching on the mains, after installation or a power cut, it is quite normal for
the spark generator to be activated automatically.
In the absence of electricity, ignition can occur without the electrical device; in
this case, approach the burner with a flame, push the relevant knob down and turn
it anti-clockwise until it reaches the “maximum” position.
If the control knobs become difficult to turn, please contact your local Service
Force Centre.
Using the hob correctly
To ensure maximum burner efficiency, it is strongly recommended that you use only pots
and pans with a flat bottom fitting the size of the burner used, so that flame will not spread
beyond the bottom of the vessel (see the table beside).

9
Burner minimum maximum
diameter diameter
Triple crown 180 mm 260 mm
Large (rapid) 180 mm 260 mm
Medium (semi-rapid) 120 mm 220 mm
Small (auxiliary) 80 mm 160 mm
As soon as a liquid starts boiling, turn down the flame so that it will barely keep the
liquid simmering.
Use only pans or pots with flat bottom.
If you use a saucepan which is smaller than the recommended size, the
flame will spread beyond the bottom of the vessel, causing the handle to
overheat.
Carefully supervise cooking with fat or oil, since these types of foodstuff can
result in a fire, if over-heated.
The stainless steel can become tarnished if excessively heated. Therefore
prolonged cooking with potstones, earthenware pans or cast-iron plates
is inadvisable. Also, do not use aluminium foil to protect the top during
use.
Make sure pots do not protrude over the edges of the cooktop and that
they are centrally positioned on the rings in order to obtain lower gas
consumption.
Do not place unstable or deformed pots on the rings: they could tip over
or spill their contents, causing accidents.
Pots must not enter the control zone.

10
Before any maintenance or cleaning can be carried out, you must
DISCONNECT the hob from the electricity supply.
The hob is best cleaned whilst it is still warm, as spillage can be removed
more easily than if it is left to cool.
This appliance cannot be cleaned with steam or with a steam cleaning
machine.
The Hob Top
Regularly wipe over the hob top using a soft cloth well wrung out in warm water to which a little
wasing up liquid has been added. Avoid the use of the following:
- household detergent and bleaches;
- impregnated pads unsuitable for non-stick saucepans;
- steel wool pads;
- bath/sink stain removers.
Should the hob top become heavily soiled, the following products are recommended:
- For stainless steel hobs use a proprietary stainless steel cleaner.
- For other hobs use Hob Brite or Bar Keepers Friend.
Do not leave acid or alkaline substances (e.g. vinegar, salt, lemon juice,
etc.) on the cooktop.
Pan Supports
The pan supports are dishwasher proof. If washing them by hand, take care when drying them
as the enamelling process occasionally leaves rough edges. If necessay, remove stubborn
stains using a paste cleaner.
After cleaning, make sure that the pan supports are correctly positioned.
To make burners work properly, ensure that pan supports are placed in a way that the arms
are centred upon the burner as shown in the picture.
Pay attention when replacing the pan supports in order to avoid damaging
the hob top.
Maintenance and Cleaning

11
The Burners
The burner caps and crowns can be removed for cleaning.
Wash the burners caps and crowns using hot soapy water, and remove marks with a mild
paste cleaner. A well moistened soap impregnated steel wool pad can be used with
caution, if the marks are particularly difficult to remove.
After cleaning, be sure to wipe dry with a soft cloth.
The Ignition electrode
The electric ignition is obtained through a ceramic electrode and a metal electrode .
Keep these components very clean, to avoid difficult lighting, and check that the burner
crown holes are not obstructed.

12
Something Not Working?
If the hob is not working correctly, please carry out the following checks before contacting
your local Service Force Centre.
SYMPTOM
There is no spark when lighting the
gas.
The gas ring burns unevenly.
SOLUTION
Check that the unit is plugged in and
the electrical supply is switched on.
Check that the RCCB has not tripped
(if fitted).
Check the mains fuse has not blown.
Check the burner cap and crown
have been replaced correctly, e.g.
after cleaning.
Check the main jet is not blocked
and the burner crown is clear of food
particles.
Check the burner cap and crown
have been replaced correctly, e.g.
after cleaning.
If after all these checks, your hob still does not operate correctly, contact your local
Service Force Centre.
Please note that it will be necessary to provide proof of purchase for any in-guarantee
service calls.
In-guarantee customers should ensure that the above checks have been made as the
engineer will make a charge if the fault is not a mechanical or electrical breakdown.

13
OVERALL DIMENSIONS Width: 680 mm
Depth: 510 mm
Height: 72 mm
CUT OUT DIMENSIONS Width: 560 mm
Depth: 480 mm
Thickness: 30 mm
SUPPLY CONNECTIONS
Gas:
R 1/2 inch (1/2 inch male) Rear right hand corner
Electric:
230 V~ 50 Hz supply, 3 core flexible cable with
non rewireable plug fitted with a 3 amp cartridge fuse
HEAT INPUT
Rear Left Burner 2.0 kW (6826 BTU/HR)
(semi rapid)
Front Right Burner 3.0 kW Natural Gas (10239 BTU/HR)
(rapid) 2.8 kW LPG (9556 BTU/HR)
Rear Right Burner 2.0 kW (6826 BTU/HR)
(semi rapid)
Central Burner 4.0 kW (13652 BTU/HR)
(triple crown)
Front Left Burner 1.0 kW (3413 BTU/HR)
(auxiliary)
APPLIANCE CLASS 3
APPLIANCE CATEGORY II2H3+
GAS SUPPLY Natural gas G20 (2H) / 20 mbar
Instructions for the Installer
Engineer technical data
This appliance is manufactured according to the following EEC directives:
2006/95 EEC - 93/68 EEC - 89/336 EEC - 90/396 EEC, current edition.

14
Burner Dia. Tap By-pass
1/100 mm
Auxiliary 28
Semi-rapid 32
Rapid 40
Triple crown 56
Aeration adjustment none
BURNER RAPID SEMI-RAPID
AUXILIARY TRIPLECROWN
POSITION MAX MIN MAX MIN MAX MIN MAX MIN
NOMINAL THERMAL
POWER kW 3.0 0.65 2.0 0.45 1.0 0.33 4.0 1.2
NOMINAL FLOW
RATE m
3
/h 0.286 0.062 0.190 0.043 0.095 0.031 0.381 0.114
NOZZLE REFERENCE 119 Adjust. 96 Adjust. 70 Adjust. 146 Adjust.
1/100 mm
NOMINAL THERMAL
POWER kW 2.8 0.65 2.0 0.45 1.0 0.33 4.0 1.2
NOMINAL FLOW
RATE g/h 202 47 144 32 72 24 288 86
NOZZLE REFERENCE 86 40 71 32 50 28 98 56
1/100 mm
NATURAL GAS
20 mbar
VALUE =
37.78 MJ/m
3
Ws - 50.7 MJ/ m
3
TYPE OF GAS
LPG GAS
28-30/37 mbar
VALUE =
49.92 MJ/Kg

15
Important safety requirements
This hob must be installed in accordance with the Gas Safety (Installation and Use) Regulations
(Current Edition) and the IEE Wiring Regulations (Current Edition).
For appliances installed in the Republic of Ireland please refer to NSAI- Domestic Gas Installation I.S.
813 Current Editions and the ETCI Rules for Electrical Installations.
Provision for Ventilation
Detailed recommendations are contained in the following British Standards Codes Of Practice: B.S.
6172/ B.S. 5440, Par. 2 and B.S. 6891 Current Editions.
The hob should not be installed in a bed sitting room with a volume of less than 20 m3. If it is installed in
a room of volume less than 5 m3 an air vent of effective area of 110 cm2 is required. If it is installed in a
room of volume between 5 m3 and 10 m3 an air vent of effective area of 50 cm2 is required, while if the
volume exceeds 11 m3 no air vent is required.
However, if the room has a door which opens directly to the outside no air vent is required even if the
volume is between 5 m3 and 11 m3.
If there are other fuel burning appliances in the same room, B.S. 5440 Part 2 Current Edition, should be
consulted to determine the requisite air vent requirements.
For appliances installed in the Republic of Ireland please refer to the NSAI- Domestic Gas Installation
I.S. 813 Current Editions Table Four.
Location
The hob may be located in a kitchen, a kitchen/diner or bed sitting room, but not in a bathroom or shower
room.
Before making the cut out in the worktop ensure that there is a minimum distance of 55 mm between the
rear edge of the hob and the wall.
A minimum distance of 100 mm must be left between the side edges of the hob and any adjacent cabinets
or walls.
The minimum distance combustible material can be fitted above the hob in line with the edges of the hob
is 400 mm If it is fitted below 400 mm a space of 50 mm 5must be allowed from the edges of the hob.
The minimum distance combustible material can be fitted directly above the hob is 700 mm.
For appliances installed in the Republic of Ireland please refer to NSAI- Domestic Gas Installation I.S
813 Current Edition Section 7- Permitted Locations of Appliance.

16
CLEARANCES REQUIRED
WHEN FITTING THE GAS HOB
WITHOUT A COOKER HOOD ABOVE
CLEARANCES REQUIRED
WHEN FITTING THE GAS HOB
WITH A COOKER HOOD ABOVE
Installation
IMPORTANT
This hob must be installed by a competent person to the relevant Gas
Standards.
Any gas installation must be carried out by a registered competent
person.
Please, ensure that, once the hob is installed, it is easily accessible for the engineer in
the event of a breakdown.
The manufacturer will not accept liability, should the above instructions or any of the
other safety instructions incorporated in this instruction booklet be ignored.
On the end of the shaft, which includes the G 1/2" threaded elbow, adjustment is fixed so
that the washer is fitted between the components as shown in the diagram. Screw the
parts together without using excessive force.
700 mm
400 mm
400 mm
100 mm
55 mm
50 mm 50 mm
600 mm
700 mm
400 mm
400 mm
100 mm
55 mm
600 mm
50 mm 50 mm

17
It is important to install the elbow correctly, with the shoulder on the end of the
thread, fitted to the hob connecting pipe.
Failure to ensure the correct assembly will cause leakage of gas.
Gas Connection
Connection to the gas supply should be with either rigid or semi-rigid pipe, i.e. steel or copper.
The connection should be suitable for connecting to R 1/2 (1/2 BSP male thread).
When the final connection has been made, it is essential that a thorough leak test is carried out on the hob
and installation.
Ensure that the main connection pipe does not exert any strain on the hob.
WHEN THE HOB IS FIRST INSTALLED
Once the hob has been installed, it is important to remove any protective materials,
which were put on in the factory.
On the end of the shaft, which includes the GJ 1/2" threaded elbow, adjustment is fixed so that the
washer is fitted between the components as shown in the diagram. Screw the parts together without
using excessive force.
A) End of shaft with nut
B) Washer
C) Elbow
FO
0814
FO 0264

18
Cut Out Size
The dimensions of the cut-out are given in the diagram.
560
480
30
150 min

19
ON/OFF SWITCH
FLEX
OUTLET
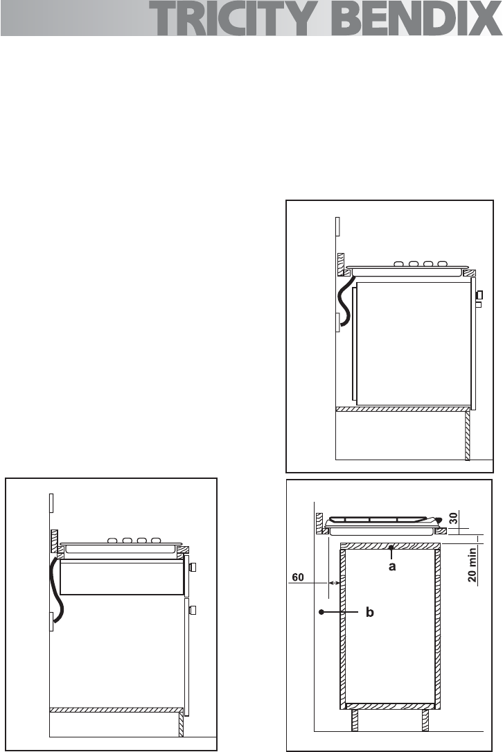
2
Building over a kitchen unit with
door
Proper arrangements must be taken in designing the
furniture unit, in order to avoid any contact with the bottom
of the hob which can be heated when it is operated. The
recommended solution is shown in diagram 3.
The panel fitted under the hob ("a") should be easily
removable to allow easy access if technical assistance is
needed. The space behind the kitchen unit ("b") can be
used for connections.
Dimensions are given in mm.
3
ON/OFF SWITCH
FLEX
OUTLET
1
Building over a cupboard or drawer
If the hob is to be installed above a cupboard or drawer it will be necessary to fit a heat resistant board
below the base of the hob on the underside of the work surface.
It is also recommended to carry out the electrical connection to the hob as shown in diagrams 1 and 2.
Building In

20
Fitting the Hob into the Worktop
Carry out the building in of the hob as follows:
1. place the seals supplied with the hob on the front edge of the cut out. Then,
place them at 50 mm from the side edges and at 10 mm from the rear edge,
as shown in the diagram, taking
care that the seals meet without
overlapping.
2. Place the hob in the cut out, taking
care that it is centred.
3. Fix the hob with the relevant fixing
clamps, supplied with the injectors
kit (see diagram). When the screws
have been tightened, the excess
seal can be removed.
The edge of the hob forms a double seal
which prevents the ingress of liquids.
Seal

21
Electrical Connections
Any electrical work required to install this hob should be carried out by a
qualified electrician or competent person, in accordance with the current
regulations.
THIS HOB MUST BE EARTHED.
The manufacturer declines any liability should these safety measures not be observed.
This hob is designed to be connected to a 230 V 50 Hz AC electrical supply.
Before switching on, make sure the electricity supply voltage is the same as that indicated
on the hob rating plate. The rating plate is located on the bottom of the hob. A copy is
attached on the back cover of this book.
The hob is supplied with a 3 core flexible supply cord incorporating a 3 amp plug fitted.
In the event of having to change the fuse, a 3 amp ASTA approved (BS 1362) fuse must be
used.
Should the plug need to be replaced for any reason, the wires in the mains lead are
coloured in accordance with the following code:
Green and Yellow - Earth
Blue - Neutral
Brown - Live
1) Connect the green and yellow (earth)
wire to the terminal in the plug which is
marked with the letter 'E' or the earth
symbol or coloured green and
yellow.
2) Connect the blue (neutral) wire to the
terminal in the plug which is marked
with the letter 'N' or coloured black.
3) Connect the brown (live) wire to the
terminal in the plug which is marked
with the letter 'L' or coloured red.
Upon completion there must be no cut, or stray strands of wire present and the cord
clamp must be secure over the outer sheath.
A cut off plug inserted into a 13 amp socket is a serious safety (shock)
hazard. Ensure that the cut off plug is disposed of safely.
The replacement of electric cable must be carried out exclusively by the
service force centre or by personnel with similar competencies, in
accordance with the current regulations.
FO 0390

22
Wiring Diagram
2
1
L
N
0
220
240 1
2
3
4
5
N
Permanent Connection
In the case of a permanent connection, it is necessary that you install a double pole
switch between the hob and the electricity supply (mains), with a minimum gap of 3 mm
between the switch contacts and of a type suitable for the required load in compliance
with the current electric regulations.
The switch must not break the yellow and green earth cable at any point.
Ensure that the hob supply cord does not come into contact with surfaces
with temperatures higher than 50 deg. C.
1. Ignitor switches
2. Ignitor unit

23
Fault Finding
Preliminary Electrical Systems Check
START
Isolate appliance
and carry out:
A: Earth Continuity
check.
Has inlet fuse blown?
Carry out:
C: Polarity check.
Electricity supply
should now be
satisfactory.
Carry out:
D: Resistance to
Earth check.
Inlet wiring
faulty.
Rectify any
fault.
Isolate appliance and
carry out:
B: Insulation check.
Rectify any fault
including replacing
fuses as necessary.
NO YES
SOCKET
(face view)
PLUG (with cover removed)
Earth Wire
Green/Yellow
Neutral Wire
Blue
( )
FUSE
( )
E
NL
NO YES
Brown Blue Green
Yellow
Green
Yellow
Brown Blue

24
A. EARTH CONTINUITY CHECK
Appliance must be electrically disconnected - meter set on W (Ohms) x 1 scale
and adjust zero if necessary.
— Test leads from any appliance earth point to earth pin on plug. Resistance
should be less than 0.1 W (Ohm), check all earth wires for continuity and all
contacts clean and tight.
B. INSULATION CHECK
Appliance electrically disconnected, all switches ON.
a) meter set on W (Ohms) x 1 scale.
Test leads from L to N in appliance terminal block. If meter reads «0» then
there is a short circuit.
b) meter set on W (Ohm) x 100 scale.
Repeat test with leads from L to E. If meter reads less than × (infinity) there is
a fault.
NOTE - Should it be found that the fuse has failed but no fault is indicated - a detailed
continuity check (i.e. by disconnecting and checking each component) is required to
trace the faulty component.
It is possible that a fault could occur as a result of local burning/arcing but no fault could
be found under test. However a detailed visual inspection should reveal evidence of
burning around the fault.

25
Check gas supply at
burner
Ignition System / Gas Ignition
YES
Check plug top fuse and
replace if necessary
Check polarity and earth
continuity of supply point
Check earth continuity
of appliance
Ignitor does not spark
Check fitting of
burners
Check position of the
electrode
Check by pass simmer
adjusted
Light burner manually
Check continuity from 'N' on the
mains connector block and "O" on
the ignitor unit
Check continuity from 'L' on the
mains connector block and the
taps ignition switches
Check continuity from ignition
switches connector to ignitor unit
Check continuity from the tip of
each electrode to the terminals 1 to 4 on
the ignitor unit
Check for breaks in the insulation of the
HT leads
NO
Change the ignitor unit

26
Commissioning
When the hob has been fully installed it will be necessary to check the minimum flame
setting. To do this, follow the procedure below.
1) Turn the gas tap to the MAX position and ignite.
2) Set the gas tap to the MIN flame position then turn the control knob from MIN
to MAX several times. If the flame is unstable or is extinguished follow the
procedure below.
Procedure:
1) Re-ignite the burner and set to MIN.
2) Remove the control knob.
3) To adjust, use a thin bladed
screwdriver and turn the adjustment
screw (see diagram) until the flame
is steady and does not extinguish,
when the knob is turned from MIN
to MAX. Repeat this procedure for
all burners.
Pressure Testing
The pressure testing must becarried out on the burners.
Proceed as follows:
1) Remove the pan supports and the burner caps and crowns.
2) Fit manometer tube over the injector.
3) Turn on the burner gas supply and ignite another burner supply.
The pressure reading should be nominally 20 mbar and must be between 17
mbar and 25 mbar.
4) Turn off the burner supplies.
Minimum adjustment screw

27
Conversion from Natural Gas to LPG
IMPORTANT
The replacement/conversion from natural gas to LPG should only be undertaken by
a competent person.
It is important to note that this model is designed for use with natural gas but can be converted for use with
butane or propane gas providing the correct injectors are fitted. The gas rate is adjusted to suit.
Method
1) Ensure that the gas taps are in the 'OFF' position
2) Isolate the hob from the electricity supply
3) Remove all pan supports, burner caps, rings, crowns and control knobs.
4) With the aid of a 7mm box spanner the burner injectors can then be unscrewed and
replaced by the appropriate LPG injectors.
TO ADJUST THE GAS RATE
With the aid of a thin bladed screwdriver completely tighten down the by pass adjustment screw.
Upon completion stick the replacement rating plate on the under side of the hob.

28
Standard Guarantee Conditions
We, Electrolux, undertake that if within 12 months of the date of the purchase this Electrolux appliance or
any part thereof is proved to be defective by reason only of faulty workmanship or materials, we will, at
our option repair or replace the same FREE OF CHARGE for labour, materials or carriage on condition
that:
•The appliance has been correctly installed and used only on the gas and electricity supply stated on the
rating plate.
•The appliance has been used for normal domestic purposes only, and in accordance with the
manufacturer’s instructions.
•The appliance has not been serviced, maintained, repaired, taken apart or tampered with by any
person not authorised by us.
•Electrolux Service Force Centre must undertake all service work under this guarantee.
•Any appliance or defective part replaced shall become the Company’s property.
•This guarantee is in addition to your statutory and other legal rights.
Exclusions
•Damage or calls resulting from trans-portation, improper use or neglect, the replacement of any light
bulbs or removable parts of glass or plastic.
•Costs incurred for calls to put right an appliance which is improperly installed or calls to appliances
outside the United Kingdom.
•Appliances found to be in use within a commercial environment, plus those which are subject to rental
agreements.
•Products of Electrolux manufacturer that are not marketed by Electrolux.

29
Customer Care
For general enquiries concerning your Electrolux appliance, or for further information
on Electrolux products please contact our Customer Care Department by letter or
telephone at the address below or visit our website at www.electrolux.co.uk
Customer Care Department
Electrolux Major Appliances
Addington Way
Luton
Bedfordshire, LU4 9QQ
Tel: 08705 950 950 (*)
(*) Calls may be recorded for training purposes
Service and Spare Parts
In the event of your appliance requiring service, or if you wish to purchase spare parts, please contact
your local Service Force Centre by telephoning
0870 5 929 929
Your telephone call will be automatically routed to the Service Force Centre co-vering your postcode
area.
For the address of your local Service Force Centre and further information about Service Force, please
visit the website at
www.serviceforce.co.uk
Before calling out an engineer, please ensure you have read the details under the heading “Something
not working”. When you contact the Service Force Centre you will need to give the follo-wing details:
1.Your name, address and postcode.
2.Your telephone number.
3. Clear concise details of the fault.
4. The model and Serial number of the appliance (found on the rating plate).
5.The purchase date.
Please note a valid purchase receipt or guarantee documentation is required for in guarantee service
calls.

30
This appliance is guaranteed by Electrolux in each of the countries listed at the back of
this user manual, for the period specified in the appliance guarantee or otherwise by
law. If you move from one of these countries to another of the countries listed below the
appliance guarantee will move with you subject to the following qualifications:
• The appliance guarantee starts from the date you first purchased the appliance which
will be evidenced by production of a valid purchase document issued by the seller of
the appliance.
• The appliance guarantee is for the same period and to the same extent for labour
and parts as exists in your new country of residence for this particular model or range
of appliances.
• The appliance guarantee is personal to the original purchaser of the appliance and
cannot be transferred to another user.
• The appliance is installed and used in accordance with instructions issued by
Electrolux and is only used within the home, i.e. is not used for commercial purposes.
• The appliance is installed in accordance with all relevant regulations in force within
your new country of residence.
The provisions of this European Guarantee do not affect any of the rights granted to you
by law.
European Guarantee

31

32
35674-6903 02/07 R.0
www.tricity-bendix.co.uk