Tyco Safelinc 4100U Users Manual LT0350 Installation & Maintenance
4100U to the manual d772a500-6bbd-43e9-b241-fce0803cd784
2015-02-03
: Tyco Tyco-Safelinc-4100U-Users-Manual-460882 tyco-safelinc-4100u-users-manual-460882 tyco pdf
Open the PDF directly: View PDF .
Page Count: 180 [warning: Documents this large are best viewed by clicking the View PDF Link!]
- Copyrights and Trademarks
- Approvals
- Manufacture
- Product / Site
- Non-Disclosure Agreement
- End User Liability Disclaimer
- Model Number & Firmware Revision
- Document
- Amendment Log
- Cautions, Warnings, and Regulatory Information
- Table of Contents
- List of Figures
- List of Tables
- Introduction to the 4100U Fire Alarm System
- Installing 4100U FACP Components
- Introduction to FACPs (4100U)
- Step 1. Mounting Cabinets (4100U)
- Step 2. Mounting Card Bays to Cabinets (4100U)
- Step 3. Configuring Cards (4100U)
- Step 4. Interconnecting Modules and Bays
- Step 5. Installing Modules into Expansion Bays (4100U)
- Step 6. Installing LED/Switch Modules into Expansion Bays (4100U)
- Overview
- The LED/Switch User Interface
- LED/Switch Controller Card
- LED/Switch Modules
- Configuring the LED/Switch Controller Card
- Activating the Communication Loss Feature
- Mounting LED/Switch Modules to the Expansion Bay
- Mounting the Controller Card Assembly
- Changing Display Card LEDs
- Interconnecting Cards
- Wiring Instructions
- The Terminal Block Utility Module (4100U)
- Installing 4100 MINIPLEX Components (Non-4100U)
- Installing 4100U MINIPLEX Components
- Networking
- Getting Started
- Introduction to the 4100 Network Interface Card (NIC)
- Step 1. Configuring Network Cards
- Step 2. Mounting Media Cards to the NIC
- Step 3. Mounting Network Cards
- Step 4. Wiring Network Cards
- The System Power Supply & Alarm Relay Card
- SPS Field Wiring (4100U)
- Installing 4100U IDNet & 4100MXP Cards
- PC Software Connections
- Australian Version Specifics
- Installation Checklist, Commissioning & Maintenance
- Appendix AThe Device Configuration DIP Switch
- Appendix BProgramming Requirements
- Appendix CChecking System Wiring
- Appendix DEarth Fault Detection
- Appendix ERelated Documentation
- Appendix FCompatible Actuating Devices
- Appendix GCompatible Batteries
- Appendix H4100U Specifications
- Appendix I Power Supply & Battery Capacity Calculations
- Appendix JCable Characteristics
- Appendix KList of Drawings

Fire
Australian
Installation
Manual
4100U Fire Indicator Panel
Fire Alarm System, Installation &
Maintenance
Australian
Installation &
Maintenance
Manual
LT0350

i
2004 Tyco Safety Products Westminster, Westminster, MA 01441-0001 USA.
All specifications and other information shown were current as of document revision date,
and are subject to change without notice.
Tyco, Simplex, the Simplex logo, MAPNET II, IDNet, TrueAlarm, SmartSync,
WALKTEST, MINIPLEX, and TrueAlert are trademarks of Tyco International Services
AG or its affiliates in the U.S. and/or other countries. VESDA is a trademark of Vision
Products Pty Ltd.
Simplex fire alarm technology is protected by the following U.S. Patent Numbers:
TrueAlarm analog smoke detection: 5,155,468; 5,173,683 and 5,543,777. IDNet and
MAPNET II addressable communications; 4,796,025. TrueAlert addressable notification;
6,313,744 and 6,426,697. SmartSync horn/strobe control; 6,281,789.
Australian Standard AS4428.1
SSL Listing Number afp1682
The 4100U is a Fire Alarm manufactured by Tyco Safety Products for:
Tyco Services Fire & Safety
47 Gilby Road
Notting Hill
VIC 3168
AUSTRALIA
Phone : (03) 9538-7220
Fax : (03) 9538-7255
Name
Serial #
Manufacture Date
Copyrights and Trademarks
Approvals
Manufacture
Product / Site

ii
Tyco (THE COMPANY) and the User of this/these document(s) desire to share
proprietary technical information concerning electronic systems.
For this reason the company is disclosing to the User information in the form of this/these
document(s). In as much as the company considers this information to be proprietary and
desires that it be maintained in confidence, it is hereby agreed by the User that such
information shall be maintained in confidence by the User for a period of TEN YEARS
after the issue date and only be used for the purpose for which it was supplied.
During this period, the User shall not divulge such information to any third party without
the prior written consent of the company and shall take reasonable efforts to prevent any
unauthorised disclosure by its employees. However, the User shall not be required to
keep such information in confidence if it was in their possession prior to its receipt from
the company; if it is or becomes public knowledge without the fault of the User; or the
information becomes available on an unrestricted basis from a third party having a legal
right to disclose such information.
The User's receipt and retention of this information constitutes acceptance of these terms.
This information is copyright and shall not be reproduced in any form whatsoever.
The 4100U Fire Indicator Panel provides a configuration programming facility, which
may be accessed via a programming computer using a “dongle”. Because this
programming facility allows the user to define in detail the operation of the 4100U
System being customised, changes may be made by the user that prevent this installation
from meeting statutory requirements.
The Company, therefore cannot accept any responsibility as to the suitability of the
functions generated by the user using this programming facility.
Non-Disclosure Agreement
End User Liability Disclaimer

iii
This manual applies to product with the following:
Model number : 4100U
Firmware revision : 11.08 and on
Document Name : LT0350 4100U Installation & Maintenance Manual
Cross Reference : 574-848 4100U Installation Manual (USA)
Issue : 1.0-G 14 May, 2004
14 May, 2004 Issue 1.0.6 Original based on 574-848 Rev G
Model Number & Firmware Revision
Document
Amendment Log

iv
READ AND SAVE THESE INSTRUCTIONS. Follow the instructions in this
installation manual. These instructions must be followed to avoid damage to this product
and associated equipment. Product operation and reliability depends upon proper
installation.
DO NOT INSTALL ANY SIMPLEX® PRODUCT THAT APPEARS DAMAGED.
Upon unpacking your Simplex product, inspect the contents of the carton for shipping
damage. If damage is apparent, immediately file a claim with the carrier and notify your
Simplex product supplier.
SAFETY HAZARD - The 4100U CPU Card includes a lithium battery. There is
danger of explosion if the battery is incorrectly replaced. Replace only with the same
or equivalent type recommended by the manufacturer. Dispose of used batteries
according to the manufacturer’s instructions.
ELECTRICAL HAZARD - Disconnect electrical field power when making any internal
adjustments or repairs. All repairs should be performed by a representative or authorized
agent of your local Simplex product supplier.
STATIC HAZARD - Static electricity can damage components. Therefore, handle as
follows:
• Ground yourself before opening or installing components (use the 553-484 Static
Control Kit).
• Prior to installation, keep components wrapped in anti-static material at all times.
EYE SAFETY HAZARD - Under certain fiber optic application conditions, the optical
output of this device may exceed eye safety limits. Do not use magnification (such as a
microscope or other focusing equipment) when viewing the output of this device.
RADIO FREQUENCY ENERGY - This equipment generates, uses, and can radiate
radio frequency energy and if not installed and used in accordance with the instruction
manual, may cause interference to radio communications. It has been tested and found to
comply with the limits defined in AS4428.0-1997 and Amendment 1 : 2002.
SYSTEM REACCEPTANCE TEST AFTER SOFTWARE CHANGES - To ensure
proper system operation, this product must be tested in accordance with AS1670 after any
programming operation or change in site-specific software. Reacceptance testing is
required after any change, addition or deletion of system components, or after any
modification, repair or adjustment to system hardware or wiring.
All components, circuits, system operations, or software functions,known to be affected
by a change must be 100% tested. In addition, to ensure that other operations are not
inadvertently affected, at least 10% of initiating devices that are not directly affected by
the change, up to a maximum of 50 devices, should also be tested and proper system
operation verified.
IMPORTANT: Verify 4100U System Programmer, Executive, and Slave Software
compatibility when installing or replacing system components. Refer to Solution Bulletin
SB01014 for compatibility information.
Cautions, Warnings, and Regulatory Information
v
Copyrights and Trademarks ................................................................................ i
Approvals............................................................................................................. i
Manufacture......................................................................................................... i
Product / Site ....................................................................................................... i
Non-Disclosure Agreement .................................................................................ii
End User Liability Disclaimer...............................................................................ii
Model Number & Firmware Revision..................................................................iii
Document ...........................................................................................................iii
Amendment Log .................................................................................................iii
Cautions, Warnings, and Regulatory Information...............................................iv
Table of Contents ............................................................................................... v
List of Figures ...................................................................................................xiv
List of Tables .....................................................................................................xv
Chapter 1 Introduction to the 4100U Fire Alarm System ........ 1-1
Introduction .................................................................................................. 1-1
In this Chapter ............................................................................................. 1-1
System Configurations .................................................................................... 1-2
Overview......................................................................................................1-2
Standalone Configuration ................................................................................ 1-3
Overview......................................................................................................1-3
System Design............................................................................................. 1-3
MINIPLEX Configuration .................................................................................1-4
Overview......................................................................................................1-4
System Design............................................................................................. 1-4
RUI Communication..................................................................................... 1-5
Network Configuration ..................................................................................... 1-6
Overview......................................................................................................1-6
Hub and Star Configurations .......................................................................1-6
Connecting Loops........................................................................................ 1-7
System Design............................................................................................. 1-7
Network Communication.............................................................................. 1-7
4100 PIDs (Non-4100U) ..................................................................................1-8
Annunciation Modules .................................................................................1-8
4100U Cabinet Part Identification Numbers (PIDs).........................................1-9
Overview......................................................................................................1-9
4100U Cabinets ........................................................................................... 1-9
Table of Contents
vi
4100U PIDs ..................................................................................................... 1-9
Overview......................................................................................................1-9
Assemblies, Cards & & Modules ................................................................. 1-9
Kits ............................................................................................................. 1-10
Labels ........................................................................................................1-10
Looms ........................................................................................................1-10
Chapter 2 Installing 4100U FACP Components ....................... 2-1
Introduction .................................................................................................. 2-1
In this Chapter ............................................................................................. 2-1
Introduction to FACPs (4100U) ....................................................................... 2-2
Overview......................................................................................................2-2
CPU Bay ...................................................................................................... 2-2
Master Motherboard .................................................................................... 2-3
Master Controller Daughter Card ................................................................2-4
Master Controller Daughter Card LEDs....................................................... 2-5
Operator Interface........................................................................................ 2-6
Additional CPU Bay Modules .....................................................................2-6
Expansion Bays ........................................................................................... 2-6
System Power Supply (SPS)....................................................................... 2-7
System Power.............................................................................................. 2-8
The Power Distribution Interface (PDI)........................................................2-8
Step 1. Mounting Cabinets (4100U) ................................................................2-9
Overview......................................................................................................2-9
Step 2. Mounting Card Bays to Cabinets (4100U) .......................................... 2-9
Overview......................................................................................................2-9
Step 3. Configuring Cards (4100U) ...............................................................2-10
Overview....................................................................................................2-10
Master Motherboard Configuration............................................................2-10
Master Controller Daughter Card Configuration........................................2-10
SPS Configuration .....................................................................................2-10
PDI Configuration ......................................................................................2-11
Configuring Other Cards............................................................................2-11
Step 4. Interconnecting Modules and Bays................................................... 2-11
Overview....................................................................................................2-11
Guidelines..................................................................................................2-11
Card Interconnections in the CPU Bay...................................................... 2-12
Card Interconnections Within Expansion Bays .........................................2-12
Basic Bay-To-Bay Interconnections .......................................................... 2-12
Connecting to Motherboards ..................................................................... 2-13
Step 5. Installing Modules into Expansion Bays (4100U) .............................2-15
Overview....................................................................................................2-15
Placement Guidelines................................................................................2-15
Installing 4” X 5” Cards ..............................................................................2-18
vii
Step 6. Installing LED/Switch Modules into Expansion Bays (4100U).......... 2-20
Overview....................................................................................................2-20
The LED/Switch User Interface .................................................................2-21
LED/Switch Controller Card.......................................................................2-21
LED/Switch Modules.................................................................................. 2-22
Configuring the LED/Switch Controller Card .............................................2-22
Activating the Communication Loss Feature............................................. 2-22
Mounting LED/Switch Modules to the Expansion Bay ..............................2-23
Mounting the Controller Card Assembly.................................................... 2-24
Changing Display Card LEDs....................................................................2-24
Interconnecting Cards................................................................................ 2-25
Wiring Instructions .....................................................................................2-26
The Terminal Block Utility Module (4100U)...................................................2-27
Overview....................................................................................................2-27
Mounting to the Electronics Bay ................................................................2-27
Chapter 3 Installing 4100 MINIPLEX Components
(Non-4100U) ................................................... 3-29
Introduction ................................................................................................3-29
In this Chapter ...........................................................................................3-29
Introduction to MINIPLEX Systems (Non-4100U) .........................................3-30
Overview....................................................................................................3-30
MINIPLEX System Components (Non-4100U) .............................................3-32
Overview....................................................................................................3-32
The RUI Card.............................................................................................3-32
Transponder Cabinets ...............................................................................3-32
The Remote Interface Card (RIC) .............................................................3-33
MINIPLEX System Guidelines (Non-4100U)................................................. 3-34
Overview....................................................................................................3-34
Guidelines..................................................................................................3-34
Installing Modules into Cabinets (Non-4100U)..............................................3-35
Overview....................................................................................................3-35
Guidelines..................................................................................................3-35
Installing the RUI Motherboard................................................................. 3-35
Installing the RIC II Motherboard...............................................................3-36
Connecting the 733-525 Harness............................................................. 3-37
MINIPLEX Wiring (Non-4100U).....................................................................3-39
Overview....................................................................................................3-39
Wiring Configurations ................................................................................3-39
Class A Wiring ........................................................................................... 3-39
Class B Wiring ........................................................................................... 3-39
Wiring Illustration .......................................................................................3-40
Chapter 4 Installing 4100U MINIPLEX Components ................ 4-1
Introduction .................................................................................................. 4-1
In this Chapter ............................................................................................. 4-1
Introduction to MINIPLEX Transponders (4100U)........................................... 4-2
Overview......................................................................................................4-2
Transponder Cabinets .................................................................................4-2
Transponder Interface Cards (TICs)............................................................4-2
Basic TICs ...................................................................................................4-2
The Local Mode TIC (Not currently available in Australia). ......................... 4-3
TIC Illustrations............................................................................................ 4-4
viii
Local Mode Specifications........................................................................... 4-5
LEDs ............................................................................................................4-6
Card Specifications...................................................................................... 4-6
MINIPLEX System Guidelines (4100U)...........................................................4-7
Overview......................................................................................................4-7
Guidelines.................................................................................................... 4-7
Configuring Cards (4100U).............................................................................. 4-8
Overview......................................................................................................4-8
CPU Motherboard DIP Switch ..................................................................... 4-8
TIC Configuration......................................................................................... 4-8
Configuring Other Cards..............................................................................4-8
TIC/Riser Mounting (4100U)............................................................................ 4-9
Overview......................................................................................................4-9
Mounting Instructions...................................................................................4-9
TIC/Motherboard Interconnections (4100U)..................................................4-10
RUI Wiring (4100U) .......................................................................................4-11
Overview....................................................................................................4-11
Wiring Configurations ................................................................................4-11
Chapter 5 Networking ................................................................ 5-1
Introduction .................................................................................................. 5-1
In this Chapter ............................................................................................. 5-1
Getting Started.................................................................................................5-2
Overview......................................................................................................5-2
Introduction to the 4100 Network Interface Card (NIC)................................... 5-3
Overview......................................................................................................5-3
Network Module Illustrations ....................................................................... 5-4
NIC Card LED Indications............................................................................5-4
NIC Motherboards .......................................................................................5-5
NIC Media Cards .........................................................................................5-6
Requirements and Limitations .....................................................................5-7
Step 1. Configuring Network Cards................................................................. 5-7
Overview......................................................................................................5-7
Motherboard Jumper Settings .................................................................... 5-7
NIC Card Address Setting .......................................................................... 5-7
NIC Card Jumper Settings.......................................................................... 5-8
Wired Media Card Jumper Settings............................................................ 5-8
Step 2. Mounting Media Cards to the NIC....................................................... 5-9
Overview......................................................................................................5-9
Media Card Mounting ..................................................................................5-9
Step 3. Mounting Network Cards................................................................... 5-10
Step 4. Wiring Network Cards .......................................................................5-11
Overview....................................................................................................5-11
Wiring Guidelines....................................................................................... 5-11
Wiring Distances........................................................................................ 5-12
Related Documentation .............................................................................5-12
Fiber-Optic Wiring...................................................................................... 5-13
Fiber Optic Connection Types ...................................................................5-13
4190-9010 Coupler Requirements ............................................................5-14
Wiring with the Wired Media Card .............................................................5-15
ix
Wiring Illustrations .....................................................................................5-17
Wired Media, Style 7 Wiring .....................................................................5-17
Fiber Optic, Style 7 Wiring........................................................................ 5-18
Wired Media and Fiber Optic, Style 7 Wiring............................................5-19
Chapter 6 The System Power Supply & Alarm Relay Card..... 6-1
Introduction .................................................................................................. 6-1
In this Chapter ............................................................................................. 6-1
SPS Specifications ..........................................................................................6-2
Input/Output/BatterySpecifications .............................................................. 6-2
SPS Current Consumption .......................................................................... 6-3
Environmental Requirements ......................................................................6-4
SPS Configuration ...........................................................................................6-4
Overview......................................................................................................6-4
Jumper Settings........................................................................................... 6-4
Setting the Device Address .........................................................................6-4
Adjusting Voltages ....................................................................................... 6-4
SPS LED Indications .......................................................................................6-5
LEDs ............................................................................................................6-5
Troubleshooting on SPS.................................................................................. 6-6
Overview......................................................................................................6-6
IDNet Power Monitor Trouble .....................................................................6-6
Extra Device ................................................................................................ 6-6
Class A Trouble ........................................................................................... 6-6
Earth Fault Search....................................................................................... 6-6
Short Circuit ................................................................................................. 6-6
Channel Fail................................................................................................. 6-6
No Answer/ Bad Answer..............................................................................6-6
Output Abnormal.......................................................................................... 6-6
The Alarm Relay Card ..................................................................................... 6-7
Overview......................................................................................................6-7
Mounting ......................................................................................................6-7
Configuration ...............................................................................................6-8
Notes............................................................................................................ 6-8
Warning .......................................................................................................6-8
Specification ................................................................................................6-8
Chapter 7 SPS Field Wiring (4100U) ......................................... 7-1
Introduction .................................................................................................. 7-1
In this Chapter ............................................................................................. 7-1
General Field Wiring Guidelines......................................................................7-2
General Guidelines ...................................................................................... 7-2
SPS NAC Field Wiring Guidelines...................................................................7-3
Overview......................................................................................................7-3
Guidelines.................................................................................................... 7-3
Class A NAC Wiring..................................................................................... 7-4
Class B NAC Wiring..................................................................................... 7-5
Power Supply Wiring Distances ......................................................................7-5
Overview......................................................................................................7-5
Class A NAC Wiring Table .........................................................................7-6
Class B NAC Wiring Table .........................................................................7-7
x
SPS Auxiliary Power Wiring ............................................................................7-8
Overview......................................................................................................7-8
Guidelines.................................................................................................... 7-8
Wiring...........................................................................................................7-9
SPS Relay Wiring ..........................................................................................7-10
Overview....................................................................................................7-10
Aux 1 Relay ...............................................................................................7-10
Alarm Relay Card ......................................................................................7-10
Relays........................................................................................................7-11
SPS IDNet Wiring ..........................................................................................7-12
Overview....................................................................................................7-12
IDNet Wiring ..............................................................................................7-12
Guidelines..................................................................................................7-12
Class A Wiring ........................................................................................... 7-13
Class B Wiring ........................................................................................... 7-14
Chapter 8 Installing 4100U IDNet & 4100MXP Cards ............... 8-1
Introduction .................................................................................................. 8-1
In this Chapter ............................................................................................. 8-1
The IDNet Card................................................................................................8-2
Overview......................................................................................................8-2
LEDs ............................................................................................................8-3
Specifications............................................................................................... 8-3
Installing the IDNet Card onto the PDI ............................................................ 8-4
Overview......................................................................................................8-4
Installing the ID-Net into a 4100 Card Bay ...................................................... 8-5
Overview......................................................................................................8-5
Configuring the Card .......................................................................................8-6
Overview......................................................................................................8-6
Setting the Shield Tie Point .........................................................................8-6
Setting the Address .....................................................................................8-6
Wiring to IDNet Devices ..................................................................................8-7
Overview......................................................................................................8-7
Guidelines.................................................................................................... 8-7
Notes............................................................................................................ 8-8
Class A Wiring ............................................................................................. 8-8
Class B Wiring ............................................................................................. 8-9
Troubleshooting on IDNet..............................................................................8-10
Overview....................................................................................................8-10
IDNet Power Monitor Trouble ...................................................................8-10
Extra Device ..............................................................................................8-10
Class A Trouble ......................................................................................... 8-10
Earth Fault Search.....................................................................................8-10
Short Circuit ...............................................................................................8-10
Channel Fail...............................................................................................8-10
No Answer ................................................................................................. 8-10
Bad Answer ...............................................................................................8-10
Output Abnormal........................................................................................ 8-10
The 4100MXP................................................................................................8-11
Introduction ................................................................................................8-11
Power Connection .....................................................................................8-11
xi
Chapter 9 PC Software Connections ........................................ 9-1
Introduction .................................................................................................. 9-1
In this Chapter ............................................................................................. 9-1
Software Modes............................................................................................... 9-2
Overview......................................................................................................9-2
Software Modes...........................................................................................9-2
Chapter 10 Australian Version Specifics................................ 10-1
Introduction ................................................................................................10-1
In this Chapter ...........................................................................................10-1
Summary Of Australian Version Specifics..................................................... 10-2
Overview....................................................................................................10-2
AS4428 Requirements...............................................................................10-2
Australian Panel Format ................................................................................ 10-3
Overview....................................................................................................10-3
Australian / USA Differences .....................................................................10-3
4100U/4100A Differences..........................................................................10-3
4100U Fan Control Module ........................................................................... 10-4
Overview....................................................................................................10-4
Labeling .....................................................................................................10-4
Mounting & Connection .............................................................................10-4
Programming .............................................................................................10-4
Brigade Interfaces .........................................................................................10-6
Overview....................................................................................................10-6
Format........................................................................................................10-6
Applications ...............................................................................................10-6
Chapter 11 Installation Checklist, Commissioning
& Maintenance ............................................... 11-1
Introduction ................................................................................................11-1
In this Chapter ...........................................................................................11-1
Installation Checklist...................................................................................... 11-2
Overview....................................................................................................11-2
Alignment & Adjustment ................................................................................ 11-3
Overview....................................................................................................11-3
Power Up & Placing into Operation............................................................... 11-4
Maintenance ..................................................................................................11-5
xii
Appendix A The Device Configuration DIP Switch..................A-1
Overview......................................................................................................A-1
Appendix B Programming Requirements ................................B-1
Introduction ..................................................................................................B-1
In this Chapter .............................................................................................B-1
Required Features .......................................................................................B-1
Notes............................................................................................................B-1
Appendix C Checking System Wiring.......................................C-1
Overview..................................................................................................... C-1
Using the Volt/ Ohm Meter ........................................................................ C-1
Meter Readings .......................................................................................... C-2
Appendix D Earth Fault Detection.............................................D-1
Overview..................................................................................................... D-1
General Guidelines......................................................................................... D-2
Earth Fault Searching from the Front Panel................................................... D-3
Overview..................................................................................................... D-3
Access Level Selection............................................................................... D-3
Starting the Earth Fault Search .................................................................. D-3
Search Option A: Select Location............................................................... D-4
Search Option B: Select Channel.............................................................. D-5
Search Option C: Last Search Result........................................................ D-5
Completing the Search ............................................................................... D-5
Search Results ............................................................................................... D-6
Overview..................................................................................................... D-6
Non-Point Faults ......................................................................................... D-6
Point Faults................................................................................................. D-6
Fault Not Found .......................................................................................... D-7
No Fault ...................................................................................................... D-7
Result Not Available ................................................................................... D-7
Earth Fault Search Example........................................................................... D-8
Appendix E Related Documentation.........................................E-1
Appendix F Compatible Actuating Devices ............................. F-1
Introduction ..................................................................................................F-1
In this Chapter .............................................................................................F-1
List of Approved Devices.................................................................................F-1
Compatible Detectors, IDNET .........................................................................F-4
Compatible Addressable Field Devices, IDNet ...............................................F-5
xiii
Appendix G Compatible Batteries............................................ G-1
Appendix H 4100U Specifications.............................................H-1
General ....................................................................................................... H-1
Fuses .......................................................................................................... H-1
Firmware Features...................................................................................... H-1
Voltage & Current Ratings of Modules & Assemblies .................................... H-2
Appendix I Power Supply & Battery Capacity Calculations ... I-1
Power Supply................................................................................................ I-1
Battery Capacity ...........................................................................................I-1
Appendix J Cable Characteristics............................................. J-1
IDNet............................................................................................................ J-1
4100 MAPNET II.......................................................................................... J-1
NETWORK .................................................................................................. J-1
Appendix K List of Drawings.....................................................K-1

xiv
Figure 1-1. Standalone 4100U System ........................................................... 3
Figure 1-2. MINIPLEX 4100U System ............................................................ 5
Figure 1-3. Hub/Ring Configuration ................................................................ 6
Figure 1-4. Interconnected Loop Configuration............................................... 7
Figure 2-1. Master (CPU) Motherboard (566-227).......................................2-3
Figure 2-2. Master Controller Daughter Card (566-149).............................. 2-4
Figure 2-3. Operator Interface......................................................................2-6
Figure 2-4. System Power Supply................................................................ 2-7
Figure 2-5. The Power Distribution Interface (PDI)......................................2-8
Figure 2-6. Bracket Mounting ....................................................................... 2-9
Figure 2-7. Bay-to-Bay Interconnections.................................................... 2-13
Figure 2-8. Power and Communication Wiring for Motherboards..............2-14
Figure 2-9. Expansion Bay 4”x 5” Card Placement.................................... 2-15
Figure 2-10. Expansion Bay Motherboard Placement .................................2-16
Figure 2-11. Mixed Module Placement ........................................................2-17
Figure 2-12. Slave Card/PDI Connection.....................................................2-18
Figure 2-13. Installing the Motherboard in a 4100U Expansion Bay............2-19
Figure 2-14. LED/Switch Modules................................................................2-21
Figure 2-15. LED/Switch Controller..............................................................2-21
Figure 2-16. LED/Switch Card Mounting...................................................... 2-23
Figure 2-17. Controller Card Mounting.........................................................2-24
Figure 2-18. Assembling / Disassembling the LED Display Card ................ 2-25
Figure 2-19. LED/Switch Controller Wiring ..................................................2-26
Figure 2-20. Terminal Block Utility Module Mounting ..................................2-27
Figure 3-1. MINIPLEX System Design.......................................................3-31
Figure 3-2. The Remote Unit Interface Card..............................................3-32
Figure 3-3. The RIC II Card........................................................................ 3-33
Figure 3-4. Installing the RUI Motherboard in the CPU Bay ......................3-35
Figure 3-5. Installing the RIC II Motherboard into a 4100 Expansion Bay.3-36
Figure 3-6. Power and Communication Wiring for the Transponder
Cabinet (4100) .........................................................................3-38
Figure 3-7. MINIPLEX Wiring.....................................................................3-40
Figure 4-1. Transponder Interface Cards..................................................... 4-4
Figure 4-2. TIC Mounting .............................................................................4-9
Figure 4-3. Transponder Cabinet Interconnections....................................4-10
Figure 4-5. TIC Wiring to the Host Panel ................................................... 4-11
Figure 5-1. 4100-6014 Network Interface Card............................................ 5-4
Figure 5-2. UT Motherboard with City Connection (565-274) ......................5-5
Figure 5-3. UT Motherboard without City Connection (565-275)................. 5-5
Figure 5-4. The 4100/4120-0143 Fiber-Optic Media Card...........................5-6
Figure 5-5. The 4100/4120-0142 Wired Media Card ...................................5-6
Figure 5-6. Media Card Mounting ................................................................5-9
Figure 5-7. Installing the Daughter Card .................................................... 5-10
Figure 5-8. The Transient Suppressor .......................................................5-12
Figure 5-9. Fiber Wiring.............................................................................. 5-13
Figure 5-10. Coupler Wiring .........................................................................5-15
Figure 5-11. Wired Media Interconnections Between 4100U Motherboards5-16
Figure 5-12. Wired Media, Style 7 Wiring ....................................................5-17
Figure 5-13. Fiber Optic, Style 7 Wiring .......................................................5-18
Figure 5-14. Wired Media and Fiber Optic, Style 7 Wiring...........................5-19
Figure 6-1. The Alarm Relay Card ............................................................... 6-7
Figure 7-1. The Ferrite Bead (SX0005)........................................................7-2
Figure 7-2. Class A NAC Wiring................................................................... 7-4
Figure 7-3. Class B Wiring ...........................................................................7-5
Figure 7-4. Auxiliary Power Wiring............................................................... 7-9
Figure 7-5. Auxiliary Relay & Alarm Relay Card Relays ............................7-11
Figure 7-6. Class A Wiring .........................................................................7-13
Figure 7-7. Class B Wiring .........................................................................7-14
Figure 8-1. The IDNet Card..........................................................................8-2
List of Figures

xv
Figure 8-2. Mounting onto the Power Distribution Interface......................... 8-4
Figure 8-3. Mounting into 4100 (legacy) Bay ............................................... 8-5
Figure 8-4. DIP Switch SW1......................................................................... 8-6
Figure 8-5. Class A Wiring ...........................................................................8-8
Figure 8-6. Class B Wiring ...........................................................................8-9
Figure 9-1. Service and Diagnostic Interface ...............................................9-2
Figure 9-2. Data Transfer Interface.............................................................. 9-2
Figure 9-3. Bootloader Interface ..................................................................9-3
Figure 10-1. Fan Control Module .................................................................10-5
Figure D-1. Volt/Ohm Meter Readings ........................................................D-1
Figure G-1. Earth Fault Search Example.....................................................G-8
Table 2-1 Master Controller LEDs 1 through 4 .............................................2-1
Table 5-1 4100 NIC & Media Cards – Electrical and Environmental
Specifications................................................................................ 5-7
Table 5-2 Wiring Distances.........................................................................5-12
Table 5-3 Dual Fiber Optic Cable Communications Distance Examples ...5-14
Table 5-4 Single Fiber Optic Cable Communications Distance
Examples using 4190-9010 Bi-Directional Couplers ..................5-14
Table 5-5 566-227 CPU Motherboard Wired Media Connections ..............5-16
Table 6-1 SPS Input and Output Specifications ...........................................6-2
Table 6-2 SPS Current Specifications ..........................................................6-3
Table 6-3 Alarm Relay Card Jumper Positions............................................. 6-8
Table 7-1 Class A Wiring Distances ............................................................. 7-6
Table 7-2 Class B Wiring Distances ............................................................. 7-7
Table 8-1 IDNet Specifications .....................................................................8-3
Table 8-2 Cable Run Lengths .......................................................................8-8
Table 10-1 Switch/LED Format.....................................................................10-4
Table 10-2 Switch Status ..............................................................................10-4
Table A-1 Card Addresses ............................................................................A-2
Table C-1 Acceptable Zone and Signal Circuit Meter Readings.................. C-2
List of Tables
xvi

1-1
The 4100/4100U is an expandable fire alarm system that can be used as a standalone
system with one host panel, or as a wide-ranging system with several remote cabinets,
with or without multiple host panels. This chapter is an overview of standalone,
MINIPLEX, and network 4100 system concepts.
Refer to the page number listed in this table for information on a specific topic.
Topic See Page #
System Configurations 1-2
Standalone Configuration 1-3
MINIPLEX Configuration
1-4
Network Configuration 1-6
4100 PIDs (Non-4100U) 1-8
4100U Cabinet Part Identification Numbers (PIDs) 1-9
4100U PIDs 1-9
Chapter 1
Introduction to the 4100U Fire Alarm System
Introduction
In this Chapter

1-2
The 4100U is available as a standalone system with one host panel, or as an expansive
system with several remote back boxes, with or without multiple host panels. The type of
configuration used depends on the size of the site into which it is being installed.
The following types of configurations are offered:
Standalone. Comprised of one FACP and its assorted warning devices, initiating devices,
and signaling line circuit devices.
MINIPLEX. A standalone system plus remote transponder cabinets, which allow for
additional slave modules to be used. Typically used for multi-level buildings and small
multi-building applications.
Network. A multi-FACP system connected by network cards. Each panel maintains the
status and control of its own circuit points while monitoring and controlling activity at
other locations. Network nodes may perform similar tasks, or may be dedicated to
specific functions.
This chapter outlines the fundamental concepts of each configuration.
System Configurations
Overview

1-3
The standalone version of the 4100U is used for smaller or single-building applications. A
standalone system is ideally placed into a small building that requires a limited number of
notification appliances and initiating devices.
If a small building is being expanded, or if other buildings are being constructed in the
same general area (as in a campus application), the standalone 4100U can be expanded
into one of the larger systems described later.
The standalone 4100U uses one FACP (one, two, or three bays) containing the following:
• CPU
• System Power Supply for the 4100U (Universal Power Supply for the 4100)
• Optional slave cards
All appliances and devices are connected to that one FACP, as shown in Figure 1-1.
ALARMFIRE
PULL
DOWN
A
ddressable
station
I/O Module
Supervised IAM
Smoke sensor
with base
Remote line
powered isolator
To additional IDNET devices, up to 250 total
4100 FIRE ALARM CONTR OL
PULL TO OPE
N
DOOR
EMERGENCY
INSTRUCTI
ONS
A
LARM OR TROUBLE
- SYSTEM INDICAT OR
TO
- PRESS "ACK" LOCATED
- REPEAT OPERATION UNTIL
TO SILENCE
- PRESS "ALARM
TO RESTORE SYSTEM
- PRESS
- PRESS "ACK" TO
OPERATO
INTERFAC
PANEL
TROU
SILEN
O
ALA
SYS
T
SUPERVI
SYSTEM IS NORMAL
12:35:15 am MON 29 JAN
96
ACKNO
TB
AC
ALA
SI
M
PL
EX
TI
M
E
21
90-
91
55
.0
9
21
90-
91
57
.01
2A
IN
ST
AL
.
IN
ST
RU
C.
21
90-
91
61
.04
21
90-
91
63
.04
IN
ST
AL
..I
NS
TR
UC
.
33
33
B
A
U
D
R
A
TE
28
VD
51
9-
57
1
2
3
4
5
AD
DR
ES
S
CO
1
2
3
4
5
6
7
A
D
D
R
E
S
S
C
O
51
9-
63
1 2 3 4 5
6
O
Thermal sensor
with base
to Device
Figure 1-1. Standalone 4100U System
Standalone Configuration
Overview
System Design

1-4
The MINIPLEX version of the 4100 Fire Alarm System, which is designed for
moderately larger applications than the standalone configuration, allows up to 1000
monitor and/or control points and 2000 annunciator points to be controlled by a single
FACP.
Like the standalone system, only one CPU is used. Remote Unit Interface (RUI) data, and
optionally power is distributed from the host panel to remote boxes called transponder
cabinets. The exact system design varies, depending on whether the system is a 4100 or a
4100U:
• 4100U: Transponder interface cards (TICs), located in transponder cabinets, take
the RUI data directly from the CPU motherboard and distribute it to modules nearby,
thereby expanding the system’s status from standalone to MINIPLEX.
• 4100: Remote interface cards (RICs), located in transponder cabinets, take the RUI
data and optionally power from the remote unit interface (RUI) card in the host panel
and distribute it to modules nearby, thereby expanding the system’s status from
standalone to MINIPLEX.
The MINIPLEX 4100 FACP must contain the following:
• CPU
• System Power Supply for the 4100U (Universal Power Supply for the 4100)
• 4100 only (non-4100U): Remote unit interface (RUI) Card
• Optional slave cards
Each transponder cabinet, meanwhile, must contain a Transponder Interface Card (TIC)
and any number of optional slave cards.
Continued on next page
MINIPLEX Configuration
Overview
System Design

1-5
The 4100 internal comms bus may be used to carry data from the CPU in the main cabinet
to expansion equipment in a co-located cabinet. 4100 data from the CPU may be routed to
remote cabinets (RTUs) in a MINIPLEX system by using the external RUI comms bus.
An RUI line, routed from either the CPU Motherboard in the 4100U, or the RUI card in
the 4100, allows the data to travel long distances. Once the RUI line terminates at a
remote cabinet, the TIC (4100U) or RIC (4100) in that cabinet distributes the CPU’s data
to the other modules within the cabinet.
Power has to be supplied locally within each RTU, or routed from the main FIP.
Figure 1-2, below, outlines this process in a typical MINIPLEX setup.
4100U
RUI Risers - 4 MAX (same channel)
(from CPU Motherboard or Remote
Unit Interface Card)
Transponders may be located
further apart (within the 2500'
limit) as called for by the
application requirements.
Risers from 4100U to
Remote Transponders
RUI
9th Floor
Transponder
Unit
6th Floor
Transponder
Unit
3rd Floor
Transponder
Unit
RUI I/F Slave
Slave Slave
RUI I/F Slave
Slave Slave
RUI I/F Slave
Slave Slave
Note:
Although not shown, nested
RUI is supported up to one
level deep.
Figure 1-2. MINIPLEX 4100U System
MINIPLEX Configuration, Continued
RUI Communication

1-6
The 4100 can be expanded to a network system by using network interface cards (NICs).
When a NIC is installed into a 4100 host panel, it is used to connect to other network
nodes. Nodes may consist of other host 4100 panels, or they may be completely different:
Graphical Command Centers (GCCs), and Visual Command Centers (VCCs) are all
examples of what could be used as nodes. A node is a self-sufficient CPU that controls
appliances and devices, which also has the capability of controlling and communicating
with other nodes.
The network configuration supports two prevalent architectures (or wiring
configurations): hub (or ring), or star. A networked system can also use a combination of
the two.
The hub configuration consists of a main loop with nodes connected in a radial manner.
The star configuration consists of several nodes connected directly to one common node.
Physical bridge cards are used for the star configuration. Physical bridges reduce the
amount of wire that would otherwise be needed to connect all nodes in a loop, and
therefore cut down on system response time. A combination of the two styles is illustrated
in Figure 1-3.
Ring Topology
Physical Bridge Links
(Star Topology)
Graphic Command
Center (GCC) Network Display Unit
(NDU) Hub Node
Distributed Remote
Node Locations
Figure 1-3. Hub/Ring Configuration
Continued on next page
Network Configuration
Overview
Hub and Star
Configurations

1-7
Network loops can be joined via physical bridge cards. There may be no more than two
Style 7 network loops (two hub configurations) connected in tandem. For every two
loops that are interconnected (using one physical bridge), there can be a maximum of
three physical bridges used in a star configuration. See Figure 1-4.
Remote Loop
Physical Bridge Link
Local Loop
Physical Bridging
(Star Configuration)
Graphic Command
Center (GCC)
Physical
Bridge
Link
Physical Bridge Link
Hub Node
Hub
Node
Remote
Node
Physical Bridge Link
Figure 1-4. Interconnected Loop Configuration
To be used as a network node, a 4100 panel must contain the following:
• CPU
• System Power Supply
• 4100 Network Interface Card
• Optional slave cards
Network communication is achieved via 4100-6014 or 4100-6035 Network Interface
Cards (NICs). Each network node requires a NIC. Once the FACP is a network node, it
may be programmed to be fully in control of other nodes, or to be fully passive, or
anywhere in between.
Network Configuration, Continued
Connecting Loops
System Design
Network
Communication

1-8
The following is a list of existing 4100+/A cards and modules that may be used with
4100U.
• 4100-5004 8 AZF Monitor Zone
• 4100-0113 Dual RS232 Modem Interface
• 4100-0110 MAPNET 2 Addressable Loop
• 4100-3003 8 Relay Module
• 4100-4321 6 Supervised Relays
• 4100-3024 24 Relay Module
• 4100-0302 24 I/O Module
• 4100-0111 Quad Isolator Module
• 4100-0149 Modular Network Card (required 2 media cards)
• 4100-0142 Wired Media Card RS485
• 4100-0143 Fibre Optic Media Card
• 4100-0301 LED Switch Controller
• 4100-0154 VESDA High Level Interface
• 4100-0157A 4100A PSU
• 4100-0451 Printer
• 4100-0301 64/64 LED/Switch Controller
• 4100-0302 24-Point I/O Graphic Interface
• 4100-0401 8-LED Display Card (Red LEDs)
• 4100-0402 16-Point Display Card (Red/Yellow LEDs)
• 4100-0403 8-Switch/8-LED Display Card (Momentary switches; red LEDs)
• 4100-0404 8-Switch/16-LED Display Card (Maintained switches; one red and
one green LED per switch)
• 4100-0405 8-Switch/16-LED Display Card (Maintained switches; one red and
one yellow LED per switch)
• 4100-0408 8-Switch/8-LED Annunciator Control Switch Module
• 4100-0450 Remote Panel LCD
4100 PIDs (Non-4100U)
Annunciation
Modules

1-9
This section lists all cabinet (back box) PIDs for the 4100U Fire Alarm System.
Empty cabinets with Doors (Cream Wrinkle)/ Number of bays
Number of bays that can be fitted:
• ME0447 18U x 210 Rack Cabinet, Window Door : 1-Bay
• ME0268 21U x 310 Rack Cabinet, Window Door : 1-Bay
• ME0255 28U x 310 Rack Cabinet, Window Door : 2-Bays
• ME0257 40U x 310 Rack Cabinet, Window Door : 3-Bays
• ME0454 18U x 210 Rack Cabinet, Solid Door : 1-Bay
• ME0269 21U x 310 Rack Cabinet, Solid Door : 1-Bay
• ME0265 28U x 310 Rack Cabinet, Solid Door : 2-Bays
• ME0267 40U x 310 Rack Cabinet, Solid Door : 3-Bays
This section lists the PIDs that are supported by the 4100U Fire Alarm System.
The following is a list of assemblies, cards and modules used in 4100U:
• 566-084 Power Distribution Interface (ie the back-plane)
• 742-516 CPU Motherboard (566-227)
• 4100-7151 Master Controller (CPU Card 566-149)
• 4100-2300 Expansion Bay Assembly (includes the metalwork with the
PDI back- plane)
• 4100-6033 Alarm Relay Card (566-058. Small card plugged onto the SPS
and used to supply the Brigade I/F relays).
• 4100-3101 IDNET Module – 250 pt capacity (566-044)
• 4100-1288 64 LED/64 Switch Controller module w/mounting plate
• 4100-1289 64 LED/64 Switch Controller module
• 4100-1282 8 SW/16 LED red/yellow module
• 4100-1287 24 Switch/24 red LED module
• 4100-1284 8 Switch 16 red/green LED module
• 4100-1281 8 Switch 8 yellow LED module
Continued on next page
4100U Cabinet Part Identification Numbers (PIDs)
Overview
4100U Cabinets
4100U PIDs
Overview
Assemblies, Cards &
& Modules

1-10
• 4100-0625 Transponder Interface Card
• 4100-0160 Internet Interface Module (566-355).
• 4100-9848AU System Power Supply, Australian version.
• ME0456 Fan Control Module
The following kits are available:
• KT0419 A4 Document Holder, Stick-On, 3U High, Grey
• KT0446 4100U Expansion Bay
• KT0447 Expansion SPS, Bay Mounting
• KT0448 Fused DC Distribution Bd, XSPS AU Mounting
• KT0450 4100-4100U Upgrade, 19” RAC Mounting
• KT0452 IDNet Mounted on 4100 Interface Bracket
• KT0468 4100 MBd to 4100U Bay, Mounting Kit
• KT0469 A5 Document Holder, Stick-On, 3U High, Grey
Brigade Interfaces
• KT0199 19”, 3U ASE Mounting Bracket, plus
KT0207 ASE FAS Interface Loom
• FZ9028 19”, 3U AIU/PPU Mounting Bracket & Loom
LB0602 Operator I/F ISO/Test, Card
LB0605 Fan Control Zone Insert Card
526-873 Slide In Label, LED Switch Module, 1 Sheet of 6
4100-1294 Module Slide In Labels, Panel Set
LM0309 4100U Mains Lead With Filter
LM0310 4100U Battery Lead Set, 18U-21U (1976-132-1)
LM0311 4100U Battery Lead Set, 28U-40U (1976-132-2)
734-008 Harness, Power Comms, 4 Way, 2ft Length
734-075 Harness, Power Comms, 4 Way, 8ft Length
SX0039 Sw/LED Module Ribbon Cable, 26 Way, 2in
SX0052 Sw/LED Module Ribbon Cable, 26 Way, 6in
4100U PIDs, Continued
Kits
Labels
Looms

2-1
4100U cabinets are available in one-, two-, and three-bay sizes. Each can be equipped
with a solid or perspex door. This chapter describes how to mount all types of 4100U
cabinets to a wall, and how to mount system card bays into the cabinets, modules to bays,
etc.
FACPs are assembled to order within the factory. Steps 2 to 6 below are therefore not
typically required in the field, but are included in case of in-field system expansion.
The section Introduction to FACPs describes the various components that make up the
FACP.
The assembly drawings 1976-136, 1976-137 are included in the appendix of this manual
for reference.
Refer to the page number listed in this table for information on a specific topic.
Topic See Page #
Introduction to FACPs (4100U)
2-2
Step 1. Mounting Cabinets (4100U) 2-9
Step 2. Mounting Card Bays to Cabinets (4100U) 2-9
Step 3. Configuring Cards (4100U) 2-10
Step 4. Interconnecting Modules and Bays 2-11
Step 5. Installing Modules into Expansion Bays (4100U)
2-15
Step 6. Installing LED/Switch Modules into Expansion Bays
(4100U)
2-20
The Terminal Block Utility Module (4100U) 2-27
Chapter 2
Installing 4100U FACP Components
Introduction
In this Chapter

2-2
4100U FACPs cabinets contain the CPU, operator interface, system power supply (SPS),
backup batteries, and any additional modules that the panel requires. The FACP is the
central hub (often referred to as a host panel) of a standalone or MINIPLEX fire alarm
system. In a networked system, the FACP can be connected to other system FACPs, so
that each host panel is a node on the network.
In the standard (USA) version of 4100U the CPU bay contains an SPS, the Master
Motherboard with CPU Daughter card, but no PDI to which 4” x 5” cards (e.g. IDNet
card) can be fitted. Also, it has the Operator Interface (I/F) on its front, so no switch/LED
display modules can be fitted to it.
In the Australian version the SPS is fitted to a bracket behind a side-hinged 4U door that
has the Operator I/F on it. The Master Motherboard (i.e. CPU Motherboard) is fitted to
the right hand side of an expansion bay mounted directly below. This bay has a PDI
fitted so can house 4”x 5”cards and Switch/LED Display Modules.
Continued on next page
Introduction to FACPs (4100U)
Overview
CPU Bay

2-3
Introduction to FACPs (4100U), Continued
The 4100U Master motherboard that houses the CPU card is central to the 4100U system.
It mounts in the first bay, occupying four inches of space on the right hand side. Neither
has a card address DIP switch (the CPU is address 0).
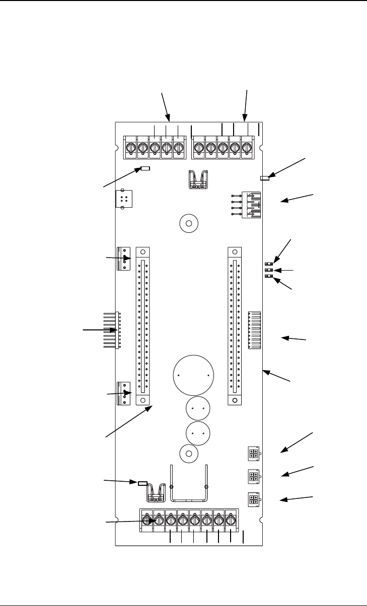
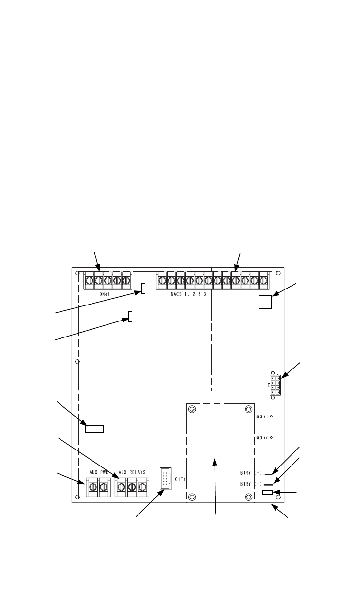
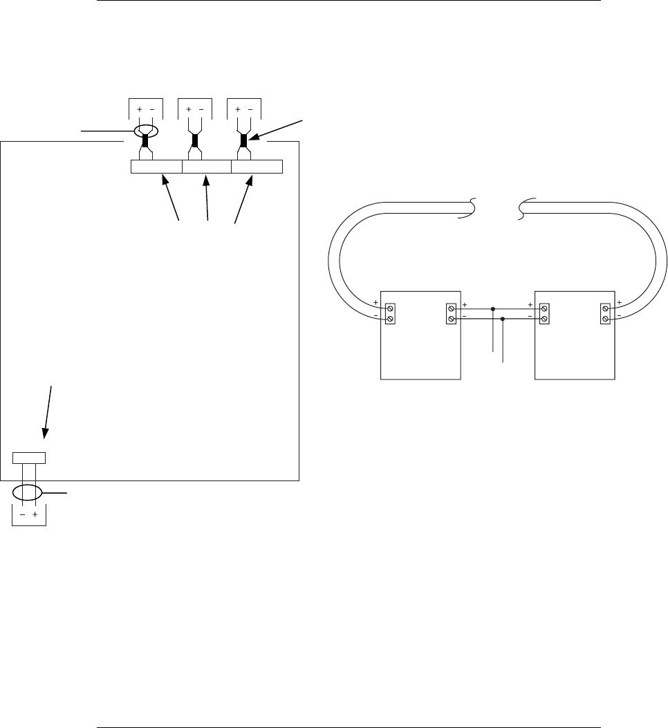
Figure 2-1. Master (CPU) Motherboard (566-227)
Continued on next page
Master Motherboard
RUI TERMINAL BLOCK (TB2)
NETWORK WIRED MEDIA/ RS-232
TERMINAL BLOCK (TB3)
POWER/COMM TO
SYSTEM POWER
SUPPLY (P1)
RUI CLASS A
TROUBLE (LED1)
RUI PRIMARY SHORT
TROUBLE (LED2)
RUI SECONDARY
SHORT TROUBLE
(LED3)
BUS CONNECTOR
(J1) (Reserved for
future use)
POWER/COMMS TO
A
DJACENT BAY (P4)
POWER/COMMS TO
A
DJACENT BAY (P5)
POWER/COMMS TO
A
DJACENT BAY (P6)
NETWORK WIRED MEDIA/ RS-232
TERMINAL BLOCK (TB1)
HEADER CONNECTOR TO
OPTION MOTHERBOARD
(P3)
CPU DAUGHTER CARD
CONNECTOR (J3)
POWER CONNECTOR TO
OPTION MOTHERBOARD
(P7)
COMMS CONNECTOR TO
OPTION MOTHERBOARD
(P8)
NETWORK DAUGHTER CARD
CONNECTOR
(J2)
RUI COMM
EARTH SHIELD
JUMPER (P9)
RS-232/NETWOR
K
CARD PORT 1
JUMPER (P10)
RS-232/NETWOR
K
CARD PORT 2
JUMPER (P11)
XMIT RTS RCV CTS GND RUI RUI SHLD RUI RUI
B+ B- A+
A
-
11
55
XMIT RTS RCV CTS GND 24C RSRVD
PIEZO
1
8

2-4
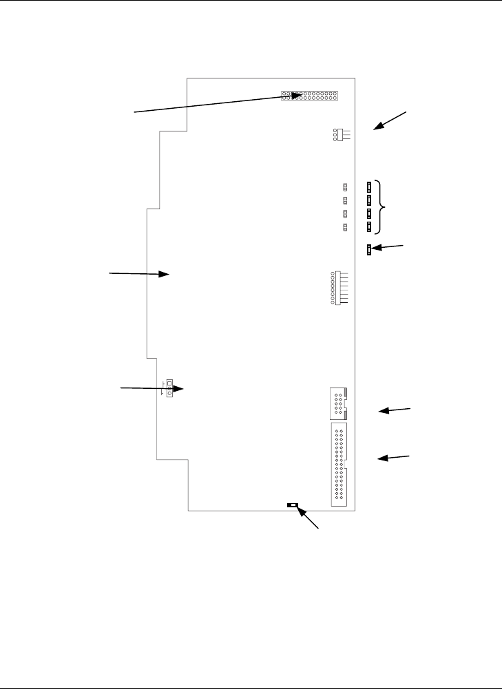
The master controller daughter card mounts onto the master motherboard. The master
controller daughter card contains a service port, a direct drive user interface connection,
and a port for a service modem.
MODEM
2
LED1 LED2 LED3 SERVICE PORT DISPLAY
CPU CARD
BD ASSY
566-149
BAT ON BAT OFF
Figure 2-2. Master Controller Daughter Card (566-149)
Continued on next page
Introduction to FACPs (4100U), Continued
Master Controller
Daughter Card
SERVICE MODEM
CONNECTOR (P4)
BATTERY BACKUP
ON/ OFF JUMPER (P3) SERVICE PORT (P5)
DIRECT-DRIVE
DISPLAY PORT (P6)
CONNECTOR TO CPU
MOTHERBOARD (P9)
SERVICE PORT
COMM JUMPER (P1)
CPU BOOTLOADER LEDs
(LED1 – LED4)
TROUBLE LED (LD5)
TROUBLE LED (LED5):
OFF: No trouble.
FLASHING: CPU has power but the software is
failing to hit the watchdog
ON: The 5 V is outside the acceptable range
WARM START
SWITCH (SW1)

2-5
The master controller daughter card LEDs indicate Bootloader status as shown in the
table below.
Table 2-1. Master Controller LEDs 1 through 4
Status
Condition LED4 LED3 LED2 LED1
Bootloader
Initialization
On (0.25s),
Off (0.25s)
On (0.25s),
Off (0.25s)
On (0.25s),
Off (0.25s)
On (0.25s),
Off (0.25s)
Bad Master
CRC or No
Master Present
On Off Off Off
Diagnostic Fail –
RAM On Off Off On
Diagnostic Fail –
Bootloader CRC On Off On Off
Downloading
Master On Off On On
Downloading
CFIG On On Off Off
Downloading
MsgLib On On Off On
Downloading
BootLoader On On On Off
Download
Successful On On On On
Continued on next page
Introduction to FACPs (4100U), Continued
Master Controller
Daughter Card LEDs

2-6
The operator interface lets a user operate the panel. It provides alarm, trouble, and isolate
status alerts, and lets the user review historical logs and perform diagnostics.
Figure 2-3. Operator Interface
The CPU bay can be equipped with many additional types of modules. The cards listed
below are limited to the CPU bay only.
4100-6030 Service Modem Card. CPU mezzanine card. Provides a connection to remote
PCs for diagnostics and programming purposes. (Not approved for use in Australia).
4100-6014 Modular Network Interface Card (NIC). A daughter card that mounts to the
CPU motherboard. Performs 4100 networking operations. May be installed with the
4100-6056 Wired Media Card and/or the 4100-6057 Fiber Media Card.
An FACP always has the CPU in the first bay, but it may have further expansion bays.
Expansion bays contain a variety of additional modules that the system might require.
Continued on next page
Introduction to FACPs (4100U), Continued
Operator Interface
Additional CPU
Bay Modules
Expansion Bays

2-7
In the USA, a number of variants of power supply are available, e.g. SPS, RPS, XPS,
XCharger each with different portions of circuitry (eg NACs, Battery Charger, IDNet)
fitted or not fitted. In Australia, only one variant (SPS) is currently available, and it has
hardware and software that are specific to Australia. This unit is used as the main power
supply, but may also be fitted directly to a card bay as an expansion supply.
The system power supply (SPS) is mains powered and has backup batteries that get
switched in on mains failure. It is the initial power source for the CPU and the host
cabinet. The SPS provides 24V card power to the CPU motherboard and the other cards.
It also supplies 24V power on a separate bus to the outputs, e.g. Notification Appliance
Circuits (NACs).
The SPS also has three on-board NACs that support reverse polarity supervision. It
provides an IDNet channel, auxiliary power, an auxiliary relay, and it mounts and drives
the Alarm Relay Card.
The SPS performs functions such as brownout detect, battery transfer, battery recharge,
earth fault detection, and power limiting of outputs. It provides voltage and current
information to the CPU card, which can then be displayed at the user interface.
Figure 2-4. System Power Supply
Continued on next page
Introduction to FACPs (4100U), Continued
System Power
Supply (SPS)
CITY / RELAY CARD
MOUNTING AREA
CITY CARD
CONNECTOR (P7)
AUXILIARY RELA
Y
TERMINAL BLOC
K
(TB4)
AUXILIARY POWER
TERMINAL BLOCK
(TB3)
A
C
CONNECTOR
(under board)
BATTERY
CONNECTORS:
P4
P5
POWER/COMM TO
CPU
MOTHERBOARD
(P8)
DEVICE ADDRESS
SWITCH (SW1)
IDNET SHIELD JUMPER
(P2)
CITY/RELAY CARD
TROUBLE INDICATION
JUMPER (P3)
EARTH
FAULT
MONITOR
JUMPER (P1)
NAC TERMINAL BLOCK (TB2)
IDNET TERMINAL BLOCK (TB1)
POWER/COMM TO
NEXT PDI (P6)

2-8
The FACP is powered by the SPS (System Power Supply), which gets its primary power
from the AC mains and its secondary power from the backup batteries.
The 24Vdc bulk power on the SPS is unregulated, and is divided into three feeds, i.e. 24V
Card, 24V Signal, and 24V Aux Power. 24V Card which supplies the cards, and Aux
power, which is accessible on screw terminals, are each rated at 2A and protected by a
PTC. The 27.3V regulated battery charger is powered from the bulk supply and is
switched off during alarm. The batteries only get connected to the bulk supply when the
mains supply fails. The charger has two programmable options of rating, 1.4A for 6-
18Ahr (called little-uns), and 3.3A for batteries above 18Ahr (called big-uns).
The “heavy” 24V Signal feed is only accessible via the NACs on the SPS, or via a wire
harness.
IMPORTANT: AC power must be provided to the 4100U from a dedicated
branch circuit.
In expansion bays, power and data are distributed via the power distribution interface
(PDI). The PDI is a wiring board with eight card slots, each of which can accommodate a
4-inch (102 mm) x 5-inch (127 mm) slave card. If motherboards are used, they must be
mounted over the PDI using metal standoffs.
Standards cards, e.g. IDNet, plugged onto the PDI access only the 24V Card supply.
If an XSPS is plugged onto the PDI, then the 24V Signal Bus is also powered. This is
required for the 4100MXP which uses card power to power its electronics, but signal
power to supply the 40V loop.
4100 POWER DISTRIBUTION INTERFACE
ASSY 566-084
Figure 2-5. The Power Distribution Interface (PDI)
Introduction to FACPs (4100U), Continued
System Power
The Power
Distribution
Interface (PDI)
POWER/COMMS
CONNECTORS
(P1-P3)
AUDIO
INTERFACE
CONNECTORS
(P6, P7)
POWER SOURCE
JUMPERS
(P4, P5)

2-9
The important aspects of mounting the cabinet are:
Access for the operator;
Height of displays and controls;
Free space for door opening;
Cable entry for field wiring.
Refer to AS1670 for the height requirement and minimum access requirements.
In general, 18U – 28U cabinets will need to be wall mounted. Mounting holes and cabinet
dimensions are shown in drawing 1919-22b.
Door opening left/right should be specified with the order. The cabinets are symmetrical,
top to bottom, so door opening can be swapped by removing the equipment, rotating the
cabinet 180°, then re-fitting the equipment.
FACPs are ordered from the factory with bays and cards fitted as per the panel order
spreadsheet.
Additional mounting bays may be ordered as KT0447 which includes the 19” rac
mounting brackets and earth loom.
Attach each mounting bracket to the two studs in each front corner to achieve the format
shown below. Fit M6 cage nuts to the appropriate 19”rack holes, then attach the bay
using M6 countersunk screws.
← Mounting Bracket
← Bay Front
Figure 2-6. Bracket Mounting
Refer to the assembly drawings in the Appendix.
Step 1. Mounting Cabinets (4100U)
Overview
Step 2. Mounting Card Bays to Cabinets (4100U)
Overview

2-10
The CPU, SPS, and all other modules to be mounted in the FACP cabinets must be
configured to operate correctly in the system via their DIP switch and jumper ports. This
section describes the hardware configuration for the CPU and SPS, since they will always
be used in the CPU bay.
The CPU motherboard must be jumpered as follows:
P9 determines whether the RUI SHIELD signal is connected to 24 C or Earth.
• Position 1 – 2: SHIELD to 24 C (default). Set to this position unless the system
uses a TrueAlert Power Supply.
• Position 2 – 3: SHIELD to Earth. Set to this position only if the system uses a
TrueAlert Power Supply.
Note: Some devices that connect to RUI have inherently grounded shield
terminals, in which case 24 C cannot be used. If 24 C is used, a
Negative Ground Fault will occur.
P10/P11: P10 is associated with Port 1 and P11 is associated with Port 2. P10 and P11 are
used to set the CPU motherboard up to be attached to either a network card or a RS-
232/2120 card.
• Position 1 – 2: Network card (NIC) attached to CPU motherboard (default).
• Position 2 – 3: RS-232/2120 card attached to CPU motherboard.
The master controller daughter card must be jumpered as follows:
P1 is used for engineering diagnostics (COMLAB).
• Position 1 – 2 : Download or no connection.
• Position 2 – 3 : Diagnostic mode.
P3 configures the RAM battery as ON or OFF.
• Position 1 – 2 : ON.
• Position 2 – 3 : OFF.
The SPS must be configured as follows:
SW1: Using DIP switch SW1, set the SPS device address. Use the address table in
Appendix A.
P2: If the SPS IDNet outputs are being used, you may change P2 to configure the IDNet
shield connection.
• Position 1 – 2 (bottom) : Connects the shield to 0 V (default).
• Position 2 – 3 (top) : Connects the shield to earth ground.
P3 configures relay 3 on the 4100-6033 Alarm Relay Card.
• Position 1 – 2 (top) : Removes fault monitoring on relay 3 (default).
• Position 2 – 3 (bottom) : Makes relay 3 activate when there is a fault.
P1: Earth connect jumper.
• Position 1 – 2 (rhs): Enables Earth fault monitoring. Set to this position unless the
system uses a TrueAlert Power Supply under common 0 V.
• Position 2 – 3 (lhs): Disables Earth fault monitoring. Set to this position only if the
system uses a TrueAlert Power Supply under common 0 V.
Continued on next page
Step 3. Configuring Cards (4100U)
Overview
Master Motherboard
Configuration
Master Controller
Daughter Card
Configuration
SPS Configuration

2-11
P4/P5: The PDI can be configured to draw its power from different sources via P4 and
P5.
• To draw power from an XPS on the PDI, set jumpers on P4 and P5 to position 2
– 3.
• To draw power from P1 (from the previous PDI or SPS), set jumpers on P4 and
P5 to position
1 – 2 (default).
• To remove power from the PDI, remove the jumper from P4.
Refer to the appropriate installation instructions to configure other cards that are located
in CPU and expansion bays. The 4100U ones are included in this manual. Refer to
Appendix D for a list of publications.
Each card has to be interconnected with every other card in its bay. At the same time,
bays in the FACP also have to be connected together. Read this section to ensure that
cards and bays are interconnected. Refer also to drawings 1976-136 and 1976-137.
Review the following guidelines before interconnecting modules and bays.
• The SPS provides 24 V power to the CPU motherboard.
• The CPU motherboard provides 8 V (3 A capacity) for use by Legacy 4100 slave
cards. 24 V card power is routed through the motherboard for slave card use.
• 4100 internal comms and power are harnessed to other bays. Do not connect the 8 V
at P7 to an 8 V converter on a Goldwing or remote interface card.
• 24 V Card power from the SPS is rated at 2 A.
• The 4-wire coms and power harness carries only the 24 V Card supply to a PDI, and
not the 24V Signal supply.
• Some of the wire harnesses supplied with cards are not required. It is recommended
to store these spare harnesses in case of future requirements.
Continued on next page
Step 3. Configuring Cards (4100U), Continued
PDI Configuration
Configuring Other
Cards
Step 4. Interconnecting Modules and Bays
Overview
Guidelines

2-12
Use the following directions to connect the CPU to the SPS and other motherboards.
1. Connect P3 on the SPS to P1 on the CPU motherboard using the 8 wire harness
with eight-position Molex minifit connector (provided).
2. Make sure the 10 way, right angle header, connector P3 on the CPU is secured to
J1 on the next motherboard to the left. Repeat this for the third (leftmost)
motherboard, and on if applicable.
The power distribution interface (PDI) mounted to the back of each expansion cabinet
carries 24V Card power and data to each 4”x 5” card.
Refer to “Step 7: Installing Modules into Expansion Bays (4100U)” for instructions on
mounting 4”x 5” cards to the PDI. Also bear in mind the following variations:
• In a remote expansion cabinet, a transponder interface card (TIC) requires additional
interconnections. This occurs in MINIPLEX systems. Refer to Chapter 3.
• Regular motherboards require non-PDI interconnections to each other and to the
CPU. Refer to “Step 5: Installing Modules into Expansion Bays (4100U).”
The 4 wire harness 734-008 is used to carry 24V Card power and coms from bay to bay.
Connector P1 on the PDI receives power from the previous PDI or from P6 on the SPS
(or alternatively from P7, P8 on the CPU Motherboard). P2 on the PDI is used to carry
power and coms to a 64/64 Controller. P3 is used to carry power and coms to the next
PDI.
Jumpers P4 and P5 on the PDI are set to positions 2-3 (right) to provide card power
to the bay only if an XPS is fitted to the PDI. Jumpers P4 and P5 are set to positions
1-2 (left) to provide card power to the bay from P1 on the PDI.
Note: Interconnections can become more involved if 4100 motherboards are
used. Refer to “Step 5: Installing Modules into Expansion Bays (4100U)”
if this is the case.
Continued on next page
Step 4. Interconnecting Modules and Bays, Continued
Card
Interconnections in
the CPU Bay
Card
Interconnections
Within Expansion
Bays
Basic Bay-To-Bay
Interconnections

2-13
Figure 2-7, below, shows the interconnections between three bays in a host panel.
4100 POWER DISTRIBUTION INTERFACE
ASSY 566-084
4100 POWER DISTRIBUTION INTERFACE
ASSY 566-084
Figure 2-7. Bay-to-Bay Interconnections
Panels with motherboards on the left side of the expansion bays require some non-PDI
connections. If you need to connect a harness to a motherboard, refer to Figure 2-8 and
follow these steps. Make sure to route the power and communication wiring on the left
side of the bay.
1. Connect one end of the 733-525 Harness to a motherboard in an adjacent bay.
If the adjacent bay is a CPU bay with no additional motherboards, connect the
harness to the P8 and P7 connectors of the CPU motherboard.
• Insert the harness connector with the blue wire into the P8 connector. Note that
the P8 connector has eight pins. Insert the harness connector on either the top
four pins or the bottom four pins, not in the middle.
• Insert the harness connector with the white wire into the P7 connector. Note that
the P7 connector has eight pins. Insert the harness connector on either the top
four pins or the bottom four pins, not in the middle.
If the adjacent bay is an expansion bay or a CPU bay with additional motherboards,
connect the harness to the P2 and P3 connectors of the motherboard installed in the
leftmost slot. Connect the harness as follows:
• Insert the harness connector with the blue wire into the P2 connector. Note that
the P2 connector has eight pins. Insert the harness connector on either the top
four pins or the bottom four pins, not in the middle.
• Insert the harness connector with the white wire into the P3 connector. Note that
the P3 connector has eight pins. Insert the harness connector on either the top
four pins or the bottom four pins, not in the middle.
Continued on next page
Step 4. Interconnecting Modules and Bays, Continued
Basic Bay-To-Bay
Interconnections
(continued)
Connecting to
Motherboards
HARNESS
734-008
P3
From Previous PDI
P1
P2
P3
P4
P5
P6
P7
P1
P2
P3
P4
P5
P6
P7

2-14
2. Connect the other end of the harness to the leftmost motherboard in the next bay,
as described below. Make sure to route the wiring on the left side of the bay.
• Insert the harness connector with the blue wire into the P2 connector. Note
that the P2 connector has eight pins. Insert the harness connector on either
the top four pins or the bottom four pins, not in the middle.
• Insert the harness connector with the white wire into the P3 connector. Note
that the P3 connector has eight pins. Insert the harness connector on either
the top four pins or the bottom four pins, not in the middle.
Figure 2-8. Power and Communication Wiring for Motherboards
Step 4. Interconnecting Modules and Bays, Continued
Connecting to
Motherboards
(continued)
Connector with
Blue Wire Goes
to P2
Connector with
White Wire Goes
to P3
733-525 Harness

2-15
This section contains guidelines and instructions on installing 4”x 5” cards and traditional
motherboards into 4100U card bays.
IMPORTANT: This section applies to aftermarket modules for expansion bays
only. If you do not need to install any aftermarket modules at all,
and if you have followed Steps 1 through 6, you have completed
the panel installation and can apply AC power.
Refer to the following guidelines before mounting 4” x 5” cards and/or motherboards to
an expansion bay.
• Each expansion bay assembly includes a chassis, two end supports, one LED/switch
frame, and a power distribution interface (PDI) board.
• An expansion bay holds up to eight 4” x 5” modules. A double-size module, such as
the expansion power supply (XPS), takes up two blocks of space as shown below.
The Australian SPS takes up four blocks of space (note, the double sized XPS is not
currently available for Australia).
• Cards should be added from right to left if an XSPS is fitted.
Power Distribution Interface (PDI)
Expansion Power
Supply
(XPS)
I/O Wiring I/O Wiring I/O Wiring
I/O Wiring I/O Wiring I/O Wiring
I/O Wiring
Block A Block C
Block B Block D
Block E Slots 7 + 8
Block F
4" (102 mm) x 5" (127 mm)
Module
4" (102 mm) x 5" (127 mm)
Module
4" (102 mm) x 5" (127 mm)
Module
4" (102 mm) x 5" (127 mm)
Module
4" (102 mm) x 5" (127 mm)
Module
4" (102 mm) x 5" (127 mm)
Module
(Note. Australian SPS is 4 slots wide. XPS is not available in Australia.)
Figure 2-9. Expansion Bay 4”x 5” Card Placement
Continued on next page
Step 5. Installing Modules into Expansion Bays (4100U)
Overview
Placement
Guidelines

2-16
• Motherboards can be installed on top of the PDI in expansion bays. The data and
power that would normally be bussed via the PDI is instead routed across the boards
via ribbon cable from one board to the next.
• Up to eight 2” (51 mm) x 11 ½” (292 mm) motherboards can be installed in an
expansion bay if no 4”x 5”modules are installed in the bay, and if the pins on the
left connector (usually P1) on the leftmost motherboard are removed.
Motherboards are mounted on top of the PDI in expansion bays. The data and power
that would normally be bussed via the PDI is instead routed across the boards via
ribbon cable from one board to the next.
• Motherboards should be added from left to right.
• Relay motherboards must be the rightmost motherboards.
• In the first bay of an FACP, the CPU motherboard is the right most motherboard, and
other motherboards are fitted to its left side.
• The CPU motherboard generates the 8V supply required for 4100A motherboards. It
also has the 4100A style Molex connectors to which a harness can be fitted as per Fig
2-8.
Power Distribution
Interface
4100 Option Bd
4100 Option Bd
4100 Option Bd
4100 Option Bd
4100 Option Bd
4100 Option Bd
4100 Option Bd
Slot 2 Slot 3 Slot 4 Slot 5 Slot 6 Slot 7 Slot 8Slot 1
This Slot
Must
Remain
Empty
Figure 2-10. Expansion Bay Motherboard Placement
Continued on next page
Step 5. Installing Modules into Expansion Bays (4100U), Continued
Placement
Guidelines
(continued)
This slot cannot contain a
motherboard unless the pins
on P1 (or leftmost pin
connector) are removed.
Up to eight 2” (51mm) x 11 ½” (292 mm) motherboards can be
mounted in an expansion bay. Seven motherboards fit into Slots
2 through 8; the eighth can be added in Slot 1 if its leftpost pins
are removed.

2-17
• As shown in the figure below, motherboards can be installed alongside
4”x 5” cards, if necessary.
No Boards
Allowed
in
This Slot
PDI
Expansion Power
Supply
(XPS)
I/O Wiring
I/O Wiring
I/O Wiring
4100 Option
4100 Option
4100 Option
Slot 1 Slot 2 Slot 3 Slot 4 Position
5
Position
6
Position
7 & 8
Block E Slots 7 + 8
Block F
This slot cannot contain a motherboard unless the pins
on P1 (or leftmost pin connector) are removed.
4" (102 mm) x 5" (127 mm)
Module
4" (102 mm) x 5" (127 mm)
Module
(Note. Australian SPS is 4 slots wide. XPS is not available in Australia.)
Figure 2-11. Mixed Module Placement
Continued on next page
Step 5. Installing Modules into Expansion Bays (4100U), Continued
Placement
Guidelines
(continued)

2-18
The power distribution interface (PDI) is mounted to the back of each expansion cabinet.
The PDI contains slots for up to eight 4”x 5” slave cards. Since the PDI carries power and
data across the entire bay, it solves most interconnection issues, especially between
4”x 5” cards.
Use the following instructions and the figure below to mount 4”x 5” slave cards to an
expansion cabinet.
1. Screw two standoffs and washers to the appropriate holes in the back of the
cabinet. These holes must line up with the screw holes in the 4”x 5” card. See
Figure 3-24.
2. Plug the 4”x 5” card into the appropriate blind mating connector. Seat the card
firmly onto the PDI when installing to ensure complete insertion of the power
connector into the PDI.
3. Secure the top of the card to the standoffs with two #6 torx screws and washers.
Figure 2-12. Slave Card/PDI Connection
Continued on next page
Step 5. Installing Modules into Expansion Bays (4100U), Continued
Installing 4” X 5”
Cards
4”x 5” CARD
STANDOFFS
#6 SCREWS
WASHERS
PDI CONNECTOR
(reverse side)
PDI
SCREW
RETAINERS

2-19
Use the following procedure when installing motherboards in an expansion bay. Start
with the second slot from the left and fill to the right. The mounting items are available
as KT0468.
1. Orient the motherboard with the connector labeled J1 on the right and the header
labeled P1 on the left.
2. Attach four metal threaded standoffs and lockwashers into the screw holes on the
chassis.
3. Attach two grey plastic standoffs to the motherboard socket mounting screws.
4. Secure the motherboard to the standoffs using four #6 torx screws as shown below.
WARNING: Note that a 4100 Motherboard with daughter card cannot be fitted
directly behind a 64/64 LED/Switch Controller. The same applies
to the modules made on the bay mounting bracket (FA2255), e.g.
ME0426 T-Gen.
Figure 2-13. Installing the Motherboard in a 4100U Expansion Bay
Step 5. Installing Modules into Expansion Bays (4100U), Continued
Installing
Motherboards
#6 SCREWS
LOCKWASHERS
METAL
STANDOFFS SCREW HOLES
SCREW HOLES
PLASTIC STANDOFFS

2-20
The LED/switch user interface consists of a variety of modules, mounted to the front of
an expansion bay, which are configured via the 4100 Programmer. Each display module
contains between 8 and 24 switches and LEDs, each one separately configurable.
User interface functionality is driven by the 64/64 LED/Switch Controller Card, which
mounts behind two of the display modules (typically in positions 3 and 4). The varieties
of modules are as follows:
• 4100-1288 LED/Switch Controller Card with mounting plate.
• 4100-1289 LED/Switch Controller Card (no mounting plate; mounts on extra
space of 4100-1288).
• 4100-1280 8-Switch/8-LED Display Card. With red LEDs.
• 4100-1281 8-Switch/8-LED Display Card. With yellow LEDs.
• 4100-1282 8-Switch/16-LED Display Card. With one red and one yellow LED
per switch.
• 4100-1283 8-Switch/16-LED Display Card. With two yellow LEDs per switch.
• 4100-1284 8-Switch/16-LED Display Card. With one red and one green LED
per switch.
• 4100-1285 16-Switch/16-LED Display Card. With red LEDs.
• 4100-1286 Hands Off Auto (HOA) Switch Display Card. Provides 24 switches
and 24 LEDs. The HOA uses an overlay to group every 3 switches together,
denoting on, off, and automatic control of smoke control components. For every
group of 3 switches, there are 3 LEDs (green-red-green).
• 4100-1287 24-Switch/24-LED Display Card. With red LEDs.
• 4100-1279 2” Blank display cover module to cover empty front panel space
• 4100-1294 Slide-In Label Kit - one per 4100U cabinet
• 4100-1276 8-Pluggable LEDs with 8 red LEDs
• 4100-1277 16-Pluggable LEDs with alternating red and yellow LEDs
• 4100-1278. 16-Switch/16-LED with alternating red and yellow LEDs, one per
switch
• 4100-1295 Hands Off Auto (HOA) switch display card. Provides 24 switches
and 24 red LEDs.
• 4100-1296 8-Switch/16 LED Display Card. With one green and one yellow
LED per switch.
• 4100-9843 Pluggable LED Kit, 8 Yellow LEDs
• 4100-9844 Pluggable LED Kit, 8 Green LEDs
• 4100-9845 Pluggable LED Kit, 8 Red LEDs
• ME0456 Fan Control Module
Continued on next page
Step 6. Installing LED/Switch Modules into Expansion Bays (4100U)
Overview

2-21
Below is an illustration of a LED/switch bay from the user’s perspective.
Figure 2-14. LED/Switch Modules
The LED/switch controller card is a 4100 slave that mounts behind two LED/switch
modules. The LED/switch controller handles up to 64 switches and 64 LEDs on the
modules and communicates their status to the 4100 CPU. When a button is pressed on a
module, the controller acknowledges the signal and reacts according to how that switch
was configured via the 4100 Programmer.
GND1
LED1
P2
12
SW1
1
2
3
4
5
6
7
8
P1
COMM
LOSS
P3
12
Figure 2-15. LED/Switch Controller
Continued on next page
Step 6. Installing LED/Switch Modules into Expansion Bays (4100U),
Continued
The LED/Switch
User Interface
LED/Switch
Controller Card
LED/SWITCH DISPLAY
CONNECTOR
(P4; reverse side)
POWER/COMMS
CONNECTORS
(P2)
(P3)
COMM LOSS LED (LED1)
ADDRESS DIP
SWITCH (SW1)
REMOTE ANNUNCIATOR
JUMPER (P1)

2-22
If more than 64 LEDs or 64 switches are used, a second controller may be installed.
LED 1. This LED illuminates if communication loss between the controller and the CPU
occurs. It is independent of jumper P1 (which configures different communication loss
features).
All types of modules are mounted to the front of a bay, and are connected to each other
via a ribbon cable. Each module operates by the same rules: when a button is pressed, the
controller card sends the CPU the information, and the event programmed for that button
occurs.
The 64/64 LED/switch controller requires physical configuration, but the LED/Switch
modules do not. Configuration consists of setting jumper P1 and setting the device
address. Device Address is covered in Appendix A.
If the LED/switch controller is used in a remote annunciator, it can make the LED/Switch
modules annunciate a communication loss condition. If communication loss occurs when
this setting is activated, LED 1 of the first connected display card illuminates, and the
piezo on the LED/switch controller sounds. The indication is silenced via the
corresponding switch (switch 1 on the first display card).
Use jumper port P1 to activate or deactivate the communication loss feature.
• Position 1 - 2 deactivates the feature (default).
• Position 2 - 3 activates the communication loss feature.
Continued on next page
Step 6. Installing LED/Switch Modules into Expansion Bays (4100U),
Continued
LED/Switch
Controller Card,
(continued)
LED/Switch Modules
Configuring the
LED/Switch
Controller Card
Activating the
Communication
Loss Feature

2-23
Refer to the figure below to mount the display cards to the front of the expansion box.
Figure 2-16. LED/Switch Card Mounting
Continued on next page
Step 6. Installing LED/Switch Modules into Expansion Bays (4100U),
Continued
Mounting
LED/Switch Modules
to the Expansion
Bay
#6 UNC NUTS
GROUND
CONNECTION
ADDITIONAL
LED/SWITCH
CONTROLLER
GROUND
CONNECTION
LOCKWASHERS
Controller assemblies
can only be installed
into these two slots

2-24
Refer to the figures and instructions below to mount the controller card assembly to the
back of one of the LED/switch cards.
4. Use four 322-123 Nuts and four 268-009 Washers to secure the 637-141 Bracket
to the inside front of the expansion box. Note that there are only two locations
where the bracket can be mounted, as shown in Figure 2-16.
5. Attach the header connector on the back side of the controller (P4) to the
connector on the back side of one of the LED/switch modules.
6. Secure the controller card to the board using four #6 screws, as shown in Figure
5.
Figure 2-17. Controller Card Mounting
WARNING: The 64/64 Controller Card cannot be mounted directly in front of a
4100 Motherboard or a Bay mounting bracket such as one that
mounts a T-Gen.
The 4100-1276 LED display card contains eight red LEDs and the 4100-1277 card
contains 16 alternating red/yellow LEDs. The LED colors may be configured differently,
as described in this section.
Only the following LEDs are to be used to change color configurations. LEDs are
available in sets of eight, as follows:
• 4100-9843 (yellow)
• 4100-9844 (green)
• 4100-9845 (red)
Continued on next page
Step 6. Installing LED/Switch Modules into Expansion Bays (4100U),
Continued
Mounting the
Controller Card
Assembly
Changing Display
Card LEDs

2-25
Figure 2-18. Assembling / Disassembling the LED Display Card
User interface wiring consists of connecting the LED/switch controller card to the
expansion bay’s power distribution interface (PDI), and connecting display cards to each
other. This section describes both procedures.
Continued on next page
Step 6. Installing LED/Switch Modules into Expansion Bays (4100U),
Continued
Changing Display
Card LEDs,
(continued)
Interconnecting
Cards

2-26
The following directions are complete instructions on interconnecting display cards and
connecting the controller card to a power source.
1. Use Harness 734-008 to connect P2 on the controller card to one of the 4-pin
connectors on the PDI.
2. If there are multiple controller cards, use Harness 734-036 to connect P3 on the
controller card to P2 on another controller card.
3. Interconnect all LED/switch display cards with the ribbon cables (provided).
Connector P1 is the input; connector P2 is the output.
TO PDI CONNECTOR OR ANOTHER
CONTROLLER CARD
P4
(reverse side)
HARNESS 734- 036
LED / SWITCH
CONTROLLER
26 - CONDUCTOR
RIBBON CABLE
LED/ SWITCH
MODULE 3
LED/ SWITCH
MODULE 2
LED/ SWITCH
MODULE 1
TO ANOTHER
CONTROLLER CARD
HARNESS 734 008
IN OUT IN OUT IN
Figure 2-19. LED/Switch Controller Wiring
Step 6. Installing LED/Switch Modules into Expansion Bays (4100U),
Continued
Wiring Instructions

2-27
The 4100-0632 Terminal Block Utility Module is an all-purpose terminal block that
mounts to an expansion bay, above or below the power distribution interface (PDI). Each
module utilizes one block of mounting space.
The terminal block utility module has two 16-position terminal blocks that accept up to a
maximum of 12 AWG (3.309 mm2) wire.
Follow the directions below to mount the terminal block utility module to the electronics
bay.
1. Align the terminal block utility module to any two compatible screw holes on the
electronics bay. Position the higher terminal block towards the middle of the
bay. There are eight possible locations: four above and four below the PDI.
Refer to the figure, below.
2. Secure the terminal block utility module to the electronics bay with two #6
screws and lockwashers.
3. The shorting strip may be removed or modified, depending on the application.
Figure 2-20. Terminal Block Utility Module Mounting
The Terminal Block Utility Module (4100U)
Overview
Mounting to the
Electronics Bay
TERMINAL BLOCK UTILITY MODULE
#6 SCREW AND LOCKWASHER
SCREW HOLES FOR
MODULE BRACKET
SCREW HOLES FOR
MODULE BRACKET
2-28

3-29
4100 host panel and remote locations. This chapter describes the transponder installation
procedure for all MINIPLEX systems in non-4100U systems.
Refer to the page number listed in this table for information on a specific topic.
Topic See Page #
Introduction to MINIPLEX Systems (Non-4100U) 3-30
MINIPLEX System Components (Non-4100U) 3-32
MINIPLEX System Guidelines (Non-4100U) 3-34
Installing Modules into Cabinets (Non-4100U) 3-35
MINIPLEX Wiring (Non-4100U)
3-39
Chapter 3
Installing 4100 MINIPLEX Components (Non-4100U)
Introduction
In this Chapter

3-30
The 4100 MINIPLEX Fire Alarm System uses transponder cabinets containing remote
interface cards (RICs) to extend power and communication across large areas.
MINIPLEX transponders allow the system to provide applications for up to 1000 monitor
and/or control points and 2000 annunciator points (see note). Using 4100-style serial
communications, up to 31 distributed MINIPLEX transponder locations are possible for
initiating device circuit cards, MAPNET II/
TrueAlarm addressable communications interfaces, notification appliance circuit cards,
LED/switch controls, auxiliary relay control cards, power supplies, and audio amplifiers.
By selecting the required combinations of modules and mounting MINIPLEX
transponders at the appropriate building locations, wire quantities are significantly
reduced for all monitor and control functions. Since power for the local modules is
provided from the local power supply, the wiring from the control panel need only be
separate twisted, shielded pairs for data, voice, and telephone.
Notes:
• One point consists of one LED or one switch on an LED/switch module, one
LED driver output on a graphic driver, or one switch input on a graphic switch
input module.
• Up to 32 modules can be controlled by one MINIPLEX transponder.
Continued on next page
Introduction to MINIPLEX Systems (Non-4100U)
Overview

3-31
Seventh floor
Sixth floor
Fifth floor
Fourth floor
Third floor
Second floor
First floor
Speaker NAC
TrueAlarm sensors
and MAPNET II
addressable circuits
RUI communications
wiring, twisted,
shielded pair
Audio riser wiring,
twisted pair
Legend:
MINIPLEX transponder
with solid door
MINIPLEX transponder with
LED/switch modules on door panel
FACP
ACKNOWLEDGE
Figure 3-1. MINIPLEX System Design
Introduction to MINIPLEX Systems (Non-4100U), Continued
Overview
(Continued)

3-32
The 4100 MINIPLEX system is comprised of a host panel containing everything required
in a standalone cabinet (see Chapter 2), plus:
• An RUI module in the master controller bay
• One or more remote MINIPLEX transponder cabinets
• A RIC II card in each transponder cabinet
This section describes each component in turn.
The RUI module consists of a motherboard and daughter card, which are used in the
master controller bay of a MINIPLEX system to extend the length of communications
wire to reach remote bays.
Figure 3-2. The Remote Unit Interface Card
The RUI card mounts onto a 562-799 or 562-856 Motherboard.
Communication wiring from the RUI module in the host panel extends to the RIC II card
in a remote transponder cabinet.
Continued on next page
MINIPLEX System Components (Non-4100U)
Overview
The RUI Card
Transponder
Cabinets

3-33
Remote interface cards (RICs) in the transponder cabinets allow for data, power, and
audio interconnections between the 4100 host panel and remote locations. They support
RUI connections in Style 4 and Style 7 wiring configurations.
TB2 LED1
TBL +COMM
PRIM
+COMM
PRIM
-COMM
-COMM
+COMM
+COMM
24C
24C
PIEZO
CTRL
LED
CTRL
PTT+
PTT-
SHLD
GRN
MIC
WHT
Figure 3-3. The RIC II Card
MINIPLEX System Components (Non-4100U), Continued
The Remote
Interface Card (RIC)
COMMS TROUBLE LED
(LED 1):
Lights if there is a line short
on either primary or
secondary lines, or if both
comms inputs are absent.
POWER/COMM
TERMINAL BLOCK (TB1)
HEADER CONNECTOR
(J1)
SEC
+24 V
+24 V
8
1
PIEZO/MICROPHONE
TERMINAL BLOCK (TB2)
REMOTE MICROPHONE
CONNECTOR (P1)

3-34
The rules on this page apply exclusively to MINIPLEX systems. Review each guideline
before installing a MINIPLEX 4100 system.
• The Style 4 RUI card supports MINIPLEX transponders and 4602/4603 serial
annunciators on the same signaling line circuit.
• Up to 4 RUI cards in the 4100 Control Panel can be used for distributing transponder
wiring in different directions or for supporting different wiring requirements (such as
using a Style 7 RUI for serial annunciators).
• Up to 31 MINIPLEX transponders can be controlled from the 4100 Control Panel,
and can be distributed as required among the RUI cards.
• “T” tapping is not allowed unless less than 40 detectors/addressable devices are
connected to the MINIPLEX.
• Wiring from RUI cards is a minimum of 18 AWG (0.75sqmm) twisted, shielded pair.
• The maximum wiring distance from the 4100 RUI card to a MINIPLEX transponder
is 2500 feet (762 m). For Style 4 wiring, this can be extended to 10,000 feet (3 km)
maximum if “T” tapping is used.
MINIPLEX System Guidelines (Non-4100U)
Overview
Guidelines

3-35
This section contains guidelines and instructions for mounting the RUI and RIC II
modules into 4100 cabinets.
• The RUI motherboard mounts into the CPU bay or, if necessary, an expansion bay.
• The RIC II mounts into expansion bays only.
Review the following guidelines before installing a motherboard into a cabinet.
• If a power supply is installed in the bay, it must be installed on the far right of
the bay and any relay modules must be installed in the slots immediately to its
left.
• Relay cards must be installed in the rightmost possible slots. This is necessary
to allow for the proper routing of non-power limited wiring, which could be
connected to a relay module.
Mount the RUI motherboard (562-799 or 562-856) in a master controller bay as described
below.
1. Orient the motherboard with the connector labeled J1 on the right and the header
labeled P1 on the left.
2. Match the connector on the previously installed motherboard with the pins on
the motherboard you are installing. Slide the motherboard to the left until the
pins are completely inserted in the connector of the previously installed
motherboard. If you are installing the leftmost board, the pins will remain
unconnected.
3. Secure the motherboard to the chassis with four torx screws.
Figure 3-4. Installing the RUI Motherboard in the CPU Bay
Note: RUI motherboards may also be installed in expansion bays. Refer to
“Step 5: Installing Motherboards into Expansion Bays (Non-4100U)” in
Chapter 2 for instructions.
Continued on next page
Installing Modules into Cabinets (Non-4100U)
Overview
Guidelines
Installing the
RUI Motherboard
A
n RUI motherboard can be installed in any of the remaining
slots, or in an expansion bay. Relay motherboards must be
mounted to the far right of the bay.
CPU or 575-274
Motherboard
Power
Supply
J1
P1

3-36
The RIC II motherboard is installed into a remote transponder cabinet. Review the
following guidelines before mounting RIC II motherboard.
• If a power supply is installed in the bay, it must be installed on the far right of
the bay and any relay modules must be installed in the slots immediately to its
left.
• Relay cards must be installed in the rightmost possible slots. This is necessary to
allow for the proper routing of non-power limited wiring (typically 120 VAC
wiring), which could be connected to a relay module.
Use the following directions and Figure 3-5 to install a RIC II motherboard into a
transponder cabinet.
1. The RIC II motherboard must be installed in the leftmost slot. Orient the
motherboard with the connector labeled J1 on the right.
2. Secure the motherboard to the chassis with four torx screws.
Figure 3-5. Installing the RIC II Motherboard into a 4100 Expansion Bay
3. If you are installing the RIC II in a transponder cabinet with additional bays, you
must connect a 733-525 Power and Communication Harness. Continue to the
next topic for instructions.
Continued on next page
Installing Modules into Cabinets (Non-4100U), Continued
Installing the RIC II
Motherboard
The RIC II motherboard must be installed in the
leftmost slot.
RIC II
J1

3-37
If you need to connect a 733-525 Harness to a motherboard, refer to Figure 3-6 and
follow these steps. Make sure to route the power and communication wiring on the left
side of the bay.
1. Connect one end of the harness to a motherboard in an adjacent bay.
If the adjacent bay is a master controller bay, connect the harness to the P2 and P3
connectors of the master controller motherboard and continue to step 2.
If the adjacent bay is an expansion bay, connect the harness to the P2 and P3
connectors of the motherboard installed in the leftmost slot. Connect the harness as
follows:
a. Insert the harness connector with the blue wire into the P2 connector. Note that
the P2 connector has eight pins. Insert the harness connector on either the top
four pins or the bottom four pins, not in the middle.
b. Insert the harness connector with the white wire into the P3 connector. Note that
the P3 connector has eight pins. Insert the harness connector on either the top
four pins or the bottom four pins, not in the middle.
2. Connect the other end of the harness to the leftmost motherboard in the next bay, as
described below. Make sure to route the wiring on the left side of the bay.
a. Insert the harness connector with the blue wire into the P2 connector. Note that
the P2 connector has eight pins. Insert the harness connector on either the top
four pins or the bottom four pins, not in the middle.
b. Insert the harness connector with the white wire into the P3 connector. Note that
the P3 connector has eight pins. Insert the harness connector on either the top
four pins or the bottom four pins, not in the middle.
Continued on next page
Installing Modules into Cabinets (Non-4100U), Continued
Connecting the
733-525 Harness

3-38
RIC II
(565-233)
TO 24 VDC
(OPTIONAL)
UNIVERSAL
POWER
SUPPLY
Figure 3-6. Power and Communication Wiring for the Transponder Cabinet
(4100)
Installing Modules into Cabinets (Non-4100U), Continued
Connector with
Blue Wire Goes
to P2
Connector with
White Wire Goes
to P3
733-525 Harness
RIC II
(565-233)
733-672 Harness

3-39
The RIC must be connected to the host panel via RUI cabling. This section explains how
to wire the two together, and how to set up a system with multiple transponders connected
to the same host panel.
RUI cabling can be accomplished either through Class A or Class B wiring.
Class A wiring allows transponder cabinets to communicate with the FACP even in the
event of an open circuit somewhere in the loop. Class A wiring requires that two wires are
routed from the CPU motherboard to each RIC, and then back again to the CPU
motherboard.
Class B wiring allows “T” tapping, and therefore requires less wiring distance per
installation than Class A. Additionally, Class B wiring does not require end-of-line
resistors, because each RIC communicates directly to the CPU.
Make sure these prerequisites are accounted for before wiring:
• AS1670 allows the loss of a maximum of 40 detectors/addressable devices to be
caused by a single fault.
• All transponder cabinets are installed within 2500 feet (762 m) of the FACP.
• Conductors test free of all grounds.
• All wires are between 12 (3.309 mm2) and 18 AWG (0.8321 mm2), or as the
local code dictates.
To connect the RUI card to RICs using Class A wiring, read the following instructions
and refer to Figure 3-7, on the next page.
1. Route wire between 0.75 mm2 and 4 mm2 from the + (TB1-8) and - (TB1-6)
terminals on the Comms “A” block of the 562-856/565-217 RUI card to the
TB1-8 (+) and TB1-6 (-) terminals on the 565-233 RIC.
2. Route wire from the first RIC to the next one. Repeat for each transponder
cabinet within 2500 feet (762 m).
3. Route wire from TB1-7 (+) and TB1-5 (-) on the last RIC to + (TB1-4) and -
(TB1-2) on the Comms “B” block of the 562-856/565-217 RUI card.
To connect the RUI card to RIC II cards using Class B wiring, read the following
instructions and refer to Figure 3-7, on the next page.
1. Route wire between 0.75 mm2 and 4 mm2 from the + (TB1-8) and - (TB1-6)
terminals on the Comms “A” block of the 562-856/565-217 RUI card to the
TB1-8 (+) and TB1-6 (-) terminals on the 565-233 RIC.
2. Route wire from the first RIC to the next one. Repeat for each transponder
cabinet within 2500 feet (762 m).
Continued on next page
MINIPLEX Wiring (Non-4100U)
Overview
Wiring
Configurations
Class A Wiring
Class B Wiring

3-40
The illustration below applies to Class A and Class B wiring.
4100 MINIPLEX MASTER
RIC 11
565-233
MINIPLEX
TRANSPONDER
562-856 W/565-217
COMMS "A"
81
COMMS "B"
RUI
T
B
1T
B
1RIC 11
565-233
MINIPLEX
TRANSPONDER
81
T
B
1
Figure 3-7. MINIPLEX Wiring
Notes:
1. Power wiring is not shown. Connect the RIC II card to the UPS or expansion
power supply in the transponder cabinet.
2. If a UPS is not provided in the transponder cabinet, then 24 V must be
provided from the host panel.
3. Maintain correct polarity on terminal connections. Do not loop wires under
terminals.
4. All wiring is supervised and power limited.
MINIPLEX Wiring (Non-4100U), Continued
Wiring Illustration
CLASS A
CLASS B
+24 V
24 C
See
Note 1
II II

4-1
MINIPLEX transponder interface cards (TICs) allow for data and power interconnections
between the 4100 host panel and remote locations. This chapter describes the transponder
installation procedure for 4100U MINIPLEX systems.
Refer to the page number listed in this table for information on a specific topic.
Topic See Page #
Introduction to MINIPLEX Transponders
4-2
MINIPLEX System Guidelines
4-7
Configuring Cards
4-8
TIC/Riser Mounting (4100U)
4-9
TIC/Motherboard Interconnections (4100U)
4-10
RUI Wiring (4100U)
4-11
Chapter 4
Installing 4100U MINIPLEX Components
Introduction
In this Chapter

4-2
The 4100U MINIPLEX system is comprised of a host panel containing everything
required in a standalone cabinet (see Chapter 1), plus:
• One or more remote MINIPLEX transponder cabinets
• A transponder interface card (TIC) in each transponder cabinet
This section describes each component in turn.
RUI Communication wiring from the RUI module in the host panel extends to a
transponder interface card (TIC) in a remote transponder cabinet. The transponder cabinet
has at least one TIC module in it, and can have one, two, or three bays.
The following TICs, audio risers, and audio riser controller modules are available for
4100U and/or 4100U MINIPLEX ® systems:
• Basic Transponder Interface Card (TIC) Module
• Local Mode TIC Module (not currently available in Australia)
Transponder Interface Cards (TICs) receive data from 4100U host panels allowing remote
locations to perform fire alarm functions. TIC modules are optionally available with local
mode operation that provides basic (degraded mode) system functions in the event of a
communication loss with the master panel. TICs receive communications from the 4100U
host panel using Remote Interface (RUI) communications with either Style 4 or Style 7
wiring.
The basic TIC is an addressable device that contains an RUI input, and a port for
connecting to other transponder modules.
The basic TICs use the same board, with some variations:
• The basic TIC is an addressable device that contains RUI outputs, an audio riser
output, a user interface output, and a port for connecting to motherboards.
Continued on next page
Introduction to MINIPLEX Transponders (4100U)
Overview
Transponder
Cabinets
Transponder
Interface Cards
(TICs)
Basic TICs

4-3
The local mode TIC contains an RUI input, port for connecting to other transponder
modules, and terminal block for connecting to an optional Local Mode Controller. Local
Mode Controllers are mounted remotely from the transponder. Installation instructions are
supplied with the controller.
Local mode operation allows a TIC to provide life safety operations in the event of a
communication loss with the master controller. More specifically, this provision means
that fire alarm inputs and outputs within the transponder cabinet can still work in a limited
capacity to allow continued functioning of local initiating devices and notification
appliances connected to the TIC. Local mode is considered a “degraded” mode of
operation because full fire alarm system functionality is not guaranteed.
Because the TIC is a slave module that occupies an RUI address, it can indicate a trouble
condition to the master controller in the event of a hardware failure. When local mode is
initiated, all slave devices locally connected to the TIC are notified by the TIC that local
mode is taking effect. From that point until communication is restored to the master
controller, the TIC
”group-polls” all connected local slaves, and the slaves respond only in the event of an
alarm input activation. Other status changes, including troubles, are not reported.
Continued on next page
Introduction to MINIPLEX Transponders (4100U), Continued
The Local Mode TIC
(Not currently
available in
Australia).

4-4
TB1
CH2
SEC-
SEC+
SHLD
PRI-
PRI+
CH1/DAR
SEC-
SEC+
SHLD
PRI-
PRI+
16
15
2
LED1
CH2
LED2
CH1/DAR
1
SEC 1
TB3
TB2
1
P2
1
TB1
2
1
SEC 2
DAR CHANNEL OUT NAA IN
NAA OUT
NAA
VOLUME
R4
SW1
LED1
LED2
LED3
LED4
DAR GROUND FAULT
SEARCH ACTIVE
PDI RECEIVE
ENABLE
PRIMARY RECEIVE
SECONDARY RECEIVE
DIGITAL
RISER
ON-ENABLE
NAA
1
2
3
4
SW2
LSB
MSB
1
2
3
4
LINE
25V
70V
SHLD
PRI 1
Below is an illustration of the various TIC and audio riser circuit boards.
Figure 4-1. Transponder Interface Cards
Note, the audio risers are not approved for use in Australia.
Continued on next page
Introduction to MINIPLEX Transponders (4100U), Continued
TIC Illustrations
4100-0620
BASIC TIC
4100-0625
LOCAL MODE TIC
4100-0621 ANALOG
AUDIO RISER
4100-0622 DIGITAL
AUDIO RISER

4-5
Local mode is supported by the following:
• 4100-3101/3104/3105 IDNet Card
• 4100-5101/5102/5103 Expansion Power Supply NACs (including TrueAlert
Non-Addressable SmartSync appliances)
• 4100-5111/5112/5113 System Power Supply NACs (including TrueAlert Non-
Addressable SmartSync appliances)
• 4100-5125/5126/5127 Remote Power Supply NACs (including TrueAlert Non-
Addressable SmartSync appliances)
• 4100-5120/5121/5122 TrueAlert Power Supply NACs
• 4100-1214 to -1225, 4100-1228 to –1239, 4100-1314 to -1325, 4100-1328 to –
1339,
100 W Amplifier NACs
• 4100-1212/1213/1226/1227/1312/1313/1326/1327 Flex 50 Amplifier NACs
• 4009-9401 TrueAlert Addressable Controller
• 4100-1270 Phone Controller and 4100-1272/1273 Phone NAC cards
• 4009-9201/ 9301 IDNet NAC Extender
• 4100-5116 Expansion Signal Card
Local mode is NOT supported by, but can co-exist with, the following:
• 4100 Legacy cards
• 4100-3101 to -3103 Auxiliary Relay Cards
• 4100-6048 VESDA Interface Kit
• 4100-6043/6044 RS-232/2120 Interfaces
• 4100-1280 to -1287 LED/Switch Annunciators
• 4100-1290 24-Point Graphic I/O Module
• 4602-9101 SCU/ 4602-9102 RCU
• 4603-9101 LCD Annunciator
• 4100-1210/1211/1311 Audio Controller Board
• 4100-6014 Network Interface Card
• 4100-6052 DACT
Bear in mind the following limitations for when local mode is in effect:
• If an alarm is already activated when local mode is initiated, the alarm remains
activated in local mode.
• Software zones are not supported. Basic TrueAlert channels are supported.
• Alarm verification is not supported. All alarms are reported immediately.
• SMPL is not supported.
• TrueAlarm sensors have fixed thresholds.
Continued on next page
Introduction to MINIPLEX Transponders (4100U), Continued
Local Mode
Specifications

4-6
The TICs have the following LEDs:
LED1. Illuminates to indicate communication loss with the CPU.
LED2. Illuminates when an RUI ground fault search is active.
LED3. Illuminates when Local Mode is active.
LED4. Illuminates to indicate an RUI Style 7 primary trouble.
LED5. Illuminates to indicate an RUI Style 7 secondary trouble.
Refer to Figure 5-1 to see which LEDs are included on which TIC. Most TICs do not
contain all LEDs.
Table 5-1 lists the specifications for all TICs.
Table 5-1. TIC Specifications
Electrical Specifications
Input Voltage 18-33 VDC
Output Voltage 8 V @ 1 A; 100 mV p-p ripple
Input Current 87 mA for all TICs. 112 mA for a local mode TIC
connected to a local mode annunciator.
Environmental Specifications
Operating
Temperature 32° to 120° F (0° to 49° C)
Humidity 10% to 93% relative humidity at 90° F (32° C)
Introduction to MINIPLEX Transponders (4100U), Continued
LEDs
Card Specifications

4-7
The rules on this page apply exclusively to MINIPLEX systems. Review each guideline
before installing a MINIPLEX 4100U system.
• All wiring is 18 AWG (0.8231 mm2) (minimum) and 12 AWG (3.309 mm2)
(maximum).
• All wiring is supervised and power-limited.
• All wiring that leaves the building requires overvoltage protection. Install
module
inside an UL-Listed electrical box wherever wire enters or exits the building. A
maximum of four 2081-9044 Modules may be connected to one channel. The
2081-9044 is rated for 200 mA (maximum).
• AS1670 allows the loss of a maximum of 40 detectors/addressable devices to be
caused by a single fault.
• For Style 4 operation:
- The maximum distance to any device is 2,500 feet (762 m).
- “T” taps are allowed.
- The total maximum distance (including all “T” taps) is 10,000 feet (3,048 m).
- Maximum allowed line-to-line capacitance (“+” to “-” terminals) is 0.58 uF.
For applications with shielded wire, be sure that the total capacitance from line
to line plus the shield to either line is no more than 0.58 uF.
• For Style 6 or Style 7 operation, the maximum loop distance is 2,500 feet (762
m). “T” taps are not allowed.
• RUI comms are wired to remote cabinets from the CPU motherboard to one of
the following transponder interface cards: 4100-0620 (566-093) or 4100-0625
(566-094).
• Annunciators and transponder interface cards support Style 7 operation when the
system is wired Class A.
• The master control panel must be a 4100U Fire Alarm Control Panel.
• The Style 4 RUI card supports MINIPLEX transponders and 4602/4603 serial
annunciators on the same signaling line circuit.
• Up to 4 RUI cards in the 4100U Control Panel can be used for distributing
transponder wiring in different directions or for supporting different wiring
requirements (such as using a Style 7 RUI for serial annunciators).
• Up to 31 transponders can be controlled from the 4100U Control Panel, and can be
distributed as required among the RUI cards.
MINIPLEX System Guidelines (4100U)
Overview
Guidelines

4-8
The TIC and all other cards to be mounted in the transponder cabinet and attached
expansion bays must be configured to operate correctly in the system via their DIP switch
and jumper ports. The CPU motherboard may have to be configured as well.
P9 on the CPU motherboard determines whether the RUI SHIELD signal is connected to
24 C or Earth.
• Position 1 – 2: SHIELD to 24 C (default).
• Position 2 – 3: SHIELD to Earth.
Note: Some devices that connect to RUI have inherently grounded shield
terminals, in which case 24 C cannot be used. If 24 C is used, a
Negative Ground Fault will occur.
The TIC must be assigned a device address via DIP switch SW1. Refer to Appendix A for
the address switch table.
Refer to the appropriate publication to configure other cards that are located in the
transponder cabinet and attached expansion bays.
Configuring Cards (4100U)
Overview
CPU Motherboard
DIP Switch
TIC Configuration
Configuring Other
Cards

4-9
All TICs are mounted like any 4-inch (102 mm) X 5-inch (127 mm) card. This section
describes the TIC/audio riser card mounting procedure, which is identical to that of other
4-inch (102 mm) X 5-inch (127 mm) cards.
Use the following instructions and Figure 4-2, below, to mount 4”x 5” slave cards to an
expansion cabinet.
IMPORTANT:
• The TIC must be mounted in the upper left position of the bay.
• The audio riser card must be mounted directly below the TIC.
1. Screw two standoffs and washers to the appropriate holes in the back of the
cabinet. These holes must line up with the screwholes in the 4-inch (102 mm) X
5-inch (127 mm) card. See Figure 5-2.
2. Plug the 4-inch (102 mm) X 5-inch (127 mm) card into the top left PDI
connector (P8).
3. Secure the top of the card to the standoffs with two #6 torx screws and washers.
Figure 4-2. TIC Mounting
Continued on next page
TIC/Riser Mounting (4100U)
Overview
Mounting
Instructions
TIC CARD
STANDOFFS
#6 SCREWS
WASHERS
PDI CONNECTOR
(reverse side)
PDI
SCREW
RETAINERS

4-10
4100 POWER DISTRIBUTION INTERFACE
ASSY 566-084
4100 POWER DISTRIBUTION INTERFACE
ASSY 566-084
LED4
SW1
LED1
TB2
PRI
LED2
P1
P3
LED5
TB3
SEC
RUI
TMPR SW
24C INPUT
SHLD
4100
COMM
LOSS
RUI
G.F.
SEARCH
AUDIO RISER CARD
HARNESS
734-008
TI
SPS
OR
RPS
C
PDI 1
PDI 2
HARNESS
734-078
P1
P6
POWER/
COMM
Connectors with
White Wire go to P3
HARNESS 733-525
Connectors with
Blue Wire go to P2
Use Figure 4-3 to connect the TIC to a motherboard in another bay.
Figure 4-3. Transponder Cabinet Interconnections
TIC/Motherboard Interconnections (4100U)
PDI Jumpers
P4 and P5 on the PDI must be configured to provide power to the TIC.
--- If there is a Power Supply in Bay 1,
• Set Jumpers P4 and P5 in Bay 1 to Positions 2 and 3.
--- If there is no Power Supply in Bay 1 with the TIC, you must obtain
power from Bay 2 or Bay 3.
Option 1
• Set Jumpers P4 and P5 in Bay 1 to Positions 1 and 2.
• Connect one end of Harness 734-008 to Power/Comm
plug on the SPS or RPS (P6) (or P2 on XPS) located in
Bay 2 or Bay 3. Connect the other end of the harness to
P1 in Bay 1.
Option 2
• Set Jumpers P4 and P5 in Bay 1 to Positions 1 and 2.
• Set Jumpers P4 and P5 to Positions 2 and 3 in bay with
power supply that will provide power to the TIC in Bay 1.
• Connect one end of Harness 734-008 to P2 or P3 in bay
that will provide power to the TIC in Bay 1. Connect the
other end of the harness to P1 in Bay 1.

4-11
The TIC must be connected to the host panel via RUI cabling. This section explains how
to wire the two together, and how to set up a system with multiple transponders connected
to the same host panel.
RUI cabling can be accomplished either through Class A or Class B wiring.
Class A wiring allows transponder cabinets to communicate with the FACP even in the
event of an open circuit somewhere in the loop. Class A wiring requires that two wires are
routed from the CPU motherboard to each TIC, and then back again to the CPU
motherboard.
Class B wiring allows “T” tapping, and therefore requires less wiring distance per
installation than Class A. Additionally, Class B wiring does not require end-of-line
resistors, because each TIC communicates directly to the CPU.
Note: Use supplied ferrite beads with TICs. Loop wires once through the
supplied ferrite bead(s) as shown in Figure 4-4.
The illustration below shows both types of wiring.
TRANSPONDER INTERFACE
ASSY 566-094
MSB
LSB
LED1
ADDRESS
LED3
PRI
B+ B- SHLD A+ A-
SEC
RUI
SHLD
LED4 LED5
LED2
P1
P2 P3
RUI
P9
P1
123 TRANSPONDER INTERFACE
ASSY 566-094
MSB
LSB
LED1
ADDRESS
LED3
PRI SEC
RUI
SHLD
LED4 LED5
LED2
P1
P2
Figure 4-5. TIC Wiring to the Host Panel
Continued on next page
RUI Wiring (4100U)
Overview
Wiring
Configurations
Figure 4-4. The
Ferrite Bead
DASHED LINES ARE FOR
CLASS A OPERATION
• Wire size must be
between 18 AWG (0.8231 mm2)
and 12 AWG (3.309 mm2).
• Maximum wiring distance: 2,500 feet
(762 m).
• Maximum “T” tapping length:
10,000 feet (3,048 m).
• Maintain correct polarity on terminal
connections.
• Do not loop wires under terminals.
CPU
MOTHERBOARD
566-227
4-12

5-1
A standalone or MINIPLEX 4100 system becomes a network node when a 4100 Network
Interface Card (NIC) or other compatible network card is installed and connected to
another network node. How network cards connect to each other depends on the type of
media network cards being used.
Refer to the page number listed in this table for information on a specific topic.
Topic See Page #
Getting Started
5-2
Introduction to the 4100 Network Interface Card (NIC)
5-3
Step 1. Configuring Network Cards 5-7
Step 2. Mounting Media Cards to the NIC
5-9
Step 3. Mounting Network Cards
5-10
Step 4. Wiring Network Cards
5-11
Chapter 5
Networking
Introduction
In this Chapter

5-2
This chapter describes how to turn a standalone or MINIPLEX FACP into a network
node. This process consists of the following:
Step 1. Configuring cards for operation (using DIP switches and jumper ports)
Step 2. Mounting media cards to the network interface card (NIC)
Step 3. Mounting network cards
Step 4. Wiring network cards
Each step is described in this chapter. Before beginning the installation, review the next
few pages for a detailed description of network cards and the media cards that mount onto
them.
Getting Started
Overview

5-3
The Network Interface Card (NIC) is a slave card that uses the standard 4100 serial bus to
communicate with the master. The NIC connects FACPs in a network, allowing for
communication between each panel via fiber, modem, or twisted shielded pair wire.
The NIC is designed to be connected in a point-to-point arrangement, so that one wire
fault does not cause the entire system to fail. The point-to-point arrangement provides the
most secure and fault-tolerant wiring possible.
Two types of media boards can be used with the NIC card.
• The Fiber-Optic Media Card can be used for electrically noisy environments or
for connecting externally to other buildings.
• The Wired Media Card is used in all other types of applications.
Up to two media boards can be plugged into each NIC. The same NIC can use a
combination of two types of media boards (for example, a NIC may have a wired media
card connected to port 1 and a fiber-optic media card connected to port 2).
Continued on next page
Introduction to the 4100 Network Interface Card (NIC)
Overview

5-4
Figure 5-1. 4100-6014 Network Interface Card
The 4100-6014 NIC has the following LEDs:
LED1 (yellow). Illuminates when
• The host 4100 requests it to illuminate
• A transmission fails
• It is off-line with the 4100 host
• It needs to be configured
LED2 (red). Illuminates when a data ‘0’ is received at the right port.
LED3 (green). Illuminates when a data ‘0’ is transmitted at the right port.
LED4 (red). Illuminates when a data ‘0’ is received at the left port.
LED5 (green). Illuminates when a data ‘0’ is transmitted at the left port.
Continued on next page
Introduction to the 4100 Network Interface Card (NIC), Continued
Network Module
Illustrations
NIC Card LED
Indications
DATA TRANSMIT/
RECEIVE LEDs
(LED2 THROUGH
LED5)
MEDIA CARD
40-PIN
CONNECTORS
(P5, P6)
DATA RATE JUMPER
PORT (P3)
DAT
A
PROTOCOL
JUMPER PORT
(P3)
ADDRESS DIP
SWITCH (SW2)
DIAL-UP
SERVICE
MODEM
CONNECTOR
(
P2
)
RESET SWITCH
(SW1)
MOTHERBOARD
CONNECTOR (P4)
YELLOW LED
(LED1)

5-5
The figures below are illustrations of two motherboards apart from the default CPU
motherboard that can be used with the 4100 NIC.
• The 565-274 Master Motherboard holds two daughter cards: the 4100 master
controller card and the 4100 NIC.
• The 565-275 Class B Motherboard holds the 4100 NIC by itself.
Figure 5-2. UT Motherboard with City Connection (565-274)
Note: The City (Brigade) connection is not used in Australia.
Figure 5-3. UT Motherboard without City Connection (565-275)
Continued on next page
Introduction to the 4100 Network Interface Card (NIC), Continued
NIC Motherboards
POWER/COMM BUS
CONNECTOR (J3)
2120 COMM/RS-232 CARD
CONNECTOR (J1)
SYSTEM POWER
CONNECTOR (P3)
INTERNAL COMMS
CONNECTOR (P2)
UT MASTER
CONTROLLER
CONNECTOR (J2)
POWER/COMM BUS
CONNECTOR (P1)
FIELD WIRING
TERMINAL
BLOCK (TB1)
FIELD WIRING
TERMINAL
BLOCK (TB2)
CITY CONNECT
JUMPERS (P4)
SYSTEM POWER
CONNECTOR (P3)
INTERNAL COMMS
CONNECTOR (P2) POWER/COMM BUS
CONNECTOR (P1)
FIELD WIRING TERMINAL
BLOCK (TB1)
FIELD WIRING
TERMINAL
BLOCK (TB2)
2120 COMM/RS-232 CARD
CONNECTOR (J1)

5-6
There are two approved modules that can be plugged into the 4100-6014 NIC:
• 4100-6057 Fiber-Optic Media Card (565-261)
• 4100-6056 Wired Media Card (565-413)
Each module is shown below.
Figure 5-4. The 4100/4120-0143 Fiber-Optic Media Card
RESERVED (TB1)
Figure 5-5. The 4100/4120-0142 Wired Media Card
Continued on next page
Introduction to the 4100 Network Interface Card (NIC), Continued
NIC Media Cards
40-PIN NETWORK
INTERFACE CARD
CONNECTOR (J1)
FIBER-OPTIC DATA:
TRANSMIT (U1),
RECEIVE (U2)
40-PIN NETWOR
K
INTERFACE CARD
CONNECTOR (P1)

5-7
Table 5-1. 4100 NIC & Media Cards - Electrical and Environmental
Specifications
Electrical Specifications
Network
Interface Card
Startup, no media cards: 8 VDC @ 110 mA
Nominal, no media cards: 20 to 32 VDC @ 0 mA
Fiber
Media Card
Using 24 V power supply: 20 VDC @ 140 mA max.
Using 5 V power supply (GCC/NPU): 5 VDC @ 130 mA
max.
Wired
Media Card 4.75 to 5.25 VDC @ 170 mA max.
Environmental Specifications (All Modules)
Operating
Temperature 32° to 120° F (0° to 50° C)
Humidity 10% to 93% relative humidity at 90° F (32° C)
The NIC card, along with the each media card, all have jumpers that must be set as shown
below.
NIC-compatible jumper settings on CPU motherboards depend on which motherboards
are used.
Motherboard 565-274:
• JW1 and JW2 must be installed.
• Jumper plugs P5-P8 must not be installed.
Motherboard 566-227:
P10: Port 1 settings.
P11: Port 2 settings.
• P10/P11 position 1 – 2: Network card (NIC) attached to CPU motherboard (default).
• P10/P11 position 2 – 3: RS-232/2120 card attached to CPU motherboard.
Use SW2 to set the NIC card address. Refer to Appendix A for the address table.
Continued on next page
Introduction to the 4100 Network Interface Card (NIC), Continued
Requirements
and Limitations
Step 1. Configuring Network Cards
Overview
Motherboard
Jumper Settings
NIC Card
Address Setting

5-8
There are two shunt jumper ports on the NIC card that need to be set: P3 and P4.
P3: Determines the NIC data transmission rate, 57.6 kbits/second or 9600 bits/second.
• Position 1 – 2 (the right two pins) or no pins jumpered: 57.6 kbits/second.
• Position 2 – 3 (the left two pins): 9600 bits/second.
P4: Determines the data protocol, 8-bit or 9-bit, that the NIC card is using.
• Position 1 – 2 (the right two pins) or no pins jumpered: 9-bit.
• Position 2 – 3 (the left two pins): 8-bit.
All settings are labeled on the card.
P2: Tells the system which wire type is to be used.
• Positions 1 – 2, 5 – 6, and 7 – 8: 18 AWG shielded, twisted pair wiring.
• Remove all jumpers to specify 24 AWG twisted pair telephone cable wiring.
IMPORTANT: When using the wired media card, the Earth fault detection is
performed on the left port only. Remove R1 (1 Ohm resistor)
from the media card on the right port.
Step 1. Configuring Network Cards, Continued
NIC Card
Jumper Settings
Wired Media Card
Jumper Settings

5-9
The 4100-6014 Network Interface Card (NIC) uses media cards to connect to other NICs.
This section describes how the media cards are mounted onto NICs.
NICs connect to each other via the three types of media cards. The types of media cards
in the right and left ports are determined by the type of wiring that is being used across
cards.
Connect P1 on the wired media card, or J1 on the modem or fiber media cards, to P5 (the
left port) on the NIC.
To connect a second media card to the same NIC, connect it as described above, but use
P6 (the right port) on the NIC. Note that any two types of media cards can be connected
to the same NIC.
Figure 5-6. Media Card Mounting
Step 2. Mounting Media Cards to the NIC
Overview
Media Card
Mounting
MEDIA CARDS
4100-6014 NETWOR
K
INTERFACE CARD
40-PIN
CONNECTION
(MEDIA CARD
P1 OR J1 TO
NIC P5)
40-PIN
CONNECTION
(MEDIA CARD
P1 OR J1 TO
NIC P6)
STANDOFFS FIT INTO HOLES

5-10
The 4100 NIC daughter card, shown in Figure 6-8 below, inserts into motherboards as
follows:
• If the 565-274 Master Motherboard is being used, the NIC daughter card is
inserted into connector J1.
• If the 566-227 Master Motherboard or 565-275 Motherboard is used, the NIC
daughter card is inserted into connector J2.
Figure 5-7. Installing the Daughter Card
Step 3. Mounting Network Cards

5-11
The nodes in the network now have to be wired together, so that the NIC in one host
panel connects to the NIC in the next panel. This section contains guidelines and
instructions for NIC wiring.
Refer to the following guidelines whenever field wiring the NICs.
• Network nodes must be wired right to left port, regardless of the media type
selected.
• Style 7 protection is achieved by wiring the nodes in a loop fashion. A single
fault (except an Earth fault) will cause the network to reconfigure for degraded
Style 7 (Style 4) operation. A second fault (except an Earth fault) will result in
the network dividing into two separate networks.
• Style 4 is achieved by wiring the nodes in a linear fashion. Style 4 networks are
not fault-tolerant and a single fault (except an Earth fault) will result in the
network dividing into two separate networks.
• Earth fault detection is performed on the left port only. When a network Earth
fault occurs, the trouble is only reported on the node whose left port is connected
to the span.
• All 18 AWG (0.8231 mm2) wiring used with 4100-6056 Wired Media Cards
must be twisted-shielded pair. All 24 AWG (0.2047 mm2) (telephone cable) used
with 4100-6056 must be twisted pair. When shielded cable is used, the shield
must be terminated to chassis Earth on the left port only.
• It is permissible to use mixed media in a network. For example, some spans may
be “wired media” while others are optical fiber or telephone modem.
• Each NIC has a jumper for selecting between network data rates of 57.6 kbps
and
9.6 kbps. All cards in the network must be set for the same rate. (When modem
media or physical bridging is used, the data rate must be set for 9.6 kbps).
• Each NIC has a jumper for selecting between 8- and 9-bit network protocols. All
cards in the network must be set for the same network protocol. (When modem
media or physical bridging is used, the protocol must be set for 8-bit).
• All network wiring except the shield is supervised and power limited.
• When wiring leaves the building, 2081-9044 Overvoltage Protectors are required.
One overvoltage protector is installed where wiring leaves the building; another is
installed where wiring enters the next building.
Continued on next page
Step 4. Wiring Network Cards
Overview
Wiring Guidelines

5-12
• 655-158 Transient Suppressor (ordered as part of 748-599) is required for each
modem-to-telephone line connection.
From Modem
8
5
Grn
Telephone Line
1
4
7
6
2
3
Figure 5-8. The Transient Suppressor
Maximum wiring distances are shown in the Table below and in Appendix J.
Table 5-2. Wiring Distances
Media Type Size Data Rate Max Distance
57.6 kbps 7,000 ft (2,134 m)
24 AWG
(0.2047 mm2) 9.6 kbps 12,000 ft (3,658 m)
57.6 kbps 10,000 ft (3,048 m)
Wired
18 AWG
(0.8231 mm2) 9.6 kbps 17,000 ft (5,182 m)
50/125 um 57.6 or 9.6 kbps 10,000 ft (3,048 m)
Optical Fiber
62.5/125 um 57.6 or 9.6 kbps 15,000 ft (4,572 m)
57.6 kbps 50 ft (15 m)
RS-232 18 AWG
(0.8231 mm2) 9.6 kbps 300 ft (91 m)
Notes:
• The characteristics for 0.75 mm2 are shown in Appendix J.
• 18 AWG (0.8231 mm2) fire-rated twisted, shielded pair must not exceed 58
pF per foot and be less than or equal to 6.385 Ohms per 1,000 feet (305 m).
• 24 AWG (0.2047 mm2) twisted, unshielded telephone cable must not exceed
22 pF per foot and be less than or equal to 25.6 Ohms per 1,000 feet (305
m).
Refer to the 900-242 Field Wiring Specifications or 900-143 Fiber Tutorial for additional
NIC wiring information.
Continued on next page
Step 4. Wiring Network Cards, Continued
Wiring Distances
Related
Documentation
Transient Suppressor Assembly (655-158)
added to RJ-31x as shown. If connecting to a
terminal block, cut off one end of the cable.
Strip back the cable to connect the two center
wires, normally red and green, to the red and
green wires in the block.

5-13
Connectors U1 (transmitter) and U2 (receiver) on the 4100-6057 Fiber-Optic Media Card
are used to connect 4100-6014 NICs across parts of a network.
Note: ST connectors with long strain relief boots are to be used with the fiber
optic cable.
Figure 6-10 shows how two network nodes are connected via fiber-optic cable.
U1 U2 U1 U2 U1 U2 U1 U2
Figure 5-9. Fiber Wiring
Dual Fiber Optic Cable Connections. The standard fiber optic connection between
network nodes uses two fiber optic cables, one for transmit, and the other for receive.
This connection allows for optimum communications distance.
The available communications distance is determined by the properties of the specific
fiber cable used. Distances can be determined using the information and examples shown
below in Table 6-3.
Single Fiber Optic Cable Connections. For applications where a single fiber cable is
available, or where use of a single cable is desired, using a model 4190-9010
Bi-Directional Coupler at each node combines the separate transmit and receive signals
into a single path (refer to the requirements list).
This connection allows use of a single fiber cable, but it does reduce communications
distance as indicated in the information and examples shown below in Table 6-4.
Continued on next page
Step 4. Wiring Network Cards, Continued
Fiber-Optic Wiring
Fiber Optic
Connection Types
FIBER MEDIA CARD
4100-6014
NETWOR
K
INTERFACE CARD
Fiber-Optic Cable

5-14
The 4190-9010 Coupler (271-012) is used with the 565-261 Fiber Optic Media Board,
revision “C” or higher. Two 4190-9010 Bi-Directional Couplers are required per
connection, one at each node.
The 4190-9010 is equipped with type ST connectors. To make type ST to type ST
connections, an ST to ST coupler, by others, is required. ST to ST Couplers are available
from:
Black Box, part # FO200
Fiber Instrument Sales, part # F1-8101
Newark Electronics, part # 95F2097
(or equivalent)
Table 5-3. Dual Fiber Optic Cable Communications Distance Examples
Fiber Type 1* MIFL 2 Power
Margin Distance 3 Budget 3
4 dB/km 4 dB 10,000 ft (3.05 km)
50/125
numerical
aperture = 0.2 3 dB/km 3 dB 15,000 ft (4.57 km)
17 dB
4 dB/km 4 dB 13,000 ft (3.96 km)
62.5/125
numerical
aperture = 0.275 3.75
dB/km 3 dB 15,000 ft (4.57 km)
21.4 dB
*See notes at bottom of page.
Table 5-4. Single Fiber Optic Cable Communications Distance Examples
Using 4190-9010 Bi-Directional Couplers
Fiber Type 1 MIFL 2 Power
Margin Distance 3 Budget 3 4190-9010
Coupler Loss
ST to ST
Coupler Loss
50/125
numerical
aperture = 0.2
3 dB/km 7,650 ft
(2.33 km) 3 dB
62.5/125
numerical
aperture = 0.275
3.2 dB/km
2 dB
8,200 ft
(2.5 km)
21.4 dB 9.4 dB
2 dB
Notes for Tables Above:
1. Cable specifications are for 50 or 62.5 micron core with 125 micron cladding, multi-
mode graded index fiber. Wavelength = 850 nm.
2. MIFL = Maximum Individual Fiber Loss. Numbers shown are for example reference
only, refer to specific cable for exact specification.
3. Maximum cable length is determined by distance listed or by reaching budget value,
whichever is shorter. Maximum distances listed for dual fiber cable are shorter than
would be calculated. Budget using 4190-9010 Bi-Directional Coupler is the same with
either size cable because the coupler input cables are 62.5/125 fiber allowing launch
power to be the same.
Continued on next page
Step 4. Wiring Network Cards, Continued
4190-9010 Coupler
Requirements

5-15
The illustration below shows coupler wiring.
Figure 5-10. Coupler Wiring
Refer to the guidelines and figures in this topic to use wired media cards.
IMPORTANT: TB1 on the wired media card must not be used when it is
connected to the 4100-6014 NIC.
• When the 565-413 Interface Card is used with 565-516, -407, or –409 Network
Card, TB1 on the 565-413 Interface Card cannot be used. Connection to the
motherboard is required as shown.
• The shield should only be connected at one end of the line. The shield is
connected to the left port.
• When wiring leaves the building, 2081-9044 Overvoltage Protectors are
required. One overvoltage protector is installed where wiring leaves the building;
another is installed where wiring enters the next building.
Continued on next page
Step 4. Wiring Network Cards, Continued
4190-9010 Coupler
Requirements
(continued)
Wiring with the
Wired Media Card

5-16
The Table below lists the 4100U master motherboard connections for the wired media
card.
Table 5-5. 566-227 CPU Motherboard Wired Media Connections
Motherboard Port for Media
Card Connected to P5
Wired Media Card Connection
(Left Port)
TB1-4 0 V
TB1-5 Earth ground
TB1-6 INV (-)
TB1-7 None
TB1-8 NONINV (+)
Motherboard Port for Media
Card Connected to P6
Wired Media Card Connection
(Right Port)
TB3-1 NONINV (+)
TB3-2 Reserved
TB3-3 INV (-)
TB3-4 Earth ground
TB3-5 0 V
Figure 5-11, below, shows how two CPU motherboards with wired media network cards
connect to each other in the 4100U.
Figure 5-11. Wired Media Interconnections Between 4100U Motherboards
Continued on next page
Step 4. Wiring Network Cards, Continued
Wiring with the
Wired Media Card
(continued)
18 AWG
1 TB3 10
XMIT RCV
8 TB1 1
XMIT RCV

5-17
The figures below show how to wire the NIC. The illustrations use the 565-274 and 565-
275 motherboards only. If you are using the 4100U motherboard, refer to Figure 5-11
along with the figures below.
Figure 5-12. Wired Media, Style 7 Wiring
Continued on next page
Step 4. Wiring Network Cards, Continued
Wiring Illustrations
Wired Media,
Style 7 Wiring
Notes:
1. Refer to general wiring precautions in this
chapter, as well as Field Wiring
Specifications: document 900-082 for
4100; 900-242 for 4100U.
2. When the 565-413 Interface Card is used
with 565-516, -407, or –409 Network
Card, TB1 on the 565-413 Interface Card
cannot be used. Connection to the
motherboard is required as shown.
3. The shield should only be connected at
one end of the line. The shield is
connected to the left port.
4. On assembly 565-274, JW1 and JW2
must be installed. Jumper plugs must not
be installed on P5-P8.
5. Each “wired” media cable requires two
ferrite beads, one at each end (included in
the shipping group). Refer to installation
instructions 574-041 for proper bead
mounting.
SEE NOTE 3
SEE NOTE 5
SEE NOTE 3

5-18
Figure 5-13. Fiber Optic, Style 7 Wiring
Continued on next page
Step 4. Wiring Network Cards, Continued
Fiber Optic,
Style 7 Wiring
Notes:
1. Refer to general wiring precautions in this chapter, as well as Field Wiring Specifications: document 900-082 for 4100;
900-242 for 4100U. For specific information about fiber optic wiring, refer to the 900-143 Fiber Tutorial.
2. The maximum distance between nodes when using the fiber communication path is dependent upon the fiber’s
multimode graded index: 10,000 feet (3,048 m) for 50/125 fiber; 15,000 feet (4,572 m) for 62.5/125 fiber. The maximum
cable O.D. is 0.118 (3 mm). Reference document 900-143 for other fiber sizes.
3. ST connectors with long strain relief boots are to be used with the fiber optic cable.
4. On assembly 565-274, JW1 and JW2 must be installed. Jumper plugs must not be installed on P5-P8.
5. Cable clamps supplied with 748-531 are used to secure the fiber cable.
SEE NOTE 5
SEE NOTE 5 SEE NOTE 5

5-19
Figure 5-14. Wired Media and Fiber Optic, Style 7 Wiring
Step 4. Wiring Network Cards , Continued
Wired Media and
Fiber Optic,
Style 7 Wiring
Notes:
1. Refer to general wiring precautions in this
chapter, as well as Field Wiring Specifications:
document 900-082 for 4100; 900-242 for 4100U.
For specific information about fiber optic wiring, refer to the 900-143 Fiber Tutorial.
2. The maximum distance between nodes when using the fiber communication path is
dependent upon the fiber’s multimode graded index: 10,000 feet (3,048 m) for 50/125 fiber;
15,000 feet (4,572 m) for 62.5/125 fiber. The maximum cable O.D. is 0.118 (3 mm).
Reference document 900-143 for other fiber sizes.
3. ST connectors with long strain relief boots are to be used with the fiber optic cable.
4. On assembly 565-274, JW1 and JW2 must be installed. Jumper plugs must not be installed on P5-P8.
5. Cable clamps supplied with 748-531 are used to secure the fiber cable.
6. When the 565-413 Interface Card is used with 565-516, -407, or –409 Network Card, TB1 on the 565-413 Interface
Card cannot be used. Connection to the motherboard is required as shown.
7. The shield should only be connected at one end of the line. The shield is connected to the left port.
8. Each “wired” media cable requires two ferrite beads, one at each end (included in the shipping group). Refer to
installation instructions 574-041 for proper bead mounting.
9. When wiring leaves the building, 2081-9044 Overvoltage Protectors are required. One overvoltage protector is installed
where wiring leaves the building; another is installed where wiring enters the next building.
SEE NOTE 5
SEE NOTE 6
SEE NOTES 7 and 8
SEE
NOTES 7
and 8
5-20

6-1
The SPS is described in Chapter 2. A picture is shown in Figure 2.4.
This chapter has the current and voltage ratings of the system power supply (SPS) and
describes how it is installed and configured by the factory. It also describes the Alarm
Relay Card that mounts onto the SPS to provide 3 extra relays.
Refer to the page number listed in this table for information on a specific topic.
Topic See Page #
SPS Specifications 6-2
SPS Configuration 6-4
SPS LED Indications 6-5
Troubleshooting on SPS 6-6
The Alarm Relay Card 6-7
Chapter 6
The System Power Supply & Alarm Relay Card
Introduction
In this Chapter

6-2
The following table summarizes the specifications for the SPS.
Table 6-1. SPS Input and Output Specifications
AC Input Specifications
SPS in Standard
Australian FACP
4100-9848AU
2 A Maximum
240 VAC + 6% -10% @ 50 Hz
DC Output Specifications
Voltage
Nominal 28VDC
Minimum: 19.5 VDC Maximum: 32 VDC
Ripple: 2 VDC p-p @ full load (9A)
Total Current (max)
24V Card
24V Aux
Each NAC (total A+B)
9A alarm load. Includes: NACs (+24V Sig);
+24V Card; +24V Aux; SPS card power
including on-board IDNet.
5A non-alarm load. Includes as per above,
allows for battery charging at high rate.
2A max. See note.
2A max
3A max alarm load
2A max non-alarm load (used as Aux 24V
power).
SPS IDNet Output 30 V or 35 V (see note below)
Battery Charger Specifications
Input Voltage Range 21-33 VDC
Output Float Voltage
27.3 VDC ±200 mV @ 20°C, temperature
compensated at approximately -36mV/°C
(0° C to 50° C)
Output Current Limit 1.4 A (For 6.2 – 18 Ah battery)
3.3 A (Default; for 18-110 Ah battery)
Notes:
• AC power must be provided to the 4100U from a dedicated AC branch circuit.
The AC input is supervised.
• 240 VAC: The service branch circuit breaker should be sized to handle at
least 150 percent of the total required by all of the power supplies in the
system.
• The bulk supply (rated at 9A max) which feeds 24V Sig, 24V Card, 24V Aux
also supplies the SPS Card including the on board IDNet, and the battery
charger. The charger is disabled during alarms so as to make the 9A
available on the other busses. (See the following table for the SPS current.)
Continued on next page
SPS Specifications
Input/Output/Battery
Specifications

6-3
• +24V Sig is used to supply the NACs. It can be made accessible by
configuring a NAC as an aux power output (normally energized). The PDI
has a 24V Sig bus that is only powered when an SPS is plugged directly on
to it. (Not in standard configuration). The 4100 MXP is the only Australian
approved card that takes power from this bus. All other cards draw power
from +24V Card.
• The battery circuit is supervised every 29 seconds. The battery test (custom
control) is for 1 hour once per week.
• The battery is connected to the charger but is normally disconnected from the
bulk supply. During mains fail, and the 1 hour battery test, the battery gets
connected to the bulk supply.
• The IDNet output is 30V in the normal condition as is used to prolong battery
standby. When it is necessary to activate large numbers of output devices on
IDNet peripherals (such as piezo sounders), the output voltage is increased
to 35V to provide sufficient voltage at the end of line to activate the piezo.
The higher voltage state is an alarm condition for the purpose of standby
battery calculation.
The following table summarizes battery standby capabilities for the SPS. Voltage
assumed is 24 V, which is the rated battery voltage for lead-acid type batteries.
Table 6-2. SPS Current Specifications
Standby Conditions Current
• No alarms (NACs normal)
• IDNet LED ON, no IDNet devices connected 175 mA
Add to above for each additional set of 50 IDNet devices in
standby, with IDNet at 30 V 40 mA
Total current for fully loaded IDNet channel (250 devices) in
standby 375 mA
Alarm Conditions Current
• 3 NACs ON
• IDNet LED ON, no IDNet devices connected 185 mA
Add to above for each set of 50 IDNet devices in alarm, 20
LEDs ON 80 mA
Add to above for each set of 50 IDNet devices in alarm, LEDs
OFF 50 mA
Total current for a fully loaded IDNet channel (250 devices) in
alarm, 20 LEDs ON 475 mA
Notes:
• Additional standby conditions: Trouble relay activated, power trouble LED
on, IDNet LED on, battery charger off, auxiliary power load = 0 mA
• Additional alarm conditions: Trouble relay activated, power trouble LED
on, IDNet LED on, battery charger off, auxiliary power load = 0 mA, NAC
alarm load = 0 mA, IDNet = 35 V
Continued on next page
SPS Specifications, Continued
SPS Current
Consumption

6-4
The range of possible temperatures under which the SPS may function are between 0° C
and 50° C (120° F).
The SPS operates normally under non-condensing humidity conditions up to 93% with
relative humidity at 32° C.
This section contains information about SPS jumpers, DIP switches and potentiometers.
P2: If the SPS IDNet outputs are being used, you may change P2 to configure the IDNet
shield connection.
• Position 1 – 2 (bottom ): Connects the shield to 0 V (default).
• Position 2 – 3 (top): Connects the shield to earth ground.
P3: City Card and Relay Card operation
• Position 1-2 (top): Install in pos. 1-2 only if a relay card 4100-6033 is installed and
has relay 3 programmed for operation other than "Fault (Trouble)"
• Position 2-3 (bottom): (default) For use with 4100-6033 if relay 3 is programmed for
"activate on fault (trouble)" operation. (This option is used for Brigade connection)
P1: Earth connect jumper.
• Position 1 – 2 (rhs): Enables Earth fault monitoring. Set to this position unless the
system uses a TrueAlert Power Supply under common 0 V.
• Position 2 – 3 (lhs): Disables Earth fault monitoring. Set to this position only if the
system uses a TrueAlert Power Supply under common 0 V.
Refer to Appendix A to set the device address for the SPS with DIP switch SW1.
There are two 4mm (i.e. small), potentiometers on the 4100-9848AU SPS, situated below
the centre of the pcb. These are adjusted in the factory and typically, will not need
adjusting in the field.
If it is required to adjust them, turning the potentiometer clockwise increases the voltage.
R341 Battery Charger Voltage
Adjust this potentiometer to achieve a charger voltage of 27.3V ± 0.1V at 20°C.
(Allow -36V/°C for temperatures different to 20°C).
R342 Voltage Measurement Calibration
Adjust this potentiometer to match the measurement of charger voltage on the panel LCD
with that on a calibrated voltmeter measuring the charger output. Use the “Card
Status”option of the menu. Match the two readings to within 0.05Vdc.
SPS Specifications, Continued
Environmental
Requirements
SPS Configuration
Overview
Jumper Settings
Setting the Device
Address
Adjusting Voltages

6-5
The SPS has the following LEDs:
LED1 (yellow). Illuminates when NAC 1 is ON or in Fault.
LED2 (yellow). Illuminates when NAC 2 is ON or in Fault.
LED3 (yellow). Illuminates when NAC 3 is ON or in Fault.
LED4 (yellow). Illuminates to indicate a communications loss with the system CPU;
normally off. If this LED is blinking, try re-loading the software to FLASH.
LED5 (yellow). Indicates IDNet status.
• Slow blink: Class A open circuit Fault.
• Fast blink: Short circuit Fault.
• On steady: No devices detected/ channel failure.
• Normally off.
LED6 (yellow). Indicates power supply status.
• Single blink: Positive earth fault.
• Double blink: Negative earth fault.
• Triple blink: Battery Fault.
• Quadruple blink: Charger Fault.
• On steady: Overcurrent fault.
• Normally off.
LED7 (green). Illuminates when the power supply is powered from the AC line. Off
when the power supply is de-energized, or when it is using battery backup power.
SPS LED Indications
LEDs

6-6
This section contains explanations of fault messages that may appear on the 4100U
display when using the SPS. Heading text in the left margin shows the error message,
while the paragraph next to it describes the likely cause of the message.
There is no output voltage from the power supply. Refer to Chapters 2 and 6 for
information on power supplies.
Appears if one or more extra devices (i.e., devices that have not been configured for the
IDNet channel) are one the system. Only one message appears, regardless of the number
of extra devices found.
There is an open on the IDNet channel. A hardware reset is required to reset the fault.
Comes up during the Earth Fault Search diagnostic function. Once the search is initiated,
the front panel display indicates how far along the search process has progressed (10%,
25%… 75%), and then shows the results of the search. The result either identifies the
offending circuit or indicates that the earth fault could not be found. SPS circuits (IDNet,
NAC, and aux power) are searched. System alarm and trouble processing is suspended
during the search.
Appears when a short is detected on the IDNet channel. This status clears automatically
when the short circuit is removed.
Appears when each device on the IDNet channel has been configured, and when none of
the devices are communicating on the channel. This message does not appear if there are
no configured devices on the IDNet channel.
Occurs when the 4100 is put into a diagnostic mode and finds a device not responding, or
responding unreliably. Refer to the 4100U PC Programmer Programming Manual (574-
849) for information on how to perform this diagnostic.
Occurs when 24 V is not present on TrueAlarm devices or when TrueAlarm sensor bases
with relay driver outputs are not properly supervised or when isolator devices are in
isolation mode.
Troubleshooting on SPS
Overview
IDNet Power
Monitor Trouble
Extra Device
Class A Trouble
Earth Fault Search
Short Circuit
Channel Fail
No Answer/
Bad Answer
Output Abnormal

6-7
The Alarm Relay Card mounts on, and is driven by, the SPS. It has 3 relays each
providing one set of voltage-free contacts.
The relays are able to be configured under custom control, but the default operation is for
system status, i.e. Fault (Trouble), Isolate (Supervisory), and Alarm, respectively. These
are commonly used to drive the Brigade signalling.
TROUBLE SUPERVISORY ALARM
F3 F2 F1
p
3
p
2
p
1
LD1 LD2 LD3
Fault
(Trouble)
Isolate
(Supervisory)
Alarm
10 Way FRC
connects to P7
on SPS
Energised Relay LEDs
Energised Relay LEDs
Normally Closed/
Normally Open
Jumpers
3A, 5 x 15mm Fuses
TB1 Terminal Block
Figure 6-1. The Alarm Relay Card
The Alarm Relay Card mounts on the SPS adjacent to the largest relay K3. With the
power disconnected, fit the card using the 3 plastic stand-offs and one Torx screw with
plastic sleeve.
Connect P4 on the relay card to P7 on the SPS with the 10 way FRC provided.
The Alarm Relay Card
Overview
Mounting

6-8
The relays have one set of voltage-free contacts (see note below) connected to one pair of
terminals via a header. The two terminals are configured for normally closed or normally
open by positioning a jumper on the header.
Table 6-3. Alarm Relay Card Jumper Positions
Relay Header Normally Closed Normally Open
Alarm
Isolate (Supervisory)
Fault (Trouble)
P1
P2
P3
1-2 (top)
1-2 (top)
1-2 (top)
2-3 (bottom)
2-3 (bottom)
2-3 (bottom)
• The common contact of each relay has a transient suppressor to earth, and must not be
used to switch voltages greater than its rating.
• The common contact is protected with a 3A fuse.
• For default configuration the relays are normally de-energised and energise on
Fault/Isolate/Alarm.
• The corresponding LED illuminates when the relay is energized.
• The relays may be configured under custom control to operate other than default.
If relay RL3 is configured for operation other than Fault (Trouble), jumper P3 on the SPS
must be shifted to positions 1-2 (top).
CARD
Input Voltage 20-32Vdc
Input Current 15mA @ 24V, quiescent
(nominal) 37mA @ 24V, all relays on
RELAYS
Form Voltage-free changeover, suppresses to
earth
Voltage 30Vac, 32Vdc
Current 2A, resistive load
FUSE
F1, F2, F3 5 x 15mm, Glass Cartridge, 3A (208-163)
The Alarm Relay Card, Continued
Configuration
Notes
Warning
Specification

7-1
This chapter shows how various devices are wired to an SPS. It includes connection to
NACs, IDNet, relays, and power circuits.
Refer to the page number listed in this table for information on a specific topic.
Topic See Page #
General Field Wiring Guidelines 7-2
SPS NAC Field Wiring Guidelines 7-3
Power Supply Wiring Distances 7-5
SPS Auxiliary Power Wiring 7-8
SPS Relay Wiring 7-10
SPS IDNet Wiring 7-12
Chapter 7
SPS Field Wiring (4100U)
Introduction
In this Chapter

7-2
Make sure these guidelines are accounted for before wiring:
• All field wires must be 0.75 mm2 or greater and comply with AS1670.1 and the
wiring code.
• Conductors must test free of all grounds.
• All wiring must be done using copper conductors only, unless noted otherwise.
• If shielded wire is used,
- the metallic continuity of the shield must be maintained throughout the
entire cable length.
- the entire length of the cable must have a resistance greater than 1 Megohm
to earth ground.
• Underground wiring must be free of all water.
• In areas of high lightning activity, or in areas that have large power surges, the
2081-9027 Transient Suppressor should be used on monitor points.
• Wires that run in plenum should be in conduit.
• A system ground must be provided for earth detection and lightning protection
devices. This connection must comply with approved earth detection.
• Only system wiring should be run together in the same conduit.
• Use supplied ferrite beads with all SPS field wiring including the Aux 24V.
Loop wires twice through the supplied ferrite bead(s) as shown in Figure 7-1.
(Extra can be ordered as SX0005.)
Figure 7-1. The Ferrite Bead (SX0005)
Continued on next page
General Field Wiring Guidelines
General Guidelines
Wires go twice
through (1 turn)

7-3
Each of the 3 NACs has two pairs of driven outputs (A+/A-, B+/B-) which operate
together.
NAC B outputs have polarity reversal supervision and expect a 10k EOLR. Each
connected device must have a suitably rated blocking diode.
NAC A outputs have an integral 10k to accommodate Class A (loop) wiring. Class A
wiring is not mandatory under AS1670.1.
The 3A max rating applies to each NAC, B + A outputs combined. NAC load current
may be read on the LCD.
The Australian SPS has extra decoupling capacitors fitted to the NAC outputs, and cannot
be used to drive the Simplex range of addressable appliances.
NACs may be programmed to be normally on and the terminals used as power supply
outputs. See the SPS Auxiliary Power Wiring section following.
Review the following guidelines for NACs before you begin NAC field wiring.
• All wiring shall be 0.75 mm2 to 4 mm2.
• All wiring is supervised and power-limited.
• The maximum alarm current is 3 A per circuit. The supervisory current is 2.03
mA at
24 VDC.
• The nominal voltage rating is 24 VDC, 2 V p-p ripple (maximum).
• The total available current from the SPS is 9 A. Any current used for card power
by modules plugged into the PDI, as well as any auxiliary 24 VDC current, must
be deducted from the total 9 A available current.
• Terminal designations “+” and “-” are for the alarm state not the supervision
state.
Continued on next page
SPS NAC Field Wiring Guidelines
Overview
Guidelines

7-4
To connect the SPS to reverse-polarity, non-addressable notification appliances using
Class A wiring, read the following instructions and refer to the figure below.
1. Route wire (between 0.75 mm2 and 4 mm2) from the “B+”, “B-”, outputs on TB2
of the SPS to the appropriate inputs on a peripheral notification appliance. Use
NAC1, NAC2, or NAC3 as configured..
2. Route wire from the first appliance to the next one. Repeat for each appliance.
3. Route wire from the last appliance to the A+ and A- inputs on the same NAC
circuit of TB1 of the SPS.
4. Repeat steps 1 through 3 for each NAC output you want to use.
5. Leave the 10 K, ½ W, brown/black/orange resistor (378-030) on each the “B+”
to “B-” terminals of each unused NAC. No external end-of-line resistor is
needed for circuits in use.
6. If the appliance/device to be used does not have an integral diode, a sufficiently
rated blocking diode must be fitted between the incoming +ve wire and the +ve
terminals of the device with cathode to the device.
P1
3
2
1
B+ B- A+ A-
TYPICAL
APPLIANCE
RED
RED
RED
NAC1
B+ B- A+ A-
NAC1
B+ B- A+ A-
NAC1
LED1 LED2 LED3
TYPICAL
APPLIANCE
BLK
BLK
BLK
NAC2 NAC3
Figure 7-2. Class A NAC Wiring
Continued on next page
SPS NAC Field Wiring Guidelines, Continued
Class A NAC Wiring
SPS NAC Field Wiring Guidelines, Continued
0.75 mm
2
to 4 mm
2
Important: Conductors must test free of
all grounds. Leave the 378-030 EOL
Resistor (10 K Ohm, ½ W;
brown/black/orange) on
unused B+/B- terminals
Ferrite beads
required for EMC
compliance. Use
SX0005 or kit
4100-5129.

7-5
To connect the SPS to appliances using Class B wiring, read the following instructions
and refer to the figure below.
1. Route wire (between 0.75 mm2 and 4 mm2) from the B+, B- outputs on TB2 of
the SPS to the appropriate inputs on a peripheral notification appliance. Use
NAC1, NAC2, or NAC3, as configured.
2. Route wire from the first appliance to the next one. “T” tapping is not allowed.
Repeat for each appliance.
3. Route wire from the last appliance to the supplied EOLR or a 4081-9008 EOL
Harness (10 K Ohm, ½ W; brown/black/orange).
4. Repeat steps 1 through 3 for each NAC output you want to use.
5. Leave the 378-030 EOL Resistor (10 K Ohm, ½ W; brown/black/orange) on
each unused circuit. The circuit must connect “B+” to “B-” terminals.
6. If the appliance/device to be used does not have an integral diode, a blocking
diode must be fitted between the incoming +ve wire and the +ve terminals of the
device with cathode to the device.
The illustration below shows Class B wiring.
P1
3
2
1
B+ B- A+ A-
TYPICAL
APPLIANCE
RED BLK
NAC1
B+ B- A+ A-
NAC1
B+ B- A+ A-
NAC1
LED1 LED2 LED3
TYPICAL
APPLIANCE
10K 1/2W (133-894)
NAC2 NAC3
RED RED
RED RED
Figure 7-3. Class B Wiring
Before wiring from any type of power supply to notification appliances, check Tables 7-1
and 7-2 for wiring distances.
Class B NAC Wiring
Power Supply Wiring Distances
Overview
Important: Conductors must test free of
all grounds.
0.75 mm
2
to 4 mm
2
BLK
BLK
BLK
4081-9008 EOL Harness
Leave the 378-030 EOL
Resistor (10 K Ohm, ½ W;
brown/black/orange) on
unused B+/B- terminals
Ferrite bead
required for CE
compliance. Use
SX0005 or kit
4100-5129.

7-6
Table 7-1 lists the maximum distances from the NAC terminal block to the last appliance
in a Class A configuration, depending on wire gauge and current. Use Table 7-1 to
calculate wire distances for your application if you are using Class A wiring.
Table 7-1. Class A Wiring Distances
Alarm
Current @
24 V
Max Distance
w/ 18 AWG
(0.8231 mm2)
Max Distance
w/ 16 AWG
(1.309 mm2)
Max Distance
w/ 14 AWG
(2.081 mm2)
Max Distance
w/ 12 AWG
(3.309 mm2)
DC
Resistance
0.25 A 420 ft. (128 m) 667 ft. (203
m)
1,063 ft. (324
m)
1,691 ft. (515
m)
6 Ohms
0.50 A 210 ft. (64 m) 334 ft. (102
m)
532 ft. (162 m) 845 ft. (258 m) 3 Ohms
0.75 A 140 ft. (43 m) 222 ft. (68 m) 354 ft. (108 m) 564 ft. (172 m) 2 Ohms
1 A 105 ft. (32 m) 167 ft. (51 m) 266 ft. (81 m) 423 ft. (129 m) 1.5 Ohms
1.25 A 84 ft. (26 m) 133 ft. (41 m) 213 ft. (65 m) 338 ft. (103 m) 1.2 Ohms
1.50 A 70 ft. (21 m) 111 ft. (34 m) 177 ft. (54 m) 282 ft. (86 m) 1 Ohm
1.75 A 60 ft. (18 m) 95 ft. (29 m) 152 ft. (46 m) 242 ft. (74 m) 0.86 Ohm
2 A 53 ft. (16 m) 83 ft. (25 m) 133 ft. (41 m) 211 ft. (64 m) 0.75 Ohm
2.25 A 47 ft. (14 m) 74 ft. (23 m) 118 ft. (36 m) 188 ft. (57 m) 0.67 Ohm
2.50 A 42 ft. (13 m) 67 ft. (20 m) 106 ft. (32 m) 169 ft. (51 m) 0.60 Ohm
2.75 A 38 ft. (12 m) 61 ft. (19 m) 97 ft. (30 m) 154 ft. (47 m) 0.55 Ohm
3 A 35 ft. (11 m) 56 ft. (17 m) 89 ft. (27 m) 141 ft. (43 m) 0.50 Ohm
Notes:
• Max Distance = distance from SPS/RPS to last appliance.
• This table is calculated at 49 degrees Centigrade (120 degrees
Fahrenheit). If you are installing in locations that could be exposed to
higher temperatures, refer to NEC Tables 7 and 8 in NFPA code, or
applicable local standard.
• Distances are based on a 3 V drop, and take into account the worst-case
panel output voltage. These distances are worst case to allow for one
single load at the furthest point.
• If circuit integrity wire is used instead of housing cable in a fire-rated
enclosure, reduce wiring distances by 38 feet (12 m) for every 10 feet (3
m) of potential exposure.
• For other wire gauges (e.g. 4 mm2) multiply the distance specified for the
nearest wire size by the ratio of the wire area, e.g. for 3A on 4 mm2 look
up 3A on 12AWG (3.3 mm2) and multiply the resulting 43m x 4.0/3.3 =
52m.
Continued on next page
Class A NAC
Wiring Table

7-7
Table 7-2 lists the maximum distances from the NAC terminal block to the last appliance
in a Class B configuration, depending on wire gauge and current. Use Table 7-2 to
calculate wire distances for your application if you are using Class B wiring.
Table 7-2. Class B Wiring Distances
Alarm
Current @
24 V
Max Distance
w/ 18 AWG
(0.8231 mm2)
Max Distance
w/ 16 AWG
(1.309 mm2)
Max Distance
w/ 14 AWG
(2.081 mm2)
Max Distance w/
12 AWG
(3.309 mm2)
DC
Resistance
0.25 A 840 ft. (256 m) 1,335 ft. (407 m) 2,126 ft. (648 m) 3,382 ft. (1,031 m) 12 Ohms
0.50 A 420 ft. (128 m) 667 ft. (203 m) 1,063 ft. (324 m) 1,691 ft. (515 m) 6 Ohms
0.75 A 280 ft. (85 m) 445 ft. (136 m) 709 ft. (216 m) 1,127 ft. (344 m) 4 Ohms
1 A 210 ft. (64 m) 334 ft. (102 m) 532 ft. (162 m) 845 ft. (258 m) 3 Ohms
1.25 A 168 ft. (51 m) 267 ft. (81 m) 425 ft. (130 m) 676 ft. (206 m) 2.4 Ohms
1.50 A 140 ft. (43 m) 222 ft. (68 m) 354 ft. (108 m) 564 ft. (172 m) 2 Ohms
1.75 A 120 ft. (37 m) 191 ft. (58 m) 304 ft. (93 m) 483 ft. (147 m) 1.71 Ohms
2 A 105 ft. (32 m) 167 ft. (51 m) 266 ft. (81 m) 423 ft. (129 m) 1.5 Ohms
2.25 A 93 ft. (28 m) 148 ft. (45 m) 236 ft. (72 m) 376 ft. (115 m) 1.33 Ohms
2.50 A 84 ft. (26 m) 133 ft. (41 m) 213 ft. (65 m) 338 ft. (103 m) 1.2 Ohms
2.75 A 76 ft. (23 m) 121 ft. (37 m) 193 ft. (59 m) 307 ft. (94 m) 1.09 Ohms
3 A 70 ft. (21 m) 111 ft. (34 m) 177 ft. (54 m) 282 ft. (86 m) 1 Ohm
Notes:
• Max Distance = distance from SPS or RPS to last appliance.
• This table is calculated at 49 degrees Centigrade (120 degrees
Fahrenheit). If you are installing in locations that could be exposed to
higher temperatures, refer to NEC Table 7 and 8 in NFPA code, or
applicable local standard.
• Distances are based on a 3 V drop, and take into account the worst-case
panel output voltage. These distances are worst case to allow for one
single load at the furthest point.
• If circuit integrity wire is used instead of housing cable in a fire rated
enclosure, reduce wiring distances by 38 feet (12 m) for every 10 feet (3
m) of potential exposure.
• For other wire gauges (e.g. 4 mm2) multiply the distance specified for the
nearest wire size by the ratio of the wire area, e.g. for 3A on 4 mm2 look
up 3A on 12AWG (3.3 mm2) and multiply the resulting 86m x 4.0/3.3 =
104m.
Continued on next page
Power Supply Wiring Distances, Continued
Class B NAC
Wiring Table

7-8
The panel, battery-backed, unregulated dc bulk power is available from the SPS via the
NAC and the 24V Aux power terminals (1 pair only, ref fig 7-4). NACs not configured
as switched outputs may be configured as auxiliary power point type in the 4100
Programmer. All of these are power-limited.
Review the following guidelines before using the SPS for auxiliary power.
• Voltage rating: 24 VDC (nominal), 2 V P-P ripple (maximum).
• The total auxiliary current available for non-alarm is 5 A. The total current available
for the entire SPS is 9 A, including NAC, auxiliary, and card power.
• All wiring is 0.75 mm2 to 4 mm2.
• All SPS powered field wiring requires a ferrite bead (ref fig 7.1).
• All wiring that leaves the building requires overvoltage protection. Install
module
2081-9044 wherever wire enters or exits the building. A maximum of four 2081-
9044 Modules may be connected to one channel.
• When a NAC is configured as an auxiliary power circuit, no end-of-line resistor
is used.
• External wiring is not supervised unless an end-of-line relay is wired, coil to
auxiliary power, and Normally Open contacts are monitored by a system power
point. Relay current must be considered as part of the load.
• Programming is required for the dedicated Auxiliary Power output (TB3).
• The following devices may be connected to the 2 A Auxiliary Power:
- 2088-series relays and door holders
- 2098-series four-wire smoke detectors
- 2190-series monitor and signal ZAMs
- 4090-series IDNet ZAMs
- 4098-series four-wire smoke detectors and duct detectors
- 2190-9039 Printer
- 4190-9050/9051 4-20 mA ZAMs
- 4603-9101 LCD Annunciator
• The Auxiliary Power output is rated at 2 A dc.
• Where multiple loads are to be connected with individual protection, a Fused DC
Distribution board may be fitted directly to the SPS bracket adjacent to TB3.
Continued on next page
SPS Auxiliary Power Wiring
Overview
Guidelines

7-9
The SPS can connect to auxiliary power appliances via the dedicated auxiliary power tap
(TB3). If more power is needed, any of the three NAC outputs can be used for EMC
auxiliary power.
B+
0V 24V
AUX POWER
B- A+ A- B+ B- A+ A- B+ B- A+ A-
AUXILIARY
POWER
AUXILIARY
POWER
AUXILIARY
POWER AUXILIARY
POWER
Figure 7-4. Auxiliary Power Wiring
SPS Auxiliary Power Wiring, Continued
Wiring
• Maximum per NAC: 3 A
• Maximum per Auxiliary Power output: 2 A
• Class A wiring is possible only if 4090-9117 Power Isolators are used.
• EMC compliant systems require ferrite beads. Use kit SX0005.
Devices
Primary Return
TB1 TB2
24V
0V
TB1 TB2
To SPS/
RPS
Class A aux power wiring requires the use
of 4090-9117 IDNet Power Isolators, as
shown above.
4090-9117
ISOLATOR
4090-9117
ISOLATOR
SPS
TB2
TB3
Dedicated auxiliary
power screw terminal
(configured in the
Programmer)
NAC points must be
reconfigured as
auxiliary power
output points in the
programmer
0.75 mm
2
to 4 mm
2
0.75 mm2 to 4 mm2
Ferrite bead
required for EMC
compliance. Use
SX0005 or kit
4100-5129.

7-10
The SPS has one programmable relay, Aux 1, with one set of voltage-free contacts (see
below). It also has provision for mounting a 4100-6033 Alarm Relay that has 3 relays,
each with one set of normally open (or normally closed) contacts available on a screw
terminal block (see fig 6.1).
• The relay must be configured in the Programmer.
• The relay circuit is rated to switch 2 A at 30 VAC or 32 VDC, resistive load.
• Relay contacts are Form C voltage-free contacts (but with a 40V transorb from
common to Earth. Do not switch voltages greater than the rating, or damage may
result.
• When power through the relay contacts is provided by the SPS 2 A Auxiliary Power,
wiring is
power-limited.
• The relay circuit is not supervised.
The three relays have default functions of Fault (trouble), Isolate (supervisory) and
Alarm, and are typically used for Brigade Signalling (refer to chpt 10).
• The relays may be configured by the Programmer for alternate functions.
• If used as Brigade relays, the jumper must be fitted to the bottom position on P3 on
the SPS. If Fault (trouble) is programmed for an alternate function it must be fitted
to the top position.
• Only one pair of contacts is available for each, and is configured as normally open
(NO) or normally closed (NC) by fitting a jumper on the adjacent headers P1
(Alarm), P2 (Isolate) and P3 (Fault). Use top position for NC and bottom position
for NO.
• The relays are each fuse protected (fuse 5 x 15mm, rating 3 A).
• Relays are not supervised.
Continued on next page
SPS Relay Wiring
Overview
Aux 1 Relay
Alarm Relay Card

7-11
The Figure below shows the SPS relays.
Figure 7-5. Auxiliary Relay & Alarm Relay Card Relays
SPS Auxiliary Relay Wiring, Continued
Relays
B+ B- A+ A- B+ B- A+ A- B+ B- A+ A-
TB2
SPS
Dedicated Auxiliary 1
relay terminal block
NO C NC
TB4
TERMINAL
BLOCK
ALARM
RELAY
MODULE
P7 P4

7-12
This section describes how the IDNet on the SPS connects to addressable
devices/detectors.
The guidelines governing IDNet wiring guidelines are covered in chpt 8, IDNet
Installation.
Up to 250 IDNet initiating devices are supported on the SPS IDNet channel. The SPS
supports both Class A (loop) and Class B(string) wiring. Class A wiring is mandatory for
connection to more than 40 devices.
Class A wiring allows IDNet appliances to communicate with the SPS even in the event
of an open circuit somewhere in the loop. Class A wiring requires that two wires are
routed from the SPS to each IDNet appliance, and then back again to the SPS.
Class B wiring allows “T” tapping, and therefore requires less wiring distance per
installation than Class A. Note that Class B wiring does not require end-of-line resistors,
because each IDNet appliance communicates directly to the SPS.
Ferrite beads are required on the SPS IDNet cables (ref Fig 7.1). Refer to chpt 8
IDNet Installation for the guidelines governing IDNet wiring.
Continued on next page
SPS IDNet Wiring
Overview
IDNet Wiring
Guidelines

7-13
To connect addressable devices/detectors to the SPS IDNet using Class A wiring, read the
following instructions.
1. Ferrite beads are required on the SPS IDNet cables (ref Fig 7.1).
2. Route wire (between 0.75 mm2 and 4 mm2) from the B+, B- outputs on TB1 of
the SPS to the appropriate inputs on a peripheral IDNet device.
3. Route wire from the first IDNet device to the next one. Repeat for each device.
4. Route wire from the last IDNet device to the A+ and A- inputs on TB1 of the
SPS.
B+ B- SHLD
IDNet
A+ P1
3
2
1
A-
IDNet
DEVICE
IDNet
DEVICE
IDNet
DEVICE
IDNet LOOP
(CLASS A / STYLE G)
Figure 7-6. Class A Wiring
Continued on next page
SPS IDNet Wiring, Continued
Class A Wiring
IDNet
DEVICE
IDNet
DEVICE
IDNet
DEVICE
Ferrite beads
required.

7-14
To connect addressable devices/detectors to the SPS IDNet using Class B wiring, read the
following instructions.
1. Under AS1670.1 Class B wiring is allowed only for a maximum of 40
addressable devices.
2. A ferrite bead is required on the SPS IDNet cable.
3. On TB1, jumper B+ to A+, and jumper B- to A-.
4. Route wire (between 0.75 mm2 and 4 mm2) from the B+, B-.
The illustration below shows Class B wiring.
B+ B- SHLD
IDNet
A+ P1
3
2
1
A-
IDNet LINES TO DEVICES
(CLASS B / STYLE 4)
Figure 7-7. Class B Wiring
SPS IDNet Wiring, Continued
Class B Wiring
Ferrite bead
required.

8-1
Two loop cards are available in the 4100U 4”x 5”card format. These plug directly onto
the PDI and form an intelligent interface between the 4100U CPU and one loop of
addressable detectors/devices.
The IDNet Card uses Mapnet Protocol and communicates with existing Mapnet
detectors/devices plus the new IDNet devices.
The 4100MXP communicates with the Tyco MX range of detectors/devices.
Refer to the page number listed in this table for information on a specific topic..
Topic See Page #
The IDNet Card 8-2
Installing the IDNet Card onto the PDI 8-4
Installing the ID-Net into a 4100 Card Bay 8-5
Configuring the Card
8-6
Wiring to IDNet Devices 8-7
Troubleshooting on IDNet 8-10
The 4100MXP 8-11
Chapter 8
Installing 4100U IDNet & 4100MXP Cards
Introduction
In this Chapter

8-2
The 4100U IDNet card receives 24V power (+24V Card Supply bus) and coms (i.e.
communication with the CPU) via the PDI. There are several versions, configured by
links soldered on the pcb. The 4100-3101 used in Australia, communicates with up to
250 devices. An IDNet card may be fitted to a 4100 (non-U) bay in an upgrade panel by
use of a bracket and interface pcb plus 4100 style power and coms wiring harness.
The part number for the IDNet card, plus Interface bracket is KT0452.
Figure 8-1. The IDNet Card
The IDNet Card
Overview
IDNET LINE TERMINAL BLOC
K
(TB1)
SHIELD JUMPER
(P1)
A
DDRESS
DIP SWITCH
(SW1)
COMM TROUBLE
LED (LED1)
IDNET TROUBLE
LED (LED2)
PDI CONNECTOR
(P2) (on reverse
side)

8-3
The IDNet card has the following LEDs:
LED1. Normally off. Turns on steady if the IDNet card is not communicating with
the 4100 CPU.
LED2. Normally off. Illuminates to indicate a problem with the IDNet lines.
• Steady on indicates channel failure.
• One repetitive blink indicates a line short.
• Two repetitive blinks indicate a Class A failure or an open line.
Table 8-1. IDNet Specifications
Electrical Specifications
Input Voltage 24 VDC nominal from FACP (24V Card Supply from SPS)
Coms/Power
Voltage to
IDNet Slaves
30 VDC (nominal) or 35 VDC @ 250 mA
36.5V max (See below)
Coms/Power
Current Limit 350mA ave current @ 49° C
Coms/Power
Wiring
Distance
40 Ohms max loop resistance
0.58 µF capacitance max (line to line and shield to line)
Environmental Specifications
Operating
Temperature 0° to 50° C
• Voltage output to IDNet is normally 30 VDC. Output is increased to 35 VDC
when LEDs, piezos, or other outputs are activated, as in the alarm state.
• The 30/35V PSU on the IDNet is rated at greater than 350mA. The current limit
is provided by a PTC.
• Up to 250 IDNet devices are supported by one IDNet channel.
• The IDNet card keeps track of which LEDs should be on at all times, and
displays up to 20 at any given time.
• Up to 43 coded piezo sounders are supported by one IDNet channel.
The IDNet Card, Continued
LEDs
Specifications

8-4
The 4100-series IDNet card is designed to be mounted on the PDI in a 4100U expansion
cabinet. The card can be mounted on any of the PDI connectors.
Use connector P2, labeled on the back side of the IDNet card, to connect to any of the
eight PDI connectors as shown in the figure below.
Figure 8-2. Mounting onto the Power Distribution Interface
Installing the IDNet Card onto the PDI
Overview
IDNet CARD
STANDOFFS
#6 SCREWS
WASHERS
PDI CONNECTOR
(reverse side)
PDI
SCREW
RETAINERS

8-5
If a 4100 is upgraded to 4100U, IDNet cards can be fitted to existing 4100 bays by use of
the Interface Card plus bracket. The bracket mounts to the bay as a 4100 card
motherboard does and takes up 1 slot.
Wire detectors and
devices
Connect Comms
and Power with
LM0203
Blue +
3 Black
Blue +
3 Black
White +
3 Black
White +
3 Black
P2 Comms
P3 Power
Set Links
+-
+-
+
---
++
IDNET CARD
A- A+ B- B+
LM0203 to next
IDNet if required
4" x 5" Card
Bracket
IDNET Card plus Interface Part
Number KT0452
Figure 8-3. Mounting into 4100 (legacy) Bay
Installing the ID-Net into a 4100 Card Bay
Overview

8-6
Configuring the card consists of selecting the shield tie point, and setting the device
address..
If a shielded cable is used, connect the cable shield to the dedicated terminal on TB1 and
use jumper port (P1) to select where the shield will be tied.
• Position 1 - 2 connects the shield to 0 V.
• Position 2 - 3 connects the shield to Earth.
The device address is set on DIP switch SW1, which is a bank of eight switches (see
figure below). From left to right, these switches are designated as SW1-1 through SW1-8.
The function of these switches is as follows:
• SW1-1. This switch sets the baud rate for the internal 4100 communications
line running between the card and the 4100 CPU. Set this switch to ON.
• SW1-2 through SW1-8. These switches set the card’s address within the
4100 FACP. Refer to the table in Appendix A for a complete list of the switch
settings for all of the possible card addresses.
Note: You must set these switches to the value assigned to the card by the
4100 Programmer.
1 8
7
6
5
4
3
2
Figure 8-4. DIP Switch SW1
Configuring the Card
Overview
Setting the Shield
Tie Point
Setting the Address
ON
OFF
Dip Switches SW1-2 through
SW1-8 set the Card Address.
Figure shows an Address of 3.
4100 Comm. Baud Rate.
Switch (SW1-1)
Must Be Set to ON

8-7
Up to 250 IDNet slave devices, such as smoke detectors and manual call points, can be
connected to the IDNet card using Class A (loop) or Class B (line) wiring, with the
following restrictions.
Class A wiring allows the devices to communicate with the IDNet card even in the event
of an open circuit somewhere in the loop. Class A wiring requires that two wires are
routed from the IDNet card to each IDNet device, and then back again to the IDNet card.
Under AS1670.1 every group of 40 devices (or less) must be separated by a Comms
Isolator.
Class B wiring allows “T” tapping, and therefore requires less wiring distance per
installation than Class A. IDNet wiring does not require end-of-line resistors, because
each IDNet device communicates directly to the IDNet card. A maximum of 40 devices
is allowed to be connected this way.
See Appendix F for a list of compatible devices and their ratings.
• Use ferrites. See Fig 7.1.
• Shielded cable is recommended in electrically noisy environments.
• IDNet cabling should not be run adjacent to other cabling, especially non-fire
system cabling, e.g. mains.
• The limiting factors of the 2 core cable connecting the IDNet devices to the
IDNet Card are cable capacitance (attenuates the superimposed coms signal) and
resistance (causes voltage drop of the supply voltage and comms signals).
• The maximum capacitance of 0.58uF core to core must also include the mutual
capacitance of core to earth. The latter is greatly increased when shielded cable
is used.
• Rather than do voltage drop calculations (see notes following), the following
simplified rules are applied.
• Allow a maximum of 40Ω to any device (Class B), and in any loop (Class A)
with 125 devices or less.
• Allow a maximum of 20Ω in any loop with 250 devices.
• Linear de-rating between 40Ω and 20Ω may be applied between 125 devices and
250 devices. Use RL = 20Ω x (1 + (250-n)/125) where RL is the allowable line
resistance and n is the number of devices used. E.g. for 200 devices the
maximum resistance allowed may be extended from 20Ω to: 20Ω + 20Ω x (250
– 200) / 125 = 28Ω
• Use the resistance specifications that apply to the cable being used. The values
used in this manual allow 39Ω per km for 2 core of 1 mm2 for copper wire at
49°C. (A commonly used value is 34Ω per km for 2 core of 1 mm2 at 20°C).
See Table 8.1. Note that this includes both cores.
• Sounder bases and 6 point I/O modules do not draw the alarm load from the
loop, but are powered from separate 24V terminals.
• Where devices, e.g. sounder bases, are wired from a 24V source (e.g. supplied
by 24V Aux Power or a NAC), and are in more than 1 zone, the power cable
must also be isolated between zones by a 4090-9117AU Power Isolator Module.
Continued on next page
Wiring to IDNet Devices
Overview
Guidelines

8-8
Table 8-2 Cable Run Lengths
1. The circuit allowance per device on the loop is 0.5mA with the LED off, 2mA with
the LED on. A maximum of 20 LEDs get turned on at one time by IDNet Card (i.e.
in alarm).
2. The minimum voltage allowed at the furthest device to guarantee operation is
24.9Vdc. The
IDNet boosts its output voltage from nominal 30V to nominal 35V during alarm.
To connect the IDNet card to devices using Class A wiring, read the following
instructions and refer to the figure below.
1. Route wire between 0.75 mm2 and 4 mm2 from the IDNetB+, IDNetB- outputs
on TB1 of the IDNet card to the appropriate inputs on a peripheral IDNet device.
2. Route wire from the first IDNet device to the next one. Repeat for each
appliance.
3. Route wire from the last IDNet device to the IDNetA+ and IDNetA- inputs on
TB1 of the IDNet card.
4. Separate every 40 devices (maximum) with a coms isolator (e.g. 4090-9116).
5. Separate sounder bases or 6 point I/O modules in zones using the 4090-9117 Power
Isolate module.
+
12
1212
Figure 8-5. Class A Wiring
Continued on next page
Wiring to IDNet Devices, Continued
Wire Size 0.75 mm2 1 mm2 1.5 mm2 2.5 mm2 4 mm2 Resistance
Distance 385 m 513 m 769 m 1,282 m 2,052 m 20Ω
Distance 769 m 1,026 m 1,538 m 2,565 m 4,104 m 40Ω
Notes
Class A Wiring
IDNET CARD
IDNET DEVICES
0.75 mm2 to 4 mm2
SHIELD SHIELD
FERRITE BEAD FERRITE BEAD
(see fig 7.1)

8-9
To connect the IDNet card to appliances using Class B wiring, read the following
instructions.
1. On TB1, jumper IDNetB+ to IDNet A+, and jumper IDNetB- to IDNetA-. If the
jumper is absent, a Class A Trouble will be indicated on LED 2.
2. Route wire between 0.75 mm2 and 4 mm2 from the IDNetA+, IDNetA-, (or B+,
B-) outputs on TB1 of the IDNet card to a junction box. Begin “T” tapping at the
junction box.
3. Up to 40 devices maximum.
4. Sounder bases or 6 Point I/O modules in separate zones may not be wired in
Class B.
The illustration below shows Class B wiring.
+
12
121212
Figure 8-6. Class B Wiring
Note: Maintain correct polarity on terminal connections. Do not loop wires
under terminals.
Wiring to IDNet Devices, Continued
Class B Wiring
IDNET CARD
IDNET DEVICES
0.75 mm2 and 4 mm2
FERRITE BEAD (see fig 7.1)

8-10
This section describes the messages that may appear on the 4100 display when using the
IDNet card. Trouble messages appear on the left as titles, and possible causes are listed to
the right in the text.
There is no output voltage from the IDNet power supply. Replace the IDNet card.
Appears if one or more extra devices (i.e., devices that have not been configured for the
IDNet channel) are found on the system, or if a device is at an incorrect address. Only one
message appears, regardless of the number of extra devices found. Viewing the trouble
log will reveal the extra device address.
There is an open on the IDNet channel. After fixing the wiring fault, a hardware reset is
required to reset the trouble.
Appears while the IDNet card is searching for earth faults on the IDNet line. When this
message is displayed, the IDNet card cannot show any alarms or other statuses.
Appears when a short is detected on the IDNet channel. This status clears automatically
when the short circuit is removed.
Appears when devices have been configured, but none of the devices are communicating
on the channel. This message does not appear if there are no configured devices on the
IDNet channel.
Appears when a device is missing.
Appears when there is a faulty device or a noisy communications channel.
Occurs during any of these conditions:
24 V is not present on TrueAlarm devices.
TrueAlarm sensor bases with relay driver outputs are not properly supervised.
Isolator devices are in isolation mode.
Troubleshooting on IDNet
Overview
IDNet Power
Monitor Trouble
Extra Device
Class A Trouble
Earth Fault Search
Short Circuit
Channel Fail
No Answer
Bad Answer
Output Abnormal

8-11
The 4100MXP is a 4” x 5” card, similar to the IDNet, but allows the 4100U to
communicate with a Loop of MX devices. The firmware in the 4100U sees the
4100MXP as an IDNet, and all the MX devices are matched to the nearest Simplex
device.
The main difference of 4100MXP from IDNet is that it has a nominal 40V loop supply
voltage and is capable of supplying up to 1A of loop current.
The power for this loop supply is drawn from the 24V Signal bus, which is only present
on the PDI when an XSPS is directly attached to it.
Details of the 4100MXP is provided in manuals LT0313 and LT0314.
The 4100MXP
Introduction
Power Connection
8-12

9-1
The service port on the door with the Operator Interface enables the 4100U to connect to
PCs running important utilities, such as diagnostics, programming, CPU firmware
downloading, and channel monitoring.
Refer to the page number listed in this table for information on a specific topic.
Topic See Page #
Software Modes 9-2
Chapter 9
PC Software Connections
Introduction
In this Chapter

9-2
The 4100U can connect to PCs running important utilities, such as diagnostics,
programming, CPU firmware downloading, and channel monitoring. It connects to PCs
running all of these utilities via the service port on the CPU daughter card. When a PC is
located remotely from the FACP, the 4100-9832 Service Modem is used.
There are three basic software modes that the service port or service modem can be used
to connect to:
• Service and Diagnostics Mode
• Data Transfer Interface Mode
• Master Bootloader Interface Mode
Each mode is described below.
Service and Diagnostics Mode. The default functionality when a PC is connected to the
FACP. On a PC, this mode provides application startup messages, an ASCII interface to a
UI command set for diagnostics, and event reporting. The PC must be running terminal
emulation software (e.g., Hyperterm). Connection to a PC is made via serial port or
service modem.
Important: When connecting via the service port, ensure your Flow Control
is set to NONE in the Port Settings of your terminal emulator.
Laptop/PC running
terminal emulation software
4100 Panel (with CPU modem card)
running application
serial download
cable
Modem Laptop/PC running
terminal emulation software
Option 1 Option 2
Figure 9-1. Service and Diagnostic Interface
Data Transfer Interface Mode. In this mode, the 4100 Programmer is enabled. This
allows for slave downloading, as well as downloading a configuration and audio
messages to the FACP, and uploading a configuration or history log from the FACP.
Connection to a PC is made via serial port or service modem.
Laptop/PC running
Programmer software
4100 Panel (with CPU modem card)
running application
serial download
cable
Modem Laptop/PC running
Programmer software
Option 1 Option 2
Figure 9-2. Data Transfer Interface
Note: The standard Simplex modem is not currently approved for use in Australia.
Continued on next page
Software Modes
Overview
Software Modes

9-3
Master Bootloader Interface Mode. This mode downloads the Master CPU Exec
firmware and the CFG.TXT file to the CPU via the serial port.
Laptop/PC running
terminal emulation software
4100 Panel
running Bootloader
serial download
cable
Figure 9-3. Bootloader Interface
Software Modes, Continued
Software Modes
(continued)
Laptop/PC running
programming file transfer

9-4

10-1
This chapter provides detail on format and components that are specific to the Australian
version 4100U that complies with AS4428.
Refer to the page number listed in this table for information on a specific topic.
Topic See Page #
Summary Of Australian Version Specifics 10-2
Australian Panel Format 10-3
4100U Fan Control Module 10-4
Brigade Interfaces 10-6
Chapter 10
Australian Version Specifics
Introduction
In this Chapter

10-2
The Australian fire alarm standards differ from those in the USA. Shipping costs from
USA to Australia are significant, and the Australian market is small compared to the USA
market. It is therefore necessary to:
• have an Australian specific panel format that differs from the standard USA panel
format;
• have some Australian specific components;
• limit the number of system components available in the Australian version.
The 4100U Operator Interface does not comply with the AS4428.1 requirements for an
FF (Firefighter Facility) that uses only an alphanumeric display for alarm zone status
indication. The basic firmware of 4100U does not accommodate zones as described in
AS4428.1. The standard SPS (System Power Supply) does not have the required charger
and battery supervision and test facilities. Therefore the following are required for an
Australian 4100U.
• Use a different Operator Interface front label (overlay) and keypad with “Trouble”
changed to “Fault”, “Supervisory” changed to “Isolate”. This overlay is also smaller
and has different text in the instructions on the bottom.
• Use an Australian version of the message library with “Trouble” changed to “Fault”,
“Supervisory” changed to “Isolate”.
• Configure the programmable control keys and indications on the Operator Interface
with the functions shown in Figure 2-7.
• Fit 8 Switch/16 LED Red/Yellow modules such that there is one switch plus one red
and one yellow LED per zone to give individual zone isolate and alarm indications.
• Configure zone and battery test functionality in custom control.
The custom control programming requirements are covered in Appendix B.
• Use an Australian version of the SPS (with a modified pcb and firmware). Because of
low quantity, only one format is available, and this excludes the standard XPS (2 slot
wide). The SPS communicates with the CPU Card. Note that in a Brigade connected
FIP, the SPS controls the Brigade Interface relays. If the CPU Card fails, or if the SPS
CPU fails, the Fault (Trouble) relay turns on. This watchdog action provided by the
SPS is statutory.
Summary Of Australian Version Specifics
Overview
AS4428
Requirements

10-3
The main difference with the Australian panels is that they are assembled in the
Australian (Tyco) range of rack cabinets.
Some further specific differences follow:
• Only the Expansion Bay is used, with the Controller CPU and Motherboard mounted
in the right hand side of the first one. The standard US Controller Bay is not used.
• The Operator Interface is fitted to an Australian specific 4U hinged bracket mounted
above the first bay.
• Australian specific bay mounting brackets and trims are used. This includes the
standard range of 19” rack mount panels and brackets.
• Only one version of SPS is available. This mounts on a specific bracket and also to an
expansion bay, and is unique to Australia.
• Only one version of IDNet card is used, ie the 4100-3101.
• Two of the addressable modules were modified specifically for AS4428, i.e. 4090-
9117AU Addressable Power Isolations, and the 4090-9120AU 6 Point I/O.
• Other cards / modules not used in Australia include the large range of Evacuation
products and some modems.
Standard 4100 motherboards and cards fit in a 4100U bay. The following items however,
do not fit:
• 4100 Switch/LED display modules;
• The range of Australian brackets that mount to the front of a 4100 bay. This includes
some EWIS products, Brigade interface brackets, T-Gen bracket, and printer.
• The metal bracket that mounts into a 4100 bay (as does a Motherboard), and houses:
the 25W and 50W amplifiers; the T-Gen; two MiniGens; the 1948 24V 2A PSU; or
the Powerblock PSU.
A revised version of this bracket has been designed to mount the T-Gen, two
MiniGens or the 1948 PSU into a 4100U bay. It does not, however, take the two
amplifiers. The Powerblock. PSU is not available in this form.
Note that although 4100 cards fitted to motherboards, and the bay mounting brackets, can
be fitted in directly behind Switch/LED modules, they cannot be fitted behind the 64/64
Switch/LED Controller mounted to the inside of the bay door. This is typically mounted
behind the LED/Switch Modules fitted to the 3rd and 4th positions from the left.
Australian Panel Format
Overview
Australian / USA
Differences
4100U/4100A
Differences

10-4
ME0456 is a 4100U style Switch/LED display module specifically designed for fan
control. It complies with the requirements of AS1668.1, 1998. It has rotary switches and
LEDs for 4 fans. In order to accommodate the required rotary switches, the front plate is
joggled forward so that it protrudes through the trim.
The Fan Control switch positions of ON, AUTO and OFF, as per the standard, are
permanently marked on the faceplate label.
The labeling of the LEDs, ON, FLT, and OFF is marked on the removable fan name label
card, LB0605, supplied with the module.
The card may be reversed and different LED labelling used, e.g. as required for damper
controls.
The name area accommodates 3 rows of 6 letters at 5mm.
A “soft” version of this label is available on the TSP website as LB0605. This template
allows entry of the fan name on a PC for local printing. LED names may also be revised.
The Fan Control module mounts to the frame of the 4100U Expansion bay door, from the
front, by the studs on the module with the nuts and washers provided.
Connection from “Out” of the adjacent Switch/LED module (or 64/64 Controller if it is
the first module on that Controller) to “In” on the module is by the flat flexible cable
provided (SX0039).
The Module is programmed as a standard 8 Switch/16 LED module. Up to 4 can be
driven by one 64/64 Switch/LED Controller.
Each fan control with one rotary switch uses two of the 8 “switches”, and 3 of the 16
LEDs of an 8 Switch/16 LED module as per Table 1. The other 4 LEDs are not fitted so
must not be programmed.
Table 10-1. Switch/LED Format
Fan Control Switches LEDs
ON FLT OFF
1 SW1, SW2 LD1 LD2 LD3
2 SW3, SW4 LD5 LD6 LD7
3 SW5, SW6 LD9 LD10 LD11
4 SW7, SW8 LD13 LD14 LD15
The switch functions for Fan Control 1 are shown in Table 2. The state with both switches
closed is not physically achievable.
Table 10-2. Switch Status
SW1 SW2 Control Status
Closed (up) Open (centre) On
Open (centre) Closed (up) Off
Open (centre) Open (centre) Auto
Continued on next page
4100U Fan Control Module
Overview
Labeling
Mounting &
Connection
Programming

10-5
Figure 10-1. Fan Control Module

10-6
The Alarm Relay Card is typically used to provide a Brigade Interface. The default
configuration is for the three relays to operate on Fault (Trouble), Isolate (Supervisory)
and Alarm, respectively.
The connection drawings for the Centaur ASE, Western Australia AIU and Queensland
PPU are included in the appendix.
These relays are normally de-energised and energise on the respective status. They have
voltage-free contacts that are connected to two terminals and can be configured as
normally open or normally closed by the positioning of links. Refer to Chapter 6 for
details.
If a normally energized relay is required to provide activation on complete loss of system
power (Standby), the Aux Relay on the SPS can be programmed as normally on and its
contacts connected in series/parallel with the contacts of the Fault (Trouble) relay as is
applicable (ie series for normally closed, parallel for normally open). Where the Brigade
interface is powered from the system power and monitored by the central station, this is
not typically required.
Note that the Aux relay programmed as normally energised, de-energising on Fault
cannot be used to replace the Fault relay on the Alarm Relay Card as the latter is link
connected to a hardware signal of “SPS CPU Fault”.
Standard rack mounting, 3U, Brigade Interface brackets are available as follows. FZ9028
includes the wiring loom. KT0199 requires KT0207 to provide the wiring loom with the
encapsulated Interface (FP0740).
Where there are space limitations, eg in the 18U cabinet, an A5 document holder
(KT0469) can be fitted to the 3U ASE Bracket, or the 3U AIU/PPU bracket. At 220mm
wide, this document holder is only half the width of the standard one that requires a whole
3U trim.
KT0199 19”, 3U ASE Mounting Bracket
KT0207 ASE FAS Interface Loom
FZ9028 19”, 3U AIU/PPU Mounting Bracket and Loom
Connection for the ASE is shown in drawing 1963-62.
Connections for the AIU and PPU are shown in drawing 1901-267 sht2.
For the AIU (Western Australia) the links on the Alarm Relay Card are fitted for normally
open contacts. For the PPU (Queensland) and the ASE (most other territories) the links
are fitted for normally closed contacts.
Brigade Interfaces
Overview
Format
Applications

11-1
When a branch designs a system and orders a 4100U panel, a “Configuration Sheet” is
prepared. The factory builds the panel to the configuration sheet. This includes fitting,
connecting and configuring cards and modules.
The factory programs and tests the panel to the configured sheet.
The CPU Card and any 4100 style (legacy) cards that are fitted to motherboards are then
removed and packaged with the panel for shipping.
When the panel arrives on site the installers must unpack and check the panel, mount the
cabinet, refit any packaged cards, and check the configuration before applying power.
A registered electrician must connect the mains. The panel should then be powered up
and checked for correct operation.
With the mains turned off and the batteries disconnected, the field wiring is checked and
connected to the field terminals on the various cards.
The panel should then be powered up and re-programmed to accommodate all the
connected field devices. Faults in the field wiring, misaddressed detectors / devices,
mismatched detectors / devices will be displayed on the LCD. These should be cleared
one at a time and then the system (panel plus connected devices) should be
commissioned.
Refer to the page number listed in this table for information on a specific topic.
Topic See Page #
Installation Checklist 11-2
Alignment & Adjustment 11-3
Maintenance 11-5
Chapter 11
Installation Checklist, Commissioning & Maintenance
Introduction
In this Chapter

11-2
The following checklist should be completed by the installer. (Note that all pcbs are
electronically tested and adjusted before being fitted to the FIP).
1. CABINET & GENERAL
A) Cabinet colour - Standard Cream Wrinkle (BFF 998 CW)
- Other: ____________________________________
B) Cabinet undamaged (Paint OK)
C) Door aligned correctly
D) Window undamaged and fitted correctly
F) Cabinet Door locks firmly, operates microswitch (if fitted)
G) Lock - 003 Type & two keys supplied
H) Door seals fitted to top and sides
I) Display Keypad and 4U door fitted & aligned correctly
J) Label LB0602 fitted to l.h.s. of Operator Interface
K) Card bays fitted
L) Operator Manual and battery leads included
M) Panel rating label completed, fitted
N) AS1668 Warning label fitted if Fan Control Modules used
O) Applique label fitted to front.
2. MODULES, CARDS & WIRING
A) SPS fitted securely, pcb & components undamaged
B) LED switch modules fitted correctly, spaced evenly
C) FRCs connecting 64/64 Controller & modules fitted correctly
D) Earth wires fitted to display door, card bays and bay front panels
E) All 4100 style cards fitted to motherboards
F) All 4100 style motherboards connected
G) All 4” x 5” modules fitted securely
H) All cards, modules addressed as per configuration sheet (see note 1 below)
I) The Lithium battery is fitted to the holder on the CPU card
J) Link P3 on the CPU card is fitted to the BAT ON position (see note 2)
K) The CPU card is fitted to its motherboard and the 2 FRCs are connected
I) All fan control zone name labels fitted.
Notes
1. The 64/64 Controller Modules are addressed but the LED/Switch modules are not.
2. The Lithium battery on the CPU Card (Master Controller) that stores time and date is
disconnected during shipping by fitting link P3 to the BAT OFF position. It must be
reconnected at time of installation.
Installation Checklist
Overview

11-3
All the 4100U cards and modules (pcbs) are tested and aligned in the factory before being
supplied to the customer or fitted to a FIP. The only field adjustment that may be
necessary is to set the battery charger voltage. (Note this has been set and should not
need re-adjusting).
R341 Battery Charger Voltage
Should the battery charger voltage need adjusting, the method is as follows:
1. Run the system with the batteries connected and the door closed for at least 30
minutes to allow components to "warm up" (the longer the better).
2. Calculate the required no-load battery charging voltage by taking 27.3V for
20°C and subtracting approximately 0.1V for every 3°C above 20°C, or adding
approximately 0.1V for every 3°C below 20°C.
3. With the system not in Alarm, disconnect the batteries.
4. Measure the voltage at the battery terminals and adjust to the voltage calculated
in Step 2 by turning pot R341.
5. Re-connect the batteries.
Alignment & Adjustment
Overview

11-4
To place the 4100U FACP into operation, perform the following steps:
STEP 1 Ensure that the Mains Isolate Switch is OFF.
STEP 2 Ensure that 240 VAC is connected to the panel from the mains distribution
switchboard.
STEP 3 Ensure that the Lithium battery is fitted to battery holder on the CPU card,
and link P3 is fitted to the BAT ON position.
Turn the Mains Isolate Switch ON.
STEP 4 Check that the green "MAINS ON" LED indicator is on.
The Controller performs tests on its memory, electronics, and the LCD.
STEP 5 Check that the buzzer sounds and the LCD display “CPU Serial Number”.
STEP 6 Check that the LCD has good visibility.
STEP 7 Install and connect the batteries.
Take care not to short the battery leads or connect in reverse polarity when
connecting.
STEP 8 Press the Lamp Test key on the Operator I/F and check that all LEDs turn
on, and the LCD shows all black squares.
STEP 9 Clear all faults one at a time.
A full commissioning test should be carried out as per AS1670.1. Refer to the appendix in
this manual for detail on checking wiring, and earth fault detection. Refer to the
Operator’s Manual LT0351 for detail of the walk test that may be used for verifying
correct detector operation.
Power Up & Placing into Operation

11-5
The 4100U system must be kept free from faults and tested on a weekly, monthly and
annual basis to verify that it is operating correctly. The tests required by part 8 of the
standard AS1851 Maintenance of Fire Protection Equipment are detailed in the 4100U
Operator’s Manual, LT0351.
The Operator’s manual also provides detail of report printing and performing tests that are
useful for checking the system.
Maintenance
11-6

A-1
Addressable cards include a bank of eight DIP switches. From left to right (see Figure A-
1, below) these switches are designated as SWx-1 through SWx-8. The function of these
switches is as follows:
• SWx-1. This switch sets the baud rate for the internal 4100 communications line
running between the card and the CPU. Set this switch to ON.
• SWx-2 through SWx-8. These switches set the card’s address within the 4100
FACP. Refer to Table A-1 for a complete list of the switch settings for all of the
possible card addresses.
Note: You must set these switches to the value assigned to the card by the
4100 Programmer.
1 8
7
6
5
4
3
2
Figure A-1. DIP Switch SWx
Continued on next page
Appendix A
The Device Configuration DIP Switch
Overview
ON
OFF
DIP Switches SWx-2 through
SWx-8 set the Card Address.
Figure shows an Address of 3.
4100 Comm. Baud Rate.
Switch (SWx-1)
Must Be Set to ON

A-2
Table A-1. Card Addresses
Overview,
(continued)
Address SW 1-2 SW 1-3 SW 1-4 SW 1-5 SW 1-6 SW 1-7 SW 1-8 Address SW 1-2 SW 1-3 SW 1-4 SW 1-5 SW 1-6 SW 1-7 SW 1-8
1 ON ON ON ON ON ON OFF 61 ON OFF OFF OFF OFF ON OFF
2 ON ON ON ON ON OFF ON 62 ON OFF OFF OFF OFF OFF ON
3 ON ON ON ON ON OFF OFF 63 ON OFF OFF OFF OFF OFF OFF
4 ON ON ON ON OFF ON ON 64 OFF ON ON ON ON ON ON
5 ON ON ON ON OFF ON OFF 65 OFF ON ON ON ON ON OFF
6 ON ON ON ON OFF OFF ON 66 OFF ON ON ON ON OFF ON
7 ON ON ON ON OFF OFF OFF 67 OFF ON ON ON ON OFF OFF
8 ON ON ON OFF ON ON ON 68 OFF ON ON ON OFF ON ON
9 ON ON ON OFF ON ON OFF 69 OFF ON ON ON OFF ON OFF
10 ON ON ON OFF ON OFF ON 70 OFF ON ON ON OFF OFF ON
11 ON ON ON OFF ON OFF OFF 71 OFF ON ON ON OFF OFF OFF
12 ON ON ON OFF OFF ON ON 72 OFF ON ON OFF ON ON ON
13 ON ON ON OFF OFF ON OFF 73 OFF ON ON OFF ON ON OFF
14 ON ON ON OFF OFF OFF ON 74 OFF ON ON OFF ON OFF ON
15 ON ON ON OFF OFF OFF OFF 75 OFF ON ON OFF ON OFF OFF
16 ON ON OFF ON ON ON ON 76 OFF ON ON OFF OFF ON ON
17 ON ON OFF ON ON ON OFF 77 OFF ON ON OFF OFF ON OFF
18 ON ON OFF ON ON OFF ON 78 OFF ON ON OFF OFF OFF ON
19 ON ON OFF ON ON OFF OFF 79 OFF ON ON OFF OFF OFF OFF
20 ON ON OFF ON OFF ON ON 80 OFF ON OFF ON ON ON ON
21 ON ON OFF ON OFF ON OFF 81 OFF ON OFF ON ON ON OFF
22 ON ON OFF ON OFF OFF ON 82 OFF ON OFF ON ON OFF ON
23 ON ON OFF ON OFF OFF OFF 83 OFF ON OFF ON ON OFF OFF
24 ON ON OFF OFF ON ON ON 84 OFF ON OFF ON OFF ON ON
25 ON ON OFF OFF ON ON OFF 85 OFF ON OFF ON OFF ON OFF
26 ON ON OFF OFF ON OFF ON 86 OFF ON OFF ON OFF OFF ON
27 ON ON OFF OFF ON OFF OFF 87 OFF ON OFF ON OFF OFF OFF
28 ON ON OFF OFF OFF ON ON 88 OFF ON OFF OFF ON ON ON
29 ON ON OFF OFF OFF ON OFF 89 OFF ON OFF OFF ON ON OFF
30 ON ON OFF OFF OFF OFF ON 90 OFF ON OFF OFF ON OFF ON
31 ON ON OFF OFF OFF OFF OFF 91 OFF ON OFF OFF ON OFF OFF
32 ON OFF ON ON ON ON ON 92 OFF ON OFF OFF OFF ON ON
33 ON OFF ON ON ON ON OFF 93 OFF ON OFF OFF OFF ON OFF
34 ON OFF ON ON ON OFF ON 94 OFF ON OFF OFF OFF OFF ON
35 ON OFF ON ON ON OFF OFF 95 OFF ON OFF OFF OFF OFF OFF
36 ON OFF ON ON OFF ON ON 96 OFF OFF ON ON ON ON ON
37 ON OFF ON ON OFF ON OFF 97 OFF OFF ON ON ON ON OFF
38 ON OFF ON ON OFF OFF ON 98 OFF OFF ON ON ON OFF ON
39 ON OFF ON ON OFF OFF OFF 99 OFF OFF ON ON ON OFF OFF
40 ON OFF ON OFF ON ON ON 100 OFF OFF ON ON OFF ON ON
41 ON OFF ON OFF ON ON OFF 101 OFF OFF ON ON OFF ON OFF
42 ON OFF ON OFF ON OFF ON 102 OFF OFF ON ON OFF OFF ON
43 ON OFF ON OFF ON OFF OFF 103 OFF OFF ON ON OFF OFF OFF
44 ON OFF ON OFF OFF ON ON 104 OFF OFF ON OFF ON ON ON
45 ON OFF ON OFF OFF ON OFF 105 OFF OFF ON OFF ON ON OFF
46 ON OFF ON OFF OFF OFF ON 106 OFF OFF ON OFF ON OFF ON
47 ON OFF ON OFF OFF OFF OFF 107 OFF OFF ON OFF ON OFF OFF
48 ON OFF OFF ON ON ON ON 108 OFF OFF ON OFF OFF ON ON
49 ON OFF OFF ON ON ON OFF 109 OFF OFF ON OFF OFF ON OFF
50 ON OFF OFF ON ON OFF ON 110 OFF OFF ON OFF OFF OFF ON
51 ON OFF OFF ON ON OFF OFF 111 OFF OFF ON OFF OFF OFF OFF
52 ON OFF OFF ON OFF ON ON 112 OFF OFF OFF ON ON ON ON
53 ON OFF OFF ON OFF ON OFF 113 OFF OFF OFF ON ON ON OFF
54 ON OFF OFF ON OFF OFF ON 114 OFF OFF OFF ON ON OFF ON
55 ON OFF OFF ON OFF OFF OFF 115 OFF OFF OFF ON ON OFF OFF
56 ON OFF OFF OFF ON ON ON 116 OFF OFF OFF ON OFF ON ON
57 ON OFF OFF OFF ON ON OFF 117 OFF OFF OFF ON OFF ON OFF
58 ON OFF OFF OFF ON OFF ON 118 OFF OFF OFF ON OFF OFF ON
59 ON OFF OFF OFF ON OFF OFF 119 OFF OFF OFF ON OFF OFF OFF
60 ON OFF OFF OFF OFF ON ON

B-1
This appendix identifies the programming that is required to comply with AS4428.
It does not provide equations or detail of programming. The separate 4100 Programming
Unit Manual tells how to use the PC-based 4100U Programmer.
Refer to the page number listed in this table for information on a specific topic.
Topic See Page #
Required Features B-1
The following is a list of functions that must be programmed under custom control. Refer
to Fig 2-7. Functionality must comply with AS4428.1, and be as described in the
Operator’s manual LT0351.
• Individual zone alarm indication, flashing until isolated, steady when isolated.
• Common Zone Alarm indication, flashing when any zone in alarm is un-isolated,
steady when all zones in alarm are isolated.
• Individual zone isolate pushbutton and indication.
• Zone Alarm Test pushbutton and indication.
• Zone Fault Test pushbutton and indication.
• Warning System Isolate pushbutton and indication.
• Ancillary Control Function and Isolate pushbutton and indication as required.
• Weekly 1 hour battery test.
• Fault indication after 8 hours of isolate.
• The panel format is different to that on the programmer because the CPU card is fitted
on the rhs of the first expansion bay, and extra cards may be fitted to the left of it.
• The US options for power supply and AVF are selected, not the Canadian ones.
• Features that do not comply with AS4428 must not be enabled, e.g. Alarm cut-out
times.
• Features that are statutory in AS4428 must not be pass-code protected, e.g. zone
isolate, zone test (Fault and Alarm).
Appendix B
Programming Requirements
Introduction
In this Chapter
Required Features
Notes

C-1
This appendix contains instructions on how to use a volt/ohm meter to check system
wiring.
When using the volt/ohm meter to check each circuit, make sure to adhere to the notes
and instructions below.
Notes:
• Ensure that no power is applied to the 4100U fire alarm
panel and that all wiring is properly connected (terminal
blocks, LED/switch module ribbon cables, etc.).
• Use the earth stud in the control panel for all measurements
to ground.
• Each circuit must test free of all grounds and extraneous
voltages.
Use the volt/ohm meter as described in the steps below to check each
circuit type.
1. At the control panel, locate wires from each initiating device
or indicating appliance circuit.
2. Check each circuit for extraneous voltage by setting the
volt/ohm meter to 300 VAC. Place the meter probes so that
the black probe is on the “-” wire and the red probe is on the
“+” wire. Meter readings must show 0 volts (see Figure D-
1A).
3. Set the volt/ohm meter to 60 VDC and repeat step 2. The
meter must read 0 volts (see Figure D-1A).
4. Set the volt/ohm meter to OHMS x 10 and place the meter
probes as described in step 2. Check the circuits using the
resistance measurements in Table D-1. Locate and correct
any abnormal conditions at this time. Note: If the reading
indicates an open circuit in an initiating circuit, make sure the
smoke detector heads are properly mounted and seated. The
circuit may be open if smoke detector power is not present,
and if separately powered 4-wire devices are used.
5. Check all other system wiring to verify that each circuit is
free of grounds and extraneous voltages.
Continued on next page
Appendix C
Checking System Wiring
Overview
Using the Volt/
Ohm Meter
A. No Voltage
B. Open Circuit
C. Short Circuit
Figure D-1. Volt/Ohm Meter Readings

C-2
Table C-1 lists the correct meter readings for indicating appliances and initiating devices.
Table C-1. Acceptable Zone and Signal Circuit Meter Readings
Circuit Type Meter Reading
Class B/Style B Initiating Device (Zone) Circuit
From zone + to zone – (each zone) 3.3 K Ohms
From zone + to ground Infinity
From zone - to ground Infinity
Class A/Style D Initiating Device (Zone) Circuit
From zone + to zone – (each zone) Infinity
From zone + to ground Infinity
From zone - to ground Infinity
From zone + OUT to + IN Less than 50 Ohms
From zone - OUT to - IN Less than 50 Ohms
Class B/Style Y Notification Appliance Circuit (each signal circuit)
From + to ground Infinity
From - to ground Infinity
Resistance across circuit:
In one direction
In opposite direction
10 K Ohms
Less than 200 Ohms
Class A/Style Z Notification Appliance Circuit (each signal circuit)
From + to ground Infinity
From - to ground Infinity
From zone + OUT to + IN Less than 50 Ohms
From zone - OUT to - IN Less than 50 Ohms
Resistance across circuit:
In one direction
In opposite direction
Infinity
Less than 200 Ohms
Shielding
Shield to ground Infinity
Shield to - Infinity
Shield to + Infinity
MAPNET/IDNet II Loops (ZAMs and IAMs)
From MAPNET/IDNet II + to ground Infinity
From MAPNET/IDNet II - to ground Infinity
Appendix C: Checking System Wiring, Continued
Meter Readings

D-1
This appendix contains instructions on how to use the Earth Fault Search feature of the
4100U diagnostics menus.
Earth Fault Search is a diagnostic search of external field wiring that assists in locating
circuits with earth faults. An earth fault occurs when an electrical circuit is shorted to
ground. Although most circuits operate with a single earth fault, multiple earth faults can
disable communications. Because of this, earth faults must be located and repaired.
Earth Fault Search is conducted by the FACP. The diagnostic may be activated using
either the front panel interface or the Computer Port Protocol (CPP), via a service port.
The 4100U supports two types of Earth Fault Searches:
• Location Search. Searches all circuits at a location, such as a transponder or the
main panel. For the purposes of Earth Fault Searching,
- A location is composed of a group of slaves connected to each other via
4100 Comm (local RUI).
- The main panel is defined as all slaves local to the Master CPU.
- A transponder denotes all slaves associated with a single Transponder
Interface Card (TIC)/Local Mode TIC slave.
• IDNet Channel Search. Selectively enables channel isolators and repeaters to
detect which segment of the channel wiring has a fault.
- Earth faults are detected by one of the following:
- A single designated power supply at a location. The power supply that
detects the fault is designated via a jumper setting on the power supply
slave. For any given location, only one power supply should detect
earth faults.
- Each 4009 IDNet NAC Extender on an IDNet channel.
Appendix D
Earth Fault Detection
Overview

D-2
Review the guidelines below before initiating an Earth Fault Search.
• The Detect Earth Fault jumper must be installed at each SPS, RPS, TPS, IPS, or
4009T for earth fault detection to occur.
• Only one power supply per location is configured to detect earth faults.
• For more reliable earth fault searching:
- Use a Firefighter Telephone NAC for each telephone riser connection to
a transponder.
- Use IDNet channel isolators to isolate channel faults to a specific
segment of channel wiring.
- Set IDNet channel isolator addresses to the lowest IDNet device
addresses, increasing with communication distance from the IDNet
card.
• If an earth fault is suspected on the IDNet channel with multiple isolators, start
an IDNet Channel Search before doing a Location Search. If the Location Search
is done first, it may not yield the correct location (this is a by-product of the
extended amount of time required for the IDNet channel to initialize during a
Location Search). Note: The 4009 IDNet NAC Extender has a common ground
fault trouble that reports to the panel without running the Earth Fault Search.
• Earth Fault Search detects only one fault at a time. Multiple faults require fixing
the first fault and then repeating the search.
• The FACP suspends normal operation for the duration of the Earth Fault Search.
• Location Earth Fault Searches optionally allow exclusion of auxiliary power
circuits from the search, so that modules connected to the 24 V auxiliary outputs
can remain in operation during the search.
• The option to exclude auxiliary power circuits does not apply to IDNet devices,
because the entire IDNet communication channel is isolated during each search.
• During the search, all related troubles are suppressed and a single trouble
pseudo-point is activated (P438).
• At the completion of the search, all slaves are restarted and normal panel
operation resumes.
• Earth Fault Search is only supported by new 4100U modules. 4100 Legacy (slot
format) modules are not supported, with the following exceptions:
- MAPNET channel isolation during location search
- IPS for earth fault detection (not recommended). The Earth Fault
Search may fail because the isolation circuits of some 4100U slaves
(such as the 4100U telephone slave) do not support IPS.
IMPORTANT: The fire panel cannot provide fire protection during an Earth
Fault Search.
General Guidelines

D-3
This section describes how to conduct an Earth Fault Search, from selecting the
appropriate access code to correcting the fault.
The panel must be at the appropriate access level (1, 2, 3, or 4) in order to run diagnostics.
To get to the correct access level,
1. Press the Menu button. The following message comes up (press the Next or
Previous buttons, if necessary, to display it):
Press <NEXT> or <PREVIOUS> to scroll
Change Access Level?
3. Press the Enter button. Now you are prompted to log in or log out.
1=Login 2=Logout
CURRENT ACCESS LEVEL = x
4. Press the "1" key on the numeric keypad to log in, so that the passcode prompt
comes up.
Enter a Passcode followed by <ENTER>
5. Enter the passcode and press the Enter button. ACCESS GRANTED displays
briefly on the LCD, and then the display goes back to:
1=Login 2=Logout
CURRENT ACCESS LEVEL = y
You can now open the diagnostic menu as described in the next topic.
To start an Earth Fault Search,
1. If necessary, press the Menu button to access the menus.
6. Press the Previous or Next buttons until the diagnostic functions option appears:
Press <NEXT> or <PREVIOUS> to scroll
Diagnostic Functions?
7. Press the Enter button. Then press Next or Previous buttons until the Earth Fault
Search option appears:
Press <NEXT> or <PREVIOUS> to scroll
Earth Fault Search?
Continued on next page
Earth Fault Searching from the Front Panel
Overview
Access Level
Selection
Starting the Earth
Fault Search

D-4
8. Press the Enter button. The following options become available when you press
the Next and Previous buttons:
Press <NEXT> or <PREVIOUS> to scroll
Location Search
Press <NEXT> or <PREVIOUS> to scroll
IDNet Channel Search
Press <NEXT> or <PREVIOUS> to scroll
Last Search Result
The search types are described below. When you have determined what kind of search to
initiate, display its option (one of the three shown above) and press the Enter button. Each
option has its own topic, below.
If you select the Location Search menu item, a list of cards to search becomes available.
Use the Next and Previous buttons to scroll through the list.
If you find a card that you suspect is connected to a circuit with an earth ground, press the
Enter button when that circuit is shown.
Before you can start the search, the Aux Power Select option comes up.
1=Exclude 2=Include
Exclude AUXPWR circuits from search?
The number you select, 1 or 2, determines whether the auxiliary power circuit on the
selected board is searched for earth grounds. If you exclude the auxiliary power circuit
from the search, the circuit will continue to operate normally.
Press 1 (or just press the Enter button) to exclude the card's auxiliary power circuits from
the search, or press 2 to remove auxiliary power circuits from normal operation and
search them for earth grounds.
Now you are prompted to start the search. When the location you want to search is shown
and "Press <ENTER> to start search" displays, the search is ready to start. A sample is
shown below.
CARD 1, SYSTEM POWER SUPPLY
Press <ENTER> to start search
NOTE: The FACP suspends normal operation for the duration of the
search.
Press the Enter button to start the search.
As the search progresses, watch the display for an indication of how much of the search
has been completed. The search can be aborted at any time if you press the Clear button.
Earth Search In-Progress, Please Wait...
Earth Search In-Progress, Please Wait...
40%
Skip ahead to the "Completing the Search" topic.
Continued on next page
Earth Fault Searching from the Front Panel, Continued
Starting the Earth
Fault Search,
Continued
Search Option A:
Select Location

D-5
If you select the IDNet Channel Search menu item, a list of IDNet channels to search
becomes available. Use the Next and Previous buttons to scroll through the list. When the
IDNet channel you want to search is shown and "Press <ENTER> to start search"
displays, the search is ready to start. A sample screen is shown below.
IDNET CHANNEL M12
Press <ENTER> to select for search
NOTE: The FACP suspends normal operation for the duration of the
search.
Press the Enter button to start the search.
As the search progresses, watch the display for an indication of how much of the search
has been completed. The search can be aborted at any time if you press the Clear button.
Earth Search In-Progress, Please Wait...
Earth Search In-Progress, Please Wait...
40%
Skip ahead to the "Completing the Search" topic.
This option simply displays the last Earth Fault Search result. If there has been no search
since the last system startup, or if the last search was aborted, the panel displays
"RESULT NOT AVAILABLE."
When a Location or IDNet Channel Search completes, all of the following occurs:
• All slaves automatically reset.
• The FACP turns off the Earth Fault Search trouble pseudo-point.
• The panel displays the specific fault information.
The panel can only return one Earth Fault Search result at a time. If another fault exists, it
can only be found via diagnostics after the first fault is cleared. Faults will continue to
appear, one by one, until each one has been found and corrected.
IMPORTANT: Once you have been directed to an earth ground fault and
corrected it, it is recommended that you restart the system (warm- or cold-
start).
Continue to the next topic for a list of search results and their required actions.
Earth Fault Searching from the Front Panel, Continued
Search Option B:
Select Channel
Search Option C:
Last Search Result
Completing the
Search

D-6
There are several types of results that can display at the end of an Earth Fault Search. This
section covers all types of results.
IMPORTANT: Once you have been directed to an earth ground fault and
corrected it, it is recommended that you restart the system (warm- or cold-
start).
A non-point fault indicates a ground that cannot be traced to an addressable point (for
example, a shield or an audio riser). The earth fault in this example is not occurring at the
audio controller but somewhere in the riser:
CARD 17, ANALOG AUDIO CONTROLLER
AUDIO RISER 1 EARTH FAULT
Non-point faults can be displayed for each of the following items:
• Shield (Flex 50/100 W Amplifier)
• Audio Riser (Digital./Analog Audio Controller; Local Mode Transponder; may
also annunciate as "DAR SECONDARY" (Digital Audio Riser Secondary) on
transponder)
• Remote Mic 1 and Push-to-Talk line (Digital./Analog Audio Controller) (other
remote mics are not supported)
• Channel Output (IDNet Card; MAPNET Interface Card)
• RUI Channel (Master Controller Card)
• Channel 1 to 3 (TrueAlert Power Supply)
A point fault indicates a ground at a specific addressable point. The example below is a
location earth ground search result, where 3 is the card address, 10 is the point number,
and 0 is the
sub-point number (not used):
CARD 003, FLEX 50 AMPLIFIER
3-10-0 EARTH FAULT
Point faults can be found at any point in the system that connects to field wiring.
Some IDNet channel point fault examples are illustrated below.
Fault not cleared. The message below shows that an IDNet channel that has been
isolated for fault detection still has the earth fault:
CARD 2, IDNET CARD (250 POINTS)
M1, EARTH FAULT SEARCH FAULT CLEAR FAIL
Fault between channel output and first isolator. The message below shows a fault
between the IDNet channel output and the first isolator on the line:
CARD 2, IDNET CARD (250 POINTS)
M1, CHANNEL OUTPUT EARTH FAULT
Continued on next page
Search Results
Overview
Non-Point Faults
Point Faults

D-7
4009 IDNet NAC Extender/TrueAlert Addressable Controller faults. The message
below shows a fault detected on the 4009 IDNet NAC Extender before the repeater
connected to that circuit is turned on:
CARD 2, IDNET CARD (250 POINTS)
M1-18, 4009A NAC EARTH FAULT
Conversely, the following example shows a fault detected after the repeater connected to
that circuit is turned on:
CARD 2, IDNET CARD (250 POINTS)
M1-18, 4009A REPEATER EARTH FAULT
IDNet isolator fault. The message below shows a fault detected after the IDNet isolator
was turned on:
CARD 2, IDNET CARD (250 POINTS)
M1-3, IDNET ISOLATOR EARTH FAULT
If the message in the lower right corner of the LCD reads FAULT NOT FOUND (for a
Location Earth Fault Search) or FAULT CLEAR FAIL (for an IDNet Channel Earth Fault
Search), it means the search could not locate the fault, but it acknowledges that a fault
exists.
There are three main possibilities behind this message:
• There are one or more internal wiring earth(s) in the system.
• There are system defects (hardware or software, such as a failed isolation
circuit).
• An intermittent earth exists in the system (it occurs inconsistently and is
therefore difficult to track via diagnostics).
• The cable to the service port may be grounded due to the remote PC's 3-prong
plug. Use a non-grounded plug adapter to the remote PC to get rid of the earth
ground.
• The fault is on an auxiliary output that was excluded from the search.
The problem may have to be found manually and then corrected in some of the above
scenarios.
If the message in the lower right corner of the LCD reads NO FAULT, it means the
IDNet channel search could not locate any earth faults on that channel.
If the message in the lower right corner of the LCD reads RESULT NOT AVAILABLE,
it means there is no result to view. This message comes up only when you have selected
"Last Search Result" on the menu.
Search Results, Continued
Point Faults,
Continued
Fault Not Found
No Fault
Result Not Available

D-8
The illustration below shows a MINIPLEX system with one transponder that has three
earth faults:
• SPS NAC on the SPS in the Main Panel
• RPS AUXPWR output on the RPS in Transponder 1
• IDNet channel in Transponder 1
Transponder
1
Main
Panel
RUI
SPS
NAC 2
RPS
AUXPWR
Iso
1
Iso
2
= Ground Fault
RPS
SPS
IDNet
IDNet
Channel
M2
Figure F-1. Earth Fault Example
The panel reports two earth faults—one for each power supply. The third fault is as yet
unreported.
The example below shows the progression of events in finding and repairing the three
faults. They are presented as instructions to a technician who does not yet know about the
third fault.
A. Find and repair the fault in the main panel.
1. After opening the Earth Fault Search diagnostic menu option, select Location
Search.
9. Select the SPS located in the Main Panel (this selects the Main Panel as the
location for the search).
10. When prompted, select exclusion of AUXPWR circuits.
11. Start the search. (The panel turns on the earth fault search trouble pseudo-point
and the keypad inactivity utility pseudo-point to disable timeout during the
search).
12. The search completes. The panel indicates that NAC 2 on the SPS has the earth
fault. All slaves are reset (and the panel turns off the earth fault search trouble
pseudo-point).
13. Repair the earth fault on NAC 2. When this is done, the trouble from the SPS
clears but the trouble from the RPS is still indicated.
Continued on next page
Earth Fault Search Example

D-9
B. Find and repair the indicated fault on Transponder 1.
1. Select Location Search.
14. Select the RPS located in Transponder 1 (this selects Transponder 1 as the
location for the search).
15. When prompted, select exclusion of AUXPWR circuits.
16. Start the search. (The panel turns on the earth fault search trouble pseudo-point
and the keypad inactivity utility pseudo-point to disable timeout during the
search).
17. The search completes. The panel indicates FAULT NOT FOUND because the
fault is on the excluded AUXPWR circuit. All slaves in Transponder 1 are reset
(and the panel turns off the earth fault search trouble pseudo-point).
18. Repeat the search but include the AUXPWR circuit this time.
19. The search completes. The panel indicates a fault on the AUXPWR point on the
RPS. All slaves in Transponder 1 are reset (and the panel turns off the earth fault
search trouble pseudo-point).
20. Repair the earth fault on AUXPWR.
Even though you have fixed the fault, the trouble from the RPS is still not clearing.
Remember that the only two faults you could see at first were from the SPS and RPS. It is
time to find and clear the next fault.
C. Find and repair the next indicated fault on Transponder 1.
1. Select Location Search.
21. Select the RPS located in Transponder 1.
22. When prompted, select exclusion of AUXPWR circuits.
23. Start the search.
24. The search completes. The panel indicates a fault on IDNet Channel M2.
25. Start another search, this time an IDNet Channel Search on Channel M2.
26. When prompted, select exclusion of AUXPWR circuits.
27. The search completes. The panel indicates a fault on the IDNet channel between
isolators 1 and 2.
28. Repair the earth fault. The trouble from the RPS is cleared.
Search Results, Continued

E-1
The following manuals are relevant. Other Australian 4100 manuals may be found on the
TSP website.
Book Part
Number Title
LT0293 4100A FIP AS4428 Operators Manual
LT0294 4100A FIP AS4428 Installation Manual
LT0295 4100A FIP AS4428 Technical Manual
LT0307 4100 Field Wiring Diagrams
LT0313 4100 MXP Engineering/Technical Manual
LT0314 4100 MXP Installation Instructions
LT0351 4100U Operators Manual (For ordering, LT0351 is A5, LT0351A4 is A4.)
The following is a complete listing of US 4100U documentation.
Book Part
Number Title
574-037 4100/4120-0136 and 4100-6045 Decoder Modules
Installation Instructions
574-046 4100/4120-0139 Dial-Up Service Modem
Installation Instructions
574-197 4100U Fire Alarm Operator’s Manual
574-674 4100/4120-Series MAPNET Isolator Modules
Installation Instructions
574-772 4100U XPS and XNAC
Installation Instructions
574-800 4100U IDNet Cards
Installation Instructions
574-836 4100/4120-Series Event and Point Reporting Digital Alarm
Communications Transmitters (DACTs) Installation Instructions
574-839 4100U City and Relay Cards
Installation Instructions
574-844 4100U Communication and Audio Interface Modules Installation Instructions
574-848 4100U Fire Alarm System/ System Installation Guide
Continued on next page
Appendix E
Related Documentation

E-2
Book Part
Number
(cont.)
Title (cont.)
574-849 4100U PC Programmer Programming Manual
575-978 4100/4120 Battery Cabinet
Installation Instructions
579-117 4100U Back Boxes and Accessories
Installation Instructions
579-159 4100U Digital/Analog Audio Controllers
Installation Instructions
579-160 4100U Audio Input Card
Installation Instructions
579-168 4100U Audio Operator Interface
Installation Instructions
579-172 4100U Message Memory Expansion Cards
Installation Instructions
579-173 4100U Flex Amplifiers
Installation Instructions
579-174 4100U Digital/Analog Amplifiers
Installation Instructions
579-175 4100U Class A and Expansion NAC Modules
Installation Instructions
579-182 4100/4120-Series NIC and Media Modules
Installation Instructions
579-184 4100/4120-Series Physical Bridges and 4100/4120-Series Media Modules
Installation Instructions
579-194 4100-6030 Service Modem
Installation Instructions
579-195 4100U Tamper Switch Installation Instructions
579-205 4100/4120-Series Class A / Class B Zone Modules
Installation Instructions
579-220 4100/4120-Series Relay Modules
Installation Instructions
579-221 4100/4120-Series Dual RS-232/2120 Modules
Installation Instructions
579-222 4100/4120-Series MAPNET II Transceivers
Installation Instructions
579-223 4100/4120-Series Class A / Class B NAC Modules
Installation Instructions
Continued on next page
Appendix E: Related Documentation, Continued

E-3
Book Part
Number
(cont.)
Title (cont.)
579-175 4100U Class A and Expansion NAC Modules
Installation Instructions
579-229 4100U Upgrade Kits
Installation Instructions
579-246 4100U SPS/RPS
Installation Instructions
579-248 4100-0632 Terminal Block Utility Module
Installation Instructions
579-331 4100U Redundant Master Controller Installation Instructions
579-347 4100U Fire Alarm System Placement Guidelines
579-515 4100U Constant Supervision NAC (CSNAC) Modules
Installation Instructions
579-516 4100U Expansion Signal (XSIG) Card Installation Instructions
579-571 4100-1265 DFSM (Degraded Fail-Safe Mode) Microphone Preamplifier Card
Installation Instructions
579-575 4100U TFX Interface Installation Instructions
Appendix E: Related Documentation, Continued

F-1
This appendix describes the following:
• It lists devices that have been approved as compatible devices for use with the
4100A/4100U FIP.
• It lists the devices approved for use with the IDNet and shows the number allowed
per loop.
Refer to the page number listed in this table for information on a specific topic.
Topic See Page #
List of Approved Devices F-1
Compatible Detectors, IDNET F-4
Compatible Addressable Field Devices, IDNet F-5
Simplex Range - Conventional Detectors
4098-9413 Heat detector Type A
4098-9414 Heat detector Type B
4098-9415 Heat detector Type C
4098-9416 Heat detector Type D
2098-9201 Photoelectric smoke detector
2098-9576 Ionisation smoke detector
4098-9618EA Heat detector Type A
4098-9619EA Heat detector Type B
4098-9621EA Heat detector Type D
4098-9621A Heat detector Type C
4098-9601EA Photoelectric smoke detector
4098-9603EA Ionisation smoke detector
Continued on next page
Appendix F
Compatible Actuating Devices
Introduction
In this Chapter
List of Approved Devices

F-2
Hochiki Range - Conventional Detectors
DCA-B-60R MK V Type A heat detector
DCC-A Heat Type A
DCC-C Heat Type C
DCD-A Heat Type A
DCD-C Heat Type C
DFE-60B Type B heat detector
DCA-B-90R MK 1 Type C heat detector
DFE-90D Type D heat detector
DFG-60BLKJ Type B heat detector
DFJ-60B Heat Type B
DFJ-90D Heat Type D
SPA-AB Beam type smoke detector
SIH-AM Ionisation smoke detector
SIF-A MK 1 Smoke
SIJ-ASN Smoke
SLK-A Photoelectric smoke detector
SLG-A MK 1 Smoke
SLG-AM MK 1 Photoelectric smoke detector
SLR-AS Smoke
HF-24A MK 1 Ultraviolet smoke detector
YBC-R/3A Plain - non indicating base
YBF-RL/4AH4 LED Indicating base
Olsen Range - Conventional Detectors
B111B Beam type smoke detector
C24B Ionisation smoke detector
C29BEX Ionisation smoke detector
FW81B Heat detector cable, Type E
P24B Photoelectric smoke detector
P29B Photoelectric smoke detector
R23B Infrared flame detector
R24BEX Dual spectrum infrared flame detector
T54B Probe type heat detector type E
T56B Heat detector types A,B,C,D with Z55B base
T56B Heat detector types A,B,C,D with Z54B base
V41B/V42B Ultraviolet flame detector
Apollo Range - Conventional Detectors
Series 60 Heat detector Type A
Series 60 Heat detector Type B
Series 60 Heat detector Type C
Series 60 Heat detector Type D
Series 60 55000-310 Aus Photoelectric smoke detector
Series 60 55000-240 Aus Ionisation smoke detector
Continued on next page
List of Approved Devices, Continued

F-3
Brooks Range - Conventional Detectors
PFS-A Heat detector Type A
PFS-B Heat detector Type B
PFS-C Heat detector Type C
PFS-D Heat detector Type D
PFS-P Photoelectric smoke detector
PFS-P MK II Photoelectric smoke detector
PFS-I Ionisation smoke detector
PFS-I MK II Ionisation smoke detector
Cerberus Range - Conventional Detectors
D01191A Beam
DL01191A Beam
The following range of detectors may be used with MAPNET Modules.
Simplex Range - Analog Addressable Sensors
4098-9701 High / Very High sensitivity Photoelectric smoke
4098-9716 Ionisation smoke
4098-9731 Type A / Type B Heat
4098-9781 Addressable LED Indicating base
4098-9782 Addressable LED Indicating base with Sounder
4098-9783 Addressable LED Indicating base with Relay
driver
4098-9714/9714EA TrueAlarm Photoelectric smoke
4098-9717/9717EA TrueAlarm Ionization smoke
4098-9733/9733EA TrueAlarm Type A / Type B Heat
4098-9754/9754EA TrueAlarm Multi-Sensor Photo / Type A / Type B
Heat
4098-9789/9789EA TrueAlarm Addressable LED Indicating base
4098-9794/9794EA TrueAlarm Addressable LED Indicating base
with Sounder
4098-9795/9795EA TrueAlarm Addressable Multi-Sensor LED
Indicating base with Sounder
4098-9796/9796EA TrueAlarm Addressable Multi-Sensor LED
Indicating base
4098-9752/9752EA TrueAlarm Addressable Photoelectric Duct
Probe
4098-9755/9755EA TrueAlarm Addressable Photoelectric Duct
Probe
Continued on next page
List of Approved Devices, Continued

F-4
Simplex MAPNET 2 Range – Addressable Field Devices
2190-9156 Mapnet 2 Monitor ZAM
2190-9162 Mapnet 2 Signal ZAM
2190-9164 Mapnet 2 Control ZAM
2190-9169 Mapnet 2 Line Powered Short Circuit Isolator
2190-9172 Mapnet 2 Supervised IAM
2190-9173 Mapnet 2 Loop powered 2 Point Input / Output
Module
4099-9032NL Mapnet 2 Addressable Manual Call Point
The following lists the detectors approved for use with IDNet and shows current
rating and numbers allowed per loop.
Device Type Operating
Current mA
Maximum
Number Allowed
Per Loop
Maximum
Number
Allowed Per
Line
4098-9714E
Analogue Photoelectric
Smoke Detector
0.5
(2 with LED
on)
250 40*
4098-9717E
Analogue Ionisation
Smoke Detector
0.5
(2 with LED
on)
250 40*
4098-9733E
Analogue Heat Type A &
B Detector
0.5
(2 with LED
on)
250 40*
4098-9754E
Analogue Multi
(Heat/Photo)
Detector
0.5
(2 with LED
on)
250 40*
* Maximum allowed by AS1670.1.
The above with 9714E, 9717E and 9733E use a (4098-) 9789E addressable base
or 9794E addressable sounder base, or 9793 addressable isolator base. The
9754E uses a 9796E addressable base or 9795E sounder base.
The maximum specified loop/line resistance is 40Ω.
The maximum number of LEDs switched on by an IDNet in alarm is 20.
List of Approved Devices, Continued
Compatible Detectors, IDNET

F-5
The following lists the addressable devices approved for use with IDNet and
shows current rating and numbers allowed per loop.
Device Type Operating
Current mA
Maximum
Addressable
Point On
Analogue Loop
Maximum
Addressable
Points on
Analogue Line
4090-9116
IDNet Comms Isolator
0.5
(2 with LED on)
250 40*
4090-9118
Relay IAM with T-sense
0.5
(2 with LED on)
250 40*
4090-9117
Addressable Power
Isolator
0.5
(2 with LED on)
250 40*
4090-9118
Relay IAM with T-Sense
Input
0.5
(2 with LED on)
250 40*
4090-9119
Relay IAM with
unsupervised Input
0.5
(2 with LED on)
250 40*
409-9120
6 Point I/O
0.5 250 40*
4090-9001
Supervised IAM
0.65
(2.8 with LED
on)
250 40*
4090-9101
Monitor ZAM
0.65
(2.8 with LED
on)
250 40*
4099-9032
Manual Call Point
0.65
(2.8 with LED
on)
250 40*
* Maximum allowed by AS1670.1.
The maximum specified loop/line resistance is 40Ω.
The maximum number of LEDs switched on by an IDNet in alarm is 20.
The 6 Point I/O LED is powered from the external 24V supply, not from the loop.
Note: The relays on the 6 Point I/O are not approved for switching field loads,
i.e. the contacts may only be used to switch loads within an earthed
cabinet.
Compatible Addressable Field Devices, IDNet

G-1
The following batteries are compatible with the 4100U.
• Power Sonic PS12 Series
• Century Power Sonic PS12 series
• Sonnenschein A200 Series
• Sonnenschein A300 Series
• Century Yuasa NP Series
• Auscell CJ12 series
• Power Block PB12 series
Appendix G
Compatible Batteries

H-1
System Capacity 2,000 points of addressable points, plus 2,000 points of
annunciation. Expansion Up to capacity above.
Up to 119 Addressable cards
Cabinet Size Dependent on system configuration
Cabinet Material 1.6mm Zintex
Cabinet Finish Powder coated
Cabinet Colour Cream Wrinkle
Mounting Wall mount
Mains Input 240V AC, +6%, -10%, 50Hz
Internal Power Supply 24V DC @ 9A
Standby Battery 24V sealed lead acid up 110Ah
Battery Charger 27.3V DC (nominal)
PSU Supervision Charger high/low, Battery low/fail
Temperature -5°C to 45°C
Humidity 10% to 90% RH non-condensing
Refer to Table 6-1, 6-2 for full SPS specifications.
Alarm Relay Card
F1 Alarm, 3A, 15 x 5mm, Glass Cartridge
F2 Supervisory, 3A, 15 x 5mm, Glass Cartridge
F3 Trouble, 3A, 15 x 5mm, Glass Cartridge
Fused Distribution Board (if fitted)
F1 24V Out, 1A 20 x 5mm Glass Cartridge
F2 24V Out, 1A 20 x 5mm Glass Cartridge
F3 24V Out, 1A 20 x 5mm Glass Cartridge
F4 24V Out, 1A 20 x 5mm Glass Cartridge
• WALK TEST System Test
• 4 Operator Access Levels
• Event Historical Logging
• Device selectable Alarm Verification
• Individual Zone Isolate
• Addressable device disable/enable
• Non-volatile Flash EPROM for field editable program changes
• Expansion cards firmware upgraded via download to flash EPROMs
Appendix H
4100U Specifications
General
Fuses
Firmware Features

H-2
The DC input voltage range of the following modules is 18-33Vdc. The current listed is
nominal for 24Vdc, and may be used for battery capacity calculations.
Module Name Quiescent Alarm
N/A Master Controller Assembly
(includes SPS, CPU, CPU Motherboard
with RUI I/F, Operator Interface with
LCD)
373mA 470mA
4100-6035 Alarm Relay Card 15mA 37mA
4100-3101 IDNet Module without Devices
- per device add
- with 250 devices add
75mA
0.8mA
200mA
115mA
1mA
250mA
4100-1289 64/64 Controller plus Switch LED
Modules
- no LED on
- per LED on add
- with 64 LEDs on add
20mA
3mA
210mA
3mA
210mA
4100-0620 Transponder Interface, Basic Unit 87mA 87mA
4100-0625 Transponder Interface, Local Mode 112mA 112mA
4100-6014 Network Interface Card 28mA 28mA
4100-6056 Wired Media Module 55mA 55mA
4100-6057 Fibre Optic Media Module 25mA 25mA
4100-6038 Dual RS232 Interface 132mA 132mA
Voltage & Current Ratings of Modules & Assemblies

I-1
Part of the system design includes calculating that the quiescent load and the
alarm load are each less than the rating of the power supply.
Note that the quiescent load includes devices such as door holders that are
normally energized, but get switched off during alarm.
The SPS rating is included in the specifications in Chapter 6.
Refer to AS1670.1 Section 8.2.3 for a definition of the loads to be calculated.
Battery capacity requirements are specified in AS1670.1, 2004, Section 3.16.4
with an example shown in Appendix C1.
Calculate the quiescent load (Iq) and alarm load (Ia) from the currents listed in
the specifications (Appendix H of this manual). Follow the example in AS1670.1.
Note that the system current for both the quiescent and the alarm state can be
checked on the panel by use of the System Current status point under Card
Status for the SPS.
Appendix I
Power Supply & Battery Capacity Calculations
Power Supply
Battery Capacity

J-1
The IDNet cabling requirements are detailed in Chapter 8 of this manual.
Line Characteristics
Note: In the following paragraphs the term "MAPNET channel" is used to mean those
lines connected to any one Mapnet Transceiver board. Parallel runs from the same board
do not constitute separate channels. The term "continuous run" refers to the loop distance
from the primary output, through all devices and back to the secondary output.
Line characteristics are based on 0.58uF and/or 35 Ohms total line resistance.
Total length of line on one MAPNET channel shall not exceed 3,000 m including all
T-taps and parallel runs.
Maximum length for ONE continuous MAPNET run is 1200 m for up to 128 MAPNET
devices using 1.5 mm sq cable.
When the run exceeds 850 m it is necessary to use twisted, shielded pair.
Copper Line Characteristics
Network "Wired" (formerly called RS-485) Communication wiring shall be 0.75 mm sq
twisted, shielded pair (TSP), or 0.22 mm sq twisted pair (TP). Shielded Cable is
recommended for new installations. When shielding is used, the shield shall be connected
to Earth Ground, at the Left Port end of span only.
No T-tapping of the Network conductors is allowed. Network wiring is point-to-point,
only.
Maximum line length between ports at 57,600 and 9600 bits per second is shown in the
table below.
Maximum Wiring Distance
Communication Speed 0.75mm sq TSP Wire.
(Maximum capacitance
between conductors is 174
pf. per meter)
0.22mm sq TP Wire.
(Maximum capacitance
between conductors is 66
pf. per meter)
57,600 bps 3,000 m 2,300 m
9600 bps 5,600 m 4,000 m
Table J- 1 Network: Maximum Transmission Distances, "Wired" Network
Continued on next page
Appendix J
Cable Characteristics
IDNet
4100 MAPNET II
NETWORK

J-2
Fibre Optic Cable Characteristics
All fibre cables shall be multimode, graded index. ST style connectors must be used. No
physical strain shall be put on the cables. There must be no cable bends of less than a
50mm radius.
Two methods are available for joining fibre cable. Splices provide a permanent, very low
loss, fibre-to-fibre connection. Couplers provide temporary connection between two ST
style connectors with a loss of 1.2dB. Both methods are permitted on a fibre Network.
The characteristics of the 4100-0143 fibre optic media card are as follows. Mininium
Launch Power into a 50/125 cable is 50 uW (-13 dBm). Minimum Launch Power into a
62.5/125 cable is 109.5 uW (-8.6 dBm). The maximum value for the minimum input
sensitivity of the receiver is 1.0 uW (-30 dBm).
Maximum line lengths for 50/125 and 62.5/125 cable are shown in the table below.
Fibre CableFibre
CableFib Loss Per Kilometer Power Margin Maximum distance
50/125 Fibre 4 db 4 db 3,050 meters
50/125 Fibre 3 db 3 db 4,500 meters
62.5/125 Fibre 4 db 4 db 4,000 meters
62.5/125 Fibre 3.75 db 3 db 4,500 meters
Table J-2 Network: Maximum Distances, Optical Fibre
All the information above is based on the minimum launch power of the transmitter into
the specified cable and the maximum value of the minimum input sensitivity of the
receiver
Network, Continued

K-1
The following drawings are included and are referred to in the manual or are considered
relevant.
1901-267 Sheet 2, 4100U AIU/PSU Wiring Assembly Drawing
1919-22 RAC Cabinet Mounting Drawing
1963-51 KT0193 3U RAC Mounting ASE Drawing
1963-62 ASE FAS Interface Drawing
1976-133 18U FIP Presentation Drawing
1976-136 18U FIP Assembly Drawing
1976-137 21U-40U Assembly Drawing
1976-141 28U FIP Presentation Drawing
1976-142 40U FIP Presentation Drawing
1976-143 18U Expansion Presentation Drawing
1976-144 28U Expansion Presentation Drawing
1976-145 40U Expansion Presentation Drawing
Appendix K
List of Drawings

©2004 Tyco Safety Products Westminster, Westminster, MA 01441-001 USA. Specifications and other information shown were current as of publication, and are subject to change without notice.