UBS Axcera LHV20AL 20-Watt VHF High Band Translator User Manual TITLE PAGE
UBS-Axcera 20-Watt VHF High Band Translator TITLE PAGE
Compiled User Manual

INSTRUCTION MANUAL
Innovator
LX Series
Analog
VHF Translator
AXCERA, LLC
103 FREEDOM DRIVE P.O. BOX 525 LAWRENCE, PA 15055-0525 USA
(724) 873-8100 • FAX (724) 873-8105
www.axcera.com • info@axcera.com

LX Series VHF Translator Table of Contents
LX Series, Rev. 0
iv
TABLE OF CONTENTS
CHAPTER 1 INTRODUCTION
SECTION PAGE
1.1 Manual Overview...................................................................................1-1
1.2 Assembly Designators............................................................................1-1
1.3 Safety..................................................................................................1-2
1.4 Contact Information...............................................................................1-2
1.5 Return Material Procedure ......................................................................1-2
1.6 Limited One Year Warranty for Axcera Products........................................1-3
CHAPTER 2 SYSTEM DESCRIPTION, MAINTENANCE
& REMOTE CONTROL CONNECTIONS
2.0 System Overview ..................................................................................2-1
2.2 Exciter/Amplifier Chassis Assembly .........................................................2-2
2.2.1 Receiver Module...........................................................................2-2
2.2.2 IF Processor Module .....................................................................2-2
2.2.3 VHF/UHF Upconverter Module........................................................2-5
2.2.4 Control & Monitoring/Power Supply Module.....................................2-6
2.2.5 Exciter Power Amplifier Module, VHF HB .........................................2-8
2.3 RF Output Assemblies..........................................................................2-10
2.4 Control and Status...............................................................................2-10
2.5 System Operation................................................................................2-10
2.5.1 Principles of Operation................................................................2-10
2.6 Maintenance .......................................................................................2-11
2.7 Customer Remote Connections .............................................................2-12
CHAPTER 3 SITE CONSIDERATIONS, INSTALLATION AND SETUP PROCEDURES
3.1 Site Considerations................................................................................3-1
3.2 Unpacking the Cabinet, Chassis w/Modules and DTV mask filter .................3-4
3.3 Installing the Chassis w/Modules and filters..............................................3-4
3.4 AC Input...............................................................................................3-6
3.5 Setup and Operation..............................................................................3-6
3.5.1 Input Connections........................................................................3-6
3.5.2 Initial Turn On .............................................................................3-7
3.5.2.2 Receiver Module LEDs on Front Panel ....................................3-8
3.5.2.3 IF Processor Module LEDs on Front Panel...............................3-8
3.5.2.4 VHF/UHF Upconverter Module LEDs on Front Panel .................3-8
3.5.2.5 Controller Module LEDs on Front Panel ..................................3-8
3.5.2.6 Power Amplifier Module LEDs on Front Panel..........................3-8
3.5.3 Front Panel Screens for the Exciter/Amplifier Chassis Assembly.........3-9
3.5.5 Operation Procedure...................................................................3-18

LX Series VHF Translator Table of Contents
LX Series, Rev. 0
v
TABLE OF CONTENTS - (Continued)
CHAPTER 4 CIRCUIT DESCRIPTIONS
4.2 Receiver Module (not used in the digital translator system)........................4-1
4.2.1 IF ALC Board ...............................................................................4-1
4.2.2 VHF Mixer/PLL Board ....................................................................4-2
4.2.3 VHF High Band Preamplifier Board .................................................4-2
4.3 IF Processor Module...............................................................................4-2
4.3.1 IF Processor Board .......................................................................4-3
4.3.1.1 Modulator Selected..............................................................4-3
4.3.1.2 External Modulated IF Selected.............................................4-3
4.3.1.3 Main IF Signal Path (Part 1 of 3)...........................................4-3
4.3.1.4 Input Level Detector Circuit..................................................4-3
4.3.1.5 Pin-Diode Attenuator Circuit.................................................4-5
4.3.1.6 Main IF Signal Path (Part 2 of 3)...........................................4-5
4.3.1.7 Amplitude and Phase Pre-Correction Circuits..........................4-6
4.3.1.8 Main IF Signal Path (Part 3 of 3)...........................................4-7
4.3.1.9 ALC Circuit .........................................................................4-7
4.3.1.10 Fault Command.................................................................4-8
4.3.1.11 ±12 VDC needed to operate Board......................................4-8
4.4 VHF/UHF Upconverter Module.................................................................4-8
4.4.1 Downconverter Board ...................................................................4-8
4.4.2 L-Band PLL Board.........................................................................4-9
4.4.3 First Conversion Board..................................................................4-9
4.4.4 Upconverter Control Board ............................................................4-9
4.5 Control Monitoring/Power Supply Module ...............................................4-10
4.5.1 Power Protection Board...............................................................4-10
4.5.1.1 +12 VDC Circuits ..............................................................4-11
4.5.1.2 -12 VDC Circuits ...............................................................4-11
4.5.2 Control Board ............................................................................4-11
4.5.2.1 Schematic Page 1..............................................................4-11
4.5.2.2 Schematic Page 2..............................................................4-12
4.5.2.3 Schematic Page 3..............................................................4-12
4.5.2.4 Schematic Page 4..............................................................4-13
4.5.2.5 Schematic Page 5..............................................................4-13
4.5.3 Switch Board .............................................................................4-14
4.5.4 Switching Power Supply Assembly................................................4-14
4.6 Power Amplifier Module, VHF High Band, CH: 8 & 10...............................4-14
4.6.1 25 Watt VHF Driver Pallet............................................................4-14
4.6.2 Coupler Board Assembly .............................................................4-14

LX Series VHF Translator Table of Contents
LX Series, Rev. 0
vi
TABLE OF CONTENTS - (Continued)
SECTION PAGE
4.6.3 Amplifier Control Board...............................................................4-15
4.6.3.1 Schematic Page 1..............................................................4-15
4.6.3.2 Schematic Page 2..............................................................4-15
4.6.3.3 Current Monitoring Sections of the Board.............................4-16
4.6.3.4 Schematic Page 3, RF Power Detector Circuits......................4-16
CHAPTER 5 DETAILED ALIGNMENT PROCEDURES
5.1 Module Replacement..............................................................................5-1
5.1.1 Initial Test Setup..........................................................................5-1
5.2 LX Series Exciter/Amplifier Chassis Assembly ...........................................5-2
5.2.1 Receiver Module Assembly ............................................................5-2
5.2.2 IF Processor Module Assembly.......................................................5-2
5.2.3 VHF/UHF Upconverter Assembly ....................................................5-2
5.3 Changing the Analog Translator Output Channel Procedure........................5-3
5.4 Adjusting Manual AGC, Auto AGC and AGC cutback in Analog Translator .....5-4
5.4.1 Setting the Manual AGC................................................................5-4
5.4.2 Setting the Auto AGC....................................................................5-4
5.4.3 Setting the AGC Cutback...............................................................5-4
5.5 Calibration of Forward & Reflected Power of Analog Translator ...................5-4
5.5.1 Calibration of the Translator Forward Output Power .........................5-5
5.5.2 Calibration of the Translator Reflected Power ..................................5-5
5.6 Linearity Correction Adjustment for the Analog Translator..........................5-6
5.7 Frequency Response Delay Equalization Adjustment for Analog Translator...5-6
APPENDICES
APPENDIX A SYSTEM AND EXCITER/AMPLIFIER DRAWINGS

LX Series VHF Translator Chapter 1
Introduction
LX Series, Rev. 0 1-1
Chapter 1
Introduction
1.1 Manual Overview
This manual explains the installation,
setup, alignment, and maintenance
procedures for the Innovator LX Series
VHF translator. It is important that you
read all of the instructions, especially
the safety information in this chapter,
before you begin to install or operate
the unit.
This instruction manual is divided into
five chapters and supporting
appendices. Chapter 1, Introduction,
contains information on the assembly
numbering system used in the manual,
safety, maintenance, return procedures,
and warranties. Chapter 2, System
Description, Maintenance & Remote
Control Connections, describes the
transmitter and includes discussions on
system control and status indicators,
maintenance, and remote control
connections. Chapter 3, Site
Considerations, Installation and Setup
Procedures, explains how to unpack,
install, setup, and operate the
transmitter. Chapter 4, Circuit
Descriptions, contains circuit level
descriptions for boards and board level
components in the transmitter.
Chapter 5, Detailed Alignment
Procedures, provides information on
adjusting the system assemblies for
optimal operation. Appendix A
contains the System, Remodulator &
Exciter/Amplifier drawings and parts
lists.
1.2 Assembly Designators
Axcera has assigned assembly numbers,
Ax designations such as A1, where
x=1,2,3…etc, to all assemblies, modules,
and boards in the system. These
designations are referenced in the text of
this manual and shown on the block
diagrams and interconnect drawings
provided in the appendices. The Block
Diagrams, Interconnects, Schematics,
Assembly Drawings and Parts Lists are
arranged in increasing numerical order in
the appendices. Section titles in the text
for assembly or module descriptions or
alignment procedures contain the
associated part number(s) and the
relevant appendix that contains the
drawings for that item.
The cables that connect between the
boards within a tray or assembly and
that connect between the trays, racks
and cabinets are labeled using Brady
markers.
Figure 1-1 is an example of a Brady
marked cable. There may be as few as
two or as many as four Markers on any
one cable. These Brady markers are
read starting furthest from the
connector. If there are four Brady
Markers, this marker is the transmitter
number such as transmitter 1 or
transmitter 2. The next or the furthest
Brady Marker is the rack or cabinet
number on an interconnect cable or the
board number within a tray. The next
number on an interconnect cable is the
Tray location or number. The Brady
marker closest to the connector is the
jack or connector number on an
interconnect cable or the jack or
connector number on the board within a
tray.
Figure 1-1 Brady Marker Identification
Drawing

LX Series VHF Translator Chapter 1
Introduction
LX Series, Rev. 0 1-2
1.3 Safety
The VHF translator systems
manufactured by Axcera are designed to
be easy to use and repair while providing
protection from electrical and mechanical
hazards. Please review the following
warnings and familiarize yourself with the
operation and servicing procedures
before working on the transmitter
system.
Read All safety Instructions – All of
the safety instructions should be read
and understood before operating this
equipment.
Retain Manuals – The manuals for the
transmitter should be retained at the
transmitter site for future reference.
Axcera provides two sets of manuals for
this purpose; one set can be left at the
office while one set can be kept at the
site.
Heed all Notes, Warnings, and
Cautions – All of the notes, warnings,
and cautions listed in this safety section
and throughout the manual must be
followed.
Follow Operating Instructions – All of
the operating and use instructions for the
transmitter should be followed.
Cleaning – Unplug or otherwise
disconnect all power from the equipment
before cleaning. Do not use liquid or
aerosol cleaners. Use a damp cloth for
cleaning.
Ventilation – Openings in the cabinet
and module front panels are provided for
ventilation. To ensure the reliable
operation of the driver/transmitter, and
to protect the unit from overheating,
these openings must not be blocked.
Servicing – Do not attempt to service
this product yourself until becoming
familiar with the equipment. If in doubt,
refer all servicing questions to qualified
Axcera service personnel.
Replacement Parts – When
replacement parts are used, be sure that
the parts have the same functional and
performance characteristics as the
original part. Unauthorized substitutions
may result in fire, electric shock, or other
hazards. Please contact the Axcera
Technical Service Department if you have
any questions regarding service or
replacement parts.
1.4 Contact Information
The Axcera Field Service Department can
be contacted by phone at (724) 873-
8100 or by fax at (724) 873-8105.
Before calling Axcera, please be prepared
to supply the Axcera technician with
answers to the following questions. This
will save time and help ensure the most
direct resolution to the problem.
1. What are the Customers’ Name
and call letters?
2. What are the model number and
type of transmitter?
3. Is the transmitter digital or
analog?
4. How long has the transmitter
been on the air? (Approximately
when was the transmitter
installed.)
5. What are the symptoms being
exhibited by the transmitter?
Include the current control/power
supply LCD readings and the
status of LEDs on the front
panels of the modules. If
possible, include the
control/power supply LCD
readings before the problem
occurred.
1.5 Return Material Procedure
To insure the efficient handling of
equipment or components that have been
returned for repair, Axcera requests that
each returned item be accompanied by a
Return Material Authorization Number
(RMA#).

LX Series VHF Translator Chapter 1
Introduction
LX Series, Rev. 0 1-3
The RMA# can be obtained from any
Axcera Field Service Engineer by
contacting the Axcera Field Service
Department at (724) 873-8100 or by fax
at (724) 873-8105. This procedure
applies to all items sent to the Field
Service Department regardless of
whether the item was originally
manufactured by Axcera.
When equipment is sent to the field on
loan, an RMA# is included with the unit.
The RMA# is intended to be used when
the unit is returned to Axcera. In
addition, all shipping material should be
retained for the return of the unit to
Axcera.
Replacement assemblies are also sent
with an RMA# to allow for the proper
routing of the exchanged hardware.
Failure to close out this type of RMA# will
normally result in the customer being
invoiced for the value of the loaner item
or the exchanged assembly.
When shipping an item to Axcera, please
include the RMA# on the packing list and
on the shipping container. The packing
slip should also include contact
information and a brief description of why
the unit is being returned.
Please forward all RMA items to:
AXCERA, LLC
103 Freedom Drive
P.O. Box 525
Lawrence, PA 15055-0525 USA
For more information concerning this
procedure, call the Axcera Field Service
Department @ (724) 873-8100.
Axcera can also be contacted through e-
mail at info@axcera.com and on the
Web at www.axcera.com.
1.6 Limited One Year Warranty for
Axcera Products
Axcera warrants each new product that
it has manufactured and sold against
defects in material and workmanship
under normal use and service for a
period of one (1) year from the date of
shipment from Axcera's plant, when
operated in accordance with Axcera's
operating instructions. This warranty
shall not apply to tubes, fuses,
batteries, bulbs or LEDs.
Warranties are valid only when and if
(a) Axcera receives prompt written
notice of breach within the period of
warranty, (b) the defective product is
properly packed and returned by the
buyer (transportation and insurance
prepaid), and (c) Axcera determines, in
its sole judgment, that the product is
defective and not subject to any misuse,
neglect, improper installation,
negligence, accident, or (unless
authorized in writing by Axcera) repair
or alteration. Axcera's exclusive liability
for any personal and/or property
damage (including direct, consequential,
or incidental) caused by the breach of
any or all warranties, shall be limited to
the following: (a) repairing or replacing
(in Axcera's sole discretion) any
defective parts free of charge (F.O.B.
Axcera’s plant) and/or (b) crediting (in
Axcera's sole discretion) all or a portion
of the purchase price to the buyer.
Equipment furnished by Axcera, but not
bearing its trade name, shall bear no
warranties other than the special hours-
of-use or other warranties extended by
or enforceable against the manufacturer
at the time of delivery to the buyer.
NO WARRANTIES, WHETHER
STATUTORY, EXPRESSED, OR
IMPLIED, AND NO WARRANTIES OF
MERCHANTABILITY, FITNESS FOR
ANY PARTICULAR PURPOSE, OR
FREEDOM FROM INFRINGEMENT,
OR THE LIKE, OTHER THAN AS
SPECIFIED IN PATENT LIABILITY
ARTICLES, AND IN THIS ARTICLE,
SHALL APPLY TO THE EQUIPMENT
FURNISHED HEREUNDER.

LX Series VHF Translator Chapter 1
Introduction
LX Series, Rev. 0 1-4
F WARNING!!!
× HIGH VOLTAGE Ø
DO NOT ATTEMPT TO REPAIR OR TROUBLESHOOT THIS EQUIPMENT UNLESS
YOU ARE FAMILIAR WITH ITS OPERATION AND EXPERIENCED IN
SERVICING HIGH VOLTAGE EQUIPMENT. LETHAL VOLTAGES ARE PRESENT
WHEN POWER IS APPLIED TO THIS SYSTEM. IF POSSIBLE, TURN OFF
POWER BEFORE MAKING ADJUSTMENTS TO THE SYSTEM.
« RADIO FREQUENCY RADIATION HAZARD «
MICROWAVE, RF AMPLIFIERS AND TUBES GENERATE HAZARDOUS RF
RADIATION THAT CAN CAUSE SEVERE INJURY INCLUDING CATARACTS,
WHICH CAN RESULT IN BLINDNESS. SOME CARDIAC PACEMAKERS MAY BE
AFFECTED BY THE RF ENERGY EMITTED BY RF AND MICROWAVE
AMPLIFIERS. NEVER OPERATE THE TRANSMITTER SYSTEM WITHOUT A
PROPERLY MATCHED RF ENERGY ABSORBING LOAD ATTACHED. KEEP
PERSONNEL AWAY FROM OPEN WAVEGUIDES AND ANTENNAS. NEVER
LOOK INTO AN OPEN WAVEGUIDE OR ANTENNA. MONITOR ALL PARTS OF
THE RF SYSTEM FOR RADIATION LEAKAGE AT REGULAR INTERVALS.

LX Series VHF Translator Chapter 1
Introduction
LX Series, Rev. 0 1-5
EMERGENCY FIRST AID INSTRUCTIONS
Personnel engaged in the installation, operation, or maintenance of this equipment are urged to become
familiar with the following rules both in theory and practice. It is the duty of all operating personnel to be
prepared to give adequate Emergency First Aid and thereby prevent avoidable loss of life.
RESCUE BREATHING
1. Find out if the person is
breathing.
You must find out if the person
has stopped breathing. If you
think he is not breathing, place
him flat on his back. Put your ear
close to his mouth and look at his
chest. If he is breathing you can
feel the air on your cheek. You
can see his chest move up and
down. If you do not feel the air
or see the chest move, he is not
breathing.
2. If he is not breathing, open
the airway by tilting his head
backwards.
Lift up his neck with one hand
and push down on his forehead
with the other. This opens the
airway. Sometimes doing this will
let the person breathe again by
himself.
3. If he is still not breathing,
begin rescue breathing.
-Keep his head tilted backward.
Pinch nose shut.
-Put your mouth tightly over his
mouth.
-Blow into his mouth once every
five seconds
-DO NOT STOP rescue breathing
until help arrives.
LOOSEN CLOTHING - KEEP
WARM
Do this when the victim is
breathing by himself or help is
available. Keep him as quiet as
possible and from becoming
chilled. Otherwise treat him for
shock.
BURNS
SKIN REDDENED: Apply ice cold water to burned
area to prevent burn from going deeper into skin
tissue. Cover area with a clean sheet or cloth to
keep away air. Consult a physician.
SKIN BLISTERED OR FLESH CHARRED: Apply
ice cold water to burned area to prevent burn from
going deeper into skin tissue.
Cover area with clean sheet or cloth to keep away
air. Treat victim for shock and take to hospital.
EXTENSIVE BURN - SKIN BROKEN: Cover area
with clean sheet or cloth to keep away air. Treat
victim for shock and take to hospital.

LX Series VHF Translator Chapter 1
Introduction
LX Series, Rev. 0 1-6
dBm, dBw, dBmV, dBµV, & VOLTAGE
EXPRESSED IN WATTS
50 Ohm System
WATTS PREFIX dBm dBw dBmV dBµV VOLTAGE
1,000,000,000,000 1 TERAWATT +150
+120
100,000,000,000 100 GIGAWATTS +140
+110
10,000,000,000 10 GIGAWATTS +130
+100
1,000,000,000 1 GIGAWATT +120
+ 99
100,000,000 100 MEGAWATTS +110
+ 80
10,000,000 10 MEGAWATTS +100
+ 70
1,000,000 1 MEGAWATT + 90 + 60
100,000
100 KILOWATTS + 80 + 50
10,000 10 KILOWATTS + 70 + 40
1,000 1 KILOWATT + 60 + 30
100 1 HECTROWATT + 50 + 20
50 + 47 + 17
20 + 43 + 13
10 1 DECAWATT + 40 + 10
1 1 WATT + 30 0 + 77 +137 7.07V
0.1 1 DECIWATT + 20 - 10 + 67 +127 2.24V
0.01 1 CENTIWATT + 10 - 20 + 57 +117 0.707V
0.001 1 MILLIWATT 0 - 30 + 47 +107 224mV
0.0001 100 MICROWATTS - 10 - 40
0.00001
10 MICROWATTS - 20 - 50
0.000001 1 MICROWATT - 30 - 60
0.0000001 100 NANOWATTS - 40 - 70
0.00000001 10 NANOWATTS - 50 - 80
0.000000001 1 NANOWATT - 60 - 90
0.0000000001 100 PICOWATTS - 70 -100
0.00000000001 10 PICOWATTS - 80 -110
0.000000000001 1 PICOWATT - 90 -120
TEMPERATURE CONVERSION
°F = 32 + [(9/5) °C]
°C = [(5/9) (°F - 32)]

LX Series VHF Translator Chapter 1
Introduction
LX Series, Rev. 0 1-7
USEFUL CONVERSION FACTORS
TO CONVERT FROM TO MULTIPLY BY
mile (US statute) kilometer (km) 1.609347
inch (in) millimeter (mm) 25.4
inch (in) centimeter (cm) 2.54
inch (in) meter (m) 0.0254
foot (ft) meter (m) 0.3048
yard (yd) meter (m) 0.9144
mile per hour (mph) kilometer per hour(km/hr) 1.60934
mile per hour (mph) meter per second (m/s) 0.44704
pound (lb) kilogram (kg) 0.4535924
gallon (gal) liter 3.7854118
U.S. liquid
(One U.S. gallon equals 0.8327 Canadian gallon)
fluid ounce (fl oz) milliliters (ml) 29.57353
British Thermal Unit watt (W) 0.2930711
per hour (Btu/hr)
horsepower (hp) watt (W) 746
NOMENCLATURE OF FREQUENCY BANDS
FREQUENCY RANGE DESIGNATION
3 to 30 kHz VLF - Very Low Frequency
30 to 300 kHz LF - Low Frequency
300 to 3000 kHz MF - Medium Frequency
3 to 30 MHz HF - High Frequency
30 to 300 MHz VHF - Very High Frequency
300 to 3000 MHz UHF - Ultrahigh Frequency
3 to 30 GHz SHF - Superhigh Frequency
30 to 300 GHz EHF - Extremely High Frequency
LETTER DESIGNATIONS FOR UPPER FREQUENCY
BANDS
LETTER FREQ. BAND
L 1000 - 2000 MHz
S 2000 - 4000 MHz
C 4000 - 8000 MHz
X 8000 - 12000 MHz
Ku 12 - 18 GHz
K 18 - 27 GHz
Ka 27 - 40 GHz
V 40 - 75 GHz
W 75 - 110 GHz

LX Series VHF Translator Chapter 1
Introduction
LX Series, Rev. 0 1-8
RETURN LOSS VS. VSWR
1.001 1.01 1.1 2.0
VSWR
0
-
10
-
20
-
30
-
40
-
50
-
60
-
70
R
E
T
U
R
N
L
O
S
S
dB

LX Series VHF Translator Chapter 1
Introduction
LX Series, Rev. 0 1-9
ABBREVIATIONS/ACRONYMS
AC Alternating Current
AFC Automatic Frequency Control
ALC Automatic Level Control
AM Amplitude modulation
AGC Automatic Gain Control
ATSC Advanced Television Systems
Committee
AWG American wire gauge
BER Bit Error Rate
BW Bandwidth
DC Direct Current
D/A Digital to analog
DTV Digital Television
dB Decibel
dBm Decibel referenced to
1 milliwatt
dBmV Decibel referenced to
1 millivolt
dBw Decibel referenced to 1 watt
FEC Forward Error Correction
FM Frequency modulation
Hz Hertz
ICPM Incidental Carrier Phase
Modulation
I/P Input
IF Intermediate Frequency
LED Light emitting diode
LSB Lower Sideband
MPEG Motion Pictures Expert Group
O/P Output
PLL Phase Locked Loop
PCB Printed circuit board
QAM Quadrature Amplitude
Modulation
SMPTE Society of Motion Picture and
Television Engineers
VSB Vestigial Side Band

LX Series VHF Translator Chapter 2, System Description,
Maintenance & Remote Control Connections
LX Series, Rev. 0 2-1
Chapter 2
System Description, Maintenance & Remote Control Connections
2.0 System Overview
This analog translator is a complete VHF
internally diplexed modular television
translator. There are three systems, one
that operates at CH:6 at a nominal visual
output power of 20W or a DTV output of
10W, one that operates at CH:10 at a
nominal visual output power of 20W or a
DTV output of 10W, and one that
operates at CH:8 at a nominal visual
output power of 100W or a DTV output of
50W..
The Analog LX Series translator is made
up of the modules and assemblies as
listed in Table 2-1.
Figure 2-1:Exciter/Amplifier w/Remodulator Front View
Table 2-1: Exciter/Amplifier w/Remodulator Translator Assemblies
ASSEMBLY DESIGNATOR
TRAY/ASSEMBLY NAME PART NUMBER
A2 Exciter Amplifier Chassis Assembly,
V2, LX Series 1304052 (110 VAC)
A2-A11 Backplane Board, V2, LX Series 1304047
A1 Receiver Module (used in the analog
translator system) 1304001 (VHF High
Band)
A3 IF Processor Module 1301938
A4 Control/Power Supply Module 1301936 (110 VAC)
A5 VHF/UHF Upconverter Module 1303829
A6 Power Amplifier Module, 20 W Analog
1305833 (VHF High
Band
A3
A5
A4
A6
A1
A2
A24

LX Series VHF Translator Chapter 2, System Description,
Maintenance & Remote Control Connections
LX Series, Rev. 0 2-2
2.2 (A2) Exciter Amplifier Chassis
Assembly, 110 VAC (1304052;
Appendix A)
This chassis assembly is factory set for
operation using 110 VAC. All of the
modules except the power amplifier
module and the power supply section of
the Control & Monitoring/Power Supply
Module, plug directly into a backplane
board. The backplane board provides
module to module interconnection as well
as interconnection to remote command
and control connectors.
2.2.1 (A1) Receiver Module
Assembly, VHF High Band
(1304001; Appendix A)
NOTE: The Receiver module is not used
in the digital system.
NOTE: For analog translator operation
the Receiver IF output at A2-J13 is
connected to the Modulated IF input
Jack A2-J6 and the On Channel RF input
is connected to A2-J12.
The VHF Receiver converts a low level
RF input signal (-65 to –15 dBm) to an
IF frequency of 44 MHz, filters off any
unwanted out of band energy, and
normalizes the level so that it can be
applied to the IF processor assembly.
The receiver consists of three boards,
the VHF High Band Preamplifier Board
(1306445), the Mixer/PLL Board
(1306472), and the IF ALC Board
(1304003). The RF input is applied first
to the VHF preamplifier board, which
filters off out of channel energy and
amplifies the input signal. The RF output
is connected to the Mixer/PLL board,
which converts the signal down to an IF
frequency of 44 MHz. The IF output is
cabled to the IF ALC board, which
amplifies the signal, filters off any
unwanted out of band energy and
controls its own IF gain to make sure
that the IF output level is constant.
There is also a provision to apply +12V
to the RF input center conductor to
power an external preamplifier.
CAUTION: Do not hook up the RF
input to any test equipment with the
DC bias applied. Always move the
jumper W1 on J2, on the UHF
Preamplifier Board, to the Bias off
position, between pins 2 & 3, to
prevent possible damage to the test
equipment.
Table 2-5: Receiver Front Panel Switch
SWITCH FUNCTION
MAN/AUTO ALC
SW1
When Manual ALC is selected, the level is set by the
Manual ALC Pot R57 located on the mixer/PLL board.
(NOTE: The pot is factory set and needs no adjustment
by the customer).
When Auto ALC is selected, the level control circuit will
automatically increase or decrease the ALC to maintain
the desired output level.

LX Series VHF Translator Chapter 2, System Description,
Maintenance & Remote Control Connections
LX Series, Rev. 0 2-3
Table 2-6: Receiver Front Panel Status Indicators
LED FUNCTION
PLL1 Fault DS6 Displays the status of the Local oscillator PLL
PLL 2 Fault DS8 Displays status of optional input frequency correcting PLL
DC on center conductor DS4 Displays whether or not DC is applied to the RF input
center conductor
Man ALC Gain DS7 Displays when ALC is switched to Manual bypass
ALC Fault DS5 Displays ALC status
Table 2-7: Receiver Front Panel Control Adjustments
POTENTIOMETERS DESCRIPTION
Manual Gain R57 Adjusts the gain of the receiver when the ALC is bypassed.
A/V Ratio R50 Adjusts the ratio between the visual and aural carriers.
Table 2-8: Receiver Front Panel Samples
SMA CONNECTORS DESCRIPTION
Receiver IF J13 Sample of the IF output of the IF ALC Board.
Receiver LO J2 Sample of the LO generated on the UHF Mixer PLL Board.
2.2.2 (A3) IF Processor Module
Assembly (1301938; Appendix A)
The (A3) IF Processor Assembly contains
the IF Processor Board (1301977). The IF
Processor provides pre-correction to
ensure broadcast quality output signal.
The pre-correction consists of amplitude
linearity correction, Incidental Carrier
Phase Modulation (ICPM) correction and
frequency response correction.
The IF Processor module is configured
either for an analog or digital system.
Pin 13C of the IF Processor module is
grounded in analog systems and left not
connected in digital systems. An IF
Processor Interlock signal is used to
report the presence of the IF Processor
module to the Control Monitoring board.
If the IF Processor interlock signal is not
present, the LX Series translator RF
output is Muted (turned off). If an
analog IF Processor module is installed
and the Modulation Present signal is not
true, the LX Series Translator output is
Muted (turned off).
The Control & Monitoring/Power Supply
module uses the IF Processor module for
System output power control. Through
the front panel display or a remote
interface, an operator can set the RF
output power level of the translator.
The range of RF power adjustment is
between 0% (full off) and 105% (full
power plus). A front panel IF Processor
module potentiometer sets the upper
limit of RF power at 120%. The
system's Control Monitoring board
compares the RF Power Monitoring
module RF power level with the desired
level and uses the IF Power Control PWM
line to correct for errors.
In digital systems, a digital level control
(DLC) voltage is generated on the IF
Processor module and sent to an
external digital modulator (DT1B/C). RF
power control is implemented by
changing the DLC voltage provided to
the external digital modulator. The 'RF
High' potentiometer sets the upper
adjusted range of RF control circuit
output to 120%.
The IF Processor module provides a
reference ALC voltage to the system's
Upconverter. When the ALC voltage
decreases, the Upconverter
automatically lowers the system output
power through the AGC circuits.

LX Series VHF Translator Chapter 2, System Description,
Maintenance & Remote Control Connections
LX Series, Rev. 0 2-4
The IF Processor module has a front
panel switch to select Auto or Manual
ALC. When Manual ALC is selected, the
reference ALC voltage is set by a front
panel potentiometer. In this condition,
the RF power level control circuit is
removed from use. When the ALC select
switch is changed to Auto, the RF power
level control circuit will start at low
power and increase the RF output until
the desired output power is attained.
The IF Processor module Modulation
Present signal is monitored. If the
modulation level is too low or non-
existent, a Modulation Present Fault is
reported to the Control Monitoring
board. When the controller detects this
fault, it can be set to Automatically Mute
the translator or in Manual mode the
translator will continue to operate at
25% output.
The IF Processor module Input Signal
level is monitored. If the signal level is
too low or non-existent, an Input Fault
is reported on the Control Monitoring
board. When the IF Processor board
detects an Input Signal Fault it
automatically Mutes the translator. The
system controller does not Mute on an
IF Processor Input Fault.
Table 2-9: IF Processor Front Panel Switch
SWITCH FUNCTION
MAN/AUTO ALC
When Manual ALC is selected, the reference ALC voltage is set
by the ALC Gain front panel potentiometer.
When Auto ALC is selected, the IF level control circuit will
automatically increase the IF output until the desired output
power is attained.
Table 2-10: IF Processor Front Panel Status Indicators
LED FUNCTION
INPUT FAULT (Red) When lit it indicates that there is a loss of the IF Input signal to the
IF Processor. Translator can be set to Mute on an IF Input Fault.
ALC Fault (Red) When lit it indicates that the required gain to produce the desired
output power level has exceeded the operational range of the ALC
circuit. The LED will also be lit when ALC is in Manual.
MUTE (Red) When lit it indicates that the IF input signal is cut back but the
enable to the Power Supply is present and the +32 VDC remains on.
Table 2-11: IF Processor Front Panel Control Adjustments
POTENTIOMETERS
DESCRIPTION
FREQUENCY
RESPONSE
EQUALIZER
These three variable resistors, R103, R106 & R274, adjust the
depth of gain for the three stages of frequency response correction.
ALC GAIN Adjusts the gain of the translator when the translator is in the Auto
ALC position.
MAN GAIN Adjusts the gain of the translator when the translator is in the
Manual ALC position.
LINEARITY
CORRECTION
These three variable resistors adjust the threshold cut in for the
three stages of linearity pre-correction. R211 and R216, the top
two pots, are adjusted to correct for in phase amplitude distortions.
R 231, the bottom pot, is adjusted to correct for quadrature phase
distortions.
Table 2-12: IF Processor Front Panel Sample
SMA CONNECTOR DESCRIPTION
IF SAMPLE Sample of the pre-corrected IF output of the IF Processor

LX Series VHF Translator Chapter 2, System Description,
Maintenance & Remote Control Connections
LX Series, Rev. 0 2-5
2.2.3 (A5) VHF/UHF Upconverter
Module Assembly (1303829;
Appendix A)
The VHF/UHF Upconverter Module
Assembly contains (A1) a Downconverter
Board Assembly (1303834), (A3) a First
Conversion Board, LX Series (1303838),
(A2) a L-Band PLL Board, LX Series
(1303846) and (A4) an Upconverter
Control Board (1304760).
A 0 dBm 44 MHz IF input to the
upconverter through the backplane
board is applied to a mixer mounted on
the first conversion board. Also applied
to the mixer is a nominal 1 GHz LO1.
The mixer converts it to a nominal
frequency centered at 1044 MHz. A
filter selects the appropriate conversion
product, which is then amplified to a
level of approximately –4 dBm. The
frequency of the first conversion LO1
can be shifted by ± 10 kHz to generate
channel offsets of 10kHz. For +offsets
the frequency is 999.99 MHz and for –
offsets the frequency is 1000.01 MHz.
This signal is applied to a second mixer
mounted on the downconverter board
that converts it back to a broadcast
channel (2-69) by an LO2 that operates
in 100kHz steps between 1.1-1.9 GHz
depending on the channel selected. The
LO2 frequency equals the Channel
center frequency plus the LO1 frequency
plus 44 MHz. (As an example CH14+:
Center Frequency is 473.01 MHz and
LO1 is 999.99 MHz therefore LO2 is
473.01 + 999.99 + 44, which equals
1517.00 MHz.)
The output of the mixer is applied to a
900 MHz Low pass filter to remove
unwanted conversion products. The
resulting signal is amplified and applied
to a Pin diode attenuator before it is
connected to the output of the
upconverter. This pin diode attenuator
adjusts the gain of the module and is
controlled by an Automatic Gain Control
circuit, which maintains a constant
power out of the upconverter, and also
the translator, that connects to the
power amplifier module.
Table 2-13: VHF/UHF Upconverter Front Panel Switch
SWITCH FUNCTION
MAN/AUTO AGC
(Left Manual, Right AGC)
When Manual AGC is selected, the reference AGC voltage is
set by the AGC Manual Gain front panel potentiometer.
When Auto AGC is selected, the RF power level control circuit
will automatically increase the RF output until the desired
output power is attained.

LX Series VHF Translator Chapter 2, System Description,
Maintenance & Remote Control Connections
LX Series, Rev. 0 2-6
Table 2-14: VHF/UHF Upconverter Front Panel Status Indicators
LED FUNCTION
PLL 1 Fault
(Red) When lit it indicates that the 1 GHz PLL is unlocked
PLL 2 Fault
(Red) When lit it indicates that the 1.1 –1.9 GHz PLL is unlocked
AGC Fault
(Red) When lit it indicates that the AGC is out of range.
AGC Override
(Red) When lit it indicates that the AGC is cutting back due to too much
drive to the driver module.
Man Gain
(Amber) When lit it indicates that the AGC is bypassed in Manual.
Table 2-15: VHF/UHF Upconverter Front Panel Control Adjustments
POTENTIOMETERS
DESCRIPTION
MAN GAIN ADJ Adjusts the gain of the upconverter and translator when in the
Manual AGC position.
AGC ADJ Adjusts the gain of the upconverter and translator when in the Auto
AGC position.
AGC CUTBACK ADJ
(AGC OVERRIDE) Adjusts the point at which the translator will cut back in power, due
to too much drive, when the Translator is in Auto AGC.
Table 2-16: VHF/UHF Upconverter Front Panel Samples
SMA CONNECTOR DESCRIPTION
LO1 SAMPLE Sample of the 1 GHz nominal LO1 signal in the Upconverter as
generated on the L-Band PLL Board.
LO2 SAMPLE Sample of the 1.1-1.9 GHz LO2 signal in the Upconverter as
generated on the First Conversion Board.
RF SAMPLE Sample of the On Channel RF Output of the Upconverter
2.2.4 (A4) Control/Power Supply
Module Assembly, 110VAC
(1301936; Appendix A)
This (A4) Control & Monitoring/Power
Supply Assembly was configured at the
factory for operation at 110 VAC. The
assembly is made up of a Control Board
(1302021), a Power Protection Board
(1302837) and a Switch Board (1527-
1406).
The Assembly also contains a switching
power supply that provides ±12 VDC to
the rest of the modules in the chassis
and +32 VDC to the Power Amplifier
module.
The Assembly provides all translator
control and monitoring functions. The
Front panel LCD allows monitoring of
system parameters, including forward
and reflected power, transistor currents,
module temperatures and power supply
voltages. The LCD screens are detailed
in Chapter 3.

LX Series VHF Translator Chapter 2, System Description,
Maintenance & Remote Control Connections
LX Series, Rev. 0 2-7
Table 2-17: Controller/Power Supply Display
DISPLAY FUNCTION
LCD A 4 x 20 display providing a four-line readout of the internal
functions, external inputs, and status. See Chapter 3,
Controller/Power Supply Display Screens, for a listing of displays.
Table 2-18: Controller/Power Supply Status Indicator
LED FUNCTION
OPERATE
(green)
When lit it indicates that the translator is in the Operate Mode. If
translator is Muted the Operate LED will stay lit, the translator will
remain in Operate, until the input signal is returned.
FAULT
(red or green)
Red indicates that a problem has occurred in the translator. The
translator will be Muted or placed in Standby until the problem is
corrected.
DC OK
( red or green ) Green indicates that the switchable fuse protected DC outputs that
connect to the modules in the translator are OK.
Table 2-19: Controller/Power Supply Control Adjustments
POTENTIOMETERS
DESCRIPTION
DISPLAY CONTRAST Adjusts the contrast of the display for desired viewing of screen.

LX Series VHF Translator Chapter 2, System Description,
Maintenance & Remote Control Connections
LX Series, Rev. 0 2-8
2.2.6 (A6) Power Amplifier Module
Assembly, VHF High Band,
(1305833; Appendix A)
NOTE: This 20W Analog power amplifier
module is used in the VHF High Band
Translator.
The (A6) Power Amplifier Module
Assembly is made up of a VHF High Band
Coupler Board (1211-1004), a VHF
Amplifier Control Board (1308260), and a
High Band VHF Amplifier Pallet Assembly
(1305820).
The Power Amplifier Module contains
Broadband LDMOS amplifiers that cover
the VHF High Band with no tuning
required. The module amplifies the RF
output of the Upconverter to
approximately 22 watts Peak of Sync
Visual. A cable, located on the rear
chassis, connects the RF output from the
Upconverter at J23 to J24 the RF input to
the PA Assembly. The High Band VHF
Amplifier Pallet Assembly (1305820) is
made from a Delta RF Technology pallet
PA25-VHF-HB.
The PA module contains RF monitoring
circuitry for both an analog and a digital
system. Control and monitoring lines to
the Power Amplifier module are routed
through the floating blind-mate
connector of the Control &
Monitoring/Power Supply module. The
Driver Power Amplifier module contains
a control and monitoring board. This
board monitors RF output power, RF
reflected power, the current draw of
amplifier sections, the supply voltage,
and the temperature of the PA heat sink.
The RF power detector circuit outputs
vary with operating frequency. These
circuits must be calibrated at their
intended operating frequency. Front
panel adjustment potentiometers are
used to calibrate the following:
Power Amplifier Calibration Adjustments
in Analog Systems
R201 Reflected Power Cal
R202 Visual/Forward Power Cal
R203 Aural Power Cal
R204 Visual Offset Zero
R205 Aural Null
In analog systems, the Aural power of
an Exciter Driver Power Amplifier and
the Aural power of any external PA
amplifiers will not be reported by the
system Control Monitoring module.
Additionally the Visual power of these
amplifiers is reported as Forward Power
just like in digital systems. In analog
systems, aural and visual power will only
be reported for the final system RF
output.
In this translator, system power is
measured in the Power Amplifier
module. The wired connections are
transferred through the power supply
connector to the backplane board on a
five position header. All four positions
of control board switch SW1 must be set
ON to route these lines as the system's
RF power signals.
The Forward Power of the Exciter Driver
Power Amplifier module is routed to the
Upconverter module as AGC #1. A
system over-drive condition is detected
when this value rises above 0.9 VDC.
When an over-drive condition is
detected, the Upconverter module
reduces its RF output level. For values
less than 0.9 VDC, the Upconverter uses
this voltage for automatic gain.

LX Series VHF Translator Chapter 2, System Description,
Maintenance & Remote Control Connections
LX Series, Rev. 0 2-9
Table 2-23: Power Amplifier Status Indicator
LED FUNCTION
ENABLED
(Green) When lit Green, it indicates that the PA is in the Operate Mode. If a Mute
occurs, the PA will remain Enabled, until the input signal is returned.
DC OK
(Green) When lit Green, it indicates that the fuse protected DC inputs to the PA
module are OK.
TEMP
(Green) When lit Green, it indicates that the temperature of the heatsink assembly in
the module is below 78°C.
MOD OK
(Green) When lit Green, it indicates that the PA Module is operating and has no faults.
MOD OK
(Red)
If the Module OK LED is Red and blinking a fault is present.
1 Blink indicates Amplifier Current Fault. If the Module OK LED is Red and
blinking a fault is present, as indicated below by the number of blinks and a
pause then a repeat of the number of blinks and a pause.
2 Blinks indicate Temperature Fault.
3 Blinks indicate +32V Power Supply Over Voltage Fault.
4 Blinks indicate +32V Power Supply Under Voltage Fault.
5 Blinks indicate Reflected Power Fault.
6 Blinks indicate +12V or –12V Power Supply Fault.
MOD OK
(Amber)
A blinking Amber Mod OK LED indicates the power output of the amplifier
module is below 65%. (NOTE: Only in Amplifier Code Versions 3.7A or later &
System Controller Code Versions 3.9C or later.)
Table 2-24: Power Amplifier Control Adjustments
POTENTIOMETERS
DESCRIPTION
RFL CAL Adjusts the gain of the Reflected Power monitoring circuit
VISUAL CAL Adjusts the gain of the Visual / Forward Power monitoring circuit
AURAL CAL Adjusts the gain of the Aural Power monitoring circuit
VISUAL ZERO Adjusts the offset of the Forward Power monitoring circuit
AURAL NULL Adjusts the offset of the Forward Power monitoring circuit based on
the Aural signal level.
Table 2-25: Power Amplifier Sample
DISPLAY FUNCTION
FWD SAMPLE RF sample of the amplified signal being sent out the module on J25.

LX Series VHF Translator Chapter 2, System Description,
Maintenance & Remote Control Connections
LX Series, Rev. 0 2-10
2.3 RF Output Assemblies
The RF output from the exciter power
amplifier is at the RF output jack, an “N”
connector J25, PA RF Output, of the
chassis assembly.
2.4 Control and Status
A 4 x 20 display located on the front of
the Control & Monitoring/Power Supply
Module is used in the LX Series
translator for control of the operation
and display of the operating parameters
of the translator. Refer to Chapter 3 for
descriptions of the screens.
2.5 System Operation
When the translator is in operate, as set
by the menu screen located on the
Control & Monitoring Module, the
following occurs. The IF Processor will be
enabled and the mute indicator on the
front panel will be extinguished. The
+32 VDC stage of the Power Supply in
the Control & Monitoring Module is
enabled, the operate indicator on the
front panel is lit and the DC OK on the
front panel should also be green. The
enable and DC OK indicators on the PA
Module will also be green.
When the translator is in standby. The IF
Processor will be disabled, the mute
indicator on the front panel will be red.
The +32 VDC stage of the Power Supply
in the Control & Monitoring Module is
disabled, the operate indicator on the
front panel will be extinguished and the
DC OK on the front panel should remain
green. The enable indicator on the PA
Module is also extinguished.
If the translator does not switch to
Operate when the operate menu is
switched to Operate, check that all faults
are cleared and that the remote control
terminal block stand-by signal is not
active.
The translator can be controlled by the
presence of a modulated input signal. If
the input signal to the translator is lost,
the translator will automatically cutback
and the input fault indicator on the IF
Processor module will light. When the
video input signal returns, the translator
will automatically return to full power and
the input fault indicator will be
extinguished.
2.5.1 Principles of Operation
Operating Modes
This translator is either operating or in
standby mode. The sections below
discuss the characteristics of each of
these modes.
Operate Mode
Operate mode is the normal mode for
the translator when it is providing RF
power output. To provide RF power to
the output, the translator will not be in
mute. Mute is a special case of the
operate mode where the +32 VDC
section of the power supply is enabled
but there is no RF output power from
the translator. This condition is the
result of a fault that causes the firmware
to hold the IF Processor module in a
mute state.
Operate Mode with Mute Condition
The translator will remain in the operate
mode but will be placed in mute when
the following fault conditions exists in
the translator.
• Upconverter is unlocked
• Upconverter module is not present
• IF Processor module is not present
Entering Operate Mode
Entering the operate mode can be
initiated a few different ways by the
transmitter control board. A list of the
actions that cause the operate mode to
be entered is given below:

LX Series VHF Translator Chapter 2, System Description,
Maintenance & Remote Control Connections
LX Series, Rev. 0 2-11
• A low on the Remote Transmitter
Operate line.
• User selects "OPR" using switches
and menus of the front panel.
• Receipt of an “Operate CMD” over
the serial interface.
There are several fault or interlock
conditions that may exist in the
translator that will prevent the translator
from entering the operate mode. These
conditions are:
• Power Amplifier heat sink
temperature greater than 78°C.
• Translator is Muted due to conditions
listed above.
• Power Amplifier Interlock is high
indicating that the amplifier is not
installed.
Standby Mode
The standby mode in the translator
indicates that the output amplifier of the
translator is disabled.
Entering Standby Mode
Similar to the operate mode, the
standby mode is entered using various
means. These are:
• A low on the Remote Translator
Stand-By line.
• Depressing the “STB” key on
selected front panel menus.
• Receipt of a “Standby CMD” over the
serial interface.
Auto Standby Mode
The FCC requires that certain translators
automatically switch to standby
operation on loss of video input. The LX
Series translator incorporates this
feature as a user configurable setting.
When Auto Stand-By on modulation loss
is selected in the set-up menus, the
translator temporarily switches to
standby after ten seconds of modulation
loss. When the modulated signal as
reported by the IF Processor module is
again present, the translator
automatically returns to Operate mode.
This feature is implemented in
transmitter software versions 1.4 and
above.
RF System Interlock
A RF System Interlock signal is provided
through TB30-5. When this signal's
circuit is completed to ground such as
through a wire between TB30-5 and
TB30-15, the translator is allowed to
operate. If this circuit is opened, the
translator switches to a Mute condition.
This circuit may be completed through
coax relay contacts and reject load
contact closures to assure the RF output
system is available to receive the
translator's output RF signal. This
feature is implemented in translator
software versions 1.4 and above.
Operating Frequency
The LX Series translator controller is
designed to operate on the VHF
frequencies. The exact output frequency
of the translator can be set to one of the
standard VHF frequencies, or to a
custom frequency using the software
channel set-up menu on the Controller
Module.. The Power detectors in the
translator are frequency dependent,
therefore detectors of power amplifiers
are calibrated at their frequency of use.
The detectors for System RF monitoring
are also calibrated at the desired
frequency of use. Refer to Chapter 5 for
the Channel Change Procedure.
2.6 Maintenance
The Innovator LX Series Translator is
designed with components that require
little or no periodic maintenance except

LX Series VHF Translator Chapter 2, System Description,
Maintenance & Remote Control Connections
LX Series, Rev. 0 2-12
for the routine cleaning of the fans and
the front panels of the modules and the
periodic check of general tightness of
hardware.
It is recommended that periodically, the
time interval depends on the amount of
movement the cabinet receives, all
mounting hardware, holding tray slides,
shelving and mounting plates inside the
cabinet are checked for tightness. All
screws and bolts that are accessible
should be tightened initially when the
translator is received and periodically
thereafter if the translator is moved by
vehicle. All coaxial connectors, hard-line
connections and hardware holding
combiners, splitters, or any other
mounted items should be checked and
tightened. Check the front panel
thumbscrews that hold the Exciter/Driver
Sleds, Amplifier Module and Power
Supply Sleds in place are tight. This is
especially important after the translator
has been transported.
The amount of time between cleanings
depends on the conditions within the
transmitter room. While the electronics
have been designed to function even if
covered with dust, a heavy buildup of
dust, dirt, or insects will affect the
cooling of the components. This could
lead to a thermal shutdown or the
premature failure of the affected module.
When the front panels of the modules
become dust covered, the module should
be pulled out and any accumulated
foreign material should be removed.
NOTE: To remove the driver/power
amplifier module, mounted in the
exciter/amplifier assembly, the input and
output cables must be removed from the
rear of the module and also a 6/32” x ½”
Philips screw, mounted between the two
connectors, needs to be removed before
the module will pull out. After removal of
the screw, which is used to hold the
module in place during shipping, it does
not need to be replaced.
NOTE: To remove the Combiner Module,
found in the external power amplifier
assembly, the output cable must be
removed from the rear of the module and
also two 8/32” x ½” Philips screws,
mounted above the connector, need to
be removed before the module will pull
out. After removal of the screws, which
are used to hold the module in place
during shipping, they do not need to be
replaced.
A vacuum cleaner, utilizing a small,
wand-type attachment, is an excellent
way to suction out the dirt. Alcohol and
other cleaning agents should not be used
unless you are certain that the solvents
will not damage components or the silk-
screened markings on the modules and
boards. Water-based cleaners can be
used, but do not saturate the
components. The fans and heatsinks
should be cleaned of all dust or dirt to
permit the free flow of air for cooling
purposes.
It is recommended that the operating
parameters of the driver/translator be
recorded from the LEDs on the modules
and the LCD system metering on the
control/monitoring module at least once
a month. It is suggested that this data be
retained in a rugged folder or envelope.
2.7 Customer Remote Connections
The remote monitoring and operation of
the translator is provided through jacks
TB30 and TB31 located on the rear of the
chassis assembly. If remote connections
are made to the translator, they must be
made through plugs TB30 and TB31 at
positions noted on the translator
interconnect drawing and Table 2-26.
TB30 and TB31 are 18 position terminal
blocks that are removable from their
sockets to make connections easier. Just
grasp and pull connector straight out.
After connections are made, replace the
connector and push firmly to seat the
connector in the socket.

LX Series VHF Translator Chapter 2, System Description,
Maintenance & Remote Control Connections
LX Series, Rev. 0 2-13
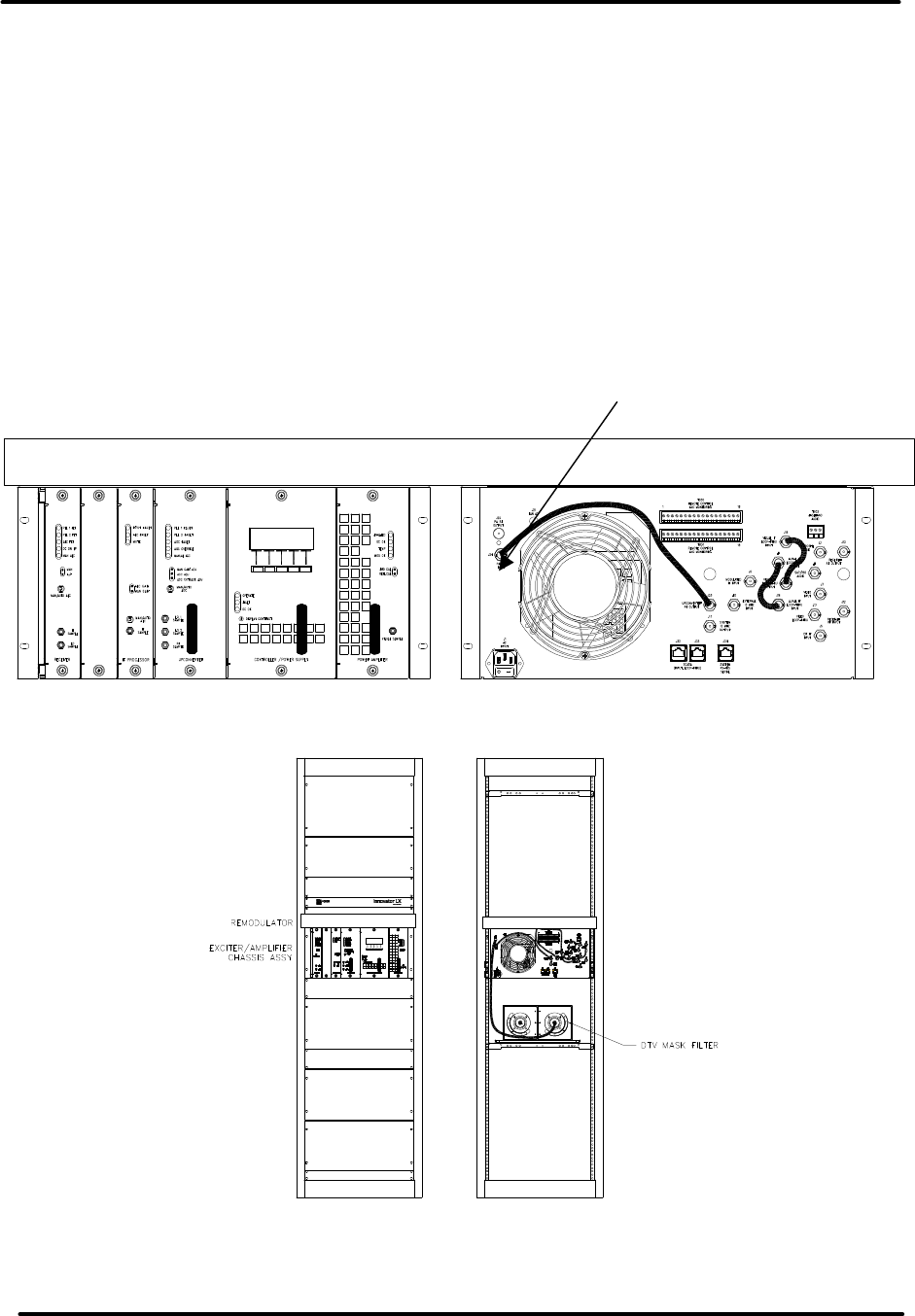
Figure 2-2: Exciter/Amplifier Chassis Assembly Rear View
Table 2-26: LX Series Chassis Assembly Hard Wired Remote Interface Connections to
TB30 or TB31, 18 pos. Terminal Blocks Located on the Rear of the Assembly
Signal Name Pin
Designations Signal Type/Description
RMT Transmitter
State TB30-1 Discrete Open Collector Output - A low indicates that
the translator is in the operate mode.
RMT Transmitter
Interlock TB30-2
Discrete Open Collector Output - A low indicated the
translator is OK or completes a interlock daisy chain.
When the translator is not faulted, the interlock circuit
is completed.
RMT Transmitter
Interlock Isolated
Return TB30-3
Ground - Configurable ground return which can be
either jumpered directly to ground or it can be the
“source” pin of an FET so that the transmitter interlock
can be daisy chained with other transmitters. This
signal does not directly interface to the
microcontroller.
RMT AUX IO 1 TB30-4
Discrete Open Collector Inputs, Discrete Open Drain
Outputs, or 0 - 5 VDC Analog Input - When used as an
output, this line is pulled to +5 VDC with a 1.0 kO
resistor for logic high and pulled to ground for a low.
A diode allows this line to be pulled up to 12 VDC.
When used as a digital input, this line considers all
values over 2 Volts as high and those under 1 volt as
low. As an analog input, this line is protected by a 5.1
zener diode.
RMT RF System
Interlock TB30-5
When this signal's circuit is completed to ground such
as through a jumper between TB30-5 and TB30-15,
the translator is allowed to operate. If this circuit is
opened, the translator switches to a Mute condition.
Implemented in transmitter software versions 1.4 and
above.
TB30
TB31

LX Series VHF Translator Chapter 2, System Description,
Maintenance & Remote Control Connections
LX Series, Rev. 0 2-14
Signal Name Pin
Designations Signal Type/Description
RMT
Transmitter
Operate TB30-6 Discrete Open Collector Input - A pull down to ground
on this line indicates that the translator is to be placed
into the operate mode.
RMT
Transmitter
Stand-By TB30-7 Discrete Open Collector Input - A pull down to ground
on this line indicates that the translator is to be placed
into the standby mode.
RMT Power Raise TB30-8 Discrete Open Collector Input - A pull down to ground
on this line indicates that the translator power is to be
raised.
RMT Power Lower TB30-9 Discrete Open Collector Input - A pull down to ground
on this line indicates that the translator power is to be
lowered.
RMT
System Reflect
Power TB30-10
Analog Output (0 to 4.0 V). This is a buffered loop
through of the calibrated “System Reflected Power ”
and indicates the translator's reflected output power.
The scale factor is 25% = 3.2V.
RMT System
Visual/Forward
Power TB30-11
Analog Output (0 to 4.0 V). This is a buffered loop
through of the calibrated “System Visual/Avg. Power ”.
Indicates the translator's Visual / Average power.
Scale factor is 100% = 3.2V.
RMT
System Aural
Power (Not used
in DTV system)
TB30-12
Analog Output (0 to 4.0 V). This is a buffered loop
through of the calibrated “System Aural Power ”.
Indicates the translator's forward Aural output power.
The scale factor is 100% = 3.2V.
RMT Spare 1 TB30-13 Remote connection to spare module - Use is TBD.
RMT Spare 2 TB30-14 Remote connection to spare module - Use is TBD.
RMT +12 VDC TB30-16 +12 VDC available through Remote w/ 2 Amp re-
settable fuse.
RMT -12 VDC TB30-18 -12 VDC available through Remote w/ 2 Amp re-
settable fuse.
IF Processor
IF Signal Select TB31-3
Discrete Open Collector Input – By connecting a low to
this pin, the Modulator IF source is used by the IF
Processor module. When floating the IF from the
internal or external Receiver is used. (NOTE: The IF
Processor board must be configured for external
switching by placing jumper W11 on J29 between pins
1 & 2 for the modulated IF input at J6 to be used).
IF Processor
DLC Voltage TB31-4 Analog Output (0 to 5.00 V). This is the input of IF
Processor module for digital system RF output power
control.
UC AGC #2
Voltage TB31-5
Auxiliary Analog Input (0 to 1V). This voltage is used
by the Upconverter for gain control. Linear signal with
display resolution of 0.01 %. Primary signal source is
J34-1.
Ground Return TB31-12 Ground Return pin.
System Reflected
Power TB31-13
Analog Input (0 to 1.00 V). This is the input of the
“System Reflected Power ” indicating the translator's
reflected output power. The scale factor is 25% =
0.80V.
System Visual /
TB31-14
Analog Input (0 to 1.00 V). This is the input of the

LX Series VHF Translator Chapter 2, System Description,
Maintenance & Remote Control Connections
LX Series, Rev. 0 2-15
Signal Name Pin
Designations Signal Type/Description
Forward Power “System Visual / Forward Power ” indicating the
translator's forward Visual / Forward output power.
The scale factor is 100% = 0.80V.
System Aural
Power (Not used
in DTV system) TB31-15
Analog Input (0 to 1.00 V). This is the input of the
“System Aural Power ” indicating the translator's
forward Aural output power. The scale factor is 100%
= 0.80V.
+12 VDC TB31-16 +12 VDC available through Remote w/ 2 Amp re-
settable fuse.
Ground Return TB31-17 Ground Return pin.
-12 VDC TB31-18 -12 VDC available through Remote w/ 2 Amp re-
settable fuse.
RMT Ground TB30-15, and
17 Ground pins available through Remote
RMT Ground TB31-1, 2, 6 to
12 Ground pins available through Remote

LX Series VHF Translator Chapter 3, Site Considerations,
Installation and Setup Procedures
LX Series, Rev. 0 3-1
Chapter 3
Site Considerations, Installation and Setup Procedures
3.1 Site Considerations
There are special considerations that need
to be taken into account before the
Innovator LX Series translator can be
installed. For example, if the installation is
completed during cool weather, a heat-
related problem may not surface for many
months, suddenly appearing during the
heat of summer. This section provides
planning information for the installation
and set up of the translator.
The AC input and current requirements
for analog/digital LX Series translator is
110 VAC @ 15 Amps. Check that your
site has the needed power requirements.
The LX Series Translators are designed
and built to provide long life with a
minimum of maintenance. The
environment in which they are placed is
important and certain precautions must be
taken. The three greatest dangers to the
translator are heat, dirt, and moisture.
Heat is usually the greatest problem,
followed by dirt, and then moisture. Over-
temperature can cause heat-related
problems such as thermal runaway and
component failure. Each amplifier module
in the translator contains a thermal
interlock protection circuit that will shut
down that module until the temperature
drops to an acceptable level.
A suitable environment for the translator
can enhance the overall performance and
reliability of the translator and maximize
revenues by minimizing downtime. A
properly designed facility will have an
adequate supply of cool, clean air, free of
airborne particulates of any kind, and no
excessive humidity. An ideal environment
will require temperature in the range of
40° F to 70° F throughout the year,
reasonably low humidity, and a dust-free
room. It should be noted that this is rarely
if ever attainable in the real world.
However, the closer the environment is to
this design, the greater the operating
capacity of the translator.
The fans are designed and built into the
translator will remove the heat from
within the modules, but additional means
are required for removing this heat from
the building. To achieve this, a few issues
need to be resolved. The first step is to
determine the amount of heat to be
removed from the transmitter room.
There are generally three sources of heat
that must be considered. The first and
most obvious is the heat from the
translator itself. This amount can be
determined for a 100 Watt translator by
subtracting the average power to the
antenna (69.5 watts) from the AC input
power (675 watts) and taking this
number in watts (605.5) and then
multiplying it by 3.41. This gives a result
of 2065, the BTUs to be removed every
hour. 12,000 BTUs per hour equals one
ton. Therefore, a 1/4 ton air conditioner
will cool a 100W translator.
The second source of heat is other
equipment in the same room. This
number is calculated in the same way as
the equation for BTUs. The third source
of heat is equally obvious but not as
simple to calculate. This is the heat
coming through the walls, roof, and
windows on a hot summer day. Unless
the underside is exposed, the floor is
usually not a problem. Determining this
number is usually best left up to a
qualified HVAC technician. There are far
too many variables to even estimate this
number without reviewing the detailed
drawings of the site that show all of the
construction details. The sum of these
three sources is the bulk of the heat that
must be removed. There may be other
sources of heat, such as personnel, and
all should be taken into account. Now
that the amount of heat that must be
removed is known, the next step is to
determine how to accomplish this. The

LX Series VHF Translator Chapter 3, Site Considerations,
Installation and Setup Procedures
LX Series, Rev. 0 3-2
options are air conditioning, ventilation, or
a combination of the two. Air conditioning
is always the preferred method and is the
only way to create anything close to an
ideal environment.
Ventilation will work quite well if the
ambient air temperature is below 100° F,
or about 38° C, and the humidity is kept
at a reasonable level. In addition, the air
stream must be adequately filtered to
ensure that no airborne particulates of
any kind will be carried into the translator.
The combination of air conditioning for
summer and ventilation during the cooler
months is acceptable when the proper
cooling cannot be obtained through the
use of ventilation alone and using air
conditioning throughout the year is not
feasible.
Caution: The use of air conditioning
and ventilation simultaneously is not
recommended. This can cause
condensation in the translators.
The following precautions should be
observed regarding air conditioning
systems:
1. Air conditioners have an ARI
nominal cooling capacity rating. In
selecting an air conditioner, do not
assume that this number can be
equated to the requirements of the
site. Make certain that the
contractor uses the actual
conditions that are to be
maintained at the site in
determining the size of the air
conditioning unit.
2. Do not have the air conditioner
blowing directly onto the translator.
Under certain conditions,
condensation may occur on, or
worse in, the translator.
3. Do not separate the front of the
translator from the back with the
thought of air conditioning only the
front of the unit. Cooling air is
drawn in at the front of all
translators and in the front and
back of others. Any attempt to
separate the front of the
translator from the rear of the
unit will adversely affect the flow
of cooling air.
4. Interlocking the translator with the
air conditioner is recommended to
keep the translator from operating
without the necessary cooling.
5. The periodic cleaning of all filters
is a must.
When using ventilation alone, the
following general statements apply:
1. The blower, with attendant filters,
should be on the inlet, thereby
pressurizing the room and
preventing dirt from entering the
translator.
2. The inlet and outlet vents should
be on the same side of the
building, preferably the leeward
side. As a result, the pressure
differential created by wind will be
minimized. Only the outlet vent
may be released through the roof.
3. The inlet and outlet vents should
be screened with 1/8-inch
hardware cloth (preferred) or
galvanized hardware cloth
(acceptable).
4. Cooling air should enter the room
as low as practical but in no case
higher than four feet above the
floor. The inlet must be located
where dirt, leaves, snow, etc., will
not be carried in with the cooling
air.
5. The exhaust should be located as
high as possible. Some ducting is
usually required to insure the
complete flushing of heated air
with no stagnant areas.

LX Series VHF Translator Chapter 3, Site Considerations,
Installation and Setup Procedures
LX Series, Rev. 0 3-3
6. The filter area must be large
enough to insure a maximum air
velocity of 300 cubic feet per
minute through the filter. This is
not a conservative number but a
never-exceed number. In a dusty
or remote location, this number
should be reduced to 150 CFM.
7. The inlet and outlet(s) must have
automatic dampers that close any
time the ventilation blower is off.
8. In those cases in which a translator
is regularly off for a portion of each
day, a temperature-differential
sensor that controls a small heater
must be installed. This sensor will
monitor inside and outside
temperatures simultaneously. If the
inside temperature falls to within
5° F of the outside temperature,
the heater will come on. This will
prevent condensation when the
ventilation blower comes on and
should be used even in the
summer.
9. A controlled air bypass system
must be installed to prevent the
temperature in the room from
falling below 40° F during
translator operation.
10. The blower should have two
speeds, which are thermostatically
controlled, and are interlocked
with the translator. The blower on
high speed must be capable of
moving the required volume of air
into a half inch of water pressure at
the required elevation. The free air
delivery method must not be used.
11. Regular maintenance of any filters
can not be overemphasized.
12. Above 4000 feet, for external
venting, the air vent on the
cabinet top must be increased to
an 8-inch diameter for a 1 kW
transmitter and to a 10 inch
diameter for 5 kW and 6 kW
transmitters. An equivalent
rectangular duct may be used but,
in all cases, the outlet must be
increased by 50% through the
outlet screen.
13. It is recommended that a site plan
be submitted to Axcera for
comments before installation
begins.
In calculating the blower requirements,
filter size, and exhaust size, if the total
load is known in watts, 2000 CFM into ½
inch of water will be required for each
5000 watts. If the load is known in BTUs,
2000 CFM into ½ inch of water will be
required for each 17,000 BTUs. The inlet
filter must be a minimum of seven
square feet, larger for dusty and remote
locations, for each 5000 watts or 17,000
BTUs. The exhaust must be at least four
square feet at the exhaust screen for
each 5000 watts or 17,000 BTUs.
The information presented in this section
is intended to serve only as a general
guide and may need to be modified for
unusually severe conditions.
A combination of air conditioning and
ventilation should not be difficult to
design (see Figure 3-1).
System interlocking and thermostat
settings should be reviewed with Axcera.
As with any equipment installation, it is
always good practice to consult the
manufacturer when questions arise.
Axcera can be contacted at (724) 873-
8100.

LX Series VHF Translator Chapter 3, Site Considerations,
Installation and Setup Procedures
LX Series, Rev. 0 3-4
Figure 3-1. 1 kW Minimum Ventilation Configuration
3.2 Unpacking the Cabinet, Chassis
w/modules and mask filter
Thoroughly inspect the cabinet, chassis
with modules and all other materials
upon their arrival. Axcera certifies that
upon leaving our facility the equipment
was undamaged and in proper working
order. The shipping containers should be
inspected for obvious damage that
indicates rough handling. Remove the
cabinet, if purchased, chassis and
modules, along with mask filter, from the
crates and boxes. Check for dents and
scratches or broken connectors,
switches, display, or connectors. Any
claims against in-transit damage should
be directed to the carrier. Inform Axcera
as to the extent of any damage as soon
as possible.
The modules are mounted to the chassis
assembly with slides that are on the top
and the bottom of the modules. There
are two thumb screws on the front panel
that hold each of the modules in place.
After placement of cabinet, all mounting
hardware, holding tray slides, shelving
and mounting plates inside the cabinet
should be checked for tightness. All
screws and bolts that are accessible
should be tightened initially when the
translator is received and periodically
thereafter if the translator is moved by
vehicle. All coaxial connectors, hard-line
connections and hardware holding
combiners, splitters, or any other
mounted items should be checked and
tightened. Check the front panel
thumbscrews that hold the Exciter/Driver
Sleds, Amplifier Module and Power
Supply Sleds in place are tight. This is
especially important after the translator
has been transported.
NOTE: Typically the translator is shipped
pre-installed into a cabinet and therefore
the following sections may be skipped.
3.3 Installing the Chassis w/modules
and filters
The chassis assembly is made to mount
in a standard 19” rack. The chassis
assembly mounts using the four #10
clearance mounting holes on the ends.
The chassis should be positioned; to

LX Series VHF Translator Chapter 3, Site Considerations,
Installation and Setup Procedures
LX Series, Rev. 0 3-5
provide adequate air intake into the front
and the air exhaust of the fan(s) in the
rear; the ability to slide the modules out
for replacement purposes; the
installation of the bandpass filter, and
output transmission line. The chassis or
cabinet in which it is mounted should be
grounded using copper strapping
material.
NOTE: To remove the power amplifier
module, mounted in the exciter/amplifier
assembly, the input and output cables
must be removed from the rear of the
module and also a 6/32” x ½” Philips
screw, mounted between the two
connectors, needs to be removed before
the module will pull out. After removal of
the screw, which is used to hold the
module in place during shipping, it does
not need to be replaced. (See Figure 3-2)
Connect the output of the chassis
assembly at the “N” connector J25 to the
input of the mask filter. Connect the
transmission line for the antenna system
to the output of the mask filter.
Figure 3-2: Exciter/Amplifier Front and Rear View Reconnection Drawing
Figure 3-3: Translator Front and Rear View Reconnection Drawing
Shipping Screw

LX Series VHF Translator Chapter 3, Site Considerations,
Installation and Setup Procedures
LX Series, Rev. 0 3-6
3.4 AC Input
Once the chassis and output connections
are in place, connect the AC power cords
from the exciter/amplifier chassis
assembly to 110 VAC outlets.
The AC input and current requirements
for analog/ digital LX Series translator is
110 VAC @ 15 Amps.
This completes the unpacking and
installation of the LX Series VHF
television translator. Refer to the setup
and operation procedures that follow
before applying power to the translator.
3.5 Setup and Operation
Initially, the translator should be turned
on with the RF output at the coupler
terminated into a dummy load of at least
25W. If a load is not available, check
that the output of the coupler is
connected to the antenna for your
system.
3.5.1 Input Connections
The input connections to the translator
are to the rear of the exciter/amplifier
chassis assembly.
Refer to the tables and description that
follows for detailed information on the
input connections to the
Exciter/Amplifier.
Figure 3-4: Rear View of the Analog Translator
J1
J24
J25
TB30
TB31
J32
J34
J33
J11
J10
J6
J5
J19
J18
TB2
J13
J4
J7
J17
J8
J9
J12
J3
J23
A2
Exciter/
Driver
Chassis
Assembly
J4
J3
J2
J5
J6
THIS CABLE IS USED
FOR ANALOG SYSTEM.

LX Series VHF Translator Chapter 3, Site Considerations,
Installation and Setup Procedures
LX Series, Rev. 0 3-7
Table 3-1: Rear Chassis Connections for the LX Series Exciter/Driver.
Port Type Function Impedance
J1 IEC AC Input N/A
TB02 Term (NOT USED) Base Band Audio Input 600O
J3 BNC (NOT USED) Composite Audio Input 75O
J4 BNC (NOT USED) SAP / PRO Audio Input 50O
J5 BNC (NOT USED) CW IF Input 50O
J6 BNC Modulated IF Input (In Analog System
connects to J13 50O
J7 BNC (NOT USED) Video Input (Isolated) 75O
J8 BNC (NOT USED) Visual IF Loop-Thru Output 50O
J9 BNC (NOT USED) Aural IF Loop-Thru Output 50O
J10 BNC External 10 MHz Reference Input 50O
J11 BNC System 10 MHz Reference Output 50O
J12 BNC Receiver RF Input (Used in Analog System) 50O
J13 BNC Receiver IF Output (In Analog System connects
to J6) 50O
J17 BNC (NOT USED) Video Loop-Thru (Isolated) 75O
J18 BNC (NOT USED) Visual IF Loop-Thru Input 50O
J19 BNC (NOT USED) Aural IF Loop-Thru Input 50O
J23 BNC Upconverter RF Output (Jumpered to J24) 50O
J24 BNC Power Amplifier RF Input (Jumpered to J23) 50O
J25 N Power Amplifier RF Output 50O
J32 RJ-45 SCADA (Input / Loop-Thru) CAT5
J33 RJ-45 SCADA (Input / Loop-Thru) CAT5
J34 RJ-45 System RS-485 Serial CAT5
TB30 Termination
Remote Control & Monitoring N/A
TB31 Termination
Remote Control & Monitoring N/A
3.5.2 Initial Turn On
Once the translator has been installed
and all connections have been made, the
process of turning on the equipment can
begin. Verify that AC power is present
and connected to the translator. Verify
all cables are properly connected and are
the correct type. Once these checks are
completed, the unit is ready to be turned
on using the following procedures.
Turn on the main AC power source that
supplies the AC to the translator. Check
that the AC power plug is connected to
J1 on the rear of the exciter/amplifier
chassis assembly. Check that the On/Off
circuit breaker, located on the rear of the
Exciter/Amplifier is On.
Monitor the LCD display located on the
front of the control/monitoring power
supply module in the exciter/amplifier
chassis assembly as you proceed
through this section. When the
translator is in the operate mode, the
STB menu appears on the screen. When
in the standby mode, the OPR menu
appears on the screen. Press the NXT
key after each menu to continue through
the sequence to the next screen.

LX Series VHF Translator Chapter 3, Site Considerations,
Installation and Setup Procedures
LX Series, Rev. 0 3-8
3.5.2.2 Receiver Module LEDs on
Front Panel
Fault Indicators:
PLL 1 FLT: This illuminates Red when
the Local Oscillator PLL is unlocked.
PLL 2 FLT: This illuminates Red when
the optional input frequency correcting
PLL is unlocked.
ALC FLT: This illuminates Red when the
ALC can not maintain output level.
Status Indicators:
DC ON I/P: This indicator will illuminate
Red when DC is applied to the RF input
center conductor.
MAN ALC: This illuminates Red when
the ALC can not maintain output level.
3.5.2.3 IF Processor Module LEDs on
Front Panel
Fault Indicators:
INPUT FAULT: This illuminates Red if
the input to the module is missing or
low.
ALC FAULT: This illuminates RED when
the needed ALC value to maintain the
output level is beyond the range of the
circuitry.
MUTE: This indicator will illuminate Red
when the translator is muted.
3.5.2.4 VHF/UHF Upconverter
Module LEDs on Front Panel
Fault Indicator:
AGC FAULT: This illuminates Red if the
required gain to produce the desired
output level is beyond the value set by
the AGC circuit. AGC out of range.
AGC OVERRIDE: This illuminates Red if
the drive to the driver module is too
high.
MAN GAIN: This illuminates Red if the
AGC is bypassed in Manual.
PLL 1: This illuminates Red if the 1 GHz
PLL is unlocked.
PLL 2: This illuminates Red if the 1.1-
1.9 GHz PLL is unlocked.
3.5.2.5 Controller Module LEDs on
Front Panel
Status Indicators:
OPERATE: This illuminates Green when
translator is in operate.
FAULT: This illuminates Red when a
fault has occurred in the translator.
DC OK: This illuminates Green when the
DC outputs that connect to the modules
in the translator are present.
3.5.2.6 Power Amplifier Module LEDs
on Front Panel
NOTE: Both the VHF High Band and
Low Band PA Modules have the same
front panel LEDs.
Status Indicators:
ENABLED: This illuminates Green when
the PA is in operate.
DC OK: This illuminates Green when the
DC inputs to the PA module are present.
TEMP: This illuminates Green when the
temperature of the heatsink in the PA is
below 78°C.
MOD OK: This illuminates Green when
the PA module is operating and has no
faults.
If the Module OK LED is Red and blinking
a fault is present. The meaning of the
blinking LED is as follows.
1 Blink: Indicates Amplifier Current
Fault.
2 Blinks: Indicate Temperature Fault.
3 Blinks: Indicate +32V Power Supply

LX Series VHF Translator Chapter 3, Site Considerations,
Installation and Setup Procedures
LX Series, Rev. 0 3-9
Over Voltage Fault.
4 Blinks: Indicate +32V Power Supply
Under Voltage Fault.
5 Blinks: Indicate Reflected Power Fault.
6 Blinks: Indicate +12V or –12V Power
Supply Fault
If the Module OK LED is Amber and
blinking, it indicates the power output of
the amplifier has dropped below 65%.
(NOTE: Only in Amplifier Code Versions
3.7A or later and System Controller Code
Versions 3.9C or later.).
3.5.3 Front Panel Screens for the
Exciter/Amplifier Chassis Assembly
A 4 x 20 display located on the front of
the Control & Monitoring/Power Supply
Module is used in the LX Series
translator for control of the operation
and display of the operating parameters
of the translator. Below are the typical
display screens for the system and may
vary depending on your system. The ↑
and ↓ characters are special characters
used to navigate up or down through the
menu screens. Display text flashes on
discrete fault conditions for all screens
that display a fault condition. When the
translator is in operate mode, the STB
menu appears. When the translator is in
standby mode, the OPR menu appears.
Display Menu Screens for the LX Series Translator
Table 3-3: Menu 01 - Splash Screen #1
This is the first of the two transmitter splash screens that is shown for the first few
seconds after reset or after pushing the SPL button on the Main Screen. Will
automatically switch to the second splash screen.
Table 3-4: Menu 02- Splash Screen #2
This is the second of the two transmitter splash screens. Will automatically switch to the
Main Screen. The Model Number, Code Version Number and Firmware Number for your
system are displayed on this screen. Make note of these two numbers when conferring
with Axcera on software problems.
Table 3-5: Menu 10 - Main Screen:
This is the default main screen of the translator. When the translator is in operate,
the 'STB' characters appear, allowing an operator to place the translator in STANDBY, by
pushing the right most button located under to display. When the translator is in standby
the 'STB' characters are replaced with 'OPR' and the forward power values are displayed
as OFF. An operator can change the translator from STANDBY to OPERATE by pressing
the right most button on the front panel display. If the translator is in operate mode but
off due to a modulation fault, the display reports the system power as Auto Off. Pushing
the SPL button will display the two splash screens.

LX Series VHF Translator Chapter 3, Site Considerations,
Installation and Setup Procedures
LX Series, Rev. 0 3-10
If the ↓ key is activated the display changes to Menu 11, the System Error List Access
Screen. If the ↑ key is activated the display changes to Menu 13, the Transmitter
Configurations Access Screen.
Table 3-6: Menu 11 - Error List Access Screen
This screen of the translator shows the current number of system errors, displayed in
upper, right of screen, shown above is System Errors 0. and provides operator access to
view Menu 20, the error list screens, by pushing the ENT button if errors are indicated. .
If the ↓ key is pushed the display changes to Menu 12, Table 3-7, the Transmitter Device
Data Access Screen. If the ↑ key is activated the display returns to Menu 10, the Main
Screen. When ENT is pushed, if errors are present, Menu 20, Table 3-9, the System
Error List Display Screen is displayed with the error indicated.
Table 3-7: Menu 12 - Transmitter Device Data Access Screen
This screen of the translator allows access to various parameters of the translator
system. This is the entry point to Menu 30, the System Details Screens, by pausing the
ENT button. When the ENT button is pushed, Menu 30 is accessed. Go to Menu 30, Table
3-12 for set up details. Before pushing the ENT button: if the ↓ key is activated the
display changes to Menu 13, Transmitter Configurations Access Screen. If the ↑ key is
activated the display returns to Menu 11, the Error List Access Screen.

LX Series VHF Translator Chapter 3, Site Considerations,
Installation and Setup Procedures
LX Series, Rev. 0 3-11
Table 3-8: Menu 13 - Transmitter Configuration Access Screen
This screen of the translator allows access to various software settings of the translator
system. If ENT is pushed, go to Menu 40, Table 3-13, the access to transmitter
configuration and set up. Before pushing the ENT button: if the ↓ key is activated the
display returns to Menu 10, Main Screen. If the ↑ key is activated the display returns to
Menu 12, the Transmitter Device Data Access Screen.
Table 3-9: Menu 20 - Error List Display Screen
When ENT is pushed on the Error List Access Screen, Menu 11, if errors are present,
Menu 20, the System Error List Display Screen is displayed with the System Error
indicated as shown above. This screen of the translator allows access to the system
faults screens. Fault logging is stored in non-volatile memory. The translator's operating
state can not be changed in this screen. The 'CLR' switch is used to clear previously
detected faults that are no longer active. The ↑ key and ↓ key allow an operator to scroll
through the list of errors that have occurred. The ESC button is used to leave this screen
and return to Menu 11, Table 3-16, the Error List Access Screen.
The screen shown indicates a Modulator Module Interlock Fault, typically because the
Modulator is not present. It also indicates that there are a total of eight faults. The
other faults can be displayed by pushing the ↓ key button. To clear the displayed System
Error, fault, that is no longer active, push the button under CLR. Repeat to clear each
additional displayed System Error. If an error is active it will not clear.
NOTES: In Dual Exciter Systems with an Exciter Switcher, for the automatic switching to
the back up exciter to occur, the System Error, Fault, Log located in the Back Up Exciter
must be cleared of all Previous Faults, as described above.
With all Errors, faults, cleared the screen below should be displayed. Push the button
under ESC to return to Menu 11, Table 3-6, the Error List Access Screen.

LX Series VHF Translator Chapter 3, Site Considerations,
Installation and Setup Procedures
LX Series, Rev. 0 3-12
Menu 30 is entered by selecting ENT at Menu 12, Table 3-7.
Table 3-10: Menu 30 - Transmitter Device Details Screen
This screen allows access to the translator parameters of installed devices. The system is
configured to know which devices are present. Current values for all installed devices are
shown. If a module is not installed, only a "MODULE NOT PRESENT" message will be
displayed. The first screen displayed is Menu 30-1, Table 3-11, the System Details
Screen.
Table 3-11: Menu 30-1 – System Details Screen
The ↓ and ↑ arrows allow you to scroll through the different parameters of each device as
shown in Table 3-12 that follows. Each System Component is a different screen. The
proper IF Processor and the Driver or the Power Amplifier will be programmed for your
system. The External Amplifier Modules will only be used in high power translators.
Examples of External Amplifier Modules displays are: (AMP SET 1 MODULE 1) and (AMP
SET 2 MODULE 4).
Table 3-12: Transmitter Device Parameters Detail Screens
System
Component Parameter Normal Faulted (Blinking)
AFC 1 LEVEL 0 - 10.00 V N/A
PLL 1 CIRCUIT LOCKED UNLOCKED
ALC INPUT OK FAULT
Receiver Details
(Not used with
Digital.) FAULT AT 0 - 10.00 V FAULT
INPUT SIGNAL STATE OK FAULT
MODULATION OK FAULT
INPUT IF MODULATOR or J6 N/A
DLC CONTROL LOCK 0 - 5.00 V N/A
ALC LEVEL 0 - 5.00 V N/A
IF Processor
Details
ALC MODE AUTO or MANUAL N/A
AFC 1 LEVEL 0 – 5.00 V N/A
AFC 2 LEVEL 0 - 5.00 V N/A
CODE VERSION x.x N/A
PLL 1 CIRCUIT LOCKED FAULT
PLL 2 CIRCUIT LOCKED FAULT
AGC 1 LEVEL 0 - 5.00 V N/A
AGC 2 LEVEL 0 - 5.00 V N/A
Upconverter
Details
INT. 10 MHz IS USED N/A
System Control
Details SUPPLY ENABLED
FOR xxx HOURS N/A

LX Series VHF Translator Chapter 3, Site Considerations,
Installation and Setup Procedures
LX Series, Rev. 0 3-13
System
Component Parameter Normal Faulted (Blinking)
POWER SUPPLY
STATE, 32V 32 VDC N/A
±12V SUPPLY OK or OFF FAULT
FORWARD POWER xxx% xxx%
REFLECTED POWER xxx% xxx%
AMP 1 CURRENT xx.xA xx.xA
AMP 2 CURRENT xx.xA xx.xA
TEMPERATURE xxC xxC
CODE VERSION x.x N/A
Exciter/Amplifier
Power Amplifier
Details
PA HAS OPERATED
FOR xxx HOURS N/A
Pushing the ↓ Down Arrow, after scrolling through all the detail screens, will put you back
to Menu 30, Table 3-10. Push the ESC button to exit the Transmitter Device Parameter
Screens to Menu 12, Table 3-7 to the Transmitter Device Parameter Access Screen.
Menu 40 (Table 3-13) is entered by selecting ENT at Menu 13.
Table 3-13: Menu 40 - Authorized Personnel Screen
This screen of the translator notifies an operator that they are only to proceed if they are
authorized to make changes to the translator's operation. Changes made within the
following set-up screens can affect the translators output power level, output frequency,
and the general behavior of the translator. Please do not make changes within the
translator's set-up screens unless you are familiar with the operation of the translator.
This screen is implemented in transmitter software version 1.4 and above.
Pressing ENT will put you into the Transmitter Set Up Screens for Menu 40.
A safeguard is added to the Set Up Menus in software version 2.5 and above. If a change
is made to a screen within the Set Up Menus, when you go to the next menu, a new
screen asks if you accept the change or want to return to the previous menu to
reconsider the changes made.
To accept the changes, the two buttons located under ACCEPT must be pushed
simultaneously.
To return to the previous Menu to make corrections, the two buttons located under the
RETURN must be pushed simultaneously.
Upon returning to the previous Menu the correct input must be entered and the above
procedure repeated, this time accepting the changes.

LX Series VHF Translator Chapter 3, Site Considerations,
Installation and Setup Procedures
LX Series, Rev. 0 3-14
Accept or Return to previous Menu Screen
Pushing these two buttons Pushing these two buttons
Simultaneously will accept Simultaneously will return you
the change. to the previous Menu.
The Set Up Screens are shown in Table 3-14 Menu 40-1 through Table 3-32 Menu 40-19
that follow.
Table 14: Menu 40-1 - Transmitter Set-up: Power Control Screen
This screen of the translator is the first of several that allows access to translator set-up
parameters. This is the output Power Control Screen. When + is selected, the Power will
increase. When - is selected, the Power will decrease.
Table 3-15: Menu 40-2 - Transmitter Set-up: Model Select Screen
This screen is used to specify which components are expected to be part of the system.
By specifying the model number, the transmitter control firmware knows which
components should be installed and it will be able to display faults for components that
are not properly responding to system commands.
Table 3-16: Menu 40-3 - Transmitter Set-up: Receiver Channel Configuration
This screen of the translator allows access to translator frequency set-up parameters.
The choices of this screen are as follow. NOTE: The above screen will only be present if a
Receiver is part of the system. Used to set the Receiver Channel designation and for
custom Channel Offsets the setting of the PLL operating frequency.

LX Series VHF Translator Chapter 3, Site Considerations,
Installation and Setup Procedures
LX Series, Rev. 0 3-15
Table 3-17: Menu 40-4 - Transmitter Set-up: Upconverter Channel Select Screen
The choices of this screen are to the standard UHF / VHF channels. The + and – buttons
change the desired channel of the translator. The PLL frequency is set for custom Offsets
within the upconverter frequency. Any change to the channel is immediately set to the LO
/ Upconverter Frequency Synthesizer PLL circuit.
Table 3-18: Menu 40-5 - Transmitter Set-up: Serial Address Screen
This screen allows the user to set the serial address of the translator. The default
address is 5. This value and all other set-up parameters, are stored in non-volatile
memory.
Table 3-19: Menu 40-6 - Transmitter Set-up: Station ID Screen
This screen allows the user to set the Station ID, Call Sign, in analog translators. If blank
characters are used for all five positions, then the Station ID feature is disabled.
Otherwise the Station ID code is transmitted every 15 minutes. This value and all other
set-up parameters, are stored in non-volatile memory. (NOTE: If an external Receiver
Tray is used in your system, the LX Series Station ID is disabled. Therefore, the Station
ID must be set up in the external Receiver Tray.)
Table 3-20: Menu 40-7 - Transmitter Set-up: System Visual Power Calibration
This screen is used to adjust the calibration of the system's visual power. A symbol
placed under the '6' character is used to show major changes in the calibration value.
When the calibration value is at full value, the character will be full black. As the value
decreases, the character pixels are gradually turned off. The calibration value is a value
between 0 and 255 but the calibration value symbol only has 40 pixels. Therefore small
changes in actual calibration value may not affect the symbol's appearance.

LX Series VHF Translator Chapter 3, Site Considerations,
Installation and Setup Procedures
LX Series, Rev. 0 3-16
Table 3-21: Menu 40-8 - Transmitter Set-up: System Aural Power Calibration
This screen is used to adjust the calibration of the system's aural forward power. A
calibration value symbol is used for this screen as on the previous screen.
Table 3-22: Menu 40-9 - Transmitter Set-up: System Reflected Power Calibration
This screen is used to adjust the calibration of the system's reflected power. Again a
calibration value symbol is used for this screen as on the previous screens.
Table 3-23: Menu 40-10 - Transmitter Set-up: Modulated Output Calibration
In analog systems, this screen is used to adjust the calibration of the system's modulated
output signal detector. The calibration value symbol is again used to graphically
represent the modulated output signal detector's calibration value.
Table 3-24: Menu 40-11 - Transmitter Set-up: Aural Deviation Calibration
In analog systems this screen is used to adjust the calibration of the system's aural
deviation detector. The calibration value symbol is again used to graphically represent
the aural deviation detector's calibration value.
Table 3-25: Menu 40-12 - Transmitter Set-up: Forward Power Fault Threshold Screen
This screen is used to set the minimum forward power fault threshold. When the
translator is operating, it must operate above this value otherwise the system will shut
down with fault for 5 minutes. If after five minutes the fault is not fixed, the translator
will enable, measure power less than this value and again shut down for five minutes.

LX Series VHF Translator Chapter 3, Site Considerations,
Installation and Setup Procedures
LX Series, Rev. 0 3-17
Table 3-26: Menu 40-13 - Transmitter Set-up: Reflected Power Fault Threshold
This screen is used to set the maximum reflected power fault threshold. When the
translator is operating, it must not operate above this value otherwise the system will
slowly begin to reduce the forward output power. If the system's reflected output power
exceeds the maximum reflected power threshold by five percent or more, the translator
will shut down with fault for 5 minutes. If after five minutes the fault is not fixed, the
translator will enable, measure power above this value plus five percent and again shut
down for five minutes. If the system's reflected output power exceeds the maximum
reflected power threshold due to some condition like the formation of ice on an antenna,
the translator reduces forward power to a level where the reflected power is less than
this threshold. The translator will automatically increase its output power to normal
operation when the cause of higher than normal reflected power is corrected.
Table 3-27: Menu 40-14 - Transmitter Set-up: Auto Stand-By Control
Certain LX translator locations are required to reduce to no output power on the loss of
video input. When a LX translator is configured for Auto Stand-By On Modulation Loss,
the translator will switch to stand-by, if a modulated input signal fault is detected by the
IF Processor module that lasts for more than ten seconds. Once the modulated input
signal fault is cleared, a translator in operate mode will return to normal operation. This
feature is implemented in transmitter software version 1.4 and above.
Table 3-28: Menu 40-15 - Transmitter Set-up: Receiver ALC Fault Set Up
This screen is used to set up the level of the ALC at which the Receiver will fault. This
feature is implemented in transmitter software version 2.0 and above. NOTE: The above
screen will only be present if a Receiver is part of the system.
Table 3-29: Menu 40-16 - Transmitter Set-up: Inner Loop Gain Control
This screen is used to set up the Inner Loop Gain of the exciter/amplifier assembly. This
feature is implemented in transmitter software version 2.0 and above.

LX Series VHF Translator Chapter 3, Site Considerations,
Installation and Setup Procedures
LX Series, Rev. 0 3-18
Table 3-30: Menu 40-17 - Transmitter Set-up: Optional System Control
This screen is used to set up any optional system, including the addition of the optional
Modulator in a translator system. This feature is implemented in transmitter software
version 2.0 and above.
Table 3-31: Menu 40-18 - Transmitter Set-up: Amplifier Output Power Warning
This screen is used to set up the Amplifier Output Power level at which a warning will be
sent out if the power output of the amplifier drops below this setting. The warning
indication is the blinking of the Module OK LED colored Amber, located on the front of the
amplifier module. (NOTE: Only in Amplifier Code Versions 3.7A or later and System
Controller Code Versions 3.9C or later.)
Table 3-32: Menu 40-19 - Transmitter Set-up: Remote Commands Control
This screen is used to allow or deny the use of remote control commands. When
disabled, remote commands are not used. Remote commands are commands received
either through the rear terminal blocks or through serial messages. Push the ESC button
to exit the Transmitter Set Up Screens to Menu 13, Table 3-8, the Transmitter
Configuration Access Screen.
This completes the description of the menu screens for the LX Series exciter/driver chassis
assembly.
3.5.5 Operation Procedure
If necessary, place the translator in
standby and connect the translator to
the antenna. Switch the translator to
operate and check that the output is
100% and if needed adjust the ALC
Gain adjust pot on the front panel of
the IF Processor to attain 100%. The
power raise / lower settings, in the
menus, are only to be used for
temporary reductions in power.
The power set-back values do not
directly correspond to the output power
of the translator.
This completes the Installation, Set Up
and Turn On of the Translator. If a
problem occurred during the setup and
operation procedures, refer to Chapter
5, Detailed Alignment Procedures, of
this manual for more information.

LX Series VHF Translator Chapter 4,
Circuit Descriptions
LX Series, Rev. 0 4-1
Chapter 4
Circuit Descriptions
4.2 (A1) Receiver Module, VHF High
Band (1304001; Appendix A)
NOTE: Used in analog translator system.
4.2.1 IF ALC Board (1304003;
Appendix A)
The board provides the interface between
the receiver and the backplane and also
contains the control and ALC circuits for
the sled.
The control portion of the board consists
of a microcontroller (U8) and its
associated components that
communicate to the outside world via an
RS-485 serial data link. The
microcontroller receives various metering
and alarm functions such as AFC and ALC
voltages, PLL and ALC faults and
communicates them back to the system
controller for display on the transmitter’s
LCD display. It also receives the channel
information from the system controller,
and converts it to the programming data
for the PLL chip on the Mixer/PLL Board
in the receiver.
The IF portion of the board consists of
an input pin attenuator, which is used to
normalize the gain of the board to
account for variations in the input level
to the board. The pin attenuator is
made up of DS1, DS2 and associated
components. The signal is then amplified
by U2-U4 and associated components
and applied to a SAW filter that rejects
any out of channel signal that made it
through the receivers RF front end.
Amplifiers U5, U6 and their associated
components are used to amplify the
signal to make up for the loss through
the filter. The final output of U6 is split
by a lumped element Wilkinson splitter
consisting of C21, C26, C27, L12, and
L14. The output from one of the output
ports is sent to the output of the
receiver, and the other output is
connected to a peak detector and used
by the ALC. The ALC circuit, consisting of
U1, CR4 and its associated components,
varies the gain of the pin attenuator on
the front end of the board to maintain a
constant output level. The pin attenuator
has an overall adjustment range of
approximately 50 dB.
There is a comparator that looks at the
pin attenuator voltage and generates an
alarm if the pin attenuator is close to
running out of range. This alarm is likely
to occur if the RF input signal to the
receiver is weak or missing. This alarm is
received by the microcontroller that
passes it along to the transmitter's system
controller, which mutes the signal in the
IF processor until the fault goes away.

LX Series VHF Translator Chapter 4,
Circuit Descriptions
LX Series, Rev. 0 4-2
4.2.2 VHF Mixer/PLL Board
(1306472; Appendix A)
The VHF Mixer/PLL Board converts the
RF input to the receiver to a 44 MHz IF.
It consists of a Mixer, a local oscillator
and some IF amplifiers used to make up
for the loss of the mixer.
The Local oscillator signal is generated
by the VCO (U3), which operates directly
at the LO frequency of the VHF channel
center frequency (104-176 MHz) + 44
MHz. The oscillator is phase locked to a
10 MHz standard by U2, U8, and their
associated components. TP1 shows the
AFC voltage, which is also sent back to
the IF ALC board to be displayed on the
system level controller. The variable
resistor R30 sets the LO output level to
+10 dBm into the mixer U4. This is
done by looking at the LO sample at J2
with a spectrum analyzer, adjusting R30
until the level is -10 dBm. This ensures
that the mixer gets the correct level, as
the sample is 20 dB down from the level
into the mixer.
Mixer U4 converts the RF input at J1 to
an IF frequency of 44 MHz. L13, L14
and C56 form a low pass filter, which
rejects any unwanted higher frequency
conversion products. U5 and U9 amplify
the signal, which exits the board at J5.
There are two jumpers on J3 and J4 that
allow the user to switch in a 10 dB
attenuator if the input level to the
receiver is too high. Normally the
jumpers are connected between pins 1
and 2 of each connector, but if the user
has a high input level, they can be
switched to connect pins 2 and 3 of each
connector, which switches in the 10 dB
pad.
The A/V ratio of the incoming signal can
be adjusted via an external front panel
pot, which controls the bias on pin
attenuator DS3. The pin attenuator
controls the Q of a notch set at the aural
IF carrier frequency, set by C41 and L7.
The A/V ratio control is used if the
incoming signal has an aural carrier that is
too high relative to the visual carrier.
4.2.3 VHF High Band Preamplifier
Board (1306445; Appendix A)
The VHF High Band Preamplifier Board
filters and amplifies the low level RF input
signal to the receiver. It consists of two
two-pole bandpass filters and a dual stage
preamplifier. The filters are tuned at the
RF channel frequency and are about 8
MHz wide. They are intended to filter off
the unwanted image product 88 MHz
below the Channel center frequency.
Each filter is a combination micro-strip
lumped element filter.
The input filter also has provisions to
insert a +12V DC signal onto the center
conductor of the receiver's RF input to
power an external preamp. The jumper
W1 on J2 controls whether or not the DC
bias is applied to the center conductor.
When it is connected between pins 1 and
2, the +12V bias is applied. When it is
between pins 2 and 3, there is no bias
applied. The presence of the DC bias is
displayed on a front panel LED on the
sled.
CAUTION: Do not hook up the RF
input to any test equipment with the
DC bias applied. Always move the
jumper W1 on J2 to the Bias off
position, between pins 2 & 3, to
prevent possible damage to the test
equipment.
The amplifier consists of two cascaded
stages, which provide approximately 27
dB of gain across the VHF High Band
channels.
4.3 (A3) IF Processor Module
Assembly (1301938; Appendix A)
The IF from the modulator enters the
module and the signal is pre-corrected as
needed for amplitude linearity correction,
Incidental Carrier Phase Modulation

LX Series VHF Translator Chapter 4,
Circuit Descriptions
LX Series, Rev. 0 4-3
(ICPM) correction and frequency
response correction.
The Module contains the IF Processor
board 1301977.
4.3.1 IF Processor Board (1301977;
Appendix A)
The automatic level control (ALC) portion
of the board provides the ALC and
amplitude linearity correction of the IF
signal. The ALC adjusts the level of the
IF signal that controls the output power
of the transmitter.
The IF from the modulator enters the
board at J42 pin 32B. If the (optional)
receiver is present, the IF input (-6 dBm)
from the receiver connects to the
modulated IF input jack J42 Pin 21C.
The modulator IF input connects to relay
K3 and the receiver IF input connects to
relay K4.
The Modulator select enable/disable
jumper W11 on J29 controls whether the
Modulator Select command at J42 Pin
14C controls the operation of the relays.
With the jumper W11 on J29 between
pins 1 and 2, the external Modulator
Select command at J42 Pin 14C controls
the operation of the relays. With the
jumper W11 on J29 between pins 2 and
3, the Modulator input is selected all of
the time.
4.3.1.1 Modulator Selected
With the modulator selected, J42-14C
low or the jumper W11 on J29 between
pins 2 and 3, the low shuts off Q12 and
causes Pin 8 on the relays to go high that
causes relays K3 and K4 to de-energize.
When K4 is de-energized, it connects the
receiver IF input at J42-21C, if present,
to a 50O load. When K3 is de-energized,
it connects the modulator IF input at J42-
32B to the rest of the board and the
Modulator Enable LED DS5 will be
illuminated.
4.3.1.2 External Modulated IF Selected
With the External Modulated IF selected,
J42-14C high and jumper W11 on J29
between pins 1 and 2, this high turns on
Q12 and makes pin 8 on the relays Low
that causes the relays K3 and K4 to
energize. When K4 is energized, it
connects the receiver IF input at J42-21C,
if present, to the rest of the board. When
K3 is energized, it connects the modulator
IF input at J42-32B to a 50O load and the
Modulator Enable LED DS5 will not be
illuminated.
4.3.1.3 Main IF Signal Path (Part 1 of 3)
The selected IF input (-6 dBm average)
signal is split, with one half entering a
bandpass filter that consists of L3, L4, C4,
L5, and L6. This bandpass filter can be
tuned with C4 and is substantially broader
than the IF signal bandwidth. It is used to
slightly steer the frequency response of the
IF to make up for any small discrepancies
in the frequency response in the stages
that precede this point. The filter also
serves the additional function of rejecting
unwanted frequencies that may occur if the
tray cover is off and the tray is in a high RF
environment. (If this is the case, the
transmitter will have to be serviced with
the tray cover off in spite of the presence
of other RF signals). The filtered IF signal is
fed through a pi-type matching pad
consisting of R2, R3, and R4 to the pin-
diode attenuator circuit consisting of CR1,
CR2, and CR3.
4.3.1.4 Input Level Detector Circuit
The other part of the split IF input is
connected through L2 and C44 to U7. U7
is an IC amplifier that is the input to the
input level detector circuit. The amplified IF
is fed to T4, which is a step-up transformer
that feeds diode detector CR14. The
positive-going detected signal is then low-
pass filtered by C49, L18, and C50. This
allows only the positive digital peaks to be
applied through emitter follower Q1. The
signal is then connected to detector CR15
to produce a peak digital voltage that is

LX Series VHF Translator Chapter 4,
Circuit Descriptions
LX Series, Rev. 0 4-4
applied to op-amp U9A. There is a test
point at TP3 that provides a voltage-
reference check of the input level. The
detector serves the dual function of
providing a reference that determines the
input IF signal level to the board and also
serves as an input threshold detector.
The input threshold detector prevents the
automatic level control from reducing the
attenuation of the pin-diode attenuator to
minimum, the maximum signal output, if
the IF input to the board is removed. The
ALC, input loss cutback, and the
threshold detector circuits will only
operate when jumper W2 on jack J5 is in
the Enabled position, between pins 2 and
3. Without the threshold detector, and
with the pin-diode attenuator at
minimum, the signal will overdrive the
stages following this board when the
input is restored.
As part of the threshold detector
operation, the minimum IF input level at
TP3 is fed through detector CR15 to op-
amp IC U9A, pin 2. The reference
voltage for the op-amp is determined by
the voltage divider that consists of R50
and R51, off the +12 VDC line. When
the detected input signal level at U9A,
pin 2, falls below this reference
threshold, approximately 10 dB below
the normal input level, the output of U9A
at pin 1 goes high, toward the +12 VDC
rail. This high is connected to the base
of Q2 that is forward biased and creates
a current path. This path runs from the -
12 VDC line, through red LED DS1, the
input level fault indicator, which lights,
resistor R54, and transistor Q2 to +12
VDC. The high from U9A also connects
through diode CR16 and R52, to U24D
pin 12, whose output at pin 14 goes high.
The high connects through the front
panel accessible ALC Gain pot R284 and
the full power set pot R252 to U24C Pin
9. This high causes U24C pin 8 to go
low. A power raise/lower input from the
Control/Monitoring Module connects to
J42C pin 24C and is wired to Q14. This
input will increase or decrease the value
of the low applied to U24B and therefore
increase or decrease the power output of
the transmitter.
The low connects to U24B pin 5 whose
output goes low. The low is wired to U24A
pin 2 whose output goes high. The high is
applied to U10A, pin 2, whose output goes
low. The low connects through the switch
SW1, if it is in the auto gain position, to
the pin-diode attenuator circuit, CR1, CR2
& CR3. The low reverse biases them and
cuts back the IF level, therefore the output
level, to 0. When the input signal level
increases above the threshold level, the
output power will increase, as the input
level increases, until normal output power
is reached.
The input level at TP3 is also fed to a pulse
detector circuit, consisting of IC U8, CR17,
Q3, and associated components, and then
to a comparator circuit made up of U9C
and U9D. The reference voltage for the
comparators is determined by a voltage
divider consisting of R243, R65, R66, and
R130, off the -12 VDC line. When the input
signal level to the detector at TP3 falls
below this reference threshold, which acts
as a loss-of-signal peak detector circuit,
the output of U9C and U9D goes towards
the -12 VDC rail and is split, with one part
biasing on transistor Q5. A current path is
then established from the +12 VDC line
through Q5, the resistors R69 and R137,
and the red LED DS3, input loss indicator,
which is illuminated. When Q5 is on, it
applies a high to the gate of Q6. This
causes it to conduct and apply a
modulation loss pull-down output to J42C,
pin 7C, which is applied to the front panel
display on the Control/Monitor module.
The other low output of U9C and U9D is
connected through CR18, CR19 & CR20 to
jack J5. Jumper W2 on J5, in the Cutback
Enable position, which is between pins 2
and 3, connects the low to the base of Q4
that is now forward-biased. NOTE: If
jumper W2 is in the Disable position,
between pins 1 and 2, the auto cutback will
not operate. With Q4 biased on, a
negative level determined by the setting of
cutback level pot R71 is applied to U24D,

LX Series VHF Translator Chapter 4,
Circuit Descriptions
LX Series, Rev. 0 4-5
pin 12. The level is set at the factory to
cut back the output to approximately
25%. The output of U24D at pin 14 goes
low and is applied through the power
adjust pot to U24C, pin 9, whose output
goes low. The low connects to U24B, pin
5, whose output goes low. The low then
connects to U24A, pin 2, whose output
goes high. The high is applied to U10A,
pin 2, whose output goes low. The low
connects through the switch SW1, if it is
in the auto gain position, to the pin-diode
attenuator circuit, CR1, CR2 & CR3. The
low reverse biases them and cuts back
the level of the output to approximately
25%.
4.3.1.5 Pin-Diode Attenuator Circuit
The input IF signal is fed to a pin-diode
attenuator circuit that consists of CR1,
CR2 & CR3. Each of the pin diodes
contains a wide intrinsic region; this
makes the diodes function as voltage-
variable resistors at this intermediate
frequency. The value of the resistance is
controlled by the DC bias supplied to the
diode. The pin diodes are configured in a
pi-type attenuator configuration where
CR1 is the first shunt element, CR3 is the
series element, and CR2 is the second
shunt element. The control voltage,
which can be measured at TP1, originates
either from the ALC circuit when the
switch SW1 is in the ALC Auto position,
between pins 2 and 3, or from pot R87
when SW1 is in the Manual Gain position,
between pins 1 and 2.
In the pin diode attenuator circuit,
changing the amount of current through
the diodes by forward biasing them
changes the IF output level of the board.
There are two extremes of attenuation
ranges for the pin-diode attenuators. In
the minimum attenuation case, the
voltage, measured at TP1, approaches
the +12 VDC line. There is a current path
created through R6, through series diode
CR3, and finally through R9 to ground.
This path forward biases CR3 and causes
it to act as a relatively low-value resistor.
In addition, the larger current flow
increases the voltage drop across R9 that
tends to turn off diodes CR1 and CR2 and
causes them to act as high-value resistors.
In this case, the shunt elements act as a
high resistance and the series element acts
as a low resistance to represent the
minimum loss condition of the attenuator
(maximum signal output). The other
extreme case occurs as the voltage at TP1
is reduced and goes towards ground or
even slightly negative. This tends to turn
off (reverse bias) diode CR3, the series
element, causing it to act as a high-value
resistor. An existing fixed current path
from the +12 VDC line, and through R5,
CR1, CR2, and R9, biases series element
CR3 off and shunt elements, diodes CR1
and CR2, on, causing them to act as
relatively low-value resistors. This
represents the maximum attenuation case
of the pin attenuator (minimum signal
output). By controlling the value of the
voltage applied to the pin diodes, the IF
signal level is maintained at the set level.
4.3.1.6 Main IF Signal Path (Part 2 of 3)
When the IF signal passes out of the pin-
diode attenuator through C11, it is applied
to the modular amplifier U1. This device
contains the biasing and impedance-
matching circuits that makes it operate as
a wide-band IF amplifier. The output of U1
connects to J40 that is jumpered to J41.
The J40 jack is available, as a sample of
the pre-correction IF for troubleshooting
purposes and system setup. The IF signal
is connected to a splitter Z1 that has an In
Phase output and a 90° Quadrature output,
which are then connected to the linearity
corrector portion of the board.
4.3.1.7 Amplitude and Phase
Pre-Correction Circuits
The linearity corrector circuits use three
stages of correction, two adjust for any
amplitude non-linearities and one for phase
non-linearities of the output signal. Two of
the stages are in the In Phase Amplitude
pre-correction path and one stage is in the
Quadrature Phase pre-correction path.
Each stage has a variable threshold control

LX Series VHF Translator Chapter 4,
Circuit Descriptions
LX Series, Rev. 0 4-6
adjustment, R211 and R216, in the In
Phase path, and R231, in the Quadrature
path, that determines the point at which
the gain is changed for that stage.
Two reference voltages are needed for
the operation of the corrector circuits.
The Zener diode VR3, through R261,
provides the +6.8 VDC reference. The
VREF is produced using the path through
R265 and the diodes CR30 and CR31.
They provide a .9 VDC reference, which
temperature compensates for the two
diodes in each corrector stage.
The first corrector stage in the In Phase
path operates as follows. The In Phase
IF signal is applied to transformer T6,
which doubles the voltage swing by
means of a 1:4 impedance
transformation. Resistors R222 and
R225 form an L-pad that lowers the level
of the signal. The input signal level,
when it reaches a set level, causes the
diodes CR24 and CR25 to turn on,
generating current flow that puts them in
parallel with the L-pad. When the diodes
are put in parallel with the resistors, the
attenuation through the L-pad is lowered,
causing signal stretch.
The signal is next applied to amplifier
U17 to compensate for the loss through
the L-pad. The breakpoint, or cut-in
point, for the first corrector is set by
controlling where CR24 and CR25 turn
on. This is accomplished by adjusting the
threshold cut-in resistor R211. R211
forms a voltage-divider network from
+6.8 VDC to ground. The voltage at the
wiper arm of R211 is buffered by the
unity-gain amplifier U16B. This reference
voltage is then applied to R215, R216,
and C134 through L44 to the CR24 diode.
C134 keeps the reference from sagging
during the vertical interval. The .9 VDC
reference voltage is applied to the unity-
gain amplifier U16D. The reference
voltage is then connected to diode CR25
through choke L45. The two chokes L44
and L45 form a high impedance for RF
that serves to isolate the op-amp ICs
from the IF.
After the signal is amplified by U17, it is
applied to the second corrector stage in the
In Phase path through T7. These two
correctors and the third corrector stage in
the Quadrature path operate in the same
fashion as the first. All three corrector
stages are independent and do not interact
with each other.
The correctors can be disabled by moving
the jumper W12 on J30 to the Disable
position, between pins 1 and 2, this moves
all of the breakpoints past the signal peaks
so that they will have no affect.
The pre-distorted IF signal in the In Phase
path, connects to an op amp U18 whose
output level is controlled by R238. R238
provides a means of balancing the level of
the amplitude pre-distorted IF signal that
then connects to the combiner Z2.
The pre-distorted IF signal in the
Quadrature path connects to op amp U20
and then step up transformer T9, next op
amp U21 and step up transformer T10 and
finally op amp U22 whose output level is
controlled by R258. R258 provides a
means of balancing the level of the Phase
pre-distorted IF signal that then connects
to the combiner Z2.
The Amplitude and Phase pre-distorted IF
signals are combined by Z2 and connected
to J37 that is jumpered to J36 on the
board. J37 can be used for testing or
monitoring purposes of the IF signal after
Amplitude and Phase pre-distortion. The
pre-distorted IF signal connects through a
resistor buffer network that prevents
loading of the combiner before it is wired
to the frequency response circuitry.
4.3.1.8 Main IF Signal Path (Part 3 of 3)
The IF signal, at the input to the
frequency-response corrector circuit, is
split using L24, L25 and R89. One path is
through L24, which is the main IF path
through the board. The main IF is fed
through a resistor network that controls
the level of the IF by adjusting the
resistance of R99, the output level adjust.

LX Series VHF Translator Chapter 4,
Circuit Descriptions
LX Series, Rev. 0 4-7
The IF signal is then applied to a three-
stage, frequency-response corrector
circuit that is adjusted as needed.
The frequency-response corrector circuit
operates as follows. Variable resistors
R103, R106 and R274 are used to adjust
the depth and gain of the notches and
variable caps C71, C72 and C171 are
used to adjust the frequency position of
the notches. These are adjusted as
needed to compensate for frequency
response problems.
The frequency-response corrected IF is
connected to J38 that is jumpered to J39
on the board. J38 can be used for
testing or monitoring purposes of the IF
signal after frequency response pre-
correction.
The IF is next amplified by U13 and U14.
After amplification, the IF is split with one
path connected to J42C pin 1C the IF
output to the LO/Upconverter Module.
The other path is fed through a divider
network to J35 a SMA IF Sample Jack,
located on the front panel, which
provides a sample of the corrected IF for
test purposes.
4.3.1.9 ALC Circuit
The other path of the corrected IF signal
at the input to the frequency response
corrector circuit is used in the ALC circuit.
The IF flows through L25, of the L24 L25
splitter, and connects to the op-amp
U12. The IF signal is applied through a
resistor divider network to transformer
T5. T5 doubles the voltage swing by
means of a 1:4 impedance
transformation before it is connected to
the ALC detector circuit, consisting of
C70, CR23 and R91. The detected ALC
level output is amplified by U10B and
wired to U10A, pin 2, where it is summed
with the power control setting, which is
the output power setting that is
maintained by the ALC. The output of
U10A connects through SW1, if it is in
the auto gain position, to the pin-diode
attenuator circuit, CR1, CR2 & CR3. The
high forward biases them more or less,
that increases or decreases the IF level,
therefore the output level, opposite the
input level. When the input signal level
increases, the forward bias on the pin
attenuator decreases, therefore the output
power will decrease, which keeps the
output power the same as set by the
customer.
An external power raise/lower switch can
be used by connecting it to TB30, at TB30-
8 power raise and TB30-9 power lower, on
the rear of the exciter/amplifier chassis.
The ALC voltage is set for .8 VDC at TP4
with a 0-dBm output at J42C pin 1C of the
module. A sample of the ALC at J42C pin
11C, is wired to the Control
Monitoring/Power Supply module where it
is used on the LCD display and in the AGC
circuits.
The ALC voltage, and the DC level
corresponding to the IF level after signal
correction, are fed to U10A, pin 2, whose
output at pin 1 connects to the ALC pin-
diode attenuator circuit. If there is a loss of
gain somewhere in an IF circuit, the output
power of the transmitter will drop. The ALC
circuit senses this drop at U10A and
automatically decreases the loss through
the pin-diode attenuator circuit therefore
increasing its gain maintaining the same
output power level.
The ALC action starts with the ALC detector
level monitored at TP4. The detector
output at TP4 is nominally +.8 VDC and is
applied through resistor R77 to a summing
point at op-amp U10A, pin 2. The current
available from the ALC detector is offset, or
complemented, by current taken away
from the summing junction. In normal
operation, U10A, pin 2, is at 0 VDC when
the loop is satisfied. If the recovered or
peak-detected IF signal level at IF input to
this board should drop, which normally
means that the output power will decrease,
the null condition would no longer occur at
U10A, pin 2. When the level drops, the
output of U10A, pin 1, will go more
positive. If SW1 is in the Automatic
position, it will cause the ALC pin-diode

LX Series VHF Translator Chapter 4,
Circuit Descriptions
LX Series, Rev. 0 4-8
attenuators CR1, CR2, and CR3 to have
less attenuation and increase the IF
level; this will compensate for the
decrease in the level. If the ALC cannot
increase the input level enough to satisfy
the ALC loop, due to the lack of range, an
ALC fault will occur. The fault is
generated because U10D, pin 12,
increases above the trip point set by R84
and R83 until it conducts. This makes
U10D, pin 14, high and causes the red
ALC Fault LED DS2 to light.
4.3.1.10 Fault Command
The board also has circuitry for an
external mute fault input at J42 pin 10C.
This is a Mute command that protects the
circuits of high-gain output amplifier
devices against VSWR faults. This action
needs to occur faster than just pulling
the ALC reference down. Two different
mechanisms are employed: one is a very
fast-acting circuit to increase the
attenuation of the pin-diode attenuator,
CR1, CR2, and CR3, and the second is
the reference voltage being pulled away
from the ALC amplifier device. An
external Mute is a pull-down applied to
J42 pin 10C, which completes a current
path from the +12 VDC line through R78
and R139, the LED DS4 (Mute indicator),
and the LED section of opto-isolator U11.
These actions turn on the transistor
section of U11 that applies -12 VDC
through CR21 to U10A pin 3, and pulls
down the reference voltage. This is a
fairly slow action controlled by the low-
pass filter function of R81 and C61.
When the transistor section of U11 is on,
-12 VDC is also connected through CR22
directly to the pin-diode attenuator
circuit. This establishes a very fast
muting action, by reverse biasing CR3.
This action occurs in the event of an
external VSWR fault.
4.3.1.11 ±12 VDC Needed to Operate the
Board
The ±12 VDC connects to the board at
J42C. The +12 VDC connects to J42C pin
16C and is filtered by L30, L41, and C80
before it is applied to the rest of the board.
The -12 VDC connects to J42C pin 18C and
is filtered by L31 and C81 before it is
applied to the rest of the board.
The +12 VDC connects through R261 to
the zener diode VR3 that connects to
ground, which generates the +6.8 VDC
output to the rest of the board. The +12
VDC also connects through R265 to the
diodes CR30 and CR31 provide a .9 VDC
reference output voltage VREF that
temperature compensates for the two
diodes in each corrector stage.
4.4 (A5) VHF/UHF Upconverter
Module (1303829; Appendix A)
This module contains the Downconverter
Board Assembly 1303834, the First
Conversion Board 1303838, L-Band PLL
Board 1303846 and the Upconverter
Control Board 1304760. This module
takes an external IF and converts it to the
final RF output frequency using two
internally generated local oscillator
frequencies.
4.4.1 (A1) Downconverter Board
Assembly (1303834; Appendix A)
This board converts a signal at an input
frequency of 1044 MHz to a broadcast VHF
or UHF TV channel.
The IF at 1044MHz is applied to the board
at J7, and is converted down to VHF or
UHF by the mixer IC U6. The LO
frequency is applied to the board at a
level of +20 dBm at J8. The output of the
mixer is applied to a 6 dB attenuator and
then to a 900 MHz Low Pass filter. The
filter is intended to remove any unwanted
conversion products. The signal is next
connected to the amplifier U2, and then a
pin diode attenuator consisting of DS4,
DS5 and their associated components.
The attenuator sets the output level of the
board and is controlled either by a manual
gain pot R7, or an external AGC circuit.
This automatic or manual mode of
operation is controlled by the switch SW1.

LX Series VHF Translator Chapter 4,
Circuit Descriptions
LX Series, Rev. 0 4-9
When in manual mode, the LED DS6 is
illuminated.
The output of the pin attenuator is
applied to another amplifier U3 and
another low pass filter, before reaching
the final amplifier U1. The output of the
board is at J5 with a sample of the
output available at J6, which is 20 dB in
level below the signal at J5.
4.4.2 (A2) L-Band PLL Board
(1303846; Appendix A)
This board generates an LO at a
frequency of 1.1-1.9 GHz. The board
contains a PLL IC U6, which controls the
output frequency of a VCO. The PLL IC
divides the output of the VCO down to
100kHz, and compares it to a 100kHz
reference created by dividing down an
external 10 MHz reference that is
applied to the board at J1 pin 4. The IC
generates an error current that is
applied to U3 and its associated
components to generate a bias voltage
for the VCO's AFC input.
There are two VCOs on the board, U4,
which operates at 1.1-1.3 GHz for VHF
channels, and U5, which operates at
1.5-1.9 GHz for UHF channels. The VCO
in use is selected by a signal applied to
J1 pin 20. This input enables the power
supply either U1 or U2 for the
appropriate VCO for the desired channel.
U7 is a power supply IC that generates
+5V for the PLL IC U6.
The output of each VCO is filtered by a
low pass filter to remove any harmonic
content and applied to a pin diode
switch consisting of CR1, CR2, and their
associated components. The selected
signal is amplified by U9 and U10, then
applied to a high pass filter and finally
amplified to a level of approximately
+21 dBm by U11. The output is
connected to a low pass filter to remove
any unwanted harmonic content and
leaves the board at J3 at a level of +20
dBm.
4.4.3 (A3) First Conversion Board
(1303838; Appendix A)
This board generates a 1 GHz LO signal
using the VCO U9, the PLL IC U12, and
the loop filter, C30-C33 and R49. The PLL
IC compares a divided down sample of the
VCO to a divided down sample of the
transmitter's system 10 MHz reference.
The output of the VCO is amplified by U10
and U11 and applied to a low pass filter
before being connected to an image
rejection mixer consisting of U1, U2, U3
and U6. The 44 MHz IF input is connected
to the board at J2, and then to the image
rejection mixer. This mixer converts the
44 MHz input to an output frequency of
1044 MHz. The output of the mixer is
amplified by U4 and applied to a band
pass filter consisting of C2-C4 and some
microstrip line sections. This filter rejects
any LO leakage at 1 GHz and also any
unwanted out of band products. The
output of the filter is amplified by U5 and
then filtered before exiting the board at
J1.
4.4.4 (A4) Upconverter Control Board
(1304760; Appendix A)
This board performs a variety of functions,
which include an interface between the
other boards in the upconverter and the
rest of the transmitter. It also has a
microcontroller U8, which controls and
monitors the functions of the other boards
in the assembly.
The microcontroller communicates via an
RS-485 interface with the transmitter's
system control module. It reports any
faults and metering information and
receives channel information, which it
passes along to the PLLs on the L-Band
PLL Board and the First Conversion Board.
The board also generates various voltages
used by the rest of the boards in the
upconverter. U9 converts the +12V input
to the board to +20V. U15 converts +12V
to +5V for the on board 10 MHz crystal
oscillator. U12 converts +12V to +9V for

LX Series VHF Translator Chapter 4,
Circuit Descriptions
LX Series, Rev. 0 4-10
the L-Band PLL board and the First
Conversion board. U13 and U14
generate +5V for the microcontroller.
The board also selects whether the
internal or external 10 MHz reference
source will be used. There is an
onboard 10 MHz oscillator, U3, which is
used when no external 10 MHz source is
present. The Relay K1 is automatically
switched to the external 10 MHz
reference whenever it is present. The
LED DS1 illuminates whenever the
internal 10 MHz reference is used. The
diode detector CR1 detects the presence
of the 10 MHz external reference that
connects to U2, which compares the
detected level to a reference level and
switches the relay whenever the
reference is present. It also disables the
internal oscillator whenever the external
10 MHz reference is being used.
The output of the relay is split to drive
multiple outputs, some internal and
some external. The external outputs
leave the board at J1-22C and J1-31B
and are used by the external receiver
and modulator modules.
The board also contains AGC circuitry,
which controls a pin diode attenuator on
the Downconverter Board. There are
three references used by the AGC
circuit. The first is the AGC reference
#1, which comes from the transmitter's
driver module. The second is the AGC
reference #2, which is a diode ORed
sample of the output stages of the
transmitter. The IC U5 normalizes the
level of the AGC reference # 1 and sets
it at a level that is 0.2V less than the
level of AGC reference #2. The AGC
reference #1 and #2 are diode ORed
with only the highest reference used by
the AGC circuit.
The highest reference is compared to
the ALC reference, which originated on
the IF processor module, and the error
voltage generated by U4D and applied
to the external pin attenuator. The AGC
will try to maintain a constant ratio
between the ALC voltages and the higher
of the two AGC voltages. If something in
the output amplifier of the transmitter
fails, the AGC reference #1 voltage will
take over and the power will be regulated
at the output of the driver.
The RF from the Upconverter Module
Assembly connects from the Upconverter RF
Output BNC Jack J23, through a cable, to
the PA RF Input BNC Jack J24, located on
the rear of the exciter/amplifier chassis
assembly.
4.5 (A4) Control Monitoring/Power
Supply Module, 110 VAC
(1301936; Appendix A)
The Control Monitoring/Power Supply
Module Assembly contains (A1) a Power
Protection Board (1302837), (A2) a 600
Watt Switching Power Supply, (A3) a
Control Board (1302021), (A4) a Switch
Board (1527-1406) and (A5) a LCD
Display.
AC Input to Innovator LX Exciter/Amplifier
Chassis Assembly
The AC input to the Exciter/Amplifier
Chassis Assembly is connected from J1,
part of a fused entry module, located on
the rear of the chassis assembly to J50 on
the Control Monitoring/Power Supply
Module. J50-10 is line #1 input, J50-8 is
earth ground and J50-9 is line #2 input.
The input AC connects to J1 on the Power
Protection Board where it is fuse protected
and connected back to J50, at J50-11 AC
Line #1 and J50-12 AC Line #2, for
distribution to the cooling Fan.
4.5.1 (A1) Power Protection Board
(1302837; Appendix A)
The input AC connects through J1 to two
10 Amp AC fuses F1 and F2. The AC line
#1 input connects from J1-1 to the F1
fuse. The AC line #1 input after the F1
fuse is split with one line connected back
to Jack J1 Pin 4, which becomes the AC
Line #1 to the Fan. The other line of the

LX Series VHF Translator Chapter 4,
Circuit Descriptions
LX Series, Rev. 0 4-11
split connects to J4. The AC line #2
input connects from J1-3 to the F2 fuse.
The AC line #2 input after the F2 fuse is
split with one line connected back to
Jack J1 at Pin 5, which becomes the AC
Line #2 to the Fan. The other line of the
split connects to J2. J1-2 is the earth
ground input for the AC and connects to
J3.
Three 150 VAC MOVs are connected to
the input AC for protection. One
connects from each AC line to ground
and one connects across the two lines.
VR1 connects from J4 to J2, VR2
connects from J4 to J3 and VR3 connects
from J2 to J3.
4.5.1.1 +12 VDC Circuits
+12 VDC from the Switching Power
Supply Assembly connects to J6 on the
board. The +12 VDC is divided into four
separate circuits each with a 3 amp self
resetting fuse, PS3, PS4, PS5 and PS6.
The polyswitch resettable fuses may
open on a current as low as 2.43 Amps
at 50°C, 3 Amps at 25°C or 3.3 Amps at
0°C. They definitely will open when the
current is 4.86 Amps at 50°C, 6 Amps
at 25°C or 6.6 Amps at 0°C.
PS3 protects the +12 VDC 2 Amp
circuits for the System Controller, the
Amplifier Controller and the Spare Slot
through J62 pins 7, 8, 9 and 10. If this
circuit is operational, the Green LED
DS3, mounted on the board, will be lit.
PS4 protects the +12 VDC 2 Amp
circuits for the Modulator and the IF
Processor through J62 pins 13, 14, 15
and 16. If this circuit is operational, the
Green LED DS4, mounted on the board,
will be lit
PS5 protects the +12 VDC 2 Amp
circuits for the Upconverter through J62
pins 17, 18, 19 and 20. If this circuit is
operational, the Green LED DS5,
mounted on the board, will be lit
PS6 protects the +12 VDC 2 Amp circuits
for the Remote through J63 pins 17, 18,
19 and 20. If this circuit is operational,
the Green LED DS6, mounted on the
board, will be lit
4.5.1.2 -12 VDC Circuits
-12 VDC from the Switching Power Supply
Assembly connects to J5 on the board.
The -12 VDC is divided into two separate
circuits each with a 3 amp self resetting
fuse, PS1 and PS2.
PS1 protects the -12 VDC 2 Amp circuits
for the System through J63 pins 1, 2, 3
and 4. If this circuit is operational, the
Green LED DS1, mounted on the board,
will be lit
PS2 protects the -12 VDC 2 Amp circuits
for the Remote through J62 pins 1, 2, 3
and 4. If this circuit is operational, the
Green LED DS2, mounted on the board,
will be lit
The connections from J62 and J63 of the
Power Protection Board are wired to J62
and J63 on the Control Board.
4.5.2 (A3) Control Board (1302021;
Appendix A)
In this translator, the control and
monitoring functions and the front panel
operator interfaces are found on the
Control Board. Front panel operator
interfaces are brought to the control board
using a 26 position conductor ribbon cable
that plugs into J60. The control board
controls and monitors the Power Supply
and Power Amplifier module through a 16
position connector J61 and two 20 position
connectors J62 & J63.
4.5.2.1 Schematic Page 1
U1 is an 8 bit RISC microcontroller that is
in circuit programmed or programmed
using the serial programming port J4 on
the board. When the microcontroller, U1,
is held in reset, low on pin 20, by either
the programming port or the external

LX Series VHF Translator Chapter 4,
Circuit Descriptions
LX Series, Rev. 0 4-12
watchdog IC (U2), a FET Q1 inverts the
reset signal to a high that connects to
the control lines of U5, an analog switch.
The closed contacts of U5 connects the
serial programming lines from J4 to U1.
LED DS10 will be lit when programming
port J4 is used.
U2 is a watchdog IC used to hold the
microcontroller in reset, if the supply
voltage is less the 4.21 VDC; (1.25 VDC
< Pin 4 (IN) < Pin 2 (Vcc). The
watchdog momentarily resets the
microcontroller, if Pin 6 (ST) is not
clocked every second. A manual reset
switch S1 is provided but should not be
needed.
Diodes DS1 through DS8 are used for
display of auto test results. A test board
is used to execute self test routines.
When the test board is installed,
Auto_Test_1 is held low and
Auto_Test_2 is allowed to float at 5
VDC. This is the signal to start the auto
test routines.
U3 and U4 are used to selectively enable
various input and output ICs found on
pages 2 & 3 of the schematic.
U1 has two serial ports available. In this
application, one port is used to
communicate with transmitter system
components where U1 is the master of a
RS-485 serial bus. The other serial port
is used to provide serial data I/O where
U1 is not the master of the data port. A
dual RS-232 port driver IC and a RS-485
Port driver are also in the second serial
data I/O system. The serial ports are
wired such that serial data input can
come through one of the three serial
port channels. Data output is sent out
through each of the three serial port
channels.
Switch SW1, transmitter operation
select, is used to select either
transmitter operation or exciter/driver
operation. When the contacts of SW1
are closed, transmitter operation is
selected and the power monitoring lines
of the transmitter’s power amplifier are
routed to the system power monitoring
lines.
4.5.2.2 Schematic Page 2
U9 is a non-inverting transceiver IC that
provides 2 way asynchronous
communication between data busses. The
IC is used as an input buffer to allow the
microcontroller to monitor various digital
input values.
Digital output latch circuits are used to
control system devices. Remote output
circuits are implemented using open drain
FETs, Q13, Q14, Q16, and Q17, with
greater than 60 Volt drain to source
voltage ratings.
Remote digital inputs are diode protected,
using CR6, CR7, CR8 and CR9 with a 1 kO
pull-up resistor, to +5 VDC. If the remote
input voltage is greater than about 2 Volts
or floating, the FET is turned on and a
logic low is applied to the digital input
buffer, U9. If the remote input voltage is
less than the turn on threshold of the FET
(about 2 VDC), a logic high is applied to
the digital input buffer, U9.
Four of the circuits on page two of the
schematic, which include Q2, Q9, Q19 and
Q21, are auxiliary I/O connections wired
for future use. They are wired similar to
the remote digital inputs but include a
FET, Q5, Q12, Q20 and Q22, for digital
output operations. To operate these
signals as inputs, the associated output
FET must be turned off. The FETs are
controlled by U10 and U12, analog input
multiplexer ICs.
4.5.2.3 Schematic Page 3
U13, U14, U15, U16, U17 and U18 are 3
state non-inverting transceiver ICs that
provide 2 way asynchronous
communication between data busses. The
ICs are used as input buffers to allow the
microcontroller to monitor various digital
input values. The digital inputs to the ICs
utilize a 10 kO pull-up resistor. The buffer

LX Series VHF Translator Chapter 4,
Circuit Descriptions
LX Series, Rev. 0 4-13
IC, U18, used for data transfer to the
display is wired for read and write
control.
4.5.2.4 Schematic Page 4
U19 and U20 are digitally controlled
analog switches that provide samples
back to the microprocessor. Each
analog input is expected to be between
0 and 5 VDC. If a signal exceeds 5.1
VDC, a 5.1 Volt zener diode clamps the
signals voltage, to prevent damage to
the IC. Most signals are calibrated at
their source, however two dual serial
potentiometers ICs are used to calibrate
four signals, System Visual/Average
Power, System Aural Power, System
Reflected Power and the Spare AIN 1.
For these four circuits, the input value is
divided in half before it is applied to an
op-amp. The serial potentiometer is
used to adjust the output signal level to
between 80 and 120% of the input
signal level. Serial data, serial clock and
serial pot enables are supplied by the
microprocessor to the dual serial
potentiometer ICs. J62 and J63 are two
20 position connectors that provide the
+12 VDC and –12 VDC power through
the Power Protection Board. The ±12
VDC generated by the switching power
supply connects to J62 and J63 after
being fuse protected on the Power
Protection Board.
4.5.2.5 Schematic Page 5
There are three dual element,
red/green, common cathode LED
indicators mounted on the front panel of
the sled assembly; DC OK, Operate and
Fault.
There are three, the fourth is a spare,
identical circuits that drive the front
panel mounted LED indicators. The
levels on the 1, 2, 3 and 4 LED Control
Lines, for both the red and green LEDs,
are generated by the IC U11 as
controlled by the DATABUS from the
microprocessor U1.
Each LED controller circuit consists of an
N-Channel MOSFET w/internal diode that
controls the base of an N-P-N transistor in
an emitter follower configuration. The
emitter of the transistor connects the LED.
With the LED control line LOW, the
MOSFET is Off, which causes the base of
the transistor to increase towards +12
VDC, forward biasing the transistor. With
the transistor forward biased, current will
flow from ground through the LED, the
transistor and the current limiting
resistors in the collector to the +12 VDC
source. The effected LED will light.
With the LED control line HIGH, the
MOSFET is On, which causes the base of
the transistor go toward ground potential,
reverse biasing the transistor. With the
transistor reverse biased, no current
through the transistor and LED, therefore
the effected LED will not light.
A third color, amber, can also be
generated by having both transistors
conducting, both control lines LOW. The
amber color is produced because the
current applied to the green element is
slightly greater than the red element.
This occurs because the current limiting
resistors have a smaller ohmage value in
the green circuit.
There are four voltage regulators, three
for +5 VDC and one for +7 VDC, which
are used to power the Control Board. +12
VDC is applied to U25 the +7 VDC
regulator that produces the +7 VDC,
which is applied to the LEDs mounted on
the board. The +7V is also connected to
the input of U26 a precision +5.0 Volt
regulator. The +5.0 VDC regulator output
is used to power the analog circuits and as
the microcontroller analog reference
voltage. Another two +5 Volt regulator
circuits U27, +5V, and U8, +5 Vserial, are
used for most other board circuits.

LX Series VHF Translator Chapter 4,
Circuit Descriptions
LX Series, Rev. 0 4-14
4.5.3 (A4) Switch Board (1527-1406;
Appendix A)
The switch board provides five front-
panel momentary contact switches for
user control and interface with the front-
panel LCD menu selections. The
switches, SW1 to SW5, complete the
circuit through connector J1 to
connector J2 that connects to J1 on (A5)
the 20 Character by 4 line LCD Display.
J1 on the switch board is also cabled to
the Control Board. When a switch is
closed, it connects a logic low to the
control board that supplies the
information from the selected source to
the display. By pushing the button
again, a different source is selected.
This occurs for each push button. Refer
to Chapter 3, for more information on
the Display Menu Screens.
4.5.4 (A2) Switching Power Supply
Assembly
The power supply module contains a
switching power supply, an eight
position terminal block for distributing
the DC voltages, a three position
terminal block to which the AC Input
connects. Jack J1 connects to the
Control Board and supplies DC OK, at
J1-4 & 3, and AC OK, at J1-2 & 1, status
to the control board. A Power Supply
enable connects from the control board
to the power supply at V1-6 & 7. The
power supply is configured for three
output voltages +12V, -12V, at the 8
position terminal block, and a main
output power of +32 VDC at J50 pin A
(+) and J50 pin B (Rtn). The power
supply is power factor corrected to .98
for optimum efficiency and a decrease in
energy consumption. For safety
purposes all outputs are over voltage
and over current protected. This supply
accepts input voltages from 85 to 264
volts AC, but the power entry module,
for the exciter/amplifier chassis, must
be switched to the proper input voltage
setting, for the transmitter to operate.
4.7 (A6) Power Amplifier Assembly,
VHF High Band, (1305833; Appendix A)
The Power Amplifier Module Assembly
1305833 contains (A2) a 25 Watt VHF
Driver Pallet 1305820, (A4) a VHF HB
Coupler Board 1211-1004, and (A5) an
Amplifier Control Board 1308260.
4.7.1 (A2) 25 Watt VHF Driver Pallet
(1305820; Appendix A)
The RF input at a level of approximately +4
dBm connects to the RF input jack on the
(A2) Driver Assembly Pallet. The pallet is
an assembly manufactured by Delta RF
and has a gain of approximately +30dB.
The Refer to the Delta RF data sheet
(PA25-VHF-H) located in Appendix A for
more information on the assembly. The RF
output, approximately+34 dBm, connects
to the RF input jack on (A4) the coupler
board assembly.
The +30 VDC bias voltage connects from
the amplifier control board at TB18 to the
feed thru capacitor FL2 on the module
assembly that is wired to the +Vdd input on
the 25 Watt VHF Amplifier Assembly.
4.7.2 (A4) Coupler Board Assembly
(1211-1004; Appendix A)
The coupler board assembly provides
forward and reflected power samples of the
output to (A5) the amplifier control board
where they connect to the metering and
overdrive protection circuits in the system.
The RF input to the coupler assembly, from
the 25 Watt VHF Amplifier module,
connects to the SMA jack J1. In the
assembly, the RF is connected by a
stripline track to the SMA type connector
RF Output jack J2. A hybrid-coupler circuit
picks off a power sample that is connected
to a SMA type connector jack J3 as the
forward power sample. Another power
sample is taken from the coupler circuit
that is connected to the SMA type
connector jack J4 as the reflected power
sample.

LX Series VHF Translator Chapter 4,
Circuit Descriptions
LX Series, Rev. 0 4-15
4.7.3 (A5) Amplifier Control Board
(1308260; Appendix A)
The amplifier control board provides LED
fault and enable indications on the front
panel of the module and also performs
the following functions: overdrive
cutback, when the drive level reaches the
amount needed to attain 110% output
power; and overtemperature, VSWR, and
overdrive faults. The board provides
connections to the LCD Display for
monitoring the % Reflected Power, %
Output Power, and the power supply
voltage.
If the Module OK LED, located on the
front panel, is Red and blinking, a fault is
present. The meaning of the blinking
LED is as follows.
1 Blink: Indicates Amplifier Current
Fault.
2 Blinks: Indicate Temperature Fault.
3 Blinks: Indicate +32V Power Supply
Over Voltage Fault.
4 Blinks: Indicate +32V Power Supply
Under Voltage Fault.
5 Blinks: Indicate Reflected Power Fault.
6 Blinks: Indicate +12V or –12V Power
Supply Fault
If the Module OK LED, located on the
front panel, is Amber and blinking, it
indicates the power output of the
amplifier has dropped below 65%.
(NOTE: Only in Amplifier Code Versions
3.7A or later and System Controller Code
Versions 3.9C or later.).
4.7.3.1 Schematic Page 1
U4, located upper center of page, is an in
circuit microcontroller. The controller is
operated at the frequency of 3.6864 MHz
using crystal Y1. Programming of this
device is performed through the serial
programming port J2. U4 selects the
desired analog channel of U3 through the
settings of PA0-PA2. PA3 of U4 is a
processor operating LED that can be
flashed to show continued operation.
PF1 is used to monitor the +12VDC
supply to the board. PF4 is the selected
channel of analog switch U3. PF3 is
connected to a via, V10, for future access.
U2 is a serial to RS-485 driver IC. U5 is a
watchdog IC used to hold the
microprocessor in reset, if the supply
voltage is less than 4.21 VDC. U5
momentarily resets the microcontroller if
Pin 6 (!ST) is not clocked every second. A
manual reset switch is provided but should
not be needed.
In the Upper left corner, U1 is used to
determine where the amplifier control
board is located. The eight inputs come
from the main amp connector J8 and are
used to set the SCADA address of the
controller. Pull-up resistors set a default
condition of logic high.
U6 below U1 is used to control two of the
four board mounted status LEDs and three
other circuits that are not allowed to
change state during a microcontroller
reset. A FET is turned On to shunt current
away from the LED to turn it Off. U8 below
U6 is used to enable different features
within the software. Actual use is to be
determined.
4.7.3.2 Schematic Page 2
In the lower right corner are voltage
regulator circuits. U17 should allow for
0.14 amps of power using its 92 C/W
rating if Ta = 60°C max and Tj = 125°C
max. 0.26 amps can be obtained from
U17 if the mounting pad is 0.5 square
inches. The controller will not need this
much current. U18 and U19 are low drop
out +5 VDC, voltage regulators with a
tolerance greater than or equal to 1%.
100mA of current is available from each
device but again the controller will not
need this much current.
In the upper left section are circuits with
U9 and U11. U11 is used to generate a
regulated voltage that is about 10 volts
less than the +32 VDC supply,
approximately +20.75 VDC. When the
+32 VDC supply is enabled, the circuitry

LX Series VHF Translator Chapter 4,
Circuit Descriptions
LX Series, Rev. 0 4-16
around U9A is used to provide gate
voltage to Q14 that is 5 volts greater
than the source pin of this FET. The gate
of Q14 can be turned Off by any one of a
few different circuits.
U10A is used to turn Off the gate of Q14
in the event of high current in amplifier
#1. At 1.10 VDC the current to amplifier
#1 should be greater than 6.2 Amps.
U10B is used to turn off the Q14 FET, if
high current is detected in amplifier #2.
U12A is used to turn off the Q14 FET, if
high current is detected in amplifier #3.
With 2.743 VDC at Pin 5 of U10B or Pin 3
of U12A, the voltage output of current
sense amplifier U15 or U16, at high
current shut down, should be greater
than 15 Amps. These circuits are wired
through Q12 and Q13. At this time,
these transistors are not installed but
they may be installed to increase the
shut-down time on a detected fault.
Without Q12 and Q13 installed, Q14 is
only turned off by the microcontroller
through Q16.
U10A is used to detect high current in
amplifier #1. At 1.10 VDC, the current
to amplifier #1 should be 6.2 Amps.
U10B and U12A are used to detect high
current conditions in amplifier stages #2
and #3. With 2.74 VDC reference, high
current shut down should be
approximately 15 Amps.
U12B is used to turn Off the gate of Q14
in the event of high power supply
voltage, approximately +35.4 VDC.
U13A is used to keep the FET disabled in
the event of low power supply voltage,
approximately +26 VDC.
4.7.3.3 Current monitoring sections of
the board.
The ICs U14, U15 and U16 along with
associated components set up the
current monitoring sections of the board.
R67, R68 and R69 are 0.01O/5W 1%
through hole resistors used for
monitoring the current through several
sections of the amplifier. The voltage
developed across these resistors are
amplified for current monitoring by U14,
U15 or U16. The LT1787HVCS8 precision
high side current sense IC amplifier
accepts a maximum voltage of 60 VDC.
The 43.2 kO resistor from pin 5 to ground
sets the gain of the amplifier to about
17.28. This value is not set with much
accuracy since the manufacturer internally
matches the resistors of this part but their
actual resistance value is not closely
defined. A trimming resistor is suggested
to give a temperature stability of –200
ppm/C, but instead the microcontroller will
determine the exact gain of the circuit and
use a correction factor for measurements.
A6 is a temperature sensor thermistor
that is used to monitor the temperature of
the module's heat sink. It connects to J6
pins 1 & 2 on the board and is wired to
the comparator IC U13B. If the
temperature increases above 75°C the
output will go Low that is used as a
temperature fault output, which generates
a Fault alert and disables Amplifier #1.
4.7.3.4 Schematic Page 3, RF power
detector circuits.
Q16 is used by the microcontroller to
disable the aural circuit of a digital
transmitter or in external amplifiers where
the amplifier is not to monitor visual
power. A Forward Power Sample enters
the board at SMA Jack J3 and is connected
to pin 1 of U23. The output at Pin 6 of U23
is split with one input connected to J4 on
the board that is cabled to J1, the SMA
Forward Power Sample Jack, located on the
front panel of the assembly. The other
part of the split forward power sample is
detected by CR24 and the DC level
amplified by U21B. The output of U21B at
pin 7 is split with one part connected to
test point TP2, forward power sample. The
other split output connects to U21C that is
part of the Forward Average Power circuit.
The detected level is connected through
the average/visual calibration pot R202 to
U24A, a comparator IC that has Aural Null
and Offset Null, if present in the system,
connected to the other input. The output

LX Series VHF Translator Chapter 4,
Circuit Descriptions
LX Series, Rev. 0 4-17
Average Forward power level connects to
J9 pin 1 of the board.
A Reflected Power Sample enters the
board at SMA Jack J5 and is detected by
CR31 and the DC level amplified by
U21D. The output of U21D at pin 14 is
connected through the reflected
calibration pot R201 to U25A. The output
is split with one part connected to J9 pin
5, the Reflected Power Output level of
the board. The other part of the split
from U25A connects to the comparator
IC U25B that has a reference level
connected to the other input. If the
reflected level increases above the
reference level a low output is produced
and connected to the Reflected Power
Shutdown circuit at CR14 and CR5 on
Page 2 of the schematic. This produces a
Reflected Power Fault that is connected
to an output of the board, the Fault Alert
circuit and shuts down Amplifier #1.
Gain of the power measurements is
completed through software. Only the
Aural Null and Offset Null, if used, need
to be done through front panel pots.
NOTE: In this configuration the output of
U23 at pin 6 is not used. This circuit is
for analog 4.5 MHz and Aural power
samples.
This completes the description of the
1305833 20W Analog Power Amplifier
Module Assembly.

LX Series VHF Translator Chapter 5,
Detailed Alignment Procedures
LX Series, Rev. 0 5-1
Chapter 5
Detailed Alignment Procedures
This translator was aligned at the
factory and should not require additional
adjustments to achieve normal
operation.
The analog translator takes the VHF on
channel input, which connects to the
receiver module, that converts it to an IF
output which is then upconverted to the
desired UHF On Channel RF Output at
20W peak of sync visual power level.
The exciter/amplifier chassis assembly of
the LX Series translator is of a Modular
design and if a Module fails that module
can be easily changed out with a
replacement module. The failed module
can then be sent back to Axcera for
repair. Contact Axcera Customer Service
Department at 724-873-8100 or fax to
724-873-8105, before sending in any
module.
5.1 Module Replacement
Module replacement on the LX series
products is a relatively simple process.
All modules plug directly into the
backplane board except for the power
amplifier module that plugs into a blind
mating connector. To replace a module,
refer to the following procedure.
Loosen the two grip lock connectors,
located on the front panel, at the top
and bottom of the module,
counterclockwise until the module
releases. The Receiver, IF Processor,
Upconverter and Controller/Power
Supply can then be gently pulled from
the unit. To remove the Driver/Power
Amplifier Module in the exciter/amplifier
chassis assembly, the two cables, Input
and Output, connected to the rear of the
chassis must be removed. A 6/32” x ½”
shipping screw, located between the two
connectors, also must be removed
before the module will slide out. After
removal of the failed module, slide the
replacement module in place and make
certain it connects to the backplane
board. If the replacement module is a
driver/PA module replace the two cables
onto J24 and J25 on the rear of the
exciter/amplifier chassis assembly. The
6/32” x ½” shipping screw does not
need to be replaced. It is only used
during shipping. If the replacement
module does not slide in easily, verify it
is properly aligned in the nylon tracks,
located on both the top and bottom of
the module.
Note: Each Module has an assigned slot
and will not fit properly or operate in the
incorrect slot. Do not try to place a
Module in the wrong slot as this may
damage the slot or the connectors on
the backplane board. Each module has
the name of the module on the front,
bottom for identification and correct
placement. The Modules are placed in
the chassis assembly from left to right;
(1) Receiver, (2) Blank panel, (3) IF
Processor, (4) Upconverter, (5)
Controller/Power Supply and (6) Driver
Power Amplifier.
5.1.1 Initial Test Set Up
Check that the RF output of the
translator is terminated into a dummy
load of at least 20 Watts. While
performing the alignment, refer to the
Test Data Sheet for the system and
compare the final readings from the
factory with the readings on each of the
modules. The readings should be very
similar. If a reading is way off, the
problem is likely to be in that module.
Switch On the main AC for the system.
5.2 LX Series Exciter/Amplifier
Chassis Assembly
On the LCD Display, located on the
Controller/Power Supply Module, in the
Transmitter Set-Up menu, push the right
button to switch the translator to
Operate, STB will be displayed. The level

LX Series VHF Translator Chapter 5,
Detailed Alignment Procedures
LX Series, Rev. 0 5-2
of the RF output includes adjustments of
the drive level to the Power Amplifier and
the adjustment of the linearity and phase
predistortion to compensate for any
nonlinear response of the Power
Amplifier. The adjustments are located
on the front panel of the IF Processor
module.
5.2.1 Receiver Module Assembly
(Used in Analog Translator Only.)
Connect the on channel RF input to J12
the receiver RF input jack on the rear of
exciter/amplifier assembly. Verify that
all LEDs located on the front panel of the
Receiver are Green. The following details
the meaning of each LED:
PLL 1 Fault (DS6) - Displays the status
of the Local oscillator PLL
PLL 2 Fault (DS8) - Displays status of
optional input frequency correcting PLL
DC on center conductor (DS4) -
Displays whether or not DC is applied to
the RF input center conductor*
*Caution: Do not hook up the RF
input to any test equipment with the
DC bias applied. Always move the
jumper W1 on J2 on the VHF
Preamplifier board to the Bias off
position, between pins 2 & 3, before
beginning tests, to prevent possible
damage to the test equipment.
5.2.2 IF Processor Module Assembly
Verify that all red LEDs located on the IF
Processor front panel are extinguished.
The following details the meaning of each
LED when illuminated:
Input Fault (DS1) – Indicates that
either abnormally low or no IF is present
at the input of the IF Processor module.
• ALC Fault (DS2) – Indicates that the
ALC circuit is unable to maintain the
signal level requested by the ALC
reference. This is normally due to
excessive attenuation in the linearity
signal path or the IF phase corrector
signal path, or that switch SW1 is in
the Manual ALC Gain position.
• Mute (DS4) – Indicates that a Mute
command is present to the system.
Switch the translator to Standby. The
ALC is muted when the translator is in
Standby.
5.2.3 VHF/UHF Upconverter Module
Assembly
Switch the translator to Operate. Verify
that all LEDs located on the front panel of
the Upconverter are Green. The following
details the meaning of each LED:
PLL 1 Fault (DS1) - Displays the status
of the 1 GHz PLL, Green locked or Red
unlocked
PLL 2 Fault (DS2) - Displays status of
the 1.1-1.9 GHz PLL, Green locked or
Red unlocked
AGC Fault (DS7) - Displays status of
AGC, Green normal or Red out of range
AGC Override (DS3) - Displays status
of AGC cutback, either Green normal
drive level, no cutback, or too much
drive level to driver module, Red
cutback.
Manual Gain (DS6) - Displays status of
the control of the AGC level, either
Green normal, AGC Adj. using R6 or
Amber manual, Man Gain Adj. using R7.
The translator is now ready for normal
operation.

LX Series VHF Translator Chapter 5,
Detailed Alignment Procedures
LX Series, Rev. 0 5-3
5.3 Changing the Analog Translator
Output Channel Procedure
NOTE: Depending on the new channel
frequency, the bandpass filter may need
to be retuned or replaced to achieve
maximum output power.
Place the translator in Standby and go to
the Set Up Menu, Transmitter
Configuration Access Screen, on the LCD
Display by pushing the down arrow on
the default main screen and each
succeeding screen until the Transmitter
Set-Up Main Screen appears.
Transmitter Set-Up, Configuration
Access Screen
Enter the Set-Up screens by pushing the
ENT button. The following screen will
appear.
Authorized Personnel Screen
This screen of the translator notifies an
operator that they are only to proceed if
they are authorized to make changes to
the translator's operation. This screen is
implemented in transmitter software
version 1.4 and above. Push the ENT
button and step through the Set Up
screens by pushing the Down Arrow
button until the screen labeled
“Upconverter CH xx” is reached, as
shown in the following example. This
example shows the Transmitter set to
Channel 39.
Transmitter Set-up: Upconverter
Channel Select Screen
The choices of this screen are to the
standard UHF/VHF channels. The
channel number should be blinking. To
change the channel, hit the + button to
step through the channels until the
desired channel is reached.
To select a 10kHz offset to the channel
frequency, use the > button to move
the curser to the LO frequency listed
below the Channel number, and keep
pressing the > button until the desired
digit is blinking, and then use the +
button to change the frequency.
Example:
Nominal LO frequency for Channel 39 =
0667.00 MHz. To generate a + offset,
change the LO frequency to 0667.01
MHz. To generate a – offset, change the
LO frequency to 0666.99 MHz.
A safeguard is added to the Set Up
Menus in software version 2.5 and
above. If a change is made to a screen
within the Set Up Menu, as was just
completed with the channel change,
when you go to the next menu, by
pushing the Down or Up Arrow, a screen
appears that asks if you accept the
change or want to return to the previous
menu to reconsider the changes made.
See the Accept or Return to previous
Menu Screen. To accept the changes,
the two buttons located under ACCEPT
must be pushed simultaneously. To
return to the previous Menu to make
corrections, the two buttons located
under the RETURN must be pushed
simultaneously. Upon returning to the
previous Menu, the correct input must
be entered and the above procedure
repeated, this time accepting the
changes.

LX Series VHF Translator Chapter 5,
Detailed Alignment Procedures
LX Series, Rev. 0 5-4
Accept or Return to previous Menu
Screen
Pushing these two Pushing these
buttons together two buttons
will accept the together will return
change. you to the previous
Menu.
Accepting the changes will put you back
to the Main Set-Up Screen.
5.4 Adjusting the Manual AGC, Auto
AGC, and the Overdrive Cutback
Protection (AGC Cutback) in the
Analog Translator
NOTE: For alignment and calibration of
the digital translator proceed to the
Section 5.8.
NOTE: The translator was setup and
calibrated at the factory and should
require no adjustment to attain normal
operation.
5.4.1 Setting the Manual AGC
Switch the Translator to Standby. Preset
the front panel “Man Gain” pot on the
Upconverter full Counterclockwise,
and the Man/Auto Gain Switch to the
Left, Man.
Turn the translator to Operate, and
slowly adjust the “Man Gain” pot until
the desired % output power, as read on
the LCD display, has been reached.
The Manual AGC is now set. Normal
operation of the Translator is in the Auto
AGC position.
5.4.2 Setting the Auto AGC
With the translator in Standby, preset
the AGC pot on the Upconverter full
Counterclockwise. Preset the AGC
Cutback pot on the Upconverter full
Clockwise. Move the Man/Auto Gain
Switch on the Upconverter to the Right,
Auto. Switch the translator to Operate
and slowly adjust the AGC pot until the
desired output power has been reached.
Monitor the output of the translator with
a Spectrum Analyzer and turn the power
up 1 dB higher than desired using the
AGC pot. Enter the Translator Set-Up
menu on the LCD Control Panel and step
through the screens until the screen
labeled “Inner Loop Gain” is reached.
The inner loop is adjustable from 0-255.
Push the + button to increase the Inner
Loop Gain until the power on the
spectrum analyzer just begins to
decrease. Now push the – button to
decrease the inner loop gain by 10%.
(Example: If it begins to affect power at
setting 160, drop it back down to 160-
16=144 or if it affects power at 100,
drop it down by 10 to 90, etc….).
5.4.3 Setting the AGC Cutback
Slowly turn the AGC Cutback Pot
Counterclockwise until the AGC
Override light begins to flicker, and the
output power begins to drop. Turn the
pot Clockwise slightly, so the light just
goes out and the power stabilizes.
Adjust the AGC pot until the power level
returns to the desired % output power
level. The Auto AGC is now set. Normal
operation of the Translator is in the Auto
AGC position.
The translator is now ready for normal
operation.
5.5 Calibration of the Forward and
Reflected Output Power for the
Analog Translator
NOTE: Only perform the following
procedures if the output power
calibration is suspect.

LX Series VHF Translator Chapter 5,
Detailed Alignment Procedures
LX Series, Rev. 0 5-5
5.5.1 Calibration of Forward Output
Power
Switch the translator to Standby and
place the Upconverter into Manual Gain.
Preset R205, the aural null pot on the
Amp Control board, fully CCW. Adjust
R204, the null offset pot on the Amp
Control board, for 0% visual output.
Perform the following adjustments with
no aural present by removing the aural
IF carrier jumper on the back of the
chassis assembly. Connect an RF On
Channel frequency with a sync and black
test signal modulated onto it to the
Receiver RF input jack J12 on the rear of
the exciter/amplifier chassis. Switch the
translator to Operate.
Next, set up the translator for the
appropriate average output power level:
Example is for a 20 Watt Translator.
• Sync + black 0 IRE
setup/wattmeter=11.9 watts
• Sync + black 7.5 IRE
setup/wattmeter=10.9 watts
NOTE: The translator must have 40 IRE
units of sync.
Adjust R202, visual calibration, on the
Amp Control board for 100% on the front
panel LCD display in the % Visual Output
position. (Examples of the screens are
shown below).
With the spectrum analyzer set to zero
span mode, obtain a peak reference on
the screen. Reconnect the aural carrier
jumper on the rear of the chassis
assembly. Turn the power adjust pot on
the front panel until the original peak
reference level is attained. Adjust R203
for a 100% aural power reading. Switch
to the Visual Output Power position and
adjust R205 (aural null pot) for 100%
visual power.
5.5.2 Calibration of Reflected Power
To calibrate the reflected output power
reading of the translator. Reduce the
manual gain pot R3 to a 10% reading on
the LCD front panel display in the %
Output Power position. Place the
translator in Standby. Remove the PA
Module Sled. Remove the load from J4
on the (A4) Directional Coupler Board
and switch the LCD Display screen to the
Reflected Output Power position.
Reinstall the PA Module. Switch the
translator to operate. Adjust the
reflected power calibration adjust pot
R163 on the power amplifier module to a
10% reading. A reflected power fault
should be present on the LCD Display.
Reconnect the load to J4 in the module.
After this calibration is completed, move
switch SW1 on the upconverter module
to the Automatic AGC position. This is
the normal operating position for the
switch. Adjust the ALC pot on the IF
Processor as needed to attain 100%
output power. Switch to Manual Gain
(Manual AGC) and adjust the Manual
Gain pot for 100 % output power.
Switch the upconverter back to
Automatic AGC.
The translator is now ready for normal
operation.

LX Series VHF Translator Chapter 5,
Detailed Alignment Procedures
LX Series, Rev. 0 5-6
5.6 Linearity Correction Adjustment
for the Analog Translator
As shipped, the exciter was preset to
include amplitude and phase pre-
distortion. The pre-distortion was
adjusted to approximately compensate
the corresponding non-linear distortions
of the Power Amplifier.
NOTE: On the IF processor board inside
the IF Processor module, the correction
enable/disable jumper W12 on J30 must
be in the Enable position, on pins 2 & 3.
This is the normal operating position.
Set up a spectrum analyzer with
100 kHz resolution bandwidth and
100 kHz video bandwidth to monitor the
intermodulation products of the RF
output signal of the Power Amplifier.
A typical red field spectrum is shown in
Figure 5-1.
Figure 5-1: Typical Red Field Spectrum
in Analog Translator
There are three Linearity Corrector stage
adjustments located on the front panel
of the IF Processor Module. The
adjustments are threshold settings that
are set up as needed to correct for any
amplitude or phase intermod problems.
Adjust the top linearity correction
adjustment R211 threshold cut in for the
in phase amplitude distortion pre-
correction that is needed. Next, adjust
the middle linearity correction
adjustment R216 threshold cut in also
for the in phase amplitude distortion
pre-correction that is needed. Finally,
adjust the bottom linearity correction
adjustment R231 threshold cut in for the
quadrature phase distortion pre-
correction that is needed. The above
pots are adjusted for the greatest
separation between the peak visual
carrier and the intermod products.
NOTE: These pots affect many other
video parameters, so care should be
taken when adjusting the linearity
correction.
5.7 Frequency Response Delay
Equalization Adjustment for the
Analog Translator
NOTE: Perform the following procedure
only if a frequency response delay
equalization problem is suspect.
The procedure for performing a
frequency response delay equalization
adjustment for the translator is done at
IF and is described in the following steps:
The center frequency for the first stage is
42 MHz. Adjust R103, the top frequency
response equalizer pot, located on the
front panel of the IF Processor Module,
for the best depth of frequency response
correction at 42 MHz.
The center frequency for the second
stage is 43.5 MHz. Adjust R106, the
middle frequency response equalizer pot,
located on the front panel of the IF
Processor Module, for the best depth of
frequency response correction at 43.5
MHz.
The center frequency for the third stage
is 45 MHz. Adjust R274, the bottom
frequency response equalizer pot, located
on the front panel of the IF Processor
Module, for the best depth of frequency
response correction at 45 MHz.
After the three delay attenuation
equalizers have been adjusted, fine tune,
as needed, for the best frequency
response across the channel.

LX Series VHF Translator Chapter 5,
Detailed Alignment Procedures
LX Series, Rev. 0 5-7
The Analog Translator is now aligned,
calibrated, and ready for normal
operation.
If a problem occurred during the
alignment, help is available by calling
Axcera field support at (724) 873-8100.
APPENDIX A
SYSTEM AND EXCITER/AMPLIFIER
DRAWINGS

LX Series VHF Translator Appendix A, System
LX Series, Rev. 0 A-1
Innovator LX Series VHF Translator System
LX Series Analog Translator Block Diagram ............................................1309398
LX Series Analog Translator System Interconnect ...................................1309399
Chassis Assembly, 110 VAC Exciter, V2, LX Series
Interconnect.......................................................................................1304064
Backplane Board, V2, LX Series
Schematic..........................................................................................1304049
Receiver Assembly, VHF High Band (Part of the Analog Translator System)
Interconnect.......................................................................................1304005
Block Diagram....................................................................................1304004
IF ALC Board
Schematic..........................................................................................1304011
VHF High Band Preamplifier Board
Schematic..........................................................................................1306446
VHF Mixer/PLL Board
Schematic..........................................................................................1306473
IF Processor Assembly
IF Processor Board
Schematic..........................................................................................1301983
VHF/UHF Upconverter Assembly
Block Diagram....................................................................................1303830
Interconnect.......................................................................................1303831
Downconverter Board Assembly
Schematic..........................................................................................1303836
First Conversion Board, LX Series
Schematic..........................................................................................1303840
L-Band PLL Board, LX Series
Schematic..........................................................................................1303848
Upconverter Control Board, LX Series
Schematic..........................................................................................1304761
Control/Power Supply Assembly, 110 VAC
Block Diagram....................................................................................1303889
Interconnect.......................................................................................1302062
Control Board
Schematic..........................................................................................1302023
Power Protection Board
Schematic..........................................................................................1302839
Switch Board

LX Series VHF Translator Appendix A, System
LX Series, Rev. 0 A-2
Schematic.......................................................................................1527-3406
20W Analog Amplifier Assembly,
Block Diagram....................................................................................1305837
Interconnect.......................................................................................1305836
VHF Amplifier Control Board
Schematic..........................................................................................1308261
High Band VHF Amplifier Pallet Assembly, 1305820
(Manufactured by Delta RF Technology)......................................... PA25-VHF-HB