Unilock ML32HRH DIGITAL FURNITURE LOCK User Manual
Unilock Co., Ltd. DIGITAL FURNITURE LOCK
Unilock >
User Manual

- 1 -
Model No. ML22HRH, ML22HRV
ML32HRH, ML32HRV
2013. 12

- 2 -
Specifications
RFID 13.56 MHz Mifare Materials & Environments
Master 1 Front: ABS Plastic
User 1 Lock Cylinder: Zinc casting
External Battery Pack (Option) Working temperature: -15~55 ℃
Using 3 AAA Alkaline batteries Working humidity: 0~90 % RH
Usable up to 1 year (10 times/day) USB Port for debugging program
Drawer Cylinder Cam Cylinder
RFID Type Front
V Type
(HRV)
H Type
(HRH)
(ML22) (ML32)

- 3 -
Sizes
(mm)
Punching Holes
RF Front
Multi-Drawer C
y
linde
r
Cam C
y
linde
r
Batter
y
Pac
k

- 4 -
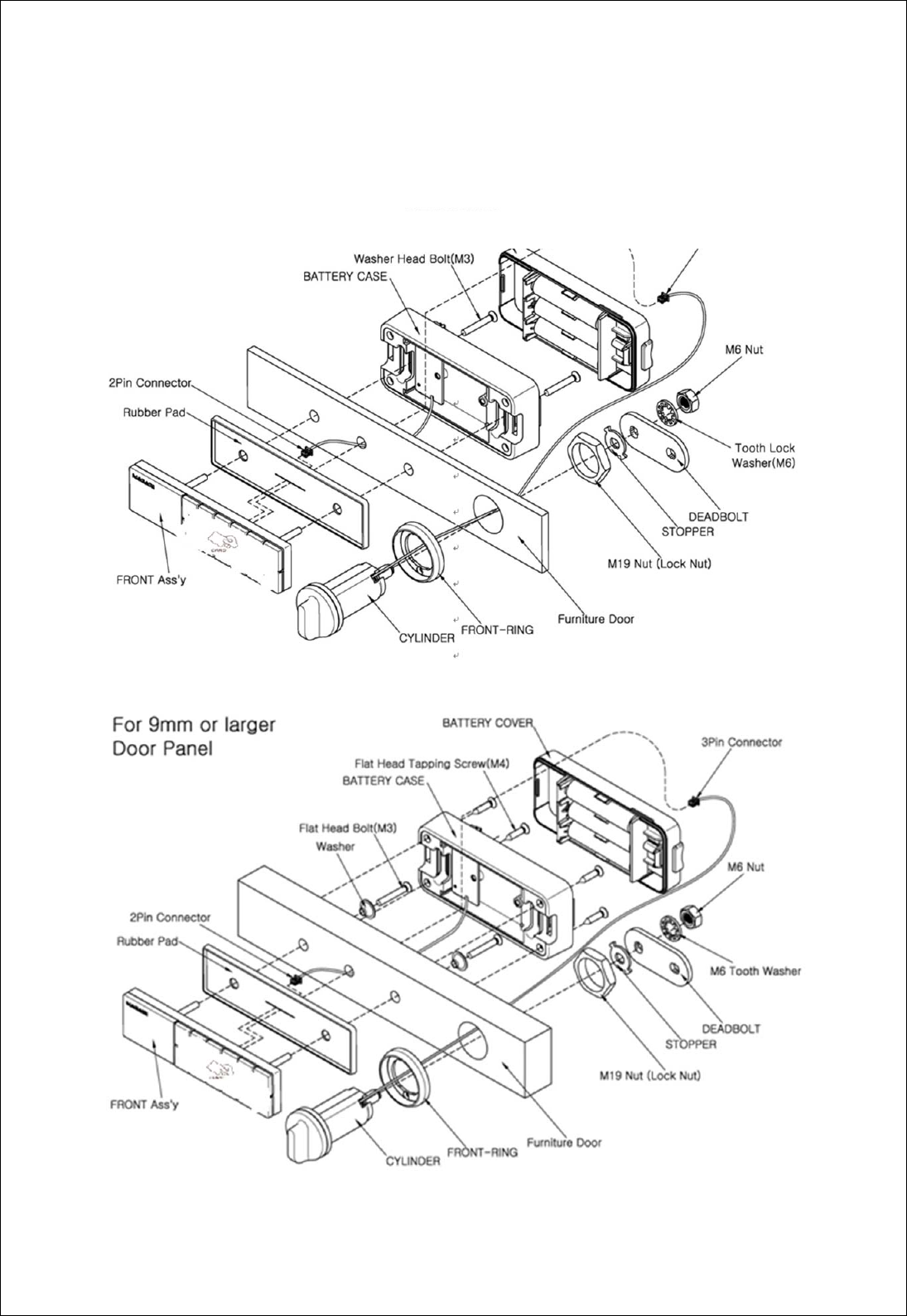
ML32HRH (Cam lock + Battery Pack). For furniture door thickness 8 mm or less.
Install Drawings
ML32HRH (Cam Lock + Battery Pack). For furniture door thickness 9 mm or larger.

- 5 -
ML22HRH (Drawer Lock + Battery Pack). For furniture door thickness 8 mm or less.
ML22HRH (Drawer Lock + Battery Pack). For furniture door thickness 9 mm or larger.

- 6 -
Precautions
Before using Maeari (for both of Cam lock and Drawer lock)
a. Connect battery wire first. (Battery Pack)
b. Connect cylinder wire.
Before using Maeari multi- drawer lock.
a. Check the locking position of your desk drawer, up or down.
b. Install the cylinder into the drawer panel and confirm it works okay. (See page 5)
c. Check the locking position of the side locking bar of the drawer, up or down.
d. Remove the RED tape on the cylinder knob if you sure it works okay.
e. Assemble the cylinder knob and cylinder body securely.
* Once you assemble the cylinder after remove the Red tape, there is no way to
disassemble it. Be careful please!
** Need to use spacers between drawer and cylinder body if the thickness of the drawer
panel is less than 23mm. Max thickness of the drawer front is 23mm.
Aligning 2 holes for proper installation of cylinder knob and cylinder body.

- 7 -
Instructions
RFID Type: 13.56 MHz, ISO-14443A Compatible
No RFID card is registered at the factory.
1. Register a Master card
- Tap an RFID card for registering a Master card.
- Melody “do-re-mi” and “green” LED blinks 5 times if registered.
2. Register a User card
- Tap the Master card and tap an extra card within 8 seconds for registering a User card.
- Melody “do-re-mi” and “green” LED blinks 5 times if registered.
3. Change the Master card
- Tap the Master card and stay for 8 seconds.
- After beep 3 times, tap an extra card for changing the Master card.
- Melody “do-re-mi” and “green” LED blinks 5 times if changed.
4. Melody On/Off
- Tap the Master card and stay for 4 seconds.
- There will be 5 beeps and the melody toggled on and off.
For better detecting RF card on RF type Maeari - Touch with Hand!
- Maeari is getting into the sleep mode for saving battery life. Touch the RF card with
hand just like left picture. Hand wakes up Maeari and detects RF card almost at the
same time.
Better
Bad

- 8 -
Reset Memory (Clear Memory)
1. Coupling the “RESET” soldering points with a sharp tweezers or similar tool and tap any RF
card for resetting.
- Beep 1 time and green LED and red LED blinking if the reset is done.
2. Register a Master card and a User card again.
Emergency Opening
There is an emergency “Break for Opening” if the lock does not work at all even tried to
use Micro USB power. These processes are exactly same for both of Drawer Cylinder
and Cam Cylinder
1. Drilling a hole at the point of Cylinder Knob
at right angle by use of 2ø drill tip for
5mm depth. (Figure 1 and 2)
(Customized drill tips are sold separately)

- 9 -
2. Push in the drill tip into the end of the hole.
Press the drill tip slightly and pull out the Cylinder Knob. (Figure 3)
3. Push in flat-head screwdriver into the back Cylinder and turn to opening direction.
(Figure 4)
4. Return the broken Knob part to Unilock or our dealer for replacing

- 10 -
FCC Information to User
This equipment has been tested and found to comply with the limits for a Class B digital device,
pursuant to Part 15 of the FCC Rules. These limits are designed to provide reasonable protection
against harmful interference in a residential installation. This equipment generates, uses and can
radiate radio frequency energy and, if not installed and used in accordance with the instructions, may
cause harmful interference to radio communications. However, there is no guarantee that interference
will not occur in a particular installation. If this equipment does cause harmful interference to radio or
television reception, which can be determined by turning the equipment off and on, the user is
encouraged to try to correct the interference by one of the following measures:
• Reorient or relocate the receiving antenna.
• Increase the separation between the equipment and receiver.
• Connect the equipment into an outlet on a circuit different from that to which the receiver is con-
nected.
• Consult the dealer or an experienced radio/TV technician for help.
Caution
Modifications not expressly approved by the party responsible for compliance could void the user’s
authority to operate the equipment.
FCC Compliance Information : This device complies with Part 15 of the FCC Rules. Operation is
subject to the following two conditions: (1) This device may not cause harmful interference, and (2)
this device must accept any interference received, including interference that may cause undesired
operation
IMPORTANT NOTE:
FCC RF Radiation Exposure Statement:
This equipment complies with FCC RF radiation exposure limits set forth for an uncontrolled
environment. This equipment should be installed and operated with a minimum distance of 20
centimeters between the radiator and your body.This transmitter must not be co-located or operating
in conjunction with any other antenna or transmitter.

- 11 -
IMPORTANT Safety Instruction:
1) Read these instructions.
2) Keep these instructions.
3) Heed all warnings.
4) Follow all instructions.
5) Do not use this equipment near water.
6) Do not using near any heat sources such as radiators, heat resisters, stove, or other equipment
that produce heat.

- 12 -
CONTACT INFORMATION
Manufacturer Address : 1409 Mega Bldg., SK n Techno Park, 190-1 Sangdaewon-dong,
Jungwon-gu, Seongnam, Gyeonggi-do, South Korea
To locate in-country Unilock Co., Ltd. distributors of the ML32HRH,
please refer to the Unilock Co., Ltd. Website http://www.unilock.co.kr/
These distributor(s) represent local contacts for this product.
CORPORATE HEADQUARTERS:
Unilock Co., Ltd.
1409 Mega Bldg., SK n Techno Park, 190-1 Sangdaewon-dong, Jungwon-
gu, Seongnam, Gyeonggi-do, South Korea
Tel: +82-31-776-3525
Fax: +82-31-776-3526
Web: http://www.unilock.co.kr/
EUROPEAN UNION “DECLARATION OF CONFORMITY”
DECLARATION OF CONFORMITY
Unilock Co., Ltd.
1409 Mega Bldg., SK n Techno Park, 190-1 Sangdaewon-dong, Jungwon-gu, Seongnam,
Gyeonggi-do, South Korea
declare under our sole responsibility that the product(s)
DIGITAL FURNITURE LOCK – ML32HRH
to which this declaration relate(s) is in conformance with the following standards:
EN 60950-1:2006/A11:2009/A1:2010/A12:2011/A2:2013
EN 301 489-1 V1.9.2:2011
EN 301 489-3 V1.6.1:2013
EN 300 330-1 V1.7.1:2010
EN 300 330-2 V1.5.1:2010
following the provisions of the 1999/5/EC Directives.

- 13 -
[END]