Utica Boilers H2Oi Dual Operation And Installation Manual
2015-05-20
: Utica-Boilers Utica-Boilers-H2Oi-Dual-Operation-And-Installation-Manual-719584 utica-boilers-h2oi-dual-operation-and-installation-manual-719584 utica-boilers pdf
Open the PDF directly: View PDF
.
Page Count: 24

H2O
INDIRECT-FIRED WATER
HEATERS WITH DUAL COIL
SOLAR HOT WATER STORAGE
TANK APPLICATIONS
DUAL COIL INDIRECT FIRED
WATER HEATERS WITH OR
WITHOUT ELECTRIC BACKUP
INDIRECT FIRED WATER
HEATERS SINGLE COIL WITH
ELECTRIC BACKUP
INSTALLATION, OPERATION &
MAINTENANCE MANUAL
P/N# 615000056, Rev. B [08/2012]
MODELS
H2OI60D
H2O60E
H2O60DE
H2OI80D
H2OI80E
H2OI80DE
H2OI115D
H2OI115E
H2OI115DE
An ISO 9001-2008 Certified Company
ECR International, Inc.
2201 Dwyer Avenue, Utica NY 13501
web site: www.ecrinternational.com
Information and specifi cations outlined in this manual in effect at the time of
printing of this manual. ECR International reserves the right to discontinue, change
specifi cations or system design at any time without notice and without incurring
any obligation, whatsoever.
Conforms to UL STD 174
Certifi ed to CAN/CSA STD C22.2 No. 110-94
60, 80, 115 Gallon
D = Dual Coil
E = Electric Backup Element

2
I. General Information
IMpORTANT INFORMATION – READ CAREFullY
NOTE: The equipment shall be installed in accordance with those installation regulations required in the area where the
installation is to be made. These regulations shall be carefully followed in all cases. Authorities having jurisdiction shall be
consulted before installations are made.
All wiring on water heaters shall be in accordance with the National Electrical Code and/or local regulations.
Improper installation, adjustment, alteration, service or maintenance can cause property damage, personal injury, or loss
of life. Read and understand the entire manual before attempting installation, start-up, operation, or service. Installation
and service must be performed only by an experienced, skilled installer or service agency.
This water heater contains very hot water under high pressure. Do not unscrew any pipe ttings or attempt to disconnect
any components of this water heater without positively assuring that the water is cool and has no pressure. Always wear
protective clothing and equipment when installing, starting up or servicing this water heater to prevent scalding injuries.
Do not rely on the pressure and temperature gauges to determine the temperature and pressure of the water heater.
This water heater contains components that become very hot when the boiler is operating. Do not touch any components
unless they are cool.
Failure to follow all instructions in the proper order can cause personal injury or death. Read all instructions, including all
those contained in component manufacturers’ manuals before installing, starting up, operating, maintaining, or servicing
the water heater.
To reduce the risk of excessive pressures and temperatures in this water heater, install temperature and pressure
protective equipment required by local codes but no less than a combination temperature relief valve certied by a
nationally recognized testing laboratory that maintains periodic inspection of production of listed equipment or materials,
as meeting the requirements for Relief Valves and Automatic Shutoff Devices for Hot Water Supply Systems, ANSI Z21.22-
latest edition. This valve must be marked with a maximum set pressure not to exceed the marked working pressure of
the water heater. Install the valve into an opening provide and marked for this purpose in the water heater, and orient it
or provide tubing so that any discharge from the valve will exit only within 6 inches above, or at any distance below, the
structural oor, and cannot contact any live electrical part. The discharge opening must not be blocked or reduced in size
under any circumstances.
I. General Information & Safety Instructions ................................................................................ 2
Dimensions and Capacities .................................................................................................. 4
II. Pre-installation Considerations ................................................................................................ 6
III. Piping .................................................................................................................................. 9
Hot Water Recirculation .....................................................................................................14
IV. Electrical .............................................................................................................................15
V. Operation ............................................................................................................................15
VI. Maintenance ........................................................................................................................19
VII. Troubleshooting ...................................................................................................................19
Table of Contents

3
IMpORTANT SAFETY INSTRuCTIONS
WARNING – When using electrical appliances, basic safety precautions to reduce the risk of re, electric
shock, or injury to persons should be followed, including:
READ ALL INSTRUCTIONS BEFORE USING THIS BUFFER TANK.
1.
This water heater must be grounded. Connect only to properly grounded outlet. See “GROUNDING
INSTRUCTIONS” found in Section IV.
2.
Install or locate this water heater only in accordance with the provided installation instructions
3.
Use this water heater only for its intended use as described in this manual.
4.
Do not use an extension cord set with this water heater. If no receptacle is available adjacent to the water
heater, contact a qualied electrician to have one properly installed.
5.
As with any appliance, close supervision is necessary when used by children.
6.
Do not operate this water heater if it has damaged connections or plug, if it is not working properly, or if it has been
damaged or dropped.
7.
This water heater should be serviced only by qualied personnel. Contact nearest authorized service facility for
examination, repair, or adjustment.
Hazard Denitions
The following dened terms are used throughout this manual to bring attention to the presence of hazards of various risk
levels or to important information concerning the life of the product.
Indicates a presence of hazards that will cause severe personal injury, death or substantial property damage.
Indicates the presence of hazards that can cause severe personal injury, death or substantial property damage.
Indicates presence of hazards that will or can cause minor personal injury or property damage.
Indicates special instructions on installation, operation or maintenance that are important but not related to
personal injury or property damage.
Heat transfer medium must be water or other non-toxic uid having a toxicity rating or class of 1, as listed in clinical
Toxicology of Commercial Products, latest edition.
The pressure of the heat transfer medium must be limited to a maximum of 60 psig by a listed safety or relief valve.
DO NOT store or use gasoline or other ammable vapors or liquids in the vicinity of this or any other appliance.
If you smell gas vapors, DO NOT try to operate any appliance - DO NOT touch any electrical switch or use any phone in
the building. Immediately, call the gas supplier from a remote located phone. Follow the gas supplier’s instructions or if
the supplier is unavailable, contact the re department.

4
Model Storage
Volume Top Coil
Heating
Surface Bottom Coil
Heating Surface Dimensions
(Inches) Pipe Connec-
tions Max.
Working
Pressure
Approx.
shipping
Wt.
Gals. Sq. Ft. Sq. Ft. Ht. Dia. NPT (psi) Lbs.
Single Coil - No Electric Backup
H2OI115 115 - 8.9 74.0 28.0 1" NPT 150 175
H2OI80 80 -- 8.0 56.0 28.0 1" NPT 150 140
H2OI60 60 8.3 62.0 23.5 1" NPT 150 125
Single Coil - with 3500 watt Electric Backup
H2O115E 115 - 8.9 74.0 28.0 1" NPT 150 180
H2O080E 80 - 8.0 56.0 28.0 1" NPT 150 145
H2O60E 60 - 8.3 62.3 23.5 1" NPT 150 135
Dual Coil - No Electric Backup
H2O115D 115 7.4 8.9 74.0 28.0 1" NPT 150 205
H2O80D 80 7.4 8.0 56.0 28.0 1" NPT 150 175
H2O60D 60 7.4 8.3 62.0 23.5 1" NPT 150 165
Dual Coil - with 3500 watt Electric Backup
H2O115DE 115 7.4 8.9 74.0 28.0 1" NPT 150 215
H2O80DE 80 7.4 8.0 56.0 28.0 1" NPT 150 185
H2O60DE 60 7.4 8.9 62.0 23.5 1" NPT 150 175
Storage Only - No Coil, No Electric Backup
H2O115ST 115 - no coil storage
only
74.0 28.0 1" NPT 150 170
H2O80ST 80 - 56.0 28.0 1" NPT 150 130
H2O60ST 60 - 62.0 23.5 1" NPT 150 115
Table 1 - Dimensions and Capacities

5
BOTTOM SOLAR
COIL RETURN
TOP COIL
SUPPLY
BOTTOM SOLAR
COIL SUPPLY
T+P VALVE
TOP COIL
RETURN
COLD
WATER IN
HOT WATER
OUT
BOTTOM HEATING COIL
FOR SOLAR
BOTTOM COIL
3/8" ID THERMAL WELL
TOP HEAT ING COIL
FOR BACKUP
TOP COIL
3/8" ID THERMAL WELL
DUAL COIL UNITS
1/2" NPT RECIRC.
RETURN PORT
DRAIN VALVE
3/8" ID
THERMAL WELL
4" X 10"
ELECTRICAL BOX
TYPICAL ALL
ELECTRIC BACKUP UNITS
1.5
Heat exchanger coil outputs
Model Max. Recovery Max. Recovery Water Flow Pressure Drop
(gal/hr.) (gal/hr.) Through Coil Through Coil
Top Coil Bottom Coil (gal./min.) (Ft. Water)
115 Gal. Units 190 214 10.0 3.9
80 Gal. Units 180 214 10.0 3.6
60 Gal. Units 185 214 10.0 3.5
Note: All Ratings are based on 180 degree F boiler water supply and 50 degree F cold Water inlet.
In the interest of continuous improvement, specications are subject to change without notice.
For all units with 3500 watt Electric Backup
Model First Hour Rating (gal/hr.) Continuous Rating (gal/hr.)
140 F 115 F 140 F 115 F
115 Gal. Units 73.9 80.0 15.9 22.0
80 Gal. Units 55.9 62.0 15.9 22.0
60 Gal. Units 45.9 52.0 15.9 22.0
DuAl COIl uNITS ElECTRIC bACKup uNITS
Table 2

6
II. Pre-installation Considerations
Inspect shipment carefully for signs of damage. All equipment is carefully inspected and packed. ECR’s responsibility
ceases upon delivery of the water heater to the carrier in good condition. Any claims for damage or shortage, must
be led immediately against the carrier by the consignee. No claims for variances or shortages will be allowed by the
Manufacturer, unless they are presented within sixty days after receipt of the equipment.
Installation must conform to the requirements of the authority having jurisdiction. In the absence of such requirements,
installation must conform to the National Plumbing Code and the National Electrical Code ANSI/NFPA No. 70, current
edition.
IMpORTANT CONSIDERATIONS bEFORE INSTAllATION
1.
Water Heater Sizing.
Choose the water heater model based on the expected water usage for the given site. The average residence with one
shower or more will require a Model 40 or larger. The Model 30 should only be considered for residences with minimal
water demand, or for commercial applications without showers. See tables on pages 20 and 21.
Consult ASHRAE sizing guides and other references.
Factors that increase water demand dramatically include high ow shower heads, hot tubs, and the use of more than one
shower at a time. Increase the tank size if these factors are present. Consult ASHRAE sizing guides or other references.
Dimensions, weights, ratings, and capacities are outlined in Tables 1 and 2.
2.
Boiler Sizing.
The water heater will provide the rated performance only if it is used with a boiler with a heating capacity of at least
as much as the capacity ratings in Table 2. If the boiler has less capacity, the water heating output will be reduced. To
determine performance with other boiler outputs, refer to the expanded capacity tables in the Appendix.

7
1.
Circulator Sizing.
Refer to Table 2 for the minimum ow through the water heater coil and the pressure drop at minimum ow. Calculate the
pressure drop across all piping and ttings connected to the water heater zone. Be sure to include all zone valves, check
valves, and shut-off valves. It is recommended that the water heater zone be piped with 1” pipe around the entire loop on
typical residential sites.
A. System Zone Control
The water heater must be installed as a separate zone from the space heating system. The water heating zone’s piping
and circulator must be sized for the minimum ow rate with all the zones in use and a maximum ow with only the water
heater in use. Zone control with circulators normally gives the best performance.
The three most common systems are:
1.
Zone Circulators - Space heating zones use a circulator for each zone. The water heater is controlled with an
additional circulator.
2.
Hybrid System - Space heating zones use zone valves for each zone. The water heater is controlled with an
additional circulator.
3.
Zone Valves - Space heating zones use zone valves for each zone. The water heater is controlled with an
additional zone valve. Select a valve with a low pressure drop, and assure minimum ow with adequate pipe
sizing.
B. Priority or Non-Priority for Hot Water
1.
Option 1 – Priority. The demand for space heating is interrupted until the hot water demand is satised. This
option provides the maximum delivery of hot water.
Priority is recommended when:
A. The boiler output is less than 100,000 Btu per hour, or
B. The boiler output required to satisfy the hot water demand is more than 50% of the boiler output needed to
satisfy the space heating demand, or
C. When an interruption in space heating can be tolerated during long domestic hot water draws.
In most cases the delay in space heating will not be noticed because of the rapid recovery of the water
heater. It must be recognized however that certain water heater malfunctions, such as a failed thermostat or
circulator, could delay space heating indenitely.
2.
Option 2 – Non-Priority. Boiler output is divided between space heating and water heating. Heating of
domestic hot water can be reduced during simultaneous space and water heating demands. The amount of
reduction depends on boiler output, number of space heating zones calling, and amount of boiler water ow split
between space heating zones and water heater zones.

8
C. Locating the water heater.
The water heater should be located in an area where water leakage from the tank or connections will not result in damage
to areas adjacent to the water heater or to lower oors of the structure. When such a location can not be avoided, a suit-
able drain pan must be installed under the water heater, and the drain pan must be connected to a drain.
The water heater should be installed as close to the boiler as is practical for easy access for service. The unit is designed
for installation on combustible ooring and in alcoves, closets, etc.
The minimum clearances from combustible surfaces are:
Bottom -------------------------------- 0”
Left, right, and rear sides ---------- 0.5”
Front -------------------------------- 0.5”
Top ------------------------------------ 6”
The minimum clearances for service are:
Bottom -------------------------------- 0”
Left, right, and rear sides ------------ 3”
Front ----------------------------------- 6”
Top ------------------------------------ 6”
D. Additional recommended components
1.
Shut-off valves. Allows the isolation of the water heater from the boiler system during service.
2.
Unions. Allows for easy locating or removal.
3.
Vacuum breaker. Protects the water heater from collapse if a hot tank is valved off to service other components
in the system.
4.
Thermal expansion tank. If the water heater is installed in a closed water supply system, such as a system
having a back ow preventer in the cold water supply line, the installation of a thermal expansion tank is
required.
E. Removing the Existing Domestic Water Heating System
1.
External Tankless Heater- Disconnect all lines to the boiler and plug the boiler ttings. Disconnect the external
heater from the boiler piping, and the domestic piping systems.
2.
Internal Tankless Heaters- Disconnect the domestic piping. Do not plug the cold water or the hot water ttings
in the internal tankless coil. Leave the coil in the boiler with the cold and hot water ttings open to prevent
pressure build-up in the coil.
WALLS
WALLS
CEILING
6" Minimum 0.5" Minimum
0.5"
Min.
Sides
0.5"
Min.
Sides
0.5"
Min.
Sides
0.5"
Min.
Sides
Top
Rear
Front
Provide access clearance
Front View Top View

9
F. Water Quality
Improper water quality will reduce the expected life of the water heater. Hard water, sediment, high or low Ph, and high
levels of chlorides in the domestic water should be avoided. Sediment and hard water will eventually coat the heating coil
inside the water heater and reduce the rate of hot water production and may, eventually cause a failure. High or low Ph
and/or high chloride concentrations will cause corrosion and eventually failure. A lter is strongly recommended where
sediment is present in the water. A water softening system is recommended for areas with hard water.
In an area where the water quality is not known, a water quality test should be performed.
WARNING:
Do not operate the water heaters in areas where the Ph is above 8.0 or below 6.0, and/or with chloride concentrations
greater than 100 parts per million (ppm). ECR’s standard warranty does not cover problems caused by improper water Ph
or excessive levels of chlorides.
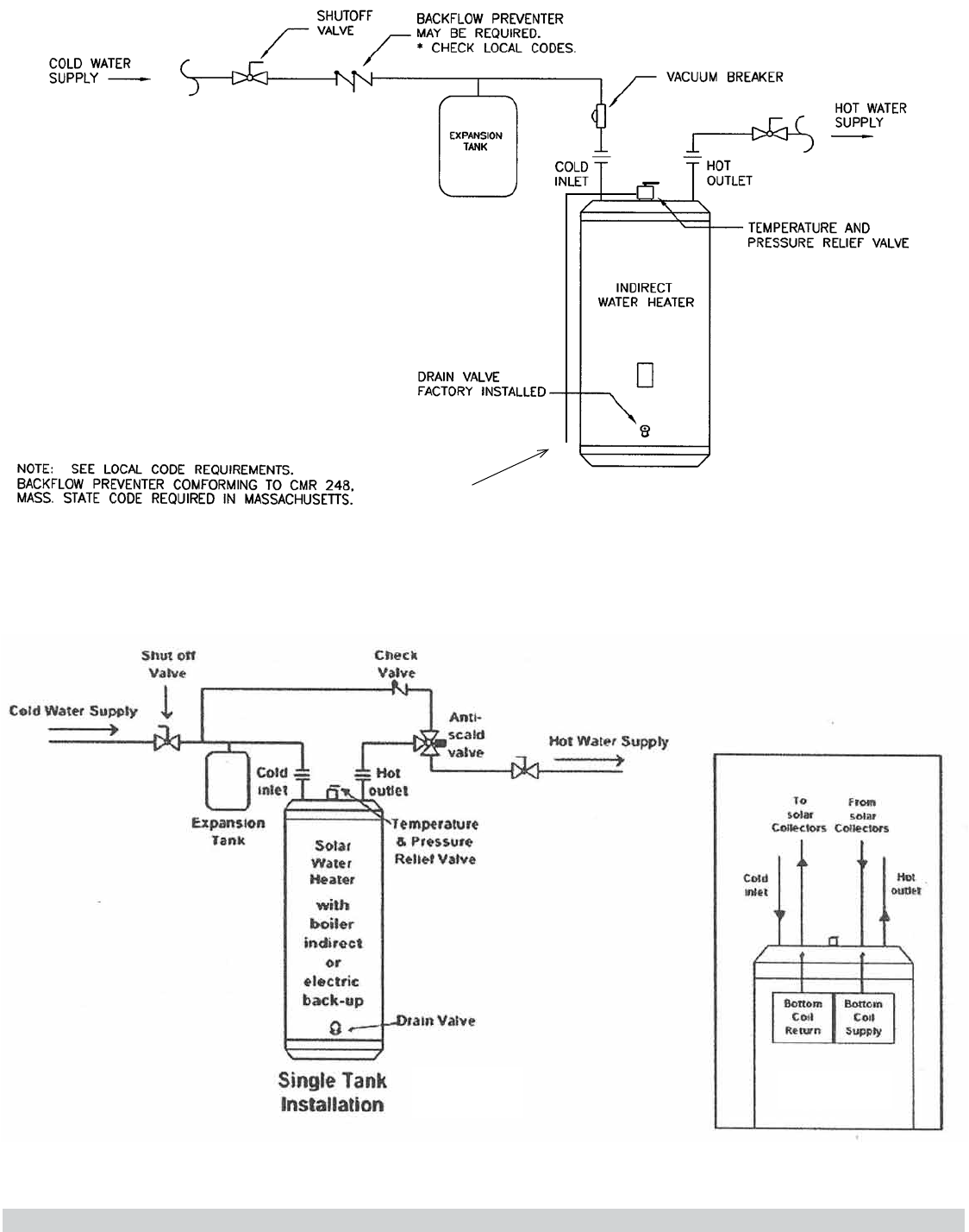
III. Piping
A. Domestic water piping. See Figure 1.
1.
Shut off the cold water supply at the main shutoff valve.
Open one or more faucets to relieve the pressure. Open the system drain, leaving the faucets open.
Drain the domestic water system.
2.
Position the water heater in the nal location.
3.
Connect the cold water supply piping.
Install piping onto cold inlet connection.
Connect to cold water supply connection using a union, a heat trap, a shut-off valve, an expansion tank (where
required), a back ow preventer (where required), and a lter (recommended to prevent sediment buildup).
4.
Connect the domestic hot water piping.
Install piping on to hot water supply connection using a union, a heat trap, a vacuum breaker, and a shut-off
valve.
5.
Pipe the relief valve discharge so that the discharge from the valve will exit only within 6 inches above, or at any
distance below, the structural oor, and cannot contact any live electrical part. The discharge opening must not
be blocked or reduced in size under any circumstances. Refer to local codes.
6.
Fill the water heater tank.
Open all faucets to allow air to purge from the tank and piping. Remove screens on faucets.
Open domestic hot water shut-off valve.
Open cold water inlet shut-off valve.
Purge all of the air from the domestic water system. Allow water to run so the tank is completely purged of any
debris. Run the water long enough to change at least ve tank volume changes. Close all faucets. Reinstall all of
the screens in the faucets.
Check the system for leaks. Repair as required using materials listed for potable water applications.

10
B. Water boiler piping. See Figures 2 and 3.
1.
Determine where the boiler, the space heating, and the water heater connections should be made based on the
type of piping system that is either in place, or is to be installed for a new hydronic system installation. See
Figure 2, Boiler Water Piping with Zone Circulators, and Figure 3, Boiler Water Piping with Zone Valves.
2.
It is recommended that 1” pipe and 1” zone valves be used on the water heater zone.
Zone Circulator System
For space heating systems that use Zone Circulators, refer to Figure 2. The water heater connection labeled
“BOILER SUPPLY” should be piped to the boiler supply piping after the air purger and before the space heating
takeoffs. Mount the water heater circulator as close as possible to the water heater, and make sure the ow
arrow points toward the water heater. The use of shut-off valves is recommended for future service convenience.
The water heater connection labeled “BOILER RETURN” should be piped to the boiler return piping as close to
the boiler as possible and after any ow control or check valves in the space heating return piping. The use of a
union and a shut-off valve is recommended. The use of a check valve is required to prevent back ow through
the water heater during operation of the space heating system.
Zone Valve System
For a space heating system that uses Zone Valves, refer to Figure 3. The water heater connection labeled
“BOILER SUPPLY” should be piped to the boiler supply piping after the air purger and before the space heating
circulator. Mount the water heater circulator as close as possible to the water heater, and make sure the
ow arrow points toward the water heater. The use of a shut-off valve is recommended for future service
convenience.
The water heater connection labeled “BOILER RETURN” should be piped to the boiler return piping as close to
the boiler as possible and after any ow control or check valves in the space heating return piping. The use of a
union and a shut-off valve is recommended. The use of a check valve is required to prevent back ow through
the water heater during operation of the space heating system.
Thermal expansion tank – Optional
Required if cold water line is equipped with a backow preventer or pressure reducing valve.
Water hammer arrester – Optional
Dishwashers, clothes washers, and fast-closing positive shutoff valves incorporated in the system all
contribute to creating water hammer. Install a water hammer arrester to prevent damage to pipes and appliances. See
control manufacturer's instructions for application and installation.
unions
Use dielectric unions or couplings to protect hot and cold water ttings from corrosion when connecting dissimilar
materials such as copper and galvanized pipe.
Backow preventer – Optional
Required for Commonwealth of Massachusetts
Vacuum breaker – Optional
Required for Commonwealth of Massachusetts

11
Figure 2
Typical Mixing
Valve Install
Figure 1
Domestic Water Piping
Pipe Relief Valve Discharge
to within 6" of oor, see
Section III Notes.

12
Pipe Relief Valve Discharge
to within 6" of oor, see
Section III Notes.
Pipe Relief Valve Discharge
to within 6" of oor, see
Section III Notes.
FIGURE 3 - BOILER WATER PIPING WITH ZONE CIRCULATORS
FIGURE 4 - BOILER WATER PIPING WITH ZONE VALVES

13
Pipe Relief Valve Discharge
to within 6" of oor, see
Section III Notes.
FIGURE 5 FIGURE 6
FIGURE 7
Pipe Relief Valve Discharge
to within 6" of oor, see
Section III Notes.

14
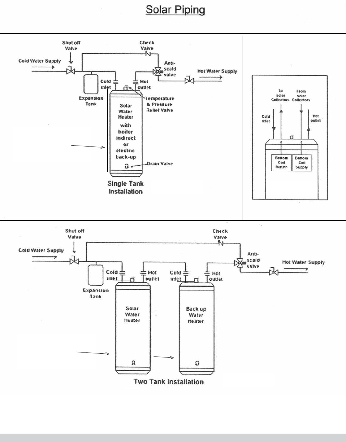
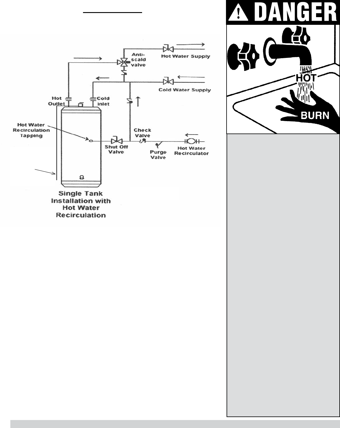
SOlAR pIpING
Hot Water Recirculation
Hot Water Recirculation for Solar Hot Water Storage Tanks
Hot water recirculation is for the continuous circulation of hot water for
instant hot water at the hot water faucets. Solar tank tappings provide
hot water recirculation return at the distance mid-height at the side of
the tank. See Figure 8. Location of tapping will not allow for mixing of
back-up heated hot water (boiler indirect of electric element) into lower
solar heated section of the tank.
When an anti-scald device is installed it is critical to feed cold supply of
mixing valve with return of recirculated hot water. This is important to
keep hot water recirculation loop operating through the mixing valve
even if tank temperatures are above mixing valve setting. Other wise
the mixing valve will not allow ow of hot water though it and disable
recirculation loop of hot water.
Hot Water Can Scald!
Water heated to temperature for
clothes washing, dish washing and
other sanitizing needs can scald and
cause permanent injury.
Children, elderly, and inrm or
physically handicapped persons are
more likely to be permanently injured
by hot water. Never leave them
unattended in bathtub or shower. Never
allow small children to use a hot water
tap or draw their own bath.
• If anyone using hot water in the
building ts the above description,
or if state laws or local codes
require certain water temperatures
at hot water taps, you must take
special precautions:
• Use lowest possible temperature
setting.
• Install some type of
tempering device, such as an
automatic mixing valve, at
hot water tap or water heater.
Automatic mixing valve must
be selected and installed
according to manufacturer's
recommendations and
instructions.
Water passing out of drain valves may
be extremely hot. To avoid injury:
• Make sure all connections are tight.
• Direct water ow away from any
person.
Pipe Relief Valve
Discharge to within
6" of oor, see
Section III Notes.
FIGURE 8

15
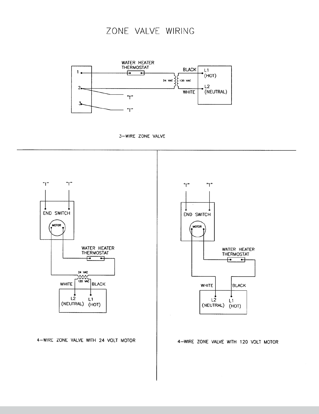
IV. Electrical
1.
Install electric wiring and grounding in accordance with the National Electrical code and local regulations.
2.
All water heaters are supplied with a thermostat.
3.
Refer to wiring schematics for separate circulator wiring.
Refer to wiring schematics for zone valve wiring.
Reference should be made to the Installation Manual for the boiler as well.
V. Operation
Startup
After the water heater has been plumbed and wired, and the boiler water piping is purged of air, the water heater is ready
to be started.
1.
Follow the boiler installation instructions to place the boiler in operation.
2.
The tank thermostat is factory pre-set to 125 degrees F and will call for heat if the water in the tank is lower
than 125.
3.
On a call for heat, the tank thermostat contacts close to start the water heater zone circulator and the boiler.
4.
After the tank has reached the temperature setting, the tank thermostat opens and de-energizes the circulator
and the boiler. If there is a call for space heating, the boiler will continue to run until the room thermostats are
satised.
Temperature Adjustment
The tank thermostat controls the maximum water temperature in the water heater. If it is set too high, the resulting hot
water can cause painful scalding with possible serious and permanent injury. The temperature at which this occurs varies
with a person’s age, and the length of time in contact with the hot water. The slower response time of infants, older, or
handicapped people increases the hazard for them.
It is recommended that the thermostat be set for the lowest possible temperature that satises your needs. This will also
provide you with the lowest energy consumption and cost.
Check the water temperature at a hot water faucet soon after the tank thermostat has satised, and the circulator and the
boiler have turned off. Adjust as needed.
Lowering the thermostat setting will not have an immediate effect on the water temperature because the stored water
will have to be used and the thermostat must go through the cycle of heating cold water and satisfying at the new, lower
temperature. Additional temperature checks should follow the completion of a heating cycle. Further adjustments may be
required after you have used the water heater.
Studies have indicated that dangerous
bacteria including legionella pneumophila
can form in potable water distribution system if certain minimum
water temperatures are not maintained. Contact your local health
department for more information.

16
Class 2
Terminals
Primary
Terminals
RELAY
RELAY
RELAY
RELAY
RELAY
RELAY
TO BOILER T-T
TERMINALS
Argo offers a broad line of controls for water heating and multiple zone boiler heating applications.
Please check out our web site at http://www.argoindustries.com for applications information and compre-
hensive wiring diagrams.
A typical wiring diagram is shown below. This is a multi-zone application using zone pumps with program-
mable domestic hot water priority using our ARM-4P Panel.
Product features include:
Build in transformer that will support up to 15 zones. Transformer has electronic fuse protection
1.
to prevent transformer overloading.
Data Port Terminal for easy connection to other Argo control products.
2.
Expansion module plug-in allowing easy expansion to more zones.
3.
Priority Zone Safety Timer. If the priority zone calls for more than 30 minutes the priority zone
4.
feature will turn off allowing all zones to operate independently preventing freeze ups if water
heater has a problem.
Plug in replacement relays for long life and easy servicing with 1/3 HP pump motor ratings.
5.
INDIRECT WATER TANK TO ARM-4P CONTROL

17
BOILER T-T
BOILER T-T BOILER T-T

18
Solar Electric Tank
Electric Connections
Solar electric hot water heater includes 240 VAC thermostat and 3500 watt element.
See Schematic
Connect Electric Heating Element
Before any electrical connections are made, verify water heater is full of water and valve in cold water supply line is open.
Solar water heater is supplied with single electric heating element backup system. Thermostat incorporates manual reset
temperature-limiting device. Refer to "Troubleshooting Guide" section for manual reset operation. Turn off all power
related to heating system before proceeding with electrical connections. Any and all wiring shall be sized and installed to
satisfy voltage and amperage used. Water heater must be well grounded. Green ground screw is provided at electrical
connection point for connecting ground wire. All wiring shall be done in accordance with all applicable local and state
codes.
Adjusting Thermostat Temperature Dial
Minimum potable water temperature can be changed by adjusting thermostat. Before any work is done on water heater,
disconnect all power to the water heater and heat source (solar collector) by opening the switch(s) at main electrical
circuit breaker or fuse box. Remove cover and fold insulation outward away form control. Adjust thermostat dial using
screwdriver until minimum acceptable temperature is achieved. Rotate temperature dial clockwise to increase water
temperature. Rotate thermostat dial counter-clockwise to decrease temperature setting. See Figure 6 for temperature
settings.
Thermostat has been factory preset to 120°F (49°C). Remember lower temperature settings are more energy efcient.
Replace insulation make sure control is well covered and plastic terminal shield has not displaced. Replace access panel.
Water heater is now ready for operation.
FIGURE 9
N
Ground
unit per
local code
L

19
VI. Maintenance
The water heater is intended to provide many years of reliable service. Components, such as thermostats and relief
valves, may be subject to failures that require service. Depending on the quality of the water supply, sediment and/or
scale may coat the heating coil in the tank and reduce hot water recovery rate. Failure to use the correct procedures or
parts can result in unsafe operation.
The owner should arrange to have the following inspections and simple maintenance procedures done at the suggested
frequencies.
1.
Boiler and Domestic Water Piping (Annual)
Check all piping for signs of leakage at the joints, unions and shut-off valves. Repair as required.
2.
Temperature and Pressure Relief Valve (Annual)
3.
Sediment (Annual except where harsh water quality may require more frequent service)
Depending on water conditions, a varying amount of sediment may collect in the tank. Levels requiring service
are indicated by a small temperature difference between the boiler supply and return lines, and a reduced
recovery rate. Repeated ushing usually clears such material. As a preventive measure, water should be drawn
from the drain valve until it runs clear and the installation of a water lter should be considered.
4.
Scale (Annual)
Hard water may cause scale buildup on the outside of the heating coil inside the tank. A water softener will
prevent this problem. Symptoms are identical to sediment buildup. If repeated ushing does not resolve the
problem, chemical cleaning may be required. Contact a qualied contractor.
VII. Troubleshooting
PROBLEM CAUSE SOLUTION
No hot water at faucets
Boiler does not operate.
Press reset button
Check main cut-off switch
Check fuses or breakers.
Check power supply to boiler.
Circulator does not operate Check power supply to pump.
Improper thermostat setting Turn thermostat to a higher setting.
Zone valve does not open Check power supply and valve
Electrical problem Check fuses and replace.
Check circuit breaker and reset.
Check power supply
Clogged lter Clean or replace lter.
Insufcient or runs out of hot water
at the faucet
Thermostat setting too low. Turn the thermostat to a higher setting.
Undersized boiler with no priority to do-
mestic water heating.
Rewire for priority.
Peak draw of hot water is greater than
the tank storage.
Determine peak usage and compare to tank
volume.
Sediment and/or scale buildup Contact qualied contractor to clean coil.
Faulty water heater thermostat Replace thermostat
Water at faucet too hot Thermostat set to high Lower thermostat setting.
Improper wiring or plumbing. Compare to installation guide.
Boiler cycles more than 5 times per
day in summer
Excessive demand Reduce demand or consider larger boiler
and/or water heater.
Faulty thermostat Replace thermostat
Boiler high limit set to low Increase boiler hi-limit setting
Sediment and or scale buildup Contact qualied contractor to clean coil.
Faulty water heating element Replace element

20
MODEL
BOILER
OUTPUT
(BTU/HR)
140 F 115 F 140 F 115 F 140 F 115 F 140 F 115 F 140 F 115 F 140 F 115 F
50,000 94 119 67 92 103 128 67 92 121 146 67 92
60,000 107 138 80 111 116 147 80 111 134 165 80 111
80,000 134 174 107 147 143 183 107 147 161 201 107 147
100,000 160 212 133 185 169 220 133 184 187 238 133 184
120,000 171 227 144 200 190 250 154 214 214 275 160 221
140,000 171 227 144 200 190 250 154 214 227 293 173 239
160,000 171 227 144 200 190 250 154 214 227 293 173 239
MODEL
BOILER
OUTPUT
(BTU/HR)
140 F 115 F 140 F 115 F 140 F 115 F 140 F 115 F 140 F 115 F 140 F 115 F
50,000 121 146 67 92 139 164 67 92 170 195 67 92
60,000 134 165 80 111 152 183 80 111 183 214 80 111
80,000 161 201 107 147 179 219 107 147 210 250 107 147
100,000 187 238 133 184 205 256 133 184 236 287 133 184
120,000 208 268 154 214 232 293 160 221 263 324 160 221
140,000 208 268 154 214 239 303 167 231 289 360 186 257
160 000
208
268
154
214
239
303
167
231
289
360
186
257
(GAL/HR)
1st HOUR CONTINUOUS
(GAL/HR) (GAL/HR)(GAL/HR) (GAL/HR) (GAL/HR)
RATING RATING RATING RATING RATING RATING
115
Boiler flow = 14 gpm Boiler flow = 14 gpm Boiler flow = 14 gpm
1st HOUR CONTINUOUS
60 LOW 80
1st HOUR CONTINUOUS
(GAL/HR) (GAL/HR) (GAL/HR) (GAL/HR) (GAL/HR) (GAL/HR)
RATING RATING
Boiler flow = 14 gpm Boiler flow = 14 gpm
RATING RATINGRATING RATING
1st HOUR CONTINUOUS 1st HOUR CONTINUOUS 1st HOUR CONTINUOUS
180 deg. F Boiler Supply
30 and 40LOW 40 60
IBR Rating Condition
Boiler flow = 14 gpm
Heat-Flo, Inc.
15 Megan Court, Uxbridge, MA 01569
Tel: 508-278-2400 Fax: 508-278-2466
www.heat-flo.com
160
,
000
208
268
154
214
239
303
167
231
289
360
186
257
MODEL
BOILER
OUTPUT
(BTU/HR)
140 F 115 F 140 F 115 F 140 F 115 F 140 F 115 F
50,000 139 164 67 92 170 195 67 92
60,000 152 183 80 111 183 214 80 111
80,000 179 219 107 147 210 250 107 147
100,000 205 256 133 184 236 287 133 184
120,000 232 293 160 221 263 324 160 221
140,000 258 330 186 258 289 361 186 258
160,000 285 368 213 296 316 398 213 295
180,000 312 405 240 333 343 435 240 332
200,000 339 442 267 370 370 473 267 370
220,000 343 473 271 401 396 509 293 406
240,000 362 473 290 401 412 531 309 428
250,000 362 473 290 401 412 531 309 428
RATING RATING RATING RATING
(GAL/HR) (GAL/HR) (GAL/HR) (GAL/HR)
Boiler flow = 21 gpm Boiler flow = 21 gpm
1st HOUR CONTINUOUS 1st HOUR CONTINUOUS
High Output Units - 80-HO and 115-HO - 21 gpm boiler flow
80-HO High Output 115-HO High Output
Heat-Flo, Inc.
15 Megan Court, Uxbridge, MA 01569
Tel: 508-278-2400 Fax: 508-278-2466
www.heat-flo.com
180 deg. F Boiler Supply
IbR Rating Condition

21

22
ECR International, Inc.
LIMITED WARRANTY
HYDRONIC BUFFER TANKS & SOLAR HOT WATER STORAGE TANKS
By this Limited Warranty ECR International, Inc. (“ECR”) issues limited warranties from the date of original installation of the
Hydronic Buffer Tank or Solar Hot Water Storage Tank (“Product”) to the person that purchased the new Product directly (a) from
the ECR brand dealer; or (b) in the case of a newly constructed home, from the contractor who purchased such new Product directly
from an ECR brand dealer or wholesaler for installation and use in the newly constructed home (such person in either case referred
to hereinafter as the “Original Purchaser”), subject to the terms and conditions set forth below.
WARRANTY COVERAGE FOR RESIDENTIAL USAGE
The following limited warranty set forth in this section shall apply to only the original installation of the Product in a single-family
dwelling used without interruption by the Original Purchaser as his or her primary residence (“Residential Application”). “Residential
Application” shall also mean usage in a multiple family dwelling provided that the Product services only one (1) dwelling in such
multiple family dwelling.
I. LIMITED ONE YEAR WARRANTY
ECR warrants its Product used in Residential Applications to be free from defects in material and workmanship under normal usage
and service for a period of one (1) year from the date of original installation. In the event that the Product is found to be defective in
material or workmanship during this one-year period, then ECR will repair or replace, at its option, the defective Product.
II. LIMITED WARRANTY ON STORAGE TANK/HEAT EXCHANGER ASSEMBLY
ECR warrants that the Product’s storage tank/heat exchanger assembly shall be free from leaks during normal usage and service
for a period of fifteen (15) years from the date of original installation. In the event that a leak should develop and occur within this
limited warranty period as a result of defective material of workmanship, ECR will replace the Product. During the five (5) year
period from the date of original installation ECR’s replacement of the defective Product shall be without charge. From the sixth (6th)
year from the date of original installation to the fifteenth (15th) year from the date of original installation, ECR’s replacement of the
defective Product shall be made upon payment by the Original Purchaser to ECR of a proportionate charge based upon the time the
Product has been in service.
The proportionate charge will be equal to the appropriate percentage of the list price of such Product at the time the warranty claim
is made and will be determined as follows:
Within the sixth (6th) year through the seventh (7th) year from the original date of installation – sixty percent (60%)
Within the eighth (8th) year through the ninth (9th) year from the original date of installation – sixty-five percent (65%)
Within the tenth (10th) year through the eleventh (11th) year from the original date of installation – seventy percent (70%)
Within the twelfth (12th) year through the thirteenth (13th) year from the original date of installation – seventy-five percent (75%)
Within the fourteenth (14th) year through the fifteenth (15th) year from the original date of installation – eighty percent (80%)
Please Note: If the Product model involved is no longer available due to product obsolescence or redesign, the value used to
establish the list price will be the current retail price of the nearest equivalent Product.
LIMITATIONS AND EXCLUSIONS
1. Under no circumstances will ECR be responsible for any other costs associated with rectifying the defective part or Product,
including, without limitation, costs associated with removing and reinstalling the defective part or Product and/or its replacement part
or Product, and all labor and material costs connected therewith, including, without limitation, costs associated with returning the
defective part or Product to ECR.
2. This Limited Warranty will not be applicable if the Product is (a) used or operated at a pressure over or under its rated capacity;
(b) installed for uses other than home heating; (c) not maintained in accordance with ECR’s recommendation or accepted good
practice as determined by industry standards; or (d) subjected to unauthorized alteration.
3. This Limited Warranty will not be applicable if the Product has been damaged as a result of being improperly installed, serviced or
operated, including, without limitation, operated with insufficient water, allowed to freeze or subjected to flood conditions.
4. In order for this Limited Warranty to be effective (a) the Product must have been assembled in strict compliance with installation
instructions furnished with the Product; and (b) the Product sections must not have been damaged during shipment and installation.
5. ECR shall not be liable for any damages, defaults or delays in performance under this Limited Warranty caused by (a) any
contingency beyond its control, including, without limitation, a shortage or reduced supply of energy or raw materials, freezing, flood,
fire, wind or lightening; (b) the failure of external wiring, piping, or other attachments and accessory products not integral with the
Product; (c) installation, service or operation that is not in compliance with all applicable federal, state and provincial laws or
regulations; (d) misapplication or the use of the Product for purposes other than for which it was designed; (e) the use of parts not
supplied or designated by ECR; (f) failure to maintain the Product free of water sediments or scale deposits; (g) components of a
Product which are not defective, but must be replaced during the warranty period as a result of reasonable wear and tear; (h) failure
of a component, control or component part other than a component part manufactured solely by ECR; or (i) potable water with a Ph
exceeding 8.0 or below 6.0, and/or chloride concentrations exceeding 80 parts per million (ppm).
6. This Limited Warranty in no way can be considered as a guarantee of workmanship of an installer or repairman connected with
the installation or repair of the Product or as imposing on ECR liability of any nature for unsatisfactory performance as a result of
faulty workmanship in the installation or service of the Product, which liability is hereby expressly disclaimed.
7. The furnishing of replacement parts under the terms of this Limited Warranty will apply to the original warranty period and will not
serve to extend such period.
8. This Limited Warranty only applies to Products installed in the United States or Canada.
9. The remedy for breach of this Limited Warranty is expressly limited to the repair or replacement of any part found to be defective
under conditions of normal use, unless otherwise specifically set forth herein, and the remedy for breach of this Limited Warranty,
statutory duty or by reason of tort (including, without limitation, negligence) does not extend to liability for incidental, special or
consequential damages or losses, such as loss for the use of the material, inconvenience or loss of time. The maximum liability of
ECR in connection with the sale of the Product shall not in any case exceed the price of the part claimed to be defective, or the price
of the Product if the entire Product is claimed to be defective. This Limited Warranty is the complete and exclusive statement of
warranty terms in regards to the Product.
10. FOR ALL SALES NOT SUBJECT TO THE MAGNUSON-MOSS WARRANTY ACT THE FOREGOING WARRANTIES ARE
EXCLUSIVE AND ARE GIVEN AND ACCEPTED IN LIEU OF ANY AND ALL OTHER WARRANTIES, EXPRESS OR IMPLIED,
INCLUDING, WITHOUT LIMITATION, THE IMPLIED WARRANTIES OF MERCHANTABILITY AND FITNESS FOR PARTICULAR
PURPOSE. FOR ALL OTHER SALES, ALL IMPLIED WARRANTIES OF MERCHANTABILITY AND/OR FITNESS FOR ANY
PARTICULAR PURPOSE ARE LIMITED IN DURATION TO THE PERIOD OF THIS LIMITED WARRANTY.
PLEASE NOTE: Some states, provinces and territories do not allow the exclusion or limitation of incidental or
consequential damages, or limitations on how long an implied warranty lasts, so the above limitations and exclusions may
not apply to you.
MISCELLANEOUS
1. The Magnuson-Moss Warranty Act applies to “consumer” sales as contrasted with “commercial” sales. A consumer sale is one to
a buyer for personal, family or household purposes and not for the purpose of resale.
2. If any provision of this Limited Warranty shall be determined to be illegal, unconscionable or unenforceable, all other terms and
provisions hereof shall nevertheless remain effective and shall be enforced to the fullest extent permitted by law. The warranties
made under this Limited Warranty are exclusive and may not be altered, enlarged or changed by a distributor, dealer, or other
person whatsoever, other than pursuant to a written agreement executed by a duly authorized officer of ECR.
3. This Limited Warranty is nontransferable and shall be for the benefit of the Original Purchaser of the Product only.
4. This Limited Warranty gives the Original Purchaser only specific legal rights and you may have other legal rights which vary from
state-to-state.
PROCEDURE FOR OBTAINING WARRANTY SERVICE
1. At the time a claim is filed under this Limited Warranty the Original Purchaser must present a copy of the original sales receipt,
and a deed, utility bill, or equivalent document evidencing both ownership of the Product and installation in the dwelling owned by
the Original Purchaser.
2. For prompt warranty service, notify the installer who, in turn, will notify the ECR distributor from whom such distributor purchased
the Product. If this action does not result in warranty service, the Original Purchaser or installer should contact ECR Customer
Service (see contact information below), giving full particulars in support of the claim. Alleged defective part or parts must be
returned through trade channels in accordance with ECR’s procedure currently in force for handling returned goods for the purpose
of inspection or determining the cause of failure. ECR will furnish the new part(s) to an authorized ECR distributor who, in turn, will
furnish the part(s) to the heating contractor who installed the Product.
ECR International, Inc.
2201 Dwyer Avenue
Utica, New York13504-4729
Ph: 315/797-1310
Customer Service Fax: 315/724-9319
E-Mail: info@ecrinternational.com
PN 240009218 Rev. A 10/11

23
regulations; (d) misapplication or the use of the Product for purposes other than for which it was designed; (e) the use of parts not
supplied or designated by ECR; (f) failure to maintain the Product free of water sediments or scale deposits; (g) components of a
Product which are not defective, but must be replaced during the warranty period as a result of reasonable wear and tear; (h) failure
of a component, control or component part other than a component part manufactured solely by ECR; or (i) potable water with a Ph
exceeding 8.0 or below 6.0, and/or chloride concentrations exceeding 80 parts per million (ppm).
6. This Limited Warranty in no way can be considered as a guarantee of workmanship of an installer or repairman connected with
the installation or repair of the Product or as imposing on ECR liability of any nature for unsatisfactory performance as a result of
faulty workmanship in the installation or service of the Product, which liability is hereby expressly disclaimed.
7. The furnishing of replacement parts under the terms of this Limited Warranty will apply to the original warranty period and will not
serve to extend such period.
8. This Limited Warranty only applies to Products installed in the United States or Canada.
9. The remedy for breach of this Limited Warranty is expressly limited to the repair or replacement of any part found to be defective
under conditions of normal use, unless otherwise specifically set forth herein, and the remedy for breach of this Limited Warranty,
statutory duty or by reason of tort (including, without limitation, negligence) does not extend to liability for incidental, sp
ecial or
consequential damages or losses, such as loss for the use of the material, inconvenience or loss of time. The maximum liability of
ECR in connection with the sale of the Product shall not in any case exceed the price of the part claimed to be defective, or the price
of the Product if the entire Product is claimed to be defective. This Limited Warranty is the complete and exclusive statement of
warranty terms in regards to the Product.
10. FOR ALL SALES NOT SUBJECT TO THE MAGNUSON-MOSS WARRANTY ACT THE FOREGOING WARRANTIES ARE
EXCLUSIVE AND ARE GIVEN AND ACCEPTED IN LIEU OF ANY AND ALL OTHER WARRANTIES, EXPRESS OR IMPLIED,
INCLUDING, WITHOUT LIMITATION, THE IMPLIED WARRANTIES OF MERCHANTABILITY AND FITNESS FOR PARTICULAR
PURPOSE. FOR ALL OTHER SALES, ALL IMPLIED WARRANTIES OF MERCHANTABILITY AND/OR FITNESS FOR ANY
PARTICULAR PURPOSE ARE LIMITED IN DURATION TO THE PERIOD OF THIS LIMITED WARRANTY.
PLEASE NOTE: Some states, provinces and territories do not
allow the exclusion or limitation of incidental or
consequential damages, or limitations on how long an implied warranty lasts, so the above limitations and exclusions may
not apply to you.
MISCELLANEOUS
1. The Magnuson-Moss Warranty Act applies to “consumer” sales as contrasted with “commercial” sales. A consumer sale is one to
a buyer for personal, family or household purposes and not for the purpose of resale.
2. If any provision of this Limited Warranty shall be determined to be illegal, unconscionable or unenforceable, all other terms and
provisions hereof shall nevertheless remain effective and shall be enforced to the fullest extent permitted by law. The warranties
made under this Limited Warranty are exclusive and may not be altered, enlarged or changed by a distributor, dealer, or other
person whatsoever, other than pursuant to a written agreement executed by a duly authorized officer of ECR.
3. This Limited Warranty is nontransferable and shall be for the benefit of the Original Purchaser of the Product only.
4. This Limited Warranty gives the Original Purchaser only specific legal rights and you may have other legal rights which vary from
state-to-state.
PROCEDURE FOR OBTAINING WARRANTY SERVICE
1. At the time a claim is filed under this Limited Warranty the Original Purchaser must present a copy of the original sales receipt,
and a deed, utility bill, or equivalent document evidencing both ownership of the Product and installation in the dwelling owned by
the Original Purchaser.
2. For prompt warranty service, notify the installer who, in turn, will notify the ECR distributor from whom such distributor purchased
the Product. If this action does not result in warranty service, the Original Purchaser or installer should contact ECR Customer
Service (see contact information below), giving full particulars in support of the claim. Alleged defective part or parts must be
returned through trade channels in accordance with ECR’s procedure currently in force for handling returned goods for the purpose
of inspection or determining the cause of failure. ECR will furnish the new part(s) to an authorized ECR distributor who, in turn, will
furnish the part(s) to the heating contractor who installed the Product.
ECR International, Inc.
2201 Dwyer Avenue
Utica, New York13504-4729
Ph: 315/797-1310
Customer Service Fax: 315/724-9319
E-Mail: info@ecrinternational.com
PN 240009218 Rev. A 10/11
-------------------------------------------------------------------------------------------------------------------------------------------
List Prices 2011
FOB Uxbridge, MA
INDIRECT WATER HEATERS 1 1/2” NPT COLD AND HOT CONNECTIONS
- HO = HIGH OUTPUT 1 1/4" NPT BOILER SUPPLY AND RETURN
HF-80-C 1899 80 54 26.5 140
HF-115-C 2616 115 72 26.5 185
HF-80-HO-C 2186 80 54 26.5 155
HF-115-HO-C 2904 115 72 26.5 200
HOT WATER STORAGE TANKS with 1 ½” NPT COLD AND HOT CONNECTIONS
HF-80-ST-C 1765 80 54 26.5 130
HF-115-ST-C 2473 115 72 26.5 190
HYDRONIC BUFFER TANKS WITH COIL (S) **
Insulated thermal buffer and hydraulic separator tanks. Used with water source heat pumps, chillers, and
low mass boilers.
-XX denotes connection size Specify 1 ¼”, 1 ½”, or 2” NPT connections.
Internal coil can be used to add heat from solar panels, remove heat, and many other applications.
Model
No.
List
Price
($)
Capacity
(gal.)
Height
(in.)
Diameter
(in.)
Ship Wt.
(lbs.)
HF-40-BT-XX with coil 1926 40 42.0 22.5 115
HF60-BT-XX with coil 2240 60 42.0 26.5 140
HF80-BT-XX with coil 2443 80 52.0 26.5 150
HF115-BT-XX with coil 2973 115 72.0 26.5 175
** Buffer tanks can be fabricated with dual coils. Add $275.00 to the single coil list price
for a second coil.
REPLACEMENT PARTS
Part Part No. Description List Price
($)
T+P Relief Valve TP-3 150 psi / 210deg. F, 4” probe,
ANSI/AGA Cert.
22.35
Thermostat L4080 Honeywell L4080B 59.63
Thermostat Well R-Well 3” Immersion Well, ¾”, ½” NPT 40.94
List Prices: 3/15/11 FOB Uxbridge, MA
Heat-Flo, Inc., 15 Megan Court, Uxbridge, MA 01569
Tel: 508-278-2400 Fax: 508-278-2466 www.heat-flo.com

ECR International, Inc
2201 Dwyer Avenue, Utica NY 13504-4729
web site: www.ecrinternational.com
H2O