Utica Gas Fired Boiler Operation Manual ManualsLib Makes It Easy To Find Manuals Online!
2014-12-11
: Utica Utica-Gas-Fired-Boiler-Operation-Manual-121725 utica-gas-fired-boiler-operation-manual-121725 utica pdf
Open the PDF directly: View PDF
.
Page Count: 28

INSTINST
INSTINST
INSTALLAALLA
ALLAALLA
ALLATION MANUTION MANU
TION MANUTION MANU
TION MANUAL AL
AL AL
AL AND OPERAAND OPERA
AND OPERAAND OPERA
AND OPERATING INSTRTING INSTR
TING INSTRTING INSTR
TING INSTRUCTIONSUCTIONS
UCTIONSUCTIONS
UCTIONS
MGBMGB
MGBMGB
MGB
GAS FIRED BOILERS
FOR FORCED HOT WATER
Utica Boilers, • P.O. Box 4729 • Utica, NY 13504

TT
TT
TABLE OF CONTENTSABLE OF CONTENTS
ABLE OF CONTENTSABLE OF CONTENTS
ABLE OF CONTENTS
Safety Symbols & Warnings ........................................................................ Page 2
Installation Procedure .................................................................................. Page 3
Ventilation and Combustion Air .................................................................... Pages 4-6
Connecting Supply and Return Piping .......................................................... Pages 6-9
Vent Installation ........................................................................................... Page 9
Vent System modification ............................................................................ Page 10
Vent Damper Installation and Instructions .................................................... Page 11
Connecting Gas Service ............................................................................. Page 12
Electrical Wiring ........................................................................................... Page 13
Thermostat Installation................................................................................. Page 13
Lighting Instructions ..................................................................................... Pages 13-16
Normal Sequence of Operation .................................................................... Page 16
General Instructions ..................................................................................... Pages 17-19
Checking Gas Input Rate to Boiler ............................................................... Pages 19-20
Replacement Parts Lists .............................................................................. Pages 20-25
Ratings and Data ......................................................................................... Page 26
Dimensions .................................................................................................. Page 27
KEEP THIS MANUAL NEAR BOILER
RETAIN FOR FUTURE REFERENCE
SERIES MGB
CAST IRON
GAS FIRED BOILERS
INSTALLATION MANUAL AND
OPERATION INSTRUCTIONS
Published February 1989
Revised June 1998
Printed in USA
Made In USA PAGE 1
C.S.A. Certified for Natural gas
or Propane
Tested for 100 lbs.
ASME Working
Pressure

IMPORIMPOR
IMPORIMPOR
IMPORTT
TT
TANT!ANT!
ANT!ANT!
ANT! READ ALL INSTRUCTIONS BEFORE INSTALLING.
WARNING:WARNING:
WARNING:WARNING:
WARNING:
1. Keep boiler area clear and free from combustible materials, gasoline and other
flammable vapors and liquids.
2. DO NOT obstruct air openings to the boiler room.
3. Modification, substitution or elimination of factory equipped, supplied or specified
components may result in property damage, personal injury or the loss of life.
4. To the owner: Installation and service of this boiler must be performed by a qualified
installer.
5. To the installer: Leave all instructions with the boiler for future reference.
6. When this product is installed in the Commonwealth of Massachusetts the installation
must be performed by a Licensed Plumber or Licensed Gas Fitter.
Safety SymbolsSafety Symbols
Safety SymbolsSafety Symbols
Safety Symbols
DD
DD
DANGERANGER
ANGERANGER
ANGER
DANGER - Indicates an imminently hazardous situation which, if not avoided, WILL
result in death or serious injury.
WARNINGWARNING
WARNINGWARNING
WARNING
WARNING - Indicates a potentially hazardous situation which, if not avoided, COULD
result in death or serious injury
CACA
CACA
CAUTIONUTION
UTIONUTION
UTION
CAUTION - Indicates a potential hazardous situation which, if not avoided, MAY result
in minor or moderate injury. It may also be used to alert against unsafe practices.
The following defined symbols are used throughout this manual to notify the
reader of potential hazards of varying risk levels.
PAGE 2
WARNING:WARNING:
WARNING:WARNING:
WARNING: ALL INSTALLATIONS OF BOILERS ANDALL INSTALLATIONS OF BOILERS AND
ALL INSTALLATIONS OF BOILERS ANDALL INSTALLATIONS OF BOILERS AND
ALL INSTALLATIONS OF BOILERS AND
VENTING SHOULD BE DONE ONLY BY A QUALIFIED EXPERT ANDVENTING SHOULD BE DONE ONLY BY A QUALIFIED EXPERT AND
VENTING SHOULD BE DONE ONLY BY A QUALIFIED EXPERT ANDVENTING SHOULD BE DONE ONLY BY A QUALIFIED EXPERT AND
VENTING SHOULD BE DONE ONLY BY A QUALIFIED EXPERT AND
IN ACCORDANCE WITH THE APPROPRIATE UTICA BOILERSIN ACCORDANCE WITH THE APPROPRIATE UTICA BOILERS
IN ACCORDANCE WITH THE APPROPRIATE UTICA BOILERSIN ACCORDANCE WITH THE APPROPRIATE UTICA BOILERS
IN ACCORDANCE WITH THE APPROPRIATE UTICA BOILERS
MANUAL. INSTALLING OR VENTING A BOILER OR ANY OTHERMANUAL. INSTALLING OR VENTING A BOILER OR ANY OTHER
MANUAL. INSTALLING OR VENTING A BOILER OR ANY OTHERMANUAL. INSTALLING OR VENTING A BOILER OR ANY OTHER
MANUAL. INSTALLING OR VENTING A BOILER OR ANY OTHER
GAS APPLIANCE WITH IMPROPER METHODS OR MATERIALS MAYGAS APPLIANCE WITH IMPROPER METHODS OR MATERIALS MAY
GAS APPLIANCE WITH IMPROPER METHODS OR MATERIALS MAYGAS APPLIANCE WITH IMPROPER METHODS OR MATERIALS MAY
GAS APPLIANCE WITH IMPROPER METHODS OR MATERIALS MAY
RESULT IN SERIOUS INJURY OR DEATH DUE TO FIRE OR TORESULT IN SERIOUS INJURY OR DEATH DUE TO FIRE OR TO
RESULT IN SERIOUS INJURY OR DEATH DUE TO FIRE OR TORESULT IN SERIOUS INJURY OR DEATH DUE TO FIRE OR TO
RESULT IN SERIOUS INJURY OR DEATH DUE TO FIRE OR TO
ASPHYXIATION FROM POISONOUS GASES SUCH AS CARBONASPHYXIATION FROM POISONOUS GASES SUCH AS CARBON
ASPHYXIATION FROM POISONOUS GASES SUCH AS CARBONASPHYXIATION FROM POISONOUS GASES SUCH AS CARBON
ASPHYXIATION FROM POISONOUS GASES SUCH AS CARBON
MONOXIDE WHICH IS ODORLESS AND INVISIBLE.MONOXIDE WHICH IS ODORLESS AND INVISIBLE.
MONOXIDE WHICH IS ODORLESS AND INVISIBLE.MONOXIDE WHICH IS ODORLESS AND INVISIBLE.
MONOXIDE WHICH IS ODORLESS AND INVISIBLE.

INSTINST
INSTINST
INSTALLAALLA
ALLAALLA
ALLATION PRTION PR
TION PRTION PR
TION PROCEDUREOCEDURE
OCEDUREOCEDURE
OCEDURE
WARNING: Improper installation, adjustment, alteration, service or maintenance
can cause injury or property damage.
1. The installation must conform to the requirements of the authority having jurisdiction or,
in the absence of such requirements, to the latest revision of the National Fuel Gas Code,
ANSI Z223. (Available from the American Gas Association, 8501 E. Pleasant Valley Road,
Cleveland, Ohio 44134). Reference should also be made to local gas utility regulations and
other codes in effect in the area in which the installation is to be made. When installed in
Canada: The latest revision of the CAN1-B149.1 and/or B149.2 Installation Codes for Gas-
Burning Equipment and/or local codes.
2. Where required by the authority having jurisdiction, the installation must conform to
American Society of Mechanical Engineers Safety Code for Controls and Safety Devices For
Automatically Fired Boilers, ANSI/ASME No.CSD-1.
3. This boiler series is classified as a Category 1 and the vent installation shall be in
accordance with Part 7 of the National Fuel Gas Code noted above when installed in the
United States. In Canada refer to the CAN1-B149.1 and or B149.2 Installation Codes for
Gas-Burning Equipment. Also refer to applicable provisions of the local building codes.
4. This boiler has met safe lighting and other performance criteria with the gas manifold
and control assembly on the boiler per the latest revision of ANSI Z21.13/CGA 4.9.
5. The boiler shall be installed such that the gas ignition system components are protected
from water (dripping, spraying, rain, etc.) during appliance operation and service, (circulator
replacement, condensate trap, control replacement, etc.).
6. LOCATE BOILER on level, solid base as near the chimney as possible and centrally
located with respect to the heat distribution system as practical.
7. Allow 24 inches at the front and right side for servicing and cleaning.
8. When installed in a utility room, the door should be wide enough to allow the largest
boiler part to enter, or to permit replacement of another appliance such as a water heater.
9. FOR INSTALLATION ON NON-COMBUSTIBLE FLOORS ONLY . For installation
on combustible flooring special base part no. 325-2-8.00 must be used. The boiler can not
be installed on carpeting. Minimum clearances to combustible construction are:
TOP ........................................18 IN.
FRONT ...................................ALCOVE
FLUE CONNECTOR ...............6 IN.
REAR ......................................4 IN.
CONTROL SIDE .....................9 IN.
OTHER SIDE ..........................3 IN.
NOTE: Greater clearances for access should supersede fire protection clearances.
PAGE 3

PAGE 4
COMBCOMB
COMBCOMB
COMBUSTION USTION
USTION USTION
USTION AIR REQAIR REQ
AIR REQAIR REQ
AIR REQUIREMENTSUIREMENTS
UIREMENTSUIREMENTS
UIREMENTS
(MINIMUM SQUARE INCHES OPENING)
**
**
*UNCONFINED AREA ****
****
**CONFINED AREA
OUTSIDE INSIDE OUTSIDE COMBUSTION AIR
MODEL COMBUSTION COMBUSTION VERTICAL HORIZONTAL
NUMBER AIR 1 SQ. IN AIR 1 SQ. IN. DUCTS DUCTS
MGB /5000 BTU/HR /1000 BTU/HR 1 SQ. IN. 1 SQ. IN.
(SEE FIG. 4) (SEE FIG. 3) /4000 BTU/HR /2000 BTU/HR
MGB 38 8 100 10 19
MGB 50 10 100 13 25
MGB 75 15 100 19 38
MGB 100 20 100 25 50
MGB 125 25 125 32 63
MGB 150 30 150 38 75
MGB 175 35 175 44 88
MGB 200 40 200 50 100
MGB 225 45 225 57 113
MGB 275 55 275 69 138
MGB 300 60 300 75 150
VENTILAVENTILA
VENTILAVENTILA
VENTILATION & COMBTION & COMB
TION & COMBTION & COMB
TION & COMBUSTION USTION
USTION USTION
USTION AIRAIR
AIRAIR
AIR
WARNING:WARNING:
WARNING:WARNING:
WARNING: AIR OPENINGS TO COMBUSTION AREA MUST NOT BE
OBSTRUCTED. BY FOLLOWING THE INSTRUCTIONS BELOW, ADEQUATE
COMBUSTION AIR CAN BE MAINTAINED
**
**
* Unconfined area: A space whose volume is not less than 50 cubic feet per
1000 BTU per hour of all appliances installed in that space (cubic feet of space = height x
width x length).
****
****
** Confined area: A space whose volume is less than 50 cubic feet per 1000 BTU
per hour of all appliances installed in that space (cubic feet of space = height x width x
length).
1. Ventilation of the boiler room must be adequate to provide sufficient air to properly
support combustion per the latest revision of the National Fuel Gas Code, ANSI Z223.1
section 5.3.
2. When a boiler is located in an unconfined space in a building or conventional construction
frame, masonry or metal building, infiltration normally is adequate to provide air for
combustion and ventilation. However, if the equipment is located in a building of unusually tight
construction (See the national Fuel Gas Code, Ansi Z223.1 section 1.7), the boiler area
should be considered as a confined space. In this case air for combustion and ventilation shall
be provided according to part 5 on page 5. If there is any doubt, install air supply provisions
in accordance with the latest revision of the National Fuel Gas Code.
3. When a boiler is installed in an unconfined space, in a building of unusually tight

PAGE 5
construction, air for combustion and ventilation must be obtained from outdoors or from
spaces freely communicating with the outdoors. A permanent opening or openings having a
total free area of not less than 1 square inch per 5,000 BTU per hour of total input rating of
all appliances shall be provided. Ducts may be used to convey makeup air from the outdoors
and shall have the same cross-sectional area of the openings to which they are connected.
4. When air for combustion and ventilation is from inside buildings, the confined space shall
be provided with two permanent openings, one starting 12 inches from the top and one 12
inches from the bottom of the enclosed space. Each opening shall have a minimum free area
of 1 square inch per one thousand (1000) BTU per hour of the total input rating of all appliances
in the enclosed space, but must not be less than one hundred (100) square inches. These
openings must freely communicate directly with other spaces of sufficient volume so that the
combined volume of all spaces meets the criteria for an unconfined space.
5. When the boiler is installed in a confined space and all air is provided from the outdoors
the confined space shall be provided with one or two permanent openings according to
methods A or B. When ducts are used, they shall be of the same cross sectional area as the
free area of the area of the openings to which they connect. The minimum dimension of
rectangular air ducts shall be not less than 3 x 3 inches or 9 square inches.
A. When installing two openings, one must commence within 12 inches from the top and
the other within 12 inches from the bottom of the enclosure. The openings shall communicate
directly, or by ducts, with the outdoors or spaces (crawl or attic) that freely communicate with
the outdoors. One of the following methods must be used to provide adequate air for
ventilation and combustion.
1. When directly communicating with the outdoors, each opening shall have a
minimum free area of 1 square inch per 4,000 BTU per hour of total input rating of all
equipment in the enclosure. See figure 2 below.
2. When communicating with the outdoors by means of vertical ducts, each
opening shall have a minimum free area 1 square inch per 4,000 BTU per hour of total input
rating of all appliances in the enclosed space. See figure 3 on page 6.
3. If horizontal ducts are used, each opening and duct shall have a minimum free
area 1 square inch per 2,000 BTU per hour of total input rating of all appliances in the enclosed
space. See figure 4 on page 6.
B. One permanent opening, commencing within 12 inches of the top of the enclosure,
FIGURE 2
FIGURE 1

FIGURE 3 FIGURE 4
shall be permitted where the equipment has clearances of at least 1 inch from the sides, 1
inch from the back, and 6 inches from the front of the boiler. The opening shall directly
communicate with the outdoors or shall communicate through a vertical or horizontal duct to
the outdoors or spaces (crawl or attic) that freely communicate with the outdoors. The
openings must have a minimum free area of 1 square inch per 3000 Btu per hour of the total
input rating of all equipment located in the enclosure. The free area must be no less than the
sum of the areas of all vent connectors in the confined space.
6. In calculating free area using louvers, grilles or screens for the above, consideration shall
be given to their blocking effect. Screens used shall not be smaller than 1/4 inch mesh. If the
free area through a design of louver or grill is known, it should be used in calculating the size
opening required to provide the free area specified. If the design and free area is not known,
it may be assumed that wood louvers will have 20-25% free area and metal louvers and grilles
will have 60-75% free area. Louvers and grilles should be fixed in the open position or
interlocked with the boiler so they are opened automatically during the boiler operation.
CONNECTING SUPPLCONNECTING SUPPL
CONNECTING SUPPLCONNECTING SUPPL
CONNECTING SUPPLY Y
Y Y
Y AND RETURN PIPINGAND RETURN PIPING
AND RETURN PIPINGAND RETURN PIPING
AND RETURN PIPING
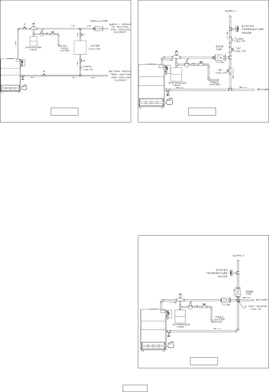
IMPORTANT: Circulators in the following illustrations are mounted on the system supply
side, but mounting on the system return side is also acceptable practice.
1. Connect supply and return piping as suggested in figure 5 on page 7, when the boiler
is used in connection with refrigerated systems.
A. The chilled medium MUST BE PIPED IN PARALLELMUST BE PIPED IN PARALLEL
MUST BE PIPED IN PARALLELMUST BE PIPED IN PARALLEL
MUST BE PIPED IN PARALLEL with the boiler.
B. Use appropriate valves to prevent the chilled medium from entering the
heating boiler.
a. During heating cycle open valves A and B, close valves C and D.
b. During cooling cycle, open valves C and D, close valves A and B.
C. Maintain a minimum clearance of one inch to hot water pipes.
2. When the boiler is connected to heating coils located in air handling units where they may
be exposed to refrigerated air circulation, the boiler piping system MUST BE supplied with
flow control valves or other automatic means to prevent gravity circulation of the boiler water
during the cooling cycle.
PAGE 6

PAGE 7
FIGURE 7
FIGURE 6
BYPASS PIPING
MIXING VALVE PIPING
3. Hot water boilers installed above radiation level must be provided with a low water cut-
off device.
4. When a boiler is connected to a heating system that utilizes multiple zoned circulators,
each circulator must be supplied with a flow control valve to prevent gravity circulation.
5. Hot water boilers and system must be filled with water and maintained to a minimum
pressure of 12 pounds per square inch.
6. Bypass piping is an option which gives the ability to adjust the supply boiler water
temperature to fit the system or the condition of the installation. This method of piping, however,
is not typically required for baseboard heating systems. Typical installations where bypass
piping is used are as follows:
A. This method is used to protect
boilers from condensation forming due to low
temperature return water. Generally noticed in
large converted gravity systems or other large
water volume systems. See figure 6 above.
B. These methods are used to protect
systems using radiant panels and the material
they are encased in from high temperature
supply water from the boiler and protect the
boiler from condensation. See figure 7 at
right and 8 on page 8.
NOTE 1: When using bypass piping, adjust
valves A and B until desired system
temperature is obtained.
NOTE 2: Bypass loop must be same size
piping as the supply and return piping.
FIGURE 5

PAGE 8
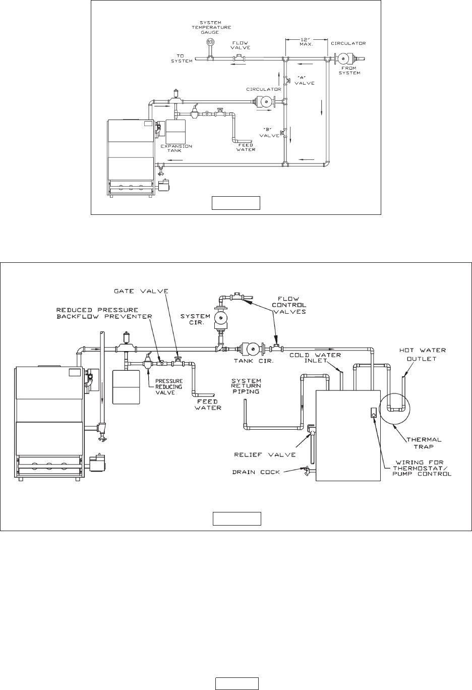
7. Installation using circulators is shown in figure 9 below.
8. Installation using zone valves is shown in figure 10 on page 9.
9. For further piping information refer to the I=B=R Installation and Piping Guide.
FIGURE 9
FIGURE 8
PRIMARY SECONDARY PIPING WITH BY PASS

PAGE 9
VENT INSTVENT INST
VENT INSTVENT INST
VENT INSTALLAALLA
ALLAALLA
ALLATIONTION
TIONTION
TION
WARNING:WARNING:
WARNING:WARNING:
WARNING: This boiler shall not be connected to any portion of a mechanical
draft system operating under positive pressure.
1. The vent pipe must slope upward from the boiler not less then 1/4 inch for every 1 foot
to the vent terminal.
2. Horizontal portions of the venting system shall be supported rigidly every 5 feet and at
the elbows. No portion of the vent pipe should have any dips or sags.
3. This boiler series is classified as a Category 1 and the vent installation shall be in
accordance with chapter 7 and 10 of the National Fuel Gas Code noted above or applicable
provisions of the local building codes.
4. Inspect chimney to make certain it is constructed according to NFPA 211. The vent
or vent collector shall be Type B or metal pipe having resistance to heat and corrosion not
less than that of galvanized sheet steel or aluminum not less than 0.016 inch thick (No. 28 Ga).
5. Connect flue pipe from draft hood to chimney. Bolt or screw joints together to avoid
sags. Flue pipe should not extend beyond inside wall of chimney. Do not install manual damper
in flue pipe or reduce size of flue outlet except as provided by the latest revision of
ANSIZ223.1. Protect combustible ceiling and walls near flue pip with fireproof insulation.
Where two or more appliances vent into a common flue, the area of the common flue must
be at least equal to the area of the largest flue plus 50 percent of the area of each additional
flue.
WARNING:WARNING:
WARNING:WARNING:
WARNING: ALL INSTALLATIONS OF BOILERS ANDALL INSTALLATIONS OF BOILERS AND
ALL INSTALLATIONS OF BOILERS ANDALL INSTALLATIONS OF BOILERS AND
ALL INSTALLATIONS OF BOILERS AND
VENTING SHOULD BE DONE ONLY BY A QUALIFIED EXPERT ANDVENTING SHOULD BE DONE ONLY BY A QUALIFIED EXPERT AND
VENTING SHOULD BE DONE ONLY BY A QUALIFIED EXPERT ANDVENTING SHOULD BE DONE ONLY BY A QUALIFIED EXPERT AND
VENTING SHOULD BE DONE ONLY BY A QUALIFIED EXPERT AND
IN ACCORDANCE WITH THE APPROPRIATE UTICA BOILERSIN ACCORDANCE WITH THE APPROPRIATE UTICA BOILERS
IN ACCORDANCE WITH THE APPROPRIATE UTICA BOILERSIN ACCORDANCE WITH THE APPROPRIATE UTICA BOILERS
IN ACCORDANCE WITH THE APPROPRIATE UTICA BOILERS
MANUAL. INSTALLING OR VENTING A BOILER OR ANY OTHERMANUAL. INSTALLING OR VENTING A BOILER OR ANY OTHER
MANUAL. INSTALLING OR VENTING A BOILER OR ANY OTHERMANUAL. INSTALLING OR VENTING A BOILER OR ANY OTHER
MANUAL. INSTALLING OR VENTING A BOILER OR ANY OTHER
GAS APPLIANCE WITH IMPROPER METHODS OR MATERIALS MAYGAS APPLIANCE WITH IMPROPER METHODS OR MATERIALS MAY
GAS APPLIANCE WITH IMPROPER METHODS OR MATERIALS MAYGAS APPLIANCE WITH IMPROPER METHODS OR MATERIALS MAY
GAS APPLIANCE WITH IMPROPER METHODS OR MATERIALS MAY
RESULT IN SERIOUS INJURY OR DEATH DUE TO FIRE OR TORESULT IN SERIOUS INJURY OR DEATH DUE TO FIRE OR TO
RESULT IN SERIOUS INJURY OR DEATH DUE TO FIRE OR TORESULT IN SERIOUS INJURY OR DEATH DUE TO FIRE OR TO
RESULT IN SERIOUS INJURY OR DEATH DUE TO FIRE OR TO
ASPHYXIATION FROM POISONOUS GASES SUCH AS CARBONASPHYXIATION FROM POISONOUS GASES SUCH AS CARBON
ASPHYXIATION FROM POISONOUS GASES SUCH AS CARBONASPHYXIATION FROM POISONOUS GASES SUCH AS CARBON
ASPHYXIATION FROM POISONOUS GASES SUCH AS CARBON
MONOXIDE WHICH IS ODORLESS AND INVISIBLE.MONOXIDE WHICH IS ODORLESS AND INVISIBLE.
MONOXIDE WHICH IS ODORLESS AND INVISIBLE.MONOXIDE WHICH IS ODORLESS AND INVISIBLE.
MONOXIDE WHICH IS ODORLESS AND INVISIBLE.
FIGURE 10

VENT SYVENT SY
VENT SYVENT SY
VENT SYSTEM MODIFICASTEM MODIFICA
STEM MODIFICASTEM MODIFICA
STEM MODIFICATIONTION
TIONTION
TION
When an existing boiler is removed from a common venting system, the common venting
system is likely to be too large for the proper venting of the appliances remained connected
to it. If this situation occurs, the following test procedure must be followed:
REMOVAL OF BOILER FROM VENTING SYSTEMREMOVAL OF BOILER FROM VENTING SYSTEM
REMOVAL OF BOILER FROM VENTING SYSTEMREMOVAL OF BOILER FROM VENTING SYSTEM
REMOVAL OF BOILER FROM VENTING SYSTEM
At the time of removal of an existing boiler, the following steps shall be followed with each
appliance remaining connected to the common venting system placed in operation, while the
other appliances remaining connected to the common venting system are not in operation.
A. Seal an unused opening in the common venting system.
B. Visually inspect the venting system for proper size and horizontal pitch and determine
there is no blockage or restriction, leakage, corrosion and other deficiencies which could
cause an unsafe condition.
C. Insofar as is practical, close all building doors and windows and all doors between the
space in which the appliances remaining connected to the common venting system are
located and other spaces of the building. Turn on clothes dryers and any other appliance not
connected to the common venting system. Turn on any exhaust fans, such as range hoods
and bathroom exhausts, so they operate at maximum speed. Do not operate a summer
exhaust fan. Close fireplace dampers.
D. Place in operation the appliance being inspected. Follow the lighting instructions. Adjust
thermostat so appliance will operate continuously.
E. Test for spillage at the draft hood relief opening after 5 minutes of main burner
operation. Use the flame of a match or candle, or smoke from a cigarette, cigar or pipe.
F. After it has been determined that each appliance remaining connected to a common
venting system properly vents when tested as outlined above, return doors, windows,
exhaust fans, fireplace dampers and any other gas burning appliances to their previous
condition of use.
G. Any improper operation of the common venting system should be corrected so the
installation conforms with the latest revision of the National Fuel Gas Code, ANSI Z223.1.
When resizing any portion of the common venting system, the common venting system should
be resized to approach the minimum size as determined using the appropriate tables in
appendix G in the latest revision of the National Fuel Gas Code, ANSI Z223.
PAGE 10

VENT DVENT D
VENT DVENT D
VENT DAMPER INSTAMPER INST
AMPER INSTAMPER INST
AMPER INSTALLAALLA
ALLAALLA
ALLATION TION
TION TION
TION AND INSTRAND INSTR
AND INSTRAND INSTR
AND INSTRUCTIONSUCTIONS
UCTIONSUCTIONS
UCTIONS
INSTALLATIONINSTALLATION
INSTALLATIONINSTALLATION
INSTALLATION
NOTE: Refer to Figure 11for steps 1 - 7.
1. Place Vent Damper on or as close to vent outlet of boiler as possible. See figure 12 below.
2. Remove Vent Damper Motor cover.
3. Remove locknut from connector at the end of the Damper wire harness.
4. Feed Damper and Damper wire harness connectors through bracket hole on Damper
Motor frame.
5. Replace and tighten locknut onto Damper wire harness connector,
6. Plug Damper connector into socket on Damper Motor frame.
7. Replace Damper Motor cover.
8. Wire Damper in accordance with figure 11below.
INSTRUCTIONSINSTRUCTIONS
INSTRUCTIONSINSTRUCTIONS
INSTRUCTIONS
1. Ensure that only the boiler is serviced by the Vent Damper. See Figure 12, above.
2. Clearance of not less than 6 inches between Vent Damper and combustible material
must be maintained. Additional clearance should be allowed for service of Vent Damper.
3. Vent Damper must be in the open position when appliance main burners are operating.
4. The Vent Damper position indicator must be in a visible location following installation.
5. The thermostat's heat anticipator must be adjusted to match the total current draw of
all controls associated with the boiler during a heating cycle.
PAGE 11
FIGURE 11 FIGURE 12

CONNECTING GAS SERVICECONNECTING GAS SERVICE
CONNECTING GAS SERVICECONNECTING GAS SERVICE
CONNECTING GAS SERVICE
1. Connect gas service from meter to control assembly in accordance with ANSI Z223.1
and local codes or utility. A ground joint union should be installed for easy removal of gas
control for servicing. A drip leg or trap must be installed at the bottom of a vertical section
of piping at the inlet to the boiler. A pipe compound resistant to the action of liquified petroleum
gases must be used on all threaded pipe connections. Check with the local utility for location
of manual shutoff valve if required. See figure 13 below.
2. The gas line should be of adequate size to prevent undue pressure drop and never
smaller than the pipe size of the main gas control valve. See chart below.
3. To check for leaks in gas piping, use a soap and water solution or other approved
method.
WARNING: DO NOT USE AN OPEN FLAME.
4. Disconnect the boiler from the gas supply piping system during any pressure testing
of the gas piping. After reconnecting, leak test the gas connection and boiler piping before
placing the boiler back into operation.
PAGE 12
FIGURE 13
Nominal
Iron Pipe
Size
Maximum Capacity of Pipe in
Cubic Feet of Gas Per Hour
(Gas pressure = 0.5 psig or less, pressure drop =
.5 in.w/c)
Length of Pipe (Feet)
10' 20' 30' 40' 60' 80' 100'
1/2" 175 120 97 82 66 57 50
3/4" 360 250 200 170 138 118 103
1" 680 465 375 320 260 220 195
1.1/4" 1400 950 770 660 530 460 400
For additional information refer to “Table C” of the
National Fuel Gas Code Handbook.

LIGHTING INSTRUCTIONSLIGHTING INSTRUCTIONS
LIGHTING INSTRUCTIONSLIGHTING INSTRUCTIONS
LIGHTING INSTRUCTIONS
WARNING:WARNING:
WARNING:WARNING:
WARNING: IF YOU DO NOT FOLLOW THESE INSTRUCTIONS EXACTLY,
A FIRE OR EXPLOSION MAY RESULT CAUSING PROPERTY DAMAGE, PERSONAL
INJURY OR LOSS OF LIFE.
Before any procedures are attempted on this appliance, it is necessary to
determine if the ignition system is electric or standing pilot. If you are un-certain,
contact the manufacturer before proceeding.
CACA
CACA
CAUTION:UTION:
UTION:UTION:
UTION: Before lighting any type of pilot burner (standing or
intermittent), make certain the hot water boiler and system are full of water to
minimum pressure of 12 lbs. per square inch in the system, and also make certain that
the system is vented of air. Set the operating control of thermostat to a “below”
normal setting. Refer to the following appropriate lighting instruction.
ELECTRICAL WIRINGELECTRICAL WIRING
ELECTRICAL WIRINGELECTRICAL WIRING
ELECTRICAL WIRING
SEE ADDENDUM " A" FOR WIRING DIAGRAMS
AND COMPONENT CODING.
Electrical wiring must conform with the National Electrical Code, ANSI/NFPA No. 70-1990
when installed in the United states, the CSA C22.1 Canadian Electrical Code, Part 1, when
installed in Canada, and/or the local authority having jurisdiction.
WARNING:WARNING:
WARNING:WARNING:
WARNING: 1.When an external electrical source is utilized, the boiler, when
installed MUST BEMUST BE
MUST BEMUST BE
MUST BE electrically grounded in accordance with these requirements.
2. Install a fused disconnect switch between boiler and meter at a convenient location.
THERMOSTTHERMOST
THERMOSTTHERMOST
THERMOSTAA
AA
AT INSTT INST
T INSTT INST
T INSTALLAALLA
ALLAALLA
ALLATIONTION
TIONTION
TION
1. Thermostat should be installed on an inside wall about four feet above the floor.
2. NEVER install a thermostat on an outside wall.
3. Do not install a thermostat where it will be affected by:
A. Drafts
B. Hot or Cold Pipes
C. Sun Light
D. Lighting Fixture
E. Television
F. A Fireplace or Chimney
4. Check thermostat operation by raising and lowering thermostat setting as required to
start and stop the burners.
5. Instructions for the final adjustment of the thermostat are packaged with the thermostat
(adjusting heating anticipator, calibration, etc.)
PAGE 13

FIGURE 14
PAGE 14
LIGHTING PROCEDURE FOR BOILER WITHLIGHTING PROCEDURE FOR BOILER WITH
LIGHTING PROCEDURE FOR BOILER WITHLIGHTING PROCEDURE FOR BOILER WITH
LIGHTING PROCEDURE FOR BOILER WITH
INTERMITTENT PILINTERMITTENT PIL
INTERMITTENT PILINTERMITTENT PIL
INTERMITTENT PILOO
OO
OT SYT SY
T SYT SY
T SYSTEMSSTEMS
STEMSSTEMS
STEMS..
..
.
FOR YOUR SAFETY READ BEFORE OPERATING.
A. This appliance is equipped with an ignition device which automatically lights the pilot.
Do not try to light the appliance by hand.
B. Before operating, smell all around the appliance area for gas. Be sure to smell next
to the floor because some gas is heavier than air and will settle on the floor.
CACA
CACA
CAUTION:UTION:
UTION:UTION:
UTION: WHAT TO DO IF YOU SMELL GASWHAT TO DO IF YOU SMELL GAS
WHAT TO DO IF YOU SMELL GASWHAT TO DO IF YOU SMELL GAS
WHAT TO DO IF YOU SMELL GAS
* Do not try to light any appliance.
* Do not touch any electrical switches; do not use any phones in your building.
* Immediately call your gas supplier from a neighbor’s phone. Follow the gas supplier's
instructions.
* If you cannot reach your gas supplier, call the fire department.
C. Use only your hand to push in or turn the gas control knob. Never use tools. If the knob
will not push in or turn by hand, don’t try to repair it. Call a qualified service technician. Force
or attempted repair may result in a fire or explosion.
D. Do not use this appliance if any part has been under water. Immediately call a qualified
service technician to inspect the appliance and to replace any part of the control system and
any gas control which has been under water.
OPERAOPERA
OPERAOPERA
OPERATING INSTRTING INSTR
TING INSTRTING INSTR
TING INSTRUCTIONS FORUCTIONS FOR
UCTIONS FORUCTIONS FOR
UCTIONS FOR
INTERMITTENT PILINTERMITTENT PIL
INTERMITTENT PILINTERMITTENT PIL
INTERMITTENT PILOO
OO
OT SYT SY
T SYT SY
T SYSTEMSSTEMS
STEMSSTEMS
STEMS
1. STOP!STOP!
STOP!STOP!
STOP! Read the safety information in the User’s Information Manual.
2. Set the thermostat to lowest setting.
3. Turn off all electric power to the appliance.
4. This appliance is equipped with an ignition device which automatically lights the pilot.
Do not try to light the pilot by hand. See figure 14 below.
5. Remove access panel.
6. Turn gas control knob clockwise to “OFF”.
7. Wait (5) minutes to clear out any gas.
If you then smell gas, STOP!STOP!
STOP!STOP!
STOP! Follow “What
To Do If You Smell Gas” in the safety
information above. If you don’t smell gas, go
on to the next step.
8. Turn gas control knob counterclockwise
to “ON”.
9. Replace access panel.
10. Turn on all electric power to the
appliance.
11. Set thermostat to desired setting.
12. If the appliance will not operate,
follow the instructions “To turn off gas to
appliance”, on page 16, and call a qualified
service technician or your gas supplier.

LIGHTING PROCEDURE FOR BOILERLIGHTING PROCEDURE FOR BOILER
LIGHTING PROCEDURE FOR BOILERLIGHTING PROCEDURE FOR BOILER
LIGHTING PROCEDURE FOR BOILER
WITH CONTINUOUS PILWITH CONTINUOUS PIL
WITH CONTINUOUS PILWITH CONTINUOUS PIL
WITH CONTINUOUS PILOO
OO
OTT
TT
T
FOR YOUR SAFETY READ BEFORE LIGHTINGFOR YOUR SAFETY READ BEFORE LIGHTING
FOR YOUR SAFETY READ BEFORE LIGHTINGFOR YOUR SAFETY READ BEFORE LIGHTING
FOR YOUR SAFETY READ BEFORE LIGHTING
A. Read the warning at the beginning of the LIGHTING INSTRUCTIONS. (Page 13)
B. This appliance has a pilot which must be lighted by hand. When lighting the pilot, follow
these instructions exactly.
C. Before lighting, smell all around the appliance area for gas. Be sure to smell next to
the floor because some gas is heavier than air and will settle on the floor. See page 14 for
WHAT TO DO IF YOU SMELL GAS.
D. Use only your hand to push in or turn gas control knob or reset button. Never use tools.
If the knob or reset button will not push in or turn by hand, don’t try to repair it, call a qualified
service technician. Force or attempted repair may result in a fire or explosion.
E. Do not use this appliance if any part has been under water. Immediately call a qualified
service technician to inspect the appliance and to replace any part of the control system and
any gas control which has been under water.
LIGHTING INSTRUCTIONS FORLIGHTING INSTRUCTIONS FOR
LIGHTING INSTRUCTIONS FORLIGHTING INSTRUCTIONS FOR
LIGHTING INSTRUCTIONS FOR
CONTINUOUS PILCONTINUOUS PIL
CONTINUOUS PILCONTINUOUS PIL
CONTINUOUS PILOO
OO
OTT
TT
T
1. STOP!STOP!
STOP!STOP!
STOP! Read the safety information at the beginning of these instructions.
2. Set the thermostat to the lowest setting.
3. Turn off all electric power to the appliance.
4. Remove access panel and burner door.
5. Turn gas control knob clockwise to "OFF". See figure's 15 & 16 below.
NOTE #1: Some gas control knobs cannot be turned from "PILOT" to "OFF" unless
knob is pushed in slightly. DO NOT FORCE.DO NOT FORCE.
DO NOT FORCE.DO NOT FORCE.
DO NOT FORCE.
6. Wait (5) minutes to clear out any gas. If you then smell gas, STOP! Follow “What To
Do If You Smell Gas”, on page 14. If you don't smell gas, go to the next step.
7. Find pilot. Follow metal tube from gas control. Depending on the model of the boiler,
pilot is either mounted on the base or on one of the burner tubes.
8. Turn gas control knob counterclockwise to "PILOT".
PAGE 15
FIGURE 15 FIGURE 16

9. Push in gas control knob or reset button if so equipped, all the way in and hold.
Immediately light the pilot with a match. Continue to hold the gas control knob or reset button
in for about 1 minute after the pilot is lit. Release knob or button, and it will pop up back up.
Pilot should remain lit. If it goes out, repeat steps 5 through 9.
* If knob or button does not pop up when released, stop and immediately call a qualified
service technician or your gas supplier.
* If the pilot will not stay lit after several tries, turn the gas control knob clockwise
to "OFF". (See note #1), and call a qualified service technician or your gas supplier.
10. Replace burner door.
11. Turn gas control knob counterclockwise to "ON".
12. Replace access panel.
13. Turn on all electric power to the appliance.
14. Set thermostat to desired setting.
TT
TT
TO O
O O
O TURN OFF GAS TURN OFF GAS
TURN OFF GAS TURN OFF GAS
TURN OFF GAS TT
TT
TO O
O O
O APPLIANCEAPPLIANCE
APPLIANCEAPPLIANCE
APPLIANCE
1. Set the thermostat to lowest setting.
2. Turn off all electric power to the appliance if service is to be performed.
3. Push in gas control knob slightly and turn clockwise to "OFF", DODO
DODO
DO
NOT FORCE.NOT FORCE.
NOT FORCE.NOT FORCE.
NOT FORCE.
5. Call a qualified service technician.
NORMAL SEQNORMAL SEQ
NORMAL SEQNORMAL SEQ
NORMAL SEQUENCE OF OPERAUENCE OF OPERA
UENCE OF OPERAUENCE OF OPERA
UENCE OF OPERATIONTION
TIONTION
TION
On a call for heat, the thermostat will actuate, completing the circuit to the aquastat. The
completed circuit to the aquastat will first activate the circulator and damper which will close
an end switch inside the damper. This action will complete the circuit to the ignition system
and ignition will take place.
In the event the boiler water temperature exceeds the high limit setting on the boiler
mounted aquastat, power will be interrupted between the aquastat and the ignition system.
The power will remain off until the boiler water temperature drops below the high limit setting.
The circulator will continue to operate under this condition until the thermostat is satisfied.
In the event the flow of combustion products through the boiler venting system becomes
blocked, the blocked vent safety switch will shut the main burner gas off. See figure 18, page
17. Similarly, if the boiler flueway becomes blocked, a flame rollout safety switch will shut
the main burner gas off. See figuer 18, page 17. If either of these conditions occur, do not
attempt to place the boiler back into operation. Contact a qualified service agency.
PAGE 16

GENERAL INSTRUCTIONSGENERAL INSTRUCTIONS
GENERAL INSTRUCTIONSGENERAL INSTRUCTIONS
GENERAL INSTRUCTIONS
Before seasonal start-up, have a competent service agency check the boiler for soot and
scale in the flues, clean the burners and check the gas input rate to maintain high operating
efficiency.
CACA
CACA
CAUTION:UTION:
UTION:UTION:
UTION: Label all wires prior to disconnection when servicing controls.
Wiring errors can cause improper and dangerous operation.
Verify proper operation after service.
The service agency or owner should make certain the system is filled with water to
minimum pressure and open air vents, if used, to expel any air that may have accumulated
in the system. Check the entire piping system and if any leaks appear, have them repaired.
Many circulators like the one pictured in figure 17 below, require periodic servicing. The
motor usually has openings at each end to lubricate the bearings. Put about one half teaspoon
of SAE 20 or 30 non-detergent motor oil in each opening twice a year.
CAUTION: DO NOT OVER OIL.
Many circulators have an oil opening for the shaft bearing. This should be oiled at the same
time for quiet operation. Follow the manufacturer's instructions for oiling the shaft bearing.
The venting system should be inspected at the start of each heating season. Check the
vent pipe from the boiler to the chimney for signs of deterioration by rust or sagging joints.
Repair if necessary. Remove the vent pipe at the base of the chimney or flue and using a
mirror, check vent for obstruction and make certain the vent is in good working order.
The boiler flue gas passageways may be inspected by a light and mirror. Remove the burner
door, figure 18. Place a trouble lamp in the flue collector through the draft relief opening. With
PAGE 17
FIGURE 17 FIGURE 18

FIGURE 19 FIGURE 20
PAGE 18
the mirror positioned above the burners, the flue gas passageways can be checked for soot
or scale.
The following procedure should be followed to clean the flue gas passageways:
1. Remove the burners from the combustion chamber by raising the burners up from the
manifold orifices and pulling toward the front of the boiler. See figure 18 on page 17.
2. Disconnect the vent pipe from the draft hood.
3. Remove the top jacket panel.
4. Remove the combination flue collector and draft hood from the boiler castings by
loosening the nuts on the hold down bolts located on each side of the collector. See figure
18 on page 17.
5. Place a sheet of heavy paper or similar material over the bottom of the base and brush
down the flue passageways. The soot and scale will collect on the paper and is easily
removed with the paper.
With the paper still in place in the base, clean the top of the boiler castings of the boiler
putty or silicone used to seal between the castings and flue collector. Make certain that chips
are not lodged in the flue passageways.
When the cleaning process is complete, restore the boiler components to their original
position. Use boiler putty or IS-808 GE silicone, available from a Utica Boilers distributor, to
seal around the flue collector and boiler castings.
A visual check of the main burner and pilot flames should be made at the start of the
heating season and again in mid-season. The main burner flame should have a well defined
inner blue mantel with a lighter blue outer mantel. Check the burner throats and burner orifices
for lint or dust obstruction. See figures 19 and 20 above.
The pilot flame should envelop 3/8 to 1/2 inch of the tip of the pilot thermocouple, ignition/
sensing electrode or mercury sensor. See figure 21 on page 19. To adjust the pilot flame,
remove the pilot adjustment cover screw (figures 14, 15, & 16 on pages 14 & 15), and turn
the inner adjustment screw counterclockwise to increase or clockwise
to decrease pilot flame. Be sure to replace cover screw after adjustment to prevent possible
gas leakage.

The burners and pilot should be checked for signs of corrosion, rust or scale buildup.
The area around the boiler must be kept clear and free of combustible materials, gasoline
and other flammable vapors and liquids.
The free flow of combustion and ventilating air to the boiler and boiler room must not be
restricted or blocked.
It is recommended that a qualified service agency be employed to make an annual
inspection of the boiler and heating system. They are experienced in making the inspections
outlined above, and, in the event repairs or corrections are necessary, trained technicians
can make the proper changes for safe operation of the boiler.
PAGE 19
FIGURE 22
FIGURE 21
CHECKING GAS INPUT RACHECKING GAS INPUT RA
CHECKING GAS INPUT RACHECKING GAS INPUT RA
CHECKING GAS INPUT RATE TE
TE TE
TE TT
TT
TO BOILERO BOILER
O BOILERO BOILER
O BOILER
Gas input to the boiler can be adjusted by removing the protective cap on the pressure
regulator, (See figures 14, 15, & 16 on pages 14 & 15), and turning the screw clockwise
to increase input and counterclockwise to decrease input. Natural gas
manifold pressure should be set at approximately 3.5 inches water column. Propane gas
manifold pressure should be set at approximately 11.0 inches water column. These manifold
pressures are taken at the outlet side of the gas valve. See figures15 & 17 on pages14 &
15. To check for proper flow of natural gas to the boiler, divide the input rate shown on the
rating plate by the heating value of the gas obtained from the local gas company. This will
determine the number of cubic feet of gas required per hour. With all other gas appliances
off, determine the flow of gas through the meter for two minutes and multiply by 30 to get
the hourly rate. Make minor adjustments to the gas input as described above.
Burner orifices should be changed if the final manifold pressure varies more than plus or
minus 0.3 inches water column from the specified pressure.
Primary air adjustment is not necessary, therefore air shutters are not furnished as standard
equipment. Air shutters can be furnished on request where required by local codes or
conditions.

PAGE 20
CHECK SAFETY CONTROL CIRCUIT, after burner adjustments are made, for satisfactory
operation.
1. Pilot: With main burner operating, turn the pilot gas adjusting screw clockwise
until pilot gas is turned off. See figures 14, 15, & 16 on pages 14 & 15. Within 90 seconds
the main gas control should close, shutting off the gas to the main burner.
2. High limit control (figure 22 on page 19). Remove cover and note temperature setting.
Decrease this setting to minimum and operate boiler. When the boiler water temperature
exceeds the control temperature setting, the control will open the circuit, closing the
automatic main gas valve.
ITEM PART
NO. NO. DESCRIPTION OTY.
1 3262001 TEMP. SENSOR BRACKET 1
2 AQ02101 CONTROL-FIXED TEMPERATURE 1
THERMO (ROLLOUT SWITCH)
3 HW06501 SCREW - #6 X1/4 HEX HD 2
THE ROLLOUT SWITCH IS LOCATED ON THE BASE AND FLUE COLLECTOR
NOTE: THE QUANTITIES ABOVE ARE FOR EACH SWITCH.
FIGURE 23
MGB SERIES REPLAMGB SERIES REPLA
MGB SERIES REPLAMGB SERIES REPLA
MGB SERIES REPLACEMENT PCEMENT P
CEMENT PCEMENT P
CEMENT PARAR
ARAR
ARTSTS
TSTS
TS
RR
RR
ROLLOLL
OLLOLL
OLLOUT & SPILL SWITOUT & SPILL SWIT
OUT & SPILL SWITOUT & SPILL SWIT
OUT & SPILL SWITCHCH
CHCH
CH

MGB SERIES REPLAMGB SERIES REPLA
MGB SERIES REPLAMGB SERIES REPLA
MGB SERIES REPLACEMENT PCEMENT P
CEMENT PCEMENT P
CEMENT PARAR
ARAR
ARTS - PILTS - PIL
TS - PILTS - PIL
TS - PILOO
OO
OTSTS
TSTS
TS
FIGURE 25
PAGE 21
1 1520001 THERMOCOUPLE Q309A 1
2 HW-009.01 SCREW #8-18X1/2 4
3 PB-011.03 PILOT STDG Q380 NAT 1
PB-011.04 PILOT STDG Q380 LP
ITEM PART
# NUMBER DESCRIPTION OTY. ITEM PART
# NUMBER DESCRIPTION OTY.
4 32622001 PILOT BRACKET ASSY 24V 1
(THIS INCLUDES #5 & 2 SCREWS)
5 3261401 PILOT SHIELD 1
6 MS-003.03 PILOT TUBE 1/4"X20.1/2" AL. 1
1 32623601 PILOT BRACKET ASSY SPARK 1
2 PB-011.01 PILOT SPARK Q381 NAT 1
PB-011.02 PILOT SPARK Q381 LP
ITEM PART
# NUMBER DESCRIPTION OTY. ITEM PART
# NUMBER DESCRIPTION OTY.
3 HW-009.01 SCREWS #8-18X1/2 2
4 PB00702 PILOT IGNITION CABLE 30" 1
5 MS-003.03 PILOT TUBE 1/4"X20.1/2" AL. 1
FIGURE 24

MGB SERIES REPLAMGB SERIES REPLA
MGB SERIES REPLAMGB SERIES REPLA
MGB SERIES REPLACEMENT PCEMENT P
CEMENT PCEMENT P
CEMENT PARAR
ARAR
ARTS - BTS - B
TS - BTS - B
TS - BASEASE
ASEASE
ASE
FIGURE 26
PAGE 22
1 3352401 BURNER TUBE 1.3/4"
MGB50 (1) MGB75 (2) MGB100 (2)
MGB125 (3) MGB150 (3) MGB175 (4)
MGB200 (4) MGB250 (5) MGB300 (6)
2 5611601 BASE W/INSUL MGB50 1
5611602 BASE W/INSUL MGB75&100
5611603 BASE W/INSUL MGB125&150
5611604 BASE W/INSUL MGB175&200
5611605 BASE W/INSUL MGB225&250
5611606 BASE W/INSUL MGB275&300
3 3261201 BURNER DOOR MGB50 1
3262701 BURNER DOOR MGB75&100
3262801 BURNER DOOR MGB125&150
32621001 BURNER DOOR MGB175&200
32621002 BURNER DOOR MGB250
32621003 BURNER DOOR MGB300
4 356-2-1.01 MANIFOLD MGB50 1
356-2-1.02 MANIFOLD MGB75&100
356-2-1.03 MANIFOLD MGB125&150
356-2-1.04 MANIFOLD MGB175&200
356-2-1.05 MANIFOLD MGB225&250
356-2-1.0\6 MANIFOLD MGB275&300
5 HW-005.01 SCREW 1/4-20X1/2 SELF TAP 4
ITEM PART
# NUMBER DESCRIPTION OTY.
ITEM PART
# NUMBER DESCRIPTION OTY.
6 VG-003.05 GAS VALVE VR8200H 1
MGB50-150 24V NAT
VG00307 GAS VALVE VR8200H
MGB50-300 24V LP
VG01101 GAS VALVE VR8204H
MGB50-150 SPARK NAT
VG01103 GAS VALVE VR8304H4
MGB175-300 SPARK NAT
VG01104 GAS VALVE VR8304
MGB50-300 SPARK LP
VG01201 GAS VALVE VR8300H4
MGB250 & 300 24V NAT
VG01202 GAS VALVE VR8300H4
MGB175 & 200 24V NAT
7 355-1-5.01 ORIFICE #30 NAT 1
MGB50, 100, 150, 200, 250, & 300
355-1-5.02 ORIFICE #31 NAT
MGB125&175
355-1-5.03 ORIFICE #33 NAT MGB75
355-1-5.04 ORIFICE #47 LP
MGB50, 100, 150, 200, 250, & 300
355-1-5.06 ORIFICE #49 LP MGB125&175
355-1-5.07 ORIFICE #50 LP MGB75

MGB SERIES REPLAMGB SERIES REPLA
MGB SERIES REPLAMGB SERIES REPLA
MGB SERIES REPLACEMENT PCEMENT P
CEMENT PCEMENT P
CEMENT PARAR
ARAR
ARTS - JTS - J
TS - JTS - J
TS - JAA
AA
ACKETSCKETS
CKETSCKETS
CKETS
FIGURE 27
PAGE 23
1 31621501 PANEL - TOP MGB50 1
31621502 PANEL - TOP MGB75 & 100
31621503 PANEL - TOP MGB125
31621504 PANEL - TOP MGB150
31621505 PANEL - TOP MGB175 & 200
31621506 PANEL - TOP MGB225 & 250
31621507 PANEL - TOP MGB275 & 300
2 3162704 PANEL - LEFT MGB225-300 1
3162706 PANEL - LEFT MGB(L)50-200
3162707 PANEL - LEFT MGB(L)225-300
3162708 PANEL - LEFT MGB50-200
3 3162501 DRAFT DEFLECTOR MGB50 1
3162502 DRAFT DEFLECTOR MGB75/100
3162503 DRAFT DEFLECTOR MGB125/150
3162504 DRAFT DEFLECTOR MGB175/200
3162505 DRAFT DEFLECTOR MGB225/250
3162506 DRAFT DEFLECTOR MGB275/300
4 3161101 PNL LWR ACCES MGB50 1
3161102 PNL LWR ACCES MGB75/100
3161103 PNL LWR ACCES MGB125/150
3161104 PNL LWR ACCES MGB175/200
3161105 PNL LWR ACCES MGB225/250
3161106 PNL LWR ACCES MGB275/300
5 3161201 PANEL - BASE MGB50 1
3161202 PANEL - BASE MGB75 & 100
3161203 PANEL - BASE MGB125 & 150
3161204 PANEL - MGB175 & 200
3161205 PANEL - BASE MGB225 &250
3161206 PANEL - BASE MGB275 & 300
ITEM PART
# NUMBER DESCRIPTION OTY. ITEM PART
# NUMBER DESCRIPTION OTY.
6 3162705 PANEL - RIGHT MGB 50-200 1
3162703 PANEL - RIGHT MGB 225-300
7 3162601 PANEL - REAR MGB50 1
3162602 PANEL - REAR MGB75 & 100
3162603 PANEL - REAR MGB125 & 150
3162604 PANEL - REAR MGB175 & 200
3162605 PANEL - REAR MGB225 & 250
3162606 PANEL - REAR MGB275 & 300
8 3462101 FLUE COL MGB50 1
3462102 FLUE COL MGB100
3462103 FLUE COL MGB150
3462104 FLUE COL MGB200
3462105 FLUE COL MGB225 & 250
3462106 FLUE COL MGB275 & 300
3462107 FLUE COL MGB125
3462108 FLUE COL MGB75
3462109 FLUE COL MGB175
9 1182004 DAMPER 4" MGB50 1
1182005 DAMPER 5" MGB75
1182006 DAMPER 6" MGB100 & 125
1182007 DAMPER 7" MGB150 & 175
1182008 DAMPER 8" MGB200, 225, & 250
1182009 DAMPER 9" MGB 275 & 300
10 31621201 PNL- UPPER ACCESS MGB50 1
31621202 PNL- UPPER ACCESS MGB75&100
31621203 PNL- UPPER ACCESS MGB125
31621204 PNL- UPPER ACCESS MGB150
31621205 PNL- UPPER ACCESS MGB175 & 200
31621206 PNL- UPPER ACCESS MGB225 & 250
31621207 PNL- UPPER ACCESS MGB275 & 300

MGB SERIES REPLAMGB SERIES REPLA
MGB SERIES REPLAMGB SERIES REPLA
MGB SERIES REPLACEMENT PCEMENT P
CEMENT PCEMENT P
CEMENT PARAR
ARAR
ARTSTS
TSTS
TS
HEAHEA
HEAHEA
HEAT EXT EX
T EXT EX
T EXCHANGERCHANGER
CHANGERCHANGER
CHANGER
FIGURE 28
PAGE 24
ITEM NO P/N DESCRIPTION QTY.
1 100-2-2.01 B-LEFT HAND SECTION 1
2 100-2-1.01 B-CENTER SECTION
MGB50 (0) MGB75 (1) MGB100 (1) MGB125 (2)
MGB150 (2) MGB175 (3) MGB200 (3) MGB225 (4)
MGB250 (4) MGB275 (5) MGB300 (5)
3 100-2-3.01 B-RIGHT SECTION 1
4 HW-011.01 TIE ROD 1/4X11.1/2 MGB75 & 100 2
HW-011.03 TIE ROD 1/4X15.1/2 MGB125 & 150
HW-011.05 TIE ROD 1/4X19.1/2 MGB175 & 200
HW-011.07 TIE ROD 1/4X23 MGB225 & 250
HW-011.09 TIE ROD 1/4X27 MGB275 & 300
5 HW06901 NUT 5/16-18 WISLOCK 6
643300976 PUSH NIPPLE 2" MACH.
MGB50 (2) MGB75 (4) MGB100 (4) MGB125 (6)
MGB150 (6) MGB175 (8) MGB200 (8) MGB225 (10)
MGB250 (10) MGB275 (12) MGB300 (12)
7 3461601 BAFFLE (USED ON MGB75 & MGB175 ONLY)
MGB75(4) 2 per flueway MGB175 (4) 1 per flueway
8 HW-008.01 WASH-5/16 FLAT STL ZP 4
9 HW-003.02 NUT-1/4-20 HEX-STL ZP 2
FULLY ASSEMBLED HEAT EXCHANGERS
100-2-7.01 HEAT EXCHANGER 3 SECTION
100-2-7.02 HEAT EXCHANGER 4 SECTION
100-2-7.03 HEAT EXCHANGER 5 SECTION
100-2-7.04 HEAT EXCHANGER 6 SECTION
100-2-7.05 HEAT EXCHANGER 7 SECTION
100-2-7.06 HEAT EXCHANGER 2 SECTION

MGB SERIES REPLAMGB SERIES REPLA
MGB SERIES REPLAMGB SERIES REPLA
MGB SERIES REPLACEMENT PCEMENT P
CEMENT PCEMENT P
CEMENT PARAR
ARAR
ARTSTS
TSTS
TS
PIPING & CONTROLSPIPING & CONTROLS
PIPING & CONTROLSPIPING & CONTROLS
PIPING & CONTROLS
FIGURE 29
PAGE 25
ITEM NO P/N DESCRIPTION QTY.
1 37513301 WIRE ROLLOUT/SPILL 28" 2
2 37413602 HARNESS IGN TO G/V 18" 1
3 PB00702 PILOT IGNITION CABLE 30" 1
4 PF-006.07 PIPE - NPL 1.1/4X4.1/2 NPT 1
5 HW-016.03 DRAIN - SHORT 1
6 PF-008.03 PIPE - TEE 1.1/4X3/4X1.1/4 1
7 PF-006.01 PIPE - 1.1/4" CLOSE NPL 1
8 375-1-14.01 WIRE LOW VOLTAGE/DAMPER 1
9 37519501 HARNESS CIRCULATOR 72" 1
10 1010002 CONTROL L8148E1257 (AQUASTAT) 1
11 VR-001.01 RELIEF VALVE 30# 1
12 AQ-020.01 WELL 3/4"X3" 1
13 GA-001.00 GAUGE - THERALTIMETER 1
14 PF-005.11 PIPE - NPL 3/4"X4" 1
15 PF-002.04 PIPE - ELBOW 3/4" 90° 1
16 EF03601 CLAMP #3600 WHITE 2
17 PB00604 PLT SPARK CTRL S8600 1

§ § § ** †∆∆
∆∆
∆Natural Propane
Boiler A.G.A. Heating I=B=R NetRating No. Recommended Gas Orifice Water
No. Input Capacity NetOutput Sq. Ft. HW of Air Cushion Orifice Drill Content
Btu/Hr. Btu/Hr. Btu/Hr @ 170
o
Burners Tank Drill Size Size (Gals.)
MGB 50 50,000 42,000 37,000 243 1 15 30 47 2.4
MGB 75 75,000 63,000 55,000 365 2 15 33 50 4.0
MGB 100 100,000 83,000 72,000 481 2 30 30 47 4.0
MGB 125 125,000 104,000 90,000 603 3 30 31 49 5.6
MGB 150 150,000 124,000 108,000 719 3 30 30 47 5.6
MGB 175 175,000 143,000 124,000 829 4 30 31 49 7.2
MGB 200 200,000 165,000 143,000 957 4 30 30 47 7.2
MGB 250 250,000 205,000 178,000 1189 5 30 30 47 8.8
MGB 300 299,999 243,000 214,000 1368 6 60 30 47 10.4
RARA
RARA
RATINGS TINGS
TINGS TINGS
TINGS AND DAND D
AND DAND D
AND DAA
AA
ATT
TT
TAA
AA
A
NN
NN
NAA
AA
ATURAL GAS TURAL GAS
TURAL GAS TURAL GAS
TURAL GAS AND PRAND PR
AND PRAND PR
AND PROPOP
OPOP
OPANE GASANE GAS
ANE GASANE GAS
ANE GAS
STANDARD EQUIPMENT: Boiler Jacket, Cast Iron Boiler Battery, Combination Aquastat Relay, Theraltimeter
Gauge,Circulator with return piping to boiler, Main Gas Burners, Combination 24 Volt Gas Control (includes
automatic gas valve, gas pressure regulator, automatic pilot, safety shutoff, pilot flow adjustment, pilotfilter),
A.S.M.E. Relief Valve, Drain Cock, Spill Switch, Rollout Switch, Automatic Vent damper. Not shown are
a wiring harness, thermocouple, and non-linting safety pilot.
OPTIONAL EQUIPMENT: Intermittent Electric Ignition Pilot System.
EXPLANATORY NOTES
--All boilers are design certified for installation on noncombustible floor.
--For installation on combustible floors use combustible floor kit.
--Recommended chimney height 20 feet. In special cases where conditions permit, chimney height may
be reduced to 10 feet. Refer to the latest revision of NFGC part 11.
--Electric service to be 120 Volts, 15 Amps, 60 Hz.
--The MEA number for the MGB series boiler is 19-79 Vol. II
§For elevations above 2000 feet, ratings should be reduced at a rate of 4% for each 1000 feet above sea
level.
∆∆
∆∆
∆Tank sized for non-ferrous baseboard or radiant panel systems. Increase size for cast iron baseboard
and radiation.
†Base on 170' temperature in radiators.
--Net I=B=R ratings include 15% allowance for normal piping and pick-up load. Manufacturer should be
consulted on installations having otherthan normal piping and pick-up requirements.
**For equivalent square feet of radiation, divide I=B=R output by 150.
PAGE 26

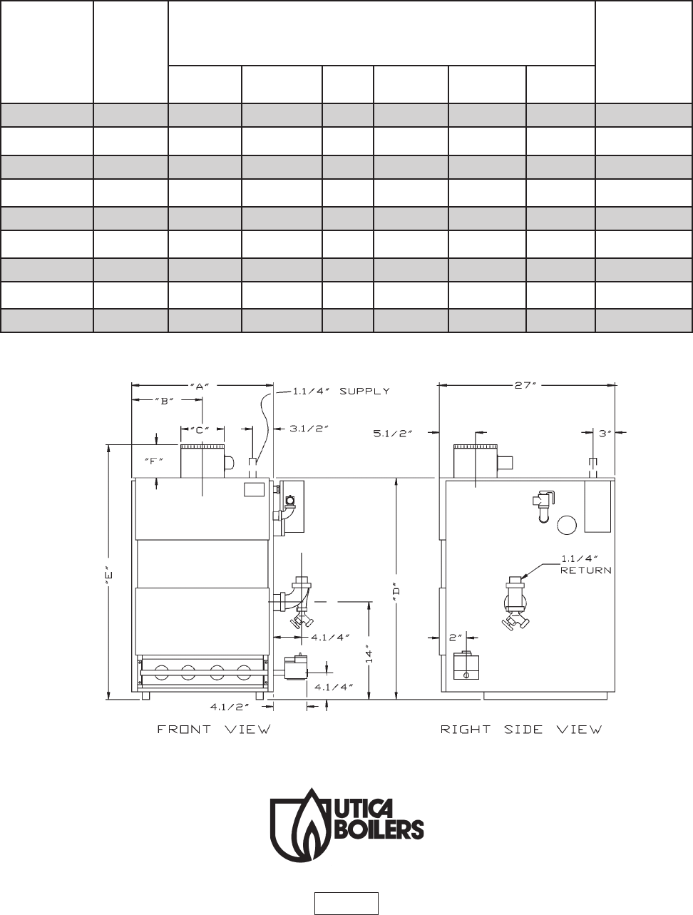
*
Pump size
Boiler Natural Dimensions Supply &
No. Gas Return
Inlet A B C D E F Tappings
MGB 50 1/2" 11.1/8" 5.1/2" 4" 30.3/4" 36.1/4" 6" 1.1/4"
MGB 75 1/2" 15 7.1/2" 5" 30.3/4" 37.3/4" 6" 1.1/4"
MGB 100 1/2" 15 7.1/2" 6" 30.3/4" 37.1/4" 6.1/2" 1.1/4"
MGB 125 1/2" 18.7/8" 9.1/2" 6" 30.3/4" 37.1/4" 6.1/2" 1.1/4"
MGB 150 1/2" 18.7/8" 9.1/2" 7" 30.3/4" 37.3/4" 7" 1.1/4"
MGB 175 1/2" 22.3/4" 11.3/8" 7" 30.3/4" 38.3/4" 7" 1.1/4"
MGB 200 1/2" 22.3/4" 11.3/8" 8" 30.3/4" 38.3/4" 8" 1.1/4"
MGB 250 3/4" 265.8" 13.1/4" 8" 32.3/4" 40.3/4" 8" 1.1/4"
MGB 300 3/4" 30.1/2" 15.1/4" 9" 32.3/4" 42.3/4" 10" 1.1/4"
MGB SERIESMGB SERIES
MGB SERIESMGB SERIES
MGB SERIES
DIMENSIONS FOR NDIMENSIONS FOR N
DIMENSIONS FOR NDIMENSIONS FOR N
DIMENSIONS FOR NAA
AA
ATURAL GAS TURAL GAS
TURAL GAS TURAL GAS
TURAL GAS AND PRAND PR
AND PRAND PR
AND PROPOP
OPOP
OPANE GASANE GAS
ANE GASANE GAS
ANE GAS
*Propane gas inlet, all units, 1/2"
37611601 PAGE 27 REV 14.1, May 2004
Solutions you can be comfortable with.