Valcom Intercom System Vsp V 2925A Users Manual
V-2925A V-2925A
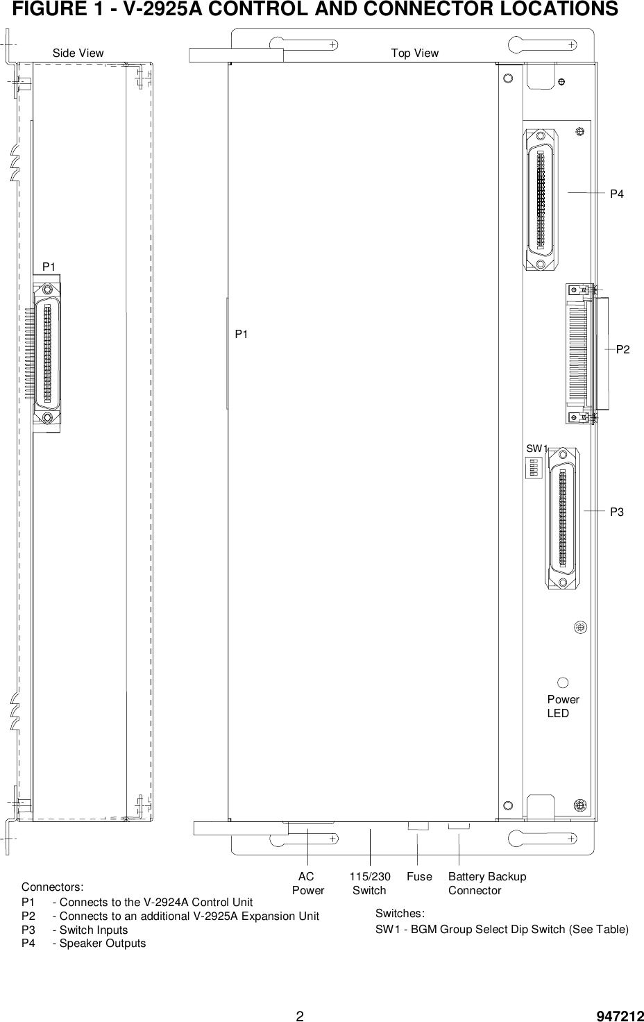
Valcom V-2925A Talkback Intercom System ADD On Expansion Unit for the V-2924A Installation Manual Valcom-V-2925A-Intercom-System-Installation-Manual Valcom Page Control V-xxxx Series - Telecomuserguides.com
VSP-V-2925A to the manual 3de1b0ad-d79d-454f-8892-65a2a1fae2ac
2015-02-03
: Valcom Valcom-Intercom-System-Vsp-V-2925A-Users-Manual-457320 valcom-intercom-system-vsp-v-2925a-users-manual-457320 valcom pdf
Open the PDF directly: View PDF .
Page Count: 6





