Vanguard Heating Gas Log Heater Users Manual
Gas Log Heater to the manual d20db94a-426c-0c94-a5e2-531b5dfc5200
2015-02-03
: Vanguard-Heating Vanguard-Heating-Gas-Log-Heater-Users-Manual-457371 vanguard-heating-gas-log-heater-users-manual-457371 vanguard-heating pdf
Open the PDF directly: View PDF
.
Page Count: 36

Save this manual for future reference.
UNVENTED (VENT-FREE)
NATURAL GAS LOG HEATER
WARNING: If the information in this
manual is not followed exactly, a fire or
explosion may result causing property
damage, personal injury, or loss of life.
— Do not store or use gasoline or other
flammable vapors and liquids in the
vicinity of this or any other appliance.
— WHAT TO DO IF YOU SMELL GAS
• Do not try to light any appliance.
• Do not touch any electrical switch; do
not use any phone in your building.
• Immediately call your gas supplier
from a neighbor’s phone. Follow the
gas supplier’s instructions.
• If you cannot reach your gas sup-
plier, call the fire department.
— Installation and service must be per-
formed by a qualified installer, service
agency, or the gas supplier.
WARNING: Improper installation, adjust-
ment, alteration, service, or maintenance
can cause injury or property damage.
Refer to this manual for correct installa-
tion and operational procedures. For
assistance or additional information con-
sult a qualified installer, service agency,
or the gas supplier.
WARNING: This gas log set is for instal-
lation in a masonry solid fuel burning
fireplace, a U.L. listed manufactured
solid fuel burning fireplace or an AGA
design certified vent-free firebox listed
for use with these gas log models.
WARNING: This is an unvented gas-
fired heater. It uses air (oxygen) from
the room in which it is installed. Provi-
sions for adequate combustion and ven-
tilation air must be provided. Refer to
Air for Combustion and Ventilation
sec-
tion in this manual.
18" and 24" Variable
Manually-Controlled Models
FLAME-MAX™
Vintage Oak
Log Design
OWNER’S OPERATION AND INSTALLATION MANUAL
Models Also Designed Certified as Vented Decorative Appliances
This appliance may be installed in an aftermarket* manufactured (mobile) home, where
not prohibited by state or local codes. This appliance is only for use with the type of gas
indicated on the rating plate. This appliance is not convertible for use with other gases.
* Aftermarket: Completion of sale, not for purpose of resale, from the manufacturer
®
Patent Pending
FLAME-MAX™
Golden Oak Log
Design
18", 24", and 30" Variable
Manually-Controlled Model 18", 24", and 30" Variable
Manually-Controlled Model
FLAME-MAX™
Birch
Log Design
®

2
103515
CONTENTS SECTION PAGE
SAFETY
INFORMATION
WARNING ICON G 001
WARNINGS
IMPORTANT: Read this owner’s manual carefully and completely before
trying to assemble, operate, or service this heater. Improper use of this
heater can cause serious injury or death from burns, fire, explosion,
electrical shock, and carbon monoxide poisoning.
WARNING ICON G 001
DANGER
Carbon monoxide poisoning may lead to death!
Carbon Monoxide Poisoning: Early signs of carbon monoxide poisoning resemble
the flu, with headaches, dizziness, or nausea. If you have these signs, the heater may not
be working properly. Get fresh air at once! Have heater serviced. Some people are more
affected by carbon monoxide than others. These include pregnant women, people with
heart or lung disease or anemia, those under the influence of alcohol, and those at high
altitudes.
Natural Gas: Natural gas is odorless. An odor-making agent is added to the gas. The odor
helps you detect a gas leak. However, the odor added to the gas can fade. Gas may be present
even though no odor exists.
Make certain you read and understand all Warnings. Keep this manual for reference. It is
your guide to safe and proper operation of this heater.
Safety Information continues on next page
Safety Information ................................................................................... 2
Product Identification .............................................................................. 4
Local Codes ............................................................................................. 5
Unpacking................................................................................................ 5
Product Features ...................................................................................... 5
Air for Combustion and Ventilation ........................................................ 5
Installing .................................................................................................. 9
Check Gas Type ............................................................................... 9
Installation and Clearances (Vent-Free Operation Only) ................. 10
Installing Damper Clamp Accessory for Vented Operation ............ 14
Installing Heater Base Assembly ..................................................... 15
Connecting to Gas Supply ................................................................ 17
Checking Gas Connections .............................................................. 18
Installing Logs .................................................................................. 20,21
Operating Heater ..................................................................................... 22
Inspecting Burners ................................................................................... 24
Cleaning and Maintenance ...................................................................... 25
Troubleshooting....................................................................................... 25
Technical Service .................................................................................... 28
Specifications .......................................................................................... 29
Service Hints ........................................................................................... 29
Replacement Parts ................................................................................... 29
Illustrated Parts Lists ............................................................................... 30-33
Accessories .............................................................................................. 34
Warranty Information .............................................................................. Back Cover

3
103515
SAFETY
INFORMATION
Continued
WARNING ICON G 001
WARNINGS
Continued
WARNING: Any change to this heater or its controls can be dangerous.
1. This appliance is only for use with the type of gas indicated on the rating plate. This
appliance is not convertible for use with other gases.
2. If you smell gas
• shut off gas supply
• do not try to light any appliance
• do not touch any electrical switch; do not use any phone in your building
• immediately call your gas supplier from a neighbor’s phone. Follow the gas
supplier’s instructions
• if you cannot reach your gas supplier, call the fire department
3. This heater shall not be installed in a bedroom or bathroom unless installed as a
vented appliance (see page 14).
4. Never install the heater
• in a recreational vehicle
• where curtains, furniture, clothing, or other flammable objects are less than 36
inches from the front, top, or sides of the heater
• in high traffic areas
• in windy or drafty areas
5. Before installing in a solid fuel burning fireplace, the chimney flue and firebox must be
cleaned of soot, creosote, ashes and loose paint by a qualified chimney cleaner. Creosote
will ignite if highly heated. Inspect chimney flue for damage. If damaged, operate heater
with flue damper closed.
6. If fireplace has glass doors, never operate this heater with glass doors closed. If you
operate heater with doors closed, heat buildup inside fireplace will cause glass to burst.
Also if fireplace opening has vents at the bottom, you must open the vents before
operating heater.
7. You must operate this heater with a fireplace screen in place. Make sure fireplace screen
is closed before running heater.
8. This log heater is designed to be smokeless. If logs ever appear to smoke, turn off heater
and call a qualified service person.
Note:
During initial operation, slight smoking could
occur due to log curing and heater burning manufacturing residues.
9. Do not allow fans to blow directly into the fireplace. Avoid any drafts that alter burner
flame patterns. Ceiling fans can create drafts that alter burner flame patterns. Altered
burner patterns can cause sooting.
10. Do not use a blower insert, heat exchanger insert or other accessory not approved for use
with this heater.
11. This heater needs fresh, outside air ventilation to run properly. This heater has an oxygen
depletion sensor (ODS) pilot light safety system. The ODS shuts down the heater if not
enough fresh air is available. See Air for Combustion and Ventilation, pages 5 through
8. If heater keeps shutting off, see Troubleshooting, pages 25 through 28.
12. Do not run heater
• where flammable liquids or vapors are used or stored
• under dusty conditions
13. Do not use this heater to cook food or burn paper or other objects.
14. Never place any objects on the heater.
15. Heater base assembly becomes very hot when running heater. Keep children and adults
away from hot surface to avoid burns or clothing ignition. Heater will remain hot for
a time after shut-down. Allow surface to cool before touching.
16. Carefully supervise young children when they are in the room with heater.
17. Do not use heater if any part has been exposed to or under water. Immediately call a
qualified service technician to inspect the room heater and to replace any part of the
control system and any gas control which has been under water.
18. Do not operate heater if any log is broken. Do not operate heater if a log is chipped (dime-
sized or larger).
19. Turn heater off and let cool before servicing. Only a qualified service person should
service and repair heater.
20. Operating heater above elevations of 4,500 feet could pilot outage.

4
103515
PRODUCT
IDENTIFICATION
Figure 1 - Product Identification
Control Knob
Back Log
Base Assembly
Piezo Ignitor
Burner
Crossover Log
Front Log
Flame-Max
Standard Oak
Logs
Flame-Max
Golden
Oak Logs
Flame-Max
Birch Logs
Control Knob
Piezo Ignitor
One Piece
Log Set
One Piece
Log Set
Control Knob
Piezo Ignitor
Base Assembly
Base Assembly

5
103515
LOCAL CODES Install and use heater with care. Follow all local codes. In the absence of local
codes, use the latest edition of The National Fuel Gas Code ANSI Z223, also
known as NFPA 54*.
*Available from: American National Standards Institute, Inc.
1430 Broadway
New York, NY 10018
National Fire Protection Association, Inc.
Batterymarch Park
Quincy, MA 02269
1. Remove logs and heater base assembly from carton.
Note:
Do not pick up
heater base assembly by the burner. This could damage heater. Always handle
base assembly by grate.
2. Remove all protective packaging applied to logs and heater for shipment.
3. Check all items for any shipping damage. If damaged, promptly inform dealer
where you bought heater.
UNPACKING
Operation
This heater is clean burning. It requires no outside venting. There is no heat loss out
a vent or up a chimney. Heat is generated by realistic, dancing yellow flames. This
heater is designed for vent-free operation with flue damper closed. State and local
codes in some areas prohibit the use of vent-free heaters. You can operate heater as
a vented product by opening flue damper.
Safety Pilot
This heater has a pilot with an Oxygen Depletion Sensor Shutoff System (ODS).
The ODS/pilot is a required feature for vent-free room heaters. The ODS/pilot
shuts off the heater if there is not enough fresh air.
Piezo Ignition System
This heater has a piezo ignitor. This system requires no matches, batteries, or
other sources to light heater.
PRODUCT
FEATURES
Continued
AIR FOR
COMBUSTION
AND
VENTILATION
WARNING
This heater shall not be installed in a confined space unless
provisions are provided for adequate combustion and ventila-
tion air. Read the following instructions to insure proper fresh
air for this and other fuel-burning appliances in your home.
Today’s homes are built more energy efficient than ever. New materials, in-
creased insulation, and new construction methods help reduce heat loss in homes.
Home owners weather strip and caulk around windows and doors to keep the cold
air out and the warm air in. During heating months, home owners want their
homes as airtight as possible.
While it is good to make your home energy efficient, your home needs to breathe.
Fresh air must enter your home. All fuel-burning appliances need fresh air for
proper combustion and ventilation.
Exhaust fans, fireplaces, clothes dryers, and fuel burning appliances draw air
from the house to operate. You must provide adequate fresh air for these appli-
ances. This will insure proper venting of vented fuel-burning appliances.

6
103515
PROVIDING ADEQUATE VENTILATION
The following is exerpts from National Fuel Gas Code. NFPA 54/ANSI Z223.1,
Section 5.3, Air for Combustion and Ventilation.
All spaces in homes fall into one of the three following ventilation classifications:
1. Unusually Tight Contruction; 2. Unconfined Space; 3. Confined Space.
The information on pages 5 through 8 will help you classify your space and provide
adequate ventilation.
Unusually Tight Construction
The air that leaks around doors and windows may provide enough fresh air for
combustion and ventilation. However, in buildings of unusually tight construc-
tion, you must provide additional fresh air.
Unusually tight construction is defined as construction where:
a. walls and ceilings exposed to the outside atmosphere have a con-
tinuous water vapor retarder with a rating of one perm (6x10-11 per
pa•sec•m2) or less with openings gasketed or sealed
and
b. weather stripping has been added on openable windows and doors
and
c. caulking or sealants are applied to areas such as joints around window
and door frames, between sole plates and floors, between wall-ceiling
joints, between wall panels, at penetrations for plumbing, electrical, and
gas lines, and at other openings.
If your home meets all of the three criteria above, you must provide addi-
tional fresh air. See
Ventilation Air From Outdoors
, page 8.
If your home does not meet all of the three criteria above, proceed to page 7.
Confined and Unconfined Space
The National Fuel Gas Code (ANSIZ223.1, 1992 Section 5.3) defines a confined space
as a space whose volume is less than 50 cubic feet per 1,000 Btu per hour (4.8 m3 per
kw) of the aggregate input rating of all appliances installed in that space and an
unconfined space as a space whose volume is not less than 50 cubic feet per 1,000 Btu
per hour (4.8 m3 per kw) of the aggregate input rating of all appliances installed in that
space. Rooms communicating directly with the space in which the appliances are
installed*, through openings not furnished with doors, are considered a part of the
unconfined space.
* Adjoining rooms are communicating only if there are doorless passageways or
ventilation grills between them.
AIR FOR
COMBUSTION
AND
VENTILATION
Continued

7
103515
AIR FOR
COMBUSTION
AND
VENTILATION
Continued
DETERMINING AIR FLOW FOR HEATER LOCATION
Determining if You Have a Confined or Unconfined Space
Use this work sheet to determine if you have a confined or unconfined space.
Space: Includes the room in which you will install heater plus any adjoining rooms with
doorless passageways or ventilation grills between the rooms.
1. Determine the volume of the space (length x width x height).
Length x Width x Height = ___________________ cu. ft. (volume of space)
Example:
Space size 20 ft. (length) x 16 ft. (width) x 8 ft. (ceiling height) =
2560 cu. ft. (volume of space)
If additional ventilation to adjoining room is supplied with grills or openings, add the
volume of these rooms to the total volume of the space.
2. Divide the space volume by 50 cubic feet to determine the maximum Btu/Hr the space
can support.
____________ (volume of space) ÷ 50 cu. ft. = (maximum Btu/Hr the space can support)
Example:
2560 cu. ft. (volume of space) ÷ 50 cu. ft. = 51.2 or 51,200 (maximum
Btu/Hr the space can support)
3. Add the Btu/Hr of all fuel burning appliances in the space.
Vent-free heater ___________________ Btu/Hr
Gas water heater* ___________________ Btu/Hr
Gas furnace ___________________ Btu/Hr
Vented gas heater ___________________ Btu/Hr
Gas fireplace logs ___________________ Btu/Hr
Other gas appliances* +___________________ Btu/Hr
Total =___________________ Btu/Hr
Example:
Gas water heater 40,000 Btu/Hr
Vent-free heater +31,500 Btu/Hr
Total =71,500 Btu/Hr
* Do not include direct-vent gas appliances. Direct-vent draws combustion air from the
outdoors and vents to the outdoors.
4. Compare the maximum Btu/Hr the space can support with the actual amount of Btu/Hr
used.
_________________ Btu/Hr (maximum the space can support)
_________________ Btu/Hr (actual amount of Btu/Hr used)
Example:
51,200 Btu/Hr (maximum the space can support)
71,500 Btu/Hr (actual amount of Btu/Hr used)
The space in the above example is a confined space because the actual Btu/Hr used is more
than the maximum Btu/Hr the space can support. You must provide additional fresh air.
Your options are as follows:
A. Rework worksheet, adding the space of an adjoining room. If the extra space provides
an unconfined space, remove door to adjoining room or add ventilation grills between
rooms. See Ventilation Air From Inside Building, page 8.
B. Vent room directly to the outdoors. See Ventilation Air From Outdoors, page 8.
C. Install a lower Btu/Hr heater, if lower Btu/Hr size makes room unconfined.
If the actual Btu/Hr used is less than the maximum Btu/Hr the space can support, the
space is an unconfined space. You will need no additional fresh air ventilation.

8
103515
WARNING
If the area in which the heater may be operated is smaller than
that defined as an unconfined space, provide adequate combus-
tion and ventilation air by one of the methods described in the
National Fuel Gas Code, ANSI Z223.1, 1992, Section 5.3
or appli-
cable local codes.
AIR FOR
COMBUSTION
AND
VENTILATION
Continued
Figure 3 - Ventilation Air from Outdoors
Ventilation Air From Outdoors
Provide extra fresh air by using ventilation grills or ducts. You must provide two perma-
nent openings: one within 12" of the ceiling and one within 12" of the floor. Connect these
items directly to the outdoors or spaces open to the outdoors. These spaces include attics
and crawl spaces.
IMPORTANT:
Do not provide openings for inlet or outlet air into attic if attic has a
thermostat-controlled power vent. Heated air entering the attic will activate the power
vent.
Figure 2 - Ventilation Air from Inside Building
Outlet
Air
Ventilated
Attic
Outlet
Air
Inlet
Air
Inlet Air Ventilated
Crawl Space
To
Crawl
Space
To Attic
Or
Remove
Door into
Adjoining
Room,
Option
3
Ventilation Grills
Into Adjoining Room,
Option 2
Ventilation
Grills
Into Adjoining
Room,
Option 1
12"
12"
VENTILATION AIR
Ventilation Air From Inside Building
This fresh air would come from an adjoining unconfined space. When ventilating to an
adjoining unconfined space, you must provide two permanent openings: one within 12" of the
ceiling and one within 12" of the floor on the wall connecting the two spaces (see options 1
and 2, Figure 2). You can also remove door into adjoining room (see option 3, Figure 2).
Follow the National Fuel Gas Code NFPA 54/ANSI Z223.1, Section 5.3, Air for Combustion
and Ventilation for required size of ventilation grills or ducts.
WARNING
Rework worksheet, adding the space of the adjoining unconfined
space.
The combined spaces must have enough fresh air to supply all
appliances in both spaces.

9
103515
WARNING
Never install the heater
•in a bedroom or bathroom unless installed as a vented appli-
ance (see page 14)
•in a recreational vehicle
•where curtains, furniture, clothing, or other flammable objects are
less than 36 inches from the front, top, or sides of the heater
•in high traffic areas
•in windy or drafty areas
INSTALLING NOTICE
A qualified service person must install heater. Follow all local codes.
WARNING
Before installing in a solid fuel burning fireplace, the chimney flue
and firebox must be cleaned of soot, creosote, ashes and loose paint
by a qualified chimney cleaner. Creosote will ignite if highly heated.
Inspect chimney flue for damage. If damaged, operate heater with
flue damper closed.
WARNING
Seal any fresh air vents or ash clean-out doors located on floor or wall
of fireplace. If not, drafting may cause pilot outage or sooting. Use a
heat-resistant sealant. Do not seal chimney flue damper.
CAUTION
This heater creates warm air currents. These currents move heat
to wall surfaces next to heater. Installing heater next to vinyl or
cloth wall coverings or operating heater where impurities in the air
(such as tobacco smoke) exist, may discolor walls.
CHECK GAS TYPE
Use only natural gas. If your gas supply is not natural gas, do not install heater.
Call dealer where you bought heater for proper type heater.
IMPORTANT:
Vent-free heaters add moisture to the air. Although this is benefi-
cial, installing heater in rooms without enough ventilation air may cause mildew
to form from too much moisture. See Air for Combustion and Ventilation, pages 5
through 8.
NOTICE
State or local codes may only allow operation of this appliance in a
vented configuration. Check your state or local codes.
Continued

10
103515
INSTALLATION AND CLEARANCES (Vent-Free Operation Only)
WARNING
Maintain the minimum clearances. If you can, provide greater clear-
ances from floor, ceiling, and adjoining wall.
INSTALLING
Continued
Carefully follow the instructions below. This will ensure safe installation into a
masonry, U.L. listed manufactured fireplace, or AGA design certified vent free
firebox listed for use with these models.
Minimum Wall and Ceiling Clearances (see Figure 4)
A. Clearances from the side of the fireplace opening to any combustible wall
should not be less than 16 inches.
B. Clearances from the top of the fireplace opening to the ceiling should not be
less than 42 inches.
42"
16"
Figure 4 - Minimum Clearance to Wall and Ceiling
Left and Right
Sides
LOG SIZING REQUIREMENTS
Log Minimum Firebox Size
Size Height Depth Front Width
18" 17" 14" 20"
24" 17" 14" 26"
30" 17" 14" 32"
MINIMUM FIREPLACE CLEARANCE
TO COMBUSTIBLE MATERIALS
Log Size Side Wall Ceiling
18", 24", and 30" 16" 42"

11
103515
INSTALLING
Continued
Continued
NOTICE
Manual control heaters may be used as a vented product. If so,
you must always run heater with chimney flue damper open. If
running heater with damper open, non-combustible material
above fireplace opening is not needed. Go to
Installing Damper
Clamp Accessory for Vented Operation,
page 14.
Minimum Non Combustible Material Clearances
If Not Using Mantel
Note:
If using a mantel, go to page 12. If not using a mantel, follow the informa-
tion on this page.
You must have non combustible material(s) above the fireplace opening. Non
combustible materials (such as slate, marble, tile, etc.) must be at least 1/2 inch
thick. With sheet metal, you must have non combustible material behind it. Non
combustible material must extend at least 8" up (for all models). If non combus-
tible material is less than 12", you must install the fireplace hood accessory (24"
and 30" models only). See chart below and Figure 4 page 10 for minimum clearances.
IMPORTANT:
If you cannot meet these minimum clearances, you must operate
heater with chimney flue damper open. Go to Installing Damper Clamp Accessory
for Vented Operation, page 14.
Non-Combustible Requirements for
Material Distance (A) Safe Installation
12" or more Non combustible material OK.
Between 8" and 12" 24" or 30" Models: Install fireplace hood accessory
(GA6050 or GA6052, see
Accessories,
page 34).
18" Model: Non combustible material OK.
Less than 8" Non combustible material must be extended to at
least 8". See
Between 8" and 12",
above. If you
cannot extend material, you must operate heater
with flue damper open.
Figure 5 - Heat Resistant Material (Slate, Marble, Tile, etc.) Above Fireplace
Heat Resistant
Material
(A)

12
103515
INSTALLING
Continued
Minimum Non Combustible Material Clearances
If Using Mantel
You must have non combustible material(s) above the fireplace opening. Non
combustible materials (such as slate, marble, tile, etc.) must be at least 1/2 inch
thick. With sheet metal, you must have non combustible material behind it. Non
combustible material must extend at least 8 inches up (for all models). If non
combustible material is less than 12", you must install the fireplace hood accessory
(24" and 30" models only). Even if non combustible material is more than 12", you
may need the hood accessory to deflect heat away from your mantel shelf. See
chart below and Figures 6 and 7 for minimum clearances.
IMPORTANT:
If you cannot meet these minimum clearances, you must operate
heater with chimney flue damper open. Go to Installing Damper Clamp Accessory
for Vented Operation, page 14.
Figure 6 - Minimum Mantel Clearances Without Using Hood
If above minimum clearances are not met, you must have a hood. Follow
minimum clearances shown in Figure 7 on page 13 when using hood.
Non-Combustible Requirements for
Material Distance (A) Safe Installation
12" or more Non combustible material OK.
Between 8" and 12" 24" or 30" Models: Install fireplace hood accessory
(GA6050 or GA6052, see
Accessories,
page 34).
18" Model: Non combustible material OK.
Less than 8" Non combustible material must be extended to at
least 8". See
Between 8" and 12",
above. If you
cannot extend material, you must operate heater with
flue damper open.
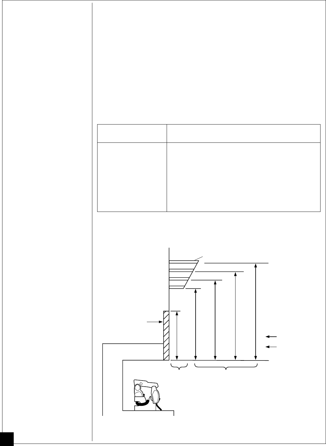
Mantel Clearances
If you meet minimum clearance between mantel shelf and top of fireplace opening,
a hood is not required (see Figure 6).
Minimum Non-
Combustible
Material
Minimum Non-
Combustible
Material Height
Distances to
Underside of
Mantel
Top of Fireplace
Opening
Underside of
Mantel Shelf
Mantel Shelf
12"
8"
(A)
20"
14"
24
1
/2"
16
3
/4"
27
1
/2"
18
1
/2"
30"
20"
All minimum
distances are
in inches
Log Set
24"/30" Models
18" Model
2 1/2"
6"
8"
10"

13
103515
INSTALLING
Continued
Floor Clearances
A. If installing appliance on the floor level, you must maintain the minimum
distance of 14" to combustibles (see Figure 8).
Figure 8 - Minimum Fireplace Clearances If Installed at Floor Level
B. If combustible materials are less than 14" to the fireplace, you must install
appliance at least 5" above the combustible flooring (see Figure 9).
Figure 9 - Minimum Fireplace Clearances Above Combustible Flooring
If your installation does not meet the above minimum clearances, you must:
• operate the logs only with the flue damper open, OR
• raise the mantel to an acceptable height, OR
• remove the mantel.
Figure 7 - Minimum Mantel Clearances When Using Hood
Continued
Minimum Non-
Combustible
Material 8"
Min. 12" 15" 18"
All minimum
distances are
in inches
Log Sets
18", 24", and
30" Models
20"
2
1/2
"
6"
8"
10"
12"
Distances to
Underside of
Mantel
Hood
(GA6050, GA6052)
Top of Fireplace
Opening
Underside of
Mantel Shelf
Mantel Shelf
14"
Min.
Combustible
Material
Non-Combustible Material
Hearth
5"
Min.
Combustible
Material

14
103515
INSTALLING
Continued
INSTALLING DAMPER CLAMP ACCESSORY FOR
VENTED OPERATION
Note:
When used as a vented heater, appliance must be installed only in a solid-
fuel burning fireplace with a working flue and constructed of non combustible
material.
If your heater is a manually controlled model, you may use this heater as a vented
product. There are three reasons for operating your heater in the vented mode.
1. The fireplace does not meet the clearance to combustibles requirements for
vent-free operation.
2. State or local codes do not permit vent-free operation.
3. You prefer vented operation.
If reasons number 1 or 2 above apply to you, you must permanently open chimney flue
damper. You must install the damper clamp accessory (to order, see Accessories, page
34). This will insure vented operation (see Figure 10). The damper clamp will keep
damper open. Installation instructions are included with clamp accessory.
See chart below for minimum permanent flue opening you must provide. Attach
damper clamp so the minimum permanent flue opening will be maintained at all times.
Chimney Minimum Permanent
Height (ft.) Flue Opening (sq. ins.)
6' to 15' 39 sq. inches
15' to 30' 29 sq. inches
Area of Various Standard Round Flues
Diameter (ins.) Area (sq. ins.)
5" 20 sq. inches
6" 29 sq. inches
7" 39 sq. inches
8" 51 sq. inches
Damper
Damper
Clamp
Damper
Clamp
Damper
Damper
Masonry Fireplace
Figure 10 - Attaching Damper Clamp
Manufactured Fireplace

15
103515
INSTALLING
Continued
INSTALLING HEATER BASE ASSEMBLY
WARNING ICON G 001
WARNING
You must secure this heater to fireplace floor. If not, heater will move
when you adjust controls. Moving heater may cause a gas leak.
WARNING ICON G 001
WARNING
If installing in a sunken fireplace, special care is needed. You
must raise the fireplace floor to allow access to heater control
panel. This will insure adequate air flow and guard against soot-
ing. Raise fireplace floor with non-combustible material. Make
sure material is secure.
WARNING ICON G 001
CAUTION
Do not pick up heater base assembly by the burner. This could
damage heater. Only handle base assembly by grates.
IMPORTANT:
Make sure the heater burner is level. If heater is not level, heater
will not work properly.
Installation Items Needed
• hardware package (provided with heater)
• approved flexible gas hose (not provided) (if allowed by local codes)
• sealant (resistant to LP gas, not provided)
• electric drill with 3/16" drill bit (metal or masonry as applicable)
• flatheaded screwdriver
1. Apply pipe joint sealant lightly to male threads of the fitting to be threaded
into gas regulator. Connect approved flexible gas hose to gas regulator of
heater (see Figure 11, page 16).
IMPORTANT:
Hold gas regulator with wrench when connecting flexible gas
hose.
2. Locate two masonry screws in hardware package.
3. Position heater base assembly in fireplace.
4. Mark screw locations through one hole on each side of the mounting bracket
(see Figure 12, page 16). If installing in a brick-bottom fireplace, mark screw
locations in mortar joint of bricks.
5. Remove heater base from fireplace.
6. Drill holes at marked locations using 3/16" drill bit.
7.
Attach base assembly to fireplace floor using two masonry screws (in hardware
package).
8. Connect to gas supply. See Connecting To Gas Supply, page 16.
Continued

16
103515
INSTALLING
Continued
Heater Gas
Regulator
Flexible Gas Hose (if
allowed by local codes)
Figure 11 - Attaching Flexible Gas Hose to Heater Gas Regulator
Figure 12 - Attaching Base Assembly to Fireplace Floor
Fitting
Masonry Screw
Bracket with
Screw Holes
Standard Oak Log
Chassis
Golden Oak and Birch
Model Chassis
Masonry Screw
Bracket with
Screw Holes

17
103515
INSTALLING
Continued
CONNECTING TO GAS SUPPLY
NOTICE
A qualified service person must connect heater to gas supply.
Follow all local codes.
Installation Items Needed
Before installing heater, make sure you have the items listed below.
• piping (check local codes)
• sealant (resistant to LP gas)
• manual shutoff valve *
• test gauge connection *
• sediment trap
• tee joint
• pipe wrench
* An A.G.A. design-certified manual shutoff valve with 1/8" NPT tap is an acceptable
alternative to test gauge connection. Purchase the optional A.G.A. design-certified manual
shutoff valve from your dealer. See Accessories, page 34.
CAUTION
Use only new, black iron or steel pipe. Internally-tinned copper
tubing may be used in certain areas. Check your local codes. Use
pipe of 1/2" diameter or greater to allow proper gas volume to
heater. If pipe is too small, undue loss of pressure will occur.
Installation must include a manual shutoff valve, union, and plugged 1/8" NPT
tap. Locate NPT tap within reach for test gauge hook up. NPT tap must be up-
stream from heater (see Figure 13, page 18).
Apply pipe joint sealant lightly to male threads. This will prevent excess sealant
from going into pipe. Excess sealant in pipe could result in clogged heater valves.
CAUTION
Use pipe joint sealant that is resistant to liquid petroleum (LP) gas.
Install sediment trap in supply line as shown in Figure 13, page 18. Locate
sediment trap where it is within reach for cleaning. Locate sediment trap where
trapped matter is not likely to freeze. A sediment trap traps moisture and contami-
nants. This keeps them from going into heater controls. If sediment trap is not
installed or is installed wrong, heater may not run properly.
WARNING
Never connect heater to private (non-utility) gas wells. This gas is
commonly known as well-head gas.
Continued

18
103515
Tee Joint
Pipe
Nipple
Cap
3" Minimum
Sediment
Trap
Gas
Regulator
From
Gas Meter
(5" W.C.** to
10.5" W.C.
Pressure)
A.G.A. Design-Certified
Manual Shutoff Valve
With 1/8" NPT Tap* Approved Flexible
Gas Hose (if allowed
by local codes)
WARNING ICON G 001
CAUTION
Avoid damage to regulator. Hold gas regulator with wrench when
connecting it to gas piping and/or fittings.
Figure 13 - Gas Connection
* Purchase the optional A.G.A. design-certified manual shutoff valve from your
dealer. See Accessories, page 34.
** Minimum inlet pressure for purpose of input adjustment.
INSTALLING
Continued
WARNING ICON G 001
WARNING
Never use an open flame to check for a leak. Apply a mixture of
liquid soap and water to all joints. Bubbles forming show a leak.
Correct all leaks at once.
WARNING ICON G 001
WARNING
Test all gas piping and connections for leaks after installing or
servicing. Correct all leaks at once.
CHECKING GAS CONNECTIONS
Pressure Testing Gas Supply Piping System
Test Pressures In Excess Of 1/2 PSIG
1. Disconnect heater and its individual manual shutoff valve from gas supply
piping system. Pressures in excess of 1/2 psig will damage heater regulator.
2. Cap off open end of gas pipe where manual shutoff valve was connected.
3. Pressurize supply piping system by either using compressed air or opening
main gas valve located on or near gas meter.
4. Check all joints of gas supply piping system. Apply mixture of liquid soap and
water to gas joints. Bubbles forming show a leak.
5. Correct all leaks at once.
6. Re-connect heater and manual shutoff valve to gas supply. Check re-con-
nected fittings for leaks.

19
103515
Test Pressures Equal To or Less Than 1/2 PSIG
1. Close manual shutoff valve (see Figure 14).
2. Pressurize supply piping system by either using compressed air or opening
main gas valve located on or near gas meter.
3. Check all joints from gas meter to manual shutoff valve (see Figure 15). Apply
mixture of liquid soap and water to gas joints. Bubbles forming show a leak.
4. Correct all leaks at once.
Pressure Testing Heater Gas Connections
1. Open manual shutoff valve (see Figure 14).
2. Open main gas valve located on or near gas meter.
3. Make sure control knob of heater is in the OFF position.
4. Check all joints from manual shutoff valve to control valve (see Figure 15). Apply
mixture of liquid soap and water to gas joints. Bubbles forming show a leak.
5. Correct all leaks at once.
6. Light heater (see Operating Heater, pages 22 through 24). Check all other
internal joints for leaks.
7. Turn off heater (see To Turn Off Gas to Appliance, page 24).
INSTALLING
Continued
Figure 14 - Manual Shutoff Valve
ON
POSITION
OFF
POSITION
Open
Closed
Manual
Shutoff
Valve
Figure 15 - Checking Gas Joints
Gas Meter
Manual
Shutoff
Valve Control Valve Location
Continued

20
103515
INSTALLING
Continued
WARNING ICON G 001
WARNING
Failure to position the parts in accordance with these diagrams or failure
to use only parts specifically approved with this heater may result in
property damage or personal injury.
For Vintage Oak Log Model
Each log is marked with a number. These numbers will help you identify the log
when installing. It is very important to install these logs exactly as instructed. Do
not modify logs. Only use logs supplied with heater.
1. Locate pegs on the bottom of back log (#1). Slide these pegs into the holes in
the grate base behind the burner (see Figure 16).
2. Locate the notches on the back of the front log (#2). Slide these notches over
the tabs of the grate base (see Figure 17).
3. Locate the notches in the bottom of the crossover log (#3). Place the crossover log
on top of the back log and front log. Make sure the notches of the crossover log line
up with rectangular knobs on top of the back and front logs (see Figure 18).
4. Add lava rock around base of heater.
INSTALLING LOGS
Figure 16 - Installing Back Log
Back Log
(#1)
Crossover
Log (#3)
Figure 18 - Installing Crossover Log
Figure 17 - Installing Front Log
Front Log
(#2)
Notch
Peg
Notch
Rectangular Knob
Notch
Peg
Tabs of
Grate Base
Hole
Rectangular Knob

21
103515
INSTALLING
Continued
For Golden Oak or Birch Models
It is very important to install the logs exactly as instructed. Do not modify logs.
Only use logs supplied with heater.
1. Place one-piece log set on grate to fit as illustrated in Figure 19. Make sure
middle section at bottom of log set is seated into "U"-shaped cutout in center of
chassis (see Figure 19). Log will fit securely on chassis.
IMPORTANT:
Make
sure log does not cover any burner parts.
2. Place lava rock around base of heater.
Figure 19 - Installing Golden Oak or Birch One-Piece Log Set
Figure 20 - Installing Golden Oak or Birch One-Piece Log Set (Top View)
One Piece Log Set
Burner
One Piece Log Set
Burner
Middle Section at
Bottom of Log Set
"U"-shaped Cutout
in Chassis
Chassis

22
103515
OPERATING
HEATER
FOR YOUR SAFETY READ BEFORE LIGHTING
WARNING
If you do not follow these instructions exactly, a fire or explosion may
result causing property damage, personal injury or loss of life.
A. This appliance has a pilot which must be lighted by hand. When lighting the pilot,
follow these instructions exactly.
B. BEFORE LIGHTING smell all around the appliance area for gas. Be sure to smell
next to the floor because some gas is heavier than air and will settle on the floor.
WHAT TO DO IF YOU SMELL GAS
• Do not try to light any appliance.
• Do not touch any electric switch; do not use any phone in your building.
• Immediately call your gas supplier from a neighbor’s phone. Follow the gas
supplier’s instructions.
• If you cannot reach your gas supplier, call the fire department.
C. Use only your hand to push in or turn the gas control knob. Never use tools. If the
knob will not push in or turn by hand, don’t try to repair it, call a qualified service
technician or gas supplier. Force or attempted repair may result in a fire or
explosion.
D. Do not use this appliance if any part has been under water. Immediately call a
qualified service technician to inspect the appliance and to replace any part of the
control system and any gas control which has been under water.
PILOT
OFF
LO
HI
Control Knob
Ignitor Button
Figure 21 - Control Knob and Ignitor Button Location
LIGHTING INSTRUCTIONS
WARNING ICON G 001
WARNING
•If fireplace has glass doors, never operate this heater with glass doors
closed. If you operate heater with doors closed, heat buildup inside
fireplace will cause glass to burst. Also if fireplace opening has vents at the
bottom, you must open the vents before operating heater.
•You must operate this heater with a fireplace screen in place. Make sure
fireplace screen is closed before running heater.
1. STOP! Read the safety information above.
2. Make sure manual shutoff valve is fully open.
3. Press in and turn control knob clockwise to the OFF position.
NOTICE
During initial operation of new heater, burning logs will give off a paper-
burning smell. Open damper or window to vent smell. This will only last a
few hours.
Note:
Homeowners generally prefer to operate their heater with the chimney damper
closed. This will put all the heat into the room. However there may be times you will
desire the full flames of the High heat setting but will find the heat output excessive. You
can open the chimney damper (if you have one) fully or partially to release some of the
heat. WARNING: Damper handle will be hot if heater has been running.
Continued

23
103515
WARNING ICON G 001
WARNING
Do not operate heater between PILOT and HIGH positions.
WARNING ICON G 001
CAUTION
Do not try to adjust heating levels by using the manual shutoff valve.
VARIABLE CONTROL OPERATION
The variable control valve can be set to any heat setting and flame height desired, by
simply turning the control knob until that setting is attained. Even the lowest setting
provides realistic, dancing yellow flames. Selecting higher settings produces greater
heat output. This results in increased heating comfort.
4. Wait five (5) minutes to clear out any gas. Then smell for gas, including near the
floor. If you smell gas, STOP! Follow “B” in the safety information on page 21. If
you don’t smell gas, go to the next step.
5. Slightly depress and turn control knob counterclockwise
C-clockwise
to the PILOT
position. Keep control knob pressed in for five (5) seconds (see Figure 21, page 22).
Note:
You may be running this heater for the first time after hooking up to gas
supply. If so, the control knob may need to be pressed in for 30 seconds. This
will allow air to bleed from the gas system.
6. With control knob pressed in, press and release ignitor button. This will light
pilot. The pilot is attached to the burner. If needed, keep pressing ignitor button
until pilot lights.
Note:
If pilot does not light, contact a qualified service person or gas supplier
for repairs. Until repairs are made, light pilot with match. To light pilot with
match, see Manual Lighting Procedure on page 24.
7. Keep control knob pressed in for 30 seconds after lighting pilot. After 30 seconds,
release control knob.
Note:
If pilot goes out, repeat steps 3 through 7.
• If control knob does not pop out when released, contact a qualified service
person or gas supplier for repairs.
OPERATING
HEATER
Continued
8. Slightly depress and turn control knob counterclockwise
C-clockwise
to the HIGH
position. The burner should light. Set control knob to any heat level between
HIGH and LO.
Figure 22 - Pilot
Thermocouple Ignitor Electrode
Pilot Burner

24
103515
OPERATING
HEATER
Continued
TO TURN OFF GAS TO APPLIANCE
Shutting Off Heater
1. Press in and turn control knob clockwise
Clockwise
to the HIGH position.
2. Turn the control knob clockwise
Clockwise
to the PILOT position.
3. Press in control knob and turn clockwise
Clockwise
to the OFF Position.
Shutting Off Burners Only (pilot stays lit)
1. Turn the control knob clockwise
Clockwise
to the HIGH position.
2. Press in and turn control knob clockwise
Clockwise
to the PILOT position.
MANUAL LIGHTING PROCEDURE
1. Follow steps 1 through 5 under Lighting Instructions, pages 22 and 23.
2. Depress control knob and light pilot with match.
3. Keep control knob pressed in for 30 seconds after lighting pilot. After 30
seconds, release control knob. Now follow step 8, page 23.
INSPECTING
BURNERS
Check pilot flame pattern and burner flame patterns often.
PILOT FLAME PATTERN
Figure 23 shows a correct pilot flame pattern. Figure 24 shows an incorrect pilot flame
pattern. The incorrect pilot flame is not touching the thermocouple. This will cause the
thermocouple to cool. When the thermocouple cools, the heater will shut down.
Figure 23 - Correct Pilot
Flame Pattern Figure 24 - Incorrect Pilot
Flame Pattern
If pilot flame pattern is incorrect, as shown in Figure 24
• turn heater off (see To Turn Off Gas to Appliance, above)
• see Troubleshooting, pages 25 through 28
Thermocouple Pilot Burner Pilot Burner
Thermocouple

25
103515
CLEANING
AND
MAINTENANCE
WARNING ICON G 001
WARNING
Turn off heater and let cool before cleaning.
WARNING ICON G 001
CAUTION
You must keep control areas, burner, and circulating air passage-
ways of heater clean. Inspect these areas of heater before each
use. Have heater inspected yearly by a qualified service person.
Heater may need more frequent cleaning due to excessive lint from
carpeting, bedding material, etc.
TROUBLE-
SHOOTING
Note:
All troubleshooting
items are listed in order of
operation.
WARNING ICON G 001
WARNING
Turn off and unplug heater and let cool before servicing. Only a
qualified service person should service and repair heater.
WARNING ICON G 001
CAUTION
Never use a wire, needle, or similar object to clean ODS/pilot. This
can damage ODS/pilot unit.
POSSIBLE
CAUSE
1. Ignitor electrode not con-
nected to ignitor cable
2. Ignitor cable pinched or
wet
3. Piezo ignitor nut is loose
4. Broken ignitor cable
5. Bad piezo ignitor
6. Ignitor electrode posi-
tioned wrong
7. Ignitor electrode broken
REMEDY
1. Reconnect ignitor cable
2. Free ignitor cable if
pinched by any metal or
tubing. Keep ignitor
cable dry
3. Tighten nut holding
piezo ignitor to base
panel of log set. Nut is
located behind base
panel.
4. Replace ignitor cable
5. Replace piezo ignitor
6. Replace ignitor
7. Replace ignitor
OBSERVED
PROBLEM
When ignitor button
is pressed, there is no
spark at ODS/pilot
ODS/PILOT AND BURNER
• Use a vacuum cleaner or small, soft bristled brush to clean.
LOGS
• If you remove logs for cleaning, refer to Installing Logs, pages 20 and 21, to
properly replace logs.
• Replace log(s) if broken or chipped (dime-sized or larger).

26
103515
TROUBLE-
SHOOTING
Continued
REMEDY
1. Turn on gas supply or
open manual shutoff
valve
2. Turn control knob to
PILOT position
3. Press in control knob
while in PILOT position
4. Continue holding down
control knob. Repeat
igniting operation until
air is removed
5. Clean ODS/pilot (see
Cleaning and Mainte-
nance, page 25) or
replace ODS/pilot
assembly
6. Replace gas regulator
1. Press in control knob
fully
2. After ODS/pilot lights,
keep control knob
pressed in 30 seconds
3. Wait one minute for
safety interlock system
to reset. Repeat ignition
operation
4. Fully open manual
shut-off valve
5. A) Contact local
natural gas company
B) Clean ODS/pilot
(see Cleaning and
Maintenance, page 25)
or replace ODS/pilot
assembly
6. Hand tighten until
snug, then tighten 1/4
turn more
7. Replace thermocouple
8. Replace control valve
OBSERVED
PROBLEM
When ignitor button
is pressed, there is
spark at ODS/pilot
but no ignition
ODS/pilot lights but
flame goes out when
control knob is
released
POSSIBLE
CAUSE
1. Gas supply turned off or
manual shutoff valve
closed
2. Control knob not in
PILOT position
3. Control knob not
pressed in while in
PILOT position
4. Air in gas lines when
installed
5. ODS/pilot is clogged
6. Gas regulator setting is
not correct
1. Control knob not fully
pressed in
2. Control knob not
pressed in long enough
3. Safety interlock system
has been triggered
4. Manual shutoff valve
not fully open
5. Pilot flame not touching
thermocouple, which
allows thermocouple to
cool, causing pilot flame
to go out. This problem
could be caused by one
or both of the following:
A) Low gas pressure
B) Dirty or partially
clogged ODS/pilot
6. Thermocouple connec-
tion loose at control
valve
7. Thermocouple damaged
8. Control valve damaged
Continued

27
103515
OBSERVED
PROBLEM
Burner does not light
after ODS/pilot is lit
Delayed ignition
burner
Burner backfiring
during combustion
Slight smoke or odor
during initial opera-
tion
Heater produces a
whistling noise when
burner is lit
Moisture/condensation
noticed on windows
REMEDY
1. Contact local natural
gas company
2. Clean burner (see
Cleaning and Mainte-
nance, page 25) or
replace burner orifice
3. Replace burner orifice
1. Contact local natural
gas company
2. Clean burner (see
Cleaning and Mainte-
nance, page 25) or
replace burner orifice
1. Clean burner (see
Cleaning and Mainte-
nance, page 25) or
replace burner orifice
2. Replace damaged
burner
3. Replace gas regulator
1. Check burner for dirt
and debris. If found,
clean burner (see
Cleaning and Mainte-
nance, page 25)
2. Replace gas regulator
3. Problem will stop after
a few hours of opera-
tion
1. Turn control knob to
LO position and let
warm up for a minute
2. Operate burner until air
is removed from line.
Have gas line checked
by local natural gas
company
3. Observe minimum
installation clearances
(see pages 10-13)
4. Clean burners (see
Cleaning and Mainte-
nance, page 25) or
replace burner orifice
1. Refer to Air for Com-
bustion and Ventilation
requirements (page 5-8)
TROUBLE-
SHOOTING
Continued
POSSIBLE
CAUSE
1. Inlet gas pressure is
too low
2. Burner orifice clogged
3. Burner orifice diameter
is too small
1. Manifold pressure is
too low
2. Burner orifice clogged
1. Burner orifice is
clogged or damaged
2. Damaged burner
3. Gas regulator defective
1. Not enough air
2. Gas regulator defective
3. Residues from manu-
facturing processes
and logs curing
1. Turning control knob
to HI position when
burner is cold
2. Air in gas line
3. Air passageways on
heater blocked
4. Dirty or partially
clogged burner orifice
1. Not enough combus-
tion/ventilation air

28
103515
TECHNICAL
SERVICE
You may have further questions about installation, operation, or troubleshooting.
If so, contact DESA International’s Technical Service Department at
1-800-DESA LOG (1-800-337-2564).
TROUBLE-
SHOOTING
Continued
WARNING
If you smell gas
•Shut off gas supply.
•Do not try to light any appliance.
•Do not touch any electrical switch; do not
use any phone in your building.
•Immediately call your gas supplier from
a neighbor’s phone. Follow the gas
supplier’s instructions.
•If you cannot reach your gas supplier, call
the fire department.
IMPORTANT:
Operating heater where impurities in air exist may create odors.
Cleaning supplies, paint, paint remover, cigarette smoke, cements and glues, new
carpet or textiles, etc., create fumes. These fumes may mix with combustion air
and create odors. These odors will disappear over time.
POSSIBLE
CAUSE
1. Metal expanding while
heating or contracting
while cooling
1. Heater burning vapors
from paint, hair spray,
glues, cleaners, chemi-
cals, new carpet, etc. (See
IMPORTANT
statement
above)
2. Gas leak. See Warning
statement at top of
page
1. Not enough fresh air is
available
2. Low line pressure
3. ODS/pilot is partially
clogged
1. Gas leak. See Warning
statement at top of
page
2. Control valve defective
1. Foreign matter between
control valve and burner
2. Gas leak. See Warning
statement at top of
page
OBSERVED
PROBLEM
Heater produces a
clicking/ticking noise
just after burner is lit or
shut off
Heater produces
unwanted odors
Heater shuts off in use
(ODS operates)
Gas odor even when
control knob is in OFF
position
Gas odor during
combustion
REMEDY
1. This is common with
most heaters. If noise is
excessive, contact
qualified service person
1. Open window and
ventilate room. Stop
using odor causing
products while heater is
running
2. Locate and correct all
leaks (see Checking Gas
Connections, page 18)
1. Open window and/or
door for ventilation
2. Contact local natural
gas company
3. Clean ODS/pilot (see
Cleaning and Mainte-
nance, page 25)
1. Locate and correct all
leaks (see Checking Gas
Connections, page 18)
2. Replace control valve
1. Take apart gas tubing and
remove foreign matter
2. Locate and correct all
leaks (see Checking Gas
Connections, page 18)

29
103515
When gas pressure is too low
• pilot will not stay lit • burners will have delayed ignition
• heater will not produce specified heat
When gas quality is bad
• pilot will not stay lit • burners will produce flames and soot
• heater will backfire when lit
You may feel your gas pressure is too low or gas quality is bad. If so, contact your
local natural gas supplier.
SERVICE
HINTS
Note:
Use only original replacement parts. This will protect your warranty cover-
age for parts replaced under warranty.
Parts Under Warranty
Contact authorized dealers of this product. If they can’t supply original replace-
ment part(s), call DESA International’s Technical Service Department at
1-800-323-5190. When calling DESA International, have ready
• your name and address
• model number of your heater
• how heater was malfunctioning
• type of gas used (propane or natural gas)
• purchase date
Usually, we will ask you to return the defective part to the factory.
Parts Not Under Warranty
Contact authorized dealers of this product. If they can’t supply original replace-
ment part(s), call DESA International’s Parts Department at 1-800-972-7879 for
referral information. When calling DESA International, have ready
• model number of your heater
• the replacement part number
REPLACEMENT
PARTS
SPECIFICATIONS Vintage Oak Vintage Oak
18" Variable 24" Variable
Manually Controlled Manually Controlled
Btu (Variable) 16,000/27,000 16,000/31,500
Type Gas Natural Gas Only Natural Gas Only
Ignition Piezo Piezo
Pressure Manifold 3.5" W.C. 3.5" W.C.
Inlet Gas Pressure (in. of water)
Maximum 10.5" 10.5"
Minimum* 5" 5"
* For input adjustment
Shipping Weight 27 lbs. 29 lbs.
Golden Oak and Birch Golden Oak and Birch
18" Variable 24" and 30" Variable
Manually Controlled Manually Controlled
Btu (Variable) 16,000/30,000 20,000/39,000
Type Gas Natural Gas Only Natural Gas Only
Ignition Piezo Piezo
Pressure Manifold 3.5" W.C. 3.5" W.C.
Inlet Gas Pressure (in. of water)
Maximum 10.5" 10.5"
Minimum* 5" 5"
* For input adjustment
Shipping Weight 28 lbs. 30 lbs. (24")/32 lbs. (30")

30
103515
ILLUSTRATED
PARTS
BREAKDOWN
Flame-Max Vintage
Oak Log Models
VYS18N and VYS24N
4
1
2
3
12
21
10
11
21
7
21
5
6
89
15 14
16 19
22 18
13
19
17
20-2
20-1
20
18
23

31
103515
PARTS LIST This list contains replaceable parts used in your heater. When ordering parts, follow
the instructions listed under Replacement Parts on page 29 of this manual.
KEY PART NUMBER FOR
NO. VYS18N VYS24N DESCRIPTION QTY.
1 102968-01 102968-02 Back Log (#1) 1
2 102969-01 102969-02 Front Log (#2) 1
3 102970-01 102970-02 Crossover Log (#3) 1
4 102775-02CK 102775-01CK Painted Base Assembly 1
5 102844-01 102844-01 Lower Bracket 1
6 102966-01 102966-01 Upper Bracket 1
7 098867-11 098867-11 Gas Regulator 1
8 102798-01 102798-01 Inlet Tube 1
9 102780-01 102780-01 Outlet Burner Tube 1
10 099056-20 099056-18 Burner Orifice Injector 1
11 102843-01 102843-01 Burner Clip 1
12 102963-01 102773-01 Burner 1
13 102568-07 102568-07 Control Valve 1
14 098508-01 098508-01 Valve Retainer Nut 1
15 098354-01 098354-01 Control Knob 1
16 102445-01 102445-01 Piezo Ignitor 1
17 098249-01 098249-01 Nut, M5 2
18 099387-08 099387-08 Pilot Tube 1
19 098271-07 098271-07 Ignitor Cable 1
20 103042-01 103042-01 ODS Pilot 1
20-1 098594-01 098594-01 Ignitor Electrode 1
20-2 098593-01 098593-01 Thermocouple 1
21 M11084-38 M11084-38 Screw, Hex Head 11
(#8-18 x .38)
22 098276-01 098276-01 Hex Head Plug, 1/8" NPT 1
23 099553-01 099553-01 Pilot Shield 1
PARTS AVAILABLE — NOT SHOWN
100563-01 100563-01 Warning Plate 1
101055-02 101055-02 Lighting Instructions Plate 1
100565-01 100565-01 Warning Plate Fastener 1
100639-01 100639-01 Caution Decal 1
101449-04 101449-04 Control Position Decal 1
101137-02 101137-02 Hardware Kit 1
101416-16 101416-16 Information Video 1
GA6060 GA6060 Lava Rock 1

32
103515
ILLUSTRATED
PARTS
BREAKDOWN
Flame-Max Golden Oak
and Birch Log Models
VYD24N and VYBD24N
4
20
10
11
12
20
7
20
20
5
6
9
8
15 14
16 18
217
13
18
3
19-2
19-1
19
17
1A
1B

33
103515
PARTS LIST This list contains replaceable parts used in your heater. When ordering parts, follow
the instructions listed under Replacement Parts on page 29 of this manual.
KEY PART NUMBER FOR
NO. VYD18N VYBD18N VYD24N VYBD24N VYD30N VYBD30N DESCRIPTION QTY.
1A 103517-01 –102785-01 –103519-01 –Log, Golden Oak 1
1B –103520-01 –103336-01 –103522-01 Log, Birch 1
2 098276-01 098276-01 098276-01 098276-01 098276-01 098276-01 Hex Head Plug, 1/8" NPT 1
3 098249-01 098249-01 098249-01 098249-01 098249-01 098249-01 Nut, M5 2
4 102775-04CK 102775-04CK 102775-01CK 102775-01CK 102775-03CK 102775-03CK Painted Base Assembly 1
5 102844-02 102844-02 102844-01 102844-01 102844-01 102844-01 Lower Bracket 1
6 102966-02 102966-02 102966-01 102966-01 102966-01 102966-01 Upper Bracket 1
7 098867-11 098867-11 098867-11 098867-11 098867-11 098867-11 Gas Regulator 1
8 102798-01 102798-01 102798-01 102798-01 102798-01 102798-01 Inlet Tube 1
9 102779-03 102779-03 102779-01 102779-01 102779-01 102779-01 Outlet Burner Tube 1
10 099056-26 099056-26 099056-16 099056-16 099056-16 099056-16 Burner Orifice Injector 1
11 102843-01 102843-01 102843-01 102843-01 102843-01 102843-01 Burner Clip 1
12 102980-01 102980-01 102772-01 102772-01 102772-01 102772-01 Burner 1
13 102568-07 102568-07 102568-05 102568-05 102568-05 102568-05 Control Valve 1
14 098508-01 098508-01 098508-01 098508-01 098508-01 098508-01 Valve Retainer Nut 1
15 098354-01 098354-01 098354-01 098354-01 098354-01 098354-01 Control Knob 1
16 102445-01 102445-01 102445-01 102445-01 102445-01 102445-01 Piezo Ignitor 1
17 099387-08 099387-08 099387-08 099387-08 099387-08 099387-08 Pilot Tube 1
18 098271-07 098271-07 098271-07 098271-07 098271-07 098271-07 Ignitor Cable 1
19 103042-01 103042-01 103042-01 103042-01 103042-01 103042-01 ODS Pilot 1
19-1 098594-01 098594-01 098594-01 098594-01 098594-01 098594-01 Ignitor Electrode 1
19-2 098593-01 098593-01 098593-01 098593-01 098593-01 098593-01 Thermocouple 1
20 M11084-38 M11084-38 M11084-38 M11084-38 M11084-38 M11084-38 Screw, Hex Head 11
(#8-18 x .38)
PARTS AVAILABLE — NOT SHOWN
100563-01 100563-01 100563-01 100563-01 100563-01 100563-01 Warning Plate 1
101055-02 101055-02 101055-02 101055-02 101055-02 101055-02 Lighting Instructions Plate 1
100565-01 100565-01 100565-01 100565-01 100565-01 100565-01 Warning Plate Fastener 1
100639-01 100639-01 100639-01 100639-01 100639-01 100639-01 Caution Decal 1
101449-04 101449-04 101449-04 101449-04 101449-04 101449-04 Control Position Decal 1
101137-02 101137-02 101137-02 101137-02 101137-02 101137-02 Hardware Kit 1
101416-16 101416-16 101416-16 101416-16 101416-16 101416-16 Information Video 1
GA6060 GA6060 GA6060 GA6060 GA6060 GA6060 Lava Rock 1

34
103515
ACCESSORIES Purchase these heater accessories from your local dealer. If they can not supply
these accessories, call DESA International’s Parts Department at 1-800-972-7879
for referral information. You can also write to the address listed on the back page of
this manual.
LAVA ROCK - GA6060
For all models. Order when additional rock is desired. (3 lb. bag)
DAMPER CLAMP - GA6080
For manually controlled models. Permanently opens chimney flue damper for
vented operation.
MANUAL SHUTOFF
VALVE - GA5010
For all models. Manual shutoff valve with 1/8" NPT
tap. Fits 1/2" NPT pipe.
BLACK FIREPLACE
HOOD - GA6050
For all models. Helps deflect heat away
from mantel or wall above fireplace. Fits
openings 28" to 48" wide.
BRASS FIREPLACE
HOOD - GA6052
For all models. Helps deflect heat away
from mantel or wall above fireplace. Fits
openings 28" to 48" wide.

35
103515
NOTES _________________________________________________________________
_________________________________________________________________
_________________________________________________________________
_________________________________________________________________
_________________________________________________________________
_________________________________________________________________
_________________________________________________________________
_________________________________________________________________
_________________________________________________________________
_________________________________________________________________
_________________________________________________________________
_________________________________________________________________
_________________________________________________________________
_________________________________________________________________
_________________________________________________________________
_________________________________________________________________
_________________________________________________________________
_________________________________________________________________
_________________________________________________________________
_________________________________________________________________
_________________________________________________________________
_________________________________________________________________
_________________________________________________________________
_________________________________________________________________
_________________________________________________________________
_________________________________________________________________
_________________________________________________________________
_________________________________________________________________
_________________________________________________________________
_________________________________________________________________
_________________________________________________________________
_________________________________________________________________
_________________________________________________________________
_________________________________________________________________
_________________________________________________________________
_________________________________________________________________
_________________________________________________________________
_________________________________________________________________

LIMITED WARRANTY
VENT-FREE NATURAL GAS LOG HEATERS
DESA International warrants this product to be free from defects in materials and components for three (3) years from the
date of first purchase, provided that the product has been properly installed, operated and maintained in accordance with
all applicable instructions. To make a claim under this warranty the Bill of Sale or cancelled check must be presented.
This warranty is extended only to the original retail purchaser. This warranty covers the cost of part(s) required to restore
this heater to proper operating condition and an allowance for labor when provided by a DESA Authorized Service Center.
Warranty part(s) MUST be obtained through authorized dealers of this product and/or DESA International who will
provide original factory replacement parts. Failure to use original factory replacement parts voids this warranty. The heater
MUST be installed by a qualified installer in accordance with all local codes and instructions furnished with the unit.
This warranty does not apply to parts that are not in original condition because of normal wear and tear, or parts that fail
or become damaged as a result of misuse, accidents, lack of proper maintenance or defects caused by improper installation.
Travel, diagnostic cost, labor, transportation and any and all such other costs related to repairing a defective heater will
be the responsibility of the owner.
TO THE FULL EXTENT ALLOWED BY THE LAW OF THE JURISDICTION THAT GOVERNS THE SALE OF THE
PRODUCT; THIS EXPRESS WARRANTY EXCLUDES ANY AND ALL OTHER EXPRESSED WARRANTIES
AND LIMITS THE DURATION OF ANY AND ALL IMPLIED WARRANTIES, INCLUDING WARRANTIES OF
MERCHANTABILITY AND FITNESS FOR A PARTICULAR PURPOSE TO THREE (3) YEARS ON ALL COMPO-
NENTS FROM THE DATE OF FIRST PURCHASE; AND DESA INTERNATIONAL’S LIABILITY IS HEREBY
LIMITED TO THE PURCHASE PRICE OF THE PRODUCT AND DESA INTERNATIONAL SHALL NOT BE
LIABLE FOR ANY OTHER DAMAGES WHATSOEVER INCLUDING INDIRECT, INCIDENTAL OR CONSE-
QUENTIAL DAMAGES.
Some states do not allow a limitation on how long an implied warranty lasts or an exclusion or limitation of incidental or
consequential damages, so the above limitation on implied warranties, or exclusion or limitation on damages may not apply
to you.
This warranty gives you specific legal rights, and you may also have other rights that vary from state to state.
For information about this warranty write:
2701 Industrial Drive
P.O. Box 90004
Bowling Green, KY 42102-9004
KEEP THIS WARRANTY
WARRANTY INFORMATION
Model
Serial No.
Date Purchased
Always specify model and serial numbers when communicating with the factory.
We reserve the right to amend these specifications at any time without notice. The only warranty applicable is our
standard written warranty. We make no other warranty, expressed or implied.
103515-01
Rev. A
3/97