Viessmann Vitodens 200 W B2Hb Technical Manual 5461 883 02
2015-08-26
: Viessmann Viessmann-Vitodens-200-W-B2Hb-Technical-Manual-802282 viessmann-vitodens-200-w-b2hb-technical-manual-802282 viessmann pdf
Open the PDF directly: View PDF
.
Page Count: 44

Technical Data Manual
VITODENS
r
200-W
5461 883 - 02 04/2015
Model Nos. and pricing: see Price List
For Natural Gas and Liquid Propane Gas
Gas-fired wall-mounted condensing boiler
12 to 125 MBH (3.5 to 37 kW)
Product may not be exactly as shown
Vitodens 200-W
Series B2HB, Models 19, 26 and 35
Gas-Fired Wall-Mounted Condensing Boiler
with modulating MatriX cylinder burner for
room air independent operation (using a
direct vent system) or room air dependent
operation.
H

Vitodens 200-W, B2HB 19 to 35 Technical Data
5461 883 - 02
2
Product Information
Vitodens 200-W
2
Equipped with the industry’s first intelligent combustion
management system and powerful control technology,
the new generation Vitodens 200-W gas-fired wall-mount
condensing boiler delivers unparalleled performance,
reliability and comfort.
The benefits at a glance:
■ Best value in its class with new industry-leading
technology and the most standard features.
■ Highest Efficiency up to 98% at full modulation and up
to 95% A.F.U.E.
■ Lasting performance with industry-leading Viessmann
made SA240 316 Ti stainless steel Inox-Radial heat
exchanger constructed to CSA B51 and ASME Section IV.
■ Low Emission Combustion with Viessmann made
stainless steel MatriX cylinder burner. Factory calibrated.
■ Fast Installation and Reduced Maintenance with Lambda
Pro, industry-first intelligent combustion management
system: Adjusts automatically to gas type and quality.
No fuel conversion kit required.
■ Powerful and User-friendly
Viessmann Vitotronic on-board multi-function outdoor
reset boiler and system control for multi-temperature
space and DHW heating.
■ Greater Venting Flexibility with increased vent length
up to 180 ft. (55 m) and multiple venting options.
- Horizontal or vertical sealed combustion coaxial
venting (field supplied).
- Horizontal, vertical or hybrid sealed combustion
double-pipe venting (field supplied).
- Horizontal or vertical single-wall venting (field
supplied).
■ Compact, Esthetic Product Design and zero clearance
to combustibles.
■ Extremely Quiet Operation; quieter than most
refrigerators.
■ True High-Altitude Operation up to 10,000 ft. (3,000 m)
with simple electronic adjustment.
■ Efficiency up to 98% through intensive condensation.
The flue gas temperature is only approximately 9-27ºF
(5-15ºC) above boiler return temperature (see chart
below).

Vitodens 200-W, B2HB 19 to 35 Technical Data
3
5461 883 - 02
Product Information
3
Cross-Section
Product may not be exactly as shown
The flue gas temperature is only approximately 9-27ºF
(5-15ºC) above boiler return temperature (see chart
below).
A Inox-Radial heat exchanger made from stainless steel
– for high operational reliability and a long service life.
Large heating output in the smallest of spaces
B Modulating MatriX cylinder burner for extremely
clean combustion and quiet operation
C Variable speed combustion fan for quiet and
economical operation
D Gas and water connections
E Digital boiler control unit
Delivered condition
Wall mounted gas condensing boiler with Inox-Radial heat
exchanger, modulating MatriX cylinder burner for natural
gas and LPG, plus wall mounting bracket. Vitotronic 200
for weather-compensated operation. Preset for operation
with natural gas. Fully plumbed and wired. White epoxy-
coated casing.
Vitodens 200-W B2HB 19, 26, 35

Vitodens 200-W, B2HB 19 to 35 Technical Data
5461 883 - 02
4
Technical Data
Technical Data
4
Boiler Model No. 200-W B2HB 19 26 35
Natural Gas / Liquid Propane Gas
CSA input
CSA output/DOE *1
heating capacity
Net AHRI rating *2
MBH
(kW)
MBH
(kW)
MBH
(kW)
12-68
(3.5-20)
11-64
(3.2-19)
55
(16)
19-94
(5.5-27)
18-89
(5-26)
76.5
(22)
19-125
(5.5-37)
18-117
(5-34)
102
(30)
Heat exchanger surface area ft.2
(m2)
12.96
(1.2)
12.96
(1.2)
12.96
(1.2)
Min. gas supply pressure
Natural gas
Liquid propane gas
“w.c.
“w.c.
4
10
4
10
4
10
Max. gas supply pressure *3
Natural gas
Liquid propane gas
“w.c.
“w.c.
14
14
14
14
14
14
A.F.U.E. % 95 95 95
Weight lbs
(kg)
110
(50)
110
(50)
110
(50)
Boiler water content USG
(L)
1.02
(3.88)
1.02
3.88)
1.02
3.88)
Boiler max. flow rate *4 GPM
(L/h)
6.2
(1400)
6.2
(1400)
6.2
(1400)
Max. operating pressure
at 210ºF (99ºC)
psig
(bar)
45
(3)
45
(3)
45
(3)
Boiler water temperature
- Adjustable high limit (AHL) range
space heating (steady state)
DHW production
- Fixed high limit (FHL)
ºF
(ºC)
ºF
(ºC)
ºF (ºC)
68 to 165
(20 to 74)
165
(74)
210 (99)
68 to 165
(20 to 74)
165
(74)
210 (99)
68 to 165
(20 to 74)
165
(74)
210 (99)
Boiler connections
Boiler heating supply and return
Pressure relief valve
Drain valve
Boiler supply/return for
indirect-fired DHW storage tank
(field supplied)
Gas valve connection
NPTM”
NPTF”
(male
thread)
NPT”
NPTF”
¾
¾
¾
¾
¾
¾
¾
¾
¾
¾
¾
¾
¾
¾
¾
*1 Output based on 140ºF (60ºC), 120ºF (49ºC) system supply/return temperature.
*2 Net AHRI rating based on piping and pick-up allowance of 1.15.
*3 If the gas supply pressure exceeds the maximum gas supply pressure value, a separate gas pressure regulator
must be installed upstream of the heating system.
*4 See “Waterside Flow” starting on page 8 in this manual.

Vitodens 200-W, B2HB 19 to 35 Technical Data
5
5461 883 - 02
Technical Data
5
Technical Data
Boiler Model No. 200-W B2HB 19 26 35
Dimensions
Overall depth
Overall width
Overall height
inches
(mm)
inches
(mm)
inches
(mm)
15.7
(400)
17¾
(450)
41
(1040)
15.7
(400)
17¾
(450)
41
(1040)
15.7
(400)
17¾
(450)
41
(1040)
Flue gas *5
Temperature (at boiler return
temperature of 86ºF (30ºC)
- at rated full load
- at rated partial load
Temperature (at boiler return
temperature of 140ºF (60ºC)
ºF (ºC)
ºF (ºC)
ºF (ºC)
113 (45)
95 (35)
154 (68)
113 (45)
95 (35)
154 (68)
113 (45)
95 (35)
154 (68)
Max. condensate flow rate *6
with natural gas and
TS/TR =122/86ºF (50/30ºC) USG/h
(L/h)
0.66
(2.5)
0.97
(3.7)
1.21
(4.6)
Condensate connection *7 hose
nozzle
Ø in ¾-1¾-1¾-1
Boiler flue gas connection *8 Ø
in (mm) 23/8 (60) 23/8 (60) 23/8 (60)
Combustion air supply
connection (coaxial)
outer
Ø in (mm) 4 (100) 4 (100) 4 (100)
Sound Rating
- at maximum input
- at minimum input
dB
dB 41
35
48
36
51
36
*5 Measured flue gas temperature with a combustion air temperature of 68°F (20°C).
*6 Based on maximum input rate.
*7 Requires 1 inch (25 mm) tubing. See the Installation Instructions of the Vitodens 200-W, B2HB for details.
*8 For side wall vent installations (coaxial system):
Do not exceed max. equivalent length specified in the Installation Instructions of the Vitodens 200-W, B2HB
Venting System.
Do not attempt to common-vent Vitodens 200-W with any other appliance.
Side wall co-axial vent installation must include Viessmann protective screen!
For details refer to the Installation Instructions for the Vitodens 200-W, B2HB Venting System.
For information regarding other Viessmann System Technology componentry, please reference documentation
of respective product.
Note: For high altitude installation at 10,000 ft. the input for model B2HB 19 to 35 will have an altitude
de-ration of 21%.

Vitodens 200-W, B2HB 19 to 35 Technical Data
5461 883 - 02
6
Dimensional Information
Models 200-W, B2HB 19, 26, 35
Legend
A Boiler Supply
B Gas Connection, ¾” NPTF
C Boiler Return
D Recommended height (single boiler system)
E Condensate drain
F Combustion air intake (left or right)
G Combustion air intake (through co-axial)

Vitodens 200-W, B2HB 19 to 35 Technical Data
7
5461 883 - 02
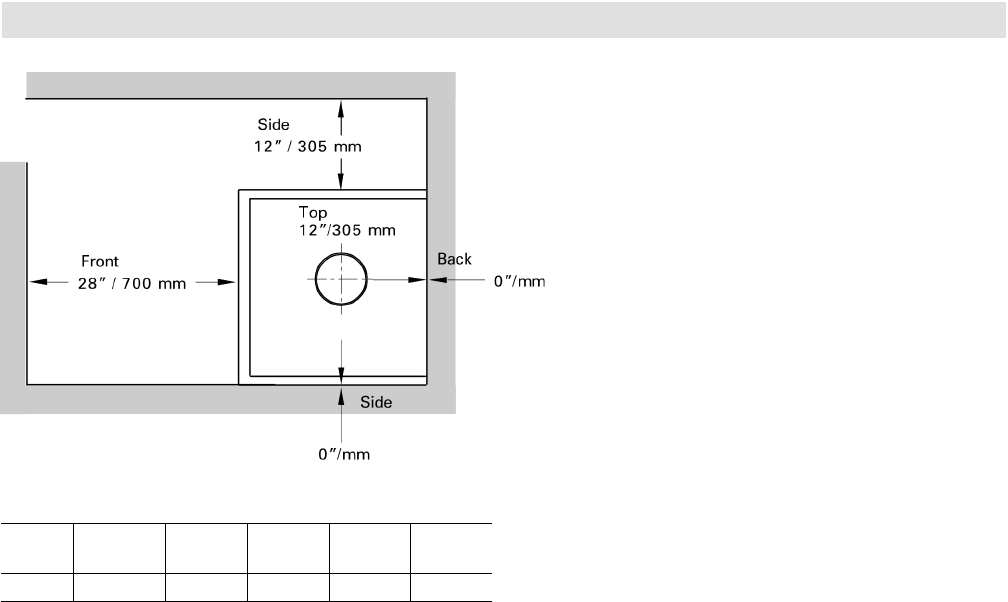
Minimum Clearances
7
Recommended Minimum Service Clearances
Minimum Clearances to Combustibles
AL= Alcove
CL= Closet
*1 Refer to the Installation Instructions of the Vitodens
200-W, B2HB Venting System for details.
Note:The Vitodens boiler has passed the zero inches
vent clearance to combustibles testing requirements
dictated by the Harmonized Standard ANSI Z21.13.
CSA 4.9.2000 and therefore is listed for zero
clearance to combustibles when vented with a
single wall special venting system (AL-29-4C
material). The zero inches vent clearance to
combustibles for the Vitodens boiler supercedes
the clearance to combustibles listing that appears
on the special venting system label.
Top Front Rear Left Right Vent
pipe *1
0 0 AL, CL 0 0 0 0

Vitodens 200-W, B2HB 19 to 35 Technical Data
5461 883 - 02
8
Typical System Flow Rates
Waterside Flow
Waterside Flow (primary circuit)
Boiler maximum flow rate 6.2 GPM (1400 L/h)
Boiler maximum flow rate 6.2 GPM (1400 L/h)
Boiler maximum flow rate 6.2 GPM (1400 L/h)
The Vitodens 200-W, B2HB is designed for closed loop,
forced circulation hot water heating systems only. Use
standard friction loss method for pipe sizing. Observe
boiler maximum and minimum flow rate limitations. If
system flow rate exceeds boiler maximum flow rate
(as stated above), falls below the minimum flow rate
or if system flow rate is unknown, Viessmann strongly
recommends the installation of a low-loss header.
An alternative method may be used, such as primary
secondary piping using closely spaced tees.
A low-loss header offers additional benefits not provided
by a pair of closely spaced tees. Viessmann therefore
strongly recommends and prefers the use of a low-loss
header over closely spaced tees. See pages 25 and 26
for low-loss header information. Once the low-loss header
is connected, the built-in low-loss header logic of the
Vitodens 200-W boiler ensures the required rt across the
system through the sensory communication between the
low-loss header and the boiler.
Model B2HB 26 1 boiler
Output (NG/LPG)
MBH 88
rt for NG/LPG
20ºF (11ºC) rise GPM (L/h) 8.8 (1999)
25ºF (14ºC) rise GPM (L/h) 7.0 (1599)
30ºF (17ºC) rise GPM (L/h) 5.9 (1332)
35ºF (19.5ºC) rise GPM (L/h) 5.0 (1142)
40ºF (22ºC) rise GPM (L/h) 4.4 (999)
Pressure drop (primary circuit) for
Vitodens 200-W, B2HB 19, 26, 35
For sizing an on-site circulation system.
Max. flow rate: 6.2 GPM (1400 L/h)
Model B2HB 19 1 boiler
Output (NG/LPG)
MBH 64
rt for NG/LPG
20ºF (11ºC) rise GPM (L/h) 6.4 (1453)
25ºF (14ºC) rise GPM (L/h) 5.1 (1163)
30ºF (17ºC) rise GPM (L/h) 4.3 (969)
35ºF (19.5ºC) rise GPM (L/h) 3.7 (830)
40ºF (22ºC) rise GPM (L/h) 3.2 (727)
Model B2HB 35 1 boiler
Output (NG/LPG)
MBH 117
rt for NG/LPG
20ºF (11ºC) rise GPM (L/h) 11.7 (2657)
25ºF (14ºC) rise GPM (L/h) 9.4 (2126)
30ºF (17ºC) rise GPM (L/h) 7.8 (1771)
35ºF (19.5ºC) rise GPM (L/h) 6.7 (1518)
40ºF (22ºC) rise GPM (L/h) 5.9 (1328)
Flow rate
Supply head pressure (water)

Vitodens 200-W, B2HB 19 to 35 Technical Data
9
5461 883 - 02
System Flow Rates
9
Heating Circuit / Boiler Pumps
Viessmann offers a variety of Grundfos heating circuit/
boiler pumps which meet typical Vitodens system
installation requirements (see “Heating circuit pump
(field supplied)” or “Boiler pump (field supplied)” in the
Installation Examples starting on page 28). See tables
below for recommended pumps. Refer to the graph
on page 8 for the proper waterside boiler friction loss
calculations. The following pumps have been selected
based on boiler heat exchanger head loss and boiler piping
to a low-loss header.
IMPORTANT
Pump selection must be based on accurate system flow
and pressure drop calculations (includes DHW sizing).
Model B2HB 19 B2HB 26 B2HB 35
Flow rate
20ºF rt GPM (L/h) 6.4 (1453) -- --
25ºF rt GPM (L/h) 5.1 (1163) -- --
30ºF rt GPM (L/h) 4.3 (969) 5.9 (1332) --
35ºF rt GPM (L/h) 3.7 (830) 5.0 (1142) --
40ºF rt GPM (L/h) 3.2 (727) 4.4 (999) 5.9 (1328)
Flow limitation GPM (L/h) 6.2 (1400) 6.2 (1400) 6.2 (1400)
Recommended boiler pumps Grundfos UPS 15-58 (3-speed), Taco 0015, Wilo Star S 21 FX
Before using the following pumps for a DHW tank
application, find out the proper pressure drop through the
tank, the required temperature difference through the coil
and system piping head loss of the domestic hot water.
Low-Loss Header Application
Sizing of Low-Loss Header in a Residential Single-Boiler Application
*1 For system rt < 20° F use low-loss header sizes for rt 20° F.
*2 Low-Loss temperature sensor - is included with the boiler for use in a single boiler application.
Boiler
Model
No. of
Boilers
Boiler
Max.
Flow
Rate
GPM
(L/h)
Typical System Flow Rates Viessmann
Low-loss
Temp.
Sensor
Required*2
rt *1 °F
(°C)
20
(11.0)
25
(14.0)
30
(17.0)
35
(19.5)
40
(22.0)
B2HB
19
1 6.2
(1400)
System Flow
Rate
LLH Required
LLH Model
GPM
(L/h)
6.4
(1453)
Yes
80/60
5.1
(1163)
Optional
80/60
4.3
(969)
Optional
80/60
3.7
(830)
Optional
80/60
3.2
(727)
Optional
80/60
Included
B2HB
26
1 6.2
(1400)
System Flow
Rate
LLH Required
LLH Model
GPM
(L/h)
8.8
(1999)
Yes
80/60
7.0
(1599)
Yes
80/60
5.9
(1332)
Optional
80/60
5.0
(1142)
Optional
80/60
4.4
(999)
Optional
80/60
Included
B2HB
35
1 6.2
(1400)
System Flow
Rate
LLH Required
LLH Model
GPM
(L/h)
11.7
(2657)
Yes
80/60
9.4
(2126)
Yes
80/60
7.8
(1771)
Yes
80/60
6.7
(1518)
Yes
80/60
5.9
(1328)
Optional
80/60
Included

Vitodens 200-W, B2HB 19 to 35 Technical Data
5461 883 - 02
10
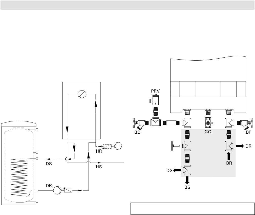
DHW Production
Domestic Hot Water Production
Legend
DR Boiler heating return for domestic hot water
production
DS Boiler heating supply for domestic hot water
production
HR Heating Return
HS Heating Supply
BD Boiler Drain
BR Boiler Return
BS Boiler Supply
GC Gas Connection
PRV Pressure Relief Valve
BF Boiler Fill
PG Pressure Gage (not shown)
*1 See page 45 for alternate DHW connection.
*2 Temperature guage
An adequately sized pre-charged expansion tank must be
used. See Installation Examples for details.
IMPORTANT
Vitodens 200-W boilers can be used in conjunction
with the stand-alone DHW storage tanks offered by
Viessmann.
All Viessmann DHW storage tanks sold in North America
are available in “Vitosilver” finish only.
Size and select the DHW storage tank based on the
forecasted DHW consumption of the building in question.
For further technical information on DHW storage tanks,
see the Vitocell-V Technical Data Manuals.
For the connection of a stand-alone DHW tank, installation
fittings (field supplied), an external circulating pump for
DHW production (field supplied) and a DHW temperature
sensor (optional equipment, see Viessmann Price List for
order information) are required.
Note:Install the temperature guage (supplied) anywhere
in the supply piping near the boiler (not shown).
*1 DHW
Connections
(Field Supplied)
*2

Vitodens 200-W, B2HB 19 to 35 Technical Data
11
5461 883 - 02
DHW Recirculation
Domestic Hot Water Recirculation
DHW recirculation lines increase the level of comfort and
convenience of the domestic hot water supply and reduce
water consumption.
These advantages directly derive from the immediate
availability of domestic hot water at all draw points.
Poor insulation of the DHW recirculation line, however,
can result in considerable heat loss. Viessmann therefore
recommends that effective insulation be provided and
used for DHW recirculation lines of 23 ft. (7 m) in length
or longer.
Vitocell-V stand-alone DHW storage tank
Legend
DCW Domestic Cold Water
DHW Domestic Hot Water
TPV Temperature and Pressure Relief Valve
(on tank - not shown)
R DHW Recirculation Line
RP DHW Recirculation Pump

Vitodens 200-W, B2HB 19 to 35 Technical Data
5461 883 - 02
12
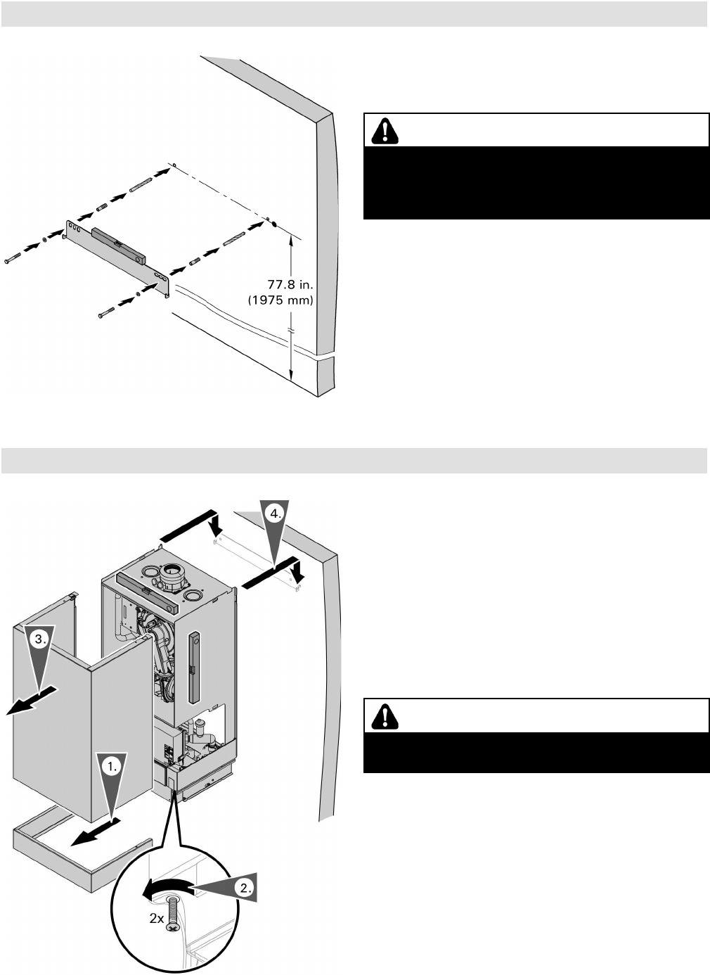
Wall Mounting
Mounting Bracket
1. Remove the external accessories connection box
cover.
2. Loosen the screws at the bottom of the boiler
(do not remove completely).
3. Remove the front encloser panel (lift up and pull
away from the boiler).
4. Mount boiler onto the mounting bracket and connect
boiler to the installation fittings.
5. Ensure the boiler is securely mounted.
CAUTION
Whichever mounting method is used, ensure that the
bracket is tightly and securely fastened to wall. Failure
to secure boiler properly could cause boiler to loosen,
posing a severe safety hazard.
Fitting the wall mounting bracket
See the installation instructions applicable to the
mounting bracket on each type of material.
Models B2HB 19, 26, 35
CAUTION
The boiler must be level both vertically and horizontally
to ensure proper draining of the condensate.

Vitodens 200-W, B2HB 19 to 35 Technical Data
13
5461 883 - 02
Frame Mounting
Boiler Stand for B2HB 19 to 35
The boiler stand is used for free-standing installation of a
single boiler within the mechanical room.
When using the boiler stand, ensure that the stand is
securely fastened to the floor (recommended concrete
expansion anchors are Hilti model KB-TZ e x 4 or
equivalent.
The Vitodens 200-W, model B2HB does not come with
a mounting template. The wall location for the frame,
mounting bracket and all vents must be field calculated.
Boiler mounting bracket and frame
1. Attach the wall mounting bracket (supplied with the
boiler) to the boiler mounting frame using the supplied
hardware. Ensure that the wall mounting bracket is
level.
2. Move the rack into position and secure to the floor
(and to the wall if needed).

Vitodens 200-W, B2HB 19 to 35 Technical Data
5461 883 - 02
14
Frame Mounting
Models B2HB 19, 26, 35
1. Remove the external accessories connection box
cover.
2. Loosen the screws at the bottom of the boiler
(do not remove completely).
3. Remove the front encloser panel (lift up and pull
away from the boiler).
4. Mount boiler onto the mounting bracket and ensure
the boiler is securely mounted. Then install the
holding bracket to the frame on top of the boiler.
5. Connect the boiler to the installation fittings.
CAUTION
The boiler must be level both vertically and horizontally
to ensure proper draining of the condensate.

Vitodens 200-W, B2HB 19 to 35 Technical Data
15
5461 883 - 02
Condensate Connection/Neutralization Unit
Condensate Connection
Install the condensate drain pipe with a suitable gradient.
Discharge condensate from the boiler into the drainage
system, either directly or (if required) via a neutralization
unit (accessory).
Pipe ventilation must take place between the siphon trap
and the neutralization unit (if applicable).
Condensate Connection for Vitodens
200-W, models B2HB 19, 26, 35
IMPORTANT
Condensate Drainage and Neutralization
The condensate formed both in the condensing boiler
and in the flue gas pipe must be discharged into the
public sewage system in accordance with all applicable
local regulations. The condensate produced by a gas-fired
heating system has a pH value between 3 and 4.
Some local codes may require the use of a separate
neutralization unit to treat the aggressive and corrosive
nature of the condensate. With a neutralization unit
installed, all condensate from the boiler and the flue gas
pipe enters into the neutralization unit where it is treated
and released into the public sewage system with a safe
pH value of above 6.5.
The use of neutralization granulate (performing the
neutralizing process) is dependent on the operation of the
heating system. To determine the required refill amount,
check granulate level several times during the first year
of operation. In some cases one granulate fill may last
an entire year.
Contact Viessmann to order a neutralization unit for the
Vitodens 200-W boiler.
See Viessmann Price List for order information.
The condensate discharge outlet to the drainage system
connection must be clearly visible. It must be installed
with a suitable gradient and provided with a stench trap.
If the condensate outlet of the Vitodens 200-W boiler is
lower than the drain, a condensate pump must be used.
Only corrosion-resistant materials must be used for
condensate drainage purposes (e.g. braided hose).
Do not use galvanized materials or materials containing
copper for piping, couplings etc. The condensate drain
must have a trap to prevent flue gas leakage.
Please note that other requirements might apply
depending on local regulations and/or project-specific
details.
It is advisable to contact your local waterworks office
(authority responsible for waste water regulations)
well before commencing with the installation of the
neutralization unit in order to establish details of local
regulations that apply.
The following table shows the concentration of (effluent)
substances (e.g. heavy metals) contained in the waste
water from the Vitodens 200-W condensing boiler.
Condensate (effluent)
substances
Values measured in mg/L
Vitodens 200-W
Lead
Cadmium
Chromium
Copper
Nickel
Zinc
Tin
< 0.01
< 0.005
< 0.01
< 0.01
< 0.01
< 0.05
< 0.05

Vitodens 200-W, B2HB 19 to 35 Technical Data
5461 883 - 02
16
Venting Options/Electrical Connection/Control
Venting Options
For detailed information refer to the Installation Instructions for the Vitodens 200-W, B2HB Venting System.
Power Supply
The Vitodens 200-W requires a standard 120 VAC power
outlet 15A fuse protected circuit. Refer to the installation
instructions shipped with the boiler for wiring details, or
reference the “Overview of Electrical Connections” on
pages 38 and 39 of this manual.
Power Supply Connection of Accessories
The power supply connection of accessories can be made
directly at the boiler control. The connection is activated
and deactivated with the system on/off switch.
The mixing valve accessory kit and the Vitosolic control
(if used) will require a separate 120 VAC power supply
from the wall receptacle.
Wire cabling required for:
■ Outdoor temperature sensor
■ Vitotronic 200-H, HK1B mixing valve control
■ Accessory kit for heating circuit with mixing valve
■ Vitotrol 200 remote control
■ Vitotrol 300 remote control
■ Remote switching of operating mode
■ Remote disable
■ Alarm output
Vent Connection, (with optional
air intake openings on sides)
for models B2HB 19, 26, 35
Electrical Connections

Vitodens 200-W, B2HB 19 to 35 Technical Data
17
5461 883 - 02
Boiler Control
On-Board Vitotronic 200, HO1B Control
Modular structure
The control unit is integrated into the boiler. The control
unit comprises a standard unit, electronics modules and
a programming unit.
Standard unit:
■ ON/OFF switch
■ Optolink laptop interface
■ Operating and fault indicators
■ Reset button
■ Fuses
Programming unit:
■ Easy operation through:
– Plain text display with graphic ability
– Large font and black & white depiction for good
contrast
– Context-sensitive help text
– Removable programming unit; can be mounted
on the wall with separate accessory
■ With digital time switch
■ Control keys for:
– Navigation
– Confirmation
– Help and additional information
– Menu
■ Setting the:
– Room temperature
– Reduced room temperature
– DHW temperature
– Heating program
– Time programs for central heating, DHW heating
and DHW recirculation
– Economy mode
– Party mode
– Holiday program
– Heating curves
– Codes
– Actuator tests
– Test mode
■ Displaying the:
– Boiler water temperature
– DHW temperature
– Operating details
– Diagnostic details
– Fault messages

Vitodens 200-W, B2HB 19 to 35 Technical Data
5461 883 - 02
18
Frost protection
■ The frost protection function will be started when the
outside temperature drops below approx. 34°F (1°C).
With the frost protection function, the heating circuit
pump will be switched ON and the boiler water is
maintained at a lower temperature of approx. 68°F
(20°C).
The DHW tank will be heated to approx. 68°F (20°C).
■ The frost protection function will be stopped when the
outside temperature rises above approx. 37°F (3°C)
(default settings).
Summer Operation
Heating program “w”
The burner is only activated upon a call for domestic hot
water from the DHW storage tank (controlled by DHW
tank temperature sensor).
Design and Function
Boiler Control
Control Characteristics
PI characteristics with modulating output.
Time Switch
Digital time switch.
■ Individual and 7-day program
■ Automatic daylight savings time changeover
■ Automatic function for DHW heating and DHW
recirculation pump
■ Time, day and standard switching times for space
heating, DHW heating and the DHW recirculation
pump are factory-set
■ Switching times are individually programmable,
i.e. up to four switching periods per day
Shortest switching interval: 10 minutes
Power backup: 14 days.
Functions
■ Weather-compensated control of the boiler water
and/or flow temperature
■ Control of one heating circuit without mixer and two
heating circuits with mixer
■ Control of one heating circuit without mixer and two
heating circuits with mixer
■ Demand-dependent heating circuit pump and burner
off control
■ Adjustment of a variable heating limit
■ Anti-seizing pump protection
■ Integral diagnostic system
■ Maintenance display
■ DHW temperature control with priority
■ Control of solar DHW heating and central heating
backup in conjunction with the solar control module,
type SM1
■ Display of the solar energy yield
■ Auxiliary function for DHW heating (short-term
heating to a higher temperature)
■ Slab curing program
■ 0-10V External signal input
Setting the Operating Programs
The heating system frost protection (see
frost protection function) applies to all heating programs.
You can select the following heating programs with the
program keys:
■ Heating and DHW
■ DHW only
■ Standby mode
External heating program changeover.

Vitodens 200-W, B2HB 19 to 35 Technical Data
19
5461 883 - 02
Boiler Control
Design and Functions (continued)
Heating Curve Adjustment (slope and shift)
The control unit regulates the boiler water temperature
(= supply temperature of heating circuit without
mixing valve) and the supply temperature of the heating
circuit with mixing valve (in conjunction with the
accessory mixing valve extension kit) according to the
outdoor temperature. The boiler water temperature is
automatically raised by 0 to 72 F / 0 to 40 K higher than
the currently required set supply termperature (in the
factory default setting the differential temperature
is 14.4 F / 8 K). See Service Instructions for coding
address “9F” in coding level 2.
The supply temperature that is required to achieve a
given room temperature depends on the heating system
and the thermal insulation of the building that is being
heated.
The adjustment of the two heating curves is used to
match the boiler water temperature and the supply
temperature to these conditions. The boiler water
temperature is limited upwards by the fixed high limit
and the temperature set for the electronic high limit.
The supply temperature cannot rise above the boiler
water temperature.
Technical Data
Rated supply voltage: 120 VAC
Rated frequency: 60 Hz
Rated current: 12 A
Max. ambient temp.
- at operation: 32 to 104ºF (0 to 40ºC)
Installation in living spaces or
boiler rooms (standard
ambient conditions)
- when storing
or transporting: -4 to +158ºF (-20 to +70ºC)
Max. operating temp.
setting (space heating):
Models B2HB 19-35 165ºF (74ºC)
DHW production:
Models B2HB 19-35 165ºF (74ºC)
Setting fixed high limit: 210ºF (99ºC)
(not adjustable)
Adjustment range of
DHW tank set-point
temperature: 50 to 154ºF (10 to 68ºC)
Heating curve settings
- Heating curve slope: 0.2 to 3.5
- Heating curve shift: -12 to +33ºC
-13 to 40 K
Legend
A Low temperature heating system,
e.g. radiant floor heating
B Medium temperature heating system,
e.g. cast iron radiation, staple-up radiant floor heating
C High temperature heating system,
e.g. fintube radiation, fan coils
Boiler water or supply
temperature
Room
set-point
temperature Outdoor temperature

5461 883 - 02
20
Vitodens 200-W, B2HB 19 to 35 Technical Data
Sensors (supplied)
Boiler Temperature Sensor
The boiler temperature sensor is connected at the control
unit for weather-responsive operation and is built into the
boiler.
Specification sensor type: Viessmann NTC 10K ohms
at 77ºF (25ºC)
Max. ambient temp.
- at operation: 32 to 266ºF (0 to 130ºC)
- when storing
or transporting: - 4 to+158ºF (-20 to+70ºC)
Outdoor Temperature Sensor
Sensor location:
- North or northwest wall of building
- 6.6 to 8.2 ft. (2 to 2.5 m) above ground or in case
of a multi-storey building approximately halfway up
the second floor
Electrical connection:
- 2-wire cable, max. cable length 115 ft. (35 m)
with a wire size of min. AWG 16 copper
- Cable to the outdoor sensor must not be laid near
line voltage wiring (120/240 V)
Max. ambient temp.
- at operation: 32 to 194ºF (0 to 90ºC)
- when storing
or transporting: - 4 to+158ºF (-20 to+70ºC)
DHW Tank Temperature Sensor
(immersion temperature sensor)
Supplied with:
- Cable length approx. 13 ft. (3.75 m), ready to plug in
- All pipe connections are field supplied.
Specification
Max. ambient temp.
- at operation: 32 to 194ºF (0 to 90ºC)
- when storing
or transporting: - 4 to+158ºF (-20 to+70ºC)
- Sensor type: Viessmann NTC
10K ohms @ 77ºF (25ºC)
Accessories
Immersion Temperature Sensor
To capture the low loss temperature
(if low-loss header is used)
Specification
Lead length fully wired: 12 ft. (3.75 m),
Permissable ambient temp.
- during operation: 32 to 194°F (0 to 90°C)
- when storing
or transporting: - 4 to+158° F (-20 to+70° C)

21
5461 883 - 02
Vitodens 200-W, B2HB 19 to 35 Technical Data Accessories
Optional Accessories
Mixing Valve Motor Kit
The mixing valve actuator is mounted directly on the
Viessmann ¾ to 2½” mixing valve.
The mixing valve actuator is a motor-driven control unit.
The rotational direction is reversible.
Rated voltage: 120 VAC
Rated frequency: 60 Hz
Power consumption: 4W max. ambient temperature
- at operation: 32ºF to 104ºF (0ºC to 40ºC)
application in living areas and installation sites
(normal ambient conditions)
-storage & shipping: -4ºF to 149ºF (-20ºC to 65ºC)
Room Temperature Sensor,
Separate room temperature sensor as supplement to the
Vitotrol 200A and 300A; to be used if the Vitotrol 200A
or 300A cannot be installed inside the main living room
or in a suitable position where the unit can capture and
adjust the temperature.
Installation in the main living room on an internal wall
opposite radiators. Never install inside shelf units,
recesses, immediately by a door or heat source
(e.g. direct sunlight, fireplace, TV set, etc.).
Connect the room temperature sensor to the Vitotrol
200A or 300A.
Electrical connection:
- 2-wire cable with a wire size of min. AWG 18 copper
- The cable length between the control unit, remote
control unit and room temperature sensor must not
exceed 98 ft. (30 m)
Max. ambient temp.
- at operation: 32 to 104ºF (0 to 40ºC)
- when storing
or transporting: -4 to+149ºF (-20 to +65ºC)
Supply Temperature Sensor
(strap-on sensor, included with mixing valve actuator
accessory kit),
- when storing
or transporting: -4 to+158° F (-20 to+70ºC)
Installed with a strapping band.
Cable length 19.7 ft. (6 m), ready to plug in.
Max. ambient temp.
- at operation: 32 to 212ºF (0 to 100ºC)
- when storing
or transporting: -4 to+149ºF (-20 to+70ºC)

Vitodens 200-W, B2HB 19 to 35 Technical Data
5461 883 - 02
22
Mixing Valve Extension Module
Rated voltage: 120 VAC
Rated frequency: 60 Hz
Rated current: 2 A
Power consumption: 4 W
Max. ambient temp.
- at operation: 32 to 104ºF (0 to 40ºC)
- when storing
or transporting: -4 to+149ºF (-20 to+65ºC)
Relay output for
heating circuit pump: 2 A, 120 VAC
Actuator torque: 3 Nm
Time of 90º: 120 seconds
Accessories
Optional Accessories (continued)
LON Communication Module
Electronic PCB for data exchange with the Vitotronic
200-H, Vitocom 200 and for connecting to a higher level
building management system.
LON Connecting Cable
(for data exchange between control units)
Cable length 23 ft. (7 m), fully wired
LON Terminal End Resistor
To terminate the LON BUS at the first and the last control
unit.
KM BUS Expansion Module
To connect 2 to 9 devices (mixing valve actuator,
Vitotrol, input module, etc.) to the single KM BUS
connection of the boiler.
Specification
Lead length 10 ft. (3.0 m), fully wired
Permissable ambient temp.
- during operation 32 to 104°F (0 to 40°C)
- during storage and
transport: - 4 to+149°F (-20 to+65°C)

Vitodens 200-W, B2HB 19 to 35 Technical Data
23
5461 883 - 02
Accessories
Optional Accessories (continued)
Connection:
- 2-core lead 18 AWG, length max. 164 ft.(50 m)
(even if connecting several remote control units)
- Never route this lead immediately next to 120/208/460 V
cables
- LV plug as standard delivery must be installed in the
main living room (lead room).
Specification:
Power supply via KM BUS
Power consumption: 0.2 W
Protection class: III
Max. ambient temp.
- at operation: 32 to 104ºF (0 to 40ºC)
- when storing
or transporting: -4 to+149ºF (-20 to+65ºC)
Set room temp. range 37 to 99ºF (3 to 37ºC)
The set room temperature for reduced mode is adjusted
at the control unit.
Vitotrol 200A
One Vitotrol 200A can be used for every heating circuit
in a heating system. The Vitotrol 200A can regulate one
heating circuit and up to two remote controls may be
connected to the control unit.
KM BUS Participant
The Vitotrol 200A remote control regulates the required
set room temperature in standard mode, from any room
in the house.
- Party and economy mode can be enabled via keys
- Only for heating circuit with mixing valve
Fitted room temperature sensor for room temperature
hook-up
WS function:
Installation anywhere in the building.
RS function:
Note: Never activate the RS function for underfloor
heating circuits (inertia). In heating systems with
a heating circuit without mixing valve and heating
circuits with mixing valve, the RS function must
only affect the heating circuit with mixing valve.
Room temperature hook-up:
Installation in the main living room on an internal wall
opposite radiators. Never install inside shelf units,
recesses, immediately by a door or heat source (e.g.
direct sunlight, fireplace, TV set, etc.).
The integral room temperature sensor captures the actual
room temperature and effects any necessary corrections
of the supply temperature as well as a rapid heat-up
at the start of the heating operation (if appropriately
programmed).

Vitodens 200-W, B2HB 19 to 35 Technical Data
5461 883 - 02
24
Vitotrol 300A
One Vitotrol 300A can be used for every heating circuit
in a heating system. The Vitotrol 300A can regulate up
to three heating circuits. Up to two remote controls may
be connected to the control unit.
KM BUS Participant
The Vitotrol 300A remote control regulates the required
set room temperature for one heating circuit in standard
and reduced mode, the heating program and the switching
times for central heating, DHW heating and the DHW
recirculation pump.
Displaying:
- Room temperature
- Outside temperature
- Heating program
- Operating condition
- Solar yield as graphic display
Settings:
- Set room temperatures for standard mode
(day temperature) and reduced mode (night temperature)
via the standard display
- Heating program, switching times for heating circuits,
DHW heating and DHW recirculation pump plus further
settings via plain text menu on the display
- Party and economy mode can be enabled via the menu
- Only for heating circuit with mixer:
Fitted room temperature sensor for room temperature
hook-up
Note: For room temperature hook-up, the Vitotrol 300A
must be installed in the main living room (lead room).
RS function:
Installation in the main living room on an internal wall
opposite radiators. Never install inside shelving units,
in recesses, or immediately by a door or heat source
(e.g. direct sunlight, fireplace, TV set, etc.). The fitted
room temperature sensor captures the actual room
temperature and effects any necessary correction of
the flow temperature.
WS function:
Installation anywhere in the building.
Connection:
- 2-core lead 18 AWG, length max. 164 ft. (50 m)
(even if connecting several remote control units)
- Never route this lead immediately next to 120/208/460 V
cables
- LV plug as standard delivery must be installed in the main
living room (lead room).
Specification:
Power supply via KM BUS
Power consumption: 0.2 W
Protection class: III
Max. ambient temp.
- at operation: 32 to 104ºF (0 to 40ºC)
- when storing
or transporting: -4 to+149ºF (-20 to+65ºC)
Set room temp. range 37 to 99ºF (3 to 37ºC)
The set room temperature for reduced mode is adjusted
at the control unit.
Optional Accessories (continued)
Accessories

Vitodens 200-W, B2HB 19 to 35 Technical Data
25
5461 883 - 02
Accessories
Accessories for Vitodens 200-W
Neutralization Unit for Single-Boiler Applications
with neutralizing granulate
for models B2HB 19, 26, 35
Neutralization Pellets
for models B2HB 19, 26, 35
2 x 1.3 kg for refill or replacement purposes
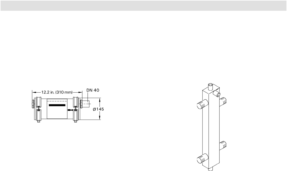
Low-Loss Header
When used in conjunction with the Vitodens 200-W
boiler, the low-loss header acts as hydraulic break,
decoupling boiler and system circuits from each other.
It is recommended to use the low-loss header in
applications in which the total system flow rate exceeds
the maximum (or minimum) boiler flow rate.
For maximum boiler flow rates, starting on page 9 of
this manual.
Viessmann strongly recommends the use of a low-loss
header in cases where the system head and flow rates
are unknown.
The temperature sensor connection [TS] typically located
at the top of the low-loss header ensures low return
temperatures to the Vitodens 200-W boiler at all times,
increasing operational efficiency.
In addition, the low-loss header helps eliminate air and
debris [D] from the heating system.
See illustrations for design and principle of operation on
page 26.
The low-loss header is available in various sizes
(see page 26). Select the size based on the maximum
system flow rate of your application.
Fuel Conversion Label Kit (NG>LPG)
(included in boiler technical literature set)
The Vitodens 200-W, B2HB boiler comes factory set
for operation with natural gas. All B2HB models can be
field converted to operate with liquid propane gas (as
well as back to natural gas as required). The kit includes
instructions and labels for field conversion.
LON Communication Module
Electronic PCB for data exchange with the Vitotronic
200-H, Vitocom 200 and for connecting to a higher level
building management system.

5461 883 - 02
26
Vitodens 200-W, B2HB 19 to 35 Technical Data
Accessories
Accessories for Vitodens 200-W
Low-Loss Header (continued)
Use only a Viessmann supplied temperature sensor.
Do not use any other manufacturer’s temperature sensor.
Legend
AB Air Bleed
BR Boiler Return
BS Boiler Supply
BY Bypass (with laminar flow)
D Debris
DV Drain Valve
SC Sensor Cable
SR System Return
SS System Supply
TS Viessmann Temperature Sensor
SW Sensor Well
When installing a low-loss header, the system mixed
supply temperature (T3) must be calculated as follows:
Legend
T1 Boiler supply temperature
T2 Boiler return temperature
T3 System supply temperature
T4 System return temperature
Vprimary Boiler circuit flow rate
Vsecondary Heating circuit flow rate
Vbypass Bypass flow rate
Qprimary Heat supplied by boiler
Qsecondary Heat consumed by system
Vprimary < Vsecondary
T1 > T3
T2 = T4
Qprimary = Qsecondary
T1 167° F (75° C)
Vsecondary=Vprimary+Vbypass
IMPORTANT
IMPORTANT
Model No. Max. system flow rate
Type 80/60 19.5 GPM (4.4 m3/h)
Type 120/80 35.2 GPM (8 m3/h)
Type 160/80 *1 44 GPM (10 m3/h)
Type 200/120 *180 GPM (18 m3/h)
*1 Floor-mounted version (typically used for
multiple-boiler installations).
Low-loss header design (Typical)
Principle of Operation

27
5461 883 - 02
Vitodens 200-W, B2HB 19 to 35 Technical Data Standard Equipment
Standard Equipment
The Vitodens 200-W gas-fired condensing boiler with
Inox-Radial heat exchanger, modulating MatriX cylinder
burner for liquid propane gas and natural gas (available
on all models), comes standard with:
■ pressure gage
■ installation fittings with 30 psig pressure
relief valve and air vent
■ thermometer guage (field installation on supply pipe)
■ LLH immersion sensor (if LLH is used)
■ DHW sensor
■ boiler control unit with outdoor
temperature sensor
- The boiler comes prewired and fully piped
internally for field connections and prewired.
- Side wall co-axial vent installations must include
Viessmann protective screen!
- Enclosure finish:
black steel, powder-coated white
- The Vitodens 200-W comes ready for use
with natural gas and can be fuel
converted to liquid propane gas in the field.
- Air vent
Wall mounting componentry
The following wall mounting components are supplied
with the Vitodens 200-W boiler:
■ Mounting bracket
■ Mounting bolts
■ Installation fittings
■ Screws for mounting bracket on
- wood studs (2” x 4”)
- metal studs
- brick/concrete wall
Combustion Management System
The combustion management system utilizes the physical
correlation between the level of the ionization current
and the air factor λ. For all gas qualities, the maximum
ionization current results with air factor λ.
The ionization signal is evaluated by the combustion
management system, and the air factor is adjusted to
between λ=1.24 and 1.44. This range provides for an
optimum combustion quality. Thereafter, the electronic
gas valve regulates the required gas volume based on the
prevailing gas quality.
To check the combustion quality, the CO2 content or the
O2 content of the flue gas is measured. The actual values
enable the prevailing air factor to be determined.
The relationship between the CO2 or O2 content and
air factor λ is illustrated in the table below.
To achieve an optimum combustion control, the system
regularly performs an automatic self-calibration; also after
a power failure (shutdown). For this, the combustion is
briefly regulated to max. ionization current (equals air factor
λ=1). The automatic calibration is performed shortly after
the burner starts and lasts approximately 5 seconds. During
the calibration, higher than normal CO emissions may occur
briefly.
The Vitodens 200-W, B2HB boilers come equipped with Lambda Pro, the industry’s first intelligent combustion
management system. The boiler adjusts automatically to any gas type and quality without the need for a fuel
conversion kit.
Air factor λ - CO2/O2 content
Air factor λO2 content (%) CO2 content (%) for natural gas CO2 content (%) for liquid propane gas
1.20 3.8 9.6 11.3
1.24 4.4 9.2 10.9
1.27 4.9 9.0 10.6
1.30 5.3 8.7 10.3
1.34 5.7 8.5 10.0
1.37 6.1 8.3 9.8
1.40 6.5 8.1 9.6
1.44 6.9 7.8 9.3
1.48 7.3 7.6 9.0

28
5461 883 - 02
Installation
Installation Examples
Please note that in the following piping layout examples all pumps are field supplied.
IMPORTANT IMPORTANT
The examples on the following pages depict possible
piping layouts of the Vitodens 200-W boiler equipped
with Viessmann System Technology.
For boiler and tank combinations, please install only
feasible combinations listed in the Viessmann Price List.
Please note that the following examples are simplified
conceptual drawings only!
Piping and necessary componentry must be field verified.
A low water cut-off (LWCO) must be installed where
required by local codes.
Proper installation and functionality in the field is the
responsibility of the heating contractor.
DHW supply and return piping between boiler DHW
connections and the Viessmann DHW tank connections,
shall be a minimum of 1” nominal pipe diameter (for
models B2HB 19 to 35) DHW connection outlet sizes
provided on the boiler and the DHW tank). This will
ensure the residual head of the field supplied pump is
fully utilized to overcome the resistance of the DHW heat
exchanger coil and to provide sufficient water flow to the
boiler heat exchanger.
In non-Viessmann DHW tank applications, perform, in
addition to the above, accurate calculations for DHW
tank coil pressure drop versus boiler pump (field supplied)
residual head to ensure sufficient water flow to the boiler
heat exchanger. Failure to heed the above instructions
may cause boiler short-cycling and inadequate DHW
supply.
WARNING
If a DHW storage tank other than a Viessmann
Vitocell 100 or 300 tank is used, the installer must
verify proper operation of the Viessmann DHW tank
temperature sensor with the original manufacturer
of the tank. Viessmann strongly recommends the
installation of a temperature tempering valve in the
DHW supply line.
Hydraulic Connection
System design
Viessmann condensing boilers can generally be installed
in any pumped hot water heating system (closed system).
The circulation pump is an integral part of the appliance.
Minimum system pressure 14 psi (1.0 bar).
The boiler water temperature is limited to 180ºF (82ºC).
To minimise distribution losses, we recommend that
you size the heat distribution system to a max. flow
temperature of 158ºF (70ºC).
To reduce burner cycling in low energy houses with a
correspondingly low heat demand, we recommend the
use of a low loss header.
Vitodens 200-W, B2HB 19 to 35 Technical Data

29
5461 883 - 02
Installation Examples
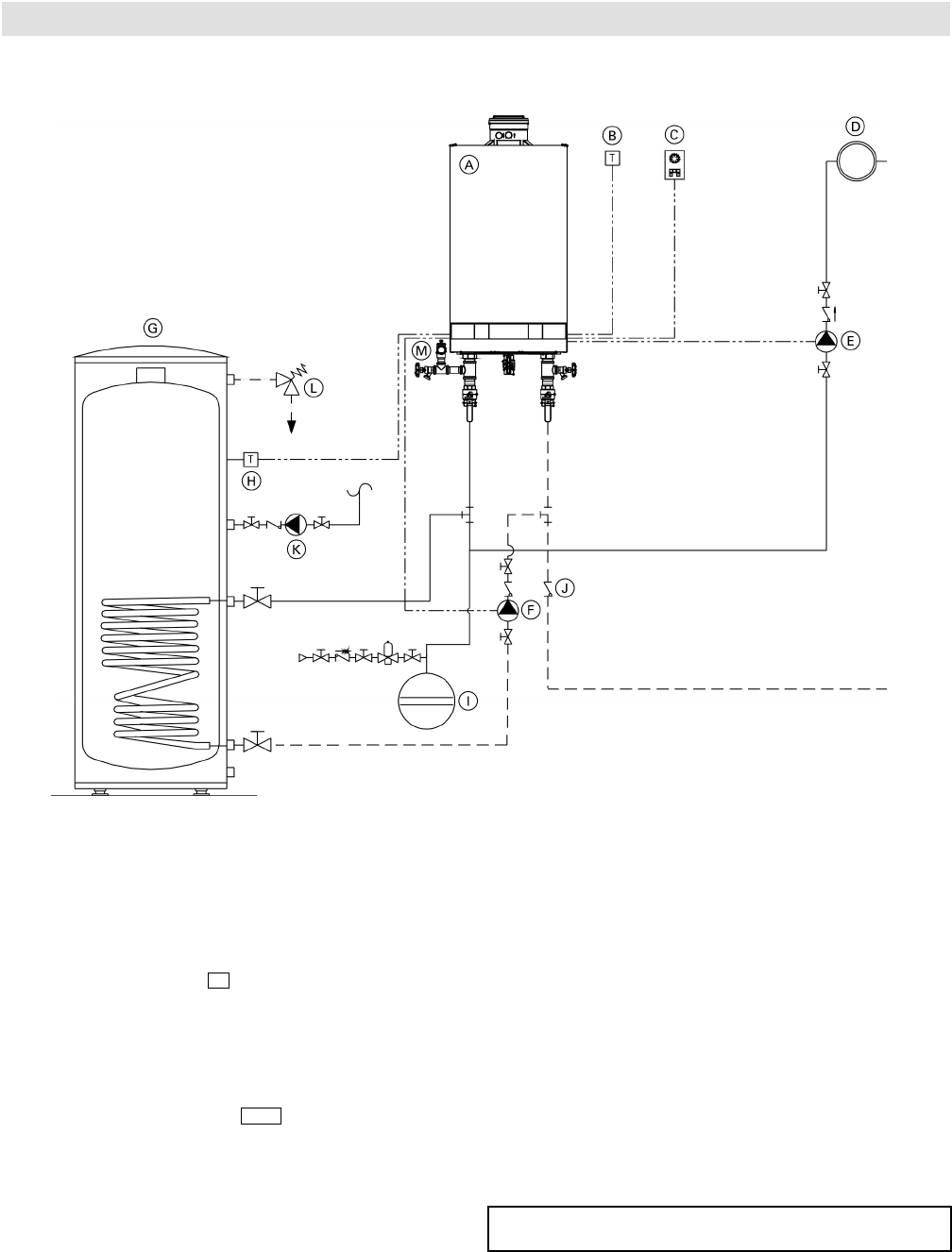
System Layout 1
Vitodens 200-W, B2HB with a direct-connected heating circuit
Installation of ...
■ radiator heating circuit (high-temp. circuit)
■ DHW production
... with the following flow conditions:
The flow rate of the heating circuit is less than the
maximum possible water flow rate of the Vitodens 200-W
B2HB boiler (see page 8 for maximum water flow rate of
boiler).
The use of a low-loss header is strongly recommended if
the maximum water flow rate in the application concerned
exceeds the values shown in the applicable table on page
8, or if the system flow rates are unknown.
The low-loss header is available as accessory part.
See following pages for installation examples with a low-
loss header.
DHW circulating pump F must pump into the Vitodens
200-W boiler (as illustrated).
IMPORTANT
Legend
A Vitodens 200-W B2HB boiler with
Vitotronic 200, HO1B outdoor reset control
B Outdoor temperature sensor !
C Vitotrol remote (optional)
D Heating circuit
E Heating circuit pump 20
F DHW circulating pump sA
G DHW storage tank
H DHW tank temperature sensor %
I Expansion tank
J Flow check valve
K DHW recirculation pump *
L Temperature and pressure relief valve
M Pressure relief valve
* Function based on coding of address 33
28/20
Vitodens 200-W, B2HB 19 to 35 Technical Data

Installation Examples
System Layout 2
Vitodens 200-W, B2HB with one heating circuit and low-loss header
Installation of ...
■ radiator heating circuit (high-temp. circuit)
■ DHW production
... with the following flow conditions:
The flow rate of the heating circuit is greater than the
maximum possible water flow rate of the Vitodens
200-W B2HB boiler (see page 8 for maximum water flow
rate of boiler).
The use of a low-loss header is strongly recommended
if the maximum water flow rate in the application
concerned exceeds the values shown on page 8,
or if the system flow rates are unknown.
The low-loss header is available as accessory part.
Please note location of expansion tank.
DHW circulating pump F must pump into the Vitodens
200-W B2HB boiler (as illustrated).
IMPORTANT
Legend
A Vitodens 200-W B2HB boiler with
Vitotronic 200, HO1B outdoor reset
control
B Outdoor temperature sensor !
C Vitotrol remote (optional)
D Heating circuit
E Boiler pump 20
F DHW circulating pump sA
G DHW storage tank
H DHW tank temperature sensor %
I Expansion tank
J Temperature and pressure relief valve
K DHW recirculation pump 28/20 *
L Low-loss header
M Pressure relief valve
N Viessmann temperature sensor for
low-loss header ?
O Heating circuit pump 28/20 *
* Function based on coding of address 33
30
Vitodens 200-W, B2HB 19 to 35 Technical Data
5461 883 - 02

Installation Examples
System Layout 3
Vitodens 200-W, B2HB with...
- DHW storage tank
- one heating circuit with mixing valve and system separation
Installation of ...
■ underfloor heating circuit with 3-way mixing valve
and system separation (low-temp. circuit)
■ DHW production
... with the following flow conditions:
The flow rate of the heating circuit is less than the
maximum possible water flow rate of the Vitodens
200-W B2HB boiler.
See page 8 for maximum water flow rate of the Vitodens
200-W B2HB boilers. The use of a low-loss header is
recommended if the system water flow rate is unknown.
The low-loss header is available as accessory part.
See following pages for installation examples with a
low-loss header.
System separation is required of underfloor heating
systems employing non-oxygen diffusion barrier tubing.
All components on the secondary side of the heat
exchanger must be made of corrosion-resistant materials.
Sizing of field-supplied pump P is critical for proper boiler
operation in this system layout. See page 8 for the supply
head pressure drop of the boiler. An undersized pump may
cause short-cycling and/or improper operation of the boiler.
Viessmann STRONGLY recommends using a low-loss
header and a boiler pump in this system layout.
IMPORTANT
IMPORTANT
IMPORTANT
31
Legend
A Vitodens 200-W B2HB boiler with
Vitotronic 200, HO1B outdoor reset
control
B Outdoor temperature !
C Vitotrol remote (optional)
D Underfloor heating circuit
E Mixing valve temperature sensor ?
F Pressure relief valve
G Plate heat exchanger for system
separation
H Accessory kit for heating circuit with
mixing valve
I DHW circulating pump sA
J DHW storage tank
K DHW tank temperature sensor %
L Expansion tank
M DHW recirculation pump 28/20 *
N Temperature and pressure relief valve
O Flow check valve
P Heating circuit pump 20
Q Heating circuit pump
* Function based on coding of address 33
DHW circulating pump must pump I into the Vitodens
200-W B2HB boiler (as illustrated).
Vitodens 200-W, B2HB 19 to 35 Technical Data
5461 883 - 02

Installation Examples
System Layout 4
Installation of ...
■ underfloor heating circuit with 3-way mixing valve
and system separation (low-temp. circuit)
■ DHW production
... with the following flow conditions:
The flow rate of the heating circuit is less than the
maximum possible water flow rate of the Vitodens
200-W B2HB boiler.
See page 8 for maximum water flow rate of the Vitodens
200-W B2HB boilers. The use of a low-loss header is
recommended if the system water flow rate is unknown.
The low-loss header is available as accessory part.
See following pages for installation examples with a
low-loss header.
System separation is required of underfloor heating
systems employing non-oxygen diffusion barrier tubing.
All components on the secondary side of the heat
exchanger must be made of corrosion-resistant materials.
Sizing of field-supplied pump P is critical for proper boiler
operation in this system layout. See page 8 for the supply
head pressure drop of the boiler. An undersized pump may
cause short-cycling and/or improper operation of the boiler.
Viessmann STRONGLY recommends using a low-loss
header and a boiler pump in this system layout.
IMPORTANT
IMPORTANT
IMPORTANT
Legend
A Vitodens 200-W B2HB boiler with
Vitotronic 200, HO1B outdoor reset control
B Outdoor temperature sensor !
C Vitotrol remote (optional)
D Under floor heating circuit
E Radiator heating circuit
F Heating circuit pump
G Mixing valve temperature sensor ?
H Accessory kit for heating circuit with mixing valve
I Domestic hot water storage tank
J DHW tank temperature sensor %
K Expansion tank
L Temperature and pressure relief valve
M Pressure relief valve
N DHW recirculation pump 28/20 *
O Boiler pump 20
P DHW circulating pump sA
* Function based on coding of address 33
DHW circulating pump P must pump into the Vitodens
200-W B2HB boiler (as illustrated).
Vitodens 200-W, B2HB with...
- DHW storage tank
- one direct-connected heating circuit
- one heating circuit with a mixing valve
32
Vitodens 200-W, B2HB 19 to 35 Technical Data
5461 883 - 02

Installation Examples
System Layout 5
33
Vitodens 200-W, B2HB with...
- DHW storage tank
- one heating circuit with mixing valve
- one heating circuit without mixing valve and low-loss header
Installation of different heating circuits...
■ radiator heating circuit (high-temp. circuit)
■ under floor heating circuit with 3-way mixing valve
(low-temp. circuit)
■ DHW production
... with the following flow conditions:
The total flow rate of the two heating circuits is greater
than the maximum possible water flow rate of the
Vitodens 200-W B2HB boiler (see page 8 for maximum
water flow rate of boiler).
The use of a low-loss header is strongly recommended.
The low-loss header is available as accessory part.
The 3-way mixing valve, built-in to achieve the low-
temperature level of the under floor heating circuit, is
controlled by an accessory kit for a heating circuit with
mixing valve.
DHW circulating pump O must pump into the Vitodens
200-W B2HB boiler (as illustrated).
IMPORTANT
Legend
A Vitodens 200-W B2HB boiler with
Vitotronic 200, HO1B outdoor reset control
B Outdoor temperature sensor !
C Vitotrol remote (optional)
D Under floor heating circuit
E Radiator heating circuit
F Boiler circuit pump 20
G Mixing valve temperature sensor ?
H Kit for heating circuit with mixing valve
I Domestic hot water storage tank
J DHW tank temperature sensor %
K Expansion tank
L Temperature and pressure relief valve
M Pressure relief valve
N DHW recirculation pump 28/20 *
O DHW circulating pump sA
P Heating circuit pump
Q Low-loss header
R Viessmann temperature sensor for low-loss header ?
S Heating circuit pump 28/20 *
* Function based on coding of address 33
Vitodens 200-W, B2HB 19 to 35 Technical Data
5461 883 - 02

Installation Examples
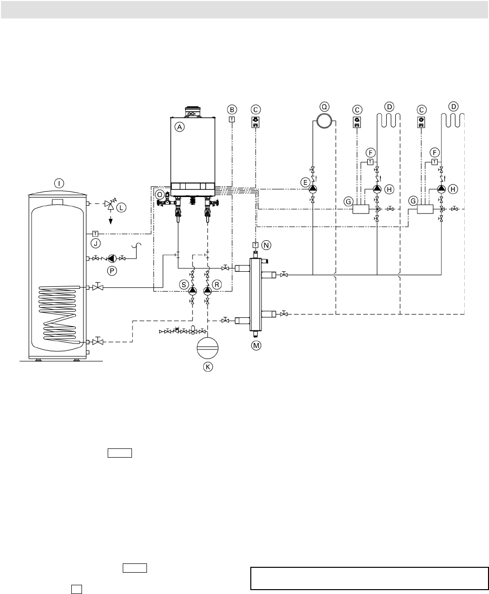
System Layout 6
Vitodens 200-W, B2HB with...
- DHW storage tank
- one heating circuit without a mixing valve
- two heating circuits with a mixing valve
- low-loss header
Installation of different heating circuits...
■ two heating circuits with 3-way mixing valve
(low-temp. circuit)
■ DHW production
... with the following flow conditions:
The total flow rate of the two heating circuits is greater
than the maximum possible water flow rate of the
Vitodens 200-W B2HB boiler (see page 8 for maximum
water flow rate of boiler).
The use of a low-loss header is strongly recommended.
The low-loss header is available as accessory part.
The 3-way mixing valve, built-in to achieve the low-
temperature level of the under floor heating circuit, is
controlled by an accessory kit for a heating circuit with
a mixing valve.
DHW circulating pump S must pump into the Vitodens
200-W B2HB boiler (as illustrated).
IMPORTANT
Legend
A Vitodens 200-W B2HB boiler with
Vitotronic 200, HO1B outdoor reset control
B Outdoor temperature sensor !
C Vitotrol remote (optional)
D Under floor heating circuit
E Heating circuit pump 28/20 *
F Mixing valve temperature sensor ?
G Accessory kit for heating circuit with mixing valve
H Heating circuit pumps
I DHW storage tank
J DHW tank temperature sensor %
K Expansion tank
L Temperature and pressure relief valve
M Low-loss header
N Viessmann temperature sensor for low-loss header ?
O Pressure relief valve
P DHW recirculation pump 28/20 *
Q Radiator heating circuit
R Boiler pump 20
S DHW circulating pump sA
* Function based on coding of address 33
Vitodens 200-W, B2HB 19 to 35 Technical Data
34
5461 883 - 02

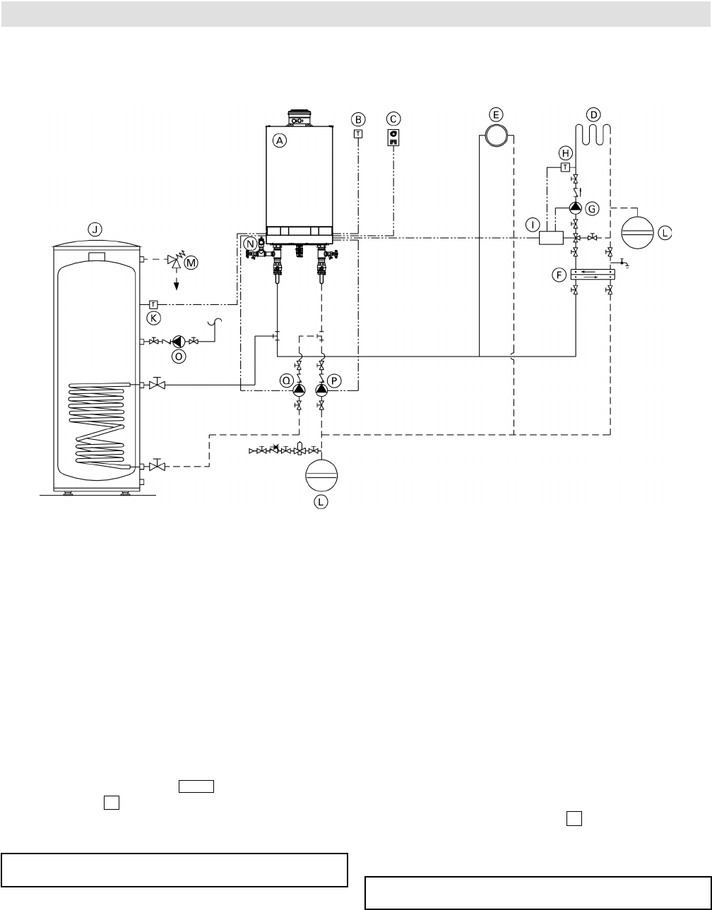
Installation Examples
System Layout 7
Vitodens 200-W, B2HB with...
- direct-connected heating circuit
- one heating circuit with system separation
IMPORTANT
IMPORTANT
Installation of different heating circuits...
■ radiator heating circuit (high-temp. circuit)
■ under floor heating circuit with 3-way mixing valve
(low-temp. circuit)
■ DHW production
... with the following flow conditions:
The total flow rate of the two heating circuits is less than
the maximum possible water flow rate of the Vitodens
200-W B2HB boiler (see page 8 for maximum water flow
rate of boiler).
The use of a low-loss header is strongly recommended if
the maximum water flow rate in the application concerned
exceeds the max. boiler flow rate, or if the system flow
rates are unknown. The low-loss header is available as
accessory part.
The 3-way mixing valve, built-in to achieve the low-
temperature level of the under floor heating circuit, is
controlled by an accessory kit for a heating circuit with
mixing valve I. The boiler pump 20 supplies the
radiator heating circuit and the plate heat exchanger
for system separation.
The pressure drop (secondary circuit) of the plate heat
exchanger F must be less/equal to the pressure drop of
the 3-way mixing valve. This must be taken into account
when sizing the plate heat exchanger.
35
Legend
A Vitodens 200-W B2HB boiler with Vitotronic 200,
HO1B outdoor reset control
B Outdoor temperature sensor !
C Vitotrol remote (optional)
D Under floor heating circuit
E Radiator heating circuit
F Plate heat exchanger for system separation
G Heating circuit pump
H Mixing valve temperature sensor ?
I Accessory kit for heating circuit with mixing valve
J DHW storage tank
K DHW tank temperature sensor %
L Expansion tanks
M Temperature and pressure relief valve
N Pressure relief valve
O DHW recirculation pump 28/20 *
P Boiler pump 20
Q DHW circulating pump sA
* Function based on coding of address 33
DHW circulating pump Q must pump into the Vitodens
200-W B2HB boiler (as illustrated).
Vitodens 200-W, B2HB 19 to 35 Technical Data
5461 883 - 02

Installation Examples
System Layout 8
Vitodens 200-W, B2HB with...
- DHW storage tank
- low-loss header
- multiple heating circuits with mixing valves
- one heating circuit without mixing valve
When designing a system as illustrated above, please contact your local Viessmann Sales Representative for assistance.
*1 Contact your local Sales Representative for details.
Vitotronic 200-H, HK1B mixing valve control with
LON communication module can be used instead
of the accessory kit and Vitocontrol.
Please note location of expansion tank N.
Pumps C and K must pump into the Vitodens 200-W
B2HB boiler (as illustrated).
IMPORTANT
IMPORTANT
Legend
A Vitodens 200-W B2HB boiler with Vitotronic
200, HO1B outdoor reset control
B Outdoor temperature !
C Boiler pump 20
D Vitotronic 200-H, HK1B *1
E Mixing valve temperature sensor ?
F Heating circuit pumps
G Accessory kit for heating circuit with mixing valve
H Heating circuits with mixing valves
I Viessmann temperature sensor for low-loss header ?
J Low-loss header
K DHW circulating pump sA
L DHW tank temperature sensor %
M DHW storage tank
N Expansion tank
O DHW recirculation pump sK
P Heating circuit pump 28/20 *
Q Vitotrol remote (optional)
R Radiator heating circuit
S Temperature and pressure relief valve
T Pressure relief valve
* Function based on coding of address 33
36
Vitodens 200-W, B2HB 19 to 35 Technical Data
5461 883 - 02

Vitodens 200-W, B2HB 19 to 35 Technical Data
37
Installation Examples
Alternative DHW Connection
The following piping diagram reflects an alternative connection for the DHW tank only and applies to system layouts
2, 5, 6 and 8. The boiler control pump logic function must be programmed in the Service Instructions.
*Note: When using a low loss header in the system, the
DHW connections can be made downstream of
the low loss header. See Vitodens 200-W B2HB
Service Instructions for applicable system coding
information (see coding level 2):
00: ...
A2: ...
5b: ...
5461 883 - 02

Vitodens 200-W, B2HB 19 to 35 Technical Data
5461 883 - 02
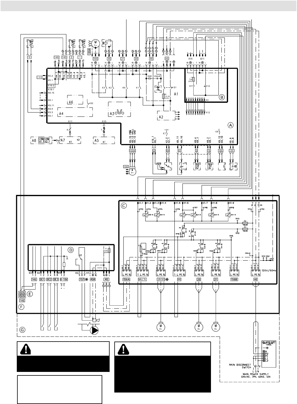
Wiring Diagram
Overview of Electrical Connections, Models B2HB 19, 26, and 35
38
If any of the original wires as
supplied with the appliance must
be replaced, it must be replaced
with the exact equivalent.
CAUTION
Label all wires prior to disconnection
when servicing controls. Wiring errors
can cause improper and dangerous
operation. Verify proper operation
after servicing.
WARNING
DISCONNECT POWER BEFORE
SERVICING BOILER.
* Only one function/accessory may
be assigned to each connection.

Vitodens 200-W, B2HB 19 to 35 Technical Data
39
5461 883 - 02
Overview of Electrical Connections, Models B2HB 19, 26 and 35 (continued)
Wiring Diagram
A Boiler Control
B External Accessory Connection Board
C Pump Connection Interface
D Extension Module EA1
E KM-BUS for External Devices
F Electrical Junction Box
G Field Wiring Connections
A1 Main Board
A2 Internal Power Supply Unit
A3 Optolink
A4 Burner Control Unit
A5 Programming Unit
A6 Coding Card
A7 Connection Adaptor
A8 LON Communication Module
S1 ON/OFF Switch
S2 Reset Button
X.. Electrical Interface
Legend
1 Outdoor Temperature Sensor
2 Supply Temperature Sensor/Low Loss Header
3 Boiler Temperature Sensor
5 DHW Temperature Sensor
11 Ionization Electrode
15 Flue Gas temperature Sensor
20 Boiler Pump
21 DHW Pump
[21] Pump Output Connection
28/20 Programmable Pump Output*
33 Flow Switch
35 Gas Valve
40 Power Supply
40A Accessory Power Output
47 Fixed High Limit
[53] Powered Accessory Connection
54 Ignition Transformer
96 Powered Accessory Connection
100 Fan Motor
100A Fan Motor Control
111 Not Used
145 KM BUS
Multi Powered Accessory Connection
156A Switched Output F2
156B Switched Output F1
DE1 Digital Input 1 (Dry Contact)
DE2 Digital Input 2 (Dry Contact)
DE3 Digital Input 3 (Dry Contact)
0-10V 0-10VDC Input
157 Fault Alarm/DHW Recirc. Pump*
190 Gas Modulation Coil
* See wiring diagram

5461 883 - 02
40
Vitodens 200-W, B2HB 19 to 35 Technical Data
System Design
System Design Considerations
IN THE COMMONWEALTH OF MASSACHUSETTS...
- this product shall be installed by a licensed plumber or
gas fitter.
- the flexible connector (if used) cannot exceed 36”.
- any level type shutoff used must be of tee handle
type.
Boiler location
As a direct vent appliance, the Vitodens 200-W can
be installed for room air independent operation (sealed
combustion) regardless of size and ventilation method
of the room in which it is located.
The Vitodens 200-W can be installed, for example, in
the main living area of a house, in non-ventilated utility
rooms, cupboards, closets and alcoves with no clearance
required from combustible materials, as well as in attics
with a direct outlet for the flue gas/fresh air system.
Follow all local and national codes.
Flue gas system
PPS (Polypropylene) concentric flue gas/fresh air systems
for room air independent operation (sealed combustion)
and side wall venting are tested to ANSI Z21.13 - CSA
4.9 - 2000 standards and are certified together with the
Vitodens 200-W boiler as a constructional unit.
The Vitodens 200-W boiler may also be vented vertically,
using an AL29-4C® special stainless steel, single-wall, room
air dependent venting system (UL listed for category IV).
For a more detailed description of the direct vent and
single-wall vent system, please refer to the Vitodens 200-W
Venting System Installation Instructions.
Flue gas temperature protection
Flue pipes used for the Vitodens 200-W are suitable for
max. flue gas temperatures of up to 230°F (110°C).
No flue gas temperature protection is required as the
maximum permissible flue gas temperature is not
exceeded in any operating condition or in the event of
malfunctioning.
Low water cut-off
A low water cut-off may be required by local codes.
If the boiler is installed above the radiation level, a low
water cut-off device of approved type must be installed
in all instances. An approved type low water cut-off
device must be provided by the heating contractor.
Do not install an isolation valve between the boiler and
the low water cut-off.
Water connections
Vitodens 200-W boilers can be used in any fully pumped
hot water heating system.
Minimum system pressure is 0.8 bar (12 psig).
Chemical corrosion protection products
Corrosion does not typically occur in sealed heating
systems which have been correctly installed and are
correctly operated.
Many manufacturers of plastic pipes recommend the
use of chemical additives. In this case, only those
commercially available corrosion protection products
approved for boilers with domestic hot water heating
via single-wall heat exchangers (instantaneous plate
heat exchangers or DHW tanks) must be used.
Water quality
Treatment for boiler feed water should be considered in
areas of known problems, such as where a high mineral
content and hardness exist. In areas where freezing might
occur, an antifreeze may be added to the system water
to protect the system. Please adhere to the specifications
given by the antifreeze manufacturer. Do not use
automotive silicate based antifreeze.
Please observe that an antifreeze/water mixture may
require a backflow preventer within the automatic water
feed and influence components such as diaphragm
expansion tanks, radiation, etc. Maximum antifreeze
content is 50% for the Vitodens 200-W boiler. Do not
use antifreeze other than specifically made for hot water
heating systems. System also may contain components
which might be negatively affected by antifreeze.
Check total system frequently when filled with antifreeze.
Advise system operator/ultimate owner that system is
filled with a glycol mix. The heating contractor must
provide a MSDS (Material Safety Data Sheet) for the
antifreeze used to the system operator/ultimate owner.
Total permissible hardness of the fill and top-up water
Total heating output Specific heating volume
MBH <5 USG per 3412 BTU m 5USG per 3412 BTU to
<13USG per 3412 BTU
m 13USG per 3412 BTU
[ 170 300 ppm 17.5 gpg 200 ppm 11.7 gpg 2 ppm 0.11 gpg
>170 to [ 682 200 ppm 11.7 gpg 150 ppm 8.8 gpg 2 ppm 0.11 gpg
>682 to [170 150 ppm 8.8 gpg 2 ppm 0.11 gpg 2 ppm 0.11 gpg
>2050 2 ppm 0.11 gpg 2 ppm 0.11 gpg 2 ppm 0.11 gpg
ppm - parts per million
gpg - grains per gallon

41
5461 883 - 02
Vitodens 200-W, B2HB 19 to 35 Technical Data System Design
System Design Considerations (continued)
Oxygen diffusion barrier underfloor tubing
The boiler warranty does not cover leaks resulting from
corrosion caused by the use of underfloor plastic tubing
without an oxygen diffusion barrier. Such systems must
have the non-oxygen diffusion barrier tubing separated
from the boiler with a heat exchanger. Viessmann
recommends the use of underfloor plastic tubing with
an oxygen diffusion barrier.
Warranty
Our warranty does not cover damages resulting from
the following:
- installation or service by unqualified and unlicensed
personnel.
- attempting to perform any repair work on the boiler
other than that mentioned in the boiler literature.
- tampering with or attempting, without Viessmann
permission, to readjust the factory settings of the;
-combination gas valve
-combustion air opening of the burner blower
- leaks resulting from corrosion caused by the use of
underfloor plastic tubing without an oxygen diffusion
barrier. For detailed warranty information, please read
warranty sheet supplied with product.
System layout
■ The max. boiler water temperature for space heating
and DHW production is 165° F (74° C) for models
B2HB 19 to 35. To minimize distribution losses,
Viessmann recommends that the heating and domestic
hot water systems be based on a maximum boiler
supply temperature of 158° F (70° C).
■ Due to the low return temperatures required for gas
condensing, no mixing valves should be used in the
heating circuit whenever possible. If mixing valves
are required, e.g. for multi-circuit systems or
underfloor heating systems, only 3-way mixing valves
must be used.
Do not use 4-way mixing valves with condensing
boilers.
Underfloor heating systems
For underfloor heating systems Viessmann recommends
the use of plastic tubing with an oxygen diffusion barrier
in order to prevent the diffusion of oxygen through
tubing. If plastic tubing without an oxygen diffusion
barrier is used in underfloor heating systems, Viessmann
recommends that such systems be separated from the
boiler with a heat exchanger.
Underfloor heating systems and heating circuits
containing a very large volume of water must be
connected to the boiler via a 3-way mixing valve; please
refer to the applicable installation example in this manual.

Vitodens 200-W, B2HB 19 to 35 Technical Data
5461 883 - 02
42

Vitodens 200-W, B2HB 19 to 35 Technical Data
43
5461 883 - 02

Vitodens 200-W, B2HB 19 to 35 Technical Data
5461 883 - 02 Technical information subject to change without notice. Printed on environmentally friendly
(recycled and recyclable) paper.