Visonic SMD429PG2 Supervised Wireless PowerG Smoke Detector User Manual
Visonic Ltd. Supervised Wireless PowerG Smoke Detector Users Manual
Visonic >
Users Manual

Installation and Operating Instructions
Read this instruction sheet thoroughly before installation and use of the SMD-429 PG2
Introduction
The SMD-429 PG2 is a wireless photoelectric smoke and heat detector with a fixed tem-
perature and rate of rise heat detector, and an internal piezoelectric alarm.
Three versions are available: a 915 MHz for US version (UL) and Canadian version (ULC), a
433 MHz and 868 MHz for International version (EU) and a 433 MHz for Australian version
(AUS).
Compatible Devices
The smoke detector is compatible with Visonic Control Panels and Power G receivers.
HUSH/TEST BUTTON
Operation
Approximately every 7 to 8 seconds the unit tests for a smoke or heat alarm condition. During
this sequence the unit also performs self diagnostics, and checks for tampers and faults. During
normal operation the green LED flashes every 12 seconds and the sounder does not sound.
Smoke Alarm
The smoke detector alarms when the signal level exceeds the “alarm” threshold and auto-
matically restores when the signal level falls below the alarm “restore” threshold. During an
alarm the LED flashes once per second and the sounder sounds the evacuation temporal pat-
tern.
Alarm Silencing
This smoke alarm is provided with an automatically resettable alarm silencing feature. When the
sensor is in alarm, press the Test/Silence/Reset button to silence the local annunciation of the
alarm and transmit an alarm restore event to the control panel. The LED flashes every 8
seconds for up to 10 minutes, to indicate the alarm has been silenced.
The flashing LED stops when the unit returns to normal operation. The alarm silence feature
has a fixed time setting that desensitizes the smoke alarm for 8 minutes.
Alarm silencing does not disable the smoke alarm but rather reduces its smoke sensitivity. Fol-
lowing the silenced period the smoke alarm restores automatically to its intended operation. If
smoke around the unit is dense enough to suggest a potentially dangerous situation, it remains
in alarm, or may return to the alarm state quickly.
Detector Trouble
When the detector has a general fault, the yellow LED blinks once every four seconds and
there is a chirp every 48 seconds. After 12 hours, the panel will display a loss of supervision
message.
Status LEDs
Sounder
(do not pulse the sounder and
LEDconcurrently)
Normal Green flash every 12 seconds Off
Heat Alarm Red flash every 1 second ANSI S3.41 temporal 3
Heat Test Red flash every 1 second ANSI S3.41 temporal 3
Smoke
Alarm Red flash every 1 second ANSI S3.41 temporal 3
(press button to hush for 5-10 minutes)
Smoke Test Red flash every 1 second ANSI S3.41 temporal 3
(press button to hush for 5-10 minutes)
Test Alarm Red flash every 1 second ANSI S3.41 temporal 3
Detector
Trouble Yellow flash every 4 seconds One chirp every 48 seconds
SMD-429 PG2 Series Wireless Smoke and Heat Detector

Status LEDs
Sounder
(do not pulse the sounder and
LEDconcurrently)
Low Battery Yellow flash every 12 seconds One chirp every 48 seconds
(press button to hush for 12 hours)
Detector
Dirty Yellow flash every 8 seconds One chirp every 48 seconds
Power-up Red, yellow, green, flash sequence One chirp at the end of the power-up
sequence
Tamper Red, yellow, green flash sequence every
12 seconds Off
Table 1: Detector and Status Indication
Detector Cleaning Required
When the detector is contaminated, the yellow LED blinks once every 8 seconds and there is a
chirp every 48 seconds. Refer to the MAINTENANCE section for cleaning the detector. After 12
hours, the panel displays a message loss of supervision.
Heat Alarm
The heat detector (cULus versions only) alarms when the heat signal level exceeds the heat
alarm threshold (135 ºF / 57 ºC); and will automatically restore when the heat signal level falls
below the heat alarm threshold (restore). The detector also goes into a heat alarm state when
there is a rapid increase in the temperature over a short period of time. During an alarm the
LED flashes 1/second and the sounder sounds the evacuation temporal pattern.
Tamper
The removal of the detector from the mounting plate initiates a “tamper” transmission. The
tamper condition is restored after the detector is mounted on the plate.
Wireless Transmissions
A supervisory message is transmitted at 64 minute intervals for the SMD-429 PG2 and 12-
minute intervals for the other models. If the signal is not received the control panel determines
that the detector is missing.
The detector transmits the following:
lAlarm / Alarm Restore - (heat or smoke alarm). Transmitted at time of occurrence.
NOTE: During an alarm condition, the detector sends an alarm event to the control panel.
When the condition is restored, the detector sends an alarm restore event to the
panel and sets the alarm restore indicator, the red LED blinks once per minute. You
can clear the alarm restore indicator only from the control panel.
lTamper / Tamper Restore - (tamper switch activated) 10 second maximum delay on restore
before transmission.
lLow Battery - (battery voltage falls below threshold). Battery voltage is tested & transmitted
at the time of a supervisory or other transmissions.
lTrouble - (detector fault or sensor compensation limit reached). Troubles are transmitted at
the time of occurrence (one trouble per supervisory interval).
Batteries
NOTE: The batteries must be replayed by service persons only.
The wireless smoke heat alarm is powered by 3 AAA Duracell Procell PC2400 or 3 AAA Ener-
gizer E92 batteries (included). The detector regularly checks for a low battery. If a low battery is
detected, the transmitter sends a low battery message to the control panel, which displays the
detector's ID at low battery. In addition, the yellow LED of the detector blinks every 12 seconds.
The detector's sounder chirps every 48 seconds and the yellow LED continues to blink until the
batteries are replaced. Pressing the hush button silences the chirps for 12 hours, if no other
trouble conditions exist. The batteries should be replaced with new batteries when the chirps
begin.
Battery Installation and Replacement
CAUTION: Risk of explosion if battery is replaced by an incorrect type. Dispose of used bat-
tery according to the manufacturer's instructions.
To replace batteries, complete the following steps:
1. Remove the detector from its mounting base by twisting the detector counterclockwise.
Carefully remove batteries by lifting from the “+” end using a flathead screwdriver and dis-
pose of them according to local regulations.
2. To ensure a proper power-down sequence, wait a minimum of 20 seconds before
installing new batteries.
3. Install 3 new AAA batteries, available from a local Duracell or Energizer dealer in the bat-
tery compartment. Install the batteries by inserting the “-” end first, then pushing the “+”
end down. If the batteries are incorrectly inserted, please remove them carefully by lifting

them out from the “+” end and correctly re-inserting them.
BATTERY COMPARTMENT
+++
4. Re-install the detector on its mounting base by turning the detector clockwise until the mat-
ing marks align.
5. After the power-up sequence, the green LED should blink once every 12 seconds to indic-
ate normal operation. If the batteries are not installed correctly, the detector will not oper-
ate and the batteries may be damaged. If the detector does not power up, check that the
batteries are installed correctly and fully charged.
6. Test the detector as described later.
CONSTANT EXPOSURES TO HIGH OR LOW TEMPERATURES OR HIGH HUMIDITY MAY
REDUCE BATTERY LIFE.
Installation Instructions
The SMD-429 PG2 Series wireless smoke detector shall be installed and used within an envir-
onment that provides the pollution degree max 2 and over voltages category II in non-haz-
ardous locations, indoor only. The equipment is designed to be installed by SERVICE
PERSONS only; (SERVICE PERSON is defined as a person having the appropriate technical
training and experience necessary to be aware of hazards to which that person may be
exposed in performing a task and of measures to minimize the risks to that person or other per-
sons).
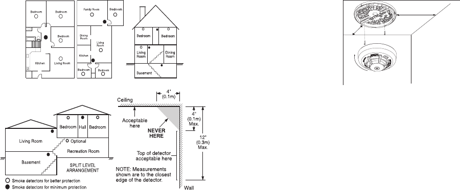
1. Smoke Detector Placement
Research has shown that all hostile fires in homes generate smoke to a greater or lesser extent.
Experiments with typical fires in homes indicate that detectable quantities of smoke precede
detectable levels of heat in most cases. For these reasons, smoke alarms should be installed
outside of each sleeping area and on each storey of the home.
The following information is for general guidance only and it is recommended that local fire
codes and regulations be consulted when locating and installing smoke alarms. It is recom-
mended that additional smoke alarms beyond those required for minimum protection be
installed. Additional areas that should be protected include: the basement; bedrooms, especially
where smokers sleep; dining rooms; furnace and utility rooms; and any hallways not protected
by the required units. On smooth ceilings, detectors may be spaced 9.1 m (30 ft) apart as a
guide. Other spacing may be required depending on ceiling height, air movement, the presence
of joists, uninsulated ceilings, etc. Consult National Fire Alarm Code NFPA 72, CAN/ULC-S553
or other appropriate national standards for installation recommendations.
lDo not locate smoke detectors at the top of peaked or gabled ceilings; the dead air space
in these locations may prevent the unit from detecting smoke.
lAvoid areas with turbulent air flow, such as near doors, fans or windows. Rapid air move-
ment around the detector may prevent smoke from entering the unit.
lDo not locate detectors in areas of high humidity.
lDo not locate detectors in areas where the temperature rises above 38 ºC (100 ºF) or falls
below 5 ºC (41 ºF).
lSmoke detectors must always be installed in USA in accordance with Chapter 29 of NFPA
72, the National Fire Alarm Code: 29.5.1.1.
Where required by applicable laws, codes, or standards for a specific type of occupancy,
approved
single and multiple-station smoke alarms shall be installed as follows:
1. In all sleeping rooms and guest rooms.
2. Outside of each separate dwelling unit sleeping area, within 6.4 m (21 ft) of any door to a
sleeping room, the distance measured along a path of travel.
3. On every level of a dwelling unit, including basements.
4. On every level of a residential board and care occupancy (small facility), including base-
ments and excluding crawl spaces and unfinished attics.
5. In the living areas of a guest suite.
6. In the living areas of a residential board and care occupancy (small facility).
NOTE: In Australia the device shall not be installed in locations where the normal ambient
temperature is lower than 5 ºC or higher than 45 ºC.

2. Mount Smoke Detector Backplate
NOTE: The alarm device should only be installed by a competent engineer or technician. The
device should not be used with a guard.
Once a suitable location is found, mount the detector backplate. Install the mounting base on
the ceiling or on the wall (if local ordinances permit) using screw locations as required. Use the
two screws and anchors provided. Maneuver the base so the screws are at the elbow of the
screw slots and secure.
100 mm (4 in.) minimum
100 mm (4 in.)
minimum
3. Mounting
Fit the detector inside the base by aligning it over the base. The detector's alignment notch
should be slightly offset from the mounting base tamper release tab. Then turn the detector
clockwise until it clicks into place.
4. Test Unit
NOTE: The central monitoring station if used, should be notified prior to the test being gen-
erated. This prevents a false alarm and an unnecessary response from the central mon-
itoring station.
Initiate test by pressing the test button for 5 seconds minimum. Alarm activation is indicated by
the flashing LED, the sounder, and transmission of the alarm signal to the control panel. The
detector restores to normal when the test button is released.
NOTE: Allow a minimum of 20 seconds after power up and , after test, alarm or tamper restore
activations. Do not use the test button when smoke is present.
NOTE: If the detector is in one of the following states when a test is initiated; it will not enter an
alarm state:
lTamper, detector not installed on mounting plate
lCompensation Trouble
lOther internal faults that could prevent a smoke or heat alarm
5. Device Enrollment
The 7-digit serial number located on the back of the smoke detector housing must be enrolled
on the alarm systems control panel. See the Receiver Installation Manual and follow the enroll-
ment procedure. For placement tests remove the detector from its backplate for one second
(tamper) and then reattach. Wait at least 30 seconds for the test result before activating again.
A general description of the procedure is provided in the following flow chart:

Step Procedure
1See the Installation Manual for the alarm system that the device is being enrolled on, to
ensure that the proper steps are used.
2Enter the Device Enrollment option through the specified method and select the
appropriate option to add the new device.
3Enroll the device by inserting the batteries to power up the device and enter the Device
ID. For example, ID No. 202-XXXX.
4Select the desired Zone Number.
5Configure any device parameters that are required. Enter the DEV SETTINGS menu
and select the required options to configure the detector:
Option Configuration Instructions
Burglary Siren Select to enable a burglary alarm.
Options: ON or OFF (default)
Fire Siren Select to enable a fire alarm.
Options: ON or OFF (default)
Gas / CO Siren Select to enable a gas alarm.
Options: ON or OFF (default)
Flood Siren Select to enable a flood alarm.
Fire Siren Options: ON or OFF (default
6Mount and test the detector. See Smoke Detector Unit Test for information on testing the
device. In addition, see the alarm systems Installation Manual that the device is enrolled
on for other test procedures that are required.
Owner's Instructions
Fire Safety In The Home
Most fires occur in the home, and to minimize this danger, it is recommended that a household
fire safety audit be conducted and a family escape plan be developed.
Household Fire Safety Audit
1. Are all electrical appliances and outlets in safe condition? Check for frayed cords, over-
loaded lighting circuits, etc. If you are uncertain about the condition of your electrical appli-
ances or household service, have a professional evaluation.
2. Are all flammable liquids safely stored in closed containers, and in a cool and well vent-
ilated area? Cleaning the unit with flammable liquids should be avoided.
3. Are hazardous materials for example, matches out of the reach of children?
4. Are furnaces and wood burning appliances properly installed, clean, and in good working
order? If in doubt, have a professional evaluation.
Family Escape Planning
There is often very little time between the detection of a fire and the time it becomes deadly.
Because of this, it is very important that a family escape plan be developed and rehearsed.
lEvery family member should participate in the escape plan.
lStudy the possible escape routes from each location within the house. Since many fires
occur at night, special attention should be given to the escape routes from sleeping quar-
ters.
lIt is essential that escape from a bedroom be possible without opening the interior door.
Consider the following when making your escape plans:
lEnsure that doors and windows that open to the outside are easily opened. Ensure that
they are not painted shut and that the locking mechanisms operate smoothly.
lIf opening or using the exit is too difficult for children, the elderly or handicapped, plans for
their rescue should be developed. This plan includes making sure that those who are to per-
form the rescue can promptly hear the fire warning signal.
lIf the exit is above the ground level, an approved fire ladder or rope should be provided, as
well as training in its use.
lExits on the ground level should be kept clear. Be sure to remove snow from exterior patio
doors in the winter and that outdoor furniture or equipment does not block exits.
lThe family should have a predetermined assembly point where everyone can be accounted
for; for example, across the street or at a neighbor’s house.
lOnce everyone is out of the house, call the Fire Department.
lA good plan emphasizes a quick escape. Do not investigate first or attempt to fight the fire,
and do not attempt to rescue belongings or valuables as this takes up time. Once outside,
do not re-enter the house; wait for the Fire Department.
lWrite the plan down and rehearse it frequently so that should an emergency ever arise,
everyone will know what to do. Revise the plan as conditions change; for example, when
there are more or fewer family members in the home or if there are changes to the house.

lMake sure your fire warning system is operational by conducting weekly tests. If you are
unsure about system operation, contact your smoke detector installer or dealer.
lIt is recommended that you contact your local Fire Department and request further inform-
ation on home fire safety and escape planning. If available, have your local fire prevention
officer conduct an in-house fire safety inspection.
Testing Your Smoke Detector
Follow the test procedure described here or contact your smoke detector dealer or installer
for testing instructions. It is recommended to test the entire alarm system at least once a
week to verify the operation of all system functions.
Smoke Detector Unit Test
Initiate test by pressing the test button for 5 seconds, the sounder makes clicking noises during
this time. Press the button until the unit alarm sounds, an alarm should be sent to the control
panel. When the button is released, the alarm should cease. If this does not occur, ensure bat-
teries are the correct type, in good condition and are installed correctly.
Upon completing the functional testing of the smoke detector, check the unit’s sensing chamber
to ensure proper operation. To test the sensing chamber, wave a lit cotton wick or punk stick
around the outside of the unit until a generous amount of smoke enters the sensing chamber or
the unit alarms. If the smoke detector does not function properly, call your smoke detector
installer or dealer for service.
Smoke Detector Test
Before you test, complete the following steps:
1. Insert the battery and then mount the detector on the bracket before conducting the
smoke detector test.
2. After the battery is inserted, the detector enters Local Diagnostic Test Mode for 15
minutes.
3. It is recommended to perform the Periodic Test and use either the Installer code (Installer
Diagnostic Mode) or the User code (User Diagnostic Mode) to test.
CAUTION: The diagnostic test cannot be performed when the tamper is open.
Press and hold the test button for 2 seconds. When the button is released, the following
sequence of events occur:
lRed LED lights for 0.5 s > off for 0.5 s
lYellow LED lights for 0.5 s > off for 0.5 s
This is followed by 3 loud alarm beeps and at the same time the red LED flashes. Otherwise
the detector produces a warning signal, see the Alarm Indication table for details. In test mode,
the detector tests smoke, heat, and battery functions.
If the detector is in diagnostic mode, the detector performs the diagnostic test as described
below.
Diagnostic Test
The following sequence of events occur during a diagnostic test:
A. The detector performs a communication quality test, the LED lights orange.
B. The LED lights orange, red or green, this indicates the correct operation of the LED.
C. The detector performs a link quality test.
Note: The detector must be in local or diagnostic mode to perform the link quality test.
In diagnostic mode, if you press the test button for more than 6 seconds, an alarm mes-
sage is sent to the panel and a Temporal-3 alarm signal is sounded. After this sequence
is completed, the panel responds by sending an “Alarm in Memory” message to the
device.
D. At the end of the diagnostic test the LED blinks three times. The following table indicates
the received signal strength.
LED
Response
Green LED
blinks
Orange LED
blinks
Red LED
blinks No blinks
Reception Strong Good Poor Paired, no
communicaton
IMPORTANT! Reliable reception must be confirmed. Therefore, "poor" signal strength is not
acceptable. If you receive a "poor" signal from the device, re-locate it and re-test until a "good"
or "strong" signal strength is received. For UL/CUL installations, the test results must be "strong".
See the alarm systems installation guide for detailed diagnostic tests.
Owner’s Maintenance
The smoke detector is designed to require minimum maintenance. If the case becomes dusty,
vacuum with a small brush attachment. If the case is greasy, wipe the case gently with a soft
cloth slightly dampened with soapy water.
Never disassemble the smoke detector; there are no user serviceable parts inside the unit.
You may only remove detector from backplate to replace batteries if not serviced by
installer. When replacing the batteries, follow the instructions specified in the Installation
Instructions.
Never paint the unit. Paint may prevent smoke from entering the unit. If you are planning
renovations or repainting, contact your installer and ask that the unit be temporarily
removed until work is complete.
If the unit is located in an area where it is exposed to high levels of dust or insects and causes
false alarms, it may require service; contact your smoke detector installer or dealer.
Testing and maintenance procedures shall be in accordance with CAN/ULC-S552-02.
Specifications
lRegulatory Listings: UL268/ULC-S531 915 MHz
lDiameter: 5 in (125 mm)
lHeight: 2.5 in (63 mm)
lWeight (including battery): 8.75 oz (243 g)
lColor: White
lSpacing rating: 70 ft (21.3 m)
lAlarm Sensitivity (threshold) 915 MHz (cULus): 1.26 - 2.39 %/ foot obscuration
lAlarm Sensitivity (threshold) 433 MHz / 868 MHz: complies with EN14604
lAudible Signal (ANSI Temporal 3): 85 dBA minimum in alarm
lSounder Alarm Pattern: 915 MHz only; Evacuation Temporal Pattern: 433 MHz EU/ 868
MHz
lOperating Temperature: 40 ºF - 100 ºF (4.4 ºC - 37.8 ºC)
lOperating Temperature with Heat Detector: 32 ºF - 100 ºF (0º C - 37.8ºC)
lOperating Temperature for Smoke Alarm: 433 MHz 41 ºF - 113 ºF (5 ºC - 45 ºC); Type A
Photoelectric Smoke Alarm (Australia)
lHumidity: 15 % - 90 % RH, non-condensing
lApproved Batteries: 3 AAA Energizer E92 or Duracell Procell PC2400
lSupervisory Transmission Frequency: 915 MHz 64 minute intervals
lSupervisory Transmission Frequency: 433 MHz /868 MHz 12 minute intervals
lMaximum Tx Power: 10 dBm @ 433 MHz, 14 dBm @ 868 MHz.
lLow Battery Detection: Low battery 14 days remaining
WARRANTY
Visonic Limited (the “Manufacturer") warrants t his product only (the "Product") to the original purchaser only (the “Purchaser”) against defective
workmanship and materials under normal use of the Product for a period of twelve (12) months from the date of shipment by the Manufacturer.
This Warranty is absolutely conditional upon the Product having been properly installed, maintained and operated under conditions of normal use in
accordance with the Manufacturers recommended installation and operation instructions. Product s which have become defective for any other
reason, according to the Manufacturers discretion, such as improper installation, failure to follow recommended installation and operational instruc-
tions, neglect, willful damage, misuse or vandalism, accidental damage, alteration or tampering, or repair by anyone other than the manufact urer,
are not covered by this Warranty.
There is absolutely no warranty on software, and all software products are sold as a user license under the terms of the software license agree-
ment included with such Product.
The Manufacturer does not represent that this Product may not be compromised and/or circumvented or that the Product will prevent any death
and/or personal injury and/or damage to property resulting from burglary, robbery, fire or otherwise, or that the Product will in all cases provide
adequate warning or protection. The Product, properly installed and maintained, only reduces the risk of such events without warning and it is not a
guarantee or insurance that such events will not occur.
Conditions to Void Warranty: This warranty applies only to defects in parts and workmanship relating to normal use of the Products. It does not
cover:
* damage incurred in shipping or handling;
* damage caused by disaster such as fire, flood, wind, earthquake or lightning;
* damage due to causes beyond the control of the Seller such as excessive voltage, mechanical shock or wat er damage;
* damage caused by unauthorized attachment, alterations, modifications or foreign objects being used with or in conjunction with the Products;
* damage caused by peripherals (unless such peripherals were supplied by t he Seller;
* defects caused by failure to provide a suitable inst allation environment for the products;
* damage caused by use of the Products for purposes other than those for which they were designed;
* damage from improper maintenance;
* damage arising out of any other abuse, mishandling or improper application of the Products.
Items Not Covered by Warranty: In addition to t he items which void t he Warranty, the following items shall not be covered by Warranty: (i) freight
cost to the repair centre; (ii) customs fees, t axes, or VAT that may be due; (iii) Products which are not identified with the Seller's product label and
lot number or serial number; (iv) Products disassembled or repaired in such a manner as to adversely affect performance or prevent adequate
inspection or testing to verify any warranty claim. Access cards or tags returned for replacement under warranty will be credited or replaced at the
Seller's option. THIS WARRANTY I S EXCLUSIVE AND EXPRESSLY IN LIEU OF ALL OTHER WARRANTIES, OBLIGATIONS OR LIABILITIES,
WHETHER WRITTEN, ORAL, EXPRESS OR IMPLIED, INCLUDING ANY WARRANTY OF MERCHANTABILITY OR FI TNESS FOR A
PARTICULAR PURPOSE, OR OTHERWISE. IN NO CASE SHALL THE MANUFACTURER BE LIABLE TO ANYONE FOR ANY
CONSEQUENTIAL OR INCIDENTAL DAMAGES FOR BREACH OF THIS WARRANTY OR ANY OTHER WARRANTIES WHATSOEVER, AS
AFORESAID. THE MANUFACTURER SHALL IN NO EVENT BE LIABLE FOR ANY SPECIAL, INDIRECT, I NCIDENTAL, CONSEQUENTIAL OR
PUNITIVE DAMAGES OR FOR LOSS, DAMAGE, OR EXPENSE, INCLUDING LOSS OF USE, PROFITS, REVENUE, OR GOODWILL,
DIRECTLY OR INDIRECTLY ARISING FROM PURCHASER’S USE OR INABI LITY TO USE THE PRODUCT, OR FOR LOSS OR DESTRUCTION
OF OTHER PROPERTY OR FROM ANY OTHER CAUSE, EVEN I F MANUFACTURER HAS BEEN ADVISED OF THE POSSIBILITY OF SUCH
DAMAGE. THE MANUFACTURER SHALL HAVE NO LIABILITY FOR ANY DEATH, PERSONAL AND/OR BODILY INJURY AND/OR DAMAGE
TO PROPERTY OR OTHER LOSS WHETHER DIRECT, INDIRECT, INCIDENTAL, CONSEQUENTIAL OR OTHERWISE, BASED ON A CLAIM
THAT THE PRODUCT FAILED TO FUNCTION. HOWEVER, IF THE MANUFACTURER IS HELD LIABLE, WHETHER DIRECTLY OR
INDIRECTLY, FOR ANY LOSS OR DAMAGE ARISING UNDER THIS LIMITED WARRANTY, THE MANUFACTURER'S MAXIMUM LIABILITY (IF
ANY) SHALL NOT IN ANY CASE EXCEED THE PURCHASE PRICE OF THE PRODUCT INVOLVED, WHICH SHALL BE FIXED AS
LIQUIDATED DAMAGES AND NOT AS A PENALTY, AND SHALL BE THE COMPLETE AND EXCLUSIVE REMEDY AGAINST THE
MANUFACTURER. SOME JURISDICTIONS DO NOT ALLOW THE EXCLUSION OR LIMITATION OF INCIDENTAL OR CONSEQUENTIAL
DAMAGES, SO THESE LIMITATIONS MAY NOT APPLY UNDER CERTAIN CIRCUMSTANCES.
When accepting the delivery of the Product, the Purchaser agrees to the said conditions of sale and warranty and he recognizes having been
informed of.
The Manufact urer shall be under no liability whatsoever arising out of the corruption and/or malfunctioning of any t elecommunication or electronic
equipment or any programs.
The Manufacturers obligations under this Warranty are limited solely to repair and/or replace at the Manufacturer’s discretion any Product or part
thereof that may prove defective. Any repair and/or replacement shall not extend the original Warranty period. The Manufacturer shall not be
responsible for dismantling and/or reinstallation costs. To exercise this Warranty t he Product must be returned to the Manufacturer freight pre- paid
and insured. All freight and insurance costs are the responsibility of the Purchaser and are not included in this Warranty.
This warranty shall not be modified, varied or extended, and the Manufacturer does not authorize any person to act on its behalf in the modification,
variation or extension of this warranty. This warranty shall apply to the Product only. All products, accessories or attachments of others used in
conjunction with t he Product , including batteries, shall be covered solely by their own warranty, if any. The Manufacturer shall not be liable for any
damage or loss whatsoever, whether directly, indirectly, incidentally, consequentially or otherwise, caused by t he malfunction of t he Product due to
products, accessories, or attachments of others, including batteries, used in conjunction with the Products. This Warranty is exclusive to the ori-
ginal Purchaser and is not assignable.
This Warranty is in addition to and does not affect your legal rights. Any provision in this warranty which is contrary to the Law in the state or coun-
try were t he Product is supplied shall not apply.
Governing Law: This disclaimer of warranties and limited warranty are governed by the domestic laws of Israel.
Warning
The user must follow t he Manufacturer’s installation and operational instructions including testing the Product and its whole system at least once a
week and to take all necessary precautions for his/her safety and the protection of his/her property.
* In case of a conflict, contradiction or interpretation between the English version of the warranty and other versions, the English version shall pre-
vail.
END-USER LICENSE AGREEMENT
IMPORTANT - READ THIS END- USER LICENSE AGREEMENT ("EULA") CAREFULLY BEFORE OPENING THE DISK PACKAGE,
DOWNLOADING THE SOFTWARE OR INSTALLING, COPYING OR OTHERWISE USING THE SOFTWARE.
THIS EULA IS A LEGAL AGREEMENT BETWEEN YOU AND VISONIC LTD. (“TYCO”) AND GOVERNS YOUR USE OF THE SOFTWARE
ACCOMPANYING THIS EULA, WHICH SOFTWARE INCLUDES COMPUTER SOFTWARE AND MAY INCLUDE MEDIA, PRINTED MATERIALS,
AND "ON-LINE" OR ELECTRONIC DOCUMENTATION (COLLECTIVELY, THE "SOFTWARE"). BY BREAKING THE SEAL ON THIS PACKAGE,
DOWNLOADING THE SOFTWARE OR INSTALLING, COPYING OR OTHERWISE USING THE SOFTWARE, YOU AGREE TO BE BOUND BY THE
TERMS OF THIS EULA. IF YOU DO NOT AGREE TO ALL OF THE TERMS AND CONDITIONS OF THIS EULA, DO NOT OPEN, DOWNLOAD,
INSTALL, COPY OR OTHERWISE USE THE SOFTWARE.
1. SCOPE OF LICENSE. The Software may include computer code, program files and any associated media, hardware or software keys,
printed material and electronic documentation. The Software may be provided to you pre-installed on a storage device (the media) as part
of a computer system or other hardware or device (“System”). The Software is protected by copyright laws and international copyright
treaties, as well as other intellectual property laws and treaties. All title and intellectual property rights in and to the Software (including but
not limited to any images, photographs, and text incorporated into the Sof tware), the accompanying printed materials, and any copies of
the Software, are owned by Tyco and/or its suppliers. The Software is licensed, not sold. All rights not expressly granted under this EULA
are reserved by Tyco and its suppliers.
2. GRANT OF LICENSE. This EULA grants you the following rights on a non-exclusive basis:
1. General. This EULA permits you to use the Soft ware for which you have purchased this EULA. Once you have purchased licenses for the
number of copies of the Software that you require, you may use the Software and accompanying material provided that you install and
use no more than the licensed number of copies at one time. The Software is only licensed for use with specified Licensor-supplied Sys-
tems. If the Software is protected by a software or hardware key or other device, the Software may be used on any computer on which
the key is installed. If the key locks the Software to a particular System, the Software may only be used on that System.
2. Locally Stored Components. The Software may include a software code component that may be stored and operated locally on one or
more devices. Once you have paid the required license fees for these devices (as determined by Tyco in its sole discretion), you may
install and/or use one copy of such component of the Software on each of the devices as licensed by Tyco. You may then use, access,
display, run or otherwise interact with ("use") such component of the Software in connection with operating the device on which it is
installed solely in the manner set forth in any accompanying documentation or, in the absence of such, solely in the manner contemplated
by the nature of the Software.
3. Remotely Stored Components. The Soft ware may also include a software code component for operating one or more devices remotely.
You may install and/or use one copy of such component of the Software on a remote storage device on an internal network with all of the
devices and may operate such component with each device over the internal network solely in the manner set forth in any accompanying
documentation or, in the absence of such, solely in the manner contemplated by the nature of the Software; provided however, you must
still acquire the required number of licenses for each of t he devices with which such component is to be operated.
4. Embedded Software/Firmware. The Software may also include a software code component that is resident in a device as provided by
Tyco for operating that device. You may use such component of the Software solely in connection with the use of that device, but may
not retrieve, copy or otherwise transfer that software component to any other media or device without Tyco's express prior written author-
ization.
5. Backup Copy. You may make a back-up copy of the Software (other than embedded software) solely for archival purposes, which copy
may only be used to replace a component of the Software for which you have current valid license. Except as expressly provided in this
EULA, you may not otherwise make copies of the Software, including the printed materials.
3. OTHER RIGHTS AND LIMITATIONS. Your use of t he Software is subject to the following additional limitations. Failure to comply with any
of these restrictions will result in automatic termination of this EULA and will make available to Tyco other legal remedies.
1. Limitations on Reverse Engineering and Derivative Works. You may not reverse engineer, decompile, or disassemble the Software, and
any attempt to do so shall immediately terminate this EULA - except and only to the extent that such activity may be expressly permitted
by applicable law notwithstanding this limitation. You may not make any changes or modifications to any portion of the Software, or create
any derivative works, without the written permission of an officer of Tyco (except as provided in Section 3(f) of this EULA with respect to
“open source” software). You may not remove any proprietary notices, marks or labels from the Software. You shall institute reasonable
measures to ensure compliance with the terms and conditions of t his EULA by your personnel and agents.
2. Copyright Notices. You must maint ain all copyright notices on all copies of the Software.
3. Transfer. You may only transfer your rights under this EULA (i) as part of a permanent sale or transfer of all of the devices for which the
Sof tware is licensed as applicable; (ii) if you transfer all of the Software (including all component parts, the media and printed materials,
any upgrades and this EULA); (iii) if you do not retain any copies of any portion of the Software; (iv) if the recipient agrees to the terms
of this EULA; and (v) if the Software is an upgrade, such transfer must also include all prior versions of the Software. You agree that fail-
ure t o meet all of these conditions renders such transfer null and void.
4. Termination. Without prejudice to any other rights, Tyco may terminate this EULA if you fail to comply with the terms and conditions
herein. I n such event, you must immediately destroy all copies of the Software and all of its component parts. To the extent the Soft-
ware is embedded in hardware or firmware, you will provide prompt access to Tyco or its representat ive to remove or lock Software fea-
tures or functionality as Tyco determines.
5. Subsequent EULA. Tyco may also supersede this EULA with a subsequent EULA pursuant to providing you with any future component,
release, upgrade or other modification or addition to the Software. Similarly, t o the extent that the terms of this EULA conflict with any
prior EULA or other agreement between you and Tyco regarding the Software, the terms of this EULA shall prevail.
6. Incorporation of “Open Source” and other Third Party Software. Portions of the Software may be subject to certain third party license
agreements governing the use, copying, modification, redistribution and warranty of those portions of the Software, including what is com-
monly known as “open source” software. A copy of each applicable third party license can be found in the file README.TXT or other doc-
umentation accompanying the Software. Such open source software is not subject to any warranty and indemnity set forth in this EULA.
By using the Software you are also agreeing to be bound to the terms of such third party licenses. If provided for in the applicable third
party license, you have a right to receive source code for such software for use and distribution in any program t hat you create, so long
as you in turn agree to be bound to the terms of the applicable third party license, and your programs are distributed under the terms of
that license. A copy of such source code may be obtained free of charge by contacting your Tyco representative.
7. Trademarks. This EULA does not grant you any rights in connection with any trademarks or service marks of Tyco, its affiliates or its sup-
pliers.
8. Rental. You may not sublicense, rent, lease or lend the Software. You may not make it available to others or post it on a server or web
site or otherwise distribute it.
9. Software Keys. The hardware/software key, where applicable, is your proof of license to exercise the rights granted herein and must be
retained by you. Lost or stolen keys will not be replaced.
10. Demonstration and Evaluation Copies. A demonstration or evaluation copy of the Software is covered by this EULA; provided that the
licenses contained herein shall expire at the end of the demonstration or evaluation period.
11. Registration of Software. The Software may require regist ration with Tyco prior to use. If you do not register the Software, this EULA is
automatically terminated and you may not use the Sof tware.
12. Additional Restrictions. The Software may be subject to additional restrictions and conditions on use as specified in the documentation
accompanying such Software, which additional restrictions and conditions are hereby incorporated into and made a part of this EULA.
13. Upgrades and Updates. To the extent Tyco makes them available, Software upgrades and updates may only be used to replace all or part
of the original Software that you are licensed to use. Software upgrades and updates do not increase the number of copies licensed to
you. If t he Software is an upgrade of a component of a package of Software programs t hat you licensed as a single product, the Soft-
ware may be used and t ransferred only as part of that single product package and may not be separated for use on more than one com-
puter or System. Software upgrades and updates downloaded free of charge via a Tyco authorized World Wide Web or FTP site may be
used to upgrade multiple Systems provided that you are licensed to use the original Software on those Syst ems.
14. Tools and Utilities. Software distributed via a Tyco-authorized World Wide Web or FTP site (or similar Tyco-authorized distribution means)
as a tool or utility may be copied and installed without limitation provided that the Software is not dist ributed or sold and the Software is
only used for the intended purpose of the tool or utility and in conjunction with Tyco products. All other terms and conditions of t his EULA
continue to apply.
15. EXPORT RESTRICTIONS. You agree that you will not export, re-export or transfer any port ion of the Software, or any direct product
thereof (the foregoing collectively referred to as the "Restricted Components"), to IRAN, NORTH KOREA, SYRIA, CUBA and SUDAN,
including any entities or persons in those countries, either directly or indirectly (“Tyco’s Position”). You also agree that you will not export,
re-export or transfer the Restrict ed Components to any other countries except in full compliance with all applicable governmental require-
ments, including but not limited to applicable economic sanctions and constraints administered by any Israeli governmental authority, includ-
ing, but not limited to the Israeli Ministry of Defense, by any applicable treaty, applicable export control measures administered by Israel ,
U.S. Treasury Depart ment and applicable export control measures administered by the U.S. Department of Commerce and U.S. Depart-
ment of State, any other U.S. government agencies, and measures administered by the European Union or the government agencies of
any other countries. Any violation by you of the applicable laws or regulations of the U.S. or any other government, or where you breach
Tyco’s Position notwithstanding whether or not this is contrary to any aforementioned applicable laws or regulations, will result in automatic
termination of this EULA.
16. U.S. GOVERNMENT RESTRICTED RIGHTS. The Software is Commercial Computer Software provided with "restricted rights" under
Federal Acquisition Regulations and agency supplements t o t hem. Any use, duplication or disclosure by the U.S. Government is subject to
restrictions as set forth in subparagraph (c)(1)(ii) of the Rights in Technical Data and Computer Software clause at DFAR 255.227-7013

et. seq. or 252.211-7015, or subparagraphs (a) through (d) of the Commercial Computer Soft ware Restricted Rights at FAR 52.227-19,
as applicable, or similar clauses in the NASA FAR Supplement. Contractor/manufacturer is Visonic Ltd., 24 Habarzel St ., Tel-Aviv, Israel
69710.
17. LIMITATION OF LIABILITY & EXCLUSION OF DAMAGES.
1. LIMITATION OF LIABILITY. IN NO EVENT WILL TYCO’S AGGREGATE LIABILITY (INCLUDING, BUT NOT LIMITED TO, LIABILITY
FOR NEGLIGENCE, STRICT LIABILITY, BREACH OF CONTRACT, MISREPRESENTATION AND OTHER CONTRACT OR TORT
CLAIMS) ARISING FROM OR RELATED TO THIS EULA, OR THE USE OF THE SOFTWARE, EXCEED THE AMOUNT OF FEES YOU
PAID TO TYCO OR ITS RESELLER FOR THE SOFTWARE THAT GIVES RISE TO SUCH LIABILITY. BECAUSE AND TO THE EXTENT
THAT SOME JURISDICTIONS DO NOT ALLOW THE EXCLUSIONS OR LIMITATIONS OF LIABILITY ABOVE, THESE MAY NOT
APPLY TO YOU.
2. EXCLUSION OF OTHER DAMAGES. UNDER NO CIRCUMSTANCES SHALL TYCO OR ANY OF ITS RESELLERS OR LICENSORS BE
LIABLE FOR ANY OF THE FOLLOWING: (I) THIRD PARTY CLAIMS; (II) LOSS OR DAMAGE TO ANY SYSTEMS, RECORDS OR
DATA, OR LIABILITIES RELATED TO A VIOLATION OF AN INDIVIDUAL'S PRIVACY RIGHTS; OR (III) I NDIRECT, INCIDENTAL,
SPECIAL, CONSEQUENTIAL, PUNITIVE, RELIANCE, OR COVER DAMAGES (INCLUDING WITHOUT LIMITATION, LOSS OF
PROFITS, BUSINESS INTERRUPTION, LOSS OF DATA OR BUSINESS INFORMATION AND LOST SAVINGS), IN EACH CASE
EVEN IF TYCO HAS BEEN ADVISED OF THE POSSIBILITY OF SUCH DAMAGES. YOU ARE SOLELY RESPONSIBLE AND LIABLE
FOR VERIFYING THE SECURITY, ACCURACY AND ADEQUACY OF ANY OUTPUT FROM THE SOFTWARE, AND FOR ANY
RELIANCE THEREON. SOME JURISDICTIONS DO NOT ALLOW THE EXCLUSION OF INCIDENTAL OR CONSEQUENTIAL
DAMAGES, OR THE LIMITATION ON HOW LONG AN IMPLIED WARRANTY LASTS, SO SOME OF THE ABOVE LIMITATIONS MAY
APPLY TO YOU ONLY TO THE EXTENT PERMITTED BY THOSE LAWS.
GENERAL. If any provision of this EULA is found to be unlawful, void, or for any reason unenforceable, then that provision shall be severed from
this EULA and shall not affect the validity and enforceability of the remaining provisions. You should retain proof of the license fee paid, including
model number, serial number and date of payment, and present such proof of payment when seeking service or assistance covered by the war-
ranty set forth in this EULA. This EULA is governed by the laws of Israel, without giving effect to any choice or conflict of law provision or rule that
would cause the application of the laws of any jurisdict ion other than Israel. Each of the Parties submits to the exclusive jurisdict ion of any court sit-
ting in Tel Aviv, Israel f or purposes of resolving any and all disputes arising under or related to these terms and conditions. The parties specifically
exclude the application of t he provisions of the United Nations Convention on Contracts for the International Sale of Goods.
Regulatory Information
The smoke alarm SMD-429 PG2 has a recommended service life of 10 years under normal conditions of use. Please refer to
the label applied to the device indicating the recommended replacement year.
NOTE: In Australia, the device shall not be installed in locations where the normal ambient temperature is lower than 41°F
(5°C) or higher than 113°F (45°C).
This manual shall be used in conjunction with the Installation Manual of the alarm control panel. All the instructions specified
within that manual must be observed.
FCC and IC Compliance Statement
CAUTION: Changes or modifications not expressly approved by Visonic could void your authority to use this equipment.
The letters “IC:” indicate that this is an Innovation, Science and Economic Development Canada’s certification number.
This device complies with FCC Rules Part 15 and with Industry Canada licence-exempt RSS standard(s). Operation is subject
to two conditions: (1) This device may not cause harmful interference, and (2) this device must accept any interference that
may be received or that may cause undesired operation.
For Industry Canada: Le présent appareil est conforme aux CNR d'ISED Canada applicables aux appareils radio exempts de
licence. L'exploitation est autorisée aux deux conditions suivantes : (1) l'appareil ne doit pas produire de brouillage, et (2) l'util-
isateur de l'appareil doit accepter tout brouillage radioélectrique subi, même si le brouillage est susceptible d'en compromettre
le fonctionnement.
This Class B digital apparatus complies with Canadian ICES-003.
Cet appareil numerique de la classe B est conforme a la norme NMB-003 du Canada.
CAN ICES-3 (B)/NMB-3(B)
WARNING! To comply with FCC and IC RF exposure compliance requirements, the device should be located at a distance
of at least 20 cm from all persons during normal operation. The antennas used for this product must not be co-located or
operated in conjunction with any other antenna or transmitter.
Avertissement! Le dispositif doit être placé à une distance d'au moins 20 cm à partir de toutes les personnes au cours de
son fonctionnement normal. Les antennes utilisées pour ce produit ne doivent pas être situés ou exploités conjointement
avec une autre antenne ou transmetteur.
NOTE: This equipment has been tested and found to comply with the limits for a Class B digital device, pursuant to part 15 of
the FCC Rules. These limits are designed to provide reasonable protection against harmful interference in a residential install-
ation. This equipment generates, uses and can radiate radio frequency energy and, if not installed and used in accordance
with the instructions, may cause harmful interference to radio communications. However, there is no guarantee that inter-
ference will not occur in a particular installation. If this equipment does cause harmful interference to radio or television recep-
tion, which can be determined by turning the equipment off and on, the user is encouraged to try to correct the interference
by one or more of the following measures:
lRe-orient the receiving antenna
lRelocate the alarm control with respect to the receiver
lMove the alarm control away from the receiver
lConnect the alarm control into a different outlet so that alarm control and receiver are on different circuits.
lConsult the dealer r or an experienced radio/television technician for help.
WARNING! Changes or modifications to this equipment not expressly approved by the party responsible for compliance
(Visonic Ltd.) could void the user’s authority to operate the equipment.
Hereby, Visonic Ltd. declares that the radio equipment type SMD-429 PG2 is in compliance
with Directive 2014/53/EU.
The full text of the EU declaration of conformity is available at the following internet address:
http://www.visonic.com/download-center.
Email: info@visonic.com
Internet: www. visonic.com
@VISONIC LTD 2017 SMD-429 PG2 (Rev. 0 07/17)