WG security MGSKG58 Electronic Article Surveillance System User Manual Overview

WG Security Products, Inc Electronic Article Surveillance System Overview

User Manual

      58kHz SKY-GUARDTM INSTALLATION MANUAL     WG SECURITY PRODUCT INC.        3031 Tisch Way #602    San Jose, CA 95128 USA Tel: 408-241-8000   Fax: 408-241-8082 For Tech Support In Your Country Please Visit Our Web Site www.wgspi.com
 TABLE OF CONTENTS  SECTION ONE OVERVIEW…………….………………………………………..……………………..…………..P1 INTRODUCTION ………...……………..…………………………………………..……………..P1 FEATURES……………..……...………………………………………………………………......P2 APPLICATIONS………………..…………………………………………………………………..P3 PARTS LIST ……………………..………………………..………………………………….…....P4    SECTION TWO INSTALLATION PROCEDURES………….…………….……………….……….……….….....P5 QUICK START INSTRUCTIONS ..……………………….……………………………...….…..P7 PROBLEMS..…………..…………..………………………….……………………………..…....P7 ACCESSORIES..……………..…..……………………….…….………………………..……….P7    SECTION THREE  APPENDIX (IR CONTROL KEYBOARD FUNCTION DESCRIPTION) KEY DEFINITIONS & DEFAULT PARAMETERS TABLE …………………………….……..P8 FLOW CHART OF SUGGESTED TUNING PROCEDURES …..…………..…………..……P9 TUNING INSTRUCTIONS………………………………………………………………….…...P10 PARAMETERS CONFIGURATION …………………..………………………………….……P12    SECTION FOUR IMPORTANT SAFEGUARDS AND REGULATORY NOTICES…………..……………….P16
Page: 1 Overview Introduction  Sky-GuardTM is an invisible system installed into a doorframe or mall entrance walls, without any obtrusive side panels or pedestals. The system eliminates the confliction between security merchandise tagging and integrity of store décor. Sky-GuardTM is fully automatic with self-tuning electronics, plug and play. It is the FIRST smart installation system of looping systems. It can be installed into any size of entrance frame without the adjustment of system. And it can also constantly change its phase to accommodate the environment that it protects.               The Sky-GuardTM system is software driven EAS system that works in combination with any 58KHz tags and labels. The system’s transmitter sends out 58Khz signals, exciting tags within the detection zone, and the system receiver listens for the unique signal that any 58KHz tags and labels produce, and the sequence produced is then verified and multiplied in a fraction of a second.               Europe United StatesLength 535mm 21"Height 70mm 2.7"Width 138mm 5.4"Weight 10kg 10kgWidth 40mm 1.5"Length 80mm 3.1"Weight 200~220VAC 110VAC58Khz 58Khz2 meters 7 feetSystemTechnical DataMaximum Tag DetectionActive antennaPowerOperating Frequency
Page: 2 Features   Digital Signal Processing The Sky-GuardTM system applies the latest and most technically advanced DSP technologies to address antitheft problems. It minimizes false alarms while maintaining considerable detection range.   Smart Installation Sky-GuardTM is the first smart installation looping system in the EAS industry, which eliminates the need for expensive technicians during installation. Due to a variety of entrance dimension, formal system has to be properly adjusted to ensure the transmitter adaptation. The Sky-GuardTM is free of this trouble, as soon as the power is applied, the system will automatically detect the entrance shape and tune the transmitter electronics to optimum performance, making Sky-GuardTM a real plug and play looping system.   Self-Tuning Electronics Other manufacturers need professional technicians to tune the system to ensure proper functioning. But once the environment condition changes, the systems best working position changes and requires tuning again. The Sky-GuardTM system, benefiting from its fully digital electronics, constantly detects the environment & automatically adapts to any changes. It will always operate at its optimum performance from the beginning.   Software Driven The Sky-GuardTM is fully digital software driven system, which allows unprecedented flexibility especially in later versions.   System Expansion The typical application of the system is for the entrance of 7 feet or below, but there may be special cases requiring the protection of even wider openings which makes Sky-GuardTM advantageous. Unlike other systems with additional bulk size pedestals, Sky-GuardTM only need to add few slim active antennas according to the width of entrance, making system expansion easy, simple and cost-effective.
Page: 3 Applications                       Sky-GuardTM system simple installation consists of the system measuring 2.7”(H)21”(L) 5.4”(W),  three passive antennas 3.1” long with a width of 1.5”, and built-in enunciator. Detection with a simple installation extends up to 7ft in all directions within the loop with 58k hard tag. If used with labels, some more detecting antennas shall be installed. The system can be mounted on either side of doorway.   The Sky-GuardTM can be installed close to a metal door or frame with out decreasing the detection range, but once the material or environment around door entry changes, the system need to be reset to adjust the inductance of transmitter. We also recommend that the when using a neon light, the system is kept 12 ft away, if this is not possible you can install our noise shield over the transformer to eliminate this problem.
Page: 4 Parts List (For simple installation)                           Tx loop (9 m) Antenna holders (4 sets) System (1) with build-in alarm indicator Passive antenna (3 sets) System open picture
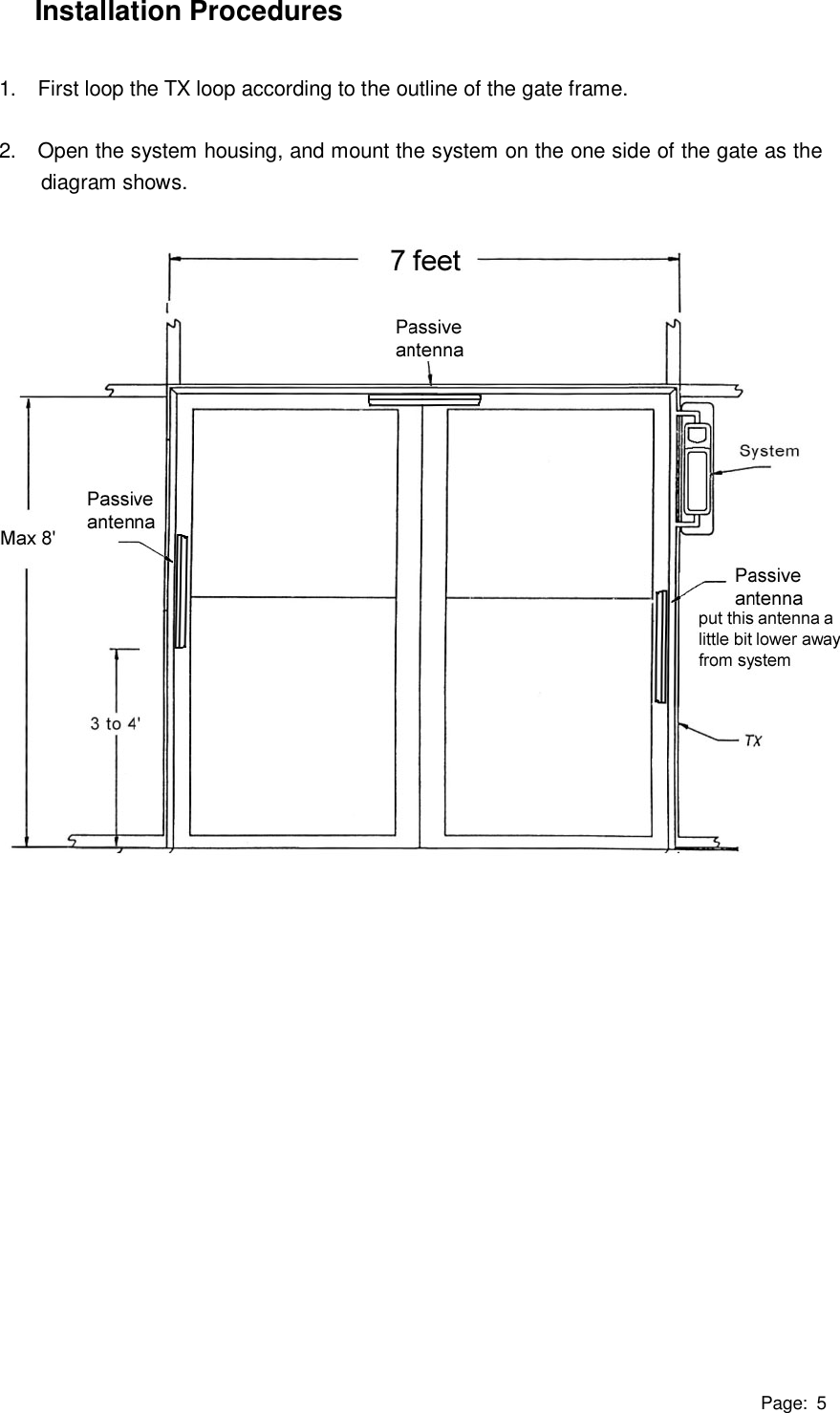
Page: 5 Installation Procedures  1.  First loop the TX loop according to the outline of the gate frame.  2.  Open the system housing, and mount the system on the one side of the gate as the diagram shows.
Page: 6 3.  First mount the antenna holders 3 to 4’ above the ground (two holders for every side) , and scew the passive antennas into the doorframe.        4.  Plug the antenna connections onto the system and do the same to Tx loop connection.   5.  The power line connections are ready with the system when out of box, but if expansion of the power line is needed, the termination can be connected as the above diagram shows. The left terminal is for power line grounding, and the right terminal is for power line N and L terminations. N and L can be swapped.    6.    Finally when all the connections ready, mount the housing onto the system and fix it by screwing down the screws at the upper and lower side of the system housing.
Page: 7 Quick Start Instructions When all procedures of installation finished and the power applied on, the system automatically enters the transmitter self-configuration condition. In this stage, you can hear the buzzer beeps regularly with a sequence of medium intervals. When the self-configuration accomplished, three beeps of short term intervals indicate that the system is ready for tag detections.    Problems If you ensure every step of the installation is proper, all the connections are correct, and the system still malfunctions or does not work with satisfactory sensitivity, please call our technical support number (408-530-8070)   Accessories A noise shield is available to cover the electronic transformer. This eliminates the problem of noise from the proximity of Neon Lighting.
Page: 8 Appendix (IR control keyboard function description)   Default Parameters Table     WGSPI Strongly recommends using the Self Tuning Mode when installing the system for the first time, please see [H] entry for instructions on how to operate this feature.
Page: 9 FLOW CHART OF SUGGESTED TUNING PROCEDURES      System Defaut Weak Performance & or False alarms from your systems or theirs    Check Noise "D"              D               BAlternate between D1-D6 & B to get most favorable parameters ( Low Noise Level ) If noise is less than 80  If noise is higher than 80               H               AIf OK - You are done   If noise is higher 1/2 of new noise or less=value  than 80 Adjust Gain  increase slightly if False Alarms to 0 IF Not Acceptable Check Noise Value and Sensitivity of the System .               C               HIf system is picking well,  Adjust until sensitive enough  Your'e Done, If weak then increase until stable  adjust H to approximately1/2 of Noise Level, if falsealrarms adjust slightly Upward               C Adjust from C6 to C1 until system is working well. Than adjust Upuntil system is stable*Always Watch the system for about an Hour to ensure that you have chosen stable paramaters
Page: 10 Tuning Instructions 1.  Firstly, open systems one by one if there are multiple systems works together. Make sure every system does not interrupt another if another is under self detection mode. (see entry H)  2.  If the system is less sensitive,   Firstly, adjust Minimum Signal Adjustment figures by a decrement of 20. The default number is 40. Please decrease the parameters by a step of 20 until the system reaches satisfactory sensitivity.   Next but not important is to raise Gain Adjustment from 0(low) to 1(high), because usually the default settings is 1 already.  3.  If the system gives false alarms, Firstly, shut down all the other systems (including all the possible noise source such as lights electronic equipment and etc.) If it doesn’t stop this system from false alarming, please follow the above two methods in an inverse way. A. Increase Minimum Signal Adjustment by an increment of 20. The range is from 20 to 200.    B. Lower Gain Adjustment from 1(high) to 0(low).   Secondly, if all the other systems works properly except that turning on this system renders others false alarm or shut down, please switch the L and N terminals on the power cord(see Power Cord Notice in above sections).  4.  If any efforts followed by the above methods failed to eliminate the system false alarming or false alarms are stopped but system detection range drops below 6 feet, please call the number in the first page to ask for our help.
Page: 11 Parameters Configuration  1.  press “start” button to initiate the control when panel shows the following state, initiation is ready.                        Fig. 1  2.  Press password “961”                         Fig. 2  3.  Press “confirm” button     Then enter the control parameters input state.   There usually are three steps in parameters input.     Firstly, select the parameter type, like Gain Adjustment, Sychron Adjustment or Noise Condition Display;     Secondly, input the numbers within a valid range;     Thirdly, press “confirm” button.
Page: 12 Parameter Type Description  A.  Gain Adjustment (range: 0-1) There are two choices here, input 1 to select high gain, 0 to low gain.                        Fig. 3  B.    Sychron Adjustment (range: 1-250; increment: 1)   It is the time from zero crossing point to the start point of transmitting burst. This is usually set for multiple systems working on a different power line with phase problem. The range is 1~250, each stands for 34u seconds.                          Fig. 4.1   Under this entry, you can also see the different noise condition (from the light segment display and number indication) at a different phase when the adjustment goes on. It will help you to select a relative “clean” phase environment to set the system on.                        Fig. 4.2
Page: 13 C.  Noise Condition Display (range: 0-3) The LEDs show signal or noise level by figures while the light segments bar shows the level by the number of segments lit. Select different parameter to choose the corresponding antenna channel to view tag and noise condition.  (Note:  If noise condition display is activated, alarm will be deactivated unless you input 0 to shut down the display)   Noise Condition Display Configuration Table
Page: 14                       Fig. 6   H. Minimum Signal Adjustment 1. Minimum Signal Adjustment (suggested increment : 20; valid range: 2-200) Change this figure to admit minimum signal amplitude, in another word any signal smaller than the level here will be ignored.   Decreasing the number will increase the sensitivity of system but also at the risk of false alarming.   Vise versa, increasing it will lower down the sensitivity to overcome the unexpected false alarming caused by uncontrollable environment noise. 2. Configuration Loading Mode Setting (range: 0-1) Also under this setting entry, there are three modes of system configuration loading.     Inputting 1 will set the system to power on self-detection mode in which system will automatically configure all the parameters.     By inputting 0, system will load the default parameters from Flash ROM. (See the default parameters table)   If this parameter is bigger than 2(use as Minimum Signal Adjustment), system will load the latest saved parameters.   Note: Default parameters are NOT equivalent to the latest saved parameters.                       Fig. 8
Page: 15 Exit button This button will return control box to last state.  Save button This button will save all parameters to flash ROM, so when power shut down the parameters will not be lost.  After press this button, you should press “confirm” button to confirm saving.  Notice:  But any adjustment of H as 0 (default parameters loading mode) or 1 (self-detection mode) will deactivate the application of the saved parameters.                               Fig. 9
Page: 16          Information on the following pages provides important safety guidelines for both Operator and Service Personnel. Specific warnings and cautions will be found throughout the manual where they apply, but may not appear here. Please read and follow the important safety information, noting especially those instructions related to risk of fire, electric shock or injury to persons.    WARNING Any instructions in this manual that require opening the equipment cover or enclosure are for use by qualified service personnel only. To reduce the risk of electric shock, do not perform any servicing other than that contained in the operating instructions unless you are qualified to do so.      Symbols and Their Meanings The exclamation point within an equilateral triangle alerts the user to the presence of important operating and maintenance (servicing) instructions in the literature accompanying the equipment.   The fuse symbol indicates that the fuse referenced in the text must be replaced with one having the ratings indicated.    Important Safeguards and Regulatory Notices
Page: 17 Danger Electrical potential is still applied to some internal components even when the power switch/breaker is in the off position. To prevent electrical shock when working on this equipment, disconnect the AC line cord from the AC source before working on any internal components.  A residual voltage may be present immediately after unplugging the system due to slow discharge of large power supply capacitors. Wait 30 seconds to allow capacitors to discharge before working on the system.   Warnings  Heed all warnings on the unit and in the operating instructions.  Do not use this equipment in or near water.  Disconnect AC power before installing any options.  The attachment plug receptacles in the vicinity of the equipment are all to be of a grounding type, and the equipment grounding conductors serving these are to be connected to earth ground at the service equipment.  This equipment is grounded through the grounding conductor of the power cord. To avoid electrical shock, connect the power cord to the equipment and plug it into a properly wired receptacle before connecting the equipment inputs and outputs.  Route power cords and other cables so that they are not likely to be damaged.  Do not wear hand jewelry or watches when troubleshooting high current circuits, such as the power supplies.  During installation, do not use the door handles or front panels to lift the equipment as they may open abruptly and injure you.
Page: 18 To avoid fire hazard, use only components of the specified type, voltage and current rating as referenced in the appropriate parts list.  Always refer fuse replacement to qualified service personnel.  To avoid explosion, do not operate this equipment in an explosive atmosphere unless it has been specifically certified for such operation.  Have qualified personnel perform safety checks after any completed service.  Risk of electric shock is present. A grounded circuit conductor (neutral) is provided with over current protection. Test all components before touching.   Cautions To prevent damage to equipment when replacing fuses, locate and correct the trouble that caused the fuse to blow before applying power.  Verify that all power supply lights are off before removing the power supply or servicing equipment.  Use only specified replacement parts.  Leave the base of the system clear for air exhaust cooling and to allow room for cabling. Slots and openings in the system are provided for ventilation. Do not block them.  To prevent damage to this equipment read the instructions in this document for proper input voltage range selection.  Circuit boards in this equipment are densely populated with surface mount and ASIC components. Special tools and techniques are required to safely and effectively troubleshoot and repair modules that use SMT or ASIC components. For this reason, service and repair of products incorporating surface mount technology are supported only on a module exchange basis. Customers should not
Page: 19 attempt to troubleshoot or repair modules that contain SMT components. It assumes no liability for damage caused by unauthorized repairs. This applies to both in- and out-of-warranty products.   Power Cord Notices  North American Power Supply Cords  This equipment is supplied with an external power line at one end and a molded receptacle terminal block at the other end. Conductors are color coded white (neutral), black (line) and green or green/yellow (ground).  Operation of this equipment at voltages exceeding 130 VAC will require power supply cords which comply with NEMA configurations.          International Power Supply Cord  This equipment is supplied with an external power line at one end and a molded receptacle terminal block at the other end. Conductors are CEE color coded—light blue (neutral), brown (line) and green/yellow (ground). Other IEC 320 C-13 type power supply cords can be used if they comply with the safety regulations of the country in which they are installed.
Page: 20 Before You Install   Introduction Congratulations on your purchase of one of the finest EAS systems on the market. This is the Installation Instructions manual.    Receiving Inspection Inspect all shipping containers for any signs of damage. If any is found, notify the shipping company. If there is no obvious damage, continue with the unpacking instructions.   Unpacking Instructions Place the containers on a flat level surface with enough room to move the container around as needed. Remove all the remaining manuals and the Floppy Disk software set. Compare the manuals against the Inventory sheet and make a note of any discrepancies.   Carefully remove the contents of container and place on a flat level surface. Compare the contents with the Part List to ensure that there no missing items. Make a note of any discrepancies.   Equipment Inspection Inspect all equipment for damage. Items to specifically check, and damage to look for, are listed below: All connectors for bent or broken pins Cables for crimped or broken wires Plastic housing for any obvious signs of damage If any damage is found, contact Customer Service at the telephone number in the front of this manual. If any item is damaged, DO NOT make any power or signal connections to the unit unless otherwise advised to do so by Customer
Page: 21 Service. If there are any discrepancies between the Manual Set Inventory sheet and the manuals received, or between the Packing List and items received, contact Customer Service at the telephone number at the front of this manual. If there are no discrepancies and either no damage, or GVG-advised correction action is made, continue with this manual.     Facility Checklist The following checklist is a synopsis of information found in the appropriate Installation Planning Guide. The Planning Guide should be referred to for detailed site preparation information. Ensure that there are sufficient AC power outlets of the required 3-prong grounded type and amp rating for the intended equipment.

Navigation menu