WG security MGSKG58 Electronic Article Surveillance System User Manual Overview
WG Security Products, Inc Electronic Article Surveillance System Overview
User Manual

TABLE OF CONTENTS
SECTION ONE
OVERVIEW…………….………………………………………..……………………..…………..P1
INTRODUCTION ………...……………..…………………………………………..……………..P1
FEATURES……………..……...………………………………………………………………......P2
APPLICATIONS………………..…………………………………………………………………..P3
PARTS LIST ……………………..………………………..………………………………….…....P4
SECTION TWO
INSTALLATION PROCEDURES………….…………….……………….……….……….….....P5
QUICK START INSTRUCTIONS ..……………………….……………………………...….…..P7
PROBLEMS..…………..…………..………………………….……………………………..…....P7
ACCESSORIES..……………..…..……………………….…….………………………..……….P7
SECTION THREE
APPENDIX (IR CONTROL KEYBOARD FUNCTION DESCRIPTION)
KEY DEFINITIONS & DEFAULT PARAMETERS TABLE …………………………….……..P8
FLOW CHART OF SUGGESTED TUNING PROCEDURES …..…………..…………..……P9
TUNING INSTRUCTIONS………………………………………………………………….…...P10
PARAMETERS CONFIGURATION …………………..………………………………….……P12
SECTION FOUR
IMPORTANT SAFEGUARDS AND REGULATORY NOTICES…………..……………….P16

Page: 1
Overview
Introduction
Sky-GuardTM is an invisible system installed into a doorframe or mall entrance walls,
without any obtrusive side panels or pedestals. The system eliminates the confliction
between security merchandise tagging and integrity of store décor. Sky-GuardTM is
fully automatic with self-tuning electronics, plug and play. It is the FIRST smart
installation system of looping systems. It can be installed into any size of entrance
frame without the adjustment of system. And it can also constantly change its phase
to accommodate the environment that it protects.
The Sky-GuardTM system is software driven EAS system that works in combination
with any 58KHz tags and labels. The system’s transmitter sends out 58Khz signals,
exciting tags within the detection zone, and the system receiver listens for the unique
signal that any 58KHz tags and labels produce, and the sequence produced is then
verified and multiplied in a fraction of a second.
Europe United States
Length 535mm 21"
Height 70mm 2.7"
Width 138mm 5.4"
Weight 10kg 10kg
Width 40mm 1.5"
Length 80mm 3.1"
Weight 200~220VAC 110VAC
58Khz 58Khz
2 meters 7 feet
System
Technical Data
Maximum Tag Detection
Active antenna
Power
Operating Frequency

Page: 2
Features
Digital Signal Processing
The Sky-GuardTM system applies the latest and most technically advanced DSP
technologies to address antitheft problems. It minimizes false alarms while
maintaining considerable detection range.
Smart Installation
Sky-GuardTM is the first smart installation looping system in the EAS industry,
which eliminates the need for expensive technicians during installation. Due to
a variety of entrance dimension, formal system has to be properly adjusted to
ensure the transmitter adaptation. The Sky-GuardTM is free of this trouble, as
soon as the power is applied, the system will automatically detect the entrance
shape and tune the transmitter electronics to optimum performance, making
Sky-GuardTM a real plug and play looping system.
Self-Tuning Electronics
Other manufacturers need professional technicians to tune the system to
ensure proper functioning. But once the environment condition changes, the
systems best working position changes and requires tuning again. The
Sky-GuardTM system, benefiting from its fully digital electronics, constantly
detects the environment & automatically adapts to any changes. It will always
operate at its optimum performance from the beginning.
Software Driven
The Sky-GuardTM is fully digital software driven system, which allows
unprecedented flexibility especially in later versions.
System Expansion
The typical application of the system is for the entrance of 7 feet or below, but
there may be special cases requiring the protection of even wider openings
which makes Sky-GuardTM advantageous. Unlike other systems with additional
bulk size pedestals, Sky-GuardTM only need to add few slim active antennas
according to the width of entrance, making system expansion easy, simple and
cost-effective.

Page: 3
Applications
Sky-GuardTM system simple installation consists of the system measuring 2.7”(H)
21”(L) 5.4”(W), three passive antennas 3.1” long with a width of 1.5”, and
built-in enunciator. Detection with a simple installation extends up to 7ft in all
directions within the loop with 58k hard tag. If used with labels, some more
detecting antennas shall be installed. The system can be mounted on either side
of doorway.
The Sky-GuardTM can be installed close to a metal door or frame with out
decreasing the detection range, but once the material or environment around door
entry changes, the system need to be reset to adjust the inductance of
transmitter. We also recommend that the when using a neon light, the system is
kept 12 ft away, if this is not possible you can install our noise shield over the
transformer to eliminate this problem.

Page: 4
Parts List (For simple installation)
Tx loop (9 m)
Antenna holders (4 sets)
System (1)
with build-in alarm indicator
Passive antenna
(3 sets)
System open picture

Page: 5
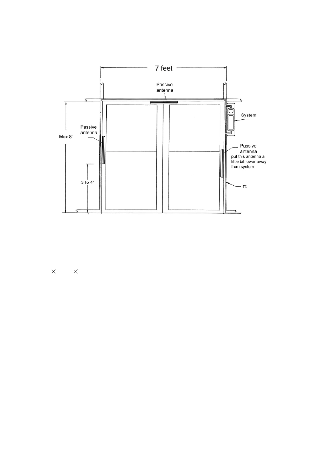
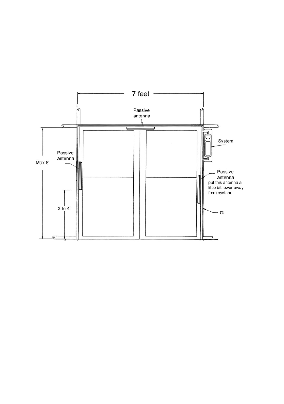
Installation Procedures
1. First loop the TX loop according to the outline of the gate frame.
2. Open the system housing, and mount the system on the one side of the gate as the
diagram shows.

Page: 6
3. First mount the antenna holders 3 to 4’ above the ground (two holders for every
side) , and scew the passive antennas into the doorframe.
4. Plug the antenna connections onto the system and do the same to Tx loop
connection.
5. The power line connections are ready with the system when out of box, but if
expansion of the power line is needed, the termination can be connected as the
above diagram shows. The left terminal is for power line grounding, and the right
terminal is for power line N and L terminations. N and L can be swapped.
6. Finally when all the connections ready, mount the housing onto the system and fix it
by screwing down the screws at the upper and lower side of the system housing.

Page: 7
Quick Start Instructions
When all procedures of installation finished and the power applied on, the system
automatically enters the transmitter self-configuration condition. In this stage, you can
hear the buzzer beeps regularly with a sequence of medium intervals. When the
self-configuration accomplished, three beeps of short term intervals indicate that the
system is ready for tag detections.
Problems
If you ensure every step of the installation is proper, all the connections are correct, and
the system still malfunctions or does not work with satisfactory sensitivity, please call our
technical support number (408-530-8070)
Accessories
A noise shield is available to cover the electronic transformer. This eliminates the
problem of noise from the proximity of Neon Lighting.

Page: 8
Appendix (IR control keyboard function description)
Default Parameters Table
WGSPI Strongly recommends using the Self Tuning Mode when installing the
system for the first time, please see [H] entry for instructions on how to operate
this feature.

Page: 9
FLOW CHART OF SUGGESTED TUNING PROCEDURES
System Defaut
Weak Performance & or False alarms
from your systems or theirs
Check Noise "D"
D B
Alternate between D1-D6 & B to
get most favorable parameters
( Low Noise Level )
If noise is less than 80 If noise is higher than 80
H A
If OK - You are done If noise is higher
1/2 of new noise or less=value than 80 Adjust Gain
increase slightly if False Alarms to 0
IF Not Acceptable
Check Noise Value and
Sensitivity of the System .
C H
If system is picking well,
Adjust until sensitive enough Your'e Done, If weak
then increase until stable adjust H to approximately
1/2 of Noise Level, if false
alrarms adjust slightly
Upward
C
Adjust from C6 to C1
until system is working
well. Than adjust Up
until system is stable
*Always Watch the system for about an Hour to ensure that you have chosen stable paramaters

Page: 10
Tuning Instructions
1. Firstly, open systems one by one if there are multiple systems works together. Make
sure every system does not interrupt another if another is under self detection mode.
(see entry H)
2. If the system is less sensitive,
Firstly, adjust Minimum Signal Adjustment figures by a decrement of 20. The default
number is 40. Please decrease the parameters by a step of 20 until the system
reaches satisfactory sensitivity.
Next but not important is to raise Gain Adjustment from 0(low) to 1(high), because
usually the default settings is 1 already.
3. If the system gives false alarms,
Firstly, shut down all the other systems (including all the possible noise source such
as lights electronic equipment and etc.) If it doesn’t stop this system from false
alarming, please follow the above two methods in an inverse way. A. Increase
Minimum Signal Adjustment by an increment of 20. The range is from 20 to 200. B.
Lower Gain Adjustment from 1(high) to 0(low).
Secondly, if all the other systems works properly except that turning on this system
renders others false alarm or shut down, please switch the L and N terminals on the
power cord(see Power Cord Notice in above sections).
4. If any efforts followed by the above methods failed to eliminate the system false
alarming or false alarms are stopped but system detection range drops below 6 feet,
please call the number in the first page to ask for our help.

Page: 11
Parameters Configuration
1. press “start” button to initiate the control
when panel shows the following state, initiation is ready.
Fig. 1
2. Press password “961”
Fig. 2
3. Press “confirm” button
Then enter the control parameters input state.
There usually are three steps in parameters input.
Firstly, select the parameter type, like Gain Adjustment, Sychron Adjustment or Noise
Condition Display;
Secondly, input the numbers within a valid range;
Thirdly, press “confirm” button.

Page: 12
Parameter Type Description
A. Gain Adjustment (range: 0-1)
There are two choices here, input 1 to select high gain, 0 to low gain.
Fig. 3
B. Sychron Adjustment (range: 1-250; increment: 1)
It is the time from zero crossing point to the start point of transmitting burst.
This is usually set for multiple systems working on a different power line with
phase problem. The range is 1~250, each stands for 34u seconds.
Fig. 4.1
Under this entry, you can also see the different noise condition (from the light
segment display and number indication) at a different phase when the
adjustment goes on. It will help you to select a relative “clean” phase
environment to set the system on.
Fig. 4.2

Page: 13
C. Noise Condition Display (range: 0-3)
The LEDs show signal or noise level by figures while the light segments bar
shows the level by the number of segments lit.
Select different parameter to choose the corresponding antenna channel to view
tag and noise condition.
(Note: If noise condition display is activated, alarm will be deactivated
unless you input 0 to shut down the display)
Noise Condition Display Configuration Table

Page: 14
Fig. 6
H. Minimum Signal Adjustment
1. Minimum Signal Adjustment (suggested increment : 20; valid range: 2-200)
Change this figure to admit minimum signal amplitude, in another word
any signal smaller than the level here will be ignored.
Decreasing the number will increase the sensitivity of system but also at
the risk of false alarming.
Vise versa, increasing it will lower down the sensitivity to overcome the
unexpected false alarming caused by uncontrollable environment noise.
2. Configuration Loading Mode Setting (range: 0-1)
Also under this setting entry, there are three modes of system
configuration loading.
Inputting 1 will set the system to power on self-detection mode in which
system will automatically configure all the parameters.
By inputting 0, system will load the default parameters from Flash ROM. (See
the default parameters table)
If this parameter is bigger than 2(use as Minimum Signal Adjustment), system
will load the latest saved parameters.
Note: Default parameters are NOT equivalent to the latest saved parameters.
Fig. 8

Page: 15
Exit button
This button will return control box to last state.
Save button
This button will save all parameters to flash ROM, so when power shut down
the parameters will not be lost.
After press this button, you should press “confirm” button to confirm saving.
Notice: But any adjustment of H as 0 (default parameters loading mode) or 1
(self-detection mode) will deactivate the application of the saved
parameters.
Fig. 9

Page: 16
Information on the following pages provides important safety
guidelines for both Operator and Service Personnel. Specific
warnings and cautions will be found throughout the manual
where they apply, but may not appear here. Please read and
follow the important safety information, noting especially
those instructions related to risk of fire, electric shock or injury
to persons.
WARNING
Any instructions in this manual that require opening the
equipment cover or enclosure are for use by qualified service
personnel only. To reduce the risk of electric shock, do not
perform any servicing other than that contained in the
operating instructions unless you are qualified to do so.
Symbols and Their Meanings
The exclamation point within an equilateral triangle alerts
the user to the presence of important operating and
maintenance (servicing) instructions in the literature
accompanying the equipment.
The fuse symbol indicates that the fuse referenced in the
text must be replaced with one having the ratings indicated.
Important Safeguards and
Regulatory Notices

Page: 17
Danger
Electrical potential is still applied to some internal
components even when the power switch/breaker is in the
off position. To prevent electrical shock when working on
this equipment, disconnect the AC line cord from the AC
source before working on any internal components.
A residual voltage may be present immediately after
unplugging the system due to slow discharge of large
power supply capacitors. Wait 30 seconds to allow
capacitors to discharge before working on the system.
Warnings
Heed all warnings on the unit and in the operating
instructions.
Do not use this equipment in or near water.
Disconnect AC power before installing any options.
The attachment plug receptacles in the vicinity of the
equipment are all to be of a grounding type, and the
equipment grounding conductors serving these are to be
connected to earth ground at the service equipment.
This equipment is grounded through the grounding
conductor of the power cord. To avoid electrical shock,
connect the power cord to the equipment and plug it into a
properly wired receptacle before connecting the equipment
inputs and outputs.
Route power cords and other cables so that they are not
likely to be damaged.
Do not wear hand jewelry or watches when troubleshooting
high current circuits, such as the power supplies.
During installation, do not use the door handles or front
panels to lift the equipment as they may open abruptly and
injure you.

Page: 18
To avoid fire hazard, use only components of the specified
type, voltage and current rating as referenced in the
appropriate parts list.
Always refer fuse replacement to qualified service
personnel.
To avoid explosion, do not operate this equipment in an
explosive atmosphere unless it has been specifically
certified for such operation.
Have qualified personnel perform safety checks after any
completed service.
Risk of electric shock is present. A grounded circuit
conductor (neutral) is provided with over current protection.
Test all components before touching.
Cautions
To prevent damage to equipment when replacing fuses,
locate and correct the trouble that caused the fuse to blow
before applying power.
Verify that all power supply lights are off before removing
the power supply or servicing equipment.
Use only specified replacement parts.
Leave the base of the system clear for air exhaust cooling
and to allow room for cabling. Slots and openings in the
system are provided for ventilation. Do not block them.
To prevent damage to this equipment read the instructions
in this document for proper input voltage range selection.
Circuit boards in this equipment are densely populated with
surface mount and ASIC components. Special tools and
techniques are required to safely and effectively
troubleshoot and repair modules that use SMT or ASIC
components. For this reason, service and repair of products
incorporating surface mount technology are supported only
on a module exchange basis. Customers should not

Page: 19
attempt to troubleshoot or repair modules that contain SMT
components. It assumes no liability for damage caused by
unauthorized repairs. This applies to both in- and
out-of-warranty products.
Power Cord Notices
North American Power Supply Cords
This equipment is supplied with an external power line at
one end and a molded receptacle terminal block at the
other end. Conductors are color coded white (neutral),
black (line) and green or green/yellow (ground).
Operation of this equipment at voltages exceeding 130 VAC
will require power supply cords which comply with NEMA
configurations.
International Power Supply Cord
This equipment is supplied with an external power line at
one end and a molded receptacle terminal block at the
other end. Conductors are CEE color coded—light blue
(neutral), brown (line) and green/yellow (ground). Other IEC
320 C-13 type power supply cords can be used if they
comply with the safety regulations of the country in which
they are installed.

Page: 20
Before You Install
Introduction
Congratulations on your purchase of one of the finest EAS
systems on the market. This is the Installation Instructions
manual.
Receiving Inspection
Inspect all shipping containers for any signs of damage. If
any is found, notify the shipping company. If there is no
obvious damage, continue with the unpacking instructions.
Unpacking Instructions
Place the containers on a flat level surface with enough
room to move the container around as needed. Remove all
the remaining manuals and the Floppy Disk software set.
Compare the manuals against the Inventory sheet and
make a note of any discrepancies.
Carefully remove the contents of container and place on a
flat level surface. Compare the contents with the Part List to
ensure that there no missing items. Make a note of any
discrepancies.
Equipment Inspection
Inspect all equipment for damage. Items to specifically
check, and damage to look for, are listed below:
All connectors for bent or broken pins
Cables for crimped or broken wires
Plastic housing for any obvious signs of damage
If any damage is found, contact Customer Service at the
telephone number in the front of this manual. If any item is
damaged, DO NOT make any power or signal connections
to the unit unless otherwise advised to do so by Customer

Page: 21
Service.
If there are any discrepancies between the Manual Set
Inventory sheet and the manuals received, or between the
Packing List and items received, contact Customer Service
at the telephone number at the front of this manual. If there
are no discrepancies and either no damage, or
GVG-advised correction action is made, continue with this
manual.
Facility Checklist
The following checklist is a synopsis of information found in
the appropriate Installation Planning Guide. The Planning
Guide should be referred to for detailed site preparation
information.
Ensure that there are sufficient AC power outlets of the
required 3-prong grounded type and amp rating for the
intended equipment.
