Weider 831157110 User Manual WEIGHT BENCH PRO 265 Manuals And Guides L0710609
WEIDER Weight System Manual L0710609 WEIDER Weight System Owner's Manual, WEIDER Weight System installation guides
User Manual: Weider 831157110 831157110 WEIDER WEIGHT BENCH WEIDER PRO 265 - Manuals and Guides View the owners manual for your WEIDER WEIGHT BENCH WEIDER PRO 265 #831157110. Home:Fitness Equipment Parts:Weider Parts:Weider WEIGHT BENCH WEIDER PRO 265 Manual
Open the PDF directly: View PDF .
Page Count: 20

WE|
Model No. 831.15711.0
Serial No.
Write the serial number in the
space above for reference.
Serial Number Decal (under seat)
, Assembly
, Adjustment
, Part List and Drawing
_,CAUTION
Read all precautions and instruc-
tions in this manual before using
this equipment. Save this manu-
al for future reference.
WEIGHT BENCH EXERCISER
User's Manual
Sears, Roebuck and Co., Hoffman Estates, IL 60179

TABLE OF CONTENTS
WARNING DECAL PLACEMENT .............................................................. 2
IMPORTANT PRECAUTIONS ................................................................. 3
BEFORE YOU BEGIN ....................................................................... 4
PART IDENTIFICATION CHART ............................................................... 5
ASSEMBLY ............................................................................... 6
ADJUSTMENT ............................................................................ 10
EXERCISE GUIDELINES ................................................................... 12
PART LIST ............................................................................... 18
EXPLODED DRAWING ..................................................................... 19
ORDERING REPLACEMENT PARTS .................................................. Back Cover
90-DAY FULL WARRANTY ........................................................... Back Cover
WARNING DECAL PLACEMENT
The decals shown here have been placed on
the weight bench, if adecal is missing or
illegible, call 1-877=992=5999, and order a
free replacement decal. Apply the decal in
the location shown. Note: The decals may
not be shown at actual size.
User Weight: Max 300 LBS
Weight Crutch: Max 210 LBS
Leg Developer: Max 130 LBS
Weight Carriage: Max 130 LBS
Chest F|y Per Arm: Max 40 LBS
Product may not offer all |isted exercises.
ible, or removed.

iMPORTANT PRECAUTIONS
WARNING: Toreducether skofserious njury,readthefollowing important precau-
tionsbefore using the weight bench.
1. Read all instructions in this manual and all 11. The weight bench is designed to support a
warnings on the weight bench before using maximum user weight of 300 Ibs. (136 kg)
the weight bench. Use the weight bench only and a maximum total weight of 510 Ibs. (231
as described in this manual, kg). Do not place more than 210 Ibs. (95 kg),
2. It is the responsibility of the owner to ensure
that all users of the weight bench are ade-
quately informed of all precautions.
3. The weight bench is intended for home use
only. Do not use the weight bench in any
commercial, rental, or institutional setting.
4. Keep the weight bench indoors, away from
including a barbell and weights, on the
weight rests. Do not place more than 130 Ibs.
(59 kg) on the leg lever or the weight car-
riage. Note: The weight bench does not
include a barbell or weights.
12. Always make sure that there is an equal
amount of weight on each side of the barbell
when you are using it. Always keep some
weight on both ends of the barbell when
moisture and dust. Place the weight bench adding or removing weights to prevent the
on a level surface, with a mat beneath it to barbell from tipping.
protect the floor or carpet. Make sure that
there is enough clearance around the weight 13. When you are usi ng the leg lever, place a
bench to mount, dismount, and use the barbell with the same amount of weight on
weight bench, the weight rests to balance the weight bench.
5. Inspect and properly tighten all parts regular- 14. When you put weight on the weight rests,
ly. Replace any worn parts immediately, make sure that you put at least 10 Ibs. (5 kg}
on the leg lever to balance the weight bench.
Keep children under age 12 and pets away
from the weight bench at all times.
.
15. Make sure that the adjustment pin and the
weight rest knobs are inserted completely
7. Keep hands and feet away from moving parts, and tightened into the uprights before begin-
ning any exercise.
8. Always wear athletic shoes for foot protec=
tion while exercising. 16. Always remove the curl post and the lat
tower from the front leg before using the leg
9. Always exercise with a partner. When you lever.
are performing bench press exercises, your
partner should stand behind you to catch the 17. If you feel pain or dizziness at any time while
barbell if you cannot complete arepetition, exercising, stop immediately and cool down.
10. Do not sit on the top end of the backrest;
this will cause the weight bench to tip.
WARNING: Before beginning this or any exercise program, consult your physician. This
is especially important for persons over the age of 35 or persons with pre-existing health problems.
Read all instructions before using. Sears assumes no responsibility for personal injury or property
damage sustained by or through the use of this product.
3

BEFORE YOU BEGIN
Thank you for selecting the versatile WELDER ®PRO
265 weight bench. The weight bench offers an impres-
sive array of weight stations designed to develop
every major muscle group of the body. Whether your
goal is to tone your body, build dramatic muscle size
and strength, or improve your cardiovascular system,
the weight bench will help you to achieve the specific
results you want.
For your benefit, read this manual carefully before
using the weight bench, if you have questions after
reading this manual, call 1-800-4-MY-HOME ®
(1-800-469-4663). To help us assist you, please note
the product model number and serial number before
calling. The model number is 831.15711.0. The serial
number can be found on a decal attached to the
weight bench (see the front cover of this manual for
the location of the decal).
Before reading further, please review the drawing
below and familiarize yourself with the parts that are
labeled.
Lat Bar
Lat Towel
Backrest
Weight Carriage
Leg Lever
ASSEMBLED DIMENSIONS:
Height: 79 in. (201 cm)
Width: 40 in. (102 cm)
Depth: 70 in. (178 cm)
Weight Rest
Weight Rest Knob
Upright
Storage Tube
Seat
Bracket
Weight Tube
4

PART iDENTiFiCATiON CHART
Refer to the drawings below to identify small parts used in assembly. The number in parentheses by each draw-
ing is the key number of the part, from the PART LIST on page 18. Important: Some parts may have been
pre-assembled for shipping purposes, if you cannot find a part in the parts bags, check to see if it has
been pre-assembled, if apart is missing, call 1-877-992-5999.
MIO Nylon Locknut (43)
M8 Nylon Locknut (55)
M6 Nylon Locknut (51)
L
MIO Washer (44)
M8 Washer (56)
H
M6 Washer (48)
M4 x 16mm Screw (45)
MIO x 81mm Bolt (41)
MIO x 75mm Bolt (42)
MIO x 68mm Bolt (54)
MIO x 65mm Bolt (40)
MIO x 60mm Bolt (47)
M8 x 58mm Bolt (52)
M6 x 40mm Bolt (49)
MIO x 19mm Bolt (53)
c D
M6 x 16mm Screw (39)
x I
o I

ASSEMBLY
Make Assembly Easier
Everything in this manual is designed to ensure
that the weight bench can be assembled suc-
cessfully by almost anyone However. the weight
bench has many parts and the assembly
process will take time. By setting aside plenty of
time_ assembly will go smoothly.
Before beginning assembly, carefully read the
following information and instructions:
.Assembly requires two people.
*Because of its weight and size, the weight bench
should be assembled in the location where it will
be used. Make sure that there is enough clear-
ance to walk around the weight bench as you
assemble it.
*Place all parts in a cleared area and remove the
packing materials. Do not dispose of the packing
materials until assembly is completed.
•Tighten all parts as you assemble them, unless
instructed to do otherwise.
°As you assemble the weight bench, make sure all
parts are oriented as shown in the drawings.
*For help identifying small parts, use the Part
Identification Chart.
The included grease and the following tools (not
included) may be required for assembly:
•Two adjustable wrenches
• One rubber mallet
•One standard screwdriver _J
* One Phillips screwdriver (L_-
Assembly will be more convenient if you have a
socket set, a set of open-end or closed-end
wrenches, or a set of ratchet wrenches.
Before assembling the weight bench, make
sure that that you have read and under-
stand the information in the box above.
Lift the Weight Rest (7) in the Left Upright (6) and
secure it with a Weight Rest Knob (23).
Attach the Crossbar (4) to the Left Upright (6)
with a Right Joint Plate (18), a Left Joint Plate
(59), four MIO x 75mm Bolts (42), and four MIO
Nylon Locknuts (43). Do not tighten the Nylon
Locknuts yet.
Attach the Crossbar (4) to the Right Upright
(5) in the same manner.
18
59
18
7_
43 23
6

Attach the Bench Frame (1) to the Front Leg (2)
with two MIO x 65mm Bolts (40), two MIO
Washers (44), and two MIO Nylon Locknuts (43).
Do not tighten the Nylon Locknuts yet.
Attach the Bench Frame (1) to the Crossbar (4)
with two MIO x 81mm Bolts (41) and two MIO
Nylon Locknuts (43).
Tighten the IVll0 Nylon Locknuts (43) used in
steps 1 through 3.
Attach the Weight Tube (16) inside the Leg Lever
(3) with an M8 x 58mm Bolt (52), two M8
Washers (56), a lOmm Spacer (32), and an M8
Nylon Locknut (55).
Press the 25mm Round Angled Cap (28) onto the
Weight Tube (16).
Grease an MIO x 68mm Bolt (54). Attach the Leg
Lever (3) with the Bolt and an MIO Nylon Locknut
(43). Do not overtighten the Nylon Locknut;
the Leg Lever must pivot easily.
Orient the Backrest Frames (12) with the indicat-
ed tubes in the position shown. Attach the
Backrest Frames to the Backrest Bracket (10)
with four M6 x 40mm Bolts (49), four M6 Washers
(48), and four M6 Nylon Locknuts (51). Do not
tighten the Nylon Locknuts yet.
44
4O
40
4
43
41
56
16 52
_rease
12
7

6. 6
Attach the Backrest (13) to the Backrest Frames
(12) with four M6 x 40mm Belts (49) and four M6
Washers (48). Do not tighten the Bolts yet.
Insert the Backrest Bracket (10) through the
Bench Frame (1).
Grease an M10 x 168mm Bolt (50). Attach the
Backrest Frames (12) to the Bench Frame (1)
with the Bolt and an M10 Nylon Locknut (43). Do
not overtighten the Nylon Locknut; the
Backrest Frames must pivot easily.
Attach the Adjustment Pin (25) to the Bench
Frame (1) with an M4 x 16mm Screw (45).
Engage the Pin into the Bench Frame and the
Backrest Bracket (10).
Tighten the M6 x 40mm Bolts (49) and M6
Nylon Locknuts (51) used in steps 5 and 6.
Attach the Seat (14) to the Bench Frame (1) with
four M6 x 16mm Screws (39).
13
12
49
1 50
14
39
8

9. Insert a Pad Tube (19) into the Leg Lever (3). 9
Slide two Foam Pads (20) onto the Pad Tube.
Repeat this step with the other two Pad Tubes
(19) and the Leg Lever (3) and Front Leg (2).
10. Attach the Curl Pad (15) to the Curl Post (11) with
two M6 x 16mm Screws (39).
11. Route the Lat Cable (35) through the Lat Tower
(8) and over the Pulley (38). Make sure that the
Cable is under the lat bar rest. Attach the Pulley
inside the Lat Tower with an MIO x 60mm Bolt
(47), two MIO Washers (44), two lOmm Large
Spacers (31), and an MIO Nylon Locknut (43).
12. Insert an MIO x 19mm Bolt (53) into the bracket
on the Weight Carriage (9).
Slide the Weight Carriage (9) onto the Lat Tower
(8). Make sure that the bracket on the Weight
Carriage and the lat bar rest on the Lat Tower
(see step 11) are on opposite sides of the Lat
Tower. Attach the Lat Cable (35) to the MIO x
19mm Bolt (53) with an MIO Nylon Locknut (43).
13. Make sure that all parts are properly tightened
before the weight bench is used. The use of all
remaining parts will be explained in ADJUST-
MENT on page 10.
10
11
12
20
2
3
19
15
Lat Bar
43 31 Rest
31 )
47
--8
9

ADJUSTMENT
This section explains how to adjust the weight bench. See the EXERCISE GUIDELINES on page 12 for impor-
tant information about how to get the most benefit from your exercise program. Also, refer to the accompanying
exercise guide to see the correct form for each exercise.
Make sure all parts are properly tightened each time the weight bench is used. Replace any worn parts immediate-
ly. The weight bench can be cleaned with a damp cloth and a mild, non-abrasive detergent. Do not use solvents.
ADJUSTING THE BACKREST
The Backrest (13) can be used in a decline position,
a level position, or an incline position. To use the
Backrest in the decline position, remove the
Adjustment Pin (25) and lay the Backrest on the
Crossbar (4).
To use the Backrest (13) in the level or inclined posi-
tion, lift the Backrest and insert the Adjustment Pin
(25) through the Bench Frame (1) and a hole in the
Backrest Bracket (10).
ADDING WEIGHT
To use the Weight Carriage (9) or the Leg Lever (3),
slide the desired weights (not included) onto the
Weight Carriage or the Weight Tube (16). Secure the
weights on the Weight Carriage with the Spring Clips
(36). Unused weights can be stored on the tubes on
the Uprights (not shown).
WARNING" Do pl eth
. not ace mor an
130 Ibs, (59 kg) On the Weight Carriage (9)Or
Weight Tube (!6),
ADJUSTING THE WEIGHT RESTS
To change the height of the Weight Rests (7), remove
the Weight Rest Knobs (23). Position the Weight
Rests to the desired height in the Uprights (5, 6) and
secure them with the Weight Rest Knobs.
WARNING: A,waysSetbothWe,ght
Rests (7)at the same height. Make sure that the
Weight Rest Knobs (23) are inserted into both
the Uprights (5, 6) and the Weight Rests.
13
ustment
10 Holes
36
16
23 _
-7
--5 7
/.6
23
10

ATTACHING THE CURL PAD
For some exercises, the Curl Pad (15) must be
attached to the weight bench. Remove the 45mm
Thick Square Inner Cap (57) from the Front Leg (2).
insert the Curl Post (11) into the Front Leg (2). Align
one of the adjustment holes in the Curl Post with the
adjustment hole in the Front Leg. Fully tighten the
Curl Knob (34) into the Front Leg.
The Lat Tower (8) can be attached in the same way.
Note: When the Curl Pad (15) or Lat Tower (8) is not
in use, the 45mm Thick Square Inner Cap (57) should
be inserted into the Front Leg (2).
ATTACHING THE LAT BAR
Attach the Lat Bar (17) to the Lat Cable (35) with a
Cable Clip (37). Remove the Lat Bar when performing
an exercise that does not require it.
15
35
37
17
11

EXERCISE GUiDELiNES
THE FOUR BASIC TYPES OF WORKOUTS
Muscle Building
To increase the size and strength of your muscles,
push them close to their maximum capacity. Your mus-
cles will continually adapt and grow as you progres-
sively increase the intensity of your exercise. You can
adjust the intensity level of an individual exercise in
two ways:
• by changing the amount of resistance used
by changing the number of repetitions or sets per-
formed. (A "repetition" is one complete cycle of an
exercise, such as one sit-up. A "set" is a series of
repetitions.)
The proper amount of resistance for each exercise
depends upon the individual user. You must gauge
your limits and select the amount of resistance that is
right for you. Begin with 3 sets of 8 repetitions for each
exercise you perform. Rest for 3 minutes after each
set. When you can complete 3 sets of 12 repetitions
without difficulty, increase the amount of resistance.
Toning
You can tone your muscles by pushing them to a mod-
erate percentage of their capacity. Select a moderate
amount of resistance and increase the number of rep-
etitions in each set. Complete as many sets of 15 to
20 repetitions as possible without discomfort. Rest for
1 minute after each set. Work your muscles by com-
pleting more sets rather than by using high amounts of
resistance.
Weight Loss
To lose weight, use a low amount of resistance and
increase the number of repetitions in each set.
Exercise for 20 to 30 minutes, resting for a maximum
of 30 seconds between sets.
Cross Training
Cross training is an efficient way to get a complete and
well-balanced fitness program. An example of a bal-
anced program is:
Plan strength training workouts on Monday,
Wednesday, and Friday.
• Plan 20 to 30 minutes of aerobic exercise, such as
running on a treadmill or riding on an exercise cycle,
on Tuesday and Thursday.
Rest from both strength training and aerobic exercise
for at least one full day each week to give your body
time to regenerate.
The combination of strength training and aerobic exer-
cise will reshape and strengthen your body, plus devel-
op your heart and lungs.
PERSONALiZiNG YOUR EXERCISE PROGRAM
Determining the appropriate length of time for each
workout, and the number of repetitions or sets to com-
plete, is an individual matter. Avoid overdoing it during
the first few months of your exercise program.
Progress at your own pace and be sensitive to your
body's signals. If you experience pain or dizziness
while exercising, stop immediately and cool down.
Find out what is wrong before continuing. Remember
that adequate rest and a proper diet are important fac-
tors in any exercise program.
WARMING UP
Begin each workout with 5 to 10 minutes of stretching
and light exercise to warm up. Warming up prepares
your body for more strenuous exercise by increasing
circulation, raising your body temperature and deliver-
ing more oxygen to your muscles.
WORKING OUT
Each workout should include 6 to 10 different exercis-
es. Select exercises for every major muscle group,
emphasizing areas that you want to develop most. To
give balance and variety to your workouts, vary the
exercises from workout to workout.
Schedule your workouts for the time of day when your
energy level is the highest. Each workout should be
followed by at least one day of rest. Once you find the
schedule that is right for you, stick with it.
EXERCISE FORM
Maintaining proper form is an essential part of an
effective exercise program. This requires moving
through the full range of motion for each exercise, and
moving only the appropriate parts of the body.
Exercising in an uncontrolled manner will leave you
feeling exhausted. On the exercise guide accompany-
ing this manual you will find photographs showing the
correct form for several exercises, and a list of the
muscles affected. Refer to the muscle chart on the
next page to find the names of the muscles.
The repetitions in each set should be performed
smoothly and without pausing. The exertion stage of
each repetition should last about half as long as the
return stage. Proper breathing is important. Exhale
during the exertion stage of each repetition and inhale
during the return stroke. Never hold your breath.
12

Rest for a short period of time after each set. The
ideal resting periods are:
• Rest for three minutes after each set for a muscle
building workout.
• Rest for one minute after each set for a toning work-
out.
• Rest for 30 seconds after each set for a weight loss
workout.
Plan to spend the first couple of weeks familiarizing
yourself with the equipment and learning the proper
form for each exercise.
COOLING DOWN
End each workout with 5 to 10 minutes of stretching.
Include stretches for both your arms and legs. Move
slowly as you stretch and do not bounce. Ease into
each stretch gradually and go only as far as you can
without strain. Stretching at the end of each workout
is an effective way to increase flexibility.
STAYING MOTIVATED
For motivation, keep a record of each workout. The
chart on pages 14 and 15 of this manual can be pho-
tocopied and used to schedule and record your work-
outs. List the date, the exercises performed, the resist-
ance used, and the numbers of sets and repetitions
completed. Record your weight and key body meas-
urements at the end of every month. Remember, the
key to achieving the greatest results is to make exer-
cise a regular and enjoyable part of your everyday life.
R
S
T
V
W
X
MUSCLE CHART
A. Sternomastoid (neck)
B. Pectoralis Major (chest)
C. Biceps (front of arm)
D. Obliques (waist)
E. Brachioradials (forearm)
R Hip Flexors (upper thigh)
G. Abductor (outer thigh)
H. Quaddceps (front of thigh)
I. Sartodus (front of thigh)
J. Tibialis Anterior (front of calf)
K. Soleus (front of calf)
L. Anterior Deltoid (shoulder)
M. RectusAbdominus (stomach)
N. Adductor (inner thigh)
O. Trapezius (upper back)
P. Rhomboideus (upper back)
Q. Posterior Deltoid (shoulder)
R. Triceps (back of arm)
S. Latissimus Dorsi (mid back)
T. Spinae Erectors (lower back)
U. Gluteus Medius (hip)
V. Gluteus Maximus (buttocks)
W. Hamstring (back of leg)
X. Gastrocnemius (back of calf)
13

MONDAY EXERCISE WEIGHT SETS REPS
Date:
/ /
TUESDAY
Date:
/ /
AEROBIC EXERCISE
WEDNESDAY EXERCISE WEIGHT SETS REPS
Date:
/ /
THURSDAY
Date:
/ /
AEROBIC EXERCISE
FRIDAY EXERCISE WEIGHT SETS REPS
Date:
/ /
Make photocopies of this page for scheduling and recording your workouts.
14

MONDAY EXERCISE WEIGHT SETS REPS
Date:
/ /
TUESDAY
Date:
/ /
AEROBIC EXERCISE
WEDNESDAY EXERCISE WEIGHT SETS REPS
Date:
/ /
THURSDAY
Date:
/ /
AEROBIC EXERCISE
FRIDAY EXERCISE WEIGHT SETS REPS
Date:
/ /
Make photocopies of this page for scheduling and recording your workouts.
15

NOTES
16

NOTES
17

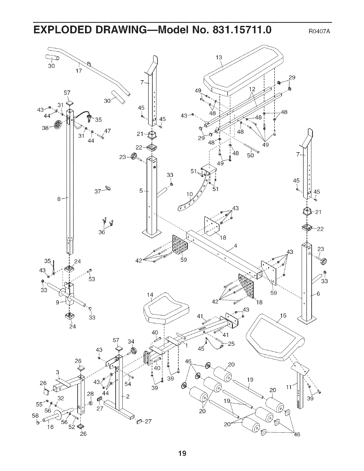
PART LiST--Model No. 831.15711.0 R0407A
Key No. Qty. Description Key No. Qty. Description
1 1 Bench Frame 32 1 lOmm Spacer
2 1 Front Leg 33 4 25mm Round Inner Cap
3 1 Leg Lever 34 1 Curl Knob
4 1 Crossbar 35 1 Lat Cable
5 1 Right Upright 36 2 Spring Clip
6 1 Left Upright 37 1 Cable Clip
7 2 Weight Rest 38 1 Pulley
8 1 Lat Tower 39 6 M6 x 16mm Screw
9 1 Weight Carriage 40 2 MIO x 65mm Bolt
10 1 Backrest Bracket 41 2 MIO x 81mm Bolt
11 1 Curl Post 42 8 MIO x 75mm Bolt
12 2 Backrest Frame 43 16 M 10 Nylon Locknut
13 1 Backrest 44 4 M10 Washer
14 1 Seat 45 5 M4 x 16mm Screw
15 1 Curl Pad 46 6 19mm Round Inner Cap
16 1 Weight Tube 47 1 MIO x 60mm Bolt
17 1 Lat Bar 48 8 M6 Washer
18 2 Right Joint Plate 49 8 M6 x 40mm Bolt
19 3 Pad Tube 50 1 MIO x 168mm Bolt
20 6 Foam Pad 51 4 M6 Nylon Locknut
21 2 Weight Rest Cap 52 1 M8 x 58mm Bolt
22 2 Square Bushing 53 1 MIO x 19mm Bolt
23 2 Weight Rest Knob 54 1 MIO x 68mm Bolt
24 2 Lat Tower Bushing 55 1 M8 Nylon Locknut
25 1 Adjustment Pin 56 2 M8 Washer
26 3 45mm Square Inner Cap 57 2 45mm Thick Square Inner Cap
27 2 25mm x 51mm Inner Cap 58 1 25mm Thin Round Inner Cap
28 1 25mm Round Angled Cap 59 2 Left Joint Plate
29 4 25mm Square Inner Cap , User's Manual
30 2 Lat Handgdp * Exercise Guide
31 2 lOmm Large Spacer * Grease Packet
Note: Specifications are subject to change without notice. See the back cover of this manual for information
about ordering replacement parts. If a part is missing, call 1-877-992-5999. *These parts are not illustrated.
18

EXPLODED DRAWING--Model No. 831.15711.0 Ro4o7A
30 17
4O
39
14
41
I 45
46 2O
39 19
20
29
49
11
2O
23
_6
>
39
19

Your Home
iiiiiiiiiiiiiiiiii_
For repair--in your home--of all major brand appliances, lawn and garden equipment,
or heating and cooling systems, no matter who made it, no matter who sold it!
For the replacement parts, accessories, and user's manuals that you need to do-it-yourself.
For Sears professional installation of home appliances
and items like garage door openers and water heaters.
1-800-4-M't-HOME®{,-8oo-469-4663
Call anytime, day or night (U.S.A. and Canada)
www.sears.com www.sear .ca
Our Home
For repair of carry-in items like vacuums, lawn equipment,
and electronics, call or go on-line for the location of your nearest
SearsParts RepairCenter.
1"800"488" 1222 Call anytime, day or night (U.S.A. only)
To purchase a protection agreement (U.S.A.)
or maintenance agreement (Canada) on a product serviced by Sears:
1-800-827-6655 (U.S.A.) 1-800-361-6665 (Canada)
Pard pedir servicio de reparaci6n a domicilio, y pard ordenar piezas:
® Registered Trademark /TMTrademark /SMService Mark of Sears Brands, LLC
® Marsa Registrada /TMMarsa de Fabrica /SMMarca de Servisio de Sears Brands, LLC
f90-DAY FULL WARRANTY
If this Sears WEIGHT BENCH EXERCISER fails due to a defect in material or workmanship within 90
days of the date of purchase, call 1-800-4-MY-HOME _ (1-800-469-4663) to arrange for free repair (or
replacement if repair proves impossible).
This warranty does not apply when the WEIGHT BENCH EXERCISER is used commercially or for rental
purposes. This warranty gives you specific legal rights, and you may also have other rights which vary
from state to state.
Sears, Roebuck and Co., Hoffman Estates, IL 60179
Part No. 252431 RO407A Printed in China © 2007 ICON IP, Inc.