Whirlpool CEM2743BQ0 User Manual COMMERCIAL ELECTRIC DRYER Manuals And Guides 1303093L
User Manual: Whirlpool CEM2743BQ0 CEM2743BQ0 WHIRLPOOL COMMERCIAL ELECTRIC DRYER - Manuals and Guides View the owners manual for your WHIRLPOOL COMMERCIAL ELECTRIC DRYER #CEM2743BQ0. Home:Laundry & Garment Care Parts:Whirlpool Parts:Whirlpool COMMERCIAL ELECTRIC DRYER Manual
Open the PDF directly: View PDF
.
Page Count: 48

Whi I
COMMERCIAL
LAUNDRY
INSTALLATION INSTRUCTIONS
COMMERCIAL DRYER GAS OR ELECTRIC
MODELSCGM2743BQ CGM2793BQ CEM2743BQ CEM2793BQ
INSTRUCTIONS D'INSTALLATION
SECHEUSE A USAGE COMMERCIAL i GAZ OU }_LECTRIQUE
MOD]_LESCGM2743BQ CGM2793BQ CEM2743BQ CEM2793BQ
TABLE OF CONTENTS
Page
Dryer Safety ............................................................................. 2
Tools &Parts ........................................................................... 5
Dimensions/Clearances ......................................................... 6
Gas Dryer installation Requirements .................................... 7
Electric Dryer Installation Requirements ........................... 10
Dryer Venting Requirements ............................................... 13
Gas Supply Connection ....................................................... 15
installing Leveling Legs, Coin Slide, and Coin Box ............ 17
Electric Dryer Electrical Connections ................................ 18
Leveling ................................................................................. 22
Complete Installation ........................................................... 23
Reversing Dryer Door Swing ............................................... 24
Changing to a30- or 60-Minute Timing Cam ..................... 25
Maintenance instructions .................................................... 26
if You Need Assistance ........................................................ 26
TABLE DES MATIERES
Page
S4curit4 de la s4cheuse ...................................................... 28
Outils et pi_ces ................................................................... 31
Dimensions/Distances de d4gagement ........................... 32
Exigences d'installation pour la s4cheuse hgaz ............. 33
Exigences d'installation pour
la s4cheuse 41ectrique ...................................................... 36
Exigences concernant 1'4vacuation
de la s4cheuse .................................................................... 38
Raccordement hla canalisation de gaz ........................... 40
Installation des pieds de nivellement,
de la glissi_re a monnaie et de la caisse
monnaie ............................................................................ 42
Nivellement .......................................................................... 43
Achever PinstaRation ........................................................... 44
inversion du sens d'ouverture de la porte ........................ 45
Installation d'une came de minutage
de 30 ou 60 minutes ............................................................ 46
instructions d'entretien ....................................................... 47
Si vous avez besoin d'assistance ...................................... 47
W10474269A
W10474270A = SP www.whirlpoolcornrnerciallaundry.corn

DRYER SAFETY
Your safety and the safety of others are very important.
We have provided many important safety messages in this manual and on your appliance. Always read and obey all safety
messages.
This is the safety alert symbol.
This symbol alerts you to potential hazards that can kill or hurt you and others.
All safety messages will follow the safety alert symbol and either the word "DANGER" or "WARNING."
These words mean:
You can be killed or seriously injured if you don't immediately
follow instructions,
You can be killed or seriously injured if you don't follow
instructions,
All safety messages will tell you what the potential hazard is, tell you how to reduce the chance of injury, and tell you what can
happen if the instructions are not followed.
WARNING -"Ri,kofFi, "
- Clothes dryer installation must be performed by a qualified installer,
- Install the clothes dryer according to the manufacturer's instructions and local codes.
- Do not install a clothes dryer with flexible plastic venting materials or flexible metal
(foil type} duct. if flexible metal duct is installed, it must be of aspecific type identified
by the appliance manufacturer as suitable for use with clothes dryers. Flexible venting
materials are known to collapse, be easily crushed, and trap lint. These conditions will
obstruct clothes dryer airflow and increase the risk of fire.
- To reduce the risk of severe injury or death, follow all installation instructions.
- Save these instructions.
[] It is recommended that the owner post, in a prominent location, instructions for the customer's use in the event the customer
smells gas. This information should be obtained from your gas supplier.
[] Post the following warning in a prominent location.
FOR YOUR SAFETY
Do not store or use gasoline or other flammable vapors and liquids in the vicinity of this or any other appliance. 1
2

DRYER SAFETY
WARNING: For your safety, the information in this manual must be followed to minimize !
the risk of fire or explosion, or to prevent property damage, personal injury, or death. J
- Do not store or use gasoline or other flammable vapors and liquids in the vicinity of this
or any other appliance.
- WHAT TO DO iF YOU SMELL GAS:
=Do not try to light any appliance.
•Do not touch any electrical switch; do not use any phone in your building.
eClear the room, building, or area of all occupants.
=Immediately carl your gas supplier from a neighbor's phone. Follow the gas supplier's
instructions.
=if you cannot reach your gas supplier, call the fire department.
- installation and service must be performed by a qualified installer, service agency, or
the gas supplier.
WARNING: Gas leaks cannot always be detected by smell.
Gas suppliers recommend that you use a gas detector approved by UL or CSA.
For more information, contact your gas supplier.
If a gas leak is detected, follow the "What to do if you smell gas" instructions.
in the State of Massachusetts, the following installation instructions apply:
[] installations and repairs must be performed by a qualified or licensed contractor, plumber, or gasfitter qualified or licensed by
the State of Massachusetts.
[] If using a ball valve, it shall be a T-handle type.
[] A flexible gas connector, when used, must not exceed 3 feet.
IMPORTANT: The gas installation must conform with local codes, or in the absence of local codes, with the National Fuel Gas
Code, ANSi Z223.1/NFPA 54 or the Canadian Natural Gas and Propane Installation Code, CSA B149.1.
The dryer must be electrically grounded in accordance with local codes, or in the absence of local codes, with the National
Electrical Code, ANSI/NFPA 70 or Canadian Electrical Code, CSA C22.1.
IMPORTANT: When discarding or storing your old clothes dryer, remove the door. I
3

DRYER SAFETY
IMPORTANT SAFETY iNSTRUCTiONS
WARNING: To reduce the risk of fire, electric shock, or injury to persons when using the dryer, follow basic
precautions, including the following:
[] Read all instructions before using the dryer.
[] This dryer is intended only for drying clothes and textiles
that have been washed in water. Do not use for any
other purpose.
[] WARNING: If you smell gas, do not use the dryer or any
electrical equipment nearby. Warn other people to clear
the area. Contact the dryer owner immediately.
[] Do not place items exposed to cooking oils in your dryer.
Items contaminated with cooking oils may contribute to
a chemical reaction that could cause a load to catch fire.
[] Do not dry articles that have been previously cleaned
in, washed in, soaked in, or spotted with gasoline,
dry-cleaning solvents, other flammable, or explosive
substances as they give off vapors that could ignite or
explode.
[] Do not dry unwashed items in the dryer.
[] Do not allow children to play on or in the dryer. Close
supervision of children is necessary when the dryer is
used near children.
[] Before the dryer is removed from service or discarded,
remove the door to the dryer compartment.
[] Do not reach into the dryer if the drum is moving.
[] Do not open door while dryer is in operation. It will stop.
[] Do not install or store the dryer where it will be exposed
to the weather.
[] Do not tamper with controls.
[] Clean dryer lint screen before or after each load.
[] Do not use this dryer without the lint screen in place.
[] Do not repair or replace any part of the dryer or attempt
any servicing unless specifically recommended in this
Installation Instructions or in published user-repair
instructions that you understand and have the skills
to carry out.
[] Do not use fabric softeners or products to eliminate static
unless recommended by the manufacturer of the fabric
softener or product.
[] Do not use heat to dry articles containing foam rubber or
similarly textured rubber-like materials.
[] The final part of a tumble dryer cycle occurs without
heat (cool-down cycle) to ensure that the articles are left
at a temperature that ensures that the items will not be
damaged.
[] WARNING: Never stop a tumble dryer before the end of
the drying cycle unless all items are quickly removed and
spread out so that the heat is dissipated. (Avoids risk of
spontaneous combustion).
[] Keep area around the exhaust opening and adjacent
surrounding areas free from the accumulation of lint, dust,
and dirt.
[] The interior of the dryer and dryer exhaust vent should be
cleaned periodically by qualified service personnel.
[] See "Electrical Requirements" section for grounding
instructions.
SAVE THESE INSTRUCTIONS
4

TOOLS &PARTS
Tools Needed:
8" (203 mm)
or 10"' (254 ram)
Pipe Wrench
Torx ®_1"=20Security
Screwdriver or Bit
Level
8" (203 mm) or 10" (254 mm)
Adjustable Wrench
that opens to 1" (25 ram)
Flat=Blade Screwdriver PhiUips Screwdriver
1" (25 ram) Hex-Head
Socket Wrench 5/16" (8 ram) Socket Wrench Pliers (that open to
19/16"[39 mm]}
Utility Knife 1/4" (6 ram) Nut Driver 27"(686 mm)
Wood Block
Caulk Gun and Caulk
(for installing new exhaust vent}
Vent Clamps Pipe-Joint Compound
Suitable for Gas Type
U
Putty Knife
1" (25 ram}
Open=End Wrenches Ruler or Measuring Tape
Parts Supplied:
Foot Boots (4) Leveling Legs(4) Security Cone
(on some models}
5/16"" Hex Head =
18 x 21/2"' Security Bolt
(on some models}
3=Pin 60=Minute Timing Cam
(on some models}
6=Pin 30=Minute Timing Cam
(on some models}
10 TORX is a registered trademark of Saturn Fasteners, Inc. 5

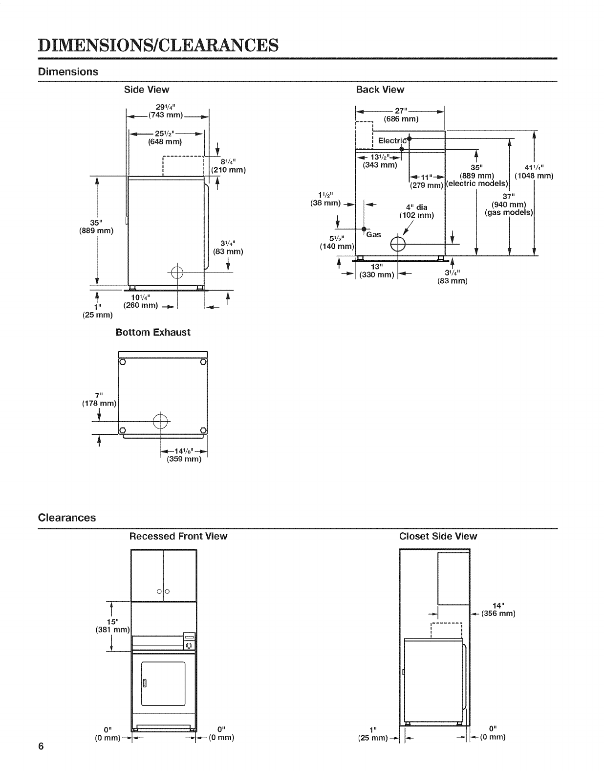
DIMENSIONS/CLEARANCES
Dimensions
Side View Back View
291/4"
(743 mm)
(648 m m}
ram)
1 "
(25 ram)
I I
u
I
101/4''
(260 ram)
Bottom Exhaust
81/4''
(210 mm)
31/4=`
(83 mm)
11/2nn
(38 mm)
51/2''
(140 ram)
_ .... (686 ram)
ii E,oc,.a
(343 ram) /
(279 ram)
I"_- 4" dia
| (102 ram)
* 13"| -*
(330 ram) _ 31/4"
(83 ram)
37"
(940 ram)
(gas iodels',
411/4"
ram)
7ul
(178 ram)
o 6
LI J
_, 141/a''
(359 ram)
Clearances
6
Recessed Front View
l
15"
(381 ram) F
0 II
•.,-- (0 mm)
I Ul
(25 ram)--,-
Closet Side View
4
I
u
14"
--- (356 mm)

GAS DRYER INSTALLATION REQUIREMENTS
Location Requirements
Explosion Hazard
Keep flammable materials and vapors, such as
gasoline, away from dryer.
Do not install in agarage.
Failure to do so can result in death, explosion, or fire.
Your dryer can be installed in a basement, laundry room, or
recessed area.
Companion appliance location requirements should also be
considered.
IMPORTANT: Do not install or store the dryer where it
will be exposed to the weather. Proper installation is your
responsibility.
You will need:
[] A grounded electrical outlet located within 6 ft. (1.8 m) of
where the power cord is attached to the back of the dryer.
See "Electrical Requirements."
[] A level floor with a maximum slope of 1" (25 mm) under
entire dryer, installing the dryer on soft floor surfaces,
such as carpets or surfaces with foam backing, is not
recommended.
Gas dryer installation clearances
[] The location must be large enough to allow the dryer door to
be fully opened.
[] Additional spacing should be considered for ease of
installation and servicing. The door opens more than 180°.
[] Additional clearances might be required for wall, door, and
floor moldings.
[] Additional spacing of 1" (25 mm) on all sides of the dryer is
recommended to reduce noise transfer.
When installing a gas dryer:
IMPORTANT: Observe all governing codes and ordinances.
[] Check code requirements: Some codes limit or do not
permit installation of clothes dryers in garages, closets, or
sleeping quarters. Contact your local building inspector.
[] Make sure that lower edges of the cabinet, plus the back
and bottom sides of the dryer, are free of obstructions to
permit adequate clearance of air openings for combustion
air. See "Recessed Area and Closet installation instructions"
below for minimum spacing requirements.
Recessed Area and Closet Installation Instructions
This dryer may be installed in a recessed area or closet. For
recessed area and closet installations, minimum clearances
can be found on the warning label on the rear of the dryer
or in "Dimensions/Clearances."
The installation spacing is in inches and is the minimum
allowable. Additional spacing should be considered for ease
of installation, servicing, and compliance with local codes and
ordinances.
If closet door is installed, the minimum unobstructed air
opening in the top and bottom is required. Louvered doors with
equivalent air openings are acceptable.
The dryer must be exhausted outdoors.
No other fuel-burning appliance may be installed in the same
closet as the dryer.
48 in?
(310 cm2)
Front
View
24 in.2
(155 cm2)
O
Closet
Door
3"
(76 ml
7

GAS DRYER INSTALLATION REQUIREMENTS
Electrical Requirements
Electrical Shock Hazard
Plug into agrounded 3 prong outlet.
Do not remove ground prong.
Do not use an adapter.
Do not use an extension cord.
Failure to follow these instructions can result in death,
fire, or electrical shock.
iMPORTANT: The dryer must be electrically grounded in
accordance with local codes and ordinances or, in the absence
of local codes, with the National Electrical Code, ANSI/NFPA
70, latest edition, or Canadian Electrical Code, CSA C22.1.
If codes permit and a separate ground wire is used, it is
recommended that a qualified electrical installer determine
that the ground path is adequate.
A copy of the above code standards can be obtained from:
National Fire Protection Association
One Batterymarch Park, Quincy, MA 02269
CSA International
8501 East Pleasant Valley Road
Cleveland, Ohio 44131-5575
[] Do not ground to a gas pipe.
[] Do not have a fuse in the neutral or ground circuit.
[] A 120 volt, 60 Hz, AC only, 15- or 20-amp, fused electrical
circuit is required. A time-delay fuse or circuit breaker is also
recommended. It is recommended that a separate circuit
serving only this dryer be provided.
[] This dryer is equipped with a power supply cord having a
3-prong grounding plug.
[] To minimize the possibility of shock, the cord must be
plugged into a mating, 3 prong, grounding-type outlet,
grounded in accordance with local codes and ordinances.
If a mating outlet is not available, it is the personal
responsibility and obligation of the customer to have the
properly grounded outlet installed by a qualified electrician.
[] If codes permit and a separate ground wire is used, it is
recommended that a qualified electrician determine that the
ground path is adequate.
[] Check with a qualified electrician if you are not sure the
dryer is properly grounded.
Gas Dryer Grounding
GROUNDING iNSTRUCTiONS
=1For a grounded, cord-connected dryer:
This dryer must be grounded. In the event of malfunction or
breakdown, grounding will reduce the risk of electric shock
by providing a path of least resistance for electric current.
This dryer uses a cord having an equipment-grounding
conductor and a grounding plug. The plug must be plugged
into an appropriate outlet that is properly installed and
grounded in accordance with all local codes and ordinances.
[] For a permanently connected dryer:
This dryer must be connected to a grounded metal,
permanent wiring system, or an equipment-grounding
conductor must be run with the circuit conductors and
connected to the equipment-grounding terminal or lead on
the dryer.
WARNING: Improper connection of the equipment-
grounding conductor can result in a risk of electric shock.
Check with a qualified electrician or service representative
or personnel if you are in doubt as to whether the dryer is
properly grounded. Do not modify the plug on the power
supply cord: if it will not fit the outlet, have a proper outlet
installed by a qualified electrician.
SAVE THESE iNSTRUCTiONS
8

GAS DRYER INSTALLATION REQUIREMENTS
Gas Supply
Explosion Hazard
Use anew CSA International approved gas supply line.
Install a shut=off valve,
Securely tighten all gas connections.
if connected to LP, have a qualified person make sure
gas pressure does not exceed 13" (330 ram) water
column.
Examples of a qualified person include:
licensed heating personnel,
authorized gas company personnel, and
authorized service personnel.
Failure to do so can result in death, explosion, or fire.
IMPORTANT: Observe all governing codes and ordinances.
This installation must conform with all local codes and
ordinances. In the absence of local codes, installation must
conform with American National Standard, National Fuel Gas
Code ANSI Z223.1/NFPA 54 or CAN/CSA B149.
A copy of the above code standards can be obtained from:
National Fire Protection Association
One Battewmarch Park, Quincy, MA 02269
CSA International
8501 East Pleasant Valley Road
Cleveland, Ohio 44131-5575
The design of this dwer has been certified by CSA International
for use at altitudes up to 10,000 feet (3048 m) above sea level
at the B.T.U. rating indicated on the model/serial plate. Burner
input adjustments are not required when the dwer is operated
up to this elevation.
When installed above 10,000 feet (3048 m), a four percent
(4%) reduction of the burner B.T.U. rating shown on the model/
serial plate is required for each 1,000 foot (305 m) increase in
elevation. For assistance when converting to other gas types
and/or installing above 10,000 feet (3048 m) elevation, contact
your local service company.
9

ELECTRIC DRYER INSTALLATION REQUIREMENTS
Location Requirements
Explosion Hazard
Keep flammable materials and vapors, such as
gasoline, away from dryer.
Do not install in a garage.
FaUure to do so can result in death, e×plosion, or fire.
Your dryer can be installed in a basement, laundry room, or
recessed area.
Companion appliance location requirements should also be
considered.
iMPORTANT: Do not install or store the dryer where it
will be exposed to the weather. Proper installation is your
responsibility.
You will need:
[] A grounded electrical outlet located within 6 ft. (1.8 m) of
where the power cord is attached to the back of the dryer.
See "Electrical Requirements."
[] A level floor with a maximum slope of 1" (25 mm) under
entire dryer. Installing the dryer on soft floor surfaces,
such as carpets or surfaces with foam backing, is not
recommended.
Electric dryer installation clearances
[] The location must be large enough to allow the dryer door
to be fully opened.
[] Additional spacing should be considered for ease of
installation and servicing. The door opens more than 180 °.
[] Additional clearances might be required for wall, door, and
floor moldings.
[] Additional spacing of 1" (25 mm) on all sides of the dryer is
recommended to reduce noise transfer.
Recessed Area and Closet installation instructions
This dryer may be installed in a recessed area or closet. For
recessed area and closet installations, minimum clearances
can be found on the warning label on the rear of the dryer
or in "Dimensions/Clearances."
The installation spacing is in inches and is the minimum
allowable. Additional spacing should be considered for ease
of installation, servicing, and compliance with local codes and
ordinances.
If closet door is installed, the minimum unobstructed air
opening in the top and bottom is required. Louvered doors
with equivalent air openings are acceptable.
The dryer must be exhausted outdoors.
48 in.2
(310 cm2}
Front
View
24 in.2
(155 cm2)
0
Closet
Door
3"
(76 mr
3ml
(76into)
Electrical Requirements = U.S.A. only
It is your responsibility:
[] To contact a qualified electrical installer.
[] To be sure that the electrical connection is adequate and in
conformance with the National Electrical Code, ANSVNFPA
70-latest edition and all local codes and ordinances.
[] The National Electrical Code requires a 4-wire power supply
connection for homes built after 1996, dryer circuits involved
in remodeling after 1996, and all mobile home installations.
[] A copy of the above code standards can be obtained from:
National Fire Protection Association, One Batterymarch
Park, Quincy, MA 02269.
[] To supply the required 3 or 4 wire, single phase, 120/240
volt, 60 Hz., AC only electrical supply (or 3 or 4 wire,
120/208 volt electrical supply, if specified on the serial/
rating plate) on a separate 30-amp circuit, fused on both
sides of the line. A time delay fuse or circuit breaker is
recommended. Connect to an individual branch circuit.
Do not have a fuse in the neutral or grounding circuit.
[] Do not use an extension cord.
[] If codes permit and a separate ground wire is used, it is
recommended that a qualified electrician determine that the
ground path is adequate.
10

ELECTRIC DRYER INSTALLATION REQUIREMENTS
Electrical Requirements = U.S.A. only (cont.)
Electrical Connection
To properly install your dryer, you must determine the type
of electrical connection you will be using and follow the
instructions provided for it here.
[] This dryer is manufactured ready to install with a 3-wire
electrical supply connection. The neutral ground conductor
is permanently connected to the neutral conductor (white
wire) within the dryer. If the dryer is installed with a 4-wire
electrical supply connection, the neutral ground conductor
must be removed from the external ground connector (green
screw), and secured under the neutral terminal (center or
white wire) of the terminal block. When the neutral ground
conductor is secured under the neutral terminal (center or
white wire) of the terminal block, the dryer cabinet is isolated
from the neutral conductor.
[] If local codes do not permit the connection of a neutral
ground wire to the neutral wire, see "Optional 3-wire
connection" section.
[] A 4-wire power supply connection must be used when the
appliance is installed in a location where grounding through
the neutral conductor is prohibited. Grounding through the
neutral is prohibited for (1) new branch-circuit installations
and (2) areas where local codes prohibit grounding through
the neutral conductor.
Electric Dryer Grounding
GROUNDING INSTRUCTIONS
[] For a grounded, cord-connected dryer:
This dryer must be grounded. In the event of malfunction or
breakdown, grounding will reduce the risk of electric shock
by providing a path of least resistance for electric current.
This dryer uses a cord having an equipment-grounding
conductor and a grounding plug. The plug must be plugged
into an appropriate outlet that is properly installed and
grounded in accordance with all local codes and ordinances.
[] For a permanently connected dryer:
This dryer must be connected to a grounded metal,
permanent wiring system, or an equipment-grounding
conductor must be run with the circuit conductors and
connected to the equipment-grounding terminal or lead on
the dryer.
WARNING: improper connection of the equipment-
grounding conductor can result in a risk of electric shock.
Check with a qualified electrician or service representative
or personnel if you are in doubt as to whether the dryer is
properly grounded. Do not modify the plug on the power
supply cord: if it will not fit the outlet, have a proper outlet
installed by a qualified electrician.
SAVE THESE INSTRUCTIONS
Electric Dryer Power Supply Cord
Fire Hazard
Use a new UL listed 30 amp power supply cord.
Use a UL listed strain relief.
Disconnect power before making electrical connections.
Connect neutral wire (white or center wire) to center
terminal
Ground wire (green or bare wire) must be connected to
green ground connector.
Connect remaining 2 supply wires to remaining
2 terminals (gold).
Securely tighten all electrical connections.
Failure to do so can result in death, fire, or
electrical shock.
If using a power supply cord:
Use a UL listed power supply cord kit marked for use with
clothes dryers. The kit should contain:
[] A UL listed 30-amp power supply cord, rated 120/240 volt
minimum. The cord should be type SRD or SRDT and be at
least 4 ft. (1.22 m) long. The wires that connect to the dryer
must end in ring terminals or "U" shaped spade terminals
with upturned ends.
[] A UL listed strain relief.
if your outlet looks like this:
4-Wire
Receptacle
(14-30R)
Then choose a 4-wire power supply cord with ring
or spade terminals and UL listed strain relief. The
4-wire power supply cord, at least 4 ft. (1.22 m)
long, must have four 10-gauge copper wires and
match a 4-wire receptacle of NEMA Type 14-30R.
The ground wire (ground conductor) may be either
green or bare. The neutral conductor must be
identified by a white cover.
if your outlet looks like this:
3-Wire
Receptacle
(10-30R}
Then choose a 3-wire power supply cord with ring
or spade terminals and UL listed strain relief. The
3-wire power supply cord, at least 4 ft. (1.22 m)
long, must have three 10-gauge copper wires and
match a 3-wire receptacle of NEMA Type 10-30R.
11

ELECTRIC DRYER INSTALLATION REQUIREMENTS
Direct Wire
Fire Hazard
Use 10 gauge copper wire.
Use aUL listed strain relief.
Disconnect power before making electrical connections.
Connect neutral wire (white or center wire) to center
terminal.
Ground wire (green or bare wire) must be connected to
green ground connector.
Connect remaining 2supply wires to remaining
2 terminals (gold).
Securely tighten all electrical connections.
Failure to do so can result in death, fire, or
electrical shock.
if connecting by direct wire:
Power supply cable must match power supply (4-wire or 3-wire)
and be:
[] Flexible armored cable or nonmetallic sheathed copper
cable (with ground wire), covered with flexible metallic
conduit. All current-carrying wires must be insulated.
[] 10-gauge solid copper wire (do not use aluminum).
[] At least 5 ft. (1.52 m) long.
Electrical Requirements = Canada only
!
Electrical Shock Hazard
Plug into a grounded 4prong outlet.
Failure to do so can result in death or electrical shock.
It is your responsibility:
[] To contact a qualified electrical installer.
[] To be sure that the electrical connection is adequate
and in conformance with the Canadian Electrical Code,
C22.1 - latest edition and all local codes. A copy of the
above codes standard may be obtained from: Canadian
Standards Association, 178 Rexdale Blvd., Toronto, ON
M9W 1R3 CANADA.
[] To supply the required 4 wire, single phase, 120/240 volt,
60 Hz., AC only electrical supply on a separate 30-amp
circuit, fused on both sides of the line. A time-delay fuse
or circuit breaker is recommended. Connect to an individual
branch circuit.
[] This dryer is equipped with a CSA International/_
Certified Power Cord intended to be plugged /r, kJ '_
into a standard 14-30R wall receptacle. The _ II II)
cord is 5 ft (1.52 m) in length. Be sure wall \'' _-q ''J
receptacle is within reach of dryer's final
location. 4-Wire
Receptacle
(14-30R}
[] Do not use an extension cord.
If you are using a replacement power supply cord,
it is recommended that you use Power Supply Cord
Replacement Part Number 9831317. For further information,
please reference the service numbers located in the
"Assistance or Service" section.
GROUNDING INSTRUCTIONS
[] For a grounded, cord-connected dryer:
This dryer must be grounded. In the event of malfunction or
breakdown, grounding will reduce the risk of electric shock
by providing a path of least resistance for electric current.
This dryer is equipped with a cord having an equipment-
grounding conductor and a grounding plug. The plug must
be plugged into an appropriate outlet that is properly
installed and grounded in accordance with all local codes
and ordinances.
WARNING: Improper connection of the equipment-
grounding conductor can result in a risk of electric shock.
Check with a qualified electrician or service representative
or personnel if you are in doubt as to whether the dryer is
properly grounded. Do not modify the plug provided with
the dryer: if it will not fit the outlet, have a proper outlet
installed by a qualified electrician.
SAVE THESE INSTRUCTIONS
12

DRYER VENTING REQUIREMENTS
Fire Hazard
Use a heavy metal vent.
Do not use aplastic vent.
Do not use a metal foil vent,
Failure to follow these instructions can result in death
or fire.
WARNING: To reduce the risk of fire, this dryer MUST BE
EXHAUSTED OUTDOORS.
IMPORTANT: Observe all governing codes and ordinances.
Dryer exhaust must not be connected into any gas vent,
chimney, wall, ceiling, attic, crawlspace, or a concealed space
of a building. Only rigid or flexible metal vent shall be used for
exhausting.
((),
(102ram)
4" (102 ram) Heavy, Metal Exhaust Vent
[] Only a 4" (102 mm) heavy, metal exhaust vent and clamps
may be used.
[] Do not use plastic or metal foil vent.
Rigid metal vent:
[] Recommended for best drying performance and to avoid
crushing and kinking.
Flexible metal vent: (Acceptable only if accessible to clean)
[] Must be fully extended and supported in final dryer location.
[] Remove excess to avoid sagging and kinking that may result
in reduced airflow and poor performance.
[] Do not install in enclosed walls, ceilings, or floors.
[] The total length should not exceed 7% ft. (2.4 m).
NOTE: If using an existing vent system, clean lint from entire
length of the system and make sure exhaust hood is not
plugged with lint. Replace plastic or metal foil vents with rigid
metal or flexible metal vents. Review "Vent System Chart" and,
if necessary, modify existing vent system to achieve best drying
performance.
Elbows:
[] 45 ° elbows provide better airflow than 90 ° elbows.
Bet
Clamps:
[] Use clamps to seal all joints.
[] Exhaust vent must not be connected or secured with screws
or other fastening devices that extend into interior of duct
and catch lint. Do not use duct tape.
Improper venting can cause moisture and lint to collect
indoors, which may result in:
[] Moisture damage to woodwork, furniture, paint, wallpaper,
carpets, etc.
[] Housecleaning problems and health problems.
13

DRYER VENTING REQUIREMENTS
Vent Hoods
4" (102 ram} Diameter Exhaust Hoods
Box Hood Louvered Hood Angled Hood
Exhaust hood must be at least 12" (305 mm) from the ground
or any object that may be in the path of the exhaust (such as
flowers, rocks, bushes, or snow).
Vent System Length
Maximum Vent Length/Vent Connection
Maximum length of vent system depends upon the type of vent
used, number of elbows, and type of exhaust hood.
3. Tighten hose clamp with Phillips screwdriver.
Vent System Chart (Rigid Metal Vent}
No. of Box and Angled
90° Turns Louvered Hood Hood
0 64 ft. (19.5 m) 58 ft. (17.7 m)
1 54 ft. (16.5 m} 48 ft. (14.6 m}
2 44 ft. (13.4 m) 38 ft. (11.6 m)
3 35 ft. (10.7 m) 29 ft. (8.8 m}
4 27 ft. (8.2 m} 21 ft. (8.4 m}
For vent systems not covered by the vent specification chart,
see your parts distributor.
Provision must be made for enough air for combustion and
ventilation. (Check governing codes and ordinances.) See
"Recessed Area and Closet Installation Instructions" in the
"Location Requirements" sections.
A 4" (102 mm) outlet hood is preferred. However, a 21/2''
(64 mm) outlet exhaust hood may be used. A 21/2"(64 mm)
outlet creates greater back pressure than other hood types.
For permanent installation, a stationary vent system is required.
Connect Vent
1. If connecting to existing vent, make sure the vent is clean.
2. Using a 4" (102 mm) clamp, connect vent to exhaust outlet
in dryer. Vent Collar
4. Make sure the vent is secured to exhaust hood with
a 4" (102 mm) clamp.
5. Move dryer into final position. Do not crush or kink vent.
Make sure dryer is level.
NOTE: Do not remove vent collar.
14

DRYER VENTING REQUIREMENTS
if an Exhaust Hood Cannot be Used
The outside end of main vent should have a sweep elbow
directed downward.
l 24" rain.
12" rnin. (610 mm)
(305 rnrn)*
*Minimum clearance above any
accumulation of snow, ice, or
debris such as leaves
If main vent travels vertically through the roof, rather than
through wall, install a 180 ° sweep elbow on end of vent at least
2 ft. (610 mm) above surface of roof.
The opening in wall or roof shall have a diameter 1/2" (13 mm)
larger than vent diameter. Vent should be centered in opening.
Do not install screening over end of vent for best performance.
Multiple Dryer Venting
A main vent can be used for venting a group of dryers. The
main vent should be sized to remove 5663 I/min. (200 CFM)
of air per dryer. Large-capacity lint screens of proper design
may be used in main vent if checked and cleaned frequently.
The room where the dryers are located should have make-up
air (air supply) equal to or greater than CFM of all the dryers in
the room.
Back-draft dampers are available from your distributor and
should be installed in the vent of each dryer to keep exhausted
air from returning into dryers and to keep exhaust in balance
within main vent. Unobstructed return air openings are required.
Although usually each single-load dryer should have an
unobstructed outdoor air opening of 24 in? (154 cm 2)(based
on 1 in? [6.5 cm 2] per 1,000 Btu [252 kcal]), common make-up
air openings are also acceptable. Set up common openings so
the make-up air is distributed equally to all of the dryers. Keep
in mind that the coverage area must be increased by 33% to
account for the use of registers or louvers over the openings.
Also, make-up air openings should not be installed near the
location where exhaust vents exit the building.
Each vent should enter the main vent at an angle pointing in
the direction of the airflow. Vents entering from the opposite
side should be staggered to reduce the exhausted air from
interfering with the other vents.
, l
The maximum angle of each vent entering the main vent should
be no more than 30°.
Keep air openings free of dry cleaning fluid fumes. Fumes
create acids which, when drawn through the dryer heating
units, can damage dryers and items being dried.
A clean-out cover should be located on the main vent for
periodic cleaning of the vent system.
GAS SUPPLY CONNECTION
Make Gas Connection
Excessive Weight Hazard
Use two or more people to move and install dryer.
Failure to do so can result in back or other injury.
3. Open the shut-off valve in the gas supply line and make sure
the dryer has its own gas supply opened.
4. Test all connections by brushing on an approved
noncorrosive leak-detection solution. Bubbles will show
a leak. Correct any leaks found.
1. Remove red cap from gas pipe on back of dryer.
2. Connect gas supply to dryer. Use a pipe thread compound
approved for the type of gas supplied. If flexible metal
tubing is used, be certain there are no kinks.
If necessary for service, depending on model:
Open the toe panel by removing the 21/4'' hex-head screws
from the bottom of the panel. Then lift up on the panel while
pulling the bottom of the panel away from the dryer.
OR
Open the toe panel. Use a putty knife to press on the toe
panel lock located at the center top of the toe panel. Pull
downward on the toe panel to open. Toe panel is hinged
at the bottom. 15

GAS SUPPLY CONNECTION
Type of Gas
This dryer is equipped for use with natural gas. It is design-
certified by CSA International for LP (propane and butane)
gases with appropriate conversion. No attempt shall be made
to convert dryer from gas specified on serial/rating plate for use
with a different gas without consulting the serving gas supplier.
Conversion must be done by a qualified service technician.
Gas conversion kit part numbers are listed near gas valve
burner base.
Gas Supply Line
Recommended Method
Provide a gas supply line of 1/2" (13 mm) rigid (IPS) pipe to
dryer location. Pipe joint compounds that resist action of LP
gas must be used. Do not use TEFLON _ettape. With LP gas,
piping or tubing size can be 1/2" (13 mm) minimum. Usually, LP
gas suppliers determine size and materials used in the system.
Flexible Metal Appliance Connector
It is recommended that a new flexible stainless steel gas line,
design-certified by CSA International, be used for connecting
the dryer to the gas supply line. (The gas pipe which extends
through the lower rear of the dryer is provided with 3/8"
[10 ram] male pipe thread.)
Gas Supply Pressure Testing
A 1/8" (3 mm) NPT minimum plugged tapping, accessible for
gauge testing, must be installed immediately downstream of
the installed shut-off valve to the dryer (as shown above). The
dryer must be disconnected from the gas supply piping system
during any pressure testing of the system at test pressures in
excess of 1/2" psig (352 kg/m2).
Alternate Method
The gas supply may also be connected using 3/8" (10 mm)
approved copper or aluminum tubing. If the total length of
the supply line is more than 20 ft. (6.1 m), larger tubing will
be required.
If using natural gas, do not use copper tubing. Pipe joint
compounds that resist action of type of gas supplied must
be used.
Shut-off valve required
The supply line must be equipped with a manual shut-off
valve installed within 6 ft. (1.8 m) of dryer in accordance
with National Fuel Gas Code, ANSi Z223.1. This valve should
be located in same room as dryer. It should be in a location
that allows ease of opening and closing. Do not block access
to shut-off valve. In Canada, an individual manual shut-off
valve must be installed in accordance with the B149 installation
codes CAN/CGA B149.1 and CAN/CGA B149.2.
NOTE: Do not kink or damage the flexible stainless steel gas
line when moving the dryer.
Rigid Pipe Connection
The rigid pipe connection requires a combination of pipe fittings
to obtain an in-line connection to the dryer.
16
1-®TEFLON is a registered trademark of E.I. Du Pont De Nemours and Company.

INSTALLING LEVELING LEGS, COIN SLIDE,
AND COIN BOX
Excessive Weight Hazard
Use two or more people to move and install dryer.
Failure to do so can result in back or other injury.
1. Prepare dryer for leveling legs
NOTE: Slide dryer onto cardboard or hardboard before moving
to avoid damaging floor covering.
Using two or more people, move dryer to desired installation
location.
Take tape off front corners of dryer. Open dryer and remove
the literature and parts packages. Wipe drum interior with a
damp cloth to remove any dust.
Take two cardboard corners from the dryer carton and place
them on the floor in back of the dryer. Firmly grasp the body of
the dryer and gently lay it on its back on the cardboard corners.
On some models: The meter case houses the factory-installed
accumulator timer with actuating arm or service switch.
The factory-installed timer is set to provide 45 minutes (4 pins)
of drying time when activated by the coin slide. Timer cams
for 30-minute (6 pins) and 60-minute (3 pins) drying times are
included in the parts bag.
The coin slide mechanism, service door lock and key, and coin
box lock and key may not be included but are available from
the usual industry sources.
1. install coin slide and coin box
Remove the service door of the meter case by lifting it up
at the back. install the money-accepting device. (Refer to
manufacturer's instructions for proper installation.)
(appearance may vary)
2. Screw in leveling legs
Examine leveling legs and find diamond
marking. Screw legs into leg holes by
hand. Use an adjustable wrench or
1" (25 ram) hex-head socket wrench
to finish turning legs until diamond
marking is no longer visible. Then fit
a covered foot boot over each leg foot.
Diamond
Marking_
Foot
To protect the floor, use a large piece of cardboard from the
dryer carton. Stand dryer up on the cardboard. Slide the dryer
until it is close to its final location. Leave enough room for
electrical connection and to connect the exhaust vent.
For dryers using coin slides, use the adapter kit supplied with
the dryer.
Replace the meter case service door. Put the coin vault with
lock and key in the meter case opening.
Remove cardboard or hardboard from under dryer. Adjust the
legs of the dryer up or down until the dryer is level.
2. install added security device
Check that power is not supplied to the dryer.
Open and remove the service door.
insert the narrow part of the security cone into the oblong hole
in the bottom rear of the meter case assembly.
Pass the security bolt through this cone and thread it by hand
into the cage nut below the oblong hole.
Tighten the security bolt by hand a few turns before using a
wrench to tighten until snug.
Bolt
Cone
Cage
Nut
NOTE: installing the security bolt provides added security, but
will add to the service time when the top needs to be removed
for servicing the dryer.
17

ELECTRIC DRYER ELECTRICAL CONNECTIONS (FORU.S.A. ONLY)
Strain Relief
Remove Terminal Block Cover Power Supply Cord Strain Relief
1. insert strain relief.
N
2. insert power cord into strain relief.
(appearance may vary)
Strain Relief
Direct Wire Strain Relief
1. insert strain relief. 2. insert conduit into strain relief and tighten clamp.
18

ELECTRIC DRYER ELECTRICAL CONNECTIONS (FORU.S.A. ONLY)
Connection Options
Power Cord
4-wire receptacle (NEMA Type 14-30R)
(127
3-wire receptacle (NEMA Type 10-30R) 3-wire direct
Connecting 4-Wire Connection: Power Supply Cord
IMPORTANT: A 4-wire connection is required for mobile
homes and where local codes do not permit the use of 3-wire
connections.
Standard Power Supply Cord Connectors
Flanged Spade Connector Ring Connector
Connecting Neutral Ground and Neutral Wires
1. Remove center terminal block screw (A) and the neutral
ground wire (B) by removing the green external ground
conductor screw (C).
I
2. Connect neutral ground wire (B) and neutral wire (white or
center wire) (D) of power supply cord under center terminal
block screw (A). Tighten screw.
Connecting Direct Wire Ground
3. Connect ground wire (green or bare) (E) of power supply cord
under green external ground conductor screw (C). Tighten
screw.
Connecting Remaining Wires
4. Connect remaining wires under outer terminal block screws
(F). Tighten screws. Finally, reinstall terminal block to dryer
rear panel. Secure cover with hold-down screw.
19

ELECTRIC DRYER ELECTRICAL CONNECTIONS (FORU.S.A. ONLY)
Connecting 3=Wire Connection: Power Supply Cord
Standard Power Cord Connectors
Flanged Spade Connector RingConnector
2. Connect neutral wire (white or center wire)) (D) of power
supply cord under center terminal block screw (A). Tighten
screw.
Connecting Neutral Wire
1. Loosen or remove center terminal block screw (A).
3. Connect remaining wires under outer terminal block screws
(F). Tighten screws. Finally, reinstall terminal block to dryer
rear panel. Secure cover with hold-down screw.
"n
1i
Connecting 4-Wire Connection: Direct Wire
IMPORTANT: A 4-wire connection is required for mobile
homes and where local codes do not permit the use of 3-wire
connections.
Direct wire cable must have 5 ft. (1.52 m) of extra length so
dryer can be moved if needed.
Strip 5" (127 mm) of outer covering from end of cable, leaving
bare ground wire at 5" (127 mm). Cut 11/2"(38 mm) from 3
remaining wires. Strip insulation back 1" (25 mm). Shape ends
of wires into a hook shape.
Connecting Neutral Ground and Neutral Wires
1. Remove center terminal block screw (A) and the neutral
ground wire (B) by removing the green external ground
conductor screw (C).
20

ELECTRIC DRYER ELECTRICAL CONNECTIONS (FORU.S.A. ONLY)
Connecting 4-Wire Connection: Direct Wire
Connecting Neutral Ground and Neutral Wires (cont.)
2. Connect neutral ground wire (B) and place hooked end (hook
facing right) of neutral wire (white or center wire) (D) of direct
wire cable under center terminal block screw (A). Squeeze
hooked ends together and tighten screw.
H
Connecting Remaining Wires
4. Connect remaining wires under outer terminal block screws
(F). Squeeze hooked ends together and tighten screws.
Connecting Direct Wire Ground
3. Connect ground wire (green or bare wire) (E) of direct wire
cable under green external ground conductor screw (C).
Tighten screw.
Connecting 3=Wire Connection: Direct Wire
Use where local codes permit connecting cabinet-ground
conductor to neutral wire.
Direct wire cable must have 5 ft. (1.52 m) of extra length so
dryer can be moved if needed.
Strip 31A" (89 mm) of outer covering from end of cable. Strip
insulation back 1" (25 mm). If using 3-wire cable with ground
wire, cut bare wire even with outer covering. Shape ends of
wires into a hook shape.
Connecting Neutral Wire
1. Loosen or remove center terminal block screw (A).
H
2. Place hooked end of neutral wire (white or center wire) (D)
of direct wire cable under center terminal block screw (A),
hook facing right. Squeeze hooked end together and tighten
screw.
3. Connect remaining wires under outer terminal block screws
(F). Squeeze hooked ends together and tighten screws.
Finally, reinstall terminal block to dryer rear panel. Secure
cover with hold-down screw.
21

ELECTRIC DRYER ELECTRICAL CONNECTIONS (FORU.S.A. ONLY)
Connecting 3=Wire Connection: Optional
Use for direct wire or power supply cord where Ideal codes
do not permit connecting cabinet=ground conductor to
neutral wire.
Connecting Neutral Wire
1. Remove center terminal block screw (A). Also remove
neutral ground wire (B) by removing green external ground
conductor screw (C).
3. Connect remaining wires under outer terminal block screws
(F). Tighten screws. !
F
2. Connect neutral ground wire (B) and neutral wire (white or
center wire) (D) of power supply cord/cable under center
terminal block screw (A). Tighten screw.
_A
4. Connect a separate copper ground wire (G) under the green
external ground conductor screw (C) to an adequate ground.
Finally, reinstall terminal block to dryer rear panel. Secure
cover with hold-down screw.
LEVELING
Leveling your dryer properly reduces excess noise and vibration.
Excessive Weight Hazard
Use two or more people to move and install dryer,
Failure to do so can result in back or other injury. Not Level LEVEL Not Level
1. Remove cardboard from beneath dryer. Place a level on top
edges of dryer, checking each side and front. If not level,
tip dryer and adjust legs up or down as shown in Step 3,
repeating as necessary.
£
22

LEVELING
2. Grip dryer from top and rock back and forth, making sure all
four legs are firmly on floor. Repeat, rocking dryer from side
to side. If dryer rocks, go to Step 3 and adjust leveling legs.
3. If dryer is not level, use a 1" or 25 mm open-end or
adjustable wrench to turn the leveling leg counterclockwise
to lower the dryer or clockwise to raise the dryer. Recheck
levelness of dryer and that all four legs are firmly in contact
with the floor. Repeat as needed.
HELPFUL TIP: You may want to prop up front of dryer about
4" (102 mm) with a wood block or similar object that will
support weight of dryer.
-._
(appearance may vary}
COMPLETE INSTALLATION
1. Check the electrical requirements. Be sure that you have the
correct electrical supply and the recommended grounding
method. See "Electrical Requirements."
2. Check that all parts are now installed. If there is an extra part,
go back through the steps.
3. Check that you have all of your tools.
4. Dispose of/recycle all packaging materials.
Electrical Shock Hazard
Plug into agrounded 3 prong outlet.
Do not remove ground prong.
Do not use an adapter.
Do not use an extension cord.
Failure to follow these instructions can result in death,
fire, or electrical shock.
6. Check dryer operation (on some models, some accumulated
time may be on the timer due to factory testing). Close dryer
door. Depending on model, turn timer-set knob to the right
or insert coins and press slide in slowly. (Operating time will
accumulate per number of coinslide depressions, depending
on model, and type of timing cam used.) Push START button.
Using a full heat cycle (not the air cycle), let the dryer run for
at least five minutes. Dryer will stop when time is used up.
NOTE: Dryer door must be closed for dryer to operate.
When door is open, dryer stops, but timer continues to run.
To restart dryer, close door and push START button.
7. Open the dryer door. Check that the inside of the dryer is
warm. If the burner does not ignite and you can feel no heat
inside the dryer, shut off dryer for five minutes. Check that
all supply valve controls are in "ON" position and that the
electrical cord is plugged in. Repeat five-minute test.
8. If drying time is too long, make sure that the lint screen is
clean and that there are no obstructions to airflow in the
dryer vent system.
9. Restart the dryer and allow it to complete a full heat cycle
(not air cycle) to make sure it is working properly.
5. Plug into a grounded outlet, or connect power.
23

REVERSING DRYER DOOR SWING (OPTIONAL)
You can change your door swing from a right-side opening to
left-side opening, if desired.
Remove the Door Assembly
1. Place a towel or soft cloth on top of dryer or work space to
avoid scratching of the surface.
2. Open dryer door. Remove bottom screws from cabinet side
of hinges. Loosen (do not remove) top screws from cabinet
side of hinges.
7. Be certain to keep cardboard spacer centered between
doors. Reattach outer door panel to inner door panel so
handle is on the side where hinges were just removed.
8. Reattach screws at top, bottom, and side of door (5 screws).
Hinges
(appearance may vary)
3. Lift door until top screws in cabinet are in large part of hinge
slot. Pull forward off screws. Set door (handle side up) on
top of dryer. Remove top screws from cabinet.
4. Remove screws attaching hinges to door.
5. Remove screws at top, bottom, and side of door (5 screws).
6. Holding door over towel on dryer, grasp sides of outer door
and gently lift to separate it from inner door. Do not use a
putty knife to pry apart. Do not pull on door seal or plastic
door catch.
9. Attach door hinges to dryer door so that larger hole is at the
bottom of the hinge and the hinge pin is toward the door
front.
10. Remove the 4 screws that attach 2 plugs on the left side.
Attach plugs to right side using the same 4 screws.
11. Insert screws into bottom holes on left side of cabinet.
Tighten screws halfway. Position door so large end of door
hinge slot is over screws. Slide door up so screws are in
bottom of slots. Tighten screws. Insert and tighten top
screws in hinges.
12. Close door and check that door strike aligns with door
catch. If needed, slide door catch left or right within slot
to adjust alignment.
24

CHANGING TO A30- OR 60-MINUTE TIMING CAM
(on some models)
Electrical Shock Hazard
Disconnect power before making cam changes.
Failure to follow these instructions can result in death
or electrical shock.
5. Place new cam (hub side down) over clock shaft. Line up flat
side of shaft with flat side of cam hole. Check that drive lug
is in place.
Drive Lug
Coin-slide models: You can install the 30-minute or 60-minute
timing cam (shipped with dryer) as follows:
1. Unplug dryer or disconnect power.
2. Unlock meter case.
3. Turn the timing cam by hand until the V-shaped notch lines
up below the ratchet tooth.
V-Shaped Ratchet
Notch Tooth
6. Turn cam until V-shaped notch lines up with ratchet tooth.
7. Press cam down in place on clock shaft. Make sure that
V-shaped notch clears the ratchet tooth.
4. Insert a narrow, flat-blade screwdriver under the timing cam
near the clock shaft. Gently lift cam straight up and off shaft,
making sure that the V-shaped notch clears the ratchet tooth.
8. Close and lock the meter case.
9. Plug in dryer or reconnect power.
25

MAINTENANCE INSTRUCTIONS
[] Clean lint screen before and after each cycle.
[] Removing accumulated lint:
From inside the dryer cabinet:
Lint should be removed every 2 years or more often,
depending on dryer usage. Cleaning should be done
by a qualified person.
From the exhaust vent:
Lint should be removed every 2 years, or more often,
depending on dryer usage.
[] Keep area around dryer clear and free from combustible
materials, gasoline, and other flammable vapors and liquids.
[] Keep dryer area clear and free from items that would
obstruct the flow of combustion and ventilation air.
If dryer does not operate, check the following:
[] Electrical supply is connected.
[] Circuit breaker is not tripped or house fuse is not blown.
[] Door is closed.
[] Controls are set in a running or "on" position.
[] START button has been pushed firmly.
[] For gas dryers, check that gas supply shut-off valves are set
in open position.
IF YOU NEED ASSISTANCE
Contact your authorized Commercial Laundry distributor. To locate your authorized Commercial Laundry distributor, or for web
inquiries, visit www.WhirlpoolCommercialLaundry.com.
If you cannot locate your distributor, the Commercial Laundry Support Center will answer any questions about operating or
maintaining your dryer not covered in the Installation Instructions.
Just dial 1-800 NO BELTS (1-800-662-3587} -- the call is toll free.
When you call, you will need the dryer model number and serial number. Both numbers can be found on the serial-rating plate
located in the dryer door opening.
26

NOTES
27

S] CURITE DE LA S] CHEUSE
Votre s_curit_ et celle des autres est trbs importante.
Nous donnons de nombreux messages de s_curit6 importants dans ce manuel et sur votre appareil m6nager. Assurez-vous de
toujours lire tousles messages de s(_curit_ et de vous y conformer.
Voici le symbole d'alerte de s(_curit&
Ce symbole d'alerte de s_curit6 vous signale les dangers potentiels de d6c_s et de blessures graves & vous
et & d'autres.
Tous les messages de securit6 suivront le symbole d'alerte de s6curit6 et le mot "DANGER" ou
"AVERTISSEMENT". Ces mots signifient :
Risque possible de decks ou de blessure grave si vous ne
suivez pas irnm_diaternent les instructions.
Risque possible de d_c_s ou de blessure grave si vous
ne suivez pas les instructions,
Tousles messages de s_curit6 vous diront quel est le danger potentiel et vous disent comment reduire le risque de blessure et
ce qui peut se produire en cas de non-respect des instructions.
AVERTISSEMEN r-,,Risque d'incendie"
m
m
m
L'installation de la s_cheuse _ linge dolt _tre effectu_e par un installateur qualifi_.
|nstaller la s_cheuse conforrn_ment aux instructions du fabricant et aux codes Iocaux.
Ne pas installer de s_cheuse hlinge avec des rnat_riaux d'_vacuation en plastique
souple ou un conduit rn_tallique souple (de type papier d'alurniniurn). Si un conduit
rn_tallique souple est installS, celui-ci dolt _tre d'un type sp_cifique identifi_ par le
fabricant de I'appareil et convenir a une utilisation avec les s_cheuses hlinge. Les
rnat_riaux d'_vacuation souples sont connus pour s'affaisser, 6tre facilernent _cras_s
et bloquer la charpie. Ces situations obstrueront le d_bit d'air de la s_cheuse _ linge et
augrnenteront le risque d'incendie.
Pour r_duire le risque de blessure grave ou de d_c_s, suivre routes
les instructions d'installation,
Conserver ces instructions.
[] On recommande que le propri6taire place les instructions h I'usage du client en un lieu bien visible, au cas gO le client percevrait
une odeur de gaz. Ces renseignements doivent 6tre obtenus aupres de votre fournisseur en gaz.
[] Placer I'avertissement qui suit hun endroit bien visible.
POUR VOTRE SECURITE
Ne pas remiser ou utiliser de I'essence ou tout autre liquide ou vapeur inflammable h proximit6 de cet appareil ou de tout autre appareil.
28

S] CURITE DE LA S] CHEUSE
AVERTISSEMENT • Pour votre s6curit_, les renseignements darts ce manuel doivent
_tre observes pour reduire au minimum les risques d'incendie ou d'e×plosion ou pour
6viter des dommages au produit, des blessures ou un d_c_s.
- Ne pas entreposer ou utiliser de I'essence ou d'autres vapeurs ou liquides
inflammables &proximit_ de cet appareU ou de tout autre appareil _lectrom_nager.
- QUE FAIRE DANS LE CAS D'UNE ODEUR DE GAZ :
oNe pas tenter d'allumer un appareil.
•Ne pas toucher h un commutateur 61ectrique; ne pas utiliser le tel6phone se trouvant
sur les lieux.
=I_vacuer tous les gens de la piece, de I'_difice ou du quarrier.
oAppeler immediatement le fournisseur de gaz d'un t61_phone voisin. Suivre ses
instructions.
o A d_faut de joindre votre fournisseur de gaz, appeler les pompiers.
- L'installation et I'entretien doivent _tre effectu_s par un installateur qualifi6, une
agence de service ou le fournisseur de gaz.
AVERTISSEMENT : L'odorat ne permet pas toujours la d6tection d'une fuite de gaz.
Les distributeurs de gaz recommandent I'emploi d'un detecteur de gaz (homologation UL ou CSA).
Pour d'autre information, contacter le fournisseur de gaz local.
En cas de d6tection d'une fuite de gaz, executer les instructions "Que faire dans le cas d'une odeur de gaz".
Dans I'Etat du Massachusetts, les instructions d'installation suivantes sont applicables :
[] Les travaux d'installation et r6paration doivent 6tre execut6s par un plombier ou tuyauteur qualifie ou licencie, ou par le
personnel qualifie d'une entreprise licenciee par I'#tat du Massachusetts.
m Si une vanne & boisseau sph6rique est utilisee, elle dolt comporter une manette "T".
m Si un conduit de raccordement flexible est utilise, sa Iongueur ne dolt pas depasser 3 pi.
iMPORTANT :L'installation du gaz dolt se conformer aux codes Iocaux, ou en I'absence de codes Iocaux, au code canadien
d'installation B149.1 du gaz naturel ou du propane.
La s6cheuse dolt _tre 61ectriquement reli6e & la terre conform6ment aux codes Iocaux, ou en I'absence de codes Iocaux, au Code
canadien de 1'61ectricite, CSA C22.1.
IMPORTANT : Pour mettre I'ancienne s6cheuse au rebut ou pour la remiser, enlever la porte. I
29

S] CURITE DE LA S] CHEUSE
IMPORTANTES iNSTRUCTiONS DE sf:CURIT¢:
AVERTISSEMENT : Pour r6duire les risques d'incendie, de choc 61ectrique ou de blessures lots de I'utilisation
de la s6cheuse, suivre les pr6cautions fondamentales dont les suivantes :
[] Lire toutes les instructions avant d'utiliser la s6cheuse.
[] Cette s6cheuse est congue uniquement pour le s6chage
de v6tements et de textiles ayant 6t6 nettoy6s a I'eau.
Ne pas I'utiliser a toute autre fin.
[] AVERTISSEMENT: Si I'on d6tecte une odeur de gaz,
ne pas utiliser la s6cheuse ou tout autre 6quipement
61ectrique situ6 h proximit6. Avertir les autres personnes
qu'elles doivent 6vacuer cette zone. Contacter
le propri6taire de la s6cheuse imm6diatement.
[] Ne pas placer des articles expos6s aux huiles de cuisson
dans votre s6cheuse. Les articles contamin6s par des
huiles de cuisson peuvent contribuer & une r6action
chimique qui pourrait causer a la charge de s'enflammer.
[] Ne pas faire s6cher des articles qui ont 6t6 nettoy6s ou
lav6s avec de I'essence ou imbib6s d'essence, solvants
de nettoyage & sec, ou autres substances inflammables
ou explosives; ces substances peuvent 6mettre des
vapeurs susceptibles de s'enflammer ou d'exploser.
[] Ne pas faire s6cher dans la s6cheuse des articles
nonlav6s.
[] Ne pas laisser des enfants jouer sur ou & I'int6rieur
de la s6cheuse. Bien surveiller les enfants Iorsque la
s6cheuse est utilis6e & proximit6 d'enfants.
[] Avant de retirer la s6cheuse pour un d6pannage ou pour
le jeter, 6ter la porte du compartiment de la s6cheuse
[] Ne pas tenter d'atteindre un article & I'int6rieur de la cure
de la s6cheuse Iorsque le tambour est en mouvement.
[] Ne pas ouvrir la porte Iorsque la s6cheuse est
en marche. II s'arr6tera.
[] Ne pas installer ou remiser cette s6cheuse a un endroit
oQ il serait expos6e aux intemp6ries.
[] Ne pas modifier les organes de commande.
[] Nettoyer le filtre & charpie avant et apres chaque charge.
[] Ne pas utiliser cette s6cheuse si le filtre a peluches
n'est pas install6.
[] Ne pas r6parer ou remplacer un composant quelconque
de la s6cheuse, ni entreprendre une op6ration de
service, si ce n'est sp6cifiquement recommand6 dans ce
manuel ou dans un manuel d'instructions de r6parations
destin6 & I'utilisateur; il est alors essentiel que la
personne concern6e comprenne ces instructions et soit
comp6tente pour les ex6cuter.
[] Ne pas utiliser un produit assouplissant de tissu ou des
produits pour 61iminer la statique & moins qu'ils ne soient
recommand6s par le fabricant du produit assouplissant
de tissu ou du produit.
[] Ne pas utiliser la chaleur pour faire s6cher des articles
fabriqu6s avec du caoutchouc mousse ou de mat6riaux
semblables.
[] La derniere pattie d'un programme de s6chage
par culbutage a lieu sans chaleur (programme de
refroidissement) pour faire en sorte que les articles soient
laiss6s & une temp6rature qui garantit que les articles ne
seront pas endommag6s.
[] AVERTISSEMENT: Ne jamais arr6ter le s6chage par
culbutage avant la In du programme de s6chage sauf
si tousles articles sont retir6s rapidement et r6partis pour
une dissipation de la chaleur (permet d'6viter le risque de
combustion spontan6e).
[] Ne pas laisser la charpie, la poussiere, ou la salet6
s'accumuler autour du systeme d'6vacuation ou autour
de I'appareil.
[] Un nettoyage p6riodique de I'int6rieur de la s6cheuse
et du conduit d'6vacuation dolt 6tre effectu6 par une
personne qualifi6e.
[] Voir la section "Sp6cifications 61ectriques" dans les
instructions d'installation pour les instructions de raise
la terre.
CONSERVEZ CES INSTRUCTIONS
3O

OUTILS ET PIECES
Outillage necessaire :
Cl_ _ tuyau
de 8" {203 mm}
ou 10" (254 ram)
Cl_ _ molette de 8" (203 ram)
ou 10" (254 ram) {ouverture
jusqu'_ 1" [25 mm]}
Tournevis _lame plate Tournevis Phillips
Tournevis isol_ ou foret
Torx ®_1"=20 Cl_ _ douille hexagonale
de 1" (25 mm}
Cl_ _ douiUe de 5/16" (8 ram} Pince (ouverture
jusqu'_ 19/16 '' [39 mm])
Niveau
G t=-
Pistolet a calfeutrage et
compos_ de calfeutrage
(pour I'installation d'un nouveau
conduit d'_vacuation)
Couteau utilitaire
Brides de conduit
Tourne=_crou de 1/4" (6 ram)
Compos_ d'_tanch_it_
des tuyauteries r_sistant au type
de gaz utilis_
Cale de bois de
27" (686 mm)
Couteau _ mastic
(
Lampe de poche
(facultative}
Cl_s plates de 1" (25 ram) R_gle ou m_tre ruban
Pieces fournies :
Patins (4) Pieds de la s_cheuse (4) Coin
(sur certains modules)
Boulon de 5/16" -
18 × 21/2"
(sur certains modules)
Came de minutage de 60 minutes
3broches
(sur certains modules)
Came de minutage de 30 minutes
6 broches
(sur certains modules)
1® TORX est une marque d6pos6e de Saturn Fasteners, Inc. 31

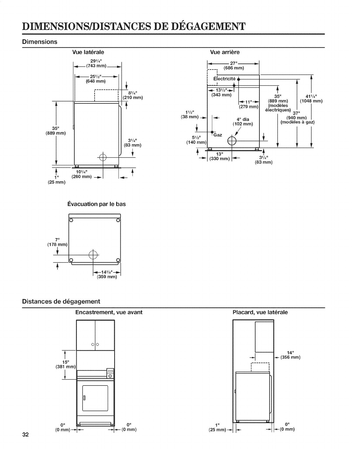
DIMENSIONS/DISTANCES DE DI_GAGEMENT
Dimensions
Vue lat6rale Vue artiste
291/4"
-.t--- (743 mm)-----_
35"
(889 ram)
1
1"
(25 ram)
251/2"-----=_
(648 ram}
s
101/4"
(260 ram)
l 81/4''
i (210 ram)
31/4''
(83 ram)
27" ------=_ I
F---I (686 ram)
I
Electdcit_
(343 ram) I
_-11"-_
(279 ram)
11/2"
(38 mm) _ I-_- 4" dia
| (102 ram)
51/2,, az _.
(140 ram)
÷ 13,,_-÷
(330 mm) _ 31/4"
(83 mm)
35"
(889 ram)
(modUles
_lectriques)
I 411!4,'
(1048 mm)
37"
(940 ram)
(modUles _ gaz)
7 II
(178 ram)
i_vacuation par le bas
o C
__£ _ ,,c
t_--141/8
'(359 mm)
Distances de d_gagement
Encastrement, vue avant
15"
(381 ram) F
9u
•.,-- (0 ram)
Placard, vue lat_rale
E
q
I
i
14"
--- (356 mm)
32

EXIGENCES D'INSTALLATION POUR LA S] CHEUSE A GAZ
Exigences de I'emplacement
Risque d'explosion
Garder les mati_res et les vapeurs inflammables, telle
que I'essence, loin de la sdcheuse.
Ne pas installer dans un garage.
Le non-respect de ces instructions peut causer
un d_c_s, une explosion ou un incendie.
La s6cheuse peut 6tre install6e dans un sous-sol, une salle de
buanderie ou un encastrement.
II faut aussi prendre en compte les exigences d'emplacement
des appareils voisins.
IMPORTANT : Ne pas installer ou remiser la s6cheuse dans
un endroit oQ elle sera expos6e aux intemp6ries. C'est
I'utilisateur qu'incombe la responsabilit6 de r6aliser une
installation correcte.
II vous faudra :
[] Une prise 61ectrique reli6e & la terre situ6e &moins de
6 pi (1,8 m) de la prise du cordon 61ectrique se trouvant
& I'arriere de la s6cheuse. Voir "Sp6cifications 61ectriques".
[] Un plancher de niveau ayant une pente maximale de
1" (25 mm) sous I'ensemble de la s6cheuse. Uinstallation
de la s6cheuse sur des surfaces de sol molles, telles que
tapis ou surfaces avec sous-couche en mousse n'est pas
recommand6e.
Distances de d_gagement pour I'installation pour
la s_cheuse hgaz
[] L'emplacement doit 6tre assez grand pour permettre
d'ouvrir completement la porte de la s6cheuse.
[] Pr6voir davantage d'espace pour faciliter I'installation
et I'entretien. La porte s'ouvre a plus de 180 °.
[] Un espace suppl6mentaire peut 6tre requis pour les
moulures de porte et de plancher et pour les plinthes.
[] Un espace suppl6mentaire de 1" (25 mm) de tousles c6t6s
de la s6cheuse est recommand6 pour r6duire le transfert
du bruit.
Lots de I'installation d'une s_cheuse hgaz :
iMPORTANT :Observer les dispositions de tousles codes et
reglements en vigueur.
[] V6rifier les exigences des codes : Certains codes limitent
ou n'autorisent pas I'installation d'une s6cheuse dans
un garage, un placard ou une chambre & coucher.
Communiquer avec I'inspecteur en b&timents local.
[] S'assurer que les rebords inf6rieurs de la caisse ainsi que
les c6t6s arriere et inf6rieurs de la s6cheuse, sont bien
d6gag6s pour permettre une 6vacuation ad6quate de I'air de
combustion. Voir la section "Instructions d'installation dans
un encastrement ou un placard" ci-dessous pour connaitre
les distances de d6gagement minimales.
instructions d'installation darts un encastrement
ou un placard
Cette s6cheuse peut _tre install6e dans un encastrement
ou un placard. Pour les installations dans un encastrement
ou un placard, les distances de d6gagement minimales
sont indiqu6es sur 1'6tiquette d'avertissement a I'arriere
de la s6cheuse ou a la section "Dimensions/Distances de
d6gagement".
Les dimensions d'installation sont en pouces et constituent
le minimum applicable. Un espace suppl6mentaire peut
6tre n6cessaire pour faciliter I'installation, I'entretien et pour
observer les codes et reglements Iocaux.
Si une porte de placard est install6e, une ouverture
d'6vacuation de I'air minimale est n6cessaire dans les parties
sup6rieure et inf6rieure. Les portes a claire-vote offrant des
ouvertures 6quivalentes sont acceptables.
La s6cheuse doit _.tre6vacu6e a I'ext6rieur.
Aucun autre appareil utilisant un combustible ne doit 6tre
install6 dans le m6me placard.
48 in.2
(310 cm 2)
Vue de
face
24 in.2
(155 crn_)
0
Porte du
placard
3"
(76 ram)
33

EXIGENCES D'INSTALLATION POUR LA S] CHEUSE A GAZ
Specifications electriques
Risque de choc _lectrique
Brancher sur une prise a3aIv_o|es reliee h|a terre.
Ne pas enlever la broche de liaison hla terre.
Ne pas utiliser un adaptateur.
Ne pas utiliser un cfible de rallonge.
Le non-respect de ces instructions peut causer
un d_c_s, un incendie ou un choc _lectrique.
IMPORTANT :La s6cheuse dolt 6tre reli6e _, la terre
conform6ment aux codes et reglements Iocaux en vigueur, ou
en I'absence de tels codes, avec la derniere 6dition du National
Electrical Code, ANSI/NFPA 70, ou du Canadian Electrical
Code, CSA C22.1. Si les codes le permettent et si on utilise
un conducteur distinct de liaison & la terre, ilest recommand6
qu'un 61ectricien qualifi6 v6rifie la qualit6 de la liaison & la terre.
Pour obtenir un exemplaire des normes des codes ci-dessus,
contacter :
National Fire Protection Association
One Batterymarch Park, Quincy, MA 02269
CSA International
8501 East Pleasant Valley Road
Cleveland, Ohio 44131-5575
[] Ne pas utiliser une tuyauterie de gaz pour le raccordement
& la terre.
[] Ne pas installer un fusible dans le conducteur neutre ou
le circuit de liaison & la terre.
[] Une alimentation de 120 volts, 60 Hz, CA seulement,
de 15 ou 20 amperes, prot6g6e par un fusible est requise.
On recommande 6galement d'utiliser un fusible ou un
disjoncteur temporis& II est recommand6 de raccorder
la s6cheuse sur un circuit distinct exclusif & cet appareil.
[] Cette s6cheuse comporte un cordon d'alimentation
61ectrique & trois broches pour liaison & la terre.
[] Pour minim|set le risque de choc 61ectrique, on dolt
brancher le cordon sur une prise de courant de
configuration correspondante, b,3 alv6oles, reli6e b,la terre
et install6e conform6ment aux codes et reglements Iocaux.
Si une prise de courant de configuration correspondante
n'est pas disponible, le client a la responsabilit6 et
I'obligation de faire installer par un 61ectricien qualifi6
une prise de courant correctement reli6e & la terre.
[] Si les codes le permettent et si I'on utilise un conducteur
distinct de liaison & la terre, ilest recommand6 qu'un
61ectricien qualifi6 v6rifie la qualit6 de la liaison & la terre.
[] En cas de doute quant & la qualit6 de la liaison & la terre
de la s6cheuse, consulter un 61ectricien qualifi&
Mise _la terre de la s_cheuse _ gaz
iNSTRUCTiONS DE LiAiSON _, LA TERRE
[] Pour une secheuse reliee b, la terre et connectee par un
cordon :
Cette secheuse doit _tre reliee & la terre. En cas de mauvais
fonctionnement ou de panne, la liaison & la terre r_duira le
risque de choc _lectrique en offrant au courant electrique un
acheminement d'evacuation de moindre resistance. Cette
secheuse est aliment_e par un cordon _lectrique
comportant un conducteur relie & la terre et une fiche de
branchement munie d'une broche de liaison & la terre. La
fiche dolt _tre branch_e sur une prise appropriee qui est
bien install_e et reliee h la terre conformement & tousles
codes et reglements Iocaux.
[] Pour une s6cheuse raccord6e en permanence :
Cette secheuse doit _tre raccord6e & un syst6me de
c&blage permanent en metal reli6 a la terre ou un
conducteur reli6 h la terre dolt _tre en fonction avec les
conducteurs de circuit et raccord6 a la borne de liaison & la
terre ou la borne sur la secheuse.
AVERTISSEMENT " Le raccordement incorrect de
cet appareil au conducteur de liaison h la terre peut susciter
un risque de choc 61ectrique. En cas de doute quant & la
qualite de liaison & la terre de la secheuse, consulter un
electricien ou un technicien ou un personnel qualifi6. Ne pas
modifier la fiche de branchement fournie avec la s6cheuse;
si la fiche ne correspond pas & la configuration de la prise
de courant, demander & un 61ectricien qualifi_ d'installer une
prise de courant appropri_e.
CONSERVEZ CES iNSTRUCTiONS
34

EXIGENCES D'INSTALLATION POUR LA S] CHEUSE A GAZ
Alimentation en 9az
Risque d'explosion
Utiliser une canalisation neuve d'arriv_e de gaz
approuv_e par CSA International.
Installer un robinet d'arr_t.
Bien serrer chaque organe de connexion de la
canalisation de gaz.
En cas de connexion au gaz propane, demander _une
personne qualifi_e de s'assurer que la pression de gaz
ne d_passe pas 330 mm (13 po) de la colonne d'eau.
Par personne qualifi_e, on comprend :
le personnel autoris6 de chauffage,
le personnel autoris_ d"une compagnie de gaz, et
le personnel d"entretien autoris&
Le non=respect de ces instructions peut causer
un d_c_s, un explosion ou un incendie.
iMPORTANT : Observer les dispositions de tous les codes
et reglements en vigueur.
[_'installation doit satisfaire aux crit@es de tousles codes et
reglements Iocaux. En I'absence de code local, I'installation
doit satisfaire aux prescriptions de la norme American National
Standard, National Fuel Gas Code ANSI Z223.1/NFPA 54 ou
CAN/CSA B149.
Pour obtenir un exemplaire des normes des codes ci-dessus,
contacter :
National Fire Protection Association
One Batterymarch Park, Quincy, MA 02269
CSA International
8501 East Pleasant Valley Road
Cleveland, Ohio 44131-5575
La conception de cette s6cheuse a 6t6 homologu6e par CSA
International pour une utilisation jusqu'& une altitude de 10 000
pieds (3 048 m) au-dessus du niveau de lamer pour le d6bit
thermique indiqu6 sur la plaque signal6tique. Aucun r6glage du
brQleur n'est n6cessaire Iorsque la s6cheuse est utilis6e & une
altitude inf@ieure ou 6gale & cette valeur maximale.
Lorsque I'appareil est install6 b,une altitude sup@ieure
& 10 000 pieds (3 048 m), on doit r6duire de 4 % le d6bit
thermique du brQleur indiqu6 sur la plaque signal6tique pour
chaque tranche de 1 000 pieds (305 m) d'augmentation de
I'altitude. Pour obtenir de I'aide lots de la conversion & d'autres
types de gaz et/ou I'installation de I'appareil & une altitude
sup@ieure & 10 000 pieds (3048 m), contacter la soci6t6 de
d@annage la plus proche.
35

EXIGENCES D'INSTALLATION POUR LA S] CHEUSE
] LECTRIQUE
Exigences de I'emplacement
Risque d'e×plosion
Garder les mati_res et les vapeurs inflammables, telle
que |'essence, loin de la s6cheuse.
Ne pas installer clans un garage.
Le non=respect de ces instructions peut causer
un d6c_s, une explosion ou un incendie.
La s6cheuse peut 6tre install6e dans un sous-sol, une salle de
instructions d'instaiiation dans un encastrement
ou un placard
Cette s6cheuse peut 6tre install6e dans un encastrement
ou un placard. Pour les installations dans un encastrement
ou un placard, les dimensions minimales de d6gagement
sont indiqu6es sur 1'6tiquette d'avertissement, a I'arriere
de la s6cheuse ou a la section "Dimensions/Distances de
d6gagement".
Les dimensions d'installation sont en pouces et constituent
le minimum applicable. Un espace suppl6mentaire peut
6tre n6cessaire pour faciliter I'installation, I'entretien et pour
observer les codes et reglements Iocaux.
Si une porte de placard est install6e, une ouverture
d'6vacuation de Fair minimale est n6cessaire dans les parties
sup6rieure et inf6rieure. Les portes a claire-vole offrant des
ouvertures 6quivalentes sont acceptables.
La s6cheuse dolt 6tre 6vacu6e a I'ext6rieur.
buanderie ou un encastrement.
II faut aussi prendre en compte les exigences d'emplacement
des appareils voisins.
iMPORTANT : Ne pas installer ou remiser la s6cheuse dans
un endroit oQ elle sera expos6e aux intemp6ries. C'est
I'utilisateur qu'incombe la responsabilit6 de r6aliser une
installation correcte.
II vous faudra :
[] Une prise 61ectrique reli6e & la terre situ6e & moins de
6 pi (1,8 m) de la prise du cordon 61ectrique se trouvant
& I'arriere de la s6cheuse. Voir "Sp6cifications 61ectriques".
[] Un plancher de niveau ayant une pente maximale de 1"
(25 mm) sous I'ensemble de la s6cheuse. Uinstallation
de la s6cheuse sur des surfaces de sol molles, telles que
tapis ou surfaces avec sous-couche en mousse n'est pas
recommand6e.
Distances de d6gagement pour I'installation pour la
s6cheuse 61ectrique
[] L'emplacement dolt 6tre assez grand pour permettre
d'ouvrir completement la porte de la s6cheuse.
[] Pr6voir davantage d'espace pour faciliter I'installation
et I'entretien. La porte s'ouvre a plus de 180 °.
[] Un espace suppl6mentaire peut 6tre requis pour les
moulures de porte et de plancher et pour les plinthes.
[] Un espace suppl6mentaire de 1" (25 mm) de tousles c6t6s
de la s6cheuse est recommand6 pour r6duire le transfert
du bruit.
48 in.2
(310cm 2)
Vue de Porte du
3"
(76 mr
face
0
24 in.2
(155cm 2)
placard
f
36

EXIGENCES D'INSTALLATION POUR LA S] CHEUSE
] LECTRIQUE
Specifications electriques
[]
Risque de choc _lectrique
Brancher sur une prise & 4 alv_oles relide _ la terre.
Le non=respect de cette instruction peut causer
un d_c_s ou un choc _lectrique,
C'est aI'utilisateur qu'incombe la responsabilit_ de :
[] Communiquer avec un 61ectricien qualifi&
[] S'assurer que les connexions electriques sont adequates
et conformes au Code canadien de 1'61ectricit6, C22.1 -
derniere edition et b.tous les codes Iocaux. Pour obtenir un
exemplaire de la norme des codes ci-dessus, contacter :
Association canadienne de normalisation, 178 Rexdale Blvd.,
Toronto, ON M9W 1R3 CANADA.
[] Alimenter I'appareil uniquement par un circuit monophas6
de 120/240 volts CA seulement, 60 Hz a 4 ills, sur un circuit
s6par6 de 30 amperes, fusionn6 aux deux extr6mit6s de la
ligne. On recommande I'emploi d'un fusible temporis6 ou
disjoncteur. On recommande 6galement que cet appareil
soit aliment6 par un circuit ind6pendant.
[] Cette s6cheuse est 6quip6e d'un cordon
61ectrique homologu6 par la CSA International _ (_ "_
b.introduire dans une prise murale standard / F] r] /
14-30R. Le cordon mesure 5 pi (1,52 m). Veiller\ U L---mU ]
b.ce que la prise murale se trouve b,proximit6
de I'emplacement d6finitif de la s6cheuse. Prise rnurale
4 fils
(14=30R}
Ne pas utiliser de c&ble de rallonge.
Si on utilise un cordon d'alimentation de rechange, il est
recommand6 d'utiliser le cordon d'alimentation de rechange
num@o de piece 9831317. Pour plus d'information, veuillez
consulter les num@os de service qui se trouvent a la section
"Assistance ou service".
INSTRUCTIONS DE LIAISON ALA TERRE
[] Pour une s6cheuse reli6e & la terre et connect6e par
un cordon :
Cette s6cheuse doit 6tre reli6e & la terre. En cas de mauvais
fonctionnement ou de panne, la liaison & la terre r6duira le
risque de choc 61ectrique en offrant au courant 61ectrique un
acheminement d'6vacuation de moindre r6sistance. Cette
s6cheuse est aliment6e par un cordon 61ectrique comportant
un conducteur reli6 & la terre et une fiche de branchement
munie d'une broche de liaison & la terre. La fiche doit _tre
branch6e sur une prise appropri6e qui est bien install6e et
reli6e & la terre conform6ment & tous les codes et reglements
Iocaux.
AVERTISSEMENT "Le raccordement incorrect de
cet appareil au conducteur de liaison & la terre peut susciter
un risque de choc 61ectrique. En cas de doute quant & la
qualit6 de liaison & la terre de la s6cheuse, consulter un
61ectricien ou un technicien ou un personnel qualifi& Ne pas
modifier la fiche de branchement fournie avec la s6cheuse;
si la fiche ne correspond pas & la configuration de la prise de
courant, demander & un 61ectricien qualifi6 d'installer une
prise de courant appropri6e.
CONSERVEZ CES iNSTRUCTiONS
37

p
EXIGENCES CONCERNANT UEVACUATION
DE LA SltCHEUSE
Risque d'incendie
Utiliser un conduit d'evacuation en m_tal Iourd.
Ne pas utiliser un conduit d'_vacuation en plastique,
Ne pas utiliser un conduit d'_vacuation en feuile
de m_tal.
Le non=respect de ces instructions peut causer
un d_ces ou un incendie,
AVERTISSEMENT :Pour r6duire le risque d'incendie, cette
s6cheuse doit FtVACUER UAIR A L'EXTFtRIEUR.
IMPORTANT : Observer les dispositions de tousles codes
et reglements en vigueur.
Le conduit d'6vacuation de la s6cheuse ne doit pas 6tre
raccord6 & une 6vacuation de gaz, une chemin6e, un tour,
un plafond, un grenier, un vide sanitaire ou un vide de
construction. Seul un conduit d'6vacuation m6tallique rigide
ou souple doit 6tre utilis6 pour le systeme d'6vacuation.
!
_ 4"
(102 ram)
t
Conduit d'_vacuation en m_tal lout6 de 4" (102 ram)
[] Utiliser uniquement un conduit d'6vacuation en m6tal Iourd
de 4" (102 mm) et des brides de serrage.
[] Ne pas utiliser de conduit de plastique ou de m6tal tres
mince.
Conduit m_tallique rigide :
[] Recommand6 pour une performance de s6chage id6ale afin
d'6viter tout 6crasement ou d6formation.
Conduit m_tallique flexible :(Acceptable uniquement
si son acces reste facile pour le nettoyage)
[] Doit 6tre entierement d6ploy6 et soutenu & I'emplacement
d'installation final de la s6cheuse.
[] Enlever tout exces de conduit flexible pour 6viter tout
affaissement et d6formation susceptible de r6duire
la capacit6 d'6vacuation et le rendement.
[] Ne pas installer le conduit m6tallique flexible dans
des cavit6s ferm6es de tour, plafonds ou planchers.
[] La Iongueur totale ne doit pas d6passer 73/4pi (2,4 m).
REMARQUE : Lots de I'utilisation d'un systeme d'6vacuation
existant, nettoyer et 61iminer la charpie sur toute la Iongueur du
systeme, et veiller & ce que le clapet d'6vacuation ne soit pas
obstru6 par de la charpie. Remplacer tout conduit de plastique
ou en aluminium par un conduit m6tallique rigide ou souple.
Consulter & nouveau le "Tableau des systemes d'6vacuation"
et modifier le systeme d'6vacuation existant au besoin pour
obtenir un meilleur s6chage.
Coudes :
[] Les coudes & 45° permettent une meilleure circulation
de Fair que les coudes & 90 °.
Mi
Brides de serrage :
[] Utiliser des brides pour sceller tous les joints.
[] Le conduit d'6vacuation ne doit pas _,tre raccord6 ou fix6
avec des vis ou tout autre dispositif de serrage qui se
prolongerait & I'int6rieur du conduit et retiendrait la charpie.
Ne pas utiliser de ruban adh6sif pour conduit.
Une mauvaise _vacuation de I'air peut causer de
I'humidit6 et une accumulation de charpie _ I'int_rieur de
la maison, ce qui peut provoquer :
[] Dommages par I'humidit6 aux boiseries, meubles, peinture,
papier-peint, tapis, etc.
[] Problemes de nettoyage dans la maison et problemes
de sant&
38

p
EXIGENCES CONCERNANT UEVACUATION
DE LA S] CHEUSE
Hottes d'extraction
Clapets d'_vacuation - Diam_tre de 4" (102 ram}
Clapet de type Clapet hpersiennes Clapet inclin_
bore
Longueur du syst_me d'evacuation
Longueur maximale du conduit/raccord
La Iongueur maximale du systeme d'6vacuation d6pend du
type de conduit utilis6, du nombre de coudes et du type de
clapet d'6vacuation.
Tableau des syst_mes d'_vacuation (conduit en m_tal rigide)
Nbre de changements Clapet de type de
direction h 90°boJte ou h persiennes Clapet inclin6
0 64 pi (19,5 m) 58 pi (17,7 m)
1 54 pi (16,5 m) 48 pi (14,6 m)
2 44 pi (13,4 m) 38 pi (11,6 m)
3 35 pi (10,7 m) 29 pi (8,8 m)
4 27 pi (8,2 m) 21 pi (6,4 m)
Pour les systemes d'6vacuation autres que ceux indiqu6s dans
le tableau des systemes d'6vacuation, consulter le revendeur
de pieces.
Pr6voir un espace suffisant pour la combustion et la
ventilation de I'air. (V6rifier les dispositions des codes et
reglements en vigueur). Voir "Instructions d'installation dans un
encastrement ou un placard" dans les sections "Exigences de
I'emplacement".
II est pr6f6rable d'utiliser une sortie de hotte de 4" (102 mm).
Cependant, on peut utiliser un clapet d'6vacuation de 2V2"
(64 mm). Une sortie de 2V2" (64 mm) cause davantage de
contre-pression que les autres types d'installation. Pour une
installation permanente, un systeme d'6vacuation fixe est
requis.
Le clapet de d6charge doit se trouver b, au moins 12" (305 mm)
au-dessus du sol ou de tout autre objet susceptible de se trouver
sur le trajet de Fair humide rejet6 (par exemple, fleurs, roches,
buissons ou neige).
3. Serrer la bride de serrage de tuyau avec un tournevis Phillips.
Raccordement du conduit d'6vacuation
1. Si on utilise le conduit d'6vacuation existant, s'assurer
qu'il est propre.
2. _, I'aide d'une bride de fixation de 4" (102 ram), relier
le conduit d'6vacuation & la bouche d'6vacuation
de la s6cheuse. Raccord de sortie
4. S'assurer que le conduit d'6vacuation est fix6 au clapet
d'6vacuation & I'aide d'une bride de fixation de 4" (102 mm).
5. Placer la s6cheuse & son emplacement final. Ne pas 6craser
ni pincer le conduit d'6vacuation. V6rifier que la s6cheuse est
d'aplomb.
REMARQUE : Ne pas enlever le raccord de sortie.
39

EXIGENCES CONCERNANT UI VACUATION DE LA S] CHEUSE
Si on ne peut pas utiiiser de ciapet d'6vacuation
L'ext6rieur du conduit d'6vacuation principal dolt comporter
un conduit de d6viation orient6 vers le bas.
- [
l 24" min.
12" rain. (610 mm)
(305 rara)*
1
*Distance de d6gagement
minimaie au=dessus d'une
accumulation de neige, de
giace ou de d6bris teis des feuilles
Si le conduit principal monte verticalement a travers le toit
et non atravers lemur, installer un coude de d6viation a 180 °
I'extr6mit6 du conduit d'au moins 2 pi (610 mm) au-dessus
de la surface ou du toit.
Le diametre de I'ouverture dans le toit ou le mur dolt 6tre
sup6rieur de 1/2" (13 mm) a celui du conduit. Le conduit dolt
6tre centr6 dans I'ouverture.
Pour de meilleures performances, ne pas installer de grillage
I'extr6mit6 de 1'6vacuation.
i_vacuation pour plusieurs secheuses
On peut utiliser un conduit principal pour assurer 1'6vacuation
d'un ensemble de s6cheuses. La taille du conduit principal
dolt permettre une 6vacuation de 200 CFM d'air pour chaque
s6cheuse. On peut utiliser des filtres a charpie haute capacit6
correctement congus dans le conduit principal s'ils sont
inspect6s et nettoy6s r6gulierement. La piece dans laquelle
se trouvent les s6cheuses dolt comporter un systeme d'air
d'appoint au moins 6gal au CFM de toutes les s6cheuses qui
se trouvent dans la piece.
Les clapets anti-retours sont disponibles aupres de votre
distributeur et doivent 6tre install6s sur la ligne d'6vacuation
de chaque s6cheuse pour 6viter que I'air 6vacu6 revienne dans
les s6cheuses et pour maintenir 1'6vacuation en 6quilibre avec
le conduit de sortie principal. Des ouvertures d6gag6es pour
le retour d'air sont n6cessaires.
M6me si chaque s6cheuse a charge unique dolt normalement
poss6der une ouverture d'air ext6rieur sans obstacle de 24
po 2(154 cm 2)(en consid6rant 1 po2 [6,5 cm 2] par 1 000 Btu
[252 kcal]), des ouvertures d'air d'appoint communes sont
6galement acceptables. Placer les ouvertures communes
pour que I'air d'appoint soit r6parti uniform6ment a toutes les
s6cheuses. Garder a I'esprit que la surface de couverture dolt
6tre augment6e de 33 % pour tenir compte de la pr6sence de
registres ou de persiennes par-dessus les ouvertures. De plus,
les ouvertures d'air d'appoint ne doivent pas 6tre plac6es
proximit6 des sorties d'air 6vacu6 du b&timent.
Chaque conduit dolt p6n6trer dans le conduit principal en
direction du mouvement de circulation de I'air. Les 6vacuations
par I'autre c6t6 doivent 6tre plac6es en quinconce (d6cal6es)
pour r6duire les interf6rences avec I'air sortant des autres
6vacuations en face.
L'inclinaJson maxJmale de chaque conduit qui p6netre dans
le conduit principal ne doit pas d6passer 30 °.
Veiller a ce que les ouvertures de passage d'air demeurent
exemptes de vapeurs de solvants de nettoyage a sec. Les
vapeurs sont source de formation de compos6s acides, dont
I'introduction via les modules de chauffage de la s6cheuse peut
provoquer la d6t6rioration de la s6cheuse et du linge en cours
de s6chage.
Uouverture principale comporte normalement un couvercle
amovible, ce qui permet le nettoyage p6riodique du circuit
d'extraction.
RACCORDEMENT A LA CANALISATION DE GAZ
Raccordement a ia canalisation de gaz
Risque du poids excessif
Utiliser deux ou plus de personnes pour d6placer et
installer la s6cheuse.
Le non-respect de cette instruction peut causer
une blessure au dos ou d'autre biessure.
1. Retirer le capuchon rouge de la canalisation de gaz.
2. Raccorder la canalisation de gaz a la s6cheuse. Utiliser
un compos6 d'6tanch6it6 compatible avec le type de gaz
utilis6. Si un conduit m6tallique flexible est utilis6, v6rifier
qu'il n'est pas d6form6.
Si n6cessaire pour une intervention d'entretien ou de
r6paration, selon le modele :
Ouvrir la plinthe en 6tant les vis de 21/4'' (57 mm) a t6te
hexagonale du fond du panneau. Soulever ensuite
3=
4.
le panneau tout en tirant le fond du panneau hors
de la s6cheuse.
OU
Ouvrir la plinthe. Appuyer sur le dispositif de verrouillage
de la plinthe avec un couteau a mastic pour I'ouvrir - le
dispositif se trouve sur la partie sup6rieure centrale de la
plinthe. Tirer la plinthe vers le bas pour I'ouvrir. La plinthe
comporte une charniere sur sa pattie inf6rieure.
Ouvrir le robinet d'arr6t de la canalisation d'arriv6e de gazet
v6rifier que la canalisation de gaz a la s6cheuse est ouverte.
V6rifier tousles raccordements en les badigeonnant d'une
solution de d6tection des fuites non corrosive approuv6e.
Uapparition de bulles indique une fuite. R6parer toute fuite
6ventuelle.
4O

RACCORDEMENT A LA CANALISATION DE GAZ
Type de gaz
Cette s6cheuse est 6quip6e pour une alimentation au gaz
naturel. Sa conception est homologu6e par CSA international
pour I'alimentation au gaz de p6trole liqu6fi6 (propane ou
butane), avec conversion appropri6e. Ne pas entreprendre de
convertir la s6cheuse pour une utilisation avec un gaz diff@ent
Canalisation d'alimentation en gaz
M_thode recommand_e
installer une canalisation de gaz rigide de 1/2" (13 mm)jusqu'a
I'emplacement d'installation de la s6cheuse. On doit utiliser
un compos6 d'6tanch6it6 des tuyauteries r6sistant a I'action
du gaz de p6trole liqu6fi6. Ne pas utiliser de ruban TEFLON_%
Pour I'alimentation au propane, le diametre des canalisations
ou tuyaux doit #.tre de 1/2" (13 mm) minimum. En g6n@al, le
fournisseur de gaz propane d6termine les mat@iaux a utiliser
et le diametre appropri6 pour le circuit.
de celui indiqu6 sur la plaque signal6tique sans consulter
le fournisseur de gaz au pr6alable. L'op@ation de conversion
doit 6tre ex6cut6e par un technicien de r6paration qualifi6.
Les num@os de piece de I'ensemble de conversion de gaz sont
indiqu6s pres de la base des brQleurs.
Raccord m_taUique flexible pour appareil m_nager :
II est recommand6 d'utiliser une canalisation en acier
inoxydable souple neuve, conception homologu6e par CSA
international, pour raccorder la s6cheuse a la conduite
d'alimentation en gaz. (La canalisation d'arriv6e de gaz
6mergeant au niveau de la partie inf@ieure arriere de la
s6cheuse est dot6e d'un filetage male de 3/8" [10 mm]).
Test de pressurisation de la canalisation de gaz
Un piquage bouch6 de 1/8" (3 mm) NPT minimum, accessible
pour le contr61e de pression, doit 8tre install6 imm6diatement
en aval du robinet d'arrSt install6 pour la s6cheuse (comme
illustr6 ci-dessous). Lots de toute @reuve de pressurisation du
systeme a une pression sup6rieure a 1/2 Ib/po 2(352 kg/m2), on
doit d6connecter la s6cheuse de la tuyauterie de I'alimentation
en gaz.
M_thode alternative
L'alimentation en gaz peut aussi 8tre raccord6e h I'aide
d'un conduit en cuivre ou en aluminium homologu6 de 3/8"
(10 mm). Si la Iongueur totale de la canalisation d'alimentation
est sup@ieure a 20 pi (6,1 m), utiliser un conduit de taille
sup@ieure.
Pour le gaz naturel, ne pas utiliser de conduits en cuivre. On
dolt utiliser un compos6 d'6tanch6it6 des tuyauteries r6sistant
I'action du gaz d'alimentation.
Robinet d'arr_t n_cessaire
La canalisation d'alimentation dolt comporter un robinet
d'arr6t individuel manuel install6 & 6 pi (1,8 m) maximum de
la s6cheuse conform6ment au National Fuel Gas Code, ANSi
Z223.1. Le robinet dolt se trouver dans la mSme piece que
la s6cheuse. La canalisation doit se trouver en un endroit
facilement accessible pour les manceuvres d'ouverture/
fermeture. Ne pas entraver I'acces au robinet d'arr6t manuel.
Au Canada, un robinet d'arr_t individuel dolt 8tre install6
conform6ment aux codes d'installation B149.1 CAN/CGA
B149.1 et CAN/CGA B149.2.
REMARQUE : Ne pas d6former/endommager la canalisation
en acier inoxydable flexible Iors du d6placement de la porte.
Raccordement par conduit rigide
On doit utiliser un ensemble de raccords pour r6aliser
un raccordement rigide a la s6cheuse.
JJ
1-®TEFLONest une marque d6pos6e de E.I.Du Pont De Nemours et Compagnie.
41

INSTALLATION DES PIEDS DE NIVELLEMENT, DE LA
GLISSI] RE A MONNAIE ET DE LA CAISSE A MONNAIE
Risque du poids excessif
Utiliser deux ou plus de personnes pour d_placer et
installer la s_cheuse,
Le non=respect de cette instruction peut causer
une blessure au dos ou d'autre blessure.
1. Preparation de la s_cheuse pour les pieds de nivellement
NOTE :Placer la s6cheuse sur une feuille de carton ou un
panneau de bois dur avant de la d6placer sur le plancher,
afin d'6viter d'endommager le rev_tement du sol.
,5,I'aide de deux personnes ou plus, d6placer la s6cheuse
& I'emplacement d'installation d6sir&
Enlever le ruban adh6sif dans les angles avant de la s6cheuse.
Ouvrir la s6cheuse; enlever les brochures et sachets de pieces.
Essuyer parfaitement la surface interne du tambour avec un
chiffon humide.
Prendre deux cornieres de carton de I'emballage et les placer
sur le plancher & I'arriere de la s6cheuse. Saisir fermement la
s6cheuse et la placer doucement en appui sur la face arriere,
sur les cornieres de carton.
. "_3
(l'aspect peut varlet)
2. Vissage des pieds de nivellement
Examiner les pieds de nivellement pour trouver
le repere en forme de diamant. Introduire (_-J/_'_
Marque de
manuellement les pieds darts les trous . _-_J/j
dlamant
des pieds. U,!iliser une cl6 & molette ou __
une cl6 de 1 (25 mm) pour faire tourner /_
les pieds jusqu'& ce que la marque de Pied _'_
rep6rage (Iosange) ne soit plus visible.
Placer ensuite un cache-pied sur chaque pied.
Pour prot6ger le plancher, utiliser un grand morceau de
carton provenant de I'emballage de la s6cheuse. Redresser la
s6cheuse sur le morceau de carton. Faire glisser la s6cheuse
jusqu'a ce qu'elle se trouve a proximit6 de son emplacement
final. Laisser suffisamment d'espace pour pouvoir r6aliser le
raccordement 61ectrique et raccorder le conduit d'6vacuation.
Sur certaJns modules :Le boitier de commande inclut la
minuterie (accumulation pr6install6e) avec bras de manoeuvre
ou commutateur de service.
La minuterie, install6 & I'usine, commande une p6riode de
s6chage de 45 minutes (came & 4 broches) apres activation
par le m6canisme d'insertion des pieces de monnaie. Le sachet
de pieces inclut des cames pour des p6riodes de s6chage de
30 minutes (6 broches) et 60 minutes (3 broches).
Le m6canisme de paiement, la serrure et la cl6 de la plaque
de I'ouverture d'acces et la serrure et la cl6 de r6ceptacle des
pieces ne peuvent pas 6tre inclus; mais on peut les obtenir
aupres des sources usuelles de I'industrie.
1. Installation d'une glissi_re et d'une caisse _ monnaie
Oter la plaque de I'ouverture d'acces du boitier de commande.
Soulever la plaque & I'arriere pour I'enlever. installer le dispositif
d'introduction de pieces (pour I'installation, consulter les
instructions d'installation du fabricant).
Pour une s6cheuse dot6e d'un m6canisme d'insertion
glissiere, utiliser I'ensemble d'adaptation fourni avec
la s6cheuse.
R6installer la plaque de I'ouverture d'acces du boitier de
commande. Placer la boite a pieces avec la serrure et la cl6
dans I'ouverture d'acces du boitier de commande.
Retirer la feuille de carton ou le panneau de bois dur plac6
sous la s6cheuse. Relever ou abaisser les pieds de la s6cheuse
jusqu'a ce que la s6cheuse soit d'aplomb.
2. installation du dispositif de s_curit_ suppl_mentaire
S'assurer que la s6cheuse n'est pas aliment6e.
Ouvrir et retirer la porte de service.
Placer le c6ne de s6curit6 en orientant la petite pattie vers
le bas, par dessus le trou de forme allong6e dans la pattie
inf6rieure arriere du boitier du compteur.
Introduire le boulon de s6curit6 dans ce c6ne et I'enfiler
manuellement dans 1'6crou cage, sous I'ouverture de forme
allong6e.
Serrer le boulon de s6curit_ & la main en y appliquant quelques
tours avant d'utiliser une cl_ pour serrer fermement.
Boulon de
X_ s_curit_
i CSne de
_s_curit_
Ecrou cage
42
NOTE :Uinstallation du boulon de s_curit_ offre une s_curit_
suppl_mentaire, mais repr_sente aussi un d_lai suppl_mentaire
pour une r_paration _ventuelle, Iorsqu'il faut retirer le dessus
pour r_parer la s_cheuse.

NIVELLEMENT
Le nivellement de la s6cheuse permet le bruit et les vibrations
excessifs.
Risque du poids excessif
Utiliser deux ou plus de personnes pour d_placer et
installer la sdcheuse.
Le non=respect de cette instruction peut causer
une blessure au dos ou d'autre blessure,
1. Enlever la plaque de carton plac6 sous la s6cheuse.
Placer un niveau sur les bords sup@ieurs de la s6cheuse en
contr61ant chaque c6t6 et I'avant. Si elle n'est pas d'aplomb,
faire basculer la s6cheuse et r6gler les pieds vers le haut ou
vers le bas tel qu'indiqu6 dans 1'6tape 3, et recommencer si
n6cessaire.
f
Pas d'apiomb D'APLOMB Pas d'apiomb
2. Saisir la s6cheuse par le dessus et la faire basculer d'avant
en arriere tout en s'assurant que les quatre pieds sont en
contact ferme avec le sol. Faire de nouveau basculer la
s6cheuse, transversalement. Si la s6cheuse bascule, passer
1'6tape 3 et ajuster les pieds de nivellement.
(l'aspect peut varlet}
3. Si la s6cheuse n'est pas d'aplomb, utiliser une cl6 plate
ou une cl6 a molette de 1" ou 25 mm pour tourner le pied
de nivellement dans le sens antihoraire pour abaisser
la s6cheuse ou dans le sens horaire pour les soulever.
Contr61er a nouveau I'aplomb de la s6cheuse et v@ifier
que les quatre pieds sont en contact ferme avec le sol.
R6p6ter si n6cessaire.
CONSEIL UTILE : II serait judicieux de soulever I'avant de
la s6cheuse d'environ 4" (102 mm) a I'aide d'une cale en bois
ou d'un objet similaire qui soutiendra le poids de la s6cheuse.
43

ACHEVER UINSTALLATION
1. Consulter les sp6cifications 61ectriques. V@ifier que
la tension 61ectrique disponible est correcte et que
la prise de courant est convenablement reli6e a la terre.
Voir "Sp6cifications 61ectriques".
2. V@ifier que toutes les pieces sont maintenant install6es.
S'il reste une piece, passer en revue les diff@entes 6tapes.
3. V@ifier la pr6sence de tousles outils.
4. Ftliminer/recycler tous les mat@iaux d'emballage.
Risque de choc _lectrique
Brancher sur une prise h3alv_oles reli_e h la terre.
Ne pas enlever la broche de liaison hla terre.
Ne pas utiliser un adaptateur.
Ne pas utiliser un c_ble de ralionge,
Le non-respect de ces instructions peut causer
un d_c_s, un incendie ou un choc _lectrique,
5. Brancher sur une prise reli6e a la terre ou connecter
la source de courant 61ectrique.
6. Contr61er le bon fonctionnement de la s6cheuse (sur certains
modeles, la minuterie comportera peut-6tre encore du
temps accumul6 Iors des tests d'usine). Fermer la porte
de la s6cheuse. Selon le modele, tourner le bouton de
r6glage de la minuterie vers la droite ou ins6rer les pieces
dans le m6canisme a glissiere et enfoncer doucement le
m6canisme a glissi@e. (Le temps de fonctionnement sera
accumul6, selon le nombre de pressions de glissi@e
monnaie et le type de came de minutage utilis6). Appuyer
sur le bouton START (mise en marche). Faire fonctionner
la s6cheuse pendant au moins cinq minutes - programme
de s6chage avec chaleur (pas le programme de s6chage
I'air). La s6cheuse s'arr_tera a I'expiration de la p@iode ainsi
d6termin6e.
REMARQUE : II faut que la porte soit ferm6e pour que
la s6cheuse puisse fonctionner. La s6cheuse s'arr6te
des I'ouverture de la porte, mais la minuterie continue de
fonctionner. Pour remettre la s6cheuse en marche, fermer
la porte et appuyer sur le bouton START.
7. Ouvrir la porte de la s6cheuse. Wrifier que I'int@ieur de la
s6cheuse est chaud. Si le brQleur ne s'allume pas et qu'on
ne ressent pas de chaleur a I'int@ieur de la s6cheuse,
6teindre la s6cheuse pendant cinq minutes. V6rifier que
toutes les manettes des vannes d'alimentation sont en
position ouverte ("ON") et que le cordon 61ectrique est
branch6. R6p6ter le test de 5 minutes d6crit ci-dessus.
8. Si le temps de s6chage est trop long, s'assurer que le filtre
charpie est propre, et v@ifier qu'il n'y a aucun obstacle
au d6bit d'air du circuit d'6vacuation de la s6cheuse.
9. D6marrer a nouveau la s6cheuse et la laisser ex6cuter le
programme de s6chage avec chaleur pour v@ifier qu'elle
fonctionne correctement.
44

INVERSION DU SENS D'OUVERTURE DE LA PORTE
(FACULTATIF)
Le sens d'ouverture de la porte peut 8tre chang6 du c6t6 droit
au c6t6 gauche, si d6sir6.
Retirer I'assemblee de porte
1. Placer une serviette sur le dessus de la s6cheuse pour
prot6ger sa surface.
2. Ouvrir la porte de la s6cheuse. Oter les vis inf@ieures
du c5t6 charniere de la caisse. Desserrer (ne pas retirer)
les vis sup@ieures du c6t6 charniere de la caisse.
7. Veiller & maintenir la cale d'espacement en carton centr6e
entre les portes. Fixer & nouveau le panneau externe de
porte & la porte interne de fagon & ce que la poign6e se
trouve du c6t6 oQ les vis viennent d'Stre retir6es.
Serviette
J
\
\
(l'aspect peut varier)
_Charni_res
3. Soulever la porte jusqu'& ce que les vis sup@ieures de la
caisse se trouvent dans la pattie large de I'encoche de la
charniere. Tirer la porte vers I'avant pour la d6gager des vis.
Placer la porte (c6t6 poign6e vers le haut) sur la s6cheuse.
Retirer les vis de la charniere sup@ieure de la caisse.
4. Retirer les vis fixant les charnieres & la porte.
5. Retirer les vis de chaque c6t6 de la porte (5 vis).
8. Fixer a nouveau les vis de chaque c6t6 de la porte (5 vis).
9. Fixer les charnieres de porte a la porte de la s6cheuse de
fagon & ce que le trou le plus gros se trouve au fond de
la charniere et que I'axe de la charniere soit orient6 vers
I'avant de la porte.
6. Tout en maintenant la porte sur une serviette et sur la
s6cheuse, saisir les c6t6s de la porte externe et soulever
doucement pour la s6parer de la porte interne (ne pas les
s6parer en forgant). Ne pas tirer sur le joint ou le Ioquet en
plastique de la porte.
10.
11.
Oter les 4 vis fixant les 2 bouchons d'obturation du c6t6 de
la poign6e. Fixer les bouchons d'obturation au c6t6 oppos6
& I'aide des mSmes 4 vis.
Ins6rer les vis dans les trous inf@ieurs du c6t6 gauche de
la caisse. Serrer les vis & moiti6. Positionner la porte de
fagon & ce que le c6t6 large de I'encoche de la charniere
de porte se trouve au-dessus des vis. Faire glisser la porte
vers le haut de fagon ace que les vis se trouvent au fond
des encoches. Resserrer les vis. Ins@er les vis sup@ieures
dans les charnieres et serrer.
@
12. Fermer la porte et v@ifier que la g&che de la porte est
align6e avec le Ioquet. Au besoin, faire glisser le Ioquet
de la porte vers la gauche ou vers la droite a I'int@ieur
de I'encoche pour r6gler I'alignement. 45

INSTALLATION D'UNE CAME DE MINUTAGE DE 30
OU 60 MINUTES (sur certains modules)
Risque de choc _lectrique
D_connecter la source de courant _lectrique avant
d'effectuer des modifications sur la came.
Le non-respect de ces instructions peut entrainer un
d_c_s ou un choc _lectrique.
ModUles avec la glissi_re a monnaie :Pour installer une came
de minutage de 30 ou 60 minutes (fournie avec la s6cheuse),
proc6der comme suit:
1. D6brancher la s6cheuse ou d6connecter la source de
courant 61ectrique.
2. D6verrouiller le boitier de commande.
3. Faire tourner la came manuellement pour aligner I'encoche
en V sous la dent de la roue dent6e.
Encoche Roue
en V dent_e
5. Placer la nouvelle came (moyeu vers le bas) sur I'axe. Aligner
le m6plat de I'axe avec le m6plat du trou de la came. Veiller
mettre en place I'onglet d'entrainement.
Onegn'teta'nement ._
6. Faire tourner la came pour aligner I'encoche en V sous
la dent de la roue dent6e.
7. Appuyer sur la came pour la mettre en place sur I'axe du
moteur; veiller & ce que I'encoche en V laisse passer la dent
de la roue dent6e.
4. Ins6rer un tournevis & lame plate 6troite sous la came
de minutage, pres de I'axe. Soulever doucement la came
verticalement pour la s6parer de I'axe; veiller & ce que
I'encoche en V laisse passer la dent de la roue dent6e.
8. Fermer et verrouiller le boitier de commande.
9. Brancher la s6cheuse ou reconnecter la source de courant
61ectrique.
46

INSTRUCTIONS D'ENTRETIEN
[] Nettoyer le filtre & charpie avant ou apres chaque
programme.
[] Comment enlever la charpie accumul6e :
,_ I'int6rieur de la caisse de la s6cheuse :
II faut retirer la charpie accumul6e darts le conduit
d'6vacuation tousles 2 arts ou plus souvent, selon
I'utilisation de la s6cheuse. Le nettoyage dolt 6tre effectu6
par une personne qualifi6e.
De I'int6rieur du conduit d'6vacuation :
Retirer la charpie tousles 2 arts, ou plus souvent, selon
I'utilisation de la s6cheuse.
[] D6gager I'espace autour de la s6cheuse; aucune matiere
combustible, essence ou autres vapeurs ou liquides
inflammables ne dolt s'y trouver.
[] D6gager I'emplacement de la s6cheuse de fagon & ce qu'il
soit libre de tout 616ment susceptible d'obstruer le d6bit
d'air de combustion et de ventilation.
Si la s6cheuse ne fonctionne pas, contr61er ce qui suit :
[] La prise de courant est correctement aliment6e.
[] Le disjoncteur ne s'est pas d6clench6 et aucun fusible n'est
grill&
[] La porte est ferm6e.
[] Les boutons de commande s61ectionnent une configuration
de fonctionnement.
[] Le bouton START (mise en marche) a 6t6 enfonc6
fermement.
[] Pour une s6cheuse & gaz, v6rifier que les robinets
de la canalisation de gaz sont ouverts.
SI VOUS AVEZ BESOIN D'ASSISTANCE
Contacter le revendeur autoris6 d'appareils de buanderie & usage commercial. Pour Iocaliser votre revendeur autoris6 d'appareils
de buanderie & usage commercial ou pour toute question via internet, consulter www.WhirlpoolCommercialLaundry.com.
Si vous ne parvenez pas & Iocaliser un revendeur, le centre d'aide pour les appareils de buanderie & usage commercial r6pond
& toute question qui n'aurait pas 6t6 abord6e darts les Instructions d'installation au sujet du fonctionnement ou de I'entretien
de la s6cheuse.
II suffit de composer le 1=800 NO BELTS (1=800=662=3587) -I'appel est gratuit.
Lots de votre appel, vous aurez besoin du num6ro de modele et de s6rie de la s6cheuse. Ces deux num6ros figurent sur la plaque
signal6tique situ6e darts I'encadrement de la porte de la s6cheuse.
47

W10474269A
W10474270A=SP ®/TM © 2012 Whirlpool. All rights reserved. Used under license in Canada.
®/TM © 2012 Whirlpool. Tous droits r6serv6s. Emploi sous licence au Canada.
12/2012
Printed in U.S.A.
Imprim6 aux Etats-Unis