Whirlpool EC3JHAXRL00 User Manual SIDE BY REFRIGERATOR Manuals And Guides L0521036
WHIRLPOOL Side by Side Refrigerator Manual L0521036 WHIRLPOOL Side by Side Refrigerator Owner's Manual, WHIRLPOOL Side by Side Refrigerator installation guides
User Manual: Whirlpool EC3JHAXRL00 EC3JHAXRL00 WHIRLPOOL SIDE BY SIDE REFRIGERATOR - Manuals and Guides View the owners manual for your WHIRLPOOL SIDE BY SIDE REFRIGERATOR #EC3JHAXRL00. Home:Kitchen Appliance Parts:Whirlpool Parts:Whirlpool SIDE BY SIDE REFRIGERATOR Manual
Open the PDF directly: View PDF
.
Page Count: 28

INSTALLATIONINSTRUCTIONS
COI_,_,_iii'_'i!ii_!ii:i!i!_,_il_¸D,_i_:,,i:i:i,i_iiii'_iiii!!!!_iidii!!i_'b'!i__'Siiid,iiiii?!i:i_i!!,_ii_i_:_ii!!i_iii!_i!i_!_ii_i:::::;iiii"o_
IMPORTANT: READ AND SAVE THESE INSTRUCTIONS, INSTALLATION REQUIRES 2 OR MORE PEOPLE,
INSTRUCCIONESDEINSTALACION
IMPORTANTE: LEA Y GUARDE ESTASINSTRUCCIONES, LA INSTALACION REQUIERE DE 20 MAS PERSONAS,
INSTRUCTIONSD'INSTALLATION
IMPORTANT : LIRE ET CONSERVER CES INSTRUCTIONS, L'INSTALLATION NECESSITE L'INTERVENTION DE 2 PERSONNES OU PLUS,
Table of Contents /indice /Table des mati@res
ASSISTANCE OR SERVICE ............................ 1
REFRIGERATOR SAFETY ............................... 2
INSTALLATION REQUIREMENTS ................. 2
Teels and Parts ............................................. 2
Product Dimensiens ...................................... 2
Deor and Side Panels ................................... 4
Locatien Requirements ................................. 5
Electrical Requirements ................................ 5
Water Supply Requirements ......................... 6
INSTALLATION INSTRUCTIONS ................... 6
Unpaek the Refrigerater ................................ 6
Install Custom Door Panels .......................... 7
Install New Water Line .................................. 7
Connect Water Supply .................................. 7
Plug in Refrigerator ....................................... 8
Prepare the Water System ............................ 8
Level Refrigerator .......................................... 9
Door Height Adjustment ............................... 9
Complete Installation .................................... 9
AYUDA OSERVICIO TECNICO .................... 10
SEGURIDAD DEL REFRIGERADOR ............ 10
REQUISITOS DE INSTALACION .................. 10
Piezas y herramientas ................................. t 0
Medidas del produeto ................................. 1t
Paneles de puerta y laterales ...................... 13
Requisitos de ubicaci6n .............................. 14
Requisitos electricos ................................... 14
Requisitos del suministro de agua .............. 14
INSTRUCCIONES DE INSTALACI(_N .......... 15
Desempaque el refrigerador ....................... 15
Instalaci6n de los paneles a
la medida para la puerta ............................. 15
C6mo instalar una tuberia de agua nueva.. 16
Conexi6n del suministro de agua ............... 16
C6mo enchufar el refrigerador .................... 17
Preparaci6n del sistema de agua ............... 17
C6mo nivelar el refrigerador ....................... 18
C6mo ajustar la altura de la puerta ............. 18
Complete la instalaci6n ............................... 19
ASSISTANCE OU SERVICE .......................... lg
SleCURITle DU RleFRIGleRATEUR ................ 19
EXIGENCES D'INSTALLATION .................... 20
Outillage et pieces ....................................... 20
Dimensions du produit ................................ 20
Panneaux lat_raux et de porte .................... 22
Exigences d'emplacement ......................... 23
Specifications _lectriques ........................... 23
Specifications de I'alimentation en eau ...... 24
INSTRUCTIONS D'INSTALLATION .............. 24
D_ballage du r_frig_rateur .......................... 24
Installation de panneaux de porte
personnalis_s .............................................. 25
Installation d'une nouvelle
canalisation d'eau ....................................... 25
Raccordement a la canalisation d'eau ....... 25
Brancher le r_frig_rateur ............................. 26
Preparer le systeme d'eau .......................... 27
Nivellement du r_frig_rateur ........................ 27
Ajustement de la hauteur des portes .......... 28
Achever I'installation ................................... 28
Assistance orService
If You Have Questions
If you have questions about operating, cleaning or maintaining
your refrigerator, see the Use & Care Guide.
If You Need Service
Maintain the quality built into your refrigerator by calling an
authorized service company.
To locate an authorized service company, see the Use & Care
Guide for the number to call, phone the dealer from whom you
purchased the refrigerator, or check the yellow pages of your local
phone directory.
Keep this book and your sales slip together for future
reference. You must provide proof of purchase or installation
date for in-warranty service.
Write down the following information about your appliance to help
you obtain assistance or service if you ever need it. You will need
to know your complete model number and serial number. You can
find this information on the model and serial number label, located
on the inside wall of the refrigerator compartment.
Dealer name
Serial number
Address
Phone number
Model number
Purchase date
2223996A

REFRIGERATORSAFETY
Your safety and the safety of others are very important.
We have provided many important safety messages in this manual and on your appliance. Always read and obey all safety
messages.
This is the safety alert symbol.
This symbol alerts you to potential hazards that can kill or hurt you and others.
All safety messages will follow the safety alert symbol and either the word "DANGER" or "WARNING."
These words mean:
You can be killed or seriously injured if you don't immediately
follow instructions.
You can be killed or seriously injured if you don't follow
instructions.
All safety messages will tell you what the potential hazard is, tell you how to reduce the chance of injury, and tell you what can
happen if the instructions are not followed.
INSTALLATIONREQUIREMENTS
PARTS NEEDED:
IMPORTANT:
Observe all governing codes and ordinances.
Installer: Leave Installation Instructions with homeowner.
Homeowner: Keep Installation Instructions for future reference
and for the local electrical inspector's use.
• Keep cardboard shipping piece or plywood under refrigerator
until it is installed in the operating position.
• Comply with installation specifications and dimensions.
• Remove any moldings or decorative panels from kitchen
cabinets that prevent the refrigerator from being serviced.
• Contact a qualified electrical installer.
TOOLS NEEDED:
Gather the required tools and parts before starting installation.
Read and follow the instructions provided with any tools listed
here.
• Hand drill or electric drill • 7/16"and 1/2"open-end
(properly grounded) wrenches
• 1/4"nut driver and • Two adjustable wrenches
drill bit
• Flat-blade screwdriver • %" and 1/2"socket wrench
•%6" or adjustable wrench
• Your refrigerator dealer has a kit available with a 1/4"(6.35 mm)
saddle-type shutoff valve, a union, and copper tubing.
• Or you can purchase a 1/4"(6.35 mm) copper tubing with
shutoff valve and a 1/4"(6.35 mm) compression fitting
(coupling).
• Depending on water line connections, you may also need a 1/4"
(6.35 mm) nut and 1/4"(6.35 mm) ferrule.
Top View
"gE---
n
355/8''
(90.5 cm) __
_/ ullu
155/8" _l_q[-_ 191/2"
(39,6 era) (49,5 cm)
3/8"
(95,3 mm)
....
25/8.........................................................................................................A
(6.7 cra) max.
A. Dimensions may vary based on the model

Side View
• Height dimensions are shown with the leveling legs extended
to the minimum height of 1/4"(6.35 mm) below the refrigerator.
• The power cord is 66" (167.7 cm) long.
• The water line attached to the back of the refrigerator is 78"
(198.1 cm)long.
66"
167.7 cm)
Front View
3611/16" --
(90.6 cm)
Model Size Height A
23' (654 L) 647/8'' (164.8 cm)
25' (694 L) 678/4'' (172.1 cm)
3%" (9.2 cm)
Model Size A B C
23' 688/,,,'' 687/8" 681/2''
(654 L) (174.6 cm) (175.0 cm) (174.0 cm)
25' 718/4'' 71%" 711/2''
(694 L) (182.2 cm) (182.5 cm) (181.6 cm)
When leveling legs are fully extended to 1" (25 mm) below the
refrigerator, add 3/4"(19 mm) to the height dimensions.

Opening Dimensions
• Height dimensions are shown with the leveling legs extended
to the minimum height of 1/4"(6.35 mm) below the refrigerator.
NOTE: When leveling legs are fully extended to 1" (25 mm)
below the refrigerator, add 3/4"(19 mm) to the height
dimensions.
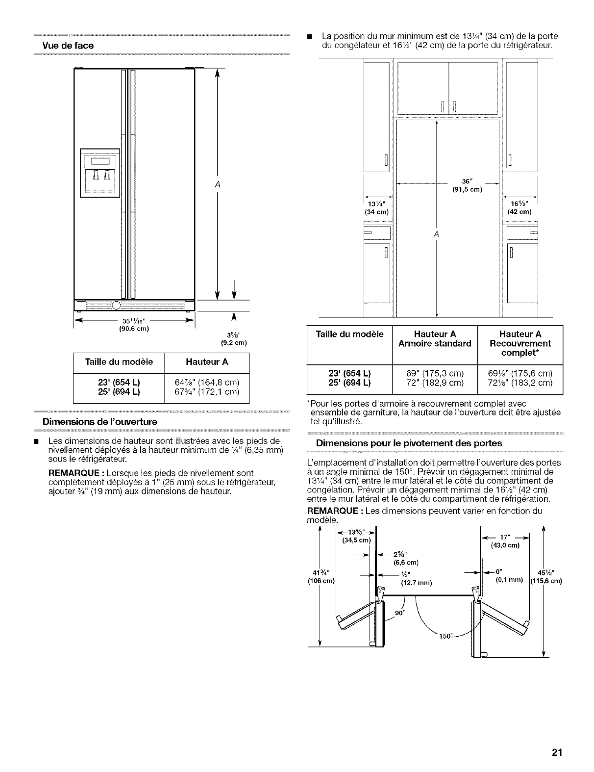
• Minimum fixed wall position is 131/4'' (34 cm) from the freezer
door and 161/2'' (42 cm) from the refrigerator door.
A
36"
(91.5 cm)
(34 cm) (42 cm)
Model Size Height A Height A
Standard Cabinet Full-overlay*
23' (654 L) 69" (175.3 cm) 691/3'' (175.6 cm)
25' (694 L) 72" (182.9 cm) 721/8'' (183.2 cm)
*For full-overlay cabinet doors with a trim kit, the opening height
must be adjusted as shown.
Door Swing Dimensions
Location must permit doors to open to a minimum of 150°. Allow
131/4'' (34 cm) minimum space between the side wall and the
freezer side of the refrigerator. Allow 161/2'' (42 cm) minimum
space between the side wall and the refrigerator side.
NOTE: Dimensions may vary based on model.
_-- 13%" -_
(34.5 cmll
-_a.- II-<-_ 2%"
I II (°-°=)
ml , T
451/2"
[115.6 crn)
Factory Door Panels and Side Trim Kits
All factory parts are available through your Whirlpool dealer or by
calling Whirlpool Parts and Accessories at 1-800-442-9991. In
Canada, call 1-800-807-6777.
Decorator Door Panel Kits
Decorator door panel kits are available only for models with
factory-installed trim kits. Follow the kit instructions for installing
the panels.
NOTE: Door panel kits are not required for factory-installed
stainless steel models.
1 1
Color 23' Model 25' Model
White #4396762 #4396758
Black #4396763 #4396759
Biscuit #4396764 #4396760
Stainless Steel #4396765 #4396761
Cabinet Side Trim Kits
Cabinet side trim kits are available to customize refrigerator to
cabinet face. Follow the kit instructions for installing the side trim.
Color 23' Model 25' Model
White #4396771 #4396789
Black #4396770 #4396790
Biscuit #4396769 #4396791
Stainless Steel #4396768 #4396792
Cabinet Side Panel Kits
Cabinet side panel kits are available to customize the exposed
side of the refrigerator. Follow the kit instructions for installing the
side panel.
1 1
Color 23' Model 25' Model
Stainless Steel #4396748 #4396749
Custom Door Panels
If you plan to install custom wood panels, you will need to create
the panels yourself or consult a qualified cabinetmaker or
carpenter. See dimension drawing for panel specifications.
IMPORTANT: Panels weighing more than the recommended
weight may cause damage to your refrigerator. Door panels
should not exceed the weights listed in the following table.
Model Size Refrigerator Freezer
Door Panel Weight Door Panel Weight
23' 28 Ibs 16 Ibs
(654 L) (12.7 kg) (7.3 kg)
25' 30 Ibs 17 Ibs
(694 L) (13.6 kg) (7.7 kg)
Flat panels:
You can create a custom flat panel a maximum of 1/4"(6.35 mm)
thickness to replace your decorator panels. Flat wood panels less
than 1/4"(6.35 mm) thick are not recommended.

Raised panels:
A raised panel design can be created by screwing or gluing wood
panels to 1/4"(6.35 mm) backing or by using 3/4"(19 mm) stock
with routed edges. Raised panels should be spaced 21/4''
(5.70 cm) from the back edge of the handle to allow room for
fingers to grasp the handle.
1/8"
(3.18 ram)
l/s" (_
(3.18 mm)
A
_15%"
(39.3 cm) C
15%"
(39.3 cm_
B
(3,18 ram)
V8"
(3.16 mm)
191/4,,
(49.0 cm)_
B
291/4"
(74.4 cm)
321/2''
(82.7 cm)
Model Size A C
23' 211/8" 647/8''
(654 L) (53.7 cm) (164.9 cm)
25' 203/4'' 673/4''
(694 L) (52.7 cm) (172.2 cm)
Routing Dimensions for Custom Panels more than
1/4"(6.35 mm) thick
Handle side detail
24/2 ''
(63.5.mm) ,_
mlrl. +1
=v,..{6.3,minI ox.]
11/2" (38..1 ram) panel
handle tara.
Top, bottom and side trim detail
_(__1/4,,
(&35 ram) max_
1/2,,J
(12.7 ram)
rain.
panel--
Expmosion Hazard
Keep flammable materials and vapors, such as
gasomine, away from refrigerator.
Faimure to do so can resumt in death, explosion, or fire,
NOTES:
• The cabinet depth refrigerator can be installed into a recessed
opening, at the end of cabinets or as a freestanding
refrigerator.
• If you are installing the refrigerator to fit flush with the front of
the base cabinets, all shoe molding and baseboards must be
removed from the rear of the refrigerator opening.
• For full-overlay cabinet doors, the height of the opening must
be 691/s'' (175.6 cm).
• Location should permit doors to open fully. See the "Door
Swing Dimensions" section.
• Do not install the refrigerator near an oven, radiator, or other
heat source, nor in a location where the temperature will fall
below 55°F (13°C).
• Floor must support refrigerator weight (more than 600 Ibs
[272 kg], door panels and contents).
Electdcam Shock Hazard
Pmuginto a grounded 3prong outlet.
Do not remove ground prong,
Do not use an adapter,
Do not use an extension cord.
Failure to follow these instructions can resumt in death,
fire, or electricam shock.
Before you move your refrigerator into its final location, it is
important to make sure you have the proper electrical connection,
Recommended Grounding Method
A 115 Volt, 60 Hz., AC only 15- or 20-amp fused, grounded
electrical supply is required. It is recommended that a separate
circuit serving only your refrigerator be provided. Use an outlet
that cannot be turned off by a switch. Do not use an
extension cord.

IMPORTANT:IfthisproductisconnectedtoaGFCI(GroundFault
CircuitInterrupter)protectedoutlet,nuisancetrippingofthe
powersupplymayoccur,resultinginlossofcooling.Foodquality
andflavormaybeaffected.Ifnuisancetrippinghasoccurred,and
iftheconditionofthefoodappearspoor,disposeofit.
NOTE:Beforeperforminganytypeofinstallation,cleaning,or
removingalightbulb,turnthecontrol(Thermostat,Refrigeratoror
FreezerControldependingonthemodel)toOFFandthen
disconnecttherefrigeratorfromtheelectricalsource.Whenyou
arefinished,reconnecttherefrigeratortotheelectricalsourceand
resetthecontrol(Thermostat,RefrigeratororFreezerControl
dependingonthemodel)tothedesiredsetting.
V_ii:_i::::;ili:,ib_¸__!il;L_ii!i_:::ii!l,,::::::i_,!!i,i,'ii:iii_i_,i:::!iLiiii_,i:;!!!!_,!i_'_ii_i!_f_ili;
Gather the required tools and parts before starting installation.
Read and follow the instructions provided with any tools listed
here.
TOOLS NEEDED:
• Flat-blade screwdriver • %" Drill bit
• 7A6"and 1/2"Open-end or two • Hand drill or electric drill
adjustable wrenches (properly grounded)
• 1/4"nut driver
NOTE: Your refrigerator dealer has a kit available with a %"
(6.35 mm) saddle-type shutoff valve, a union, and copper tubing.
Before purchasing, make sure a saddle-type valve complies with
your local plumbing codes. Do not use a piercing-type or 3/16"
(4.76 mm) saddle valve which reduces water flow and clogs more
easily.
IMPORTANT:
• All installations must meet local plumbing code requirements.
• Use copper tubing and check for leaks. Install copper tubing
only in areas where the household temperatures will remain
above freezing.
Water Pressure
A cold water supply with water pressure of between 30 and
120 psi (207 - 827 kPa) is required to operate the water dispenser
and ice maker. If you have questions about your water pressure,
call a licensed, qualified plumber.
Reverse Osmosis Water Supply
IMPORTANT: The pressure of the water supply coming out of a
reverse osmosis system going to the water inlet valve of the
refrigerator needs to be between 30 and 120 psi (207 - 827 kPa).
If a reverse osmosis water filtration system is connected to your
cold water supply, the water pressure to the reverse osmosis
system needs to be a minimum of 40 to 60 psi (276 - 414 kPa).
If the water pressure to the reverse osmosis system is less than
40 to 60 psi (276 - 414 kPa):
• Check to see whether the sediment filter in the reverse
osmosis system is blocked. Replace the filter if necessary.
• Allow the storage tank on the reverse osmosis system to refill
after heavy usage.
• If your refrigerator has a water filter, it may further reduce the
water pressure when used in conjunction with a reverse
osmosis system. Remove the water filter. See "Water Filtration
System" in the Use & Care Guide.
If you have questions about your water pressure, call a licensed,
qualified plumber.
INSTALLATIONINSTRUCTIONS
Excessive Weight Hazard
Use two or more people to move and install
refrigerator.
Failure to do so can result in back or other injury.
Remove the Packaging
Properly dispose of packaging. Do not use sharp instruments,
rubbing alcohol, flammable fluids, or abrasive cleaners to remove
tape or glue. These products can damage the surface of your
refrigerator.
IMPORTANT:
• Use 3/8"socket wrench to remove skids.
• All four leveling legs must contact the floor to support and
stabilize the full weight of the refrigerator.
When Moving Your Refrigerator:
Your refrigerator is heavy. When moving the refrigerator
for cleaning or service, be sure to protect the floor=
Always pull the refrigerator straight out when moving it=
Do not wiggle or "walk" the refrigerator when trying to move
it, as floor damage could occur=
Clean Before Using
After you remove all of the package materials, clean the inside of
your refrigerator before using it. See the cleaning instructions in
the Use & Care Guide.
_mportant information to know about glass she_ves
and covers:
Do not clean glass shelves or covers with warm water when
they are cold. Shelves and covers may break if exposed to
sudden temperature changes or impact, such as bumping=
For your protection, tempered glass is designed to shatter
into many small, pebbIe-size pieces= This is normal= GIass
shelves and covers are heavy= Use special care when
removing them to avoid impact from dropping.

iii%;iiCiii!iiiiiiiiiil;L_ii:_!!ii,:i_Oii'_'_!'_i!iiiilXiii>C,_,z__i::::;_:iii:_!_i_i_iiii_!i_!!il,¸
1. Remove any packing tape.
2. Remove the refrigerator and freezer door trims from the hinge
side of each door by pulling the trim away from the bottom of
the door first.
3. Partially unscrew the two screws that hold the top trim in
place. It is not necessary to completely remove the screws.
Loosen the screws at least 1/4"(6.35 mm) from the trim to allow
the panels to slide freely.
4. Remove the existing door panels, if panels were provided.
5. Slide custom door panels into place.
NOTE: The door panels may require 1/8"(3.18 mm) cardboard
fillers behind the panels to keep them from being loose in that
area.
Replace the hinge side trims by inserting the notched end
under the top trim first.
Tighten the two top trim screws.
C
A. Side trims C. Door panels
B. Top trim screws D. Filler panels
iiiiiiii_i_i,_;_i_i_<::iiLiiiiiiiiii_iiii_<;:iiiii_
TOOLS NEEDED:
• Flat-blade screwdriver • 1/4"Drill bit
• 7/18"and 1/2"Open-end or • Hand drill or electric drill
two adjustable wrenches (properly grounded)
1. Turn OFF main water supply. Turn ON nearest faucet long
enough to clear line of water.
2. Find a 1_,, (12.70 mm) to 1W' (3.18 cm) vertical COLD water
pipe near the refrigerator.
NOTE: Horizontal pipe will work, but the following procedure
must be followed: Drill on the top side of the pipe, not the
bottom. This will help keep water away from the drill. This also
keeps normal sediment from collecting in the valve.
3. Determine the length of copper tubing you need. Measure
from the connection on the lower left rear of refrigerator to the
water pipe. Add 7 ft (2.1 m) to allow for cleaning. Use 1/4"
(6.35 mm) O.D. (outside diameter) copper tubing. Be sure both
ends of copper tubing are cut square.
Using a grounded drill, drill a 1/4"(6.35 mm) hole in the cold
water pipe you have selected.
................... A
A. Cold waterpipe
B. Pipe clamp
C. Copper tubing
D. Compression nut
E. Compression sleeve
F. Shutoff valve
G, Packing nut
5. Fasten shutoff valve to cold water pipe with pipe clamp. Be
sure outlet end is solidly in the 1/4"(6.35 mm) drilled hole in the
water pipe and that washer is under the pipe clamp. Tighten
packing nut. Tighten the pipe clamp screws carefully and
evenly so washer makes a watertight seal. Do not overtighten
or you may crush the copper tubing, especially if soft (coiled)
copper tubing is used. Now you are ready to connect the
copper tubing.
6. Slip compression sleeve and compression nut on copper
tubing as shown in the diagram. Insert the end of the tubing
into the outlet end of the shutoff valve as far as it will go.
Screw the compression nut onto the outlet end with an
adjustable wrench. Do not overtighten.
7. Place the free end of the tubing into a container or sink, turn
ON main water supply and flush out tubing until water is clear.
Turn OFF the shutoff valve on the water pipe.
Style I -Connection to Water Valve
1. Unplug refrigerator or disconnect power.
2. Before attaching copper tubing to refrigerator, flush at least
2 qt (1.9 L) of water through the copper tubing and into a
bucket to get rid of any particles in the water line.
3. Check for leaks around the saddle valve. Do not overtighten
clamp or sleeve. This will crush copper tubing.
4. Attach the copper tube to the valve inlet using a compression
nut and sleeve as shown. Tighten the compression nut. Do not
overtighten.
5. Use the tube clamp on the back of the refrigerator to secure
the tubing to the refrigerator as shown. This will help prevent
damage to the tubing when the refrigerator is pushed back
against the wall.
6. Turn shutoff valve ON.
7. Check for leaks. Tighten any connections (including
connections at the valve) or nuts that leak.
A. Tube clamp
B. Copper tubing
C. Compression nut
D. Valve inlet
The ice maker is equipped with a built-in water strainer. If your
water conditions require a second water strainer, install it in
the 1/4"(6.35 mm) water line at either tube connection. Obtain
a water strainer from your nearest appliance dealer.

Style 2 -Connection to Water Line
1. Unplug refrigerator or disconnect power.
2. Remove and discard the shipping tape and the black nylon
plug from the gray, coiled water tubing on the rear of the
refrigerator.
3. Before attaching copper tubing to refrigerator, flush at least
2 qt (1.9 L) of water through the copper tubing and into a
bucket to get rid of any particles in the water line.
4. Check for leaks around the saddle valve. Do not overtighten
clamp or sleeve. This will crush copper tubing.
5. If the gray water tube supplied with the refrigerator is not long
enough, a 1/4"x 1/4"coupling is needed in order to connect the
water tubing to an existing household water line. Thread the
provided nut onto the coupling on the end of the copper
tubing.
NOTE: Tighten the nut by hand. Then tighten it with a wrench
two more turns. Do not overtighten.
ii:: ,ii! iii;ii:t!:iiiiiiiii!! ii!!iiiiii ii i! , i il,c !O i
Electrica_ Shock Hazard
P_ug into a grounded 3prong outlet.
Do not remove ground prong.
Do not use an adapter.
Do not use an extension cord.
Failure to follow these instructions can result in death,
fire, or electrica_ shock.
A B C D E F G
A. Refrigerator water tubing E. Ferrule (purchased)
B. Nut (provided) FNut (purchased)
C. Bulb G. Household water line
D. Coupling (provided)
6. Turn shutoff valve ON.
7. Check for leaks. Tighten any nuts or connections (including
connections at the valve) that leak.
Style 3 -Connection to Shut-off Valve
1. Unplug refrigerator or disconnect power.
2. Remove and discard the shipping tape and the black nylon
plug from the gray, coiled water tubing on the rear of the
refrigerator.
3. Before attaching copper tubing to refrigerator, flush at least
2 qt (1.9 L) of water through the copper tubing and into a
bucket to get rid of any particles in the water line.
4. Check for leaks around the saddle valve. Do not overtighten
clamp or sleeve. This will crush copper tubing.
5. Push the bulb end of the tubing into the water valve as far as it
will go. Thread the provided nut onto the water valve as
shown.
NOTE: Tighten the nut by hand. Then tighten it with a wrench
two more turns. Do not overtighten.
A
B
6.
7.
A. Bulb
B. Nut (provided)
Turn shutoff valve ON.
Check for leaks. Tighten any nuts or connections (including
connections at the valve) that leak.
1. Plug into a grounded 3 prong outlet.
Please read before using the water system.
Immediately after installation, follow the steps below to make sure
that the water system is properly cleaned.
1. Open the freezer door and turn off the ice maker. The ON/OFF
switch is located on the top right side of the freezer
compartment. Move the switch to the OFF (right) setting as
shown.
NOTES:
• Make sure the base grille filter is properly installed and the
cap is in the horizontal position.
•Do not use with water that is microbiologically unsafe
or of unknown quality without adequate disinfection
before or after the system. Systems certified for cyst
reduction may be used on disinfected waters that may
contain filterable cysts.
Use a sturdy container to depress the water dispenser bar
until the water begins to flow. Flush the water system by
dispensing and discarding 1.5 gal. (5.4 L) of water. Cleaning
the system will take approximately 3 minutes and will help
clear air from the line. Additional flushing may be required in
some households.
NOTE: As air is cleared from the system, water may spurt out
of the dispenser.
Open the freezer door and turn on the ice maker. Move the
switch to the ON (left) position. See the Use & Care Guide for
further instructions on the operation of your ice maker.
• Allow 24 hours to produce the first batch of ice.
• Discard the first three batches of ice produced.
• Depending on your model, you may want to select the
maximum ice feature to increase the production of ice.

L,_,_!_:,v',_;ij_!_,!i!i;iii!i!)_ii_,i_!ii!il;:iii@__i::::_ii'oi¸¸¸
IMPORTANT: All four leveling legs must contact the floor to
support and stabilize the full weight of the refrigerator.
Remove the Base Grille
1. Open the refrigerator doors to 90°.
2. Remove base grille. Grasp the grille with both hands. Lift up
and tilt the top of the grille toward you.
NOTE: Do not remove the Tech Sheets fastened behind the
grille.
Level the Refrigerator
There is a set of two leveling bolts on each side of the refrigerator
behind the base grille. The top bolts adjust the rear of the
refrigerator, and the bottom bolts adjust the front of the
refrigerator.
3. Adjust the rear leveling bolt to bring the refrigerator level with
the side cabinets or cabinet end panels.
4. If you want, you may now use the four leveling bolts to raise
the refrigerator to reduce the gap between the refrigerator top
hinge and the cabinet opening. Check that all four leveling
legs still touch the floor and that the cabinet doors above the
refrigerator open all the way.
+, r r
Replace Base Grille
1. Open the refrigerator doors to 90 °.
2. Replace the base grille. Place the lower clips into the bottom
of the refrigerator and roll the grille up until it snaps into place.
TOOLS NEEDED: %6" or adjustable wrench.
IMPORTANT: Models are preset with a quarter's-thickness
difference in door height and may not need adjusting.
If necessary after the refrigerator is loaded with food, follow the
steps below to adjust the door height up or down.
A-----------
Bm
A. Rear leveling bolt (top)
B. Front leveling bolt (bottom)
1. Use a 1/2"(12.70 mm) socket wrench to adjust the leveling
bolts. Turn the leveling bolts to the right to raise or to the left to
lower the refrigerator. It may take several turns to adjust the tilt
of the refrigerator.
NOTE: Do not unscrew the leveling bolts too much when
lowering the refrigerator. The bolt head will start to come away
from the refrigerator when in the lowest position.
2. Adjust the front leveling bolts to bring the refrigerator top
parallel with the cabinet above the refrigerator.
• For standard cabinets, leave approximately 1/8"(3.18 mm)
gap between the refrigerator's top hinges and the
cabinets.
• For full-overlay cabinets, leave 1/4"(6.35 mm) gap between
the refrigerator's top hinges and the cabinets.
• If you do not have a cabinet above the refrigerator, simply
adjust the refrigerator to make it level.
A. Top hinges
B. Front of the refrigerator
1. Locate the height adjustment bolt on the bottom hinge of the
refrigerator door.
NOTE: For easier access to the height adjustment bolt, the
refrigerator door should be closed.
2. Turn the height adjustment bolt using the sad' or adjustable
wrench.
• To raise the height, turn the bolt to the right.
• To lower the height, turn the bolt to the left.
3. Check to make sure the doors are even at the top and bottom.
If necessary, continue to turn the height adjustment bolt.
1. Turn water supply line valve to "Open" position.
2. Turn refrigerator switch to ON position. Wait a few minutes.
Check water line connections for leaks.
3. Set refrigerator and freezer compartment controls to the
midpoint setting. Check that the compressor is operating
properly and that all lights are working.
4. Flush water system before using. See "Prepare the Water
System."
NOTE: If construction will continue after refrigerator has been
installed, set controls to OFR
If refrigerator does not operate
• Check that the circuit breaker is not tripped or household fuse
blown.
• Check that the power supply cord is plugged into a grounded
3 prong outlet.
• See "Troubleshooting" in the Use & Care Guide.

INSTRUCCIONES DE INSTALACION
Ayuda oServicioT@cnico
Escriba la siguiente informaci6n acerca de su electrodomestico
Si tiene preguntas para ayudarle a obtener asistencia o servicio tecnico si alguna vez
............ Ilegara a necesitarlo. Debera tenet a mane el nQmero completo
Si usted tiene preguntas acerca del funcionamiento, la limpieza o del modelo y de la serie. Puede encontrar esta informaci6n en la
el mantenimiento de su refrigerador, vea el Manual de uso y etiqueta con el nQmero de modelo y de serie que esta ubicada en
cuidado, la pared interior del compartimiento del refrigerador.
Si necesita servicio
Para mantener la calidad de su refrigerador, Ilame a una compa_ia
de servicio autorizado.
Para ubicar una compa_ia de servicio autorizada, vea el Manual
de uso y cuidado para saber a que nQmero tiene que Ilamar, Ilame
al distribuidor en donde compr6 el refrigerador o fijese en las
paginas amarillas de su guia telef6nica local.
Guarde este libro y su comprobante de compra juntos para
referencia futura. Usted debera proporcionar evidencia de la
compra o una fecha de instalacibn para obtener servicio bajo
la garantia.
Nombre del distribuidor
Nt_mero de serie
Direcci6n
Nt_mero de tel_fono
Nt_mero del modelo
Fecha de compra
SEGURIDAD DELREFRIGERADOR
Su seguridad y la seguridad de los demas es muy importante.
Hemos incluido muchos mensajes importantes de seguridad en este manual yen su electrodomestico. Lea y obedezca siempre
todos los mensaies de seguridad=
Este es el simbolo de advertencia de seguridad.
Este simbolo le llama la atenci6n sobre peligros potenciales que pueden ocasionar la muerte o una lesi6n a
usted y a los demas.
Todos los mensajes de seguridad iran a continuaci6n del simbolo de advertencia de seguridad y de la palabra
"PELIGRO" o "ADVERTENCIA". Estas palabras significan:
Si no eigue lae instrucciones de inmediato, usted puede
morir o sufrir una lesion grave.
Si no eigue lae instrucciones, usted puede morir o eufrir
una lesion grave.
Todos los mensajes de seguridad le diran el peligro potencial, le diran como reducir las posibilidades de sufrir una lesion y Io que
puede suceder si no se siguen las instrucciones.
REQUISITOSDE INSTALACION
IMPORTANTE:
• Observe todos los c6digos y reglamentos aplicables.
• Instalador: Deje las instrucciones de instalaci6n con el
propietario.
• Propietario: Guarde las instrucciones de instalaci6n para
referencia futura y para que puedan ser usadas per el
inspector electrico local.
• Mantenga un tramo de cart6n de empaque o de madera
contrachapada debajo del refrigerador hasta que Io instale en
su ubicaci6n final.
• Cumpla con las especificaciones y medidas de instalaci6n.
• Quite las molduras o los paneles decorativos de los armarios
de la cocina que impidan que se le pueda dar servicio al
refrigerador.
• Contacte a un instalador electricista calificado.
10

HERRAMIENTAS NECESARIAS:
Re_na las herramientas y piezas necesarias antes de comenzar la
instalaci6n. Lea y siga las instrucciones provistas con cualquiera
de las herramientas enlistadas aqu[.
•Taladro manual o •Llaves de boca de
electrico (debidamente 7/16"y 1/2"
conectado a tierra)
• Llave para tuercas de • Dosllaves ajustables
1/4"y broca
• Destornillador de hoja • Llave de cube de %" y 1/2"
plana
•Llave de %6" o Ilave
ajustable
PIEZAS NECESARIAS:
• El distribuidor de su refrigerador tiene un juego disponible de
valvula de cierre tipo montura de 1A"(6,35 mm), una uni6n y
tuberia de cobre.
• 0 usted puede comprar una tuberfa de cobre de 1/4"(6,35 mm)
con valvula de cierre y un accesorio de compresi6n
(acoplamiento) de 1A" (6,35 mm).
• Dependiendo de las conexiones de la linea de agua, usted
tambien puede necesitar una tuerca de 1A"(6,35 mm) y una
ferula de 1A" (6,35 mm).
Vista superior
.ql_-m
N
3/8"
355/8, ,(95,3 mm)
(90,5ore) +
,, I
15s/8'' _ 191/2''
(39,6 cm) (49,5 cm) 2% .........................................................................................................a
(6,7 cm) max.
A. Las dimensiones pueden variar segOn el modelo
Vista Lateral
• Las medidas de altura indicadas consideran las patas
niveladoras extendidas come minimo 1_,,(6,35 mm) per
debajo del refrigerador.
• El cable de suministro de energ(a es de 66" (167,7 cm) de
largo.
• La linea de agua ajustada a la parte posterior del refrigerador
es de 78" (198,1 cm) de largo.
t
B
21V4" I
cm) _1
66"
(167,7 cm)
Tamaho del A B C
modelo
23' 68%" 68%" 681/2''
(664 L) (174,6 cm) (175,0 cm) (174,0 cm)
25' 71%" 717/8'' 711/2''
(694 L) (182,2 cm) (182,5 cm) (181,6 cm)
Si las patas niveladoras estan totalmente extendidas 1" (25 mm)
por debajo del refrigerador, agregue 8/4"(19 mm) alas medidas de
altura.
11

Vista frontal
3511/16" _/_
/
(99,6 cm) 35/8"
(9,2 cm)
Tamaho del modelo Altura A
23' (654 L) 647/8'' (164,8 cm)
25' (694 L) 673/4'' (172,1 cm)
Medidas de abertura
• Las medidas de altura indicadas consideran las patas
niveladoras extendidas como minimo 1A"(6,35 mm) pot
debajo del refrigerador.
NOTA: Si las patas niveladoras estan totalmente extendidas
1" (25 mm) pot debajo del refrigerador, agregue 3/4"(19 mm) a
las medidas de altura.
La posici6n fija minima respecto de la pared es de 131/4"
(34 cm) desde la puerta del congelador y de 161/2'' (42 cm)
desde la puerta del refrigerador.
36"
(91,5 cm)
(34 cm)
=A
(42 cm)
Tama5o del Altura A Altura A
modelo Armario estandar Completamente
recubierto*
23' (654 L) 69" (175,3 cm) 691/8'' (175,6 cm)
25' (694 L) 72" (182,9 cm) 721/8'' (183,2 cm)
*Para las puertas de armarios completamente recubiertos con un
juego de adornos, debe ajustarse la altura de la abertura segQn
se muestra.
Medidas de oscilacibn de las puertas
La ubicaci6n debe permitir que las puertas se abran a un minimo
de 150°. Deje un espacio minimo de 131/4'' (34 cm) entre la pared y
el lado del congelador del refrigerador. Deje un espacio m(nimo de
161A" (42 cm) entre la pared y el lado del refrigerador.
NOTA: Las dimensiones pueden variar segQn el modelo.
T
413/4"
(10i cm)
2%"
(6,6cm)
1/2"
(12,7 mm)
(49,0o [
451/2 ''
(0,1 mm) (115,6 cm)
12

Juegos de f&brica de paneles de puerta y adornos
laterales
Todas las piezas de fabrica estan disponibles a traves de su
representante Whirlpool o Ilamando a Whirlpool Piezas y
Accesorios al nQmero 1-800-442-9991. En CanadA, lame al
1-800-807-6777.
Juegos de paneles de puerta de decoracibn
Los juegos del panel decorador de la puerta estan disponibles
solamente para los modelos con juegos de adornos instalados de
fabrica. Siga las instrucciones de instalaci6n de los paneles,
suministradas con el juego.
NOTA: Para los modelos de acero inoxidable instalados de
fabrica, los juegos de paneles de puerta no son necesarios.
i
Color Modelo 23' Modelo 25'
Blanco #4396762 #4396758
Negro #4396763 #4396759
Biscuit #4396764 #4396760
Acero inoxidable #4396765 #4396761
Juegos de adornos laterales para armarios
Los juegos de adornos laterales para armarios se pueden adquirir
para personalizar el refrigerador de acuerdo a la parte frontal del
armario. Siga las instrucciones de instalaci6n del adorno lateral,
suministradas con el juego.
i
Color Modelo 23' Modelo 25'
Blanco #4396771 #4396789
Negro #4396770 #4396790
Biscuit #4396769 #4396791
Acero inoxidable #4396768 #4396792
Juegos de paneles laterales para armarios
Los juegos de paneles laterales para armarios se pueden adquirir
para personalizar el lade al descubierto del refrigerador. Siga las
instrucciones de instalaci6n del panel lateral.
.............................................................. i
Color Modelo 23' Modelo 25'
Acero inoxidable #4396748 #4396749
Paneles a la medida para la puerta
Siva a instalar paneles de madera a la medida, debera hacerlos
usted mismo o consultar un carpintero o fabricante de armarios
calificado. Para obtener informaci6n acerca de las
especificaciones de los paneles, vea los graficos dimensionales.
IMPORTANTE: Los paneles que pesen mas de Io recomendado
pueden da_ar su refrigerador. Los paneles de la puerta no pueden
exceder los pesos indicados en la siguiente tabla.
Tama_o del Peso del panel Peso del panel
Modelo de la puerta de la puerta
del refrigerador del congelador
23' 28 Ibs 16 Ibs
(654 L} (12,7 kg) (7,3 kg)
25' 30 Ibs 17 Ibs
(694 L} (13,6 kg) (7,7 kg)
Paneles pianos:
Ud. puede hacer un panel piano a la medida de un espesor
maximo de 1/4"(6,35 mm) para reemplazar sus paneles de
decoraci6n. No se recomiendan los paneles planes de madera de
un espesor menor a 1/4"(6,35 mm).
Paneles en relieve:
Un dise_o de panel en relieve puede crearse atornillando o
pegando con goma paneles de madera a un respaldo de 1/4"
(6,35 mm) o usando un soporte de madera de 3A" (19 mm) con
bordes contorneados. Los paneles en relieve deben mantener
una distancia de 21/4'' (5,70 cm) con el borde posterior de la
agarradera para permitir que los dedos tengan suficiente espacio
para sujetar la agarradera.
1/8"
(3,18 mm)
1/8" / 0
(3,18 mm)
15a/8''
(39,3 cm)
153/8" _
(39,3 cm_
A
B
1/8"
(3,18 mm)
191/,¢'
(49,0 cm)--
)
_ 1/8,,
"(3,18 ram)
TamaSo del Modelo A B C
23' 211/_,, 291/4'' 64%"
(654 L) (53,7 cm) (74,4 cm) (164,9 cm)
25' 203/4'' 321A'' 67_/4''
(694 L) (52,7 cm) (82,7 cm) (172,2 cm)
13

Dimensiones para el contorneado de los paneles a la
medida con espesor mayor a 1/4"(6,35 mm).
Detalle del lado de la agarradera
21/2"
(63_inrr_'m) _1
= ,/,,,(6,36ram>m x.]
11/2" (38,1 ram) panel
agarradera mm,
Detalle del adorno superior, inferior y lateral
_'1 _--- 1/4"
(6,35 ram) ma×=
1/2,,_-
(12,7 ram)
rain.
panel--
Pemigro de Exploei6n
Mantenga Boematedames y vapores inflamabBes,
tamescome gasolina, amejados demrefrigerador.
No seguir esta instrucci6n puede ocasionar la rnuerte,
expmoei6n, o incendio.
NOTAS:
• El refrigerador con profundidad de armario puede instalarse
empotrado, al final de los armarios o separado.
• Siesta instalando el refrigerador para estar alineado con el
frente de los armarios de base, se deben quitar todas las
molduras y los z6calos de la parte poserior de la abertura del
refrigerador.
• Para puertas del armario completamente recubiertas, la altura
de la abertura debe ser de 691/8'' (175,6 cm).
• La ubicaci6n debera permitir que las puertas se abran
completamente. Vea la secci6n "Medidas de oscilaci6n de las
puertas".
• No instale el refrigerador cerca de un horno, radiador u otra
fuente de calor ni en una ubicaci6n en la que la temperatura
puede bajar de los 55°F (13°C).
• El piso debe soportar el peso del refrigerador (mas de
600 libras [272 kg], los paneles de las puertas y el contenido).
PeHgro de Choque Electrico
Conecte a un contacto de pared de conexi6n a tierra de
3 terminates.
No quite la terminaB de conexi6n a tierra.
No use un adaptador.
No use un cabme electrico de extensi6n.
No seguir estas inetrucciones puede ocasionar
la muerte, incendio o choque emectrico.
Antes de mover el refrigerador a su posici6n definitiva, es
importante asegurarse que Ud. tiene la conexi6n electrica
adecuada.
M_todo de conexibn a tierra recomendado
Se requiere una fuente de energia electrica de 115 Voltios, 60 Hz.,
CA solamente y con fusibles de 15 6 20 amperios, debidamente
conectados a tierra. Se recomienda que se use un circuito
separado s61o para su refrigerador. Use un tomacorriente que no
se puede apagar con un interruptor. No use un cable electrico de
extensi6n.
IMPORTANTE: Si este producto esta conectado a un
tomacorriente protegido por GFCI (Ground Fault Circuit
Interrupter- Interruptor de circuito de falla electrica de puesta a
tierra), puede ocurrir un disparo molesto del suministro de
corriente, Io que resultara en la perdida de refrigeraci6n. Esto
puede afectar la calidad y el sabor de los alimentos. Si ha
ocurrido un disparo molesto, y el alimento aparenta estar en
malas condiciones, deshagase del mismo.
NOTA: Antes de realizar cualquier tipo de instalaci6n, limpieza o
de quitar un foco de luz, ponga el control (del termostato, del
refrigerador o del congelador dependiendo del modelo) en la
posici6n OFF (apagado) y luego desconecte el refrigerador de la
fuente de energia. Cuando Ud. haya terminado, reconecte el
refrigerador a la fuente de energfa electrica y vuelva a poner el
control (del termostato, del refrigerador o del congelador
dependiendo del modelo) en la posici6n deseada.
ReQna las herramientas y piezas necesarias antes de comenzar
la instalaci6n. Lea y siga las instrucciones provistas con
cualquiera de las herramientas enlistadas aqui.
HERRAMIENTAS NECESARIAS:
• Destornillador de hoja plana
• Llaves de boca de 7A6"y 1/2"0
dos Ilaves ajustables
• Llave para tuercas de 1/4"
• Broca de %"
• Taladro manual o
electrico (debidamente
conectado a tierra)
NOTA: El distribuidor de su refrigerador tiene un juego disponible
con una valvula de cierre tipo montura de W' (6,35 mm), una
uni6n y tuberfa de cobre. Antes de comprar, asegQrese que la
valvula tipo montura cumpla con los c6digos de plomerfa de su
Iocalidad. No use una valvula perforadora o una valvula de
montura de 3/16"(4,76 mm) que reduce el flujo de agua y se
obstruye con mas facilidad.
14

IMPORTANTE:
• Todas las instalaciones deben hacerse de acuerdo a los
requerimientos locales de plomer[a.
• Use tuber[as de cobre y revise si hay fugas. Instale tuberia de
cobre s61o en Areas donde la temperatura va a permanecer
por encima del punto de congelaci6n.
Presibn del agua
Se necesita un suministro de agua fria con presi6n de agua entre
30 y 120 Ibs/pulg 2 (207 a 827 kPa) para hacer funcionar el
despachador de agua y la fabrica de hielo. Si usted tiene
preguntas acerca de la presi6n de agua, Ilame a un plomero
competente autorizado.
Suministro de agua de bsmosis inversa
IMPORTANTE: La presi6n del suministro de agua que sale de un
sistema de 6smosis inversa y va a la valvula de entrada de agua
del refrigerador necesitara ser entre 30 y 120 Ib/pulg 2 (207 a
827 kPa).
Si se conecta un sistema de filtraci6n de agua de 6smosis inversa
al suministro de agua fr[a, la presi6n de agua al sistema de
6smosis inversa necesitara ser de un minimo de 40 a 60 Ibs/pulg 2
(276 a 414 kPa).
Si la presi6n del agua del sistema de 6smosis inversa es menor de
40 a 60 Ibs/pulg 2 (276 a 414 kPa):
• F[jese si el filtro de sedimentos en el sistema de 6smosis
inversa esta bloqueado y reemplacelo si fuera necesario.
• Deje que se vuelva a Ilenar el tanque de almacenaje del
sistema de 6smosis inversa despues del uso intenso.
• Si su refrigerador tiene un cartucho del filtro de agua, se podra
reducir la presi6n ann mas si se usa en conjunto con un
sistema de 6smosis inversa. Quite el cartucho del filtro de
agua. Vea "Sistema de filtraci6n de agua" en el Manual de uso
y cuidado.
Si tiene preguntas acerca de la presi6n del agua, Ilame a un
plomero competente autorizado.
INSTRUCCIONESDE INSTALACION
Peligro de Peso E×cesivo
Use doe o mas personas para mover e insta_ar
el refrigeradoro
No seguir eeta instrucci6n puede ocasionar una
_esiSn en _aespa_da u otro tipo de lesionee.
Cbmo quitar los materiales de empaque
Descarte apropiadamente los materiales de empaque. No use
instrumentos filosos, alcohol para fricciones, I[quidos inflamables
o productos de limpieza abrasivos para eliminar los restos de
cinta o goma. Estos productos pueden daSar la superficie de su
refrigerador.
IMPORTANTE:
• Use una Ilave de cubo de 3/8"para quitar la plataforma.
• Las cuatro patas niveladoras deberan tocar el piso para
soportar y estabilizar el peso total del refrigerador.
Come mover su refrigerador:
Su refrigerador es muy pesado. Cuando mueva su
refrigerador para Iimpiarlo o dade servicio, proteja et piso.
At mover el refrigerador, siempre tire directamente hacia
afuera. No menee el refrigerador de lado a lade ni Io haga
"caminar" cuando Io trate de mover ya que podria daSar
el piso.
Cbmo limpiar su refrigerador antes de usarlo
Una vez que usted haya quitado todos los materiales de
empaque, limpie el interior de su refrigerador antes de usarlo. Vea
las instrucciones de limpieza en el Manual de Uso y Cuidado.
_nformaci6n importante para saber acerca de los estantes
y tapas de vidrio:
No limpie Ios estantes y tapas de vidrio con agua caliente
mientras est_n fr[os. Los estantes y tapas pueden romperse
si se exponen a cambios bruscos de temperatura o impacto,
como ser[a un golpe brusco. Para su protecci6n, et vidrio
templado se ha diseSado para hacerse aSicos. Esto es normal.
Los estantes y tapas de vidrio son muy pesados. Tenga
mucho cuidado aI sacarlos para evitar que se daSen aI caer.
1. Quite toda cinta de embalaje.
2. Quite los adornos de las puertas del refrigerador y del
congelador del lado de la bisagra de cada puerta, separando
primero los adornos de la parte inferior de la puerta.
3. Desatornille parcialmente los dos tornillos que sujetan el
adorno superior en su sitio. No es necesario que quite los
tornillos completamente. Afioje los tornillos del adorno por Io
menos 1A"(6,35 mm) para permitir que los paneles se deslicen
libremente.
4. Quite los paneles de puertas existentes, en caso de que estos
se hayan suministrado.
5. Deslice los paneles a la medida en su sitio.
NOTA: Los paneles de puertas pueden requerir cartones de
relleno de %" (3,18 mm) detras de los paneles para que no
esten sueltos en esa Area.
Reemplace los adornos de la bisagra lateral insertando,
primero, el lado de la muesca debajo del adorno superior.
15

7. Ajuste los dos tornillos del adorno superior.
B
C
A. Adomos laterales
B. Tornillos del adomo superior
C. Paneles de puertas
D. Paneles de relleno
HERRAMIENTAS NECESARIAS:
•Destornillador de hoja plana •
• Llaves de boca de 7/16"y 1/2"o •
dos Ilaves ajustables
Broca de 1/4"
Taladro manual o electrico
(debidamente conectado a
tierra)
1.
2.
CIERRE el suministro principal de agua, ABRA la Ilave de agua
mas cercana el tiempo suficiente para que la tuberfa de agua
se vacie.
Busque una tuberia vertical de agua FRIA de 1/2"(12,70 mm) a
11A'' (3,18 cm) cerca del refrigerador.
NOTA: Una tuberia horizontal funcionara, pero debe seguirse
el procedimiento indicado a continuaci6n: taladre por el lade
de arriba de la tuberia, no pot debajo. Esto ayudara a
mantener el agua alejada del taladro, Esto tambien evita que
se acumule el sedimento normal en la vMvula.
3. Determine la Iongitud de la tuberfa de cobre que necesite.
Mida desde la conexi6n de la parte baja trasera izquierda del
refrigerador hasta la tuberia de agua. Agregue 7 pies (2,1 m)
para poder mover el refrigerador para limpiarlo. Use tuberfa de
cobre de 1/4"(6,35 mm) de diametro externo. AsegOrese que
ambos extremos de la tuberia de cobre estan cortados a
escuadra.
4. Usando un taladro conectado a tierra, haga un orificio de 1A"
(6,35 mm) en la tuberia de agua frfa que Ud. eligi6,
F E D
A, Tuberfade aguafda
B, Abrazadera para tuberfa
C, Tuberfade cobre
D. Tuercade compresidn
E. Manga de compresidn
F. Vblvula de cierre
G. Tuerca de presidn
5. Sujete la valvula de cierre al tubo de agua fria empleando la
abrazadera para tuberfa, Asegt]rese de que el extreme de
salida este firmemente insertado en el orificio de 1A"(6.35 mm)
en la tuberia de agua y que la arandela este debajo de la
abrazadera para tuberfa, Ajuste la tuerca de presi6n, Apriete
los tornillos de la abrazadera para tuberia con cuidado yen
forma pareja de manera que la arandela provea un cierre
hermetico. No apriete demasiado porque se puede quebrar la
tuberia de cobre, especialmente si usa la tuberia de cobre
blanda (enrollada). Ahora esta listo para conectar la tuberia de
cobre.
6. Deslice la manga de compresi6n y la tuerca de compresi6n
sobre la tuberia de cobre como se muestra en el grafico.
Inserte el extremo de la tuberfa en el extremo de salida hasta
donde sea posible. Atornille la tuerca de compresi6n sobre el
extreme de salida con una Ilave ajustable, No apriete
demasiado.
7. Coloque el extremo libre de la tuberia dentro de un recipiente
o fregadero, ABRA el suministro principal de agua para lavar
la tuberfa hasta que el agua salga limpia. CIERRE la valvula de
cierre del tube de agua.
Estilo I - Conexibn a la v&lvula de agua
1. Desenchufe el refrigerador o desconecte el suministro de
energia.
2. Antes de fijar la tuberia de cobre al refrigerador, deje correr
per Io menos 2 qt (1,9 L) de agua a traves de la tuberia de
cobre y dentro de una cubeta para eliminar cualquier particula
dentro de la tuber[a de agua.
3. Busque fugas alrededor de la vMvula tipo montura. No apriete
demasiado la abrazadera o la manga, Se puede quebrar la
tuberia de cobre,
4. Fije el tubo de cobre a la entrada de la vMvula usando una
tuerca de compresiOn y manga de compresi6n como se
muestra, Ajuste la tuerca de compresi6n, No apriete
demasiado.
5. Use la abrazadera para tuber_a en la parte trasera del
refrigerador para afianzar la tuberia al refrigerador segt]n se
muestra. Esto ayudara a evitar dafios a la tuber[a cuando el
refrigerador se empuje nuevamente contra la pared,
6. ABRA la valvula de cierre,
7. Revise si hay fugas. Ajuste las conexiones (incluso las de la
valvula) o tuercas que tienen fugas,
8.
A. Abrazadera para tuberfa C. Tuerca de compresidn
B. Tuberfa de cobre D. Entrada de la vblvula
La fabrica de hielo esta equipada con un filtro de agua
incorporado. Si las condiciones del agua local requieren un
segundo filtro de agua, se debe instalar en la linea de agua de
1/4"(6,35 mm) en cualquiera de las conexiones de la tuber[a.
Obtenga un filtro de agua del distribuidor de electrodomesticos
mas cercano a su domicilio.
Estilo 2 - Conexibn a la linea de agua
1. Desenchufe el refrigerador o desconecte el suministro de
energia.
16

2. Quite y deseche la cinta de empaque y el tap6n de nailon
negro de la tuberia gris de agua enrollada en la parte trasera
del refrigerador.
3. Antes de fijar la tuberia de cobre al refrigerador, deje correr
por Io menos 2 qt (1,9 L) de agua a traves de la tuberfa de
cobre y dentro de una cubeta para eliminar cualquier particula
dentro de la tuberia de agua.
4. Busque fugas alrededor de la valvula tipo montura. No apriete
demasiado la abrazadera o la manga. Se puede quebrar la
tuberia de cobre.
5. Si el tubo de agua gris suministrado con el refrigerador no es
suficientemente largo, se necesita un acoplamiento de
1A" x 1A" para conectar la tuberia de agua a una linea
domestica de agua existente. Enrosque la tuerca provista
sobre el acoplamiento en el extreme de la tuberfa de cobre.
NOTA: Apriete la tuerca a mano. Luego aprietela dos vueltas
con una Ilave de tuercas. No apriete demasiado.
ABcD E F e
A. Tuberfa de agua al
refrigerador
B. Tuerca (provista)
C. Bulbo
D. Acoplamiento (provisto)
E. F_rula (adquirida)
FTuerca (adquirida)
G. Lfnea de agua de la casa
6. ABRA la valvula de cierre.
7. Revise si hay fugas. Apriete aquellas tuercas o conexiones
que tengan fugas (incluidas las conexiones en la valvula).
Estilo 3 -Conexibn a la v_lvula de cierre
1. Desenchufe el refrigerador o desconecte el suministro de
energia.
2. Quite y deseche la cinta de empaque y el tap6n de nailon
negro de la tuberia gris de agua enrollada en la parte trasera
del refrigerador.
3. Antes de fijar la tuberia de cobre al refrigerador, deje correr
por Io menos 2 qt (1,9 L) de agua a traves de la tuberia de
cobre y dentro de una cubeta para eliminar cualquier particula
dentro de la tuberia de agua.
4. Busque fugas alrededor de la valvula tipo montura. No apriete
demasiado la abrazadera o la manga. Se puede quebrar la
tuberia de cobre.
5. Empuje el extremo del bulbo de la tuberia dentro de la valvula
de agua hasta que se detenga. Enrosque la tuerca provista
sobre la valvula de agua como se muestra.
NOTA: Apriete la tuerca a mano. Luego aprietela 2 vueltas con
una Ilave de tuercas. No apriete demasiado.
A
J/ II B
6=
7.
A. Bulbo
B. Tuerca(provista)
ABRA la valvula de cierre.
Revise si hay fugas. Apriete aquellas tuercas o conexiones
que tengan fugas (incluidas las conexiones en la valvula).
PeHgro de Choqae E_ectrico
Conecte a un contacto de pared de cone×i6n a tierra de
3terminates.
No quite la terminal de conexi6n a tierra.
No use un adaptador.
No use un cable electrico de extensi6n.
No seguir estas inetrucciones puede ocasionar
la muerte, incendio o choque eiectrico.
1. Enchufe a un contacto de pared de conexi6n a tierra de
3 terminales.
Sirvase leer antes de usar el sistema de agua.
Inmediatamente despues de la instalaci6n, siga los pasos a
continuaci6n para asegurarse de que el sistema de agua este
debidamente limpio.
1. Abra la puerta del congelador y apague la fabrica de hielo. El
interruptor de encendido/apagado (ON/OFF) se encuentra en
el lado superior derecho del compartimiento del congelador.
Mueva el interrupter a la posici6n OFF (Apagado - hacia la
derecha) como se muestra.
NOTAS:
3=
• AsegQrese de que el filtro de la rejilla de la base este
instalado adecuadamente y que la tapa este en la
posici6n horizontal.
•No use con agua que no sea microbiol6gicamente
segura o que sea de calidad desconocida sin
desinfectarla adecuadamente antes o despu_s del
sistema. Pueden usarse sistemas certificados para la
reducci6n de quistes en aguas desinfectadas que
puedan contener quistes flltrables.
Use un recipiente resistente para oprimir la barra del
despachador de agua hasta que el agua comience a salir.
Limpie el sistema de agua distribuyendo y desechando de
1,5 gal. (5,4 L) de agua. La limpieza del sistema tomara
aproximadamente 3 minutos y ayudara a despejar el aire de la
I[nea. En algunas casas se podra requerir limpieza adicional.
NOTA: A medida que sale aire del sistema, es posible que
salgan chorros de agua repentinos del despachador.
Abra la puerta del congelador y encienda la fabrica de hielo.
Mueva el interrupter a la posici6n ON (Encendido-hacia la
izquierda). Vea el Manual de Use y Cuidado para obtener mas
instrucciones sobre el funcionamiento de su fabrica de hielo.
17

Deje transcurrir 24 horas para la producci6n del primer
Iote de hielo.
Deshagase de los tres primeros Iotes de hielo producidos.
Dependiendo de su modelo, puede ser que Ud. desee
elegir la caracteristica maxima de hielo para incrementar
la producci6n de hielo.
IMPORTANTE: Las cuatro patas niveladoras deberan hacer
contacto con el piso para soportar y estabilizar el peso total del
refrigerador.
Cbmo quitar la rejilla de la base
1. Abra las puertas del refrigerador a 90°.
2. Quite la rejilla de la base. Tome la rejilla con las dos manes.
Levante e incline la parte superior de la rejilla hacia Ud.
NOTA: No quite las Hojas Tecnicas que estan sujetas detras
de la rejilla.
Nivele el refrigerador
A cada lado del refrigerador detras de la rejilla de la base hay un
juego de dos pernos de nivelaci6n. Los pernos superiores
ajustaran la parte trasera del refrigerador y los pernos inferiores
ajustaran la parte frontal del refrigerador.
Jill
i
E.__U
A. Perno nivelador trasero (superior)
B. Pemo nivelador frontal (inferior)
1. Utilice una Ilave de tubo de 1/2"(12,70 mm) para ajustar los
pernos niveladores. Gire los pernos niveladores a la derecha
para levantar el refrigerador 0 a la izquierda para bajarlo.
Puede precisar darle varias vueltas para ajustar la inclinaci6n
del refrigerador.
NOTA: No desenrosque demasiado los pernos niveladores
cuando este bajando el refrigerador. La cabeza del perno
comenzara a salirse del refrigerador cuando este en la
posici6n mas baja.
2. Ajuste los pernos niveladores frontales para Ilevar la parte
superior del refrigerador paralela al armario encima del
refrigerador.
• Para armarios estandares, deje un espacio de
aproximadamente 1/8"(3,18 mm) entre las bisagras
superiores del refrigerador y los armarios.
• Para armarios completamente recubiertos, deje un
espacio de 1/4"(6,35 mm) entre las bisagras superiores del
refrigerador y los armarios.
• Si no tiene un armario encima del refrigerador,
simplemente ajuste el refrigerador para nivelarlo.
A. Bisagras superiores
B. Frente del refrigerador
3. Ajuste el perno nivelador trasero para nivelar el refrigerador
con los armarios laterales o los paneles extremos del armario.
4. Si Io desea, puede usar ahora los cuatro pernos niveladores
para levantar el refrigerador y reduzca el espacio entre la
bisagra superior del refrigerador y la abertura del armario.
AsegQrese de que las cuatro patas niveladoras todavia tocan
el piso y que las puertas del armario encima del refrigerador
abren completamente.
Vuelva a colocar la rejilla de la base
1. Abra las puertas del refrigerador a 90 °.
2. Vuelva a colocar la rejilla de la base. Coloque las abrazaderas
inferiores en la parte inferior del refrigerador y deslice la rejilla
hacia arriba hasta que calce en su lugar.
HERRAMIENTAS NECESARIAS: Llave de tuerca de %8" o
ajustable.
IMPORTANTE: Los modelos son preajustados con una diferencia
de espesor de una moneda de 25 centavos en la altura de la
puerta yes posible que no necesiten ajuste.
Si fuera necesario despues de Ilenar el refrigerador con alimentos,
ajustar la altura de la puerta hacia arriba o hacia abajo, siga los
pasos que se dan a continuaci6n..
1. Ubique el perno para ajustar la altura en la bisagra inferior de
la puerta del refrigerador.
NOTA: Para facil acceso al perno para ajustar la altura, la
puerta del refrigerador debe estar cerrada.
2. Gire el perno para ajustar la altura usando la Ilave de tuerca de
_/16"o una Ilave de tuerca ajustable.
• Para elevar la altura, gire el perno hacia la derecha.
• Para bajar la altura, gire el perno hacia la izquierda.
3. Revise para asegurase de que las puertas esten a nivel en la
parte superior yen la parte inferior. De ser necesario, contin0e
girando el perno para ajustar la altura.
18

CO,iYi!i])i,_!:i_!iii_,_i!i_¸ii=(::::;iil!',_:ii,!iii_(]_!,(]:;iOikiil;i;i:)f_i_
1. Gire la valvula de la tuberia de suministro de agua a la
posici6n "Abierta".
2. Gire el interruptor del refrigerador a la posici6n ON
(encendido). Espere unos minutes. Busque fugas en las
conexiones de la tuberia de agua.
3. Fije los controles del compartimiento del refrigerador y del •
congelador en su posici6n central. Verifique que el compresor
esta funcionando correctamente y que todas las luces
funcionan.
4. Enjuague el sistema de agua antes de utilizarlo. Vea "Prepare
el sistema de agua".
NOTA: Si se sigue construyendo despues de haber instalado el
refrigerador, fije los controles en OFF (Apagado).
Si el refrigerador no funciona
• Verifique que el disyuntor no se haya disparado o que no haya
explotado un fusible.
Verifique que el cable del suministro de energia este
enchufado en un contacto de pared de conexi6n a tierra de
3 terminales.
Vea "Soluci6n de problemas" en el Manual de Use y Cuidado.
INSTRUCTIONS D'INSTALLATION
Assistance ou service
Inscrivez les renseignements suivants au sujet de votre apparel
Si vous avez des questions menager pour vous aider a obtenir assistance ou service en cas
de besoin. Vous devrez connaftre le numero de modele et le
Si vous avez des questions concernant le fonctionnement, le numero de s@ie au complet. Vous trouverez ces renseignements
nettoyage ou I'entretien de votre refrig@ateur, consulter le Guide sur la plaque signaletique situee sur la paroi interne du
d'utilisation et d'entretien, compartiment de refrigeration.
Si vous avez besoin de service
Maintenez la qualite de votre refrigerateur en telephonant a une
compagnie de service agreee.
Pour obtenir le nom et le numero d'une compagnie de service
agreee, v@ifier le Guide d'utilisation ou d'entretien pour le numero
composer, telephoner au marchand chez qui I'appareil menager
a ete achete ou consulter les Pages jaunes de votre annuaire
telephonique.
Conservez ce manuel et votre re<;ude vente ensemble pour
reference ult_rieure. Pour le service sous garantie, vous
devez presenter un document prouvant la date d'achat ou
d'installation.
Nom du marchand
Num_ro de s_rie
Adresse
Num_ro de t_l_phone
Num_ro de module
Date d'achat
SECURITEDU REFRIGERATEUR
Votre s_curit_ et celle des autres est trbs importante.
Nous donnons de nombreux messages de securite importants dans ce manuel et sur votre apparel menager. Assurez-vous de
toujours Ire tousles messages de securite et de vous y conformer.
Voici le symbole d'alerte de securite.
Ce symbole d'alerte de securite vous signale les dangers potentiels de deces et de blessures graves & vous
eta d'autres.
Tousles messages de securite suivront le symbole d'alerte de securite et le mot "DANGER" ou
"AVERTISSEMENT". Ces roots signifient :
Risque possible de deces ou de blessure grave si vous ne
suivez pas immediatement lee instructions.
Risque possible de deces ou de blessure grave si vous
ne euivez pas lee instructions.
Tous les messages de securite vous diront quel est le danger potentiel et vous disent comment reduire le risque de blessure et
ce qui peut se produire en cas de non-respect des instructions.
19

EXIGENCES D'INSTALLATION
Ciii,fii_i!iii,i;iii::i_!i!ii_i!i_i;i:i::_¸_!_i!_i_iii;!ii:i:::;i_,iii_ii_,O_iii_:_ii!!i;_,
IMPORTANT :
• Respecter toutes les prescriptions des codes et
reglements en vigueur.
• Installateur : Remettre les instructions d'installation au
proprietaire.
• Proprietaire : Conserver les instructions d'installation pour
consultation ulterieure et pour utilisation par I'inspecteur
local des installations electriques.
• Garder la piece de carton ou de contreplaque d'expedition
sous le refrig6rateur jusqu'a son installation
I'emplacement de service.
• Observer les specifications et dimensions d'installation.
• Enlever toute moulure ou tout panneau decoratif qui
emp_che I'entretien du refrigerateur.
• Communiquer avec un electricien qualifie.
OUTILLAGE REQUIS :
Rassembler les outils et pieces necessaires avant de commencer
I'installation. Lire et suivre les instructions fournies avec les outils
indiques ici.
Perceuse manuelle ou • Cle de %6" ou cle
electrique molette
(convenablement reliee
la terre) • Cles plates de 7/16"et 1/2"
• Tourne-ecrou de 1/4"et • Deux cles a molette
foret
• Tournevis a lame plate • Cle a douille de %" et 1/2"
PII_CES NI_CESSAIRES :
• Votre marchand de refrigerateurs presente une trousse
avec un robinet d'arr_t a etrier de 1/4"(6,35 mm), un
raccord et un tube en cuivre.
• Ou vous pouvez acheter un tube en cuivre de 1/4"
(6,35 mm) avec un robinet d'arr_t et un raccord de
compression de 1/4"(6,35 mm).
• Selon les raccordements de la canalisation d'eau, il vous
faudra peut-_tre aussi un ecrou de 1/4"(6,35 mm) et une
bague de 1/4"(6,35 mm).
Vue de dessus
rq
35%"
(90,5 cm) __
'_J-_UIIuuI
15%" -_-_ 191/2''
(39,6 crn)_ (49,5 cm)
%"
(95,3 mm)
2%" A
(6,7 cm) max.
Vue lat_rale
• Les dimensions de hauteur sent illustrees avec les pieds de
nivellement deployes a la hauteur minimum de 1/4"(6,35 mm)
sous le refrigerateur.
• Le cordon d'alimentation mesure 66" (167,7 cm) de long.
• La canalisation d'eau fixee a I'arriere du refrigerateur mesure
78" (198,1 cm) de long.
211/4"
cm)
66"
(167,7 cm)
C
3%" (9,2 cm) _
Taille du A B O
modble
23' 68%" 687/8'' 681/8''
(654 L) (174,6 cm) (175 cm) (174 cm)
25' 71%" 717/8'' 711/2''
(694 L) (182,2 cm) (182,5 cm) (181,6 cm)
Lorsque les pieds de nivellement sont completement deployes
1" (25 mm) sous le refrigerateur, ajouter 8/4"(19 mm) aux
dimensions de hauteur.
A. Les dimensions peuvent varier selon le modele
2O

(90,6 crn) 35/8 ''
(9,2 cm)
Taille du module Hauteur A
23' (654 L) 647/8'' (164,8 cm)
25' (694 L) 673/4'' (172,1 cm)
Dimensions de rouverture
• Les dimensions de hauteur sent illustrees avec les pieds de
nivellement deployes & la hauteur minimum de 1/4"(6,35 mm)
sous le refrigerateur.
REMARQUE : Lorsque les pieds de nivellement sont
completement deployes a 1" (25 mm) sous le refrigerateur,
ajouter 3/4"(19 mm) aux dimensions de hauteur.
131/4 ''
(34 cm)
36" _
(91,5 cm)
A
161/2''
(42 cm)
Taille du module Hauteur A Hauteur A
Armoire standard Recouvrement
complet*
23' (654 L) 69" (175,3 cm) 691/8'' (175,6 cm)
25' (694 L) 72" (182,9 cm) 721/8'' (183,2 cm)
*Pour les portes d'armoire a recouvrement complet avec
ensemble de garniture, la hauteur de I'ouverture dolt _tre ajustee
tel qu'illustr&
Dimensions pour le pivotement des portes
L'emplacement d'installation dolt permettre I'ouverture des portes
un angle minimal de 150°. Prevoir un degagement minimal de
131/4'' (34 cm) entre lemur lateral et le c6te du compartiment de
congelation. Prevoir un degagement minimal de 161A" (42 cm)
entre lemur lateral et le c6te du compartiment de refrigeration.
REMARQUE : Les dimensions peuvent varier en fonction du
modele.
_,,_--13s/s" --_,.
(34,5 cm)
413/4"
_ 2%"
(6,6 cm)
1/2"
(12,7 ram)
21

Troueses de panneaux de porte et de garnitures
lat_rales d'origine
Toutes les pieces d'origine sent disponibles par I'entremise de
votre marchand Whirlpool ou en telephonant a Pieces et
accessoires Whirlpool au 1-800-442-9991. Au Canada, composer
le 1-800-807-6777.
Trousses de panneaux de porte d_coratifs
Les trousses du panneau decoratif de porte sent disponibles
uniquement pour les modeles avec trousses de garnitures
d'origine. Suivre les instructions de la trousse pour I'installation
des panneaux.
REMARQUE :Les trousses de panneaux de porte ne sont pas
requises pour les modeles a panneaux en acier inoxydable
d'origine. 1 1
Oouleur ModUle 23' Mod_le 25'
Blanc n°4396762 n°4396758
Noir n°4396763 n°4396759
Biscuit n°4396764 n°4396760
Acier inoxydable n°4396765 n°4396761
Troueses de garnitures lat_rales
Des trousses de garnitures laterales sont disponibles pour assortir
le refrig6rateur a la fagade des armoires. Suivre les instructions de
la trousse pour I'installation de la garniture laterale.
i
Oouleur ModUle 23' Mod_le 25'
Blanc n°4396771 n°4396789
Noir n°4396770 n°4396790
Biscuit n°4396769 n°4396791
Acier inoxydable n°4396768 n°4396792
Troueses de panneaux lat_raux
Des trousses de panneaux lateraux sont disponibles pour
personnaliser le c6te visible du refrigerateur. Suivre les
instructions de la trousse pour I'installation du panneau lateral.
i i
Oouleur ModUle 23' Mod_le 25'
Acier inoxydable n°4396748 n°4396749
Panneaux de porte pereonnalis_s
Si vous prevoyez installer des panneaux personnalises en bois,
vous devrez les creer vous-m_me ou consulter un ebeniste ou
menuisier qualifi& Voir les dessins dimensionnels pour les
specifications des panneaux.
IMPORTANT :Les panneaux de poids superieur au poids
recommande risquent d'endommager le refrigerateur. Le poids
des panneaux de porte ne dolt pas _tre superieur aux poids
indiques dans le tableau suivant.
Vous pouvez creer un panneau uni personnalise d'un maximum
de 1/4"(6,35 mm) d'epaisseur pour remplacer vos panneaux
decoratifs. Les panneaux en bois unis de moins de 1/4"(6,35 mm)
d'epaisseur ne sont pas recommandes.
Panneaux en relief :
Un panneau en relief peut _tre cree en vissant ou en collant des
panneaux en bois a un appui de 1/4"(6,35 mm) ou en utilisant un
panneau de %" (19 mm) avec rebord aminci. Les panneaux en
relief doivent _tre espaces de 21/4'' (5,70 cm) du bord arriere de la
poignee pour laisser de la place aux doigts pour saisir la poignee.
1/8"
(3,18 mm)
1/8"
(3,10 mm)
_,, _ 15a/_''
(39,3 cm)
153/8" _
(39,3 cm_
A
B
1/8"
(3,10 mm)
191/_,'
C(49,0 cm)
)
"(3,18 ram)
Taille du ModUle A B C
23' 211/_,, 291/4'' 64%"
(654 L) (53,7 cm) (74,4 cm) (164,9 cm)
25' 203/4'' 321/_'' 67_/4''
(694 L) (52,7 cm) (82,7 cm) (172,2 cm)
Taille du Poids du panneau de Poids du panneau de
ModUle porte du refrig_rateur porte du cong_lateur
23' 28 Ib 16 Ib
(654 L) (12,7 kg) (7,3 kg)
25' 30 Ib 17 Ib
(694 L) (13,6 kg) (7,7 kg)
22

Dimensionsd'usinagepourdespanneauxpersonnalis_s
deplusde1/4H(6,35 mm) d'_paisseur
Detail du c6te de la poignee
°+ 1
¼,, (6,35 ram) max. l\
polgnee
Detail de la garniture dessus dessous et sur le c6te
(6,35 mm) max.
(12,7 ram)
rain.
_nneau --
Risque d"explosion
Garder les materiaux et les vapeurs inflammables, teHe
que I"essence, loin du refrigerateuro
Le non-respect de cette instruction peut causer
un deces, une explosion ou un incendieo
REMARQUES :
• Le refrigerateur & profondeur de comptoir peut _tre installe
darts un encastrement, a I'extremite des armoires ou en
position autonome.
• Si vous installez le refrigerateur pour qu'il soit en affleurement
avec les armoires inferieures, il faut enlever toutes les
moulures et plinthes de I'arri_re de I'ouverture du refrigerateur.
• Pour les portes d'armoire & recouvrement complet, la hauteur
de I'ouverture dolt _tre de 691/8'' (175,6 cm).
• L'emplacement dolt permettre I'ouverture complete des
portes. Voir la section "Dimensions pour le pivotement des
portes".
• Ne pas installer le refrigerateur pres d'un four, d'un radiateur
ou d'une autre source de chaleur, ni darts un endroit ou la
temperature baissera au-dessous de 55°F (13°C).
• Le plancher dolt supporter le poids du refrigerateur (plus de
600 Ib [272 kg], les panneaux de porte ainsi que le contenu).
Risque de choc emectrique
Brancher sur une prise a 3alveomes reliee a la terre.
Ne pas enmever la broche de miaison a materreo
Ne pas utiliser un adaptateuro
Ne pas utiliser un cSble de ratlonge.
Le nomrespect de ces instructions peut causer
un deces, un incendie ou un choc eiectrique.
Avant de placer le refrigerateur a son emplacement final, il est
important de vous assurer d'avoir la connexion electrique
appropriee.
M_thode recommand_e de raise _la terre
Une source d'alimentation de 115 volts, 60 Hz, type 15 ou
20 amperes CA seulement, protegee par fusible et adequatement
mise a la terre est necessaire. II est recommande d'utiliser un
circuit distinct pour alimenter uniquement votre refrigerateur.
Utiliser une prise murale qui ne peut pas _tre mise hors circuit
I'aide d'un commutateur. Ne pas utiliser de rallonge.
IMPORTANT : Si ce produit est connecte a une prise protegee
par un disjoncteur de fuite a la terre, un declenchement
intempestif peut se produire et causer une perte de
refroidissement. La qualite et la saveur des aliments risquent
d'etre affectees. Si un declenchement intempestif se produit et si
les aliments semblent de pietre qualite, jeter le tout.
REMARQUE : Avant d'executer tout type d'installation, nettoyage
ou remplacement d'une ampoule d'_clairage, tourner le reglage
(reglage du thermostat, du refrigerateur ou du congelateur selon
le modele) a OFF (arr_t) et deconnecter ensuite le refrigerateur de
la source de courant electrique. Lorsque vous avez termine,
reconnecter le refrigerateur & la source de courant electrique et
mettre de nouveau le reglage (reglage du thermostat, du
refrigerateur ou du congelateur selon le modele) au reglage
desire.
23

_::i_;!:i),_i_!iiii_Cii[!;iiCC_i'iiO!i%;,(iii:i,_i,:ii:_,i_:Ciiiii[iiT_i:i,_i%ii'_i!i'_C_i_[iiO_'_,i%ii'_!_iiii_i:_C_L_ii¸
Rassembler les outils et pieces necessaires avant de commencer
I'installation. Lire et suivre les instructions fournies avec les outils
indiques ici.
OUTILLAGE REQUIS :
• Tournevis a lame plate • Foret de 1/4"
• Cles plates de 7/16"et 1/2"ou deux • Perceuse manuelle ou
cles & molette reglables electrique
• Tourne-ecrou de 1/4" (convenablement reliee
la terre)
REMARQUE : Votre marchand de refrigerateurs presente une
trousse disponible avec un robinet d'arr_t a etrier de 1/4"
(6,35 mm), un raccord et un tube en cuivre. Avant I'achat,
s'assurer que le robinet d'arr_t a etrier est conforme a vos codes
Iocaux de plomberie. Ne pas employer de robinet d'arr_t & etrier
de 3/16"(4,76 mm) ou de type a percer, ce qui reduit le debit d'eau
et cause une obstruction plus facilement.
IMPORTANT:
• Toutes les installations doivent 6tre conformes aux exigences
des codes Iocaux de plomberie.
• Utiliser un tube en cuivre et verifier s'il y a des fuites. Installer
les tubes en cuivre seulement a des endroits ou la
temperature se maintient au-dessus du point de congelation.
Preseion de I'eau
Une alimentation en eau froide avec une pression entre 30 et
120 Ib/po 2(207 - 827 kPa) est necessaire pour faire fonctionner le
distributeur d'eau et la machine & glagons. Si vous avez des
questions au sujet de la pression de votre eau, appeler un
plombier qualifie agree.
Alirnentation en eau par osmose inverse
IMPORTANT : La pression de I'alimentation en eau entre le
systeme d'osmose inverse et la valve d'arrivee d'eau du
refrigerateur dolt _tre entre 30 et 120 Ib/po 2 (207 - 827 kPa).
Si un syst_me de purification de I'eau par osmose inverse est
raccorde a votre alimentation en eau froide, la pression de I'eau
au systeme dolt _tre d'un minimum de 40 a 60 Ib/po 2 (276 -
414 kPa),
Si la pression de I'eau au systeme d'osmose inverse est inferieure
40 - 60 Ib/po 2(276 - 414 kPa) :
• Verifier pour voir si le filtre a sediments du systeme d'osmose
inverse est bloque et le remplacer si n_cessaire.
• Laisser le reservoir du systeme d'osmose inverse se remplir
apres une utilisation intense.
• Si votre refrigerateur comporte un filtre a eau, celui-ci peut
reduire encore plus la pression de I'eau Iorsqu'il est utilise
avec un systeme d'osmose inverse. Retirer le filtre a eau. Voir
"Syst_me de filtration d'eau" dans la Guide d'utilisation et
d'entretien.
Si vous avez des questions au sujet de la pression de votre eau,
appeler un plombier qualifie agre&
INSTRUCTIONSD'INSTALLATION
Risque du poids exceseif
Utilieer deux ou p_us de personnes pour deplacer et
installer le refrigerateur.
Le non-respect de cette instruction peut causer
une blessure au dos ou d'autre blessure.
Enlever I'emballage
Jeter le materiel d'emballage de maniere appropriee. Ne pas
utiliser d'instruments coupants, d'alcool a friction, de liquides
inflammables ou de nettoyants abrasifs pour enlever le ruban
adhesif ou la colle. Ces produits peuvent endommager la surface
de votre rdrigerateur.
IMPORTANT :
• Utiliser une cle & douille de 3/8"pour enlever les cales.
• Les quatre pieds de nivellement doivent toucher le plancher
pour supporter et stabiliser le poids total du refrigerateur.
Nettoyage avant utilisation
Apres avoir enleve tousles materiaux d'emballage, nettoyer
I'interieur du refrigerateur avant de I'utiliser. Voir les instructions de
nettoyage dans le Guide d'utilisation et d'entretien.
Importants renseignernents a savoir au eujet des tablettes
et des couvercles en verre :
Ne pas nettoyer Ies tablettes ou couvercies en verre avec de
I'eau tiede quand ils sont fro[ds, Les tablettes et les
couvercies peuvent se briser s'Hs sont exposes & des
changements soudains de temperature ou & un impact te!
que coup brusque. Pour votre protection, le verre trempe est
con_u pour _ciater en d'innombrables pieces minuscules.
Ceci est normal. Les tablettes et les couvercles en verre sent
Iourds. Un so[n special s'impose Iors de leur d_placement
pour eviter Rmpact d'une chute.
Dep_acement de votre refrigerateur :
Votre r_fr[gerateur est Iourd. Lors du deplacement du
r_frigerateur pour le nettoyage ou le service, veHler a proteger
le plancher. Tou]ours tirer le r6frigerateur tout dro[t Iors du
d&placement. Ne pas incliner le refrigerateur d'un c6te ou de
Fautre n[ te "faire marcher" en essayant de le deplacer car le
plancher pourrait _tre endommag&
24

1. Enlever tout ruban adhesif provenant de I'emballage.
2. Enlever les garnitures des portes du refrig6rateur et du
congelateur du c6te charniere de chaque porte en tirant la
garniture au bas de la porte d'abord.
3. Devisser partiellement les deux vis maintenant le haut de la
garniture en place. II n'est pas n6cessaire de retirer
completement les vis. Desserrer les vis d'au moins 1/4"
(6,35 mm) de la garniture pour que les panneaux puissent bien
glisser.
4. Retirer les panneaux de porte existants, si des panneaux sont
fournis.
5. Glisser les panneaux de porte personnalises en place.
REMARQUE : Les panneaux de porte peuvent necessiter des
panneaux de remplissage en carton de 1/8"(3,18 mm) derriere
les panneaux pour eviter qu'il y ait du jeu a cet endroit.
Reinstaller les garnitures laterales de charniere en ins@ant
I'extremit6 a encoche sous la garniture superieure d'abord.
Serrer les deux vis du haut de la garniture.
6,
7.
B
C
C
A. Garnitures lat_rales
B. Vis de la garniture sup6rieure
.........................................................................A
C. Panneaux de porte
D. Panneaux de remplissage
OUTILLAGE NI_CESSAIRE :
•Tournevis a lame plate
• Cles plates de 7/16"et 1/2"ou
deux cles a molette reglables
• Foret de 1/4"
Perceuse manuelle ou
electrique
(convenablement reliee
la terre)
1,
2.
FERMER le robinet principal d'arrivee d'eau. OUVRIR le
robinet de puisage le plus proche pendant une periode
suffisante pour que la canalisation d'eau se vide.
Trouver une canalisation d'eau FROIDE verticale de 1/2"
(12,70 mm) a 11A" (3,18 cm) pres du r6frigerateur.
REMARQUE :Un conduit horizontal fonctionnera, mais le
proced6 suivant dolt 6tre suivi : Percer par le dessus de la
canalisation et non pas par le dessous. Ainsi, I'eau ne risquera
pas d'arroser la perceuse. Ceci emp6che egalement les
sediments qu'on trouve normalement dans I'eau de
s'accumuler dans le robinet d'arr6t.
3. Determiner la Iongueur du tube de cuivre necessaire. Mesurer
la distance entre le point de connexion inferieur gauche
I'arriere du refrig6rateur et le tuyau d'arrivee d'eau. Ajouter
7 pi (2,1 m) pour permettre le nettoyage. Utiliser un tube en
cuivre de 1/4"(6,35 mm) de diametre exterieur. Veiller ace que
le tube soit coupe d'equerre aux deux extremit6s.
4. /_,I'aide d'une perceuse electrique reliee a la terre, percer un
trou de 1/4"(6,35 mm) dans la canalisation d'eau froide
choisie.
6,
e_
H
F E D
A. Canalisationd'eau froide E.Bague de compression
B. Bride de tuyau F.Robinet d'arr_t
C.Tubeen cuivre G. 'Jcrou deserrage
D.E-croude compression
Fixer le robinet d'arr6t sur le tuyau d'alimentation en eau
I'aide d'une bride de tuyau. Verifier que le raccord du robinet
est bien engage dans le trou de 1/4"(6,35 mm) perce dans la
canalisation et que la rondelle d'6tancheit6 est placee sous la
bride du tuyau. Serrer I'ecrou de serrage. Serrer
soigneusement et uniform6ment les vis fixant la bride de
tuyau sur le tuyau afin que la rondelle forme un scellement
etanche. Ne pas serrer excessivement car ceci pourrait
provoquer I'ecrasement du tube en cuivre, particulierement s'il
s'agit d'un tube en cuivre malleable (enroule). On est
maintenant pr6t a connecter le tube en cuivre.
Enfiler I'ecrou et la bague de compression du raccord sur le
tube en cuivre comme on le volt sur I'illustration. Inserer
I'extremit6 du tube aussi loin que possible dans I'ouverture de
sortie du robinet d'arr6t. Visser I'ecrou de compression sur le
raccord de sortie avec une cle a molette. Ne pas serrer
excessivement.
Placer le bout libre du tube dans un contenant ou evier,
OUVRIR le robinet principal d'arrivee d'eau et laisser I'eau
s'ecouler par le tube jusqu'a ce que I'eau soit limpide.
FERMER le robinet principal d'arrivee d'eau.
Style I -Connexion au robinet d'eau
1. Debrancher le refrig6rateur ou deconnecter la source de
courant electrique.
2. Avant de raccorder le tube en cuivre au rdrig6rateur, purger le
tube en cuivre en laissant couler au moins 2 pintes (1,9 L)
d'eau dans un seau pour eliminer toute particule de la
canalisation.
3. Verifier s'il y a des fuites autour du robinet d'arr6t a etrier. Ne
pas serrer excessivement la bride ou la bague. Ceci
provoquera I'ecrasement du tube en cuivre.
4. Connecter le tube en cuivre au robinet d'eau en utilisant un
ecrou et une bague de compression tel qu'illustre. Serrer
I'ecrou de compression. Ne pas setter excessivement.
5. Utiliser la bride du tube a I'arriere du rdrig6rateur pour fixer le
tube au refrig6rateur tel qu'illustre. Ceci aidera a emp6cher les
dommages au tube Iorsque le r6frigerateur est pousse contre
lemur.
6. OUVRIR le robinet d'arr6t.
25

7. Inspecter pour rechercher les fuites. Serrer tousles raccords
(y compris les raccordements de la valve d'entree d'eau) ou
les ecrous qui coulent.
C
D
A. Bride du tube C. Ecrou de compression
B. Tube en cuivre D. Valve d'entr_e d'eau
8. La machine & gla(_ons est equipee d'un filtre & eau incorpor&
Si la qualite de I'eau distribuee Iocalement necessite un
deuxieme filtre & eau, il serait utile de I'installer dans le tube de
raccordement de 1/4"(6,35 mm). On peut obtenir un tel filtre &
eau chez le marchand d'appareils electromenagers le plus
proche.
Style 2 -Connexion ala canalisation d'eau
1. Debrancher le refrig@ateur ou deconnecter la source de
courant electrique.
2. Enlever et jeter le ruban d'expedition et le bouchon en nylon
noir du serpentin gris pour I'eau a I'arriere du refrig@ateur.
3. Avant de raccorder le tube en cuivre au refrig@ateur, purger le
tube en cuivre en laissant couler au moins 2 pintes (1,9 L)
d'eau dans un seau pour eliminer toute particule de la
canalisation.
4. Verifier s'il y a des fuites autour du robinet d'arr_t & etrier. Ne
pas serrer excessivement la bride ou la bague. Ceci
provoquera I'ecrasement du tube en cuivre.
5. Si le tuyau gris fourni avec le r_frigerateur n'est pas assez
long, un raccord de 1/4"x 1/4"est necessaire pour connecter le
conduit pour I'eau a une canalisation d'eau de la maison.
Enfiler I'ecrou fourni dans le raccord a I'extremite du tube de
cuivre.
REMARQUE :Serrer I'ecrou a la main. Ensuite le serrer avec
une cle deux tours de plus. Ne pas serrer excessivement.
Style 3 -Connexion au robinet d'arr6t
1. Debrancher le refrigerateur ou deconnecter la source de
courant electrique.
2. Enlever et jeter le ruban d'expedition et le bouchon en nylon
noir du serpentin gris pour I'eau a I'arriere du refrigerateur.
3. Avant de raccorder le tube en cuivre au refrig@ateur, purger le
tube en cuivre en laissant couler au moins 2 pintes (1,9 L)
d'eau dans un seau pour eliminer toute particule de la
canalisation.
4. V@ifier s'il y a des fuites autour du robinet d'arr_t a etrier. Ne
pas serrer excessivement la bride ou la bague. Ceci
provoquera I'ecrasement du tube en cuivre.
5. Pousser I'extremite du renflement du tube dans le robinet de
debit d'eau aussi loin que possible. Enfiler I'ecrou fourni dans
le robinet d'eau comme sur I'illustration.
REMARQUE : Serrer I'ecrou a la main. Ensuite, le serrer avec
une cle 2 tours de plus. Ne pas serrer excessivement.
A
B
6=
7.
A. Renflement
B. Ecrou (foumi)
OUVRIR le robinet d'arr_t.
Inspecter pour rechercher les fuites. Serrer tousles raccords
(y compris les raccordements de la valve d'entree d'eau) ou
les ecrous qui coulent.
6=
7.
AB C
A. Tube vers le r#frig_rateur
B. Ecrou (fourni)
C. Renflement
D. Raccord (foumi)
E. Virole (9 acheter)
F. £-crou (a acheted
G. Canalisation
d'eau du domicile
OUVRIR le robinet d'arr_t.
Inspecter pour rechercher les fuites. Serrer tous les raccords
(y compris les raccordements de la valve d'entree d'eau) ou
les ecrous qui coulent.
Risque de choc electrique
Brancher sur une prise a 3a_veoles reiiee a [a terre.
Ne pus eniever [a broche de _iaison a _a terre.
Ne pus utiiieer un adaptateur.
Ne pus utiliser un cSb[e de raHonge.
Le non-respect de ces instructions peut causer
un deces, un incendie ou un choc eiectrique.
1. Brancher sur une prise a 3 alveoles reliee a la terre.
26

iii::::_iii_'_i!_:i?_::ii:_ii'_,_i!i!!?_i'_¸!_,!:iii!,_i_:'i!i_,_'!_,ii:_i:;:iiii_'ii_ii_ii:_!_¸¸_Cii'_,_b_i:i:::_/,Ji_i
Veuillez lire avant d'utiliser le syst_me d'eau.
Imm_diatement apres I'installation, suivre les etapes ci-dessous
pour vous assurer que le systeme d'eau est bien nettoye.
1. Ouvrir la porte du congelateur et arr_ter la machine a glagons.
Le commutateur ON/OFF (marche/arr_t) est situe du c6te droit
superieur du compartiment du congelateur. Tourner le
commutateur au reglage OFF (&droite) tel qu'illustre.
2=
3=
REMARQUES:
• S'assurer que le filtre de la grille de la base est
correctement installe et que la capsule est a la position
horizontale.
•Ne pas utiliser pour le filtrage d'une eau
microbiologiquement pollute ou de qualite inconnue
en I'absence d'un dispositif de d_sinfection ad_quat
avant ou apres le syst_me. Les syst_mes certifies pour
la r_duction de kyste peuvent _tre utilis_s pour I'eau
d_sinfect_e qui peut contenir des kystes filtrables.
Utiliser un contenant solide pour appuyer sur la barre de
distribution jusqu'a ce que I'eau commence a couler. Vider le
syst_me d'eau en laissant couler et en jetant 1,5 gallons
(5,4 L) d'eau. Le nettoyage du systeme prendra environ
3 minutes et aidera a degager I'air du conduit. Un ecoulement
additionnel peut _tre requis dans certains domiciles.
REMAROUE : Pendant I'evacuation de I'air, I'eau peut gicler
du distributeur.
Ouvrir la porte du congelateur et mettre la machine a glagons
en marche. Mettre le commutateur a la position ON (marche)
(vers la gauche). Pour plus d'instructions sur le
fonctionnement de votre machine a gla(_ons, consulter le
Guide d'utilisation et d'entretien.
• Attendre 24 heures pour obtenir la premiere quantite de
glagons.
• Jeter les trois premieres quantites de glat_ons produites.
• Selon le modele que vous avez, vous devrez peut-_tre
choisir la caracteristique de production maximale de
glagons pour augmenter la production de glagons.
i"',,,_iiv;_ii?ii!,_i!!i!!_,_i'__ii_i:ii?ii_i_¸_:i::_i/,_i_ii_!ii_ii'iiii,!!iii:i:ii_i:li_i!!i_i'C;i!,_i!ii!i,:_i_i_....
IMPORTANT : Les quatre pieds de nivellement doivent toucher le
plancher pour supporter et stabiliser le poids total du refrigerateur.
Enlever la grille de la base
1. Ouvrir les portes du refrigerateur a 90 °.
2. Enlever la grille de la base. Tenir la grille des deux mains.
Soulever la grille et incliner le dessus vers soi.
REMARQUE :Ne pas enlever les fiches techniques fixees
derriere la grille.
Niveler le r_frig_rateur
II y a un jeu de deux boulons de nivellement de chaque c6te du
refrigerateur derriere la grille de la base. Les boulons superieurs
ajustent I'arriere du refrigerateur et les boulons inferieurs ajustent
I'avant du refrigerateur.
Jill
A. Boulon de nivellement arriere (sup_rieur)
B. Boulon de nivellement avant (inf_rieur)
1. Utiliser une cle a douille de _A" (12,70 mm) pour ajuster les
boulons de nivellement. Tourner les boulons de nivellement
vers la droite pour surelever le refrigerateur ou vers la gauche
pour I'abaisser. Plusieurs tours peuvent _tre necessaires pour
regler I'inclinaison du refrigerateur.
REMAROUE :Ne pas devisser les boulons de nivellement
excessivement Iorsqu'on abaisse le rdrigerateur. La t_te du
boulon commencera a se degager du refrigerateur Iorsqu'il est
la position la plus basse.
2. Ajuster les boulons de nivellement avant pour mettre le
sommet du refrigerateur parallele a I'armoire au-dessus du
refrigerateur.
• Pour les armoires standard, laisser un ecart d'environ _/8"
(3,18 mm) entre les charnieres sup_rieures et I'armoire.
• Pour les armoires a recouvrement total, laisser un ecart de
_/4"(6,35 mm) entre les charnieres superieures et I'armoire.
• Si vous n'avez pas d'armoire au-dessus du refrigerateur,
ajuster simplement le refrigerateur pour qu'il soit
d'aplomb.
3=
4.
A. Chamieres sup_rieures
B. Avant du r_frig_rateur
Ajuster le boulon de nivellement arriere pour mettre le
refrigerateur a niveau avec les panneaux des armoires
laterales ou I'extremite des armoires.
Si vous le desirez, vous pouvez desormais utiliser les quatre
boulons de nivellement pour soulever le refrigerateur et
reduire I'ecart entre la charniere sup_rieure du refrigerateur et
I'ouverture de I'armoire. Verifier que les quatre pieds de
nivellement touchent encore le plancher et que les portes de
I'armoire au-dessus du refrigerateur s'ouvrent completement.
27

R_installation de la grille de la base
1. Ouvrir les portes du refrigerateur a 90 °.
2. Reinstaller la grille de la base. Placer les broches inferieures
au bas du refrigerateur et inserer la grille jusqu'a ce qu'elle
s'enclenche en place.
f_,,iLi_!_J_,,ii:::i_!iTii_i!_,_'_ii_Cii,_iii!i_¸ii_ii:i;:_i_ii_C!Liii_,i'_i:i_!_L;i_¸¸¸¸C!_I!i:I!!_Si!iii:ili_,O!;i_ii_il;iiil;_S
OUTILLAGE REQUIS : Cle de %6" ou cle a molette.
IMPORTANT : Les modeles sont congus avec une difference de
hauteur de porte de I'epaisseur d'une piece de 25 cents et
peuvent ne pas necessiter d'ajustement.
Si necessaire apres le chargement d'aliments dans le
refrigerateur, suivre les etapes ci-dessous pour ajuster la hauteur
de la porte vers le haut ou vers le bas.
1. Tourner le robinet de la canalisation d'eau a la position "Open"
(ouvert).
2. Tourner le commutateur du refrigerateur a la position ON
(marche). Attendre quelques minutes. Verifier les raccords de
la canalisation d'eau pour voir s'il y a des fuites.
3. Regler les commandes des compartiments de refrigeration et
de congelation au reglage moyen. S'assurer que le
compresseur fonctionne bien et que toutes les lumieres
s'allument.
4. Purger le systeme d'eau avant I'utilisation. Voir "Preparer le
systeme d'eau".
REMARQUI:: : Si la construction continue apres I'installation du
refrigerateur, regler les commandes a OFF (arr_t).
Si le r_frig_rateur ne fonctionne pas
• Verifier si le disjoncteur s'est declenche ou si un fusible est
grill&
• Verifier que le cordon d'alimentation est correctement
branche sur une prise de courant a 3 alveoles reliee a la terre.
• Voir la section "Depannage" dans le Guide d'utilisation et
d'entretien.
2=
3=
Localiser le boulon d'ajustement de la hauteur sur la charniere
inferieure de la porte du refrigerateur.
REMARQUE : Pour acceder plus facilement au boulon
d'ajustement de la hauteur, la porte du refrigerateur doit _tre
fermee.
Tourner le boulon d'ajustement de la hauteur & I'aide de la cle
de %e" ou de la cle a molette.
• Pour augmenter la hauteur, tourner le boulon vers la
droite.
• Pour diminuer la hauteur, tourner le boulon vers la gauche.
Verifier les portes pour s'assurer qu'elles sont egales en haut
et en bas. Si necessaire, continuer a tourner le boulon
d'ajustement de la hauteur.
2223996A
© 2005.
All rights reserved.
Todos los derechos reservados.
Tous droits r_serves.
8/05
Printed in U.S.A.
Impreso en EE,UU.
Imprim_ aux E.-U.